Whirlpool LTE6234DQ3 User Manual LAUNDRY CENTER Manuals And Guides L0412414
WHIRLPOOL Laundry Centers Manual L0412414 WHIRLPOOL Laundry Centers Owner's Manual, WHIRLPOOL Laundry Centers installation guides
User Manual: Whirlpool LTE6234DQ3 LTE6234DQ3 WHIRLPOOL LAUNDRY CENTER - Manuals and Guides View the owners manual for your WHIRLPOOL LAUNDRY CENTER #LTE6234DQ3. Home:Laundry & Garment Care Parts:Whirlpool Parts:Whirlpool LAUNDRY CENTER Manual
Open the PDF directly: View PDF
.
Page Count: 16

27IN. (69CM)ELECTRIC WAStlER/DRYER
INSTAILATION INSTRUCTIONS
Tableof Contents
WASHER/DRYER SAFETY .............................. 1
INSTALLATION INSTRUCTIONS .................... 2
Tools and Parts ............................................. 2
Alternate Parts ............................................... 2
Location Requirements ................................ 2
Drain System ................................................. 3
Electrical Requirements ................................. 4
Electrical Connection .................................... 5
Venting Requirements ................................... 9
Remove Shipping Strap .............................. 10
Install Leveling Legs .................................... 10
Connect the Drain Hose .............................. 10
Connect the Inlet Hoses ............................. 11
Secure the Drain Hose ................................ 11
Plan Vent System ........................................ 12
Install Vent System ...................................... 13
Level Washer/Dryer ..................................... 14
Connect Vent .............................................. 14
Complete Installation .................................. 14
WASHER/DRYERSAFETY
Your safety and the safety of others are very important.
We have provided many important safety messages in this manual and on your appliance. Always read and obey all safety
messages.
This is the safety alert symbol.
This symbol alerts you to potential hazards that can kill or hurt you and others.
All safety messages will follow the safety alert symbol and either the word "DANGER" or "WARNING."
These words mean:
You can be killed or seriously injured if you don't immediately
follow instructions.
You can be killed or seriously injured if you don't follow
instructions.
All safety messages will tell you what the potential hazard is, tell you how to reduce the chance of injury, and tell you what can
happen if the instructions are not followed.
8542746

INSTAILATIONINSTRUCTIONS
Check that you have everything necessary for correct installation.
Proper installation is your responsibility.
Tools needed:
• #2 Phillips and flat-blade • Knife
screwdriver • Safety glasses
• Adjustable wrench that
opens to 1 in. (2.5 cm) or • Vent clamps
9/16in. open-end wrench • Caulking gun and
(for adjusting dryer feet) compound (for installing
• Level new exhaust vent)
• 1/4in. nut driver or socket • Gloves
wrench • Pliers
• Wood block(for leveling) • Scissors
• Ruler or measuring tape • Tin snips (for new vent
• Wire stripper (direct wire installations)
installations)
Parts supplied:
Remove parts package from the washer basket. Check that all
parts were included.
Your installation may require additional parts. For ordering
information, please refer to the toll free phone numbers on the
front page of your "Washer/Dryer User Instructions."
If You Have You Will Need to Buy
Laundry tub or Sump pump system (if not already
standpipe taller than available)
96 in. (2.4 m)
1 in. (2.5 cm) 2 in. (5 cm) diameter to 1 in. (2.5 cm)
diameter standpipe diameter standpipe adapter, Part
Number 3363920
Overhead sewer Standard 20 gal. (76 L) 34 in. (86.4 cm)
tall drain tub or utility sink and sump
pump (available from local plumbing
suppliers)
Floor drain Siphon break, Part Number 285320,
additional drain hose, Part Number
285702 and connector kit,
Part Number 285442
Drain hose too short Drain hose, Part Number 285664 and
connector kit, Part Number 285442
Lint clogged drain Drain protector, Part Number 367031
Water faucets 2 longer water fill hoses:
beyond reach of fill 6 ft (1.8 m) Part Number 76314,
hoses 10 ft (3.0 m) Part Number 350008
!. Water inlet hoses (2)
2. Inlet hose flat washers (4)
3. Front leveling feet with nuts (2)
4. Shipping strap (not in parts bag,
see "Remove Shipping Strap")
6 7
5. Drain hose
6. Yellow, single wire hose
clamp
7. Silver, double wire hose
clamp
Parts needed:
Check local codes, electrical supply and venting, and read
"Electrical Requirements" and "Venting Requirements" before
purchasing parts.
Mobile home installations require metal exhaust system hardware
available for purchase from the dealer from whom you purchased
your washer/dryer. For further information, please reference the
"Assistance or Service" section of your "Washer/Dryer User
Instructions."
Explosion Hazard
Keep flammable materiaBs and vapors, such as
gasoline, away from dryer.
Failure to do so can result in death, expmosion, or fire.
You will need
• A location that allows for proper exhaust installation. See
"Venting Requirements."
• A separate 30 amp circuit.
• A grounded electrical outlet located within 2 ft (61 cm) of
either side of the washer/dryer. See "Electrical Requirements."
• A sturdy floor to support the washer/dryer weight (washer/
dryer, water and load) of 500 Ibs (226.8 kg).

• Alevelfloorwithamaximumslopeof1in.(2.5cm)under
entirewasher/dryer.Clothesmaynottumbleproperlyand
automaticsensorcyclesmaynotoperatecorrectlyifdryeris
notlevel.Installingoncarpetisnotrecommended.
• Awaterheatersettodeliver120°F(49°C)watertothewasher.
• Hotandcoldwaterfaucetslocatedwithin4ft(1.2m)ofthe
hotandcoldwaterfillvalves,andwaterpressureof5-100psi
(34.5-689.6kPa).
Thewasher/dryermustnotbeinstalledorstoredinanareawhere
itwillbeexposedtowaterand/orweather.
Donotoperateyourwasherintemperaturesatorbelow32°F
(0°C).Somewatercanremaininthewasherandcancause
damageinlowtemperatures.See"Washer/DryerCare"inyour
"Washer/DryerUserInstructions"forwinterizinginformation.
Donotoperateyourdryerattemperaturesbelow45°F(7°C).At
lowertemperatures,thedryermightnotshutoffattheendofan
automaticcycle.Thiscanresultinlongerdryingtimes.
Checkcoderequirements.Somecodeslimit,ordonotpermit,
installationofthewasher/dryeringarages,closets,mobilehomes,
orsleepingquarters.Contactyourlocalbuildinginspector.
Installation Clearances
The location must be large enough to fully open the dryer door.
Washer/Dryer Dimensions
723/4"
(184=8cm)
Rear clearance may be 0 in. when house exhaust system is
lined up directly with dryer exhaust.
(0era 69=5em 0¢rn) (2.5cm) (81=9cm)
2
_(15=2era) 3" (7=6cm)
(3!0 cm _)
(155 cra) 3" (7=_¢m)
(14cm)
1. Recessed area
2. Side view -closet or confined area
3. Closet door with vents
Mobile Home -Additional Installation Requirements
This washer/dryer is suitable for mobile home installations.
The installation must conform to the Manufactured Home
Construction and Safety Standard, Title 24 CFR, Part 3280
(formerly the Federal Standard for Mobile Home Construction and
Safety, Title 24, HUD Part 280).
Mobile home installations require:
• Metal exhaust system hardware which is available for
purchase from your dealer.
• Special provisions must be made in mobile homes to
introduce outside air into the dryer. The opening (such as a
nearby window) should be at least twice as large as the dryer
exhaust opening.
* Most installations require a minimum 51/2in. (14 cm) clearance
behind the dryer for the exhaust vent with elbow. See "Venting
Requirements."
Minimum installation spacing for recessed area or closet
installation
The following dimensions shown are for the minimum spacings
allowed.
• Additional spacing should be considered for ease of
installation and servicing.
• Additional clearances might be required for wall, door and
floor moldings.
• Additional spacing of 1 in. (2.5 cm) on all sides of the dryer is
recommended to reduce noise transfer.
For closet installation, with a door, minimum ventilation
openings in the top and bottom of the door are required.
Louvered doors with equivalent ventilation openings are
acceptable.
The washer/dryer can be installed using the standpipe drain
system (floor or wall), the laundry tub drain system, or the floor
drain system. Select the drain hose installation method you need.I
See "Alternate Parts."
Standpipe drain system - wall or floor (view I & 2)
The standpipe drain requires a minimum diameter standpipe of
2 in. (5 cm). The minimum carry-away capacity can be no less
than 17 gal. (64 L) per minute. A 2 in. (5 cm) diameter to 1 in. (2.5
cm) diameter standpipe adapter kit is available. See "Alternate
Parts."
The top of the standpipe must be at least 39 in. (99 cm) high and
no higher than 96 in. (2.4 m) from the bottom of the washer.
Laundry tub drain system (view 3}
The laundry tub needs a minimum 20 gal. (76 L) capacity. The top
of the laundry tub must be at least 34 in. (86.4 cm) above the floor
and no higher than 96 in. (2.4 m) from the bottom of the washer.

Floor drain system (view 4)
The floor drain system requires a siphon break that may be
purchased separately. See "Alternate Parts."
The siphon break must be a minimum of 28 in. (71 cm) from the
bottom of the washer. Additional hoses might be needed.
It is your responsibility
• To contact a qualified electrical installer.
• To be sure that the electrical connection is adequate and in
conformance with the National Electrical Code, ANSI/NFPA
70-latest edition and all local codes and ordinances.
A copy of the above code standards can be obtained from:
National Fire Protection Association, Batterymarch Park,
Quincy, MA 02269.
• To supply the required 3 or 4 wire, single phase, 120/240-volt,
60-Hz., AC-only electrical supply (or 3 or 4 wire, 120/208-volt
electrical supply, if specified on the serial/rating plate) on a
separate 30-ampere circuit, fused on both sides of the line. A
time-delay fuse or circuit breaker is recommended. Connect
to an individual branch circuit. Do not have a fuse in the
neutral or grounding circuit.
• Do not use an extension cord.
•If codes permit and a separate ground wire is used, it is
recommended that a qualified electrician determine that the
ground path is adequate.
Electrical Connection
To properly install your washer/dryer, you must determine the type
of electrical connection you will be using and follow the
instructions provided for it here.
• If local codes do not permit the connection of a cabinet
ground connector to the neutral wire, see "Optional 3-wire
Connection."
• This washer/dryer is manufactured with a 3-wire, cabinet-
ground conductor connected to the NEUTRAL (white or
center wire) of the wiring harness at the terminal block.
• Use a 4-wire conductor cord when the washer/dryer is
installed in a mobile home or an area where local codes do not
permit grounding through the neutral.
If using a power supply cord:
• Use a UL approved power supply cord kit marked for use with
clothes dryers. The kit should contain:
• A UL approved 30 amp power supply cord, rated 120/240 volt
minimum. The cord should be type SRD or SRDT and be at
least 4 ft (1.22 m) long. The wires that connect to the dryer
must end in ring terminals or spade terminals with upturned
ends.
• A UL approved strain relief.
If your outlet looks like this:
4-wire receptacle (14-30R)
Then choose a 4-wire power supply cord with ring or spade
terminals and UL approved strain relief. The 4-wire power supply
cord, at least 4 ft (1.22 m) long, must have 4, 10-gauge solid
copper wires and match a 4-wire receptacle of NEMA Type 14-
30R. The ground wire (ground conductor) may be either green or
bare. The neutral conductor must be identified by a white cover.
If your outlet looks like this:
3-wire receptacle (10-30R)
Then choose a 3-wire power supply cord with ring or spade
terminals and UL approved strain relief. The 3-wire power supply
cord, at least 4 ft (1.22 m) long, must have 3, 10-gauge solid
copper wires and match a 3-wire receptacle of NEMA Type 10-
30R.
If connecting by direct wire:
Power supply cable must match power supply (4-wire or 3-wire)
and be:
• Flexible armored cable or nonmetallic sheathed copper cable
(with ground wire), protected with flexible metallic conduit. All
current-carrying wires must be insulated.
• 10-gauge solid copper wire (do not use aluminum.)
• At least 5 ft (1.52 m) long.
GROUNDING INSTRUCTIONS
[] For a grounded, cord-connected washer/dryer:
This washer/dryer must be grounded. Hnthe event of malfunc-
tion or breakdown, grounding will reduce the risk of electric
shock by providing a path of least resistance for electric
current. This washer/dryer uses a cord having an equipment-
grounding conductor and a grounding plug. The plug must be
plugged into an appropriate outlet that is properly installed and
grounded in accordance with all local codes and ordinances.
[] For a permanently connected washer/dryer:
This washer/dryer must be connected to a grounded metal,
permanent wiring system, or an equipment-grounding con-
ductor must be run with the circuit conductors and connected
to the equipment_grounding terminal or lead on the
washer/dryer.
WARNING: Hmproper connection of the equipment-
grounding conductor can result in a risk of electric shock.
Check with a qualified electrician or service representative or
personnel if you are in doubt as to whether the washer/dryer
is properly grounded. Do not modify the plug on the power
supply cord: if it wiiI not fit the outlet, have a proper outlet in-
stalled by a qualified electrician.
SAVE THESE INSTRUCTIONS

PowerSupplyCord DirectWire
Fire Hazard
Use a new UL approved 30 amp power supply cord,
Use a UL approved strain retief.
Disconnect power before making emectrical connections.
Connect neutram wire (white or center wire) to center
terminal (silver),
Ground wire (green or bare wire) must be connected to
green ground connector.
Connect remaining 2 suppmy wires to remaining
2 terminals (gored).
Securemy tighten aimeJectrical connections,
Failure to do so can resumt in death, fire, or
emectrical shock,
1. Disconnect power.
2. Remove the hold-down screw and terminal block cover.
I
2
5
1. Center,silver-colored terminal block screw
2. Hold-down screw
3. Terminalblock cover
4. Neutralgrounding wire(green/yellow)
5. Externalground connector
Fire Hazard
Use t0 gauge somid copper wire,
Use aUL approved strain retief,
Disconnect power before making emectricamconnections.
Connect neutral wire (white or center wire) to center
terminal (simver).
Ground wire (green or bare wire) must be connected to
green ground connector,
Connect remaining 2 suppmy wires to remaining
2terminals (gold).
Securely tighten aimemectrica{ connections.
Failure to do so can result in death, fire, or
electrica_ shock.
3. Assemble a 3/,in. (1.9 cm) UL approved strain relief (UL
marking on strain relief) into the hole below the terminal block
opening. Tighten strain relief screws just enough to hold the
two clamp sections together. Put power supply cord through
the strain relief, The strain relief should have a tight fit with the
dryer cabinet.
Now complete installation following instructions for your type
of electrical connection:
4-wire (recommended)
3-wire (if 4-wire is not available)

Electrical Connection Options
If your home has: And you will be Go to Section
connecting to:
4-wire receptacle A UL listed, 120/ 4-wire connection:
(NEMA Type 14-30R) 240 volt Power supply cord
minimum, 30
amp., dryer
power supply
cord*
4-wire direct A fused 4-wire connection:
disconnect or Direct Wire
circuit breaker
box*
3-wire receptacle A UL listed, 120/
(NEMA type 10-30R) 240 volt
minimum, 30
amp., dryer
power supply
cord*
3-wire connection:
Power supply cord
3-wire direct 3-wire connection:
Direct Wire
A fused
disconnect or
circuit breaker
box*
* If local codes do not permit the connection of a frame-
grounding conductor to the neutral wire, go to "Optional 3-wire
Connection" section.
4-wire connection: Power supply cord
IMPORTANT: A 4-wire connection is required for all mobile
homes and where local codes do not permit the use of 3-wire
connections.
2
3 4
6
5 7
1.4-wire receptacle (NEMA type !4-30R)
2. 4-prong plug
3. Ground prong
4. Neutral prong
5. Spade terminals with upturned ends
6. ¾in. (1.9 cm) UL approved strain relief
7. Ring terminals
1. Remove center terminal block screw.
2. Remove appliance ground wire (green with yellow stripes)
from external ground connector screw. Fasten it under center,
silver-colored terminal block screw.
1 2
3=
4.
1. Neutral grounding wire (green/yellow)
2. Center silver-colored terminal block screw
3. External ground connector
Connect ground wire (green or bare) of power supply cord to
external ground conductor screw. Tighten screw.
Connect neutral wire (white or center wire) of power supply
cord under center screw of the terminal block. Tighten screw.
4
2
6
1. External ground connector
2. Green or bare copper wire of power supply cord
3. Neutral grounding wire (green/yellow)
4. Center silver-colored terminal block screw
5. Neutral wire (white or center)
6. 3/4in. (1.9 cm) UL listed, strain relief
5. Connect the other wires to outer terminal block screws.
Tighten screws.
6. Tighten strain relief screws.
7. Insert tab of terminal block cover into slot of dryer rear panel.
Secure cover with hold-down screw.

4-wire connection: Direct Wire
IMPORTANT: A 4-wire connection is required for mobile homes
and where local codes do not permit the use of 3-wire
connections.
Direct wire cable must have 5 ft (1.52 m) of extra length so dryer
can be moved if needed.
Strip 5 in. (12.7 cm) of outer covering from end of cable, leaving
bare ground wire at 5 in. (12.7 cm). Cut 11/2in. (3.8 cm) from 3
remaining wires. Strip insulation back 1 in. (2.5 cm). Shape ends
of wires into a hook shape.
When connecting to the terminal block, place the hooked end of
the wire under the screw of the terminal block (hook facing right),
squeeze hooked end together and tighten screw.
1. Remove center terminal block screw.
2. Remove appliance ground wire (green with yellow stripes)
from external ground connector screw. Fasten it under center,
silver-colored terminal block screw.
t 2
3=
4.
Connect ground wire (green or bare) of power supply cable to
external ground conductor screw. Tighten screw.
Place the hooked end of the neutral wire (white or center wire)
of power supply cable under the center screw of terminal
block (hook facing right), Squeeze hooked end together.
Tighten screw.
6
!. External ground connector
2. Green or bare copper wire of power supply cord
3. Neutral grounding wire (green/yellow)
4. Center sliver-colored terminal block screw
5. Neutral wire (white or center)
6. 3/4in. (1.9 cm) UL listed, strain relief
Place the hooked ends of the other power supply cable wires
under the outer terminal block screws (hooks facing right).
Squeeze hooked ends together. Tighten screws.
!! !!
1. Neutral grounding wire (green/yellow)
2. Center silver-colored terminal block screw
3. External ground connector
6. Tighten strain relief screws.
7. Insert tab of terminal block cover into slot of dryer rear panel.
Secure cover with hold-down screw,

3-wire connection: Power supply cord
Use where local codes permit connecting cabinet-ground
conductor to neutral wire.
2
3
5
1. 3-wire receptacle (NEMA type 10-30R)
2. 3-wire plug
3. Neutral prong
4. Spade terminals with up turned ends
5. ¾in. (1.9 cm) UL approved strain relief
6. Ring terminals
7. Neutral (white or center wire)
1.
2.
Loosen or remove center terminal block screw.
Connect neutral wire (white or center wire) of power supply
cord to the center, silver-colored terminal screw of the terminal
block. Tighten screw.
3
2?
3-wire connection: Direct Wire
Use where local codes permit connecting cabinet-ground
conductor to neutral wire.
Direct wire cable must have 5 ft (1.52 m) of extra length so dryer
can be moved if needed.
Strip 31/2in. (8.9 cm) of outer covering from end of cable. Strip
insulation back 1 in. (2.5 cm) If using 3-wire cable with ground
wire, cut bare wire even with outer covering. Shape ends of wires
into a hook shape.
When connecting to the terminal block, place the hooked end of
the wire under the screw of the terminal block (hook facing right),
squeeze hooked end together and tighten screw. See example
below.
1.
2.
Loosen or remove center terminal block screw.
Place the hooked end of the neutral wire (white or center wire)
of power supply cable under the center screw of terminal
block (hook facing right). Squeeze hooked end together.
Tighten screw.
3
J
1. External ground connector
2. Neutral grounding wire (green/yellow)
3. Center silver-colored terminal block screw
4. Neutral wire (white or center wire)
5. ¾in. (1.9 cm) UL-listed strain relief
3. Connect the other wires to outer terminal block screws.
Tighten screws.
4. Tighten strain relief screws.
5. Insert tab of terminal block cover into slot of dryer rear panel.
Secure cover with hold-down screw.
4
1. External ground connector
2. Neutral grounding wire (green/yellow)
3. Center silver-colored terminal block screw
4. Neutral wire (white or center wire)
5. ¾in. (1.9 cm) UL-listed strain relief
Place the hooked ends of the other power supply cable wires
under the outer terminal block screws (hooks facing right).
Squeeze hooked ends together. Tighten screws.
!! !!
4. Tighten strain relief screws.
5. Insert tab of terminal block cover into slot of dryer rear panel.
Secure cover with hold-down screw.

Optional 3-wire connection
Use for direct wire or power supply cord where local codes do
not permit connecting cabinet-ground conductor to neutral
wire.
1. Remove center terminal block screw,
2. Remove appliance ground wire (green with yellow stripes)
from external ground connector screw, Connect appliance
ground wire and the neutral wire (white or center wire) of
power supply cord/cable under center, silver-colored terminal
block screw. Tighten screw.
3. Connect the other wires to outer terminal block screws,
Tighten screws,
4. Tighten strain relief screws.
5. Insert tab of terminal block cover into slot of dryer rear panel.
Secure cover with hold-down screw.
6. Connect a separate copper ground wire from the external
ground connector screw to an adequate ground.
1. External ground connector
2. Neutral grounding wire (green/yellow)
3. Neutral wire (white or center wire)
4. Grounding path determined by a qualified electrician
Fire Hazard
Use a heavy metal vent.
Do not use a plastic vent.
Do not use a metal foil vent.
Failure to follow these instructions can resumt in death
or fire.
WARNING: To reduce the risk of fire, this washer/dryer
MUST BE EXHAUSTED OUTDOORS.
4 in. (10.2 cm) heavy metal exhaust vent and clamps must be
used. DURASAFE TM venting products are recommended.
DURASAFE TM vent products can be purchased from your dealer
or by calling Whirlpool Parts and Accessories. For more
information, see the "Assistance or Service" section of your
"Washer/Dryer User Instructions."
• The dryer exhaust must not be connected into any gas vent,
chimney, wall, ceiling, or a concealed space of a building.
• Do not use an exhaust hood with a magnetic latch.
• Do not install flexible metal vent in enclosed walls, ceilings or
floors.
• Use clamps to seal all joints. Exhaust vent must not be
connected or secured with screws or other fastening devices
which extend into the interior of the duct. Do not use duct
tape.
IMPORTANT: Observe all governing codes and ordinances,
_mproper venting can cause moisture and mintto co,meet
indoors, which may resumt in:
[] Moisture damage to woodwork, furniture, paint, waif
paper, carpets, etc=
[] Housecleaning problems and health problems.
Use a heavy metal vent. Do not use plastic or metal foil vent.
Rigid metal vent is recommended to prevent crushing and kinking.
Flexible metal vent must be fully extended and supported when
the washer/dryer is in its final position. Remove excess flexible
metal vent to avoid sagging and kinking that may result in reduced
airflow and poor performance.
An exhaust hood should cap the vent to prevent rodents and
insects from entering the home.
Exhaust hood must be at least 12 in. (30.5 cm) from the ground or
any object that may be in the path of the exhaust (such as flowers,
rocks or bushes, etc.).
If using an existing vent system, clean lint from the entire length of
the system and make sure exhaust hood is not plugged with lint.
Replace any plastic or metal foil vent with rigid metal or flexible
metal vent.

Excessive Weight Hazard
Use two or more people to move and install
washer/dryer.
Failure to do so can result in back or other injury.
To prevent floor damage, set washer/dryer onto cardboard before
moving across floor. Move washer/dryer close to its final location.
1. Do not cut yellow strap. Pull yellow strap firmly, until
completely removed from washer/dryer. There should be 2
cotter pins on the end of the shipping strap. The electrical
plug is attached to this shipping strap.
Proper connection of the drain hose protects your floors from
damage due to water leakage. To prevent the drain hose from
coming off or leaking, it must be installed per the following
instructions:
IMPORTANT: To ensure proper installation, this procedure must
be followed exactly.
1. Check the drain hose to see whether it is the proper length.
2. Wet the inside of the straight end of the drain hose with tap
water. DO NOT USE ANY OTHER LUBRICANT.
3. Squeeze ears of the silver, double-wire clamp with pliers to
open. Place clamp over the straight end of the drain hose
1Ain. (6.4 mm) from the end.
4. Open clamp. Twist hose back and forth while pushing onto
drain connector on the side of the washer/dryer. Continue until
hose contacts the ribbed stops on the cabinet.
2. Tilt the washer/dryer forward. Move each of the 2 rear legs in
an up-down motion to check the self-adjusting leveling legs
for free movement. This is required for proper leveling. Gently
lower the washer/dryer to the floor.
3. Cut the shipping strap about 16 in. (40.6 cm) from the plug
end. Look for the words "CUT HERE." Discard end with cotter
pins. You will use the remaining piece of shipping strap to
secure the drain hose.
Install the front leveling feet
1. Prop up the front of the washer/dryer about 4 in. (10.2 cm)
with a wood block or similar object. The block needs to
support the weight of the washer/dryer.
2. Screw the lock nut onto each foot to within I in. (2.5 cm) of the
base.
5. Place clamp over the area marked "CLAMR" Release clamp.
For laundry tub or standpipe drain systems
1. Open the yellow, single-wire clamp and slide over the hooked
end of the drain hose to secure the rubber and corrugated
sections together.
1 "
(2.5crn)
s
3. Screw the feet into the correct holes at the front corner of the
washer/dryer until the nuts touch the washer.
NOTE: Do not tighten the nuts until the washer/dryer is level.
4. Tilt the washer/dryer back and remove the wood block, Gently
lower the washer/dryer to the floor.
!. Hooked end
2. Drain hose
2. Put hooked end of drain hose into laundry tub or standpipe.
Rotate hook to eliminate kinks.
To prevent drain water from going back into the washer:
• Do not straighten hooked end of the drain hose and force
excess drain hose into standpipe. Hose should be secure but
loose enough to provide a gap for air.
• Do not lay excess hose on the bottom of the laundry tub.
10

For use with floor drain
Remove the drain hose hook from the corrugated drain hose. You
may need additional parts. See "Floor Drain" under "Alternate
Parts."
_,_ _j= _/_t, t,,=C_ _
1. Insert a new flat washer (supplied) into each end of the inlet
hoses. Firmly seat the washers in the couplings.
1 2
1. Coupling
2. Washer
Connect the inlet hoses to the water faucets
Make sure the washer basket is empty.
2. Attach the hose with the red coupling to the hot water faucet.
Screw on coupling by hand until seated on the washer.
3. Attach the hose with the blue coupling to the cold water
faucet. Screw on coupling by hand until seated on the washer.
4. Using pliers, tighten the couplings with an additional two-
thirds turn.
NOTE: Do not overtighten. Damage to the valves can result.
Clear the water lines
5. Run water through both faucets and inlet hoses, into a bucket
or laundry tub, to get rid of particles in the water lines that
might clog the inlet valve screens.
Connect the inlet hoses to the washer
6. Attach the hose with the blue coupling to the cold water (top)
inlet valve. Screw on coupling by hand until seated on the
washer. Using pliers, tighten the couplings with an additional
two-thirds turn.
NOTE: Do not overtighten. Damage to the valves can result.
If you are working in a closet or recessed area
Move the washer/dryer into its final position and remove
cardboard from under washer/dryer. Remove the access panel by
removing 3 Phillips-head screws and one bumper, located at the
top of the access panel. Set panel, screw, and bumper aside.
Complete hookup of water hoses and (on gas models) the flexible
gas connector through the access area. Replace access panel
upon completion of washer/dryer installation.
Check for leaks
8. Turn on the water faucets and check for leaks. A small amount
of water might enter the washer. You will drain this later.
NOTE: Replace inlet hoses after 5 years of use to reduce the risk
of hose failure. Record hose installation or replacement dates for
future reference.
• If you connect only one water hose, you must cap off the
remaining water inlet port.
• Periodically inspect and replace hoses if bulges, kinks, cuts,
wear, or leaks are found.
1. Move the washer/dryer to its final location and remove any
cardboard used to move the washer/dryer.
2. Locate the remaining piece of shipping strap (see "Remove
Shipping Strap").
Shipping Strap
Wrap the drain hose to the laundry tub leg or standpipe with
the shipping strap (1 or 2 below). Push fastener into the
nearest hole in the shipping strap (see illustration above).
1. Cold water inlet valve (blue)
2. Hot water inlet valve (red)
7. Attach the hose with the red coupling to the hot water
(bottom) inlet valve. Screw on coupling by hand until seated
on the washer. Using pliers, tighten the couplings with an
additional two-thirds turn.
NOTE: Do not overtighten. Damage to the valves can result.
If the water faucets and the drain standpipe are recessed, put
the hooked end of the drain hose in the standpipe. Tightly
wrap the shipping strap around the water inlet hoses and the
drain hose (3 above). Push fastener into the nearest hole in the
shipping strap (see illustration above).
11

Typical exhaust installations
Typical installations vent the dryer from rear of the washer/dryer.
Other installations are possible.
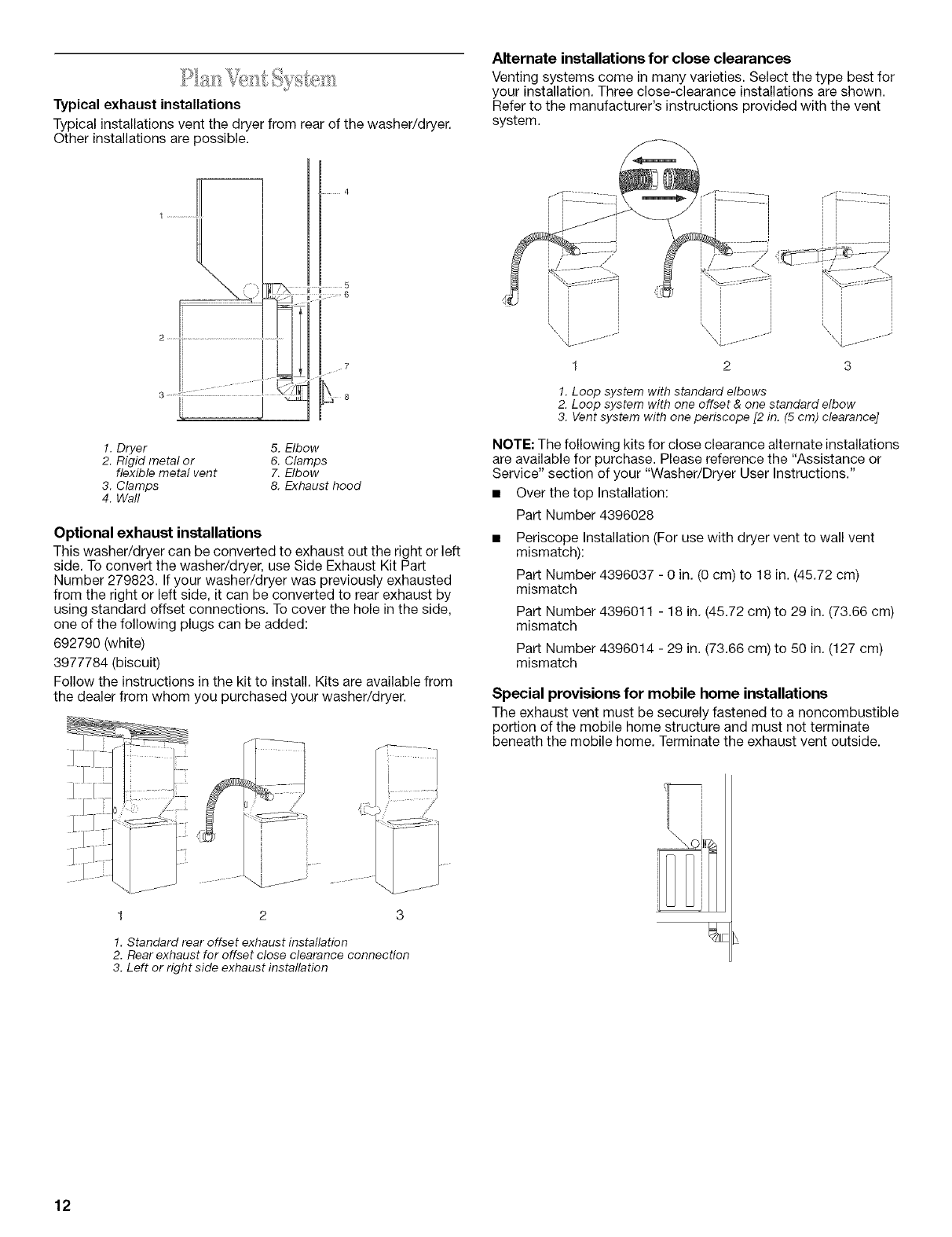
Alternate installations for close clearances
Venting systems come in many varieties. Select the type best for
your installation, Three close-clearance installations are shown.
Refer to the manufacturer's instructions provided with the vent
system.
I .....................!
4
1. Dryer 5. Elbow
2. Rigid metal or 6. Clamps
flexible metal vent 7. Elbow
3. Clamps 8. Exhaust hood
4. Wall
Optional exhaust installations
This washer/dryer can be converted to exhaust out the right or left
side. To convert the washer/dryer, use Side Exhaust Kit Part
Number 279823. If four washer/dryer was previously exhausted
from the right or left side, it can be converted to rear exhaust by
using standard offset connections. To cover the hole in the side,
one of the following plugs can be added:
692790 (white)
3977784 (biscuit)
Follow the instructions in the kit to install. Kits are available from
the dealer from whom you purchased your washer/dryer.
1. Standard rear offset exhaust installation
2. Rear exhaust for offset close clearance connection
3. Left or right side exhaust installation
1. Loop system with standard elbows
2. Loop system with one offset & one standard elbow
3. Vent system with one periscope [2 in. (5 cm) clearance]
NOTE: The following kits for close clearance alternate installations
are available for purchase. Please reference the "Assistance or
Service" section of your "Washer/Dryer User Instructions."
• Over thetop Installation:
Part Number 4396028
Periscope Installation (For use with dryer vent to wall vent
mismatch):
Part Number 4396037 - 0 in, (0 cm) to 18 in. (45,72 cm)
mismatch
Part Number 4396011 - 18 in, (45.72 cm) to 29 in. (73.66 cm)
mismatch
Part Number 4396014 - 29 in. (73.66 cm) to 50 in. (127 cm)
mismatch
Special provisions for mobile home installations
The exhaust vent must be securely fastened to a noncombustible
portion of the mobile home structure and must not terminate
beneath the mobile home, Terminate the exhaust vent outside.
L
K
12

Determine Vent Length
1. Select the route that will provide the straightest and most
direct path outdoors. Plan the installation to use the fewest
number of elbows and turns. When using elbows or making
turns, allow as much room as possible. Bend vent gradually to
avoid kinking. Avoid 90° turns.
2= Determine vent length.
The maximum length of the exhaust system depends upon:
• The type of vent (rigid metal or flexible metal).
• The number of elbows used.
• Typeof hood.
Recommended hood styles areshown here.
2
(10.2 or#)
1. Louvered hood style
2. Box hood style
The angled hood style (shown following) is acceptable.
See the exhaust vent length chart that matches your hood
type for the maximum vent lengths you can use.
Exhaust systems longer than specified will:
• Shorten the life of the dryer.
• Reduce performance, resulting in longer drying times and
increased energy usage.
3. Determine the number of elbows you will need.
IMPORTANT" Do not use vent runs longer than those
specified in Vent Length Chart.
The following chart helps you determine your maximum vent
length based on the number of 90 ° turns or elbows you will
need and the type of vent (rigid or flexible metal) and hood
that you will use.
Vent Length Chart
No. of Type of Vent Box or Angled
go° turns Louvered hoods
or elbows hoods
0 Rigid metal 37 ft (11.3 m) 35 ft (10.7 m)
Flexible metal 25 ft (7.6 m) 20 ft (6.1 m)
1 Rigid metal 32 ft (9.7 m) 27 ft (8.2 m
Flexible metal 21 ft (6.4 m) 16 ft (4.9 m)
2 Rigid metal 24 ft (7.3 m) 19 ft (5.8 m)
Flexible metal 15 ft (4.6 m) 10 ft (3.0 m)
NOTE: Side exhaust adds a 90° turn inside the washer/dryer. To
determine maximum exhaust length, add one 90 ° turn to the
chart.
1. (Optional) Put on safety glasses and gloves.
2. Install exhaust hood. Use caulking compound to seal exterior
wall opening around exhaust hood.
3. Connect vent to exhaust hood. Vent must fit inside exhaust
hood. Secure vent to exhaust hood with 4 in. (10.2 cm) clamp.
4. Run vent to dryer location. Use the straightest path possible.
see "Determine Vent Length." Avoid 90° turns. Use clamps to
seal all joints. Do not use duct tape, screws or other fastening
devices that extend into the interior of the vent to secure vent.
13

Properly leveling your washer/dryer prevents excessive noise and
vibration.
1. Check the levelness of the washer/dryer by placing a level on
the top edge of the washer, first side to side, then front to
back.
1. Using a 4 in. (10.2 cm) clamp, connect vent to exhaust outlet
in washer/dryer. If connecting to existing vent, make sure the
vent is clean. The vent must fit over the exhaust outlet and
inside the exhaust hood. Make sure the vent is secured to
exhaust hood with a 4 in. (10.2 cm) clamp.
2. Move washer/dryer into final position. Do not crush or kink
vent. Make sure washer/dryer is level.
3. (On gas models) Check to be sure there are no kinks in the
flexible gas line.
2= If the washer/dryer is not level, prop up the front with the
wood block and adjust the feet up or down as necessary.
Remove wood block.
3. Tilt the washer/dryer forward until the rear of the washer/dryer
is at least 4 in. (10.2 cm) off the floor. You may hear the self-
adjusting rear feet click into place. Lower the washer/dryer to
the floor. Check the levelness of the washer/dryer with a level
as shown above.
If washer/dryer will not level, recheck rear leveling legs for free
movement as described in the "Install Leveling Legs" section.
Repeat until the washer/dryer is level.
NOTE: It may be necessary to level the dryer again after it is
moved into its final position.
4. After the washer/dryer is in the final location and level, use an
adjustable or open-end wrench to turn the nuts on the front
feet tightly against the washer cabinet.
If the nuts are not tight against the washer cabinet, the
washer/dryer may vibrate.
1. Check to be sure all parts are now installed. If there is an extra
part, go back through the steps to see which step was
skipped.
2. Check to be sure you have all of your tools.
3. Dispose/recycle all packaging materials. Keep the plastic
foam for use if the washer/dryer should be transported.
4. Check the washer/dryer's final location. Be sure the vent is not
crushed or kinked.
5. Check to be sure the washer/dryer is level and front leveling
feet are tight. See "Level Washer/Dryer."
6. Plug into a grounded outlet. Turn power on.
7. Check to be sure the water faucets are on.
8. Check for leaks around faucets and inlet hoses.
9. Remove the blue protective film on the console and any tape
remaining on the washer/dryer.
10. Read your "Washer/Dryer User Instructions."
11. Wipe the dryer drum interior thoroughly with a damp cloth to
remove any dust.
12. To test the washer, measure 1/2the normal recommended
amount of detergent and pour it into the washer. Close the lid.
Select HEAVY DUTY and pull out the Cycle Control knob.
Allow the washer to complete one whole cycle.
13. To test the dryer, set the dryer on a full heat cycle (not an air
cycle) for 20 minutes and start the dryer.
If the dryer will not start, check the following:
• Controls are set in a running or "On" position.
• Start button has been firmly pushed.
• Washer/dryer is plugged into a grounded outlet.
• Electrical supply is connected.
• House fuse is intact and tight; or circuit breaker has not
tripped.
• Dryer door is closed.
14. When the dryer has been running for 5 minutes, open the
dryer door and feel for heat.
If you do not feel heat, turn the dryer off and check the
following:
• There may be 2 fuses or circuit breakers for the dryer.
Check to make sure both fuses are intact and tight, or that
both circuit breakers have not tripped. If there is still no
heat, contact a qualified technician.
NOTE: You may notice a burning odor when dryer is first heated.
This odor is common when the heating element is first used. The
odor will go away.
14

15

8542746
(c) 2003.
All rights reserved. Benton Harbor, Michigan 49022
TM DURASAFE is a trademark of Whirlpool, U.S.A.
7/03
Printed in U.S.A.