Wireless BR1200 Wireless LAN Bridge Radio User Manual
Wireless Manufacturing Company, LLC Wireless LAN Bridge Radio
Wireless >
User Manual
FCC ID: OIA-BR1200 1
Wireless LAN Bridge Radio
Quick Installation Guide
Model: BR1200
Wireless Manufacturing Company, LLC
This Wireless LAN Bridge Radio is to be professionally installed by a
fully trained technician who is thoroughly knowledgeable of both
computer LAN and microwave radio installation requirements.

FCC ID: OIA-BR1200 2
INFORMATION TO USER
FCC REQUIREMENTS
This device complies with part 15 of the FCC Rules.
Operation is subject to the following two conditions:
(1)This device may not cause harmful interference, and
(2)This device must accept any interference received, including interference that may cause undesired
operation.
NOTE: This equipment has been tested and found to comply with the limits for a
Class A digital device, pursuant to Part 15 of the FCC Rules. These limits are designed to provide
reasonable protection against harmful interference when the equipment is operated in a commercial
environment. This equipment generates, uses and can radiate radio frequency energy and, if not
installed and used in accordance with the instruction manual, may cause harmful interference to radio
communications. Operation of this equipment in a residential area is likely to cause harmful
interference in which case the user will be required to correct the interference at his own expense.
Information to User
Caution: Changes or modifications not expressly approved by the party responsible for compliance
could void the user’s authority to operate the equipment.
BR1200 Technical Support
If you encounter problems when installing or using this product, or would like more information about
our other products, you can contact us with the telephone numbers listed below.
Useful information
TEL: 603-672-9336
FAX: 603-672-9228
E-Mail: sales@wirelessmfg.com
World Wide Web: www.wirelessmfg.com
PO Box 298
Milford, NH 03055-0298
FCC ID: OIA-BR1200 3
CONTENTS
Step 1. PCMCIA Adapter Quick Installation............................ -
Step 2. BR1200 Installation Option (separated up to 10 miles)........ -
Step 3. BR1200 Installation Option (separated 10 to 20 miles)............ -

FCC ID: OIA-BR1200 4
Step 1 PCMCIA Adapter Quick Installation
Unit will be shipped from the factory with the PCMCIA card installed into the
BR1200 radio. Skip to Step 2 if PCMCIA card is factory installed. In the
event that the card needs to be replaced, the following instructions apply.
No power should be applied to the BR1200 radio.
Install the WL201 PCMCIA card in the PCMCIA slot, then power on.
The card should recognize the card automatically.
This radio is certified only for use in conjunction with the WL201 PCMCIA
card (FCC ID: MXF-WL201) as supplied by Wireless Manufacturing
Company, LLC (WMC). Other cards may malfunction or cause unacceptable
spurious emissions thus voiding the FCC certification and any warranty from
WMC.

FCC ID: OIA-BR1200 5
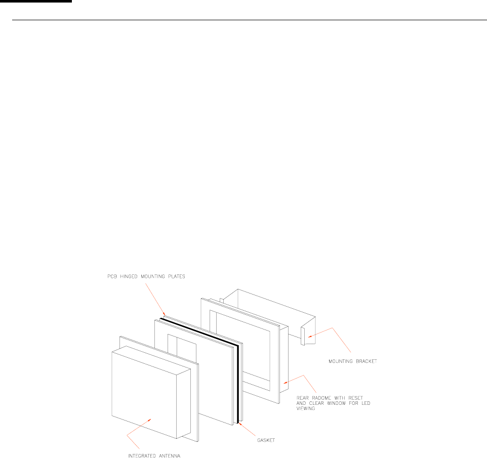
Step 2 BR1200 Installation (separated up to 10 miles)
Patch Antenna Option : M/A-Com Part Number: ANAD-159W-A-6-SM
The Wireless LAN Bridge Radio (BR1200) is an integrated weatherproof
assembly which includes a WL201 PCMCIA transceiver, 486 computer, and
power conditioning. The BR1200 can be married to the optional square patch
antenna assembly. To do this the cable attached to the rear of the patch
antenna assembly is connected to the coaxial connector on the PCMCIA card.
The antenna assembly with the supplied weather sealing gasket is placed onto
the BR1200 and connected with supplied fasteners.
FCC ID: OIA-BR1200 6
Typical installation will include two BR1200’s, each with an installed antenna
assembly, located in a direct line-of-sight up to 10 miles apart. Each finished
radio/antenna combination can then be mounted to a suitable mast that has
already been installed on an outdoor structure. Structures include buildings,
towers, chimneys, etc.
Initial preparation will be to determine the proper location of each BR1200.
Wherever possible, installer will visually site each location. Radios will be
aimed at each other using the built in adjustments provided with the mounting
bracket.
Electrical connections are provided and clearly marked. The connector
marked “LAN” will supply standard IEEE 802.3 10BASE-T data (compliant
with IEEE 802.11) as well as the radio operating voltage of 24V (AC or DC).
Connect a suitable Category 5 cable with the connector provided and dress it
appropriately to an interior location where it can connect to a the LAN and
prime power. An alternate “Power Only” connection is provided in the event
that 24 V is available closer to the BR1200 installation.

FCC ID: OIA-BR1200 7
Step 3 BR1200 Installation (separated 10-20 miles)
Wire Grid Parabola Option : California Amplifier Part Number: 130093
The Wireless LAN Bridge Radio (BR1200) is an integrated weatherproof
assembly which includes a WL201 PCMCIA transceiver, 486 computer, and
power conditioning. The BR1200 can be married to the optional wire grid
parabola antenna/cover assembly. The 130093 parabola antenna includes the
grid parabola with attached coaxial cable and connector. It is connected to
the bulkhead connector on the weather cover. A coaxial cable protrudes from
the rear of the weather cover and is connected to the coaxial connection on the
WL201 PCMCIA card. The wire grid parabola antenna/cover assembly with
the supplied weather sealing gasket is placed onto the BR1200 and connected
with supplied fasteners.
FCC ID: OIA-BR1200 8
Typical installation will include two BR1200’s, each with the installed
antenna assembly, located in a direct line-of-sight from 10 to 20 miles apart.
Each finished radio/antenna combination can then be mounted to a suitable
mast which has already been installed on an outdoor structure. Structures
include buildings, towers, chimneys, etc.
Initial preparation will be to determine the proper location of each BR1200.
Wherever possible, installer will visually site each location or consult
appropriate reference material for obstructions which would prohibit line-of-
site transmissions. In this case the parabolas will be aimed at each other using
the built in adjustments provided with the mounting bracket.