Woods Equipment 1012606 Users Manual 3 Point Mounting Kit BH90 X
1012606 to the manual e1a90f6d-c6bb-436c-a401-f7451ce25703
2015-02-05
: Woods-Equipment Woods-Equipment-1012606-Users-Manual-408647 woods-equipment-1012606-users-manual-408647 woods-equipment pdf
Open the PDF directly: View PDF 
.
Page Count: 16

INSTALLATION MANUAL
SAVE THIS 
MANUAL!
Include it with 
your Backhoe Manual. 
It contains safety, 
operation, and repair 
part information not 
found in other  
manuals.
1012606
3-POINT MOUNTING KIT
For Woods BH90-X Backhoe
MAN0549
 (6/30/2006)
Tested. Proven. Unbeatable.

2 Introduction
SFMK (Rev. 6/6/2005)
TO THE DEALER:
Assembly and proper installation of this product is the responsibility of the Woods® dealer. Read manual instructions
and safety rules. Make sure all items on the Dealer’s Pre-Delivery and Delivery Check Lists in the Operator’s Manual
are completed before releasing equipment to the owner.
The dealer must complete the Product Registration included with this manual. The customer must sign the registration
which certifies that all Dealer Check List items have been completed. The dealer is to return the prepaid postage
portion to Woods, give one copy to the customer, and retain one copy. Failure to complete and return this card does
not diminish customer’s warranty rights.
TO THE OWNER:
Read this manual before operating your Woods equipment. The information presented will prepare you to do a better and
safer job. Keep this manual handy for ready reference. Require all operators to read this manual carefully and become
acquainted with all adjustment and operating procedures before attempting to operate. Replacement manuals can be
obtained from your dealer. To locate your nearest dealer, check the Dealer Locator at www.WoodsEquipment.com, or in
the United States and Canada call 1-800-319-6637.
The equipment you have purchased has been carefully engineered and manufactured to provide dependable and
satisfactory use. Like all mechanical products, it will require cleaning and upkeep. Lubricate the unit as specified.
Observe all safety information in this manual and safety decals on the equipment.
For service, your authorized Woods dealer has trained mechanics, genuine Woods service parts, and the necessary
tools and equipment to handle all your needs.
Use only genuine Woods service parts. Substitute parts will void the warranty and may not meet standards required for
safe and satisfactory operation. Record the model number and serial number of your equipment in the spaces
provided:
Model: _______________________________ Date of Purchase: _____________________
Serial Number: (see Parts section for location) __________________________________________
Provide this information to your dealer to obtain correct repair parts.
Throughout this manual, the term IMPORTANT is used to indicate that failure to observe can cause damage to
equipment. The terms CAUTION, WARNING, and DANGER are used in conjunction with the Safety-Alert Symbol (a
triangle with an exclamation mark) to indicate the degree of hazard for items of personal safety.
CAUTION
CAUTION
IMPORTANT
IMPORTANT
WARNING
WARNING
DANGER
DANGER
NOTE
NOTE
This Safety-Alert Symbol indicates a hazard and means ATTENTION!
BECOME ALERT! YOUR SAFETY IS INVOLVED!
Indicates an imminently hazardous situation that, if not avoided, will 
result in death or serious injury.
Indicates a potentially hazardous situation that, if not avoided, could 
result in death or serious injury, and includes hazards that are exposed 
when guards are removed.
Indicates a potentially hazardous situation that, if not avoided, may 
result in minor or moderate injury.
Indicates that failure to observe can cause damage to equipment.
Indicates helpful information.

Safety 3
BH 3-Pt Mount (Rev. 2/25/2005)
INSTALLATION
This Mounting Kit is to be used only for the
backhoes and tractors specified in the Installation
section of this manual. Any other use or modifica-
tion of this mounting kit may result in serious
injury or death.
Hydraulics must be connected as instructed in
this manual. Do not substitute parts, modify, or
connect in any other way.
After connecting hoses, check that all control
lever positions function as instructed in the Opera-
tor's Manual. Do not put into service until control
lever and equipment movements are correct.
TRAINING
Safety instructions are important! Read all
attachment and power unit manuals; follow all
safety rules and safety decal information. (Replace-
ment manuals and safety decals are available from
your dealer. To locate your nearest dealer, check
the Dealer Locator at www.WoodsEquipment.com,
or in the United States and Canada call 1-800-319-
6637.) Failure to follow instructions or safety rules
can result in serious injury or death.
If you do not understand any part of this manual
and need assistance, see your dealer.
Know your controls and how to stop engine and
attachment quickly in an emergency.
Keep hands and body away from pressurized
lines. Use paper or cardboard, not hands or other
body parts to check for leaks. Wear safety goggles.
Hydraulic fluid under pressure can easily penetrate
skin and will cause serious injury or death.
Make sure that all operating and service person-
nel know that if hydraulic fluid penetrates skin, it
must be surgically removed as soon as possible by
a doctor familiar with this form of injury or gan-
grene, serious injury, or death will result. CON-
TACT A PHYSICIAN IMMEDIATELY IF FLUID
ENTERS SKIN OR EYES. DO NOT DELAY.
Never allow children or untrained persons to
operate equipment.
PREPARATION
Check that all hardware is properly installed.
Always tighten to torque chart specifications
unless instructed otherwise in this manual.
Air in hydraulic systems can cause erratic oper-
ation and allows loads or equipment components
to drop unexpectedly. When connecting equipment
or hoses or performing any hydraulic maintenance,
purge any air in hydraulic system by operating all
hydraulic functions several times. Do this before
putting into service or allowing anyone to
approach the equipment.
Protective hose sleeves must cover all hydrau-
lic hoses within 20 inches of the operator and be
secured onto metal hose fittings. Replace hoses or
sleeves if damaged or if protective sleeve cannot
be properly positioned or secured.
Make sure all hydraulic hoses, fittings, and
valves are in good condition and not leaking before
starting power unit or using equipment. Check and
route hoses carefully to prevent damage. Hoses
must not be twisted, bent sharply, kinked, frayed,
pinched, or come into contact with any moving
parts. Operate moveable components through full
operational range to check clearances. Replace
any damaged hoses immediately.
This mounting kit is designed to provide secure
mounting and adequate operator clearance when
properly installed. Check clearance dimensions
shown in Figure 1 to be sure you have installed
mounting kit correctly. Follow all mounting instruc-
tions in this manual. Do not operate backhoe
unless there is adequate clearance. Failure to
check and comply with these instructions may
result in serious injury or death.
(Safety Rules continued on next page)
Si no lee Ingles, pida ayuda a 
alguien que si lo lea para que le 
traduzca las medidas de seguridad.
LEA EL INSTRUCTIVO!
!
Safety is a primary concern in the design and
manufacture of our products. Unfortunately, our
efforts to provide safe equipment can be wiped
out by an operator’s single careless act.
In addition to the design and configuration of
equipment, hazard control and accident preven-
tion are dependent upon the awareness, con-
cern, judgement, and proper training of
personnel involved in the operation, transport,
maintenance, and storage of equipment.
It has been said, “The best safety device is an
informed, careful operator.” We ask you to be
that kind of operator.
SAFETY RULES
ATTENTION! BECOME ALERT! YOUR SAFETY IS INVOLVED!

4 Safety
BH 3-Pt Mount (Rev. 2/25/2005)
(Safety Rules continued from previous page)
Always wear relatively tight and belted clothing
to avoid getting caught in moving parts. Wear
sturdy, rough-soled work shoes and protective
equipment for eyes, hair, hands, hearing, and head;
and respirator or filter mask where appropriate.
Make sure attachment is properly secured,
adjusted, and in good operating condition.
Remove seat and upper support assembly
before installing or removing backhoe from tractor.
Failure to comply may result in equipment failure
and/or personal injury.
Always use original equipment high-strength
tractor top link pin when attaching mount to tractor.
If tractor is equipped with draft sensing control,
set control to “HEAVY” (minimum sensitivity) posi-
tion.
Make sure all safety decals are installed.
Replace if damaged. (See Safety Decals section for
location.)
A minimum 20% of tractor and equipment
weight must be on the tractor front wheels when
attachments are in transport position. Without this
weight, tractor could tip over, causing personal
injury or death. The weight may be attained with a
loader, front wheel weights, ballast in tires or front
tractor weights. Weigh the tractor and equipment.
Do not estimate.
OPERATION
Do not allow bystanders in the area when oper-
ating, attaching, removing, assembling, or servic-
ing equipment.
Before operating, make sure stabilizer pads are
lowered firmly to the ground. Stabilizer arms pro-
vide support for the backhoe and support for the
backhoe mounting brackets.
Do not operate or transport equipment while
under the influence of alcohol or drugs.
Always comply with all state and local lighting
and marking requirements.
Do not allow riders. Do not lift or carry anybody
on the power unit or attachments.
The only time the backhoe may be operated
from a position other than the operator seat is dur-
ing backhoe attachment and removal. Operator
must:
• Read Mounting Kit Manual instructions on
attaching and removing backhoe and use
extreme care.
• Always stand between rear tire and backhoe
stabilizer arms or along side of tractor to avoid
being trapped should the boom swing control
be accidentally activated.
Never leave equipment unattended with engine
running or with bucket in raised position. Always
engage swing and boom transport locks, relieve
system pressure by operating controls, and
remove ignition key before leaving equipment.
MAINTENANCE
Refer to backhoe manual and follow all mainte-
nance safety rules and instructions.
Do not modify or alter or permit anyone else to
modify or alter the equipment or any of its compo-
nents in any way.
Your dealer can supply original equipment
hydraulic accessories and repair parts. Substitute
parts may not meet original equipment specifica-
tions and may be dangerous.
Always wear relatively tight and belted clothing
to avoid getting caught in moving parts. Wear
sturdy, rough-soled work shoes and protective
equipment for eyes, hair, hands, hearing, and head;
and respirator or filter mask where appropriate.
Do not allow bystanders in the area when oper-
ating, attaching, removing, assembling, or servic-
ing equipment.
Make sure attachment is properly secured,
adjusted, and in good operating condition.
Keep all persons away from operator control
area while performing adjustments, service, or
maintenance.
Before working on backhoe, extend boom and
dipperstick and place bucket on ground. Make sure
that all system pressure has been relieved by oper-
ating controls before performing maintenance or
service or before disconnecting any hydraulic lines.
Tighten all bolts, nuts, and screws to torque
chart specifications. Check that all cotter pins are
installed securely to ensure equipment is in a safe
condition before putting unit into service.
SAFETY RULES
ATTENTION! BECOME ALERT! YOUR SAFETY IS INVOLVED!

Installation 5
MAN0549 (6/30/2006)
BACKHOE 3-POINT MOUNT INSTALLATION
TRACTOR PREPARATION
NOTE:  For installing this 3-point mounting kit, refer-
ence to right, left, forward and rearward directions are
determined from the operator’s position in the back-
hoe seat.
NOTE:  Leave all hardware loose until mounting kit
has been fit up.
1.  Refer to the WOODS BH90-X Backhoe Opera-
tor’s Manual for backhoe assembly instructions.
2.  Remove the tractor top link and top link storage
bracket, if equipped.
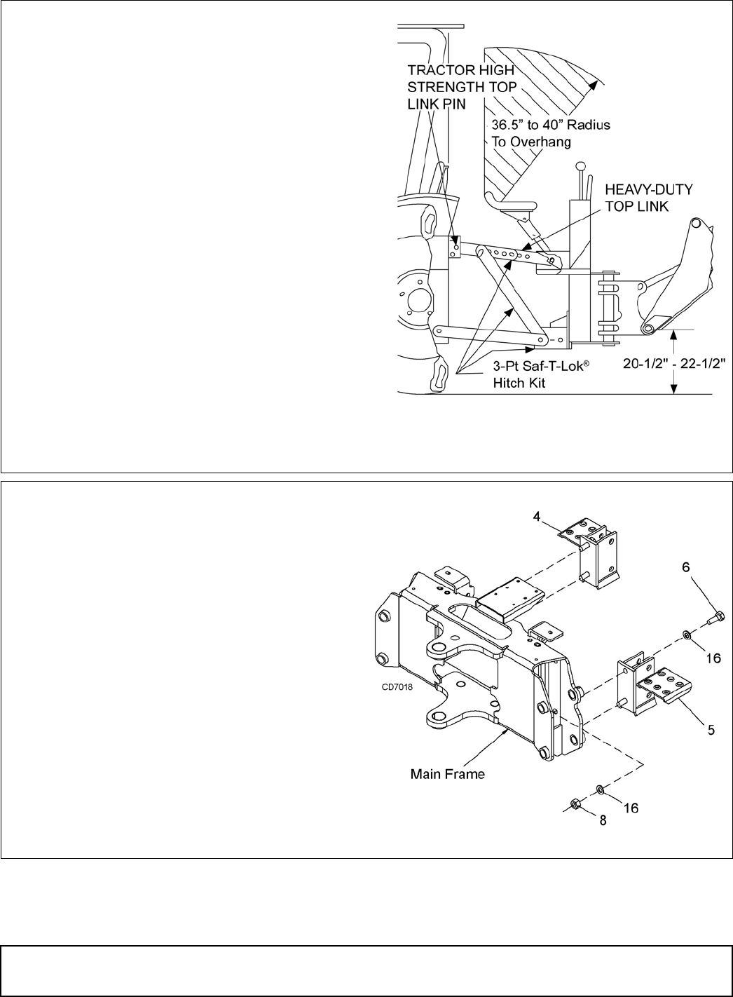
* Operator’s seat must be located in the lowest and
most forward position to obtain 40" minimum radius.
 Figure 1. Seat Clearance
Attach Rear Brackets to Backhoe
1.  Attach rear brackets (4 & 5) to main frame using
bolts (6), hardened flat washers (16), and hex
nuts (8) as shown in Figure 2.
2.   Torque hardware to 297 lbs-ft.
4. 37682 Right mount bracket
5. 37683 Left mount bracket
6. 13759 3/4 NC x 2-1/4 HHCS GR5
8. 1450 3/4 NC Hex nut
16. 57798 3/4 Hardened flat washer
 Figure 2. Rear Bracket Installation

6 Installation
MAN0549 (6/30/2006)
Attach Top Link to Backhoe
1.  Attach top link (1) to the main frame using two
cap screws (7), four hardened flat washers (16),
and two hex nuts (8).
2.  Slide double top link (2) over top link (1) and
secure using two cap screws (10) and lock huts
(12). See Figure 3. 
NOTE: To estimate the overall length of the two
top link bars; roughly measure from the center of
the tractor top link bracket to the center of the
lower 3-point lift arm pivot as shown in Figure 3.
Final adjustment will be made when backhoe is
attached to tractor.
1. 1017875 Top link
2. 37670 Double top link
7. 14334 3/4 NC x 3 HHCS GR5
8. 1450 3/4 NC Hex nut
10. 34157 7/8 NC x 3-1/2 HHCS GR5
12. 34194 7/8 NC Lock nut
16. 57798 3/4 Hardened flat washer
 Figure 3. Top Link Installation

Installation 7
MAN0549 (6/30/2006)
Attach Offset Bars to Backhoe
3.  Attach offset bars (3) to right and left rear brack-
ets using sleeves (15), cap screws (10), and lock
nuts (12). Do not tighten nuts at this time. 
4.  Swing offset bars up and attach it to the double
top link bar using cap screw (11) and lock nut
(12). See Figure 4.
3. 37679 Offset bar
10. 34157 7/8 NC x 3-1/2 HHCS GR5
11. 34163 7/8 NC x 5 HHCS GR5
12. 34194 7/8 NC Lock nut
15. 38696 Sleeve, .88 x 1.25 x 1.06
 Figure 4. Offset Bar Installation
Attach Backhoe to Tractor
1.  Back tractor up to backhoe and 3-point mount.
Center between the tractor rear tires. Position
tractor so that the hydraulic system can be con-
nected. Shut off tractor, set brake, and remove
key.
2.  Attach hydraulic pump to tractor PTO or connect
hydraulic hoses.
3.  With transmission in neutral, start tractor engine
at idle speed and engage PTO or start hydraulic
flow.
NOTE: Use the backhoe hydraulics to maneuver
the 3-point mount into position. Use care in this
procedure to avoid being trapped between tractor
and backhoe or between backhoe parts.
4.  Raise backhoe with stabilizer controls and level
backhoe from side to side and front to back. Set
ground clearance between 20-1/2 to 22-1/2
inches. Measure from the center of boom pivot
pin to the ground. See Figure 5.
 Figure 5. Ground Clearance

8 Installation
MAN0549 (6/30/2006)
Attach Backhoe to Tractor (Continued)
5.  Place tractor 3-point lower lift arms between right
and left mounting brackets on the backhoe.
Secure into position using hitch pins (14), sleeves
(13) if needed, and klik pin (17). 
6.  Connect double top link bar to the tractor top link
bracket. Use top link pin supplied with your tractor
and sleeve (9). If necessary, separate and adjust
top link bars IN or OUT to maintain the backhoe
vertical position. See “Tractor Connections” on
page 11 for tractor top link specifications.
NOTE: Sleeve (9) is for tractors with a 1-inch top
link pin.
7.  Torque all hardware to specifications listed in the 
9. 30067 Sleeve, .765 x 1.0 x 1.69
13. 34291 Sleeve, 5/32 x 1-7/16 x 1-7/8
14. 37487 Pin, hitch .88 x 3.0
17. 62043 Klik pin, 1/4 x 1-3/4
 Figure 6. Tractor 3-Point Arm Installed

Installation 9
MAN0549 (6/30/2006)
Remove Backhoe
The only time the backhoe may be operated
from a position other than the operator seat is
during backhoe attachment and removal. Opera-
tor must
• Read Mounting Kit Manual instructions on
attaching and removing backhoe and use
extreme care.
• Always stand between rear tire and back-
hoe stabilizer arms or along side of tractor to
avoid being trapped should the boom swing
control be accidentally activated.
1.  Remove the seat assembly.
2.  Start the tractor. Engage hydraulics at slow idle
speed. Curl the bucket all the way towards the
operator.
3.  On a hard level surface, center the boom, remove
transport lock bar, and extend boom and dipper-
stick. 
4.  Rest bucket on the ground and lower stabilizers
to take backhoe weight off tractor.
5.  Remove high-strength tractor top link pin from top
link.
6.  Remove lower 3-point arms from backhoe.
7.  Place 6" blocks under backhoe mainframe and
raise stabilizers to lower the backhoe onto the
blocks as shown in Figure 7. Adjust blocks to
make backhoe stable.
8.  Disengage PTO, turn off engine, set brakes, and
remove key before leaving tractor seat.
9.  Remove the backhoe hydraulic pump from the
PTO shaft or disconnect hydraulic hoses from
tractor.
10.  Start tractor and drive the tractor away.
11.  Reinstall seat assembly.
 Figure 7. Backhoe Storage Position (Typical)
Store Hydraulic Pump (If Equipped)
Store pump on back side of backhoe to prevent dirt
and debris from accumulating in pump adapter.
6" Blocks
BH1

10 Installation
MAN0549 (6/30/2006)
Attach Backhoe to Tractor
This mounting kit is designed to provide
secure mounting and adequate operator clear-
ance when properly installed. Check clearance
dimensions shown in Figure 1 to be sure you
have installed mounting kit correctly. Follow all
mounting instructions in this manual. Do not
operate backhoe unless there is adequate clear-
ance. Failure to check and comply with these
instructions may result in serious injury or death.
Remove seat and upper support assembly
before installing or removing backhoe from trac-
tor. Failure to comply may result in equipment
failure and/or personal injury.
1.  Back tractor up to backhoe and 3-point mount,
center between the tractor rear tires. Position
tractor so that the hydraulic system can be con-
nected. Shut off tractor, set brake, remove key.
2.  Connect hydraulic pump or hydraulic hose kit.
3.  With transmission in neutral, start tractor engine
at idle speed and engage PTO or start hydraulic
flow.
NOTE:  Very little engine power is required to
power hydraulic system in this mode. Should
engine pull down excessively, check plumbing
hook-up for reversed lines or a control lever stuck
in an operating position.
Use the backhoe hydraulics to maneuver the 3-
point mount into position. Use care in this proce-
dure to avoid being trapped between tractor and
backhoe or between backhoe parts.
4.  Raise the 3-point mount up by lowering stabilizers
and boom section until even with tractor 3-point
lift arms. Attach tractor 3-point lift arms to right
and left rear brackets using hitch pins (14),
sleeves (13), and klik pin (17). See page 8.
5.  Raise backhoe with stabilizer and boom section
to establish ground clearance between 20-1/2 to
22-1/2 inches from boom pivot to ground. 
6.  Level backhoe from side to side and front to back
with stabilizer control. It may not be possible to
obtain the ground clearance on small tractors and
also maintain minimum head clearance for trac-
tors with ROPS and cabs. Head clearance must
take priority.
7.  Align 3-point mount top link with tractor top link
attachment point using the boom section and sta-
bilizers. Attach top link using only original equip-
ment high-strength tractor top link pin.
8.  Reinstall seat.
9.  Run at idle for 5 minutes, then check oil level. Add
fluid as necessary. 
10.  Operate all functions through full cylinder stroke
to purge air from system. Check oil level again
and add fluid as necessary.
11.  Raise stabilizers and boom section secure in
transport position (see Backhoe Operator’s Man-
ual).
NOTE: Install swing lock before transporting.

Installation 11
MAN0549 (6/30/2006)
Tractor Connections
There may be more than one hole provided in tractor
top link attachment bracket. Select hole A, B, or C
that most evenly distributes the load between top link
bracket top and bottom mounting bolts. See Figure 8.
For the Massey Ferguson 1455V tractor use hole
position D.
NOTE: The maximum width between tractor top link
attachment plates must not exceed 2-1/2 inches. This
will prevent excessive bending loads to the tractor top
link pin. 
For tractors with draft control, select hole closest to
supporting point of floating link. Block or lock draft
control so it is inoperative. Lower manual 3-point lift
control to the lowest position to deactivate draft sens-
ing control (refer to tractor manual).
1. Original equipment high-strength tractor top link
2. Safety pin
3. Backhoe top link
4. Saf-T-Lok
 Figure 8. Tractor Top LInk Connections
Seat Installation and Adjustment
Install seat and upper seat support.
The seat may be adjusted fore, aft, up, and down for
operator comfort. 
Moving the seat down also moves it forward; moving
it up also moves it rearward. The fore and aft adjust-
ment may be used with the up and down adjustment
to obtain desired position. 
Never operate backhoe unless manufacturer's 3-point
hitch Saf-T-Lok limiter or sub-frame has been
installed and adjusted. Operator's area (shown
shaded in Figure 9) must be free from obstructions in
a 36.5" to 40" radius from the seat.
 Figure 9. Seat Clearance

12 Parts
MAN0549 (6/30/2006)
1012606 3-POINT MOUNTING KIT
CD7022
1
2
3
4
5
7
16
16
8
10
12
9
12
15
11
12
16
6
8
16
10
17
14
13
REF PART QTY DESCRIPTION
1 1017875 1 Top link
2 37670 1 Double top link (upper)
3 37679 2 Offset links, .75 x 3 x 32.23 x 12.95
4 37682 1 Right mounting bracket
5 37683 1 Left mounting bracket
6 13759 * 4 3/4 NC x 2-1/4 HHCS GR5
7 14334 * 2 3/4 NC x 3 HHCS GR5
8 1450 * 6 3/4 NC Hex nut
9 30067 1 Sleeve, .765 x 1.0 x 1.69
10 34157 * 4 7/8 NC x 3-1/2 HHCS GR5
REF PART QTY DESCRIPTION
11 34163 * 1 7/8 NC x 5 HHCS GR5
12 34194 * 5 7/8 NC Lock nut
13 34291 2 Sleeve, 5/32 x 1-7/16 x 1-7/8
14 37487 2 Hitch pin, .88 x 3.0
15 38696 2 Sleeve, .88 x 1.25 x 1.06
16 57798 12 3/4 Hardened flat washer
17 62043 2 Klik pin, 1/4 x 1-3/4
HHCS, Hex Head Cap Screw
* Standard Hardware, obtain locally

Appendix 13
Bolt Torque & Size Charts (Rev. 10/10/2005)
BOLT TORQUE CHART
Always tighten hardware to these values unless a different torque value or tightening procedure is listed for a specific 
application.
Fasteners must always be replaced with the same grade as specified in the manual parts list.
Always use the proper tool for tightening hardware: SAE for SAE hardware and Metric for metric hardware.
Make sure fastener threads are clean and you start thread engagement properly. 
All torque values are given to specifications used on hardware defined by SAE J1701 MAR 99 & J1701M JUL 96.
Diameter 
(Inches)
Wrench
Size
MARKING ON HEAD
SAE 2 SAE 5 SAE 8
lbs-ft N-m lbs-ft N-m lbs-ft N-m
1/4" 7/16" 6 8 10 13 14 18
5/16"1/2"121719262737
3/8"9/16"233135474967
7/16"5/8"3648557578106
1/2" 3/4" 55 75 85 115 120 163
9/16" 13/16" 78 106 121 164 171 232
5/8" 15/16" 110 149 170 230 240 325
3/4" 1-1/8" 192 261 297 403 420 569
7/8" 1-5/16" 306 416 474 642 669 907
1" 1-1/2" 467 634 722 979 1020 1383
A
SAE SERIES 
TORQUE 
CHART
SAE Bolt Head 
Identification
SAE Grade 2
(No Dashes)
SAE Grade 5
(3 Radial Dashes)
SAE Grade 8
(6 Radial Dashes)
A
METRIC SERIES 
TORQUE 
CHART
Metric Bolt Head 
Identification
8.8
Metric
Grade 10.9
10.9
Metric
Grade 8.8
A
Diameter & 
Thread Pitch 
(Millimeters)
Wrench 
Size
COARSE THREAD FINE THREAD
Diameter & 
Thread Pitch 
(Millimeters)
MARKING ON HEAD MARKING ON HEAD
Metric 8.8 Metric 10.9 Metric 8.8 Metric 10.9
N-m lbs-ft N-m lbs-ft N-m lbs-ft N-m lbs-ft
6 x 1.0 10 mm 8 6 11 8 8 6 11 8 6 x 1.0
8 x 1.25 13 mm 20 15 27 20 21 16 29 22 8 x 1.0
10 x 1.5 16 mm 39 29 54 40 41 30 57 42 10 x 1.25
12 x 1.75 18 mm 68 50 94 70 75 55 103 76 12 x 1.25
14 x 2.0 21 mm 109 80 151 111 118 87 163 120 14 x 1.5
16 x 2.0 24 mm 169 125 234 173 181 133 250 184 16 x 1.5
18 x 2.5 27 mm 234 172 323 239 263 194 363 268 18 x 1.5
20 x 2.5 30 mm 330 244 457 337 367 270 507 374 20 x 1.5
22 x 2.5 34 mm 451 332 623 460 495 365 684 505 22 x 1.5
24 x 3.0 36 mm 571 421 790 583 623 459 861 635 24 x 2.0
30 x 3.0 46 mm 1175 867 1626 1199 1258 928 1740 1283 30 x 2.0
A A
Typical Washer 
Installations
Lock Washer
Flat Washer
8/9/00
Bolt

14 Appendix
Bolt Torque & Size Charts (Rev. 10/10/2005)
BOLT SIZE CHART
NOTE: Chart shows bolt thread sizes and corresponding head (wrench) sizes for standard SAE and metric bolts.
ABBREVIATIONS
AG ............................................................ Agriculture
ATF .............................. Automatic Transmission Fluid
BSPP ........................... British Standard Pipe Parallel
BSPTM .............. British Standard Pipe Tapered Male
CV................................................... Constant Velocity
CCW .............................................Counter-Clockwise
CW..............................................................Clockwise
F .....................................................................Female
GA ................................................................... Gauge
GR (5, etc.) ..........................................Grade (5, etc.)
HHCS ...................................... Hex Head Cap Screw
HT.......................................................... Heat-Treated
JIC ............... Joint Industry Council 37° Degree Flare
LH ............................................................... Left Hand
LT..........................................................................Left
m....................................................................... Meter
mm.............................................................. Millimeter
M.........................................................................Male
MPa ....................................................... Mega Pascal
N .....................................................................Newton
NC .................................................... National Coarse
NF ......................................................... National Fine
NPSM................... National Pipe Straight Mechanical
NPT .........................................National Pipe Tapered
NPT SWF ........National Pipe Tapered Swivel Female
ORBM .........................................O-Ring Boss - Male
P......................................................................... Pitch
PBY .....................................................Power-Beyond
psi........................................ Pounds per Square Inch
PTO ....................................................Power Take Off
QD.................................................. Quick Disconnect
RH ............................................................ Right Hand
ROPS ......................... Roll-Over Protective Structure
RPM ...................................... Revolutions Per Minute
RT ......................................................................Right
SAE ........................ Society of Automotive Engineers
UNC ................................................... Unified Coarse
UNF.........................................................Unified Fine
UNS.................................................... Unified Special
5/16 3/81/2 5/83/4 7/8
SAE Bolt Thread Sizes
MM 25 50 75 100 125 150 175
IN 1 7
Metric Bolt Thread Sizes
8MM 18MM14MM12MM10MM 16MM
234 56

F-3079 (Rev. 5/2/2006)
Woods Equipment 
Company
2606 South Illinois Route 2 
Post Office Box 1000
Oregon, Illinois 61061 
800-319-6637 tel
800-399-6637 fax
www.WoodsEquipment.com
WARRANTY
(All Models Except Mow’n MachineTM Zero-Turn Mowers and Woods BoundaryTM Utility Vehicles)
Please Enter Information Below and Save for Future Reference.
Date Purchased:  __________________________ From (Dealer): ________________________________________
Model Number:  __________________________ Serial Number:________________________________________
Woods Equipment Company (“WOODS”) warrants this product to be free from defect in material and workmanship. Except as otherwise
set forth below, the duration of this Warranty shall be for TWELVE (12) MONTHS COMMENCING ON THE DATE OF DELIVERY OF
THE PRODUCT TO THE ORIGINAL PURCHASER. 
The warranty periods for certain gearboxes and blade spindles are listed below:
Under no circumstances will this Warranty apply in the event that the product, in the good faith opinion of WOODS, has been subjected to
improper operation, improper maintenance, misuse, or an accident. This Warranty does not apply in the event that the product has been
materially modified or repaired by someone other than WOODS, a WOODS authorized dealer or distributor, and/or a WOODS authorized
service center. This Warranty does not cover normal wear or tear, or normal maintenance items. This Warranty also does not cover repairs
made with parts other than those obtainable through WOODS.
This Warranty is extended solely to the original purchaser of the product. Should the original purchaser sell or otherwise transfer this
product to a third party, this Warranty does not transfer to the third party purchaser in any way. There are no third party beneficiaries of this
Warranty.
WOODS makes no warranty, express or implied, with respect to engines, batteries, tires or other parts or accessories not manufactured by
WOODS. Warranties for these items, if any, are provided separately by their respective manufacturers.
WOODS’ obligation under this Warranty is limited to, at WOODS’ option, the repair or replacement, free of charge, of the product if
WOODS, in its sole discretion, deems it to be defective or in noncompliance with this Warranty. The product must be returned to
WOODS with proof of purchase within thirty (30) days after such defect or noncompliance is discovered or should have been
discovered, routed through the dealer and distributor from whom the purchase was made, transportation charges prepaid.
WOODS shall complete such repair or replacement within a reasonable time after WOODS receives the product. THERE ARE NO
OTHER REMEDIES UNDER THIS WARRANTY. THE REMEDY OF REPAIR OR REPLACEMENT IS THE SOLE AND
EXCLUSIVE REMEDY UNDER THIS WARRANTY.
THERE ARE NO WARRANTIES WHICH EXTEND BEYOND THE DESCRIPTION ON THE FACE OF THIS WARRANTY.
WOODS MAKES NO OTHER WARRANTY, EXPRESS OR IMPLIED, AND WOODS SPECIFICALLY DISCLAIMS ANY IMPLIED
WARRANTY OF MERCHANTABILITY AND/OR ANY IMPLIED WARRANTY OF FITNESS FOR A PARTICULAR PURPOSE.
WOODS shall not be liable for any incidental or consequential losses, damages or expenses, arising directly or indirectly from the
product, whether such claim is based upon breach of contract, breach of warranty, negligence, strict liability in tort or any other
legal theory. Without limiting the generality of the foregoing, Woods specifically disclaims any damages relating to (i) lost profits,
business, revenues or goodwill; (ii) loss of crops; (iii) loss because of delay in harvesting; (iv) any expense or loss incurred for labor,
supplies, substitute machinery or rental; or (v) any other type of damage to property or economic loss.
This Warranty is subject to any existing conditions of supply which may directly affect WOODS’ ability to obtain materials or manufacture
replacement parts.
No agent, representative, dealer, distributor, serviceperson, salesperson, or employee of any company, including without limitation,
WOODS, its authorized dealers, distributors, and service centers, is authorized to alter, modify, or enlarge this Warranty.
Answers to any questions regarding warranty service and locations may be obtained by contacting:
Model No.Part Warranted Duration
PHD25, PHD35, PHD65, PHD95, 1260, 2162, 3240, BB48, BB60, BB72, BB84,
BB600, BB720, BB840, BB6000, BB7200, BB8400, BW180-2, BW1800, DS96,
DS120, RCC42, RM550-2, RM660-2, RM990-3, PRD6000, PRD7200, PRD8400,
7144RD-2, 9180RD-2, 9204RD-2, S15CD, S20CD, S22CD, S25CD, S27CD
Gearbox 
components 5 years from the date of delivery to
the original purchaser.
RDC54, RD60, RD72 Gearbox 
components
3 years from the date of delivery to
the original purchaser. 
RDC54, RD60, RD72 Gearbox 
components
1 year from the date of delivery to
the original purchaser if used in
rental or commercial applications.
RM550-2, RM660-2, RM990-3, PRD6000, PRD7200, PRD8400, 7144RD-2,
9180RD-2, 9204RD-2 Blade spindles 3 years from the date of delivery to
the original purchaser. 

F-8494 (Rev. 6/23/2005)
©2006 Woods Equipment Company. All rights reserved. WOODS, the Woods logo, and "Tested. Proven. Unbeatable." are trademarks of Woods
Equipment Company. All other trademarks, trade names, or service marks not owned by Woods Equipment Company that appear in this manual are
the property of their respective companies or mark holders. Specifications subject to change without notice. 
WARRANTY
(Replacement Parts For All Models Except Mow’n MachineTM
Zero-Turn Mowers and Woods BoundaryTM Utility Vehicles)
Woods Equipment Company (“WOODS”) warrants this product to be free from defect in material and
workmanship for a period of ninety (90) days from the date of delivery of the product to the original purchaser
with the exception of V-belts, which will be free of defect in material and workmanship for a period of 12 months. 
Under no circumstances will this Warranty apply in the event that the product, in the good faith opinion of
WOODS, has been subjected to improper operation, improper maintenance, misuse, or an accident. This Warranty
does not cover normal wear or tear, or normal maintenance items. 
This Warranty is extended solely to the original purchaser of the product. Should the original purchaser sell or
otherwise transfer this product to a third party, this Warranty does not transfer to the third party purchaser in any
way. There are no third party beneficiaries of this Warranty. 
WOODS’ obligation under this Warranty is limited to, at WOODS’ option, the repair or replacement, free of
charge, of the product if WOODS, in its sole discretion, deems it to be defective or in noncompliance with this
Warranty. The product must be returned to WOODS with proof of purchase within thirty (30) days after
such defect or noncompliance is discovered or should have been discovered, routed through the dealer and
distributor from whom the purchase was made, transportation charges prepaid. WOODS shall complete
such repair or replacement within a reasonable time after WOODS receives the product. THERE ARE NO
OTHER REMEDIES UNDER THIS WARRANTY. THE REMEDY OF REPAIR OR REPLACEMENT IS THE
SOLE AND EXCLUSIVE REMEDY UNDER THIS WARRANTY. 
THERE ARE NO WARRANTIES WHICH EXTEND BEYOND THE DESCRIPTION ON THE FACE OF THIS
WARRANTY. WOODS MAKES NO OTHER WARRANTY, EXPRESS OR IMPLIED, AND WOODS
SPECIFICALLY DISCLAIMS ANY IMPLIED WARRANTY OF MERCHANTABILITY AND/OR ANY
IMPLIED WARRANTY OF FITNESS FOR A PARTICULAR PURPOSE.
WOODS shall not be liable for any incidental or consequential losses, damages or expenses, arising directly
or indirectly from the product, whether such claim is based upon breach of contract, breach of warranty,
negligence, strict liability in tort or any other legal theory. Without limiting the generality of the foregoing,
Woods specifically disclaims any damages relating to (i) lost profits, business, revenues or goodwill; (ii) loss of
crops; (iii) loss because of delay in harvesting; (iv) any expense or loss incurred for labor, supplies, substitute
machinery or rental; or (v) any other type of damage to property or economic loss.
This Warranty is subject to any existing conditions of supply which may directly affect WOODS’ ability to obtain
materials or manufacture replacement parts. 
No agent, representative, dealer, distributor, service person, salesperson, or employee of any company, including
without limitation, WOODS, its authorized dealers, distributors, and service centers, is authorized to alter, modify,
or enlarge this Warranty. 
Answers to any questions regarding warranty service and locations may be obtained by contacting: