Woods Equipment Loaders Lf138 Users Manual MAN0556
LF138 to the manual d2c35501-26d7-4370-85d2-091718642aac
2015-02-05
: Woods-Equipment Woods-Equipment-Loaders-Lf138-Users-Manual-408542 woods-equipment-loaders-lf138-users-manual-408542 woods-equipment pdf
Open the PDF directly: View PDF
.
Page Count: 50

OPER ATOR'S MANUAL
LOADERS
MAN0556
(Rev. 1/6/2011)
Tested. Proven. Unbeatable.
LF138
LF156

2 Introduction
Gen’l (Rev. 3/5/2010)
TO THE DEALER:
Assembly and proper installation of this product is the responsibility of the Woods® dealer. Read manual instructions
and safety rules. Make sure all items on the Dealer’s Pre-Delivery and Delivery Check Lists in the Operator’s Manual
are completed before releasing equipment to the owner.
The dealer must complete the online Product Registration form at the Woods Dealer Website which certifies that
all Dealer Check List items have been completed. Please contact your dealer to complete this form. Dealers can
register all Woods product at dealer.WoodsEquipment.com under Product Registration.
Failure to register the product does not diminish customer’s warranty rights.
TO THE OWNER:
Read this manual before operating your Woods equipment. The information presented will prepare you to do a better and
safer job. Keep this manual handy for ready reference. Require all operators to read this manual carefully and become
acquainted with all adjustment and operating procedures before attempting to operate. Replacement manuals can be
obtained from your dealer. To locate your nearest dealer, check the Dealer Locator at www.WoodsEquipment.com, or in
the United States and Canada call 1-800-319-6637.
The equipment you have purchased has been carefully engineered and manufactured to provide dependable and
satisfactory use. Like all mechanical products, it will require cleaning and upkeep. Lubricate the unit as specified.
Observe all safety information in this manual and safety decals on the equipment.
For service, your authorized Woods dealer has trained mechanics, genuine Woods service parts, and the necessary
tools and equipment to handle all your needs.
Use only genuine Woods service parts. Substitute parts will void the warranty and may not meet standards required for
safe and satisfactory operation. Record the model number and serial number of your equipment in the spaces
provided:
Model: _______________________________ Date of Purchase: _____________________
Serial Number: (see Safety Decal section for location) ____________________________________
Provide this information to your dealer to obtain correct repair parts.
Throughout this manual, the term NOTICE is used to indicate that failure to observe can cause damage to equipment.
The terms CAUTION, WARNING, and DANGER are used in conjunction with the Safety-Alert Symbol (a triangle with
an exclamation mark) to indicate the degree of hazard for items of personal safety.

Introduction 3
MAN0556 (9/21/2007)
TABLE OF CONTENTS
Introduction . . . . . . . . . . . . . . . . . . . . . . . . . . . . . . . . . . . . . . . . . . . . . . . . . . 2
General Information. . . . . . . . . . . . . . . . . . . . . . . . . . . . . . . . . . . . . . . . . . . . 3
Specifications. . . . . . . . . . . . . . . . . . . . . . . . . . . . . . . . . . . . . . . . . . . . . . . . . 4
Safety Rules . . . . . . . . . . . . . . . . . . . . . . . . . . . . . . . . . . . . . . . . . . . . . . . . . 6
Safety & Instructional Decals. . . . . . . . . . . . . . . . . . . . . . . . . . . . . . . . . . . . 10
Operation . . . . . . . . . . . . . . . . . . . . . . . . . . . . . . . . . . . . . . . . . . . . . . . . . . . 12
Owner Service . . . . . . . . . . . . . . . . . . . . . . . . . . . . . . . . . . . . . . . . . . . . . . . 22
Troubleshooting . . . . . . . . . . . . . . . . . . . . . . . . . . . . . . . . . . . . . . . . . . . . . . 23
Dealer Service . . . . . . . . . . . . . . . . . . . . . . . . . . . . . . . . . . . . . . . . . . . . . . . 26
Assembly . . . . . . . . . . . . . . . . . . . . . . . . . . . . . . . . . . . . . . . . . . . . . . . . . . 31
Dealer Check Lists. . . . . . . . . . . . . . . . . . . . . . . . . . . . . . . . . . . . . . . . . . . . 25
Installation . . . . . . . . . . . . . . . . . . . . . . . . . . . . . . . . . . . . . . . . . . . . . . . . . . 35
Parts Lists
LF138 & LF156 Loader Assembly. . . . . . . . . . . . . . . . . . . . . . . . . . 38 - 39
Quick Attach Bucket Assembly . . . . . . . . . . . . . . . . . . . . . . . . . . . . . . . 40
Pin-on Bucket Assembly . . . . . . . . . . . . . . . . . . . . . . . . . . . . . . . . . . . . 40
Quick Attach Coupler . . . . . . . . . . . . . . . . . . . . . . . . . . . . . . . . . . . . . . 41
Hydraulic Hose Routing & Parts Lists . . . . . . . . . . . . . . . . . . . . . . . . . . 42
Hydraulic Cylinder Seal Kit & Assembly . . . . . . . . . . . . . . . . . . . . . . . . 43
Grapple Assembly (Optional) . . . . . . . . . . . . . . . . . . . . . . . . . . . . . 44 - 45
Bolt Torque Chart. . . . . . . . . . . . . . . . . . . . . . . . . . . . . . . . . . . . . . . . . . . . . 46
Bolt Size Chart & Abbreviations . . . . . . . . . . . . . . . . . . . . . . . . . . . . . . . . . 47
Index . . . . . . . . . . . . . . . . . . . . . . . . . . . . . . . . . . . . . . . . . . . . . . . . . . . . . . 48
Product Warranty. . . . . . . . . . . . . . . . . . . . . . . . . . . . . . . . . Inside Back Cover
Replacement Parts Warranty. . . . . . . . . . . . . . . . . . . . . . . . . . . . . Back Cover
GENERAL INFORMATION
The purpose of this manual is to assist you in operating
and maintaining your loader. Read it carefully. It
furnishes information and instructions that will help you
achieve years of dependable performance. These
instructions have been compiled from extensive field
experience and engineering data. Some information
may be general in nature due to unknown and varying
operating conditions. However, through experience
and these instructions, you should be able to develop
procedures suitable to your particular situation.
The illustrations and data used in this manual were
current at the time of printing, but due to possible inline
production changes, your machine may vary slightly in
detail. We reserve the right to redesign and change the
machines as may be necessary without notification.
Throughout this manual, references are made to right
and left directions. These are determined by standing
behind the equipment facing the direction of forward
travel.

4 Introduction
MAN0556 (9/121/2007)
SPECIFICATIONS
Specifications will vary with tractor, tire size, hydraulic system and bucket used. The specifications are given for a
loader equipped with a 84" (LF138) and 96" (LF156) material bucket, operated with an average tractor hydraulic
system of 10-20 gpm with engine operating at rated PTO rpm and a control valve relief setting of 2750 psi.
Model LF138 Model LF156
A Maximum Lift Height 138" 156"
B Clearance with Attachment Dumped 103" 121"
C Reach at Maximum Height 32" 36"
D Maximum Dump Angle 50° 50°
E Reach with Attachment on Ground 85" 94"
F Attachment Rollback Angle 35° 35°
G Digging Depth 6" 6"
Overall Height in Carrying Position 74" 81"
Length of Attachment 42" 42"
Lift Capacity to Full Height at Bucket Pin 4280 lbs. 4850 lbs.
Lift Capacity to Full Height - 31.5" Forward of Bucket Pin 2940 lbs. 3480 lbs.
Breakout Capacity at Bucket Pin 6410 lbs. 7140 lbs.
Breakout Capacity - 31.5" Forward of Bucket Pin 4440 lbs. 4990 lbs.
System Pressure Tested 2750 psi 2750 psi
Recommended Hydraulic Flow 10-20 gpm 12-25 gpm
Recommended Tractor PTO Horsepower 65-105 hp 85-140 hp
Lift Cylinder Bore 2.76" 2.95"
Bucket Cylinder Bore 2.76" 2.76"
BUCKET HEAPED CAPACITY WEIGHT
84" QA 28.7 cu. ft. 690 lbs.
84" Pin 28.7 cu. ft. 660 lbs.
96" QA 33.0 cu. ft. 760 lbs.

Introduction 5
MAN0556 (9/21/2007)
LIFT CAPACITY & BREAKOUT VS PRESSURE
Pressure (psi)
LF138 Lift
Capacity
at Bucket Pin (lbs.)
LF138 Breakout
31.5" Forward of
Bucket Pin (lbs.)
LF156 Lift
Capacity
at Bucket Pin (lbs.)
LF156 Breakout
31.5" Forward of
Bucket Pin (lbs.)
2250 3160 3410 3700 3820
2500 3720 3920 4270 4400
2750 4280 4440 4850 4990
Capacities measured in accordance with ASAE S301.4
ATTACHMENTS
APPROVED FOR USE ON LF138 & LF156 LOADERS
Description Model Weight
Agricultural Grapple
Attachment
GF5000 700 lbs.
Bale Spear BS32E 275 lbs.
Bale Clamp BC22E 570 lbs.
Pallet Fork PF6048E 600 lbs.

6 Safety
1020 Loader SR (Rev. 2/16/2007)
INSTALLATION
During installation, the tractor engine should be
off, the key removed and the brakes locked. Do not
disconnect hydraulic lines until attachments are
removed or lowered to the ground and system
pressure is released by operating valve levers.
Never operate any hydraulic cylinders during any
phase of the installation process.
After connecting hoses, check that all control
lever positions function as instructed in the Opera-
tor's Manual. Do not put into service until control
lever and equipment movements are correct.
TRAINING
Safety instructions are important! Read all
attachment and power unit manuals; follow all
safety rules and safety decal information. (Replace-
ment manuals and safety decals are available from
your dealer. To locate your nearest dealer, check
the Dealer Locator at www.WoodsEquipment.com,
or in the United States and Canada call 1-800-319-
6637.) Failure to follow instructions or safety rules
can result in serious injury or death.
If you do not understand any part of this manual
and need assistance, see your dealer.
Know your controls and how to stop engine and
attachment quickly in an emergency.
Operators must be instructed in and be capable
of the safe operation of the equipment, its attach-
ments, and all controls. Do not allow anyone to
operate this equipment without proper instruc-
tions.
Keep hands and body away from pressurized
lines. Use paper or cardboard, not hands or other
body parts to check for leaks. Wear safety goggles.
Hydraulic fluid under pressure can easily penetrate
skin and will cause serious injury or death.
Make sure that all operating and service person-
nel know that if hydraulic fluid penetrates skin, it
must be surgically removed as soon as possible by
a doctor familiar with this form of injury or gan-
grene, serious injury, or death will result. CON-
TACT A PHYSICIAN IMMEDIATELY IF FLUID
ENTERS SKIN OR EYES. DO NOT DELAY.
Never allow children or untrained persons to
operate equipment.
PREPARATION
Check that all hardware is properly installed.
Always tighten to torque chart specifications
unless instructed otherwise in this manual.
Air in hydraulic systems can cause erratic oper-
ation and allows loads or equipment components
to drop unexpectedly. When connecting equipment
or hoses or performing any hydraulic maintenance,
purge any air in hydraulic system by operating all
hydraulic functions several times. Do this before
putting into service or allowing anyone to
approach the equipment.
After connecting hoses, check that all control
lever positions function as instructed in the Opera-
tor's Manual. Do not put into service until control
lever and equipment movements are correct.
Make sure all hydraulic hoses, fittings, and
valves are in good condition and not leaking before
starting power unit or using equipment. Check and
route hoses carefully to prevent damage. Hoses
must not be twisted, bent sharply, kinked, frayed,
pinched, or come into contact with any moving
parts. Operate moveable components through full
operational range to check clearances. Replace
any damaged hoses immediately.
Protective hose sleeves must cover all hydrau-
lic hoses within 20 inches of the operator and be
secured onto metal hose fittings. Replace hoses or
sleeves if damaged or if protective sleeve cannot
be properly positioned or secured.
Always wear relatively tight and belted clothing
to avoid entanglement in moving parts. Wear
sturdy, rough-soled work shoes and protective
equipment for eyes, hair, hands, hearing, and head;
and respirator or filter mask where appropriate.
Make sure attachment is properly secured,
adjusted, and in good operating condition.
Safety is a primary concern in the design and
manufacture of our products. Unfortunately, our
efforts to provide safe equipment can be wiped
out by an operator’s single careless act.
In addition to the design and configuration of
equipment, hazard control and accident preven-
tion are dependent upon the awareness, con-
cern, judgement, and proper training of
personnel involved in the operation, transport,
maintenance, and storage of equipment.
It has been said, “The best safety device is an
informed, careful operator.” We ask you to be
that kind of operator.
SAFETY RULES
ATTENTION! BECOME ALERT! YOUR SAFETY IS INVOLVED!

Safety 7
1020 Loader SR (Rev. 2/16/2007)
Power unit must be equipped with ROPS or
ROPS cab and seat belt. Keep seat belt securely
fastened. Falling off power unit can result in death
from being run over or crushed. Keep foldable
ROPS system in “locked up” position at all times.
Make sure all safety decals are installed.
Replace if damaged. (See Safety Decals section for
location.)
Make sure shields and guards are properly
installed and in good condition. Replace if dam-
aged.
To provide stability, add tractor manufacturer's
recommended wheel ballast or rear weight.
Move wheels to tractor manufacturer's widest
recommended setting to increase stability. Do not
use loader on tractors with single or double cen-
tered front wheels.
To help prevent tractor/loader instability, never
exceed the capacity of the tractor/loader used with
the pallet fork. To increase stability, adjust tires to
maximum possible width.
Your dealer can supply original equipment
hydraulic accessories and repair parts. Substitute
parts may not meet original equipment specifica-
tions and may be dangerous.
OPERATION
Do not allow bystanders in the area when oper-
ating, attaching, removing, assembling, or servic-
ing equipment.
Improper use of a loader can cause injury or
death.
Consult local utilities before working. Know
location of all underground cables, pipelines, over-
head wires, and other hazards in working area and
avoid contact.
The bale spear is to be used only for handling
bales. Do not use for digging rocks, pulling out
fence, or as a craning device with a chain over the
spear.
Do not attempt to lift loads in excess of the
loader capacity.
Keep bystanders away from equipment.
Do not walk or work under a raised loader,
bucket, or attachment.
Never allow anyone to get under the loader
bucket or reach through the lift arms when the
bucket is raised.
Do not operate or transport equipment while
under the influence of alcohol or drugs.
Operate only in daylight or good artificial light.
Always comply with all state and local lighting
and marking requirements.
Never allow riders. Do not lift or carry anybody
on the loader or in the bucket or attachments.
Power unit must be equipped with ROPS or
ROPS cab and seat belt. Keep seat belt securely
fastened. Falling off power unit can result in death
from being run over or crushed. Keep foldable
ROPS system in “locked up” position at all times.
Always sit in power unit seat when operating
controls or starting engine. Securely fasten seat
belt, place transmission in neutral, engage brake,
and ensure all other controls are disengaged
before starting power unit engine.
Look down and to the rear and make sure area
is clear before operating in reverse.
Avoid loose fill, rocks, and holes. They can be
dangerous for loader operation or movement.
Stop the loader arms gradually when lowering
or lifting.
Use caution when handling loose or shiftable
loads.
Allow for extra attachment length and width
when making turns.
The grapple fork is a clamping device and
should be used to clamp loose hay, straw, or
silage. It is not to be used to dig material loose
from a pile.
AVOID INJURY OR DEATH FROM POWER
LINES:
• Stay away from power lines.
• Electrocution can occur without direct con-
tact.
• Check clearances before raising attachment.
• Consult local utilities before digging. Know
location of and avoid contacting all under-
ground cables, pipelines, overhead wires, and
other hazards in digging area.
• Do not leave the operator's seat if any part of
the power unit or attachment contacts electric
lines or underground cables.
(Safety Rules continued on next page)
SAFETY RULES
ATTENTION! BECOME ALERT! YOUR SAFETY IS INVOLVED!
(Rev. 9/17/20107)

8 Safety
1020 Loader SR (Rev. 2/16/2007)
(Safety Rules continued from previous page)
AVOID INJURY OR DEATH FROM ROLLOVER
ACCIDENTS:
• Move and turn tractor at less than 6 mph (10
km/h).
• Watch for hidden hazards such as holes,
ditches, and other obstructions which may
cause tractor and loader to tip over.
• Carry loads close to the ground to aid visibil-
ity and lower center of gravity for improved sta-
bility.
• Balance loads so weight is evenly distributed
and load is stable.
• Be extra careful when operating on a slope.
• Do not operate on steep slopes.
• Do not stop, start or change directions sud-
denly on slopes.
• If loader is equipped with round bale attach-
ments, always approach bale with tractor facing
uphill.
• Be sure tractor tire spacing and rear ballast is
correct before using loader.
• Tractor must be equipped with a Roll-Over
Protective Structure (ROPS) and seat belt. Keep
seat belt securely fastened and keep foldable
ROPS systems in “locked up” position at all
times.
AVOID INJURY OR DEATH FROM FALLING
BALES AND OTHER OBJECTS:
• Do not carry hay bales, logs, fence posts,
stones, or any other loose objects that can roll,
shift, or fall from a raised bucket and crush
operator or bystanders.
• Do not handle round bales unless loader is
equipped with approved bale handling attach-
ment.
• Handle raised loads with caution.
• Carry loads low and drive slowly.
MAINTENANCE
Never work under a raised loader. Always lower
loader to the ground with bucket or loader attach-
ment in full roll-back position. Shut off tractor, set
parking brake, and remove key. Operate valve
levers to release any hydraulic pressure. If loader
obstructs tractor maintenance, loader must be
removed from tractor.
Do not modify or alter or permit anyone else to
modify or alter the equipment or any of its compo-
nents in any way.
Your dealer can supply original equipment
hydraulic accessories and repair parts. Substitute
parts may not meet original equipment specifica-
tions and may be dangerous.
Always wear relatively tight and belted clothing
to avoid entanglement in moving parts. Wear
sturdy, rough-soled work shoes and protective
equipment for eyes, hair, hands, hearing, and head;
and respirator or filter mask where appropriate.
Keep all persons away from operator control
area while performing adjustments, service, or
maintenance.
Tighten all bolts, nuts and screws to torque
chart specifications. Check that all cotter pins are
installed securely to ensure equipment is in a safe
condition before putting unit into service.
Make sure all safety decals are installed.
Replace if damaged. (See Safety Decals section for
location.)
Make sure shields and guards are properly
installed and in good condition. Replace if dam-
aged.
Do not disconnect hydraulic lines until all sys-
tem pressure is relieved. Lower unit to ground,
stop engine, and operate all hydraulic control
levers.
When servicing or replacing pins in cylinder
ends, buckets, etc., always use a brass drift and
hammer. Failure to do so could result in injury from
flying metal fragments.
STORAGE
Block equipment securely for storage.
Stored loader can fall and cause serious injury
or death. Securely store loader and attachments to
prevent falling.
To help prevent injury caused by a falling imple-
ment, always detach on a hard level surface.
Secure equipment parking stand(s) in park posi-
tion before detaching.
To provide necessary balance, loader frame
must be equipped with bucket or attachment
before attaching or detaching from tractor, or when
loader is in stored position.
To help prevent personal injury from exposed
fork tines, always store bale spear with tines
pointed down, or against bale, building or other
stable object.
SAFETY RULES
ATTENTION! BECOME ALERT! YOUR SAFETY IS INVOLVED!
(Rev. 9/21/2007)

Safety 9
1020 Loader SR (Rev. 2/16/2007)
Do not loosen hydraulic fittings or hoses while
loader is in stored position.
Do not climb or lean on equipment stored on
stand.
Keep children and bystanders away from stor-
age area.
Do not allow bystanders in the area when oper-
ating, attaching, removing, assembling, or servic-
ing equipment.
SAFETY RULES
ATTENTION! BECOME ALERT! YOUR SAFETY IS INVOLVED!
(Rev. 9/21/2007)

10 Safety
MAN0556 (9/21/2007)
SAFETY & INSTRUCTIONAL DECALS
ATTENTION! BECOME ALERT! YOUR SAFETY IS INVOLVED!
Replace Immediately If Damaged!
7 - PN 56053
56053-A
DANGER
ROLLOVERS CAN
RESULT IN INJURY
OR DEATH
Always use ROPS and
seat belt.
Add rear tractor
ballast.
Move wheels to widest
setting.
Avoid slope operation.
Operate at low speeds.
Carry load low.
Serious injury or death
can result from contact
with electrical lines.
DANGER
9 - PN 56052
MODEL NO. SERIAL NO.
Woods Equipment Company
Oregon, Illinois, U.S.A.
1 - SERIAL NUMBER PLATE
4 - PN 19924
Check for leaks with cardboard; never use hand.
Before loosening fittings: lower load, release pressure, and
be sure oil is cool.
Consult physician immediately if skin penetration occurs.
WARNING
19924-B
WARNING
Read and understand Operator’s
Manual before operating.
(Replacement manuals are
available from dealer or, in the
United States and Canada, call
1-800-319-6637.)
Keep others away when operating
loader.
Do not allow children or untrained
persons to operate equipment.
Lower loader to ground, stop en-
gine, set park brake and remove
key before leaving tractor seat.
Failure to follow safety rules can
result in serious injury or death.
56051-A
6 - PN 56051

Safety 11
MAN0556 (9/212007)
8 - PN 1025148A
5 - PN 56050
3 - PN 1026268
BE CAREFUL!
Use a clean, damp cloth to clean safety decals.
Avoid spraying too close to decals when using a
pressure washer; high-pressure water can enter
through very small scratches or under edges of
decals causing them to peel or come off.
Replacement safety decals can be ordered free
from your Woods dealer. To locate your nearest
dealer, check the Dealer Locator at
www.WoodsEquipment.com, or in the United
States and Canada call 1-
800-319-6637.
10 - PN 1020371
WARNING
Only use loader manufacturer approved attachments.
Failure to do so can cause serious injury or death. 45024-A
2 - PN 45024
SAFETY & INSTRUCTIONAL DECALS
ATTENTION! BECOME ALERT! YOUR SAFETY IS INVOLVED!
Replace Immediately If Damaged!

12 Operation
MAN0556 (9/21/2007)
OPERATION
Be familiar with and follow all safety rules and safety
decals in the manual, on the loader, and on the tractor.
The safe operation of this loader is the responsibility of
the operator, who must be properly trained. The opera-
tor should be familiar with the equipment and all safety
practices before starting operation. Read the safety
rules and safety decals on pages 6 through 11.
AVOID INJURY OR DEATH FROM POWER
LINES:
• Stay away from power lines.
• Electrocution can occur without direct con-
tact.
• Check clearances before raising attachment.
• Consult local utilities before digging. Know
location of and avoid contacting all under-
ground cables, pipelines, overhead wires, and
other hazards in digging area.
• Do not leave the operator's seat if any part of
the power unit or attachment contacts electric
lines or underground cables.
Power unit must be equipped with ROPS or
ROPS cab and seat belt. Keep seat belt securely
fastened. Falling off power unit can result in death
from being run over or crushed. Keep foldable
ROPS system in “locked up” position at all times.
Move wheels to tractor manufacturer's widest
recommended setting to increase stability. Do not
use loader on tractors with single or double cen-
tered front wheels.
To provide stability, add tractor manufacturer's
recommended wheel ballast or rear weight.
Never allow children or untrained persons to
operate equipment.
Keep bystanders away from equipment.
Keep all persons away from operator control
area while performing adjustments, service, or
maintenance.
Keep hands and body away from pressurized
lines. Use paper or cardboard, not hands or other
body parts to check for leaks. Wear safety goggles.
Hydraulic fluid under pressure can easily penetrate
skin and will cause serious injury or death.
Make sure that all operating and service person-
nel know that if hydraulic fluid penetrates skin, it
must be surgically removed as soon as possible by
a doctor familiar with this form of injury or gan-
grene, serious injury, or death will result. CON-
TACT A PHYSICIAN IMMEDIATELY IF FLUID
ENTERS SKIN OR EYES. DO NOT DELAY.
AVOID INJURY OR DEATH FROM FALLING
OBJECTS:
• Do not carry shiftable items. Hay bales, logs,
fence posts, stones, and other objects can roll
or fall from a raised attachment and crush oper-
ator or bystanders.
• This unit is not equipped with any method to
prevent objects such as round bales, posts, or
logs from rolling back onto operator.
• Do not handle round hay bales.
• Carry loads low and drive slowly.
• Do not carry large objects that can fall out of
attachment into operator zone.
• Never lift load higher than necessary to clear
the ground when moving.
Always wear relatively tight and belted clothing
to avoid getting caught in moving parts. Wear
sturdy, rough-soled work shoes and protective
equipment for eyes, hair, hands, hearing, and head;
and respirator or filter mask where appropriate.
TRACTOR PREPARATION
Before operating the loader, extra weight should be
added to the rear of the tractor with rear wheel weights
or liquid ballast for optimum stability. Refer to your trac-
tor operator's manual for weight information.
The tractor rear wheels should be moved to the tractor
manufacturer's widest recommended settings to
increase the stability of the tractor.
For safety in preventing injury or death from rollover
accidents, the tractor must be equipped with an
approved ROPS or ROPS cab and seat belt.
Pin-on bucket must be securely attached to the loader
using pins and retaining hardware supplied with the
bucket.
CAUTION

Operation 13
MAN0556 (9/21/2007)
CONNECT BUCKET OR ATTACHMENT
USING QUICK ATTACH COUPLER
Position the hydraulic hoses so they will not be pinched
when connecting the attachment.
The quick attach coupler handle should be in the
unlocked (open) position with lock pins retracted, Fig-
ure 1.
Figure 1. Quick Attach Coupler Handle - Unlocked
Move to the operator seat, fasten seat belt, and start
engine.
Lower loader lift arms to their lowest position.
Carefully move and align the quick attach coupler to
the bucket or attachment. The top of the quick attach
coupler must completely engage the attachment or
bucket hook, Figure 2.
Roll the attachment coupler into the attachment flange
so the coupler handle can be engaged.
Figure 2. Connecting Bucket or Attachment to Loader
Shut off the engine, set brake, remove key, and remove
seat belt. Dismount the tractor.
Move the attachment coupler handle to the locked
(closed) position. The lockpins must be completely
extended and secured into the retaining slots, Figure 3.
Attachment coupler handles must always be
rotated to LOCK POSITION to prevent coupler latch
from disengaging and attachment from falling off.
Connect hydraulic hoses to loader auxiliary quick cou-
plers (optional).
Figure 3. Attachment Coupler Handle - Locked
LOADER OPERATION
Do not allow bystanders in the area when oper-
ating, attaching, removing, assembling, or servic-
ing equipment.
The loader should be operated with the tractor engine
running at a safe RPM. Excessive speeds are danger-
ous, and may cause bucket spillage and unnecessary
strain on the tractor and loader.
Open
DP1
Handle
Closed
Handle

14 Operation
MAN0556 (9/21/2007)
Filling Bucket
1. Approach and enter the pile with a level bucket.
Figure 4. Filling Bucket
2. Loaders with single handle controls: Ease the
lever back and toward you to lift and roll back the
bucket, Figure 5.
Figure 5. Single Handle Control
3. Lift and rollback bucket.
Figure 6. Lift and Rollback Bucket
The lift and rollback of the bucket will increase effi-
ciency because maintaining a level bucket throughout
the lifting cycle resists bucket lift and increases break-
away effort, Figure 6.
NOTE: Do not be concerned if the bucket is not com-
pletely filled during each pass. Maximum productivity is
determined by the amount of material loaded in a given
period of time. Time is lost if two or more attempts are
made to fill the bucket on each pass.
Lifting Load
Do not attempt to lift loads in excess of the
loader capacity.
When lifting the load, keep the bucket positioned to
avoid spillage, Figure 7.
Figure 7. Lifting Load
Carrying Load
Position the bucket just below the level of the tractor
hood for maximum stability and visibility, whether the
bucket is loaded or empty, Figure 8.
.
Figure 8. Carrying Load
Operating on a Slope
AVOID INJURY OR DEATH FROM ROLLOVER
ACCIDENTS:
• Move and turn tractor at less than 6 mph (10
km/h).
• Watch for hidden hazards such as holes,
ditches, and other obstructions which may
cause tractor and loader to tip over.
• Carry loads close to the ground to aid visibil-
ity and lower center of gravity for improved sta-
bility.
• Balance loads so weight is evenly distributed

Operation 15
MAN0556 (9/21/2007)
and load is stable.
• Be extra careful when operating on a slope.
• Do not operate on steep slopes.
• Do not stop, start or change directions sud-
denly on slopes.
• If loader is equipped with round bale attach-
ments, always approach bale with tractor facing
uphill.
• Be sure tractor tire spacing and rear ballast is
correct before using loader.
• Tractor must be equipped with a Roll-Over
Protective Structure (ROPS) and seat belt. Keep
seat belt securely fastened and keep foldable
ROPS systems in “locked up” position at all
times.
Use extreme care when operating the loader on a
slope, keeping the bucket as low as possible. This will
maintain a low center of gravity for the bucket and trac-
tor and will provide maximum tractor stability.
When transporting the load, keep the bucket as low as
possible to avoid tipping in case a wheel drops in a rut.
Figure 9. Operating on a Slope
Dumping Bucket
Figure 10. Dumping Bucket
Lift the bucket high enough to clear the side of the vehi-
cle. Move the tractor in as close as possible, then
dump the bucket. See Figure 10.
Lowering Bucket
After the bucket is dumped, back away from the vehicle
while lowering and rolling back the bucket.
Figure 11. Control Handle Function
Operating with Float Control
During hard surface operation, keep the bucket level
and put the lift control in the float position to permit the
bucket to float on the working surface. If hydraulic
down pressure is exerted on the bucket, it will wear
faster than normal.
The float will also prevent the mixing of surface mate-
rial with stockpile material. The float position will
reduce the chance of surface gouging when removing
snow or other material.
Figure 12. Float Position
Loading from a Bank
See Figure 13.
Exercise caution when undercutting high banks. Dirt
slides can be dangerous. Load the bucket from as low
a position as possible for maximum efficiency. Loader
lift and break-away capacity diminish as loading height
is increased.
Keep the bucket level when approaching a bank or
pile. This will help prevent gouging in the work area.

16 Operation
MAN0556 (9/21/2007)
Figure 13. Loading from a Bank
Peeling and Scraping
Use a slight bucket angle, travel forward, and hold the
lift control forward to start the cut. Make a short 5-inch
to 8-inch angle cut and break-out cleanly, Figure 14.
With the bucket level, start a cut at the notch approxi-
mately 2 inches deep. Hold the depth by feathering the
bucket control to adjust the cutting lip up or down.
When the front tires enter the notch, adjust the lift cylin-
der to maintain proper depth, Figure 15.
Figure 14. Angle Cut
Figure 15. Peeling/Scraping
Make additional passes until the desired depth is
reached. During each pass, only use the bucket control
while at working depth. This will allow you to concen-
trate on controlling the bucket angle to maintain a pre-
cise cut, Figure 16.
Figure 16. Additional Passes
Loading Low Trucks or
Spreaders from a Pile
For easier loading, minimize the angle of turn and
length of run between pile and spreader, Figure 17.
Figure 17. Loading
Backgrade occasionally with a loaded bucket to keep
the working surface free of ruts and holes. Also, hold
the lift control forward so the full weight of the bucket is
scraping the ground. Use the heel of the bucket.
Figure 18. Backgrading
Backblading
Position the bucket at an angle of less than 45 degrees
and back up slowly, Figure 19.
Backgrading with the bucket tilted too far will result in
damage to bucket cylinders and void warranty, Figure
20.
Figure 19. Backblading

Operation 17
MAN0556 (9/21/2007)
Figure 20. Bucket Tilted too Far
Backfilling
1. Approach the pile with a flat bucket, Figure 21.
Figure 21. Backfilling Correctly
2. Do not use the bucket in the dump position for
bulldozing. This method will impose severe shock
loadings on the dump linkage, the bucket cylinder,
and the tractor, Figure 22.
Figure 22. Incorrect Bucket Position for Backfilling
3. Leave dirt in the bucket because dumping on each
pass wastes time.
4. Operate at right angles to the ditch. Take as big a
bite as the tractor can handle without lugging
down.
5. Leave dirt that drifts over the side of the bucket for
final clean-up.
6. Pile dirt on the high side for easier backfilling on a
slope.
HANDLING OBJECTS
AVOID INJURY OR DEATH FROM FALLING
BALES AND OTHER OBJECTS:
• Do not carry hay bales, logs, fence posts,
stones, or any other loose objects that can roll,
shift, or fall from a raised bucket and crush
operator or bystanders.
• Do not handle round bales unless loader is
equipped with approved bale handling attach-
ment.
• Handle raised loads with caution.
• Carry loads low and drive slowly.
Figure 23. Avoid Falling Loads
FORKLIFT OPERATION
To avoid injury or death from bale rolling back
down loader, do not handle round bales with the
pallet fork.
To help prevent tractor/loader instability, never
exceed the capacity of the tractor/loader used with
the pallet fork. To increase stability, adjust tires to
maximum possible width.
Use the pallet fork to move pallets, bulk bins, crates,
boxes and hampers.
Do not use for shiftable loads such as logs or poles.
Do not use for digging rocks or lifting concrete slabs.
CAUTION

18 Operation
MAN0556 (9/21/2007)
GRAPPLE OPERATION
The grapple fork is a clamping device and should be
used to clamp loose hay, straw, or silage. It is not to be
used to dig material loose from a pile.
AVOID INJURY OR DEATH FROM ROLLOVER
ACCIDENTS:
• Move and turn tractor at less than 6 mph (10
km/h).
• Watch for hidden hazards such as holes,
ditches, and other obstructions which may
cause tractor and loader to tip over.
• Carry loads close to the ground to aid visibil-
ity and lower center of gravity for improved sta-
bility.
• Balance loads so weight is evenly distributed
and load is stable.
• Be extra careful when operating on a slope.
• Do not operate on steep slopes.
• Do not stop, start or change directions sud-
denly on slopes.
• If loader is equipped with round bale attach-
ments, always approach bale with tractor facing
uphill.
• Be sure tractor tire spacing and rear ballast is
correct before using loader.
• Tractor must be equipped with a Roll-Over
Protective Structure (ROPS) and seat belt. Keep
seat belt securely fastened and keep foldable
ROPS systems in “locked up” position at all
times.
AVOID INJURY OR DEATH FROM FALLING
BALES AND OTHER OBJECTS:
• Do not carry hay bales, logs, fence posts,
stones, or any other loose objects that can roll,
shift, or fall from a raised bucket and crush
operator or bystanders.
• Do not handle round bales unless loader is
equipped with approved bale handling attach-
ment.
• Handle raised loads with caution.
• Carry loads low and drive slowly.
Use caution when handling loose or shiftable
loads.
Never handle large, heavy objects due to the dangers
of rolling the tractor over, upending the tractor, and
having the object roll or slide down the loader arms
onto the operator.
Never lift loader higher than necessary to clear the
ground. When necessary, ballast the tractor rear to
compensate for load. Never lift large objects. Move
slowly and carefully. Avoid rough terrain. Stop the
loader gradually when lowering or lifting loads.
For loose hay or other materials, adjust the mounting
arms and the grapple teeth in the position that provides
the best performance.
Set the rear tractor wheels to the widest recommended
setting. Add enough ballast at the rear end so at least
50% of the original rear wheel weight is maintained
when the load in the loader is at transport height.
Always carry the load on level ground or directly uphill.
Never move along a side hill or directly downhill when a
load is carried.
Make sure the grapple is holding the load securely so it
cannot roll backwards or sideways.
Never carry a round bale in a bucket without a properly
operating and adjusted grapple.
Picking Up a Round Bale with Grapple
Approach bale with grapple open, bucket level and
close to the ground. Work bucket under bale until bale
is against grapple frame. Close grapple, raise and roll
back just high enough to provide ground clearance for
transport.
Figure 24. Pick Up Round Bale
Picking Up Round Bale on Slope with a
Grapple
To help prevent injury caused by tractor rollover when
handling round bales on a slope, avoid side slope
travel whenever possible. Drive up slope to pick up
bale and back down in reverse. Transport bale as close
to the ground as possible.
Approach bale with tractor facing uphill, grapple open,
bucket level and close to the ground.
Work bucket under bale until bale is against grapple
frame. Close grapple.

Operation 19
MAN0556 (9/21/2007)
Raise and roll bale back just high enough to provide
ground clearance for transport.
Select low tractor speed before moving or turning on a
slope.
Figure 25. Picking Up Round Bale on a Slope
Transporting a Round Bale with Grapple
Carry bale low and slightly rolled back.
Figure 26. Transporting a Round Bale
Removing Hay & Silage from a Pile
with Grapple Fork
The grapple fork is a clamping device and
should be used to clamp loose hay, straw, or
silage. It is not to be used to dig material loose
from a pile.
NOTICE
■ Using the grapple teeth to dig material out of a
pile will damage the grapple or loader. The grapple
is designed only to clamp material in a bucket. Use
the bucket to break material loose.
If possible, remove material from the top of the pile
first. Use the loader bucket to break material loose.
Equip the bucket with teeth for better loosening action
in packed silage. After material is loosened, close grap-
ple, Figure 27.
Figure 27. Removing Hay and Silage from a Pile
with a Grapple Fork
Dumping into Truck, Wagon & Spreaders
Use extreme care when dumping into trucks, wagons,
spreaders, etc. when grapple is attached to bucket.
Open grapple teeth will swing a wide radius beyond
bucket and can damage or puncture the opposite sides
of these implements, out of the operator's sight.
BALE SPEAR OPERATION
Power unit must be equipped with ROPS or
ROPS cab and seat belt. Keep seat belt securely
fastened. Falling off power unit can result in death
from being run over or crushed. Keep foldable
ROPS system in “locked up” position at all times.
To provide stability, add tractor manufacturer's
recommended wheel ballast or rear weight.
Move wheels to tractor manufacturer's widest
recommended setting to increase stability. Do not
use loader on tractors with single or double cen-
tered front wheels.
Stop the loader arms gradually when lowering
or lifting.
AVOID INJURY OR DEATH FROM FALLING
BALES AND OTHER OBJECTS:
• Do not carry hay bales, logs, fence posts,
stones, or any other loose objects that can roll,
shift, or fall from a raised bucket and crush
operator or bystanders.
• Do not handle round bales unless loader is
equipped with approved bale handling attach-
ment.
• Handle raised loads with caution.
• Carry loads low and drive slowly.

20 Operation
MAN0556 (9/21/2007)
To help prevent personal injury from exposed
fork tines, always store bale spear with tines
pointed down, or against bale, building or other
stable object.
The bale spear is to be used only for handling round
bales. Do not use for digging rocks, pulling out fence,
or as a craning device with a chain over the spear.
Picking Up a Round Bale with Bale Spear
Approach bale with spike level and centered on bale.
Push spike into bale until bale is against the frame.
Raise and roll bale back just high enough to provide
ground clearance for transport, Figure 28.
Figure 28. Picking Up a Round Bale
Picking Up Round Bale on a Slope
with Bale Spear
To help prevent injury caused by tractor rollover when
handling round bales on a slope, avoid side slope
travel whenever possible. Drive up slope to pick up
bale and back down in reverse. Transport bale as close
to the ground as possible.
Approach bale with tractor facing uphill, spike level and
centered on bale. Push spike into bale until bale is
against the frame. Raise and roll bale back just high
enough to provide ground clearance for transport.
Select low tractor speed before moving or turning on a
slope, Figure 29.
Figure 29. Picking Up Round Bale on a Slope
Transporting a Round Bale
To help prevent personal injury or accident caused
from a bale falling off the spike, carry the bale low and
slightly rolled back. Travel slowly over rough ground.
Figure 30. Transporting a Round Bale
CLEANING
After Each Use
●Remove large debris such as clumps of dirt, grass,
crop residue, etc. from machine.
●Inspect machine and replace worn or damaged
parts.
●Replace any safety decals that are missing or not
readable.
Periodically or Before Extended Storage
●Clean large debris such as clumps of dirt, grass,
crop residue, etc. from machine.
●Remove the remainder using a low-pressure water
spray.
1. Be careful when spraying near scratched or torn
safety decals or near edges of decals as water
spray can peel decal off surface.
2. Be careful when spraying near chipped or
scratched paint as water spray can lift paint.
3. If a pressure washer is used, follow the advice
of the pressure washer manufacturer.
●Inspect machine and replace worn or damaged
parts.
●Sand down scratches and the edges of areas of
missing paint and coat with Woods spray paint of
matching color (purchase from your Woods
dealer).
●Replace any safety decals that are missing or not
readable (supplied free by your Woods dealer).
See Safety Decals section for location drawing.
CAUTION

Operation 21
MAN0556 (9/21/2007)
PRE-OPERATION CHECK LIST
(OWNER'S RESPONSIBILITY)
___ Review and follow all safety rules and safety
decal instructions on pages 6 through 11.
___ Check that all safety decals are installed and in
good condition. Replace if damaged.
___ Check that all hardware and cotter pins are prop-
erly installed and secured.
___ Check that equipment is properly and securely
attached to tractor.
___ Do not allow riders.
___ Check all lubrication points and grease as
instructed in Owner Service, ". Lubrication
Points", page 22.
___ Check that all hydraulic hoses and fittings are in
good condition and not leaking before starting
tractor. Check that hoses are not twisted, bent
sharply, kinked, frayed or pulled tight. Replace
any damaged hoses immediately.
___ Make sure tractor ROPS or ROPS cab and seat
belt are in good condition. Keep seat belt
securely fastened during operation.
___ Before starting engine, operator must be in trac-
tor seat with seat belt fastened. Place transmis-
sion in neutral or park, engage brake, and
disengage tractor PTO.

22 Owner Service
MAN0556 (9/21/2007)
OWNER SERVICE
The information in this section is written for operators
who possess basic mechanical skills. If you need help,
your dealer has trained service technicians available.
For your protection, read and follow the safety informa-
tion in this manual.
Never work under a raised loader. Always lower
loader to the ground with bucket or loader attach-
ment in full roll-back position. Shut off tractor, set
parking brake, and remove key. Operate valve
levers to release any hydraulic pressure. If loader
obstructs tractor maintenance, loader must be
removed from tractor.
Keep all persons away from operator control
area while performing adjustments, service, or
maintenance.
Do not disconnect hydraulic lines until all sys-
tem pressure is relieved. Lower unit to ground,
stop engine, and operate all hydraulic control
levers.
Keep hands and body away from pressurized
lines. Use paper or cardboard, not hands or other
body parts to check for leaks. Wear safety goggles.
Hydraulic fluid under pressure can easily penetrate
skin and will cause serious injury or death.
Make sure that all operating and service person-
nel know that if hydraulic fluid penetrates skin, it
must be surgically removed as soon as possible by
a doctor familiar with this form of injury or gan-
grene, serious injury, or death will result. CON-
TACT A PHYSICIAN IMMEDIATELY IF FLUID
ENTERS SKIN OR EYES. DO NOT DELAY.
Before dismounting power unit or performing
any service or maintenance, follow these steps:
disengage power to equipment, lower the 3-point
hitch and all raised components to the ground,
operate valve levers to release any hydraulic pres-
sure, set parking brake, stop engine, remove key,
and unfasten seat belt.
If you do not understand any part of this manual
and need assistance, see your dealer.
Always wear relatively tight and belted clothing
to avoid getting caught in moving parts. Wear
sturdy, rough-soled work shoes and protective
equipment for eyes, hair, hands, hearing, and head;
and respirator or filter mask where appropriate.
Lubrication
NOTICE
■ When adding oil to the tractor reservoir, always
use hydraulic oil as specified by the tractor manu-
factures.
Daily
___ Check the level of hydraulic oil in tractor before
starting each day's operation. If necessary, add
oil as recommended in your tractor owner's man-
ual.
___ Lubricate after every eight hours of operation;
lubricate grease fittings at each end of each lift
boom arm and at rod and base end of each boom
and bucket cylinder.
___ After every eight hours of operation, check all
hardware and tighten where required.
___ Replace hoses immediately if they are damaged
by a cut or scrape, extruded at the fittings, or
leaking. Hydraulic oil leaks should be repaired
promptly to avoid loss of oil and serious personal
injury from escaping oil.
Annually
___ Lubricate direct mount control valve joystick link-
age with grease.
Figure 30. Lubrication Points
CAUTION

Troubleshooting 23
MAN0556 (9/21/2007)
TROUBLESHOOTING
The following is a list of service problems, possible causes, and solutions. If problems still exist after preforming the
solution, contact your nearest Woods dealer for authorized service.
PROBLEM POSSIBLE CAUSE SOLUTION
Jerky operation Air in hydraulic system Cycle cylinders several times to
purge system of air.
Cold hydraulic oil Run engine to warm oil.
Low hydraulic oil level Add oil to level specified.
Poor oil circulation Change oil filter and clean screen in
tractor hydraulic system.
Worn or damaged hydraulic pump Repair or replace pump.
Air leak in pump inlet line Check, tighten or replace inlet line.
Slow operation Faulty valve Repair or replace valve.
Air in hydraulic system Cycle lift cylinders and bucket
cylinders several times to free
system of air.
Hydraulic oil too heavy Change to proper oil.
Oil filter plugged Clean and replace filter.
Slow engine speed Increase engine speed rate.
Cylinder piston seals leaking Install seal repair kit.
Remote valve incorrectly adjusted
or malfunctioning
Adjust, repair, or replace control
valve.
Tractor hydraulic pump malfunc-
tioning
Repair or replace pump.
Hydraulic pump too small; hoses
or feedlines restricted
Check hoses and feed lines for
kinks and other restrictions.
Hydraulic couplers not completely
engaged
Connect hydraulic couplers.
Oil leaks Loose hose connections Tighten fittings. Use thread sealer
on pipe (tapered) threads.
Fittings or hoses defective Tighten fittings. Use thread sealer
on pipe (tapered) threads.
Fittings or hoses defective Replace defective parts.
Hydraulic cylinder seals worn or
damaged
Install seal repair kit.
Remote valve components worn
or damaged
Repair and/or replace.

24 Troubleshooting
MAN0556 (9/21/2007)
TROUBLESHOOTING
Cannot raise load Low oil supply Check oil level.
Bucket overloaded Try lighter load.
Hydraulic couplers not fully
engaged
Reconnect hoses.
Cylinder piston seal leakage Install seal repair kit.
Control valve incorrectly adjusted
or malfunctioning
Repair or replace control valve.
Tractor valve not open to provide
circuit to auxiliary valve
Open tractor valve. Be sure pres-
sure is to inlet side of auxiliary
valve.
Hydraulic pump malfunctioning Repair or replace hydraulic pump.
Load is greater than boom lift
capacity
Check loader specifications.
Bucket or boom leaks down from
“hold” position
Leaks in hydraulic circuits Tighten loose fittings. Use thread
sealer on pipe (tapered) threads.
Cylinder piston seals leaking Install seal repair kit.
Control valve worn or damaged Repair or replace control valve.
Tractor valve worn or damaged Repair or replace tractor valve.
Cannot lower boom Hydraulic couplers not fully
engaged
Recouple hoses.
Loss of bucket tilt control when
lever is pushed completely for-
ward
Tractor lever in “float” position Use float lockout control to pre-
vent lever from being moved to
“float” position.
Couplers hard to hook up Pressure in circuit Place control levers in “float”
when connecting
Boom and bucket operation does
not correspond to control lever
position
Improperly connected hydraulic
couplers
Connect hydraulic couplers cor-
rectly. See Hydraulic Kit Manual
for proper connections.
Hoses improperly connected Connect hoses properly. See
Hydraulic Kit Manual for proper
connections.
Excessive wear on bucket cutting
edge and wear pads
Bucket is tilted too far forward and
is riding on cutting edge
Keep bottom of bucket parallel to
ground. Use rod gauge to indicate
level bucket position.
Excessive down pressure when
cleaning feedlots and working on
concrete
Use “float” position on boom lift
control lever.

MAN0556 (9/21/2007)
Dealer Check Lists 25
DEALER CHECK LISTS
PRE-DELIVERY CHECK LIST
(Dealer's Responsibility)
Inspect the loader thoroughly after assembly to be cer-
tain it is set up properly before delivering it to the cus-
tomer. The check lists are a reminder of points to
inspect. Check off each item as it is found satisfactory
or after proper adjustments are made.
___ Check all bolts to be sure they are properly
torqued.
___ Check and grease all lubrication points. See “.
Lubrication Points” on page 22.
___ Check that shields and guards are properly
installed and in good condition. Replace if dam-
aged.
___ Check that all cotter pins and safety pins are
properly installed. Replace if damaged.
___ Properly attach implement to tractor and make all
necessary adjustments.
___ Check all hydraulic hoses, fittings, tubing, and
cylinders for any leaks or damage. Be sure quick
couplers operate properly. Make sure hydraulic
valve matches tractor hydraulic system - open
system or closed system.
___ Check parking stand for proper operation.
___ Check that all safety decals are installed and in
good condition. Replace if damaged.
___ Check that all loader mounting decals are prop-
erly installed on left loader mount.
___ Make sure all hydraulic fittings are tight and
hoses are properly routed and not twisted, bent
sharply, kinked or pulled tight.
___ Make sure loader operates as recommended.
See operation section. Make necessary changes
in hydraulic hook-ups to obtain loader operation.
Cycle loader (all functions). Bleed air from
hydraulic system. Cycling loader removes air
from system. After cycling loader, check hydraulic
system oil level.
DELIVERY CHECK LIST
(Dealer's Responsibility)
___ Present Operator's Manual and request that cus-
tomer and all operators read it before operating
equipment. Point out the manual safety rules,
explain their meanings and emphasize the
increased safety hazards that exist when safety
rules are not followed.
___ Show customer how to make adjustments.
___ Instruct customer how to lubricate and explain
importance of lubrication.
___ Explain to customer the potential crushing haz-
ards of going underneath raised equipment.
Instruct customer that service work does not
require going underneath unit and never to do so.
___ Show customer the safe, proper procedures to be
used when mounting, dismounting, and storing
equipment.
___ Point out the correct mounting and routing of
hydraulic hoses. Explain that during operation,
mounting, dismounting and storage, care must be
taken to prevent hose damage from pulling, twist-
ing and kinking.
___ Make customer aware of optional equipment
available so that customer can make proper
choices as required.
A Delivery Report and Registration form must be filled
in by dealer and signed by both dealer and purchaser
at time of delivery. Be sure Operator's Manual remains
with loader. Deliver it to customer with loader.

26 Dealer Service
MAN0556 (9/21/2007)
DEALER SERVICE
The information in this section is written for dealer ser-
vice personnel. The repair described herein requires
special skills and tools. If your shop is not properly
equipped or your mechanics are not properly trained in
this type of repair, you may be time and money ahead
to replace complete assemblies.
Never work under a raised loader. Always lower
loader to the ground with bucket or loader attach-
ment in full roll-back position. Shut off tractor, set
parking brake, and remove key. Operate valve
levers to release any hydraulic pressure. If loader
obstructs tractor maintenance, loader must be
removed from tractor.
Never allow anyone to get under the loader
bucket or reach through the lift arms when the
bucket is raised.
Keep all persons away from operator control
area while performing adjustments, service, or
maintenance.
Do not disconnect hydraulic lines until all sys-
tem pressure is relieved. Lower unit to ground,
stop engine, and operate all hydraulic control
levers.
Make sure that all operating and service person-
nel know that if hydraulic fluid penetrates skin, it
must be surgically removed as soon as possible by
a doctor familiar with this form of injury or gan-
grene, serious injury, or death will result. CON-
TACT A PHYSICIAN IMMEDIATELY IF FLUID
ENTERS SKIN OR EYES. DO NOT DELAY.
Keep hands and body away from pressurized
lines. Use paper or cardboard, not hands or other
body parts to check for leaks. Wear safety goggles.
Hydraulic fluid under pressure can easily penetrate
skin and will cause serious injury or death.
Always wear relatively tight and belted clothing
to avoid getting caught in moving parts. Wear
sturdy, rough-soled work shoes and protective
equipment for eyes, hair, hands, hearing, and head;
and respirator or filter mask where appropriate.
CYLINDER SERVICE
The cylinders are designed to be reliable and easy to
service. If a cylinder should malfunction during the war-
ranty period, return the complete cylinder assembly,
without disassembling, to your authorized service
department or contact your authorized service depart-
ment for instructions. Unauthorized disassembly of a
cylinder in the warranty period will VOID WARRANTY.
NOTE: Repair to cylinders is limited to replacing seals,
wear rings, and O-rings. Replacing rod, barrel, or pis-
tons is not cost effective. Purchasing a complete cylin-
der is more economical.
CYLINDER REPAIR
Threaded Rod Guide Cylinders
Threaded guide cylinders for the LF138 and LF156 use
two different styles of seals.
Disassembly
On threaded guide type cylinders, unscrew guide (5)
using a spanner wrench, or carefully use a punch and
hammer. (Spanner wrench 1021841 is available from
Woods to help with these procedures.) Pull on rod (1)
to remove parts from barrel.
Clamp cross pin end of rod assembly (1) in a vise with
protective jaws. Heat threads to break thread locking
compound loose. Unscrew piston (6) from end of rod
assembly using a spanner wrench, or carefully use a
punch and hammer. Remove rod guide (5) from rod.
Remove and discard all seals, wear rings and O-rings.
Clean all components in solvent and blow dry with low
pressure air.
Inspect inside diameter of barrel. Replace cylinder if
damaged.
Assembly
For these assembly instructions the front surface of the
threaded rod guide with two holes will be referred to as
the "rod guide face".
Lubricate O-rings and seals with clean hydraulic fluid.
Install back-up washer (3D) on rod guide (5), and then
install O-ring (3E) in exterior O-ring groove of rod
guide. Make sure that the back-up ring is located clos-
est to the rod guide face. Place rod wiper (3B) in outer
rod guide groove. Install rod seal (3C) into the second
groove from the rod guide face with the open portion of
V-groove toward piston.
For bucket cylinders (Figure 31) install rings into the
third and fourth grooves from the rod guide face.
CAUTION

MAN0556 (9/21/2007)
Dealer Service 27
With all of the seals installed, slide the rod guide
assembly (5) onto rod (1).
Install crown piston seal (3J) onto piston (6). Install off-
set rings (3H) on both sides of the crown piston seal
(3J) in the large groove on the piston (6). The profile of
the offset ring (3B) should mate with the lip on the
crown piston seal (3J). Place the “L” shaped guide ring
(3G) on the outside of each offset ring (3H). Boom cyl-
inders require two additional wear rings (3K) to be
installed in the two smaller grooves on the piston (6).
Bucket cylinders have one wear ring.
Lightly coat rod threads with hydraulic oil and slide O-
ring (3A) over threads and into groove. Completely
clean threads of hydraulic oil, apply Liquid Primer 7649
and Loctite 242 to the rod threads, and thread piston
(6) onto rod (1) with the two holes in the piston orien-
tated away from the rod. Torque the piston (6) to 160
lbs-ft.
Compress wear rings and piston seals and carefully
insert piston and rod assembly into barrel. Use care to
prevent damage while installing. Carefully screw rod
guide (5) into barrel (8) using a spanner wrench, or
carefully use a punch and hammer.
Figure 31. Bucket Cylinders
1. Piston rod
3A. O-Ring
3B. Wiper ring
3C. Rod seal
3D. Back-up ring
3E. O-Ring
3F. Rod guide ring
3G. Guard ring
3H. Offset ring
3J. Crown piston seal
3K. Wear ring
5. Rod guide assembly
6. Piston
8. Cylinder barrel

28 Dealer Service
MAN0556 (9/21/2007)
Figure 32. Boom Cylinders
Figure 33. Grapple Cylinder
1. Piston rod
3A. O-Ring
3B. Wiper ring
3C. Rod seal
3D. Back-up ring
3E. O-Ring
3G. Guard ring
3H. Offset ring
3J. Crown piston seal
5. Rod guide assembly
6. Piston
8. Cylinder barrel
1. Piston rod
3A. O-Ring
3B. Wiper ring
3C. Rod seal
3D. Back-up ring
3E. O-Ring
3G. Guard ring
3H. Offset ring
3J. Crown piston seal
3K. Wear ring
5. Rod guide assembly
6. Piston
8. Cylinder barrel

MAN0556 (9/21/2007)
Dealer Service 29
PIVOT BEARING REPLACEMENT
Two replacable bearings per pivot joint are located in:
Bearing repair kits for LF138 and LF156 loaders are:
1018608 24 Bearing repair kit
(All pivot points)
1018607 2 Bearing repair kit
(For any 1 pivot point)
Replace pivot bearing as follows:
1. Remove loader from tractor.
2. Remove pivot pin from pivot location that needs to
be replaced.
NOTE: Make sure to support upright and/or lift cyl-
inders to prevent them from falling while the loader
is being disassembled.
3. Remove both wipers (if present).
4. Remove both bearings from each pivot point.
NOTE: Hammer and punch or heat may be
required to remove bearings.
5. Apply one drop of Loctite (supplied with bearing kit)
to each new bearing and install bearing.
6. Allow Loctite to set one hour before reassembling
loader.
7. Apply grease to all bearings. Allow grease to fill
small cavities in bearing.
8. Install wipers, if required.
NOTE: Lip must be installed towards the outside of
joint (Figure 36).
9. Reassemble loader.
Figure 34. Bearing Locations
Figure 35. Replaceable Bearings (Typical)
Figure 36. Wiper Installation
Bearing Location Wiper
• Boom pivot (A) X
• Boom cylinder rod end (B)
• Bucket cylinder rod end (C)
• Loader boom bucket pivot (D) X
• Bucket linkage (E) X
• Boom guide link pivot (F) X
DP7
Replaceable
Bearings

30 Dealer Service
MAN0556 (9/21/2007)
NOTES

MAN0556 (9/21/2007)
Assembly 31
ASSEMBLY
DEALER SET-UP INSTRUCTIONS
Loader assembly is the responsibility of the Woods
dealer. The loader is shipped assembled on a pallet for
your convenience. The loader must be properly set up
and installed to assure prolonged service life and safe
operation.
Keep hands and body away from pressurized
lines. Use paper or cardboard, not hands or other
body parts to check for leaks. Wear safety goggles.
Hydraulic fluid under pressure can easily penetrate
skin and will cause serious injury or death.
Make sure that all operating and service person-
nel know that if hydraulic fluid penetrates skin, it
must be surgically removed as soon as possible by
a doctor familiar with this form of injury or gan-
grene, serious injury, or death will result. CON-
TACT A PHYSICIAN IMMEDIATELY IF FLUID
ENTERS SKIN OR EYES. DO NOT DELAY.
Do not disconnect hydraulic lines until all sys-
tem pressure is relieved. Lower unit to ground,
stop engine, and operate all hydraulic control
levers.
Never work under a raised loader. Always lower
loader to the ground with bucket or loader attach-
ment in full roll-back position. Shut off tractor, set
parking brake, and remove key. Operate valve
levers to release any hydraulic pressure. If loader
obstructs tractor maintenance, loader must be
removed from tractor.
Do not modify or alter or permit anyone else to
modify or alter the equipment or any of its compo-
nents in any way.
Always wear relatively tight and belted clothing
to avoid getting caught in moving parts. Wear
sturdy, rough-soled work shoes and protective
equipment for eyes, hair, hands, hearing, and head;
and respirator or filter mask where appropriate.
ASSEMBLY INSTRUCTIONS
Loader Mounting Kit and Hydraulic Kit
Installation
Install the loader mounting kit on the tractor according
to specific mounting instructions included with the
mounting kit and hydraulic kits.
Loader Set-Up
Make sure all hydraulic hoses, fittings, and
valves are in good condition and not leaking before
starting power unit or using equipment. Check and
route hoses carefully to prevent damage. Hoses
must not be twisted, bent sharply, kinked, frayed,
pinched, or come into contact with any moving
parts. Operate moveable components through full
operational range to check clearances. Replace
any damaged hoses immediately.
■Lift and support all loader components safely.
■Stand clear of the loader while attaching. The
loader could fall, causing serious personal injury.
Always work safely and think clearly!
Remove bucket and attachment coupler from shipping
skid.
Support loader frame and remove lag screws from
plates that hold frame on skid. Lower frame to ground.
Using an overhead lifting devise, lift loader frame and
position tractor so uprights can be placed onto loader
mount. Secure uprights on mounts with pin shipped
with frame. Cut shipping straps around boom cylinders
and remove spacer angle and protective sleeves.
Refer to Hydraulic Hose Installation in the loader
mounting kit. Always use hoses that have a minimum
working pressure rating of 3000 psi and meet or
exceed SAE 100R1 specifications.
Refer to Control Valve Manual for optional control valve
instructions.
Connect loader hoses and start tractor. Clear hydraulic
system of air by raising and lowering boom frame and
actuating bucket cylinders several times. After air has
been purged from system, with loader boom on
ground, check the tractor hydraulic oil level as shown in
tractor owner's manual. When adding oil to hydraulic
system, always use the type of oil specified for the trac-
tor. NEVER MIX OIL TYPES.
CAUTION

32 Assembly
MAN0556 (9/21/2007)
Pin-On Bucket Installation (LF138 Only)
1. Remove loader pins and bucket pins from the
bucket mounting lugs.
2. Attach lower holes on bucket to loader boom using
pins and hardware provided.
3. Extend bucket cylinder and attach bucket links to
the upper holes on the bucket using pins and
hardware provided. See Figure 37.
Figure 37. Pin On Bucket Installed (Typical)
Quick Attach Coupler Installation
(Optional on LF138)
Figure 38. Quick Attach Coupler Installed
1. Remove attachment coupler from bucket.
2. Position quick attach coupler on the ground in front
of the loader frame.
3. Attach quick attach coupler (lower holes) to end of
loader boom using pins and retaining hardware
that came with the quick attach coupler, Figure 38.
4. Attach bucket linkage to the upper holes and
secure.
NOTE: To ease installation of bucket link, extend
bucket cylinders. Plugs in hydraulic feedlines may
need to be removed.
Bucket Connection to Quick Attach
Coupler
See connect bucket or attachment using Quick Attach
Coupler, page 13 to connect bucket.
Bucket Level Indicator Installation
Figure 39. Bucket Level Indicator Installation
1. Remove bucket level indicator rod from its shipping
position on right loader boom leg.
2. Slide rod through bucket level indicator bracket on
left boom frame.
3. Attach other end to hole in inner guide link and with
hardware provided. See Figure 39 and Figure 40.
Bucket Level Indicator Adjustment
With tractor and loader on flat surface, position boom
and bucket cylinders as necessary to place bottom sur-
face of bucket level on the ground.
Shut off tractor, set park brake, remove key and exit the
tractor.
Loosen bolts and slide indicator bracket so that bend in
indicator rod is centered in the bracket. Tighten bolts.
See Figure 40.

MAN0556 (9/21/2007)
Assembly 33
Figure 40. Bucket Level Indicator Installed
Grease Loader
Lubricate all pivot points shown on page 22 with a high
quality SAE multi-purpose grease.
Grapple Installation (Optional)
1. With the bucket attached to the loader, roll bucket
forward until the back of it is parallel with the
ground.
2. Secure right (2) and left (3) grapple attachment
brackets to back of bucket using four (two per
bracket) pins (15) and klik pins (23).
3. Place grapple grill (6) between attachment
brackets and secure to lug on bucket with cap
screws (28) and nuts (29).
4. Secure grapple grill (6) to right and left attachment
bracket using cap screws (28) and nuts(29).
5. Attach grapple arm (4) to right attachment bracket
using pin (18), cap screw (26) and lock nut (27).
6. Secure base end of cylinder to attaching bracket
using pin (17), cap screw (26) and lock nut (27).
7. Repeat steps to secure second grapple arm (4)
and cylinder to left attachment bracket.
8. Roll bucket back until front pads of grapple arms
(4) are level with the ground.
9. Place grapple toothbar (5) under grapple arms and
secure using eight (four per arm) cap screws (25),
sixteen hardened flat washers (21) and lock nuts
(20).
Figure 41. Grapple Assembly
2. Attachment bracket - right
3. Attachment bracket - left
4. Grapple arm
5. Grapple toothbar
6. Grapple grill
15. Hitch pin, 1.25 x 4.63
17. Pin, 1.25 x 5.50
18. Pin, 1.25 x 6.68
20. 5/8 NC Lock nut
21. 5/8 Hardened flat washer
23. Klik pin, 7/16 x 2
25. 5/8 NC x 2-1/2 HHCS GR8
26. 5/16 NC x 2-1/4 HHCS GR5
27. 5/16 NC Lock nut
28. 1/2 NC x 1-1/2 HHCS
29. 1/2 NC nut
(Rev. 1/6/2011)

34 Assembly
MAN0556 (9/21/2007)
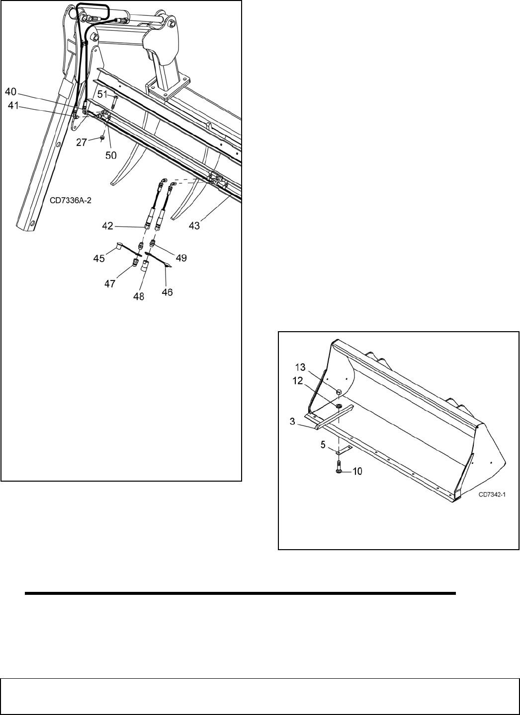
Install Hydraulic Hoses
Figure 42. Hydraulic Hose Installation
1. Attach straight end of hose (40) to rod end of left
grapple cylinder.
2. Route hose along inside of left attachment bracket
and attach 90° end of hose (40) to the top feedline
(43) on the left side of the grapple.
3. Attach straight end of hose (41) to base end of left
grapple cylinder.
4. Route hose along inside of left attachment bracket
and attach 90° end of hose (41) to the bottom
feedline (43) on the left side of the grapple.
5. Secure hoses to attachment bracket using hose
clamp (50) and lock nut (27).
6. Repeat steps to attach hoses (40 & 41) to right side
of grapple.
7. Attach adapter (49), dust plug (46) and female
quick coupler (48) to straight end of hose (42).
8. Attach this hose to the bottom feedline in the
middle of the grapple.
9. Attach adapter (49), dust cap (45) and male quick
coupler (47) to straight end of second hose (42).
10. Attach this hose to the top feedline in the middle of
the grapple.
Bucket Tooth Installation (Optional)
Holes for teeth must be drilled in bottom of bucket.
Position point of tooth as shown in Figure 43, 5" from
leading edge of cutting edge. Equally space teeth
along bucket before marking holes. Drill 9/16" holes
where marked. Install tooth (3), hardware (10, 12, 13),
and stiffener (5) for each tooth.
Figure 43. Bolt on Bucket Tooth (Optional)
27. 5/16 NC Lock nut
40. Hose, 46” x 9/16 ORBM x 9/16 JICF 90°
41. Hose, 52” x 9/16 ORBM x 9/16 JICF 90°
42. Hose, 28” x 9/16 JICF x 3/4 JICF 90°
43. Feedline
45. Dust cap
46. Dust plug
47. Quick coupler, male ISO B 1/2
48. Quick coupler, female ISO B 1/2
49. Adapter, 1/2 NPTM x 9/16 JICM
50. Feedline clamp
51. Crg bolt 5/16 NC x 1
3. Bucket tooth
5. Stiffener
10. 3/8 NC x 2 Carriage bolt
12. 3/8 Lock washer
13. 3/8 NC Hex nut
(Rev. 1/6/2011)

MAN0556 (9/21/2007)
Installation 35
INSTALLATION
ATTACH LOADER TO TRACTOR
Remove mount pins from loader uprights.
Align tractor with loader and drive tractor into loader
slowly.
Figure 44. Align Tractor to Loader
Shut off tractor. Connect the hydraulic hoses.
Restart tractor and drive tractor forward, dump bucket
to lower upright into mounts.
Continue dumping bucket until uprights settle into
mounts and mounting pin holes are aligned. Set brake
and shut off the tractor. Install mount pins and retaining
clips.
Remove pins and fold stands into storage position
using pins provided (Figure 45).
Figure 45. Parking Stand - Storage Position
REMOVE LOADER FROM TRACTOR
Bucket or attachment must be installed to remove
loader.
Park tractor on a level surface and lower bucket so the
bucket bottom or attachment is about 1” off the ground.
Set brake and shut off tractor.
Remove lock-up pin and lower the parking stands.
Install pin into hole that most closely aligns (Figure 46).
Repeat steps for opposite parking stand.
Remove mount pins from loader uprights.
Start tractor and retract lift cylinders.
Roll bucket back to completely raise loader uprights
from mounts.
Shut off tractor. Disconnect hydraulics. Store mount
pins in loader uprights. Start tractor and back away
from loader.
Figure 46. Parking Stands Installed
Stored loader can fall and cause serious injury
or death. Securely store loader and attachments to
prevent falling.
Secure equipment parking stand(s) in park posi-
tion before detaching.

36 Installation
MAN0556 (9/21/2007)
To provide necessary balance, loader frame
must be equipped with bucket or attachment
before attaching or detaching from tractor, or when
loader is in stored position.
Do not climb or lean on equipment stored on
stand.
Keep children and bystanders away from stor-
age area.
CONNECT LOADER SUPPLY HOSES TO
LOADER
Refer to Loader Mounting Kit Manual for hose kit instal-
lation.
Connect loader supply hoses to loader feedlines at the
right side of the loader. Always use hoses that have a
minimum working pressure rating of 3000 psi and meet
or exceed SAE 100R1 specifications.
Figure 47. Loader Supply Hose Connection
VERIFY CONTROL MOVEMENTS
Check that all tractor hydraulic control lever positions
operate the loader movements correctly. See Figure
48.
If loader movements do not respond correctly, shut off
tractor, relieve pressure, and reconnect properly.
Loader control movements must be correct before pro-
ceeding.
Once all loader functions are correct, start the tractor
and operate the loader to check for leaks. Purge any
remaining air from the hydraulic system and check oil
level.
When hose routing and correct loader operations are
verified, identify each circuit by placing a matching col-
ored band around the male and female quick coupler.
The color-coded bands will make reinstallation easier
when the loader is removed from tractor.
Figure 48. Single Lever Control Operation
GRAPPLE ASSEMBLY (OPTIONAL)
Remove Grapple
Block equipment securely for storage.
To help prevent injury caused by a falling imple-
ment, always detach on a hard level surface.
Keep children and bystanders away from stor-
age area.
1. On a hard level surface, raise bucket and roll it
completely forward.
2. Place 4x4 blocks underneath the grapple arms
near the rod ends of the cylinders.
3. Lower the bucket and set it down so the grapple
arms rest on the 4x4's and the toothbar rests on
the ground.
CAUTION
●Handle forward - Boom down
●Handle forward to limit - Float position
●Handle back - Boom up
●Handle right -
Dump bucket or attachment (slow)
●Handle to left - Rollback bucket or attachment

MAN0556 (9/21/2007)
Installation 37
4. Open the grapple slightly (enough to remove some
pressure from the pins).
5. Remove the pins that attach the grapple to the
bucket (tools may be required to get the pins out)
6. Uncouple the hydraulics.
7. Remove the cap screws that attach the grapple grill
to the bucket.
8. Rotate the grapple grill back over center so that it
won't swing down when the bucket is moved
(secure with bungee straps if necessary).
Figure 49. Remove grapple
9. Lower the bucket and back the tractor away.
10. Lower the grapple grill so that it won't be able to fall
down and cause damage to the cylinder ports.
Install Grapple
1. Raise the grapple grill so that it is out of the way
and will not swing down (secure with bungee
straps if necessary).
2. Roll the bucket completely forward
Figure 50. Align Bucket with Grapple
3. Drive the tractor forward and align the bottom holes
of the grapple with the bottom set of grapple
mounts on the bucket and insert the pins. NOTE:
this may require two people.
4. Roll the bucket back and align the front holes and
insert pins.
5. Attach the grapple grill to the bucket using cap
screws and nuts.
6. Hook up the hydraulics.
7. Raise the loader and roll the bucket back.
Pins
Removed
4 X 4
Grapple
Grill
(Rev. 1/6/2011)

38 Parts
MAN0556 (9/21/2007)
LF138 & LF156 LOADER ASSEMBLY
55
35. Complete Decal Set
36. Safety Decal Set
37. French Decal Set

MAN0556 (9/212007)
Parts 39
LF138 & LF156 LOADER ASSEMBLY PARTS LIST
REF PART QTY DESCRIPTION
1 1026590 1 Boom assembly - LF156
1 1026591 1 Boom assembly - LF138
2 1026592 1 Right upright - LF156
2 1026594 1 Right upright - LF138
3 1026593 1 Left upright - LF156
3 1026595 1 Left upright - LF138
4 1024768B 1 Cylinder, 2.95 x 1.97 x 30.87
(right hand) - LF156
4 1024766B 1 Cylinder, 2.76 x 1.77 x 28.93
(right hand) - LF138
5 1024769B 1 Cylinder, 2.95 x 1.97 x 30.87
(left hand) - LF156
5 1024767B 1 Cylinder, 2.76 x 1.77 x 28.93
(left hand) - LF138
6 1024770B 2 Cylinder 2.76 x 1.49 x 20.00
7 1025640B 2 Bucket link
(also order 2 of wiper 441517)
8 1025645 2 Free link -11.50
9 1025650B 2 Guide link 11.50
10 1026267 2 Pin - bent .50 x 3.00
11 56075 2 Pull pin 1.25 w/lynch pin
12 1025646 4 Pin - 1.25 x 7.63
13 1025647B 4 Pin - 1.25 x 6.68
14 1025660B 1 Cover - feedline - LF156
14 1026270B 1 Cover - feedline - LF138
15 1025667B 2 Channel - stand support - LF156
15 1026261B 2 Channel - stand support - LF138
16 1025668 2 Pad - parking stand
17 1025669 2 Channel - parking stand - LF156
17 1026262 2 Channel - parking stand - LF138
18 1026258 1 Bracket - level indicator - LF156
18 1026269 1 Bracket - level indicator - LF138
REF PART QTY DESCRIPTION
19 1026259 1 Rod - level indicator
20 1025651 1 Bracket - manual tube
21 1003828 1 Manual tube
22 258 8 Feedline clamp - 1/2
23 56 2 Feedline clamp - 5/8
25 43439 2 Strap
26 1018607 12 Bearing 1.25x1.41x1.00 (set of 2)
27 1018608 1 Bearing 1.25x1.41x1.00 (set of 24)
28 441517 16 Wiper ring (1-1/4 ID)
29 88 * 15 Plastic tie
35 1026596 1 Decal set complete
36 1018605 1 Decal set safety
37 1019721 1 Decal set safety French
38 30515 2 M8 x 1.25P Hex nut
39 2688 * 2 5/32 Hair pin cotter
40 64803 * 4 3/16 x 2 Cotter pin
41 62043 2 1/4 x 1-3/4 klik pin
(included with item 10)
42 307128 1 M8 x 1.25P x 150 mm HHCS
43 14562 * 2 5/16 NC x 1 HHCS GR5
44 4378 * 7 Washer, 5/16 Standard flat
45 FA220 14 Nut, 5/16 NC Nylock
46 300165 * 8 3/8 NC x 2-1/2 HHCS GR5
47 6698 * 8 Nut, lock 3/8 NC
48 300300 * 4 1/2 NC x 1 HHCS GR5
49 3699 * 1 1/2 NC x 2 HHCS GR5
50 1637 * 2 1/2 NC x 3-1/2 HHCS GR5
51 29553 4 Washer, 1/2 ID x 1-5/8 OD x 1/4 thick
52 1093 * 2 Nut, hex 1/2 NC
53 765 * 2 Nut, lock 1/2 NC
54 7163 * 4 Washer, 1-1/4 standard flat
55 1021841 1 Spanner wrench
(used for cylinder repairs)
HHCS Hex Head cap Screw
* Standard hardware, obtain locally
(Rev. 4/25/2008)

40 Parts
MAN0556 (9/21/2007)
QUICK ATTACH BUCKET ASSEMBLY
PIN-ON BUCKET ASSEMBLY (LF138 ONLY)
REF PART QTY DESCRIPTION
1 2470084G - 84" Bucket w/Grapple lugs
1 2470084 - 84" Bucket
1 2470096 - 96" Bucket w/Grapple lugs
2 1014179K - 84" Cutting edge kit (incl. items 15-16)
2 1019482K - 96" Cutting edge kit (incl. items 15-16)
3 38993 7 Bucket tooth
4 46381 - Tooth kit (7) for 84" bucket
(incl. items 3, 5, 10-13)
5 46388 7 Bucket tooth stiffener
6 1022758 1 84" Cutting edge, .75 x 6.0 x 84
(weld in edge)
6 1022766 1 96" Cutting edge, .75 x 6.0 x 96
(weld in edge)
10 301145 * 14 3/8 NC x 2 Carriage bolt GR5
12 838 * 14 3/8 Lock washer
13 835 * 14 3/8 NC Hex nut
15 21261 * A/R 5/8 NC x 2 Plow bolt
16 6239 * A/R 5/8 NC Lock nut
** Standard hardware, obtain locally
A/R As required
NOTE: Bolt-on cutting edge kits and bucket tooth kits
are optional and must be ordered separately.
NOTE: Bolt-on cutting edge kits and bucket tooth kits are
optional and must be ordered separately.
REF PART QTY DESCRIPTION
1 2460084 - 84" Bucket (incl. items 7, 10, 11)
2 1014179K - 84" Cutting edge kit (incl. items 15-16)
3 38993 7 Bucket tooth
4 46381 - Tooth kit (7) for 84" bucket
(incl. items 3, 5, 12-14)
5 46388 7 Bucket tooth stiffener
6 1022758 1 84" Cutting edge, .75 x 6.0 x 84
(weld in edge)
7 1025646 4 Pin, 1.25 x 7.63
10 7164 * 4 5/16 NC x 2-1/4 HHCS GR5
11 6778 * 4 5/16 NC Lock nut
12 301145 * 12 3/8 NC x 2 Carriage bolt GR5
13 838 * 12 3/8 Lock washer
14 835 * 12 3/8 NC Hex nut
15 21261 * A/R 5/8 NC x 2 Plow bolt
16 6239 * A/R 2/8 NC Lock nut
* Standard hardware, obtain locally

MAN0556 (9/212007)
Parts 41
QUICK ATTACH COUPLER
(OPTIONAL FOR LF138)
REF PART QTY DESCRIPTION
A 2450000 - ISO 23206 Carriage assembly
1 --------- 1 ISO 23206 Carriage (NSS)
2 1025541 1 Handle
3 1025542 1 Handle link - right
4 1025545 1 Handle link - left
5 1025941 1 Latch link
6 1025646 4 Pin, 1.25 x 7.63
7 1025543 2 Pin, .787 x 7.60
8 395036 1 Handle grip
15 H019 1 Lock pin
REF PART QTY DESCRIPTION
16 12169 * 1 3/8 NC x 1-1/4 HHCS GR5
17 976 * 2 3/8 NC x 1-1/2 HHCS GR5
18 300165 * 4 3/8 NC x 2-1/2 HHCS GR5
19 565 * 4 3/8 Flat washer
20 302082 * 7 3/8 NC Lock nut
21 6100 * 2 1/2 NC x 1-1/4 HHCS GR5
22 639 * 1 1/2 NC x 2-1/2 HHCS GR5
23 765 * 3 1/2 NC Lock nut
NSS Not sold separately
HHCS Hex Head Cap Screw
* Standard hardware, obtain locally

42 Parts
MAN0556 (9/21/2007)
HYDRAULIC HOSE ROUTING & PARTS LIST
REF PART QTY DESCRIPTION
1 1025656 1 Feedline - Bucket rod upper - LF156
1 1026250 1 Feedline - Bucket rod upper - LF138
2 1025653 1 Feedline - Bucket base upper - LF156
2 1026251 1 Feedline - Bucket base upper - LF138
3 1025655 1 Feedline - Boom base - LF156
3 1026252 1 Feedline - Boom base - LF138
4 1025654 1 Feedline - Boom rod - LF156
4 1026253 1 Feedline - Boom rod - LF138
5 1025658 1 Feedline - Bucket rod lower - LF156
5 1026254 1 Feedline - Bucket rod lower - LF138
6 1025657 1 Feedline - Bucket base lower - LF156
6 1026255 1 Feedline - Bucket base lower- LF138
7 360174 4 Hose, 36" x 3/4 ORBM x 3/4 JICF -
LF156
7 1004286 4 Hose, 28" x 3/4 ORBM x 3/4 JICF -
LF138
REF PART QTY DESCRIPTION
8 360175 4 Hose, 60" x 3/4 ORBM x 3/4 JICF -
LF156
8 360178 4 Hose, 50" x 3/4 ORBM x 3/4 JICF -
LF138
9 360161 4 Hose, 64" x 3/4 ORBM x 3/4 JICF -
LF156
9 360175 4 Hose, 60" x 3/4 ORBM x 3/4 JICF -
LF138
15 315019 1 Elbow, 3/4 JICM x 3/4 JICM - LF156
16 258 8 Feedline clamp - 1/2
17 56 2 Feedline clamp - 5/8
18 43439 2 Strap
19 FA220 14 5/16 NC Nylock nut
20 88 * 15 Plastic tie
* Standard hardware, obtain locally

MAN0556 (9/212007)
Parts 43
HYDRAULIC CYLINDER SEAL KITS & ASSEMBLY
Length Seal Kit
Cylinder Tube
ID
Rod
OD
Extended Retracted Spanner Nut
Style
Threaded Rod Gland
Style
Complete Assembly
LF138 Boom 2.76 1.77 67.00 38.07 N.A. 1024771 1024766 RH
1024767 LH
LF156 Boom 2.95 1.97 70.75 39.88 N.A. 1024772 1024768 RH
1024769 LH
LF138 Bucket 2.76 1.49 48.88 28.88 N.A. 1024773 1024770
LF156 Bucket 2.76 1.49 48.88 28.88 N.A. 1024773 1024770
Grapple 2.76 1.38 33.75 20.20 1023728 1023729 1021502

44 Parts
MAN0556 (9/21/2007)
2490000 GRAPPLE (OPTIONAL)
(Rev. 1/6/2011)
7 - PN 1026520

MAN0556 (9/212007)
Parts 45
2490000 GRAPPLE PARTS LIST
NOTE: For items 8, 9 & 10 see Decal pages 10 and 11.
REF PART QTY DESCRIPTION
1 1021502B 2 Hydraulic cylinder
2 1025916 1 Grapple attach right
3 1025917 1 Grapple attach left
4 1025918 1 Grapple arm
5 1025919 1 Grapple tooth
6 1032748 1 Grapple grill
7 1026520 2 Decal, Danger - Overhead Power
Lines
8 56051 1 Decal, Warning - Read Manual
9 56050 1 Decal, Warning - Crush & Fall Hazard
10 19924 1 Decal, Warning - Hydraulic Fluid
15 1002739 4 Hitch pin, 1.25 x 4.63
16 1018607 4 Bearing, 1.25 x 1.41 x 1.0 (set of 2)
17 1020348 4 Pin, 1.25 x 5.50
18 1025647 2 Pin, 1.25 x 6.68
20 6239 * 8 5/8 NC Lock nut
21 57817 16 5/8 Hardened flat washer
23 35124 4 Klik pin, 7/16 x 2
REF PART QTY DESCRIPTION
25 11854 * 8 5/8 NC x 2-1/2 HHCS GR8
26 7164 * 6 5/16 NC x 2-1/4 HHCS GR5
27 6778 * 12 5/16 NC Lock nut
28 3379 * 4 1/2 NC x 1-1/2 HHCS GR5
29 1093 * 4 1/2 NC nut
40 1023474 2 Hose, 46" x 9/16 ORBM x 3/4 JICF 90°
41 1023477 2 Hose, 52" x 9/16 ORBM x 3/4 JICF 90°
42 360143 2 Hose, 28" x 9/16 ORBM x 3/4 JICF 90°
43 216070 2 Feedline
45 1024763 1 Dust cap, 1/2 ISO B
46 1024764 1 Dust plug, 1/2 ISO B
47 1025944 1 Quick coupler, male 1/2 - ISO B
48 1025945 1 Quick coupler, female 1/2 - ISO B
49 54315 2 Adapter, 1/2 NPTM x 9/16 JICM
50 258 6 Feedline clamp
51 24409 4 Crg. bolt 5/16 NC x 1
* Standard hardware, obtain locally
(Rev. 1/6/2011)

46 Appendix
Bolt Torque & Size Charts (Rev. 3/28/2007)
BOLT TORQUE CHART
Always tighten hardware to these values unless a different torque value or tightening procedure is listed for a specific
application.
Fasteners must always be replaced with the same grade as specified in the manual parts list.
Always use the proper tool for tightening hardware: SAE for SAE hardware and Metric for metric hardware.
Make sure fastener threads are clean and you start thread engagement properly.
All torque values are given to specifications used on hardware defined by SAE J1701 MAR 99 & J1701M JUL 96.
Diameter
(Inches)
Wrench
Size
MARKING ON HEAD
SAE 2 SAE 5 SAE 8
lbs-ft N-m lbs-ft N-m lbs-ft N-m
1/4" 7/16" 6 8 10 13 14 18
5/16"1/2"121719262737
3/8"9/16"233135474967
7/16"5/8"3648557578106
1/2" 3/4" 55 75 85 115 120 163
9/16" 13/16" 78 106 121 164 171 232
5/8" 15/16" 110 149 170 230 240 325
3/4" 1-1/8" 192 261 297 403 420 569
7/8" 1-5/16" 306 416 474 642 669 907
1" 1-1/2" 467 634 722 979 1020 1383
Diameter &
Thread Pitch
(Millimeters)
Wrench
Size
COARSE THREAD FINE THREAD
Diameter &
Thread Pitch
(Millimeters)
MARKING ON HEAD MARKING ON HEAD
Metric 8.8 Metric 10.9 Metric 8.8 Metric 10.9
N-m lbs-ft N-m lbs-ft N-m lbs-ft N-m lbs-ft
6 x 1.0 10 mm 8 6 11 8 8 6 11 8 6 x 1.0
8 x 1.25 13 mm 20 15 27 20 21 16 29 22 8 x 1.0
10 x 1.5 16 mm 39 29 54 40 41 30 57 42 10 x 1.25
12 x 1.75 18 mm 68 50 94 70 75 55 103 76 12 x 1.25
14 x 2.0 21 mm 109 80 151 111 118 87 163 120 14 x 1.5
16 x 2.0 24 mm 169 125 234 173 181 133 250 184 16 x 1.5
18 x 2.5 27 mm 234 172 323 239 263 194 363 268 18 x 1.5
20 x 2.5 30 mm 330 244 457 337 367 270 507 374 20 x 1.5
22 x 2.5 34 mm 451 332 623 460 495 365 684 505 22 x 1.5
24 x 3.0 36 mm 571 421 790 583 623 459 861 635 24 x 2.0
30 x 3.0 46 mm 1175 867 1626 1199 1258 928 1740 1283 30 x 2.0
A
SAE SERIES
TORQUE
CHART
SAE Bolt Head
Identification
SAE Grade 2
(No Dashes)
SAE Grade 5
(3 Radial Dashes)
SAE Grade 8
(6 Radial Dashes)
A
METRIC SERIES
TORQUE
CHART
Metric Bolt Head
Identification
8.8
Metric
Grade 10.9
10.9
Metric
Grade 8.8
A
A
A
Typical Washer
Installations
Lock Washer
Flat Washer
8/9/00
Bolt

Appendix 47
Bolt Torque & Size Charts (Rev. 3/28/2007)
BOLT SIZE CHART
NOTE: Chart shows bolt thread sizes and corresponding head (wrench) sizes for standard SAE and metric bolts.
ABBREVIATIONS
AG .............................................................. Agriculture
ASABE.................... American Society of Agricultural &
Biological Engineers (formerly ASAE)
ASAE ....... American Society of Agricultural Engineers
ATF ............................... Automatic Transmission Fluid
BSPP .............................British Standard Pipe Parallel
BSPTM ................ British Standard Pipe Tapered Male
CV.....................................................Constant Velocity
CCW .............................................. Counter-Clockwise
CW............................................................... Clockwise
F ...................................................................... Female
FT .............................................................. Full Thread
GA .................................................................... Gauge
GR (5, etc.) ........................................... Grade (5, etc.)
HHCS ........................................Hex Head Cap Screw
HT........................................................... Heat-Treated
JIC .................Joint Industry Council 37° Degree Flare
LH .................................................................Left Hand
LT........................................................................... Left
m......................................................................... Meter
mm................................................................ Millimeter
M.......................................................................... Male
MPa.........................................................Mega Pascal
N.......................................................................Newton
NC ......................................................National Coarse
NF ...........................................................National Fine
NPSM.....................National Pipe Straight Mechanical
NPT .......................................... National Pipe Tapered
NPT SWF .........National Pipe Tapered Swivel Female
ORBM .......................................... O-Ring Boss - Male
P...........................................................................Pitch
PBY ...................................................... Power-Beyond
psi.......................................... Pounds per Square Inch
PTO ..................................................... Power Take Off
QD....................................................Quick Disconnect
RH ..............................................................Right Hand
ROPS ........................... Roll-Over Protective Structure
RPM ........................................Revolutions Per Minute
RT ....................................................................... Right
SAE ..........................Society of Automotive Engineers
UNC .....................................................Unified Coarse
UNF...........................................................Unified Fine
UNS......................................................Unified Special
5/16 3/81/2 5/83/4 7/8
SAE Bolt Thread Sizes
MM 25 50 75 100 125 150 175
IN 1 7
Metric Bolt Thread Sizes
8MM 18MM14MM12MM10MM 16MM
234 56

48 Index
MAN0556 (9/21/2007)
INDEX
A
ASSEMBLY
Dealer Set-Up Instructions 31
D
DEALER CHECK LISTS
Delivery (Dealer’s Responsibility) 25
Pre-Delivery (Dealer’s Responsibility) 25
DEALER SERVICE
Cylinder Repair
Threaded Rod Guide Cylinder
Assembly 26
Disassembly 26
Pivot Bearing Replacement 29
G
GENERAL
Abbreviations 47
Bolt Size Chart 47
Bolt Torque Chart 46
General Information 3
Introduction 2
Obtaining Replacement Manuals 2
Product Registration 2
Specifications 4
Table of Contents 3
Warranty
Product 88
Replacement Parts 73
I
INSTALLATION
Attach Loader to Tractor 35
Connect Loader Supply Hoses 36
Grapple Assembly
Install Grapple 37
Remove Grapple 36
Remove Loader from Tractor 35
Verify Control Movements 36
O
OPERATION
Bale Spear Operation 19
Picking Up Round Bale 20
Picking Up Round Bale on Slope 20
Transporting Round Bale 20
Cleaning
After Each Use 20
Extended Storage 20
Connect Bucket using Quick Attach Coupler 13
Forklift Operation 17
Grapple Operation 18
Dumping Load 19
Removing Hay & Silage 19
Handling Objects 17
Loader Operation 13
Backblading 16
Backfilling 17
Carrying Load 14
Dumping Bucket 15
Filling Bucket 14
Lifting Load 14
Loading from a Bank 15
Loading Low Trucks or Spreading 16
Lowering Bucket 15
Operating on a Slope 14
Operating with Float Control 15
Peeling and Scraping 16
Pre-Operation Check List
(Owner’s Responsibility) 21
Tractor Preparation 12
OWNER SERVICE
Lubrication Points 22
S
SAFETY
Delivery (Dealer’s Responsibility) 25
Pre-Delivery (Dealer’s Responsibility) 25
Pre-Operation Check List
(Owner’s Responsibility) 21
Safety & Instructional Decals 10
Safety Rules 6
Safety Symbols Explained 2
T
TROUBLESHOOTING
Troubleshooting 23

F-3079 (Rev. 1/12/2011)
Woods Equipment
Company
2606 South Illinois Route 2
Post Office Box 1000
Oregon, Illinois 61061 USA
800-319-6637 tel
800-399-6637 fax
www.WoodsEquipment.com
WARRANTY
All Models Except Mow’n MachineTM Zero-Turn Mowers
Please Enter Information Below and Save for Future Reference.
Date Purchased: ____________________________ From (Dealer): __________________________________________
Model Number: ____________________________ Serial Number: __________________________________________
Woods Equipment Company (“WOODS”) warrants this product to be free from defect in material and workmanship. Except as otherwise set forth
below, the duration of this Warranty shall be for TWELVE (12) MONTHS COMMENCING ON THE DATE OF DELIVERY OF THE
PRODUCT TO THE ORIGINAL PURCHASER.
All current model loaders and backhoes are warranted for two (2) years from the date of delivery to the original purchaser.
The warranty periods for specific parts or conditions are listed below:
Under no circumstances will this Warranty apply in the event that the product, in the good faith opinion of WOODS, has been subjected to
improper operation, improper maintenance, misuse, or an accident. This Warranty does not apply in the event that the product has been materially
modified or repaired by someone other than WOODS, a WOODS authorized dealer or distributor, and/or a WOODS authorized service center.
This Warranty does not cover normal wear or tear, or normal maintenance items. This Warranty also does not cover repairs made with parts other
than those obtainable through WOODS.
This Warranty is extended solely to the original purchaser of the product. Should the original purchaser sell or otherwise transfer this product to a
third party, this Warranty does not transfer to the third party purchaser in any way. There are no third party beneficiaries of this Warranty.
WOODS makes no warranty, express or implied, with respect to engines, batteries, tires or other parts or accessories not manufactured by
WOODS. Warranties for these items, if any, are provided separately by their respective manufacturers.
WOODS’ obligation under this Warranty is limited to, at WOODS’ option, the repair or replacement, free of charge, of the product if WOODS, in
its sole discretion, deems it to be defective or in noncompliance with this Warranty. The product must be returned to WOODS with proof of
purchase within thirty (30) days after such defect or noncompliance is discovered or should have been discovered, routed through the
dealer and distributor from whom the purchase was made, transportation charges prepaid. WOODS shall complete such repair or
replacement within a reasonable time after WOODS receives the product. THERE ARE NO OTHER REMEDIES UNDER THIS WARRANTY.
THE REMEDY OF REPAIR OR REPLACEMENT IS THE SOLE AND EXCLUSIVE REMEDY UNDER THIS WARRANTY.
THERE ARE NO WARRANTIES WHICH EXTEND BEYOND THE DESCRIPTION ON THE FACE OF THIS WARRANTY. WOODS
MAKES NO OTHER WARRANTY, EXPRESS OR IMPLIED, AND WOODS SPECIFICALLY DISCLAIMS ANY IMPLIED WARRANTY
OF MERCHANTABILITY AND/OR ANY IMPLIED WARRANTY OF FITNESS FOR A PARTICULAR PURPOSE.
WOODS shall not be liable for any incidental or consequential losses, damages or expenses, arising directly or indirectly from the
product, whether such claim is based upon breach of contract, breach of warranty, negligence, strict liability in tort or any other legal
theory. Without limiting the generality of the foregoing, Woods specifically disclaims any damages relating to (i) lost profits, business, revenues
or goodwill; (ii) loss of crops; (iii) loss because of delay in harvesting; (iv) any expense or loss incurred for labor, supplies, substitute machinery or
rental; or (v) any other type of damage to property or economic loss.
This Warranty is subject to any existing conditions of supply which may directly affect WOODS’ ability to obtain materials or manufacture
replacement parts.
No agent, representative, dealer, distributor, serviceperson, salesperson, or employee of any company, including without limitation, WOODS, its
authorized dealers, distributors, and service centers, is authorized to alter, modify, or enlarge this Warranty. Answers to any
questions regarding warranty service and locations may be obtained by contacting:
Part or
Condition
Warranted
Model Number
Duration (from date of
delivery to the original
purchaser)
Gearbox
Seals All units listed below 2 years
Gearbox
components
BW1260, BW1620, BW1800, BW2400 8 years
BW240HD, BW180HD, BW180HB, BW126HB 7 years
BB48X, BB60X, BB72X, BB84X, BB600X, BB720X, BB840X, BB6000X, BB7200X, BB8400X,
DS1260, DSO1260, DS1440, TS1680, BW126-3, BW180-3, BW240 6 years
PHD25, PHD35, PHD65, PHD95, 2162, 3240, DS96, DS120, RCC42, RM550-2, RM660-2,
RD990X, PRD6000, PRD7200, PRD8400, S15CD, S20CD, S22CD, S25CD, S27CD, BW180LH,
TC/R74, TC/R68, TC/R60, TBW144, TBW180, TBW204
5 years
RDC54, RD60, RD72, TBW150C, TS/R60, TS/R52, TS/R44 3 years (1 year if used in rental or
commercial applications)
Blade
spindles RM550-2, RM660-2, RD990X, PRD6000, PRD7200, PRD8400, 7144RD-2, 9180RD-2, 9204RD-2 3 years
Rust-through
BB600, BB720, BB840, BB6000, BB7200, BB8400, BW126-3, BW126HB, BW180-3, BW180HB,
BW180HD, BW1260, BW1800, BW240, BW240HD, 2162, 3240, DS1260, DSO1260, DS1440,
TS1680
10 years

F-8494 (Rev. 6/23/2005)
©2007 Woods Equipment Company. All rights reserved. WOODS and the Woods logo are trademarks of Woods Equipment Company. All other
trademarks, trade names, or service marks not owned by Woods Equipment Company that appear in this manual are the property of their respective
companies or mark holders. Specifications subject to change without notice.
WARRANTY
(Replacement Parts For All Models Except Mow’n MachineTM
Zero-Turn Mowers and Woods BoundaryTM Utility Vehicles)
Woods Equipment Company (“WOODS”) warrants this product to be free from defect in material and
workmanship for a period of ninety (90) days from the date of delivery of the product to the original purchaser
with the exception of V-belts, which will be free of defect in material and workmanship for a period of 12 months.
Under no circumstances will this Warranty apply in the event that the product, in the good faith opinion of
WOODS, has been subjected to improper operation, improper maintenance, misuse, or an accident. This Warranty
does not cover normal wear or tear, or normal maintenance items.
This Warranty is extended solely to the original purchaser of the product. Should the original purchaser sell or
otherwise transfer this product to a third party, this Warranty does not transfer to the third party purchaser in any
way. There are no third party beneficiaries of this Warranty.
WOODS’ obligation under this Warranty is limited to, at WOODS’ option, the repair or replacement, free of
charge, of the product if WOODS, in its sole discretion, deems it to be defective or in noncompliance with this
Warranty. The product must be returned to WOODS with proof of purchase within thirty (30) days after
such defect or noncompliance is discovered or should have been discovered, routed through the dealer and
distributor from whom the purchase was made, transportation charges prepaid. WOODS shall complete
such repair or replacement within a reasonable time after WOODS receives the product. THERE ARE NO
OTHER REMEDIES UNDER THIS WARRANTY. THE REMEDY OF REPAIR OR REPLACEMENT IS THE
SOLE AND EXCLUSIVE REMEDY UNDER THIS WARRANTY.
THERE ARE NO WARRANTIES WHICH EXTEND BEYOND THE DESCRIPTION ON THE FACE OF THIS
WARRANTY. WOODS MAKES NO OTHER WARRANTY, EXPRESS OR IMPLIED, AND WOODS
SPECIFICALLY DISCLAIMS ANY IMPLIED WARRANTY OF MERCHANTABILITY AND/OR ANY
IMPLIED WARRANTY OF FITNESS FOR A PARTICULAR PURPOSE.
WOODS shall not be liable for any incidental or consequential losses, damages or expenses, arising directly
or indirectly from the product, whether such claim is based upon breach of contract, breach of warranty,
negligence, strict liability in tort or any other legal theory. Without limiting the generality of the foregoing,
Woods specifically disclaims any damages relating to (i) lost profits, business, revenues or goodwill; (ii) loss of
crops; (iii) loss because of delay in harvesting; (iv) any expense or loss incurred for labor, supplies, substitute
machinery or rental; or (v) any other type of damage to property or economic loss.
This Warranty is subject to any existing conditions of supply which may directly affect WOODS’ ability to obtain
materials or manufacture replacement parts.
No agent, representative, dealer, distributor, service person, salesperson, or employee of any company, including
without limitation, WOODS, its authorized dealers, distributors, and service centers, is authorized to alter, modify,
or enlarge this Warranty.
Answers to any questions regarding warranty service and locations may be obtained by contacting: