Yamaha DZR/DXS XLF Series Dimensions Dzr Dxs
User Manual: Yamaha DZR/DXS XLF Series Dimensions
Open the PDF directly: View PDF
.
Page Count: 6

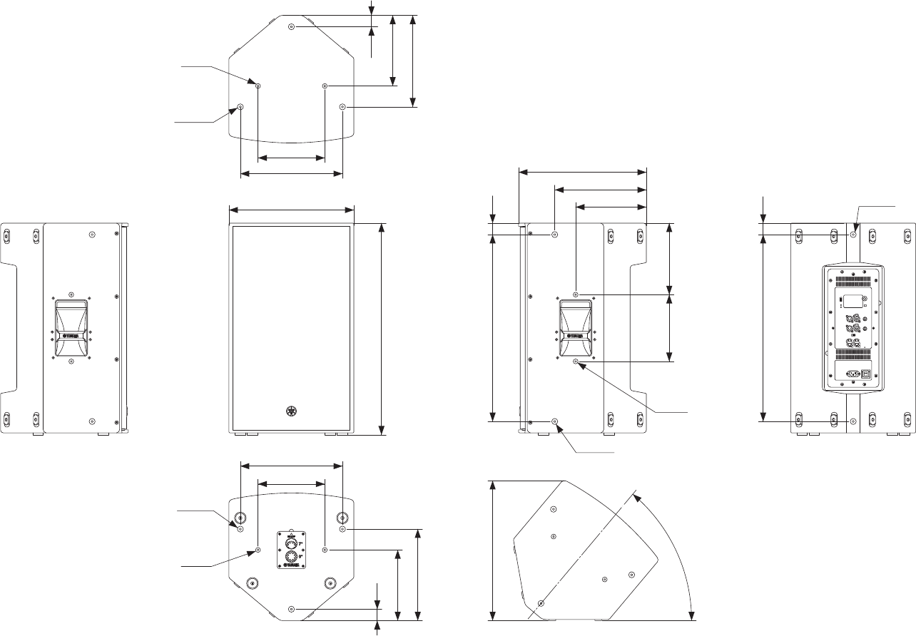
41
366 92
287
41
287
448 51
4xM10
550
897
520
41808
282
2xM10
41
4xM10
808
4xM10
366 92
366 92
448 51
DZR315/315-D
Unit: mm
Dimensions / 寸法図(1/6)

41672
2xM10
460
41672
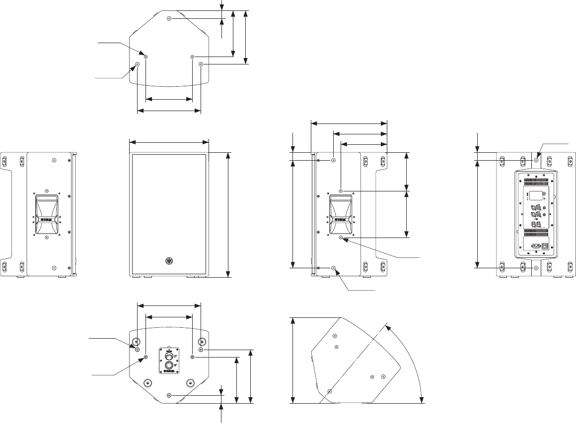
329
254
257240
2xM10
2xM8
367
240
41
254
329
3xM10
2xM8
450
761
367
240
41
254
329
3xM10
2xM8
504
50°
DZR15/15-D
Unit: mm
Dimensions / 寸法図(2/6)

2xM8
2xM8
3xM10
41
239
277
240
327
2xM8
3xM10
646
410 239
394
277
199.5240
41557
2xM10
41557
2xM10
240
327
41
239
277
444
50°
DZR12/12-D
Unit: mm
Dimensions / 寸法図(3/6)

233
240
166
236
2xM8
2xM10
315
537
233
166
236
240
2xM10
2xM8
392
50°
236
176
41
145240
451
345
2xM8
2xM10
28474
2xM8
DZR10/10-D
Unit: mm
Dimensions / 寸法図(4/6)

720
550
657
Ø35
M20
82
40
16 x M6
DXS18XLF/18XLF-D
Unit: mm
Dimensions / 寸法図(5/6)

M20
Ø35
587
450
600
82
40
16 x M6
DXS15XLF/15XLF-D
Unit: mm
Dimensions / 寸法図(6/6)