York Pv9 Users Manual 036 21584 001 B 1004
PV9 to the manual b917e178-663c-4f3e-81ca-0638b47d76a4
2015-02-02
: York Pv9-Users-Manual york-pv9-users-manual-455298 york pdf
Open the PDF directly: View PDF
.
Page Count: 8

TECHNICAL GUIDE
AFFINITY
MODELS: PV9
GAS-FIRED
CONDENSING / HIGH EFFICIENCY
TWO STAGE VARIABLE
UPFLOW FURNACES
UP TO 94% AFUE
NATURAL GAS
40 - 120 MBH INPUT
Due to continuous product improvement, specifications
are subject to change without notice.
Visit us on the web at www.york.com for the most
up-to-date technical information.
Additional rating information can be found at
www.gamanet.org.
EFFICIENCY
RATING
CERTIFIED
This product was manufactured
in a plant whose quality system
is certified/registered as being
in conformity with ISO 9001.
036-21584-001 Rev. B (1004)
FOR DISTRIBUTION USE ONLY - NOT TO BE USED AT POINT OF RETAIL SALE
DESCRIPTION
These Category IV, highly efficient, compact, condensing
type furnaces are designed for residential and commercial
installations in a basement, closet, alcove, recreation room
or garage where the ambient temperature is above 32°F, or
higher. They may be either side wall or thru-roof vented
using approved plastic type combustion air and vent piping.
All units are factory assembled, wired and tested to assure
dependable and economical installation and operation.
WARRANTY
Lifetime limited warranty on both heat exchangers to the
original purchaser; a 20-year limited warranty from original
installation date to subsequent purchaser.
10-year warranty on commercial applications.
5-year limited parts warranty.
FEATURES
• Two stage heating operation includes:
- Two stage gas valve
- Two stage inducer operation
- Variable speed ECM blower operation
• Provides increased comfort level & very quiet unit oper-
ation
• Adjustable delay timer allows two stage operation with
single stage thermostat
• Compact, easy to install, ideal height 40" cabinet
• Blower-off delay for cooling SEER improvement.
• Easy to connect power/control wiring.
• Built-in, high level self diagnostics with fault code display.
• Low unit amp requirement for easy replacement applica-
tion.
• Integrated control module for reliable, economical opera-
tion.
• High velocity filter and side -return filter rack provided for
easy field installation.
• May be installed as either two-pipe (sealed combustion)
or single pipe vent (using indoor combustion air)
• Top intake & vent connection allows installation in narrow
locations.
• Electronic Hot Surface Ignition saves fuel cost with
increased dependability and reliability.
• Induced combustion system with inshot main burners for
quiet, efficient operation.
• No special vent termination kit required.
• 100% shut off main gas valve for extra safety.
• 24V, 40 VA control transformer and blower relay supplied
for add-on cooling.
• Hi-tech tubular aluminized steel primary heat exchanger.
• Secondary (condensing) heat exchanger of 29-4C high-
grade stainless steel.
• Timed on, adjustable off blower capability for maximum
comfort.
• Solid removable bottom panel allows easy application.
• Easy access from front of unit for cleaning, maintenance
or service.
• Protection from intake, exhaust or condensate blockage.
• Insulated blower compartment for quiet operation.
• ClimaTraK comfort system allows dealer to customize
comfort settings based on regional location.

036-21584-001 Rev. B (1004)
2Unitary Products Group
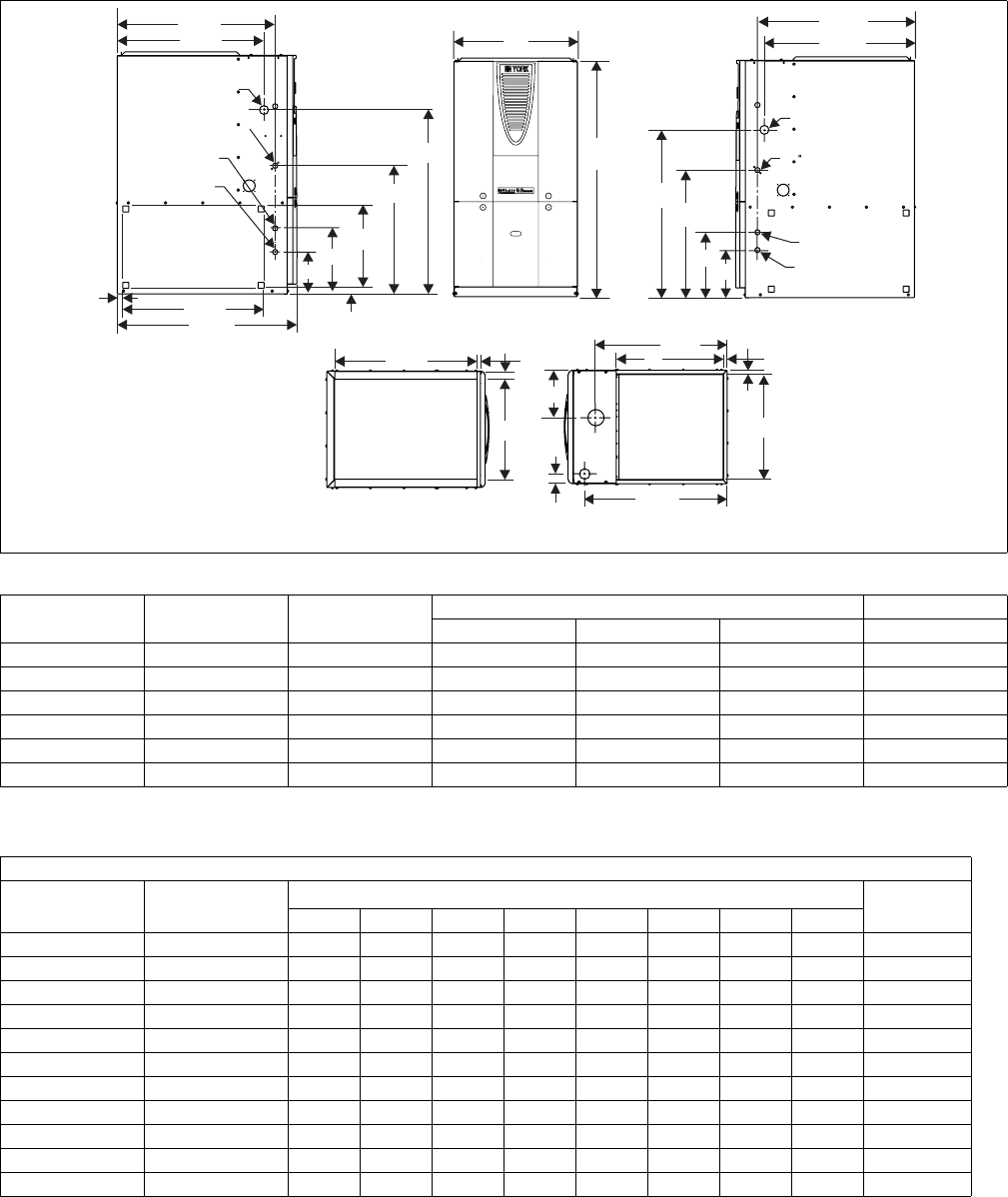
Three elbows (two in vent pipe and one in the air intake pipe) are already accounted for and need not be included in the elbow count from the Table
above.
30-7/8
21-1/2
13-7/8
7
11
7/8
23-3/4
7/8
30-1/8
26-1/2
24-5/8 A
40
26-1/2
25-3/8
28-3/8
21-1/2
11
8
26-3/4
1-3/81-1/4
C
24-3/8
20 5/8
5/8
B
26-1/2
1-3/4
D
1-1/2” GAS
PIPE ENTRY
7/8” JUNCTION
BOX HOLE
T-STAT WIRING
7/8” K.O.
CONDENSATE
DRAIN 7/8” K.O.
OPTIONAL RETURN AIR
CUT-OUT (either side)
FOR USE WITH
EXTERNAL FILTER
FRAME
LEFT SIDE
FRONT RIGHT SIDE
BOTTOM IMAGE
RETURN END TOP IMAGE
SUPPLY END
1-1/2” GAS
PIPE ENTRY
7/8” JUNCTION
BOX HOLE
T-STAT WIRING
7/8” K.O.
CONDENSATE
DRAIN 7/8” K.O.
DIMENSIONS
Models CFM Cabinet
Size
Cabinet Dimension Air Intake
A (in.) B (in.) C (in.) D (in.)
PV9A12N040UP11 1200 A 14-1/2 13-1/2 12-1/8 6-1/4
PV9B12N060UP11 1200 B 17-1/2 16-1/4 15-1/8 8-1/2
PV9B12N080UP11 1200 B 17-1/2 16-1/4 15-1/8 8-1/2
PV9C16N080UP11 1600 C 21 19-3/4 18-1/2 8-7/8
PV9C20N100UP11 2000 C 21 19-3/4 18-1/2 8-7/8
PV9D20N120UP11 2000 D 24-1/2 23-1/4 21-7/8 10-5/8
COMBUSTION AIR SUPPLY AND VENT PIPING
MAXIMUM ELBOWS AND VENT LENGTHS
Models Pipe Size
Inches (cm)
Maximum Number of Elbows* Minimum
Length
1 2 3 4 5 6 7 8
40,000 1-1/2 30 25 20 10 N/A N/A N/A N/A 5
40,000 2 7065605550453525 5
60,000 1-1/2 (3.8) 30 25 20 10 N/A N/A N/A N/A 5
60,000 2 (5.1) 60 55 50 45 40 30 20 10 5
60,000 3 (7.6) 85 80 75 70 65 60 50 40 20
80,000 1-1/2 (3.8) 20 15 N/A N/A N/A N/A N/A N/A 5
80,000 2 (5.1) 60 55 50 45 40 30 20 10 5
80,000 3 (7.6) 85 80 75 70 65 60 50 40 20
100,000 2 (5.1) 25 20 15 N/A N/A N/A N/A N/A 5
100,000 3 (7.6) 85 80 75 70 65 60 50 40 20
120,000 3 (7.6) 75 70 65 60 55 45 35 25 5

036-21584-001 Rev. B (1004)
Unitary Products Group 3
NOTE: For high altitude conversion, an orifice change may also be required. See Form 035-14447-001 for application information.
Annual Fuel Utilization Efficiency (AFUE) numbers are determined in accordance with DOE Test procedures.
Wire size and over current protection must comply with the National Electrical Code (NFPA-70-latest edition) and all local codes.
The furnace shall be installed so that the electrical components are protected from water.
* ESP (External Static Pressure) .5" WG is at furnace outlet ahead of cooling coil.
NOTES:
1. All filters must be high velocity cleanable type.
2. Air flows above 1800 CFM require either return from two sides or one side plus bottom.
HIGH ALTITUDE PRESSURE SWITCH APPLICATION
Models High Altitude Pressure Switch Kit
4,500 Ft to 10,000 Ft.
PV9A12N040UP11 1PS0506
PV9B12N060UP11 1PS0501
PV9B12N080UP11 1PS0502
PV9C16N080UP11 1PS0503
PV9C20N100UP11 1PS0505
PV9D20N120UP11 1PS0503
ELECTRICAL AND PERFORMANCE DATA
Models
Input
High/Low Output
High/Low Nominal
Airflow AFUE Air Temp.
Rise Max. Outlet
Air Temp. Blower Blower
Size Total Unit Max.
Over-current
Protect
Min. Wire Size
(awg) @ 75 ft.
One Way
MBH MBH CFM % °F °F HP Amps In. Amps
PV9A12N040UP11 40/26 38/24 1200 94.0 35-65 165 1/2 7.7 11x8 9 20 14
PV9B12N060UP11 60/39 56/36 1200 93.2 40-70 170 1/2 7.7 11x8 9 20 14
PV9B12N080UP11 80/52 75/49 1200 92.5 45-75 175 1/2 7.7 11x8 9 20 14
PV9C16N080UP11 80/52 75/49 1600 92.8 45-75 175 3/4 9.6 11x10 12 20 14
PV9C20N100UP11 100/65 93/60 2000 92.8 45-75 175 1 12.8 11x11 14 20 12
PV9D20N120UP11 120/78 112/73 2000 93.2 40-70 170 1 12.8 11x11 14 20 12
FILTER SIZES
Models CFM Cabinet Size Side Return Filter in. (cm) Bottom Return Filter in. (cm)
PV9A12N040UP11 1200 A 16 x 25 14 x 25
PV9B12N060UP11 1200 B 16 x 25 16 x 25
PV9B12N080UP11 1200 B 16 x 25 16 x 25
PV9C16N080UP11 1600 C 16 x 25 20 x 25
PV9C20N100UP11 2000 C 16 x 25 20 x 25
PV9D20N120UP11 2000 D (2) 16 x 25 22 x 25

036-21584-001 Rev. B (1004)
4Unitary Products Group
AIR FLOW DATA
HIGH / LOW SPEED COOLING AND HEAT PUMP CFM
40,000 INPUT - 3 Ton 60,000 INPUT - 3 Ton JUMPER SETTINGS
CFM m³/min CFM m³/min
High Low High Low High Low High Low COOL Tap ADJ Tap
1340 995 38.0 28.2 1330 900 37.7 25.5 A B
1205 885 34.1 25.1 1130 800 32.0 22.7 B B
1255 920 35.6 26.1 1220 850 34.6 24.1 A A
1150 835 32.6 23.7 1040 730 29.4 20.7 B A
1170 855 33.2 24.2 1120 770 31.7 21.8 A C
1025 755 29.0 21.4 920 650 26.1 18.4 C B
1045 780 29.6 22.1 950 660 26.9 18.7 B C
835 625 23.7 17.7 740 540 21.0 15.3 D B
950 705 26.9 20.0 860 610 24.4 17.3 C A
785 590 22.2 16.7 690 540 19.5 15.3 D A
865 665 24.5 18.8 790 570 22.4 16.1 C C
725 605 20.5 17.1 630 530 17.8 15.0 D C
80,000 INPUT - 3 Ton 80,000 INPUT - 4 Ton JUMPER SETTINGS
CFM m³/min CFM m³/min
High Low High Low High Low High Low COOL Tap ADJ Tap*
1310 890 37.1 25.2 1660 1110 47.0 31.4 A B
1100 740 31.2 21.0 1550 1050 43.9 29.7 B B
1220 830 34.6 23.5 1610 1070 45.6 30.3 A A
1000 670 28.3 19.0 1440 960 40.8 27.2 B A
1090 720 30.9 20.4 1470 990 41.6 28.0 A C
900 610 25.5 17.3 1370 920 38.8 26.1 C B
880 610 24.1 17.3 1290 850 36.5 24.1 B C
680 510 19.3 14.4 1130 790 32.0 22.4 D B
810 580 22.9 16.4 1230 850 34.8 24.1 C A
630 500 17.8 14.2 1050 720 29.7 20.4 D A
730 530 20.7 15.0 1110 760 31.4 21.5 C C
590 500 16.7 14.2 950 660 26.9 18.7 D C
100,000 INPUT - 5 Ton 120,000 INPUT - 5 Ton JUMPER SETTINGS
CFM m³/min CFM m³/min
High Low High Low High Low High Low COOL Tap ADJ Tap*
2210 1480 62.6 41.9 2280 1510 64.6 42.8 A B
1780 1180 50.4 33.4 1860 1190 52.7 33.7 B B
2040 1350 57.8 38.2 2090 1370 59.2 38.8 A A
1620 1050 45.9 29.7 1630 1060 46.2 30.0 B A
1840 1250 52.1 35.4 1880 1250 53.2 35.4 A C
1560 1010 44.2 28.6 1620 1030 45.9 29.2 C B
1470 940 41.6 26.6 1500 960 42.5 27.2 B C
1370 890 38.8 25.2 1410 880 39.9 24.9 D B
1460 930 41.3 26.3 1490 920 42.2 26.1 C A
1250 790 35.4 22.4 1290 790 36.5 22.4 D A
1310 810 37.1 22.9 1360 840 38.5 23.8 C C
1090 690 30.9 19.5 1140 690 32.3 19.5 D C
HIGH / LOW HEAT CFM
40,000 INPUT - 3 Ton 60,000 INPUT - 3 Ton JUMPER SETTINGS
CFM m³/min CFM m³/min
High Low High Low High Low High Low HEAT Tap ADJ Tap*
1045 740 29.6 21.0 1110 710 31.4 20.1 A Any
905 645 25.6 18.3 960 640 27.2 18.1 B Any
825 595 23.4 16.8 870 600 24.6 17.0 C Any
765 590 21.7 16.7 830 570 23.5 16.1 D Any
80,000 INPUT - 3 Ton 80,000 INPUT - 4 Ton JUMPER SETTINGS
CFM m³/min CFM m³/min
High Low High Low High Low High Low HEAT Tap ADJ Tap*
1330 880 37.7 24.9 1490 990 42.2 28.0 A Any
1180 810 33.4 22.9 1350 900 38.2 25.5 B Any
1100 730 31.2 20.7 1220 820 34.6 23.2 C Any
1010 670 28.6 19.0 1120 770 31.7 21.8 D Any
100,000 INPUT - 5 Ton 120,000 INPUT - 5 Ton JUMPER SETTINGS
CFM m³/min CFM m³/min
High Low High Low High Low High Low HEAT Tap ADJ Tap*
1880 1230 53.2 34.8 2150 1420 60.9 40.2 A Any
1670 1080 47.3 30.6 1930 1290 54.7 36.5 B Any
1530 980 43.3 27.8 1850 1190 52.4 33.7 C Any
1430 900 40.5 25.5 1660 1070 47.0 30.3 D Any
All CFM’s are shown at 0.5” w.c. external static pressure.These units have variable speed motors that automatically adjust to provide constant CFM from 0.0” to 0.6” w.c. static pressure. From
0.6” to 1.0” static pressure, CFM is reduced by 2% per 0.1” increase in static. Operation on duct systems with greater than 1.0” w.c. external static pressure is not recommended.
NOTE: At some settings, LOW COOL and/or LOW HEAT airflow may be lower that what is required to operate an airflow switch on certain models of electronic air cleaners. Consult the
instructions for the electronic air cleaner for further details.
The ADJ “D” tap should not be used.

036-21584-001 Rev. B (1004)
Unitary Products Group 5
FILTER PERFORMANCE
The airflow capacity data published in the “Blower Perfor-
mance” table listed above represents blower performance
WITHOUT filters. To determine the approximate blower per-
formance of the system, apply the filter drop value for the fil-
ter being used or select an appropriate value from the “Filter
Performance” table shown below.
NOTE: The filter pressure drop values in the “Filter Perfor-
mance” table shown below are typical values for the type of
filter listed and should only be used as a guideline. Actual
pressure drop ratings for each filter type vary between filter
manufacturer.
* Washable Fibers are the type supplied with furnace (if supplied.
APPLYING FILTER PRESSURE DROP TO
DETERMINE SYSTEM AIRFLOW
To determine the approximate airflow of the unit with a filter in
place, follow the steps below:
1. Select the filter type.
2. Select the number of return air openings or calculate the
return opening size in square inches to determine the
proper filter pressure drop.
3. Determine the External System Static Pressure (ESP)
without the filter.
4. Select a filter pressure drop from the table based upon
the number of return air openings or return air opening
size and add to the ESP from Step 3 to determine the
total system static.
5. If total system static matches a ESP value in the airflow
table (i.e. 0.20, 0.60, etc,) the system airflow corre-
sponds to the intersection of the ESP column and Model/
Blower Speed row.
BLK
WHT
GRN
BLK (HOT)
WHT (NEUTRAL)
GRN
NOMINAL
120 VOLT
LINE WIRING CONNECTIONS SINGLE STAGE HEATING
THERMOSTAT CONNECTIONS
SINGLE STAGE HEATING AND TWO-STAGE COOLING
THERMOSTAT CONNECTIONS
ROOM
THERMOSTAT
FURNACE
CONTROL
CONDENSING
UNIT
TO AIR CONDITIONER
CONTROLS
R
W
G
Y1
C
R
G
C
COMMON T’STAT CONNECTION
Y2
Y1
W1/W
Y/Y2
ROOM
THERMOSTAT
FURNACE
CONTROL
CONDENSING
UNIT
TO AIR CONDITIONER
CONTROLS
R
W
G
Y
C
R
G
C
COMMON T’STAT CONNECTION
W1/W
Y/Y2
ROOM
THERMOSTAT
FURNACE
CONTROL
CONDENSING
UNIT
TO AIR CONDITIONER
CONTROLS
R
W1
W2
G
Y2
R
G
COMMON T’STAT CONNECTION
Y1 Y1
W1/W
CC
W2
Y/Y2
TWO-STAGE HEATING AND TWO-STAGE COOLING
THERMOSTAT CONNECTIONS
FILTER PERFORMANCE - PRESSURE DROP INCHES W.C. AND (KPA)
Airflow Range
Minimum Opening Size Filter Type
Disposable WASHABLE FIBER* Pleated
1 Opening 2 Openings 1 Opening 2 Opening 1 Opening 2 Opening 1 Opening 2 Opening
Sq. in. Sq. in. In w.c. Pa In w.c. Pa In w.c. Pa In w.c. Pa In w.c. Pa In w.c. Pa
0 - 750 230 0.01 2.5 0.01 2.5 0.15 37
751 - 1000 330 0.04 10 0.03 7.5 0.20 50
1001 - 1250 330 0.08 20 0.07 17 0.20 50
1251 - 1500 330 0.08 20 0.07 17 0.25 62
1501 - 1750 380 658 0.14 35 0.08 20 0.13 32 0.06 15 0.30 75 0.17 42
1751 - 2000 380 658 0.17 42 0.09 22 0.15 37 0.07 17 0.30 75 0.17 42
2001 & Above 463 658 0.17 42 0.09 22 0.15 37 0.07 17 0.30 75 0.17 42

036-21584-001 Rev. B (1004)
6Unitary Products Group
ACCESSORIES
PROPANE (LP) CONVERSION KIT -
1NP0580 - All units
This accessory conversion kit may be used to convert natural
gas (N) units for propane (LP) operation. Conversions must
be made by qualified distributor or dealer personnel.
CONCENTRIC VENT TERMINATION -
1CT0302 (2")
1CT0303 (3")
For use through rooftop, sidewall. Allows combustion air to
enter and exhaust to exit through single common hole.
CONDENSATE NEUTRALIZER KIT - 1NK0301
Neutralizer cartidge has a 1/2" plastic tube fittings for installa-
tion in the drain line. Calcium carbonate refill media is also
avaiable from the Source 1 Parts (p/n 026-30228-000).
Sidewall Vent Termination - 1HT0901
For use on sidewall, two-pipe installations only. Provides a
more attractive termination for locations where the terminal is
visible on the side of the home.
EXTERNAL BOTTOM RETURN FILTER RACK W/FILTER -
Provides a cleanable, high velocity type filter and filter rack.
Attaches to the bottom of the furnace.
1BR0314 - For 14-1/2” cabinets
1BR0317 - For 17-1/2" cabinets
1BR0321 - For 21" cabinets
1BR0324 - For 24-1/2" cabinets
HIGH ALTITUDE PRESSURE SWITCHES -
These accessory kits may be used to convert units for high
altitude operation. Conversion must be made by qualified dis-
tributor or dealer personnel.
1PS0501
HIGH ALTITUDE PRESSURE
SWITCH KIT
(Does Not Include Orifices)
FOR APPLICATION
INFORMATION
SEE FORM
035-20506-001
1PS0502
1PS0503
1PS0504
1PS0505
1PS0506
FIELD INSTALLED ACCESSORIES - ELECTRICAL
MODEL NO. DESCRIPTION USED WITH
2TH07700124 THERMOSTAT- One-stage heat/cool. Manual changeover, integral subbase.
System Switch: Cool-Off-Heat. Fan Switch: Auto-On. ALL MODELS
2TH13700424
THERMOSTAT- One-stage heat. Deluxe 24V with heat only subbase, does not
include fan switch. NOTE: For one-stage cool or one-stage heat/cool, must be
used with subbase 2TB17700424.
ALL MODELS
2TB17700424 SUBBASE (24V) - One-stage heat/cool. Manual changeover, integral subbase.
System Switch: Cool-Off-Heat. Fan Switch: Auto-On. ALL MODELS
2ET07700224 THERMOSTAT- One-stage heat/cool. Programmable changeover, with sub-
base. System Switch: Cool-Off-Heat. Fan Switch: Auto-On. ALL MODELS
036-21584-001 Rev. B (1004)
Unitary Products Group 7
NOTES

Subject to change without notice. Printed in U.S.A. 036-21584-001 Rev. B (1004)
Copyright © by York International Corp. 2004. All rights reserved. Supersedes: 036-21584-001 Rev. a (0904)
Unitary 5005 Norman
Products York OK
Group Drive 73069
NOTES