York Ycul0016 Users Manual 150.63 EG1
YCUL0016 to the manual 4bbea84b-c5e8-4194-a81e-eee070cc593e
2015-02-02
: York Ycul0016-Users-Manual york-ycul0016-users-manual-455272 york pdf
Open the PDF directly: View PDF
.
Page Count: 124 [warning: Documents this large are best viewed by clicking the View PDF Link!]

YCUL0016 – YCUL0130
15 – 130 TON
53 – 457 kW
R-22 & HFC-407C
60 Hz
FORM 150.63-EG1 (103)
AIR-COOLED
SCROLL CONDENSING UNITS
STYLE C
00096VIP
ASHRAE 90.1
COMPLIANT

YORK INTERNATIONAL
2
YORK INTERNATIONAL 3
FORM 150.63-EG1
Table of Contents
Introduction................................................................................................................................................................3
Specification..............................................................................................................................................................4
Options and Accessories................................................................................................................................7
Selection Data................................................................................................................................9
Design Parameters................................................................................................................................16
Ratings - R22 (English Units)................................................................................................................................18
Ratings - R22 (SI Units)................................................................................................................................28
Ratings - HFC-407C (English Units)................................................................................................................................34
Ratings - HFC-407C (SI Units)................................................................................................................................44
Part Load Ratings - R-22 (English Units)......................................................................................................................50
Part Load Ratings - R-22 (SI Units)................................................................................................................................52
Part Load Ratings - HFC-407C (English Units).............................................................................................................54
Part Load Ratings - HFC-407C (SI Units)..........................................................................................................................56
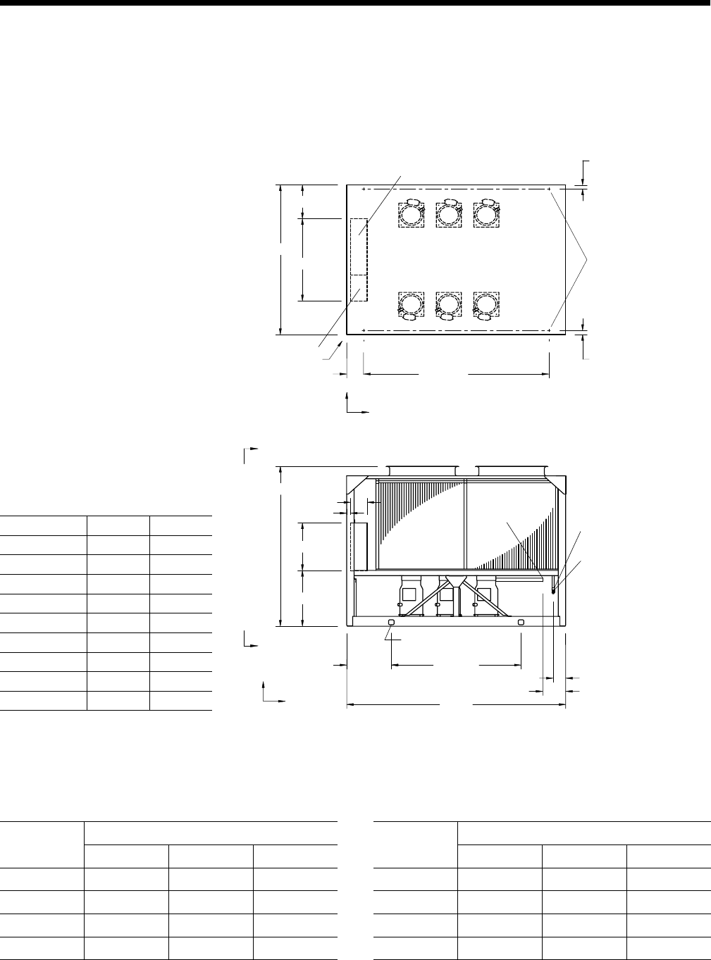
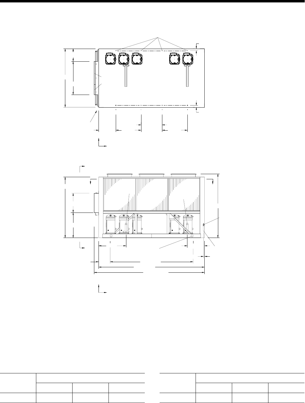
Physical Data - (English Units).................................................................................................................58
Physical Data - (SI Units) .........................................................................................................................60
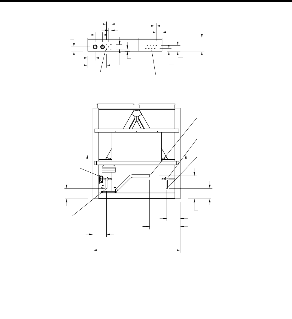
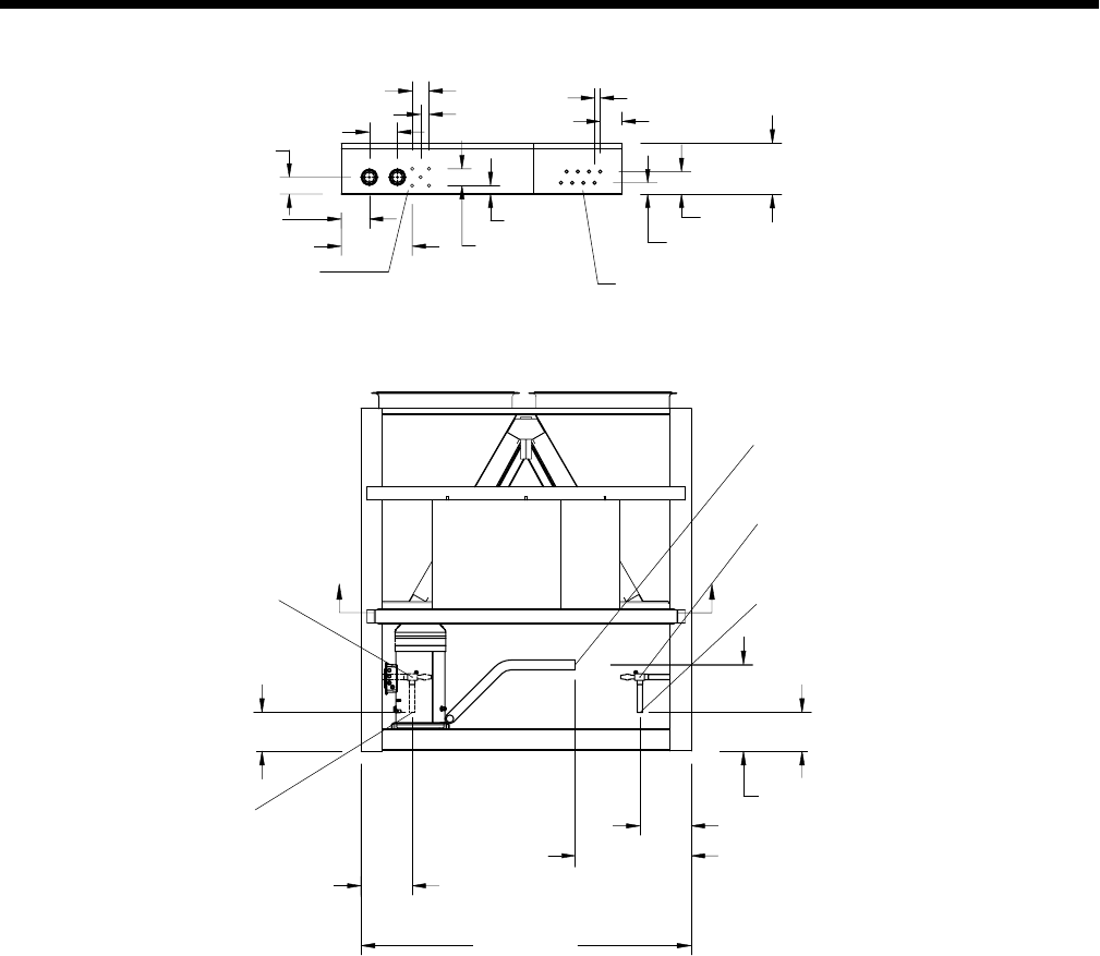
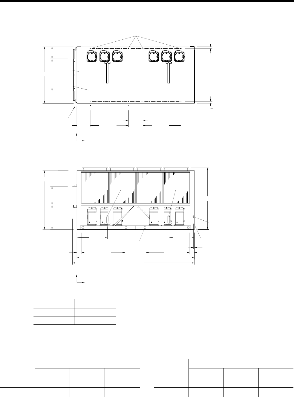
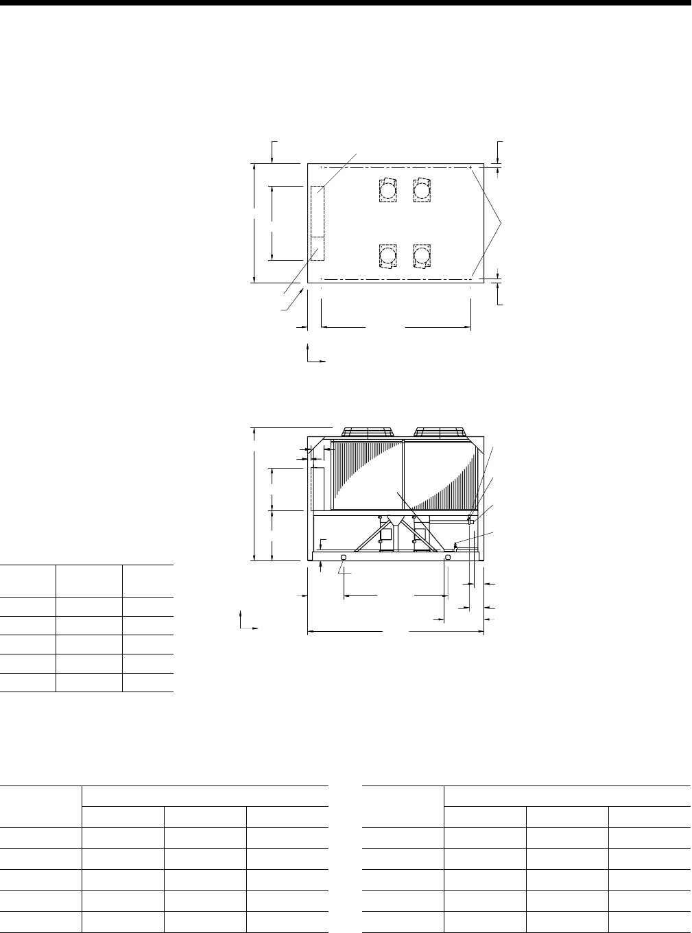
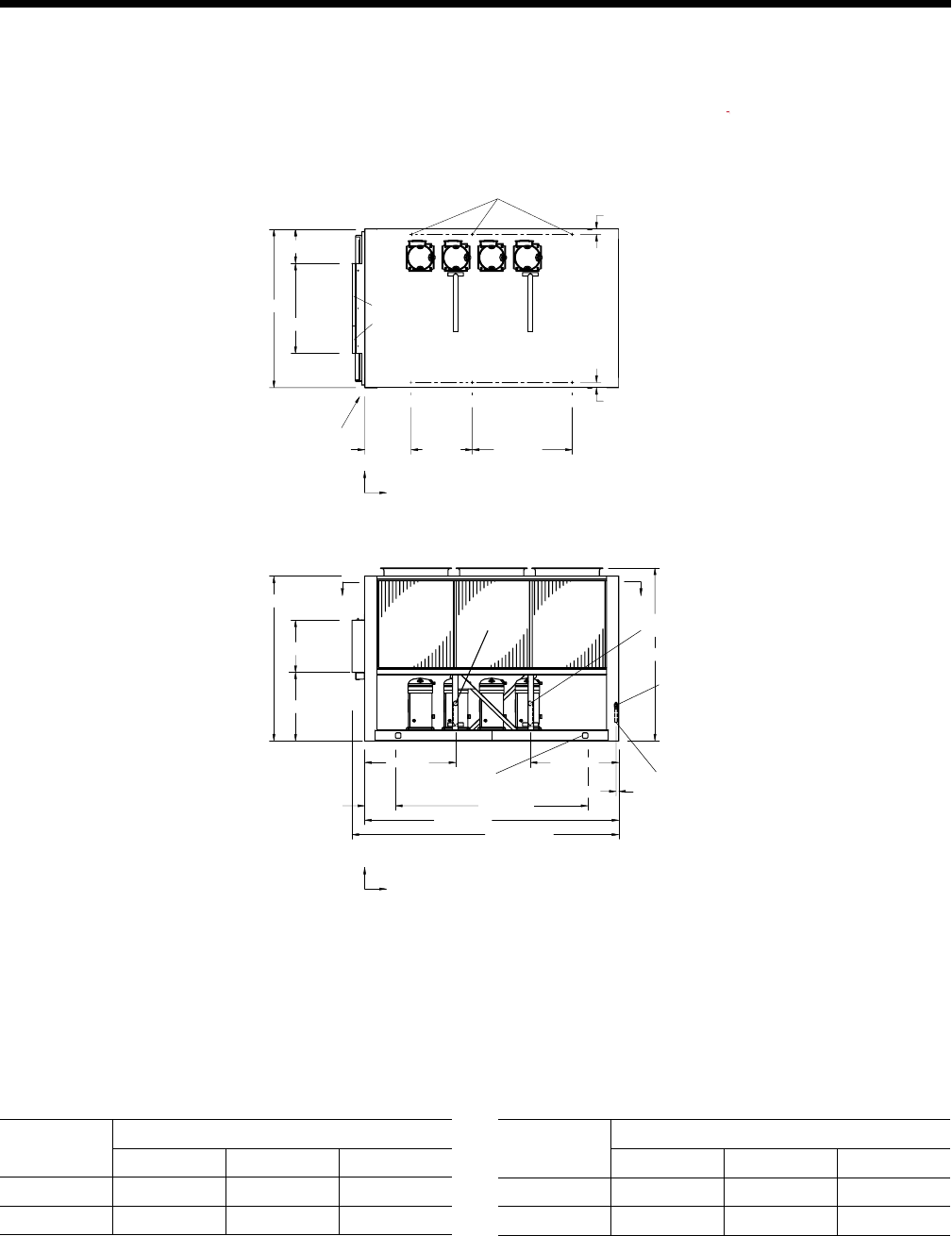
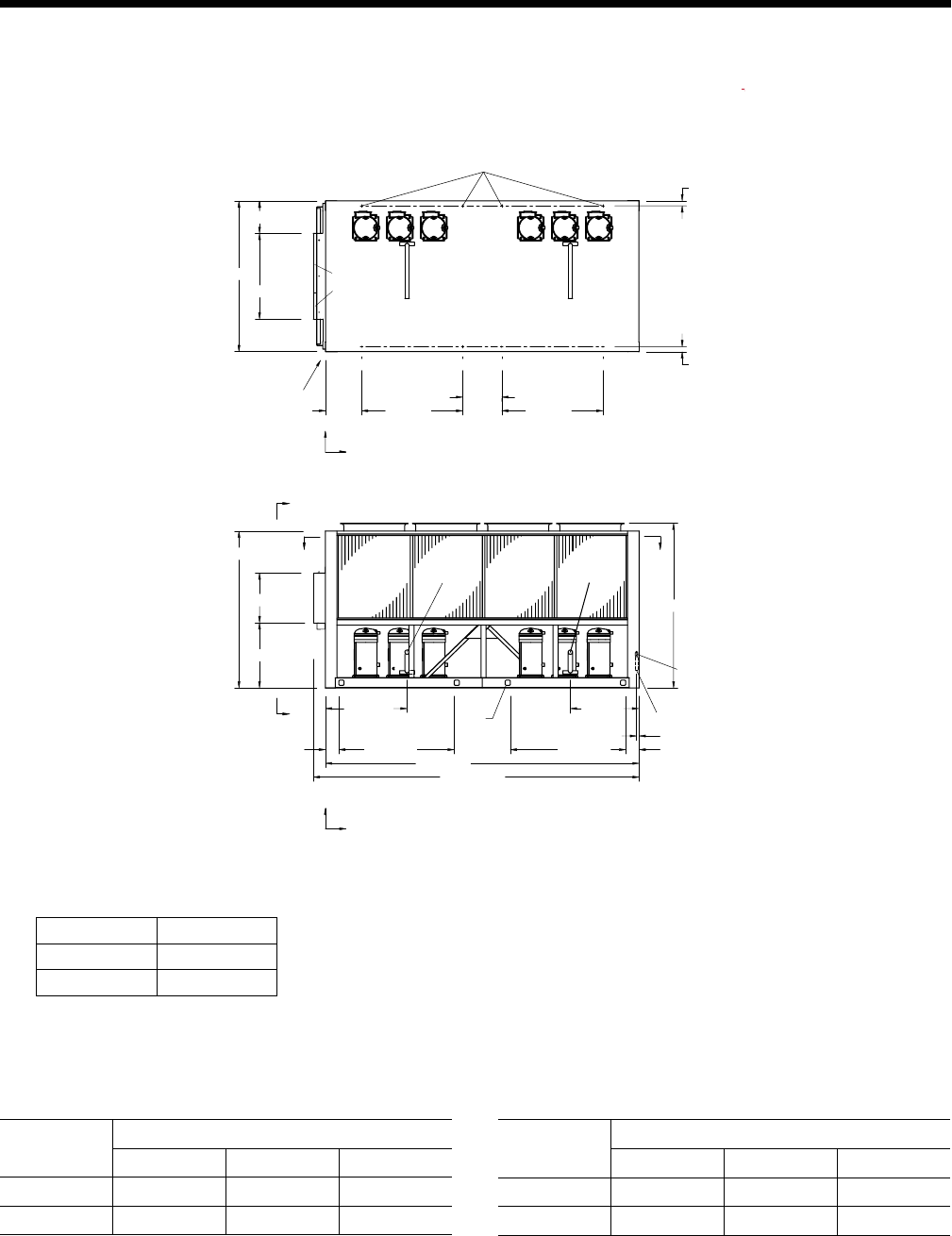
Dimensions (English Units).............................................................................................................................62
Dimensions - (SI Units)..........................................................................................................................................78
Electrical Notes................................................................................................................................102
Electrical Data................................................................................................................................103
Power Wiring................................................................................................................................112
Control Wiring................................................................................................................................114
Application Data................................................................................................................................116
Guide Specifications................................................................................................................................117

YORK INTERNATIONAL
2
YORK INTERNATIONAL 3
FORM 150.63-EG1
YORK Air-Cooled Scroll Condensing Units are the perfect refrigeration com-
ponents for all air conditioning applications that use DX central station air
handling. They are designed for outdoor (roof or ground level) installation.
Each unit includes hermetic scroll compressors, an air cooled condenser, and
a weather resistant microprocessor control center, all mounted on a formed
steel base.
Introduction
00096VIP

YORK INTERNATIONAL
4
YORK INTERNATIONAL 5
FORM 150.63-EG1
Specification
GENERAL
The 15 - 130 Ton (53 - 457 kW) YCUL Condensing Unit
Models are shipped complete from the factory ready for
eld installation.
The unit is pressure-tested, evacuated and given a nitro-
gen holding charge and includes an initial oil charge (R-
22 or HFC-407C refringerant supplied by others). After
assembly, a operational test is performed to assure that
each control device operates correctly.
The unit structure is heavy-gauge, galvanized steel.
This galvanized steel is coated with baked-on powder
paint, which, when subjected to ASTM B117 500 hour,
salt spray testing, yields a minimum ASTM 1654 rating
of “6”. Units are designed in accordance with NFPA 70
(National Electric Code), ASHRAE/ANSI 15 Safety code
for mechanical refrigeration, and are cETL listed. All units
are produced at an ISO 9000-registered facility.
COMPRESSORS
The chiller has suction-gas cooled, hermetic, scroll
compressors. The compressors incorporate a compli-
ant scroll design in both the axial and radial direction.
All rotating parts of the compressors are statically and
dynamically balanced. A large internal volume and oil
reservoir provides greater liquid tolerance. Compressor
crankcase heaters are also included for extra protection
against liquid migration.
CONDENSER
Coils – Fin and tube condenser coils of seamless, inter-
nally-enhanced, high-condensing-coefcient, corrosion
resistant copper tubes are arranged in staggered rows,
mechanically expanded into aluminum ns. Integral
subcooling is included. The design working pressure of
the coil is 450 PSIG (31 bar).
Fans – The condenser fans are composed of corrosion-
resistant aluminum hub and glass-fiber-reinforced
polypropylene composite blades molded into a low
noise airfoil section. The are designed for maximum
efciency and are statically and dynamically balanced
for vibration free operation. They are directly driven
by independent motors, and positioned for vertical air
discharge. The fan guards are constructed of heavy-
gauge, rust-resistant, coated steel. All blades are
statically and dynamically balanced for vibration-free
operation.
Motors – The fan motors are Totally Enclosed Air-Over,
squirrel-cage type, current protected. They feature
ball bearings that are double-sealed and permanently
lubricated.
REFRIGERANT CIRCUIT
One (YCUL0016-0040) or two (YCUL0046-0130) inde-
pendent refrigerant circuits will be nished on each unit.
All unit piping will be copper, with brazed joints. The
liquid line will include a eld connection shutoff valve with
charging port located on each condenser circuit. Suc-
tion line connections are provided on each refrigeration
circuit. A lter drier and sight glass are shipped loose
for eld installation on each refrigerant circuit.
All expansion valves, liquid line solenoid valves, refriger-
ant, and refrigerant eld piping are supplied by others.

YORK INTERNATIONAL
4
YORK INTERNATIONAL 5
FORM 150.63-EG1
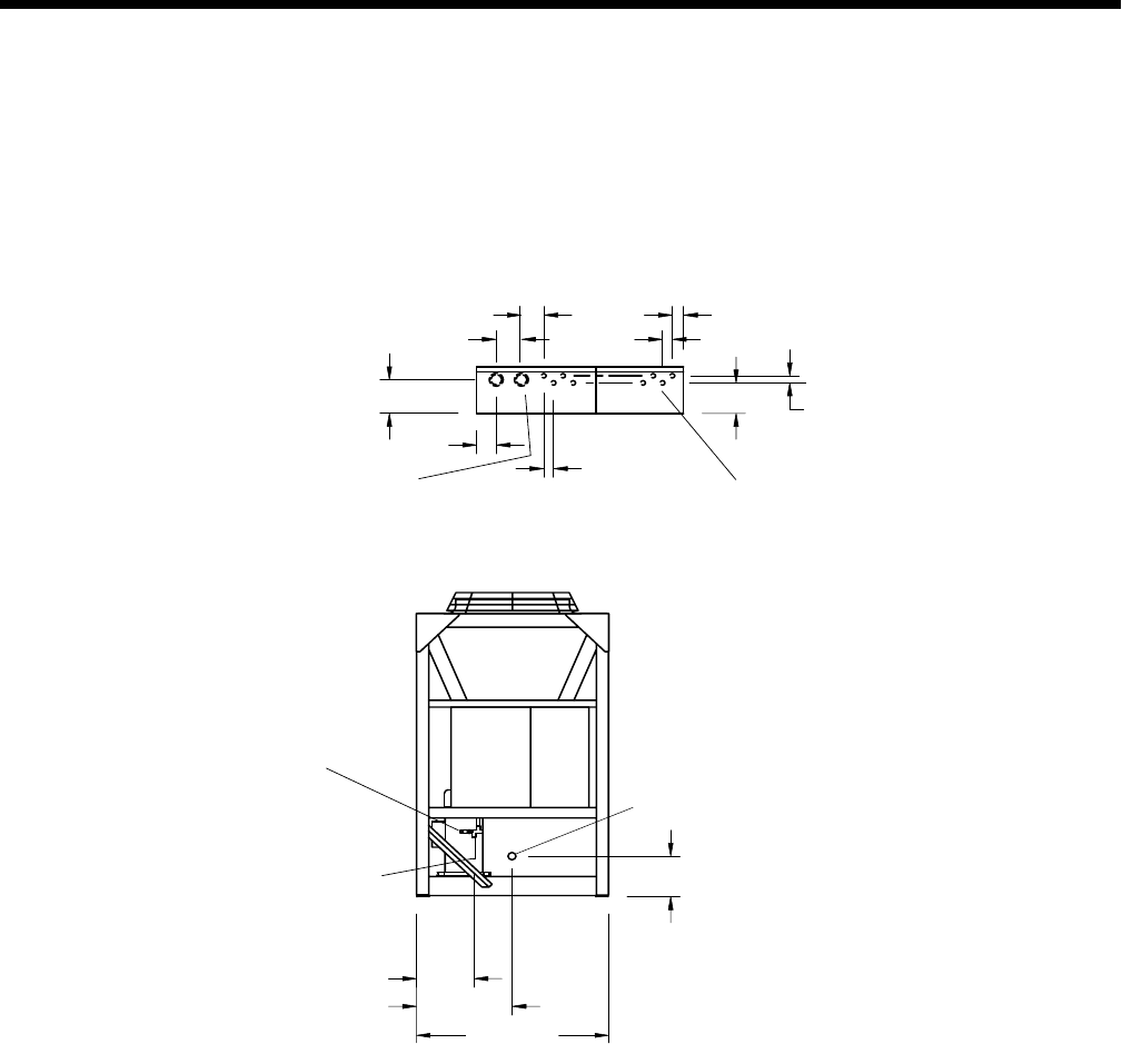
MILLENNIUM CONTROL CENTER
All controls are contained in a NEMA 3R/12 (and
equivalent to IP55*) cabinet with hinged outer door
and includes:
Liquid Crystal Display with Light Emitting Diode
backlighting for outdoor viewing:
Two display lines
Twenty characters per line
Color coded 12-button non-tactile keypad with sections
for:
DISPLAY/PRINT of typical information:
Suction temperatures (optional)
Ambient temperature
System pressures (each circuit)
Operating hours and starts (each compressor)
Print calls up to the liquid crystal display:
Operating data for the systems
History of fault shutdown data for up to
the last six fault shutdown conditions
An RS-232 port, in conjunction with this
press-to-print button, is provided to permit
the capability of hard copy print-outs via a separate
printer (by others).
ENTRY section to:
ENTER setpoints or modify system values
SETPOINTS updating can be performed to:
Suction pressure setting
Suction pressure control zone
Remote reset temperature range
Set daily schedule/holiday for start/stop
Manual override for servicing
Low and high ambient cutouts
Number of compressors
Low suction pressure cutout
High discharge pressure cutout
Anti-recycle timer (compressor start cycle time)
Anti-coincident timer (delay compressor starts)
UNIT section to:
Set clock
Set options
• Set unit option
• Set unit control for Discharge Air Temperature
Control or for Suction Pressure Control (requires
Suction Pressure Transducers – standard on
YCUL 0076 - 0130 and optional on YCUL0016
- 0066.
UNIT ON/OFF switch
The microprocessor control center is capable of
displaying the following:
• Suction temperatures (optional)
• Low ambient temperature cutout setting
• Outdoor air temperature
• English or Metric data
• Suction pressure cutout setting
• Each system suction pressure (optional on 0016
- 0066 models and standard on 0076 - 0130
models)
• System discharge pressure (optional on 0016 - 0090
models and standard on 0096 - 0130 models)
• Discharge Air Temperature Reset via a YORK ISN
DDC or Building Automation System (by others)
via:
- a pulse width modulated (PWM) input as stan-
dard
- a 4-20 milliamp or 0 -10 VDC input, or contact
closure with the optional B.A.S. interface option
• Anti-recycle timer status for each system
• Anti-coincident system start timer condition
• Compressor run status
• No cooling load condition
• Day, date and time
• Daily start/stop times
• Holiday status
• Automatic or manual system lead/lag control
(Discharge Air Temperature control only)
• Automatic lead/lag of compressors within a system
• Compressor starts & operating hours
(each compressor)
• Status of hot gas valves, and fan operation
• Run permissive status
• Number of compressors running
• Liquid solenoid valve status
• Load & unload timer status

YORK INTERNATIONAL
6
YORK INTERNATIONAL 7
FORM 150.63-EG1
Provisions are included for: pumpdown at shutdown;
optional remote discharge air temperature reset and
two steps of demand load limiting from an external
building automation system. Unit alarm contacts are
standard.
The operating program is stored in non-volatile memory
(EPROM) to eliminate chiller failure due to AC powered
failure/battery discharge. Programmed setpoints are
retained in lithium battery-backed RTC memory for 5
years minimum.
POWER PANEL
Each panel contains:
• Compressor power terminals
• Compressor motor starting contactors per l.E.C.**
• Control power terminals to accept incoming for
115-1-60 control power
• Fan contactors & overload current protection
The power wiring is routed through liquid-tight conduit
to the compressors and fans.
Specication
* Intensity of Protection European Standard
** International Electrotechnical Commission

YORK INTERNATIONAL
6
YORK INTERNATIONAL 7
FORM 150.63-EG1
Options and Accessories
POWER OPTIONS:
COMPRESSOR POWER CONNECTIONS – Single-point
(YCUL0016-0040) or multiple-point (YCUL0046-0130) ter-
minal block connection(s) are provided as standard. The
following power connections are available as options. (See
electrical data for specic voltage and options availability.)
(Factory-mounted.)
SINGLE-POINT SUPPLY TERMINAL BLOCK – (Available
on YCUL0046 - 0090 models (standard on YCUL0016 -
0040 models)). Includes enclosure, terminal-block and
interconnecting wiring to the compressors. Separate
external protection must be supplied, by others, in the
incoming compressor-power wiring. (Do not include this
option if either the Single-Point Non-Fused Disconnect
Switch or Single-Point Circuit Breaker options have been
included.)
SINGLE-POINT OR MULTIPLE-POINT SUPPLY TER-
MINAL BLOCK(S) WITH INDIVIDUAL SYSTEM BREAK-
ERS - (Available on YCUL0096-0130 models) Includes
single- or dual-point terminal block connection(s) with
factory interconnecting wiring from the terminal block to
factory supplied system circuit breakers.
SINGLE-POINT NON-FUSED DISCONNECT SWITCH (Avail-
able on YCUL0016-0090 models) OR MULTIPLE-POINT
NON-FUSED DISCONNECT SWITCHES (Available on
YCUL0096-0130 models) – Unit-mounted disconnect
switch(es) with external, lockable handle (in compliance
with Article 440-14 of N.E.C.), can be supplied to isolate
the unit power voltage for servicing. Separate external fus-
ing must be supplied, by others in the power wiring, which
must comply with the National Electrical Code and/or local
codes.
SINGLE-POINT NON-FUSED DISCONNECT SWITCH
WITH INDIVIDUAL SYSTEM BREAKERS - (Available on
YCUL0096-0130 models) Includes unit-mounted disconnect
switch with external, lockable handles (in compliance with
Article 440-14 of N.E.C.) to isolate unit power voltage for
servicing. Factory interconnecting wiring is provided from
the disconnect switch to factory supplied system circuit
breakers.
SINGLE-POINT CIRCUIT BREAKER – (Available on
YCUL0016-0090 models) – A unit mounted circuit breaker
with external, lockable handle (in compliance with N.E.C.
Article 440-14), can be supplied to isolate the power volt-
age for servicing. (This option includes the Single-Point
Power connection.)
CONTROL TRANSFORMER – Converts unit power voltage to
115-1-60 (0.5 or 1.0 kVA capacity). Factory mounting includes
primary- and secondary-wiring between the transformer and
the control panel. (Factory-mounted.)
POWER FACTOR CORRECTION CAPACITORS – Will cor-
rect unit compressor power factors to a 0.90-0.95. (Factory
mounted).
CONTROL OPTIONS:
AMBIENT KIT (LOW) – (Available on YCUL0016-0090 models
only [standard on YCUL0096-0130models]) Units will operate
to 25°F (-4°C). This accessory includes all necessary compo-
nents to permit condensing unit operation to 0°F (-18°C). (This
option includes the Discharge Pressure Transducer / Readout
Capability option.) For proper head pressure control in appli-
cations below 25°F (-4°C) where wind gusts may exceed 5
mph, it is recommended that Optional Condenser Louvered
Enclosure Panels also be included. (Factory-mounted.)
AMBIENT KIT (HIGH) – Required if units are to operate when
the ambient temperature is above 115°F (46°C). Includes sun
shield panels and discharge pressure transducers. (This option
includes the Discharge Pressure Transducer / Readout Capa-
bility option). (Field-mounted).
BUILDING AUTOMATION SYSTEM INTERFACE – The fac-
tory addition of a Printed Circuit Board to accept a 4-20 mil-
liamp, 0-10VDC or contact closure input to reset the discharge
air temperature from a Building Automation System. (Only
one of following options can be offered on a unit at a time:
BAS, Remote Control Panel or Multi-unit Sequence Control).
(Factory mounted).
- (The standard unit capabilities include remote start-stop,
remote discharge air temperature reset via a PWM input
signal or up to two steps of demand (load) limiting depend-
ing on model.)
- (The standard control panel can be directly connected to
a YORK Building Automated System via the standard on
board RS485 communication port.)
LANGUAGE LCD AND KEYPAD DISPLAY – Spanish,
French, German, and Italian unit LCD controls and keypad
display available. Standard language is English.
DISCHARGE PRESSURE TRANSDUCERS AND READOUT
CAPABILITY – (Available on YCUL0016 - 0090 models only
[standard on YCUL0096 - 0130]) The addition of pressure
transducers allows models to sense and display discharge
pressure. (This option as included with either the low or high
ambient kits). (Factory mounted).
SUCTION PRESSURE TRANSDUCERS AND READOUT
CAPABILITY – (Available on YCUL0016-0066 models [stan-
dard on YCUL0076-0130 models]). The addition of suction
transducers allows models to sense and display suction
pressure. This option is required for suction pressure control
capability on YCUL0016-0066 models. (Factory mounted).
SUCTION TEMPERATURE READOUT – The addition of tem-
perature sensors allow models to sense and display suction

YORK INTERNATIONAL
8
YORK INTERNATIONAL 9
FORM 150.63-EG1
temperature. (Factory mounted).
MOTOR CURRENT MODULE – Capable of monitoring
compressor motor current. Provides extra protection against
compressor reverse rotation, phase-loss and phase imbalance.
Option consists of one module per electrical system. (Fac-
tory-mounted.)
REMOTE CONTROL PANEL AND WALL ADAPTOR–(Avail-
able on the YCUL0016 - 0090 models only) (Only one of fol-
lowing options can be offered on a unit at a time: BAS, Remote
Control Panel, OptiView Remote Graphic Panel, or Multi-unit
Sequence Control). (Field mounted).
OPTIVIEW REMOTE CONTROL PANEL - Graphical interface
panel to remotely control and monitor up to 8 different units.
(Refer to form 201.18-SG4 for detailed information)
COMPRESSOR AND PIPING OPTIONS:
CHICAGO CODE RELIEF VALVES – Unit will be provided
with relief valves to meet Chicago code requirements. (Fac-
tory-mounted).
HOT GAS BY-PASS – Permits continuous, stable operation
at capacities below the minimum step of compressor unload-
ing to as low as 5% capacity (depending on both the unit and
operating conditions) by introducing an articial load. Hot gas
by-pass is available installed on refrigerant system #1 or on
both systems of two circuited units. (Factory mounted).
SERVICE ISOLATION VALVE – Service suction and discharge
(ball type) isolation valves are added to unit per system. This
option also includes a system high pressure relief valve in
compliance with ASHRAE 15. (Factory-mounted.)
CONDENSER AND CABINET OPTIONS:
Condenser coil protection against corrosive environments is
available by choosing any of the following options. For addi-
tional application recommendations, refer to FORM 150.12-
ES1. (Factory-mounted).
PRE-COATED FIN CONDENSER COILS – The
air-cooled condenser coils are constructed of black
epoxy-coated aluminum ns. This can provide corro-
sion resistance comparable to copper-n coils in typical
seashore locations. Either these or the post-coated coils
(below), are recommended for units being installed at
the seashore or where salt spray may hit the unit.
POST-COATED DIPPED CONDENSER COILS – The
unit is built with dipped-cured condenser coils. This is
another choice for seashore and other corrosive appli-
cations (with the exception of strong alkalies, oxidizers
and wet bromine, chlorine and uorine in concentrations
greater than 100 ppm).
COPPER-FIN CONDENSER COILS – The unit constructed
with condenser coils which have copper ns. (This is not
recommended for units in areas where they may be
exposed to acid rain).
ENCLOSURE PANELS (UNIT) – Tamperproof Enclosure
Panels prevent unauthorized access to units. Enclosure
Panels can provide an aesthetically pleasing alternative to
expensive fencing. Additionally, for proper head pressure
control, YORK recommends the use of Condenser Louvered
Panels for winter applications where wind gustss may exceed
ve miles per hour. The following types of enclosure panels
are available:
WIRE PANELS (Full Unit) – Consists of welded-wire-
mesh guards mounted on the exterior of the unit. Prevents
unauthorized access, yet provides free air ow. (Factory-
mounted).
WIRE/LOUVERED PANELS – Consists of welded-wire-
mesh panels on the bottom part of unit and louvered panels
on the condenser section of the unit. (Factory-mounted).
LOUVERED PANELS (Condenser Coil Only) – Louvered
panels are mounted on the sides and ends of the condenser
coils for protection. (Factory-mounted).
LOUVERED PANELS (Full Unit) – Louvered panels sur-
round the front, back, and sides of the unit. These prevent
unauthorized access and visually screen unit components.
Unrestricted air ow is permitted through generously sized
louvered openings. This option is applicable for any outdoor
design ambient temperature up to 115°F (46°C). (Factory-
mounted).
SOUND ATTENUATION – One or both of the following sound
attenuation options are recommended for residential or other
similar sound sensitive locations:
COMPRESSOR ACOUSTIC SOUND BLANKET – Each
compressor is individually enclosed by an acoustic sound
blanket. The sound blankets are made with one layer of
acoustical absorbent textile ber of 5/8" (15mm) thickness;
one layer of anti-vibrating heavy material thickness of 1/8"
(3mm). Both are closed by two sheets of welded PVC,
reinforced for temperature and UV resistance. (Factory-
mounted).
LOW SOUND FANS – Lower RPM, 8-pole fan motors are
used with steeper-pitch fans. (Factory-mounted).
VIBRATION ISOLATORS – Level adjusting, spring type 1"
(25.4mm) or seismic deection or neoprene pad isolators for
mounting under unit base rails. (Field mounted).
Options and Accessories

YORK INTERNATIONAL
8
YORK INTERNATIONAL 9
FORM 150.63-EG1
Selection Data
The ratings shown on pages 18 through 57 are based
on unit operation in a well designed and properly piped
system.
SELECTION RULES
1. Capabilities are based on Refrigerant 22 or 407C.
2. Ratings may interpolated, but must not be extrapo-
lated.
3. Ratings shown are at saturated suction temperatures
corresponding to pressures at the compressor. In
actual practice, suction line pressure drop has the
effect of reducing compressor capacity, forcing the
compressor to operate at a lower suction pressure to
maintain the desired evaporator temperature.
For normal air conditioning applications, size the
suction line for a pressure drop of 3 PSI, corresponding
to 2°F, for R-22 refrigerant. Thus, the evaporator
temperature will be approximately 2°F higher than the
compressor suction temperature. Line loss must be
taken into consideration when selecting the evapora-
tor.
SELECTION PROCEDURE
The air-cooled condensing unit may be selected from
the Ratings on pages 20 through 48, if the ambient air
temperature at the condenser and the saturated suction
temperature at the compressor are known. The ambi-
ent air temperature is a known design parameter, but
the suction temperature at the compressor, in many
cases, is known only within certain allowable limits.
The actual compressor operating suction temperature
and the overall performance of the system will depend
directly upon the choice of the evaporator. Starting with a
preliminary evaporator selection at a nominal evaporator
temperature and using data supplied by the evaporator
manufacturer, enter the ratings tables and select a unit to
meet the required cooling load at a suction temperature
at least 2°F below the evaporator temperature. The 2°F
allows for normal suction line loss.
If more accurate selection is required, the evaporator
capacity should be plotted against the condensing
unit capacity to determine the balanced system
performance. Again, it is necessary to factor in the
suction line loss.
After the system balance point has been determined,
the compressor KW input may be interpolated from
the ratings tables.
SAMPLE SELECTION
Select an R-22 Air-Cooled Condensing Unit with a
matched central station air handling unit having the
following operating conditions:
Design Conditions
1. An air handling unit with four large DX coils (two
per circuit) having a total cooling load of 600 MBH
(50 tons).
2. The coil suction temperature required 45°F.
3. The design outdoor ambient temperature is 90°F.
4. The power supply is 460V/3 phase/60 HZ.
Selection
1. Enter the YCUL 60 HZ Rating Table (page 20).
2. The model YCUL0056EC will provide 51.3 tons with
48.3 compressor KW input at 90°F ambient air and
43°F suction pressure.
3. Calculate the compressor KW input for the specic
design conditions of 50 tons and 90°F ambient air.
KW = 50tons
x 48.3 KW = 47.1 KW
51.3 tons
The YCUL0056EC is the suitable selection for the design
capacity.

YORK INTERNATIONAL
10
YORK INTERNATIONAL 11
FORM 150.63-EG1
Selection Data
REFRIGERANT PIPING
General – When the unit has been located in its nal
position, the unit piping may be connected. Normal instal-
lation precautions should be observed in order to receive
maximum operating efciencies. System piping should
conform to the York DX piping guide form 050.40-ES2 or
ASHRAE refrigeration handbook guidelines. All piping
design and installation is the responsibility of the user.
YORK ASSUMES NO WARRANTY RESPONSIBILITY
FOR SYSTEM OPERATION OR FAILURES DUE TO
IMPROPER PIPING OR PIPING DESIGN.
Filter driers and sight glasses are shipped loose for eld
installation on each refrigerant circuit. Field refrigerant
piping can be connected to the condensing unit.
All expansion valves, liquid line solenoid valves, refrig-
erant and refrigerant piping are supplied and installed
by others.
Table 4 lists refrigerant line connections sizes per unit
model number.
REFRIGERANT LINE SIZING
Refrigerant piping systems must be designed to provide
practical line sizes without excessive pressure drops,
prevent compressor oil from being “trapped” in the refrig-
erant piping, and ensure proper ow of liquid refrigerant
to the thermal expansion valve. Considerations should
be give to:
1) Suction line pressure drop due to refrigerant ow.
2) Suction line refrigerant velocity for oil return.
3) Liquid line pressure drop due to refrigerant ow.
4) Liquid line pressure drop (or gain) due to vertical rise
of the liquid line.
Table 5 provides the pressure drops for given pipe sizes
for both liquid and suction lines. The pressure drops
given are per 100 equivalent ft. (30.5 m) of refrigerant
piping. These friction losses do not include any allow-
ances for strainer, lter drier, solenoid valve, isolation
valve or ttings
Nominal pressure drop for solenoids, sight glass, and
driers are shown in Table 2.
Table 1 includes approximate equivalent lengths for
copper ttings.
To ensure a solid column of liquid refrigerant to the expan-
sion valve, the total liquid line pressure drop should
never exceed 40 psi (276 kPa). Refrigerant vapor in
the liquid line will measurably reduce valve capacity and
poor system performance can be expected.
To allow adequate oil return to the compressor, suction
risers should be sized for a minimum of 1000 FPM (5.08
m/s) while the system is operating at minimum capacity
to ensure oil return up the suction riser. Refer to Table 5
under column labeled Nominal Tons (KW) Unloaded.
Evaporator Below Condensing Unit
On a system where the evaporator is located below the
condensing unit, the suction line must be sized for both
pressure drop and oil return. In some cases a double
suction riser must be installed to ensure reliable oil return
at reduced loads. Table 3 indicates when a double suc-
tion riser should be used for listed pipe sizes to provide
adequate oil return at reduced loads. The calculated
information was based on maintaining a minimum of
1000 fpm (5.08 m/s) refrigerant vapor velocity.
Condenser Below Evaporator
When the condensing unit is located below the evapora-
tor, the liquid line must be designed for both friction loss
and static head loss due the vertical rise. The value of
static head loss of 5 PSI/ft.(3.4 kPa/30 cm) must be
added to the friction loss pressure drop in addition to all
pressure drops due to driers, valves, etc.
OIL TRAPS
All horizontal suction lines should be pitched at least 1/4"
per foot (2 cm/m) in the direction of the refrigerant ow
to aid in the return of oil to the compressor. All suction
lines with a vertical rise exceeding 3 feet (.91 meters)
should have a “P” trap at the bottom and top of the riser.
Suction lines with a vertical rise exceeding 25 feet (7.6
meters) should be trapped every 15 feet (4.6 meters).
REFRIGERANT CHARGE
The condensing unit is charged with a dry nitrogen hold-
ing charge. The remaining operating charge for the con-
densing unit, evaporator coil, and refrigerant piping must
be weighed in after all refrigerant piping is installed, leak
checked, and evacuated. Final adjustment of refrigerant
charge should be veried by subcooling values (refer to
section on Pre-Startup for checking subcooling).
REFRIGERANT PIPING REFERENCE
For more details, refer to ASHRAE Refrigeration Hand-
book, Chapter 2.

YORK INTERNATIONAL
10
YORK INTERNATIONAL 11
FORM 150.63-EG1
TABLE 1 – FITTING EQUIVALENT LENGTHS
*COPPER FITTING EQUIVALENT LENGTHS
LINE SIZE O.D. SHORT-RADIUS ELL LONG-RADIUS ELL
3/4" (19mm) 6.5 ft. (2m) 4.5 ft. (1.4m)
7/8" (22mm) 7.8 ft. (2.4m) 5.3 ft. (1.6m)
1-1/8" (29mm) 2.7 ft. (.8m) 1.9 ft. (.6m)
1-3/8" (35mm) 3.2 ft. (1m) 2.2 ft. (.7m)
1-5/8" (41mm) 3.8 ft. (1.2m) 2.6 ft. (8m)
2-1/8" (54mm) 5.2 ft. (1.6m) 3.4 ft. (1m)
2-5/8" (67mm) 6.5 ft. (20m) 4.2 ft. (1.3m)
TABLE 2 – MISCELLANEOUS LIQUID LINE
PRESSURE DROPS
*MISCELLANEOUS LIQUID LINE PRESSURE
SOLENOID VALVE 2 TO 3 PSI (13.8 TO 20.7 kPa)
FILTER/DRIER 2 TO 3 PSI (13.8 TO 20.7 kPa)
SIGHT GLASS 0.5 PSI (3.4 kPa)
TABLE 4 – REFRIGERANT LINE CONNECTIONS
YCUL REFRIGERANT LINE CONNECTIONS
MODEL YCUL SUCTION LIQUID
0016 1-3/8" 7/8"
0026 1-5/8" 7/8"
0030 2-1/8" 7/8"
0036 2-1/8" 7/8"
0040 2-1/8" 7/8"
0046 2-1/8" 7/8"
0050 2-1/8" 7/8"
0056 2-1/8" 7/8"
0060 2-1/8" 7/8"
0066 2-1/8" 1-1/8"
0076 2-1/8" 1-1/8"
0080 2-1/8" 1-1/8"
0086 2-5/8" 1-1/8"
0090 2-5/8" 1-1/8"
0096 2-5/8" 1-1/8"
0100 2-5/8" 1-3/8"
0106 2-5/8" 1-3/8"
0120 2-5/8" 1-3/8"
0130 2-5/8" 1-3/8"
TABLE 3 – REFRIGERATION PIPING CHARGES
REFRIGERANT LINE CHARGES
SUCTION LINES LIQUID LINES
1-3/8" (35mm) .2 oz./ft. (6 grams/30cm) 3/4" (19mm) 2.7 oz./ft. (76 grams/30cm)
1-5/8" (41mm) .3 oz./ft. (8 grams/30 cm) 7/8" (22mm) 3.7 oz./ft. (105 grams/30cm)
2-1/8" (54mm) .6 oz/ft. (17 grams/30cm) 1-1/8" (29mm) 6.2 oz./ft. (176 grams/30cm)
2-5/8" (67mm) .8 oz./ft. (23 grams/30cm) 1-3/8" (35mm) 8.6 oz./ft. (244 grams/30cm)
* Pressure drops or equivalent length values are approximate. If more precise value is desired, consult either the York DX Piping Guide (form
050.40-ES2) or ASHRAE Refrigerant Handbook.

YORK INTERNATIONAL
12
YORK INTERNATIONAL 13
FORM 150.63-EG1
TABLE 5 – REFRIGERANT LINE PRESSURE DROPS (ENGLISH)
MODEL
NUMBER
YCUL
SYSTEM
NUMBER
1NOMINAL
TONS
SUCTION LINE LIQUID LINE
COPPER
TYPE L
INCHES O.D.
2PRESSURE
DROP
PSI/100 FT.
VELOCITY
@NOMINAL
CAPACITY
IN FPM
4NOMINAL
TONS
UNLOADED
COPPER
TYPE L
INCHES
O.D.
3PRESSURE
DROP
PSI/100 FT.
0016 1 15 1-5/8 2.5 2400 7.5 3/4 4.5
52-1/8 0.6 1350 7/8 2.1
0026 1 20 1-5/8 4.3 3200 10 3/4 7.7
52-1/8 1.1 1800 7/8 3.5
0030 1 27 1-5/8 7.4 4320 13 7/8 6.1
2-1/8 1.9 2430 1-1/8 1.7
0036 1 31 2-1/8 2.4 2790 15 7/8 7.9
52-5/8 0.7 1860 1-1/8 2.2
0040 1 39
52-1/8 3.7 3510 13 1-1/8 3.4
52-5/8 1.3 2340 1-3/8 1.3
0046
1 21 1-5/8 4.7 3360 10 3/4 8.4
52-1/8 1.2 1890 7/8 3.8
2 21 1-5/8 4.7 3360 10 3/4 8.4
52-1/8 1.2 1890 7/8 3.8
0050
1 27 1-5/8 7.4 4320 13 7/8 6.1
2-1/8 1.9 2430 1-1/8 1.7
2 21 1-5/8 4.7 3360 10 3/4 8.4
52-1/8 1.2 1890 7/8 3.8
0056
1 27 1-5/8 7.4 4320 13 7/8 6.1
2-1/8 1.9 2430 1-1/8 1.7
2 27 1-5/8 7.4 4320 13 7/8 6.1
2-1/8 1.9 2430 1-1/8 1.7
0060
1 30 2-1/8 2.3 2700 15 7/8 7.4
52-1/8 0.8 1800 1-1/8 3.8
2 27 1-5/8 7.4 4320 13 7/8 6.1
2-1/8 1.9 2430 1-1/8 1.7
0066
1 31 2-1/8 2.4 2790 15 7/8 7.9
52-5/8 0.9 1860 1-1/8 2.2
2 31 2-1/8 2.4 2790 15 7/8 7.9
52-5/8 0.9 1860 1-1/8 2.2
Selection Data

YORK INTERNATIONAL
12
YORK INTERNATIONAL 13
FORM 150.63-EG1
TABLE 5 – REFRIGERANT LINE PRESSURE DROPS (ENGLISH)
MODEL
NUMBER
YCUL00
SYSTEM
NUMBER
1NOMINAL
TONS
SUCTION LINE LIQUID LINE
COPPER
TYPE L
INCHES
O.D.
2PRESSURE
DROP
PSI/100 FT.
VELOCITY
@NOMINAL
CAPACITY
IN FPM
4NOMINAL
TONS
UNLOADED
COPPER
TYPE L
INCHES
O.D.
3PRESSURE
DROP
PSI/100 FT.
0076
1 40 2-1/8 3.9 3600 13 1-1/8 3.6
52-5/8 1.4 2400 1-3/8 1.4
2 31
52-1/8 2.4 2790 10 7/8 7.9
52-5/8 .9 1860 1-1/8 2.2
0080
1 39 2-1/8 3.7 3510 13 1-1/8 3.4
52-5/8 1.3 2340 1-3/8 1.3
2 39 2-1/8 3.7 351 13 1-1/8 3.4
52-5/8 1.3 2340 1-3/8 1.3
0086
1 45 2-1/8 4.9 4050 15 1-1/8 4.4
52-5/8 1.7 2700 1-3/8 1.7
2 39 2-1/8 3.7 3510 13 1-1/8 3.4
52-5/8 1.3 2340 1-3/8 1.4
0090
1 45 2-1/8 4.9 4050 15 1-1/8 4.4
52-5/8 1.7 2700 1-3/8 1.7
2 45 2-1/8 4.9 4050 15 1-1/8 4.4
52-5/8 1.7 2700 1-3/8 1.7
0096
1 50 2 5/8 2.1 3000
25
5.4 5.4
3 1/8 0.9 2200 2.1 2.1
2 41 2 1/8 4.1 3690 3.7 3.7
2 5/8 1.4 2460 1.4 1.4
0100
1 49 2 5/8 2 2940
25
5.2 5.2
3 1/8 0.9 2156 2 2
2 49 2 5/8 2 2940 5.2 5.2
3 1/8 0.9 2156 2 2
0106
1 59 2 5/8 2.8 3540
20
7.3 7.3
3 18 1.2 2596 2.8 2.8
2 50 2 5/8 2.1 3000 5.4 5.4
5 3 1/8 0.9 2200 2.1 2.1
0120
1 61 2 5/8 3 3660
20
7.8 7.8
5 3 1/8 1.3 2684 3 3
2 61 2 5/8 3 3660 7.8 7.8
5 3 1/8 1.3 2684 3 3
0130
1 74 2 5/8 4.3 4440
25
4.3 4.3
3 1/8 1.9 3256 1.6 1.6
2 60 2 5/8 2.9 3600 7.6 7.6
3 1/8 1.3 2640 2.9 2.9

YORK INTERNATIONAL
14
YORK INTERNATIONAL 15
FORM 150.63-EG1
TABLE 5 – REFRIGERANT LINE PRESSURE DROPS (METRIC)
MODEL
NUMBER
YCUL
SYSTEM
NUMBER
1NOMINAL
KW
SUCTION LINE LIQUID LINE
COPPER
TYPE L
INCHES O.D.
2PRESSURE
DROP
kPa/30.5 m
VELOCITY
@NOMINAL
CAPACITY
IN M/S
4NOMINAL
KW
UNLOADED
COPPER
TYPE L
INCHES O.D.
3PRESSURE
DROP
kPa/30.5 m
0016 1 53 1-5/8 17.2 2400 26 3/4 31.0
52-1/8 4.1 1350 7/8 14.5
0026 1 70 1-5/8 29.6 3200 35 3/4 53.0
52-1/8 7.6 1800 7/8 24.1
0030 1 95 1-5/8 51.0 4320 46 7/8 42.1
2-1/8 13.0 2430 1-1/8 11.7
0036 1 109 2-1/8 16.5 2790 53 7/8 54.5
52-5/8 4.8 1860 1-1/8 15.2
0040 1 137
52-1/8 25.5 3510 46 1-1/8 23.4
52-5/8 9.0 2340 1-3/8 9.0
0046
1 74 1-5/8 32.4 3360 35 3/4 58.0
52-1/8 8.3 1890 7/8 26.2
2 74 1-5/8 32.4 3360 35 3/4 58.0
52-1/8 8.3 1890 7/8 26.2
0050
1 95 1-5/8 51.0 4320 46 7/8 42.1
2-1/8 13.1 2430 1-1/8 11.7
2 74 1-5/8 32.4 3360 35 3/4 58.0
52-1/8 8.3 1890 7/8 26.2
0056
1 95 1-5/8 51.0 4320 46 7/8 42.1
2-1/8 13.1 2430 1-1/8 11.7
2 95 1-5/8 51.0 4320 46 7/8 42.1
2-1/8 13.1 2430 1-1/8 11.7
0060
1 105 2-1/8 15.6 2700 53 7/8 51.0
52-1/8 5.5 1800 1-1/8 26.2
2 95 1-5/8 51.0 4320 46 7/8 42.1
2-1/8 13.1 2430 1-1/8 11.7
0066
1 109 2-1/8 16.5 2790 53 7/8 54.5
52-5/8 6.2 1860 1-1/8 15.2
2 109 2-1/8 16.5 2790 53 7/8 54.5
52-5/8 6.2 1860 1-1/8 15.2
0076
1 141 2-1/8 26.9 18.3 46 1-1/8 24.8
52-5/8 9.7 12.2 1-3/8 9.7
2 109
52-1/8 16.5 14.2 35 7/8 54.5
52-5/8 6.2 9.4 1-1/8 15.2
0080
1 137 2-1/8 25.5 17.8 46 1-1/8 23.4
52-5/8 9.0 11.9 1-3/8 9.0
2 137 2-1/8 25.5 17.8 46 1-1/8 23.4
52-5/8 9.0 11.9 1-3/8 9.0
0086
1 158 2-1/8 33.8 20.6 53 1-1/8 30.3
52-5/8 11.7 13.7 1-3/8 11.7
2 137 2-1/8 25.5 17.8 46 1-1/8 23.4
52-5/8 9.0 11.9 1-3/8 9.7
Selection Data

YORK INTERNATIONAL
14
YORK INTERNATIONAL 15
FORM 150.63-EG1
TABLE 5 – REFRIGERANT LINE PRESSURE DROPS (METRIC)
MODEL
NUMBER
YCUL
SYSTEM
NUMBER
1NOMINAL
KW
SUCTION LINE LIQUID LINE
COPPER
TYPE L
INCHES O.D.
2PRESSURE
DROP
kPa/30.5 m
VELOCITY
@NOMINAL
CAPACITY
IN M/S
4NOMINAL
KW
UNLOADED
COPPER
TYPE L
INCHES O.D.
3PRESSURE
DROP
kPa/30.5 m
0090
1 158 2-1/8 33.8 20.6 53 1-1/8 30.3
52-5/8 11.7 13.7 1-3/8 11.7
2 158 2-1/8 33.8 20.6 53 1-1/8 30.3
52-5/8 11.7 13.8 1-3/8 11.7
0096
1 175.7 2 5/8 14.5 914
87.9
1 1/8 37.2
3 1/8 6.2 671 1 3/8 14.5
2 144.1 2 1/8 28.3 1125 1 1/8 25.5
2 5/8 9.7 750 1 3/8 9.7
0100
1 172.2 2 5/8 13.8 896
87.9
1 1/8 35.9
3 1/8 6.2 657 1 3/8 13.8
2 172.2 2 5/8 13.8 896 1 1/8 35.9
3 1/8 6.2 657 1 3/8 13.8
0106
1 207.4 2 5/8 19.3 1079
70.3
1 1/8 50.3
3 18 8.3 791 1 3/8 19.3
2 175.7 2 5/8 14.5 914 1 1/8 37.2
5 3 1/8 6.2 671 1 3/8 14.5
0120
1 214.4 2 5/8 20.7 1116
70.3
1 1/8 53.8
5 3 1/8 9.0 818 1 3/8 20.7
2 214.4 2 5/8 20.7 1116 1 1/8 53.8
5 3 1/8 9.0 818 1 3/8 20.7
0130
1 260.1 2 5/8 29.6 1353
87.9
1 3/8 29.6
3 1/8 13.1 992 1 5/8 11.0
2 210.9 2 5/8 20.0 1097 1 1/8 52.4
3 1/8 9.0 805 1 38 20.0
REFRIGERANT PIPING NOTES
1. Based on R-22 at the nominal capacity of the unit or system, an ambient temperature of 95°F (35°C) and a suction temperature of 45°F
(7.2°C).
2. Suction line sizes were calculated based on a nominal maximum pressure drop to 3 PSI/100 ft. (20.7 kPa/30.5 m). When calculating suction
line pressure drop for a specic application, it should be noted that system capacity decreases as suction line pressure drop increases.
3. Liquid pressure drop (or gain) due to a vertical liquid line is not included in the tables and must be taken into account when determining pres-
sure drop (or gain) of the liquid line. The nominal value that must be included in the liquid line loss (or gain) is .5 PSI/foot (3.4 kPa/30 cm) of
rise (or gain). To ensure a solid column of liquid refrigerant to the expansion valve, the total maximum pressure drop of the liquid line should
not exceed 40 PSI (276 kPa) based on 15°F (8.3°C) subcooled liquid. Vapor in the liquid line, even in small amounts, will measurably reduce
valve capacity and poor system performance will result. In addition, pressure loss for strainers, lter driers, solenoid valves, and isolation
valve or ttings are not included in this table, and must be taken into account.
4. Nominal Tons (KW) Unloaded is based on one compressor (per system) operating at design conditions.
5. Based on minimum compressor staging for the given pipe size, a double suction riser should be used to ensure proper oil return to the com-
pressor on all vertical suction risers. Oil returning up the riser moves up the inner surface of the pipe and depends on the mass velocity of
the refrigerant vapor at the wall surface to move the oil up the vertical rise.
6. Hot gas bypass lines are typically 7/8" for lines up to 40 feet and 1-1/8" for lines over 40 feet in length (12 meters). The eld connections sizes
are 7/8" for the optional factory mounted hot gas bypass valve. Note: Hot gas bypass is only available for refrigerant system number 1.
7. For more information, please refer to either the York DX Piping Guide (form 050.40-ES2) or the ASHRAE Refrigertion Handbook.

YORK INTERNATIONAL
16
YORK INTERNATIONAL 17
FORM 150.63-EG1
NOTES:
1. For lower or higher suction temperature applications, contact your nearest YORK Ofce for application requirements.
2. For operation at temperatures below 25°F (-3.9°C), the optional Low Ambient Kit will need to be installed on the system (For YCUL0016
- 0090 models only).
3. For operation at temperatures above 115°F (46.1°C), the optional High Ambient Kit will need to be installed on the system.
ENGLISH UNITS
Design Parameters
YCUL
SUCTION
TEMPERATURE (°F)
AIR ON
CONDENSER (°F)
MIN1MAX1MIN2MAX3
0016 35 55 0 125
0026 35 55 0 125
0030 35 55 0 125
0036 35 55 0 125
0040 35 55 0 125
0046 35 55 0 125
0050 35 55 0 125
0056 35 55 0 125
0060 35 55 0 125
0066 35 55 0 125
0076 35 55 0 125
0080 35 55 0 125
0086 35 55 0 125
0090 35 55 0 125
0096 35 55 0 125
0100 35 55 0 125
0106 35 55 0 125
0120 35 55 0 125
0130 35 55 0 125

YORK INTERNATIONAL
16
YORK INTERNATIONAL 17
FORM 150.63-EG1
SI UNITS
YCUL
SUCTION
TEMPERATURE (°C)
AIR ON
CONDENSER (°C)
MIN1MAX1MIN2MAX3
0016 1.7 12.8 -17.7 51.7
0026 1.7 12.8 -17.7 51.7
0030 1.7 12.8 -17.7 51.7
0036 1.7 12.8 -17.7 51.7
0040 1.7 12.8 -17.7 51.7
0046 1.7 12.8 -17.7 51.7
0050 1.7 12.8 -17.7 51.7
0056 1.7 12.8 -17.7 51.7
0060 1.7 12.8 -17.7 51.7
0066 1.7 12.8 -17.7 51.7
0076 1.7 12.8 -17.7 51.7
0080 1.7 12.8 -17.7 51.7
0086 1.7 12.8 -17.7 51.7
0090 1.7 12.8 -17.7 51.7
0096 1.7 12.8 -17.7 51.7
0100 1.7 12.8 -17.7 51.7
0106 1.7 12.8 -17.7 51.7
0120 1.7 12.8 -17.7 51.7
0130 1.7 12.8 -17.7 51.7

YORK INTERNATIONAL
18
YORK INTERNATIONAL 19
FORM 150.63-EG1
Ratings - R22 (English Units)
NOTES:
1. SST = Saturated Suction Temperature
2. kW = Compressors Input Power
3. EER = Condensing Unit EER (includes power from compressors, fans and the control panel)
YCUL0016EC
AIR TEMPERATURE ON CONDENSER (°F)
SST
(°F)
75°F 80°F 85°F 90°F 95°F 100°F
TONS KW EER TONS KW EER TONS KW EER TONS KW EER TONS KW EER TONS KW EER
35.0 14.0 10.9 12.2 13.6 11.5 11.4 13.3 12.2 10.6 13.0 12.9 9.9 12.6 13.6 9.2 12.3 14.5 8.5
37.0 14.5 11.0 12.6 14.2 11.6 11.8 13.8 12.3 11.0 13.5 13.0 10.2 13.1 13.7 9.5 12.8 14.5 8.8
39.0 15.1 11.1 13.0 14.7 11.7 12.2 14.3 12.3 11.4 14.0 13.0 10.6 13.6 13.8 9.8 13.3 14.6 9.1
41.0 15.6 11.1 13.5 15.2 11.7 12.6 14.9 12.4 11.7 14.5 13.1 10.9 14.1 13.9 10.2 13.8 14.7 9.4
43.0 16.2 11.2 13.9 15.8 11.8 13.0 15.4 12.5 12.1 15.0 13.2 11.3 14.7 14.0 10.5 14.3 14.8 9.7
45.0 16.8 11.3 14.3 16.4 11.9 13.4 16.0 12.6 12.5 15.6 13.3 11.6 15.2 14.1 10.8 14.8 14.9 10.1
47.0 17.4 11.4 14.7 17.0 12.0 13.8 16.6 12.7 12.9 16.2 13.4 12.0 15.8 14.1 11.2 15.4 15.0 10.4
49.0 18.1 11.5 15.2 17.6 12.1 14.2 17.2 12.8 13.3 16.8 13.5 12.4 16.3 14.2 11.5 15.9 15.1 10.7
51.0 18.7 11.6 15.6 18.2 12.2 14.6 17.8 12.9 13.6 17.4 13.6 12.7 16.9 14.4 11.9 16.5 15.2 11.0
53.0 19.4 11.7 16.1 18.9 12.3 15.0 18.5 13.0 14.0 18.0 13.7 13.1 17.6 14.5 12.2 17.1 15.3 11.3
55.0 20.1 11.8 16.5 19.6 12.4 15.5 19.1 13.1 14.5 18.7 13.8 13.5 18.2 14.6 12.6 17.7 15.4 11.7
YCUL0026EC
AIR TEMPERATURE ON CONDENSER (°F)
SST
(°F)
75°F 80°F 85°F 90°F 95°F 100°F
TONS KW EER TONS KW EER TONS KW EER TONS KW EER TONS KW EER TONS KW EER
35.0 19.4 15.6 12.7 19.0 16.5 11.8 18.5 17.5 10.9 18.0 18.5 10.1 17.4 19.6 9.3 16.9 20.7 8.6
37.0 20.2 15.7 13.1 19.7 16.6 12.1 19.1 17.6 11.2 18.6 18.7 10.4 18.1 19.7 9.6 17.6 20.9 8.9
39.0 20.9 15.8 13.4 20.4 16.8 12.5 19.8 17.8 11.6 19.3 18.8 10.7 18.8 19.9 9.9 18.2 21.0 9.2
41.0 21.6 16.0 13.8 21.1 16.9 12.9 20.6 17.9 11.9 20.0 18.9 11.0 19.4 20.0 10.2 18.9 21.2 9.4
43.0 22.4 16.1 14.2 21.9 17.0 13.2 21.3 18.0 12.3 20.7 19.1 11.4 20.1 20.2 10.5 19.5 21.3 9.7
45.0 23.2 16.2 14.6 22.6 17.2 13.6 22.0 18.2 12.6 21.4 19.2 11.7 20.8 20.3 10.8 20.2 21.5 10.0
47.0 24.0 16.4 15.0 23.4 17.3 14.0 22.8 18.3 12.9 22.2 19.4 12.0 21.6 20.5 11.1 20.9 21.7 10.3
49.0 24.8 16.5 15.4 24.2 17.5 14.3 23.6 18.5 13.3 22.9 19.5 12.3 22.3 20.7 11.4 21.6 21.8 10.5
51.0 25.6 16.7 15.8 25.0 17.6 14.7 24.4 18.6 13.6 23.7 19.7 12.6 23.0 20.8 11.7 22.4 22.0 10.8
53.0 26.5 16.9 16.2 25.8 17.8 15.1 25.2 18.8 14.0 24.5 19.9 13.0 23.8 21.0 12.0 23.1 22.2 11.1
55.0 27.4 17.0 16.5 26.7 18.0 15.4 26.0 19.0 14.3 25.3 20.0 13.3 24.6 21.2 12.3 23.9 22.4 11.4
YCUL0030EC
AIR TEMPERATURE ON CONDENSER (°F)
SST
(°F)
75°F 80°F 85°F 90°F 95°F 100°F
TONS KW EER TONS KW EER TONS KW EER TONS KW EER TONS KW EER TONS KW EER
35.0 23.9 19.7 12.7 23.3 20.7 11.9 22.8 21.9 11.1 22.2 23.0 10.3 21.6 24.3 9.6 21.0 25.6 8.9
37.0 24.8 19.9 13.1 24.2 20.9 12.3 23.7 22.0 11.4 23.1 23.2 10.6 22.4 24.5 9.9 21.8 25.8 9.1
39.0 25.7 20.0 13.5 25.1 21.1 12.6 24.5 22.2 11.8 23.9 23.4 11.0 23.3 24.6 10.2 22.6 26.0 9.4
41.0 26.6 20.2 13.9 26.0 21.2 13.0 25.4 22.3 12.1 24.8 23.5 11.3 24.1 24.8 10.5 23.4 26.2 9.7
43.0 27.6 20.4 14.3 26.9 21.4 13.4 26.3 22.5 12.5 25.7 23.7 11.6 25.0 25.0 10.8 24.3 26.4 10.0
45.0 28.5 20.6 14.7 27.9 21.6 13.7 27.2 22.7 12.8 26.6 23.9 12.0 25.9 25.2 11.1 25.1 26.5 10.3
47.0 29.5 20.8 15.0 28.9 21.8 14.1 28.2 22.9 13.2 27.5 24.0 12.3 26.8 25.3 11.4 26.0 26.7 10.6
49.0 30.6 21.0 15.4 29.9 21.9 14.5 29.2 23.0 13.5 28.4 24.2 12.6 27.7 25.5 11.7 26.9 26.9 10.9
51.0 31.6 21.2 15.8 30.9 22.1 14.9 30.1 23.2 13.9 29.4 24.4 13.0 28.6 25.7 12.0 27.8 27.1 11.2
53.0 32.7 21.4 16.2 31.9 22.3 15.2 31.2 23.4 14.3 30.4 24.6 13.3 29.6 25.9 12.4 28.8 27.3 11.5
55.0 33.7 21.6 16.6 33.0 22.6 15.6 32.2 23.6 14.6 31.4 24.8 13.6 30.6 26.1 12.7 29.7 27.5 11.8
YCUL0036EC
AIR TEMPERATURE ON CONDENSER (°F)
SST
(°F)
75°F 80°F 85°F 90°F 95°F 100°F
TONS KW EER TONS KW EER TONS KW EER TONS KW EER TONS KW EER TONS KW EER
35.0 28.9 23.9 13.0 28.2 25.3 12.0 27.5 26.8 11.2 26.8 28.3 10.3 26.1 30.0 9.5 25.4 31.7 8.8
37.0 29.9 24.1 13.3 29.2 25.5 12.4 28.5 27.0 11.5 27.8 28.5 10.6 27.1 30.2 9.8 26.3 32.0 9.1
39.0 31.0 24.3 13.7 30.3 25.7 12.7 29.6 27.2 11.8 28.8 28.8 11.0 28.1 30.4 10.1 27.3 32.2 9.4
41.0 32.1 24.6 14.1 31.4 26.0 13.1 30.6 27.4 12.2 29.9 29.0 11.3 29.1 30.7 10.4 28.3 32.4 9.6
43.0 33.2 24.8 14.4 32.5 26.2 13.4 31.7 27.7 12.5 30.9 29.2 11.6 30.1 30.9 10.7 29.3 32.7 9.9
45.0 34.4 25.1 14.8 33.6 26.4 13.8 32.8 27.9 12.8 32.0 29.5 11.9 31.2 31.2 11.0 30.3 32.9 10.2
47.0 35.5 25.3 15.2 34.7 26.7 14.1 33.9 28.2 13.2 33.1 29.7 12.2 32.3 31.4 11.3 31.4 33.2 10.5
49.0 36.7 25.6 15.5 35.9 27.0 14.5 35.1 28.4 13.5 34.2 30.0 12.5 33.4 31.7 11.6 32.5 33.5 10.7
51.0 37.9 25.9 15.9 37.1 27.2 14.8 36.2 28.7 13.8 35.4 30.3 12.8 34.5 32.0 11.9 33.6 33.8 11.0
53.0 39.2 26.2 16.2 38.3 27.5 15.2 37.4 29.0 14.1 36.6 30.6 13.1 35.6 32.3 12.2 34.7 34.1 11.3
55.0 40.4 26.5 16.6 39.5 27.8 15.5 38.6 29.3 14.4 37.7 30.9 13.4 36.8 32.6 12.5 35.8 34.4 11.6

YORK INTERNATIONAL
18
YORK INTERNATIONAL 19
FORM 150.63-EG1
NOTES:
1. SST = Saturated Suction Temperature
2. kW = Compressors Input Power
3. EER = Condensing Unit EER (includes power from compressors, fans and the control panel)
YCUL0016EC
AIR TEMPERATURE ON CONDENSER (°F)
SST 105°F 110°F 115°F 120°F 125°F
(°F) TONS KW EER TONS KW EER TONS KW EER TONS KW EER TONS KW EER
35.0 12.0 15.3 7.9 11.6 16.2 7.3 11.2 17.2 6.7 10.8 18.2 6.2 5.4 8.6 5.6
37.0 12.4 15.4 8.2 12.0 16.3 7.6 11.6 17.3 7.0 11.2 18.3 6.4 5.6 8.7 5.9
39.0 12.9 15.5 8.5 12.5 16.4 7.8 12.1 17.4 7.2 11.6 18.4 6.6 5.8 8.7 6.1
41.0 13.4 15.6 8.7 13.0 16.5 8.1 12.6 17.4 7.4 12.1 18.5 6.8 6.1 8.7 6.3
43.0 13.9 15.7 9.0 13.5 16.6 8.3 13.0 17.5 7.7 12.6 18.5 7.1 6.3 8.7 6.6
45.0 14.4 15.7 9.3 14.0 16.7 8.6 13.5 17.6 7.9 13.0 18.6 7.3 6.5 8.7 6.8
47.0 14.9 15.8 9.6 14.5 16.8 8.9 14.0 17.7 8.2 13.5 18.7 7.5 6.8 8.8 7.1
49.0 15.5 15.9 9.9 15.0 16.9 9.2 14.5 17.8 8.5 14.0 18.8 7.8 7.1 8.8 7.3
51.0 16.1 16.0 10.2 15.6 17.0 9.5 15.1 17.9 8.7 14.5 19.0 8.0 7.3 8.8 7.6
53.0 16.6 16.2 10.5 16.1 17.1 9.7 15.6 18.1 9.0 7.9 8.4 8.5 7.6 8.9 7.8
55.0 17.2 16.3 10.8 16.7 17.2 10.0 16.2 18.2 9.3 8.2 8.4 8.8 7.9 8.9 8.1
YCUL0026EC
AIR TEMPERATURE ON CONDENSER (°F)
SST 105°F 110°F 115°F 120°F 125°F
(°F) TONS KW EER TONS KW EER TONS KW EER TONS KW EER TONS KW EER
35.0 16.4 21.9 8.0 15.9 23.2 7.3 15.3 24.5 6.7 14.8 25.8 6.2 7.5 11.9 6.1
37.0 17.0 22.1 8.2 16.5 23.3 7.6 15.9 24.6 7.0 15.3 26.0 6.4 7.8 12.0 6.3
39.0 17.6 22.2 8.5 17.1 23.5 7.8 16.5 24.8 7.2 15.9 26.2 6.6 8.1 12.0 6.6
41.0 18.3 22.4 8.7 17.7 23.7 8.0 17.1 25.0 7.4 16.5 26.4 6.8 8.4 12.1 6.8
43.0 18.9 22.6 9.0 18.3 23.8 8.3 17.7 25.2 7.6 17.1 26.6 7.0 8.7 12.1 7.0
45.0 19.6 22.7 9.2 19.0 24.0 8.5 18.3 25.3 7.8 17.7 26.7 7.2 9.1 12.2 7.3
47.0 20.3 22.9 9.5 19.6 24.2 8.7 19.0 25.5 8.0 18.3 26.9 7.4 9.4 12.2 7.5
49.0 21.0 23.1 9.7 20.3 24.4 9.0 19.6 25.7 8.3 10.1 11.6 8.4 9.7 12.3 7.7
51.0 21.7 23.2 10.0 21.0 24.6 9.2 20.3 25.9 8.5 10.4 11.7 8.7 10.1 12.3 8.0
53.0 22.4 23.4 10.3 21.7 24.7 9.5 21.0 26.1 8.7 10.8 11.7 8.9 10.4 12.4 8.2
55.0 23.1 23.6 10.5 22.4 24.9 9.7 21.7 26.3 8.9 11.2 11.8 9.2 10.8 12.4 8.5
YCUL0030EC
AIR TEMPERATURE ON CONDENSER (°F)
SST 105°F 110°F 115°F 120°F 125°F
(°F) TONS KW EER TONS KW EER TONS KW EER TONS KW EER TONS KW EER
35.0 20.4 27.1 8.2 19.7 28.6 7.5 19.0 30.2 6.9 18.2 31.9 6.3 17.5 33.7 5.7
37.0 21.1 27.3 8.4 20.5 28.8 7.8 19.7 30.4 7.1 19.0 32.1 6.5 18.2 33.9 5.9
39.0 21.9 27.4 8.7 21.2 29.0 8.0 20.5 30.6 7.4 19.7 32.3 6.7 10.0 15.1 6.7
41.0 22.7 27.6 9.0 22.0 29.2 8.3 21.3 30.8 7.6 20.5 32.5 7.0 10.3 15.2 6.9
43.0 23.6 27.8 9.2 22.8 29.3 8.5 22.0 31.0 7.8 21.2 32.7 7.2 10.7 15.2 7.2
45.0 24.4 28.0 9.5 23.6 29.5 8.8 22.8 31.2 8.1 22.0 32.9 7.4 11.2 15.3 7.4
47.0 25.3 28.2 9.8 24.5 29.8 9.0 23.7 31.4 8.3 22.8 33.2 7.6 11.6 15.3 7.7
49.0 26.1 28.4 10.1 25.3 29.9 9.3 24.5 31.6 8.5 23.6 33.4 7.8 12.0 15.4 7.9
51.0 27.0 28.6 10.3 26.2 30.2 9.5 25.4 31.8 8.8 24.5 33.6 8.1 12.4 15.4 8.2
53.0 27.9 28.8 10.6 27.1 30.4 9.8 26.2 32.0 9.0 25.3 33.8 8.3 12.9 15.5 8.5
55.0 28.9 29.0 10.9 28.0 30.6 10.1 27.1 32.3 9.3 13.8 14.7 9.5 13.3 15.5 8.7
YCUL0036EC
AIR TEMPERATURE ON CONDENSER (°F)
SST 105°F 110°F 115°F 120°F 125°F
(°F) TONS KW EER TONS KW EER TONS KW EER TONS KW EER TONS KW EER
35.0 24.6 33.5 8.1 23.9 35.4 7.5 23.1 37.4 6.9 22.3 39.5 6.3 11.2 18.6 6.3
37.0 25.5 33.8 8.4 24.8 35.7 7.7 24.0 37.7 7.1 23.2 39.8 6.5 11.6 18.6 6.5
39.0 26.5 34.0 8.6 25.7 36.0 8.0 24.9 38.0 7.3 12.5 17.7 7.3 12.1 18.7 6.7
41.0 27.5 34.3 8.9 26.6 36.2 8.2 25.8 38.3 7.5 13.0 17.8 7.6 12.5 18.8 7.0
43.0 28.5 34.5 9.1 27.6 36.5 8.4 26.7 38.5 7.8 13.5 17.9 7.8 13.0 18.9 7.2
45.0 29.5 34.8 9.4 28.6 36.8 8.7 27.7 38.8 8.0 14.0 18.0 8.1 13.5 19.0 7.4
47.0 30.5 35.1 9.7 29.6 37.1 8.9 28.7 39.1 8.2 14.5 18.0 8.3 14.0 19.1 7.7
49.0 31.5 35.4 9.9 30.6 37.4 9.1 29.6 39.4 8.4 15.0 18.1 8.6 14.5 19.2 7.9
51.0 32.6 35.7 10.2 31.7 37.7 9.4 30.7 39.8 8.6 15.5 18.2 8.9 15.0 19.3 8.2
53.0 33.7 36.0 10.4 32.7 38.0 9.6 16.6 17.3 9.9 16.1 18.3 9.1 15.6 19.4 8.4
55.0 34.8 36.3 10.7 33.8 38.3 9.9 17.2 17.4 10.2 16.7 18.4 9.4 16.1 19.5 8.7

YORK INTERNATIONAL
20
YORK INTERNATIONAL 21
FORM 150.63-EG1
Ratings - R22 (English Units)
NOTES:
1. SST = Saturated Suction Temperature
2. kW = Compressors Input Power
3. EER = Condensing Unit EER (includes power from compressors, fans and the control panel)
YCUL0040EC
AIR TEMPERATURE ON CONDENSER (°F)
SST
(°F)
75°F 80°F 85°F 90°F 95°F 100°F
TONS KW EER TONS KW EER TONS KW EER TONS KW EER TONS KW EER TONS KW EER
35.0 35.1 30.9 12.5 34.3 32.6 11.6 33.5 34.3 10.8 32.6 36.2 10.0 31.6 38.2 9.3 30.7 40.4 8.5
37.0 36.4 31.2 12.9 35.6 32.8 12.0 34.7 34.6 11.1 33.8 36.5 10.3 32.8 38.5 9.5 31.8 40.7 8.8
39.0 37.7 31.5 13.2 36.8 33.1 12.3 35.9 34.9 11.4 35.0 36.8 10.6 34.0 38.8 9.8 33.0 41.0 9.0
41.0 39.1 31.7 13.6 38.2 33.4 12.6 37.2 35.2 11.7 36.2 37.1 10.9 35.2 39.2 10.1 34.2 41.3 9.3
43.0 40.5 32.0 13.9 39.5 33.7 13.0 38.5 35.5 12.1 37.5 37.4 11.2 36.4 39.5 10.3 35.4 41.7 9.5
45.0 41.9 32.4 14.3 40.9 34.0 13.3 39.8 35.8 12.4 38.8 37.8 11.5 37.7 39.8 10.6 36.6 42.0 9.8
47.0 43.3 32.7 14.6 42.2 34.3 13.7 41.2 36.1 12.7 40.1 38.1 11.8 39.0 40.2 10.9 37.8 42.4 10.1
49.0 44.7 33.0 15.0 43.7 34.7 14.0 42.6 36.5 13.0 41.4 38.4 12.1 40.3 40.5 11.2 39.1 42.7 10.3
51.0 46.2 33.3 15.4 45.1 35.0 14.3 44.0 36.8 13.3 42.8 38.8 12.4 41.6 40.9 11.4 40.4 43.1 10.6
53.0 47.7 33.7 15.7 46.6 35.4 14.7 45.4 37.2 13.6 44.2 39.1 12.7 43.0 41.2 11.7 41.7 43.5 10.8
55.0 49.3 34.0 16.1 48.1 35.7 15.0 46.9 37.5 13.9 45.6 39.5 13.0 44.4 41.6 12.0 43.1 43.8 11.1
YCUL0046EC
AIR TEMPERATURE ON CONDENSER (°F)
SST
(°F)
75°F 80°F 85°F 90°F 95°F 100°F
TONS KW EER TONS KW EER TONS KW EER TONS KW EER TONS KW EER TONS KW EER
35.0 39.0 30.5 13.0 38.1 32.3 12.0 37.1 34.2 11.2 36.2 36.3 10.4 35.2 38.5 9.6 34.2 40.7 8.9
37.0 40.4 30.7 13.4 39.5 32.5 12.4 38.5 34.4 11.6 37.6 36.5 10.7 36.5 38.6 9.9 35.5 40.9 9.2
39.0 42.0 30.9 13.8 41.0 32.7 12.9 40.0 34.6 11.9 39.0 36.7 11.1 37.9 38.8 10.2 36.9 41.1 9.5
41.0 43.5 31.0 14.2 42.5 32.9 13.3 41.5 34.8 12.3 40.4 36.9 11.4 39.3 39.0 10.6 38.2 41.3 9.8
43.0 45.1 31.3 14.7 44.1 33.1 13.7 43.0 35.0 12.7 41.9 37.1 11.8 40.8 39.2 10.9 39.6 41.6 10.1
45.0 46.7 31.5 15.1 45.6 33.3 14.1 44.5 35.2 13.1 43.4 37.3 12.1 42.3 39.5 11.3 41.1 41.8 10.4
47.0 48.4 31.7 15.6 47.3 33.5 14.5 46.1 35.4 13.5 45.0 37.5 12.5 43.8 39.7 11.6 42.5 42.0 10.7
49.0 50.1 31.9 16.0 48.9 33.7 14.9 47.8 35.6 13.9 46.6 37.7 12.9 45.3 39.9 11.9 44.1 42.2 11.1
51.0 51.9 32.1 16.5 50.7 33.9 15.4 49.4 35.9 14.3 48.2 37.9 13.3 46.9 40.1 12.3 45.6 42.5 11.4
53.0 53.6 32.4 16.9 52.4 34.2 15.8 51.1 36.1 14.7 49.8 38.2 13.7 48.5 40.4 12.7 47.2 42.7 11.7
55.0 55.5 32.6 17.4 54.2 34.4 16.2 52.9 36.4 15.1 51.5 38.4 14.0 50.2 40.6 13.0 48.8 43.0 12.1
YCUL0050EC
AIR TEMPERATURE ON CONDENSER (°F)
SST
(°F)
75°F 80°F 85°F 90°F 95°F 100°F
TONS KW EER TONS KW EER TONS KW EER TONS KW EER TONS KW EER TONS KW EER
35.0 43.3 35.6 12.6 42.4 37.6 11.8 41.3 39.8 10.9 40.3 42.0 10.1 39.2 44.5 9.4 38.1 47.0 8.7
37.0 45.0 35.9 13.0 44.0 37.9 12.1 42.9 40.0 11.3 41.8 42.3 10.5 40.7 44.7 9.7 39.5 47.3 9.0
39.0 46.6 36.2 13.4 45.6 38.1 12.5 44.5 40.3 11.6 43.4 42.6 10.8 42.2 45.0 10.0 41.0 47.6 9.2
41.0 48.4 36.4 13.8 47.3 38.4 12.9 46.1 40.5 12.0 44.9 42.8 11.1 43.7 45.3 10.3 42.5 47.9 9.5
43.0 50.1 36.7 14.2 49.0 38.7 13.3 47.8 40.8 12.4 46.6 43.1 11.5 45.3 45.5 10.6 44.0 48.1 9.8
45.0 51.9 37.0 14.6 50.7 39.0 13.7 49.5 41.1 12.7 48.2 43.4 11.8 46.9 45.8 11.0 45.6 48.4 10.1
47.0 53.7 37.3 15.0 52.5 39.3 14.0 51.2 41.4 13.1 49.9 43.7 12.2 48.6 46.1 11.3 47.2 48.7 10.4
49.0 55.6 37.6 15.4 54.3 39.6 14.4 53.0 41.7 13.5 51.7 44.0 12.5 50.3 46.4 11.6 48.9 49.0 10.7
51.0 57.5 37.9 15.9 56.2 39.9 14.8 54.8 42.0 13.8 53.4 44.3 12.9 52.0 46.7 11.9 50.6 49.4 11.0
53.0 59.5 38.3 16.3 58.1 40.2 15.2 56.7 42.3 14.2 55.3 44.6 13.2 53.8 47.1 12.3 52.3 49.7 11.4
55.0 61.5 38.6 16.7 60.1 40.6 15.6 58.6 42.7 14.6 57.1 44.9 13.6 55.6 47.4 12.6 54.1 50.0 11.7
YCUL0056EC
AIR TEMPERATURE ON CONDENSER (°F)
SST
(°F)
75°F 80°F 85°F 90°F 95°F 100°F
TONS KW EER TONS KW EER TONS KW EER TONS KW EER TONS KW EER TONS KW EER
35.0 47.8 40.1 12.6 46.7 42.2 11.7 45.6 44.5 10.9 44.5 47.0 10.2 43.3 49.6 9.4 42.0 52.4 8.7
37.0 49.6 40.4 12.9 48.5 42.5 12.1 47.3 44.8 11.3 46.1 47.3 10.5 44.9 49.9 9.7 43.6 52.7 9.0
39.0 51.4 40.8 13.3 50.3 42.9 12.4 49.1 45.1 11.6 47.8 47.6 10.8 46.5 50.3 10.0 45.2 53.1 9.2
41.0 53.3 41.1 13.7 52.1 43.2 12.8 50.9 45.5 11.9 49.6 47.9 11.1 48.2 50.6 10.3 46.9 53.4 9.5
43.0 55.2 41.4 14.1 54.0 43.5 13.2 52.7 45.8 12.3 51.3 48.3 11.4 50.0 50.9 10.6 48.6 53.8 9.8
45.0 57.2 41.8 14.5 55.9 43.9 13.5 54.5 46.2 12.6 53.2 48.6 11.8 51.7 51.3 10.9 50.3 54.1 10.1
47.0 59.2 42.2 14.9 57.8 44.3 13.9 56.4 46.5 13.0 55.0 49.0 12.1 53.5 51.7 11.2 52.0 54.5 10.4
49.0 61.2 42.6 15.3 59.8 44.6 14.3 58.4 46.9 13.3 56.9 49.4 12.4 55.4 52.0 11.5 53.8 54.9 10.7
51.0 63.3 43.0 15.6 61.8 45.0 14.7 60.4 47.3 13.7 58.8 49.8 12.8 57.2 52.4 11.8 55.7 55.3 11.0
53.0 65.5 43.4 16.0 63.9 45.4 15.0 62.4 47.7 14.0 60.8 50.1 13.1 59.2 52.8 12.2 57.5 55.7 11.3
55.0 67.6 43.8 16.4 66.1 45.9 15.4 64.4 48.1 14.4 62.8 50.6 13.4 61.1 53.2 12.5 59.4 56.1 11.6

YORK INTERNATIONAL
20
YORK INTERNATIONAL 21
FORM 150.63-EG1
NOTES:
1. SST = Saturated Suction Temperature
2. kW = Compressors Input Power
3. EER = Condensing Unit EER (includes power from compressors, fans and the control panel)
YCUL0040EC
AIR TEMPERATURE ON CONDENSER (°F)
SST
(°F)
105°F 110°F 115°F 120°F 125°F
TONS KW EER TONS KW EER TONS KW EER TONS KW EER TONS KW EER
35.0 29.7 42.6 7.8 28.6 45.0 7.2 27.5 47.5 6.6 26.4 50.1 6.0 17.6 32.3 6.0
37.0 30.8 43.0 8.1 29.7 45.4 7.4 28.6 47.9 6.8 27.4 50.5 6.2 18.4 32.5 6.2
39.0 31.9 43.3 8.3 30.8 45.7 7.6 29.7 48.3 7.0 28.5 50.9 6.4 19.1 32.7 6.5
41.0 33.1 43.7 8.5 31.9 46.1 7.8 30.8 48.7 7.2 20.6 31.1 7.3 19.8 32.9 6.7
43.0 34.2 44.0 8.8 33.1 46.5 8.1 31.9 49.0 7.4 21.4 31.3 7.5 20.6 33.1 6.9
45.0 35.4 44.3 9.0 34.3 46.8 8.3 33.0 49.4 7.6 22.2 31.5 7.8 21.4 33.2 7.1
47.0 36.7 44.7 9.3 35.5 47.2 8.5 34.2 49.8 7.8 23.0 31.6 8.0 22.2 33.4 7.4
49.0 37.9 45.1 9.5 36.7 47.6 8.7 35.4 50.2 8.0 23.9 31.8 8.3 23.0 33.6 7.6
51.0 39.2 45.4 9.7 37.9 47.9 9.0 36.6 50.6 8.2 24.7 31.9 8.5 23.8 33.7 7.8
53.0 40.5 45.8 10.0 39.2 48.3 9.2 37.8 51.0 8.4 25.6 32.1 8.8 24.7 33.9 8.1
55.0 41.8 46.2 10.2 40.4 48.7 9.4 27.4 30.6 9.8 26.5 32.3 9.1 25.5 34.1 8.3
YCUL0046EC
AIR TEMPERATURE ON CONDENSER (°F)
SST
(°F)
105°F 110°F 115°F 120°F 125°F
TONS KW EER TONS KW EER TONS KW EER TONS KW EER TONS KW EER
35.0 33.2 43.1 8.2 32.2 45.6 7.5 31.1 48.2 6.9 30.0 51.0 6.4 29.0 53.9 5.8
37.0 34.5 43.3 8.5 33.4 45.8 7.8 32.3 48.5 7.2 31.2 51.2 6.6 15.5 24.5 6.2
39.0 35.8 43.5 8.7 34.7 46.1 8.0 33.6 48.7 7.4 32.4 51.5 6.8 16.1 24.6 6.4
41.0 37.1 43.8 9.0 36.0 46.3 8.3 34.8 49.0 7.7 33.7 51.7 7.0 16.7 24.6 6.6
43.0 38.5 44.0 9.3 37.3 46.6 8.6 36.1 49.2 7.9 34.9 52.0 7.3 17.4 24.7 6.9
45.0 39.9 44.2 9.6 38.6 46.8 8.8 37.4 49.5 8.2 36.2 52.3 7.5 18.0 24.8 7.1
47.0 41.3 44.5 9.9 40.1 47.0 9.1 38.8 49.7 8.4 37.5 52.6 7.7 18.7 24.8 7.4
49.0 42.8 44.7 10.2 41.5 47.3 9.4 40.2 50.0 8.7 38.9 52.8 8.0 19.4 24.9 7.6
51.0 44.3 44.9 10.5 43.0 47.5 9.7 41.6 50.3 8.9 40.2 53.1 8.2 20.1 25.0 7.9
53.0 45.8 45.2 10.8 44.5 47.8 10.0 43.1 50.5 9.2 41.7 53.4 8.5 20.9 25.0 8.2
55.0 47.4 45.4 11.1 46.0 48.1 10.3 44.5 50.8 9.5 43.1 53.7 8.7 21.6 25.1 8.4
YCUL0050EC
AIR TEMPERATURE ON CONDENSER (°F)
SST
(°F)
105°F 110°F 115°F 120°F 125°F
TONS KW EER TONS KW EER TONS KW EER TONS KW EER TONS KW EER
35.0 36.9 49.7 8.0 35.7 52.6 7.4 34.5 55.6 6.8 33.2 58.7 6.2 16.6 27.8 6.0
37.0 38.3 50.0 8.3 37.1 52.9 7.6 35.8 55.9 7.0 34.5 59.1 6.4 17.3 27.9 6.2
39.0 39.8 50.3 8.5 38.5 53.2 7.9 37.2 56.2 7.2 35.8 59.4 6.6 18.0 28.0 6.4
41.0 41.2 50.6 8.8 39.9 53.5 8.1 38.6 56.6 7.4 37.2 59.7 6.8 18.7 28.1 6.6
43.0 42.7 50.9 9.1 41.4 53.8 8.4 40.0 56.9 7.7 38.6 60.1 7.1 19.4 28.2 6.9
45.0 44.3 51.2 9.4 42.9 54.1 8.6 41.5 57.2 7.9 29.7 41.4 7.6 20.1 28.3 7.1
47.0 45.8 51.5 9.6 44.4 54.4 8.9 43.0 57.6 8.2 30.8 41.6 7.8 20.9 28.4 7.4
49.0 47.5 51.8 9.9 46.0 54.8 9.1 44.5 57.9 8.4 31.9 41.7 8.1 21.7 28.5 7.6
51.0 49.1 52.1 10.2 47.6 55.1 9.4 46.1 58.2 8.7 33.0 41.9 8.3 22.5 28.5 7.9
53.0 50.8 52.5 10.5 49.2 55.4 9.7 47.6 58.6 8.9 24.1 27.0 8.8 23.3 28.6 8.2
55.0 52.5 52.8 10.8 50.9 55.8 9.9 49.3 59.0 9.2 24.9 27.1 9.1 24.1 28.7 8.4
YCUL0056EC
AIR TEMPERATURE ON CONDENSER (°F)
SST
(°F)
105°F 110°F 115°F 120°F 125°F
TONS KW EER TONS KW EER TONS KW EER TONS KW EER TONS KW EER
35.0 40.7 55.4 8.0 39.3 58.5 7.4 37.9 61.8 6.7 36.4 65.3 6.2 18.3 30.7 6.1
37.0 42.2 55.7 8.3 40.8 58.9 7.6 39.4 62.2 7.0 37.9 65.7 6.4 19.1 30.8 6.3
39.0 43.8 56.1 8.5 42.4 59.2 7.8 40.9 62.6 7.2 39.3 66.1 6.6 19.9 31.0 6.5
41.0 45.4 56.4 8.8 44.0 59.6 8.1 42.4 63.0 7.4 40.9 66.6 6.8 20.6 31.1 6.8
43.0 47.1 56.8 9.1 45.6 60.0 8.3 44.0 63.4 7.7 42.4 67.0 7.0 21.4 31.2 7.0
45.0 48.8 57.2 9.3 47.2 60.4 8.6 45.6 63.8 7.9 44.0 67.4 7.2 22.3 31.3 7.2
47.0 50.5 57.6 9.6 48.9 60.8 8.8 47.2 64.2 8.1 45.6 67.9 7.4 23.1 31.4 7.5
49.0 52.2 57.9 9.9 50.6 61.2 9.1 48.9 64.6 8.4 24.8 29.7 8.4 23.9 31.5 7.8
51.0 54.0 58.3 10.1 52.3 61.6 9.3 50.6 65.1 8.6 25.7 29.8 8.7 24.8 31.6 8.0
53.0 55.8 58.7 10.4 54.1 62.0 9.6 52.3 65.5 8.8 26.6 29.9 9.0 25.7 31.7 8.3
55.0 57.7 59.2 10.7 55.9 62.4 9.9 54.1 65.9 9.1 27.6 30.0 9.3 26.6 31.8 8.6

YORK INTERNATIONAL
22
YORK INTERNATIONAL 23
FORM 150.63-EG1
Ratings - R22 (English Units)
NOTES:
1. SST = Saturated Suction Temperature
2. kW = Compressors Input Power
3. EER = Condensing Unit EER (includes power from compressors, fans and the control panel)
YCUL0060EC
AIR TEMPERATURE ON CONDENSER (°F)
SST
(°F)
75°F 80°F 85°F 90°F 95°F 100°F
TONS KW EER TONS KW EER TONS KW EER TONS KW EER TONS KW EER TONS KW EER
35.0 52.2 45.7 12.2 51.0 48.2 11.4 49.7 50.9 10.6 48.5 53.8 9.8 47.1 56.8 9.1 45.8 60.0 8.4
37.0 54.1 46.1 12.6 52.9 48.6 11.7 51.6 51.3 10.9 50.3 54.2 10.1 48.9 57.3 9.3 47.5 60.5 8.6
39.0 56.1 46.5 12.9 54.8 49.1 12.0 53.4 51.8 11.2 52.1 54.7 10.4 50.7 57.7 9.6 49.2 61.0 8.9
41.0 58.1 47.0 13.3 56.7 49.5 12.4 55.4 52.2 11.5 53.9 55.1 10.7 52.5 58.2 9.9 51.0 61.5 9.1
43.0 60.1 47.4 13.6 58.7 50.0 12.7 57.3 52.7 11.8 55.8 55.6 11.0 54.3 58.7 10.1 52.8 62.0 9.4
45.0 62.2 47.9 13.9 60.8 50.4 13.0 59.3 53.2 12.1 57.8 56.1 11.2 56.2 59.2 10.4 54.7 62.5 9.6
47.0 64.3 48.4 14.3 62.8 50.9 13.3 61.3 53.6 12.4 59.8 56.6 11.5 58.2 59.7 10.7 56.5 63.0 9.9
49.0 66.5 48.9 14.6 65.0 51.4 13.7 63.4 54.2 12.7 61.8 57.1 11.8 60.1 60.2 11.0 58.5 63.5 10.1
51.0 68.7 49.5 15.0 67.1 52.0 14.0 65.5 54.7 13.0 63.8 57.6 12.1 62.2 60.8 11.2 60.4 64.1 10.4
53.0 70.9 50.0 15.3 69.3 52.5 14.3 67.6 55.2 13.3 65.9 58.2 12.4 64.2 61.3 11.5 62.4 64.7 10.7
55.0 73.2 50.6 15.6 71.5 53.1 14.6 69.8 55.8 13.6 68.1 58.8 12.7 66.3 61.9 11.8 64.4 65.3 10.9
YCUL0066EC
AIR TEMPERATURE ON CONDENSER (°F)
SST
(°F)
75°F 80°F 85°F 90°F 95°F 100°F
TONS KW EER TONS KW EER TONS KW EER TONS KW EER TONS KW EER TONS KW EER
35.0 57.6 47.7 13.0 56.2 50.4 12.1 54.9 53.3 11.2 53.5 56.3 10.4 52.1 59.6 9.6 50.6 63.0 8.9
37.0 59.7 48.1 13.3 58.3 50.8 12.4 56.9 53.7 11.5 55.5 56.8 10.7 54.0 60.1 9.9 52.5 63.5 9.1
39.0 61.8 48.6 13.7 60.4 51.3 12.7 59.0 54.2 11.8 57.5 57.3 11.0 56.0 60.6 10.2 54.4 64.0 9.4
41.0 64.0 49.0 14.1 62.6 51.7 13.1 61.1 54.7 12.2 59.6 57.8 11.3 58.0 61.1 10.4 56.4 64.5 9.7
43.0 66.2 49.5 14.4 64.7 52.2 13.4 63.2 55.1 12.5 61.7 58.3 11.6 60.1 61.6 10.7 58.4 65.1 9.9
45.0 68.5 50.0 14.8 67.0 52.7 13.8 65.4 55.7 12.8 63.8 58.8 11.9 62.2 62.1 11.0 60.5 65.6 10.2
47.0 70.8 50.6 15.1 69.2 53.3 14.1 67.7 56.2 13.1 66.0 59.3 12.2 64.3 62.6 11.3 62.6 66.2 10.5
49.0 73.2 51.1 15.5 71.6 53.8 14.5 69.9 56.7 13.5 68.2 59.9 12.5 66.5 63.2 11.6 64.7 66.8 10.7
51.0 75.6 51.7 15.8 73.9 54.4 14.8 72.2 57.3 13.8 70.5 60.5 12.8 68.7 63.8 11.9 66.9 67.4 11.0
53.0 78.0 52.3 16.2 76.3 55.0 15.1 74.6 57.9 14.1 72.8 61.1 13.1 71.0 64.4 12.2 69.1 68.0 11.3
55.0 80.5 52.9 16.5 78.7 55.6 15.4 77.0 58.6 14.4 75.2 61.7 13.4 73.3 65.1 12.4 71.3 68.6 11.5
YCUL0076EC
AIR TEMPERATURE ON CONDENSER (°F)
SST
(°F)
75°F 80°F 85°F 90°F 95°F 100°F
TONS KW EER TONS KW EER TONS KW EER TONS KW EER TONS KW EER TONS KW EER
35.0 64.2 55.4 12.4 62.6 58.6 11.5 61.0 61.9 10.7 59.4 65.5 9.9 57.7 69.2 9.1 55.9 73.1 8.4
37.0 66.6 55.9 12.7 64.9 59.0 11.8 63.3 62.4 11.0 61.6 65.9 10.2 59.8 69.7 9.4 58.0 73.7 8.6
39.0 69.0 56.3 13.1 67.3 59.5 12.2 65.6 62.8 11.3 63.8 66.4 10.5 62.0 70.2 9.7 60.1 74.2 8.9
41.0 71.4 56.8 13.5 69.7 60.0 12.5 67.9 63.4 11.6 66.1 67.0 10.8 64.2 70.8 9.9 62.3 74.8 9.2
43.0 74.0 57.3 13.8 72.2 60.5 12.9 70.3 63.9 11.9 68.5 67.5 11.1 66.5 71.3 10.2 64.5 75.4 9.4
45.0 76.6 57.8 14.2 74.7 61.0 13.2 72.8 64.4 12.3 70.8 68.0 11.4 68.9 71.9 10.5 66.8 75.9 9.7
47.0 79.2 58.4 14.6 77.3 61.5 13.6 75.3 64.9 12.6 73.3 68.6 11.7 71.2 72.4 10.8 69.1 76.5 10.0
49.0 81.9 58.9 15.0 79.9 62.1 13.9 77.9 65.5 12.9 75.8 69.1 12.0 73.6 73.0 11.1 71.5 77.1 10.2
51.0 84.6 59.5 15.3 82.6 62.6 14.3 80.5 66.1 13.3 78.3 69.7 12.3 76.1 73.6 11.4 73.9 77.7 10.5
53.0 87.4 60.1 15.7 85.3 63.2 14.6 83.1 66.6 13.6 80.9 70.3 12.6 78.6 74.2 11.6 76.3 78.4 10.8
55.0 90.3 60.7 16.1 88.1 63.8 15.0 85.8 67.3 13.9 83.5 70.9 12.9 81.2 74.9 11.9 78.8 79.0 11.0
YCUL0080EC
AIR TEMPERATURE ON CONDENSER (°F)
SST
(°F)
75°F 80°F 85°F 90°F 95°F 100°F
TONS KW EER TONS KW EER TONS KW EER TONS KW EER TONS KW EER TONS KW EER
35.0 71.4 61.3 12.6 69.8 64.6 11.7 68.1 68.1 10.9 66.4 71.9 10.1 64.5 76.0 9.3 62.6 80.4 8.6
37.0 74.1 61.8 13.0 72.4 65.1 12.1 70.6 68.6 11.2 68.8 72.5 10.4 66.9 76.6 9.6 64.9 80.9 8.9
39.0 76.8 62.3 13.3 75.0 65.6 12.4 73.2 69.2 11.6 71.3 73.0 10.7 69.4 77.1 9.9 67.3 81.5 9.2
41.0 79.6 62.9 13.7 77.7 66.2 12.8 75.8 69.8 11.9 73.9 73.5 11.0 71.9 77.7 10.2 69.7 82.1 9.4
43.0 82.4 63.4 14.1 80.5 66.7 13.1 78.5 70.3 12.2 76.5 74.1 11.3 74.4 78.2 10.5 72.2 82.7 9.7
45.0 85.3 64.0 14.5 83.3 67.3 13.5 81.3 70.9 12.6 79.2 74.7 11.7 77.0 78.8 10.8 74.8 83.2 10.0
47.0 88.3 64.6 14.8 86.2 67.9 13.9 84.1 71.4 12.9 81.9 75.3 12.0 79.7 79.4 11.1 77.4 83.8 10.2
49.0 91.4 65.2 15.2 89.2 68.5 14.2 87.0 72.0 13.2 84.7 75.9 12.3 82.4 80.1 11.4 80.0 84.4 10.5
51.0 94.5 65.8 15.6 92.2 69.1 14.6 89.9 72.6 13.6 87.6 76.5 12.6 85.1 80.7 11.7 82.7 85.1 10.8
53.0 97.6 66.4 16.0 95.3 69.7 14.9 92.9 73.3 13.9 90.5 77.1 12.9 88.0 81.3 12.0 85.5 85.8 11.1
55.0 100.9 67.1 16.4 98.4 70.3 15.3 96.0 73.9 14.3 93.4 77.8 13.3 90.9 81.9 12.3 88.3 86.4 11.4

YORK INTERNATIONAL
22
YORK INTERNATIONAL 23
FORM 150.63-EG1
NOTES:
1. SST = Saturated Suction Temperature
2. kW = Compressors Input Power
3. EER = Condensing Unit EER (includes power from compressors, fans and the control panel)
YCUL0060EC
AIR TEMPERATURE ON CONDENSER (°F)
SST
(°F)
105°F 110°F 115°F 120°F 125°F
TONS KW EER TONS KW EER TONS KW EER TONS KW EER TONS KW EER
35.0 44.4 63.4 7.7 42.9 67.0 7.1 41.4 70.7 6.5 29.5 51.2 6.2 28.4 54.0 5.7
37.0 46.0 63.9 7.9 44.6 67.5 7.3 43.0 71.3 6.7 30.7 51.5 6.5 29.5 54.4 5.9
39.0 47.7 64.4 8.2 46.2 68.0 7.5 33.1 49.0 7.3 31.9 51.8 6.7 21.8 35.1 6.4
41.0 49.5 64.9 8.4 47.9 68.6 7.7 34.3 49.3 7.5 33.1 52.1 6.9 22.7 35.2 6.7
43.0 51.2 65.4 8.7 49.6 69.1 8.0 35.6 49.6 7.7 34.4 52.4 7.1 23.5 35.4 6.9
45.0 53.0 66.0 8.9 51.4 69.7 8.2 36.9 49.9 8.0 35.6 52.7 7.3 24.4 35.6 7.1
47.0 54.9 66.5 9.1 53.1 70.2 8.4 38.2 50.2 8.2 36.9 53.0 7.6 25.3 35.7 7.4
49.0 56.7 67.1 9.4 55.0 70.8 8.6 39.6 50.5 8.5 38.2 53.4 7.8 26.2 35.9 7.6
51.0 58.6 67.7 9.6 42.3 48.1 9.5 41.0 50.8 8.7 39.6 53.7 8.0 27.2 36.0 7.8
53.0 60.6 68.2 9.8 43.8 48.4 9.7 42.4 51.1 9.0 41.0 54.0 8.2 28.2 36.2 8.1
55.0 62.6 68.8 10.1 45.2 48.7 10.0 43.8 51.5 9.2 30.2 34.4 9.1 29.2 36.3 8.3
YCUL0066EC
AIR TEMPERATURE ON CONDENSER (°F)
SST
(°F)
105°F 110°F 115°F 120°F 125°F
TONS KW EER TONS KW EER TONS KW EER TONS KW EER TONS KW EER
35.0 49.2 66.6 8.2 47.7 70.4 7.5 46.1 74.3 6.9 44.6 78.3 6.4 22.4 36.8 6.3
37.0 51.0 67.1 8.4 49.5 70.9 7.8 47.9 74.8 7.1 46.3 78.9 6.6 23.2 37.0 6.5
39.0 52.9 67.6 8.7 51.3 71.4 8.0 49.6 75.4 7.4 48.0 79.5 6.8 24.1 37.2 6.8
41.0 54.8 68.2 8.9 53.1 72.0 8.2 51.5 76.0 7.6 25.9 35.3 7.6 25.0 37.4 7.0
43.0 56.8 68.7 9.2 55.1 72.6 8.5 53.3 76.6 7.8 26.9 35.5 7.9 26.0 37.5 7.2
45.0 58.8 69.3 9.4 57.0 73.2 8.7 55.2 77.2 8.0 27.9 35.7 8.1 27.0 37.7 7.5
47.0 60.8 69.9 9.7 59.0 73.8 8.9 57.1 77.9 8.2 28.9 35.8 8.4 28.0 37.9 7.7
49.0 62.9 70.5 9.9 61.0 74.4 9.2 59.1 78.5 8.4 30.0 36.0 8.6 29.0 38.1 8.0
51.0 65.0 71.1 10.2 63.1 75.0 9.4 61.1 79.2 8.7 31.0 36.2 8.9 30.0 38.3 8.2
53.0 67.2 71.7 10.4 65.2 75.7 9.6 63.2 79.8 8.9 32.1 36.4 9.2 31.1 38.5 8.5
55.0 69.4 72.4 10.7 67.3 76.4 9.9 34.3 34.6 10.2 33.3 36.6 9.5 32.2 38.7 8.7
YCUL0076EC
AIR TEMPERATURE ON CONDENSER (°F)
SST
(°F)
105°F 110°F 115°F 120°F 125°F
TONS KW EER TONS KW EER TONS KW EER TONS KW EER TONS KW EER
35.0 54.1 77.3 7.7 52.3 81.7 7.1 50.3 86.3 6.5 40.5 71.0 6.3 39.0 75.0 5.7
37.0 56.2 77.9 8.0 54.2 82.3 7.3 52.3 86.9 6.7 42.1 71.4 6.5 40.5 75.4 5.9
39.0 58.2 78.5 8.2 56.3 82.9 7.5 54.3 87.6 6.9 43.8 71.9 6.7 42.1 75.9 6.1
41.0 60.3 79.1 8.4 58.3 83.5 7.8 56.3 88.2 7.1 45.4 72.3 6.9 43.7 76.4 6.3
43.0 62.5 79.7 8.7 60.4 84.2 8.0 58.3 88.9 7.3 47.1 72.7 7.1 37.6 60.2 6.7
45.0 64.7 80.3 8.9 62.6 84.8 8.2 60.4 89.6 7.5 48.8 73.2 7.3 39.0 60.5 7.0
47.0 67.0 80.9 9.2 64.8 85.4 8.4 52.4 69.7 8.2 50.6 73.7 7.5 40.5 60.8 7.2
49.0 69.3 81.5 9.4 67.0 86.1 8.7 54.2 70.2 8.5 52.4 74.1 7.8 41.9 61.1 7.4
51.0 71.6 82.1 9.7 69.3 86.8 8.9 56.1 70.6 8.7 54.2 74.6 8.0 43.4 61.4 7.6
53.0 74.0 82.8 9.9 71.6 87.4 9.1 58.0 71.0 8.9 56.1 75.0 8.2 45.0 61.7 7.9
55.0 76.4 83.5 10.2 74.0 88.1 9.3 60.0 71.5 9.2 58.0 75.5 8.5 46.6 62.0 8.1
YCUL0080EC
AIR TEMPERATURE ON CONDENSER (°F)
SST
(°F)
105°F 110°F 115°F 120°F 125°F
TONS KW EER TONS KW EER TONS KW EER TONS KW EER TONS KW EER
35.0 60.6 84.9 7.9 58.5 89.8 7.3 56.3 94.9 6.6 54.0 100.2 6.1 35.9 65.2 6.0
37.0 62.9 85.5 8.2 60.7 90.5 7.5 58.5 95.5 6.9 56.2 100.9 6.3 37.4 65.5 6.2
39.0 65.2 86.2 8.4 63.0 91.0 7.7 60.7 96.2 7.1 58.4 101.6 6.5 38.9 65.8 6.4
41.0 67.6 86.7 8.7 65.3 91.7 8.0 63.0 96.9 7.3 42.0 62.6 7.3 40.4 66.2 6.6
43.0 70.0 87.3 8.9 67.7 92.3 8.2 65.3 97.6 7.5 43.6 62.8 7.5 42.0 66.4 6.9
45.0 72.5 88.0 9.2 70.1 93.0 8.4 67.7 98.2 7.7 45.2 63.1 7.8 43.6 66.8 7.1
47.0 75.0 88.6 9.4 72.6 93.6 8.7 70.1 98.9 8.0 46.9 63.4 8.0 45.2 67.1 7.3
49.0 77.6 89.2 9.7 75.1 94.3 8.9 72.6 99.6 8.2 48.6 63.7 8.3 46.8 67.4 7.6
51.0 80.3 89.8 10.0 77.7 94.9 9.2 75.1 100.3 8.4 50.3 64.0 8.5 48.5 67.7 7.8
53.0 82.9 90.5 10.2 80.3 95.6 9.4 77.6 101.0 8.6 52.1 64.3 8.8 50.3 68.0 8.1
55.0 85.7 91.2 10.5 83.0 96.3 9.7 80.2 101.7 8.9 53.9 64.6 9.1 52.0 68.3 8.3

YORK INTERNATIONAL
24
YORK INTERNATIONAL 25
FORM 150.63-EG1
Ratings - R22 (English Units)
NOTES:
1. SST = Saturated Suction Temperature
2. kW = Compressors Input Power
3. EER = Condensing Unit EER (includes power from compressors, fans and the control panel)
YCUL0086EC
AIR TEMPERATURE ON CONDENSER (°F)
SST
(°F)
75°F 80°F 85°F 90°F 95°F 100°F
TONS KW EER TONS KW EER TONS KW EER TONS KW EER TONS KW EER TONS KW EER
35.0 77.9 68.0 12.5 76.1 71.8 11.6 74.1 75.9 10.8 72.2 80.2 10.0 70.2 84.8 9.2 68.1 89.6 8.5
37.0 80.7 68.7 12.8 78.8 72.5 11.9 76.9 76.6 11.1 74.8 80.9 10.2 72.8 85.5 9.5 70.6 90.4 8.7
39.0 83.6 69.3 13.2 81.7 73.2 12.3 79.6 77.2 11.4 77.5 81.6 10.5 75.4 86.3 9.7 73.2 91.2 9.0
41.0 86.6 70.0 13.5 84.6 73.8 12.6 82.5 77.9 11.7 80.3 82.4 10.8 78.1 87.0 10.0 75.8 92.0 9.2
43.0 89.6 70.7 13.9 87.5 74.6 12.9 85.3 78.7 12.0 83.1 83.1 11.1 80.8 87.8 10.3 78.5 92.8 9.5
45.0 92.7 71.4 14.2 90.5 75.3 13.2 88.3 79.4 12.3 86.0 83.9 11.4 83.6 88.6 10.5 81.2 93.5 9.7
47.0 95.9 72.2 14.6 93.6 76.0 13.6 91.3 80.2 12.6 88.9 84.6 11.7 86.5 89.4 10.8 84.0 94.4 10.0
49.0 99.1 73.0 14.9 96.7 76.8 13.9 94.3 81.0 12.9 91.9 85.5 12.0 89.4 90.2 11.1 86.8 95.2 10.2
51.0 102.4 73.8 15.2 99.9 77.6 14.2 97.5 81.8 13.2 94.9 86.3 12.2 92.3 91.1 11.3 89.7 96.1 10.5
53.0 105.7 74.6 15.6 103.2 78.5 14.5 100.6 82.7 13.5 98.0 87.2 12.5 95.4 91.9 11.6 92.6 97.0 10.7
55.0 109.1 75.5 15.9 106.5 79.3 14.8 103.9 83.5 13.8 101.2 88.0 12.8 98.4 92.8 11.9 95.6 97.9 11.0
YCUL0090EC
AIR TEMPERATURE ON CONDENSER (°F)
SST
(°F)
75°F 80°F 85°F 90°F 95°F 100°F
TONS KW EER TONS KW EER TONS KW EER TONS KW EER TONS KW EER TONS KW EER
35.0 84.2 74.4 12.4 82.1 78.8 11.5 80.0 83.3 10.7 77.9 88.2 9.8 75.7 93.2 9.1 73.5 98.5 8.4
37.0 87.2 75.2 12.8 85.1 79.5 11.8 82.9 84.1 10.9 80.7 89.0 10.1 78.5 94.1 9.3 76.2 99.4 8.6
39.0 90.3 76.0 13.1 88.1 80.3 12.1 85.9 85.0 11.2 83.6 89.9 10.4 81.3 95.0 9.6 78.9 100.4 8.8
41.0 93.5 76.8 13.4 91.2 81.2 12.4 88.9 85.8 11.5 86.5 90.8 10.6 84.1 95.9 9.8 81.7 101.4 9.1
43.0 96.7 77.6 13.7 94.3 82.0 12.7 92.0 86.7 11.8 89.6 91.7 10.9 87.1 96.9 10.1 84.5 102.4 9.3
45.0 99.9 78.5 14.1 97.6 82.9 13.0 95.1 87.6 12.1 92.6 92.6 11.2 90.1 97.9 10.3 87.4 103.4 9.5
47.0 103.3 79.4 14.4 100.8 83.8 13.3 98.3 88.6 12.4 95.7 93.6 11.4 93.1 98.9 10.6 90.4 104.4 9.8
49.0 106.6 80.4 14.7 104.1 84.8 13.6 101.5 89.6 12.6 98.9 94.6 11.7 96.2 99.9 10.8 93.4 105.5 10.0
51.0 110.1 81.4 15.0 107.5 85.8 13.9 104.8 90.6 12.9 102.1 95.6 12.0 99.3 101.0 11.1 96.5 106.6 10.2
53.0 113.6 82.4 15.3 110.9 86.9 14.2 108.2 91.6 13.2 105.4 96.7 12.2 102.5 102.1 11.3 99.6 107.8 10.4
55.0 117.1 83.4 15.6 114.4 87.9 14.5 111.6 92.7 13.5 108.7 97.8 12.5 105.8 103.2 11.5 102.7 108.9 10.7
YCUL0096EC
AIR TEMPERATURE ON CONDENSER (°F)
SST
(°F)
75°F 80°F 85°F 90°F 95°F 100°F
TONS KW EER TONS KW EER TONS KW EER TONS KW EER TONS KW EER TONS KW EER
35.0 83.7 69.3 12.5 81.7 72.7 11.7 79.8 76.4 11.0 77.8 80.3 10.3 75.8 84.4 9.5 73.7 88.9 8.9
37.0 86.8 70.1 12.9 84.8 73.5 12.1 82.8 77.1 11.3 80.7 81.1 10.5 78.6 85.2 9.8 76.5 89.7 9.1
39.0 90.0 70.9 13.2 87.9 74.3 12.4 85.8 77.9 11.6 83.7 81.9 10.8 81.6 86.1 10.1 79.4 90.5 9.4
41.0 93.3 71.8 13.6 91.1 75.1 12.7 89.0 78.8 11.9 86.8 82.7 11.1 84.6 86.9 10.4 82.3 91.4 9.7
43.0 96.6 72.6 13.9 94.4 76.0 13.0 92.2 79.6 12.2 89.9 83.5 11.4 87.7 87.7 10.7 85.3 92.3 9.9
45.0 100.1 73.6 14.2 97.8 76.9 13.4 95.5 80.5 12.5 93.2 84.4 11.7 90.8 88.6 11.0 88.5 93.1 10.2
47.0 103.6 74.5 14.6 101.3 77.8 13.7 98.9 81.4 12.9 96.5 85.3 12.0 94.1 89.5 11.3 91.6 94.1 10.5
49.0 107.2 75.5 14.9 104.8 78.8 14.0 102.4 82.4 13.2 99.9 86.3 12.3 97.4 90.5 11.5 94.9 95.0 10.8
51.0 110.9 76.5 15.3 108.4 79.8 14.4 105.9 83.4 13.5 103.4 87.3 12.6 100.8 91.5 11.8 98.2 96.0 11.0
53.0 114.7 77.5 15.6 112.2 80.8 14.7 109.6 84.4 13.8 106.9 88.3 12.9 104.3 92.5 12.1 101.6 97.0 11.3
55.0 118.6 78.6 15.9 116.0 81.9 15.0 113.3 85.5 14.1 110.6 89.4 13.3 107.9 93.5 12.4 105.1 98.1 11.6
YCUL0100EC
AIR TEMPERATURE ON CONDENSER (°F)
SST
(°F)
75°F 80°F 85°F 90°F 95°F 100°F
TONS KW EER TONS KW EER TONS KW EER TONS KW EER TONS KW EER TONS KW EER
35.0 91.0 76.0 12.6 88.8 79.7 11.8 86.6 83.7 11.0 84.4 87.9 10.3 82.2 92.3 9.6 79.9 97.1 8.9
37.0 94.4 76.9 12.9 92.1 80.6 12.1 89.9 84.5 11.3 87.6 88.8 10.6 85.3 93.2 9.8 83.0 98.0 9.1
39.0 97.8 77.9 13.2 95.5 81.5 12.4 93.2 85.4 11.6 90.8 89.6 10.8 88.4 94.2 10.1 86.1 98.9 9.4
41.0 101.3 78.9 13.6 99.0 82.5 12.7 96.5 86.4 11.9 94.1 90.6 11.1 91.7 95.1 10.4 89.2 99.9 9.7
43.0 104.9 79.9 13.9 102.5 83.5 13.0 100.0 87.3 12.2 97.5 91.5 11.4 95.0 96.0 10.7 92.4 100.9 9.9
45.0 108.6 81.0 14.2 106.1 84.5 13.4 103.6 88.3 12.5 101.0 92.5 11.7 98.4 97.0 10.9 95.8 101.9 10.2
47.0 112.4 82.2 14.5 109.8 85.6 13.7 107.2 89.4 12.8 104.5 93.6 12.0 101.8 98.1 11.2 99.1 103.0 10.5
49.0 116.2 83.4 14.8 113.6 86.8 14.0 110.9 90.5 13.1 108.2 94.7 12.3 105.4 99.2 11.5 102.6 104.0 10.7
51.0 120.2 84.6 15.1 117.4 88.0 14.3 114.7 91.7 13.4 111.8 95.8 12.6 109.0 100.3 11.8 106.2 105.1 11.0
53.0 124.2 85.9 15.4 121.4 89.2 14.6 118.5 92.9 13.7 115.6 97.0 12.9 112.7 101.4 12.1 109.8 106.3 11.3
55.0 128.3 87.3 15.7 125.4 90.5 14.8 122.4 94.2 14.0 119.5 98.3 13.1 116.5 102.7 12.3 113.5 107.5 11.5

YORK INTERNATIONAL
24
YORK INTERNATIONAL 25
FORM 150.63-EG1
NOTES:
1. SST = Saturated Suction Temperature
2. kW = Compressors Input Power
3. EER = Condensing Unit EER (includes power from compressors, fans and the control panel)
YCUL0086EC
AIR TEMPERATURE ON CONDENSER (°F)
SST
(°F)
105°F 110°F 115°F 120°F 125°F
TONS KW EER TONS KW EER TONS KW EER TONS KW EER TONS KW EER
35.0 66.0 94.7 7.8 63.8 100.1 7.2 61.5 105.6 6.6 49.3 86.9 6.3 39.5 71.9 6.0
37.0 68.4 95.5 8.0 66.2 100.9 7.4 63.9 106.5 6.8 51.2 87.5 6.5 41.1 72.3 6.2
39.0 70.9 96.3 8.3 68.6 101.7 7.6 55.2 83.5 7.3 53.2 88.2 6.7 42.7 72.7 6.4
41.0 73.5 97.1 8.5 71.1 102.5 7.8 57.2 84.0 7.6 46.0 69.3 7.2 44.3 73.2 6.6
43.0 76.1 98.0 8.7 73.6 103.4 8.0 59.3 84.6 7.8 47.7 69.7 7.5 45.9 73.6 6.9
45.0 78.7 98.8 8.9 76.2 104.3 8.2 61.5 85.2 8.0 49.4 70.1 7.7 47.6 74.1 7.1
47.0 81.4 99.7 9.2 78.8 105.2 8.4 63.7 85.8 8.2 51.2 70.5 7.9 49.4 74.5 7.3
49.0 84.2 100.5 9.4 81.5 106.1 8.7 65.9 86.4 8.5 53.0 71.0 8.2 51.2 74.9 7.5
51.0 87.0 101.4 9.6 70.5 82.4 9.5 68.2 87.0 8.7 54.9 71.4 8.4 53.0 75.4 7.7
53.0 89.9 102.4 9.9 72.8 83.0 9.7 70.5 87.7 9.0 56.8 71.8 8.7 54.8 75.9 8.0
55.0 92.8 103.3 10.1 75.3 83.6 10.0 72.8 88.3 9.2 58.7 72.3 8.9 56.7 76.3 8.2
YCUL0090EC
AIR TEMPERATURE ON CONDENSER (°F)
SST
(°F)
105°F 110°F 115°F 120°F 125°F
TONS KW EER TONS KW EER TONS KW EER TONS KW EER TONS KW EER
35.0 71.2 104.1 7.7 69.0 109.8 7.1 66.6 115.8 6.5 44.6 74.2 6.6* 43.0 78.3 6.1
37.0 73.9 105.0 7.9 71.5 110.9 7.3 69.1 116.9 6.7 46.3 74.7 6.8* 44.7 78.8 6.3
39.0 76.5 106.0 8.1 74.1 111.9 7.5 71.6 118.0 6.9 48.0 75.2 7.0* 46.3 79.4 6.5
41.0 79.2 107.0 8.4 76.7 112.9 7.7 74.1 119.1 7.1 49.8 75.7 7.2* 48.1 79.9 6.7
43.0 82.0 108.1 8.6 79.4 114.0 7.9 53.4 72.2 8.1 51.6 76.2 7.5 49.8 80.5 6.9
45.0 84.8 109.2 8.8 82.1 115.1 8.1 55.3 72.7 8.4 53.5 76.8 7.7 51.6 81.0 7.1
47.0 87.7 110.2 9.0 84.9 116.3 8.3 57.3 73.2 8.6 55.4 77.3 7.9 53.5 81.6 7.3
49.0 90.6 111.4 9.2 87.7 117.5 8.5 59.3 73.7 8.8 57.4 77.9 8.1 55.4 82.2 7.5
51.0 93.6 112.5 9.4 90.6 118.7 8.7 61.4 74.3 9.1 59.3 78.4 8.4 57.3 82.8 7.7
53.0 96.6 113.7 9.6 93.5 119.9 8.9 63.4 74.9 9.3 61.4 79.0 8.6 59.3 83.4 7.9
55.0 99.7 114.9 9.8 67.7 71.4 10.4 65.6 75.4 9.6 63.4 79.6 8.8 61.3 84.0 8.1
YCUL0096EC
AIR TEMPERATURE ON CONDENSER (°F)
SST
(°F)
105°F 110°F 115°F 120°F 125°F
TONS KW EER TONS KW EER TONS KW EER TONS KW EER TONS KW EER
35.0 71.6 93.6 8.2 69.5 98.7 7.6 67.4 104.0 7.0 65.2 109.7 6.5 63.0 115.7 6.0
37.0 74.4 94.4 8.5 72.2 99.5 7.9 70.0 104.9 7.3 67.8 110.6 6.7 65.5 116.6 6.2
39.0 77.2 95.3 8.7 74.9 100.4 8.1 72.7 105.8 7.5 70.4 111.6 6.9 68.1 117.6 6.4
41.0 80.1 96.2 9.0 77.8 101.3 8.3 75.4 106.7 7.7 73.1 112.5 7.1 70.7 118.6 6.6
43.0 83.0 97.1 9.2 80.7 102.2 8.6 78.3 107.6 7.9 75.9 113.4 7.3 54.2 83.4 6.9
45.0 86.1 98.0 9.5 83.6 103.1 8.8 81.2 108.6 8.2 78.7 114.4 7.5 56.2 84.0 7.1
47.0 89.2 98.9 9.8 86.7 104.1 9.1 84.2 109.6 8.4 81.6 115.5 7.8 58.4 84.7 7.3
49.0 92.4 99.9 10.0 89.8 105.1 9.3 87.2 110.6 8.6 84.6 116.5 8.0 60.5 85.3 7.6
51.0 95.6 100.9 10.3 93.0 106.1 9.5 90.3 111.7 8.8 87.6 117.6 8.2 62.8 86.0 7.8
53.0 99.0 101.9 10.5 96.3 107.1 9.8 93.5 112.7 9.1 90.7 118.7 8.4 65.1 86.6 8.0
55.0 102.4 103.0 10.8 99.6 108.2 10.0 96.8 113.8 9.3 93.9 119.8 8.6 47.3 55.4 8.6
YCUL0100EC
AIR TEMPERATURE ON CONDENSER (°F)
SST
(°F)
105°F 110°F 115°F 120°F 125°F
TONS KW EER TONS KW EER TONS KW EER TONS KW EER TONS KW EER
35.0 77.7 102.2 8.2 75.4 107.6 7.6 73.2 113.2 7.1 70.9 119.2 6.5 68.7 125.4 6.1
37.0 80.6 103.1 8.5 78.3 108.5 7.9 76.0 114.3 7.3 73.6 120.3 6.7 71.4 126.5 6.2
39.0 83.7 104.0 8.7 81.2 109.5 8.1 78.9 115.2 7.5 76.5 121.4 6.9 74.1 127.6 6.4
41.0 86.7 105.0 9.0 84.3 110.5 8.3 81.8 116.3 7.7 79.4 122.4 7.2 76.9 128.8 6.6
43.0 89.9 106.0 9.2 87.4 111.5 8.6 84.9 117.3 7.9 82.3 123.5 7.4 41.3 57.6 7.2
45.0 93.2 107.1 9.5 90.6 112.5 8.8 88.0 118.4 8.2 85.3 124.6 7.6 42.9 58.0 7.5
47.0 96.5 108.1 9.7 93.8 113.7 9.0 91.1 119.5 8.4 88.5 125.8 7.8 44.5 58.4 7.7
49.0 99.9 109.2 10.0 97.1 114.8 9.3 94.3 120.8 8.6 91.6 127.0 8.0 46.1 58.8 8.0
51.0 103.3 110.4 10.2 100.5 116.0 9.5 97.7 122.0 8.8 94.8 128.3 8.2 47.8 59.2 8.2
53.0 106.9 111.5 10.5 104.0 117.2 9.7 101.0 123.2 9.0 98.1 129.6 8.4 49.6 59.6 8.4
55.0 110.5 112.8 10.7 107.5 118.4 10.0 104.5 124.5 9.3 101.5 130.9 8.6 51.3 60.0 8.7

YORK INTERNATIONAL
26
YORK INTERNATIONAL 27
FORM 150.63-EG1
Ratings - R22 (English Units)
NOTES:
1. SST = Saturated Suction Temperature
2. kW = Compressors Input Power
3. EER = Condensing Unit EER (includes power from compressors, fans and the control panel)
YCUL0106EC
AIR TEMPERATURE ON CONDENSER (°F)
SST
(°F)
75°F 80°F 85°F 90°F 95°F 100°F
TONS KW EER TONS KW EER TONS KW EER TONS KW EER TONS KW EER TONS KW EER
35.0 101.1 88.1 12.3 98.7 92.6 11.5 96.2 97.4 10.7 93.7 102.6 9.9 91.1 108.1 9.2 88.5 113.9 8.5
37.0 104.8 89.2 12.6 102.3 93.7 11.7 99.7 98.5 11.0 97.2 103.7 10.2 94.5 109.2 9.5 91.8 115.1 8.8
39.0 108.6 90.3 12.9 106.0 94.8 12.0 103.4 99.6 11.2 100.7 104.8 10.5 98.0 110.4 9.7 95.2 116.3 9.0
41.0 112.5 91.5 13.2 109.8 96.0 12.3 107.1 100.8 11.5 104.4 106.0 10.7 101.5 111.6 10.0 98.7 117.6 9.2
43.0 116.5 92.7 13.5 113.7 97.2 12.6 110.9 102.0 11.8 108.1 107.2 11.0 105.2 112.8 10.2 102.3 118.9 9.5
45.0 120.6 94.0 13.8 117.7 98.4 12.9 114.8 103.3 12.1 111.9 108.5 11.3 108.9 114.1 10.5 105.9 120.1 9.7
47.0 124.8 95.3 14.1 121.8 99.7 13.2 118.8 104.6 12.4 115.8 109.8 11.5 112.8 115.4 10.7 109.7 121.5 9.9
49.0 129.0 96.6 14.4 126.0 101.1 13.5 122.9 105.9 12.6 119.8 111.1 11.8 116.7 116.8 11.0 113.5 122.9 10.2
51.0 133.4 98.0 14.7 130.3 102.4 13.8 127.2 107.3 12.9 124.0 112.5 12.1 120.7 118.2 11.2 117.4 124.3 10.4
53.0 138.0 99.4 15.0 134.7 103.8 14.1 131.5 108.7 13.2 128.2 113.9 12.3 124.8 119.6 11.5 121.5 125.7 10.7
55.0 142.6 100.8 15.3 139.3 105.3 14.4 135.9 110.1 13.5 132.5 115.3 12.6 129.1 121.0 11.8 125.6 127.1 10.9
YCUL0120EC
AIR TEMPERATURE ON CONDENSER (°F)
SST
(°F)
75°F 80°F 85°F 90°F 95°F 100°F
TONS KW EER TONS KW EER TONS KW EER TONS KW EER TONS KW EER TONS KW EER
35.0 112.6 96.3 12.2 110.0 101.3 11.4 107.4 106.6 10.6 104.7 112.2 9.9 101.9 118.3 9.2 99.1 124.8 8.5
37.0 116.8 97.4 12.5 114.1 102.4 11.7 111.3 107.7 10.9 108.6 113.4 10.2 105.7 119.5 9.5 102.8 126.0 8.8
39.0 121.1 98.5 12.9 118.3 103.5 12.0 115.5 108.9 11.2 112.6 114.6 10.5 109.7 120.7 9.7 106.7 127.2 9.0
41.0 125.5 99.7 13.2 122.6 104.7 12.4 119.7 110.0 11.5 116.7 115.8 10.8 113.7 121.9 10.0 110.6 128.5 9.3
43.0 130.0 100.8 13.5 127.0 105.9 12.7 124.0 111.3 11.8 121.0 117.0 11.0 117.9 123.2 10.3 114.7 129.8 9.5
45.0 134.7 102.0 13.9 131.6 107.1 13.0 128.5 112.5 12.1 125.3 118.3 11.3 122.1 124.5 10.6 118.9 131.1 9.8
47.0 139.5 103.3 14.2 136.3 108.4 13.3 133.1 113.8 12.5 129.8 119.6 11.6 126.5 125.8 10.8 123.1 132.5 10.1
49.0 144.4 104.5 14.6 141.1 109.7 13.6 137.8 115.1 12.8 134.4 121.0 11.9 131.0 127.2 11.1 127.5 133.9 10.3
51.0 149.5 105.9 14.9 146.0 111.0 14.0 142.6 116.5 13.1 139.1 122.4 12.2 135.6 128.6 11.4 132.0 135.4 10.6
53.0 154.6 107.2 15.3 151.1 112.4 14.3 147.6 117.9 13.4 144.0 123.8 12.5 140.3 130.1 11.6 136.6 136.9 10.8
55.0 160.0 108.5 15.6 156.3 113.7 14.6 152.7 119.3 13.7 148.9 125.3 12.8 145.2 131.6 11.9 141.4 138.4 11.1
YCUL0130EC
AIR TEMPERATURE ON CONDENSER (°F)
SST
(°F)
75°F 80°F 85°F 90°F 95°F 100°F
TONS KW EER TONS KW EER TONS KW EER TONS KW EER TONS KW EER TONS KW EER
35.0 123.8 107.0 12.2 120.8 112.4 11.4 117.8 118.2 10.7 114.7 124.4 9.9 111.6 131.0 9.2 108.5 138.0 8.5
37.0 128.3 108.3 12.6 125.2 113.7 11.7 122.1 119.5 10.9 119.0 125.7 10.2 115.8 132.3 9.5 112.6 139.4 8.8
39.0 133.0 109.6 12.9 129.8 115.0 12.0 126.6 120.8 11.2 123.4 127.0 10.5 120.1 133.7 9.7 116.8 140.8 9.0
41.0 137.7 111.0 13.2 134.5 116.4 12.3 131.2 122.2 11.5 127.8 128.4 10.7 124.4 135.1 10.0 121.0 142.3 9.3
43.0 142.7 112.4 13.5 139.3 117.8 12.6 135.9 123.6 11.8 132.4 129.9 11.0 128.9 136.6 10.2 125.4 143.7 9.5
45.0 147.7 113.8 13.8 144.2 119.2 13.0 140.7 125.0 12.1 137.1 131.3 11.3 133.6 138.0 10.5 129.9 145.2 9.8
47.0 152.9 115.3 14.1 149.3 120.7 13.3 145.6 126.5 12.4 142.0 132.8 11.6 138.3 139.5 10.8 134.6 146.7 10.0
49.0 158.1 116.9 14.5 154.4 122.2 13.6 150.7 128.0 12.7 146.9 134.3 11.9 143.1 141.0 11.0 139.3 148.3 10.3
51.0 163.5 118.5 14.8 159.7 123.8 13.9 155.9 129.6 13.0 152.0 135.9 12.1 148.1 142.7 11.3 144.1 150.0 10.5
53.0 169.1 120.1 15.1 165.2 125.4 14.2 161.2 131.2 13.3 157.2 137.5 12.4 153.1 144.4 11.6 149.1 151.6 10.8
55.0 174.8 121.8 15.4 170.7 127.1 14.5 166.6 132.9 13.6 162.5 139.3 12.7 158.3 146.1 11.8 154.2 153.4 11.0

YORK INTERNATIONAL
26
YORK INTERNATIONAL 27
FORM 150.63-EG1
NOTES:
1. SST = Saturated Suction Temperature
2. kW = Compressors Input Power
3. EER = Condensing Unit EER (includes power from compressors, fans and the control panel)
YCUL0106EC
AIR TEMPERATURE ON CONDENSER (°F)
SST
(°F)
105°F 110°F 115°F 120°F 125°F
TONS KW EER TONS KW EER TONS KW EER TONS KW EER TONS KW EER
35.0 85.8 120.2 7.9 83.1 126.9 7.2 80.3 134.0 6.7 77.5 141.5 6.1 62.5 115.2 6.0
37.0 89.1 121.4 8.1 86.3 128.2 7.5 83.4 135.3 6.9 80.5 142.9 6.3 65.0 116.3 6.1
39.0 92.4 122.7 8.3 89.5 129.4 7.7 86.6 136.7 7.0 83.6 144.4 6.5 67.5 117.3 6.3
41.0 95.8 124.0 8.5 92.8 130.8 7.9 89.8 138.1 7.2 86.8 145.7 6.7 70.1 118.3 6.5
43.0 99.3 125.3 8.8 96.2 132.2 8.1 93.2 139.4 7.4 75.2 113.1 7.3 53.6 82.9 6.9
45.0 102.9 126.6 9.0 99.7 133.5 8.3 96.6 140.8 7.6 78.0 114.2 7.5 55.6 83.5 7.1
47.0 106.5 128.0 9.2 103.3 134.9 8.5 100.0 142.3 7.8 80.9 115.2 7.7 57.7 84.2 7.3
49.0 110.3 129.4 9.4 107.0 136.3 8.7 103.6 143.7 8.0 83.8 116.3 7.9 59.9 84.8 7.5
51.0 114.1 130.8 9.7 110.7 137.8 8.9 107.3 145.2 8.3 86.8 117.4 8.1 62.1 85.5 7.7
53.0 118.0 132.2 9.9 114.6 139.2 9.2 111.1 146.7 8.5 89.9 118.5 8.3 64.3 86.2 8.0
55.0 122.1 133.7 10.1 118.5 140.8 9.4 96.0 113.5 9.3 93.1 119.6 8.6 66.7 86.9 8.2
YCUL0120EC
AIR TEMPERATURE ON CONDENSER (°F)
SST
(°F)
105°F 110°F 115°F 120°F 125°F
TONS KW EER TONS KW EER TONS KW EER TONS KW EER TONS KW EER
35.0 96.2 131.7 7.9 93.2 139.1 7.3 90.0 147.0 6.7 86.8 155.5 6.1 83.4 164.6 5.6
37.0 99.8 132.9 8.1 96.8 140.4 7.5 93.5 148.3 6.9 90.2 156.9 6.3 86.8 166.0 5.8
39.0 103.6 134.2 8.4 100.4 141.7 7.7 97.2 149.7 7.1 93.8 158.2 6.5 90.2 167.4 6.0
41.0 107.5 135.5 8.6 104.2 143.0 7.9 100.9 151.1 7.3 97.4 159.7 6.7 93.8 168.8 6.1
43.0 111.5 136.8 8.8 108.1 144.4 8.2 104.7 152.5 7.5 101.1 161.1 6.9 67.2 104.1 6.8
45.0 115.5 138.2 9.1 112.1 145.8 8.4 108.5 153.9 7.7 104.9 162.6 7.1 69.8 104.9 7.0
47.0 119.7 139.6 9.3 116.2 147.2 8.6 112.5 155.4 8.0 108.8 164.2 7.3 72.4 105.7 7.2
49.0 124.0 141.1 9.6 120.3 148.8 8.9 116.6 157.0 8.2 112.8 165.7 7.5 75.2 106.5 7.5
51.0 128.4 142.6 9.8 124.6 150.4 9.1 120.8 158.5 8.4 116.9 167.3 7.7 78.0 107.3 7.7
53.0 132.8 144.2 10.0 129.0 151.8 9.3 125.1 160.1 8.6 121.1 168.8 7.9 80.8 108.2 7.9
55.0 137.5 145.6 10.3 133.6 153.4 9.6 129.6 161.6 8.8 125.5 170.4 8.1 83.8 109.0 8.1
YCUL0130EC
AIR TEMPERATURE ON CONDENSER (°F)
SST
(°F)
105°F 110°F 115°F 120°F 125°F
TONS KW EER TONS KW EER TONS KW EER TONS KW EER TONS KW EER
35.0 105.3 145.5 7.9 102.1 153.4 7.3 98.8 161.8 6.7 95.5 170.8 6.2 76.4 142.3 5.9
37.0 109.3 146.9 8.1 106.0 154.9 7.5 102.6 163.4 6.9 99.2 172.4 6.4 79.5 143.5 6.0
39.0 113.4 148.4 8.4 109.9 156.5 7.7 106.5 165.0 7.1 103.0 174.0 6.6 82.6 144.7 6.2
41.0 117.5 149.9 8.6 114.1 158.0 7.9 110.5 166.6 7.3 106.9 175.7 6.8 85.8 145.9 6.4
43.0 121.9 151.4 8.8 118.3 159.5 8.2 114.6 168.2 7.5 110.9 177.4 6.9 73.9 114.0 6.9
45.0 126.3 152.9 9.1 122.6 161.1 8.4 118.8 169.8 7.7 95.7 140.6 7.4 76.7 114.9 7.1
47.0 130.8 154.5 9.3 127.0 162.7 8.6 123.1 171.5 7.9 99.2 141.9 7.6 79.6 115.9 7.3
49.0 135.4 156.1 9.5 131.5 164.4 8.8 127.5 173.3 8.2 102.8 143.2 7.8 82.5 116.8 7.5
51.0 140.1 157.8 9.8 136.1 166.2 9.0 132.0 175.0 8.4 106.5 144.5 8.0 85.5 117.7 7.8
53.0 145.0 159.5 10.0 140.8 167.9 9.3 136.7 176.8 8.6 110.3 145.9 8.3 88.6 118.7 8.0
55.0 150.0 161.2 10.2 145.7 169.7 9.5 141.4 178.7 8.8 114.3 147.2 8.5 91.8 119.7 8.2

YORK INTERNATIONAL
28
YORK INTERNATIONAL 29
FORM 150.63-EG1
Ratings - R22 (SI Units)
NOTES:
1. SST = Saturated Suction Temperature
2. kWo = Unit kW Cooling Capacity Output
3. kWi = Compressors kW Input
4. COP = Coefcient of Performance (based on compressor and fan input kW)
YCUL0016EC
AIR TEMPERATURE ON - CONDENSER (°C)
LCWT
(°C)
25°C 30°C 35°C 40°C 45°C 50°C
KWoKWiCOP KWoKWiCOP KWoKWiCOP KWoKWiCOP KWoKWiCOP KWoKWiCOP
2.0 49.3 11.2 3.5 47.0 12.3 3.1 44.9 13.7 2.7 42.8 15.2 2.4 40.4 16.8 2.1 37.8 18.6 1.8
3.0 50.9 11.2 3.6 48.6 12.4 3.2 46.5 13.7 2.8 44.2 15.2 2.5 41.8 16.9 2.1 39.1 18.7 1.8
4.0 52.6 11.3 3.7 50.3 12.5 3.3 48.0 13.8 2.9 45.8 15.3 2.5 43.3 17.0 2.2 40.5 18.8 1.9
5.0 54.4 11.4 3.8 52.0 12.5 3.4 49.7 13.9 3.0 47.3 15.4 2.6 44.8 17.1 2.3 41.9 18.9 1.9
6.0 56.2 11.4 4.0 53.7 12.6 3.5 51.4 14.0 3.1 48.9 15.5 2.7 46.3 17.1 2.3 43.3 19.0 2.0
7.0 58.1 11.5 4.1 55.5 12.7 3.6 53.1 14.0 3.2 50.6 15.5 2.8 47.8 17.2 2.4 23.3 8.4 2.1
8.0 60.0 11.6 4.2 57.4 12.8 3.7 54.8 14.1 3.2 52.2 15.6 2.8 49.4 17.3 2.5 24.1 8.5 2.1
9.0 62.0 11.7 4.3 59.3 12.9 3.8 56.7 14.2 3.3 54.0 15.7 2.9 51.1 17.4 2.5 25.0 8.5 2.2
10.0 64.0 11.8 4.4 61.2 12.9 3.9 58.5 14.3 3.4 55.8 15.8 3.0 52.8 17.5 2.6 25.8 8.5 2.3
11.0 66.1 11.8 4.5 63.2 13.0 4.0 60.4 14.4 3.5 57.6 15.9 3.1 54.5 17.6 2.7 26.7 8.5 2.4
12.0 68.2 11.9 4.6 65.3 13.1 4.1 62.4 14.5 3.6 59.5 16.0 3.2 56.3 17.7 2.8 27.6 8.6 2.4
YCUL0026EC
AIR TEMPERATURE ON - CONDENSER (°C)
LCWT
(°C)
25°C 30°C 35°C 40°C 45°C 50°C
KWoKWiCOP KWoKWiCOP KWoKWiCOP KWoKWiCOP KWoKWiCOP KWoKWiCOP
2.0 68.4 16.0 3.6 65.3 17.7 3.2 62.0 19.6 2.8 58.7 21.7 2.4 55.2 24.0 2.1 51.7 26.4 1.8
3.0 70.7 16.1 3.7 67.5 17.9 3.3 64.1 19.8 2.8 60.6 21.9 2.5 57.1 24.1 2.1 53.5 26.6 1.8
4.0 73.0 16.2 3.8 69.7 18.0 3.4 66.2 19.9 2.9 62.6 22.0 2.5 59.0 24.3 2.2 55.3 26.8 1.9
5.0 75.4 16.3 3.9 71.9 18.1 3.4 68.3 20.0 3.0 64.7 22.1 2.6 60.9 24.4 2.2 57.2 26.9 1.9
6.0 77.8 16.5 4.0 74.2 18.2 3.5 70.5 20.2 3.1 66.8 22.3 2.7 62.9 24.6 2.3 31.2 11.7 2.2
7.0 80.2 16.6 4.1 76.5 18.4 3.6 72.8 20.3 3.2 68.9 22.4 2.7 64.9 24.8 2.4 32.3 11.8 2.2
8.0 82.7 16.7 4.2 78.9 18.5 3.7 75.0 20.4 3.2 71.0 22.6 2.8 67.0 24.9 2.4 33.4 11.8 2.3
9.0 85.2 16.8 4.3 81.4 18.6 3.8 77.4 20.6 3.3 73.2 22.7 2.9 69.1 25.1 2.5 34.4 11.9 2.4
10.0 87.8 17.0 4.4 83.8 18.8 3.9 79.7 20.7 3.4 75.5 22.9 2.9 71.2 25.3 2.5 35.6 11.9 2.4
11.0 90.5 17.1 4.5 86.4 18.9 4.0 82.1 20.9 3.5 77.8 23.1 3.0 73.4 25.4 2.6 36.7 11.9 2.5
12.0 93.2 17.3 4.6 88.9 19.1 4.1 84.6 21.1 3.5 80.1 23.2 3.1 75.6 25.6 2.7 37.9 12.0 2.6
YCUL0030EC
AIR TEMPERATURE ON - CONDENSER (°C)
LCWT
(°C)
25°C 30°C 35°C 40°C 45°C 50°C
KWoKWiCOP KWoKWiCOP KWoKWiCOP KWoKWiCOP KWoKWiCOP KWoKWiCOP
2.0 84.2 20.2 3.7 80.7 22.1 3.2 76.9 24.4 2.8 72.9 26.8 2.5 68.6 29.6 2.1 63.8 32.7 1.8
3.0 87.0 20.3 3.8 83.4 22.3 3.3 79.5 24.5 2.9 75.4 27.0 2.5 70.9 29.8 2.2 66.1 32.9 1.9
4.0 89.8 20.5 3.9 86.1 22.4 3.4 82.1 24.7 3.0 77.9 27.2 2.6 73.4 30.0 2.2 68.5 33.0 1.9
5.0 92.8 20.6 4.0 88.9 22.6 3.5 84.8 24.8 3.1 80.5 27.3 2.7 75.8 30.1 2.3 70.9 33.2 2.0
6.0 95.7 20.8 4.1 91.8 22.7 3.6 87.5 25.0 3.2 83.1 27.5 2.7 78.4 30.3 2.4 73.3 33.4 2.0
7.0 98.8 20.9 4.2 94.7 22.9 3.7 90.3 25.1 3.2 85.7 27.7 2.8 80.9 30.5 2.4 75.7 33.6 2.1
8.0 101.9 21.1 4.3 97.6 23.0 3.8 93.2 25.3 3.3 88.4 27.8 2.9 83.5 30.7 2.5 78.2 33.8 2.1
9.0 105.1 21.3 4.4 100.7 23.2 3.9 96.0 25.4 3.4 91.2 28.0 3.0 86.2 30.8 2.6 42.5 14.9 2.4
10.0 108.3 21.4 4.5 103.7 23.4 4.0 99.0 25.6 3.5 94.0 28.2 3.0 88.8 31.0 2.6 43.9 14.9 2.5
11.0 111.6 21.6 4.6 106.9 23.5 4.1 102.0 25.8 3.6 96.9 28.3 3.1 91.5 31.2 2.7 45.3 14.9 2.6
12.0 114.9 21.8 4.7 110.1 23.7 4.2 105.0 26.0 3.7 99.8 28.5 3.2 94.3 31.4 2.8 46.7 15.0 2.6
YCUL0036EC
AIR TEMPERATURE ON - CONDENSER (°C)
LCWT
(°C)
25°C 30°C 35°C 40°C 45°C 50°C
KWoKWiCOP KWoKWiCOP KWoKWiCOP KWoKWiCOP KWoKWiCOP KWoKWiCOP
2.0 101.7 24.5 3.7 97.3 27.1 3.3 92.8 30.0 2.8 88.1 33.2 2.4 83.2 36.7 2.1 40.6 18.0 2.0
3.0 105.0 24.7 3.8 100.5 27.3 3.3 95.9 30.3 2.9 91.0 33.5 2.5 86.1 36.9 2.2 42.1 18.0 2.0
4.0 108.4 24.9 3.9 103.8 27.5 3.4 99.0 30.5 3.0 94.1 33.7 2.6 88.9 37.2 2.2 43.5 18.1 2.1
5.0 111.9 25.1 4.0 107.2 27.7 3.5 102.3 30.7 3.1 97.2 33.9 2.7 91.9 37.4 2.3 45.0 18.2 2.1
6.0 115.4 25.3 4.1 110.6 27.9 3.6 105.5 30.9 3.1 100.3 34.1 2.7 94.9 37.7 2.3 46.6 18.3 2.2
7.0 118.9 25.6 4.2 114.1 28.2 3.7 108.9 31.1 3.2 103.5 34.4 2.8 97.9 37.9 2.4 48.1 18.3 2.3
8.0 122.6 25.8 4.3 117.6 28.4 3.8 112.3 31.3 3.3 106.8 34.6 2.9 101.0 38.2 2.5 49.7 18.4 2.3
9.0 126.3 26.0 4.4 121.2 28.6 3.9 115.8 31.6 3.4 110.1 34.9 2.9 104.2 38.5 2.5 51.4 18.5 2.4
10.0 130.1 26.3 4.5 124.8 28.9 3.9 119.3 31.8 3.4 113.5 35.1 3.0 107.4 38.8 2.6 53.0 18.6 2.5
11.0 133.9 26.5 4.6 128.5 29.1 4.0 122.9 32.1 3.5 116.9 35.4 3.1 110.7 39.0 2.7 54.7 18.7 2.6
12.0 137.8 26.8 4.7 132.3 29.4 4.1 126.5 32.4 3.6 120.4 35.7 3.1 114.0 39.3 2.7 56.5 18.8 2.6

YORK INTERNATIONAL
28
YORK INTERNATIONAL 29
FORM 150.63-EG1
NOTES:
1. SST = Saturated Suction Temperature
2. kWo = Unit kW Cooling Capacity Output
3. kWi = Compressors kW Input
4. COP = Coefcient of Performance (based on compressor and fan input kW)
YCUL0040EC
AIR TEMPERATURE ON - CONDENSER (°C)
LCWT
(°C)
25°C 30°C 35°C 40°C 45°C 50°C
KWoKWiCOP KWoKWiCOP KWoKWiCOP KWoKWiCOP KWoKWiCOP KWoKWiCOP
2.0 123.8 31.6 3.6 118.3 34.8 3.2 112.5 38.3 2.7 106.2 42.3 2.4 99.4 46.6 2.0 64.4 31.4 1.9
3.0 127.8 31.9 3.7 122.2 35.1 3.2 116.2 38.6 2.8 109.8 42.6 2.4 102.9 46.9 2.1 66.7 31.5 1.9
4.0 131.9 32.1 3.8 126.1 35.3 3.3 120.0 38.9 2.9 113.4 42.9 2.5 106.3 47.3 2.1 69.1 31.7 2.0
5.0 136.2 32.4 3.9 130.1 35.6 3.4 123.8 39.2 3.0 117.1 43.2 2.6 109.9 47.6 2.2 71.5 31.8 2.1
6.0 140.4 32.7 4.0 134.2 35.9 3.5 127.7 39.4 3.0 120.8 43.5 2.6 113.5 47.9 2.2 73.9 32.0 2.1
7.0 144.8 32.9 4.1 138.4 36.1 3.6 131.7 39.8 3.1 124.6 43.8 2.7 117.1 48.3 2.3 76.4 32.1 2.2
8.0 149.3 33.2 4.1 142.6 36.4 3.6 135.7 40.1 3.2 128.5 44.1 2.7 120.8 48.6 2.4 79.0 32.3 2.3
9.0 153.8 33.5 4.2 147.0 36.7 3.7 139.8 40.4 3.2 132.4 44.4 2.8 124.6 49.0 2.4 81.6 32.4 2.3
10.0 158.4 33.8 4.3 151.4 37.0 3.8 144.0 40.7 3.3 136.4 44.8 2.9 128.4 49.3 2.5 84.2 32.6 2.4
11.0 163.1 34.1 4.4 155.8 37.3 3.9 148.3 41.0 3.4 140.5 45.1 2.9 132.3 49.7 2.5 86.9 32.7 2.5
12.0 167.9 34.4 4.5 160.4 37.6 4.0 152.6 41.3 3.5 144.6 45.5 3.0 136.3 50.0 2.6 89.6 32.9 2.5
YCUL0046EC
AIR TEMPERATURE ON - CONDENSER (°C)
LCWT
(°C)
25°C 30°C 35°C 40°C 45°C 50°C
KWoKWiCOP KWoKWiCOP KWoKWiCOP KWoKWiCOP KWoKWiCOP KWoKWiCOP
2.0 137.3 31.3 3.7 131.4 34.7 3.3 125.2 38.5 2.8 118.8 42.7 2.5 112.2 47.2 2.1 105.3 52.2 1.8
3.0 142.0 31.4 3.8 135.9 34.9 3.4 129.5 38.7 2.9 122.8 42.9 2.5 116.1 47.4 2.2 109.1 52.4 1.9
4.0 146.7 31.6 4.0 140.4 35.0 3.5 133.9 38.9 3.0 127.0 43.1 2.6 120.0 47.7 2.3 112.9 52.7 1.9
5.0 151.6 31.8 4.1 145.1 35.2 3.6 138.3 39.0 3.1 131.3 43.3 2.7 124.1 47.9 2.3 116.7 52.9 2.0
6.0 156.6 31.9 4.2 149.9 35.4 3.7 142.9 39.2 3.2 135.6 43.5 2.8 128.2 48.1 2.4 120.7 53.1 2.1
7.0 161.7 32.1 4.3 154.8 35.6 3.8 147.5 39.4 3.3 140.1 43.7 2.8 132.5 48.3 2.5 124.7 53.4 2.1
8.0 166.9 32.3 4.4 159.7 35.8 3.9 152.3 39.6 3.4 144.6 43.9 2.9 136.8 48.6 2.5 128.7 53.7 2.2
9.0 172.2 32.5 4.5 164.8 36.0 4.0 157.2 39.8 3.5 149.2 44.1 3.0 141.2 48.8 2.6 132.9 53.9 2.2
10.0 177.6 32.7 4.6 170.0 36.2 4.1 162.1 40.0 3.6 154.0 44.3 3.1 145.7 49.0 2.7 71.0 24.1 2.4
11.0 183.2 32.9 4.8 175.3 36.4 4.2 167.2 40.2 3.7 158.8 44.5 3.2 150.3 49.2 2.7 73.3 24.1 2.5
12.0 188.8 33.2 4.9 180.7 36.6 4.3 172.4 40.5 3.7 163.8 44.8 3.3 155.0 49.5 2.8 75.7 24.2 2.5
YCUL0050EC
AIR TEMPERATURE ON - CONDENSER (°C)
LCWT
(°C)
25°C 30°C 35°C 40°C 45°C 50°C
KWoKWiCOP KWoKWiCOP KWoKWiCOP KWoKWiCOP KWoKWiCOP KWoKWiCOP
2.0 152.8 36.5 3.6 146.3 40.3 3.2 139.4 44.5 2.8 132.1 49.3 2.4 124.4 54.4 2.1 116.2 60.1 1.8
3.0 157.9 36.7 3.7 151.2 40.5 3.3 144.1 44.8 2.9 136.6 49.5 2.5 128.7 54.7 2.1 120.4 60.4 1.8
4.0 163.2 37.0 3.8 156.2 40.7 3.4 148.9 45.0 2.9 141.2 49.8 2.6 133.1 55.0 2.2 92.5 41.7 2.0
5.0 168.5 37.2 3.9 161.4 41.0 3.5 153.8 45.3 3.0 145.9 50.0 2.6 137.6 55.3 2.3 95.7 41.9 2.0
6.0 174.0 37.4 4.0 166.6 41.2 3.6 158.8 45.5 3.1 150.7 50.3 2.7 142.2 55.6 2.3 98.9 42.1 2.1
7.0 179.6 37.7 4.2 172.0 41.5 3.7 163.9 45.8 3.2 155.6 50.6 2.8 146.8 55.9 2.4 71.8 27.3 2.2
8.0 185.3 38.0 4.3 177.4 41.7 3.8 169.2 46.0 3.3 160.5 50.9 2.8 151.6 56.2 2.5 74.2 27.4 2.3
9.0 191.2 38.2 4.4 183.0 42.0 3.8 174.5 46.3 3.4 165.6 51.1 2.9 156.4 56.5 2.5 76.7 27.5 2.3
10.0 197.1 38.5 4.5 188.7 42.3 3.9 179.9 46.6 3.5 170.8 51.4 3.0 161.4 56.8 2.6 79.2 27.5 2.4
11.0 203.2 38.8 4.6 194.5 42.6 4.0 185.4 46.9 3.5 176.1 51.7 3.1 166.4 57.1 2.7 81.8 27.6 2.5
12.0 209.4 39.1 4.7 200.4 42.9 4.1 191.1 47.2 3.6 181.5 52.0 3.2 171.5 57.4 2.7 84.4 27.7 2.5
YCUL0056EC
AIR TEMPERATURE ON - CONDENSER (°C)
LCWT
(°C)
25°C 30°C 35°C 40°C 45°C 50°C
KWoKWiCOP KWoKWiCOP KWoKWiCOP KWoKWiCOP KWoKWiCOP KWoKWiCOP
2.0 168.5 41.0 3.6 161.5 45.1 3.2 153.9 49.7 2.8 145.7 54.9 2.4 136.9 60.6 2.1 127.3 66.8 1.8
3.0 174.1 41.3 3.7 166.8 45.4 3.3 159.0 50.0 2.9 150.7 55.2 2.5 141.6 60.9 2.1 132.0 67.2 1.8
4.0 179.9 41.6 3.8 172.3 45.7 3.4 164.3 50.3 2.9 155.7 55.5 2.6 146.5 61.3 2.2 136.6 67.6 1.9
5.0 185.8 41.9 3.9 177.9 46.0 3.5 169.7 50.6 3.0 160.8 55.8 2.6 151.4 61.6 2.3 74.2 30.0 2.1
6.0 191.8 42.2 4.0 183.7 46.3 3.5 175.1 50.9 3.1 166.1 56.1 2.7 156.4 62.0 2.3 76.8 30.1 2.2
7.0 197.9 42.5 4.1 189.5 46.6 3.6 180.7 51.2 3.2 171.4 56.5 2.8 161.5 62.3 2.4 79.4 30.2 2.2
8.0 204.1 42.9 4.2 195.5 46.9 3.7 186.3 51.6 3.3 176.8 56.8 2.8 166.7 62.7 2.4 82.1 30.3 2.3
9.0 210.5 43.2 4.3 201.5 47.2 3.8 192.1 51.9 3.3 182.3 57.2 2.9 172.0 63.1 2.5 84.8 30.4 2.4
10.0 217.0 43.6 4.4 207.7 47.6 3.9 198.0 52.2 3.4 188.0 57.5 3.0 177.4 63.4 2.6 87.6 30.5 2.4
11.0 223.6 43.9 4.5 214.0 47.9 4.0 204.0 52.6 3.5 193.7 57.9 3.1 182.9 63.8 2.6 90.4 30.6 2.5
12.0 230.3 44.3 4.6 220.4 48.3 4.1 210.2 52.9 3.6 199.5 58.2 3.1 188.4 64.2 2.7 93.4 30.6 2.6

YORK INTERNATIONAL
30
YORK INTERNATIONAL 31
FORM 150.63-EG1
Ratings - R22 (SI Units)
NOTES:
1. SST = Saturated Suction Temperature
2. kWo = Unit kW Cooling Capacity Output
3. kWi = Compressors kW Input
4. COP = Coefcient of Performance (based on compressor and fan input kW)
YCUL0060EC
AIR TEMPERATURE ON - CONDENSER (°C)
LCWT
(°C)
25°C 30°C 35°C 40°C 45°C 50°C
KWoKWiCOP KWoKWiCOP KWoKWiCOP KWoKWiCOP KWoKWiCOP KWoKWiCOP
2.0 183.9 46.8 3.5 176.0 51.6 3.1 167.6 57.0 2.7 158.8 62.9 2.3 149.5 69.4 2.0 103.4 52.4 1.8
3.0 189.9 47.2 3.6 181.8 52.0 3.2 173.2 57.4 2.8 164.1 63.3 2.4 154.6 69.9 2.1 107.1 52.7 1.8
4.0 196.1 47.6 3.7 187.7 52.4 3.2 178.8 57.8 2.8 169.5 63.8 2.4 159.7 70.3 2.1 110.9 53.0 1.9
5.0 202.3 48.0 3.8 193.7 52.8 3.3 184.6 58.2 2.9 175.0 64.2 2.5 165.0 70.8 2.2 114.7 53.2 2.0
6.0 208.7 48.4 3.9 199.8 53.2 3.4 190.5 58.6 3.0 180.6 64.7 2.6 126.5 48.5 2.3 118.6 53.5 2.0
7.0 215.2 48.8 4.0 206.1 53.6 3.5 196.5 59.1 3.0 186.4 65.2 2.6 130.6 48.7 2.4 122.6 53.8 2.1
8.0 221.9 49.2 4.1 212.4 54.1 3.6 202.5 59.5 3.1 192.2 65.6 2.7 134.8 49.0 2.5 126.6 54.1 2.1
9.0 228.6 49.7 4.1 218.9 54.5 3.6 208.7 60.0 3.2 198.1 66.1 2.8 139.2 49.3 2.5 92.9 34.6 2.3
10.0 235.5 50.2 4.2 225.5 55.0 3.7 215.0 60.5 3.3 204.1 66.6 2.8 143.5 49.5 2.6 95.9 34.8 2.4
11.0 242.4 50.7 4.3 232.2 55.5 3.8 221.4 61.0 3.3 210.2 67.2 2.9 148.0 49.8 2.7 99.0 34.9 2.4
12.0 249.5 51.2 4.4 239.0 56.0 3.9 228.0 61.5 3.4 216.4 67.7 3.0 152.5 50.1 2.7 102.2 35.0 2.5
YCUL0066EC
AIR TEMPERATURE ON - CONDENSER (°C)
LCWT
(°C)
25°C 30°C 35°C 40°C 45°C 50°C
KWoKWiCOP KWoKWiCOP KWoKWiCOP KWoKWiCOP KWoKWiCOP KWoKWiCOP
2.0 202.8 48.9 3.7 194.2 54.0 3.3 185.2 59.7 2.8 175.9 66.0 2.5 166.3 72.8 2.1 81.2 35.7 2.0
3.0 209.4 49.3 3.8 200.6 54.4 3.3 191.3 60.2 2.9 181.7 66.5 2.5 171.8 73.4 2.2 84.0 35.8 2.0
4.0 216.2 49.7 3.9 207.1 54.8 3.4 197.6 60.6 3.0 187.7 67.0 2.6 177.5 73.9 2.2 86.9 36.0 2.1
5.0 223.0 50.1 4.0 213.7 55.3 3.5 204.0 61.1 3.1 193.9 67.4 2.7 183.4 74.4 2.3 89.9 36.1 2.2
6.0 230.0 50.5 4.1 220.5 55.7 3.6 210.5 61.5 3.1 200.1 67.9 2.7 189.3 74.9 2.4 93.0 36.3 2.2
7.0 237.2 51.0 4.2 227.4 56.2 3.7 217.2 62.0 3.2 206.5 68.4 2.8 195.3 75.5 2.4 96.1 36.4 2.3
8.0 244.4 51.5 4.3 234.4 56.6 3.8 223.9 62.5 3.3 212.9 68.9 2.9 201.5 76.0 2.5 99.3 36.6 2.4
9.0 251.8 51.9 4.4 241.5 57.1 3.9 230.8 63.0 3.4 219.5 69.5 2.9 207.8 76.6 2.5 102.5 36.8 2.4
10.0 259.2 52.5 4.5 248.8 57.6 3.9 237.7 63.5 3.4 226.2 70.0 3.0 214.1 77.2 2.6 105.9 36.9 2.5
11.0 266.8 53.0 4.6 256.1 58.2 4.0 244.8 64.1 3.5 233.0 70.6 3.1 220.6 77.8 2.7 109.3 37.1 2.6
12.0 274.5 53.5 4.6 263.6 58.7 4.1 252.0 64.6 3.6 239.9 71.2 3.1 227.2 78.4 2.7 112.7 37.3 2.6
YCUL0076EC
AIR TEMPERATURE ON - CONDENSER (°C)
LCWT
(°C)
25°C 30°C 35°C 40°C 45°C 50°C
KWoKWiCOP KWoKWiCOP KWoKWiCOP KWoKWiCOP KWoKWiCOP KWoKWiCOP
2.0 226.0 56.8 3.6 215.9 62.7 3.1 205.1 69.4 2.7 193.8 76.6 2.3 181.8 84.6 2.0 142.0 72.7 1.8
3.0 233.5 57.2 3.7 223.0 63.2 3.2 211.9 69.8 2.8 200.3 77.1 2.4 188.0 85.2 2.0 147.0 73.1 1.8
4.0 241.1 57.6 3.7 230.3 63.6 3.3 218.9 70.3 2.8 206.9 77.7 2.5 194.4 85.7 2.1 152.1 73.5 1.9
5.0 248.9 58.1 3.8 237.7 64.1 3.4 226.0 70.8 2.9 213.6 78.2 2.5 200.8 86.3 2.2 157.3 73.9 2.0
6.0 256.8 58.5 3.9 245.2 64.5 3.4 233.2 71.2 3.0 220.5 78.7 2.6 207.4 86.9 2.2 162.6 74.3 2.0
7.0 264.8 59.0 4.0 252.9 65.0 3.5 240.5 71.7 3.1 227.5 79.3 2.6 214.0 87.5 2.3 168.0 74.7 2.1
8.0 273.0 59.5 4.1 260.8 65.5 3.6 248.0 72.2 3.1 234.6 79.8 2.7 220.8 88.1 2.3 173.5 75.1 2.1
9.0 281.4 60.0 4.2 268.8 66.0 3.7 255.6 72.8 3.2 241.9 80.3 2.8 227.7 88.7 2.4 179.0 75.6 2.2
10.0 290.0 60.4 4.3 276.9 66.5 3.8 263.3 73.3 3.3 249.3 80.9 2.8 234.7 89.3 2.4 184.7 76.0 2.2
11.0 298.7 60.9 4.4 285.2 67.0 3.9 271.2 73.8 3.4 256.8 81.5 2.9 241.9 89.9 2.5 190.4 76.4 2.3
12.0 307.5 61.5 4.5 293.6 67.5 4.0 279.2 74.4 3.4 264.4 82.1 3.0 208.9 69.7 2.7 163.4 59.8 2.5
YCUL0080EC
AIR TEMPERATURE ON - CONDENSER (°C)
LCWT
(°C)
25°C 30°C 35°C 40°C 45°C 50°C
KWoKWiCOP KWoKWiCOP KWoKWiCOP KWoKWiCOP KWoKWiCOP KWoKWiCOP
2.0 251.8 62.7 3.6 241.0 69.0 3.2 229.4 76.2 2.8 216.9 84.2 2.4 203.4 93.0 2.0 131.0 63.1 1.9
3.0 260.1 63.2 3.7 249.0 69.5 3.3 237.0 76.7 2.8 224.2 84.7 2.5 210.5 93.6 2.1 135.7 63.4 1.9
4.0 268.6 63.7 3.8 257.1 70.0 3.4 244.8 77.2 2.9 231.6 85.3 2.5 217.6 94.2 2.2 140.5 63.7 2.0
5.0 277.3 64.2 3.9 265.4 70.4 3.4 252.7 77.7 3.0 239.1 85.8 2.6 224.9 94.8 2.2 145.5 64.0 2.1
6.0 286.2 64.7 4.0 273.8 71.0 3.5 260.8 78.2 3.1 247.0 86.3 2.7 232.3 95.4 2.3 150.5 64.2 2.1
7.0 295.3 65.2 4.1 282.4 71.5 3.6 269.0 78.7 3.2 254.8 86.9 2.7 239.9 96.0 2.3 155.6 64.5 2.2
8.0 304.5 65.7 4.2 291.2 72.0 3.7 277.4 79.2 3.2 262.8 87.4 2.8 247.5 96.6 2.4 160.7 64.8 2.3
9.0 314.0 66.2 4.3 300.2 72.5 3.8 285.8 79.8 3.3 271.0 88.0 2.9 255.3 97.2 2.5 166.0 65.0 2.3
10.0 323.6 66.8 4.4 309.4 73.1 3.9 294.5 80.4 3.4 279.3 88.5 2.9 263.3 97.8 2.5 171.4 65.3 2.4
11.0 333.4 67.3 4.5 318.7 73.6 4.0 303.4 80.9 3.5 287.8 89.1 3.0 271.4 98.4 2.6 176.9 65.6 2.4
12.0 343.4 67.9 4.6 328.2 74.2 4.1 312.5 81.5 3.5 296.4 89.7 3.1 279.6 99.0 2.6 182.5 65.8 2.5

YORK INTERNATIONAL
30
YORK INTERNATIONAL 31
FORM 150.63-EG1
NOTES:
1. SST = Saturated Suction Temperature
2. kWo = Unit kW Cooling Capacity Output
3. kWi = Compressors kW Input
4. COP = Coefcient of Performance (based on compressor and fan input kW)
YCUL0086EC
AIR TEMPERATURE ON - CONDENSER (°C)
LCWT
(°C)
25°C 30°C 35°C 40°C 45°C 50°C
KWoKWiCOP KWoKWiCOP KWoKWiCOP KWoKWiCOP KWoKWiCOP KWoKWiCOP
2.0 274.3 69.7 3.6 262.2 77.0 3.1 249.5 85.1 2.7 236.1 93.9 2.3 222.0 103.6 2.0 143.9 69.7 1.9
3.0 283.3 70.3 3.7 270.8 77.6 3.2 257.7 85.7 2.8 244.0 94.6 2.4 229.5 104.4 2.1 148.9 70.1 1.9
4.0 292.4 70.9 3.8 279.6 78.2 3.3 266.1 86.3 2.9 251.9 95.3 2.5 237.1 105.1 2.1 154.0 70.4 2.0
5.0 301.7 71.5 3.9 288.5 78.8 3.4 274.6 87.0 2.9 260.0 96.1 2.5 244.8 105.9 2.2 159.3 70.8 2.1
6.0 311.2 72.1 3.9 297.6 79.5 3.5 283.3 87.7 3.0 268.3 96.8 2.6 210.8 82.7 2.4 164.6 71.2 2.1
7.0 320.9 72.8 4.0 306.8 80.2 3.5 292.1 88.4 3.1 276.7 97.6 2.7 217.7 83.2 2.4 170.1 71.6 2.2
8.0 330.7 73.5 4.1 316.2 80.8 3.6 301.0 89.1 3.1 285.3 98.3 2.7 224.6 83.8 2.5 175.6 72.0 2.2
9.0 340.7 74.2 4.2 325.7 81.6 3.7 310.2 89.9 3.2 294.0 99.1 2.8 231.7 84.3 2.5 181.3 72.4 2.3
10.0 350.9 74.9 4.3 335.5 82.3 3.8 319.5 90.6 3.3 302.9 99.9 2.8 238.9 84.8 2.6 187.1 72.8 2.4
11.0 361.2 75.6 4.4 345.4 83.0 3.9 329.0 91.4 3.4 311.9 100.7 2.9 246.3 85.4 2.7 193.0 73.2 2.4
12.0 371.7 76.4 4.5 355.5 83.8 3.9 338.6 92.2 3.4 321.0 101.6 3.0 253.7 86.0 2.7 199.0 73.6 2.5
YCUL0090EC
AIR TEMPERATURE ON - CONDENSER (°C)
LCWT
(°C)
25°C 30°C 35°C 40°C 45°C 50°C
KWoKWiCOP KWoKWiCOP KWoKWiCOP KWoKWiCOP KWoKWiCOP KWoKWiCOP
2.0 296.3 76.4 3.6 283.0 84.5 3.1 269.2 93.5 2.7 254.9 103.2 2.3 240.2 113.7 2.0 156.4 76.0 1.89*
3.0 305.9 77.1 3.7 292.1 85.3 3.2 277.9 94.3 2.8 263.2 104.1 2.4 248.1 114.7 2.0 161.7 76.4 1.9
4.0 315.6 77.8 3.7 301.5 86.0 3.3 286.8 95.1 2.8 271.7 105.0 2.4 256.1 115.6 2.1 167.2 76.9 2.0
5.0 325.5 78.5 3.8 311.0 86.8 3.3 295.9 95.9 2.9 280.4 105.9 2.5 264.3 116.6 2.1 172.7 77.4 2.1
6.0 335.6 79.3 3.9 320.7 87.6 3.4 305.2 96.8 3.0 289.1 106.8 2.5 272.6 117.6 2.2 178.4 77.9 2.1
7.0 345.8 80.1 4.0 330.5 88.4 3.5 314.6 97.7 3.0 298.0 107.8 2.6 281.1 118.6 2.2 184.2 78.3 2.2
8.0 356.2 80.9 4.1 340.5 89.3 3.6 324.2 98.6 3.1 307.2 108.7 2.7 289.7 119.7 2.3 190.2 78.8 2.2
9.0 366.8 81.7 4.1 350.7 90.1 3.6 333.9 99.5 3.1 316.4 109.7 2.7 208.4 71.9 2.7 196.2 79.3 2.3
10.0 377.5 82.6 4.2 361.0 91.0 3.7 343.8 100.4 3.2 325.8 110.7 2.8 214.9 72.4 2.7 202.4 79.9 2.3
11.0 388.3 83.5 4.3 371.5 92.0 3.8 353.8 101.4 3.3 335.4 111.8 2.8 221.5 72.9 2.8 208.6 80.4 2.4
12.0 399.3 84.4 4.4 382.1 92.9 3.8 364.0 102.4 3.3 345.1 112.8 2.9 228.2 73.4 2.9 215.0 80.9 2.5
YCUL0096EC
AIR TEMPERATURE ON - CONDENSER (°C)
LCWT
(°C)
25°C 30°C 35°C 40°C 45°C 50°C
KWoKWiCOP KWoKWiCOP KWoKWiCOP KWoKWiCOP KWoKWiCOP KWoKWiCOP
2.0 294.8 70.9 3.6 282.3 77.4 3.2 269.5 84.7 2.8 256.3 92.9 2.5 242.8 102.1 2.2 228.9 112.3 1.9
3.0 304.7 71.6 3.7 291.7 78.1 3.3 278.6 85.4 2.9 265.1 93.6 2.5 251.2 102.9 2.2 236.9 113.2 1.9
4.0 314.7 72.3 3.8 301.4 78.8 3.4 287.9 86.1 3.0 274.0 94.4 2.6 259.8 103.7 2.3 245.2 114.0 2.0
5.0 325.0 73.1 3.9 311.4 79.5 3.5 297.4 86.9 3.0 283.2 95.2 2.7 268.6 104.5 2.3 253.7 114.9 2.0
6.0 335.5 73.9 4.0 321.5 80.3 3.5 307.2 87.7 3.1 292.5 96.0 2.7 277.7 105.3 2.4 262.4 115.8 2.1
7.0 346.3 74.7 4.1 331.9 81.1 3.6 317.2 88.4 3.2 302.2 96.8 2.8 286.9 106.2 2.5 271.2 116.7 2.1
8.0 357.3 75.5 4.1 342.5 81.9 3.7 327.4 89.3 3.3 312.0 97.6 2.9 296.4 107.0 2.5 280.3 117.6 2.2
9.0 368.6 76.4 4.2 353.4 82.8 3.8 337.9 90.1 3.4 322.1 98.5 3.0 305.9 108.0 2.6 289.6 118.5 2.2
10.0 380.2 77.3 4.3 364.5 83.6 3.9 348.5 91.0 3.4 332.3 99.4 3.0 315.8 108.9 2.6 299.0 119.5 2.3
11.0 391.9 78.2 4.4 375.8 84.5 3.9 359.4 91.9 3.5 342.8 100.3 3.1 325.9 109.8 2.7 308.7 120.5 2.4
12.0 404.0 79.1 4.5 387.4 85.5 4.0 370.6 92.8 3.6 353.5 101.2 3.2 336.2 110.8 2.8 235.9 84.2 2.5
YCUL0100EC
AIR TEMPERATURE ON - CONDENSER (°C)
LCWT
(°C)
25°C 30°C 35°C 40°C 45°C 50°C
KWoKWiCOP KWoKWiCOP KWoKWiCOP KWoKWiCOP KWoKWiCOP KWoKWiCOP
2.0 320.5 77.7 3.6 306.4 84.8 3.2 292.3 92.6 2.8 277.9 101.4 2.5 263.4 111.2 2.2 249.1 121.9 1.9
3.0 331.1 78.6 3.7 316.7 85.5 3.3 302.1 93.4 2.9 287.3 102.2 2.5 272.4 112.1 2.2 257.7 123.0 1.9
4.0 342.0 79.4 3.8 327.1 86.3 3.4 312.1 94.2 3.0 297.0 103.1 2.6 281.8 113.0 2.3 266.6 123.9 2.0
5.0 353.1 80.3 3.9 337.8 87.2 3.5 322.4 95.1 3.0 306.8 104.0 2.7 291.2 113.9 2.3 275.7 124.9 2.0
6.0 364.4 81.2 4.0 348.8 88.0 3.5 332.9 95.9 3.1 316.8 104.9 2.7 300.9 114.8 2.4 284.9 125.9 2.1
7.0 375.9 82.2 4.0 359.9 88.9 3.6 343.6 96.8 3.2 327.1 105.8 2.8 310.8 115.8 2.5 294.4 127.0 2.1
8.0 387.7 83.2 4.1 371.2 89.9 3.7 354.5 97.8 3.3 337.6 106.7 2.9 320.9 116.8 2.5 304.0 128.1 2.2
9.0 399.7 84.2 4.2 382.8 90.9 3.8 365.6 98.7 3.3 348.3 107.7 2.9 331.0 117.9 2.6 313.9 129.1 2.2
10.0 411.9 85.3 4.3 394.6 91.9 3.8 377.0 99.7 3.4 359.3 108.7 3.0 341.5 118.9 2.6 324.0 130.3 2.3
11.0 424.4 86.4 4.4 406.6 93.0 3.9 388.5 100.8 3.5 370.4 109.7 3.1 352.2 120.0 2.7 334.1 131.5 2.4
12.0 437.0 87.6 4.4 418.8 94.1 4.0 400.4 101.8 3.6 381.8 110.8 3.1 363.2 121.1 2.8 179.4 57.9 2.6

YORK INTERNATIONAL
32
YORK INTERNATIONAL 33
FORM 150.63-EG1
Ratings - R22 (SI Units)
NOTES:
1. SST = Saturated Suction Temperature
2. kWo = Unit kW Cooling Capacity Output
3. kWi = Compressors kW Input
4. COP = Coefcient of Performance (based on compressor and fan input kW)
YCUL0106EC
AIR TEMPERATURE ON - CONDENSER (°C)
LCWT
(°C)
25°C 30°C 35°C 40°C 45°C 50°C
KWoKWiCOP KWoKWiCOP KWoKWiCOP KWoKWiCOP KWoKWiCOP KWoKWiCOP
2.0 356.0 90.2 3.5 340.3 98.7 3.1 324.0 108.4 2.7 307.2 119.3 2.4 289.7 131.5 2.0 227.2 111.9 1.9
3.0 367.7 91.2 3.6 351.5 99.7 3.2 334.8 109.4 2.8 317.6 120.4 2.4 299.7 132.7 2.1 235.1 112.7 1.9
4.0 379.7 92.2 3.7 363.0 100.8 3.3 345.9 110.5 2.9 328.1 121.5 2.5 309.8 133.9 2.1 243.3 113.6 2.0
5.0 391.9 93.3 3.8 374.8 101.8 3.3 357.1 111.6 2.9 338.9 122.6 2.5 320.1 135.1 2.2 251.6 114.6 2.0
6.0 404.4 94.3 3.9 386.8 102.9 3.4 368.7 112.7 3.0 350.0 123.8 2.6 330.8 136.3 2.3 260.1 115.5 2.1
7.0 417.2 95.4 3.9 399.1 104.0 3.5 380.4 113.9 3.1 361.3 125.0 2.7 341.6 137.5 2.3 268.8 116.4 2.1
8.0 430.2 96.6 4.0 411.6 105.2 3.6 392.5 115.0 3.1 372.9 126.2 2.7 352.7 138.8 2.4 277.7 117.4 2.2
9.0 443.6 97.8 4.1 424.4 106.4 3.6 404.8 116.2 3.2 384.7 127.5 2.8 364.0 140.1 2.4 286.8 118.4 2.2
10.0 457.1 99.1 4.2 437.5 107.6 3.7 417.4 117.5 3.3 396.8 128.7 2.8 375.7 141.4 2.5 296.1 119.4 2.3
11.0 471.2 100.3 4.2 450.9 108.8 3.8 430.3 118.7 3.3 409.2 130.0 2.9 387.5 142.8 2.5 226.0 83.1 2.4
12.0 485.5 101.5 4.3 464.7 110.1 3.8 443.5 120.0 3.4 421.8 131.3 3.0 399.6 144.2 2.6 233.3 83.7 2.5
YCUL0120EC
AIR TEMPERATURE ON - CONDENSER (°C)
LCWT
(°C)
25°C 30°C 35°C 40°C 45°C 50°C
KWoKWiCOP KWoKWiCOP KWoKWiCOP KWoKWiCOP KWoKWiCOP KWoKWiCOP
2.0 396.6 98.6 3.5 379.8 108.0 3.1 362.4 118.6 2.7 344.1 130.6 2.4 324.8 144.2 2.1 304.0 159.5 1.8
3.0 409.8 99.6 3.6 392.5 109.0 3.2 374.6 119.7 2.8 355.9 131.7 2.4 336.1 145.4 2.1 314.9 160.7 1.8
4.0 423.3 100.6 3.7 405.5 110.1 3.3 387.2 120.8 2.9 367.9 132.9 2.5 347.7 146.5 2.2 326.1 162.0 1.9
5.0 437.2 101.6 3.8 418.9 111.2 3.3 400.0 121.9 2.9 380.3 134.0 2.6 359.5 147.8 2.2 337.4 163.3 1.9
6.0 451.5 102.7 3.9 432.5 112.3 3.4 413.1 123.0 3.0 392.9 135.2 2.6 371.6 149.0 2.3 349.1 164.6 2.0
7.0 466.0 103.8 3.9 446.5 113.4 3.5 426.5 124.2 3.1 405.7 136.5 2.7 384.0 150.3 2.3 360.9 165.9 2.0
8.0 481.0 104.9 4.0 460.9 114.5 3.6 440.3 125.4 3.2 418.9 137.7 2.8 396.6 151.6 2.4 373.0 167.4 2.1
9.0 496.3 106.0 4.1 475.6 115.7 3.7 454.3 126.7 3.2 432.4 139.0 2.8 409.5 153.0 2.5 385.5 168.7 2.1
10.0 511.9 107.2 4.2 490.6 116.9 3.7 468.8 127.9 3.3 446.2 140.4 2.9 422.6 154.5 2.5 398.2 170.2 2.2
11.0 528.0 108.4 4.3 506.0 118.2 3.8 483.5 129.2 3.4 460.2 141.8 3.0 436.3 155.8 2.6 283.8 104.2 2.4
12.0 544.5 109.6 4.4 521.7 119.5 3.9 498.5 130.6 3.4 474.7 143.2 3.0 450.3 157.2 2.6 293.1 105.0 2.5
YCUL0130EC
AIR TEMPERATURE ON - CONDENSER (°C)
LCWT
(°C)
25°C 30°C 35°C 40°C 45°C 50°C
KWoKWiCOP KWoKWiCOP KWoKWiCOP KWoKWiCOP KWoKWiCOP KWoKWiCOP
2.0 435.8 109.5 3.5 416.6 119.8 3.1 397.0 131.4 2.7 376.9 144.4 2.4 356.2 158.8 2.1 335.0 174.9 1.8
3.0 450.2 110.7 3.6 430.4 121.0 3.2 410.3 132.6 2.8 389.6 145.6 2.4 368.4 160.3 2.1 346.7 176.5 1.8
4.0 464.8 111.9 3.7 444.6 122.1 3.3 423.8 133.8 2.9 402.6 147.0 2.5 380.9 161.6 2.2 297.9 140.2 1.9
5.0 479.9 113.1 3.8 459.0 123.4 3.3 437.7 135.1 2.9 415.8 148.3 2.6 393.7 163.1 2.2 308.2 141.2 2.0
6.0 495.2 114.3 3.9 473.8 124.7 3.4 451.8 136.4 3.0 429.6 149.6 2.6 406.8 164.5 2.3 318.7 142.3 2.0
7.0 511.0 115.6 3.9 488.9 126.0 3.5 466.5 137.7 3.1 443.5 151.0 2.7 420.1 165.9 2.3 329.5 143.5 2.1
8.0 527.1 117.0 4.0 504.3 127.3 3.6 481.3 139.0 3.1 457.8 152.4 2.7 433.8 167.4 2.4 340.4 144.6 2.1
9.0 543.5 118.3 4.1 520.2 128.6 3.6 496.5 140.4 3.2 472.4 153.8 2.8 447.8 169.0 2.4 351.7 145.8 2.2
10.0 560.3 119.7 4.2 536.4 130.0 3.7 512.0 141.9 3.3 487.2 155.3 2.9 461.9 170.6 2.5 363.2 147.0 2.3
11.0 577.5 121.2 4.3 552.9 131.5 3.8 527.9 143.3 3.4 502.4 156.9 2.9 476.6 172.1 2.6 311.0 114.5 2.4
12.0 595.1 122.7 4.3 569.8 133.0 3.9 544.0 144.9 3.4 517.9 158.5 3.0 491.6 173.7 2.6 321.1 115.3 2.5

YORK INTERNATIONAL
32
YORK INTERNATIONAL 33
FORM 150.63-EG1

YORK INTERNATIONAL
34
YORK INTERNATIONAL 35
FORM 150.63-EG1
Ratings - HFC-407C (English Units)
NOTES:
1. SST = Saturated Suction Temperature
2. kW = Compressors Input Power
3. EER = Condensing Unit EER (includes power from compressors, fans and the control panel)
YCUL0016EB
AIR TEMPERATURE ON CONDENSER (°F)
SST
(°F)
75°F 80°F 85°F 90°F 95°F 100°F
TONS KW EER TONS KW EER TONS KW EER TONS KW EER TONS KW EER TONS KW EER
35.0 13.6 11.3 11.6 13.2 12.0 10.7 12.8 12.7 9.9 12.4 13.5 9.1 12.0 14.3 8.4 11.5 15.2 7.7
37.0 14.1 11.3 12.0 13.7 12.0 11.1 13.3 12.8 10.3 12.9 13.5 9.5 12.3 14.8 8.4 11.8 15.7 7.7
39.0 14.6 11.6 12.1 14.1 12.3 11.2 13.7 13.1 10.3 13.3 13.9 9.5 12.8 14.8 8.8 12.5 15.3 8.3
41.0 15.2 11.6 12.6 14.7 12.3 11.7 14.4 12.9 11.0 14.0 13.7 10.2 13.5 14.5 9.4 13.1 15.4 8.6
43.0 15.8 11.7 13.1 15.4 12.4 12.2 14.9 13.1 11.2 14.4 14.0 10.3 13.9 14.8 9.5 13.6 15.5 8.9
45.0 16.5 11.7 13.6 16.0 12.4 12.6 15.5 13.2 11.7 15.0 14.0 10.7 14.5 14.9 9.9 14.0 15.8 9.1
47.0 17.1 11.7 14.1 16.6 12.5 13.1 16.1 13.2 12.1 15.6 14.0 11.1 15.1 14.9 10.2 14.6 15.8 9.4
49.0 17.8 11.8 14.6 17.3 12.5 13.6 16.8 13.3 12.5 16.3 14.1 11.5 15.7 15.0 10.6 15.2 15.9 9.8
51.0 18.5 11.9 15.2 18.0 12.6 14.0 17.5 13.3 13.0 16.9 14.2 12.0 16.4 15.0 11.0 15.8 16.0 10.1
53.0 19.2 11.9 15.7 18.7 12.6 14.5 18.1 13.4 13.4 17.6 14.2 12.4 17.0 15.1 11.4 16.4 16.0 10.5
55.0 20.0 12.0 16.2 19.4 12.7 15.0 18.8 13.5 13.9 18.2 14.3 12.8 17.7 15.2 11.8 17.1 16.1 10.8
YCUL0026EB
AIR TEMPERATURE ON CONDENSER (°F)
SST
(°F)
75°F 80°F 85°F 90°F 95°F 100°F
TONS KW EER TONS KW EER TONS KW EER TONS KW EER TONS KW EER TONS KW EER
35.0 18.8 16.5 11.7 18.2 17.6 10.7 17.6 18.7 9.9 17.1 19.8 9.1 16.5 21.0 8.3 15.9 22.3 7.6
37.0 19.5 16.6 12.1 19.0 17.7 11.1 18.4 18.8 10.2 17.8 19.9 9.4 17.2 21.2 8.6 16.6 22.4 7.9
39.0 20.3 16.8 12.5 19.7 17.8 11.5 19.1 18.9 10.6 18.5 20.1 9.7 17.9 21.3 8.9 17.3 22.6 8.2
41.0 21.1 16.9 12.9 20.5 17.9 11.9 19.9 19.0 10.9 19.2 20.2 10.0 18.6 21.4 9.2 18.0 22.8 8.4
43.0 22.0 17.0 13.3 21.3 18.1 12.3 20.6 19.2 11.3 20.0 20.4 10.4 19.3 21.6 9.5 18.7 22.9 8.7
45.0 22.8 17.1 13.7 22.1 18.2 12.7 21.5 19.3 11.6 20.8 20.5 10.7 20.1 21.8 9.8 19.4 23.1 9.0
47.0 23.7 17.3 14.2 23.0 18.3 13.0 22.3 19.5 12.0 21.6 20.7 11.0 20.9 21.9 10.1 20.2 23.3 9.3
49.0 24.5 17.4 14.6 23.8 18.5 13.4 23.1 19.6 12.4 22.4 20.8 11.4 21.7 22.1 10.4 21.0 23.4 9.6
51.0 25.5 17.6 15.0 24.7 18.6 13.8 24.0 19.8 12.7 23.2 21.0 11.7 22.5 22.3 10.8 21.8 23.6 9.9
53.0 26.4 17.7 15.4 25.6 18.8 14.2 24.9 20.0 13.1 24.1 21.2 12.1 23.3 22.5 11.1 22.6 23.8 10.2
55.0 27.3 17.9 15.9 26.6 19.0 14.6 25.8 20.1 13.5 25.0 21.4 12.4 24.2 22.7 11.4 23.4 24.0 10.5
YCUL0030EB
AIR TEMPERATURE ON CONDENSER (°F)
SST
(°F)
75°F 80°F 85°F 90°F 95°F 100°F
TONS KW EER TONS KW EER TONS KW EER TONS KW EER TONS KW EER TONS KW EER
35.0 23.4 20.6 12.0 22.7 21.8 11.1 22.0 23.1 10.2 21.3 24.5 9.4 20.6 25.9 8.6 20.0 27.1 8.0
37.0 24.3 20.8 12.4 23.6 22.0 11.4 22.9 23.2 10.6 22.2 24.6 9.7 21.4 26.1 8.9 20.7 27.6 8.2
39.0 25.3 20.9 12.8 24.6 22.1 11.8 23.9 23.4 10.9 23.1 24.8 10.0 22.3 26.3 9.2 21.5 27.8 8.4
41.0 26.3 21.1 13.2 25.6 22.3 12.2 24.8 23.6 11.3 24.0 25.0 10.4 23.2 26.4 9.5 22.4 28.0 8.7
43.0 27.4 21.3 13.6 26.6 22.5 12.6 25.8 23.8 11.6 25.0 25.2 10.7 24.2 26.7 9.8 23.3 28.2 9.0
45.0 28.4 21.6 14.0 27.6 22.8 13.0 26.8 24.1 12.0 25.9 25.4 11.0 25.1 26.9 10.2 24.3 28.4 9.3
47.0 29.5 21.8 14.4 28.7 23.0 13.3 27.8 24.3 12.3 27.0 25.7 11.4 26.1 27.1 10.5 25.2 28.7 9.6
49.0 30.6 22.1 14.8 29.8 23.2 13.7 28.9 24.5 12.7 28.0 25.9 11.7 27.1 27.4 10.8 26.2 29.0 9.9
51.0 31.8 22.3 15.2 30.9 23.5 14.1 30.0 24.8 13.0 29.1 26.2 12.0 28.1 27.7 11.1 27.2 29.2 10.2
53.0 33.0 22.6 15.6 32.0 23.8 14.5 31.1 25.1 13.4 30.2 26.5 12.4 29.2 28.0 11.4 28.3 29.5 10.5
55.0 34.2 22.9 16.0 33.2 24.1 14.8 32.3 25.4 13.7 31.3 26.8 12.7 30.3 28.3 11.7 29.3 29.8 10.8
YCUL0036EB
AIR TEMPERATURE ON CONDENSER (°F)
SST
(°F)
75°F 80°F 85°F 90°F 95°F 100°F
TONS KW EER TONS KW EER TONS KW EER TONS KW EER TONS KW EER TONS KW EER
35.0 28.4 25.0 12.3 27.6 26.6 11.3 26.8 28.2 10.4 26.0 29.9 9.5 25.2 31.8 8.7 24.3 33.7 8.0
37.0 29.6 25.2 12.7 28.8 26.7 11.7 27.9 28.4 10.8 27.1 30.1 9.9 26.2 31.9 9.1 25.4 33.9 8.3
39.0 30.8 25.3 13.1 29.9 26.9 12.1 29.1 28.5 11.1 28.2 30.3 10.2 27.3 32.1 9.4 26.4 34.0 8.6
41.0 32.0 25.5 13.6 31.1 27.1 12.5 30.2 28.7 11.5 29.3 30.5 10.6 28.4 32.3 9.7 27.5 34.2 8.9
43.0 33.3 25.7 14.0 32.4 27.3 12.9 31.4 28.9 11.9 30.5 30.7 10.9 29.6 32.5 10.0 28.6 34.5 9.2
45.0 34.6 25.9 14.5 33.6 27.5 13.3 32.7 29.1 12.3 31.7 30.9 11.3 30.7 32.8 10.4 29.7 34.7 9.5
47.0 35.9 26.1 14.9 34.9 27.7 13.7 33.9 29.4 12.7 32.9 31.1 11.6 31.9 33.0 10.7 30.9 35.0 9.8
49.0 37.2 26.4 15.3 36.2 27.9 14.1 35.2 29.6 13.0 34.2 31.4 12.0 33.1 33.3 11.0 32.1 35.2 10.1
51.0 38.6 26.6 15.7 37.6 28.2 14.6 36.5 29.9 13.4 35.4 31.6 12.3 34.4 33.5 11.3 33.3 35.5 10.4
53.0 40.0 26.8 16.2 38.9 28.4 15.0 37.8 30.1 13.8 36.7 31.9 12.7 35.6 33.8 11.7 34.5 35.8 10.7
55.0 41.4 27.1 16.6 40.3 28.7 15.3 39.2 30.4 14.2 38.1 32.2 13.1 36.9 34.1 12.0 35.8 36.1 11.0

YORK INTERNATIONAL
34
YORK INTERNATIONAL 35
FORM 150.63-EG1
NOTES:
1. SST = Saturated Suction Temperature
2. kW = Compressors Input Power
3. EER = Condensing Unit EER (includes power from compressors, fans and the control panel)
YCUL0016EB
AIR TEMPERATURE ON CONDENSER (°F)
SST
(°F)
105°F 110°F 115°F 120°F 125°F
TONS KW EER TONS KW EER TONS KW EER TONS KW EER TONS KW EER
35.0 11.1 16.1 7.1 10.7 17.1 6.5 10.1 18.5 5.7 5.1 8.8 5.3 4.9 9.3 4.8
37.0 11.4 16.6 7.1 11.0 17.6 6.5 10.7 18.2 6.2 5.3 8.8 5.5 5.1 9.3 5.1
39.0 12.1 16.3 7.6 11.6 17.2 7.0 11.2 18.3 6.4 5.5 8.8 5.7 5.3 9.3 5.3
41.0 12.6 16.4 7.9 12.1 17.3 7.2 11.7 18.4 6.6 5.8 8.8 6.0 5.6 9.3 5.5
43.0 13.1 16.4 8.2 12.6 17.4 7.5 12.2 18.5 6.9 6.0 8.8 6.2 5.8 9.4 5.7
45.0 13.5 16.8 8.3 13.0 17.8 7.6 12.6 18.8 7.0 6.3 8.8 6.5 6.1 9.4 6.0
47.0 14.1 16.8 8.6 13.6 17.8 7.9 13.1 18.9 7.2 6.6 8.9 6.8 6.3 9.4 6.2
49.0 14.7 16.9 8.9 14.1 17.9 8.2 13.6 19.0 7.5 6.9 8.9 7.0 6.6 9.4 6.5
51.0 15.3 17.0 9.3 14.7 18.0 8.5 7.4 8.4 8.0 7.1 8.9 7.3 6.9 9.4 6.7
53.0 15.9 17.0 9.6 15.3 18.1 8.8 7.7 8.4 8.3 7.4 8.9 7.6 7.2 9.5 7.0
55.0 16.5 17.1 9.9 15.9 18.2 9.1 8.0 8.4 8.6 7.7 8.9 7.9 7.5 9.5 7.3
YCUL0026EB
AIR TEMPERATURE ON CONDENSER (°F)
SST
(°F)
105°F 110°F 115°F 120°F 125°F
TONS KW EER TONS KW EER TONS KW EER TONS KW EER TONS KW EER
35.0 15.4 23.6 7.0 14.8 25.1 6.4 14.3 26.5 5.8 7.2 12.3 5.7 6.9 13.0 5.3
37.0 16.0 23.8 7.2 15.4 25.2 6.6 14.9 26.7 6.1 7.5 12.3 6.0 7.3 13.1 5.5
39.0 16.7 24.0 7.5 16.1 25.4 6.8 15.5 26.9 6.3 7.9 12.4 6.2 7.6 13.1 5.7
41.0 17.3 24.1 7.7 16.7 25.6 7.1 8.5 11.8 7.0 8.2 12.5 6.4 7.9 13.3 5.9
43.0 18.0 24.3 8.0 17.4 25.8 7.3 8.8 11.8 7.3 8.5 12.6 6.7 8.2 13.3 6.1
45.0 18.8 24.5 8.3 18.1 26.0 7.6 9.2 11.9 7.5 8.9 12.6 6.9 8.6 13.4 6.4
47.0 19.5 24.7 8.5 18.8 26.2 7.8 9.6 11.9 7.8 9.3 12.6 7.2 8.9 13.4 6.6
49.0 20.3 24.9 8.8 19.6 26.4 8.1 10.0 11.9 8.2 9.6 12.7 7.5 9.3 13.5 6.9
51.0 21.0 25.1 9.1 20.3 26.6 8.3 10.4 12.0 8.5 10.0 12.7 7.8 9.7 13.5 7.1
53.0 21.8 25.3 9.3 21.1 26.8 8.6 10.8 12.0 8.8 10.5 12.8 8.1 10.1 13.6 7.4
55.0 22.7 25.5 9.6 11.7 11.3 9.9 11.3 12.1 9.1 10.9 12.8 8.4 10.5 13.6 7.7
YCUL0030EB
AIR TEMPERATURE ON CONDENSER (°F)
SST
(°F)
105°F 110°F 115°F 120°F 125°F
TONS KW EER TONS KW EER TONS KW EER TONS KW EER TONS KW EER
35.0 19.2 28.7 7.3 18.5 30.3 6.7 17.8 32.0 6.1 17.1 33.7 5.6 8.5 16.1 5.4
37.0 19.9 29.2 7.5 19.2 30.9 6.8 18.4 32.6 6.2 9.3 15.4 6.1 8.9 16.2 5.6
39.0 20.8 29.4 7.7 20.0 31.1 7.1 19.2 32.8 6.5 9.7 15.5 6.4 9.3 16.3 5.8
41.0 21.6 29.6 8.0 20.8 31.3 7.3 20.0 33.0 6.7 10.1 15.5 6.6 9.7 16.4 6.1
43.0 22.5 29.8 8.3 21.7 31.5 7.6 20.9 33.3 6.9 10.5 15.6 6.9 10.1 16.5 6.3
45.0 23.4 30.1 8.5 22.6 31.8 7.8 21.7 33.6 7.2 11.0 15.7 7.1 10.6 16.6 6.5
47.0 24.4 30.3 8.8 23.5 32.1 8.1 22.6 33.8 7.4 11.4 15.8 7.4 11.0 16.7 6.8
49.0 25.3 30.6 9.1 24.4 32.3 8.3 12.4 15.0 8.4 11.9 15.9 7.7 11.5 16.8 7.0
51.0 26.3 30.9 9.4 25.4 32.6 8.6 12.9 15.1 8.7 12.4 15.9 8.0 12.0 16.9 7.3
53.0 27.3 31.2 9.7 26.4 32.9 8.9 13.4 15.2 8.9 12.9 16.1 8.2 12.4 17.0 7.5
55.0 28.4 31.5 9.9 27.4 33.3 9.1 13.9 15.3 9.3 13.4 16.2 8.5 12.9 17.1 7.8
YCUL0036EB
AIR TEMPERATURE ON CONDENSER (°F)
SST
(°F)
105°F 110°F 115°F 120°F 125°F
TONS KW EER TONS KW EER TONS KW EER TONS KW EER TONS KW EER
35.0 23.5 35.7 7.3 22.6 37.8 6.7 11.4 17.8 6.6 10.9 18.8 6.1 10.5 20.0 5.5
37.0 24.5 35.9 7.6 23.6 38.0 6.9 11.9 17.8 6.9 11.4 18.9 6.3 11.0 20.0 5.8
39.0 25.5 36.1 7.9 24.6 38.2 7.2 12.4 17.9 7.2 11.9 19.0 6.6 11.4 20.1 6.0
41.0 26.5 36.3 8.1 25.6 38.5 7.4 12.9 18.0 7.5 12.4 19.0 6.8 11.9 20.2 6.2
43.0 27.6 36.5 8.4 26.6 38.7 7.7 13.4 18.0 7.8 12.9 19.1 7.1 12.4 20.3 6.5
45.0 28.7 36.8 8.7 27.7 39.0 8.0 14.0 18.1 8.0 13.5 19.2 7.4 13.0 20.3 6.7
47.0 29.8 37.0 9.0 28.8 39.2 8.2 14.6 18.1 8.4 14.0 19.3 7.6 13.5 20.4 7.0
49.0 31.0 37.3 9.3 29.9 39.5 8.5 15.2 18.2 8.7 14.6 19.3 7.9 14.1 20.5 7.2
51.0 32.2 37.6 9.5 31.0 39.8 8.7 15.8 18.3 9.0 15.2 19.4 8.2 14.6 20.6 7.5
53.0 33.4 37.9 9.8 17.0 17.3 10.1 16.4 18.4 9.3 15.8 19.5 8.5 15.2 20.7 7.8
55.0 34.6 38.2 10.1 17.6 17.5 10.4 17.0 18.6 9.5 16.4 19.7 8.7 15.8 20.9 8.0

YORK INTERNATIONAL
36
YORK INTERNATIONAL 37
FORM 150.63-EG1
Ratings - HFC-407C (English Units)
NOTES:
1. SST = Saturated Suction Temperature
2. kW = Compressors Input Power
3. EER = Condensing Unit EER (includes power from compressors, fans and the control panel)
YCUL0040EB
AIR TEMPERATURE ON CONDENSER (°F)
SST
(°F)
75°F 80°F 85°F 90°F 95°F 100°F
TONS KW EER TONS KW EER TONS KW EER TONS KW EER TONS KW EER TONS KW EER
35.0 34.5 31.9 11.9 33.4 33.8 10.9 32.4 35.8 10.0 31.3 38.0 9.2 30.2 40.2 8.4 29.1 42.5 7.7
37.0 35.8 32.3 12.2 34.7 34.2 11.3 33.6 36.2 10.4 32.5 38.3 9.5 31.4 40.6 8.7 30.3 42.9 7.9
39.0 37.2 32.7 12.6 36.1 34.5 11.6 35.0 36.6 10.7 33.8 38.7 9.8 32.7 41.0 8.9 31.5 43.4 8.2
41.0 38.6 33.0 12.9 37.5 34.9 11.9 36.3 37.0 11.0 35.1 39.1 10.1 33.9 41.4 9.2 32.7 43.8 8.4
43.0 40.1 33.4 13.3 38.9 35.4 12.2 37.7 37.4 11.3 36.5 39.5 10.3 35.3 41.8 9.5 34.0 44.2 8.7
45.0 41.6 33.8 13.6 40.4 35.8 12.6 39.1 37.8 11.6 37.9 40.0 10.6 36.6 42.3 9.7 35.4 44.7 8.9
47.0 43.2 34.3 14.0 41.9 36.2 12.9 40.6 38.2 11.9 39.3 40.4 10.9 38.0 42.8 10.0 36.7 45.2 9.2
49.0 44.8 34.7 14.3 43.4 36.7 13.2 42.1 38.7 12.2 40.8 40.9 11.2 39.4 43.2 10.3 38.1 45.7 9.4
51.0 46.4 35.2 14.7 45.0 37.1 13.5 43.7 39.2 12.5 42.3 41.4 11.5 40.9 43.7 10.5 39.5 46.2 9.7
53.0 48.1 35.7 15.0 46.7 37.6 13.9 45.2 39.7 12.8 43.9 41.9 11.8 42.4 44.3 10.8 41.0 46.8 9.9
55.0 49.8 36.2 15.3 48.3 38.1 14.2 46.9 40.2 13.1 45.4 42.4 12.1 44.0 44.8 11.1 42.5 47.3 10.2
YCUL0046EB
AIR TEMPERATURE ON CONDENSER (°F)
SST
(°F)
75°F 80°F 85°F 90°F 95°F 100°F
TONS KW EER TONS KW EER TONS KW EER TONS KW EER TONS KW EER TONS KW EER
35.0 37.8 31.8 12.1 36.7 33.8 11.2 35.6 35.9 10.3 34.5 38.2 9.5 33.4 40.6 8.7 32.3 43.1 7.9
37.0 39.4 32.0 12.6 38.3 33.9 11.6 36.5 37.2 10.2 35.4 39.5 9.4 34.8 40.7 9.0 33.6 43.2 8.3
39.0 40.6 32.8 12.7 39.8 34.1 12.0 38.7 36.2 11.1 37.5 38.5 10.2 36.3 40.9 9.4 35.1 43.4 8.6
41.0 42.7 32.2 13.5 41.5 34.2 12.5 40.3 36.3 11.5 39.0 38.6 10.6 37.8 41.0 9.7 36.5 43.6 8.9
43.0 44.4 32.4 14.0 43.1 34.4 12.9 41.9 36.5 11.9 40.6 38.8 11.0 39.3 41.2 10.1 38.1 43.8 9.2
45.0 46.2 32.5 14.5 44.9 34.5 13.4 43.6 36.7 12.4 42.2 39.0 11.4 40.9 41.4 10.5 39.6 44.0 9.6
47.0 47.8 33.0 14.9 46.4 35.0 13.7 45.1 37.2 12.6 43.9 39.2 11.8 42.5 41.8 10.8 41.2 44.2 9.9
49.0 49.7 33.1 15.4 48.3 35.1 14.2 46.9 37.4 13.1 45.5 39.7 12.0 44.1 42.2 11.1 42.6 44.8 10.1
51.0 51.6 33.2 16.0 50.2 35.3 14.7 48.7 37.5 13.6 47.3 39.8 12.5 45.8 42.4 11.5 44.4 45.0 10.5
53.0 53.6 33.4 16.5 52.1 35.4 15.2 50.6 37.6 14.1 49.1 40.0 12.9 47.6 42.5 11.9 46.2 45.2 10.9
55.0 55.6 33.6 17.0 54.1 35.6 15.8 52.6 37.8 14.5 51.0 40.2 13.4 49.5 42.7 12.3 47.9 45.4 11.3
YCUL0050EB
AIR TEMPERATURE ON CONDENSER (°F)
SST
(°F)
75°F 80°F 85°F 90°F 95°F 100°F
TONS KW EER TONS KW EER TONS KW EER TONS KW EER TONS KW EER TONS KW EER
35.0 42.3 37.5 11.8 41.0 39.8 10.8 39.8 42.3 10.0 38.5 44.9 9.2 37.2 47.6 8.4 35.9 50.5 7.7
37.0 44.0 37.8 12.2 42.7 40.0 11.2 41.4 42.5 10.3 40.1 45.1 9.5 38.8 47.9 8.7 37.4 50.7 8.0
39.0 45.8 38.0 12.6 44.5 40.3 11.6 43.1 42.8 10.7 41.8 45.4 9.8 40.4 48.1 9.0 39.0 51.0 8.3
41.0 47.6 38.3 13.0 46.3 40.6 12.0 44.9 43.0 11.1 43.5 45.6 10.2 42.0 48.4 9.3 40.6 51.3 8.6
43.0 49.5 38.6 13.4 48.1 40.9 12.4 46.7 43.3 11.4 45.2 45.9 10.5 43.8 48.7 9.7 42.3 51.7 8.9
45.0 51.4 39.1 13.8 50.0 41.2 12.8 48.5 43.6 11.8 47.0 46.3 10.9 45.5 49.1 10.0 44.0 52.0 9.2
47.0 53.4 39.4 14.3 51.9 41.7 13.2 50.3 44.2 12.1 48.8 46.8 11.2 47.3 49.4 10.3 45.8 52.4 9.5
49.0 55.5 39.7 14.7 53.9 42.0 13.6 52.3 44.5 12.5 50.7 47.1 11.5 49.1 49.9 10.6 47.4 53.0 9.7
51.0 57.6 40.0 15.1 56.0 42.3 14.0 54.3 44.8 12.9 52.6 47.5 11.9 51.0 50.3 10.9 49.3 53.3 10.0
53.0 59.8 40.4 15.6 58.1 42.7 14.4 56.4 45.2 13.3 54.7 47.8 12.3 53.0 50.7 11.3 51.2 53.7 10.4
55.0 62.0 40.8 16.0 60.3 43.1 14.9 58.5 45.6 13.7 56.7 48.2 12.6 55.0 51.1 11.6 53.2 54.1 10.7
YCUL0056EB
AIR TEMPERATURE ON CONDENSER (°F)
SST
(°F)
75°F 80°F 85°F 90°F 95°F 100°F
TONS KW EER TONS KW EER TONS KW EER TONS KW EER TONS KW EER TONS KW EER
35.0 46.8 41.9 11.8 45.4 44.4 10.9 44.0 47.1 10.0 42.5 49.9 9.2 41.1 52.8 8.4 39.6 56.0 7.7
37.0 48.7 42.2 12.2 47.3 44.7 11.3 45.8 47.4 10.4 44.3 50.2 9.5 42.8 53.2 8.7 41.3 56.3 8.0
39.0 50.7 42.6 12.6 49.2 45.1 11.6 47.7 47.8 10.7 46.1 50.6 9.9 44.6 53.6 9.0 43.0 56.8 8.3
41.0 52.7 43.0 13.0 51.2 45.5 12.0 49.6 48.1 11.1 48.0 51.0 10.2 46.4 54.0 9.3 44.8 57.2 8.6
43.0 54.8 43.4 13.4 53.2 45.9 12.4 51.6 48.6 11.4 49.9 51.4 10.5 48.3 54.5 9.6 46.6 57.7 8.8
45.0 56.9 43.9 13.8 55.3 46.3 12.8 53.6 49.0 11.8 51.9 51.9 10.8 50.2 55.0 9.9 48.5 58.1 9.1
47.0 59.1 44.4 14.2 57.4 46.8 13.1 55.7 49.5 12.1 53.9 52.4 11.2 52.2 55.4 10.3 50.4 58.6 9.4
49.0 61.4 44.9 14.6 59.6 47.3 13.5 57.8 50.0 12.5 56.0 52.9 11.5 54.2 55.9 10.6 52.4 59.2 9.7
51.0 63.7 45.4 15.0 61.8 47.9 13.9 60.0 50.5 12.8 58.1 53.4 11.8 56.3 56.5 10.9 54.4 59.8 10.0
53.0 66.0 46.0 15.4 64.2 48.4 14.3 62.3 51.1 13.2 60.3 54.0 12.2 58.4 57.1 11.2 56.5 60.3 10.3
55.0 68.5 46.6 15.8 66.5 49.0 14.6 64.6 51.7 13.5 62.6 54.6 12.5 60.6 57.7 11.5 58.6 61.0 10.6

YORK INTERNATIONAL
36
YORK INTERNATIONAL 37
FORM 150.63-EG1
NOTES:
1. SST = Saturated Suction Temperature
2. kW = Compressors Input Power
3. EER = Condensing Unit EER (includes power from compressors, fans and the control panel)
YCUL0040EB
AIR TEMPERATURE ON CONDENSER (°F)
SST
(°F)
105°F 110°F 115°F 120°F 125°F
TONS KW EER TONS KW EER TONS KW EER TONS KW EER TONS KW EER
35.0 28.0 44.9 7.0 26.9 47.4 6.4 25.9 49.9 5.9 17.1 32.6 5.8 16.4 34.3 5.3
37.0 29.2 45.4 7.3 28.0 47.8 6.6 27.0 50.4 6.1 17.9 32.8 6.0 17.2 34.5 5.5
39.0 30.3 45.8 7.5 29.2 48.3 6.9 28.1 50.9 6.3 18.7 33.0 6.3 17.9 34.7 5.7
41.0 31.6 46.3 7.7 30.4 48.8 7.1 20.3 31.5 7.1 19.5 33.2 6.5 18.7 35.0 5.9
43.0 32.8 46.7 7.9 31.6 49.3 7.3 21.1 31.7 7.4 20.3 33.5 6.7 19.5 35.2 6.2
45.0 34.1 47.2 8.2 32.9 49.8 7.5 22.0 31.9 7.6 21.2 33.7 7.0 20.4 35.5 6.4
47.0 35.4 47.7 8.4 34.1 50.3 7.7 22.9 32.2 7.9 22.1 33.9 7.2 21.2 35.8 6.6
49.0 36.8 48.3 8.6 35.5 50.9 7.9 23.9 32.4 8.1 23.0 34.2 7.5 22.1 36.1 6.8
51.0 38.2 48.8 8.9 25.8 30.9 9.2 24.8 32.7 8.4 23.9 34.5 7.7 23.0 36.4 7.1
53.0 39.6 49.4 9.1 26.8 31.1 9.5 25.8 32.9 8.7 24.9 34.8 8.0 24.0 36.6 7.3
55.0 41.1 50.0 9.3 27.8 31.4 9.8 26.8 33.2 9.0 25.9 35.0 8.2 24.9 37.0 7.5
YCUL0046EB
AIR TEMPERATURE ON CONDENSER (°F)
SST
(°F)
105°F 110°F 115°F 120°F 125°F
TONS KW EER TONS KW EER TONS KW EER TONS KW EER TONS KW EER
35.0 30.5 47.3 6.9 29.4 50.2 6.3 29.0 51.4 6.1 14.2 25.0 5.6 13.7 26.5 5.1
37.0 32.5 45.9 7.6 31.3 48.7 6.9 30.2 51.7 6.3 14.9 25.1 5.8 14.3 26.6 5.3
39.0 33.9 46.1 7.9 32.7 48.9 7.2 31.5 51.9 6.6 15.5 25.1 6.1 14.9 26.6 5.6
41.0 35.3 46.3 8.2 34.1 49.1 7.5 32.9 52.1 6.8 16.2 25.1 6.3 15.6 26.7 5.8
43.0 36.8 46.5 8.5 35.5 49.3 7.8 34.3 52.3 7.1 16.9 25.2 6.6 16.3 26.7 6.1
45.0 38.3 46.7 8.8 37.0 49.6 8.0 35.7 52.6 7.4 17.7 25.2 6.9 17.0 26.7 6.3
47.0 39.8 46.9 9.1 38.5 49.8 8.3 37.2 52.8 7.6 18.4 25.2 7.2 17.7 26.8 6.6
49.0 41.5 47.1 9.4 40.1 50.0 8.6 38.7 53.1 7.9 19.2 25.3 7.5 18.5 26.8 6.9
51.0 42.9 47.8 9.6 41.4 50.8 8.8 40.0 53.9 8.1 20.0 25.3 7.8 19.3 26.9 7.1
53.0 44.6 47.9 10.0 43.1 50.9 9.2 21.6 23.8 8.8 20.9 25.3 8.1 20.1 26.9 7.4
55.0 46.4 48.2 10.4 44.9 51.1 9.5 22.5 23.9 9.2 21.7 25.4 8.4 20.9 27.0 7.7
YCUL0050EB
AIR TEMPERATURE ON CONDENSER (°F)
SST
(°F)
105°F 110°F 115°F 120°F 125°F
TONS KW EER TONS KW EER TONS KW EER TONS KW EER TONS KW EER
35.0 34.6 53.5 7.0 33.3 56.6 6.4 32.2 59.5 5.9 15.9 28.6 5.6 15.3 30.3 5.1
37.0 36.1 53.7 7.3 34.8 56.9 6.7 33.5 60.2 6.1 16.7 28.7 5.8 16.0 30.4 5.3
39.0 37.6 54.0 7.6 36.3 57.2 6.9 34.9 60.5 6.3 17.4 28.8 6.1 16.7 30.5 5.6
41.0 39.2 54.4 7.8 37.8 57.6 7.2 27.0 42.0 6.8 18.2 28.9 6.3 17.5 30.6 5.8
43.0 40.8 54.7 8.1 39.4 57.9 7.4 19.7 27.4 7.2 19.0 29.0 6.6 18.2 30.8 6.0
45.0 42.5 55.1 8.4 41.0 58.4 7.7 20.5 27.5 7.4 19.8 29.1 6.8 19.0 30.9 6.3
47.0 44.2 55.5 8.7 42.6 58.8 7.9 21.4 27.6 7.7 20.6 29.3 7.1 19.8 31.0 6.5
49.0 45.8 56.1 8.9 44.2 59.5 8.2 22.3 27.7 8.0 21.5 29.4 7.4 20.7 31.1 6.8
51.0 47.7 56.5 9.2 46.0 59.8 8.4 23.2 27.8 8.4 22.4 29.5 7.7 21.6 31.2 7.0
53.0 49.5 56.9 9.5 47.8 60.3 8.7 24.2 28.0 8.6 23.3 29.7 7.9 22.4 31.4 7.3
55.0 51.5 57.4 9.8 36.9 41.3 9.5 25.2 28.1 9.0 24.3 29.8 8.2 23.4 31.6 7.5
YCUL0056EB
AIR TEMPERATURE ON CONDENSER (°F)
SST
(°F)
105°F 110°F 115°F 120°F 125°F
TONS KW EER TONS KW EER TONS KW EER TONS KW EER TONS KW EER
35.0 38.2 59.2 7.1 36.7 62.6 6.5 35.5 65.3 6.0 17.7 31.2 5.8 17.0 33.0 5.3
37.0 39.8 59.6 7.3 38.3 63.0 6.7 36.8 66.4 6.1 18.5 31.4 6.0 17.7 33.1 5.5
39.0 41.5 60.0 7.6 39.9 63.4 6.9 38.4 66.9 6.4 19.3 31.5 6.2 18.5 33.3 5.7
41.0 43.2 60.5 7.8 41.6 63.9 7.2 40.0 67.4 6.6 20.2 31.7 6.5 19.4 33.5 5.9
43.0 45.0 61.0 8.1 43.3 64.4 7.4 41.7 68.0 6.8 21.0 31.9 6.7 20.2 33.7 6.2
45.0 46.8 61.5 8.4 45.1 65.0 7.7 22.8 30.3 7.6 21.9 32.0 7.0 21.1 33.9 6.4
47.0 48.6 62.0 8.6 46.9 65.6 7.9 23.8 30.4 7.9 22.9 32.2 7.3 22.0 34.1 6.6
49.0 50.6 62.6 8.9 48.8 66.1 8.2 24.7 30.6 8.2 23.8 32.4 7.5 22.9 34.3 6.9
51.0 52.5 63.2 9.2 50.7 66.8 8.4 25.8 30.8 8.5 24.8 32.6 7.8 23.9 34.5 7.2
53.0 54.6 63.8 9.4 52.7 67.4 8.7 26.8 31.1 8.8 25.8 32.9 8.0 24.8 34.8 7.4
55.0 56.7 64.4 9.7 28.9 29.5 9.9 27.9 31.2 9.1 26.9 33.1 8.3 25.8 35.0 7.6

YORK INTERNATIONAL
38
YORK INTERNATIONAL 39
FORM 150.63-EG1
Ratings - HFC-407C (English Units)
NOTES:
1. SST = Saturated Suction Temperature
2. kW = Compressors Input Power
3. EER = Condensing Unit EER (includes power from compressors, fans and the control panel)
YCUL0060EB
AIR TEMPERATURE ON CONDENSER (°F)
SST
(°F)
75°F 80°F 85°F 90°F 95°F 100°F
TONS KW EER TONS KW EER TONS KW EER TONS KW EER TONS KW EER TONS KW EER
35.0 51.2 47.6 11.6 49.8 50.5 10.6 48.3 53.5 9.8 46.7 56.7 9.0 45.2 60.1 8.3 43.6 63.6 7.6
37.0 53.3 48.0 11.9 51.8 50.9 11.0 50.2 53.9 10.1 48.6 57.2 9.3 47.1 60.6 8.6 45.4 64.1 7.8
39.0 55.4 48.5 12.3 53.8 51.3 11.3 52.2 54.4 10.4 50.6 57.6 9.6 48.9 61.0 8.8 47.3 64.6 8.1
41.0 57.6 48.9 12.7 56.0 51.8 11.7 54.3 54.9 10.8 52.6 58.1 9.9 50.9 61.6 9.1 49.1 65.2 8.3
43.0 59.8 49.4 13.0 58.1 52.3 12.0 56.4 55.4 11.1 54.7 58.6 10.2 52.9 62.1 9.4 51.1 65.8 8.6
45.0 62.1 50.0 13.4 60.3 52.8 12.4 58.6 55.9 11.4 56.8 59.2 10.5 54.9 62.7 9.6 53.1 66.3 8.9
47.0 64.4 50.5 13.8 62.6 53.4 12.7 60.8 56.5 11.7 58.9 59.8 10.8 57.0 63.3 9.9 55.1 67.0 9.1
49.0 66.8 51.1 14.2 64.9 54.0 13.1 63.0 57.1 12.1 61.1 60.4 11.1 59.2 63.9 10.2 57.2 67.6 9.4
51.0 69.3 51.7 14.5 67.3 54.6 13.4 65.4 57.7 12.4 63.4 61.0 11.4 61.4 64.5 10.5 59.3 68.3 9.6
53.0 71.8 52.3 14.9 69.8 55.2 13.8 67.7 58.3 12.7 65.7 61.7 11.7 63.6 65.2 10.8 61.5 69.0 9.9
55.0 74.3 52.9 15.2 72.3 55.8 14.1 70.2 59.0 13.0 68.1 62.3 12.0 65.9 65.9 11.1 63.8 69.7 10.2
YCUL0066EB
AIR TEMPERATURE ON CONDENSER (°F)
SST
(°F)
75°F 80°F 85°F 90°F 95°F 100°F
TONS KW EER TONS KW EER TONS KW EER TONS KW EER TONS KW EER TONS KW EER
35.0 56.8 49.7 12.3 55.2 52.7 11.4 53.6 55.9 10.5 52.0 59.3 9.6 50.4 62.9 8.8 48.9 66.1 8.2
37.0 59.1 50.0 12.8 57.5 53.0 11.8 55.8 56.3 10.8 54.2 59.6 10.0 52.5 63.2 9.1 50.8 67.0 8.4
39.0 61.5 50.3 13.2 59.8 53.4 12.2 58.1 56.6 11.2 56.4 60.0 10.3 54.6 63.6 9.5 52.8 67.4 8.7
41.0 63.9 50.7 13.6 62.2 53.8 12.6 60.4 57.0 11.6 58.6 60.5 10.6 56.8 64.1 9.8 54.9 67.9 9.0
43.0 66.4 51.1 14.0 64.6 54.2 13.0 62.8 57.5 11.9 60.9 60.9 11.0 59.0 64.6 10.1 57.1 68.4 9.3
45.0 68.9 51.6 14.5 67.1 54.7 13.4 65.2 58.0 12.3 63.3 61.4 11.3 61.3 65.1 10.4 59.4 68.9 9.6
47.0 71.5 52.1 14.9 69.6 55.2 13.7 67.7 58.5 12.7 65.7 61.9 11.7 63.7 65.6 10.7 61.6 69.5 9.8
49.0 74.2 52.6 15.3 72.2 55.7 14.1 70.2 59.0 13.0 68.1 62.5 12.0 66.1 66.2 11.0 64.0 70.1 10.1
51.0 76.9 53.1 15.7 74.8 56.2 14.5 72.8 59.5 13.4 70.6 63.1 12.3 68.5 66.8 11.4 66.3 70.7 10.4
53.0 79.6 53.6 16.1 77.5 56.8 14.9 75.4 60.1 13.8 73.2 63.7 12.7 71.0 67.4 11.7 68.8 71.4 10.7
55.0 82.5 54.2 16.6 80.3 57.4 15.3 78.1 60.7 14.1 75.8 64.3 13.0 73.6 68.0 12.0 71.3 72.0 11.0
YCUL0076EB
AIR TEMPERATURE ON CONDENSER (°F)
SST
(°F)
75°F 80°F 85°F 90°F 95°F 100°F
TONS KW EER TONS KW EER TONS KW EER TONS KW EER TONS KW EER TONS KW EER
35.0 62.4 58.2 11.5 60.5 61.8 10.6 58.6 65.5 9.7 56.6 69.5 8.9 54.7 73.6 8.2 52.7 78.0 7.5
37.0 64.9 58.7 11.9 63.0 62.2 10.9 61.0 66.0 10.0 58.9 70.0 9.2 57.0 74.2 8.4 54.9 78.6 7.7
39.0 67.5 59.2 12.3 65.5 62.7 11.3 63.4 66.6 10.4 61.3 70.6 9.5 59.2 74.8 8.7 57.2 79.2 8.0
41.0 70.1 59.7 12.6 68.0 63.3 11.6 65.9 67.1 10.7 63.8 71.2 9.8 61.6 75.4 9.0 59.5 80.0 8.2
43.0 72.8 60.3 13.0 70.7 63.9 12.0 68.5 67.7 11.0 66.3 71.8 10.1 64.0 76.1 9.3 61.8 80.6 8.5
45.0 75.6 60.9 13.4 73.4 64.5 12.3 71.1 68.4 11.4 68.8 72.4 10.4 66.5 76.8 9.6 64.3 81.3 8.8
47.0 78.5 61.5 13.8 76.1 65.2 12.7 73.8 69.0 11.7 71.5 73.2 10.7 69.1 77.5 9.8 66.8 82.1 9.0
49.0 81.4 62.2 14.2 79.0 65.8 13.1 76.6 69.7 12.0 74.2 73.9 11.0 71.8 78.2 10.1 69.3 82.8 9.3
51.0 84.4 62.9 14.5 81.9 66.5 13.4 79.4 70.5 12.3 76.9 74.6 11.3 74.4 79.0 10.4 72.0 83.6 9.5
53.0 87.5 63.6 14.9 84.9 67.3 13.8 82.4 71.2 12.7 79.8 75.4 11.6 77.2 79.9 10.7 74.7 84.5 9.8
55.0 90.6 64.3 15.3 88.0 68.0 14.1 85.3 72.0 13.0 82.7 76.2 12.0 80.1 80.7 11.0 77.4 85.4 10.1
YCUL0080EB
AIR TEMPERATURE ON CONDENSER (°F)
SST
(°F)
75°F 80°F 85°F 90°F 95°F 100°F
TONS KW EER TONS KW EER TONS KW EER TONS KW EER TONS KW EER TONS KW EER
35.0 70.1 63.6 11.9 68.0 67.5 11.0 65.8 71.6 10.1 63.7 75.9 9.2 61.4 80.6 8.4 59.2 85.3 7.7
37.0 72.9 64.2 12.3 70.7 68.1 11.3 68.5 72.2 10.4 66.3 76.5 9.5 64.0 81.1 8.7 61.7 86.0 8.0
39.0 75.8 64.8 12.7 73.6 68.6 11.7 71.3 72.8 10.8 68.9 77.2 9.9 66.6 81.8 9.0 64.2 86.7 8.2
41.0 78.8 65.5 13.1 76.5 69.3 12.1 74.1 73.4 11.1 71.7 77.8 10.2 69.3 82.5 9.3 66.8 87.4 8.5
43.0 81.9 66.1 13.5 79.5 70.0 12.4 77.0 74.1 11.4 74.5 78.5 10.5 72.0 83.2 9.6 69.5 88.1 8.8
45.0 85.1 66.9 13.9 82.6 70.7 12.8 80.0 74.8 11.8 77.5 79.3 10.8 74.9 84.0 9.9 72.3 89.0 9.1
47.0 88.3 67.7 14.2 85.7 71.4 13.2 83.1 75.6 12.1 80.4 80.1 11.1 77.8 84.8 10.2 75.1 89.8 9.3
49.0 91.6 68.5 14.6 89.0 72.3 13.5 86.2 76.4 12.4 83.5 80.9 11.4 80.8 85.6 10.5 78.0 90.6 9.6
51.0 95.1 69.3 15.0 92.3 73.1 13.9 89.5 77.3 12.8 86.7 81.7 11.7 83.8 86.5 10.8 81.0 91.6 9.9
53.0 98.6 70.2 15.4 95.7 74.0 14.2 92.8 78.1 13.1 89.9 82.7 12.1 87.0 87.5 11.1 84.1 92.5 10.2
55.0 102.2 71.2 15.7 99.2 75.0 14.6 96.2 79.2 13.4 93.3 83.6 12.4 90.2 88.4 11.4 87.2 93.5 10.4

YORK INTERNATIONAL
38
YORK INTERNATIONAL 39
FORM 150.63-EG1
NOTES:
1. SST = Saturated Suction Temperature
2. kW = Compressors Input Power
3. EER = Condensing Unit EER (includes power from compressors, fans and the control panel)
YCUL0060EB
AIR TEMPERATURE ON CONDENSER (°F)
SST
(°F)
105°F 110°F 115°F 120°F 125°F
TONS KW EER TONS KW EER TONS KW EER TONS KW EER TONS KW EER
35.0 42.0 67.4 6.9 40.6 70.9 6.4 28.9 51.3 6.1 27.8 54.2 5.6 18.8 37.2 5.3
37.0 43.8 67.9 7.2 31.2 49.1 6.8 30.0 52.0 6.3 20.5 35.4 6.0 19.7 37.4 5.5
39.0 45.6 68.4 7.4 32.5 49.5 7.1 31.3 52.4 6.5 21.4 35.6 6.2 20.5 37.7 5.7
41.0 47.4 69.0 7.6 33.9 49.8 7.3 32.6 52.7 6.7 22.3 35.8 6.5 21.4 37.9 5.9
43.0 49.3 69.6 7.9 35.3 50.2 7.6 34.0 53.0 7.0 23.2 36.0 6.7 22.3 38.1 6.1
45.0 51.2 70.2 8.1 36.7 50.6 7.8 35.4 53.4 7.2 24.2 36.1 7.0 23.3 38.3 6.4
47.0 53.2 70.9 8.3 38.2 50.9 8.1 36.8 53.8 7.4 25.2 36.3 7.2 24.2 38.5 6.6
49.0 55.2 71.5 8.6 39.7 51.3 8.4 27.3 34.5 8.2 26.2 36.5 7.5 25.2 38.7 6.8
51.0 42.8 48.9 9.4 41.3 51.7 8.6 28.4 34.6 8.5 27.3 36.7 7.8 26.3 38.9 7.1
53.0 44.4 49.2 9.7 42.9 52.1 8.9 29.5 34.9 8.7 28.4 37.0 8.0 27.3 39.1 7.3
55.0 46.1 49.7 10.0 44.5 52.5 9.2 30.6 35.1 9.0 29.5 37.1 8.3 28.4 39.3 7.6
YCUL0066EB
AIR TEMPERATURE ON CONDENSER (°F)
SST
(°F)
105°F 110°F 115°F 120°F 125°F
TONS KW EER TONS KW EER TONS KW EER TONS KW EER TONS KW EER
35.0 47.3 69.9 7.5 45.6 74.1 6.9 43.9 78.4 6.3 21.9 37.3 6.1 21.0 39.5 5.6
37.0 49.0 71.0 7.7 47.2 75.2 7.0 45.4 79.6 6.4 22.9 37.4 6.4 21.9 39.6 5.8
39.0 51.0 71.4 8.0 49.2 75.6 7.3 24.8 35.4 7.2 23.8 37.5 6.6 22.9 39.8 6.1
41.0 53.1 71.9 8.2 51.2 76.1 7.5 25.8 35.5 7.5 24.9 37.7 6.9 23.9 39.9 6.3
43.0 55.2 72.5 8.5 53.2 76.7 7.8 26.9 35.7 7.8 25.9 37.8 7.2 24.9 40.1 6.5
45.0 57.4 73.0 8.8 55.3 77.3 8.0 28.0 35.8 8.1 27.0 38.0 7.4 25.9 40.3 6.8
47.0 59.5 73.6 9.0 57.5 77.9 8.3 29.2 35.9 8.4 28.1 38.1 7.7 27.0 40.4 7.0
49.0 61.8 74.2 9.3 59.7 78.6 8.5 30.3 36.1 8.7 29.2 38.3 8.0 28.1 40.6 7.3
51.0 64.1 74.9 9.6 61.9 79.2 8.8 31.5 36.3 9.0 30.4 38.5 8.3 29.2 40.8 7.6
53.0 66.5 75.5 9.8 64.2 79.9 9.0 32.8 36.4 9.4 31.6 38.6 8.6 30.4 41.0 7.8
55.0 68.9 76.2 10.1 35.2 34.6 10.5 34.0 36.7 9.6 32.8 39.0 8.8 31.5 41.3 8.1
YCUL0076EB
AIR TEMPERATURE ON CONDENSER (°F)
SST
(°F)
105°F 110°F 115°F 120°F 125°F
TONS KW EER TONS KW EER TONS KW EER TONS KW EER TONS KW EER
35.0 50.8 82.5 6.8 48.9 87.2 6.2 39.2 72.5 5.9 31.2 59.9 5.6 30.0 63.2 5.1
37.0 52.9 83.2 7.1 51.0 87.9 6.5 40.9 73.0 6.2 32.6 60.2 5.8 31.2 63.9 5.3
39.0 55.1 83.8 7.3 53.1 88.7 6.7 42.6 73.4 6.4 33.9 60.9 6.0 32.6 64.3 5.5
41.0 57.4 84.5 7.5 55.3 89.4 6.9 44.4 73.9 6.6 35.4 61.2 6.2 34.0 64.6 5.7
43.0 59.6 85.3 7.8 57.5 90.2 7.1 46.3 74.4 6.8 36.9 61.5 6.5 35.5 65.0 5.9
45.0 62.0 86.0 8.0 50.0 70.7 7.7 48.2 74.9 7.1 38.5 61.9 6.7 37.0 65.4 6.1
47.0 64.5 86.8 8.3 52.0 71.2 8.0 50.2 75.4 7.3 40.1 62.3 7.0 38.6 65.8 6.4
49.0 66.9 87.7 8.5 54.1 71.7 8.3 52.2 76.0 7.6 41.7 62.7 7.2 40.2 66.3 6.6
51.0 69.5 88.5 8.8 56.2 72.3 8.5 45.1 59.6 8.1 43.4 63.1 7.5 41.8 66.7 6.8
53.0 72.1 89.4 9.0 58.4 72.8 8.8 46.9 60.0 8.4 45.2 63.5 7.7 43.5 67.1 7.1
55.0 62.8 69.3 9.9 60.7 73.4 9.1 48.7 60.4 8.7 47.0 63.9 8.0 33.5 46.5 7.5
YCUL0080EB
AIR TEMPERATURE ON CONDENSER (°F)
SST
(°F)
105°F 110°F 115°F 120°F 125°F
TONS KW EER TONS KW EER TONS KW EER TONS KW EER TONS KW EER
35.0 57.0 90.3 7.0 54.8 95.4 6.4 52.6 100.6 5.9 35.0 65.4 5.8 33.5 68.9 5.3
37.0 59.4 91.0 7.3 57.1 96.1 6.7 54.9 101.4 6.1 36.5 65.9 6.0 35.0 69.4 5.5
39.0 61.9 91.7 7.5 59.5 96.9 6.9 39.6 62.8 6.8 38.1 66.3 6.2 36.5 70.0 5.7
41.0 64.4 92.5 7.8 62.0 97.7 7.1 41.3 63.2 7.1 39.7 66.8 6.5 37.8 71.1 5.8
43.0 67.0 93.3 8.0 64.5 98.6 7.3 42.8 64.1 7.2 41.2 67.8 6.6 39.5 71.5 6.1
45.0 69.6 94.2 8.3 67.1 99.4 7.6 44.6 64.5 7.5 42.9 68.2 6.9 41.3 71.9 6.3
47.0 72.4 95.0 8.5 69.8 100.4 7.8 46.5 64.9 7.8 44.8 68.5 7.1 43.0 72.4 6.5
49.0 75.3 95.9 8.8 72.6 101.3 8.1 48.5 65.3 8.1 46.6 69.0 7.4 44.8 72.9 6.8
51.0 78.2 96.9 9.1 52.3 62.1 9.1 50.4 65.7 8.3 48.6 69.5 7.6 46.7 73.4 7.0
53.0 81.2 97.9 9.3 54.4 62.5 9.4 52.5 66.2 8.6 50.6 70.0 7.9 48.7 73.9 7.2
55.0 84.3 98.9 9.6 56.6 63.0 9.7 54.6 66.7 8.9 52.6 70.5 8.2 50.7 74.4 7.5

YORK INTERNATIONAL
40
YORK INTERNATIONAL 41
FORM 150.63-EG1
Ratings - HFC-407C (English Units)
NOTES:
1. SST = Saturated Suction Temperature
2. kW = Compressors Input Power
3. EER = Condensing Unit EER (includes power from compressors, fans and the control panel)
YCUL0086EB
AIR TEMPERATURE ON CONDENSER (°F)
SST
(°F)
75°F 80°F 85°F 90°F 95°F 100°F
TONS KW EER TONS KW EER TONS KW EER TONS KW EER TONS KW EER TONS KW EER
35.0 76.6 70.6 11.9 74.4 74.8 10.9 72.1 79.3 10.1 69.8 84.1 9.2 67.4 89.2 8.4 65.1 94.5 7.7
37.0 79.7 71.2 12.3 77.4 75.5 11.3 75.0 80.0 10.4 72.6 84.8 9.5 70.2 89.9 8.7 67.7 95.3 8.0
39.0 82.8 71.9 12.6 80.4 76.2 11.6 78.0 80.8 10.7 75.5 85.6 9.8 73.0 90.8 9.0 70.4 96.1 8.2
41.0 86.0 72.7 13.0 83.5 77.0 12.0 81.0 81.5 11.0 78.4 86.4 10.1 75.8 91.6 9.2 73.2 97.0 8.5
43.0 89.3 73.4 13.4 86.7 77.8 12.3 84.1 82.4 11.3 81.5 87.3 10.4 78.8 92.5 9.5 76.1 97.9 8.7
45.0 92.7 74.2 13.7 90.0 78.6 12.6 87.3 83.3 11.6 84.6 88.1 10.7 81.8 93.4 9.8 79.0 98.9 9.0
47.0 96.1 75.1 14.1 93.4 79.5 13.0 90.6 84.1 12.0 87.7 89.1 11.0 84.9 94.3 10.1 82.0 99.9 9.2
49.0 99.7 76.0 14.4 96.8 80.4 13.3 93.9 85.1 12.3 91.0 90.1 11.3 88.0 95.3 10.3 85.1 100.9 9.5
51.0 103.3 76.9 14.8 100.3 81.3 13.7 97.3 86.0 12.6 94.3 91.1 11.6 91.3 96.4 10.6 88.2 102.0 9.7
53.0 107.0 77.9 15.2 103.9 82.3 14.0 100.9 87.0 12.9 97.7 92.1 11.9 94.6 97.5 10.9 91.4 103.1 10.0
55.0 110.8 78.8 15.5 107.6 83.3 14.3 104.4 88.1 13.2 101.2 93.2 12.1 98.0 98.6 11.2 94.7 104.3 10.2
YCUL0090EB
AIR TEMPERATURE ON CONDENSER (°F)
SST
(°F)
75°F 80°F 85°F 90°F 95°F 100°F
TONS KW EER TONS KW EER TONS KW EER TONS KW EER TONS KW EER TONS KW EER
35.0 83.0 77.9 11.8 80.7 82.6 10.8 78.2 87.6 9.9 75.8 92.9 9.1 73.3 98.5 8.4 70.8 104.3 7.6
37.0 86.3 78.7 12.1 83.8 83.4 11.2 81.3 88.4 10.2 78.8 93.8 9.4 76.2 99.4 8.6 73.6 105.3 7.9
39.0 89.6 79.5 12.5 87.1 84.3 11.5 84.5 89.3 10.5 81.8 94.7 9.7 79.1 100.4 8.9 76.4 106.3 8.1
41.0 93.0 80.4 12.8 90.4 85.2 11.8 87.7 90.2 10.8 85.0 95.6 10.0 82.2 101.4 9.1 79.4 107.4 8.3
43.0 96.5 81.2 13.2 93.8 86.1 12.1 91.0 91.2 11.1 88.2 96.6 10.2 85.3 102.4 9.4 82.4 108.5 8.6
45.0 100.1 82.1 13.5 97.2 87.1 12.4 94.3 92.3 11.4 91.5 97.7 10.5 88.5 103.5 9.6 85.5 109.6 8.8
47.0 103.7 83.1 13.9 100.8 88.0 12.8 97.8 93.3 11.7 94.8 98.7 10.8 91.8 104.6 9.9 88.7 110.7 9.1
49.0 107.5 84.0 14.2 104.4 89.0 13.1 101.3 94.3 12.0 98.2 99.9 11.0 95.1 105.7 10.1 91.9 111.9 9.3
51.0 111.3 85.0 14.5 108.1 90.1 13.4 104.9 95.4 12.3 101.7 101.1 11.3 98.5 106.9 10.4 95.2 113.2 9.5
53.0 115.2 86.1 14.9 111.9 91.2 13.7 108.6 96.5 12.6 105.3 102.2 11.6 101.9 108.2 10.6 98.6 114.4 9.8
55.0 119.1 87.1 15.2 115.8 92.3 14.0 112.4 97.7 12.9 108.9 103.4 11.9 105.5 109.4 10.9 102.0 115.7 10.0
YCUL0096EB
AIR TEMPERATURE ON CONDENSER (°F)
SST
(°F)
75°F 80°F 85°F 90°F 95°F 100°F
TONS KW EER TONS KW EER TONS KW EER TONS KW EER TONS KW EER TONS KW EER
35.0 80.1 70.2 11.9 77.9 74.1 11.0 75.6 78.1 10.2 73.3 82.4 9.4 71.8 85.4 9.0 68.5 91.9 8.0
37.0 83.9 70.2 12.4 81.2 74.6 11.4 78.9 78.7 10.6 76.5 83.0 9.8 74.5 86.8 9.2 71.5 92.5 8.3
39.0 87.0 71.4 12.7 84.6 75.2 11.8 82.2 79.3 11.0 79.8 83.6 10.1 77.2 88.2 9.4 74.6 93.2 8.6
41.0 90.6 72.0 13.1 88.1 75.9 12.2 85.7 80.0 11.3 83.1 84.3 10.5 80.5 88.9 9.7 77.8 93.8 8.9
43.0 94.2 72.6 13.6 91.7 76.6 12.6 89.2 80.7 11.7 86.5 85.0 10.8 83.8 89.6 10.0 81.0 94.6 9.2
45.0 98.0 73.4 14.0 95.4 77.3 13.0 92.8 81.5 12.1 90.0 85.8 11.2 87.2 90.4 10.3 84.4 95.4 9.5
47.0 101.8 74.1 14.4 99.2 78.1 13.4 96.4 82.2 12.4 93.6 86.6 11.5 90.7 91.2 10.7 87.8 96.2 9.8
49.0 105.8 74.8 14.8 103.0 78.9 13.8 100.2 83.1 12.8 97.3 87.5 11.9 94.3 92.1 11.0 91.3 97.1 10.2
51.0 109.8 75.6 15.3 107.0 79.7 14.2 104.0 83.9 13.2 101.1 88.3 12.2 98.0 93.0 11.3 94.8 98.0 10.5
53.0 114.0 76.4 15.7 111.0 80.5 14.6 108.0 84.8 13.6 104.9 89.3 12.6 101.8 93.9 11.7 98.5 98.9 10.8
55.0 118.2 77.2 16.1 115.2 81.4 15.0 112.0 85.7 13.9 108.9 90.2 12.9 105.6 94.9 12.0 102.3 99.9 11.1
YCUL0100EB
AIR TEMPERATURE ON CONDENSER (°F)
SST
(°F)
75°F 80°F 85°F 90°F 95°F 100°F
TONS KW EER TONS KW EER TONS KW EER TONS KW EER TONS KW EER TONS KW EER
35.0 86.6 77.2 11.8 84.3 81.3 11.0 81.9 85.6 10.2 79.6 90.2 9.5 77.1 95.0 8.7 74.6 100.1 8.1
37.0 90.2 77.9 12.2 87.8 82.1 11.3 85.4 86.4 10.5 82.9 91.0 9.8 80.3 95.8 9.0 77.7 101.0 8.3
39.0 93.9 78.6 12.6 91.4 82.8 11.7 88.9 87.2 10.9 86.3 91.8 10.1 83.7 96.7 9.3 81.0 101.8 8.6
41.0 97.7 79.3 13.0 95.1 83.6 12.1 92.5 88.1 11.2 89.8 92.7 10.4 87.1 97.6 9.6 84.3 102.7 8.9
43.0 101.6 80.1 13.4 98.9 84.4 12.5 96.2 88.9 11.6 93.4 93.6 10.7 90.6 98.5 9.9 87.7 103.7 9.2
45.0 105.5 81.0 13.8 102.8 85.3 12.8 100.0 89.8 11.9 97.1 94.5 11.1 94.2 99.5 10.2 91.2 104.7 9.5
47.0 109.6 81.7 14.2 106.8 86.2 13.2 103.8 90.7 12.3 100.9 95.5 11.4 97.9 100.5 10.6 94.8 105.7 9.8
49.0 113.8 82.5 14.6 110.8 87.0 13.6 107.8 91.6 12.6 104.8 96.4 11.7 101.6 101.4 10.9 98.4 106.7 10.0
51.0 118.1 83.2 15.1 115.0 87.9 14.0 111.9 92.6 13.0 108.7 97.4 12.1 105.5 102.5 11.2 102.2 107.8 10.3
53.0 122.5 84.0 15.5 119.3 88.7 14.4 116.1 93.5 13.3 112.8 98.4 12.4 109.5 103.5 11.5 106.1 108.8 10.6
55.0 127.1 84.7 16.0 123.7 89.6 14.8 120.3 94.5 13.7 116.9 99.4 12.7 113.6 104.5 11.8 110.0 109.9 10.9

YORK INTERNATIONAL
40
YORK INTERNATIONAL 41
FORM 150.63-EG1
NOTES:
1. SST = Saturated Suction Temperature
2. kW = Compressors Input Power
3. EER = Condensing Unit EER (includes power from compressors, fans and the control panel)
YCUL0086EB
AIR TEMPERATURE ON CONDENSER (°F)
SST
(°F)
105°F 110°F 115°F 120°F 125°F
TONS KW EER TONS KW EER TONS KW EER TONS KW EER TONS KW EER
35.0 62.7 100.0 7.0 60.3 105.8 6.4 48.2 87.3 6.1 38.6 72.3 5.8 37.0 76.5 5.3
37.0 65.2 100.9 7.3 62.7 106.7 6.6 50.2 88.0 6.4 40.2 72.8 6.1 38.6 77.0 5.5
39.0 67.9 101.8 7.5 54.4 83.8 7.2 43.7 69.3 6.9 41.9 73.3 6.3 40.2 77.5 5.7
41.0 70.6 102.7 7.7 56.7 84.4 7.5 45.5 69.7 7.1 43.7 73.8 6.5 41.8 78.3 5.9
43.0 73.3 103.7 8.0 59.0 85.1 7.7 47.2 70.5 7.3 45.4 74.6 6.7 43.5 78.8 6.1
45.0 76.2 104.7 8.2 61.3 85.8 7.9 49.2 70.9 7.6 47.3 75.0 6.9 45.4 79.3 6.3
47.0 79.1 105.7 8.4 63.8 86.5 8.2 51.2 71.3 7.9 49.2 75.5 7.2 47.2 79.8 6.5
49.0 82.1 106.8 8.7 66.3 87.3 8.5 53.2 71.8 8.1 51.2 76.0 7.4 49.2 80.4 6.8
51.0 71.3 83.2 9.5 57.4 68.3 9.2 55.3 72.3 8.4 53.2 76.5 7.7 51.2 80.9 7.0
53.0 74.0 84.0 9.8 59.6 68.8 9.5 57.5 72.8 8.7 55.3 77.1 7.9 53.2 81.5 7.2
55.0 76.8 84.8 10.1 61.9 69.3 9.8 59.7 73.4 8.9 57.5 77.7 8.2 41.0 56.5 7.8
YCUL0090EB
AIR TEMPERATURE ON CONDENSER (°F)
SST
(°F)
105°F 110°F 115°F 120°F 125°F
TONS KW EER TONS KW EER TONS KW EER TONS KW EER TONS KW EER
35.0 68.2 110.5 7.0 65.6 117.0 6.4 43.8 75.3 6.4 42.1 79.8 5.8 40.3 84.5 5.3
37.0 70.9 111.5 7.2 68.2 118.1 6.6 45.7 75.8 6.6 43.9 80.3 6.0 42.0 85.0 5.5
39.0 73.7 112.6 7.4 70.9 119.2 6.8 47.6 76.2 6.9 45.7 80.8 6.3 43.8 85.5 5.7
41.0 76.5 113.7 7.6 51.4 72.4 7.8 49.5 76.7 7.1 47.6 81.3 6.5 45.6 86.1 5.9
43.0 79.5 114.8 7.8 53.5 72.9 8.1 51.5 77.3 7.4 49.5 81.8 6.7 47.5 86.6 6.1
45.0 82.5 116.0 8.1 55.6 73.4 8.3 53.6 77.8 7.6 51.5 82.4 6.9 49.4 87.2 6.3
47.0 85.5 117.2 8.3 57.8 73.9 8.6 55.7 78.3 7.8 53.5 83.0 7.2 51.3 87.8 6.5
49.0 88.6 118.4 8.5 60.0 74.5 8.9 57.8 78.9 8.1 55.6 83.6 7.4 53.4 88.4 6.7
51.0 91.9 119.7 8.7 62.3 75.0 9.1 60.0 79.5 8.4 57.8 84.2 7.6 55.5 89.0 6.9
53.0 67.0 71.3 10.3 64.7 75.6 9.4 62.3 80.1 8.6 60.0 84.7 7.9 57.6 89.7 7.2
55.0 69.5 71.9 10.6 67.1 76.2 9.7 64.7 80.7 8.9 62.2 85.4 8.1 31.5 39.7 8.1
YCUL0096EB
AIR TEMPERATURE ON CONDENSER (°F)
SST
(°F)
105°F 110°F 115°F 120°F 125°F
TONS KW EER TONS KW EER TONS KW EER TONS KW EER TONS KW EER
35.0 66.0 97.3 7.3 63.3 103.2 6.7 60.5 109.6 6.0 58.3 114.9 5.6 55.3 122.3 5.0
37.0 68.9 97.9 7.6 66.1 103.7 6.9 63.8 108.8 6.4 60.9 115.6 5.8 57.8 123.0 5.2
39.0 71.9 98.5 7.9 69.5 103.3 7.3 66.6 109.5 6.6 63.1 117.4 5.9 44.8 86.9 5.5
41.0 75.0 99.2 8.2 72.5 104.1 7.6 69.0 111.2 6.8 66.4 116.9 6.2 47.0 86.8 5.8
43.0 78.1 99.9 8.5 75.5 104.9 7.8 72.4 111.1 7.1 69.2 117.7 6.5 49.1 87.2 6.0
45.0 81.4 100.7 8.8 78.3 106.4 8.0 75.1 112.5 7.3 71.8 119.2 6.6 50.9 88.5 6.1
47.0 84.7 101.5 9.1 81.5 107.2 8.3 78.2 113.3 7.6 74.8 119.9 6.9 53.1 88.9 6.4
49.0 88.1 102.4 9.3 84.8 108.1 8.6 81.5 114.1 7.8 78.0 120.7 7.1 55.3 89.6 6.6
51.0 91.6 103.2 9.6 88.2 108.9 8.8 84.8 115.0 8.1 81.2 121.5 7.4 40.9 57.3 7.2
53.0 95.2 104.2 9.9 91.7 109.8 9.1 88.1 115.9 8.3 84.5 122.4 7.6 42.9 57.1 7.6
55.0 98.8 105.2 10.2 95.3 110.8 9.4 91.6 116.9 8.6 87.8 123.4 7.9 44.7 57.4 7.9
YCUL0100EB
AIR TEMPERATURE ON CONDENSER (°F)
SST
(°F)
105°F 110°F 115°F 120°F 125°F
TONS KW EER TONS KW EER TONS KW EER TONS KW EER TONS KW EER
35.0 72.0 105.6 7.4 69.2 111.5 6.8 66.4 117.9 6.2 63.4 124.8 5.6 60.3 132.2 5.1
37.0 75.0 106.5 7.7 72.2 112.4 7.0 69.3 118.7 6.4 66.2 125.5 5.8 63.0 132.9 5.3
39.0 78.2 107.3 7.9 75.3 113.2 7.3 72.3 119.5 6.7 69.1 126.3 6.1 34.5 60.3 5.8
41.0 81.4 108.2 8.2 78.4 114.1 7.5 75.3 120.4 6.9 72.1 127.1 6.3 36.5 59.7 6.2
43.0 84.7 109.2 8.5 81.6 115.1 7.8 78.4 121.3 7.1 75.1 128.0 6.5 38.0 60.0 6.4
45.0 88.1 110.2 8.7 84.9 116.1 8.0 81.6 122.3 7.4 78.2 129.0 6.7 39.7 60.4 6.7
47.0 91.6 111.2 9.0 88.3 117.1 8.3 84.9 123.3 7.6 81.4 130.0 6.9 41.3 60.8 6.9
49.0 95.1 112.3 9.3 91.7 118.2 8.5 88.3 124.4 7.8 84.7 131.0 7.2 42.8 61.5 7.1
51.0 98.8 113.4 9.5 95.3 119.3 8.8 91.7 125.5 8.1 88.0 132.1 7.4 44.6 61.8 7.4
53.0 102.6 114.4 9.8 99.0 120.4 9.1 95.3 126.6 8.3 91.4 133.2 7.6 46.5 62.2 7.6
55.0 106.4 115.6 10.1 102.7 121.5 9.3 98.9 127.8 8.6 95.0 134.4 7.9 48.4 62.5 7.9

YORK INTERNATIONAL
42
YORK INTERNATIONAL 43
FORM 150.63-EG1
Ratings - HFC-407C (English Units)
NOTES:
1. SST = Saturated Suction Temperature
2. kW = Compressors Input Power
3. EER = Condensing Unit EER (includes power from compressors, fans and the control panel)
YCUL0106EB
AIR TEMPERATURE ON CONDENSER (°F)
SST
(°F)
75°F 80°F 85°F 90°F 95°F 100°F
TONS KW EER TONS KW EER TONS KW EER TONS KW EER TONS KW EER TONS KW EER
35.0 97.1 88.4 11.8 94.3 93.2 10.9 91.5 98.4 10.1 88.6 104.0 9.3 85.5 110.0 8.5 82.4 116.6 7.8
37.0 101.1 89.4 12.1 98.2 94.3 11.2 95.3 99.5 10.4 92.2 105.1 9.6 89.1 111.1 8.8 85.8 117.7 8.0
39.0 105.1 90.4 12.5 102.2 95.3 11.6 99.1 100.6 10.7 96.0 106.2 9.8 92.7 112.3 9.0 89.4 118.8 8.3
41.0 109.3 91.4 12.8 106.2 96.4 11.9 103.1 101.7 11.0 99.8 107.4 10.1 96.5 113.5 9.3 93.0 120.0 8.5
43.0 113.6 92.5 13.2 110.4 97.6 12.2 107.1 102.9 11.3 103.8 108.6 10.4 100.3 114.8 9.6 96.7 121.3 8.8
45.0 118.0 93.7 13.6 114.7 98.8 12.6 111.3 104.2 11.6 107.8 109.9 10.7 104.2 116.0 9.9 100.5 122.6 9.0
47.0 122.5 94.8 13.9 119.1 100.0 12.9 115.6 105.4 11.9 112.0 111.2 11.0 108.3 117.3 10.1 104.5 123.9 9.3
49.0 127.1 96.0 14.3 123.6 101.2 13.2 120.0 106.7 12.3 116.3 112.5 11.3 112.4 118.6 10.4 108.5 125.2 9.6
51.0 131.9 97.1 14.7 128.2 102.4 13.6 124.5 107.9 12.6 120.7 113.8 11.6 116.7 120.0 10.7 112.7 126.6 9.8
53.0 136.8 98.3 15.0 133.0 103.7 13.9 129.1 109.2 12.9 125.2 115.1 11.9 121.1 121.3 11.0 116.9 127.9 10.1
55.0 141.8 99.5 15.4 137.9 104.9 14.3 133.9 110.5 13.2 129.8 116.4 12.2 125.6 122.7 11.3 121.3 129.4 10.4
YCUL0120EB
AIR TEMPERATURE ON CONDENSER (°F)
SST
(°F)
75°F 80°F 85°F 90°F 95°F 100°F
TONS KW EER TONS KW EER TONS KW EER TONS KW EER TONS KW EER TONS KW EER
35.0 109.1 96.0 11.9 106.0 101.4 11.0 102.8 107.1 10.2 99.4 113.3 9.3 95.9 120.1 8.6 92.3 127.5 7.8
37.0 113.7 97.0 12.2 110.5 102.4 11.4 107.1 108.1 10.5 103.6 114.3 9.7 100.0 121.0 8.9 96.3 128.4 8.1
39.0 118.3 98.0 12.6 115.0 103.4 11.7 111.6 109.2 10.8 108.0 115.4 10.0 104.3 122.1 9.2 100.4 129.5 8.4
41.0 123.1 99.1 13.0 119.7 104.6 12.1 116.1 110.3 11.2 112.5 116.5 10.3 108.6 123.3 9.5 104.6 130.7 8.7
43.0 128.0 100.4 13.4 124.5 105.8 12.4 120.8 111.5 11.5 117.0 117.7 10.6 113.1 124.5 9.8 109.0 131.8 8.9
45.0 133.1 101.6 13.8 129.4 107.0 12.8 125.6 112.8 11.8 121.7 119.0 10.9 117.6 125.8 10.1 113.4 133.1 9.2
47.0 138.2 102.8 14.1 134.4 108.3 13.1 130.5 114.2 12.2 126.5 120.4 11.3 122.3 127.1 10.4 117.9 134.4 9.5
49.0 143.5 104.2 14.5 139.6 109.7 13.5 135.6 115.5 12.5 131.4 121.8 11.6 127.1 128.5 10.7 122.6 135.8 9.8
51.0 148.9 105.5 14.9 144.9 111.1 13.9 140.8 116.9 12.9 136.5 123.2 11.9 132.1 129.9 11.0 127.5 137.1 10.1
53.0 154.5 106.9 15.3 150.4 112.5 14.2 146.1 118.3 13.2 141.7 124.6 12.2 137.1 131.3 11.3 132.4 138.6 10.4
55.0 160.3 108.3 15.7 156.0 113.9 14.6 151.6 119.8 13.6 147.0 126.1 12.6 142.3 132.9 11.6 137.5 140.1 10.7
YCUL0130EB
AIR TEMPERATURE ON CONDENSER (°F)
SST
(°F)
75°F 80°F 85°F 90°F 95°F 100°F
TONS KW EER TONS KW EER TONS KW EER TONS KW EER TONS KW EER TONS KW EER
35.0 118.8 107.6 11.7 115.5 113.5 10.8 112.1 119.7 10.0 108.6 126.3 9.3 105.0 133.5 8.5 101.2 141.2 7.8
37.0 123.7 108.8 12.0 120.2 114.7 11.2 116.7 121.0 10.3 113.1 127.6 9.6 109.3 134.8 8.8 105.4 142.5 8.1
39.0 128.7 110.0 12.4 125.1 116.0 11.5 121.5 122.3 10.7 117.7 129.0 9.9 113.8 136.1 9.1 109.8 143.8 8.3
41.0 133.8 111.3 12.8 130.1 117.3 11.9 126.3 123.6 11.0 122.4 130.3 10.2 118.4 137.5 9.4 114.3 145.2 8.6
43.0 139.1 112.6 13.1 135.3 118.7 12.2 131.3 125.0 11.3 127.3 131.8 10.5 123.2 139.0 9.6 118.9 146.7 8.9
45.0 144.5 113.9 13.5 140.5 120.0 12.5 136.5 126.5 11.6 132.3 133.3 10.8 128.0 140.4 9.9 123.6 148.2 9.1
47.0 150.0 115.2 13.9 145.9 121.5 12.9 141.8 127.9 12.0 137.5 134.7 11.1 133.0 142.0 10.2 128.5 149.7 9.4
49.0 155.7 116.6 14.3 151.5 122.8 13.2 147.2 129.4 12.3 142.7 136.2 11.4 138.2 143.5 10.5 133.5 151.3 9.7
51.0 161.6 117.9 14.7 157.2 124.3 13.6 152.7 130.9 12.6 148.1 137.8 11.7 143.4 145.1 10.8 138.6 152.9 9.9
53.0 167.6 119.3 15.0 163.1 125.7 14.0 158.5 132.4 13.0 153.7 139.3 12.0 148.8 146.7 11.1 143.8 154.5 10.2
55.0 173.8 120.7 15.4 169.1 127.2 14.3 164.3 133.9 13.3 159.4 141.0 12.3 154.4 148.3 11.4 149.3 156.2 10.5

YORK INTERNATIONAL
42
YORK INTERNATIONAL 43
FORM 150.63-EG1
NOTES:
1. SST = Saturated Suction Temperature
2. kW = Compressors Input Power
3. EER = Condensing Unit EER (includes power from compressors, fans and the control panel)
YCUL0106EB
AIR TEMPERATURE ON CONDENSER (°F)
SST
(°F)
105°F 110°F 115°F 120°F 125°F
TONS KW EER TONS KW EER TONS KW EER TONS KW EER TONS KW EER
35.0 79.1 123.7 7.1 75.7 131.5 6.4 72.1 140.0 5.7 68.4 149.4 5.1 40.5 85.7 5.0
37.0 82.5 124.8 7.3 78.9 132.6 6.6 75.3 141.1 5.9 71.4 150.4 5.3 42.4 86.0 5.3
39.0 85.9 125.9 7.5 82.2 133.7 6.8 78.5 142.2 6.2 74.6 151.4 5.5 44.3 86.4 5.5
41.0 89.4 127.2 7.8 85.7 134.9 7.1 81.8 143.3 6.4 65.7 116.8 6.2 46.3 86.8 5.7
43.0 93.0 128.4 8.0 89.2 136.1 7.3 85.2 144.5 6.6 68.5 117.6 6.4 48.4 87.2 5.9
45.0 96.7 129.7 8.3 92.8 137.4 7.5 88.7 145.7 6.8 71.4 118.4 6.6 50.7 87.3 6.2
47.0 100.5 131.0 8.5 96.5 138.6 7.7 92.3 146.9 7.0 74.3 119.3 6.9 52.9 87.8 6.4
49.0 104.5 132.3 8.8 100.3 139.9 8.0 96.0 148.2 7.2 77.4 120.2 7.1 55.1 88.3 6.7
51.0 108.5 133.7 9.0 104.2 141.3 8.2 99.8 149.5 7.5 80.4 121.3 7.3 57.3 89.1 6.9
53.0 112.7 135.0 9.3 108.2 142.7 8.5 103.7 150.9 7.7 83.7 122.2 7.6 59.7 89.6 7.1
55.0 116.9 136.5 9.5 112.4 144.1 8.7 107.7 152.3 7.9 87.0 123.2 7.8 44.5 57.1 7.9
YCUL0120EB
AIR TEMPERATURE ON CONDENSER (°F)
SST
(°F)
105°F 110°F 115°F 120°F 125°F
TONS KW EER TONS KW EER TONS KW EER TONS KW EER TONS KW EER
35.0 88.5 135.6 7.1 84.6 144.6 6.4 80.5 154.6 5.7 76.2 165.5 5.1 71.8 177.5 4.5
37.0 92.4 136.5 7.3 88.4 145.5 6.6 84.1 155.3 5.9 79.8 166.2 5.3 53.3 107.3 5.3
39.0 96.4 137.5 7.6 92.2 146.4 6.9 87.9 156.2 6.2 83.3 167.1 5.5 55.1 109.5 5.3
41.0 100.5 138.6 7.9 96.2 147.5 7.1 91.7 157.2 6.4 87.1 167.9 5.7 57.7 109.7 5.6
43.0 104.7 139.8 8.1 100.3 148.6 7.4 95.7 158.3 6.7 90.9 168.8 6.0 60.4 110.0 5.8
45.0 109.0 141.1 8.4 104.5 149.8 7.6 99.8 159.4 6.9 94.9 169.8 6.2 63.1 110.3 6.1
47.0 113.4 142.4 8.7 108.8 151.0 7.9 104.0 160.5 7.1 99.0 170.9 6.4 65.9 110.8 6.3
49.0 118.0 143.7 9.0 113.2 152.3 8.1 108.3 161.7 7.4 103.2 172.0 6.6 68.8 111.3 6.6
51.0 122.7 145.0 9.2 117.8 153.6 8.4 112.7 163.1 7.6 107.5 173.3 6.9 71.8 111.9 6.8
53.0 127.5 146.5 9.5 122.5 155.0 8.7 117.3 164.3 7.9 111.9 174.4 7.1 74.9 112.5 7.1
55.0 132.5 147.9 9.8 127.3 156.4 8.9 122.0 165.7 8.1 116.5 175.8 7.4 78.0 113.1 7.3
YCUL0130EB
AIR TEMPERATURE ON CONDENSER (°F)
SST
(°F)
105°F 110°F 115°F 120°F 125°F
TONS KW EER TONS KW EER TONS KW EER TONS KW EER TONS KW EER
35.0 97.3 149.6 7.1 93.2 158.7 6.5 88.9 168.7 5.8 84.5 179.6 5.2 56.4 116.4 5.2
37.0 101.4 150.9 7.4 97.2 160.0 6.7 92.8 169.8 6.0 88.3 180.6 5.4 58.9 117.0 5.4
39.0 105.7 152.2 7.6 101.3 161.2 6.9 96.8 171.1 6.3 92.1 181.8 5.6 61.2 118.4 5.5
41.0 110.0 153.6 7.9 105.5 162.6 7.2 100.9 172.4 6.5 96.1 183.0 5.8 64.0 118.9 5.8
43.0 114.5 155.0 8.1 109.9 164.0 7.4 105.1 173.7 6.7 100.2 184.3 6.1 66.8 119.5 6.0
45.0 119.1 156.5 8.4 114.3 165.5 7.6 109.4 175.2 6.9 87.4 146.5 6.5 69.7 120.1 6.2
47.0 123.8 158.0 8.6 118.9 167.0 7.9 113.9 176.6 7.2 91.1 147.5 6.8 72.7 120.8 6.5
49.0 128.6 159.6 8.9 123.6 168.5 8.1 118.5 178.1 7.4 94.9 148.5 7.0 75.7 121.5 6.7
51.0 133.6 161.2 9.1 128.5 170.1 8.4 123.1 179.7 7.6 98.7 149.6 7.2 78.9 122.3 6.9
53.0 138.7 162.9 9.4 133.4 171.7 8.6 128.0 181.3 7.8 102.7 150.7 7.5 82.2 123.1 7.2
55.0 144.0 164.5 9.7 138.5 173.4 8.9 132.9 182.9 8.1 106.8 151.9 7.7 85.5 123.9 7.4

YORK INTERNATIONAL
44
YORK INTERNATIONAL 45
FORM 150.63-EG1
Ratings - HFC-407C (SI Units)
NOTES:
1. SST = Saturated Suction Temperature
2. kWo = Unit kW Cooling Capacity Output
3. kWi = Compressors kW Input
4. COP = Coefcient of Performance (based on compressor and fan input kW)
YCUL0016EB
AIR TEMPERATURE ON - CONDENSER (°C)
LCWT
(°C)
25°C 30°C 35°C 40°C 45°C 50°C
KWoKWiCOP KWoKWiCOP KWoKWiCOP KWoKWiCOP KWoKWiCOP KWoKWiCOP
2.0 47.8 11.5 3.3 45.2 12.9 2.9 42.6 14.3 2.5 39.9 15.9 2.1 36.6 18.2 1.8 17.8 9.0 1.5
3.0 49.5 11.6 3.4 46.9 12.9 3.0 43.6 14.8 2.5 40.8 16.4 2.1 38.7 17.8 1.9 18.5 9.0 1.6
4.0 50.9 11.9 3.5 48.1 13.3 3.0 45.9 14.5 2.7 43.0 16.1 2.3 40.2 17.9 2.0 19.3 9.0 1.6
5.0 52.8 11.9 3.6 50.4 13.0 3.2 47.5 14.5 2.7 44.6 16.2 2.4 41.7 18.0 2.0 20.0 9.0 1.7
6.0 54.8 11.9 3.7 51.8 13.3 3.2 48.8 14.8 2.8 46.2 16.2 2.4 43.3 18.0 2.1 20.8 9.0 1.8
7.0 56.8 12.0 3.9 53.8 13.3 3.3 50.7 14.9 2.9 47.5 16.5 2.5 44.9 18.1 2.1 21.6 9.1 1.8
8.0 58.9 12.0 4.0 55.8 13.4 3.5 52.5 14.9 3.0 49.3 16.6 2.5 46.1 18.4 2.2 22.5 9.1 1.9
9.0 61.0 12.1 4.1 57.8 13.4 3.6 54.5 14.9 3.1 51.1 16.7 2.6 47.9 18.5 2.3 23.3 9.1 2.0
10.0 63.2 12.1 4.2 59.8 13.5 3.7 56.4 15.0 3.2 53.0 16.7 2.7 49.6 18.6 2.3 24.2 9.1 2.0
11.0 65.4 12.2 4.4 61.9 13.5 3.8 58.4 15.1 3.3 54.9 16.8 2.8 51.5 18.7 2.4 25.1 9.1 2.1
12.0 67.7 12.2 4.5 64.1 13.6 3.9 60.5 15.1 3.4 56.9 16.9 2.9 53.3 18.7 2.5 26.1 9.1 2.2
YCUL0026EB
AIR TEMPERATURE ON - CONDENSER (°C)
LCWT
(°C)
25°C 30°C 35°C 40°C 45°C 50°C
KWoKWiCOP KWoKWiCOP KWoKWiCOP KWoKWiCOP KWoKWiCOP KWoKWiCOP
2.0 66.1 17.0 3.3 62.4 18.9 2.9 58.7 21.1 2.5 55.1 23.4 2.1 51.6 26.0 1.8 25.3 12.6 1.6
3.0 68.5 17.1 3.5 64.7 19.0 3.0 60.9 21.2 2.5 57.1 23.6 2.2 53.6 26.1 1.9 26.3 12.7 1.7
4.0 70.9 17.2 3.6 67.0 19.1 3.1 63.1 21.3 2.6 59.3 23.7 2.2 55.6 26.3 1.9 27.4 12.7 1.8
5.0 73.4 17.3 3.7 69.4 19.3 3.2 65.4 21.4 2.7 61.4 23.9 2.3 57.6 26.5 2.0 28.3 12.8 1.8
6.0 76.0 17.4 3.8 71.9 19.4 3.2 67.7 21.6 2.8 63.7 24.0 2.4 59.7 26.6 2.0 29.4 12.9 1.9
7.0 78.6 17.5 3.9 74.4 19.5 3.3 70.1 21.7 2.9 65.9 24.2 2.5 61.9 26.8 2.1 30.5 12.9 2.0
8.0 81.3 17.6 4.0 77.0 19.6 3.4 72.6 21.9 2.9 68.3 24.3 2.5 33.9 11.6 2.4 31.7 12.9 2.0
9.0 84.1 17.8 4.1 79.6 19.8 3.5 75.1 22.0 3.0 70.7 24.5 2.6 35.1 11.6 2.4 32.9 13.0 2.1
10.0 86.9 17.9 4.2 82.3 19.9 3.6 77.7 22.2 3.1 73.1 24.7 2.7 36.4 11.7 2.5 34.1 13.0 2.2
11.0 89.8 18.0 4.3 85.0 20.1 3.7 80.3 22.4 3.2 75.6 24.9 2.7 37.8 11.7 2.6 35.4 13.0 2.2
12.0 92.7 18.2 4.4 87.8 20.2 3.8 83.0 22.5 3.3 78.2 25.1 2.8 39.1 11.7 2.7 36.7 13.1 2.3
YCUL0030EB
AIR TEMPERATURE ON - CONDENSER (°C)
LCWT
(°C)
25°C 30°C 35°C 40°C 45°C 50°C
KWoKWiCOP KWoKWiCOP KWoKWiCOP KWoKWiCOP KWoKWiCOP KWoKWiCOP
2.0 82.2 21.1 3.4 77.8 23.4 3.0 73.2 26.0 2.6 68.5 28.8 2.2 64.3 31.4 1.9 31.1 15.7 1.7
3.0 85.3 21.3 3.5 80.7 23.5 3.1 76.0 26.1 2.6 71.1 28.9 2.2 66.3 31.9 1.9 32.3 15.7 1.7
4.0 88.3 21.4 3.7 83.7 23.7 3.2 78.8 26.3 2.7 73.8 29.1 2.3 68.9 32.1 2.0 33.6 15.8 1.8
5.0 91.5 21.6 3.8 86.6 23.9 3.3 81.7 26.4 2.8 76.6 29.3 2.4 71.6 32.3 2.0 34.9 15.9 1.9
6.0 94.7 21.8 3.9 89.7 24.1 3.3 84.7 26.6 2.9 79.4 29.5 2.5 74.2 32.6 2.1 36.3 16.0 1.9
7.0 98.1 22.0 4.0 92.9 24.3 3.4 87.7 26.8 3.0 82.3 29.7 2.5 77.0 32.8 2.2 37.7 16.0 2.0
8.0 101.5 22.2 4.1 96.1 24.5 3.5 90.8 27.0 3.0 85.3 29.9 2.6 79.8 33.0 2.2 39.1 16.1 2.1
9.0 104.9 22.4 4.2 99.5 24.7 3.6 94.0 27.3 3.1 88.3 30.2 2.7 82.7 33.3 2.3 40.6 16.2 2.1
10.0 108.5 22.7 4.3 102.9 24.9 3.7 97.1 27.5 3.2 91.4 30.4 2.8 85.7 33.6 2.4 42.2 16.3 2.2
11.0 112.2 22.9 4.4 106.4 25.2 3.8 100.5 27.8 3.3 94.6 30.7 2.8 88.8 33.8 2.4 43.7 16.3 2.3
12.0 115.9 23.1 4.5 109.9 25.4 3.9 103.9 28.1 3.4 97.9 30.9 2.9 48.4 14.9 2.7 45.2 16.5 2.3
YCUL0036EB
AIR TEMPERATURE ON - CONDENSER (°C)
LCWT
(°C)
25°C 30°C 35°C 40°C 45°C 50°C
KWoKWiCOP KWoKWiCOP KWoKWiCOP KWoKWiCOP KWoKWiCOP KWoKWiCOP
2.0 100.1 25.7 3.5 94.9 28.6 3.0 89.6 31.8 2.6 84.2 35.3 2.2 78.7 39.2 1.9 38.3 19.3 1.7
3.0 103.8 25.8 3.6 98.4 28.7 3.1 93.0 32.0 2.7 87.4 35.5 2.3 81.7 39.4 1.9 39.8 19.4 1.8
4.0 107.6 25.9 3.7 102.1 28.9 3.2 96.4 32.1 2.8 90.7 35.7 2.4 84.8 39.6 2.0 41.4 19.4 1.9
5.0 111.4 26.1 3.9 105.7 29.1 3.3 100.0 32.3 2.9 94.0 35.9 2.4 88.0 39.8 2.1 43.0 19.5 1.9
6.0 115.3 26.3 4.0 109.5 29.2 3.4 103.5 32.5 2.9 97.4 36.1 2.5 47.8 17.6 2.3 44.6 19.6 2.0
7.0 119.3 26.5 4.1 113.3 29.4 3.5 107.2 32.7 3.0 100.9 36.3 2.6 49.6 17.6 2.4 46.3 19.6 2.1
8.0 123.4 26.7 4.2 117.3 29.6 3.6 110.9 32.9 3.1 104.5 36.5 2.7 51.4 17.7 2.5 48.0 19.7 2.1
9.0 127.6 26.9 4.3 121.3 29.9 3.7 114.7 33.2 3.2 108.1 36.8 2.7 53.3 17.8 2.6 49.8 19.8 2.2
10.0 131.9 27.1 4.4 125.3 30.1 3.8 118.6 33.4 3.3 111.8 37.0 2.8 55.2 17.8 2.7 51.6 19.8 2.3
11.0 136.1 27.3 4.5 129.5 30.3 3.9 122.6 33.6 3.4 115.6 37.3 2.9 57.2 17.9 2.8 53.5 19.9 2.4
12.0 140.5 27.6 4.6 133.7 30.6 4.0 126.7 33.9 3.5 119.4 37.6 3.0 59.2 18.0 2.9 55.4 20.0 2.4

YORK INTERNATIONAL
44
YORK INTERNATIONAL 45
FORM 150.63-EG1
NOTES:
1. SST = Saturated Suction Temperature
2. kWo = Unit kW Cooling Capacity Output
3. kWi = Compressors kW Input
4. COP = Coefcient of Performance (based on compressor and fan input kW)
YCUL0040EB
AIR TEMPERATURE ON - CONDENSER (°C)
LCWT
(°C)
25°C 30°C 35°C 40°C 45°C 50°C
KWoKWiCOP KWoKWiCOP KWoKWiCOP KWoKWiCOP KWoKWiCOP KWoKWiCOP
2.0 121.1 32.8 3.4 114.4 36.4 2.9 107.4 40.3 2.5 100.5 44.6 2.1 93.6 49.0 1.8 60.1 33.3 1.7
3.0 125.4 33.1 3.5 118.5 36.7 3.0 111.3 40.7 2.6 104.2 44.9 2.2 97.1 49.4 1.9 62.5 33.5 1.7
4.0 129.7 33.5 3.6 122.6 37.0 3.1 115.3 41.0 2.6 107.9 45.3 2.2 100.7 49.9 1.9 65.0 33.7 1.8
5.0 134.2 33.8 3.7 126.9 37.4 3.2 119.4 41.4 2.7 111.8 45.8 2.3 104.4 50.3 2.0 67.5 33.9 1.8
6.0 138.8 34.1 3.8 131.3 37.7 3.2 123.5 41.8 2.8 115.8 46.2 2.4 108.2 50.8 2.0 70.1 34.1 1.9
7.0 143.5 34.5 3.9 135.8 38.1 3.3 127.8 42.2 2.8 119.9 46.6 2.4 78.0 31.2 2.3 72.8 34.4 2.0
8.0 148.4 34.9 3.9 140.4 38.5 3.4 132.2 42.6 2.9 124.0 47.1 2.5 80.9 31.4 2.4 75.5 34.6 2.0
9.0 153.3 35.3 4.0 145.1 38.9 3.5 136.7 43.0 3.0 128.3 47.5 2.6 83.9 31.6 2.4 78.3 34.8 2.1
10.0 158.4 35.7 4.1 149.8 39.4 3.6 141.3 43.5 3.1 132.7 48.0 2.6 86.9 31.8 2.5 81.2 35.1 2.1
11.0 163.6 36.1 4.2 154.8 39.8 3.6 146.0 44.0 3.1 137.2 48.5 2.7 90.0 32.0 2.6 84.2 35.3 2.2
12.0 168.9 36.6 4.3 159.8 40.3 3.7 150.8 44.4 3.2 141.8 49.0 2.7 93.2 32.3 2.7 87.3 35.6 2.3
YCUL0046EB
AIR TEMPERATURE ON - CONDENSER (°C)
LCWT
(°C)
25°C 30°C 35°C 40°C 45°C 50°C
KWoKWiCOP KWoKWiCOP KWoKWiCOP KWoKWiCOP KWoKWiCOP KWoKWiCOP
2.0 133.2 32.6 3.5 126.1 36.4 3.0 118.9 40.6 2.6 109.5 46.8 2.1 104.7 50.3 1.9 49.9 25.6 1.6
3.0 138.1 32.7 3.6 128.8 37.6 3.0 123.4 40.8 2.7 116.0 45.4 2.3 108.8 50.5 1.9 51.9 25.7 1.7
4.0 143.2 32.9 3.7 135.7 36.7 3.2 128.1 40.9 2.8 120.4 45.6 2.4 113.0 50.7 2.0 54.0 25.7 1.7
5.0 148.4 33.0 3.8 140.8 36.8 3.3 132.9 41.0 2.9 125.0 45.7 2.4 117.3 50.9 2.1 56.2 25.7 1.8
6.0 153.7 33.2 4.0 145.8 37.0 3.4 137.8 41.2 3.0 129.7 45.9 2.5 121.7 51.1 2.2 58.4 25.8 1.9
7.0 159.3 33.3 4.1 151.1 37.1 3.5 142.9 41.3 3.0 134.5 46.1 2.6 126.3 51.3 2.2 60.7 25.8 1.9
8.0 164.2 33.8 4.2 156.5 37.3 3.7 148.0 41.5 3.1 139.4 46.3 2.7 130.9 51.6 2.3 63.0 25.8 2.0
9.0 170.1 33.9 4.3 161.3 37.8 3.7 152.5 42.1 3.2 144.5 46.5 2.8 135.8 51.8 2.4 65.5 25.9 2.1
10.0 176.1 34.0 4.5 167.1 37.9 3.8 158.0 42.2 3.3 148.9 47.1 2.8 139.8 52.5 2.4 68.0 25.9 2.2
11.0 182.3 34.1 4.6 173.0 38.0 4.0 163.6 42.4 3.4 154.3 47.3 2.9 145.0 52.7 2.5 70.5 25.9 2.2
12.0 188.5 34.2 4.7 179.0 38.2 4.1 169.4 42.6 3.5 159.9 47.4 3.0 150.3 52.9 2.6 73.1 26.0 2.3
YCUL0050EB
AIR TEMPERATURE ON - CONDENSER (°C)
LCWT
(°C)
25°C 30°C 35°C 40°C 45°C 50°C
KWoKWiCOP KWoKWiCOP KWoKWiCOP KWoKWiCOP KWoKWiCOP KWoKWiCOP
2.0 148.7 38.5 3.4 140.7 42.8 2.9 132.5 47.7 2.5 124.2 52.9 2.1 116.0 58.6 1.8 55.9 29.3 1.6
3.0 154.2 38.7 3.5 145.9 43.1 3.0 137.4 47.9 2.6 129.0 53.2 2.2 120.5 58.9 1.9 58.2 29.4 1.7
4.0 159.8 39.0 3.6 151.3 43.3 3.1 142.6 48.2 2.7 133.9 53.5 2.3 125.2 59.3 1.9 60.5 29.5 1.7
5.0 165.6 39.2 3.7 156.9 43.5 3.2 147.9 48.4 2.7 138.9 53.8 2.3 130.0 59.6 2.0 62.9 29.6 1.8
6.0 171.6 39.5 3.8 162.5 43.8 3.3 153.3 48.7 2.8 144.0 54.1 2.4 134.9 59.9 2.1 65.4 29.7 1.9
7.0 177.6 39.7 3.9 168.3 44.1 3.4 158.8 49.0 2.9 149.2 54.4 2.5 139.8 60.3 2.1 67.9 29.8 1.9
8.0 183.5 40.2 4.0 173.9 44.6 3.5 164.4 49.3 3.0 154.7 54.7 2.6 107.5 41.6 2.3 70.5 29.9 2.0
9.0 189.9 40.5 4.1 180.0 44.9 3.6 169.9 49.8 3.1 159.8 55.3 2.6 111.5 41.8 2.4 73.2 30.0 2.1
10.0 196.5 40.7 4.2 186.3 45.1 3.7 175.9 50.1 3.2 165.5 55.7 2.7 81.3 27.1 2.5 76.0 30.1 2.1
11.0 203.3 41.1 4.4 192.7 45.5 3.8 182.0 50.5 3.3 171.4 56.0 2.8 84.1 27.2 2.6 78.7 30.3 2.2
12.0 210.1 41.4 4.5 199.3 45.8 3.9 188.3 50.8 3.3 177.4 56.4 2.9 87.3 27.3 2.7 81.7 30.4 2.3
YCUL0056EB
AIR TEMPERATURE ON - CONDENSER (°C)
LCWT
(°C)
25°C 30°C 35°C 40°C 45°C 50°C
KWoKWiCOP KWoKWiCOP KWoKWiCOP KWoKWiCOP KWoKWiCOP KWoKWiCOP
2.0 164.6 43.0 3.4 155.6 47.7 2.9 146.4 52.9 2.5 137.0 58.7 2.1 127.6 64.7 1.8 62.1 32.0 1.7
3.0 170.7 43.3 3.5 161.4 48.0 3.0 151.8 53.3 2.6 142.3 59.0 2.2 132.6 65.1 1.9 64.6 32.1 1.7
4.0 176.9 43.6 3.6 167.3 48.3 3.1 157.5 53.7 2.7 147.7 59.4 2.3 137.7 65.6 1.9 67.1 32.3 1.8
5.0 183.2 44.0 3.7 173.3 48.7 3.2 163.2 54.0 2.7 153.1 59.8 2.3 143.0 66.0 2.0 69.8 32.4 1.8
6.0 189.7 44.3 3.8 179.5 49.1 3.3 169.1 54.4 2.8 158.6 60.3 2.4 148.4 66.5 2.1 72.5 32.6 1.9
7.0 196.3 44.7 3.9 185.9 49.5 3.4 175.1 54.9 2.9 164.4 60.7 2.5 153.8 67.0 2.1 75.3 32.7 2.0
8.0 203.2 45.2 4.0 192.4 49.9 3.5 181.4 55.3 3.0 170.3 61.2 2.6 159.3 67.6 2.2 78.2 32.9 2.0
9.0 210.1 45.6 4.1 199.0 50.4 3.6 187.7 55.7 3.1 176.3 61.7 2.6 86.9 29.8 2.5 81.1 33.1 2.1
10.0 217.3 46.1 4.2 205.8 50.8 3.7 194.2 56.2 3.1 182.5 62.2 2.7 90.2 30.0 2.5 84.2 33.2 2.2
11.0 224.6 46.6 4.3 212.8 51.3 3.7 200.9 56.7 3.2 188.9 62.7 2.8 93.2 30.3 2.6 87.1 33.6 2.2
12.0 232.1 47.1 4.4 220.0 51.8 3.8 207.7 57.2 3.3 195.4 63.3 2.8 96.7 30.4 2.7 90.4 33.7 2.3

YORK INTERNATIONAL
46
YORK INTERNATIONAL 47
FORM 150.63-EG1
Ratings - HFC-407C (SI Units)
NOTES:
1. SST = Saturated Suction Temperature
2. kWo = Unit kW Cooling Capacity Output
3. kWi = Compressors kW Input
4. COP = Coefcient of Performance (based on compressor and fan input kW)
YCUL0060EB
AIR TEMPERATURE ON - CONDENSER (°C)
LCWT
(°C)
25°C 30°C 35°C 40°C 45°C 50°C
KWoKWiCOP KWoKWiCOP KWoKWiCOP KWoKWiCOP KWoKWiCOP KWoKWiCOP
2.0 180.3 48.9 3.3 170.7 54.3 2.9 160.9 60.2 2.5 150.8 66.7 2.1 104.1 50.6 1.9 68.9 36.1 1.65*
3.0 186.8 49.2 3.4 176.9 54.7 2.9 166.7 60.7 2.5 156.4 67.2 2.2 108.2 50.9 1.9 71.6 36.2 1.7
4.0 193.5 49.6 3.5 183.3 55.1 3.0 172.8 61.1 2.6 162.2 67.7 2.2 112.1 51.3 2.0 74.2 36.5 1.8
5.0 200.3 50.1 3.6 189.8 55.5 3.1 178.9 61.6 2.7 168.0 68.2 2.3 116.5 51.5 2.0 77.1 36.6 1.8
6.0 207.2 50.5 3.7 196.4 56.0 3.2 185.3 62.0 2.7 173.9 68.7 2.3 120.8 51.8 2.1 80.0 36.8 1.9
7.0 214.3 51.0 3.8 203.2 56.4 3.3 191.7 62.6 2.8 180.0 69.3 2.4 125.3 52.2 2.2 83.1 36.9 2.0
8.0 221.6 51.5 3.9 210.1 56.9 3.4 198.3 63.1 2.9 186.3 69.9 2.5 129.8 52.5 2.2 86.2 37.1 2.0
9.0 229.0 52.0 4.0 217.2 57.5 3.4 205.0 63.6 3.0 192.7 70.5 2.5 134.5 52.9 2.3 89.4 37.3 2.1
10.0 236.6 52.5 4.1 224.4 58.0 3.5 211.9 64.2 3.0 199.2 71.1 2.6 139.3 53.2 2.4 92.7 37.5 2.2
11.0 244.4 53.0 4.2 231.8 58.6 3.6 219.0 64.8 3.1 153.7 48.5 2.8 144.3 53.6 2.4 96.0 37.7 2.2
12.0 252.2 53.6 4.3 239.4 59.2 3.7 226.2 65.4 3.2 159.0 48.8 2.9 106.4 34.1 2.7 99.5 37.9 2.3
YCUL0066EB
AIR TEMPERATURE ON - CONDENSER (°C)
LCWT
(°C)
25°C 30°C 35°C 40°C 45°C 50°C
KWoKWiCOP KWoKWiCOP KWoKWiCOP KWoKWiCOP KWoKWiCOP KWoKWiCOP
2.0 199.9 51.0 3.5 189.7 56.7 3.1 179.3 63.0 2.6 168.7 69.9 2.2 158.7 76.8 1.9 76.8 38.2 1.8
3.0 207.3 51.3 3.7 196.8 57.0 3.1 185.9 63.3 2.7 175.0 70.2 2.3 163.7 77.9 2.0 79.8 38.3 1.8
4.0 214.8 51.6 3.8 203.9 57.3 3.2 192.8 63.7 2.8 181.4 70.7 2.4 169.8 78.3 2.0 82.9 38.4 1.9
5.0 222.4 51.9 3.9 211.2 57.7 3.3 199.7 64.1 2.9 188.0 71.1 2.5 176.1 78.8 2.1 86.0 38.6 2.0
6.0 230.2 52.3 4.0 218.6 58.1 3.4 206.8 64.5 3.0 194.7 71.6 2.5 182.3 79.3 2.2 89.3 38.7 2.0
7.0 238.1 52.7 4.1 226.2 58.5 3.5 214.1 65.0 3.0 201.6 72.1 2.6 188.8 79.9 2.2 92.7 38.8 2.1
8.0 246.2 53.1 4.2 233.9 59.0 3.6 221.4 65.5 3.1 208.6 72.6 2.7 102.8 35.1 2.5 96.1 39.0 2.2
9.0 254.4 53.6 4.3 241.8 59.5 3.7 228.9 66.0 3.2 215.7 73.1 2.7 106.5 35.2 2.6 99.6 39.1 2.2
10.0 262.8 54.0 4.4 249.9 59.9 3.8 236.6 66.5 3.3 223.0 73.7 2.8 110.3 35.3 2.7 103.3 39.3 2.3
11.0 271.3 54.5 4.5 258.0 60.5 3.9 244.4 67.0 3.4 230.4 74.3 2.9 114.3 35.5 2.8 107.0 39.4 2.4
12.0 280.0 55.0 4.6 266.4 61.0 4.0 252.4 67.6 3.5 238.0 74.9 3.0 118.3 35.6 2.9 110.8 39.6 2.5
YCUL0076EB
AIR TEMPERATURE ON - CONDENSER (°C)
LCWT
(°C)
25°C 30°C 35°C 40°C 45°C 50°C
KWoKWiCOP KWoKWiCOP KWoKWiCOP KWoKWiCOP KWoKWiCOP KWoKWiCOP
2.0 219.4 59.7 3.3 207.1 66.4 2.8 194.7 73.8 2.4 182.3 81.8 2.1 170.1 90.4 1.8 109.5 61.3 1.6
3.0 227.4 60.2 3.4 214.7 66.9 2.9 201.8 74.3 2.5 189.1 82.4 2.1 176.6 91.0 1.8 113.8 61.6 1.7
4.0 235.4 60.7 3.5 222.4 67.4 3.0 209.2 74.9 2.6 196.1 83.0 2.2 152.9 71.8 2.0 117.9 62.3 1.7
5.0 243.6 61.2 3.6 230.3 67.9 3.1 216.7 75.4 2.6 203.2 83.6 2.3 158.7 72.2 2.0 122.5 62.6 1.8
6.0 252.1 61.7 3.7 238.4 68.4 3.2 224.3 76.1 2.7 210.5 84.3 2.3 164.6 72.7 2.1 127.2 62.9 1.8
7.0 260.8 62.2 3.8 246.6 69.0 3.3 232.3 76.6 2.8 218.0 85.0 2.4 170.7 73.1 2.1 132.1 63.2 1.9
8.0 269.7 62.8 3.9 255.0 69.7 3.3 240.3 77.3 2.9 225.7 85.6 2.4 176.9 73.6 2.2 137.1 63.6 2.0
9.0 278.7 63.4 4.0 263.7 70.3 3.4 248.6 77.9 2.9 233.5 86.4 2.5 183.3 74.0 2.3 142.2 63.9 2.0
10.0 288.1 64.0 4.1 272.6 70.9 3.5 257.0 78.6 3.0 241.6 87.1 2.6 189.9 74.5 2.3 147.5 64.3 2.1
11.0 297.6 64.6 4.2 281.6 71.6 3.6 265.6 79.4 3.1 249.9 87.9 2.6 196.6 75.0 2.4 152.8 64.7 2.1
12.0 307.3 65.2 4.3 290.9 72.3 3.7 274.5 80.1 3.2 258.3 88.7 2.7 203.5 75.6 2.5 158.5 65.0 2.2
YCUL0080EB
AIR TEMPERATURE ON - CONDENSER (°C)
LCWT
(°C)
25°C 30°C 35°C 40°C 45°C 50°C
KWoKWiCOP KWoKWiCOP KWoKWiCOP KWoKWiCOP KWoKWiCOP KWoKWiCOP
2.0 246.5 65.3 3.4 232.8 72.6 2.9 218.7 80.7 2.5 204.5 89.5 2.1 190.4 98.7 1.8 122.5 66.9 1.7
3.0 255.4 65.8 3.5 241.3 73.1 3.0 226.8 81.3 2.6 212.2 90.1 2.2 197.7 99.4 1.9 127.3 67.4 1.7
4.0 264.6 66.4 3.6 250.0 73.7 3.1 235.1 81.9 2.7 220.1 90.7 2.3 205.3 100.2 1.9 132.3 67.8 1.8
5.0 274.0 67.0 3.7 259.0 74.3 3.2 243.6 82.5 2.7 228.2 91.4 2.3 213.0 100.9 2.0 137.4 68.3 1.8
6.0 283.6 67.6 3.8 268.1 74.9 3.3 252.3 83.1 2.8 236.5 92.1 2.4 220.9 101.7 2.0 141.8 69.2 1.9
7.0 293.5 68.2 3.9 277.5 75.5 3.4 261.3 83.8 2.9 244.9 92.9 2.5 158.1 63.0 2.3 147.4 69.6 1.9
8.0 303.6 68.9 4.0 287.1 76.2 3.5 270.3 84.6 3.0 253.7 93.6 2.5 164.1 63.3 2.3 153.0 70.0 2.0
9.0 313.8 69.7 4.1 297.0 77.0 3.6 279.8 85.3 3.0 262.6 94.5 2.6 170.2 63.6 2.4 158.8 70.4 2.1
10.0 324.4 70.4 4.2 307.1 77.7 3.6 289.4 86.1 3.1 271.8 95.3 2.7 176.5 64.0 2.5 164.8 70.8 2.1
11.0 335.2 71.2 4.3 317.4 78.5 3.7 299.2 86.9 3.2 281.1 96.2 2.7 182.9 64.4 2.6 171.0 71.2 2.2
12.0 346.3 72.0 4.4 328.0 79.3 3.8 309.3 87.7 3.3 290.8 97.1 2.8 189.5 64.8 2.7 177.2 71.7 2.3

YORK INTERNATIONAL
46
YORK INTERNATIONAL 47
FORM 150.63-EG1
NOTES:
1. SST = Saturated Suction Temperature
2. kWo = Unit kW Cooling Capacity Output
3. kWi = Compressors kW Input
4. COP = Coefcient of Performance (based on compressor and fan input kW)
YCUL0086EB
AIR TEMPERATURE ON - CONDENSER (°C)
LCWT
(°C)
25°C 30°C 35°C 40°C 45°C 50°C
KWoKWiCOP KWoKWiCOP KWoKWiCOP KWoKWiCOP KWoKWiCOP KWoKWiCOP
2.0 269.6 72.4 3.4 255.0 80.5 2.9 240.0 89.4 2.5 224.8 99.2 2.1 174.4 85.6 1.9 135.1 74.1 1.7
3.0 279.2 73.0 3.5 264.2 81.1 3.0 248.7 90.1 2.6 233.0 99.9 2.2 181.0 86.2 2.0 140.3 74.6 1.7
4.0 289.0 73.7 3.6 273.5 81.8 3.1 257.6 90.8 2.6 241.4 100.7 2.2 187.8 86.7 2.0 145.6 75.0 1.8
5.0 299.0 74.4 3.7 283.1 82.5 3.2 266.7 91.6 2.7 250.0 101.6 2.3 194.8 87.3 2.1 151.1 75.5 1.8
6.0 309.3 75.0 3.8 292.9 83.2 3.3 276.0 92.4 2.8 258.8 102.4 2.4 202.0 87.9 2.1 156.4 76.2 1.9
7.0 319.9 75.8 3.9 302.8 84.0 3.3 285.5 93.2 2.9 267.8 103.3 2.4 174.2 69.2 2.3 162.2 76.6 1.9
8.0 330.6 76.5 4.0 313.0 84.8 3.4 295.2 94.1 2.9 277.1 104.2 2.5 180.5 69.6 2.4 168.2 77.1 2.0
9.0 341.5 77.3 4.1 323.5 85.7 3.5 305.1 94.9 3.0 286.4 105.2 2.6 187.0 70.0 2.4 174.4 77.5 2.1
10.0 352.7 78.2 4.2 334.2 86.5 3.6 315.3 95.8 3.1 296.0 106.2 2.6 193.7 70.4 2.5 180.7 78.0 2.1
11.0 364.2 79.0 4.2 345.1 87.4 3.7 325.6 96.8 3.1 256.4 82.6 2.9 200.5 70.9 2.6 187.2 78.5 2.2
12.0 375.8 79.9 4.3 356.2 88.3 3.7 336.2 97.8 3.2 265.1 83.3 2.9 207.5 71.4 2.7 193.8 79.0 2.3
YCUL0090EB
AIR TEMPERATURE ON - CONDENSER (°C)
LCWT
(°C)
25°C 30°C 35°C 40°C 45°C 50°C
KWoKWiCOP KWoKWiCOP KWoKWiCOP KWoKWiCOP KWoKWiCOP KWoKWiCOP
2.0 292.1 79.9 3.4 276.6 88.9 2.9 260.7 98.7 2.5 244.5 109.6 2.1 158.6 73.7 2.0 147.4 81.8 1.7
3.0 302.2 80.8 3.5 286.4 89.7 3.0 270.0 99.6 2.5 253.2 110.5 2.2 164.5 74.1 2.0 152.9 82.2 1.7
4.0 312.7 81.5 3.5 296.4 90.5 3.1 279.4 100.5 2.6 262.1 111.4 2.2 170.6 74.5 2.1 158.6 82.8 1.8
5.0 323.4 82.3 3.6 306.5 91.3 3.1 289.1 101.4 2.7 271.2 112.4 2.3 176.9 75.0 2.2 164.5 83.2 1.8
6.0 334.4 83.1 3.7 317.0 92.1 3.2 298.9 102.3 2.7 280.5 113.4 2.3 183.3 75.4 2.2 170.5 83.7 1.9
7.0 345.5 83.9 3.8 327.4 93.1 3.3 309.0 103.2 2.8 290.0 114.5 2.4 189.8 75.9 2.3 176.7 84.2 1.9
8.0 356.9 84.7 3.9 338.2 94.1 3.4 319.3 104.2 2.9 299.7 115.5 2.5 196.5 76.4 2.4 183.0 84.7 2.0
9.0 368.5 85.6 4.0 349.2 95.0 3.4 329.7 105.2 2.9 309.5 116.6 2.5 203.4 76.9 2.4 189.5 85.2 2.1
10.0 380.3 86.5 4.1 360.5 96.0 3.5 340.4 106.3 3.0 319.7 117.7 2.6 210.4 77.4 2.5 196.1 85.8 2.1
11.0 392.3 87.4 4.2 371.9 97.0 3.6 351.1 107.5 3.1 330.0 118.9 2.6 217.6 77.9 2.6 203.0 86.3 2.2
12.0 404.5 88.4 4.3 383.6 98.0 3.7 362.2 108.6 3.1 239.8 70.7 3.1 225.0 78.4 2.6 209.9 86.9 2.2
YCUL0096EB
AIR TEMPERATURE ON - CONDENSER (°C)
LCWT
(°C)
25°C 30°C 35°C 40°C 45°C 50°C
KWoKWiCOP KWoKWiCOP KWoKWiCOP KWoKWiCOP KWoKWiCOP KWoKWiCOP
2.0 282.1 71.9 3.4 267.8 79.1 3.0 252.8 87.1 2.6 236.9 96.4 2.2 221.8 105.8 1.9 203.5 118.0 1.6
3.0 292.8 72.4 3.5 278.1 79.6 3.1 262.6 87.7 2.7 246.2 96.9 2.3 230.5 106.4 2.0 211.7 118.6 1.6
4.0 303.9 73.0 3.6 288.7 80.2 3.2 272.8 88.3 2.8 255.8 97.5 2.4 239.4 107.0 2.0 220.2 119.1 1.7
5.0 315.1 73.5 3.7 299.5 80.8 3.3 283.0 88.9 2.8 265.7 98.1 2.4 247.1 108.6 2.1 228.8 119.7 1.8
6.0 326.6 74.1 3.9 310.5 81.5 3.4 293.6 89.6 2.9 275.7 98.7 2.5 257.9 108.5 2.2 237.7 120.4 1.8
7.0 338.4 74.8 4.0 321.8 82.2 3.5 304.4 90.3 3.0 286.0 99.4 2.6 267.6 109.2 2.2 246.9 121.0 1.9
8.0 350.3 75.5 4.1 333.3 82.9 3.6 315.4 91.0 3.1 296.5 100.1 2.7 276.4 110.5 2.3 255.1 122.5 1.9
9.0 362.5 76.2 4.2 345.1 83.6 3.7 326.7 91.8 3.2 307.2 100.9 2.8 286.6 111.3 2.4 264.7 123.2 2.0
10.0 375.1 76.8 4.3 357.1 84.4 3.8 338.2 92.6 3.3 318.2 101.7 2.8 297.1 112.1 2.4 274.7 123.9 2.0
11.0 388.0 77.5 4.4 369.3 85.2 3.9 349.9 93.4 3.4 329.4 102.5 2.9 307.8 112.9 2.5 212.1 87.0 2.2
12.0 401.1 78.3 4.5 381.9 86.0 4.0 362.0 94.2 3.5 340.9 103.4 3.0 318.7 113.7 2.6 220.1 87.4 2.2
YCUL0100EB
AIR TEMPERATURE ON - CONDENSER (°C)
LCWT
(°C)
25°C 30°C 35°C 40°C 45°C 50°C
KWoKWiCOP KWoKWiCOP KWoKWiCOP KWoKWiCOP KWoKWiCOP KWoKWiCOP
2.0 304.9 79.0 3.4 290.0 86.8 3.0 274.6 95.2 2.6 258.2 104.7 2.2 240.6 115.5 1.9 221.6 127.9 1.6
3.0 316.3 79.7 3.5 300.9 87.5 3.1 284.8 96.0 2.7 268.0 105.5 2.3 250.0 116.2 2.0 230.4 128.5 1.7
4.0 328.0 80.4 3.6 312.0 88.2 3.2 295.5 96.8 2.8 278.1 106.3 2.4 259.5 117.0 2.0 239.5 129.2 1.7
5.0 339.9 81.0 3.7 323.3 89.0 3.2 306.3 97.6 2.8 288.3 107.1 2.5 269.3 117.8 2.1 248.8 129.9 1.8
6.0 352.1 81.7 3.8 334.9 89.8 3.3 317.3 98.4 2.9 298.8 108.0 2.5 279.2 118.7 2.2 258.2 130.7 1.8
7.0 364.5 82.4 3.9 346.8 90.6 3.4 328.6 99.3 3.0 309.6 108.9 2.6 289.4 119.6 2.2 267.9 131.6 1.9
8.0 377.0 83.3 4.0 359.0 91.4 3.5 340.2 100.2 3.1 320.6 109.8 2.7 299.9 120.5 2.3 277.8 132.5 1.9
9.0 390.1 84.0 4.1 371.5 92.2 3.6 352.1 101.0 3.2 331.8 110.7 2.7 310.5 121.5 2.4 288.0 133.4 2.0
10.0 403.4 84.7 4.2 384.0 93.1 3.7 364.1 102.0 3.2 343.4 111.7 2.8 321.5 122.4 2.4 298.3 134.3 2.1
11.0 417.1 85.4 4.3 397.0 93.9 3.8 376.6 102.9 3.3 355.1 112.7 2.9 332.7 123.4 2.5 163.5 60.0 2.3
12.0 431.1 86.1 4.5 410.3 94.8 3.9 389.3 103.8 3.4 367.2 113.6 3.0 344.1 124.4 2.5 169.5 60.3 2.4

YORK INTERNATIONAL
48
YORK INTERNATIONAL 49
FORM 150.63-EG1
Ratings - HFC-407C (SI Units)
NOTES:
1. SST = Saturated Suction Temperature
2. kWo = Unit kW Cooling Capacity Output
3. kWi = Compressors kW Input
4. COP = Coefcient of Performance (based on compressor and fan input kW)
YCUL0106EB
AIR TEMPERATURE ON - CONDENSER (°C)
LCWT
(°C)
25°C 30°C 35°C 40°C 45°C 50°C
KWoKWiCOP KWoKWiCOP KWoKWiCOP KWoKWiCOP KWoKWiCOP KWoKWiCOP
2.0 341.7 90.6 3.4 323.6 99.8 2.9 304.5 110.3 2.5 284.1 122.5 2.1 262.1 136.8 1.8 201.6 117.8 1.6
3.0 354.2 91.5 3.5 335.6 100.8 3.0 315.8 111.3 2.6 294.8 123.5 2.2 272.2 137.8 1.8 209.8 118.3 1.6
4.0 367.1 92.4 3.6 347.8 101.8 3.1 327.4 112.4 2.7 305.8 124.6 2.3 282.5 138.8 1.9 218.1 119.0 1.7
5.0 380.2 93.4 3.7 360.3 102.8 3.2 339.3 113.5 2.7 316.9 125.7 2.3 293.1 139.8 2.0 226.5 119.6 1.7
6.0 393.6 94.4 3.7 373.0 103.9 3.3 351.3 114.6 2.8 328.4 126.8 2.4 304.0 140.9 2.0 235.3 120.3 1.8
7.0 407.3 95.4 3.8 386.0 105.1 3.3 363.7 115.8 2.9 340.2 128.0 2.5 315.2 142.0 2.1 244.2 121.1 1.9
8.0 421.3 96.5 3.9 399.4 106.2 3.4 376.5 116.9 3.0 352.3 129.1 2.5 326.6 143.1 2.1 253.4 121.9 1.9
9.0 435.7 97.6 4.0 413.2 107.3 3.5 389.5 118.1 3.0 364.7 130.3 2.6 338.4 144.3 2.2 262.8 122.7 2.0
10.0 450.4 98.6 4.1 427.2 108.4 3.6 402.9 119.3 3.1 377.4 131.5 2.7 350.4 145.5 2.2 203.0 85.7 2.1
11.0 465.5 99.7 4.2 441.6 109.6 3.7 416.6 120.5 3.2 390.4 132.7 2.7 362.7 146.7 2.3 210.5 86.2 2.2
12.0 481.0 100.8 4.3 456.4 110.8 3.8 430.7 121.7 3.3 403.7 134.0 2.8 375.2 148.0 2.4 218.3 86.7 2.2
YCUL0120EB
AIR TEMPERATURE ON - CONDENSER (°C)
LCWT
(°C)
25°C 30°C 35°C 40°C 45°C 50°C
KWoKWiCOP KWoKWiCOP KWoKWiCOP KWoKWiCOP KWoKWiCOP KWoKWiCOP
2.0 384.1 98.4 3.4 363.6 108.6 3.0 341.6 120.3 2.5 318.1 134.2 2.1 292.8 150.7 1.8 265.6 170.4 1.4
3.0 398.5 99.3 3.5 377.4 109.5 3.1 354.8 121.2 2.6 330.6 135.0 2.2 304.6 151.5 1.8 276.7 170.9 1.5
4.0 413.2 100.3 3.6 391.5 110.5 3.1 368.2 122.2 2.7 343.4 136.0 2.3 316.7 152.3 1.9 288.1 171.7 1.6
5.0 428.3 101.3 3.7 405.9 111.5 3.2 382.0 123.3 2.8 356.4 137.0 2.4 329.0 153.2 2.0 299.7 172.4 1.6
6.0 443.5 102.4 3.8 420.6 112.6 3.3 396.1 124.3 2.9 369.8 138.0 2.4 341.6 154.2 2.0 311.6 173.3 1.7
7.0 459.3 103.5 3.9 435.7 113.8 3.4 410.4 125.5 2.9 383.4 139.2 2.5 354.6 155.2 2.1 323.9 174.1 1.7
8.0 475.4 104.6 4.0 451.1 115.0 3.5 425.1 126.7 3.0 397.4 140.3 2.6 367.9 156.3 2.2 336.6 175.0 1.8
9.0 491.8 105.8 4.1 466.8 116.2 3.6 440.2 127.9 3.1 411.8 141.5 2.6 381.6 157.4 2.2 349.7 175.9 1.8
10.0 508.7 107.0 4.2 483.0 117.4 3.7 455.7 129.2 3.2 426.6 142.7 2.7 395.7 158.5 2.3 254.6 107.5 2.1
11.0 526.0 108.2 4.3 499.6 118.7 3.8 471.6 130.4 3.3 441.7 144.0 2.8 409.9 159.8 2.4 264.3 108.0 2.2
12.0 543.6 109.5 4.4 516.6 120.0 3.8 487.7 131.8 3.3 457.1 145.3 2.9 424.9 160.9 2.4 274.2 108.6 2.2
YCUL0130EB
AIR TEMPERATURE ON - CONDENSER (°C)
LCWT
(°C)
25°C 30°C 35°C 40°C 45°C 50°C
KWoKWiCOP KWoKWiCOP KWoKWiCOP KWoKWiCOP KWoKWiCOP KWoKWiCOP
2.0 418.3 110.3 3.4 396.6 121.3 2.9 373.7 133.8 2.5 349.2 148.2 2.2 323.0 165.0 1.8 294.7 184.4 1.5
3.0 433.6 111.4 3.5 411.2 122.5 3.0 387.6 135.0 2.6 362.5 149.4 2.2 335.5 166.0 1.9 256.3 146.7 1.6
4.0 449.3 112.5 3.5 426.2 123.7 3.1 401.9 136.2 2.7 376.1 150.6 2.3 348.3 167.2 1.9 266.6 147.4 1.7
5.0 465.4 113.7 3.6 441.6 124.9 3.2 416.5 137.5 2.7 389.9 151.9 2.4 361.5 168.4 2.0 277.1 148.2 1.7
6.0 481.9 114.9 3.7 457.4 126.2 3.3 431.5 138.8 2.8 404.1 153.1 2.4 374.9 169.6 2.0 287.9 149.0 1.8
7.0 498.8 116.0 3.8 473.4 127.5 3.3 446.8 140.1 2.9 418.7 154.5 2.5 388.7 170.9 2.1 298.9 149.8 1.8
8.0 516.1 117.3 3.9 489.9 128.8 3.4 462.5 141.5 3.0 433.6 155.9 2.6 402.9 172.2 2.2 310.3 150.7 1.9
9.0 533.7 118.5 4.0 506.8 130.1 3.5 478.6 142.9 3.0 448.9 157.3 2.6 417.4 173.6 2.2 322.1 151.6 1.9
10.0 551.9 119.7 4.1 524.2 131.5 3.6 495.1 144.3 3.1 464.6 158.7 2.7 432.3 175.0 2.3 279.6 117.8 2.1
11.0 570.5 121.0 4.2 541.9 132.8 3.7 512.0 145.7 3.2 480.6 160.1 2.8 447.4 176.4 2.3 289.7 118.6 2.2
12.0 589.5 122.3 4.3 560.0 134.2 3.8 529.3 147.2 3.3 497.1 161.6 2.8 463.1 177.9 2.4 300.4 119.2 2.3

YORK INTERNATIONAL
48
YORK INTERNATIONAL 49
FORM 150.63-EG1

YORK INTERNATIONAL
50
YORK INTERNATIONAL 51
FORM 150.63-EG1
Part Load Ratings - R-22 (English Units)
YCUL0016EC
%
DISPL.
AMBIENT
DEG F TONS COMPR
kW EER
100.0 95.0 15.2 14.1 10.8
50.0 69.2 8.7 5.1 16.1
YCUL0030EC
%
DISPL.
AMBIENT
DEG F TONS COMPR
kW EER
100.0 95.0 25.9 25.2 11.1
50.0 69.0 14.6 9.2 16.6
YCUL0040EC
%
DISPL.
AMBIENT
DEG F TONS COMPR
kW EER
100.0 95.0 37.7 39.8 10.6
66.7 79.8 28.1 20.5 14.5
33.3 59.2 15.2 8.3 18.8
YCUL0050EC
%
DISPL.
AMBIENT
DEG F TONS COMPR
kW EER
100.0 95.0 46.9 45.8 11.0
78.2 84.4 38.6 30.9 12.7
50.0 68.9 26.5 16.5 16.5
28.2 55.0 15.3 8.5 18.6
YCUL0060EC
%
DISPL.
AMBIENT
DEG F TONS COMPR
kW EER
100.0 95.0 56.2 59.2 10.4
76.5 84.5 46.4 39.9 12.2
50.0 69.0 31.9 21.3 15.9
26.5 55.0 18.4 10.3 18.8
YCUL0076EC
%
DISPL.
AMBIENT
DEG F TONS COMPR
kW EER
100.0 95.0 68.9 71.9 10.5
85.5 88.4 61.2 55.4 11.8
66.7 79.7 51.3 36.7 14.2
52.2 69.7 39.8 28.1 15.1
33.3 59.3 27.9 14.5 18.7
18.8 55.0 15.5 8.2 18.8
YCUL0086EC
%
DISPL.
AMBIENT
DEG F TONS COMPR
kW EER
100.0 95.0 83.6 88.6 10.5
84.3 88.3 74.3 68.3 11.9
66.7 79.6 62.2 45.1 14.4
51.0 69.4 47.9 35.2 14.9
33.3 59.0 33.5 18.2 18.6
17.7 55.0 18.6 9.6 19.7
YCUL0026EC
%
DISPL.
AMBIENT
DEG F TONS COMPR
kW EER
100.0 95.0 20.8 20.3 10.8
50.0 69.3 11.9 7.1 16.7
YCUL0036EC
%
DISPL.
AMBIENT
DEG F TONS COMPR
kW EER
100.0 95.0 31.2 31.2 11.0
50.0 68.7 17.5 11.2 16.6
YCUL0046EC
%
DISPL.
AMBIENT
DEG F TONS COMPR
kW EER
100.0 95.0 42.3 39.5 11.3
75.0 83.2 34.0 24.9 13.4
50.0 68.9 23.9 13.9 17.1
25.0 55.0 12.6 6.0 20.4
YCUL0056EC
%
DISPL.
AMBIENT
DEG F TONS COMPR
kW EER
100.0 95.0 51.7 51.3 10.9
75.0 83.4 41.7 32.7 13.1
50.0 68.9 29.3 18.8 16.3
25.0 55.0 15.5 8.4 18.9
YCUL0066EC
%
DISPL.
AMBIENT
DEG F TONS COMPR
kW EER
100.0 95.0 62.2 62.1 11.0
75.0 83.3 50.0 39.2 13.4
50.0 68.7 34.9 22.4 16.6
25.0 55.0 18.4 9.9 19.6
YCUL0080EC
%
DISPL.
AMBIENT
DEG F TONS COMPR
kW EER
100.0 95.0 77.0 78.8 10.8
83.3 87.6 67.5 58.6 12.4
66.7 79.5 57.1 40.8 14.4
50.0 68.6 43.1 29.7 15.6
33.3 59.0 30.8 16.9 18.2
16.7 55.0 15.6 8.2 18.9
YCUL0090EC
%
DISPL.
AMBIENT
DEG F TONS COMPR
kW EER
100.0 95.0 90.1 97.9 10.3
83.3 87.8 79.2 72.0 12.1
66.7 79.8 67.2 49.2 14.4
50.0 68.6 50.5 36.2 15.3
33.3 59.1 36.2 19.5 19.0
16.7 55.0 18.4 9.4 19.8

YORK INTERNATIONAL
50
YORK INTERNATIONAL 51
FORM 150.63-EG1
YCUL0096EC
%
DISPL.
AMBIENT
DEG F TONS COMPR
kW EER
100.0 95.0 90.8 88.6 11.0
77.8 84.0 74.2 60.4 12.8
50.0 67.8 49.6 35.4 15.3
27.8 55.0 28.5 17.9 17.3
YCUL0106EC
%
DISPL.
AMBIENT
DEG F TONS COMPR
kW EER
100.0 95.0 108.9 114.1 10.5
81.8 86.9 94.3 81.2 12.3
59.1 75.2 72.9 51.3 14.5
40.9 63.0 50.8 33.5 16.5
18.2 55.0 23.9 13.7 18.5
YCUL0130EC
%
DISPL.
AMBIENT
DEG F TONS COMPR
kW EER
100.0 95.0 133.6 138.0 10.5
85.2 88.1 118.3 106.4 11.7
66.7 77.5 94.7 79.0 13.2
51.9 69.0 75.7 56.3 14.7
33.3 58.0 51.3 32.4 17.1
18.5 55.0 28.2 17.8 17.2
YCUL0100EC
%
DISPL.
AMBIENT
DEG F TONS COMPR
kW EER
100.0 95.0 98.4 97.0 10.9
75.0 83.0 78.8 63.5 13.0
50.0 67.8 53.8 39.2 15.1
25.0 55.0 28.5 17.9 17.3
YCUL0120EC
%
DISPL.
AMBIENT
DEG F TONS COMPR
kW EER
100.0 95.0 122.1 124.5 10.6
83.3 87.5 106.8 93.0 11.9
66.7 77.5 86.6 70.7 13.3
50.0 68.2 67.5 48.0 15.2
33.3 58.0 46.8 28.5 17.5
16.7 55.0 23.7 13.8 18.2

YORK INTERNATIONAL
52
YORK INTERNATIONAL 53
FORM 150.63-EG1
Part Load Ratings - R-22 (SI Units)
YCUL0016EC
%
DISPL.
AMBIENT
DEG C KW COMPR
kW COP
100.0 35.0 53.5 14.1 3.17
50.0 20.7 30.5 5.1 4.71
YCUL0030EC
%
DISPL.
AMBIENT
DEG C KW COMPR
kW COP
100.0 35.0 91.0 25.2 3.25
50.0 20.5 51.5 9.2 4.85
YCUL0040EC
%
DISPL.
AMBIENT
DEG C KW COMPR
kW COP
100.0 35.0 132.6 39.8 3.11
66.7 26.5 98.9 20.5 4.25
33.3 15.1 53.5 8.3 5.50
YCUL0050EC
%
DISPL.
AMBIENT
DEG C KW COMPR
kW COP
100.0 35.0 165.1 45.8 3.21
78.2 29.1 135.9 30.9 3.72
50.0 20.5 93.3 16.5 4.83
28.2 12.8 54.0 8.5 5.44
YCUL0060EC
%
DISPL.
AMBIENT
DEG C KW COMPR
kW COP
100.0 35.0 197.8 59.2 3.05
76.5 29.1 163.0 39.9 3.58
50.0 20.6 112.1 21.3 4.66
26.5 12.8 64.6 10.3 5.51
YCUL0076EC
%
DISPL.
AMBIENT
DEG C KW COMPR
kW COP
100.0 35.0 242.1 71.9 3.08
85.5 31.3 215.3 55.4 3.46
66.7 26.5 180.5 36.7 4.15
52.2 20.9 139.9 28.1 4.44
33.3 15.2 98.0 14.5 5.48
18.8 12.8 54.5 8.2 5.52
YCUL0086EC
%
DISPL.
AMBIENT
DEG C KW COMPR
kW COP
100.0 35.0 294.1 88.6 3.08
84.3 31.3 261.3 68.3 3.48
66.7 26.5 218.8 45.1 4.21
51.0 20.8 168.4 35.2 4.36
33.3 15.0 117.9 18.2 5.46
17.7 12.8 65.3 9.6 5.78
YCUL0026EC
%
DISPL.
AMBIENT
DEG C KW COMPR
kW COP
100.0 35.0 73.3 20.3 3.17
50.0 20.7 41.9 7.1 4.91
YCUL0036EC
%
DISPL.
AMBIENT
DEG C KW COMPR
kW COP
100.0 35.0 109.6 31.2 3.23
50.0 20.4 61.5 11.2 4.88
YCUL0046EC
%
DISPL.
AMBIENT
DEG C KW COMPR
kW COP
100.0 35.0 148.6 39.5 3.30
75.0 28.5 119.4 24.9 3.92
50.0 20.5 83.9 13.9 5.02
25.0 12.8 44.3 6.0 5.99
YCUL0056EC
%
DISPL.
AMBIENT
DEG C KW COMPR
kW COP
100.0 35.0 181.9 51.3 3.20
75.0 28.5 146.6 32.7 3.83
50.0 20.5 102.9 18.8 4.77
25.0 12.8 54.5 8.4 5.54
YCUL0066EC
%
DISPL.
AMBIENT
DEG C KW COMPR
kW COP
100.0 35.0 218.6 62.1 3.23
75.0 28.5 175.8 39.2 3.93
50.0 20.4 122.7 22.4 4.87
25.0 12.8 64.7 9.9 5.74
YCUL0080EC
%
DISPL.
AMBIENT
DEG C KW COMPR
kW COP
100.0 35.0 270.8 78.8 3.16
83.3 30.9 237.5 58.6 3.63
66.7 26.4 200.8 40.8 4.21
50.0 20.3 151.7 29.7 4.58
33.3 15.0 108.2 16.9 5.34
16.7 12.8 55.0 8.2 5.54
YCUL0090EC
%
DISPL.
AMBIENT
DEG C KW COMPR
kW COP
100.0 35.0 316.7 97.9 3.03
83.3 31.0 278.6 72.0 3.53
66.7 26.5 236.4 49.2 4.22
50.0 20.4 177.5 36.2 4.49
33.3 15.1 127.2 19.5 5.57
16.7 12.8 64.6 9.4 5.82

YORK INTERNATIONAL
52
YORK INTERNATIONAL 53
FORM 150.63-EG1
YCUL0096EC
%
DISPL.
AMBIENT
DEG C KW COMPR
kW COP
100.0 35.0 319.4 88.6 3.21
77.8 28.9 260.8 60.4 3.76
50.0 19.9 174.6 35.4 4.48
27.8 12.8 100.1 17.9 5.08
YCUL0106EC
%
DISPL.
AMBIENT
DEG C KW COMPR
kW COP
100.0 35.0 383.0 114.1 3.07
81.8 30.5 331.6 81.2 3.60
59.1 24.0 256.4 51.3 4.25
40.9 17.2 178.7 33.5 4.82
18.2 12.8 84.1 13.7 5.41
YCUL0130EC
%
DISPL.
AMBIENT
DEG C KW COMPR
kW COP
100.0 35.0 469.7 138.0 3.08
85.2 31.2 415.9 106.4 3.44
66.7 25.3 333.0 79.0 3.86
51.9 20.6 266.3 56.3 4.31
33.3 14.5 180.4 32.4 5.01
18.5 12.8 99.0 17.8 5.05
YCUL0100EC
%
DISPL.
AMBIENT
DEG C KW COMPR
kW COP
100.0 35.0 346.0 97.0 3.21
75.0 28.4 277.0 63.5 3.82
50.0 19.9 189.2 39.2 4.42
25.0 12.8 100.1 17.9 5.08
YCUL0120EC
%
DISPL.
AMBIENT
DEG C KW COMPR
kW COP
100.0 35.0 429.5 124.5 3.09
83.3 30.8 375.5 93.0 3.50
66.7 25.3 304.5 70.7 3.91
50.0 20.1 237.5 48.0 4.45
33.3 14.4 164.5 28.5 5.13
16.7 12.8 83.4 13.8 5.34

YORK INTERNATIONAL
54
YORK INTERNATIONAL 55
FORM 150.63-EG1
Part Load Ratings - HFC-407C (English Units)
YCUL0016EB
%
DISPL.
AMBIENT
DEG F TONS COMPR
kW EER
100.0 95.0 14.5 14.9 9.9
50.0 70.2 8.5 5.1 15.6
YCUL0030EB
%
DISPL.
AMBIENT
DEG F TONS COMPR
kW EER
100.0 95.0 25.1 26.9 10.2
50.0 70.1 14.7 9.6 16.1
YCUL0040EB
%
DISPL.
AMBIENT
DEG F TONS COMPR
kW EER
100.0 95.0 36.6 42.3 9.7
66.7 80.7 27.9 21.6 13.7
33.3 60.4 15.5 8.6 18.6
YCUL0050EB
%
DISPL.
AMBIENT
DEG F TONS COMPR
kW EER
100.0 95.0 45.5 49.1 10.0
78.2 84.9 37.9 33.1 11.7
50.0 70.0 26.6 17.2 15.9
28.2 55.6 15.6 8.8 18.4
YCUL0060EB
%
DISPL.
AMBIENT
DEG F TONS COMPR
kW EER
100.0 95.0 54.9 62.7 9.6
76.5 85.1 45.9 42.1 11.5
50.0 70.1 32.1 22.0 15.6
26.5 55.6 18.9 10.2 19.6
YCUL0076EB
%
DISPL.
AMBIENT
DEG F TONS COMPR
kW EER
100.0 95.0 66.5 76.8 9.6
85.5 88.7 59.5 59.2 10.8
66.7 80.6 50.5 39.0 13.2
52.2 70.7 39.5 29.5 14.4
33.3 60.4 28.2 15.0 18.4
18.8 55.0 15.8 8.5 18.7
YCUL0086EB
%
DISPL.
AMBIENT
DEG F TONS COMPR
kW EER
100.0 95.0 81.8 93.4 9.8
84.3 88.7 73.2 71.9 11.2
66.7 80.5 62.0 47.4 13.7
51.0 70.3 48.1 36.5 14.5
33.3 60.2 34.4 18.2 19.1
17.7 55.0 19.3 9.0 21.7
YCUL0026EB
%
DISPL.
AMBIENT
DEG F TONS COMPR
kW EER
100.0 95.0 20.1 21.8 9.8
50.0 70.3 11.8 7.5 16.0
YCUL0036EB
%
DISPL.
AMBIENT
DEG F TONS COMPR
kW EER
100.0 95.0 30.7 32.8 10.4
50.0 69.7 17.8 11.4 16.7
YCUL0046EB
%
DISPL.
AMBIENT
DEG F TONS COMPR
kW EER
100.0 95.0 40.9 41.4 10.5
75.0 83.5 33.1 26.3 12.5
50.0 69.9 23.8 14.3 16.7
25.0 55.0 12.8 6.0 20.6
YCUL0056EB
%
DISPL.
AMBIENT
DEG F TONS COMPR
kW EER
100.0 95.0 50.2 55.0 9.9
75.0 84.1 41.0 34.8 12.2
50.0 70.2 29.4 19.6 15.8
25.0 55.0 15.8 8.7 18.8
YCUL0066EB
%
DISPL.
AMBIENT
DEG F TONS COMPR
kW EER
100.0 95.0 61.3 65.1 10.4
75.0 83.8 49.9 40.9 12.9
50.0 69.7 35.4 22.7 16.7
25.0 55.0 19.1 9.5 21.0
YCUL0080EB
%
DISPL.
AMBIENT
DEG F TONS COMPR
kW EER
100.0 95.0 74.9 84.0 9.9
83.3 88.1 66.2 62.3 11.5
66.7 80.4 56.7 43.2 13.6
50.0 69.7 43.3 30.9 15.1
33.3 60.1 31.3 17.4 18.0
16.7 55.0 16.0 8.5 18.8
YCUL0090EB
%
DISPL.
AMBIENT
DEG F TONS COMPR
kW EER
100.0 95.0 88.5 103.5 9.6
83.3 88.2 78.4 76.2 11.3
66.7 80.6 67.3 51.9 13.8
50.0 69.5 50.9 37.5 14.9
33.3 60.3 37.3 19.1 19.9
16.7 55.0 19.1 8.9 21.6

YORK INTERNATIONAL
54
YORK INTERNATIONAL 55
FORM 150.63-EG1
YCUL0096EB
%
DISPL.
AMBIENT
DEG F TONS COMPR
kW EER
100.0 95.0 87.2 90.4 10.3
77.8 84.5 71.9 61.3 12.3
50.0 68.7 49.0 34.5 15.4
27.8 55.0 28.2 16.2 18.9
YCUL0106EB
%
DISPL.
AMBIENT
DEG F TONS COMPR
kW EER
100.0 95.0 104.2 116.0 9.9
81.8 87.5 91.2 82.8 11.7
59.1 76.2 71.5 50.9 14.3
40.9 64.0 50.3 32.0 17.0
18.2 55.0 24.1 12.7 19.9
YCUL0130EB
%
DISPL.
AMBIENT
DEG F TONS COMPR
kW EER
100.0 95.0 128.0 140.4 9.9
85.2 88.5 114.2 108.6 11.1
66.7 78.3 92.5 79.3 12.8
51.9 69.8 74.3 55.6 14.6
33.3 58.9 51.1 30.2 18.1
18.5 55.0 28.1 15.8 19.1
YCUL0100EB
%
DISPL.
AMBIENT
DEG F TONS COMPR
kW EER
100.0 95.0 94.2 99.5 10.2
75.0 83.5 76.1 64.3 12.5
50.0 68.5 52.6 38.2 15.1
25.0 55.0 28.2 16.2 18.9
YCUL0120EB
%
DISPL.
AMBIENT
DEG F TONS COMPR
kW EER
100.0 95.0 117.6 125.8 10.1
83.3 88.0 103.9 94.1 11.5
66.7 78.6 85.4 70.3 13.2
50.0 69.3 67.2 47.1 15.4
33.3 58.9 46.9 26.9 18.4
16.7 55.0 23.9 12.8 19.6

YORK INTERNATIONAL
56
YORK INTERNATIONAL 57
FORM 150.63-EG1
Part Load Ratings - HFC-407C (SI Units)
YCUL0016EB
%
DISPL.
AMBIENT
DEG F TONS COMPR
kW EER
100.0 35.0 51.1 14.9 2.89
50.0 21.2 29.9 5.1 4.57
YCUL0030EB
%
DISPL.
AMBIENT
DEG F TONS COMPR
kW EER
100.0 35.0 88.4 26.9 2.98
50.0 21.2 51.7 9.6 4.71
YCUL0040EB
%
DISPL.
AMBIENT
DEG F TONS COMPR
kW EER
100.0 35.0 128.8 42.3 2.86
66.7 27.1 98.1 21.6 4.02
33.3 15.8 54.5 8.6 5.45
YCUL0050EB
%
DISPL.
AMBIENT
DEG F TONS COMPR
kW EER
100.0 35.0 160.0 49.1 2.93
78.2 29.4 133.1 33.1 3.44
50.0 21.1 93.4 17.2 4.66
28.2 13.1 54.9 8.8 5.38
YCUL0060EB
%
DISPL.
AMBIENT
DEG F TONS COMPR
kW EER
100.0 35.0 193.1 62.7 2.83
76.5 29.5 161.3 42.1 3.38
50.0 21.2 113.0 22.0 4.56
26.5 13.1 66.4 10.2 5.74
YCUL0076EB
%
DISPL.
AMBIENT
DEG F TONS COMPR
kW EER
100.0 35.0 234.0 76.8 2.80
85.5 31.5 209.4 59.2 3.17
66.7 27.0 177.7 39.0 3.88
52.2 21.5 139.1 29.5 4.23
33.3 15.8 99.1 15.0 5.39
18.8 12.8 55.7 8.5 5.48
YCUL0086EB
%
DISPL.
AMBIENT
DEG F TONS COMPR
kW EER
100.0 35.0 287.6 93.4 2.87
84.3 31.5 257.6 71.9 3.27
66.7 26.9 218.1 47.4 4.03
51.0 21.3 169.2 36.5 4.25
33.3 15.7 120.9 18.2 5.60
17.7 12.8 68.0 9.0 6.35
YCUL0026EB
%
DISPL.
AMBIENT
DEG F TONS COMPR
kW EER
100.0 35.0 70.7 21.8 2.88
50.0 21.3 41.5 7.5 4.68
YCUL0036EB
%
DISPL.
AMBIENT
DEG F TONS COMPR
kW EER
100.0 35.0 108.0 32.8 3.04
50.0 21.0 62.5 11.4 4.89
YCUL0046EB
%
DISPL.
AMBIENT
DEG F TONS COMPR
kW EER
100.0 35.0 144.0 41.4 3.07
75.0 28.6 116.5 26.3 3.65
50.0 21.0 83.7 14.3 4.90
25.0 12.8 44.9 6.0 6.05
YCUL0056EB
%
DISPL.
AMBIENT
DEG F TONS COMPR
kW EER
100.0 35.0 176.5 55.0 2.91
75.0 28.9 144.3 34.8 3.57
50.0 21.2 103.4 19.6 4.62
25.0 12.8 55.6 8.7 5.51
YCUL0066EB
%
DISPL.
AMBIENT
DEG F TONS COMPR
kW EER
100.0 35.0 215.7 65.1 3.05
75.0 28.8 175.5 40.9 3.77
50.0 20.9 124.6 22.7 4.88
25.0 12.8 67.0 9.5 6.16
YCUL0080EB
%
DISPL.
AMBIENT
DEG F TONS COMPR
kW EER
100.0 35.0 263.3 84.0 2.90
83.3 31.2 233.0 62.3 3.37
66.7 26.9 199.2 43.2 3.98
50.0 21.0 152.3 30.9 4.44
33.3 15.6 110.2 17.4 5.29
16.7 12.8 56.3 8.5 5.51
YCUL0090EB
%
DISPL.
AMBIENT
DEG F TONS COMPR
kW EER
100.0 35.0 311.2 103.5 2.82
83.3 31.2 275.9 76.2 3.32
66.7 27.0 236.5 51.9 4.03
50.0 20.8 179.1 37.5 4.38
33.3 15.7 131.2 19.1 5.83
16.7 12.8 67.3 8.9 6.33

YORK INTERNATIONAL
56
YORK INTERNATIONAL 57
FORM 150.63-EG1
YCUL0096EB
%
DISPL.
AMBIENT
DEG C KW COMPR
kW COP
100.0 35.0 306.8 90.4 3.03
77.8 29.2 253.0 61.3 3.60
50.0 20.4 172.4 34.5 4.52
27.8 12.8 99.3 16.2 5.53
YCUL0106EB
%
DISPL.
AMBIENT
DEG C KW COMPR
kW COP
100.0 35.0 366.6 116.0 2.89
81.8 30.8 320.7 82.8 3.43
59.1 24.5 251.5 50.9 4.20
40.9 17.8 176.9 32.0 4.97
18.2 12.8 84.6 12.7 5.84
YCUL0130EB
%
DISPL.
AMBIENT
DEG C KW COMPR
kW COP
100.0 35.0 450.3 140.4 2.91
85.2 31.4 401.5 108.6 3.26
66.7 25.7 325.3 79.3 3.76
51.9 21.0 261.4 55.6 4.28
33.3 15.0 179.6 30.2 5.32
18.5 12.8 98.7 15.8 5.60
YCUL0100EB
%
DISPL.
AMBIENT
DEG C KW COMPR
kW COP
100.0 35.0 331.2 99.5 3.00
75.0 28.6 267.6 64.3 3.65
50.0 20.3 185.1 38.2 4.43
25.0 12.8 99.3 16.2 5.53
YCUL0120EB
%
DISPL.
AMBIENT
DEG C KW COMPR
kW COP
100.0 35.0 413.7 125.8 2.95
83.3 31.1 365.3 94.1 3.37
66.7 25.9 300.3 70.3 3.87
50.0 20.7 236.4 47.1 4.50
33.3 15.0 165.1 26.9 5.40
16.7 12.8 84.0 12.8 5.76

YORK INTERNATIONAL
58
YORK INTERNATIONAL 59
FORM 150.63-EG1
Physical Data - (English Units)
Notes:
1. Pump Down Capacity is based on 100°F (37.8°C) liquid R22 and 80% of condenser volume.
2. Operating Refrigerant Charge is for Condensing Unit only, does not include refrigerant lines and evaporator coil.
Model Number YCUL
0016 0026 0030 0036 0040 0046 0050 0056 0060
General Unit Data
Nominal Tons, R-22 15.2 20.8 25.9 31.2 37.7 42.3 46.9 51.7 56.2
Nominal Tons, R-407C 14.5 20.1 25.1 30.7 36.6 40.9 45.5 50.2 54.9
Number of Refrigerant Circuits 1 1 1 1 1 2 2 2 2
Refrigerant Charge, Operating
R-22, ckt1 / ckt2, lbs 25.0 29.6 45.2 50.7 53.8 35.1/35.1 42.1/35.1 42.1/42.1 46.8/42.1
R-407C, ckt1 / ckt2, lbs 24.1 28.5 43.6 48.9 51.9 33.8/33.8 40.6/33.8 40.6/40.6 45.1/40.6
Pumpdown Capacity
R-22, ckt1 / ckt2, lbs 43.2 43.2 60.5 90.7 90.7 58.4/58.4 58.4/58.4 58.4/58.4 58.4/58.4
R-407C, ckt1 / ckt2, lbs 41.6 41.6 58.3 87.4 87.4 56.5/56.5 56.5/56.5 56.5/56.5 56.5/56.5
Oil Charge, ckt1 / ckt2, gallons 2.2 2.2 2.2 2.2 3.3 2.2/2.2 2.2/2.2 2.2/2.2 2.2/2.2
Operating / Shipping Weight
Aluminum Fin Coils, lbs 2051 2058 2401 2445 2788 3947 4000 4057 4114
Copper Fin Coils, lbs 2201 2208 2551 2595 2938 4247 4300 4357 4414
Compressors, scroll type
Compressors per circuit 2 2 2 2 3 2 2 2 2
Compressors per unit 2 2 2 2 3 4 4 4 4
Nominal Tons per compressor 7.5 10 13 15 13 10/10 13/10 13/13 15/13
Condenser
Total Face Area ft247.2 47.2 66.1 66.1 66.1 128.0 128.0 128.0 128.0
Number of Rows 2 2 2 3 3 2 2 2 2
Fins per Inch 13 13 13 13 13 13 13 13 13
Condenser Fans
Number of Fans total 2 2 2 2 2 4 4 4 4
Fan hp/kw 2 / 1.4 2 / 1.4 2 / 1.4 2 / 1.4 2 / 1.4 2 / 1.4 2 / 1.4 2 / 1.4 2 / 1.4
Fan RPM 1140 1140 1140 1140 1140 1140 1140 1140 1140
Number of Blades 3 3 3 3 3 3 3 3 3
Total Chiller CFM 16257 16257 23500 23500 23500 47360 47360 47360 47360

YORK INTERNATIONAL
58
YORK INTERNATIONAL 59
FORM 150.63-EG1
Model Number YCUL
0066 0076 0080 0086 0090 0096 0100 0106 0120 0130
62.2 68.9 77.0 83.6 90.1 90.8 98.4 108.9 122.1 133.6
61.3 66.5 74.9 81.8 88.5 87.2 94.2 104.2 117.6 128.0
2 2 2 2 2 2 2 2 2 2
56.2/56.2 58.5/48.4 64.7/64.7 71.8/64.7 78.0/78.0 86.3/73.2 86.3/86.3 104.3/86.3 106.9/106.9 126.0/106.9
54.2/54.2 56.4/46.7 62.4/62.4 69.2/62.4 75.2/75.2 83.2/70.5 83.2/83.2 100.5/83.2 103.0/103.0 121.4/103.0
87.6/87.6 68.1/68.1 102.2/102.2 102.2/102.2 102.2/102.2 150.0/150.0 150.0/150.0 170.2/170.2 194.8/194.8 194.8/194.8
84.4/84.4 65.6/65.6 98.5/98.5 98.5/98.5 98.5/98.5 145.8/145.8 145.8/145.8 165.5/165.5 189.4/189.4 189.4/189.4
2.2/2.2 3.3/3.3 3.3/3.3 3.3/3.3 3.3/3.3 4.2/4.2 4.2/4.2 6.3/4.2 6.3/6.3 6.3/6.3
4175 4842 5004 5150 5240 5532 5646 6362 7744 7770
4475 5142 5384 5530 5620 6394 6474 7305 9012 9034
2 3 3 3 3 2 2 3/2 3 3
4 6 6 6 6 4 4 5 6 6
15/15 13/10 13/13 15/13 15/15 25/20 25/25 20/25 20/20 25/20
128.0 149.3 149.3 149.3 149.3 168.0 168.0 192.0 222.0 222.0
3 2 3 3 3 3 3 3 3 3
13 13 13 13 13 13 13 13 13 13
4 4 4 4 4 6 6 6 8 8
2 / 1.4 2 / 1.4 2 / 1.7 2 / 1.7 2 / 1.7 2 / 1.8 2 / 1.8 2 / 1.8 2 / 1.8 2 / 1.8
1140 1140 1140 1140 1140 1140 1140 1140 1140 1140
3 3 3 3 3 3 3 3 3 3
47360 46080 55253 55253 54550 79800 79800 85800 106400 106400

YORK INTERNATIONAL
60
YORK INTERNATIONAL 61
FORM 150.63-EG1
Physical Data - (SI Units)
Notes:
1. Pump Down Capacity is based on 100°F (37.8°C) liquid R22 and 80% of condenser volume.
2. Operating Refrigerant Charge is for Condensing Unit only, does not include refrigerant lines and evaporator coil.
Model Number YCUL
0016 0026 0030 0036 0040 0046 0050 0056 0060
General Unit Data
Nominal kW, R-22 53.5 73.2 91.1 109.7 132.6 148.8 164.9 181.8 197.7
Nominal kW, R-407C 51.0 70.7 88.3 108.0 128.7 143.8 160.0 176.6 193.1
Number of Refrigerant Circuits 1 1 1 1 1 2 2 2 2
Refrigerant Charge, Operating
R-22, ckt1 / ckt2, kg 11.7 13.3 18.7 23.4 24.2 16.4/16.4 19.5/16.4 19.5/19.5 28.9/19.5
R-407C, ckt1 / ckt2, kg 11.3 12.8 18.0 22.6 23.3 15.8/15.8 18.8/15.8 18.8/18.8 27.9/18.8
Pumpdown Capacity
R-22, ckt1 / ckt2, lbs 19.6 19.6 27.4 41.1 41.1 26.5/26.5 26.5/26.5 26.5/26.5 26.5/26.5
R-407C, ckt1 / ckt2, lbs 18.9 18.9 26.4 39.6 39.6 25.5/25.5 25.5/25.5 25.5/25.5 25.5/25.5
Oil Charge, ckt1 / ckt2, liters 8.3 8.3 8.3 8.3 12.5 8.3/8.3 8.3/8.3 8.3/8.3 8.3/8.3
Shipping Weight
Aluminum Fin Coils, kg 930 934 1089 1109 1265 1790 1814 1840 1866
Copper Fin Coils, kg 998 1002 1157 1177 1333 1926 1950 1976 2002
Compressors, scroll type
Compressors per circuit 2 2 2 2 3 2 2 2 2
Compressors per unit 2 2 2 2 3 4 4 4 4
Nominal kWo per compressor 26 35 46 53 46 35/35 46/35 46/46 53/46
Condenser
Total Face Area meters24 4 6 6 6 12 12 12 12
Number of Rows 2 2 2 3 3 2 2 2 2
Fins per m 512 512 512 512 512 512 512 512 512
Condenser Fans
Number of Fans total 2 2 2 2 2 4 4 4 4
Fan hp/kw 2 / 1.4 2 / 1.4 2 / 1.4 2 / 1.4 2 / 1.4 2 / 1.4 2 / 1.4 2 / 1.4 2 / 1.4
Fan RPM 1140 1140 1140 1140 1140 1140 1140 1140 1140
Number of Blades 3 3 3 3 3 3 3 3 3
Total Chiller Airow l/s 7672 7672 11091 11091 11091 22351 22351 22351 22351

YORK INTERNATIONAL
60
YORK INTERNATIONAL 61
FORM 150.63-EG1
Model Number YCUL
0066 0076 0080 0086 0090 0096 0100 0106 0120 0130
218.8 242.3 270.8 294.0 316.9 319.3 346.1 383.0 429.4 469.9
215.6 233.9 263.4 287.7 311.3 306.7 331.3 366.5 413.6 450.2
2 2 2 2 2 2 2 2 2 2
25.7/25.7 26.5/21.8 35.9/35.9 35.9/35.9 35.9/35.9 39.1/33.2 39.1/39.1 47.3/39.1 48.5/48.5 57.2/48.5
24.8/24.8 25.5/21.0 34.6/34.6 34.6/34.6 34.6/34.6 37.7/32.0 37.7/37.7 45.6/37.7 46.7/46.7 55.1/46.7
39.7/39.7 30.9/30.9 46.4/46.4 46.4/46.4 46.4/46.4 68.0/68.0 68.0/68.0 77.2/77.2 88.4/88.4 88.4/88.4
38.2/38.2 29.8/29.8 44.7/44.7 44.7/44.7 44.7/44.7 66.1/66.1 66.1/66.1 75.1/75.1 85.9/85.9 85.9/85.9
8.3/8.3 12.5/12.5 12.5/12.5 12.5/12.5 12.5/12.5 16/16 16/16 24/16 24/24 24/24
1894 2196 2270 2336 2377 2509 2561 2886 3513 3524
2030 2332 2442 2508 2549 2900 2937 3314 4088 4098
2 3 3 3 3 2 2 3/2 3 3
4 6 6 6 6 4 4 5 6 6
53/53 46/35 46/46 53/46 53/53 88/70 88/88 70/88 70/70 88/70
12 14 14 14 14 16.0 16.0 18.0 21.0 21.0
3 3 2 3 3 3 3 3 3 3
512 512 512 512 512 512 512 512 512 512
4 4 4 4 4 6 6 6 8 8
2 / 1.4 2 / 1.7 2 / 1.7 2 / 1.7 2 / 1.7 2 / 1.8 2 / 1.8 2 / 1.8 2 / 1.8 2 / 1.8
1140 1140 1140 1140 1140 1140 1140 1140 1140 1140
3 3 3 3 3 3 3 3 3 3
21747 26076 26076 25744 25371 37660 37660 39784 50214 50214

YORK INTERNATIONAL
62
YORK INTERNATIONAL 63
FORM 150.63-EG1
Dimensions - YCUL0016 - YCUL0026 (English)
NOTE:
Placement on a level surface of free of obstructions (including snow, for winter operation) or air circulation ensures rated performance, reliable
operation, and ease of maintenance. Site restrictions may compromise minimum clearances indicated below, resulting in unpredictable
airow patterns and possible diminished performance. YORK’s unit controls will optimize operation without nuisance high-pressure
safety cutouts; however, the system designer must consider potential performance degradation. Access to the unit control center
assumes the unit is no higher than on spring isolators. Recommended minimum clearances: Side to wall – 6'; rear to wall – 6';
control panel to end wall – 4'0; top – no obstructions allowed; distance between adjacent units – 10'. No more than one adjacent
wall may be higher than the unit.
LD04417
MODEL YCUL A
0016 22 5/16”
0026 22 3/16”

YORK INTERNATIONAL
62
YORK INTERNATIONAL 63
FORM 150.63-EG1
YCUL Center of Gravity (in.)
X Y Z
0016 45.5 26.3 31.8
0026 45.5 26.3 31.7
ALUMINUM COIL COPPER COIL
YCUL Center of Gravity (in.)
X Y Z
0016 44.3 25.4 31.0
0026 44.3 25.3 31.0
MODEL YCUL A
0016 7 3/8”
0026 5 1/4”

YORK INTERNATIONAL
64
YORK INTERNATIONAL 65
FORM 150.63-EG1
Dimensions - YCUL0030 - YCUL0036 (English)
NOTE:
Placement on a level surface of free of obstructions (including snow, for winter operation) or air circulation ensures rated performance, reli-
able operation, and ease of maintenance. Site restrictions may compromise minimum clearances indicated below, resulting in unpredictable
airow patterns and possible diminished performance. YORK’s unit controls will optimize operation without nuisance high-pressure safety
cutouts; however, the system designer must consider potential performance degradation. Access to the unit control center assumes the unit
is no higher than on spring isolators. Recommended minimum clearances: Side to wall – 6'; rear to wall – 6'; control panel to end wall – 4';
top – no obstructions allowed; distance between adjacent units – 10'. No more than one adjacent wall may be higher than the unit.
LD04421
MODEL
YCUL A B
0030 16 5/16” 28 7/8”
0036 14 1/2” 22 1/4”

YORK INTERNATIONAL
64
YORK INTERNATIONAL 65
FORM 150.63-EG1
LD04422
ALUMINUM COIL COPPER COIL
YCUL Center of Gravity (in.)
X Y Z
0030 44.3 26.4 39.5
0036 44.4 26.6 39.3
YCUL Center of Gravity (in.)
X Y Z
0030 43.4 25.6 38.8
0036 43.4 25.8 38.6
MODEL
YCUL A
0030 5 15/16”
0036 4 3/4”

YORK INTERNATIONAL
66
YORK INTERNATIONAL 67
FORM 150.63-EG1
NOTE:
Placement on a level surface of free of obstructions (including snow, for winter operation) or air circulation ensures rated performance, reli-
able operation, and ease of maintenance. Site restrictions may compromise minimum clearances indicated below, resulting in unpredictable
airow patterns and possible diminished performance. YORK’s unit controls will optimize operation without nuisance high-pressure safety
cutouts; however, the system designer must consider potential performance degradation. Access to the unit control center assumes the unit
is no higher than on spring isolators. Recommended minimum clearances: Side to wall – 6'; rear to wall – 6'; control panel to end wall – 4';
top – no obstructions allowed; distance between adjacent units – 10'. No more than one adjacent wall may be higher than the unit.
Dimensions - YCUL0040 (English)

YORK INTERNATIONAL
66
YORK INTERNATIONAL 67
FORM 150.63-EG1
ALUMINUM COIL COPPER COIL
YCUL Center of Gravity (in.)
X Y Z
0040 44.4 27.6 37.5
YCUL Center of Gravity (in.)
X Y Z
0040 43.5 26.9 36.9

YORK INTERNATIONAL
68
YORK INTERNATIONAL 69
FORM 150.63-EG1
Dimensions - YCUL0046 - YCUL0066 (English)
NOTE:
Placement on a level surface of free of obstructions (including snow, for winter operation) or air circulation ensures rated performance, reli-
able operation, and ease of maintenance. Site restrictions may compromise minimum clearances indicated below, resulting in unpredictable
airow patterns and possible diminished performance. YORK’s unit controls will optimize operation without nuisance high-pressure safety
cutouts; however, the system designer must consider potential performance degradation. Access to the unit control center assumes the unit
is no higher than on spring isolators. Recommended minimum clearances: Side to wall – 6'; rear to wall – 6'; control panel to end wall – 4';
top – no obstructions allowed; distance between adjacent units – 10'. No more than one adjacent wall may be higher than the unit.
LD04427
MODEL YCUL A B
0046 7/8” OD 1/8”
0050 7/8” OD 1/4”
0056 7/8” OD 1/4”
0060 7/8” OD 1/4”
0066 1 1/8” OD 1/4”

YORK INTERNATIONAL
68
YORK INTERNATIONAL 69
FORM 150.63-EG1
LD04428
ALUMINUM COIL COPPER COIL
YCUL Center of Gravity (in.)
X Y Z
0046 59.7 40.2 46.6
0050 59.5 40.5 45.6
0056 59.5 40.2 45.3
0060 59.6 40.4 45.2
0066 59.7 40.2 45.0
YCUL Center of Gravity (in.)
X Y Z
0046 59.8 40.2 46.8
0050 59.8 40.4 46.4
0056 59.9 40.2 46.1
0060 59.9 40.4 46.0
0066 60.0 40.2 45.9
MODEL
YCUL A B
0046 6 15/16” 7 3/16”
0050 6 15/16” 7 3/16”
0056 6 15/16” 7 3/16”
0060 6 11/16” 7 3/16”
0066 6 15/16” 5 7/8”

MODEL YCUL A B C D E F
0076 2 1/8” OD 2 1/8” OD 29 3/16” 33 7/8” 6 7/8” 29 3/16”
0080 2 1/8” OD 2 1/8” OD 29 3/16” 33 7/8” 6 7/8” 29 3/16”
0086 2 1/8” OD 2 1/8” OD 29 3/16” 16 15/16” 5 3/16” 28 9/16”
0090 2 5/8” OD 2 5/8” OD 28 9/16” 16 15/16” 5 3/16” 28 9/16”
YORK INTERNATIONAL
70
YORK INTERNATIONAL 71
FORM 150.63-EG1
Dimensions - YCUL0076 - YCUL0090 (English)
NOTE:
Placement on a level surface of free of obstructions (including snow, for winter operation) or air circulation ensures rated performance, reliable
operation, and ease of maintenance. Site restrictions may compromise minimum clearances indicated below, resulting in unpredictable
airow patterns and possible diminished performance. YORK’s unit controls will optimize operation without nuisance high-pressure
safety cutouts; however, the system designer must consider potential performance degradation. Access to the unit control center
assumes the unit is no higher than on spring isolators. Recommended minimum clearances: Side to wall – 6'; rear to wall – 6';
control panel to end wall – 4'0; top – no obstructions allowed; distance between adjacent units – 10'. No more than one adjacent
wall may be higher than the unit.
LD04435

YORK INTERNATIONAL
70
YORK INTERNATIONAL 71
FORM 150.63-EG1
LD04436
ALUMINUM COIL COPPER COIL
YCUL Center of Gravity (in.)
X Y Z
0076 57.7 45.8 46.2
0080 57.8 45.5 46.3
0086 57.8 45.8 46.2
0090 57.8 45.5 46.0
YCUL Center of Gravity (in.)
X Y Z
0076 57.3 45.9 45.2
0080 57.4 45.5 45.1
0086 57.4 45.8 45.0
0090 57.4 45.5 44.9
MODEL YCUL A B
0076 3 5/16” 3 3/16”
0080 3 5/16” 3 3/16”
0086 3 3/16” 3 1/4”
0090 3 3/16” 3 1/4”
MODEL YCUL C D
0076 7 7/8” 11 9/16”
0080 7 7/8” 11 9/16”
0086 6 13/16” 11 9/16”
0090 10” 14 3/8”

YORK INTERNATIONAL
72
YORK INTERNATIONAL 73
FORM 150.63-EG1
NOTE:
Placement on a level surface of free of obstructions (including snow, for winter operation) or air circulation ensures rated performance, reliable
operation, and ease of maintenance. Site restrictions may compromise minimum clearances indicated below, resulting in unpredictable airow
patterns and possible diminished performance. YORK’s unit controls will optimize operation without nuisance high-pressure safety cutouts;
however, the system designer must consider potential performance degradation. Access to the unit control center assumes the unit is no
higher than on spring isolators. Recommended minimum clearances: Side to wall – 6'; rear to wall – 6'; control panel to end wall – 4'0;
top – no obstructions allowed; distance between adjacent units – 10'. No more than one adjacent wall may be higher than the unit.
Dimensions - YCUL0096 - YCUL0100 (English)
MODEL YCUL A B
0096 1 1/8” OD 1 1/8” OD
0100 1 3/8” OD 1 3/8” OD

YORK INTERNATIONAL
72
YORK INTERNATIONAL 73
FORM 150.63-EG1
ALUMINUM COIL COPPER COIL
YCUL Center of Gravity (in.)
X Y Z
0096 64.0 50.9 48.4
0100 64.9 50.9 48.1
YCUL Center of Gravity (in.)
X Y Z
0096 64.8 50.0 50.5
0100 65.6 50.1 50.1

YORK INTERNATIONAL
74
YORK INTERNATIONAL 75
FORM 150.63-EG1
NOTE:
Placement on a level surface of free of obstructions (including snow, for winter operation) or air circulation ensures rated performance, reliable
operation, and ease of maintenance. Site restrictions may compromise minimum clearances indicated below, resulting in unpredictable airow
patterns and possible diminished performance. YORK’s unit controls will optimize operation without nuisance high-pressure safety cutouts;
however, the system designer must consider potential performance degradation. Access to the unit control center assumes the unit is no
higher than on spring isolators. Recommended minimum clearances: Side to wall – 6'; rear to wall – 6'; control panel to end wall – 4'0;
top – no obstructions allowed; distance between adjacent units – 10'. No more than one adjacent wall may be higher than the unit.
Dimensions - YCUL0106 (English)

YORK INTERNATIONAL
74
YORK INTERNATIONAL 75
FORM 150.63-EG1
ALUMINUM COIL COPPER COIL
YCUL Center of Gravity (in.)
X Y Z
0106 73.9 51.4 46.7
YCUL Center of Gravity (in.)
X Y Z
0106 74.6 50.4 48.1

YORK INTERNATIONAL
76
YORK INTERNATIONAL 77
FORM 150.63-EG1
NOTE:
Placement on a level surface of free of obstructions (including snow, for winter operation) or air circulation ensures rated performance, reliable
operation, and ease of maintenance. Site restrictions may compromise minimum clearances indicated below, resulting in unpredictable airow
patterns and possible diminished performance. YORK’s unit controls will optimize operation without nuisance high-pressure safety cutouts;
however, the system designer must consider potential performance degradation. Access to the unit control center assumes the unit is no
higher than on spring isolators. Recommended minimum clearances: Side to wall – 6'; rear to wall – 6'; control panel to end wall – 4'0;
top – no obstructions allowed; distance between adjacent units – 10'. No more than one adjacent wall may be higher than the unit.
Dimensions - YCUL0120 - YCUL0130 (English)

YORK INTERNATIONAL
76
YORK INTERNATIONAL 77
FORM 150.63-EG1
ALUMINUM COIL COPPER COIL
YCUL Center of Gravity (in.)
X Y Z
0120 84.3 49.5 48.1
0130 84.2 49.5 48.1
YCUL Center of Gravity (in.)
X Y Z
0120 83.1 50.4 46.3
0130 83.0 50.4 46.3
MODEL YCUL A
0120 46 11/16”
0130 48 5/8”

YORK INTERNATIONAL
78
YORK INTERNATIONAL 79
FORM 150.63-EG1
NOTE:
Placement on a level surface of free of obstructions (including snow, for winter operation) or air circulation ensures rated performance, reliable
operation, and ease of maintenance. Site restrictions may compromise minimum clearances indicated below, resulting in unpredictable
airow patterns and possible diminished performance. YORK’s unit controls will optimize operation without nuisance high-pressure
safety cutouts; however, the system designer must consider potential performance degradation. Access to the unit control center
assumes the unit is no higher than on spring isolators. Recommended minimum clearances: Side to wall – 2m; rear to wall –
2m; control panel to end wall – 1.2m; top – no obstructions allowed; distance between adjacent units – 3m. No more than one
adjacent wall may be higher than the unit.
Dimensions - YCUL0016 - YCUL0026 (SI)
MODEL YCUL A
0016 567
0026 564

YORK INTERNATIONAL
78
YORK INTERNATIONAL 79
FORM 150.63-EG1
ALUMINUM COIL COPPER COIL
YCUL Center of Gravity (mm)
X Y Z
0016 1155 668 807
0026 1155 667 806
YCUL Center of Gravity (mm)
X Y Z
0016 1,125 644 788
0026 1,125 644 788
MODEL YCUL A
0016 187
0026 133

YORK INTERNATIONAL
80
YORK INTERNATIONAL 81
FORM 150.63-EG1
NOTE:
Placement on a level surface of free of obstructions (including snow, for winter operation) or air circulation ensures rated performance, reliable
operation, and ease of maintenance. Site restrictions may compromise minimum clearances indicated below, resulting in unpredictable
airow patterns and possible diminished performance. YORK’s unit controls will optimize operation without nuisance high-pressure
safety cutouts; however, the system designer must consider potential performance degradation. Access to the unit control center
assumes the unit is no higher than on spring isolators. Recommended minimum clearances: Side to wall – 2m; rear to wall –
2m; control panel to end wall – 1.2m; top – no obstructions allowed; distance between adjacent units – 3m. No more than one
adjacent wall may be higher than the unit.
Dimensions - YCUL0030 - YCUL0036 (SI)
LD04447
MODEL YCUL A B
0030 414 733
0036 368 565

YORK INTERNATIONAL
80
YORK INTERNATIONAL 81
FORM 150.63-EG1
LD04448
ALUMINUM COIL COPPER COIL
MODEL YCUL A
0030 151
0036 121
YCUL Center of Gravity (mm)
X Y Z
0030 1126 671 1004
0036 1127 676 999
YCUL Center of Gravity (mm)
X Y Z
0030 1,102 650 985
0036 1,103 656 980

YORK INTERNATIONAL
82
YORK INTERNATIONAL 83
FORM 150.63-EG1
NOTE:
Placement on a level surface of free of obstructions (including snow, for winter operation) or air circulation ensures rated performance, reli-
able operation, and ease of maintenance. Site restrictions may compromise minimum clearances indicated below, resulting in unpredictable
airow patterns and possible diminished performance. YORK’s unit controls will optimize operation without nuisance high-pressure safety
cutouts; however, the system designer must consider potential performance degradation. Access to the unit control center assumes the unit
is no higher than on spring isolators. Recommended minimum clearances: Side to wall – 2m; rear to wall – 2m; control panel to end wall
– 1.2m; top – no obstructions allowed; distance between adjacent units – 3m. No more than one adjacent wall may be higher than the
unit.
Dimensions - YCUL0040 (SI)

YORK INTERNATIONAL
82
YORK INTERNATIONAL 83
FORM 150.63-EG1
ALUMINUM COIL COPPER COIL
YCUL Center of Gravity (mm)
X Y Z
0040 1127 701 953
YCUL Center of Gravity (mm)
X Y Z
0040 1,106 682 938

YORK INTERNATIONAL
84
YORK INTERNATIONAL 85
FORM 150.63-EG1
NOTE:
Placement on a level surface of free of obstructions (including snow, for winter operation) or air circulation ensures rated performance, reliable
operation, and ease of maintenance. Site restrictions may compromise minimum clearances indicated below, resulting in unpredictable
airow patterns and possible diminished performance. YORK’s unit controls will optimize operation without nuisance high-pressure
safety cutouts; however, the system designer must consider potential performance degradation. Access to the unit control center
assumes the unit is no higher than on spring isolators. Recommended minimum clearances: Side to wall – 2m; rear to wall –
2m; control panel to end wall – 1.2m; top – no obstructions allowed; distance between adjacent units – 3m. No more than one
adjacent wall may be higher than the unit.
Dimensions - YCUL0046 - YCUL0066 (SI)
LD04453
MODEL YCUL A B
0046 7/8” OD 3
0050 7/8” OD 6
0056 7/8” OD 6
0060 7/8” OD 6
0066 1 1/8” OD 6

YORK INTERNATIONAL
84
YORK INTERNATIONAL 85
FORM 150.63-EG1
LD04454
ALUMINUM COIL COPPER COIL
MODEL
YCUL A B
0046 176 183
0050 176 183
0056 176 183
0060 170 183
0066 176 149
YCUL Center of Gravity (mm)
X Y Z
0046 1517 1021 1184
0050 1511 1027 1158
0056 1512 1021 1151
0060 1514 1026 1147
0066 1515 1021 1144
YCUL Center of Gravity (mm)
X Y Z
0046 1518 1021 1187
0050 1519 1027 1180
0056 1520 1021 1172
0060 1521 1026 1169
0066 1523 1021 1165

MODEL YCUL A B C D E F
0076 2 1/8” OD 2 1/8” OD 741 860 175 741
0080 2 1/8” OD 2 1/8” OD 741 860 175 741
0086 2 1/8” OD 2 1/8” OD 741 430 132 725
0090 2 5/8” OD 2 5/8” OD 725 430 132 725
YORK INTERNATIONAL
86
YORK INTERNATIONAL 87
FORM 150.63-EG1
NOTE:
Placement on a level surface of free of obstructions (including snow, for winter operation) or air circulation ensures rated performance, reliable
operation, and ease of maintenance. Site restrictions may compromise minimum clearances indicated below, resulting in unpredictable
airow patterns and possible diminished performance. YORK’s unit controls will optimize operation without nuisance high-pressure
safety cutouts; however, the system designer must consider potential performance degradation. Access to the unit control center
assumes the unit is no higher than on spring isolators. Recommended minimum clearances: Side to wall – 2m; rear to wall –
2m; control panel to end wall – 1.2m; top – no obstructions allowed; distance between adjacent units – 3m. No more than one
adjacent wall may be higher than the unit.
Dimensions - YCUL0076 - YCUL0090 (SI)
LD04461

ALUMINUM COIL COPPER COIL
MODEL YCUL A B
0076 84 81
0080 84 81
0086 81 83
0090 81 83
MODEL YCUL C D
0076 200 294
0080 200 294
0086 173 294
0090 254 365
YORK INTERNATIONAL
86
YORK INTERNATIONAL 87
FORM 150.63-EG1
LD04462
YCUL Center of Gravity (mm)
X Y Z
0076 1454 1165 1149
0080 1457 1154 1146
0086 1457 1163 1144
0090 1457 1154 1141
YCUL Center of Gravity (mm)
X Y Z
0076 1464 1164 1172
0080 1469 1154 1175
0086 1469 1162 1172
0090 1469 1154 1169

YORK INTERNATIONAL
88
YORK INTERNATIONAL 89
FORM 150.63-EG1
NOTE:
Placement on a level surface of free of obstructions (including snow, for winter operation) or air circulation ensures rated performance, reli-
able operation, and ease of maintenance. Site restrictions may compromise minimum clearances indicated below, resulting in unpredictable
airow patterns and possible diminished performance. YORK’s unit controls will optimize operation without nuisance high-pressure safety
cutouts; however, the system designer must consider potential performance degradation. Access to the unit control center assumes the unit
is no higher than on spring isolators. Recommended minimum clearances: Side to wall – 2m; rear to wall – 2m; control panel to end wall
– 1.2m; top – no obstructions allowed; distance between adjacent units – 3m. No more than one adjacent wall may be higher than the
unit.
Dimensions - YCUL0096 - YCUL0100 (SI)
MODEL YCUL A B
0096 1 3/8” OD 1 1/8” OD
0100 1 3/8” OD 1 3/8” OD

YORK INTERNATIONAL
88
YORK INTERNATIONAL 89
FORM 150.63-EG1
ALUMINUM COIL COPPER COIL
YCUL Center of Gravity (mm)
X Y Z
0096 1626 1293 1229
0100 1648 1293 1222
YCUL Center of Gravity (mm)
X Y Z
0096 1646 1271 1282
0100 1667 1271 1274

YORK INTERNATIONAL
90
YORK INTERNATIONAL 91
FORM 150.63-EG1
Dimensions - YCUL0106 (SI)
NOTE:
Placement on a level surface of free of obstructions (including snow, for winter operation) or air circulation ensures rated performance, reli-
able operation, and ease of maintenance. Site restrictions may compromise minimum clearances indicated below, resulting in unpredictable
airow patterns and possible diminished performance. YORK’s unit controls will optimize operation without nuisance high-pressure safety
cutouts; however, the system designer must consider potential performance degradation. Access to the unit control center assumes the unit
is no higher than on spring isolators. Recommended minimum clearances: Side to wall – 2m; rear to wall – 2m; control panel to end wall
– 1.2m; top – no obstructions allowed; distance between adjacent units – 3m. No more than one adjacent wall may be higher than the
unit.

YORK INTERNATIONAL
90
YORK INTERNATIONAL 91
FORM 150.63-EG1
ALUMINUM COIL COPPER COIL
YCUL Center of Gravity (mm)
X Y Z
0106 1877 1814 1186
YCUL Center of Gravity (mm)
X Y Z
0106 1895 1281 1221

YORK INTERNATIONAL
92
YORK INTERNATIONAL 93
FORM 150.63-EG1
NOTE:
Placement on a level surface of free of obstructions (including snow, for winter operation) or air circulation ensures rated performance, reli-
able operation, and ease of maintenance. Site restrictions may compromise minimum clearances indicated below, resulting in unpredictable
airow patterns and possible diminished performance. YORK’s unit controls will optimize operation without nuisance high-pressure safety
cutouts; however, the system designer must consider potential performance degradation. Access to the unit control center assumes the unit
is no higher than on spring isolators. Recommended minimum clearances: Side to wall – 2m; rear to wall – 2m; control panel to end wall
– 1.2m; top – no obstructions allowed; distance between adjacent units – 3m. No more than one adjacent wall may be higher than the
unit.
Dimensions - YCUL0120 - YCUL0130 (SI)

YORK INTERNATIONAL
92
YORK INTERNATIONAL 93
FORM 150.63-EG1
ALUMINUM COIL COPPER COIL
YCUL Center of Gravity (mm)
X Y Z
0120 2111 1280 1176
0130 2108 1280 1176
YCUL Center of Gravity (mm)
X Y Z
0120 2141 1257 1221
0130 2138 1257 1221
MODEL YCUL A
0120 1185
0130 1235

YORK INTERNATIONAL
94
YORK INTERNATIONAL 95
FORM 150.63-EG1
YCUL Aluminum Fin Coil Weight Distribution (lbs)
A B C D E F G H Total
0016 577 469 554 450 --- --- --- --- 2051
0026 579 470 557 452 --- --- --- --- 2058
0030 697 534 662 507 --- --- --- --- 2401
0036 678 586 634 548 --- --- --- --- 2445
0040 801 693 694 600 --- --- --- --- 2788
0046 987 984 990 987 --- --- --- --- 3947
0050 1005 1005 995 995 --- --- --- --- 4000
0056 1012 1013 1015 1017 --- --- --- --- 4057
0060 1031 1034 1023 1026 --- --- --- --- 4114
0066 1039 1045 1042 1049 --- --- --- --- 4175
0076 1275 1165 1256 1147 --- --- --- --- 4842
0080 1304 1196 1306 1198 --- --- --- --- 5004
0086 1351 1240 1334 1225 --- --- --- --- 5150
0090 1365 1253 1367 1255 --- --- --- --- 5240
0096 1142 1073 971 856 782 708 --- --- 5532
0100 1157 1089 1022 842 793 743 --- --- 5646
0106 1102 987 871 755 785 703 621 538 6362
0120 1356 1191 1026 861 1012 889 766 643 7744
0130 1363 1196 1028 861 1018 893 768 643 7770
ALUMINUM FIN COILS
English Units
YCUL Aluminum Fin Coil Weight Distribution (kg)
A B C D E F G H Total
0016 262 213 251 204 --- --- --- --- 930
0026 263 213 253 205 --- --- --- --- 933
0030 316 242 300 230 --- --- --- --- 1089
0036 307 266 288 249 --- --- --- --- 1109
0040 364 314 315 272 --- --- --- --- 1265
0046 448 446 449 448 --- --- --- --- 1791
0050 456 456 452 451 --- --- --- --- 1814
0056 459 460 460 461 --- --- --- --- 1840
0060 467 469 464 466 --- --- --- --- 1866
0066 471 474 473 476 --- --- --- --- 1894
0076 578 528 570 520 --- --- --- --- 2196
0080 591 542 593 543 --- --- --- --- 2270
0086 613 562 605 556 --- --- --- --- 2336
0090 619 568 620 569 --- --- --- --- 2377
0096 518 487 440 388 355 321 --- --- 2509
0100 525 494 464 382 360 337 --- --- 2561
0106 500 448 395 342 356 319 282 244 2886
0120 615 540 465 391 459 403 347 292 3513
0130 618 542 466 391 462 405 348 292 3524
SI Units
Weight Distribution

YORK INTERNATIONAL
94
YORK INTERNATIONAL 95
FORM 150.63-EG1
YCUL Copper Fin Coil Weight Distribution (lbs)
A B C D E F G H Total
0016 614 470 633 484 --- --- --- --- 2201
0026 616 470 636 486 --- --- --- --- 2208
0030 733 535 742 541 --- --- --- --- 2551
0036 714 586 711 584 --- --- --- --- 2595
0040 839 693 770 636 --- --- --- --- 2938
0046 1055 1065 1058 1069 --- --- --- --- 4247
0050 1073 1086 1064 1077 --- --- --- --- 4300
0056 1080 1095 1083 1099 --- --- --- --- 4357
0060 1098 1116 1091 1109 --- --- --- --- 4414
0066 1107 1127 1110 1131 --- --- --- --- 4475
0076 1343 1246 1324 1229 --- --- --- --- 5142
0080 1390 1299 1393 1302 --- --- --- --- 5384
0086 1437 1344 1421 1329 --- --- --- --- 5530
0090 1451 1356 1454 1359 --- --- --- --- 5620
0096 1293 1211 1130 982 920 858 --- --- 6394
0100 1275 1227 1180 967 931 894 --- --- 6474
0106 1216 1103 990 877 906 822 738 653 7305
0120 1510 1348 1186 1025 1174 1049 923 797 9012
0130 1516 1352 1188 1024 1180 1052 925 797 9034
Copper Fin Coil Weight Distribution (kg)
YCUL A B C D E F G H Total
0016 279 213 287 220 --- --- --- --- 998
0026 279 213 288 220 --- --- --- --- 1001
0030 333 243 336 245 --- --- --- --- 1157
0036 324 266 322 265 --- --- --- --- 1177
0040 380 314 349 289 --- --- --- --- 1333
0046 478 483 480 485 --- --- --- --- 1927
0050 487 493 482 488 --- --- --- --- 1950
0056 490 497 491 498 --- --- --- --- 1976
0060 498 506 495 503 --- --- --- --- 2002
0066 502 511 504 513 --- --- --- --- 2030
0076 609 565 600 557 --- --- --- --- 2332
0080 630 589 632 591 --- --- --- --- 2442
0086 652 609 645 603 --- --- --- --- 2508
0090 658 615 659 617 --- --- --- --- 2549
0096 586 549 513 445 417 389 --- --- 2900
0100 578 557 535 439 422 406 --- --- 2937
0106 552 500 449 398 411 373 335 296 3313
0120 685 611 538 465 533 476 419 362 4088
0130 688 613 539 464 535 477 420 362 4098
COPPER FIN COILS
English Units
SI Units

YORK INTERNATIONAL
96
YORK INTERNATIONAL 97
FORM 150.63-EG1
Seismic Isolator Selections, VMC Model # AEQM-xxxx
YCUL A B C D E F G H
0016 96 96 96 96 --- --- --- ---
0026 96 96 96 96 --- --- --- ---
0030 97 96 97 96 --- --- --- ---
0036 97 96 97 96 --- --- --- ---
0040 98 97 97 96 --- --- --- ---
0046 1000 1000 1000 1000 --- --- --- ---
0050 1000 1000 1000 1000 --- --- --- ---
0056 1000 1000 1000 1000 --- --- --- ---
0060 1000 1000 1000 1000 --- --- --- ---
0066 1000 1000 1000 1000 --- --- --- ---
0076 1300 1000 1300 1000 --- --- --- ---
0080 1300 1000 1300 1000 --- --- --- ---
0086 1600 1300 1600 1300 --- --- --- ---
0090 1600 1300 1600 1300 --- --- --- ---
0096 1300 1300 1300 1000 1000 1000 --- ---
0100 1300 1300 1300 1000 1000 1000 --- ---
0106 1300 1300 1000 1000 1000 1000 1000 1000
0120 1600 1300 1300 1000 1300 1000 1000 1000
0130 1600 1300 1300 1000 1300 1000 1000 1000
ALUMINUM FIN COILS
1” Isolator Selections, VMC Type CP-x-xx
YCUL A B C D E F G H
0016 1-26 1-26 1-26 1-26 --- --- --- ---
0026 1-26 1-26 1-26 1-26 --- --- --- ---
0030 1-27 1-26 1-27 1-26 --- --- --- ---
0036 1-27 1-26 1-27 1-26 --- --- --- ---
0040 1-28 1-27 1-27 1-26 --- --- --- ---
0046 1-31 1-31 1-31 1-31 --- --- --- ---
0050 1-31 1-31 1-31 1-31 --- --- --- ---
0056 1-31 1-31 1-31 1-31 --- --- --- ---
0060 1-31 1-31 1-31 1-31 --- --- --- ---
0066 1-31 1-31 1-31 1-31 --- --- --- ---
0076 2-27 2-26 2-27 2-26 --- --- --- ---
0080 2-27 2-26 2-27 2-26 --- --- --- ---
0086 2-27 2-27 2-27 2-27 --- --- --- ---
0090 2-27 2-27 2-27 2-27 --- --- --- ---
0096 2-26 2-26 2-26 2-25 2-25 2-25 --- ---
0100 2-26 2-26 2-26 2-25 2-25 2-25 --- ---
0106 2-26 2-26 2-25 2-25 2-25 2-25 2-25 2-25
0120 2-27 2-26 2-26 2-25 2-26 2-25 2-25 2-25
0130 2-27 2-26 2-26 2-25 2-26 2-25 2-25 2-25
Isolator Selections

YORK INTERNATIONAL
96
YORK INTERNATIONAL 97
FORM 150.63-EG1
VMC Type RD Neoprene
YCUL A B C D E F G H
0016 -3 Grn -3 Red -3 Grn -3 Red --- --- --- ---
0026 -3 Grn -3 Red -3 Grn -3 Red --- --- --- ---
0030 -3 Grn -3 Grn -3 Grn -3 Red --- --- --- ---
0036 -3 Grn -3 Grn -3 Grn -3 Red --- --- --- ---
0040 -3 Gray -3 Gray -3 Gray -3 Gray --- --- --- ---
0046 -3 Gray -3 Gray -3 Gray -3 Gray --- --- --- ---
0050 -3 Gray -3 Gray -3 Gray -3 Gray --- --- --- ---
0056 -3 Gray -3 Gray -3 Gray -3 Gray --- --- --- ---
0060 -3 Gray -3 Gray -3 Gray -3 Gray --- --- --- ---
0066 -3 Gray -3 Gray -3 Gray -3 Gray --- --- --- ---
0076 -4 Blk -4 Blk -4 Blk -4 Blk --- --- --- ---
0080 -4 Blk -4 Blk -4 Blk -4 Blk --- --- --- ---
0086 -4 Blk -4 Blk -4 Blk -4 Blk --- --- --- ---
0090 -4 Blk -4 Blk -4 Blk -4 Blk --- --- --- ---
0096 -4 Blk -3 Gray -3 Gray -3 Gray -3 Gray -3 Grn --- ---
0100 -4 Blk -3 Gray -3 Gray -3 Gray -3 Gray -3 Grn --- ---
0106 -4 Blk -3 Gray -3 Gray -3 Gray -3 Gray -3 Grn -3 Grn -2 Gray
0120 -4 Blk -4 Blk -3 Gray -3 Gray -3 Gray -3 Gray -3 Gray -3 Grn
0130 -4 Blk -4 Blk -3 Gray -3 Gray -3 Gray -3 Gray -3 Gray -3 Grn
ALUMINUM FIN COILS

YORK INTERNATIONAL
98
YORK INTERNATIONAL 99
FORM 150.63-EG1
COPPER FIN COILS
Seismic Isolator Selections, VMC Model # AEQM-xxxx
YCUL A B C D E F G H
0016 97 96 97 96 --- --- --- ---
0026 97 96 97 96 --- --- --- ---
0030 97 96 97 96 --- --- --- ---
0036 97 96 97 96 --- --- --- ---
0040 98 97 98 97 --- --- --- ---
0046 99 99 99 99 --- --- --- ---
0050 99 99 99 99 --- --- --- ---
0056 99 99 99 99 --- --- --- ---
0060 99 99 99 99 --- --- --- ---
0066 99 99 99 99 --- --- --- ---
0076 1600 1300 1600 1300 --- --- --- ---
0080 1600 1300 1600 1300 --- --- --- ---
0086 1600 1600 1600 1600 --- --- --- ---
0090 1600 1600 1600 1600 --- --- --- ---
0096 1600 1300 1300 1300 1000 1000 --- ---
0100 1600 1300 1300 1300 1000 1000 --- ---
0106 1600 1300 1300 1000 1300 1000 1000 1000
0120 1600 1600 1300 1300 1300 1300 1300 1000
0130 1600 1600 1300 1300 1300 1300 1300 1000
1” Isolator Selections, VMC Type CP-x-xx
YCUL A B C D E F G H
0016 1-27 1-26 1-27 1-26 --- --- --- ---
0026 1-27 1-26 1-27 1-26 --- --- --- ---
0030 1-27 1-26 1-27 1-26 --- --- --- ---
0036 1-27 1-26 1-27 1-26 --- --- --- ---
0040 1-28 1-27 1-28 1-27 --- --- --- ---
0046 1-31 1-31 1-31 1-31 --- --- --- ---
0050 1-31 1-31 1-31 1-31 --- --- --- ---
0056 1-31 1-31 1-31 1-31 --- --- --- ---
0060 2-26 2-26 2-26 2-26 --- --- --- ---
0066 2-26 2-26 2-26 2-26 --- --- --- ---
0076 2-27 2-27 2-27 2-27 --- --- --- ---
0080 2-27 2-27 2-27 2-27 --- --- --- ---
0086 2-27 2-27 2-27 2-27 --- --- --- ---
0090 2-27 2-27 2-27 2-27 --- --- --- ---
0096 2-27 2-27 2-26 2-26 2-26 2-25 --- ---
0100 2-27 2-27 2-26 2-26 2-26 2-25 --- ---
0106 2-27 2-26 2-26 2-25 2-26 2-25 2-25 2-25
0120 2-28 2-27 2-26 2-26 2-26 2-26 2-26 2-25
0130 2-28 2-27 2-26 2-26 2-26 2-26 2-26 2-25

YORK INTERNATIONAL
98
YORK INTERNATIONAL 99
FORM 150.63-EG1
VMC Type RD Neoprene
YCUL A B C D E F G H
0016 -3 Grn -3 Red -3 Grn -3 Red --- --- --- ---
0026 -3 Grn -3 Red -3 Grn -3 Red --- --- --- ---
0030 -3 Grn -3 Red -3 Grn -3 Red --- --- --- ---
0036 -3 Grn -3 Grn -3 Grn -3 Grn --- --- --- ---
0040 -3 Gray -3 Gray -3 Gray -3 Gray --- --- --- ---
0046 -3 Gray -3 Gray -3 Gray -3 Gray --- --- --- ---
0050 -3 Gray -3 Gray -3 Gray -3 Gray --- --- --- ---
0056 -3 Gray -3 Gray -3 Gray -3 Gray --- --- --- ---
0060 -4 Blk -4 Blk -4 Blk -4 Blk --- --- --- ---
0066 -4 Blk -4 Blk -4 Blk -4 Blk --- --- --- ---
0076 -4 Blk -4 Blk -4 Blk -4 Blk --- --- --- ---
0080 -4 Blk -4 Blk -4 Blk -4 Blk --- --- --- ---
0086 -4 Blk -4 Blk -4 Blk -4 Blk --- --- --- ---
0090 -4 Blk -4 Blk -4 Blk -4 Blk --- --- --- ---
0096 -4 Blk -4 Blk -4 Blk -3 Gray -3 Gray -3 Gray --- ---
0100 -4 Blk -4 Blk -4 Blk -3 Gray -3 Gray -3 Gray --- ---
0106 -4 Blk -4 Blk -3 Gray -3 Gray -3 Gray -3 Gray -3 Grn -3 Grn
0120 -4 Red -4 Blk -4 Blk -3 Gray -4 Blk -3 Gray -3 Gray -3 Gray
0130 -4 Red -4 Blk -4 Blk -3 Gray -4 Blk -3 Gray -3 Gray -3 Gray
COPPER FIN COILS

YORK INTERNATIONAL
100
YORK INTERNATIONAL 101
FORM 150.63-EG1
Isolators
1" DEFLECTION SEISMIC
MODEL PART- # COLOR MODEL PART # COLOR
CP-1-26 308439-26 PURPLE AEQM-96 301055-96 BLACK
CP-1-27 308439-27 ORANGE AEQM-97 301055-97 WHITE
CP-1-28 308439-28 GREEN AEQM-98 301055-98 GRAY
CP-1-31 308439-31 GRAY AEQM-99 301055-99 BLUE
CP-2-25 308439-25 RED AEQM-1000 30106-1000 GREEN
CP-2-26 308692-26 PURPLE AEQM-1300 30106-1300 YELLOW
CP-2-27 308962-27 ORANGE AEQM-1600 301060-1600 GRAY
CP-2-28 308692-28 GREEN AEQM-1625 301060-1625 RED
CP-2-31 308692-31 GRAY AEQM-1628 301060-1628 GRAY/GREEN

YORK INTERNATIONAL
100
YORK INTERNATIONAL 101
FORM 150.63-EG1
MODEL # A B C D E F G H J
AEQM-97 7 5-1/2 4-1/2 2-1/2 5/8 1/4 7-1/4 5/8 3/8
AEQM-98 7 5-1/2 4-1/2 2-1/2 5/8 1/4 7-1/4 5/8 3/8
AEQM-99 7 5-1/2 4-1/2 2-1/2 5/8 1/4 7-1/4 5/8 3/8
AEQM-1000 8-1/2 6-1/2 6 4-1/2 3/4 3/8 8-3/8 7/8 1/2
AEQM-1300 8-1/2 6-1/2 6 4-1/2 3/4 3/8 8-3/8 7/8 1/2
AEQM-1600 8-1/2 6-1/2 6 4-1/2 3/4 3/8 8-3/8 7/8 1/2
AEQM-1625 8-1/2 6-1/2 6 4-1/2 3/4 3/8 8-3/8 7/8 1/2
AEQM-1628 8-1/2 6-1/2 6 4-1/2 3/4 3/8 8-3/8 7/8 1/2
DIMENSIONS

YORK INTERNATIONAL
102
YORK INTERNATIONAL 103
FORM 150.63-EG1
I . Minimum Circuit Ampacity (MCA) is based on 125% of the rated load amps for the largest motor plus 100% of the rated load
amps for all other loads included in the circuit, per N.E.C. Article 430-24. If the optional Factory Mounted Control Transformer
is provided, add the following MCA values to the electrical tables for the system providing power to the transformer: -17, add
2.5 amps; -28, add 2.3 amps; -40, add 1.5 amps, -46, add 1.3 amps; -58, add 1 amps.
2. Minimum fuse size is based upon 150% of the rated load amps for the largest motor plus 100% of the rated load amps
for all other loads included in the circuit to avoid nuisance trips at start-up due to lock rotor amps. It is not recommended
in applications where brown outs, frequent starting and stopping of the unit, and/or operation at ambient temperatures
in excess of 95ºF (35ºC) is anticipated.
3. Maximum fuse size is based upon 225% of the rated load amps for the largest motor plus 100% of the rated load amps for
all other loads included in the circuit, per N.E.C. Article 440.
4. The minimum recommended disconnect switch is based on 115% of the rated load amps for all loads included
in the circuit, per N.E.C. Article 440.
5. Circuit breakers must be UL listed and CSA certied and maximum size is based on 225% of the rated loadamps for
the largest motor plus 100% of the rated load amps for all other loads included in the circuit. Exception: YCUL0016 and
YCUL0026 must have the optional factory overloads installed to use a standard circuit breaker. Otherwise, an HACR-type
circuit breakers must be used. Maximum HACR circuit breaker rating is based on 225% of the rated load amps for the largest
motor plus 100% of the rated load amps for all other loads included in the circuit.
6. The “INCOMING WIRE RANGE” is the minimum and maximum wire size that can be accommodated by the unit wiring lugs.
The (2) preceding the wire range indicates the number of termination points available per phase of the wire range specied.
Actual wire size and number of wires per phase must be determined based on the National Electrical Code, USING COPPER
CONNECTORS ONLY. Field wiring must also comply with local codes.
7. A ground lug is provided for each compressor system to accommodate a eld grounding conductor per N.E.C. Table
250-95. A control circuit grounding lug is also supplied.
8. The supplied disconnect is a “Disconnecting Means” as dened in the N.E.C. 100, and is intended for isolating the
unit for the available power supply to perform maintenance and troubleshooting. This disconnect is not intended to
be a Load Break Device.
9. Field Wiring by others which complies to the National Electrical Code & Local Codes.
LEGEND
ACR-LINE ACROSS THE LINE START
C.B. CIRCUIT BREAKER
D.E. DUAL ELEMENT FUSE
DISC SW DISCONNECT SWITCH
FACT MOUNT CB FACTORY MOUNTED CIRCUIT BREAKER
FLA FULL LOAD AMPS
HZ HERTZ
MAX MAXIMUM
MCA MINIMUM CIRCUIT AMPACITY
MIN MINIMUM
MIN NF MINIMUM NON FUSED
RLA RATED LOAD AMPS
S.P. WIRE SINGLE POINT WIRING
UNIT MTD SERV SW UNIT MOUNTED SERVICE (NON-FUSED DISCONNECT SWITCH)
LRA LOCKED ROTOR ARMS
VOLTAGE CODE
-17 = 200-3-60
-28 = 230-3-60
-40 = 380-3-60
-46 = 460-3-60
-58 = 575-3-60
NOTES:
Electrical Notes

YORK INTERNATIONAL
102
YORK INTERNATIONAL 103
FORM 150.63-EG1
YCUL0016 - YCUL0040
SINGLE POINT POWER SUPPLY CONNECTIONS (See Fig. 1)
(One Field Provided Power Supply to the condensing unit. Field connections to Factory Provided Power Terminal Block (standard), Non-Fused Disconnect Switch
(optional) or Circuit Breaker (optional).)
OVER CURRENT PROTECTION,
UNIT VOLTAGE UNIT VOLTAGE CONTROL POWER MCA SEE NOTE B NFDISC Sw
NOTE A MIN MAX
MODELS w/o
CONTROL TRANS 115-1-60/50 15A 10A 15A 30 A / 240V
-17 200-1-60 15A 10A 15A 30 A / 240V
-28 230-1-60 15A 10A 15A 30 A / 240V
MODELS w/ -40 380-1-60 15A 10A 15A 30 A / 480V
CONTROL TRANS -46 460-1-60 15A 10A 15A 30 A / 480V
-58 575-1-60 15A 10A 15A 30 A / 600V
Electrical Data
SINGLE POINT FIELD SUPPLIED WIRING SYSTEM #1 COMPRESSOR & FAN
MODEL
YCUL VOLT HZ MCA1
MIN
N/F
DISC
SW2
D.E. FUSE CKT. BKR.5INCOMING (LUGS) WIRE RANGE6
COMPR. #1 COMPR. #2 COMPR. #3 FANS
TERMINAL
BLOCK (std)
NF DISC.
SWITCH
(opt)
CIRCUIT
BREAKER
(opt)
MIN3MAX4MIN MAX RLA LRA RLA LRA RLA LRA QTY FLA
(EA)
0016
200 60 71 100 80 90 80 90 # 10 - # 1 # 14 - 1/0 # 14 - 1/0 24.0 189 24.0 189 — — 2 8.2
230 60 70 100 80 90 80 90 # 10 - # 1 # 14 - 1/0 # 14 - 1/0 24.0 189 24.0 189 — — 2 7.8
380 60 42 60 50 50 50 50 # 10 - # 1 # 14 - 2 # 14 - 2 14.4 112 14.4 112 — — 2 4.8
460 60 35 60 40 45 40 45 # 10 - # 1 # 14 - 2 # 14 - 2 12.0 99 12.0 99 — — 2 4.0
575 60 28 30 35 35 35 35 # 10 - # 1 # 14 - 2 # 14 - 2 9.6 74 9.6 74 — — 2 3.1
0026
200 60 92 100 100 110 100 110 # 10 - # 1 # 14 - 1/0 # 14 - 1/0 33.2 278 33.2 278 — — 2 8.2
230 60 91 100 100 110 100 110 # 10 - # 1 # 14 - 1/0 # 14 - 1/0 33.2 278 33.2 278 — — 2 7.8
380 60 55 60 60 70 60 70 # 10 - # 1 # 14 - 2 # 14 - 2 19.9 151 19.9 151 — — 2 4.8
460 60 46 60 50 60 50 60 # 10 - # 1 # 14 - 2 # 14 - 2 16.6 127 16.6 127 — — 2 4.0
575 60 37 60 40 45 40 45 # 10 - # 1 # 14 - 2 # 14 - 2 13.3 100 13.3 100 — — 2 3.1
0030
200 60 107 150 125 125 125 125 # 10 - # 1 # 2 - 4/0 # 2 - 4/0 40.0 350 40.0 350 — — 2 8.2
230 60 106 150 125 125 125 125 # 10 - # 1 # 2 - 4/0 # 2 - 4/0 40.0 350 40.0 350 — — 2 7.8
380 60 64 100 70 80 70 80 # 10 - # 1 # 14 - 1/0 # 14 - 1/0 24.0 195 24.0 195 — — 2 4.8
460 60 53 60 60 70 60 70 # 10 - # 1 # 14 - 2 # 14 - 2 19.9 167 19.9 167 — — 2 4.0
575 60 43 60 50 50 50 50 # 10 - # 1 # 14 - 2 # 14 - 2 16.0 125 16.0 125 — — 2 3.1
0036
200 60 124 150 150 150 150 150 # 10 - 3/0 # 2 - 4/0 # 2 - 4/0 47.8 425 47.8 425 — — 2 8.2
230 60 124 150 150 150 150 150 # 10 - 3/0 # 2 - 4/0 # 2 - 4/0 47.8 425 47.8 425 — — 2 7.8
380 60 75 100 90 90 90 90 # 10 - # 1 # 14 - 1/0 # 14 - 1/0 28.7 239 28.7 239 — —- 2 4.8
460 60 62 100 70 70 70 70 # 10 - # 1 # 14 - 1/0 # 14 - 1/0 23.9 198 23.9 198 — — 2 4.0
575 60 50 60 60 60 60 60 # 10 - # 1 # 14 - 2 # 14 - 2 19.1 148 19.1 148 — — 2 3.1
0040
200 60 147 200 175 175 175 175 # 10 - 3/0 # 3 - 300 # 3 - 300 40.0 350 40.0 350 40.0 350 2 8.2
230 60 146 200 175 175 175 175 # 10 - 3/0 # 3 - 300 # 3 - 300 40.0 350 40.0 350 40.0 350 2 7.8
380 60 88 100 100 110 100 110 # 10 - # 1 # 14 - 1/0 # 14 - 1/0 24.0 195 24.0 195 24.0 195 2 4.8
460 60 73 100 80 90 80 90 # 10 - # 1 # 14 - 1/0 # 14 - 1/0 19.9 167 19.9 167 19.9 167 2 4.0
575 60 59 100 70 70 70 70 # 10 - # 1 # 14 - 1/0 # 14 - 1/0 16.0 125 16.0 125 16.0 125 2 3.1
VOLTAGE RANGE
VOLTAGE CODE UNIT POWER MIN. MAX.
-17 200-3-60 180 220
-28 230-3-60 207 253
-40 380/415-3-60 342 440
-46 460-3-60 414 506
-58 575-3-60 517 633
A. Minimum #14 AWG, 75°C, Copper Recommended
B. Minimum and Maximum Over Current Protection, Dual Element Fuse or Circuit Breaker

YORK INTERNATIONAL
104
YORK INTERNATIONAL 105
FORM 150.63-EG1
MODEL
YCUL VOLT HZ
SYSTEM #1 FIELD SUPPLIED WIRING SYSTEM #1 COMPRESSOR & FAN
MCA1
MIN N/F
DISC
SW2
D.E. FUSE CKT. BKR.5INCOMING
(LUGS) WIRE
RANGE6
COMPR. #1 COMPR. #2 COMPR. #3 FANS
MIN3MAX4MIN MAX RLA LRA RLA LRA RLA LRA QTY FLA (EA)
0046
200 60 92 100 100 110 100 110 # 10 - # 1 33.2 278 33.2 278 — — 2 8.2
230 60 91 100 100 110 100 110 # 10 - # 1 33.2 278 33.2 278 — — 2 7.8
380 60 55 60 60 70 60 70 # 10 - # 1 19.9 151 19.9 151 — — 2 4.8
460 60 46 60 50 60 50 60 # 10 - # 1 16.6 127 16.6 127 — — 2 4.0
575 60 37 60 40 45 40 45 # 10 - # 1 13.3 100 13.3 100 — — 2 3.1
0050
200 60 107 150 125 125 125 125 # 10 - # 1 40.0 350 40.0 350 — — 2 8.2
230 60 106 150 125 125 125 125 # 10 - # 1 40.0 350 40.0 350 — — 2 7.8
380 60 64 100 70 90 70 90 # 10 - # 1 24.0 195 24.0 195 — — 2 4.8
460 60 53 60 60 70 60 70 # 10 - # 1 19.9 167 19.9 167 — — 2 4.0
575 60 43 60 50 50 50 50 # 10 - # 1 16.0 125 16.0 125 — — 2 3.1
0056
200 60 107 150 125 125 125 125 # 10 - # 1 40.0 350 40.0 350 — — 2 8.2
230 60 106 150 125 125 125 125 # 10 - # 1 40.0 350 40.0 350 — — 2 7.8
380 60 64 100 70 80 70 80 # 10 - # 1 24.0 195 24.0 195 — — 2 4.8
460 60 53 60 60 70 60 70 # 10 - # 1 19.9 167 19.9 167 — — 2 4.0
575 60 43 60 50 50 50 50 # 10 - # 1 16.0 125 16.0 125 — — 2 3.1
0060
200 60 124 150 150 150 150 150 # 10 - 3/0 47.8 425 47.8 425 — — 2 8.2
230 60 124 150 150 150 150 150 # 10 - 3/0 47.8 425 47.8 425 — — 2 7.8
380 60 75 100 90 100 90 100 # 10 - # 1 28.7 239 28.7 239 — — 2 4.8
460 60 62 100 70 80 70 80 # 10 - # 1 23.9 198 23.9 198 — — 2 4.0
575 60 50 60 60 60 60 60 # 10 - # 1 19.1 148 19.1 148 — — 2 3.1
0066
200 60 124 150 150 150 150 150 # 10 - 3/0 47.8 425 47.8 425 — — 2 8.2
230 60 124 150 150 150 150 150 # 10 - 3/0 47.8 425 47.8 425 — — 2 7.8
380 60 75 100 90 100 90 100 # 10 - # 1 28.7 239 28.7 239 — — 2 4.8
460 60 62 100 70 80 70 80 # 10 - # 1 23.9 198 23.9 198 — — 2 4.0
575 60 50 60 60 60 60 60 # 10 - # 1 19.1 148 19.1 148 —- — 2 3.1
0076
200 60 147 200 175 175 175 175 # 10 - 3/0 40.0 350 40.0 350 40.0 350 2 8.2
230 60 146 200 175 175 175 175 # 10 - 3/0 40.0 350 40.0 350 40.0 350 2 7.8
380 60 88 100 100 110 100 110 # 10 - # 1 24.0 195 24.0 195 24.0 195 2 4.8
460 60 73 100 80 90 80 90 # 10 - # 1 19.9 167 19.9 167 19.9 167 2 4.0
575 60 59 100 70 70 70 70 # 10 - # 1 16.0 125 16.0 125 16.0 125 2 3.1
0080
200 60 147 200 175 175 175 175 # 10 - 3/0 40.0 350 40.0 350 40.0 350 2 8.2
230 60 146 200 175 175 175 175 # 10 - 3/0 40.0 350 40.0 350 40.0 350 2 7.8
380 60 88 100 100 110 100 110 # 10 - # 1 24.0 195 24.0 195 24.0 195 2 4.8
460 60 73 100 80 90 80 90 # 10 - # 1 19.9 167 19.9 167 19.9 167 2 4.0
575 60 59 100 70 70 70 70 # 10 - # 1 16.0 125 16.0 125 16.0 125 2 3.1
0086
200 60 172 200 200 200 200 200 # 10 - 3/0 47.8 425 47.8 425 47.8 425 2 8.2
230 60 171 200 200 200 200 200 # 10 - 3/0 47.8 425 47.8 425 47.8 425 2 7.8
380 60 103 150 125 125 125 125 # 10 - # 1 28.7 239 28.7 239 28.7 239 2 4.8
460 60 86 100 100 100 100 100 # 10 - # 1 23.9 198 23.9 198 23.9 198 2 4.0
575 60 69 100 80 80 80 80 # 10 - # 1 19.1 148 19.1 148 19.1 148 2 3.1
0090
200 60 172 200 200 200 200 200 # 10 - 3/0 47.8 425 47.8 425 47.8 425 2 8.2
230 60 171 200 200 200 200 200 # 10 - 3/0 47.8 425 47.8 425 47.8 425 2 7.8
380 60 103 150 125 125 125 125 # 10 - # 1 28.7 239 28.7 239 28.7 239 2 4.8
460 60 86 100 100 100 100 100 # 10 - # 1 23.9 198 23.9 198 23.9 198 2 4.0
575 60 69 100 80 80 80 80 # 10 - # 1 19.1 148 19.1 148 19.1 148 2 3.1
See Notes on page 100
YCUL0046 - YCUL0090
DUAL POINT POWER SUPPLY CONNECTIONS (see Fig. 2)
(Two Field Provided Power Supply Circuits to the condensing unit. Field connections to Factory Provided Terminal Blocks per system.)
Electrical Data

YORK INTERNATIONAL
104
YORK INTERNATIONAL 105
FORM 150.63-EG1
SYSTEM #2 FIELD SUPPLIED WIRING SYSTEM #2 COMPRESSOR & FAN
MCA1MIN N/F
DISC SW2
D.E. FUSE CKT. BKR.5
INCOMING
(LUGS) WIRE
RANGE6
COMPR. #1 COMPR. #2 COMPR. #3 FANS
MIN3MAX4MIN MAX RLA LRA RLA LRA RLA LRA QTY FLA (EA)
92 100 100 110 100 110 # 10 - # 1 33.2 278 33.2 278 — — 2 8.2
91 100 100 110 100 110 # 10 - # 1 33.2 278 33.2 278 — — 2 7.8
55 60 60 70 60 70 # 10 - # 1 19.9 151 19.9 151 — — 2 4.8
46 60 50 60 50 60 # 10 - # 1 16.6 127 16.6 127 — — 2 4.0
37 60 40 45 40 45 # 10 - # 1 13.3 100 13.3 100 — — 2 3.1
92 100 100 110 100 110 # 10 - # 1 33.2 278 33.2 278 — — 2 8.2
91 100 100 110 100 110 # 10 - # 1 33.2 278 33.2 278 — — 2 7.8
55 60 60 70 60 70 # 10 - # 1 19.9 151 19.9 151 — — 2 4.8
46 60 50 60 50 60 # 10 - # 1 16.6 127 16.6 127 — — 2 4.0
37 60 40 45 40 45 # 10 - # 1 13.3 100 13.3 100 — — 2 3.1
107 150 125 125 125 125 # 10 - # 1 40.0 350 40.0 350 — — 2 8.2
106 150 125 125 125 125 # 10 - # 1 40.0 350 40.0 350 — — 2 7.8
64 100 70 80 70 80 # 10 - # 1 24.0 195 24.0 195 — — 2 4.8
53 60 60 70 60 70 # 10 - # 1 19.9 167 19.9 167 — — 2 4.0
43 60 50 50 50 50 # 10 - # 1 16.0 125 16.0 125 — — 2 3.1
107 150 125 125 125 125 # 10 - # 1 40.0 350 40.0 350 — — 2 8.2
106 150 125 125 125 125 # 10 - # 1 40.0 350 40.0 350 — — 2 7.8
64 100 70 80 70 80 # 10 - # 1 24.0 195 24.0 195 — — 2 4.8
53 60 60 70 60 70 # 10 - # 1 19.9 167 19.9 167 — — 2 4.0
43 60 50 50 50 50 # 10 - # 1 16.0 125 16.0 125 — — 2 3.1
124 150 150 150 150 150 # 10 - 3/0 47.8 425 47.8 425 — — 2 8.2
124 150 150 150 150 150 # 10 - 3/0 47.8 425 47.8 425 — — 2 7.8
75 100 90 100 90 100 # 10 - # 1 28.7 239 28.7 239 — — 2 4.8
62 100 70 80 70 80 # 10 - # 1 23.9 198 23.9 198 — — 2 4.0
50 60 60 60 60 60 # 10 - # 1 19.1 148 19.1 148 — — 2 3.1
125 150 150 150 150 150 # 10 - 3/0 33.2 278 33.2 278 33.2 278 2 8.2
124 150 150 150 150 150 # 10 - 3/0 33.2 278 33.2 278 33.2 278 2 7.8
75 100 80 90 80 90 # 10 - # 1 19.9 151 19.9 151 19.9 151 2 4.8
62 100 70 70 70 70 # 10 - # 1 16.6 127 16.6 127 16.6 127 2 4.0
50 60 60 60 60 60 # 10 - # 1 13.3 100 13.3 100 13.3 100 2 3.1
147 200 175 175 175 175 # 10 - 3/0 40.0 350 40.0 350 40.0 350 2 8.2
146 200 175 175 175 175 # 10 - 3/0 40.0 350 40.0 350 40.0 350 2 7.8
88 100 100 110 100 110 # 10 - # 1 24.0 195 24.0 195 24.0 195 2 4.8
73 100 80 90 80 90 # 10 - # 1 19.9 167 19.9 167 19.9 167 2 4.0
59 100 70 70 70 70 # 10 - # 1 16.0 125 16.0 125 16.0 125 2 3.1
147 200 175 175 175 175 # 10 - 3/0 40.0 350 40.0 350 40.0 350 2 8.2
146 200 175 175 175 175 # 10 - 3/0 40.0 350 40.0 350 40.0 350 2 7.8
88 100 100 100 100 100 # 10 - # 1 24.0 195 24.0 195 24.0 195 2 4.8
73 100 80 90 80 90 # 10 - # 1 19.9 167 19.9 167 19.9 167 2 4.0
59 100 70 70 70 70 # 10 - # 1 16.0 125 16.0 125 16.0 125 2 3.1
172 200 200 200 200 200 # 10 - 3/0 47.8 425 47.8 425 47.8 425 2 8.2
171 200 200 200 200 200 # 10 - 3/0 47.8 425 47.8 425 47.8 425 2 7.8
103 150 125 125 125 125 # 10 - # 1 28.7 239 28.7 239 28.7 239 2 4.8
86 100 100 100 100 100 # 10 - # 1 23.9 198 23.9 198 23.9 198 2 4.0
69 100 80 80 80 80 # 10 - # 1 19.1 148 19.1 148 19.1 148 2 3.1
YCUL0046 - YCUL0090
DUAL POINT POWER SUPPLY CONNECTIONS (see Fig. 2)
(Two Field Provided Power Supply Circuits to the condensing unit. Field connections to Factory Provided Terminal Blocks per system.)

YORK INTERNATIONAL
106
YORK INTERNATIONAL 107
FORM 150.63-EG1
Electrical Data
See Notes on page 100
YCUL0046 - YCUL0090
SINGLE POINT POWER SUPPLY CONNECTIONS (see Fig. 1)
(One Field Provided Power Supply Circuit to the condensing unit. Field connections to Factory Provided Terminal Block (optional), Non-Fused Disconnect Switch
(optional) or Circuit Breaker (optional).)
SINGLE POINT FIELD SUPPLIED WIRING
MODEL
YCUL VOLT HZ MCA1MIN N/F
DISC SW2
D.E. FUSE CKT. BKR.5INCOMING (LUGS) WIRE RANGE6
MIN3MAX4MIN MAX TERMINAL
BLOCK (opt)
NF DISC.
SWITCH (opt)
CIRCUIT
BREAKER
(opt)
0046
200 60 174 200 200 200 200 200 # 10 - 3/0 # 6 - 350 # 3 - 300
230 60 173 200 200 200 200 200 # 10 - 3/0 # 6 - 350 # 3 - 300
380 60 104 150 110 110 110 110 # 10 - # 1 # 2 - 4/0 # 2 - 4/0
460 60 87 100 100 100 100 100 # 10 - # 1 # 14 - 1/0 # 14 - 1/0
575 60 69 100 80 80 80 80 # 10 - # 1 # 14 - 1/0 # 14 - 1/0
0050
200 60 190 250 200 225 200 225 # 10 - 300 # 6 - 350 # 3 - 300
230 60 188 250 200 225 200 225 # 10 - 300 # 6 - 350 # 3 - 300
380 60 113 150 125 125 125 125 # 10 - # 1 # 2 - 4/0 # 2 - 4/0
460 60 94 150 100 110 100 110 # 10 - # 1 # 2 - 4/0 # 14 - 1/0
575 60 75 100 80 90 80 90 # 10 - # 1 # 14 - 1/0 # 14 - 1/0
0056
200 60 203 250 225 225 225 225 # 10 - 300 # 6 - 350 # 3 - 300
230 60 202 250 225 225 225 225 # 10 - 300 # 6 - 350 # 3 - 300
380 60 122 150 150 125 150 125 # 10 - 3/0 # 2 - 4/0 # 2 - 4/0
460 60 101 150 110 110 110 110 # 10 - # 1 # 2 - 4/0 # 2 - 4/0
575 60 81 100 90 90 90 90 # 10 - # 1 # 14 - 1/0 # 14 - 1/0
0060
200 60 221 250 250 250 250 250 # 10 - 300 # 6 - 350 # 6 - 350
230 60 219 250 250 250 250 250 # 10 - 300 # 6 - 350 # 6 - 350
380 60 132 150 150 150 150 150 # 10 - 3/0 # 2 - 4/0 # 2 - 4/0
460 60 110 150 125 125 125 125 # 10 - # 1 # 2 - 4/0 # 2 - 4/0
575 60 88 100 100 100 100 100 # 10 - # 1 # 14 - 1/0 # 14 - 1/0
0066
200 60 236 400 250 250 250 250 # 10 - 300 250-500 # 6 - 350
230 60 235 400 250 250 250 250 # 10 - 300 250-500 # 6 - 350
380 60 142 200 150 150 150 150 # 10 - 3/0 # 6 - 350 # 2 - 4/0
460 60 118 150 125 125 125 125 # 10 - 3/0 # 2 - 4/0 # 2 - 4/0
575 60 94 150 100 110 100 110 # 10 - # 1 # 2 - 4/0 # 14 - 1/0
0076
200 60 263 400 300 300 300 300 # 4 - 500 250-500 250-500
230 60 261 400 300 300 300 300 # 4 - 500 250-500 250-500
380 60 157 200 175 175 175 175 # 10 - 3/0 # 6 - 350 # 2 - 4/0
460 60 131 150 150 150 150 150 # 10 - 3/0 # 2 - 4/0 # 2 - 4/0
575 60 105 150 110 110 110 110 # 10 - # 1 # 2 - 4/0 # 2 - 4/0
0080
200 60 283 400 300 300 300 300 # 4 - 500 250-500 250-500
230 60 282 400 300 300 300 300 # 4 - 500 250-500 250-500
380 60 170 200 200 200 200 200 # 10 - 3/0 # 6 - 350 # 4 - 300
460 60 141 200 150 150 150 150 # 10 - 3/0 # 6 - 350 # 2 - 4/0
575 60 113 150 125 125 125 125 # 10 - # 1 # 2 - 4/0 # 2 - 4/0
0086
200 60 309 400 350 350 350 350 # 4 - 500 250-500 250-500
230 60 307 400 350 350 350 350 # 4 - 500 250-500 250-500
380 60 185 250 200 200 200 200 # 10 - 300 # 6 - 350 # 4 - 300
460 60 154 200 175 175 175 175 # 10 - 3/0 # 6 - 350 # 4 - 300
575 60 123 150 150 125 150 125 # 10 - 3/0 # 2 - 4/0 # 2 - 4/0
0090
200 60 332 400 350 350 350 350 # 4 - 500 250-500 250-500
230 60 330 400 350 350 350 350 # 4 - 500 250-500 250-500
380 60 199 250 225 225 225 225 # 10 - 300 # 6 - 350 # 4 - 300
460 60 166 200 175 175 175 175 # 10 - 3/0 # 6 - 350 # 4 - 300
575 60 132 150 150 150 150 150 # 10 - 3/0 # 2 - 4/0 # 2 - 4/0

YORK INTERNATIONAL
106
YORK INTERNATIONAL 107
FORM 150.63-EG1
SYSTEM #1 COMPRESSOR & FAN SYSTEM #2 FIELD SUPPLIED WIRING
COMPR. #1 COMPR. #2 COMPR. #3 FANS COMPR. #1 COMPR. #2 COMPR. #3 FANS
RLA LRA RLA LRA RLA LRA QTY FLA(EA) RLA LRA RLA LRA RLA LRA QTY FLA(EA)
33.2 278 33.2 278 — — 2 8.2 33.2 278 33.2 278 — — 2 8.2
33.2 278 33.2 278 — — 2 7.8 33.2 278 33.2 278 — — 2 7.8
19.9 151 19.9 151 — — 2 4.8 19.9 151 19.9 151 — — 2 4.8
16.6 127 16.6 127 — — 2 4.0 16.6 127 16.6 127 — — 2 4.0
13.3 100 13.3 100 — — 2 3.1 13.3 100 13.3 100 — — 2 3.1
40.0 350 40.0 350 — — 2 8.2 33.2 278 33.2 278 — — 2 8.2
40.0 350 40.0 350 — — 2 7.8 33.2 278 33.2 278 — — 2 7.8
24.0 195 24.0 195 — — 2 4.8 19.9 151 19.9 151 — — 2 4.8
19.9 167 19.9 167 — — 2 4.0 16.6 127 16.6 127 — — 2 4.0
16.0 125 16.0 125 — — 2 3.1 13.3 100 13.3 100 — — 2 3.1
40.0 350 40.0 350 — — 2 8.2 40.0 350 40.0 350 — — 2 8.2
40.0 350 40.0 350 — — 2 7.8 40.0 350 40.0 350 — — 2 7.8
24.0 195 24.0 195 — — 2 4.8 24.0 195 24.0 195 — — 2 4.8
19.9 167 19.9 167 — — 2 4.0 19.9 167 19.9 167 — — 2 4.0
16.0 125 16.0 125 — — 2 3.1 16.0 125 16.0 125 — — 2 3.1
47.8 425 47.8 425 — — 2 8.2 40.0 350 40.0 350 — — 2 8.2
47.8 425 47.8 425 — — 2 7.8 40.0 350 40.0 350 — — 2 7.8
28.7 239 28.7 239 — — 2 4.8 24.0 195 24.0 195 — — 2 4.8
23.9 198 23.9 198 — — 2 4.0 19.9 167 19.9 167 — — 2 4.0
19.1 148 19.1 148 — — 2 3.1 16.0 125 16.0 125 — — 2 3.1
47.8 425 47.8 425 — — 2 8.2 47.8 425 47.8 425 — — 2 8.2
47.8 425 47.8 425 — — 2 7.8 47.8 425 47.8 425 — — 2 7.8
28.7 239 28.7 239 — — 2 4.8 28.7 239 28.7 239 — — 2 4.8
23.9 198 23.9 198 — — 2 4.0 23.9 198 23.9 198 — — 2 4.0
19.1 148 19.1 148 — — 2 3.1 19.1 148 19.1 148 — — 2 3.1
40.0 350 40.0 350 40.0 350 2 8.2 33.2 278 33.2 278 33.2 278 2 8.2
40.0 350 40.0 350 40.0 350 2 7.8 33.2 278 33.2 278 33.2 278 2 7.8
24.0 195 24.0 195 24.0 195 2 4.8 19.9 151 19.9 151 19.9 151 2 4.8
19.9 167 19.9 167 19.9 167 2 4.0 16.6 127 16.6 127 16.6 127 2 4.0
16.0 125 16.0 125 16.0 125 2 3.1 13.3 100 13.3 100 13.3 100 2 3.1
40.0 350 40.0 350 40.0 350 2 8.2 40.0 350 40.0 350 40.0 350 2 8.2
40.0 350 40.0 350 40.0 350 2 7.8 40.0 350 40.0 350 40.0 350 2 7.8
24.0 195 24.0 195 24.0 195 2 4.8 24.0 195 24.0 195 24.0 195 2 4.8
19.9 167 19.9 167 19.9 167 2 4.0 19.9 167 19.9 167 19.9 167 2 4.0
16.0 125 16.0 125 16.0 125 2 3.1 16.0 125 16.0 125 16.0 125 2 3.1
47.8 425 47.8 425 47.8 425 2 8.2 40.0 350 40.0 350 40.0 350 2 8.2
47.8 425 47.8 425 47.8 425 2 7.8 40.0 350 40.0 350 40.0 350 2 7.8
28.7 239 28.7 239 28.7 239 2 4.8 24.0 195 24.0 195 24.0 195 2 4.8
23.9 198 23.9 198 23.9 198 2 4.0 19.9 167 19.9 167 19.9 167 2 4.0
19.1 148 19.1 148 19.1 148 2 3.1 16.0 125 16.0 125 16.0 125 2 3.1
47.8 425 47.8 425 47.8 425 2 8.2 47.8 425 47.8 425 47.8 425 2 8.2
47.8 425 47.8 425 47.8 425 2 7.8 47.8 425 47.8 425 47.8 425 2 7.8
28.7 239 28.7 239 28.7 239 2 4.8 28.7 239 28.7 239 28.7 239 2 4.8
23.9 198 23.9 198 23.9 198 2 4.0 23.9 198 23.9 198 23.9 198 2 4.0
19.1 148 19.1 148 19.1 148 2 3.1 19.1 148 19.1 148 19.1 148 2 3.1
YCUL0046 - YCUL0090
SINGLE POINT POWER SUPPLY CONNECTIONS (see Fig. 1)
(One Field Provided Power Supply Circuit to the condensing unit. Field connections to Factory Provided Terminal Block (optional), Non-Fused Disconnect Switch
(optional) or Circuit Breaker (optional).)

YORK INTERNATIONAL
108
YORK INTERNATIONAL 109
FORM 150.63-EG1
Electrical Data
MODEL
YCUL VOLT HZ
SYSTEM #1 FIELD SUPPLIED WIRING
MCA1MIN N/F
DISC SW2
D.E. FUSE CKT. BKR.5INCOMING (LUGS) WIRE RANGE6
MIN3MAX4MIN MAX TERMINAL BLOCK
(std)
NF DISC. SWITCHES
(opt)
CIR BREAKERS
(opt)
0096
200 60 251 400 300 350 300 350 # 6 - 400 (1 or 2) 3/0 - 500 (1 or 2) 3/0 - 500
230 60 233 250 300 300 300 300 # 6 - 400 (1) # 6 - 350 (1 or 2) 3/0 - 500
380 60 135 150 150 175 150 175 # 14 - 2/0 (1) # 6 - 350 (1) # 6 - 350
460 60 111 150 125 150 125 150 # 14 - 2/0 (1) # 6 - 350 (1) # 3 - 3/0
575 60 89 100 100 110 100 110 # 14 - 2/0 (1) # 6 - 350 (1) # 10 - 1/0
0100
200 60 251 400 300 350 300 350 # 6 - 400 (1 or 2) 3/0 - 500 (1 or 2) 3/0 - 500
230 60 233 250 300 300 300 300 # 6 - 400 (1) # 6 - 350 (1 or 2) 3/0 - 500
380 60 135 150 150 175 150 175 # 14 - 2/0 (1) # 6 - 350 (1) # 6 - 350
460 60 111 150 125 150 125 150 # 14 - 2/0 (1) # 6 - 350 (1) # 3 - 3/0
575 60 89 100 100 110 100 110 # 14 - 2/0 (1) # 6 - 350 (1) # 10 - 1/0
0106
200 60 274 400 300 300 300 300 (2) # 4 - 500 (1 or 2) 3/0 - 500 (1 or 2) 3/0 - 500
230 60 254 400 300 300 300 300 (2) # 4 - 500 (1 or 2) 3/0 - 500 (1 or 2) 3/0 - 500
380 60 148 200 175 175 175 175 # 14 - 2/0 (1) # 6 - 350 (1) # 3 - 3/0
460 60 122 150 150 150 150 150 # 14 - 2/0 (1) # 6 - 350 (1) # 10 - 1/0
575 60 98 150 110 110 110 110 # 14 - 2/0 (1) # 10 - 1/0 (1) # 10 - 1/0
0120
200 60 274 400 300 300 300 300 (2) # 4 - 500 (1 or 2) 3/0 - 500 (1 or 2) 3/0 - 500
230 60 254 400 300 300 300 300 (2) # 4 - 500 (1 or 2) 3/0 - 500 (1 or 2) 3/0 - 500
380 60 148 200 175 175 175 175 # 14 - 2/0 (1) # 6 - 350 (1) # 6 - 350
460 60 122 150 150 150 150 150 # 14 - 2/0 (1) # 6 - 350 (1) # 6 - 350
575 60 98 150 110 110 110 110 # 14 - 2/0 (1) # 6 - 350 (1) # 3 - 3/0
0130
200 60 359 400 400 450 400 450 (2) # 4 - 500 (1 or 2) 3/0 - 500 (1 or 2) 3/0 - 500
230 60 333 400 400 400 400 400 (2) # 4 - 500 (1 or 2) 3/0 - 500 (1 or 2) 3/0 - 500
380 60 194 250 225 225 225 225 # 6 - 400 (1) # 6 - 350 (1) # 6 - 350
460 60 159 200 175 200 175 200 # 6 - 400 (1) # 6 - 350 (1) # 6 - 350
575 60 128 150 150 150 150 150 # 14 - 2/0 (1) # 6 - 350 (1) # 6 - 350
MODEL
YCUL VOLT HZ
SYSTEM #2 FIELD SUPPLIED WIRING
MCA1MIN N/F
DISC SW2
D.E. FUSE CKT. BKR.5INCOMING (LUGS) WIRE RANGE6
MIN3MAX4MIN MAX TERMINAL BLOCK
(std)
NF DISC. SWITCHES
(opt)
CIR BREAKERS
(opt)
0096
200 60 191 200 225 250 225 250 # 6 - 400 (1) # 6 - 350 (1) # 6 - 350
230 60 178 200 200 225 200 225 # 6 - 400 (1) # 6 - 350 (1) # 6 - 350
380 60 104 150 125 125 125 125 # 14 - 2/0 (1) # 6 - 350 (1) # 3 - 3/0
460 60 85 100 100 110 100 110 # 14 - 2/0 (1) # 10 - 1/0 (1) # 10 - 1/0
575 60 68 100 80 90 80 90 # 14 - 2/0 (1) # 10 - 1/0 (1) # 10 - 1/0
0100
200 60 251 400 300 350 300 350 # 6 - 400 (1 or 2) 3/0 - 500 (1 or 2) 3/0 - 500
230 60 233 250 300 300 300 300 # 6 - 400 (1) # 6 - 350 (1 or 2) 3/0 - 500
380 60 135 150 150 175 150 175 # 14 - 2/0 (1) # 6 - 350 (1) # 6 - 350
460 60 111 150 125 150 125 150 # 14 - 2/0 (1) # 6 - 350 (1) # 3 - 3/0
575 60 89 100 100 110 100 110 # 14 - 2/0 (1) # 6 - 350 (1) # 10 - 1/0
0106
200 60 259 400 300 350 300 350 # 6 - 400 (1 or 2) 3/0 - 500 (1 or 2) 3/0 - 500
230 60 241 250 300 300 300 300 # 6 - 400 (1) # 6 - 350 (1 or 2) 3/0 - 500
380 60 140 150 175 175 175 175 # 14 - 2/0 (1) # 6 - 350 (1) # 6 - 350
460 60 115 150 150 150 150 150 # 14 - 2/0 (1) # 6 - 350 (1) # 6 - 350
575 60 92 100 110 125 110 125 # 14 - 2/0 (1) # 6 - 350 (1) # 3 - 3/0
0120
200 60 274 400 300 300 300 300 (2) # 4 - 500 (1 or 2) 3/0 - 500 (1 or 2) 3/0 - 500
230 60 254 400 300 300 300 300 (2) # 4 - 500 (1 or 2) 3/0 - 500 (1 or 2) 3/0 - 500
380 60 148 200 175 175 175 175 # 14 - 2/0 (1) # 6 - 350 (1) # 6 - 350
460 60 122 150 150 150 150 150 # 14 - 2/0 (1) # 6 - 350 (1) # 6 - 350
575 60 98 150 110 110 110 110 # 14 - 2/0 (1) # 6 - 350 (1) # 3 - 3/0
0130
200 60 374 400 300 300 300 300 (2) # 4 - 500 (1 or 2) 3/0 - 500 (1 or 2) 3/0 - 500
230 60 354 400 300 300 300 300 (2) # 4 - 500 (1 or 2) 3/0 - 500 (1 or 2) 3/0 - 500
380 60 148 200 175 175 175 175 # 14 - 2/0 (1) # 6 - 350 (1) # 6 - 350
460 60 122 150 150 150 150 150 # 14 - 2/0 (1) # 6 - 350 (1) # 6 - 350
575 60 98 150 110 110 110 110 # 14 - 2/0 (1) # 6 - 350 (1) # 3 - 3/0
YCUL0096 - YCUL0130
MULTIPLE POINT POWER SUPPLY CONNECTIONS (see Fig. 3)
(Two Field Provided Power Supply Circuits to the condensing unit. Field connections to Factory Provided Terminal Blocks (standard), Non-Fused Disconnect
Switches (optional) or Individual System Circuit Breakers (optional) per electrical system.)
See Notes on page 100

YORK INTERNATIONAL
108
YORK INTERNATIONAL 109
FORM 150.63-EG1
SYSTEM #1 COMPRESSOR & FAN
COMPR. #1 COMPR. #2 COMPR. #3 FANS
RLA LRA RLA LRA RLA LRA QTY FLA(EA)
100.2 550 100.2 550 — — 3 8.2
92.8 550 92.8 550 — — 3 7.8
53.5 305 53.5 305 — — 3 4.8
44.2 270 44.2 270 — — 3 4.0
35.4 210 35.4 210 — — 3 3.1
100.2 550 100.2 550 — — 3 8.2
92.8 550 92.8 550 — — 3 7.8
53.5 305 53.5 305 — — 3 4.8
44.2 270 44.2 270 — — 3 4.0
35.4 210 35.4 210 — — 3 3.1
73.9 450 73.9 450 73.9 450 4 8.2
68.5 450 68.5 450 68.5 450 4 7.8
39.5 260 39.5 260 39.5 260 4 4.8
32.6 215 32.6 215 32.6 215 4 4.0
26.1 180 26.1 180 26.1 180 4 3.1
73.9 450 73.9 450 73.9 450 4 8.2
68.5 450 68.5 450 68.5 450 4 7.8
39.5 260 39.5 260 39.5 260 4 4.8
32.6 215 32.6 215 32.6 215 4 4.0
26.1 180 26.1 180 26.1 180 4 3.1
100.2 550 100.2 550 100.2 550 4 8.2
92.8 550 92.8 550 92.8 550 4 7.8
53.5 305 53.5 305 53.5 305 4 4.8
44.2 270 44.2 270 44.2 270 4 4.0
35.4 210 35.4 210 35.4 210 4 3.1
SYSTEM #2 COMPRESSOR & FAN
COMPR. #1 COMPR. #2 COMPR. #3 FANS
RLA LRA RLA LRA RLA LRA QTY FLA(EA)
73.9 450 73.9 450 — — 3 8.2
68.5 450 68.5 450 — — 3 7.8
39.5 260 39.5 260 — — 3 4.8
32.6 215 32.6 215 — — 3 4.0
26.1 180 26.1 180 — — 3 3.1
100.2 550 100.2 550 — — 3 8.2
92.8 550 92.8 550 — — 3 7.8
53.5 305 53.5 305 — — 3 4.8
44.2 270 44.2 270 — — 3 4.0
35.4 210 35.4 210 — — 3 3.1
100.2 550 100.2 550 — — 4 8.2
92.8 550 92.8 550 — — 4 7.8
53.5 305 53.5 305 — — 4 4.8
44.2 270 44.2 270 — — 4 4.0
35.4 210 35.4 210 — — 4 3.1
73.9 450 73.9 450 73.9 450 4 8.2
68.5 450 68.5 450 68.5 450 4 7.8
39.5 260 39.5 260 39.5 260 4 4.8
32.6 215 32.6 215 32.6 215 4 4.0
26.1 180 26.1 180 26.1 180 4 3.1
73.9 450 73.9 450 73.9 450 4 8.2
68.5 450 68.5 450 68.5 450 4 7.8
39.5 260 39.5 260 39.5 260 4 4.8
32.6 215 32.6 215 32.6 215 4 4.0
26.1 180 26.1 180 26.1 180 4 3.1
YCUL0096 - YCUL0130
MULTIPLE POINT POWER SUPPLY CONNECTIONS (see Fig. 3)
(Two Field Provided Power Supply Circuits to the condensing unit. Field connections to Factory Provided Terminal Blocks (standard), Non-Fused Disconnect
Switches (optional) or Individual System Circuit Breakers (optional) per electrical system.)

YORK INTERNATIONAL
110
YORK INTERNATIONAL 111
FORM 150.63-EG1
Electrical Data
See Notes on page 100
YCUL0096 - YCUL0130 (R22 & R407C)
SINGLE-POINT POWER SUPPLY CONNECTIONS WITH INDIVIDUAL SYSTEM CIRCUIT BREAKERS (see Fig. 4)
(One Field Provided Power Supply Circuit to the condensing unit. Field connections to Factory Provided Terminal Block (optional) or Non-Fused Disconnect Switch
(optional). Includes Individual Branch Circuit Protection (Breakers) per electrical system)
MODEL
YCUL VOLT HZ
SINGLE POINT FIELD SUPPLIED WIRING
MCA1MIN N/F
DISC SW2
D.E. FUSE CKT. BKR.5INCOMING (LUGS) WIRE
RANGE6
MIN3MAX4MIN MAX TERMINAL
BLOCK (opt)
NF DISC.
SWITCH (opt)
0096
200 60 423 600 450 500 450 500 (2) # 4 - 500 (1 or 2) 3/0 - 500
230 60 393 600 450 450 450 450 (2) # 4 - 500 (1 or 2) 3/0 - 500
380 60 229 250 250 250 250 250 (2) # 4 - 500 (1) # 6 - 350
460 60 188 250 250 200 250 200 # 6 - 400 (1) # 6 - 350
575 60 151 200 200 175 200 175 # 14 - 2/0 (1) # 6 - 350
0100
200 60 476 600 600 600 600 600 (2) # 4 - 500 (1 or 2) 3/0 - 500
230 60 442 600 500 500 500 500 (2) # 4 - 500 (1 or 2) 3/0 - 500
380 60 257 400 300 300 300 300 (2) # 4 - 500 (1 or 2) 3/0 - 500
460 60 211 250 225 250 225 250 # 6 - 400 (1) # 6 - 350
575 60 169 200 200 200 200 200 # 6 - 400 (1) # 6 - 350
0106
200 60 513 600 600 600 600 600 (2) # 4 - 500 (1 or 2) 3/0 - 500
230 60 477 600 500 500 500 500 (2) # 4 - 500 (1 or 2) 3/0 - 500
380 60 278 400 300 300 300 300 (2) # 4 - 500 (1 or 2) 3/0 - 500
460 60 228 250 250 250 250 250 # 6 - 400 (1) # 6 - 350
575 60 183 200 200 200 200 200 # 6 - 400 (1) # 6 - 350
0120
200 60 528 600 600 600 600 600 (2) # 4 - 500 (1 or 2) 3/0 - 500
230 60 491 600 600 600 600 600 (2) # 4 - 500 (1 or 2) 3/0 - 500
380 60 286 400 300 300 300 300 (2) # 4 - 500 (1 or 2) 3/0 - 500
460 60 235 400 250 250 250 250 # 6 - 400 (1 or 2) 3/0 - 500
575 60 188 250 200 200 200 200 # 6 - 400 (1) # 6 - 350
0130
200 60 607 800 700 700 700 700 (2) # 4 - 500 (1 or 2) 3/0 - 500
230 60 564 800 600 600 600 600 (2) # 4 - 500 (1 or 2) 3/0 - 500
380 60 328 400 350 350 350 350 (2) # 4 - 500 (1 or 2) 3/0 - 500
460 60 269 400 300 300 300 300 # 6 - 400 (1 or 2) 3/0 - 500
575 60 216 250 250 250 250 250 # 6 - 400 (1) # 6 - 350

YORK INTERNATIONAL
110
YORK INTERNATIONAL 111
FORM 150.63-EG1
SYSTEM #1 COMPRESSOR & FAN SYSTEM #2 FIELD SUPPLIED WIRING
COMPR. #1 COMPR. #2 COMPR. #3 FANS COMPR. #1 COMPR. #2 COMPR. #3 FANS
RLA LRA RLA LRA RLA LRA QTY FLA(EA) RLA LRA RLA LRA RLA LRA QTY FLA(EA)
100.2 550 100.2 550 — — 3 8.2 73.9 450 73.9 450 — — 3 8.2
92.8 550 92.8 550 — — 3 7.8 68.5 450 68.5 450 — — 3 7.8
53.5 305 53.5 305 — — 3 4.8 39.5 260 39.5 260 — — 3 4.8
44.2 270 44.2 270 — — 3 4.0 32.6 215 32.6 215 — — 3 4.0
35.4 210 35.4 210 — — 3 3.1 26.1 180 26.1 180 — — 3 3.1
100.2 550 100.2 550 — — 3 8.2 100.2 550 100.2 550 — — 3 8.2
92.8 550 92.8 550 — — 3 7.8 92.8 550 92.8 550 — — 3 7.8
53.5 305 53.5 305 — — 3 4.8 53.5 305 53.5 305 — — 3 4.8
44.2 270 44.2 270 — — 3 4.0 44.2 270 44.2 270 — — 3 4.0
35.4 210 35.4 210 — — 3 3.1 35.4 210 35.4 210 — — 3 3.1
73.9 450 73.9 450 73.9 450 4 8.2 100.2 550 100.2 550 — — 4 8.2
68.5 450 68.5 450 68.5 450 4 7.8 92.8 550 92.8 550 — — 4 7.8
39.5 260 39.5 260 39.5 260 4 4.8 53.5 305 53.5 305 — — 4 4.8
32.6 215 32.6 215 32.6 215 4 4.0 44.2 270 44.2 270 — — 4 4.0
26.1 180 26.1 180 26.1 180 4 3.1 35.4 210 35.4 210 — — 4 3.1
73.9 450 73.9 450 73.9 450 4 8.2 73.9 450 73.9 450 73.9 450 4 8.2
68.5 450 68.5 450 68.5 450 4 7.8 68.5 450 68.5 450 68.5 450 4 7.8
39.5 260 39.5 260 39.5 260 4 4.8 39.5 260 39.5 260 39.5 260 4 4.8
32.6 215 32.6 215 32.6 215 4 4.0 32.6 215 32.6 215 32.6 215 4 4.0
26.1 180 26.1 180 26.1 180 4 3.1 26.1 180 26.1 180 26.1 180 4 3.1
100.2 550 100.2 550 100.2 550 4 8.2 73.9 450 73.9 450 73.9 450 4 8.2
92.8 550 92.8 550 92.8 550 4 7.8 68.5 450 68.5 450 68.5 450 4 7.8
53.5 305 53.5 305 53.5 305 4 4.8 39.5 260 39.5 260 39.5 260 4 4.8
44.2 270 44.2 270 44.2 270 4 4.0 32.6 215 32.6 215 32.6 215 4 4.0
35.4 210 35.4 210 35.4 210 4 3.1 26.1 180 26.1 180 26.1 180 4 3.1
YCUL0096 - YCUL0130 (R22 & R407C)
SINGLE-POINT POWER SUPPLY CONNECTIONS WITH INDIVIDUAL SYSTEM CIRCUIT BREAKERS (see Fig. 4)
(One Field Provided Power Supply Circuit to the condensing unit. Field connections to Factory Provided Terminal Block (optional) or Non-Fused Disconnect Switch
(optional). Includes Individual Branch Circuit Protection (Breakers) per electrical system)

YORK INTERNATIONAL
112
YORK INTERNATIONAL 113
FORM 150.63-EG1
Power Wiring
FIG. 2 – SINGLE POINT POWER SUPPLY WIRING
Single Point Power Supply Wiring – (0016 - 0090)
Multi Point Power Supply Wiring – (0046 - 0090)

YORK INTERNATIONAL
112
YORK INTERNATIONAL 113
FORM 150.63-EG1
Multi Point Power Supply Wiring – (0096 - 0130)
FIG. 3 – MULTI POINT POWER SUPPLY WIRING
Single Point Power Supply Wiring – (0096 - 0130)

YORK INTERNATIONAL
114
YORK INTERNATIONAL 115
FORM 150.63-EG1
FIG. 4 – OPTIONALSINGLE POINT POWER SUPPLY WIRING
Control Wiring
LD04289
LD04288
LD04290
FIG. 4 – CTB1 CONTROL PANEL FIELD WIRING
LD04376
FIG. 5 – CTB 2 POWER PANEL FIELD WIRING FIG. 6 – CTB3 POWER PANEL FIELD WIRING
* YCUL0046 - YCUL0090

YORK INTERNATIONAL
114
YORK INTERNATIONAL 115
FORM 150.63-EG1
Intentionally left blank

YORK INTERNATIONAL
116
YORK INTERNATIONAL 117
FORM 150.63-EG1
UNIT LOCATION
The YCUL Condensing Units are designed for outdoor
installation. When selecting a site for installation, be
guided by the following conditions:
1.For outdoor locations of the unit, select a place having
an adequate supply of fresh air for the condenser.
2. Avoid locations beneath windows or between struc-
tures where normal operating sounds may be objec-
tionable.
3. Installation sites may be either on a roof, or at ground
level. (See FOUNDATION.)
4. The condenser fans are the propeller-type, and are
not recommended for use with duct work in the con-
denser air stream.
5. When it is desirable to surround the unit(s), it is rec-
ommended that the screening be able to pass the
required chiller CFM without exceeding 0.1" of water
external static pressure.
6. Protection against corrosive environments is available
by supplying the units with either copper n, cured
phenolic, or epoxy coating on the condenser coils.
The phenolic or epoxy coils should be offered with
any units being installed at the seashore or where
salt spray may hit the unit.
In installations where winter operation is intended and
snow accumulations are expected, additional height
must be provided to ensure normal condenser air
ow.
Recommended clearances for units are given in DIMEN-
SIONS. When the available space is less, the unit(s)
must be equipped with the discharge pressure trans-
ducer option to permit high pressure unloading in the
event that air recirculation were to occur.
FOUNDATION
The unit should be mounted on a at and level founda-
tion, ground or roof, capable of supporting the entire
operating weight of the equipment. Operating weights
are given in the PHYSICAL DATA tables.
ROOF LOCATIONS – Choose a spot with adequate
structural strength to safely support the entire weight
of the unit and service personnel. Care must be taken
not to damage the roof during installation. If the roof is
“bonded”, consult the building contractor or architect
for special installation requirements. Roof installations
should incorporate the use of spring-type isolators to
minimize the transmission of vibration into the building
structure.
Application Data
GROUND LEVEL INSTALLATIONS – It is important
that the units be installed on a substantial base that will
not settle, causing strain on the refrigerant lines and
resulting in possible leaks. A one-piece concrete slab
with footers extending below the frost line is highly rec-
ommended. Additionally, the slab should not be tied to
the main building foundation as noises will telegraph.
Mounting holes (11/16" diameter) are provided in the
steel channel for bolting the unit to its foundation. See
DIMENSIONS.
For ground level installations, precautions should be
taken to protect the unit from tampering by or injury to
unauthorized persons. Screws on access panels will pre-
vent casual tampering; however, further safety precau-
tions, such as unit enclosure options, a fenced-in enclo-
sure, or locking devices on the panels may be advisable.
Check local authorities for safety regulations.
REFRIGERANT PIPING
When sizing refrigerant pipe for split system air condi-
tioning, consideration must be given to the: (1) Suction
line pressure drop due to friction, (2) Liquid line pres-
sure drop due to friction, (3) Suction line velocity for oil
return, and (4) Liquid line pressure drop due to vertical
rise. Refer to DESIGN PARAMETERS for friction losses
for both the suction and liquid lines for the condensing
unit.
On a system where the evaporator blower is located
below the condensing unit, the suction line must be
sized for both pressure drop and oil return.
When the condensing unit is located below the evapora-
tor blower, the liquid line must be designed for pressure
drop due to friction loss and vertical rise. If the pressure
drop due to vertical rise and friction loss exceeds 30 psi,
some refrigerant will ash before it reaches the thermal
expansion valve.
All horizontal suction lines should be pitched at least 1/4
inch per foot in the direction of the refrigerant ow to aid
the return of oil to the compressor. All suction lines with
a vertical rise exceeding 3 feet should have a ‘P’ trap
at the bottom and the top to facilitate oil return. Suction
lines with a vertical rise exceeding 25 feet should be
trapped every 15 feet to provide drain points for the
oil when the circuit is deactivated. When the circuit is
reactivated, oil will return to the compressor more quickly
and in smaller slugs.
For more details, refer to ASHRAE Refrigeration Hand-
book, System Practices for Halocarbon Refrigerants.

YORK INTERNATIONAL
116
YORK INTERNATIONAL 117
FORM 150.63-EG1
Guide Specications
PART 1 – GENERAL
1.01 SCOPE
A. The requirements of the General Conditions,
Supplementary Conditions, Division 1, and Draw-
ings apply to all Work herein.
B. Provide Microprocessor controlled, multiple-scroll
compressor, air-cooled, condensing units of the
scheduled capacities as shown and indicated on
the Drawings, including but not limited to:
1. Condensing Unit package
2. Electrical power and control connections
3. DX Central Station Air Handling connections
1.02 QUALITY ASSURANCE
A. Products shall be Designed, Tested, and installed in
compliance with applicable sections of the following
Standards and Codes:
1. ANSI/ASHRAE Standard 15 – Safety Code
for Mechanical Refrigeration
2. ASHRAE 90.1 - Energy efciency compli-
ance.
3. ANSI/NFPA Standard 70 – National Electrical
Code (N.E.C.).
4. Conform to Intertek Testing Services, formerly
ETL, for construction of condensing units and
provide E.T.L./c E.T.L. Listing label.
5. Manufactured in facility registered to ISO
9002.
B. Factory Test: Condensing Unit shall be pressure-
tested, evacuated and given a nitrogen holding
charge and an initial oil charge, and shall be fac-
tory operational run tested to assure each control
device operates properly.
C. Warranty: Manufacturer shall Warrant all equipment
and material of its manufacture against defects in
workmanship and material for a period of one year
from date of initial start-up or eighteen (18) months
from date of shipment, whichever occurs rst.
1.03 DELIVERY AND HANDLING
A. Unit shall be delivered to job site fully assembled,
and given nitrogen holding charge and a full oil
charge by the Manufacturer. (R-22 or HFC-407C
supplied by others).
B. Unit shall be stored and handled per Manufacturer’s
instructions.
PART 2 - PRODUCTS
2.01 CONDENSING UNITS MATERIALS AND
COMPONENTS
A. General: Install and commission, as shown on the
schedules and plans, factory assembled, charged,
and tested air cooled scroll compressor condensing
unit as specied herein. Condensing Unit shall be
designed, selected, and constructed using a refrig-
erant with Flammability rating of “1”, as dened by
ANSI/ASHRAE STANDARD - 34 Number Desig-
nation and Safety Classication of Refrigerants.
Condensing Unit shall include, but is not limited to:
a system with a single refrigerant circuit 35 tons
(123kW) and below, and not less than two refriger-
ant circuits above 35 tons (123kW), scroll compres-
sors, air-cooled condenser, refrigerant, lubrication
system, interconnecting wiring, safety and operating
controls including capacity controller, control center,
motor starting components, and special features as
specified herein or required for safe, automatic
operation.
B. Cabinet: External structural members shall be con-
structed of heavy gauge, galvanized steel coated with
baked on powder paint which, when subject to ASTM
B117, 500 hour, 5% salt spray test, yields minimum
ASTM 1654 rating of “6”
2.02 COMPRESSORS
Compressors: Shall be hermetic, scroll-type, includ-
ing:
1 Compliant design for axial and radial sealing.
2. Refrigerant ow through the compressor with
100% suction cooled motor.
3. Large suction side free volume and oil sump to
provide liquid handling capability.
4. Compressor crankcase heaters to provide extra
liquid migration protection.
5. Annular discharge check valve and reverse vent
assembly to provide low pressure drop, silent
shutdown and reverse rotation protection.
6. Initial Oil charge.
7. Oil Level sightglass.
8. Vibration isolator mounts for compressors.
9. Brazed-type connections for fully hermetic
refrigerant circuits.

YORK INTERNATIONAL
118
YORK INTERNATIONAL 119
FORM 150.63-EG1
2.03 REFRIGERANT CIRCUIT
One (YCUL0016-0040) or two (YCUL0046-0130) inde-
pendent refrigerant circuits will be furnished on each
unit. All unit piping will be copper, with brazed joints. The
liquid line will include a eld connection shutoff valve with
charging port located on each condenser circuit. Suc-
tion line connections are provided on each refrigeration
circuit. Filter drier and sight glass are shipped loose for
eld installation on each refrigerant circuit.
All expansion valves and liquid line solenoid valves and
refrigerant eld piping are supplied by others.
2.04 HEAT EXCHANGERS
A. Air Cooled Condenser:
1. Coils: Internally enhanced, seamless copper
tubes, mechanically expanded into aluminum
alloy ns with full height collars. Subcooling coil
an integral part of condenser. Design working
pressure shall be 450 psig (31 bar).
2. Fans: Shall be dynamically and statically
balanced, direct drive, corrosion resistant glass
ber reinforced composite blades molded into
low noise, full airfoil cross section, providing
vertical air discharge from extended orices
for efciency and low sound. Each fan in its own
compartment to prevent cross ow during fan
cycling. Guards of heavy gauge, PVC (polyvinyl
chloride) coated or galvanized steel.
3. Fan Motors: High efficiency, direct drive, 6
pole, 3 phase, insulation class “F”, current
protected, Totally Enclosed Air-Over (TEAO),
rigid mounted, with double sealed, permanently
lubricated, ball bearings.
2.05 CONTROLS
A. General: Automatic start, stop, operating, and
protection sequences across the range of scheduled
conditions and transients.
B. Microprocessor Enclosure: Rain and dust tight
NEMA 3R/12 (IP55) powder painted steel cabinet
with hinged, latched, and gasket sealed door.
C. Microprocessor Control Center:
1. Condensing Unit control can be set for Dis-
charge Air Temperature Control or for Suction
Pressure Control. (Note: Suction Pressure
Control requires optional Suction Pressure
Transducers on Models YCUL0016-0066.)
2. Automatic control of compressor start/stop,
anti-coincidence and anti-recycle timers,
automatic pump-down shut-down, condenser
fans, unit alarm contacts, and condensing unit
operation from 0°F to 125°F (-18°C to 52°C)
ambient. Automatic reset to normal chiller
operation after power failure.
3. Discharge air temperature reset via a Pulse
Width Modulated (PWM) input signal or up to
two steps of demand (load) limiting.
4. Software stored in non-volatile memory, with
programmed set-points retained in lithium
battery backed real time clock (RTC) memory
for minimum 5 years.
5. Forty character liquid crystal display, descrip-
tions in English (or Spanish, French, Italian, or
German), numeric data in English (or Metric)
units. Sealed keypad with sections for Set-
points, Display/Print, Entry, Unit Options &
clock, and On/Off Switch.
6. Programmable Set-points (within Manufacturer
limits): display language; suction pressure
setting and control range, remote reset tem-
perature range, set daily schedule/holiday
for start/stop, manual override for servicing,
low and high ambient cutouts, number of
compressors, low suction pressure cutout,
high discharge pressure cutout, anti-recycle
timer (compressor start cycle time), and anti-
coincident timer (delay compressor starts).
7. Display Data: Suction temperatures (optional),
low ambient temperature cutout setting,
outdoor air temperature, English or metric data,
suction pressure cutout setting, each system
suction pressure (optional on YCUL0016-0066
models), discharge pressure (optional), dis-
charge air reset via a YORK ISN DDC or
Building Automation System (by others) via
PWM input as standard or a 4-20milliamp or
0-10 VDC input or contact closure with optional
BAS interface, anti-recycle timer status for
each compressor, anti-coincident system start
timer condition, compressor run status, no
cooling load condition, day, date and time,
daily start/stop times, holiday status, automatic
or manual system lead/lag control (when
controlling based on Discharge Air Temperature
only), automatic lead/lag of compressors
within a system, compressor starts/operating
hours (each), status of hot gas valves, and
fan operation, run permissive status, number
of compressors running, liquid solenoid valve
status, load & unload timer status.
8. System Safeties: Shall cause individual com-
pressor systems to perform auto shut down;
manual reset required after the third trip in 90
minutes. Includes: high discharge pressure,
Guide Specications

YORK INTERNATIONAL
118
YORK INTERNATIONAL 119
FORM 150.63-EG1
low suction pressure, high pressure switch, and
motor protector. Compressor motor protector
shall protect against damage due to high input
current or thermal overload of windings.
9. Unit Safeties: Shall be automatic reset and
cause compressors to shut down if low ambient,
or under voltage.
10. Alarm Contacts: Low ambient, low voltage,
low battery, and (per compressor circuit):
high discharge pressure, and low suction
pressure.
D. Manufacturer shall provide any controls not listed
above, necessary for automatic condensing unit
operation. Mechanical Contractor shall provide
eld control wiring necessary to interface sensors
to the condensing unit control system.
2.06 POWER CONNECTION AND
DISTRIBUTION
A. Power Panels:
1. NEMA 3R/12 (IP55) rain/dust tight, powder
painted steel cabinets with hinged, latched, and
gasket sealed outer doors. Provide main power
connection(s), control power connections,
compressor and fan motor start contactors,
current overloads, and factory wiring.
2. Power supply shall enter unit at a single
location, be 3 phase of scheduled voltage,
and connect to individual terminal blocks per
compressor. Separate disconnecting means
and/or external branch circuit protection (by
Contractor) required per applicable local or
national codes.
B. Exposed compressor, control and fan motor power
wiring shall be routed through liquid tight conduit.
2.07 ACCESSORIES AND OPTIONS
Some accessories and options supercede standard
product features. Your YORK representative will be
pleased to provide assistance.
A. Microprocessor controlled, Factory installed
Across-the-Line type compressor motor starters
as standard.
B. Outdoor Ambient Temperature Control
1. Low Ambient Control: Permits unit operation to
0°F ambient. Standard unit controls to 25°F
ambient. Low Ambient Control standard on
YCUL0096-0130 models.
2. High Ambient Control: Permits unit operation
above 115°F ambient.
C. Power Supply Connections:
1. Single Point Power Supply: Single point Termi-
nal Block for eld connection and interconnect-
ing wiring to the compressors. Separate exter-
nal protection must be supplied, by others, in
the incoming power wiring, which must comply
with the National Electric Code and/or local
codes. Single Point Supply option available
on YCUL0046-0090 models and standard on
YCUL0016 - 0040 models.
2. Single Point or Multiple Point Power Supply
with individual System Breakers: Single or
Multiple Point Terminal Block(s) for eld con
nection and factory interconnecting wiring to
factory supplied system breakers . Available
on YCUL0096-0130 models.
3. Single Point or Multiple Point Disconnect:
Single or Dual point Non-Fused Disconnect(s)
and lockable external handle (in compliance
with Article 440-14 of N.E.C.) can be supplied
to isolate the unit power voltage for servicing.
Separate external fusing must be supplied, by
others, in the in coming power wiring, which
must comply with the National Electric Code
and/or local codes.
4. Single Point Disconnect with Individual System
Breakers: Single point Terminal Block with Non-
Fused Disconnect and lockable external handle
(in compliance with Article 440-14 of N.E.C.)
can be supplied to isolate power voltage for
servicing. Factory interconnecting wiring from
disconnect to factory supplied circuit breakers.
Available on YCUL0096-0130 models.
5. Single Point Circuit Breaker: Single point Ter-
minal Block with Circuit Breaker and lockable
external handle (in compliance with Article 440
14 of N.E.C.) can be supplied to isolate power
voltage for servicing. Incoming power wiring
must comply with the National Electric Code
and/or local codes. Single Point Circuit Break
ers available on YCUL0016-0090 models.
D. Pressure & Temperature Transducers and Sen-
sors
1. Discharge Pressure Transducers: Permits unit
to sense and display discharge pressure.
2. Suction Pressure Transducers: Permits unit
to sense and display suction pressure. This
capability is standard on YCUL0076-0090
models. (This option is required for suction
pressure control on models YCUL0016-0066.)
3. Suction Temperature Sensors: Permits units to

YORK INTERNATIONAL
120
YORK INTERNATIONAL 121
FORM 150.63-EG1
sense and display suction temperature.
E. Control Power Transformer: Converts unit power
voltage to 120-1-60 (500 VA capacity). Factory
mounting includes primary- and secondary-wiring
between the transformer and the control panel.
F. Motor Current Module: Capable of monitoring com-
pressor motor current. Provides extra protection
against compressor reverse rotation, phase-loss
and phase imbalance. Options consists of one
module per electrical system. (Factory mounted)
G. Power Factor Correction Capacitors: Provided to
correct unit compressor factors to a 0.90-0.95.
H. Condenser Coil Environmental Protection:
1. Pre-Coated: Epoxy coated aluminum n stock
to guard from corrosive agents and insulate
against galvanic potential. For mild seashore
or industrial locations.
2. Copper Fin: Provide copper fins in lieu of
aluminum.
3. Post-Coated Dipped: Dipped-cured coating on
condenser coils for seashore and other corro-
sive applications (with the exception of strong
alkalis, oxidizers, and wet bromine, chlorine
and fluorine in concentrations greater than
100ppm).
I. Protective Condensing Unit Panels (Factory or Field
Mounted):
1. Louvered Panels (condenser coils only):
Painted steel as per remainder of unit cabinet,
over external condenser coil faces.
2. Wire Panels (full unit): Heavy gauge, welded
wire-mesh, coated to resist corrosion, to protect
condenser coils from incidental damage and
restrict unauthorized access to internal com-
ponents.
3. Louvered Panels (full unit): Painted steel as per
remainder of unit cabinet, to protect condenser
coils from incidental damage,visually screen
internal components, and prevent unauthorized
access to internal components.
4. Louvered/Wire Panels: Louvered steel panels
on external condenser coil faces, painted as
per remainder of unit cabinet. Heavy gauge,
welded wire-mesh, coated to resist corrosion,
around base of machine to restrict unauthorized
access.
J. Service Isolation valves: Service suction and dis-
charge (ball type) isolation valves are added to unit
per system. This option also includes a system high
pressure relief valve in compliance with ASHRAE
15. (Factory-mounted.)
K. Hot Gas By-Pass: Permits continuous, stable opera-
tion at capacities below the minimum step of unload-
ing to as low as 5% capacity (depending on both
the unit & operating conditions) by introducing an
articial load. Hot gas by-pass is available installed
on one or both refrigerant circuit(s).
L. Microprocessor Membrane Keypad Graphics on in
lieu of Standard English:
1. French language.
2. German language.
3. Spanish language.
4. Italian language.
M. Chicago Code Relief Valves to meet Chicago Code
requirements.
N. Building Automation System (EMS) Reset Interface:
Condensing Unit to accept 4 to 20mA, 0 to 10 VDC,
or discrete contact closure input to reset the dis-
charge air temperature.
O. Remote Control Panel (Field Mounted): Auxiliary
panel for remote user interface for functions nor-
mally made at the unit control center. Available on
YCUL0016-0090 models.
P. OptiView Remote Control Panel (Field-mounted)
Graphical interface panel to remotely control and
monitor up to 8 units
Q. Sound Reduction (Factory Mounted):
1. Low speed, reduced noise fans
2. Compressor Acoustic Sound Blankets
R. Vibration Isolation (Field Mounted):
1. Neoprene Pad Isolators.
2. 1 Inch Deection Spring Isolators: Level adjust-
able, spring and cage type isolators for mount-
ing under the unit base rails.
3. 2 Inch Deflection Seismic Isolators: Level
adjustable, restrained mounts in rugged welded
steel housing with vertical and
horizontal limit stops. Housings shall be
designed to withstand a minimum 1.0g accel-
Guide Specications

YORK INTERNATIONAL
120
YORK INTERNATIONAL 121
FORM 150.63-EG1
erated force in all directions to 2 inches.
PART 3 - EXECUTION
3.01 INSTALLATION
A. General: Rig and Install in full accordance with
Manufacturers requirements, Project drawings,
and Contract documents.
B. Location: Locate condensing unit as indicated
on drawings, including cleaning and service
maintenance clearance per Manufacturer instruc-
tions. Adjust and level condensing unit on support
structure.
C. Components: Installing Contractor shall provide and
install all auxiliary devices and accessories for fully
operational condensing unit.
D. Electrical: Coordinate electrical requirements and
connections for all power feeds with Electrical Con-
tractor (Division 16).
E. Controls: Coordinate all control requirements and
connections with Controls Contractor.
F. Finish: Installing Contractor shall paint damaged and
abraded factory nish with touch-up paint matching
factory nish.

YORK INTERNATIONAL
122
YORK INTERNATIONAL 123
FORM 150.63-EG1

YORK INTERNATIONAL
122
YORK INTERNATIONAL 123
FORM 150.63-EG1

P.O. Box 1592, York, Pennsylvania USA 17405-1592 Subject to change without notice. Printed in USA
Copyright © by York International Corporation 2002 ALL RIGHTS RESERVED
Form 150.63-EG1 (103)
Supersedes: 150.63-EG1 (502)
SHU 3M 303 9.92
Codes: DXL, ET2