York Yd Millennium Technical Guide 628770 YTG B 0811
SUNLINE MAGNUM DJ 210 628770-ytg-b-0811
2015-09-09
: York Yd-Millennium-Technical-Guide york-yd-millennium-technical-guide-811925 york pdf
Open the PDF directly: View PDF
.
Page Count: 24
- Description
- Table of Contents
- Product Nomenclature
- Condensing Unit Features and Benefits
- Condensing Unit Accessories
- Guide Specifications
- Physical Data
- Unit Limitations
- Capacity Performance
- Sound Performance
- Typical 208/230 Volt, YD360/480/600 Condensing Unit Wiring Diagram
- Typical 460/575 Volt, YD360/480/600 Condensing Unit Wiring Diagram
- Typical Field Wiring Diagrams
- Typical Field Wiring Diagram ND360/480 Evaporator Units, ND600 Air Handler and M1CZ600A Evaporator Coil when Matched with YD360, 480, 600 Condenser
- Typical ND360/480 & M1CZ600A Liquid Line Solenoid Wiring
- Typical Liquid Line Solenoid Wiring
- Weight And Dimension’s

TECHNICAL GUIDE
SPLIT-SYSTEM
AIR-COOLED CONDENSING UNITS
YD360, 480 & 600
30 THRU 50 NOMINAL TONS
ISO 9001
Certified Quality
Management System
628770-YTG-B-0811
®
Description
These units are completely assembled, piped and wired at the factory
to provide one-piece shipment and rigging. Each unit is pressurized
with a holding charge of Refrigerant R-410A for storage and/or ship-
ping.
The compact design, clean styling, low silhouette, and quiet operation
make these condensing units suitable for almost any outdoor location.
On rooftops . . . because they weigh much less than a single package
unit of similar capacity and are much easier to rig and support. At
ground level . . . because their ample sub-cooling capacity allows them
to be located three or more stories below the evaporator coil.
Every condenser coil is pressurized with air to 325 psig and leak
tested under water. After assembly, the unit is pressurized with a com-
bination of Refrigerant R-410A and nitrogen to 450 psig for pressure
testing and additional leak testing. During this pressure test, the opera-
tion of the high pressure control is checked. As the unit is being evacu-
ated and dehydrated, the operation of the low pressure control is
checked. Every compressor, condenser fan motor, crankcase heater,
and electrical control circuit is checked to assure a trouble-free start-
up and years of reliable operation.
The condenser fan guards are vinyl-coated to provide additional rust
protection and to enhance the appearance of the unit.
Compressors are mounted on rubber isolators to reduce the transmis-
sion of vibration. Vertical discharge condenser fans direct sound
upward and away from any surrounding structures.
All sheet metal parts are constructed of commercial grade galvanized
steel. After fabrication, each part is thoroughly cleaned to remove any
grease or dirt from its surfaces. The external parts are coated with a
powder paint to assure a quality finish for many years. This UL
approved coating system has passed the 1000 hour, 20% salt spray
test per ASTM Standard B117.
All models include a 1-year limited warranty on the complete unit. An
additional 4-year extended compressor warranty is available as an
option on all models.
A matching line of Evaporator Blower units is also offered to meet your
precise capacity and air handling requirements.

628770-YTG-B-0811
2Unitary Products Group
Table of Contents
Description . . . . . . . . . . . . . . . . . . . . . . . . . . . . . . . . . . . . . . . . . . . . . . . . . . . . . . . . . . . . . . . . . . . . . . . . . . . . . . . . . . . . . . . . . 1
Table of Contents . . . . . . . . . . . . . . . . . . . . . . . . . . . . . . . . . . . . . . . . . . . . . . . . . . . . . . . . . . . . . . . . . . . . . . . . . . . . . . . . . . . . 2
Condensing Unit Accessories . . . . . . . . . . . . . . . . . . . . . . . . . . . . . . . . . . . . . . . . . . . . . . . . . . . . . . . . . . . . . . . . . . . . . . . . . . 4
Guide Specifications. . . . . . . . . . . . . . . . . . . . . . . . . . . . . . . . . . . . . . . . . . . . . . . . . . . . . . . . . . . . . . . . . . . . . . . . . . . . . . . . . . 5
Physical Data. . . . . . . . . . . . . . . . . . . . . . . . . . . . . . . . . . . . . . . . . . . . . . . . . . . . . . . . . . . . . . . . . . . . . . . . . . . . . . . . . . . . . . . . 6
Unit Limitations. . . . . . . . . . . . . . . . . . . . . . . . . . . . . . . . . . . . . . . . . . . . . . . . . . . . . . . . . . . . . . . . . . . . . . . . . . . . . . . . . . . . . . 7
Cooling Ratings. . . . . . . . . . . . . . . . . . . . . . . . . . . . . . . . . . . . . . . . . . . . . . . . . . . . . . . . . . . . . . . . . . . . . . . . . . . . . . . . . . . . . . 7
Capacity Performance . . . . . . . . . . . . . . . . . . . . . . . . . . . . . . . . . . . . . . . . . . . . . . . . . . . . . . . . . . . . . . . . . . . . . . . . . . . . . . . . 8
Sound Performance . . . . . . . . . . . . . . . . . . . . . . . . . . . . . . . . . . . . . . . . . . . . . . . . . . . . . . . . . . . . . . . . . . . . . . . . . . . . . . . . . 14
Electrical Data . . . . . . . . . . . . . . . . . . . . . . . . . . . . . . . . . . . . . . . . . . . . . . . . . . . . . . . . . . . . . . . . . . . . . . . . . . . . . . . . . . . . . . 14
Typical Wiring Diagrams . . . . . . . . . . . . . . . . . . . . . . . . . . . . . . . . . . . . . . . . . . . . . . . . . . . . . . . . . . . . . . . . . . . . . . . . . . . . . 15
Typical Field Wiring Diagrams. . . . . . . . . . . . . . . . . . . . . . . . . . . . . . . . . . . . . . . . . . . . . . . . . . . . . . . . . . . . . . . . . . . . . . . . . 16
Weight And Dimension’s . . . . . . . . . . . . . . . . . . . . . . . . . . . . . . . . . . . . . . . . . . . . . . . . . . . . . . . . . . . . . . . . . . . . . . . . . . . . . 18

628770-YTG-B-0811
Unitary Products Group 3
Product Nomenclature
Product Category
Y = Split System, Condenser, AC, R-410A
Product Identifier
D = Standard Efficiency, 4-Pipe, R-410A
Nominal Cooling Capacity - MBH
360 = 30 Ton
480 = 40 Ton
600 = 50 Ton
C00 = Cooling Only
Product Options
AA = None
TA = Technicoat Condenser Coil
Installation Options
A = None
2 = 208/230-3-60
4 = 460-3-60
5 = 575-3-60
Configured Split Condenser Model Number Nomenclature
A = Standard Motor
Airflow
Product Generation
1 = First Generation
Voltage
Heat Type & Nominal Heat Capacity
YD360 C00 A 2AAA 2A
Product Style
A = Style A
1 = Disconnect
B = Option 1
Options

628770-YTG-B-0811
4Unitary Products Group
Condensing Unit Features and Benefits
• Meets or exceeds ASHRAE 90.1 standards.
• Scroll compressors provide both high efficiency and reli-
ability.
•Simplicity® Controls
• Dual refrigerant circuits.
• Condenser coils are constructed of copper tubes and
aluminum fins for durability and long lasting efficient
operation.
• Crankcase heaters that will be de-energized when the
compressor is operating.
• Both high and low pressure controls. Since these con-
trols are self-contained, there are no capillary lines to be
damaged.
• Solid state or internal line break compressor motor pro-
tection.
• Class 2, 24-volt thermostat control circuit.
• Factory installed service valves are standard.
• Two filter-driers are shipped in the unit's control box for
field installation in the liquid line near the condensing
unit.
• Copper stub-outs are factory mounted on the suction
and liquid line service valves to simplify the field piping
connections.
• Multiple controls to provide stable system operation at
ambient temperatures down to 40ºF with kits available
for operation to 0ºF.
• Capacity staging for more economical operation and
more even temperature levels within the conditioned
space.
• A lockout circuit to prevent the unit from cycling on safety
control.
• Pump-out on unit startup to prevent liquid refrigerant
returning to the compressor is standard on all models.
• Inherently protected condenser fan motors.
• V-Coil Design with exterior service port connections.
• Five-minute anti-short cycle timer and minimum com-
pressor run time.
• Factory installed disconnect and Technicoat coils option.
• Self contained high and low pressure controls.
Condensing Unit Accessories
• Low ambient VFD control to 0° F.
• Phase Monitors - Designed to prevent unit damage. The
phase monitor will shut the unit down and out-of phase
condition.
• Hot Gas Bypass Kit - That will provide a metered flow of
compressor discharge gas to the system’s evaporator
coil during reduced load operation.
• Optional skid for fork truck handling (requires 96” length
forks).

628770-YTG-B-0811
Unitary Products Group 5
Guide Specifications
SPLIT SYSTEM COOLING ONLY CONDENSING
UNITS
MODELS YD360, YD480 AND YD600
THE INSTALLER SHALL:
•Furnish York
® air-cooled condensing units or equivalent
in accordance with the performance schedule shown on
the plans, and
• Install each unit as shown on the plans in accordance
with:
• The manufacturers recommendations and
• All applicable national and local codes
EACH UNIT SHALL BE:
• CSA approved.
• Completely assembled for one-piece shipping and rig-
ging.
• Leak pressure and functionally tested at the factory to
assure a trouble-free start-up after installation.
• Covered by a 1-year limited parts warranty on the com-
plete unit.
• In current production with published literature available
to check performance, limitations, specifications, power
requirements, dimensions, operation and appearance.
EACH UNIT SHALL HAVE:
• A steel angle frame to provide the rigid support required
for shipping, rigging and years of dependable operation.
• Zinc-coated steel that has been finished by a powder
paint process to provide a long lasting, quality appear-
ance.
• Removable panels for easy access to all internal compo-
nents during maintenance and service.
THE DIMENSIONS OF EACH UNIT SHALL:
• Not exceed those specified on the plans.
EACH COMPRESSOR SHALL:
• Be mounted on isolators to minimize the transmission of
vibration.
ALL CONDENSER COILS SHALL:
• Be draw through design.
• Be constructed of copper tubes arranged in staggered
rows and mechanically expanded into aluminum fins.
THE CONDENSER FAN MOTOR(S) SHALL:
• Be directly connected to the condenser fans.
• Have permanently lubricated ball bearings.
• Have inherent overload protection.
• Motors shall be three phase.
• The propeller-type condenser fans shall be arranged for
vertical discharge of the condenser air.
THE WIRING FOR EACH UNIT SHALL INCLUDE:
• A crankcase heater (one per compressor)
• All 24-volt temperature control circuit.
• Both high and low pressure cutouts.
• Solid-state or internal line break compressor motor pro-
tection.
• Condenser fan motor control to assure stable operation
at ambient temperatures down to 40ºF.
THE REFRIGERANT PIPING of each system shall include:
• A filter-drier shipped for field installation.

628770-YTG-B-0811
6Unitary Products Group
Physical Data
YD360 thru 600 Physical Data
Component Models
YD360 YD480 YD600
Nominal Tonnage 30 40 50
REFRIGERANT
Refrigerant type R-410A R-410A R-410A
Holding charge (lb)1
1Holding Charge is the amount in the unit as shipped from the factory.
1.0 1.0 1.0
Operating Charge (lb)2
2Includes matched evaporator unit with 25 ft of piping.
System #1 35.0 47.0 51.0
System #2 35.0 47.0 51.0
DIMENSIONS (inches)
Length 128.5 128.5 128.5
Width 88.5 88.5 88.5
Height 37.5 57.7 57.7
WEIGHTS (lb)
Shipping 1875 2315 2345
Operating 1895 2347 2381
COMPRESSORS
Type Tandem Scroll Tandem Scroll Tandem Scroll
Quantity 2 2 2
Cooling
Nominal Capacity (Tons) System #1 15 20 25
System #2 15 20 25
Capacity Stages System #1 2 2 2
System #2 2 2 2
SYSTEM DATA
No. Refrigeration Circuits 2 2 2
Suction Line OD (in.) 1 5/8 1 5/8 1 5/8
Liquid Line OD (in.) 7/8 7/8 7/8
OUTDOOR COIL DATA
Face area (Sq. Ft.) System #1 32.5 45.5 52.0
System #2 32.5 45.5 52.0
Rows 222
Fins per inch 16 16 16
Tube diameter (in.) 3/8 3/8 3/8
Circuitry Type Interlaced Interlaced Interlaced
Refrigerant Control --- --- ---
CONDENSER FAN DATA
No. Fans / Diameter (in.) 4/30 4/30 4/30
Type Axial Axial Axial
Drive type Direct Direct Direct
No. speeds 1 1 1
Number of motors System #1 2 2 2
System #2 2 2 2
Motor HP (ea.) 1 1/2 1 1/2 1 1/2
Rotation3
3When viewing the shaft end of the motor.
CW CW CW
RPM 1140 1140 1140
Nominal CFM System #1 15400 19400 19900
System #2 15400 19400 19900

628770-YTG-B-0811
Unitary Products Group 7
Unit Limitations
Cooling Ratings
EER = Energy Efficiency Ratio at full load - the cooling capacity in Btu’s per hour (Btuh) divided by the power input in watts, expressed in Btuh per
watt (Btuh/watt).
EER; condensing unit only ratings based on 45º F SST and 95ºF entering outdoor air temperature.
IEER - A single number cooling part-load efficiency figure that is calculated based on equipment stages and EER at these capacity stages (ANSI/
ARI STD 340/360 - 2007)
LEGEND
EER = Energy Efficiency Ratio
SST = Saturated Suction Temperature
ARI = Air Conditioning and Refrigeration Institute
IEER = Integrated Energy Efficiency Ratio
Condenser Unit limitations
Model Nominal
Tonnage Unit Voltage Applied Voltage1
1Rated in accordance with ARI Standard 110, Range “A” Utilization Voltage.
Outdoor DB Temp Cooling (°F) Indoor DB Temp Cooling (°F)
Min2
2Low Ambient accessories are available to permit stable system operation at ambient temperatures down to 0°F.
Cooling Ratings
Max Max Min†Max Min
YD360 30
208/230-3-60 187 252
125 40 86 68460-3-60 432 504
575-3-60 540 630
YD480 40
208/230-3-60 187 252
125 40 86 68460-3-60 432 504
575-3-60 540 630
YD600 50
208/230-3-60 187 252
125 40 86 68460-3-60 432 504
575-3-60 540 630
Outdoor
Unit
Condensing Unit Only
Indoor
Unit
System Cooling Capacity1
1Certified in accordance with the Unitary Large Equipment certification program, which is based on ARI Standard 340/360.
Rated
Airflow
(CFM)
Gross Capacity2
(MBH)
2Condensing unit only ratings are at 45 F SST and 95 F entering-air temperature.
kW EER Gross Capacity3
(MBH)
3Deduct 1 MBH when a unit operates at 208 volts.
EER IEER
YD360 333 29.9 11.1 ND360 375 10.0 11.1 12,000
YD480 469 37.4 12.5 ND480 500 10.0 10.8 16,000
YD600 576 50.0 11.5 ND600 620 10.0 10.4 17,500

628770-YTG-B-0811
8Unitary Products Group
Capacity Performance
Condenser and Air Handling Cooling Capacities
YD360/ND360 (30 Ton)
Air on
Evaporator Coil
Temperature of Air on Condenser Coil
Total
Capacity1
(MBh)
Total
Input
(kW)2
Sensible Capacity (MBh) Total
Capacity1
(MBh)
Total
Input
(kW)2
Sensible Capacity (MBh)
CFM WB
(°F)
Return Dry Bulb (°F) Return Dry Bulb (°F)
90 85 80 75 70 65 90 85 80 75 70 65
75°F 85°F
9000
77 440.3 26.1 221.9 185.2 148.6 - - - 424.8 28.5 215.2 179.0 142.8 - - -
72 411.6 25.5 272.6 235.9 199.2 162.5 - - 396.5 28.0 265.3 229.1 192.9 156.7 - -
67 382.9 24.9 323.2 286.6 249.9 213.2 176.5 - 368.3 27.5 315.5 279.3 243.1 206.8 170.6 -
62 318.5 24.4 318.5 301.8 265.1 228.4 191.8 155.1 311.2 26.9 311.2 300.3 264.1 227.9 191.7 155.5
57 347.4 24.2 347.4 347.4 312.7 276.0 239.3 202.7 335.5 26.8 335.5 335.5 304.9 268.7 232.5 196.3
10500
77 454.2 26.4 247.9 202.9 157.8 - - - 437.9 28.7 236.3 194.0 151.8 - - -
72 424.6 25.8 301.8 256.7 211.7 166.6 - - 408.7 28.2 289.6 247.3 205.1 162.8 - -
67 394.9 25.2 355.6 310.6 265.5 220.5 175.4 - 379.6 27.7 342.9 300.6 258.4 216.1 173.9 -
62 328.6 24.6 328.6 320.2 281.7 238.2 191.6 146.6 320.8 27.2 320.8 315.4 280.7 238.5 196.2 154.0
57 358.3 24.4 358.3 358.3 332.3 290.0 242.2 197.1 345.9 27.0 345.9 345.9 324.2 281.9 239.6 197.4
12000
77 468.1 26.7 274.0 220.6 167.1 - - - 451.0 29.0 257.4 209.1 160.8 - - -
72 437.5 26.1 331.0 277.6 224.1 170.7 - - 421.0 28.5 313.9 265.5 217.2 168.9 - -
67 407.0 25.4 388.0 334.6 281.1 227.7 174.3 - 391.0 27.9 370.3 322.0 273.7 225.4 177.1 -
62 338.6 24.9 338.6 338.6 298.3 248.0 191.5 138.1 330.4 27.4 330.4 330.4 297.4 249.1 200.8 152.4
57 369.3 24.7 369.3 369.3 351.8 303.9 245.0 191.6 356.2 27.2 356.2 356.2 343.4 295.1 246.7 198.4
13500
72 448.4 26.2 338.1 287.0 235.8 184.6 - - 430.4 28.6 326.0 277.3 228.5 179.8 - -
67 417.1 25.5 399.7 346.9 295.7 244.5 193.3 - 399.7 28.0 385.4 336.7 288.0 239.2 190.5 -
62 347.0 25.0 347.0 347.0 313.7 264.1 211.4 160.2 337.8 27.5 337.8 337.8 312.9 264.2 215.4 166.7
57 378.4 24.8 378.4 378.4 369.7 321.3 267.3 216.1 364.1 27.3 364.1 364.1 357.7 309.0 260.3 211.5
15000
72 459.3 26.3 345.3 296.3 247.4 198.4 - - 439.7 28.7 338.2 289.0 239.9 190.7 - -
67 427.2 25.7 411.4 359.3 310.3 261.3 212.3 - 408.4 28.1 400.5 351.4 302.2 253.1 203.9 -
62 355.5 25.1 355.5 355.5 329.2 280.2 231.2 182.3 345.2 27.6 345.2 345.2 328.4 279.3 230.1 181.0
57 387.6 24.9 387.6 387.6 387.6 338.6 289.6 240.7 372.1 27.4 372.1 372.1 372.1 322.9 273.8 224.7
95°F 105°F
9000
77 409.2 30.9 208.5 172.7 137.0 - - - 388.6 34.2 199.2 164.5 129.8 - - -
72 381.4 30.4 258.1 222.4 186.6 150.9 - - 362.5 33.7 248.3 213.6 178.9 144.2 - -
67 353.7 30.0 307.7 272.0 236.2 200.5 164.8 - 336.3 33.2 297.4 262.7 228.0 193.3 158.6 -
62 303.9 29.5 303.9 298.8 263.1 227.3 191.6 155.8 295.7 32.8 295.7 293.1 262.5 227.8 193.1 158.4
57 323.6 29.4 323.6 323.6 297.2 261.4 225.7 189.9 309.1 32.7 309.1 309.1 286.3 251.6 216.9 182.2
10500
77 421.5 31.1 224.6 185.1 145.7 - - - 400.6 34.3 223.8 179.3 138.3 - - -
72 392.9 30.6 277.4 237.9 198.5 159.0 - - 373.6 33.9 272.7 231.7 190.7 149.6 - -
67 364.3 30.2 330.2 290.7 251.2 211.8 172.3 - 346.6 33.4 321.6 284.0 243.0 202.0 160.9 -
62 313.1 29.7 313.1 310.6 279.8 238.8 200.8 161.3 304.8 33.0 304.8 303.5 279.8 238.0 197.8 156.8
57 333.4 29.6 333.4 333.4 316.1 273.8 237.1 197.6 318.6 32.9 318.6 318.6 305.2 262.8 223.1 182.1
12000
77 433.9 31.3 240.8 197.6 154.4 - - - 412.5 34.5 248.5 194.2 146.9 - - -
72 404.4 30.9 296.7 253.5 210.3 167.1 - - 384.7 34.0 297.2 249.8 202.4 155.1 - -
67 375.0 30.4 352.7 309.5 266.3 223.0 179.8 - 357.0 33.6 345.8 305.4 258.0 210.7 163.3 -
62 322.3 29.9 322.3 322.3 296.5 250.2 210.1 166.8 313.9 33.1 313.9 313.9 297.2 248.3 202.4 155.1
57 343.2 29.8 343.2 343.2 334.9 286.2 248.5 205.3 328.1 33.1 328.1 328.1 324.0 273.9 229.3 181.9
13500
72 412.3 31.0 313.9 267.6 221.3 175.1 - - 384.1 34.2 311.6 263.0 214.5 165.9 - -
67 382.3 30.5 371.2 326.5 280.2 234.0 187.7 - 356.4 33.8 350.8 319.0 273.4 224.8 176.2 -
62 328.6 30.0 328.6 328.6 312.1 264.2 219.5 173.3 313.2 33.3 313.2 313.2 303.0 253.7 205.9 157.3
57 349.9 29.9 349.9 349.9 345.7 296.7 253.2 206.9 327.6 33.3 327.6 327.6 325.5 275.5 228.4 179.8
15000
72 420.2 31.0 331.0 281.7 232.4 183.1 - - 383.5 34.4 326.1 276.3 226.5 176.7 - -
67 389.7 30.6 389.7 343.5 294.2 244.9 195.6 - 355.8 34.0 355.8 332.7 288.7 239.0 189.2 -
62 334.9 30.1 334.9 334.9 327.6 278.3 229.0 179.7 312.5 33.5 312.5 312.5 308.9 259.1 209.3 159.5
57 356.6 29.9 356.6 356.6 356.6 307.3 257.9 208.6 327.0 33.5 327.0 327.0 327.0 277.2 227.4 177.6

628770-YTG-B-0811
Unitary Products Group 9
115°F 125°F
9000
77 368.1 37.4 189.9 156.2 122.6 - - - 347.5 40.7 180.6 148.0 115.4 - - -
72 343.5 37.0 238.5 204.8 171.2 137.5 - - 324.5 40.2 228.6 196.0 163.4 130.8 - -
67 318.9 36.5 287.0 253.4 219.7 186.1 152.4 - 301.5 39.7 276.7 244.1 211.5 178.9 146.3 -
62 287.4 36.1 287.4 287.4 262.0 228.3 194.7 161.0 279.1 39.5 279.1 279.1 261.4 228.8 196.2 163.6
57 294.6 36.1 294.6 294.6 275.4 241.8 208.1 174.5 280.1 39.5 280.1 280.1 264.5 231.9 199.3 166.7
10500
77 379.6 37.5 223.1 173.6 131.0 - - - 358.7 40.7 222.3 167.8 123.6 - - -
72 354.3 37.1 268.0 225.4 182.9 140.3 - - 335.0 40.3 263.3 219.2 175.1 131.0 - -
67 328.9 36.6 313.0 277.3 234.8 192.2 149.6 - 311.2 39.8 304.4 270.6 226.5 182.4 138.3 -
62 296.4 36.3 296.4 296.4 279.9 237.3 194.7 152.2 288.1 39.5 288.1 288.1 280.0 236.6 191.7 147.6
57 303.9 36.2 303.9 303.9 294.3 251.7 209.1 166.5 289.1 39.6 289.1 289.1 283.4 240.6 195.1 151.0
12000
77 391.2 37.6 256.2 190.9 139.4 - - - 369.9 40.8 264.0 187.5 131.9 - - -
72 365.1 37.2 297.6 246.1 194.6 143.1 - - 345.4 40.3 298.0 242.4 186.7 131.1 - -
67 338.9 36.7 338.9 301.3 249.8 198.3 146.8 - 320.9 39.9 320.9 297.2 241.6 185.9 130.3 -
62 305.5 36.4 305.5 305.5 297.8 246.3 194.8 143.3 297.1 39.6 297.1 297.1 297.1 244.4 187.2 131.6
57 313.1 36.4 313.1 313.1 313.1 261.6 210.1 158.6 298.1 39.7 298.1 298.1 298.1 249.3 190.9 135.3
13500
72 355.9 37.5 309.4 258.5 207.6 156.7 - - 327.7 40.8 307.1 253.9 200.8 147.6 - -
67 330.4 37.0 330.4 311.6 266.5 215.7 164.8 - 304.5 40.3 304.5 304.2 259.7 206.5 153.3 -
62 297.8 36.7 297.8 297.8 294.0 243.1 192.2 141.4 282.4 40.0 282.4 282.4 282.4 232.5 178.6 125.4
57 305.2 36.7 305.2 305.2 305.2 254.4 203.5 152.6 282.9 40.1 282.9 282.9 282.9 233.2 178.6 125.5
15000
72 346.7 37.8 321.1 270.9 220.7 170.4 - - 310.0 41.2 310.0 265.5 214.8 164.1 - -
67 321.9 37.3 321.9 321.9 283.3 233.0 182.8 - 288.0 40.7 288.0 288.0 277.8 227.1 176.4 -
62 290.1 37.0 290.1 290.1 290.1 239.9 189.6 139.4 267.7 40.4 267.7 267.7 267.7 220.7 170.0 119.3
57 297.4 37.0 297.4 297.4 297.4 247.1 196.9 146.7 267.8 40.5 267.8 267.8 267.8 217.1 166.4 115.7
1These capacities are gross ratings. For net capacity, deduct supply air blower motor, MBh. Example: Refer to the appropriate Blower
Performance Table for the BHP of the supply air blower motor, MBh = 3.415 x kW and kW = BHP x 0.746 nameplate rated motor
efficiency.
2These ratings include the condenser fan motors and the compressor motors but not the supply air blower motor.
YD360/ND360 (30 Ton) (Continued)
Air on
Evaporator Coil
Temperature of Air on Condenser Coil
Total
Capacity1
(MBh)
Total
Input
(kW)2
Sensible Capacity (MBh) Total
Capacity1
(MBh)
Total
Input
(kW)2
Sensible Capacity (MBh)
CFM WB
(°F)
Return Dry Bulb (°F) Return Dry Bulb (°F)
90 85 80 75 70 65 90 85 80 75 70 65

628770-YTG-B-0811
10 Unitary Products Group
YD480/ND480 (40 Ton)
Air on
Evaporator Coil
Temperature of Air on Condenser Coil
Total
Capacity1
(MBh)
Total
Input
(kW)2
Sensible Capacity (MBh) Total
Capacity1
(MBh)
Total
Input
(kW)2
Sensible Capacity (MBh)
CFM WB
(°F)
Return Dry Bulb (°F) Return Dry Bulb (°F)
90 85 80 75 70 65 90 85 80 75 70 65
75°F 85°F
12000
77 579.6 32.8 292.9 247.9 202.9 - - - 530.5 35.1 268.7 224.3 179.9 - - -
72 530.4 31.6 355.0 310.0 265.0 220.0 - - 496.5 34.4 333.0 288.6 244.2 199.8 - -
67 481.2 30.3 417.1 372.1 327.1 282.2 237.2 - 462.6 33.7 397.3 352.9 308.5 264.1 219.7 -
62 451.0 30.3 455.0 418.2 373.2 328.2 283.2 238.2 429.4 33.2 429.4 389.1 344.7 300.3 255.9 211.5
57 448.9 29.6 448.9 448.9 437.7 392.7 347.7 302.7 421.3 33.0 421.3 421.3 395.3 351.0 306.6 262.2
14000
77 600.7 32.8 308.8 259.6 210.4 - - - 556.3 35.3 292.2 242.4 192.5 - - -
72 549.4 31.5 372.5 323.3 274.1 224.9 - - 520.6 34.6 361.0 311.2 261.3 211.4 - -
67 498.0 30.3 436.1 386.9 337.7 288.5 239.3 - 485.0 34.0 429.8 380.0 330.1 280.2 230.3 -
62 466.9 30.3 468.9 435.1 385.9 337.8 287.4 238.2 450.2 33.4 450.2 418.7 368.8 318.9 269.0 219.1
57 464.9 29.5 464.9 464.9 453.3 406.6 354.9 305.7 441.7 33.2 441.7 441.7 423.0 373.1 323.2 273.3
16000
77 621.8 32.8 324.8 271.4 217.9 - - - 582.0 35.6 315.8 260.4 205.1 - - -
72 568.3 31.5 390.0 336.6 283.1 229.7 - - 544.7 34.9 389.1 333.7 278.4 223.0 - -
67 514.9 30.3 455.2 401.7 348.3 294.9 241.4 - 507.4 34.2 462.4 407.0 351.6 296.3 240.9 -
62 482.8 30.2 482.8 452.0 398.5 347.3 291.7 238.2 471.1 33.6 471.1 448.2 392.9 337.5 282.1 226.7
57 481.0 29.5 481.0 481.0 468.9 420.5 362.1 308.6 462.2 33.5 462.2 462.2 450.6 395.2 339.9 284.5
18000
72 583.2 32.0 421.4 367.3 313.2 259.1 - - 554.4 35.0 419.5 362.4 305.3 248.3 - -
67 528.6 30.8 498.7 439.6 385.5 331.4 277.3 - 516.5 34.4 493.9 442.9 385.8 328.7 271.6 -
62 495.6 30.7 495.6 480.2 440.9 387.9 332.7 278.6 479.4 33.8 479.4 468.0 431.0 373.9 316.8 259.7
57 493.6 30.0 493.6 493.6 487.6 435.9 379.4 325.3 470.4 33.6 470.4 470.4 464.6 407.5 350.4 293.3
20000
72 598.1 32.5 452.8 398.0 343.3 288.5 - - 564.1 35.2 450.0 391.2 332.3 273.5 - -
67 542.3 31.3 542.3 477.4 422.6 367.9 313.1 - 525.5 34.5 525.5 478.7 419.9 361.0 302.2 -
62 508.4 31.2 508.4 508.4 483.2 428.5 373.7 318.9 487.8 33.9 487.8 487.8 469.1 410.3 351.4 292.6
57 506.2 30.5 506.2 506.2 506.2 451.4 396.7 341.9 478.6 33.8 478.6 478.6 478.6 419.8 361.0 302.1
95°F 105°F
12000
77 481.4 37.4 244.5 200.7 156.9 - - - 462.2 41.8 256.0 212.6 169.1 - - -
72 462.7 37.3 311.0 267.2 223.4 179.6 - - 446.3 41.6 315.8 272.4 229.0 185.5 - -
67 443.9 37.1 377.5 333.7 289.9 246.1 202.3 - 430.4 41.4 375.6 332.2 288.8 245.4 201.9 -
62 407.8 36.1 403.8 360.0 316.2 272.4 228.6 184.8 405.5 40.9 403.5 363.1 319.7 276.2 232.8 189.4
57 393.7 36.5 393.7 393.7 353.0 309.2 265.4 221.6 382.2 41.0 382.2 382.2 345.7 302.2 258.8 215.4
14000
77 511.8 37.9 275.6 225.1 174.5 - - - 487.2 42.1 293.1 237.7 185.2 - - -
72 491.9 37.7 349.6 299.0 248.5 197.9 - - 470.4 41.8 355.9 303.4 250.8 198.3 - -
67 472.0 37.6 423.5 373.0 322.4 271.9 221.3 - 453.7 41.6 418.7 369.0 316.5 264.0 211.5 -
62 433.6 36.5 431.5 402.2 351.7 300.0 250.6 200.0 427.3 41.1 426.3 402.4 350.3 297.2 245.2 192.7
57 418.5 37.0 418.5 418.5 392.7 339.6 291.6 241.0 402.8 41.2 402.8 402.8 378.9 325.2 273.9 221.4
16000
77 542.2 38.3 306.8 249.5 192.2 - - - 512.1 42.3 330.2 262.8 201.2 - - -
72 521.1 38.2 388.2 330.9 273.6 216.3 - - 494.5 42.1 395.9 334.3 272.7 211.1 - -
67 500.0 38.1 469.6 412.3 355.0 297.7 240.4 - 476.9 41.8 461.7 405.8 344.2 282.6 221.0 -
62 459.3 37.0 459.3 444.5 387.2 327.6 272.6 215.3 449.1 41.4 449.1 441.7 380.9 318.2 257.7 196.1
57 443.4 37.4 443.4 443.4 432.3 370.0 317.7 260.4 423.4 41.4 423.4 423.4 412.2 348.1 289.0 227.4
18000
72 525.6 38.1 417.7 357.6 297.5 237.4 - - 497.0 42.1 415.9 352.5 289.0 225.5 - -
67 504.3 37.9 489.1 446.1 386.0 325.9 265.9 - 479.3 41.8 471.7 428.5 365.1 301.6 238.1 -
62 463.3 36.9 463.3 455.9 421.1 359.8 300.9 240.8 451.3 41.4 451.3 447.6 403.8 339.7 276.8 213.4
57 447.2 37.3 447.2 447.2 441.7 379.1 321.5 261.4 425.6 41.4 425.6 425.6 420.0 355.3 293.0 229.6
20000
72 530.1 37.9 447.2 384.3 321.4 258.5 - - 499.5 42.1 435.9 370.6 305.3 240.0 - -
67 508.6 37.8 508.6 480.0 417.1 354.2 291.3 - 481.7 41.8 481.7 451.2 385.9 320.6 255.2 -
62 467.2 36.7 467.2 467.2 454.9 392.0 329.2 266.3 453.5 41.3 453.5 453.5 426.7 361.3 296.0 230.7
57 451.0 37.1 451.0 451.0 451.0 388.2 325.3 262.4 427.7 41.4 427.7 427.7 427.7 362.4 297.0 231.7

628770-YTG-B-0811
Unitary Products Group 11
115°F 125°F
12000
77 443.0 46.3 267.5 224.4 181.3 - - - 423.8 50.8 278.9 236.2 193.6 - - -
72 430.0 46.0 320.6 277.6 234.5 191.5 - - 413.6 50.3 325.5 282.8 240.1 197.4 - -
67 416.9 45.6 373.8 330.7 287.7 244.6 201.6 - 403.4 49.8 372.0 329.3 286.6 243.9 201.2 -
62 403.3 45.7 403.3 366.2 323.1 280.1 237.0 193.9 401.0 50.6 401.0 369.3 326.6 283.9 241.2 198.5
57 370.8 45.5 370.8 370.8 338.3 295.2 252.2 209.1 359.3 50.0 359.3 359.3 331.0 288.3 245.6 202.9
14000
77 462.5 46.3 310.5 250.3 195.8 - - - 437.9 50.5 328.0 262.8 206.4 - - -
72 448.9 45.9 362.1 307.7 253.2 198.7 - - 427.4 50.0 368.4 312.0 255.5 199.1 - -
67 435.3 45.6 413.8 365.1 310.6 256.1 201.6 - 417.0 49.6 408.9 361.1 304.7 248.2 191.8 -
62 421.1 45.7 421.1 402.5 348.8 294.4 239.9 185.4 414.8 50.3 414.8 402.6 347.4 291.5 234.5 178.1
57 387.1 45.5 387.1 387.1 365.2 310.8 256.3 201.8 371.4 49.8 371.4 371.4 351.5 296.3 238.6 182.2
16000
77 482.1 46.3 353.6 276.1 210.2 - - - 452.0 50.2 377.0 289.4 219.2 - - -
72 467.9 45.9 403.6 337.7 271.9 206.0 - - 441.3 49.8 411.4 341.2 271.0 200.8 - -
67 453.7 45.6 453.7 399.4 333.5 267.6 201.7 - 430.6 49.3 430.6 392.9 322.7 252.5 182.3 -
62 438.8 45.7 438.8 438.8 374.6 308.7 242.8 176.9 428.6 50.1 428.6 428.6 368.2 299.2 227.8 157.7
57 403.5 45.5 403.5 403.5 392.2 326.3 260.4 194.5 383.5 49.5 383.5 383.5 372.1 304.4 231.7 161.5
18000
72 468.4 46.1 414.2 347.3 280.5 213.7 - - 439.8 50.1 412.4 342.2 272.0 201.8 - -
67 454.2 45.7 454.2 410.9 344.1 277.3 210.4 - 429.2 49.6 429.2 393.3 323.1 252.9 182.7 -
62 439.3 45.9 439.3 439.3 386.5 319.6 252.8 186.0 427.4 50.4 427.4 427.4 369.2 299.5 228.8 158.5
57 403.9 45.6 403.9 403.9 398.3 331.4 264.6 197.8 382.3 49.8 382.3 382.3 376.6 307.6 236.2 165.9
20000
72 469.0 46.2 424.7 356.9 289.1 221.4 - - 438.4 50.4 413.5 343.2 273.0 202.8 - -
67 454.8 45.9 454.8 422.5 354.7 286.9 219.1 - 427.8 49.9 427.8 393.8 323.5 253.3 183.1 -
62 439.8 46.0 439.8 439.8 398.4 330.6 262.8 195.0 426.1 50.6 426.1 426.1 370.1 299.9 229.7 159.4
57 404.4 45.8 404.4 404.4 404.4 336.6 268.8 201.0 381.1 50.1 381.1 381.1 381.1 310.8 240.6 170.3
1These capacities are gross ratings. For net capacity, deduct supply air blower motor, MBh. Example: Refer to the appropriate Blower
Performance Table for the BHP of the supply air blower motor, MBh = 3.415 x kW and kW = BHP x 0.746 nameplate rated motor
efficiency.
2These ratings include the condenser fan motors and the compressor motors but not the supply air blower motor.
YD480/ND480 (40 Ton) (Continued)
Air on
Evaporator Coil
Temperature of Air on Condenser Coil
Total
Capacity1
(MBh)
Total
Input
(kW)2
Sensible Capacity (MBh) Total
Capacity1
(MBh)
Total
Input
(kW)2
Sensible Capacity (MBh)
CFM WB
(°F)
Return Dry Bulb (°F) Return Dry Bulb (°F)
90 85 80 75 70 65 90 85 80 75 70 65

628770-YTG-B-0811
12 Unitary Products Group
YD600/ND600 Air Handler with M1CZ600A Evaporator Coil (50 Ton)
Air on
Evaporator Coil
Temperature of Air on Condenser Coil
Total
Capacity1
(MBh)
Total
Input
(kW)2
Sensible Capacity (MBh) Total
Capacity1
(MBh)
Total
Input
(kW)2
Sensible Capacity (MBh)
CFM WB
(°F)
Return Dry Bulb (°F) Return Dry Bulb (°F)
90 85 80 75 70 65 90 85 80 75 70 65
75°F 85°F
15000
77 778.4 38.3 415.3 359.0 302.7 - - - 739.6 44.5 405.1 348.7 292.3 - - -
72 711.3 40.7 471.4 415.1 358.8 302.5 - - 679.6 45.7 463.0 406.7 350.3 293.9 - -
67 644.1 43.1 527.5 471.2 415.0 358.7 302.4 - 619.5 46.8 521.0 464.7 408.3 351.9 295.5 -
62 618.5 41.7 618.5 580.0 523.8 467.5 411.2 354.9 599.2 45.6 599.2 560.7 504.3 447.9 391.6 335.2
57 629.2 40.1 629.2 573.3 517.0 460.7 404.4 348.1 616.4 44.2 616.4 561.2 504.8 448.4 392.1 335.7
17500
77 803.9 38.1 456.4 392.7 329.1 - - - 760.9 44.6 443.3 379.7 316.2 - - -
72 734.5 40.5 517.4 453.8 390.2 326.6 - - 699.1 45.7 506.0 442.5 378.9 315.4 - -
67 665.2 42.9 578.5 514.9 451.3 387.7 324.1 - 637.4 46.9 568.7 505.2 441.6 378.1 314.6 -
62 638.8 41.5 638.8 619.6 569.5 508.3 442.3 378.7 616.4 45.7 616.4 597.1 545.5 482.0 418.4 354.9
57 649.9 39.9 649.9 621.9 562.2 501.2 435.0 371.4 634.1 44.3 634.1 606.5 546.1 482.5 419.0 355.5
20000
77 829.3 37.9 497.4 426.5 355.6 - - - 782.2 44.7 481.5 410.8 340.1 - - -
72 757.8 40.3 563.4 492.5 421.6 350.7 - - 718.7 45.8 549.0 478.3 407.6 336.9 - -
67 686.3 42.7 629.5 558.5 487.6 416.7 345.8 - 655.2 46.9 616.4 545.7 475.0 404.3 333.6 -
62 659.1 41.2 659.1 659.1 615.2 549.1 473.3 402.4 633.6 45.7 633.6 633.6 586.7 516.0 445.3 374.6
57 670.6 39.7 670.6 670.6 607.4 541.7 465.5 394.6 651.9 44.3 651.9 651.9 587.3 516.6 445.9 375.2
21750
72 784.2 39.9 617.2 540.1 463.0 386.0 - - 737.6 45.5 588.6 512.9 437.2 361.5 - -
67 710.3 42.3 681.9 612.8 535.7 458.7 381.6 - 672.4 46.6 653.0 585.3 509.6 433.8 358.1 -
62 682.2 40.8 682.2 682.2 670.1 595.4 515.9 438.8 650.3 45.4 650.3 650.3 626.8 551.1 475.4 399.7
57 694.3 39.3 694.3 694.3 667.1 592.6 513.0 435.9 669.0 44.0 669.0 669.0 630.0 554.3 478.6 402.9
23500
72 810.6 39.5 671.0 587.7 504.5 421.2 - - 756.4 45.1 628.3 547.5 466.8 386.1 - -
67 734.3 41.9 734.3 667.1 583.9 500.6 417.4 - 689.6 46.3 689.6 624.8 544.1 463.4 382.7 -
62 705.3 40.5 705.3 705.3 725.0 641.7 558.5 475.2 666.9 45.1 666.9 666.9 666.9 586.2 505.5 424.8
57 717.9 38.9 717.9 717.9 726.8 643.6 560.4 477.1 686.1 43.7 686.1 686.1 672.7 592.0 511.3 430.6
95°F 105°F
15000
77 700.8 50.7 394.8 338.4 281.9 - - - 643.6 56.8 367.7 311.4 255.1 - - -
72 647.9 50.6 454.7 398.2 341.8 285.3 - - 603.3 56.7 434.4 378.1 321.8 265.5 - -
67 595.0 50.4 514.5 458.1 401.6 345.2 288.7 - 563.1 56.6 501.2 444.9 388.6 332.3 276.0 -
62 579.8 49.5 579.8 541.3 484.9 428.4 371.9 315.5 542.8 55.9 542.8 508.1 451.8 395.5 339.2 282.9
57 603.6 48.3 603.6 549.1 492.7 436.2 379.7 323.3 564.5 55.9 564.5 510.2 453.9 397.6 341.3 285.0
17500
77 717.9 51.1 430.2 366.7 303.3 - - - 663.4 56.8 416.1 342.4 277.3 - - -
72 663.7 50.9 494.6 431.1 367.6 304.2 - - 621.9 56.7 480.2 415.1 350.0 284.9 - -
67 609.5 50.8 559.0 495.5 432.0 368.6 305.1 - 580.5 56.7 544.4 487.8 422.7 357.5 292.4 -
62 594.0 49.8 594.0 574.7 521.6 455.7 394.6 331.2 559.6 56.0 559.6 542.3 491.3 425.0 361.0 295.9
57 618.3 48.7 618.3 591.1 530.0 463.9 403.0 339.6 581.9 55.9 581.9 554.8 493.5 427.0 363.2 298.1
20000
77 735.0 51.5 465.6 395.1 324.6 - - - 683.2 56.9 464.5 373.4 299.5 - - -
72 679.5 51.3 534.5 464.0 393.5 323.0 - - 640.5 56.8 526.0 452.1 378.1 304.2 - -
67 624.1 51.2 603.4 532.9 462.4 391.9 321.5 - 597.9 56.7 587.6 530.7 456.8 382.8 308.9 -
62 608.1 50.2 608.1 608.1 558.3 483.0 417.3 346.8 576.4 56.0 576.4 576.4 530.7 454.4 382.8 308.9
57 633.1 49.0 633.1 633.1 567.2 491.6 426.3 355.8 599.3 56.0 599.3 599.3 533.0 456.5 385.1 311.1
21750
72 690.9 51.1 560.0 485.7 411.3 337.0 - - 648.5 56.6 546.8 470.5 394.3 318.0 - -
67 634.5 50.9 624.1 557.7 483.4 409.0 334.7 - 605.3 56.5 600.2 552.5 476.2 400.0 323.7 -
62 618.3 49.9 618.3 618.3 583.6 506.8 434.9 360.6 583.5 55.8 583.5 583.5 553.4 476.0 400.9 324.7
57 643.7 48.8 643.7 643.7 593.0 516.0 444.3 369.9 606.8 55.8 606.8 606.8 555.8 478.3 403.3 327.1
23500
72 702.3 50.8 585.6 507.4 429.2 351.0 - - 656.5 56.4 567.5 488.9 410.4 331.9 - -
67 644.9 50.7 644.9 582.5 504.3 426.1 347.9 - 612.7 56.3 612.7 574.2 495.7 417.2 338.6 -
62 628.5 49.7 628.5 628.5 608.9 530.7 452.5 374.3 590.7 55.6 590.7 590.7 576.1 497.5 419.0 340.5
57 654.3 48.5 654.3 654.3 618.7 540.5 462.3 384.1 614.2 55.6 614.2 614.2 578.6 500.0 421.5 343.0

628770-YTG-B-0811
Unitary Products Group 13
Condenser Only Cooling Capacities
115°F 125°F
15000
77 586.4 62.8 340.6 284.5 228.3 - - - 529.2 68.8 313.5 257.5 201.5 - - -
72 558.8 62.8 414.2 358.1 301.9 245.8 - - 514.2 68.8 394.0 338.0 282.0 226.0 - -
67 531.1 62.7 487.8 431.7 375.5 319.4 263.2 - 499.2 68.9 474.4 418.4 362.5 306.5 250.5 -
62 505.9 62.3 505.9 475.0 418.8 362.7 306.5 250.4 468.9 68.7 468.9 441.8 385.8 329.8 273.8 217.9
57 525.3 63.4 525.3 471.3 415.2 359.0 302.9 246.7 486.2 70.9 486.2 432.4 376.4 320.4 264.4 208.5
17500
77 608.8 62.6 402.0 318.1 251.3 - - - 554.3 68.3 387.9 293.8 225.3 - - -
72 580.2 62.5 465.9 399.1 332.3 265.5 - - 538.4 68.3 451.6 383.1 314.7 246.2 - -
67 551.5 62.5 529.8 480.1 413.3 346.5 279.7 - 522.4 68.3 515.2 472.4 404.0 335.5 267.1 -
62 525.2 62.1 525.2 509.8 461.0 394.2 327.4 260.6 490.9 68.2 490.9 477.3 430.7 363.5 293.8 225.4
57 545.4 63.2 545.4 518.4 457.0 390.2 323.4 256.6 509.0 70.4 509.0 482.1 420.5 353.3 283.6 215.1
20000
77 631.3 62.4 463.4 351.8 274.3 - - - 579.4 67.8 462.4 330.1 249.2 - - -
72 601.5 62.3 517.6 440.2 362.7 285.3 - - 562.6 67.8 509.2 428.3 347.3 266.4 - -
67 571.8 62.3 571.8 528.6 451.2 373.7 296.3 - 545.7 67.8 545.7 526.4 445.5 364.6 283.7 -
62 544.6 61.9 544.6 544.6 503.2 425.8 348.3 270.9 512.8 67.7 512.8 512.8 475.7 397.1 313.8 232.9
57 565.5 63.0 565.5 565.5 498.8 421.4 343.9 266.5 531.8 69.9 531.8 531.8 464.6 386.2 302.7 221.8
21750
72 606.1 62.2 533.5 455.3 377.2 299.0 - - 563.8 67.7 520.2 440.2 360.1 280.0 - -
67 576.2 62.1 576.2 547.3 469.1 390.9 312.8 - 547.0 67.7 547.0 542.0 462.0 381.9 301.8 -
62 548.7 61.7 548.7 548.7 523.2 445.1 366.9 288.8 514.0 67.6 514.0 514.0 493.1 414.2 332.9 252.9
57 569.8 62.8 569.8 569.8 518.7 440.5 362.3 284.2 532.9 69.8 532.9 532.9 481.5 402.7 321.4 241.3
23500
72 610.7 62.0 549.4 470.5 391.6 312.7 - - 565.0 67.6 531.3 452.0 372.8 293.6 - -
67 580.5 61.9 580.5 565.9 487.1 408.2 329.3 - 548.3 67.6 548.3 548.3 478.4 399.2 320.0 -
62 552.9 61.5 552.9 552.9 543.3 464.4 385.5 306.6 515.1 67.5 515.1 515.1 510.5 431.2 352.0 272.8
57 574.2 62.6 574.2 574.2 538.5 459.6 380.8 301.9 534.1 69.7 534.1 534.1 498.4 419.2 340.0 260.8
1These capacities are gross ratings. For net capacity, deduct supply air blower motor, MBh. Example: Refer to the appropriate Blower
Performance Table for the BHP of the supply air blower motor, MBh = 3.415 x kW and kW = BHP x 0.746 nameplate rated motor
efficiency.
2These ratings include the condenser fan motors and the compressor motors but not the supply air blower motor.
YD600/ND600 Air Handler with M1CZ600A Evaporator Coil (50 Ton) (Continued)
Air on
Evaporator Coil
Temperature of Air on Condenser Coil
Total
Capacity1
(MBh)
Total
Input
(kW)2
Sensible Capacity (MBh) Total
Capacity1
(MBh)
Total
Input
(kW)2
Sensible Capacity (MBh)
CFM WB
(°F)
Return Dry Bulb (°F) Return Dry Bulb (°F)
90 85 80 75 70 65 90 85 80 75 70 65
YD360 thru 600 Condenser Only Capacities
MODEL
Suction Press. &
Corresponding
Temp. @ Saturation
Temperature of Air on Condenser Coil, °F
65 75 85 95 105 115
PSIG °F MBH KW EER MBH KW EER MBH KW EER MBH KW EER MBH KW EER MBH KW EER
YD360
104 35 275.4 28.5 9.6 264.0 27.4 9.6 250.0 26.4 9.5 238.2 28.8 8.3 231.8 32.0 7.2 228.5 35.1 6.5
117 40 327.9 29.2 11.2 316.0 28.1 11.3 302.0 27.0 11.2 285.8 29.4 9.7 273.0 32.5 8.4 263.3 35.6 7.4
129 45 380.4 29.8 12.8 368.0 28.7 12.8 354.0 27.5 12.9 333.5 29.9 11.1 314.2 33.0 9.5 298.1 36.2 8.2
142 50 432.9 30.4 14.3 420.0 29.3 14.3 406.0 28.1 14.4 381.1 30.5 12.5 355.4 33.6 10.6 332.9 36.7 9.1
154 55 485.4 31.0 15.7 472.0 30.0 15.8 458.0 28.7 16.0 428.8 31.0 13.8 396.6 34.1 11.6 367.7 37.2 9.9
YD480
105 35 418.0 33.2 12.6 408.0 32.4 12.6 399.2 32.4 12.3 397.3 36.2 11.0 389.6 40.4 9.6 389.2 45.0 8.6
117 40 461.0 34.4 13.4 451.0 33.5 13.5 441.6 33.1 13.3 433.0 36.8 11.8 419.2 40.9 10.3 410.8 45.2 9.1
130 45 504.0 35.6 14.1 494.0 34.6 14.3 484.1 33.8 14.3 468.8 37.4 12.5 448.9 41.3 10.9 432.4 45.4 9.5
142 50 547.0 36.9 14.8 537.0 35.7 15.0 526.5 34.5 15.3 504.5 38.0 13.3 478.5 41.8 11.5 454.0 45.6 9.9
155 55 590.0 38.1 15.5 580.0 36.8 15.8 569.0 35.2 16.2 540.3 38.5 14.0 508.2 42.2 12.0 475.6 45.8 10.4
YD600
105 35 489.4 45.3 10.8 487.2 44.1 11.0 482.6 43.4 11.1 442.2 48.4 9.1 391.3 54.4 7.2 334.0 60.7 5.5
118 40 561.4 46.2 12.1 558.7 45.2 12.4 554.6 44.4 12.5 509.2 49.4 10.3 456.8 55.1 8.3 400.0 61.1 6.5
130 45 633.4 47.2 13.4 630.2 46.3 13.6 626.6 45.4 13.8 576.2 50.5 11.4 522.3 55.9 9.3 466.0 61.5 7.6
142 50 705.4 48.2 14.6 701.7 47.4 14.8 698.6 46.4 15.1 643.2 51.3 12.5 587.8 56.6 10.4 532.0 62.0 8.6
154 55 777.4 49.2 15.8 773.2 48.5 15.9 770.6 47.4 16.2 710.2 52.3 13.6 653.3 57.4 11.4 598.0 62.4 9.6

628770-YTG-B-0811
14 Unitary Products Group
Sound Performance
Outdoor Sound Power Levels (dB), 60 Hz
Model Nominal
Tonnage dB(A)1
1Rated in accordance with ARI 270 Standard.
Electrical Data
Octave Bands (Hz)
63 125 250 500 1000 2000 4000 8000
YD360 30 92 90 93 91 89 87 83 79 74
YD480 40 92 90 93 91 89 87 84 80 75
YD600 50 93 91 94 92 90 87 84 80 75
YD360 thru 600 Electrical Data
Model
Compressors Outdoor Fan Motor Minimum
Circuit
Ampacity
Maximum
Fuse Size
(A)
Power
Supply Qty RLA
(each) MCC
(each) LRA
(each) Power
Supply HP Qty FLA
(each)
YD360
208/230-3-60 4 25.0 39 164 208/230-3-60 1 1/2 4 5.8 129.5 150
460-3-60 4 12.2 19 100 460-3-60 1 1/2 4 2.9 63.5 70
575-3-60 4 9.0 14 78 575-3-60 1 1/2 4 2.2 47.1 50
YD480
208/230-3-60 4 30.1 47 225 208/230-3-60 1 1/2 4 5.8 151.1 175
460-3-60 4 16.7 26 114 460-3-60 1 1/2 4 2.9 82.6 90
575-3-60 4 12.2 19 80 575-3-60 1 1/2 4 2.2 60.7 70
YD600
208/230-3-60 4 48.1 75 245 208/230-3-60 1 1/2 4 5.8 227.6 250
460-3-60 4 18.6 29 125 460-3-60 1 1/2 4 2.9 90.7 100
575-3-60 4 14.7 23 100 575-3-60 1 1/2 4 2.2 71.3 80

628770-YTG-B-0811
Unitary Products Group 15
Typical Wiring Diagrams
Typical 208/230 Volt, YD360/480/600 Condensing Unit Wiring Diagram

628770-YTG-B-0811
16 Unitary Products Group
Typical Wiring Diagrams
Typical 460/575 Volt, YD360/480/600 Condensing Unit Wiring Diagram

628770-YTG-B-0811
Unitary Products Group 17
Typical Field Wiring Diagrams
Typical Field Wiring Diagram ND360/480 Evaporator Units, ND600 Air Handler and M1CZ600A Evaporator Coil when
Matched with YD360, 480, 600 Condenser
NOTE: Typical field wiring when OD unit is matched with ND
air handler. When matching condensing unit with
models other than ND an additional control
transformer is required on the Indoor unit.
NOTE: For applications on airhandlers/evaporator DX coils
other than ND360-600 certified matchups liquid line
solenoids may be required for proper operation and
refrigerant system dump out.
Typical ND360/480 & M1CZ600A Liquid Line Solenoid Wiring

628770-YTG-B-0811
18 Unitary Products Group
Typical Liquid Line Solenoid Wiring
Standard Terminal Block on ND360/480 and
ND600 with M1CZ600A models. On non ND
models isolation relays must be installed to avoid
overloading on 75 VA transformer on condensing
unit.
Non ND units may not include any or all of the
components required to wire the unit. Use the
diagram as general reference only.
Primary side of transformer
connect to line side of power
supply.
Primary side of transformer
connect to line side of power
supply.

628770-YTG-B-0811
Unitary Products Group 19
Weight And Dimension’s
Corner Weights & Center Of Gravity (Inches)
Unit Model Unit Weight (Lbs.) Unit Dimensions
(Inches) A B C D Dim X Dim Y Weight
A to B Weight
D to C
Shipping Operation Length Width
YD360 1875 1895 128.5 88.5 404 537 533 401 55.2 44.1 934 941
YD480 2315 2347 128.5 88.5 486 675 671 483 53.8 44.1 1154 1161
YD600 2345 2381 128.5 88.5 486 693 685 481 53.0 44.0 1166 1179
Corner Weights & Center Of Gravity

628770-YTG-B-0811
20 Unitary Products Group
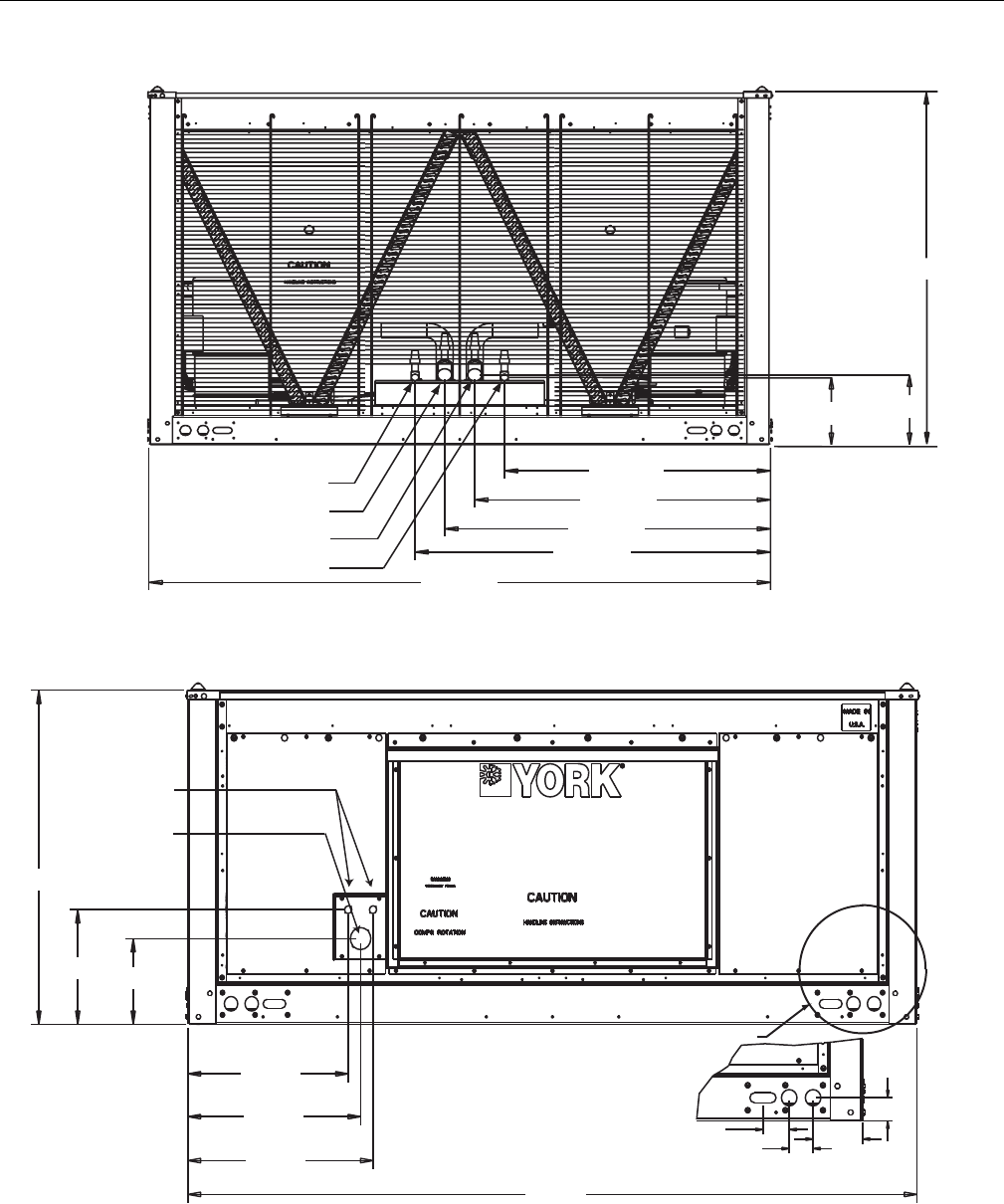
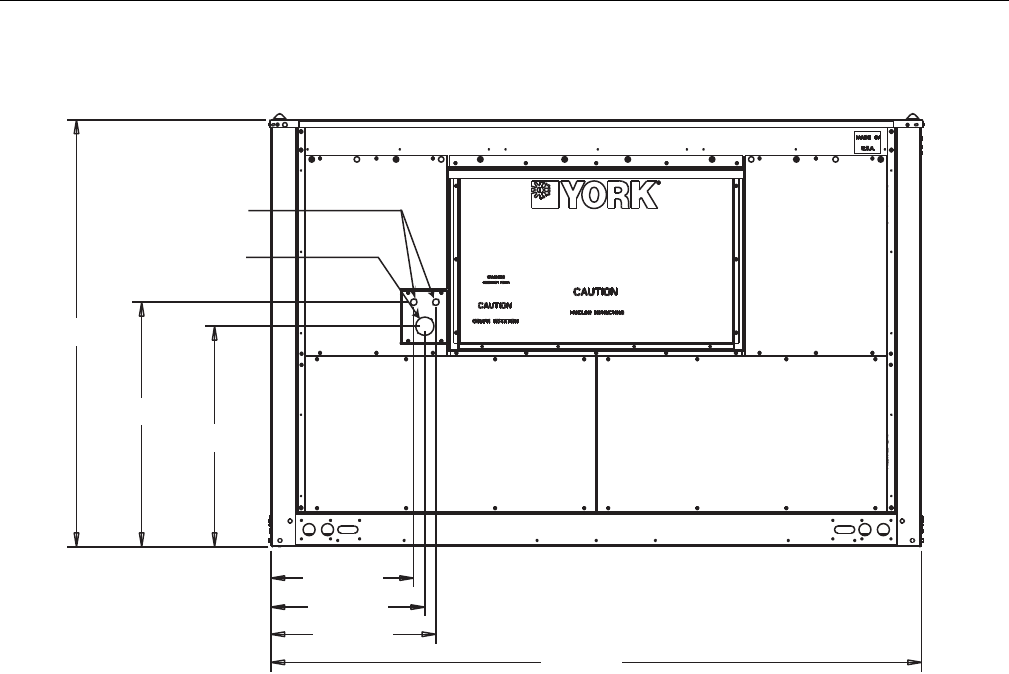
Piping And Electrical Connections
Piping connections are made from the rear of the unit. Con-
nections can be made directly to the suction and liquid line
service valves.
Piping can be routed to the unit from the left or right side.
Electrical connections for power and control wiring is made
from the front of all units, left of the electrical control box
access. See piping sizes and electrical knockout details.
YD Unit Dimensions
E
D
A
FRONT
B
REAR
RIGHT
LEFT
C
F
G
H
Unit Dimensions (Inches)
Model ABCDEFGH
YD360 128.5 88.5 37.5 41.8 40.0 46.1 37.1 23.6
YD480 128.5 88.5 57.7 41.8 40.0 46.1 37.1 23.6
YD600 128.5 88.5 57.7 41.8 40.0 46.1 37.1 23.6
Unit Clearances
Location Dimensions
Overhead (Top)1
1Units must be installed outdoors. Overhanging structures or
shrubs should not obstruct condenser air discharge.
120”
Front access panels 36”
Left Side 30”
Right Side 30”
Rear 24”
Bottom2
2Adequate snow clearance must be provided if winter operation
is expected.
0”

628770-YTG-B-0811
Unitary Products Group 21
Piping And Electrical Connection Sizes (30/40/50T) (Inches)
Connection Entry Size
Suction Line Sys #1 1-5/8 OD
Liquid Line Sys #1 7/8 OD
Suction Line Sys #2 1-5/8 OD
Liquid Line Sys #2 7/8 OD
Power Wiring Knockout SEE BELOW
Control Wiring 7/8 HOLE
Electrical Power Knockout Sizes (Inches)
Connection Entry 30-40-50T/230V 30-40-50T/460-575V
Power Wiring 2-1/2” 1-1/2”
30 Ton Piping Connections
Liquid (Sys 2)
Suction (Sys 2)
Liquid (Sys 1)
Suction (Sys 1)
37.518
88.140
50.313
46.190
41.859
37.826
10.984 11.385

628770-YTG-B-0811
22 Unitary Products Group
40 & 50 Ton Piping Connections
30 Ton Power And Control Wiring Connections
Liquid (Sys 2)
Suction (Sys 2)
Suction (Sys 1)
Liquid (Sys 1)
10.974
57.689
11.385
37.731
41.934
46.206
50.409
88.140
SEE DETAIL RIGGING HOLES
Control Wiring
Power Wiring
DETAIL RIGGING HOLES
SCALE 0.250
2.750
2.500 5.183
2.313
88.140
22.358
20.858
19.358
37.518
12.878 9.628

628770-YTG-B-0811
Unitary Products Group 23
40 & 50 Ton Power and Control Wiring Connections
88.140
19.358
20.858
22.358
29.799
33.049
57.689
Control Wiring
Power Wiring

Subject to change without notice. Printed in U.S.A. 628770-YTG-B-0811
Copyright © August 23, 2011 by Johnson Controls, Inc. All rights reserved. Supersedes: 628770-YTG-A-0610
Johnson Controls Unitary Products
5005 York Drive
Norman, OK 73069