York Zf Predator R410A 11 2 Eer Technical Guide
2015-09-09
: York Zf-Predator-R410A-11-2-Eer-Technical-Guide york-zf-predator-r410a-11-2-eer-technical-guide-812277 york pdf
Open the PDF directly: View PDF  .
.
Page Count: 55
- Description
- Table of Contents
- Component Location
- Nomenclature
- Features and Benefits
- Guide Specifications
- Physical Data
- Capacity Performance
- Airflow Performance- ZF090-150 Side Duct Application
- ZF090 (7.5 Ton) Standard Motor Side Duct Imperial
- ZF090 (26 kW) Standard Motor Side Duct Metric
- ZF090 (7.5) Ton Optional Motor Side Duct Imperial
- ZF090 (26 kW) Optional Motor Side Duct Metric
- ZF120 (10 Ton) Standard Motor Side Duct Imperial
- ZF120 (35 kW) Standard Motor Side Duct Metric
- ZF120 (10 Ton) Optional Motor Side Duct Imperial
- ZF120 (35 kW) Optional Motor Side Duct Metric
- ZF150 (12.5 Ton) Side Duct Imperial
- ZF150 (44 kW) Side Duct Metric
- ZF090-150 Bottom Duct Application
- ZF090 (7.5 Ton) Standard Motor Bottom Duct Imperial
- ZF090 (26 kW) Standard Motor Bottom Duct Metric
- ZF090 (7.5 Ton) Optional Motor Bottom Duct Imperial
- ZF090 (26 kW) Optional Motor Bottom Duct Metric
- ZF120 (10 Ton) Standard Motor Bottom Duct Imperial
- ZF120 (35 kW) Standard Motor Bottom Duct Metric
- ZF120 (10 Ton) Optional Motor Bottom Duct Imperial
- ZF120 (35 kW) Optional Motor Bottom Duct Metric
- ZF150 (12.5 Ton) Bottom Duct Imperial
- ZF150 (44 kW) Bottom Duct Metric
- Rated Airflow Imperial
- Additional Static Resistance ZF120/150 Cabinet (IMPERIAL)
- Additional Static Resistance ZF090 Cabinet (Imperial)
- Additional Static Resistance ZF120/150 Cabinet (Metric)
- Additional Static Resistance ZF090 Cabinet (Metric)
- Power Exhaust Specifications
 
- Sound Performance
- Electrical Data
- Typical Wiring Diagrams
- Weights and Dimensions
- Economizer Options

FOR DISTRIBUTION USE ONLY - NOT TO BE USED AT POINT OF RETAIL SALE
862075-XTG-G-0415
TECHNICAL GUIDE
Description
ASHRAE 90.1 COMPLIANT
YORK® Predator® units are convertible single packages 
with a common footprint cabinet and common roof curb for 
all 7-1/2 through 12-1/2 ton models. All units have two 
compressors with independent refrigeration circuits to 
provide 2 stages of cooling. The units were designed for 
light commercial applications and can be easily installed on 
a roof curb, slab, or frame.
All Predator® units are self-contained and assembled on 
rigid full perimeter base rails allowing for 3-way forklift 
access and overhead rigging. Every unit is completely 
charged, wired, piped, and tested at the factory to provide a 
quick and easy field installation.
All units are convertible between side and down airflow. 
Independent economizer designs are used on side and 
down discharge applications, as well as all tonnage sizes.
Predator® units are available in the following configurations: 
cooling only, cooling with electric heat, and cooling with gas 
heat. Electric heaters are available as factory-installed 
options or field-installed accessories.
All units provide constant supply air volume.
R-410A
ZF SERIES
7-1/2 THRU 12-1/2 TON
50 Hz (Export)
ZF 7-1/2 AND 10 TON
ZF 12-1/2 TON

862075-XTG-G-0415
2Johnson Controls Unitary Products
Table of Contents
Description  . . . . . . . . . . . . . . . . . . . . . . . . . . . . . . . . . . . . . . . . . . . . . . . . . . . . . . . . . . . . . . . . . . . . . . . . . . . . . . . . . . . . . . . . . . . .  1
Table of Contents  . . . . . . . . . . . . . . . . . . . . . . . . . . . . . . . . . . . . . . . . . . . . . . . . . . . . . . . . . . . . . . . . . . . . . . . . . . . . . . . . . . . . . . .  2
Component Location  . . . . . . . . . . . . . . . . . . . . . . . . . . . . . . . . . . . . . . . . . . . . . . . . . . . . . . . . . . . . . . . . . . . . . . . . . . . . . . . . . . . .  2
Nomenclature  . . . . . . . . . . . . . . . . . . . . . . . . . . . . . . . . . . . . . . . . . . . . . . . . . . . . . . . . . . . . . . . . . . . . . . . . . . . . . . . . . . . . . . . . . .  3
Features and Benefits . . . . . . . . . . . . . . . . . . . . . . . . . . . . . . . . . . . . . . . . . . . . . . . . . . . . . . . . . . . . . . . . . . . . . . . . . . . . . . . . . . . .  4
Guide Specifications . . . . . . . . . . . . . . . . . . . . . . . . . . . . . . . . . . . . . . . . . . . . . . . . . . . . . . . . . . . . . . . . . . . . . . . . . . . . . . . . . . . . .  9
Physical Data . . . . . . . . . . . . . . . . . . . . . . . . . . . . . . . . . . . . . . . . . . . . . . . . . . . . . . . . . . . . . . . . . . . . . . . . . . . . . . . . . . . . . . . . . .  13
Capacity Performance  . . . . . . . . . . . . . . . . . . . . . . . . . . . . . . . . . . . . . . . . . . . . . . . . . . . . . . . . . . . . . . . . . . . . . . . . . . . . . . . . . .  16
Airflow Performance . . . . . . . . . . . . . . . . . . . . . . . . . . . . . . . . . . . . . . . . . . . . . . . . . . . . . . . . . . . . . . . . . . . . . . . . . . . . . . . . . . . .  28
Sound Performance  . . . . . . . . . . . . . . . . . . . . . . . . . . . . . . . . . . . . . . . . . . . . . . . . . . . . . . . . . . . . . . . . . . . . . . . . . . . . . . . . . . . .  40
Electrical Data . . . . . . . . . . . . . . . . . . . . . . . . . . . . . . . . . . . . . . . . . . . . . . . . . . . . . . . . . . . . . . . . . . . . . . . . . . . . . . . . . . . . . . . . .  41
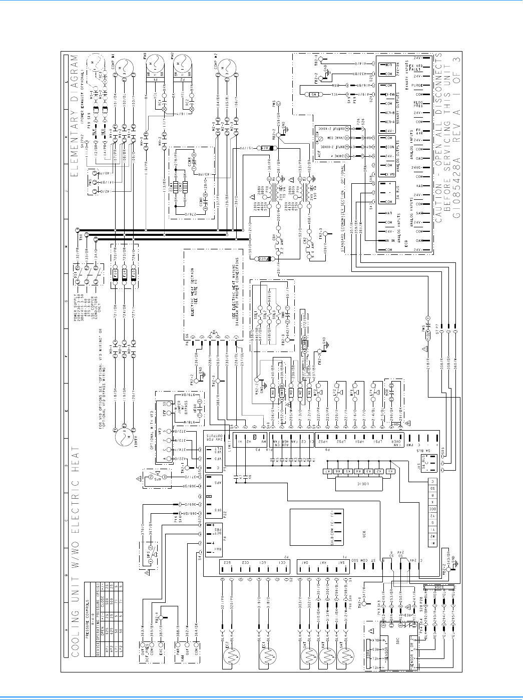
Typical Wiring Diagrams  . . . . . . . . . . . . . . . . . . . . . . . . . . . . . . . . . . . . . . . . . . . . . . . . . . . . . . . . . . . . . . . . . . . . . . . . . . . . . . . .  42
Weights and Dimensions . . . . . . . . . . . . . . . . . . . . . . . . . . . . . . . . . . . . . . . . . . . . . . . . . . . . . . . . . . . . . . . . . . . . . . . . . . . . . . . .  46
Economizer Options . . . . . . . . . . . . . . . . . . . . . . . . . . . . . . . . . . . . . . . . . . . . . . . . . . . . . . . . . . . . . . . . . . . . . . . . . . . . . . . . . . . .  54
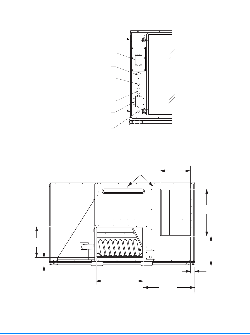
Component Location
Cooling With Gas Heat
Roof curbs in eight- and 
fourteen-inch heights. Roof 
curbs for transitioning from 
York Sunline™ footprint to 
the ZF Series footprints 
are also available (field 
installed accessory)
Base rails w/forklift 
slots (three sides) 
and lifting holes
Compressor #2 
access (high- 
efficiency 
compressor 
w/crankcase 
heater)
Dual stage 
cooling for 
maximum 
comfort
Second model 
nameplate 
inside hinged 
access panel
Terminal block for 
hi-voltage connection
Simplicity® SE control board 
w/screw connector for T-stat 
wiring and network connections
Disconnect location 
(optional disconnect switch)
Filter Access
(2” or 4” filter options) Filter drier
(solid core)
Slide-out motor and 
blower assembly for 
easy adjustment 
and service
Belt-drive 
blower motor
Power ventor motor
20-gauge alumi-
nized steel tubular 
heat exchanger for 
long life (stainless 
steel option)
Two-stage gas 
heating to maintain 
warm, comfortable 
temperature
Ignition control  
board for safe and 
efficient operation
Compressor #1 access 
(high-efficiency compressor 
w/crankcase heater)
Toolless 
door latch
Side entry power 
and control wiring 
knockouts
Slide-out drain pan
with 3/4” NPT,
female connection
ZF Series utilize Micro-Channel
Aluminum Tube/Aluminum Fin
Condenser

862075-XTG-G-0415
Johnson Controls Unitary Products 3
Nomenclature
Z F 090 N10 A 7 A AA 7 0 1 2 4 A
Z = A/C, Single Pkg., R410A
Product Category
7 = Seventh Generation
Product Generation
C00 = Cooling Only. No heat installed
Heat Type and Nominal Heat Capacity
N10 = 100 MBH Output Aluminized Steel
N15 = 150 MBH Output Aluminized Steel
S10 = 100 MBH Output Stainless Steel
S15 = 150 MBH Output Stainless Steel
E18 = 18 KW
E24 = 24 KW
E36 = 36 KW 
E54 = 54 KW 
Gas Heat Options*
Electric Heat Options*
Nominal Cooling Capacity
090 = 7.5 Ton
120 = 10.0 Ton
150 = 12.5 Ton
Product Identifier
F = 11.2 EER 7.5 & 10 Ton A/C
Voltage
7 = 380/415-3-50
Product Style
A = Style A
A = No Options Installed
Installation Options
B = Option 1
E = Option 3
F = Option 4
G = Options 1 & 3
H = Options 1 & 4
L = Options 1,3 & 4
R = Options 3 & 4
1 = Disconnect
3 = Smoke Detector S.A.
4 = Smoke Detector R.A.
Options
SS Drain Pan
Configuration Options (not required for all units)
These four digits will not be assigned until a quote is requested, or an order placed.
Honeywell Controller, DFS, APS
Simplicity®Smart Equipment w/Comm Card (BACnet, N2, Mod-Bus)
BAS Ready Unit with Belimo Economizer
Shipping Bag
Any Combination of Additional Options that Don’t Have an Option Code Pre-assigned 
AA = None
AB = Phase Monitor
AC = Coil Guard
AD = Dirty Filter Switch
AE = Phase Monitor & Coil Guard
AF = Phase Monitor & Dirty Filter Switch
AG = Coil Guard & Dirty Filter Switch
AH = Phase Monitor, Coil Guard & Dirty Filter Switch
Additional Options
RC = Coil Guard & American Flag
TA = Technicoat Condenser Coil
TJ = Technicoat Evaporator Coil
TS = Technicoat Evaporator & Condenser Coils
7.5-12.5 Ton York® Model Number Nomenclature
ZZ = If desired option combination is not listed above, ZZ will be assigned and configuration options will be
located in digits 15-18.  
* No Electric Heat Options for ZF090
** Only Hi Static Is Offered On ZF150
11.0 EER 12.5 Ton A/C
2" Pleated Filters, MERV 7
4" Pleated Filters, MERV 13
EA = ElectroFin Condenser Coil
EJ = ElectroFin Evaporator Coil
ES = ElectroFin Cond & Evap Coils
N20 = 200 MBH Output Aluminized Steel
S20 = 200 MBH Output Stainless Steel
* N10/S10 Not Available on ZF120/150
Airow
A = Std. Motor
D = Std. Motor/Motorized Damper (Downow Only)
H = Std Motor/Low Leak Econ/Barometric Relief (Downow
        & Horizontal End Return Only)
J = Std Motor/Low Leak Econ/Power Exhaust (Downow
        & Horizontal End Return Only)
N = Hi Static
R = Hi Static/Motorized Damper (Downow Only)
V = Hi Static Mtr/Low Leak Econ/Barometric Relief
      (Downow & Horizontal End Return Only)
W = Hi Static Mtr/Low Leak Econ/Power Exhaust
       (Downow & Horizontal End Return Only)

862075-XTG-G-0415
4Johnson Controls Unitary Products
Features and Benefits
Standard Features
•High Efficiency – High efficiency units reach as high as 
11.2 EER. Gas/electric units have electronic spark ignition 
and power vented combustion with steady state efficiencies 
of 80%. These efficiencies exceed all legislated minimum 
levels and provide low operating costs.
•Service Friendly – The Predator® incorporates a number 
of enhancements which improve serviceability.
The motor and blower slide out of the unit as a common 
assembly. This facilitates greater access to all the indoor 
airflow components, thus simplifying maintenance and 
adjustment.
Service time is reduced through the use of hinged, 
toolless panels. Such panels provide access to frequently 
inspected components and areas, including the control 
box, compressors, filters, indoor motor & blower, and the 
heating section. The panels are screwed in place at the 
factory to prevent access by children or other 
unauthorized persons. It is recommended that the panels 
be secured with screws once service is complete.
Service windows have been placed in both condenser 
section walls. Rotation of the cover allows easy access to 
the condenser coils for cleaning or inspection.
The Simplicity® SE control board provides alarm 
messages to help quickly identify any faults.
All units use the same standard filter size. This 
standardization removes any confusion on which filter 
sizes are needed for replacement.
The non-corrosive drain pan slides out of the unit to permit 
easy cleaning. The drain pan is accessed by removing the 
drain pan cover plate on the rear of the unit. Once the plate is 
removed, the drain pan slides out through the rear of the unit.
All Predator® units have a second model nameplate 
located inside the control access door. This is to prevent 
deterioration of the nameplate through weathering.
• Coil Technology – ZF condensers utilize Micro-Channel 
“all aluminum” condensers which provide improved heat 
transfer capabilities and reduced charge volumes.
•Environmentally Aware – For improved Indoor Air 
Quality, a combination of foil faced and elastometric 
rubber insulation is used exclusively throughout the units.
•Balanced Heating – The Predator® offers “Ultimate 
Heating Comfort” with a balance between 1st and 2nd stage 
gas heating. The first stage of a gas heat Predator® unit 
provides 60% of the heating capacity. Balanced heating 
allows the unit to better maintain desired temperatures.
•Convertible Airflow Design – The side duct openings 
are covered when they leave the factory. If a side supply/
return is desired, the installer simply removes the two side 
duct covers from the outside of the unit and installs them 
over the down shot openings. No panel cutting is required. 
Convertible airflow design allows maximum field flexibility 
and minimum inventory.
•System Protection - Suction line freezestats are supplied 
on all units to protect against loss of charge and coil frosting 
when the economizer operates at low outdoor air 
temperatures while the compressors are running. Every unit 
has solid-core liquid line filter-driers and high and low-
pressure switches. Internal compressor protection is 
standard on all compressors. Crankcase heaters are 
standard on reciprocating compressors. Scroll compressors 
do not require crankcase heaters. Phase Monitors are 
standard on units with scroll compressors. This accessory 
monitors the incoming power to the unit and protects the 
unit from phase loss and reversed phase rotation.
•Advanced Controls - Simplicity® SE control boards have 
standardized a number of features previously available only 
as options or by utilizing additional controls.
•Units will come with the new state of the art Simplicity 
SE (Smart Equipment) control system. The new unit 
control incorporates the best of the already proven 
Simplicity™ unitary controls and creates a more robust, 
intelligent control. The goal of this control is to utilize 
cutting edge technology making the equipment easier to 
install, operate, and service. All units are Factory 
commissioned, configured, and run tested.
•Versatile - The Simplicity SE control can be configured to 
use with a standard thermostat (easy to connect screw 
terminals), A zone sensor, or can be setup to 
The Simplicity® SE control board used in this 
product will effectively operate the cooling system 
down to 0°F when this product is applied in a comfort 
cooling application for people. An economizer is 
typically included in this type of application. When 
applying this product for process cooling applications 
(computer rooms, switchgear, etc.), please 
reference applications bulletin AE-011-07 or call the 
applications department for Unitary Products @ 1-
877-UPG-SERV for guidance. Additional 
accessories may be needed for stable operation at 
temperatures below 30°F.

862075-XTG-G-0415
Johnson Controls Unitary Products 5
communicate with multiple BAS communication protocols 
to integrate with building automation systems.
•Reduce field installed complexity - Each unit will comes 
equipped with factory installed supply air, return air, and 
outdoor air temperature sensors providing key 
temperature readings thus reduce field installed 
complexity.
•On-board USB Port - The new control comes with a long 
list of features including data logging, current and 
previous system faults and software update capabilities 
using the on board USB port and common flash drive. 
Energy use monitoring capabilities allow custom tailoring 
to allow a   system to work more efficiently at all times and 
occupancy levels. Self test and start-up reports also 
available from the board VIA the USB port.
•Embedded LCD Display - The board has a easy to read, 
built-in LCD display and easy to use navigation joystick 
and buttons allowing the user to quickly navigate the 
menus displaying unit status, options, current function, 
supply, return and outdoor temperatures, fault codes and 
other information.
•Safety Monitoring - The control monitors the outdoor, 
supply, and return air temperatures and the high and low 
pressure switch status on the independent refrigerant 
circuits. On units with heating the gas valve and high 
temperature limit switches are monitored on gas and 
electric heating units. The control also monitors the 
voltage supplied to the unit and will protect the unit if low 
voltage due to a brown out, or other electrical issue 
occurs.
•Low Ambient - An integrated low-ambient control allows 
units to operate in the cooling mode down to 0°F outdoor 
ambient without additional components or intervention. 
Optionally, the control board can be programmed to 
lockout the compressors when the outdoor air 
temperature is low or when free cooling is available.
•Anti-Short Cycle Protection - To aid compressor life, an 
anti- short cycle delay is incorporated into the standard 
control. Compressor reliability is further ensured by 
programmable minimum run times. For testing, the anti-
short cycle delay can be temporarily overridden with the 
push of a button.
•Fan Delays - Fan on and fan off delays are fully 
programmable. Furthermore, the heating and cooling fan 
delay times are independent of one another. All units are 
programmed with default values based upon their 
configuration of cooling and/or heating capacity.
•Nuisance Trip Protection and Three Strikes - To 
prevent nuisance calls, the control board uses a three 
times, you're out philosophy. The high, low-pressure 
switch, anti-freeze protection, low voltage or heating high 
limit must trip three times within two hours before the unit 
control board will lock out the associated compressor.An 
alarm message will be displayed on the LCD screen.
•Lead-Lag - An integrated Lead-Lag option allows equal 
run time hours on all compressors, thereby extending the 
life of all compressors. This option is selectable on the unit 
control board.
•Low Limit Control (LLC) - To prevent the supply air from 
dropping below a specified set point, when there is a 
demand for cooling during cold outside conditions. 
(Programmable Set point)
•Reliable – From the beginning – All units undergo 
computer automated testing before they leave the factory. 
Units are tested for refrigerant charge and pressure, unit 
amperage, and 100% functionality. For the long term – All 
Predator® units are painted with a long lasting, powder 
paint that stands up over the life of the unit. The paint 
used has been proven by a 1000 hour salt spray test.
•Flexible Placement – All models and configurations 
share the same cabinet/footprint and thus the same roof 
curb. You have the flexibility to set one curb and choose 
the correct tonnage size and heating option after the 
internal loads have been determined.
To further simplify planning and installation, Predator® ZF 
cabinets are designed to fit your roof. With the optional 
roof curb, the unit ductwork is designed to fit around 24” 
on-center joists or between 48” on-center joists.
The drain pan can be rotated to drain to either the front or 
the rear of the unit. Additionally, the drain pan can be 
fitted to drain through the roof curb. As it is sometimes 
difficult to have a level installation, the drain pan features 
a generous slope to ensure proper drainage.
•Full Perimeter Base Rails – The permanently attached 
base rails provide a solid foundation for the entire unit and 
protect the unit during shipment. The rails offer forklift 
access from 3 sides, and rigging holes are available so that 
an overhead crane can be used to place the units on a roof.
•Easy Installation – Gas and electric utility knockouts are 
supplied in the unit underside as well as the side of the unit. 
A clearly identified location is provided to mount a field 
supplied electrical disconnect switch. Utility connections can 
be made quickly and with a minimum amount of field labor.
All units are shipped with 2” throw-away filters installed.
•Wide Range of Indoor Airflows – All indoor fan motors 
are belt-drive type providing maximum flexibility to handle 
most airflow requirements. For high static applications, 
factory installed alternate indoor fan motors are available. 
With the optional indoor fan motor, all units can supply 
nominal airflow at a minimum of 1.5” ESP.
•Warranty - All models include a 1-year limited warranty 
on the complete unit. Compressors and electric heater 
elements each carry a 5-year warranty. Aluminized steel 
and stainless steel tubular heat exchangers carry a 10-
year warranty.
Factory Installed Options
YORK® offers several equipment options factory installed, for 
the Predator®line.
•Optional Factory Installed Economizers - Predator units 
offer a variety of optional factory installed economizers 
with low leak dampers. The outdoor air enthalpy sensor 
enables economizer operation if the outdoor enthalpy is 
less than the setpoint of the economizer logic module. See 
economizer options section to determine the correct 
economizer for your application.

862075-XTG-G-0415
6Johnson Controls Unitary Products
•Down flow / End Return Economizers (with barometric 
relief and fresh air hood) - All units offer a variety of 
optional factory installed down flow economizers that are 
shipped, installed and wired with low leak dampers 
designed to meet ASHRAE 90.1-2010, AMCA 511 Class 
1A damper, and the International Energy Conservation 
Code (IECC) certification requirements by achieving 
leakage rates of 3 cfm/sq. ft. at 1" of static pressure. Each 
economizer goes through a rigorous 60,000 cycle test. Dry 
bulb, single enthalpy, and dual enthalpy (with field installed 
kit) can be selected. The economizer has spring return, 
fully modulating damper actuators and is capable of 
introducing up to 100% outdoor air. As the outdoor air 
intake dampers open, the return air dampers close. The 
changeover from mechanical refrigeration to economizer 
operation is regulated by the outdoor air dry bulb 
temperature or the outdoor air enthalpy input. The optional 
(field installed) single or dual enthalpy kits provide 
additional inputs to monitor outdoor air/ or return air 
humidity and temperature for true enthalpy control. The 
installer needs only to assemble the outdoor air hood, 
attach the enthalpy control the hood and mount the hood 
to the unit (Hood and control are provided).
•Power Exhaust - This factory option allows down flow or 
horizontal end return economizer operation. The power 
exhaust must be removed from the unit and mounted 
in the horizontal end return duct work when applying 
the product in the horizontal, end return 
configuration. 
•Motorized Outdoor Air Damper - The motorized outdoor 
air damper includes a slide-in/plug-in damper assembly 
with an outdoor air hood and filters. The outdoor air 
dampers open to the preset position when the indoor fan 
motor is energized. The damper has a range of 0% to 
100% outdoor air entry. Factory installed option or field 
installed accessory.
•Alternate Indoor Blower Motor - For applications with 
high static restrictions, units are offered with optional 
indoor motors that provide higher static output and/or 
higher airflow, depending upon the installer’s needs.
•Aluminized Steel Gas Heat Exchanger - For 
applications in non-corrosive environments. 
•Stainless Steel Gas Heat Exchanger - For applications 
in corrosive environments, this option provides a full 
stainless steel heat exchanger assembly.
•Stainless Steel Drain Pan - An optional rust-proof 
stainless steel drain pan is available to provide years of 
trouble-free operation in corrosive environments.
•Electric Heaters (10 & 12.5 Ton Only) - The electric 
heaters range from 18KW to 54kW and are available in all 
the voltage options of the base units. All heaters are dual 
staged. All heaters are intended for single point power 
supply.
•Disconnect Switch - For gas heat units and cooling units 
with electric heat, a HACR breaker sized to the unit is 
provided. For cooling only units, a switch sized to the 
largest electric heat available for the particular unit is 
provided. Factory installed option only.
•Smoke Detectors - The smoke detectors stop operation 
of the unit by interrupting power to the control board if 
smoke is detected within the air compartment. Available 
for both the supply and/or return air configurations.
•Filters – 2” Pleated MERV 7 or 4” Pleated MERV 13 are 
available to meet LEED requirements. A 2” Throwaway is 
shipped as standard.
•Phase Monitors - Designed to prevent unit damage. The 
phase monitor will shut the unit down in an out-of phase 
condition. (Standard on units with Scroll Compressors.)
•Coil Guard - Customers can purchase a coil guard kit to 
protect the condenser coil from damage. Additionally, this 
kit stops animals and foreign objects from entering the 
space between the inner condenser coil and the main 
cabinet. This is not a hail guard kit.
•Dirty Filter Switch - This kit includes a differential 
pressure switch that energizes the fault light on the unit 
thermostat, indicating that there is an abnormally high 
pressure drop across the filters. Factory installed option or 
field installed accessory.
•Technicoat Condenser Coils - The condenser coils are 
coated with a phenolic coating for protection against 
corrosion due to harsh environments.
•Technicoat Evaporator Coil - The evaporator coils are 
coated with a phenolic coating for protection against 
corrosion due to harsh environments.
•ElectroFin® E-coat Condenser Coils - The condenser 
coils are coated with an epoxy polymer coating to protect 
against corrosion.
•ElectroFin® E-coat Evaporator Coils - The evaporator 
coils are coated with an epoxy polymer coating to protect 
against corrosion.
Control Options
•Simplicity® SE with Communication Option Control - 
The York® Simplicity® SE with Communication Option 
Control is factory installed. It includes all the features of 
the Simplicity® SE control with an additional gateway to 
BACnet MS/TP (programmable to Modbus or N2 
protocols).
•Novar® BAS Control - The Novar® building automation 
system controller is factory installed. Incudes supply air 
sensor, return air sensor, dirty filter indicator switch, and 
air proving switch.
•CPC BAS Control - The Computer Process Controls 
Model 810-3060 ARTC Advanced Rooftop building 
automation system controller is factory installed. Includes 
Factory-installed smoke detectors may be subjected to 
extreme temperatures during "off" times due to outside air 
infiltration. These smoke detectors have an operational 
range of -4 °F to 158°F. Smoke detectors installed in areas 
that could be outside this range will have to be relocated to 
prevent false alarms.

862075-XTG-G-0415
Johnson Controls Unitary Products 7
supply air sensor, return air sensor, dirty filter indicator 
switch and air proving switch.
•Honeywell BAS Control - The Honeywell W7750C 
building automation system controller is factory installed. 
Includes air supply sensor, return air sensor, dirty filter 
indicator switch, and air proving switch.
Field Installed Accessories
YORK® offers several equipment accessories for field 
installation, for the Predator® line.
•Down flow and End Return Economizers (with fresh air 
hood and barometric relief) - All units offer a variety of 
optional factory installed down flow economizers that are 
shipped, installed and wired with low leak dampers designed 
to meet ASHRAE 90.1-2010, AMCA 511 Class 1A damper, 
and the International Energy Conservation Code (IECC) 
certification requirements by achieving leakage rates of 3 
cfm/sq. ft. at 1" of static pressure. Each economizer goes 
through a rigorous 60,000 cycle test. Dry bulb, single 
enthalpy, and dual enthalpy (with field installed kit) can be 
selected. The economizer has spring return, fully modulating 
damper actuators and is capable of introducing up to 100% 
outdoor air. As the outdoor air intake dampers open, the 
return air dampers close. The changeover from mechanical 
refrigeration to economizer operation is regulated by the 
outdoor air dry bulb temperature or the outdoor air enthalpy 
input. The dual enthalpy kit provides a second input used to 
monitor the return air (field installed). The installer needs only 
to assemble the outdoor air hood, attach the enthalpy control 
the hood and mount the hood to the unit (Hood and control 
are provided).
•Single or Dual Enthalpy Control, Accessories - These 
kits contain the required components to convert a dry bulb 
economizer to a single enthalpy and/or dual enthalpy 
economizer.
•Barometric Relief Damper - Zero to 100% capacity 
barometric relief dampers for use with horizontal flow, or 
field installed slab economizers.
•Power Exhaust - This accessory installs in the unit with a 
down flow economizer. Power exhaust plugs into the 
connector in the unit bulkhead. You must purchase 
1EH0408 barometric relief when applying to a 
horizontal flow application.
•Manual Outdoor Air Damper - Like the motorized outdoor 
air damper, each manual outdoor air damper includes a 
slide-in damper assembly with an outdoor air hood and 
filters. Customers have a choice of dampers with ranges of 
0% to 100% or 0% to 35% outdoor air entry.
•Motorized Outdoor Air Damper - The motorized outdoor 
air damper includes a slide-in/plug-in damper assembly with 
an outdoor air hood and filters. The outdoor air dampers 
open to the preset position when the indoor fan motor is 
energized. The damper has a range of 0% to 100% outdoor 
air entry. Factory installed option or field installed accessory.
•Smoke Detectors - The smoke detectors stop operation 
of the unit by interrupting power to the control board if 
smoke is detected within the air compartment.
•CO2 Sensor - Senses CO2 levels and automatically 
overrides the economizer when levels rise above the 
preset limits.
•Dirty Filter Switch - This kit includes a differential 
pressure switch that energizes the fault light on the unit 
thermostat, indicating that there is an abnormally high 
pressure drop across the filters.
•Coil Guard - Field installed decorative wire coil guard.
•Hail Guard - This kit includes a sloped hood which installs 
over the outside condenser coil and prevents damage to 
the coil fins from hail strikes. Field installed accessory only.
•Flue Exhaust Extension Kit - In locations with wind or 
weather conditions which may interfere with proper 
exhausting of furnace combustion products, this kit can be 
installed to prevent the flue exhaust from entering nearby 
fresh air intakes.
•-60°F Gas Heat Kit - For installations which require gas 
heat units to perform in low ambient temperatures, a gas 
section heating kit is available. This kit provides electric 
heat in the gas heat controls section to ensure the gas 
valve and controls will continue to function properly at 
extremely low temperatures.
•Gas Heat High Altitude Kit - This kit converts a gas heat 
unit to operate at high altitudes, 2,000 to 6,000 feet. 
Conversion kits are available for natural gas and propane.
•Gas Heat Propane Conversion Kit - This kit converts a 
gas-fired heater from natural gas to propane. It contains the 
main burner orifices and gas valve replacement springs.
•Gas Piping Kit - Contains pipe nipples, fittings and gas cock 
required for gas supply connection with external shut off.
•Electric Heaters (10 & 12.5 Ton Only) - The electric 
heaters range from 18 kW to 54kW.
All heaters are dual staged. Cooling units include an 
adapter panel for easy installation of the electric heaters. 
Necessary hardware and connectors are included with the 
heaters. All heaters are intended for single point power 
supply.
• Low Limit / Compressor Lockout Kit
•Compressor Lockout (CLO): To prevent mechanical 
(compressorized) operation of the unit during cold 
outdoor conditions where there is a risk of returning 
liquid refrigerant back to the compressors.
•Low Limit Control (LLC): To prevent the supply air 
from dropping below a specified setpoint by utilizing the 
units first stage heating means when there is a demand 
for cooling during cold outside conditions.
•Metal Frame Filter Kit - Metal frame with polyester filter 
medium.
•Permanent Filters - Permanent filters are available.
•Roof Curbs - The roof curbs have insulated decks and are 
shipped disassembled The roof curbs are available in 8” and 
14” heights. For applications with security concerns, burglar 
bars are available for the duct openings of the roof curbs.
•Roof Curb Transition - Single Piece Adapter (10” High) - 
Roof curbs for transitioning from Sunline™ units to 
Predator® units. Fits 7.5 to 12.5 Sunline™ roof curbs only.

862075-XTG-G-0415
8Johnson Controls Unitary Products
•Burglar Bars - Mount in the supply and return openings 
to prevent entry into the duct work.
•Thermostat - The units are designed to operate with 24- 
volt electronic and electro-mechanical thermostats. All 
units (with or without an economizer) operate with two-
stage heat/two-stage cool or two-stage cooling only 
thermostats, depending upon unit configuration.
Accessories  
Field Installed Accessories - Non-Electrical
MODEL VOLTAGE DESCRIPTION WHERE USED
1BD0408 All Burglar Bars, Downflow All Cabinets
1CG0419 All Coil Guard (Electric / Electric  Models), 50” Tall Standard Cabinets
1CG0420 All Coil Guard (Gas / Electric Models), 50" Tall Standard Cabinets
1CG0427 All Coil Guard (Electric / Electric  Models), 42” Tall Cabinets
1CG0428 All Coil Guard (Gas / Electric Models),  42" Tall Cabinets
1HG0411 All Hail Guard Kit
All Tall (50") Standard Cabinets, (Excludes 12.5T "V" 
cabinets)
1HG0415 All Hail Guard Kit All Short (42") Standard Cabinets
1FE0411 All Flue Exhaust Extension Kit All Cabinets
1FF0414 All 2" only Metal Filter Frame Kit All Tall 50" Cabinets
1FF0415 All 2" only Metal Filter Frame Kit All Tall 42" Cabinets
1FL0402 All Permanent 2" only Filter Kit Includes (4) Four Filters) All Tall 50" Cabinets
1FL0423 All Permanent 2" only Filter Kit (Includes (4) four Filters) All Tall 42" Cabinets
1GP0405 All Gas Piping Kit All Cabinets
1HA0442 All High Altitude Kit for Natural Gas All 7 1/2 - 12T Cabinets
1HA0443 All High Altitude Kit for Propane All 7 1/2 - 12T Cabinets
1NP0442 All Propane Conversion Kit All 6 - 12T Cabinets
1RC0470 All Roof Curb, 8" Height All Cabinets
1RC0471 All Roof Curb, 14" Height All Cabinets
1RC0472 All
Roof Curb, Transition (7.5 T thru 12.5T Sunline to 
Predator 3- 12T) All Cabinets
1WC0412 All
Wooden Crate for extra protection during shipping and 
handling
Standard Cabinets Only (not applicable to units 119" in 
length)
Field Installed Accessories - Electric Heat
MODEL VOLTAGE DESCRIPTION WHERE USED
2TP04521850 380/415-3-50 18kW Electric Heat All 50" Cabinet 10 Ton Models
2TP04522450 380/415-3-50 24kW Electric Heat All 50" Cabinet 10 and 12.5 Ton Models
2TP04523650 380/415-3-50 36kW Electric Heat All 50" Cabinet 10 and 12.5 Ton Models
2TP04525450 380/415-3-50 54kW Electric Heat All 50" Cabinet 10 and 12.5 Ton Models
*Note: No factory or field installed electric heater available for 42” Cabinet ZF090

862075-XTG-G-0415
Johnson Controls Unitary Products 9
Guide Specifications
GENERAL
Units shall be manufactured by York International Unitary 
Products in an ISO 9001 certified facility. YORK® Predator® 
units are convertible single packages with a common footprint 
cabinet and common roof curb for all 7-1/2 through 12-1/2 ton 
models. All units have two compressors with independent R-
410A refrigeration circuits to provide 2 stages of cooling. The 
units were designed for light commercial applications and can 
be easily installed on a roof curb, slab, or frame. All Predator® 
units are self-contained and assembled on rigid full perimeter 
base rails allowing for 3-way forklift access and overhead 
rigging. Every unit is completely charged with R-410A, wired, 
piped, and tested at the factory to provide a quick and easy 
field installation. All units are convertible between side and 
down airflow. Independent economizer designs are used on 
side and down discharge applications, as well as all tonnage 
sizes. Predator® units are available in the following 
configurations: cooling only, cooling with electric heat, cooling 
with gas heat, heat pump, and heat pump with electric heat. 
Electric heaters are available as factory-installed options or 
field-installed accessories.
DESCRIPTION
Units shall be factory assembled, single package, (Elec/Elec, Gas/
Elec), designed for outdoor installation. They shall have built in 
Field Installed Accessories - Fresh Air
MODEL VOLTAGE DESCRIPTION WHERE USED
1FA0413 All Manual Outside Air Damper 0-35%, Downflow All Cabinets
1FA0414 All Manual Outside Air Damper 0-100%, Downflow All Cabinets
1EH0408 All Barometric Relief Kit for Power Exhaust, Horizontal 
Application All Cabinets
2EC0401 All Single Enthalpy Control All Cabinets
2EC0402 All Dual Enthalpy Control (Includes 2 Sensors) All Cabinets
2EE04707624 All
Economizer for Downflow, End Return Horizontal, or 
ERV Applications. Includes FA Hood, Exhaust Hood w/
Baro Relief
All 50" Cabinets
2EE04707424 All
Economizer for Downflow, End Return Horizontal, or 
ERV Applications. Includes FA Hood, Exhaust Hood w/
Baro Relief
All 42" Cabinets
2EE04706924 All Horizontal Economizer without Barometric Relief All Cabinets
2MD04703824 All Motorized Damper, Downflow without Barometric Relief All Cabinets
2MD04703924 All Motorized Damper, Horizontal without Barometric 
Relief All Cabinets
2PE04704706* 230 Power Exhaust 230V Downflow or Horizontal All Cabinets
2PE04704746* 460 Power Exhaust 460V Downflow or Horizontal All Cabinets
2PE04704758* 575 Power Exhaust 575V Downflow or Horizontal All Cabinets
* Must be installed in return Duct on Horizontal Applications and a 1EH0408 is required. Approved for operation on 50Hz
Field Installed Accessories - Controls
MODEL VOLTAGE DESCRIPTION WHERE USED
2AP0401 All Air Proving Switch All Units
2AQ04700324 All CO2 Space Accessory All Units
2AQ04700424 All CO2 Unit Accessory All Units
2DF0402 All Dirty Air Switch All Units
2SH0401 All Wall Mounted humidity sensor-For use with MagnaDry 
Reheat or space humidity input to Simplicity SE board. All Cabinets
2SD04700824 All Smoke Detector for Supply All Gen 5 units and greater with 2" & 4" Filters
2SD04700924 All Smoke Detector for Return All Gen 5 units and greater with 2" & 4" Filters
2SD04701024 All Smoke Detector for Supply and Return All Gen 5 units and greater with 2" & 4" Filters
S1-YK-
MAP1810-0P All MAP (Mobile Access Portal) Gateway- For use with 
Simplicity SE Control. All Units
S1-MP-PRTKIT-
0P All
MAP (Multiple Access Portal) Gateway Kit- 
Replacement MAP gateway protective case, lanyard 
and communication cable. Use only to replace worn or 
damaged components.
All Units
Field Installed Accessories - Electrical
MODEL VOLTAGE DESCRIPTION WHERE USED
2BC04700106 230 Gas heat kit, -60ºF All Units
2BC04700151 460 Gas heat kit, -60ºF All Units
2BC04700154 575 Gas heat kit, -60ºF All Units
2LA04704632 All Low Ambient Kit All 3 - 10T units (excludes 12.5T "V" cabinets)
Accessories (Continued)

862075-XTG-G-0415
10 Johnson Controls Unitary Products
field convertible duct connections for down discharge supply/return 
or horizontal discharge supply/return and be available with factory 
installed options or field installed accessories. The units shall be 
factory wired, piped and charged with R-410A refrigerant and 
factory tested prior to shipment. All unit wiring shall be both 
numbered and color coded. The cooling performance shall be 
rated in accordance with DOE and AHRI test procedures and 
MEW-2010.
UNIT CABINET
Unit cabinet shall be constructed of galvanized steel with 
exterior surfaces coated with a non-chalking, powder paint 
finish, certified at 1000 hour salt spray test per ASTM-B117 
standards. Indoor blower sections shall be insulated with up to 
1” thick insulation coated on the airside. Either aluminum foil 
faced or elastometric rubber insulation shall be used in the 
unit’s compartments and be fastened to prevent insulation from 
entering the air stream. Cabinet doors shall be hinged with 
toolless access for easy servicing and maintenance. Full 
perimeter base rails shall be provided to assure reliable transit 
of equipment, overhead rigging, fork truck access and proper 
sealing on roof curb applications. Disposable 2” filters shall be 
furnished as standard and be accessible through hinged access 
door. Fan performance measuring ports shall be provided on 
the outside of the cabinet to allow accurate air measurements 
of evaporator fan performance without removing panels or 
creating bypass of the coils. Condensate pan shall be slide out 
design, constructed of a non corrosive material, internally 
sloped and conforming to ASHRAE 62-B9 standards. 
Condensate connection shall be a minimum of ¾” I.D. female 
and be rigid mount connection.
INDOOR (EVAPORATOR) FAN ASSEMBLY
Fan shall be a belt drive assembly and include an adjustable 
pitch motor pulley. Job site selected brake horsepower shall not 
exceed the motors nameplate horsepower rating plus the ser-
vice factor. Units shall be designed to operate within the service 
factor. Fan wheel shall be double inlet type with forward curve 
blades, dynamically balanced to operate smoothly throughout 
the entire range of operation. Airflow design shall be constant 
volume. Bearings shall be sealed and permanently lubricated 
for longer life and no maintenance. Entire blower assembly and 
motor shall be slide out design.
OUTDOOR (CONDENSER) FAN ASSEMBLY
The outdoor fans shall be of the direct drive type, discharge air 
vertically, have aluminum blades riveted to corrosion resistant 
steel spider brackets and shall be dynamically balanced for 
smooth operation. The outdoor fan motors shall have permanently 
lubricated bearings internally protected against overload 
conditions and staged independently. A cleaning window shall be 
provided on two sides of the units for coil cleaning.
REFRIGERANT COMPONENTS
Compressors:
a. Shall be fully hermetic type, direct drive, internally 
protected with internal high-pressure relief and over 
temperature protection. The hermetic motor shall be 
suction gas cooled and have a voltage range of + or – 
10% of the unit nameplate voltage.
b. Shall have internal spring isolation and sound muffling to 
minimize vibration and noise, and be externally isolated 
on a dedicated, independent mounting.
Coils:
a. Evaporator coils shall have aluminum plate fins 
mechanically bonded to seamless internally enhanced 
copper tubes with all joints brazed. Special Phenolic 
coating shall be available as a factory option.
b. Evaporator coils shall be of the direct expansion, draw-
thru design.
c. Condenser coils shall have Micro-Channel aluminum 
tube, aluminum fins.
d. Condenser coils shall be of the draw-thru design.
Refrigerant Circuit and Refrigerant Safety Components shall 
include:
a. Independent thermally operated expansion devices. 
b. Solid core filter drier/strainer to eliminate any moisture or 
foreign matter. 
c. Accessible service gage connections on both suction 
and discharge lines to charge, evacuate, and measure 
refrigerant pressure during any necessary servicing or 
troubleshooting, without losing charge.
d. The unit shall have two independent refrigerant circuits, 
equally split in 50% capacity increments.
Unit Controls:
a. Unit shall be complete with self-contained low-voltage 
control circuit protected by a resettable circuit breaker on 
the 24-volt transformer side.
b. Unit shall incorporate a lockout circuit which provides 
reset capability at the space thermostat or base unit 
should any of the following standard safety devices trip 
and shut off compressor:
c. Loss-of-charge/Low-pressure switch.
• High-pressure switch.
• Freeze-protection thermostat, evaporator coil. If any of 
the above safety devices trip, an LED (light-emitting 
diode) indicator shall flash a diagnostic code that 
indicates which safety switch has tripped.
d. Unit shall incorporate “AUTO RESET” compressor over 
temperature, over current protection.
e. Unit shall operate with conventional thermostat designs 
and have a low voltage terminal strip for easy hook-up. 
f. Unit control board shall have on-board diagnostics and 
fault code display.
g. Standard controls shall include anti-short cycle and low 
voltage protection, and permit cooling operation down to 
0 ºF.

862075-XTG-G-0415
Johnson Controls Unitary Products 11
h. Control board shall monitor each refrigerant safety switch 
independently.
i. Control board shall retain last 5 fault codes in non-
volatile memory, which will not be lost in the event of a 
power loss.
GAS HEATING SECTION (IF EQUIPPED)
Heat exchanger and exhaust system shall be constructed of 
aluminized steel and shall be designed with induced draft com-
bustion with post purge logic, energy saving direct spark igni-
tion, and redundant main gas valve. The heat exchanger shall 
be of the tubular type, constructed of T1-40 aluminized steel for 
corrosion resistance and allowing minimum mixed air entering 
temperature of 40 ºF. Burners shall be of the in-shot type, con-
structed of aluminum-coated steel. All gas piping shall enter the 
unit cabinet at a single location, through either the side or bot-
tom, without any field modifications. An integrated control board 
shall provide timed control of evaporator fan functioning and 
burner ignition. Heating section shall be provided with the fol-
lowing minimum protection:
a. Primary and auxiliary high-temperature limit switches.
b. Induced draft pressure sensor.
c. Flame roll out switch (manual reset).
d. Flame proving controls. 
e. All two stage units shall have two independent stages of 
capacity (60% 1st stage, 100% 2nd stage).
ELECTRIC HEATING SECTION (IF EQUIPPED)
An electric heating section, with nickel chromium elements, 
shall be provided in a range of 18 thru 54 KW, offering two 
states of capacity all sizes. The heating section shall have a pri-
mary limit control(s) (automatic reset) to prevent the heating 
element system from operating at an excessive temperature. 
The Heating Section assembly shall slide out of the unit for 
easy maintenance and service. Units with Electric Heating Sec-
tions shall be wired for a single point power supply with branch 
circuit fusing (where required).
UNIT OPERATING CHARACTERISTICS
Unit shall be capable of starting and running at 125 ºF outdoor 
temperature, exceeding maximum load criteria of AHRI Stan-
dard 340/360. The compressor, with standard controls, shall be 
capable of operation down to 0 ºF outdoor temperature. Unit 
shall be provided with fan time delay to prevent cold air delivery 
before heat exchanger warms up. (Gas heat only)
ELECTRICAL REQUIREMENTS - All unit power wiring shall 
enter unit cabinet at a single factory provided location and be 
capable of side or bottom entry to minimize roof penetrations 
and avoid unit field modifications. Separate side and bottom 
openings shall be provided for the control wiring.
STANDARD LIMITED WARRANTIES - Compressor – 5 Years, 
Heat Exchanger – 10 Years, Elect. Heat Elem. – 5 Years,
Parts – 1 Year
FACTORY INSTALLED OPTIONAL OUTDOOR AIR (Shall be 
made available by either/or): 
•DRY BULB AUTOMATIC ECONOMIZER - Outdoor and 
return air dampers that are interlocked and positioned by 
a fully-modulating, spring-return damper actuator. The 
maximum leakage rate for the outdoor air intake dampers 
shall be designed to meet ASHRAE 90.1-2010, AMCA 
511 Class 1A damper, and the International Energy 
Conservation Code (IECC) certification requirements by 
achieving leakage rates of 3 cfm/sq. ft. at 1" of static 
pressure. Changeover from compressor to economizer 
operation shall be provided by an integral electronic 
enthalpy control that feeds input into the basic module. 
The outdoor intake opening shall be covered with a rain 
hood that matches the exterior of the unit. Water 
eliminator/filters shall be provided.
•MOTORIZED OUTDOOR AIR DAMPERS – Outdoor and 
return air dampers that are interlocked and positioned by 
a 2-position, spring-return damper actuator. The 
maximum leakage rate for the outdoor air intake dampers 
shall not exceed 2% when dampers are fully closed and 
operating against a pressure differential of 0.5 IWG. A 
unit-mounted potentiometer shall be provided to adjust 
the outdoor and return air damper assembly to take in the 
design CFM of outdoor air to meet the ventilation 
requirements of the conditioned space during normal 
operation. Whenever the indoor fan motor is energized, 
the dampers open up to one of two pre-selected positions 
– regardless of the outdoor air enthalpy. Dampers return 
to the fully closed position when the indoor fan motor is 
de-energized. Dampers shall fully close on power loss.
ADDITIONAL FACTORY INSTALLED OPTIONS
•ALTERNATE INDOOR BLOWER MOTOR – For 
applications with high restrictions, units are available with 
optional indoor blower motors that provide higher static 
output and/or higher airflow.
•ELECTRIC HEAT (10 & 12.5 Ton Only) - Electric Heaters 
range from 18 kW to 54 kW and are available in all the 
voltage options of the base unit.
•PHASE MONITOR - Designed to prevent damage in out-
of-phase condition.
•COIL GUARD - Designed to prevent condenser coil 
damage.
•BAS CONTROLS - Include supply air sensor, return air 
sensor, dirty filter indicator and air proving switch.
•DIRTY FILTER SWITCH – This kit includes a differential 
pressure switch that energizes the fault light on the unit 
thermostat, indicating that there is an abnormally high-
pressure drop across the filters.
•BREAKER – An HACR breaker can be factory installed 
on gas heat units or cooling units with electric heat.
•DISCONNECT SWITCH - A disconnect can be factory 
installed on a cooling only units sized for the largest 
electric heat available.

862075-XTG-G-0415
12 Johnson Controls Unitary Products
•STAINLESS STEEL HEAT EXCHANGER – For 
applications in a corrosive environment, this option 
provides a full stainless steel heat exchanger assembly.
•SMOKE DETECTOR – A smoke detector can be factory 
mounted and wired in the supply and/or return air 
compartments.
OTHER PRE-ENGINEERED ACCESSORIES AVAILABLE
•ROOF CURB - 14” and 8” high, full perimeter knockdown 
curb, with hinged design for quick assembly.
•BAROMETRIC RELIEF DAMPER – (Unit mounted – 
Downflow, Duct Mounted – Horizontal) – Contains a rain 
hood, air inlet screen, exhaust damper and mounting 
hardware. Used to relieve internal air pressure through 
the unit during economizer operation.
•PROPANE CONVERSION KIT – Contains new orifices 
and gas valve springs to convert from natural to L.P. gas.
•60ºF GAS HEAT KIT – Provides an electric heat kit for the 
gas compartment for use in extreme low ambient 
conditions.
•ECONOMIZER (Downflow and Horizontal flow)
•POWER EXHAUST – (Unit mount – Downflow, Duct 
mount – Horizontal flow)
•DUAL ENTHALPY KIT - Provides a second input to 
economizer to monitor return air.

862075-XTG-G-0415
Johnson Controls Unitary Products 13
Physical Data
ZF090-150 Physical Data  
Component Models
ZF090 ZF120 ZF150
Nominal Tonnage 7.5 10 12.5
Gross Capacity @ AHRI A point (Mbh) 88200 115300 151500
EER 11.2 11.2 11.0
Nominal CFM 3000 4000 5000
System power (KW) 7.21 10.05 12.7
Refrigerant type R-410A R-410A R-410A
Refrigerant charge (lb-oz)
System 1 4-12 7-12 8-3
System 2 4-12 7-8 8-10
AHRI HEATING PERFORMANCE
Heating model 10 15 15 20 15 20
Heat input (K Btu) 120 180 180 240 180 240
Heat output (K Btu) 96 144 144 192 144 192
AFUE % ------
Steady state efficiency (%) 80 80 80 80 80 80
No. burners 466868
No. stages 212121212121
Temperature Rise Range (ºF) 15-45 30-60 20-50 35-65 10-40 25-55
Gas Limit Setting (ºF) 165 165 195 160 195 160
Gas piping connection (in.)  3/4  3/4 3/4 3/4 3/4 3/4
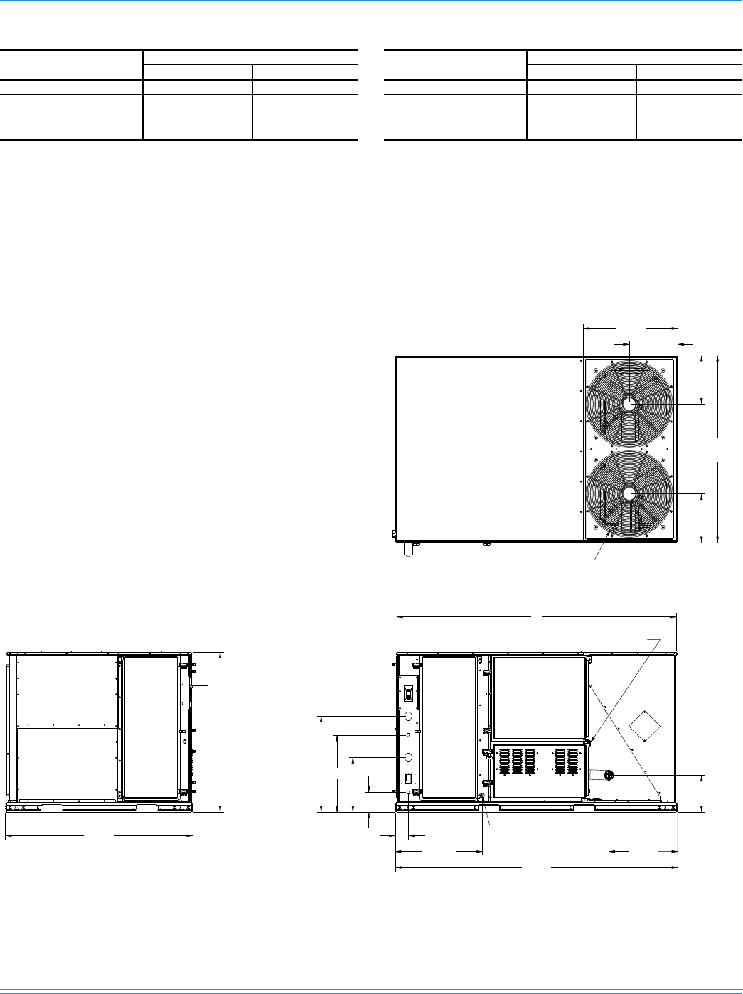
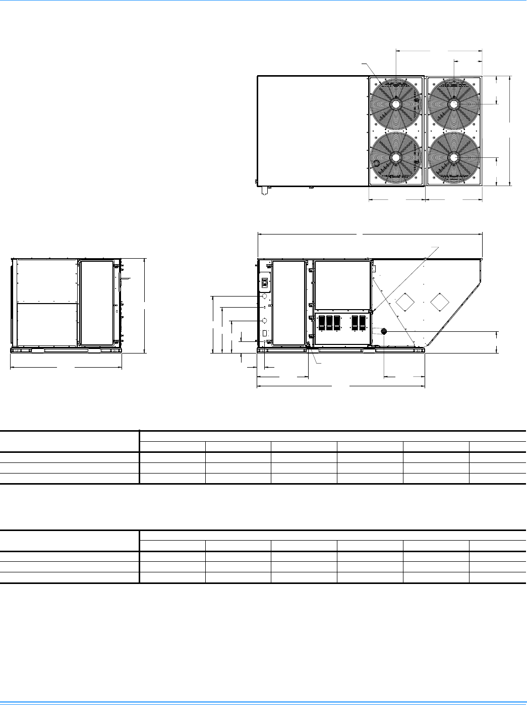
DIMENSIONS (inches)
Length 89 89 119-1/2
Width 595959
Height 42 50-3/4 50-3/4
OPERATING WT. (lbs.) 880 1060 1253
COMPRESSORS
Type Scroll Scroll Scroll
Quantity 2 2 2
Unit Capacity Steps (%) 50 / 100 50 / 100 50 / 100
CONDENSER COIL DATA
Face area (Sq. Ft.) 18.5 29.0 29.0
Rows 1 1 1
Fins per inch 23 23 23
Tube diameter (in.)/mm .71/18 1/25  1/25
Circuitry Type 2-pass Microchannel 2-pass Microchannel 2-pass Microchannel
EVAPORATOR COIL DATA
Face area (Sq. Ft.) 10.6 13.2 13.2
Rows 3 4 4
Fins per inch 15 15 15
Tube diameter 0.375 0.375 0.375
Circuitry Type Intertwined Intertwined Intertwined
Refrigerant control TXV TXV TXV

862075-XTG-G-0415
14 Johnson Controls Unitary Products
Component Models
ZF090 ZF120 ZF150
Nominal Tonnage 7.5 10 12.5
CONDENSER FAN DATA
Quantity of Fans 2 2 4
Fan diameter (Inch) 24 24 24
Type Prop Prop Prop
Drive type Direct Direct Direct
Quantity of motors 2 2 4
Motor HP each @ 50 Hz.  3/4  3/4  3/4
No. speeds 1 1 1
RPM @ 50 Hz. 940294029402
Nominal total CFM 7600 9500 13900
BELT DRIVE EVAP FAN DATA
Quantity 1 1 1
Fan Size (Inch) 12 x 12 15 x 15 15 x 15
Type Centrifugal Centrifugal Centrifugal
Motor Sheave 1VM50 1VM50 1VM50 1VP56 1VP56
Blower Sheave AK59 AK54 AK74 AK66 BK72
Belt A49 A47 A54 A56 BX56
Motor HP each @ 50 Hz. 2224 4
RPM @ 50 Hz. 1425314253142531455314553
Frame size 56 56 56 184T 184T
FILTERS
Quantity - Size 4 - (24 x 16 x 2)4, 54 - (24 x 20 x 2)4,5 4 - (24 x 20 x 2)4, 5
4 - (24 x 16 x 4)64 - (24 x 20 x 4)64 - (24 x 20 x 4)6
1. 1ST Stage 60% of 2nd Stage
2. 1110 RPM 60 Hz.
3. 1725 RPM 60 Hz.
4. 2 In. Throwaway, Standard, MERV (Minimum Efficiency Reporting Value) 3
5. 2 In. Pleated, Optional, MERV 7
6. 4 In. Pleated, Optional, MERV 13
ZF090-150 Physical Data (Continued)

862075-XTG-G-0415
Johnson Controls Unitary Products 15
ZF078-150 Unit Limitations
Size
(Tons/KW) Model Unit Voltage
Unit Limitations
Applied Voltage Outdoor DB Temp
Min Max Max (°F/°C)
090
(7.5/26) ZF 380/415-3-50 342 457 125/52
120
(10/35) ZF 380/415-3-50 342 457 125/52
150
(12.5/44) ZF 380/415-3-50 342 457 125/52

862075-XTG-G-0415
16 Johnson Controls Unitary Products
Capacity Performance
ZF090-150 Cooling Capacities
ZF090 (7.5 Ton) Imperial  
Air on
Evaporator Coil
Temperature of Air on Condenser Coil
Total
Capacity1,2
(MBh)
Total
Input
(kW)3
Sensible Capacity (MBh) Total
Capacity1,2
(MBh)
Total
Input
(kW)3
Sensible Capacity (MBh)
CFM WB
(°F)
Return Dry Bulb (°F) Return Dry Bulb (°F)
90 85 80 75 70 65 90 85 80 75 70 65
85°F 95°F
2250 
77 105.2 6.36 45.4 36.2 33.7 - - - 102.4 7.01 45.6 36.3 27.0 - - -
72 98.1 6.35 58.7 49.6 45.4 31.2 - - 94.4 6.99 59.0 49.7 40.4 31.0 - -
67 90.9 6.33 72.1 62.9 57.1 44.5 35.4 - 86.4 6.98 72.4 63.1 53.7 44.4 35.1 -
62 82.9 6.33 79.2 76.7 71.5 58.3 49.1 39.9 79.2 6.97 79.2 76.8 67.5 58.1 48.8 39.5
57 82.6 5.78 78.7 78.7 76.4 63.0 53.9 44.7 78.7 6.96 78.7 78.7 72.2 62.9 53.6 44.2
2625 
77 108.4 6.86 48.1 38.7 35.9 - - - 104.1 7.19 57.7 43.5 29.3 - - -
72 101.0 6.85 63.7 53.8 48.3 34.0 - - 95.9 7.17 63.9 53.9 43.9 33.9 - -
67 93.6 6.84 79.4 68.9 60.7 48.0 37.5 - 87.8 7.16 70.1 64.3 58.4 52.6 46.8 -
62 85.4 6.83 80.5 79.2 76.0 62.6 51.8 41.0 80.5 7.15 80.5 79.3 73.4 62.6 51.8 40.9
57 85.0 6.25 80.0 80.0 81.2 67.4 56.3 45.1 80.0 7.15 80.0 80.0 78.6 67.3 56.0 44.7
3000 
77 111.5 7.42 50.8 41.2 38.0 - - - 105.8 7.42 69.8 50.8 31.7 - - -
72 103.9 7.40 68.7 58.1 51.1 36.8 - - 97.5 7.41 68.8 58.1 47.4 36.7 - -
67 96.3 7.39 86.7 74.9 64.3 51.4 39.6 - 89.3 7.39 67.8 65.5 63.1 60.8 58.5 -
62 87.9 7.38 81.8 81.8 80.4 66.9 54.4 42.0 81.8 7.38 81.8 81.8 79.3 67.0 54.7 42.4
57 87.5 6.77 81.3 81.3 86.0 71.8 58.7 45.6 81.3 7.38 81.3 81.3 84.9 71.7 58.4 45.2
3325 
77 112.9 7.43 58.7 44.9 40.3 - - - 107.3 7.74 68.1 49.6 33.4 - - -
72 105.2 7.41 74.0 62.0 54.3 38.0 - - 98.9 7.73 73.9 62.0 50.0 38.0 - -
67 97.5 7.40 89.2 79.1 68.3 54.0 41.4 - 90.5 7.71 79.8 74.3 66.6 58.8 51.0 -
62 88.9 7.39 83.0 83.0 85.2 68.8 55.9 43.1 83.0 7.70 83.0 83.0 81.7 68.9 56.2 43.4
57 88.6 6.81 82.5 82.5 87.8 71.0 57.8 44.6 82.5 7.70 82.5 82.5 84.3 71.0 57.8 44.6
3650 
77 114.2 7.43 66.7 48.5 42.7 - - - 108.8 8.06 66.3 48.4 35.1 - - -
72 106.4 7.42 79.2 65.9 57.5 39.2 - - 100.3 8.05 79.1 65.8 52.6 39.3 - -
67 98.7 7.41 91.8 83.3 72.3 56.6 43.3 - 91.8 8.03 91.8 83.2 70.0 56.7 43.5 -
62 90.0 7.40 84.1 84.1 90.0 70.8 57.4 44.1 84.1 8.02 84.1 84.1 84.1 70.9 57.6 44.4
57 89.6 6.85 83.6 83.6 89.6 70.3 56.9 43.6 83.6 8.02 83.6 83.6 83.6 70.4 57.1 43.9
105°F 115°F
2250 
77 96.0 7.80 42.6 33.4 24.1 - - - 89.6 8.60 39.6 30.4 21.3 - - -
72 88.3 7.79 55.9 46.6 37.3 28.1 - - 82.2 8.59 52.7 43.5 34.3 25.1 - -
67 80.6 7.78 69.1 59.8 50.6 41.3 32.0 - 74.8 8.57 65.8 56.6 47.4 38.2 29.0 -
62 73.9 7.77 73.9 72.8 63.5 54.2 45.0 35.7 68.7 8.58 68.7 68.7 59.5 50.3 41.1 32.0
57 73.6 7.77 73.6 73.6 67.4 58.2 48.9 39.6 68.4 8.58 68.4 68.4 62.6 53.4 44.2 35.0
2625 
77 97.4 7.98 50.6 38.1 26.4 - - - 90.8 8.78 43.5 32.7 23.4 - - -
72 89.6 7.97 60.7 50.7 40.8 30.9 - - 83.3 8.77 57.4 47.6 37.8 28.0 - -
67 81.8 7.96 70.7 63.4 55.3 47.2 39.1 - 75.8 8.75 71.3 62.5 52.2 41.8 31.5 -
62 75.0 7.95 75.0 74.5 69.5 58.7 47.9 37.1 69.6 8.76 69.6 69.6 65.5 54.8 44.0 33.2
57 74.7 7.95 74.7 74.7 73.7 62.6 51.4 40.2 69.3 8.76 69.3 69.3 68.9 57.9 46.8 35.7
3000 
77 98.9 8.21 58.6 42.8 28.6 - - - 92.0 9.01 47.4 34.9 25.5 - - -
72 90.9 8.20 65.4 54.9 44.3 33.8 - - 84.4 9.00 62.1 51.7 41.2 30.8 - -
67 83.0 8.19 72.3 66.9 60.0 53.1 46.2 - 76.7 8.98 76.7 68.4 56.9 45.4 34.0 -
62 76.2 8.18 76.2 76.2 75.4 63.1 50.7 38.4 70.5 8.99 70.5 70.5 71.6 59.2 46.8 34.4
57 75.8 8.18 75.8 75.8 80.1 67.0 53.9 40.8 70.2 8.99 70.2 70.2 75.3 62.3 49.3 36.4
3325 
77 100.3 8.53 61.9 43.8 30.1 - - - 93.3 9.33 55.7 38.0 26.8 - - -
72 92.2 8.52 70.4 58.5 46.6 34.8 - - 85.6 9.31 66.8 55.0 43.3 31.5 - -
67 84.2 8.51 78.8 73.2 63.2 53.1 43.1 - 77.9 9.30 77.9 72.0 59.7 47.4 35.1 -
62 77.3 8.50 77.3 77.3 76.9 64.1 51.4 38.6 71.6 9.30 71.6 71.6 72.1 59.3 46.6 33.8
57 76.9 8.50 76.9 76.9 79.0 65.9 52.7 39.6 71.3 9.30 71.3 71.3 73.8 60.7 47.7 34.7
3650 
77 101.7 8.85 65.2 44.8 31.6 - - - 94.7 9.65 64.1 41.2 28.1 - - -
72 93.6 8.84 75.3 62.1 48.9 35.7 - - 86.9 9.63 71.6 58.4 45.3 32.2 - -
67 85.4 8.83 85.4 79.5 66.3 53.1 39.9 - 79.0 9.62 79.0 75.7 62.6 49.4 36.3 -
62 78.4 8.82 78.4 78.4 78.4 65.2 52.0 38.8 72.6 9.62 72.6 72.6 72.6 59.5 46.4 33.2
57 78.0 8.82 78.0 78.0 78.0 64.8 51.6 38.4 72.3 9.62 72.3 72.3 72.3 59.2 46.1 32.9

862075-XTG-G-0415
Johnson Controls Unitary Products 17
118.4°F 125°F
2250 
77 88.3 8.85 33.5 26.8 20.2 - - - 85.8 9.48 21.5 19.8 18.1 - - -
72 80.4 8.84 46.7 40.1 33.4 26.8 - - 76.9 9.47 35.1 33.4 31.6 29.9 - -
67 72.5 8.84 59.9 53.3 46.6 40.0 33.3 - 68.0 9.45 48.6 46.9 45.2 43.5 41.7 -
62 68.0 8.83 64.0 63.4 56.8 50.1 43.5 36.8 66.8 9.45 54.8 53.1 51.4 49.7 47.9 46.2
57 67.8 8.83 64.2 63.6 59.2 52.5 45.9 39.2 66.6 9.45 55.9 54.2 52.5 50.8 49.1 47.4
2625 
77 89.2 9.04 36.7 29.1 22.5 - - - 86.1 9.66 23.3 22.1 20.8 - - -
72 81.5 9.03 50.8 43.8 36.8 29.8 - - 78.0 9.64 38.0 36.4 34.8 33.3 - -
67 73.7 9.02 64.9 58.5 51.0 43.6 36.1 - 69.8 9.63 52.6 50.8 48.9 47.0 45.1 -
62 68.9 9.02 66.6 65.9 62.5 54.7 46.9 39.0 67.7 9.63 60.6 58.6 56.6 54.5 52.5 50.4
57 68.7 9.01 66.8 66.1 65.1 57.2 49.2 41.2 67.5 9.63 61.8 59.8 57.8 55.8 53.8 51.7
3000 
77 90.1 9.28 39.8 31.3 24.8 - - - 86.4 9.88 25.1 24.3 23.5 - - -
72 82.5 9.26 54.9 47.5 40.1 32.8 - - 79.0 9.87 40.9 39.5 38.0 36.6 - -
67 75.0 9.26 69.9 63.7 55.5 47.2 38.9 - 71.6 9.86 56.7 54.6 52.6 50.5 48.5 -
62 69.8 9.25 69.2 68.3 68.2 59.2 50.2 41.3 68.5 9.86 66.5 64.1 61.7 59.4 57.0 54.6
57 69.6 9.24 69.4 68.6 71.1 61.8 52.4 43.1 68.4 9.86 67.8 65.4 63.1 60.8 58.4 56.1
3325 
77 91.7 9.60 45.7 33.5 25.5 - - - 88.6 10.20 26.2 24.7 23.1 - - -
72 83.7 9.59 58.9 50.5 42.1 33.7 - - 80.1 10.19 43.6 41.8 39.9 38.0 - -
67 75.8 9.58 72.2 67.6 58.7 49.9 41.0 - 71.7 10.18 61.1 58.9 56.7 54.5 52.4 -
62 70.9 9.57 70.5 70.1 69.6 60.4 51.2 42.0 69.6 10.17 68.5 67.1 64.8 62.4 60.1 57.8
57 70.6 9.56 70.5 70.1 71.2 61.8 52.4 43.0 69.4 10.17 69.1 67.9 66.2 63.9 61.6 59.3
3650 
77 93.3 9.92 51.6 35.7 26.2 - - - 90.7 10.51 27.3 25.0 22.7 - - -
72 85.0 9.91 63.0 53.6 44.1 34.7 - - 81.3 10.51 46.4 44.1 41.8 39.5 - -
67 76.6 9.90 74.4 71.4 62.0 52.5 43.1 - 71.9 10.50 65.5 63.2 60.8 58.5 56.2 -
62 71.9 9.89 71.9 71.8 71.0 61.5 52.1 42.6 70.6 10.49 70.6 70.2 67.8 65.5 63.2 60.9
57 71.7 9.88 71.7 71.7 71.3 61.8 52.4 42.9 70.4 10.49 70.4 70.4 69.3 67.0 64.7 62.4
1. These capacities are gross ratings. For net capacity, deduct air blower motor, MBh = 3.415 x kW. Refer to the appropriate Blower 
Performance Table for the kW of the supply air blower motor.
2. Capacity rating are based on 80 F (26.6 C) Entering Air Dry Bulb Temperature.
3. These ratings include the condenser fan motors, the compressor motors and supply air blower motor (External Static Pressure 0.25 IWG/
62.3 Pa).
ZF090 (7.5 Ton) Imperial (Continued)
Air on
Evaporator Coil
Temperature of Air on Condenser Coil
Total
Capacity1,2
(MBh)
Total
Input
(kW)3
Sensible Capacity (MBh) Total
Capacity1,2
(MBh)
Total
Input
(kW)3
Sensible Capacity (MBh)
CFM WB
(°F)
Return Dry Bulb (°F) Return Dry Bulb (°F)
90 85 80 75 70 65 90 85 80 75 70 65

862075-XTG-G-0415
18 Johnson Controls Unitary Products
ZF090 (26 kW) Metric  
Air on
Evaporator Coil Temperature of Air on Condenser Coil
Total
Capacity1,2
(kW)
Total
Input
(kW)3
Sensible Capacity (kW) Total
Capacity1,2
(kW)
Total
Input
(kW)3
Sensible Capacity (kW)
m3/s WB
(°C) Return Dry Bulb (°C) Return Dry Bulb (°C)
32 29 27 24 21 18 32 29 27 24 21 18
29°C 35°C
1.06
25 30.8 6.36 13.3 10.6 9.9 - - - 30.0 7.01 13.4 10.6 7.9 - - -
22 28.7 6.35 17.2 14.5 13.3 9.1 - - 27.7 6.99 17.3 14.6 11.8 9.1 - -
19 26.6 6.33 21.1 18.4 16.7 13.1 10.4 - 25.3 6.98 21.2 18.5 15.8 13.0 10.3 -
17 24.3 6.33 23.2 22.5 20.9 17.1 14.4 11.7 23.2 6.97 23.2 22.5 19.8 17.0 14.3 11.6
14 24.2 5.78 23.1 23.1 22.4 18.5 15.8 13.1 23.1 6.96 23.1 23.1 21.2 18.4 15.7 13.0
1.24
25 31.8 6.86 14.1 11.3 10.5 - - - 30.5 7.19 16.9 12.8 8.6 - - -
22 29.6 6.85 18.7 15.8 14.1 10.0 - - 28.1 7.17 18.7 15.8 12.9 9.9 - -
19 27.4 6.84 23.3 20.2 17.8 14.1 11.0 - 25.7 7.16 20.5 18.8 17.1 15.4 13.7 -
17 25.0 6.83 23.6 23.2 22.3 18.3 15.2 12.0 23.6 7.15 23.6 23.2 21.5 18.3 15.2 12.0
14 24.9 6.25 23.5 23.5 23.8 19.8 16.5 13.2 23.5 7.14 23.5 23.5 23.0 19.7 16.4 13.1
1.42
25 32.7 7.42 14.9 12.1 11.1 - - - 31.0 7.42 20.5 14.9 9.3 - - -
22 30.5 7.40 20.1 17.0 15.0 10.8 - - 28.6 7.40 20.2 17.0 13.9 10.8 - -
19 28.2 7.39 25.4 22.0 18.8 15.1 11.6 - 26.2 7.39 19.9 19.2 18.5 17.8 17.1 -
17 25.8 7.38 24.0 24.0 23.6 19.6 16.0 12.3 24.0 7.38 24.0 24.0 23.2 19.6 16.0 12.4
14 25.6 6.77 23.8 23.8 25.2 21.0 17.2 13.4 23.8 7.38 23.8 23.8 24.9 21.0 17.1 13.3
1.57
25 33.1 7.43 17.2 13.1 11.8 - - - 31.4 7.74 20.0 14.5 9.8 - - -
22 30.8 7.41 21.7 18.2 15.9 11.1 - - 29.0 7.73 21.7 18.2 14.6 11.1 - -
19 28.6 7.40 26.2 23.2 20.0 15.8 12.1 - 26.5 7.71 23.4 21.8 19.5 17.2 14.9 -
17 26.1 7.39 24.3 24.3 25.0 20.2 16.4 12.6 24.3 7.70 24.3 24.3 23.9 20.2 16.5 12.7
14 26.0 6.81 24.2 24.2 25.7 20.8 16.9 13.1 24.2 7.70 24.2 24.2 24.7 20.8 16.9 13.1
1.72
25 33.5 7.43 19.6 14.2 12.5 - - - 31.9 8.06 19.4 14.2 10.3 - - -
22 31.2 7.42 23.2 19.3 16.8 11.5 - - 29.4 8.05 23.2 19.3 15.4 11.5 - -
19 28.9 7.41 26.9 24.4 21.2 16.6 12.7 - 26.9 8.03 26.9 24.4 20.5 16.6 12.7 -
17 26.4 7.40 24.7 24.7 26.4 20.7 16.8 12.9 24.7 8.02 24.7 24.7 24.7 20.8 16.9 13.0
14 26.3 6.85 24.5 24.5 26.3 20.6 16.7 12.8 24.5 8.02 24.5 24.5 24.5 20.6 16.7 12.9
41°C 46°C
1.06
25 28.1 7.78 12.5 9.8 7.1 - - - 26.3 8.56 11.6 8.9 6.2 - - -
22 25.9 7.78 16.4 13.7 10.9 8.2 - - 24.1 8.57 15.4 12.8 10.1 7.4 - -
19 23.6 7.78 20.2 17.5 14.8 12.1 9.4 - 21.9 8.57 19.3 16.6 13.9 11.2 8.5 -
17 21.7 7.77 21.7 21.3 18.6 15.9 13.2 10.5 20.1 8.58 20.1 20.1 17.4 14.8 12.1 9.4
14 21.6 7.77 21.6 21.6 19.8 17.0 14.3 11.6 20.0 8.58 20.0 20.0 18.4 15.7 13.0 10.3
1.24
25 28.6 7.96 14.8 11.2 7.7 - - - 26.6 8.74 12.8 9.6 6.9 - - -
22 26.3 7.96 17.8 14.9 12.0 9.1 - - 24.4 8.75 16.8 13.9 11.1 8.2 - -
19 24.0 7.96 20.7 18.6 16.2 13.8 11.5 - 22.2 8.75 20.9 18.3 15.3 12.3 9.2 -
17 22.0 7.95 22.0 21.8 20.4 17.2 14.0 10.9 20.4 8.76 20.4 20.4 19.2 16.0 12.9 9.7
14 21.9 7.95 21.9 21.9 21.6 18.3 15.1 11.8 20.3 8.76 20.3 20.3 20.2 17.0 13.7 10.5
1.42
25 29.0 8.19 17.2 12.6 8.4 - - - 27.0 8.97 13.9 10.2 7.5 - - -
22 26.6 8.19 19.2 16.1 13.0 9.9 - - 24.7 8.98 18.2 15.1 12.1 9.0 - -
19 24.3 8.19 21.2 19.6 17.6 15.6 13.5 - 22.5 8.98 22.5 20.1 16.7 13.3 10.0 -
17 22.3 8.18 22.3 22.3 22.1 18.5 14.9 11.3 20.7 8.99 20.7 20.7 21.0 17.3 13.7 10.1
14 22.2 8.18 22.2 22.2 23.5 19.6 15.8 12.0 20.6 8.99 20.6 20.6 22.1 18.3 14.5 10.7
1.57
25 29.4 8.51 18.1 12.8 8.8 - - - 27.4 9.29 16.3 11.2 7.9 - - -
22 27.0 8.51 20.6 17.1 13.7 10.2 - - 25.1 9.29 19.6 16.1 12.7 9.2 - -
19 24.7 8.51 23.1 21.5 18.5 15.6 12.6 - 22.8 9.30 22.8 21.1 17.5 13.9 10.3 -
17 22.6 8.50 22.6 22.6 22.5 18.8 15.1 11.3 21.0 9.30 21.0 21.0 21.1 17.4 13.6 9.9
14 22.5 8.50 22.5 22.5 23.2 19.3 15.5 11.6 20.9 9.30 20.9 20.9 21.6 17.8 14.0 10.2
1.72
25 29.8 8.83 19.1 13.1 9.3 - - - 27.8 9.61 18.8 12.1 8.2 - - -
22 27.4 8.83 22.1 18.2 14.3 10.5 - - 25.5 9.61 21.0 17.1 13.3 9.4 - -
19 25.0 8.83 25.0 23.3 19.4 15.6 11.7 - 23.2 9.62 23.2 22.2 18.3 14.5 10.6 -
17 23.0 8.82 23.0 23.0 23.0 19.1 15.2 11.4 21.3 9.62 21.3 21.3 21.3 17.4 13.6 9.7
14 22.9 8.82 22.9 22.9 22.9 19.0 15.1 11.3 21.2 9.62 21.2 21.2 21.2 17.3 13.5 9.7

862075-XTG-G-0415
Johnson Controls Unitary Products 19
48°C 52°C
1.06
25 25.9 8.85 9.8 7.9 5.9 - - - 25.2 9.48 6.3 5.8 5.3 - - -
22 23.6 8.84 13.7 11.7 9.8 7.8 - - 22.5 9.47 10.3 9.8 9.3 8.8 - -
19 21.2 8.84 17.6 15.6 13.7 11.7 9.8 - 19.9 9.45 14.2 13.7 13.2 12.7 12.2 -
17 19.9 8.83 18.7 18.6 16.6 14.7 12.7 10.8 19.6 9.45 16.1 15.6 15.1 14.6 14.0 13.5
14 19.9 8.83 18.8 18.6 17.3 15.4 13.4 11.5 19.5 9.45 16.4 15.9 15.4 14.9 14.4 13.9
1.24
25 26.1 9.04 10.7 8.5 6.6 - - - 25.2 9.66 6.8 6.5 6.1 - - -
22 23.9 9.03 14.9 12.8 10.8 8.7 - - 22.8 9.64 11.1 10.7 10.2 9.7 - -
19 21.6 9.02 19.0 17.1 15.0 12.8 10.6 - 20.5 9.63 15.4 14.9 14.3 13.8 13.2 -
17 20.2 9.02 19.5 19.3 18.3 16.0 13.7 11.4 19.8 9.63 17.8 17.2 16.6 16.0 15.4 14.8
14 20.1 9.01 19.6 19.4 19.1 16.8 14.4 12.1 19.8 9.63 18.1 17.5 16.9 16.3 15.8 15.2
1.42
25 26.4 9.28 11.7 9.2 7.3 - - - 25.3 9.88 7.4 7.1 6.9 - - -
22 24.2 9.26 16.1 13.9 11.8 9.6 - - 23.1 9.87 12.0 11.6 11.1 10.7 - -
19 22.0 9.26 20.5 18.7 16.3 13.8 11.4 - 21.0 9.86 16.6 16.0 15.4 14.8 14.2 -
17 20.5 9.25 20.3 20.0 20.0 17.4 14.7 12.1 20.1 9.86 19.5 18.8 18.1 17.4 16.7 16.0
14 20.4 9.24 20.3 20.1 20.8 18.1 15.4 12.6 20.0 9.86 19.9 19.2 18.5 17.8 17.1 16.4
1.57
25 26.9 9.60 13.4 9.8 7.5 - - - 26.0 10.20 7.7 7.2 6.8 - - -
22 24.5 9.59 17.3 14.8 12.3 9.9 - - 23.5 10.19 12.8 12.2 11.7 11.1 - -
19 22.2 9.58 21.2 19.8 17.2 14.6 12.0 - 21.0 10.18 17.9 17.3 16.6 16.0 15.3 -
17 20.8 9.57 20.7 20.5 20.4 17.7 15.0 12.3 20.4 10.17 20.1 19.7 19.0 18.3 17.6 16.9
14 20.7 9.56 20.7 20.6 20.9 18.1 15.4 12.6 20.3 10.17 20.2 19.9 19.4 18.7 18.0 17.4
1.72
25 27.4 9.92 15.1 10.5 7.7 - - - 26.6 10.51 8.0 7.3 6.7 - - -
22 24.9 9.91 18.5 15.7 12.9 10.2 - - 23.8 10.51 13.6 12.9 12.2 11.6 - -
19 22.5 9.90 21.8 20.9 18.2 15.4 12.6 - 21.1 10.50 19.2 18.5 17.8 17.2 16.5 -
17 21.1 9.89 21.1 21.0 20.8 18.0 15.3 12.5 20.7 10.49 20.7 20.6 19.9 19.2 18.5 17.8
14 21.0 9.88 21.0 21.0 20.9 18.1 15.4 12.6 20.6 10.49 20.6 20.6 20.3 19.6 19.0 18.3
1. These capacities are gross ratings. For net capacity, deduct air blower motor, MBh = 3.415 x kW. Refer to the appropriate Blower 
Performance Table for the kW of the supply air blower motor.
2. Capacity rating are based on 80 F (26.6 C) Entering Air Dry Bulb Temperature.
3. These ratings include the condenser fan motors, the compressor motors and supply air blower motor (External Static Pressure 0.25 IWG/
62.3 Pa).
ZF090 (26 kW) Metric (Continued)
Air on
Evaporator Coil Temperature of Air on Condenser Coil
Total
Capacity1,2
(kW)
Total
Input
(kW)3
Sensible Capacity (kW) Total
Capacity1,2
(kW)
Total
Input
(kW)3
Sensible Capacity (kW)
m3/s WB
(°C) Return Dry Bulb (°C) Return Dry Bulb (°C)
32 29 27 24 21 18 32 29 27 24 21 18

862075-XTG-G-0415
20 Johnson Controls Unitary Products
ZF120 (10 Ton) Imperial  
Air on
Evaporator Coil
Temperature of Air on Condenser Coil
Total
Capacity1,2
(MBh)
Total
Input
(kW)3
Sensible Capacity (MBh) Total
Capacity1,2
(MBh)
Total
Input
(kW)3
Sensible Capacity (MBh)
CFM WB
(°F)
Return Dry Bulb (°F) Return Dry Bulb (°F)
90 85 80 75 70 65 90 85 80 75 70 65
85°F 95°F
3000 
77 120.6 8.40 68.1 55.8 43.5 - - - 120.7 9.61 67.5 55.2 42.9 - - -
72 115.1 8.47 83.7 71.4 59.1 46.8 - - 112.0 9.59 81.3 69.0 56.7 44.4 - -
67 109.6 8.54 99.2 86.9 74.7 62.4 50.1 - 103.2 9.57 95.1 82.8 70.5 58.2 45.9 -
62 103.7 8.56 103.7 89.8 77.5 65.2 52.9 40.7 96.8 9.56 96.8 87.4 75.1 62.8 50.5 38.2
57 95.5 8.56 95.5 95.5 92.3 80.0 67.7 55.5 90.4 9.54 90.4 90.4 86.3 74.0 61.7 49.4
3500 
77 128.2 8.64 70.2 59.1 46.9 - - - 128.2 9.88 70.6 58.5 46.4 - - -
72 122.4 8.71 90.3 77.0 63.7 50.4 - - 118.9 9.86 87.7 74.6 61.4 48.2 - -
67 116.6 8.78 110.4 94.9 80.5 66.2 51.8 - 109.6 9.83 104.9 90.6 76.3 62.0 47.7 -
62 110.3 8.80 110.3 99.7 83.6 69.2 54.9 40.6 102.8 9.82 102.8 95.7 81.3 67.0 52.6 38.3
57 101.6 8.80 101.6 101.6 99.6 84.7 69.9 55.1 96.0 9.80 96.0 96.0 93.5 78.7 63.9 49.2
4000 
77 135.9 8.97 72.2 62.4 50.3 - - - 135.7 10.24 73.7 61.8 50.0 - - -
72 129.7 9.04 96.9 82.6 68.3 54.1 - - 125.8 10.22 94.2 80.1 66.1 52.0 - -
67 123.5 9.11 121.5 102.8 86.4 69.9 53.5 - 116.0 10.20 114.7 98.4 82.1 65.9 49.6 -
62 116.8 9.14 116.8 109.6 89.6 73.2 56.9 40.5 108.8 10.18 108.8 103.9 87.5 71.1 54.7 38.4
57 107.6 9.14 107.6 107.6 106.8 89.5 72.1 54.7 101.6 10.17 101.6 101.6 100.6 83.4 66.2 48.9
4550 
77 134.8 9.53 92.3 68.8 54.6 - - - 135.5 10.80 94.5 70.2 54.8 - - -
72 128.7 9.60 107.0 90.6 74.2 57.8 - - 125.7 10.78 104.8 88.6 72.4 56.2 - -
67 122.7 9.67 121.7 112.3 93.8 76.3 58.8 - 115.8 10.76 115.2 107.0 90.0 72.7 55.4 -
62 116.1 9.69 116.1 112.4 99.3 81.9 64.4 47.0 108.6 10.74 108.6 106.2 95.9 78.5 61.1 43.8
57 106.9 9.69 106.9 106.9 106.5 88.5 70.6 52.6 101.4 10.73 101.4 101.4 101.0 83.1 65.3 47.5
5100 
77 133.8 9.98 112.4 75.3 58.8 - - - 135.3 11.26 115.3 78.5 59.6 - - -
72 127.8 10.05 117.1 98.6 80.0 61.5 - - 125.5 11.24 115.5 97.1 78.7 60.3 - -
67 121.8 10.12 121.8 121.8 101.2 82.7 64.1 - 115.7 11.22 115.7 115.7 97.9 79.5 61.1 -
62 115.3 10.15 115.3 115.3 109.1 90.5 72.0 53.4 108.5 11.20 108.5 108.5 104.3 85.9 67.5 49.2
57 106.2 10.14 106.2 106.2 106.2 87.6 69.1 50.5 101.3 11.19 101.3 101.3 101.3 82.9 64.5 46.1
105°F 115°F
3000 
77 120.9 10.83 66.9 54.6 42.2 - - - 121.0 12.04 66.3 53.9 41.6 - - -
72 108.8 10.72 78.9 66.6 54.3 41.9 - - 105.7 11.84 76.6 64.2 51.8 39.5 - -
67 96.8 10.60 91.0 78.6 66.3 54.0 41.6 - 90.4 11.64 86.8 74.5 62.1 49.8 37.4 -
62 89.8 10.55 89.8 85.0 72.7 60.3 48.0 35.7 82.9 11.54 82.9 82.6 70.2 57.9 45.5 33.2
57 85.2 10.52 85.2 85.2 80.4 68.0 55.7 43.4 80.0 11.50 80.0 80.0 74.4 62.0 49.7 37.3
3500 
77 128.2 11.12 71.0 57.9 46.0 - - - 128.1 12.36 71.5 57.3 45.5 - - -
72 115.4 11.01 85.2 72.1 59.0 45.9 - - 111.9 12.16 82.7 69.7 56.7 43.7 - -
67 102.6 10.89 99.4 86.3 72.1 57.9 43.7 - 95.7 11.95 93.9 82.1 67.9 53.8 39.6 -
62 95.3 10.84 95.3 91.6 79.1 64.7 50.3 35.9 87.8 11.85 87.8 87.6 76.8 62.4 48.0 33.6
57 90.3 10.81 90.3 90.3 87.4 72.7 58.0 43.2 84.7 11.81 84.7 84.7 81.3 66.6 52.0 37.3
4000 
77 135.5 11.51 75.2 61.3 49.7 - - - 135.3 12.78 76.7 60.7 49.4 - - -
72 122.0 11.40 91.5 77.7 63.8 49.9 - - 118.1 12.57 88.8 75.2 61.5 47.9 - -
67 108.5 11.28 107.8 94.0 77.9 61.8 45.7 - 101.0 12.37 101.0 89.7 73.7 57.8 41.8 -
62 100.7 11.22 100.7 98.3 85.5 69.0 52.6 36.2 92.7 12.27 92.7 92.7 83.4 66.9 50.5 34.1
57 95.5 11.20 95.5 95.5 94.5 77.3 60.2 43.1 89.4 12.23 89.4 89.4 88.3 71.3 54.3 37.3
4550 
77 136.2 12.08 96.7 71.6 55.0 - - - 136.8 13.35 98.9 72.9 55.2 - - -
72 122.6 11.96 102.7 86.7 70.6 54.6 - - 119.5 13.15 100.6 84.7 68.8 53.0 - -
67 109.0 11.85 108.7 101.8 86.2 69.1 51.9 - 102.2 12.94 102.2 96.5 82.5 65.5 48.5 -
62 101.2 11.79 101.2 100.0 92.5 75.2 57.9 40.6 93.7 12.84 93.7 93.7 89.1 71.8 54.6 37.4
57 95.9 11.76 95.9 95.9 95.4 77.7 60.1 42.4 90.5 12.80 90.5 90.5 89.9 72.4 54.8 37.3
5100 
77 136.8 12.54 118.3 81.8 60.3 - - - 138.4 13.82 121.2 85.1 61.1 - - -
72 123.2 12.43 113.9 95.7 77.4 59.2 - - 120.9 13.62 112.3 94.2 76.2 58.1 - -
67 109.5 12.32 109.5 109.5 94.6 76.3 58.1 - 103.3 13.41 103.3 103.3 91.2 73.2 55.1 -
62 101.6 12.26 101.6 101.6 99.5 81.3 63.1 44.9 94.8 13.31 94.8 94.8 94.8 76.7 58.7 40.6
57 96.4 12.23 96.4 96.4 96.4 78.2 59.9 41.7 91.5 13.27 91.5 91.5 91.5 73.4 55.4 37.3

862075-XTG-G-0415
Johnson Controls Unitary Products 21
118.4°F 125°F
3000 
77 118.0 12.34 67.4 53.5 41.1 - - - 112.2 12.91 69.7 52.6 40.2 - - -
72 102.1 12.21 75.7 63.3 50.9 38.6 - - 95.2 12.94 73.9 61.5 49.1 36.7 - -
67 86.2 12.09 83.9 73.1 60.7 48.4 36.0 - 78.1 12.96 78.1 70.4 58.1 45.7 33.3 -
62 80.0 11.98 80.0 79.8 69.0 56.6 44.3 31.9 74.5 12.84 74.5 74.5 66.6 54.2 41.8 29.4
57 77.7 11.96 77.7 77.7 71.8 59.5 47.1 34.7 73.2 12.84 73.2 73.2 66.9 54.5 42.1 29.7
3500 
77 124.8 12.67 73.2 57.3 45.4 - - - 118.3 13.28 76.7 57.4 45.3 - - -
72 108.1 12.53 81.8 68.7 55.7 42.6 - - 100.8 13.26 80.0 66.8 53.7 40.6 - -
67 91.4 12.39 90.3 80.1 66.0 51.8 37.7 - 83.2 13.23 83.2 76.3 62.2 48.0 33.9 -
62 84.7 12.30 84.7 84.6 75.4 60.9 46.4 31.9 78.8 13.16 78.8 78.8 72.8 58.0 43.3 28.5
57 82.3 12.27 82.3 82.3 78.5 63.8 49.1 34.4 77.5 13.16 77.5 77.5 73.1 58.3 43.5 28.7
4000 
77 131.6 13.11 79.0 61.2 49.7 - - - 124.5 13.76 83.7 62.2 50.4 - - -
72 114.1 12.95 87.9 74.2 60.4 46.7 - - 106.4 13.68 86.0 72.2 58.3 44.5 - -
67 96.7 12.79 96.7 87.1 71.2 55.3 39.4 - 88.3 13.61 88.3 82.1 66.3 50.4 34.6 -
62 89.5 12.71 89.5 89.5 81.9 65.2 48.6 31.9 83.2 13.58 83.2 83.2 79.0 61.9 44.8 27.6
57 86.9 12.69 86.9 86.9 85.2 68.2 51.1 34.1 81.8 13.58 81.8 81.8 79.4 62.2 45.0 27.8
4550 
77 132.7 13.69 100.8 74.0 55.0 - - - 124.8 14.34 104.4 76.2 54.5 - - -
72 115.5 13.52 99.5 83.7 67.6 51.6 - - 107.6 14.26 97.4 81.8 65.3 48.8 - -
67 98.2 13.36 98.2 93.4 80.3 63.1 45.9 - 90.4 14.17 90.4 87.3 76.0 58.5 41.0 -
62 90.5 13.29 90.5 90.5 86.7 69.2 51.6 34.1 84.2 14.16 84.2 84.2 82.1 63.9 45.8 27.6
57 87.8 13.26 87.8 87.8 87.0 69.3 51.5 33.8 82.8 14.15 82.8 82.8 81.5 63.4 45.2 27.0
5100 
77 133.9 14.16 122.6 86.8 60.2 - - - 125.2 14.82 125.2 90.2 58.6 - - -
72 116.8 14.00 111.1 93.2 74.8 56.4 - - 108.8 14.73 108.8 91.4 72.2 53.0 - -
67 99.6 13.83 99.6 99.6 89.4 70.9 52.5 - 92.5 14.64 92.5 92.5 85.7 66.6 47.4 -
62 91.5 13.76 91.5 91.5 91.5 73.1 54.6 36.2 85.1 14.64 85.1 85.1 85.1 66.0 46.8 27.6
57 88.8 13.74 88.8 88.8 88.8 70.4 52.0 33.5 83.7 14.63 83.7 83.7 83.7 64.5 45.4 26.2
1. These capacities are gross ratings. For net capacity, deduct air blower motor, MBh = 3.415 x kW. Refer to the appropriate Blower 
Performance Table for the kW of the supply air blower motor.
2. Capacity rating are based on 80 F (26.6 C) Entering Air Dry Bulb Temperature.
3. These ratings include the condenser fan motors, the compressor motors and supply air blower motor (External Static Pressure 0.30 IWG/
74.7 Pa).
ZF120 (10 Ton) Imperial (Continued)
Air on
Evaporator Coil
Temperature of Air on Condenser Coil
Total
Capacity1,2
(MBh)
Total
Input
(kW)3
Sensible Capacity (MBh) Total
Capacity1,2
(MBh)
Total
Input
(kW)3
Sensible Capacity (MBh)
CFM WB
(°F)
Return Dry Bulb (°F) Return Dry Bulb (°F)
90 85 80 75 70 65 90 85 80 75 70 65

862075-XTG-G-0415
22 Johnson Controls Unitary Products
ZF120 (35 kW) Metric  
Air on
Evaporator Coil Temperature of Air on Condenser Coil
Total
Capacity1,2
(kW)
Total
Input
(kW)3
Sensible Capacity (kW) Total
Capacity1
(kW)
Total
Input
(kW)2
Sensible Capacity (kW)
m3/s WB
(°C) Return Dry Bulb (°C) Return Dry Bulb (°C)
32 29 27 24 21 18 32 29 27 24 21 18
29°C 35°C
1.42
25 35.3 8.40 20.0 16.4 12.8 - - - 35.4 9.61 19.8 16.2 12.6 - - -
22 33.7 8.47 24.5 20.9 17.3 13.7 - - 32.8 9.59 23.8 20.2 16.6 13.0 - -
19 32.1 8.54 29.1 25.5 21.9 18.3 14.7 - 30.2 9.57 27.9 24.3 20.7 17.0 13.4 -
17 30.4 8.56 30.4 26.3 22.7 19.1 15.5 11.9 28.4 9.56 28.4 25.6 22.0 18.4 14.8 11.2
14 28.0 8.56 28.0 28.0 27.1 23.5 19.9 16.3 26.5 9.54 26.5 26.5 25.3 21.7 18.1 14.5
1.65
25 37.6 8.64 20.6 17.3 13.8 - - - 37.6 9.88 20.7 17.2 13.6 - - -
22 35.9 8.71 26.5 22.6 18.7 14.8 - - 34.8 9.86 25.7 21.9 18.0 14.1 - -
19 34.2 8.78 32.3 27.8 23.6 19.4 15.2 - 32.1 9.83 30.7 26.6 22.4 18.2 14.0 -
17 32.3 8.80 32.3 29.2 24.5 20.3 16.1 11.9 30.1 9.82 30.1 28.0 23.8 19.6 15.4 11.2
14 29.8 8.80 29.8 29.8 29.2 24.8 20.5 16.2 28.1 9.80 28.1 28.1 27.4 23.1 18.7 14.4
1.89
25 39.8 8.97 21.2 18.3 14.7 - - - 39.8 10.24 21.6 18.1 14.7 - - -
22 38.0 9.04 28.4 24.2 20.0 15.8 - - 36.9 10.22 27.6 23.5 19.4 15.2 - -
19 36.2 9.11 35.6 30.1 25.3 20.5 15.7 - 34.0 10.20 33.6 28.8 24.1 19.3 14.5 -
17 34.2 9.14 34.2 32.1 26.3 21.5 16.7 11.9 31.9 10.18 31.9 30.5 25.7 20.8 16.0 11.2
14 31.5 9.14 31.5 31.5 31.3 26.2 21.1 16.0 29.8 10.17 29.8 29.8 29.5 24.4 19.4 14.3
2.15
25 39.5 9.53 27.0 20.2 16.0 - - - 39.7 10.80 27.7 20.6 16.1 - - -
22 37.7 9.60 31.4 26.5 21.7 16.9 - - 36.8 10.78 30.7 26.0 21.2 16.5 - -
19 36.0 9.67 35.7 32.9 27.5 22.4 17.2 - 33.9 10.76 33.8 31.4 26.4 21.3 16.2 -
17 34.0 9.69 34.0 33.0 29.1 24.0 18.9 13.8 31.8 10.74 31.8 31.1 28.1 23.0 17.9 12.8
14 31.3 9.69 31.3 31.3 31.2 26.0 20.7 15.4 29.7 10.73 29.7 29.7 29.6 24.4 19.1 13.9
2.41
25 39.2 9.98 32.9 22.1 17.2 - - - 39.7 11.26 33.8 23.0 17.5 - - -
22 37.5 10.05 34.3 28.9 23.5 18.0 - - 36.8 11.24 33.8 28.5 23.1 17.7 - -
19 35.7 10.12 35.7 35.7 29.7 24.2 18.8 - 33.9 11.22 33.9 33.9 28.7 23.3 17.9 -
17 33.8 10.15 33.8 33.8 32.0 26.5 21.1 15.7 31.8 11.20 31.8 31.8 30.6 25.2 19.8 14.4
14 31.1 10.14 31.1 31.1 31.1 25.7 20.2 14.8 29.7 11.19 29.7 29.7 29.7 24.3 18.9 13.5
41°C 46°C
1.42
25 35.4 10.83 19.6 16.0 12.4 - - - 35.5 12.04 19.4 15.8 12.2 - - -
22 31.9 10.72 23.1 19.5 15.9 12.3 - - 31.0 11.84 22.4 18.8 15.2 11.6 - -
19 28.4 10.60 26.7 23.0 19.4 15.8 12.2 - 26.5 11.64 25.4 21.8 18.2 14.6 11.0 -
17 26.3 10.55 26.3 24.9 21.3 17.7 14.1 10.5 24.3 11.54 24.3 24.2 20.6 17.0 13.3 9.7
14 25.0 10.52 25.0 25.0 23.6 19.9 16.3 12.7 23.4 11.50 23.4 23.4 21.8 18.2 14.6 10.9
1.65
25 37.6 11.12 20.8 17.0 13.5 - - - 37.6 12.36 21.0 16.8 13.3 - - -
22 33.8 11.01 25.0 21.1 17.3 13.5 - - 32.8 12.16 24.2 20.4 16.6 12.8 - -
19 30.1 10.89 29.1 25.3 21.1 17.0 12.8 - 28.0 11.95 27.5 24.1 19.9 15.8 11.6 -
17 27.9 10.84 27.9 26.9 23.2 19.0 14.7 10.5 25.7 11.85 25.7 25.7 22.5 18.3 14.1 9.9
14 26.5 10.81 26.5 26.5 25.6 21.3 17.0 12.7 24.8 11.81 24.8 24.8 23.8 19.5 15.2 10.9
1.89
25 39.7 11.51 22.0 18.0 14.6 - - - 39.6 12.78 22.5 17.8 14.5 - - -
22 35.8 11.40 26.8 22.8 18.7 14.6 - - 34.6 12.57 26.0 22.0 18.0 14.0 - -
19 31.8 11.28 31.6 27.6 22.8 18.1 13.4 - 29.6 12.37 29.6 26.3 21.6 16.9 12.3 -
17 29.5 11.22 29.5 28.8 25.0 20.2 15.4 10.6 27.2 12.27 27.2 27.2 24.4 19.6 14.8 10.0
14 28.0 11.20 28.0 28.0 27.7 22.7 17.6 12.6 26.2 12.23 26.2 26.2 25.9 20.9 15.9 10.9
2.15
25 39.9 12.08 28.3 21.0 16.1 - - - 40.1 13.35 29.0 21.4 16.2 - - -
22 35.9 11.96 30.1 25.4 20.7 16.0 - - 35.0 13.15 29.5 24.8 20.2 15.5 - -
19 31.9 11.85 31.9 29.8 25.3 20.2 15.2 - 29.9 12.94 29.9 28.3 24.2 19.2 14.2 -
17 29.7 11.79 29.7 29.3 27.1 22.0 17.0 11.9 27.5 12.84 27.5 27.5 26.1 21.1 16.0 11.0
14 28.1 11.76 28.1 28.1 28.0 22.8 17.6 12.4 26.5 12.80 26.5 26.5 26.3 21.2 16.1 10.9
2.41
25 40.1 12.54 34.7 24.0 17.7 - - - 40.6 13.82 35.5 24.9 17.9 - - -
22 36.1 12.43 33.4 28.0 22.7 17.4 - - 35.4 13.62 32.9 27.6 22.3 17.0 - -
19 32.1 12.32 32.1 32.1 27.7 22.4 17.0 - 30.3 13.41 30.3 30.3 26.7 21.4 16.2 -
17 29.8 12.26 29.8 29.8 29.2 23.8 18.5 13.2 27.8 13.31 27.8 27.8 27.8 22.5 17.2 11.9
14 28.2 12.23 28.2 28.2 28.2 22.9 17.6 12.2 26.8 13.27 26.8 26.8 26.8 21.5 16.2 10.9

862075-XTG-G-0415
Johnson Controls Unitary Products 23
48°C 52°C
1.42
25 34.6 12.34 19.8 15.7 12.1 - - - 32.9 12.91 20.4 15.4 11.8 - - -
22 29.9 12.21 22.2 18.5 14.9 11.3 - - 27.9 12.94 21.7 18.0 14.4 10.8 - -
19 25.3 12.09 24.6 21.4 17.8 14.2 10.5 - 22.9 12.96 22.9 20.6 17.0 13.4 9.8 -
17 23.5 11.98 23.5 23.4 20.2 16.6 13.0 9.3 21.8 12.84 21.8 21.8 19.5 15.9 12.3 8.6
14 22.8 11.96 22.8 22.8 21.0 17.4 13.8 10.2 21.5 12.84 21.5 21.5 19.6 16.0 12.3 8.7
1.65
25 36.6 12.67 21.5 16.8 13.3 - - - 34.7 13.28 22.5 16.8 13.3 - - -
22 31.7 12.53 24.0 20.1 16.3 12.5 - - 29.5 13.26 23.4 19.6 15.7 11.9 - -
19 26.8 12.39 26.5 23.5 19.3 15.2 11.0 - 24.4 13.23 24.4 22.4 18.2 14.1 9.9 -
17 24.8 12.30 24.8 24.8 22.1 17.9 13.6 9.3 23.1 13.16 23.1 23.1 21.3 17.0 12.7 8.4
14 24.1 12.27 24.1 24.1 23.0 18.7 14.4 10.1 22.7 13.16 22.7 22.7 21.4 17.1 12.8 8.4
1.89
25 38.6 13.11 23.2 17.9 14.6 - - - 36.5 13.76 24.5 18.2 14.8 - - -
22 33.5 12.95 25.8 21.7 17.7 13.7 - - 31.2 13.68 25.2 21.1 17.1 13.0 - -
19 28.3 12.79 28.3 25.5 20.9 16.2 11.5 - 25.9 13.61 25.9 24.1 19.4 14.8 10.1 -
17 26.2 12.71 26.2 26.2 24.0 19.1 14.2 9.4 24.4 13.58 24.4 24.4 23.2 18.1 13.1 8.1
14 25.5 12.69 25.5 25.5 25.0 20.0 15.0 10.0 24.0 13.58 24.0 24.0 23.3 18.2 13.2 8.1
2.15
25 38.9 13.69 29.5 21.7 16.1 - - - 36.6 14.34 30.6 22.3 16.0 - - -
22 33.8 13.52 29.2 24.5 19.8 15.1 - - 31.5 14.26 28.5 24.0 19.1 14.3 - -
19 28.8 13.36 28.8 27.4 23.5 18.5 13.5 - 26.5 14.17 26.5 25.6 22.3 17.1 12.0 -
17 26.5 13.29 26.5 26.5 25.4 20.3 15.1 10.0 24.7 14.16 24.7 24.7 24.1 18.7 13.4 8.1
14 25.7 13.26 25.7 25.7 25.5 20.3 15.1 9.9 24.3 14.15 24.3 24.3 23.9 18.6 13.2 7.9
2.41
25 39.2 14.16 35.9 25.5 17.7 - - - 36.7 14.82 36.7 26.4 17.2 - - -
22 34.2 14.00 32.6 27.3 21.9 16.5 - - 31.9 14.73 31.9 26.8 21.2 15.5 - -
19 29.2 13.83 29.2 29.2 26.2 20.8 15.4 - 27.1 14.64 27.1 27.1 25.1 19.5 13.9 -
17 26.8 13.76 26.8 26.8 26.8 21.4 16.0 10.6 25.0 14.64 25.0 25.0 25.0 19.3 13.7 8.1
14 26.0 13.74 26.0 26.0 26.0 20.6 15.2 9.8 24.5 14.63 24.5 24.5 24.5 18.9 13.3 7.7
1. These capacities are gross ratings. For net capacity, deduct air blower motor, MBh = 3.415 x kW. Refer to the appropriate Blower 
Performance Table for the kW of the supply air blower motor.
2. Capacity rating are based on 80 F (26.6 C) Entering Air Dry Bulb Temperature.
3. These ratings include the condenser fan motors, the compressor motors and supply air blower motor (External Static Pressure 0.30 IWG/
74.7 Pa).
ZF120 (35 kW) Metric (Continued)
Air on
Evaporator Coil Temperature of Air on Condenser Coil
Total
Capacity1,2
(kW)
Total
Input
(kW)3
Sensible Capacity (kW) Total
Capacity1
(kW)
Total
Input
(kW)2
Sensible Capacity (kW)
m3/s WB
(°C) Return Dry Bulb (°C) Return Dry Bulb (°C)
32 29 27 24 21 18 32 29 27 24 21 18

862075-XTG-G-0415
24 Johnson Controls Unitary Products
ZF150 (12.5 Ton) Imperial  
Air on
Evaporator Coil
Temperature of Air on Condenser Coil
Total
Capacity1,2
(MBh)
Total
Input
(kW)3
Sensible Capacity (MBh) Total
Capacity1,2
(MBh)
Total
Input
(kW)3
Sensible Capacity (MBh)
CFM WB
(°F)
Return Dry Bulb (°F) Return Dry Bulb (°F)
90 85 80 75 70 65 90 85 80 75 70 65
85°F 95°F
3750 
77 185.6 11.34 82.4 66.9 51.4 - - - 170.6 12.56 79.4 64.1 48.9 - - -
72 168.8 11.18 104.3 88.8 73.3 57.8 - - 155.7 12.43 100.6 85.3 70.1 54.8 - -
67 151.9 11.02 126.3 110.8 95.2 79.7 64.2 - 140.7 12.29 121.8 106.5 91.3 76.0 60.7 -
62 146.1 10.96 145.6 122.7 106.4 90.9 75.4 59.8 134.2 12.23 133.9 118.6 103.4 88.1 72.9 57.6
57 141.4 10.92 141.4 133.8 116.3 100.8 85.3 69.8 131.0 12.20 131.0 125.9 110.6 95.4 80.1 64.9
4375 
77 190.5 11.63 85.8 71.6 55.5 - - - 175.4 12.85 83.8 68.3 52.7 - - -
72 173.2 11.47 112.8 96.0 79.2 62.4 - - 160.0 12.71 108.4 92.0 75.6 59.2 - -
67 155.9 11.31 139.8 120.4 102.9 85.4 67.8 - 144.7 12.57 133.0 115.8 98.5 81.2 63.9 -
62 149.9 11.25 149.7 136.9 115.0 96.9 78.9 60.9 138.0 12.51 137.8 129.3 111.5 93.8 76.0 58.3
57 145.1 11.21 145.1 141.3 125.7 107.3 88.9 70.4 134.6 12.48 134.6 132.1 119.4 101.3 83.2 65.0
5000 
77 195.4 11.89 89.2 76.3 59.6 - - - 180.2 13.12 88.3 72.4 56.6 - - -
72 177.6 11.73 121.3 103.2 85.1 67.0 - - 164.4 12.98 116.3 98.7 81.1 63.5 - -
67 159.9 11.57 153.4 130.1 110.6 91.0 71.5 - 148.6 12.84 144.3 125.0 105.7 86.4 67.1 -
62 153.8 11.51 153.8 151.0 123.5 103.0 82.5 61.9 141.7 12.78 141.7 139.9 119.7 99.5 79.2 59.0
57 148.8 11.47 148.8 148.8 135.1 113.8 92.4 71.1 138.3 12.75 138.3 138.3 128.1 107.1 86.2 65.2
5575 
77 200.8 12.68 93.4 80.3 60.9 - - - 184.3 13.90 95.8 77.0 58.2 - - -
72 182.6 12.52 127.2 107.0 86.9 66.7 - - 168.2 13.76 122.8 103.2 83.5 63.8 - -
67 164.3 12.36 161.0 133.8 112.9 92.0 71.1 - 152.0 13.62 149.8 129.3 108.7 88.2 67.7 -
62 158.0 12.30 158.0 156.7 126.7 105.3 83.9 62.5 145.0 13.55 145.0 144.1 123.2 102.2 81.2 60.2
57 152.9 12.26 152.9 152.9 139.2 117.4 95.6 73.8 141.5 13.53 141.5 141.5 131.8 110.5 89.1 67.7
6150 
77 206.2 13.46 97.6 84.3 62.1 - - - 188.5 14.67 103.4 81.6 59.9 - - -
72 187.5 13.30 133.1 110.9 88.6 66.4 - - 172.0 14.53 129.4 107.6 85.8 64.1 - -
67 168.8 13.14 168.6 137.4 115.1 92.9 70.6 - 155.5 14.39 155.3 133.6 111.8 90.0 68.3 -
62 162.3 13.08 162.3 162.3 129.8 107.5 85.3 63.1 148.3 14.32 148.3 148.3 126.6 104.9 83.1 61.3
57 157.0 13.04 157.0 157.0 143.3 121.1 98.8 76.6 144.7 14.30 144.7 144.7 135.6 113.8 92.0 70.3
105°F 115°F
3750 
77 155.6 13.79 76.4 61.4 46.4 - - - 140.6 15.02 73.4 58.6 43.9 - - -
72 142.6 13.67 96.8 81.8 66.8 51.8 - - 129.5 14.92 93.1 78.4 63.6 48.9 - -
67 129.5 13.56 117.3 102.3 87.3 72.3 57.3 - 118.3 14.83 112.8 98.1 83.3 68.6 53.8 -
62 122.3 13.49 122.2 114.6 100.4 85.4 70.4 55.4 110.5 14.76 110.5 110.5 97.4 82.6 67.9 53.1
57 120.6 13.48 120.6 118.0 104.9 89.9 74.9 59.9 110.2 14.76 110.2 110.2 99.2 84.5 69.8 55.0
4375 
77 160.3 14.08 81.9 65.0 50.0 - - - 145.2 15.30 79.9 61.7 47.2 - - -
72 146.9 13.96 104.0 88.0 72.0 56.0 - - 133.7 15.20 99.6 84.0 68.4 52.8 - -
67 133.4 13.84 126.2 111.1 94.0 77.0 60.0 - 122.2 15.11 119.4 106.4 89.6 72.8 56.1 -
62 126.0 13.78 125.9 121.7 108.1 90.6 73.2 55.7 114.1 15.04 114.1 114.1 104.7 87.5 70.3 53.2
57 124.2 13.76 124.2 122.9 113.0 95.2 77.4 59.6 113.8 15.04 113.8 113.8 106.7 89.2 71.7 54.2
5000 
77 165.0 14.34 87.3 68.6 53.5 - - - 149.8 15.56 86.4 64.7 50.5 - - -
72 151.1 14.22 111.2 94.2 77.1 60.1 - - 137.9 15.47 106.2 89.7 73.2 56.7 - -
67 137.3 14.10 135.1 119.8 100.8 81.7 62.7 - 126.0 15.37 126.0 114.7 95.9 77.1 58.3 -
62 129.7 14.04 129.7 128.8 115.8 95.9 76.0 56.1 117.7 15.30 117.7 117.7 112.0 92.4 72.8 53.2
57 127.8 14.03 127.8 127.8 121.1 100.5 79.9 59.3 117.3 15.30 117.3 117.3 114.2 93.9 73.7 53.5
5575
77 167.9 15.11 98.2 73.7 55.6 - - - 151.5 16.32 100.6 70.5 52.9 - - -
72 153.8 14.99 118.4 99.3 80.1 60.9 - - 139.5 16.23 114.1 95.4 76.7 58.1 - -
67 139.8 14.87 138.6 124.8 104.6 84.5 64.3 - 127.5 16.13 127.5 120.3 100.5 80.7 60.9 -
62 132.0 14.81 132.0 131.6 119.7 99.1 78.5 57.9 119.0 16.06 119.0 119.0 116.2 96.0 75.8 55.6
57 130.1 14.80 130.1 130.1 124.5 103.5 82.6 61.6 118.7 16.06 118.7 118.7 117.1 96.6 76.0 55.5
6150 
77 170.9 15.87 109.2 78.9 57.6 - - - 153.2 17.07 114.9 76.2 55.4 - - -
72 156.5 15.75 125.6 104.4 83.1 61.8 - - 141.1 16.98 121.9 101.1 80.3 59.5 - -
67 142.2 15.63 142.1 129.8 108.5 87.2 65.9 - 128.9 16.88 128.9 126.0 105.2 84.4 63.6 -
62 134.3 15.57 134.3 134.3 123.5 102.2 80.9 59.6 120.4 16.81 120.4 120.4 120.4 99.5 78.7 57.9
57 132.4 15.56 132.4 132.4 127.8 106.5 85.2 63.9 120.0 16.82 120.0 120.0 120.0 99.2 78.4 57.6

862075-XTG-G-0415
Johnson Controls Unitary Products 25
118.4°F 125°F
3750 
77 136.5 15.57 71.2 56.3 41.4 - - - 128.4 16.65 67.0 51.9 36.7 - - -
72 125.7 15.43 91.0 76.1 61.3 46.4 - - 118.5 16.41 87.0 71.9 56.7 41.5 - -
67 115.0 15.28 110.9 96.0 81.1 66.2 51.3 - 108.5 16.17 107.1 91.9 76.7 61.5 46.4 -
62 104.8 15.16 104.8 104.8 96.2 81.3 66.4 51.5 93.9 15.95 93.9 93.9 93.9 78.7 63.5 48.3
57 104.5 15.16 104.5 104.5 97.3 82.4 67.5 52.6 93.6 15.95 93.6 93.6 93.6 78.4 63.2 48.1
4375 
77 140.9 15.85 78.2 59.1 44.5 - - - 132.6 16.91 75.0 54.3 39.4 - - -
72 129.8 15.71 97.4 81.6 65.9 50.1 - - 122.3 16.70 93.1 77.1 61.0 44.9 - -
67 118.7 15.58 116.7 104.2 87.2 70.2 53.2 - 112.0 16.48 111.3 99.9 82.5 65.1 47.8 -
62 108.2 15.45 108.2 108.2 104.1 86.7 69.2 51.8 96.9 16.23 96.9 96.9 103.1 85.1 67.0 49.0
57 107.9 15.45 107.9 107.9 105.8 88.1 70.5 52.8 96.6 16.23 96.6 96.6 104.1 86.1 68.1 50.0
5000 
77 145.4 16.10 85.2 62.0 47.7 - - - 136.9 17.15 83.0 56.6 42.2 - - -
72 133.9 15.97 103.8 87.2 70.5 53.8 - - 126.2 16.96 99.2 82.2 65.2 48.2 - -
67 122.4 15.85 122.4 112.3 93.3 74.2 55.2 - 115.5 16.77 115.5 107.8 88.3 68.7 49.2 -
62 111.7 15.71 111.7 111.7 112.1 92.1 72.0 52.0 100.0 16.50 100.0 100.0 112.3 91.4 70.5 49.7
57 111.3 15.71 111.3 111.3 114.3 93.9 73.4 53.0 99.7 16.49 99.7 99.7 114.6 93.7 72.9 52.0
5575
77 146.6 16.85 99.5 68.2 50.4 - - - 137.2 17.88 97.2 63.7 45.4 - - -
72 135.5 16.74 111.9 92.9 73.9 54.9 - - 127.6 17.72 107.6 88.0 68.4 48.8 - -
67 124.3 16.62 124.3 117.6 97.4 77.3 57.1 - 118.1 17.57 118.1 112.3 91.4 70.5 49.6 -
62 112.9 16.47 112.9 112.9 113.2 92.5 71.8 51.2 101.1 17.26 101.1 101.1 107.3 85.7 64.2 42.6
57 112.6 16.47 112.6 112.6 114.1 93.2 72.4 51.5 100.8 17.26 100.8 100.8 108.3 86.7 65.2 43.6
6150 
77 147.9 17.59 113.7 74.4 53.1 - - - 137.5 18.60 111.4 70.8 48.6 - - -
72 137.0 17.49 119.9 98.6 77.3 56.0 - - 129.1 18.48 116.0 93.8 71.6 49.3 - -
67 126.1 17.38 126.1 122.9 101.6 80.3 59.0 - 120.7 18.35 120.7 116.8 94.6 72.3 50.1 -
62 114.2 17.22 114.2 114.2 114.2 92.9 71.6 50.3 102.3 18.01 102.3 102.3 102.3 80.0 57.8 35.6
57 113.9 17.22 113.9 113.9 113.9 92.6 71.3 50.0 102.0 18.01 102.0 102.0 102.0 79.7 57.5 35.2
1. These capacities are gross ratings. For net capacity, deduct air blower motor, MBh = 3.415 x kW. Refer to the appropriate Blower 
Performance Table for the kW of the supply air blower motor.
2. Capacity rating are based on 80 F (26.6 C) Entering Air Dry Bulb Temperature.
3. These ratings include the condenser fan motors, the compressor motors and supply air blower motor (External Static Pressure 0.35 IWG/
87.1 Pa).
ZF150 (12.5 Ton) Imperial (Continued)
Air on
Evaporator Coil
Temperature of Air on Condenser Coil
Total
Capacity1,2
(MBh)
Total
Input
(kW)3
Sensible Capacity (MBh) Total
Capacity1,2
(MBh)
Total
Input
(kW)3
Sensible Capacity (MBh)
CFM WB
(°F)
Return Dry Bulb (°F) Return Dry Bulb (°F)
90 85 80 75 70 65 90 85 80 75 70 65

862075-XTG-G-0415
26 Johnson Controls Unitary Products
ZF150 (44 kW) Metric  
Air on
Evaporator Coil Temperature of Air on Condenser Coil
Total
Capacity1,2
(kW)
Total
Input
(kW)3
Sensible Capacity (kW) Total
Capacity1,2
(kW)
Total
Input
(kW)3
Sensible Capacity (kW)
m3/s WB
(°C) Return Dry Bulb (°C) Return Dry Bulb (°C)
32 29 27 24 21 18 32 29 27 24 21 18
29°C 35°C
1.77
25 54.4 11.34 24.1 19.6 15.1 - - - 50.0 12.56 23.3 18.8 14.3 - - -
22 49.5 11.18 30.6 26.0 21.5 16.9 - - 45.6 12.43 29.5 25.0 20.5 16.1 - -
19 44.5 11.02 37.0 32.5 27.9 23.4 18.8 - 41.2 12.29 35.7 31.2 26.7 22.3 17.8 -
17 42.8 10.96 42.7 36.0 31.2 26.6 22.1 17.5 39.3 12.23 39.2 34.8 30.3 25.8 21.4 16.9
14 41.4 10.92 41.4 39.2 34.1 29.6 25.0 20.5 38.4 12.20 38.4 36.9 32.4 28.0 23.5 19.0
2.06
25 55.8 11.63 25.2 21.0 16.3 - - - 51.4 12.85 24.6 20.0 15.5 - - -
22 50.8 11.47 33.1 28.1 23.2 18.3 - - 46.9 12.71 31.8 27.0 22.2 17.3 - -
19 45.7 11.31 41.0 35.3 30.2 25.0 19.9 - 42.4 12.57 39.0 33.9 28.9 23.8 18.7 -
17 43.9 11.25 43.9 40.1 33.7 28.4 23.1 17.8 40.4 12.51 40.4 37.9 32.7 27.5 22.3 17.1
14 42.5 11.21 42.5 41.4 36.8 31.4 26.0 20.6 39.5 12.48 39.5 38.7 35.0 29.7 24.4 19.1
2.36
25 57.3 11.89 26.2 22.4 17.5 - - - 52.8 13.12 25.9 21.2 16.6 - - -
22 52.1 11.73 35.6 30.2 24.9 19.6 - - 48.2 12.98 34.1 28.9 23.8 18.6 - -
19 46.9 11.57 45.0 38.1 32.4 26.7 20.9 - 43.6 12.84 42.3 36.6 31.0 25.3 19.7 -
17 45.1 11.51 45.1 44.3 36.2 30.2 24.2 18.1 41.5 12.78 41.5 41.0 35.1 29.2 23.2 17.3
14 43.6 11.47 43.6 43.6 39.6 33.3 27.1 20.8 40.5 12.75 40.5 40.5 37.5 31.4 25.3 19.1
2.63
25 58.8 12.68 27.4 23.5 17.8 - - - 54.0 13.90 28.1 22.6 17.1 - - -
22 53.5 12.52 37.3 31.4 25.5 19.5 - - 49.3 13.76 36.0 30.2 24.5 18.7 - -
19 48.2 12.36 47.2 39.2 33.1 27.0 20.8 - 44.6 13.62 43.9 37.9 31.9 25.9 19.8 -
17 46.3 12.30 46.3 45.9 37.1 30.9 24.6 18.3 42.5 13.55 42.5 42.2 36.1 29.9 23.8 17.6
14 44.8 12.26 44.8 44.8 40.8 34.4 28.0 21.6 41.5 13.53 41.5 41.5 38.6 32.4 26.1 19.9
2.90
25 60.4 13.46 28.6 24.7 18.2 - - - 55.2 14.67 30.3 23.9 17.5 - - -
22 54.9 13.30 39.0 32.5 26.0 19.5 - - 50.4 14.53 37.9 31.5 25.2 18.8 - -
19 49.5 13.14 49.4 40.3 33.7 27.2 20.7 - 45.6 14.39 45.5 39.2 32.8 26.4 20.0 -
17 47.6 13.08 47.6 47.6 38.0 31.5 25.0 18.5 43.5 14.32 43.5 43.5 37.1 30.7 24.4 18.0
14 46.0 13.04 46.0 46.0 42.0 35.5 29.0 22.4 42.4 14.30 42.4 42.4 39.7 33.3 27.0 20.6
41°C 46°C
1.77
25 45.6 11.34 22.4 18.0 13.6 - - - 41.2 15.02 21.5 17.2 12.9 - - -
22 41.8 11.18 28.4 24.0 19.6 15.2 - - 37.9 14.92 27.3 23.0 18.6 14.3 - -
19 38.0 11.02 34.4 30.0 25.6 21.2 16.8 - 34.7 14.83 33.1 28.7 24.4 20.1 15.8 -
17 35.9 10.96 35.8 33.6 29.4 25.0 20.6 16.2 32.4 14.76 32.4 32.4 28.5 24.2 19.9 15.6
14 35.3 10.92 35.3 34.6 30.8 26.4 22.0 17.6 32.3 14.76 32.3 32.3 29.1 24.8 20.4 16.1
2.06
25 47.0 11.63 24.0 19.0 14.6 - - - 42.6 15.30 23.4 18.1 13.8 - - -
22 43.0 11.47 30.5 25.8 21.1 16.4 - - 39.2 15.20 29.2 24.6 20.0 15.5 - -
19 39.1 11.31 37.0 32.5 27.6 22.6 17.6 - 35.8 15.11 35.0 31.2 26.3 21.3 16.4 -
17 36.9 11.25 36.9 35.7 31.7 26.6 21.5 16.3 33.4 15.04 33.4 33.4 30.7 25.6 20.6 15.6
14 36.4 11.21 36.4 36.0 33.1 27.9 22.7 17.5 33.3 15.04 33.3 33.3 31.3 26.1 21.0 15.9
2.36
25 48.4 11.89 25.6 20.1 15.7 - - - 43.9 15.56 25.3 19.0 14.8 - - -
22 44.3 11.73 32.6 27.6 22.6 17.6 - - 40.4 15.47 31.1 26.3 21.4 16.6 - -
19 40.2 11.57 39.6 35.1 29.5 24.0 18.4 - 36.9 15.37 36.9 33.6 28.1 22.6 17.1 -
17 38.0 11.51 38.0 37.7 34.0 28.1 22.3 16.4 34.5 15.30 34.5 34.5 32.8 27.1 21.3 15.6
14 37.5 11.47 37.5 37.5 35.5 29.5 23.4 17.4 34.4 15.30 34.4 34.4 33.5 27.5 21.6 15.7
2.63
25 49.2 12.68 28.8 21.6 16.3 - - - 44.4 16.32 29.5 20.6 15.5 - - -
22 45.1 12.52 34.7 29.1 23.5 17.9 - - 40.9 16.23 33.4 28.0 22.5 17.0 - -
19 41.0 12.36 40.6 36.6 30.7 24.8 18.8 - 37.4 16.13 37.4 35.3 29.5 23.7 17.9 -
17 38.7 12.30 38.7 38.6 35.1 29.0 23.0 17.0 34.9 16.06 34.9 34.9 34.0 28.1 22.2 16.3
14 38.1 12.26 38.1 38.1 36.5 30.3 24.2 18.1 34.8 16.06 34.8 34.8 34.3 28.3 22.3 16.3
2.90
25 50.1 13.46 32.0 23.1 16.9 - - - 44.9 17.07 33.7 22.3 16.2 - - -
22 45.9 13.30 36.8 30.6 24.3 18.1 - - 41.3 16.98 35.7 29.6 23.5 17.4 - -
19 41.7 13.14 41.7 38.0 31.8 25.6 19.3 - 37.8 16.88 37.8 36.9 30.8 24.7 18.6 -
17 39.4 13.08 39.4 39.4 36.2 30.0 23.7 17.5 35.3 16.81 35.3 35.3 35.3 29.2 23.1 17.0
14 38.8 13.04 38.8 38.8 37.5 31.2 25.0 18.7 35.2 16.82 35.2 35.2 35.2 29.1 23.0 16.9

862075-XTG-G-0415
Johnson Controls Unitary Products 27
48°C 52°C
1.77
25 40.0 15.57 20.9 16.5 12.1 - - - 37.6 16.65 19.6 15.2 10.8 - - -
22 36.8 15.43 26.7 22.3 18.0 13.6 - - 34.7 16.41 25.5 21.1 16.6 12.2 - -
19 33.7 15.28 32.5 28.1 23.8 19.4 15.0 - 31.8 16.17 31.4 26.9 22.5 18.0 13.6 -
17 30.7 15.16 30.7 30.7 28.2 23.8 19.5 15.1 27.5 15.95 27.5 27.5 27.5 23.1 18.6 14.2
14 30.6 15.16 30.6 30.6 28.5 24.2 19.8 15.4 27.4 15.95 27.4 27.4 27.4 23.0 18.5 14.1
2.06
25 41.3 15.85 22.9 17.3 13.1 - - - 38.9 16.91 22.0 15.9 11.6 - - -
22 38.0 15.71 28.6 23.9 19.3 14.7 - - 35.9 16.70 27.3 22.6 17.9 13.2 - -
19 34.8 15.58 34.2 30.5 25.6 20.6 15.6 - 32.8 16.48 32.6 29.3 24.2 19.1 14.0 -
17 31.7 15.45 31.7 31.7 30.5 25.4 20.3 15.2 28.4 16.23 28.4 28.4 30.2 24.9 19.6 14.4
14 31.6 15.45 31.6 31.6 31.0 25.8 20.7 15.5 28.3 16.23 28.3 28.3 30.5 25.2 19.9 14.7
2.36
25 42.6 16.10 25.0 18.2 14.0 - - - 40.1 17.15 24.3 16.6 12.4 - - -
22 39.2 15.97 30.4 25.5 20.7 15.8 - - 37.0 16.96 29.1 24.1 19.1 14.1 - -
19 35.9 15.85 35.9 32.9 27.3 21.8 16.2 - 33.9 16.77 33.9 31.6 25.9 20.1 14.4 -
17 32.7 15.71 32.7 32.7 32.9 27.0 21.1 15.2 29.3 16.50 29.3 29.3 32.9 26.8 20.7 14.6
14 32.6 15.71 32.6 32.6 33.5 27.5 21.5 15.5 29.2 16.49 29.2 29.2 33.6 27.5 21.4 15.2
2.63
25 43.0 16.85 29.2 20.0 14.8 - - - 40.2 17.88 28.5 18.7 13.3 - - -
22 39.7 16.74 32.8 27.2 21.7 16.1 - - 37.4 17.72 31.5 25.8 20.0 14.3 - -
19 36.4 16.62 36.4 34.5 28.6 22.6 16.7 - 34.6 17.57 34.6 32.9 26.8 20.7 14.5 -
17 33.1 16.47 33.1 33.1 33.2 27.1 21.1 15.0 29.6 17.26 29.6 29.6 31.4 25.1 18.8 12.5
14 33.0 16.47 33.0 33.0 33.4 27.3 21.2 15.1 29.5 17.26 29.5 29.5 31.7 25.4 19.1 12.8
2.90
25 43.3 17.59 33.3 21.8 15.6 - - - 40.3 18.60 32.6 20.7 14.2 - - -
22 40.1 17.49 35.1 28.9 22.7 16.4 - - 37.8 18.48 34.0 27.5 21.0 14.5 - -
19 37.0 17.38 37.0 36.0 29.8 23.5 17.3 - 35.4 18.35 35.4 34.2 27.7 21.2 14.7 -
17 33.5 17.22 33.5 33.5 33.5 27.2 21.0 14.7 30.0 18.01 30.0 30.0 30.0 23.5 16.9 10.4
14 33.4 17.22 33.4 33.4 33.4 27.1 20.9 14.7 29.9 18.01 29.9 29.9 29.9 23.4 16.8 10.3
1. These capacities are gross ratings. For net capacity, deduct air blower motor, MBh = 3.415 x kW. Refer to the appropriate Blower 
Performance Table for the kW of the supply air blower motor.
2. Capacity rating are based on 80 F (26.6 C) Entering Air Dry Bulb Temperature.
3. These ratings include the condenser fan motors, the compressor motors and supply air blower motor (External Static Pressure 0.35 IWG/
87.1 Pa).
ZF150 (44 kW) Metric (Continued)
Air on
Evaporator Coil Temperature of Air on Condenser Coil
Total
Capacity1,2
(kW)
Total
Input
(kW)3
Sensible Capacity (kW) Total
Capacity1,2
(kW)
Total
Input
(kW)3
Sensible Capacity (kW)
m3/s WB
(°C) Return Dry Bulb (°C) Return Dry Bulb (°C)
32 29 27 24 21 18 32 29 27 24 21 18

862075-XTG-G-0415
28 Johnson Controls Unitary Products
Airflow Performance
ZF090-150 Side Duct Application
ZF090 (7.5 Ton) Standard Motor Side Duct Imperial
ESP
(iwg)
Turns Open
012345
CFM Watts BHP CFM Watts BHP CFM Watts BHP CFM Watts BHP CFM Watts BHP CFM Watts BHP
0.2 – – – – – – – – – – – – 3193 1490 1.60 2981 1310 1.41
0.4 3690 2230 2.39 3468 1950 2.09 3294 1750 1.88 3105 1550 1.66 2922 1370 1.47 2694 1210 1.30
0.6 3478 2110 2.26 3239 1830 1.96 3044 1640 1.76 2850 1440 1.54 2651 1270 1.36 2423 1120 1.20
0.8 3243 1980 2.12 3001 1720 1.85 2790 1520 1.63 2576 1330 1.43 2370 1170 1.26 2105 1020 1.09
1.0 3006 1830 1.96 2758 1580 1.70 2544 1400 1.50 2303 1230 1.32 2017 1050 1.13 1624 880 0.94
1.2 2758 1720 1.85 2533 1510 1.62 2230 1290 1.38 1891 1080 1.16 – – – – – –
1.4 2447 1570 1.68 2182 1350 1.45 1769 1110 1.19 – – – – – – – – –
1.6 2085 1410 1.51 – – – – – – – – – – – – – – –
ZF090 (26 kW) Standard Motor Side Duct Metric
ESP
(Pa)
Turns Open
012345
m3/s In Out m3/s In Out m3/s In Out m3/s In Out m3/s In Out m3/s In Out
50 – – – – – – – – – – – – 1.51 1.49 1.19 1.36 1.31 1.05
100 1.74 2.23 1.78 1.64 1.95 1.55 1.55 1.75 1.40 1.46 1.55 1.24 1.38 1.37 1.10 1.27 1.21 0.97
149 1.64 2.11 1.68 1.53 1.83 1.46 1.44 1.64 1.39 1.34 1.44 1.15 1.25 1.27 1.01 1.14 1.12 0.89
199 1.53 1.98 1.58 1.42 1.72 1.38 1.32 1.52 1.38 1.22 1.33 1.07 1.12 1.17 0.94 0.99 1.02 0.81
249 1.42 1.83 1.46 1.30 1.58 1.27 1.20 1.40 1.28 1.09 1.23 0.98 0.95 1.05 0.84 0.77 0.88 0.70
299 1.30 1.72 1.38 1.20 1.51 1.21 1.05 1.29 1.17 0.89 1.08 0.91 – – – – – –
349 1.15 1.57 1.25 1.03 1.35 1.08 0.83 1.11 1.01 – – – – – – – – –
399 0.98 1.41 1.26 – – – – – – – – – – – – – – –
ZF090 (7.5) Ton Optional Motor Side Duct Imperial
ESP
(iwg)
Turns Open
012345
CFM Watts BHP CFM Watts BHP CFM Watts BHP CFM Watts BHP CFM Watts BHP CFM Watts BHP
0.25 – – – – – – – – – – – – 3650 1800 1.95 3290 1560 1.68
0.5 – – – – – – – – – – – – 3250 1650 1.78 2930 1430 1.53
0.8 – – – – – – – – – – – – 2783 1500 1.61 2507 1300 1.39
13555 2440 2.62 3285 2120 2.27 3047 1860 2.00 2778 1590 1.71 2507 1390 1.49 2209 1180 1.27
1.2 3320 2310 2.48 3034 1990 2.13 2799 1730 1.86 2510 1480 1.59 2213 1260 1.35 1846 1050 1.13
1.4 3101 2160 2.32 2796 1860 2.00 2466 1590 1.71 2188 1330 1.43 1721 1090 1.17 – – –
1.6 2864 2040 2.19 2489 1710 1.83 2145 1450 1.56 – – – – – – – – –
1.8 2524 1860 2.00 2182 1550 1.66 – – – – – – – – – – – –

862075-XTG-G-0415
Johnson Controls Unitary Products 29
22189 1680 1.80 – – – – – – – – – – – – – – –
ZF090 (7.5) Ton Optional Motor Side Duct Imperial
ESP
(iwg)
Turns Open
012345
CFM Watts BHP CFM Watts BHP CFM Watts BHP CFM Watts BHP CFM Watts BHP CFM Watts BHP

ZF090 (26 kW) Optional Motor Side Duct Metric
ESP
(Pa)
Turns Open
0 1 2 3 4 5
m3/s In
(kW)
Out
(kW) m3/s In
(kW)
Out
(kW) m3/s In
(kW)
Out
(kW) m3/s In
(kW)
Out
(kW) m3/s In
(kW)
Out
(kW) m3/s In
(kW)
Out
(kW)
62 – – – – – – – – – – – – 1.72 1.8 1.46 1.55 1.56 1.25
125 – – – – – – – – – – – – 1.53 1.65 1.33 1.38 1.43 1.14
199 – – – – – – – – – – – – 1.31 1.5 1.20 1.18 1.3 1.04
249 1.68 2.44 1.95 1.55 2.12 1.70 1.44 1.86 1.49 1.31 1.59 1.27 1.18 1.39 1.11 1.04 1.18 0.94
299 1.52 2.31 1.85 1.43 1.99 1.59 1.32 1.73 1.38 1.18 1.48 1.18 1.04 1.26 1.01 0.87 1.05 0.84
349 1.46 2.16 1.73 1.31 1.86 1.49 1.16 1.59 1.27 1.03 1.33 1.06 0.81 1.09 0.87 – – –
399 1.35 2.04 1.63 1.17 1.71 1.36 1.01 1.45 1.16 – – – – – – – – –
448 1.19 1.86 1.49 1.03 1.55 1.24 – – – – – – – – – – – –
498 1.03 1.68 1.34 – – – – – – – – – – – – – – –
ZF120 (10 Ton) Standard Motor Side Duct Imperial
ESP
(iwg)
Turns Open
012345
CFM Watts BHP CFM Watts BHP CFM Watts BHP CFM Watts BHP CFM Watts BHP CFM Watts BHP
0.35 4820 2675 2.87 4582 2362 2.53 4319 2080 2.23 4086 1842 1.98 3863 1648 1.77 3590 1430 1.53
0.6 4522 2496 2.68 4307 2215 2.38 4025 1941 2.08 3713 1678 1.80 3464 1499 1.61 3149 1291 1.38
0.8 4223 2332 2.50 3973 2062 2.21 3656 1783 1.91 3363 1550 1.66 3026 1350 1.45 - - -
1.0 3913 2174 2.33 3679 1923 2.06 3262 1619 1.74 2721 1330 1.43 - - - - - -
1.2 3521 1978 2.12 3104 1693 1.82 - - - - - - - - - - - -
1.4 2790 1660 1.78 - - - - - - - - - - - - - - -
ZF120 (35 kW) Standard Motor Side Duct Metric
ESP
(Pa)
Turns Open
0 1 2 3 4 5
m3/s In
(kW)
Out
(kW) m3/s In
(kW)
Out
(kW) m3/s In
(kW)
Out
(kW) m3/s In
(kW)
Out
(kW) m3/s In
(kW)
Out
(kW) m3/s In
(kW)
Out
(kW)
87 2.27 2.68 2.14 2.16 2.36 1.89 2.04 2.08 1.66 1.93 1.84 1.47 1.82 1.65 1.32 1.69 1.43 1.14
149 2.13 2.50 2.00 2.03 2.22 1.77 1.90 1.94 1.55 1.75 1.68 1.34 1.63 1.50 1.20 1.49 1.29 1.03
199 1.99 2.33 1.87 1.88 2.06 1.65 1.73 1.78 1.43 1.59 1.55 1.24 1.43 1.35 1.08 ---
249 1.85 2.17 1.74 1.74 1.92 1.54 1.54 1.62 1.30 1.28 1.33 1.06 ------
299 1.66 1.98 1.58 1.46 1.69 1.35 ------------
349 1.32 1.66 1.33 ---------------
862075-XTG-G-0415
30 Johnson Controls Unitary Products

ZF120 (10 Ton) Optional Motor Side Duct Imperial
ESP
(iwg)
Turns Open
012345
CFM Watts BHP CFM Watts BHP CFM Watts BHP CFM Watts BHP CFM Watts BHP CFM Watts BHP
0.35 - - - - - - - - - - - - - - - 5100 2495 2.68
0.6 - - - - - - - - - - - - 5091 2745 2.94 4646 2314 2.48
0.8 - - - - - - - - - 5078 2937 3.15 4839 2584 2.77 4347 2153 2.31
1.0 - - - - - - 5075 3117 3.34 4767 2730 2.93 4487 2377 2.55 3946 1942 2.08
1.2 - - - 5068 3308 3.55 4742 2881 3.09 4427 2513 2.69 4108 2159 2.32 3501 1723 1.85
1.4 5079 3595 3.86 4787 3105 3.33 4452 2713 2.91 4012 2259 2.42 3665 1926 2.07 - - -
1.6 4739 3316 3.56 4482 2892 3.10 4098 2474 2.65 3543 2006 2.15 3057 1642 1.76 - - -
1.8 4461 3111 3.34 4070 2621 2.81 3552 2160 2.32 - - - - - - - - -
2.0 3997 2782 2.98 3400 2219 2.38 - - - - - - - - - - - -
2.2 3496 2480 2.66 - - - - - - - - - - - - - - -
ZF120 (35 kW) Optional Motor Side Duct Metric
ESP
(Pa)
Turns Open
0 1 2 3 4 5
m3/s In
(kW)
Out
(kW) m3/s In
(kW)
Out
(kW) m3/s In
(kW)
Out
(kW) m3/s In
(kW)
Out
(kW) m3/s In
(kW)
Out
(kW) m3/s In
(kW)
Out
(kW)
87 ---------------2.4 2.50 2.00
149 ------------2.40 2.75 2.20 2.19 2.31 1.85
199 ---------2.40 2.94 2.35 2.28 2.58 2.07 2.05 2.15 1.72
249 ------2.40 3.12 2.49 2.25 2.73 2.18 2.12 2.38 1.90 1.86 1.94 1.55
299 ---2.39 3.31 2.65 2.24 2.88 2.30 2.09 2.51 2.01 1.94 2.16 1.73 1.65 1.72 1.38
349 2.40 3.60 2.88 2.26 3.11 2.48 2.10 2.71 2.17 1.89 2.26 1.81 1.73 1.93 1.54 ---
399 2.24 3.32 2.65 2.12 2.89 2.31 1.93 2.47 1.98 1.67 2.01 1.60 1.44 1.64 1.31 ---
448 2.11 3.11 2.49 1.92 2.62 2.10 1.68 2.16 1.73 ---------
498 1.89 2.78 2.23 1.60 2.22 1.78 ------------
548 1.65 2.48 1.98 ---------------
862075-XTG-G-0415
Johnson Controls Unitary Products 31

ZF150 (12.5 Ton) Side Duct Imperial
ESP
(iwg)
Turns Open
012345
CFM Watts BHP CFM Watts BHP CFM Watts BHP CFM Watts BHP CFM Watts BHP CFM Watts BHP
0.35 - - - 6150 4171 4.47 5915 3774 4.05 5610 3309 3.55 5396 2948 3.16 4960 2495 2.68
0.6 - - - 5850 3932 4.22 5648 3565 3.82 5363 3136 3.36 5091 2745 2.94 4646 2314 2.48
0.8 5870 4273 4.58 5567 3715 3.98 5406 3380 3.62 5078 2937 3.15 4839 2584 2.77 4347 2153 2.31
1.0 5652 4087 4.38 5327 3518 3.77 5075 3117 3.34 4767 2730 2.93 4487 2377 2.55 3946 1942 2.08
1.2 5350 3820 4.10 5068 3308 3.55 4742 2881 3.09 4427 2513 2.69 4108 2159 2.32 - - -
1.4 5079 3595 3.86 4787 3105 3.33 4452 2713 2.91 4012 2259 2.42 3665 1926 2.07 - - -
1.6 4739 3316 3.56 4482 2892 3.10 4098 2474 2.65 - - - - - - - - -
1.8 4461 3111 3.34 4070 2621 2.81 - - - - - - - - - - - -
2.0 3997 2782 2.98 - - - - - - - - - - - - - - -
ZF150 (44 kW) Side Duct Metric
ESP
(Pa)
Turns Open
0 1 2 3 4 5
m3/s In
(kW)
Out
(kW) m3/s In
(kW)
Out
(kW) m3/s In
(kW)
Out
(kW) m3/s In
(kW)
Out
(kW) m3/s In
(kW)
Out
(kW) m3/s In
(kW)
Out
(kW)
87 ---2.90 4.17 3.34 2.79 3.77 3.02 2.65 3.31 2.65 2.55 2.95 2.36 2.34 2.50 2.00
149 ---2.76 3.93 3.15 2.67 3.57 2.85 2.53 3.14 2.51 2.40 2.75 2.20 2.19 2.31 1.85
199 2.77 4.27 3.42 2.63 3.72 2.97 2.55 3.38 2.70 2.40 2.94 2.35 2.28 2.58 2.07 2.05 2.15 1.72
249 2.67 4.09 3.27 2.51 3.52 2.81 2.40 3.12 2.49 2.25 2.73 2.18 2.12 2.38 1.90 1.86 1.94 1.55
299 2.52 3.82 3.06 2.39 3.31 2.65 2.24 2.88 2.30 2.09 2.51 2.01 1.94 2.16 1.73 ---
349 2.40 3.60 2.88 2.26 3.11 2.48 2.10 2.71 2.17 1.89 2.26 1.81 1.73 1.93 1.54 ---
399 2.24 3.32 2.65 2.12 2.89 2.31 1.93 2.47 1.98 ---------
448 2.11 3.11 2.49 1.92 2.62 2.10 -- ---------
498 1.89 2.78 2.23 ---------------
862075-XTG-G-0415
32 Johnson Controls Unitary Products

862075-XTG-G-0415
Johnson Controls Unitary Products 33
ZF090-150 Bottom Duct Application
ZF090 (26 kW) Standard Motor Bottom Duct Metric
ESP
(Pa)
Turns Open
0 1 2 3 4 5
m3/s In
(kW)
Out
(kW) m3/s In
(kW)
Out
(kW) m3/s In
(kW)
Out
(kW) m3/s In
(kW)
Out
(kW) m3/s In
(kW)
Out
(kW) m3/s In
(kW)
Out
(kW)
50 1.64 2.11 1.68 1.53 1.83 1.46 1.44 1.64 1.39 1.34 1.44 1.15 1.25 1.27 1.01 1.14 1.12 0.89
100 1.53 1.98 1.58 1.42 1.72 1.38 1.32 1.52 1.38 1.22 1.33 1.07 1.12 1.17 0.94 0.99 1.02 0.81
149 1.42 1.83 1.46 1.30 1.58 1.27 1.20 1.40 1.28 1.09 1.23 0.98 0.95 1.05 0.84 0.77 0.88 0.70
199 1.30 1.72 1.38 1.20 1.51 1.21 1.05 1.29 1.17 0.89 1.08 0.91 ––––––
249 1.15 1.57 1.25 1.03 1.35 1.08 0.83 1.11 1.01 –––––––––
299 0.98 1.41 1.26 –––––––––––––––
ZF090 (7.5 Ton) Optional Motor Bottom Duct Imperial
ESP
(iwg)
Turns Open
012345
CFM Watts BHP CFM Watts BHP CFM Watts BHP CFM Watts BHP CFM Watts BHP CFM Watts BHP
0.4 – – – – – – – – – – – – 2783 1500 1.61 2507 1300 1.39
0.6 – – – 3285 2120 2.27 3047 1860 2.00 2778 1590 1.71 2507 1390 1.49 2209 1180 1.27
0.8 – – – 3034 1990 2.13 2799 1730 1.86 2510 1480 1.59 2213 1260 1.35 1846 1050 1.13
1.0 3101 2160 2.32 2796 1860 2.00 2466 1590 1.71 2188 1330 1.43 1721 1090 1.17 – – –
1.2 2864 2040 2.19 2489 1710 1.83 2145 1450 1.56 – – – – – – – – –
1.4 2524 1860 2.00 2182 1550 1.66 – – – – – – – – – – – –
1.6 2189 1680 1.80 – – – – – – – – – – – – – – –
ZF090 (7.5 Ton) Standard Motor Bottom Duct Imperial
ESP
(iwg)
Turns Open
012345
CFM Watts BHP CFM Watts BHP CFM Watts BHP CFM Watts BHP CFM Watts BHP CFM Watts BHP
0.2 3478 2110 2.26 3239 1830 1.96 3044 1640 1.76 2850 1440 1.54 2651 1270 1.36 2423 1120 1.20
0.4 3243 1980 2.12 3001 1720 1.85 2790 1520 1.63 2576 1330 1.43 2370 1170 1.26 2105 1020 1.09
0.6 3006 1830 1.96 2758 1580 1.70 2544 1400 1.50 2303 1230 1.32 2017 1050 1.13 1624 880 0.94
0.8 2758 1720 1.85 2533 1510 1.62 2230 1290 1.38 1891 1080 1.16 – – – – – –
1.0 2447 1570 1.68 2182 1350 1.45 1769 1110 1.19 – – – – – – – – –
1.2 2085 1410 1.51 – – – – – – – – – – – – – – –

ZF090 (26 kW) Optional Motor Bottom Duct Metric
ESP
(Pa)
Turns Open
0 1 2 3 4 5
m3/s In
(kW)
Out
(kW) m3/s In
(kW)
Out
(kW) m3/s In
(kW)
Out
(kW) m3/s In
(kW)
Out
(kW) m3/s In
(kW)
Out
(kW) m3/s In
(kW)
Out
(kW)
100 – – – – – – – – – – – – 1.31 1.5 1.20 1.18 1.3 1.04
149 1.67 2.44 1.95 1.55 2.12 1.70 1.44 1.86 1.49 1.31 1.59 1.27 1.18 1.39 1.11 1.04 1.18 0.94
199 1.57 2.31 1.85 1.43 1.99 1.59 1.32 1.73 1.38 1.18 1.48 1.18 1.04 1.26 1.01 0.87 1.05 0.84
249 1.46 2.16 1.73 1.31 1.86 1.49 1.16 1.59 1.27 1.03 1.33 1.06 0.81 1.09 0.87 – – –
299 1.35 2.04 1.63 1.17 1.71 1.36 1.01 1.45 1.16 – – – – – – – – –
349 1.19 1.86 1.49 1.03 1.55 1.24 – – – – – – – – – – – –
399 1.03 1.68 1.34 – – – – – – – – – – – – – – –
862075-XTG-G-0415
34 Johnson Controls Unitary Products
ZF120 (10 Ton) Standard Motor Bottom Duct Imperial
ESP
(iwg)
Turns Open
012345
CFM Watts BHP CFM Watts BHP CFM Watts BHP CFM Watts BHP CFM Watts BHP CFM Watts BHP
0.2 4543 2511 2.69 4362 2250 2.41 4139 1996 2.14 3911 1766 1.89 3719 1594 1.71 3518 1407 1.51
0.4 4311 2381 2.55 4115 2127 2.28 3862 1871 2.01 3611 1644 1.76 3386 1471 1.58 3153 1293 1.39
0.6 4032 2232 2.39 3804 1982 2.13 3508 1720 1.84 3246 1506 1.61 2971 1332 1.43 - - -
0.8 3706 2068 2.22 3428 1818 1.95 3078 1548 1.66 - - - - - - - - -
1.0 3333 1892 2.03 2989 1644 1.76 - - -- - - - - - - - -
1.2 2914 1711 1.83 - - -- - -- - - - - - - - -
ZF120 (35 kW) Standard Motor Bottom Duct Metric
ESP
(Pa)
Turns Open
0 1 2 3 4 5
m3/s In
(kW)
Out
(kW) m3/s In
(kW)
Out
(kW) m3/s In
(kW)
Out
(kW) m3/s In
(kW)
Out
(kW) m3/s In
(kW)
Out
(kW) m3/s In
(kW)
Out
(kW)
50 2.14 2.51 2.01 2.06 2.25 1.80 1.95 2.00 1.60 1.85 1.77 1.41 1.75 1.59 1.27 1.66 1.41 1.13
100 2.03 2.38 1.91 1.94 2.13 1.70 1.82 1.87 1.50 1.70 1.64 1.31 1.60 1.47 1.18 1.49 1.29 1.03
149 1.90 2.23 1.79 1.80 1.98 1.59 1.66 1.72 1.38 1.53 1.51 1.20 1.40 1.33 1.07 ---
199 1.75 2.07 1.65 1.62 1.82 1.45 1.45 1.55 1.24 ---------
249 1.57 1.89 1.51 1.41 1.64 1.32 ------------
299 1.38 1.71 1.37 --------------

ZF120 (10 Ton) Optional Motor Bottom Duct Imperial
ESP
(iwg)
Turns Open
012345
CFM Watts BHP CFM Watts BHP CFM Watts BHP CFM Watts BHP CFM Watts BHP CFM Watts BHP
0.2 - - - - - - - - - - - -4966 2666 2.86 4605 2290 2.46
0.4 - - -- - -- - -4919 2473 2.65 4721 2515 2.70 4344 2145 2.30
0.6 - - -- - -4929 3022 3.24 4665 2324 2.49 4450 2353 2.52 4048 1991 2.13
0.8 - - -4908 3197 3.43 4668 2841 3.05 4391 2171 2.33 4151 2183 2.34 3717 1829 1.96
1.0 4915 3456 3.71 4651 3013 3.23 4388 2656 2.85 4096 2015 2.16 3825 2008 2.15 3352 1664 1.78
1.2 4653 3253 3.49 4377 2823 3.03 4089 2467 2.65 3779 1858 1.99 3471 1830 1.96 2951 1499 1.61
1.4 4372 3046 3.27 4087 2631 2.82 3771 2277 2.44 3442 1703 1.83 3090 1652 1.77 - - -
1.6 4070 2837 3.04 3780 2437 2.61 3434 2089 2.24 3084 1552 1.66 - - - - - -
1.8 3748 2629 2.82 3455 2243 2.41 3078 1904 2.04 - - - - - - - - -
2.0 3406 2425 2.60 3114 2051 2.20 - - -- - - - - - - - -
2.2 3044 2228 2.39 - - - - - - - - - - - - - - -
ZF120 (35 kW) Optional Motor Bottom Duct Metric
ESP
(Pa)
Turns Open
012345
m3/s In
(kW)
Out
(kW) m3/s In
(kW)
Out
(kW) m3/s In
(kW)
Out
(kW) m3/s In
(kW)
Out
(kW) m3/s In
(kW)
Out
(kW) m3/s In
(kW)
Out
(kW)
50 - - - - - - - - - - - - 2.34 2.67 2.13 2.17 2.29 1.83
100 - - - - - - - - - 2.32 2.47 1.98 2.23 2.51 2.01 2.05 2.15 1.72
149 - - - - - - 2.33 3.02 2.42 2.20 2.32 1.86 2.10 2.35 1.88 1.91 1.99 1.59
199 - - - 2.32 3.20 2.56 2.20 2.84 2.27 2.07 2.17 1.74 1.96 2.18 1.75 1.75 1.83 1.46
249 2.32 3.46 2.76 2.20 3.01 2.41 2.07 2.66 2.12 1.93 2.01 1.61 1.81 2.01 1.61 1.58 1.66 1.33
299 2.20 3.25 2.60 2.07 2.82 2.26 1.93 2.47 1.97 1.78 1.86 1.49 1.64 1.83 1.46 1.39 1.50 1.20
349 2.06 3.05 2.44 1.93 2.63 2.10 1.78 2.28 1.82 1.62 1.70 1.36 1.46 1.65 1.32 - - -
399 1.92 2.84 2.27 1.78 2.44 1.95 1.62 2.09 1.67 1.46 1.55 1.24 - - - - - -
448 1.77 2.63 2.10 1.63 2.24 1.79 1.45 1.90 1.52 - - - - - - - - -
498 1.61 2.43 1.94 1.47 2.05 1.64 - - - - - - - - - - - -
548 1.44 2.23 1.78 - - - - - - - - - - - - - - -
862075-XTG-G-0415
Johnson Controls Unitary Products 35

ZF150 (12.5 Ton) Bottom Duct Imperial
ESP
(iwg)
Turns Open
012345
CFM Watts BHP CFM Watts BHP CFM Watts BHP CFM Watts BHP CFM Watts BHP CFM Watts BHP
0.35 5576 4015 4.32 5370 3547 3.80 5171 3197 3.43 5007 2884 3.09 4721 2515 2.70 4344 2145 2.30
0.6 5376 3839 4.12 5147 3376 3.62 4929 3022 3.24 4735 2704 2.90 4450 2353 2.52 4048 1991 2.13
0.8 5155 3652 3.92 4908 3197 3.43 4668 2841 3.05 4411 2501 2.68 4151 2183 2.34 3717 1829 1.96
1.0 4915 3456 3.71 4651 3013 3.23 4388 2656 2.85 4035 2281 2.45 3825 2008 2.15 - - -
1.2 4653 3253 3.49 4377 2823 3.03 4089 2467 2.65 3608 2051 2.20 - - - - - -
1.4 4372 3046 3.27 4087 3621 2.82 3771 2277 2.44 - - - - - - - - -
1.6 4070 2837 3.04 3780 2437 2.61 - - - - - - - - - - - -
1.8 3748 2629 2.82 - - - - - - - - - - - - - - -
ZF150 (44 kW) Bottom Duct Metric
ESP
(Pa)
Turns Open
0 1 2 3 4 5
m3/s In
(kW)
Out
(kW) m3/s In
(kW)
Out
(kW) m3/s In
(kW)
Out
(kW) m3/s In
(kW)
Out
(kW) m3/s In
(kW)
Out
(kW) m3/s In
(kW)
Out
(kW)
87 2.63 4.01 3.21 2.53 3.55 2.84 2.44 3.20 2.56 2.36 2.88 2.31 2.23 2.51 2.01 2.05 2.15 1.72
149 2.54 3.84 3.07 2.43 3.38 2.70 2.33 3.02 2.42 2.23 2.70 2.16 2.10 2.35 1.88 1.91 1.99 1.59
199 2.43 3.65 2.92 2.32 3.20 2.56 2.20 2.84 2.27 2.08 2.50 2.00 1.96 2.18 1.75 1.75 1.83 1.46
249 2.32 3.46 2.76 2.20 3.01 2.41 2.07 2.66 2.12 1.90 2.28 1.83 1.81 2.01 1.61 ---
299 2.20 3.25 2.60 2.07 2.82 2.26 1.93 2.47 1.97 1.70 2.05 1.64 ------
349 2.06 3.05 2.44 1.93 2.63 2.10 1.78 2.28 1.82 ---------
399 1.92 2.84 2.27 1.78 2.44 1.95 ------------
448 1.77 2.63 2.10 ---------------
862075-XTG-G-0415
36 Johnson Controls Unitary Products
NOTES FOR TABLES ON PAGES 30 THROUGH 37: 
• “Turns Open” refers to the setting of the variable pitch 
motor sheave, where “0 Turns Open” is fully closed.
• Blower performance includes dry coil and 2” (51mm) throw-
away filters.
• Blower performance for gas heat includes the maximum 
number of heat tubes available for each tonnage.
• ESP (External Static Pressure) given is that available for 
the supply and return air duct system. All internal resis-
tances have been deducted from the total static pressure of 
the blower.
Rated Airflow Imperial
Model CFM ESP (iwg)
ZF090 3650 0.2
ZF120 5000 0.3
ZF150 6250 0.3

862075-XTG-G-0415
Johnson Controls Unitary Products 37
Additional Static Resistance ZF120/150 Cabinet (IMPERIAL)
CFM Cooling Only1
1. Add these resistance values to the available static resistance in the respective Blower Performance Tables.
Economizer2 3
2. Deduct these resistance values from the available external static pressure shown in the respective Blower Perfor-
mance Table.
3. The pressure drop through the economizer is greater for 100% outdoor air than for 100% return air. If the resistance of 
the return air duct system is less than 0.25 IWG, the unit will deliver less CFM during full economizer operation.
Electric Heat KW2
18 24 36 54
1900 0.06 0.02 0.06 0.07 0.08 0.10
2100 0.07 0.02 0.07 0.08 0.09 0.11
2300 0.08 0.02 0.08 0.09 0.10 0.13
2500 0.09 0.02 0.09 0.10 0.11 0.14
2700 0.11 0.03 0.10 0.12 0.13 0.16
2900 0.12 0.03 0.11 0.13 0.14 0.18
3100 0.14 0.03 0.13 0.15 0.16 0.20
3300 0.16 0.03 0.14 0.17 0.18 0.22
3500 0.18 0.04 0.16 0.19 0.20 0.24
3700 0.20 0.04 0.18 0.21 0.22 0.26
3900 0.23 0.04 0.20 0.23 0.24 0.28
4100 0.25 0.04 0.22 0.25 0.26 0.31
4300 0.28 0.05 0.24 0.28 0.29 0.34
4500 0.30 0.05 0.26 0.30 0.31 0.37
4700 0.33 0.05 0.29 0.33 0.34 0.40
4900 0.36 0.05 0.31 0.35 0.37 0.43
5100 0.39 0.06 0.34 0.38 0.40 0.46
5300 0.42 0.06 0.37 0.41 0.43 0.49
5500 0.45 0.06 0.40 0.44 0.46 0.53
5700 0.48 0.06 0.43 0.47 0.49 0.56
5900 0.52 0.07 0.46 0.50 0.53 0.59
6100 0.56 0.07 0.49 0.53 0.56 0.62
6300 0.60 0.07 0.53 0.56 0.59 0.65
Additional Static Resistance ZF090 Cabinet (Imperial)
CFM Cooling Only1
1. Add these resistance values to the available static resistance in the respective Blower 
Performance Tables.
Economizer2 3
2. Deduct these resistance values from the available external static pressure shown in the 
respective Blower Performance Table.
3. The pressure drop through the economizer is greater for 100% outdoor air than for 100% 
return air. If the resistance of the return air duct system is less than 0.25 IWG, the unit will 
deliver less CFM during full economizer operation.
1900 -0.004 0.07
2100 0.01 0.09
2300 0.01 0.11
2500 0.02 0.13
2700 0.03 0.16
2900 0.04 0.18
3100 0.05 0.20
3300 0.06 0.22
3500 0.07 0.24
3700 0.08 0.27
3900 0.09 0.29
4100 0.09 0.31
4300 0.10 0.33

Additional Static Resistance ZF120/150 Cabinet (Metric)
M3SCooling Only1Economizer2 3
0.89 14.9 5.0 14.9 17.4 19.9 24.8
862075-XTG-G-0415
38 Johnson Controls Unitary Products
Electric Heat kW2
18 24 36 54
0.99 17.4 5.0 17.4 19.9 22.4 27.3
1.08 19.9 5.0 19.9 22.4 24.8 32.3
1.18 22.4 5.0 22.4 24.8 27.3 34.8
1.27 27.3 7.5 24.8 29.8 32.3 39.7
1.36 29.8 7.5 27.3 32.3 34.8 44.7
1.46 34.8 7.5 32.3 37.3 39.7 49.7
1.55 39.7 7.5 34.8 42.2 44.7 54.6
1.65 44.7 9.9 39.7 47.2 49.7 59.6
1.74 49.7 9.9 44.7 52.2 49.7 64.6
1.83 57.1 9.9 49.7 57.1 59.6 69.5
1.93 62.1 9.9 54.6 62.1 64.6 77.0
1.02 69.5 12.4 59.6 69.5 72.0 84.4
2.12 74.5 12.4 64.6 74.5 77.0 91.9
2.21 82.0 12.4 72.0 82.0 84.4 99.3
2.30 89.4 12.4 77.0 86.9 91.9 106.8
2.40 96.9 14.9 84.4 94.4 99.3 114.2
2.49 104.3 14.9 91.9 101.8 106.8 121.7
2.59 111.8 14.9 99.3 109.3 114.2 131.6
2.68 119.2 14.9 106.8 116.7 121.7 139.1
2.77 129.1 17.4 114.2 124.2 131.6 146.5
2.87 139.1 17.4 121.7 131.6 139.1 154.0
2.96 149.0 17.4 131.6 139.1 146.5 161.4
1. Add these resistance values to the available static resistance in the respective Blower Performance Tables.
2. Deduct these resistance values from the available external static pressure shown in the respective Blower Perfor-
mance Table.
3. The pressure drop through the economizer is greater for 100% outdoor air than for 100% return air. If the resistance of 
the return air duct system is less than 62.1 Pa, the unit will deliver less M3S during full economizer operation.
Additional Static Resistance ZF090 Cabinet (Metric)
M3SCooling Only1Economizer2 3
0.9 -0.99 17.40
0.99 2.50 22.40
1.09 2.50 27.40
1.18 4.98 32.40
1.27 7.50 39.90
1.37 10.00 44.83
1.46 12.50 49.81
1.56 14.90 54.80
1.65 17.40 59.80
1.75 19.90 67.20
1.84 22.40 72.20
1.93 22.40 77.20
2.03 24.90 82.20
1. Add these resistance values to the available static resistance in the respective Blower 
Performance Tables.
2. Deduct these resistance values from the available external static pressure shown in 
the respective Blower Performance Table.
3. The pressure drop through the economizer is greater for 100% outdoor air than for 
100% return air. If the resistance of the return air duct system is less than 62.1 Pa, the 
unit will deliver less M3S during full economizer operation.

862075-XTG-G-0415
Johnson Controls Unitary Products 39
Gas Heat Minimum Supply Air Imperial
Size
(Ton) Model Heat
Size
Supply Air (CFM)
Cooling Heating
Min Max Min Max
090
(7.5) ZF 10 2250 3750 2250 3750
15 2250 3750 2250 3750
120
(10) ZF 15 3000 5000 3000 5000
20 3000 5000 3000 5000
150
 (12.5) ZF 15 3750 6250 3750 6250
20 3750 6250 3750 6250
Gas Heat Minimum Supply Air Metric
Size
(KW) Model Heat
Size
Supply Air (M3S)
Cooling Heating
Min Max Min Max
090
(26) ZF 10 1.06 1.76 1.06 1.76
15 1.06 1.76 1.06 1.76
120
(35) ZF 15 1.42 2.36 1.42 2.36
20 1.42 2.36 1.42 2.36
150
(44) ZF 15 1.76 2.95 1.76 2.95
20 1.76 2.95 1.76 2.95
Electric Heat Minimum Supply Air Imperial
Size
(Tons) Model Voltage
Minimum Supply Air (CFM)
Heater kW
18 24 36 54
120
(10) ZF 380/415-3-50 3000 3000 3000 3500
150
(12.5) ZF 380/415-3-50 3750 3750 3750 3750
Electric Heat Minimum Supply Air Metric
Size
(KW) Model Voltage
Minimum Supply Air (C3S)
Heater kW
18 24 36 54
120
(35) ZF 380/415-3-50 1.42 1.42 1.42 1.42
150
(44) ZF 380/415-3-50 1.76 1.76 1.76 1.76
Indoor Blower Specifications
Size 
(Tons) Model Motor Motor Sheave Blower Sheave Belt
HP RPM1
1. 1725 RPM at 60 Hz.
Eff. SF Frame Datum Dia.
(In.) Bore (In.) Model Datum Dia.
(In.) Bore (In.) Model
90
(7.5) ZF 2 1425 0.8 1.15 56 3.4 - 4.4  7/8 1VM50 5.5 1 AK59 A49
2 1425 0.8 1.15 56 3.4 - 4.4  7/8 1VM50 5 1 AK54 A47
120
(10) ZF 2 1425 0.8 1.15 56 3.4 - 4.4  7/8 1VM50 7 1 AK74 A54
4 1455 0.87 1.15 184T 4.0 - 5.0 1-1/8 1VP56 6.2 1 AK66 A56
150
(12.5) ZF 4 1455 0.87 1.15 184T 4.3 - 5.3 1-1/8 1VP56 6.6 1 BK72 BX56

862075-XTG-G-0415
40 Johnson Controls Unitary Products
Sound Performance
Power Exhaust Specifications
Model Voltage Motor Motor Fuse Size CFM @
0.1 ESP
HP RPM1QTY LRA FLA MCA
2PE04703246 460-1-60 3/4 1075 1 3.4 2.2 2.8 5 3800
1. Motors are multi-tapped and factory wired for high speed, suitable for 50 HZ power supply
Indoor Sound Power Levels
Size
(Tons) Model CFM ESP
(IWG)
Blower Sound Power, dB (10-12) Watts
Sound Rating1
dB (A)
1. These values have been accessed using a model of sound propagation from a point source into the hemispheric/free field. The dBA values 
provided are to be used for reference only. Calculation of dBA values cover matters of system design and the fan manufacture has no way 
of knowing the details of each system. This constitutes an exception to any specification or guarantee requiring a dBA value of sound data 
in any other form than sound power level ratings.
Octave Band Centerline Frequency (Hz)
RPM BHP 63 125 250 500 1000 2000 4000 8000
090
(7.5) ZF 3000 0.6 854 1.47 77 74 76 76 74 72 68 68 63
120
(10) ZF 4000 0.6 959 2.29 83 80 82 82 80 78 74 74 69
150
(12.5) ZF 5000 0.6 1132 3.74 87 84 86 86 84 82 78 78 73

862075-XTG-G-0415
Johnson Controls Unitary Products 41
Electrical Data
ZF090-120 Standard Motor  
Size
(Tons) Volt
 Compressors (each)  OD Fan 
Motors 
(each)
 Supply 
Blower 
Motor
 Pwr 
Exh 
Motor   Electric Heat Option MCA1 
(Amps)
 MCA1 w/ 
Pwr Exh 
(Amps)
Max Fuse2/ 
Breaker3 
Size (Amps)
Max Fuse2/ 
Breaker3 
Size w/ Pwr 
Exh (Amps)
RLA LRA MCC  FLA FLA  FLA Model KW Stages Amps
ZF090 380 6.2 52.0 9.7 1.6 4.3 2.2 None - - - 21.5 23.7 25 25
415 6.2 52.0 9.7 1.6 4.3 2.2 None - - - 21.5 23.7 25 25
ZF120
380 8.0 67.1 12.5 1.6 4.3 2.2
None - - - 25.5 27.7 30 35
2TP04521850 11.3 2 17.2 26.8 29.6 30 35
2TP04522450 15.0 2 22.8 33.9 36.6 35 40
2TP04523650 21.3 2 32.4 45.8 48.6 50 50
2TP04525450 33.8 2 51.4 69.6 72.3 70 80
415 8.0 67.1 12.5 1.6 4.3 2.2
None - - - 25.5 27.7 30 35
2TP04521850 13.5 2 18.8 28.9 31.6 30 35
2TP04522450 17.9 2 24.9 36.5 39.3 40 40
2TP04523650 25.4 2 35.3 49.5 52.3 50 60
2TP04525450 40.4 2 56.2 75.6 78.4 80 80
1. Minimum Circuit Ampacity.
2. Maximum Over current Protection per Standard UL 1995.
3. Fuse or HACR circuit breaker size installed at factory or field installed.
ZF090-150 Hi Static Motor 
Size
(Tons) Volt
 Compressors (each)   OD Fan 
Motors 
(each)
 Supply 
Blower 
Motor
 Pwr Exh 
Motor Electric Heat Option MCA1 
(Amps)
1. Minimum Circuit Ampacity.
 MCA1 w/ 
Pwr Exh 
(Amps)
Max 
Fuse2/ 
Breaker3 
Size 
(Amps)
2. Maximum Over current Protection per Standard UL 1995.
3. Fuse or HACR circuit breaker size installed at factory or field installed.
Max Fuse2/ 
Breaker3 Size 
w/ Pwr Exh 
(Amps)
RLA LRA MCC  FLA FLA  FLA Model KW Stages Amps
ZF090 380 6.2 52.0 9.7 1.6 4.3 2.2 None - - - 21.5 23.7 25 25
415 6.2 52.0 9.7 1.6 4.3 2.2 None - - - 21.5 23.7 25 25
ZF120
380 8.0 67.1 12.5 1.6 6.4 2.2
None - - - 27.6 29.8 35 35
2TP04521850 11.3 2 17.2 29.5 32.2 35 35
2TP04522450 15.0 2 22.8 36.5 39.2 40 40
2TP04523650 21.3 2 32.4 48.5 51.2 50 60
2TP04525450 33.8 2 51.4 72.2 74.9 80 80
415 8.0 67.1 12.5 1.6 6.4 2.2
None - - - 27.6 29.8 35 35
2TP04521850 13.5 2 18.8 31.5 34.2 35 35
2TP04522450 17.9 2 24.9 39.1 41.9 40 45
2TP04523650 25.4 2 35.3 52.2 54.9 60 60
2TP04525450 40.4 2 56.2 78.3 81.0 80 90
ZF150
380 11.2 75.0 17.5 1.6 6.4 2.2
None - - - 38.0 40.2 45 50
2TP04521850 11.3 2 17.2 38.0 40.2 45 50
2TP04522450 15.0 2 22.8 38.0 40.2 45 50
2TP04523650 21.3 2 32.4 48.5 51.2 50 60
2TP04525450 33.8 2 51.4 72.2 74.9 80 80
415 11.2 75.0 17.5 1.6 6.4 2.2
None - - - 38.0 40.2 45 50
2TP04521850 13.5 2 18.8 38.0 40.2 45 50
2TP04522450 17.9 2 24.9 39.1 41.9 45 50
2TP04523650 25.4 2 35.3 52.2 54.9 60 60
2TP04525450 40.4 2 56.2 78.3 81.0 80 90

862075-XTG-G-0415
42 Johnson Controls Unitary Products
Typical Wiring Diagrams
ZF090-150 Typical Wiring Diagrams
Typical ZF090-120 Cooling Unit with Gas Heat Volt Wiring Diagram

862075-XTG-G-0415
Johnson Controls Unitary Products 43
Typical ZF090-120 Cooling Unit with/without Electric Heat Wiring Diagram

862075-XTG-G-0415
44 Johnson Controls Unitary Products
Typical ZF150 Cooling Unit with Gas Heat Volt Wiring Diagram

862075-XTG-G-0415
Johnson Controls Unitary Products 45
Typical ZF150 Cooling Unit with Gas Heat 380/415 Volt 50 Hz. Wiring Diagram

862075-XTG-G-0415
46 Johnson Controls Unitary Products
Weights and Dimensions
ZF090-150 Unit Weights
Unit 4 Point Load Weight Unit 6 Point Load Weight
D
A
CB
LEFT
FRONT
D
A
C
B
E
F
LEFT
FRONT
XY
LEFT FRONT
Imperial
Size 
(Tons) Model Weight (lbs.) Center of 
Gravity (in.) 4 Point Load Location (lbs.) 6 Point Load Location (lbs.)
ShippingOperatingXYABCDABCDEF
090
(7.5) ZF 885 860 38 24 205 153 223 299 144 117 97 142 171 210
120
(10) ZF 1065 1060 38 24 247 184 268 360 173 141 117 171 206 253
150
(12.5) ZF 1258 1253 47 25 251 280 381 341 164 176 190 259 240 223
Metric
Size
(KW) Model Weight (kg.) Center of 
Gravity (mm) 4 Point Load Location (kg.) 6 Point Load Location (kg.)
ShippingOperatingXYABCDABCDEF
090
(22) ZF 401 390 965.2 609.7 93 69.4 101.2 135.6 65.3 53.1 44 64.4 77.6 95.3
120
(35) ZF 483 480 965.2 609.7 112 83.5 121.6 163.3 78.5 64 53.1 77.6 93.4 114.8
150
(44) ZF 571 568 1193.8 635 113.9 127 172.8 154.7 74.4 79.8 86.2 117.5 108.9 101.2

862075-XTG-G-0415
Johnson Controls Unitary Products 47
ZF090-150 Unit Dimensions
ZF090 - 120
ZF090-150 Unit Accessory Weights Imperial
Unit Accessory Weight (lbs.)
Shipping Operating
Economizer 90 85
Power Exhaust 40 35
Electric Heat1
1. Weight given is for the maximum heater size available 
(54KW).
49 49
Gas Heat2
2. Weight given is for the maximum number of tube heat 
exchangers available (8 tube).
110 110
ZF090-150 Unit Accessory Weights Metric
Unit Accessory Weight (kg.)
Shipping Operating
Economizer 40.8 38.6
Power Exhaust 18.1 15.9
Electric Heat1
1. Weight given is for the maximum heater size available 
(54KW).
22.2 22.2
Gas Heat2
2. Weight given is for the maximum number of tube heat 
exchangers available (8 tube).
49.9 49.9
LEFT
A
59.00
C
D
E
F
4.19 
27.31
89.00
21.19
11.38
15.38
59.00
15.38
29.69
15.25
FRONT
SEE DETAIL B
FOR DRAIN LOCATION
SEE DETAIL A FOR GAS INLET
B
2X Ø 24.38
(619)
(754)
(387)
(391)
(1499)
(391)
(1499)
(538)
(2261)
(106)
(694)
(289)
NOTE: (XXX) Indicates Millimeters

862075-XTG-G-0415
48 Johnson Controls Unitary Products
ZF150
LEFT
59.00
A
C
D
E
F
4.19 
27.31
89.00
21.19
FRONT
SEE DETAIL B
FOR DRAIN LOCATION
11.38
SEE DETAIL A FOR GAS INLET
B
29.95 30.11
14.92
59.00
14.92
14.92
45.64
4X Ø 24.38
NOTE: (XXX) Indicates Millimeters
(619)
(1159)
(379)
(379)
(1499)
(379)
(765)
(761)
(1499)
(106)
(694) (538)
(2261)
(289)
ZF090-150 Unit Physical Dimensions Imperial
Unit Model Number Dimension (in.)
ABCDEF
090 42 89 22 1/8  18 3/16 15 3/16 6 3/16
120 50 3/4 89 30 3/16 24 3/16 17 3/16 6 3/16
150 50 3/4 119 1/2 30 3/16 24 3/16 17 3/16 6 3/16
ZF090-150 Unit Physical Dimensions Metric
Unit Model Number Dimension (mm)
ABCDEF
090 1067 2261 562     462       386       157      
120 1289     2261 767       614       437       157      
150 1289     3035     767       614       437       157      

862075-XTG-G-0415
Johnson Controls Unitary Products 49
Detail A
Detail B
ZF090-150 Unit Clearances Imperial
Direction Distance (in.) Direction Distance (in.)
Top1
1. Units must be installed outdoors. Over hanging structure or shrubs should not obscure condenser air discharge outlet.
72 Right 12
Front 36 Left 36
Rear 36 Bottom2
2. Units may be installed on combustible floors made from wood or class A, B or C roof covering materials.
0
ZF090-150 Unit Clearances Metric
Direction Distance (mm) Direction Distance (mm)
Top1
1. Units must be installed outdoors. Over hanging structure or shrubs should not obscure condenser air discharge outlet.
1829 Right 305
Front 914 Left 914
Rear 914 Bottom2
2. Units may be installed on combustible floors made from wood or class A, B or C roof covering materials.
0
42”/1067mm CABINET
Ø 3.126
Ø 2.000
3.184
4.727
7.705
14.594
Gas Pipe Inlet
Gas Exhaust Vent
50 3/4”/1289mm CABINET
Ø 3.126
Ø 2.000
3.184
4.737
7.715
17.541
Gas Pipe Inlet
Gas Exhaust Vent
(81)
(51)
(587)
(120)
(371)
(196)
NOTE: (XXX) Indicates Millimeters
5-3/8
3/4” FPT
(137)
(19.05)
NOTE: (XXX) Indicates Millimeters

862075-XTG-G-0415
50 Johnson Controls Unitary Products
ZF090-150 Unit Bottom Duct Opening
TOP VIEW
Bottom condensate drain
Bottom gas
supply entry
FRONT
RETURN
AIR
SUPPLY
AIR
RIGHT
LEFT
20 1/8 19 1/8 17 1/8
6 13/16
6 13/16
32 11/16
14 1/2
16 3/8
18 1/16
25 9/16
12 5/16
27 1/2 24
21
18
89
(2261)
(830)
(173)
(173)
(690)
(457)
(610)
(533)
(511) (486) (435)
(368)
(416)
(459)
(649)
(313)
NOTE: (XXX) Indicates Millimeters
Ø 2.469
3X Ø 0.875
Bottom power, control
and convenience outlet
wiring entry
(22)
(63)

862075-XTG-G-0415
Johnson Controls Unitary Products 51
ZF090-150 Unit Electrical Entry
ZF090-120 Unit Side Duct Openings
Disconnect Swith Cover 
Power Entry Ø 2-1/2 
Control Entry Ø 7/8 
Power Entry Ø 2-1/2 
Convenience Outlet Cover 
Convenience Outlet 
Power Entry Ø 7/8  FRONT 
(64)
(22)
(64)
(22)
D o t P l u g s 
5 - 5 /3 2 
3 1 - 1 1 /1 6 
2 - 3 1 /3 2 
1 8 - 1 /4 
Return
Air
Supply Air
A 
B 
C 
D 
(464)
(75)
(805)
(131)
NOTE: (XXX) Indicates Millimeters

862075-XTG-G-0415
52 Johnson Controls Unitary Products
ZF150 Unit Side Duct Openings
ZF090-150 Unit Left Duct Opening
ZF Side Duct Dimensions Imperial                                           ZF Side Duct Dimensions Metric
Unit Model Number Dimension (in.) Unit Model Number Dimension (mm)
ABCD ABCD
090 27 3/4 12 1/16 27 1/2 16 090 705 306 698 406
120 28 1/4 18 1/16 28 1/4 18 1/4 120 718 459 718 464
150 28 1/4 18 1/16 28 1/4 18 1/4 150 718 459 718 464
Dot Plugs
2-7/8
5-5/32
D
C31-5/8
18-1/4
B
A
(464)
(75)
(805)
(131)
NOTE: (XXX) Indicates Millimeters
4-5/16 
30-3/8 
(772)
(110)

862075-XTG-G-0415
Johnson Controls Unitary Products 53
ZF090-150 Unit Accessory Dimensions
ZF090-150 Roof Curb
ZF090-150 Transition Roof Curb
5 0 - 1 / 2
( 1 2 8 5 )
3 0
( 7 6 0 )
2 0
( 5 1 0 )
8 0 - 5 / 8
( 2 0 5 0 )
6
( 1 5 0 )
2   T Y P .
( 5 0 )
I N S U L A T E D   D E C K   U N D E R
C O M P R E S S O R   S E C T I O N
I N S U L A T E D   D E C K   U N D E R
C O N D E N S E R   S E C T I O N
F R O N T
R I G H T
S U P P L Y
R E T U R N
2 0
( 5 1 0 )
N O T E : ( X X X )   I N D I C A T E S
D I M E N S I O N S   I N
M I L L I M E T E R S
1 4
( 3 5 5 )
8
( 2 0 5 ) O R
7 6 - 5 / 8
( 1 9 4 5 )
9 4
( 2 3 9 0 )
5 0 - 1 / 2
( 1 2 8 5 )
3 0 - 1 / 2
( 7 7 5 )
6 4 - 1 / 4
( 1 6 3 0 )
5 9 - 1 / 4
( 1 5 0 5 )
1 0
( 2 5 5 )
2 3
( 5 8 5 )
4
( 1 0 0 )
2 6
( 6 6 0 )
8 0 - 5 / 8
( 2 0 5 0 )
2   T Y P
( 5 0 )
F R O N T
R I G H T
S U P P L Y
R E T U R N

862075-XTG-G-0415
54 Johnson Controls Unitary Products
Economizer Options
Economizer Downflow W/Power Exhaust
Economizer Usage
Application Cabinet Height Description Model
Side Return All Horizontal economizer without barometric relief 2EE047069241
Downflow, End Return 
Horizontal or ERV
42"  Economizer, 42” tall cabinet 2EE047074242
50"  Economizer, 50” tall cabinet 2EE047076242
1. Barometric relief must be ordered separately and installed in duct work.
2. Includes fresh air hood, exhaust hood and barometric relief.
Fresh Air Hood
Barometric Relief
Hood
Barometric
Relief Damper
Power Exhaust
Low Leak Economizer

Subject to change without notice. Printed in U.S.A.  862075-XTG-G-0415
Copyright © 2015 by Johnson Controls, Inc. All rights reserved. Supersedes: 862075-XTG-F-0513
York International Corporation
5005 York Drive
Norman, OK 73069
Economizer End Return W/Power Exhaust
Field Installed Horizontal Economizer W/Power Exhaust
Fresh Air Hood
Field Installed
Duct Work
Power Exhaust
Barometric Relief Damper
Barometric Relief Hood
Low Leak
Economizer
Barometric
Relief Hood
Barometric
Relief Damper
Power Exhaust
Fresh Air Hood
Fresh Air Damper
Return Air Damper
Field Installed
 Duct Work