ZTE R8860EGU858 GSM/UMTS Dual Mode Remote Radio Unit User Manual ZXSDR R8860E GU858 User Manual Part 2
ZTE Corporation GSM/UMTS Dual Mode Remote Radio Unit ZXSDR R8860E GU858 User Manual Part 2
ZTE >
Contents
- 1. ZXSDR_R8860E_GU858_User_Manual_Part_1
- 2. ZXSDR_R8860E_GU858_User_Manual_Part_2
ZXSDR_R8860E_GU858_User_Manual_Part_2

ZXSDRR8860EGU858UserManual
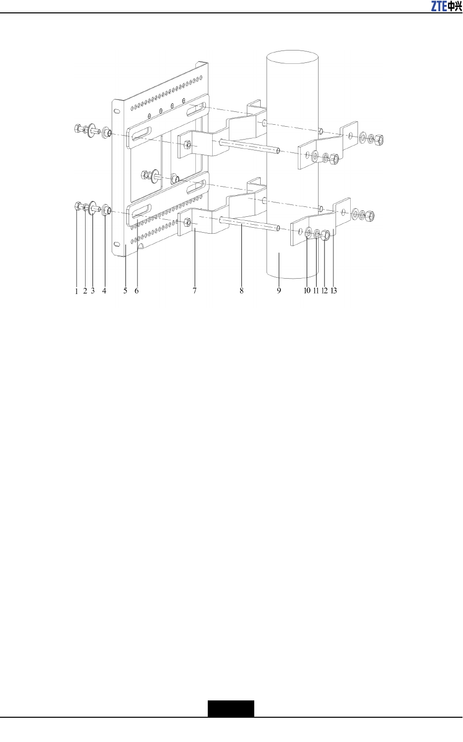
NameShapeFunction
Clampassembly
forpolemounted
installation
Forthepolewith
1or2R8860E
GU858polemounted
installation
Mountingbracket
assemblyfor
polemounted
installation
Forthepolewith3
R8860EGU858pole
mountedinstallation
MountingBaseUsedbypole
mountedinstallation
ofR8860EGU858
MountingPieceUsedbyxingonthe
pole
4-22
SJ-20101210110401-001|2010-12-06ZTEProprietaryandCondential

Chapter4Installation
NameShapeFunction
Lightningpretector
piece
Usedbypole
mountedinstallation
ofLightningpretector
box
ExpansionpieceForthepolewith
thethirdR8860E
GU858polemounted
installation
ProtectionshadeToshieldR8860E
GU858fromdirect
sunlight
4.5.2.2WallMountedInstallation
Fixtheassemblyforwallmountedinstallationonthewall,andthenxR8860EGU858on
theassemblywithbolts,asshowninFigure4-7.
4-23
SJ-20101210110401-001|2010-12-06ZTEProprietaryandCondential

Chapter4Installation
Figure4-8POLEMOUNTEDINSTALLATIONFOR1OR2R8860EGU858s
Ifthereare3R8860EGU858s,usethemountingbracketassemblytoxthemonthepole,
asshowninFigure4-9.
Figure4-9POLEMOUNTEDINSTALLATIONFOR3R8860EGU858s
4.5.2.4PoleMounting(UniversalSheet-MetalKit)
InthesingleR8860EGU858solutiontheunitisxedonthepolebyanuniversalmounting
kit,asshowninFigure4-10.
4-25
SJ-20101210110401-001|2010-12-06ZTEProprietaryandCondential

ZXSDRR8860EGU858UserManual
Figure4-10TheSingleR8860EGU858MountingSolution
InthedoubleR8860EGU858solutiontheunitisxedonthepolebyanuniversalmounting
kit,asshowninFigure4-11.
Figure4-11TheDoubleR8860EGU858MountingSolution
InthetripleR8860EGU858solutiontheunitisxedonthepolebyanuniversalmounting
kit,asshowninFigure4-12.
4-26
SJ-20101210110401-001|2010-12-06ZTEProprietaryandCondential

ZXSDRR8860EGU858UserManual
Figure4-13R8860EGU858INSTALLATIONFLOW
4.5.3.1WallMountedInstallationforR8860EGU858
Steps
1.DrillholesonthewallwithholingtemplateaccordingtotheR8860EGU858installation
positionspeciedintheengineeringdesigndocuments,andinstalltheexpansion
bolts.Thedepthoftheholeshouldbeabout60mm.Theholingtemplateisshownin
Figure4-14.
4-28
SJ-20101210110401-001|2010-12-06ZTEProprietaryandCondential

ZXSDRR8860EGU858UserManual
Figure4-15ASSEMBLINGWALL-MOUNTEDINSTALLATIONASSEMBLY
1.Expansionbolt
2.Insulationplate
3.Wall-mountingplate
4.Insulationflange
5.Flatwasher
6.Springwasher
7.Nut
3.HangtheR8860EGU858cabinetonthewallmountedinstallationassembly(alignit
withtheclamps),andxthecabinettotheassemblywith2M6bolts,asshownin
Figure4-16.
4-30
SJ-20101210110401-001|2010-12-06ZTEProprietaryandCondential

Chapter4Installation
Figure4-16FIXINGTHECABINET
1.Wall-mountinginstallat
ioncomponentsclamp
2.Screw
3.Fixationboard
–EndofSteps–
4.5.3.2PoleMountedInstallationforR8860EGU858PoleMountingKit
4.5.3.2.1Installing1R8860EGU858
Steps
1.Install2setsofclampassembliesonthepole,andfastenthemjustalittle.Adjustthe
distancebetweenthepoleclampassembliesaccordingtothescrewholesandthen
fastenM8bolts.Finally,fastenthescrewsonthepoleclampassemblies,asshown
inFigure4-17.
4-31
SJ-20101210110401-001|2010-12-06ZTEProprietaryandCondential

ZXSDRR8860EGU858UserManual
Figure4-17INSTALLINGCLAMPASSEMBLY
1.M8nut
2.Springwasher
3.Flatwasher
4.Insulationflange
5.Wall-mounting
installationassemblies
6.Insulationboard
7.Hoop
8.Bolt
9.Pole
10.Plainwasher
11.Springwasher
12.NutHoop
13.Hoop
2.HangtheR8860EGU858cabinetonthewallmountedinstallationassembly(alignit
withtheclamps),andxthecabinettotheassemblywith2M6bolts,asshownin
Figure4-18.
4-32
SJ-20101210110401-001|2010-12-06ZTEProprietaryandCondential

ZXSDRR8860EGU858UserManual
Figure4-19INSTALLINGCLAMPASSEMBLY
1.Nut
2.Springwasher
3.Plainwasher
4.Hoop
5.Bolt
Note
Wheninstalling2R8860EGU858s,decidethelengthofclampassemblybolts
accordingtotheresultofengineeringsurvey.Ifthepolediameterisintherange60
mm~90mm,useboltswiththelength80mm.Ifthepolediameterisintherange90
mm~120mm,useboltswiththelength130mm.
2.Assemble2setsofwallmountedinstallationassembliesandfastentheM8bolts,as
showninFigure4-20.Fastentheboltsoftheclampassemblies.
4-34
SJ-20101210110401-001|2010-12-06ZTEProprietaryandCondential

Chapter4Installation
Figure4-20ASSEMBLINGWALL-MOUNTEDINSTALLATIONASSEMBLY
1.Bolt
2.Springwasher
3.Plainwashe
4.Insulationflange
5.Wall-mounting
installationassemblies
6.Insulationwasher
7.Hoop
3.HangtheR8860EGU858cabinetonthewallmountedinstallationassembly(alignit
withtheclamps),andxthecabinettotheassemblywith2M6bolts,asshownin
Figure4-21.
Figure4-21FIXINGTHECABINET
1.Screw2.Wall-mounting
installationassemblies
4-35
SJ-20101210110401-001|2010-12-06ZTEProprietaryandCondential

ZXSDRR8860EGU858UserManual
3.Fixationboard
–EndofSteps–
4.5.3.2.3Installing3R8860EGU858s
Steps
1.Install4setsofmountingbracketassembliesonthepole,backtoback,andfasten
themjustalittle,asshowninFigure4-22.
Figure4-22INSTALLINGMOUNTINGBRACKETASSEMBLY
1.Fixationplate
2.Nut
3.Springwasher
4.Plainwasher
5.Bolt
2.Assemble3setsofwallmountedinstallationassembliesandfastentheM8bolts,as
showninFigure4-23.Fastentheboltsoftheclampassemblies.
4-36
SJ-20101210110401-001|2010-12-06ZTEProprietaryandCondential

Chapter4Installation
Figure4-23ASSEMBLINGWALL-MOUNTEDINSTALLATIONASSEMBLY
1.Fixationplate
2.Largeinsulationplate
3.Wall-mounting
installationassemblies
4.Insulationflange
5.Plainwasher
6.Springwasher
7.Bolt
3.HangtheR8860EGU858cabinetonthewallmountedinstallationassembly(alignit
withtheclamps),andxthecabinettotheassemblywith2M6bolts,asshownin
Figure4-24.
Figure4-24FIXINGTHECABINET
1.Screw2.Wall-mounting
installationassemblies
3.Fixationboard
4-37
SJ-20101210110401-001|2010-12-06ZTEProprietaryandCondential

ZXSDRR8860EGU858UserManual
Note
Theemptysideofmountingbracketcanbebesidethewallorusedtoinstalloutdoor
lightningprotectionbox.
–EndofSteps–
4.5.3.3PoleMounting(UniversalSheet-MetalKit)
4.5.3.3.1PoleMounting(SingleUnitSolution)
Steps
1.Fixtwosetsoffrontmountingpieces(keepthescreenprintingonthetop)onto
themountingbasebyfourM8×35bolts,andinsertfourM10×180longboltstothe
mountingbaseandattachthemountingbasetothepole,thenattachtwomounting
pieces(keepthescreenprintingonthetop)totheoppositepositionofthepoleand
connectthemtothelongboltasshowninFigure4-25.
Figure4-25FixingtheMountingPiece
1.MountingPiece(the
screenprintingonthe
top)
2.Pole
3.MountingBase
4.InsulatingFlange
5.M8×35Bolt
6.FlatWasher
7.LockWasher
8.M10×180LongBolt
2.AttachtheR8860EGU858ontothehooksonthemountingbaseandfastenitwith
fourM6×20allenscrews,asshowninFigure4-26.
4-38
SJ-20101210110401-001|2010-12-06ZTEProprietaryandCondential

Chapter4Installation
Figure4-26MountingR8860EGU858
–EndofSteps–
4.5.3.3.2PoleMounting(DoubleUnitSolution)
Steps
1.Fixtwosetsoffrontmountingpieces(keepthescreenprintingonthetop)ontothe
mountingbasebyfourM8×35bolts.AndInsertfourM10×180longboltstothe
mountingbase.
2.Fixtwosetsofrearmountingpieces(keepthescreenprintingonthetop)ontoanother
mountingbasebyfourM8×35bolts.
3.Attachthefront/rearmountingpiecestothepole(keepthescreenprintingonthetop).
FastentheM10×180longbolts(notetheboltsgothroughtheinsulatingange),as
showninFigure4-27andFigure4-28.
4-39
SJ-20101210110401-001|2010-12-06ZTEProprietaryandCondential

ZXSDRR8860EGU858UserManual
Figure4-27MountingbaseDoubleUnitSolution
Figure4-28MountingbaseSingleUnit+LightningProtectorBoxSolution
4-40
SJ-20101210110401-001|2010-12-06ZTEProprietaryandCondential

Chapter4Installation
Note
Thefastenersareshowninthelastsectionsingleunitsolution.
ThedoubleunitmountingbasesolutionsupportstwoR8860EGU858oroneR8860E
GU858andalightarrestorunit.
4.FastentheM10×180boltsandattachR8860EGU858tothemountingbase.Fasten
theconnectionwiththeM6×20Allenbolts,asshowninFigure4-29andFigure4-30.
Figure4-29MountingTwoR8860EGU858
4-41
SJ-20101210110401-001|2010-12-06ZTEProprietaryandCondential

ZXSDRR8860EGU858UserManual
Figure4-30MountingoneR8860EGU858andOneLightningProtectorBox
Note
Thelightningprotectorboxisxedontothelightningprotectorboxmountingbasewith
theboltsfastened,asshowninFigure4-31.
Figure4-31FixingtheLightningProtectorBox
–EndofSteps–
4-42
SJ-20101210110401-001|2010-12-06ZTEProprietaryandCondential

Chapter4Installation
4.5.3.3.3PoleMounting(TripleUnitSolution)
Steps
1.Securetwosetsofmountingpiecesandmountingbasesonthepoleandattachtwo
R8860EGU858,asshowninFigure4-32.
Figure4-32MountingTwoR8860EGU858
2.AttachtheexpansionpiecetoasideofthepoleandfastenwithM6×60bolts.Install
thelowerpiecebeforethehigherpiece,asshowninFigure4-33.
Figure4-33MountingtheExpansionPiece
4-43
SJ-20101210110401-001|2010-12-06ZTEProprietaryandCondential

ZXSDRR8860EGU858UserManual
3.AttachthemountingbaseontotheexpansionpieceandfastenwiththeM10×35bolts,
asshowninFigure4-34.
Figure4-34AttachingtheMountingbase
4.AttachtheR8860EGU858ontothehooksonthemountingbaseandfastenitwith
fourM6×20Allenscrews,asshowninFigure4-35.
4-44
SJ-20101210110401-001|2010-12-06ZTEProprietaryandCondential

Chapter4Installation
Figure4-35AttachtheR8860EGU858totheMountingbase
–EndofSteps–
4.5.3.4InstallingProtectionShade
Steps
1.HangtheR8860EGU858cabinetonthewall.
2.Fixtheprotectionshadeonthe4xingpositionsonthefrontofR8860EGU858
cabinet,andfastenitonthehandlesontopofthecabinetwith2M6bolts,asshown
inFigure4-36.
4-45
SJ-20101210110401-001|2010-12-06ZTEProprietaryandCondential

ZXSDRR8860EGU858UserManual
Figure4-36INSTALLINGPROTECTIONSHADE
1.M6screw
2.Protectionshade
3.Handle
4.Buckle
5.R8860EGU858
–EndofSteps–
4.6ExternalCableInstallation
4.6.1ExternalCableLayout
TheconnectionrelationshipofR8860EGU858externalcablesisdescribedinT able4-4.
Table4-4R8860EGU858ExternalCableConnectionRelationship
NameConnectionRelationshipDescription
PowercableConnectstheR8860EGU858
powerinterface(DCIN)to
thepowersupplyequipment
interface
Oneendistheaviationplugand
theotherendisreservedfor
powercablemadeonsite.The
lengthofcableisbasedonthe
engineeringsurvey.
4-46
SJ-20101210110401-001|2010-12-06ZTEProprietaryandCondential

Chapter4Installation
NameConnectionRelationshipDescription
GroundingcableConnectsoneR8860EGU858
groundbolttothecopperbar
Thegroundingcableismade
upofstrandsofame-retardant
wire.Thecrosssectionalarea
ofR8860EGU858grounding
cableis10mm2.Thecolorof
groundingcableisyellowand
green.Copperlugsarecrimped
atbothendsoftheR8860E
GU858groundingcable.
OpticalFiberTherearetwotypesofR8860E
GU858ber:BBUconnection/
R8860EGU858cascading.
TherearetwotypesofR8860E
GU858opticalber:oneused
inBBUconnectionandtheother
usedincascadingbetween
R8860EGU858s.
EnvironmentmonitoringcableConnectstheR8860EGU858
environmentmonitoring
interfaceMONtotheexternal
monitoringcomponentsorthe
drycontact.
Aendoftheenvironment
monitoringcableisPINdesign.
Bend,with3mlengthintotal,
needsmakingbasedonthe
on-siteengineering.
AISGcontrolcableConnectstheR8860EGU858
debugginginterface(AISG)
tothecontrolinterfaceof
electrical-adjustmentantenna.
AISGisusedforcontrolofthe
electrical-adjustmentantenna.
Frequencypointextension
cable
InterconnectstheR8860E
GU858RXin/RXoutinterfaces.
Thefrequencypointextension
cableusuallyadoptsthenished
1/2″jumperwith2mlength.
Thejumpercanbeself-made
basedonthereal-timecondition
onsite.
AandBendsofjumperareN
connectors(male).
Antenna,feederandjumperConnectstheR8860EGU858
tothemainfeeder.
TheRFjumperusuallyadopts
thenished1/2″jumperwith
2mlength.Thejumpercan
beself-madebasedonthe
real-timeconditiononsite.
TheendofjumperisN
connector(male)andtheother
endisDINconnector(female).
4-47
SJ-20101210110401-001|2010-12-06ZTEProprietaryandCondential

Chapter4Installation
4.6.3InstallingPowerCable
Context
TheR8860EGU858cabinetadopts-48VDCforpowersupply.EndAistheaviationplug
andEndBisreservedforself-madepowercableonsite.Thelengthofpowercableis
accordingtotheengineeringsurvey.
R8860EGU858Figure4-38showsthestructureofpowercable.
Figure4-38PowerCablestructure
Table4-5describesthecolorsandspecicationsofinsidecorecable.
Table4-5ColorandSpecication
ColorSpecication
Blue-48V
Black-48VGND
Note
1.Ifthetwo-corecableisadopted,thebluecorecablestandsfor-48Vandtheblack
corecablestandsfor-48VGND;
2.Ifthefour-corecableisadopted,thetwobluecorecablesconnectedinparallelstand
for-48Vandtheblackcorecablesconnectedinparallelstandfor-48VGND.
Steps
1.ConnectEndAofpowercablewithDCINinterfacelocatedatthebottomofR8860E
GU858.
2.StriptheprotectivecoatofEndBandconnectitwiththeDCinputpowersource
accordingtocolorsoftheinsidecorecable.
3.MakewaterproofprotectionofEndB.
4.Attachlabelsatbothendsofthepowercable.
5.Fixthepowercable.
–EndofSteps–
4-49
SJ-20101210110401-001|2010-12-06ZTEProprietaryandCondential

ZXSDRR8860EGU858UserManual
4.6.4InstallingGroundingCable
Context
Thegroundingcableismadeupofstrandsofame-retardantwire.Thecrosssectional
areaofR8860EGU858groundingcableis10mm2.Thecolorofgroundingcableis
yellowandgreen.CopperlugsarecrimpedatbothendsoftheR8860EGU858grounding
cable,asshowninFigure4-39.
Figure4-39GroundingCableStructure
Steps
1.CoverandxacopperlugontheagroundingboltoftheR8860EGU858cabinet.
2.Connecttheothercopperlugtotheearth-networkingcopperbarandxitwithabolt,
asshowninFigure4-40.
Figure4-40Earth-networkCopperBar(Unit:mm)
3.Attachthelabelonthegroundingcable.
4.Measurethegroundingresistanceandmakesureitlessthan5Ω.
–EndofSteps–
4-50
SJ-20101210110401-001|2010-12-06ZTEProprietaryandCondential

Chapter4Installation
4.6.5InstallingFiberbetweenBBUandRRU
Prerequisites
TheR8860EGU858cabinetmustbeinstalledandxedsuccessfully.
Context
Figure4-41showsberconnectionbetweenR8860EGU858andBBU.
Figure4-41FiberConnectionbetweenR8860EGU858andBBU
1.OutdoorSealComponent
WhileconnectingaBBUtoR8860EGU858,makesurethatthebasebandRFber
interface(LC1/2)oftheR8860EGU858isconnectedtotheopticalinterfaceconnector
oftheBBU.
Steps
1.Attachlabelsatbothendsoftheber.
2.AdjustthesideofEndAwiththecolormarkandinserttheR8860EGU858ber
interface,andscrewdownthenuts,asshowninFigure4-42
4-51
SJ-20101210110401-001|2010-12-06ZTEProprietaryandCondential

ZXSDRR8860EGU858UserManual
Figure4-42OpticalFiberInstallation
1.Colormark
3.ConnectEndAofthebertothebasebandRFberinterface(LC1/2)oftheR8860E
GU858.
4.ConnectEndBoftheber,whichisaDLCconnector,totheBBUopticalconnector.
5.ScrewdowntheoutdoorsealcomponentatEndAforwaterproong.
–EndofSteps–
4.6.6InstallingFiberbetweenRRUandRRU
Prerequisites
ThecascadingR8860EGU858cabinetsmustbeinstalledandxedsuccessfully.
Context
Figure4-43showsberconnectionbetweenR8860EGU858s.
Figure4-43FiberConnectionbetweenR8860EGU858s
1.OutdoorSealComponent
4-52
SJ-20101210110401-001|2010-12-06ZTEProprietaryandCondential

Chapter4Installation
WhileinterconnectingtheR8860EGU858s,makesurethatthetwobasebandRFber
interfaces(LC1/2)oftheR8860EGU858areconnected.
Steps
1.Attachlabelsatbothendsoftheopticalber.
2.AdjustthesideofEndAwiththecolormarkandinserttheR8860EGU858ber
interface,andscrewdownthenuts,asshowninFigure4-44.
Figure4-44OpticalFiberInstallation
1.Colormark
3.ConnectEndAoftheopticalbertothebasebandRFberinterface(LC1/2)ofthe
R8860EGU858.
4.ConnectEndBoftheopticalbertotheotherbasebandRFberinterface(LC1/2)of
theR8860EGU858.
5.ScrewdowntheoutdoorsealcomponentatEndAforwaterproong.
–EndofSteps–
4.6.7InstallingEnvironmentMonitoringCable
Prerequisites
TheR8860EGU858cabinetmustbeinstalledandxedsuccessfully.
4-53
SJ-20101210110401-001|2010-12-06ZTEProprietaryandCondential

ZXSDRR8860EGU858UserManual
Context
Theenvironmentmonitoringcableprovidesa485interface,usedforR8860EGU858
environmentmonitoring.Inaddition,thecablealsoprovidesfourextensionaccessesfor
externaldrycontactmonitoring.
EndAisthe37PINconnector,andEndBismadebyon-siteengineering.Thetotallength
is3m.Figure4-45showstheappearanceofenvironmentmonitoringcable.
Figure4-45EnvironmentMonitoringCable
Theconnector,connectingtheenvironmentmonitoringcabletotheR8860EGU858,
adopts37–coreaviationjack.TheconnectoraccordswiththeGJB599specication.The
connectorappearanceisasshowninFigure4-46
Figure4-46AviationJackAppearance
Table4-6describestheconnectorpins.
Table4-6CablePinDescription
PinCore-CableColorSignalDescription
15/16Whiteandblue/blueDrycontact4-/+
17/18Whiteandorange/orangeDrycontact3-/+
19/20Whiteandgreen/greenDrycontact2-/+
21/22Whiteandbrown/brownDrycontact1-/+
23/24Redandblue/blueRS485receive
25/26Redandorange/orangeRS485transmit
Steps
1.ConnectEndAtotheMONinterfacelocatedatthebottomofR8860EGU858.
4-54
SJ-20101210110401-001|2010-12-06ZTEProprietaryandCondential

Chapter4Installation
2.ConnectEndBwithexternalmonitoringdevicesordrycontacts.
3.AttachthelabelatEndB.
–EndofSteps–
4.6.8InstallingAISGControlCable
Context
TheAISGcontrolcableisusedforcontroloftheelectricaladjustmentantenna.
Figure4-47showsthestructureoftheAISGcontrolcable.
Figure4-47AISGControlCableStructure
Table4-7describestheserialNo.meaningofAISGcontrolcable.
Table4-7AISGControlCableDescription
SerialNo.NameMeaning
1TRX_ANT_485_+RS485+
2TRX_ANT_485_-RS485-
3,4TRX_ANT_28V28V
5,6TRX_ANT_28VGND28VGND
7,8NCNull
Steps
1.ConnectEndAtotheR8860EGU858debugginginterface(AISG)andscrewdown
thebolt;
2.ConnectEndBtothecontrolinterfaceofelectricaladjustmentantennaandscrew
downthebolt.
–EndofSteps–
4-55
SJ-20101210110401-001|2010-12-06ZTEProprietaryandCondential

ZXSDRR8860EGU858UserManual
4.6.9InstallingFrequencyPointExtensionCable
Prerequisites
ThetwoR8860EGU858cabinetstobecombinedmustbeinstalledandxedsuccessfully.
Context
Afterthecombinationofcabinets,theR8860EGU858cansupport8carriersectorsat
most.
ThetwoR8860EGU858cabinetsareconnectedthroughtheirconnectinginterfacessuch
asRXinandRXoutbytwofrequencypointextensioncables.Figure4-48showsthe
structureofthefrequencypointcable.EndAandEndBareNconnectors(male).
The2M1/2″jumperisoftenusedforthefrequencypointextensioncable.Itmaybe
preparedonsiteifnecessary.
Figure4-48FrequencyPointExtensionCable
Steps
1.ConnectEndAofthefrequencypointextensioncabletothefrequencypointextension
interfaceRXINofoneR8860EGU858;
2.ConnectEndBtoRXoutoftheotherR8860EGU858;
3.ConnecttheremainingRXin/RXoutinterfacesofthetwocombinedcabinetswiththe
otherfrequencypointextensioncable.
–EndofSteps–
4.6.10InstallingJumper
Context
OneendofRFjumperconnectswiththemainfeederandtheotherendconnectswiththe
antennafeederinterfaceofR8860EGU858cabinet.BeforeinstallingtheRFjumper,the
mainfeederisinstalled.
TheRFjumperadoptsthe1/2″jumperwitha2mlength.Thejumpercanalsobeself-made
accordingtotheon-sitecondition.
TheinstallationpositionofRFjumperisasshowninFigure4-49.
4-56
SJ-20101210110401-001|2010-12-06ZTEProprietaryandCondential

Chapter4Installation
Figure4-49RFJumperInstallation
PerformthefollowingstepstoinstalltheRFjumper.
Steps
1.ConnecttheDINconnector(male)ofRFjumperwiththeDINconnector(female)of
mainfeeder.
2.ConnecttheDINconnector(male)ofRFjumperwiththeDINconnector(female)of
R8860EGU858cabinet.
3.SealtheconnectorswithwaterproofadhesivetapesandPVCtapes.
–EndofSteps–
4.7HardwareInstallationInspection
4.7.1CheckingCabinetInstallation
Steps
1.Ensurethatthecabinetinstallationpositioncomplieswiththeengineeringdesign
drawing.
2.Erectcabinetrmlysoastoresistanearthquakemeasuringupto7.0onRichterscale.
3.Ensurethathorizontalandverticalerrorislessthan3mm.
4.Ensurethatcabinetsurfaceiscleanandtidyandcoveredwellbyoilpaint.Allparts
ofthecabinetarecompleteandallmarkingonthecabinetarecorrect,clearand
complete.
5.Ensureallscrewsarexedtightwithatwashersorspringwashers.
–EndofSteps–
4-57
SJ-20101210110401-001|2010-12-06ZTEProprietaryandCondential

ZXSDRR8860EGU858UserManual
4.7.2CheckingCableInstallation
4.7.2.1CablesInstallationGeneralSpecification
OpticalFiber
Note
Thelengthofopticalberisdecidedbyengineeringsurvey(1Tx,1Rx).
Thetechnicalspecicationsofopticalberareasfollows:
lTheopticalberisasinglemodewithEndBadoptingtwoDLC/PCconnectors.
lTheinsertionlossislessthat0.3dB.
lThereturnlossislessthan45dB.
lIfopticalberistobeusedoutdoor,then
1.Takewaterproofandanti-ultravioletprotectionmeasures.
2.Makesurethatworkingtemperatureisinbetween-40to80oC.
lThesheathofopticalberisblackincolorwithadiameterof7mm.Underthesheath,
therearetwocoresopticalwires(yellowandbluecolor)withsubstantialamountof
protectionpadding.
lThemaximumdistancebetweencoreopticalwires(includingbothDLC/PC
connectors)andsheathedopticalberis350mm.
lZTEsupplies15m,25m,35m.50m,70m,100m,and130mlongbercables.
lThe20mmlongblackPyrocondensationcannulashouldbeaddedinbetweenoptical
corewiresandsheathedopticalber.
lThelabelattachedatbothendsshouldsatisfytherequirementsofZTECable
DesigningCriteria–LabelDesigningandUsageRequirements.
AISGCable
ThefollowingarethetechnicalspecicationofAISGcable:
lTable4-8illustratestheconnectionrelationshipofbothends.Makesuretoenclose
EndAconnectionbyblackcannulacompletelyafterconnecting.
Table4-8ConnectionRelationship
Serial
Number
Signal
Denition
EndAPin
Number
EndBPin
Number
ConnectedCable
1485+Pin3Pin1-
2485-Pin5Pin2-
328VPin6Pin3,4TwocablesfromPin6
ofAendareweldedto
Pin3and4ofBend.
4-58
SJ-20101210110401-001|2010-12-06ZTEProprietaryandCondential

Chapter4Installation
Serial
Number
Signal
Denition
EndAPin
Number
EndBPin
Number
ConnectedCable
428VGNDPin7Pin5,6TwocablesfromPin7
ofAendareweldedto
Pin5and6ofBend.
lThePin6andPin7(SeeTable4-8)areneededtobeweldedwithtwocables.
lTheEndAconnectorshouldbeequippedwithmetaldust-proofcover
lThelabelsprintingandpastingshouldsatisfytherequirementsofQ/ZX04.113.4Cable
DesigningCriteria–LabelDesigningandUsageRequirements.
MonitoringCable
Thefollowingarethetechnicalspecicationofmonitoringcable:
lTheEndAisa37-pinfemaleconnector.
lEndBisanopenendwithoutanyconnector.TheconnectorattheEndBshouldbe
preparedon-siteaccordingtotheon-siterequirements.
lMakesurethatconnectorattheEndAisproperlywelded.
lThelabelattachedatbothendsshouldsatisfytherequirementsofZTECable
DesigningCriteria–LabelDesigningandUsageRequirements.
lTable4-9showstheconnectionrelationshipofEndA.
Table4-9ConnectionRelationship
EndA(Pins)ColorSignalDenition
15/16White/blueDrycontact4-/+
17/18White/orangeDrycontact3-/+
19/20White/greenDrycontact2-/+
21/22White/brownDrycontact1-/+
23/24Red/blue485Rx-/+
25/26Red/orange485Tx-/+
OtherPinsarefreeOthercorewiresarefree
4.7.2.2PowerandGroundingCablesInstallationCheck
Context
Ensurethepowerandgroundingcablesinstallationisdoneinaccordancewiththe
followingchecks:
4-59
SJ-20101210110401-001|2010-12-06ZTEProprietaryandCondential

ZXSDRR8860EGU858UserManual
Steps
1.Thepowerandgroundingcablesarelaidseparatelyfromothercables.Ifthepower
andgroundingcablesaretobelaidparallelwithothercables,thenatleastadistance
of20cmismaintainedbetweenthem.
2.Thecablelabelsareintactonbothsidesofpowerandgroundingcables.Thelabels
areattachedatalmost2cmfromcablecopperlug.
3.Entirepowerandgroundingcablesaremadefromonematerialwithnoconnections
inbetween.
4.Asinglegroundingpointonthegroundingbusbarjustconnectstoapieceof
equipment.
5.Copperlugsonbothendsofpowerandgroundingcablesaresolderedorpressed
rmly.
6.Theshortestroutebetweenthegroundingcablesandgroundingbusbarisadopted.
7.Powerandgroundingcablesatconnectingterminalsandlughandlesareproperly
insulatedusingeitherinsulatedtapesorheatshrinktubes.
8.Theredundantlengthofpowerandgroundingcablesiscuttoavoidwrappingeach
other.
–EndofSteps–
4.7.2.3OpticalFiberInstallationCheck
Context
Thebercableinstallationshouldmeetthefollowingspecications:
Steps
1.Donotfoldopticalberat90o.Foropticalberthatistobelaidoutdoors,minimal
twistradiusshouldbeatleastgreaterthan90mm.Whereasforopticalberthatisto
belaidindoors,minimaltwistradiusshouldbeatleastgreaterthan30mm.
2.Afterinstallation,anysurplusopticalbershouldbeputbackinthebercardfor
convenience.
3.Duringinstallation,minimizeopticalbertwistandturn,asmuchaspossible.
4.Thebindingforceshouldbepropertoensurethatbindinggapsareless0.5m.
5.Makesurethatlabelsatbothendsofopticalberareintactandclear.
–EndofSteps–
4-60
SJ-20101210110401-001|2010-12-06ZTEProprietaryandCondential

Chapter4Installation
4.7.3CheckingMainAntennaSystemInstallation
Steps
1.Ensuretheheightofantennaisconsistentwiththenetworkplanning,andthe
installationpositionisconsistentwiththeengineeringdesigndrawing.
2.Ensuretheazimuthanddown-tiltoftheantennaisconsistentwiththeengineering
designdrawing.
3.Ensuretheantennaiswithintheprotectionareaoflightningrod.
4.EnsuretheVSWRnotmorethan1.5.
5.Ensureproperconnectionbetweenantennaandjumperaswellasbetweenjumper
andmainfeedercorrect.
6.Makesurethatthejumperandantennaatthejunctionkeepstraightwithin30cmat
least.
–EndofSteps–
4.8Poweronandoff
4.8.1PoweronPreparation
Context
Makesurethatfollowingconditionsarefullledbeforepowering-onR8860EGU858:
Steps
1.Makesurethatinputpowersupplyiswithintheacceptablerange.
2.MakesurethatpowercableconnectedtoR8860EGU858cabinetisproperly
grounded.
–EndofSteps–
Result
Thepreparationtopoweronthecabinetissuccessfullycompleted.
4.8.2PowerON
Context
Performthefollowingstepstopower-ontheR8860EGU858.
4-61
SJ-20101210110401-001|2010-12-06ZTEProprietaryandCondential

ZXSDRR8860EGU858UserManual
Steps
1.ThereisnopowerswitchONtheR8860EGU858cabinet.Closetheexternalpower
switchtopoweronR8860EGU858.
2.DuringpowerON,ifsomeabnormalphenomenaoccurs,disconnecttheexternal
powerswitchortheplugimmediately,andcheckthereason.
–EndofSteps–
4.8.3PowerOFF
Context
PerformthefollowingstepstopowerOFFtheR8860EGU858.
Steps
1.ThereisnopowerswitchontheR8860EGU858cabinet.Disconnecttheexternal
powerswitchtopoweroffR8860EGU858.
–EndofSteps–
4-62
SJ-20101210110401-001|2010-12-06ZTEProprietaryandCondential

Chapter5
RRUConnectionswith
AntennaFeederSystem
TableofContents
TypicalSingle-RRUAntennaFeederSystemCongurations......................................5-1
ConguringRRUwithCommonAntennasandWithoutADTMA.................................5-1
ConguringRRUwithCommonAntennasandADTMA..............................................5-2
ConguringRRUwithElectricalAntennasandWithoutADTMA(I).............................5-3
ConguringRRUwithElectricalAntennasandWithoutADTMA(II)............................5-4
ConguringRRUwithElectricalAntennasandADTMA..............................................5-5
5.1TypicalSingle-RRUAntennaFeederSystem
Configurations
Thetypicalcongurationsofasingle-RRUfeedersystemareasfollows:
lTheRRUisconguredwithcommonantennas
lTheRRUisconguredwithcommonantennasandAISGdualT owerMounted
Amplier(ADTMA)
lTheRRUisconguredwithelectricalantennas(I)
lTheRRUisconguredwithelectricalantennas(II)
lTheRRUisconguredwithelectricalantennasandADTMA
5.2ConfiguringRRUwithCommonAntennasand
WithoutADTMA
InstalltheRRUclosetotheantennaontherooftop.DirectlyconnecttheRRUtothe
antennathrough1/2”feeders,orinsomesituations,5/4”or7/8”feeders.
5-1
SJ-20101210110401-001|2010-12-06ZTEProprietaryandCondential

ZXSDRR8860EGU858UserManual
Figure5-1CONNECTINGRRUTOCOMMONANTENNASWITHOUTTWA
5.3ConfiguringRRUwithCommonAntennasand
ADTMA
InstalltheRRUunderthetowerandinstalltheantennaonthetower.ConnecttheRRUto
theantennathrough5/4”or7/8”feeders.
5-2
SJ-20101210110401-001|2010-12-06ZTEProprietaryandCondential

Chapter5RRUConnectionswithAntennaFeederSystem
Figure5-2CONNECTINGRRUTOCOMMONANTENNASANDADTMA
5.4ConfiguringRRUwithElectricalAntennasand
WithoutADTMA(I)
InstalltheRRUclosetotheantennaontherooftop.ConnecttheRRUtotheantenna
through1/2”feeders,orinsomesituations,5/4”or7/8”feeders.
5-3
SJ-20101210110401-001|2010-12-06ZTEProprietaryandCondential

ZXSDRR8860EGU858UserManual
Figure5-3CONNECTINGRRUWITHELECTRICALANTENNAS(I)
5.5ConfiguringRRUwithElectricalAntennasand
WithoutADTMA(II)
InstalltheRRUunderthetowerandinstalltheantennaonthetower.ConnecttheRRUto
theantennathrough5/4”or7/8”feeders.
5-4
SJ-20101210110401-001|2010-12-06ZTEProprietaryandCondential

Chapter5RRUConnectionswithAntennaFeederSystem
Figure5-4CONNECTINGRRUWITHELECTRICALANTENNAS(II)
5.6ConfiguringRRUwithElectricalAntennasand
ADTMA
InstalltheRRUunderthetowerandinstalltheantennaonthetower.ConnecttheRRUto
theantennathrough5/4”or7/8”feeders.
5-5
SJ-20101210110401-001|2010-12-06ZTEProprietaryandCondential

ZXSDRR8860EGU858UserManual
Figure5-5CONNECTINGRRUTOELECTRICALANTENNASANDADTMA
5-6
SJ-20101210110401-001|2010-12-06ZTEProprietaryandCondential

Figures
Figure1-1R8860EGU858POSITIONINGSM/UMTSNETWORK..........................1-2
Figure1-2BASESTATION(BBUANDRRU)............................................................1-2
Figure1-3DISTRIBUTEDBASESTATIONSYSTEMSTRUCTURE.........................1-3
Figure1-4RUNNINGENVIRONMENTOFR8860EGU858.....................................1-4
Figure1-5R8860EGU858Appearance...................................................................1-5
Figure1-6OPERATIONANDMAINTENANCEOFR8860EGU858.........................1-9
Figure3-1ExternalInterfacesatChassisBottom.....................................................3-1
Figure3-2R8860EGU858IndicatorsandButtons....................................................3-3
Figure3-3HARDWARESYSTEM............................................................................3-4
Figure3-4R8860EGU858SOFTWAREARCHITECTURE......................................3-7
Figure4-1PACKINGOFR8860EGU858..............................................................4-15
Figure4-2FLOWOFUNPACKINGANDCHECKING.............................................4-16
Figure4-3R8860EGU858InstallationFlow...........................................................4-17
Figure4-4TakingoutCabinet.................................................................................4-18
Figure4-5BindingCabinetwithRope.....................................................................4-19
Figure4-6HoistingOperationSchematicDiagram..................................................4-20
Figure4-7WALLMOUNTEDINSTALLATIONFORR8860EGU858.......................4-24
Figure4-8POLEMOUNTEDINSTALLATIONFOR1OR2R8860EGU858s...........4-25
Figure4-9POLEMOUNTEDINSTALLATIONFOR3R8860EGU858s..................4-25
Figure4-10TheSingleR8860EGU858MountingSolution.....................................4-26
Figure4-11TheDoubleR8860EGU858MountingSolution....................................4-26
Figure4-12TheTripleR8860EGU858MountingSolution......................................4-27
Figure4-13R8860EGU858INSTALLATIONFLOW...............................................4-28
Figure4-14HOLINGTEMPLATE...........................................................................4-29
Figure4-15ASSEMBLINGWALL-MOUNTEDINSTALLATIONASSEMBLY...........4-30
Figure4-16FIXINGTHECABINET........................................................................4-31
Figure4-17INSTALLINGCLAMPASSEMBLY.......................................................4-32
Figure4-18FIXINGTHECABINET........................................................................4-33
Figure4-19INSTALLINGCLAMPASSEMBLY.......................................................4-34
Figure4-20ASSEMBLINGWALL-MOUNTEDINSTALLATIONASSEMBLY...........4-35
Figure4-21FIXINGTHECABINET........................................................................4-35
Figure4-22INSTALLINGMOUNTINGBRACKETASSEMBLY...............................4-36
I

ZXSDRR8860EGU858UserManual
Figure4-23ASSEMBLINGWALL-MOUNTEDINSTALLATIONASSEMBLY...........4-37
Figure4-24FIXINGTHECABINET........................................................................4-37
Figure4-25FixingtheMountingPiece....................................................................4-38
Figure4-26MountingR8860EGU858....................................................................4-39
Figure4-27MountingbaseDoubleUnitSolution...............................................4-40
Figure4-28MountingbaseSingleUnit+LightningProtectorBoxSolution............4-40
Figure4-29MountingTwoR8860EGU858.............................................................4-41
Figure4-30MountingoneR8860EGU858andOneLightningProtectorBox...........4-42
Figure4-31FixingtheLightningProtectorBox........................................................4-42
Figure4-32MountingTwoR8860EGU858.............................................................4-43
Figure4-33MountingtheExpansionPiece.............................................................4-43
Figure4-34AttachingtheMountingbase................................................................4-44
Figure4-35AttachtheR8860EGU858totheMountingbase.................................4-45
Figure4-36INSTALLINGPROTECTIONSHADE...................................................4-46
Figure4-37ExternalCableInstallationFlow...........................................................4-48
Figure4-38PowerCablestructure.........................................................................4-49
Figure4-39GroundingCableStructure..................................................................4-50
Figure4-40Earth-networkCopperBar(Unit:mm)..................................................4-50
Figure4-41FiberConnectionbetweenR8860EGU858andBBU..........................4-51
Figure4-42OpticalFiberInstallation.......................................................................4-52
Figure4-43FiberConnectionbetweenR8860EGU858s.......................................4-52
Figure4-44OpticalFiberInstallation.......................................................................4-53
Figure4-45EnvironmentMonitoringCable.............................................................4-54
Figure4-46AviationJackAppearance....................................................................4-54
Figure4-47AISGControlCableStructure..............................................................4-55
Figure4-48FrequencyPointExtensionCable........................................................4-56
Figure4-49RFJumperInstallation.........................................................................4-57
Figure5-1CONNECTINGRRUTOCOMMONANTENNASWITHOUTTWA...........5-2
Figure5-2CONNECTINGRRUTOCOMMONANTENNASANDADTMA...............5-3
Figure5-3CONNECTINGRRUWITHELECTRICALANTENNAS(I).......................5-4
Figure5-4CONNECTINGRRUWITHELECTRICALANTENNAS(II)......................5-5
Figure5-5CONNECTINGRRUTOELECTRICALANTENNASANDADTMA...........5-6
II

Tables
Table1-1EQUIPMENTSRELATEDTOR8860EGU858RUNNING.........................1-4
Table2-1WindSpeed@150km/h...........................................................................2-2
Table2-2WindSpeed@240km/h...........................................................................2-2
Table3-1ExternalInterfaces....................................................................................3-2
Table3-2IndicatorsandButtons...............................................................................3-3
Table3-3COMPOSITIONOFM8206CABINETHARDWARE..................................3-5
Table4-1SafetySymbolsDescription.......................................................................4-2
Table4-2ToolandMeterList....................................................................................4-9
Table4-3INSTALLATIONACCESSORIESOFR8860EGU858ANDTHEIR
FUNCTIONS.......................................................................................4-21
Table4-4R8860EGU858ExternalCableConnectionRelationship........................4-46
Table4-5ColorandSpecication...........................................................................4-49
Table4-6CablePinDescription.............................................................................4-54
Table4-7AISGControlCableDescription..............................................................4-55
Table4-8ConnectionRelationship..........................................................................4-58
Table4-9ConnectionRelationship..........................................................................4-59
III

Tables
Thispageintentionallyleftblank.

Glossary
AISG
-AntennaInterfaceStandardsGroup
BBU
-BaseBandUnit
V




