Aiphone Ai900 User Manual Bc683c86 A6e5 4343 A674 F1b12515b27d
User Manual: aiphone ai900 Aiphone Home Security System AI-900 User Guide |
Open the PDF directly: View PDF
.
Page Count: 48

Please follow the instructions in this manual to obtain the optimum results from this unit.
We also recommend that you keep this manual handy for future reference.
Be sure to leave system installations, adjustments, and data settings to the dealer from whom
you have purchased.
INSTALLATION MANUAL
VOICE SECURITY SYSTEM AI-900

2
TABLE OF CONTENTS
1. SAFETY PRECAUTIONS ..................................................................................... 4
2. FCC REQUIREMENTS ......................................................................................... 6
3. INDUSTRIAL CANADA REQUIREMENTS .................................................... 7
4. GENERAL DESCRIPTION .................................................................................. 8
5. FEATURES ............................................................................................................... 8
6. INSTALLATION PRECAUTIONS ....................................................................... 8
7. SYSTEM CONFIGURATION AND EQUIPMENT FUNCTIONS
7.1. System Configuration ............................................................................................. 9
7.2. Equipment Functions ............................................................................................ 10
8. AI-900MF MAIN FRAME NOMENCLATURE AND FUNCTIONS ........... 11
9. INSTALLATION AND CONNECTION PROCEDURES .............................. 12
10. EQUIPMENT INSTALLATION
10.1. AI-900MF Main Frame
10.1.1. Rack mounting ........................................................................................ 13
10.1.2. Wall mounting ......................................................................................... 14
10.2. AI-PU200 Power Transformer unit
10.2.1. Rack mounting ........................................................................................ 15
10.2.2. Wall mounting ......................................................................................... 16
10.3. AI-RS150, AI-RS160, AI-RS170 and AI-RS180 Substations .............................. 17
10.4. Master Station
10.4.1. Desk-top mounting .................................................................................. 18
10.4.2. Wall mounting ......................................................................................... 18
11. AI-900MF CARD INSTALLATION
11.1. Backup Battery Installation ................................................................................. 19
11.2. Card Installation .................................................................................................. 20

3
12. WIRING
12.1. Wiring from the Station or Outside Line .............................................................. 21
12.2. Supplied Connector Connection ......................................................................... 22
12.3. AI-900MS Master Station Interface Card Connection
12.3.1. Master Station and AI-900MS connection .............................................. 23
12.3.2. External recording device and AI-900MS connection ............................ 25
12.4. AI-MS900 Master Station Connection and Adjustment
12.4.1. External speaker connection .................................................................. 26
12.4.2. Speaker volume and microphone sensitivity adjustment ....................... 26
12.5. AI-900AL Telephone Interface Card Connection
12.5.1. Telephone and AI-900AL connection ..................................................... 27
12.5.2. External recording device and AI-900AL connection ............................. 29
12.6. AI-900RS Substation Interface Card Connection
12.6.1. Substation and AI-900RS connection .................................................... 30
12.6.2. External amplifier and AI-900RS connection .......................................... 31
12.7. AI-900CO Outside Line Interface Card Connection
12.7.1. Outside line and AI-900CO connection .................................................. 32
12.7.2. External recording device and AI-900CO connection ............................ 33
12.8. AI-900AF Audio Function Card Connection
12.8.1. Amplifier and AI-900AF connection ........................................................ 34
12.8.2. External sound source and AI-900AF connection .................................. 35
12.9. AI-900TI Tie-Line Interface Card Exchange Interconnection .............................. 36
12.10. AI-900MF Main Frame and AI-PU200 Power Transformer Connection ............ 39
13. MAIN FRAME AND PC CONNECTION
13.1. Programming PC Connection
13.1.1. Direct connection by means of RS-232C ............................................... 40
13.1.2. Connection via modem ........................................................................... 41
13.2. Operation Log PC Connection
13.2.1. Direct connection by means of RS-232C ............................................... 42
13.2.2. Connection via modem ........................................................................... 43
13.3. System Programming ......................................................................................... 43
14. SPEECH AND FUNCTION TESTS
14.1. Speech Test ........................................................................................................ 44
14.2. Function Test ...................................................................................................... 44
15. SPECIFICATIONS ................................................................................................. 45
Accessories .................................................................................................................. 45

4
When Installing the Unit
[Applicable to the exchange and the station]
• Do not expose the unit to rain or an environment
where it may be splashed by water or other liquids,
as doing so may result in fire or electric shock.
• Do not cut, kink, otherwise damage nor modify the
power supply cord and connection cord. In
addition, avoid using the cords in close proximity to
heaters, and never place heavy objects -- including
the unit itself -- on the cords, as doing so may
result in fire or electric shock.
[Applicable to the exchange]
• Use the unit only with the voltage specified on the
unit. Using a voltage higher than that which is
specified may result in fire or electric shock.
• Be sure to ground to the safety ground (earth)
terminal to avoid electric shock. Never ground to a
gas pipe as a catastrophic disaster may result.
• Owing to the unit's size and weight, be sure that at
least two persons are available to install the unit.
Failure to do so could result in personal injury.
• Because the AI-900 is an electrical device, users
must not make wiring and installation.
Leave the work to qualified personnel.
Improper wiring or installation may cause electric
shock.
• Never perform wiring nor installation work while
power is turned on as doing so may cause fire or
damage to the unit.
•(When mounted on a wall)
Avoid installing the AI-MS900 Master Station on a
wall in locations where it may hit persons or it may
fall. Failure to do so may result in injury.
•(When mounted on a wall)
Install the unit only in a location that can
structurally support the weight of the unit and the
mounting bracket. Doing otherwise may result in
the unit falling down and causing personal injury
and/or property damage.
When the Unit is in Use
[Applicable to the exchange]
• Should the following irregularity be found during
use, immediately switch off the power, disconnect
the power supply plug from the AC outlet and
contact your nearest AIPHONE dealer. Make no
further attempt to operate the unit in this condition
as this may cause fire or electric shock.
· If you detect smoke or a strange smell coming
from the unit.
· If water or any metallic object gets into the unit
• To prevent a fire or electric shock, never open nor
remove the unit case as there are high voltage
components inside the unit. Refer all servicing to
your nearest AIPHONE dealer.
• Do not place cups, bowls, or other containers of
liquid or metallic objects on top of the unit. If they
accidentally spill into the unit, this may cause a fire
or electric shock.
Indicates a potentially hazardous situation which, if mishandled, could
result in death or serious personal injury.
Indicates a potentially hazardous situation which, if mishandled, could
result in moderate or minor personal injury, and/or property damage.
WARNING
1. SAFETY PRECAUTIONS
• Be sure to read the instructions in this section carefully before use.
• Make sure to observe the instructions in this manual as the conventions of safety symbols and messages
regarded as very important precautions are included.
• We also recommend you keep this instruction manual handy for future reference.
Safety Symbol and Message Conventions
Safety symbols and messages described below are used in this manual to prevent bodily injury and property
damage which could result from mishandling. Before operating your product, read this manual first and
understand the safety symbols and messages so you are thoroughly aware of the potential safety hazards.
CAUTION
WARNING

5
• Do not touch the power cord during thunder and
lightning, as this may result in electric shock.
• Do not connect any power supply other than
specified to the AI-900MF's DC power input
terminals.
Doing so could result in fire or damage to the unit.
When Installing the Unit
[Applicable to the exchange and the station]
• Avoid installing the unit in humid or dusty locations,
in locations exposed to the direct sunlight, near the
heaters, or in locations generating sooty smoke or
steam as doing otherwise may result in fire or
electric shock.
[Applicable to the exchange]
• Do not block the ventilation slots in the unit's cover.
Doing so may cause heat to build up inside the unit
and result in fire.
When the Unit is in Use
[Applicable to the exchange]
• Do not place heavy objects on the unit as this may
cause it to fall or break which may result in
personal injury and/or property damage. In
addition, the object itself may fall off and cause
injury and/or damage.
• Contact your AIPHONE dealer as to the cleaning. If
dust is allowed to accumulate in the unit over a
long period of time, a fire or damage to the unit
may result.
CAUTION

6
2. FCC REQUIREMENTS
(1) The AI-900 complies with FCC Rules, Part 68. On this equipment is a label which contains, among other
information, the FCC Part 68 registration number.
(2) The ringer equivalence number (REN) is used to determine the quality of devices which may be
connected to the telephone line. Excessive RENs on the telephone line may result in the devices not
ringing in response to an incoming call. In most, but not all areas, the sum of RENs should not exceed five
(5.0). To be certain of the number of devices that may be connected to a line, as determined by the total
RENs, contact the local telephone company.
Note: RENs are associated with loop-start and ground-start ports. It is not used for E&M and digital ports.
The REN assigned to the AI-900 is 0.4. If requested, this information must be given to the
telephone company.
(3) In the event of equipment malfunction, all repairs should be performed by AIPHONE CORPORATION or
an authorized agent. It is the responsibility of users requiring service to report the need for service to
AIPHONE CORPORATION or to one of our authorized agents. Service can be facilitated through our
office at:
AIPHONE CORPORATION
1700-130th Ave., N.E.
Bellevue, Washington 98009
Phone (425) 455-0510
The telephone company can ask you to disconnect the equipment from the network until the problem is
corrected or until you are sure that the equipment is not malfunctioning.
(4) If the AI-900 disrupts the telephone network, the telephone company can discontinue your service
temporarily. If possible, the telephone company will notify you in advance. If advance notice is not
practical, they will notify you as soon as possible. You are also informed of your right to file a complaint
with the FCC.
(5) The telephone company can make changes in its facilities, equipment, operations, or procedures that can
affect the operation of your equipment. If they do, you should be notified in advance so you have an
opportunity to maintain uninterrupted telephone service.
(6) While the AI-900 is fully compliant with FCC rules and regulations, it is recommended that an alternating
current (ac) surge arrestor of the form and capability suitable for the model purchased be installed in the
ac outlet to which the AIPHONE CORPORATION products are connected. Consult with your distributor as
to the surge protector requirements for your equipment.
(7) The FCC rules require that the following Affidavit be completed by the installer and forwarded to the local
exchange carrier, whenever digital terminal equipment without encoded analog content and billing
protection is used to transmit digital signals containing encoded analog content, which are intended for
eventual conversion into Voiceband analog signals and retransmitted on the network.
(8) The AI-900 has been tested and comply with the limits for a class A digital device, pursuant to Part 15 of
the FCC Rules. These limits are designed to provide reasonable protection against harmful interference
when the equipment is operated in a commercial environment. This equipment generates, uses, and can
radiate radio frequency energy and, if not installed and used in accordance with the instruction manual,
can cause harmful interference to radio communications. Operation of this equipment in a residential area
is likely to cause harmful interference, in which case the user will be required to correct the interference in
the user's expense.
CHANGES OR MODIFICATIONS NOT EXPRESSLY APPROVED BY AIPHONE CORPORATION
COULD VOID THE USER'S AUTHORITY TO OPERATE THE EQUIPMENT.

7
3. INDUSTRY CANADA REQUIREMENTS
(1) ''NOTICE: This equipment meets the applicable Industry Canada Terminal Equipment Technical
Specifications.
This is confirmed by the registration number. The abbreviation, IC, before the registration number signifies
that registration was performed based on a Declaration of Conformity indicating that Industry Canada
technical specifications were met.
It does not imply that Industry Canada approved the equipment."
(2) ''NOTICE: The Ringer Equivalence Number (REN) for this terminal equipment is 0.4.
The REN assigned to each terminal equipment provides an indication of the maximum number of
terminals allowed to be connected to a telephone interface.
The termination on an interface may consist of any combination of devices subject only to the requirement
that the sum of the Ringer Equivalence Numbers of all the devices does not exceed five.''
(3) "The abbreviation, IC, before the registration number signifies that registration was performed based on a
Declaration of Conformity indicating that Industry Canada technical specifications were met. It does not
imply that Industry Canada approved the equipment.
(4) This Class A digital apparatus complies with Canadian ICES-003.
Cet appareil numérique de la classe A est conforme à la norme NMB-003 du Canada.

8
4. GENERAL DESCRIPTION
The AI-900 Security System is a voice communication system that permits calls to be quickly and easily
made - even in emergency situations - with the touch of single button. The system can record conversations,
and features external equipment sync output and operation log output. These features combine to make the
AI-900 an ideal system for voice security applications.
5. FEATURES
• Modular construction facilitates installation, maintenance, and system expansion.
• Rack- or wall-mountable exchange.
• Up to 4 master stations (or commercial telephone sets) and 64 substations can be connected per exchange.
• Up to 2 outside telephone (C/O) lines can be connected per exchange.
• Station paging (by means of the substation speaker) and external paging functions.
• External sound source distribution capability.
• Up to 19 paging zones can be established.
• Emergency Paging function.
• By connecting an external recording device, the conversations at the master station (or telephone set) and
at the outside line telephone can be recorded.
• Exchange operating log can be transmitted to a PC.
• Tie-line possible for up to 16 exchanges.
• 24 V DC input for connection of backup power supply.
• Manual/Automatic Call Forwarding, Conference, Scan Monitor functions.
6. INSTALLATION PRECAUTIONS
• To prevent the unit's failure, be sure to switch off its power when inserting or removing the card.
• When mounting each card, fully insert it into the Main Frame. After all cards are mounted, secure them with
the card fixing bracket.
• When the unit gets dirty with dust or oil, wipe down with a soft, dry cloth. Never use a chemically-treated
cleaning cloth or volatile liquids, such as benzine and thinner, because the unit's plastic parts may be
deformed or its finish discolored.
• All units except the AI-RS170 and AI-RS180 Substations are designed exclusively for indoor use.
Do not install them outdoors.
• The whole system will not operate without power supply.
• In areas where broadcasting stations are close by, the system operation may be affected by radio frequency
interference.
• Keep DC wiring at least 30 cm away from AC wiring. Otherwise, the system may malfunction.

9
7. SYSTEM CONFIGURATION AND EQUIPMENT FUNCTIONS
7.1. System Configuration
AI-900 Exchange (1)
AI-900 Exchange (2)
AI-900 Exchange (16)
Rack Mount Panel
AI-PN100B
Main Frame AI-900MF/
Main Frame Mounting
Bracket AI-YC303
Master station AI-MS900 (2 units)
Recording voice output (for each station)
Recording control output (for each station)
Telephone (2 units)
Recording voice output (for each telephone)
Recording control output (for each telephone)
Paging output (to an amplifier)
Paging input (from an amplifier)
Substation AI-RS150, AI-RS160, AI-RS170 or
AI-RS180 (16 units)
Outside line (2 lines)
Recording voice output (for each line)
Recording control output (for each line)
External paging voice output
External paging control output (16 channels)
Voice input for external source distribution
Control input for external source distribution
(4 channels)
Input and output for exchange interconnection
(4 voice lines, 1 data line)
Power Transformer
Uint AI-PU200
Power Transformer
Uint AI-PU200
Master Station
Interface Card
AI-900MS (1)
Telephone Interface
Card AI-900AL (2)
Substation Interface
Card AI-900RS (1)
Substation Interface
Card AI-900RS (4)
Outside Line
Interface Card
AI-900CO
Audio Function Card
AI-900AF
Tie-line Interface
Card AI-900TI

10
7.2. Equipment Functions
•AI-900MF Main Frame
The AI-900MF accommodates the following cards: Up to 2 AI-900MS or AI-900AL Cards (both cards may be
mixed), up to 4 AI-900RS Cards, 1 AI-900CO Card, 1 AI-900AF Card, and 1 AI-900TI Card.
The Main Frame has 2 RS-232C ports; one for programming and the other for operation log output.
•AI-900MS Master Station Interface Card
The AI-900MS is used for master station connection. Up to 2 master stations can be connected per card,
and an external recording device can be connected to each line.
•AI-900AL Telephone Interface Card
The AI-900AL is used for connecting telephone sets (in compliance with the FCC Regulation Part 68). Up to
2 telephones can be connected per card, and an external recording device can be connected to each line.
•AI-900RS Substation Interface Card
The AI-900RS is used for substation connection. Up to 16 substations can be connected per card. The
Substation Interface Card has 2 speech links, one of which also functions as a paging link with the paging
input/output connected to an external amplifier.
•AI-900CO Outside Line Interface Card
The AI-900CO is used for outside line connection. Up to 2 outside lines can be connected per card, and an
external recording device can be connected to each line.
•AI-900AF Audio Function Card
The AI-900AF enables Conference, External Amplifier Paging, and External Source Distribution functions.
The Audio Function Card has 1 conference link (maximum 4 stations), 1 voice output and 16 control outputs
for external amplifier paging, and 1 voice input and 4 control inputs for external source distribution.
•AI-900TI Tie-Line Interface Card
The AI-900TI is used to interconnect multiple exchanges. The Tie-Line Interface Card can connect up to 4
links made up by 1 pair of data lines and 2 pairs of voice lines.
•AI-PU200 Power Transformer Unit
The wall-mountable AI-PU200 has 2 20V/2.5A AC outputs. One AI-PU200 unit is required when up to 2
AI-900RS Cards are installed, and 2 AI-PU200 units are required when 3 or more AI-900RS Cards are
installed.
•AI-YC303 Main Frame Wall Mounting Bracket
The AI-YC303 is used when mounting the main frame on the wall.
•AI-PN100B Rack Mount Panel
The AI-PN100B provides side-by-side rack mounting capability for up to 2 AI-PU200 transformer units.
•AI-MS900 Master Station
The AI-MS900 can make calls to or receive calls from the substation. It utilizes 2 pairs of twisted cables.
•AI-RS150 Substation (Indoor Type)
The AI-RS150 can call and converse with the registered master stations. It utilizes a single-pair shielded
cable.
•AI-RS160 Substation (Indoor Vandal-Resistant Type)
The AI-RS160 can call and converse with the registered master stations. It utilizes a single-pair shielded
cable.
•AI-RS170 Substation (Outdoor Vandal-Resistant Type)
The AI-RS170 can call and make converse with the registered master stations. It utilizes a single-pair
shielded cable.
•AI-RS180 Substation (for Emergency Use)
The AI-RS180 can call and converse with the registered master stations. It has a indicator lamp and a
control output channel, and utilizes a single-pair shielded cable.

11
8. AI-900MF MAIN FRAME NOMENCLATURE AND FUNCTIONS
123
4
56 7 8 9
10
11
12
1. AC Input Connectors
Connect to the AC output terminal of the
AI-PU200 power transformer unit.
(See p. 39.)
2. 24 V DC Input Connector
Connects to a battery (24 V DC). (See p. 39.)
3. Power Switch
Power is switched on (I) and off (O) with each
depression of this switch.
4. Backup Battery Socket
Insert the CR2032 data backup battery into this
socket. (See p. 19.)
5.
AI-900MS/AI-900AL Installation Slot [MS/AL 1-2]
A maximum of 2 AI-900MS or AI-900AL cards
can be installed. (See p. 24 and 29.)
6. AI-900RS Installation Slot [RS 1-4]
A maximum of 4 AI-900RS cards can be
installed. (See p. 30.)
7.AI-900CO Installation Slot [CO]
One AI-900CO card can be installed.
(See p. 32.)
8. AI-900AF Installation Slot [AF]
One AI-900AF card can be installed. (See p. 34.)
9. AI-900TI Installation Slot [TI]
One AI-900TI card can be installed. (See p. 36.)
10. Programming PC Connector [RS-232C]
Connects to the programming PC either directly
or via modem. (See p. 40.)
11. Operation Log PC Connector [RS-232C]
Connects to the operation log PC either directly
or via modem. (See p. 42.)
12. Power Indicator
Lights when the power switch is set to ON.

12
9. INSTALLATION AND CONNECTION PROCEDURES
(1) System Design
Exchange/Station Configuration, Wiring Schedule and Station Numbering Schedule
(2) Equipment Installation
Installing the AI-900MF Main Frame in an Equipment Rack or on a Wall (See p. 13.)
Installing the AI-PU200 Power Transformer in an Equipment Rack or on a Wall (See p. 15.)
Installing the Substation (See p. 17.)
Installing the Master Station (See p. 18.)
(4) Connecting the Station/Outside Line to Each Exchange Card
• AI-MS900 Master Station vs. AI-900MS Card
• External Recording Device vs. AI-900MS Card
(See p. 23.)
(See p. 25.)
• Telephone vs. AI-900AL Card
• External Recording Device vs. AI-900AL Card
(See p. 27.)
(See p. 29.)
• Substation vs. AI-900RS Card
• External Amplifier vs. AI-900RS Card
(See p. 30.)
(See p. 31.)
• Outside Line vs. AI-900CO Card
• External Recording Device vs. AI-900CO Card
(See p. 32.)
(See p. 33.)
• External Amplifier vs. AI-900AF Card
• External Recording Device vs. AI-900AF Card
(See p. 34.)
(See p. 35.)
AI-900MF Main Frame vs. AI-PU200 Power Transformer (See p. 39.)
(3) Installing a Card in the AI-900MF Main Frame
Installing the Data Backup Battery (See p. 19.)
Installing and Connecting Each Card (See p. 20.)
(6) Connecting the AI-900MF Main Frame to a PC
Connection to a Programming PC (See p. 40.)
Connection to an Operation Log PC (See p. 42.)
(7) Adjusting the Station and Exchange
System Programming (See the "AI-900 SETUP SOFTWARE MANUAL.")
Master Station Microphone Sensitivity/Speaker Volume Adjustment (See p. 26.)
Telephone Volume Adjustment (AI-900AL Card) (See p. 28.)
(8) Speech and Function Tests
Speech Test (See p. 44.)
Function Test (See p. 44.)
(5) Tie-Line Connection (between Exchanges)
AI-900TI vs. AI-900TI (See p. 36.)
Power-ON

13
10. EQUIPMENT INSTALLATION
10.1. AI-900MF Main Frame
10.1.1. Rack mounting
Step 1. Attach the supplied rack mounting brackets to the frame.
Mounting bracket
Machine screw M4x10 (6 places)
Step 2. Mount the frame to an equipment rack.
Fiber washer
(8 places)
Rack mounting screw (tapping screw 5x12 , 8 places)

14
10.1.2. Wall mounting (Optional AI-YC303 Wall Mounting Frame is required.)
Step 1. Mount the AI-YC303 bracket to the wall.
Wood screw 5.1x38
Knockout (for wiring)
Mounting dimensions
78 78 78 55.2
30
391.4
290
200
440.6
141.3
Step 2. Remove the AI-900MF's front panel, then mount the AI-900MF on the AI-YC303.
Tapping screw 4x12

15
10.2. AI-PU200 Power Transformer Unit
10.2.1. Rack mounting
Step 1. Remove the 4 mounting screws, and attach the supplied wall mounting brackets to the transformer
unit using the removed screws.
Mounting screw
Wall mounting bracket
Step 2. Attach the AI-PU200 to the AI-PN100B Rack Mount Panel.
AI-PN100B
AI-PU200
Machine screw (M3 x 8)
Step 3. Mount the AI-PN100B in an equipment rack.
Binding head self tapping screw (5 x 12)
Fiber washer
Note
Perform terminal wiring before mounting.

16
10.2.2. Wall mounting
Step 1. Remove the 4 mounting screws, and attach the supplied wall mounting brackets to the transformer
using the removed screws.
Mounting screw
Wall mounting bracket
Step 2. Mount the transformer to the wall using the supplied wood screws.
Wood screw 3.5 x 25
140
120
11525
Unit: mm

17
10.3. AI-RS150, AI-RS160, AI-RS170 and AI-RS180 Substations
Mount the substation to an electrical box mounted in the wall.
AI-RS150/-RS160/-RS170/-RS180
Oval head screw UNC No.6x18
2-gang electrical box (deep)
and adapter ring
46
120 52.5 *2*2 43.5 (AI-RS150)
*1 2 (AI-RS150)
3 *1
37
18.2 83.5
120
Unit: mm
Dimensional diagram

18
10.4. Master Station
10.4.1. Desk-top mounting
Connect the supplied modular-plug cord.
10.4.2. Wall mounting
Pull out, rotate, and reset the cradle hook, then mount the station on the wall using the supplied wall mounting
frame.
Remove the cradle hook.

19
CR2032
BATT1
AI-900MF
11. AI-900MF CARD INSTALLATION
11.1. Backup Battery Installation
Caution
All cards contain many CMOS ICs which are easily damaged by static electricity. Do not touch circuit
components.
•Insert the backup battery into the Main Frame mother board before installing any cards.
Danger of explosion if battery is incorrectly replaced.
Replace only with the same or equivalent type recommended by the manufacturer.
Dispose of used batteries according to the manufacturer's instructions.
CAUTION
Danger d'explosion lorsque la batterie n'est pas remplacée correctement.
Remplacer uniquement avec des batteries identiques ou d'un type équivalent.
ATTENTION
Battery replacement
As the battery life is rated at about 4 years, replace it with a new one every 4 years.
Follow the replacement procedure below.
Step 1. Switch the Main Frame (AI-900MF) power off.
Step 2. Remove all installed cards.
Step 3. Switch the AI-900MF power on.
Step 4. Replace the battery.
Step 5. Switch the AI-900MF power off.
Step 6. Reinstall the removed cards.
Step 7. Switch the AI-900MF power on.
Important
Be sure to replace the battery while the AI-900MF power is on.
Otherwise, stored date and time data will be lost.

20
11.2. Card Installation
Step 1. Remove each card from its static-protective bag, and install it in its designated position in the Main
Frame.
•For the AI-900TI, perform exchange number setting BEFORE installation. Refer to p. 38 "Exchange Number
Setting."
Step 2. After installing all cards, secure them using the supplied fixing bracket.
The top and side panels are omitted to
show the hidden parts.

21
12. WIRING
12.1. Wiring from the Station or Outside Line
Step 1. Remove the main frame's bottom panel as shown below.
Step 2. Connect stations or outside lines to their respective cards as shown below.

22
12.2. Supplied Connector Connection
Use the supplied connectors for exchange connections as follows.
Step 1. Insert a cable into the connector and tighten the screw.
Step 2. After cable connection is completed, press the connector onto the circuit board's connector.

23
12.3. AI-900MS Master Station Interface Card Connection
12.3.1. Master Station and AI-900MS connection
•The AI-900MS can be interfaced with up to 2 AI-MS900 master stations.
•Because up to 2 AI-900MS cards can be mounted in the AI-900MF Main Frame, up to four master stations
can be connected per frame.
•A station address must be assigned to each connected AI-MS900 station. Set the station address at each
AI-MS900 station after switching ON the power.
[Station Address Setting]
Step 1. Set the Master Station's REGISTER switch to the ON position. The "Reg_mode" indication will be
displayed on the station screen.
Step 2. Press the [XFER] key.
Step 3. According to the following table, enter the station address 1 – 4 through the use of a numeric keypad.
AI-900MS Line Station Address
MS/AL Slot 1 11
22
MS/AL Slot 2 13
24
Step 4. Press the [PTT] key.
Step 5. Set the REGISTER switch to the OFF position to places the station in standby mode.
Press-to-talk [PTT] key
Transfer [XFER] key
2
ABC
13
DEF
12
34
56
78
5
JKL
4
GHI
6
MNO
8
TUV
7
PRS
9
WXY
0
C
OPER
P T T REDIAL XFER
#
HANDSET REGISTER
Do not connect thei jack
to telephone line.
LINE
MINI. MAX.
SP. VOL. OFF ON
[View ]
A
View
A
Registration ON/OFF switch
[REGISTER ON/OFF]
Display panel
Numeric keys
[0] – [9]

24
[Connection]
Use 2 twisted pair cables with a modular jack fitted at each one end to connect the AI-MS900 to the
AI-900MS. Refer to the following table for the maximum recommended cable length between the two.
Cable type AWG24 (0.52 mm) AWG22 (0.65 mm) AWG20 (0.82 mm)
Distance 0.9 km 1.5 km 2.3 km
Connect as shown below.
AI-900MS and AI-MS900 connection
2 twisted pair cables
2 twisted pair cables
LINE
LINE
1234
1234
1
2
3
4
1
2
3
4
AI-900MS
CN1
CN2
CN3
CN4
Line 1
for master station
Line 2
for master station
Front view of
the circuit board
Ferrite clamp *
Ferrite clamp *
* Mount the ferrite clamp (supplied with the AI-900MS card) on the cable in a way that the cable is looped one
turn as illustrated. (This countermeasure is for complying with the CE marking and FCC requirements.)
AI-900MS card
Ferrite clamp
SFC-10
Note
When using a shielded cable, connect the shielded wire to the "FG" terminal of the exchange main frame.
Also, connect the unused cables, if included in a bundle of cables, to the same terminal.

25
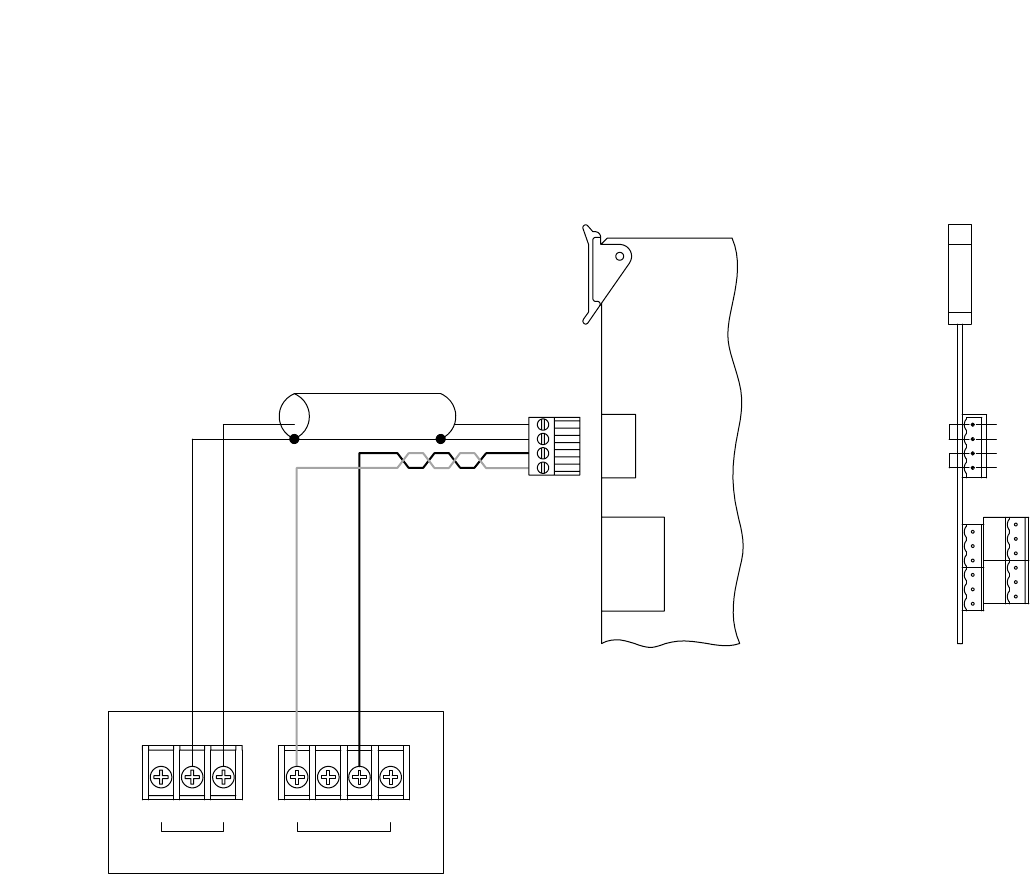
12.3.2. External recording device and AI-900MS connection
An external recording device can be connected to each master station line.
[Connection]
To connect the external recording device, use a twisted pair cable for voice output, and a twisted pair cable for
control output. The voice output is 0 dB* and of unbalanced type. The control output is an open collector
output 20 mA, 24 V DC max. Connect as shown below.
*0 dB = 1 V
External recording device and AI-900MS connection
2 twisted pair cables
2 twisted pair cables
HOT
GND
HOT
GND
HOT
GND
HOT
GND
AI-900MS
CN1
CN2
CN3
CN4
Line 1 for
recording
Line 2 for
recording
To voice input (HOT)
To voice input (GND)
To recording start input (HOT)
To recording start input (GND)
Recording device
Recording device
Voice output
Control output
Voice output
Control output
Front view of
the circuit board

26
12.4. AI-MS900 Master Station Connection and Adjustment
12.4.1. External speaker connection
Follow the procedures below when connecting an external speaker (8Ω).
Step 1. Remove the AI-MS900's rear terminal cover and set the internal slide switch to the [EXT. SP] position.
Terminal cover
EXT.SP terminal
Microphone sensitivity control
Internal speaker volume control
Internal/External speaker selection switch
Step 2. Connect the speaker cable to EXT.SP terminal.
Speaker cable
12.4.2. Internal speaker volume and microphone sensitivity adjustment
The AI-MS900's internal speaker volume and microphone sensitivity can be adjusted by means of their
respective controls located under the terminal cover described above. Both controls are factory-preset to their
maximum positions.
Step 3. Replace the removed terminal cover in place.

27
12.5. AI-900AL Telephone Interface Card Connection
12.5.1. Telephone and AI-900AL connection
The AI-900AL can be interfaced with up to 2 commercial telephone sets. Use the telephone which complies
with the FCC Regulation Part 68.
[Connection]
To connect the telephone set to the AI-900AL, use a twisted pair cable. The connector of the cable end going
to the telephone needs to be the type that can be connected to the telephone connector. Perform wiring as
shown below so that the loop resistance is less than 500 Ωincluding the telephone resistance.
Telephone and AI-900AL connection
AI-900AL
CN1
CN2
CN3
CN4
1 twisted pair cable
1 twisted pair cable
Telephone set
Telephone set
Line 1
for telephone
Line 2
for telephone
Front view of
the circuit board
Ferrite clamp *
Ferrite clamp *
* Mount the ferrite clamp (supplied with the AI-900AL card) on the cable in a way that the cable is looped one
turn as illustrated. (This countermeasure is for complying with the CE marking and FCC requirements.)
AI-900AL card
Ferrite clamp
SFC-10
Note
When using a shielded cable, connect the shielded wire to the "FG" terminal of the exchange main frame.
Also, connect the unused cables, if included in a bundle of cables, to the same terminal.

28
[Setting telephone's talking volume levels]
When the talking volume is low, set it using the switch SW101 (for Line 1) or SW201 (for Line 2) on the
AI-900AL card as illustrated below.
Setting of telephone volume switches on the AI-900AL card
AI-900AL
SW101
SW201
D210
D110
CN1
Telephone
volume
switch
Telephone's talking volume (Line 1)
Telephone's talking volume (Line 2)
Front view of
the circuit board
12
ON
12
ON
12
ON
Telephone's talking volume setting
Volume "low"
(Factory-preset)
Volume "middle" Volume "high"

29
12.5.2. External recording device and AI-900AL connection
An external recording device can be connected to each telephone line.
[Connection]
To connect the external recording device, use a twisted pair cable for voice output, and a twisted pair cable for
control output. The voice output is 0 dB* and of unbalanced type. The control output is an open collector
output of 20 mA, 24 V DC max. Connect as shown below.
*0 dB = 1 V
External recording device and AI-900AL connection
2 twisted pair cables
2 twisted pair cables
To voice input (HOT)
To voice input (GND)
To recording start input (HOT)
To recording start input (GND)
Recording device
Recording device
AI-900AL
CN1
CN2
CN3
CN4
HOT
GND
HOT
GND
HOT
GND
HOT
GND
Line 1 for
recording
Line 2 for
recording
Voice output
Control output
Voice output
Control output
Front view of
the circuit board

30
12.6. AI-900RS Substation Interface Card Connection
12.6.1. Substation and AI-900RS connection
The AI-900RS can be interfaced with up to 16 substations.
[Connection]
Use a 2-core shield cable to connect the substation to the AI-900RS. Refer to the following table for the
maximum recommended cable length between the two.
Cable type AWG24 (0.52 mm) AWG22 (0.65 mm) AWG20 (0.82 mm)
Distance 0.5 km 0.8 km 1.3 km
Connect as shown below.
Connection of the AI-RS150/-RS160/-RS170/-RS180 to the AI-900RS
AI-RS150, AI-RS160,
AI-RS170 or AI-RS180
To line A (orange)
To line B (brown)
To line C (black)
2-core shielded cable
2-core shielded cable
AI-900RS
CN1
CN2
CN3
CN4
Line 1
Line 2
Line 5
Line 6
Line 9
Line 10
Line 13
Line 14
Line 3
Line 4
Line 7
Line 8
Line 11
Line 12
Line 15
Line 16
A
B
C
A
B
C
A
B
C
A
B
C
A
B
C
A
B
C
A
B
C
A
B
C
A
B
C
A
B
C
A
B
C
A
B
C
A
B
C
A
B
C
A
B
C
A
B
C
Front view of
the circuit board
Note
The cables coming from the substations are bared at their ends.

31
12.6.2. External amplifier and AI-900RS connection
1-core shielded cable
1 twisted pair cable
AI-900RS
CN1
CN5 Voice output
Voice input
HOT
HOT
GND
GND
(For paging amplifier)
Paging amplifier *1
GND COM COM 25V 70V4HOT
INPUT OUTPUT
Front view of
the circuit board
Electrical characteristics of the CN5 connector
Voice output: Unbalanced, –20 dB*2signals to be sent to a paging amplifier
Voice input: Balanced, acceptable signals on the 25 V line output from a paging amplifier
*1Rated at over 16 W power output (ex. BG-130 30 W amplifier)
*20 dB = 1 V

32
12.7. AI-900CO Outside Line Interface Card Connection
12.7.1. Outside line and AI-900CO connection
The AI-900CO can be interfaced with up to 2 outside lines. Using DTMF tone dialing, it is compatible with both
loop and ground start systems.
[Connection]
Connect as shown below.
Outside line and AI-900CO connection
1 twisted pair cable
1 twisted pair cable
AI-900CO
CN1
CN2
CN3
CN4
GND *1
GND
Front view of
the circuit board
Outside line
Line 1
GND *1
GND
Outside line
Line 2
Lightening
protector *2
Lightening
protector *2
U.S.O.C. *3
RJ11C or W
C/O Line 1
(or PBX
Extension)
C/O Line 2
(or PBX
Extension)
*1Ground this terminal only when using ground start system.
*2Install a protector if not yet installed by the telephone company.
*3This terminal must be installed by the telephone company.

33
12.7.2. External recording device and AI-900CO connection
An external recording device can be connected to each telephone line.
[Connection]
To connect the external recording device, use a twisted pair cable for voice output, and a twisted pair cable for
control output. The voice output is 0 dB* and of unbalanced type. The control output is an open collector
output o f 20 mA, 24 V DC max. Connect as shown below.
*0 dB = 1 V
External recording device and AI-900CO connection
2 twisted pair cables
2 twisted pair cables
To voice input (HOT)
To voice input (GND)
To recording start input (HOT)
To recording start input (GND)
Recording device
Recording device
AI-900CO
CN1
CN2
CN3
CN4
HOT
GND
HOT
GND
HOT
GND
HOT
GND
Line 1 for
recording
Line 2 for
recording
Voice output
Control output
Voice output
Control output
Front view of
the circuit board

34
12.8. AI-900AF Audio Function Card Connection
12.8.1. Amplifier and AI-900AF connection
Paging can be provided through connected external amplifiers using the AI-900AF.
[Connection]
To connect the amplifier to the AI-900AF, use a twisted pair cable for voice output, and a twisted pair cable for
control output. The voice output is 0 dB* and of unbalanced type. The control output is an open collector
output of 20 mA, 24 V DC max., and permits connection of up to 16 channels. Connect as shown below.
*0 dB = 1 V
External amplifier and AI-900AF connection
To voice input (HOT)
To voice input (GND)
1 twisted pair cable
1 twisted pair cable
To start input (HOT)
To start input (GND)
AI-900AF
CN4
CN5
CN7
CN8
CN6
Voice output
Control output 1
Control output 2
Control output 3
Control output 4
Control output 9
Control output 10
Control output 11
Control output 12
Control output 5
Control output 6
Control output 7
Control output 8
Control output 13
Control output 14
Control output 15
Control output 16
HOT
GND
HOT
GND
HOT
GND
HOT
GND
HOT
GND
HOT
GND
HOT
GND
HOT
GND
HOT
GND
HOT
GND
HOT
GND
HOT
GND
HOT
GND
HOT
GND
HOT
GND
HOT
GND
HOT
GND
Amplifier(1)
Amplifier(2)
Amplifier(15)
Amplifier(16)
Front view of
the circuit board

35
12.8.2. External sound source and AI-900AF connection
The External Sound Source Distribution function can be operated using the AI-900AF.
[Connection]
To connect external sound sources to the AI-900AF, use a twisted pair cable for voice input, and a twisted pair
cable for control input (level-operated activation). The voice input is 0 dB* and of unbalanced type. The start
input is a no-voltage make contact of 20 mA, 24 V DC max. Connect as shown below.
*0 dB = 1 V
External sound sources and AI-900AF connection
AI-900AF
CN1
CN2
CN3
4 twisted pair cables
To voice output (HOT)
To voice output (GND)
Mixer
Sound source
Sound source
Sound source
Sound source
Voice (HOT)
Voice (GND)
To control input (HOT)
To control input (GND)
To control output (HOT)
To control output (GND)
Timer
Voice input
Control input 1
Control input 2
Control input 3
Control input 4
HOT
GND
HOT
GND
HOT
GND
HOT
GND
HOT
GND
Front view of
the cicuit board

36
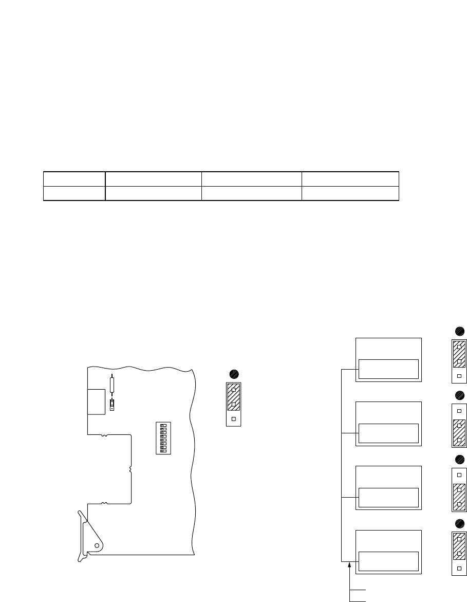
12.9. AI-900TI Tie-Line Interface Card Exchange Interconnection
Up to 16 exchanges can be tie-line interconnected using the AI-900TI card.
[Connection]
To interconnect the exchanges, use 2 twisted pair cables for voice lines, and a 2-core shielded cable for data
lines. A maximum of 4 voice lines can be connected. Refer to the following table for the maximum
recommended length for each cable type between exchanges.
(As to the cable connection, see the figure on the next page.)
Cable type AWG24 (0.52 mm) AWG22 (0.65 mm) AWG20 (0.82 mm)
Distance 0.6 km 1 km 1.5 km
[Termination resistance setting]
When interconnecting three or more exchanges, change the SJP10 connection on each card as shown below,
with the exception of the cards in the rightmost and leftmost exchanges.
AI-900
AI-900TI
AI-900TI
AI-900TI
AI-900TI
AI-900TI
AI-900
AI-900
AI-900
SJP10
SJP10
SJP10
SJP10
SJP10
CN6
R26
SJP10
SW1
Two twist pair cables (voice line)
A 2-core shielded cable (data line)
Factory-preset status of SJP10 Termination resistance setting when
interconnecting 3 or 4 exchanges

37
Connect as shown below.
Exchange interconnection by means of AI-900TI
2 twisted pair cables
2 twisted pair cables
2 twisted pair cables
2 twisted pair cables
2 twisted pair cables
2 twisted pair cables
2 twisted pair cables
2 twisted pair cables
2-core shielded cable
2-core shielded cable
AI-900TI
CN1
CN2
CN3
CN4
CN6
AI-900TI
CN1
CN2
CN3
CN4
CN6
Voice line 1
Voice line 2
Voice line 3
Voice line 4
Data line
RS-485
Voice line 1
Voice line 2
Voice line 3
Voice line 4
Data line
RS-485
HOT
COM
HOT
COM
HOT
COM
HOT
COM
HOT
COM
HOT
COM
HOT
COM
HOT
COM
A
B
GND
GND
HOT
COM
HOT
COM
HOT
COM
HOT
COM
HOT
COM
HOT
COM
HOT
COM
HOT
COM
A
B
GND
GND
Front view of
the circuit board

38
[Exchange Number Setting]
When interconnecting the exchanges using the AI-900TI, assign the exchange number to each exchange with
the SW1 switch located on the AI-900TI's circuit board. (Refer to the table below.)
Exchange No. setting
Initial status: Exchange No. 1
AI-900TI
CN6
SW1
1 8
Exchange No. 1
1
2
3
4
5
6
7
8
OFF
ON
OFF
ON
OFF
ON
OFF
ON
2
OFF
OFF
ON
ON
OFF
OFF
ON
ON
3
OFF
OFF
OFF
OFF
ON
ON
ON
ON
4
OFF
OFF
OFF
OFF
OFF
OFF
OFF
OFF
5 – 8
OFF
OFF
OFF
OFF
OFF
OFF
OFF
OFF
9
10
11
12
13
14
15
16
OFF
ON
OFF
ON
OFF
ON
OFF
ON
OFF
OFF
ON
ON
OFF
OFF
ON
ON
OFF
OFF
OFF
OFF
ON
ON
ON
ON
ON
ON
ON
ON
ON
ON
ON
ON
OFF
OFF
OFF
OFF
OFF
OFF
OFF
OFF
ON
12345678

39
12.10. AI-900MF Main Frame and AI-PU200 Power Transformer Connection
[Connection]
Connect as shown below using 2 parallel pair cables. Use cables with a sufficient current capacity and a
heavier gauge than AWG18. Two AI-PU200 units are required when using 3 or 4 AI-900RS cards.
AI-900MF and power supply connection
AI-900MF
24 V DC
AI-PU200
To commercial power supply
AI-PU200
To commercial power supply
OUTPUT
20V AC 2.5A 20V AC 2.5A
OUTPUT
20V AC 2.5A 20V AC 2.5A
from AI-PU200
AC-INAC-IN
12
DC24V IN
G1 FG
from AI-PU200
AC-INAC-IN
3 4

40
13. MAIN FRAME AND PC CONNECTION
13.1. Programming PC Connection
13.1.1. Direct connection by means of RS-232C
Using the RS-232C cable, connect the programming PC to the AI-900MF Main Frame as shown below.
Direct connection by means of RS-232C (Programming PC)
AI-900MF
Main Frame AI-900MF
Front view
PC
COM2
COM2
COM1
RS-232C straight cable
RS-232C straight cable
Programming PC
1DCD
2RXD
3TXD
4DTR
5GND
6DSR
7RTS
8CTS
9RI
1DCD
2RXD
3TXD
4DTR
5GND
6DSR
7RTS
8CTS
9RI

41
13.1.2. Connection via modem
Connect as shown below.
Connection via modem (Programming PC)
AI-900MF Modem
Modem
COM2
COM1
1DCD
2RXD
3TXD
4DTR
5GND
6DSR
7RTS
8CTS
9RI
1DCD
2RXD
3TXD
4DTR
5GND
6DSR
7RTS
8CTS
9RI
RS-232C cross cable
RS-232C cross cable
Main Frame AI-900MF
Front view

42
13.2. Operation Log PC Connection
13.2.1. Direct connection by means of RS-232C
Using the RS-232C cable, connect the operating log PC to the AI-900MF as shown below.
Direct connection by means of RS-232C (Operation log PC)
AI-900MF PC
COM2
COM1
RS-232C straight cable
RS-232C straight cable
1DCD
2RXD
3TXD
4DTR
5GND
6DSR
7RTS
8CTS
9RI
1DCD
2RXD
3TXD
4DTR
5GND
6DSR
7RTS
8CTS
9RI
Operation log PC
Main Frame AI-900MF
Front view

43
13.2.2. Connection via modem
Connect as shown below.
Connection via modem (Operation log PC)
AI-900MF Modem
Modem
COM2
COM1
1DCD
2RXD
3TXD
4DTR
5GND
6DSR
7RTS
8CTS
9RI
1DCD
2RXD
3TXD
4DTR
5GND
6DSR
7RTS
8CTS
9RI
RS-232C cross cable
RS-232C cross cable
Main Frame AI-900MF
Front view
13.3. System Programming
Use the supplied PC software to perform such system programming as station number and function settings.
For its use and installation, refer to the "AI-900 Setup Software Instruction Manual."

44
14. SPEECH AND FUNCTION TESTS
Using installed equipment, perform both speech and function tests after system programming completion.
14.1. Speech Test
(1) Calls from the substation
•Call the Master Station (telephone) from each substation to check to be sure that a conversation is possible.
Also, check to confirm that the master station (telephone) registered in system programming is correctly
called.
•Check to be sure that the calling substation number (name) is correctly displayed on the Master Station.
(2) Calls from the master station
•Call the substation and Master Station from each Master Station to check to be sure that a conversation is
possible.
•Check to confirm that the designated station is correctly called.
14.2. Function Test
Check each function registered in system programming for correct operation.
For each function's operation, refer to the "AI-900 OPERATING INSTRUCTIONS."

45
Note: The design and specifications are subject to change without notice for improvement.
• Accessories
Power Source 20 V AC, 24 V DC
Current Consumption 5.5 A
Speech Path Configuration Time sharing switch (T1 stage)
Serial port Complies with the RS-232C Standard, D-sub connector (9-pin, female),
2 ports
Installation Method Rack- and wall-mountable
Other Real time clock for time control
Unit's presence/non-presence detection
System programming data maintenance
Power switch
Connection Terminal Bus connector: DIN connector (64-pin, female) x 9
AI-PU200 connection terminal: 4-pin x 2 (2 AI-PU200s are connectable.)
24 V DC input terminal: 4-pin (with grounding terminal)
Operating Temperature 0 – 40°C
Finish Pre-coated steel plate, black, 30% gloss
Dimensions 420 (w) x 443.7 (h) x 288.3 (d) mm (excluding the rack mounting bracket)
Weight 12.7 kg
15. SPECIFICATIONS
[AI-900MF Main Frame]
Power Source 5 V DC, 24 V DC (supplied from the main frame)
Current Consumption 50 mA (5 V DC), 200 mA (24 V DC)
Supply Power 24 V DC, 80 mA
Number of Lines 2 lines
Conversation Recording Output Audio signal: 0 dB*, unbalanced
Control signal: Open collector output, withstand voltage: 24 V DC,
control current: 20 mA
Connection Terminal Main frame connection side: DIN connector (64-pin, male)
Line output: 4-pin x 2
Recording audio/control output: 4-pin x 2
Weight 350 g
[AI-900MS Master Station Interface Card]
* 0 dB = 1 V
Note: The design and specifications are subject to change without notice for improvement.
• Accessories
4-pin dedicated connector .......................... 4
Ferrite clamp SFC-10 ................................. 2
Rack mounting bracket .............................. 2
Machine screw (M4 x 10) ........................... 6
Cable clip ................................................. 20
4-pin dedicated connector .......................... 3
CR2032 battery .......................................... 1
Floppy disk (PC setting software) .............. 2
AI-900 operating instructions ..................... 1
AI-900 installation manual (this manual) .... 1
AI-900 setup software manual ................... 1
Rack mounting screw ................................. 8
Rack mounting washer ............................... 8

46
Note: The design and specifications are subject to change without notice for improvement.
• Accessories
2-pin dedicated connector .......................... 2
4-pin dedicated connector .......................... 2
Ferrite clamp SFC-10 ................................. 2
[AI-900AL Telephone Interface Card]
Power Source 5 V DC, 15 V DC, 24 V DC (supplied from the main frame)
Current Consumption 150 mA (5 V DC), 30 mA (15 V DC), 200 mA (24 V DC)
Supply Power 24 V DC, 80 mA
Number of Lines 2 lines
Conversation Recording Output Audio signal: 0 dB*, unbalanced
Control signal: Open collector output, withstand voltage: 24 V DC,
control current: 20 mA
Selectable Signal Type DTMF signal
Monitoring Function Line loop detection function
Applicable Terminal Telephone sets to comply with FCC Part 68
Control Function Call signal transmission, audible signal transmission,
caller identification signal transmission (Caller ID Function)
Connection Terminal Main frame connection side: DIN connector (64-pin, male)
Line output: 2-pin x 2
Recording audio/control output: 4-pin x 2
Weight 400 g
* 0 dB = 1 V
Note: The design and specifications are subject to change without notice for improvement.
• Accessories
3-pin dedicated connector ........................ 16
4-pin dedicated connector .......................... 1
[AI-900RS Substation Interface Card]
Power Source 5 V DC, 24 V DC (supplied from the main frame)
Current Consumption 200 mA (5 V DC), 600 mA (24 V DC)
Number of Lines Substation 16 lines
Number of Links 2 links (One of 2 links is also used as a Paging Link.)
Paging Output Unbalanced, –20 dB* signals to be sent to a paging amplifier
Paging Input Balanced, acceptable signals on the 25 V line output from a paging
amplifier
Conversation Method Half-duplex conversation by voice-operated switch or simplex
conversation by PTT switch
Supply Power Maximum 1 W per substation
Other Call button detection function and speech link control function
Connection Terminal Main frame connection side: DIN connector (64-pin, male)
Substation connection side: Two-core shielded cable (3-pin) x 16
Paging input/paging output: 4-pin
Weight 550 g
* 0 dB = 1 V

47
Note: The design and specifications are subject to change without notice for improvement.
• Accessories
4-pin dedicated connector .......................... 4
[AI-900CO Outside Line Interface Card]
Power Source 5 V DC, 15 V DC, 24 V DC (supplied from the main frame)
Current Consumption 300 mA (5 V DC), 50 mA (15 V DC), 50 mA (24 V DC)
Number of Lines 2 lines
Conversation Recording Output Audio signal: 0 dB*, unbalanced
Control signal: Open collector output, withstand voltage: 24 V DC,
control current: 20 mA
Selectable Signal Type DTMF signal
Signal Format Loop start and Ground start compatible
Main Functions DTMF dial signal transmission function, DTMF signal detection
function, call signal (receiving) detection
Connection Terminal Main frame connection side: DIN connector (64-pin, male)
C/O line connection side: 4-pin x 2
Recording audio/control output: 4-pin x 2
Weight 380 g
* 0 dB = 1 V
Note: The design and specifications are subject to change without notice for improvement.
• Accessories
2-pin dedicated connector .......................... 2
4-pin dedicated connector ........................ 10
[AI-900AF Audio Function Card]
Power Source 5 V DC, 15 V DC, 24 V DC (supplied from the main frame)
Current Consumption 100 mA (5 V DC), 50 mA (15 V DC), 30 mA (24 V DC)
Paging Output Audio output: 1 output, 0 dB*, unbalanced
Control output: Open collector output, withstand voltage: 24 V DC,
control current: 20 mA
External Source Distribution Audio input: 1 input, 0 dB*, unbalanced
Control input: 4 inputs, no-voltage make contact,
open voltage: 24 V DC, short circuit current: 20 mA
Conference Link 1 link (up to 4-party conference)
Connection Terminal Main frame connection side: DIN connector (64-pin, male)
External interface side: Voice output 2-pin
Control output 2-pin x 16
Voice input 2-pin
Control input 2-pin x 4
Weight 230 g
* 0 dB = 1 V

Printed in Japan
133-06-239-30
Note: The design and specifications are subject to change without notice for improvement.
• Accessories
4-pin dedicated connector .......................... 5
[AI-900TI Tie-Line Interface Card]
Power Source 5 V DC, 15 V DC (supplied from the main frame)
Current Consumption 100 mA (5 V DC), 50 mA (15 V DC)
Number of Audio Links 4 links
Connection Format Multidrop system
Transmitting System Data: RS-485
Voice: Base band
Input/Output Level Voice: 0 dB*, balanced
Data: In compliance with RS-485 Standard
Other Exchange number setting function
Connection Terminal Main frame connection side: DIN connector (64-pin, male)
Tie-line interface side: 4-pin x 4 (Voice line)
4-pin x 1 (Data line)
Weight 320 g
* 0 dB = 0.775 V
Note: The design and specifications are subject to change without notice for improvement.
• Accessories
Wood screw (5.1 x 38) ............................... 4
Tapping screw (4 x 12) ............................... 4
[AI-YC303 Main Frame Wall Mounting Bracket]
Finish Steel, black, electrodeposition paint
Dimensions 391.4 (w) x 440 (h) x 58 (d) mm
Weight 2.1 kg