dormakaba Deutschland B-ECOH2 RFID Reader User Manual

Kaba GmbH RFID Reader

user manual

               B-eco         Manual    04043988 - 02/2014  EN
      © Copyright by Kaba GmbH Albertistraße 3 D-78056 Villingen-Schwenningen Phone +49 7720/603-0 Fax +49 7720/603-102  www.kaba.com/workforce-management   All rights reserved. The document and its parts are copyrighted. Only Kaba GmbH has the right to commercialize, market and distribute this document. This document, or any part of it, may not be copied or reproduced, adapted, arranged, reworked or modified without the prior consent of Kaba GmbH.  All company, trademark or product names are trademarks or registered trademarks of their respective owners and are protected.  Subject to technical changes without notice!   Order no. 04043988 - 02/2014
    1 About this manual ............................................................................................................................ 7 2 Grouped safety messages................................................................................................................ 9 2.1 Use as directed .....................................................................................................................................................9 2.2 Mounting and Installation................................................................................................................................9 2.3 Service and Maintenance .................................................................................................................................9 2.4 Handling lithium batteries ............................................................................................................................ 10 2.5 ESD (electrostatic discharge) protective measures...............................................................................10 2.6 Environmental protection ............................................................................................................................. 11 3 Product description........................................................................................................................12 3.1 B-eco..................................................................................................................................................................... 12 3.2 Technical data.................................................................................................................................................... 13 3.2.1 System.................................................................................................................................................. 13 3.2.2 Inputs / Outputs ............................................................................................................................... 13 3.2.3 Interface .............................................................................................................................................. 14 3.2.4 Reader .................................................................................................................................................. 14 3.2.5 Power supply..................................................................................................................................... 15 3.2.6 Uninterruptible power supply (option).................................................................................... 15 3.2.7 Environmental conditions............................................................................................................. 15 3.2.8 Dimensions ........................................................................................................................................ 16 3.3 Conformity.......................................................................................................................................................... 19 3.4 Labeling............................................................................................................................................................... 21 4 Design and Function.......................................................................................................................22 4.1 Device structure................................................................................................................................................ 22 4.1.1 Terminal front.................................................................................................................................... 23 4.1.2 Terminal rear...................................................................................................................................... 23 4.2 System connection .......................................................................................................................................... 24 4.2.1 Communication principle ............................................................................................................. 24 4.2.2 Parameterization.............................................................................................................................. 24 4.2.3 User rights........................................................................................................................................... 24 4.2.4 Terminal data..................................................................................................................................... 25 4.2.5 Operating modes ............................................................................................................................. 25 4.3 Device variants and options ......................................................................................................................... 26 4.3.1 Hardware variants............................................................................................................................ 26 4.4 Terminal software............................................................................................................................................. 29 4.4.1 Terminal software variants............................................................................................................ 29 4.4.2 Software options.............................................................................................................................. 30 4.4.3 License file.......................................................................................................................................... 31 5 Installation ......................................................................................................................................32 5.1 Installation conditions .................................................................................................................................... 32 5.1.1 General ................................................................................................................................................ 32 5.1.2 Installation site.................................................................................................................................. 32 5.1.3 Connections....................................................................................................................................... 33 5.1.4 Cable entry ......................................................................................................................................... 33 5.2 Installation lines................................................................................................................................................ 34 5.2.1 Ethernet............................................................................................................................................... 34 5.2.2 Inputs - Outputs................................................................................................................................ 34 5.3 Attach mounting plate ................................................................................................................................... 35 5.4 Inserting batteries ............................................................................................................................................ 37
  5.5 Connections....................................................................................................................................................... 38 5.5.1 Connecting an external reader ...................................................................................................39 5.6 Fastening the terminal housing to the mounting plate ..................................................................... 40 5.7 Fastening of devices with additional sealing (IP54 version).............................................................. 41 6 Start-up ........................................................................................................................................... 42 6.1.1 Service switch.................................................................................................................................... 42 6.1.2 Cold start............................................................................................................................................. 43 6.1.3 Starting the service mode............................................................................................................. 43 6.1.4 Starting the service mode and setting the service IP address.......................................... 43 6.1.5 Starting the terminal software / warm start............................................................................ 43 6.2 Network access requirements ..................................................................................................................... 44 6.2.1 Communication................................................................................................................................ 44 6.2.2 Comparing finger templates........................................................................................................ 44 6.2.3 1-click installation............................................................................................................................ 44 6.2.4 Configuration.................................................................................................................................... 44 6.3 1-click installation ............................................................................................................................................ 45 6.3.1 Start-up procedure.......................................................................................................................... 45 6.4 Manual settings ................................................................................................................................................ 46 6.5 Configuration-specific settings ................................................................................................................... 47 6.5.1 Ethernet settings.............................................................................................................................. 47 6.5.2 Host interface.................................................................................................................................... 48 6.5.3 Reader settings................................................................................................................................. 48 6.6 Setting the screen contrast........................................................................................................................... 49 7 Operation........................................................................................................................................ 50 7.1 Operating elements ........................................................................................................................................ 50 7.2 Keypad................................................................................................................................................................. 50 7.3 RFID reader......................................................................................................................................................... 51 7.4 Swipe reader...................................................................................................................................................... 51 7.4.1 Biometric reader............................................................................................................................... 52 7.4.2 Finger position.................................................................................................................................. 52 7.4.3 Operator guidance .......................................................................................................................... 53 7.4.4 Displaying error states ................................................................................................................... 53 7.5 Operating sequences...................................................................................................................................... 54 7.5.1 Basic state........................................................................................................................................... 54 7.5.2 Active function.................................................................................................................................. 54 7.5.3 Active booking.................................................................................................................................. 55 7.5.4 Booking response ............................................................................................................................ 55 7.6 Keypad entries................................................................................................................................................... 56 7.6.1 Numeric input................................................................................................................................... 56 7.6.2 Alphanumeric input........................................................................................................................ 56 7.7 Local enrollment............................................................................................................................................... 57 7.7.1 Call up and requirements.............................................................................................................. 57 7.7.2 Biometric management functions ............................................................................................. 57 8 Maintenance ................................................................................................................................... 61 8.1 Buffer battery..................................................................................................................................................... 61 8.1.1 Battery change.................................................................................................................................. 62 8.2 Replacing the UPS batteries ......................................................................................................................... 63 8.3 Cleaning the housing...................................................................................................................................... 64 9 Packaging / returns ........................................................................................................................ 65 9.1 Complete devices............................................................................................................................................. 65 9.2 Electronic assemblies...................................................................................................................................... 65
   9.3 Labeling............................................................................................................................................................... 66 10 Disposal ...........................................................................................................................................67 11 Index ................................................................................................................................................68
Manual  About this manual B-eco  04043988 - 02/2014  7   1 About this manual  Validity  This manual describes the Kaba B-eco terminal starting from  Manufacturing date:  February 2014  Serial number:  079940-000100  Service module version:  697-00-X-K07  B-Client PDC6 version:  766-01-X-K00 767-01-X-K00   This manual describes all device versions and optional equipment and functions. Options must be purchased and are therefore only available if they were purchased. Additional equipment and functions may not yet be available at the time of issuing the manual and can possible only be purchased at a later stage.  Addressees  This manual is written exclusively for specialists. The descriptions in this manual are intended for personnel trained by the manufacturer. The information in this manual cannot substitute the product training. The contents of this manual is intended for use by the following groups of people: •  Project manager   Project manager who is responsible for the system and entrusted with project planning and realization. •  Fitter   Person specialized in mounting and installation.   Person who has an adequate technical training and sufficient experience and who has been authorized by the manufacturer after completing the training on the product. •  Service technician   Specialist for initial set-up and maintenance of the installation.   Person who has an adequate technical training and sufficient experience and who has been authorized by the manufacturer after completing the training on the product. •  Network administrator   Realizes the set-up of the device within the network and makes sure that the devices are accessible within the network. •  Software partner   Specialists for connecting the system to the user software by defining operating and booking sequences, programming the customer applications and setting the parameters of the devices.  Important! For reasons of device safety, some of the activities might only be carried out by the SERVICE PERSON. Only persons of the groups "Fitter" and "Service technician" have the status of a SERVICE PERSON according to DIN EN 60950-1:2006.
About this manual  Manual 8  04043988 - 02/2014  B-eco    Contents and purpose  The contents is limited to the assembly, installation, start-up, and basic operation of the hardware.    Additional documentation  Terminal software: •  B-Client PDC6 software manual, order number 04043881. Service functions and FTP access: •  BECO Service Module manual, order number 04106694.   Orientation in the manual  This manual contains the following orientation aids to facilitate finding of specific topics: •  The table of contents at the beginning of the manual gives an overview of all topics. •  The header always contains the respective main chapter. •  An index in the alphabetical order is given at the end of the manual.   Danger categories  Remarks with specifications or rules and restrictions to prevent injuries and property damage are particularly marked. Please read the danger warnings and user tips carefully. This information will help prevent accidents and damage to your equipment. Danger warnings are divided into the following categories.    CAUTION  Describes a possibly dangerous situation that can lead to minor injuries.    NOTICE!  Important information for proper handling of the product.  Ignoring this information can cause device malfunction and the device or something near it can get damaged.   Symbols  Depending on the source of danger, warnings are marked with symbols of the following meaning.      General danger  Danger for electronic components due to electrostatic discharge   Remarks  Please pay special attention to the remarks that are marked with symbols.    Tips and useful information. This information will help you to best use the product and its functionality.
Manual  Grouped safety messages B-eco  04043988 - 02/2014  9    2 Grouped safety messages  The device has been built in accordance with state-of-the-art standards and the recognized safety rules. Nevertheless, its use may constitute a risk to persons and cause damage to material property. Read and observe the following safety instructions, before using the product.  2.1 Use as directed  The device or system is only intended for usage as described in chapter ”Product description.” Any use beyond the designated use is not according to rules. The manufacturer is not responsible for damages resulting from improper use. The user/operator is responsible for any risks associated with non-duly use.  2.2 Mounting and Installation  Mounting and installation may only be carried out by the SERVICE PERSON (see chapter 1 / Addressees).  Installation may only be carried out in places that fulfill climatic and technical conditions stated by the manufacturer.  Kaba GmbH is not liable for damages resulting from improper handling or incorrect installation.  2.3 Service and Maintenance  Maintenance work / troubleshooting  Only the SERVICE PERSON (see chapter 1 / Addressees) is entitled to remove faults and carry out the maintenance work.  Reconstruction and modification  Any reconstruction and modification of the device may only be realized by the SERVICE PERSON (see chapter 1 / Addressees). All reconstructions and modifications carried out by unauthorized personnel shall render void any liability.
Grouped safety messages  Manual 10  04043988 - 02/2014  B-eco   2.4 Handling lithium batteries  The device has a lithium manganese dioxide battery, type CR2032, to buffer the memory. The battery is on the rear of the terminal housing.   CAUTION  Lithium batteries can rupture or burst like an explosive. Improper handling of lithium batteries can cause fire and explosions. •  Lithium batteries may only be replaced by the SERVICE PERSON. •  They may only be replaced by batteries of the same type. •  Do not open, bore through, or crush lithium batteries. •  Do not burn lithium batteries or expose them to high temperatures. •  Do not short-circuit lithium batteries. •  Do not recharge the lithium batteries.   2.5 ESD (electrostatic discharge) protective measures  NOTICE!  Danger for electronic components due to electrostatic discharge. Improper handling of printed circuit boards or components can cause damages that lead to complete failures or sporadic errors. •  During installation and repair of the device, the ESD protective measures must be considered. The following rules must be considered: •  Wear an ESD wristband when handling electronic components.   Connect the end of the wristband to a discharge socket or an unvarnished grounded metal component. This way, static charges are discharged from your body securely and effectively. •  Touch only the edges of circuit boards. Do not touch the circuit board nor the connector. •  Place all dismantled components on an antistatic surface or in an antistatic container. •  Avoid contact between circuit boards and clothing. The wristband only protects the printed circuit boards against electrostatic discharge from your body, but there is still a risk of damage through electrostatic discharge from your clothing. •  Transport and dispatch dismantled modules only in electrostatically shielded protective bags.
Manual  Grouped safety messages B-eco  04043988 - 02/2014  11    2.6 Environmental protection  Please do not dispose of the device in your domestic waste. Used devices contain valuable materials that should be recycled. Properly dispose of used devices. Used-up batteries must be disposed of according to state and local regulations. Please store the batteries to be disposed of carefully in order to avoid short-circuits, crushing, or damage to the battery housing.
Product description  Manual 12  04043988 - 02/2014  B-eco   3 Product description    3.1 B-eco    The terminal has been designed for shop floor data collection (SFDC) functions and can also perform time and attendance functions or can be used for project time recording. The B-Client PDC6 terminal software is used on the terminal. Data records of the B-Net and B-web terminal series are compatible with the data records used in this device. The terminal software can be updated any time via a software update. In combination with the B-COMM communication software, the device offers a new and comfortable concept for start-up, subsequent functional upgrades and device analysis. To display time data and information, the terminal has a graphic monochrome display with a resolution of 240 x 128 pixels. The device has capacitive key fields that are operated by touching the glass front. The function keys are designed for time and attendance and SFDC. Time data are entered via a contactless RFID reader, a biometric reader or a swipe card reader, depending on the version. An external reader (e.g. CCD scanner) can optionally be connected. Communication is established via the Ethernet network and power supply via PoE (Power over Ethernet). Optionally, the terminal has 1 output (relay) and 2 digital inputs for control functions.
Manual  Product description B-eco  04043988 - 02/2014  13    3.2 Technical data  3.2.1 System Kaba BECO330 CPU unit with ARM7TDMI processor core Memory •  8 MByte Flash •  16 MByte SDRAM. •  2 MByte SRAM, buffered Modified parameters, master records, and data records are retained approximately 6 months without power supply. Graphic monochrome display •  240 x 128 pixels resolution. •  Background illumination by white LED. Capacitive keypad SFDC version: •  5 function keys (F1 to F5). •  4 special keys (grey). •  Numeric keypad with C and E keys. XML version: •  5 function keys (F1 to F5). •  8 special keys (gray). • Alphanumeric keypad (multiple assignment) with C and E keys.  3.2.2 Inputs / Outputs 1 relay output (optional) •  One potential-free changeover contact. •  Contact rating: 30 V AC / DC; max. 2 A   Only voltages from limited power sources according to EN 60950-1 may be applied. 2 digital inputs (optional) •  Controllable against GND via dry contact. •  Controllable via external direct voltage, switching level: −  Active input:  0 V to 0.8 V −  Inactive input:  2.5 V to 24 V
Product description  Manual 14  04043988 - 02/2014  B-eco   3.2.3 Interface Ethernet interface •  IEEE802.3 compatible 10BASE-T/100BASE-TX Auto sensing, Auto MDIX.  3.2.4 Reader Supported RFID technologies (depending on design): • LEGIC prime/advant • MIFARE Classic/DESFire • HID iCLASS • HID Prox Biometric reader (optional add on reader) •  Compact Biometric Module (CBM) with integrated database for fingerprints. Depending on the version, the reader has a storage capacity of 500, 3000 or 5000 persons (2 fingers per person).    The reader is available in 2 versions: −  CBM −  CBM-E with enhanced approvals (PIV-IQS with FBI certification and FIPS 201-approved template evaluation) •  Supported authentication methods:  −  Biometric identification Swipe card reader (optional add on reader) •  Magnetic stripe track 1, 2, 3 • Barcode redlight • Barcode infrared RJ45 connection for external reader • Interface: RS-232C. • Communication parameters: 9600, 8, N, 1. •  Power supply for the reader: 5 V DC, max. 300 mA over RJ45 connection.
Manual  Product description B-eco  04043988 - 02/2014  15    3.2.5 Power supply PoE (Power over Ethernet) Power supply of the terminal via the 8-wire Ethernet cable (max. 100 m). •  Corresponds to IEEE 802.3 af •  Power consumption class 3, max. power consumption 12.95 W •  Supported powering processes: −  Spare pair powering over (Fast Ethernet free) wire pairs 4/5 and 7/8 −  Phantom powering over RX wires (1/2) and TX wires (3/6) Power supply is superimposed to the data signal  3.2.6 Uninterruptible power supply (option) The optional uninterruptible power supply (UPS) guarantees operation for up to 15 minutes or approx. 200 bookings in case of power failure. Whatever occurs first. Requirement: New battery, 90% charged, temperature 20  -   25 °C. The battery is completely charged after 10 hours.  3.2.7  Environmental conditions •  Ingress protection according to IEC 60529: −  IP30 −  IP54 (Option for devices with RFID reader) • Relative humidity: −  5% to 95%, non-condensing • Environmental temperature: −  0 °C – +40 °C (operation) −  -25 °C – +70 °C (storage)
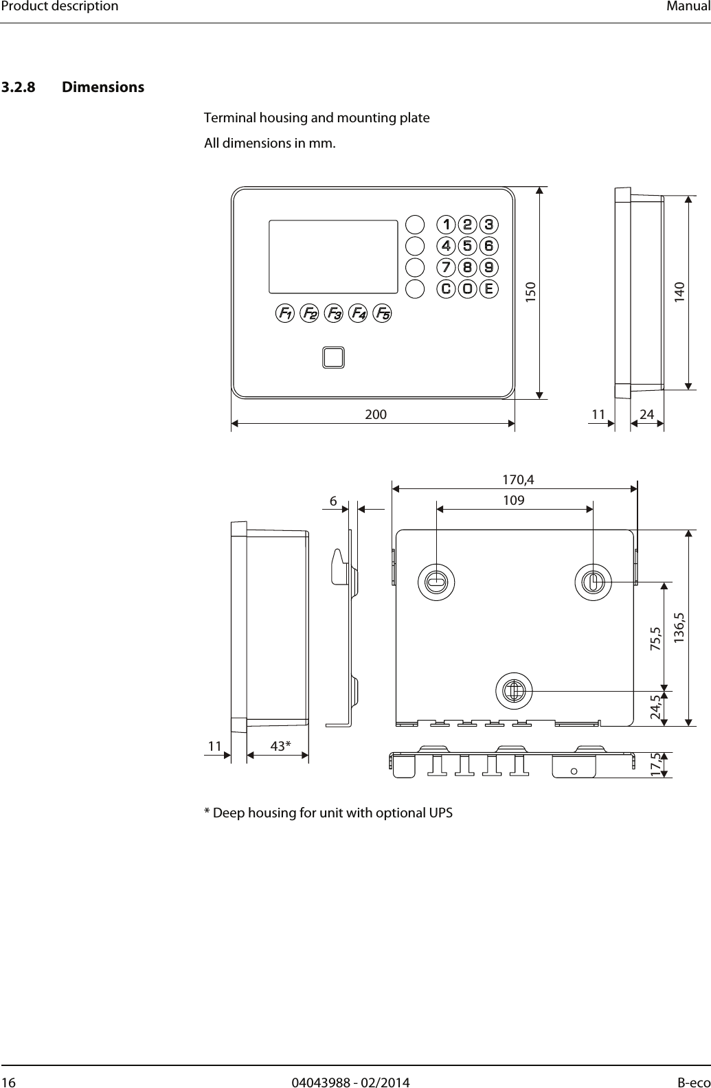
Product description  Manual 16  04043988 - 02/2014  B-eco   3.2.8 Dimensions Terminal housing and mounting plate All dimensions in mm.  200 11112443*15014075,5136,5109170,4617,5 24,5  * Deep housing for unit with optional UPS
Manual  Product description B-eco  04043988 - 02/2014  17  Terminal housing with biometric reader and mounting plate  852002121094,5327814232
Product description  Manual 18  04043988 - 02/2014  B-eco Terminal housing with swipe card reader and mounting plate  2001804441MagBCD61,51881094,5100136,524,533,5USV
Manual  Product description B-eco  04043988 - 02/2014  19   Konf 3.3 Conformity   This device complies with the following standards: EN 60950-1/A12:2011    EN 300 330-1 V1.7.1      EN 300 330-2 V1.5.1     EN 301 489-1 V1.4.3     EN 301 489-3 V1.9.2       according to the regulations of the EU Directives  1999/5/EC R&TTE Directive
Product description  Manual 20  04043988 - 02/2014  B-eco          DECLARATION OF CONFORMITY according to FCC Part 15   This device complies with part 15 of the FCC Rules. Operation is subject to the following two conditions: •  This device may not cause harmful interference •  This device must accept any interference received, including interference that may cause undesired operation.  Please Note: This equipment has been tested and found to comply with the limits for a Class B digital device, pursuant to part 15 of the FCC Rules. These limits are designed to provide reasonable protection against harmful interference in a residential installation. This equipment generates, uses and can radiate radio frequency energy and, if not installed and used in accordance with the instructions, may cause harmful interference to radio communications. However, there is no guarantee that interference will not occur in a particular installation. If this equipment does cause harmful interference to radio or television reception, which can be determined by turning the equipment off and on, the user is encouraged to try to correct the interference by one or more of the following measures: •  Reorient or relocate the receiving antenna. •  Increase the separation between the equipment and receiver. •  Connect the equipment into an outlet on a circuit different from that to which the receiver is connected. •  Consult the dealer or an experienced radio/TV technician for help. Any changes or modifications not expressly approved by the party responsible for compliance could void the user's authority to operate the equipment. Device variants •  B-eco with LEGIC   FCC ID: NVI-B-ECOL1 •  B-eco with MIFARE   FCC ID: NVI-B-ECOM1 •  B-eco with HID Prox   FCC ID: NVI-B-ECOH1 •  B-eco with HID iCLASS  FCC ID: NVI-B-ECOH2
Manual  Product description B-eco  04043988 - 02/2014  21    3.4 Labeling  The identification plate is located on the bottom side of the device.          Specified on the identification plate: • Device name • Product number • Serial number • Power data • CE identification • FCC identification •  WEEE labeling acc. to DIN EN 50419
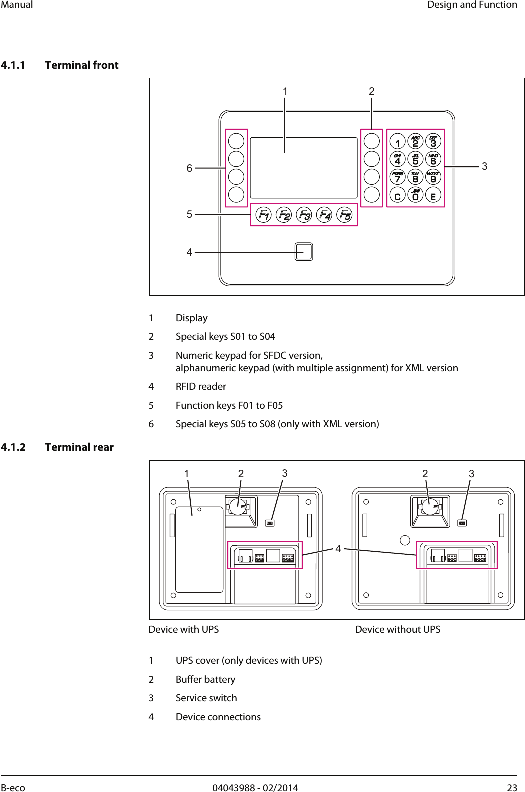
Design and Function  Manual 22  04043988 - 02/2014  B-eco   4 Design and Function  4.1 Device structure   12  The device consists of the terminal housing (1) and the mounting plate (2). The mounting plate is the wall-mounting element of the device. The terminal housing is simply snapped into the mounting plate and secured by means of a screw from below. The installation lines are led into the device from below. The connections are located on the rear of the terminal.  3 RFID devices with optional IP54 ingress protection are equipped by an additional sealing (3).
Manual  Design and Function B-eco  04043988 - 02/2014  23      4.1.1 Terminal front 123456  1 Display 2  Special keys S01 to S04 3  Numeric keypad for SFDC version,  alphanumeric keypad (with multiple assignment) for XML version 4 RFID reader 5  Function keys F01 to F05 6  Special keys S05 to S08 (only with XML version) 4.1.2 Terminal rear 12 2334 Device with UPS   Device without UPS  1  UPS cover (only devices with UPS) 2 Buffer battery 3 Service switch 4 Device connections
Design and Function  Manual 24  04043988 - 02/2014  B-eco   4.2 System connection   4.2.1 Communication principle Communication between the terminal and a higher-level host computer usually takes place via an Ethernet network. Terminal software B-Client PDC6 Communication software B-COMM   Customer application LANB-eco Host computer    Data exchange between the B-Client PDC6 terminal software and the customer application takes place by means of the B-COMM communication software. The communication software transfers the data recorded by the terminals to files or sends it to the customer application via a defined interface.  4.2.2 Parameterization The various terminal functions mainly depend on the set parameters. Parameter setting allows extensive adaptation to a wide range of applications. A parameter setting changes the currently valid parameters and stores the new ones in the memory of the terminal. The required parameters are provided by the customer application and transferred to the terminal in form of parameter records.  4.2.3 User rights Information required for authorizations is provided by the customer application in the form of personnel master records. All the information on a specific badge number or group is stored in the master record. The master record contains information on authorizations, time profiles, person-related display texts and the PIN number. Master records can be saved in the terminal. This allows the terminal itself to decide whether a booking is authorized. Master records can be transmitted to the terminal at any time. The currently valid master record is then overwritten. Individual master records can be deleted from the host. Likewise, master records can be requested from the host. The number of master records that can be loaded in the terminal depends on the licensed memory configuration. Whether a booking is authorized can also be requested by contacting the host in "online" mode. In this case, no master records are required in the terminal.
Manual  Design and Function B-eco  04043988 - 02/2014  25    4.2.4 Terminal data After a booking has been made, a data record is generated by the terminal. The data record contains information about who has booked on which terminal using which function key. The operating mode of the terminal determines when this data record is transmitted to the host. As a result of certain statuses and events, alarm records and status records will be generated.  4.2.5 Operating modes 4.2.5.1 Online After a booking has been made, the terminal carries out the checks and writes the test result as error identification into the input record. The data record is transmitted to the host computer. After that, the terminal expects a logical booking response from the host. With this response the terminal is informed by the host if the booking is authorized or not. If the terminal does not receive a logical booking response from the host, it will change to the offline operating mode and decide itself if the booking is authorized or not. As soon as the host is available again, all data records stored offline since the last transmission are transmitted to the host. Then the terminal changes back to the online operating mode. 4.2.5.2 Offline After a booking has been made, the terminal carries out the programmed checks and decides immediately by way of an internal booking response if the booking is authorized or not. Otherwise, the data records will be stored in the terminal. As soon as the host computer is available, all data records stored since the last transmission are transmitted to the host. 4.2.5.3 Autonomous After a booking has been made, the terminal carries out the programmed checks and decides immediately by way of an internal booking response if the booking is authorized or not. Data records of authorized or unauthorized bookings are stored in the terminal, depending on the set parameters.  If the host is available, any existing error and alarm records are transmitted to the host. The stored data records are transmitted to the host in a special data record after being requested.
Design and Function  Manual 26  04043988 - 02/2014  B-eco   4.3 Device variants and options  4.3.1 Hardware variants  4.3.1.1 Keypad The terminal is available with 2 different keypads.   • SFDC keypad   • XML-keypad
Manual  Design and Function B-eco  04043988 - 02/2014  27   4.3.1.2 Reader RFID reader The terminal can be equipped with different RFID readers  (see chapter 3.2.4). The RFID reader is integrated in the terminal housing. Biometric reader Optional the terminal can be equipped with a biometric reader  (see chapter 3.2.4).  The biometric reader is integrated in an add-on housing. Swipe card reader Optional the terminal can be equipped with a swipe card reader for magnetic stripes or bar codes (see chapter 3.2.4).  The swipe card reader is designed as a bottom-mounted reader.
Design and Function  Manual 28  04043988 - 02/2014  B-eco 4.3.1.3 Ingress protection As an option the device is available with IP54 ingress protection. In this case the device is equipped b y an additional sealing. This option is only available for devices with RFID reader, not for devices with add-on readers. 4.3.1.4 UPS The device is optionally equipped with an uninterruptible power supply. The UPS guarantees operation when power supply fails temporarily. Devices with integrated UPS have a deeper terminal housing.
Manual  Design and Function B-eco  04043988 - 02/2014  29    4.4 Terminal software The B-Client PDC6 terminal software is used on the device. The B-Client PDC6 terminal software performs the following basic functionalities: •  Host communication via  −  UDP −  http/https • Operating mode −  online −  offline −  autonom •  Display info and mailbox texts • G dialog • List report •  200 master records, 4,000 data records 4.4.1 Terminal software variants B-Client PDC6 is available in the following two variants. Partner Client (767-0x-X-K0x) Not usable with B-COMM ERP. ERP Client (766-0x-X-K0x) Usable with B-COMM ERP.   Generally the B-Client PDC6 terminal software version 766 is installed on the device. The terminal software version 767 depends on the available functions of the software license.
Design and Function  Manual 30  04043988 - 02/2014  B-eco   4.4.2 Software options  The usable functionality of the device is based on the options purchased by the customer. The individual options are activated by means of a license key in the "sop.ini" license file.  4.4.2.1 Memory options  Standard  Option 1  Option 2*  Option 3 Master records  200 1000 2000 3500 5000 Data records  4000 4000 8000 3000 20000 *The selection of the 2000/8000 or 3500/3000 variant is made by entry in the b-client_pdc6.ini file.  4.4.2.2 Data encryption Requirement: •  Only together with the B-COMM communication software. Allows: •  Data encryption via Ethernet UDP.   The user data is encrypted with a key length of 448 bits via the Blowfish algorithm. The key is exchanged automatically via the Diffie-Hellman algorithm. •  Data encryption via HTTPS.  4.4.2.3 Inputs / Outputs Allows: •  Use of 2 digital inputs. •  Use of 1 relay output.  4.4.2.4 Local enrollment Requirement: •  Devices with biometric reader CBM. Allows: •  Recording of new fingerprints over CBM reader in the terminal.
Manual  Design and Function B-eco  04043988 - 02/2014  31    4.4.3 License file The sop.ini file is stored in the /Program/Share/Init/ directory. This file contains the license key for the basic software and software options purchased by the customer. The license key is bound to the MAC address of the device.  The contents of the sop.ini file may not be modified. Any manual change will invalidate the license.   The parameters allow you to see which functions are enabled.  Entry (example)  Meaning [BClientPDC6]  Section of B-Client PDC6 terminal software BufferConfiguration=2  Memory options 0 to 3  The following parameters each have the value true or false. BClientPDC6Enabled=true  B-Client PDC6 terminal software ERPClientEnabled=true  true = useable with B-COMM ERP false = not useable with B-COMM ERP DigitalIOEnabled=true  true = Inputs / Outputs available false = Inputs / Outputs not available EncryptionEnabled=true  true = Encryption available false = Encryption not available
Installation  Manual 32  04043988 - 02/2014  B-eco  Installation 5 Installation  5.1 Installation conditions  5.1.1 General  An accurate installation of all components is a basic requirement for a properly functioning device. The following installation instructions must be adhered to.  5.1.2 Installation site  Clearances Keep a distance of 20 cm on all sides between two devices with RFID readers.  Mounting height The recommended mounting height is 140 cm to the top edge of the terminal.  Electromagnetic fields The terminal must not be installed in the area of strong electromagnetic fields caused by switching power supply, power lines, phase controllers, etc.! Electromagnetic fields can affect the reading power or cause failures, in particular with contactless readers (RFID).  Sun exposure Direct sun exposure leads to reflections within the display area and a poor readability of the display. Please avoid installation at places with direct sunlight.
Manual  Installation B-eco  04043988 - 02/2014  33    5.1.3 Connections     The following connectors must be prearranged at the installation site of the terminal. •  Ethernet network connection   Established via the network cable are −  Communication with the host computer −  Power supply for the terminal via PoE (Power over Ethernet) •  Signal lines to inputs/outputs (optional). Ethernet network connection The shield of the network cable must be connected to ground at the destination side. PoE (Power over Ethernet) power supply PoE (Power over Ethernet) facilitates the power supply of the terminal via the 8-wire Ethernet cable (max. 100 m). This avoids a separate power supply cable to the terminal. Power is supplied to the device after plugging in the Ethernet cable (for details, see chapter 3.2.5). Power is ideally supplied to the terminal over a PoE power injector (PoE switch or midspan PoE injector) integrated into the IT rack to the network cable.  5.1.4 Cable entry      The installation lines are led into the device from the bottom.
Installation  Manual 34  04043988 - 02/2014  B-eco   5.2 Installation lines  5.2.1 Ethernet Network cable with RJ45 connector, line requirement CAT.5 E or higher.  5.2.2 Inputs - Outputs The terminals for the signal lines are designed for the following max. wire sizes: Diameter: 0.3-1.4 mm Cross section:  0.08-1 mm2 AWG number:  28 - 16 Recommended cable:  CAT.5 S-UTP 4 x 2 AWG 24 or AWG 22 (according to EIA/TIA568) or higher.
Manual  Installation B-eco  04043988 - 02/2014  35     5.3 Attach mounting plate  75,5109231 Fastening the mounting plate, dimensions in mm  The mounting plate (2) is mounted directly to the wall using screws (1) / dowels (3). There are three oval fastening holes for fastening the mounting plate. Fixing material (included in the delivery): •  3 round-head wooden screws DIN 96 Ø 4.5 x 35 (1) •  3 dowels S6 (3) When mounted on different surfaces, use suitable fastening material. In case of soft mounting surfaces, make sure that the housing is not pressed into the surface when mounting it. The unevenness of the mounting surface may not exceed 0.5 mm. Use washers, for example, to compensate a possible unevenness.
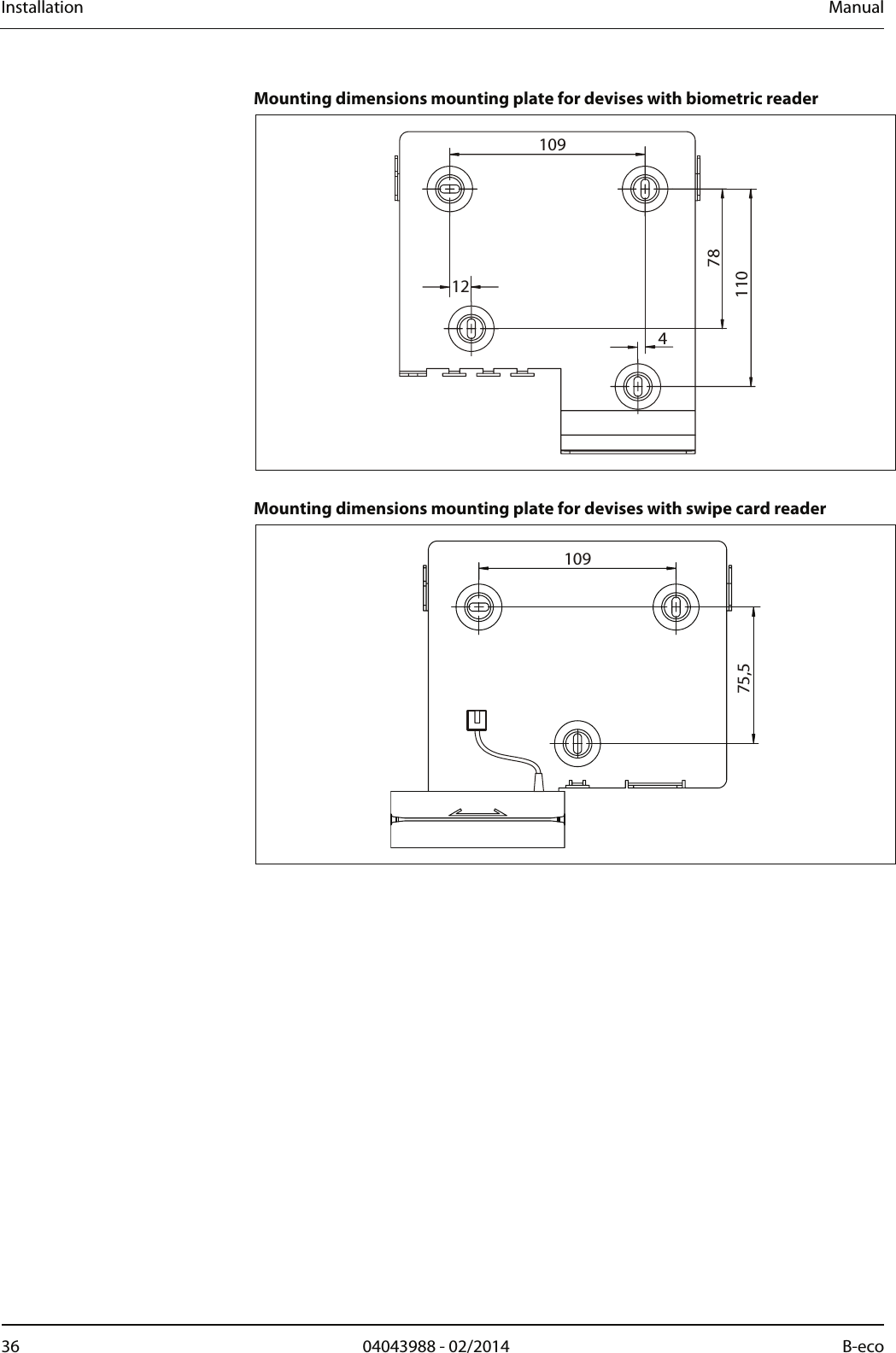
Installation  Manual 36  04043988 - 02/2014  B-eco Mounting dimensions mounting plate for devises with biometric reader 10978110124  Mounting dimensions mounting plate for devises with swipe card reader 10975,5
Manual  Installation B-eco  04043988 - 02/2014  37    5.4 Inserting batteries Only devices with UPS! Before commissioning the device, the batteries for the uninterruptible power supply (UPS) must be inserted.  A blister pack containing 6 batteries is included in the delivery of the device. Specification: NiMH battery, 1.2 V, capacity min. 2000 mAh, size AA   NOTICE  Wrong battery types or incorrectly inserted batteries can overheat and damage the device. •  Use new identical batteries conforming to the above specification only. •  Do not use any primary battery cells. •  Ensure correct polarity.    •  Remove the TORX8 screw (arrow). •  Remove the cover of the battery compartment. •  Press batteries into the holding clamps. • Re-attach cover.        After an operating time of about 10 hours, the batteries are completely charged, and the UPS is ready for use.
Installation  Manual 38  04043988 - 02/2014  B-eco   5.5 Connections    In1In2GNDNOCNCGNDOUTEthernetPoE IN1 2 34  1  RJ45 Ethernet network connection  Communication with the host and power supply of the terminal via PoE 2  Terminal block for the relay output Max. contact rating 30 V AC / DC; 2 A Only voltages from limited power sources according to EN 60950-1 may be applied. The relay can be used to trigger the door opener. For door openers, which are supplied with direct current, a freewheeling diode must be connected in parallel to suppress interference (in reverse direction). A varistor must be connected in parallel to AC door openers. 3  RJ45 connection for an external reader or the optional swipe card reader 4 Digital inputs The inputs are connected to common ground using a simple switch or relay contact.
Manual  Installation B-eco  04043988 - 02/2014  39    5.5.1 Connecting an external reader  The swipe card reader is connected to this socket at devices with optional swipe card reader. An additional external reader with RS-232C levels, e.g. a CCD barcode scanner, can be connected to the device. The reader is connected to the COM1 port of the device.   The reader must be configured and enabled via the service module so that it works properly.  Assignment of the RJ45 socket (3) Pin 1  5 V DC; max. 300 mA  Pin 5  TxD (of the reader) 2 CTS*  6 GND 3 GND  7 RTS* 18 4  RxD (of the reader)*  8  5 V DC * Not supported, do not use connection! Hardware handshake is not supported, no transmission delay for scanner data, communication parameters: 9600, 8, N, 1 (can be set). Power supply for the reader The power supply of the external reader is effected via the 5 V DC of the RJ45 socket. The permitted current is max. 300 mA.
Installation  Manual 40  04043988 - 02/2014  B-eco     5.6 Fastening the terminal housing to the mounting plate     Fasten the terminal housing to the mounting plate as follows: 1 Hang terminal housing into the mounting lugs of the mounting plate and slide it downwards. 2. Secure terminal housing on the mounting plate using locking screw K30x10 TORX. 3. Strain-relieve the installation lines on the mounting plate using cable binders.
Manual  Installation B-eco  04043988 - 02/2014  41    5.7 Fastening of devices with additional sealing (IP54 version) Fasten the terminal housing to the mounting plate as follows: 1. Insert the installation cables through the cable inlets on the bottom of the sealing and connect them to the device. 19,5 21 19,5Ø 6,5 (4x)  2. Slide sealing through the terminal housing from behind. 3. Hang terminal housing into the mounting lugs of the mounting plate and slide it downwards. 4. Secure terminal housing on the mounting plate using locking screw K30x10 TORX.
Start-up  Manual 42  04043988 - 02/2014  B-eco   6 Start-up  6.1.1 Service switch There is a service switch on the rear of the terminal housing. The service switch is accessible after having removed the terminal housing from the mounting plate.    The terminal software recognizes when connecting it whether the switch has been modified. Then press a numeric key on the device front to start one of the functions described in the following. If you do not press any key within 30 seconds, the device starts with the terminal software.  Procedure and possible functions •  Remove the device from the mounting plate. •  Switch off the power supply (unplug network cable). •  Change the position of the slide switch. •  Switch on the power supply (plug in network cable).   Two short acoustic signals sound, darkening the display. •  Press a key (numeric keypad on housing front) −  Key "1" = Cold start −  Key "3" = Start of the service mode −  Key "7" = Start of the service mode and setting of the service IP   A short acoustic signal sounds, brightening the display.
Manual  Start-up B-eco  04043988 - 02/2014  43  6.1.2 Cold start The data memory is deleted and newly initialized with a cold start of the system. A cold start becomes necessary, for instance, after a software update or after having changed the memory configuration. The device starts with the terminal software.  When performing a cold start, parameters are reset to their default values. Master records and booking records are deleted. Network settings as well as group and terminal addresses remain unchanged. In devices with active "host registration", the B-COMM Java communication software transmits automatically all previously valid parameters after a cold start. 6.1.3 Starting the service mode If the device is started in service mode, then the service module is loaded alternatively to the terminal software. The service module provides the functions that are required for setup, maintenance, and diagnosis of the device. 6.1.4 Starting the service mode and setting the service IP address  This start option allows the service mode to be started and simultaneously the terminal IP address to be set to 123.0.0.2 and the network mask to 0.0.0.0.  Any already set IP address is overwritten. DHCP is deactivated. All other settings, such as host IP address, UPD port number and GID/DID, remain unchanged. 6.1.5 Starting the terminal software / warm start The device starts the terminal software when it does not recognize any changed switching status when it is connected (normal system start). How to perform a warm start: •  Switch off the power supply (unplug network cable). •  Switch on the power supply again (plug in network cable).
Start-up  Manual 44  04043988 - 02/2014  B-eco   6.2 Network access requirements An Ethernet network is used for startup and maintenance of the terminal as well as communication in production use. To guarantee unhindered and trouble-free data traffic, the UDP ports used for communication must be free.  Modify the firewall configuration accordingly. 6.2.1 Communication The UDP port used for communication between B-COMM and the terminal must be free. The UDP port is located in the range of 7700 hex to 77EF hex (30464 dez. to 30703 dez.) depending on the configuration. If communication is established via http/https, the port used must be free (normally port 80 or 8080). 6.2.2 Comparing finger templates Devices with a biometric CBM reader require another UDP port for exchanging biometric data. The UDP port used for the FTCS or BCFTC stream must be free. The UDP port is located in the range of 7800 hex to 78EF hex (30720 dez. to 30959 dez.) depending on the configuration. 6.2.3 1-click installation It must be possible to transfer UDP data packages unhindered to the B-COMM server.  •  IP address 239.255.255.250, UDP port 1900 dez. and UDP port 7900 (30976 dez.) must be free. •  The SSDP service has to be enabled in the Windows service management. •  The FTP connection over standard port 21 must be free. 6.2.4 Configuration The terminal is configured by means of the service module. Standard port 80 is used for access with an http browser. Standard port 21 is used for the FTP connection to the terminal.
Manual  Start-up B-eco  04043988 - 02/2014  45    6.3 1-click installation In combination with the B-COMM communication software, the terminal can be put into operation almost automatically. System requirements •  B-COMM communication software version 3.7 and higher. Required settings (activated by default when delivered) •  Network configuration via DHCP. •  DNS configuration via DHCP. •  Check box "Enable host registration" ticked.  The device is preset in the factory for 1-click installation. 6.3.1 Start-up procedure •  Plug in network cable and supply device with power. •  After booting, the device cyclically reports to the B-COMMs active in the network.   At this point, the following display is shown until start-up by a B-COMM is complete:                  B-eco Serial number:         <Serial number> IP address:              <IP address>   Waiting for registration   •  After the device is found by B-COMM, the relevant data that identify the device are queried. •   If the device is not known, it is entered in B-COMM under the B-COMM Terminal Discovery client under the BCTDS (Terminal Discovery Stream) stream. •  If the device is to be managed using B-COMM, it can be moved to the desired stream, and the communication parameters can be set. •  After having assigned the device firmly to B-COMM, B-COMM first updates the settings of the device and then makes a backup copy together with the "sop.ini" license file. •  After loading the specific parameters and master records from the host, the device is automatically restarted and is then ready for operation.  •  The device now informs the B-COMMs active in the network that registration is complete. Other B-COMMs then remove the device again from the BCTDS stream.
Start-up  Manual 46  04043988 - 02/2014  B-eco    6.4 Manual settings Device settings can also be made manually. This might be required, for example, to define a fixed network address or to configure later hardware extensions. There are the following options to adapt the parameters: • Service mode    For the setting of the parameters via menu-controlled service functions per HTTP browser, see BECO service module manual. • Remote setup   Modify the parameters via FTP (see BECO service module manual). •  B-COMM   Modify the parameters via the "Terminal basis settings" menu item (see BECO service module manual).
Manual  Start-up B-eco  04043988 - 02/2014  47    6.5 Configuration-specific settings  In the following, we present the required settings for various device configurations. The settings can be made using service functions in the menus of the service mode, see BECO service module manual. It is also possible to transfer the parameters in the reboot.cmd file via FTP to the device, see BECO service module manual. The following parameter examples correspond to the entries in this file.   6.5.1 Ethernet settings These settings are required if the terminal is integrated into an Ethernet network. For details, please see the BECO service module manual. 6.5.1.1 Assigning fixed terminal network parameters [Ethernet] DHCP Mode=disabled Terminal Addr=10.10.5.85 Netmask=255.255.0.0 Gateway Addr=10.10.1.101  DNS Configuration from DHCP=disabled DNS Addr=0.0.0.0 6.5.1.2 Assigning terminal network parameters via DHCP [Ethernet] DHCP Mode=enabled  DNS Configuration from DHCP=disabled DNS Addr=0.0.0.0 6.5.1.3 Requesting DNS settings via DHCP [Ethernet] DHCP Mode=enabled  DNS Configuration from DHCP= enabled
Start-up  Manual 48  04043988 - 02/2014  B-eco   6.5.2 Host interface 6.5.2.1 Host communication via Ethernet / UDP  Prefix hexadecimal parameter values with "0x" ,  example UDP port=0x7705  [HostLine] Host Line=ETH Host Type=UDP Host Addr=10.10.12.52 UDP Port=0x7705 Encryption=disabled Host Registration=disabled Group ID=01 Device ID=01   6.5.2.2 Host communication via Ethernet / XML (http/https) [HostLine] Host Line=ETH Host Type=XML Encryption=disabled Online IP:Port=10.10.10.107:80 Proxy IP:Port=10.10.10.145:1234 Use Proxy Server=1 Group ID=01 Device ID=00 6.5.3 Reader settings Example: •  Internal LEGIC reader to COM2 •  External barcode scanner to COM1 (RJ45 socket) [Reader1] Interface=COM2 Type=LEGIC  [Reader2] Interface=COM1 Type=BARCODE
Manual  Start-up B-eco  04043988 - 02/2014  49    6.6 Setting the screen contrast The display contrast can be set by simultaneously pressing keys C, 4, 9 (in this order). First you are asked for the password. By default, no password has been set, which is why you should confirm by pressing "E". The contrast is changed using the keys on the right from the display.  Increase contrast, in steps of 5 Increase contrast, in steps of 1 Reduce contrast, in steps of 1 255 Reduce contrast, in steps of 5  Left from the symbols, the current numeric value for the contrast in the range from 230 to 290 is displayed. Default is 260. Press key "E" to apply the value and exit the contrast setting.
Operation  Manual 50  04043988 - 02/2014  B-eco   7 Operation  7.1 Operating elements 123456  1 Display 2  Special keys S01 to S04 (from top to bottom) 3  Numeric keypad for SFDC version,  alphanumeric keypad (with multiple assignment) for XML version 4  Entry field of the RFID reader 5  Function keys F01 to F05 6  Special keys S05 to S08 (only with XML version)   7.2 Keypad The individual keys of the keypad are capacitive keys. Slightly press a key with your fingertip to operate the device. Pressing a key is confirmed by an acoustic signal.
Manual  Operation B-eco  04043988 - 02/2014  51    7.3 RFID reader Hold contactless media simply in front of the entry field of the RFID reader on the terminal.    After a valid booking, a short acoustic signal can be heard.  7.4 Swipe reader Swiftly slide the magnetic-stripe badges and barcode badges through the reading bar in any direction.  The magnetic stripe is on the back of the badge, pointing toward the scanning unit. The barcode is on the front of the badge, pointing toward the scanning unit.    After a valid booking, a short acoustic signal can be heard.
Operation  Manual 52  04043988 - 02/2014  B-eco    7.4.1 Biometric reader In its basic state, the biometric reader is inactive. 1. To enable the reader, press a function key which directly requires a biometric entry.   The reading window of the biometric reader is lit. 2. Place finger on the biometric reader sensor.   After a valid booking, a short acoustic signal can be heard.  7.4.2 Finger position Only if finger position and pressure on the reader window are ideal, is a correct fingerprint read-in ensured. Ideal finger position •  The finger has to be slightly humid. •  The finger has to be pressed gently onto the window. •  The fingerprint has to be in the center of the reader window.
Manual  Operation B-eco  04043988 - 02/2014  53    7.4.3 Operator guidance While the fingerprint is read in, the user is guided event-driven by the biometric reader.   Place finger more to the left.   Place finger more to the right.   Place finger more to the top.   Place finger more to the bottom.   Press finger stronger.   Fingerprint already recorded in this position (latent finger) Place finger in other position again. 7.4.4 Displaying error states The following symbols are displayed to signal the error states to the user.  No finger templates available in the reader.  Unknown fingerprint.
Operation  Manual 54  04043988 - 02/2014  B-eco   7.5 Operating sequences  The terminal functions and operating sequences depend on the set parameters. Parameter setting allows extensive adaptation to a wide range of applications.  The following examples refer to the B-Client PDC6 terminal software in its default setting.  7.5.1 Basic state        We  01.08.2012  15:35:52 Select function          Time  Order  CC        F1: IN      F2: OUT     F3: Official absence      F4: Query    F5:                  In its basic state, the display shows tabs. A tab is selected by pressing special keys S1 to S3. The tab contains the currently correct assignment of the function keys. Special key S4 is used to select the language. 7.5.2 Active function         We  01.08.2012  15:36:27 IN          Present badge        F1: IN     F2: OUT     F3: Official absence     F4: Query    F5:                  After selecting a function, you are asked for the first input step, for example "Present badge". The valid assignment of the function keys for the current tab is still displayed even when the function has been activated. A different function can still be selected.
Manual  Operation B-eco  04043988 - 02/2014  55  7.5.3 Active booking        We  01.08.2012  15:36:40 IN          Please wait                                      After the first input step, the function key information is hidden. 7.5.4 Booking response        We  01.08.2012  15:36:42 IN          Thank you                                      Once the booking response, for example "Thank you", has been displayed, the booking is complete.
Operation  Manual 56  04043988 - 02/2014  B-eco   7.6 Keypad entries 7.6.1 Numeric input            We   01.08.2012  15:56:11  -  Beginning of order  Machine number  .                  123|-----   ,                                The input field is displayed by entering the first digit. The digits are entered on the numeric keypad.  In addition, the characters minus, period and comma can be entered via the right-hand special key bar. 7.6.2 Alphanumeric input            We   01.08.2012  15:58:29  -  Beginning of order  Order number  .                  123ab|---   ,                    123           The alphanumeric input is done via the numeric keypad. The individual keys have multiple assignments.  In addition, the characters minus, period and comma can be entered via the special keys 1 to 3. Special key 4 is used to switch the input mode: •  123 = Input of digits  •  abc = Input of small letters •  ABC = Input of capitals At the beginning of the input, the digit input is active, after the first press, it changes to the small letters input mode and then to the capitals input mode.
Manual  Operation B-eco  04043988 - 02/2014  57     7.7 Local enrollment It is possible to enroll fingerprints directly on terminals of devices with biometric reader (optional). 7.7.1 Call up and requirements Software option The "Local Enrollment" function is a software option. The function can only be entered if the required entry is available in the license file. A function call up without corresponding license generates an O5 error record. Disable and enable by the host The "Local Enrollment" function can be enabled or disabled with the data records I2 and I3. The "Local Enrollment" function is enabled by default. Function call up The "Local Enrollment" function must be called up by a booking. The used function key must be set to limit value check "30". Enroll PIN To protect access to the biometric database in addition a Password is requested. The password can be set by using the parameter setting “Password parameter setting and customer number” (X02 record). A password is not stored by default. Timeout If the user does not enter anything within 70 seconds, the "Local Enrollment" function is automatically closed.   Please see manual of the B-Client PDC6 terminal software for a detailed description of the parameter and data records named above.  7.7.2 Biometric management functions After call-up, the system menu is displayed. The current assignment of the internal CBM database is additionally displayed. The example shows that the database contains 23 of 500 possible finger templates.  Please Select Function (C=Cancel) DB usage 23 of 500 entries used Enroll  Unenroll List  Identify Erase  The functions of the system menu are activated by means of the function keys below.
Operation  Manual 58  04043988 - 02/2014  B-eco 7.7.2.1 Enroll This function serves for enrolling new individuals in the local database and for transmitting templates to B-COMM. The Enroll function can only be performed if a connection via the BCFTC stream has been established, otherwise the error text "No FTCS connection!" is displayed (not in standalone operation). First it is checked if free space is available in the local database. If not, the message "Local database is full!" is output and an acoustic signal is emitted. If there is space available in the local database, the user is requested to enter the template ID. The individual to be newly enrolled is identified by means of the template ID. The ID length is specified by the "PresetEnroll" parameter in the system.ini or by parameterized badge definition. Press “Cancel“ to cancel the entry and return to the menu. Press “OK“ or the E button to confirm the entry. If the ID already exists, the message "<Template ID> already exists" is output and an acoustic signal is emitted. After entering the template ID, the actual enrollment process starts. Two fingers are enrolled and three images of each finger are taken. To do so, each finger has to be briefly placed on the reader window three times. The current finger (1 or 2) is shown in the display. The number of the image taken at the moment is shown in brackets. Successful recording of a finger is confirmed by means of a short acoustic signal. A quality value is specified for each enrollment process. Example: Enrollment Finger 1 (1/3) Quality: 103  Press “Cancel“ to cancel the process and return to the menu.  If the finger position is not ideal during enrollment, corresponding symbols are shown on the display, see chapter 7.4.2. If the finger is already recorded in the CBM reader database, the error message "Finger <X> matched! (<Template ID>)" is output and an acoustic signal is emitted.
Manual  Operation B-eco  04043988 - 02/2014  59  At the end of the enrollment process, an overview with the following contents is displayed. •  Total quality of the enrolled fingers by means of text and figures. • Belonging ID. Example: Enrolled ID: 00000126 Template 1: 103 / Template 2: 96 Template quality:  good OK  Cancel  Retry    The quality of the enrolled fingers is subdivided into three levels. •  > 120  Very good quality • 60-120  Good quality •  < 60  Poor quality  If the quality is poor, then the enrollment process should be repeated. Wait for the new template to be collected by B-COMM (not in standalone mode). The message "Sending template to FTCS..." is displayed. The process will be continued as soon as B-COMM has collected the template (normally after 1-2 seconds). If B-COMM is not available, the message "Timeout in connection to FTCS!" is displayed after 10 seconds and an acoustic signal is emitted. In this case, the generated template is not stored in the local database. 7.7.2.2 Unenroll A specific template can be deleted from the database via its template ID using the Unenroll function (only in standalone operation). The input ID is deleted by pressing "OK" or the E button. This is confirmed by an acoustic signal. In case of error, an acoustic signal is emitted and the message "<Template ID> does not exist!" or "Deleting template failed!" is displayed. Return to the menu in both cases or by pressing “Cancel”. 7.7.2.3 List This function lists all template IDs stored in the data base. The list can be scrolled using the arrow keys of the display keypad or the accordingly marked function keys (depending on terminal). Press the C button to cancel the function and return to the menu.
Operation  Manual 60  04043988 - 02/2014  B-eco 7.7.2.4 Identify This function allows identification of an individual. After calling the function, the finger has to be placed on the reader window. After successful identification, an acoustic signal is emitted and the corresponding ID is displayed. Press “OK” to confirm the result and return to the menu. The identified template can be deleted by selecting “Unenroll“. The delete operation has to be confirmed afterwards. If the finger position is not ideal during enrollment, corresponding symbols are shown on the display, see chapter 7.4.2. The finger position on the reader window has to be corrected accordingly. In case of error, "Identification failed!" is displayed. Return to the menu. 7.7.2.5 Erase The entire local biometric memory can be deleted by means of this function. A code is requested for safety reasons. The Erase PIN is always "439235".  If a wrong code is entered, an acoustic signal is emitted and the message "Wrong Erase PIN!" is displayed. PIN input can be cancelled by pressing “Cancel” or the C button.  Deleting of finger templates out of the local biometric memory of the terminal is only useful in standalone mode. When comparing biometric data with B-COMM the finger templates are recovered automatically.
Manual  Maintenance B-eco  04043988 - 02/2014  61    8 Maintenance  8.1 Buffer battery       The device has a lithium manganese dioxide battery, type CR2032, to buffer the memory. The battery is on the rear of the terminal housing.   The buffer battery must be replaced by a new one every 2 years.       NOTICE!  Immediate data loss in the absence of buffering If the battery is removed, with the terminal switched off, or if the battery is already empty at the time of switch-off, booking records, master records, profiles and the parameter setting will get lost immediately. In this case, following the battery replacement, a cold start must be carried out, and then the data must be transferred again to the terminal. •  Save all data, before switching off the terminal. •  Perform the battery change with the unit switched on.   To do so, use a PoE power injector, e.g., 04042778, for supplying power to the terminal. This injector must remain connected to the network connector of the terminal for the duration of the battery change.
Maintenance  Manual 62  04043988 - 02/2014  B-eco   8.1.1 Battery change   CAUTION  Lithium batteries can rupture or burst like an explosive. Improper handling of lithium batteries can cause fire and explosions. •  Lithium batteries may only be replaced by the SERVICE PERSON. •  They may only be replaced by batteries of the same type. •  Do not open, bore through, or crush lithium batteries. •  Do not burn lithium batteries or expose them to high temperatures. •  Do not short-circuit lithium batteries. •  Do not recharge the lithium batteries.    1. Remove the terminal housing from the mounting plate. 2. Connect the PoE power injector to the network socket of the terminal, thus ensuring power supply of the terminal during the battery change. 3. NOTE: Do not use tools such as screwdrivers and the like.  Remove the old buffer battery carefully by hand from the battery holder. 4. Press new battery into holder until it snaps into place. 5. Remove the PoE power injector. 6. Fasten the terminal housing to the mounting plate.
Manual  Maintenance B-eco  04043988 - 02/2014  63     8.2 Replacing the UPS batteries  To ensure the function of the uninterruptible power supply, the UPS batteries must be replaced with new batteries every 3 years. A set of replacement batteries consisting of 6 batteries can be purchased from Kaba under the order number 04043851.  Specification NiMH battery, 1.2 V, capacity min. 2000 mAh, size AA   NOTICE  Wrong battery types or incorrectly inserted batteries can overheat and damage the device. •  Use new identical batteries conforming to the above specification only. •  Do not use any primary battery cells. •  Ensure correct polarity.     •  Remove the TORX8 screw (arrow). •  Remove the cover of the battery compartment. •  Remove old batteries. •  Press new batteries into the holding clamps. • Re-attach cover.        After an operating time of about 10 hours, the batteries are completely charged, and the UPS is ready for use.   Old batteries must be disposed of according to state and local regulations.
Maintenance  Manual 64  04043988 - 02/2014  B-eco   8.3 Cleaning the housing To clean the housing, use a soft, lint-free cloth and a soft window cleaning agent!  Observe the following instructions in order to avoid producing damage to the housing and the reader window of the biometric reader (if any) during the cleaning process: • Do not use alcohol, such as ethyl alcohol or isopropyl • Do not use aggressive solvents • Do not use cleaning agents with added powder •  Avoid scratching and abrasive movements
Manual  Packaging / returns B-eco  04043988 - 02/2014  65    9 Packaging / returns  Not properly packaged components and devices can cause costs due to damages during shipping. Please observe the following information when sending products to Kaba. Kaba GmbH is not liable for products that have been damaged due to negligent packaging.  9.1 Complete devices  The original packaging has been specifically designed to fit the device. It offers maximum protection against damage in transit.  Always use the original packaging for returning the products!   If this is not possible, packaging which ensures that the device is not damaged during shipping and handling must be provided. •  Use a robust and thick-walled transport box or cardboard box. Approximately 8 to 10 cm of space needs to be allowed on either side of the device. •  Wrap the device with a suitable foil or put it into a bag. •  Generously stuff foam pads or air cushions, for example, all around device. Movements of the device inside the packaging must be excluded. •  Use only dustless and environmentally friendly padding material.  9.2 Electronic assemblies  ESD sensitive electronic assemblies such as printed circuit boards, readers, etc. must be stored, transported, and shipped in appropriate ESD protective bags. Electronic assemblies may only be packed at ESD secure workplaces and by persons familiar with general ESD safety standards and who apply them on a regular basis. Returning electronic assemblies in packaging with sufficient ESD protection is a prerequisite for •  the submission of warranty claims after functional failures of any type. •  replacement of printed circuit boards and electronic components in exchange. Electronic components delivered in packaging without sufficient ESD protection are --in order to maintain a high quality standard-- neither analyzed nor repaired but directly disposed of.
Packaging / returns  Manual 66  04043988 - 02/2014  B-eco   9.3 Labeling  Complete return documents and a correct labeling allow for fast processing. Please make sure that each package includes a delivery note. The delivery note should contain the following information: •  Number of devices or components per package. •  Product numbers, serial numbers, specifications. •  Name and address of your company / contact person. •  Reason for return, e.g. repair exchange. •  Meaningful and detailed error description. Returns from countries outside the European Union require a customs invoice stating the real customs value. Some countries (e.g. Switzerland) require a preference.
Manual  Disposal B-eco  04043988 - 02/2014  67    10 Disposal   This product complies with the WEEE directive and is, according to DIN EN standard 50419, marked with the “Crossed out garbage can” symbol. See chapter 3.4 Labeling. The symbol refers to separated disposal of electric and electronic devices in EU countries. Please do not dispose of device in your regular garbage. Used devices contain valuable materials that should be recycled. Used devices should therefore be disposed of via your country’s take back system. At the end of use of the goods supplied, Kaba GmbH will take them back for a proper disposal in accordance with the legal regulations (German law on the disposal of electrical equipment (ElektroG)). Charges incurred for transport to the manufacturer will be at the expense of the owner of the waste electrical equipment. In the EU and Switzerland, electronic devices have to be disposed of according to national disposal and environmental legislation.    Please dispose of in an environmentally responsible way. The packaging materials are recyclable. Please do not throw packaging material into your regular garbage can. Always take it to a recycling center or have it picked up by your local waste recycler.   Lithium batteries CAUTION  Lithium batteries can rupture or burst like an explosive. Improper handling of lithium batteries can cause fire and explosions. •  Please store batteries to be disposed of carefully in order to avoid short-circuits, crushing, or damage of the battery housing. See also chapter 2.4 Handling lithium batteries. Used lithium batteries must be disposed of according to state and local regulations.   Mh UPS batteries In devices equipped with uninterruptible power supply UPS, NiMH batteries are used. Replaced batteries must be disposed of according to state and local regulations.
Index  Manual 68  04043988 - 02/2014  B-eco  11 Index   1 1-click installation.................................................................... 45 A Alphanumeric keypad............................................................ 13 Ambient temperature............................................................ 15 Autonomous operating state.............................................. 25 B Battery......................................................................................... 10 Battery change ......................................................................... 62 Biometric reader ...................................................................... 52 Booking....................................................................................... 25 C Cable entry................................................................................. 33 Capacitive keypad................................................................... 13 CCD barcode scanner............................................................. 38 CE conformity ........................................................................... 19 Cleaning the housing............................................................. 64 Cleaning the reader window............................................... 64 Cold start .................................................................................... 43 Communication principle..................................................... 24 Communication software..................................................... 24 Conformity................................................................................. 19 Connections ....................................................................... 33, 38 D Data encryption ....................................................................... 30 Data record................................................................................ 25 Default IP address.................................................................... 43 Device variants......................................................................... 26 DHCP............................................................................................ 45 Dimensions................................................................................ 16 Display......................................................................................... 13 Disposal ...................................................................................... 67 Distances between two devices with RFID reader....... 32 E Electromagnetic fields........................................................... 32 Enroll............................................................................................ 58 Enroll PIN.................................................................................... 57 Environmental conditions.................................................... 15 Erase............................................................................................. 60 ESD (electrostatic discharge) protective measures...... 10 Ethernet interface.................................................................... 14 External reader ........................................................... 14, 38, 39 F Fastening the mounting plate............................................ 35 Fastening the terminal housing ......................................... 40 FCC conformity......................................................................... 20 Function keys ............................................................................13 I Identification plate..................................................................21 Identify ........................................................................................60 Ingress protection ...................................................................15 Inputs...........................................................................................13 Inputs / Outputs.......................................................................30 Installation..................................................................................32 Installation conditions............................................................32 Installation lines .......................................................................34 Interface......................................................................................14 K Keypad........................................................................... 13, 26, 50 L Labeling ......................................................................................21 License file..................................................................................31 List.................................................................................................59 Lithium battery.........................................................................10 Lithium battery disposal........................................................67 Local database is full...............................................................58 M Maintenance..............................................................................61 Master record............................................................................24 Memory.......................................................................................13 Memory options.......................................................................30 Mounting height......................................................................32 Mounting plate..................................................................22, 35 N No FTCS connection................................................................58 Numeric keypad.......................................................................13 O Offline operating state...........................................................25 Online operating state ...........................................................25 Operating modes.....................................................................25 Operating sequences .............................................................54 Operating state.........................................................................25 Options........................................................................................26 Outputs .......................................................................................13 P Parameterization......................................................................24 Power over Ethernet........................................................15, 33 Power supply......................................................................15, 33 Product description ................................................................12 R R&TTE...........................................................................................19
Manual  Index B-eco  04043988 - 02/2014  69 Reader...................................................................................14, 27 Relative humidity.....................................................................15 Relay outputs ............................................................................13 RFID reader ................................................................................51 RFID technologies....................................................................14 S Service mode.............................................................................43 Service switch ...........................................................................42 SFDC version .............................................................................13 Special keys................................................................................13 Start-up .......................................................................................42 Sun exposure.............................................................................32 Swipe card reader....................................................................14 Swipe reader..............................................................................51 System.........................................................................................13 System connection..................................................................24 T Technical data...........................................................................13 Template ID already exists....................................................58 Terminal housing .....................................................................22 Terminal software ....................................................................29 Timeout in connection to FTCS...........................................58 U Unenroll.......................................................................................59 Uninterruptible power supply......................................15, 28 Use as directed............................................................................9 W Warm start..................................................................................43 X XML version................................................................................13

Navigation menu