dormakaba Deutschland KCR9104-L1 RFID Reader User Manual

Kaba GmbH RFID Reader

User Manual

                Kaba compact reader 91 04 - subterminal         Technical Manual    04044346 - 07/2014  EN
      © Copyright by Kaba GmbH Albertistraße 3 D-78056 Villingen-Schwenningen Phone +49 7720/603-0 Fax +49 7720/603-102  www.kaba.com/workforce-management   All rights reserved. The document and its parts are copyrighted. Only Kaba GmbH has the right to commercialize, market and distribute this document. This document, or any part of it, may not be copied or reproduced, adapted, arranged, reworked or modified without the prior consent of Kaba GmbH.  All company, trademark or product names are trademarks or registered trademarks of their respective owners and are protected.  Subject to technical changes without notice!   Order no. 04044346 - 07/2014
 1 About this manual ............................................................................................................................ 52 Grouped safety messages................................................................................................................ 72.1 Use as directed .....................................................................................................................................................72.2 Mounting and Installation................................................................................................................................72.3 Service and Maintenance .................................................................................................................................72.4 ESD (electrostatic discharge) protective measures..................................................................................83 Product description.......................................................................................................................... 93.1 Technical data.................................................................................................................................................... 103.1.1 Interfaces............................................................................................................................................. 103.1.2 Power supply..................................................................................................................................... 103.1.3 Reader.................................................................................................................................................. 103.1.4 Inputs / Outputs ............................................................................................................................... 103.1.5 Umgebungsbedingungen ............................................................................................................ 113.1.6 Dimensions ........................................................................................................................................ 113.2 Conformity.......................................................................................................................................................... 123.3 Labeling............................................................................................................................................................... 133.4 Device variants .................................................................................................................................................. 143.4.1 RFID reader......................................................................................................................................... 143.4.2 Design.................................................................................................................................................. 143.5 Terminal software............................................................................................................................................. 143.6 Device structure................................................................................................................................................ 153.7 System connection .......................................................................................................................................... 163.8 System requirements...................................................................................................................................... 173.9 Supported features.......................................................................................................................................... 173.10 Operating sequence........................................................................................................................................ 183.10.1 Badge input........................................................................................................................................ 183.10.2 Valid booking .................................................................................................................................... 183.10.3 Invalid booking................................................................................................................................. 184 Installation ......................................................................................................................................194.1 Installation conditions .................................................................................................................................... 194.1.1 General ................................................................................................................................................ 194.1.2 Installation site.................................................................................................................................. 194.1.3 Connections....................................................................................................................................... 194.2 Installation diagram......................................................................................................................................... 204.3 Installation lines ................................................................................................................................................ 214.3.1 Power supply cable ......................................................................................................................... 214.3.2 Data line .............................................................................................................................................. 214.3.3 Line to the door opener and door contacts............................................................................ 214.4 Fastening the base frame .............................................................................................................................. 224.5 Connections ....................................................................................................................................................... 234.5.1 Compact reader 91 04 with plug-in terminal clamp ............................................................ 234.5.2 Compact reader 91 04 with permanently connected connecting cable ...................... 244.5.3 Note on the use of door openers................................................................................................ 244.6 Setting the switches ........................................................................................................................................ 254.6.1 DIP switch ........................................................................................................................................... 254.6.2 Rotary switch ..................................................................................................................................... 274.7 Final assembly ................................................................................................................................................... 284.8 Dismounting ...................................................................................................................................................... 29
5 Start-up ........................................................................................................................................... 305.1 Set-up procedure ............................................................................................................................................. 305.2 Cold start............................................................................................................................................................. 306 System mode .................................................................................................................................. 316.1 Function of the system mode...................................................................................................................... 316.2 Access to the system mode .......................................................................................................................... 316.3 Starting the system mode............................................................................................................................. 316.4 Terminating the system mode .................................................................................................................... 326.5 Commands ......................................................................................................................................................... 326.5.1 SETHWC............................................................................................................................................... 336.5.2 GETHWC.............................................................................................................................................. 356.5.3 GETPRG................................................................................................................................................ 356.5.4 GETKVS ................................................................................................................................................ 356.5.5 RUN....................................................................................................................................................... 356.5.6 COLD .................................................................................................................................................... 366.5.7 ORIGIN ................................................................................................................................................. 366.5.8 LOWPAR.............................................................................................................................................. 376.5.9 GETDGN .............................................................................................................................................. 386.5.10 RSTDGN............................................................................................................................................... 387 Description of the subpartyline.................................................................................................... 397.1 BPA/9 Subset ..................................................................................................................................................... 397.2 Addressing.......................................................................................................................................................... 397.3 Control characters and control sequences.............................................................................................. 407.4 Data records....................................................................................................................................................... 407.5 Data from subterminal to control unit...................................................................................................... 417.6 Data from the control unit to the subterminal....................................................................................... 427.7 Escape sequences ............................................................................................................................................ 437.7.1 Controlling LED, relay and beeper............................................................................................. 437.7.2 Reset..................................................................................................................................................... 447.7.3 Device configuration ...................................................................................................................... 447.7.4 Program number.............................................................................................................................. 457.7.5 Recorded data................................................................................................................................... 457.7.6 Hex representation of the recorded data................................................................................ 457.7.7 Acoustic acknowledgement for reading ................................................................................. 467.7.8 Digital inputs ..................................................................................................................................... 468 Maintenance ................................................................................................................................... 478.1 Updating terminal software ......................................................................................................................... 478.1.1 Programming interface.................................................................................................................. 478.1.2 Equipment.......................................................................................................................................... 478.1.3 Procedure ........................................................................................................................................... 489 Packaging / returns ........................................................................................................................ 499.1 Complete devices............................................................................................................................................. 499.2 Electronic assemblies...................................................................................................................................... 499.3 Labeling............................................................................................................................................................... 5010 Disposal........................................................................................................................................... 5111 Index................................................................................................................................................ 52
Technical Manual  About this manualKaba compact reader 91 04 - subterminal  04044346 - 07/2014  51 About this manual Validity  This manual describes the Kaba compact reader 91 04 as of  Manufacturing date:  April 2014  Terminal software:  ARCC01_05RA (LEGIC) MRCC01_08RA (MIFARE)  Functional type:  Subterminal  Addressees  This manual is written exclusively for specialists. The descriptions in this manual are intended for personnel trained by the manufacturer. The information in this manual cannot substitute the product training. The contents of this manual is intended for use by the following groups of people: •  Project manager   Project manager who is responsible for the system and entrusted with project planning and realization. •  Fitter   Person specialized in mounting and installation.   Person who has an adequate technical training and sufficient experience and who has been authorized by the manufacturer after completing the training on the product. •  Service technician   Specialist for initial set-up and maintenance of the installation.   Person who has an adequate technical training and sufficient experience and who has been authorized by the manufacturer after completing the training on the product. •  Network administrator   Realizes the set-up of the device within the network and makes sure that the devices are accessible within the network. •  Software partner   Specialists for connecting the system to the user software by defining operating and booking sequences, programming the customer applications and setting the parameters of the devices.  Important! For reasons of device safety, some of the activities might only be carried out by the SERVICE PERSON. Only persons of the groups "Fitter" and "Service technician" have the status of a SERVICE PERSON according to DIN EN 60950-1:2006.
About this manual  Technical Manual6  04044346 - 07/2014  Kaba compact reader 91 04 - subterminalContents and purpose  The contents is limited to the assembly, installation, start-up, and basic operation of the hardware.  Orientation in the manual  This manual contains the following orientation aids to facilitate finding of specific topics: •  The table of contents at the beginning of the manual gives an overview of all topics. •  The header always contains the respective main chapter. •  An index in the alphabetical order is given at the end of the manual.  Danger categories  Remarks with specifications or rules and restrictions to prevent injuries and property damage are particularly marked. Please read the danger warnings and user tips carefully. This information will help prevent accidents and damage to your equipment. Danger warnings are divided into the following categories.  CAUTION  Describes a possibly dangerous situation that can lead to minor injuries.  NOTICE!  Important information for proper handling of the product.  Ignoring this information can cause device malfunction and the device or something near it can get damaged.  Symbols  Depending on the source of danger, warnings are marked with symbols of the following meaning.   General danger  Danger for electronic components due to electrostatic discharge  Remarks  Please pay special attention to the remarks that are marked with symbols.   Tips and useful information. This information will help you to best use the product and its functionality.
Technical Manual  Grouped safety messagesKaba compact reader 91 04 - subterminal  04044346 - 07/2014  72 Grouped safety messages The device has been built in accordance with state-of-the-art standards and the recognized safety rules. Nevertheless, its use may constitute a risk to persons and cause damage to material property. Read and observe the following safety instructions, before using the product. 2.1 Use as directed The device or system is only intended for usage as described in chapter ”Product description.” Any use beyond the designated use is not according to rules. The manufacturer is not responsible for damages resulting from improper use. The user/operator is responsible for any risks associated with non-duly use. 2.2 Mounting and Installation Mounting and installation may only be carried out by the SERVICE PERSON (see chapter 1 / Addressees). Installation may only be carried out in places that fulfill climatic and technical conditions stated by the manufacturer. Kaba GmbH is not liable for damages resulting from improper handling or incorrect installation. 2.3 Service and Maintenance Maintenance work / troubleshooting Only the SERVICE PERSON (see chapter 1 / Addressees) is entitled to remove faults and carry out the maintenance work. Reconstruction and modification Any reconstruction and modification of the device may only be realized by the SERVICE PERSON (see chapter 1 / Addressees). All reconstructions and modifications carried out by unauthorized personnel shall render void any liability.
Grouped safety messages  Technical Manual8  04044346 - 07/2014  Kaba compact reader 91 04 - subterminal2.4 ESD (electrostatic discharge) protective measures NOTICE!  Danger for electronic components due to electrostatic discharge. Improper handling of printed circuit boards or components can cause damages that lead to complete failures or sporadic errors. •  During installation and repair of the device, the ESD protective measures must be considered. The following rules must be considered: •  Wear an ESD wristband when handling electronic components.   Connect the end of the wristband to a discharge socket or an unvarnished grounded metal component. This way, static charges are discharged from your body securely and effectively. •  Touch only the edges of circuit boards. Do not touch the circuit board nor the connector. •  Place all dismantled components on an antistatic surface or in an antistatic container. •  Avoid contact between circuit boards and clothing. The wristband only protects the printed circuit boards against electrostatic discharge from your body, but there is still a risk of damage through electrostatic discharge from your clothing. •  Transport and dispatch dismantled modules only in electrostatically shielded protective bags.
Technical Manual  Product descriptionKaba compact reader 91 04 - subterminal  04044346 - 07/2014  93 Product description The Kaba compact reader 91 04 has been designed as subterminal for use at a time and attendance terminal or an access control manager.   The Kaba compact reader 91 04 is installed in an ergonomically suitable position in secured areas, e.g., in the access area (door). The integrated RFID reader allows contact-free reading and writing of RFID media in MIFARE or LEGIC technology (depending on the version). Communication with the superior access control system or the time and attendance terminal is performed in the "Online" operating mode via the RS-485 subpartyline.  Depending on settings of the superior control system Access, IN or OUT booking operations are possible. The device has 2 digital inputs that can be used in combination with an access control, e.g., for door frame contact or door-opener. The built-in relay can be used for door opening in secure areas. The compact reader is equipped with a light icon (red/green) and a buzzer for optical and acoustic signaling.
Product description  Technical Manual10  04044346 - 07/2014  Kaba compact reader 91 04 - subterminal3.1 Technical data 3.1.1 Interfaces RS-485 RS-485 2-wire subpartyline for communication with the superior access control system unit or a time and attendance terminal. •  Protocol: BPA/9 Subset. •  Automatic baud rate detection; 9600 / 19200 Baud. •  7 data bits, even parity, 1 stop bit. Programming interface For terminal software update. 3.1.2 Power supply •  Voltage range:  12 – 27 V AC; 10 – 34 V DC •  Power consumption:  Typically 1.2 W; max. 2.2 W 3.1.3 Reader MIFARE version •  RFID standard: ISO 14443A •  Badge media supported:   MIFARE DESfire  MIFARE Classic LEGIC version •  RFID standard: ISO 14443A, ISO 15693, LEGIC RF •  Badge media supported:   LEGIC advant  LEGIC prime 3.1.4 Inputs / Outputs 1 relay output •  One potential-free changeover contact. •  Contact loading capacity: 30 V AC / DC; max. 2 A. 2 digital inputs •  With integrated power supply and common ground to connect potential-free contacts. •  Input voltage: max. 5 V DC.
Technical Manual  Product descriptionKaba compact reader 91 04 - subterminal  04044346 - 07/2014  113.1.5  Umgebungsbedingungen •  Ingress protection according to IEC 60529:  IP54 (device variant with plug-in terminal clamp)  IP66 (device variant with permanently connected connecting cable) • Relative humidity:  5% to 95%, non-condensing • Ambient temperature:  -25 °C – +70 °C (operation)  -40 °C – +85 °C (storage) 3.1.6 Dimensions Dimensional drawing compact reader 91 04, dimensions in mm  3.63.617.5(17.5)7763.617.5(17.5)3.67761223535 351221221644.5  Outer dimensions  Back housing IP66  Back housing IP54
Product description  Technical Manual12  04044346 - 07/2014  Kaba compact reader 91 04 - subterminalKonf 3.2 Conformity This device complies with the following standards: EN 60950-1:2006 + A11:2009    EN 301 489-1 V1.8.1      EN 301 489-3 V1.4.1      EN 300 330-1 V1.7.1      EN 300 330-2 V1.5.1        according to the regulations of the EU Directives  2006/95/EG Low voltage directive  1999/5/EG R&TTE Directive  2004/108/EG EMC Directive  RoHS  This device is in conformity with Directive 2011/65/EU of the European Parliament and of the Council of 8 June 2011 on the restriction of the use of certain hazardous substances in electrical and electronic equipment. In addition, the product also conforms to the following standards: UL 60950-1 UL 294  The components shall be supplied by a limited power source according to chapter 2.5 of IEC 60950-1. When installing/inserting the components in end-use equipment/system all requirements of the mentioned test standards must be fulfilled. The external power supply unit shall be in accordance to UL 294. The secondary output shall fulfill the requirements for class 2 or class 3 outputs. UL 294 Security Level 1  FCC ID NVI-KCR9110-L1 This device complies with part 15 of the FCC Rules. Operation is subject to the following two conditions: •  This device may not cause harmful interference •  This device must accept any interference received, including interference that may cause undesired operation. Any changes or modifications not expressly approved by the party responsible forcompliance could void the user's authority to operate the equipment.FCC ID NVI-KCR9104-L1FCC IDNVI-KCR9110-L1FCC ID NVI-KCR9104-L1FCC ID NVI-KCR9104-L1
Technical Manual  Product descriptionKaba compact reader 91 04 - subterminal  04044346 - 07/2014  133.3 Labeling The identification plate is located on the rear of the device. Specified on the identification plate: • Device name • Product number • Serial number • Power data • CE identification •  WEEE labeling acc. to DIN EN 50419
Product description  Technical Manual14  04044346 - 07/2014  Kaba compact reader 91 04 - subterminal3.4 Device variants 3.4.1 RFID reader The compact reader 91 04 is available with the following RFID reader types: • MIFARE • LEGIC 3.4.2 Design The device is available in two designs: •  With permanently connected connecting cable (IP66 version). •  With plug-in terminal clamp (IP54 version). 3.5 Terminal software The hardware of the Kaba compact reader 91 04 is used in various Kaba system solutions. Type of use and functions of the device are determined by the software used:  This description of the Kaba compact reader 91 04 only refers to the terminal software for online operation as a subterminal. Designation of the terminal software The software designation has the following meaning: Reader type  M A MIFARE LEGIC Device type  RC  Compact reader Operating mode  A B C Standalone Access manager Subterminal Version number  01.00 Version Addition 1  R  Released Addition 2  A  Subversion Addition 3  _  Reserve  Examples:  MRCC01.08RA_  Terminal software for MIFARE compact reader.  ARCC01.05RA_  Terminal software for LEGIC compact reader. Labeling of the device "Type: Subterminal" is written on the identification plate of devices using the terminal software for online operation as a subterminal.
Technical Manual  Product descriptionKaba compact reader 91 04 - subterminal  04044346 - 07/2014  153.6 Device structure Compact reader 91 04 with permanently connected connecting cable (IP66 version) 4321  1 Front cover 2  Sealing plug for the DIP switch 3  Core device with electronics and permanently connected connecting cable length 3.5 m 4 Base frame  Compact reader 91 04 with plug-in terminal clamp (IP54 version) 4321  1 Front cover 2  Sealing plug for the DIP switch 3  Core device with electronics 4  Base frame with plug-in terminal clamp
Product description  Technical Manual16  04044346 - 07/2014  Kaba compact reader 91 04 - subterminal3.7 System connection Customer application      B-COMM communications software     Time and attendance terminal    Access control manager       Compact reader         The compact reader operates as a subterminal of a superior time and attendance terminal or an access control system, which  control system in the following text. Data exchange takes place via the RS-485 interface (subpartyline). Communication takes place via the transmission protocol BPA/9 subset. Once the subterminal has been switched on, it will be initialized. This process includes setting the parameters of the reader driver, thus defining the method for transferring badge data to the entry data record. The subterminal can be used for Access, IN, or OUT booking operations. The compact reader itself has no decision-making authority and is to be considered as a separate operating unit. Once a valid RFID medium (badge) is detected, a corresponding badge data record will be sent to the control system. The control system will decide whether a badge is authorized or not and return the respective commands for signaling (acoustic signal generator and luminous ring) and relay control to the subterminal. The built-in relay can be used to trigger the door opener. The inputs may be used for door monitoring in combination with an access control system.
Technical Manual  Product descriptionKaba compact reader 91 04 - subterminal  04044346 - 07/2014  173.8 System requirements Communication software •  B-COMM version 2.10 and higher Control •  Terminal of the B-web 93 00 series with B-Client HR10 terminal software version 754-00-X-K02 and higher. •  B-Net 92 50 access control manager with B-Client AC2 terminal software version 664-03-X-K03 and higher. •  B-Net 92 90 access control manager with B-Client AC3 terminal software version 666-03-X-K03 and higher. •  B-Net 92 90-2 access control manager with B-Client AC3 terminal software version 668-00-X-K04 and higher. 3.9 Supported features Depending on the system connection, the following functional elements are supported: HR = B-web 93 00 time and attendance terminal with B-Client HR10 terminal software. AC = Access control unit with B-Client AC2/3 terminal software.  HR AC Inputs - X Outputs X X CardLink update  -  - CardLink validation and invalidation  -  X Distribution of site keys via download  (ARIOS security concept) X -
Product description  Technical Manual18  04044346 - 07/2014  Kaba compact reader 91 04 - subterminal3.10 Operating sequence The exact operating sequence at the subterminal is defined by the parameters set for the superior control unit. The operating sequences described below correspond to the default settings. 3.10.1 Badge input The luminous ring is green while the reader is in idle state. A booking operation is started by a badge input. The contactless media are simply held in front of the terminal.    3.10.2 Valid booking If the booking is valid, a short acoustic signal is emitted, and the luminous ring blinks once in green.    •  short acoustic signal •  luminous ring blinks once 3.10.3 Invalid booking If the booking is invalid, an alternating acoustic signal is emitted for about 5 seconds while the luminous ring is blinking in red.     •  alternating acoustic signal •  luminous ring blinks in red   Duration approx. 5 seconds
Technical Manual  InstallationKaba compact reader 91 04 - subterminal  04044346 - 07/2014  19Installation 4 Installation 4.1 Installation conditions 4.1.1 General An accurate installation of all components is a basic requirement for a properly functioning device. The following installation instructions must be adhered to. 4.1.2 Installation site The compact reader is installed in an ergonomically suitable position, e.g., in the access area (door). The compact reader is mounted directly on the wall or on the door frame.  In the device variant with permanently connected connecting cable, the cable must be led to the back into the wall. In the device variant with plug-in terminal clamp, the cable feed can take place from behind (flush-mounted cable routing) or from below (surface-mounted cable routing). Clearances Between two compact readers, a distance of 20 cm must be observed on all sides. Mounting height Recommended mounting height 110 cm to top edge of the compact reader. Electromagnetic fields The device must not be installed in the area of strong electromagnetic fields caused by switching power supply, power lines, phase controllers, etc.!Electromagnetic fields can affect the reading power or cause failures, in particular with contactless RFID readers. 4.1.3 Connections The following connectors must be prearranged at the installation site. •  Power supply for the compact reader. •  Data line to the control unit. •  Signal lines to door openers and door contacts (if required).
Installation  Technical Manual20  04044346 - 07/2014  Kaba compact reader 91 04 - subterminal4.2 Installation diagram 123456789C0 E6AB1345342BAC  1  B-web 93 00 time and attendance terminal 2  access control manager 3  Compact reader 91 04 4 Power supply 5  Door frame contact 6  Door contact, door opener    Installation lines A Data line B  Power supply cable C  Cable to the door opener and to the door contacts  (if required)   In the example top right, the relay in the subterminal is used for door opening. This is only recommended in secure areas. Alternatively, the door opening can take place via an internal relay of the terminal or of the access control manager.
Technical Manual  InstallationKaba compact reader 91 04 - subterminal  04044346 - 07/2014  214.3 Installation lines 4.3.1 Power supply cable Power is normally supplied to the subterminal by the superior access control manger and can be tapped easily from there. A separate power supply needs to be provided if the subterminal is connected to a B-web time and attendance terminal. For distances up to 20 meters max., it is permitted to have the power supply for the subterminal and the data line in one single cable. A separate power supply cable needs to be provided for longer distances. Recommended cable:  1 x 2 x 0.6 mm or 1 x 2 x AWG 24. In case of long lines, the voltage drop - caused by the line resistance - must be considered. 4.3.2 Data line The communication with the superior control unit is performed via the RS-485 2-wire subpartyline.  The complete bus network (master lines and stubs) may be up to 1,200 meters long. One stub must not exceed 100 m. Line requirements: Shielded line with twisted wire pairs, for instance standard telephone cable J-Y (St) Y 2 x 2 x 0.6 mm. Recommended cable: CAT.5 S/UTP 4 x 2 AWG 24 or AWG 22 (according to EIA/TIA568). 4.3.3 Line to the door opener and door contacts Line requirements: Cable diameters from 0.5 mm to 0.8 mm. Recommended cable: CAT.5 S-UTP 4 x 2 AWG 24 or AWG 22 (according to EIA/TIA568) or higher.
Installation  Technical Manual22  04044346 - 07/2014  Kaba compact reader 91 04 - subterminal4.4 Fastening the base frame The base frame is mounted directly on the wall or on the door frame.  For fastening, two long holes (arrow) are provided in the base frame. Depending on the surface, screws/dowels or self-tapping screws are used for fastening. For cable feed from behind, ensure correct position via hole or empty tube. 3,63,677644,5  The base frame may not be mounted twisted. The screws may only be tightened slightly. The base frame may not be deformed or bent.  In the case of soft mounting surfaces, make sure that when installed, the base frame is not pressed into the mounting surface. The unevenness of the mounting surface must be compensated for or adjusted by means of suitable measures (e.g. washers).
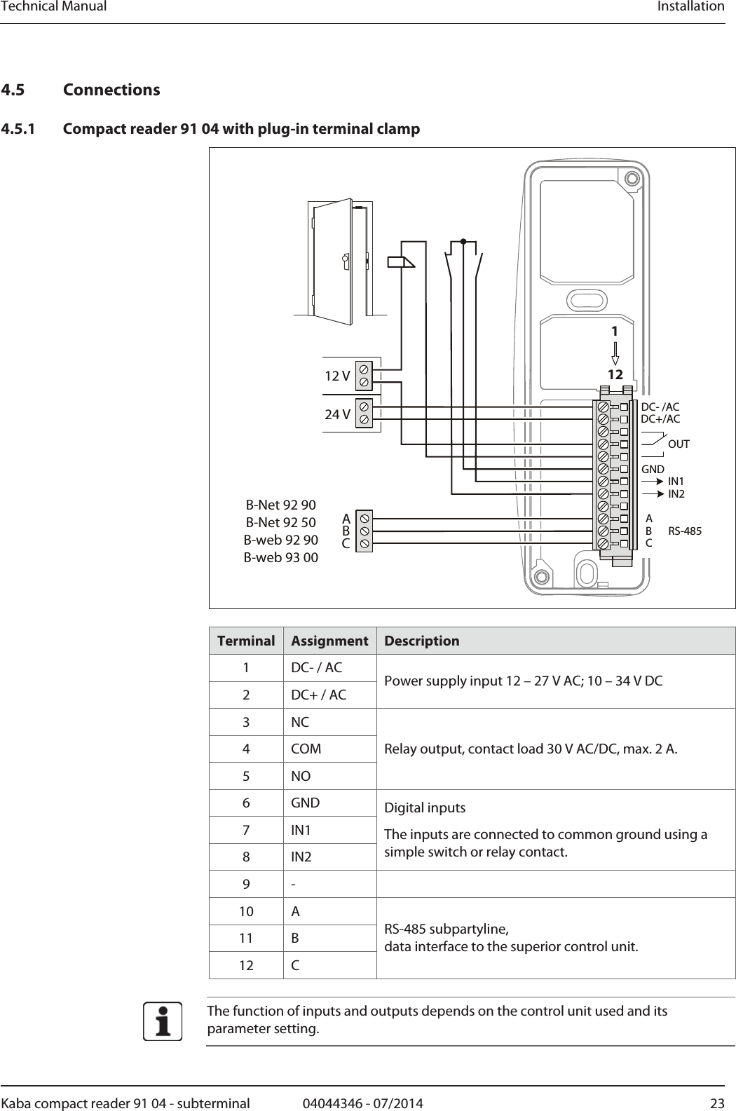
Technical Manual  InstallationKaba compact reader 91 04 - subterminal  04044346 - 07/2014  234.5 Connections 4.5.1 Compact reader 91 04 with plug-in terminal clamp 24 V12 VABCB-Net 92 90B-Net 92 50B-web 92 90B-web 93 00AOUTIN2DC- /ACBCIN1GNDDC+/ACRS-485112  Terminal  Assignment Description 1  DC- / AC 2  DC+ / AC Power supply input 12 – 27 V AC; 10 – 34 V DC 3 NC 4 COM 5 NO Relay output, contact load 30 V AC/DC, max. 2 A. 6 GND 7 IN1 8 IN2 Digital inputs The inputs are connected to common ground using a simple switch or relay contact. 9 -   10 A 11 B 12 C RS-485 subpartyline, data interface to the superior control unit.   The function of inputs and outputs depends on the control unit used and its parameter setting.
Installation  Technical Manual24  04044346 - 07/2014  Kaba compact reader 91 04 - subterminal4.5.2 Compact reader 91 04 with permanently connected connecting cable The wires of the connecting cable have different colors.  The following table shows the assignment on the basis of the wire color. Color  Assignment Description blue  DC- / AC red  DC+ / AC Power supply input  12 – 27 V AC; 10 – 34 V DC. yellow NC green COM orange NO Relay output, contact load 30 V AC/DC, max. 2 A. white GND white/black IN1 gray IN2 Digital inputs The inputs are connected to common ground using a simple switch or relay contact. white/red -   brown A violet B black C RS -485 subpartyline, data interface to the superior control unit. rose Shield  4.5.3 Note on the use of door openers The relay can be used for activating the door opener. For door openers supplied with direct voltage, a freewheeling diode must be connected in parallel to suppress interference (in reverse direction). A varistor must be connected in parallel to AC door openers.
Technical Manual  InstallationKaba compact reader 91 04 - subterminal  04044346 - 07/2014  254.6 Setting the switches 12 A DIP switch (1) and a rotary switch (2) are located on the front of the compact reader. 4.6.1 DIP switch  RS-485 bus termination ON  Terminating resistor 4.7 kOhm (star topology) Switch 1 OFF Open ON  Bus terminating resistor 120 Ohm Switch 2 OFF  Open Switch 3    Not used  Rotary switch settings ON  The interface parameters and the GID/DID, set in system mode by means of the LOWPAR command, are active (special applications). Switch 4 OFF  The device address DID set by means of the rotary switch is active, the GID group address is always 00. The baud rate of the subpartyline 9600 or 19200 is detected automatically by the remote reader.  System mode ON  The device is started in system mode after switch-on (Service/Setup). Switch 5 OFF  The terminal software is started after switch-on (normal start).  Cold start ON  A cold start is performed after switch-on and the update mode is started. Switch 6 OFF  Normal start.   The switch positions needed for normal operation as a subterminal are shown in bold with a gray background.
Installation  Technical Manual26  04044346 - 07/2014  Kaba compact reader 91 04 - subterminal4.6.1.1 RS-485 bus termination The RS-485 terminating resistor is set via DIP switches 1 and 2. The selection of the terminating resistors depends on the connection architecture. Bus wiring In the example, the subterminals (2) are connected to the superior control (1) via a bus.  120open open open12123456789C0 E  The last terminal at the bus requires a 120-ohm terminating resistor.  Star wiring In the example, the subterminals (2) are connected to the superior control (1) via a star topology.  4k74k74k74k712123456789C0 E  All subterminals require a 4.7-kohm terminating resistor.
Technical Manual  InstallationKaba compact reader 91 04 - subterminal  04044346 - 07/2014  274.6.2 Rotary switch A device is addressed via the RS-485 subpartyline by means of the group address and device address. The rotary switch is used to set the logical device address (DID) of the subterminal.  The GID logical group address is fixed to 00 and cannot be changed.  Position  DID 0 16 1 01 2 02 3 03 4 04 5 05 6 06 7 07 8 08 9 09 A 10 B 11 C 12 D 13 E 14 F 15
Installation  Technical Manual28  04044346 - 07/2014  Kaba compact reader 91 04 - subterminal4.7 Final assembly After the connections have been made and the switches have been set, the final assembly of the compact reader is carried out. In case of cable feed from below: •  Break off the tab at the inside cover.   Carrying out the final assembly: 1.Place core on the base frame and screw it down. 2.Insert sealing plug 3.Hang in front cover at the top and then press it at the bottom into the base frame until it locks into place. 1. 2. 3.  This completes the installation process.
Technical Manual  InstallationKaba compact reader 91 04 - subterminal  04044346 - 07/2014  294.8 Dismounting Dismounting the compact reader: 1.Unlock the locking tab of the front cover using a small screwdriver. Lift off the front cover at the bottom and then disengage it at the top and remove it. 2.Remove the sealing plug (if required) 3.Unscrew the fastening screws and remove the core from the base frame. 1. 2.3.
Start-up  Technical Manual30  04044346 - 07/2014  Kaba compact reader 91 04 - subterminal5 Start-up 5.1 Set-up procedure  1.Switch on the power supply 2.Log the subterminal on to the control unit in B-COMM and put it into operation. 3.Carry out a functional test. 5.2 Cold start The device is reset to default (factory) settings by means of a cold start. How to perform a cold start: •  Turn off the device. •  Set DIP switch 6 to ON. •  Turn on the device.   An acoustic signal can be heard; after approx. 3 seconds, the luminous ring blinks alternately in red and green. •  Turn off the device. •  Set DIP switch 6 to OFF. •  Turn on the device.   The device is now again in normal operation mode.
Technical Manual  System modeKaba compact reader 91 04 - subterminal  04044346 - 07/2014  316 System mode 6.1 Function of the system mode The system mode allows setting additional parameters for the device.  Default (factory) parameters can be modified in system mode. However, the parameters need only to be modified via the system mode for special applications. 6.2 Access to the system mode It can be accessed via the data interface of the device. A service PC is connected by means of the parameter setting tool, order number 04036126. SubterminalPara-ToolService-PCRS-232CRS-485  For communication with the system mode, a standard terminal software, e.g. HyperTerminal, is used on the service PC. The connection is established with the following communication parameters: Baud rate:   9600 Baud Parity:   even Data bits:   7 Stop bits:   1 6.3 Starting the system mode Start the device in system mode. 1. Turn off the device. 2.Set DIP switch 5 to ON (see chapter 4.6.1). 3.Turn on the device.   The device starts in system mode.  After starting system mode, the device replies with the prompt (<CR>, <LF>, '>') in the terminal software window. The luminous ring blinks red while the device is in system mode.
System mode  Technical Manual32  04044346 - 07/2014  Kaba compact reader 91 04 - subterminal6.4 Terminating the system mode Terminate the system mode and start the device with terminal software (normal start). 1.Turn off the device. 2.Set DIP switch 5 to OFF (see chapter 4.6.1). 3.Turn on the device.   The device starts with the terminal software.  The system mode is not terminated automatically with a timeout. 6.5 Commands Commands only contain capital letters and terminate with <CR>. When entering commands, the characters following the command are ignored, as parameters might follow if the device is provided with an operating system. A wrong command is shown as follows: Command not found >_ Once a command has been called successfully, it will be processed. Upon termination of a command, the device terminal displays a prompt. If the output of a command is too large for the screen, the stopped output can be continued with <CR> (Enter key). If an error is detected upon termination of the command, an error message will be displayed before outputting the prompt: Write Error >_ After entering <BS> (backspace key) or <DEL> (delete key), the last entered character is deleted and the cursor is put back one character. All entered characters are sent back as echo. It is checked whether the parameters are correct, and only correct parameters are applied. The parameters are only accepted if the format (length) is strictly adhered to. Before entry, a parameter description is displayed. The currently valid parameter values, surrounded by simple quotation marks ('parameter'), are then transmitted. Preset parameters can be applied by means of <CR> (Enter key). The character '_' represents the cursor in the following examples.
Technical Manual  System modeKaba compact reader 91 04 - subterminal  04044346 - 07/2014  336.5.1 SETHWC The SETHWC command (Set Hardware Configuration) is used to enter the parameters defining the device hardware. After having changed hardware parameters, a cold start must be performed to enable the parameters. Example: >SETHWCProtocol Type                : '01'           : 01 Keyboard Type                : '31'           : 31 AUX 1  Type                : '47'           : 47  CIR                 : '00'           : 00 LEDs Number              : '02'           : 02 Outputs Number              : '01'           : 01 Inputs Number              : '02'           : 02 Buzzers Number              : '01'           : 01
System mode  Technical Manual34  04044346 - 07/2014  Kaba compact reader 91 04 - subterminal6.5.1.1 Description of the parameters Protocol type: 2-digit protocol to control unit (data interface)  Default 00 No protocol   01  BPA/9 Subset protocol  X  Keyboard type: 2 digits keyboard type  Default 00 No keyboard  X  Driver type for AUX channels: Devices with RFID reader  Default 14 LEGIC   47 MIFARE   00 No component    CIR: 2 digits for CIR 1+2 each  Default 00 No CIR  X 01  CIR provided, depending on component for AUX channel    LED number: 2 digits number of LEDs  Default 02 2 LEDs  X  Output number: 2 digits number of outputs  Default 01 1 output  X  Input number: 2 digits number of inputs  Default 02 2 inputs  X  Buzzer number: 2 digits number of acoustic signal generators  Default 01  1 acoustic signal generator  X
Technical Manual  System modeKaba compact reader 91 04 - subterminal  04044346 - 07/2014  356.5.2 GETHWC The command GETHWC (Get Hardware Configuration) is used to display the parameters set with the SETHWC command. 6.5.3 GETPRG The command GETPRG (Get Program Number) is used to query the program number of the device. Example: >GETPRGProgram Number       : '854-00-X-K00'  >_  6.5.4 GETKVS The command GETKVS (Get Kaba Version String) is used to query the program number of the device in the format of the Kaba Programmer 1460. Example: >GETKVSVersion String       : 'ARCC01.04RA'  >_  6.5.5 RUN The RUN command (restart of the program) is used to perform a warm start. Example: >RUN_ The warm start is indicated by the following message: >Restarting …   Depending on the position of DIP switch 5, the device will start in system mode or with the terminal software (normal start).
System mode  Technical Manual36  04044346 - 07/2014  Kaba compact reader 91 04 - subterminal6.5.6 COLD The COLD command starts execution of a cold start (see chapter 5.2). Example: >COLD_ The following messages appear: Resetting device with Cold Start Are you sure?  After acknowledgement with '1' or 'Y', the cold start is executed and indicated by the following message: >Restarting …  In all other cases, there is no action, and the system mode remains active. 6.5.7 ORIGIN The ORIGIN command resets the device to its delivery state. This applies to all cold start parameters, to hardware parameters that can be set using the SETHWC command and to the diagnostics data. Example: >ORIGIN_ The following messages appear: Resetting device to delivery state Are you sure?  After acknowledgement with '1' or 'Y', the delivery state is restored and indicated by the following message: >Restarting …  In all other cases, there is no action, and the system mode remains active.
Technical Manual  System modeKaba compact reader 91 04 - subterminal  04044346 - 07/2014  376.5.8 LOWPAR The LOWPAR command (Low Level Parameterization) is used to set the parameters of the data interface. The parameters for a protocol will only be queried if a protocol has been logged on with the SETHWC command. These parameters are reset to the default values by a cold start. The default value is always the first value after the parameter name.  Low level parameterization with BPA/9 subset protocol (protocol type 01): >LOWPARSerial Interface Baudrate            : 'AUTO       : 009600  Number of Data Bits : '7'         : 7  Parity              : '2'         : 2  Number of Stop Bits : '1'         : 1  Flow Control        : '0'         : 0 Protocol BPA/9 Group (GID)         : '00'        : 01  Device (DID)        : '00'        : 01  Response-TO         : '005'       : 005  Activity-TO         : '010'       : 010  Output Delay        : '000'       : 000 6.5.8.1 Description of the parameters Serial interface:   6 digits: Baud rate (001200 to 057600 and 009600/019200 (AUTO  ))   1 digit: Number of data bits (7, 8)   1 digit: Parity (0 or N = no; 1 or O = odd; 2 or E = even)   1 digit: Number of stop bits (1, 2) BPA/9:   2 digits: Group number (00 to 29)   2 digits: Device number (00 to 59)   3 digits: Response timeout (001 to 999 = 0.1 – 99.9 sec.)   3 digits: Operating timeout (001 to 999 = 0.1 – 99.9 sec.)   3 digits: Transmit delay (000 to 999 = 0.0 – 99.9 sec.)   The parameters for "serial interface" as well as GID and DID can only be changed using the LOWPAR command if the DIP switch 4 is set to OFF.
System mode  Technical Manual38  04044346 - 07/2014  Kaba compact reader 91 04 - subterminal6.5.9 GETDGN The GETDGN command is used to query diagnostics data (possible errors). Query without error messages: >GETDGN_No Errors found >_ Query with error messages: >GETDGNErrors found        :  01 Code: 030    Meaning:  Error while allocating memory    >_  The following error codes are possible: 1   Unspecific Error 2   Unknown Error 10  Error while initializing Task Manager 11  Error while creating Task 12  Error from Task Manager 20  Error while initializing  EEPROM 21  Error while writing to EEPROM 22  Error while reading from EEPROM 30 Error while allocating memory 31  Error while initializing Buffer 40  Error while writing to Display  6.5.10 RSTDGN The RSTDGN command is used to delete all diagnostics data. Example:    >RSTDGN   >_
Technical Manual  Description of the subpartylineKaba compact reader 91 04 - subterminal  04044346 - 07/2014  397 Description of the subpartyline In the online mode, communication between the subterminal and the superior control unit takes place via the subpartyline with BPA/9 subset protocol. The subpartyline is an RS485 bus operated in 2-wire technology. Normally, transmission takes place at 19,200 baud, with even parity and one stop bit. Alternatively 9,600 baud are also possible. 7 bit ASCII characters are transmitted. 7.1 BPA/9 Subset The BPA (Benzing Protocol Asynchronous) is a master slave protocol with the subterminal being the slave. The master is always the superior control unit. The BPA’s overall control is performed by the control unit. The BPA/9 subset is a protocol of a reduced range of functions adapted to data exchange with subterminals. 7.2 Addressing Since several subterminals can be connected to a control unit, these must be distinguished by addresses. For this, two addresses exist. The group ID (GID) is a group address, the device ID (DID) is the actual device address. These addresses are set at the subterminal. In transmission these addresses are always ASCII characters. Capitals are used for GID and DID in a transmit poll. Lower case letters are used for GID in a receive poll:   GID(hex) Address DID(hex)  Address Transmit poll  Receive poll 1 A(41)  0 @(40) ´(60) 2 B(42)  1 A(41) a(61) 3 C(43)  2 B(42) b(62) 4 D(44)  3 C(43) c(63) 5 E(45)  4 D(44) d(64) 6 F(46)  5 E(45) e(65) 7 G(47)  6 F(46) f(66) 8 H(48)  7 G(47) g(67) 9 I(49)       10 J(4A)       11 K(4B)       12 L(4C)       13 M(4D)       14 N(4E)       15 O(4F)       16 P(50)
Description of the subpartyline  Technical Manual40  04044346 - 07/2014  Kaba compact reader 91 04 - subterminal7.3 Control characters and control sequences  Control characters are displayed in angle brackets, e.g. ESC (1Bhex) as <ESC>. An underline character “_” is used as blank (2Øhex). In the following examples “0” is used as group address (GID) and “1” as device address (DID).  The following characters and sequences are used as control characters: Control characters/ sequence Meaning <STX>  STX  Start of Text  Beginning of the text <ETX>  ETX  End of Text  End of the text <EOT>  EOT  End of Transmission  End of the transmission <NAK>  NAK Negative Acknowledgement Negative feedback <ENQ>  ENQ Enquiry  Enquiry <DLE> 0  ACK0 Acknowledgement 0 <DLE> 1  ACK1 Acknowledgement 1 Alternating positive feedback <DLE> <  RVI  Reverse Interrupt  Reverse interrupt  ACK0, ACK1 and RVI consist of two characters. The second character (0, 1, <) added to the control character DLE defines which of the three control characters is meant. The handshake in the BPA is effected via control characters and control sequences. The control sequences are: <EOT> @ @ A A <ENQ>  Transmit poll <EOT> ´ ´ A A <ENQ>  Receive poll  These control sequences instruct the subterminal to send existing data records or to receive a data record. For receive and transmit polling, the two addresses are sent twice in order to have a verification possibility. <EOT> GID GID DID DID <ENQ> 7.4 Data records Data records are marked up by the control characters STX (beginning) and ETX (end). The ETX is followed by an LRC - a check character which is calculated by exclusive OR of the data and the ETX control character. The STX is not considered in this calculation. <STX> Data <ETX> LRC
Technical Manual  Description of the subpartylineKaba compact reader 91 04 - subterminal  04044346 - 07/2014  417.5 Data from subterminal to control unit Transmit poll  Control unit    Subterminal  The subterminal does not respond if the address is different than the own address, or if an error has been recognized, or if the two address characters are different. The control unit repeats the transmit poll after an internal timeout. <EOT> GID GID DID DID <ENQ>      No response In case of the same address the subterminal must respond. If it has no data for the control unit, an EOT is sent. This completes the entire transmission process. <EOT> GID GID DID DID <ENQ>      <EOT>  If data exists, this data will be sent, waiting for the control units acknowledgement. If an RVI is received, the data is acknowledged which is confirmed by the subterminal by an EOT. This completes the transmission. <EOT> GID GID DID DID <ENQ>      <STX> Text <ETX> LRC <DLE><     <EOT>  If the control unit answers with NAK, the subterminal will repeat data transmission. The control unit repeats the NAK up to two times and then terminates the transmission by EOT. This does not yet acknowledge the data record and is not discarded by the subterminal. The subterminal waits for the next transmit poll to send the data record again. <EOT> GID GID DID DID <ENQ>    <STX> Text <ETX> LRC <NAK>    <STX> Text <ETX> LRC <NAK>    <STX> Text <ETX> LRC <NAK>    <STX> Text <ETX> LRC <EOT>
Description of the subpartyline  Technical Manual42  04044346 - 07/2014  Kaba compact reader 91 04 - subterminal7.6 Data from the control unit to the subterminal Receive poll Steuerung   Subterminal The subterminal will not respond if the address is different from the own address, or if an error has been detected, or if the two address characters are different. The control unit repeats the receive poll after an internal timeout. <EOT> GID GID DID DID <ENQ>      No response  If the address has been detected correctly, the receive poll is acknowledged by the subterminal by ACK0. After that the control unit sends the data record, which is acknowledged by ACK1 if correctly received. If the control unit receives a correct acknowledgement, the control unit terminates the transmission by sending an EOT. <EOT> GID GID DID DID <ENQ>     ACK0 <STX> Text <ETX> LRC    ACK1 <EOT>    If the control unit’s data record has not been received correctly, the subterminal will acknowledge by sending an NAK until the record has been understood. <EOT> GID GID DID DID <ENQ>     ACK0 <STX> Text <ETX> LRC    <NAK> <STX> Text <ETX> LRC    ACK1 <EOT>    If the control receives no correct acknowledgement, it will send an ENQ to request a retry of acknowledgement. <EOT> GID GID DID DID <ENQ>      ACK0 <STX> Text <ETX> LRC    No response <ENQ>    ACK1 <EOT>
Technical Manual  Description of the subpartylineKaba compact reader 91 04 - subterminal  04044346 - 07/2014  437.7 Escape sequences The subterminal functions are controlled by the following escape sequences. Which ESC sequences are used or supported depends on the particular control unit. 7.7.1 Controlling LED, relay and beeper The following sequences are used to control the relay, the acoustic signal generator (beeper) and the optical signal generator (LED) in the subterminal. Meaning Code Switching on LED Pn <ESC>[PnqSwitching on blinking LED Pn <ESC>[?PnqSwitching on inverse blinking LED Pn <ESC>[<PnqSwitching off LED Pn <ESC>[=PnqPn:  Number of the local LED: 1 = green, 2 = red   Meaning Code Switching off all relays and beeper  <ESC>[qSwitching on beeper  <ESC>[99qSwitching on alternating beeper  <ESC>[?99qSwitching on inverse alternating beeper  <ESC>[<99qSwitching off beeper  <ESC>[=99qSwitching on relay  <ESC>[3qSwitching off relay  <ESC>[=3qThe acoustic signal transmitter in the subterminal is activated by means of the control character <BEL> for 0.3 seconds. The acoustic signal generator does not need to be switched off afterwards. Meaning Code Triggering the beeper dynamically  <BEL>
Description of the subpartyline  Technical Manual44  04044346 - 07/2014  Kaba compact reader 91 04 - subterminal7.7.2 Reset The following ESC sequence will reset the subterminal. The same settings as after a warm start will then apply to all parameters. Meaning Code Performing reset  <ESC>cAfter a reset, the subterminal will send the ESC sequence “LOG IN”. Meaning Code LOG IN  <ESC>[98~ 7.7.3 Device configuration The device configuration of the subterminal is requested by means of the following ESC sequence. The subterminal sends the ESC sequence “Device configuration” in response. Meaning Code Requesting device configuration  <ESC>[cResponse from the subterminal  <ESC>[:2;Ps;Ps;..cThe number of configuration entries may vary depending on the device configuration. The individual configuration entries are separated from each other by “;” (semicolon).  Example:  <ESC>[:2;0;?10;?41;?120;?1031;?1147;?1200cPs:  State:    0  = Keyboard available  3  = No keyboard available  ?10  = Channel AUX 1 available  ?13  = Channel AUX 1 not available  ?40  = Input 1 open (alarm)  ?41  = Input 1 closed (no alarm)  ?120  = Input 2 open  ?121  = Input 2 closed     Type:    ?1000  No keyboard available  ?10xx  Keyboard type 31 = B-web 91 15  ?1100  Channel AUX 1 not available  ?11xx  Component type xx at AUX 1 channel, type 47=MIFARE, 39=LEGIC  ?1200  No display available
Technical Manual  Description of the subpartylineKaba compact reader 91 04 - subterminal  04044346 - 07/2014  457.7.4 Program number The program number (version of the terminal software) is requested by means of the following ESC sequence. The subterminal will send the ESC sequence “Report program number” in response. Meaning Code Requesting program number  <ESC>[?cResponse from the subterminal  <ESC>[?18 O<ESC>P852-00-X-K00<ESC>\   1  21) Space = 20Hex 2) O as in Otto = 4FHex  7.7.5 Recorded data After entering a badge, the subterminal will send the following sequence. Meaning Code Badge data  <ESC>[?11 O<ESC>PDATA<ESC>\  1  21) Space = 20Hex 2) O as in Otto = 4FHex  DATA:  Badge data   7.7.6 Hex representation of the recorded data The Hex representation of the collected data is set by means of the following ESC sequences. Meaning Code Hex representation with letters  <ESC>[?14iHex representation with special characters  <ESC>[?15i Example:  Hex representation with letters:  0123456789ABCDEFHex representation with special characters*:  0123456789:;<=>?* Default (after a warm start or cold start)
Description of the subpartyline  Technical Manual46  04044346 - 07/2014  Kaba compact reader 91 04 - subterminal7.7.7 Acoustic acknowledgement for reading Correct reading of a badge can be acknowledged by a short acoustic signal. This acoustic acknowledgement can be switched on/off with the following ESC sequence: Meaning  Code for AUX 1 Acoustic acknowledgement ON  <ESC>[?16iAcoustic acknowledgement OFF*  <ESC>[?17i* Default (after a warm start or cold start) 7.7.8 Digital inputs The subterminal sends the following sequences if the state of the inputs has changed. Meaning Code Input 1 open  <ESC>[70~Input 1 closed  <ESC>[71~Input 2 open  <ESC>[72~Input 2 closed  <ESC>[73~ After resetting, the states of all logged-on digital inputs are reported. The states of all logged-on digital inputs can be requested by means of the following command: Meaning Code Requesting input states  <ESC>[?99c
Technical Manual  MaintenanceKaba compact reader 91 04 - subterminal  04044346 - 07/2014  478 Maintenance 8.1 Updating terminal software The terminal software can be updated if needed.   Update of terminal software requires special equipment which usually is only available to authorized specialist partners and Kaba Service staff.  8.1.1 Programming interface The compact reader contains a 3-pin socket (1) on the front for connecting the Kaba Programmer 1460. This programming interface is used for updating the terminal software. 1  8.1.2 Equipment The following equipment is needed for terminal software update: •  Current terminal software: •  Service PC with Kaba EAC Service Tool. •  Kaba Programmer 1460.
Maintenance  Technical Manual48  04044346 - 07/2014  Kaba compact reader 91 04 - subterminal8.1.3 Procedure Preparation: 1.Transfer the current terminal software to Kaba Programmer 1460 using the EAC Service Tool.  Details on how to proceed can be found in the description of the EAC Service Tool and the Kaba Programmer 1460 operating instructions. Updating the subterminal firmware: 2.Turn off the device. 3.Set DIP switch 6 to ON (see chapter 4.6.1). 4.Turn on the device.   The luminous ring blinks red/green after 2 short acoustic signals. 5.Connect Programmer 1460 to the programming socket of the device.LED briefly blinks twice. Blinking extinguishes after a short acoustic signal. 6.Select the terminal software on Programmer 1460 and start the update.   Short acoustic signal, LED briefly blinks twice in green.
Technical Manual  Packaging / returnsKaba compact reader 91 04 - subterminal  04044346 - 07/2014  499 Packaging / returns Not properly packaged components and devices can cause costs due to damages during shipping. Please observe the following information when sending products to Kaba. Kaba GmbH is not liable for products that have been damaged due to negligent packaging. 9.1 Complete devices The original packaging has been specifically designed to fit the device. It offers maximum protection against damage in transit.  Always use the original packaging for returning the products! If this is not possible, packaging which ensures that the device is not damaged during shipping and handling must be provided. •  Use a robust and thick-walled transport box or cardboard box. Approximately 8 to 10 cm of space needs to be allowed on either side of the device. •  Wrap the device with a suitable foil or put it into a bag. •  Generously stuff foam pads or air cushions, for example, all around device. Movements of the device inside the packaging must be excluded. •  Use only dustless and environmentally friendly padding material. 9.2 Electronic assemblies  ESD sensitive electronic assemblies such as printed circuit boards, readers, etc. must be stored, transported, and shipped in appropriate ESD protective bags.Electronic assemblies may only be packed at ESD secure workplaces and by persons familiar with general ESD safety standards and who apply them on a regular basis. Returning electronic assemblies in packaging with sufficient ESD protection is a prerequisite for•  the submission of warranty claims after functional failures of any type. •  replacement of printed circuit boards and electronic components in exchange. Electronic components delivered in packaging without sufficient ESD protection are --in order to maintain a high quality standard-- neither analyzed nor repaired but directly disposed of.
Packaging / returns  Technical Manual50  04044346 - 07/2014  Kaba compact reader 91 04 - subterminal9.3 Labeling Complete return documents and a correct labeling allow for fast processing. Please make sure that each package includes a delivery note. The delivery note should contain the following information: •  Number of devices or components per package. •  Product numbers, serial numbers, specifications. •  Name and address of your company / contact person. •  Reason for return, e.g. repair exchange. •  Meaningful and detailed error description. Returns from countries outside the European Union require a customs invoice stating the real customs value. Some countries (e.g. Switzerland) require a preference.
Technical Manual  DisposalKaba compact reader 91 04 - subterminal  04044346 - 07/2014  5110 Disposal  This product complies with the WEEE directive and is, according to DIN EN standard 50419, marked with the “Crossed out garbage can” symbol. See chapter 3.3 Labeling. The symbol refers to separated disposal of electric and electronic devices in EU countries. Please do not dispose of device in your regular garbage. Used devices contain valuable materials that should be recycled. Used devices should therefore be disposed of via your country’s take back system. At the end of use of the goods supplied, Kaba GmbH will take them back for a proper disposal in accordance with the legal regulations (German law on the disposal of electrical equipment (ElektroG)). Charges incurred for transport to the manufacturer will be at the expense of the owner of the waste electrical equipment. In the EU and Switzerland, electronic devices have to be disposed of according to national disposal and environmental legislation.   Please dispose of in an environmentally responsible way.The packaging materials are recyclable. Please do not throw packaging material into your regular garbage can. Always take it to a recycling center or have it picked up by your local waste recycler.
Index  Technical Manual52  04044346 - 07/2014  Kaba compact reader 91 04 - subterminal 11 Index  AAccess control manager.......................................... 16, 17, 20 Acoustic acknowledgment .................................................. 46 Addressing.......................................................................... 27, 39 Ambient temperature............................................................ 11 ARIOS........................................................................................... 17 BBadge input............................................................................... 18 B-Client AC2/3 .......................................................................... 17 B-Client HR10............................................................................ 17 B-COMM............................................................................... 16, 17 B-Net 92 50 ................................................................................ 17 B-Net 92 90 ................................................................................ 17 Booking....................................................................................... 18 BPA/9 Subset............................................................................. 39 B-web 93 00........................................................................ 17, 20 CCardLink...................................................................................... 17 CE conformity ........................................................................... 12 Clearances.................................................................................. 19 COLD............................................................................................ 36 Cold start ...................................................................... 25, 30, 36 Communication software..................................................... 17 Conformity................................................................................. 12 Connections ....................................................................... 19, 23 Controlling relay and beeper .............................................. 43 DData line...................................................................................... 21 Delivery state ............................................................................ 36 Design ......................................................................................... 14 Device address (DID) .............................................................. 27 Device configuration.............................................................. 44 Device structure....................................................................... 15 Device variants......................................................................... 14 Diagnostics data ...................................................................... 38 DID................................................................................................ 27 Digital inputs............................................................................. 46 Dimensions................................................................................ 11 DIP switch................................................................................... 25 Dismounting ............................................................................. 29 Disposal ......................................................................................51 Door contact ............................................................................. 20 Door frame contact................................................................. 20 Door opener....................................................................... 20, 24 EElectromagnetic fields ........................................................... 19 EMC Directive............................................................................ 12 Escape sequences ................................................................... 43 ESD (electrostatic discharge) protective measures........ 8 FFastening the base frame......................................................22 Final assembly...........................................................................28 Functions....................................................................................17 GGETDGN ......................................................................................38 GETHWC......................................................................................35 GETKVS ........................................................................................35 GID ................................................................................................27 Group address (GID)................................................................27 HHex representation of the recorded data........................45 IIdentification plate..................................................................13 Ingress protection ...................................................................11 Inputs....................................................................................10, 17 Installation..................................................................................19 Installation conditions............................................................19 Installation diagram................................................................20 Installation lines ................................................................20, 21 Interfaces ....................................................................................10 LLabeling ......................................................................................13 Low voltage directive.............................................................12 LOWPAR......................................................................................37 Luminous ring...........................................................................18 MMaintenance..............................................................................47 Mounting height......................................................................19 OOperation ...................................................................................18 ORIGIN .........................................................................................36 Outputs .......................................................................................17 PPower supply cable.................................................................21 Product description .................................................................. 9 Program number .....................................................................45 RR&TTE...........................................................................................12 Reader..........................................................................................10 Recorded data...........................................................................45 Registration unit.......................................................................17 Relative humidity.....................................................................11
Technical Manual  IndexKaba compact reader 91 04 - subterminal 04044346 - 07/2014  53Relay outputs ............................................................................10 Reset.............................................................................................44 RFID reader types.....................................................................14 RoHS.............................................................................................12 Rotary switch.............................................................................27 RS-485..........................................................................................10 RSTDGN.......................................................................................38 RUN...............................................................................................35 SSETHWC.......................................................................................33 Site keys ......................................................................................17 Start-up .......................................................................................30 Subpartyline ..............................................................................39 Supported features.................................................................17 Switches ......................................................................................25 System connection..................................................................16 System mode......................................................................25, 31 System requirements..............................................................17 TTechnical data ...........................................................................10 Terminal software ....................................................................14 Time and attendance terminal..............................16, 17, 20 UUmgebungsbedingungen....................................................11 Use as directed............................................................................ 7

Navigation menu