dormakaba Deutschland KRR9115-K5 Remote Reader User Manual TM RemoteReader9115 AM US CAN 201606 en

Kaba GmbH Remote Reader TM RemoteReader9115 AM US CAN 201606 en

user manual

0123456789ABCDEF91 15StateIN1IN2OUTGNDAC-AC+BACGNDIN1IN221PushClickDIN-RailASA+OUTOutputAnt.Function 0 - F123456ONOFFRS-485InputProgrammerSupply10-34VDC12-27VAC 34VDCClass IIRelay Output27VACmax 5VDCKaba Remote Reader 91 15-AM (US/CAN)Technical ManualEN- 06/2016
Kaba AGAccess & Workforce ManagementHofwisenstrasse 248153 RümlangSwitzerlandPhone +41 44 818 93 11www.kaba.comKaba AGAccess & Workforce ManagementMühlebühlstrasse 238620 WetzikonSwitzerlandPhone +41 44 931 61 11www.kaba.comKaba GmbHAccess & Workforce ManagementAlbertistraße 378056 Villingen-SchwenningenGermanyPhone +49 7720 603 0www.kaba.comThis document must not be reproduced in any way or otherwise further used without the written consent of Kaba AG.All product names are trademarks of the respective companies.Copyright 2016 Kaba AG. All rights reserved.- 06/2016
Technical Manual ContentsKaba Remote Reader 91 15-AM (US/CAN)3- 06/2016Contents1 About this Document ............................................................................................................................. 71.1 Validity............................................................................................................................................................................... 71.2 Target group ................................................................................................................................................................... 71.3 Contents and purpose................................................................................................................................................. 71.4 Additional documentation ........................................................................................................................................ 71.5 Change Log ..................................................................................................................................................................... 91.6 Orientation in the document.................................................................................................................................... 91.7 Abbreviations/Term Definitions .............................................................................................................................. 91.8 Warnings.........................................................................................................................................................................101.8.1 Hazard Categories........................................................................................................................................101.8.2 Symbols............................................................................................................................................................101.9 Notes................................................................................................................................................................................102 Grouped safety messages.................................................................................................................... 112.1 Use as directed .............................................................................................................................................................112.2 Mounting and Installation........................................................................................................................................112.3 Service and Maintenance .........................................................................................................................................112.4 Accessories and spare parts ....................................................................................................................................112.5 ESD (electrostatic discharge) protective measures.........................................................................................123 Product Description ............................................................................................................................. 133.1 Overview.........................................................................................................................................................................133.2 Registration Unit Compatibility .............................................................................................................................143.3 Operating modes ........................................................................................................................................................153.4 Supported RFID Standards with Possible Media Definitions.......................................................................153.4.1 MIFARE .............................................................................................................................................................153.4.2 LEGIC.................................................................................................................................................................163.5 Interface for Extension Modules ............................................................................................................................173.6 Technical Data ..............................................................................................................................................................183.6.1 Overview of Technical Data......................................................................................................................183.7 Conformity.....................................................................................................................................................................203.8 Labeling ..........................................................................................................................................................................224 Design and function ............................................................................................................................. 234.1 Device variants .............................................................................................................................................................234.1.1 RFID reader .....................................................................................................................................................234.2 Device Structure ..........................................................................................................................................................234.3 Firmware.........................................................................................................................................................................244.4 System Connection ....................................................................................................................................................254.5 System Requirements................................................................................................................................................264.6 Behavior with Several Media in the Field (Anti-Collision).............................................................................264.7 Functions........................................................................................................................................................................264.8 Operating Modes.........................................................................................................................................................284.8.1 Overview of Operating Types ..................................................................................................................284.8.2 Online operation...........................................................................................................................................28
Contents Technical Manual4 Kaba Remote Reader 91 15-AM (US/CAN)- 06/20164.8.3 Offline Operation..........................................................................................................................................284.9 'Electric strike' operating mode..............................................................................................................................305 Installation ............................................................................................................................................ 315.1 Installation conditions...............................................................................................................................................315.1.1 General.............................................................................................................................................................315.1.2 Installation site ..............................................................................................................................................315.1.3 Connections ...................................................................................................................................................315.2 Installation layout (example)...................................................................................................................................325.3 Installation lines...........................................................................................................................................................335.3.1 Power supply line.........................................................................................................................................335.3.2 Data line RS-485............................................................................................................................................345.3.3 Line to the door opener and door contacts........................................................................................395.3.4 Coaxial Cable to the Registration Units................................................................................................395.3.5 Grounding Concept.....................................................................................................................................405.4 Mounting the device and extension modules..................................................................................................415.5 Connections ..................................................................................................................................................................435.5.1 Connections ...................................................................................................................................................435.5.2 Inputs IN1–IN2 ..............................................................................................................................................445.5.3 Output  .............................................................................................................................................................465.6 Configuration................................................................................................................................................................475.6.1 Directions for configuration .....................................................................................................................475.6.2 Switch ...............................................................................................................................................................475.6.3 Set RS-485 termination resistances .......................................................................................................485.6.4 Set peripheral address................................................................................................................................505.6.5 Settings for “Electric strike” operating mode.....................................................................................515.6.6 Activate the monitoring of inputs..........................................................................................................516 Start-up ................................................................................................................................................. 526.1 "Standalone Access Control without Host System" Commissioning .......................................................526.1.1 Using LEGIC ....................................................................................................................................................526.1.2 Using MIFARE.................................................................................................................................................536.2 Issue Write/Read Authorization (Launch)...........................................................................................................546.3 Cancel Write/Read Authorization..........................................................................................................................546.3.1 Cancel all writing rights granted by a write authorization............................................................556.3.2 Cancel a particular writing right granted by a write authorization:...........................................557 Maintenance ......................................................................................................................................... 567.1 Programming interface.............................................................................................................................................567.2 Restart..............................................................................................................................................................................567.3 Factory Reset/Reset Device to the Basic Status................................................................................................577.4 Firmware Update/LEGIC OS Update.....................................................................................................................587.4.1 Firmware update/LEGIC OS update via access manager...............................................................587.4.2 Firmware Update / LEGIC OS Update with programmer 1460....................................................587.5 Updating configuration ............................................................................................................................................607.6 Crossgrade .....................................................................................................................................................................617.6.1 Device with Bxxx firmware (MRD) ..........................................................................................................617.6.2 Device with Axxx firmware (LEGIC)........................................................................................................617.6.3 Device with Mxxx firmware (MIFARE) ...................................................................................................618 Troubleshooting................................................................................................................................... 638.1 LED Displays on the Remote Reader ....................................................................................................................63
Technical Manual ContentsKaba Remote Reader 91 15-AM (US/CAN)5- 06/20168.2 During Installation ......................................................................................................................................................638.3 During operation.........................................................................................................................................................649 Packaging/Return................................................................................................................................. 6610 Disposal................................................................................................................................................. 6710.1 Decommissioning .......................................................................................................................................................6710.2 Dismantling ...................................................................................................................................................................6710.3 Disposal...........................................................................................................................................................................67Index...................................................................................................................................................... 68
Contents Technical Manual6 Kaba Remote Reader 91 15-AM (US/CAN)- 06/2016
Technical Manual About this Document7- 06/2016Kaba Remote Reader 91 15-AM (US/CAN)1 About this Document1.1 ValidityThis document describes the product:Product name: Kaba Remote Reader 91 15 MRDKaba Remote Reader 91 15 MIFAREKaba Remote Reader 91 15 LEGICFunctional type: Access ManagerDate of manufacture: April 2014 and laterDevice software ver-sion:RR 91 15-MRD = BRRB03.xxRx_RR 91 15-M = MRRB03.xxRx_RR 91 15-L = ARRB03.xxRx_This document describes all device versions and optional equipment and functions.Options need to be paid for and are therefore only available if they have been pur-chased. Additional equipment and functions may not yet be available at the time ofissuing the document and, possibly, can only be purchased at a later stage.1.2 Target groupThis document is exclusively intended for specialist personnel.The descriptions require specialist personnel trained by the manufacturer. The de-scriptions do not replace product training.For reasons of device safety, the installation and maintenance operations describedin this document must be carried out only by service persons according to EN60950-1 (Information technology equipment - Safety).Service persons are persons having adequate technical training and sufficient experi-ence to be aware of and to minimize the possible risks for themselves or other per-sons, which may occur when carrying out these operations. The service persons areresponsible for adhering to the instructions given by the manufacturer and to the ap-plicable standards and regulations during execution of their work.This document is also used as information for persons with the following tasks:• project planning and implementation• Commissioning the product within the network• Connecting the product to the user software by programming customer applica-tions• Customer-specific adjustment by setting the parameters of the product1.3 Contents and purposeThe contents is limited to the assembly, installation, start-up, and basic operation ofthe hardware.1.4 Additional documentationSupplementary documentation is available on the Kaba website. The technical man-uals are located in a secured area of the website.• Access is only possible after logging in.• An account will need to be created before logging in for the first time.Access and login:1. In the browser, access the Kaba page http://www.kaba.com.2. Select the language in the top right.
About this Document Technical Manual8 - 06/2016 Kaba Remote Reader 91 15-AM (US/CAN)3. Under "Products", select the "Access Management" or "Workforce Management"product division.4. In the top right section of the screen, click on the following symbol:.5. Enter your e-mail address and password and login or create an account (see be-low).ðThe technical manuals can be found under "Downloads".Create account:1. Click "Create account".2. Complete the data fields and confirm.ðA confirmation link will be sent to your e-mail address.3. To activate your account, click on the confirmation link in your e-mail.
Technical Manual About this Document9- 06/2016Kaba Remote Reader 91 15-AM (US/CAN)1.5 Change LogThe most important changes to the last issue of this manual are listed below:Version number Edition Brief descriptionTM_RemoteReader9115-AM-US-CAN_201606_en06/2016 • First edition1.6 Orientation in the documentThis document contains the following orientation aids to facilitate finding of specifictopics:• The table of contents at the beginning of the manual gives an overview of alltopics.• The header always contains the respective main chapter.• Cross references always indicate the number of the chapter in which the supple-mentary information can be found. Example [   5.7].• An index in the alphabetical order is given at the end of the manual.1.7 Abbreviations/Term DefinitionsAbbreviation/term DescriptionRemoteReader • Kaba Remote Reader 91 15Device • Kaba Compact Reader 91 10 AMRegistration unit • Kaba Registration Unit 90 00• Kaba Registration Unit 90 01• Kaba Registration Unit 90 02Host • Host systemControl unit • Kaba Access ManagerKCP Kaba Communication Protocol (RS-485)KMM Kaba Media ManagerAccess Manager • Kaba Access Manager 92 00 MRD• Kaba Access Manager 92 00 LEGIC• Kaba Access Manager 92 00 MIFAREProgrammer • Kaba Programmer 1460
About this Document Technical Manual10 - 06/2016 Kaba Remote Reader 91 15-AM (US/CAN)1.8 WarningsWarnings containing information/instructions and prohibitions to prevent injury topersons and damage to property are specially labeled.Please pay attention to warnings. They are intended to help prevent accidents andavoid damage.1.8.1 Hazard CategoriesWarnings are split into the following categories:CAUTIONSlight RiskDescribes a potentially hazardous situation that could result in minor physical in-juries.NOTICEInformation on how to handle the product correctly.Failure to comply with these warnings may result in malfunctions. The product orsomething in its vicinity could be damaged.1.8.2 SymbolsDepending on the source of the hazard, symbols are used for the warnings, andthese have the following meanings:General danger Danger for electronic compo-nents from electrostatic dis-charge1.9 NotesNotes are labeled with an info symbol.Tips and useful information.These help you to make best use of the product and its functions.
Technical Manual Grouped safety messages11- 06/2016Kaba Remote Reader 91 15-AM (US/CAN)2 Grouped safety messagesThis product has been built in accordance with state-of-the-art standards and therecognized safety rules. Nevertheless, its use may constitute a risk to persons andcause damage to material property.Read and observe the following safety instructions before using the product.2.1 Use as directedThe product is only intended for use as described in chapter “Product description”.Any use beyond that is considered contrary to its designated use. The manufacturercannot be held liable for damage resulting from such use. Such use is at the sole riskof the user/operator.2.2 Mounting and InstallationMounting and installation may only be carried out by service persons (see chapter 1“Target group”).Installation may only be carried out in places that fulfill the climatic and technicalconditions stated by the manufacturer.The manufacturer is not liable for damages resulting from improper handling or in-correct installation.2.3 Service and MaintenanceMaintenance work / troubleshootingOnly the service person (see chapter 1 “Target group”) is entitled to remove faultsand carry out maintenance work.Reconstruction and modificationAny alteration or modification to the device may only be performed by the serviceperson (see chapter 1 “Target group”). Any alteration or modification performed byunauthorized persons shall render void any liability.2.4 Accessories and spare partsAccessories and spare parts must comply with the technical requirements specifiedby the manufacturer. This is guaranteed when using original accessories and spareparts from Kaba.
Grouped safety messages Technical Manual12 - 06/2016 Kaba Remote Reader 91 15-AM (US/CAN)2.5 ESD (electrostatic discharge) protective measuresNOTICEDanger for electronic components due to electrostatic discharge.Improper handling of printed circuit boards or components can cause damages thatlead to complete failures or sporadic errors.• During installation and repair of the product, the ESD protective measures mustbe considered.• Wear an ESD wristband when handling electronic components. Connect the endof the wristband to a discharge socket or an unvarnished grounded metal com-ponent. This way, static charges are discharged from your body securely and ef-fectively.• Touch only the edges of circuit boards. Do not touch the circuit board nor theconnector.• Place all dismantled components on an antistatic surface or in an antistatic con-tainer.• Avoid contact between circuit boards and clothing. The wristband only protectsthe printed circuit boards against electrostatic discharge from your body, butthere is still a risk of damage through electrostatic discharge from your clothing.• Transport and dispatch dismantled modules only in electrostatically shieldedprotective bags.
Technical Manual Product Description13- 06/2016Kaba Remote Reader 91 15-AM (US/CAN)3 Product Description3.1 OverviewThe Kaba Remote Reader 91 15 with functional type AM can either control and moni-tor access control at access points or register coming/leaving bookings for time regis-tration.0123456789ABCDEF91 15StateIN1IN2OUTGNDAC-AC+BACGNDIN1IN221PushClickDIN-RailASA+OUTOutputAnt.Function 0 - F123456ONOFFRS-485InputProgrammerSupply10-34VDC12-27VAC 34VDCClass IIRelay Output27VACmax 5VDCA registration unit can be connected to the Kaba Remote Reader 91 15. Thanks to the separation of the remote reader and the registration unit, the remotereader can be installed in a tamper-proof area and the registration unit can be in-stalled in an area that is not tamper-proof. The remote reader can be integrated with the Kaba exos access control system. The remote reader is installed on a DIN rail. The door components (locking elements, monitoring contacts) are directly con-nected to the remote reader. This controls the electric strikes as well as the opticaland acoustic signal transmitters of the registration units. The remote reader communicates with the host system via the RS-485 interface. Thehost system checks the company codes and the user medium numbers, and activatesthe access points. If the communication between the remote reader and the host sys-tem is interrupted, then, with the relevant programming of its offline behavior, theremote reader automatically takes on the tasks of the host system; i.e. authorizationchecks and door functions are retained.
Product Description Technical Manual14 - 06/2016 Kaba Remote Reader 91 15-AM (US/CAN)90 00Access manager90 0291 1590 011 2 34 5 67 8 91 0 E90 31Ethernet92 00 exos Client1)Coaxial cableRS-485Access Management System Kaba exos 9300(US / CAN) Registration unitsReaderCommunicationHubDatabaseWeb- and Application ServiceCardLinkUSB92 00 1) 90 3091 2591 083.2 Registration Unit CompatibilityThe following registration units are supported.Registration unit Control unitAccess Manager RemotereaderFunctional type Access managerKaba registration unit 90 00 ✔ ✔Kaba registration unit 90 01 ✔ ✔Kaba registration unit 90 02 ✔ ✔Registration unit FCC ICKaba registration unit 9000 Tested Standard: FCCCode of Federal Regula-tions, CFR 47, Part 15,Sections 15.205, 15.207,15.215 and 15.225Tested Standard: Indus-try Canada Radio Stan-dards SpecificationsRSS-GEN Issue 4, Sec-tions 8.8, 8.9 and 8.10and RSS-210 Issue 8,Section A2.6 (Category IEquipment)Kone registration unit PCBKaba registration unit 9001Kone registration unit 9001Kaba registration unit 9002Kone registration unit 9002
Technical Manual Product Description15- 06/2016Kaba Remote Reader 91 15-AM (US/CAN)3.3 Operating modesThe door configuration determines the operating mode of the device. A detailed de-scription of the door configurations and their operating modes can be found in thechapter 'Electric strike' operating mode [}4.9].3.4 Supported RFID Standards with Possible Media DefinitionsThe following table shows the RFID standards and media definitions supported bythe device.The Kaba Remote Reader 91 15 recognizes up to eight different media definitions atthe same time.Media definitions Supported RFID technologiesMIFAREDESFireMI-FAREClas-sicLEGICadvant LEGICprimeISO14443AISO14443AISO14443AISO15693LEGICRFUnique number (UID)*1✔✔✔✔ -Safe UID - - - - ✔Card ID ✔✔✔✔ -Kaba group header - - ✔✔✔Kaba advant ID - - ✔ ✔ -LEGIC access™ (advant)- - ✔ ✔ -LEGIC access™ pool(prime)----✔CardLink1.1Data ✔✔✔✔ -Actuatorstatus✔✔✔✔ -Mediatraceback*2✔-✔- -CardLink1.0Data incl.actuatorstatus----✔Additional medianumbers✔✔✔✔✔*1 The LEGIC chip set does not use the safe UID command setso that UID from other media, such as MIFARE, can also beread.*2 Media traceback information can only be read out directlyon the access manager and no media traceback informa-tion is written.3.4.1 MIFAREThe system can evaluate everything that can be defined in Kaba media manager. MI-FARE DESFire or MIFARE Classic media can be read and described on the same KabaRemote Reader 91 15 MIFARE using various media applications.
Product Description Technical Manual16 - 06/2016 Kaba Remote Reader 91 15-AM (US/CAN)3.4.2 LEGICLEGIC prime or LEGIC advant media can be read and described on the same Kaba Re-mote Reader 91 15 LEGIC using various media applications (LEGIC advant media canonly be described using LEGIC advant components).Dual chip cardA dual chip card with LEGIC advant (14443 A) and CardLink LEGIC prime (LEGIC RF) issupported.
Technical Manual Product Description17- 06/2016Kaba Remote Reader 91 15-AM (US/CAN)3.5 Interface for Extension ModulesThe extension modules are connected to the system bus of the Kaba Remote Reader91 15. There is a limit to the maximum number of supported extension modules. Thehost system determines the maximum number of connectible extension modules.A maximum of 2 extension module 90 31 (8 inputs) and 2 extension modules 90 30 (8relay outputs) can be plugged in via the serial port on this interface.
Product Description Technical Manual18 - 06/2016 Kaba Remote Reader 91 15-AM (US/CAN)3.6 Technical Data3.6.1 Overview of Technical DataMechanicsMounting • Installation location: see • On DIN rail in accordance with EN 50022Housing • ABS black, with imprinted connection diagramCombustion category • HB (UL94)Dimensions • 70 x 106 x 45mm (L x W x H) or four space units of17.5mm width measurement including screw/plugterminalsConnections • All connections are screw/plug terminals• Max. relay load: 2APower supplyInput voltage, without ex-ternal wiring• 12–27VAC (50/60Hz) or10–34VDC• Power consumption/thermal output: max. 5WThe device may only be supplied with SELV (Safety Extra Low Voltage) and LPS(Limited Power Source), according to IEC/UL/CSA 60950-1.Clock • The clock can run for at least 120hours without apower supply (after at least 10minutes in opera-tion)InterfacesHF RFID • 1 registration unit with or without keypads• Coaxial cable, impedance 50Ohm• Encrypted data transfer• See also 3.4RS-485 • To connect to the host control unit• KCP protocol; galvanically isolated, 2-wire• Baud rate 19200baud• 8 data bits, even (Even) parity, 1 stop bit• Termination resistance for bus or star wiring• Addressing 1–8Programmer interface • For firmware update or programmer connectionExtension modules • Maximum number of supported extension mod-ules, see chapter 3.5
Technical Manual Product Description19- 06/2016Kaba Remote Reader 91 15-AM (US/CAN)Inputs and outputs2 binary inputs• With internal power supply and common ground,for connection of insulated switches• Maximum 5VDC• Line monitoring (can be disabled)• LED status indicator1 relay output • Switch contact: max. 30VDC/AC max. power 2A• Switching cycles at 30V DC/1Atypical 500,000 (VdS 2358 requirement is 200,000)• Switching cycles at 30V DC/2Atypical 100,000• LED status indicatorAmbient conditionsAmbient conditions • Operating temperature: -25°C to +70°C• Storage temperature: -40°C to +85°C• Relative humidity: 0% to 95%, non-condensing• Protection class as per IEC 60529: IP20Also see about this23.4Supported RFID Standards with Possible Media Definitions [}15]25.1.2Installation site [}31]
Product Description Technical Manual20 - 06/2016 Kaba Remote Reader 91 15-AM (US/CAN)3.7 ConformityThis product conforms to the following standards:EN 60950-1:2006/A2:2013 UL 60950-1:2007/R:2014-10CAN/CSA-C22.2 No. 60950-1:2007/A2:2014-10EN 301 489-1 V1.8.1:2008EN 301 489-3 V1.4.1:2002EN 300 330-1 V1.7.1:2010EN 300 330-2 V1.5.1:2010in accordance with the provisions of the EC directives2006/95/EC Low voltage directive 1999/5/EC R&TTE directive2004/108/EC EMC directiveRoHS This device complies with the regulations of the Directive 2011/65/EU of the Euro-pean Parliament and of the Council of June 8, 2011, on the restriction of the use ofcertain hazardous substances in electrical and electronic equipment.The original Declaration of Conformity can be downloaded from www.kaba.com/conformity in PDF format.Tested Standard:FCC Code of Federal Regulations, CFR 47, Part 15, Sections 15.205, 15.207, 15.215 and15.225FCC ID NVI-KRR9115-K5FCC § 15.19This device complies with Part 15 of the FCC rules. Operation is subject to the follow-ing two conditions: (1) This device may not cause harmful interference, and (2) thisdevice must accept any interference received, including interference that may causeundesired operation.FCC § 15.21 (Warning Statement)[Any] changes or modifications not expressly approved by the party responsible forcompliance could void the user’s authority to operate the equipment.FCC § 15.105Note: This equipment has been tested and found to comply with the limits for a ClassA digital device, pursuant to part 15 of the FCC Rules. These limits are designed toprovide reasonable protection against harmful interference when the equipment isoperated in a commercial environment. This equipment generates, uses, and can ra-diate radio frequency energy and, if not installed and used in accordance with the in-struction manual, may cause harmful interference to radio communications. Opera-tion of this equipment in a residential area is likely to cause harmful interference inwhich case the user will be required to correct the interference at his own expense.Tested Standard:Industry Canada Radio Standards Specifications RSS-GEN Issue 4, Sections 8.8, 8.9and 8.10 and RSS-210 Issue 8, Section A2.6 (Category I Equipment)
Technical Manual Product Description21- 06/2016Kaba Remote Reader 91 15-AM (US/CAN)IC:11038A-KRR9115K5ICES-003This Class A digital apparatus complies with Canadian ICES-003. Cet appareilnumérique de la classe A est conforme à la norme NMB-003 du Canada.Canada RSS-GEN 8.4This device complies with Industry Canada’s licence-exempt RSSs. Operation is sub-ject to the following two conditions: (1) This device may not cause interference; and(2) This device must accept any interference, including interference that may causeundesired operation of the device. Le présent appareil est conforme aux CNR d’Industrie Canada applicables aux ap-pareils radio exempts de licence. L’exploitation est autorisée aux deux conditionssuivantes : 1) l’appareil ne doit pas produire de brouillage; 2) l’utilisateur de l’appareildoit accepter tout brouillage radioélectrique subi, même si le brouillage est suscepti-ble d’en compromettre le fonctionnement.
Product Description Technical Manual22 - 06/2016 Kaba Remote Reader 91 15-AM (US/CAN)3.8 LabelingThe identification plate is located on the side of the device.The following information can be found on the identification plate:• Device designation• Article number• Serial number• Function type• Connection data (power supply)• CE mark• WEEE mark as per DIN EN 50419
Technical Manual Design and function23- 06/2016Kaba Remote Reader 91 15-AM (US/CAN)4 Design and function4.1 Device variants4.1.1 RFID readerKaba Remote Reader 91 15 is available in the following RFID reader variants:• MIFARE• LEGICThe host system determines which RFID media technology (MIFARE or LEGIC) theCompact Reader supports.4.2 Device Structure0123456789ABC91 15StateIN1IN2OUTGNDAC-AC+BACGNDIN1IN221PushClickDIN-RailASA+OUTOutputAnt.Function 0 - F123456ONOFFRS-485InputProgrammerSupply10-34VDC12-27VAC 34VDCClass IIRelay Output27VACmax 5VDC1 2 3 456789101 RS-485 interface2 Function3 Rotary switch (addressing)4 Antenna5 LED Displays6 Interface for Extension Modules7 Relay output OUT8 Inputs IN1–IN29 Interface for Kaba programmer 146010 Power supply
Design and function Technical Manual24 - 06/2016 Kaba Remote Reader 91 15-AM (US/CAN)4.3 FirmwareThe hardware of this product is used in various Kaba system solutions. The functionsand possible uses of the product are determined by the firmware used.This manual exclusively describes the Kaba Remote Reader 91 15 with functionaltype Access Manager (AM).Firmware designationReader type MMIFAREALEGICBMRD (multi RFID device)LEGIC or MIFARE(determined during commissioning)Device type RC CompactreaderRR Remotereader 91 15RE Remotereader 91 25Functional type AE300 V4 or N300/T300/U300 V3BAccess ManagerCSubterminalEAMC/II (cDML)Version number xx.xx VersionAddition 1 RFinal, approved versionAddition 2 ASubversionAddition 3 _ReserveExampleDesignation of firmware for Kaba Remote Reader 91 15 with functional type AccessManager:• BREB03.xxRxx (MRD)Firmware mark on the productDevices with firmware with the functional type access manager bear a mark reading"Type: Access manager" on the identification plate.
Technical Manual Design and function25- 06/2016Kaba Remote Reader 91 15-AM (US/CAN)4.4 System Connection91 15StateIN1IN2OUTGNDAC-AC+BACGNDIN1IN221PushClickDIN-RailASA+OUTOutputAnt.Function 0 - F123456ONOFFRS-485InputProgrammerSupply10-34VDC12-27VAC 34VDCClass IIRelay Output27VACmax 5VDC1 2 34 5 67 8 91 0 EGNDGNDGNDGNDGNDStateIN1IN2IN3IN4OUT1OUT2OUT35VRxTx0VTamperIN1IN2IN3IN4Vs-Vs-Vs+Vs+3s    Restart10s upon power-on    Factory/IP Reset100MBitLink/ActOUT1OUT2OUT3Supply 10-34VDCOutput max. 34VDC/27VACInput max. 5VDCEthernet5VRxTx0VRS-232 B RS-232 A Ant. B Ant. AASA+21PushClickDIN-RailASA+CBARS-485open1204k7Access Manager123The Remotereader communicates with the host control unit via the RS-485 interface.Functions of the host control unit (1)• Checking access data received by the Remotereader• Authorization check• Sending commands for optical and acoustic user guidance to the Remotereader• Sending commands for relay control to the RemotereaderFunctions of the remote reader (2)See Overview [}3.1]Functions of the registration unit (3)• Reading the media held up (RFID)• Optical and acoustic user guidance• Keypad for PIN entry and additional functions with numeric codesBehavior in the event of an interruption in communicationIn the event of an interruption in communication, the Remotereader automaticallytakes over some of the tasks of the host control unit. A simplified authorization checkand simplified door functions remain available. The parameterization determines off-line behavior.
Design and function Technical Manual26 - 06/2016 Kaba Remote Reader 91 15-AM (US/CAN)4.5 System RequirementsHost control unit• Kaba access manager 92 00 MRD• Kaba access manager 92 00 LEGIC (for RemotereaderLEGIC)• Kaba access manager 92 00 MIFARE (for Remotereader MIFARE)System software• Kabaexos93004.6 Behavior with Several Media in the Field (Anti-Collision)The device (Kaba Remote Reader 91 15) can recognize several LEGIC advant user me-dia (ISO 14443 A) in the field simultaneously. Only the first user medium that corre-sponds to the search criteria defined in the system is considered. The remaining usermedia are ignored.4.7 FunctionsAll data for access decisions are saved in the host control device. The authorizationcheck of a badge and access control are undertaken by the control device.Functions available before connection to the host systemStandalone access control (without host system); see chapter "Standalone AccessControl without Host System" CommissioningAccess control functions• Authorization check using badges and temporal authorization including verifica-tion• Connection of a remote registration unit• Control of optical and acoustic signal transmitters of the registration unit• Control of electric strikes (doors with electrical blocking elements)• Support for a connected door release button or door handle contact• Monitoring of the door status with frame contact, bolt monitoring and door han-dle contact• CardLink support: Validating and Invalidating• CardLink support: Validation and UID additional recording (LEGIC only)• Hold-open mode, so that, when access is authorized, the door remains open foras long as the badge remains within range of the antenna (field)Restrictions with interrupted connection (offline)MIFAREReduced authorization check using site keys. Door function is retained depending on the offline parameter setting, see Switch[}5.6.2].• Authorization check using site keys. A maximum of eight site keys can be saved.• Not taken into consideration: Time Zones• Logbook for 2000 events• No room monitoring/balancing and no CardLink functionality• No change in fabrication keyLEGIC
Technical Manual Design and function27- 06/2016Kaba Remote Reader 91 15-AM (US/CAN)Reduced authorization check using segment search keys. Door function is retaineddepending on the offline parameter setting, see Switch [}5.6.2].• Authorization check using segment search keys. A maximum of eight segmentsearch keys can be saved.• Not taken into consideration: Time Zones• Logbook for 2000 events• No room monitoring/balancing and no CardLink functionalityRestored connectionAutomatic forwarding of saved bookings as well as status and alarm messages whenconnection is restored.
Design and function Technical Manual28 - 06/2016 Kaba Remote Reader 91 15-AM (US/CAN)4.8 Operating Modes4.8.1 Overview of Operating TypesThe device supports online and offline operating modes.Online operation: The device communicates with the system.See Supported functionsOffline operation: If a device connected with the system is disconnectedfrom the system, then it switches to offline mode.See Supported functionsFor the online and offline operation of the device, a minimum of the following hard-ware settings must be carried out before putting into operation:System used Minimum hardware settingsKabaexos9300 Online operation:• AddressOffline operation:• DIP and rotary switch4.8.2 Online operationIn online operation, the Remotereader communicates with the host system. The sys-tem makes the access decision on the basis of badges, time-dependent authorizationand verification. The system controls the access points. If communication betweenRemotereader and system is interrupted, then the Remotereader independentlyswitches into offline operation. If the Remotereader is queried by the system again,then the Remotereader switches back into online operation.4.8.3 Offline OperationEven in offline operation, i.e. without communication with the host system, an accesspoint is monitored and controlled by the Remotereader. For access decisions, site keys are used under MIFARE and segment search keys are used under LEGIC. The Remotereader controls the access point according to the position of the DIPswitch. In order to ensure fault-free offline operation, the Remotereader should be operatedwith a secure power supply (e.g. UPS).Behavior in the event of an interruption to communication• The access point goes to basic status (possibly alarm, if the access point is notclosed)• Relays which are not involved in a door process (according to DIP switch) deacti-vate; the same is true for the connected Kaba extension module 90304.8.3.1 Offline Access DecisionThe customer determines the nature of the offline access decision which is parame-terized in the system. We differentiate the following offline access decisions:Parameter settings in the system: no offline access decisionThe Remotereader rejects all bookings in offline operation.
Technical Manual Design and function29- 06/2016Kaba Remote Reader 91 15-AM (US/CAN)Parameter settings in the system: Checking site key (MIFARE)/segment search key (LEGIC)In the online mode, the site key (MIFARE)/segment search key (LEGIC) is sent to theRemotereader by the system and saved in the Remotereader. During the offlinemode, the Remotereader only checks the site key (MIFARE)/segment search key(LEGIC). The time zone is not considered for this kind of access decision.LogbookThe logbook records and saves a maximum of 2000 events during the offline opera-tion. Once the Remotereader is online again, the saved data is sent to the host sys-tem and deleted from the memory of the Remotereader.The following events are logged:• Authorized accesses (incl. type of authorization)• Tampering, door forced open, door opener keyIf there are more than 2000 entries, the oldest will be overwritten (ring memory).Service modeSee chapter Service mode
Design and function Technical Manual30 - 06/2016 Kaba Remote Reader 91 15-AM (US/CAN)4.9 'Electric strike' operating mode12341 Kaba Remote Reader 91 152 Electric strike3 Door opener key4 Frame contact (Access control)In ‘Electric Strike' operating mode, primarily doors with electrical blocking elements(door opener, magnet) are operated. The electric strike is actuated when triggered by an authorized booking or the dooropener key. The door is now released for opening and the set relay operation timestarts to run. When opening the door, the pre-alarm and alarm time start to run('Door open too long'). Authorised booking, door opener key or door handle trigger a door openingElectric strike (not used with a door handle)Access control Door openFrame contactPre-alarm timeAlarm timeRelais operation timeAccess control Door closed
Technical Manual Installation31- 06/2016Kaba Remote Reader 91 15-AM (US/CAN)5 Installation5.1 Installation conditions5.1.1 GeneralAn accurate installation of all components is a basic requirement for a properly func-tioning device. The following installation instructions must be adhered to.5.1.2 Installation siteThe device is assembled on a DIN rail in a housing or IT cabinet.The device should be installed in a tamper-proof location within the area to be se-cured.Electromagnetic fieldsThe device must not be installed in the area of strong electromagnetic fields causedby switching power supply, power lines, phase controllers, etc.!5.1.3 ConnectionsThe following connections must be available at the location where the access man-ager is to be installed:• Power supply for the device• RS-485 cable to the host device• Cables to door openers and switches• Coaxial cable to registration unitsThe installation lines have to be flush with the surface or be laid in the vandal-proofarea.
Installation Technical Manual32 - 06/2016 Kaba Remote Reader 91 15-AM (US/CAN)5.2 Installation layout (example)541C26DCCAB54126DCAB3 3D DStateIN1IN2OUTGNDAC-AC+BACGNDIN1IN2ASA+OUTOutputAnt.Function 0 - F123456ONOFFRS-485InputProgrammerSupply10-34VDC12-27VAC 34VDCClass IIRelay Output27VACmax 5VDCStateIN1IN2OUTGNDAC-AC+BACGNDIN1IN2ASA+OUTOutputAnt.Function 0 - F123456ONOFFRS-485InputProgrammerSupply10-34VDC12-27VAC 34VDCClass IIRelay Output27VACmax 5VDC1 Kaba Remote Reader 91 152 Kaba access manager 92 003 Kaba registration unit4 Door frame contact5 Door contact, door opener6 Power supplyInstallation cablesA Data lineB Power supply lineC Line to the door opener and door contacts (if required)D Coaxial cable
Technical Manual Installation33- 06/2016Kaba Remote Reader 91 15-AM (US/CAN)5.3 Installation lines5.3.1 Power supply linePower can be supplied in the following ways:• From the host control device (power supply and data line in one cable)• From a separate power supplyNOTICEVoltage drops, caused by line resistance, must be taken into consideration forlong lines.The given cable types and diameters are examples and serve as recommendations.The technical specifications of the cable manufacturer are authoritative for the pre-cise determination of the cable diameter/cross section and the resulting maximumcable lengths. The voltage drop across the cable length is decisive in this case. Assuch, the voltage that is available at the end of the cable may, under no circum-stances, be less than the minimum permitted supply voltage of the connected com-ponents. This always applies in consideration of the maximum power consumptionof the connected components.Only connect the terminals when the power is switched off.Notice: The device may only be supplied with SELV (Safety Extra Low Voltage) andLPS (Limited Power Source), according to IEC/UL/CSA 60950-1.5.3.1.1 Power supply from the host control device(Central power supply)Power is supplied from the host control device.In the case of bus wiring, the power supply and data line can be carried in one cable(maximum total length of 350m). In the case of star wiring, the power supply and data line can be carried in one cable(maximum length per stub of 20m). A separate power supply must be used for greater distances.Permissible Cable Lengths and Cable TypesType of wiring: Star BusMax. cable length: < 20m(per stub)< 50m(total)< 100m(total)< 350m(total)Cable type CAT.5 S-UTP*4 x 2 x AWG 24 4 x 2 x AWG 22 4 x 2 x AWG 20Cable type J-Y (ST) 4 x 2 x ø 0.6mm 4 x 2 x ø0.8mm4 x 2 x ø1.0mm*S-UTP (screened unshielded twisted pair)Do not ground the compact reader/remote reader.
Installation Technical Manual34 - 06/2016 Kaba Remote Reader 91 15-AM (US/CAN)5.3.1.2 Power supply and data transfer in separate cables(Local power supply)Data lines and power supply lines are carried with one of each in a cable.Power is supplied locally, e.g. from a power supply unit.A local power supply can be used in the following cases:• in long data lines• if there are increased requirements regarding the operational safety of the de-vice (offline capability).Permissible Cable Lengths and Cable TypesData line RS-485 Power supplyType of wiring: Star BusMax. cable length: < 100m (per stub)< 1200m(total)< 10mCable type CAT.5 S-UTP * 2 x 2 x AWG 24 1 x 2 x AWG 24Cable type J-Y (ST) 2 x 2 x ø 0.6mm 1 x 2 x ø 0.6mm*S-UTP (screened unshielded twisted pair)Notice: The device may only be supplied with SELV (Safety Extra Low Voltage) andLPS (Limited Power Source), according to IEC/UL/CSA 60950-1.5.3.2 Data line RS-485Only connect the terminals when the power is switched off.The device is connected to the host control device via a two-wire party line connec-tion (RS-485).For information on permissible cable lengths and cable types, please see:•Power supply from the host control device [}5.3.1.1]•Power supply and data transfer in separate cables [}5.3.1.2]5.3.2.1 CableNOTICELocal legal provisions (e.g., VDE) must be observed during installation of compo-nents. For notes on structured cabling, see the standard EN 50173.The cables recommended in the chapter Power supply line [}5.3.1] have a foilscreen and are designed based on S-UTP (screened unshielded twisted pair). The wirepairs are not individually shielded against each other (unshielded). Each pair com-prises two color-coded wires that are twisted together (twisted pair).NOTICEIt must be ensured that the screen is applied with the aid of the drain wire. The drainwire must be insulated to avoid short circuits on the circuit boards of the connecteddevices using a shrink-on tube or similar.
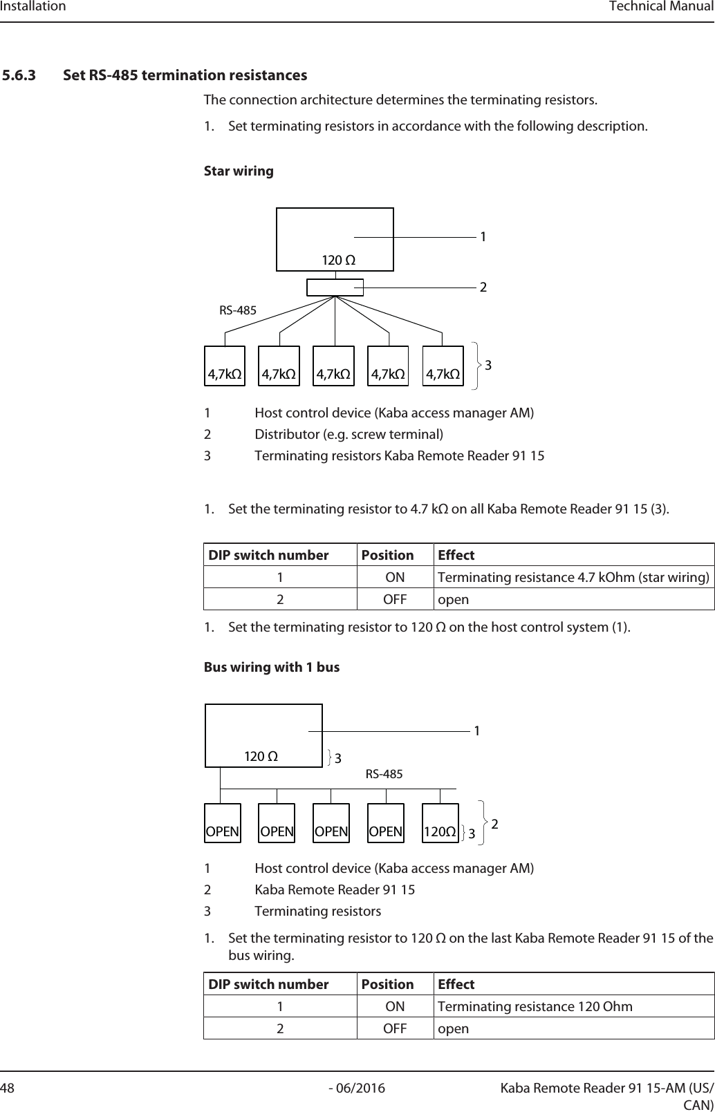
Technical Manual Installation35- 06/2016Kaba Remote Reader 91 15-AM (US/CAN)5.3.2.2 Connection RS-485Lines A and B are arranged as a twisted wire pair. Lines A and B must not be crossed.1ABCRS-485ABCRS-48521 Host control device 2 Compact Reader/Remote ReaderDo not ground the compact reader/remote reader.5.3.2.3 Using several remote readersIf several Kaba Remote Reader 91 15 are to be connected to a host control device, ei-ther bus wiring or star wiring can be used.See:• Star wiring• Bus wiring5.3.2.4 Star wiringMax. eight devices can be operated on a party line.Power supply and data line in one cable: Maximum cable length per compact readeror stub: 20mPower supply and data line in separate cables: Maximum data line length per com-pact reader or stub: 100m4,7kΩ4,7kΩ4,7kΩ 4,7kΩ4,7kΩ120 ΩRS-4852131 Host control device2 Distribution List3 CompactReaderInstalling terminating resistors1. Set the terminating resistor to 120Ω on the host control system (1). DIP Switch
Installation Technical Manual36 - 06/2016 Kaba Remote Reader 91 15-AM (US/CAN)2. For all devices (3) in the star wiring, set DIP switch 1 to OFF (open) and DIP switch2 to ON (4.7Ω).DIP SwitchConnecting shielding1. On the host control device, connect the shielding of the RS-485 cable (blue) tothe ground.Do not ground the compact reader.1ABCRS-485ABCRS-48521 Host control device 2 CompactReader2. Connect all shieldings pertaining to the RS-485 cables used (blue) to each other.
Technical Manual Installation37- 06/2016Kaba Remote Reader 91 15-AM (US/CAN)5.3.2.5 Bus wiringA maximum of eight devices can be operated on a party line.Maximum total length of data lines (incl. stubs): 1200m A stub itself may be a maximum of 100m in length. The length of the party line can be increased using a repeater.5.3.2.5.1 Bus wiring with 1 bus120ΩOPENOPENOPENOPENRS-485120 Ω12331 Host control device2 Compact Reader or Remote Reader3 Terminating resistorsInstalling terminating resistors1. Set the terminating resistor to 120Ω on the host control system (1).2. On the last device in the bus wiring, set DIP switch 1 to ON (120Ω), and DIP switch 2 to OFF (open).3. On all other devices in the bus wiring, set DIP switch 1 and 2 to OFF (open).Set peripheral address1. Assign unique addresses to the devices connected to the bus.Set peripheral address [}5.6.4]Connecting shielding1. On the host control device connect the shielding of the RS-485 cable (blue) tothe ground.Do not ground the compact reader/remote reader.1ABCRS-485ABCRS-48521 Host control device 2 Compact Reader, Remote Reader2. Connect all shieldings of RS-485 cables (blue) used in the bus to each other.
Installation Technical Manual38 - 06/2016 Kaba Remote Reader 91 15-AM (US/CAN)5.3.2.5.2 Bus wiring with two buses120Ω120ΩRS-485RS-485OPEN233OPEN OPENOPENOPENOPEN11 Host control device2 Compact Reader or Remote Reader3 Terminating resistorsInstalling terminating resistors1. Set the terminating resistor to OFF (open) on the host control system.2. On both terminal devices in the bus wiring, set DIP switch 1 to ON (120 Ω), andDIP switch 2 to OFF (open).3. On all other devices in the bus wiring, set DIP switch 1 and 2 to OFF (open).Set peripheral address1. Assign unique addresses to the devices connected to the bus.Set peripheral address [}5.6.4]Connecting shielding1. On the host control device connect the shielding of the RS-485 cable (blue) tothe ground.Do not ground the compact reader/remote reader.1ABCRS-485ABCRS-48521 Host control device 2 Compact Reader, Remote Reader2. Connect all shieldings of RS-485 cables (blue) used in the bus to each other.
Technical Manual Installation39- 06/2016Kaba Remote Reader 91 15-AM (US/CAN)5.3.3 Line to the door opener and door contactsLine requirements: Cable diameters from 0.5 mm to 0.8 mm.Recommended cable: CAT.5 S-UTP 4 x 2 AWG 24 or AWG 22 (according to EIA/TIA568) or higher.5.3.4 Coaxial Cable to the Registration UnitsCable TypeRG174/UCoaxial cable 50Ohm, item No. 161.250Maximum cable lengths:Cable type RG174: up to 30m Cable type RG178/U: up to 30m (RU 90 02: up to 10m)Recommended ca-ble length< 10mMax. cable length 30m
Installation Technical Manual40 - 06/2016 Kaba Remote Reader 91 15-AM (US/CAN)5.3.5 Grounding Concept5.3.5.1 Power supplyThe divice is in a plastic housing and is not grounded. The power supply can be operated floating or grounded.5.3.5.2 Communication lines1. On the host control device connect the shielding of the RS-485 cable (blue) tothe ground.Do not ground the Kaba Remote Reader 91 15.1ABCRS-485ABCRS-48521 Host control device 2 Kaba Remote Reader 91 151. Connect all shieldings pertaining to the RS-485 cables used (blue) to each other.5.3.5.3 Coaxial Cable TerminalNOTICEInner conductor A+ and shield AS of the coaxial cable may be connected to theground.
Technical Manual Installation41- 06/2016Kaba Remote Reader 91 15-AM (US/CAN)5.4 Mounting the device and extension modulesMount the device on a 35mm DIN rail (EN 50022).1. Install the rail.2. Screw grounding terminal to the rail.ClickPush1.2.3. Hang the device on the bottom of the DIN rail – without tilting – and press it up-wards and keep it pressed.4. Press the device upwards against the rail at the same time until it can be hung onthe rail.Connecting extension modulesNOTICEAttaching live extension modules may cause damage to the devices.Always switch off the power supply before attaching the extension modules.1221. 2.1 Kaba Remote Reader 91 152 Extension module 90 30Connecting multiple 90 30 modules1. Carefully insert the first extension module 90 30 into the device (1) (push the de-vices together on the rail).2. Next insert the second extension module 90 30.ðThe extension module which is closer to the device (1) is designated as Mod-ule 1. The next module is designated as Module 2.
Installation Technical Manual42 - 06/2016 Kaba Remote Reader 91 15-AM (US/CAN)Removing extension modulesNOTICERemoving live extension modules may cause damage to the devices.Always switch off the power supply before removing the extension modules.1.2.1. Push the extension module away from the adjacent module until the contact isfully disconnected.2. Remove the disconnected extension module from the rail.Push1.2.
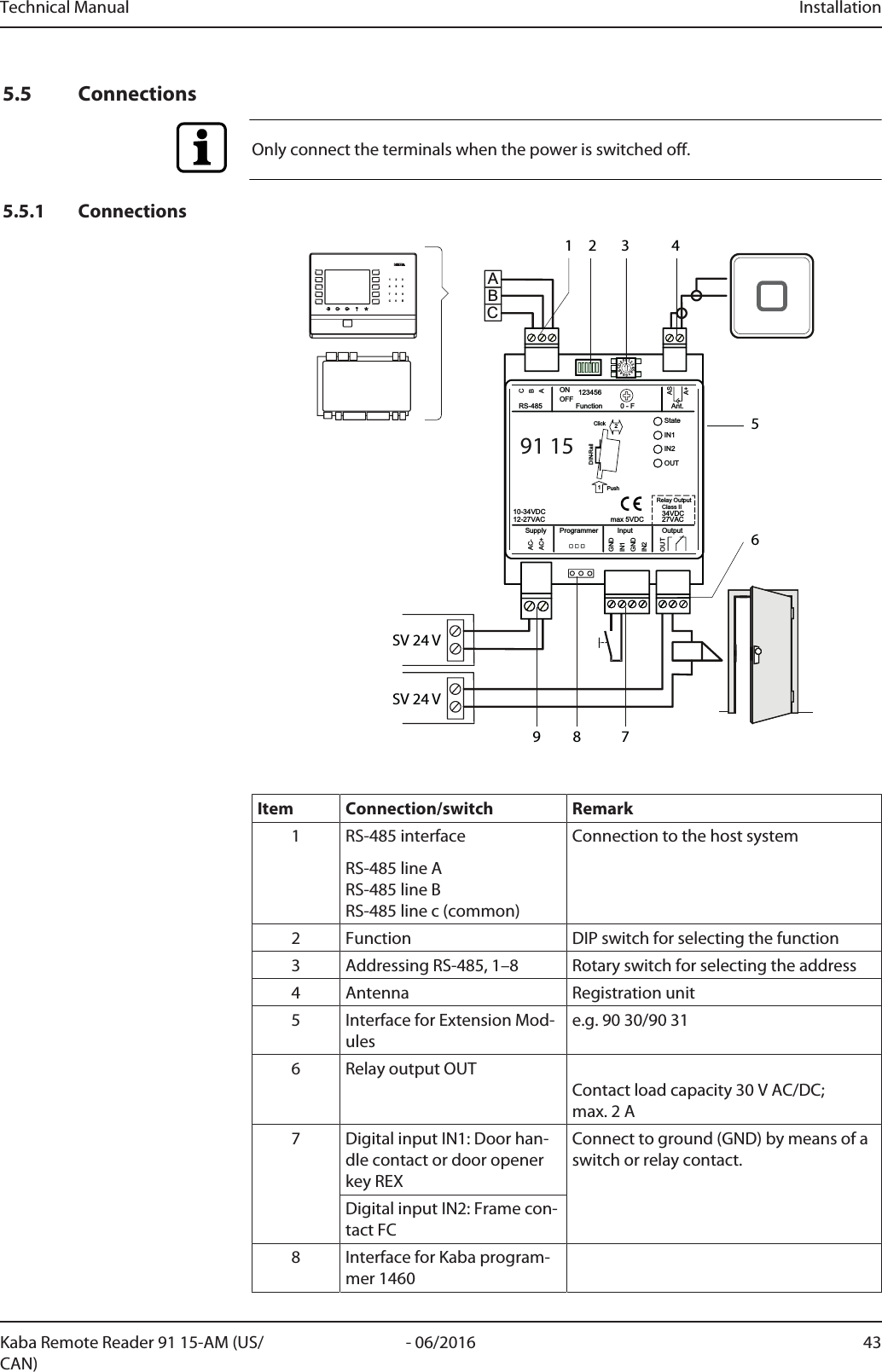
Technical Manual Installation43- 06/2016Kaba Remote Reader 91 15-AM (US/CAN)5.5 ConnectionsOnly connect the terminals when the power is switched off.5.5.1 Connections1 2 34 5 6789C 0 EABCSV 24 VSV 24 V91 15StateIN1IN2OUTGNDAC-AC+BACGNDIN1IN221PushClickDIN-RailASA+OUTOutputAnt.Function 0 - F123456ONOFFRS-485InputProgrammerSupply10-34VDC12-27VAC 34VDCClass IIRelay Output27VACmax 5VDC0123456789ABCDEF1 2 3 45679 8Item Connection/switch Remark1 RS-485 interfaceRS-485 line ARS-485 line BRS-485 line c (common)Connection to the host system2 Function DIP switch for selecting the function3 Addressing RS-485, 1–8 Rotary switch for selecting the address4 Antenna Registration unit5 Interface for Extension Mod-ulese.g. 90 30/90 316 Relay output OUTContact load capacity 30V AC/DC; max. 2A7 Digital input IN1: Door han-dle contact or door openerkey REXConnect to ground (GND) by means of aswitch or relay contact.Digital input IN2: Frame con-tact FC8 Interface for Kaba program-mer 1460
Installation Technical Manual44 - 06/2016 Kaba Remote Reader 91 15-AM (US/CAN)Item Connection/switch Remark9 Power supply 12–27VAC (50/60Hz) or 10–34VDCNotice: The device may only be supplied with SELV (Safety Extra LowVoltage) and LPS (Limited Power Source), according to IEC/UL/CSA60950-1.See also: Using several remote readers [}5.3.2.3]Set RS-485 termination resistances [}5.6.3]5.5.2 Inputs IN1–IN2NOTICEConnecting Isolated Inputs.The function of the inputs and outputs depends on the control unit used and its pa-rameter settings.The logic (normally open [active low]/normally closed [active high]) of the inputs canbe changed by the host system.Allocation MeaningGND (common ground)IN1 (input 1)Door handle contact or door opener key REXIN2 (input 2)Frame contact (FC)If the Kaba Remote Reader 91 15 needs to behave in the same way in both online andoffline operation, the inputs and relay outputs must be connected according to theoperating mode and configured with the DIP switches.DIP switches 3 and 4 define the function of inputs IN1 and IN2.DIP SwitchIN1 and IN2 can, when necessary, be used as line-monitored inputs.Inputs IN1–IN2 With Line Monitoring [}5.5.2.2]
Technical Manual Installation45- 06/2016Kaba Remote Reader 91 15-AM (US/CAN)5.5.2.1 Inputs IN1–IN2 (Without Line Monitoring)IN1-IN2+5 V DCGND1680 Ω1 Kaba Remote Reader 91 15Internal wiring without line monitoringExample: Connection of door frame contact not line monitored.Any tampering with the lines between Kaba Remote Reader 91 15 and the doorframe contact is not detected.5.5.2.2 Inputs IN1–IN2 With Line MonitoringAny tampering with the lines between the Kaba Remote Reader 91 15 and, for exam-ple, the door frame contact is detected.1. Activate/deactivate line monitoring:On the host system, activate or deactivate line monitoring for each input.2. Inputs with line monitoring:Attach resistors (R=680 Ω, ¼ W 2%), ensuring they are tamper-proof.IN1-IN2GND12+5 V DC680 Ω680 Ω680 Ω1 Kaba Remote Reader 91 152 Tamper-proof area3. Using inputs with and without line monitoring at the same time:No resistors need to be connected to lines without line monitoring.
Installation Technical Manual46 - 06/2016 Kaba Remote Reader 91 15-AM (US/CAN)5.5.3 OutputThe function of the inputs and outputs depends on the control unit used and its pa-rameter settings.Output (OUT), e.g. for an electric strike:COMNC1NO21 Kaba Remote Reader 91 152 Free-wheeling diode for door openers with DC voltageorvaristor for door openers with AC voltage.Item* Meaning6 NC (normally closed)6 COM6 NO (normally open)*SeeContact load capacity: See OutputsAlso see about this25.5.1Connections [}43]5.5.3.1 Note on the use of door openersThe relay can be used to activate the door opener. For door openers that are sup-plied with DC voltage, a "free-wheeling" diode must be parallel-connected (in the re-verse direction) to the door opener for noise attenuation. A varistor must be con-nected parallel to AC voltage door openers.
Technical Manual Installation47- 06/2016Kaba Remote Reader 91 15-AM (US/CAN)5.6 Configuration5.6.1 Directions for configurationThe switch settings determine the behavior of the device.NOTICESwitch settings may only be changed while the device is powered down.Changed settings will only be adopted after an interruption to the power supply.5.6.2 Switch0123456789ABC91 15StateIN1IN2OUTGNDAC-AC+BACGNDIN1IN221PushClickDIN-RailASA+OUTOutputAnt.Function 0 - F123456ONOFFRS-485InputProgrammerSupply10-34VDC12-27VAC 34VDCClass IIRelay Output27VACmax 5VDC1 21 DIP switch (selection of functions)2 Rotary switch (addressing)1. Set the device’s switch in accordance with the following description.
Installation Technical Manual48 - 06/2016 Kaba Remote Reader 91 15-AM (US/CAN)5.6.3 Set RS-485 termination resistancesThe connection architecture determines the terminating resistors.1. Set terminating resistors in accordance with the following description.Star wiring4,7kΩ4,7kΩ4,7kΩ 4,7kΩ4,7kΩ120 ΩRS-4852131 Host control device (Kaba access manager AM)2 Distributor (e.g. screw terminal)3 Terminating resistors Kaba Remote Reader 91 151. Set the terminating resistor to 4.7kΩ on all Kaba Remote Reader 91 15 (3).DIP switch number Position Effect1 ON Terminating resistance 4.7kOhm (star wiring)2 OFF open1. Set the terminating resistor to 120Ω on the host control system (1).Bus wiring with 1 bus120ΩOPENOPENOPENOPENRS-485120 Ω12331 Host control device (Kaba access manager AM)2 Kaba Remote Reader 91 153 Terminating resistors1. Set the terminating resistor to 120Ω on the last Kaba Remote Reader 91 15 of thebus wiring.DIP switch number Position Effect1 ON Terminating resistance 120Ohm2 OFF open
Technical Manual Installation49- 06/2016Kaba Remote Reader 91 15-AM (US/CAN)1. Set the terminating resistor to open on all other Kaba Remote Reader 91 15 ofthe bus wiring.DIP switch number Position Effect1 OFF open2 OFF open1. Set the terminating resistor to 120Ω on the host control system.Bus wiring with two buses120Ω120ΩRS-485RS-485OPEN233OPEN OPENOPENOPENOPEN11 Host control device (Kaba access manager AM)2 Kaba Remote Reader 91 153 Terminating resistors1. Set the terminating resistor to 120Ω on both terminal devices of the bus wiring.DIP switch number Position Effect1 ON Terminating resistance 120Ohm2 OFF open1. Set the terminating resistor to open on all other Kaba Remote Reader 91 15 ofthe bus wiring.DIP switch number Position Effect1 OFF open2 OFF open1. Set the terminating resistor to open on the host control system.
Installation Technical Manual50 - 06/2016 Kaba Remote Reader 91 15-AM (US/CAN)5.6.4 Set peripheral addressEach device connected to an RS-485 bus must have a unique address.1. Set a unique device address on the rotary switch.Position Peripheral address Position Peripheral address0 Default, not used 5 51 1 6 62 2 7 73 3 8 84 4 9–F Not used1. Note down the address. It is required for configuration in the host system.
Technical Manual Installation51- 06/2016Kaba Remote Reader 91 15-AM (US/CAN)5.6.5 Settings for “Electric strike” operating modeThe door configuration determines the operating mode of the Kaba Remote Reader91 15. The operating mode is set with the DIP switch. If the device is intended to support simplified door management in offline mode, in-puts 1 and 2 must be connected in accordance with chapter , and defined accordingto the description in this chapter.DIP switches 3 and 4 define the behavior of the connections IN1, IN2 and OUT.1. Parameterize the access point in the system in accordance with “Connection ofElectric Door Strikes”.2. Set DIP switches 3 and 4.DIP switch num-berPosition Function Connection3 ON Door frame contact(FC) activeIN2OFF - -4 ON REX; Door openerkeyIN1OFF Door handle con-tactIN1IN1 and IN2 can, when necessary, be used as line-monitored inputs.See5.6.6 Activate the monitoring of inputsLine monitoring can only be activated and deactivated by the host system.1. Activate line monitoring in the host system.
Start-up Technical Manual52 - 06/2016 Kaba Remote Reader 91 15-AM (US/CAN)6 Start-up6.1 "Standalone Access Control without Host System" Commissioning(Construction site mode)The Remotereader can already be used on a host system even before connection.This enables the use of the remote reader, e.g., during the construction phase.By connecting the remote reader to a host control device (host system), the func-tions of the remote reader described in this chapter are replaced by parameteriza-tion of the system.6.1.1 Using LEGICIf using "Standalone access control (without host system)", only the LEGIC stamp(segment search key) is checked. To authorize access, the user medium's stamp mustmatch the stamp of the remote reader.• If using "Standalone access control (without host system)" the remote reader canonly be used with one stamp (segment search key).Preparation1. Use security cardC1 (IAM) to define the stamp of masterA (only LEGIC ISO14443A) (see RM_LEGIC_advant_Media_Definition).Putting into operation1. Carry out factory reset on the remote reader, see Chapter2. Present Master A (only LEGIC ISO 14443A) to the connected registration unitðIn the event of successful transfer of the stamp: 3x short beepðThe stamp (segment search key) was transferred onto the remote readerðThe remote reader is now ready for bookingsFunctions• Book• Save the following events (max. 2000):– Door forced open– Doors opened using the button/door handle– Door open too long• Not saved:– Access events– The time and date stamps are incorrect/invalid because the clock on the re-mote reader has not been set yet.Book1. Present a LEGIC user medium (LEGIC prime, ISO 14443A or ISO 15693) to the con-nected registration unit.ðIf the stamp (segment search key) of the remote reader matches a stamp ofthe user medium: Access authorized
Technical Manual Start-up53- 06/2016Kaba Remote Reader 91 15-AM (US/CAN)6.1.2 Using MIFAREIf using "Standalone access control (without host system)", only the site key/fabrica-tion key is checked. During the check, the medium's fabrication key is not replaced.To authorize access, the user medium's site key must match one of the remotereader's site keys.• A security cardC, a masterA, or a masterB medium can contain up to eight sitekeys.• On the medium, the site key's identification file must match the "default ARIOSconfiguration"; the applicationID, fileID, and coding of the identification numbermust match. Media with changed applicationIDs or non-standard identificationnumber coding will not be recognized.Putting into operation1. Carry out factory reset on the remote reader, see Chapter2. Hold security card C, a master A or a master B medium in front of the connectedregistration unit.ðIn the event of successful transfer of the stamp: 3x short beepðA maximum of eight site keys are transferred onto the remote readerðThe remote reader is now ready for bookingsFunctions• Book• Save the following events (max. 2000):– Door forced open– Doors opened using the button/door handle– Door open too long• Not saved:– Access events– The time and date stamps are incorrect/invalid because the clock on the re-mote reader has not been set yet.Book1. Present a MIFARE user medium (MIFARE DESFire or MIFARE classic) to the con-nected registration unit.ðThe user medium's site key must match one of the remote reader's site keys:Access authorized
Start-up Technical Manual54 - 06/2016 Kaba Remote Reader 91 15-AM (US/CAN)6.2 Issue Write/Read Authorization (Launch)(LEGIC only)A write/read authorization is required in the following cases:• If the Remotereader needs to write on a write-protected segment of a medium,e.g. in the case of CardLink applications, validate write-protected CardLink seg-ments• If the Remotereader needs to read a read-protected segment of a mediumIn this chapter, the term "Write authorization" will be used for the terms "Write au-thorization" and "Read authorization".Write authorization with a LEGIC prime SAM 63 card is only valid for LEGIC prime.Write authorization with a LEGIC advant SAM 63 card is only valid for LEGIC primeand LEGIC advant 15693 and 14443A.In this chapter, the designation "Security card C2" will be used for the card designa-tions "SAM 63" and "Security card C2 (SC-C2)".The signaling is carried via the registration unit on which the card is presented.Requirements• For the write authorization, a security card C2 with corresponding segment areais required.• ISO standard 14443A must have been activated using security card C2.• The ISO standard of the SAM 63 card must match the parameterized ISO stan-dard.• The Remotereader should be in regular operation and waiting for an RFID entry.Procedure1. Present the security card C2 to the connected registration unit without interrup-tion (approx. 15s).ðThe Registration unit illuminates green during the process.ðSignaling after successful write authorization: 3x beepsIf the Remotereader has previously been granted write authorization usingthe same security card C2, this will be signaled immediately by 3x beepsðNo signaling: Write authorization has not been granted.Possible reasons- The security card C2 card was removed from the RFID field too early- ISO 14443A is not activated in the system- If SAM+ media are being used: No credit is available2. Remove the security card C2 from the field.6.3 Cancel Write/Read Authorization(Only for LEGIC Compact Reader)The write/read authorization needs to be canceled in the following cases:• If the Remotereader no longer needs to write on write-protected segments of amedium
Technical Manual Start-up55- 06/2016Kaba Remote Reader 91 15-AM (US/CAN)• If the Remotereader no longer needs to read read-protected segments of amediumIn this chapter, the term "Write authorization" will be used for the terms "Write au-thorization" and "Read authorization".In this chapter, the term "Writing right" will be used for the terms "Writing right" and"Reading right".6.3.1 Cancel all writing rights granted by a write authorization1. Reset remote reader to the basic status, see Chapter6.3.2 Cancel a particular writing right granted by a write authorization:Use the SAM 64 card to delete the relevant stamp.The signaling is carried via the registration unit on which the card is presented.Requirements• In order to cancel the write authorization, a SAM 64 card with the relevant seg-ment range is required.• The Remotereader should be in regular operation and waiting for an RFID entry.Procedure1. Present the SAM 64 card to the connected registration unit without interruption(approx. 15s).ðThe Registration unit illuminates green during the process.ð3x beep: Write-authorization canceledIf the write authorization has already previously been canceled with thesame SAM 64 card, this will be signaled immediately with 3x beeps.ðNo signaling: Write authorization has not been canceled.Possible reasons- The SAM 64 card was removed from the RFID field too early- ISO 14443A is not activated in the system- If SAM+ media are being used: No credit is available2. Remove the SAM 64 card from the field.
Maintenance Technical Manual56 - 06/2016 Kaba Remote Reader 91 15-AM (US/CAN)7 Maintenance7.1 Programming interfaceThe Kaba Remote Reader 91 15 has a three-pin socket (9) for connecting a Kaba pro-grammer. This programming interface is used, for example, for firmware updates.0123456789ABC91 15StateIN1IN2OUTGNDAC-AC+BACGNDIN1IN221PushClickDIN-RailASA+OUTOutputAnt.Function 0 - F123456ONOFFRS-485InputProgrammerSupply10-34VDC12-27VAC 34VDCClass IIRelay Output27VACmax 5VDC1 2 3 456789107.2 RestartConsequences of the restart• Duration approx. 3 seconds• The access point is blocked during the restart.• The saved parameter settings and data remain in place.• The device is restarted.1. Switch the power supply off and on again.ðThe LED state goes out.ðThe access point is blocked.2. After the restart, the LED state changes back to green.ðOffline mode: If the device is parameterized for offline mode, the accesspoint is now ready for bookings.ðOnline mode: After the connection has been set up with the host controldevice, the remote reader is ready for operation in online mode.Restarting resets the internal clock. After restarting, the clock will read 01/01/201000:00. Logbook entries will be saved with an incorrect date stamp as a result until thenext online operation.
Technical Manual Maintenance57- 06/2016Kaba Remote Reader 91 15-AM (US/CAN)7.3 Factory Reset/Reset Device to the Basic StatusConsequences of the factory reset• The device is returned to its basic state (factory settings).• The parameter settings are deleted.• The stamps are deleted.• The factory reset lasts approximately 3seconds.• The access point is blocked during the factory reset.Procedure SignalingRemote readerSignalingRegistration unit1. Disconnect the device from the power supply.• The access point is blocked during the factory re-set.2. Set DIP switch 6 to ON.(Switching the DIP switch when the power supply isconnected has no effect).3. Connect the device to the power supply.After the registration unitbeeps, all LEDs flash or-ange2 x short beep, then red/green flashing• Device is reset to the factory settings (for furthereffects, see above, consequences of the factoryreset).4. Disconnect the device from the power supply.5. Set DIP switch 6 to OFF.6. Connect device to the power supply.• The device is in operation again.• In the event of online connection: The host con-trol device loads the current parameters on theremote reader.• The access point is ready for bookings.State: permanent green or flashing green or flashes alternating green/orangepermanent green
Maintenance Technical Manual58 - 06/2016 Kaba Remote Reader 91 15-AM (US/CAN)7.4 Firmware Update/LEGIC OS UpdateAn update can be performed in the following ways:• Using the access manager service tool via access manager (via Ethernet and theRS-485 interface)• Using the Kaba EAC service tool and programmer 1460NOTICEConsequences of the firmware update:• Device is reset to the factory settings(basic status)• The parameterization is deleted• The data is deleted• The stamps are deleted7.4.1 Firmware update/LEGIC OS update via access managerThe firmware/LEGIC OS is updated using the access manager service tool via accessmanager (via Ethernet and the RS-485 interface). The access manager reference man-ual describes the process.7.4.2 Firmware Update / LEGIC OS Update with programmer 1460The firmware update/LEGICOS update lasts around 120 seconds.Requirements• The firmware has been transferred from the Kaba EAC service tool to the programmer 1460 (the LEGIC OS is in-tegrated into the firmware).• The user is familiar with the handling of the programmer and the Kaba EAC service tool.• Kaba EAC service tool ≥ V 2.6.1 is installed.• FTDI driver (using the operating system) for Kaba programmer 1460 is installed (FTDI CDM supports D2XX andVCP functionality) http://www.ftdichip.com/FTDrivers.htm• Microsoft .Net Framework 4 Client Profile is installed http://www.microsoft.com/net/Procedure SignalingRemote readerSignalingRegistration unit1. Disconnect the device from the powersupply.(Switching DIP switch 6 when thepower supply is connected has no ef-fect.)• The access point is blocked duringthe firmware update.2. Turn DIP switch 6 to ON.• Service mode is activated.3. Connect the device to the power sup-ply.
Technical Manual Maintenance59- 06/2016Kaba Remote Reader 91 15-AM (US/CAN)All LEDs flash orange 2 x short beep, then alternatered/green flashingIf the programmer is connectedbefore switching on the powersupply, then there is no flashing.If the programmer is connectedbefore switching on the powersupply, then there is no flashing.4. Connect the programmer to the deviceusing the programming cable.LED off Flashing stops, 1x short beep,LED briefly flashes green twiceNOTICEDuring the firmware update, the power supply and the connection to the program-mer must not be interrupted.5. On the programmer, select thefirmware to be transferred and thendownload.After successful download: 1x short beep, LED brieflyflashes green twice6. Disconnect the device from the powersupply.If the programmer is removedbefore the power supply is inter-rupted, then the LEDs flash ac-cording to the update mode.If the programmer is removedbefore the power supply is inter-rupted, then the LEDs flash ac-cording to the update mode.7. Set DIP switch 6 to OFF.• Service mode is deactivated.8. Disconnect the programmer from thedevice.9. Connect the device to the power sup-ply.• The device is in operation again.• In the event of online connection:The host control device loads thecurrent parameters on the remotereader.• The access point is ready for book-ings.State: permanent green orflashing green or flashes alternating green/or-angepermanent green
Maintenance Technical Manual60 - 06/2016 Kaba Remote Reader 91 15-AM (US/CAN)7.5 Updating configurationWith an online connection, the host control unit downloads the current parametersto the reader.
Technical Manual Maintenance61- 06/2016Kaba Remote Reader 91 15-AM (US/CAN)7.6 CrossgradeA crossgrade can be used to amend the functional type of a device. For example, adevice with the functional type access manager (AM) can be turned into a devicewith the functional type E300 V4 or subterminal.The process for changing the functional type is described in the user manual for Kabaprogrammer1460, document nok1evo809.7.6.1 Device with Bxxx firmware (MRD)Remote reader before cross-gradeRemote reader after cross-gradeFunctionaltypeFunctionaltypeMRD(multi RFID de-vice)• AM• E300 V4• Subterm.• AMC• NTU300 V3Crossgrade⇨MRD(multi RFID de-vice)• AM• E300 V4• Subterm.• AMC• NTU300 V3Illustrative exampleOnly Bxxx firmware (MRD) can be transferred to a device with Bxxx firmware (MRD). It is possible to change functional type.It is possible to change between LEGIC and MIFARE.7.6.2 Device with Axxx firmware (LEGIC)Remote reader before cross-gradeReader type after crossgradeFunctionaltypeFunctionaltypeLEGIC • AM• E300 V4• Subterm.• AMC• NTU300 V3Crossgrade⇨LEGIC • AM• E300 V4• Subterm.• AMC• NTU300 V3Illustrative exampleOnly Axxx firmware (LEGIC) can be transferred to a device with Axxx firmware(LEGIC). A change of functional type is possible. A change from LEGIC to MIFARE is not possible.7.6.3 Device with Mxxx firmware (MIFARE)Remote reader before cross-gradeRemote reader after cross-gradeFunctionaltypeFunctionaltypeMIFARE • AM• E300 V4• Subterm.Crossgrade⇨MIFARE • AM• E300 V4• Subterm.
Maintenance Technical Manual62 - 06/2016 Kaba Remote Reader 91 15-AM (US/CAN)Illustrative exampleOnly Mxxx firmware (MIFARE) can be transferred to a device with Mxxx firmware (MI-FARE). A change of functional type is possible. A change from MIFARE to LEGIC is not possible.
Technical Manual Troubleshooting63- 06/2016Kaba Remote Reader 91 15-AM (US/CAN)8 Troubleshooting8.1 LED Displays on the Remote ReaderLED desig-nationLED signaling Meaning MeasuresState green Offline, in operationgreen flashes Online, in operationINx green Input aktive, ONoff Input inaktive, OFFOUT green Relay aktiveState red permanent • Incorrect firmware• Remote reader de-fective• Carry out firmware up-date• Replace remote readerflashes greenand orangeAfter an interruption incommunication, untilthe Kaba RemoteReader 91 15 is queriedfor the first time by thehost systemorange perma-nentService modeIN1–IN2(only withmonitoredlines)(Assign-ments: IN2 to IN1 IN1 to IN2)orange perma-nentShort circuit Check lines, line monitoringand resistancesred permanent Interruption8.2 During InstallationError Possible cause MeasuresHost system doesnot recognize theremote readerCommunication between re-mote reader and host systemdefectiveCheck communication usingthe LED state and adjustThe address set on the remotereader does not match the ad-dress set in the systemCheck address settings on theremote reader and in the hostsystemIncorrect termination resis-tancesAdjust RS-485 termination re-sistancesInterruption Check/repair cable and con-nections
Troubleshooting Technical Manual64 - 06/2016 Kaba Remote Reader 91 15-AM (US/CAN)Error Possible cause MeasuresRemote readerdoes not read cor-rectlyInterruption Check/repair connection ofregistration unitsIncorrect customer mediumusedCheck whether the correctcustomer medium was usedwhen putting it into operationMedium does not match thedefinition in the systemCheck whether the mediumfound and its definitions areparameterized correctly in thesystemSeveral devices which are con-nected to the RS485 bus havethe same addressGive a unique address to eachdivice which is connected tothe RS485 busRF standard not parameter-ized in the host systemAdjust the configuration in thehost system8.3 During operationError Possible cause MeasuresHost system doesnot recognize oronly temporarilyrecognizes the Re-motereaderFacility changed by user Adjust facilityNew sources of interference(e.g. new or replaced hubs,cash dispensers or other secu-rity systems)Reduce influence of thesources of interference (in-crease distance, shielding)Cabling changed Adjust cablingConfiguration of the accesspoint in the host systemchangedAdjust configuration of the ac-cess point in the host systemSeveral devices connected tothe RS-485 bus have the sameaddressAssign a unique address toeach device connected to theRS-485 busRemote readerdoes not read cor-rectlyFacility changed by user Adjust facilityNew sources of interference(e.g. new or replaced hubs,cash dispensers or other secu-rity systems)Reduce influence of thesources of interference (in-crease distance, shielding)Cabling changed Adjust cablingIncorrect handling of themediumInform user of correct use ofthe medium and the registra-tion unitRF standard not set correctlyStructure of the medium or itsstructure in the system notcorrectAdjust structure of themedium or its structure in thesystem
Technical Manual Troubleshooting65- 06/2016Kaba Remote Reader 91 15-AM (US/CAN)Error Possible cause MeasuresTime sequence ofthe access pointcontrol is incorrectConfiguration of the accesspoint in the host systemchangedAdjust DIP switch settingsMemory of the remote readerdeleted via factory reset andthe data of the host systemhas not yet been written tothe remote readerAdjust times in the host sys-tem and transfer to the re-mote readerCheck whether the data hasbeen loaded from the controldevice onto the remote readerafter a factory resetCheck whether the desiredtimes have been defined inthe host systemCabling changed Adjust cablingRemotereaderdoes not write onthe mediaRemotereader has no writeauthorizationGrant write authorizationCardLink settings in the hostcontrol device are incorrectAdjust the configuration of thehost control device
Packaging/Return Technical Manual66 - 06/2016 Kaba Remote Reader 91 15-AM (US/CAN)9 Packaging/ReturnIncorrectly packaged assemblies and devices may cause expenses due to damageduring transport.Please observe the following information when sending Kaba products.Kaba shall not be liable for damage to products which can be attributed to insuffi-cient packaging.
Technical Manual Disposal67- 06/2016Kaba Remote Reader 91 15-AM (US/CAN)10 DisposalThis chapter provides important information on disposal.10.1 DecommissioningThe following steps should be executed for the decommissioning of the device in anaccess control system:1. For online operation: Check configuration of the host system2. Disconnect the device from the power supply3. Disconnect RS-485 connection from the host system10.2 Dismantling1. Dismantle the deviceDismountingNOTICEAfter dismantling:Check the terminating resistors of all devices connected to the host control device. Check the configuration of the host system.10.3 DisposalThis product meets the requirements of the WEEE Directive and, in accordance withDIN standard EN 50419, is labeled with the WEEE crossed-out garbage can symbol.The symbol indicates the separate disposal of electric and electronic equipment inEU countries.Do not dispose of the device with household waste under any circumstances.Used devices contain valuable recyclable materials that should be recycled. Used de-vices should therefore be disposed of via the collection system used in your country.Disposal in Germany: After use, Kaba GmbH undertakes to carry out the proper disposal of the suppliedgoods in line with legal requirements (such as the ElektroG law in Germany). All costsincurred for the transport of goods to the manufacturer's plant will be borne by theowner of the used electronic equipment.Disposal in Switzerland:Send the device to an electronic equipment collection facility as per the VREG regula-tion.In the EU, electrical devices should be disposed of in accordance with national wastedisposal and environmental directives.The erasure of personal data before disposal must be carried out self-dependent.Dispose of packaging in an environmentally-friendly manner.The packaging materials are recyclable. Please do not put the packaging in withhousehold waste, instead dispose of with waste for recycling.
Disposal Technical Manual68 - 06/2016 Kaba Remote Reader 91 15-AM (US/CAN)IndexCCE conformity ............................................................................. 20Conformity................................................................................... 20Control .......................................................................................... 26DDesignated use .......................................................................... 11Device address ........................................................................... 50Disposal ........................................................................................ 67Door contact ............................................................................... 32Door frame contact .................................................................. 32Door opener..........................................................................32, 46EElectromagnetic fields............................................................. 31EMC directive.............................................................................. 20ESD protective measures........................................................ 12Extension modules, max. number ...................................... 17FFactory reset................................................................................ 57Firmware update....................................................................... 58GGrouped safety messages...................................................... 11IIdentification plate ................................................................... 22Installation cables ..................................................................... 32LLED Display.................................................................................. 63LEGICOS update........................................................................ 58Low voltage directive .............................................................. 20OOffline operation ....................................................................... 28Online operation ....................................................................... 28PPackaging..................................................................................... 66Power supply line...................................................................... 33Programming interface........................................................... 56RR&TTE directive ................................................................ 20Return............................................................................................ 66RFID reader .................................................................................. 23RoHS............................................................................................... 20Rotary switch .............................................................................. 50RS-485 bus termination .......................................................... 48SSafety ............................................................................................. 11Safety messages ........................................................................ 11Supplementary Documentation.............................................7TTroubleshooting........................................................................ 63

Navigation menu