dormakaba Deutschland WRU200 Inductive Tag Reader Module User Manual USer Manual

Kaba GmbH Inductive Tag Reader Module USer Manual

Contents

USer Manual

             B-Net 93 60     User Manual    01/2006
    © Copyright by Kaba Benzing GmbH Albertistraße 3 D-78056 Villingen-Schwenningen Phone +49 7720/603-0 Fax +49 7720/603-102 info@kaba-benzing.com www.kaba-benzing.com   All rights reserved. The document and its parts are copyrighted. Only Kaba Benzing has the right to commercialize, market and distribute this document. This document, or any part of it, may not be copied or reproduced, adapted, arranged, reworked or modified without the prior consent of Kaba Benzing.  All company, trademark or product names are trademarks or registered trademarks of their respective owners and are protected.  Subject to technical changes without notice!   Order no. 04036695
   1 About this manual...................................................................................................................5 2 Safety regulations...................................................................................................................7 2.1 Use as directed...............................................................................................................7 2.2 General remarks.............................................................................................................7 2.3 Installation instructions ...................................................................................................7 2.4 Handling of Lithium batteries ..........................................................................................8 2.5 ESD (Electro Static Discharge) protective measures.....................................................9 3 Product description..............................................................................................................10 3.1 The B-Net 93 60 Terminal ............................................................................................10 3.2 Technical data ..............................................................................................................11 3.3 Conformity ....................................................................................................................13 3.4 Labeling ........................................................................................................................13 4 Design and function .............................................................................................................14 4.1 How to open the housing..............................................................................................14 4.2 Housing front ................................................................................................................15 4.2.1 Trimmer for display contrast.............................................................................15 4.3 Bottom casing ...............................................................................................................16 4.3.1 Mains switch.....................................................................................................17 4.3.2 Buffer battery....................................................................................................17 5 Mounting and installation ....................................................................................................18 5.1 Installation conditions ...................................................................................................18 5.2 Installation scheme.......................................................................................................20 5.3 Installation lines ............................................................................................................21 5.3.1 Power supply internal.......................................................................................21 5.3.2 Power supply external......................................................................................21 5.3.3 Subterminal ......................................................................................................21 5.3.4 Door control......................................................................................................22 5.3.5 Host connection................................................................................................22 5.4 Wall-mounted installation..............................................................................................23 5.4.1 Direct surface mounting ...................................................................................23 5.4.2 Hole pattern......................................................................................................23 5.4.3 Using the mounting plate .................................................................................24 5.5 Insertion of the installation cables ................................................................................26 5.6 Connectors ...................................................................................................................27 5.6.1 Connections on BEX101 mother board and BECO500 CPU unit....................27 5.6.2 Ethernet connector...........................................................................................28 5.6.3 Optional serial interface or modem ..................................................................28 5.6.4 Analog modem .................................................................................................29 5.6.5 ISDN modem....................................................................................................30 5.6.6 RS485 interface (BEX302)...............................................................................31 5.6.7 RS232 interface (BEX301)...............................................................................34 5.6.8 RJ-45 Connection for second reader ...............................................................34 5.6.9 Digital inputs.....................................................................................................35 5.6.10 Relay outputs ...................................................................................................36 5.6.11 Input 24 V.........................................................................................................37 5.6.12 SV9001 power supply ......................................................................................38 5.7 Hardware options..........................................................................................................39 5.7.1 BEX400 memory expansion unit......................................................................39 5.7.2 Uninterruptible power supply BEX500 .............................................................40
  6 Set-up.....................................................................................................................................42 6.1 Set-up process..............................................................................................................42 6.2 Set-up of optional hardware .........................................................................................43 6.2.1 Second reader (external reader, e.g. CCD hand scanner)..............................43 6.2.2 Replacing a reader module with other reader type..........................................43 6.2.3 Host connection via partyline ...........................................................................44 6.2.4 Host connection via modem.............................................................................44 6.2.5 Subterminal ......................................................................................................45 6.3 Start options..................................................................................................................46 6.3.1 Function of buttons and LEDs..........................................................................46 6.3.2 Start of application............................................................................................47 6.3.3 Cold start of application....................................................................................47 6.3.4 Start of service mode .......................................................................................47 6.3.5 Start of service mode and reset to default IP...................................................47 7 BECO service module ..........................................................................................................48 7.1 Start of service module.................................................................................................48 7.2 Access to the service module.......................................................................................49 7.2.1 First access ......................................................................................................49 7.2.2 Access after executed network parameter setting ...........................................49 7.3 Service functions ..........................................................................................................49 7.3.1 Demands on the HTTP browser.......................................................................49 7.3.2 Call of service functions ...................................................................................49 7.3.3 Log-in................................................................................................................50 7.3.4 Start page.........................................................................................................51 7.3.5 Overview of functions.......................................................................................52 7.3.6 System monitoring and maintenance...............................................................53 7.3.7 Hardware settings ............................................................................................62 7.3.8 Hardware analysis............................................................................................74 7.4 FTP access...................................................................................................................77 8 Operating elements ..............................................................................................................78 8.1 Badge input...................................................................................................................78 8.1.1 Contactless media............................................................................................78 8.1.2 Mag-stripe badges and barcode badges..........................................................79 8.1.3 Inductive badges ..............................................................................................80 8.1.4 Verification LEGIC® & Fingerprint ...................................................................81 8.2 Matrix touch ..................................................................................................................82 8.3 Display illumination.......................................................................................................83 9 Maintenance ..........................................................................................................................84 9.1 Battery change..............................................................................................................84 10 Packaging / returns...............................................................................................................85 10.1 Devices .........................................................................................................................85 10.2 Electronic assemblies...................................................................................................85 10.3 Labeling ........................................................................................................................86 11 Disposal .................................................................................................................................87 12 Appendix................................................................................................................................88 12.1 Dimensional drawings...................................................................................................88 12.2 Exchange of passepartout............................................................................................89 13 Index.......................................................................................................................................91
User Manual B-Net 93 60   About this manual  01/2006  © Kaba Benzing GmbH  5  1  About this manual   Validity  This Manual describes the Kaba Benzing B-Net 93 60 terminal as of   Serial number:  072363 - 000500   Manufacturing date:  September 2005   Boot loader version:  2.4.0   Service module version:  698-00-X-K03     Addressees  The manual addresses specialists for mounting, installation, set-up, service, and maintenance of the device. The descriptions in this manual require trained personnel. The information in this manual does not substitute for product training.    Content and purpose  The contents are limited to the assembly, installation, set-up, and basic operation of the hardware.     Supplemental documentation  Information regarding the application used by this terminal can be found in •  Software Manual B-Client HR3 /753, order number 04036907. When installing the device the following remarks listed in the following Kaba Benzing manual must be considered. •  General installation notes, order number 04023965. The above mentioned manuals can be found in the included •  Documentation & Software CD ROM, order number 04033324.     Modification log  Listed below are the most important changes and additions compared to the last edition of the B-Net 93 60 User Manual, 10/2005. •  Connection of subterminals, refer to chapter 5.6.6  •  Changed specification of the subpartyline buslines •  Extendet description of the subpartyline     Orientation in the manual  This manual contains the following orientation guide to easier find specific topics: •  The table of contents in the beginning of the manual shows an overview of all topics. •  The header always contains the respective main chapter. •  An index in alphabetical order is at the end of the manual.
About this manual  User Manual B-Net 93 60 6  © Kaba Benzing GmbH  01/2006    Danger categories  Remarks with specifications or rules and restriction to prevent injuries and property damage are particularly marked. Please read the danger warnings and user tips carefully. This information will help prevent accidents and damage to your equipment. Danger warnings are divided into the following categories.      WARNING  Describes a possibly dangerous situation that can lead to substantial bodily harm or that can lead to death.      CAUTION  Describes a possibly dangerous situation that can lead to minor injuries.     CAUTION  Describes a possibly dangerous situation where the product itself or something near the product could be damaged.    Symbols  If the source of danger can be precisely specified the respective symbol is prefixed.     Hazardous voltage     Explosion hazard     Danger for electronic components due to electrostatic discharge    Remarks with symbols  Please pay special attention to the remarks that are marked with symbols. The symbols used in this manual have the following meaning:   NOTICE! Important information for proper handling of the product. Ignoring this information can cause device malfunction.    Remark Tips and useful information. This information will help you to best use the product and its functionality.
User Manual B-Net 93 60   Safety regulations  01/2006  © Kaba Benzing GmbH  7   2 Safety regulations  2.1  Use as directed  The device or system is only intended for usage as described in chapter ”Product Description.” Use going beyond that is not according to rules. The manufacturer is not responsible for damages resulting from improper use. The user/operator is responsible for any risks associated with non-duly use.  2.2 General remarks    WARNING  Hazardous voltage inside the housing!  Carelessness can lead to an electric shock. Only skilled maintenance or service personnel may open the housing. Before you carry out maintenance works take the following measures: • Disconnect power. •  Secure against re-starting. •  Verify that the installation is dead.   Removal of malfunctions and maintenance may only be performed by skilled technical specialists. Only specialists authorized by the manufacturer may carry out reconstruction and modification. All reconstructions and modifications carried out by unauthorized personnel leads to an exclusion of liability.  2.3 Installation instructions  Installations at the mains voltage may only be executed by a trained electrical specialist.  Only trained personnel may carry out mounting and installation. Kaba Benzing GmbH is not liable for damages resulting from improper handling or incorrect installation.     NOTICE! The relays are designed for 30 V AC / DC and 2 A maximum. For device safety reasons 115 / 230 V may not be switched with this relay.   Installation may only be carried out in places that fulfill climatic and technical conditions stated by the manufacturer.   NOTICE! Devices that are installed outside or in splash-water endangered rooms, may not be operated with 115 / 230 V mains voltage, but must be supplied with safety extra-low voltage (24 V).
Safety regulations  User Manual B-Net 93 60 8  © Kaba Benzing GmbH  01/2006   2.4  Handling of Lithium batteries    CAUTION  Lithium batteries can rupture or burst like an explosive. Improper handling of Lithium batteries can lead to fire and explosions. •  Only skilled specialists authorized by the manufacturer may exchange Lithium batteries. •  They may only be replaced by batteries of the same type. •  Do not open, bore through, or crush Lithium batteries. •  Do not burn Lithium batteries or expose to high temperatures. •  Do not short-circuit Lithium batteries.  The Lithium-ion accumulator Panasonic CGA103450 is used as buffer battery in the BEX500 UPS (optional).  These batteries may only be charged with the BEX500’s charging connection.  The Lithium Mangandioxid battery type CR 2032 is used to buffer the memory on the BEC0500 CPU board and the BEX400 add-on memory.  These batteries may in no case be recharged. The battery could overheat and melt while being recharged or even explode.   NOTICE! Used Lithium batteries must be disposed of according to state and local regulations.Please carefully deposit the batteries that must be disposed, in order to avoid short-circuits, crushing, or damage of the battery housing.
User Manual B-Net 93 60   Safety regulations  01/2006  © Kaba Benzing GmbH  9   2.5  ESD (Electro Static Discharge) protective measures   CAUTION  Danger for electronic components due to electrostatic discharge. Improper handling of printed circuit boards or components can cause damages that lead to complete failures or sporadic errors. During installation and repair of the device, the ESD protective measures must be considered. Please consider the following guidelines before the installation or maintenance of the device: •  If you deal with electronic components, always carry a wristband for the protection against electrostatic discharge. Connect one part of the wristband with a discharge socket or an unvarnished grounded metal component. •  Only touch the printed circuit boards at the edges. Do not touch the printed circuit board itself or the connector.  •  Place all dismantled components on an anti-static surface or in a static-proof container.  •  Avoid contact between printed circuit boards and your clothing. The wristband only protects the printed circuit boards against electrostatic discharge from the body, but there is still a risk of damage through electrostatic discharge from your clothing. •  Only transport and dispatch dismantled modules in protective bags.
Product description  User Manual B-Net 93 60 10  © Kaba Benzing GmbH  01/2006   3 Product description  3.1  The B-Net 93 60 Terminal     Fig. 1: B-Net 93 60  The B-Net 93 60 is a terminal with state-of-the-art technology. Besides its primary time recording functions, the 93 60 can handle additional tasks, such as access control functions or simple PDC functions as well as project time recording. The terminal software can be updated any time via a network connection. The terminal features a high-contrast monochrome display with a resolution of 240 x 128 pixels. The device is operated via a 8 x 8 matrix touch where operational elements can be designed and placed individually. Time data capture is performed with the keyless LEGIC® identification system. Reader modules are also available, including inductive; mag-stripe, barcode, chip-card; and contact-free readers such as Mifare, HID, and Hitag. Up to four Bedanet subterminals can be connected optionally. The built-in Ethernet interface allows integration into existing IT structures. The terminal has 2 outputs (relays) and 4 digital inputs for control functions.
User Manual B-Net 93 60   Product description  01/2006  © Kaba Benzing GmbH  11   3.2 Technical data   System Processor  Netsilicon NET+ARM50   ( ARM7TDMI – Core )  Memory  16MByte SDRAM / 8MByte FLASH / 1MByte SRAM, buffered, expandable by 4 MByte to 5 MByte  Display  Monochrome display with a resolution of 240 x 128 pixels  Keypad  8 x 8 matrix touch alphanumeric reader keypad (optional)   Communication  Ethernet interface 10/100 Mbps auto-sensing (Twisted Pair). Alternatively: •  Partyline RS 485 (optional) •  Analog modem (optional) •  ISDN modem (optional)   Reader  Serial reader module integrated.  Available reader types: LEGIC®, inductive, mag-stripe, barcode, verification LEGIC® & Fingerprint. Other readers available on request.        with SV9001 230 V  with SV9001 115 V Rated voltage  24 V AC/DC  230 V  115 V Voltage range  12 -27 V AC 16 -32 V DC  +6 / -10%  +6 / -10% Frequency  50 -60 Hz  50 -60 Hz  50 -60 Hz Power supply Power consumption  25 W max.  25 VA max.  25 VA max.    Protection class according to IEC 60529  IP54 with LEGIC®, barcode, and Verification LEGIC® fingerprint reader modules. IP30 with mag-stripe and inductive reader modules. Relative humidity  10% to 95%, non-condensing. Ambient temperature  -10°C to +40°C, no direct sunlight. Environmental conditions Use  Indoors and in protected outdoor areas.    Height  300 mm Width  251 mm Dimensions Depth  120 mm
Product description  User Manual B-Net 93 60 12  © Kaba Benzing GmbH  01/2006    Memory size  1 MB (Standard)  5 MB (optional) Data records  8,000 alternatively 3,000  50,000 Capacity of data memory Master records  2,000 alternatively 3,500  10,000 These specifications apply in connection with the B-Client HR3 application.   Data retention in case of power failure Modified parameters, master records, and data records are retained approximately 6 months without power supply.    Buffer time  The optional BEX500 uninterruptible power supply allows for further operation after power failure. Buffer time (operating time with full function) for devices with BEX500 is in case of heavy frequentation at least 90 minutes; however under typical conditions up to 4 hours. These specifications apply to a new, fully charged accumulator in room temperature.    NOTICE! Supplying the door opener with power through the BEX500 UPS is not possible.
User Manual B-Net 93 60   Product description  01/2006  © Kaba Benzing GmbH  13   3.3 Conformity   This device complies with the standards EN 55022    EN 61000-6-1    EN 61000-6-2   EN 300330      according to the regulations of the EU guidelines  73/23/EWG Low voltage directive  89/336/EWG EMC standard  FCC Compliance This device complies with Part 15 of the FCC Rules. Operation is subject to the following two conditions: (1) This device may not cause harmful interference, and (2) this device must accept any interference received, including interference that may cause undesired operation.    NOTICE! Any changes or modifications not expressly approved by the party responsible for compliance could void the user's authority to operate the equipment.    3.4 Labeling  The identification plate is located on the bottom side of the device.    Fig. 2: Position of identification plate  On the identification plate are: • Device name • Product number • Serial number • Power data • CE identification •  WEEE specification according to DIN EN 50419, please refer to chapter 11
Design and function  User Manual B-Net 93 60 14  © Kaba Benzing GmbH  01/2006   4  Design and function  4.1  How to open the housing    WARNING  Hazardous voltage at clamps Carelessness can lead to an electric shock. •  Only skilled maintenance or service personnel may open the housing. •  Disconnect power before servicing. •  Voltage must be turned off for devices that are connected fix. •  Devices that are fed via a separable connection, the mains plug must be pulled out. •  Secure against re-starting. •  Verify that the installation is dead.   To open the housing, please proceed as follows: •  Unlock housing front with key. •  Swing housing front to the left.    Fig. 3: How to open the housing
User Manual B-Net 93 60   Design and function  01/2006  © Kaba Benzing GmbH  15   4.2 Housing front    CAUTION  Display operating voltage 310 V AC (6 mA max.) Hazard of electric shock Avoid touching the area marked in yellow!     Fig. 4: B-Net 93 60 housing front with matrix touch  1 Serial reader module 2  BEX201 user interface 3 Display module 4  Trimmer for display contrast 5  BEX500 UPS (optional)   4.2.1  Trimmer for display contrast  The display contrast is set by default. Due to special conditions at the installation site (light incidence), the contrast setting may need to be corrected again.   NOTICE! The device has an automatic temperature-sensitive contrast control. Therefore, the display contrast settings should only be carried out after the device has already been operated for at least one hour with a closed housing.
Design and function  User Manual B-Net 93 60 16  © Kaba Benzing GmbH  01/2006   4.3 Bottom casing    Fig. 5: Bottom casing  1 Mains switch 2  SV9001 power supply (optional) 3  Optional interface or modem, refer to chapter 5.6.3 4  Slot for BEX400 memory expansion module 5  Cold start button, refer to chapter 6.3 6  Service button, refer to chapter 6.3 7  Backup battery CR2032 8  BECO500 CPU unit 9  Subminiature fuse (radial) F 315 mA / 250 V 5 V supply for second reader at RJ-45 connector on BEX101 10  Microfuse 5x20 (cartridge fuse) T 1.6 A / 250 V input circuit of 24 V terminal supply 11 BEX101 board
User Manual B-Net 93 60   Design and function  01/2006  © Kaba Benzing GmbH  17   4.3.1 Mains switch  The mains switch is located on the SV9001 power supply unit.   Remark The internal SV9001 power supply unit with mains switch is optional and therefore not available in devices with external 24 V power supply.   4.3.2 Buffer battery  To buffer modified parameters, master records, and data records, a Lithium battery type CR2032 is located on the BECO500 CPU board.   NOTICE! The buffer battery must be replaced by a new one every two years. Please refer to chapter 9.1 Battery change .
Mounting and installation  User Manual B-Net 93 60 18  © Kaba Benzing GmbH  01/2006   5 Mounting and installation  5.1 Installation conditions   General  An accurate installation of all components is a basic requirement for proper functioning. The following installation instructions must be adhered to.    Connectors  At the terminal’s installation site, the appropriate Ethernet connection as well as a mains voltage supply must be prepared. Mains voltage supply can be executed as stationary wiring or as separable connection.   NOTICE! If the mains voltage supply is executed as separable connection the following applies: •  The mains socket must be in the immediate vicinity of the device. •  The mains plug must be freely accessible. For devices without an integrated power supply, the 24 V supply voltage can be supplied by the external power supply.    Earthing  The terminal must be grounded! In order to ensure an ideal shielding according to EMC (electromagnetic compatibility), the conductive housing interior must be connected with earth. If an internal SV 9001 power supply (optional) is available, the earth lead must be connected to it. If no internal power supply is available, the earth lead must be routed via the external power supply and clamped to the metal holder.    Cable inlet  The network connection, the mains voltage supply, and possibly needed signal lines can be inserted into the housing from below or from the back. Perforated holes to insert the installation cables are available in the bottom casing.    NOTICE! If connections are made from the back of the housing the mounting position must be defined at an early stage and discussed with the electrical fitter.    Sun exposure  Direct illumination as well as sun exposure leads to reflections within the display area and a poor readability of the display.   NOTICE! Please avoid installation in places with direct sunlight.
User Manual B-Net 93 60   Mounting and installation  01/2006  © Kaba Benzing GmbH  19    Splash water  Devices that are installed outside or in splash-water endangered rooms, may not be connected to the 115 V / 230 V mains voltage, but must be supplied with safety extra-low voltage (24 V).  In this case, industry-standard and waterproof screwed cable glands are to be used for the insertion of the lines into the housing. Please consider that the International Protection class depends on the type of reader being used.    NOTICE! Please arrange for a weather protection roof if installed outside.    Clearances  Between two devices with LEGIC® readers a distance of 20 cm must be observed on all sides.  Min. 20 cmMin. 20 cm Min. 20 cm  Fig. 6: Minimum distance between devices with LEGIC® readers    Mounting height  Recommended mounting height: 150 cm to top edge of terminal.   150 cm Fig. 7: Recommended mounting height
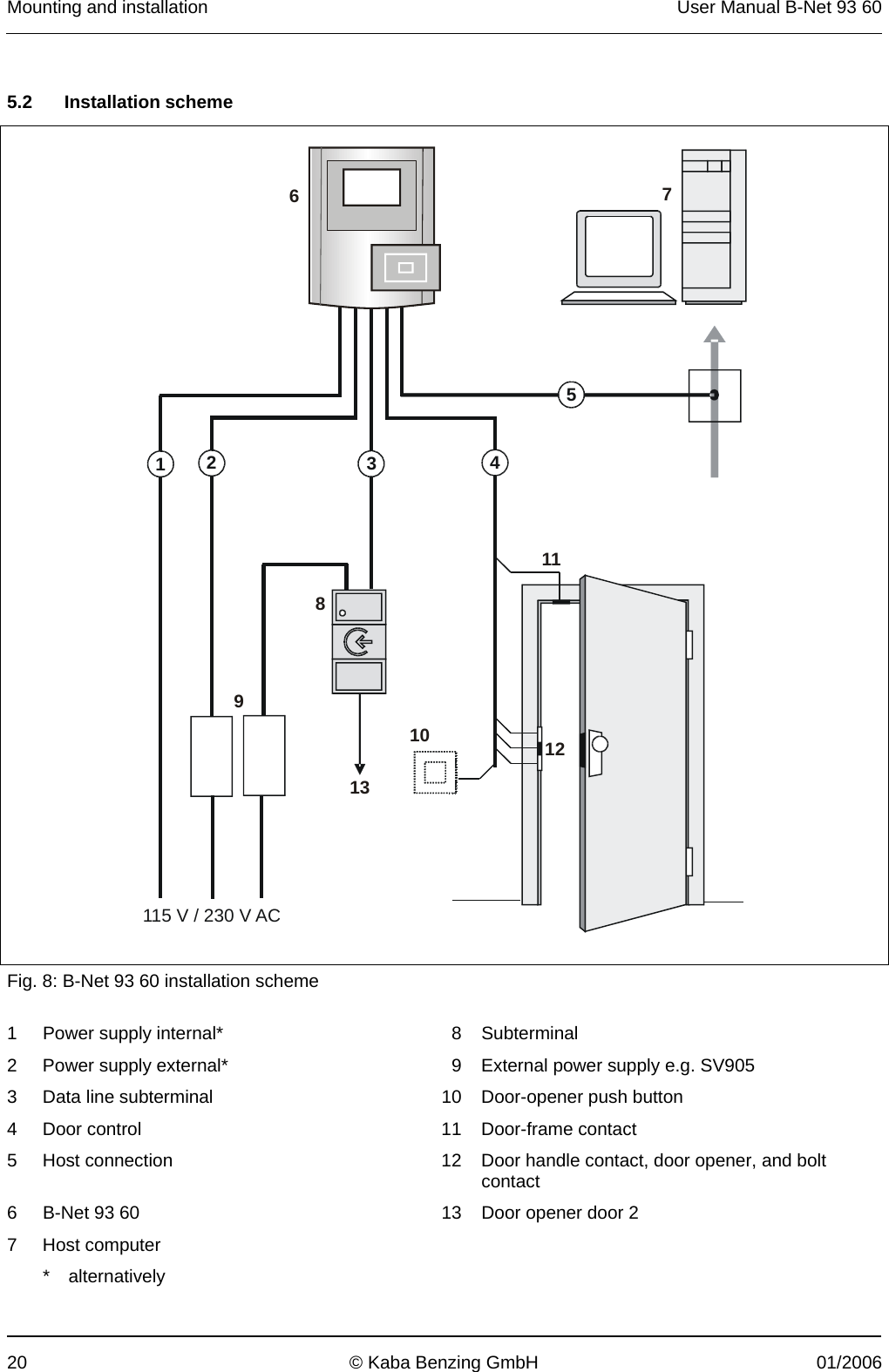
Mounting and installation  User Manual B-Net 93 60 20  © Kaba Benzing GmbH  01/2006   5.2  Installation scheme  53  1  2 115 V / 230 V AC 4 789101112136 Fig. 8: B-Net 93 60 installation scheme  1  Power supply internal*  8 Subterminal 2  Power supply external*  9 External power supply e.g. SV905 3  Data line subterminal  10 Door-opener push button 4 Door control  11 Door-frame contact 5  Host connection  12 Door handle contact, door opener, and bolt contact 6  B-Net 93 60  13 Door opener door 2 7 Host computer    * alternatively
User Manual B-Net 93 60   Mounting and installation  01/2006  © Kaba Benzing GmbH  21   5.3 Installation lines  5.3.1 Power supply internal  With devices that have an integrated power supply SV9001 (optional), the mains voltage supply is led to the terminal. What must be considered? The terminal blocks on the SV9001 power supply are designed for a wire cross section of 1.5 mm² maximum. Line requirements Power cord max. 3 x 1.5 mm2.   5.3.2 Power supply external  Devices with 24 V input are fed with an external power supply, e.g. SV900 item no. 04021688 or SV905 item no.04033373. What must be considered? The terminal’s housing must be grounded. It is therefore imperative to carry the ground wire from the power supply to the terminal. In case of long lines, the voltage drop --caused by the line resistance-- must be considered. Line requirements Cables with a cable diameter from 0.5 mm to 0.8 mm can be used. Three wires are required for power supply + earth (SV900). If door-opener voltage is required, two further wires are needed (SV905).  Recommended cable CAT.5 S-UTP 4 x 2 AWG 24 or AWG 22 (according to EIA/TIA568) or higher.   5.3.3 Subterminal  The subterminals are connected via a 2-wire sub-partyline. It can be designed in star-shape or as partyline. What must be considered? No further signals or voltages may be carried along inside the data cable to the subterminal (e.g. door-opener triggering, door-frame contact, etc.). A separate power supply must be provided for the subterminals. The supply voltage for the subterminals may not be taken from the terminal, it may also not be carried along within the data cable. The complete bus connection (master lines and branch lines) may be up to 2,000 meters long. One branch line may not exceed 100 m.  Line requirements Shielded line with twisted wire pairs, for instance standard telephone cable J-Y (St) Y 2 x 2 x 0.6 mm. Recommended cable CAT.5 S-UTP 4 x 2 AWG 24 or AWG 22 (according to EIA/TIA568) or higher.
Mounting and installation  User Manual B-Net 93 60 22  © Kaba Benzing GmbH  01/2006   5.3.4 Door control  Line to door-opener, door-frame contact, door-opener push button, door handle contact, etc. Line requirements Cables with a cable diameter from 0.5 mm to 0.8 mm can be used. Recommended cable CAT.5 S-UTP 4 x 2 AWG 24 or AWG 22 (according to EIA/TIA568) or higher.   5.3.5 Host connection  Ethernet Connecting cable from terminal to the Ethernet’s RJ45 connector. Line requirements Connection takes place via 1:1 patch cable.   Analog modem Connecting cable from terminal to TAE outlet. Recommended cable Data cable with TAE jack 3 m long, item no. 04106703.  ISDN modem Connecting cable from terminal to RJ45 outlet. Recommended cable Telephone cable with RJ45 jack 3 m long, item no. 04106702.   Partyline What must be considered? The complete bus connection (master lines and branch lines) may be up to 2,000 meters long. One branch line may not exceed 100 m.  A maximum of 30 devices may be operated with one partyline.  The length of the master line or the branch line can be increased with repeaters. Please keep in mind that the connecting line of a repeater may not exceed 1,500 m. Up to 3 repeaters may be cascaded in an extension of a bus connection. Line requirements Shielded line with twisted wire pairs, for instance standard telephone cable J-Y (St) Y 4 x 2 x 0.6 mm. Recommended cable CAT.5 S-UTP 4 x 2 x AWG 24 or AWG 22 (nach EIA/TIA 568), or higher (CAT.6, CAT.7).
User Manual B-Net 93 60   Mounting and installation  01/2006  © Kaba Benzing GmbH  23   5.4 Wall-mounted installation  5.4.1  Direct surface mounting  With dowels / screws the terminal can be mounted directly to the wall. For attachment, four mounting holes are available in the bottom casing. After opening the device, the mounting holes are accessible in the housing corners of the bottom casing. In case of soft mounting undergrounds, make sure that when installed, the housing is not pressed into the underground. The unevenness of the mounting surface may not exceed 0.5 mm. With spacing washers for example, a possible unevenness must be compensated or adjusted. Recommended mounting material: •  4 x dowel S6 •  4 x round-head wood screw DIN 96 Ø 4.5 x 35  5.4.2 Hole pattern   Fig. 9: Hole pattern with mounting dimension, dimensions in mm
Mounting and installation  User Manual B-Net 93 60 24  © Kaba Benzing GmbH  01/2006   5.4.3  Using the mounting plate  If you install the terminal using the mounting plate, the terminal can be quickly and easily removed from the wall.   Remark The mounting plate --product number 04036599-- is an optional accesssory and must therefore be ordered separately! To mount the plate to the wall, 3 drill holes are provided. After you attach the mounting plate to the wall, attach the terminal to the mounting plate using the two mounting holes on the back of the terminal. For protection, tighten the knurled screw at the lower end of the plate.     Fig. 10: Terminal and mounting plate    Fig. 11: Wall mounting with mounting plate
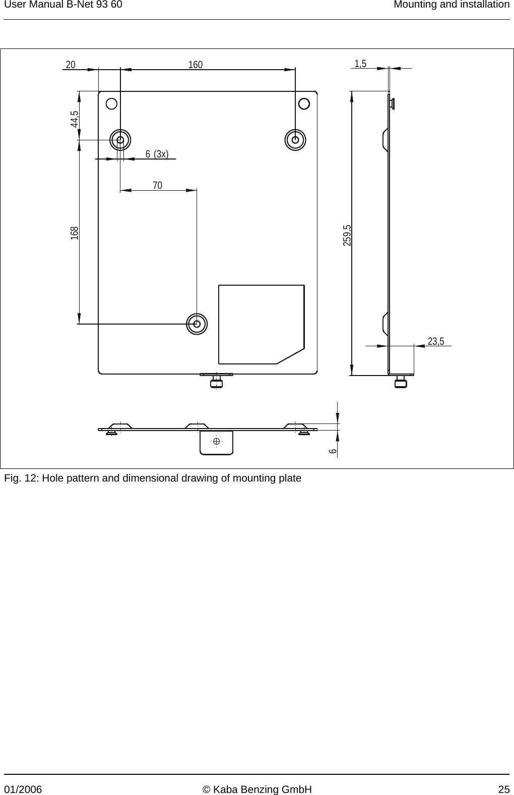
User Manual B-Net 93 60   Mounting and installation  01/2006  © Kaba Benzing GmbH  25     23,5259,51,5620 16044,51686 (3x)70 Fig. 12: Hole pattern and dimensional drawing of mounting plate
Mounting and installation  User Manual B-Net 93 60 26  © Kaba Benzing GmbH  01/2006   5.5  Insertion of the installation cables  Perforated holes to insert the installation cables are available (from below and from the back). Cable inlet should preferably be done from the back.     Fig. 13: Insertion of the installation cables   1 Cable inlet 2 Cable clamp  The incoming data line and the installation cables must be clamped under the clip in such a way that a conducting connection between the shielding and cable clamp develops.   Remark 2 cable fittings PG22, 4 grommets, and a blanking plug are included in delivery.
User Manual B-Net 93 60   Mounting and installation  01/2006  © Kaba Benzing GmbH  27   5.6 Connectors  5.6.1  Connections on BEX101 mother board and BECO500 CPU unit     654321GNDGNDE4E3E2E1RELAIS 1RELAIS 2456  Fig. 14: Connections on BEX101 mother board and BECO500 CPU unit  1  Slot for optional serial interface or modem, refer to chapter 5.6.3 2  RJ-45 connector for second reader, refer to chapter 5.6.8 3  RJ-45 Ethernet connection, refer to chapter 5.6.2 4  Clamps for the serial interface, refer to chapter 5.6.3 5  Digital inputs, refer to chapter 5.6.9 6  Relay outputs, refer to chapter 5.6.10 7  Input 24 V AC / DC supply voltage for the terminal, refer to chapter 5.6.11
Mounting and installation  User Manual B-Net 93 60 28  © Kaba Benzing GmbH  01/2006   5.6.2 Ethernet connector  The BECO 500 CPU unit is equipped with a high-performance Ethernet interface, which fulfills the IEEE 802.3u 10/100 Mbps CSMA/CD standard. Connection takes place by patch cable 1:1 via Onboard-RJ-45 socket. Three LEDs are located on the right hand side of the Ethernet RJ-45 connection.   DataLink10 / 100 Mbit Fig. 15: Ethernet LED  Meaning of the light-emitting diodes   Off  Lights up Data  No data  Data transmission Link  No link  Physical connection to network exists 10/100 MBit  10 MBit  100 MBit   5.6.3  Optional serial interface or modem  Clamp assignment for the serial interface depends on which optional interface is equipped. The clamps for the serial interface are numbered in ascending order from the bottom up. The optional interface is plugged on the BEX101 mother board and secured with a screw.   NOTICE! The settings for the respective optional interface must be adapted in the BECO500 Service Module.
User Manual B-Net 93 60   Mounting and installation  01/2006  © Kaba Benzing GmbH  29   5.6.4 Analog modem      Fig. 16: Analog modem front view and rear view  Terminal assignment BEX101 Terminal Specification Function (from the terminal) 6  Earth  Line for earth key (Used with older telephone systems to occupy an exchange line). Not required with modern PBX systems (e.g. occupy exchange line with number ”0“). 5 -  Not used 4  A1  Series-connected telephone “A” Is detached as soon as the modem occupies the line 3  A  Incoming line (exchange / PBX) “A” 2  B1  Series-connected telephone “B” Is detached as soon as the modem occupies the line 1  B  Incoming line (exchange / PBX) “B”    Remark A series-connected telephone is disconnected as soon as the modem occupies the line!  Pin assignment TAE (telephone jack) Connection TAE  Assignment  Color  Clamp BEX101 1 A  Green  3 2 B  Yellow  1 3 n.c.  − − 4 Earth Gray/pink 6 5 B1  Brown  2 6 A1  White  4 F123456  Pin assignment RJ45 (analog) Connection RJ45  Assignment Color  Clamp BEX101 1 n.c.  − − 2 n.c.  Brown  − 3 A1  White  4 4 A  Green  3 5 B  Yellow  1 6 B1  Gray  2 7 Earth Pink  6 8 n.c.  − −  18
Mounting and installation  User Manual B-Net 93 60 30  © Kaba Benzing GmbH  01/2006   5.6.5 ISDN modem     Fig. 17: ISDN modem front view and rear view  Terminal assignment BEX101 Terminal Assignment Function 6 -  not used 5 -  not used 4  STA / TX+  Transmitting line TX+ 3  SRA / RX+  Receiving line RX+ 2  STB / TX-  Transmitting line TX- 1  SRB / RX-  Receiving line RX-  Pin assignment RJ45 (ISDN) Connection RJ45  Specification  Color  Clamp BEX 101 1 n.c.  − − 2 n.c.  Brown  − 3  STA / TX+  White  4 4  SRA / RX+  Green  3 5  SRB / RX-  Yellow  1 6  STB / TX-  Gray  2 7 n.c.  Pink  − 8 n.c.  − −  18    Remark Modem configuration can be adapted via the BECO500 Service Module, refer to chapter 7.3.7.8.
User Manual B-Net 93 60   Mounting and installation  01/2006  © Kaba Benzing GmbH  31   5.6.6  RS485 interface (BEX302)    Remark The RS485 interface can either be used as 2- or 4-wire partyline to the host or as  2-wire sub-partyline for the connection of subterminals.       Fig. 18: BEX302 front view and rear view   Jumper position: 2-wire 4PLI4-wire 4PLI4PLI Fig. 19: BEX302 jumper assignment  4-wire partyline to host (recommended) Clamp BEX 101  Specification Function (from the terminal)  PIN assignment RJ -45 connector 6 GND  Signal ground  Shield 5  A TxD  A-line Transmit 4-wire  6 4  B TxD  B-line Transmit 4-wire  3 3  A RxD  A-line Receive 4-wire  2 2  B RxD  B-line Receive 4-wire  1 1  C  Potential compensation (C)  7+8  2-wire partyline to host Clamp BEX 101  Specification Function (from the terminal)  PIN assignment RJ -45 connector 6 GND  Signal ground  Shield 5      4      3  A RxD  A-line 2-wire  2 2  B RxD  B-line 2-wire  1 1  C  Potential compensation (C)  7+8
Mounting and installation  User Manual B-Net 93 60 32  © Kaba Benzing GmbH  01/2006    Connection of subterminals The subterminals are connected via a 2-wire sub-partyline. The sub-partyline is an RS485 bus operated in 2 wire technology. It can be designed in star-shape or as partyline.   ATX/RX-ABBTX/RX+DRCCDR Control unit    Subterminal Fig. 20: Concept of 2-wire sub-partyline  Only two lines are required which are triggered half-duplex. The two bus lines are specified with A and B, whereas A does not invert the signal and B inverts the signal. Reference potential for the interface forms the additional C line. For the cable joints, the standard category 5 cable with 4 wire pairs, AWG 24-22 (0.5-0.65 wire-Ø), and the structure S-UTP (Screened Unshielded Twisted Pair) must be used (CAT.5). This cable has a foil shield (screened). The wire pairs are not individually shielded against each other (unshielded). Always two wires which match in colors are twisted with each other (Twisted Pair). In accordance with EN 50 173 all 8 wires must be wired end-to-end. This way consistently structured cabling is available. Not wiring unused wires contradicts the principles of a structured cabling.  2-wire sub-partyline Terminal BEX101  Specification Function (from the terminal)  PIN assignment RJ 45 connector 6 GND  Signal ground  Shield 5      4      3  B TX/RX-  B-line 2-wire  2 2  A TR/RX+  A-line 2-wire  1 1  C  Potential compensation (C)  7+8  The shielding of the data line is generally connected on both sides.
User Manual B-Net 93 60   Mounting and installation  01/2006  © Kaba Benzing GmbH  33     Remark The specifications of signal lines A and B have been swapped with Kaba Benzing’s Bedas and Bedanet devices. Specifications of signal lines with newer devices as well as with the B-Net Series are correct. The various subterminals must therefore be wired according to the following overview.  Subterminal  Manufacturer  B-Net 93 60  Subterminal Bedas 91 05  Kaba Benzing   Bedas 91 10  Kaba Benzing  A B Bedas 91 20  Kaba Benzing   Bedas 91 40  Kaba Benzing  B A Bedanet 91 04  Kaba Benzing       Bedanet 91 05  Kaba Benzing       Bedanet 91 20  Kaba Benzing             Subterminal  Manufacturer  B-Net 93 60  Subterminal Bedanet 90 20  Kaba Benzing   LR-100 Kaba AG  A A LS -110  Kaba AG      B B
Mounting and installation  User Manual B-Net 93 60 34  © Kaba Benzing GmbH  01/2006   5.6.7  RS232 interface (BEX301)  The RS232 interface (V24) is used to connect a second reader.      Fig. 21: BEX301 front view and rear view   5.6.8  RJ-45 Connection for second reader  The second serial reader can be connected to this connector. In this case the optional interface BEX301 RS232 must be equipped. Assignment Pin Assignment 1  VCC 5 V DC; max. 200 mA 2 - 3 GND 4 - 5 TxD 6 - 7 - 8 -   18    Remarks •  Communication parameters: 9600, 8, N, 1. •  The serial interface works with RS-232 levels, not with TTL. •  Hardware handshake is not supported. •  No transmit delay of scanner data.
User Manual B-Net 93 60   Mounting and installation  01/2006  © Kaba Benzing GmbH  35   5.6.9 Digital inputs   Terminal Assignment GND   GND Common ground for E1 to E4        Open / High  Ground / Low E4  Alarm  Sabotage alarm  Idle state E3  Block terminal  Idle state  Terminal blocks E2 Door-opener push button  Idle state  Door opens E1  Door-frame contact  Door open  Idle state  The inputs can be easily controlled with a simple switch or relay contact. The corresponding input is connected to common ground. An open input is recognized as “high” due to the internal pull-up resistor. Ground potential equals “low.” The input circuit also allows the control via connected potential in the following ranges: Input voltage 30 V DC max.; min – 30 V DC Level High   = + 2.6 V to + 30 V or open Low   = - 30 V to + 2.3 V Principle    Door-frame contact Door-opener push button or door-handle contact Block terminal Alarm      E1E2E3E4GND    Fig. 22: Concept of digital inputs    NOTICE! Do not remove the wire links at the E1 and E4 inputs if these inputs are not used!
Mounting and installation  User Manual B-Net 93 60 36  © Kaba Benzing GmbH  01/2006   5.6.10 Relay outputs   Assignment Relay 2  Door opener 2 (OUT) Relay 1  Door opener 1 (IN)      NOTICE! The relays are designed for 30 V AC / DC and 2 A maximum. For device safety reasons 115 / 230 V may not be switched with this relay.   Door opener For door openers that are supplied with DC voltage, the included diode (a freewheeling diode) must be connected parallel to the door opener to suppress interference. In doing so, make sure that the diode is connected in reverse-bias direction. When using an AC voltage power supply, the included varistor type S10K30 must be connected parallelly. The diode or varistor must be connected directly to the door opener and must not be fitted in the terminal.    Fig. 23: Door opener  1 Door opener 2 Freewheeling diode or varistor
User Manual B-Net 93 60   Mounting and installation  01/2006  © Kaba Benzing GmbH  37   5.6.11  Input 24 V  The supply voltage for the terminal is connected to this clamp. The supply of the terminal can take place via an integrated SV9001 (optional) or via an external power supply e.g., SV900 or SV905.  Rated voltage:  24 V AC/DC Voltage range:  12 -27 V AC 16 -32 V DC Frequency: 50 -60 Hz Power consumption:  25 W max.    NOTICE! Please make sure that the input voltage range during maximum load is observed.     Important for devices with host connection via RS485! If several terminals are supplied with the same DC voltage, it must be considered that the polarity at the input terminals is consistent (preferably Plus at bottom).
Mounting and installation  User Manual B-Net 93 60 38  © Kaba Benzing GmbH  01/2006   5.6.12   SV9001 power supply  The terminal may be equipped with the internal power supply SV9001.    +  - I   0   NL124 V DC12 V DC6 V DC12345 Fig. 24:  SV9001 power supply  1  Jumper to set door-opener voltage 2  24 V AC operating voltage for the terminal 3  Operating voltage for door-opener 24 V DC, 12 V DC or 6 V DC; depending on jumper position max. 4 VA 100% on-time, max. 8 VA 10% on-time 4  Power input 115 V AC max. 140 mA (115 V version) Power input 230 V AC max. 70 mA (230 V version) 5 Mains switch        NOTICE! With the terminal’s 24 V AC operating voltage (terminal 2), NO additional door-opener may be supplied.
User Manual B-Net 93 60   Mounting and installation  01/2006  © Kaba Benzing GmbH  39   5.7 Hardware options  5.7.1  BEX400 memory expansion unit  The BECO500 CPU unit is equipped with 1 MB internal SRAM. With the BEX400 memory expansion unit the memory space for data can be expanded with 4 MB to a total of 5 MB. The SODIMM socket for the memory module is located on the BEX100 board.   NOTICE! The BEX400 memory expansion unit is SRAM. By using DRAM or S-DRAM PC memory modules, the BECO500 CPU unit can be damaged or destroyed.    During mounting and demounting of the BEX400 memory expansion unit, the ESD protective measures must be considered.     Fig. 25: BEX400 Memory Expansion Unit  1  BEX101 board    4  BECO500 CPU unit 2  BEX400 memory expansion unit    5  Buffer battery 3 SODIMM socket         NOTICE! The SRAM sector serves as main memory with file system. Removing the BEX400 memory expansion unit or the buffer battery on the BECO500 CPU unit in off-circuit state, leads to data and formatting loss. After the memory extension has been mounted, the SRAM area must be newly formatted. This takes place automatically when performing a cold start. Refer to chapter 6.3.3.
Mounting and installation  User Manual B-Net 93 60 40  © Kaba Benzing GmbH  01/2006   5.7.2  Uninterruptible power supply BEX500  The terminal may optionally be equipped with the uninterruptible power supply (UPS) BEX500. The UPS is integrated right next to the serial reader in the housing front and is connected to the BEX101 mother board.    Fig. 26: BEX500 UPS   5.7.2.1  Technical data BEX500 UPS  Input voltage:  24 V according to rectifier level Output voltage:  5 V Performance:  approx. 14 Wh Accumulator type:  2 x Panasonic CGA103450, Lithium-ion or equivalent Accumulator power:  Voltage 8.8 to 6.0 V average 7.6 V Accumulator capacity:  1800 mAh typical
User Manual B-Net 93 60   Mounting and installation  01/2006  © Kaba Benzing GmbH  41   5.7.2.2  Switch for emergency power operation  A micro switch is located in the upper left corner of the BEX500 printed circuit board for activation of the emergency power operation. During transport and storage, the emergency power operation must be deactivated. Charging mode is also possible.   Remark The micro switch must be operated with a pointed object, e.g. pen, small screwdriver, or tweezers.   12ONOFF3 Fig. 27: BEX500 UPS switch for emergency power operation and LEDs.  1  Switch for emergency power operation     Meaning 2  LED red  Lights up  =  Charging    Blinks  = Error        3  LED green  Lights up  =  Accumulator > 90% charged
Set-up  User Manual B-Net 93 60 42  © Kaba Benzing GmbH  01/2006   6 Set-up  6.1 Set-up process  Set-up takes place as follows: •  Link service PC with the terminal. •  Start device in service mode. Refer to chapter 6.3.4 •  Call up BECO500 service module via http browser. Refer to chapter 7.2 •  Log in with user name: localuser, Password: Bedanet •  Set network parameter Hardware Settings / Ethernet Communication Parameter Refer to chapter 7.3.7.1 •  Enter the group and device address (GID/DID) of BECO500 Hardware Settings / Hostline Parameters Please refer to chapter 7.3.7.4 •  Restart device in application mode System Monitoring and Maintenance / Restart or switch device off/on. Refer to chapter 7.3.6.10 •  Loading of specific parameters and master records from host Please refer to the Manual of the used application.    Remark The BECO500 Service Module is described in detail in chapter 7.
User Manual B-Net 93 60   Set-up  01/2006  © Kaba Benzing GmbH  43   6.2  Set-up of optional hardware     NOTICE! Before the modification of devices already in operation, save parameters and master records. After modification, the changed parameters must be sent from the communication software to the device.    Remark regarding the use of serial interfaces (Serial Line) Each serial interface can only be assigned to one function (Reader, Host Line or Sub Line). It must be considered that the respective interface is deactivated in the other service functions.   6.2.1  Second reader (external reader, e.g. CCD hand scanner)  Hardware requirements: •  The terminal must be equipped with option BEX301 (interface RS232). •  The second reader must be connected to the RJ-45 connector on the BEX101 mother board, refer to chapter 5.6.8 Settings in the service module: •  Hardware Settings/Serial Line Communication Parameter, refer to chapter 7.3.7.2 • COM1:   Enabled •  Bits per second:   9600 • Data bits:  8 • Parity  NONE • Stop bits:  1 •  Hardware Settings/Reader, refer to chapter 7.3.7.3 • Reader 2:   Enabled • Interface:  COM1 • Type:   Barcode •  Hardware Settings/Sub Line Parameter, refer to chapter 7.3.7.5 •  Sub line:   Disabled  6.2.2  Replacing a reader module with other reader type  Settings in the service module: •  Hardware Settings/Reader, refer to chapter 7.3.7.3 • Reader 1:   Enabled • Interface:  COM2 •  Type:   (new reader type)
Set-up  User Manual B-Net 93 60 44  © Kaba Benzing GmbH  01/2006   6.2.3  Host connection via partyline  Hardware requirements: •  The terminal must be equipped with option BEX302 (interface RS485). •  The host partyline must be connected at the BEX101, please refer to chapter 5.6.6  Settings in the service module: •  Hardware Settings/Host Line, refer to chapter 7.3.7.4. • Host Line:  Enabled • Interface:  COM1 • Group ID:  (GID) • Device ID:  (DID) •  Hardware settings/serial line communication parameter,  please refer to chapter 7.3.7.2. • COM 1:   Enabled •  Bits per second:   9600 • Data bits:  7 • Parity  EVEN • Stop bits:  1  6.2.4  Host connection via modem  Hardware requirements: •  The terminal must be equipped with an optional internal analog modem or ISDN modem. Settings in the service module: •  Hardware Settings/Host Line, refer to chapter 7.3.7.4. • Host Line:  Enabled • Interface:  COM1 • Group ID:  (GID) • Device ID:  (DID) •  Hardware settings/serial line communication parameter,  please refer to chapter 7.3.7.2. • COM 1:   Enabled •  Bits per second:   9600 • Data bits:  7 • Parity  EVEN • Stop bits:  1 •  Initialize modem; refer to chapter 7.3.7.8
User Manual B-Net 93 60   Set-up  01/2006  © Kaba Benzing GmbH  45   6.2.5 Subterminal  Hardware requirements: •  The terminal must be equipped with option BEX302 (interface RS485). •  The subterminals must be connected at the BEX101 mother board, please refer to chapter 5.6.6  Other requirement: •  To support subterminals a corresponding license key is required; refer to chapter 7.3.6.8. Settings in the service module: •  Hardware Settings/SubLine, refer to chapter 7.3.7.5. •  Sub line 1:  Enabled • Interface:  COM1 •  Hardware settings/serial line communication parameter,  please refer to chapter 7.3.7.2. • COM 1:   Enabled •  Bits per second:   19200 • Data bits:  7 • Parity  EVEN • Stop bits:  1
Set-up  User Manual B-Net 93 60 46  © Kaba Benzing GmbH  01/2006   6.3 Start options  6.3.1  Function of buttons and LEDs    BEX101     BECO5001234 Fig. 28: Buttons and light emitting diodes on BEX101  1 Cold start button 2 Service button 3 LED red 4 LED green  The buttons allow for a system start with execution of the following start options: •  Cold start of the application, please refer to chapter 6.3.3  •  Start of service mode, please refer to chapter 6.3.4  •  Start of service mode and set back to default IP, please refer to chapter 6.3.5  The light emitting diodes signal if the respective start option has been executed.  LED red (3)  LED green (4)  Meaning Lights up  Off  Application runs Off  Lights up  Service module running Blinks  Off  Application or service module not available
User Manual B-Net 93 60   Set-up  01/2006  © Kaba Benzing GmbH  47   6.3.2  Start of application  The application is started, if neither one of the buttons is pressed during switch on.   6.3.3  Cold start of application   NOTICE! When performing a cold start, parameters are reset to their default values. Master records and booking records are deleted. Network settings, group and device address, as well as the INI file entries remain unchanged.   How to perform a cold start: •  Turn off the device •  Push and hold the cold start button •  Turn on device •  Release cold start button after approx. 5 seconds     6.3.4  Start of service mode  Performing a system start in service mode: •  Turn off the device •  Push and hold the service button •  Turn on device •  Release service button after approx. 5 seconds   6.3.5  Start of service mode and reset to default IP  This start option makes a start of the service mode possible with concurrent reset of the terminal IP address to default IP 123.0.0.2.   NOTICE! A possibly already set IP address is overwritten, DHCP is disabled. All other settings like host IP address, UPD port number and GID/DID remain unchanged. Execution: •  Turn off the device •  Push and hold the service button •  Turn on device •  Release service button after approx. 12 seconds
BECO service module  User Manual B-Net 93 60 48  © Kaba Benzing GmbH  01/2006   7  BECO service module  The BECO (Benzing Embedded COre) CPU unit is used inside terminals and control units of Kaba Benzing’s Bedanet and B-Net Series. The BECO Service Module provides the functions that are required for setup, maintenance, and diagnosis. It is consistently used for all devices where the BECO is deployed. The Service Module is an independent and from the actual terminal software autonomous application that runs on the BECO alternatively to the device software. The Service Module is there stored as “service.obf" or as "service.lzo." The file with the file extension “Izo“ has a packed file format. The unpacked file format has the extension “obf.“ The existing Ethernet connection is used as an interface. Communication takes place via an arbitrary system (service PC) within the network. However, the service PC can also be connected directly with the BECO. An HTTP browser with Java VM support must be installed on the service PC. An http server and an FTP server runs in service mode. Data for the display of statistical information is stored on the BECO as HTML files. Data for the display of dynamic information is generated by the service module in Servlets / Active Server Pages (ASP) and then sent to the browser as HTML. User dialogs for the modification of settings (e.g., date, addresses) are carried out in Java applets. The BECO service module allows for the following functions •  Menu-driven service functions via dialog browser • FTP access •  Local setting of communication parameters   7.1  Start of service module     NOTICE! The device must be started in service mode in order to utilize the functions of the Service Module. Refer to chapter 6.3.4. The Service Module is not available in the normal application mode. Depending on the application active at the moment, the service mode can also be started via B-COMM or per FTP with a respective control record. For further details please refer to the application’s User Manual.
User Manual B-Net 93 60   BECO service module  01/2006  © Kaba Benzing GmbH  49   7.2  Access to the service module  Access to the FTP server and the HTML server of the Service Module takes place via the BECO’s Ethernet connection.  7.2.1 First access  The default IP address 123.0.0.2 is preset on the BECO •  with ex factory delivery •  after the start of the service mode with simultaneous setting of the default IP address. For this purpose, press and hold the service button for at least 12 seconds.  (Details about the individual start options are explained in chapter 6.3). The network setting in the service PC must be configured accordingly, e.g. IP address 123.0.0.1. The Service PC must be in the same network segment. For initial startup, the service PC is connected directly to the BECO via an Ethernet cross over cable (crossed RJ-45 cable).  7.2.2  Access after executed network parameter setting  After startup, the BECO’s service module can be called up via the entered IP address.   Remark A newly set IP address will be active after the device has been rebooted.   7.3 Service functions  The communication with the menu-driven service functions of the BECO Service Module takes place via an HTTP browser.  7.3.1  Demands on the HTTP browser  User dialogs for the modification of settings (e.g., date, addresses) are carried out in Java applets.  The HTTP browser used must therefore support Java applets. An installed and activated Sun JRE version as of 1.4.2_03 is required.  7.3.2  Call of service functions  As soon as the BECO is physically connected with the service PC, the service functions can be accessed with the help of the HTTP browser. For this purpose simply enter the BECO’s IP address (default 123.0.0.2).   Remark Please consider, that with an active IP address filter the proxy server must be avoided where applicable.
BECO service module  User Manual B-Net 93 60 50  © Kaba Benzing GmbH  01/2006   7.3.3 Log-in  If the BECO is addressed via the browser, it answers with a login mask. Here, user name and password are requested that control the access to the individual functions.   Fig. 29: Log-in mask  Enter user name and password. Then press the “Submit” button. Users The following users are already created by default: User name  Password  Access rights  Use localuser Bedanet  limited  Set-up root Bedanet unlimited Expert mode

Navigation menu