ACE&EASTMAN Durkopp 504 User Manual
2016-12-20
User Manual: ACE&EASTMAN Durkopp 504
Open the PDF directly: View PDF .
Page Count: 26
- Cover Page
- Info
- Location Plan
- 1
- 2
- 3
- 4
- 5
- 5.1
- 6
- 7
- 8
- 9
- 10
- 004 00 006 0-204 15 014 0
- 204 15 024 3-504 15 019 3
- 504 15 020 0-504 33 113 0
- 504 33 118 0-906 02 006 0
- 907 02 008 3-992 02 229 0
- 992 02 229 7-993 15 158 0
- 993 15 158 7-993 91 135 7
- 993 91 144 7-996 61 029 0
- 996 61 136 0-999 22 047 5
- 999 22 047 6-791 1128
- 993 91 123 7-995 31 073 0
- 504 15 121 0-993 91 122 7

504...
Typenschliissel:
Machine Type code:
Code du type:
Clave de tipos:
Hauptklasse: 1
. . -.
Matn Class:
Classe principale:
504 - 1
T T
1
Teiieliste
Spare Parts List
Clase principal: J
FiiRchenliiftung:
Foot lift:
Elevatio du pied:
Elevaci6n del pie presantelas:
mechanisch
Mechanical
Mechanique
mechanicamente I-
pneumatisch
Pneumatic
Pneumatique
neumaticamente
pneumatisch mit
Fadenbrenner
Pneumatic with
thread burner
Pneumatique avec
coup-fil bruleur
neumaticamente con
dispositivo fundente
de hilo sintetico
ohne Vorgelege (Normalausfiihrung)
without reduction gearing
(Normal-specification)
sans engrenage de reduction
(Construction normale) N
sin sistema reducir
(version standard) I
mit Vorgelege
with reduction gearing
avec engrenage de reduction
I-
V
con sistema reducir
N/ 1
Elektrische Ausfiihrung:
Electrical equipment:
Execution Blectrique:
Equip0 el&rico:
3 x 380 V, 50 Hz,
3 x 220 V, 50 Hz
3 x 220 V, 60 Hz
3~415’/,50Hz =4

INFORMATION ZUR HANUHMING DER TEILELISTE
1. Allgemeines
1.1 Im Inhaltsverzeichnis sind die Teile-Nr. nach steigenden Nr. geordnet.
1.2 993 91 081 7 Zyl -Schr
. .
Teile-Nr. I
henennung
Hbmessung
Planquadrat der jeweiligen Bildtafel
I' M4 [ 10
Bildtafel Nr. (rechts und links oben in der Bildtafel eingekreiste Nr.)
1.5 Zu einer Einheit gehijrende Einzelteile sind durch eine strichpunktierte Linie eingerahmt. Die Einheit kann such komplett unter der
~011 eingerahmten Teile-Nr. bestellt werden. Zu dieser Einheit gehbren keine Teile, deren Nr. auBerhalb der strichpunktierten Linie
steht.
2.1 Verwendete Bildzeichen
= nicht als Einzelteil lieferbar 1 2
N q
= Laenge oder Flaeche c + = Hinweis auf Unter-
scheidungsmerkmal
Mg = mustergebunden, bei Ersatzteilebestellung I= ohne Fadenabschneider
bitte Muster einschicken oder Form-Nr. angeben mm = MaBe
C$ = siehe Mechanikeranleitung m= mit Fadenabschneider
v = veraltete Ausfuehrung
i
a = links
= fluessig sichern, kleben, dichten a.& = auf Wunsch
Loctite 270, Nr.990 49 034 6 p = rechts
2.3 Sollten Sie ein Teil nicht in der Ersatzteileliste auffinden, was durch technische Anderungen vorkommen kann, dann geben Sic uns
bitte zur Teile- und Funktionsbeschreibung , evtl. Teil skizzieren, die genaue Unterklasse und Fabrik-Nr. It. Typenschild bekannt.
3. Elektro-Teile
3.1 Bei Elektrokabeln und pneumatischen Schlluchen ist es erforderlich, die gewiinschte Meterzahl anzugeben.
3.2 Bei Bestellungen van Elektroteilen bitten wir die zusltzlichen Angaben, die in Klammern hinter der Teile-Nr. stehen, mit anzugeben.
3.3 Elektroteile sind zum schnellen Auffinden im Lageplan mit einer Positions-Nr. gekennzeichnet. Die Teile sind Ilie in Punkt 1.5
beschrieben aufgefuhrt.
3.4 Nicht numerierte Elektroteile kbnnen nach der Bezeichnung z.B."Transistor T6" oder-"Widerstand IK 0,5W" und der dazugehdrenden
Stromlaufplan-Nr. bestellt werden.
5. Jeder Nachdruck, such der auszugsweise, ist nur mit unserer Genehmigung gestattet. Anderungen behalten wir uns var.
Gruppe : C

-1
a fJ-M
. .
80
.
c
5.1
L
$
24v= I
Reihenfolge und Aufteilung der Bildtafeln.
Sequence and breakdown of the illustrations.
3
El
7
Zusatz=
ausstattung
supplimentary
equipment
‘------,- 9
i “‘I
-cJ
\
c
\ i
/‘I
‘,__’ ,
r-------’ .I-A
*
L’ ,)
7
504 36 752 9
Die Unterklassen bestehen aus folgenden Biidtafeln:
The sub-classes are made up of the following illustrations:
151
22ov--
Unterklassen: I Bildtafel:
sub-classes: I i I lustrations: I












Teile-Nr. , Benennung , Bildtafel Teile-Nr. , Benennung , Bildtafel
KLASSE 504-l
-3
N/O
v/o
004 00 006 0 BUCHSE
004 00 069 0 STOFFDR.STANGE
004 00 143 0 HUELSE
004 00 206 0 FEDER KNIEHEBEL
004 00 401 0 SCHARNIER
004 00 401 4 SCHARNIER
004 00 439 0 BUCHSE
004 00 457 0 SCHARNIERGELENK
004 00 522 3 STELLRING
005 00 036 0 NADELSTG.GELENK
005 00 039 0 FADENHEBELOESE
005 00 063 0 GLEITSTEIN
005 00 094 0 FADENFUEHRUNGSOESE
005 00 095 0 SCHEIBE
005 00 184 0 SCHEIBE
005 00 185 0 REGULIERBLECH
005 00 215 0 BUTZEN
005 00 222 0 KEGELFEDER
005 00 227 0 FADENANZUGSFEDER
005 00 236 0 SCHEIBE
005 00 237 0 HALTESTIFT
016 00 401 0 SCHEIBE
030 00 031 0 SCHEIBE
037 00 129 0 AUSLOESEHEBEL
061 00 105 0 ROSETTE
064 00 169 0 BUCHSE
064 00 172 3 SCHAUKELWELLE
064 00 174 0 BUCHSE
064 00 176 3 ZUGSTANGE
064 00 178 0 ZUGSTANGENBOLZEN
064 00 205 0 SCHIFFCHENBAHN
064 00 208 0 FEDER
064 00 209 0 SCHARNIER
064 00 209 4 SCHARNIER KPL.
064 00 210 0 FUEHRUNGSBOLZEN
064 00 211 0 RIEGEL
064 00 212 0 DRUCKSTUECK
064
00 213 0 GLEITSTUECK
065
00 183 0 SPANNUNGSFEDER
066
00 109 0 GLEITSTEIN
066
00 207 0 DECKRING
067
00 051 0 BOLZEN
067
10 022 0 TROPFEINSATZ
067
11 011 0 ROLLE
067
35 158 0 HALTEWINKEL
068
00 010 0 SCHEIBE
lC6 2C6
163
lE4 2E4
186 286
4E2
4E2
lC9 2c9
4D2
3K9
lD4 lF5
204 2F5
lC4 2C4
3LlO
163 263
3D6 2KlO
1Gl 261
lF2 2F2
3Kl
161 261
lH2 2H2
161 261
3K4
102 2D2 6Dll
1El 2El 4E6
6Dll
4E6
1Dl 2Dl 6Dll
3K9
3Lll
3510
lD9 2D9 3511
3512
3L5
3K3
3L3
3L3
3L5
3K4
3K4
3L6
3Kl
3L8
3K4
4K6
158 258
1Fl 2Fl
752
359
068
00 026 0 FADENFUEHRUNGSSTIFT lE7 2E7
068
00 157 0 SCHEIBE 3M9
068
00 174 3 STELLRING lK4 lL4
2K4 2L4
068
00 533 0 SCHEIBE 152 252
068
00 535 0 FADENFUEHR.BOLZEN 152 252
068
00 842 0 OBERTEILSTUETZE 4C8
068
11 103 0 DRUCKFEDR
069
00 305 0 ZUGSTANG
069
24 120 0 SCHEIBE
077
11 023 0 ZENTRIERTUECK
077 15 027 3 STELLRIN
081
00 059 0 KUGELOELR
081
00 139 0 SCHEIBE
081
00 296 0 ZUGFEDER
081
00 638 0 MUTTER
081
00 639 0 MUTTER
087
00 011 0 SCHEIBE
088
00 232 0 HUELSE
088
00 503 0 ZUGFEDER
089
00 250 0 DRUCKSTUCK
097
00 283 0 SPANNUNG
097
00 284 0 SPULERAR
099
00 479 0 FADENSPAN.BOLZEN
099
00 480 0 FADENSPAN.FEDER
100
02 010 0 BEFEST.WNKEL
100
03 012 3 KLOBEN
100
03 013 0 DISTANZRNG
100
03 015 0 GEWINDEENSATZ
100
03 059 0 WINKEL
104
00 026 0 FADENHEBLBOLZEN
104
00 271 0 BOLZEN
104
00 481 3 STOFFSTGKLOBEN
104
10 005 0 ARMDECKE
104
12 004 0 BOLZEN
104
12 005 0 BUCHSE
104
12 006 0 BUCHSE
104
13 002 0 BOLZEN
104
17 003 0 MITNEHMESCHEIBE
105
00 331 0 STOFFDR.EDER
105
11 006 0 OELKASTE
105
11 006 4 OELKASTE
105
11 007 3 DECKEL
105
11 008 0 ROLLENBOZEN
105
11 010 4 OELKASTE
105
11 011 0 PLATTE
105 12 003 3 KLOBEN
120
11 010 0 FADENFUERUNG
167 00 462 0 MESSER
170
11 010 0 DISTANZBCHSE
196 00 022 0 FADENFUERUNG
200 02 010 0 UNTERLEGCHEIBE
204 11 013 0 FADENANZGSHEBEL
204
11 027 0 ROLLE,D1,17
204 11 028 0 ROLLE,D1,18
204 11 029 0 ROLLE,Dl,lS
204 11 030 0 ROLLE.Dl.20
204 11 031 0 ROLLE,Dl,Zl
204 11 032 0 ROLLE,D1,22
204 11 033 0 ROLLE.Dl.23
204 15 002 0 BOLZEN
204
15 011 3 SPULENGEAEUSE
204
15 012 0 SPANNUNGFEDER
204
15 014 0 BOLZEN
152 252
166 168 267 288
8Bll
4LlO
lFl0 2Fll
3E9
3512
364
357
3H7
lF8 2F8
152 252
4H8
3L4
4E6
4E6
lC2 2C2 6Cll
1Dl 2Dl 6Dll
4D4
7K6
lB6 286
4F3 7F3
5K8 783
184 284
186 286
163 263
lE8 2E8
lC4 2C4
lG5 265
lE5 2E5
lF4 2F4
4K4
lF4 2F4
lB9 289
lB9 289
lAl0 2AlO
lC5 2C5
lB9 2B9
lBl0 2810
164 265
lA9 2A2
888
lOJ9
lF2 2F2
463
lH2 2H2
182 282
182 282
182 282
182 282
182 282
182 282
182 282
3KlO
3Ll
3Kl
3H2

Teile-Nr. , Benennung , Bildtafel
204 15 024 3 TREIBERKURBEL 3LlO
205 15 015 0 WELLE 3511
296 00 048 0 ANLAUFSCHEIBE lC5 2c5
296 13 012 0 ZUGFEDER 688
296 16 114 0 ZUGFEDER lE8 2E8
367 15 027 0 KEGELSTUMPFFEDER 3Ll
367 36 765 4 WE3_UE/WARTUNGSEINH. 5Kl
396 11 002 0 FADENFUEHR.STIFT
396 11 105 0 GARNROLLENSTIFT
396 11 132 0 SCHEIBE
467 11 022 0 SPANNUNGSSCHB.
477 25 016 0 GARNTELLER
504 10 001 0 ARM
504 10 001 4 OBERTEIL KPL.
504 10 002 0 LAGERPLATTE
504 10 003 0 LAGERBOCK
504 10 004 0 LAGERARM
504 10 006 0 KOPFDECKEL
504 10 006 4 KOPFDECKEL
504 10 008 0 TRAEGER
504 10 010 0 AUGENSCHUTZ
504 10 011 3 ANTRIEBSRAD
504 10 012 0 ARMWELLE
504 10 012 4 ARMWELLE
504 10 014 0 LAGERPLATTE
504 10 015 3 SCHALTSCHEIBE
504 10 018 0 BUCHSE
504 10 022 0 KLINKE
504 10 024 3 BREMSHEBEL
504 10 026 0 BREMSKLOBEN
504 10 026 4 BREMSKLOBEN
504 10 027 0 ZUGSTANGE
504 10 028 0 DRUCKFEDER
504 10 029 0 WINKEL
504 10 030 3 SCHALTHEBEL
504 10 031 3 SCHALTHEBEL
504 10 032 0 BOLZEN
504 10 033 0 HALTER
504 10 036 0 RASTE
504 10 037 0 HALTER
504 10 039 0 WINKEL
504 10 040 3 GEHAEUSE VO.
504 10 041 3 GEHAEUSE HI.
504 10 042 0 WINKEL
504 10 042 4 AUGENSCHUTZ
504 10 043 0 WINKEL
504 10 044 0 GELENK
504 10 045 0 SCHEIBE
504 10 053 0 LASCHE
504 10 056 0 FADENFUEHRUNG
504 10 057 0 SCHALTSTUECK
504 10 058 0 LAGERBOCK
504 10 059 3 SCHALTSCHEIBE
504 10 060 3 SCHALTSCHEIBE
504 10 061 0 ACHSE
504 10 062 0 WELLE
504 10 063 3 KLOBEN
lAl0 2AlO
4Lll
4Lll
lD2 2Dl
4Mll
167 267
167 267
lG9
3c9
3A7
163 263
163 263
lJ5 255
lJ5 255
lCl1 2Cll
206 2C8
2D6 lD6.
lE7 2E7
lC6 2C6
lGl1 2611 2F12
lE7 2E7
1612 2612
1Gll 2611
lF12 2612
1512 2512
1512 2512
5F4 7D6
lGl1 2611
lFl1 2Fll
lD8 2D8
5C8
lF9 2F9
562 765
5F7
4c4
482
lH5 2H5
lH5 2H5
lFl1 2FN
1512 2512
lDl0 2DlO
4A4
6Ell
lFl0 2F9
lGl0 2610
lC6 2C6
lC6 2C6
lGl1 lHl1 2610
2611
2Ell
Teile-Nr. , Benennung , Bildtafel
504 10 064 3 HEBEL
504 10 066 0 ARRETIERUNG
504 10 068 0 LASCHE
504 11 014 4 FADENSPANNUNG
504 11 015 0 AUSLOESESTIFT
504 11 020 0 AUSLOESEFINGER
504 11 021 3 FADENHEBEL
504 11 023 0 FADENFUEHRUNG
504 11 025 3 FADENFUEHR.TRAEGER
504 11 025 4 FADENFUEHR.TRAEGER
504 11 026 3 AUSLOESER
504 11 027 3 HEBEL
504 11 028 0 FADENZIEHER
504 12 003 0 FADENHEBELKURVE
504 12 013 0 LAGERBOCK
504 12 015 3 NADELSTANGE
504 12 016 3 NADELSTANGE
504 12 017 3 NADELSTANGE
504 13 007 2 EXZENTER
504 13 008 0 DRUCKSTUECK
504 13 010 0 DRUCKFEDER
504 13 011 0 DECKPLATTE
504 13 012 0 LAGERBOCK
504 13 013 0 LUEFTERHEBEL
504 13 016 0 KNIEHEBEL
504 13 017 0 BOLZEN
504 13 018 0 BOLZEN
504 13 020 0 BOLZEN
504 13 021 0 GLEITSTUECK
504 13 022 0 BUEGEL
504 13 024 0 HUELSE
504 13 025 3 ZUGSTANGE
504 13 027 0 BUCHSE
504 13 028 0 ZWISCHENSTUECK
504 13 030 0 ZUGSTANGE
504 13 031 0 KUPPLUNGSSTUECK
504 13 032 0 STOFFDRUECKERKOPF
504 13 032 4 STOFFDRUECKERKOPF
504 13 034 3 SCHALTKLOBEN
504 13 035 0 HEBEL
504 13 036 0 WINKEL
504 13 037 0 ABDECKPLATTE
504 14 001 0 GRUNDPLATTE
504 14 003 0 LEISTE
504 14 004 0 GEHAEUSE
504 14 005 0 WINKEL
504 14 007 0 AUSWERFER
504 14 008 0 ZUGSTANGE
504 14 009 0 DISTANZSCHEIBE
504 14 010 0 OELROHR
504 15 010 3 TREIBER
2Fll
484
483
1Hl 2Hll
lD3 2D3 6Cll
lD3 203
184 284
6Ell
lH2 2H2
152 252
6BlO
6810
6Dll
lD4 2D4
lE5 2E5
lL8 2L8
lL8 2L8
lM8 2M8
3c3
3c5
384
384
lH6 2H6
166 266
lB6 286
384
166 266
lA8 2A8
3A6
3A5
157 257
lK7 2K7
lH3 2H3
3D7
lK7 2K7
5810
384
3A4 384 3C5
785
785
786
7E4
3E8
3E8
5H3 7D6
562
3H4
3H4
364
3H8
3K7
504 15 012 4 SCHIFFCHENBAHNLAGER 3L6
504 15 015 0 SCHNAPPFEDER 351
504 15 017 0 DREHFEDER 351
504 15 018 0 DECKBLECH 3K6
504 15 018 4 SCHIFFCHENBAHNLAGER 3L6
504 15 019 3 VENTILTRAEGER 9Cl
2-

1 Teile-Nr. , Benennung , Bildtafel 1 Teile-Nr. , Benennung , Bildtafel I
504 15 020 0 SPULE 3L4 4011 4Kll
504 15 021 3 SCHIFFCHENRAHMEN 352
504 15 021 4 SCHIFFCHEN 352
504 15 023 4 OBERTEILSATZ 903
504 15 024 4 GESTELLSATZ 9F2
504 15 025 4 GESTELLSATZ 9F4
504 15 121 0 SCHIFF. BAHN 3G6
504 15 122 0 SCHIFF.RAHMEN 3Jl
504 15 138 0 SPULENGEHAEUSE 3Kl
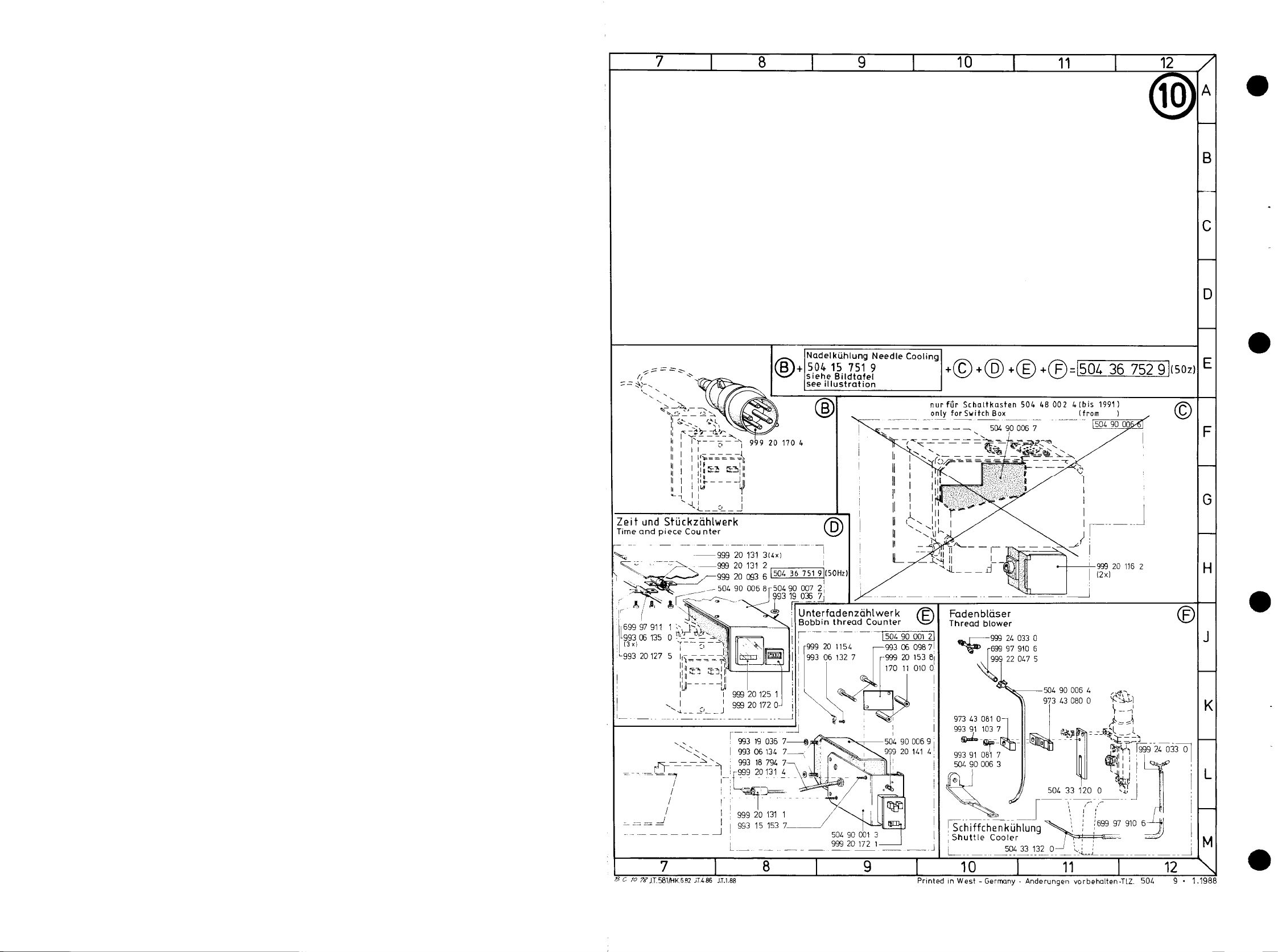
504 15 751 4 NADELKUEHLUNG 8Dll
504 15 751 9 NADELKUEHLUNG 987 988 lOE9
504 15 752 3 BLASROHR 9B5
504 15 753 0 PLATTE 984
504 15 755 9 NADELKUEHLUNG 9A7
504 17 002 3 SPANNUNGSTRAEGER 4E6
504 17 002 4 SPANNUNGSTRAEGER 4D7
504 17 004 0 SPULERARM 4KlO
504 17 006 0 SCHNECKE 458
504 17 007 0 SCHNECKENRAD 458
504 17 008 0 SPULERARM 458
504 17 008 4 SPULER 4M6
504 17 010 0 LAGER 4K8 4M8
504 17 011 0 PLATTE 4K8
504 17 012 0 BREMSE 4L6
504 17 014 3 AUSRUECKHEBEL 4L8
504 17 015 0 BUCHSE 458
504 17 016 0 PLATTE 4L6
504 17 017 3 FADENLEGER 4H8
504 17 020 3 KURVENSCHEIBE 456
504 17 021 0 SPULERWELLE 458
504 17 022 0 ABDECKBLECH 4H8
504 17 024 3 SPULERRAD 4H6
504 17 025 0 DREHFEDER 4L8
504 17 026 0 AUSRUECKHEBEL 4K6
504 17 027 0 BOLZEN 456
504 22 012 3 FINGERSCHUTZ lL6 2L6
504 22 013 3 FINGERSCHUTZ lL5 2L5
504 25 004 3 KEILRIEMENSCHEIBE 5D5 7Ml
504 25 754 0 MZ-STAENDER 482
504 31 003 0 BUCHSE lC8 2C8 lH9
504 31 005 3 SCHNECKE lC8 lM2 2C8
504 31 006 3 SCHNECKENRAD lD7 lM2 2M2 2D7
504 31 012 3 SCHNECKE lC8 lM2 2M2 2CB
504 31 013 3 SCHNECKENRAD lD7 lM2 2M2 2D7
504 31 018 0 KLEMMSTUECK lH9 2LlO
504 31 029 3 SCHNECKENRADWELLE lM3 lD9 lH9
504 31 030 3 MITNEHMER-WELLE 2511
504 31 050 0 TRANSPORTHEBEL 3c7
504 31 051 0 BOLZEN 3c7
504 31 052 0 DISTANZSCHEIBE 3L8
504 31 053 0 HUELSE 3L9
504 31 054 0 GLEITSTEIN 3L9
504 31 055 0 KLOBEN 3L8
504 31 055 4 KLOBEN 3L8
504 31 056 0 LEISTE 3L8
504 31 057 0 DECKPLATTE 3L8
504 31 058 0 BOLZEN 3K8
504 31 059 3 STEUERSTANGE 306
504 31 060 2 BUCHSE 3E7 3-
504 31 062 3 SCHNECKE lC6 lM2 2M2 2C8
504 31 063 3 SCHNECKENRAD lD7 lM2 2M2 2D7
504 31 068 0 AUSGLEICHSTUECK 3c4
504 31 070 0 ANSATZSCHRAUBE 355
504 31 071 0 TRANSPORTHEBEL 3D9
504 31 072 4 KUGELGELENK 356
504 31 073 0 WINKELHEBEL 3H5
504 31 076 0 WINKELHEBELBOLZEN 3H5
504 31 077 0 SCHEIBE 3E6
504 31 078 0 GLEITSTEIN 3E6
504 31 079 0 DECKPLATTE 3D5
504 31 081 0 ROLLENBOLZEN 3A9
504 31 089 0 LUEFTERKLOBEN 153 253
504 31 090 0 LUEFTERBALKEN 154 254
504 31 091 0 LEISTE 3D4 3E3
504 31 092 4 KUGELGELENK 3H8
504 31 093 0 VERB.STANGE 357
504 31 095 0 SPANNUNGSTRAEGER lC3 2C3
504 31 095 4 SPANNUNGSTRAEGER lD3 2D3
504 31 099 3 STOFFDR.HEBEL lK4 2K4
504 31 100 0 DREHFEDER lL4 2L4
504 31 101 2 GETRIEBEPLATTE 269
504 31 102 3 GETRIEBEDECKEL 2K9
504 31 103 0 LAGERBUCHSE 2511
504 31 104 0 BUCHSE HINT. 2HlO
504 31 106 0 WELLE 2K8 209 2M3
504 31 108 0 STIRNRAD 2K9
504 31 109 3 STIRNRAD 2HlO
504 31 110 0 STIRNRAD 259
504 31 118 0 PLATTE 267
504 31 119 0 BOLZEN 259
504 31 120 0 STICH.PLATTE 2KlO
504 31 121 0 SPERRSTUECK 2LlO
504 33 013 3 MESSERHEBEL 888
504 33 014 0 STICHPLATTE 8A9
504 33 014 4 STICHPLATTE,KPL. 8A9
504 33 021 0 ZUGSTANGE BCB
504 33 022 0 ZUGSTANGE 8DlO
504 33 023 3 WINKELHEBEL 8C9
504 33 025 0 WINKELHEBEL 8C12
504 33 039 0 HUELSE lHl1 2Hll
504 33 051 0 ZUGFEDER 8C7
504 33 087 0 SCUTZKAPPE 6H7
504 33 088 0 WINKEL 667
504 33 089 0 BEF.WINKEL 6510
504 33 090 0 SCHALTWINKEL 6C5
504 33 091 0 STEHBOLZEN 6H3
504 33 092 0 BOLZEN 364 654
504 33 094 0 GABEL 3H4 654
504 33 099 0 FEDER 6K4
504 33 100 0 ZIEHHEBEL 6K4
504 33 101 0 HEBEL 655
504 33 102 0 BUCHSE 6K5
504 33 105 3 HALTER 666
504 33 111 0 AUSLOESEWINKEL 6D8
504 33 111 4 AUSLOESEWINKEL 6D8
504 33 113 0 ANSCHLAG 607

1 Teile-Nr. , Benennung , Bildtafel 1 Teile-Nr. , Benennung , Bildtafel I
504 33 118 0 ANSCHLUSSLEISTE
504 33 119 0 DISTANZSTUECK
504 33 120 0 FUEHRUNGSPLATTE
504 33 122 0 DISTANZSTUECK
504 33 124 0 STICHPLATTE
504 33 125 0 STICHPL.EINSATZ
504 33 127 0 BRENNERSPITZE
504 33 132 0 BLASROHR
504 33 133 0 ZUGFEDER
504 33 134 0 ZUGFEDER
504 33 135 0 LAGERBOCK
504 33 136 0 PLATTE
504 33 138 0 PLATTE
504 33 139 0 SCHRAUBE
504 33 141 0 FADENABSTREIFER
504 33 143 0 STICHPL.EINSATZ
504 33 144 0 BOLZEN
504 33 145 0 PLATTE
504 33 146 0 TRAEGER
504 33 147 0 HEBEL
504 33 148 0 TRAEGERBLECH
504 33 149 0 TRAEGERBLECH
504 33 150 0 ANSCHLUSSLEISTE
504 33 150 4 ANSCHLUSSLEISTE
504 33 151 0 BOLZEN
504 33 152 0 DISTANZHUELSE
504 33 153 0
504 33 153 4
504 33 154 0
504 33 154 4
504 33 155 0
504 33 156 0
504 33 157 3
504 33 157 4
504 33 160 0
504 33 752 9
504 35 001 3
504 36 751 9
504 36 752 9
504 41 75. 4
504 41 761 4
504 41 762 4
504 41 763 4
504 41 764 4
504 41 765 4
504 41 766 4
504 41 77. 4
504 48 001 4
504 48 002 4
504 48 003 4
504 48 004 4
504 48 005 4
504 48 007 4
504 48 008 4
504 48 009 4
504 48 014 4
504 48 016 4
_.
BRENNERTRAEGER OB.
BRENNERTRAEGER
BRENNERTRAEGER
BRENNERTRAEGER
BUCHSE
SCHEIBE
PLATTE
PLATTE
WINKEL
FADENSCHNEIDER
FUSSTRITT
ZEIT u.STUECKZAEHl
BAUSATZ-504 SO
KLAMMERSATZ
SCHNECKENSATZ 42
SCHNECKENSATZ 58
SCHNECKENSATZ 72
SCHNECKENSATZ 84
SCHNECKENSATZ 116
SCHNECKENSATZ 144
KLAMMERSATZ
STEUERPLATTE
SCHALTKASTEN
STEUERUNGSEINHEIT
ZUSATZP.BRENNER
VERBIND.LEITUNG
FUSSTRITT
STELLTRAFO
BRENNERLEITUNG
3E9
657
664 lOLl1
6D8
3F4
3E3 8A9
6L4 6H6
lOMl1
lG9 269
lF9 2F9
6F3
6F3
6D4
6D4
663
3E2 3E3
663
6F5
6F5
663
6L5
6H6
5LlO 6Ll
6Ll
664
6F3
655
655
6L5
6L5
6L4
654
6F3
6F3
6D8
8811
5Fll
lOH8
lOEl1
858
1Ml
1Ml
1Ml
2Ml
2Ml
2Ml
8K8
557
556
559 5.163
6Lll
5C12
5Fll
6511
6G6 6M5
OBERTEILVERDRAHTUNG 7F6
STEUERPLATTE 5.1H9
504 48 017 4 STEUERKASTEN 5.1610
504 48 020 0 ABDECKUNG 5.1H6
504 48 021 4 STEUERPLATTE 5.1H9
504 48 022 4 STEUERKASTEN 5.1610
504 48 023 4 STEUEREINHEIT 5.163
504 48 024 4 STEUEREINHEIT 5.163
504 48 506 4 VORSCHALTTRAFO 865
504 90 001 2 UNTERFADENZAEHLW. SO lOJ9
504 90 001 3 WINKEL SOloM9
504 90 006 3 FUSS RE. so lOLl0
504 90 006 4 FADENBLAESER SO lOKl1
504 90 006 6 SCHALTKASTEN SO lOFl1
504 90 006 7 STEUERPLATTE SO lOFl0
504 90 006 8 SCHUTZKAPPE so lOH8
504 90 006 9 SCHUTZKAPPE so lOL9
504 90 007 2 WINKEL so lOH8
699 97 910 6 SCHLAUCH 4LWXl
699 97 911 1 SCHLAUCH lOLWX2
699 97 912 1 SCHLAUCH 7LWX2
744 05 031 3 SCHUETZ
801 40 055 2 TYPENSCHILD
801 48 036 0 WINKEL
801 48 037 3 SCHUTZHAUBE
801 48 037 4 SCHUTZHAUBE
801 48 038 0 DECKEL
802 48 289 0 WELLE
802 51 149 0 ZUGFEDER
893 06 642 0 ZYL.SCHR.
M 2,5 X 4
893 06 672 6 ZYL.SCHR.
M3X4
893 06 673 7 ZYL.SCHR.
M3X5
893 08 558 7 ZYL.SCHR.
M3X15
893 21 101 8 FEDERRING
B 2.3
893 23 046 8 FEDERSCHEIBE
A5
893 27 098 0 GEW.STIFT
M4X14
893 52 105 0 GEW.STIFT
M5X6
894 45 034 8 FAECHERSCHEIBE
A 3,2
894 45 036 8 FAECHERSCHEIBE
A 4,3
895 36 122 0 ZYL.STIFT
4 M6 X 24
895 36 158 0 ZYL.STIFT
6 M6 X 14
906 02 001 0 SEITENTEIL
906 02 002 0 SEITENTEIL
906 02 003 0 STELLFUSS
906 02 004 3 VERBINDUNG
906 02 006 0 VERBINDUNGSSTANGE
4-
5C8 6E5 9A3
9A4 9E3 9F7
5M6 1057
5F4 5612 7Dl
5.1A7
6511
8H5
8K5
8K5
852
lA9 2A9
7L5
3Hl
lH5
663
3Kl
351
lK5 2K5
6D7
lFl1 2Fll
6M4 6H4
6M4 6M5 666
654
lK12 2K12
4H3
4H3
455
4H3
4H3

Teile-Nr. , Benennung , Bildtafel Teile-Nr. , Benennung , Bildtafel
907
02 008 3 SCHUBKASTEN
907
02 009 0 FUEHRG.LEISTE
907
03 017 4 SCHUTZSCHALTER
916
01 014 0 TISCHPLATTE
916
01 015 0 KLAPPE
916
01 016 0 SCHARNIER
916
02 001 0 STREBE
916
02 002 0 STREBE
916
02 011 0 MONTAGEPLATTE
916
03 010 0 RIEMENSCHUTZ
961
03 015 0 LASCHE
916
03 016 0 WINKEL
916
03 017 0 LASCHE
916
03 018 0 LAGERBOCK
916
03 019 3 FUSSHEBEL
916
03 020 0 PLATTE
917
03 032 0 ZUGSTANGE
950
04 001 3 SOCKEL
950
04 002 0 GUMMIAUFLAGE
954
35 001 0 WINKEL
961
35 122 0 SCHALTERTRAEGER
961
35 234 3 HALTER
961
35 287 3 FUSSTRITT
961
35 288 0 LEISTE
962
48 003 0 GEHAEUSE
973
40 075 0 PLATTE
973
43 080 0 HALTER
973
43 081 0 DECKEL
974
40 071 0 HAUBE
974
48 028 0 KLEMMSTUECK
990 12 011 9 KEILRIEMEN
10 X 1320
990 12 013 7 KEILRIEMEN
10 X 1270
990
23 021 2 PERILEX-STECKDOSE
990
23 040 9 PERILEX-STECKER
990
24 006 7 MUFFE
990
29 572 0 MOTOR
990
81 001 9 PLASTIKOELER
990
81 006 1 SCHRAUBENDREHER
990
81 006 2 SCHRAUBENDREHER
990
81 006 7 PLASTIKOELER
465
465
7Cl
4F3
403
4F5
463
463
5L5
565 7F2
586 7F3
x10
5D9
7L4
7M5
701
7L6
4E4
4D4
585 761
5610
9F6
5Fll
5610
556
5Hll
367 9B4 lOKl1
3H7 985 lOKl0
7E3
5HlO
4C8 585 7F3
4C8 585 7F3 753
5M7
5K8
4L12
lK6 5D5 7H3
408
4D8
4D8
4Dll
990
81 008 5 SATZ IMBUSSCHLUESSEL
4Cll
990
92 017 6 NADELN,328-140 182 282
990
92 017 7 NADELN,328-160 lL8 2L8
990
92 017 8 NADELN,328-180 lL8 2L8
990
92 017 9 NADELN,328-200 lM8 2M8
990
92 018 0 NADELN,328-230 lM8 2M8
990
92 018 6 NADEL,328KA-200 lM8 2M8
992
00 016 7 LI.ZYL.SCHR. lL8 2L8
992
00 027 0 GEW.STIFT lF2 2F2
992
00 044 0 FL.KOPFSCHR. 8Cll
992
00 048 7 LI.ZYL.SCHR. lH3 2H3
992
00 060 7 LI.ZYL.SCHR. 8C7
992
00 065 0 6KT.MUTTER 3K4
992
00 080 7 KDRDELSCHR. lE8 2E8
992
00 110 0 6KT.MUTTER 3A7 389
992
00 111 0 GEW.STIFT
992
00 122 7 LI.ZYL.SCHRAUBE
992
00 185 0 FL.KOPFSCHR.
992
00 209 0 GEW.STIFT
992
00 216 0 GEW.STIFT
992
00 217 0 GEW.STIFT
992
00 218 0 FL.KOPFSCHR.
992
00 220 7 6KT.MUTTER
992
00 237 7 RAENDELMUTTER
992
00 237 7 RAENDELMUTTER
992
00 244 0 GEW.STIFT
992
00 289 0 LI.ZYL.SCHR.
992
00 316 0 LI.ZYL.SCHR.
992
00 377 0 6KT.MUTTER
992
00 386 7 6KT.MUTTER
992
00 428 0 LI.ZYL.SCHR.
992
00 436 0 ZYL.STIFT
992
00 437 4 SPANNUNGSBOLZEN
992
00 440 0 ROLLENZAPFEN
992
00 447 7 6KT.MUTTER
992
00 472 0 ZYL.SCHR.
992
00 485 7 LI.ZYL.SCHR.
992
00 537 0 FL.KOPFSCHR.
992
00 557 0 6KT.MUTTER
992
00 559 0 ANSATZSCHR.
992
00 560 0 HALBRD.SCHR.
992
00 599 0 ZYL.SCHR.
992
00 661 0 GEW.STIFT
992
00 665 0 GEW.STIFT
992
00 680 0 ROLLE
992
00 697 0 GEW.STIFT
NR. 23 X 12
992
00 730 0 6KT.MUTTER
992
00 735 7 LI.ZYL.SCHR.
992
00 748 0 SCHAFTSCHR.
992
00 766 0 ZYL.SCHRAUBE
992
00 812 0 ZYL.SCHR.
992
00 863 6 RAENDELMUTTER
992
00 970 0 GEW.STIFT
992
01 123 0 KEGELSTIFT
992
01 144 7 NUTMUTTER
992
01 215 7 SCHEIBE
992
01 265 7 LI.ZYL.SCHR.
992
01 393 7 6KT.MUTTER
992
01 435 0 6KT.SCHRAUBE
992
01 506 0 SENKSCHRAUBE
992
01 508 7 HALSSCHR.
992
01 536 0 ZYL.KOPFSCHRAUBE
992
01 577 0 LI.ZYL.SCHR.
992
01 729 0 KEGELSTIFT
992
01 757 7 ZYL.SCHR.
992
01 764 0 ZYL.KOPFSCHRAUBE
992
01 820 0 LI.ZYL.SCHR.
992
01 944 0 LI.ZYL.SCHR.
992
02 229 0 LI.SENKSCHR.
5-
4D6
2K9 306 387 3C9
888
lE5 2E5
lC4 2C4 3L9
lC4 2C4
8811 8C8
887
4E6
161 261
3K9
153 253
lC9 2C9 3511
153 253
lH7 2H7
163 263
162 262
162 262
2c5
284 3L9
3L7
lD3 2D3
887
355 3H7
8Cll
3K2 8011
4D7
3L4
3D4
3A9
lC5 2C5
3H5
lF2 2F2
3L6
3L8
3L2
1Dl 201 6011
lDl0 2DlO 3KlO
lD6 lM3 lE8 2D6
2E8 2M3
lF4 2F4
389 3C9 387 3A7
3L3
lF2 2F2
3KlO
8A8
3L4
3E4
lF7 lG9 2F7 269
3K12
3H2
lD2 201
lF5 2F5
8C9
lC8 lE8 2C8 2E8
304
-

Teile-Nr. , Benennung , Bildtafel Teile-Nr. , Benennung , Bildtafel
992
02 229 7 LI.SENKSCHR.
992
02 245 7 GKT.SCHR.
992
02 399 7 LI.ZYL.SCHR.LONG
992
02 400 0 GEW.STIFT.
M 5 X 4,3
992 10 164 0 ZYL.KOPFSCHRAUBE
992
12 240 7 LI.ZYL.SCHR.
993
02 136 0 ZYL.STIFT
M6Xl2
993
02 163 0 ZYL.STIFT
M6X32
993
02 195 0 ZYL.STIFT
M6X40
993
03 041 7 SENKSCHR.
M2X 3
993
03 092 7 SENKSCHR.
M3X4
993
03 094 7 SENKSCHR.
M3X6
993
03 098 7 SENKSCHR.
M3X16
993
03 134 0 SENKSCHR.
M4X6
993
03 134 7 SENKSCHR.
M4X6
993
03 136 7 SENKSCHR.
M4XlO
993
03 155 7 SENKSCHR.
M5X8
993
03 178 7 SENKSCHR.
M6X16
993
06 041 7 ZYL.SCHR.
M2X3
993
06 044 0 ZYL.SCHR.
M2X6
993
06 092 7 ZYL.SCHR.
M3X4
993
06 093 7 ZYL.SCHR.
M3X5
993
06 095 7 ZYL.SCHR.
M3X8
993
06 096 7 ZYL.SCHR.
M3XlO
993
06 098 7 ZYL.SCHR.
M3X16
993
06 101 0 ZYL.SCHR.
M3X22
993
06 101 0 ZYL.SCHR.
M3X22
993
06 101 7 ZYL.SCHR.
M3X45
993
06 132 7 ZYL.SCHR.
M4X4
993
06 133 7 ZYL.SCHR.
M4X5
993
06 134 0 ZYL.SCHR.
M4X6
3E4
lGl0 2610
lC12 2c12
lK4 lL4 lL5 2K4
2L4 2L5
356 358
352
lD7 207
2HlO
7L4
3E4 6H6 8A9
3K6 3L6
4D5
6L5
4E4
4E4
5HlO
3c4
3D4
6H4 6K4 6L4
6H6
3Ll
4H6 4K6 4L8
7E4
5F4 608
5H6 7E6
562 5M3
5F2 lOJ9
5H2 566 7D4
764
5H2 566 7D4
764
9Cl
lOJ9
4K8 584 5F4 5K5
7D6
4C4 4512 562 5H3
6F7 667 7F4
993
06 134 7 ZYL.SCHR.
M4X6
993
06 135 0 ZYL.SCHR.
M4X8
993
06 135 7 ZYL.SCHR.
M4X8
993
06 136 7 ZYL.SCHR.
M4XlO
993
06 137 0 ZYL.SCHR.
M4X12
993
06 137 7 ZYL.SCHR.
M4X12
993
06 146 7 ZYL.SCHR.
M4X40
993
06 148 7 ZYL.SCHR.
M4X50
993
06 155 7 ZYL.SCHR.
M5XlO
993
06 175 7 ZYL.SCHR.
M6X8
993
06 621 0 ZYL.SCHR.
M2X3
993
06 712 7 ZYL.SCHR.
M4X4
993
06 715 7 ZYL.SCHR.
M4X8
993
06 716 7 ZYL.SCHR.
M4XlO
993
06 737 7 ZYL.SCHR.
M5X12
993
06 739 0 ZYL.SCHR.
M5X18
993
13 092 0 SPLINT
4 X 32
993
15 075 7 HALBRD.HOLZSCHR.
3 x 20
993
15 113 7 HALBRD.HOLZSCHR.
4 x 14
993
15 115 7 HALBRD.HOLZSCHR.
4 x 20
993
15 116 7 HALBRD.HOLZSCHR.
4 X 25
993
15 153 7 HALBRD.HOLZSCHR.
5 x 15
993
15 176 0 HALBRD.HOLZSCHR.
5,5 x 20
993
15 135 0 HALBRD.HOLZSCHR.
4,5 x 20
993
15 135 7 HALBRD.HOLZSCHR.
4,5 x 20
993
15 156 0 HALBRD.HOLZSCHR.
5 X 25
993
15 156 7 HALBRD.HOLZSCHR.
5 X 25
993
15 158 0 HALBRD.HOLZSCHR.
5 x 35
383 3K12 483 4C4
lOL8
1057
lK5 2K5 4M8
lK3 2K3 5D5 5M5
5H6 761
467
466 5L8 781 7C3
6F8
554
lH5 lH6 lJ6 2H5
2H6 256 5K5 6M7
863
6K4
6K4
5610
852
7Dl
852
7L5
4F5
5611
4E4 465
6F8
lOM8
4L5 4L7
4D4
585 7F2
463 558 752
5610
463
-6-

Teile-Nr. , Benennung , Bildtafel Teile-Nr. , Benennung , Bildtafel
993
15 158 7 HALBRD.HOLZSCHR.
5 x 35
993
16 117 0 SENKHOLZSCHR.
4 x 30
993
16 117 7 SENKHOLZSCHR.
4 x 30
993 16 384 7 SENKHOLZSCHR.
993 19 034 7 SCHEIBE
3,2
993 19 036 7 SCHEIBE
403
993
19 037 7 SCHEIBE
5,3
993
19 038 7 SCHEIBE
6.4
993
19 039 7 SCHEIBE
7,4
993
19 040 7 SCHEIBE
8.4
993
19 042 7 SCHEIBE
13
993
19 045 7 SCHEIBE
17
993
19 046 8 SCHEIBE
19
993
34 054 7 GKT.MlJTTER
993
34 058 7 GKT.MlJTTER
M6
993
34 059 7 GKT.MlJTTER
M8
993
34 060 0 GKT.MlJTTER
M 10
993
41 016 7 RAENDELMUTTER
M4
993
52 075 7 GEW.STIFT
993
52 093 0 GEW.STIFT
M4X4
993
52 115 0 GEW.STIFT
M6X6
993
63 183 7 FL.RD.SCHR.
M 10 X 30
993
63 384 7 FL.RD.SCHR.
MlOX35 MU
993
80 139 7 STIFTSCHR.
M6X40
993
90 067 0 SCHR.DREHER
F.I.GKT.
993
90 068 0 SCHR.DREHER
F.I.GKT.
993
90 070 0 SCHR.DREHER
F.I.6KT.
5Hll
404
5HlO
4M7
5F2 5H2 5F4 5M4
566 7D4 7E4 7H4
9Bl
466 5H2 5H3 5F4
554 555 556 5L8
653 6M4 6M5 666
667 6E8 6F8
lOH8
5CB 5510
6E4 6F8
lK8 2K8 3A7 389
3C9 483 4F7 5D9
6F3 6Ell 855
9E6
7El
lF12 2F12 386
lK12 2L12 6ClO
455
5C8
lA9 2A9 4L8
185 189 2B5 289
484
184 lH5 284 2H5
5610
3H4
4L8
lH2 2H2 4K8
lF4 2F4
4H5
4H5
185 285
4Cll
4Cll
4Cll
993
90 071 0 SCHR.DREHER
F;I.GKT.
993
90 072 0 SCHR.DREHER
F.I.GKT.
993
90 073 0 SCHR.DREHER
F.I.6KT.
993
90 074 0 SCHR.DREHER
F.I.6KT.
993
90 075 0 SCHR.DREHER
F.I.CKT.
993
91 080 7 ZYL.SCHR.
M4X6
993
91 081 7 ZYL.SCHR.
M4X8
993
91 082 7 ZYL.SCHR.
M4XlO
993
91 083 7 ZYL.SCHR.
M4X12
993
91 084 7 ZYL.SCHR.
M4X16
993
91 088 7 ZYL.SCHR.
M4X25
993
91 102 7 ZYL.SCHR.
M5XlO
993
91 103 7 ZYL.SCHR.
M5X12
993
91 104 8 ZYL.SCHR.
M5X16
993
91 108 7 ZYL.SCHR.
M5X25
993
91 109 7 ZYL.SCHR.
M5X30
993
91 121 7 ZYL.SCHR.
M6X8
993
91 122 7 ZYL.SCHR.
M6XlO
993
91 123 7 ZYL.SCHR.
M6X12
993
91 124 7 ZYL.SCHR.
M6X16
993
91 125 7 ZYL.SCHR.
M6X18
993
91 126 7 ZYL.SCHR.
M6X20
993
91 128 7 ZYL.SCHR.
M6X25
993
91 129 7 ZYL.SCHR.
M6X30
993
91 132 7 ZYL.SCHR.
M6X45
993
91 133 7 ZYL.SCHR.
M6X50
993
91 134 7 ZYL.SCHR.
M6X55
993
91 135 7 ZYL.SCHR.
M6X60
7-
4811
4811
4811
4811
4811
5H3 6M5 6H6
7E4
3H7 6C5 664 6C6
8ElO
8E3 6E3
2LlO 4A3 6D7
664 6M4
3c5
lE8 2E8 6810 7B5
165 265 2Ell
2F12 3H7 6F8
164
3E9 5LlO 6Kl
7Dl
lG9 269
167 153 253
267
1512 2512 387
3C8
lK12 2K12 386
4F6 4F7 lODl1
lF9 2F9 6E4
lFl1 lK12 2Fll
9F6
lH6 2H6 484
lC6 2C6
lBl0 2810
5D5 755
855
482 6Ell

Teile-Nr. , Benennung , Bildtafel Teile-Nr. , Benennung , Bildtafel
993
91 144 7 ZYL.SCHR.
M8X16
993
91 149 7 ZYL.SCHR.
M8X30
993
91 150 7 ZYL.SCHR.
M8X35
993
91 180 7 ZYL.SCHR.
M 10 X 35
993
92 122 7 GEW.STIFT
M8X12
993
92 134 8 GEW.STIFT
M 10 X 20
993
92 152 7 GEW.STIFT
M 12 X 12
993
95 085 8 GEW.STIFT
993
97 098 0 FL.KOPFSCHR.
M4X8
993
97 098 7 FL.KOPFSCHR.
M4X8
993
99 189 7 FL.KOPFSCHR.
M6X5
994
04 190 8 GKT.SCHR.
M5X50
994
04 210 7 6KT.SCHR.
M6X16
994
04 284 7 GKT.SCHR.
M8X25
994
04 288 7 GKT.SCHR.
M8X40
994
05 034 7 GKT.MUTTER
M3
994
05 036 7 GKT.MUTTER
M4
994
05 037 7 GKT.MUTTER
M5
994
05 038 7 GKT.MUTTER
M6
994
05 041 7 GKT.MUTTER
M 10
994
05 042 0 GKT.MUTTER
M 12
994
05 042 7 GKT.MUTTER
994
05 044 7 GKT.MUTTER
M 16
994
27 171 0 ZYL.KERBSTIFT
8 X 32
994
38 062 8 SPANNHUELSE
3X6
994
38 065 8 SPANNHUELSE
3 x 12
994
38 089 8 SPANNHUELSE 4X20
4 x 20
3A9 3D9
lF12 2F12
2HlO
3FlO
lE8 2E8 2HlO
5c7
5610
384
4K6
667 657
657 667
3H4
5JlO
5D5 763
586 763
lF12 2F12
4D5 5F6 6E3 6H4
6M4 706 8E8
lK5 2K5 3H4 4E5
5C5 555 5H6 556
5K8 607 SE8 781
761
lK5 2K5
4Ell 7E4
lK7 lK8 2K7 2K8
4C2 4F7 5C9
5AlO 7K5 7K6 855
9E6
4H3
157 lK12 257
2L12
157 lK12 257
2L12
455
158 258
3D4
8A7
lE7 lG9 2E7 269
389 3D9
994
38 091 8 SPANNHUELSE
4 X 24
994
38 125 8 SPANNHUELSE
6 X 12
994
39 513 0 HUTMUTTER POLY
M6
994
39 514 0 HUTMUTTER POLY
M8
994
46 100 7 ZYL.SCHR.
M5XlO
994
46 110 7 ZYL.SCHR.
M6XlO
994
46 112 7 ZYL.SCHR.M6X16
M6X16
994
46 113 7 ZYL.SCHR.
M6X20
994
46 122 7 ZYL.SCHR.
M8X16
994
80 142 7 SCHEIBE
B 3.2
994
80 146 0 SCHEIBE
B 6,4
994
80 146 7 SCHEIBE
B 6,4
994
80 148 7 SCHEIBE
B 8,4
995
19 014 8 SPANNHUELSE
995
19 017 8 SPANNHUELSE
995
34 013 5 GKT.MUTTER
PG16 A
995
34 023 0 GKT.MUTTER
996
07 006 8 SICH.SCHEIBE
3,2
996
07 007 8 SICH.SCHEIBE
4
996
07 009 8 SICH.SCHEIBE
6
996
07 011 8 SICH.SCHEIBE
8
996
07 013 8 SICH.SCHEIBE
10
996
12 038 7 STELLRING
A6
996
19 017 0 DRAHTNAGEL
996
19 307 0 DRAHTNAGEL
996
20 072 0 PASSFEDER
5X5X10
996
20 077 0 PASSFEDER
5X5X20
996
28 080 0 DICHTRING
13X19X2
996
49 030 0 KEILRIEMENSCHEIBE
996
49 032 0 KEILRIEMENSCHEIBE
996
49 036 0 KEILRIEMENSCHEIBE
996
61 029 0 WINKELGELENK
-8-
4E2
5Hll
4A4
5D8
6K5
2KlO 3E9
lA5 2A5 366
lH6 2H6 386
386
664 6L4
4L7
157 1512 257
2512 4C2 4L6
4L9
lC12 2c12
8C12
4H6
458
7Fl
6FlO
364 6E3 6K3
654
4K6 4M4
166 lA7 lE7
2A7 266 2E7
3LlO
lA6 2A6
4K8
4D4
5Hll
2610
lCl0 2811 2ClO
5M3 964
5D5 7H2
5D5
5D5 7H2
7M6

Teile-Nr. , Benennung , Bildtafel Teile-Nr. , Benennung , Bildtafel
996 61 136 0
996 61 141 0
997 15 350 0
997 50 230 0
997 50 232 0
997 50 260 0
997 50 261 0
997 50 264 0
998 88 016 0
998 88 058 0
998 88 101 0
999 14 025 4
999 18 791 7
999 18 793 7
999 18 905 4
999 18 909 7
999 20 000 1
999 20 022 8
999 20 034 2
999 20 043 1
KIJGELZAPFEN
A 10
KUGELPFANNE
A 10
STECKHUELSE
G-SICHERUNGSEINSATZ
G-SICHERUNGSEINSATZ
G-SICHERUNGSEINSATZ
SICHERUNG T-1A
G-SICHERUNGSEINSATZ
SCHEIBE
PASZSCHEIBE
PASZSCHEIBE
6X12X0,3
ISOLIERSCHLAUCH GR
LEITUNG,H05VV-F
2X0,75 SW
LEITUNG,A03VV-F
3x0,75 SW
LEITUNG,H05VV-F
3G1,O GR
LEITUNG,HOSVV-F
4 x l,o
KABELENOHUELSE
OREHSTROMSCHUETZ
STECKER 6POL
ABOECKKAPPE G9-1
999 20 044 0 WUERGENIPPEL
999
20 087 0 PERILEX-STECKER
999
20 089 0 KABELBANO
999
20 091 8 TUELLENGEHAEUSE
999
20 091 9 STECKOOSENEINSATZ
999
20 092 0 STECKEREINSATZ
999
20 092 1 SOCKELGEHAEUSE
999
20 093 6 BEF.SCHELLE/VERNICK
605-13
999
20 096 9 STEUERLEITUNG
999
20 098 5 MIKROSCHALTER
999
20 100 4 STECKER MES160
999
20 101 8 KABELKANAL
999
20 102 8 OECKEL
999
20 104 6 WUERGENIPPEL
PG 6
999
20 106 5 EINBAUSTECKER
999
20 106 6 KUPPLUNG
999
20 111 3 ISOLIERHUELSE
999
20 115 4 BEF.SCHELLE
604-5
999
20 116 2 SCHUKO STECKOOSE
999
20 116 3 FUSSORUCKSCHALTER
999
20 118 8 TRAFO
s 14115
999
20 124 3 ISOLIERST.GEHAEUSE
999
20 125 1 BETR.STO.ZAEHLER
24V/50HZ
lK7 999 20 125 7
lK7 2K7 5AlO
7K6
555
7Kl
5L7
5L7
5.1G6
5L7
9F6
365
655
999 20 127 5
999 20 127 7
999 20 128 1
999 20 130 4
999 20 131 1
999 20 131 2
999 20 131 3
999 20 131 4
5F5 999 20 132 3
7E3 999 20 136 8
7F3 7F4
5H6
7Hl
999 20 141 4
999 20 148 3
999 20 148 4
999 20 150 6
999 20 153 1
999 20 153 8
7Hl
7K3
5C12
5H2'566 7E4
7H5
5H3 566 5K9
6F9 781 761
5M6
3H8 5K5 701 702
5Fll
5M4
5Fll
5L5
lOH8
999 20 155 6
999 20 155 8
999‘20 155 9
999 20 156 4
999 20 156 5
999 20 156 8
999 20 156 9
999 20 157 7
999 20 158 1
999 20 158 2
999 20 160 3
999 20 160 6 MIKROSCHALTER
5K4
5F2
557
5K5
5M7
5H2
562
5C12
555
lOJ9
lOHl1
5Fll 703
8F4
753
lOK8
999 20 160 8 FUSSDRUCKSCHALTER
999 20 170 0 GEOR.SCHALTUNG
KAW 119
999 20 172 0 IMPULSZAEHLER
P 0874 107
999 20 172 1 IMPULSZAEHLER
MVS 13.21
999 20 192 1 GLUEHLAMPE
999 20 206 0 TRAFO,OREHSTROM-
999 21 024 9 SCHNAEPPER,MAGNET
999 21 044 1 GELENKSTANGENKOPF
999 21 070 6 GLEITLAGER
999 21 072 9 PUFFER
999 21 076 0 KLEMMHEBEL
999 22
037 4 ZYLINOER,EINFACHW
0 12 X 25
999.22
044 1 STECKNIPPEL
999 22 047 5 SCHLAUCHKLEMME
STEUERLEITUNG
10 x 0,34
BEF.SCHELLE
605-9
MIKROSCHALTER
ISOLIERPLATTE
GEHAEUSE
STECKERGEHAEUSE
4POLIG
BUCHSENGEHAEUSE
4POLIG
BUCHSE
STIFT 163 305-2 MNL
MS VERZINN
STECKER
FPKU-STECKROHR
PG 16
LEUCHTOIOOE ROT
MITTELLEITERSCHIENE
HILFSSCHALTER
LEUCHTORUCKTASTER
TRAFO
GEOR.SCHALTUNG
KAW 88
TRAFO
TRAFO
SCHUETZ
GLUEHLAMPE
6V 1,2W
SCHUTZTUELLE
GERAETEOOSE
KABELSTECKER
LEISTUNGSVERT.
MESSERKONTAKT
FEOERKONTAKT
ISOLIERSTUECK
-9-
5C12
1057
5F2
562
5L8 783
lOL8 lOM8
lOH8
5L5 lOH8
lOL8
5L5
7A2
lOL9
7C2
781
5F7
7L2
lOJ9
6511
667
5L5
5F7
5F7
5H6 706
6511 7E3 7E6
5K3
7E3 7E5
6Lll 763 7E5
5Fll
5H2 5F6 764
705
7E3
lOE8
lOK8
lOM9
5F7
8M3
405 4F5
185 285
6Cll
556
6F3
608
6L7
3H8 9A4 lOJl0
-

Teile-Nr. , Benennung , Bildtafel Teile-Nr. , Benennung , Bildtafel
999
22 047 6 EINSTECKHUELSE
999
22 051 2 VENTIL,DRUCK-3/Z
999
22 051 9 VENTIL
999
22 055 0 VENTIL,ABSPERR
999
22 059 9 ZYLINDER
999
22 063 6 ABSCHNEIDER
999
22 065 3 WE-3-UE
999
22 067 6 ZYLINDER,DOPPELTW
D 32 X 75
999
22 068 7 VENTIL,TASTRO-3/Z
4LWXl
999
22 069 0 PNEUMATIK-ZYL.
999
22 070 1 ZYLINDER
999
22 070 3 VENTIL-OBERTEIL
999
22 070 7 ANSCHLUSSPLATTE
999
22 071 5 ZYLINDER
999
22 072 5 BEFESTIGUNG
999
24 003 9 WI-STUECK RL4
999
24 005 3 SCHLAUCHTUELLE
999
24 020 9 SCHOTTVERSCHR.
999
24 025 0 VERTEILERBLOCK
999
24 025 2 GD-E-VERSCHRAUBG
999
24 025 5 WI-E-VERSCHRAUBG
999
24 025 8 T-ES-VERSCHRAUBG
999
24 030 1 DOPPELNIPPEL
999
24 030 3 DOPPELNIPPEL
999
20 030 4 REDUZIERNIPPEL
999
20 033 0 Y-VERB.STUECK
STECKB. D4
999
24 033 4 T-VERTEILERBLOCK
999
24 034 4 GD-E-VERSCHRAUBUNG
999
24 035 2 GD-E-VERSCHRAUBG
999
24 035 3 WI-E-VERSCHRAUBG
999
24 036 1 MUFFE
R l/8
999
24 036 5 SCHW.-VERSCHRAUBG
999
24 037 1 T-E-VERSCHRAUBUNG
999
31 073 0 KERBSTIFT 3X12
MG43 409
3 x 12
GKT.-MUTTER
MG43 2510 SCHEIBE
719 127 SCHRAUBE
791 1086 GARNST.ROHR
791 1086A GARNST.ROHR
791 1109 GARNHALTERARM KPL.
791 1110 FADENF.ARM KPL.
791 1111 FADENF.ARM KPL.
791 1112 FADENFUEHRUNG
791 1113 SCHELLE
791 1128 TELLER KPL.
555 5CB 6D8
9F7
5KlO 9F3
868 966
5L2
6ClO
9G6
5K2
5ClO
9Cl
5C8
6E6
555 6K6
5K5 6M7
6K3 6D4
6E5
5L2 964
5L2 964
9G6
966
9C3 9F3,
3ElO 5Lll 6L3
668
555 6D8
962 9G6
553 9F3
5K2 5M3
lOLl0 lOL12
962
604 653 6E6
5M2 5KlO
3FlO 5K2 5M3
5C9 5510 5Mll
6L3 6K7
553 9C2
6D4 653
5510
lE8 2E8 363
6BlO
4510 4KlO
4MlO
4510 4KlO
4MlO
4510 4KlO
4512
4M12
4Lll
4511
4KlO
4510
4510 4KlO
4Mll
10 -

Ersatzteileliste. Spare par’ 8. Pikces de rechange. Pi6
Teile-Nr. Benennunq Teile-Nr. Benennunq
253;267
993 91 123 7 ZYL.SCHR.MSXlP 1512;
2512;387
993 91 124 7 ZYL.SCHR.M6X16 1KlZ;ZKlZ;
386;4F6;4F7;
855;lOOll
993 91 125 7 ZYL.SCHR.MOXlB lF9:2F9;
6E4
993 91 126 7 ZYL.SCHR.M6XZO 1Fll;lKlZ;
ZF11;9F6
993 91 128 7 ZYL.SCHR.M6X25 lH6;2H6;
484
993 91 129 7 ZYL.SCHR.M6X30 lC6;2C6
993 91 132 7 ZYL.SCHR.M6X45 1BlO;ZBlO
993 91 133 7 ZYL.SCHR.M6XSO 505;755
993 91 134 7 ZYL.SCHR.M6X55 755
993 91 135 7 ZYL.SCHR.M6X60 482;6Ell
993 91 144 7 ZYL.SCHR.MBX16 3A9;309
993 91 149 7 ZYL.SCHR.MBX30 1FlZ;ZFlZ
993 91 150 7 ZYL.SCHR.MBX35 ZH10
993 91 180 7 ZYL.SCHR.MlOX35 368
993 92 122 7 GEW.ST,FT M8X12 2HlO
993 92 134 B GEW.STIFT MlOX20 5GlO
993 92 152 7 GEW.STIFT MlZX12 384
993 95 085 8 GEW.STlFT 4K6
993 97 098 0 FL.KOPFSCHR.M4XE 667;657
993 97 098 7 FL.KOPFSCHR.M4XE 657;667
993 99 189 7 FL.KOPFSCHR.M6XS 3H4
994 04 190 8 6KT.SCHR.M5X50 5KlO
994 04 210 7 6KT.SCHR.M6X16 505;763
994 04 284 7 6KT.SCHR.M8X25 586;763
994 04 288 7 6KT.SCHR.MEX40 lF12;ZFlZ
994 05 034 7 6KT.MUTTER M3 4D5;5F6;6E3:
6H4;6M4;7D6;8EB
994 05 036 7 BKT.MUTTER M4 lK5;2K5;3H4;
4E5$5;5J5;5J6;
5K8;607;6E8;7B1;761
994 05 037 7 BKT.MUTTER MS lK5;2K5;4Cll;
4Ell;7E1;7011
994 05 038 7 6KT.M"TTER M6 lK7;lKE;ZK7;
ZK8;4C2;4F7;4G9;
5C9;5A10;7K5;&15;
9E6
994 05 041 7 SKT.MUTTER MlO 4H3
994 05 042 0 6KT.MUTTER M12 lJ7;lKlZ;
257;2L12
994 05 042 7 6KT.MUTTER lJ7;lKlZ;ZJ7
2L12;
994 05 044 7 6KT.MUTTER M16 455
994 27 171 0 ZYL.KERBSTlFT 8x32 lJ8;ZJE
994 38 062 8 SPANNHUELSE 3x6 304
994 38 065 8 SPANNHUELSE 3x12 8A7
994 38 089 8 SPANNHUELSE 4x20 lE7:1G9;
2E7;269;389;309
994 38 091 8 SPANNHUELSE 4x24 4E2
994 38 125 8 SPANNHUELSE 6x12 5Hll
lnderungen vorbehalten
994 39 513 0 HUTMUTTER POLY M6 4A4
994 39 514 0 HUTMUTTER POLY ME 5DE
994 46 100 7 ZYL.SCHR.MSXlO 6K5
994 46 110 7 ZYL.SCHR.M6XlO 2K10;3E9
994 46 112 7 ZYL.SCHR.MGX16 lA5:2A5;
386
994 46 113 7 ZYL.SCHR.M6XLO lH6;ZH6;386
994 46 122 7 ZYL.SCHR.MEX16 386
994 80 142 7 SCHEIBE 83.2 6G4;6L4
994 80 146 0 SCHEIBE B6,4 4L7
994 80 146 7 SCHEIBE B6,4 lJ7;1512;2J7;
ZJ12;4C2:4L6;4L9
994 80 148 7 SCHEIBE BE,4 1c12:2c12;
EC12
995 19 014 8 SPANNHUELSE 4H6
995 19 017 8 SPANNHUELSE 4JE
995 34 023 0 BKT.MUTTER 6FlC
996 07 006 8 SICH.SCHElBE 3,2 364;6E3;
6K3;654
996 07 007 8 SICH.SCHEIBE 4 4K6;4M4
996 07 009 8 SlCH.SCHEIBE 6 166:1A7;1E7;
2A7:2G6;2E7
996 07 Oll 8 SICH.SCHElBE 8 3L10
996 07 013 8 SICH.SCHElBE 10 lA6;2A6
996 12 038 7 STELLRING A6 4KB
996 19 017 0 ORAHTNAGEL 404
996 19 307 0 DRAHTNAGEL 5HlI
996 20 072 0 PASSFEDER 5X5XlO 2610
996 20 077 0 PASSFEDER 5X5X20 1c10;
2ßIl;2Clo
996 28 080 0 DICHTRING 13X19X2
996 49 030 0 KEILRIEMENSCHEIBE
996 49 032 0 KEILRIEMENSCHEIBE
996 49 036 0 KEILRIEMENSCHEIBE
996 61 029 0 WINKELGELENK
996 61 136 0 KUGELZAPFEN Al0
996 61 141 0 KUGELPFANNE AI0
997 15 350 0 STECKHUELSE
5M3;9G4
505;7H2
505
505;7H2
7M6
lK7
IK7;2K7;
5AlD;7K6
5J5
997 50 230 0 G-SICHERUNGSEINSATZ 7K1
997 50 232 0 G-SICHERUNGSEINSATZ 5L7
997 50 260 0 G-SICHERUNGSEINSATZ 5L7
997 50 264 0 G-SICHERUNGSEINSATZ 5L7
998 88 016 0 SCHEIBE 9F6
998 88 058 0 PASZSCHEIBE 365
998 88 101 0 PASZSCHEIBE 6X12XO,3 655
999 14 025 4 ISOLIERSCHLAUCH GR SF5
999 18 791 7 LEITUNG,HOS""-F 2XO,75SW
7E3
999 18 793 7 LEITUNG,AOJVV-F 3XO,75SW
7F3
999 18 909 7 LEITUNG,HOSVV-F 4Xl.O 7Hl
999 20 000 1 KABELENDHUELSE 7Hl
999 20 022 8 DREHSTROMSCHUETZ 7K3
999 20 034 2 STECKER 6POL SC12
999 20 043 1 ABDECKKAPPE G9-1 5H2:5G6:
as de repues to
Teile-Nr. Benennung
7E4;7H!
999 20 044 0 WUERGENIPPEL 5H3;5G6;5K9;
6F9;7B1;7Gl
999 20 087 0 PERILEX-STECKER 5Mf
999 20 089 0 KABELBANO 3H8;5K5;701;7Di
999 20 091 8 TUELLENGEHAEUSE 5Fll
999 20 091 9 STECKDOSENEINSATZ 5M4
999 20 092 0 STECKEREINSATZ 5Fll
999 20 092 1 SOCKELGEHREUSE 5Lt
999 20 096 9 STEUERLEITUNG 5K4
999 20 098 5 MIKROSCHALTER 5FI
999 20 100 4 STECKER MES160 5Ji
999 20 101 8 KABELKANAL 5KE
999 20 102 7 LEERKASTEN U-B3-4S8 EC4
999 20 102 8 DECKEL 5M7;EEi
999 20 106 5 EINBAUSTECKER SG2
999 20 106 6 KUPPLUNG 5c12
999 20 110 0 TRAFO EL3
999 20 111 3 ISOLIERHUELSE 5J5
999 20 112 8 TRAFO EM?
999 20 116 2 SCHUKO STECKDOSE 10HlI
999 20 116 3 FUSSDRUCKSCHALTER 5Fll;7D3
999 20 124 3 lSOLlERST.GEHAEUSE 753
999 20 125 7 STEUERLEITUNG lOXO,34 5C12
999 20 127 7 MIKROSCHALTER 5F2
999 20 128 1 ISOLIERPLATTE 562
999 20 130 4 GEHAEUSE SL8;783
999 20 131 3 BUCHSE 5L5
999 20 132 3 STECKER 5L5
999 20 136 8 FPKU-STECKROHR PG16 7A2
999 20 148 3 MITTELLEITERSCHIENE 7C2
999 20 148 4 HILFSSCHALTER 701
999 20 150 6 LEUCHTDRUCKTASTER 5F7
999 20 153 1 TRAFO 7L2
999 20 155 6 TRAFO 6511
999 20 155 8 TRAFO 667
999 20 155 9 SCHUETZ 5L5
999 20 156 4 GLUEHLAMPE 6V1,ZW 5F7
999 20 156 5 SCHUTZTUELLE 5F7
999 20 156 8 GERAETEOOSE 5H6;6E2;706
999 20 156 9 KABELSTECKER 6511;7E6
999 20 157 7 LEISTUNGSVERT. 5K3
999 20 158 1 MESSERKONTAKT 6E2;7E3;7E5
999 20 158 2 FEDERKONTAKT 6L11>7G3;7E5
999 20 160 3 ISOLIERSTUECK 5Fll
999 20 160 6 MIKROSCHALTER 5H2;5F6;764
705;
999 20 160 8 FUSSORUCKSCHALTER 7E3
999 20 192 1 GLUEHLAMPE 5F7
999 20 206 0 TRAFO,OREHSTROM- 8~4
999 21 024 9 SCHNAEPPER,MAGNET 4D5;4F6
999 21 044 1 GELENKSTANGENKOPF lB5;2B5
999 21 070 6 GLEITLAGER 6Cll
999 21 072 9 PUFFER 556
999 21 076 0 KLEMMHEBEL 6F3
999 22 037 4 ZYLlNOER,ElNFACHW 012x25
Teile-Nr. Benennung
6Ot
999 22 044 1 STECKNIPPEL 6L;
999 22 047 5 SCHLAUCHKLEMME 3H8;9Al
999 22 047 6 EINSTECKHUELSE 5J5;5C8;
608;9F;
999 22 051 2 VENTIL,ORUCK-3/2 5LlO;gF:
999 22 051 9 VENTIL 8G8:9Gf
999 22 055 0 VENTIL,ABSPERR 5Li
999 22 059 9 ZYLINDER 6ClC
999 22 063 6 ABSCHNEIDER 9GL
999 22 065 3 WE-3-UE 5Ki
999 22 067 6 ZYLlNOER,OOPPELTW 032x75
5ClC
999 22 068 7 VENTlL,TASTRO-3/2 4LWXl 9Cl
999 22 069 0 PNEUMATIK-ZYL. 5CE
999 22 070 1 ZYLINDER 6Ef
999 22 070 3 VENTIL-OBERTEIL 5J5;6Kf
999 22 070 7 ANSCHLUSSPLATTE 5K5;6Ml
999 22 071 5 ZYLINOER 6K3;604
999 22 072 5 BEFESTIGUNG 6EE
999 24 003 9 Wl-STUECK RL4 5L2;9G4
999 24 005 3 SCHLAUCHTUELLE 5L2;9G4
999 24 020 9 SCHOTTVERSCHR. 9GE
999 24 025 0 VERTEILERBLOCK 9GE
999 24 025 2 GD-E-YERSCHRAUBG 9C3:9F:
999 24 025 5 Wl-E-VERSCHRAUBG 3E10;6L3;
6Bf
999 24 025 8 T-ES-VERSCHRAUBG 5J5;6OE
999 24 030 1 OOPPELNIPPEL 962;966
999 24 030 3 DOPPELNIPPEL 5J3;9F?
999 20 030 4 REOUZIERNIPPEL 5K2;5M?
999 24 033 4 T-VERTEILERBLOCK 962
999 24 034 4 GD-E-VERSCHRAUBUNG 604;
653;6E6
999 24 035 2 GD-E-VERSCHRAUBG 5L10;5MZ
999 24 035 3 WI-E-VERSCHRAUEG 3F10;5K2;
5M3;5C9;5KlO;
6K7;6L3
999 24 036 1 MUFFE Rl/B 5J3;9C2
999 24 036 5 SCHW.-VERSCHRAUBG 604:653
999 24 037 1 T-E-VERSCHRAUBUNG 551a
999 31 073 0 KERBSTIFT 3x12 1EE;ZEE;
363;6Bla
ENDE
Teile-Nr Benennung Teile-Nr Benennung

:Frr:L31 OIXQW'IH3S'lAZ L 2zI T6 F66
692:69I 8X9W'BH'JS'lAZ L IzI T6 E66
IOL OEXSW'BH3S'lAZ L 601 16 F66
IW9:63& SZXSW'BHKlAZ L 801 I6 E66
0‘91 9lXSW'öHJS'lAZ 8 bO1 16 F66
Su6:LHE:zl~z:II3z
:93z:531 ZIXSW'BH3S'lAZ L EO1 16 C66
SEL~0199
:831:831 OIXPW'BH3S'lAZ L 101 16 F66
S3E SZXbW'BHJS'lAZ L 880 16 F66
bWQ:b39 9IXbW'UH3S'lAZ L b30 16 F66
LOQ~FYb
:011z ZIXbW'BH3S'lAZ L CB0 16 F66
C39fF38 OIXbW'IH3S'lAZ L 280 16 F66
0138:939!b39
:S39:LHE 8XbW'äHKlAZ L 180 16 C66
b3L:SWQ:CHS 9XbW'IH3S'lAZ L 080 16 E66
IIHb 'Ln9'I'd 83H3UO'UHDS 0 SLO 06 E66
IIrb 'IWQ'I'J Y3H31a'IH3S 0 CL0 06 E66
IIrb 'lY9'I'J I3H38(1'IHX 0 FL0 06 E66
IIrb '119'1'4 ö3H31(1'8H3S 0 ZL0 06 F66
IIPC 'IYQ'I'd ti3H3tiO'>JHX 0 lLO 06 E66
IIPb '119'1'4 U3H3W'BHX 0 OLO 06 E66
IIrb 'LWQ'I'J L(3H380'8H35 0 890 06 E66
IIPb 'InQ'I'd ti3H3YOeYH3S 0 L90 06 E66
s8z:saI abXQW'BH3SUIlS L 6EI 08 E66
SHb nWSFXOIW'IH3S'O~'ld L b8E F9 E66
SHC OEXOIW'LIH3S'OW'ld L FE1 EQ E66
bjZ!bdI QXQW UIlS'M33 0 SI1 ZS F66
8Xb~ZHZ~ZHI CXCW UIlS'M39 0 E60 ZS E66
8lb ldIlS'M33 L SLO 29 F66
CH& bW L1311flWl3aN3VU L 910 Ib E66
013s OIW 8311flW'lnQ a 090 b& E66
SH2
b8Z:SHI:b81 8W 1311flW'lxQ L 6S0 bf F66
bBb~682~SEZ
!681:581 9W KillflW'LnQ L ES0 CE F66
8lb:6VZ:6VI L(311flW'lnQ L @SO bE E66
835 61 3813H3S 8 QbO 61 F66
crt LI 3BI3H3S L Sb0 61 F66
0139:2112:21n1 EI 3813H3S L 2b0 61 F66
98&:21d2:21d1 b‘8 3813H3S L Ob0 61 E66
13L b'L 3813H3S L 6F0 61 E66
936!SPE
!II39:&39:6(15~63b
:Ldb:E8b!63&:68&
~LVC~En2:EnI b‘9 3813H3S L 8FO 61 E66
SnQ:b39:OIWS:83S
!113b~II3b~IIflb E‘5 3813H3S 1 LEO 61 E66
1139!8d9:839
:L99:SW9:bWQ:FPQ
:815~9rS!SrS:bPS
:bd5:FH5:93b E‘b 3813H3S L 9EO 61 E66
186:bHL!b3L
:baL:99s:bws
:bdS:ZHS:ZdS Z'E 3813H3S L b&a 61 E66
bunuuauag 1 2N-al!Jl
LWC 'HH3SZlOHnN3S L CE& 91 &6L
OIHS OEXb'äH3SZlOHnN3S L LII 91 E66
bat, OFXb'BH3SZlOHnN3S 0 LII 91 F6L
IIHS 5EXS'IH3SZlOH'a18lVH L 851 SI F6E
F3b 5FX5'BH3SZlOH'a~9lVH 0 851 PI F6E
0139 92XS'IH3SZlOH'aIElvH L 951 SI t66
2rL:8r5
TC31 SZXS'IIH3SZlOH'OäElYH 0 991 SI E66
2dL
!SES 02XS‘b'BH3SZlOH'OlElVH L SEI SI E66
bOb aZXS‘b'L(H3SZlOH'O1ElVH 0 SEI SI E66
Llb
:Slb a2XS‘S'IIH3SZlOH'O15lVH 0 9LI 51 E66
S3b
:b3b OZXb'IH3SZlOH'aIElVH L SI1 SI F66
1135 b1Xb'1IH3SZlOH'a88lvH L EI1 SI E66
SB O2X&~BH3SZlOH~OIJBlvH'L SLO 51 F66
SlL 2FXb 1NIldS 0 260 EI E66
113b!IIEb EIXSW'äH3S'lAZ L 6FL 90 E66
2r8 EIXSW'WH3S'lAZ 0 6EL 90 C66
IaL ZIXSW'BH3S'lAZ L LFL 90 ES6
2P8 01XbWW'8H3S'lAZ L QIL 90 F66
013s EXbW'UH3S'lAZ L SIL 90 F66
in9 bXbW'IH3S'lAZ L 2IL 90 t66
bn9 CXZW'aH3S'lAZ 0 119 90 F66
F38 EX9W'UH3S'lAZ L SLI 90 F66
Lw9:sns:9rz
:SH2:9rI:5HI OIXSW'HH3S'lAZ L 9SI 90 F66
bPS OSXbW'tiH3S'lhZ L Et1 90 E66
839 ObXW'öH3S'lAZ L QCI 90 F66
E3L
!18L~814~93b ZIXbW'IH3S'lAZ L LFI 90 ES6
L3b ZIXbW'BH3S'lAZ 0 LEI 90 F66
13L!IjQ:SWS
~SaS~Fn2~EnI OIXbW'IH3S'lAZ L QEI 90 E66
8Wb:SnZ:SnI BXbW'BH3S'lAZ L PE1 90 C66
&3S:b3b
:2In&:CaE 9XbW'öH3S'lAZ L bF1 90 E66
bjL:L39:L49:EHS
~29S~2Irb:C31 QXbW'BH3S'lAZ 0 bE1 90 166
9aL:sns
~bdS~b8S~EnC 5XbW'vH3S'lAZ L FF1 90 F66
136 SbXFW'tdH3S'lAZ L 101 90 C66
b3L:bOL
:93S:2HS ZZXEYI'IH3S'lAZ 0 101 90 F66
b3L~bOL
:935:ZHS 22XEW'IH3S'lAZ 0 101 90 E66
2% QIXEW'BH3S'lAZ L 860 90 F66
FWS OIXEW'IH3S'lAZ L 969 90 E66
93L:Z39:9HS EXFW'IH3S'lAZ L 560 90 E66
EaQ!bdS SXEW'IWS'lAZ L F60 90 E66
b3L:Elb
:9nb:QHb bXFW'UH3S'lAZ L 260 90 E66
IlE 9XZW‘IH3S'lAZ 018100 SOZ6
9HQ
:blg:bnQ:bHQ EXZW'IH3S'lAZ L Ib0 90 E66
6unuuauag ‘JN-Jl!Jl
bßF QIX9W'YH3SnNTS L EL1 EO E66
b3E 8X5W'BH3SnN3S L SS1 CO E66
OIHS OIXbW'IH3SnNB L QCI CO E66
b3b QXbW'IH3SnN35 L bE1 EO E66
b3b 9XbW'IH%nN3S a bF1 EO E66
519 QIXCW'IH3SWN3S L 860 EO E66
sac QXFW'YH!JSnN3S L b60 EO E66
9lF:QnF bXFW'tiH3SWN3S L 260 EO E66
6Y8
:QH9!13& CXZWF96'äH3SWN3S L Ib0 EO E66
ClL ObX9W UIlS'lAZ 0 561 20 E66
OIH2 2EX9W UIlS'lAZ 0 EQI 20 E66
Laz:LaI 2IX9W LdIlS'lAZ 0 QFI 20 F66
zrc 'IH3S'lAZ'Il L Ob2 21 266
8rE:QrC 38llYBH3SddOW'lAZ 0 (91 01 266
512:blZ:bnZ:SlI
!blI:bWI F'bXSW'LdIlS'M33 0 001 20 266
ZI32:2131 3NOl'BH3S'lAZ'Il L 66F 20 266
0192~0131 'BH3S'ln9 L Sb2 20 266
b3E 'IH3SnN3S'Il L 622 20 266
bOC 'tiH3SnN35.11 0 622 20 266
832
:832:831:831 'UH3S'lAZ'Il 0 bb6 IO 166
638 'IH3S'lAZ'Il 0 OZ8 IO 266
sjz:sj1 38llV~H3SddOn'lAZ 0 b9L IO 266
F3Z!F31 'tiH3S'l~Z L LSL Ia 266
2HF ldIlSl333n 0 62L IO 266
2In&:632:Ld2
!63I:LjI 'IH3S'lAZ'Il 0 LLS IO 266
b3F 38nVIH3SJdOn'lAZ 0 QEP IO 266
ClF 'kdH3SSlVH L EOS IO 266
EV8 38IlVöH3SnN3S 0 909 IO 266
OIWE 38flvIH3S'ln9 0 PEQ IO 266
zd2:zdI 131lllW'ln9 L &6& IO 266
ElF 'vH3S'lAZ'Il L SQZ IO 266
LVF~L8F!63&~68F 3813H3S L SI2 IO 166
E3Z:F31 13110WlllN L CCI IO 266
&WZ:83z:9a2
:83I:EWI:901 ldIlSl393n 0 E21 IO 266
oInF:oIo2:oIaI 14IlS'M33 0 0L6 00 166
1109:132:131 1311flWl30N3VY 9 E98 00 266
Zl& 'IHJS'lAZ 0 LT8 00 266
El& 38IlVIHTS'lAZ 0 99L 00 266
QlE 'IH3SldVH3S 0 8bL 00 266
2dz:zjI 'IH3S'lAZ'Il L SEL 00 266
SHF W3llflW'ln9 0 aFL 00 266
S32:531 ZIXEZ'IN l~IlS'M33 0 L69 00 266
SVF 31108 0 089 00 266
bOE ldIlS'M33 0 599 00 266
blF LdIlS'M33 0 199 00 266
LOb 'IWS'lAZ 0 665 00 266
1108:ZnE 'BH3S'a%3lVH 0 099 00 266
1138 'vH3SZlvSNV 0 659 00 166
SPCLHL Y311~W'lnQ 0 LSS 00 166
LU8 'IH3SddOn'lj 0 LFS 00 266
&3Z:&31 '8H3S'lAZ'Il L 581 00 266
Bunuuauag 1 q.J-a,!a~
LlE 'IH3S'lAZ 0 ZLb 00 166
6lE:bflZ n3iinw.in9 L Lbb 00 266
532 NUdVZN3llOti 0 Ott 00 266
s3z:s31 311011 0 6Eb 00 266
23z:z91 N3ZlOESSNnNNVdS b LCb 00 266
292:291 IdIlS'lAZ 0 QFb 00 266
E92:&91 'YH3S'lAZ'Il 0 82b 00 166
LHZ:LHI 13llnW'ln9 L 98E 00 266
crzm 13LlIlW'ln9 0 LLE 00 266
IIl'E:632:631 'BH3S'lAZ'Il 0 QIE 00 266
crz:m 'YH3S'lAZ'Il 0 681 00 266
6WF UIlS'M39 0 bb2 00 266
131!131 n3iinwl3aN3vti L LEZ 00 266
93b ä3llnWl3oN3v~ s LFZ 00 266
LEE v3iinw'in9 L ozz 00 266
838:IItiE 'äH3SddaYl.4 0 81Z 00 266
b3Z:b31 l~IlS'M33 0 LI2 00 266
6l&!b32:b31 ldIlS'M33 0 912 00 266
S32:531 ljIlS'H39 0 602 00 166
888 'LIH3SddOn'lJ 0 SEI 00 266
63E:LBE
:QaE:6nZ 300V1H3S'lAZ'Il L 221 00 266
gab ldIlS'M39 0 111 00 166
68E: LVE 1311nW'ln9 0 011 00 266
832!831 '8msl3anon L 080 00 266
bW& L131lOW'lnQ 0 990 00 266
L38 'BH3S'lAZ'Il L 090 00 266
&HZ:FHI 'IH3S'lAZ'Il L Et0 00 166
1138 'BH3SddOn'ld 0 bt0 00 266
2dz:zdI l~IlS'M39 0 L20 00 266
ZH2:ZHI 'IH3S'lAZ'Il L 910 00 266
231:231 OEZ-82F‘Nl3OvN 0 810 26 066
z32:231 OOZ-82F‘Nl3OVN 6 LIa 26 066
2az:za1 a81-EZE‘Nl3OVN 8 LIO 26 066
252:za1 OQI-EZF‘Nl3avN L LIO 26 066
za2:251 OCI-EZE'Nl3OvN 9 LIO 16 066
IIWC 13SS3nlH3SSn9WI ZlvS 5 800 18 066
1101 13130nIlSVld L 900 18 066
8Ob 83H31aN38llVUH3S 2 900 18 066
8Ob 83H38aN38nVBH'JS 1 900 18 066
8ob Y3130nIlSVld 6 100 18 066
FHL!SaS:QnI WOlOW 0 ZLS 62 066
IIHb 113d 3ddnW-VdvlS 8 SO0 b2 066
8WS L13n331S-X31183d 6 Ob0 FZ 066
LWS 3soan33As-x3lI83d z IZO EZ 066
FAL!SBS
! 83b OL2IXOI N3W3IlllI3W L EI0 11 066
FdL:SaS
! 831, OZEIXOI N3W3IIlI3n 6 110 21 066
OIHS n33nlSWW3ln 0 820 8b bL6
F3L 38nVH 0 ILO Ob CL6
S86:LHE 13n33a 0 180 FC EL6
b86:Lt)C I3llVH 0 080 Ei FL6
IIHS 3llVld 0 SLO Ob EL6
9rs 3SIl3VH33 0 FOO 8b 296
019s 31SI31 a 881 SF 196
bunuuauag 'J,'+'l!al
.olsanda~ ap ST)
IIJ5
936
08
0139
13L:SUS
bOb
b3b
QlL
IOL
SWL
ClL
605
013s
EjL:QBS
2JL:sas
51s
E9b
F9b
Sdb
EOC
EJC
13L
591
53b
EHC
EHb
srb
EHC
FHb
ZIn2:ZInI bIXQW9 IdIlS'lAZ a 851 9F SS8
bP9 b2X9Wb UIlS'lAZ a 221 QF S68
SW9:bW9 F'CV 3513H3SW3H33Vd 8 9EO Sb b68
bHQ:bW9 Z'CV 3813H3SY3H33Vd 8 bF0 Sb b68
IIdz:IIdI 9X5W ldIlS'M33 0 so1 1s C68
La9 bIXbW l_iIlS'M33 0 860 L2 E68
sw2:snI SV 3813H3SW31133 8 9bO EZ C68
IPF E‘28 3NI11303, 8 101 12 E68
IHE BIXEW'IH3S'GNlVH 8 81L 80 E66
F39 SXFW'BH3S'lAZ L FL9 90 E68
5HI bXFW'BH3S'lAZ 9 ZL9 90 E68
IHE bXS'ZW'BH3S'lAZ ZZPZOO EO26
SlL 8303j3nz a 6bI 1s 208
6VZt6VI 3113" 0 682 EC 208
Zr8 1331330 a 8EO EC 108
SW8 38nVHZlOH3S b LEO 8b 108
SW8 38flVHZlnH3S h LFO Et 108
SH8 13nNIM 0 9FO EC 108
IIr9 OlIH3SN3dAl Z SS0 Ob 108
IOL:ZI35:bdS 2XMlL H3IlVlH3S 1 116 L6 669
9ws 2XMlOI H3llVlH3S 1 116 L6 669
Ld6!F36!bV6
:FV6:939:83S IXMlb H3nVlH3S 9 016 L6 669
LV6 OS 3NlllH3llnl3aVN S 100 06 bOS
9jL 3NlllHVYa>J3AlI3113EO b 110 EC b0S
SW9:999 9N,IlI3113NN3YB b 600 81 109
IIPQ OdVllll31S b 800 8b b0S
IlIIlSStlj E L82 SE 196
113llVH F bF2 SE 196
H33153VWl 0 LIZ SF 196
11333V11~311VH35 0 221 SE 196
13nNIM 0 Ia0 SE bS6
33vldnvIwwns a zao bo os6
13n3OS F 100 b0 OS6
39NVlS9nZ 0 ZE0 EO LI6
311Vld 0 020 EO 916
1383HSSki & 610 EO 916
n308839Vl 0 810 FO 916
3H3SVl a LIO EO 916
13nNIM 0 910 EO 916
3H3Svl 0 SI0 EO 196
ZlnH3SN3W3II 0 010 Fa 916
311Vld39VlNOW 0 110 20 916
36311s 0 200 20 916
383LIlS 0 100 20 916
13INBVH3S 0 910 IO 916
3ddVln 0 SI0 IO 916
311vldH3SIl 0 CIO IO 916
83llvH3SZUlH3S b LIO FO L06
31SI31'3L1H3ilj 0 600 20 L06
N31SVnBnH3S E 800 20 L06
33NVlSS3N,laNIBl3A 0 900 20 906
3NnONIflL13A & bO0 20 906
ssndll3is 0 EO0 20 906
1131N3113S 0 ZOO 20 906
1131N3113S 0 100 Za 906
hmuuauag 'JN-al!al
a!d *abuqsa~ ap saxyd qmd amds *a~s!la]!alzlDsJ~
[IdS
!13S
[I-IQ
Sr5
3rs
Lrs
3Y8
IWZ
Ill2
IWZ
IWI
IWI
IWI
Er8
11301
11%
IIV8
EH9
809
CdQ
Ed9
cr9
Cl9
519
919
sr9
sr9
&j9
b39
119
119
QH9
519
F39
Sd9
SJ9
E39
&3F:Z3F
E39
ca9
bO9
Ed9
Ed9
6dZ:631
692!691
QH9:blQ
6v8:&3E
bdt
809
b39
Lr9
63E
La9
809
8119
939
IHE
IrE
9%
IlIölSSIId b LOO EC COS
3NnlI3l'aNIE13A b SO0 8b bOS
I3NN318'dZlvSllZ b bO0 8b baS
113HNI3S3Nn13Il31S b EO0 8b bOS
N31SVnllVH3S b ZOO 8b CO5
3llVld13il3lS b 100 8b bOS
ZlVS83WWVlx b 'LL Ib ba5
CbI ZlVSN3n33NH3S b QQL Ib 004
911 ZlVSN3n33NH‘S b S9L Ib CO5
b8 ZlVSN3n33NH3S b b9L Ib bOS
ZL ZlvSN3n33NH3S b F9L Ib bOS
ES ZlVSN3n33NH3S b 29L Ib bOS
Ib ZlVSN3n33NH3S b 19L Ib COS
ZlVSM3WWVln b 'SL Ib bOS
OS bOS-ZlVSnV8 6 25L QE bOS
IlItilSSIIJ F 100 SE bOS
L131113NH3SEVN3aVj b ZSL EF bOS
9NnlH3IUNI3NN318 b ISL &F bOS
13XNIfi 0 091 FF bOS
3llVld b LSI EF bOS
31lVld & LSI EE bOS
3813H3S 0 QSI FF 105
3SH3il9 0 SS1 t& bO5
11333Vll83NN3v8 b bSI FF b05
11393VICd3NN318 0 bS1 && bOS
11333V1113NN3Bl b CS1 EE b0S
50 1393Vv1113NN316 0 ES1 CE bOS
3Sl3IlHZNVlSIO 0 191 EE bOS
N3Zl08 0 191 EE bOS
31SI3lSSnlH3SNV b 051 EE bOS
3lSI3lSSIllH3SNV 0 OS1 EE bOS
H3318L1333VUl 0 Sb1 FF bOS
H33191393VIl 0 8bI EE bOS
1383H 0 LbI FF b05
>J333v>Jl 0 911 FE bOS
311vld 0 Sb1 FF bOS
N3Zl08 0 bb1 && b05
ZlVSNI3'1dH3IlS 0 CbI && b05
13jI381SQVN3aVd 0 Ib1 FF bOS
3EnVlH3S 0 6EI EE COS
3llvld a BEI FE bOS
3llVld 0 9FI FF bOS
n308833vi 0 SEI EE bOS
13a333nZ 0 bF1 FE COS
830333112 0 FC1 EE bOS
3ZlIdS83NN3v8 0 L21 SF bOS
ZlVSNI3'1dH3IlS 0 521 FF bOS
31lvldH311S 0 bZ1 EE bOS
n33niszNvisIo 0 2ZI FF bOS
3llvldS3NnlH3Ild 0 021 EF bOS
n33nlSZNVlSIO 0 611 EF baS
31SI3lSSnlH3SNV 0 811 EE bO5
3VlH3SNV 0 EI1 FE COS
13nNIfl3s30lsnv b III FF bos
13nNIfl3s30lsnv 0 111 EE CO5
831lVH F SO1 EC bOS
3Sil3vH33w3lndS 0 8EI 41 bO5
N3WtlVLI'JJIH3S 0 ZZI 51 bOS
NHVfl'j4H3S 0 IZI Cl. PO5
3