Ampt 31570001 Solar PV Converter User Manual Exhibit D Users Manual per 2 1033 b3

Ampt, LLC Solar PV Converter Exhibit D Users Manual per 2 1033 b3

Exhibit D Users Manual per 2 1033 b3

TheSPTOperatorManualSmartPanelTechnology
Page2of53CONTENTSInformation&Disclaimer..............................................................................................................................................6ReadthisFirst............................................................................................................................................................7FCCcompliance..........................................................................................................................................................7ImportantSafetyInformation.......................................................................................................................................8messagefromampt:......................................................................................................................................................9WhySPT–whygetampt?...................................................................................................................................10SmartPanelTechnologyOverview..............................................................................................................................11Insimpleterms,theSPT:.....................................................................................................................................11Here’showitworks:............................................................................................................................................12TheoryofOperation............................................................................................................................................14SPTFundamentals:..............................................................................................................................................15IntroductiontoLogicMatrix(summaryversion).................................................................................................16Valuepropositionlist...............................................................................................................................................17Testresults..............................................................................................................................................................18Internaltesting....................................................................................................................................................18Thirdpartyvalidation..........................................................................................................................................18Safetyandconveniencefeatures............................................................................................................................18Fullsystemdiagram.............................................................................................................................................19Energyvspower......................................................................................................................................................19LCOE.....................................................................................................................................................................19MaximumPowerPointTracking..............................................................................................................................20SPTSystemComponents.........................................................................................................................................22SPT–distributedpowerconverters....................................................................................................................22HRD–homerundiodes.......................................................................................................................................22Gateway...............................................................................................................................................................22FC–FieldComputer............................................................................................................................................22HandHeldFC.......................................................................................................................................................23GUI–graphicaluserinterface&SoftwareUserManual.........................................................................................24Overview..............................................................................................................................................................24Databaseandtrendanalysis...............................................................................................................................27CompletesystemlayoutandWiringDiagram.........................................................................................................28DesigningyourSPTsystemsolution....................................................................................................................30Orderinginformation–SampleSalesOrder........................................................................................................31
Page3of53QuickInstallGuide.......................................................................................................................................................32SPTInstallation........................................................................................................................................................36MechanicalmountingSPTtothePVmodule......................................................................................................36WiringSPTtothePVmodule...............................................................................................................................36Completingthestringwiring...............................................................................................................................36HRDInstallation.......................................................................................................................................................37MechanicalmountingtheHRD............................................................................................................................37WiringtheHRD....................................................................................................................................................37Completingthehomerunwiring.........................................................................................................................37GatewayandFC.......................................................................................................................................................37Locationdetermination.......................................................................................................................................37Systemrequirements...............................................................................................................................................37ACpower.............................................................................................................................................................37InternetAccess....................................................................................................................................................37Mechanicalmounting..........................................................................................................................................37Electricalwiring....................................................................................................................................................37SPTSystemCommissioning.........................................................................................................................................38Mappingyoursystem..............................................................................................................................................38UsingtheHandHeldFC.......................................................................................................................................38PoweruptheFC......................................................................................................................................................38Verifygatewayoperation....................................................................................................................................38TestingthesignalstrengthtotheGateway.........................................................................................................38AccessingtheFCthroughtheinternet................................................................................................................38SettinguptheGUI...................................................................................................................................................38Definingusersandadministrativefunctions.......................................................................................................38Choosingtheuserdefinedparameters...............................................................................................................38AlertThresholds...................................................................................................................................................38Scriptchoices.......................................................................................................................................................38Summarypage.....................................................................................................................................................38Settingupthedatabase..........................................................................................................................................38OperatingInstructions.................................................................................................................................................39ReadingtheGUI.......................................................................................................................................................39Controlfeatures.......................................................................................................................................................40Normaloperation....................................................................................................................................................40
Page4of53Whatyousee.......................................................................................................................................................40Howtointerpret..................................................................................................................................................40Howtomodify.....................................................................................................................................................40Accessingthedatabase...........................................................................................................................................40Sortingthedata...................................................................................................................................................40Definingusertemplates.......................................................................................................................................40Interpretingalertmessages.....................................................................................................................................40Troubleshooting..........................................................................................................................................................41SPToperationalissues.............................................................................................................................................41GUIoperationalissues.............................................................................................................................................41TechnicalData.............................................................................................................................................................42SPTspecificationssheet...........................................................................................................................................42SPTPhoto.................................................................................................................................................................42SPTMechanicalDrawing.........................................................................................................................................43HRDspecificationssheet.........................................................................................................................................44HRDIllustration........................................................................................................................................................44HRDMechanicalDrawing........................................................................................................................................45FCspecificationssheet............................................................................................................................................46HandHeldFCspecificationssheet...........................................................................................................................47GUIparametersandsystemrequirments...............................................................................................................49TechnicalSupport........................................................................................................................................................50InformationRegardingtheSPT:...........................................................................................................................50InformationRegardingthePVmodules:.............................................................................................................50LimitedWarranty.........................................................................................................................................................51WarrantyConditions............................................................................................................................................51ExclusionofLiability.............................................................................................................................................51forWarrantyReturns&InstallerReplacement:..................................................................................................51Appendix:.....................................................................................................................................................................53FAQ..........................................................................................................................................................................53InstallationMapping................................................................................................................................................53WiringDiagrams......................................................................................................................................................53Orderingspareorreplacementparts......................................................................................................................53Returnprocedures...................................................................................................................................................53WhitePapers...........................................................................................................................................................53
Page5of53Presentations...........................................................................................................................................................53
Page6of53INFORMATION&DISCLAIMERCopyright©2009AmptLLC.Allrightsreserved.Nopartofthisdocumentmaybereproduced,retransmitted,orcopiedinanyformwithouttheexpressedandwrittenpermissionofAmpt.Amptmakesnorepresentations,expressedorimplied,thatwithrespecttothisdocumentationoranyoftheequipmentand/orsoftwareitmaydescribe,including(withnolimitation)anyimpliedwarrantiesofutility,merchantability,orfitnessforanyparticularpurpose.Allsuchwarrantiesareexpresslydisclaimed.Amptshallnotbeliableforanyindirect,incidental,orconsequentialdamagesunderanycircumstances.(Theexclusionofimpliedwarrantiesmaynotapplyinallcasesundersomestatutes,andthustheaboveexclusionmaynotapply.)Thefollowingspecificationsaresubjecttochangewithoutnotice,eventhougheveryattempthasbeenmadetomakethisdocumentcomplete,accurateandup‐to‐date.Readersarecautioned,however,thatAmptreservestherighttomakechangeswithoutnoticeandshallnotberesponsibleforanydamages,includingindirect,incidentalorconsequentialdamages,causedbyrelianceonthematerialpresented,including,butnotlimitedto,omissions,typographicalerrors,arithmeticalerrorsorlistingerrorsinthecontentmaterial.AmptLLC4850InnovationDriveFortCollins,Colorado80525Tel970‐372‐6950www.ampt.com
Page7of53READTHISFIRSTThisoperatormanualcontainsalloftheinformationneededtoinstall,commissionandoperateanAmptSPTdistributedpowerconversiondevicewithinagrid‐tiedphotovoltaic(PV)installation.Tohelpavoidproblemsduringthesysteminstallation,familiarizeyourselfinadvance,withtheinstallationprocessbyreadingtheentireInstallationGuidebeforestartingtheinstallation.Bealert!ThereareextremelydangerousandlethalvoltagespresentatvariouspointsinaPVsystem.Forsafetyreasons,itisrecommendedthatonlyqualifiedpersonnelinstallandoperatethisequipment.FCCCOMPLIANCEAmptSPT‐ThisequipmenthasbeencertifiedascompliantwiththelimitsforaClassBdigitaldevice,pursuanttoPart15oftheFCCRules.Theselimitsaredesignedtoprovidereasonableprotectionagainstharmfulinterferenceinaresidentialinstallation.Thisequipmentgenerates,uses,andcanradiateradiofrequencyenergyandifnotinstalledandusedinaccordancewiththeinstructions,maycauseharmfulinterferencetoradiocommunications.However,thereisnoguaranteethatinterferencewillnotoccurinaparticularinstallation.TheuseriscautionedthatchangesormodificationsnotexpresslyapprovedbyAmptLLC.couldvoidtheuser’sauthoritytooperatethisequipment.***AmptSPTFCCID#XLQ31570001SPTModelNumber:31570001ThislabelisfoundoneachAmptSPTenclosure.Theboxistwopiecesandisnotmeanttobeuserservicedoropenedinanyway.***AmptGatewayFCCID#GatewayModelNumber:31570002ThislabelisfoundoneachAmptGatewayenclosure.Theboxissmallerthanpalmsize,thusthefollowingtextisonlyprintedhere:Thisdevicecomplieswithpart15oftheFCCrules.Operationissubjecttothefollowingtwoconditions:(1)thisdevicemaynotcauseharmfulinterference,and(2)thisdevicemustacceptanyinterferencereceived,includinginterferencethatmaycauseundesiredoperation.Theboxistwopiecesandisnotmeanttobeuserservicedoropenedinanyway.***
Page8of53IMPORTANTSAFETYINFORMATIONSAVETHESEINSTRUCTIONSThismanualcontainsimportantinstructionsfortheAmptSPTdistributedpowerconversiondevicethatshallbefollowedduringinstallationandmaintenanceofthemoduleandaffiliatedhardwareandsoftware.TheSPThasbeendesignedandtestedaccordingtointernationalsafetyrequirements,butrequirescertainprecautionsareobservedwheninstallingand/oroperatingtheAmptSPTproduct.ToreducetheriskofpersonalinjuryandtoensurethesafeinstallationandoperationoftheSPT,pleasebesureyoucarefullyreadandfollowallinstructions,cautionsandwarningsinthisoperatormanual.WarningsAWarningidentifiesahazardtoequipmentorpersonnel.Itcallsattentiontoaprocedureorpractice,which,ifnotcorrectlyperformed,couldresultindamagetoordestructionofpartoralloftheAmptequipmentand/orotherequipmentconnectedtotheAmptequipmentorpersonalinjury. DANGERindicatesahazardoussituationwhich,ifnotavoided,willresultindeathorseriousinjury.WARNINGindicatesahazardoussituationwhich,ifnotavoided,couldresultindeathorseriousinjury.CAUTIONindicatesahazardoussituationwhich,ifnotavoided,couldresultinminorormoderateinjury.NOTICEindicatesasituationthatcanresultinpropertydamageifnotavoided.InadditiontothesafetyandhazardsymbolsthefollowingisalsousedinthisOperatorManual:Information‐ThissymbolaccompaniesnotesthatcallattentiontosupplementaryinformationthatyoushouldknowandusetoensureoptimaloperationoftheAmptsystem.GeneralWarnings:AllelectricalinstallationsmustbedoneinaccordancewiththelocalandNationalElectricalCodeANSI/NFPA70.TheAmptproductcontainsnouser‐serviceableparts.ForallrepairandmaintenancealwaysreturntheunittoanauthorizedAmptServiceCenter.BeforeinstallingorusingtheAmptSPT,readalloftheinstructions,cautions,andwarningsontheSPT,thePVarray,inthisInstallationGuide.BeforeconnectingtheSPTtotheelectricalutilitygrid,contactthelocalutilitycompany.Thisconnectionmustbemadeonlybyqualifiedpersonnel.PVarraysproduceelectricalenergywhenexposedtolightandthuscancreateanelectricalshockhazard.WiringofthePV‐arraysshouldonlybeperformedbyqualifiedpersonnel.
Page9of53MESSAGEFROMAMPT:ThefirstproductsthatAmptisintroducingarearesultoflookingatrequirementstorealizemaximumenergyatthelowestcost–fromasystemlevelperspective.Thisinitialpremiseisthatthemaximumenergycannotbeharvestedfullywithouttherightgranularity.Webelievethatthisrequirespowerconversiontobedoneatthemodulelevel.Ourcustomersrequireminimallostharvestfromlocalsoiling,shading,orpanelimbalance–sowithregardstolocalpowerconversion,thereisnomoresuitableeconomicalternative.Webelievethatthepowerconversionhastobeextremelyefficientoveraverywiderange–soourproductsareover99%efficientovergreaterthan3:1inputrange.Toputthatintocontext,theAmptSPTconsumesonly,upto2Woftheenergygeneratedbya200Wmodule–relativelyspeakingthatisthesamelossasexpectedfromenergytravelingthrough3feetofconventionalwirecabling.WebelievethathighspeedMPPisverycriticaltomaximizeharvest–wehaveover99.9%accurateMPPin100milliseconds.Therefore,wecancapturethepowergainfromtheedgeofacloudandtherefractedirradiationonamodule.Webelievethatmaximizingthenumberofmodulesperstringisimportant.TheAmptproductisdynamicallycontrolled,andwecancommunicatewirelesslytoourfieldadaptablefirmware.Webelievethatreliabilityisahugedriveofeconomics–sowehaveanenvironmentallyvalidated(notsuperficiallymodeled)1000yearMTBF.Webelievethathighaccuracyandstableinstrumentationcombinedwithrobustcommunicationiscrucialforlarge‐scalearraysandbeneficialforallsmallerarrays.Itlowersinstallationcosts,andradicallyreducesO&Mwhilemaximizingtheeconomicsofharvesting.Wehaveabetterthan1%fieldcalibrate‐ablemeasurementsystemthatincludesmultiplechannelsofcriticalelectricalandtemperatureparameters,aswellasidentityinformation–permodule.Webelievethatcommunicationaloneisn’tsufficient.Theseapplicationsneedscalabilityandrobustnessthatdoesnotdependonproblematicconnections.Wedesignedahighlyrobustwirelesssystem.Webelievethatifthesystemisdesignedwiththerightgranularity,withtherightcomponents,withtherightinterfacesandtherightarchitecturethatitbecomesunlimitedinitsabilitytooperateatanyscale.Wehavedesignedthissystemtoallowscalingfromonemoduletoaboveamillionmodules.ThankyouforContinuedSupport–welookforwardtoworkingwithyou!WeareAmpt.
Page10of53WHYSPT–WHYGETAMPT?Whatismaximumpower?Isitdefinedbytheenergyoutputoftheweakestmoduleinastring,orthecombinedoutputofeverysinglemoduleoneverystring?Isitdefinedbyanalyzingenergyharvesteachdayatonesite,oreverysecondoneverypanelatonemillionsites?Isitdefinedbythemonitoringofinformationwithinanarray,orthecommunicationofknowledgethatleadstoimprovedperformancewithineverymodule?Byansweringwhatnooneelsehasevenyetasked,Amptisnotjustincreasingenergy,buthelpingyoutorealizeenergyyouneverknewpossible.CongratulationsonputtingtheabsolutebestcommunicationsandpowerconversionequipmentavailableonyourPVsystem!
Page11of53SMARTPANELTECHNOLOGYOVERVIEWAmpthasdevelopedSmartPanelTechnologyTM‐SPT‐astheoptimalsolutionforenergyharvestingfromanyPVsystem.ThefirstimplementationofAmptSPTisinastandalonedevicethatisplacedindirectconnectionwiththePVmoduletodeliverMPPT(MaximumPowerPointTracking)whichistheharvestedenergy.ConventionalPVsystemshavesolarmodulesseriesconnected,andaretherebylimitedbytheweakestmoduleinthestring.ThesestringsarewiredtoabulkDC‐ACinverterwhichusesalgorithmstoattemptamaximumharvestgiventhepotentialfromeachstring.TheAmptSPTputstheMPPTlogicwhereitbelongs,oneachsolarmodule,andallowseachmoduletoproduceitsmaximumpower.TheneachSPTdevicecombinestoprovidethebulkinverterwithitshighestefficiencyinputpower.Theresult:thehighestenergyfromeachmodule,operatingwiththehighestefficiencyofthebulkinverter. INSIMPLETERMS,THESPT:• ReceivesthepowerfromthemoduleatitsMaximumPowerPointTracking(MPPT)regardlessofnormalorproblematicoperatingconditions• DeliversmoduleMPPTpowerintoanyimpedancedeterminedbytheremainderofthestringandtheinverter• Solvestheproblemofhavingpanels(currentsources)inseriesbeinglimitedbytheweakestpanelinthestring‐improvesstringsightingoptions• Ensureseverypanelproduceswhateveritcanregardlessoftheremainderofthesystem• Allowstheinvertertooperateatitshighestefficiencypoint• Provideswirelesscommunicationoneachmodule,reportingmorethanjustpanelvoltage,currentandtemperature.Additionalinformationisresidentsuchasmoduleserialnumberand
Page12of53manufacturinginformation• Wirelesscommunicationalsoprovidesdiagnosticinformationformaintenance,andthroughradiocommandstheoutputcanbeturnedon/offHERE’SHOWITWORKS: EachsolarmodulewillhaveadedicatedAmptSPTdeviceconnectedtothemoduleoutputs.TheAmptSPTdevicesthenareconnectedinseriestoeachotherandwillmakeupa“string”ofmodules.Eachstringisthencombinedinparalleltoconnectwiththebulkinverter(intoday’sconventionalarray).WhensolarraysareabsorbedbythePVmodule,energyisproduced.TheSPTmaximizestheharvestableenergyfromeachPVmodule,andconvertsittoausefuloutputthatisthendeliveredtothestring(regardlessoftheenvironmentaloroperationalconditionsaffectingthatparticularpanel).Thestringsarethencombinedasanarrayanddeliveredtothebulkinverteratitspre‐determinedimpedancerequirement.ItisimportanttonotethattheconventionalbulkinverterdynamicallyissearchingforMPPT(maximumpowerpointtracking),andmaychangeitsimpedancerequirementsevery4+seconds.TheAmptSPThoweverisadjustingitsMPPT8timespersecondtoagainmaximizetheharvestableenergyproducedoneachPVmodule.InconventionalPVinstallations(withouttheAmptSPT),withseriesconnectedmodules,oneweaklinkinastringcausessignificantenergyharvestdegradation,andwilllowertheproducedpowerproduced.Ifthereissufficientobstructiontotheamountofsolarinsolationabsorbedbyasinglemodule(oroverseveralmodules),itispossiblethattheentirestringcollapses(electrically),andnetszeropoweroutput.
Page13of53TheAmptSPTsolvesthisproblembymaximizingthepowerharvestateachmoduleregardlessoftheconditions,andconvertsthattoaviableoutputtherebyeliminatingtheweakestlinkphenomenon.WithAmptSPT,evenalowpowerproducingmoduleisvaluable,andcontributestothenetpowergenerated.Ofcourse,ifthemoduleisdamagedorobstructedtothepointwhereitsinternalcircuitcannotproducepower,AmptSPTcannotcorrectthiscondition.Withthewirelesscommunicationlinkthough,theowneroperatorcanidentifythiscondition,andmakethenecessarycorrections.Inthemeantimethough,thebalanceofthestringisstilloperationalandgeneratingasmuchpowerasrequiredbythebulkinverter.EachSPTisaccessiblebyahostcomputerthroughawirelessAND“gateway”interface.Thisgatewayallowstheowner/operatortospeakspecificallytoeachSPT,andprovidesabi‐directionalwirelesscommunicationlinkwhichisthevehicleforcommand/controlanddataacquisition.TheANDGUI(graphicaluserinterface)isthenutilizedtoobservetheperformanceandcontroltheSPToperations.ExamplesofthisGUIareshownbelow:
Page14of53TheGUIhasalotofdatapresentedandwilllikelychangeforincreasedusability,butatpresentdemonstratesthekindofinteractionandreportingavailable.Asyoucansee,eachmodule(andcorrespondingSPT)ismappedoutpertheirinstalledlocation.Note:eachSPTisbarcoded,andduringthefieldcommissioningprocess,abarcodescannercanbeutilizedtologicallymapouttheorganizationofmodules.ItisalsopossiblethatthebarcodereadercaninterfacetotheSPTthroughaseparategateway,andtherebycontrolitson/offstateforfieldpersonnelsafety.That’sit.Withasimpleinstallation,theAmptSPTproductsoperateimmediatelyandautomaticallyenhancethepowergeneratedbythePVinstallation.Ongoingmonitoringandcommandcontrolfeaturesareavailabletotheowneroperation,butregularinteractionisnotrequiredtogetmaximumpower.THEORYOFOPERATIONTheAmpt SPTisdesignedtomitigateirregularitiesbetweenthemodulesinanarrayandthebulkinverter.Specifically,theSPTcanfixitsoutputtomatchtheoptimalinverterinputvoltageandbroadentheperformancerangeofconventionalPVmodules&invertercombinations.ByprovidinglocalizedDC‐DCconversionalongwithwirelesscommunication,theSPTenablesinstantaneouscontrolandfeedbacktothesystemandtherebymaximizesenergyharvesting.
Page15of53SPTFUNDAMENTALS:•  TheSPTmoduleputsMPPwhereitbelongs,oneverypanel,andproducesthemaximumpowerthatisavailableregardlessofpanelcondition,andregardlessoftheremainderofthesystem.Ifthereispartialshade,dirtorpanelimbalance,everypanelstillputsoutitsmaximumpower.•  TheSPTmodulereceivesthepowerfromthepanelatMPP.Itdeliversthepowertoanyimpedancedeterminedbytheremainderofthestringandtheinverter.Thissolvestheproblemofhavingpanels(currentsources)inseriesbeinglimitedbytheweakestpanelinthestring.•  TheconventionalbulkpowerinvertermayimpressanyvoltageitwantsandbecausetheSPTisdeployedasalocalizedDC‐DCconverter,thepanelfieldwillsimplyoutputMPPfromeverypanel.Thisallowstheinvertertooperateatitshighestefficiencypoint.•  Goingforward,SPTbasedinstallationscanenablebetterbulkinverterdesignsthatdeliverhigherefficiency,greaterreliability,smallerandlighterastheywouldnolongerberequiredtoincludeanMPPstage.•  OneofthemostsignificantelementsoftheSPTistheinherentwirelesscommunicationscapabilities,whichenablesinstantaneouscommunicationandcontrol.TheradioandubiquitouswirelessmeshnetworkformedbySPTmoduleswillnotonlyreportpanelvoltage,currentandtemperature,butalsoprovideoperationalbenefitsbytogglingthepaneloutputsonandoff.•  Otherinformationcouldalsoresidetheresuchasserialnumberandmanufacturinginformation.•  Thewirelessradiowillalsoprovidediagnosticinformationformaintenanceandtrendanalysisthusallowingintelligentdecisionsonwhatrequiresserviceandwhen.
Page16of53INTRODUCTIONTOLOGICMATRIX(SUMMARYVERSION)
Page17of53VALUEPROPOSITIONLIST Temperaturecoefficientpowerlosses‐TemperatureEffect/FillFactorManagement Panelobstruction/shading(leaf/snow/haze/birdgifts)‐Dynamicstringadjustmenttocapitalizeonunbalancedpanelproduction Panelpowervariation(mismatch/aging/broken/defect)‐diverseutilizationandimbalancecorrection Installedefficiency(placement/wiring/opens)‐MoreKWhr/KWproduction(12‐15%moreharvesting) Bi‐polarbalancing‐+/‐operationsforAdvancedEnergyInverterapplications VariableInverteroperatingalgorithmsandefficiency–deliversMPPTtoinverterhighestpointofefficiency Improvesstringsightingoptions(notsoPOAlimited) Conventionalinverterlimitations‐Greatercompatibilitybetweenconventionalinvertersandallmoduletypes(fromC‐SI,througha‐SI,CDTe,CIGSandfuturedesigns) Realtimecommandandcontrol‐WirelessCommunicationsSystem&Diagnostics–nolongerreliantondispatchedanalysisanderrorcorrection ImprovesSafety‐enablinginstantaneouson/offcyclingfortheentireSystem/atargetedString/orindividualPanelModule EnablesSoftstartforsomeinvertertypes
Page18of53TESTRESULTSINTERNALTESTING1. InitialMTBFcalculationscompleteandindicate>2Mhours2. Demonstratedlifetestplanned108units,1000hours,10%accelerationGoaltoproveMTBF>4.4Mhours(ThiswouldtranslateintoaonethousandyearMTBFforunitsoperating12hours/day)THIRDPARTYVALIDATION1. Sandia2. SWTDI(NMSU)3. BEWTestreportsavailablebyrequestSAFETYANDCONVENIENCEFEATURESCurrently,oneproblemfacinginstallersandmaintenanceprovidersofPVSystemsissafety.Sinceconventionally,allpanelsareconnectedinseriesandinstallationandmaintenanceworkisdoneduringperiodsofirradiance,thevoltageacrossthepanelsmightreachdangerouslevelsexposingfieldpersonneltoarealdangerofelectrocution.Amptprovidesa“convenience”modewhichsupportsan“on/off”modeofoperation.ThismodeofoperationessentiallyenablesordisablestheSPToutputandcanfacilitatesysteminstaller/operatorsduringinstallation,diagnostics,andmaintenancetasks.Itisimportanttorecognizethatthisisaelectricalcircuitlogicchangeandisnottobeconfusedwithahardswitch.Thisconveniencefeatureisdesignedtoenhancetheprotectionofmodulehandlers,includingtheinstaller,maintenanceproviderandpotentiallyemergencypersonnel(ie.FireDepartment)."
Page19of53FULLSYSTEMDIAGRAMENERGYVSPOWERLCOE
Page20of53MAXIMUMPOWERPOINTTRACKING
Page21of53
Page22of53SPTSYSTEMCOMPONENTSSPT–DISTRIBUTEDPOWERCONVERTERSHRD–HOMERUNDIODESGATEWAYFC–FIELDCOMPUTER
Page23of53HANDHELDFC
Page24of53GUI–GRAPHICALUSERINTERFACE&SOFTWAREUSERMANUALOVERVIEWTheAmptsoftwareisawebbasedmanagementapplicationforviewingthereal‐timeperformanceandmanagementofyoursolarinstallationatthearray,string,andmodulelevel.INTRODUCTION:TherearetwoviewsavailableformanagingyourSolarArray;summaryandstringview.TheSummaryviewprovidesanoverviewofthestateofthesolararray.ItincludescurrentDCenergyoutputinWatts,Volts,andAmps,powerbystring,SPTstatus,andestimatedACPower.TheStringviewprovidesdetailedinformationontheperformanceofeachSPT.Itprovidesperformanceinformationatthestringlevel;DCenergyoutputinWatts,Volts,andAmps.Bothviewsautomaticallyrefreshaboutevery15seconds.DETAILSSUMMARYVIEWTheSummarypage(figure1)presentsinformationatthearraylevel.Thebuttonacrossthetop“Lock/UnlockWholeStation”allowsyoutodisablecommandstothesystem.Thisisusefulasasafetyprecautionwhenservicingthestation.Totherightisthetimetheinformationyourviewingwaslastupdated.Thisisbasedonyourlocalcomputer’stime.Thestringsareorganizedaroundthephysicalandlogicallayoutascloselyaspossibleandlistthestatusofthemodule,onoroff,andstatusoftheMaximizePowerPointfeature,MPP,onoroff.ClickingonthestringandmoduleareawilltakeyoutotheStringView.Belowthestringandmoduleareaisabarchartshowingthepoweroutputforeachstringinthearray.Thepoweroutputdetailsforthearrayareshownontherightedge;includingestimatedkWhours.AtthebottomisagraphofEnergy,powerandtemperature.Thescaleforthetemperatureislistedontherightedgeofthegraph.Youcanpositionyourmouseoverthelinestoseethetimeandvalueofthemeasurement.Thetimescaleofthegraphcanbechangedusingthecontrolstotherightofthegraph.Youcanchangethetimeintervalaswellasgobackandforwardtimeperiods.
Page25of53FIGURE1STRINGVIEWSimilartotheSummaryview,thestringsareorganizedaroundthephysicalandlogicallayoutascloselyaspossible.InStringviewthestatusofthemoduleisshownindetail.There’salegendonthenextpagethatcoversthemeaningofdifferentbackgroundcolors.• MaxPower–MaximumpoweroutputfromSolarModulewithSPTTechnology• Vmp‐IN–VoltageoutputfromSPTModule• I‐Out–AmpsoutputfromSPTModule• V‐Out–SolarModulevoltageoutput• Temp–TemperatureinsidetheSPTModule• OverV–OverVoltagesettingforSPTModule• ModON–SPTModulestatus(on/off)• MppON–MaximizePowerPointTechnologystatus(on/off)• ID–UniqueidentifierfortheSPTModule
Page26of53FIGURE2TotherightofthestringlayoutisPoweroutputdetailsforeachstring;Power,Voltage,Current,andEnergy.Therearemultiplecontrolsonthefarrightedge.• SetOverV–SetOverVoltagelimitforalltheSPTModules.• ON–TurnstheSPTModuleonallowingcurrentandvoltagetopassthroughdevice.• OFF‐TurnstheSPTModuleoffblockingcurrentandvoltageoutput.• WARNING***Moduleisstillproducingvoltageandlookingforapathwaytoground.***• MPPON–EnabletheMaximizePowerPointfeatureoftheSPTModule• MPPOFF–DisabletheMaximizePowerPointfeatureoftheSPTModule• DownloadDbData–Downloadthedatathatiscurrentlybeingviewedinthegraphatthebottom.GUILEGENDTheSPTmodulebackgroundcolorvariesbasedonthepoweroutputofthemodule.
Page27of530to39.9W40to79.980to119.9W120To159.9WOver160WAreddishbackgroundmeansSPTisnottalkingtothegatewayandfieldcomputer.Ie.Nodataisbeingcapturedforthatmodule.BrownindicatesthatamodulepositionisreservedGUIbutnoSPTinstalled.DATABASEANDTRENDANALYSIS
Page28of53COMPLETESYSTEMLAYOUTANDWIRINGDIAGRAM
Page29of53
Page30of53DESIGNINGYOURSPTSYSTEMSOLUTION
Page31of53ORDERINGINFORMATION–SAMPLESALESORDER
Page32of53QUICKINSTALLGUIDEForthosewhoalreadyknowthebasicsandjustwanttogetgoing.INSTALLATIONSEQUENCEOFEVENTS1. Unpackingandinspection2. Propersystemgroundingpriortoinstallation3. Installationofthefieldcomputera. Mountingb. ACPowerc. InternetconnectionviaEthernetd. ConnectiontotheGatewaye. Connectiontoalaptop4. SPTmountingandmechanicala. Mountingchoicesi. Planeofarrayii. Perpendiculartoplaneofarrayiii. Otherb. InstallingtheSPTtothebracketc. Installingthebrackettothemountingstructurei. Hardwareandtorquesii. Groundingd. Usingthehandhelddevicetorecordserialnumbers5. HRDmountingandmechanical6. Electricalconnectionsandcommunicationwithhandhelda. ProperconnectionwithMCconnectorsb. ModuletoSPTi. Establishingcontactwiththehandhelddeviceii. TurningontheSPTiii. Measuringmodulecharacteristicsiv. TurningofftheSPTc. SPTtoSPTCablingd. SPTtoHRDboxe. Cablehandlingandsecuring7. GraphicalUserInterfaceUNPACKINGANDINSPECTIONCarefullyunpackandinspecteachSPT,HRDandcablefordamage.InspecteachfieldcomputerfordamageInspecteachMCconnectorbeforemakinganyelectricalconnections.Properconnectorsshouldbecleanandfreefromdamage.Insertpictureshere.PROPERSYSTEMGROUNDING
Page33of53INSTALLATIONOFTHEFIELDCOMPUTERa. Mountingb. ACPowerc. InternetconnectionviaEthernetd. ConnectiontotheGatewaye. ConnectiontoalaptopSPTMOUNTINGANDMECHANICALMountandgroundrackingorsupportstructureperNECArticle690andmanufacturer’sinstructions.EnsurethatsupportstructureisgroundedbeforemountingmodulesorSPTsPlanningUseonlystainlesssteelfastenerstosecuretheSPTbrackettothemountingstructureChooseflatbracketsor“L”bracketsfortheinstallation.InserttheSPTinthebracketbypushinguntilthepushpinholesalignInstallmountingpushpinsPlantomountSPTatleastoneinch(2.5cm)fromthebackofthemodulesurfacetoallowforadequatecoolingairflow.PlantomountSPT,modulecables,andSPTconnectioncablinginalocationthatwillnotbesubjecttophysicaldamage,andwillnotbesubjecttosnoworotherdebrisslides.(reword)Mountingintorailswith3/8or1/4slots
Page34of53Ifmountingtoastructurewithrailslots,insert3/8or1/4inchhardwareintherailslotbeforemodulesor“L”feetorstanchionsaresecured.EachSPTrequirestwobolts,twonuts,twoflatwashers,andtwolockwashers.Whizznutsarenotrecommendedasthegalvanizedcoatingofthebracketmaybecompromised.Secureeachbracket,makingsurethateachlockwasherisfullycompressed.Torque3/8inchfastenerstoXXXinch‐poundsand1/4inchfastenerstoYYYinch‐pounds.MountingintorailsorbraceswithoutslotsCheckwithrackingormodulesupportmanufacturerforsuggestedmountingprocedure.Checkwithalocalstructuralengineerand/ortherackingmanufacturerifanymodificationstothestructure(ie.Drillingholes)Usethebracketasaguideforanypre‐drilledholes.Insert3/8or¼inchhardwareintherailslot.EachSPTrequirestwobolts,twonuts,twoflatwashers,andtwolockwashers.Whizznutsarenotrecommendedasthegalvanizedcoatingofthebracketmaybecompromised.Secureeachbracket,makingsurethateachlockwasherisfullycompressed.Torque3/8inchfastenerstoXXXinch‐poundsand¼inchfastenerstoYYYinch‐pounds.HRDMountingandMechanicalElectricalconnectionsandcommunicationwithhandheldMountandgroundmodulepermodulemanufacturer’sinstructions.ConnectthemoduleleadstotheSPTInspectMCconnectorforwatertightsealEstablishcommunicationwiththehandheldunit.PlaceSPTin“On”mode.
Page35of53CheckmoduleVocfortemperatureandirradianceadjustedvaluefrommodulenameplatereading.PlaceSPTin“Off”modeRepeatfornextSPT’sinstringConnectSPT‐SPTcable.SecuremoduleandSPT‐SPTcablestosupportstructureormoduleframewithUVratedwiretiesand/orstainlesssteelclipsorstrainrelieff. MounteachSPTaseachmoduleisinstalled.ModulesperformancemaybetestedwiththeSPTaseachmoduleisinstalled.g. ChoosetomounttheSPT’seitherparallel,perpendicular,orinafashionthattakesadvantageofthemodulesupportstructure.TheSPTissuppliedwithaflatandan“L”shapedbracket.Bracketshave3/8”and¼”pre‐drilledtotheplaneofthearray.h. i. Mountingchoicesi. Planeofarrayii. Perpendiculartoplaneofarrayiii. Otherj. InstallingtheSPTtothebracketk. Installingthebrackettothemountingstructurei. Hardwareandtorquesii. Grounding
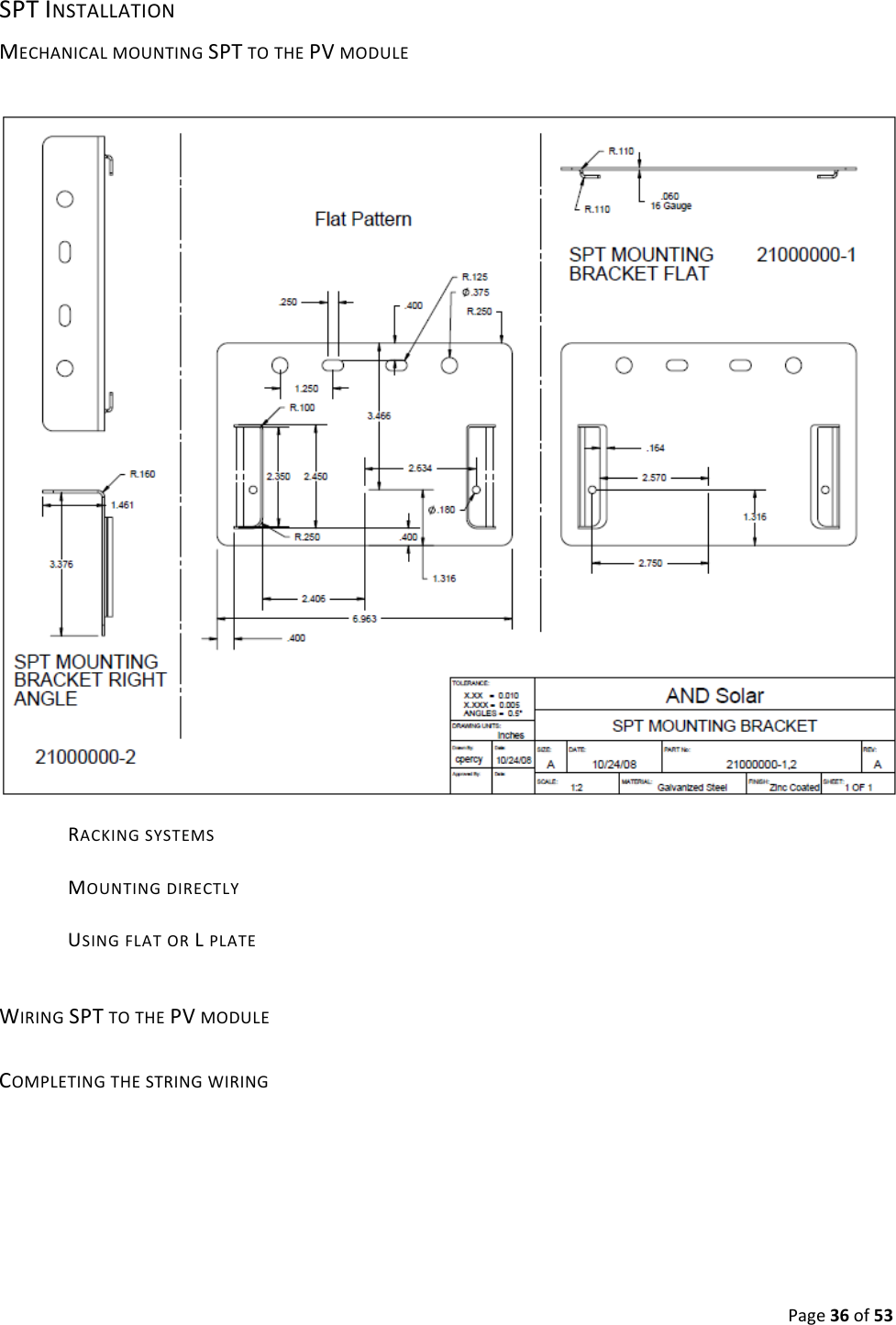
Page36of53SPTINSTALLATIONMECHANICALMOUNTINGSPTTOTHEPVMODULERACKINGSYSTEMSMOUNTINGDIRECTLYUSINGFLATORLPLATEWIRINGSPTTOTHEPVMODULECOMPLETINGTHESTRINGWIRING
Page37of53HRDINSTALLATIONMECHANICALMOUNTINGTHEHRDWIRINGTHEHRDCOMPLETINGTHEHOMERUNWIRINGGATEWAYANDFIELDCOMPUTERLOCATIONDETERMINATIONSYSTEMREQUIREMENTSACPOWERINTERNETACCESSMECHANICALMOUNTINGELECTRICALWIRING
Page38of53SPTSYSTEMCOMMISSIONINGMAPPINGYOURSYSTEMUSINGTHEHANDHELDFCPOWERUPANDDOWNREADINGTHEDISPLAYTURNINGMODULESONANDOFFRECORDINGSERIALNUMBERSDOWNLOADINGDATAPOWERUPTHEFCVERIFYGATEWAYOPERATIONTESTINGTHESIGNALSTRENGTHTOTHEGATEWAYACCESSINGTHEFCTHROUGHTHEINTERNETSETTINGUPTHEGUIDEFININGUSERSANDADMINISTRATIVEFUNCTIONSCHOOSINGTHEUSERDEFINEDPARAMETERSALERTTHRESHOLDSSCRIPTCHOICESINSTALLATIONMODECOMMERCIALOPERATIONMODERESIDENTIALOPERATIONMODEUTILITYOPERATIONMODEMAINTENANCEMODESUMMARYPAGEMAPPINGOUTYOURARRAYCROSSCHECKINGYOURMODULEPOSITIONSSETTINGUPTHEDATABASE
Page39of53OPERATINGINSTRUCTIONSREADINGTHEGUI
Page40of53CONTROLFEATURESNORMALOPERATIONWHATYOUSEEHOWTOINTERPRETHOWTOMODIFYACCESSINGTHEDATABASESORTINGTHEDATADEFININGUSERTEMPLATESINTERPRETINGALERTMESSAGES
Page41of53TROUBLESHOOTINGSPTOPERATIONALISSUESGUIOPERATIONALISSUES
Page42of53TECHNICALDATASPTSPECIFICATIONSSHEETSPTPHOTO 
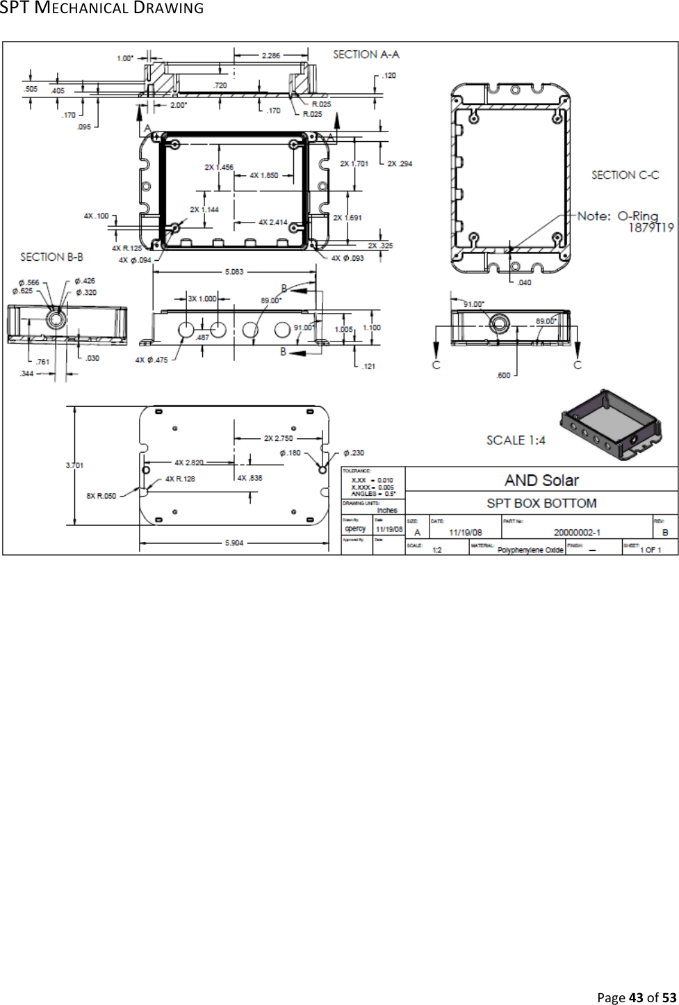
Page43of53SPTMECHANICALDRAWING
Page44of53HRDSPECIFICATIONSSHEETHRDILLUSTRATION
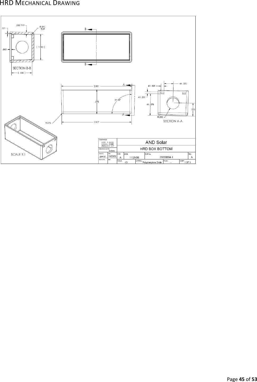
Page45of53HRDMECHANICALDRAWING
Page46of53FCSPECIFICATIONSSHEETManufacturedbyDMPElectronicsInc• ModeleBox‐3300• CPUMSTIPDX‐600(1GHz)• MemoryOnboard256MBDDR2• GraphicsXGIZ9swith32MBDDR2• External15‐pinD‐typefemaleVGAconnector• EthernetIntegrated10/100MbpsLAN• Built‐inPXEdisklessbootfunction• 2ndEthernetchipRealtekRTL8100B10/100• Base‐TEthernet(optional)• I/O44pinIDEx1• MicroSDx1• CFSlotx1• USBPortx3(2infront)• RJ‐45x1• PS/2x1Keyboard/Mouseshared• MiniPCISocketx1(optional)• RS232x2(optional)• AudioMicinandLineout• Power+5V@2A(10W)• Dimensions115x115x35mm• Weight505g
Page47of53HANDHELDFCSPECIFICATIONSSHEETManufacturedbyMotorolaPhysicalCharacteristics• Dimensions:6in.Lx3.3in.Wx1.7inD(15.24cmLx8.4cmWx4.4cmD)• Weight(includingStandard1.5Xbattery:14.9oz./422g)• Display:Transflectivecolor640x4803.5”fullVGAwithbacklight• TouchPanel:Glassanalogresistivetouch• Backlight:LEDbacklight• MainBattery:RechargeableLithiumIon3.7V,3600mAhSmartBattery• ExpansionSlot:microSDslot(maximum2GB)• NetworkConnections:Ethernet(viacradle);full‐speedUSB,hostorclient• Notification:VibratorandLED• KeypadOptions:26‐keyNumeric;44‐keyQWERTY• Audio:Speaker,receiver,microphone,headsetjackPerformanceCharacteristics• CPU:XScale™PXA270624MHzprocessor• OperatingSystem:Microsoft®WindowsMobile®6.0• Memory:128MBRAM;256MBFlash• Interface:RS‐232,USB1.1UserEnvironment• OperatingTemperature:14°Fto122°F/‐10°Cto50°C• StorageTemperature:‐40°Fto140°F/‐40°Cto60°C(w/obattery)• Humidity:95%non‐condensing• DropSpecification:5ft.droptoconcrete,atambienttemperature73°F/23°C;• Sealing:IP54• IrDA:Integrated• Clock:IntegratedrealtimeclockBaselinefeatures:
Page48of53• EachHandHeldComputerwillbecapableofcommunicatingwiththeSPT/IJBandFieldComputerthroughouttheexpected20yearsinatypicalinstallationlifetime• WWANRadio:GSM:3GHSDPA;CDMA:EVDORevA• GPS:IntegratedAssisted‐GPS(A‐GPS)• WLANRadio:Tri‐modeIEEE®802.11a/b/g• ColorCameraResolution:2megapixel• ElectricalSafety:CertifiedtoUL/cUL60950‐1,IEC/EN60950‐1• FCCClassBEMICertified• Environmental:RoHS‐compliant
Page49of53GUIPARAMETERSANDSYSTEMREQUIRMENTS
Page50of53TECHNICALSUPPORTBychoosinganAmptproduct,youhavealsochosencomprehensivetechnicalsupport&service.Inordertoattendtoyourneedsinasflexibleamanneraspossible,weofferyouthefollowingservices:• TheAmptTechnicalSupport&ServicePhoneHotline:970‐372‐6947• Replacementservice:970‐372‐6950• On‐siteservice:970‐372‐6950• ComprehensivewarrantyprogramWiththisofferyouenjoyadefinitiveadvantage:Amptsupportsyoufromtheinitialplanningphaseonward–and,ofcourse,duringtheentireoperatingtimeofthePVsystem.InordertobetterassistyouwhencontactingAmpt,pleaseprovidethefollowinginformation.Thisinformationisrequiredforserviceassistance.INFORMATIONREGARDINGTHESPT:• Serialnumber• ModelNumber• Shortdescriptionoftheproblem• BlinkingCodeordisplaymessage• WhaterrorcodeisindicatedviatheAmptGUI?• DClinevoltage• Canyoureproducethefailure?Ifyes,how?• Hasthisproblemoccurredinthepast?• Whatweretheambientconditionswhentheproblemoccurred?INFORMATIONREGARDINGTHEPVMODULES:•  ManufacturernameandmodelnumberofthePVmodule•  Outputpowerofthemodule•  Opencircuitvoltage(Voc)ofthemodule•  Numberofmodulesineachstring
Page51of53LIMITEDWARRANTYTheAmptSPTiswarrantedagainstdefectsinworkmanshipandmaterialsforaperiodof1yearfromdateofshipment,providedthattheproductremainsunmodifiedandisoperatedundernormalandproperconditions.The25yearoperationalwarrantycoversanyrepairorreplacementpartcostsincurredduringtheagreedperiod,beginningonthedevice’spurchasedate,subjecttotheconditionslistedbelow.WARRANTYCONDITIONSIfadevicebecomesdefectiveduringthe25yearAmptwarrantyperiod,oneofthefollowingservices,asselectedbyAmpt,willbeperformedatnochargeformaterialsorlaborcosts: RepairatAmpt,or RepairOn‐Site,or ExchangeforaReplacementDeviceInthecaseofanexchange,theremainderofthewarrantyeligibilitywillbetransferredtothereplacementdevice.Amptgenerallywillprovideanequivalentreplacementdevice,packagedappropriatelyfortransport,within48hours.ThedefectivedeviceistobepackedinthistransportpackagingforreturntransporttoAmpt.EXCLUSIONOFLIABILITYWarrantyclaimsandliabilityfordirectorindirectdamageareexcludedifarisingfrom:• TransportDamage,• IncorrectInstallationorCommissioning,• failuretoObservetheMaintenanceRegulationsandIntervals,• Modifications,ChangesorAttemptedRepairs,• IncorrectUseorInappropriateOperation,• InsufficientVentilationoftheDevice• failuretoObservetheApplicableSafetyRegulations,• forceMajeure(e.g.lightning,overvoltage,storm,fire),or• CosmeticShortcomings(whichdonotinfluencethesupplyofenergy)Further‐reachingoradditionalclaimsduetodirectorindirectdamage,includingclaimsforcompensationfordamagesduetolossofprofitsorduetocostsarisingfromdisassemblyandmounting,areexcluded.FORWARRANTYRETURNS&INSTALLERREPLACEMENT:AmptwillcompensateinstallersforexpensesassociatedwithreplacingSPTproductsunderwarrantyperthefollowingregistrationandwarrantyprocess:1.InstallermustcontactthetechnicalsupportteamatAmpttoregisterthesupportissueandseekassistance.AmptTechnicalsupportwillprovidetroubleshootingassistanceandiscommittedtoresolvingtheclaiminoneofthefollowingways;
Page52of53a.Situationwillberesolvedtotheinstaller’ssatisfactionoverthephoneorviatheAmptwirelesscommunicationlinktotheSPTb.AmptoroneoftheAmptcertifiedfieldservicetechnicianswillbedispatchedtothesiteforadditionaltroubleshootingandrepairoftheSPTc.AmptwilldeterminethattheunitshouldbereplacedandwillprovidetheinstallerwithanRMAnumbertoproceedwithwarrantyreplacementoftheunit2.OncetheRMAnumberhasbeenissuedbyAmpt,therearetwooptions;a.TheinstallercanuseanexistingunitfrominventorytoreplacethefailedSPTorb.Amptcansendoutanadvancereplacementunit3.Ineithercase,thereplacedunitmustbereturnedtoAmptforissueconfirmation,rootcauseanalysisandcorrectiveactionplanning4.AnyexceptionstothisprocessmustbeapprovedinadvancebyanauthorizedAmptrepresentative
Page53of53APPENDIX:FAQINSTALLATIONMAPPINGWIRINGDIAGRAMSORDERINGSPAREORREPLACEMENTPARTSRETURNPROCEDURESWHITEPAPERSPRESENTATIONS

Navigation menu