Ampt 31570001 Solar PV Converter User Manual Exhibit D Users Manual per 2 1033 b3
Ampt, LLC Solar PV Converter Exhibit D Users Manual per 2 1033 b3
Ampt >
Exhibit D Users Manual per 2 1033 b3

TheSPTOperatorManual
SmartPanelTechnology
Page2of53
CONTENTS
Information&Disclaimer..............................................................................................................................................6
ReadthisFirst............................................................................................................................................................7
FCCcompliance..........................................................................................................................................................7
ImportantSafetyInformation.......................................................................................................................................8
messagefromampt:......................................................................................................................................................9
WhySPT–whygetampt?...................................................................................................................................10
SmartPanelTechnologyOverview..............................................................................................................................11
Insimpleterms,theSPT:.....................................................................................................................................11
Here’showitworks:............................................................................................................................................12
TheoryofOperation............................................................................................................................................14
SPTFundamentals:..............................................................................................................................................15
IntroductiontoLogicMatrix(summaryversion).................................................................................................16
Valuepropositionlist...............................................................................................................................................17
Testresults..............................................................................................................................................................18
Internaltesting....................................................................................................................................................18
Thirdpartyvalidation..........................................................................................................................................18
Safetyandconveniencefeatures............................................................................................................................18
Fullsystemdiagram.............................................................................................................................................19
Energyvspower......................................................................................................................................................19
LCOE.....................................................................................................................................................................19
MaximumPowerPointTracking..............................................................................................................................20
SPTSystemComponents.........................................................................................................................................22
SPT–distributedpowerconverters....................................................................................................................22
HRD–homerundiodes.......................................................................................................................................22
Gateway...............................................................................................................................................................22
FC–FieldComputer............................................................................................................................................22
HandHeldFC.......................................................................................................................................................23
GUI–graphicaluserinterface&SoftwareUserManual.........................................................................................24
Overview..............................................................................................................................................................24
Databaseandtrendanalysis...............................................................................................................................27
CompletesystemlayoutandWiringDiagram.........................................................................................................28
DesigningyourSPTsystemsolution....................................................................................................................30
Orderinginformation–SampleSalesOrder........................................................................................................31
Page3of53
QuickInstallGuide.......................................................................................................................................................32
SPTInstallation........................................................................................................................................................36
MechanicalmountingSPTtothePVmodule......................................................................................................36
WiringSPTtothePVmodule...............................................................................................................................36
Completingthestringwiring...............................................................................................................................36
HRDInstallation.......................................................................................................................................................37
MechanicalmountingtheHRD............................................................................................................................37
WiringtheHRD....................................................................................................................................................37
Completingthehomerunwiring.........................................................................................................................37
GatewayandFC.......................................................................................................................................................37
Locationdetermination.......................................................................................................................................37
Systemrequirements...............................................................................................................................................37
ACpower.............................................................................................................................................................37
InternetAccess....................................................................................................................................................37
Mechanicalmounting..........................................................................................................................................37
Electricalwiring....................................................................................................................................................37
SPTSystemCommissioning.........................................................................................................................................38
Mappingyoursystem..............................................................................................................................................38
UsingtheHandHeldFC.......................................................................................................................................38
PoweruptheFC......................................................................................................................................................38
Verifygatewayoperation....................................................................................................................................38
TestingthesignalstrengthtotheGateway.........................................................................................................38
AccessingtheFCthroughtheinternet................................................................................................................38
SettinguptheGUI...................................................................................................................................................38
Definingusersandadministrativefunctions.......................................................................................................38
Choosingtheuserdefinedparameters...............................................................................................................38
AlertThresholds...................................................................................................................................................38
Scriptchoices.......................................................................................................................................................38
Summarypage.....................................................................................................................................................38
Settingupthedatabase..........................................................................................................................................38
OperatingInstructions.................................................................................................................................................39
ReadingtheGUI.......................................................................................................................................................39
Controlfeatures.......................................................................................................................................................40
Normaloperation....................................................................................................................................................40
Page4of53
Whatyousee.......................................................................................................................................................40
Howtointerpret..................................................................................................................................................40
Howtomodify.....................................................................................................................................................40
Accessingthedatabase...........................................................................................................................................40
Sortingthedata...................................................................................................................................................40
Definingusertemplates.......................................................................................................................................40
Interpretingalertmessages.....................................................................................................................................40
Troubleshooting..........................................................................................................................................................41
SPToperationalissues.............................................................................................................................................41
GUIoperationalissues.............................................................................................................................................41
TechnicalData.............................................................................................................................................................42
SPTspecificationssheet...........................................................................................................................................42
SPTPhoto.................................................................................................................................................................42
SPTMechanicalDrawing.........................................................................................................................................43
HRDspecificationssheet.........................................................................................................................................44
HRDIllustration........................................................................................................................................................44
HRDMechanicalDrawing........................................................................................................................................45
FCspecificationssheet............................................................................................................................................46
HandHeldFCspecificationssheet...........................................................................................................................47
GUIparametersandsystemrequirments...............................................................................................................49
TechnicalSupport........................................................................................................................................................50
InformationRegardingtheSPT:...........................................................................................................................50
InformationRegardingthePVmodules:.............................................................................................................50
LimitedWarranty.........................................................................................................................................................51
WarrantyConditions............................................................................................................................................51
ExclusionofLiability.............................................................................................................................................51
forWarrantyReturns&InstallerReplacement:..................................................................................................51
Appendix:.....................................................................................................................................................................53
FAQ..........................................................................................................................................................................53
InstallationMapping................................................................................................................................................53
WiringDiagrams......................................................................................................................................................53
Orderingspareorreplacementparts......................................................................................................................53
Returnprocedures...................................................................................................................................................53
WhitePapers...........................................................................................................................................................53
Page5of53
Presentations...........................................................................................................................................................53
Page6of53
INFORMATION&DISCLAIMER
Copyright©2009AmptLLC.Allrightsreserved.
Nopartofthisdocumentmaybereproduced,retransmitted,orcopiedinanyformwithouttheexpressedand
writtenpermissionofAmpt.
Amptmakesnorepresentations,expressedorimplied,thatwithrespecttothisdocumentationoranyofthe
equipmentand/orsoftwareitmaydescribe,including(withnolimitation)anyimpliedwarrantiesofutility,
merchantability,orfitnessforanyparticularpurpose.Allsuchwarrantiesareexpresslydisclaimed.Amptshallnot
beliableforanyindirect,incidental,orconsequentialdamagesunderanycircumstances.(Theexclusionofimplied
warrantiesmaynotapplyinallcasesundersomestatutes,andthustheaboveexclusionmaynotapply.)
Thefollowingspecificationsaresubjecttochangewithoutnotice,eventhougheveryattempthasbeenmadeto
makethisdocumentcomplete,accurateandup‐to‐date.Readersarecautioned,however,thatAmptreservesthe
righttomakechangeswithoutnoticeandshallnotberesponsibleforanydamages,includingindirect,incidental
orconsequentialdamages,causedbyrelianceonthematerialpresented,including,butnotlimitedto,omissions,
typographicalerrors,arithmeticalerrorsorlistingerrorsinthecontentmaterial.
AmptLLC
4850InnovationDrive
FortCollins,Colorado80525
Tel970‐372‐6950
www.ampt.com

Page7of53
READTHISFIRST
Thisoperatormanualcontainsalloftheinformationneededtoinstall,commissionandoperateanAmptSPT
distributedpowerconversiondevicewithinagrid‐tiedphotovoltaic(PV)installation.
Tohelpavoidproblemsduringthesysteminstallation,familiarizeyourselfinadvance,withtheinstallationprocess
byreadingtheentireInstallationGuidebeforestartingtheinstallation.
Bealert!ThereareextremelydangerousandlethalvoltagespresentatvariouspointsinaPVsystem.For
safetyreasons,itisrecommendedthatonlyqualifiedpersonnelinstallandoperatethisequipment.
FCCCOMPLIANCE
AmptSPT‐ThisequipmenthasbeencertifiedascompliantwiththelimitsforaClassBdigitaldevice,pursuantto
Part15oftheFCCRules.Theselimitsaredesignedtoprovidereasonableprotectionagainstharmfulinterference
inaresidentialinstallation.Thisequipmentgenerates,uses,andcanradiateradiofrequencyenergyandifnot
installedandusedinaccordancewiththeinstructions,maycauseharmfulinterferencetoradiocommunications.
However,thereisnoguaranteethatinterferencewillnotoccurinaparticularinstallation.
TheuseriscautionedthatchangesormodificationsnotexpresslyapprovedbyAmptLLC.couldvoidtheuser’s
authoritytooperatethisequipment.
***
AmptSPTFCCID#XLQ31570001
SPTModelNumber:31570001
ThislabelisfoundoneachAmptSPTenclosure.
Theboxistwopiecesandisnotmeanttobeuserservicedoropenedinanyway.
***
AmptGatewayFCCID#
GatewayModelNumber:31570002
ThislabelisfoundoneachAmptGatewayenclosure.
Theboxissmallerthanpalmsize,thusthefollowingtextisonlyprintedhere:
Thisdevicecomplieswithpart15oftheFCCrules.Operationissubjecttothefollowingtwo
conditions:(1)thisdevicemaynotcauseharmfulinterference,and(2)thisdevicemustaccept
anyinterferencereceived,includinginterferencethatmaycauseundesiredoperation.
Theboxistwopiecesandisnotmeanttobeuserservicedoropenedinanyway.
***

Page8of53
IMPORTANTSAFETYINFORMATION
SAVETHESEINSTRUCTIONS
ThismanualcontainsimportantinstructionsfortheAmptSPTdistributedpowerconversiondevicethatshallbe
followedduringinstallationandmaintenanceofthemoduleandaffiliatedhardwareandsoftware.TheSPThas
beendesignedandtestedaccordingtointernationalsafetyrequirements,butrequirescertainprecautionsare
observedwheninstallingand/oroperatingtheAmptSPTproduct.Toreducetheriskofpersonalinjuryandto
ensurethesafeinstallationandoperationoftheSPT,pleasebesureyoucarefullyreadandfollowallinstructions,
cautionsandwarningsinthisoperatormanual.
Warnings
AWarningidentifiesahazardtoequipmentorpersonnel.Itcallsattentiontoaprocedureorpractice,which,ifnot
correctlyperformed,couldresultindamagetoordestructionofpartoralloftheAmptequipmentand/orother
equipmentconnectedtotheAmptequipmentorpersonalinjury.
DANGERindicatesahazardoussituationwhich,ifnotavoided,willresultindeathorserious
injury.
WARNINGindicatesahazardoussituationwhich,ifnotavoided,couldresultindeathor
seriousinjury.
CAUTIONindicatesahazardoussituationwhich,ifnotavoided,couldresultinminoror
moderateinjury.
NOTICEindicatesasituationthatcanresultinpropertydamageifnotavoided.
InadditiontothesafetyandhazardsymbolsthefollowingisalsousedinthisOperatorManual:
Information‐Thissymbolaccompaniesnotesthatcallattentiontosupplementary
informationthatyoushouldknowandusetoensureoptimaloperationoftheAmptsystem.
GeneralWarnings:
AllelectricalinstallationsmustbedoneinaccordancewiththelocalandNationalElectrical
CodeANSI/NFPA70.
TheAmptproductcontainsnouser‐serviceableparts.Forallrepairandmaintenancealways
returntheunittoanauthorizedAmptServiceCenter.BeforeinstallingorusingtheAmpt
SPT,readalloftheinstructions,cautions,andwarningsontheSPT,thePVarray,inthis
InstallationGuide.BeforeconnectingtheSPTtotheelectricalutilitygrid,contactthelocal
utilitycompany.Thisconnectionmustbemadeonlybyqualifiedpersonnel.PVarrays
produceelectricalenergywhenexposedtolightandthuscancreateanelectricalshock
hazard.WiringofthePV‐arraysshouldonlybeperformedbyqualifiedpersonnel.
Page9of53
MESSAGEFROMAMPT:
ThefirstproductsthatAmptisintroducingarearesultoflookingatrequirementstorealizemaximumenergyat
thelowestcost–fromasystemlevelperspective.
Thisinitialpremiseisthatthemaximumenergycannotbeharvestedfullywithouttherightgranularity.Webelieve
thatthisrequirespowerconversiontobedoneatthemodulelevel.Ourcustomersrequireminimallostharvest
fromlocalsoiling,shading,orpanelimbalance–sowithregardstolocalpowerconversion,thereisnomore
suitableeconomicalternative.
Webelievethatthepowerconversionhastobeextremelyefficientoveraverywiderange–soourproductsare
over99%efficientovergreaterthan3:1inputrange.Toputthatintocontext,theAmptSPTconsumesonly,upto
2Woftheenergygeneratedbya200Wmodule–relativelyspeakingthatisthesamelossasexpectedfromenergy
travelingthrough3feetofconventionalwirecabling.
WebelievethathighspeedMPPisverycriticaltomaximizeharvest–wehaveover99.9%accurateMPPin100
milliseconds.Therefore,wecancapturethepowergainfromtheedgeofacloudandtherefractedirradiationona
module.
Webelievethatmaximizingthenumberofmodulesperstringisimportant.TheAmptproductisdynamically
controlled,andwecancommunicatewirelesslytoourfieldadaptablefirmware.
Webelievethatreliabilityisahugedriveofeconomics–sowehaveanenvironmentallyvalidated(not
superficiallymodeled)1000yearMTBF.
Webelievethathighaccuracyandstableinstrumentationcombinedwithrobustcommunicationiscrucialfor
large‐scalearraysandbeneficialforallsmallerarrays.Itlowersinstallationcosts,andradicallyreducesO&Mwhile
maximizingtheeconomicsofharvesting.Wehaveabetterthan1%fieldcalibrate‐ablemeasurementsystemthat
includesmultiplechannelsofcriticalelectricalandtemperatureparameters,aswellasidentityinformation–per
module.
Webelievethatcommunicationaloneisn’tsufficient.Theseapplicationsneedscalabilityandrobustnessthatdoes
notdependonproblematicconnections.Wedesignedahighlyrobustwirelesssystem.
Webelievethatifthesystemisdesignedwiththerightgranularity,withtherightcomponents,withtheright
interfacesandtherightarchitecturethatitbecomesunlimitedinitsabilitytooperateatanyscale.Wehave
designedthissystemtoallowscalingfromonemoduletoaboveamillionmodules.
ThankyouforContinuedSupport–welookforwardtoworkingwithyou!
WeareAmpt.

Page10of53
WHYSPT–WHYGETAMPT?
Whatismaximumpower?
Isitdefinedbytheenergyoutputoftheweakestmoduleinastring,
orthecombinedoutputofeverysinglemoduleoneverystring?
Isitdefinedbyanalyzingenergyharvesteachdayatonesite,
oreverysecondoneverypanelatonemillionsites?
Isitdefinedbythemonitoringofinformationwithinanarray,
orthecommunicationofknowledgethatleadstoimprovedperformancewithineverymodule?
Byansweringwhatnooneelsehasevenyetasked,Amptisnotjustincreasingenergy,
buthelpingyoutorealizeenergyyouneverknewpossible.
Congratulationsonputtingtheabsolutebestcommunicationsandpowerconversionequipment
availableonyourPVsystem!

Page11of53
SMARTPANELTECHNOLOGYOVERVIEW
AmpthasdevelopedSmartPanelTechnologyTM‐SPT‐astheoptimalsolutionforenergyharvestingfromanyPV
system.
ThefirstimplementationofAmptSPTisinastandalonedevicethatisplacedindirectconnectionwiththePV
moduletodeliverMPPT(MaximumPowerPointTracking)whichistheharvestedenergy.ConventionalPVsystems
havesolarmodulesseriesconnected,andaretherebylimitedbytheweakestmoduleinthestring.Thesestrings
arewiredtoabulkDC‐ACinverterwhichusesalgorithmstoattemptamaximumharvestgiventhepotentialfrom
eachstring.
TheAmptSPTputstheMPPTlogicwhereitbelongs,oneachsolarmodule,andallowseachmoduletoproduceits
maximumpower.TheneachSPTdevicecombinestoprovidethebulkinverterwithitshighestefficiencyinput
power.Theresult:thehighestenergyfromeachmodule,operatingwiththehighestefficiencyofthebulkinverter.
INSIMPLETERMS,THESPT:
• ReceivesthepowerfromthemoduleatitsMaximumPowerPointTracking(MPPT)regardlessof
normalorproblematicoperatingconditions
• DeliversmoduleMPPTpowerintoanyimpedancedeterminedbytheremainderofthestringandthe
inverter
• Solvestheproblemofhavingpanels(currentsources)inseriesbeinglimitedbytheweakestpanelin
thestring‐improvesstringsightingoptions
• Ensureseverypanelproduceswhateveritcanregardlessoftheremainderofthesystem
• Allowstheinvertertooperateatitshighestefficiencypoint
• Provideswirelesscommunicationoneachmodule,reportingmorethanjustpanelvoltage,current
andtemperature.Additionalinformationisresidentsuchasmoduleserialnumberand

Page12of53
manufacturinginformation
• Wirelesscommunicationalsoprovidesdiagnosticinformationformaintenance,andthroughradio
commandstheoutputcanbeturnedon/off
HERE’SHOWITWORKS:
EachsolarmodulewillhaveadedicatedAmptSPTdeviceconnectedtothemoduleoutputs.TheAmptSPTdevices
thenareconnectedinseriestoeachotherandwillmakeupa“string”ofmodules.Eachstringisthencombinedin
paralleltoconnectwiththebulkinverter(intoday’sconventionalarray).
WhensolarraysareabsorbedbythePVmodule,energyisproduced.TheSPTmaximizestheharvestableenergy
fromeachPVmodule,andconvertsittoausefuloutputthatisthendeliveredtothestring(regardlessofthe
environmentaloroperationalconditionsaffectingthatparticularpanel).Thestringsarethencombinedasanarray
anddeliveredtothebulkinverteratitspre‐determinedimpedancerequirement.Itisimportanttonotethatthe
conventionalbulkinverterdynamicallyissearchingforMPPT(maximumpowerpointtracking),andmaychangeits
impedancerequirementsevery4+seconds.TheAmptSPThoweverisadjustingitsMPPT8timespersecondto
againmaximizetheharvestableenergyproducedoneachPVmodule.
InconventionalPVinstallations(withouttheAmptSPT),withseriesconnectedmodules,oneweaklinkinastring
causessignificantenergyharvestdegradation,andwilllowertheproducedpowerproduced.Ifthereissufficient
obstructiontotheamountofsolarinsolationabsorbedbyasinglemodule(oroverseveralmodules),itispossible
thattheentirestringcollapses(electrically),andnetszeropoweroutput.

Page13of53
TheAmptSPTsolvesthisproblembymaximizingthepowerharvestateachmoduleregardlessoftheconditions,
andconvertsthattoaviableoutputtherebyeliminatingtheweakestlinkphenomenon.WithAmptSPT,evenalow
powerproducingmoduleisvaluable,andcontributestothenetpowergenerated.
Ofcourse,ifthemoduleisdamagedorobstructedtothepointwhereitsinternalcircuitcannotproducepower,
AmptSPTcannotcorrectthiscondition.Withthewirelesscommunicationlinkthough,theowneroperatorcan
identifythiscondition,andmakethenecessarycorrections.Inthemeantimethough,thebalanceofthestringis
stilloperationalandgeneratingasmuchpowerasrequiredbythebulkinverter.
EachSPTisaccessiblebyahostcomputerthroughawirelessAND“gateway”interface.Thisgatewayallowsthe
owner/operatortospeakspecificallytoeachSPT,andprovidesabi‐directionalwirelesscommunicationlinkwhich
isthevehicleforcommand/controlanddataacquisition.
TheANDGUI(graphicaluserinterface)isthenutilizedtoobservetheperformanceandcontroltheSPToperations.
ExamplesofthisGUIareshownbelow:

Page14of53
TheGUIhasalotofdatapresentedandwilllikelychangeforincreasedusability,butatpresentdemonstratesthe
kindofinteractionandreportingavailable.
Asyoucansee,eachmodule(andcorrespondingSPT)ismappedoutpertheirinstalledlocation.Note:eachSPTis
barcoded,andduringthefieldcommissioningprocess,abarcodescannercanbeutilizedtologicallymapoutthe
organizationofmodules.ItisalsopossiblethatthebarcodereadercaninterfacetotheSPTthroughaseparate
gateway,andtherebycontrolitson/offstateforfieldpersonnelsafety.
That’sit.Withasimpleinstallation,theAmptSPTproductsoperateimmediatelyandautomaticallyenhancethe
powergeneratedbythePVinstallation.Ongoingmonitoringandcommandcontrolfeaturesareavailabletothe
owneroperation,butregularinteractionisnotrequiredtogetmaximumpower.
THEORYOFOPERATION
TheAmpt SPTisdesignedtomitigateirregularities
betweenthemodulesinanarrayandthebulk
inverter.Specifically,theSPTcanfixitsoutputto
matchtheoptimalinverterinputvoltageand
broadentheperformancerangeofconventional
PVmodules&invertercombinations.Byproviding
localizedDC‐DCconversionalongwithwireless
communication,theSPTenablesinstantaneous
controlandfeedbacktothesystemandthereby
maximizesenergyharvesting.
Page15of53
SPTFUNDAMENTALS:
• TheSPTmoduleputsMPPwhereitbelongs,oneverypanel,andproducesthemaximumpowerthatis
availableregardlessofpanelcondition,andregardlessoftheremainderofthesystem.Ifthereispartial
shade,dirtorpanelimbalance,everypanelstillputsoutitsmaximumpower.
• TheSPTmodulereceivesthepowerfromthepanelatMPP.Itdeliversthepowertoanyimpedance
determinedbytheremainderofthestringandtheinverter.Thissolvestheproblemofhavingpanels(current
sources)inseriesbeinglimitedbytheweakestpanelinthestring.
• TheconventionalbulkpowerinvertermayimpressanyvoltageitwantsandbecausetheSPTisdeployedasa
localizedDC‐DCconverter,thepanelfieldwillsimplyoutputMPPfromeverypanel.Thisallowstheinverterto
operateatitshighestefficiencypoint.
• Goingforward,SPTbasedinstallationscanenablebetterbulkinverterdesignsthatdeliverhigherefficiency,
greaterreliability,smallerandlighterastheywouldnolongerberequiredtoincludeanMPPstage.
• OneofthemostsignificantelementsoftheSPTistheinherentwirelesscommunicationscapabilities,which
enablesinstantaneouscommunicationandcontrol.Theradioandubiquitouswirelessmeshnetworkformed
bySPTmoduleswillnotonlyreportpanelvoltage,currentandtemperature,butalsoprovideoperational
benefitsbytogglingthepaneloutputsonandoff.
• Otherinformationcouldalsoresidetheresuchasserialnumberandmanufacturinginformation.
• Thewirelessradiowillalsoprovidediagnosticinformationformaintenanceandtrendanalysisthusallowing
intelligentdecisionsonwhatrequiresserviceandwhen.

Page16of53
INTRODUCTIONTOLOGICMATRIX(SUMMARYVERSION)
Page17of53
VALUEPROPOSITIONLIST
Temperaturecoefficientpowerlosses‐TemperatureEffect/FillFactorManagement
Panelobstruction/shading(leaf/snow/haze/birdgifts)‐Dynamicstringadjustmenttocapitalizeon
unbalancedpanelproduction
Panelpowervariation(mismatch/aging/broken/defect)‐diverseutilizationandimbalancecorrection
Installedefficiency(placement/wiring/opens)‐MoreKWhr/KWproduction(12‐15%moreharvesting)
Bi‐polarbalancing‐+/‐operationsforAdvancedEnergyInverterapplications
VariableInverteroperatingalgorithmsandefficiency–deliversMPPTtoinverterhighestpointof
efficiency
Improvesstringsightingoptions(notsoPOAlimited)
Conventionalinverterlimitations‐Greatercompatibilitybetweenconventionalinvertersandall
moduletypes(fromC‐SI,througha‐SI,CDTe,CIGSandfuturedesigns)
Realtimecommandandcontrol‐WirelessCommunicationsSystem&Diagnostics–nolongerrelianton
dispatchedanalysisanderrorcorrection
ImprovesSafety‐enablinginstantaneouson/offcyclingfortheentireSystem/atargetedString/or
individualPanelModule
EnablesSoftstartforsomeinvertertypes
Page18of53
TESTRESULTS
INTERNALTESTING
1. InitialMTBFcalculationscompleteandindicate>2Mhours
2. Demonstratedlifetestplanned
108units,1000hours,10%acceleration
GoaltoproveMTBF>4.4Mhours
(ThiswouldtranslateintoaonethousandyearMTBFforunitsoperating12hours/day)
THIRDPARTYVALIDATION
1. Sandia
2. SWTDI(NMSU)
3. BEW
Testreportsavailablebyrequest
SAFETYANDCONVENIENCEFEATURES
Currently,oneproblemfacinginstallersandmaintenanceprovidersofPVSystemsissafety.Sinceconventionally,
allpanelsareconnectedinseriesandinstallationandmaintenanceworkisdoneduringperiodsofirradiance,the
voltageacrossthepanelsmightreachdangerouslevelsexposingfieldpersonneltoarealdangerofelectrocution.
Amptprovidesa“convenience”modewhichsupportsan“on/off”modeofoperation.Thismodeofoperation
essentiallyenablesordisablestheSPToutputandcanfacilitatesysteminstaller/operatorsduringinstallation,
diagnostics,andmaintenancetasks.Itisimportanttorecognizethatthisisaelectricalcircuitlogicchangeandis
nottobeconfusedwithahardswitch.Thisconveniencefeatureisdesignedtoenhancetheprotectionofmodule
handlers,includingtheinstaller,maintenanceproviderandpotentiallyemergencypersonnel(ie.Fire
Department)."

Page19of53
FULLSYSTEMDIAGRAM
ENERGYVSPOWER
LCOE

Page20of53
MAXIMUMPOWERPOINTTRACKING

Page21of53

Page22of53
SPTSYSTEMCOMPONENTS
SPT–DISTRIBUTEDPOWERCONVERTERS
HRD–HOMERUNDIODES
GATEWAY
FC–FIELDCOMPUTER

Page23of53
HANDHELDFC
Page24of53
GUI–GRAPHICALUSERINTERFACE&SOFTWAREUSERMANUAL
OVERVIEW
TheAmptsoftwareisawebbasedmanagementapplicationforviewingthereal‐timeperformanceand
managementofyoursolarinstallationatthearray,string,andmodulelevel.
INTRODUCTION:
TherearetwoviewsavailableformanagingyourSolarArray;summaryandstringview.TheSummaryview
providesanoverviewofthestateofthesolararray.ItincludescurrentDCenergyoutputinWatts,Volts,and
Amps,powerbystring,SPTstatus,andestimatedACPower.
TheStringviewprovidesdetailedinformationontheperformanceofeachSPT.Itprovidesperformance
informationatthestringlevel;DCenergyoutputinWatts,Volts,andAmps.Bothviewsautomaticallyrefresh
aboutevery15seconds.
DETAILS
SUMMARYVIEW
TheSummarypage(figure1)presentsinformationatthearraylevel.Thebuttonacrossthetop“Lock/Unlock
WholeStation”allowsyoutodisablecommandstothesystem.Thisisusefulasasafetyprecautionwhenservicing
thestation.Totherightisthetimetheinformationyourviewingwaslastupdated.Thisisbasedonyourlocal
computer’stime.Thestringsareorganizedaroundthephysicalandlogicallayoutascloselyaspossibleandlistthe
statusofthemodule,onoroff,andstatusoftheMaximizePowerPointfeature,MPP,onoroff.Clickingonthe
stringandmoduleareawilltakeyoutotheStringView.
Belowthestringandmoduleareaisabarchartshowingthepoweroutputforeachstringinthearray.Thepower
outputdetailsforthearrayareshownontherightedge;includingestimatedkWhours.Atthebottomisagraph
ofEnergy,powerandtemperature.Thescaleforthetemperatureislistedontherightedgeofthegraph.Youcan
positionyourmouseoverthelinestoseethetimeandvalueofthemeasurement.Thetimescaleofthegraphcan
bechangedusingthecontrolstotherightofthegraph.Youcanchangethetimeintervalaswellasgobackand
forwardtimeperiods.

Page25of53
FIGURE1
STRINGVIEW
SimilartotheSummaryview,thestringsareorganizedaroundthephysicalandlogicallayoutascloselyaspossible.
InStringviewthestatusofthemoduleisshownindetail.There’salegendonthenextpagethatcoversthe
meaningofdifferentbackgroundcolors.
• MaxPower–MaximumpoweroutputfromSolarModulewithSPTTechnology
• Vmp‐IN–VoltageoutputfromSPTModule
• I‐Out–AmpsoutputfromSPTModule
• V‐Out–SolarModulevoltageoutput
• Temp–TemperatureinsidetheSPTModule
• OverV–OverVoltagesettingforSPTModule
• ModON–SPTModulestatus(on/off)
• MppON–MaximizePowerPointTechnologystatus(on/off)
• ID–UniqueidentifierfortheSPTModule

Page26of53
FIGURE2
TotherightofthestringlayoutisPoweroutputdetailsforeachstring;Power,Voltage,Current,andEnergy.There
aremultiplecontrolsonthefarrightedge.
• SetOverV–SetOverVoltagelimitforalltheSPTModules.
• ON–TurnstheSPTModuleonallowingcurrentandvoltagetopassthroughdevice.
• OFF‐TurnstheSPTModuleoffblockingcurrentandvoltageoutput.
• WARNING***Moduleisstillproducingvoltageandlookingforapathwaytoground.***
• MPPON–EnabletheMaximizePowerPointfeatureoftheSPTModule
• MPPOFF–DisabletheMaximizePowerPointfeatureoftheSPTModule
• DownloadDbData–Downloadthedatathatiscurrentlybeingviewedinthegraphatthebottom.
GUILEGEND
TheSPTmodulebackgroundcolorvariesbasedonthepoweroutputofthemodule.

Page27of53
0to39.9W40to79.980to119.9W120To159.9WOver160W
AreddishbackgroundmeansSPTisnottalkingtothegatewayandfieldcomputer.
Ie.Nodataisbeingcapturedforthatmodule.
BrownindicatesthatamodulepositionisreservedGUIbutnoSPTinstalled.
DATABASEANDTRENDANALYSIS

Page28of53
COMPLETESYSTEMLAYOUTANDWIRINGDIAGRAM

Page29of53
Page30of53
DESIGNINGYOURSPTSYSTEMSOLUTION

Page31of53
ORDERINGINFORMATION–SAMPLESALESORDER

Page32of53
QUICKINSTALLGUIDE
Forthosewhoalreadyknowthebasicsandjustwanttogetgoing.
INSTALLATIONSEQUENCEOFEVENTS
1. Unpackingandinspection
2. Propersystemgroundingpriortoinstallation
3. Installationofthefieldcomputer
a. Mounting
b. ACPower
c. InternetconnectionviaEthernet
d. ConnectiontotheGateway
e. Connectiontoalaptop
4. SPTmountingandmechanical
a. Mountingchoices
i. Planeofarray
ii. Perpendiculartoplaneofarray
iii. Other
b. InstallingtheSPTtothebracket
c. Installingthebrackettothemountingstructure
i. Hardwareandtorques
ii. Grounding
d. Usingthehandhelddevicetorecordserialnumbers
5. HRDmountingandmechanical
6. Electricalconnectionsandcommunicationwithhandheld
a. ProperconnectionwithMCconnectors
b. ModuletoSPT
i. Establishingcontactwiththehandhelddevice
ii. TurningontheSPT
iii. Measuringmodulecharacteristics
iv. TurningofftheSPT
c. SPTtoSPTCabling
d. SPTtoHRDbox
e. Cablehandlingandsecuring
7. GraphicalUserInterface
UNPACKINGANDINSPECTION
CarefullyunpackandinspecteachSPT,HRDandcablefordamage.
Inspecteachfieldcomputerfordamage
InspecteachMCconnectorbeforemakinganyelectricalconnections.Properconnectorsshouldbeclean
andfreefromdamage.Insertpictureshere.
PROPERSYSTEMGROUNDING

Page33of53
INSTALLATIONOFTHEFIELDCOMPUTER
a. Mounting
b. ACPower
c. InternetconnectionviaEthernet
d. ConnectiontotheGateway
e. Connectiontoalaptop
SPTMOUNTINGANDMECHANICAL
MountandgroundrackingorsupportstructureperNECArticle690andmanufacturer’sinstructions.
EnsurethatsupportstructureisgroundedbeforemountingmodulesorSPTs
Planning
UseonlystainlesssteelfastenerstosecuretheSPTbrackettothemountingstructure
Chooseflatbracketsor“L”bracketsfortheinstallation.
InserttheSPTinthebracketbypushinguntilthepushpinholesalign
Installmountingpushpins
PlantomountSPTatleastoneinch(2.5cm)fromthebackofthemodulesurfacetoallowforadequate
coolingairflow.
PlantomountSPT,modulecables,andSPTconnectioncablinginalocationthatwillnotbesubjectto
physicaldamage,andwillnotbesubjecttosnoworotherdebrisslides.(reword)
Mountingintorailswith3/8or1/4slots

Page34of53
Ifmountingtoastructurewithrailslots,insert3/8or1/4inchhardwareintherailslotbeforemodulesor
“L”feetorstanchionsaresecured.EachSPTrequirestwobolts,twonuts,twoflatwashers,andtwolock
washers.Whizznutsarenotrecommendedasthegalvanizedcoatingofthebracketmaybecompromised.
Secureeachbracket,makingsurethateachlockwasherisfullycompressed.Torque3/8inchfastenersto
XXXinch‐poundsand1/4inchfastenerstoYYYinch‐pounds.
Mountingintorailsorbraceswithoutslots
Checkwithrackingormodulesupportmanufacturerforsuggestedmountingprocedure.
Checkwithalocalstructuralengineerand/ortherackingmanufacturerifanymodificationstothe
structure(ie.Drillingholes)
Usethebracketasaguideforanypre‐drilledholes.
Insert3/8or¼inchhardwareintherailslot.EachSPTrequirestwobolts,twonuts,twoflatwashers,and
twolockwashers.Whizznutsarenotrecommendedasthegalvanizedcoatingofthebracketmaybe
compromised.
Secureeachbracket,makingsurethateachlockwasherisfullycompressed.Torque3/8inchfastenersto
XXXinch‐poundsand¼inchfastenerstoYYYinch‐pounds.
HRDMountingandMechanical
Electricalconnectionsandcommunicationwithhandheld
Mountandgroundmodulepermodulemanufacturer’sinstructions.
ConnectthemoduleleadstotheSPT
InspectMCconnectorforwatertightseal
Establishcommunicationwiththehandheldunit.
PlaceSPTin“On”mode.

Page35of53
CheckmoduleVocfortemperatureandirradianceadjustedvaluefrommodulenameplatereading.
PlaceSPTin“Off”mode
RepeatfornextSPT’sinstring
ConnectSPT‐SPTcable.
SecuremoduleandSPT‐SPTcablestosupportstructureormoduleframewithUVratedwiretiesand/or
stainlesssteelclipsorstrainrelief
f. MounteachSPTaseachmoduleisinstalled.ModulesperformancemaybetestedwiththeSPTas
eachmoduleisinstalled.
g. ChoosetomounttheSPT’seitherparallel,perpendicular,orinafashionthattakesadvantageofthe
modulesupportstructure.TheSPTissuppliedwithaflatandan“L”shapedbracket.Bracketshave
3/8”and¼”pre‐drilledtotheplaneofthearray.
h.
i. Mountingchoices
i. Planeofarray
ii. Perpendiculartoplaneofarray
iii. Other
j. InstallingtheSPTtothebracket
k. Installingthebrackettothemountingstructure
i. Hardwareandtorques
ii. Grounding

Page36of53
SPTINSTALLATION
MECHANICALMOUNTINGSPTTOTHEPVMODULE
RACKINGSYSTEMS
MOUNTINGDIRECTLY
USINGFLATORLPLATE
WIRINGSPTTOTHEPVMODULE
COMPLETINGTHESTRINGWIRING
Page37of53
HRDINSTALLATION
MECHANICALMOUNTINGTHEHRD
WIRINGTHEHRD
COMPLETINGTHEHOMERUNWIRING
GATEWAYANDFIELDCOMPUTER
LOCATIONDETERMINATION
SYSTEMREQUIREMENTS
ACPOWER
INTERNETACCESS
MECHANICALMOUNTING
ELECTRICALWIRING
Page38of53
SPTSYSTEMCOMMISSIONING
MAPPINGYOURSYSTEM
USINGTHEHANDHELDFC
POWERUPANDDOWN
READINGTHEDISPLAY
TURNINGMODULESONANDOFF
RECORDINGSERIALNUMBERS
DOWNLOADINGDATA
POWERUPTHEFC
VERIFYGATEWAYOPERATION
TESTINGTHESIGNALSTRENGTHTOTHEGATEWAY
ACCESSINGTHEFCTHROUGHTHEINTERNET
SETTINGUPTHEGUI
DEFININGUSERSANDADMINISTRATIVEFUNCTIONS
CHOOSINGTHEUSERDEFINEDPARAMETERS
ALERTTHRESHOLDS
SCRIPTCHOICES
INSTALLATIONMODE
COMMERCIALOPERATIONMODE
RESIDENTIALOPERATIONMODE
UTILITYOPERATIONMODE
MAINTENANCEMODE
SUMMARYPAGE
MAPPINGOUTYOURARRAY
CROSSCHECKINGYOURMODULEPOSITIONS
SETTINGUPTHEDATABASE

Page39of53
OPERATINGINSTRUCTIONS
READINGTHEGUI

Page40of53
CONTROLFEATURES
NORMALOPERATION
WHATYOUSEE
HOWTOINTERPRET
HOWTOMODIFY
ACCESSINGTHEDATABASE
SORTINGTHEDATA
DEFININGUSERTEMPLATES
INTERPRETINGALERTMESSAGES
Page41of53
TROUBLESHOOTING
SPTOPERATIONALISSUES
GUIOPERATIONALISSUES

Page42of53
TECHNICALDATA
SPTSPECIFICATIONSSHEET
SPTPHOTO

Page43of53
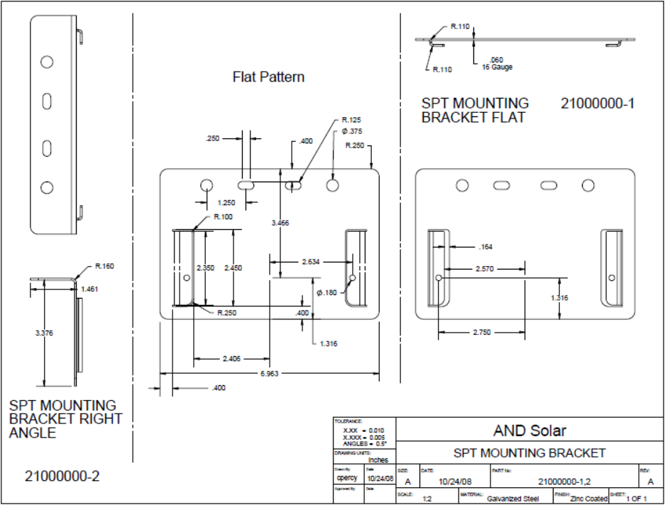
SPTMECHANICALDRAWING

Page44of53
HRDSPECIFICATIONSSHEET
HRDILLUSTRATION

Page45of53
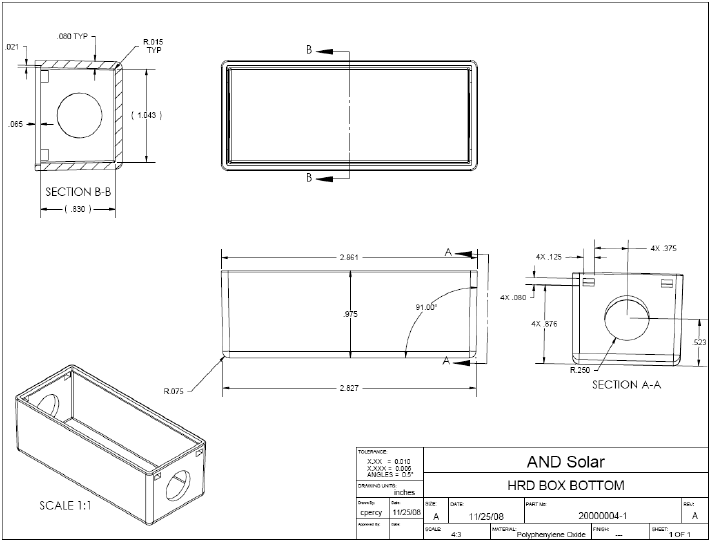
HRDMECHANICALDRAWING

Page46of53
FCSPECIFICATIONSSHEET
ManufacturedbyDMPElectronicsInc
• ModeleBox‐3300
• CPUMSTIPDX‐600(1GHz)
• MemoryOnboard256MBDDR2
• GraphicsXGIZ9swith32MBDDR2
• External15‐pinD‐typefemaleVGAconnector
• EthernetIntegrated10/100MbpsLAN
• Built‐inPXEdisklessbootfunction
• 2ndEthernetchipRealtekRTL8100B10/100
• Base‐TEthernet(optional)
• I/O44pinIDEx1
• MicroSDx1
• CFSlotx1
• USBPortx3(2infront)
• RJ‐45x1
• PS/2x1Keyboard/Mouseshared
• MiniPCISocketx1(optional)
• RS232x2(optional)
• AudioMicinandLineout
• Power+5V@2A(10W)
• Dimensions115x115x35mm
• Weight505g

Page47of53
HANDHELDFCSPECIFICATIONSSHEET
ManufacturedbyMotorola
PhysicalCharacteristics
• Dimensions:6in.Lx3.3in.Wx1.7inD(15.24cmLx8.4cmWx4.4cmD)
• Weight(includingStandard1.5Xbattery:14.9oz./422g)
• Display:Transflectivecolor640x4803.5”fullVGAwithbacklight
• TouchPanel:Glassanalogresistivetouch
• Backlight:LEDbacklight
• MainBattery:RechargeableLithiumIon3.7V,3600mAhSmartBattery
• ExpansionSlot:microSDslot(maximum2GB)
• NetworkConnections:Ethernet(viacradle);full‐speedUSB,hostorclient
• Notification:VibratorandLED
• KeypadOptions:26‐keyNumeric;44‐keyQWERTY
• Audio:Speaker,receiver,microphone,headsetjack
PerformanceCharacteristics
• CPU:XScale™PXA270624MHzprocessor
• OperatingSystem:Microsoft®WindowsMobile®6.0
• Memory:128MBRAM;256MBFlash
• Interface:RS‐232,USB1.1
UserEnvironment
• OperatingTemperature:14°Fto122°F/‐10°Cto50°C
• StorageTemperature:‐40°Fto140°F/‐40°Cto60°C(w/obattery)
• Humidity:95%non‐condensing
• DropSpecification:5ft.droptoconcrete,atambienttemperature73°F/23°C;
• Sealing:IP54
• IrDA:Integrated
• Clock:Integratedrealtimeclock
Baselinefeatures:
Page48of53
• EachHandHeldComputerwillbecapableofcommunicatingwiththeSPT/IJBandFieldComputer
throughouttheexpected20yearsinatypicalinstallationlifetime
• WWANRadio:GSM:3GHSDPA;CDMA:EVDORevA
• GPS:IntegratedAssisted‐GPS(A‐GPS)
• WLANRadio:Tri‐modeIEEE®802.11a/b/g
• ColorCameraResolution:2megapixel
• ElectricalSafety:CertifiedtoUL/cUL60950‐1,IEC/EN60950‐1
• FCCClassBEMICertified
• Environmental:RoHS‐compliant
Page49of53
GUIPARAMETERSANDSYSTEMREQUIRMENTS
Page50of53
TECHNICALSUPPORT
BychoosinganAmptproduct,youhavealsochosencomprehensivetechnicalsupport&service.Inordertoattend
toyourneedsinasflexibleamanneraspossible,weofferyouthefollowingservices:
• TheAmptTechnicalSupport&ServicePhoneHotline:970‐372‐6947
• Replacementservice:970‐372‐6950
• On‐siteservice:970‐372‐6950
• Comprehensivewarrantyprogram
Withthisofferyouenjoyadefinitiveadvantage:Amptsupportsyoufromtheinitialplanningphaseonward–and,
ofcourse,duringtheentireoperatingtimeofthePVsystem.
InordertobetterassistyouwhencontactingAmpt,pleaseprovidethefollowinginformation.Thisinformationis
requiredforserviceassistance.
INFORMATIONREGARDINGTHESPT:
• Serialnumber
• ModelNumber
• Shortdescriptionoftheproblem
• BlinkingCodeordisplaymessage
• WhaterrorcodeisindicatedviatheAmptGUI?
• DClinevoltage
• Canyoureproducethefailure?Ifyes,how?
• Hasthisproblemoccurredinthepast?
• Whatweretheambientconditionswhentheproblemoccurred?
INFORMATIONREGARDINGTHEPVMODULES:
• ManufacturernameandmodelnumberofthePVmodule
• Outputpowerofthemodule
• Opencircuitvoltage(Voc)ofthemodule
• Numberofmodulesineachstring
Page51of53
LIMITEDWARRANTY
TheAmptSPTiswarrantedagainstdefectsinworkmanshipandmaterialsforaperiodof1yearfromdateof
shipment,providedthattheproductremainsunmodifiedandisoperatedundernormalandproperconditions.
The25yearoperationalwarrantycoversanyrepairorreplacementpartcostsincurredduringtheagreedperiod,
beginningonthedevice’spurchasedate,subjecttotheconditionslistedbelow.
WARRANTYCONDITIONS
Ifadevicebecomesdefectiveduringthe25yearAmptwarrantyperiod,oneofthefollowingservices,asselected
byAmpt,willbeperformedatnochargeformaterialsorlaborcosts:
RepairatAmpt,or
RepairOn‐Site,or
ExchangeforaReplacementDevice
Inthecaseofanexchange,theremainderofthewarrantyeligibilitywillbetransferredtothereplacementdevice.
Amptgenerallywillprovideanequivalentreplacementdevice,packagedappropriatelyfortransport,within48
hours.ThedefectivedeviceistobepackedinthistransportpackagingforreturntransporttoAmpt.
EXCLUSIONOFLIABILITY
Warrantyclaimsandliabilityfordirectorindirectdamageareexcludedifarisingfrom:
• TransportDamage,
• IncorrectInstallationorCommissioning,
• failuretoObservetheMaintenanceRegulationsandIntervals,
• Modifications,ChangesorAttemptedRepairs,
• IncorrectUseorInappropriateOperation,
• InsufficientVentilationoftheDevice
• failuretoObservetheApplicableSafetyRegulations,
• forceMajeure(e.g.lightning,overvoltage,storm,fire),or
• CosmeticShortcomings(whichdonotinfluencethesupplyofenergy)
Further‐reachingoradditionalclaimsduetodirectorindirectdamage,includingclaimsforcompensationfor
damagesduetolossofprofitsorduetocostsarisingfromdisassemblyandmounting,areexcluded.
FORWARRANTYRETURNS&INSTALLERREPLACEMENT:
AmptwillcompensateinstallersforexpensesassociatedwithreplacingSPTproductsunderwarrantyperthe
followingregistrationandwarrantyprocess:
1.InstallermustcontactthetechnicalsupportteamatAmpttoregisterthesupportissueandseek
assistance.AmptTechnicalsupportwillprovidetroubleshootingassistanceandiscommittedtoresolving
theclaiminoneofthefollowingways;
Page52of53
a.Situationwillberesolvedtotheinstaller’ssatisfactionoverthephoneorviatheAmptwireless
communicationlinktotheSPT
b.AmptoroneoftheAmptcertifiedfieldservicetechnicianswillbedispatchedtothesitefor
additionaltroubleshootingandrepairoftheSPT
c.Amptwilldeterminethattheunitshouldbereplacedandwillprovidetheinstallerwithan
RMAnumbertoproceedwithwarrantyreplacementoftheunit
2.OncetheRMAnumberhasbeenissuedbyAmpt,therearetwooptions;
a.TheinstallercanuseanexistingunitfrominventorytoreplacethefailedSPT
or
b.Amptcansendoutanadvancereplacementunit
3.Ineithercase,thereplacedunitmustbereturnedtoAmptforissueconfirmation,rootcauseanalysis
andcorrectiveactionplanning
4.AnyexceptionstothisprocessmustbeapprovedinadvancebyanauthorizedAmptrepresentative
Page53of53
APPENDIX:
FAQ
INSTALLATIONMAPPING
WIRINGDIAGRAMS
ORDERINGSPAREORREPLACEMENTPARTS
RETURNPROCEDURES
WHITEPAPERS
PRESENTATIONS