Ampt AMPT-X Solar PV Converter User Manual Exhibit D Users Manual per 2 1033 b3

Ampt LLC Solar PV Converter Exhibit D Users Manual per 2 1033 b3

Exhibit D Users Manual per 2 1033 b3

TheSPTOperatorManualSmartPanelTechnology
Page2of49CONTENTSInformation&Disclaimer ..............................................................................................................................................5ReadthisFirst ............................................................................................................................................................6FCCcompliance..........................................................................................................................................................6ImportantSafetyInformation .......................................................................................................................................7SavetheseInstructions..............................................................................................................................................7Markings ....................................................................................................................................................................9Servicing.....................................................................................................................................................................9MessagefromAmpt ....................................................................................................................................................10WhySPT–WhygetAmpt? ..................................................................................................................................11SmartPanelTechnologyOverview..............................................................................................................................12Insimpleterms,theSPT: .....................................................................................................................................13Here’showitworks: ............................................................................................................................................14TheoryofOperation ............................................................................................................................................16SPTFundamentals: ..............................................................................................................................................16IntroductiontoLogicMatrix(summaryversion).................................................................................................17Valuepropositionlist...............................................................................................................................................18Testresults ..............................................................................................................................................................18Internaltesting ....................................................................................................................................................18Thirdpartyvalidation ..........................................................................................................................................18Safetyandconveniencefeatures ............................................................................................................................19Fullsystemdiagram.............................................................................................................................................19Energyvspower ......................................................................................................................................................19LCOE.....................................................................................................................................................................20MaximumPowerPointTracking..............................................................................................................................21GUI–graphicaluserinterface&SoftwareUserManual.........................................................................................22Overview..............................................................................................................................................................22Databaseandtrendanalysis...............................................................................................................................25CompletesystemlayoutandWiringDiagram .........................................................................................................26Communicationsystemlayout ................................................................................................................................26DesigningyourSPTsystemsolution ....................................................................................................................27Orderinginformation–SampleSalesOrder........................................................................................................28
Page3of49QuickInstallGuide.......................................................................................................................................................30SPTInstallation ........................................................................................................................................................34MechanicalmountingSPTtothePVmodule ......................................................................................................34WiringSPTtothePVmodule...............................................................................................................................34Completingthestringwiring ...............................................................................................................................34HRDInstallation .......................................................................................................................................................35MechanicalmountingtheHRD............................................................................................................................35WiringtheHRD ....................................................................................................................................................35Completingthehomerunwiring.........................................................................................................................35GatewayandFieldComputer ..................................................................................................................................35Locationdetermination .......................................................................................................................................35Systemrequirements...............................................................................................................................................35ACpower .............................................................................................................................................................35InternetAccess ....................................................................................................................................................35Mechanicalmounting ..........................................................................................................................................35Electricalwiring....................................................................................................................................................35SPTSystemCommissioning .........................................................................................................................................36Mappingyoursystem ..............................................................................................................................................36UsingtheHandHeldFC .......................................................................................................................................36PoweruptheFC ......................................................................................................................................................36Verifygatewayoperation ....................................................................................................................................36TestingthesignalstrengthtotheGateway.........................................................................................................36AccessingtheFCthroughtheinternet ................................................................................................................36SettinguptheGUI ...................................................................................................................................................36Definingusersandadministrativefunctions .......................................................................................................36Choosingtheuserdefinedparameters ...............................................................................................................36AlertThresholds...................................................................................................................................................36Scriptchoices.......................................................................................................................................................36Summarypage.....................................................................................................................................................36Settingupthedatabase..........................................................................................................................................37OperatingInstructions.................................................................................................................................................37ReadingtheGUI.......................................................................................................................................................37Controlfeatures.......................................................................................................................................................38Normaloperation ....................................................................................................................................................38
Page4of49Whatyousee.......................................................................................................................................................38Howtointerpret..................................................................................................................................................38Howtomodify .....................................................................................................................................................38Accessingthedatabase...........................................................................................................................................38Sortingthedata ...................................................................................................................................................38Definingusertemplates.......................................................................................................................................38Interpretingalertmessages.....................................................................................................................................38Troubleshooting ..........................................................................................................................................................39SPToperationalissues .............................................................................................................................................39GUIoperationalissues.............................................................................................................................................39TechnicalData .............................................................................................................................................................40SPTspecificationssheet...........................................................................................................................................40SPTPhoto&MechanicalDrawing ...........................................................................................................................40HRDspecificationssheet .........................................................................................................................................42HRDIllustration........................................................................................................................................................42HRDMechanicalDrawing ........................................................................................................................................42FCspecificationssheet ............................................................................................................................................43HandHeldFCspecificationssheet...........................................................................................................................44GUIparametersandsystemrequirements .............................................................................................................45TechnicalSupport ........................................................................................................................................................46InformationRegardingtheSPT:...........................................................................................................................46InformationRegardingthePVmodules: .............................................................................................................46LimitedWarranty.........................................................................................................................................................47WarrantyConditions............................................................................................................................................47ExclusionofLiability.............................................................................................................................................47forWarrantyReturns&InstallerReplacement:..................................................................................................47Appendix:.....................................................................................................................................................................49FAQ ..........................................................................................................................................................................49InstallationMapping................................................................................................................................................49WiringDiagrams ......................................................................................................................................................49Orderingspareorreplacementparts ......................................................................................................................49Returnprocedures...................................................................................................................................................49WhitePapers ...........................................................................................................................................................49Presentations...........................................................................................................................................................49
Page5of49INFORMATION&DISCLAIMERCopyright©2009AmptLLC.Allrightsreserved.Nopartofthisdocumentmaybereproduced,retransmitted,orcopiedinanyformwithouttheexpressedandwrittenpermissionofAmpt.Amptmakesnorepresentations,expressedorimplied,thatwithrespecttothisdocumentationoranyoftheequipmentand/orsoftwareitmaydescribe,including(withnolimitation)anyimpliedwarrantiesofutility,merchantability,orfitnessforanyparticularpurpose.Allsuchwarrantiesareexpresslydisclaimed.Amptshallnotbeliableforanyindirect,incidental,orconsequentialdamagesunderanycircumstances.(Theexclusionofimpliedwarrantiesmaynotapplyinallcasesundersomestatutes,andthustheaboveexclusionmaynotapply.)Thefollowingspecificationsaresubjecttochangewithoutnotice,eventhougheveryattempthasbeenmadetomakethisdocumentcomplete,accurateandup‐to‐date.Readersarecautioned,however,thatAmptreservestherighttomakechangeswithoutnoticeandshallnotberesponsibleforanydamages,includingindirect,incidentalorconsequentialdamages,causedbyrelianceonthematerialpresented,including,butnotlimitedto,omissions,typographicalerrors,arithmeticalerrorsorlistingerrorsinthecontentmaterial.AmptLLC4850InnovationDriveFortCollins,Colorado80525Tel970‐372‐6950www.ampt.com
Page6of49READTHISFIRSTThisoperatormanualcontainsalloftheinformationneededtoinstall,commission,andoperateanAmptSPTdistributedpowerconversiondevicewithinagrid‐tiedphotovoltaic(PV)installation.Tohelpavoidproblemsduringthesysteminstallation,familiarizeyourselfinadvance,withtheinstallationprocessbyreadingtheentireInstallationGuidebeforestartingtheinstallation.Bealert!ThereareextremelydangerousandlethalvoltagespresentatvariouspointsinaPVsystem.Forsafetyreasons,itisrecommendedthatonlyqualifiedpersonnelinstallandoperatethisequipment.FCCCOMPLIANCEAmptSPT‐ThisequipmenthasbeencertifiedascompliantwiththelimitsforaClassBdigitaldevice,pursuanttoPart15oftheFCCRules.Theselimitsaredesignedtoprovidereasonableprotectionagainstharmfulinterferenceinaresidentialinstallation.Thisequipmentgenerates,uses,andcanradiateradiofrequencyenergyandifnotinstalledandusedinaccordancewiththeinstructions,maycauseharmfulinterferencetoradiocommunications.However,thereisnoguaranteethatinterferencewillnotoccurinaparticularinstallation.TheuseriscautionedthatchangesormodificationsnotexpresslyapprovedbyAmptLLC.couldvoidtheuser’sauthoritytooperatethisequipment.***AmptSPTFCCID#XLQ31570001SPTModelNumber:31570001ThislabelisfoundoneachAmptSPTenclosure.Theboxistwopiecesandisnotmeanttobeuserservicedoropenedinanyway.***AmptGatewayFCCID#GatewayModelNumber:31570002ThislabelisfoundoneachAmptGatewayenclosure.Theboxissmallerthanpalmsize,thusthefollowingtextisonlyprintedhere:Thisdevicecomplieswithpart15oftheFCCrules.Operationissubjecttothefollowingtwoconditions:(1)thisdevicemaynotcauseharmfulinterference,and(2)thisdevicemustacceptanyinterferencereceived,includinginterferencethatmaycauseundesiredoperation.
Page7of49Theboxistwopiecesandisnotmeanttobeuserservicedoropenedinanyway.***IMPORTANTSAFETYINFORMATIONSAVETHESEINSTRUCTIONSThismanualcontainsimportantinstructionsfortheAmptSPTdistributedpowerconversiondevicethatshallbefollowedduringinstallationandmaintenanceofthemoduleandaffiliatedhardwareandsoftware.TheSPThasbeendesignedandtestedaccordingtointernationalsafetyrequirements,butrequirescertainprecautionsareobservedwheninstallingand/oroperatingtheAmptSPTproduct.ToreducetheriskofpersonalinjuryandtoensurethesafeinstallationandoperationoftheSPT,pleasebesureyoucarefullyreadandfollowallinstructions,cautionsandwarningsinthisoperatormanual.WarningsAWarningidentifiesahazardtoequipmentorpersonnel.Itcallsattentiontoaprocedureorpractice,which,ifnotcorrectlyperformed,couldresultindamagetoordestructionofpartoralloftheAmptequipmentand/orotherequipmentconnectedtotheAmptequipmentorpersonalinjury. DANGERindicatesahazardoussituationwhich,ifnotavoided,willresultindeathorseriousinjury.WARNINGindicatesahazardoussituationwhich,ifnotavoided,couldresultindeathorseriousinjury.CAUTIONindicatesahazardoussituationwhich,ifnotavoided,couldresultinminorormoderateinjury.NOTICEindicatesasituationthatcanresultinpropertydamageifnotavoided.InadditiontothesafetyandhazardsymbolsthefollowingisalsousedinthisOperatorManual:Information‐ThissymbolaccompaniesnotesthatcallattentiontosupplementaryinformationthatyoushouldknowandusetoensureoptimaloperationoftheAmptsystem.GeneralWarnings:AllelectricalinstallationsmustbedoneinaccordancewiththelocalandNationalElectricalCodeANSI/NFPA70.TheAmptproductcontainsnouser‐serviceableparts.ForallrepairandmaintenancealwaysreturntheunittoanauthorizedAmptServiceCenter.BeforeinstallingorusingtheAmptSPT,readalloftheinstructions,cautions,andwarningsontheSPT,thePVarray,inthisInstallation
Page8of49Guide.BeforeconnectingtheSPTtotheelectricalutilitygrid,contactthelocalutilitycompany.Thisconnectionmustbemadeonlybyqualifiedpersonnel.PVarraysproduceelectricalenergywhenexposedtolightandthuscancreateanelectricalshockhazard.WiringofthePV‐arraysshouldonlybeperformedbyqualifiedpersonnel.
Page9of49MARKINGSSERVICINGWarnings:1. Whenthephotovoltaic(PV)arrayisexposedtolight,itproducesaDCvoltage,andtheAmptequipmentisenergized.2. Servicinginstructionsareforusebyqualifiedpersonnelonly.Toreducetheriskofelectricshock,donotperformanyservicingotherthanthatspecifiedintheseOperatingInstructions.3. TheinstallationofAmptequipmentrequiresfollowingtheNationalElectricalCode(ANSI/NFPA70)wiringmethods.4. CAUTION:Toreducetheriskoffire,connecttheoutputsoftheAmptEquipmentonlytoconductorswithaminimumampacityof9.4ampereswhende‐ratedfortemperatureandconduitfill.Over‐currentprotectiondevicesandconductorsshallbesizedinaccordancewiththeNationalElectricalCode(ANSI/NFPA70).5. AmptrequiresovercurrentprotectionfortheDCoutputcircuitintheinstallation.6. AmptrecommendsthatadisconnectswitchbeincludedintheinstallationfortheDCinputandDCoutputcircuitasrequiredbythelocalauthorities.
Page10of497. MESSAGEFROMAMPTThefirstproductsthatAmptisintroducingarearesultoflookingatrequirementstorealizemaximumenergyatthelowestcost–fromasystemlevelperspective.Thisinitialpremiseisthatthemaximumenergycannotbeharvestedfullywithouttherightgranularity.Webelievethatthisrequirespowerconversiontobedoneatthemodulelevel.Ourcustomersrequireminimallostharvestfromlocalsoiling,shading,orpanelimbalance–sowithregardstolocalpowerconversion,thereisnomoresuitableeconomicalternative.Webelievethatthepowerconversionhastobeextremelyefficientoveraverywiderange–soourproductsareover99%efficientovergreaterthan3:1inputrange.Toputthatintocontext,theAmptSPTconsumesonly,upto2Woftheenergygeneratedbya200Wmodule–relativelyspeakingthatisthesamelossasexpectedfromenergytravelingthrough3feetofconventionalwirecabling.WebelievethathighspeedMPPisverycriticaltomaximizeharvest–wehaveover99.9%accurateMPPin100milliseconds.Therefore,wecancapturethepowergainfromtheedgeofacloudandtherefractedirradiationonamodule.Webelievethatmaximizingthenumberofmodulesperstringisimportant.TheAmptproductisdynamicallycontrolled,andwecancommunicatewirelesslytoourfieldadaptablefirmware.Webelievethatreliabilityisahugedriveofeconomics–sowehaveanenvironmentallyvalidated(notsuperficiallymodeled)1000yearMTBF.Webelievethathighaccuracyandstableinstrumentationcombinedwithrobustcommunicationiscrucialforlarge‐scalearraysandbeneficialforallsmallerarrays.Itlowersinstallationcosts,andradicallyreducesO&Mwhilemaximizingtheeconomicsofharvesting.Wehaveabetterthan1%fieldcalibrate‐ablemeasurementsystemthatincludesmultiplechannelsofcriticalelectricalandtemperatureparameters,aswellasidentityinformation–permodule.Webelievethatcommunicationaloneisn’tsufficient.Theseapplicationsneedscalabilityandrobustnessthatdoesnotdependonproblematicconnections.Wedesignedahighlyrobustwirelesssystem.Webelievethatifthesystemisdesignedwiththerightgranularity,withtherightcomponents,withtherightinterfacesandtherightarchitecturethatitbecomesunlimitedinitsabilitytooperateatanyscale.Wehavedesignedthissystemtoallowscalingfromonemoduletoaboveamillionmodules.ThankyouforContinuedSupport–welookforwardtoworkingwithyou!WeareAmpt.
Page11of49WHYSPT–WHYGETAMPT?Whatismaximumpower?Isitdefinedbytheenergyoutputoftheweakestmoduleinastring,orthecombinedoutputofeverysinglemoduleoneverystring?Isitdefinedbyanalyzingenergyharvesteachdayatonesite,oreverysecondoneverypanelatonemillionsites?Isitdefinedbythemonitoringofinformationwithinanarray,orthecommunicationofknowledgethatleadstoimprovedperformancewithineverymodule?Byansweringwhatnooneelsehasevenyetasked,Amptisnotjustincreasingenergy,buthelpingyoutorealizeenergyyouneverknewpossible.CongratulationsonputtingtheabsolutebestcommunicationsandpowerconversionequipmentavailableonyourPVsystem!
Page12of49SMARTPANELTECHNOLOGYOVERVIEWAmpthasdevelopedSmartPanelTechnologyTM‐SPT‐astheoptimalsolutionforenergyharvestingfromanyPVsystem.ThefirstimplementationofAmptSPTisinastandalonedevicethatisplacedindirectconnectionwiththePVmoduletodeliverMPPT(MaximumPowerPointTracking)whichistheharvestedenergy.ConventionalPVsystemshavesolarmodulesseriesconnected,andaretherebylimitedbytheweakestmoduleinthestring.ThesestringsarewiredtoabulkDC‐ACinverterwhichusesalgorithmstoattemptamaximumharvestgiventhepotentialfromeachstring.
Page13of49TheAmptSPTputstheMPPTlogicwhereitbelongs,oneachsolarmodule,andallowseachmoduletoproduceitsmaximumpower.TheneachSPTdevicecombinestoprovidethebulkinverterwithitshighestefficiencyinputpower.Theresult:thehighestenergyfromeachmodule,operatingwiththehighestefficiencyofthebulkinverter. INSIMPLETERMS,THESPT: ReceivesthepowerfromthemoduleatitsMaximumPowerPointTracking(MPPT)regardlessofnormalorproblematicoperatingconditions DeliversmoduleMPPTpowerintoanyimpedancedeterminedbytheremainderofthestringandtheinverter Solvestheproblemofhavingpanels(currentsources)inseriesbeinglimitedbytheweakestpanelinthestring‐improvesstringsightingoptions Ensureseverypanelproduceswhateveritcanregardlessoftheremainderofthesystem Allowstheinvertertooperateatitshighestefficiencypoint Provideswirelesscommunicationoneachmodule,reportingmorethanjustpanelvoltage,currentandtemperature.Additionalinformationisresidentsuchasmoduleserialnumberandmanufacturinginformation Wirelesscommunicationalsoprovidesdiagnosticinformationformaintenance,andthroughradiocommandstheoutputcanbeturnedon/off
Page14of49HERE’SHOWITWORKS: EachsolarmodulewillhaveadedicatedAmptSPTdeviceconnectedtothemoduleoutputs.TheAmptSPTdevicesthenareconnectedinseriestoeachotherandwillmakeupa“string”ofmodules.Eachstringisthencombinedinparalleltoconnectwiththebulkinverter(intoday’sconventionalarray).WhensolarraysareabsorbedbythePVmodule,energyisproduced.TheSPTmaximizestheharvestableenergyfromeachPVmodule,andconvertsittoausefuloutputthatisthendeliveredtothestring(regardlessoftheenvironmentaloroperationalconditionsaffectingthatparticularpanel).Thestringsarethencombinedasanarrayanddeliveredtothebulkinverteratitspre‐determinedimpedancerequirement.ItisimportanttonotethattheconventionalbulkinverterdynamicallyissearchingforMPPT(maximumpowerpointtracking),andmaychangeitsimpedancerequirementsevery4+seconds.TheAmptSPThoweverisadjustingitsMPPT8timespersecondtoagainmaximizetheharvestableenergyproducedoneachPVmodule.InconventionalPVinstallations(withouttheAmptSPT),withseriesconnectedmodules,oneweaklinkinastringcausessignificantenergyharvestdegradation,andwilllowertheproducedpowerproduced.Ifthereissufficientobstructiontotheamountofsolarinsolationabsorbedbyasinglemodule(oroverseveralmodules),itispossiblethattheentirestringcollapses(electrically),andnetszeropoweroutput.TheAmptSPTsolvesthisproblembymaximizingthepowerharvestateachmoduleregardlessoftheconditions,andconvertsthattoaviableoutputtherebyeliminatingtheweakestlinkphenomenon.WithAmptSPT,evenalowpowerproducingmoduleisvaluable,andcontributestothenetpowergenerated.Ofcourse,ifthemoduleisdamagedorobstructedtothepointwhereitsinternalcircuitcannotproducepower,AmptSPTcannotcorrectthiscondition.Withthewirelesscommunicationlinkthough,theowneroperatorcanidentifythiscondition,andmakethenecessarycorrections.Inthemeantimethough,thebalanceofthestringisstilloperationalandgeneratingasmuchpowerasrequiredbythebulkinverter.EachSPTisaccessiblebyahostcomputerthroughawirelessAND“gateway”interface.Thisgatewayallowstheowner/operatortospeakspecificallytoeachSPT,andprovidesabi‐directionalwirelesscommunicationlinkwhichisthevehicleforcommand/controlanddataacquisition.TheANDGUI(graphicaluserinterface)isthenutilizedtoobservetheperformanceandcontroltheSPToperations.ExamplesofthisGUIareshownbelow:
Page15of49TheGUIhasalotofdatapresentedandwilllikelychangeforincreasedusability,butatpresentdemonstratesthekindofinteractionandreportingavailable.Asyoucansee,eachmodule(andcorrespondingSPT)ismappedoutpertheirinstalledlocation.Note:eachSPTisbarcoded,andduringthefieldcommissioningprocess,abarcodescannercanbeutilizedtologicallymapouttheorganizationofmodules.ItisalsopossiblethatthebarcodereadercaninterfacetotheSPTthroughaseparategateway,andtherebycontrolitson/offstateforfieldpersonnelsafety.That’sit.Withasimpleinstallation,theAmptSPTproductsoperateimmediatelyandautomaticallyenhancethepowergeneratedbythePVinstallation.Ongoingmonitoringandcommandcontrolfeaturesareavailabletotheowneroperation,butregularinteractionisnotrequiredtogetmaximumpower.
Page16of49THEORYOFOPERATIONSPTFUNDAMENTALS:•  TheSPTmoduleputsMPPwhereitbelongs,oneverypanel,andproducesthemaximumpowerthatisavailableregardlessofpanelcondition,andregardlessoftheremainderofthesystem.Ifthereispartialshade,dirtorpanelimbalance,everypanelstillputsoutitsmaximumpower.•  TheSPTmodulereceivesthepowerfromthepanelatMPP.Itdeliversthepowertoanyimpedancedeterminedbytheremainderofthestringandtheinverter.Thissolvestheproblemofhavingpanels(currentsources)inseriesbeinglimitedbytheweakestpanelinthestring.•  TheconventionalbulkpowerinvertermayimpressanyvoltageitwantsandbecausetheSPTisdeployedasalocalizedDC‐DCconverter,thepanelfieldwillsimplyoutputMPPfromeverypanel.Thisallowstheinvertertooperateatitshighestefficiencypoint.•  Goingforward,SPTbasedinstallationscanenablebetterbulkinverterdesignsthatdeliverhigherefficiency,greaterreliability,smallerandlighterastheywouldnolongerberequiredtoincludeanMPPstage.•  OneofthemostsignificantelementsoftheSPTistheinherentwirelesscommunicationscapabilities,whichenablesinstantaneouscommunicationandcontrol.TheradioandubiquitouswirelessmeshnetworkformedbySPTmoduleswillnotonlyreportpanelvoltage,currentandtemperature,butalsoprovideoperationalbenefitsbytogglingthepaneloutputsonandoff.•  Otherinformationcouldalsoresidetheresuchasserialnumberandmanufacturinginformation.•  Thewirelessradiowillalsoprovidediagnosticinformationformaintenanceandtrendanalysisthusallowingintelligentdecisionsonwhatrequiresserviceandwhen.TheAmpt SPTisdesignedtomitigateirregularitiesbetweenthemodulesinanarrayandthebulkinverter.Specifically,theSPTcanfixitsoutputtomatchtheoptimalinverterinputvoltageandbroadentheperformancerangeofconventionalPVmodules&invertercombinations.ByprovidinglocalizedDC‐DCconversionalongwithwirelesscommunication,theSPTenablesinstantaneouscontrolandfeedbacktothesystemandtherebymaximizesenergyharvesting.
Page17of49INTRODUCTIONTOLOGICMATRIX(SUMMARYVERSION)
Page18of49VALUEPROPOSITIONLIST Temperaturecoefficientpowerlosses‐TemperatureEffect/FillFactorManagement Panelobstruction/shading(leaf/snow/haze/birdgifts)‐Dynamicstringadjustmenttocapitalizeonunbalancedpanelproduction Panelpowervariation(mismatch/aging/broken/defect)‐diverseutilizationandimbalancecorrection Installedefficiency(placement/wiring/opens)‐MoreKWhr/KWproduction(12‐15%moreharvesting) Bi‐polarbalancing‐+/‐operationsforAdvancedEnergyInverterapplications VariableInverteroperatingalgorithmsandefficiency–deliversMPPTtoinverterhighestpointofefficiency Improvesstringsightingoptions(notsoPOAlimited) Conventionalinverterlimitations‐Greatercompatibilitybetweenconventionalinvertersandallmoduletypes(fromC‐SI,througha‐SI,CDTe,CIGSandfuturedesigns) Realtimecommandandcontrol‐WirelessCommunicationsSystem&Diagnostics–nolongerreliantondispatchedanalysisanderrorcorrection ImprovesSafety‐enablinginstantaneouson/offcyclingfortheentireSystem/atargetedString/orindividualPanelModule EnablesSoftstartforsomeinvertertypesTESTRESULTSINTERNALTESTING1. 90MhoursDemonstratedMTBF@40°CcontinuousNote:InitiallyAmptcalculatedMTBF,however,thedemonstratedperformanceisabetterindicatorofarchitecturalperformance.(MBTFof90Mhrsmeansafailurerateof0.01%PER25YEARS(warrantyperiod)assuming10hoursofoperationperdayat40Cambient).THIRDPARTYVALIDATION1. Sandia2. SWTDI(NMSU) ???3. BEW ???Testreportswillbemadeavailableuponrequest
Page19of49SAFETYANDCONVENIENCEFEATURESCurrently,oneproblemfacinginstallersandmaintenanceprovidersofPVSystemsissafety.Sinceconventionally,allpanelsareconnectedinseriesandinstallationandmaintenanceworkisdoneduringperiodsofirradiance,thevoltageacrossthepanelsmightreachdangerouslevelsexposingfieldpersonneltoarealdangerofelectrocution.Amptprovidesa“convenience”modewhichsupportsan“on/off”modeofoperation.ThismodeofoperationessentiallyenablesordisablestheSPToutputandcanfacilitatesysteminstaller/operatorsduringinstallation,diagnostics,andmaintenancetasks.Itisimportanttorecognizethatthisisaelectricalcircuitlogicchangeandisnottobeconfusedwithahardswitch.Thisconveniencefeatureisdesignedtoenhancetheprotectionofmodulehandlers,includingtheinstaller,maintenanceproviderandpotentiallyemergencypersonnel(ie.FireDepartment)."FULLSYSTEMDIAGRAMENERGYVSPOWEREnergyisthecapacityofasystemtodowork.Poweristherateofdoingwork.
Page20of49LCOE
Page21of49MAXIMUMPOWERPOINTTRACKING
Page22of49GUI–GRAPHICALUSERINTERFACE&SOFTWAREUSERMANUALOVERVIEWTheAmptsoftwareisawebbasedmanagementapplicationforviewingthereal‐timeperformanceandmanagementofyoursolarinstallationatthearray,string,andmodulelevel.INTRODUCTION:TherearetwoviewsavailableformanagingyourSolarArray;summaryandstringview.TheSummaryviewprovidesanoverviewofthestateofthesolararray.ItincludescurrentDCenergyoutputinWatts,Volts,andAmps,powerbystring,SPTstatus,andestimatedACPower.TheStringviewprovidesdetailedinformationontheperformanceofeachSPT.Itprovidesperformanceinformationatthestringlevel;DCenergyoutputinWatts,Volts,andAmps.Bothviewsautomaticallyrefreshaboutevery15seconds.DETAILSSUMMARYVIEWTheSummarypage(figure1)presentsinformationatthearraylevel.Thebuttonacrossthetop“Lock/UnlockWholeStation”allowsyoutodisablecommandstothesystem.Thisisusefulasasafetyprecautionwhenservicingthestation.Totherightisthetimetheinformationyourviewingwaslastupdated.Thisisbasedonyourlocalcomputer’stime.Thestringsareorganizedaroundthephysicalandlogicallayoutascloselyaspossibleandlistthestatusofthemodule,onoroff,andstatusoftheMaximizePowerPointfeature,MPP,onoroff.ClickingonthestringandmoduleareawilltakeyoutotheStringView.Belowthestringandmoduleareaisabarchartshowingthepoweroutputforeachstringinthearray.Thepoweroutputdetailsforthearrayareshownontherightedge;includingestimatedkWhours.AtthebottomisagraphofEnergy,powerandtemperature.Thescaleforthetemperatureislistedontherightedgeofthegraph.Youcanpositionyourmouseoverthelinestoseethetimeandvalueofthemeasurement.Thetimescaleofthegraphcanbechangedusingthecontrolstotherightofthegraph.Youcanchangethetimeintervalaswellasgobackandforwardtimeperiods.
Page23of49FIGURE1STRINGVIEWSimilartotheSummaryview,thestringsareorganizedaroundthephysicalandlogicallayoutascloselyaspossible.InStringviewthestatusofthemoduleisshownindetail.There’salegendonthenextpagethatcoversthemeaningofdifferentbackgroundcolors. MaxPower–MaximumpoweroutputfromSolarModulewithSPTTechnology Vmp‐IN–VoltageoutputfromSPTModule I‐Out–AmpsoutputfromSPTModule V‐Out–SolarModulevoltageoutput Temp–TemperatureinsidetheSPTModule OverV–OverVoltagesettingforSPTModule ModON–SPTModulestatus(on/off) MppON–MaximizePowerPointTechnologystatus(on/off) ID–UniqueidentifierfortheSPTModule
Page24of49FIGURE2TotherightofthestringlayoutisPoweroutputdetailsforeachstring;Power,Voltage,Current,andEnergy.Therearemultiplecontrolsonthefarrightedge. SetOverV–SetOverVoltagelimitforalltheSPTModules. ON–TurnstheSPTModuleonallowingcurrentandvoltagetopassthroughdevice. OFF‐TurnstheSPTModuleoffblockingcurrentandvoltageoutput. WARNING***Moduleisstillproducingvoltageandlookingforapathwaytoground.*** MPPON–EnabletheMaximizePowerPointfeatureoftheSPTModule MPPOFF–DisabletheMaximizePowerPointfeatureoftheSPTModule DownloadDbData–Downloadthedatathatiscurrentlybeingviewedinthegraphatthebottom.GUILEGENDTheSPTmodulebackgroundcolorvariesbasedonthepoweroutputofthemodule.
Page25of490to39.9W40to79.980to119.9W120To159.9WOver160WAreddishbackgroundmeansSPTisnottalkingtothegatewayandfieldcomputer.Ie.Nodataisbeingcapturedforthatmodule.BrownindicatesthatamodulepositionisreservedGUIbutnoSPTinstalled.DATABASEANDTRENDANALYSIS
Page26of49COMPLETESYSTEMLAYOUTANDWIRINGDIAGRAMCOMMUNICATIONSYSTEMLAYOUT
Page27of49DESIGNINGYOURSPTSYSTEMSOLUTION
Page28of49ORDERINGINFORMATION–SAMPLESALESORDER
Page29of49
Page30of49QUICKINSTALLGUIDEForthosewhoalreadyknowthebasicsandjustwanttogetgoing.INSTALLATIONSEQUENCEOFEVENTS1. Unpackingandinspection2. Propersystemgroundingpriortoinstallation3. Installationofthefieldcomputera. Mountingb. ACPowerc. InternetconnectionviaEthernetd. ConnectiontotheGatewaye. Connectiontoalaptop4. SPTmountingandmechanicala. Mountingchoicesi. Planeofarrayii. Perpendiculartoplaneofarrayiii. Otherb. InstallingtheSPTtothebracketc. Installingthebrackettothemountingstructurei. Hardwareandtorquesii. Groundingd. Usingthehandhelddevicetorecordserialnumbers5. HRDmountingandmechanical6. Electricalconnectionsandcommunicationwithhandhelda. ProperconnectionwithMCconnectorsb. ModuletoSPTi. Establishingcontactwiththehandhelddeviceii. TurningontheSPTiii. Measuringmodulecharacteristicsiv. TurningofftheSPTc. SPTtoSPTCablingd. SPTtoHRDboxe. Cablehandlingandsecuring7. GraphicalUserInterfaceUNPACKINGANDINSPECTIONCarefullyunpackandinspecteachSPT,HRDandcablefordamage.InspecteachfieldcomputerfordamageInspecteachMCconnectorbeforemakinganyelectricalconnections.Properconnectorsshouldbecleanandfreefromdamage.Insertpictureshere.
Page31of49PROPERSYSTEMGROUNDINGINSTALLATIONOFTHEFIELDCOMPUTERa. Mountingb. ACPowerc. InternetconnectionviaEthernetd. ConnectiontotheGatewaye. ConnectiontoalaptopSPTMOUNTINGANDMECHANICALMountandgroundrackingorsupportstructureperNECArticle690andmanufacturer’sinstructions.EnsurethatsupportstructureisgroundedbeforemountingmodulesorSPTsPlanningUseonlystainlesssteelfastenerstosecuretheSPTbrackettothemountingstructureChooseflatbracketsor“L”bracketsfortheinstallation.InserttheSPTinthebracketbypushinguntilthepushpinholesalignInstallmountingpushpinsPlantomountSPTatleastoneinch(2.5cm)fromthebackofthemodulesurfacetoallowforadequatecoolingairflow.PlantomountSPT,modulecables,andSPTconnectioncablinginalocationthatwillnotbesubjecttophysicaldamage,andwillnotbesubjecttosnoworotherdebrisslides.(reword)Mountingintorailswith3/8or1/4slots
Page32of49Ifmountingtoastructurewithrailslots,insert3/8or1/4inchhardwareintherailslotbeforemodulesor“L”feetorstanchionsaresecured.EachSPTrequirestwobolts,twonuts,twoflatwashers,andtwolockwashers.Whizznutsarenotrecommendedasthegalvanizedcoatingofthebracketmaybecompromised.Secureeachbracket,makingsurethateachlockwasherisfullycompressed.Torque3/8inchfastenerstoXXXinch‐poundsand1/4inchfastenerstoYYYinch‐pounds.MountingintorailsorbraceswithoutslotsCheckwithrackingormodulesupportmanufacturerforsuggestedmountingprocedure.Checkwithalocalstructuralengineerand/ortherackingmanufacturerifanymodificationstothestructure(ie.Drillingholes)Usethebracketasaguideforanypre‐drilledholes.Insert3/8or¼inchhardwareintherailslot.EachSPTrequirestwobolts,twonuts,twoflatwashers,andtwolockwashers.Whizznutsarenotrecommendedasthegalvanizedcoatingofthebracketmaybecompromised.Secureeachbracket,makingsurethateachlockwasherisfullycompressed.Torque3/8inchfastenerstoXXXinch‐poundsand¼inchfastenerstoYYYinch‐pounds.HRDMountingandMechanicalElectricalconnectionsandcommunicationwithhandheldMountandgroundmodulepermodulemanufacturer’sinstructions.ConnectthemoduleleadstotheSPTInspectMCconnectorforwatertightsealEstablishcommunicationwiththehandheldunit.PlaceSPTin“On”mode.
Page33of49CheckmoduleVocfortemperatureandirradianceadjustedvaluefrommodulenameplatereading.PlaceSPTin“Off”modeRepeatfornextSPT’sinstringConnectSPT‐SPTcable.SecuremoduleandSPT‐SPTcablestosupportstructureormoduleframewithUVratedwiretiesand/orstainlesssteelclipsorstrainrelieff. MounteachSPTaseachmoduleisinstalled.ModulesperformancemaybetestedwiththeSPTaseachmoduleisinstalled.g. ChoosetomounttheSPT’seitherparallel,perpendicular,orinafashionthattakesadvantageofthemodulesupportstructure.TheSPTissuppliedwithaflatandan“L”shapedbracket.Bracketshave3/8”and¼”pre‐drilledtotheplaneofthearray.h. i. Mountingchoicesi. Planeofarrayii. Perpendiculartoplaneofarrayiii. Otherj. InstallingtheSPTtothebracketk. Installingthebrackettothemountingstructurei. Hardwareandtorquesii. Grounding
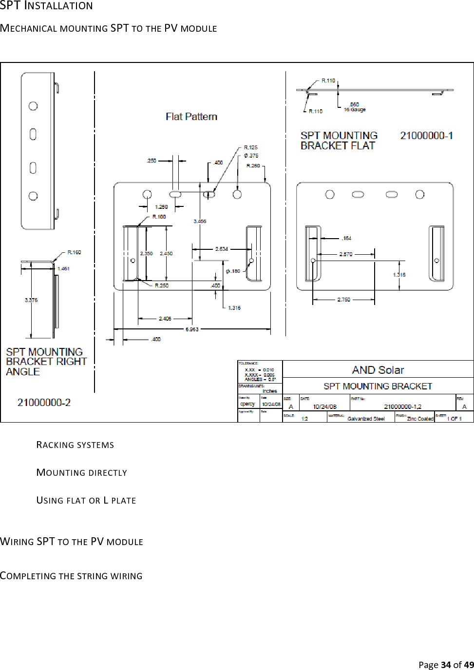
Page34of49SPTINSTALLATIONMECHANICALMOUNTINGSPTTOTHEPVMODULERACKINGSYSTEMSMOUNTINGDIRECTLYUSINGFLATORLPLATEWIRINGSPTTOTHEPVMODULECOMPLETINGTHESTRINGWIRING
Page35of49HRDINSTALLATIONMECHANICALMOUNTINGTHEHRDWIRINGTHEHRDCOMPLETINGTHEHOMERUNWIRINGGATEWAYANDFIELDCOMPUTERLOCATIONDETERMINATIONSYSTEMREQUIREMENTSACPOWERINTERNETACCESSMECHANICALMOUNTINGELECTRICALWIRING
Page36of49SPTSYSTEMCOMMISSIONINGMAPPINGYOURSYSTEMUSINGTHEHANDHELDFCPOWERUPANDDOWNREADINGTHEDISPLAYTURNINGMODULESONANDOFFRECORDINGSERIALNUMBERSDOWNLOADINGDATAPOWERUPTHEFCVERIFYGATEWAYOPERATIONTESTINGTHESIGNALSTRENGTHTOTHEGATEWAYACCESSINGTHEFCTHROUGHTHEINTERNETSETTINGUPTHEGUIDEFININGUSERSANDADMINISTRATIVEFUNCTIONSCHOOSINGTHEUSERDEFINEDPARAMETERSALERTTHRESHOLDSSCRIPTCHOICESINSTALLATIONMODECOMMERCIALOPERATIONMODERESIDENTIALOPERATIONMODEUTILITYOPERATIONMODEMAINTENANCEMODESUMMARYPAGEMAPPINGOUTYOURARRAYCROSSCHECKINGYOURMODULEPOSITIONS
Page37of49SETTINGUPTHEDATABASEOPERATINGINSTRUCTIONSREADINGTHEGUI
Page38of49CONTROLFEATURESNORMALOPERATIONWHATYOUSEEHOWTOINTERPRETHOWTOMODIFYACCESSINGTHEDATABASESORTINGTHEDATADEFININGUSERTEMPLATESINTERPRETINGALERTMESSAGES
Page39of49TROUBLESHOOTINGSPTOPERATIONALISSUESGUIOPERATIONALISSUES
Page40of49TECHNICALDATASPTSPECIFICATIONSSHEETSPTPHOTO&MECHANICALDRAWING
Page41of49
Page42of49HRDSPECIFICATIONSSHEETHRDILLUSTRATIONHRDMECHANICALDRAWING
Page43of49FCSPECIFICATIONSSHEETManufacturedbyDMPElectronicsInc ModeleBox‐3300 CPUMSTIPDX‐600(1GHz) MemoryOnboard256MBDDR2 GraphicsXGIZ9swith32MBDDR2 External15‐pinD‐typefemaleVGAconnector EthernetIntegrated10/100MbpsLAN Built‐inPXEdisklessbootfunction 2ndEthernetchipRealtekRTL8100B10/100 Base‐TEthernet(optional) I/O44pinIDEx1 MicroSDx1 CFSlotx1 USBPortx3(2infront) RJ‐45x1 PS/2x1Keyboard/Mouseshared MiniPCISocketx1(optional) RS232x2(optional) AudioMicinandLineout Power+5V@2A(10W) Dimensions115x115x35mm Weight505g
Page44of49HANDHELDFCSPECIFICATIONSSHEETManufacturedbyMotorolaPhysicalCharacteristics Dimensions:6in.Lx3.3in.Wx1.7inD(15.24cmLx8.4cmWx4.4cmD) Weight(includingStandard1.5Xbattery:14.9oz./422g) Display:Transflectivecolor640x4803.5”fullVGAwithbacklight TouchPanel:Glassanalogresistivetouch Backlight:LEDbacklight MainBattery:RechargeableLithiumIon3.7V,3600mAhSmartBattery ExpansionSlot:microSDslot(maximum2GB) NetworkConnections:Ethernet(viacradle);full‐speedUSB,hostorclient Notification:VibratorandLED KeypadOptions:26‐keyNumeric;44‐keyQWERTY Audio:Speaker,receiver,microphone,headsetjackPerformanceCharacteristics CPU:XScale™PXA270624MHzprocessor OperatingSystem:Microsoft®WindowsMobile®6.0 Memory:128MBRAM;256MBFlash Interface:RS‐232,USB1.1UserEnvironment OperatingTemperature:14°Fto122°F/‐10°Cto50°C StorageTemperature:‐40°Fto140°F/‐40°Cto60°C(w/obattery) Humidity:95%non‐condensing DropSpecification:5ft.droptoconcrete,atambienttemperature73°F/23°C; Sealing:IP54 IrDA:Integrated Clock:IntegratedrealtimeclockBaselinefeatures: EachHandHeldComputerwillbecapableofcommunicatingwiththeSPT/IJBandFieldComputerthroughouttheexpected20yearsinatypicalinstallationlifetime WWANRadio:GSM:3GHSDPA;CDMA:EVDORevA GPS:IntegratedAssisted‐GPS(A‐GPS) WLANRadio:Tri‐modeIEEE®802.11a/b/g ColorCameraResolution:2megapixel
Page45of49 ElectricalSafety:CertifiedtoUL/cUL60950‐1,IEC/EN60950‐1 FCCClassBEMICertified Environmental:RoHS‐compliantGUIPARAMETERSANDSYSTEMREQUIREMENTS
Page46of49TECHNICALSUPPORTBychoosinganAmptproduct,youhavealsochosencomprehensivetechnicalsupport&service.Inordertoattendtoyourneedsinasflexibleamanneraspossible,weofferyouthefollowingservices: TheAmptTechnicalSupport&ServicePhoneHotline:970‐372‐6947 Replacementservice:970‐372‐6950 On‐siteservice:970‐372‐6950 ComprehensivewarrantyprogramWiththisofferyouenjoyadefinitiveadvantage:Amptsupportsyoufromtheinitialplanningphaseonward–and,ofcourse,duringtheentireoperatingtimeofthePVsystem.InordertobetterassistyouwhencontactingAmpt,pleaseprovidethefollowinginformation.Thisinformationisrequiredforserviceassistance.INFORMATIONREGARDINGTHESPT: Serialnumber ModelNumber Shortdescriptionoftheproblem BlinkingCodeordisplaymessage WhaterrorcodeisindicatedviatheAmptGUI? DClinevoltage Canyoureproducethefailure?Ifyes,how? Hasthisproblemoccurredinthepast? Whatweretheambientconditionswhentheproblemoccurred?INFORMATIONREGARDINGTHEPVMODULES:•  ManufacturernameandmodelnumberofthePVmodule•  Outputpowerofthemodule•  Opencircuitvoltage(Voc)ofthemodule•  Numberofmodulesineachstring
Page47of49LIMITEDWARRANTYTheAmptSPTiswarrantedagainstdefectsinworkmanshipandmaterialsforaperiodof1yearfromdateofshipment,providedthattheproductremainsunmodifiedandisoperatedundernormalandproperconditions.TheAmptSPT25yearoperationalwarrantycoversanyrepairorreplacementpartcostsincurredduringtheagreedperiod,beginningonthedevice’spurchasedate,subjecttotheconditionslistedbelow.WARRANTYCONDITIONSIfanAmptSPTdevicebecomesdefectiveduringthe25yearAmptwarrantyperiod,oneofthefollowingservices,asselectedbyAmpt,willbeperformedatnochargeformaterialsorlaborcosts:RepairatAmpt,orRepairOn‐Site,orExchangeforaReplacementDeviceInthecaseofanexchange,theremainderofthewarrantyeligibilitywillbetransferredtothereplacementdevice.Amptgenerallywillprovideanequivalentreplacementdevice,packagedappropriatelyfortransport,within48hours.ThedefectivedeviceistobepackedinthistransportpackagingforreturntransporttoAmpt.EXCLUSIONOFLIABILITYWarrantyclaimsandliabilityfordirectorindirectdamageareexcludedifarisingfrom: TransportDamage, IncorrectInstallationorCommissioning, failuretoObservetheMaintenanceRegulationsandIntervals, Modifications,ChangesorAttemptedRepairs, IncorrectUseorInappropriateOperation, InsufficientVentilationoftheDevice failuretoObservetheApplicableSafetyRegulations, forceMajeure(e.g.lightning,overvoltage,storm,fire),or CosmeticShortcomings(whichdonotinfluencethesupplyofenergy)Further‐reachingoradditionalclaimsduetodirectorindirectdamage,includingclaimsforcompensationfordamagesduetolossofprofitsorduetocostsarisingfromdisassemblyandmounting,areexcluded.FORWARRANTYRETURNS&INSTALLERREPLACEMENT:AmptwillcompensateinstallersforexpensesassociatedwithreplacingSPTproductsunderwarrantyperthefollowingregistrationandwarrantyprocess:
Page48of491.InstallermustcontactthetechnicalsupportteamatAmpttoregisterthesupportissueandseekassistance.AmptTechnicalsupportwillprovidetroubleshootingassistanceandiscommittedtoresolvingtheclaiminoneofthefollowingways;a.Situationwillberesolvedtotheinstaller’ssatisfactionoverthephoneorviatheAmptwirelesscommunicationlinktotheSPTb.AmptoroneoftheAmptcertifiedfieldservicetechnicianswillbedispatchedtothesiteforadditionaltroubleshootingandrepairoftheSPTc.AmptwilldeterminethattheunitshouldbereplacedandwillprovidetheinstallerwithanRMAnumbertoproceedwithwarrantyreplacementoftheunit2.OncetheRMAnumberhasbeenissuedbyAmpt,therearetwooptions;a.TheinstallercanuseanexistingunitfrominventorytoreplacethefailedSPTorb.Amptcansendoutanadvancereplacementunit3.Ineithercase,thereplacedunitmustbereturnedtoAmptforissueconfirmation,rootcauseanalysisandcorrectiveactionplanning4.AnyexceptionstothisprocessmustbeapprovedinadvancebyanauthorizedAmptrepresentative
Page49of49APPENDIX:FAQINSTALLATIONMAPPINGWIRINGDIAGRAMSORDERINGSPAREORREPLACEMENTPARTSRETURNPROCEDURESWHITEPAPERS1. RobustLargeScalePVSystemsHavingDistributedDC/DCConversion–ByRobertPorterPropertransferfunctiontoachievestable,predictable,andreliableoperationPRESENTATIONS

Navigation menu