Analog Devices M1030 SmartMesh M1030 Mote User Manual Datasheet

Dust Networks, Inc. SmartMesh M1030 Mote Datasheet

Contents

User Manual

M1030-2 MOTE DATASHEET DUST NETWORKS™DOCUMENT NUMBER: 020-0013 REV ACONFIDENTIALProduct DescriptionThe SmartMesh® M1030-2 embedded wireless mote uses Time Synchronized Mesh Protocol (TSMP) to enable low-power wireless sensors and actuators with highly reliable wireless mesh networking. The M1030-2 is tailored for use in battery- and line-powered wireless devices for applications that demand proven performance, scalability, and reliability.The M1030-2 uses a 900 MHz radio to achieve more than 200-meter communication distance outdoors, while consuming down to 40 µA in a typical network deployment. The combination of extremely high reliability and low power consumption enables applications that require very low installation cost and low-maintenance, long-term deployments.The standard serial interface of the M1030-2 gives it flexibility to be used in a wide variety of different applications, from industrial process control to security, to lighting. When integrated into a product, the M1030-2 acts like a network interface card (NIC)—it takes a data packet and makes sure that it successfully traverses the network. By isolating the wireless mesh networking protocols from the user, the M1030-2 simplifies the development process and reduces development risk.Key FeaturesReliable Networking•Uses a Time Synchronized Mesh Protocol (TSMP) for high reliability (>99.9% typical network reliability)•Frequency hopping for interference rejection•Mesh networking for built-in redundancy•Every M1030-2 acts as both an endpoint and a router, increasing network reliability: “mesh-to-the-edge”•Automatic self-organizing mesh is built inLow Power Consumption•Ultra-low power components for long battery life•Network-wide coordination for efficient power usage•Down to 40 µA typical power consumptionEfficient Radio•2.5 mW (+4 dBm) RF output power•–89 dBm receiver sensitivity•Outdoor range >200 m typicalPredictable Integration•Standard HDLC serial interface with flow control in the receive direction•FCC modular certification•Industrial temperature range –40 to +85° C•Supports socket or solder assembly•Rugged design for class I div I environmentsSMARTMESH®900 MHz Wireless Analog/Digital/Serial MoteM1030-2
2DUST NETWORKS™M1030-2 MOTE DATASHEETContents1.0 Absolute Maximum Ratings ....................................................................................32.0 Normal Operating Conditions .................................................................................33.0 Electrical Specifications..........................................................................................43.1 Application Circuit .............................................................................................44.0 Radio......................................................................................................................54.1 Detailed Radio Specifications...............................................................................54.2 Antenna Specifications.......................................................................................55.0 Pinout.....................................................................................................................66.0 Interfaces...............................................................................................................66.1 Status LED .......................................................................................................66.2 Digital I/O........................................................................................................66.3 Analog Inputs ...................................................................................................76.4 Voltage Reference .............................................................................................76.5 Serial Interface.................................................................................................76.5.1 Serial Flow Control .................................................................................. 76.5.1.1 Serial Port..................................................................................76.5.1.2 Serial Interface Boot Up...............................................................76.5.1.3 Timing Values.............................................................................86.5.2 Mote Command Data Types ......................................................................86.5.3 Mote Commands ..................................................................................... 86.5.3.1 Command 0x80 Serial Payload Sent to Mote Serial..........................96.5.3.2 Command 0x81 Unacknowledged Serial Payload Received from Mote Serial............................................................96.5.3.3 Command 0x82 Acknowledged Serial Payload Received from Mote Serial.......................................................... 106.5.3.4 Command 0x84 Time/State Packet.............................................. 106.5.3.5 Commands 0x87 and 0x88 Set Parameter Request/Response.......... 106.5.3.6 Commands 0x89 and 0x8A Get Parameter Request/Response ......... 116.5.3.7 Command 0x8C Mote Information............................................... 116.5.3.8 Command 0x8D Reset Mote ....................................................... 116.5.4 Mote Get/Set Command Parameters ........................................................ 126.5.4.1 Error Codes.............................................................................. 126.5.4.2 Parameter Type 0x01 Network ID................................................ 126.5.4.3 Parameter Type 0x02 Mote State ................................................ 136.5.4.4 Parameter Type 0x03 Frame Length ............................................ 146.5.4.5 Parameter Type 0x04 Join Key.................................................... 146.5.4.6 Parameter Type 0x05 Time/State................................................ 146.5.4.7 Parameter Type 0x07 Mote information........................................ 156.5.5 HDLC Packet Processing Examples........................................................... 167.0 Packaging Description..........................................................................................187.1 Mechanical Drawings........................................................................................ 187.2 Soldering Information ...................................................................................... 198.0 Regulatory and Standards Compliance .................................................................198.1 FCC Compliance.............................................................................................. 198.1.1 FCC Testing .......................................................................................... 198.1.2 FCC-approved Antennae......................................................................... 208.1.3 OEM Labeling Requirements.................................................................... 208.2 IC Compliance ................................................................................................ 208.3 Industrial Environment Operation ...................................................................... 209.0 Ordering Information ...........................................................................................20
 Section Absolute Maximum RatingsM1030-2 MOTE DATASHEET DUST NETWORKS™3CONFIDENTIAL1.0 Absolute Maximum RatingsThe absolute maximum ratings shown below should under no circumstances be violated. Permanent damage to the device may be caused by exceeding one or more of these parameters. The M1030-2 can withstand an electrostatic discharge of up to 2 kV Human Body Model (HBM) or 200 V Machine Model (MM) applied to any header pin, except the antenna connector. The antenna input can withstand a discharge of 50 V.2.0 Normal Operating ConditionsUnless otherwise noted, Table 3 assumes Vcc is 3.0 V and temperature is 25° C.Table 1 Absolute Maximum RatingsParameter Min Typ Max Units CommentsSupply voltage (Vcc to GND) -0.3 3.6 VVoltage on digital I/O pin –0.3 VCC +0.3up to 3.6 VInput RF level 10 dBm Input power at antenna connectorStorage temperature range –45 +85 °CLead temperature +230 °CFor 10 secondsVSWR of antenna 3:1* All voltages are referenced to GNDTable 2 Normal Operating ConditionsParameter Min Typ Max Units CommentsOperational supply voltage range  (between Vcc and GND) 2.7 3.3 VIncluding noise and load regulationVoltage on analog input pins 01.5 VVoltage supply noise 102010mVp-p 50 Hz–10 kHz10 kHz–200 kHz200 kHz–15 MHzPeak current 3818mAmATX, 14 ms maximumSearching for network, 60 minutesAverage current 40 µAAssuming 40-byte packets, 1 per minute, data only moteStorage and operating temperatures –40 85 °CMaximum allowed temperature ramp 8°C/min –40° C to 85° CTable 3 Current ConsumptionParameter Min Typ Max Units CommentsTransmit 28 32 mAReceive 13 14 mASleep 48  µA
Section Electrical Specifications4DUST NETWORKS™M1030-2 MOTE DATASHEETCONFIDENTIAL3.0 Electrical SpecificationsUnless otherwise noted, Vcc is 3.0 V and temperature is –40 to +85° C.3.1 Application CircuitThe following schematic shows how the M1030-2 mote is used in a circuit.Figure 1 M1030-2 Mote in Application CircuitTable 4 Digital I/ODigital signal Min Typ Max Units CommentsVIH (logical high input)  Vcc x 80% Vcc Vcc + 0.3 VVIL (logical low input)  GND –0.3 GND GND + 0.6 VVOH (logical high output)  0.7 x Vcc Vcc Vcc VVOL (logical low output)  GND GND 0.25 x Vcc VDigital current*Output source (single pin) 0.9 mA 25°COutput sink (single pin) 0.9 mA 25°CInput leakage current 50 nA* This current level guarantees that the output voltage meets VOL of 0.25 x Vcc and VOH of 0.7 x Vcc.
 Section RadioM1030-2 MOTE DATASHEET DUST NETWORKS™5CONFIDENTIAL4.0 Radio4.1 Detailed Radio Specifications4.2 Antenna SpecificationsA MMCX-compatible male connector is provided on board for the antenna connection. The antenna must meet specifications in Table 6. For a list of FCC-approved antennae see 8.1.2.When the mote is placed inside an enclosure, the antenna should be mounted such that the radiating portion of the antenna protrudes from the enclosure, and connected using a MMCX connector on a coaxial cable. For optimum performance, allow the antenna to be positioned vertically when installed.Table 5 Radio SpecificationsParameter Min Typ Max Units CommentsOperating frequency 902 928 MHzNumber of channels 50Channel separation 470 kHzChannel bandwidth 170 kHz At ±20 dBcModulation Binary FSK (NRZ)Raw data rate 76.8 kbpsReceiver sensitivity –88 –89 dBm At 10-3 BER, Vcc = 3 V, 25° COutput power +2.5 +4 dBm Vcc = 3 V, 25° CRange*IndoorOutdoor80200mm25° C, 50% RH, 1 meter above ground, +2 dBi omni-directional antenna* Actual RF range performance is subject to a number of installation-specific variables including, but not restricted to ambient temperature, relative humidity, presence of active interference sources, line-of-sight obstacles, near-presence of objects (for example, trees, walls, signage, and so on) that may induce multipath fading. As a result, actual performance varies for each instance.Table 6 Antenna SpecificationsParameter ValueFrequency range 902-928 MHzImpedance 50 ΩGain +2 dBi maximumPattern Omni-directionalMaximum VSWR 3:1Connector MMCX** The M1030-2 can accommodate the following RF mating connectors:•MMCX straight connector such as Johnson 135-3402-001, or equivalent•MMCX right angle connector such as Tyco 1408149-1, or equivalent
Section Pinout6DUST NETWORKS™M1030-2 MOTE DATASHEETCONFIDENTIAL5.0 PinoutThe M1030-2 has two 11-pin Samtec MTMM-111-04-S-S-175-3 (or equivalent) connectors on the bottom side for handling all of the I/O. The third pin in each of the connectors is not populated, and serves as a key for alignment. The connectors are mounted on opposite edges of the long axis of the M1030-2.The M1030-2 serial interface (serial protocol is specified in 6.5.1) provides flow control in the receive direction only.6.0 Interfaces6.1 Status LEDThe M1030-2 provides an output signal driving a status LED. This LED displays network connectivity information and is used during mote installation. Alternatively, the mote’s network status may be polled via serial using the Get Parameter command (see 6.5.3.6) with the mote state parameter (see 6.5.4.3).6.2 Digital I/OThe M1030-2 supports one digital input (D2) and one digital output (D1).Table 7 M1030-2 Pin FunctionsPin Number Name Mote I/O Direction1GND In2VCC In3KEY (no pin) -4RX In5TX Out6LED Out7A1 In8CTS Out9D1 Out10 D2 In11 A2 In12 VRef Out13 Reserved -14 Reserved -15 Reserved -16 Reserved -17 Reserved -18 Reserved -19 Reserved -20 KEY (no pin) -21 Reserved -22 RST InTable 8 Status LED LED Appearance Mote StateOff Off, or in sleep modeSlow single blink (100 ms on, 900 ms off) On, and searching for potential networkSingle blink (100 ms on, 400 ms off) On, and attempting to join networkDouble blink (100 ms on, 100 ms off, 100 ms on, 700 ms off) On, connected to network, attempting to establish redundant linksSolid on On, fully configured into network with redundant parentsFigure 2  M1030-2 Package with Pin Labels
 Section InterfacesM1030-2 MOTE DATASHEET DUST NETWORKS™7CONFIDENTIAL6.3 Analog InputsThe M1030-2 supports two analog inputs, A1 and A2.6.4 Voltage ReferenceThe M1030-2 provides a voltage reference output to allow for ratiometric sensors.6.5 Serial InterfaceThe M1030-2 offers a well-defined serial interface that is optimized for low-powered embedded applications. This serial interface offers a serial port comprised of the data pins (TX, RX) as well as the flow control pin, CTS. Through this port, the M1030-2 provides a means of transmitting and receiving serial data through the wireless network, as well as a command interface which provides synchronized time stamping, local configuration and diagnostics. The following sections detail the Serial Interface Protocol, the Mote Command Interface, and the timestamping capability of the M1030-2 serial interface.6.5.1 Serial Flow ControlThe Serial Interface Protocol provides for flow control of packets flowing into the M1030-2 serial interface. Packet delineation and error control are handled separately.6.5.1.1 Serial PortThe three-pin serial port is comprised of the data pins (TX, RX) as well as the CTS flow control pin used to prevent the microprocessor from overflowing the mote. This port supports 4800 bps operation. The CTS signal is active low.The following diagram illustrates the pins used in the handshaking protocol:Figure 3  Diagram of Pins Used in Handshaking Protocol6.5.1.2 Serial Interface Boot UpUpon M1030-2 power up, the CTS line is high (inactive). The M1030-2 serial interface boots within boot_delay (see Tables 10) of the mote powering up, at which time the M1030-2 transmits an HDLC Mote Information packet, as described in section 6.5.3.7.Table 9 Serial ParametersParameter ValueBaud rate 4800 Start bit 1Data bits 8Parity None
Section Interfaces8DUST NETWORKS™M1030-2 MOTE DATASHEETCONFIDENTIALOnce the M1030-2 has established wireless network connection, it uses the CTS pin to signify availability to accept serial packets for wireless transmission. At certain critical times during communication, the M1030-2 may bring CTS high. CTS remains high if the M1030-2 does not have enough buffer space to accept another packet. It also remains high if the mote is not part of the network. Sensor processors must check that the CTS pin is low before initiating each serial packet for wireless transmission. Note that the M1030-2 may receive diagnostic serial packets at any time regardless of the CTS state.6.5.1.3 Timing Values6.5.2 Mote Command Data TypesTable 11 defines the command data types used in the commands.6.5.3 Mote CommandsThe mote command interface provides a way to send and receive network packets, access local configuration and diagnostics, and receive time stamps. All packets between the microcontroller and the mote are encapsulated in the HDLC format (RFC 1662) and have the following structure. The command type indicates which API message is contained in the message content. The message content for each command type is described within the following sections.CRC is calculated based on 16-bit FCS computation method (RFC 1622). The mote checks the CRC and drops packets that have CRC errors. There is no mechanism for the mote to tell the microcontroller that a packet has been discarded, so the applications layer must implement reliable delivery, if desired. All numerical fields in a packet are in big endian order (MSB first), unless otherwise noted. Section 6.5.5 provides an example of HDLC packet construction and HDLC packet decoding.Table 10 Timing ValuesVariable Meaning Min Max Unitdiag_ack_timeout The mote responds to all requests within this time. N/A 100 msboot_delay The time between mote power up and serial interface availability. 250 msTable 11 Command Data TypesData Type DescriptionULong Unsigned long: 4 bytesUShort Unsigned short: 2 bytesUChar Unsigned character: 1 byte characterCommand(Byte 1) (Bytes 2—n)Command Type Message ContentStart Delimiter(Byte 0) Data Frame(Bytes 1—n)Checksum (Bytes n + 1, n + 2) End Delimiter(Byte n + 3)0x7E  HDLC Packet payload CRC (2 Bytes) 0x7E
 Section InterfacesM1030-2 MOTE DATASHEET DUST NETWORKS™9CONFIDENTIALTable 12 provides a summary of mote commands, which are described in detail in the following sections. 6.5.3.1 Command 0x80 Serial Payload Sent to Mote SerialSerial Data Packets going into the mote serial port use the command type 0x80. Upon reception of the packet, the mote forwards it to the network. The format of the serial packet payload is transparent to the mote. The maximum length of the payload is 80 bytes. There is no response by the mote upon reception of this command. 6.5.3.2 Command 0x81 Unacknowledged Serial Payload Received from Mote SerialUnacknowledged serial data packets going out of the mote serial port use command type 0x81. The network uses this command to send data out through the mote serial interface. Upon receiving this packet from the network, the mote forwards it to the microcontroller without sending acknowledgement to Manager. The format of the serial packet payload is transparent to the mote. The maximum length of the payload is 80 bytes.Table 12 Mote Command SummaryCommand Type (HEX) Direction Description0x80 Microcontroller to Mote Packet destined for the network0x81 Mote to Microcontroller Unacknowledged packet received from the network and destined for microcontroller0x82 Mote to Microcontroller Acknowledged packet received from the network and destined for microcontroller0x83 -- Reserved0x84 Mote to Microcontroller Time and mote state information0x85 -- Reserved0x86 -- Reserved0x87 Microcontroller to Mote “Set Parameter” request0x88 Mote to Microcontroller “Set Parameter” response0x89 Microcontroller to Mote “Get Parameter” request0x8A Mote to Microcontroller “Get Parameter” response0x8C Mote to Microcontroller Mote information0x8D Microcontroller to Mote Reset moteTable 13 Command 0x80 Serial Payload to MoteMsg Byte Description Data Type Request (Sent to Mote)1  Cmd Type UChar 0x802(Transparent to mote) n bytes of data 2+1 (Transparent to mote) *2+… (Transparent to mote) *Table 14 Command 0x81 Unacknowledged Serial Payload from MoteMsg Byte Description Data Type Value1  Cmd Type UChar 0x812(Transparent to mote)  n bytes of data 2+1 (Transparent to mote) *2+… (Transparent to mote) *
Section Interfaces10 DUST NETWORKS™M1030-2 MOTE DATASHEETCONFIDENTIAL6.5.3.3 Command 0x82 Acknowledged Serial Payload Received from Mote SerialAcknowledged serial data packets going out of the mote use command type 0x82. The network uses this command to send data out through the mote serial interface. Upon receiving this packet from the network, the mote forwards it to the microcontroller and sends an acknowledgement back to Manager. The format of the serial packet payload is transparent to the mote. The maximum length of the payload is 80 bytes. The microcontroller receives exactly one copy of the message that was sent through the network.6.5.3.4 Command 0x84 Time/State Packet Time data packets use the command type 0x84. The time packet includes the network time and the current real time relative to the Manager. The mote sends this response when it receives a “get request” with “time” parameter (described later).6.5.3.5 Commands 0x87 and 0x88 Set Parameter Request/ResponseThe Set Parameter command allows the setting of a number of configuration parameters in the mote. When the Set Parameter Request command is sent, the response to the request is sent within the diag_ack_timeout (see Table 10). The command structure for individual Parameter Types and can be found in section 6.5.4. The length of payload 'n' is dependant on the Parameter type and is specified in the Parameter Data Packet section of this document..Table 15 Command 0x82 Acknowledged Serial Payload DownstreamMsg Byte Description Data Type Value1  Cmd Type UChar 0x822(Transparent to mote)  n bytes of data 2+1 (Transparent to mote) *2+… (Transparent to mote) *Table 16 Command 0x84 Time/State PacketMsg Byte Description Data Type Value1Cmd Type UChar 0x842-5 The sequential number of the frame ULong Cycle6-9 The offset from start of frame in microseconds ULong Offset10-11 Frame length in timeslots UShort Frame Length12-15 UTC time seconds ULong Real Time part116-19 UTC time microseconds ULong Real Time part220-23 Time from the last mote reset in milliseconds ULong Mote uptime24 Mote state (see Table 31)UChar Mote stateTable 17 Command 0x87 Set Parameter RequestMsg Byte Description Data Type Value1Cmd Type UChar 0x872UChar Parameter Type3Data (Transparent to mote) n bytes of data 3+1 Data (Transparent to mote) *3+… Data (Transparent to mote) *Table 18 Command 0x88 Set Parameter ResponseMsg Byte Description Data Type Value1Cmd Type UChar 0x882UChar Parameter Type3UChar Error code3+1 UChar Data Length (0x00)
 Section InterfacesM1030-2 MOTE DATASHEET DUST NETWORKS™11CONFIDENTIAL6.5.3.6 Commands 0x89 and 0x8A Get Parameter Request/ResponseThe Get Parameter command allows a number of configuration parameters in the mote to be read by serial. When a Get Parameter Request command is sent, the response to the request is sent within the diag_ack_timeout of 100 ms. The command structure for individual parameter types can be found in section 6.5.4. The length of payload 'n' depends on the parameter type and is specified in that section. If the error code is not equal to 0, then no data is returned in the response. Error codes are described in Table 26.6.5.3.7 Command 0x8C Mote Information The mote sends this packet on power-up, supplying information about mote properties.6.5.3.8 Command 0x8D Reset Mote Upon receiving this command, the mote notifies its neighbors about an upcoming reset, then proceeds to reset itself. The delay to the actual reset depends on the network configuration.Table 19 Command 0x89 Get Parameter RequestMsg Byte Description Data Type Value1Cmd Type UChar 0x892UChar Parameter Type3Data (Transparent to mote) n bytes of data 3+1 Data (Transparent to mote) *3+... Data (Transparent to mote) *Table 20 Command 0x8A Get Parameter ResponseMsg Byte Description Data Type Value1Cmd Type UChar 0x8A2UChar Parameter Type3UChar Error code4UChar Data Length 5Data (Transparent to mote) n bytes of data  (If Error Code != 0)5+1 Data (Transparent to mote) *5+... Data (Transparent to mote) *5+n Data (Transparent to mote) *Table 21 Command 0x8C – M1030-2 InformationMsg Byte Description Data Type Value1  Cmd Type UChar 0x8C2-4 HW model Array of 3 UChar HW model 5-6 HW revision Array of 2 UChar HW revision7-10 SW revision Array of 4 UChar SW revision11-18 MAC address Array of 8 UChar MAC addr19 Networking type UChar 1 = 900 MHz network20-21 Network ID UShort Network ID22-29 Datasheet ID Array of 8 UChar Datasheet ID30-31 Mote ID UShort Mote ID32 ReservedTable 22 Command 0x8D Reset MoteMsg Byte Description Data Type Value1  Cmd Type UChar 0x8D
Section Interfaces12 DUST NETWORKS™M1030-2 MOTE DATASHEETCONFIDENTIAL6.5.4 Mote Get/Set Command ParametersThis section specifies the parameters that may be used with the Set and Get Commands. Table 23 provides an overview of the these parameters.All requests have the following structure:All replies have the following structure:Command Types, Parameter types, and error codes are discussed in the following sections. Data length is the number of bytes of following data, set to 0 in case of non-zero error code.6.5.4.1 Error Codes6.5.4.2 Parameter Type 0x01 Network IDThe network ID is the identification number used to distinguish different wireless networks. In order to join a specific network, the mote must have the same network ID as the network Manager. This parameter is only valid for the Set Parameter command. Upon receiving this request, the mote stores the new network ID in its persistent storage area, but continues to use the existing network ID. The mote must be reset in order to begin using the new network ID.Table 23 Set and Get Command ParametersParameter Set Parameter Get Parameter DescriptionParameter type 0x01 XSets the mote’s network IDParameter type 0x02 XRetrieves the mote’s current network connection stateParameter type 0x03 XRetrieves the network frame lengthParameter type 0x04 XSets the network join key on the moteParameter type 0x05 XRetrieves the network time and mote state informationParameter type 0x06 -- ReservedParameter type 0x07 XRetrieves the mote’s propertiesTable 24 Request Structure for Parameter Data PacketsCommand Type Parameter Type Data (Optional)1 byte 1 byte Up to 33 bytesTable 25 Reply Structure for Parameter Data PacketsCommand Type Parameter Type Error Code Data Length Data (Optional)1 byte 1 byte 1 byte 1 byte Up to 31 bytesTable 26 Error CodesNumber Error Description0DIAG_NO_ERR No Command-Specific Errors1DIAG_EXE_ERR Mote unable to execute command2DIAG_PARAM_ERR Illegal parameter in the requestTable 27 Parameter Type 0x01 Network ID Set RequestMsg Byte Description Data Type  Value1Cmd Type UChar 0x872Parameter Type UChar 0x013-4 Network ID UShort Network ID
 Section InterfacesM1030-2 MOTE DATASHEET DUST NETWORKS™13CONFIDENTIALThe following packet is sent in response to a request to set the network ID.6.5.4.3 Parameter Type 0x02 Mote StateThis parameter is only valid for the Get Parameter command and is used to retrieve the mote’s current network connection state (see Table 31).:The following packet is sent in response to a request to retrieve the mote’s current network connection state.Table 28 Parameter Type 0x01 Network ID Set ResponseMsg Byte Description Data Type Value 1Cmd Type UChar 0x882Parameter Type UChar 0x013UChar Error code4UChar Data Length (0x00)Table 29 Parameter Type 0x02 Mote State Get RequestMsg Byte Description Data Type Value1Cmd Type UChar 0x892Parameter Type UChar 0x02Table 30 Parameter Type 0x02 Mote State Get ResponseMsg Byte Description Data Type Value1Cmd Type UChar 0x8A2Parameter Type UChar 0x023UChar Error code4UChar Data Length (0x01)5UChar Mote StateTable 31 Mote StatesState # Description Details1ACTIVE The mote has joined the network and is waiting to be configured2JOINING The mote has sent JOIN request, waiting for ACTIVATE3ACT SEARCH The mote is actively searching for neighbors4–5 PASS SEARCH The mote is passively searching for neighbors6SYNCHRONIZED The mote is synchronized to a network, listening in active search7–8 RESETTING The mote is going through the reset process9ONLINE1 The mote has joined a network and has been fully configured, but has only one parent10 ONLINE2 The mote has joined a network, has been fully configured, and has multiple parents
Section Interfaces14 DUST NETWORKS™M1030-2 MOTE DATASHEETCONFIDENTIAL6.5.4.4 Parameter Type 0x03 Frame LengthThis parameter is only valid for the Get Parameter command and is used to retrieve the frame length of the specified frame ID.The following packet is sent in response to a request to retrieve the frame length.6.5.4.5 Parameter Type 0x04 Join KeyThe join key is needed to allow an mote on the network. The join key is specific for the network and used for data encryption. This parameter is only valid for the Set Parameter command. Upon receiving this request, the mote stores the new join key in its persistent storage. The mote must be reset in order to begin using the new join key.The following packet is sent in response to a request to set the join key.6.5.4.6 Parameter Type 0x05 Time/StateThis parameter is only valid for the Get Parameter command and is used to request the network time and mote state information. The response to this command returns the same information as Command 0x84 (Time/State Packet), with the only difference being that this command can be solicited using a software Get command, rather than a hardware pin.Table 32 Parameter Type 0x03 Frame Length Get RequestMsg Byte Description Data Type Value1Cmd Type UChar 0x892Parameter Type UChar 0x033UChar Frame IDTable 33 Parameter Type 0x03 Frame Length Get ResponseMsg Byte Description Data Type Value1Cmd Type UChar 0x8A2Parameter Type UChar 0x033UChar Error code4UChar Data Length (0x05)5UChar Frame ID6-9 Frame Length (ms) ULong Frame LengthTable 34 Parameter Type 0x04 Join Key Set RequestMsg Byte Description Data Type Value1Cmd Type UChar 0x872Parameter Type UChar 0x043-18 New Join Key Array of 16 UChar New Join Key Table 35 Parameter Type 0x04Join Key Set ResponseMsg Byte Description Data Type Value1Cmd Type UChar 0x882Parameter Type UChar 0x043UChar Error code4UChar Data Length (0x00)Table 36 Parameter Type 0x05 Time/State Get RequestMsg Byte Description Data Type Value1Cmd Type UChar 0x892Parameter Type UChar 0x05
 Section InterfacesM1030-2 MOTE DATASHEET DUST NETWORKS™15CONFIDENTIALThe following packet is sent in response to a request for the network time and mote state information.6.5.4.7 Parameter Type 0x07 Mote informationThis parameter is only valid for the Get Parameter command. It is a diagnostics request that retrieves information about the mote’s properties.The following packet is sent in response to a request for information about mote properties.Table 37 Parameter Type 0x05 Time/State Get ResponseMsg Byte Description Data Type Value1Cmd Type UChar 0x8A2Parameter Type UChar 0x053UChar Error code4UChar Data Length (0x17)5-8 ULong Cycle9-12 ULong Offset (µsec)13-14 Frame Length (slots) UShort Frame Length15-18 UTC Time sec ULong UTC Time sec 19-22 UTC Time µsec ULong UTC Time µsec 23-26 Mote uptime msec UShort Mote uptime msec 27 UChar Mote stateTable 38 Parameter Type 0x07 Mote Information Get RequestMsg Byte Description Data Type Value1  Cmd Type UChar 0x892Parameter Type UChar 0x07Table 39 Parameter Type 0x07 Mote Information Get ResponseMsg Byte Description Data Type Value1  Cmd Type UChar 140 (0x8A)2Parameter Type UChar 0x073Error Code UChar Error Code 4Data length UChar Data length (0x1F)5-7 HW model Array of 3 UChar HW model 8-9 HW revision Array of 2 UChar HW revision10-13 SW revision Array of 4 UChar SW revision 14-21 MAC address Array of 8 UChar MAC addr 22 Networking type UChar 1 = 900 MHz network23-24 Network ID UShort Network ID 25-32 Datasheet ID Array of 8 UChar Datasheet ID 33-34 Mote ID UShort Mote ID35 Reserved36-37 CRC UShort CRC 38 UChar 126 (0x7E)
Section Interfaces16 DUST NETWORKS™M1030-2 MOTE DATASHEETCONFIDENTIAL6.5.5 HDLC Packet Processing ExamplesExample 1: Constructing an HDLC packet to send to the moteThis example demonstrates how you would construct an HDLC packet to set the network ID value to 125. (All values are in hexadecimal.)Step 1 Define HDLC packet payload:Command type  => 87Parameter => 01Network ID => 07Step 2 Calculate CRC:a. Calculate the CRC using CRC-16 algorithm (RFC 1622) on the hexadecimal sequence '87 01 00 7D'. The CRC (including 1's complement) is 74 2F.b. Append CRC to payload, CRC is sent least significant byte first (RFC 1622):Step 3 Perform byte stuffing.To perform byte stuffing, check the HDLC Packet Payload and CRC for instances of “7D” or “7E” and replace as follows:7D => 7D 5D7E => 7D 5EStep 4 Add start and stop delimiters:Enclose the above in start/stop flags (RFC 1622).Or simply, the hexadecimal sequence:7E 87 01 00 7D 5D 2F 74 7EExample 2: Decoding an HDLC packet received from the moteTo understand how to decode an HDLC packet sent from the mote, let’s assume that the mote received a “get mote information” command, and replied with the following HDLC Packet. (All values are in hexadecimal.)Step 1 (HDLC layer) strip off delimiters:HDLC Packet PayloadCommand Type Message Content87 01 00 7DHDLC Packet Payload CRC87 01 00 7D 2F 74HDLC Packet Payload (stuffed) CRC (stuffed)87 01 00 7D 5D 2F 74Start Delimiter HDLC Packet Payload (stuffed) CRC (stuffed) Stop Delimiter7E 87 01 00 7D 5D 2F 74 7EStart Byte HDLC Packet Payload (stuffed) CRC (stuffed) Stop Byte7E 8A 07 00 1F 00 00 5B 00 01 01 06 00 3C 00 00 00 00 00 00 7D 5E C3 01 00 08 30 30 30 5F 45 56 30 31 00 13 00 3F 85 7EHDLC Packet Payload (stuffed) CRC (stuffed)8A 07 00 1F 00 00 5B 00 01 01 06 00 3C 00 00 00 00 00 00 7D 5E C3 01 00 08 30 30 30 5F 45 56 30 31 00 13 00 3F 85
 Section InterfacesM1030-2 MOTE DATASHEET DUST NETWORKS™17CONFIDENTIALStep 2 Remove byte stuffing.To remove byte stuffing, check for instances of “7D 5D” or “7D 5E” and replace as follows:7D 5D => 7D7D 5E => 7EStep 3 Confirm CRC.Calculate the checksum for the HDLC payload.Confirm that the CRC matches the CRC sent with the packet. Because the packet encodes CRC least significant byte first, in this example the calculated CRC should match “85 3F”.Step 4 (Application layer) parse HDLC payload content.The resulting packet payload is as follows:As described in section 6.5.3.6., an 0x8A command with parameter type 0x07 has the following message content structure:Therefore, this is a Mote Information response with no errors (and a payload length of 31 bytes). The Mote information is as follows:HDLC Packet Payload (stuffed) CRC (stuffed)8A 07 00 1F 00 00 5B 00 01 01 06 00 3C 00 00 00 00 00 00 7E C3 01 00 08 30 30 30 5F 45 56 30 31 00 13 00 3F 85HDLC Packet Payload8A 07 00 1F 00 00 5B 00 01 01 06 00 3C 00 00 00 00 00 00 7E C3 01 00 08 30 30 30 5F 45 56 30 31 00 13 00HDLC Packet Payload8A 07 00 1F 00 00 5B 00 01 01 06 00 3C 00 00 00 00 00 00 7E C3 01 00 08 30 30 30 5F 45 56 30 31 00 13 00Command Type Message Content8A 07 00 1F 00 00 5B 00 01 01 06 00 3C 00 00 00 00 00 00 7E C3 01 00 08 30 30 30 5F 45 56 30 31 00 13 00HW model =  “00091”  (00 00 5B)HW Rev =  “0001” (00 01)SW rev = “1.6.60” (01 06 00 3C)MAC Address =  00 00 00 00 00 00 7E C3 Mote type =  01 = 900 MHz (01)Network ID =  8(00 08)Datasheet ID =  “000_EV01” (30 30 30 5F 45 56 30 31)Mote ID =  “19” (00 13) Param Error Code Length Hw Model Hw Rev Sw Rev MAC Mote Type Net ID Datasheet ID Mote ID Rsvd07 00 1F 00 00 5B 00 01 01 06 00 3C 00 00 00 00 00 00 7E C3 01 00 08 30 30 30 5F 45 56 30 31 00 13 00
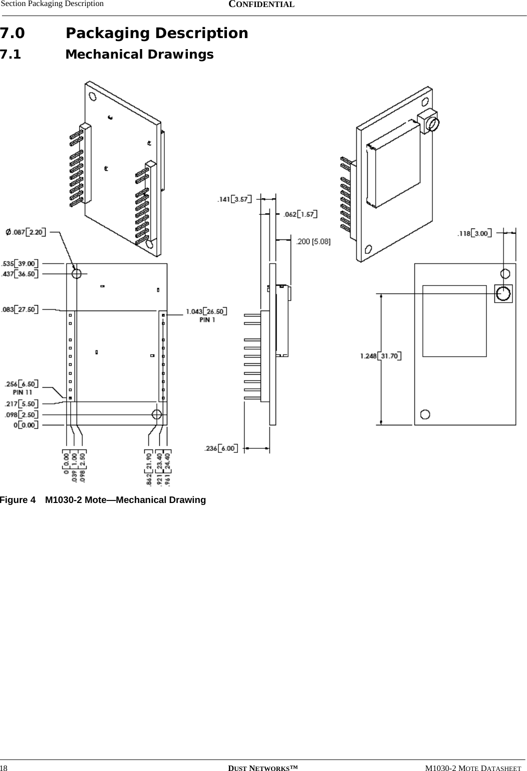
Section Packaging Description18 DUST NETWORKS™M1030-2 MOTE DATASHEETCONFIDENTIAL7.0 Packaging Description7.1 Mechanical DrawingsFigure 4 M1030-2 Mote—Mechanical Drawing
 Section Regulatory and Standards ComplianceM1030-2 MOTE DATASHEET DUST NETWORKS™19CONFIDENTIALFigure 5 M1030-2 Mote Footprint—Mechanical drawing7.2 Soldering InformationThe M1030-2 can be hand soldered with a soldering iron at 230° C. The soldering iron should be in contact with the pin for 10 seconds or less.8.0 Regulatory and Standards Compliance8.1 FCC Compliance8.1.1 FCC TestingThe M1030-2 mote complies with Part 15.247 modular (Intention Radiator) of the FCC rules and regulations. In order to fulfill FCC certification requirements, products incorporating the M1030-2 mote must comply with the following:1. An external label must be provided on the outside of the final product enclosure specifying the FCC identifier  (SJC-M1030), as described in 8.1.3 below.2. The antenna must be electrically identical to the FCC-approved antenna specifications for the M1030-2 as described in  8.1.2 or the gain may be lower than specified in Table 3.3. The device integrating the M1030-2 mote may not cause harmful interference, and must accept any interference received, including interference that may cause undesired operation.4. An unintentional radiator scan must be performed on the device integrating the M1030-2 mote, per FCC Rules and Regulations, Title 47, Part 15, Subpart B. See FCC rules for specifics on requirements for declaration of conformity.
Section Ordering Information20 DUST NETWORKS™M1030-2 MOTE DATASHEETCONFIDENTIAL8.1.2 FCC-approved AntennaeThe following are FCC-approved antenna specifications for the M1030-2:8.1.3 OEM Labeling RequirementsThe Original Equipment Manufacturer (OEM) must ensure that FCC labeling requirements are met. The outside of the final product enclosure must have a label with the following (or similar) text specifying the FCC identifier. The FCC ID and certification code must be in Latin letters and Arabic numbers and visible without magnification.or8.2 IC ComplianceThe M1030-2 shall be certified for modular Industry Canada (IC) approval. The OEM is responsible for its product to comply with IC ICES-003 and FCC Part 15, Sub. B – Unintentional Radiators. ICES-003 is the same as FCC Part 15 Sub. B and Industry Canada accepts FCC test reports or CISPR 22 test reports for compliance with ICES-003. 8.3 Industrial Environment OperationThe M1030-2 is designed to meet the specifications of a harsh industrial environments which includes:•Shock and Vibration—The M1030-2 complies with high vibration pipeline testing, as specified in IEC 60770-1.•Hazardous Locations—The M1030-2 design is consistent with operation in UL Class 1, Division 2 Hazardous Locations.•Temperature Extremes—The M1030-2 is designed for industrial storage and operational temperature range of  –40°C to 85°C.9.0 Ordering InformationProduct List:M1030-2:  SmartMesh-XT / 900 MHz Analog/Digital/Serial MoteKT1029:  SmartMesh-XT/ 900 MHz Evaluation KitContact Information:Dust Networks 30695 Huntwood Ave. Hayward, CA 94544Toll-Free Phone: 1 (866) 289-3878Website: www.dustnetworks.comEmail: sales@dustnetworks.comTable 3 FCC-approved Antenna Specifications for the M1030-2Gain Pattern Type Frequency Connector+2 dBi Omni-directional 1/4 λ902-928 MHz MMCX+2 dBi Omni-directional 1/2 λ902-928 MHz MMCXContains transmitter module FCC ID: SJC- M1030Contains FCC ID: SJC-M1030.
 Section Ordering InformationM1030-2 MOTE DATASHEET DUST NETWORKS™21CONFIDENTIALTrademarksDust Networks™, the Dust Networks logo, SmartMesh-XR™, and SmartMesh-XT™ are trademarks of Dust Networks, Inc. Dust® and SmartMesh® are registered trademarks of Dust Networks, Inc. All third-party brand and product names are the trademarks of their respective owners and are used solely for informational purposes.CopyrightThis documentation is protected by United States and international copyright and other intellectual and industrial property laws. It is solely owned by Dust Networks, Inc. and its licensors and is distributed under a restrictive license. This product, or any portion thereof, may not be used, copied, modified, reverse assembled, reverse compiled, reverse engineered, distributed, or redistributed in any form by any means without the prior written authorization of Dust Networks, Inc.RESTRICTED RIGHTS: Use, duplication, or disclosure by the U.S. Government is subject to restrictions of FAR 52.227-14(g) (2)(6/87) and FAR 52.227-19(6/87), or DFAR 252.227-7015 (b)(6/95) and DFAR 227.7202-3(a), and any and all similar and successor legislation and regulation.DisclaimerThis documentation is provided “as is” without warranty of any kind, either expressed or implied, including but not limited to, the implied warranties of merchantability or fitness for a particular purpose.This documentation might include technical inaccuracies or other errors. Corrections and improvements might be incorporated in new versions of the documentation.Dust Networks does not assume any liability arising out of the application or use of any products or services and specifically disclaims any and all liability, including without limitation consequential or incidental damages.Dust Networks products are not designed for use in life support appliances, devices, or other systems where malfunction can reasonably be expected to result in significant personal injury to the user, or as a critical component in any life support device or system whose failure to perform can be reasonably expected to cause the failure of the life support device or system, or to affect its safety or effectiveness. Dust Networks customers using or selling these products for use in such applications do so at their own risk and agree to fully indemnify and hold Dust Networks and its officers, employees, subsidiaries, affiliates, and distributors harmless against all claims, costs, damages, and expenses, and reasonable attorney fees arising out of, directly or indirectly, any claim of personal injury or death associated with such unintended or unauthorized use, even if such claim alleges that Dust Networks was negligent regarding the design or manufacture of its products.Dust Networks reserves the right to make corrections, modifications, enhancements, improvements, and other changes to its products or services at any time and to discontinue any product or service without notice. Customers should obtain the latest relevant information before placing orders and should verify that such information is current and complete. All products are sold subject to Dust Network's terms and conditions of sale supplied at the time of order acknowledgment or sale.Dust Networks does not warrant or represent that any license, either express or implied, is granted under any Dust Networks patent right, copyright, mask work right, or other Dust Networks intellectual property right relating to any combination, machine, or process in which Dust Networks products or services are used. Information published by Dust Networks regarding third-party products or services does not constitute a license from Dust Networks to use such products or services or a warranty or endorsement thereof. Use of such information may require a license from a third party under the patents or other intellectual property of the third party, or a license from Dust Networks under the patents or other intellectual property of Dust Networks. © Dust Networks, Inc. 2006. All Rights Reserved.Document Number: 020-0013 rev A M1030-2 DatasheetLast Revised:  June 21, 2006

Navigation menu