Berthold Technologies FCC01X12 Concentration, Dry, Mass, Water measuring system User Manual 39531BA2 04CETECOM HW
Berthold Technologies Concentration, Dry, Mass, Water measuring system 39531BA2 04CETECOM HW
User Manual

Process Control
ID No. 39531BA2
Rev. No. 04E 10.10.2008
Soft. Version: ≥ 1.21
detect and identify
User's Guide
Concentration Meters
Micro-Polar BrixTM
Micro-Polar Brix ++
LB 565
Hardware Manual

Micro-Polar Brix (++) LB 565
The units supplied should not be repaired by anyone other than Berthold Technolo-
gies Service engineers or technicians by Berthold Technologies.
In case of operation trouble, please address to our central service department.
The complete user’s guide consists of two manuals, the hardware description and the software
description.
The hardware manual comprises:
¾ mechanical components
¾ installation
¾ electrical installation
¾ technical data
¾ electrical and mechanical drawings
The software manual comprises:
¾ operation of the evaluation unit
¾ parameter description
¾ basic setting
¾ calibration
¾ error messages
The present manual is the hardware description.
Subject to change without prior notice.
BERTHOLD TECHNOLOGIES GmbH & Co. KG
Calmbacher Str. 22 ⋅ 75323 Bad Wildbad, Germany
Phone +49 7081 177 0 ⋅ Fax +49 7081 177 100
industry@Berthold.com
www.Berthold.com

Table of Contents
Micro-Polar Brix (++) LB 565 5
Table of Contents
Page
Chapter 1. Safety Summary 7
1.1 Symbol and Pictograms 7
1.2 Use and Function 8
1.3 General Safety Instructions 10
Chapter 2. General Information 13
2.1 Intended Use 13
2.2 Definitions 14
Chapter 3. System Description 15
3.1 Principle of Measurement 15
3.2 Calculation of Measured Values 16
3.3 Temperature Compensation 16
3.4 Mechanical Components 18
3.4.1 Evaluation Units 19
3.4.2 Flow Cell 22
3.4.3 Container Probe 23
3.4.4 High-Frequency Cable 27
3.5 Pipeline Measurement Configuration 29
3.6 Container Measurement Configuration 30
Chapter 4. Getting Started 31
4.1 Transport to the Installation Site 31
4.2 Installation 31
4.2.1 Flow Cell Installation 31
4.2.2 Container Probe Installation 33
4.2.3 Installing the Evaluation Unit 35
4.3 Connecting the Evaluation Unit 36
4.3.1 Connecting the HF Cable 36
4.3.2 Pin Configuration of the Connector Strip 39
4.3.3 Digital Outputs, Relays 43
Chapter 5. Service Instructions 45
5.1 General Information 45
5.2 Wearing Parts 45
5.3 Instrument Cleaning 45
5.4 Battery 46
5.5 Fuse Replacement 46
Chapter 6. Technical Data 47
6.1 Evaluation Unit 47
6.2 Technical Data Sensors 50
6.3 Technical Data HF-Cable 52
6.4 Format of Serial Data Output RS 232 and RS 485 53

Table of Contents
Micro-Polar Brix (++) LB 565
6
Chapter 7. Certificates 55
7.1 EC Declaration of Conformity 55
7.2 Frequency Approval 57
Chapter 8. Technical Drawings 61
8.1 Dimensional Drawing of Evaluation Unit Housing 61
8.1.1 Evaluation Unit from Micro-Polar Brix 61
8.1.2 Evaluation Unit from Micro-Polar Brix++ 62
8.2 Electrical Wiring Diagram 63
8.3 Dimensional Drawings Flow Cells 64
8.3.1 Type LB 3543-11 MP, Nominal Width 50 mm, Options 64
8.3.2 Type LB 3543-11 MP, Nominal Width 50 mm, Adapter 65
8.3.3 Type LB 3543-31 MP, Nominal Width 50 mm 66
8.3.4 Type LB 3547-11 MP, Nominal Width 65 mm, Options 67
8.3.5 Type LB 3545-11 MP, Nominal Width 80 mm 68
8.3.6 Type LB 3544-11 MP, Nominal Width 100 mm, Options 69
8.3.7 Type LB 3544-21 MP, Nominal Width 100 mm 70
8.3.8 Type LB 3548-11 MP, Nominal Width 150 mm 71
8.4 Dimensional Drawings Container Probes 72
8.4.1 Type LB 5650-01 72
8.4.2 Type LB 5650-02 73
8.4.3 Type LB 5650-03 74
8.4.4 Type LB 5650-04 75
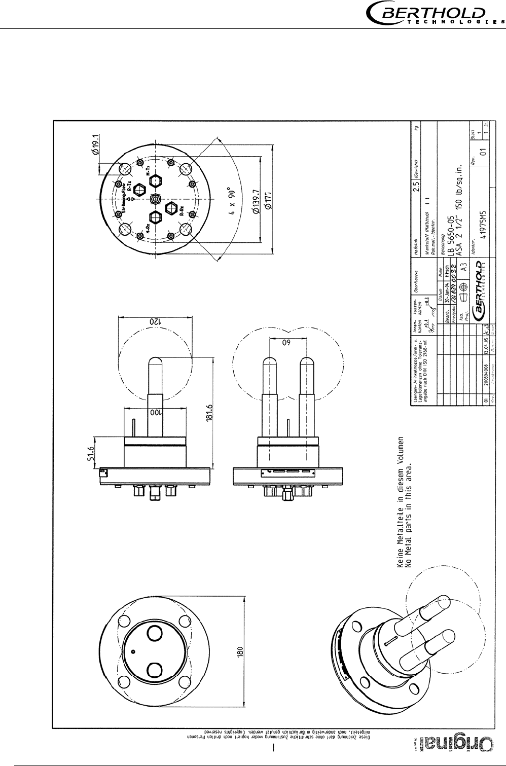
8.4.5 Type LB 5650-05 76
8.4.6 Type LB 5650-09 77
8.4.7 Installation Situation in Pipelines 78
8.5 Dimensional Drawings Container Flush Probes 79
8.5.1 Type LB 5651-01 79
8.5.2 Type LB 5651-02 80
8.5.3 Type LB 5651-03 81
8.5.4 Type LB 5651-04 82
8.5.5 Type LB 5651-05 83
8.5.6 Installation Situation in Pipelines 84
8.6 Installation Sheets for LB 5650 (Container Probe) 85
8.7 Installation Sheets for LB 5651 (Container Flush Probe) 87

Chapter 1 Safety Summary
Micro-Polar Brix (++) LB 565 7
Chapter 1. Safety Summary
1.1 Symbol and Pictograms
The following symbols identify safety instructions in this user’s
guide:
Danger!
Possible danger for life and health hazard
Caution!
Possible hazard
Minor personal injuries
Warning!
Possible hazard
Property damages
Note!
Tips for application and useful information
The safety instructions are supplemented by explanatory picto-
grams, for example:

Chapter 1 Safety Summary
Micro-Polar Brix (++) LB 565
8
1.2 Use and Function
The Micro-Polar Brix and Micro-Polar Brix ++ comply with part 15
of the FCC Rules1, and with RSS-210 of Industry Canada. These
devices fulfill the requirements regarding immunity to interference
and emitted interference and are licensed for operation.
“IC2“: before the equipment certification number signifies that the
Industry Canada technical specifications were met. It does not
guarantee that the certified product will operate to the user’s satis-
faction.
1 FCC ... Federal Communications Commission
2 IC ... Industry Canada
Frequency
licenses
FCC
license certificate

Chapter 1 Safety Summary
Micro-Polar Brix (++) LB 565 9
The Micro-Polar Brix and Micro-Polar Brix ++ comply with the
R&TTE regulations 1999/5/EG and fulfil herein all requirements for
this type of high-frequency device. The devices contain the identi-
fication of conformity according to CE symbol of No. 0682 of the
certification office. The certificate can be found in chapter 7.2 Fre-
quency Approval.
The LB 565 is a system for concentration measurement using mi-
crowave technology. The microwave probe is immersed into the
product being measured. The emitted microwaves have a very low
activity and are, therefore, not at all hazardous to human beings
or the environment. Also, the product is not affected at all by the
microwaves.
The LB 565 has been manufactured in compliance with the safety
requirements for microwave devices. If special legal provisions
exist regarding the use of microwaves, it will be the responsibility
of the user to adhere to them.
Any change in frequency or any other manipulation on the micro-
wave device will result in a loss of the frequency approval and will
be prosecuted.
The microwave modules do not include any replaceable compo-
nents and must not be opened.
NOTICE:
Changes or modifications made to this equipment not expressly
approved by (manufacturer name) may void the FCC authorization
to operate this equipment.

Chapter 1 Safety Summary
Micro-Polar Brix (++) LB 565
10
1.3 General Safety Instructions
The systems have been manufactured in accordance with state-of-
the-art technology and in compliance with acknowledged safety
rules ensuring the highest level of occupational safety.
The instrument housings are protected according to protection
type IP 65 and are suitable for outdoor application. The instru-
ment has been tested by the manufacturer and is delivered in a
condition that allows safe and reliable operation.
The measuring systems have to be protected against direct sun
rays and rain during outdoor applications e. g. by a suitable pro-
tective cover.
Never change the installation and the parameter settings without
a full knowledge of these operating instructions, as well as a full
knowledge of the behavior of the connected controller and the
possible influence on the operating process to be controlled.
The safety instructions and warnings in this user’s guide have to
be observed without fail to ensure safe operation of the instru-
ment!
The systems may be used only in technically good order and only
according to regulations!
Only authorized persons who have been trained, have the proper
qualification and have received the necessary instructions may
work with the systems! Installations and modifications on the sys-
tems which may affect the operational safety are not permitted!
Ambient conditions:
All systems components require non corrosive ambient conditions
during transport, storage and starting up.
Electrical shock hazard:
Disconnect power to rule out any contact with live parts during
installation and when servicing.
Turn off power supply before opening the instrument. NEVER work
on open and live instruments.

Chapter 1 Safety Summary
Micro-Polar Brix (++) LB 565 11
Attention! Possible danger, damage to property! Concerns the sys-
tem type LB 565-12 Micro-Polar Brix ++ (ID no. 51832-02):
When connecting the 24 V DC auxiliary power, the + and – Poles
should be connected correctly. There is no reverse voltage protec-
tion!
Spare fuses must match the rating specified by the device manu-
facturer. Short-circuiting or manipulation is not permitted.
The LB 565 and all ancillary units have to be connected to mains
via grounded connection.
If liquid gets inside the instrument, cut off the power supply. The
instrument has to be checked and cleaned by an authorized ser-
vice center.

Chapter 2 General Information
Micro-Polar Brix (++) LB 565 13
Chapter 2. General Information
2.1 Intended Use
The measuring system LB 565 can be used to determine the con-
centration of nearly all materials which can be dissolved or sus-
pended in water using microwave technology. The following sensor
and evaluation unit versions are available:
1. The container probes have been designed for installation into
pipelines with a nominal width of ≥ 200 mm and in containers,
for example, crystallizers. The probe is installed such that both
measuring rods (transmitter and receiver) are immersed into
the product being measured.
2. The flow cell is a tubular probe, with microwave transmitter
and receiver being firmly welded onto the outside of the pipe.
The inside of the pipe is Teflon-coated. The flow cell is in-
stalled into the existing pipeline system inline or into a bypass.
The evaluation unit is available in two versions: The Standard
Model Micro-Polar Brix and the high dynamic version Micro-
Polar Brix ++. The evaluation unit Micro-Polar Brix ++ can only be
used when sufficiently large microwave attenuation (min. 40 dB) is
present. The Micro-Polar Brix should be used for lower microwave
attenuation.
During operation, the concentration measuring devices Micro-
Polar Brix and Micro-Polar Brix ++ send out electromagnetic radia-
tion in the frequency range between 2.4 GHz and 2.5 GHz (range
restrictions depending on local regulations in your country). The
microwaves which emerge are not dangerous to human beings and
the environment (power emission < 10 mW). The microwaves are
emitted from the microwave window; the product is not changed
by the microwaves.
To ensure proper function of the meter, please pay attention to the
following:
¾ The material being measured must not be electrically conduc-
tive, i.e. the ohmic resistance is infinite.
¾ The product must not contain any gas bubbles, or gas bubbles
have to be compressed with adequate pressure when carrying
out measurements in pipelines.
¾ The ion concentration, e.g. salt content, has to be nearly con-
stant.
¾ The total attenuation of microwave signals must be at least 40
dB for the Micro-Polar Brix ++. For details, see Chapter 3.4.1
the evaluation units

Chapter 2 General Information
Micro-Polar Brix (++) LB 565
14
2.2 Definitions
Attenuation Weakening of microwave signals, microwave measurement
effect.
Container flush
probe Container probe with flushing device.
EVU Evaluation unit
Factory setting All parameters have been set to standard values by the manu-
facturer. In most cases this simplifies calibration of the device
significantly. Despite factory setting, calibration always has to
be performed.
Flow cell Tubular probe for simple integration into the existing pipeline
system.
HF cable High-frequency cable.
Microwaves Electromagnetic waves in a certain frequency range.
Phase Phase or phase shift. Microwave measurement effect.
Quad cable Combination of four HF cables of equal length in a corrugated
tube.
Softkeys Buttons associated with the software.
TC Temperature compensation.

Chapter 3 System Description
Micro-Polar Brix (++) LB 565 15
Chapter 3. System Description
3.1 Principle of Measurement
The microwaves that spread between the rods pass through the
product being measured; their propagation speed is slowed down
(= phase shift) and their intensity is damped (= attenuation).
Figure 3-1 illustrates the principle of measurement: the propaga-
tion speed of microwaves passing through the product being
measured is slowed down (phase shift) and their intensity (at-
tenuation) is reduced, relative to a reference signal.
Figure 3-1:
Schematic diagram:
Change of microwave
by product
Prerequisite is that the product being measured shows some
dielectric properties. In general, water is a very distinct dielec-
tric fluid. The water or dry mass concentration, respectively, can
therefore be determined by measuring the phase shift and/or
attenuation.
The concentration to be detected in the product is therefore de-
pendent in good approximation linear on phase shift and at-
tenuation. For this reason we can measure the concentration or
the Brix content of the product using a linear calibration (see
chapter 3.2 Calculation of Measured Values ).
Phase shift
Product
Phase comparison
--> Phase
Amplitude comp
--> Attenuation
Refe
r
ence path
Reference signal
Measurement signal
Measured value:
Concentration %TS
HF- sources
Transmitter
Receive
r

Chapter 3 System Description
Micro-Polar Brix (++) LB 565
16
3.2 Calculation of Measured Values
The microwave measuring phase and attenuation are calibrated
after an automatic plausibility analysis.
During calibration, the phase and/or the attenuation or a concen-
tration value (or density value) are assigned by sampling. The
calibration is full automatic and the sample taking is supported by
the evaluation unit.
Which of the parameters, either phase, attenuation or both are
used for the calibration depends on the size and interference of the
measuring effect. For example, the attenuation is significantly
more sensitive to electrolytic conductivity (salt content).
In many cases, the mere phase measurement is recommended
and is calculated in good approximation by a linear calibration as
follows:
CACon
+
ϕ⋅=
Con concentration
A, C coefficients of respective calibration function
ϕ phase
The LB 565 allows you to calibrate, display and output two concen-
trations Con1 and Con2. You have to enter the calibration coeffi-
cients separately for concentration 1 and 2. For more information
please refer to the Software Manual.
3.3 Temperature Compensation
Temperature compensation (TC) is necessary if the product tem-
perature varies. In general, we recommend connecting a tempera-
ture compensation, i.e. a temperature signal (0/4...20 mA or
Pt 100) to the evaluation unit and, if necessary, to enable the
compensation in the evaluation unit. The evaluation unit is de-
signed such that the required TC’s can be calculated automatically.
The variation in temperature where temperature compensation
becomes absolutely essential is dependent on the product and on
the water content. In first approximation, ± 2°C should be set as
fluctuation limit.
TC has to be carried out whenever you are working with cooling
crystallizers.

Chapter 3 System Description
Micro-Polar Brix (++) LB 565 17
The TC corrects the phase and attenuation before the measured
value calculation (calibration), in most applications according to
the following formulae (linear compensation, additive).
θ
Δ
⋅
+
ϕ
=ϕ ϕ
C
meascomp
θ
Δ
⋅
+
=Dmeascomp CDD
Where
ϕmeas = measured phase
ϕcomp = compensated phase
Dmeas = measured attenuation
Dmeas = compensated attenuation
Cϕ = temperature coefficient
CD = temperature coefficient
Δθ = measured temperature (Tmeas) – reference temp. (TRef)
Depending on the selected function (additive, multiplicative, linear,
quadratic), the required temperature coefficients appear on the
Calibration menu. Temperature coefficients that are not used are
set to zero.
If you select two-range calibration (split concentration), separate
TC’s have to be entered for both concentration ranges. The coeffi-
cients are entered in the course of calibration.
TC can be carried out via Pt 100 or via current input. This has to
be defined on the Calibration menu. The Pt 100 temperature range
is between –50°C and +200°C.
How to work with the temperature compensation is described in
detail in the Software Manual.

Chapter 3 System Description
Micro-Polar Brix (++) LB 565
18
3.4 Mechanical Components
The measurement system consists of an evaluation unit, a probe
and a set of special high frequency cables (in short HF-cable). The
evaluation unit is available in two versions: the standard model
Micro-Polar Brix LB 565 and the high dynamic version Micro-
Polar Brix ++ LB 565, see Figure 3-2 and 3-3.
Figure 3-2:
Evaluation unit
Micro-Polar Brix
LB 565
Figure 3-3:
Evaluation unit
Micro-Polar Brix ++
LB 565

Chapter 3 System Description
Micro-Polar Brix (++) LB 565 19
The probes are available in different versions, as pipeline and con-
tainer probe with and without flushing device (see Figure 3-4, 3-5
and 3-6).
Figure 3-4:
Container probe LB 5650
Figure 3-5:
Container probe with
flushing device LB 5651
Figure 3-6:
Flow cell LB 3543 MP
nominal width 50 mm
3.4.1 Evaluation Units
The evaluation units consist of evaluation analyser with microwave
unit. The microwaves are generated, received and analyzed by the
microwave unit. Signal processing and communication take place
in the evaluation computer. For simple operation, the measuring
system includes a display, 4 softkeys and an alphanumeric keypad.
Different functions are assigned to the softkeys on the display.
Differences between Micro-Polar Brix ++ und Micro-
Polar Brix
The Micro-Polar Brix ++ evaluation unit, has an additional HF am-
plifier module in comparison to the standard model, whereby the
wall housing is larger (dimensions see chapter 6.2 Technical Data

Chapter 3 System Description
Micro-Polar Brix (++) LB 565
20
evaluation unit). Otherwise, the evaluation units only differ in their
applications.
Higher product attenuations are allowed for the high dynamic ver-
sion of Micro-Polar Brix ++. Therefore larger measuring paths can
be irradiated, for example measuring cells of larger nominal width
can be used. The application of both evaluation units is predeter-
mined by the product attenuation. Up to an attenuation of 50 dB,
Micro-Polar Brix is used and beyond, Micro-Polar Brix ++. The Mi-
cro-Polar Brix ++ generally requires an attenuation of 40 dB. If
this is lower, the software indicates an error message (only on
software version 1.22).
An RS232 interface is included on the underside of the instrument.
Figure 3-7:
Front view of
evaluation unit
and cable feed-through
Lock
Numerical
keypad
Softkey button
s
LED’s
LCD display
RS232 connection
HF connections for
signal cable reference cable
Micro-Polar
Figure 3-8:
Evaluation unit -
bottom view
Cable feed-through
M 20 and M 16
High-frequency connections
RS232
9-pole Sub-D-connector
M-TxM-Rx R-Tx R-Rx
Micro-Polar Brix ++

Chapter 3 System Description
Micro-Polar Brix (++) LB 565 21
LED’s on the Front Panel
Five LED’s on the instrument front panel indicate the instrument
status.
Figure 3-9:
LED’s on the front panel
of the evaluation unit
Run
Error
Signal 1
Signal 2
Comm
LED Function
Run Instrument in measurement mode
Display is flashing when concentration average
value is put on hold, e.g. if an error has occurred,
if the measurement has been paused or stopped
Error Error
Goes out after reset or if fault has been repaired
Signal 1 Display depending on the selected function of relay
1, possible functions: error, no product, limit value
min., limit value max., measurement stopped
Signal 2 Display depending on the selected function of relay
2, possible functions: error, no product, limit value
min., limit value max., measurement stopped.
Comm Communication active, e.g. via RS 232 / HART®
Terminal Block
The electrical connections of the LB 565 are located on a connector
strip in the wall housing. The terminal block is accessible from the
front after you have opened the cover. There, you also find the
power cut-off switch and the fuses. The high-frequency connec-
tions are located on the outside of the housing. All other elements,
especially the live elements (on the motherboard) are provided
with a protection cap.

Chapter 3 System Description
Micro-Polar Brix (++) LB 565
22
3.4.2 Flow Cell
The flow cells are available with nominal widths from 50 to 150
mm (see Figure 3-10) and different flanges. For technical data
please refer to chapter 6.2.
Figure 3-10:
Flow cell
A
A
B
B
Pipeline with
nominal width
50 ... 150 mm
A: High-frequency connections
B: Process connection, flanges of different sizes
The flow cell consists of a sturdy stainless steel body. The micro-
wave transmitter and receiver are firmly welded to the outside of
the pipe. The entire product pipe is PTFE-coated and fulfills the
special requirements for use in foodstuffs.
There are not objects extending into the pipe (such as measuring
sensors). The flow cell can be installed in the pipeline via flange,
threaded connector or clamp connector. Adapter flanges are avail-
able as accessories.
The flow cell has two HF connections to feed in and output micro-
wave signals. Input and output can be allocated as needed (M-Tx,
M-Rx). The microwave signals transmit the product over the entire
pipeline cross-section.

Chapter 3 System Description
Micro-Polar Brix (++) LB 565 23
3.4.3 Container Probe
Two different container probe versions are available – either with
or without flushing device (see Figure 3-11). For technical data
please refer to chapter 6.2 Technical Data.
Figure 3-11:
Container probes
A
LB 5650
without flushing device
A
B
LB 5651
with flushing device
A: High-frequency connections
B: Process connection, flanges of different sizes
Container Probe Type LB 5650 and Type LB 5651
The container probe has been specially designed for concentration
measurements in containers. Both measuring rods are immersed
into the product. Microwaves are emitted from one end of the rod
and received by the other end of the rod; they are emitted only
towards the opposite end of the rod. This direction characteristic of
the probe minimizes the interfering influence of metal parts in the
vicinity of the probe and allows installation if only little space is
available. For example, the concentration of sugar strike can be
measured continuously to find the suitable inoculation time.
The plastic rods meet the special requirements for application in
foodstuffs.

Chapter 3 System Description
Micro-Polar Brix (++) LB 565
24
Two different probe types are available:
¾ The standard type is the container probe without flushing de-
vice
¾ The container flush probe is employed in processes where in-
crustations are likely to occur, for example, due to increased
depositions. The flushing device prevents any deposition on the
microwave exit windows. Long travel times are supported by
continuous crystal processes (i.e. VKT).
The flow direction of the product being measured should be verti-
cal, as shown in Figure 3-11. This ensures that the product be-
tween the measuring rods is representative, provided it is mixed
thoroughly.
Figure 3-12:
Container probe
LB 5650
Container wall
HF connections
Product
Microwave
measuring field
Plastic rods
~ 190 mm
100 mm
Pt100
Pt 100 Only the container probe LB 5650 is provided with a Pt 100 and is
connected to the evaluation unit via 4-wire cable. The wiring dia-
gram for the Pt 100 is described in chapter 4.3.2 Pin Configuration
of the Connector Strip. To reduce the danger of incrustation in the
immediate vicinity of the measuring rods, the container flush probe
is not provided with a Pt 100.

Chapter 3 System Description
Micro-Polar Brix (++) LB 565 25
Warning, possible property damages
Do not open the cover screws on the front of the container probes,
see Figure 3-13.
Figure 3-13:
The front of the con-
tainer probe LB 5650
ø
14
M-Rx
R-Tx
do not remove, only
in case of service by
Berthold Technologies
R-Rx
M-Tx
ø
160
ø
130
PT100
Probe flange
e.g. Container Probe DN65 / PN6
Flow
Strömung
Container Probe Type LB 5651 with Flushing Device
The probe LB 5651 with flushing device has been designed for
processes where depositions, for example, due to incrustations are
likely to occur on the probe.
The container flush probe has two flushing channels which keep
the plastic rod free from incrustations; this ensures that the mi-
crowaves come into direct contact with the product being meas-
ured. All parts coming into contact with the product meet the spe-
cific requirements for application in foodstuffs. Figure 3-14 shows
the probe design.

Chapter 3 System Description
Micro-Polar Brix (++) LB 565
26
Figure 3-14:
Flushing probe
LB 5651
Container wall
4 x HF connections
2 x 3/8’’ Flushing connections, internal thread
Microwave
measuring field
Plastic rods
Rinsing medium
~ 320 mm
100 mm
The flushing slit width is the same for both probe rods and shown
in Figure 3-15.
Figure 3-15:
Rod head
with flushing pipe
Plastic rods
Flushing pipe
Flushing slit
~ 1.5 mm

Chapter 3 System Description
Micro-Polar Brix (++) LB 565 27
3.4.4 High-Frequency Cable
High-frequency cables (HF cable) are used to transmit microwaves
between probe and evaluation electronics.
HF cables change their conductivity (for microwaves) relative to
the temperature. Therefore, variations in the ambient temperature
would create measurement errors. This error is compensated for
by enabling the cable compensation. Influences of the ambient
temperature on the signal cable are compensated for by means of
the reference cable. The reference cable has the same length as
the signal cable; during operation, it should be exposed to the
same ambient temperature. Therefore, we recommend installing
both cable types together in a corrugated tube; this also simplifies
installation.
Special HF-cables are available for each sensor type. For the con-
tainer probe (with and without flushing device) the HF-cable
quad is used (see Figure 3-16). It consists of four single HF-cables
of equal length, whose ends are terminated by one HF-connector
(N-type). Available cable lengths: 2, 4, 6 and 10 m.
Two cable versions are available for the flow cell.
Version 1: A HF cable quad as described above, where the refer-
ence cable is sort-circuited by means of the N-connector at the
side of the probe (see Figure 3-17). Available cable lengths: 2, 4,
6 and 10 m.
Version 2: The flow cell is connected using two separate HF-
cables (solid sheath cable) of equal length (signal cable). Another
separate cable, with the length corresponding to the sum of both
signal cables, makes up the reference cable (not shown). Available
lengths of the solid sheath cable: signal cable: 1.5 and 2.0 m; ref-
erence cable: 3.0 and 4.0 m.
Never bend HF cables! The bending radius should not be less than
100 mm. After installation, fix cables with cable binders.

Chapter 3 System Description
Micro-Polar Brix (++) LB 565
28
Figure 3-16:
HF-cable quad
Lengths 2, 4, 6 and 10 m
Corrugated tube
4 x N-connector
ø
18.5 mm
0.35 m 0.35 m
4 x N- 4 x N-connector
Figure 3-17:
HF-cable quad, at the
side of the probe
N-connector
(ID-No. 20608)
Sensor side
R-Rx
R-Tx
M-Rx
M-Tx
Figure 3-17: The ends of the reference cable R-Rx and R-Tx are
short-circuited with an N-connector.
For further technical data see chapter 6.3 Technical Data HF-
Cable.

Chapter 3 System Description
Micro-Polar Brix (++) LB 565 29
3.5 Pipeline Measurement Configuration
The evaluation unit is installed in the immediate vicinity of the
container probe to keep the HF-cable between evaluation unit and
probe fairly short. The shorter the cable connection, the better the
stability of the measurement. The standard length is 2 m and the
maximum length of the HF-cables is 10 m.
The flow cell is installed into the existing pipeline system inline or
into a bypass. The orientation of the flow cell may either be verti-
cal or horizontal. To rule out sedimentary depositions, vertical in-
stallation in a riser is preferred (see Figure 3-18).
The flow cell should be installed fairly close to the sampling loca-
tion to ensure representative sampling for calibration.
For possibly required product temperature compensation, a repre-
sentative temperature signal (current signal or Pt 100) has to be
connected to the evaluation unit.
Figure 3-18:
Typical measurement
configuration
on a pipeline
Pipeline inline
or in bypass
Product flow
Sampling
Reference line
with N-connector
HF-cable quad
Evaluation unit
Distance:
typical 2 m
Micro-Polar
Micro-Polar
Orientation:
HF-connections
facing down

Chapter 3 System Description
Micro-Polar Brix (++) LB 565
30
3.6 Container Measurement Configuration
The evaluation unit is installed in the immediate vicinity of the
container probe to keep the HF-cable between evaluation unit and
probe fairly short. The shorter the cable connection, the better the
stability of the measurement. The standard length is 2 or 4 m and
the maximum length of the HF-cables is 10 m.
The evaluation unit should be installed fairly close to the sampling
location to ensure representative sampling for calibration. A repre-
sentative temperature signal (current signal or Pt 100) should be
connected to the evaluation unit for possibly required product
temperature compensation.
Our example below shows the measurement configuration on a
discontinuous evaporation crystallizer. The probe is fixed to the
container wall such that both measuring rods are immersed into
the product.
Figure 3-19:
Typical system
configuration on a
evaporation
crystallizer
Container wall
Distance typical 4 m
(no radiation heat)
a
Micro-Polar
Pt100
HF connections
Product
Microwave
measuring field
PT-100
a > 60 mm
HF quad cable

Chapter 4 Getting Started
Micro-Polar Brix (++) LB 565 31
Chapter 4. Getting Started
4.1 Transport to the Installation Site
Risk of damage!
System parts may get damaged during transportation!
Transport probe and evaluation unit in their original packaging.
Protect parts against shocks.
Especially the plastic rods of the container probes have to be pro-
tected against mechanical impact!
After unpacking, make sure all parts listed on the packing list have
been delivered and show no sign of damage; if necessary, clean
these parts.
If you detect any damage, please notify the forwarder and the
manufacturer immediately.
4.2 Installation
4.2.1 Flow Cell Installation
For installation of the flow cell please keep in mind:
¾ The flow cell is installed into the pipeline system. Keep in mind
that material sampling should be possible for calibration di-
rectly behind the flow cell.
¾ The flow cell should be installed in a vertical riser, if possible. It
has to be ensured that no material depositions occur on the pi-
pe walls and no bubbles are present in the product. For hori-
zontal installation, please observe the correct orientation of the
HF-connections (see Figure 4-2).
¾ There should be a straight pipe section of at least 200 mm and
equal nominal width before and after the flow cell to ensure a
fairly homogeneous flow profile and to rule out possibly occur-
ring microwave reflections in the pipeline.

Chapter 4 Getting Started
Micro-Polar Brix (++) LB 565
32
Wrong arrangement !
¾ No gas bubbles should be present in the product. If gas bub-
bles cannot be ruled out, a pressure of at least 4 bar is re-
quired in the pipeline to minimize the influence of gas bubbles.
Please observe the max. permissible working pressure (see
chapter 6.2 Technical Data Sensors)
¾ The high-frequency cable should preferably be connected to
the flow cell from below to prevent inflowing water from getting
to the connecting sockets.
¾ Measuring and reference cable should follow the same path as
much as possible to make sure both cables are exposed to the
same temperature and do not get in touch with warm pipelines.
We recommend installing the HF-cable through a common ca-
ble protection. If you are working with the HF-cables quad and
quad 2-port, this function is taken over by the corrugated tube.
Figure 4-1:
Installation in a
vertical riser
Figure 4-2:
Horizontal installation:
orientation of
HF-connections
Pipeline inline
or in bypass
HF-connections
max. 2 Nm
Flange
200 ... 250 Nm
Product flow
Flow cell
min. 200 mm
Orientation:
HF-connections
facing down
Sampling
M-Tx
( M-Rx )
M-Rx
( M-Tx )
Correct arrangement !

Chapter 4 Getting Started
Micro-Polar Brix (++) LB 565 33
4.2.2 Container Probe Installation
For installation, please keep in mind:
¾ Select the installation site such that good mixing and a homo-
geneous product are ensured and no bubbles are present in the
probe. A tap should be provided in the direct vicinity to allow
representative sampling.
¾ The probe has to be flange-mounted on the container such that
the product being measured flows between both measuring
rods. That means the fork (both measuring rods) has to be in-
stalled at an angle of 90° to the material flow.
¾ The distance between the measuring rod tips and any metal-
ized walls (heating elements, stirrer, container wall) should be
at least 60 mm.
¾ The following installation hole sizes in the fitting flange
are required for installation of the probe:
Flange Minimum installation hole size ∅ (mm)
DN 65 / PN 6 100 ± 0.2
others 102 ± 0.5
¾ For further installation dimensions please refer to chapter 8
(see installation sheets).
¾ Use the respective flat gasket (standard accessory) to compen-
sate for minor surface tolerances in the fitting flange.
Installation on Process Containers
Figure 3-19 shows the position of the container probe on the con-
tainer. This position is also valid for the container flush probe.
The assembly sheet in chapter 8 includes all the information re-
quired for installation.
Installation in Pipelines
The container probes can be installed in pipelines with a nominal
width ≥ 200 mm using an adapter flange. Please observe the posi-
tion and orientation of the container probe (see the technical
drawings in chapters 8.4.7 and 8.5.6 Installation Situation in Pipe-
lines).

Chapter 4 Getting Started
Micro-Polar Brix (++) LB 565
34
Connection of the flushing pipes
The container probe with flushing device consists of two flushing
devices with a 3/8 inch inner thread (DIN ISO 228-1). The flushing
connections are subsequently sealed to this thread. A sealing to
the probe cover is not permitted, for example with silicone.
Flush Parameters (only for container flush probe)
The degree of deposition or incrustation is essential for the flush
parameters, i.e. flush frequency and duration. The flush parame-
ters have to be adapted to the product and the process.
The following independent flushing parameters for products and
processes have to be observed:
Flush solution water, condensation
Temperature of
flush solution Maximum 120 °C
Pressure ≥ 3 bar, max. 8 bar
Fittings 2 x 3/8 inch female screw thread
(DIN ISO 228-1)
Supply pipe ≥ 1/2 inch
Independent flushing parameters product and process, typical
starting rates:
Interval every 2 hours
Duration 12 seconds
Temperature of
flush solution average product temperature, mostly 65 ±5°C
For measurements on the C-product the flushing intervals can be
considerably reduced, e.g. every 6 hours for 30 seconds.
The following is generally valid: the flushing devices can be
flushed simultaneously or in shifts. The flushing parameters are
valid for every flushing device.
The required flush duration has to take into account a possible
inertness of the system, e.g. valve openings. The flush supply
pipes have to be insulated well against heat to prevent that the
flush solution is initially colder.
The amount of water per flushing connector is approx. 0.8 l/sec at
a flushing pressure of 5 bars.
Amount of water

Chapter 4 Getting Started
Micro-Polar Brix (++) LB 565 35
4.2.3 Installing the Evaluation Unit
For installation of the evaluation unit, please keep in mind:
¾ Install the evaluation unit in the vicinity of the microwave
probe, keeping in mind the length of the HF cable. HF cables
are available in a length of 2, 4, 6 and 10 m; the standard ca-
ble length are 2 or 4 m.
¾ Protect the instrument against vibrations.
¾ For instrument installation you should foresee a cutoff device to
allow easy and quick disconnection of the device from the
power supply.
¾ When installing the evaluation unit on a crystallizer, use a dis-
tance rail to minimize thermal radiation and heat conduction.
See Figure 4-3.
¾ When the evaluation unit is set-up outdoors, it has to be pro-
tected from direct sunshine and rain for example by means of
an adequately large protective roof.
Figure 4-3:
View from above:
Installation of
evaluation unit
on a crystallizer
Insulation container wall
Spacer
Evaluation unit

Chapter 4 Getting Started
Micro-Polar Brix (++) LB 565
36
4.3 Connecting the Evaluation Unit
4.3.1 Connecting the HF Cable
You need the following HF quad cable to connect the sensor to the
evaluation unit.
For the flow cell
Version1: 1 HF-cable quad with N-connector
Version 2: 2 x solid sheath cable (as signal cable, same length)
1 x solid sheath cable (as reference cable)
For the container probes
1 x HF-cable quad
Prerequisite for a proper measurement is the correct installation of
cables! Please keep in mind:
Make sure the cables do not get into contact with hot pipes over
the entire length (corrugated tube and single cable section after
splitting), e.g. direct contact with the device wall (not insulated).
This alone guarantees that all single cables are subject to the sa-
me ambient conditions and that the compensation of the cable
drift works properly.
Never bend HF cables! The bending radius should not be less than
100 mm. After installation, fix the cables with cable binders to
prevent the cable from slipping!

Chapter 4 Getting Started
Micro-Polar Brix (++) LB 565 37
Connecting the Flow Cell
Version 1 The HF-cable quad and the HF-connections on the evaluation unit
are labeled. Connect the flow cell to the evaluation unit as shown in
Figure 4-4 and make sure that you only connect cables with equal
labeling. The two connections on the flow cell are not labeled, the
allocation of the cable connectors M-Tx and M-Rx is arbitrary. The
cable plugs R-Tx and R-Mx are connector to the N-connector
(short-circuited).
Version 2 Connect the flow cell to the evaluation unit as shown in Figure 4-5
and make sure that the reference cable (ring line) is connected to
R-Tx and R-Mx.
Figure 4-4:
Connection of flow cell
version 1
Evaluation unit,
underside
M-Tx
M-Tx
M-Rx
M-Rx
R-Tx
R-Tx
R-Rx
R-Rx
Reference line
with N-connector
Flow cell
Bending radius
min. 100 mm HF-cable quad
(standard 2 m)
HF-connections
max. 2 Nm
Flange
200 ... 250 Nm
M-Tx
( M-Rx )
M-Rx
( M-Tx )
R-Rx
R-Tx
Figure 4-5:
Connection of flow cell
version 2
M-Tx
M-Rx R-Tx R-Rx
Evaluation unit,
underside
Reference line
Flow cell
Bending radius
min. 100 mm
2 x Signal cables
(standard 2 m)
HF-connections
max. 2 Nm
Flange
200 ... 250 Nm

Chapter 4 Getting Started
Micro-Polar Brix (++) LB 565
38
Connecting the Container Probes
The HF cables and the HF connections on the evaluation unit and
on the probe are labeled. Connect the flow cell to the evaluation
unit as shown in Figure 4-6, and make sure that you only connect
cables with equal labeling.
Figure 4-6:
Connection of the
container probe to
the evaluation unit
Microwave
measuring field
Evaluation unit, underside
ø100
PT-100
HF quad cable
M-Tx
M-Tx
M-Tx
M-Rx
M-Rx
R-Tx
R-Tx
R-Rx
R-Rx
M-Rx
R-Tx
R-Rx
When tightening the 21 mm screw nut, make sure that the con-
nector is not twisted on the cable. If the connector is twisted rela-
tive to the cable, the shielding may get damaged and this could
result in mismatching and bad sealing.
Hand tighten all screwed connections of the HF cable (2 Nm = 0.2
kg/m)! Before tightening, carefully screw on the cable by hand.
Caution! Threaded joint jams easily.
Occasionally you should check if the screwed connection is still
properly tightened. If the installation is exposed to vibrations, the
screwed connection may come loose and this may result in inaccu-
rate measurements or corrosion of the connections.
As long as the cables are not connected, the coaxial sockets have
to be covered immediately with plastic caps and the cable connec-
tors have to be protected by suitable provisions against moisture
and dirt.

Chapter 4 Getting Started
Micro-Polar Brix (++) LB 565 39
4.3.2 Pin Configuration of the Connector Strip
Electrical shock hazard:
Disconnect power to rule out any contact with live parts during
installation and when servicing.
Turn off power supply before opening the instrument. NEVER work
on open and live instruments.
Temperature Signal Connection
A Pt 100 or a temperature current signal has to be connected to
current input 1 or 2 if temperature fluctuations occur in the prod-
uct and if a temperature dependence of the phase or attenuation
measurement is likely to occur. The temperature sensor has to
measure the material temperature in the vicinity of the microwave
probe.
When taking the container probe into operation, connect the 4wire
cable of the Pt 100 to the connector strip of the evaluation unit as
follows:
Figure 4-7:
Pt 100 connection
container probe
Evaluation unit
Connector strip
( ) Terminal no.
(23) blue
white
white
blue
PT-100 sensor
in the container
probe
(11)

Chapter 4 Getting Started
Micro-Polar Brix (++) LB 565
40
Other Connections
¾ Connect all desired input and output signals to the terminal
strip as shown below. Use the M feed-through to maintain the
degree of protection.
¾ Check if the voltage indicated on the type plate matches your
local supply voltage.
¾ Connect the line cable to the terminals 3(L1), 2(N) and 1(PE).
¾ Check if the test switch (mains interruption) is in position „on“
(see Figure 5-1).
¾ Close the instrument housing and turn on the power supply.
Attention! Possible danger, damage to property! Concerns the sys-
tem type LB 565-12 Micro-Polar Brix ++ (ID no. 51832-02):
When connecting the 24 V DC auxiliary power, the + and – Poles
should be connected correctly. There is no reverse voltage protec-
tion!
The line cross-section for the power supply must be at least
1.0 mm2.
On the connector strip of the evaluation unit you find the following
connections:
Figure 4-8:
LB 565 wiring diagram
or / bzw.
- +

Chapter 4 Getting Started
Micro-Polar Brix (++) LB 565 41
Power supply: Terminals 3 (L1, +), 2 (N, -) and 1 (PE, )
For Micro-Polar Brix, depending on instrument version, see type
label on the outer wall of the housing.
1.) 90 V - 265 V AC, 45 - 65 Hz
2.) 24 V DC: 18 … 36 V
24 V AC: -20%, +5%, 40 … 440 Hz
For Micro-Polar Brix ++, depending on instrument version, see
type label on the outer wall of the housing.
1.) 90 V - 265 V AC, 45 - 65 Hz
2.) 24 V DC: 18 … 36 V, no reverse voltage protection
Current input no. 1 (terminals 20+ and 8-), insulated
Input as 0/4 - 20 mA signal. e.g. for temperature compensation or
reference signal recording.
Current input no. 2 (terminals 22+ and 10-), not insulated
Input as 0/4 - 20 mA signal. e.g. for temperature compensation or
reference signal recording.
Current output no. 1 (terminals 27+ and 15-), insulated
Output as 4 - 20 mA signal. Output options: concentrations (1/2),
current inputs signals (1 / 2) and Pt 100 signal
Current output no. 2 (terminals 19+ and 7-), insulated
Output as 0/4 - 20 mA signal. Output options: concentrations
1 and 2, current input signals 1 and 2 and Pt 100 signal
Pt 100 (terminals 23+ and 11-)
Connection for temperature measurement.
Digital input 1: DI1 (terminals 24+ and 12-)
Configuration options:
¾ no function
¾ measurement: start (closed) and stop (open)
Digital input 2: DI2 (terminals 25+ and 13-)
Configuration options:
¾ no function
¾ average value: hold (closed) and continue averaging (open)
¾ product selection: product 1 (open) and product 2 (closed)

Chapter 4 Getting Started
Micro-Polar Brix (++) LB 565
42
Digital input 3: DI3 (terminals 26+ and 14-)
Configuration options:
¾ no function
¾ start sampling, open: no action, closed: unique measurement
starts
¾ product selection
Relay 1: (terminals 4, 5 and 6)
Changeover contacts (SPDT), insulated, configuration option:
¾ no function
¾ error message
¾ stop measurement
¾ limit value min. and max.
¾ no product
Relay 2: (terminals 16, 17 and 18)
Changeover contacts (SPDT), insulated, configuration option:
¾ no function
¾ error message
¾ stop measurement
¾ limit value min. and max.
¾ no product
RS485 interface (terminals 21 (RS1) and 9 (RS2))
Serial data interface for output of live data (all measuring data for
every sweep, measuring cycle) the setup protocol and data log.
Data format: 38400 baud, 8 data bits, 1 stop bit, no parity, no
handshake.
RS232 interface (on instrument bottom)
9-pole SubD-connector. Serial data interface for output of live data
(all measuring data for every sweep, measuring cycle) the setup
protocol and data log.
Data format: 38400 baud (Data transfer rate ), 8 data bits, 1 stop
bit, no parity, no handshake.

Chapter 4 Getting Started
Micro-Polar Brix (++) LB 565 43
4.3.3 Digital Outputs, Relays
The status of the measurement is output via two relays:
¾ Error
¾ Alarm (alarm min. and max.)
¾ No product
Under menu item Plausibility, you may enter a min. attenuation
for pause detection (e.g. for process pause, no product pre-
sent); if this value is not reached, „no product“ is signaled via a
relay and the current output drops to 0 or 4 mA.
A typical application is pause detection between the discontinu-
ous evaporation crystal processes.
¾ Measurement stopped
The respective switching status is also signaled via LED’s on the
front panel (LED’s: signal 1 and 2).
Relay no. Error, alarm, no product,
measurement stopped,
currentless status
Normal
1
2
The relays with changeover contacts can either be operated as
make contact, terminals 4 & 5 (open at error, alarm ...) or as
break contact, terminals 5 & 6 (closed at error, alarm ...).
com
4
5
6
com
16
17
18
com
4
6
5
com
16
18
17

Chapter 5 Service Instructions
Micro-Polar Brix (++) LB 565 45
Chapter 5. Service Instructions
5.1 General Information
The evaluation unit has no wearing parts or components requiring
any special maintenance.
A malfunction of the measuring system is not always due to a de-
fect in the instrument. Often the error is caused by incorrect op-
eration, wrong installation, or irregularities in the product being
measured.
If a malfunction occurs, anyway, the measuring system helps you
to identify and eliminate errors by displaying error messages on
the LCD, indicating operator errors and defects of the electronics.
Usually, faulty modules of the evaluation unit cannot be repaired
but have to be replaced. The microwave module is fixed with
screws to a shielding cover and must not be opened.
5.2 Wearing Parts
The evaluation unit consists of no wearing parts and components
that need special attention.
The plastic rods of the container probes and the PTFE lining of the
measuring cell can eventually experience abrasion depending on
the material being measured. A lower to middle abrasion influ-
ences inconsiderably the measurement or is compensated by cali-
bration. Therefore, you should check the wearing parts approxi-
mately every 2 years.
The plastic rods of the container probe and the lining of the meas-
uring cell can be exchanged if abrasion is heavy. During excessive
wear, the plastic rods of the container probe and the lining of the
Flow cells can be exchanged. These container probes and the Flow
cells have to be sent back to the company. An on-site exchange is
not possible.
5.3 Instrument Cleaning
Clean all system components using a moistened cloth. Do not use
any chemical cleaning agent. Parts coming into contact with the
product (during regular operation) can be cleaned with hot water,
taking into account the temperature limits (see chapter 6.2
Technical Data Sensors).

Chapter 5 Service Instructions
Micro-Polar Brix (++) LB 565
46
5.4 Battery
If the measuring system LB 565 is without power supply (power
failure or disconnected from mains), the system clock is supplied
with power by the Lithium battery on the CPU. The instrument
works correctly even with empty battery, only measured data
which are output via one of the serial interfaces may become use-
less as a result of the faulty date and time information.
The service life of the battery, even under continuous load, is at
least 8 years. To replace the battery, you have to disconnect the
instrument from mains.
Battery type: 3 Volt Lithium cell (round cell battery), type CR2032.
5.5 Fuse Replacement
The mains fuse of the LB 565 is located in the wall housing. Re-
place the fuses only if the instrument is disconnected from mains.
Be sure that the new fuses match the rating specified.
Use only fuses with correct rating:
For Micro-Polar Brix:
Instrument version with 90 ... 265 V AC: 2.0 A slow-blow
Instrument version with 24 V AC/DC: 2.0 A slow-blow
For Micro-Polar Brix ++:
Instrument version with 90 ... 265 V AC: 2.0 A slow-blow
Instrument version with 24 V DC: 6.3 A slow-blow
Spare fuses must match the rating specified by the device manu-
facturer. Short-circuiting or manipulation is not permitted.
Figure 5-1:
Look inside the
instrument Micro-Polar
0
I
Netzteil
Fuses
Line connector
Terminal strip
(can be pulled off)
Battery
EEprom
(can be pulled off)
Feed-through for
line connector
Test switch Motherboard
Protective cover

Chapter 6 Technical Data
Micro-Polar Brix (++) LB 565 47
Chapter 6. Technical Data
General Specifications
Method Microwave transmission measurement
Working frequency 2.4 – 2.5 GHz (ISM band), depending on local
regulations
Transmission power Micro-Polar Brix: < 0.1 mW (< -10 dBm)
Micro-Polar Brix ++: < 10 mW (< 10 dBm)
All coaxial line power
Applications Concentration measurement in containers and
pipes
6.1 Evaluation Unit
Evaluation Unit
Housing
Wall housing made of stainless steel, material
1.4571 (~316+Ti), see dimensional drawing in
chapter 8.
Micro-Polar Brix: HxWxD: 300 x 323 x 140 mm
Micro-Polar Brix ++: HxWxD: 400 x 338 x 170 mm
Protection type IP 65
Weight Micro-Polar Brix: approx. 6.5 kg
Micro-Polar Brix ++: approx. 8.0 kg
Operating
temperature -20 ... +60°C ( 253 ...333 K ),
no condensation
Storage
temperature -20 ... +80°C ( 253 ...353 K ),
no condensation
Achievable
accuracy ≤ 0.2 weight % (standard deviation) depending on
product and sensor
Display Dot matrix LC display, 114 mm x 64 mm, 240 x
128 pixels, with back-lighting, automatic contrast
setting
Keyboard Freely accessible foil keypad, light-stable and
weatherproof: alphanumeric keyboard and four
softkeys (software-assigned buttons)
Power supply For Micro-Polar Brix depending on instrument ver-
sion:
1.) 90 ... 265 V AC, 45 ... 65 Hz or
2.) 24 V DC: 18 ... 36 V
24 V AC: +5%, -20%, 40 ... 440 Hz
For Micro-Polar Brix ++ depending on instrument
version:
1.) 90 ... 265 V AC, 45 ... 65 Hz or
2.) 24 V DC: 18 ... 36 V, no reverse voltage pro-
tection

Chapter 6 Technical Data
Micro-Polar Brix (++) LB 565
48
Power
consumption Micro-Polar Brix:
max. 30 VA (AC/DC), depending on configuration
Micro-Polar Brix ++:
max. (48/60) VA (AC/DC), depending on configu-
ration
Fuses For Micro-Polar Brix:
2 x 2.0 A / slow-blow
For Micro-Polar Brix ++:
2 x 2.0 A / slow-blow for 90 … 265 V AC or
2 x 6.3 A / slow-blow for 24 V DC
Battery type 3 V Lithium button cell, type CR2032
Measured value e.g. concentration, dry content
Communication Prepared for HART®
Inputs and Outputs
Cable
cross-section min. 1.0 mm² (mains supply)
Cable
feed-through 2 x M20x1.5 for cable 5...14 mm (depending on
application)
4 x M16x1.5 for cable 5 ...8 mm
(depending on application)
Sensor connection
Inputs and outputs for signal and
reference channel, 50 Ω N-socket
HF-cable Cable lengths: 2, 4, 6 and 10 m; 50 Ω;
both sides with 4 N connectors
Current input 2 x current input 0/4 ...20 mA, ohmic resistance
50 Ω, 1x insulated, 1x instrument ground
e.g. for temperature compensation
Current output
Current output 1: 4...20 mA, ohmic resistance
max. 800 Ω , insulated
current output 2: 0/4...20 mA, ohmic resistance
max. 800 Ω , insulated
e.g. for measured value or temperature output
Pt 100
connection Measuring range: -50 ... +200°C (223 ... 473 K);
measurement tolerance: < 0.4°C

Chapter 6 Technical Data
Micro-Polar Brix (++) LB 565 49
Digital input 3 x digital inputs (DI1..3), for floating connectors
Configuration options:
DI1: none, measurement start/stop
DI2: none, measurement hold, product selection
DI3: none, sampling, product selection
Function description:
1. Measurement (Start/Stop)
open: measurement stopped
closed: measurement started or measurement
running
2. Hold measurement
open: measurement running
closed: measurement stopped, i.e. average
values and current output are held
3. Product selection
open: product 1 (P1)
closed: P2;
with two DI’s: DI2 open & DI3 open: P1, DI2
closed & DI3 open: P2, DI2 open & DI3 closed:
P3, DI2 closed &DI3 closed: P4
4. Start sampling
open: no actions
closed: single measurement starts
Relay outputs 2 x relays (SPDT), insulated
Configuration options:
- Collective failure message
- Stop measurement
- Limit value (alarm min. and max.)
- No product
Load capacity:
AC: max. 400VA
DC: max. 90W
AC / DC: max. 250V, max. 2A, non-inductive
≥ 150V: voltage must be grounded
Restrictions for 24 V AC/DC (DC: 18 ..36 V;
AC: 24 V +5 %, -20 %) mains supply, if the
ground conductor is not connected to terminal 1
(PE):
AC: max. 50 V
DC: max. 70 V
Serial interfaces
RS 232 on the underside of the instrument,
RS 485 through terminal block
Data type: 38400 baud, no handshake,
8 data bits, 1 stop bit

Chapter 6 Technical Data
Micro-Polar Brix (++) LB 565
50
6.2 Technical Data Sensors
Flow cells
Application Microwave flow cell with various nominal widths and
flanges for measurement on pipelines
Material Stainless steel, PTFE lining
Process coupling Flange according to DIN EN 1092 Type 05 and ASA
Optional with threaded or clamp connector
Process pressure Up to 20 bar (relative), depending on nominal width
and flange type, see table below
Temperature range
Product temperature: +10 ... +130°C (283 … 403 K)
Ambient temperature: -20 ... +60°C (253 … 333 K)
Storage temperature: +10 ... +80°C (283 … 353 K)
Connections 2 x HF connections: N-socket, 50 Ω
for HF-cable with max. 10 m length
Versions Nominal pipe widths from 50 ... 150 mm
Dimensions See dimensional drawings in chapter 8
Overview flow cells
Designation ID-No. Nominal
width
[mm]
Flange Pressure
[bar]
LB 3543-11 MP 43617 50 DN 50 / PN 16 16
LB 3547-11 MP 43619 65 DN 65 / PN 40 20
LB 3545-11 MP 43620 80 DN 80 / PN 16 16
LB 3544-11 MP 43621 100 DN 100 / PN 6 6
LB 3544-21 MP 53231 100 DN 100 / PN 16 16
LB 3548-11 MP 43622 150 DN 150 / PN 16 16
LB 3543-31 MP 43623 50 ASA 2’’ / 150 PSI 16
LB 3547-31 MP 43624 65 ASA 2.5’’ / 300 PSI 20
LB 3545-31 MP 43625 80 ASA 3’’ / 150 PSI 16
LB 3544-31 MP 43626 100 ASA 4’ / 150 PSI 16
LB 3548-31 MP 43627 150 ASA 6’’ / 150 PSI 16

Chapter 6 Technical Data
Micro-Polar Brix (++) LB 565 51
Container probes
Application Container probes with and without flushing
device for concentration measurement in
process containers and pipelines with nominal width
≥ 200 mm.
Material Plastic rod, stainless steel 1.4301
PT100 connection cable: Silicon / Teflon
Process coupling Flange according to DIN EN 1092 Type 05 DN65 / PN6,
DN 80, 100, 150 / PN16;
ASA flange 2.5’’, 3’’ / 150 PSI
(others on request)
Process pressure Up to 16 bar (relative), depending on model
Temperature range
Product temperature: +10 ... +120°C (283 … 393 K)
Ambient temperature: -20 ... +60°C (253 … 333 K)
Storage temperature: +10 ... +80°C (283 … 353 K)
Connections 4 x HF connections: N-socket, 50 Ω
for HF-cable with max. 10 m length
Dimensions See dimensional drawings in chapter 8
Accessory sealing washer
Material Klingersil C-4400
Thickness 3 mm
Overview container probes and sealing washers
Designation ID-No. Flange Pressure
[bar] ID-No.
sealing washer
LB 5650-01 41975-01 DN 65 / PN 6 6 32175
LB 5650-02 41975-02 DN 80 / PN 16 16 33717
LB 5650-03 41975-03 DN 100 / PN 16 16 46661
LB 5650-04 41975-04 DN 150 / PN 16 16 46664
LB 5650-05 41975-05 ASA 2.5’’ / 150 PSI 16 46665
LB 5650-09 41975-09 ASA 3’’ / 150 PSI 16
LB 5651-01 41976-01 DN 65 / PN 6 6 32175
LB 5651-02 41976-02 DN 80 / PN 16 16 33717
LB 5651-03 41976-03 DN 100 / PN 16 16 46661
LB 5651-04 41976-04 DN 150 / PN 16 16 46664
LB 5651-05 41976-05 ASA 2.5’’ / 150 PSI 16 46665

Chapter 6 Technical Data
Micro-Polar Brix (++) LB 565
52
6.3 Technical Data HF-Cable
HF-Cable Quad
Material Corrugated tube: Polyamide (PA6)
Cable sheath: Polyethylene (PE)
Protection type IP 66
Temperature Operating temperature: -30 ... +70°C (243 … 343 K)
Installation temperature: -20 ... +70°C (253… 343 K)
Solid sheath cable
Material Cable sheath: Polyethylene (PE)
Protection type IP 66
Temperature Operating temperature: -40 ... +70°C (233 … 343 K)
Installation temperature: -20 ... +70°C (253… 343 K)

Chapter 6 Technical Data
Micro-Polar Brix (++) LB 565 53
6.4 Format of Serial Data Output RS 232 and RS 485
Header
Date·Time→Flags→Status→Product→Att→Phi→R2→Tint→IN1→IN2→Pt 100→C→Cm→C2→C2m¶
Following lines
01.01.2005·00:00:00→0000→0→1→0.43→5.30→0.07→0.0→0.0→0.0→0.0→75.36→75.00→0.00→0.00¶
1 2 3 4 5 6 7 8 9 10 11 12 13 14 15
Column no. Description Format
1 Date and time DD.MM.YY·HH:MM:SS
2 Flags (for test purposes) 4 digits, HEX
3 Status: Information on quality of last
measurement 0 : measurement OK
< 0 : error
4 Product number X (1 to 4)
5 Attenuation [dB] X.XX
6 Phase [°/GHz] X.XX
7 Statistical spread of phase regression X.XX
8 Instrument temperature [temperature unit] X.X
9 Current input 1 [unit of current input] X.X
10 Current input 2 [unit of current input] X.X
11 Pt 100 temperature [temperature unit] X.X
[…] by selection of unit g/cm3
12 Concentration 1 live X.XX [X.XXXX]
13 Concentration 1 averaged X.XX [X.XXXX]
14 Concentration 2 live X.XX [X.XXXX]
15 Concentration 2 averaged X.XX [X.XXXX]
Special characters
“→” Tabulation “¶” Carriage return + Line feed “·” Blank character

Chapter 7 Certificates
Micro-Polar Brix (++) LB 565 55
Chapter 7. Certificates
7.1 EC Declaration of Conformity

Chapter 7 Certificates
Micro-Polar Brix (++) LB 565
56

Chapter 7 Certificates
Micro-Polar Brix (++) LB 565 57
7.2 Frequency Approval

Chapter 7 Certificates
Micro-Polar Brix (++) LB 565
58

Chapter 7 Certificates
Micro-Polar Brix (++) LB 565 59

Chapter 7 Certificates
Micro-Polar Brix (++) LB 565
60

Chapter 8 Technical Drawings
Micro-Polar Brix (++) LB 565 61
Chapter 8. Technical Drawings
8.1 Dimensional Drawing of Evaluation Unit Housing
8.1.1 Evaluation Unit from Micro-Polar Brix

Chapter 8 Technical Drawings
Micro-Polar Brix (++) LB 565
62
8.1.2 Evaluation Unit from Micro-Polar Brix++

Chapter 8 Technical Drawings
Micro-Polar Brix (++) LB 565 63
8.2 Electrical Wiring Diagram
Line in for Micro-Polar Brix:
1. / 2. depending on instrument version
1.
AC 90-265V, 45-65 Hz
2.
DC 24 V (18-36 V) or
AC 24 V -20% / +5%, 40-440 Hz
________________________________
Line in for Micro-Polar Brix ++:
1. / 2. depending on instrument version
1.
AC 90-265V, 45-65 Hz
2.
DC 24 V (18-36 V), no reverse voltage
protection

Chapter 8 Technical Drawings
Micro-Polar Brix (++) LB 565
64
8.3 Dimensional Drawings Flow Cells
8.3.1 Type LB 3543-11 MP, Nominal Width 50 mm, Options

Chapter 8 Technical Drawings
Micro-Polar Brix (++) LB 565 65
8.3.2 Type LB 3543-11 MP, Nominal Width 50 mm, Adapter

Chapter 8 Technical Drawings
Micro-Polar Brix (++) LB 565
66
8.3.3 Type LB 3543-31 MP, Nominal Width 50 mm

Chapter 8 Technical Drawings
Micro-Polar Brix (++) LB 565 67
8.3.4 Type LB 3547-11 MP, Nominal Width 65 mm, Options

Chapter 8 Technical Drawings
Micro-Polar Brix (++) LB 565
68
8.3.5 Type LB 3545-11 MP, Nominal Width 80 mm

Chapter 8 Technical Drawings
Micro-Polar Brix (++) LB 565 69
8.3.6 Type LB 3544-11 MP, Nominal Width 100 mm, Options

Chapter 8 Technical Drawings
Micro-Polar Brix (++) LB 565
70
8.3.7 Type LB 3544-21 MP, Nominal Width 100 mm

Chapter 8 Technical Drawings
Micro-Polar Brix (++) LB 565 71
8.3.8 Type LB 3548-11 MP, Nominal Width 150 mm

Chapter 8 Technical Drawings
Micro-Polar Brix (++) LB 565
72
8.4 Dimensional Drawings Container Probes
8.4.1 Type LB 5650-01

Chapter 8 Technical Drawings
Micro-Polar Brix (++) LB 565 73
8.4.2 Type LB 5650-02

Chapter 8 Technical Drawings
Micro-Polar Brix (++) LB 565
74
8.4.3 Type LB 5650-03

Chapter 8 Technical Drawings
Micro-Polar Brix (++) LB 565 75
8.4.4 Type LB 5650-04

Chapter 8 Technical Drawings
Micro-Polar Brix (++) LB 565
76
8.4.5 Type LB 5650-05

Chapter 8 Technical Drawings
Micro-Polar Brix (++) LB 565 77
8.4.6 Type LB 5650-09
ll

Chapter 8 Technical Drawings
Micro-Polar Brix (++) LB 565
78
8.4.7 Installation Situation in Pipelines

Chapter 8 Technical Drawings
Micro-Polar Brix (++) LB 565 79
8.5 Dimensional Drawings Container Flush Probes
8.5.1 Type LB 5651-01

Chapter 8 Technical Drawings
Micro-Polar Brix (++) LB 565
80
8.5.2 Type LB 5651-02

Chapter 8 Technical Drawings
Micro-Polar Brix (++) LB 565 81
8.5.3 Type LB 5651-03

Chapter 8 Technical Drawings
Micro-Polar Brix (++) LB 565
82
8.5.4 Type LB 5651-04

Chapter 8 Technical Drawings
Micro-Polar Brix (++) LB 565 83
8.5.5 Type LB 5651-05

Chapter 8 Technical Drawings
Micro-Polar Brix (++) LB 565
84
8.5.6 Installation Situation in Pipelines

Chapter 8 Technical Drawings
Micro-Polar Brix (++) LB 565 85
8.6 Installation Sheets for LB 5650 (Container Probe)
ø
14
M-Rx
R-Tx
do not remove
, only
in case of service by
Berthold Technologies
R-Rx
M-Tx
ø
160
ø
130
microwave
measuring field
current stream
probe flange DN65 / PN6
evaluation unit
botten side
output
0/4 - 20 mA
Micro-Polar with Container Probe
- Installation In Crystallizer -
installation
position
top view into the
crystallizer
sealing
insulation
container wall
ø
130 / 4 x M12
190
ø
100
ø
160
60
heating
area without
metalic
installations
fitting flange
BERTHOLD TECHNOLOGIES GmbH & Co. KG . P.O. Box 100 163 . 75312 Bad Wildbad, Germany
Phone +49 7081 177-0 . Fax +49 7081 177-100 . industry@Berthold.com
www.Berthold.com
60
Id.-No. 41975TI2 Rev.04
ø
±
100
0.2
PT100
PT100
PT100
M-Tx
M-Tx
M-Tx
M-Rx
M-Rx
R-Tx
R-Tx
R-Rx
R-Rx
M-Rx
R-Tx
R-Rx
HF cable quad
Flow
Strömung
evaluation unit
220
(320)
300
(318)
(...) for Micro-Polar ++
Micro-Polar
90 - 265 V AC
or 24 V AC/DC
(24 V DC)

Chapter 8 Technical Drawings
Micro-Polar Brix (++) LB 565
86
output
0/4 - 20 mA
sealing
Id.-No. 41975TI21 Rev.04
ø
A / 8 x S
190
ø
100
ø
B
60
60
probe flange DN80, 100, 150 / PN16
installation
position
DN ABC
S
80
100
160 200 18 M16
180 220 18 M16
240 28522M20
150
ø
±
102
0,5
PT100
M-Tx
M-Tx
M-Tx
M-Rx
M-Rx
R-Tx
R-Tx
R-Rx
R-Rx
M-Rx
R-Tx
R-Rx
M-Rx
R-Tx
R-Rx
M-Tx
ø
C
ø
B
ø
A
PT100
insulation
PT100
do not remove
, only
in case of service by
Berthold Technologies
microwave
measuring field
container wall
top view into the
crystallizer
Micro-Polar with Container Probe
- Installation In Crystallizer -
evaluation unit
botten side
HF cable quad
heating
area without
metalic
installations
BERTHOLD TECHNOLOGIES GmbH & Co. KG . P.O. Box 100 163 . 75312 Bad Wildbad, Germany
Phone +49 7081 177-0 . Fax +49 7081 177-100 . industry@Berthold.com
www.Berthold.com
current stream
fitting flange
evaluation unit
220
(320)
300
(318)
(...) for Micro-Polar ++
Micro-Polar
90 - 265 V AC
or 24 V AC/DC
(24 V DC)

Chapter 8 Technical Drawings
Micro-Polar Brix (++) LB 565 87
8.7 Installation Sheets for LB 5651 (Container Flush Probe)
ø
14
M-Rx
R-Tx
output
0/4 - 20 mA
installation
position
R-Rx
M-Tx
ø
160
ø
160
160
ø
130 / 4 x M12
ø
±
100
0,2
320
ø
100
60
Id.-No. 41976TI2 Rev.05
M-Tx
M-Tx
M-Tx
M-Rx
M-Rx
R-Tx
R-Tx
R-Rx
R-Rx
M-Rx
R-Tx
R-Rx
ø
130
55
Micro-Polar with Container Flush Probe
- Installation In Crystallizer -
BERTHOLD TECHNOLOGIES GmbH & Co. KG . P.O. Box 100 163 . 75312 Bad Wildbad, Germany
Phone +49 7081 177-0 . Fax +49 7081 177-100 . industry@Berthold.com
www.Berthold.com
microwave
measuring field
top view into the
crystallizer
evaluation unit
botten side
HF cable quad
evaluation unit
sealing
insulation
do not remove
, only
in case of service by
Berthold Technologies
heating
area without
metalic
installations
current stream
fitting flange
probe flange DN65 / PN6
flushing connection:
internal thread
2 x G3/8’’
(DIN ISO 228-1)
container wall
Flow
Strömung
220
(320)
300
(318)
(...) for Micro-Polar ++
Micro-Polar
90 - 265 V AC
or 24 V AC/DC
(24 V DC)

Chapter 8 Technical Drawings
Micro-Polar Brix (++) LB 565
88
M-Rx
R-Tx
R-Rx
M-Tx
55
output
0/4 - 20 mA
ø
B
160
ø
A / 8 x S
320
ø
100
60
ø
C
installation
position
ø
B
ø
A
DN ABC
S
80
100
160 200 18 M16
180 220 18 M16
240 28522M20
150
Id.-No. 41976TI21 Rev.05
ø
±
102
0,5
flushing connection:
internal thread
2 x G3/8’’
(DIN ISO 228-1)
M-Tx
M-Tx
M-Tx
M-Rx
M-Rx
R-Tx
R-Tx
R-Rx
R-Rx
M-Rx
R-Tx
R-Rx
Micro-Polar with Container Flush Probe
- Installation In Crystallizer -
BERTHOLD TECHNOLOGIES GmbH & Co. KG . P.O. Box 100 163 . 75312 Bad Wildbad, Germany
Phone +49 7081 177-0 . Fax +49 7081 177-100 . industry@Berthold.com
www.Berthold.com
top view into the
crystallizer
container wall
microwave
measuring field
evaluation unit
botten side
HF cable quad
sealing
insulation
do not remove
, only
in case of service by
Berthold Technologies
heating
area without
metalic
installations
current stream
fitting flange
probe flange DN80, 100, 150 / PN16
evaluation unit
220
(320)
300
(318)
(...) for Micro-Polar ++
Micro-Polar
90 - 265 V AC
or 24 V AC/DC
(24 V DC)

Index
Micro-Polar Brix LB 565 89
Index
A
accuracy · 45
adapter flange · 31
B
Battery · 44
bending radius · 25
C
Calculation of Measured Values · 14
CE symbol · 8
Certificates · 53
clamp connector · 20
Components · 16
Connecting the Container Probes · 36
Connecting the Flow Cell · 35
container flush probe · 23
Container Probe · 21
Container Probe Installation · 31
D
Data format RS232 · 51
Data transfer rate · 40
Digital Outputs · 41
Dimensional Drawings Container Flush Probes · 77
Dimensional Drawings Container Probes · 70
Dimensional Drawings Flow Cells · 62
distance rail · 33
E
EC Declaration of Conformity · 53
Electrical Wiring Diagram · 61
Evaluation Unit Housing · 59
Evaluation Units · 17
F
Factory setting · 12
fitting flange · 31
Flow Cell · 20
Flow Cell Installation · 29
Flush Parameters · 32
foodstuffs · 21
Frequency Approval · 8, 55
Fuse Replacement · 44
G
gas bubbles · 11, 30
H
High-Frequency Cable · 25
I
Installation in Pipelines · 31
Installation Sheets · 83
Installation Situation in Pipelines · 76, 82
Instrument Cleaning · 43
L
LED’s · 19
M
Measurement Configuration · 27, 28
Microwaves · 12
O
Overview container probes · 49
Overview flow cells · 48
P
Principle of Measurement · 13
Pt 100 connection · 37
R
Reference temperature · 15
Relays · 41
riser · 29
RS232 interface · 40
S
safety instructions · 7

Index
Micro-Polar Brix LB 565
90
salt content · 11
sealing washers · 49
Softkeys · 12
solid sheath cable · 25
symbols · 7
T
Technical Data · 45
Technical Data HF-Cable · 50
Technical Data Sensors · 48
Technical Drawings · 59
Temperature Compensation · 14
threaded connector · 20
Transmission power · 45
Transport · 29
W
Wearing Parts · 43

Micro-Polar Brix LB 565 91
Notes

Micro-Polar Brix LB 565
92
Notes

detect and identify
Process Control
ID No. 39531BA2
Rev. No.: 03 01.08.2008
Soft. Version: ≥ 1.21
User's Guide
Concentration Meters
Micro-Polar BrixTM
Micro-Polar Brix ++
LB 565
Software Manual

Micro-Polar Brix (++) LB 565
The units supplied should not be repaired by anyone other than Berthold Service en-
gineers or technicians authorized by Berthold.
In case of operation trouble, please address to our central service department.
The complete user’s guide consists of two manuals, the hardware description and the software
description.
The hardware manual comprises:
¾ mechanical components
¾ installation
¾ electrical installation
¾ radiation protection guidelines
¾ technical data
¾ electrical and mechanical drawings
The software manual comprises:
¾ operation of the evaluation unit
¾ parameter description
¾ basic setting
¾ calibration
¾ error messages
The present manual is the software description.
Subject to changes without prior notice.
BERTHOLD TECHNOLOGIES GmbH & Co. KG
Calmbacher Str. 22 ⋅ 75323 Bad Wildbad, Germany
Phone +49 7081 177 0 ⋅ Fax +49 7081 177 100
industry@Berthold.com
www.Berthold.com

Micro-Polar Brix (++) LB 565
Table of Contents
Page
Chapter 1. Communication with Micro-Polar Brix 9
1.1 Brief Instructions 10
1.2 System Configuration 10
1.3 System Calibration 10
Chapter 2. Software Functions 11
2.1 Information on Menu Structure 11
2.2 Menu Structure 12
2.2.1 Start Menu 14
2.2.2 Diagnostic 14
2.2.3 Setup 16
2.2.4 Access Level 17
2.2.5 Language 17
2.2.6 Configuration 18
2.2.7 General Data 19
2.2.8 Measurement 19
2.2.9 Plausibility 20
2.2.10 Phase Measurement 21
2.2.11 Pause Detection 22
2.2.12 Calibration 24
2.2.13 System Adjust 24
2.2.14 Calibrate Concentration 25
2.2.15 Sample No. 26
2.2.16 Sample Data (expanded) 27
2.2.17 Advanced Settings 27
2.2.18 Calibr. manual 28
2.2.19 Input / Output 28
2.2.20 Current output 29
2.2.21 Current Output 1 29
2.2.22 Current Output 2 29
2.2.23 Current input 30
2.2.24 Current In 1 30
2.2.25 Current In 2 30
2.2.26 Pt 100 30
2.2.27 Digital Output 31
2.2.28 Digital Input 31
2.2.29 Service 32
2.3 Trend Display 34
Chapter 3. Configuration 35
3.1 Configuration Setup 35
3.1.1 General Data 35
3.1.2 Measurement 36
3.1.3 Plausibility 36
3.1.4 Microwave 36
3.1.5 Marker 37
3.1.6 Units 37
3.2 Start Calibration Coefficients 39
Chapter 4. Calibration 41
4.1 System Calibration 41
4.2 Start-up of Micro-Polar Brix ++ 43
4.3 Start Calibration 44

Micro-Polar Brix (++) LB 565
4.3.1 First Process Run 44
4.3.2 Sampling 46
4.3.3 Entering the Lab Values 47
4.3.4 Automatic Calibration 49
4.3.5 Automatic Calibration with Temperature Compensation 50
4.4 Manual Calibration 52
4.4.1 Manual Calibration with one Concentration 52
4.4.2 Calibration with Two Concentrations 55
4.4.3 Calibration with Split Value 59
4.4.4 Calibration with Temperature Compensation 61
4.5 Adjusting the Calibration 64
4.6 Output of the start-up protocol 66
Chapter 5. Password 67
5.1 Forgot password 68
Chapter 6. Inputs / Outputs 69
6.1 Current Outputs 69
6.1.1 Current Output Setup 70
6.1.2 Test and Adjustment 71
6.1.3 Error Current 73
6.1.4 Current Output 2 74
6.2 Current Inputs 75
6.2.1 Enabling the Current Input 75
6.2.2 Range Setting and Adjustment 76
6.3 Pt 100 78
6.3.1 Pt 100 Enabling 78
6.3.2 Pt 100 Calibration 79
6.4 Digital Output 80
6.4.1 Digital Output Assignment 80
6.5 Digital Input 81
6.5.1 External Product Selection 82
Chapter 7. Factory Settings 83
Chapter 8. Error Lists 85
8.1 Error Lists 85
8.1.1 Hardware Error 85
8.1.2 Input Error 85
8.1.3 Measurement Error and Error Prompts 86
Chapter 9. Calibration Data Sheet 87
9.1 Configuration 87
9.1.1 General Data 87
9.1.2 Measurement 87
9.1.3 Plausibility 87
9.1.4 Microwave 87
9.2 Product 87
9.3 Inputs/Outputs 88
9.3.1 Current Output 88
9.3.2 Current Input 88
9.3.3 Pt 100 Input 88
9.3.4 Digital Output 88
9.3.5 Digital Input 89
9.4 Calibration Data 89
9.4.1 Calibration Coefficients 89

Micro-Polar Brix (++) LB 565
9.4.2 Typical Calibration Coefficients 89
9.5 Start-up protocol printout 90
9.5.1 Examples of a start-up protocol 93
9.6 Sample Table 98

Chapter 1 Communication with Micro-Polar Brix
Micro-Polar Brix (++) LB 565 7
Safety Summary
GENERAL WARNINGS
Parameter settings
Never change the parameter settings without a
full knowledge of these operating instructions, as
well as a full knowledge of the behavior of the
connected controller and the possible influence on
the operating process to be controlled.

Chapter 1 Communication with Micro-Polar Brix
Micro-Polar Brix (++) LB 565 9
Chapter 1. Communication with Micro-Polar Brix
The communication with Micro-Polar Brix and with Micro-
Polar Brix ++ is carried out via 4 softkey buttons. The func-
tion of the individual buttons changes relative to the position
in the menu. Values and texts are entered via an alphanu-
meric keyboard. The instrument status is indicated by 5
LED’s.
and cable feed-through
Lock
Numerical
keypad
Softkey button
s
LED’s
LCD display
RS232 connection
HF connections for
signal cable reference cable
Micro-Polar

Chapter 1 Communication with Micro-Polar Brix
Micro-Polar Brix (++) LB 565
10
1.1 Brief Instructions
Provided that Micro-Polar Brix / Micro-Polar Brix ++ is installed correctly, after power on of the de-
vice the main menu appears automatically. To get correct measurement values, the instrument has
to be configured and calibrated before running the first measurement. Go to the Profi mode.
We recommend that you use these brief instructions only if you have already performed a process
measurement with the same product and you are familiar with the Phi/att ratio.
1.2 System Configuration
¾ Select | Setup | Configuration | General Data
¾ Enter the general data (date, time, tag)
¾ □< Push the Home button to return to the Configuration menu and select | Measurement |
¾ Enter the system parameters (measurement mode, start mode, averaging, units, ...)
¾ □< Push the Home button to return to the Configuration menu
¾ Select | Plausibility |
¾ Enter: 1. Process limits; 2. Phase measurement: Sigma max. = 100, Phi/att ratio = known
value, Auto set = OFF; 3. Disable pause detection
¾ □< Push the Home button to return to the Configuration menu
¾ Select | Microwave |
¾ Enter the cable length (reference cable length, signal cable length)
¾ □< Push the Home button to return to the Setup menu
¾ Select | Input/Output |
¾ Enter the values for current output, current input, Pt100, digital out-/input
¾ □< Push the Home button to return to the Setup menu.
1.3 System Calibration
¾ Power on the instrument at least 45 minutes prior to system calibration.
¾ On the main menu, select | Setup |Calibration | System Adjust | Adjust |
¾ Start the adjustment only if you are sure that the transducer is sufficiently covered by the prod-
uct. The typical standard coefficients for your application have been set up by the manufacturer.
A sample has to be taken during system calibration. The lab value of the sample is needed for
calculation of the offset. Calculation: Analysis value – Display = Offset.
¾ Upon completion of the system calibration, push the □< Home button three times to return to
the main menu.
¾ Push the RUN softkey to start the measurement. The live display appears.
¾ Push ESC to get to the main display and enter the offset value via | Setup | Calibration | Cali-
brate Conc | Adjust | Offset |.
¾ Enter offset value.
¾ Push the □< Home button 4 times to return to the main menu.
¾ Select | Live display |
¾ If the product has not changed, the reading value corresponds to the laboratory value.

Chapter 2 Software Functions
Micro-Polar Brix (++) LB 565 11
Chapter 2. Software Functions
2.1 Information on Menu Structure
The menu structure on the following pages provides an over-
view of all functions of the Micro-Polar Brix. Using the page
numbers indicated you can look up the function of the de-
picted window.
Depending on the access level, some menu items are hidden.
You have to enter an editable password to change from the
level „Read only“ to „Basic“ or to „Profi“. The „Service
level“ is not accessible due to licensing regulations.

Chapter 2 Software Functions
Micro-Polar Brix (++) LB 565
12
2.2 Menu Structure
Live Display
Diagnostic
Setup
Access Level
Language
Datalog
Errorlog
Info
Print Setup
Diagnostic
English
German
French
Language
Read only
Basic
Profi
Service
Access Level
See next page
Setup
Pa
g
e 14
Pa
g
e 14
Pa
g
e 17
Pa
g
e 17
1 | - | Live Display | 07.05 – 13:25
Concentration av.
65.50 %
Conc av. Conc act. 64.35%
ESC
SAMPLE
..▼▲..
ZOOM

Chapter 2 Software Functions
Micro-Polar Brix (++) LB 565 13
Live Display
Diagnostic
Setup
Access Level
Language
General Data
Measurement
Plausibility
Microwave
Markers
Units
Configuration
Configuration
Calibration
Input / Output
Service
Product
Change password
Setup
Measurement
Meas. Mode
Start Mode
Averaging
Reset averaging
Plausibility
Process limits
Phase Measure
Pause Detection
Phase Measure
Sigma max.
Phi/att ratio
Auto set
General Data
Date
Time
Tag
Calibration
System Adjust
Calibrate Conc
Advanced
System Adjust
Adjust
Num. Sweeps
Ref. values
Chart Phi
Chart Attenuation
Calibrate Conc
Sampling
Calibr. autom.
Calibr. manual
Tuning
View
Advanced
Tara values
Num Cal. Sweeps
Process Type
S
p
lit Value
Input / Output
Current output
Current input
Pt100
Digital output
Digital input
Current Out 1
’’ 2
Current Out 1
Assignment
Upper value
Lower value
Test/Adjust
Error current
Current Out 2
Assignment
Upper value
Lower value
Range
Test/Adjust
Error current
Current In 2
Enabled
Adjust
Live current
Cal. Order
Cal. Base
Coefficients
Compensation
Start Calibr.
Calibr. manual
Current Input 1
Enabled
Adjust
Live current
Pa
g
e 16
Pa
g
e 18
Pa
g
e 19
Pa
g
e 19
Pa
g
e 20
Pa
g
e 21
Pa
g
e 24
Pa
g
e 24
Pa
g
e 25
Pa
g
e 27
Pa
g
e 28
Pa
g
e 28
Pa
g
e 29
Pa
g
e 29
Pa
g
e 30
Pa
g
e 30
Current Output
Current Input
Current Input 1
’’ 2
Pt100
Enabled
Adjust
Pt 100 live
Digital Output
Relay 1
Relay 2
Test
Digital Input
Status
DI 1 function
DI 2 function
DI 3 function
Pa
g
e 29
Pa
g
e 30
Pa
g
e 30
Pa
g
e 31
Pa
g
e 31
Next sample
Active
Measured value
Lab Value
Advanced
Current Input 1
Current Input 2
Pt 100
PHI (m)
Attenuation
Sample No
Advanced
Pa
g
e 26
Pa
g
e 27

Chapter 2 Software Functions
Micro-Polar Brix (++) LB 565
14
2.2.1 Start Menu
LIVE DISPLAY:
Shows the live display.
DIAGNOSTIC:
This menu item contains the submenu items data logger,
error log and further instrument information.
SETUP:
All necessary inputs for operation of the measuring system
can be entered here.
ACCESS LEVEL:
Areas protected by passwords can be enabled.
LANGUAGE:
Select the dialog language.
2.2.2 Diagnostic
Datalog:
The data log records the data corresponding to the content of
the serial data output RS 232 and RS 485 (see hardware
manual, chapter 6.4).
All data per measurement values (sweep) are averaged over
the measuring time (see below) and stored. This time inter-
val results from the selected logging period. The content of
the log file can be accessed via the Live Display graphically,
see chapter 2.3 Trend Display. Output as a text-file is also
possible by using RS 232 and RS 485, or the Memory Tool in-
stead (optional accessory).
• Log type Disable
single
continuous
stop at error
• Log time logging period
15 minutes to 3 days
• Restart Log Clears the datalog and starts with the
above setting
• Averaging time Obtained from log time
• Print log Printout of table, output via RS 232
and RS 485, format see hardware
manual, chapter 6.4
1 | - | LB 565 | 07.05 – 13:25
Live Display
Diagnostic
Setup
Access Level
Language
RU
N
▲ ▼ ►
1 | - | Diagnostic | 07.05 – 13:25
Datalog
Errorlog
Info
Print Setup
⌂◄ ▲ ▼ ►

Chapter 2 Software Functions
Micro-Polar Brix (++) LB 565 15
Change datalog settings:
If you change the logtype from any to „single“ the datalog
will be cleared and you start again with the current set-
ting.
If you change all other logtypes and log times, the datalog
will not be cleared and you continue with the new settings.
Stopped measurement:
If the measurement is stopped for a time during the data
log, then the measurement pause is interpreted as log
time during the data logging “single”. For all other log
types, the measuring pause is added to the log time.
Error log:
• Shows the logged error. The last 20 error messages will
be stored with date and time.
Info:
• Tag : ...
• Device type : LB566
• Supplier : Berthold Technologies
• Manufacturer : Berthold Technologies
• Device no. : ...
• Production no. : ...-...
• Software ver. : V...
• SW release date: ...
Print Setup:
Printout of the start-up protocol via RS 232 and RS 485.
Format, content and example see chapter 9.5 Start- up
protocol printout.

Chapter 2 Software Functions
Micro-Polar Brix (++) LB 565
16
2.2.3 Setup
Configuration:
Setup of
• General data
• Measurement-specific data
• Plausibility data
• Microwave data
• Marker
• Units
Calibration:
• System adjut
• Concentration calibration
• Advanced setup
Input / Output:
• Current outputs
• Current inputs
• Pt 100
• Digital outputs
• Digital inputs
Service:
In the Profi mode the SERVICE menu is displayed and can
be edited. The following settings are possible:
• Factory settings
• General reset
• Memory Tool (operation of Memory Tool, optional ac-
cessory)
• Data printout (via RS 232 and RS 485, data contents
can be selected)
• HART® interface
Product:
Product selection (1 – 4); if you select another product,
the product-specific data will be loaded: outputs, inputs
and calibration.
When you call the products 2 to 4 for the first time, all
settings and contents (e.g. system calibration, sampling
table, datalog and calibration) of the current product will
be copied to the new product.
Change password:
The password for the access levels Basic / Profi can be
changed here.
See for more information also chapter 5 Password.
1 | - | Setup | 07.05 – 13:25
Configuration
Calibration
Input / Output
Service
Product
Change password
⌂◄ ▲ ▼ ►

Chapter 2 Software Functions
Micro-Polar Brix (++) LB 565 17
2.2.4 Access Level
Read only:
This mode can be selected on all levels without password.
Basic:
• No password required on higher levels. Password has to
be entered for „Read only“.
• Password can be changed.
• At the basic level some menu items are disabled, re-
spectively masked, e.g. manual calibration.
Profi:
• As described above. Should be used only if you are suf-
ficiently familiar with the measuring system.
• Changing between basic and profi is possible without
using a password.
Service:
• This level is reserved to the service personnel.
2.2.5 Language
Language:
• Select the dialog language
1 | - | Access Level | 07.05 – 13:25
Select Level
Read only
Basic
Profi
Service
ES
C
? ▲▼ ..
√
..
1 | - | LB 565 | 07.05 – 13:25
LANGUAGE
English
German
French
ES
C
▲▼ .
√
.

Chapter 2 Software Functions
Micro-Polar Brix (++) LB 565
18
2.2.6 Configuration
General Data:
• Enter date, time and tag
Measurement:
• Measurement mode (batch/continuous)
• Start mode (keyboard/external)
• Averaging (number of measured values used for aver-
aging)
• Reset average value (yes/no)
Plausibility:
• The process limits define the valid range, the current
concentration has to be within this range.
• The phase measurement is subject to a plausibility
analysis, which can be set here.
• Enable and define the pause detection
For more information please see chapter 2.2.9 Plausibility
Microwave:
Cable (enter the reference and signal cable length). E.g.
for 2 meters of HF-cable quad, 4 meters for both length
has to be entered.
Marker:
You can enter a name (max. 5 characters) and values for
a marker. The graphic occurs in the live display and re-
lates to the bar diagram. In order to deactivate the
marker, choose a marker value outside of the bar diagram
limits or the current output limits.
Units:
According the configuration, for the concentration, current
input and temperature there are different dimensions se-
lectable.
Selectable for concentration are: none, specific, %, %DS,
°Bx, g/L and g/cm3
1 | - | Configuration | 07.05 – 13:25
General Data
Measurement
Plausibility
Microwave
Marker
Units
⌂◄ ▲ ▼ ►

Chapter 2 Software Functions
Micro-Polar Brix (++) LB 565 19
2.2.7 General Data
Date:
• Enter the current date
Time:
• Enter the current time
Tag:
• Enter the tag name. The tag (max. 8 characters) is dis-
played in the header on the display.
2.2.8 Measurement
Meas. Mode:
Selection continuous or batch. In batch-mode a mean
value is generated from start to stop. In continuous mode
a moving average is generated, respective to the mean-
rate preset.
Start Mode:
The measurement device can be started or stopped via
external terminals (digital input) or via keyboard.
Averaging:
Enter the number of single measurement values over
which a moving average is to be calculated. Typical: 20
sweeps. Relates only to the measuring mode continuous.
Reset Averaging:
Reset averaging (yes/no). Relates to batch or continuous.
1 | - | General Datal | 07.05 – 13:25
Date
Time
Tag
⌂◄ ▲ ▼ ►
1 | - | Measurement | 07.05 – 13:25
Meas. Mode
Start Mode
Averaging
Reset averaging
⌂◄ ▲ ▼ ►

Chapter 2 Software Functions
Micro-Polar Brix (++) LB 565
20
2.2.9 Plausibility
Process Limits:
A minimum and maximum concentration has to be set.
Only concentrations within the range are permitted. If the
concentration exceeds the range, the concentration aver-
age is put on hold and an error message is displayed.
Phase Measure:
The phase is subject to a plausibility analysis. For more in-
formation please see chapter 2.2.10 Phase Measurement.
Pause Detection:
Can be enabled or disabled. Switching variable is the at-
tenuation, if the entered min. attenuation is not reached,
the evaluation unit switches to the pause mode:
• Current output drops to the lower current output limit
(0/4 mA)
• Message on display
• RUN LED is flashing
Details regarding pause function see chapter 2.2.11 Pause
Detection.
1 | - | Plausibility | 07.05 – 13:25
Process limits
Phase measure
Pause detection
⌂◄ ▲ ▼ ►

Chapter 2 Software Functions
Micro-Polar Brix (++) LB 565 21
2.2.10 Phase Measurement
Sigma max.
Here you set the maximum sigma of the regression Phase
vs. Frequency.
During normal measurement operation, sigma lies be-
tween 0 and 100.
Phi/att ratio
The correlation between Phase and Attenuation is another
plausibility criterion. It has to be measured when taking
the instrument into operation. The automatic ratio meas-
urement is quite helpful (see Auto set).
Auto set
The automatic ratio measurement Phi/att can be turned
on and off.
Turn it on during start-up. During measurement, please
keep in mind:
• Cover the entire concentration range, if possible
• Do not stop the measurement
• Do not change the concentration erratically (max.
1 %).
Stopping the recording:
The measurement can be stopped by switching off record.
The recording is frozen and only restarts when the system
switched on again.
Start new recording:
Condition: Recording is switched off. Stop and start the
measurement before you start a new recording. The re-
sults of old recordings are deleted by doing so.
! After the measurement, the automatic measurement
has to be disabled again! The ratio value is automatically
stored and enabled on the PHI/ATT RATIO menu.
1 | - | Phase measure | 07.05 – 13:25
Sigma max.
Phi/att ratio
Auto set
⌂◄ ▲ ▼ ►

Chapter 2 Software Functions
Micro-Polar Brix (++) LB 565
22
2.2.11 Pause Detection
Enabled
Here the pause function is activated and deactivated. Con-
sider the measuring conditions for using the pause detec-
tion; see below.
Attenuation min
Input of the minimum attenuation, when falling below that
value measurement goes into pause mode.
Conditions and discription:
The pause detection function is a software feature for
pause detection between two sequential discontinuous
crystallization processes. This is interesting because dur-
ing the cleaning phase, the sensor indicates the lower cur-
rent output value (0/4 mA). Only after restart of a crystal-
lization process, does the sensor show the current dry
substance content (Brix content) after product entry.
Condition: pure phase calibration first order. This corre-
sponds to the default adjustment of the automatical cali-
bration.
For example: typical signal behavior of two crystallization
processes.
Necessary Software Installations
Enter under menu SETUP | CONFIGURATION | PLAUSIBIL-
ITY | the following values:
- Under PROCESS LIMITS:
Min. Conc. and Max. Conc.
Entry of process limits: ±5 %DS to the real process
limits. Example: real process limits 70 to 90 %DS,
therefore 65 to 95 %DS is entered.
- Under PAUSE DETECTION:
The pause detection can be activated here.
Switching variable is the attenuation; if the entered
minimum attenuation is fallen short of, then the
evaluation unit pauses.
1 | - | Pause detection | 07.05 – 13:25
Enabled no
Attenuation min -15 dB
⌂◄ ▲ ▼ ►
t
Currentoutput[mA]
0/4
Pause
20
t
Currentoutput[mA]
0/4
Pause
20

Chapter 2 Software Functions
Micro-Polar Brix (++) LB 565 23
Adjust these settings if applicable according to the condi-
tions of „Quitting the pause mode” (see below).
Determination of the min. attenuation as a switching
variable:
For this, the attenuation process must be observed up to
the end of a crystalliza-tion process including cleaning
phase. In addition, you can take the data log (see chapter
2.2.2 diagnosis) for assistance.
For example, typical attenuation process:
D1 = smallest attenuation value in the product
D2 = Attenuation value for an empty vessel
D (min) = Switching variable = average attenuation be-
tween D1 and D2
Typical values (Sugar beet):
D1: -15 to -10 dB
D2: -25 to -20 dB
D (min): -20 to -15 dB
Quitting the pause mode (change to measuring mode):
Two conditions have to be met before changing the mode:
1. The attenuation has to be higher than the attenua-
tion threshold.
2. The recent concentration (Conc act.) has to be in the
following range:
- Conc act.> min. process limit
- Conc act.< min. process limit – A1·Faktor·146
A1: Calibration coefficient of the phase
Factor: From tuning (Default =1; see chapter
2.2.13 Calibr. Concentration).
Process limit: See menu PLAUSIBILITY
t
Attenuation [dB]
0
Pause
D1
D2
t
Attenuation [dB]
0
Pause
D1
D2

Chapter 2 Software Functions
Micro-Polar Brix (++) LB 565
24
2.2.12 Calibration
System Adjust:
The system calibration is started on this page.
Calibrate Conc:
Opens the calibration menu of concentration 1
Calibrate Conc2:
Opens the calibration menu of concentration 2
Advanced:
Here you set the Tara values, number of sweeps at sam-
pling, process type and split value.
Details see chapter 2.2.17 Advanced.
2.2.13 System Adjust
Adjust:
System calibration is started.
Num. Sweeps:
Here you define the number of sweeps for the system ca-
libration (arithmetic mean value).
Ref. values:
Upon completion of the reference measurement, the ref-
erence values for phase, attenuation, slope and sigma can
be output.
Chart Phi:
Shows the characteristic curve of Phase versus Frequency
based on the regression.
Chart Attenuation:
Shows the characteristic curve of Attenuation versus Fre-
quency based on the regression.
By means of a system calibration, the data log is not deleted
(see chapter 2.2.2 Diagnosis).
1 | - | Calibration | 07.05 – 13:25
System Adjust
Calibrate Conc
Calibrate Conc 2
Advanced
⌂◄ ▲ ▼ ►
1 | - |System Adjust | 07.05 –13:25
Adjust
Num. Sweeps
Reference values
Chart Phi
Chart Attnuation
⌂◄ ▲ ▼ ►

Chapter 2 Software Functions
Micro-Polar Brix (++) LB 565 25
2.2.14 Calibrate Concentration
Sampling:
Shows all measured samples.
Calibr. autom.:
Calibration can be started after measurement of two sam-
ples and input of the respective laboratory values. More-
over, compensation can be enabled if the following pre-
requisites have been fulfilled:
1. The respective analog input has been enabled (Pt100 or
current input 1 / 2).
2. Sampling has been carried out using the previously set
up compensation input.
3. The reference value has been entered on the menu
COMPENSATION. The reference value is either the current
product temperature at system adjustment or the average
product temperature.
There are at least three samples needed for temperature
compensation, otherwise the calibration error “Keeping old
coefficients” appears at the evaluation unit.
Basis of automatic calibration (fixed setting):
• Linear phase calibration
• Compensation: additive and linear
Calibr. manual:
Here you can choose the calibration order [lin-
ear/quadratic], the basis [phase/attenuation or both] and
compensation temperature.
Tuning:
Subsequent correction of the reading is possible by enter-
ing a factor and an offset.
Calculation is carried out according to the following for-
mula:
offsetfactordisplaydisplayCorrected +⋅
=
View:
Presentation of calibration curve, display of correlation and
coefficients.
1 | - |Calibrate Conc| 07.05 –13:25
Sampling
Calibr. autom.
Calibr. manual
Tuning
View
⌂◄ ▲ ▼ ►

Chapter 2 Software Functions
Micro-Polar Brix (++) LB 565
26
2.2.15 Sample No.
The header includes the following information (starting from
the left):
• Product-No.
• Current table position / Total number of entries
• Sample no. of current table position
• Date and time of sampling
Up to 20 sample entries are possible. The sample can be as-
signed to the lab value either via the sample no. or via
date/time. The sample no. is assigned on a continuous basis.
If a sample is deleted, the sample no. will not be assigned a
second time. Up to 999 sample numbers are available. Only
if all numbers have been assigned, you may assign a number
for the second time; you will be alerted accordingly on the
display.
Next sample:
Continues with the next sample.
Active:
Here you can choose if this sample should be taken into
account for calibration.
Measured value:
Display of the measured values, calculated with the ac-
tual coefficient.
Lab value:
Entry position for the laboratory value.
Advanced:
Switches to the next data page.
DEL:
The displayed sample value can be deleted by pushing
briefly the corresponding soft key.
Pushing longer, all sample values are deleted at once.
1 | 1/1 | Sample # 1 | 07.05 –13:25
Next sample
Active Yes
Measured value 65.50 %
Lab value 0.00 %
Advanced
◄ DEL ▲▼ ..
√
..

Chapter 2 Software Functions
Micro-Polar Brix (++) LB 565 27
2.2.16 Sample Data (expanded)
Current In 1:
Editable display of the first compensation input.
Current In 2:
Editable display of the second compensation input.
Pt 100:
Editable display of the Pt 100 input.
PHI (m):
Not editable display of the measured phase.
Attenuation:
Not editable display of the measured attenuation.
2.2.17 Advanced Settings
Tara Values:
Input option of Tara values for phase and attenuation. The
Tara values are attributed to the phase or the attenuation
before calibration.
The calculation is the following:
Phase = Phasemeas - Phase Tara
Attenuation = Attunationmeas - AttenuationTara
This function is not needed for the determination of dry
substance, brix or density in sugar solution.
Number of Calibration Sweeps:
Freely adjustable number of sweeps over which a calibra-
tion point (in the course of automatic sample measure-
ment) will be averaged.
Process Type:
Select the operation mode:
• one concentration [1 measuring range]
• two concentrations [2 measuring ranges]
• split concentration [1 measuring range with switching
point (split value) for coefficient switchover].
Split Value:
Setting of the switching point on a value basis.
1 | - | Advanced | 07.05 –13:25
Tara values
Num. Cal. Sweeps
Process type
Split Value
⌂◄ ▲ ▼ ►
1 | 1/1 | Sample # 1 | 07.05 –13:25
Current In 1
Current In 2
PT100
PHI (m)
Attenuation
◄ DEL ▲▼ ..
√
..

Chapter 2 Software Functions
Micro-Polar Brix (++) LB 565
28
2.2.18 Calibr. manual
Cal. Order:
Here you define the calibration order [linear / quadratic]
Cal. Base:
The following parameters can be set:
• Phase
• Attenuation
• Phase and attenuation
Coefficients:
Here you can edit all coefficients for phase and attenua-
tion.
Compensation:
If at least one analog input is active, you may assign the
compensation and set the compensation parameters.
Start Calibr.:
Starts the calibration using the parameters you have set
earlier.
2.2.19 Input / Output
Current Output:
Both outputs can be adjusted, assigned and set up on the
selected level.
Current Input:
Activation level of current input, calibration and display of
the live current signal.
Pt 100:
Here you can enable and adjust a connected Pt 100. Dis-
play of the actual temperature signal.
Digital Output:
Allocation of relays 1 and 2 and test function.
Digital Input:
Status control and assignment of the digital inputs.
1 | - | Calibr. manual | 07.05 –13:25
Cal. Order
Cal. Base
Coefficients
Compensation
Start Calibr.
⌂◄ ▲ ▼ ►
1 | - | Inputs/Outputs | 07.05 –13:25
Current Output
Current Input
PT100
Digital Output
Digital Input
⌂◄ ▲ ▼ ►

Chapter 2 Software Functions
Micro-Polar Brix (++) LB 565 29
2.2.20 Current output
Current Out 1:
Select the setup display for output 1.
Current Out 2:
Select the setup display for output 2.
2.2.21 Current Output 1
Assignment:
The current output can be assigned to a concentration or
one of the activated inputs.
Upper value:
Display value assigned to the 20mA value.
Lower value:
Display value assigned to the 4mA value.
! (Current output 1 only 4 – 20mA possible)
Test/Adjust:
Current test, calibration and display of live current.
! (In case of test function, the measurement should be
stopped.)
Error current:
Status of current output in case of error
• 22 mA
• 3.5 mA
• Hold
• Value
2.2.22 Current Output 2
All functions same as current output 1
! Current output 2 can be set from 0 – 20mA to 4 – 20mA.
Range:
Change of the current output
• 0 – 20mA
• 4 – 20 mA
1 | - | Current Output | 07.05 –13:25
Current Out 1
Current Out 2
⌂◄ ▲ ▼ ►
1 | - | Current Out 1 | 07.05 –13:25
Assignment
Upper value
Lower value
Test / Adjust
Error current
⌂◄ ▲ ▼ ►
1 | - | Current Out 2 | 07.05 –13:25
Assignment
Upper value
Lower value
Range
Test / Adjust
Error current
⌂◄ ▲ ▼ ►

Chapter 2 Software Functions
Micro-Polar Brix (++) LB 565
30
2.2.23 Current input
Current Input 1:
When selected, change to activation and calibration menu.
Current In 2:
As described above.
2.2.24 Current In 1
Enabled:
If you select yes/no, the current input is enabled or dis-
abled.
Adjust:
Follow the instructions on the display.
Live current:
Display of the live current signal.
2.2.25 Current In 2
Set and enabled same as input 1.
2.2.26 Pt 100
Enabled:
If a Pt 100 is connected, the input has to be enabled first.
Trim Pt 100:
You need a 100 Ohm and a 138.5 Ohm resistance. Follow
the instructions on the display.
Pt 100 live:
Display of the live temperature.
1 | - | Current In 1 | 07.05 –13:25
Enabled
Adjust
Live current
⌂◄ ▲ ▼ ►
1 | - | Current Input | 07.05 – 13:25
Current In 1
Current In 2
⌂◄ ▲ ▼ ►
1 | - | Pt 100 | 07.05 –13:25
Enabled
Trim Pt 100
Pt 100 live
⌂◄ ▲ ▼ ►

Chapter 2 Software Functions
Micro-Polar Brix (++) LB 565 31
2.2.27 Digital Output
Relay 1:
Relay 1 can be assigned to different functions:
• None
• Error
• Halt
• No product
• Alarm min.
• Alarm max.
Relay 2:
Same assignments possible as above.
Test:
The switching status of the relays can be set here and
checked at the respective terminals.
2.2.28 Digital Input
Status:
Shows the status of the input circuit
• open/closed
DI 1 Function:
The following functions can be assigned to DI 1:
• None
• Start (external start)
DI 2 Function:
The following functions can be assigned to DI 2:
• None
• Hold (averaging is stopped)
• Product (external product selection)
DI 3 Function:
Assignments for DI 3
• None
• Sample (external control of sampling)
• Product (external product selection)
1 | - | Digital Output | 07.05 – 13:25
Relay 1
Relay 2
Test
⌂◄ ▲ ▼ ►
1 | - | Digital Input | 07.05 –13:25
Status
DI 1 function
DI 2 function
DI 3 function
⌂◄ ▲ ▼ ►

Chapter 2 Software Functions
Micro-Polar Brix (++) LB 565
32
2.2.29 Service
Factory Settings and general reset:
See table on next page.
Memory Tool:
Communication with the external memory unit (Memory
Tool, optional accessory). Data transfer takes place via the
9-pole SubD-connector on the bottom of the instrument.
• Backup settings: all operation parameters for all prod-
ucts are stored in the Memory Tool.
• Upload settings: all operation parameters are loaded
into the evaluation unit by the Memory Tool. With that,
all parameters are deleted from the evaluation unit.
• Backup data log: the data log is stored on the Memory
Tool.
• Backup setup: the start-up protocol is stored on the
Memory Tool.
! Important: The concentration average value is put on
hold during communication with the Memory Tool.
Data Printout:
All measurement values for every single measurement
(sweep) are sent by the serial interfaces RS 232 and
RS 485 (also referred to as raw data).
The output can be adjusted as follows:
• None (disabled)
• Row (data transfer, see Hardware Manual chapter 6.4)
• Table (microwave data for each frequency point)
• Row and table (one data row and one table are output
for each sweep)
Default represents “Line”.
HART® interface (only prepare):
Settings for communication with HART®
• Polling address
• Write protection
• HART® version
1 | - | Service | 07.05 – 13:25
Factory setting
General reset
Memory Tool
Data printout
HART interface
⌂◄ ▲ ▼ ►

Chapter 2 Software Functions
Micro-Polar Brix (++) LB 565 33
*Default: default values, see chapter 9. under „Factory settings “
Factory settings General Reset
Language selection Unchanged Unchanged
Access level Unchanged Default: Basis
Measurement Has been stopped Has been stopped
Password Unchanged Default: PASS1
Product selection Unchanged All products deleted
Error log Not deleted Deleted
Data log Not deleted, Setting
default
Deleted, setting de-
fault
System calibration Not deleted Deleted
Cable length Unchanged Default
Sample table Not deleted Deleted
Measuring table description Default Default
All parameter under menu:
Measurement
Plausibility
Marker
Unit
Default Default
Calibration coefficients Default Default
All calibration under the
analog and digital in and
outputs.
Default Default
Adjustment of analog in and
outputs
Unchanged Deleted
Remark: Only is effective on
current product
Is effective for all
products (P1 to P4)
-

Chapter 2 Software Functions
Micro-Polar Brix (++) LB 565
34
2.3 Trend Display
Push the ZOOM button to enlarge the measurement value
which is surrounded by a frame.
By pushing the ZOOM button for a longer time, the enlarged
measurement value will be displayed as trend over the entire
display.
The trend display corresponds to the contents of the datalog.
Datalog has to be enabled for the trend display.
! During the trend set up (few seconds), the measuring
value or the power output is frozen.
| | Concentration av. |
%
MIN
►
1 | - | Live Display | 07.05 – 13:25
Concentration av.
43.20 %
Conc av. Act. 45 %
ES
C
SAMPL
E
▲▼ ZOOM

Chapter 3 Configuration
Micro-Polar Brix (++) LB 565 35
Chapter 3. Configuration
Before carrying out any calibration work, you should check
the configuration setup of the measuring system and change
it, if necessary.
3.1 Configuration Setup
¾ CONFIGURATION
3.1.1 General Data
¾ GENERAL DATA
Example:
Select the respective entry, edit and store it.
¾ DATE
Push DEL to delete the entry and then enter the new date.
Push..√.. to confirm and store the changed date.
! The colon for the time input (e.g. 13:25) is invoked by
pushing the button [ . ].
1 | - | Setup | 07.05 – 13:25
Configuration
Calibration
Input / Output
Service
Product
Change password
⌂◄ ▲ ▼ ►
1 | - | Configuration l | 07.05 – 13:25
General Data
Measurement
Plausibility
Microwave
Marker
Units
⌂◄ ▲ ▼ ►
1 | - | General Datal | 07.05 – 13:25
Date 07.05.2004
Time 13:25
Tag App.1
⌂◄ ▲ ▼ ►
1 | - | General Data | 07.05 – 13:25
Date
07.05.2004 |
ES
C
..?.. DEL ..
√
..

Chapter 3 Configuration
Micro-Polar Brix (++) LB 565
36
3.1.2 Measurement
You have to check the settings on this display and adapt
them to the measurement conditions.
For example, you have to adapt the measurement mode, the
start mode and the averaging to the actual operating condi-
tions.
3.1.3 Plausibility
To rule out any unnecessary disturbances during calibration,
the process limits should be set, as far as possible, below
or above the measuring range.
You should keep the factory-set default values for the phase
measurement and disable Pause detection. If a default
value has to be changed, you have to check all entries that
are relevant for calibration and, if necessary, renew them.
Upon completion of the calibration work, you can enable
Pause detection again.
3.1.4 Microwave
¾ CABLES
If the factory-set cable lengths do not match the actual geome-
try conditions, you have to correct the values.
Example: For a 2 m long HF quad cable, enter 4 m for the
reference and signal cable length. The input value corre-
sponds to twice the quad cable length.
1 | - | Measurement | 07.05 – 13:25
Meas. Mode Continuous
Start Mode Keypad
Averaging 20
Reset Averaging no
⌂◄ ▲ ▼ ►
1 | - | Plausibility | 07.05 – 13:25
Process Limits
Phase Measure
Pause Detection
⌂◄ ▲ ▼ ►
1 | - | Microwave | 07.05 – 13:25
Cables
⌂◄ ▲ ▼ ►
1 | - | Cables | 07.05 – 13:25
Ref. cable length 4 m
Signal cable length 4 m
⌂◄ ▲ ▼ ►

Chapter 3 Configuration
Micro-Polar Brix (++) LB 565 37
3.1.5 Marker
You can set a marker comprising max. 5 characters which
identify the value set on in the live display.
¾ MARKER
3.1.6 Units
Set the units as desired.
¾ UNITS
¾ CONC
The units of the concentrations (conc 1 and 2) and those of the
enabled analog inputs can be selected.
¾ %
Different units can be set for both concentrations.
1 | - | Configuration | 07.05 – 13:25
General Data
Measurement
Plausibility
Microwave
Marker
Units
⌂◄ ▲ ▼ ►
1 | - | Configuration | 07.05 – 13:25
General Data
Measurement
Plausibility
Microwave
Markers
Units
⌂◄ ▲ ▼ ►
1 | - | Units | 07.05 – 13:25
Conc % TS
Conc 2 %
Current in 1 °C
⌂◄ ▲ ▼ ►
1 | - | Units | 07.05 – 13:25
Conc.
None
Specific
%
% DS
°Bx
ES
C
..?.. ▲▼ ..
√
..

Chapter 3 Configuration
Micro-Polar Brix (++) LB 565
38
¾ CURRENT INPUT 1
¾ °C
The temperature input can be set to °C, °F, specific or none.
1 | - | Units | 07.05 – 13:25
Conc % TS
Conc 2 %
Current in 1 °C
⌂◄ ▲ ▼ ►
1 | - | Units | 07.05 – 13:25
Current in 1
None
Specific
°C
°F
ES
C
..?.. ▲▼ ..
√
..

Chapter 3 Configuration
Micro-Polar Brix (++) LB 565 39
3.2 Start Calibration Coefficients
Prerequisite: You are in the Profi mode
If the display depicted to the left is not visible, do the follow-
ing on the live display:
ESC | SETUP | CALIBRATION | CALIBRATE CONC |
¾ CALIBR. MANUAL
¾ COEFFICIENTS
Check the coefficients A1 and C and correct them, if neces-
sary, as follows:
C = average measuring range value (concentration value)
A1 = 0
Note: With these calibration coefficients the concentration aver-
age value and thus the current output is put on hold during
start-up.
1 | - |Calibrate Conc| 07.05 –13:25
Sampling
Calibr. autom.
Calibr. manual
Tuning
View
⌂◄ ▲ ▼ ►
1 | - | Calibr. manual | 07.05 –13:25
Cal. Order Linear
Cal. Basis PHI
Coefficients
Compensation
Start Calibration
⌂◄ ▲ ▼ ►
1 | - | Coefficients | 07.05 –13:25
A1 0
C 50
⌂◄ ▲ ▼ ►

Chapter 4 Calibration
Micro-Polar Brix (++) LB 565 41
Chapter 4. Calibration
Note: The measuring system has been connected properly and
the normal operating temperature has been reached (approx. 30
to 45 min. acclimatization).
It has to be ensured that the flow cell is completely filled with
product or the container probe is completely surrounded by pro-
duct.
Prerequisite: Chapter
3.1 Configuration Setup
has been completed.
4.1 System Calibration
If you turn on the measuring system, the following display
appears:
¾ SETUP
¾ CALIBRATION
¾ SYSTEM ADJUST
1 | - | LB 565 | 07.05 – 13:25
Live Display
Diagnostic
Setup
Access Level Basic
Language English
RU
N
▲ ▼ ►
1 | - | Setup | 07.05 – 13:25
Configuration
Calibration
Input / Output
Product
Change password
⌂◄ ▲ ▼ ►
1 | - | Calibration | 07.05 – 13:25
System Adjust
Calibrate Conc
⌂◄ ▲ ▼ ►

Chapter 4 Calibration
Micro-Polar Brix (++) LB 565
42
The manufacturer has set the number of measurement cycles
(sweeps) to 10.
¾ ADJUST
Confirm
System adjustment is in process.
Push ..OK.. to confirm and push ⌂◄ three times to return to the
main menu.
1 | - | System Adjust | 07.05 –13:25
Adjust
Num. Sweeps 10
⌂◄ ▲ ▼ ►
1 | - | System Adjust | 07.05 –13:25
System adjustment now?
..X.. ..
√
..
1 | - | System Adjust | 07.05 –13:25
Adjustment in process ...
….. ...........................................
1 | - | System Adjust | 07.05 –13:25
Adjusted!
..OK..

Chapter 4 Calibration
Micro-Polar Brix (++) LB 565 43
4.2 Start-up of Micro-Polar Brix ++
System adjustment and calibration are carried out in just the
same way for Micro-Polar ++, as they are for the standard
system Micro-Polar Brix. However it has to be paid attention
to the fact, that the ++system needs a minimum attenuation
of 40 dB above the complete concentration range and while
system adjustment. When falling below, the measurement is
not precise anymore and error prompts may occur.
The complete attenuation is generated the following way:
dB total = dB adjust + dB live + 0.4 x measuring cable length
This applies for:
dBtotal : total attenuation
dBadjust: attenuation while system adjustment
dBlive: actual attenuation while measuring
measuring cable length: e.g. 4 meters of HF-cable quad re-
sults into 8 meters measuring cable length (counting both
ways, forward and backwards).
From software version 1.22 on, the evaluation unit is control-
ling the total attenuation automatically and shows an error
prompt when falling below (Error no. 55).
Remedy when falling below minimum attenuation:
If the necessary attenuation is not reached, it is possible to
install a 10 dB attenuator in the transmitter branch (see Fig-
ure 4-1). However when falling below significantly, the stan-
dard system Micro-Polar Brix should be used instead.
Figure. 4-1:
Installation the
10 dB attenuator
Micro-Polar
M-Tx
M-Tx
M-Rx
M-Rx
R-Tx
R-Tx
R-Rx
R-Rx
N-attenuator 10dB
(ID-No. 20613)
HF-cable quad

Chapter 4 Calibration
Micro-Polar Brix (++) LB 565
44
4.3 Start Calibration
Push RUN to start the measuring system.
Push ..√.. to confirm this prompt and the instrument
switches to the run mode.
4.3.1 First Process Run
Prerequisite: You are in the Profi mode
Chapters 3.1 Configuration Setup
3.2 Start Calibration Coefficients
4.1 System Calibration
have been completed.
The first process run is used to determine the ratio of Phase
and Attenuation (Phi/att), a parameter from the plausibility
analysis for correct determination of the phase.
If you know the ratio already from other measurements, you
may enter it directly on the PLAUSIBILITY menu (see chapter
2.2.10 Phase Measurement); in this case, process recording
is not necessary.
! The measurement takes place automatically; you only
have to start and stop it again. During measurement,
please keep in mind:
- Do not stop the measurement
- Do not change the concentration erratically (max. 1%).
- Cover the entire measuring range, if possible
1 | - | LB 565 | 07.05 – 13:25
Live Display
Diagnostic
Setup
Access Level Basic
Language English
RU
N
▲ ▼ ►
1 | - | Run / Stop | 07.05 –13:25
Switch operating mode?
..X.. ..
√
..

Chapter 4 Calibration
Micro-Polar Brix (++) LB 565 45
From the main menu, you get in the Advanced mode to the
display to the left by selecting | SETUP | CALIBRATION |
CALIBRATE CONC.
¾ PHASE MEASURE
¾ AUTO SET
¾ ON
While the process recording is running, carry out sampling (see
the following chapter).
Do not forget to enable the process recording again as described
above!
1 | - | Plausibility | 07.05 – 13:25
Process Limits
Phase Measure
Pause Detection
⌂◄ ▲ ▼ ►
1 | - |Phase Measure | 07.05 –13:25
Sigma max. 100.00
Phi/att ratio 6.00
Auto set OFF
⌂◄ ▲ ▼ ►
1 | - |Phase Measure | 07.05 –13:25
Auto set
Off
On
ES
C
..?.. ▲▼ ..
√
..
1 | - |Phase Measure | 07.05 –13:25
Sigma max. 100.00
Phi/att ratio 5.32
Auto set ON
⌂◄ ▲ ▼ ►

Chapter 4 Calibration
Micro-Polar Brix (++) LB 565
46
4.3.2 Sampling
Push RUN and the display to the left will appear.
Note: Push the SAMPLE button to start measurement of the raw
data. At the same time, the laboratory sample has to be taken
and marked. The analysis may be performed later, provided the
product is not changed by this.
Sampling is in process......
Push the ..X.. button to stop the sampling process any time.
If the sampling process has been completed without any
problem, push the ..√.. button to save the sample in the ta-
ble and the measurement continues.
You have to repeat the process described above for each further
sample.
The second sample taking should be started only when the dis-
play shows a significant difference to the first sample taking.
The assumed concentration of the samples should be distributed
within the complete measuring range. If there is an additional
temperature compensation, the temperature of the samples
should be also distributed within the complete temperature
range.
The minimum number of required samples is derived according
to the preset calibration. In case there is not a sufficient number
of samples, an error message will appear after attempted cali-
bration.
1 | - | Live Display | 07.05 – 13:25
Average concentr.
65.50 %
Conc av. Conc. act. 64.35%
ESC SAMPLE ..▲▼.. ZOOM
1 | - | Live Display | 07.05 – 13:25
Taking Sample #1
Conc av. Conc act 64.35%
..X.. ..▲▼..
1 | - | Live Display | 07.05 – 13:25
Save sample no. 1?
Conc av. Conc act 64.35%
. ..X.. ..▲▼.. ..√..

Chapter 4 Calibration
Micro-Polar Brix (++) LB 565 47
4.3.3 Entering the Lab Values
Push the ESC button to go to the main menu. A measure-
ment can be stopped only on the main menu.
Push STOP to stop the measuring system.
Push ..√.. to confirm the prompt and the measurement swit-
ches to the STOP mode.
¾ SETUP
¾ CALIBRATION
1 | - | Live Display | 07.05 – 13:25
Average concentr.
65.50 %
Conc av. Act. Conc. 64.35%
ESC SAMPLE ..▲▼.. ZOOM
1 | - | LB 565 | 07.05 – 13:25
Live Display
Diagnostic
Setup
Access Level Basic
Language English
STOP ▲ ▼ ►
1 | - | Start / Stop | 07.05 –13:25
Switch operating mode?
..X.. ..√..
1 | - | LB 565 | 07.05 – 13:25
Live Display
Diagnostic
Setup
Access level Basic
Language English
RU
N
▲ ▼ ►
1 | - |Setup | 07.05 – 13:25
Configuration
Calibration
Input / Output
Service
Product
Change password
⌂◄ ▲ ▼ ►

Chapter 4 Calibration
Micro-Polar Brix (++) LB 565
48
¾ CALIBRATE CONC
¾ SAMPLING
¾ LAB VALUE
Delete default value with DEL, enter new value and confirm
with ..√...
¾ NEXT SAMPLE
and repeat the step described above with the next sample.
After you have entered the last sample by pushing the ◄ but-
ton you get back to the Calibration menu. (Short push – one
page, longer push of the button – you get back to the Calibra-
tion menu immediately.)
1 | - | Calibration | 07.05 – 13:25
System Adjust
Calibrate Conc
Advanced
⌂◄ ▲ ▼ ►
1 | - | Calibrate Conc| 07.05 –13:25
Sampling
Calibr. autom.
Calibr. manual
Tuning
View
⌂◄ ▲ ▼ ►
1 | 1/1 | Sample # 1 | 07.05 –13:25
Next sample
ActiveYes
Measured value 65.50 %
Lab value 0.00 %
Advanced
.. ◄ . DEL ▲▼ ..
√
..
1 | 1/1 | Sample # 1 | 07.05 –13:25
Lab value
0.00| %
ES
C
..?.. DEL ..
√
..
1 | 1/1 | Sample # 1 | 07.05 –13:25
Next sample
ActiveYes
Measured value 65.50 %
Lab value 72.40 %
Advanced
.. ◄ . DEL ▲▼ ..
√
..

Chapter 4 Calibration
Micro-Polar Brix (++) LB 565 49
4.3.4 Automatic Calibration
Phase calibration including the enabled compensation is carried
out during automatic calibration.
¾ CALIBR. AUTOM.
¾ START CALIBR.
Push the ..√.. button to start the calibration.
Push the ..OK.. button to confirm calibration.
When calculating the new coefficient set, factor and offset will be
reset (factor 1.00000 and offset 0.000).
Push the ..⌂◄.. button four times to return to the main menu.
1 | - |Calibrate Conc | 07.05 –13:25
Calibrate now?
..X.. ..
√
..
1 | - |Calibrate Conc | 07.05 –13:25
Start Calibr.
⌂◄ ▲ ▼ ►
1 | - |Calibrate Conc | 07.05 –13:25
Sampling
Calibr. autom.
Tuning
View
⌂◄ ▲ ▼ ►
1 | - |Calibrate Conc | 07.05 –13:25
Calibrated!
..OK..
1 | - |Calibrate Conc | 07.05 –13:25
Sampling
Calibr. autom.
Tuning
View
⌂◄ ▲ ▼ ►

Chapter 4 Calibration
Micro-Polar Brix (++) LB 565
50
4.3.5 Automatic Calibration with Temperature Compensation
Before running a sample measurement you have to enable the
desired compensation input and check the calibration. If all in-
puts are enabled, the measured values of all inputs will be sto-
red automatically in the sample table.
Usually, automatic calibration is sufficient and can be per-
formed in the Basic mode.
The chapters
4.1 System Calibration
4.2.2 Sampling and
4.2.3 Entering of Lab Values
are prerequisites for automatic calibration.
Starting from the main display, you get to the display de-
picted to the left by selecting | SETUP | CALIBRATION |
CALIBRATE CONC. |
¾ CALIBR. AUTOMATIC
¾ COMPENSATION
All active inputs are displayed here for compensation selec-
tion.
¾ CURRENT IN 1
1 | - |Calibrate Conc | 07.05 –13:25
Sampling
Calibr. autom.
Tuning
View
⌂◄ ▲ ▼ ►
1 | - | Calibr. autom. |07.05 –13:25
Start Calibr.
Compensation None
⌂◄ ▲ ▼ ►
1 | - | Calibr. autom. | 07.05 –13:25
Compensation
None
Current In 1
PT100
ESC ..?.. ▲▼ ..
√
..

Chapter 4 Calibration
Micro-Polar Brix (++) LB 565 51
¾ REFERENCE VALUE
After selection of the compensation input, REFERENCE VALUE
is displayed on the menu. The input of a reference value
(e.g. the reference temperature) is required.
As reference value either the temperature of the product dur-
ing calibration or the averaged operating temperature en-
tered and confirmed.
¾ START CALIBRATION
Start calibration.
Push ..OK.. to confirm the Calibration. The calibration is fin-
ished. Push the Home button .⌂◄. four times to return to the
main menu and to start a measurement.
1 | - | Calibr. autom. | 07.05 –13:25
Calibrate Now?
..X.. ..
√
..
1 | - |Calibr. autom. |07.05 –13:25
Start Calibr.
Compensation Current In 1
Ref. value
⌂◄ ▲ ▼ ►
1 | - | Calibr. autom. |07.05 –13:25
Start Calibr.
Compensation Current In 1
Ref. value 80 °C
⌂◄ ▲ ▼ ►
1 | - | Compensation | 07.05 –13:25
Ref. value
80.00 | °C
ES
C
..?.. DEL ..
√
..
1 | - | Calibr. autom. | 07.05 –13:25
Calibration in process..
..OK..
1 | - | Calibr. autom. | 07.05 –13:25
Calibrated!
..OK..

Chapter 4 Calibration
Micro-Polar Brix (++) LB 565
52
4.4 Manual Calibration
Manual calibration is possible only on the Profi level.
Prerequisite a for manual calibration are the chapters
4.1 System Calibration
4.2 Start Calibration
4.2.2 Sampling and
4.2.3 Entering the Lab Values
4.4.1 Manual Calibration with one Concentration
If the display depicted to the left is not visible, do the follow-
ing on the live display:
ESC | SETUP | CALIBRATION | CALIBRATE CONC |
¾ CALIBR. MANUAL
¾ CAL ORDER
¾ LINEAR
Quadratic calibration is possible only for a calibration with three
and more samples.
1 | - | Calibrate Conc| 07.05 –13:25
Sampling
Calibr. autom.
Calibr. manual
Tuning
View
⌂◄ ▲ ▼ ►
1 | - | Calibr. manual | 07.05 –13:25
Cal. Order Linear
Cal. Base PHI
Coefficients
Start Calibr.
⌂◄ ▲ ▼ ►
1 | - | Calibr. manual | 07.05 –13:25
Cal. Order
Linear
Quadratic
⌂◄ ▲ ▼ ►

Chapter 4 Calibration
Micro-Polar Brix (++) LB 565 53
¾ CAL. BASE
¾ PHASE ( Phase measurement)
The calibration base is selected depending on the number of
samples and their raw data. Initial calibration should be as sim-
ple as possible, since calibration can be optimized any time.
¾ START CALIBRATION
Push ..√.. to start the calibration, push ..X.. to go back one
page without calibration.
..OK.. takes over the calibration and changes to the next dis-
play.
1 | - | Calibr. manual | 07.05 –13:25
Cal. Order Linear
Cal. Base PHI
Coefficients
Start Calibr.
⌂◄ ▲ ▼ ►
1 | - | Calibr. manual | 07.05 –13:25
Cal. Base
Phase
Attenuation
Both
ESC ..?.. ▲▼ ..
√
..
1 | - | Calibr. manual | 07.05 –13:25
Cal. Order Linear
Cal. Base PHI
Coefficients
Start Calibr.
⌂◄ ▲ ▼ ►
1 | - | Calibration | 07.05 –13:25
Calibrate Now?
..X.. ..
√
..
1 | - | Calibration | 07.05 –13:25
Calibrated!
..OK..

Chapter 4 Calibration
Micro-Polar Brix (++) LB 565
54
The curve to the left shows the characteristic curve lab vs.
measured value.
¾ ..►..
The correlation shows the average deviation of the character-
istic curve from the sample series.
¾ ..OK..
As soon as you confirm this prompt, the calibration display
appears again; from there you get back to the main menu by
pushing .⌂◄. four times and you can start the measurement
again.
1 | - | Calibration | 07.05 –13:25
Lab
►
1 | - | Calibration | 07.05 –13:25
Correlation Lab/Meas value
0.998726
..OK..
1 | - | Calibration | 07.05 –13:25
Calibration
OK?
..X.. ..
√
..

Chapter 4 Calibration
Micro-Polar Brix (++) LB 565 55
4.4.2 Calibration with Two Concentrations
Calibration for two concentrations starts by changing the proc-
ess type as described below.
Prerequisite for calibration are the chapters
4.1 System Calibration and
4.2.2 Sampling
¾ ADVANCED
¾ PROCESS TYPE
¾ 2 CONC
Push the ..√.. button to accept the selected process type
and push the .⌂◄. button once to go to the display depicted
below.
¾ CALIBRATE CONC 1
1 | - | Calibration | 07.05 – 13:25
System Adjust
Calibrate Conc
Calibrate Conc 2
Advanced
⌂◄ ▲ ▼ ►
1 | - | Calibration | 07.05 – 13:25
System Adjust
Calibrate Conc
Advanced
⌂◄ ▲ ▼ ►
1 | - | Advanced | 07.05 –13:25
Tara values
Num. Cal. Sweeps 10
Process Type
⌂◄ ▲ ▼ ►
1| - | Advanced | 07.05 –13:25
Process Type
1 Conc
2 Conc
Split Conc.
ES
C
..?.. ▲▼ ..
√
..

Chapter 4 Calibration
Micro-Polar Brix (++) LB 565
56
¾ SAMPLING
There is only one sample table for both calibrations.
The lab values have to be entered for all samples used for cali-
bration of concentration 1. All other samples have to be disabled
(Active.... Yes/No).
¾ LAB VALUE
Delete default value with DEL, enter new value and confirm
with ..√...
¾ NEXT SAMPLE
Continue with next sample
¾ ACTIVE
Disable sample
1 | 1/4 | Sample # 1 | 07.05 – 13:25
Lab value
60.40 | %
ES
C
..?.. DEL ..
√
..
1 | - | Calibrate Conc1|07.05 –13:25
Sampling
Calibr. autom.
Calibr. manual
Tuning
View
⌂◄ ▲ ▼ ►
1 | 1/4 | Sample # 1 | 07.05 –13:25
Next sample
Active Yes
Measured value 65.50 %
Lab value 0.00 %
Advanced
◄ DEL ▲▼ ..
√
..
1 |1 /4 | Sample # 1 | 07.05 –13:25
Next sample
Active Yes
Meas. value 65.50 %
Lab value 60.40 %
Advanced
◄ DEL ▲▼ ..
√
..
1 |2 /4 | Sample # 2 | 07.05 –13:25
Next sample
Active Yes
Meas. value 74.35 %
Lab value 67.80 %
Advanced
◄ DEL ▲▼ ..
√
..

Chapter 4 Calibration
Micro-Polar Brix (++) LB 565 57
¾ NO
Make sure that all samples have been processed and only those
samples are active which are relevant for this calibration.
Push ◄ ESC to get to the Calibration page
Automatic as well as manual calibration is possible in this cali-
bration mode. For non-professional users we recommend the
automatic mode.
¾ START CALIBRATION
Push ..√.. to start the calibration, push ..X.. to go back one
page without calibration.
1 | 2/4 | Sample # 2 | 07.05 – 13:25
Active
No
Yes
ES
C
..?.. DEL ..
√
..
1 |2 /4 | Sample # 2 | 07.05 –13:25
Next sample
Active No
Meas. value 74.35 %
Lab value 67.80 %
Advanced
◄ DEL ▲▼ ..
√
..
1 | - | Calibrate Conc1|07.05 –13:25
Sampling
Calibr. autom.
Calibr. manual
Tuning
View
⌂◄ ▲ ▼ ►
1 | - | Calibr. autom. | 07.05 –13:25
Calibrate Now?
..X.. ..
√
..
1 | - | Calibr. autom. |07.05 –13:25
Start Calibr.
⌂◄ ▲ ▼ ►

Chapter 4 Calibration
Micro-Polar Brix (++) LB 565
58
..OK.. takes over the calibration and changes to the next dis-
play.
Push .⌂◄. twice to return two pages.
¾ CALIBRATE CONC 2
Repeat the steps as described above for concentration 2; all
samples have to be enabled again in the sample table. Now you
have to disable all samples which are not used for concentration
2.
¾ SAMPLING
1 | - | Calibr. autom. | 07.05 –13:25
Calibrated!
..OK..
1 | - | Calibr. autom. |07.05 –13:25
Start Calibr.
⌂◄ ▲ ▼ ►
1 | - | Calibration | 07.05 – 13:25
System Adjust
Calibrate Conc
Calibrate Conc 2
Advanced
⌂◄ ▲ ▼ ►
1 | - |Calibrate Conc2 | 07.05 –13:25
Sampling
Calibr. autom.
Calibr. manual
Tuning
View
⌂◄ ▲ ▼ ►

Chapter 4 Calibration
Micro-Polar Brix (++) LB 565 59
4.4.3 Calibration with Split Value
With this type of calibration, two characteristic curves (con-
centrations) are combined in one measuring range; their
point of intersection defines the split value.
Conc 1 for the lower and conc 2 for the upper measuring
range can be output only together via current output.
¾ ADVANCED
¾ PROCESS TYPE
¾ SPLIT CONC
Push the ..√.. button to accept the selected process type
and push the .⌂◄. button once to go to the display depicted
below.
The displayed split value has been set by the manufacturer,
but has to be adapted to the respective application.
The samples should be chosen that way that the last sample of
the lowest concentration is as close as possible to the first sam-
ple of the highest concentration.
It is the ideal case, when the last sample of the initial concentra-
tion coincides with the first sample of the final concentration.
1 | - | Calibration | 07.05 – 13:25
System Adjust
Calibrate Conc
Advanced
⌂◄ ▲ ▼ ►
1 | - | Advanced | 07.05 –13:25
Tara values
Num. Cal. Sweeps 10
Process Type
⌂◄ ▲ ▼ ►
1 | - | Advanced | 07.05 –13:25
Process Type
1 Conc
2 Conc
Split Conc
ES
C
..?.. ▲▼ ..
√
..
1 | - | Advanced | 07.05 –13:25
Tara values
Num. Cal. Sweeps 10
Process Type Split Conc
Split Value 75.00 %
⌂◄ ▲ ▼ ►

Chapter 4 Calibration
Micro-Polar Brix (++) LB 565
60
The sample measurement is carried out continuously over the
entire measuring range with the display depicted to the left. See
chapter 4.2.2 Sampling
After completion of sampling, the individual samples will be
enabled or disabled during input of the laboratory values,
relative to the set split values. All samples smaller or equal
to the split value will be assigned to the lower concentration
range and all samples above to the upper concentration
range.
The correlation of the samples is carried out automatically,
for instance after setting the splitting value or after entering
the laboratory value (e.g. after re-sampling). The correlation
complies with both, the splitting value and the laboratory
value.
! By entering a splitting value, this automatic correlation
reactivates samples that had been deactivated before! In
such cases the deactivated samples should be deleted or
deactivated again after entering the splitting value.
The required splitting value has to comply with the intersection
of the two calibration characteristic lines. After calibration it is
adjusted automatically (only to a certain extend).
¾ SPLIT VALUE
Enter the split value and confirm with ..√...
Push the Home button .⌂◄. to return to the calibration page.
¾ CALIBRATE CONC
1 | - | Live Display | 07.05 – 13:25
Concentration av.
65.50 %
Conc av. Conc. act. 64.35%
ESC SAMPLE ..▲▼.. ZOOM
1 | - | Advanced | 07.05 –13:25
Tara values
Num. Cal. Sweeps 10
Process Type Split Conc
Split Value 75.00 %
⌂◄ ▲ ▼ ►
1| - | Advanced |07.05 –13:25
Split Value
75.00 | %
ES
C
..?.. DEL ..
√
..
1 | - | Calibration | 07.05 – 13:25
System Adjust
Calibrate Conc
Calibrate Conc 2
Advanced
⌂◄ ▲ ▼ ►

Chapter 4 Calibration
Micro-Polar Brix (++) LB 565 61
¾ CALIBR. AUTOM.
The lower concentration is now calibrated. Then select
CONC 2 and repeat the calibration process.
Back to the main menu and start the measurement.
4.4.4 Calibration with Temperature Compensation
Starting from the main menu, you get to the display to the
left by selecting | SETUP | CALIBRATION | CALIBRATE CONC
| in the Profi mode.
¾ CALIBR. MANUAL
¾ COMPENSATION
¾ INPUT
If all inputs have been enabled during sample measurement,
you have the option to select compensation from the list, since
all input values have been stored in the sample table.
¾ Pt 100
1 | - | Calibrate Conc | 07.05 –13:25
Sampling
Calibr. autom.
Calibr. manual
Tuning
View
⌂◄ ▲ ▼ ►
1 | - | Calibr. manual | 07.05 –13:25
Cal. Order Linear
Cal. Base Phase
Coefficients
Compensation
Start Calibr.
⌂◄ ▲ ▼ ►
1 | - | Calibrate Conc | 07.05 –13:25
Input
None
Current In 1
Current In 2
PT100
⌂◄ ▲ ▼ ►
1 | - | Compensation | 07.05 –13:25
Input None
Mode Additive
Order Linear
Ref. value 0.00
C_Phi 1 0.00000
C_dB 1 0.00000
ES
C
..?.. ▲▼ ..
√
..
1 | - |Calibrate Conc2|07.05 –13:25
Sampling
Calibr. autom.
Calibr. manual
Tuning
View
⌂◄ ▲ ▼ ►

Chapter 4 Calibration
Micro-Polar Brix (++) LB 565
62
You can select additive or multiplicative mode and set the or-
der to linear or quadratic. If you select automatic calibration
mode, the above modes will be calculated automatically. This is
recommended for non-professional users.
¾ REF VALUE
As reference value either the temperature of the product dur-
ing calibration or the averaged operating temperature en-
tered and confirmed.
The coefficients C_Phi 1 and C_dB 1 are automatically calcu-
lated during calibration.
¾ ESC
If you have completed the entries described above and have
carried out the steps described in chapters
4.1 System Calibration
4.2.2 Sampling and
4.2.3 Entering the Lab Values
you may proceed with the calibration as described below.
¾ START CALIBR.
1 | - | Compensation | 07.05 –13:25
Ref. value
80.00 | °C
ES
C
..?.. DEL ..
√
..
1 | - | Compensation | 07.05 –13:25
Input Pt 100
Mode Additive
Order Linear
Ref. value 0.00°C
C_Phi 1 0.00000
C_dB 1 0.00000
ES
C
..?.. ▲▼ ..
√
..
1 | - | Compensation | 07.05 –13:25
Input Pt 100
Mode Additive
Order Linear
Ref. value 80.00°C
C_Phi 1 0.00000
C_dB 1 0.00000
ESC ..?.. ▲▼ ..
√
..
1 | - | Calibr. manual | 07.05 –13:25
Cal. Order Linear
Cal. Base Phase
Coefficients
Compensation
Start Calibr.
⌂◄ ▲ ▼ ►

Chapter 4 Calibration
Micro-Polar Brix (++) LB 565 63
Push ..√.. to start the calibration, push ..X.. to go back one
page without calibration.
..OK.. takes over the calibration and changes to the next dis-
play.
The curve to the left shows the characteristic curve lab vs.
measured value.
¾ ..►..
The correlation indicates the average deviation of the charac-
teristic curve from the sample series.
¾ ..OK..
As soon as you confirm this prompt, the calibration display
appears again; from there you get back to the main menu by
pushing .⌂◄. four times and you can start the measurement
again.
1 | - | Calibration | 07.05 –13:25
Calibrate Now?
..X.. ..
√
..
1 | - | Calibration | 07.05 –13:25
Calibrated!
..OK..
1 | - | Calibration | 07.05 –13:25
Lab
►
1 | - | Calibration | 07.05 –13:25
Correlation Lab/Meas
0.998726
..OK..
1 | - | Calibration | 07.05 –13:25
Calibration
OK
..X.. ..
√
..

Chapter 4 Calibration
Micro-Polar Brix (++) LB 565
64
4.5 Adjusting the Calibration
A correction factor and an offset factor may be entered later
to obtain subsequent adjustment of the calibration (fine cali-
bration).
Below please find an example for an offset adjustment.
The display to the left appears if you push RUN.
The display reading is now compared with the analysis value
of the lab sample. The difference has to be entered as offset
with the correct algebraic sign.
Calculation: Analysis value – display = offset
Push ESC to return to the main display.
¾ SETUP
¾ CALIBRATION
¾ CALIBRATE CONC
1 | - | Live Display | 07.05 – 13:25
Concentration av.
65.50 %
Conc av. Conc. act. 64.35%
ESC SAMPLE .▲▼. ZOOM
1 | - | LB 565 | 07.05 – 13:25
Live Display
Diagnostic
Setup
Access Level Basic
Language English
STOP ▲ ▼ ►
1 | - | Setup | 07.05 – 13:25
Configuration
Calibration
Input / Output
Service
Product
⌂◄ ▲ ▼ ►
1 | - | Calibration | 07.05 – 13:25
System Adjust
Calibrate Conc
Advanced
⌂◄ ▲ ▼ ►

Chapter 4 Calibration
Micro-Polar Brix (++) LB 565 65
¾ TUNING
¾ OFFSET
Enter the calculated offset value, confirm with ..√.. button
and push the Home button four times to return to the main
menu.
Select with
¾ LIVE DISPLAY
to get back to the display.
The reading value should now correspond to the actual value.
1 | - | Calibrate Conc | 07.05 –13:25
Sampling
Calibr. autom.
Tuning
View
⌂◄ ▲ ▼ ►
1 | - | Tuning | 07.05 –13:25
Factor 1.00000
Offset 0.000
⌂◄ ▲ ▼ ►
1 | - | Tuning | 07.05 –13:25
Offset
0.000 |
ES
C
..?.. DEL ..
√
..
1 | - | LB 565 | 07.05 – 13:25
Live Display
Diagnostic
Setup
Access Level Basic
Language English
STOP ▲ ▼ ►
1 | - | Live Display | 07.05 – 13:25
Concentration av.
75.50 %
Conc av. Conc. act. 64.35%
ESC SAMPLE .▲▼. ZOOM

Chapter 4 Calibration
Micro-Polar Brix (++) LB 565
66
4.6 Output of the start-up protocol
Starting from the main menu, you get to the display to the
left by selecting | DIAGNOSTIC | in the Profi mode.
¾ PRINT SETUP
Push ..√.. to start the print out by RS 232 and RS 485, push
..X.. to go back one page without sending.
The start-up protocol includes all adjustable parameters, calibra-
tion data, data of the system adjust and entries of the sample
table.
Further information for instance about the format or an ex-
ample of such a protocol can be found in chapter 9.5.
1 | - | Diagnostic | 07.05 – 13:25
Datalog
Errorlog
Info
Print Setup
⌂◄ ▲ ▼ ►
1 | - | Print setup | 07.05 –13:25
Print Setup now?
..X.. ..
√
..

Chapter 5 Password
Micro-Polar Brix (++) LB 565 67
Chapter 5. Password
The measuring system can be protected by passwords
against unauthorized access.
The following access levels are available:
Read only
The measuring system cannot be started and stopped. You
can only switch from the live display to Diagnostic and to
Access Level.
Basic
On the Basic level you can make essential entries, and stop
and start the system.
Profi
The Profi mode allows additional entries in the process type
menu, calibration menu and opens the Service menu.
Service
The service level is reserved to service personnel.
You have to enter a password to change from the access le-
vel „Read only“ to „Basic“ or „Profi“.
At the time of delivery, this password is
PASS1
The password can be changed in the profi mode at: menu |
SETUP | CHANGE PASSWORD.
Changing from Profi to Basic or vice versa is possible without
password. You can change the password on the Profi or Basic
level.
! Note: Depending on the access level, some menu items
are hidden.

Chapter 5 Password
Micro-Polar Brix (++) LB 565
68
5.1 Forgot password
The device is in the “read only” mode and the user forgot the
password. In order to carry out a “reset” of the user level,
use the following way:
Switch of the device.
Switch it on again, the moment when all 5 LEDs light up
while booting the 0 (zero-key) has to be pushed constantly
for 8 seconds!
The device boots in basic mode now. Henceforward it can be
carried out a manual “general reset” or define a new pass-
word respectively.
! Caution: check your process before switching of the de-
vice. For example the power output drop to 0 mA.

Chapter 6 Inputs / Outputs
Micro-Polar Brix (++) LB 565 69
Chapter 6. Inputs / Outputs
The measuring system includes two separate floating current
outputs.
6.1 Current Outputs
Current outputs 1 and 2 can be assigned to the concentra-
tions for calibration with two concentrations.
You get to the setup display as follows.
¾ SETUP
¾ INPUTS / OUTPUTS
¾ CURRENT OUTPUT
Now you can select the respective current output and assign
it to the concentration after calibration.
1 | - | LB 565 | 07.05 – 13:25
Live Display
Diagnostic
Setup
Access Level Basic
Language English
RU
N
▲ ▼ ►
1 | - | Setup | 07.05 – 13:25
Configuration
Calibration
Input / Output
Service
Product
⌂◄ ▲ ▼ ►
1 | - | Inputs/Outputs | 07.05 –13:25
Current Output
Current Input
PT100
Digital Output
Digital Input
⌂◄ ▲ ▼ ►
1 | - | Current Output | 07.05 –13:25
Current Out 1
Current Out 2
⌂◄ ▲ ▼ ►

Chapter 6 Inputs / Outputs
Micro-Polar Brix (++) LB 565
70
6.1.1 Current Output Setup
¾ CURRENT OUT 1
¾ ASSIGNMENT
¾ CONC
Select and confirm with ..√..
In case of two concentrations and outputs enabled, the assign-
ment can be chosen as needed.
¾ UPPER VALUE
Delete the old value with DEL. Enter the new limit value and
confirm with ..√.. .
Set the lower value also as described above.
1 | - | Current Output | 07.05 –13:25
Current Out 1
Current Out 2
⌂◄ ▲ ▼ ►
1 | - | Current Out 1| 07.05 –13:25
Assignment Conc
Upper Value 95.00 %
Lower Value 60.00 %
Test / Adjust
Error current
⌂◄ ▲ ▼ ►
1 | - | Current Out. 1| 07.05 –13:25
Assignment
Conc
Conc 2
Current In 1
Current In 2
PT100
ES
C
..?.. ▲▼ ..
√
..
1 | - | Current Out 1| 07.05 –13:25
Assignment Conc
Upper Value 95.00 %
Lower Value 60.00 %
Test / Adjust
Error current
⌂◄ ▲ ▼ ►
1 | - | Current Out. 1| 07.05 –13:25
Upper value
95.00 | %
ES
C
..?.. DEL ..
√
..

Chapter 6 Inputs / Outputs
Micro-Polar Brix (++) LB 565 71
6.1.2 Test and Adjustment
Prerequisite: You are in the Profi mode
¾ TEST / ADJUST
¾ ADJUST
! Warning: Current output 1 can only be set from 4 to
20 mA, since it is foreseen for a HART communicator.
Push ..OK.. to confirm that the process is not affected by the
measurement.
Push ..OK.. to confirm that the measuring system is con-
nected.
Push ..OK.. to confirm.
1 | - | Current Out 1| 07.05 –13:25
Assignment Conc
Upper Value 95.00 %
Lower Value 60.00 %
Test / Adjust
Error current
⌂◄ ▲ ▼ ►
1 | - | Test / Adjust | 07.05 –13:25
Loop test
Adjust
Live current 4.00 mA
⌂◄ ▲ ▼ ►
1 | - |Adjust Current | 07.05 –13:25
Loop should be removed
from autmatic control
..X.. .OK.
1 | - |Adjust Current | 07.05 –13:25
Connect reference meter
..X.. .OK.
1 | - |Adjust Current | 07.05 –13:25
Setting Current Output
to 4 mA
..X.. .OK.

Chapter 6 Inputs / Outputs
Micro-Polar Brix (++) LB 565
72
Read off display of measuring system and enter value.
4 mA value adjusted.
Push ..OK.. to confirm.
Read off display of measuring system and enter value.
Adjustment finished.
To check the current loop and possibly connected remote dis-
plays, you can set a current between 4 and 20 mA via the test
function. If you quit the test function, the system automatically
switches back to the live current.
1 | - |Adjust Current | 07.05 –13:25
Enter meter value
3.80 | mA
ES
C
DEL ..
√
..
1 | - |Adjust Current | 07.05 –13:25
4 mA adjusted.
..X.. .OK.
1 | - |Adjust Current | 07.05 –13:25
Setting Current Output
to 20 mA
..X.. .OK.
1 | - |Adjust Current | 07.05 –13:25
Enter meter value
19.80 | mA
ES
C
DEL ..
√
..
1 | - |Adjust Current | 07.05 –13:25
20 mA adjusted.
..X.. .OK.
1 | - | Test / Adjust | 07.05 –13:25
Loop test
Adjust
Live current 15.00 mA
⌂◄ ▲ ▼ ►

Chapter 6 Inputs / Outputs
Micro-Polar Brix (++) LB 565 73
6.1.3 Error Current
Different signal effects can be assigned to the output current.
¾ ERROR CURRENT
¾ ALARM MODE
Fixed values, Hold or freely adjustable values between 0 and
24 mA can be assigned.
¾ VALUE
With this setting, you can default any current value for the
error case.
Enter value and confirm with ..√... .
1 | - | Current Out 1 | 07.05 –13:25
Assignment Conc
Upper Value 95.00 %
Lower Value 60.00 %
Test / Adjust
Error current
⌂◄ ▲ ▼ ►
1 | - | Error current | 07.05 –13:25
Alarm Mode Value
Value 22.00 mA
⌂◄ ▲ ▼ ►
1 | - | Error current | 07.05 –13:25
Alarm Mode
22.00 mA
3.5 mA
Hold
Value
⌂◄ ▲ ▼ ►
1 | - | Error current | 07.05 –13:25
Value
3.50 mA
ES
C
DEL ..
√
..

Chapter 6 Inputs / Outputs
Micro-Polar Brix (++) LB 565
74
6.1.4 Current Output 2
¾ CURRENT OUT 2
All settings for current output 2 have to be made in the same
manner as for output 1, with the exception of the range setting.
¾ RANGE
After selection of the required range, carry out all setting and
calibration steps as described in chapter 6.1.2.
1 | - | Current Out | 07.05 –13:25
Current Out 1
Current Out 2
⌂◄ ▲ ▼ ►
1 | - | Current Out 2 | 07.05 –13:25
Assignment Conc 2
Upper Value 95.00 %
Lower Value 60.00 %
Range 4 - 20 mA
Test / Adjust
Error current
⌂◄ ▲ ▼ ►
1 | - | Current Out. 2 | 07.05 –13:25
Range
0 – 20 mA
4 – 20 mA
ES
C
▲▼ ..
√
..

Chapter 6 Inputs / Outputs
Micro-Polar Brix (++) LB 565 75
6.2 Current Inputs
If the window below is not displayed, you can invoke it on
the main menu via | SETUP |INPUT/OUTPUT |
¾ CURRENT INPUT
6.2.1 Enabling the Current Input
¾ CURRENT IN 1
¾ ENABLED
The menu ADJUST is only displayed at the profi mode.
¾ ENABLING
If a measurement is running, enabling an adjusted current input
which is not used may cause an error.
1 | - | Inputs/Outputs | 07.05 –13:25
Current Output
Current Input
PT100
Digital Output
Digital Input
⌂◄ ▲ ▼ ►
1 | - | Current In | 07.05 –13:25
Current In 1
Current In 2
⌂◄ ▲ ▼ ►
1 | - | Current In 1 | 07.05 –13:25
Enabled no
Adjust
Live current 4.00 mA
⌂◄ ▲ ▼ ►
1 | - | Current In 1 | 07.05 –13:25
Enabled
No
Yes
ES
C
..?.. ▲▼ ..
√
..

Chapter 6 Inputs / Outputs
Micro-Polar Brix (++) LB 565
76
6.2.2 Range Setting and Adjustment
Prerequisite: You are in the Profi mode
¾ RANGE SETTING
¾ 4 – 20 mA
¾ ADJUST
Push ..OK.. to confirm that the process is not affected by the
measurement.
Push ..OK.. to confirm that the current generator is con-
nected.
1 | - | Current In 1 | 07.05 –13:25
Enabled yes
Range 0 – 20 mA
Upper value 100.00 °C
Lower value 0.00 ° C
Adjust
Live current 4.00 mA
⌂◄ ▲ ▼ ►
1 | - | Current Input 1 | 07.05 –13:25
Range
0 – 20 mA
4 – 20 mA
ESC ..?.. ▲▼ ..
√
..
1 | - | Current In 1 | 07.05 –13:25
Enabled yes
Range 4 – 20 mA
Upper value 100.00 °C
Lower value 0.00 ° C
Adjust
Live current 4.00 mA
⌂◄ ▲ ▼ ►
1 | - |Adjust Current | 07.05 –13:25
Loop should be removed
from automatic control
..X.. .OK.
1 | - |Adjust Current | 07.05 –13:25
Connect current generator
..X.. .OK.

Chapter 6 Inputs / Outputs
Micro-Polar Brix (++) LB 565 77
¾ Set current generator to 4 mA.
Push the ..OK.. button to confirm.
Push ..OK.. to confirm adjustment of the lower value.
¾ Set current generator to 20 mA.
Push the ..OK.. button to confirm.
Push ..OK.. to confirm adjustment of the lower value.
1 | - |Adjust Current | 07.05 –13:25
Set current generator
to 4 mA.
..X.. .OK.
1 | - |Adjust Current | 07.05 –13:25
4 mA adjusted.
..X.. .OK.
1 | - |Adjust Current | 07.05 –13:25
Generator set to 20 mA
..X.. .OK.
1 | - |Adjust Current |07.05 –13:25
20 mA adjusted.
..X.. .OK.
1 | - |Adjust Current | 07.05 –13:25
Generator set to
4 mA?
..X.. .OK.
1 | - |Adjust Current | 07.05 –13:25
Set current generator
to 20 mA.
..X.. .OK.

Chapter 6 Inputs / Outputs
Micro-Polar Brix (++) LB 565
78
Adjustment finished. The live current is displayed.
If necessary, carry out range setting and calibration of current
input 2 as described above.
6.3 Pt 100
6.3.1 Pt 100 Enabling
¾ Pt 100
¾ ENABLED
The menu ADJUST is only displayed at the profi mode.
Select „yes“ and pushc..√… to confirm.
1 | - | Current In 1 | 07.05 –13:25
Enabled yes
Range 4 – 20 mA
Upper value 100.00 °C
Lower value 0.00 ° C
Adjust
Live current 4.00 mA
⌂◄ ▲ ▼ ►
1 | - | Inputs/Outputs | 07.05 –13:25
Current Output
Current Input
PT100
Digital Output
Digital Input
⌂◄ ▲ ▼ ►
1 | - | Pt 100 | 07.05 –13:25
Enabled no
Adjust
Pt 100 live
⌂◄ ▲ ▼ ►
1 | - | Pt 100 | 07.05 –13:25
Enabled
no
yes
ESC ..?.. ▲▼ ..
√
..

Chapter 6 Inputs / Outputs
Micro-Polar Brix (++) LB 565 79
6.3.2 Pt 100 Calibration
Prerequisite: You are in the Profi mode
¾ ADJUST
..OK..
Connect 100 Ohm resistor to Pt100 terminals [11] [23].
Confirm once more with ..OK...
Adjustment of lower point finished.
After connection of the resistor, confirm with ..OK...
1 | - | Pt 100 | 07.05 –13:25
Enabled yes
Adjust
Pt 100 Live
⌂◄ ▲ ▼ ►
1 | - | Adjust Pt100 | 07.05 –13:25
Connect 100 Ohm resistor
to Pt100 terminals.
(for 0°C/31.4°F adjustment)
..X.. .OK.
1 | - | Adjust Pt100 | 07.05 –13:25
100 Ohm resistor connected?
..X.. .OK.
1 | - | Adjust Pt100 | 07.05 –13:25
Lower point adjusted.
..X.. .OK.
1 | - | Adjust Pt100 | 07.05 –13:25
Connect 138.5 Ohm resistor
to Pt100 terminals.
(for 100°C/211.4°F adjustment)
..X.. .OK.

Chapter 6 Inputs / Outputs
Micro-Polar Brix (++) LB 565
80
Confirm safety prompt.
Calibration is finished.
6.4 Digital Output
The measuring system includes two changeover relay outputs
which can be assigned to the respective application.
Relay 1 is associated with LED signal 1 and relay 2 with signal 2.
6.4.1 Digital Output Assignment
From the main menu you get to the display depicted to the
left via | Setup | Input/Output | Digital Output
¾ Relay 2
Select the display with the arrow keys.
1 | - | Adjust Pt100 | 07.05 –13:25
Upper point adjusted.
..X.. .OK.
1 | - | Adjust Pt100 | 07.05 –13:25
138.5 Ohm resistor
connected?
..X. .OK.
1 | - | Digital Output | 07.05 –13:25
Relay 1
Relay 2
Test
⌂◄ ▲ ▼ ►
1 | - | Relay 2 | 07.05 –13:25
Function None
⌂◄ ▲ ▼ ►

Chapter 6 Inputs / Outputs
Micro-Polar Brix (++) LB 565 81
Push ▲▼ and then ..√.. to assign a function to the relay.
Function Description
None Relay and LED function disabled
Error In case of error, relay and LED will be set.
Hold If Hold function is enabled, relay and LED
will be set.
No product If Pause detection is enabled, this will be
signaled via relay and LED.
Alarm min. The relay switches if the value falls below
the limit value to be set.
Alarm max. The relay switches if the value exceeds
the limit value to be set.
6.5 Digital Input
Different functions can be assigned to the digital inputs. See
table below.
Function1 Function2 Function3 Terminals
DI 1 None Start/Stop 12/24
DI 2 None Hold Product 13/25
DI 3 None Sample Product 14/26
For external start function, the start function has to be set to
external in the Measurement menu window.
Hold: averaging is stopped, but the measurement continues
to run.
Sample: sampling is started by closing the contact.
Product: by closing the contact it changes into another
product (product 1 to 4). Details see chapter 6.5.1.
1 | - | Relay 2 | 07.05 –13:25
Function
None
Error
Hold meas.
No product
Alarm min
Alarm max
ES
C
..?.. ▲▼ ..
√
..

Chapter 6 Inputs / Outputs
Micro-Polar Brix (++) LB 565
82
6.5.1 External Product Selection
From the main menu you get to the window display depicted
to the left via | SETUP | INPUT/OUTPUT | DIGITAL INPUT.
¾ DI 2 FUNCTION
¾ PRODUCT
To change all 4 products, DI 3 also has to be set to product.
Please take the terminal assignment from the table below.
Terminals DI 2
13 / 25
DI 3
14 / 26
Product 1 open open
Product 2 closed open
Product 3 open closed
Product 4 closed closed
Caution!
If you select a product for the first time (product 2 to 4) all
adjustments and contents of the resent product are copied
into the new one, including:
- Configuration data
- System calibration
- Calibration data (including sampling table)
- Input/Output definitions
1 | - | Digital Input | 07.05 –13:25
Status
DI 1 Function None
DI 2 Funktion None
DI 3 Function None
⌂◄ ▲ ▼ ►
1 | - | Digital Input | 07.05 –13:25
DI 2 Function
None
Hold
Product
ESC ..?.. ▲▼ ..
√
..
1 | - | Digital Input | 07.05 –13:25
Status
DI 1 Function None
DI 2 Function Product
DI 3 Function None
⌂◄ ▲ ▼ ►

Chapter 7 Factory Settings
Micro-Polar Brix (++) LB 565 83
Chapter 7. Factory Settings
This function allows you to reset the measuring system to its
original status (see chapter 9. „Factory Settings“).
Prerequisite: You are in the Profi mode.
¾ SETUP
¾ SERVICE
¾ FACTORY SETTINGS
If you confirm this prompt, all parameters and configuration set-
tings will be reset to their original status, with the exception of
the sampling table and the reference measurement.
1 | - | LB 565 | 07.05 – 13:25
Live Display
Diagnostic
Setup
Access Level
Language
RU
N
▲ ▼ ►
1 | - | Setup | 07.05 – 13:25
Configuration
Calibration
Input / Output
Service
Product
Change password
⌂◄ ▲ ▼ ►
1 | - | Service | 07.05 – 13:25
Factory settings
General reset
Memory Tool
Data printout
HART interface
⌂◄ ▲ ▼ ►
1| - | Factory Settings| 07.05 – 13:25
Restore now?
..X.. ..
√
..

Chapter 8 Error Lists
Micro-Polar Brix (++) LB 565 85
Chapter 8. Error Lists
8.1 Error Lists
The status of the device is signalized by LED’s. After the error
has been remedied, the LEDs are reset to the normal status.
8.1.1 Hardware Error
Code Error Possible cause
14 Battery voltage The battery will be exhausted
soon, please replace it immedi-
ately. See Hardware Manual,
chapter 5.4 Battery.
20 HF temperature
out of range Check the operating temperature
of the evaluation unit, permissi-
ble range: -20 to +60 °C
21 Attention: Ambi-
ent temperature
too high!
Check the operating temperature
of the evaluation unit, permissi-
ble range: -20 to +60 °C
39 RF hardware fail-
ure Malfunctioning cable connection
between motherboard and HF-
unit. Check plug on the mother-
board.
Caution! The evaluation unit has
to be cut off the power supply
first!
For all other error message, please contact the Berthold
Technologies Service
8.1.2 Input Error
Error Probable Cause
Value too large Input value too large
Value too small Input value too small
Table is empty Sampling has been selected without
previous sample measurement
Chart data faulty The measuring system has determined
faulty chart data during calibration.
No chart data
available The calculated chart data have been de-
leted or calibration has not been com-
pleted.
Sampling full You have tried to measure more then 20
samples.

Chapter 8 Error Lists
Micro-Polar Brix (++) LB 565
86
8.1.3 Measurement Error and Error Prompts
Code Error Possible cause
50 Sigma of phase is
too large The measured phase exceeds
the permissible limit value.
52 Attenuation too
high The measured attenuation ex-
ceeds the permissible max.
value.
53 No product The evaluation unit is in pause
mode (“no product” is signaled).
54 No system
calibration done No system calibration has yet
been carried out.
55 Insertion attenua-
tion is not reached Details see chapter 4.2
60 Current input 1
out of range The enabled current input has
not yet been calibrated or is not
occupied.
61 Current input 2
out of range The enabled current input has
not yet been calibrated or is not
occupied.
62 Pt 100 tempera-
ture out of range The enabled Pt 100 input has
not yet been calibrated or is not
occupied.
70 Concentration
out of range The concentration calculated on
the basis of the raw data is out-
side the valid measuring range.
71 Concentration 2
out of range The concentration calculated on
the basis of the raw data is out-
side the valid measuring range.
80 Current output 1
out of range The concentration calculated on
the basis of the current is out-
side the current range.
81 Current output 2
out of range The concentration calculated on
the basis of the current lies out-
side the current range.
.
For all other error message, please contact the Berthold
Technologies Service.
After the measurement error is remedied, the measurement re-
turns into the status before error. There is no confirmation nec-
essary.

Chapter 9 Calibration Data Sheet
Micro-Polar Brix (++) LB 565 87
Chapter 9. Calibration Data Sheet
9.1 Configuration
9.1.1 General Data
General Data Factory setting Setup
Date actual
Time actual
Tag -
9.1.2 Measurement
Measurement Factory setting Setup
Meas. mode continuous
Start mode keyboard
Averaging 20
Reset averaging no
9.1.3 Plausibility
Plausibility Factory setting Setup
Process limits 50.0 – 100.0
Phase measurement
Sigma
Phi/att ratio
100.00
6.0
Auto set OFF
Pause detection no
-15.0 dB
9.1.4 Microwave
Microwave Factory setting Setup
Cable
Ref. cable length
Signal cable length
4.00 m
4.00 m
9.2 Product
Product Factory setting Setup
Product 1

Chapter 9 Calibration Data Sheet
Micro-Polar Brix (++) LB 565
88
9.3 Inputs/Outputs
9.3.1 Current Output
Current out 1 Factory setting
Setup
Assignment Conc.
Upper value 95.00
Lower value 60.00
Test/Adjust O.K.
Error current Hold
Current out. 2 Factory setting
Setup
Assignment Keine
Upper value 95.00
Lower value 60.00
Range 4 – 20 mA
Test/Adjust O.K.
Error current Hold
9.3.2 Current Input
Current in 1 Factory setting
Setup
Enabled no
Range 4 – 20 mA
Upper value 100.00
Lower value 0.00
Adjust O.K.
Current in2 Factory setting
Setup
Enabled no
Range 4 – 20 mA
Upper value 100.00
Lower value 0.00
Adjust O.K.
9.3.3 Pt 100 Input
Pt 100 Factory setting
Setup
Enabled no
Pt 100 Adjust O.K.
9.3.4 Digital Output
Digital output Factory setting
Setup
Relay 1 Error
Relay 2 Hold

Chapter 9 Calibration Data Sheet
Micro-Polar Brix (++) LB 565 89
9.3.5 Digital Input
Digital input Factory setting
Setup
DI 1 function none
DI 2 function none
DI 3 function none
9.4 Calibration Data
9.4.1 Calibration Coefficients
Calibration Factory setting
Setup
Calibration order linear
Calibration basic Phase
Coefficients
A1
A2
B1
B2
C
-0.19
0.0
0.0
0.0
75.00
Compensation
Mode
Order
Ref. temp.
TC_Phi 1
TC_Phi 2
TC_Attn 1
TC_Attn 2
none
additive
linear
0.00
0.00000
0.00000
0.00000
0.00000
9.4.2 Typical Calibration Coefficients
C: Concentration value at system calibration
For applications with the container probe
A1: -0.19 for determination of the concentration
or dry matter substance (Brix-content).

Chapter 9 Calibration Data Sheet
Micro-Polar Brix (++) LB 565
90
9.5 Start-up protocol printout
Output is possible by using RS 232 and RS 485. The output is
started under menu | DIAGNOSTIC | PRINT SETUP |.
The serial interfaces RS 232 and RS 485 have the following
accesses:
Data transfer rate 38400 Bd, 8 data bits, no parity, 1 stop
bit.
The protocol will be saved via a terminal program into a TXT-
file. To display it e.g. via Excel® the following data format
has to be regarded:
Separators: tabulator
Decimal-separator: .
1000-separator: ,
The following code-list is for the interpretation of the start-
up protocol; see an example of a protocol in chapter 9.5.1.
Parameter Code-
No. Information
Log type
0
1
2
3
Log type:
Disabled
Single
Continuous
Stop on error
Log time
0
1
2
3
4
5
Log time:
15 Minutes
1 Hour
4 Hours
8 Hours
1 Day
3 Days
Measuring
mode
0
1
Meas. mode:
Continuous
Batch
Start mode
0
1
Start mode (Start/Stop):
Keypad
Extern
Compensation
input
0
1
2
3
Compensation input:
None
Current In 1
Current In 2
PT100

Chapter 9 Calibration Data Sheet
Micro-Polar Brix (++) LB 565 91
Parameter Code-
Nr. Information
Calibration
mode
0
1
Cal. order:
Lineare regression
Quadratic regression
Calibration
variable
0
1
2
Cal. base:
Phase
Attenuation
Both (Phase and Attenuation)
Compensation
mode
0
1
Compensation mode:
Additive
Multiplicative
Compensation
fit
0
1
Compensation order:
Lineare regression
Quadratic regression
Measure con-
figuration
0
1
2
Process type:
1 Concentration
2 Concentrationen
Split Concentration
AO Assign
Code
0
1
2
3
4
5
Assignment of current output:
None
Concentration
Concentration 2
Current In 1
Current In 2
PT100
AO Alarm
select code
0
1
2
3
Error current for current output:
22 mA
3.5 mA
Hold
Value
Range selec-
tion
0
1
Current output range:
0 … 20 mA
4 … 20 mA
AI Range se-
lection
0
1
Current input range:
0 … 20 mA
4 … 20 mA
AI Enabled[2] State current in 2, enabled yes/No
DO Function
0
1
2
3
4
5
Relay function:
None
Error
Hold meas.
No product
Alarm min
Alarm max
DO Assign-
ment
0
1
2
3
4
Relay: the min/max alarm is as-
signed to …:
Concentration
Concentration 2
Current In 1
Current In 2
PT100

Chapter 9 Calibration Data Sheet
Micro-Polar Brix (++) LB 565
92
Parameter Code-
Nr. Information
DI Function
selection
0
1
2
3
4
Function of digital inputs:
None
Start/Stop
Hold
Sample
Product
Printout mode
0
1
2
3
Form of data printout:
Disabled
Line
Table
Line + Table
Access level
0
1
2
3
Access level:
Read only
Basic
Profi
Service
Language
0
1
2
Language:
English
German
French

Chapter 9 Calibration Data Sheet
Micro-Polar Brix (++) LB 565 93
9.5.1 Examples of a start-up protocol
Menu: Start of Setup: Examples of a start-up protocol Interpretation:
( * Only relevant for service)
Product Entry Product1 Product2 Prod.3 Prod.4
Datalog Log type : 1 See code-list
Log time : 2 See code-list
Number of errors : 2 Number of entries into errorlog
NTC temperature : 45.3 °C *
max. NTC temperature : 46.7 °C *
9V power supply : 8.94 V *
Info Tag : -
Berthold LB number : LB 566
Unique device ID number : 2685
Serial number : 4.295E+09
Final assembly number : 000-000
Software version : 1.21
Software release date : 12.09.2007
Actual date : 17.03.2008 Record date
Actual time : 00:24 Record time
Measurement Measuring mode : 0 See code-list
Start mode : 0 See code-list
Filter damping value : 20 Number of average values
Filter damping value[2] : 20 *
Filter damping value[3] : 20 *
Reset average : FALSE
Plausibility Lower limit : 0 Min. Concentration
Upper limit : 100 Max. Concentration
Max. phase sigma : 100 Sigma max.
Correlation Phi/Att : 6 Phi/Att ratio
Auto-set mode : FALSE Auto set: ON/OFF
Pause detection : FALSE
Minimum attenuation : -15.0 dB
Microwave Ref. cable length : 4.00 m
Meas. cable length : 4.00 m
Wave band selection : 1 *
Start frequency : 2 *
Internal Attenuation : 0 *
Marker Marker name : Mark1 For Concentration
Marker value : 50 For Concentration
Marker name[2] : Mark2 For Concentration 2
Marker value[2] : 50 For Concentration 2
System adjust Nbr of sweeps for reference: 10

Chapter 9 Calibration Data Sheet
Micro-Polar Brix (++) LB 565
94
Compensation input : 0 See code-list
Compensation reference : 0
Calibrate
concentration
Calibration mode : 0 See code-list
Calibration variable : 0 See code-list
Phase coefficients : -0.19 A1
Phase coefficients[2] : 0 A2
Attenuation coefficients : 0 B1
Attenuation coefficients[2] : 0 B2
Constant coefficient : 50 C
Compensation mode : 0 See code-list
Compensation fit : 0 See code-list
Compensation reference : 0
Phase coeff. for comp. : 0 C_Ph1
Phase coeff. for comp.[2] : 0 C_Ph2
Attenuation coeff. for comp : 0 C_dB1
Attenuation coeff. for
comp[2] 0 C_dB2
Adjust factor : 1
Adjust offset : 0
Compensation input : 0 See code-list
Compensation reference : 0
Calibrate
concentration
2
Calibration mode : 0 See code-list
Calibration variable : 0 See code-list
Phase coefficients : -0.19 A1
Phase coefficients[2] : 0 A2
Attenuation coefficients : 0 B1
Attenuation coefficients[2] : 0 B2
Constant coefficient : 50 C
Compensation mode : 0 See code-list
Compensation fit : 0 See code-list
Compensation reference : 0
Phase coeff. for comp. : 0 C_Ph1
Phase coeff. for comp.[2] : 0 C_Ph2
Attenuation coeff. for comp : 0 C_dB1
Attenuation coeff. for
comp[2] 0 C_dB2
Adjust factor : 1
Adjust offset : 0
Advanced Tara Phase (°/GHz) :
0.00
°/GHz
Tara Attenuation (dB) : 0.00 dB
Measure configuration : 0 Process type: see code-list
Range split value : 75 Split value

Chapter 9 Calibration Data Sheet
Micro-Polar Brix (++) LB 565 95
AO Assign code : 1 Assignment: see code-list
Current
out 1
AO Upper range value : 100.00% Upper value
AO Lower range value : 0.00% Lower value
AO Current value : 4.00 mA Live current
AO Alarm select code : 2 Error current: see code-list
AO Error current value : 22.00 mA Error current value
AO Assign code[2] : 0 Assignment: see code-list
Current
out 2 AO Upper range value[2] : 100 Upper value
AO Lower range value[2] : 0 Lower value
Range selection[2] : 1 Range
AO Current value[2] : 4.00 mA Live current
AO Alarm select code[2] : 2 Error current: see code-list
AO Error current value[2] : 22.00 mA Error current value
AI Enabled : FALSE
Current
in 1 AI Range selection : 1 Range: see code-list
AI Upper range value : 100 Upper value
AI Lower range value : 0 Lower value
AI Current : 0.00 mA Live current
AI Enabled[2] : FALSE
Current
in 2 AI Range selection[2] : 1 Range: see code-list
AI Upper range value[2] : 100 Upper value
AI Lower range value[2] : 0 Lower value
AI Current[2] : 0.02 mA Live current
AI Enabled[3] : TRUE
PT100
input
Pt100 value : 2.8 °C Live value
Relay 1 DO Function : 1 Function: see code-list
DO Assignment : 0 Assignment: see code-list
DO Threshold : 0.00% *
DO Hysteresis : 5.00% *
Relay 2 DO Function[2] : 2 Function: see code-list
DO Assignment[2] : 0 Assignment: see code-list
DO Threshold[2] : 0.00% *
DO Hysteresis[2] : 5.00% *
DI Function selection : 0 Function digital input 1
DI Function selection[2] : 0 Function digital input 2
Digital
input
DI Function selection[3] : 0 Function digital input 3
Printout mode : 1
Access level : 2
Language : 1
End of Setup

Chapter 9 Calibration Data Sheet
Micro-Polar Brix (++) LB 565
96
Start of Reference Data System adjustment data:
Product 1:
Mean Atten.: 46.8509 dB
Phase at fm: 42.6285 deg/GHz
Phase offset: -825.586 deg
Phase slope: 380.984 deg/GHz
Phase sigma: 0.24575
Frequency[GHz] Phase[Deg] Atten.[dB]
2.42 96.41 46.2
2.43 100.71 46.8 *
2.44 103.08 47.13
2.45 108.12 46.84
2.46 111.75 47.28
Start of Sample Data: Sample Table
Product 1: Sample Data for Concentration 1:
Sample: Active: Kon.(%): Lab.(%): AIN1(°C): AIN2(°C): Temp.(°C): Phi.(°/GHz): Att.(dB):
1|16.03 - 20:53 TRUE 50.0193 0 0 0 2.83 -0.1 -0.16
2|17.03 - 00:22 TRUE 50.1061 0 0 0 2.71 -0.56 0.18
Correlation factor between
lab and meas values: 1
End of Sample Data
Do not use following data!

Chapter 9 Calibration Data Sheet
Micro-Polar Brix (++) LB 565
98
9.6 Sample Table
No. Active
Measured
value Lab value Current In 1 Current In 2 Pt 100 Phi (m) Attenua-
tion
1
2
3
4
5
6
7
8
9
10
11
12
13
14
15
16
17
18
19
20

Micro-Polar Brix (++) LB 565 99
Notes

Micro-Polar Brix (++) LB 565
100
Notes