Bosch Termotecnologia 8708300123 Remote Control User Manual 6720607072 0401 GWH635ES 16 January

Bosch Termotecnologia S.A. Remote Control 6720607072 0401 GWH635ES 16 January

Users Manual

Water heaters for use with Natural and L.P.G.GWH-635-ESTemperature Modulated with Electronic IgnitionSuitable for heating potable water only - Not approved for space heating purposes(Intended for variable flow applications with multiple tapping points)GWH-635-ES-NGWH-635-ES-L6 720 607 072 (16 January) JSPRO TANKLESSWarning: If the information in this manual is notfollowed  exactly.  A  fire  or  explosion  may  resultcausing property damage, personal injury or death.Do not store or use  gasoline or other flammablevapor and liquids in the vicinity of this or any otherappliance.Improper  installation,  adjustment,  alteration,service  or  maintenance  can  cause  injury  orproperty  damage.  Refer  to  this  manual.  Forassistance or additional information consult aqualified  installer,  service  agency  or  the  gassupplier.In  the  Commonwealth  of  Massachusetts  thisproduct must be installed by a licensed plumber orgas fitter.Upon  completion  of  the  installation,  theseinstructions should be handed to the user of theappliance for future reference.What to do if you smell gas• Close gas valve. Open windows.• Do not try to light any appliance• Do not touch any electrical switch; do not use anyphone in your building• If  you  cannot  reach  your  gas  supplier,  call  the  firedepartment.• Immediately call your gas supplier from a neighbor’sphone. Follow the gas supplier’s instructions• Installation  and  service  must  be  performed  by  aqualified installer, service agency or the gas supplier.
6 720 607 072 (16 January)2IndexIndex1 Warning  22 Appliance details  42.1 Features  42.2 GWH-635-ES Specifications (Technical data)  42.3 Dimensions and Minimum installation clearances  62.4 General rules to follow for safe operation  72.5 Proper location for installing your heater  72.6 Clearances  82.7 Mounting installation  82.8 Combustion air requirements  82.9 Venting   92.9.1 Venting options  122.10 Gas piping & connections   152.11 Gas line sizing  172.12 Measuring gas pressure  172.13 Water connections   182.14 Electrical connections  202.15 Operating instructions  202.16 For your safety read before operating your water heater  202.17 Lighting and operating instructions  203 Operation instructions  223.1 Power  223.2 Temperature selection  223.3 New remote control registration  243.4 Operation  243.5 Reset button  243.6 Program button  243.7 Locked condition  254 Maintenance and service  255 Troubleshooting  256 Electrical diagram  287 GWH-635-ES Functional scheme  298 Interior components diagram and parts list  308.1 Interior components  308.2 Components diagram  318.3 Parts list  329 Special adjustment for measuring and adjusting CO2  levels  339.1 Adjusting the unit  339.1.1 CO2 measuring port  339.1.2 Selecting adjustment mode  3310 Protecting the environment   3511 Fifteen Year Limited Warranty  361WarningFeaturingElectronic Ignition and Power VentingFor your safetyDo not store or use gasoline or other flammable,combustible  or  corrosive  vapors  and  liquids  in  thevicinity of this or any other appliance.Warning:  If  the  information  in  thismanual is not followed exactly. A fire orexplosion may result  causing propertydamage, personal injury or death.Warning:  Improper  installation,adjustment,  alteration,  service  ormaintenance  can  cause  injury  orproperty damage. Refer to this manual.For assistance or additional informationconsult  a  qualified  installer,  serviceagency or the gas supplier.Upon  completion  of  the  installation,these instructions should be handed tothe  user  of  the  appliance  for  futurereference.Warning:  Carefully  plan  where  youinstall  the  heater.  Correct  combustionair supply and flue pipe installation arevery important. If a gas appliance is notinstalled correctly,  fatal  accidents  canresult from lack of air, carbon monoxidepoisoning or fire.Warning: Exhaust gas must be ventedto  outside  using  proper  vent  materialsuitable for category III vent systemsand  temperatures  up  to  480°F.  Ventand  combustion  air  connector  pipingmust  be  sealed  gas-tight  to  preventpossibility of flue  gas  spillage, carbonmonoxide emissions and risk of fire,resulting  in  severe  personal  injury  ordeath.Warning: Place the heater in a locationwhere water leaks will do NO DAMAGEto adjacent areas or lower floors.
6 720 607 072 (16 January)Warning3What to do if you smell gas• Close gas valve. Open windows.• Do not try to light any appliance.• Do not touch any electrical switch; do not use anyphone in your building.• Immediately call your gas supplier from a neighbor’sphone. Follow the gas supplier’s instructions.• If  you  cannot  reach  your  gas  supplier,  call  the  firedepartment.• Installation  and  service  must  be  performed  by  aqualified installer, service agency or the gas supplier.Fig. 1Fig. 2Warning: Field wiring connections andelectrical grounding must comply withlocal codes, or in the absence of localcodes,  with  the  latest  edition  of  theNational Electric Code, ANSI/NFPA 70,or in Canada, all electrical wiring mustcomply  with  the  local  codes  and  theCanadian Electrical Code, CSA C22.1Part 1.Warning: Shock hazard line voltage ispresent.  Before  servicing  the  waterheater, turn off the electrical power tothe water heater at the main disconnector circuit breaker. Failure to do so couldresult in severe personal injury or death.Warning:  The  heater  must  bedisconnected  from  the  gas  supplypiping  system  during  any  pressuretesting of that system at test pressuresequal to or more than 0.5 psig.FCC: This device complies with Part 15 of the FCCrules. Operation is subject to the followingtwo conditions: (1) This device may not causeharmful interference, and (2) this device mustaccept any interference received, includinginterference that may cause undesiredoperation.Caution:Any changes or modifications not expresslyapproved by the party responsible forcompliance could void the user's authority tooperate the equipment.
6 720 607 072 (16 January)4Appliance details2 Appliance details2.1 FeaturesParts• Touch Pad interface control• High  power pre-mix  compact  burner with low Noxemissions• Modulating  Gas  Valve  with  constant  gas:air  ratiocontrol • Modulating  water  valve  for  improved  comfort  andtemperature control.Safety• Flame sensor (ionization) rod• Overheat sensor• Temperature limiter• Fan speed monitoring.High Quality Materials for Long Working Life• Copper heat exchanger• Ceramic Burner output• Automatic overheating protection shut-off sensor• Compact  space  saver:  mounts  on  a  wall  with  asupplied bracket.• Easily removable one-piece cover.Features• LCD Display• On/Off and Temperature control switches• Reset button• Program Key (Selectable temperature default)• Failure codes for easy diagnostic and repair.Accessories• Optional  wireless  remote  control  accessory  tooperate with the appliance• Vent termination kit.2.2 GWH-635-ES Specifications (Technical data)Approved in US/CanadaCapacityMaximum  flow  rate:  6.35  GPM  (24  l/min)  at  a  45°F(25°C) rise.Maximum output142,968 Btu/h (41.8 kW)Maximum input175,000 Btu/h (51.2 kW)Efficiency in %Recovery efficiency 86.5%Min. Output31,131 Btu/h (9.1 kW)Temperature ControlSelection range: 100°F (38°C) - 140°F (60°C)Default temperature: 122°F (50°C)Stability: +/- 2°F (+/- 1°C)Gas RequirementGas connection (inches) - ¾”Inlet  gas  pressure  under  operation  (with  a  high  hotwater flow rate)*• Propane: 11” - 14” water column• Natural Gas: 5” - 14” water column• Gas pressure measuring point inside the applianceat the gas valve inlet.*  Testing  with  a  manometer,  operate  other  gasequipment  on  the  same  gas  supply.    Gas  pressureslower than 5" W.C. for Natural Gas or 11" W.C. forLPG  will  result  in  insufficient  degree  rise  to  the  hotwater  being  used.    See  Measuring  Gas  Pressure,chapter 2.12.Fig. 3 Gas pressure measuring pointVentingSee chapter 2.9 for Venting on page 9.Water• Hot water connection (inches) - ¾”• Cold water connection (inches) - ¾”• Water valve material: Polymer (PPS) (PolypropyleneSulfid)• Minimum water flow: 0.8 gallon/minute (3 l/m)iBOSCH  is  constantly  improving  itsproducts,  therefore  specifications  aresubject to change without prior notice.
6 720 607 072 (16 January)Appliance details5• Minimum  recommended  water  pressure  range:  30PSI (2.07 bar)• Connections:– Bottom of heaterCombustion•NOx ≤ 55 ppm•CO ≤ 200 ppm•CO2 level set from factory, see chapter 9.1.Dimensions• Depth (in): 8 ½” (220 mm)• Width (in): 15 ¾” (400 mm)• Height (in): 23 ½” (600 mm)• Weight: 47 pounds (21 kg).Gas typesNatural Gas.LP Gas.Converting the gas type can only be done by a certifiedgas  technician  with  a  calibrated  CO2 analyzer. CallCEC for conversion instructions.Voltage120 V AC (60 Hz)AmperageIDLE - 40 mAOperation - ≤ 2,5 ANoise≤ 50 db (A)Safety devices• Flame failure device (ionization flame rod sensor)• Pressure relief valve (supplied with heater)• Over heat prevention (temperature limiter).Water resistantIP X4 (protection against water drops)UNPACKING THE GWH-635-ES HEATERThis heater is packed securely. The box includes:• Pressure relief valve• Bracket for wall hanging the heater• Exhaust  vent  adaptor  (with  4  screws  and  gasketprovided)• Combustion  air  inlet  adaptor  (with  3  screws  andgasket provided)• Installation manual• Product registration card.Do not lose this manual. Please complete and returnthe enclosed product registration card.Before installing the unit, be certain you have thecorrect heater for your type of Gas - Propane orNatural  Gas.  Identification  labels  are  found  on  theshipping box, and on the rating plate which is located onthe right side panel of the cover.To remove front cover• Remove plastic decals on front panel• Undo two Philips head screws located behind decals• Lift front cover panel upward and remove.Fig. 4 Remove front coverPlastic decals
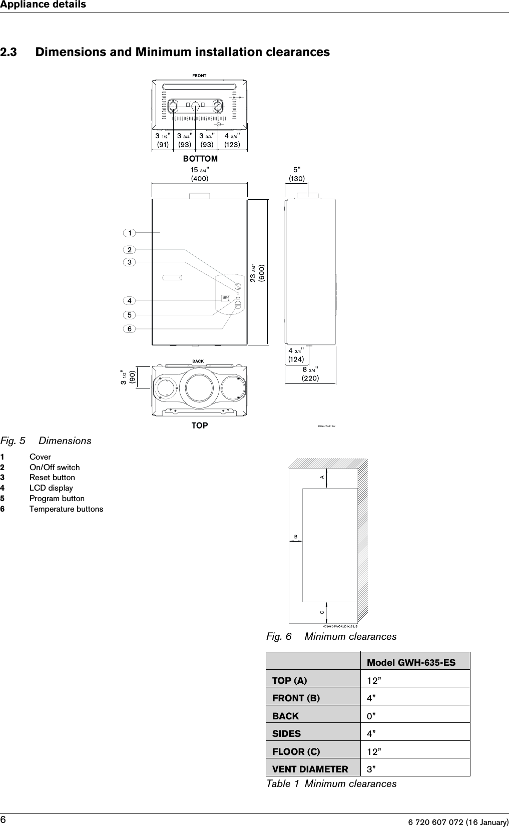
6 720 607 072 (16 January)6Appliance details2.3 Dimensions and Minimum installation clearancesFig. 5 Dimensions1Cover2On/Off switch3Reset button4LCD display5Program button6Temperature buttonsFig. 6 Minimum clearancesModel GWH-635-ESTOP (A) 12”FRONT (B) 4”BACK 0”SIDES 4”FLOOR (C) 12”VENT DIAMETER 3”Table 1 Minimum clearances
6 720 607 072 (16 January)Appliance details72.4 General rules to follow for safeoperationB1.  You  should  follow  these  instructions  when  youinstall  your  heater.  In  the  United  States:  Theinstallation must conform with local codes or, in theabsence of local codes, the National Fuel Gas CodeANSI Z223.1/NFPA 54.In  Canada:  The  Installation  should  conform  withCGA B149.(1,2)  INSTALLATION  CODES and /orlocal installation codes.B2. Carefully plan where you install the heater. Correctcombustion air supply and vent pipe installation arevery  important.  If  not  installed  correctly,  fatalaccidents  can  be  caused  by  lack  of  air,  carbonmonoxide poisoning or fire.B3.  When  the  unit  is  installed  indoors  and  ROOMSEALED (twin pipe) it is permitted to be located inbathrooms, bedrooms and occupied rooms that arenormally kept closed. See chapter 2.9. If the unit willbe installed indoors and use indoor combustion air,the  place  where  you  install  the  heater  must  haveenough  ventilation.  The  National  Fire  Codes  donot  allow  UNSEALED  gas  fired  water  heaterinstallations  in  bathrooms,  bedrooms  or  anyoccupied  rooms  normally  kept  closed. Seechapter 2.5 and 2.8.B4.  You  must  vent  your  heater.  See  section  onVENTING.B5.  The  appliance  must  be  isolated  from  the  gassupply piping system by closing its individual manualgas shutoff valve  (not supplied with heater) duringany pressure testing at pressures in excess of ½ Psig(3.5 kPa).The appliance and its gas connection must be leaktested before placing the appliance in operation.B6.  Keep  water  heater  area  clear  and  free  fromcombustibles and flammable liquids. Do not locatethe heater over any material which might burn.B7. Correct gas pressure is critical for the optimumoperation of this heater. Gas piping must be sized toprovide the required pressure at the maximum outputof the heater, while all the other gas appliances are inoperation.  Check  with  your local  gas supplier, andsee the section on connecting the gas supply.B8. Should overheating occur or the gas supply fail toshut off, turn off the gas supply at the manual gasshut  off  valve,  on  the  gas  line.  Note:  manual  gasshutoff valve is not supplied with the heater.B9.  Do  not  use  this  appliance  if  any  part  has  beenunderwater.  Immediately  call  a  qualified  servicetechnician to inspect the appliance and to replaceany part of the control system and any gas controlwhich has been underwater2.5 Proper location  for  installing  yourheaterCarefully  select  the  location  of the water  heater.  Foryour safety and for proper heater operation, you mustprovide  combustion  air  to  the  heater  and  a  properexhaust vent system.Follow the guidelines below:B1.  Locate  the  heater  where  venting,  gas  andplumbing connections are feasible and convenient.B2.  It  is  strongly  recommended  that  the  heater  beinstalled as a ROOM SEALED heater (twin pipe). Ifthe heater will be installed as an UNSEALED heater(single  pipe)  than  National  building  codes  requirethat you do not install this appliance in bathrooms,bedrooms  or  any  occupied  rooms  normally  keptclosed.  Heaters  that  are  UNSEALED  require  aconsiderable  amount  of  combustion  air,  seechapter 2.8.  If  installing  the  heater  UNSEALEDwithin a laundry room, be certain that the dryer isproperly vented. Failure to properly vent a dryer couldresult in a gradual accumulation of lint build up insidethe combustion chamber of the heater.B3. The hot water lines should be kept short to saveenergy. Centrally locating the water heater is best. Itis always best to have hot water lines insulated.Warning:  The  water  in  this  waterheater is cold and always remains coldexcept for  the  times that hot  water  isbeing used DO NOT INSTALL IN ANAREA WHERE IT COULD FREEZE.Drain  the  heater  entirely  if  freezingtemperatures  are  anticipated  in  areawhere  heater  is  installed  bydisconnecting both the inlet and outletconnections at the bottom of heater.To  prevent  any  freeze  damage,introduce  short  bursts of  compressedair  (20-40psi)  through  theseconnections  to  remove  the  residualwater in the horizontal pipes and watervalve.Warning:  Flammable  materials,gasoline, pressurized containers, or anyother items or articles that are potentialfire hazards must NOT be placed on oradjacent  to  the  heater.  The  appliancearea  must  be  kept  free  of  allcombustible  materials,  gasoline  andother flammable vapors and liquids.
6 720 607 072 (16 January)8Appliance details2.6 ClearancesThe GWH-635-ES is design certified for installation ona  combustible  wall  (see  2.7  Mounting  installation)provided  the  floor  covering  below  the  heater  isnoncombustible. For installations in an alcove or closet,maintain the  minimum clearances to  combustible andnon-combustible materials listed below. See also Fig. 6.A. Top 12 inches (306 mm)B. Front 4 inches (102 mm)C. 0 inchesD. Sides 4 inches (102 mm)E. Bottom 12 inches (306 mm)Clearances from any exhaust vent pipe are dependentupon the clearance requirements of the stainless steelvent  pipe  manufacturer.  Single  wall  stainless  steel(AL29-4C) vent  pipe (vent  type rated for  Category  IIIappliances)  must  be  used  when  exhaust  venting thisappliance. See 2.9 Venting.2.7 Mounting installationThe GWH-635-ES is design certified for mounting on awall. Secure the  wall mounting bracket provided withthe heater to a wall surface. See Fig. 7.Do not install this appliance on a carpeted wall or overfloor  covering  which  is  combustible,  such  as  carpet.The  heater  must  be  mounted  on  a  wall  usingappropriate anchoring materials.If the mounting bracket is unable to line up on two wallstuds it is recommended that support board(s), either1x4's or ½" (minimum) plywood first be attached acrossa pair of studs and then the heater should be attachedto the support boards. The heater should be kept levelon the wall surface. See Fig. 7.Expansion and contraction of piping due to changingwater temperature in the pipes imparts movement to theheater  which,  if  mounted  directly  to  a  brittle,  friableboard,  such  as  plasterboard,  can  cause  failure  ofmounting.Before installing the unit, be certain you have thecorrect heater for your type of Gas - Propane orNatural  Gas. Identification labels are found on theshipping box, and on the rating plate which is located onthe right side panel of the cover.Fig. 7 Mounting the heater2.8 Combustion air requirementsThe GWH-635-ES is a sealed  water heater and it isrecommended that outdoor combustion air be piped tothe  unit.  When  combustion  air  is  piped  to  the  unit(TWIN PIPE SYSTEM) the combustion air pipe systemmay  be  constructed  of  either  3"  PVC,  aluminum  orgalvanized pipe. See Fig. 11, 12 and 13. Select a pointfor building penetration being sure that the necessaryclearance on the outside of the building, between thecombustion air pipe and the exhaust vent terminator ofthe appliance, can be maintained, see Fig. 16. NOTE:Observe  all  local  building  codes  when  penetrating  abuilding wall.The  heater  has  the  ability  to  operate  withoutcombustion  air  being  piped  to  it  from  the  outside,provided there is an adequate amount of combustion airavailable in the room area. Observe the followinginstructions concerning combustion air when followingthe SINGLE PIPE (exhaust venting only) SYSTEM onlyand follow Fig. 14 and 15 for proper setup.• Appliances located in unconfined spaces:–a) An unconfined space is one whose volume isgreater than 50 cubic feet (1.42 cubic meter) per1000  Btu  per  hour  (292.81  Watts)  of  thecombined rating of all appliances installed in thespace.  That  would  be  8250  cubic  feet  (233.6cubic meter) for the GWH-635-ES alone.–b)  In  unconfined  spaces  in  buildings  ofconventional  frame,  masonry,  or  metalconstruction, infiltration air is normally adequate toprovide air for combustion.Warning: before starting installation:Bcheck  that  there  are  no  loose  partsinside the applianceBensure that gas pipe, gas valve, mixer,fan and burner have no damage and areproperly fitted.iFront  cover  should  be  removed  (seeinstructions on page 4) in order to inspectcomponents visually.
6 720 607 072 (16 January)Appliance details9• Appliances located in confined spaces:The  confined  space  must  be  provided  with  twopermanent  openings,  one  commencing  within  12inches (304.8mm) of the top and one commencingwithin  12  inches  (304.8mm)  of  the  bottom  of  theenclosure. Each opening must have a minimum freearea of one square inch per:– 1000 Btu/hr (292.81 Watts) if all air is taken frominside the building– 2000 Btu/hr (585.62 Watts) if all air is taken fromthe outside by horizontal ducts– 4000 Btu/hr (1171.24 Watts)if all air is taken fromthe outside by direct openings or vertical ductsOr  the  confined  space  must  be  provided  with  onepermanent  opening  or  duct  that  is  within  12  inches(304.8mm) of the ceiling of the enclosure. This openingmust have a minimum free area of one square inch per:– 3000 Btu/hr (878.43 Watts)  if all air is taken fromthe outside by a direct opening or vertical duct.Louvers, grills and screens have a blocking effect. If theeffective free area is not known, increase the sizes ofyour openings by 75% if your louvers are wood and by30% if your louvers are metal. Refer to the National FuelGas Code for complete information. In buildings of tightconstruction all air should be taken from outside.2.9 Venting NOTE: This  appliance's exhaust  must be  ventedto  the  outside  with  a  sealed  3"  stainless  steelvent pipe (AL29-4C). The appliance's flue gassesare  under  positive  pressure  and  must  travelthrough  a  stainless  steel  3"  pipe  that  is  sealedgas  tight.  Stainless  steel  vent  pipe  is  equippedwith  sealing  gaskets  for  ease  of  installation,proper safety and durability. The heater shall notbe  vented  in  combination  with  any  otherappliance;  the  appliance  must  only  be  ventedwith a dedicated sealed vent system.Establish  vent  clearances  that  comply  with  the  ventmanufacturer's specifications. In all cases follow localcodes. See table 2.Warning:  Do not reduce the vent(exhaust  and  combustion)  pipe  sizesand do not common vent with any othervented appliance or stove.Caution:  The  vent  system  must  beinstalled  by  a  qualified  agency  inaccordance with these instructions.  Ifimproperly  installed  a  hazardouscondition such as explosion or CarbonMonoxide poisoning could result.  CECwill  not  be  responsible  for  improperlyinstalled appliances.
6 720 607 072 (16 January)10Appliance detailsThe maximum flue gas exhaust temperature on the GWH-635-ES is 437°F (225°C)Venting OptionsExhaust vent diameter and material* Exhaust vent maximum length* Exhaust vent minimum lengthCombustion air pipe diameter and materialCombustion air pipe maximum lengthVent pipe clearances within an unenclosed spaceVent pipe clearances within an enclosed spaceRoom se a l ed                 (twin pipe)3 inch stainless steel (AL29-4C) sealed vent pipe26 feet (8 m) with one elbow. Less 2½ feet for each additional elbow1½ feet 3 inch PVC, aluminum or galvanized pipe 26 feet (8 m) with one elbow. Less 2½ feet for each additional elbow** See vent manufacturer's specifications** See vent manufacturer's specificationsOpen combustion(single pipe)3 inch stainless steel (AL29-4C) sealed vent pipe26 feet (8 m) with one elbow. Less 2½ feet for each additional elbow1½ feet See chapter 2.8See chapter 2.8** See vent manufacturer's specifications** See vent manufacturer's specificationsExhaust vent is always fan assisted. Installation of exhaust vent and combustion air piping may be run vertically or horizontallyand in separate directions if required.* A maximum of three 90 degree elbows are permitted in the total vent length.** Stainless steel (AL29-4C) vent pipe is manufacturerd by Z-Flex, Protech and Heat Fab. NOTE: clearance distances arevariable depending if the vent pipe is installed in an enclosed or unenclosed space, the exhaust flue gas temperature and theorientation of the vent pipe. Never reduce pipe diameter.Table 2
6 720 607 072 (16 January)Appliance details11The appliance should be located as close to the pointof termination as possible. The maximum vent length is26 feet (8 m) with one 90 degree elbow. Subtract 2½feet from the total vent length for each additional 90-degree elbow used (a maximum of three 90-degreeelbows are permitted in the total vent length). Horizontalsections  of  vent  must  pitch  ¼"  for  every  foot  ofhorizontal length and be supported at 4 foot intervalswith overhead hangers. Any vent section greater than45 degrees is considered an elbow.Note: The stainless steel exhaust vent pipe should notbe  used  in  concealed  or  unheated  locations.  Listedthimbles or collars are necessary to pass through walland ceiling partitions.  If the vent system passes throughcombustible  areas  where  the  vent  clearancerequirements cannot be maintained, it is permissible tochase straight sections of sealed 3 inch single wall ventthrough 4 inch (or greater) Type-B vent. The distance tocombustibles  using  this  chase  technique  is  1  inch.Note:  Type-B  vent  should  never  be  used  as  theactual exhaust vent system for the appliance, asit is not gas tight.Minimum exhaust vent size and lengthFig. 8Maximum vent lengthsFig. 9Note: reduce 2½ ft for each elbow used after the firstoneVent Safety SystemThe GWH-635-ES will shut down if inadequate exhaustventing is detected or a lack of combustion air isprovided  to  the  unit;  see  troubleshooting  section  onpage 25. See error code to confirm error, correct theproblem and then reset the heater before operating.Attaching  the  exhaust  and  air  inlet  connectionadaptors to the top of the heaterFig. 10Fig. 11BAttach the flue gas exhaust accessory (8 705 504114) to the top of the unit (position 1) using the 4screws  and  gasket  provided,  and  fully  insert  3"stainless  steel  vent  pipe  into  the  accessory  andtighten the clamp (position 2).BAttach  the  combustion  air  inlet  accessory  (8  705504 115) to the top of the unit (position 3) using the3  screws  and  gasket  provided,  and  fully  insert  3"combustion air pipe into the accessory and tightenthe clamp (position 4).  NOTE: The appliance has thepossibility  to  mount  the  combustion  air  inletaccessory on the top right or on the top left side ofthe heater. The combustion air inlet that is not usedmust be kept sealed.
6 720 607 072 (16 January)12Appliance details2.9.1 Venting optionsInstalling this water heater as a room sealed (TWINPIPE SYSTEM) is the recommended method. ContactCEC  or  dealer  for  available  vent  termination  kits  andvent materials for this water heater.Room sealed installation (TWIN PIPE SYSTEM)Fig. 12Combustion air pipe: ≤ 26 ft (8 m)Exhaust vent pipe: ≤ 26 ft (8 m)Fig. 13Combustion air pipe: ≤ 26 ft (8 m)Exhaust vent pipe: A+B+C ≤ 23½ ft (7.2 m)Note: reduce 2½ ft for each elbow used after the firstone.Open  combustion  installation  (SINGLE  PIPESYSTEM)Fig. 14Exhaust vent pipe: ≤ 26 ft (8 m)Fig. 15Exhaust vent pipe: A+B+C ≤ 23½ ft (7.2 m)The  exhaust  vent  system  must  vent  directly  to  theoutside  of  the  building  and  an  adequate  amount  ofindoor  combustion  air  must  be  provided  for  thisinstallation. See chapter 2.8.Connecting a one piece 90 degree elbow pipe to thecombustion air inlet adaptor is recommended, this willprevent debris or objects from ever falling into the inletopening.Note: reduce 2½ ft for each elbow used after the firstone.iExhaust  venting  shall  be  done  with  3”stainless steel (AL29-4C) vent pipe.iThe exhaust vent pipe and combustion airpipe can be run vertically or horizontally.Maximum length for each individual pipe is26  feet  (8  m)  with  one  elbow,  for eachadditional elbow after the first elbow youmust reduce 2½ feet from the total ventlength.
6 720 607 072 (16 January)Appliance details13Recommended exhaust vent terminator positionFig. 16* Subject to local codes and anticipated snow level** Other equipment that operates with a mechanical air inlet may require greater distances, reference manufacturer's instructionsRef. Description Minimum distanceADirectly below an opening; operable windows, doors and any non-mechanical fresh air openings 36 inBBelow a gutter, sanitary pipework or eaves 24 inBelow a gutter, sanitary pipework or eaves, protected by metal shielding 12 inCFrom any internal corner 12 inD* Above ground 12 inAbove a paved sidewalk or driveway 7 ftEFrom an opposing wall or structure facing the termination 24 inFrom any other building opening, gas utility meter, service regulator or the like 7 ftFFrom a terminator facing a terminator 48 inGVertically between two exhaust vent terminators on the same wall 60 inHHorizontally between two exhaust vent terminators on the same wall 12 inI**Horizontally from combustion air inlet of 635-ES 36 inVertically above combustion air inlet of 635-ESFrom the combustion air inlet of any appliance or below the combustion air inlet of 635-ES 3 ftJFrom any external corner 12 inKHorizontally from an opening; operable windows, doors and any non-mechanical fresh air openings 12 inLVertically from a wall, roof slope, or obstruction (venting through a flat or pitched roof)see ABOVE THE ROOF requirements on following pageTable 3
6 720 607 072 (16 January)14Appliance detailsSupporting the exhaust vent system and the use of an external condensate trapExternal condensate trapsBA  condensate  trap  must  be  used  in  any  sidewallexhaust vent installations when the total vent lengthis ≥ 8 ft (2.5 m) OR the vent pipe passes through anunheated space (below 60F).BA  condensate  trap  must  be  used  for  any  verticalexhaust vent installations ≥ 2 ft.BWhen installing the condensate tube at the bottom ofthe drain tee, be sure to form a trap by means of a 3"(76.2 mm) loop filled with water. This tube must be3/8" ID high temperature silicone for at least the first6 inches (152 mm) and attached with a gear clampor hose clamp. The condensate must be disposed ofaccording to local regulations.Fig. 17 Horizontal side wall venting installation(combustion air piping not being shown)Fig. 18 Above  the  roof  clearance  requirements  fromrain  cap  (combustion  air  piping  not  beingshown)Fig. 19 Vertical  venting  installation  (combustion  airpiping not being shown)iThe  venting  materials  and  accessoriesrequired  to  properly  install  the  waterheater  are available from CEC and  theirdistributors.
6 720 607 072 (16 January)Appliance details15Fig. 20 Vertical  venting  installation  -  MasonryChimney  (combustion  air  piping  not  beingshown)2.10Gas piping & connections Before  connecting  the  gas  supply,  check  the  ratingplate on the right side of the heater to be sure that theheater is rated for the same gas to which it will beconnected.In the United States: The installation must conform withlocal  codes  or,  in  the  absence  of  local  codes,  theNational Fuel Gas Code ANSI Z223.1/NFPA 54.In Canada: The Installation should conform with CGAB149 INSTALLATION CODES and/or local installationcodes.GAS LINE SIZINGThe gas supply piping should be sized according to theApplicable  Plumbing  Code  for  a  maximum  draw  of175,000 BTUH. First determine the effective length ofthe gas supply line by measuring the actual length ofpiping, and then adding 5 ft. (1.52m) for every elbow or“T” to the actual length. Use the charts in Fig. 22 todetermine  the  pipe  diameter  necessary  toaccommodate the BTU (Wh) demand of the unit. Ifthere are more gas drawing appliances on the line, sizeaccording  to  the  maximum  amount  of  BTU  (Wh)demand.Note: It is important that if any flexible gas line is used,above or below ground between the gas supply meter/regulator and the water heater, that it be sized properly;we recommend the use of non-corrugated flexible gasline  when  used.  Consult  the  gas  sizing  specificationtables provided by the flexible gas line manufacturer.Fig. 21BInstall a manual gas shut off valve, on the gas supplyline.BThe use of a union when connecting gas pipe to thegas inlet connection is critical, this will facilitate anynecessary  servicing  and  cleaning  of  the  inlet  gasparticle screen.BFlexible gas line connectors are not recommendedbecause they are commonly undersized and restrictgas flow. Oversize the diameter of any flexible gasline connector if one must be used.Gas pipingInlet gas particle screen
6 720 607 072 (16 January)16Appliance detailsFOR NATURAL GASMaximum  Capacity of pipe in  Cubic  Feet of  Gas  perHour for Gas Pressure of 0.5 Psig or less and aPressure  drop  of  0.3  in  Water  Column(0.75mbar).(Based on a 0.60 Specific Gravity Gas) Btunumbers given in thousands.Fig. 22Follow  boxed  numbers  for  piping  just  one  GWH-635-ES (example: ¾” B.I. Natural Gas pipe for 20 ft(6.1m).  will  handle  190,000  btu’s  (55.7  kWh).  Formultiple appliances combine the total btu input loadand then refer to applicable chart below.Maximum  Capacity  of  Semi-Rigid  (flexible,  noncorrugated) Tubing in Thousands of BTU per Hourof  Undiluted  Liquefied  Petroleum  Gases  (at  11inches Water Column Inlet Pressure).(Based  on  a  Pressure  Drop  of  0.5  Inch  WaterColumn)* Source National Fuel Gas Code NFPA 54, ANSIZ223.1 - No Additional Allowance is necessary for anordinary number of fittingsFOR LP GASMaximum Capacity of Pipe in Thousands of BTU perHour of Undiluted Petroleum Gases (at 11 inchesWater Column Inlet Pressure) (Based on a PressureDrop of 0.5 Inch Water Column).CopperOutside  Length of Tubing, FeetDiameter,Inch 10 20 30 40 50 60 70 80 90 1003/8 39 26 21 19 _ _____1/2 9262 50 41 37 35312927265/819913110790 79 72676259553/4 329 216 181 145 131 121 112 104 95 907/8 501 346 277 233 198 187 164 155 146 138NominalIron Pipe Black Iron PipeSize,Length of Pipe, FeetInches10 20 30 40 50 60 70 80 90 100 125 1501/2 275 189 152 129 114 103 96 89 83 78 69 633/4 567 693 315 267 237 217 196 185 173 162 146 1321 107 732 590 504 448 409 378 346 322 307 275 2521 1/4 220 149 121 103 913 834 771 724 677 630 567 5111 1/2 330 229 185 155 141 127 118 108 102 976 866 7872 622 433 346 299 264 239 220 204 192 1811 1606 1496NominalIron Length of Black Iron Pipe, FeetPipe InternalSize, Diameterinches inches 10 20 30 40 50 60 70 80 90 100 125 150 175 2001/4 0.364 32 22 18 15 14 12 11 11 10 9 8 8 7 63/8 0.493 72 49 40 34 30 27 25 23 22 21 18 17 15 141/2 0.622 132 92 73 63 56 50 46 43 40 38 34 31 28 263/4 0.824 278 190 152 130 115 105 96 90 84 79 72 64 59 551 1.049 520 350 285 245 215 195 180 170 160 150 130 120 110 1001 1/4 1.380 1050 730 590 500 440 400 370 350 320 305 275 250 225 2101 1/2 1.610 1600 1100 890 760 670 610 560 530 490 460 410 380 350 3202 2.067 3050 2100 1650 1450 1270 1150 1050 990 930 870 780 710 650 6102 1/2 2.469 4800 3300 2700 2300 2000 1850 1700 1600 1500 1400 1250 1130 1050 9803 3.068 8500 5900 4700 4100 3600 3250 3000 2800 2600 2500 2200 2000 1850 17004 4.026 17,500 12,000 9,700 8,300 7,400 6,80 6,200 5,800 5,400 5,100 4,500 4,100 3,800 3500
6 720 607 072 (16 January)Appliance details172.11 Gas line sizingBIt is strongly recommended that the Natural Gas pipebe  Black  Iron  pipe  the  entire  distance  from  theoutside meter to the inlet of the gas connection. ¾”Black Iron pipe up to 20 feet (6.1m) and 1” Black Ironpipe up to 70 feet (21.34m) distances. Flex line isNOT  recommended,  but if  used,  then oversize thediameter  of  the  flex  pipe,  keep  the  length  to  aminimum and try to keep the flex line as straight aspossible.BIt is strongly recommended that the LP Gas pipe besemi-rigid copper or Black Iron pipe from the outsideregulator to the inlet of the gas connection. For semi-rigid copper piping: 5/8” up to 10 feet (3.05m) and¾” up to 30 feet (9.14m) distances. For Black Ironpiping: ½” up to 20 feet (6.1m) and ¾” up to 80 feet(24.38m) distances. Flex line is NOT recommended,but  if  used,  then  oversize  the  diameter  of  the  flexpipe, keep the length to a minimum and try to keepthe flex line as straight as possible.National Fuel Gas Code requires that a sediment trap(drip  leg)  be  installed  on  gas  appliances  not  soequipped. Also, a manual gas shut  off valve must beinstalled on the gas supply line within close proximity ofthe water heater and be visible from the water heater.The water  heater  must  not be piped with gas  supplypressures  in  excess  of  0.5  psig.  If  overpressure  hasoccurred, such as through improper testing of the gaslines or malfunction of the supply system, the gas valvemust be checked for safe operation.When connections are made, check for gas leaks at alljoints. Apply some soapy water to all gas fittings. Soapbubbles are a sign of a leak.2.12 Measuring gas pressureTo measure and verify if adequate gas pressure is beingdelivered to the water heater, first run a high hot waterflow rate and operate other gas equipment on the sameload. Using a manometer,  then  measure the inlet gaspressure at the inlet gas pressure test port. See Fig. 23.Gas pressures lower than 5" W.C. for Natural Gas or11" W.C. for LPG will result in insufficient degree riseto the hot water being used. See Gas Connections,chapter 2.10.Fig. 23 Gas pressure measuring (left tapping)HIGH ALTITUDE OPERATIONDue to the lower density of air at high altitudes, outputmust be reduced in installations above 4000 ft (1219m).Burner output at altitudes greater than 4000 ft (1219m) will be electronically reduced once the control boardhas been properly adjusted. Follow instruction below.High altitude adjustmentBDisconnect power supply to heater.BRemove front cover of heater.BRemove control box auxiliary cover (Fig. 24, pos. 4).Fig. 24iTHESE FIGURES ARE FOR GWH-635-ES  SUPPLY  ONLY,  ALL  OTHERAPPLIANCES IN THE BUILDING MUSTBE INCLUDED IN THE PIPE SIZING.Warning:  The  heater  must  bedisconnected  from  the  gas  supplypiping  system  during  any  pressuretesting of that system at test pressuresequal to or more than 0.5 psig.Danger: If you have a leak, shut off thegas. Tighten appropriate fittings to stopleak. Turn the gas on and check againwith a soapy solution. Never test for gasleaks using a match or flame.Altitude Natural Gas: Liquid Propane:0 - 4,000 ft(0 - 1,219 m)no modificationno modification4,000 ft - 8,000 ft(1,219 m - 2,438 m)insert jumper JP3insert jumper JP3Table 4
6 720 607 072 (16 January)18Appliance detailsBRemove the 5 screws on the front retaining bar (seeFig. 24, pos. 1 and 2) being careful not to damagethe foam sealant material on it.BRemove the two electrical strip connectors inside theboard  (Fig.  25)  and  then  loosen  the  120V  powersupply  cord  retaining  nut  located  underneath  theheater.  Once  loosened,  the  power  cord  can  bepulled  up  through  the  heater  to  provide  sufficientslack.Fig. 25 Electrical strip connectorsBAt the ignition electrodes, pull off the 2 yellow igniterwires  that  come  from the top of  the  control  board(Fig.  24,  pos.  3).  Then  pull  the  complete  controlboard  forward  and  out  of  the  heater,  pull  up  thepower supply cord further if more slack is needed.BWhile holding the board in one hand or resting it ona flat surface, remove the front cover of the controlboard by removing its 4 screws.BOnce open, locate JP3 on the printed circuit board(see Fig. 26). The board is supplied with a jumperplaced on one JP3 pin, this means that one of thejumper sockets is connected to  a  JP3 pin  and theother socket of the jumper is in the air. To make thehigh altitude adjustment complete, the jumper mustbe connected to both pins.BRemove the jumper from the JP3 pin (see Fig. 26).BLine up the  two  jumper  sockets  with  the  two  JP3pins.BInsert the jumper.BReplace the front cover to the control board and re-insert  into  heater  and  then  proceed  with  previoussteps  in  reverse  order.  Be  sure  that  the  rubbergrommets  of  the  electrical  strip  connectors  are  inplace  and  the  2  yellow  igniter  wires  get  re-connected.Fig. 26 Control  board  adjustment  for  high  altitudes(above 4000 ft)2.13 Water connections When facing the heater, the ¾” cold water inlet is on thebottom right and the hot water outlet is on the bottomleft. Install the heater centrally in the building if possibleand make hot water piping runs as short as possible.Fig. 27BThe  use  of  a  union  when  connecting  both  waterpipes  to  the  inlet  and  outlet  connections  isrecommended,  this  will  facilitate  any  necessaryservicing  and  required  cleaning  of  the  inlet  waterparticle screen.Although water piping throughout the building may beother  than  copper,  we  recommend  that  copper,galvanized  or  suitably  rated  stainless  steel  flex  linepiping be used for the water heater connections (followlocal  codes  if  more  stringent).  Plastics  or  other  PEXtype  plumbing  line  materials  are  not  suitable  forconnecting directly to the water heater. Keep water inletand outlet pipes to no less than ¾” (19.05mm) diameterto allow the full flow capacity.If  the  cold  and  hot  connections  to  the  heater  areOnce  auxiliary  cover  isoff,  pull  off  the  twoelectrical  strip  connec-tors  inside  the  board.Once  off,  the  wiringstrands can be removedfrom  the  area  of  theboard  by  pulling  theirrubber  grommetsoutward.Rubbergrommets iFor altitudes greater than 8000 ft (2438 m),a  special  adjustment  and  CO2measurement  needs to  be  done.  Pleasecontact CEC for detailed instructions.High altitude adjustment(above 4 000 ft)HOT COLDINLET FILTER SCREEN
6 720 607 072 (16 January)Appliance details19reversed, the heater will not function. Be certain thereare no loose particles or dirt in the piping. Blow out orflush the lines before connecting to the water heater.Full  port  valves  should  be  installed  on  both  the  coldwater  supply  and  hot  water  outlet  lines  to  facilitateservicing the heater (see Fig. 28). For installation on aprivate well system with the use of a pressure tank, thelowest pressure range setting recommended is 30-50psi (2.07 and 3.45bar).Connecting the pressure relief valve (PRV)A listed pressure relief valve supplied with the heatermust be installed at the time of installation. No valve isto  be  placed  between  the  PRV  and  the  heater.  Noreducing coupling or other restriction may be installedin the discharge line. The discharge line must be aminimum of 4” above a drain and installed such that itallows complete drainage of both the PRV and the line.The location of the PRV must be readily accessible forservicing or replacement, and be mounted as close tothe water heater as possible. See Fig. 28. To install thePRV, a suitable fitting connected to an extension on a“T” fitting can be sweated to the hot water line.Support all piping.Fig. 28 Plumbing  Connections  and  Pressure  ReliefValve
6 720 607 072 (16 January)20Appliance details2.14 Electrical connectionsThe GWH-635-ES requires an electrical power supplyfrom  a  120VAC  60Hz  circuit  and  must  be  properlygrounded.A means for switching off the 120VAC power supplymust be provided.The heater is wired as shown in the wiring diagram(chapter 6, Fig. 39).2.15 Operating instructionsBBefore proceeding with the operation of the heatermake sure that the system is filled with water.BTurn off power supply to heater.BOpen the cold water inlet supply to the heater fully.BOpen a hot water faucet to permit the water to fill theheater and the piping and to eliminate the air trappedin the system.BClose the hot water faucet after the water flows freelyand all the air has escaped from the system. Turn onpower  supply  to  heater.  The  water  heater  is  nowready to operate.2.16 For  your  safety  read  beforeoperating your water heaterA. This appliance is equipped with electronic ignition forlighting the main burners. When turning the heater on,follow these instructions exactly.B. Before operating the unit, set the On/Off switch tothe On ( I ) position.WHAT TO DO IF YOU SMELL GASBDo not try to light any appliance.BDo not touch any electric switch; do not use anyphone in your building.BImmediately call your gas supplier from a neighborsphone. Follow the gas supplier’s instructions.BIf you  cannot  reach  your  gas supplier, call the firedepartment.C. Use only your hand to turn the on/off control switch.Never  use  tools.  Follow  these  instructions  exactly.  Ifcontrol switch is jammed, close the gas supply and calla qualified service technician. Attempted forceful repairmay result in a fire or explosion.D. Do not use this appliance if any part has been underwater. Immediately call a qualified service technician toinspect  the  appliance  and  to  replace  any part  of thecontrol  system  and  any  gas  control  which  has  beenunder water.2.17 Lighting and operating instructionsB1. STOP! Read the previous safety information.B2. The gas valve must be shut off by putting the ON/OFF switch to position (0). Wait five (5) minutes toclear out any gas. If you smell gas, STOP! Follow “B”in the safety information above. If you do not smellgas, go to the next step.B3. This appliance is equipped with electronic ignitionfor  lighting  the  main  burners.  When  turning  theheater on, follow these instructions exactly.B4. Set the ON/OFF switch to the (I) position. In thisposition, the water heater is ready to use.B5. Open a hot water tap.B6. The burners will remain on until the hot water tapis turned off.Warning:  For  safety  reasons,disconnect  the  power  supply  to  theheater before any service or testing isperformed.Warning:  This  heater  must  beelectrically  grounded  in  accordancewith the most recent edition of theNational Electrical Code. NFPA 70. InCanada,  all  electrical  wiring  to  theheater  should  be  in  accordance  withlocal codes and the Canadian ElectricalCode, CSA C22.1 Part 1. Do not relyon the gas or water piping to ground themetal parts of the heater.iNOTE: when the heater is turned on itsmotorized  water  valve  will  check  itsposition  at  minimum  and  maximumsettings and rest, this process lasts about10 seconds and the noise of it will stopafterwards.  Additionally  a  defaulttemperature setting of 122 F will appearon the display screen.Warning:  If  you  do  not  follow  theseinstructions exactly, a fire or explosionmay  result  causing  property  damage,personal injury or loss of life.
6 720 607 072 (16 January)Appliance details21When the heater is in operation you will hear its powervent fan and burner operating. Upon turning off the hotwater flow the power vent fan will continue to operatefor  up  to  60  seconds  to  exhaust  all  flue  gases.  Thepower vents fan speed is variable depending on the rateof hot water used and the burner output.TO TURN OFF GAS TO APPLIANCEBTurn off the manual gas shut off on the supply line tothe heater and set the ON/OFF switch to the OFF (0)position.  Note:  a  manual  gas  shut  off  valve  is  notsupplied with the heater.iNOTE:  on  a  first  time  initialinstallation, existence of air in thegas  supply  line  will  cause  someignition delay when the hot wateris turned on and result in an error(EA) on the display screen.  This isnormal.  You must turn off theflow  of  hot  water,  reset  the  unit(Fig.  28,  pos.  2),  wait  for  (EA)  todisappear,  and  then  re-open  thehot water tap again.  Repeat thesesteps  if  the  error  (EA)  repeatsitself until all air has been bledfrom the gas line.
6 720 607 072 (16 January)22Operation instructions3 Operation instructionsFig. 291On/Off switch2Reset button3Program Key4Increasing temperature selector5Decreasing temperature selector6LCD display3.1 PowerOnBTo start the appliance switch the button to position(I).LCD  display the default temperature - temperaturefactory setting 122°F (50°C).Fig. 30OffBTo  shut  down  the  appliance  switch  the  button  toposition (0).3.2 Temperature selectionTo select water temperature outlet:BPress  buttons    and    in  order  to  reachrequested temperature.Fig. 31If the outlet water temperature is set too high, the heatercan  produce  temperatures  that  are  too  hot.  Atemperature  balance  shower  valve  can  automaticallymix in cold water to reduce such hot water temperature.In the event of any temperature instability with the useof a temperature balance shower valve, refer to showervalve manufacturer's instructions for internal adjustmentsetting.  Adjustments  should  be  made  to  the  hottestsetting in the shower valve. Additionally the temperaturecontrol of the heater can be lowered to produce a morecomfortable hot water temperature.
6 720 607 072 (16 January)Operation instructions23Setting the water temperatureThe  desired  temperature  of  the  hot  water  can  beadjusted on the front control panel of the heater.The GWH-635-ES has an electronically controlled gasvalve that modulates  the  burner input in  response  toboth varying hot water flow rates and/or changes in anyincoming and outgoing water temperatures.Fig. 32 Flow/temperature chartsHot Water Flow and Temperature with Various Inlet Temperature (lpm/Celsius)0.004.008.0012.0016.0020.0024.0035 40 45 50 55 60 65Hot water temperature (ºC)Hot Water Flow (l/min) Inlet (ºC) 4  Inlet (ºC) 10  Inlet (ºC) 16  Inlet (ºC) 21Hot Water Flow and Temperature with Various Inlet Temperature (gpm/Fahrenheit)0.001.002.003.004.005.006.007.0090 100 110 120 130 140 150Hot water temperature (ºF)Hot Water Flow (GPM) Inlet (ºF) 40  Inlet (ºF) 50  Inlet (ºF) 60  Inlet (ºF) 70
6 720 607 072 (16 January)24Operation instructions3.3 New remote control registrationFig. 33 Remote controlRemote control registrationON/OFF switch in OFF position (Fig. 29, pos. 1).BPress and hold   key (Fig. 29, pos. 5) while at thesame time turn the main switch (Fig. 29, pos. 1) to“ON” position (I).LCD shows one number and one rotating digit.The number represents the remote control which is tobe registered, the first remote control will be registeredwith number “0”, the second with number “1” and so on.The  rotating  digit  shows  that  the  electronics  isexpecting a registration.BHold remote control in front of the control panel onthe heater and press simultaneously remote controlbuttons   and   until the temperature indicationis shown on the remote control LCD.BSwitch  ON/OFF switch (Fig. 29, pos. 1) to “OFF”position (0) and then back on (I).BPress buttons   and   in order to reachrequested temperature.New remote control is programmed.3.4 OperationBWhen a hot water tap is opened, main burner ignitesand LCD displays indication  .Fig. 34BLCD blinks until selected temperature is reached.3.5 Reset buttonIf the LCD shows the error symbol  .See  the  error  code  on  LCD  and  consult“Troubleshooting” section.Fig. 35After  following  instructions  indicated  in“Troubleshooting” sectionBpress  reset  button  in  order  to  make  the applianceready-to-work.Fig. 36 Reset buttonIf the problem persists, contact your installer.3.6 Program buttonProgram  button  can  be  used/programmed  in  theappliance and in the remote control.Programming “Program” functionProgramming actions are similar for both controls(appliance control pad and wireless remote control).BPress “Program” key (Fig. 29, pos. 3) for 3 seconds.Fig. 37 “Program” keyTemperature on LCD starts  blinking, showing currentmemorized temperature.iNOTE:  up  to  8  remote  controls  can  beprogrammed for one single appliance.iEach remote control program button canbe  programmed  with  differenttemperature set points.
6 720 607 072 (16 January)Maintenance and service25BPress buttons   and   to select temperature tobe memorized.BHold  “Program”  button  for  3  seconds  to  savetemperature.When  LCD  stops  blinking.  Temperature  is  saved  on“Program”.Using “Program” functionIn order to select memorized temperatureBPress “Program” key.LCD shows pre-memorized temperature, which is nowthe hot water selected temperature.3.7 Locked conditionThis  condition  is  only  valid  for  appliances  with  morethen 1 controller (appliances with remote control).Fig. 38 Locked conditionWhenever  LCD  shows    the  temperature  settingcannot be adjusted because the appliance is in use bya user which already selected a different temperature.Appliance will be automatically unlocked after closinghot water tap.4 Maintenance and serviceThe  unit  should  be  checked  once  a  year  by  a  gastechnician. If repairs are needed, the repairs should bedone by a gas technicianTo remove front coverBRemove plastic decals on front panel.BUndo  two  Philips  head  screws  located  behinddecals.BLift front cover panel upward and remove.Systems  and  parts  that  should  be  checked  atleast once a yearReference diagrams on pages 30 and 31.• Venting system• Burners -see page 30 for observation window• Manual operation of the pressure relief valve to insurecorrect operation• Periodic cleaning of the water filter screen, see Fig.27, chapter 2.13.• Flushing  the  heat  exchanger  with  a  descalingsolution if mineral build up is evident. Scale build upwill shorten the life of the water heater, descale heatexchanger thoroughly and repeat annually dependingon mineral content of ground water.5 TroubleshootingIntroductionThe GWH-635-ES burner is activated by a water flowvalve. Numerous water related problems can cause thiswater  valve  to malfunction  such  as: Insufficient waterflow volume to activate the burners at its minimum flowrequirement; Dirt in the water flow valve causing it tomalfunction;  Sediment  build-up  in  faucet  aerators,  orshower heads; Uneven pressures between cold and hot(with single lever mix valves); and Plumbing crossovers.These  water  flow  related  problems  can  cause  theheater to deliver  less than  its full  output,  or  to fail toignite or to shut down completely.Problems stated below in upper case and in bold faceshould be investigated when there is a problem with theperformance of the water heater but there is NO errorcode on the heater's LCD display or wireless remotecontrol.Any  failures  that  result  in  a  displayed  error  code  arereferenced  on  page 27.  A  Functional  Scheme  of  theGWH-635-ES  is  detailed  on  page29.  If  there  is  aproblem with the installation, venting or operation of theunit, the heater will communicate the source by theseerror codes.BURNERS DO NOT IGNITE WHEN HOT WATER ISTURNED ON•Cold  incoming  water  connection  made  towrong side of heaterMake sure cold water inlet connection is plumbed tothe right side of heater when facing unit•Water flow rate at hot water tap is too lowA minimum of 0.8 gallon/minute (3 l/m) is required toactivate the heater•Cold water inlet filter screen is dirtyRemove  water  inlet  filter  screen  and  clean.  Thescreen is located at the inlet connection to the waterheater, disconnecting the main cold supply line at theheater is required.  Check and clean faucet aeratorscreens too.•Crossover in plumbingThe heater  activates  when there  is sufficient waterflow through its water valve, a minimum of 0.8 gallon/minute (3 l/m) is required. If there is a crossover in theplumbing, the necessary hot water flow rate throughthe unit may not be reached, even though the flow atthe hot water tap is sufficient. A plumbing crossovercan be caused by a failed washer at a single leverfaucet, incorrect plumbing or a faulty mixing valve inthe piping. The crossover will create a back pressureWarning: Always turn off the electricalpower supply, turn off the manual gasvalve and turn off the manual watercontrol valves whenever servicing.
6 720 607 072 (16 January)26Troubleshootingon the water heater and prevent an adequate flow ofwater through it. To confirm there is no crossover inthe plumbing, shut off the cold water supply feed tothe water  heater. Individually open  each  of  the hotwater taps. There should be no water flowing undera  constant  pressure.  If  there  is  a  constant  flow  ofwater  then  the  plumbing  crossover  must  becorrected before the heater can operate properly.WATER IS TOO HOT•Temperature selection too highLower temperature adjustment on heater or wirelessremote control accessory, see chapter 3.2.WATER IS NOT HOT ENOUGH•Temperature selection too lowIncrease  temperature  adjustment  on  heater  orwireless remote control accessory, see chapter 3.2•Btu input is too low due to inadequate gas linesizingSee  specifications  in  chapter 2.10  -  2.12.  TheGWH-635-ES  requires  adequate  gas  pressure  toreach  desired  temperatures,  to  compensate  forinadequate gas supply or lack of gas pressure theGWH-635-ES will effectively reach the selectedoutput temperature by reducing the hot water flowrate.  Its motorized water valve makes this adjustment•Cold water is mixing with the hot water outlet(crossover)Test by following 4th bullet under BURNERS DONOT IGNITE WHEN HOT WATER IS TURNED ON.LOW WATER FLOW/PRESSURE•Too many hot water applications are beingused simultaneously or too much flow is beingdemandedThe GWH-635-ES will effectively support two 2.0-2.5  gpm  shower  heads  simultaneously  or  multiplesink  applications.  Greater  draws  will  result  inincreased pressure drop and reduced flow at taps.See flow/temperature chart on page 23.•Btu input is too low due to inadequate gas linesizingSee  specifications  in  chapter 2.10  -  2.12.  TheGWH-635-ES  requires  adequate  gas  pressure  toreach  expected  temperatures  and  flow  rates,  tocompensate for inadequate gas supply or lack of gaspressure the GWH-635-ES will effectively reach theselected  output  temperature,  but  only  by  reducingthe  hot  water  flow  rate.  Its  motorized  water  valvemakes  this  adjustment.  Proper  gas  pressure  willneed  to  be  delivered  before  the  motorized  watervalve will allow greater flow rates through it. Loweringthe set temperature will also allow increased waterflow  rate  through  the  motorized  water  valve.  Seeflow/temperature chart on page 23.•Cold water inlet filter screen is dirtyRemove water inlet filter screen and clean. Thescreen is located at the inlet connection to the waterheater, disconnecting the main cold supply line at theheater is required. Check and clean faucet aeratorscreens too.HOT  WATER  TEMPERATURE  FLUCTUATES  /UNIT DEACTIVATED•Unbalanced pressure in water linesAny restriction caused by the water heater in the hotwater  system  can  result  in  uneven  pressuresbetween the cold and the hot. In such cases whenmixing  cold  water  at  the  tap  (manually  orautomatically  through  a  mix-type  shower valve)  thelower hot water pressure may be overpowered by thehigher cold water pressure in the building and causethe hot water flow rate to fall below the minimum raterequired.  A  pressure  balance  valve  will  help  toresolve this symptom. •Temperature balance valvesIf the outlet  water  temperature  is  set too high,  theheater can produce temperatures that are too hot. Atemperature balance shower valve can automaticallymix  in  cold  water  to  reduce  such  hot  watertemperature.    In  the  event  of  any  temperatureinstability  with  the  use  of  a  temperature  balanceshower valve,  refer to shower valve manufacturer'sinstructions  for  internal  adjustment  setting.Adjustments should be made to the hottest setting inthe  shower  valve.  Additionally  the  temperaturecontrol of the heater can be lowered to produce amore comfortable hot water temperature.•Inlet  water  pressure  is  erratic  due  tofluctuating supply water pressureFor installation on a private well system with the useof a pressure tank, the lowest pressure range settingrecommended is 30-50 psi (2.07-3.45 bar). The useof a pressure reducing valve after the pressure tankis also an effective way to maintain a constant waterpressure to the water heater. Watts brand 25AUB-¾” or N35B-¾” pressure relief valves or equivalentare suggested.
6 720 607 072 (16 January)Troubleshooting27Display Cause SolutionE9 Temperature limiter opened circuit (overheat).Check connections.*EA No ionization during safety time (safety time out).Check gas pressure.Check  that  gas  is  not  diluted  with  air,  as  aresult from recent gas pipeline rework.*.Check  if  vent  terminal  is  blocked  (speciallywhen  the  appliance  starts  up  for  someseconds and then looses ionization signal).Check ionization electrode.*Check for a proper ground.*FA Leakage error (gas valves do not close gas circuit)Check gas valve and electronic controller.*F7 Ionization error (flame sensing at stand-by)Check electronic controller.*E0 Internal software/hardware failure. Check electronic controller.*A7 Hot water temperature sensor/receiver defect (from main controller)Check water temperature sensor/receiver and connections.*A9 Hot water temperature sensor/receiver mis-assembled (from main controller)Check that the water temperature sensor/receiver is properly assembled in the water pipe.*E1 Over-temperature detected (from main controller)Check heat exchanger sealings.*Check heat exchanger and flue gas collector.*Check over temperature fuse.*C1 FAN rotation too low at start-up (from main controller)Check supply voltage.*Check fan and connections.*Check electronic controller.*C6 FAN rotation too low at operation (from main controller)Check supply voltage.*Check fan and connections.*Check electronic controller.*C7 No rotational speed sensor signal from FANCheck fan and connections.*Check electronic controller.*CA Water  flow  signal  over  specifiedmaximum valueCheck water valve and flow sensor.E2 Inlet temperature sensor fault Check water temperature sensor/receiver and connections.*Table 5* By installer or service technician only.
6 720 607 072 (16 January)28Electrical diagram6 Electrical diagramFig. 39 Electrical scheme1Intlet water temperature sensor2Ionization sensor3Water flow sensor4Over heat protection5Temperature limiter6Gas valve7Fan8Water valve9AC Plug10 Ignition electrode11 Display PCB12 ON/OFF switch13 Fuse T 1,25A14 Fuse T 3,15A15 Terminal block16 Ground post17 Outlet water temperature sensor
6 720 607 072 (16 January)GWH-635-ES Functional scheme297 GWH-635-ES Functional schemeFig. 40 Functional scheme
6 720 607 072 (16 January)30Interior components diagram and parts list8 Interior components diagram and parts list8.1 Interior componentsFig. 41 Components1Cover2On/Off switch3Reset button4LCD display5Program button6Temperature switches7Flue gas collector8Mixer9Heat exchanger10 Observation window11 Inlet air duct12 Control box13 Exhaust fan14 Water valve15 Gas valveFig. 42 Appliance overview
6 720 607 072 (16 January)Interior components diagram and parts list318.2 Components diagramFig. 43 Components Diagram
6 720 607 072 (16 January)32Interior components diagram and parts list8.3 Parts listItem Description Reference1 Front cover 8 705 421 8372 Shield 8 705 506 6613 Heat exchanger 8 705 406 2854 Heat exchanger top gasket 8 704 701 0525 Clip 8 716 102 6076 Heat exchanger bottom gasket 8 704 701 0547 O-ring 8 700 205 1478 Temperature sensor 8 700 400 0159 Washer 1/2" 8 710 103 04510 Wireform spring 8 714 606 00211 Air inlet duct 8 705 700 09712 Water filter 8 700 507 00113 O-ring  8 700 205 13414 Water valve with engine 8 708 505 01615 Main burner 8 708 120 51516 Fan / Burner gasket 8 704 701 05017 Set of electrodes 8 708 107 02018 Exhaust Fan 8 707 204 03919 Gas / Air Mixer  8 705 700 11520 Mixer / Fan gasket 8 704 701 05921 Gas valve washer 8 704 701 06222 Gas valve 8 707 021 01923 Gas valve washer 8 700 103 01424 Remote control 8 707 207 15325 Control unit 8 707 207 13326 Ignition cable 8 704 401 22027 Cables / 24V 8 704 401 21428 Cables 8 704 401 23929 Power supply cord 8 704 401 22130 Overheat cutoff fuse 8 700 400 01931 Flue gas exhaust accessory 8 705 504 11432 Combustion air inlet accessory 8 705 504 11533 Flue gas collector 8 705 700 10034 Flue gas collector collar 8 705 700 11435 Cold water pipe 8 700 715 15636 Hot water pipe 8 700 715 15537 Air inlet screen 8 700 507 06938 Crossover tube 8 700 715 24739 Overheat sensor (ECO) 8 707 206 204Table 6
6 720 607 072 (16 January)Special adjustment for measuring and adjusting CO2 levels339 Special adjustment for measuring and adjusting CO2 levelsThe CO2 can only be adjusted by a certified gastechnician with a calibrated CO2 analyzer.9.1 Adjusting the unitFactory settings of this appliance are listed in table 7.Further adjustment is only needed if optimal CO2 levelis  required  in  order  to  assure  the  minimum  possibleCO2 emissions. In this case a CO2 analyzer is required.9.1.1 CO2 measuring portBLoosen screw 1 (Fig. 44).BInsert  CO2  analyzer  into  measuring  port  (Fig.  44,pos. 1).Fig. 441Measuring point9.1.2 Selecting adjustment modeBON/OFF switch in position OFF (0).CO2 adjustment at minimum gas flow (P1) - Seetable 7.BPress  “Program”  key  and  turn  ON/OFF  switch  toposition ON.Fig. 45LCD  shows  “P1”  and  the  appliance  is  ready  to  beadjusted.BOpen hot water tap.The  appliance  will  run  constantly  at  minimum  poweroutput and minimum water flow. This program step canalso be used to measure minimum output and minimumwater flow.BTurn the screw in order to regulate the air-gas mixtureinside  the ventilator until  the CO2 level  required  isreached (Fig. 46, pos. 3).CO2 adjustment at maximum gas flow (P2) - Seetable 7.BPress  , until “P2” appears.BOpen water tap.The  appliance  will  run  constantly  at  maximum  poweroutput and maximum water flow. This program step canalso be used to measure maximum output and maximumwater flow.BTurn the screw in order to regulate the air-gas mixtureinside  the ventilator until  the CO2 level  required  isreached (Fig. 46, pos. 3).Caution: Converting the gas type canonly be done by a certified gastechnician  with  a  calibrated  CO2analyzer. Call CEC for conversioninstructions.Caution:  Adjustments  must  only  becarried  out  by  authorized  servicepersonnel only.Caution: The appliance should alwaysbe disconnected from the power supplybefore any maintenance is carried out.Factory settingField settings acceptable rangeNat. Gas Nat. Gasmin. input P1 9.00 % 7.65 % to 10.35 %min. input P2 9.00 % 8.1 % to 9.9 %LP Gas LP Gasmin. input P1 10.80 % 9.18 % to 12.42 %min. input P2 10.80 % 9.72 % to 11.88 %* Final reading must be confirmed with the front coveron, CO2 levels increase when the cover is installed.Table 7
6 720 607 072 (16 January)34Special adjustment for measuring and adjusting CO2 levelsFig. 46 AdjustingLeave “Program” modeBTurn ON/OFF switch in position OFF and then ONagain.iNOTE:  turning  screw  clockwisedecreases  CO2  level,  turningcounterclockwise increases it.Caution:  Faulty ignition or noisyoperation may occur if CO2 levels areadjusted outside the indicated range.
6 720 607 072 (16 January)Protecting the environment3510 Protecting the environment PackingThe packing box may be fully recycled as confirmed bythe recycling symbol  .ComponentsMany parts in the heater can be fully recycled in the endof  the  product  life.  Contact  your  city  authorities  forinformation about the disposal of recyclable products.Saving water resources:BMake sure you close all the taps after any use. Avoidleaving the taps dripping. Repair any leaking tap.BWhenever possible use taps with built-in water flowlimiters.  They  will  give  you  the  same  comfort  levelwhile saving water.BDefine the temperature you want, in the appliance orwith  the  remote  control.  This  way  you  have  theprecise  water  flow  needed  (mixing  cold  water  toregulate temperature will increase the water flow withconsequent waste of water).For increased safety shut off the appliance fromthe  main  water  supply  if  your  are  staying  awayfrom home for a considerable time.At  below  freezing  temperatures, disconnect  theplumbing  connections  to  the  heater  and  allowthe heater to drain.To  prevent  any  freeze  damage,  introduce  shortbursts  of  compressed  air  (20-40  psi)  throughthese connections to remove the residual waterin the horizontal pipes and water valve.
6 720 607 072 (16 January)36Fifteen Year Limited Warranty11 Fifteen Year Limited WarrantyGeneralBOSCH  PRO  water  heaters  are  warranted  by  theManufacturer  (BOSCH)  through  Controlled  EnergyCorp.  Controlled  Energy  Corp.  (CEC)  will  furnish  areplacement  heat  exchanger  and  will  furnish  areplacement of any other part which fails in normal useand  service  within  the  applicable  periods  specifiedbelow,  in accordance with the terms of this warranty.The  CEC  replacement  will  be  warranted  for  theunexpired portion of the original warranty. This warrantywill be valid only for water heaters in possession of theoriginal purchaser as recorded on the warranty card.The Heat ExchangerIf the heat exchanger fails within fifteen (15) years afterthe original installation and operation, CEC will furnisha replacement heat exchanger.  However, if the waterheater is installed in other than a single family dwelling,this heat exchanger warranty is limited to two (2) yearsfrom date of original installation and operation.ExceptionsThis warranty will not apply:•1. to defects or malfunctions resulting from failure toproperly install,  operate  or  maintain  the  unit  inaccordance with the printed instructions provided;•2. to damage or abuse, accident, neglect or freezingand other acts of nature;•3. to damage resulting from operation with either theflame sensor rod or overheat sensor removed;•4. to failure of the heat exchanger resulting from theoperation  of  the  water  heater  in  a  corrosiveatmosphere or at water temperatures exceeding themaximum rating, or if the water heater is not suppliedwith potable water;•5.  to  defects  or damage  cause  by any  attachmentor modification, including any energy-saving device.All Other PartsIf any other part fails within two (2) years after originalinstallation  and  operation,  CEC  will  furnish  areplacement part free of charge.Extended  warranty  is  available  to  PHCC  membercontractors;  however,  all  replacements  are  madesubject to validation by CEC of in-warranty coverage.Shipping costsIn addition to supplying the replacement part(s), CECwill  provide  ground  service  delivery  for  these  parts.Expedited or upgraded shipping will be charged to thecustomer.Service Labor CostsThis warranty does not cover any labor costsassociated  with  service,  removal  or  re-installation  ofpart(s).  All such costs must be borne by the Purchaser.Additionally, this warranty does not cover any laborcosts associated with service, removal or re-installationof the original water heater or a replaced water heater.Certain service labor allowances are available to PHCCmember contractors, dependent on prior authorizationby CEC.How to Make a ClaimAny claim for warranty parts should be made to yourlocal  dealer,  distributor  or  to  CEC.  If  CEC,  pleasecontact the Technical Support Department:Controlled Energy Corp.340 Mad River ParkWaitsfield, VT  05673Phone:  866-330-2730www.protankless.comIn most cases, the dealer or distributor will be able topromptly  honor  your  claim  and  subsequently  notifyCEC.  However, all replacements are made subject tovalidation  by  CEC  of  in-warranty  coverage.    Thedamaged or defective item must be made available inexchange for the replacement.MiscellaneousNo one is authorized to make any other warranties onbehalf  of  CEC.  It  is  expressly  understood  that  thereplacement warranty of CEC shall be in lieu of any andall  other  warranties,  express  or  implied,  includingwarranties of merchantability or fitness for a particularuse or purpose, and further that CEC shall not be liablefor any loss or damage directly or indirectly arising fromthe use of the hot water heater, or for any consequentialdamages  arising  from  such  use  (including  damagesfrom water leakage). CEC’s sole liability with respect toany defect shall be for the replacement of the defectivepart(s).  Some states do not allow such limitations andexclusions, so the above may not apply to you.This warranty gives specific legal rights. You may alsohave other rights which vary from state to state.iNOTE: the water heater must be free ofdamaging scale deposits and not subjectto  gas  pressures  greater  than  thoseshown on the rating plate, which must notbe altered, defaced or removed.
6 720 607 072 (16 January)Fifteen Year Limited Warranty37
Replacement Parts available from North American DistributorCONTROLLED ENERGY CORP.340 Mad River ParkWaitsfield, Vermont 05673Phone 866-330-2730Fax (802) 496-6924www.protankless.comtechsupport@protankless.comVULCANO Termodomésticos S.A.Estrada de Cacia3801 - 856 Aveiro - PORTUGALRecycled paper © 2004 Controlled Energy Corporation, Waitsfield, VT all rights reserved

Navigation menu