Boschhome Bosch Appliances Home Security System Ds7400Xi Users Manual F01U035325 01 (4+) Ref. Guide.PMD
en-us DS7400Xi_Version_4__Quick_Selection_Guide_enUS_2511502475 DS7400Xi Series Addressable Control Panels
DS7447E to the manual e70862ae-1167-4f47-9568-77a6b5c80283
2015-01-21
: Boschhome Boschhome-Bosch-Appliances-Home-Security-System-Ds7400Xi-Users-Manual-239114 boschhome-bosch-appliances-home-security-system-ds7400xi-users-manual-239114 boschhome pdf
Open the PDF directly: View PDF .
Page Count: 100

Reference Guide
for the DS7400Xi (Ver. 4+)
Control/Communicator
Turning On (arming) your System using the DS7445/DS7445i
or DS7447/DS7447E Keypad
Normal Arming [PIN] + [On]
Perimeter Arming, no entry delay [PIN] + [No Entry] +
[Perimeter Only]
Perimeter Arming, with entry delay [PIN] + [Perimeter Only]
Maximum Security Arming [PIN] + [No Entry] + [On]
Custom Arming [PIN] + [#] [4]
Set Delayed Arming [PIN] + [#] [9] [9] and enter
number of hours from
current time to the desired
arming time.
Extend Automatic Arming [PIN] + [OFF] during pre-
arm time
Force Arming Enter an arming
command followed by
[Bypass]
Zone Bypass [PIN] + [Bypass] followed
by the Zone number.
[PIN] +[Bypass] [*] to clear
ALL Bypasses.
Turning Off (disarming) your System
Enter your [PIN] followed by [Off]
Commands for other System Features
Chime Mode [PIN] + [#] [7]
System Walk Test [PIN] + [#] [8] [1]
Read Event History [PIN] + [#] [8] [9]
Battery Test [PIN] + [System Reset]
Communicator Test [PIN] + [#] [8] [2]
Fire Reset [PIN] + [System Reset]
Remote Program Dial-out [PIN] + [#][8] [3]
Remote Program Answer [PIN] + [#] [8] [6]
Battery/Sounder Test [PIN] + [#] [8] [5]
Error Display [PIN] + [#] [8] [7]
Error Display Reset [PIN] + [System Reset]
Fire Walk Test [PIN] + [#] [9] [1]
To Silence a Fire Trouble/Alarm [PIN] + [Off]
To Clear a Fire Trouble Display [PIN] + [System Reset]
Access Control
Enter your [Access Control PIN] followed by [Off]
Keypad Quick Reference Guide
NOTE: For additional information on operating this system, consult the DS7400Xi (Ver. 4+) User’s Guide (P/N: 43851) and section 7
of this Reference Guide.
DS7447/DS7447E
123
456
789
0
*#
On
No
Entry
System
Reset
Bypass
Only
Perimeter
Off
TEST WEEKLY
12345678
9101112 13 14 15 16
Armed
Status
Power
Fire
Perimeter
Supervisory
Bell Silenced
Trouble
123
456
789
0
*#
On
No
Entry
System
Reset
Bypass
Only
Perimeter
Off
TEST WEEKLY
Armed
Status
Power
Fire
DS7445/DS7445i

Page 2 P/N: F01U035325-01 Copyright © 2007 Bosch Security Systems, Inc. DS7400Xi (4+) Reference Guide
Table of Contents
Keypad Quick Reference Guide........................................ 1
1.0 Specifications ............................................................. 4
1.1 Enclosure Housing ........................................................ 4
1.2 Temperature ................................................................... 4
1.3 Power.............................................................................. 4
1.4 Outputs ........................................................................... 4
1.5 Zones.............................................................................. 4
1.6 Keypads.......................................................................... 4
1.7 Communicator ............................................................... 4
1.8 Partitions ........................................................................ 4
1.9 Users .............................................................................. 4
1.10 Lightning Protection ....................................................... 4
1.11 Burglar/Fire Zone Inputs ................................................ 4
1.12 Fire Signal Initiating Circuit (2-wire mode) ................... 4
1.13 Multiplex Bus Wiring Requirements.............................. 4
1.13.1 Multiplex Zone Loop Wiring ................................ 4
1.14 Option Bus Wiring Requirements ................................. 4
1.15 Max. Load Currents ........................................................ 5
1.16 Backup Battery Calculation ............................................ 5
1.17 Standby Current Load .................................................... 5
1.18 Options ........................................................................... 6
2.0 Enclosure Installation ............................................... 8
2.1 Install the Enclosure ...................................................... 8
2.2 Install the Control/Communicator ................................. 8
3.0 Control Terminal Wiring ......................................... 10
4.0 Hardware Layout Example .....................................11
5.0 System Worksheet ................................................... 12
6.0 Glossary ..................................................................... 19
6.1 General Control Programming.................................... 19
6.2 Zone Function Programming ...................................... 19
6.3 Zone Programming ...................................................... 20
6.4 Output Programming ................................................... 21
6.5 Partition Control Programming ................................... 21
6.6 Keypad Assignment Programming............................. 22
6.7 Emergency Key Programming .................................... 22
6.8 Custom Arming Programming .................................... 22
6.9 Force Arming ................................................................ 22
6.10 Ground Fault Detect Programming ............................. 22
6.11 Commercial Fire Mode Programming ........................ 22
6.12 Open/Close Report Control Programming ................ 23
6.13 Report Programming ................................................... 23
6.14 Phone Number General Control Programming ......... 24
6.15 Phone Answering Programming................................. 24
6.16 FCC Compliance Notice.............................................. 25
6.17 FCC Phone Connection Notice To Users ................... 25
6.18 Canadian Dept. of Communications .......................... 25
6.19 For Installations in New Zealand ................................ 25
7.0 Operating Guide ...................................................... 26
7.1 Emergency Procedures ............................................... 26
7.1.1 Identifying Alarm Sounds ................................. 26
7.1.2 Silencing Alarms .............................................. 26
7.1.3 A Cautionary Note............................................ 26
7.1.4 Use Common Sense ......................................... 26
7.1.5 Caution When Entering a Building ..................... 26
7.1.6 Fire Alarms ...................................................... 26
7.2 Fire Reset/Fire Trouble ................................................ 26
7.2.1 Fire Reset ........................................................ 26
7.2.2 Fire Trouble ..................................................... 26
7.2.3 Dirty Smoke ..................................................... 26
7.3 Emergency Keypad Alarms ......................................... 26
7.4 Fire Safety ..................................................................... 27
7.4.1 If Installed in Family Residences ....................... 27
7.4.2 Having and Practicing an Escape Plan .............. 27
7.4.3 Installation Considerations ................................ 27
7.5 Personal Identification Numbers ................................ 28
7.5.1 General Information.......................................... 28
7.5.2 Programming PINs ............................................ 28
7.6 The Master Keypad ...................................................... 29
7.6.1 General Information.......................................... 29
7.6.2 Master Keypad Displays .................................. 29
7.6.3 Single Partition Mode ........................................ 29
7.6.4 Arming from the Master Keypad ....................... 29
7.6.5 Disarming from the Master Keypad ................... 29
To disarm all the Partitions to which you have access: ...... 29
7.7 Keypad Error Displays ................................................. 30
7.7.1 General Information.......................................... 30
7.7.2 System Faults .................................................. 30
7.7.3 Event History ................................................... 30
7.8 Testing Your System .................................................... 31
7.8.1 Zone (System Walk) Test ................................. 31
31
7.8.2 Battery Tests ................................................... 31
31
7.8.3 Communicator Test ........................................... 31
7.8.4 Fire Walk Test .................................................. 31
8.0 How to Program the Control Panel ...................... 32
8.1 Entering the Programmer’s Mode ............................... 32
8.2 Reading Back a Program Address ............................. 32
8.3 Entering a Value in a Program Address ..................... 32
8.4 HEX values ................................................................... 32
8.5 Defaults ........................................................................ 32
8.6 Setting the Control to the Factory Default .................... 32
8.7 Exiting the Programmer’s Mode .................................. 32
9.0 Understanding the Programming Charts ............ 33
10.0 Programming............................................................ 34
10.1 General Control Programing:
Program Address (0000) ............................................. 34
10.2 Zone Function Programming: ..........................................
Program Addresses (0001-0030)............................... 35
10.3 Zone Programming:
Program Addresses (0031-0278)............................... 36
10.4 Zone Programming:
Zone Type Program Addresses (0415-0538)............. 37
10.5 Zone Partition Assignment:
Program Addresses (0287-0410)............................... 38
10.6 Zone Bypass Programming:
Program Addresses (2721-2724)............................... 39
10.7 Output Programming:
Program Addresses (2734, 2735, 2736) .................... 41
10.8 Output Partition Assignment:
Program Addresses (2737-2738)............................... 42
10.9 Partition Control Programming:
Program Address (3420) ............................................. 42
10.10 Quick Arm Control Programming:
Program Address (3477) ............................................. 43
10.11 Keypad Assignment Programming:
Program Addresses (3131-3138)............................... 44
10.12 Keypad Partition Assignment:
Program Addresses (3139-3146)............................... 44
10.13 Emergency Key Programming:
Program Addresses (3147-3148)............................... 45
10.14 Custom Arming Programming:
Program Addresses (2725-2728)............................... 45
10.15 Force Arming and Ground Fault Detect Programming:
Program Address (2732) ............................................. 47

DS7400Xi ( 4+) Reference Guide Copyright © 2007 Bosch Security Systems, Inc. P/N: F01U035325-01 Page 3
10.16 Commercial Fire Mode Programming:
Program Address (2733) ............................................. 48
10.17 Open/Close Report Control Programming:
Program Address (3149) ............................................. 49
10.18 Open/Close & Zone Report Control Programming:
Program Address (3151) ............................................. 49
10.19 Report Control Programming:
Program Address (3152) ............................................. 49
10.20 Timer Programming:
Program Addresses (4028-4030, 4032-4033) .......... 50
10.21 AC Fail Report Delay Programming:
Program Address (4034) ............................................. 50
10.22 General Authority Programming:
Program Address (3421-3424) ................................... 51
10.23 Arming Warning Programming:
Program Addresses (3425-3428)............................... 51
10.24 DS7412 RS232 Interface Control Programming:
Program Address (4019) ............................................. 52
10.25 DS7412 RS232 Interface Configuration Programming:
Program Address (4020) ............................................. 52
10.26 RS232 Carriage Return/Line Feed Control:
Program Address (4027) ............................................. 52
10.27 Report Programming:
Program Addresses (3207-3419)............................... 53
10.28 Phone/DS7416i Routing Control:
Program Addresses (3153-3154)............................... 55
10.29 Account Code Programming:
Program Addresses (3429-3459)............................... 56
10.30 Phone Number General Control Programming:
Program Address (3155) ............................................. 57
10.31 Phone Number Format Programming:
Program Addresses (3156-3157)............................... 57
10.31.1 Compatible Receivers ...................................... 58
10.32 Phone Answering Programming:
Program Address (3158) ............................................. 58
10.33 Pager Delay Time:
Program Address (4038) ............................................. 59
10.34 Programmer’s and Master Code Programming:
Program Addresses (7589-7592)............................... 59
10.35 PIN Length Programming:
Program Address (3478) ............................................. 59
10.36 Octal Relay Module Output Programming .................. 60
10.36.1 Follow Action:
Program Addresses (2740-2771)..................... 60
10.36.2 Follow System Wide Event:
Program Addresses (2740-2771)..................... 61
10.36.3 Follow Function:
Program Addresses (2740-2771)..................... 62
10.36.4 Follow Zone:
Program Addresses (2740-2771)..................... 63
10.36.5 Octal Relay Module Output Partition Assignment:
Program Addresses (2844-2851)..................... 65
10.37 Output Function Programming:
Program Addresses (2772-2843)............................... 66
10.37.1 Output Function Partition Assignment:
Program Addresses (2852-2863)..................... 67
10.38 Dual Phone Line/Bell Supervision Module Output
Programming:
Program Address (4021) ............................................. 67
10.39 Call-Out Timer Programming:
Program Addresses (4022-4025)............................... 68
10.40 Test Report and Remote Programmer Call-Out
Programming:
Program Address (4026) ............................................. 68
10.41 Alpha Description Programming:
Program Addresses (0545-2720, 5001-6920) .......... 69
10.41.1 Alpha Description Programming:
A Worksheet ................................................... 70
10.42 Phone Number Programming:
Program Addresses (3159, 3175, 3191) .................... 74
10.42.1 Phone Number 1 Programming:
Program Address (3159) ................................. 74
10.42.2 Phone Number 2 Programming:
Program Address (3175) ................................. 74
10.42.3 Phone Number 3 Programming:
Program Address (3191) ................................. 74
11.0 Installation Guide for UL Listed Systems ............ 75
11.1 DS7400Xi UL Listings:................................................ 75
11.1.1 UL System Configurations ................................ 75
11.2 Installation Considerations ......................................... 76
11.3 Programming the DS7400Xi ....................................... 76
11.3.1 Household Fire Alarm Using Digital Alarm
Communicator Transmitter With Local Bell ........ 76
11.3.2 Grade A Household Burglary Alarm Using Digital
Alarm Communicator Transmitter With Local Bell 76
11.4 General System Requirements .................................. 76
11.4.1 Local Burglary Alarm ....................................... 77
11.4.2 Police Station Connection ................................. 77
11.4.3 Central Station Burglary Alarm and
Proprietary ....................................................... 77
11.5 Commercial Fire Alarm................................................ 77
11.6 Wiring and Programming Information for Installations
Using the Ademco AB-12 Bell/Housing ...................... 78
12.0 Report Programming .............................................. 79
12.1 4/2 Format .................................................................... 79
12.2 BFSK Format ................................................................ 80
12.3 Personal Dialing Format ............................................. 81
12.4 Pager Format ............................................................... 81
13.0 Report Programming - Values Sent ..................... 83
13.1 SIA Formats .................................................................. 83
13.2 CID Formats ................................................................. 85
14.0 Multiplex Zone Addressing Guide ........................ 86
15.0 Troubleshooting Guide ........................................... 87
15.1 Keypad Problems ........................................................ 87
15.2 Reporting Problems .................................................... 88
15.3 Zone Problems ............................................................ 88
15.4 General System Problems .......................................... 89
16.0 Program Addresses ................................................. 93
Index ................................................................................ 99

Page 4 P/N: F01U035325-01 Copyright © 2007 Bosch Security Systems, Inc. DS7400Xi (4+) Reference Guide
1.0 Specifications
1.1 Enclosure Housing
The standard enclosure is manufactured from 20 Guage (1.0 mm),
cold-rolled steel, and measures 12.5 by 14.5 by 3 inch (31.8 by
36.8 by 7.6 cm) (HxWxD). A keyed lock is included, and this enclosure
has provision for an optional tamper switch (required for
commercial burglary applications) for monitoring the door.
1.2 Storage and Operating Temperature
• Temperature: +32°F to +120°F (0°C to +49°C)
1.3 Power
NOTE: The total current output capacity for all auxiliary devices,
including keypads and smoke detectors = 1.5 A standby,
2.5 A alarm. The following ratings are maximum values.
The total combined output cannot exceed the maximum
load current.
• Input power: 18 VAC, 50 VA, 50 Hz./60 Hz.
• Auxiliary power: 12 VDC, 1.0 A max.
• UL Listed Alarm Power Output: 12 VDC, 1.75 A max.
• Auxiliary power voltage range: 12 V special application
• Optional Standby battery (P334): 12 V, 7.0 Ah - 35 Ah max.
• Control panel current draw: 175 mA, Standby
250 mA, Alarm
1.4 Outputs
• Alarm Output: 12 VDC, 1.75 A output. Can be programmed
for steady or pulsed output.
• Programmable Solid state current sink (1.0 A max.). Shorts to
Aux. negative when activated. Connect device
to Aux. power positive. Can be used for alarm,
arming state, or access control.** This output
is generally programmable.
• Programmable Solid state voltage source (500 mA max.). Can
be used for alarm, arming state, or access
control.** This output is generally
programmable. For use with such compatible
devices as the Listed DS250 with a 4-wire
base.
* = Current draw should be subtracted from either maximum
auxiliary or maximum alarm current draw.
** = Not investigated to the requirements of UL294.
1.5 Zones
• 8 on-board zones. Up to 248 total zones with expansion modules.
• Zone Response Time: 300 ms.
1.6 Keypads
• Maximum # of keypads: 15 Keypads
• Maximum wire length each: 1000 feet (305 m)
• Maximum wire length total: 6000 feet (1830 m) in system
• Wire type: 4 conductor, unshielded, #22 AWG
(0.8 mm) “Telephone quad” or #18
AWG (1.0 mm) quad wiring can be
home-run or daisy- chained.
NOTE: No more than 2 keypads (#22 AWG) or 3 keypads (#18
AWG) are recommended on any 1000 foot (305 m) run.
NOTE: Shared cable is not recommended for keypad, multiplex,
options bus, telephone, or siren wiring.
1.7 Communicator
Will report to two phone numbers with full single, double and back-
up reporting. Communicates in SIA (110 or 300 baud), 3/1, 3/1 Ext.,
3/1 with Parity, 3/1 Ext. with Parity, 4/1, 4/2, BFSK, Contact ID, and
Pager formats.
FCC Registration Number is ESVUSA-75333-AL-E
The ringer equivalence is 0.1B
Commercial Fire CSFM Listing Number is 7165-1062:113
Residential Fire CSFM Listing Number is 7167-1062:114
1.8 Partitions
The system has the capacity for 8 independent partitions. One
partition may be a common area.
1.9 Users
The DS7400Xi Ver 4+ system allows up to 200 individual users.
Each user will have his own PIN number (the 4- or 6-digit code
entered at the keypads) and his own authority level (to determine
which functions he may perform).
1.10 Lightning Protection
MOVs and spark gaps provide protection from lightning surges
and static discharges.
1.11 Burglar/Fire Zone Inputs
• Number of circuits: 8 Circuits on-board
• End-of-line resistor: 2.2 kΩ (P/N 25899, provided)
• Loop resistance tolerance: 60 ohms
1.12 Fire Signal Initiating Circuit (2-wire mode)
Fire circuit will work with 2- or 4-wire detectors and has optional
alarm verification.
• Number of circuits: 8 Circuits on-board
• Type of circuit: Class B, latching
• End-of-line resistor: 2.2 kΩ (P/N 25899, provided)
• Supervisory current: 5.5 mA
• Maximum short circuit current: 22 mA
• Maximum line resistance: 60 ohms
• Circuit voltage range: 8.5 to 14.1 VDC
• Total detector standby current: 2.5 mA
1.13 Multiplex Bus Wiring Requirements
NOTE: Do not use twisted-pair or shielded cable. Do not share
cable with the keypad lines.
• #22 AWG (0.8 mm). Up to 2000 feet (610 m) per system.
• #18 AWG (1.0 mm). Up to 5000 feet (1525 m) per system.
1.13.1 Multiplex Zone Loop Wiring
• Maximum wire length not to exceed 500 feet (150m) regardless
of the wire gauge.
1.14 Option Bus Wiring Requirements
• Maximum wire length 1000 feet (305 m) per home-run.
Output 1*
Output 2*
NOTE: Fire Systems installed under NFPA-72 or UL Listed Fire
Systems require the use of 18 AWG or larger wire.

DS7400Xi ( 4+) Reference Guide Copyright © 2007 Bosch Security Systems, Inc. P/N: F01U035325-01 Page 5
1.16 Backup Battery Calculation
• The following table is used to calculate the standby battery
capacity required by NFPA when using the DS7400Xi:
1.17 Standby Current Load
• Battery Ah - (20% Storage + 0.375 Ah Alarm)
• The following table is the derated battery divided by hours minus the control standby (175 mA):
1.15 Max. Load Currents
* = Add 15 mA for each additional zone in alarm.
** = When calculating Standby and Alarm Current for the Octal Relay Module, use 10 mA plus 40 mA for each activated relay.
*** = Maximum current draw if using the DS7400Xi Panel power supply. Total of all outputs cannot exceed 750 mA.
Rechargeable
Battery Size Max. Standby
for 4 hours Max. Standby
for 8 hours Max. Standby
for 24 hours Max. Standby
for 48 hours Max. Standby
for 60 hours Max. Standby
for 72 hours Max. Standby
for 80 hours
7 Ah 1.0 A 470 mA X X X X X
8 Ah 1.2 A 580 mA X X X X X
14 Ah 1.5 A 1.1 A 270 mA X X X X
15 Ah 1.5 A 1.2 A 300 mA X X X X
17.2 Ah 1.5 A 1.5 A 380 mA 100 mA X X X
21 Ah 1.5 A 1.5 A 500 mA 160 mA 100 mA X X
28 Ah 1.5 A 1.5 A 740 mA 280 mA 190 mA 130 mA 100 mA
30 Ah 1.5 A 1.5 A 800 mA 310 mA 210 mA 150 mA 120 mA
35 Ah 1.5 A 1.5 A 970 mA 400 mA 280 mA 200 mA 170 mA
Device Quantity Standby Current
per Device Total Standby
Current
(Quantity x Standby
Current per Device)
Alarm Current
per Device Total Alarm
Current
(Quantity x Alarm
Current per Device)
DS7400Xi (4+) Control Panel 1 175 mA 175 mA 250 mA 250 mA
DS7416i Advanced Radio Communications Module 127 mA 127 mA
DS7412 - RS232 Serial Interface Module 35 mA max. 35 mA max.
DS7420i -Dual Phone Line/Bell Supervision Module 20 mA 140 mA
DS7430 – Multiplex Expansion Module 65 mA 65 mA
DS7432 – 8-Input Remote Module 10 mA 10 mA
DS7433 – 8-Input Direct Module 65 mA 80 mA*
DS7436 – Dual Multiplex Expansion Module 130 mA 130 mA
DS7445/DS7445i Keypad 75 mA 75 mA
DS7447/ DS7447E Keypad 100 mA 100 mA
DS7448 Keypad 80 mA 100 mA
DS7450, DS7452, DS7455 Contact Points 350 μA 350 μA
DS7457 – Single Zone Multiplex Input Module 350 μA 350 μA
DS7460 – Dual Zone Module 1 mA 1 mA
DS7465 – Input/Output Module 1 mA 1 mA
DS7480 – Bell Supervision Module 7 mA 50 mA
DS7481 – Single Phone Line Monitor 20 mA 20 mA
DS7488 – Octal Relay Module** 10 mA + 40 mA** 10 mA + 40 mA**
DS7489 – Solid State Output Module 10 mA 750 mA max.***
MX280 Series Multiplex Smoke Detectors 500 μA 560 μA
MX540 (DS7473) PIR Detector 800 μA 800 μA
MX835 TriTech® PIR/Microwave Detector 6 mA 35 mA
MX775 (DS7470) PIR Detector 200 μA 200 μA
MX794 (DS7474) PIR Detector 800 μA 800 μA
MX934 (DS7471) PIR Detector 200 μA 200 μA
MX938 (DS7472) PIR Detector 200 μA 200 μA
MX950 (DS7476) TriTech® PIR/Microwave Detector 6 mA 35 mA
RF3222 Wireless Receivers 30 mA 30 mA
2-Wire Smoke Detectors
4-Wire Smoke Detectors
Bells, Horns, etc.
Other Sensors
Other
Grand Total
Grand Total
Max. Load Currents Standby Alarm
UL Installations 1.5 A 2.5 A
Maximum Current By Output:
Not to exceed the maximum load currents listed above in Standby or Alarm
Aux. Power & Keypad (Combined) 1.0 A 1.0 A
Option Power 1.0 A 1.0 A
Bell Output X 1.75 A
Programmable Output 2 500 mA 500 mA
Loop Power + 500 mA 500 mA

Page 6 P/N: F01U035325-01 Copyright © 2007 Bosch Security Systems, Inc. DS7400Xi (4+) Reference Guide
1.18 Options
•DS7412: RS232 Serial Interface module.
The DS7412 module allows the panel to send event
information, in an ASCII format, directly to a serial
printer or computer. In addition, the interface allows
the direct connection of a computer to the panel for
programming via the WDSRP programming software.
• Current Draw= 25 mA; 35 mA with LEDs on.
• DS7416i: Advanced Radio Communications Module provides
a means of communicating alarm and supervision
signals using the Motient radio network. This can
be a replacement for, or a complement to, the
standard digital communicator.
• Current draw = 127 mA Standby and Alarm.
• DS7420i: Dual Phone Line/Bell Supervision Module (1 per
system).
The DS7420i allows the control to be used in NFPA
72 installations. It provides two supervised 12.0 VDC
signaling outputs, one Class A (Style D) input zone,
and dual phone line transmission and supervision.
• Current Draw = 20 mA Standby; 140 mA Alarm.
• DS7430: Multiplex Expansion Module (1 per system).
The DS7430 provides a two-wire multiplex bus for
the connection of additional remote zones. It also
supplies up to 200 mA for 4-wire multiplex devices
such as the DS7432.
• Current Draw = 65 mA, Standby; 65 mA, Alarm.
• DS7432: 8-Input Remote Module (up to 30 per system.
Requires a DS7430 or DS7436 Multiplex Expansion
Module).
The DS7432 provides a means of monitoring
conventional Normally Open or Normally Closed
contacts. It reports their status to the control panel
as multiplex addresses. It occupies eight multiplex
zones on the system and can monitor up to eight
separate loops. It will support 4-wire smoke
detectors.
• Current Draw = 10 mA; Standby. 10 mA, Alarm.
• DS7433: 8-Input Direct Module (1 per system. Can not be used
with the DS7430 or DS7436 Multiplex Expansion
Modules).
The DS7433 provides a means of expanding the
system to include eight additional hard-wired zones.
Each zone can support up to twenty 2-wire smoke
detectors (can also support 4-wire smoke detectors).
• Current Draw = 65 mA, Standby; 80 mA, Alarm.
Add 15 mA for each additional zone in alarm.
•DS7436: Multiplex Expansion Module. (1 per system.)
The DS7436 provides two two-wire multiplex buses
for the connection of up to 120 remote points. It
also supplies 200 mA per bus.
• Current Draw = 130 mA, Standby or Alarm.
• DS7445/DS7445i: Control Station. (15 Keypads max. per
system). The DS7445/DS7445i is an LED keypad
which has LEDs representing the first 8 zones of
the system. It displays information on various
control panel functions. A built in sounder is used
as an interior warning device and to annunciate
keystroke entries.
• Current Draw = 75 mA, Standby; 75 mA, Alarm.
• DS7447/DS7447E: Control Station. (15 Keypads max. per
system)
The DS7447/DS7447E is an Alpha-Numeric LCD
keypad. It displays information on various control
panel functions. A built-in sounder is used as an
interior warning device and to annunciate keystroke
entries.
• Current Draw = 100 mA, Standby; 100 mA, Alarm.
• Keypad Access Output: The DS7447/DS7447E
Alpha Keypad will provide a ten (10) second access
relay output if equipped with the optional K800 Relay.
The relay will energize at the keypad if the user has a
master, unlimited, general, or access PIN. The output
will change only if the user has access to the partition
assigned to the keypad. See the DS7445/DS7447
Keypad Installation Instructions (P/N: 22235) or the
DS7445/DS7445i/DS7447E Installation Instructions
(P/N: 4998138630) for wiring information.
• DS7448: Control Station. (15 Keypads max. per system)
The DS7448 is a four-wire LCD annunciator
keypad. It has a Silence key and a Reset key used
for controlling annunciator and control panel
operation, a Keylock Switch that can be used to
lock out the annunciator to prevent unwanted
silencing or resetting of the control panel, and a
two-line, 16-character Display capable of showing
all messages normally displayed on a DS7447/
DS7447E keypad.
• Current Draw = 80 mA, Standby; 100 mA, Alarm
• DS7450: Flush Mount Single Multiplex Contact Point (requires
a DS7430 Multiplex Expansion Module).
The DS7450 is intended as a replacement for
conventional dry contacts, and to report an actual
multiplex address to the control panel. Occupies 1
zone.
• Current Draw = 350 μA, Standby; 350 μA, Alarm.
• DS7452: Surface Mount Single Multiplex Contact Point (requires
a DS7430 Multiplex Expansion Module).
The DS7452 is intended as a replacement for
conventional dry contacts, and to report an actual
multiplex address to the control panel. Occupies 1
zone.
• Current Draw = 350 μA, Standby; 350 μA, Alarm.
• DS7455: Surface Mount Single Multiplex Contact Point
(requires a DS7430 Multiplex Expansion Module).
The DS7455 is intended as a replacement for
conventional dry contacts, and to report an actual
multiplex address to the control panel. Occupies 1
zone.
• Current Draw = 350 µA, Standby; 350 µA, Alarm.
• DS7457: Single Zone Multiplex Input Module (requires a
DS7430 Multiplex Expansion Module).
The DS7457 provides a means of monitoring
conventionally Normally Open or Normally Closed
contacts. It reports their status to the control panel as
multiplex addresses. It occupies one multiplex zone
on the system and can monitor one loop. It also
includes a tamper loop.
• Current Draw = 350 μA, Standby; 350 μA, Alarm.

DS7400Xi ( 4+) Reference Guide Copyright © 2007 Bosch Security Systems, Inc. P/N: F01U035325-01 Page 7
• DS7460: Dual Zone Module (up to 60 per system. Requires a
DS7430 Multiplex Expansion Module).
The DS7460 provides a means of monitoring
conventional Normally Open or Normally Closed
contacts. It reports their status to the control panel as
multiplex addresses. It occupies two multiplex zones
on the system and can monitor up to two separate
loops.
• Current Draw = 1 mA, Standby; 1 mA, Alarm.
• DS7465: Input/Output Module (up to 60 per system. Requires
a DS7430 Multiplex Expansion Module).
The DS7465 provides a Form “C” relay that may be
programmed to activate on system events, and an
input loop to monitor conventional Normally Open or
Normally Closed contacts. It reports their status to
the control panel as multiplex addresses.
• Current Draw = 1 mA Standby; 1 mA with relay
energized.
• Occupies 2 zones.
• DS7480: Bell Supervision Module (1 per system).
The DS7480 provides a means of monitoring bells. It
provides a supervised (polarity reversing) output relay
to activate the bell. It also provides a Form “C” Bell
Fault Output to be connected to the control panel.
• Current Draw = 7 mA @ 12 VDC, Standby; 50 mA
@ 12 VDC, Alarm.
• DS7481: Single Phone Line Monitor (1 per system).
The DS7481 provides a means of monitoring a single
phone line for fault conditions. When a fault is
detected, the DS7481 automatically closes its
Normally Open relay contacts to provide a means of
signaling the fault.
• Current Draw = 20 mA, Standby; 20 mA, Alarm.
• DS7488: Octal Relay Module (2 per system).
The DS7488 provides 8 Form “C” relay outputs for
addition to the system. The outputs are fully
programmable and can be activated by system
events. Each output operates individually of the other
7 outputs for complete flexibility.
• Current Draw = 10 mA + 40 mA for each relay
when energized.
• DS7489: Solid State Output Module (2 per system).
The DS7489 is a Solid State Octal Driver Module that
provides 8 open collector transistor outputs. The
outputs are fully programmable and can be activated
by system events. Each output operates individually
of the other 7 outputs for complete flexibility. The
DS7489 Module has not been investigated by
Underwriters Laboratories, Inc.
• Current Draw = 10mA.
• Outputs: Provides a current sink (the output shorts
to common (-) when activated). The maximum
current draw for all 8 outputs combined cannot
exceed 750 mA.
•DS9484: The DS9484 is a Remote Notification Appliance
Circuit (NAC) Power Supply designed to add four
additional NACs (NFPA 72 Class B, Style Y) to a
Fire Alarm Control Panel (FACP). When connected
to the Options Bus of the DS7400Xi, it can provide
intelligent control of its individual outputs. It
supplies 6 A of NAC power through four circuits to
drive horn strobe loads. It is UL Listed as a fire
accessory for use in Commercial fire applications
and as a continuous-load power supply for auxiliary
devices.
• Current Draw = 150 mA, Standby; 6 A maximum,
Alarm
•MX280: Multiplexed Photoelectric Smoke Detector (up to 120
detectors may be used per system. Requires a
DS7430 and occupies one multiplex zone). Detects
smoke and automatically determines the detector’s
sensitivity using the Detection Systems “Chamber
Check” feature.
• Current Draw = 500 μA, Standby; 560 μA, Alarm.
•MX280TH: Multiplexed Photoelectric Smoke Detector with a
135°F heat sensor (up to 120 detectors may be used
per system. Requires a DS7430 and occupies one
multiplex zone). Detects smoke and is equiped with
a 135°F heat sensor for high temperature alarms.
The Detection Systems “Chamber Check” feature
automatically determines the detector’s sensitivity.
• Current Draw = 500 μA, Standby; 560 μA, Alarm.
•MX280THL: Multiplexed Photoelectric Smoke Detector with a
135°F heat sensor and a 45°F freeze alarm (up to 60
detectors may be used per system. Requires a
DS7430 and occupies two multiplex zones). Detects
smoke and is equiped with a 135°F heat sensor for
high temperature alarms and a 45°F sensor for freeze
alarms. Freeze alarms are reported separately from
smoke and high temperature alarms. The Detection
Systems “Chamber Check” feature automatically
determines the detector’s sensitivity.
• Current Draw = 500 μA, Standby; 560 μA, Alarm.
• MX540: Multiplexed Passive Infrared (PIR) Intrusion Detector
(DS7473) with a standard range of 40 by 50 feet (12
by 15 meters). Requires a DS7430 and occupies
one multiplex zone.
• Current Draw = 200 μA, Standby; 2 mA, Alarm.
• MX835 TriTech Microwave/PIR Intrusion Detector with “Pet
Avoidance” technology and a standard range of 35 by
35 feet (10.7m by 10.7 m). Requires a DS7430 and
occupies one multiplex zone.
• Current Draw = 6 mA, Standby; 35 mA in “Trouble”
and Walk Test mode.
• MX775 Multiplex Passive Infrared (PIR) Intrusion Detector with
(DS7470) a standard range of 50 by 50 feet (15 m by
15 m). Requires a DS7430 and occupies one multiplex
zone.
• Current Draw = 200 μA, Standby; 2 mA in Walk
Test mode.

Page 8 P/N: F01U035325-01 Copyright © 2007 Bosch Security Systems, Inc. DS7400Xi (4+) Reference Guide
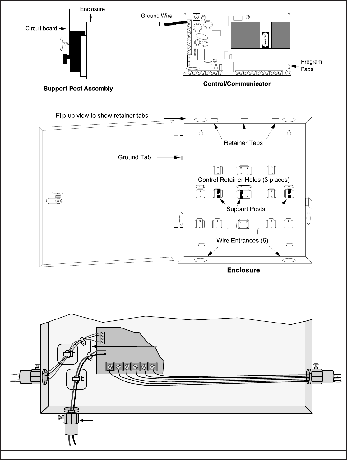
2.0 Enclosure Installation
The DS7400Xi control/communicator and the enclosure are
shipped together. The control, however, still needs to be installed
into the enclosure. Hardware for mounting the enclosure to a wall,
and the control to the enclosure is located in its own hardware
pack.
2.1 Install the Enclosure
• Use the enclosure as a template and mark the top mounting
holes on the mounting surface.
• Pre-start the mounting screws for these two holes. Slide the
enclosure onto these mounting screws so that the screws move
up into the thinner section of the holes. Tighten the screws.
• Screw in the remaining two screws in either set of bottom
mounting holes.
• Knock out the desired wire entrances on the enclosure.
2.2 Install the Control/Communicator
The control is static sensitive. Make sure you touch
earth ground before handling the control. This will
discharge any static electricity in your body. Example:
Run the ground wire to the enclosure before handling
the control. Then keep holding the ground wire while
installing the control.
• Insert the three support posts into the control retainer holes as
shown in the diagram.
• Slide the top of the control into the retainer tabs (the slots under
the top frame).
• Once in the retainer tabs, the control will rest on the three support
posts.
• Secure the bottom of the enclosure by screwing the bottom three
holes through the support posts and through to the control
retainer holes.
Once the control is installed, be sure to connect its
ground wire to the top hinge of the enclosure (the
unpainted tab).
•MX794 The MX794 is a Long Range Multiplex PIR intrusion
(DS7474) Detector with Self-test. The standard ranges
are 80 ft. by 50 ft. (24.0 m by 15.0 m) and 200 ft. by 10 ft.
(61.0 m by 3.1 m). Requires a DS7430 and occupies
one multiplex zone.
• Current Draw = 800 μA, Standby; 2 mA, Alarm.
•MX934 Multiplex Passive Infrared (PIR) intrusion detector with
(DS7471) a standard range of 35 by 35 feet (10.7 m by
10.7 m). Requires a DS7430 and occupies one multiplex
zone.
• Current Draw = 200 μA, Standby; 2 mA in Walk
Test mode.
•MX938 360° Ceiling Mount Multiplex PIR Intrusion Detector
(DS7472) with a 60 foot (18.3 m) diameter range.
Requires a DS7430 and occupies one multiplex zone.
• Current Draw = 200 μA, Standby; 2.5 mA in Walk
Test mode.
• MX950 Multiplex TriTech Microwave/PIR Intrusion Detector
(DS7476) with motion monitor and antimask features
and with a standard range of 50 by 50 feet (15 m by
15 m). Requires a DS7430 and occupies one multi-
plex zone.
• Current Draw = 6 mA, Standby; 35 mA in “Trouble”
and Walk Test mode.
•RF3222: 120-zone Wireless Receiver. (up to two receivers
per system. Requires use of a DS7430 or DS7436
Multiplex Expansion Module.)
See the DS7400Xi (4+) Wireless Reference Guide
(P/N: 44575) for more information.
• Current Draw = 30 mA
The control/communicator is also available in three package for-
mats. The packages include the following:
• DS7400XiF: DS7400Xi in large red enclosure manufactured
from 18 Guage (1.2 mm), cold-rolled steel,
measuring 15.0 by 20.75 by 4.25 inch (38.1 by 52.7
by 10.8 cm) (HxWxD).
• DS7400XiFCP: DS7400XiF package with: DS7420i, DS7447/
DS7447E and a AE-TR16
• DS7400XiCC: DS7400Xi in an Attack Enclosure.
When installing a UL Listed system, refer to Section 11.0, Installation
Guide for UL Listed Systems.

DS7400Xi ( 4+) Reference Guide Copyright © 2007 Bosch Security Systems, Inc. P/N: F01U035325-01 Page 9
T
he Battery Terminals and Wires are NOT Power Limited. A ¼ in. (6.4 mm) spacing must be maintained between
t
he battery terminals, battery wiring and all other wiring. Battery wiring may not share the same conduit, conduit
f
ittings or conduit knock-outs with other wiring.
¼ in. (6.4 mm) Minimum
Option or
Keypad Wires
Output or
Zone Wires
Battery Wires
Only required if
external batteries
are used
To ensure proper spacing
secure wires using
Tie-Wraps or similar devices
Wiring

Page 10 P/N: F01U035325-01 Copyright © 2007 Bosch Security Systems, Inc. DS7400Xi (4+) Reference Guide
3.0 Control Terminal Wiring
NO
Typical burglar
alarm loop wiring
Z– L+
Typical 2-wire
smoke detector
wiring
Z– L+
Alarm
Power
++
–
Loop +
or PO2
Zone
Input Aux. Power (—)
(terminal 5 or 7)
–
Alarm
Power
++
–
Typical 4-wire smoke
detector wiring.
For example:
Detection Systems’
DS250 in an MB4W base.
End-of-Line
Supervision Relay
(e.g. Detection Systems’
EOL200)
Z– L+
Loop +Zone
Input
Loop +Zone
Input
in out
in out
NC
TYPICAL BURGLAR AND FIRE WIRING
(for a list of
compatible 2-wire
smoke detectors,
see Technical Service
Note P/N 27685)
EARTH GROUND: Must be connected to
a good earth ground such as a cold water
pipe and also connected to the cabinet cover,
using the supplied wire jumper.
ALARM OUTPUT:
Provides 12 VDC, special application, up to
1.75 A for powering bells, siren drivers, etc.
Function programmed in address 2734.
A/C INPUT: Use U. L. listed, 18 VAC 50
VA, class 2 transformer. Model TR-1850
requires 50/60 Hz. unswitched dedicated
outlet - do not share.
1
2
3
4
5
6
7
8
A
C
–
A
–
+
AUXILIARY POWER:
Provides 12 VDC, special application, up to
1.0 A for powering detectors.
A/C Power Indication LED
OPTION BUS:
Used for options such as the DS7416i
Communications Module, the DS7420i Dual
Phone Line Module, etc.
Also for keypads #11 - #15.
For Commercial Fire Mode: Option Bus wiring
should be in conduit if run ouside the
enclosure.
O
P
T
I
O
N
R
B
G
Y
Shared cable is not recommended for keypad,
multiplex, options bus, telephone, or siren wiring.
ZONES 1-8: Zones 1-8 are intended for connection of Normally
Open or Normally Closed alarm contacts. They may also be used
for compatible 2-wire smoke detectors. These zones require a
2.21kΩ resistor (P/N 25899) at the end of the loop. Power is
momentarily removed from L+ after a [PIN] + [System Reset] or
during a fire verification.
Zone 1-8 assignments are programmed in address 0031-0038.
17 18 19 20 21 22 23 24 25 26 27 28 29 30
PO1 PO2 1– L+ 2– 3– 5– 6– 7– 8–4–
L+ L+ L+
PROGRAMMABLE OUTPUTS:
PO1 shorts to aux. power negative when activated, PO1 can sink up to 1.0 A.
PO1 function programmed in address 2735.
PO2 supplies 12 V and up to 500 mA when activated.
PO2 function programmed in address 2736.
KEYPAD BUS*:
Up to 15 keypads**
may be used. Can be
“home-run” or
“daisy-chained.”
910 112 13 14 15 16
RBGYGBSR
Keypad
(#1 - #10)
PHONE LINE:
* = Maximum wire length each: 1000 ft. (305 m).
Maximum wire length total in system: 6000 ft. (1830 m) when using
#22 AWG (0.8 mm) or #18 AWG (1.0 mm) cable.
** = Keypads #1 - #10 connect to the Keypad Bus and keypads #11 - #15
connect to the Option Bus.
TTHRHR
Keypad
(#1 - #10)
An appropriate two pole disconnect device must be installed
by qualified service personnel, as part of the building installation.
Before servicing, remove all power
including the transformer, battery and
phone line. A complete functional test
is required after any programming.
WARNING
System is Power Limited except for
battery terminals. All wiring entering
this enclosure must be power limited.
Incorrect connections may
result in damage to the unit.
CAUTION
Danger of explosion if battery is incorrectly replaced.
Replace with the same or equivalent type
recommended by the manufacturer.
Dispose of used batteries according to the
manufacturer's instructions.
CAUTION
CAUTION
NOTE

DS7400Xi ( 4+) Reference Guide Copyright © 2007 Bosch Security Systems, Inc. P/N: F01U035325-01 Page 11
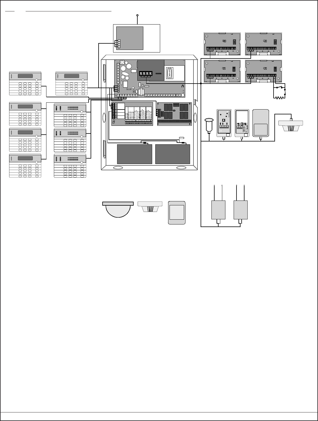
4.0 Hardware Layout Example
Armed
St at u s
Power
Fir e
123
456
789
0
*#
On
No
Ent ry
System
Re s e t
Bypass
Only
Peri m eter
Off
Per i m et e r
Supe rvi s or y
Bell Silenced
Troubl e
123 456 7 8 ®
DS7488 Octal
Relay Board
DS7400Xi
+–+–
Power Bus
DS7420i Dual Phone
Line/Bell Supervision
Module
DS7447/DS7447E and DS7445/DS7445i
Keypads
R
DS7450/52 Series Contacts, DS7460 Input Module
s,
DS7465 Input/Output Modules, MX540, MX775,
MX794, MX835, MX934, MX938, and MX950 motio
n
detectors and MX280 Series Smoke Detectors
DS7430
Keypads #11 - #15 must be connected to
the Options Bus. Keypads #1 - #10 must
be connected to the Keypad Bus.
Note: Ensure at least 1/4" separation
between battery wires and all
other cabling.
Armed
St at u s
Po wer
Fir e
123
456
789
0
*#
On
No
Entry
System
Reset
Bypass
Only
Perimeter
Off
Armed
Stat us
Powe r
Fire
123
456
789
0
*#
On
No
Entry
Sys te m
Reset
Byp ass
Only
Per i m et e r
Off
Armed
St at u s
Po wer
Fir e
123
456
789
0
*#
On
No
Entry
System
Reset
Bypass
Only
Perimeter
Off
Armed
St at u s
Po wer
Fir e
123
456
789
0
*#
On
No
Entry
System
Reset
Bypass
Only
Perimeter
Off
Armed
St at u s
Po wer
Fir e
123
456
789
0
*#
On
No
Entry
System
Reset
Bypass
Only
Perimeter
Off
Armed
St at u s
Power
Fir e
123
456
789
0
*#
On
No
Ent ry
System
Re s e t
Bypass
Only
Peri m eter
Off
Per i m et e r
Supe rvi s or y
Bell Silenced
Troubl e
123 456 7 8 ®
Armed
St at u s
Power
Fir e
123
456
789
0
*#
On
No
Ent ry
System
Re s e t
Bypass
Only
Peri m eter
Off
Per i m et e r
Supe rvi s or y
Bell Silenced
Troubl e
123 456 7 8 ®
B
G
Y
–+––
–
–
Option
Bus
Battery
Bell Output
Auxiliary
Out put
+
–
++
+
–
+
–
G
R
B
1
2
3
4
5
6
7
8
9
10
Y
112 13 14 15 16 17 18 19 20 21 22 23 24 252 627 28
Battery Battery
RF3222 120-Zone
Wireless Receivers
Wireless Sensors
RTRT TTRR TRTR
DS7432 8-Input
Remote Modules
47kΩ
Dry contact inputs
+–+–12345678
POWER BUS
+–+–123 4567 8
POWER BUS
+–+–12345678
POWER BUS
+–+ –
1234567 8
POWER BUS
12345
2G1-+
BUS NO
+
123
CNC
DS7416i
Communications
Module
EOL
• Up to 15 keypads may be used. Keypads #1 - #10 connect to the Keypad Bus and keypads #11 - #15
connect to the Option Bus. One keypad must be designated as keypad #1 and connected to the Keypad
Bus. See the DS7447/DS7447E, DS7445/DS7445i, and DS7448 Installation Instructions for further details.
• A DS7420i (Dual Phone Line/Bell Supervision Module) may be connected to the Control Panel, and
placed within the enclosure. Connect to the Options Bus of the control panel. See the DS7420i Installation
Instructions for further details.
• A DS7430 or a DS7436 (Multiplex Expansion Module) may be connected to the control panel via the
expansion port. This will allow for the connection of additional zones via the Options Bus. See the DS7430
or DS7436 Installation Instructions for further details.
• Up to 2 DS7488s (Octal Relay Modules) may be connected to the Control Panel, and placed within the
enclosure. Connect to the Options Bus of the Control Panel. This provides an additional 8 Form “C”
relay outputs for the Control Panel. See the DS7488 Installation Instructions for further details.
• A DS7416i Advanced Radio Communications Module may be connected to the Control Panel via the Options
Bus. This allows for connection to a radio network.
• Up to 248 zones are available for the connection of Single, Multiple, Input/Output, and Multiplex devices.
Up to 112 wireless zones (137-248) are also available.
• Up to 2 RF3222 (120-Zone Wireless Receivers) may be connected to the DS7430 or DS7436. Connect to
the Power and Bus terminals of the Multiplex Expansion Module. This allows for the monitoring of wireless
detectors.
• Up to 30 DS7432s (8-Input Remote Modules) may be connected to the DS7430 or DS7436. Connect to the
Power and Bus Terminals of the Multiplex Expansion Module. This allows for a means of addressing up to
240 input loops of conventional contacts to the Control Panel. See the DS7432 Installation Instructions for
further details.
123
456
789
0
*#
On
No
Entry
Sys t em
Reset
Byp ass
Only
Per i m et e r
Off
TEST WEEKLY
12345 67 8
910111213 14 15 16
Armed
Status
Power
Fire
Pe ri met e r
Supervisory
Bell Silenced
Trou bl e
123
456
789
0
*#
On
No
Entry
Sys t em
Reset
Byp ass
Only
Per i m et e r
Off
TEST WEEKLY
12345 67 8
910111213 141516
Armed
Status
Power
Fire
Pe ri met e r
Supervisory
Bell Silenced
Trou bl e
123
456
789
0
*#
On
No
Entry
Sys t em
Reset
Byp ass
Only
Per i m et e r
Off
TEST WEEKLY
12345 67 8
91011
12 13 14 15 16
Armed
Status
Power
Fire
Pe ri met e r
Supervisory
Bell Silenced
Trou bl e

Page 12 P/N: F01U035325-01 Copyright © 2007 Bosch Security Systems, Inc. DS7400Xi (4+) Reference Guide
5.0 System Worksheet
A
c
c
o
u
n
t
N
u
m
b
e
r
I
n
f
o
r
m
a
t
i
o
n
Name Contact Person
Address Voice Phone Number
Panel Phone Number
City, State, Zip Panel Answers Phone Armed Disarmed
Equipment Location and Notes
AC Voltage VAC Battery Voltage VDC AUX Current A
Battery Standby Ah Bell Current A
Control Panel
Transformer
Telephone Jack
Telephone On Same Line as Panel
Earth Ground Connection
Alarm Sounder (s)
Misc. Notes
____________________________________________________________________________________
____________________________________________________________________________________
____________________________________________________________________________________
____________________________________________________________________________________
____________________________________________________________________________________
____________________________________________________________________________________
____________________________________________________________________________________
____________________________________________________________________________________
Keypad Location and Notes
Example
Location Belongs Master/
to Partition Standard
Keypad # 1 Kitchen 2 Master
Location Belongs Master/ Location Belongs Master/
to Partition Standard to Partition Standard
Keypad # 1 Keypad # 9
Keypad # 2 Keypad # 10
Keypad # 3 Keypad # 11
Keypad # 4 Keypad # 12
Keypad # 5 Keypad # 13
Keypad # 6 Keypad # 14
Keypad # 7 Keypad # 15
Keypad # 8

DS7400Xi ( 4+) Reference Guide Copyright © 2007 Bosch Security Systems, Inc. P/N: F01U035325-01 Page 13
5.0 System Worksheet (continued)
P
e
r
s
o
n
a
l
I
d
e
n
t
i
f
i
c
a
t
i
o
n
N
u
m
b
e
r
I
n
f
o
r
m
a
t
i
o
n
PIN Information
User Pin # Auth. Parti- Name
#
Level tions
Example
002 1001 6 1, 2, 4 James L.
001
002
003
004
005
006
007
008
009
010
011
012
013
014
015
016
017
018
019
020
021
022
023
024
025
026
027
028
029
030
PIN Information
User Pin # Auth. Parti- Name
# Level tions
PIN Information
User Pin # Auth. Parti- Name
# Level tions
PIN Information
User Pin # Auth. Parti- Name
# Level tions
031
032
033
071
072
073
074
075
076
077
078
079
080
081
082
083
084
085
086
087
088
089
090
091
092
093
094
095
096
097
098
099
067
068
069
070
036
037
038
039
040
041
042
043
044
045
046
047
048
049
050
051
052
053
054
055
056
057
058
059
060
061
062
063
064
065
066
034
035
PIN Worksheet

Page 14 P/N: F01U035325-01 Copyright © 2007 Bosch Security Systems, Inc. DS7400Xi (4+) Reference Guide
5.0 System Worksheet (continued)
P
e
r
s
o
n
a
l
I
d
e
n
t
i
f
i
c
a
t
i
o
n
N
u
m
b
e
r
I
n
f
o
r
m
a
t
i
o
n
100
101
102
103
104
105
106
107
108
109
111
112
113
114
115
116
117
118
119
120
121
122
123
124
125
126
127
128
129
PIN Information
User Pin # Auth. Parti- Name
# Level tions
PIN Information
User Pin # Auth. Parti- Nam
e
# Level tions
PIN Information
User Pin # Auth. Parti- Name
# Level tions
130
131
132
172
173
174
175
176
177
178
179
180
181
182
183
184
185
186
187
188
189
190
191
192
193
194
195
196
197
198
199
200
168
169
170
171
136
137
138
139
140
156
157
158
159
160
161
162
163
164
165
166
134
135
133 167
110
141
142
143
144
145
146
147
148
149
150
151
152
153
154
155
PIN Worksheet

DS7400Xi ( 4+) Reference Guide Copyright © 2007 Bosch Security Systems, Inc. P/N: F01U035325-01 Page 15
5.0 System Worksheet (continued)
Example
Type * Zone/Output Partition & Location
Function #
Zone # 1
Zone Location and Notes
Zn Funct. 1
Type * Zone/Output Partition & Location
Function #
Zone # 1
Zone # 2
Zone # 3
Zone # 4
Zone # 5
Zone # 6
Zone # 7
Zone # 8
Zone # 9
Zone # 10
Type * Zone/Output Partition & Locatio
n
Function #
Zone # 31
Zone # 32
Zone # 33
Zone # 34
Zone # 35
Zone # 36
Zone # 37
Zone # 38
Zone # 39
Zone # 40
2, KitchenSZ
* = SZ: Single Zone Input
MZ: Multiple Zone Input
IO: DS7465
(see section 10.3)
Zone # 41
Zone # 42
Zone # 43
Zone # 44
Zone # 45
Zone # 46
Zone # 47
Zone # 48
Zone # 49
Zone # 50
Zone # 51
Zone # 52
Zone # 53
Zone # 54
Zone # 55
Zone # 56
Zone # 57
Zone # 58
Zone # 59
Zone # 60
Zone # 11
Zone # 12
Zone # 13
Zone # 14
Zone # 15
Zone # 16
Zone # 17
Zone # 18
Zone # 19
Zone # 20
Zone # 21
Zone # 22
Zone # 23
Zone # 24
Zone # 25
Zone # 26
Zone # 27
Zone # 28
Zone # 29
Zone # 30
Zone Location and Notes Worksheet

Page 16 P/N: F01U035325-01 Copyright © 2007 Bosch Security Systems, Inc. DS7400Xi (4+) Reference Guide
5.0 System Worksheet (continued)

DS7400Xi ( 4+) Reference Guide Copyright © 2007 Bosch Security Systems, Inc. P/N: F01U035325-01 Page 17
5.0 System Worksheet (continued)

Page 18 P/N: F01U035325-01 Copyright © 2007 Bosch Security Systems, Inc. DS7400Xi (4+) Reference Guide
5.0 System Worksheet (continued)
Zone Location and Notes Worksheet

DS7400Xi ( 4+) Reference Guide Copyright © 2007 Bosch Security Systems, Inc. P/N: F01U035325-01 Page 19
6.0 Glossary
6.1 General Control Programming
• Normal Arming - [PIN] + [On]: If programmed, arms the entire
system while allowing entry delays for entry/exit zones.
• Perimeter Instant Arming - [PIN] + [No Entry] [Perimeter Only]: If
programmed, arms only the perimeter of the system and does
not allow entry delays for entry/exit zones.
• Perimeter Arming - [PIN] + [Perimeter Only]: If programmed,
arms only the perimeter of the system while allowing entry delays
for entry/exit zones.
•Custom Arming - [PIN] + [#] [4]: If programmed, allows custom
arming of the system and bypasses the zone functions specified
in data addresses 2725-2728.
•Maximum Security Arming - [PIN] + [No Entry] [On]: If
programmed, arms the entire system and does not allow an
entry delay for entry/exit zones.
• General Authority by Partition
A general (level 2) authority can be programmed to have arm-
only authority; arm and bypass authority; arm and disarm
authority; or arm, disarm, and bypass authority by partition. This
is done at addresses 3421-3424.
- Arm-only access by partition allows someone with a General
Authority to arm zones in a partition he can not disarm.
- This level can still be used to arm, disarm, and bypass zones
in the other partitions that it has access to.
•Closing Ring-Back: If programmed, the keypad sounders and
Bell will activate for 2 seconds after the system is armed and the
closing report is successfully sent. This requires Closing Ring-
Back and Closing Report to be programmed.
- If a closing report is not programmed, the control will test for a
dial tone when the system is armed. If the test passes, the
system will arm normally. If the test fails, the system will arm,
but will indicate a trouble condition.
- The DS7447/DS7447E keypad will display “Communication
Err” after [#] [8] [7] is entered.
•Siren on Comm. Fail for Silent Zone: If programmed, a silent
zone will sound the alarm outputs if the zone is in an alarm
condition and the system fails to communicate with the central
station.
•Restore when Sounders Silence: If programmed, a zone sends
a restoral report and is ready to activate again only after the
burglary bell cut-off time expires or the bells are silenced.
- The zone can alarm multiple times per armed period.
•Restore when Zone Restores: If programmed, a zone sends a
restoral report and is ready to activate again as soon as it
physically restores.
- This zone can alarm multiple times per armed period.
•Restore when System Disarms: If programmed, a zone sends
a restoral report when the system is disarmed.
- It can only alarm once per armed period.
•Allow Swinger Shunts: If programmed, a zone can only alarm
or trouble up to three times per armed period. After the third
alarm or trouble, the zone will be bypassed and a bypass report
will be sent.
NOTE: Swinger Shunts are not allowed on UL Certificated
Installations.
6.2 Zone Function Programming
• Zone Function
A Zone Function is the description of how a particular zone will
behave (e.g. steady alarm output, bypassing allowed, alarm on
short, trouble on open, perimeter instant).
- There are many possible zone functions. Up to 30 different
zone functions are allowed per control.
- Zone functions may be custom made as needed.
- Each zone must be programmed as a specific zone function.
Any number and combination of zones may be programmed
as particular zone functions.
- Program zone functions at addresses 0001-0030.
•Invisible Alarms: This is a zone programmed not to have an
alarm output or an alarm display at any keypad when activated.
An alarm signal will be sent, but the DS7447/DS7447E keypad
display will read “Not Ready” while this zone is violated.
- Invisible Alarm zones are recommended for holdup alarms.
•Silent Alarms: This is a zone programmed to activate the visual
display at the keypad, but not audible signals.
- If this zone is also an entry zone, an entry tone will sound when
this zone is activated.
• Bypassing Allowed: This is a zone programmed to allow
bypassing (shunting). This is done using the bypass command
or the force-arming sequence.
•Alarm on Short: This is a zone programmed to activate an
alarm when its loop is shorted.
•Alarm on Open: This is a zone programmed to activate an
alarm when its loop is opened.
•Trouble on Open: This is a zone programmed to activate a
trouble when its loop is opened and the system is disarmed.
- If the system is armed, this zone will activate an alarm if shorted
or opened.
- For 24-hour zones, regardless of the arming state of the panel,
this always remains as a Trouble on Open.
•Trouble on Short: This is a zone programmed to activate a
trouble when its loop is shorted and the system is disarmed.
- If the system is armed, this zone will activate an alarm if shorted
or opened.
- For 24-hour zones, regardless of the arming state of the panel,
this always remains as a Trouble on Short.
•Interior Delayed: This is a zone programmed to be ignored
during the entry/exit delay period. If it is violated when the system
is armed, it will activate a delay for the programmed entry delay
time. The keypad pre-alert sounders will activate and the system
may be disarmed during this delay period. If the system is not
disarmed during this delay period, this zone will activate an alarm.
This zone is bypassed by Perimeter Instant or Perimeter Armed.
•Perimeter Instant: This is a zone programmed to activate an
alarm even during the entry/exit delay period.
•24-Hour: This is a zone programmed to activate when its loop is
faulted, even if the system is disarmed.
• Entry/Exit Delay #1: This is a zone programmed to be ignored
during the entry/exit delay period.
- If it is violated while the system is armed, it will activate a delay
for the amount of time programmed for entry delay time #1
(address 4028). The keypad pre-alert sounders will activate
and the system may be disarmed during this delay period.
- If the system is not disarmed during the entry period, this zone
will activate an alarm.

Page 20 P/N: F01U035325-01 Copyright © 2007 Bosch Security Systems, Inc. DS7400Xi (4+) Reference Guide
• Entry/Exit Delay #2: This is a zone programmed to behave
identical to the Entry/Exit Delay #1 zone function except that it
uses entry delay time #2 (address 4029).
NOTE: If both entry delays have been activated, the control will
use the shorter entry delay.
• Entry/Exit Delay Cancel Zone Functions
Entry/Exit Delay Cancel 1 and Entry/Exit Delay Cancel 2 Zone
Functions cause the exit delay to expire as soon as the premises
is vacated.
- If a zone is programmed as an Entry/Exit Delay Cancel zone,
and it is activated during the exit delay, the exit delay will expire
as soon as the zone has been restored.
- Entry/Exit Delay Cancel 1 follows entry delay 1.
- Entry/Exit Delay Cancel 2 follows entry delay 2.
•Interior Entry/Exit Follower: This is a zone programmed to be
ignored during an entry/exit delay and then become an interior
instant zone.
- If this zone is violated while the system is armed and no entry/
exit zones have been violated, it will activate an alarm.
- If this zone is violated after an entry/exit delay zone is violated,
it will follow that entry/exit delay time.
- This zone is bypassed by Perimeter Instant or Perimeter
arming.
•Interior Home/Away: This is a zone programmed to become an
interior instant zone if the system is armed and an entry/exit
delay zone is violated during the exit delay time.
- If the system is armed and an entry/exit delay zone is not
violated, this zone will be bypassed.
- This zone is bypassed by Perimeter Instant or Perimeter
arming.
•Interior Instant: This is a zone programmed to activate an alarm
even during the entry/exit delay periods.
- It is bypassed by Perimeter Instant or Perimeter arming.
•Day Monitor: This is a zone programmed to be a perimeter
instant zone when the system is armed.
- When the system is disarmed, any violation of this zone will
activate the keypad sounders which will sound continuously
until a disarm command sequence is entered.
- The alarm outputs for this zone will not activate and there will
be no report for this zone when the system is disarmed.
•Keyswitch Input: This is a zone programmed to allow the system
to be armed or disarmed using a Normally Open momentary
keyswitch.
- Outputs for keyswitch LEDs and sounders are available using
the programmable outputs or the Octal relay outputs.
- An output is needed for each LED and sounder.
- A keyswitch will only control the partition that these zones are
assigned to unless programmed as a master, then it will
control all at once. See Program Address 0001, Data Digit 1.
- Keyswitches and keypads may be used in the same partition,
if desired.
•Fire Zone: This is a zone programmed to activate if the system
is armed or disarmed.
- It can be silenced (not reset) by entering a valid [PIN] + [Off].
- The display will indicate a Fire Alarm for this zone on all
keypads in every partition.
- A fire reset command must be entered after silencing the
alarm to re-enable this zone.
- If this zone is programmed for trouble and the loop opens, the
DS7447/DS7447E keypad will display “Fire Trouble” for this
zone and the keypad sounders will beep once every ten
seconds.
- If the system is a combination fire and burglar alarm, the fire
alarm has priority over the burglar alarm.
• Fire Zone with Verification: This zone is identical to a Fire Zone
except that after the first alarm, it will perform a fire reset and
then wait up to two minutes for a second alarm.
- If a second alarm occurs within this two minute period, the
system will indicate a fire alarm.
- If there is no second alarm within this two minute period, the
control panel will reset back to its normal condition.
NOTE: Use of this control’s alarm verification feature is not per-
mitted for applications in the state of California.
•Water Flow Zone: This is a zone programmed to operate like a
Fire Zone, but is specifically intended for water flow switches.
- An optional retard timer can be programmed to compensate
for changes in water pressure. If the timer is used, the water
flow zone must be activated for the complete time period; an
alarm will be initiated at the end of the timer period.
- The maximum combined water flow delay of the control panel
and the device must not exceed two minutes.
NOTE: Any zone can be a water flow zone, but only zones 1
through 4 may be programmed as delayed water flow
zones.
•Supervisory Zone: This is a zone programmed to accommodate
shut-off valves.
- It will indicate a supervisory condition at the keypads when
activated.
6.3 Zone Programming
• Zone
A Zone is an input to the DS7400Xi Control/Communicator.
- There are 8 hardwired zones on the main circuit board.
- Additional zones may be added by using the DS7433 (8 zone
expansion module), the DS7430 (multiplex loop module), and/
or other modules.
•Single Zone Input: This is an individual zone such as the on-
board zones and multiplex contact zones.
•Multiple Zone Input: This is a zone connected to one of the 8-
Input Modules (DS7432 or DS7433) or to a Dual Zone Module
(DS7460).
- The inputs are programmed separately (see the separate
Programming Addresses Worksheet, P/N: 29802).
- When using the Dual Zone Module (DS7460), loop A is always
programmed as an odd numbered program address (ending
in 1, 3, 5, 7, or 9). Loop B is the even numbered program
address that follows loop A.
• DS7465: This is the input zone or the output relay on a DS7465.
The odd numbered zone is programmed for the input zone
function and the even numbered zone is programmed for the
output function.
•Multiplex Smoke: This is a multiplexed input zone (zones 9-
248) that is used with a MX280 series smoke detector. This zone
must have a Zone Function of Fire Zone and Trouble on Open
applied to the multiplex smoke zone.
•Multiplex Smoke with Low Temperature: This zone is used
with the MX280 series smoke detectors with a low temperature
alarm. Making this selection requires the programming of two
zones as follows:

DS7400Xi ( 4+) Reference Guide Copyright © 2007 Bosch Security Systems, Inc. P/N: F01U035325-01 Page 21
-Smoke alarm. This must be the odd numbered zone of the
zone pair required for these devices. The zone must be
programmed with a zone function that is set for Fire Zone and
Trouble onOpen.
-Low Temperature Alarm. This must be the even numbered
zone of the zone pair required for these devices. This zone
must be programmed with a zone function that is set as
Supervisory and Trouble on Open.
6.4 Output Programming
•Latch on Any Zone Alarm: This is an output programmed to
activate upon any zone alarm (including invisible zones) and will
latch until the system has been disarmed.
- If this output is programmed to respond only to a fire zone, it
will remain latched until the fire reset command is performed.
•ON during Entry Pre-Alert: This is an output programmed to
activate when an entry/exit zone is violated while the system is
armed.
- It will remain activated until the system is disarmed, or until
the entry delay time has expired.
• ON for 10 seconds after [PIN] + [System Reset] is entered: This
is an output programmed to activate for 10 seconds after the fire
reset command is entered at the keypad or if a Fire Zone with
Verification activates.
- This output is intended to be used to power 4-wire smoke
detectors or any other device that requires a power interruption
to reset an alarm condition.
NOTE: When Programmable Output 2 is programmed this way,
it will normally supply auxiliary power and will turn OFF for
10 seconds when the fire reset command is entered.
•ON when System is Armed: This is an output programmed to
activate when the system is armed.
- It will remain activated until the system is disarmed.
•Ground Start: This is an output programmed to activate for 3
seconds when the phone line is seized. It is intended for use
with ground start phone systems that require a momentary short
to ground to obtain a dial tone.
- Connect a separate 12 VDC, DPDT relay.
- Connect both relay contact commons to ground, and connect
the Normally Open of each contact to terminal positions 13
and 16 (one to terminal 13, the other to 16) of the DS7400Xi.
- This output follows all partitions regardless of how data digit 2
of the output programming address is programmed.
- Not intended for UL Listed systems. Not for use with phone
line monitors.
•System Status (ready to arm): This is an output programmed
to follow the Status LED of the keypad.
- It will activate when the system is ready to arm with no zones
violated.
•Zone Alarm: This is an output programmed to activate when a
zone is in an alarm condition.
- It will remain activated until the system is disarmed or the bell
cut-off time expires.
- This output is intended to activate alarm bells and sirens.
- This will not activate from Silent or Invisible Zones.
•Zone Alarm Delayed by 20 sec.: This is an output programmed
to wait 20 seconds after a zone enters an alarm condition to
activate.
- It will remain activated until the system is disarmed or the bell
cut-off time expires.
- This output is intended to activate alarm bells and sirens, but
provides a delay to allow the user to silence the system before
it activates.
• Output Functions
Output Functions can be programmed to follow system events
or to follow one or two specific zones in a “cross-matrix” fashion
(see Input/Output Cross-Matrixing).
- These Output Functions can be programmed to control Octal
Relay outputs or Multiplex Bus outputs.
- Output Functions are programmed in addresses 2772-2843.
• Input/Output Cross Matrixing
Input/Output Cross Matrixing allows Output Functions to follow
the status of specific input zones (zones 1 through 248 only).
- Outputs can be programmed to follow any combination of one
or two zones, open or closed, with the system armed or dis-
armed.
- If programmed to latch, the output will latch until a valid PIN is
entered at the keypad.
•Keypad Sounder Output: This is an output programmed to follow
the keypad sounder.
- It activates during the entry pre-alert and during any day monitor
alarm. It does not follow momentary keypad beeps such as
keystrokes, chimes, etc.
•Access Output: This is an output programmed to activate for
10 seconds when an access control PIN is entered at the keypad.
- Not UL Listed for Access Control (UL294).
•Panic/Duress Output: All outputs, including the three on-board
outputs, the Octal Relays, and the Output Functions, support a
Panic/Duress function. This output will follow Duress activations,
Keypad Emergency Keys B and C, and Invisible and Silent Zone
alarms. It will only be reset by a user acknowledgement and will
not reset after the burglary bell time-out occurs. Duress activa-
tions will latch until acknowledged by a user.
• Multiplex Bus Outputs
The DS7400Xi supports up to 60 DS7465 Input/Output Modules.
- These modules are connected to the multiplex bus and provide
one input loop and one Form “C” output relay.
- The input loop operates the same as all other multiplex inputs.
- The output loop can be programmed to follow Output
Functions.
- Multiplex Bus outputs can be bypassed using the bypass
function. If an output zone is bypassed while it is ON, it will turn
OFF. The bypass will not be removed when the system is
armed and then disarmed; it must be cancelled by entering
the bypass command again or by cancelling all bypasses.
NOTE: DS7465 Module outputs will not pulse, even if programmed
to do so.
• Octal Relay Modules (DS7488)
The DS7400Xi can support two Octal Relay Modules.
- Each relay can be programmed to follow system-wide events
or Output Functions as described above.
• Solid State Output Modules (DS7489)
The DS7400Xi can support two Solid State Output Modules.
- Each output can be programmed to follow system-wide events
or Output Functions as described above.
6.5 Partition Control Programming
•Partition Control Programming: Up to eight partitions may be
used. They are assigned (program address 3420) in order.

Page 22 P/N: F01U035325-01 Copyright © 2007 Bosch Security Systems, Inc. DS7400Xi (4+) Reference Guide
- For example: When using only one partition, it is partition one.
When using three partitions, they are partitions one, two, and
three.
- Partitioning allows the system to act as up to 8 different
systems.
- Zones, keypads, outputs, and other items may be assigned to
particular partitions.
- Access to partitions may be through each partition’s keypad
or through a Master keypad (see the User’s Guide P/N: 43851
for more details).
•Common Area: Partition 1 can be programmed as a common
area, that is, common to other partitions. This allows it to be
used in an installation with one common entry area such as a
foyer or vestibule.
- When Partition 1 is programmed as a common area, it will
only arm when all the partitions it is common to are armed.
- The common area will disarm when any of the partitions it is
common to are disarmed - only if the user has access to the
common area.
- When using a common area, a Master keypad should be used
and assigned to the common area (see keypad assignment
programming).
6.6 Keypad Assignment Programming
•Keypad Assignment: The keypad type and the partition it is
assigned to must be programmed.
- Each program address (3131-3138) programs the keypad
type for two keypads. For example: for address 3131, data
digit 1 is for keypad 1, data digit 2 is for keypad 2.
- Each program address (3139-3146) programs the partition
assignment for two keypads. For example: for address 3139,
data digit 1is for the partition assignment of keypad 1, data
digit 2 is for the partition assignment of keypad 2.
- Users must have access to the partition the keypad is assigned
to in order to use the keypad.
•Master Keypad Programming : A Master keypad can be used
to access all the partitions.
- It will display the arm/disarm status of all the partitions and
can be used to individually control each partition (see section
7.6).
- A Master keypad can be assigned to any of the partitions.
- Any number of the 15 allowable keypads can be a Master
keypad.
- When using the common area, it is suggested that a Master
keypad be used and that it is assigned to the common area.
6.7 Emergency Key Programming
NOTE: Do not label these keys if they are unprogrammed. Only
the “A” key may be programmed and labeled as the Fire
key. These keys are not intended to substitute for Listed
manual pull boxes.
•Fire Key: The emergency key (key A) at the bottom left of the
keypad entry area is the Fire Key. If programmed, the key will
activate a fire alarm when pressed for 2 seconds.
- It may be programmed for a steady or pulsed alarm.
NOTE: The Fire Key will generate the fire alarm sounders in the
partition that activated the Fire Key. Any other partitions in
use will only have their keypad sounders activated. All
keypad displays will be the same.
•Special Emergency Key: The emergency key (key B) at the
bottom center of the keypad entry area is the Special Emergency
Key.
- If programmed, the key will activate a supplementary or an auxiliary
type alarm when pressed for 2 seconds.
- It may be programmed for a silent, steady, or pulsed alarm.
•Panic Key: The emergency key (key C) at the bottom right of the
keypad entry area is the Panic Key.
- If programmed, the key will activate a panic alarm when
pressed for 2 seconds; nothing will display at the keypad to
indicate an alarm.
- It may be programmed for a silent, steady, or pulsed alarm.
NOTE: The Special Emergency Key and the Panic Key will gen-
erate the alarm sounders only in the partition of the key-
pad that activated that Key.
6.8 Custom Arming Programming
•Custom Arming - [PIN ] + [#] [4]: If programmed, the [PIN] + [#]
+ [4] command sequence may be used to custom arm the system
by arming only certain zone functions.
- For example: All interior zones plus some perimeter zones
may be bypassed while leaving some of the perimeter armed.
6.9 Force Arming
•Force Arming: If programmed, allows violated zones to be force
armed. When force arming, the user must enter the usual arming
command followed by the [Bypass] key. This automatically
bypasses zones that are violated and programmed as
bypassable.
- Fire zones, supervisory zones, keyswitch zones, waterflow
zones, and non-bypassable zones can not be force armed.
- Not available in UL Listed systems.
- See Program Address 2732.
6.10 Ground Fault Detect Programming
•Ground Fault: If programmed, this function will allow the system
to detect ground faults. This function is required for fire panels
and will be forced on when the panel is in the commercial fire
mode.
- See Program Address 2732.
6.11 Commercial Fire Mode Programming
NOTE: In a system that includes both fire alarm and burglar alarm
devices, the system must produce distinct sounds for fire
and burglar alarm conditions either by using different in-
dicating appliances or by using distinct cadences for the
same appliance.
•Commercial Fire Mode: When in Commercial Fire Mode, the
control panel will perform some functions (e.g. communications)
differently to conform with commercial fire regulations.
- See Commercial Fire Mode Programming, program address
2733.
•Water Flow Zone Delay: This is the amount of time a water flow
zone must be violated before the control panel will initiate an
alarm.
- The delay is necessary to accommodate normal changes in
water pressure.
- If the water flow initiating device incorporates its own time
delay, do not program the control panel unit to exceed 120
seconds combined time delay.

DS7400Xi ( 4+) Reference Guide Copyright © 2007 Bosch Security Systems, Inc. P/N: F01U035325-01 Page 23
•Pulsing Fire Zone: This is a zone programmed to output a pulse
for a fire alarm in the normal manner (one second ON, one second
OFF).
•California March Time: This is a zone programmed to output a
pulse for a fire alarm in the California Time cadence (ten 1/2
second pulses, followed by one second of quiet time).
•Temporal: This is a zone programmed to output a pulse for a
fire alarm in the Temporal cadence (three 1/2 second pulses,
followed by one second of quiet time).
•Single Keypad Use: The keypad should be used on the keypad
bus and be mounted to the front of the control enclosure OR if
within the same room as the control equipment with the wire run
in conduit (or equivalently protected against mechanical injury)
within 20 ft. (6.1 m) of the control equipment.
- This keypad should be assigned as address 1.
•Multiple Keypad Use: One keypad only must be used on the
option bus, at any address from 11 - 14, and must meet the
following requirements:
- The keypad must be mounted to the front of the control
enclosure OR mounted within the same room as the control
equipment and the wire is run in conduit (or equivalently
protected against mechanical injury) within 20 ft. (6.1 m) of the
control equipment.
- All other keypads should be connected to the keypad bus and
may be placed as needed (within the noted wiring limitations
in the installation manual).
- One keypad must be assigned as address 1.
6.12 Open/Close Report Control Programming
•Open and Close Reports: If programmed, these reports are
sent when the system is armed or disarmed. They may be sent
independently for the opening and closing of each partition, or
the first partition to open and the last partition to close may send
the reports.
•Send Trouble at Close for Bypassed Zones: If programmed, a
trouble report will be sent for each zone bypassed when the
system is armed.
•Alternate between both Phone Numbers: If programmed, open
and close reports will be sent to phone number one first. If phone
number one does not pick-up, the control panel will alternate to
phone number two. If phone number two does not pick-up, the
control panel will alternate back to phone number one. It will
alternate between both phone numbers until successful.
6.13 Report Programming
•Reports: For pulse formats, reports are programmed by enter-
ing data in the reporting and extended digits. The report will
send the data programmed for each event. For SIA and Contact
ID, the report formats are fixed and may be activated by placing a
1 in the reporting digit.
- To disable a report, enter a 0 in the reporting digit.
- To send the Man No. along with Open and Close reports,
program an "F" (enter [*] [5] at the keypad) in the extended
digit.
•Keypad Fire Alarm: This report is sent when a fire alarm has
been activated by the “A” emergency key.
•Keypad Fire Restoral: This report is sent when a keypad fire
alarm has been restored using the [System Reset] command.
•Keypad Emergency Alarm: This report is sent when an
emergency alarm has been activated using the “B” emergency key.
•Keypad Panic: This report is sent when an emergency alarm has
been activated using the “C” emergency key.
•Keypad Tamper: For keypads fitted with a wall tamper switch, this
report is sent when the keypad is removed from the wall.
•Keypad Tamper Restoral: For keypads fitted with a wall tamper
switch, this report is sent when the keypad is properly replaced
on the wall after experiencing a tamper condition.
•Zone Function Alarm: An alarm report is sent when a zone
alarm occurs. Alarm reports are enabled by zone function. Pro-
gram this report for any zone functions you wish to send an
alarm report about. For local zones (no reports), do not program
an alarm report. The zone number will automatically be sent for
this report in SIA or Contact ID format.
•Zone Function Restoral: This report is sent when the zone alarm
and trouble conditions are cleared. The zone number will auto-
matically be sent for this report in SIA or Contact ID format.
•Zone Function Trouble: This report is sent when a zone trouble
condition occurs. This can be an open circuit, if the zone is pro-
grammed for “trouble on open”, a multiplex tamper switch being
activated, or a multiplex zone not communicating with the control
panel. The zone number will automatically be sent for this report
in SIA or Contact ID format.
•Zone Function Bypass: This report is sent when a zone is by-
passed. (Note: Fire zones can never be bypassed.) Zone by-
pass reports for non-24 hour zones are sent with the closing
report. Bypass reports for 24 hour zones are sent when the zone
is bypassed. If a zone is force armed, the bypass report is sent
with the partial close report. If a 24 hour or non-24 hour zone is
custom armed, the bypass report is sent with the partial close
report.
•Zone Function Bypass Restoral: This report is sent when the
zone bypass is cleared. For non-24 hour zones the bypass resto-
ral is sent with the open report. Bypass restoral reports for 24
hour zones are sent when the zone is manually restored. The
bypass restoral report for a zone that was force armed is sent
when the zone is restored. If a 24 hour or non-24 hour zone was
custom armed, the bypass restoral is sent with the open report.
•Open: This report is sent when the system has been disarmed.
In SIA or Contact ID formats, the user number for the person who
disarmed the system will be sent with this report. To send the
user number along with an Open report in other formats, program
the extended digit of the report as *5. In Contact ID format, the
partition number will also be sent along with this report. The
Open report will only be sent if a Close report was sent previously.
•Close: This report is sent when the system has been armed. In
SIA or Contact ID formats, the user number for the person who
armed the system will be sent with this report. To send the user
number along with a Close report in other formats, program the
extended digit of the report as *5. In Contact ID format, the partition
number will also be sent along with this report.
•Duress: This report is sent when the system is disarmed using
a duress code. The user number is not sent with this report.
•Partial Close: This report is sent when the system is armed
partially, or force armed.
•First Open After Alarm: This report is sent when the system is
disarmed after an alarm has occurred.

Page 24 P/N: F01U035325-01 Copyright © 2007 Bosch Security Systems, Inc. DS7400Xi (4+) Reference Guide
•Low Battery: This report is sent when a low battery condition
occurs.
•Battery Restoral: This report is sent when a low battery condition
restores.
•AC Fail: This report is sent when an AC failure condition occurs.
This report may be delayed in address 4034.
• A/C Failure Report Delay
The A/C power loss report can be programmed to delay for up to
254 minutes (see address 4034). (The same delay would also
apply to the A/C restoral report.)
- If another report is sent during this delay period, the A/C fail
report will be sent along with this report.
- If the A/C power restores during this delay period, the A/C loss
report will not be sent.
- Programming address 4034 as FF causes the report to be
sent at a random interval of at least 15 minutes, but no more
than 2 hours after the A/C failure occurs.
•AC Restoral: This report is sent when an AC failure condition
restores.
•Communicator Test/System Normal: This report is sent at the
24-hour check-in time if there is not a control trouble, an active
fire alarm that has not been acknowledged, a fire trouble, or a
supervisory condition. Note: To send a Communicator Test
even if one of these conditions exists, program the Communicator
Test/System Off Normal.
•Remote Program Successful: This report is sent after a Remote
Program session, if the session was terminated properly.
•Remote Program Unsuccessful: This report is sent after a
Remote Program session, if some error has occurred or the
session did not terminate properly.
•Local Program Successful: This report is sent when local
programmer’s mode is exited and there is no error associated
with the programming.
•Local Program Unsuccessful: This report is sent when local
programmer’s mode is exited and there has been some error
associated with the programming.
•System Trouble: This report is sent when a control trouble
condition occurs.
•System Trouble Restoral: This report is sent when all system
trouble conditions restore.
•Communicator Test/System Off Normal: This report is sent at
the 24-hour check-in time if there is a control trouble, an active
fire alarm that has not been acknowledged, a fire trouble, or a
supervisory condition.
•Exit Error: This report is sent if an exit error occurs. An exit error
occurs when an entry/exit zone is still violated at the end of the
exit delay. If this happens, the entry delay will begin and any
output programmed to activate an alarm will energize. If the
system is not disarmed before the entry delay expires, an alarm
report for the effected zone will be sent and the Exit Error report
will be sent. If this report is not programmed, the control will not
sound the exit error warning.
•Recent Closing: This report is sent, along with any alarm reports,
when there is an alarm within the first five minutes after the
system has been armed.
•System Walk Test: This report is sent when a system test has
been started ([#] [8] [1] key sequence). Zone reports are sent
during a system test.
•System Walk Test Restoral: This report is sent when the system
test has been completed or has timed-out.
•Fire Walk Test: This report is sent when a Fire Walk Test has
been started ([#] [9] [1] key sequence). Zone reports are not sent
during a Fire Walk Test.
•Fire Walk Test Restoral: This report is sent when the Fire Walk
Test has been completed or has timed-out.
•Mux. Smoke Low Temperature Report: This supervisory report
is sent when a MX280 Series smoke detector with a low
temperature feature detects a temperature of 45°F (7.5°C) or
less for a period of 30 minutes or more.
•Mux. Smoke Low Temperature Restoral: This report is sent
when a MX280 Series smoke detector with a low temperature
alarm determines that the temperature has risen above 45°F
(7.5°C).
•Dirty Chamber Report: This report is sent when a MX280 Series
smoke detector fails to pass the “Chamber Check®” sensitivity
test.
•Dirty Chamber Restoral: This report is sent when a MX280
Series smoke detector has been returned to normal operation
after service.
6.14 Phone Number General Control
Programming
•Enable Remote Programmer Callback: If programmed, when
the remote programmer tries to initiate a session with the panel,
the panel will hang up and call the remote programmer phone
number.
- Ensures the correct remote programmer is initiating the call.
•Dial Pulse on all Phone Numbers: If programmed, the panel will
dial phone number 1, 2, and the remote programmer phone
number 3 using the pulse format.
•Dial Tone on all Phone Numbers: If programmed, the panel will
dial phone number 1, 2, and the remote programmer phone
number 3 using the tone format.
6.15 Phone Answering Programming
•Answering Machine Bypass: This feature allows the panel to
answer incoming calls when answering machines are used. If
the line rings, stops ringing, then rings again within one minute,
the panel will seize the phone line on the first ring.
•Phone Answering Programming: The panel can be
programmed to answer the phone after a selected number of
rings for remote programming access. It can also be
programmed to answer the phone after a different number of
rings when in armed or disarmed states.
- This can be used to call the panel location and determine its
arming state.

DS7400Xi ( 4+) Reference Guide Copyright © 2007 Bosch Security Systems, Inc. P/N: F01U035325-01 Page 25
6.16 FCC Compliance Notice
This equipment has been tested and found to comply with the
limits for a Class A digital device, pursuant to Part 15 of the FCC
Rules. These limits are designed to provide reasonable protection
against harmful interference in a residential installation. This
equipment generates, uses and can radiate radio frequency energy
and if not installed and used in accordance with the instructions,
may cause harmful interference to radio communications. However,
there is no guarantee that interference will not occur in a particular
installation. If this equipment does cause harmful interference to
radio or television reception, which can be determined by turning
the equipment off and on, the user is encouraged to try to correct
the interference by one or more of the following measures:
• Re-orient or relocate the receiving antenna.
• Increase the separation between the equipment and the receiver.
• Connect the equipment into an outlet on a circuit different from
that to which the receiver is connected.
• Consult the dealer or an experienced radio/TV technician for
help.
6.17 FCC Phone Connection Notice To Users
This control complies with Part 68 of the FCC rules.
On the inside of the enclosure is a label that contains, among
other information, the FCC Registration Number and the Ringer
Equivalence Number (REN) for this equipment. You must, upon
request, provide this information to your local telephone company.
The REN is useful to determine the quantity of devices that may be
connected to your telephone line and still have all of those devices
ring when your telephone number is called. In most, but not all
areas, the sum of the REN's of all devices connected to one line
should not exceed five (5.0). To be certain of the number of devices
that you may connect to your line, you may want to contact your
local telephone company to determine the maximum REN for your
local calling area.
This equipment may not be used on coin service provided by the
telephone company. This control should not be connected to party
lines.
Should this equipment cause harm to the telephone network, the
telephone company may discontinue your service temporarily. If
possible, they will notify you in advance. But if advanced notice isn’t
practical, you will be notified as soon as possible. You will be
informed of your right to file a complaint with the FCC. The telephone
company may make changes in its facilities, equipment,
operations, or procedures that could affect the proper functioning
of your equipment.
If they do, you will be notified in advance to give you an opportunity
to maintain uninterrupted telephone service.
If you experience trouble with this equipment, please contact the
manufacturer for information on obtaining service or repairs.
The telephone company may ask that you disconnect this
equipment from the network until the problem has been corrected
or until you are sure that the equipment is not malfunctioning. The
repairs to this equipment must be made by the manufacturer and
not the user.
To guard against accidental disconnection, there is ample room to
mount the Telco jack to the inside of the Control cabinet.
The operation of this Control may also be affected if events such
as accidents or acts of God cause an interruption in telephone
service.
6.18 Canadian Dept. of Communications
General Installation Requirements: Notice: The Canadian
Department of Communications label identifies certified
equipment. This certification means that the equipment meets
certain telecommunications network, protective, operational, and
safety requirements. The Department does not guarantee the
equipment will operate to the user’s satisfaction.
Before installing this equipment, users should ensure that it is
permissible to be connected to the facilities of the local
telecommunications company. The equipment must also be
installed using an acceptable method of connection. In some
cases, the company’s inside wiring associated with a single line
individual service may be extended by means of a certified connector
assembly (telephone extension cord). The customer should be
aware that compliance with the above conditions may not prevent
degradation of service in some situations.
Repairs to certified equipment should be made by an authorized
Canadian maintenance facility designated by the supplier. Any
repairs or alterations made by the user to this equipment, or
equipment malfunctions, may give the telecommunications
company cause to request the user to disconnect the equipment.
Users should ensure, for their own protection, that the electrical
ground connections of the power utility, telephone lines, and internal
metallic water pipe system, if present, are connected together.
This precaution may be particularly important in rural areas.
Users should not attempt to make such connections
themselves, but should contact the appropriate
electric inspection authority, or electrician, as
appropriate.
Terminal Requirements: The Load Number (LN) assigned to
each terminal device denotes the percentage of the total load to be
connected to a telephone loop which is used by the device, to
prevent overloading. The termination on a loop may consist of any
combination of devices subject only to the requirement that the
total of the Load Numbers of all the devices does not exceed 100.
The Load Number of the DS7400Xi is 2.
RFI Requirements: This Class A digital apparatus meets all
requirements of the Canadian Interference-Causing Equipment
Regulations. [Cet appareil numerique de la classe A respecte
toutes les exigences du Reglement sur le material broilleur du
Canada.]
6.19 For Installations in New Zealand
Two-wire Connection:
The operation of this equipment on the same line as telephones
or other equipment with audible warning devices or automatic ring
detectors will give rise to bell tinkle or noise and may cause false
tripping of the ring detector. Should such problems occur, the user
is not to contact Telecom Faults Service.

Page 26 P/N: F01U035325-01 Copyright © 2007 Bosch Security Systems, Inc. DS7400Xi (4+) Reference Guide
7.0 Operating Guide
For additional information on operating this system, consult the DS7400Xi (Ver. 4+) User’s Guide (P/N: 43851) and the front cover of this
Reference Guide.
7.1 Emergency Procedures
7.1.1 Identifying Alarm Sounds
Your alarm system may be programmed for a steady alarm sound
or a pulsed alarm sound. It is important to learn the difference
between a fire alarm sound and an intrusion alarm sound before
you are confronted with an actual emergency.
7.1.2 Silencing Alarms
All alarms can be silenced with any PIN that has disarm privileges.
Entering your [PIN]+ [Off] will silence the alarm and turn off (disarm)
the control.
7.1.3 A Cautionary Note
How you respond to an alarm will depend, mostly, on the type and
time of the alarm. You should seek the advice of your installing
company as they install your system, not later (e.g. after an alarm)
to develop a response plan.
7.1.4 Use Common Sense
Above all else, common sense should prevail. If there is any threat
or hint of danger to yourself or others on the premises, such as in
the event of a fire alarm, everyone should be instructed to leave the
premises immediately. Do not enter the premises unless
accompanied by the appropriate Emergency Services’ personnel,
or after they have given the OK to enter.
7.1.5 Caution When Entering a Building
If the bells and sirens are on and/or the red Armed Light is flashing
with the DS7447/DS7447E display reading “Zone Alarm” or the
DS7445/DS7445i having its zone LEDs flashing, then the keypad
is signaling that an alarm has occurred. The keypad will also issue
a pulsed tone during the entry delay instead of the usual steady
tone.
If the alarm has not been previously investigated, do not enter the
building unless accompanied by the appropriate Emergency
Services’ personnel.
7.1.6 Fire Alarms
Fire Alarms are silenced using the same procedure as intrusion
alarms: a [PIN] (with disarm privileges) plus the [Off] key.
The Fire Alarm system is not reset until alarms at smoke detectors
are cleared by using the [System Reset] command. The Fire Alarm
system will not be functional until this procedure has been followed.
See the “Fire Reset” section, 7.2.
7.2 Fire Reset/Fire Trouble
7.2.1 Fire Reset
During a fire alarm, exit the premises immediately. When you have
determined there is no fire, you may silence the bells/sirens before
you initiate the [System Reset] command: [PIN] + [System Reset].
Before the [System Reset] command is used, determine which
smoke detector has alarmed so the monitoring company may
verify its operation.
NOTE: To use the System Reset command sequence, your PIN
must have disarm privileges. The System Reset com-
mand will perform a fire reset, a battery test, and will clear
all system troubles.
NOTE: If the System Reset command has not been performed
after 24 hours of the Fire Alarm, the keypad will sound
and it will display “Fire Alarm Not Reset.” If the sounders
have been silenced and the system has been reset prop-
erly, this warning will not occur.
7.2.2 Fire Trouble
A Fire Trouble message with a zone number signifies a problem
with the fire system, such as a break in the wiring that monitors
smoke detectors. A Fire Trouble message with no zone number
indicates a ground fault if the unit is in the commercial fire mode.
A Fire Trouble will be indicated by a short beep from the keypad
sounders every 10 seconds. The DS7447/DS7447E will display
“Fire Trouble” followed by the zones in a trouble condition. The
DS7445/DS7445i will turn the Fire and Trouble Lights on steady
and will light the corresponding zone LEDs.
Notify your installing company immediately if the Fire Trouble
message is displayed.
The Fire Trouble beep can be silenced with any [PIN] plus the [Off]
key. After problems have been remedied, a [PIN] plus the [Off] key
should again be entered to clear the “Fire Trouble” display.
7.2.3 Dirty Smoke
A Dirty Smoke display, followed by a zone number and accompanied
by a beep every ten seconds indicates that the smoke detector for
that zone requires cleaning or replacement. The smoke detector
will also give a Dirty indication by flashing its LED once per second.
The Dirty Smoke beep can be silenced by any [PIN] plus the [Off]
key.
Notify your installing company immediately if the Dirty Smoke
message is displayed.
When using the Emergency Keys, they must be pressed for two seconds to generate an alarm.
NOTE: If the Emergency Alarm Keys are to be used, they should be labeled to signify their functions.
The A key should be labeled as the Fire key. This is the only key that may be designated as the Fire key.
The B key should be labeled as the Special Emergency key.
The C key should be labeled as the Panic key.
Use the Disarming Command Sequence to cancel or silence these alarms.
7.3 Emergency Keypad Alarms
The Emergency Alarm Keys [A], [B], and [C] may generate Fire,
Special Emergency, and Panic Alarms if programmed by the
installer.
Ask your installing company to explain the function of these
keys.
Armed
St at us
Power
Fire
123
456
789
0
*#
On
No
Entry
System
Reset
Bypass
Onl y
Per im e te r
Off
ABC ABC
123
456
789
0
*#
On
No
En tr y
System
Reset
Bypass
Only
Perimeter
Off
TEST WEEKLY
1234567 8
91011121314
15 16
Armed
St at us
Power
Fire
Perimeter
Supervisory
Bell Silenced
Tro uble

DS7400Xi ( 4+) Reference Guide Copyright © 2007 Bosch Security Systems, Inc. P/N: F01U035325-01 Page 27
7.4 Fire
Safety No fire detection device or system should be considered 100% foolproof.
This fire alarm system can provide early warning of a developing
fire. Such a system, however, does not ensure protection against
property damage or loss of life resulting from a fire. Any fire alarm
system may fail to warn for any number of reasons (e.g. smoke not
reaching a detector that is behind a closed door).
When considering detectors for residential applications, refer to
NFPA Standard 72, “The National Fire Alarm Code.” This standard
is available at a nominal cost from: The National Fire Protection
Association, Batterymarch Park, Quincy, MA 02269.
7.4.1 If Installed in Family Residences
Adherence to the NFPA Standard 72 can lead to reasonable fire
safety when the following items are practiced:
• Minimize hazards: Avoid the three traditional fire killers: smoking
in bed, leaving children home alone, and cleaning with
flammable liquids.
• Providing a fire warning system: Most fire deaths occur in the
home, the majority, during sleeping hours. The minimum level
of protection requires smoke detectors to be installed outside of
each separate sleeping area and on each additional story of the
dwelling.
For added early warning protection, it is recommended that
detectors be installed in all separated areas including the
basement, bedrooms, dining room, utility room, furnace room,
and hallways.
7.4.2 Having and Practicing an Escape Plan
A fire warning may be wasted unless the family has planned in
advance for a rapid and safe exit from the building.
• Draw a floor plan of the entire house showing two exits from
each bedroom and two from the house. Since stairwells and
hallways may be blocked during a fire, the plan should provide
exits from bedroom windows.
Make copies of the plan and practice it with all family members.
• Pre-arrange a meeting place outside and away from the
residence. Once out of the building, all occupants should
immediately go to the pre-selected location to be accounted for.
• Provide a barricade between family members and fire, smoke,
and toxic gases (e.g. close all bedroom doors before retiring).
• Children should be instructed on opening their bedroom
windows and exiting safely from the building. If exiting is not
possible, they should be taught to stay at the open window and
shout for help until it arrives.
• In the event of a fire alarm after retiring, wake the children by
shouting to them from behind your closed door. Tell them to
keep their bedroom doors closed.
• If the top of your bedroom door is uncomfortably hot, do not open
it. There is most likely fire, intolerable heat, or smoke on the
other side. Shout to all family members to keep their bedroom
doors closed and to exit the building via alternate routes.
• If the top of the door is not uncomfortably hot, brace the bottom of
the door with your foot, and the top with one hand, then open the
door about one inch. Be prepared to slam the door shut if there
is any pressure against the door or if any hot air rushes in.
• If there is no evidence of excessive heat or pressure, leave the
room and close the door behind you. Shout appropriate
instructions to all family members and immediately leave the
building via the pre-planned routes. If heavy smoke is present,
drop to your hands and knees, or crawl to remain below the
smoke level.
7.4.3 Installation Considerations
Proper location of detection devices is one of the most critical
factors in a fire alarm system.
The following are some general considerations:
• Smoke detectors should not be installed in “dead air” spaces or
close to ventilating or air conditioning outlets because smoke
may be circulated away from the detector. Locations near air
inlets should be favored.
• Avoid areas subject to normal smoke concentrations such as
kitchens, garages, or near fireplaces.
• Do not install smoke detectors where normal area tempera-
tures are above 100° F (38° C) or below 32° F (0° C).
• Areas of high humidity and dust concentrations should be avoid-
ed.
• The edge of ceiling mounted detectors should be no closer than
4 inches (10 cm) from any wall.
• Place the top edge of wall mounted detectors between 4 and 12
inches (10 to 30 cm) from the ceiling.

Page 28 P/N: F01U035325-01 Copyright © 2007 Bosch Security Systems, Inc. DS7400Xi (4+) Reference Guide
7.5 Personal Identification Numbers
7.5.1 General Information
A PIN (Personal Identification Number) is the 4- or 6-digit code
users must enter at the keypad to gain access to the system. Your
system has the capability to assign up to 200 PINs, each four or six
digits long. A PIN may be assigned to each User Number.
PINs should never be programmed with common sequences
such as 1 2 3 4, 1 1 1 1, or 2 4 6 8 because they are easily
violated.
A User Number is the number that identifies each person using
the system. There are 200 possible User Numbers available for
use (001 through 200).
Each User Number can have only one PIN assigned to it.
Attempting to assign the same PIN to multiple User Numbers will
result in the three-beep error tone, and the entry will not be made.
User Number 001 is designated as a Master code. It can be used
to add, delete, or change other PINs. It will always have access to
all partitions regardless of how it is programmed.
User Number 001 is shipped from the factory with the PIN of 1 2 3
4. If your system has been reprogrammed for 6-digit PINs, the PIN
for User Number 001 will be 123456. This PIN should be changed
to one of your personal preference and must be programmed
as a Master code.
A Master code is one of the available authority levels which can be
assigned to a user to determine which functions that user will be
able to perform. The available authority levels are:
0 = Master: Can enter all commands, add or change PINs
in assigned partitions, change the time and
date, bypass, arm, disarm, perform system
tests, system reset and view history. User
Number 001 must have the Master authority
level. Any or all PINs can behave as a Master
code.
1 = Unlimited: Can enter all commands, bypass, arm,
disarm, system reset and perform system
tests. It can not change PINs.
2 = General: Can bypass, arm and disarm. It can not change
PINs, system reset, enter [#] [7] or any of the
[#] [8] functions.
3 = Arm Only: Can arm the system with [PIN] + [ON] arming
sequence only. It can not perform any other
functions, including disarming.
4 = Temporary: Valid only for a specified time (the PIN will
disappear upon expiration date). It can arm
and disarm the system, but can not perform
any other functions. If this is done from a
Master keypad, you must be in Single Partition
Mode. If access is assigned to more than one
partition, you must enter a Temporary PIN
expiration date for all assigned partitions (see
Changing the Expiration Date for Temporary
PINs).
5 = Duress: When the system is disarmed using the duress
code, a silent report is sent to your monitoring
service. The Duress code is intended to be
used when the user is forced to disarm the
system.
6 = Access Code: When a PIN with an Access Code is entered,
any output programmed for Access Output (i.e.
door strikes) will pulse on for 10 seconds
(works when the system is armed or
disarmed).
7.5.2 Programming PINs
PINs can only be added, changed, or removed in Master
Programming Mode, so they are not programmable from an RF
(wireless) keypad.
You should write down your entries before you enter the Master
Code Programming Mode and have them with you as you begin
programming. Make your entries promptly. If a long delay occurs in
your entries, the 3-beep error tone occurs and exits you from the
programming mode.
It is recommended that all PIN programming procedures be
performed at a DS7447/DS7447E keypad since this keypad will
provided visual prompts throughout the programming sequence.
No visual clues will be given from a D7445/DS7445i keypad. When
the programming sequence is successfully completed, both the
DS7447/DS7447E and DS7445/DS7445i keypads will signal the
seccessful completion with a long beep.
To add or change a PIN:
• Enter Master Programming Mode (press [Master PIN] + [#] [0]).
• Enter a 0 for PIN Setup programming (press [0]).
• Enter the User Number (enter a 3-digit number from 001 to 200).
• Enter the Authority Level (enter a number from 0 to 6).
• Enter the Area(s) (Partitions) to which this user will have access
(press [1], [2], [3], [4], [5], [6], [7], and/or [8] followed by [#]).
• Enter the PIN (enter any 4- or 6-digit number; do not press [#]).
• Enter the PIN again followed by [#].
To set the expiration date for an existing Temporary PIN:
• Enter Master Programming Mode (press [Master PIN] + [#] [0]).
• Enter a 3 for Date of Code Expiration Setup programming (press
[3]).
• Enter the Expiration Month (press [0] [1] for January through [1]
[2] for December).
• Enter the Expiration Day (press [0] [1] through [3] [1]). The Tem-
porary PIN will expire at Midnight on the day selected.
•Enter the Year (enter the last two digits of the year followed by
[#]).
NOTE: Entering the command sequence [Master Code] [#] [0] [3]
[#] will cause the DS7447/DS7447E keypad to read back
the temporary code expiration date.
To remove a PIN:
• Enter Master Programming Mode (press [Master PIN] + [#] [0]).
• Enter a 0 for PIN Setup programming (press [0]).
• Enter the User number of the PIN to be cancelled, followed by [#]
(enter a 3-digit number from 001 to 200, then press [#]).

DS7400Xi ( 4+) Reference Guide Copyright © 2007 Bosch Security Systems, Inc. P/N: F01U035325-01 Page 29
NOTE: User Number 001 can not be disabled in this manner.
7.6 The Master Keypad
7.6.1 General Information
Your system may include a Master keypad. A Master keypad is a
DS7447/DS7447E keypad programmed to give a user access to
all the partitions the user has access to, not just the partition in
which the Master keypad is located. This is different from a
Standard keypad in that Standard keypads only give access to the
single partition in which they are located. Commands entered at
the Master keypad will affect all the partitions to which the user has
access. If this is not desirable, the Master keypad can also be
used to control each partition individually; this is called Single
Partition Mode. Single Partition Mode allows a user to control any
or all of the partitions the user has access to on an individual (one-
by-one) basis (see section 7.6.3 for more information on Single
Partition Mode).
NOTE: In order to use the Master keypad, your PIN must be
assigned to the partition in which the Master keypad is
located.
7.6.2 Master Keypad Displays
Master keypad displays will differ slightly from Standard keypads.
The Master keypad display will scroll the Status of each partition,
followed by the partition number. For example, if all partitions are
armed, the Master keypad will scroll through the following displays:
A
rmed
a
rea 1 Armed
area 7
Armed
area 2 Armed
area 6
Armed
area 3 Armed
area 4 Armed
area 5 Arme
d
area
8
If only partitions 1, 2, 3, 4, 6, and 8 are armed, the Master keypad
will scroll through the following displays:
A
rmed
a
rea 1 Ready to Arm
area 7
Armed
area 2 Armed
area 6
Armed
area 3 Armed
area 4 Ready to Arm
area 5 Arme
d
area
8
Displays for partitions that are Not Ready will display in the same
manner.
The chart at the bottom of this page will help you understand what
each LED function of the Master keypad represents.
7.6.3 Single Partition Mode
Single Partition Mode is used to control partitions on a “one at a
time/one by one” basis from the Master keypad.
To enter the Single Partition Mode, enter your [PIN], then press the
[#] key twice. This will call up the first partition you have access to.
Enter the command sequence you wish for this partition. You do
not need to use your PIN again. To move on to the next partition you
have access to, press the [#] key twice.
To exit the Single Partition Mode, hold the [*] key down for 2 seconds.
The system will also automatically drop out of Single Partition
Mode after 40 seconds without a keypad entry.
Example of accessing Single Partition Mode
• Enter your [PIN], followed by the [#] key twice: [1] [2] [3] [4] [#] [#].
• The first partition you have access to will be displayed: “Ready
to Arm. Cafeteria.”
• Complete the command sequence (in this case arming) you
wish for this partition: [#] [On].
• Move to the next partition you have access to by pressing the [#]
key twice: [#] [#].
• The next partition you have access to will be displayed: “Ready
to Arm. Office.”
• Complete the command sequence you wish for this partition.
• After you have completed all the command sequences for the
partitions you have access to, exit Single Partition Mode by
pressing the [*] key for two seconds.
7.6.4 Arming from the Master Keypad
To arm all the Partitions to which you have access:
•[PIN] + any Arming Command Sequence. This will arm all the
partitions to which you have access even if they are already
armed.
To arm only some of the Partitions to which you have access:
• [PIN] + [#] + [#]. This puts you into Single Partition Mode.
• The first partition to which you have access is displayed: “Ready
to Arm. Cafeteria.”
• Enter the Arming Command Sequence you want for this parti-
tion.
• [#] + [#] opens the next partition to which you have access.
• The next partition to which you have access is displayed: “Ready
to Arm. Office.”
• Enter the Arming Command Sequence you want for this parti-
tion.
• After arming any or all partitions to which you have access, you
may exit Single Partition Mode by holding the [*] key for at least
two seconds. The system will also drop out of Single Partition
Mode after 40 seconds without a keypad entry.
7.6.5 Disarming from the Master Keypad
To disarm all the Partitions to which you have access:
• [PIN] + [Off]. This will disarm all the partitions to which you have
access even if they are already disarmed.
To disarm only some of the Partitions to which you have access:
• [PIN] + [#] + [#]. This puts you into Single Partition Mode.
• The first partition to which you have access is displayed: “Armed.
Cafeteria.”
• If you wish to disarm this partition, enter [Off]. If not, go to the next
step.
• [#] + [#] opens the next partition to which you have access.
• The next partition to which you have access is displayed: “Armed.
Office.”
• If you wish to disarm this partition, enter [Off]. If not, go to the next
step.
• After disarming any or all partitions to which you have access,
you may exit Single Partition Mode by holding the [*] key for at
LED Off Flashing On
Armed
(red) All partitions are disarmed. One or more partitions are armed, or
an alarm has occurred. All Partitions are armed, and no
alarms have occurred.
Status
(green) Not ready to arm (if the Armed LED is
On, all partitions are armed). One or more zones are bypassed. All partitions are ready to arm.
Power
(green) The Control Panel has lost all power;
no AC or battery. Control Panel problems exist.
See Error Displays. Normal Operation.
The Control Panel is running on AC
power with no problems,
Fire
(red) There are no fire alarms. A fire zone is in alarm. A fire trouble condition exists.

Page 30 P/N: F01U035325-01 Copyright © 2007 Bosch Security Systems, Inc. DS7400Xi (4+) Reference Guide
least two seconds. The system will also drop out of Single Par-
tition Mode after 40 seconds without a keypad entry.
7.7 Keypad Error Displays
7.7.1 General Information
Display Meaning
DS7445/DS7445i: Power LED flashing
DS7447/DS7447E: Control Trouble Enter #87 There is an Error Message. To
display the message, enter [PIN] + [#
]
[8] [7].
DS7445/DS7445i: LED 1 On
DS7447/DS7447E: AC Power Failure There is a power failure, and the
panel is operating on backup battery
power.
DS7445/DS7445i: LED 2 On
DS7447/DS7447E: Battery Trouble* If the system has just been through a
power failure, wait at least two hours
for the battery to recharge, the enter
[PIN] + [System Reset] to perform a
battery test,
DS7445/DS7445i: LED 3 On
DS7447/DS7447E: Communicator Err** The communicator failed to
communicate with the Central
Station.
DS7445/DS7445i: LED 4 On
DS7447/DS7447E: System Fault Internal error in the control circuitry or
optional circuitry. See System Faults.
DS7445/DS7445i: LED 5 On
DS7447/DS7447E: Keypad Fault One of the keypads is not responding
to the Control Panel.
DS7445/DS7445i: LED 6 On
DS7447/DS7447E: Keypad Tamper One of the keypad housings has
been opened.
DS7445/DS7445i: LED 7 On
DS7447/DS7447E: Multiplex Bus The multiplex bus is defective or has
been shorted.
DS7445/DS7445i: LED 8 On
DS7447/DS7447E: Aux. Power Fault The auxiliary power has been
shorted.
DS7445/DS7445i: not applicable
DS7447/DS7447E: Zone Trouble One of the zones is not responding to
the Control Panel. This may also be
displayed during power-up; if so,
ignore it.
DS7445/DS7445i: not applicable
DS7447/DS7447E: RF Indicates a problem with an RF
(wireless) zone.
DS7445/DS7445i: not applicable
DS7447/DS7447E: Dirty Chamber One of the multiplex smoke detectors
has failed the sensitivity test and may
require cleaning or replacement. The
keypad beep may be cleared by
entering [PIN] + [Off].
Error Displays can only be read when the control is disarmed.
Some Control Panel Errors, such as battery trouble and any RF
troubles, will cause the keypad sounders to beep every 10 seconds.
The keypad sounders may be silenced for 4 hours by entering:
[PIN] + [Off].
The sounders will continue to resound until the problem is fixed.
To Clear a display, enter: [PIN] + [System Reset].
Clear the Error Display only on the advice of your
installing company or if you are certain the problem
has been remedied.
NOTE: System faults may be read from any keypad because they
are system-wide. All other Error Displays are limited to
the partition the standard keypad is in. If you are on a
Master keypad, you may read Error Displays one partition
at a time.
7.7.2 System Faults
System faults are designated as follows:
[#] [8] [7] will display [#] [8] [9] will
display
RAM Fault System Fault 01
ROM Fault System Fault 02
EEPROM Fault System Fault 03
Ground Fault System Fault 04
2Ph/Bell Fault = loss of communication to
DS7420i System Fault 10
Line 1 Fault = DS7420I phone line 1 fault System Fault 11
Line 2 Fault = DS7420I phone line 2 fault System Fault 12
Bell Fault = DS7420i bell circuit fault System Fault 13
Aux. Relay Fault = DS7420I auxiliary relay
fault System Fault 14
Oct. Relay Fault = loss of communication to
DS7488 System Fault 20
Reserved for older panels System Fault 50
AR IB Queue Full = modem buffer full System Fault 51
AR Host Down = network data switch down System Fault 52
AR Unreg. Modem = modem not registered System Fault 53
AR Power Fail = power source below
defined threshold System Fault 54
AR Network Lost = loss of network System Fault 55
AR Modem HW Err = modem hardware
error System Fault 56
AR Modem SW Err = modem software
error System Fault 57
AR Opt. Bus Err = loss of communications
to ARDIS module System Fault 58
AR Corrupt MSG = message error System Fault 59
7.7.3 Event History
The History Buffer stores the last 400 events in memory. The
DS7447/DS7447E can display all of these events. If this test is
performed from a Master keypad, it must be in Single Partition
Mode. The DS7445/DS7445i will only display those zones (1-8)
that have alarmed since the last Event History Readback. The
RF3341 cannot display history events.
To readback the Event History Buffer:
• Press [PIN] + [#] [8] [9]. On a DS7447/DS7447E keypad, the last
event to take place will be displayed. On a DS7445/DS7445i
keypad, the zone LEDs for any zones that have alarmed since
the last Event History Readback in that partition will flash.
• Scroll through the events using the [9], [6], and [#] keys as follows:
To begin scrolling back through the events, press the [#] key. The
[#] key will scroll you back through the history line by line. The [9]
key will scroll you back in reverse chronological order by event. A
[6] will scroll you back up through the events (toward the most
recent) by event.
Each event consists of two or three lines or display screens. The
first line/screen will be the event title and user. The second line/
screen will be the date of the event or the change being made. If
there is a third line/screen, it will be the date of the change.
NOTE: When performing this from a Master keypad, each partition
will display its own history.
• To exit the Event History Mode, press the [*] key or wait 20 seconds
and the keypad will exit automatically.

DS7400Xi ( 4+) Reference Guide Copyright © 2007 Bosch Security Systems, Inc. P/N: F01U035325-01 Page 31
7.8 Testing Your System
7.8.1 Zone (System Walk) Test
The Zone Test is used to confirm that detectors will report alarms
to the keypad. A Zone Test works on all zones, except 24-hour
zones and fire zones. While the keypad is in a Zone Test, no control
panel alarms will activate an alarm, except 24-hour zone alarms
and fire alarms; these will override the Zone Test function.
To perform a Zone Test:
• Press [PIN] + [#] [8] [1].
- The DS7445/DS7445i zone LEDs of any untested zones will
flash.
- The DS7447/DS7447E displays “Test Zone” followed by the
zone number of any zones that have not been tested.
• Pick any untested zone and manually cause a detector to alarm
using a method specified in the detector’s Installation
Instructions.
- The DS7445/DS7445i zone LED for the zone currently being
tested will turn on steady.
- The DS7447/DS7447E displays “Now Testing” followed by
the zone number of the zone that is currently being tested.
• Clear the alarm condition from the detector using a method
specified in the detector’s Installation Instructions, and trigger
an alarm on the next detector in that zone. Continue until all
detector’s in that zone have been tested.
- As each zone is tested, its DS7445/DS7445i zone LED turns
off.
- As each zone is tested, the DS7447/DS7447E display returns
to “Test Zone” and indicates the remaining untested zones.
• Test each zone.
• Exit the Zone Test using [PIN] + [#].
7.8.2 Battery Tests
You may perform a test of the battery and the local sounder or just
test the battery. If these tests are performed from a Master keypad,
it must be in Single Partition Mode. System Tests are not available
from RF (wireless) keypads.
To initiate a Local Battery / Sounder Test:
• Press [PIN] + [#] [8] [5]. All keypad LEDs will turn on. The keypad
sounder and all alarm sounding devices will operate for two
seconds. If the test fails, the control panel will indicate a control
problem. See Error Displays on page 30.
NOTE: If power in your building has been off recently, wait two
hours for the battery to recharge and then try again.
To initiate a Battery Test:
• Press [PIN] + [System Reset]. The control panel will perform a
battery test. The control panel will report a Low Battery or a Low
Battery Restoral if necessary.
7.8.3 Communicator Test
This test is available only if the system transmits alarms and system
information to a monitoring service, and has been programmed by
the security installing company to permit communicator tests. This
test can be performed from a Master Keypad. The account code for
partition #1 will be used. System Tests are not available from RF
(wireless) keypads.
To initiate a Communicator Test:
• Press [PIN] + [#] [8] [2]. A long beep will sound. A “Test” report is
sent to the monitoring service. If the test fails, the keypad sounder
will sound continuously. To silence the sounder, press [System
Reset].
NOTE: This test may take several minutes to complete because
the control panel will try ten attempts.
7.8.4 Fire Walk Test
This test is used to confirm that Smoke detectors will report alarms
to the keypads. The Fire Walk Test tests all fire zones, including
verified fire and waterflow.
At the start of the Fire Walk Test a Fire Walk Test report, if
programmed, is sent to the central station. Fire alarm reports are
not sent to the central station during the Fire Walk Test. A Fire Walk
Test restoral is sent upon completion of the Fire Walk Test.
The Fire Walk Test is enabled for 20 minutes once it is started. The
test time is extended to 20 minutes every time another zone is
tested.
When a fire zone is tested, any output programmed to follow that
zone will activate for 5 seconds.
To perform a Fire Walk Test:
• Press [PIN] + [#] [9] [1].
- The DS7445/DS7445i zone LEDs of any untested zones will
flash.
- The DS7447/DS7447E displays “Fire Test” followed by the
zone number of any zones that have not been tested.
• Pick any untested zone and manually cause a detector to alarm
using a method specified in the detector’s Installation
Instructions.
- The DS7445/DS7445i zone LED for the zone currently being
tested will turn on steady.
- The DS7447/DS7447E displays “Fire Testing” followed by
the zone number of the zone that is currently being tested.
• Clear the alarm condition from the detector using a method
specified in the detector’s Installation Instructions, and trigger
an alarm on the next detector in that zone. Continue until all
detector’s in that zone have been tested.
- As each zone is tested, its DS7445/DS7445i zone LED turns
off.
- As each zone is tested, the DS7447/DS7447E display returns
to “Fire Test” and indicates the remaining untested zones. *
• Test each zone as instructed by your installing company.
• Exit the Zone Test using [PIN] + [#].
NOTE: A Fire Walk Test will prevent the system from sending any
Fire Reports during the test.

Page 32 P/N: F01U035325-01 Copyright © 2007 Bosch Security Systems, Inc. DS7400Xi (4+) Reference Guide
8.0 How to Program the Control Panel
8.1 Entering the Programmer’s Mode
To enter the Programmer’s Mode, enter the Programmer’s Code followed by [#] [0]. Shorting the program pads (see section 2.0 for
location) on the control panel will also activate Programmer’s Mode.
NOTE: The factory set default Programmer’s Code is [9] [8] [7] [6]. If the system has been reprogrammed for 6-digit PINs, the default
Programmer’s Code will be [9] [8] [7] [6] [5] [4].
8.2 Reading Back a Program Address
Once you are in the programmer’s mode, to read back the value of a Program Address, enter that Program Address followed by [#]. Each
data digit is displayed one data digit at a time. To view the second data digit, enter the # button again.
The display will look like this:
8.3 Entering a Value in a Program Address
To enter a value in the Program Address, enter the Program Address, then enter the value for each Data Digit, then enter [#] to save it and
move on to the next Program Address. Entering data digit 1 will increment you to the next data digit.
The display will show the Program Address and will display the value of each Data Digit after you enter it. The data will be programmed
(saved) when you press the [#] key. The control panel will automatically increment to the next program address.
• If you wish to program that next address, enter the necessary information.
• If you wish to read back the value of that address, press the [#] key.
• If you wish to program a different address, press the [*] key two times and enter the program address you wish to program.
If you make a mistake at any time, press the [*] key two times (before pressing the [#] key). This will clear the display, allowing you to enter
the program address you wish to work with.
8.4 HEX values
Some Data Digit values will be higher than 9. These values must be programmed by pressing the [*] key followed by some other
number. These values will display as HEX characters (A - F) when entered. Example: entering *0 at the keypad will display an A.
The HEX character values are as follows:
*0 = A *1 = B *2 = C *3 = D *4 = E *5 = F
8.5 Defaults
The DS7400Xi is shipped from the factory as a working, pre-programmed control. Many of the programming addresses may already be
set to the values you need. The default values are shown in
Reverse Print
.
If the value you would like is in
Reverse Print
, you don’t need to re-program this address.
In the example, a “0” is the default value:
If the default value is not shown in
Reverse Print
, it will be shown in a separate table.
8.6 Setting the Control to the Factory Default
Only enter [0] [1] [#] in Program Address 4058 when you are completely sure you want to erase all installer program-
ming. Entering [0] [1] [#] in Program Address 4058 will immediately reset the control to the factory default. Any
programming already done by the installer will be erased. This action cannot be reversed.
To set the control’s programming values back to the default, enter the programming mode, then enter [4][0][5][8][0] [1] [#].
8.7 Exiting the Programmer’s Mode
To exit the Programmer’s Mode, press the [*] key for a minimum of 2 seconds. If no keypad entries are made for 4 minutes, the control
will automatically exit you from the Programmer’s Mode.

DS7400Xi ( 4+) Reference Guide Copyright © 2007 Bosch Security Systems, Inc. P/N: F01U035325-01 Page 33
9.0 Understanding the Programming Charts
The Programming Reference Guide makes use of three types of charts. Each is described below.
If the chart looks like this, a combination of features is available to be programmed for that particular address.
0
Select Options 1234567
Feature 1
Feature 2
Feature 3
Feature 4
Enter the Data Digit as a:
Identifies the options/features
available for this address
Enter one of these numbers
for the appropriate data digit
The dots represent which
options/features are included
with each selection
Example:
To select Feature 2 only,
enter the data digit as a 1.
To select Feature 2 and
Feature 4,
enter the data digit as a 5.
If the chart looks like this, only a single feature is available to be programmed for that particular address.
Disabled
Perimeter Instant
24-Hour
Entry/Exit Delay #1
Entry/Exit Delay #2
1
2
3
4
0
Enter one of these numbers
for the appropriate data digit
Represents the option/feature
available for this address.
Example:
To select Disabled,
enter the data digit as a 0.
To select Entry/Exit Delay #2,
enter the data digit as a 4.
Select Option DD
Some pages may also include a Default chart that looks like this:
Zone Function
1
2
3
0001
0002
0003
23
24
21
Address Default

Page 34 P/N: F01U035325-01 Copyright © 2007 Bosch Security Systems, Inc. DS7400Xi (4+) Reference Guide
10.0 Programming
10.1 General Control Programing: Program Address (0000)
General Control programming defines the system-wide general operating parameters. See Glossary (section 6.1) for further details.
0Select Options 1234567
Allow Normal and Custom Arming**
Allow Perimeter Instant Arming**
Allow Perimeter Arming**
Allow Maximum Security Arming**
Closing Ring-Back
Data Digi
t
12
Siren on Comm. Fail for Silent Zone
8 9 *0 *1 *2 *3 *4 *5
Enter the Data Digit as a:
50 Hz. operationΔ
60 Hz. operation
Δ = For installations in North America, select 60 Hz. operation.
*0 - *5 are Hex values. They will display as A - F at the keypads.
4
3
012
Restore zone when Sounders Silence
Restore zone when Zone Restores
Restore zone when System is Disarmed
Allow Swinger Shunts. Send Bypass Reports
Select Options 5
Enter DD as a:
678
Allow Swinger Shunts. No Bypass Reports
** = • Normal Arming = [PIN] + [On]: If programmed, Normal Arming arms the entire system while allowing entry delays for entry/
exit zones.
• Perimeter Instant Arming = [PIN] + [No Entry] + [Perimeter Only]: If programmed, Perimeter Instant Arming arms only the
perimeter of the system and does not allow entry delays for entry/exit zones.
• Perimeter Arming = [PIN] + [Perimeter Only]: If programmed, Perimeter Arming arms only the perimeter of the system
while allowing entry delays for entry/exit zones.
• Custom Arming = [PIN] + [#] [4]: If programmed, Custom Arming allows custom arming of the system and bypasses the
zone functions specified in data addresses 2725-2728.
• Maximum Security Arming = [PIN] + [No Entry] + [On]: If programmed, Maximum Security Arming arms the entire system
and does not allow entry delays for entry/exit zones.
Normal Arming Custom Arming Perimeter Instant Arming Perimeter Arming Maximum Security Arming Closing Ring Back Siren on Communication Fail Restore Swinger Shunts

DS7400Xi ( 4+) Reference Guide Copyright © 2007 Bosch Security Systems, Inc. P/N: F01U035325-01 Page 35
Programming a Zone
Programming a Zone is a four step process. These steps must be performed, in order, to program a zone.
• Step 1 is programming Zone Functions (what the zone will do in alarm),
• Step 2 is assigning a Zone Function to the zone.
• Step 3 is assigning a Zone Type to the zone.
• Step 4 is assigning the zone to a partition.
Step 1: Programming the Zone Functions
10.2 Zone Function Programming: Program Addresses (0001-0030)
9
All Partitions-No Force Arm
0
1
3All Partitions-Can Force Arm
Single Partition-No Force Arm
Single Partition-Can Force Arm
DDSelect Option
2
Note: If digit 2 = 9 (keyswitch), use
this chart for digit 1.
Data Digit
12
0
1
2
3
4
5
6
7
8
9
*0
*1
*2
*3
24-Hour
Interior Delayed
Perimeter Instant
Entry/Exit Delay #1
Entry/Exit Delay #2
Interior Entry/Exit Follower
Interior Home/Away
Interior Instant
Day Monitor
Keyswitch (See note below)
Fire Zone with verification
Fire Zone w/out verification
Waterflow
Supervisory
DDSelect Option
*4
*5
Entry/Exit Delay Cancel 1
Entry/Exit Delay Cancel 2
Default Values
(Will be forced to different values when in
Commercial Fire Mode. See section 10.18.3)
Address
Zone
Funct.
2 = Steady alarm output, alarm on short and open.
3 = Entry/exit delay 1.
2 = Steady alarm output, alarm on short and open.
4 = Entry/exit delay 2.
2 = Steady alarm output, alarm on short and open.
1 = Perimeter Instant.
2 = Steady alarm output, alarm on short and open.
5 = Interior entry/exit follower.
2 = Steady alarm output, alarm on short and open.
6 = Interior home/away.
2 = Steady alarm output, alarm on short and open.
7 = Interior Instant.
2 = Steady alarm output, alarm on short and open.
2 = 24-hour.
7 = Pulsing alarm output, alarm on short, trouble on open.
*0 = Fire zone with verification.
0001
0002
0003
0004
0005
0006
0007
0008
0009
0010
0011
0012
0013
0014
0015
1
2
3
4
5
6
7
8
9
10
11
12
13
14
15
2 = Steady alarm output, alarm on short and open.
1 = Perimeter Instant.
Value
(fill in)
2 = Steady alarm output, alarm on short and open.
1 = Perimeter Instant.
2 = Steady alarm output, alarm on short and open.
1 = Perimeter Instant.
2 = Steady alarm output, alarm on short and open.
1 = Perimeter Instant.
2 = Steady alarm output, alarm on short and open.
1 = Perimeter Instant.
2 = Steady alarm output, alarm on short and open.
1 = Perimeter Instant.
2 = Steady alarm output, alarm on short and open.
1 = Perimeter Instant.
16
to
30
0016
to
0030
2 = Steady alarm output, alarm on short and open.
1 = Perimeter Instant.
** = Only when disarmed. When armed, this becomes Alarm on Open or Short for
non-24-hour zones. Note: Multiplex contacts (DS7450 and DS7452) should
not be programmed for Trouble on Open.
1 2 3 4 5 6 7 *2 *3 *4 *50
Select Options
Invisible Alarm
Silent Alarm
Steady Alarm Output
Pulsing Alarm Output
Alarm on Short
Alarm on Open
Enter the Data Digit as a:
Trouble on Open**
Trouble on Short
*2 - *5 are Hex values. They will display as C - F at the keypads.
A Zone Function is the description of how a zone will behave. Up to 30 different Zone Functions may
be programmed. You may use the default values (which are already programmed into the panel) and
skip this step, or change the defaults, or add new Zone Functions. See section 6.2 for further
details.
An open loop will always produce
a steady alarm response.

Page 36 P/N: F01U035325-01 Copyright © 2007 Bosch Security Systems, Inc. DS7400Xi (4+) Reference Guide
Step 2: Assigning a Zone Function to the Zone
In this step, a Zone function is assigned to the Zone.
10.3 Zone Programming: Program Addresses (0031-0278)
In Zone Programming, each zone is defined according to its input (single or multiple zone input, or a DS7465) and its Zone Function
(1-30) or Output Function (1-24). The DS7465’s relay is the only device that will follow the output functions; its input loop will follow a zone
function. All single and multiple zone inputs will follow a zone function. See section 6.3 for further details.
Data Digit
12
1
2
3
4
5
6
7
8
0031
0032
0033
0034
0035
0036
0037
0038
0039-0278
01
02
03
04
05
06
07
08
00
Zone Number Address
Zone
Function
Default
Hint:
Address = Zone Number + 30
Options
Disable a zone
Enter a Zone Function Value
Zone
Functio
n
Value
00
01-30
T
he DS7465 occupies two zones. The odd numbered
z
one of the zone pair is the input zone. The even
n
umbered zone of the zone pair is the output relay.
T
he output follows an output function.
9-248

DS7400Xi ( 4+) Reference Guide Copyright © 2007 Bosch Security Systems, Inc. P/N: F01U035325-01 Page 37
10.4 Zone Programming: Zone Type Program Addresses (0415-0538)
In Zone Programming, each zone is defined according to its Input (single or multiple zone input, or a DS7465) and its Zone Function
or Output function (1-24). The DS7465’s relay is the only device that will follow the output functions; its input loop will follow a zone
function. All single and multiple zone inputs will follow a zone function. See section 6.3 for further details.
Data Digit
12
Single Zone Input
(zones 1-8 on the control, multiplex contacts,
sensors, or a DS7457)
Multiple Zone Input
(any zone that is on a DS7432, DS7433, or DS7460)
Select Option DD
0
1
DS7465 Connections
(the input zone or the output relay on a DS7465) 2
The D7465 occupies two zones. The odd
numbered zone of the zone pair is the input
zone. The even numbered zone of the zone
pair is the output relay.
MX280THL Multiplex Smoke Detectors
with Low Temperature Alarm 4
The MX280THL occupies two zones. The odd
numbered zone of the zone pair is the smoke
detector. The even numbered zone of the zone
pair is the Low Temperature Alarm.
IMPORTANT
I
MPORTANT
IMPORTANT
IMPORTAN
T
DD Select Option
0
1
2
3
4
Single Zone Input
(zones 1-8 on the control, multiplex contacts,
sensors, or a DS7457)
Multiple Zone Input
(any zone that is on a DS7432, DS7433, or DS7460)
DS7465 Connections
(the input zone or the output relay on a DS7465)
The D7465 occupies two zones. The odd
numbered zone of the zone pair is the input
zone. The even numbered zone of the zone
pair is the output relay.
MX280, MX280TH Multiplex Smoke Detectors
MX280THL Multiplex Smoke Detectors
with Low Temperature Alarm
The MX280THL occupies two zones. The odd
numbered zone of the zone pair is the smoke
detector. The even numbered zone of the zone
pair is the Low Temperature Alarm.
If Data Digit 1 is 2
Data Digit 2 MUST be 2
If Data Digit 1 is 4
Data Digit 2 MUST be 4
Zones 1 & 2
Zones 3 & 4
Zones 5 & 6
Zones 7 & 8
Zones 9 & 10
Zones 11 & 12
Zones 13 & 14
Zones 15 & 16
Zones 17 & 18
Zones 19 & 20
Zones 21 & 22
Zones 23 & 24
Zones 25 & 26
Zones 27 & 28
Zones 29 & 30
Zones 31 & 32
Zones 33 & 34
Zones 35 & 36
Zones 37 & 38
Zones 39 & 40
Zones 41 & 42
Zones 43 & 44
Zones 45 & 46
Zones 47 & 48
Zones 49 & 50
Zones 51 & 52
Zones 53 & 54
Zones 55 & 56
Zones 57 & 58
Zones 59 & 60
Zones 61 & 62
Zones 63 & 64
0415
0416
0417
0418
0419
0420
0421
0422
0423
0424
0425
0426
0427
0428
0429
0430
0431
0432
0433
0434
0435
0436
0437
0438
0439
0440
0441
0442
0443
0444
0445
0446
Zones 65 & 66
Zones 67 & 68
Zones 69 & 70
Zones 71 & 72
Zones 73 & 74
Zones 75 & 76
Zones 77 & 78
Zones 79 & 80
Zones 81 & 82
Zones 83 & 84
Zones 85 & 86
Zones 87 & 88
Zones 89 & 90
Zones 91 & 92
Zones 93 & 94
Zones 95 & 96
Zones 97 & 98
Zones 99 & 100
Zones 101 & 102
Zones 103 & 104
Zones 105 & 106
Zones 107 & 108
Zones 109 & 110
Zones 111 & 112
Zones 113 & 114
Zones 115 & 116
Zones 117 & 118
Zones 119 & 120
Zones 121 & 122
Zones 123 & 124
Zones 125 & 126
Zones 127 & 128
0447
0448
0449
0450
0451
0452
0453
0454
0455
0456
0457
0458
0459
0460
0461
0462
0463
0464
0465
0466
0467
0468
0469
0470
0471
0472
0473
0474
0475
0476
0477
0478
Zones 129 & 130
Zones 131 & 132
Zones 133 & 134
Zones 135 & 136
Zones 137 & 138
Zones 139 & 140
Zones 141 & 142
Zones 143 & 144
Zones 145 & 146
Zones 147& 148
Zones 149 & 150
Zones 151 & 152
Zones 153 & 154
Zones 155 & 156
Zones 157 & 158
Zones 159 & 160
Zones 161 & 162
Zones 163 & 164
Zones 165 & 166
Zones 167 & 168
Zones 169 & 170
Zones 171 & 172
Zones 173 & 174
Zones 175 & 176
Zones 177 & 178
Zones 179 & 180
Zones 181 & 182
Zones 183 & 184
Zones 185 & 186
Zones 187 & 188
Zones 189 & 190
Zones 191 & 192
0479
0480
0481
0482
0483
0484
0485
0486
0487
0488
0489
0490
0491
0492
0493
0494
0495
0496
0497
0498
0499
0500
0501
0502
0503
0504
0505
0506
0507
0508
0509
0510
Zones 193 & 194
Zones 195 & 196
Zones 197 & 198
Zones 199 & 200
Zones 201 & 202
Zones 203 & 204
Zones 205 & 206
Zones 207 & 208
Zones 209 & 210
Zones 211 & 212
Zones 213 & 214
Zones 215 & 216
Zones 217 & 218
Zones 219 & 220
Zones 221 & 222
Zones 223 & 224
Zones 225 & 226
Zones 227 & 228
Zones 229 & 230
Zones 231 & 232
Zones 233 & 234
Zones 235 & 236
Zones 237 & 238
Zones 239 & 240
Zones 241 & 242
Zones 243 & 244
Zones 245 & 246
Zones 247 & 248
0511
0512
0513
0514
0515
0516
0517
0518
0519
0520
0521
0522
0523
0524
0525
0526
0527
0528
0529
0530
0531
0532
0533
0534
0535
0536
0537
0538
Zones Address Zones Address Address AddressZones Zones
MX280, MX280TH Multiplex Smoke Detectors 3
Keyfob 5Keyfob 5
Step 3: Assigning a Zone Type to the Zone
When using premises RF,
• zones 129-136 are reserved.
• zones 137-248 are available as RF zones
only! Wired zones can not reside in zones
137-248 when using RF.

Page 38 P/N: F01U035325-01 Copyright © 2007 Bosch Security Systems, Inc. DS7400Xi (4+) Reference Guide
Step 4: Assigning a Partition to the Zone
10.5 Zone Partition Assignment: Program Addresses (0287-0410)
In Zone Partition Assignment, each zone is assigned to a partition. By default, all zones are assigned to partition 1.
The partition assignment for odd numbered zones is programmed in the first data digit of these addresses. The partition assignment
for even numbered zones is programmed in the second data digit of these addresses.
For example, to assign zone 1 to partition 1 and zone 2 to partition 2, program address 0287 as 01.
Zones 1 & 2
Zones 3 & 4
Zones 5 & 6
Zones 7 & 8
Zones 9 & 10
Zones 11 & 12
Zones 13 & 14
Zones 15 & 16
Zones 17 & 18
Zones 19 & 20
Zones 21 & 22
Zones 23 & 24
Zones 25 & 26
Zones 27 & 28
Zones 29 & 30
Zones 31 & 32
Zones 33 & 34
Zones 35 & 36
Zones 37 & 38
Zones 39 & 40
Zones 41 & 42
Zones 43 & 44
Zones 45 & 46
Zones 47 & 48
Zones 49 & 50
Zones 51 & 52
Zones 53 & 54
Zones 55 & 56
Zones 57 & 58
Zones 59 & 60
Zones 61 & 62
Zones 63 & 64
0287
0288
0289
0290
0291
0292
0293
0294
0295
0296
0297
0298
0299
0300
0301
0302
0303
0304
0305
0306
0307
0308
0309
0310
0311
0312
0313
0314
0315
0316
0317
0318
Zones 65 & 66
Zones 67 & 68
Zones 69 & 70
Zones 71 & 72
Zones 73 & 74
Zones 75 & 76
Zones 77 & 78
Zones 79 & 80
Zones 81 & 82
Zones 83 & 84
Zones 85 & 86
Zones 87 & 88
Zones 89 & 90
Zones 91 & 92
Zones 93 & 94
Zones 95 & 96
Zones 97 & 98
Zones 99 & 100
Zones 101 & 102
Zones 103 & 104
Zones 105 & 106
Zones 107 & 108
Zones 109 & 110
Zones 111 & 112
Zones 113 & 114
Zones 115 & 116
Zones 117 & 118
Zones 119 & 120
Zones 121 & 122
Zones 123 & 124
Zones 125 & 126
Zones 127 & 128
0319
0320
0321
0322
0323
0324
0325
0326
0327
0328
0329
0330
0331
0332
0333
0334
0335
0336
0337
0338
0339
0340
0341
0342
0343
0344
0345
0346
0347
0348
0349
0350
Zones 129 & 130
Zones 131 & 132
Zones 133 & 134
Zones 135 & 136
Zones 137 & 138
Zones 139 & 140
Zones 141 & 142
Zones 143 & 144
Zones 145 & 146
Zones 147& 148
Zones 149 & 150
Zones 151 & 152
Zones 153 & 154
Zones 155 & 156
Zones 157 & 158
Zones 159 & 160
Zones 161 & 162
Zones 163 & 164
Zones 165 & 166
Zones 167 & 168
Zones 169 & 170
Zones 171 & 172
Zones 173 & 174
Zones 175 & 176
Zones 177 & 178
Zones 179 & 180
Zones 181 & 182
Zones 183 & 184
Zones 185 & 186
Zones 187 & 188
Zones 189 & 190
Zones 191 & 192
0351
0352
0353
0354
0355
0356
0357
0358
0359
0360
0361
0362
0363
0364
0365
0366
0367
0368
0369
0370
0371
0372
0373
0374
0375
0376
0377
0378
0379
0380
0381
0382
Zones 193 & 194
Zones 195 & 196
Zones 197 & 198
Zones 199 & 200
Zones 201 & 202
Zones 203 & 204
Zones 205 & 206
Zones 207 & 208
Zones 209 & 210
Zones 211 & 212
Zones 213 & 214
Zones 215 & 216
Zones 217 & 218
Zones 219 & 220
Zones 221 & 222
Zones 223 & 224
Zones 225 & 226
Zones 227 & 228
Zones 229 & 230
Zones 231 & 232
Zones 233 & 234
Zones 235 & 236
Zones 237 & 238
Zones 239 & 240
Zones 241 & 242
Zones 243 & 244
Zones 245 & 246
Zones 247 & 248
0383
0384
0385
0386
0387
0388
0389
0390
0391
0392
0393
0394
0395
0396
0397
0398
0399
0400
0401
0402
0403
0404
0405
0406
0407
0408
0409
0410
Zones Address Zones Address Address AddressZones Zones
Data Digit
1
2
1
2
3
4
5
6
7
Belongs to Partition 1
Belongs to Partition 2
Belongs to Partition 3
Belongs to Partition 4
Belongs to Partition 5
Belongs to Partition 6
Belongs to Partition 7
Belongs to Partition 8
Select Option DD
= odd numbered zones
= even numbered zone
s

DS7400Xi ( 4+) Reference Guide Copyright © 2007 Bosch Security Systems, Inc. P/N: F01U035325-01 Page 39
10.6 Zone Bypass Programming: Program Addresses (2721-2724)
Zone Bypass programming determines which zone functions can be bypassed. Zone functions that can not be bypassed can not be
force armed either. Fire zones can never be manually bypassed, but can be force armed. The Default of [0] or [8] means those zones can
be bypassed.
12
Data Dig
it
PA 2721
123456789*0 *1 *2 *3 *4 *5
Zone Function 1 Can Be Bypassed
Select Options
Enter the Data Digit as a:
*0 - *5 are Hex values. They will display as A - F at the keypads.
Zone Function 4 Can Be Bypassed
Zone Function 3 Can Be Bypassed
Zone Function 2 Can Be Bypassed
0
12345670 9*0 *1 *2 *3 *4 *5
Zone Function 5 Can Be Bypassed
Select Options
Enter the Data Digit as a:
*0 - *5 are Hex values. They will display as A - F at the keypads.
Zone Function 8 Can Be Bypassed
Zone Function 7 Can Be Bypassed
Zone Function 6 Can Be Bypassed
8
*0 - *5 are Hex values. They will display as A - F at the keypads.
12
Data Dig
it
PA 2722
123456789*0 *1 *2 *3 *4 *5
Zone Function 9 Can Be Bypassed
Select Options
Enter the Data Digit as a:
*0 - *5 are Hex values. They will display as A - F at the keypads.
Zone Function 12 Can Be Bypassed
Zone Function 11 Can Be Bypassed
Zone Function 10 Can Be Bypassed
0
123456789*0 *1 *2 *3 *4 *5
Zone Function 13 Can Be Bypassed
Select Options
Enter the Data Digit as a:
Zone Function 15 Can Be Bypassed
Zone Function 14 Can Be Bypassed
0
Zone Function 16 Can Be Bypassed
Note: This programming item does not affect Custom Arming Programming (PA 2725-2778) or
Swinger Shunt Bypasses (see programming for Program Address 0000).

Page 40 P/N: F01U035325-01 Copyright © 2007 Bosch Security Systems, Inc. DS7400Xi (4+) Reference Guide
*0 - *5 are Hex values. They will display as A - F at the keypads.
12
Data Dig
it
PA 2724
123456789*0 *1 *2 *3 *4 *5
Zone Function 25 Can Be Bypassed
Select Options
Enter the Data Digit as a:
*0 - *5 are Hex values. They will display as A - F at the keypads.
Zone Function 28 Can Be Bypassed
Zone Function 27 Can Be Bypassed
Zone Function 26 Can Be Bypassed
0
123456789*0 *1 *2 *3 *4 *5
Zone Function 29 Can Be Bypassed
Select Options
Enter the Data Digit as a:
Zone Function 30 Can Be Bypassed
0
12
Data Dig
it
PA 2723
123456789*0 *1 *2 *3 *4 *5
Zone Function 17 Can Be Bypassed
Select Options
Enter the Data Digit as a:
*0 - *5 are Hex values. They will display as A - F at the keypads.
Zone Function 20 Can Be Bypassed
Zone Function 19 Can Be Bypassed
Zone Function 18 Can Be Bypassed
1234567 9*0 *1 *2 *3 *4 *5
Zone Function 21 Can Be Bypassed
Select Options
Enter the Data Digit as a:
*0 - *5 are Hex values. They will display as A - F at the keypads.
Zone Function 24 Can Be Bypassed
Zone Function 23 Can Be Bypassed
Zone Function 22 Can Be Bypassed
8
0

DS7400Xi ( 4+) Reference Guide Copyright © 2007 Bosch Security Systems, Inc. P/N: F01U035325-01 Page 41
10.7 Output Programming: Program Addresses (2734, 2735, 2736)
Output programming defines the event, partition, and type of alarm (burglary or fire) that will trigger each of the three physical outputs on
the control panel.
See section 3.0 for the location of the physical outputs on the control panel.
See Glossary (section 6.4) for further details.
0
Latch on ANY Zone Alarm**
ON during Entry Pre-Alert/Exit Warning
ON for 10 sec. after pressing [System Reset]
ON when system is Armed
Ground Start
System Status (ready to arm)
Zone Alarm
Zone Alarm delayed by 20 sec.
Keypad Sounder Output
Access Output (10 sec. pulse)
1
2
3
4
5
6
7
8
9
12
DD
Data Digit
** = This includes invisible zones. See glossary for further details.
*** = See section 6.4 for description of this option.
Select Option
Keyfob
*1
Alarm
Programmable Output 1
Programmable Output 2
2734
2736
6 3
2 3
Output Address Default
3 32735
On during battery test *3
*0
Panic Duress Output***
Programmable Output 1 will
be ON for 10 seconds after
pressing [System Reset].
Programmable Output 2 will
be OFF for 10 seconds after
pressing [System Reset].
0
1
2
3
3
Armed Full
Armed Partial
Disabled
DD
Options
Armed Any
Burglar Alarm
Fire Alarm
Disabled
Burg and Fire Alarm
DD
0
1
2
3
Options
Data Digi
t
12
0
1
2
RF3334
Disabled
Momentary
Toggle
Momentary
Toggle
Auxillary Key
Auxillary Key
Option Key
Option Key
Options DD
3
4
*0

Page 42 P/N: F01U035325-01 Copyright © 2007 Bosch Security Systems, Inc. DS7400Xi (4+) Reference Guide
10.8 Output Partition Assignment: Program Addresses (2737-2738)
In Output Partition Assignment, each On-board output is assigned to a partition. By default, outputs are assigned to all partitions.
10.9 Partition Control Programming: Program Address (3420)
Partition Control programming defines the number of partitions in use and the common area (common area can only be partition 1).
See Glossary (section 6.5) for further details.
Data Digit
12
1
2
3
4
5
6
7
0Belongs to Partition 1
Belongs to Partition 2
Belongs to Partition 3
Belongs to Partition 4
Belongs to Partition 5
Belongs to Partition 6
Belongs to Partition 7
Belongs to Partition 8
Select Option DD
8
Follows all Partitions
12
Data Dig
it
Alarm
Programmable Output 1
Programmable Output 2
2737-DD1
2737-DD2
2738-DD1
8
8
8
Output Address Default
PA 2737 PA 2738
DD
1
2
3
Options
Keyfob Chirp
Chirp Disabled
Bell Output
P01
P02
0

DS7400Xi ( 4+) Reference Guide Copyright © 2007 Bosch Security Systems, Inc. P/N: F01U035325-01 Page 43
10.10 Quick Arm Control Programming: Program Address (3477)
Quick Arm Control programming defines which partitions can be quick armed (armed without requiring a PIN to be entered).

Page 44 P/N: F01U035325-01 Copyright © 2007 Bosch Security Systems, Inc. DS7400Xi (4+) Reference Guide
10.11 Keypad Assignment Programming: Program Addresses (3131-3138)
Keypad Assignment Programming is where you assign the keypad type and the partition to which it belongs.
See Glossary (section 6.6) for further details.
Each keypad must have its own Bus address. This must also be selected on the keypad via its address pins. See DS7445/
DS7447 Installation Guide (P/N: 22235). One keypad must be selected as keypad 1.
Defaults: The default, if using only one keypad, is an Alpha keypad belonging to partition one.
* = When in Commercial Fire Mode, certain keypads must have specific assignments (see section
6.11).
** = Keypads 11-15 are connected to the Option Bus. If the DS7412 is connected to the Option Bus (at
keypad address 13 or 14), keypad 13 or 14 is unavailable. Similarly, if the DS7420i is connected to the
Option Bus at keypad address 15, keypad 15 is unavailable; and if the DS7488 is connected to the
Option Bus at keypad address 11-15, the corresponding keypad(s) is (are) unavailable.
*** = If only using one partition, do not program keypads as Master Keypads.
Only program for a Master Keypad if you need to view multiple partitions from a
single keypad.
10.12 Keypad Partition Assignment: Program Addresses (3139-3146)
Data Digit 1 Data Digit 2
K
eypad 1*
default = 1
Program Address 3131
Data Digit 1 Data Digit 2
Program Address 3132
Data Digit 1 Data Digit 2
Program Address 3135
Data Digit 1 Data Digit 2
Program Address 3136
Data Digit 1 Data Digit 2
Program Address 3133
Data Digit 1 Data Digit 2
Program Address 3134
Data Digit 1 Data Digit 2
Program Address 3137
Data Digit 1 Data Digit 2
Program Address 3138
Keypad 2
default = 0 Keypad 3
default = 0 Keypad 4
default = 0 Keypad 5
default = 0 Keypad 6
default = 0 Keypad 7
default = 0 Keypad 8
default = 0
Keypad 10
default = 0
Keypad 9
default = 0 Keypad 11**
default = 0 Keypad 12**
default = 0 Keypad 15**
default = 0
Keypad 14**
default = 0
Keypad 13**
default = 0
** ** *
LCD Backlight Off Until Keypress
Select Options
LCD Backlight Always On
0 1
Alpha (LCD) Keypad
LED Keypad
Select Options 0123
Disabled
Master Keypad***
Data Digit
12
Backlight selection affects all LCD keypads

DS7400Xi ( 4+) Reference Guide Copyright © 2007 Bosch Security Systems, Inc. P/N: F01U035325-01 Page 45
10.13 Emergency Key Programming: Program Addresses (3147-3148)
Emergency Key and Panic Key programming disables or activates these keys (the A, B, and C keys) located on the keypads and/or
keyfobs.
It also determines a silent, pulsed, or steady alarm.
See Glossary (section 6.7) for further details.
10.14 Custom Arming Programming: Program Addresses (2725-2728)
See Glossary (section 6.8) for further details.
Data Dig
it
0
Fire Key Disabled
Fire Key = Disabled
Fire Key = Steady Alarm
1
2
Fire Key = Pulsed Alarm 3
Select Option DD
Fire Key
A
May be forced to a different value when in
Commercial Fire Mode. See section 10.16.3.
12
0
Special Emergency Key Disabled
Special Emergency Key = Silent Alarm
Special Emergency Key = Steady Alarm
1
2
Special Emergency Key = Pulsed Alarm 3
Select Option DD
Emergency Key
B
0
Panic Key Disabled
Panic Key = Silent Alarm
Panic Key = Steady Alarm
1
2
Panic Key = Pulsed Alarm 3
Data Digit
12
Data Digit 2
must be 0
0
0
Select Option DD
Panic Key
C
M
ay be forced to a different value when in Commercial Fire Mode. See section 10.16.3.
PA 3147
PA 3148
123
456
789
0
*#
On
No
Entry
System
Reset
Bypass
Only
Perim e ter
Off
TEST WEEKLY
12345678
910
11 12 13 14 15 16
Armed
Status
Power
Fire
Perimeter
Supervisory
Bell Silenced
Trouble
ABC

Page 46 P/N: F01U035325-01 Copyright © 2007 Bosch Security Systems, Inc. DS7400Xi (4+) Reference Guide
10.14 Custom Arming Programming: Program Addresses (2725-2728) (Continued)
0123456789*0 *1 *2 *3 *4 *5
Bypass Zone Function 25
Bypass Zone Function 26
Bypass Zone Function 27
Bypass Zone Function 28
Select Options
Enter the Data Digit as a:
*0 - *5 are Hex values. They will display as A - F at the keypads.
12
Data Dig
it
PA 2728
Enter the
Data Digit
as a:
0123
Bypass Zone Function 29
Bypass Zone Function 30
Select Options

DS7400Xi ( 4+) Reference Guide Copyright © 2007 Bosch Security Systems, Inc. P/N: F01U035325-01 Page 47
10.15 Force Arming and Ground Fault Detect Programming: Program Address (2732)
Force Arming programming defines how many zones may be Force Armed using an Arming sequence followed by the [Bypass] key.
With this entry, all violated zones (up the programmed limit) will automatically be Force Armed (bypassed). Ground Fault Detect
programming determines whether or not the control will detect a ground fault condition.
See Glossary (sections 6.9 and 6.10) for further details.
Note: This limit does not apply when arming with
a keyswitch programmed with force arm-
ing enabled.

Page 48 P/N: F01U035325-01 Copyright © 2007 Bosch Security Systems, Inc. DS7400Xi (4+) Reference Guide
10.16 Commercial Fire Mode Programming: Program Address (2733)
This section describes how to define the parameters for the Commercial Fire Mode.
See Glossary (section 6.11) for further details.
When programming Fire zones, it is recommended that they be zone functions 12 and 13 (see sections 10.2, 10.4 and 10.16.3).
10.16.1 When Central Station Commercial Fire Mode is chosen, address 4021 (DS7420i: Dual Phone Line/Bell Supervision Mod-
ule Output Programming), will be forced to a value of 5.
10.16.2 When Local Commercial Fire Mode is chosen, address 4021 (DS7420i: Dual Phone Line/Bell Supervision Module Output
Programming),will be forced to a value of 3, 4, or 5. (Turns the Bell Monitor feature ON and the Alarm Output on Line Fault feature
OFF)
10.16.3 Regardless of which Commercial Fire Mode is chosen, the following parameters will be forced when exiting local
programmer’s mode:
• Zone Function 12, address 0012, will be a 7 *0. (Alarm on Short, Trouble on Open, Pulsing Fire with verification)
• Zone Function 13, address 0013, will be a 7 *1. (Alarm on Short, Trouble on Open, Pulsing Fire without verification)
• Zone Function 14, address 0014, will be a 7 *2. (Alarm on Short, Trouble on Open, Pulsing Water Flow)
• Zone Function 15, address 0015, will be a 7 *3. (Alarm on Short, Trouble on Open, Pulsing Supervisory)
• Zone Bypass address 2722 will not allow zone functions 12 - 15 to be bypassed.
• Emergency Key, address 3147, data digit 1, will become a 3 if programmed previously as a 2. Data digit 2 will become a 2 if
programmed previously as a 3.
• Panic Key, address 3148, data digit 1, will become a 2 if programmed previously as a 3.
• Fire Bell Cutoff, address 4032: If less than 5, set to 5, otherwise untouched.
• The AC Fail Report delay will be random between 6-12 hours regardless of the delay time programmed in 4034. Also, the AC Fail
Report will not be sent as a “tag-along.”
10.16.4 In Central Station Commercial Fire Mode, the following communication parameters will be forced:
Report Codes: If 0, the following defaults will be set, otherwise they will be unchanged.
• Phone Control (address 3156): If 0, set to 6 1, 4/2 @ 18/23, 10pps, otherwise untouched.
• Test Report (address 4026): Set to 8, call out every day.

DS7400Xi ( 4+) Reference Guide Copyright © 2007 Bosch Security Systems, Inc. P/N: F01U035325-01 Page 49
10.17 Open/Close Report Control Programming: Program Address (3149)
See Glossary (section 6.12) for further details.
4Select Options 0123 56789
Do not report opens or closes
Report opens and closes in Partition 1
Report opens and closes in Partition 2
Report opens and closes in Partition 3
Report first Partition to open and last Partition to close**
Report opens and closes in Partition 4
Enter the Data Digit as a:
Send Closing and
Bypass reports after
Send Closing and
Bypass reports at close
1
0
Report opens and closes in Partition 5
Report opens and closes in Partition 6
Report opens and closes in Partition 7
Report opens and closes in Partition 8
exit delay
Data Dig
it
12
** = When using this option, all partitions should have the same account code.
Data Dig
it
12
0
10.18 Open/Close & Zone Report Control Programming: Program Address (3151)
This section allows you to decide which phone number will send open and close reports, zone alarm, zone restoral, and zone trouble
reports.
10.19 Report Control Programming: Program Address (3152)
This section allows you to decide which phone number will send reports other than open/close reports and zone reports.
NOTE: Data Digit 1 does
not include Open
and Close
Reports or Zone
Reports (see
sections 10.17
and 10.18).
Select Option DD
0
1
2
3
Alternate between both Phone Numbers
Report to Phone Number 1
Report to Phone Number 2
Report to Phone Number 1 and 2 Data Digit 2
must be 0
Data Digit
12
0

Page 50 P/N: F01U035325-01 Copyright © 2007 Bosch Security Systems, Inc. DS7400Xi (4+) Reference Guide
10.20 Timer Programming: Program Addresses (4028-4030, 4032-4033)
10.21 AC Fail Report Delay Programming: Program Address (4034)
The AC Fail Delay Times are programmed as Hexadecimal values.
For example:
00 = Send only with next report
1 *4 = 30 minute delay
3 *2 = 60 minute delay
78 = 120 minute delay
*5 0 = 240 minute delay
*5 *5 = Random delay (at least 15 minutes, but less than 120 minutes)
(*0 - *5 are Hex values. They will display as A through F at the keypads.)
See Glossary (section 6.13) for further details.
0 to 99 minutes* Default = 04 minute
s
*1 minute intervals; 99 = 30 second cutoff
0 to 51 (0 to 255 sec.*) Default = 09 (45 sec.)
Data Digit
12
Address 4028
Entry Delay Time 1
Data Digit
12
Address 4029
Entry Delay Time 2
Data Digit
12
Address 4030
Exit Delay Time
Data Digit
12
Address 4032
Fire Bell Cutoff
Data Digit
12
Address 4033
Burglary Bell Cutoff
May be forced to a different value when in
Commercial Fire Mode. See section 10.18.3.
0 to 51 (0 to 255 sec.*) Default = 09 (45 sec.)
*5 second intervals
*5 second intervals
0 to 51 (0 to 255 sec.*) Default = 12 (60 sec
.)
*5 second intervals
0 to 99 minutes* Default = 04 minute
s
*1 minute intervals; 99 = 30 second cutoff
Entry and Exit Delay Timers are in
5 second intervals (the maximum
delay time is 255 seconds).
For example:
5 sec. = 01
15 sec. = 03
20 sec. = 04
30 sec. = 06
45 sec. = 09
60 sec. = 12
255 sec. = 51

DS7400Xi ( 4+) Reference Guide Copyright © 2007 Bosch Security Systems, Inc. P/N: F01U035325-01 Page 51
10.22 General Authority Programming: Program Address (3421-3424)
This allows for a user with a General Authority level to Arm, Disarm and Bypass specified zones.
See Glossary (section 6.1) for further details.
10.23 Arming Warning Programming: Program Addresses (3425-3428)
Arming Warning programming defines whether the keypad will be audible during the exit delay and auto arm period. If programmed, the
keypad sounder will activate once every 5 seconds during the exit delay. At 10 seconds and 5 seconds remaining, the keypad sounder
will activate 3 times. During auto arming, a pre-arming period will begin 15 minutes before the system arms automatically. The keypad
sounders will pulse five times every minute. During the last five minutes before arming, these sounders will be on steady.
0
1
General Code can Arm, Disarm, and Bypass
Select Option DD
General Code can Arm and Bypass
3
General Code can Arm
2
General Code can Arm and Disarm
Program Address 3423
Program Address 3424
Data Digit 1 Data Digit 2
Partition 5 Partition 6
Data Digit 1 Data Digit 2
Partition 7 Partition 8
Program Address 3421
Program Address 3422
Data Digit 1 Data Digit 2
Partition 1 Partition 2
Data Digit 1 Data Digit 2
Partition 3 Partition 4

Page 52 P/N: F01U035325-01 Copyright © 2007 Bosch Security Systems, Inc. DS7400Xi (4+) Reference Guide
10.24 DS7412 RS232 Interface Control Programming: Program Address (4019)
10.26 RS232 Carriage Return/Line Feed Control: Program Address (4027)
The RS232 Carriage Return/Line Feed (CR/LF) Control allows you to choose between sending carriage returns/line feeds or spac-
es to the DS7412 module. This is only used when Program Address 4019 Data Digit #2 is programmed with the numbers 1 through
7. Data Dig
it
12
DD
Send CR/LF 0
Send Spaces 1
Select Option
0
10.25 DS7412 RS232 Interface Configuration Programming: Program Address (4020)
DS7412 RS232 Interface Configuration Programming allows you to configure the DS7412 for your printer. Most printers will operate
using the default values for the DS7412. Some printers may operate more efficiently using optional program values.
DS7412 RS232 Interface Control
Programming allows you to enable or disable
the DS7412 and to select which history events
are sent to the printer as they occur. Selecting
“No Events” will cause the history to be printed
only on command.
To print the History Buffer starting from the most
recent event, enter the Master Code followed
by [#] [0] [8]. To stop printing, enter Master Code
[#] [0] [8] again.
Consult the operating guide provided with your printer to be sure that its configuration matches
the one programmed here.
NOTE: If using the WDSRP Direct Connection
option for programming, Address 4019
must be set for 1 0. Address 4020 must
be set for 2 5.

DS7400Xi ( 4+) Reference Guide Copyright © 2007 Bosch Security Systems, Inc. P/N: F01U035325-01 Page 53
10.27 Report Programming: Program Addresses (3207-3419)
• To send the User number along with open, close, or partial close reports: place an ‘F’ (*5) in the extended digit.
• To disable a report (meaning that nothing will be sent), place a ‘0’ in the reporting digit.
• When using SIA or Contact ID format, place a ‘1’ in the reporting digit of each report you wish to enable. It is not necessary to program
the extended digit.
• For suggested values for 4/2, BFSK and Pager format, see section 12.1-12.3. For SIA and Contact ID, the values sent are listed in
sections 13.1 and 13.2. For other formats, consult your central station.
• HEX values: Some Data Digit values are higher than 9. These values are programmed by pressing the [*] key followed by another
number. These values will display as HEX characters when entered. The HEX character values are as follows:
*0 = A *1 = B *2 = C *3 = D *4 = E *5 = F
See Glossary (section 6.13) for further details.

Page 54 P/N: F01U035325-01 Copyright © 2007 Bosch Security Systems, Inc. DS7400Xi (4+) Reference Guide
Report Programming (Continued)

DS7400Xi ( 4+) Reference Guide Copyright © 2007 Bosch Security Systems, Inc. P/N: F01U035325-01 Page 55
Report Programming (Continued)
10.28 Phone/DS7416i Routing Control: Program Addresses (3153-3154)
If address 3155 is programmed to “Try DS7416i first”, the following addresses can be used to control report routing. If address 3155
is set to “Send alarms via both DS7416i and digital”, this will force alarms to go to the phone even if the Phone/DS7416i report
routing for alarms does not specify phone usage.
Phone/DS7416i report routing (3153).
First digit: Open and Close Reports.
Second digit: Phone First count. Number of attempts before trying the DS7416i:
This value is used to control the number of attempts made on the phone line before switching to the DS7416i. This value is only
referenced if the “Use Phone”, “Use DS7416i”, and “Try Phone First” options are all selected. If the value is less than or equal
to 2, or more than 5, two attempts will be made on the phone before trying the DS7416i if the Phone First option is selected.
Use Phone
Use Either
Try Phone First
Use Both
1 2 7 *1 *5
Select Options
Enter the DD as a:
3
Data Digit
12
DD
0 Attempts
1 Attempt
2 Attempts
3 Attempts
1
2
3
4 Attempts
5 Attempts
6 Attempts
7 Attempts
4
5
6
7
8 Attempts
9 Attempts
10 Attempts
11 Attempts
8
9
*0
*1
12 Attempts
13 Attempts
14 Attempts
15 Attempts
*2
*3
*4
*5
Select Option DD DD DDSelect OptionSelect Option Select Option
0
Use Phone
Use Either
Try Phone First
Use Both
1 2 7 *1 *5
Select Options
Enter the DD as a:
3
Use Phone
Use Either
Try Phone First
Use Both
1 2 7 *1 *5
Select Options
Enter the DD as a:
3
Data Digit
12
Second digit: Zone Alarm, Zone Restoral,
and Zone Trouble Reports.
Phone/DS7416i report routing and Phone First count (3154)
First Digit: System Reports.
Use DS7416i
Use DS7416i
Use DS7416i

Page 56 P/N: F01U035325-01 Copyright © 2007 Bosch Security Systems, Inc. DS7400Xi (4+) Reference Guide
10.29 Account Code Programming: Program Addresses (3429-3459)
Account Code programming defines the number transmitted to the central station that identifies this panel. It also identifies which
partition is reporting from this panel.
1. Account Codes are programmed from left to right. If programming a 3 digit Account Code, the fourth digit of the address must be “0.”
For example: If the Account Code is 121, program 1210 in the programming address.
2. If you wish to send a zero “0,” enter it as *0 (this does not apply to the added zero in a three digit Account Code).
For example: If the Account Code is 101, program 1*010 in the programming address. If the Account Code is 3050, program 3*05*0
in the programming address.

DS7400Xi ( 4+) Reference Guide Copyright © 2007 Bosch Security Systems, Inc. P/N: F01U035325-01 Page 57
10.30 Phone Number General Control Programming: Program Address (3155)
See Glossary (section 6.14) for further details.
10.31 Phone Number Format Programming: Program Addresses (3156-3157)
Enter the DD as a:
Select Options
DDSelect Option
D
a
t
a
D
i
g
i
t
12
0 1 2 3 4 5
1900 Hz. Data/1400 Hz. Acknowledge
1800 Hz. Data/2300 Hz. Acknowledge
BFSK, SIA, Contact ID
10 Pulses per Second (PPS)
20 Pulses per Second (PPS)
40 Pulses per Second (PPS)
0Phone Number Disabled
3/1 (no Extended Reporting)
3/1E (Extended Reporting)
1
2
3/1 with Parity 3
3/1E with Parity 4
4/1 5
4/2 6
BFSK 7
SIA 110 Baud 8
Contact ID 9
0
SIA 300 Baud *0 *0, *2, and *5 are Hex values. They will display as A, C, and F
Pager *5
Personal Dialing *2 at the keypads.
NOTE: Phone Number 1 Format = Address
3156
Phone Number 2 Format = Address
3157
When using the DS7416i Advanced
Radio Communications Module:
Program address 3156 as:
data digit 1 = 9, data digit 2 = 1.
Program address 3157 as:
data digit 1 = 9, data digit 2 = 1.
4
Dial tone on all phone numbers**
Enter the Data Digit as a:
Select Options 210 3 5 6 7 8
Enable remote programmer call-back
Dial pulse on all phone numbers
Dial tone, switch to pulse if required
Try DS7416i first
9*0 *1
*0 - *1 are Hex values. They will display as A - B at the keypads.
ΔΔ = If this option is selected, see address 3153-3154.
** = Required on PBX systems
Data Dig
it
12
Send alarms via either DS7416i or digital
Enter the Data Digit as a:
Select Options 012345678
Dialer delay of 15 sec. on non-24H burglar alarms only**
Dialer delay of 15 sec. on 24H burglar & fire alarms only**
Send alarms via both DS7416i and digital ***
Use 110 Baud comm. for WDSRP
9*0 *1
*0 - *5 are Hex values. They will display as A - F at the keypads.
Δ = Only applicable when using the DS7416i option.
ΔΔ = If this option is selected, see address 3153-3154.
** = These selections can only be used with systems that have only one partition.
*** = This selection must be chosen for UL Listed Requirements when using the DS7416i module.
Use 300 Baud comm. for WDSRP
*2 *3 *4 *5
Δ
ΔΔ Δ
ΔΔ

Page 58 P/N: F01U035325-01 Copyright © 2007 Bosch Security Systems, Inc. DS7400Xi (4+) Reference Guide
10.31.1 Compatible Receivers
The following table lists those Digital Alarm Communicator Receivers and Formats that
are compatible with the DS7400Xi.
NOTE: Contact your central station regarding which format to use and if a special line card
is required.
l = The Format type the DS7400Xi
supports and the Digital Alarm
Communicator Receiver accepts.
10.32 Phone Answering Programming: Program Address (3158)
See Glossary (section 6.15) for further details.

DS7400Xi ( 4+) Reference Guide Copyright © 2007 Bosch Security Systems, Inc. P/N: F01U035325-01 Page 59
10.33 Pager Delay Time: Program Address (4038)
When using the Pager Dialing Format (selected in Addresses 3156 and 3157), you may insert a delay time after the phone number is
dialed and before the reports are sent to the pager system. This delay can be used to allow for greeting and instruction messages in the
pager system. This delay will not affect any other report formats.
10.34 Programmer’s and Master Code Programming: Program Addresses (7589-7592)
Programmer’s Code programming defines what the Programmer’s Code will be. This code is used to enter the programming mode
from the keypads.
Master Code programming defines what the Master Code will be. This code is the highest authority level for a PIN.
If the Master Code is lost, this address may be used to program a new one.
Otherwise, the Master Code Programming Mode should be used to create PINs
that have a Master Code authority level.
Master Code for User Number 001 has its
authority fixed at level 0. It will always have
access to all partitions.
10.35 PIN Length Programming: Program Address (3478)
PIN Length Programming defines the length of the PINs that are assigned to each user.
PINS can be programmed to be 4 or 6 digits in length.
Programmer’s Code
Enter as 6 digits.
It can not be the same
as any PIN number.
123 4
The Default for the Programmer’s Code = 987654
56
Program Address 7589
Data Digit
98 765
4
Master Code PIN Number
123 4 56
Program Address 7592
Data Digit
(Default for this User 001
is 123456)
123456
Data Digit
12
0
Select Option
6-digit PINs
4-digit PINs
1
0
Although the DS7400Xi (Ver. 4+) Control/Communicator is shipped with 6-digit codes preprogrammed, it is also shipped
with a 4-digit PIN length default. The default codes for the Programmer’s Code and the Master Code will be 4-digits (9876
and 1234 respectively) unless you have reprogrammed for a 6-digit PIN length.
NOTE: User Numbers 002 through 200
must be programmed from the
Master Code Programming
Mode.
0 to 99 seconds Default = 10 seconds
Data Digit
12
Pager Delay Time
Address 4038

Page 60 P/N: F01U035325-01 Copyright © 2007 Bosch Security Systems, Inc. DS7400Xi (4+) Reference Guide
10.36 Octal Relay Module Output Programming
10.36.1 Follow Action: Program Addresses (2740-2771)
To program an Octal Relay Module for Follow Action, follow the steps below.
1. Select Octal Relay to program.
2. Program Data Digit 1 of Program Address A as 1 for Follow Action.
3. Program Data Digit 2 of Program Address A for the desired function.
4. Program Data Digit 1 and 2 of Program Address B for the desired function.
Once both Address A and Address B have been programmed, proceed to program the next Octal Relay.
The Octal Relay Module is the DS7488. See section 1.18 and 6.4 for further details.
NOTE: If a DS9484 is used, it replaces the DS7488 and takes up outputs 1-4 of the Octal Relay Module. Outputs 5-8 of the Octal Relay
Module are unavailable. If two DS9484 power supplies are used, one replaces Octal Relay Module 1 and the other replaces
Octal Relay Module 2.
For Octal Relay Partition Assignment, see section 10.36.5.
0 1 2
SELECT OPTION DD 2
3Follows
Disabled
Burglar Alarm
Fire Alarm
Octal
Relay
#
DS7488-1
Address
A
DS7488-1
Address
B
1
2
3
4
5
6
7
8
2740 2741
2742 2743
2744 2745
2746 2747
2748 2749
2750 2751
2752 2753
2754 2755
2756 27579
10
11
12
13
14
2758 2759
2760 2761
2762 2763
2764 2765
2766 2767
2768 2769
2770 2771
15
16
DD
0 0Latch ON after Zone Alarm**
ON during Entry Pre-Alert
ON for 10 sec. after pressing [System Reset]
ON for Any Armed state
Ground Start
System Status (Ready to Arm)
Zone Alarm
Zone Alarm delayed by 20 seconds
Keypad Sounder Output
Access Output (10 sec. pulse)
0 1
0 2
0 3
0 4
0 5
0 6
0 7
0 8
0 9
SELECT OPTION DD 1 & 2
Panic/Duress Output*** 0*1
ON when System is Partial 0*2
0*0
0*3ON when System is Fully Armed
12
Data Digit
Program Address B
12
Data Digit
1
Program Address A
Future Selection
** = This includes invisible zones. See glossary for further details
.
*** = See section 6.4 for description of this option.

DS7400Xi ( 4+) Reference Guide Copyright © 2007 Bosch Security Systems, Inc. P/N: F01U035325-01 Page 61
10.36 Octal Relay Module Output Programming (continued)
10.36.2 Follow System Wide Event: Program Addresses (2740-2771)
To program an Octal Relay Module for Follow System Wide Event, follow the steps below.
1. Select Octal Relay to program.
2. Program Data Digit 1 of Program Address A as 2 for Follow System Wide Event.
3. Program Data Digit 2 of Program Address A for the desired function.
4. Program Data Digit 1 and 2 of Program Address B for the desired function.
Once both Address A and Address B have been programmed, proceed to program the next Octal Relay.
For Octal Relay Partition Assignment, see section 10.36.5.
0 1 2
SELECT OPTION DD 2
3Follows
Disabled
Burglar Alarm
Fire Alarm
Octal
Relay
#
DS7488-1
Address
A
DS7488-1
Address
B
1
2
3
4
5
6
7
8
2740 2741
2742 2743
2744 2745
2746 2747
2748 2749
2750 2751
2752 2753
2754 2755
2756 27579
10
11
12
13
14
2758 2759
2760 2761
2762 2763
2764 2765
2766 2767
2768 2769
2770 2771
15
16
12
Data Digit
Program Address B
12
Data Digit
2
Program Address A
DD
0 0Disabled
AC Power Fail
Low Battery
Communicator Failure
System Fault*
Keypad Supervision Fault
Multiplex Bus Fault
0 1
0 2
0 3
0 4
0 5
0 6
SELECT OPTION DD 1 & 2
Aux Power Fault
Fire Zone Trouble
Supervisory
0 8
0 9
0*0
Duress 0*2
Battery Test 0*3
Zone Trouble 0*1
0*4Future Selection
0*5
Future Selection
RF Receiver Fault 0 7
*System Faults include:
• RAM fault
• ROM fault
• Bell/Line Monitor fault (DS7420i)
• Line 1 fault
• Line 2 fault
• Bell fault
• Aux. Power fault
• Octal Relay fault
• Serial Module fault (DS7412)
• Serial Transmit fault
• Serial Receive fault
• Aux. Relay fault
• DS7416i Communication fault
• RF Receiver Tamper
• RF Receiver Jammed
• RF Receiver Trouble
• Printer Off-line

Page 62 P/N: F01U035325-01 Copyright © 2007 Bosch Security Systems, Inc. DS7400Xi (4+) Reference Guide
10.36 Octal Relay Module Output Programming (continued)
10.36.3 Follow Function: Program Addresses (2740-2771)
To program an Octal Relay Module for Follow Output Function, follow the steps below.
1. Select Octal Relay to program.
2. Program Data Digit 1 of Program Address A as 3 for Follow Function.
3. Program Data Digit 2 of Program Address A for the desired function.
4. Program Data Digit 1 and 2 of Program Address B for the desired function.
Once both Address A and Address B have been programmed, proceed to program the next Octal Relay.
For Octal Relay Partition Assignment, see section 10.36.5.

DS7400Xi ( 4+) Reference Guide Copyright © 2007 Bosch Security Systems, Inc. P/N: F01U035325-01 Page 63
10.36 Octal Relay Module Output Programming (continued)
10.36.4 Follow Zone: Program Addresses (2740-2771)
To program an Octal Relay Module for Follow Zone, follow the steps below.
1. Select Octal Relay to program.
2. Program Data Digit 1 of Program Address A as 4 for Follow Zone.
3. Program Data Digit 2 of Program Address A for the desired function.
4. Program Data Digit 1 and 2 of Program Address B for the desired zone.
Once both Address A and Address B have been programmed, proceed to program the next Octal Relay.
Octal
Relay
#
DS7488-1
Address
A
DS7488-1
Address
B
1
2
3
4
5
6
7
8
2740 2741
2742 2743
2744 2745
2746 2747
2748 2749
2750 2751
2752 2753
2754 2755
2756 27579
10
11
12
13
14
2758 2759
2760 2761
2762 2763
2764 2765
2766 2767
2768 2769
2770 2771
15
16
12
Data Digit
Program Address B
12
Data Digit
4
Program Address A
10 2 3 4 5
When panel is not Armed
When panel is Armed
When Zone is opened
When zone is shorted
Activate:
Disabled
6
SELECT OPTION DD 2
8
7 9 *0 *1 *2
Program the HEX value
of the Zone
from the chart
on the next page
Latch when activated**
** = This applies only to the DS7465 outputs.
DS7488 outputs will not latch when this is selected.

Page 64 P/N: F01U035325-01 Copyright © 2007 Bosch Security Systems, Inc. DS7400Xi (4+) Reference Guide

DS7400Xi ( 4+) Reference Guide Copyright © 2007 Bosch Security Systems, Inc. P/N: F01U035325-01 Page 65
10.36 Octal Relay Module Output Programming (continued)
10.36.5 Octal Relay Module Output Partition Assignment: Program Addresses (2844-2851)
Data Digit 1 Data Digit 2
P
rogram Address 2844
Data Digit 1 Data Digit 2
Program Address 2845
Data Digit 1 Data Digit 2
Program Address 2848
Data Digit 1 Data Digit 2
Program Address 2849
Data Digit 1 Data Digit 2
Program Address 2846
Data Digit 1 Data Digit 2
P
rogram Address 2847
Data Digit 1 Data Digit 2
Program Address 2850
Data Digit 1 Data Digit 2
Program Address 2851
1
2
3
4
5
6
7
0Belongs to Partition 1
Belongs to Partition 2
Belongs to Partition 3
Belongs to Partition 4
Belongs to Partition 5
Belongs to Partition 6
Belongs to Partition 7
Belongs to Partition 8
Select Option D
D
Follows all Partitions
Relay 1
default = 8 Relay 2
default = 8 Relay 6
default = 8
Relay 3
default = 8 Relay 4
default = 8 Relay 5
default = 8
Relay 7
default = 8 Relay 8
default = 8 Relay 9
default = 0 Relay 10
default = 0 Relay 11
default = 0 Relay 12
default = 0
Relay 15
default = 0 Relay 16
default = 0
Relay 13
default = 0 Relay 14
default = 0
8

Page 66 P/N: F01U035325-01 Copyright © 2007 Bosch Security Systems, Inc. DS7400Xi (4+) Reference Guide
10.37 Output Function Programming: Program Addresses (2772-2843)
Output programming allows you to have the Outputs follow status events by partition or system-wide, or follow zone outputs in an Input/
Output Cross Matrix. See the Programming Addresses Worksheet (P/N: 43850) for a description of each address. See Glossary
(section 6.4) for further details.
Data Digit 1 Option *2 is used to program an Output
Function to follow status events system-wide.
Data Digit 1 Options *3-*5 are used to program an Output
Function to follow a zone or two zones in an Input/Output
Cross Matrix. Data Digit
12
Program
Address
1
** = This is only for DS7465 Outputs. DS7488 Outputs will not latch when this is selected.
1
0 2 3 4 5
When panel is not Armed
When panel is Armed
When Zone is opened
When zone is shorted
Activate:
Disabled
6
Enter Data Digit as a:
8
7 9 *0 *1 *2
Latch when activated**
Access output (10 sec. pulse)
Latch ON after Zone Alarm
7
8
9
ON during Entry Pre-Alert
ON when system is armed
Zone alarm
Zone Alarm delayed by 20 sec.
Keypad Sounder output
1
3
6
Panic/Duress output** *1
0
DDSelect Option
Follow a single zone
Follow System Status Event
Follow two zones-When EITHER zone changes state
Follow two zones-When BOTH zones change state
*2
*3
*4
*5
*0
Keyfob output
Data Digit 1 Options 1-9 and *1 are used to program an Output
Function to follow status events for individual partitions.
Data Digit 1 Option *0 is used to program an Output
Function to follow the Wireless Keyfob Output Buttons.
Data Digit
12
Program
Address
1
Enter the
Zone Number
of Second
Zone to
Follow
(see Zone
HEX Values
chart)
Program
Address
1
Program
Address
2
Program
Address
3
2
Data Digit
Data Digit
12
Data Digit
12
Data Digit
12
1
Not Required
if following a
single zone
Enter the
Zone Number
of First Zone
to Follow
(see Zone
HEX Values
chart)
Zone Trouble
Supervisory
Select Option
DDDD
Select Option
1
Communication Failure
Keypad Supervision Fault
Multiplex Bus Fault
Radio Receiver Fault
3
4
5
6
7
8
9
Duress PIN
*1
*0
*2
Low Battery
AC Power Failure
2Aux Power Fault
Fire Trouble
*0 - *2 are Hex values. They will display as A - C at the keypads.
*0-*5 are Hex values. They will
display as A-F at the keypads.
System Fault**
Disabled
Moment
Moment
0
2
1
3
4
Option RF3334
Option Key
Option Key
Toggle
Toggle
DD Follows
Disabled
1 2 3
Burglar Alarm
Fire Alarm
Data Digit
0
14
15
16
17
18
19
20
21
22
23
24
2817
2820
2823
2826
2829
2832
2835
2838
2841
2811
2814 2818
2821
2824
2827
2830
2833
2836
2839
2842
2812
2815 2819
2822
2825
2828
2831
2834
2837
2840
2843
2813
2816
Output
Function
Number
Program
Address Program
Address Program
Address
1
2
3
4
5
6
7
8
9
10
11
12
13
2772
2775
2778
2781
2784
2787
2790
2793
2796
2799
2802
2805
2808
2773
2776
2779
2782
2785
2788
2791
2794
2797
2800
2803
2806
2809
2774
2777
2780
2783
2876
2789
2792
2795
2798
2801
2804
2807
2810
Data Digit
12
*2
Follows
Disabled
012
Armed Any
Armed Partial
Data Digit
3
Armed Full
Data Digit
12
3
• Serial Transmit fault
• Serial Receive fault
• Aux. Relay fault
• DS7416i Communications fault
•RF Receiver Tamper
•RF Receiver Jammed
• RF Receiver Trouble
• Printer Off-line
**System Faults include:
• RAM fault
• ROM fault
• Bell/Line Monitor fault (DS7420i)
• Line 1 fault
• Line 2 fault
• Bell fault
• Aux. Power fault
• Octal Relay fault
• Serial Module fault (DS7412)

DS7400Xi ( 4+) Reference Guide Copyright © 2007 Bosch Security Systems, Inc. P/N: F01U035325-01 Page 67
10.37.1 Output Function Partition Assignment: Program Addresses (2852-2863)
10.38 Dual Phone Line/Bell Supervision Module Output Programming: Program Address (4021)
The Dual Phone Line/Bell Supervision Module is the DS7420i. See section 1.18 for further details.
When in Central Station or Local Commercial Fire Mode, this address will be forced to specific values (see sections 10.16.1 and
10.16.2).

Page 68 P/N: F01U035325-01 Copyright © 2007 Bosch Security Systems, Inc. DS7400Xi (4+) Reference Guide
10.39 Call-Out Timer Programming: Program Addresses (4022-4025)
This section allows you to define the Hour and Minute for the Communicator Test Report and Remote Programmer Call-Out.
The default time for the Communicator Test Report to be sent and for the control to call the Remote Programmer is Midnight.
10.40 Test Report and Remote Programmer Call-Out Programming: Program Address (4026)
This section allows you to define the Day and Frequency for the Communicator Test Report and the Remote Programmer Call-Out.
If this address is not programmed, the Communicator Test Report will not be sent and the control will not call the Remote Program-
mer.

DS7400Xi ( 4+) Reference Guide Copyright © 2007 Bosch Security Systems, Inc. P/N: F01U035325-01 Page 69
10.41 Alpha Description Programming: Program Addresses (0545-2720, 5001-6920)
Alpha Description Programming allows up to 16 characters to be programmed for the description of each partition or zone (e.g. “J. Hill’s
Office”). If a description is less than 16 characters, leave the remaining address(es) blank. Once programmed, the descriptions will be
displayed on the alpha keypads.
The following chart lists the Program Addresses used to program Alpha-Numeric characters for each partition or zone:
See Section 10.41.1 for an Alpha Description Programming worksheet for Partitions 1 through 8 and Zones 1 through 8.
See the Programming Addresses Worksheet (P/N: 43850) for a complete Alpha Programming Worksheet
(covering addresses 0545 through 6920).
Words are created one character at a time. Each character uses two data digits.
The data digit values for these characters are shown below:

Page 70 P/N: F01U035325-01 Copyright © 2007 Bosch Security Systems, Inc. DS7400Xi (4+) Reference Guide
10.41.1 Alpha Description Programming: A Worksheet

DS7400Xi ( 4+) Reference Guide Copyright © 2007 Bosch Security Systems, Inc. P/N: F01U035325-01 Page 71
10.41.1 Alpha Description Programming: A Worksheet (Continued)

Page 72 P/N: F01U035325-01 Copyright © 2007 Bosch Security Systems, Inc. DS7400Xi (4+) Reference Guide
10.41.1 Alpha Description Programming: A Worksheet (Continued)

DS7400Xi ( 4+) Reference Guide Copyright © 2007 Bosch Security Systems, Inc. P/N: F01U035325-01 Page 73
10.41.1 Alpha Description Programming: A Worksheet (Continued)

Page 74 P/N: F01U035325-01 Copyright © 2007 Bosch Security Systems, Inc. DS7400Xi (4+) Reference Guide
10.42 Phone Number Programming: Program Addresses (3159, 3175, 3191)
10.42.1 Phone Number 1 Programming: Program Address (3159)
10.42.2 Phone Number 2 Programming: Program Address (3175)
10.42.3 Phone Number 3 Programming: Program Address (3191)
Notes:
To dial the “*” character, enter *1 (The “*” character is sent as “1” “1” when pulse dialing).
To dial the “#” character, enter *2 (The “#” character is only valid when tone dialing).
To input a three second delay, enter *3.
To wait for the dial tone, enter *4 in the first digit.
To disable a Phone Number, enter *5 in the first digit.
(*1 - *5 are Hex values. They will display as B - F at the keypads.)
Recommendation: The phone line that the control panel is connected to should not have a Call Waiting feature. If it must have call
waiting, program the code to disable call waiting and add a three second delay before the phone number. This will prevent incoming
calls from interrupting a communication. For example: call waiting can be disabled in many areas by dialing *70 before the phone
number for tone dial and 1170 for pulse dial.
123456789101112131415161718192
0
21 22 23 24 25 26 27 28 29 30 31 32
123456789101112131415161718192
0
21 22 23 24 25 26 27 28 29 30 31 32
123456789101112131415161718192
0
21 22 23 24 25 26 27 28 29 30 31 32

DS7400Xi ( 4+) Reference Guide Copyright © 2007 Bosch Security Systems, Inc. P/N: F01U035325-01 Page 75
11.0 Installation Guide for UL Listed Systems
11.1 DS7400Xi UL Listings:
• Household Fire Alarm, UL Standard UL985
• Commercial Fire Alarm (Type Service: Local, Central Station, Remote Station; Type Initiating: Automatic, Manual, Sprinkler
Supervisory, and Waterflow), UL Standard UL864
• Household Burglary Alarm, UL Standard UL1023
• Police Station Connection Grades AA and A, UL Standard UL365
• Central Station Burglary Alarm Grades AA, A, B, and C; UL Standard UL1610
• Proprietary Alarm Units Grades A and AA, UL Standard UL1076
The control panel should be installed in accordance with UL Standard UL681, Installation and Classification of Mercantile and Bank
Burglar Alarm Systems, or UL Standard UL1641, Installation and Classification of Residential Burglar Alarm Systems. It should also be
installed in accordance with NFPA 72 for Household and Commercial Fire installations.
11.1.1UL System Configurations
The following table shows the DS7400Xi system configuration for the various types of fire and burglar alarm service for which the
product is UL Listed.
Product UL Application
CSF-D CSF-D/RF LF CSB-A PP-AA CSB-B/C PP-A LB-A PSCB-D-A PSCB-RF-A HF/B
3007-9001 DS7400Xi
Standard Enclosure
Attack Enclosure
AE-TR16 Enclosure
DS7416i
AB12 Bell w/Housing
R
1
1
R
n/a
R
0
0
0
2
0
n/a
0
n/a
n/a
R
1
1
n/a
n/a
n/a
0
0
0
3
0
n/a
0
n/a
R
R
n/a
R
n/a
R
4
0
0
0
3
0
4
0
R
n/a
R
n/a
R
n/a
n/a
n/a
0
0
0
3
0
n/a
0
R
n/a
R
n/a
R
n/a
n/a
n/a
0
0
0
3
0
n/a
0
R
n/a
R
n/a
R
n/a
n/a
n/a
0
0
0
3
0
n/a
0
R
n/a
R
n/a
R
n/a
R
4
0
0
0
3
0
4
0
R
n/a
R
1
1
R
R
4
0
0
0
2
0
4
0
n/a
n/a
R
n/a
R
n/a
n/a
n/a
0
0
0
3
0
n/a
0
R
n/a
R
n/a
R
n/a
R
4
0
0
0
3
0
4
0
R
n/a
R
1
1
R
n/a
R
0
0
0
2
0
n/a
0
n/a
n/a
Configuration Codes
R = Required
0 = Optional
n/a = Not Applicable
1 = Standard or attack enclosure may be
used.
2 = Either enclosure may be used. Device
must be mounted to the enclosure cover,
or within 20 ft. w/wiring in conduit.
3 = Either enclosure may be used.
4 = Either the DS7420i or the DS7481
must be used to monitor the phone line
input to the control unit.
DS7420i
DS7430
DS7432
DS7433
DS7447/DS7447E
DS7460
DS7481
DS7488
DS7480
Key to Application Codes
CSF-D = Central Station Fire w/ DACT (Digital Alarm Communications Transmitter/dialer)
CSF-D/RF = Central Station Fire w/ DACT and Radio (DS7416i)
LF = Local Fire
CSB-A = Central Station Burglary, grades AA and A
CSB-B/C = Central Station Burglary, grades B and C
LB-A = Local Burglary, grade A
PSCB-D-A = Police Station Connected Burglary w/DACT, grade A
HF/B = Household (residential) Fire and Burglary
PP-A = Proprietary grade A
PP-AA = Proprietary grade AA
PSCB-RF-A = Police Station Connected Burglary w/Radio (DS7416i), grades AA and A

Page 76 P/N: F01U035325-01 Copyright © 2007 Bosch Security Systems, Inc. DS7400Xi (4+) Reference Guide
11.2 Installation Considerations
• Failure to install and program the control in accordance with the
requirements in this section voids the listing mark of Underwriters
Laboratories, Inc.
• The maximum standby battery capacity is 35 Ah @ 12 VDC.
• The total nominal standby current must not exceed 1.5 A nor 2.5
A when in alarm.
• The control must be mounted indoors and within the protected
area.
• Enclosure tamper switches (if used) must be connected to a 24-
hour zone.
• Grounding must be in accordance with article 250 of the NEC
(NFPA 70).
• At least one UL Listed keypad with zone display must be
connected.
• Zones must be connected to UL Listed, compatible devices.
• 50 Hz. AC input cannot be used in UL Listed Requirements.
• The ground wire provided with the enclosure must be connected
to the “Earth GND” connection on the control and the enclosure
tab.
• The keypad panic alarm output must follow the corresponding
zone function’s programming (e.g. fire = pulsing [or steady if not
a combination], burglary = steady). In all cases, the special
emergency keys must be silent.
• The ground start feature shall not be programmed.
11.3 Programming the DS7400Xi
When used in UL Listed Requirements, the control must conform
to certain programming requirements. The following is a list of the
required program entries and required accessories for specific
UL Listed Requirements.
11.3.1Household Fire Alarm Using Digital Alarm
Communicator Transmitter With Local Bell
The control must be installed in accordance with NFPA 72.
Required Accessories:
• At least one Detection Systems, Inc. Model DS250 Series smoke
detector with an MB Series base, DS280 Series, MX280 Series,
or another Listed compatible smoke detector.
• At least one DS7480 Bell Supervision Module.
• One Wheelock 46T-G10-12 bell or 34T-12 horn (will provide
85db for UL985 and NFPA 72 requirements; other Listed
compatible devices with a voltage range of 10.2 to 14.0 V may be
used) is required and must be installed inside the protected
area.
• The standard control enclosure can be used.
• At least one DS7447/DS7447E or DS7445/DS7445i Keypad must
be used.
• Four-wire detectors must be used with Listed power supervision
devices. A compatible Listed 4-wire detector is the Detection
Systems, Inc. DS250 in an MB4W base. A compatible Listed
EOL relay is the Detection Systems, Inc. EOL200.
• All zones must be used with the EOL resistor (P/N 25899),
provided.
1. Report Programming:
• Fire Zone Report must be programmed.
• Low Battery Report (Program Address 3336) must be
programmed.
• AC Failure Report (Program Address 3338) must be
programmed.
2. Timer Programming:
• Bell Cutoff Times (Program Addresses 4032 and 4033) must
be programmed for not less than 4 minutes.
3. Zone Function Programming:
• For household fire installations only, the output signal may be
pulsed or steady. For a combination system, see the selection
below on alarm output programming.
4. Alarm Output Programming:
• Program Address 2734 must be programmed as: Data Digit 1=
6, Data Digit 2= 3.
5. General Control Programming:
• Program Address 2732 must be programmed as: Data Digit 1=
0, Data Digit 2= 0.
11.3.2Grade A Household Burglary Alarm Using Digital
Alarm Communicator Transmitter With Local
Bell
The control must be installed in accordance with UL Standard
UL1641.
Required Accessories:
• At least one Wheelock 46T-G10-12 bell or 34T-12 horn (other
Listed compatible devices with a voltage range of 10.2 to 14.0 V
may be used) is required for this application.
• The standard DS7400 enclosure can be used.
1. Report Programming:
• Burglar Zone Reports must be programmed for those zones
used.
• Low Battery Report (Program Address 3336) must be
programmed.
• AC Failure Report (Program Address 3338) must be
programmed.
2. Timer Programming:
• Bell Cutoff Times (Program Addresses 4032 and 4033) must
be programmed for not less than 4 minutes.
• Entry Delay Timer (Program Addresses 4028 and 4029) must
be programmed for not longer than 60 seconds.
• Exit Delay Timer (Program Address 4030) must be programmed
for not longer than 45 seconds.
3. General Control Programming:
• Program Address 0000, Data Digit 2 must be programmed for
NO Swinger Shunts (enter 0, 1, or 2).
• Program Address 2732 must be programmed as: Data Digit 1=
0, Data Digit 2= 0.
4. Alarm Output Programming:
• Program Address 2734 must be programmed as: Data Digit 1=
6, Data Digit 2= 3.
• Program Address 2737 must be programmed as: Data Digit 1=
8.
In a system that includes both fire alarm and burglar alarm
devices, the system must produce distinct sounds for fire
and burglar alarm conditions either by using different
indicating appliances or by using distinct cadences for
the same appliance.

DS7400Xi ( 4+) Reference Guide Copyright © 2007 Bosch Security Systems, Inc. P/N: F01U035325-01 Page 77
The controls must be installed in accordance with UL Standards
UL681 and UL609 for all grades of service.
1. Report Programming:
• Burglar Zone Reports must be programmed for those zones
used.
• Low Battery Report (Program Address 3336) must be
programmed.
• AC Failure Report (Program Address 3338) must be
programmed.
• Open Report (Program Address 3331) must be programmed.
• Close Report (Program Address 3332) must be programmed.
• 24-Hour Check-In Reports (Program Addresses 3340 and 3347)
must be programmed.
2. General Control Programming:
• The control must not be programmed for auto disarm.
• Must be programmed for no swinger shunts and closing ringback.
(Program Address 0000 data digit 2, enter 0, 1, or 2).
• Program Address 2732 must be programmed as: Data Digit 1=
0, Data Digit 2= 0.
3. Zone Function Programming:
• The Burglar alarm signal (whether pulsed or steady) must be
different from the Fire alarm signal.
4. Alarm Output Programming:
• Program Address 2734 must be programmed as: Data Digit 1=
6, Data Digit 2 = 3.
• Program Address 2737 must be programmed as: Data Digit 1=
8.
11.4.1Local Burglary Alarm
A.Grade A Installations using Digital Alarm Communicator
Transmitter with local bell
Follow General System Requirements as listed in 11.4.
Required Accessories:
• The control must be in the Detection System’s model AE3CC
enclosure with a cover actuated tamper switch installed.
• An Ademco Model AB-12 bell/housing (see section 11.6).
1. Timer Programming:
• Bell Cutoff Times (Program Addresses 4032 and 4033) must
be programmed for not less than 15 minutes.
• Entry, Exit Delay Times (Program Addresses 4028-4029) must
be programmed for not longer than 60 seconds.
11.4.2Police Station Connection
Follow General System Requirements as listed in 11.4.
Required Accessories:
• The control must be in the Detection Systems’ model AE3CC
enclosure with a cover actuated tamper switch installed.
• An DS7416i (or DataTAC) interface module.
• The DS7416i module and antenna should be mounted within
the protected area.
• The Detection Systems’ model DS7481 Phone Line Monitor.
1. Timer Programming:
• Entry, Exit Delay Times (Program Addresses 4028-4030) must
be programmed for not longer than 60 seconds.
B.Grade A Installations Using Digital Alarm Communicator
Transmitter With Local Bell
Follow General System Requirements as listed in 11.4.
Required Accessories:
• The control must be in the Detection System’s model AE3CC
enclosure with a cover actuated tamper switch installed.
• The Ademco Model AB-12 bell/housing (see section 11.6).
1. Timer Programming:
• Bell Cutoff Times (Program Addresses 4032 and 4033) must
be programmed for not less than 15 minutes.
• Entry, Exit Delay Times (Program Addresses 4028-4030) must
be programmed for not longer than 60 seconds.
11.4.3Central Station Burglary Alarm and Proprietary
A.Central Station Burglary Grades AA and A and Proprietary
Grade AA Installations Using an DS7416i Interface Module
Follow General System Requirements as listed in 11.4.
Required Accessories:
• The control must be in the Detection Systems’ model AE3CC
enclosure with a cover actuated tamper switch installed.
• An DS7416i (or DataTAC) interface module.
• The DS7416i module and antenna should be mounted within
the protected area.
• The Detection Systems’ model DS7481 Phone Line Monitor.
• The Ademco Model AB-12 bell/housing (see section 11.6).
1. Timer Programming:
• Entry, Exit Delay Times (Program Addresses 4028-4030) must
be programmed for not longer than 60 seconds.
B.Grade B Installations Using Digital Alarm Communicator
Transmitter With Local Bell
Follow General System Requirements as listed in 11.4.
Required Accessories:
• The control must be in the Detection Systems’ model AE3CC
enclosure with a cover actuated tamper switch installed.
• The Ademco Model AB-12 bell/housing (see section 11.6).
1. Timer Programming:
• Bell Cutoff Times (Program Addresses 4032 and 4033) must
be programmed for not less than 15 minutes.
• Entry, Exit Delay Times (Program Addresses 4028-4030) must
be programmed for not longer than 60 seconds.
C.Central Station Burglary Grade C and Proprietary Grade A
Installations Using Digital Alarm Communicator Transmitter only
Follow General System Requirements as listed in 11.4.
Required Accessories:
• The control must be in the Detection System’s model AE3CC
enclosure with a cover actuated tamper switch installed.
1. Timer Programming:
• Entry, Exit Delay Times (Program Addresses 4028-4030) must
be programmed for not longer than 60 seconds.
Burglary Alarm -
11.4 General System Requirements
Applies to the following grades only:
Local Burglary Grade A using Digital Alarm Communicator
Transmitter (DACT)
Police Station Grades AA and A using DACT and DS7416i
Communications module.
Grade A using DACT and local Bell.
Central Station Grades AA and A using DACT and DS7416i
Communications module.
Grade B using DACT and local bell.
Grade C using Digital Alarm Communicator
Transmitter only.
Alarm -
Connection -

Page 78 P/N: F01U035325-01 Copyright © 2007 Bosch Security Systems, Inc. DS7400Xi (4+) Reference Guide
1. Report Programming:
• Burglar Zone Reports must be programmed for those zones
used.
• Fire Zone Reports must be programmed for those zones used.
• Low Battery Report (Program Address 3336) must be
programmed.
• AC Failure Report (Program Address 3338) must be
programmed.
3. General Control Programming:
• Must be programmed for no swinger shunts (Program Address
0000 data digit 2, enter 0, 1, or 2).
• Program Address 2732 must be programmed as: Data Digit
1=0, Data Digit 2= 0.
4. Commercial Fire Mode Programming:
• Local (Program Address 2733, data digit 1, enter as a 1 through
6).
• Central Station (Program Address 2733, data digit 1, enter as a
7 through *2).
• The keypad panic functions are not intended to be a substitute
for Listed manual pull boxes.
11.6 Wiring and Programming Information for Installations Using the Ademco AB-12 Bell/Housing
1) Disconnect the wire jumper from terminal 4 to the inner housing of the Bell Box (prevents a ground fault condition).
2) Connect wiring between the control and Bell Box as shown above. To use the AB-12 Bell/Housing, cut the jumper wire “JP1” on the
control. The EOL used in the AB-12 Bell/Housing must be 27 kΩ.
3) Program Zone 8 as a 24-hour zone by programming it to follow zone function 7. (Program address 0038 = 07).
4) Do not change the default programming of zone function 7. (Program address 0007 should be 22).
11.5 Commercial Fire Alarm
A.Central Station (DACT) and Local
The control must be installed in accordance with NFPA 72.
Required Accessories:
• DS7420i Dual Phone Line/Bell Supervision Module.
• For Local Commercial Fire Alarm: A Listed notification appliance
such as a Wheelock 46T-G10-12 bell or 34T-12 horn.
• If not using the phone line supervision, it must be disabled.
• AE-TR16 Transformer Housing.
• At least one DS7447/DS7447E must be used and assigned as
keypad 1. If only one is used, it may be connected to the keypad
bus if the keypad is mounted to the front of the box or within the
same room as the control equipment and the wire is run in
conduit (or equivalently protected against mechanical injury)
within 20 ft. (6.1 m) of the control equipment. If multiple
keypads are used, one keypad only must be used on the options
bus and assigned as keypad 11-14 and meet the same
requirements as in single keypad use.
• 50 Hz. operation and ground start are automatically forced to the
disabled state when central station fire mode is selected.
Control/Communicator
Cut this jumper
JP1
T
o control Alarm Output +
T
o control Alarm Output –
To control Zone 8 Input
To control Loop Positive
To control Earth Ground
EOL
27 kΩ
BELL
Bell Tampers
Outer Bell Box
Inner Bell Box Lining
Ademco AB-12 Bell/Housing
Terminal 1
Terminal 29 (+)
Terminal 30 (8-)
Terminal 5 (-)
Terminal 6 (A)
Alternate EOL (if not
using a Fire card)
Detection Systems’
P/N 28300
• Open Report (Program Address 3331) must be programmed.
• Close Report (Program Address 3332) must be programmed.
• 24-Hour Check-In Reports (Program Addresses 3340 and 3347)
must be programmed.
2. Timer Programming:
• Bell Cutoff Times (Program Addresses 4032 and 4033) must
be programmed for not less than 5 minutes.
• Entry, Exit Delay Times (Program Addresses 4028-4030) must
be programmed for not longer than 60 seconds.

DS7400Xi ( 4+) Reference Guide Copyright © 2007 Bosch Security Systems, Inc. P/N: F01U035325-01 Page 79
12.0 Report Programming
12.1 4/2 Format
Suggested Values
Local Program
Remote Program
Address Value
Report Successful Report Unsuccessful
Address Value
3341
3343
3342
3344
EF
EF FF
FF
Reports with Restorals
Z
one Function 1
Z
one Function 2
Z
one Function 3
Z
one Function 4
Z
one Function 5
Z
one Function 6
Z
one Function 7
Z
one Function 8
Z
one Function 9
Z
one Function 10
Z
one Function 11
Z
one Function 12
Z
one Function 13
Z
one Function 14
Z
one Function 15
Z
one Function 16
Z
one Function 17
Z
one Function 18
Z
one Function 19
Z
one Function 20
Z
one Function 21
Z
one Function 22
Z
one Function 23
Z
one Function 24
Z
one Function 25
Z
one Function 26
Z
one Function 27
Z
one Function 28
Z
one Function 29
Z
one Function 30
3209
3210
A1
AF
AF
AF
AF
AF
AF
AF
AF
AF
AF
AF
AF
AF
AF
AF
A
A
A
A
A
A
A
A
2
3
4
5
6
7
8
9
B
C
D
E
F
AA
A
A
A
A
A
3211
3212
3213
3214
3215
3216
3217
3218
3219
3220
3221
3222
3223
3224
3225
3226
3227
3228
3229
3230
3231
3232
3233
3234
3235
3236
3237
3238
3241
3242
3243
3244
3245
3246
3247
3248
3249
3250
3251
3252
3253
3254
3255
3256
3257
3258
3259
3260
3261
3262
3263
3264
3265
3266
3267
3268
3269
3270
2F
2F
2F
2F
2F
2F
2F
2F
2F
2F
2F
2F
2F
2F
2F
2
2
2
2
2
2
2
2
1
2
3
4
5
6
7
8
29
2
2
2
2
2
2
B
C
D
E
F
A
Address Value
Trouble
6F
6F
6F
6F
6F
6F
6F
6F
6F
6F
6F
6F
6F
6F
6F
3271
3272
3273
3274
3275
3276
3277
3278
3279
3280
3281
3282
3283
3284
3285
3286
3287
3288
3289
3290
3291
3292
3293
3294
3295
3296
3297
3298
3299
3300
1
2
3
4
5
6
7
8
9
6
6
6
6
6
6
6
6
6
6
6
6
6
6
6
A
B
C
D
E
F
3301
3302
41
4F
4F
4F
4F
4F
4F
4F
4F
4F
4F
4F
4F
4F
4F
4F
4
4
4
4
4
4
4
4
2
3
4
5
6
7
8
9
B
C
D
E
F
A4
4
4
4
4
4
3303
3304
3305
3306
3307
3308
3309
3310
3311
3312
3313
3314
3315
3316
3317
3318
3319
3320
3321
3322
3323
3324
3325
3326
3327
3328
3329
3330
3358
3359
81
8F
8F
8F
8F
8F
8F
8F
8F
8F
8F
8F
8F
8F
8F
8F
Address Value
Bypass
8
8
8
8
8
8
8
8
2
3
4
5
6
7
8
9
B
C
D
E
F
A8
8
8
8
8
8
3360
3361
3362
3363
3364
3365
3366
3367
3368
3369
3370
3371
3372
3373
3374
3375
3376
3377
3378
3379
3380
3381
3382
3383
3384
3385
3386
3387
Address Value
Bypass Restora
l
3388
3389
3390
3391
3392
3393
3394
3395
3396
3397
3398
3399
3400
3401
3402
3403
3404
3405
3406
3407
3408
3409
3410
3411
3412
3413
3414
3415
3416
3417
9F
9F
9F
9F
9F
9F
9F
9F
9F
9F
9F
9F
9F
9F
9F
9
9
9
9
9
9
9
9
1
2
3
4
5
6
7
8
99
9
9
9
9
9
9
B
C
D
E
F
A
Address Value
Report
Address Value
Restoral
Reports with Restorals
L
ow Battery
A
C Fail
S
ystem Trouble
K
eypad Fire
S
ystem Walk Test
F
ire Walk Test
L
ow Temperature
D
irty Smoke Chamber
13
3
33
2
34
35
36
37
38
3336
3338
3345
3207
3350
3352
3354
3356
Address Value
Report
Address Value
Restoral
3337
3339
3346
3208
3351
3353
3355
3357
71
72
73
74
75
76
77
78
Address Value
Trouble Restoral
Reports without Restorals Address Value
Report
3331
3332
3334
3335
3348
3349
3239
3240
51
52
53
4
5
6
7
8
5
5
5
5
5
Open
Close
Partial Close
First Open after Alarm
Exit Error
Recent Closing
Keypad Emergency
Keypad Panic
Duress 3333 5 9

Page 80 P/N: F01U035325-01 Copyright © 2007 Bosch Security Systems, Inc. DS7400Xi (4+) Reference Guide
12.2 BFSK Format
Suggested Values
Local Program
Remote Program
Address Value
Report Successful Report Unsuccessful
Address Value
3341
3343
3342
3344
00
00 00
00
Reports with Restorals
Z
one Function 1
Z
one Function 2
Z
one Function 3
Z
one Function 4
Z
one Function 5
Z
one Function 6
Z
one Function 7
Z
one Function 8
Z
one Function 9
Z
one Function 10
Z
one Function 11
Z
one Function 12
Z
one Function 13
Z
one Function 14
Z
one Function 15
Z
one Function 16
Z
one Function 17
Z
one Function 18
Z
one Function 19
Z
one Function 20
Z
one Function 21
Z
one Function 22
Z
one Function 23
Z
one Function 24
Z
one Function 25
Z
one Function 26
Z
one Function 27
Z
one Function 28
Z
one Function 29
Z
one Function 30
3209
3210
10
80
80
80
80
80
80
80
80
80
80
80
80
80
80
80
2
3
4
5
6
7
8
8
0
0
0
0
0
0
0
0
0
0
0
0
0
08
8
8
8
8
8
3211
3212
3213
3214
3215
3216
3217
3218
3219
3220
3221
3222
3223
3224
3225
3226
3227
3228
3229
3230
3231
3232
3233
3234
3235
3236
3237
3238
3241
3242
3243
3244
3245
3246
3247
3248
3249
3250
3251
3252
3253
3254
3255
3256
3257
3258
3259
3260
3261
3262
3263
3264
3265
3266
3267
3268
3269
3270
E8
E8
E8
E8
E8
E8
E8
E8
E8
E8
E8
E8
E8
E8
E8
E
E
E
E
E
E
E
E
1
2
3
4
5
6
7
8
E8
E
E
E
E
E
E
8
8
8
8
8
8
Address Value
Trouble
F0
F0
F0
F0
F0
F0
F0
F0
F0
F0
F0
F0
F0
F0
F0
3271
3272
3273
3274
3275
3276
3277
3278
3279
3280
3281
3282
3283
3284
3285
3286
3287
3288
3289
3290
3291
3292
3293
3294
3295
3296
3297
3298
3299
3300
1
2
3
4
5
6
7
8
0
F
F
F
F
F
F
F
F
F
F
F
F
F
F
F
0
0
0
0
0
0
3301
3302
E1
E8
E8
E8
E8
E8
E8
E8
E8
E8
E8
E8
E8
E8
E8
E8
E
E
E
E
E
E
E
E
2
3
4
5
6
7
8
8
8
8
8
8
8
8E
E
E
E
E
E
3303
3304
3305
3306
3307
3308
3309
3310
3311
3312
3313
3314
3315
3316
3317
3318
3319
3320
3321
3322
3323
3324
3325
3326
3327
3328
3329
3330
3358
3359
F1
F0
F0
F0
F0
F0
F0
F0
F0
F0
F0
F0
F0
F0
F0
F0
Address Value
Bypass
F
F
F
F
F
F
F
F
2
3
4
5
6
7
8
0
0
0
0
0
0
0F
F
F
F
F
F
3360
3361
3362
3363
3364
3365
3366
3367
3368
3369
3370
3371
3372
3373
3374
3375
3376
3377
3378
3379
3380
3381
3382
3383
3384
3385
3386
3387
Address Value
Bypass Restora
l
3388
3389
3390
3391
3392
3393
3394
3395
3396
3397
3398
3399
3400
3401
3402
3403
3404
3405
3406
3407
3408
3409
3410
3411
3412
3413
3414
3415
3416
3417
E8
E8
E8
E8
E8
E8
E8
E8
E8
E8
E8
E8
E8
E8
E8
E
E
E
E
E
E
E
E
1
2
3
4
5
6
7
8
E8
E
E
E
E
E
E
8
8
8
8
8
8
Address Value
Report
Address Value
Restoral
Reports with Restorals
L
ow Battery
A
C Fail
S
ystem Trouble
K
eypad Fire
S
ystem Walk Test
F
ire Walk Test
L
ow Temperature
D
irty Smoke Chamber
9F
F
FD
A
10
71
73
31
33
3336
3338
3345
3207
3350
3352
3354
3356
Address Value
Report
Address Value
Restoral
3337
3339
3346
3208
3351
3353
3355
3357
E9
EA
ED
E1
72
74
32
34
Address Value
Trouble Restoral
Reports without Restorals Address Value
Report
3331
3332
3334
3335
3348
3349
3239
3240
BF
CF
CF
F
0
0
0
0
D
0
0
0
9
Open
Close
Partial Close
First Open after Alarm
Exit Error
Recent Closing
Keypad Emergency
Keypad Panic
Duress 3333 A 0

DS7400Xi ( 4+) Reference Guide Copyright © 2007 Bosch Security Systems, Inc. P/N: F01U035325-01 Page 81
12.3 Personal Dialing Format
This is a 2 pulse per second (PPS) 0/2 (no account code/2 report event digits) format intended for manual reception, i.e. the panel will
call a phone number where a person is expected to answer. After a call is made, the panel will start sending the first report. If the report
was a “Communication Test” and Program Address 3340 had a value of 12 the person answering the phone would hear 1 pulse
followed by a 1 second delay, then 2 pulses followed by a 3 second delay. This sequence will repeat for 60 seconds per call. After the
60 seconds the panel will hang up and call again if any reports still remain to be sent.
A way to expedite this report process would be to provide an acknowledge to the panel that the report was heard and understood by the
receiving party. When an acknowledge is provided, the panel will start sending the next report or hang up if no reports remain. To provide
an acknowledge, press the 1 key of the telephone keypad during the 3 second delay of the report transmission. This “Acknowledge
Feature” is an enhancement that will allow the panel to send all reports in one call. If the call is not acknowledged a communication
failure is sent after all dial attempts are made.
Programming the first data digit as zero will disable the report. Values 1-9 and A-F are acceptable. A zero in the second data digit will
send ten pulses.
12.4 Pager Format
The Pager format allows the control panel to dial a digital pager and leave a numeric message which includes an account ID and report
type. The telephone number is dialed when a report is available. At the completion of the telephone dialing, a time delay equal to 10
seconds occurs. This delay allows time to connect with the pager service, while skipping over any voice announcement. When the delay
has ended, the numeric message is sent. This message includes the account number followed by up to 5 reports. If a delay time greater
than 10 seconds is required, see Programming Address 4038 to adjust the delay time. In addition, increments of 3 seconds can be
added by programming the “*3” character (3 second delay) at the end of the phone number in address 3159 or 3175.
For example, if you call pager number 123-4567 and it takes 20 seconds after you finished dialing before you are allowed to enter the
message, the following digits should be programmed in address 3159: 1 2 3 4 5 6 7 *3 *3 *3 *3. This will give you an overall delay of
22 seconds.
NOTE: For Pager Format, it is not advisable to use the HEX character values (*0 = A, *1 = B, *2 = C, *3 = D, *4 = E, *5 = F) in the report
programming addresses 3207 through 3419. These characters could cause unpredictable results when sent to a pager
system that only expects numeric characters between 0-9. This is the reason that this format will not allow an associated user
number with an open and close report.
The following are recommended programming values for addresses 3207 through 3419 when using the Pager format.
NOTE: The Pager format is an open-loop format which has no acknowledge tone. There is no indication at the control panel that the
signal has been sent. Therefore, the Pager format is not recommended as the primary communication method.
Refer to the worksheet on the next page for Reports with Restorals. The values for each report can be determined by the
user in conjunction with the installer. Again, the digit “0” (zero) should not be used as the reporting (first) digit as it will affect
other reports in the system. Examples have been provided for possible reporting values, but the values can be set to the
user’s preferences.

Page 82 P/N: F01U035325-01 Copyright © 2007 Bosch Security Systems, Inc. DS7400Xi (4+) Reference Guide
Pager Format (Continued)
Suggested Values
Local Program
Remote Program
Address Value
Report Successful Report Unsuccessful
Address Value
3341
3343
3342
3344
88
89 79
78
Reports with Restorals
Z
one Function 1
Z
one Function 2
Z
one Function 3
Z
one Function 4
Z
one Function 5
Z
one Function 6
Z
one Function 7
Z
one Function 8
Z
one Function 9
Z
one Function 10
Z
one Function 11
Z
one Function 12
Z
one Function 13
Z
one Function 14
Z
one Function 15
Z
one Function 16
Z
one Function 17
Z
one Function 18
Z
one Function 19
Z
one Function 20
Z
one Function 21
Z
one Function 22
Z
one Function 23
Z
one Function 24
Z
one Function 25
Z
one Function 26
Z
one Function 27
Z
one Function 28
Z
one Function 29
Z
one Function 30
3209
3210
11
26
27
28
29
30
30
30
30
30
30
30
30
30
30
30
1
1
1
1
1
1
1
1
2
3
4
5
6
7
8
9
1
2
3
4
5
02
2
2
2
2
2
3211
3212
3213
3214
3215
3216
3217
3218
3219
3220
3221
3222
3223
3224
3225
3226
3227
3228
3229
3230
3231
3232
3233
3234
3235
3236
3237
3238
3241
3242
3243
3244
3245
3246
3247
3248
3249
3250
3251
3252
3253
3254
3255
3256
3257
3258
3259
3260
3261
3262
3263
3264
3265
3266
3267
3268
3269
3270
64
64
64
64
64
64
64
64
64
64
64
64
64
64
64
6
6
6
6
6
6
6
6
4
4
4
4
4
4
4
4
64
6
6
6
6
6
6
4
4
4
4
4
4
Address Value
Trouble
46
47
48
49
50
51
52
53
54
55
56
57
58
59
60
3271
3272
3273
3274
3275
3276
3277
3278
3279
3280
3281
3282
3283
3284
3285
3286
3287
3288
3289
3290
3291
3292
3293
3294
3295
3296
3297
3298
3299
3300
1
2
3
4
5
6
7
8
9
3
3
3
3
3
3
3
3
4
3
4
4
4
4
4
0
1
2
3
4
5
3301
3302
65
65
65
65
65
65
65
65
65
65
65
65
65
65
65
65
6
6
6
6
6
6
6
6
5
5
5
5
5
5
5
5
5
5
5
5
5
56
6
6
6
6
6
3303
3304
3305
3306
3307
3308
3309
3310
3311
3312
3313
3314
3315
3316
3317
3318
3319
3320
3321
3322
3323
3324
3325
3326
3327
3328
3329
3330
3358
3359
61
62
62
62
62
62
63
63
63
63
63
63
63
63
63
63
Address Value
Bypass
6
6
6
6
6
6
6
6
1
1
1
1
1
1
1
1
2
2
2
2
2
26
6
6
6
6
6
3360
3361
3362
3363
3364
3365
3366
3367
3368
3369
3370
3371
3372
3373
3374
3375
3376
3377
3378
3379
3380
3381
3382
3383
3384
3385
3386
3387
Address Value
Bypass Restora
l
3388
3389
3390
3391
3392
3393
3394
3395
3396
3397
3398
3399
3400
3401
3402
3403
3404
3405
3406
3407
3408
3409
3410
3411
3412
3413
3414
3415
3416
3417
66
66
66
66
66
66
66
66
66
66
66
66
66
66
66
6
6
6
6
6
6
6
6
6
6
6
6
6
6
6
6
66
6
6
6
6
6
6
6
6
6
6
6
6
Address Value
Report
Address Value
Restoral
Reports with Restorals
L
ow Battery
A
C Fail
S
ystem Trouble
K
eypad Fire
S
ystem Walk Test
F
ire Walk Test
L
ow Temperature
D
irty Smoke Chamber
07
7
72
1
73
74
75
76
77
3336
3338
3345
3207
3350
3352
3354
3356
Address Value
Report
Address Value
Restoral
3337
3339
3346
3208
3351
3353
3355
3357
80
81
82
83
84
85
86
87
Address Value
Trouble Restoral
Reports without Restorals Address Value
Report
3331
3332
3334
3335
3348
3349
3239
3240
90
91
92
3
7
4
5
6
9
6
9
9
9
Open
Close
Partial Close
First Open after Alarm
Exit Error
Recent Closing
Keypad Emergency
Keypad Panic
Duress 3333 9 7

DS7400Xi ( 4+) Reference Guide Copyright © 2007 Bosch Security Systems, Inc. P/N: F01U035325-01 Page 83
13.0 Report Programming - Values Sent
13.1 SIA Formats
Data Digit 2 value SIA Report Explanation
1 PA Panic Alarm
2PRPanic Restore
3 QA Emergency Alarm
4 QR Emergency Restore
5 TA Tamper Alarm
6 TR Tamper Restore
7 UA Untyped Zone Alarm
8 UR Untyped Zone Restore
9 UT Untyped Zone Trouble
*0 UJ Untyped Trouble Restore
*1 YP Power Supply Trouble
*2 YQ Power Supply Restore
*3 YX Service Required
BA
FA
Zone
Number
Zone
Number
Burglary alarm for a zone
Fire alarm for a zone
Waterflow alarm for a zone
Supervisory for a zone
Keypad fire (A)
Keypad fire restoral (A)
Keypad emergency (B)
Keypad panic (C)
Burglary restoral for a zone
Fire restoral for a zone
Waterflow restoral for a zone
Supervisory restoral for a zone
Burglary trouble for a zone
Reports
SIA
event
code
SIA
data
field
SA
SS
Zone
Number
Zone
Number
FA
FR
000
QA
PA
BR
FR
Zone
Number
Zone
Number
SR
SJ
Zone
Number
Zone
Number
000
None
None
BT Zone
Number
BJ Zone
Number
Burglary trouble restoral
Zone
Fire trouble for a zone FT Number
Zone
Fire trouble restoral FJ Number
Supervisory trouble for a zone
Waterflow trouble for a zone FT
FT
Zone
Number
Zone
Number
First open after alarm (cancel) report
Tamper RF zone TT Zone
Number
Open report
Close report
Duress report
Partial close report
Low battery
Low battery restoral
AC failure
AC failure restoral
OP
CL
HA
CG
OR
YT
YR
AT
AR
000
None
None
None
None
None
User
Number
User
Number
User
Number
Octal relay fault report
Octal relay restoral
Exit error report
Recent closing report
System walk test start report
System walk test end report
ET
ER
None
None
EE
CR
None
None
TS
TE
None
None
Tamper, Alarm RF zone BA Zone
Number
Tamper restoral RF zone BR Zone
Number
Low Battery RF zone XT Zone
Number
Low Battery restoral RF zone BR Zone
Number
Keypad Tamper restoral
Keypad Tamper EX
ER
None
None
Burglary Zone Bypass restoral
Burglary Zone Bypass BB
BU
Zone
Number
Zone
Number
24 Hour Zone Bypass restoral
24 Hour Zone Bypass BB
BU
Zone
Number
Zone
Number

Page 84 P/N: F01U035325-01 Copyright © 2007 Bosch Security Systems, Inc. DS7400Xi (4+) Reference Guide
13.1 SIA Formats (Continued)
FI
FK
Fire walk test report
Fire walk test restoral
Reports
SIA
event
code
SIA
data
field
MC
MO
Zone
Number
Zone
Number
MF
MR
RP
RX
RS
RU
YG
YF
None
None
YC
YK
ET
ER
ET
ER
TT
RP
LT
LR
LT
LR
YS
YK
ET
ER
None
None
None
None
None
ET
ER
None
None
ET
ER
None
None
VT
VR
None
None
YP
YQ
UT
UJ
XQ
XH
None
None
XS
XJ
XQ
XH
None
Zone
Number
Zone
Number
None
Dirty Smoke Chamber report
Dirty Smoke Chamber restoral
Mux. Smoke low temperature report
Mux. Smoke low temperature restoral
Automatic system normal test report
Manual communicator test report
Remote programming successful report None
None
None
None
None
None
Remote programming failure report
Local programming successful report
Local programming failure report
Communication failure report
Communication restoral
None
None
None
None
Number
Receiver
Number
Receiver
Number
Receiver
Number
Receiver
Number
Receiver
EEPROM checksum failure or keypad supervision failure report
EEPROM checksum restoral or keypad supervision restoral
Multiplex bus fault
Multiplex bus restoral
Number
Receiver
Number
Receiver
None
None
None
None
Radio receiver tamper
Radio receiver tamper restoral
Radio receiver jammed
Radio receiver jammed restoral
Radio receiver trouble report
Radio receiver trouble restoral
RF Zone Missing
Aux. power fault report
Aux. power restoral
Ground fault report
Ground fault restoral
Automatic system off normal test report
Phone line 1 fault report
Phone line 1 restoral
Phone line 2 fault report
Phone line 2 restoral
See 8.13.6
Error Displays
See 8.13.6
Error Displays
DS7416i fault report
DS7416i fault restoral
Bell fault report
Bell fault restoral
RAM fault report
RAM fault restoral
ROM fault report
ROM fault restoral
Serial interface fault report
Serial interface restoral
Aux. relay fault report
Aux. relay restoral
None
None
E
E
T
R

DS7400Xi ( 4+) Reference Guide Copyright © 2007 Bosch Security Systems, Inc. P/N: F01U035325-01 Page 85
13.2 CID Formats
Reports
CID
event
code
CID
data
field
None
607
Restoral
System walk test end report
607 NoneSystem walk test start report
None
Restoral
604
Fire walk test restoral
604
None
Fire walk test report
602
None
Automatic system normal test report
602
None
Automatic system off normal test report
None
601
Manual communicator test report
Zone
Number
24 Hour Zone Bypass restoral 573
Restoral
573 Zone
Number
24 Hour Zone Bypass
Zone
Number
Burglary Zone Bypass restoral 573
Restoral
Zone
Number
Burglary Zone Bypass 573
457 None
Exit error report
456
Restoral User
Number
Partial close report
None
413
Remote programming failure report
412
None
Remote programming successful report
406 None
First open after alarm (cancel) report
None
405Recent closing report
401
Restoral User
Number
Close report
401 User
Number
Open report
385
Restoral Zone
Number
Dirty Smoke Chamber restoral
385
Zone
Number
Dirty Smoke Chamber report
Zone
Number
384Low Battery RF zone
383 Zone
Number
Tamper RF zone
381 Zone
Number
RF Zone Missing
Zone
Number
373
Supervisory trouble for a zone
373 Zone
Number
Waterflow trouble for a zone
Zone
Number
Fire trouble restoral 373
Restoral
373 Zone
Number
Fire trouble for a zone
Zone
Number
Burglary trouble restoral 370
Restoral
370 Zone
Number
Burglary trouble for a zone
370
Restoral Zone
Number
Tamper restoral RF zone
None
354
Restoral
Communication restoral
None
354
Communication failure report
353
Restoral
See 15.4
Gen Sys Prob
353
See 15.4
Gen Sys Prob
352
Restoral None
Phone line 2 restoral
352
None
Phone line 2 fault report
351
Restoral None
Phone line 1 restoral
351
None
Phone line 1 fault report
344
Restoral Receiver
Number
Radio receiver jammed restoral
344
Receiver
Number
Radio receiver jammed
341
Restoral Receiver
Number
Radio receiver tamper restoral
341
Receiver
Number
Radio receiver tamper
Keypad Tamper restoral 341
Restoral None
341Keypad Tamper None
*The 2-digit #89 display System
Fault numbers will be sent in the
CID data field for DS7416i fault
reports.
159
Zone
Number
Mux. Smoke low temperature report
159
Restoral
Zone
Number
Mux Smoke low temperature restoral
306
None
Local programming successful report
306
Restoral None
Local programming failure report
None
330
Keypad supervision failure report
None
330
Restoral
Keypad supervision restoral
Reports
CID
data
field
CID
event
code
Low Battery restoral RF zone
110 Zone
Number
Fire alarm for a zone
110
Restoral Zone
Number
Fire restoral for a zone
110 000
Keypad fire (A)
110
Restoral 000
Keypad fire restoral (A)
113 Zone
Number
Waterflow alarm for a zone
113
Restoral Zone
Number
Waterflow restoral for a zone
121 000
Duress report
130 Zone
Number
Burglary alarm for a zone
130
Restoral Zone
Number
Burglary restoral for a zone
Zone
Number
130
Tamper, Alarm RF zone
130
Restoral Zone
Number
200 Zone
Number
Supervisory for a zone
200
Restoral Zone
Number
Supervisory restoral for a zone
300
None
Aux. power fault report
None
300
Restoral
Aux. power restoral
301 None
AC failure
301
Restoral None
AC failure restoral
302 NoneLow battery
302
Restoral None
Low battery restoral
303
None
RAM fault report
None
303
Restoral
RAM restoral
304
None
ROM fault report
None
304
Restoral
ROM restoral
310
None
Ground fault report
310
Restoral None
Ground fault restoral
004
320Aux. relay fault report
320
Restoral
Aux. relay restoral
321
003
Bell fault report
321
Restoral
Bell restoral
330 005
Octal relay fault report
005
330
Restoral
Octal relay restoral
333
None
Multiplex bus fault
None
333
Restoral
Multiplex bus restoral
333
Receiver
Number
Radio receiver trouble report
333
Restoral Receiver
Number
Radio receiver trouble restoral
336
None
Serial interface fault report
None
336
Restoral
Serial interface restoral
004
003
122 None
Keypad emergency (B)
123 NoneKeypad panic (C)
DS7416i fault report*
DS7416i fault restoral*

Page 86 P/N: F01U035325-01 Copyright © 2007 Bosch Security Systems, Inc. DS7400Xi (4+) Reference Guide
14.0 Multiplex Zone Addressing Guide
Before installing a multiplex device, its address and other
information must be programmed into the control panel. (To disable
or remove a multiplex point, set the program address for 00 [see
Section 10.4]).
If using a DS7436 Multiplex Expansion Module,
programming must be done using bus “A.”
Perform the following:
• Program the control panel.
- Refer to sections 10.2-10.5, Zone Programming.
These sections allow you to define the Multiplex Zone’s
address (zone number), its type (single or multiple zone input
device, a DS7465, a Multiplex Smoke or a Multiplex Smoke
with a Low Temperature Alarm), which zone or output function
it will follow (1-24) and its partition (1-8).
For example:Program zone 9 to be a single zone input device
(MX950 ) that follows zone function 1 and is in
partition 1.
Procedure: Enter the programmer’s mode.
Enter address 0039.
Enter the data digits as [0] and [1] followed by the
[#] button.
Enter address 0291.
Enter the data digits as [0] and [0] followed by the
[#] button.
Exit the programmer’s mode.
• Program the BusLoc® feature.
At this point, you must decide whether or not to use the BusLoc®
feature.
BusLoc® is a proprietary method of tying the multiplex zones to
the control panel to prevent the system from being taken over.
Using BusLoc® will program an invisible identification code into
the multiplex zones.
NOTE: If using the DS7432 8-Input Remote Module or the DS7433
8-Input Direct Module, the BusLoc® feature can not be
used.
- If you choose to use the BusLoc® feature, program a 5-digit
code at programming address 9999.
It is very important to save this code under lock and key. If
you need to replace the control panel, you will have to program
it with the same BusLoc® code as the previous panel or the
multiplex devices will not match codes with the new control
panel.
For example:Program the BusLoc® code to be 54321.
Procedure: Enter the programmer’s mode.
Enter address 9999.
Enter the data digits as [5], [4], [3], [2], and [1]
followed by the [#] button.
Exit the programmer’s mode.
Once the pre-programming is done, you are ready to program the
multiplex devices. Perform the following:
• Disconnect all multiplex devices from the DS7430.
• Program the multiplex devices through the control panel. Per-
form the following:
- Enter the programmer’s mode.
- Enter the multiplex programming mode.
Do this by entering [9] [9] [9] [5] followed by the [#] button.
- The display will then call-up the first zone you have pre-
programmed to be a multiplex zone. To access a different
zone, press the [Reset/*] key, then enter the three digit value of
the zone you want. The display will show the following:
Before you do anything else, reconnect the multiplex device (that
coincides with the displayed zone) to the multiplex bus of the
DS7430.
For DS7465s and Multiple Input devices, pressing the [#] button
now will program these devices to the control panel. Remember,
these devices take up two addresses. When address 009 (for
example) is a DS7465, pressing the [#] button now will program
both addresses 009 and 010.
For Single Input devices, press the [#] button to continue
programming. The display asks whether you are programming a
sensor or a contact; it will show the following:
If you are programming a sensor, press the [4] button to program
these devices to the control panel. If you are programming a contact,
press the [6] button to program these devices to the control panel.
- If the device is successfully programmed, the keypad will
sound a single beep and increment to the next zone (if there is
one) pre-programmed as a multiplex zone.
Disconnect the device you just programmed and
connect the next device (that belongs to the displayed
zone) to the multiplex bus of the DS7430 and press
the [#] button. Continue programming.
24-hour zones will alarm when you exit the
programmer’s mode. Alarm reports for these zones
will be sent if they have been programmed. If you do
not want these reports sent, disconnect power from
the system now by unplugging the transformer and
removing the red battery lead. Do not reconnect power
until all zones have been installed and connected to
the multiplex bus.
- If no other zones have been pre-programmed, the display will
show the following:
- You may now exit the Zone Programmer’s mode by pressing
the [*/Reset] button for 2 seconds. This brings you back to the
Programmer’s Mode. To exit the Programmer’s Mode, press
the [*/Reset] button for 2 seconds.
- If the zone is unsuccessfully programmed, the keypad will
sound a three-beep error tone.
- The control will then take a few seconds to check the multiplex
connection to confirm nothing is connected to it. The display
will show the following:

DS7400Xi ( 4+) Reference Guide Copyright © 2007 Bosch Security Systems, Inc. P/N: F01U035325-01 Page 87
15.0 Troubleshooting Guide
15.1 Keypad Problems
Entry Error: Please Re-enter will
display on keypad. A three beep error
tone will sound continuously.
a) Two or more keypads share the same
address.
b) The DS7430 or DS7433 is installed in
the wrong pins.
a) Install keypad jumper properly in back of
keypads.
b) Be sure the DS7430 or DS7433 is installed
properly.
Symptom Probable Cause Possible Solution
Keypad displays Not Programmed,
See Instal Guide, sounder is on and
the keypad does not operate.
Keypad displays Ready to arm,
partition 1 when using only one
partition.
Keypad displays System Fault,
sounder is on, and the keypad does
not operate.
Keypad alpha display is locked up,
but the keys still function.
Can’t read back history with # 89
input.
In history, the Read-back for the A, B,
and C keys shows:
A = Fire
B = Emergency
C = Panic
But, the Central Station
transmissions display B as Silent
Panic and C as Audible Panic.
Can not perform a zone test (#81).
a) The keypad not addressed properly.
b) The keypad is not programmed
properly.
c) Keypads 11-15 are not properly
configured.
The keypad is programmed as a Master
keypad.
a) Keypad wiring error.
b) Keypad(s) assigned to wrong or non-
existent partition.
c) The microprocessor isn’t running.
The keypad is enabled, but as an LED
keypad.
a) Entering from Master keypad.
b) Not using a PIN with test authority.
Formats display information regarding the
B and C keys differently.
In Contact ID: A = Fire
B = Silent Panic
C = Audible Panic
In SIA: A = Fire
B = Emergency
C = Panic
a) Entering from a Master keypad.
b) Not using a PIN with test authority.
a) Install the keypad jumper properly in the back of
the keypad.
b) Check keypad programming addresses 3131-
3138.
c) Check keypad addresses 11-15. System will
only see keypads on the options bus.
Enter the program mode at the keypad and input
the correct sequence to re-enable it as an alpha
keypad. Care must be taken, since there will be no
visual feedback to verify programming until the
keypad is properly enabled.
a) First enter Single Partition Mode.
b) Use a PIN with test authority.
Discrepancy exists in the definition of these keys in
the two formats. Whatever the keys are
programmed for in the panel, that is what will be
sent.
a) Zone test is not available from a Master keypad.
b) Use a PIN with test authority.
Master keypads can only be used on multi-partition
systems. Program the keypad as a standard
keypad.
a) Check wiring.
b) Assign the keypad(s) to correct partition. If none
of the keypads are correctly assigned, re-enable
keypad 1 by shorting the program contacts in
the lower right corner of the main panel board.
This will force program mode and assign
keypad 1 as alpha, non-master to partition 1.
c) Disconnect battery and any aux. power load. If
the microprocessor has shut down, aux. power
will read approx. 11.5 VDC. If the EEProm chip
has been field-replaced, power down AC and
battery, and check for bent or mis-inserted pins;
Otherwise, replace the panel.

Page 88 P/N: F01U035325-01 Copyright © 2007 Bosch Security Systems, Inc. DS7400Xi (4+) Reference Guide
Keypad Problems (Continued)
Chime Mode (#7) does not work
when a zone is faulted. a) Not activating for interior zones.
b) The keypad is not assigned to the same
partition as the zone being activated.
a) Chime mode only activates for perimeter zones
- Chime mode must be programmed. Also, if
the perimeter zone has trouble enabled (trouble
on open), the chime won’t work if that zone is
opening.
b) Chime mode will only activate the sounder on
keypads that are assigned to the same partition
as the zone.
Symptom Probable Cause Possible Solution
Some functions won’t work on a
Master keypad. Some functions require you to enter single
partition mode when using a Master
keypad.
The following commands require that you are in
Single Partition Mode when entering from a Master
keypad:
• History read-back
• Chime mode
• Checking zone status
• Checking zone trouble status (after #87 - Master
keypad will show only partition name)
• Bypassing zones
15.2 Reporting Problems
Won’t send open or close reports. Not programmed correctly. Check addresses: 3331, 3332, 3334, and 3333.
Symptom Probable Cause Possible Solution
Reports for partitions 2-8 are being
sent with partition 1’s reporting ID.
Not getting AC power fail reports.
Panel never transmits history to
WDSRP.
The communicator test report is not
being sent.
The account codes for 2-8 are not pro-
grammed or are not programmed correctly.
a) AC power fail messages are sent only
with other reports, such as low battery.
b) Check AC report offset (3338). If 00, AC
report will work like above, if another
number, AC report will be delayed.
a) Not programmed to send history.
b) Time and date not set.
a) Report not programmed properly.
b) There was a control problem at the time
the report should have been sent. If this
is the case, the communicator test
report will not be sent. Instead, the
control will send the “System Off
Normal” report.
Check addresses: 3429-3459.
a) Try forcing another report to send when AC is
not present.
b) Wait until the delay times out or set to a lower
number if desired.
a) Check programming.
b) Verify that the time in the panel is set.
a) Check programming addresses 4022, 4023,
4026, and 3340.
b) Program “System Off Normal” report in address
3347.
15.3 Zone Problems
Fire Alarm displays on keypad but
no zone numbers are displayed. In Commercial Fire Mode, fire alarms must
be silenced before the zone number will
display.
Enter a valid disarm PIN and press #, then enter a
valid disarm PIN and press # again to display the
zones.
Symptom Probable Cause Possible Solution
Every other zone displays Not Ready. Zone Programming is incorrect. Program as a multiple zone input for DS7432 or
DS7460, a single zone input for contacts and
sensors, or program as a DS7465.

DS7400Xi ( 4+) Reference Guide Copyright © 2007 Bosch Security Systems, Inc. P/N: F01U035325-01 Page 89
Zone Problems (Continued)
Symptom Probable Cause Possible Solution
a) The multiplex expansion module is not
installed properly.
b) Multiplex wiring is missing or is not
installed properly.
c) 8-Input remote module DIP switches
are not set properly.
d) 8-Input remote module covers are
removed.
e) The BusLoc® code is set incorrectly or
has not been programmed into
modules.
f) Zone Programming is incorrect.
g) Multiplex module not programmed.
h) Multiplex Bus voltage is 12VDC or
greater. (Normal is approximately 8 to
10VDC.)
i) Multiplex Bus voltage is 5VDC or less.
a) Make sure the multiplex expansion module is
seated properly in the upper pins on the
DS7400Xi circuit board.
b) Check wiring and perform a system reset.
c) Correctly set the DIP switches for the 8-Input
remote modules.
d) Replace covers or install the tamper bypass
jumper.
e) BusLoc® can not be used with 8-Input remote
modules. If using 8-Input modules, remove the
BusLoc® code. OR
If using two-input remote modules or the
DS7465, be sure to use BusLoc® when
programming. If not using BusLoc®, be sure to
remove the BusLoc® code from address 9999.
f) Program as a multiple zone input for DS7432 or
DS7460, a single zone input for contacts and
sensors, or program as a DS7465.
g) Program the module.
h) Two modules are programmed with the same
address. The problem will only occur when both
modulees are off normal. Isolate the duplicate
module by disconnecting sections of the bus
and performing a [PIN] + [System Reset].
Reprogram modules.
OR
The system is in the programming mode. Exit
the programming mode.
OR
Zones have been added to a system protected
by Busloc®. Clear Busloc®.
i) There is a short on the multiplex bus.
OR
There is a bad module on the bus.
OR
One or more modules on the bus are connected
backwards - reverse polarity.
Zones 9 and above show Not Ready,
Zone Trouble.
Never disconnect the
power when in the
programming mode.
Always disconnect the
Multiplex Bus or have the
DS7430 or DS7436 in
the disable
programming mode
when powering up or
down.
Invisible or silent zone activates
alarm output.
Keypad displays Fire Trouble, but
does not indicate any zones.
Keypad displays Not Ready, but no
zone number is displayed.
Program the output to follow zone alarms (6).
See system trouble: Ground fault.
Press [PIN] + [OFF] to display the zone number of
the invisible zone that is not ready.
(Normal is approximately 8 to 10VDC.)
The output is programmed as “latch on
alarm” (0).
A ground fault condition exists.
An invisible zone is not ready.
15.4 General System Problems
Symptom Probable Cause Possible Solution
How to set the programming values
to the factory default. Enter a value of 01 in address 4058. Caution: Only enter a value of 01 in address
4058 when you are sure you want to
default the programming. Doing so will
immediately erase all programming.

Page 90 P/N: F01U035325-01 Copyright © 2007 Bosch Security Systems, Inc. DS7400Xi (4+) Reference Guide
General System Problems (Continued)
Symptom Probable Cause Possible Solution
Power LED is flashing, keypad
displays Control Trouble Press #87.
#87 display = Oct. Relay Fault
#89 display = System Fault 20
#87 display = Multiplex Bus Fault
Can’t reset to factory default.
A control trouble exists.
a) The octal relay module (DS7488) is
defective or the wiring to the module is
defective.
b) There is no DS7488 or a DS7488 has
been removed from the system.
The Multiplex Bus is defective or shorted.
Keypad programming access is set to
PARTIAL from Remote programmer.
Press #87 to determine the trouble condition.
a) Check the wiring to the module.
b) Enter, then exit programming mode. This will re-
scan the options bus and clear the problem.
Check wiring for shorts.
Change setting to FULL from the Remote
programmer.
#87 display = RAM Fault
#89 display = System Fault 01
or
#87 display = ROM Fault
#89 display = System Fault 02
or
#87 display = EEProm Fault
#89 display = System Fault 03
The control has failed to communicate.
a) An EEProm fault can be caused by
disconnecting power from the control while it is
in program mode. In this case, enter then exit
program mode to clear.
b) Try to clear the error at the keypad by entering a
PIN then Reset.
c) Remove AC and battery power, then re-apply.
Remember that event history will be lost and
time/date will have to be re-set.
d) If error persists, return the panel to factory default
programming by setting program address 4058
to “01”. If the error clears, re-program the panel.
e) If error still persists, replace the panel.
#87 display = Communicator Err
#89 display = Report Failure X
#87 display = 2Ph/Bell Fault
#89 display = System Fault 10
#87 display = Line 1 Fault
#89 display = System Fault 11
#87 display = Line 2 Fault
#89 display = System Fault 12
#87 display = Bell Fault
#89 display = System Fault 13
#87 display = Aux. Output Fault
#89 display = System Fault 14
a) The dual phone line/bell supervision
module (DS7420i) is defective or the
wiring to the module is defective.
b) There is no DS7420i or a DS7420i has
been removed from the system.
There is a phone line fault on line 1.
There is a phone line fault on line 2.
The bell circuit on the DS7420i is open or
shorted.
The auxiliary circuit on the DS7420i is open
or shorted.
Check history #89 to determine the source:
Report Failure 1 = Phone number 1
Report Failure 2 = Phone number 2
Report Failure 3 = Phone number 3
(remote programmer)
Report Failure 4 = DS7416i Communications fault
a)Check the wiring to the module.
b) Enter, then exit programming mode. This will re-
scan the options bus and clear the problem.
Check phone line 1 for proper operation.
Check phone line 2 for proper operation. If you wish
to monitor only one phone line, reprogram address
4021.
Check the bell circuit wiring. Be sure that the end-
of-line resistor is in place. If you don’t wish to use
the bell circuit, place an end-of-line resistor across
the bell terminals.
Check the auxiliary circuit wiring. Be sure that the
end-of-line resistor is in place. If you don’t wish to
use the auxiliary circuit, place an end-of-line resistor
across the auxiliary terminals. If you wish to use the
auxiliary circuit but do not wish to supervise it, cut
the auxiliary supervision jumper on the DS7420i.

DS7400Xi ( 4+) Reference Guide Copyright © 2007 Bosch Security Systems, Inc. P/N: F01U035325-01 Page 91
General System Problems (Continued)
Symptom Probable Cause Possible Solution
#87 display = Aux Power Fault
#87 display = Keypad Fault
The auxiliary power output has been
shorted.
a) The keypad wiring is defective.
b) A keypad is missing.
c) A keypad has been programmed, but is
not intended in this system.
Remove wiring from auxiliary power and check for
shorts.
a) Check keypad operation and wiring.
b) Install a keypad.
c) Remove from programming (3131-3138).
#87 display = Ground Fault
#89 display = System Fault 04 There is a short to ground somewhere in
the system.
Disconnect field wiring from each terminal while
watching the keypad display. When the keypad power
LED stops flashing, you have found the wire that is
causing the ground fault.
Note: The LED will not stop flashing if there is
another system fault present.
If there is no keypad nearby, or another control
problem exists, you can use a volt-meter to find the
ground fault:
1) Connect the negative lead of a volt-meter to the
panel ground terminal.
2) Connect the positive terminal to the Aux Power –
terminal.
You should read -4.5 to -7.5 Volts DC. A reading
considerably higher or lower indicates a ground
fault.
Disconnect field wiring from each terminal while
watching the meter. When the voltage reading
returns to between -4.5 and -7.5 VDC, you have
found the wire that is causing the ground fault.
#87 display = AR IB Queue Full
#89 display = System Fault 51
#87 display = AR Host Down
#89 display = System Fault 52
#87 display = AR Unreg. Modem
#89 display = System Fault 53
#87 display = AR Power Fail
#89 display = System Fault 54
#87 display = AR Network Lost
#89 display = System Fault 55
#87 display = AR Modem HW Err
#89 display = System Fault 56
#87 display = AR Modem SW Err
#89 display = System Fault 57
#87 display = AR Opt. Bus Err
#89 display = System Fault 58
#87 display = AR Corrupt MSG
#89 display = System Fault 59
The message queue in the RF modem is
full and no messages can get out to the
radio network.
The central station receiver has ceased to
be available to the network.
The modem is not registered through all
parts of the network.
There is a possible problem with the
DS7416i Module.
The DS7416i Module has lost contact with
the radio network.
There is a possible problem with the radio
modem.
The DS7416i Module is having trouble
communicating with the radio modem.
The panel can no longer communicate
with the DS7416i Module.
The communication between the panel
and the DS7416i Module is getting
corrupted.
Check RF coverage of the unit and check for RF
noisy environment.
Contract the central station and notify of status.
Contact the network administrators or technical
service.
Return for service.
Check the location and coverage of the unit.
Replace the unit.
Check for noisy environment and replace the unit if
the problem continues.
Check the wiring between the DS7400Xi and the
DS7416i Module.
Check for noisy environment, and check the wiring
between the DS7400Xi and the DS7416i Module.
Unable to arm the system. a) Zone(s) faulted.
b) If an AC failure exists, you must force
arm.
a) Determine the cause of the problem and clear
the indicated zone(s).
b) Enter an arming sequence, then press the
Bypass key during a 5 second beep.

Page 92 P/N: F01U035325-01 Copyright © 2007 Bosch Security Systems, Inc. DS7400Xi (4+) Reference Guide
General System Problems (Continued)
Symptom Probable Cause Possible Solution
#87 display = Battery Trouble a) The battery failed a battery test.
b) The battery is defective.
c) The wiring to the battery is
disconnected.
a) If there has just been a power failure, wait at
least two hours for the battery to recharge then
perform a System Reset to re-test the battery
and clear the error.
b) Replace the battery.
c) Check wiring.
#87 display = Zone Trouble
#87 display = AC Power Failure
Fire Alarm displays “000”.
Fire Trouble, no zone number.
Fire Trouble ____________
zone number. Dirty
Chamber ____________
zone number.
a) A zone is not responding to the control
panel.
b) The zone is programmed for “Trouble
on Open” and the loop is open.
There is a power failure and the panel is
operating on battery backup. If there is a
general power failure, wait for the power to
return. If there is not a general power failure
in the building.
a) The transformer is unplugged.
b) The wiring from the transformer is
defective.
c) The circuit to the transformer is off or
defective.
d) The transformer is defective.
e) In some cases, the transformer may
be connected to a circuit controlled by
a switch or a circuit breaker that is
periodically turned off.
The Fire Alarm was caused by the “A” key.
When in Commercial Fire Mode, a ground
fault causes this display.
Fire zone wiring problems.
A multiplex smoke detector has failed its
internal sensitivity test.
a) Check wiring to the zone.
or
If the zone is not to be used, remove from
programming.
b) If using Normally Closed contacts, re-program
zone for alarm on open.
or
If using Normally Open contacts and trouble on
open is desired, check for opens in the loop.
Remove wiring and place an EOL resistor across
the zone to eliminate a problem with the control.
If the trouble goes away, the problem is in the
wiring or in a contact connected to the zone.
a) Plug the transformer in.
b) Check the wiring.
c) Check the circuit and circuit breakers.
d) Replace the transformer.
e) Connect to a circuit that is not controlled this
way.
Use the System Reset command to clear the
display.
See #87 Ground Fault display for solution.
If you try to disable the zone by reprogramming it,
you need to reset the control by either entering then
exiting programmer’s mode, or removing then
restoring power to the control panel.
Clean or replace the dirty smoke detector or
chamber. DO NOT USE WATER TO CLEAN THE
CHAMBER.

DS7400Xi ( 4+) Reference Guide Copyright © 2007 Bosch Security Systems, Inc. P/N: F01U035325-01 Page 93
Address Description
0000 General Control
0001 Zone Function 1
0002 Zone Function 2
0003 Zone Function 3
0004 Zone Function 4
0005 Zone Function 5
0006 Zone Function 6
0007 Zone Function 7
0008 Zone Function 8
0009 Zone Function 9
0010 Zone Function 10
0011 Zone Function 11
0012 Zone Function 12
0013 Zone Function 13
0014 Zone Function 14
0015 Zone Function 15
0016 Zone Function 16
0017 Zone Function 17
0018 Zone Function 18
0019 Zone Function 19
0020 Zone Function 20
0021 Zone Function 21
0022 Zone Function 22
0023 Zone Function 23
0024 Zone Function 24
0025 Zone Function 25
0026 Zone Function 26
0027 Zone Function 27
0028 Zone Function 28
0029 Zone Function 29
0030 Zone Function 30
0031 Zone Number 1
0032 Zone Number 2
0033 Zone Number 3
0034 Zone Number 4
0035 Zone Number 5
0036 Zone Number 6
0037 Zone Number 7
0038 Zone Number 8
0039 Zone Number 9
0040 Zone Number 10
0041 Zone Number 11
0042 Zone Number 12
0043 Zone Number 13
0044 Zone Number 14
0045 Zone Number 15
0046 Zone Number 16
0047 Zone Number 17
0048 Zone Number 18
0049 Zone Number 19
0050 Zone Number 20
0051 Zone Number 21
0052 Zone Number 22
0053 Zone Number 23
0054 Zone Number 24
0055 Zone Number 25
0056 Zone Number 26
0057 Zone Number 27
0058 Zone Number 28
0059 Zone Number 29
0060 Zone Number 30
0061 Zone Number 31
0062 Zone Number 32
Address Description
0063 Zone Number 33
0064 Zone Number 34
0065 Zone Number 35
0066 Zone Number 36
0067 Zone Number 37
0068 Zone Number 38
0069 Zone Number 39
0070 Zone Number 40
0071 Zone Number 41
0072 Zone Number 42
0073 Zone Number 43
0074 Zone Number 44
0075 Zone Number 45
0076 Zone Number 46
0077 Zone Number 47
0078 Zone Number 48
0079 Zone Number 49
0080 Zone Number 50
0081 Zone Number 51
0082 Zone Number 52
0083 Zone Number 53
0084 Zone Number 54
0085 Zone Number 55
0086 Zone Number 56
0087 Zone Number 57
0088 Zone Number 58
0089 Zone Number 59
0090 Zone Number 60
0091 Zone Number 61
0092 Zone Number 62
0093 Zone Number 63
0094 Zone Number 64
0095 Zone Number 65
0096 Zone Number 66
0097 Zone Number 67
0098 Zone Number 68
0099 Zone Number 69
0100 Zone Number 70
0101 Zone Number 71
0102 Zone Number 72
0103 Zone Number 73
0104 Zone Number 74
0105 Zone Number 75
0106 Zone Number 76
0107 Zone Number 77
0108 Zone Number 78
0109 Zone Number 79
0110 Zone Number 80
0111 Zone Number 81
0112 Zone Number 82
0113 Zone Number 83
0114 Zone Number 84
0115 Zone Number 85
0116 Zone Number 86
0117 Zone Number 87
0118 Zone Number 88
0119 Zone Number 89
0120 Zone Number 90
0121 Zone Number 91
0122 Zone Number 92
0123 Zone Number 93
0124 Zone Number 94
0125 Zone Number 95
Address Description
0126 Zone Number 96
0127 Zone Number 97
0128 Zone Number 98
0129 Zone Number 99
0130 Zone Number 100
0131 Zone Number 101
0132 Zone Number 102
0133 Zone Number 103
0134 Zone Number 104
0135 Zone Number 105
0136 Zone Number 106
0137 Zone Number 107
0138 Zone Number 108
0139 Zone Number 109
0140 Zone Number 110
0141 Zone Number 111
0142 Zone Number 112
0143 Zone Number 113
0144 Zone Number 114
0145 Zone Number 115
0146 Zone Number 116
0147 Zone Number 117
0148 Zone Number 118
0149 Zone Number 119
0150 Zone Number 120
0151 Zone Number 121
0152 Zone Number 122
0153 Zone Number 123
0154 Zone Number 124
0155 Zone Number 125
0156 Zone Number 126
0157 Zone Number 127
0158 Zone Number 128
0159 Zone Number 129
0160 Zone Number 130
0161 Zone Number 131
0162 Zone Number 132
0163 Zone Number 133
0164 Zone Number 134
0165 Zone Number 135
0166 Zone Number 136
0167 Zone Number 137
0168 Zone Number 138
0169 Zone Number 139
0170 Zone Number 140
0171 Zone Number 141
0172 Zone Number 142
0173 Zone Number 143
0174 Zone Number 144
0175 Zone Number 145
0176 Zone Number 146
0177 Zone Number 147
0178 Zone Number 148
0179 Zone Number 149
0180 Zone Number 150
0181 Zone Number 151
0182 Zone Number 152
0183 Zone Number 153
0184 Zone Number 154
0185 Zone Number 155
0186 Zone Number 156
0187 Zone Number 157
0188 Zone Number 158
16.0 Program Addresses

Page 94 P/N: F01U035325-01 Copyright © 2007 Bosch Security Systems, Inc. DS7400Xi (4+) Reference Guide
Address Description
0189 Zone Number 159
0190 Zone Number 160
0191 Zone Number 161
0192 Zone Number 162
0193 Zone Number 163
0194 Zone Number 164
0195 Zone Number 165
0196 Zone Number 166
0197 Zone Number 167
0198 Zone Number 168
0199 Zone Number 169
0200 Zone Number 170
0201 Zone Number 171
0202 Zone Number 172
0203 Zone Number 173
0204 Zone Number 174
0205 Zone Number 175
0206 Zone Number 176
0207 Zone Number 177
0208 Zone Number 178
0209 Zone Number 179
0210 Zone Number 180
0211 Zone Number 181
0212 Zone Number 182
0213 Zone Number 183
0214 Zone Number 184
0215 Zone Number 185
0216 Zone Number 186
0217 Zone Number 187
0218 Zone Number 188
0219 Zone Number 189
0220 Zone Number 190
0221 Zone Number 191
0222 Zone Number 192
0223 Zone Number 193
0224 Zone Number 194
0225 Zone Number 195
0226 Zone Number 196
0227 Zone Number 197
0228 Zone Number 198
0229 Zone Number 199
0230 Zone Number 200
0231 Zone Number 201
0232 Zone Number 202
0233 Zone Number 203
0234 Zone Number 204
0235 Zone Number 205
0236 Zone Number 206
0237 Zone Number 207
0238 Zone Number 208
0239 Zone Number 209
0240 Zone Number 210
0241 Zone Number 211
0242 Zone Number 212
0243 Zone Number 213
0244 Zone Number 214
0245 Zone Number 215
0246 Zone Number 216
0247 Zone Number 217
0248 Zone Number 218
0249 Zone Number 219
0250 Zone Number 220
0251 Zone Number 221
0252 Zone Number 222
0253 Zone Number 223
Address Description
0254 Zone Number 224
0255 Zone Number 225
0256 Zone Number 226
0257 Zone Number 227
0258 Zone Number 228
0259 Zone Number 229
0260 Zone Number 230
0261 Zone Number 231
0262 Zone Number 232
0263 Zone Number 233
0264 Zone Number 234
0265 Zone Number 235
0266 Zone Number 236
0267 Zone Number 237
0268 Zone Number 238
0269 Zone Number 239
0270 Zone Number 240
0271 Zone Number 241
0272 Zone Number 242
0273 Zone Number 243
0274 Zone Number 244
0275 Zone Number 245
0276 Zone Number 246
0277 Zone Number 247
0278 Zone Number 248
0287 Zone 1 & 2 Partitin Assign.
0288 Zone 3 & 4 Partition Assign.
0289 Zone 5 & 6 Partition Assign.
0290 Zone 7 & 8 Partition Assign.
0291 Zone 9 & 10 Partition Assign.
0292 Zone 11 & 12 Partition Assign.
0293 Zone 13 & 14 Partition Assign.
0294 Zone 15 & 16 Partition Assign.
0295 Zone 17 & 18 Partition Assign.
0296 Zone 19 & 20 Partition Assign.
0297 Zone 21 & 22 Partition Assign.
0298 Zone 23 & 24 Partition Assign.
0299 Zone 25 & 26 Partition Assign.
0300 Zone 27 & 28 Partition Assign.
0301 Zone 29 & 30 Partition Assign.
0302 Zone 31 & 32 Partition Assign.
0303 Zone 33 & 34 Partition Assign.
0304 Zone 35 & 36 Partition Assign.
0305 Zone 37 & 38 Partition Assign.
0306 Zone 39 & 40 Partition Assign.
0307 Zone 41 & 42 Partition Assign.
0308 Zone 43 & 44 Partition Assign.
0309 Zone 45 & 46 Partition Assign.
0310 Zone 47 & 48 Partition Assign.
0311 Zone 49 & 50 Partition Assign.
0312 Zone 51 & 52 Partition Assign.
0313 Zone 53 & 54 Partition Assign.
0314 Zone 55 & 56 Partition Assign.
0315 Zone 57 & 58 PartitionAssign.
0316 Zone 59 & 60 Partition Assign.
0317 Zone 61 & 62 Partition Assign.
0318 Zone 63 & 64 Partition Assign.
0319 Zone 65 & 66 Partition Assign.
0320 Zone 67 & 68 Partition Assign.
0321 Zone 69 & 70 Partition Assign.
0322 Zone 71 & 72 Partition Assign.
0323 Zone 73 & 74 Partition Assign.
0324 Zone 75 & 76 Partition Assign.
0325 Zone 77 & 78 Partition Assign.
0326 Zone 79 & 80 Partition Assign.
Address Description
0327 Zone 81 & 82 Partition Assign.
0328 Zone 83 & 84 Partition Assign.
0329 Zone 85 & 86 Partition Assign.
0330 Zone 87 & 88 Partition Assign.
0331 Zone 89 & 90 Partition Assign.
0332 Zone 91 & 92 Partition Assign.
0333 Zone 93 & 94 Partition Assign.
0334 Zone 95 & 96 Partition Assign.
0335 Zone 97 & 98 Partition Assign.
0336 Zone 99 & 100 Partition Assign.
0337 Zone 101 & 102 Partition Assign.
0338 Zone 103 & 104 Partition Assign.
0339 Zone 105 & 106 Partition Assign.
0340 Zone 107 & 108 Partition Assign.
0341 Zone 109 & 110 Partition Assign.
0342 Zone 111 & 112 Partition Assign.
0343 Zone 113 & 114 Partition Assign.
0344 Zone 115 & 116 Partition Assign.
0345 Zone 117 & 118 Partition Assign.
0346 Zone 119 & 120 Partition Assign.
0347 Zone 121 & 122 Partition Assign.
0348 Zone 123 & 124 Partition Assign.
0349 Zone 125 & 126 Partition Assign.
0350 Zone 127 & 128 Partition Assign.
0351 Zone 129 & 130 Partition Assign.
0352 Zone 131 & 132 Partition Assign.
0353 Zone 133 & 134 Partition Assign.
0354 Zone 135 & 136 Partition Assign.
0355 Zone 137 & 138 Partition Assign.
0356 Zone 139 & 140 Partition Assign.
0357 Zone 141 & 142 Partition Assign.
0358 Zone 143 & 144 Partition Assign.
0359 Zone 145 & 146 Partition Assign.
0360 Zone 147 & 148 Partition Assign.
0361 Zone 149 & 150 Partition Assign.
0362 Zone 151 & 152 Partition Assign.
0363 Zone 153 & 154 Partition Assign.
0364 Zone 155 & 156 Partition Assign.
0365 Zone 157 & 158 Partition Assign.
0366 Zone 159 & 160 Partition Assign.
0367 Zone 161 & 162 Partition Assign.
0368 Zone 163 & 164 Partition Assign.
0369 Zone 165 & 166 Partition Assign.
0370 Zone 167 & 168 Partition Assign.
0371 Zone 169 & 170 Partition Assign.
0372 Zone 171 & 172 Partition Assign.
0373 Zone 173 & 174 Partition Assign.
0374 Zone 175 & 176 Partition Assign.
0375 Zone 177 & 178 Partition Assign.
0376 Zone 179 & 180 Partition Assign.
0377 Zone 181 & 182 Partition Assign.
0378 Zone 183 & 184 Partition Assign.
0379 Zone 185 & 186 Partition Assign.
0380 Zone 187 & 188 Partition Assign.
0381 Zone 189 & 190 Partition Assign.
0382 Zone 191 & 192 Partition Assign.
0383 Zone 193 & 194 Partition Assign.
0384 Zone 195 & 196 Partition Assign.
0385 Zone 197 & 198 Partition Assign.
0386 Zone 199 & 200 Partition Assign.
0387 Zone 201 & 202 Partition Assign.
0388 Zone 203 & 204 Partition Assign.
0389 Zone 205 & 206 Partition Assign.
0390 Zone 207 & 208 Partition Assign.
0391 Zone 209 & 210 Partition Assign.

DS7400Xi ( 4+) Reference Guide Copyright © 2007 Bosch Security Systems, Inc. P/N: F01U035325-01 Page 95
Address Description
0392 Zone 211 & 212 Partition Assign.
0393 Zone 213 & 214 Partition Assign.
0394 Zone 215 & 216 Partition Assign.
0395 Zone 217 & 218 Partition Assign.
0396 Zone 219 & 220 Partition Assign.
0397 Zone 221 & 222 Partition Assign.
0398 Zone 223 & 224 Partition Assign.
0399 Zone 225 & 226 Partition Assign.
0400 Zone 227 & 228 Partition Assign.
0401 Zone 229 & 230 Partition Assign.
0402 Zone 231 & 232 Partition Assign.
0403 Zone 233 & 234 Partition Assign.
0404 Zone 235 & 236 Partition Assign.
0405 Zone 237 & 238 Partition Assign.
0406 Zone 239 & 240 Partition Assign.
0407 Zone 241 & 242 Partition Assign.
0408 Zone 243 & 244 Partition Assign.
0409 Zone 245 & 246 Partition Assign.
0410 Zone 247 & 248 Partition Assign.
0415 Zone 1 & 2 Zone Type
0416 Zone 3 & 4 Zone Type
0417 Zone 5 & 6 Zone Type
0418 Zone 7 & 8 Zone Type
0419 Zone 9 & 10 Zone Type
0420 Zone 11 & 12 Zone Type
0421 Zone 13 & 14 Zone Type
0422 Zone 15 & 16 Zone Type
0423 Zone 17 & 18 Zone Type
0424 Zone 19 & 20 Zone Type
0425 Zone 21 & 22 Zone Type
0426 Zone 23 & 24 Zone Type
0427 Zone 25 & 26 Zone Type
0428 Zone 27 & 28 Zone Type
0429 Zone 29 & 30 Zone Type
0430 Zone 31 & 32 Zone Type
0431 Zone 33 & 34 Zone Type
0432 Zone 35 & 36 Zone Type
0433 Zone 37 & 38 Zone Type
0434 Zone 39 & 40 Zone Type
0435 Zone 41 & 42 Zone Type
0436 Zone 43 & 44 Zone Type
0437 Zone 45 & 46 Zone Type
0438 Zone 47 & 48 Zone Type
0439 Zone 49 & 50 Zone Type
0440 Zone 51 & 52 Zone Type
0441 Zone 53 & 54 Zone Type
0442 Zone 55 & 56 Zone Type
0443 Zone 57 & 58 Zone Type
0444 Zone 59 & 60 Zone Type
0445 Zone 61 & 62 Zone Type
0446 Zone 63 & 64 Zone Type
0447 Zone 65 & 66 Zone Type
0448 Zone 67 & 68 Zone Type
0449 Zone 69 & 70 Zone Type
0450 Zone 71 & 72 Zone Type
0451 Zone 73 & 74 Zone Type
0452 Zone 75 & 76 Zone Type
0453 Zone 77 & 78 Zone Type
0454 Zone 79 & 80 Zone Type
0455 Zone 81 & 82 Zone Type
0456 Zone 83 & 84 Zone Type
0457 Zone 85 & 86 Zone Type
0458 Zone 87 & 88 Zone Type
0459 Zone 89 & 90 Zone Type
0460 Zone 91 & 92 Zone Type
Address Description
0461 Zone 93 & 94 Zone Type
0462 Zone 95 & 96 Zone Type
0463 Zone 97 & 98 Zone Type
0464 Zone 99 & 100 Zone Type
0465 Zone 101 & 102 Zone Type
0466 Zone 103 & 104 Zone Type
0467 Zone 105 & 106 Zone Type
0468 Zone 107 & 108 Zone Type
0469 Zone 109 & 110 Zone Type
0470 Zone 111 & 112 Zone Type
0471 Zone 113 & 114 Zone Type
0472 Zone 116 & 115 Zone Type
0473 Zone 117 & 118 Zone Type
0474 Zone 119 & 120 Zone Type
0475 Zone 121 & 122 Zone Type
0476 Zone 123 & 124 Zone Type
0477 Zone 125 & 126 Zone Type
0478 Zone 127 & 128 Zone Type
0479 Zone 129 & 130 Zone Type
0480 Zone 131 & 132 Zone Type
0481 Zone 133 & 134 Zone Type
0482 Zone 135 & 136 Zone Type
0483 Zone 137 & 138 Zone Type
0484 Zone 139 & 140 Zone Type
0485 Zone 141 & 142 Zone Type
0486 Zone 143 & 144 Zone Type
0487 Zone 145 & 146 Zone Type
0488 Zone 147 & 148 Zone Type
0489 Zone 149 & 150 Zone Type
0490 Zone 151 & 152 Zone Type
0491 Zone 153 & 154 Zone Type
0492 Zone 155 & 156 Zone Type
0493 Zone 157 & 158 Zone Type
0494 Zone 159 & 160 Zone Type
0495 Zone 161 & 162 Zone Type
0496 Zone 163 & 164 Zone Type
0497 Zone 165 & 166 Zone Type
0498 Zone 167 & 168 Zone Type
0499 Zone 169 & 170 Zone Type
0500 Zone 171 & 172 Zone Type
0501 Zone 173 & 174 Zone Type
0502 Zone 175 & 176 Zone Type
0503 Zone 177 & 178 Zone Type
0504 Zone 179 & 180 Zone Type
0505 Zone 181 & 182 Zone Type
0506 Zone 183 & 184 Zone Type
0507 Zone 185 & 186 Zone Type
0508 Zone 187 & 188 Zone Type
0509 Zone 189 & 190 Zone Type
0510 Zone 191 & 192 Zone Type
0511 Zone 193 & 194 Zone Type
0512 Zone 195 & 196 Zone Type
0513 Zone 197 & 198 Zone Type
0514 Zone 199 & 200 Zone Type
0515 Zone 201 & 202 Zone Type
0516 Zone 203 & 204 Zone Type
0517 Zone 205 & 206 Zone Type
0518 Zone 207 & 208 Zone Type
0519 Zone 209 & 210 Zone Type
0520 Zone 211 & 212 Zone Type
0521 Zone 213 & 214 Zone Type
0522 Zone 215 & 216 Zone Type
0523 Zone 217 & 218 Zone Type
0524 Zone 219 & 220 Zone Type
0525 Zone 221 & 222 Zone Type
Address Description
0526 Zone 223 & 224 Zone Type
0527 Zone 225 & 226 Zone Type
0528 Zone 227 & 228 Zone Type
0529 Zone 229 & 230 Zone Type
0530 Zone 231 & 232 Zone Type
0531 Zone 233 & 234 Zone Type
0532 Zone 235 & 236 Zone Type
0533 Zone 237 & 238 Zone Type
0534 Zone 239 & 240 Zone Type
0535 Zone 241 & 242 Zone Type
0536 Zone 243 & 244 Zone Type
0537 Zone 245 & 246 Zone Type
0538 Zone 247 & 248 Zone Type
0545 Alpha for Partition 1
0561 Alpha for Partition 2
0577 Alpha for Partition 3
0593 Alpha for Partition 4
0609 Alpha for Partition 5
0625 Alpha for Partition 6
0641 Alpha for Partition 7
0657 Alpha for Partition 8
0673 Alpha for Zone Number 1
0689 Alpha for Zone Number 2
0705 Alpha for Zone Number 3
0721 Alpha for Zone Number 4
0737 Alpha for Zone Number 5
0753 Alpha for Zone Number 6
0769 Alpha for Zone Number 7
0785 Alpha for Zone Number 8
0801 Alpha for Zone Number 9
0817 Alpha for Zone Number 10
0833 Alpha for Zone Number 11
0849 Alpha for Zone Number 12
0865 Alpha for Zone Number 13
0881 Alpha for Zone Number 14
0897 Alpha for Zone Number 15
0913 Alpha for Zone Number 16
0929 Alpha for Zone Number 17
0945 Alpha for Zone Number 18
0961 Alpha for Zone Number 19
0977 Alpha for Zone Number 20
0993 Alpha for Zone Number 21
1009 Alpha for Zone Number 22
1025 Alpha for Zone Number 23
1041 Alpha for Zone Number 24
1057 Alpha for Zone Number 25
1073 Alpha for Zone Number 26
1089 Alpha for Zone Number 27
1105 Alpha for Zone Number 28
1121 Alpha for Zone Number 29
1137 Alpha for Zone Number 30
1153 Alpha for Zone Number 31
1169 Alpha for Zone Number 32
1185 Alpha for Zone Number 33
1201 Alpha for Zone Number 34
1217 Alpha for Zone Number 35
1233 Alpha for Zone Number 36
1249 Alpha for Zone Number 37
1265 Alpha for Zone Number 38
1281 Alpha for Zone Number 39
1297 Alpha for Zone Number 40
1313 Alpha for Zone Number 41
1329 Alpha for Zone Number 42
1345 Alpha for Zone Number 43
1361 Alpha for Zone Number 44

Page 96 P/N: F01U035325-01 Copyright © 2007 Bosch Security Systems, Inc. DS7400Xi (4+) Reference Guide
Address Description
2417 Alpha for Zone Number 110
2433 Alpha for Zone Number 111
2449 Alpha for Zone Number 112
2465 Alpha for Zone Number 113
2481 Alpha for Zone Number 114
2497 Alpha for Zone Number 115
2513 Alpha for Zone Number 116
2529 Alpha for Zone Number 117
2545 Alpha for Zone Number 118
2561 Alpha for Zone Number 119
2577 Alpha for Zone Number 120
2593 Alpha for Zone Number 121
2609 Alpha for Zone Number 122
2625 Alpha for Zone Number 123
2641 Alpha for Zone Number 124
2657 Alpha for Zone Number 125
2673 Alpha for Zone Number 126
2689 Alpha for Zone Number 127
2705 Alpha for Zone Number 128
2721 Zone Function Bypass 1-8
2722 Zone Function Bypass 9-16
2723 Zone Function Bypass 17-24
2724 Zone Function Bypass 25-30
2725 Command 4 (Cust.) Arming 1-8
2726 Command 4 (Cust.) Arming 9-16
2727 Command 4 (Cust.) Arming 17-24
2728 Command 4 (Cust.) Arming 25-30
2729 RF Zone Group Program. 129-248
2731 Receiver Configuration
2732 Force Arming & Ground Fault
2733 Commerical Fire Mode
2734 Alarm Output
2735 Programmable Output Type 1
2736 Programmable Output Type 2
2737 Output Part. Assign. & Bell Output
2738 Output Part. Assign. & Keyfob Chirp
2740 Octal Module #1, Relay #1
2742 Octal Module #1, Relay #2
2744 Octal Module #1, Relay #3
2746 Octal Module #1, Relay #4
2748 Octal Module #1, Relay #5
2750 Octal Module #1, Relay #6
2752 Octal Module #1, Relay #7
2754 Octal Module #1, Relay #8
2756 Octal Module #2, Relay #1
2758 Octal Module #2, Relay #2
2760 Octal Module #2, Relay #3
2762 Octal Module #2, Relay #4
2764 Octal Module #2, Relay #5
2766 Octal Module #2, Relay #6
2768 Octal Module #2, Relay #7
2770 Octal Module #2, Relay #8
2772 Output Function 1
2775 Output Function 2
2778 Output Function 3
2781 Output Function 4
2784 Output Function 5
2787 Output Function 6
2790 Output Function 7
2793 Output Function 8
2796 Output Function 9
2799 Output Function 10
2802 Output Function 11
2805 Output Function 12
2808 Output Function 13
Address Description
2811 Output Function 14
2814 Output Function 15
2817 Output Function 16
2820 Output Function 17
2823 Output Function 18
2826 Output Function 19
2829 Output Function 20
2832 Output Function 21
2835 Output Function 22
2838 Output Function 23
2841 Output Function 24
2844 Octal Relay Partition Assignment
2845 Octal Relay Partition Assignment
2846 Octal Relay Partition Assignment
2847 Octal Relay Partition Assignment
2848 Octal Relay Partition Assignment
2849 Octal Relay Partition Assignment
2850 Octal Relay Partition Assignment
2851 Octal Relay Partition Assignment
2852 Output Function Partition Assign.
2853 Output Function Partition Assign.
2854 Output Function Partition Assign.
2855 Output Function Partition Assign.
2856 Output Function Partition Assign.
2857 Output Function Partition Assign.
2858 Output Function Partition Assign.
2859 Output Function Partition Assign.
2860 Output Function Partition Assign.
2861 Output Function Partition Assign.
2862 Output Function Partition Assign.
2863 Output Function Partition Assign.
3131 Keypad Assignment
3132 Keypad Assignment
3133 Keypad Assignment
3134 Keypad Assignment
3135 Keypad Assignment
3136 Keypad Assignment
3137 Keypad Assignment
3138 Keypad Assignment & Backlight
Control
3139 Keypad Partition Assignment
3140 Keypad Partition Assignment
3141 Keypad Partition Assignment
3142 Keypad Partition Assignment
3143 Keypad Partition Assignment
3144 Keypad Partition Assignment
3145 Keypad Partition Assignment
3146 Keypad Partition Assignment
3147 Function Key Programming
3148 Function Key Programming
3149 Open/Close Report Control
3151 Open/Close Rprt. & Zone Alarm
Routing
3152 System Routing
3153 Phone/DS7416i Routing
3154 Phone/DS7416i Routing
3155 Phone Number General Control
3156 Phone Number 1 Control
3157 Phone Number 2 Control
3158 Answer Ring Count (Arm/Disarm)
3159 Phone Number 1
3175 Phone Number 2
3191 Phone Number 3
3207 Keypad Fire Alarm Report
3208 Keypad Fire Restoral Report
Address Description
1377 Alpha for Zone Number 45
1393 Alpha for Zone Number 46
1409 Alpha for Zone Number 47
1425 Alpha for Zone Number 48
1441 Alpha for Zone Number 49
1457 Alpha for Zone Number 50
1473 Alpha for Zone Number 51
1489 Alpha for Zone Number 52
1505 Alpha for Zone Number 53
1521 Alpha for Zone Number 54
1537 Alpha for Zone Number 55
1553 Alpha for Zone Number 56
1569 Alpha for Zone Number 57
1585 Alpha for Zone Number 58
1601 Alpha for Zone Number 59
1617 Alpha for Zone Number 60
1633 Alpha for Zone Number 61
1649 Alpha for Zone Number 62
1665 Alpha for Zone Number 63
1681 Alpha for Zone Number 64
1697 Alpha for Zone Number 65
1713 Alpha for Zone Number 66
1729 Alpha for Zone Number 67
1745 Alpha for Zone Number 68
1761 Alpha for Zone Number 69
1777 Alpha for Zone Number 70
1793 Alpha for Zone Number 71
1809 Alpha for Zone Number 72
1825 Alpha for Zone Number 73
1841 Alpha for Zone Number 74
1857 Alpha for Zone Number 75
1873 Alpha for Zone Number 76
1889 Alpha for Zone Number 77
1905 Alpha for Zone Number 78
1921 Alpha for Zone Number 79
1937 Alpha for Zone Number 80
1953 Alpha for Zone Number 81
1969 Alpha for Zone Number 82
1985 Alpha for Zone Number 83
2001 Alpha for Zone Number 84
2017 Alpha for Zone Number 85
2033 Alpha for Zone Number 86
2049 Alpha for Zone Number 87
2065 Alpha for Zone Number 88
2081 Alpha for Zone Number 89
2097 Alpha for Zone Number 90
2113 Alpha for Zone Number 91
2129 Alpha for Zone Number 92
2145 Alpha for Zone Number 93
2161 Alpha for Zone Number 94
2177 Alpha for Zone Number 95
2193 Alpha for Zone Number 96
2209 Alpha for Zone Number 97
2225 Alpha for Zone Number 98
2241 Alpha for Zone Number 99
2257 Alpha for Zone Number 100
2273 Alpha for Zone Number 101
2289 Alpha for Zone Number 102
2305 Alpha for Zone Number 103
2321 Alpha for Zone Number 104
2337 Alpha for Zone Number 105
2353 Alpha for Zone Number 106
2369 Alpha for Zone Number 107
2385 Alpha for Zone Number 108
2401 Alpha for Zone Number 109

DS7400Xi ( 4+) Reference Guide Copyright © 2007 Bosch Security Systems, Inc. P/N: F01U035325-01 Page 97
Address Description
3209 Zone Function 1 Alarm Report
3210 Zone Function 2 Alarm Report
3211 Zone Function 3 Alarm Report
3212 Zone Function 4 Alarm Report
3213 Zone Function 5 Alarm Report
3214 Zone Function 6 Alarm Report
3215 Zone Function 7 Alarm Report
3216 Zone Function 8 Alarm Report
3217 Zone Function 9 Alarm Report
3218 Zone Function 10 Alarm Report
3219 Zone Function 11 Alarm Report
3220 Zone Function 12 Alarm Report
3221 Zone Function 13 Alarm Report
3222 Zone Function 14 Alarm Report
3223 Zone Function 15 Alarm Report
3224 Zone Function 16 Alarm Report
3225 Zone Function 17 Alarm Report
3226 Zone Function 18 Alarm Report
3227 Zone Function 19 Alarm Report
3228 Zone Function 20 Alarm Report
3229 Zone Function 21 Alarm Report
3230 Zone Function 22 Alarm Report
3231 Zone Function 23 Alarm Report
3232 Zone Function 24 Alarm Report
3233 Zone Function 25 Alarm Report
3234 Zone Function 26 Alarm Report
3235 Zone Function 27 Alarm Report
3236 Zone Function 28 Alarm Report
3237 Zone Function 29 Alarm Report
3238 Zone Function 30 Alarm Report
3239 Keypad Emergency Report
3240 Keypad Panic Report
3241 Zone Function 1 Restoral Report
3242 Zone Function 2 Restoral Report
3243 Zone Function 3 Restoral Report
3244 Zone Function 4 Restoral Report
3245 Zone Function 5 Restoral Report
3246 Zone Function 6 Restoral Report
3247 Zone Function 7 Restoral Report
3248 Zone Function 8 Restoral Report
3249 Zone Function 9 Restoral Report
3250 Zone Function 10 Restoral Report
3251 Zone Function 11 Restoral Report
3252 Zone Function 12 Restoral Report
3253 Zone Function 13 Restoral Report
3254 Zone Function 14 Restoral Report
3255 Zone Function 15 Restoral Report
3256 Zone Function 16 Restoral Report
3257 Zone Function 17 Restoral Report
3258 Zone Function 18 Restoral Report
3259 Zone Function 19 Restoral Report
3260 Zone Function 20 Restoral Report
3261 Zone Function 21 Restoral Report
3262 Zone Function 22 Restoral Report
3263 Zone Function 23 Restoral Report
3264 Zone Function 24 Restoral Report
3265 Zone Function 25 Restoral Report
3266 Zone Function 26 Restoral Report
3267 Zone Function 27 Restoral Report
3268 Zone Function 28 Restoral Report
3269 Zone Function 29 Restoral Report
3270 Zone Function 30 Restoral Report
3271 Zone Function 1 Trouble Report
3272 Zone Function 2 Trouble Report
3273 Zone Function 3 Trouble Report
Address Description
3274 Zone Function 4 Trouble Report
3275 Zone Function 5 Trouble Report
3276 Zone Function 6 Trouble Report
3277 Zone Function 7 Trouble Report
3278 Zone Function 8 Trouble Report
3279 Zone Function 9 Trouble Report
3280 Zone Function 10 Trouble Report
3281 Zone Function 11 Trouble Report
3282 Zone Function 12 Trouble Report
3283 Zone Function 13 Trouble Report
3284 Zone Function 14 Trouble Report
3285 Zone Function 15 Trouble Report
3286 Zone Function 16 Trouble Report
3287 Zone Function 17 Trouble Report
3288 Zone Function 18 Trouble Report
3289 Zone Function 19 Trouble Report
3290 Zone Function 20 Trouble Report
3291 Zone Function 21 Trouble Report
3292 Zone Function 22 Trouble Report
3293 Zone Function 23 Trouble Report
3294 Zone Function 24 Trouble Report
3295 Zone Function 25 Trouble Report
3296 Zone Function 26 Trouble Report
3297 Zone Function 27 Trouble Report
3298 Zone Function 28 Trouble Report
3299 Zone Function 29 Trouble Report
3300 Zone Function 30 Trouble Report
3301 Zone Function 1 Trouble Restoral
3302 Zone Function 2 Trouble Restoral
3303 Zone Function 3 Trouble Restoral
3304 Zone Function 4 Trouble Restoral
3305 Zone Function 5 Trouble Restoral
3306 Zone Function 6 Trouble Restoral
3307 Zone Function 7 Trouble Restoral
3308 Zone Function 8 Trouble Restoral
3309 Zone Function 9 Trouble Restoral
3310 Zone Function 10 Trouble Restoral
3311 Zone Function 11 Trouble Restoral
3312 Zone Function 12 Trouble Restoral
3313 Zone Function 13 Trouble Restoral
3314 Zone Function 14 Trouble Restoral
3315 Zone Function 15 Trouble Restoral
3316 Zone Function 16 Trouble Restoral
3317 Zone Function 17 Trouble Restoral
3318 Zone Function 18 Trouble Restoral
3319 Zone Function 19 Trouble Restoral
3320 Zone Function 20 Trouble Restoral
3321 Zone Function 21 Trouble Restoral
3322 Zone Function 22 Trouble Restoral
3323 Zone Function 23 Trouble Restoral
3324 Zone Function 24 Trouble Restoral
3325 Zone Function 25 Trouble Restoral
3326 Zone Function 26 Trouble Restoral
3327 Zone Function 27 Trouble Restoral
3328 Zone Function 28 Trouble Restoral
3329 Zone Function 29 Trouble Restoral
3330 Zone Function 30 Trouble Restoral
3331 Open Report
3332 Close Report
3333 Duress Report
3334 Partial Close Report
3335 First Open After Alarm Report.
3336 Low Battery Report
3337 Low Battery Restoral Report
3338 AC Fail Report
Address Description
3339 AC Restoral Report
3340 Communicator Test/System
Normal Report
3341 Remote Prog. Successful Report
3342 Remote Prog. Unsuccessful Report
3343 Local Prog. Successful Rprt.
3344 Local Prog. Unsuccessful Report
3345 System Trouble Report
3346 Sysem Trouble Restoral Report
3347 Communicator Test/System Off
Normal Report
3348 Exit Error Report
3349 Recent Closing Report
3350 System Walk Test Report
3351 System Walk Test Restoral
3352 Fire Walk Test Report
3353 Fire Walk Test Restoral
3354 Mux Low Temperature Report
3355 Mux Low Temperature Restoral
3356 Dirty Smoke Chamber Report
3357 Dirty Smoke Chamber Restoral
3358 Zone Function 1 Bypass
3359 Zone Function 2 Bypass
3360 Zone Function 3 Bypass
3361 Zone Function 4 Bypass
3362 Zone Function 5 Bypass
3363 Zone Function 6 Bypass
3364 Zone Function 7 Bypass
3365 Zone Function 8 Bypass
3366 Zone Function 9 Bypass
3367 Zone Function 10 Bypass
3368 Zone Function 11 Bypass
3369 Zone Function 12 Bypass
3370 Zone Function 13 Bypass
3371 Zone Function 14 Bypass
3372 Zone Function 15 Bypass
3373 Zone Function 16 Bypass
3374 Zone Function 17 Bypass
3375 Zone Function 18 Bypass
3376 Zone Function 19 Bypass
3377 Zone Function 20 Bypass
3378 Zone Function 21 Bypass
3379 Zone Function 22 Bypass
3380 Zone Function 23 Bypass
3381 Zone Function 24 Bypass
3382 Zone Function 25 Bypass
3383 Zone Function 26 Bypass
3384 Zone Function 27 Bypass
3385 Zone Function 28 Bypass
3386 Zone Function 29 Bypass
3387 Zone Function 30 Bypass
3388 Zone Func. 1 Bypass Restoral
3389 Zone Func. 2 Bypass Restoral
3390 Zone Func. 3 Bypass Restoral
3391 Zone Func. 4 Bypass Restoral
3392 Zone Func. 5 Bypass Restoral
3393 Zone Func. 6 Bypass Restoral
3394 Zone Func. 7 Bypass Restoral
3395 Zone Func. 8 Bypass Restoral
3396 Zone Func. 9 Bypass Restoral
3397 Zone Func. 10 Bypass Restoral
3398 Zone Func. 11 Bypass Restoral
3399 Zone Func. 12 Bypass Restoral
3400 Zone Func. 13 Bypass Restoral
3401 Zone Func. 14 Bypass Restoral

Page 98 P/N: F01U035325-01 Copyright © 2007 Bosch Security Systems, Inc. DS7400Xi (4+) Reference Guide
Address Description
3402 Zone Func. 15 Bypass Restoral
3403 Zone Func. 16 Bypass Restoral
3404 Zone Func. 17 Bypass Restoral
3405 Zone Func. 18 Bypass Restoral
3406 Zone Func. 19 Bypass Restoral
3407 Zone Func. 20 Bypass Restoral
3408 Zone Func. 21 Bypass Restoral
3409 Zone Func. 22 Bypass Restoral
3410 Zone Func. 23 Bypass Restoral
3411 Zone Func. 24 Bypass Restoral
3412 Zone Func. 25 Bypass Restoral
3413 Zone Func. 26 Bypass Restoral
3414 Zone Func. 27 Bypass Restoral
3415 Zone Func. 28 Bypass Restoral
3416 Zone Func. 29 Bypass Restoral
3417 Zone Func. 30 Bypass Restoral
3418 Keypad Tamper
3419 Keypad Tamper Restoral
3420 Partition Control
3421 Part. 1 & 2 General Code Control
3422 Part. 3 & 4 General Code Control
3423 Part. 5 & 6 General Code Control
3424 Part. 7 & 8 General Code Control
3425 Part. 1 & 2 Arming Warning Cntrl.
3426 Part. 3 & 4 Arming Warning Cntrl.
3427 Part. 5 & 6 Arming Warning Cntrl.
3428 Part. 7 & 8 Arming Warning Cntrl.
3429 Partition 1 Account Code 1
3431 Partition 1 Account Code 2
3433 Partition 2 Account Code 1
3435 Partition 2 Account Code 2
3437 Partition 3 Account Code 1
3439 Partition 3 Account Code 2
3441 Partition 4 Account Code 1
3443 Partition 4 Account Code 2
3445 Partition 5 Account Code 1
3447 Partition 5 Account Code 2
3449 Partition 6 Account Code 1
3451 Partition 6 Account Code 2
3453 Partition 7 Account Code 1
3455 Partition 7 Account Code 2
3457 Partition 8 Account Code 1
3459 Partition 8 Account Code 2
3477 Quick Arm Allowed
3478 PIN Length
4019 DS7412 Interface Control
4020 DS7412 Interface Configuration
4021 Dual Phone Line / Bell
Supervision Module Output
4022 Comm. Test Report Timer
4024 Remote Programmer Timer
4026 Test Report & Remote
Programmer Call-Out
4027 CR/LF Control
4028 Entry Delay Time 1
4029 Entry Delay Time 2
4030 Exit Delay Time
4032 Fire Bell Cutoff
4033 Burglary Bell Cutoff
4034 AC Fail Report Delay
4038 Pager Delay Timer
4039 RF Receiver Jam Detection Level
5001 Alpha for Zone Number 129
5017 Alpha for Zone Number 130
5033 Alpha for Zone Number 131
Address Description
5049 Alpha for Zone Number 132
5065 Alpha for Zone Number 133
5081 Alpha for Zone Number 134
5097 Alpha for Zone Number 135
5113 Alpha for Zone Number 136
5129 Alpha for Zone Number 137
5145 Alpha for Zone Number 138
5161 Alpha for Zone Number 139
5177 Alpha for Zone Number 140
5193 Alpha for Zone Number 141
5209 Alpha for Zone Number 142
5225 Alpha for Zone Number 143
5241 Alpha for Zone Number 144
5257 Alpha for Zone Number 145
5273 Alpha for Zone Number 146
5289 Alpha for Zone Number 147
5305 Alpha for Zone Number 148
5321 Alpha for Zone Number 149
5337 Alpha for Zone Number 150
5353 Alpha for Zone Number 151
5369 Alpha for Zone Number 152
5385 Alpha for Zone Number 153
5401 Alpha for Zone Number 154
5417 Alpha for Zone Number 155
5433 Alpha for Zone Number 156
5449 Alpha for Zone Number 157
5465 Alpha for Zone Number 158
5481 Alpha for Zone Number 159
5497 Alpha for Zone Number 160
5513 Alpha for Zone Number 161
5529 Alpha for Zone Number 162
5545 Alpha for Zone Number 163
5561 Alpha for Zone Number 164
5577 Alpha for Zone Number 165
5593 Alpha for Zone Number 166
5609 Alpha for Zone Number 167
5625 Alpha for Zone Number 168
5641 Alpha for Zone Number 169
5657 Alpha for Zone Number 170
5673 Alpha for Zone Number 171
5689 Alpha for Zone Number 172
5705 Alpha for Zone Number 173
5721 Alpha for Zone Number 174
5737 Alpha for Zone Number 175
5753 Alpha for Zone Number 176
5769 Alpha for Zone Number 177
5785 Alpha for Zone Number 178
5801 Alpha for Zone Number 179
5817 Alpha for Zone Number 180
5833 Alpha for Zone Number 181
5849 Alpha for Zone Number 182
5865 Alpha for Zone Number 183
5881 Alpha for Zone Number 184
5897 Alpha for Zone Number 185
5913 Alpha for Zone Number 186
5929 Alpha for Zone Number 187
5945 Alpha for Zone Number 188
5961 Alpha for Zone Number 189
5977 Alpha for Zone Number 190
5993 Alpha for Zone Number 191
6009 Alpha for Zone Number 192
6025 Alpha for Zone Number 193
6041 Alpha for Zone Number 194
6057 Alpha for Zone Number 195
6073 Alpha for Zone Number 196
Address Description
6089 Alpha for Zone Number 197
6105 Alpha for Zone Number 198
6121 Alpha for Zone Number 199
6137 Alpha for Zone Number 200
6153 Alpha for Zone Number 201
6169 Alpha for Zone Number 202
6185 Alpha for Zone Number 203
6201 Alpha for Zone Number 204
6217 Alpha for Zone Number 205
6233 Alpha for Zone Number 206
6249 Alpha for Zone Number 207
6265 Alpha for Zone Number 208
6281 Alpha for Zone Number 209
6297 Alpha for Zone Number 210
6313 Alpha for Zone Number 211
6329 Alpha for Zone Number 212
5345 Alpha for Zone Number 213
6361 Alpha for Zone Number 214
6377 Alpha for Zone Number 215
6393 Alpha for Zone Number 216
6409 Alpha for Zone Number 217
6425 Alpha for Zone Number 218
6441 Alpha for Zone Number 219
6457 Alpha for Zone Number 220
6473 Alpha for Zone Number 221
6489 Alpha for Zone Number 222
6505 Alpha for Zone Number 223
6521 Alpha for Zone Number 224
6537 Alpha for Zone Number 225
6553 Alpha for Zone Number 226
6569 Alpha for Zone Number 227
6585 Alpha for Zone Number 228
6601 Alpha for Zone Number 229
6617 Alpha for Zone Number 230
6633 Alpha for Zone Number 231
6649 Alpha for Zone Number 232
6665 Alpha for Zone Number 233
6681 Alpha for Zone Number 234
6697 Alpha for Zone Number 235
6713 Alpha for Zone Number 236
6729 Alpha for Zone Number 237
6745 Alpha for Zone Number 238
6761 Alpha for Zone Number 239
6777 Alpha for Zone Number 240
6793 Alpha for Zone Number 241
6809 Alpha for Zone Number 242
6825 Alpha for Zone Number 243
6841 Alpha for Zone Number 244
6857 Alpha for Zone Number 245
6873 Alpha for Zone Number 246
6889 Alpha for Zone Number 247
6905 Alpha for Zone Number 248

DS7400Xi ( 4+) Reference Guide Copyright © 2007 Bosch Security Systems, Inc. P/N: F01U035325-01 Page 99
Index
Symbols
24-Hour Zone ............................................... 19
4/2 Format ..................................................... 79
A
AC Failure Report Delay ....................... 23, 50
AC Reports ........................................... 23, 24
Access Control .............................................. 1
PIN ............................................................ 28
Access Output ............................................. 21
Account Code Programming ......................... 56
Ademco AB-12 Bell ...................................... 78
Alarm
Fire - how to silence ........................... 1, 26
Invisible............................................. 19, 35
Low Temperature ............................. 20, 21
on Open.................................................... 19
on Short.................................................... 19
Silent ......................................................... 19
Smoke ....................................................... 20
Zone ......................................................... 21
Zone Function .......................................... 23
Alpha Description ......................................... 69
Answering Machine Bypass ....................... 24
Arm Only PIN ................................................. 28
Arming
Custom .......................... 1, 19, 22, 34, 45
Delayed ...................................................... 1
Force ................................................ 22, 47
from Master Keypad ................................ 29
Maximum Security ....................... 1, 19, 34
Normal ......................................... 1, 19, 34
Perimeter ..................................... 1, 19, 34
Perimeter Instant ......................... 1, 19, 34
Automatic Arming, Extend .............................. 1
B
Battery
Backup Calculation .................................... 5
Reports..................................................... 23
Test ...................................................... 1, 31
Battery/Sounder Test .............................. 1, 31
Bell Cutoff Delays ......................................... 50
BFSK Format ................................................. 80
Bypassing Allowed ...................................... 19
C
California March Time ................................... 22
Chime Mode .................................................... 1
CID Formats .................................................. 85
Clear Displays................................................. 1
Closing Ring Back ................................. 19, 34
Commercial Fire Mode .......................... 22, 48
California March Time .............................. 22
Multiple Keypad Use ................................ 23
Pulsing Fire Zone ..................................... 22
Single Keypad Use .................................. 23
Temporal ................................................... 22
Water Flow Zone Delay ........................... 22
Common Area ............................................... 22
Communicator Test .......................... 1, 24, 31
Custom Arming .................. 1, 19, 22, 34, 45
D
Day Monitor ................................................... 20
Defaults, Factory .......................................... 32
Delayed Arming .............................................. 1
Dirty Chamber/Smoke ........................... 26, 93
Disarming ........................................................ 1
from Master Keypad ................................ 29
DS7420i ........................................................ 67
DS9484 ........................................................... 7
.................. See also Octal Relay Modules
Duress PIN .................................................... 28
E
Emergency Key ............................. 22, 26, 45
Emergency Procedures................................ 26
Enable Remote Programmer Callback .......... 24
Entry Pre-Alert .............................................. 21
Entry/Exit Delays ........................... 19, 20, 50
Error Display ................................................... 1
Event History .................................................. 1
Extend Automatic Arming ............................... 1
F
Factory Defaults ........................................... 32
Fire Key ........................................................ 22
Fire Reset ................................................ 1, 26
Fire Safety .................................................... 27
Fire Trouble .............................................. 1, 26
Alarm - how to silence .............................. 1
Clear Display .............................................. 1
Fire Walk Test .................................. 1, 24, 31
Fire Zone ...................................................... 20
First Open After Alarm ................................. 23
Flow Zone, Water ........................................ 20
Force Arming ................................... 1, 22, 47
Formats
4/2 ............................................................ 79
BFSK ........................................................ 80
CID ............................................................ 85
SIA ............................................................ 83
G
General PIN ................................................... 28
Ground Fault Detect ............................. 22, 47
Ground Start ................................................. 21
H
HEX Values ................................................... 32
History, Read Event ................................. 1, 30
I
Input
Cross Matrix ..................................... 21, 66
Multiple Zone ............................................ 20
Single Zone .............................................. 20
Installation
Control/Communicator ................................ 8
Enclosure ................................................... 8
Fire Considerations .................................. 27
Interior Delayed ............................................ 19
Interior Entry/Exit Follower ........................... 20
Interior Home/Away ..................................... 20
Interior Instant ................................................ 20
Invisible Alarm....................................... 19, 35
K
Keypad ........................................................... 4
Keypad Alarms ............................................. 26
Keypad Assignment ............................. 22, 44
Keypad, Master ............................................ 29
Keypad Reports ........................................... 23
Keypad Sounder Output .............................. 21
Keyswitch Input ........................................... 20
L
Latch on Any Zone Alarm ............................ 21
Load Number ................................................ 25
Local Program Reports................................. 24
Low Battery .................................................. 23
Low Temperature Alarm ...................... 20, 21
M
Master Code ......................................... 28, 59
Master Keypad
Arming from ............................................. 29
Disarming from ......................................... 29
Displays.................................................... 29
Master Keypad Programming ....................... 22
Master PIN ..................................................... 28
Maximum Security Arming ............... 1, 19, 34
Multiple Keypad Use ..................................... 23
Multiple Zone Input ........................................ 20
Multiplex
Bus Outputs ............................................. 21
Bus Wiring Requirements .......................... 4
Smoke ....................................................... 20
Zone Addressing ..................................... 86
N
Normal Arming ................................. 1, 19, 34
O
Octal Relay Modules ..................................... 60
ON Outputs ................................................... 21
Open/Close Reports ...................... 23, 24, 49
Output ............................................................. 4
Access..................................................... 21
Cross Matrix ..................................... 21, 66
Keypad Sounder ...................................... 21
Multiplex Bus ............................................ 21
Panic/Duress ............................................ 21
Partition Assignment ................................ 42
Programming .................................... 21, 41
Output Function ............................................ 21
Partition Assignment ................................ 67
Programming ............................................ 66

P
Pager Delay .................................................. 59
Panic Key .............................................. 22, 45
Panic/Duress Output .................................... 21
Partition .................................................... 4, 29
Partition Assignment ..................................... 38
Partition Control Programming .............. 21, 42
Perimeter Arming ............................. 1, 19, 34
Perimeter Instant .............................. 1, 19, 34
Phone Answering Programming .......... 24, 58
Phone Number
Alternate between two ........................... 23
Dial Pulse/Tone on All ............................... 24
Programming .................................... 57, 74
PIN ................................................................. 28
Authority Levels....................................... 28
Length ...................................................... 59
Worksheet ........................................ 13, 14
Program Addresses ..................................... 93
Programmer’s Code .............................. 32, 59
Programming a Zone .................................... 35
Pulsing Fire Zone .......................................... 22
Q
Quick Arm Control ........................................ 43
R
Read Event History .................................. 1, 30
Receivers ..................................................... 58
Remote Program Dial-out & Answer .............. 1
Remote Program Reports ............................. 24
Report Programming ............................. 23, 53
Reporting Problems ...................................... 88
Reports
AC .................................................... 23, 24
Battery...................................................... 23
Communicator Test .................................. 24
Dirty Chamber .......................................... 24
Duress...................................................... 23
Exit Error .................................................. 24
Keypad ..................................................... 23
Local Program .......................................... 24
Mux. Smoke Low Temperature ................ 24
Open/Close ............................... 23, 24, 49
Remote Program....................................... 24
System Trouble ........................................ 24
Walk Test .................................................. 24
Zone ................................................. 19, 23
Zone Restoral .......................................... 19
Reset
Error Display .............................................. 1
Fire ............................................................. 1
Restore ................................................. 19, 34
RS232 Interface ........................................... 52
S
SIA Formats .................................................. 83
Silencing Alarms ...................................... 1, 26
Silent Alarm ................................................... 19
Single Keypad Use ....................................... 23
Single Partition Mode .................................... 29
Single Zone Input .......................................... 20
Siren on Communication Fail ................ 19, 34
Smoke Alarm................................................. 20
Solid State Output Modules .......................... 21
Special Emergency Key ............................... 22
Supervisory Zone ........................................ 20
Swinger Shunts ................................... 19, 34
System
Problems .................................................. 89
Status (ready to arm) .............................. 21
Trouble Reports ....................................... 24
Walk Test ............................................. 1, 24
Worksheet ........................................ 12, 18
System Reset ............................................... 30
T
Temperature Alarm ....................................... 21
Temporal ........................................................ 22
Temporary PIN ............................................... 28
Test
Battery ................................................. 1, 31
Battery/Sounder.................................. 1, 31
Communicator ..................................... 1, 31
Fire Walk ............................................. 1, 31
System Walk ....................................... 1, 31
Test Report ................................................... 68
Timer Programming ............................... 50, 68
Trouble
Fire ...................................................... 1, 26
On Open ................................................... 19
On Shor ................................................... t 19
Zone Function .......................................... 23
U
UL Listings .................................................... 75
Unlimited PIN .................................................. 28
W
Water Flow Zone ......................................... 20
Water Flow Zone Delay ............................... 22
Wiring .................................................. 4, 9, 10
Worksheets
4/2 Format ................................................ 79
Alpha Description Programming ...... 70, 73
BFSK Format ............................................ 80
Pager Format ............................................ 82
Phone Number Programming ................... 74
PIN .................................................... 13, 14
System ............................................. 12, 18
Zone Location and Notes ................ 15, 18
Z
Zone................................................................ 4
24-Hour .................................................... 19
Alarm ........................................................ 21
Alarm Delayed .......................................... 21
Bypass ................................................ 1, 39
Day Monitor .............................................. 20
Entry/Exit Delay ................................ 19, 20
Fire ........................................................... 20
Interior Entry/Exit Follower....................... 20
Interior Home/Away ................................. 20
Interior Instant .......................................... 20
Keyswitch Input ....................................... 20
Location and Notes Worksheet ....... 15, 18
Multiplex.................................................... 86
Multiplex Smoke ........................................ 20
Perimeter Instant ...................................... 19
Problems .................................................. 88
Programming ............................................ 20
Pulsing Fire ............................................... 22
Supervisory ............................................. 20
Water Flow .............................................. 20
Zone Function............................................... 19
Programming ............................................ 35
Reports..................................................... 23
Zone Restoral Reports ................................. 19
Zone Test ....................................................... 31
Index - continued
Bosch Security Systems, Inc.
130 Perinton Parkway
Fairport, NY, USA 14450-9199
(800) 289-0096
Copyright © 2007 Bosch Security Systems, Inc.
DS7400Xi (4+) Installation Instructions
P/N: F01U035325-01 7/07 Page 100