Briggs & Stratton 030439 User Manual GENERATOR Manuals And Guides L1001172
BRIGGS&STRATTON Generator Manual L1001172 BRIGGS&STRATTON Generator Owner's Manual, BRIGGS&STRATTON Generator installation guides
User Manual: Briggs & Stratton 030439 030439 BRIGGS & STRATTON GENERATOR - Manuals and Guides View the owners manual for your BRIGGS & STRATTON GENERATOR #030439. Home:Tool Parts:Briggs&Stratton Parts:Briggs&Stratton GENERATOR Manual
Open the PDF directly: View PDF
.
Page Count: 76

®
PortableGenerator
Operator'sManual
This generator is rated to be compliant with CSA(Canadian Standards
Association) standard 022.2 No. 100-04 (motors and generators).
BRIGGS & STRATTON POWER PRODUCTS GROUP, LLC
JEFFERSON, WISCONSIN, U.S.A.
Manual No. 209269GS Revision - (01/15/2009)

Thankyou for purchasing this quality-built Briggs & Stratton generator.We are pleasedthat you've placedyour confidence in
the Briggs & Stratton brand. When operated and maintained according to the instructions in this manual,your Briggs &
Stratton generator will provide manyyears of dependableservice.
This manual containssafety information to makeyou aware of the hazardsand risks associatedwith generatorsand how to
avoid them. This generator is designedand intended only for supplying electrical power for operating compatible electrical
lighting, appliances,tools and motor loads, and is not intended for any other purpose. It is important that you readand
understand these instructions thoroughly before attempting to start or operate this equipment. Save these instructions for
future reference.
This generator requiresfinal assemblybefore use. Referto the Assemb/ysection of this manual for instructions on final
assembly procedures. Follow the instructions completely.
Where to Find Us
You never haveto look far to find Briggs & Stratton support and service for your generator. Consultyour Yellow Pages.There
are over 30,000 Briggs & Stratton authorized service dealersworldwide who provide quality service. You can also contact
Briggs & Stratton Customer Service by phone at (800) 743-4115, or on the Internet at BRIGGSandSTRATTON.COM.
Generator
Model Number
Revision
Serial Number
III
Engine
Model Number
TypeNumber III
Code Number
DatePurchased III III III
Briggs & Stratton Power Products Group, LLC
900 North Parkway
Jefferson, WI 53549
Copyright © 2009 Briggs & Stratton Power Products Group,
LLC. All rights reserved. No part of this material may be
reproduced or transmitted in any form by any meanswithout
the express written permission of Briggs & Stratton Power
Products Group, LLC.
2 BRIGGSandSTRATTON.COM

Tableof Contents
OperatorSafety ................................. 4
Equipment Description......................................... 4
Important Safety Information.................................... 4
Assembly ..................................... 7
Unpack Generator ............................................ 7
Install Wheel Kit.............................................. 7
Verify EngineOil Level......................................... 8
Add Fuel.................................................... 8
System Ground .............................................. 9
Connecting to a Building's Electrical System........................ 9
Generator Location ........................................... 9
Featuresand Controls............................ 10
Cord Setsand Receptacles .................................... 11
Operation .................................... 12
Starting the Engine .......................................... 12
Connecting Electrical Loads.................................... 13
Stopping the Engine.......................................... 13
Warm WeatherOperation ..................................... 13
Don't Overload Generator ..................................... 14
Maintenance .................................. 15
Maintenance Schedule........................................ 15
Generator Maintenance ....................................... 15
Engine Maintenance.......................................... 16
Storage ................................................... 19
Troubleshooting ................................ 21
Schematic ................................................. 22
Wiring Diagram ............................................. 23
Warranties .................................... 24
Emissions Control System Warranty ............................. 24
Generator Owner Warranty .................................... 26
Specifications ................................. 28
Product Specifications........................................ 28
Common Service Parts ....................................... 28
Frangais Espa_ol

OperatorSafety
Equipment Description
Readthis manual carefully and becomefamiliar
with your generator. Knowits applications, its
limitationsand any hazardsinvolved.
The generator is an engine-driven, revolvingfield, alternating
current (AC) generator. It was designedto supply electrical
power for operating compatible electrical lighting, appliances,
tools and motor loads.The generator's revolving field is
driven at about 3,600 rpm by a single-cylinder engine.
NOTICP.Exceedinggenerators wattage/amperagecapacity
can damagegenerator and/or electrical devices connectedto
it.
• DONOTexceedthe generator'swattage/amperagecapacity.See
Don'tOverloadGeneratorinthe Operationsection.
Everyeffort has been madeto ensure that the information in
this manual is both accurateand current. However,the
manufacturer reservesthe right to change,alter or otherwise
improve the generatorand this documentation at any time
without prior notice.
The Emission Control System for this generator is warranted
for standards set by the Environmental Protection Agency
and the California Air ResourcesBoard.
Important Safety Information
The manufacturer cannot possibly anticipate every possible
circumstance that might involve a hazard.The warnings in
this manual, and the tags and decalsaffixed to the unit are,
therefore, not all-inclusive. If you use a procedure,work
method or operating technique that the manufacturer does
not specifically recommend,you must satisfy yourself that it
is safe for you and others. You must also makesure that the
procedure, work method or operating technique that you
choose does not renderthe generator unsafe.
SafetySymbolsand Mleanings
ToxicFumes Kickback ElectricalShock
Fire Explosion Operator'sManual
MovingParts Flying Objects Hot Surface
The safetyalert symbol indicatesa potential personal
injury hazard.A signal word (DANGER,WARNING,or
CAUTION)is used with the alert symbol to designatea
degreeor level of hazardseriousness. A safety symbol may
be usedto representthe type of hazard.Thesignal word
NOTICEis usedto address practicesnot relatedto personal
injury.
_k DANGERindicates a hazardwhich, if not avoided, will
result in death or serious injury.
_k WARNINGindicates a hazardwhich, if not avoided,
could result in death or serious injury.
A. CAUTIONindicates a hazardwhich, if not avoided, could
result in minor or moderate injury.
NOTICEaddress practices not related to personal injury.
4 BRIGGSandSTRATTON.COIVl

¥:IImT'-I([__ ;.(
Using a generator indoors CAN KiLL YOU iN MINUTES,
Generator exhaust contains carbon monoxide, This is
apoison you cannot see or smeJL
V V
NEVER use inside ahome
or garage, EVEN iF doors
and windows are open,
Only use OUTSIDE and
far away from windows,
doors, and vents,
_i, WARNING:Running engine gives off carbon
monoxide, an odorless, colorless, poison gas.
_ Breathing can causeheadache,
carbon monoxide
fatigue, dizziness,vomiting, confusion, seizures,
nausea,fainting or death.
• OperategeneratorONLYoutdoors.
• Installa batteryoperatedcarbonmonoxidealarmnearthe
bedrooms.
Keep exhaustgas from entering a confined area through
windows, doors, ventilation intakes, or other openings.
DO NOTstart or run engine indoors or in an enclosedarea,
(even if windows and doors are open), including the generator
compartment of a recreational vehicle (RV).
_i, WARNING:The engine exhaust from this product
contains chemicals known to the Stateof California to
cause cancer,birth defects, or other reproductive harm.
_i, WARNING:Certaincomponents in this product and
relatedaccessories contain chemicals known to the State
of Californiato cause cancer, birth defects or other
reproductive harm. Wash hands after handling.
_i, WARNING: Starter cord kickback (rapid retraction) can
result in bodily injury. Kickback will pull hand
_,_< and arm toward engine faster than you can let
go.
Broken bones, fractures, bruises, or sprains could result.
• When starting engine, pull cord slowly until resistance is felt
and then pull rapidly to avoid kickback.
• NEVERstart or stop engine with electrical devices plugged in
and turned on.
_i, WARNING: Generator produces hazardous voltage.
")Jllll Failure to isolate generator from power utility
can result in death or injury to electric utility
workers due to backfeed of electrical energy.
• When using generator for backup power, notify utility company.
Useapproved transfer equipment to isolate generator from
electric utility.
• Usea ground fault circuit interrupter (GFCI)in any damp or
highly conductive area,such as metal decking or steel work.
• DO NOTtouch barewires or receptacles.
• DO NOTuse generator with electrical cords which are worn,
frayed, bare or otherwise damaged.
• DO NOToperate generator in the rain or wet weather.
• DO NOThandle generator or electrical cords while standing in
water, while barefoot, or while hands or feet arewet.
• DO NOTallow unqualified persons or children to operateor
service generator.
_i, WARNING:Fueland its vapors are extremely
flammable and explosive.
Fireor explosion can causesevere
burns or death.
WHENADDINGORDRAININGFUEL
• Turn generator OFFand let it cool at least2 minutes before
removing fuel cap. Loosen cap slowly to relieve pressure in
tank.
•Fill or drain fuel tank outdoors.
•DONOT overfill tank. Allow spacefor fuel expansion.
• If fuel spills, wait until it evaporatesbefore starting engine.
• Keepfuel away from sparks, open flames, pilot lights, heat,and
other ignition sources.
• DONOT light a cigarette or smoke.
WHENSTARTINGEQUIPMENT
• Ensurespark plug, muffler, fuel cap,and air cleanerare in place.
• DO NOTcrank enginewith spark plug removed.
WHEN OPERATINGEQUIPMENT
• DONOTtip engine or equipment at angle which causesfuel to
spill.
• This generator is not for use in mobile equipment or marine
applications.
WHENTRANSPORTINGOR REPAIRINGEQUIPMENT
• Transport/repairwithfueltankEMPTYorwith fuelshutoffvalve
OFF.
• Disconnectsparkplugwire.
WHENSTORINGFUELOREQUIPMENTWITHFUELIN TANK
• Store away from furnaces, stoves, water heaters, clothes
dryers, or other appliancesthat havepilot light or other ignition
source becausethey can ignite fuel vapors.
AWARNING:
This generator does not meet U. S. CoastGuard Regulation
33CFR-183and should not be used on marine applications.
Failure to usethe appropriate U. S. CoastGuard approved
generator could result in death or serious injury and/or
property damage.

_kWARNING:Contactwithmufflerareacanresultin
seriousburns.
_ Exhaustheat/gasescanignite
_-_ combustibles,structuresordamage
fueltankcausingafire.
• DONOTtouchhotpartsandAVOIDhotexhaustgases.
• Allowequipmenttocoolbeforetouching.
• Keepatleast5feet(152cm)ofclearanceonallsidesof
generatorincludingoverhead.
• ItisaviolationofCaliforniaPublicResourceCode,Section
4442,touseoroperatetheengineonanyforest-covered,
brush-covered,orgrass-coveredlandunlesstheexhaust
systemisequippedwithasparkarrester,asdefinedinSection
4442,maintainedineffectiveworkingorder.Otherstatesor
federaljurisdictionsmayhavesimilarlaws.
Contacttheoriginalequipmentmanufacturer,retailer,ordealer
toobtainasparkarresterdesignedfortheexhaustsystem
installedonthisengine.
• Replacementpartsmustbethesameandinstalledinthesame
positionastheoriginalparts.
_k WARNING: Unintentional sparking can result in fire or
_ electric shock.
WHENADJUSTINGOR MAKINGREPAIRSTO YOURGENERATOR
• Disconnect the spark plug wire from the spark plug and place
the wire where it cannot contact spark plug.
WHENTESTINGFOR ENGINESPARK
• Use approved spark plug tester.
• DO NOTcheckfor spark with spark plug removed.
_k WARNING: Starter and other rotating parts can
entangle hands, hair, clothing, or accessories.
• NEVERoperate generator without protective housing or covers.
• DO NOTwear loose clothing, jewelry or anything that may be
caught in the starter or other rotating parts.
• Tie up long hair and remove jewelry.
_i, CAUTION: Excessively high operating speeds increase
risk of injury and damage to generator.
Excessively low speeds impose a heavy load.
• DO NOTtamper with governed speed. Generatorsupplies
correct rated frequency and voltage when running at governed
speed.
• DO NOTmodify generator in any way.
NOTICE:Exceedinggeneratorswattage/amperagecapacity
can damage generator and/or electrical devices connectedto
it.
DONOT exceedthe generator's wattage/amperage capacity. See
Don't OverloadGeneratorin the Operationsection.
Start generator and let engine stabilize before connecting
electrical loads.
Connect electrical loads in OFFposition, then turn ONfor
operation.
Turn electrical loads OFFand disconnect from generator before
stopping generator.
NOTICE: Improper treatment of generator can damage it
and shorten its life.
• Use generator only for intended uses.
• If you havequestions about intended use,ask dealeror contact
local service center.
• Operategenerator only on level surfaces.
• DONOT expose generator to excessive moisture, dust, dirt, or
corrosive vapors.
• DONOT insert any objects through cooling slots.
• If connected devicesoverheat,turn them off and disconnect them
from generator.
• Shut off generator if:
-electrical output is lost;
-equipment sparks, smokes, or emits flames;
-unit vibrates excessively.
6 BRIGGSandSTRATTON.COIVI

Assembly
Your generator requires some assembly and is readyfor use
after it has been properly serviced with the recommended
fuel and oil level is verified.
If you haveany problems with the assemblyof your generator,
pleasecall the generator helplineat (808) 743-4115. If calling
for assistance,pleasehavethe model revision, and serial
number from the identificationlabelavailable.Seegenerator
Featuresand Controlsfor identification labellocation.
UnpackGenerator
1. Set the carton on a rigid, flat surface.
2. Removeeverything from carton except generator.
3. Opencarton completely by cutting each corner from
top to bottom.
4. Leavegenerator on carton to install wheel kit.
The generatoris suppliedwith:
•Operator's manual
•Wheels (2)
•Axle
• Support leg
• Wheel kit hardware
Install Wheel Kit
NOTE:Wheel kit is not intended for over-the-road use.
You will needthe following tools to install thesecomponents:
• 13 mm wrench
• Socket wrench with a 13 mm socket
• Pliers
• Safety glasses
Install the wheel kit as follows:
1. Tip generator so that engine end is up.
2. Slide axle (A) through holes in generator frame.
3. Slide a washer (C) and then a wheel (B) over axle.
NOTE:Besure to install wheel with raised hub inboard.
4. Place a washer (C) on axle and then place an e-ring (D)
in axle groove.
_i, CAUTION:E-rings can cause eye injury.
E-rings can spring backand becomeairborne
when installing or removing.
• Always wear eye protection when installing/removing e-rings.
5. Install e-ring with pliers, squeezingfrom top of e-ring
to bottom of axle.
6. Repeatsteps 3 through 5 to securesecond wheel.
7. Return generator to normal operating position (resting
on wheels).
8. Remove handle (N) from generator frame by pushing in
pins (J) and pulling up on handle.
9. Turn handle around as shown below and attach it to
generator frame by pushing in pins on generator frame.
Slide handle down until pins lock into holes on handle.
10. Tip generator so that engine side is down.
11. Line up holes in support leg (E) with holes in generator
frame.
12. Attach support leg using 2 capscrews (M8 x 20 mm)
(F) and 2 hex nuts (G). Tighten with a 13 mm socket
wrench and 13 mm wrench.
13. Return generator to normal operating position (resting
on wheels and support leg).
NOTE:Turn the handlearound on the generator frame for
storage purposes ONLY.

VerifyEngineOil Level
The generator engine is shipped from the factory filled with
oil (API SJ or higher 10W-30). This allows for generator
operation in the widest rangeof temperature and climate
conditions. Beforestarting the engine, check oil level and
ensure that engine is serviced as described in Maintenance.
NOTE:SeeOil in the Maintenancesection to review oil
recomendations.Verify provided oil in engine is the correct
viscosity for current ambient temperature.
NOTICE..Any attempt to crank or start the engine before it
has been properly filled with the recommended oil will
result in equipment failure.
• Referto Maintenancefor oilfill information.
• Damageto equipment resulting from failure to follow this
instruction will void warranty.
Add
Fuel
Fuel
mustmeet these requirements:
Clean,fresh, unleaded gasoline.
A minimum of 87 octane/87 AKI (91 RON). High
altitude use, see High Altitude.
Gasoline with up to 10% ethanol (gasohol) or up to
15% MTBE (methyl tertiary butyl ether) is acceptable.
NOTICE:.Avoid generator damage.
Failure to follow Operator's Manual for fuel
recommendations voids warranty.
• DONOTuseunapprovedgasolinesuchasE85.
• DONOTmixoilin gasoline.
• DONOTmodifyengineto runonalternatefuels.
To protect the fuel system from gum formation, mix in a fuel
stabilizerwhen addingfuel. SeeStorage.All fuel is not the
same. If you experiencestarting or performanceproblemsafter
using fuel,switch to a differentfuel provider or changebrands.
This engineis certifiedto operateon gasoline.The emission
control systemfor this engineis EM (EngineModifications).
_i, WARNING:Fueland its vapors are extremely
flammable and explosive.
Fireor explosion can causesevere
burns or death.
WHENADDINGFUEL
• Turn generator OFFand let it cool at least2 minutes before
removing fuel cap. Loosen cap slowly to relieve pressure in
tank.
• Fill fuel tank outdoors.
• DONOT overfill tank. Allow spacefor fuel expansion.
• If fuel spills, wait until it evaporatesbefore starting engine.
• Keepfuel away from sparks, open flames, pilot lights, heat,and
other ignition sources.
• DONOT light a cigarette or smoke.
1. Cleanareaaround fuel fill cap, remove cap.
2. Slowly add unleadedgasoline (A) to fuel tank (B). Be
careful not to fill above the baffle (C). This allows
adequatespacefor fuel expansionas shown.
3. Install fuel cap and let any spilled fuel evaporatebefore
starting engine.
HighAltitude
At altitudes over 5,000 feet (1524 meters), a minimum
85 octane/85 AKI (89 RON)gasoline is acceptable.To
remain emissions compliant, high altitude adjustment is
required. Operation without this adjustment will cause
decreasedperformance, increasedfuel consumption, and
increasedemissions. Seean authorized dealerfor high
altitude adjustment information. Operation of the engine at
altitudes below 2,500 feet (762 meters) with the high altitude
kit is not recommended.
8 BRIGGSandSTRATTON.COIVl

SystemGround
The generator has a system ground that connects the
generator frame components to the ground terminals on the
AC output receptacles.The system ground is connected to
the AC neutral wire (the neutral is bonded to the generator
frame).
Special Requirements
There may be Federalor State OccupationalSafety and
HealthAdministration (OSHA) regulations, local codes, or
ordinances that apply to the intended use of the generator.
Pleaseconsult a qualified electrician, electrical inspector, or
the local agency having jurisdiction:
•In some areas, generatorsare required to be registered
with local utility companies.
• If the generator is used at a construction site, there
may be additional regulations which must be observed.
Connecting to a Building's Electrical System
Connections for standby power to a building's electrical
system must be made by a qualified electrician. The
connection must isolate the generator power from utility
power and must comply with all applicable laws and
electrical codes.
_lLWARNING:Generator produces hazardousvoltage.
"),||h Failureto isolate generator from power utility
can result in death or injury to electric utility
workers due to backfeedof electrical energy.
•Whenusinggeneratorfor backuppower,notifyutility company.
Useapprovedtransferequipmentto isolategeneratorfrom
electricutility.
• Useagroundfault circuitinterrupter(GFCI)in anydampor
highlyconductivearea,suchasmetaldeckingor steelwork.
• DONOTtouchbarewiresor receptacles.
• DONOTusegeneratorwithelectricalcordswhichareworn,
frayed,bareor otherwisedamaged.
• DONOToperategeneratorinthe rainorwetweather.
• DONOThandlegeneratoror electricalcordswhilestandingin
water,whilebarefoot,or whilehandsorfeetarewet.
• DONOTallowunqualifiedpersonsor childrento operateor
servicegenerator.
GeneratorLocation
Clearancesand Air Movement
A. WARNING:Exhaustheat/gases can ignite
combustibles, structures or damagefuel tank
causing a fire.
• Keep at least5 ft. (152 cm) clearanceon all sidesof generator
including overhead.
Place generator outdoors in an area that will not accumulate
deadly exhaust gas. DO NOTplace generator where exhaust
gas (A) could accumulateand enter inside or be drawn into
a potentially occupied building. Ensureexhaust gas is kept
awayfrom any windows, doors, ventilation intakes,or other
openings that can allow exhaust gas to collect in a confined
area. Prevailing winds and air currents should be taken into
consideration when positioning generator.
Using a generator indoors CAN KILL YOU IN MINUTES,
Generator exhaust contains carbon monoxide, This is
apoison you cannot see or smell,
V V
NEVER use insideahome
or garage, EVEN IF doors
and windowsare open,
Only use OUTSIDE and
far away from windows,
doors, and vents,
|
\

FeaturesandControls
Readthis Operator'sManual and safetyrules beforeoperatingyourgenerator.
Comparethe illustrations with your generator, to familiarize yourself with the locations of various controls and
adjustments. Savethis manual for future reference.
A-Fuel Tank-- Capacityof five (5) U.S. gallons.
B-RockerSwitchCircuitBreaker-- The 120/240 Volt AC,
30A locking receptacle is provided with a rocker switch
circuit breaker to protect the generator against electrical
overload.
C-CircuitBreakers(AC) -- The 120 Volt AC, 20A duplex
receptaclesare provided with "push to reset"circuit
breakersto protect the generator against electrical
overload.
D - 120 VoltAC, 20 Amp, DuplexReceptacles-- May be
used to supply electrical power for the operation of
120 Volt AC,20 Amp, single phase,60 Hzelectrical,
lighting, appliance, tool and motor loads.
E- 0il Fill Cap-- Check and add engine oil here.
F-Oil Drain Plug-- Drain engine oil here.
G- 120/240 Volt AC, 30 Amp LockingReceptacle-- May
be used to supply electrical power for the operation of
120 and/or 240 Volt AC, 30 Amp, single phase,60 Hz
electrical, lighting, appliance,tool and motor loads.
H-GroundingFastener-- Consult your local agency having
jurisdiction for grounding requirements in your area.
J - SparkArresterMuffler -- Exhaust muffler lowers engine
noise and is equippedwith a spark arrester screen.
K- Identification Label -- Provides model, revision and
serial number of generator. Pleasehave these readily
available when calling for assistance.
L - Air Cleaner-- Protects engine by filtering dust and
debris out of intake air.
M-EngineIdentification-- Provides model, type and code
of engine. Pleasehavethese readily available if calling
for assistance.
N - Recoil Starter -- Usedto start the engine.
P-EngineRocker Switch-- Set this switch to "On"before
using recoil starter. Set switch to "Off"to switch off
engine.
R - ChokeLever- Usedwhen starting a cold engine.
S-Fuel Valve-- Usedto turn fuel supply on and off to
engine.
10 BRIGGSandSTRATTON.COM

CordSetsandReceptacles
Useonly high quality, well-insulated, grounded extension
cords with the generator's 120 Volt duplex receptacle.
Inspect extension cords before each use.
Check the ratings of all extension cords before you use
them. Extensioncord sets used should be rated for 125 Volt
AC loads at 20 Amps or greater for most electrical devices.
Some devices,however, may not require this type of
extension cord. Checkthe operator's manuals of those
devices for the manufacturer's recommendations.
Keepextension cords as short as possibleto minimize
voltage drop.
_k WARNING:Overloadedelectrical cords can overheat,
arc, and burn resulting in death, bodily injury,
and/or property damage.
• ONLYusecordsratedfor your loads.
• Followallsafetiesonelectricalcords.
A double pole rocker switch circuit breaker is provided to
protect the locking receptacle.If this circuit breaker is
tripped, all panelreceptaclesare disconnected.
120/240 Volt AC, 30 Amp, LockingReceptacle
Usea NEMA L14-30 plug with this receptacle.Connect a
4-wire cord set rated for 250 Volt AC loads at 30 Amps (or
greater). You can use the same4-wire cord if you plan to
run a 120 Volt load.
4-Wire Cord Set
__1i
--\
NEMA L14-30
Y (Hot)
(Neutral)
X (Hot)
Ground (Green)
This receptaclepowers 120/240 Volt AC, 60 Hz, single phase
loads requiring up to 5,500 watts of power (5.5 kW) at
22.9 Amps for 240 Volts or two independent 120 Volt loads
at 22.9 Amps each. The outlet is protected by a two pole
rocker switch circuit breaker.
NOTICE: Receptacles may be marked with rating value
greater than generator output capacity.
• NEVERattempt to power a device requiring more amperagethan
generator or receptaclecan supply.
• DONOToverload the generator. SeeDon't OverloadGenerator.
120 Volt AC, 20 Amp, DuplexReceptacles
The duplex receptaclesare protected against overload by
push-to-reset circuit breakers.
Use each receptacleto operate 120 Volt AC, single-phase,
60 Hz electrical loads requiring up to 2,400 watts (2.4 kW) at
20 Amps of current. Usecord sets that are rated for 125 Volt
AC loads at 20 Amps (or greater). Inspect cord sets before
each use.
11

Operation
Starting the Engine
Disconnect all electrical loads from the generator. Usethe
following start instructions (see Featuresand Controls for
location of controls described below):
1. Make sure unit is on a level surface.
IMPORTANT:Failureto start and operate the unit on a level
surface will causethe unit not to start or shut down during
operation.
2. Turn the fuel valve to the "On" position.
3. Push choke lever to "Choke" position (l_,l).
,Grasp recoil handleand pull slowly until slight
resistance is felt. Then pull rapidly one time only to
start engine.
•If engine starts, proceed to step 7.
• If engine fails to start, proceedto step 6.
_iLWARNING:Starter cord kickback (rapid retraction) can
result in bodily injury. Kickbackwill pull hand
_,_ and arm toward enginefaster than you can let
T-- gO.
Broken bones,fractures, bruises, or sprains could result.
• Whenstartingengine,pullcordslowlyuntil resistanceisfelt
andthenpull rapidlyto avoidkickback.
• NEVERstartor stopenginewith electricaldevicespluggedin
andturnedon.
6. Move choke lever to "Half" choke position, and pull
recoil handle twice.
• If engine fails to start, repeat steps 5 thru 7.
7. Slowly move choke lever to "Run" position (J_I). If
engine falters, move choke lever to "Half" choke
position until engine runs smoothly, and then to "Run"
position (1+1).
IMPORTANT:If enginefloods, place choke lever in "Run"
position (J_'J)and crank until engine starts.
NOTE:If engine starts after 3 pulls but fails to run, or if unit
shuts down during operation, makesure unit is on a level
surface and check for proper oil level in crankcase. This unit
may be equippedwith a low oil protection device. If so, oil
must be at proper level for engine to start.
_iL WARNING: Contact with muffler area can result in
serious burns.
_ Exhaust heat/gases can ignite
combustibles, structures or damage
fuel tank causing a fire.
• DO NOTtouch hot parts and AVOID hot exhaustgases.
• Allow equipment to cool before touching.
• Keep at least 5 feet (152 cm) of clearanceon all sides of
generator including overhead.
• It is a violation of California Public Resource Code,Section
4442, to use or operate the engine on any forest-covered,
brush-covered, or grass-covered land unlessthe exhaust
system is equipped with a spark arrester, as defined in Section
4442, maintained in effective working order. Other states or
federal jurisdictions may have similar laws.
Contact the original equipment manufacturer, retailer, or dealer
to obtain a spark arrester designed for the exhaust system
installed on this engine.
• Replacement parts must bethe same and installed in the same
position as the original parts.
12 BRIGGSandSTRATTON.COIVl

Connecting Electrical Loads
1. Let engine stabilize and warm up for a few minutes
after starting.
2. Ensure circuit breaker on control panel is in "On"
position.
3. Plug in and turn on the desired 120 and/or 240 Volt
AC,single phase,60 Hz electrical loads.
IMPORTANT:When plugging into the 120 Volt receptacles,
plug items to be powered in sequenceas shown below.
NOTE:
•DONOTconnect 240 Volt loads to the 120 Volt duplex
receptacles.
• DONOTconnect 3-phase loads to the generator.
• DONOTconnect 50 Hz loads to the generator.
• DONOTOVERLOADTHEGENERATOR.SeeDon't
Overload Generator.
NOTICE. Exceeding generators wattage/amperage capacity
can damagegenerator and/or electrical devices connected to
it.
•DO NOTexceedthe generator's wattage/amperage capacity. See
Don't OverloadGeneratorin the Operationsection.
• Start generator and let engine stabilize before connecting
electrical loads.
• Oonnectelectrical loads in OFFposition, then turn ONfor
operation.
• Turn electrical loads OFFand disconnect from generator before
stopping generator.
Stoppingthe Engine
1. Turn OFFand unplug all electrical loads from generator
panel receptacles. NEVERstart or stop enginewith
electrical devices plugged in and turned ON.
2. Let engine run at no-load for several minutes to
stabilize internal temperatures of engine and generator.
3. Push engine rocker switch to "Off" position.
_i, WARNING:Backfire,fire or engine damagecould
occur.
• DONOTstopengineby movingchokecontrolto "Choke"
position(H).
4. Move fuel valve to "Off" position.
Warm Weather Operation
This generator engine is equippedwith WeatherGuard,an
innovative feature to preventcarburetor icing in cold weather
conditions. WeatherGuardhas beenengineeredto operate in
all weather conditions. However,product performance can be
increasedwhen operating the generator solely in warm
weather by removing the WeatherGuardshield (A).
Removethe two nuts (B) and loosen the fastener (C) as
shown. Store shield and fasteners for future cold weather
operation.
13

Don'tOverload Generator
Capacity
You must makesure your generator can supply enough
rated (running) and surge (starting) watts for the items you
will power at the same time. Follow these simple steps:
1. Select the items you will power at the sametime.
2. Totalthe rated (running) watts of theseitems. This is the
amount of power your generator must produce to keep
your items running. SeeWattage ReferenceGuide.
3. Estimate how many surge (starting) watts you will need.
Surge wattage is the short burst of power neededto
start electric motor-driven tools or appliancessuch as a
circular saw or refrigerator. Becausenot all motors start
at the sametime, total surge watts can be estimatedby
adding only the item(s) with the highest additional surge
watts to the total rated watts from step 2.
Example:
Toolor Appliance
WindowAir
Conditioner
Refrigerator
DeepFreezer
Television
Light (75Watts)
Watts
1200
8OO
5OO
5OO
75
3075Total
RunningWatts
Total Rated(Running) Watts
Highest Additional Surge Watts
Total GeneratorOutput Required
(Starting)Watts
1800
1600
5OO
1800Highest
SurgeW_ts
= 3075
= 1800
= 4875
Power Mlanagement
To prolong the life of your generator and attached devices, it
is important to take care when adding electrical loads to your
generator. There should be nothing connected to the
generator outlets before starting its engine. The correct and
safe way to manage generator power is to sequentially add
loads as follows:
1. With nothing connected to the generator, start the
engine as described in this manual.
2. Plug in and turn on the first load, preferably the largest
load you have.
3. Permit the generator output to stabilize (engine runs
smoothly and attached deviceoperates properly).
4. Plug in and turn on the next load.
5. Again, permit the generator to stabilize.
6. Repeatsteps 4 and 5 for each additional load.
NEVERadd more loads than the generator capacity. Take
special care to consider surge loads in generator capacity, as
described above.
ToolorAppliance
Rated* Additional
(Running) Surge (Starting)
Watts Watts
Essentials
Light Bulb - 75 watt 75
Deep Freezer 500 500
Sump Pump 800 1200
Refrigerator/Freezer- 18 Cu. Ft. 800 1600
Water Well Pump - 1/3 HP 1000 2000
Heating/Cooling
Window AC - 10,000 BTU 1200 1800
Window Fan 300 600
Furnace Fan Blower - 1/2 HP 800 1300
Kitchen
Microwave Oven- 1000 Watt 1000
Coffee Maker 1500
Electric Stove - Single Element 1500
Hot Plate 2500
Family Room
DVD/CD Player 100
VCR 100
Stereo Receiver 450
Color Television - 27" 500
PersonalComputerw/17" monitor 800
Other
Security System 180
AM/FM Clock Radio 300
Garage Door Opener - 1/2 HP 480 520
Electric Water Heater- 40 Gallon 4000
DIf/Job Site
Quartz HalogenWork Light 1000
Airless Sprayer - 1/3 HP 600 1200
Reciprocating Saw 960 960
Electric Drill- 1/2 HP 1000 1000
Circular Saw - 7 1/4" 1500 1500
Miter Saw - 10" 1800 1800
Table Planer- 6" 1800 1800
TableSaw/Radial Arm Saw - 10" 2000 2000
Air Compressor - 1-1/2 HP 2500 2500
Wattageslisted are approximate only. Check tool
appliance for actual wattage.
or
14 BRIGGSandSTRATTON.COIVl

Maintenance
MaintenanceSchedule
Follow the hourly or calendar intervals,whichever occurs
first. More frequent service is required when operating in
adverseconditions noted below.
_: _ _iI illillillillillillillillill:ill:ill:ill:ill:ill:ill
•Changeengine oil
• Cleandebris
• Check engine oil level
_ _ _ Y_rJ_ :ii,i?i?i?i?i?i?i?i?i?i?i?i?i?i?i?i?i?i?i :
• Service engineair cleaner'
• Changeengine oil'
_ 11_ _ _ :>i?i?i?i?i?i?i?i?i?i?i?i?i?i?i?i?i?i?i?i
• Service spark plug
• Inspect mufflerand spark arrester
• Cleancooling system'
_ _ _ :>i?i?i?i?i?i?i?i?i?i?i?i?i?i?i?i?i?i?i?i
• Checkvalveclearance
' Service more often under dirty or dusty conditions.
General Recommendations
Regular maintenancewill improve the performance and
extend the life of the generator. Seeany authorized dealer for
service.
The generator's warranty does not cover items that have
been subjected to operator abuse or negligence.To receive
full value from the warranty, the operator must maintain the
generator as instructed in this manual.
Some adjustments will needto be made periodically to
properly maintain your generator.
All service and adjustments should be made at least once
each season.Follow the requirements in the Maintenance
Schedule chart above.
NOTE:Oncea year you should clean or replacethe spark
plug and replacethe air filter. A new spark plug and clean air
filter assure proper fuel-air mixture and help your engine run
better and last longer.
EmissionsControl
Maintenance, replacement, or repair of the emissions
controldevicesandsystemsmay be performedby any
non-roadengine repair establishmentor individual.
However,to obtain "no charge" emissions control service,
the work must be performed by a factory authorized dealer.
Seethe Emissions Warranty.
GeneratorMaintenance
Generator maintenanceconsists of keepingthe unit clean
and dry. Operateand store the unit in a clean dry
environment where it will not be exposedto excessive dust,
dirt, moisture, or any corrosive vapors. Cooling air slots in
the generator must not become clogged with snow, leaves,
or any other foreign material.
NOTE:DO NOTuse water or other liquids to clean generator.
Liquids can enter enginefuel system, causing poor
performance and/or failure to occur. In addition, if liquid
enters generator through cooling air slots, some of the liquid
will be retained in voids and cracks of the rotor and stator
winding insulation. Liquid and dirt buildup on the generator
internal windings will eventually decreasethe insulation
resistance of these windings.
Cleaning
Daily or before use, look around and underneath the
generator for signs of oil or fuel leaks. Cleanaccumulated
debris from inside and outside the generator. Keepthe
linkage, spring and other engine controls clean. Keepthe
areaaround and behind the muffler free from any
combustible debris. Inspect cooling air slots and openings
on generator. Theseopenings must be kept clean and
unobstructed.
Engine parts should be kept clean to reduce the risk of
overheating and ignition of accumulated debris:
• Use a damp cloth to wipe exterior surfaces clean.
NOTICE: Improper treatment of generator can damage it
and shorten its life.
• DONOT expose generator to excessive moisture, dust, dirt, or
corrosive vapors.
• DONOT insert any objects through cooling slots.
• Use a soft bristle brush to loosen cakedon dirt or oil.
• Use a vacuum cleaner to pick up loose dirt and debris.
15

EngineMaintenance
_k WARNING:Unintentional sparking can result in fire or
_¢ electric shock.
WHENADJUSTINGORMAKINGREPAIRSTOYOUR
GENERATOR
• Disconnectthe sparkplugwirefromthe sparkplugandplace
thewirewhereit cannotcontactsparkplug.
WHENTESTINGFORENGINESPARK
• Useapprovedsparkplugtester.
• DONOTcheckfor sparkwithsparkplugremoved.
Oil
Oil Recommendations
We recommend the use of Briggs & Stratton Warranty
Certified oils for best performance. Other high-quality
detergent oils are acceptableif classified for service SF, SG,
SH, SJ or higher. DONOTuse specialadditives.
Outdoor temperatures determine the proper oil viscosity for
the engine. Usethe chart to select the best viscosity for the
outdoor temperature rangeexpected.
oF
104 -- _ u
68 o
32 o
14
-4
-22 _
oC
• 40
__ 30
>_ 20
10
_n _ 0
--___--- -10
-20
-30
* Below 40°F (4°C) the use of SAE30 will result in hard starting.
** Above 80°F (27°C) the use of 10W30 may cause increased oil
consumption. Check oil level more frequently.
NOTE:Synthetic oil meeting ILSACGF-2,API
certification mark and API service symbol with
"SJ/CF ENERGYCONSERVING"or higher, is an
acceptable oil at all temperatures. Useof synthetic
oil does not alter required oil change intervals.
CheckingOil Level
Oil level should be checked prior to each use or at least
every 8 hours of operation. Keepoil level maintained.
1. Make sure generator is on a level surface.
2. Cleanareaaround oil fill and remove oil fill cap.
3. Verify oil is at the point of overflowing at oil fill
opening.
4. Replaceand tighten oil fill cap.
AddingEngineOil
1. Make sure generator is on a level surface.
2. Check oil level as described in CheckingOffLevel
3. If needed, slowly pour oil into oil fill opening to the
point of overflowing at oil fill.
4. Replaceand tighten oil fill cap.
ChangingEngineOil
If you are using your generator under extremely dirty or
dusty conditions, or in extremely hot weather, changethe oil
more often.
_i, CAUTION: Avoid prolonged or repeated skin contact
with used motor oil.
• Used motor oil has been shown to cause skin cancer in certain
laboratory animals.
• Thoroughly wash exposed areaswith soap and water.
KEEPOUTOFREACHOFCHILDREN.DON'T
POLLUTE.CONSERVERESOURCES.RETURN
USEDOIL TO COLLECTIONCENTERS.
Changethe oil while the engine is still warm from running,
as follows:
1. Make sure unit is on a level surface.
2. Disconnect the spark plug wire from the spark plug and
place the wire where it cannot contact spark plug.
3. Cleanareaaround oil drain plug (A). The oil drain plug
is locatedat base of engine, opposite carburetor.
16 BRIGGSandSTRATTON.COIVl

4. Removeoil drain plug and drain oil completely into a
suitable container.
5. Reinstall oil drain plug and tighten securely. Remove oil
fill cap.
6. Slowly pour oil (about 28 oz.) into oil fill opening (B) to
the point of overflowing (C) at oil fill cap. DO NOT
overfill.
7. Reinstall oil fill cap. Fingertighten cap securely.
8. Wipe up any spilled oil.
Service Air Cleaner
Your enginewill not run properly and may bedamaged if
you run it with a dirty air cleaner. Replacemore often if
operating under dirty or dusty conditions.
To service the air cleaner,follow these steps:
1. Loosen screws (D) and remove air cleaner cover (E).
2. Carefully removecartridge (F) from base (G).
3. Install clean (or new) air cleaner assembly inside cover.
Disposeof old filter properly.
4. Assemble air cleaner cover onto base and tighten
screws.
Service Spark Plug
Changing the spark plug will helpyour engine to start easier
and run better.
1. Cleanareaaround spark plug.
2. Remove and inspect spark plug.
3. Check electrodegap with wire feeler gaugeand reset
spark plug gap to recommended gap if necessary (see
Specifications).
4. Replacespark plug if electrodes are pitted, burned or
porcelain is cracked. Use the recommended
replacement spark plug. SeeSpecifications.
5. Install spark plug and tighten firmly.
InspectMuffler and Spark Arrester
Inspect the muffler for cracks, corrosion, or other damage.
Remove the spark arrester, if equipped, and inspect for
damage or carbon blockage. If replacement parts are
required, make sure to use only original equipment
replacement parts.
A. WARNING: Contact with muffler area can result in
serious burns.
_ _ Exhaust heat/gases can ignite
combustibles, structures or damage
fuel tank causing a fire.
• DO NOTtouch hot parts and AVOID hot exhaustgases.
• Allow equipment to cool before touching.
• Keep at least 5 feet (152 cm) of clearanceon all sides of
generator including overhead.
• It is a violation of California Public Resource Code,Section
4442, to use or operate the engine on any forest-covered,
brush-covered, or grass-covered land unlessthe exhaust
system is equipped with a spark arrester, as defined in Section
4442, maintained in effective working order. Other states or
federal jurisdictions may have similar laws.
Contact the original equipment manufacturer, retailer, or dealer
to obtain a spark arrester designed for the exhaust system
installed on this engine.
• Replacement parts must bethe same and installed in the same
position as the original parts.
17

Clean and inspectthe spark arresteras follows:
1. To remove muffler heat shield (A) from muffler (B),
removefour screws that connect guard to muffler
bracket.
2. Removefour screws that attach spark arrester screen
(c).
3. Inspect screenand obtain a replacementif torn,
perforated or otherwise damaged.DO NOTuse a
defective screen. If screen is not damaged,clean it with
commercial solvent.
4. Reattachscreen and muffler guard.
Clean CoolingSystem
Over time debris may accumulate in cylinder cooling fins and
cannot be observedwithout partial engine disassembly. For
this reason,we recommend you have an authorized service
dealer clean the cooling system (D) per recommended
intervals (see MaintenanceSchedule in the Maintenance
section). Equally important is to keep top of engine free from
debris. Also see Cleaning.
CheckValve Clearance
Regular valve clearancecheck and adjustment will improve
performance and extend engine life. This procedure cannot
be done without partial engine disassembly and the use of
special tools. For this reasonwe recommend that you have
an authorized Service Dealercheck and adjust valve
clearanceat recommended intervals (see Maintenance
Schedule in the Maintenancesection).
CarburetorAdjustment
The carburetor on this engine is low emission. It is equipped
with a non-adjustable idle mixture valve. Top speed has been
set at the factory. If adjustment is required, see an
authorized service dealer.
_k CAUTION: Excessively high operating speeds increase
risk of injury and damage to generator.
Excessively low speeds impose a heavy load.
•DO NOTtamper with governed speed. Generatorsupplies
correct rated frequency and voltage when running at governed
speed.
• DO NOTmodify generator in any way.
18 BRIGGSandSTRATTON.COIVI

Storage
The generator should be started at least once every seven
days and allowed to run at least 30 minutes. If this cannot be
done and you must store the unit for more than 30 days, use
the following guidelines to prepareit for storage.
GeneratorStorage
•Cleanthe generator as outlined in Cleaning.
• Check that cooling air slots and openings on generator
are open and unobstructed.
LongTerm StorageInstructions
Fuel can becomestale when stored over 30 days. Stale fuel
causes acid and gum deposits to form in the fuel system or
on essential carburetor parts. To keep fuel fresh, use Briggs
& Stratton FRESHSTART® fuel stabilizer, available as a
liquid additive or a drip concentrate cartridge.
There is no needto drain gasoline from the engine if a fuel
stabilizer is added according to instructions. Run the engine
for 2 minutes to circulate the stabilizer throughout the fuel
system. The engineand fuel can then be stored up to
24 months.
If gasoline in the engine has not beentreated with a fuel
stabilizer, it must be drained into an approved container. Run
the engine until it stops from lack of fuel. The use of a fuel
stabilizer in the storage container is recommended to
maintain freshness.
_k WARNING:Fueland its vapors are extremely
flammable and explosive.
Fire or explosion can causesevere
burns or death.
WHENSTORINGFUELOREQUIPMENTWITHFUELINTANK
•Store away from furnaces, stoves, water heaters,clothes dryers
or other appliances that have pilot light or other ignition source
becausethey can ignitefuel vapors.
WHEN DRAININGFUEL
• Turn generator OFFand let it cool at least 2 minutes before
removing fuel cap. Loosen cap slowly to relieve pressure in
tank.
• Drain fuel tank outdoors.
• Keepfuel away from sparks, open flames, pilot lights, heat, and
other ignition sources.
• DO NOT light a cigarette or smoke.
ChangeEngineOil
While engine is still warm, drain oil from crankcase. Refill
with recommended grade. See Changing EngineOil.
OtherStorageTips:
1. DO NOTstore fuel from one seasonto another unless it
has beentreated as described in Long TermStorage
Instructions.
2. Replacefuel container if it starts to rust. Rust and/or
dirt in fuel can causeproblems if it's used with this
unit.
3. Cover unit with a suitable protective cover that does not
retain moisture.
_k WARNING:Storage covers can be flammable.
• DONOTplacea storagecoverovera hotgenerator.
• Letequipmentcoolfor a sufficienttime beforeplacingthecover
onthe equipment.
4. Store generator in clean, dry area.
19

Reserved
20 BRIGGSandSTRATTON.COIVI

Troubleshooting
Problem Cause
1. Oneof the circuit breakers is open.
2. Fault in generator.
3. Poor connection or defective cord set.
4. Connected deviceis bad.
,
2.
3.
4.
1.
2.
3.
4. Dirty air cleaner.
5. Out of fuel.
6. Stale fuel.
Engineis running,butnoAC
outputis available.
Enginerunswell at no-load but
"bogs down"when loads are
connected.
Enginewill notstart; or starts
and runs rough. ,
Short circuit in a connected load. 1.
Engine speed is too slow. 2.
Generator is overloaded. 3.
Shorted generator circuit. 4.
Engine switch set to "Off". 1.
Fuel valve is in "Off" position. 2.
Low oil level. 3.
4.
5.
6.
7.
Spark plug wire not connectedto spark
plug.
Correction
1. Resetcircuit breaker.
2. Contactauthorized service facility.
3. Checkand repair.
4. Connectanother device that is in good
condition.
Disconnect shorted electrical load.
Contactauthorized service facility.
SeeDon't OverloadGenerator.
Contactauthorized service facility.
Set switch to "On".
Turn fuel valveto "Open"position.
Fill crankcaseto proper level or place
generator on level surface.
Cleanor replaceair cleaner.
Fill fuel tank.
Drain fuel tank and carburetor; fill with
fresh fuel.
Connectwire to spark plug.
8. Badspark plug.
9. Water in fuel.
10. Flooded.
8. Replacespark plug.
9. Drain fuel tank and carburetor; fill with
fresh fuel.
10. Wait 5 minutes and re-crank engine.
Engineshutsdownwhen
running.
11.
12.
13.
1.
2.
Excessivelyrich fuel mixture. 11.
Intake valve stuck open or closed. 12.
Engine has lost compression. 13.
Out of fuel. 1.
Low oil level. 2.
Contactauthorized service facility.
Contactauthorized service facility.
Contactauthorized service facility.
Fill fuel tank.
Fill crankcaseto proper level or place
generator on level surface.
1. Load is too high. 1. SeeDon't OverloadGenerator.
Enginelacks power. 2. Dirty air filter. 2. Replaceair filter.
Engine"hunts" or falters. Carburetoris runningtoo rich or too lean. Contactauthorized service facility.
21

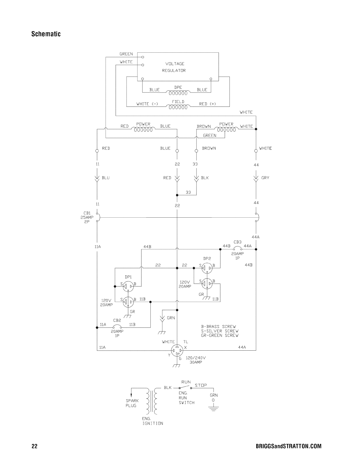
Schematic
GREEl o
WHITE o
BLUE
VOLTAGE
REGULATOR
BLUE I
FIELD
WHITE (-) RE]} (+)
WHITE
CSI
8SAHP
2P
11
_V/BLU
11
llA 44B
120V S q
20AHP
CB2
20AHP
£P
POWER
RED _ BLUE
BLUE
BROWN POWER WHITE
22 33 44
RED _ BLK t
22 44
44A
IIA
lIB
22
WHITE
S
/7
CB3
44B _ 44_A
DP2
:22 . S_ 44B
120V S_
20AHP
S-BRASS SCREW
S-SILVER SCREW
GR-GREEN SCREW
TL
X 44A
120/240V
30AHP
WHITE
GRY
__
SPARK
PLUG
RUN
BLK _® STOP E
ENG, GRN
RUN 0
SWITCH ®
ENG,
IGNITION
22 BRIGGSandSTRATTON.COIVl

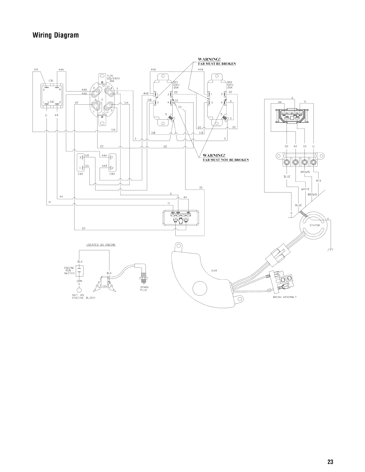
Wiring Diagram
TIRI
44A ........
<2.................................A
WARNING!
TAB MUST BE BROKEN
44B 44_
....... _? ":? ....
5"33
.............................................................................................._I_._.o:,
33
BLK
ENGINE
RUN
S%£ITCH
0
NUT ON
ENGINE BLOCK
\\
\ AVR
\\
\\\\\\\\\\\\
\\ \.
23

Warranties
California, U.S. EPA, and Briggs & Stratton
Corporation Emissions Control Warranty
Statement
Your WarrantyRightsAnd Obligations
The California Air ResourcesBoard, U.S. EPA,and Briggs &
Stratton (B&S) are pleasedto explain the emissions control
system warranty on your Model Year2008 and later
engine/equipment. In California, new small off-road engines
must be designed, built, and equipped to meet the State's
stringent anti-smog standards. B&S must warrant the
emissions control system on your engine/equipment for the
periods of time listed below provided there has been no
abuse, neglect, or improper maintenance of your small off-
road engine.
Your emissions control system may include parts such as
the carburetor or fuel injection system, fuel tank, ignition
system, and catalytic converter. Also included may be hoses,
belts, connectors, sensors, and other emissions-related
assemblies. Where a warrantable condition exists, B&S will
repairyour engine/equipment at no cost to you including
diagnosis, parts, and labor.
Manufacturer's WarrantyCoverage:
Small off-road engines are warranted for two years. If any
emissions-related part on your engine/equipment is
defective, the part will be repaired or replaced by B&S.
Owner'sWarrantyResponsibilities:
•As the small engine/equipment owner, you are
responsiblefor the performance of the required
maintenance listed in your owner's manual. B&S
recommendsthat you retain all receipts covering
maintenance on your engine/equipment, but B&S
cannot deny warranty solely for the lack of receipts or
your failure to ensure the performance of all scheduled
maintenance.
• As the engine/equipment owner, you should however
be aware that B&S may deny you warranty coverageif
your engine/equipment or a part has failed due to
abuse, neglect, improper maintenance,or unapproved
modifications.
• You are responsiblefor presentingyour
engine/equipment to a B&S distribution center,
servicing dealer, or other equivalent entity, as
applicable, as soon as a problem exists. The warranty
repairs should be completed in a reasonableamount of
time, not to exceed30 days. If you haveany questions
regardingyour warranty rights and responsibilities, you
should contact B&Sat (414) 259-5262.
Briggs& StrattonEmissionsControlWarranty Provisions
The following are specific provisions relativeto your
Emissions Control Warranty Coverage.It is in addition to the
B&S enginewarranty for non-regulated engines found in the
Operator's Manual.
1. Warranted Emissions Parts
Coverageunder this warranty extends only to the parts
listed below (the emissions control systems parts) to
the extent these parts were present on the engine
purchased.
a. Fuel Metering System
• Cold start enrichment system (soft choke)
• Carburetor and internal parts
• Fuel pump
• Fuel line, fuel line fittings, clamps
• Fueltank, cap and tether
• Carbon canister
b. Air Induction System
• Air cleaner
• Intake manifold
• Purge and vent line
c. Ignition System
• Spark plug(s)
• Magneto ignition system
d. Catalyst System
• Catalytic converter
• Exhaust manifold
,
• Air injection system or pulse valve
e. Miscellaneous Items Used in Above Systems
• Vacuum, temperature, position, time sensitive
valves and switches
• Connectors and assemblies
Length of Coverage
For a period of two years from date of original
purchase, B&Swarrants to the original purchaserand
each subsequent purchaserthat the engine is designed,
built, and equippedso as to conform with all applicable
regulations adopted by the Air Resources Board; that it
is free from defects in material and workmanship that
could cause the failure of a warranted part; and that it
is identical in all material respects to the engine
described in the manufacturer's application for
certification. The warranty period begins on the date the
engine is originally purchased.
24 BRIGGSandSTRATTON.COM

The warranty on emissions-related parts is as follows:
• Any warranted part that is not scheduledfor
replacementas required maintenancein the owner's
manual supplied, is warranted for the warranty period
stated above. If any such part fails during the period of
warranty coverage, the part will be repairedor replaced
by B&S at no charge to the owner. Any such part
repairedor replacedunder the warranty will be
warranted for the remaining warranty period.
• Any warranted part that is scheduled only for regular
inspection in the owner's manual supplied, is warranted
for the warranty period stated above. Any such part
repairedor replacedunder warranty will be warranted
for the remaining warranty period.
• Any warranted part that is scheduledfor replacementas
requiredmaintenancein the owner's manualsupplied, is
warrantedfor the period of time prior to the first
scheduledreplacementpoint for that part. If the part fails
prior to the first scheduledreplacement,the part will be
repairedor replacedby B&Sat no charge to the owner.
Any such part repairedor replacedunder warranty will
be warrantedfor the remainderof the period prior to the
first scheduledreplacementpoint for the part.
• Add on or modified parts that are not exempted by the
Air ResourcesBoard may not be used.The use of any
non exempted add on or modified parts by the owner
will be grounds for disallowing a warranty claim. The
manufacturer will not be liable to warrant failures of
warranted parts caused by the use of a non exempted
add on or modified part.
3. ConsequentialCoverage
Coverageshall extendto the failure of any engine
components causedby the failure of any warranted
emissions parts.
4. Claims and CoverageExclusions
Warranty claims shall be filed according to the
provisions of the B&S enginewarranty policy. Warranty
coverage does not apply to failures of emissions parts
that are not original equipment B&S parts or to parts
that fail due to abuse, neglect, or improper maintenance
as set forth in the B&S engine warranty policy. B&S is
not liable for warranty coverageof failures of emissions
parts caused by the use of add-on or modified parts.
Look For RelevantEmissionsDurabilityPeriod andAir
Index InformationOnYour EngineEmissionsLabel
Enginesthat are certified to meetthe California Air
Resources Board (CARB)Emissions Standard must display
information regardingthe Emissions Durability Periodand
the Air Index. Briggs & Stratton makes this information
availableto the consumer on our emissions labels.The
engine emissions labelwill indicate certification information.
The EmissionsDurability Period describes the number of
hours of actual running time for which the engine is certified
to be emissions compliant, assuming proper maintenancein
accordancewith the Operating & Maintenance Instructions.
The following categories are used:
Moderate:
Engine is certified to be emissions compliant for 125 hours
of actual engine running time.
Intermediate:
Engine is certified to be emissions compliant for 250 hours
of actual engine running time.
Extended:
Engine is certified to be emissions compliant for 500 hours
of actual engine running time.
For example, a typical walk-behind lawn mower is used 20 to
25 hours peryear. Therefore, the EmissionsDurability
Periodof an engine with an intermediate rating would
equate to 10 to 12 years. Briggs & Stratton engines are
certified to meet the United States Environmental Protection
Agency (USEPA)Phase2 emissions standards. For Phase2
certified engines, the Emissions Compliance Period referred
to on the EmissionsCompliance label indicates the number
of operating hours for which the engine has beenshown to
meet Federalemissions requirements.
For engines less than 225 cc displacement.
Category C = 125 hours
Category B = 250 hours
Category A = 500 hours
For engines of 225 cc or more displacement.
Category C = 250 hours
Category B = 500 hours
Category A = 1000 hours
25

Effective February 1, 2006 replacesall undated Warranties and all Warranties dated before February 1, 2006
LIMITED WARRANTY
Briggs & Stratton Power Products Group, LLC will repair or replace, free of charge, any part(s) of the portable generator that is defective in material or
workmanship or both. Transportation charges on product submitted for repair or replacement under this warranty must be borne by purchaser. This
warranty is effective for the time periods and subject to the conditions stated below. For warranty service, find the nearest Authorized Service Dealer in
our dealer Iocator map at BRIGGSandSTRATTON.COM.
THEREIS NO OTHEREXPRESSWARRANTY. IMPLIED WARRANTIES,INCLUDINGTHOSE OFMERCHANTABILITYAND FITNESSFORA PARTICULAR
PURPOSE,ARE LIMITED TO ONEYEAR FROM PURCHASE,ORTO THE EXTENTPERMITTEDBY LAW. ANY AND ALL IMPLIED WARRANTIESARE
EXCLUDED.LIABILITY FOR INCIDENTALOR CONSEQUENTIALDAMAGESARE EXCLUDEDTO THE EXTENTEXCLUSIONIS PERMITTEDBY LAW. Some
states or countries do not allow limitations on how long an implied warranty lasts, and some states or countries do not allow the exclusion or limitation
of incidental or consequential damages, so the above limitation and exclusion may not apply to you. This warranty gives you specific legal rights and
you may also have other rights which vary from state to state or country to country.
Commercial Use 1 year
*Secondyearpartsonly
The warranty period begins on the date of purchase by the first retail end user, and continues for the period of time stated above. "Consumer Use"means
personal residential household use by a retail consumer. "Commercial Use"means all other uses, including use for commercial, income producing or rental
purposes. Once equipment has experiencedcommercial use, it shall thereafter be considered as commercial use for purposes of this warranty.
NO WARRANTY REGISTRATIONIS NECESSARYTO OBTAINWARRANTY ON BRIGGS& STRATTONPRODUCTS.SAVEYOUR PROOFOF PURCHASE
RECEIPT.IFYOU DO NOT PROVIDEPROOFOFTHE INITIAL PURCHASEDATEAT THE TIME WARRANTY SERVICEIS REQUESTED,THE MANUFACTURING
DATE OFTHE PRODUCTWILL BE USEDTO DETERMINETHEWARRANTY PERIOD.
We welcome warranty repair and apologize to you for being inconvenienced. Any Authorized Service Dealer may perform warranty repairs. Most warranty
repairs are handled routinely, but sometimes requests for warranty service may not be appropriate. For example, warranty service would not apply if
equipment damage occurred because of misuse, lack of routine maintenance, shipping, handling, warehousing or improper installation. Similarly, the
warranty is void if the manufacturing date or the serial number on the portable generator has been removed or the equipment has been altered or modified.
During the warranty period, the Authorized Service Dealer, at its option, will repair or replace any part that, upon examination, is found to bedefective under
normal use and service. This warranty will not cover the following repairs and equipment:
Normal Wear: Outdoor Power Equipment, like all mechanical devices, needs periodic parts and service to perform well. This warranty does not cover
repair when normal use has exhausted the life of a part or the equipment.
Installation and Maintenance: This warranty does not apply to equipment or parts that have been subjected to improper or unauthorized installation or
alteration and modification, misuse, negligence, accident, overloading, overspeeding, improper maintenance, repair or storage so as, in our judgment,
to adversely affect its performance and reliability. This warranty also does not cover normal maintenance such as air filters, adjustments, fuel system
cleaning and obstruction (due to chemical, dirt, carbon, lime, and so forth).
Other Exclusions: This warranty excludes wear items such as o-rings, filters, etc., or malfunctions resulting from accidents, abuse, modifications,
alterations, or improper servicing or freezing or chemical deterioration. Accessory parts such as starting batteries, generator adapter cord sets and
storage covers are excluded from the product warranty. This warranty excludes used, reconditioned, and demonstration equipment, equipment used
for prime power in place of utility power, equipment used in life support applications, and failures due to acts of God and other force majeure events
beyond the manufacturers control. 198189E,Rev.B,12/31/2006
BRIGGS & STRATTON POWER PRODUCTS GROUP, LLC
JEFFERSON, Wl, USA
26 BRIGGSandSTRATTON.COM

Reserved
27

®
Portable Generator
ProductSpecifications
For Model 030439(A)
Starting Wattage ........................ 6,250 watts
Wattage ............................. 5,000 watts*
AC LoadCurrent:
at 120 Volts ........................... 41.6 Amps
at 240 Volts ........................... 20.8 Amps
Phase ............................... Single phase
RatedFrequency .......................... 60 Hertz
Displacement...................... 18.61 ci (305 cc)
Spark Plug Gap .................. 0.030 in (0.76 mm)
Fuel Capacity ................. 5 U.S. gallons (18.9 L)
Oil Capacity .................. 28 Ounces(0.83 Liters)
For Model 030440(A)
Starting Wattage ........................ 8,250 watts
Wattage ............................. 5,500 watts*
AC Load Current:
at 120 Volts ........................... 45.8 Amps
at 240 Volts ........................... 22.9 Amps
Phase ............................... Single phase
Rated Frequency .......................... 60 Hertz
Displacement ...................... 18.61 ci (305 cc)
Spark Plug Gap .................. 0.030 in (0.76 mm)
Fuel Capacity ................. 5 U.S. gallons (18.9 L)
Oil Capacity .................. 28 Ounces(0.83 Liters)
CommonServiceParts
Air Cleaner ......................... 491588 or 5043
Resistor Spark Plug ......................... 491055
EMS Spark Plug ........................... 691043
Engine Oil Bottle ........................... 100028
Fuel Stabilizer ....................... 100002 or 5041
Spark Arrester ............................ 83083GS
PowerRatings:The gross power rating for individual gas engine models is labeledin accordance with SAE(Society of
Automotive Engineers)code J1940 (Small EnginePower & Torque Rating Procedure),and rating performance has been
obtained and corrected in accordance with SAEJ1995 (Revision 2002-05). Torque valuesare derived at 3060 RPM; horsepower
valuesare derived at 3600 RPM. Actual gross enginepower will be lower and is affected by, among other things, ambient
operating conditions and engine-to-enginevariability. Givenboth the wide array of products on which engines are placed and
the variety of environmentalissues applicableto operating the equipment, the gas enginewill not develop the ratedgross power
when used in a given pieceof power equipment (actual "on-site"or net power). This difference is dueto a variety of factors
including, but not limited to, accessories (air cleaner,exhaust, charging, cooling, carburetor, fuel pump, etc.), application
limitations, ambient operating conditions (temperature,humidity, altitude), and engine-to-enginevariability. Due to
manufacturing and capacity limitations, Briggs & Stratton may substitute an engineof higher rated power for this Series engine.
* This generator is ratedto be compliant with CSA (CanadianStandardsAssociation) standard C22.2 No. 100-04 (motors and
generators).
Briggs& Stratton PowerProducts Group,LLC
900 N. Parkway
Jefferson, Wisconsin,53549 U.S.A.
28 (800) 743-4115 BRIGGSandSTRATTON.COIVl

Generadorport_til
Manual del Operario
Estegenerador est_ clasificado conforme a la norma C22.2 No. 100-04
(motores y generadores) de la CSA (CanadianStandards Association
[Asociaci6n canadiense de normalizaci6n]).
BRIGGS & STRATTON POWER PRODUCTS GROUP, LLC
JEFFERSON, WISCONSIN, U.S.A.

Muchas gracias por comprar este generador Briggs & Stratton de gran calidad. Nos alegra que haya depositado su confianza
en la marca Briggs & Stratton. Siempre que sea utilizado de acuerdo con las instrucciones de este manual, su generador
Briggs & Stratton le proporcionar_,muchos aSos de buen funcionamiento.
Este manual contieneinformaci6n sobre seguridad para hacerleconsciente de los riesgos asociados a los generadoresy
mostrarle c6mo evitarlos. Este generadorse ha diseSadoexclusivamente parasuministrar energia el6ctrica a cargas
compatibles de iluminaci6n, electrodom6sticos, herramientas y motores. No debe utilizarse para ningOnotro fin. Es
importante leer detenidamentey comprender estas instrucciones antes de poner en marchao utilizar el equipo. Conserveeste
manual parafuturas consultas.
Este generador requiere montajefinal antes de ser usado. Consulte la secci6n Montaje de este manual, donde encontrar_.
instrucciones para el montaje final. Siga las instrucciones al pie de la letra.
D6ndeencontrarnos
Usted no tendr_,que ir muy lejos para encontrar el servicio t6cnico de Briggs & Stratton para su generador. Consulte las
P_.ginasAmarillas. Hay m_.sde 30.000 proveedoresde Briggs & Stratton autorizados en todo el mundo, proporcionando un
servicio de calidad.Tambi6n puede ponerse en contacto con Atenci6n al Clientede Briggs & Stratton Ilamando al
(800) 743-4115 o por Internet en BRIGGSandSTRATTON.COM.
Generador
N0mero de Modelo
Revisi6n
N0mero de Serie
III
Motor
N0mero de Modelo
N0mero de Tipo
N0mero de C6digo
III
Fechade compra IIIIIIIII
Briggs & Stratton Power Products Group, LLC.
900 North Parkway
Jefferson, WI 53549
Copyright © 2009 Briggs & Stratton Power Products Group,
LLC. Reservadostodos los derechos. Quedaprohibida la
reproducci6n o transmisi6n total o parcial de este material,
sea cual sea la forma y el medio empleados para ello, sin el
permiso previo y por escrito de Briggs & Stratton Power
Products Group, LLC.
2 BRIGGSandSTRATTON.COM

Tablade Contenido
Seguridad de operario ............................ 4
Descripci6ndel equipo ........................................ 4
Informaci6n importante de seguridad ............................. 4
Montaje ...................................... 7
Desembalajedel generador ..................................... 7
Instale el juego de ruedas ...................................... 7
Comprobar el nivel de aceitedel motor ............................ 8
Agregue combustible.......................................... 8
Tierra del sistema ............................................ 9
Conexi6nal sistema el6ctrico de un edificio ........................ 9
Ubicaci6n del generador ....................................... 9
Controlesy caracteristicas......................... 10
Juegos de cordones y enchufes conectores ....................... 11
Operando .................................... 12
Enciendael motor ........................................... 12
Conexi6n de cargas el6ctricas.................................. 13
Paradadel motor ............................................ 13
Fonctionnement par temps chaud ............................... 13
No sobrecargar el generador................................... 14
Mantenimiento................................. 15
Plande mantenimiento ....................................... 15
Mantenimiento del generador .................................. 15
Mantenimiento del motor...................................... 16
Almacenamiento ............................................ 19
Resoluci6n de problemas ......................... 20
Garantias .................................... 21
Garantiadel sistema de control de emisiones ...................... 21
Garantia para el propietario de una generador...................... 23
Especificaciones ................................ 24
Especificacionesdel producto .................................. 24
Servicio comOndespide....................................... 24
EspafioJ

Seguridaddeoperario
Descripci6ndel equipo
Lea atentamenteeste manual y familiaricese con
el generador. Conozcasus aplicaciones,
limitacionesy riesgos.
Este generadorfunciona en base a un motor de campo
el6ctrico giratorio y de corriente alterna (CA). Fuedise_ado
con la finalidad de proveer energiael6ctrica para IAmparas
el6ctricas, aparatos, herramientas y cargas de motor
compatibles. Elcampo giratorio del generador se muevea
unas 3.600 rpm con un motor de un uno cilindro.
AVISO:Elsobrepasar la capacidaddel amperajey vataje del
generador, puededa_ar al generadory los aparatos
el6ctricos conectadosal mismo.
• VeaNosobrecarguegenerador.
Se ha realizadoel mg.ximoesfuerzo para reunir en este
documento la informaci6n mAsprecisay actualizada.No
obstante, nos reservamosel derecho de modificar, alterar o
mejorar de cualquier otra forma el generador en cualquier
momento y sin previo aviso.
ElSistemadeControlde Emisionesparaestegeneradorest,.
garantizadoparajuegosest_.ndarespor laAgenciade ProtecciOn
Ambientaly elConsejoderecursosdeairede California.
Informaci6nimportantede seguridad
El fabricante no puedeanticipar todas las posibles
circunstancias que podrian conllevar peligro. Por Io tanto, las
advertenciasde este manual,asi como las etiquetas y placas
de la unidad, no incluyen todo. Si usa un procedimiento,
m6todo de trabajo o t6cnica operativa que no est6
especificamente recomendadapor el fabricante, debe
asegurarsede que no entra_a peligro para usted ni para
otras personas. Tambi6n debeasegurarsede que el
procedimiento, m6todo de trabajo o t6cnica operativa elegida
no hace que el generador deje de ser seguro.
Simbolos sobre la seguridady significados
GasesT6xicos Contragolpe
Fuego
DescargaEI6ctrica
Explosi6n Manual del Operario
Partesen Movimiento ObjetosVoladores Superficie Caliente
_i, El simbolo de alerta de seguridad indica un posible
riesgo para su integridad fisica. Se utiliza una palabrade
se_alizaci6n (PELIGRO,ADVERTENCIAo PRECAUCION)
junto con el simbolo de alerta paradesignar un grado o
nivel de gravedad de riesgo. Se puedeutilizar un simbolo de
seguridad para representarel tipo de riesgo. La palabrade
se_alizaci6nAVISO se utiliza para hacer referenciaa una
pr_.cticano relacionadacon una lesi6n fisica.
_i, PELIGROindica un riesgo que, de no evitarse, provocar#
la muerte o lesiones de gravedad.
_i, ADVERTENCIAindica un riesgo que, de no evitarse,
podria provocar la muerte o lesiones de gravedad.
_i, PFIECAIJClONindica un riesgo que, de no evitarse,
podrfa provocar lesiones leveso moderadas.
AI//$O hace referenciaa una pr_.cticano relacionadacon una
lesi6n fisica.
4 BRIGGSandSTRATTON.COIVI

El uso de un generador en un espacio interior PUEDE
PROVOCAR LA MUERTE EN POCOS MINUTOS.
Los gases de escape del generador contienen
monb×ido de carbono, un veneno invisible einodoro,
NUNCA utilice un generador
en el interior de una casa o
un garaje, AUNQUE haya
ventanas y puertas abiertas,
Lltilicelo solo en el
EXTERIOR, alejado de
ventanas, puertas y
aberturas de ventilaciOn,
_i, ADVERTENClA:AI motor funcionar, se produce
monOxidode carbono, un gas inodoro y
venenoso.
Respirar monOxidode carbono puede provocar
dolor de cabeza,fatiga, mareos, vOmitos, confusion,
ataques, n_.useas,desmayos o incluso la muerte.
• Opereel generadorSOLAMENTEal airelibre.
• InstaleunaalarmademonOxidodecarbonocon bateriacerca
delos dormitorios.
• Asegt_resede que los gases de escapeno puedan entrar por
ventanas, puertas, tomas de aire de ventilaciOn u otras
aberturas en un espacio cerrado en el que puedanacumularse.
• NOarranque ni dejefuncionar el motor en interiores ni en
zonas cerradas, (aunque hayaventanas y puertas abiertas),
incluyendo el compartimiento delgenerador en un vehiculo
recreativo o RV.
_i, ADVERTENClA:El escapedel motor de este producto
contiene elementos quimicos reconocidos en el Estadode
California por producir c_.ncer,defectos de nacimiento u
otros da_os de tipo reproductivo.
_i, ADVERTENClA:Determinadoscomponentes en este
producto y los accesorios relacionados contienen
sustancias quimicas declaradascancerigenas,causantes
de malformaciones y otros defectos congOnitospor el
Estado de California. L_.veselas manos despuOsde
manipular estos elementos.
_i, ADVERTENClA: El retroceso (repliegue r_.pido) del cable
del arrancador puedeproducir lesiones. El
_._ retroceso impedir_, que el usuario suelte el cable a
tiempo y tirar_, de su mano y brazo hacia el
motor.
Como resultado, podrian producirse fracturas,
contusiones o esguinces.
• Cuandoarranque el motor, tire lentamente del cablehasta
sentir una resistenciay, a continuaciOn,tire r_pidamente de61
para evitar su retroceso.
• NUNCAarranqueo pareel motor cuando haya aparatos
el_ctricos conectadosyen funcionamiento.
_i, ADVERTENClA:La gasolina y sus vapores son
extremadamente inflamables y
_ explosivos.
Elfuego ouna explosion puedencausar
quemadurasseveras e inclusive la muerte.
CUANDOANADACOMBUSTIBLE0 VACIEELDEPOSITO
• Apague el generador (posiciOn OFF)y dOjeloenfriar al menos
por 2 minutos antes de remover la tapa de la combustible.
Afloje la tapa lentamente paradejar que la presiOnsalga del
tanque.
• Llene o vacie el depOsitode combustible a la intemperie.
• NO Ilenedemasiado eltanque. Permita al menos espacio para
la expansion del combustible.
• Si se ha derramado combustible, espere a que se evaporeantes
de arrancarel motor.
• Mantenga la combustible alejadade chispas, llamasabiertas,
pilotos, calory otras fuentes de igniciOn.
• NOencienda un cigarrillo o fume.
CUANDOPONGAENFUNCIONAIVIIENTOELEQUIPO
• Compruebe que la bujia, el silenciador, el tapOndel depOsitode
combustible y el filtro deaire est_n instalados.
• NOarranque el motor sin la bujia instalada.
CUAND00PERE ELEQUIP0
• NO incline el motor o el equipo, detal maneraque la
combustible se puedaderramar.
• Estegenerador no es apto parael uso en equipos mCvilesni en
aplicacionesmarinas.
CUANDOTRANSPORTE0 REPAREELEQUIPO
• Transporte o repareel equipo con eltanque de combustible
vacio, o con la v_lvula paraapagar el combustible, apagada
(posiciOnOFF).
• Desconecteel cable de la bujia.
CUANDOALMACENE0GUARDEELEQUIPOCONCOMBUSTIBLE
ENELTANQUE
• Almacenealejado de calderas, estufas, calentadores deagua,
secadorasde ropa u otros aparatos electrodom_sticos que
posean pilotos u otras fuentes de igniciOn,porque ellos pueden
encender los vapores de la combustible.
A, ADVERTENCIA:
• Estegenerador no cumple la norma 33CFR-183del cuerpo de
guardacostasde EE.UU.y no debe utilizarse en aplicaciones
marinas.
• El uso de un generador no homologado por cuerpo de
guardacostas de EE.UU.puede provocar lesiones y da_os
materiales.
_i, ADVERTENCIA: El arrancador y otras piezas que rotan
pueden enredar las manos, el pelo, la ropa, o
los accesorios.
• NUNCAutilice la limpiadora a presiOnsin sus carcasaso tapas
de protecciOn.
• NO use ropa suelta, joyas o elementos que puedan quedar
atrapados en el arranque o en otras partes rotatorias.
• Ate paraarriba el pelo largo y quite la joyeria.
Espafiol

_i, ADVERTENCIA: El contacto con la zona del silenciador
puede producir quemaduras graves.
_A_,. _ Los gases y el calor de escape pueden
inflamar los materiales combustibles y
las estructuras o daSar el dep6sito de combustible y
provocar un incendio.
• NOtoque las superficies calientes y EVITElos gasesdel escape
a alta temperatura.
• Permita que el equipo se enfrie antes detocarlo.
• Deje un espacio minimo de 1.5 m (5 pies) alrededor del
generador, incluida la parte superior.
• Utilizar el motor en un terreno boscoso,con malezao cubierto de
hierba constituyeuna infracci6n al C6digo de recursos p0blicos
de California,a menosque el sistema de escapeest_ equipado
con una pantallaapagachispas,de acuerdoa la definici6n dela
Secci6n4442, quese mantengaenbuenascondicionesde
funcionamiento. Enotros estadoso jurisdicciones federales
puedehaber leyes similares en vigor.
P6ngaseen contactocon el fabricante,el vendedor o el
distribuidor del equipo original paraobteneruna pantalla
apagachispasdiseSadaparael sistema de escapeinstaladoen
este motor.
• Las piezasde recambio deben ser las mismas que las piezas
originales y estar instaladasen la misma posici6n.
_i, ADVERTENCIA:Los generadores producen un voltaje
_¢ muypoderoso.Si no aisla el generadorde utilidades de energia,
puedehacer que los trabajadores de electricidad
sufran heridas gravese inclusive la muerte, debido a la
retroalimentaci6n de la energia el6ctrica.
• Cuandouseungeneradorcomopoderdeenergiaauxiliar,
notifiquea lacompa_iadeutilidades.Useelequipode
transferenciaaprobadoparaaislarel generadordeotra utilidad
el_ctrica.
Use un interruptor para la falla del circuito de tierra (GFCI)en
cualquier _reabastante h0meda o que sea altamente
conductiva, tales como terrazas de metal o trabajo hecho con
acero.
• NOtoque los alambres pelados o recept_culos.
• NO use un generadorcon cables el_ctricosque est_n
malgastados, rotos, pelados o da_ados decualquier forma.
• NO opere el generador bajo la Iluvia.
• NO manejeel generador o cables el_ctricos mientras est_
parado en agua, descalzo o cuando las manos y los pies est_n
mojados.
• NO permita que personasdescalificadaso ni_os operen o
sirvan al generador.
_i, PRECAUCION:Las velocidades de operaci6n en
exceso,aumentan los riesgos de heridas y da_os al
generador.
Las velocidades bajanen exceso, imponen una carga muy
pesada.
• NOcambieningunavelocidaddeterminada.Elgenerador
suministraunafrecuenciay unvoltajecalificadocuando
funcionaa unavelocidaddeterminada.
• NOmodifiqueal generadorenningunaforma.
AI//SO: El sobrepasar la capacidad del amperaje y vataje del
generador, puede da_ar al generador y los aparatos
el6ctricos conectados al mismo.
• Vea No sobrecarguegenerador.
• Enciendasu generador y deje que el motor se estabilice antes de
conectar las cargasel_ctricas.
• Conecte las cargasel_ctricas en la posici6n de apagado(OFF),
luego encienda(ON) parasu operaci6n.
• Apague (OFF)las cargasel_ctricas y descon_ctelasdel generador
antes de parar el generador.
AVISO:.El tratamiento inadecuadodel generador puede
da_arlo y acortar su vida productiva.
• Useelgeneradorsolamenteconlafinalidadparaelcualfue
disefiado.
• En caso de dudas sobre su uso, dirijase al distribuidor.
• Opereel generador solamente en superficies niveladas.
• NOexponga al generadora una humedadexcesiva, polvo,
suciedad o vapores corrosivos.
• NOinserte cualquier objeto a trav6s de las ranuras de
enfriamiento.
• Si los aparatos conectados se sobre calientan,ap_guelos y
descon_ctelosdel generador.
• Apague el generador si:
-Se pierde la salidael_ctrica;
-El equipo produce chispas, humo o emite llamas;
-La unidad vibra de una maneraexcesiva.
_i, ADVERTENCIA: Chispear involuntario puede tener
"_ ll=, como resultado el fuego o el golpe
el6ctrico.
CUANDOAJUSTE0 HAGAREPARACIONESA SU MAQUINA
GENERADOR
• Siempre desconecte el alambre de la bujia y col6quelo donde
no puedaentrar en contacto con la bujia.
CUANDOPRUEBELA BUJiADELMOTOR
• Utilice un comprobador de bujias homologado.
• NOcomprueba la chispa sin la bujia instalada.
6 BRIGGSandSTRATTON.COM

Montaje
Su generador requierede ciertos procedimientos de montaje
y solo estar_,listo para ser utilizado despu6s de haberle
suministrado servicio con el combustible y aceite
recomendados.
Si usted tiene problemas con el montaje de su generador,
por favor Ilame a la linea deayuda para generadoresal
(800) 743-4115. Si Ilamar para la ayuda,tiene por favor el
modelo, la revisi6n y el n0mero de serie de etiqueta de
identificaci6n disponible. Consulte la ubicaci6n en la secci6n
Controlesy caracterfsficas.
Desembalajedel generador
1. Coloque la caja de cart6n en una superficie rigiday
plana.
2. Abra completamente la caja de cart6n cortando cada
una de sus esquinas de arriba abajo.
3. Saquetodo el contenido de la caja de cart6n, a
excepci6n del generador.
4. Mantenga el generador sobre el carton para instalar el
juego de ruedas.
El generadorse entrega con:
•Manual del operario
• Ruedas(2)
• Eje
• Patade apoyo
• Elementos de fijaci6n del juego de ruedas
Instale el juegode ruedas
NOTA:Estejuego de ruedas no ha sido dise_ado paraser
usado en la carretera.
Necesitar_.las siguientes herramientas para instalar estos
componentes:
• Llavede 13 mm
• Llavede cubo de 13 mm
• Alicates
• Gafasde seguridad
Siga estos pasos para instalar el juego de ruedas:
1. Voltee el generadorde forma que el motor quede arriba.
2. Introduzca el eje (A) a trav6s de los dos soportes de
montaje.
3. Monte una arandela(C) y coloque un rueda (B) en el eje.
NOTA: Compruebe que instala la rueda con el cubo elevado
hacia el interior.
4. Introduzca una arandela (C) por el eje y coloque un
anillo -en E (D) en la ranura del eje.
IL ADVERTENCIA: Lasanillas en "e" pueden provocar
lesiones oculares.
Las anillas en "e" pueden salir disparadas durante el
montaje o el desmontaje.
• Utilice siempre protecci6n ocular para montar o desmontar
anillas en "e".
5. Paraello, apriete con unas pinzasdesde la parte
superior del anillo-en Ehacia la parte inferior del eje.
6. Repita los pasos del 3 al 5 paraasegurar la segunda
rueda.
7. Vuelvaa colocarel generadoren la posici6n normal de
funcionamiento(apoyadoen las ruedas).
8. Retire el asa (H) del bastidor del generadorempujando
los pasadores(J) y tirando del asa.
9. Gire el asa tal como se muestray fijela al bastidor del
generador empujando los pasadoresen el bastidor del
generador. Desliceel asa hasta que los pasadores
entren en los orificios del asa.
10. Voltee el generador de forma que el lado del motor
quedeabajo.
11. Haga coincidir los orificios de la pata de apoyo (E) con
los del armaz6ndel generador.
12. Monte la pata de apoyo usando 2 tornillos de cabeza(M8
x 20 mm) (F) y 2 tuercas hexagonales(G). Apriete con la
Ilavede cubo de 13 mm y con la Ilavede 13 mm.
\
\
\-
/;
Espafiol

13. Vuelvaa colocar el generadoren la posici6n normal de
funcionamiento (apoyadoen las ruedasy la pata de
apoyo).
NOTA:Gireel asa en el bastidor del generadors61ocon fines
de almacenamiento.
Comprobar el nivel de aceite del motor
El generador sale de f_brica relleno de aceite (APISJ o m_s
alto 10W-30). Esto permite al generador operar en una gran
variedad de condiciones clim_.ticasy de temperatura.Antes
de arrancar el motor, compruebe el nivel de aceitey
aseg0resede que el motor est_ servido tal como se describe
en Mantenimiento.
NOTA: Consulte la secci6n Aceiteen la secci6n
Mantenimiento paraver las recomendacionesrelativas al
aceite. Compruebeque la aceitesuministrada tiene la
viscosidad adecuada para la temperatura ambiente actual.
AI/ISO:Si intenta arrancar el motor sin comprobar que est_
adecuadamenteservido con el aceite recomendado,
provocar_,unaaveria.
• Consultarla secci6nMantenimientoacercadelrellenadodeaceite.
• Lagarantiaquedar_anuladasi se producenda_oscomo
consecuenciadelincumplimientodeestasinstrucciones.
Agregue combustible
El combustibledebe reunir lossiguientes requisitos:
• Gasolina sin plomo limpia y nueva.
• Un minimo de 87 octanos/87 AKI (91 RON). Para uso a
gran altitud, consulte Granaltitud.
• El motor admitegasolinacon hastaun 10% de etanol
(gasohol) o hastaun 15% de MTBE(6ter metilterbutilico).
AVlSO:Eviteel dafio del generador.
El fracaso para seguir Manual de Operariopara el
combustible reccomendations garantia de vacios.
• NOutilicegasolinanoautorizada;porejemplo,E85.
• NO mezcleaceite con gasolina.
• NO modifique el motor para hacerlo funcionar con otros
combustibles.
Paraevitar la formaci6n de carbonilla en el circuito de
combustible, siempre que afiada combustible, m6zclelo con
un estabilizador.Consulte Almacenamiento. No todos los
combustibles son iguales. Si detecta problemas de arranque
o de rendimiento despu6s de utilizar un combustible, pruebe
a cambiar de proveedor o de marca. Este motor est_
certificado para funcionar con gasolina. Su sistema de
control de emisiones es EM (Modificaciones del motor).
_i, ADVERTENClA: La gasolina y sus vapores son
extremadamente inflamables y
_ explosivos.
El fuego o una explosi6n pueden causar
quemaduras severas e inclusive la muerte.
CUANDOANADACOMBUSTIBLE
• Apagueel generador(posici6n OFF)y d_jelo enfriar al menos
por 2 minutos antes de remover latapa de lacombustible. Afloje
la tapa lentamenteparadejar que la presi6n salgadel tanque.
• Llene o vacie el dep6sito de combustible a la intemperie.
• NO Ilenedemasiado eltanque. Permita al menos espacio para
la expansi6n del combustible.
• Si se ha derramado combustible, espere a que se evaporeantes
de arrancarel motor.
• Mantenga la combustible alejadade chispas, llamasabiertas,
pilotos, calory otras fuentes de ignici6n.
• NOencienda un cigarrillo o fume.
,
2.
Limpie el _rea alrededor de la tapa de Ilenado del
combustible, retire la tapa.
Afiada lentamente gasolina sin plomo (A) al tanque de
combustible (B). Tenga cuidado de que el nivel de
combustible no rebase el limite (C). Esto permite dejar
el espacio adecuado paraque el combustible se
expanda como se muestra.
3. Instale la tapa del tanque de combustible y la espera
para alg0n combustible rociado paraevaporar.
Granaltitud
En altitudes superiores a 1.524 metros (5.000 pies), se
deber_ utilizar gasolina con un minimo de 85 octanos /
85 AKI (89 RON). Paraseguir cumpliendo la normativa sobre
emisiones, es necesarioajustar la unidad parasu uso a gran
altitud. De no realizarseesteajuste, el rendimiento se
reducir_ y el consumo de combustible y las emisiones
aumentar_.n.Paraobtener mg.sinformaci6n sobre el ajuste
para gran altitud, consulte con un distribuidor cualificado de
Briggs & Stratton. No se recomienda utilizar el motor a
altitudes inferiores a 762 metros (2.500 pies) con el juego de
gran altitud.
8BRIGGSandSTRATTON.COIVl

Tierra del sistema
El generador dispone de una conexi6n a tierra del sistema
que conecta los componentes del bastidor a los terminales
de tierra de los enchufes hembra de salida de CA. Latierra
del sistema est,. conectadaal cable de CA neutro que, a su
vez, est,. conectado al bastidor del generador.
RequisitosEspeciales
Es posible que haya normas u ordenanzaslocalesy
nacionales en materia de seguridad e higiene en el trabajo
aplicables al uso del generador. Consulte con un electricista
cualificado, un inspector el6ctrico o el organismo
competente.
•En algunas zonas, es obligatorio registrar los
generadores en las compafiias el6ctricas locales.
• Si el generador se utiliza en una obra, puedeser
necesario cumplir normasy requisitos adicionales.
Conexi6nal sistema el6ctricode unedificio
Las conexiones a efectos de alimentaci6n de reservaal
sistema el6ctrico de un edificio debenser realizadaspor un
electricista cualificado. La conexi6n debeaislar la
alimentaci6n del generador de la alimentaci6n de la red
p0blica y debe cumplir todas las leyesy normas el6ctricas
vigentes.
A, ADVERTENCIA:Los generadores producen un voltaje
_ muypoderoso.Si no aisla el generadorde utilidades de energia,
puedehacer que los trabajadores de electricidad
sufran heridas gravese inclusive la muerte, debido a la
retroalimentaci6n de la energia el6ctrica.
• Cuandouseungeneradorcomopoderdeenergiaauxiliar,
notifiquea lacompafiiadeutilidades.Useelequipode
transferenciaaprobadoparaaislarel generadordeotra utilidad
el_ctrica.
Use un interruptor para la falla del circuito de tierra (GFCI)en
cualquier _reabastante h0meda o que sea altamente
conductiva, tales como terrazas de metal o trabajo hecho con
acero.
• NOtoque los alambres pelados o recept_culos.
• NO use un generadorcon cables el_ctricosque est_n
malgastados, rotos, pelados o dafiados decualquier forma.
• NO opere el generador bajo la Iluvia.
• NO manejeel generador o cables el_ctricos mientras est_
parado en agua, descalzo o cuando las manos y los pies est_n
mojados.
• NO permita que personasdescalificadaso ni_os operen o
sirvan al generador.
Ubicaci6ndel generador
EspacioLibre Alrededordel Generador
A. ADVERTENCIA:Los gasesy el calor de escapepueden
inflamar los materiales combustibles y las
estructuras 0 dafiar el dep6sito de combustible
y provocar un incendio.
• Dejeunespaciominimode1.5 m (5 pies)alrededordel
generador,incluidalaparlesuperior.
Sit0e el generador en una zona bien ventilada que permita la
eliminaci6n de los gases de escapemortales. No instale el
generador en lugares en los que los gasesde escape (A) se
puedanacumular 0 entrar en un edificio que puedaestar
ocupado. Aseg0resede que los gasesde escape no puedan
entrar por ventanas,puertas, tomas de aire de ventilaci6n u
otras aberturas en un espacio cerrado en el que puedan
acumularse. Tengaen cuenta los vientos y las corriente de
aire preponderantescuando elija la ubicaci6n del generador.
El uso de un generador en un espacio interior PUEDE
PROVOCAR LA MUERTE EN POCOS MINUTOS.
Los gases de escape deJ generador contienen
rnon6×ido de carbono, un veneno invisibJe einodoro.
V
NUNCA utiliceun generador
en eJinteriorde una casao
un garaje,AUNQUE haya
ventanasy puertas abiertas,
UtiiiceJo soJo en eJ
EXTERIOR, aJejado de
ventanas, puertas y
aberturas de ventilaci6n.
|
Espafiol

Controlesy caracteristicas
Lea este Manual del Operarioy reglas de seguridadantes de poner en marcha su generador.
Compare las ilustraciones con su generador, parafamiliarizarse con la ubicaci6n de los diversos controles y ajustes.
Guardeeste manual para futuras consultas.
A-Tanquedel Combustible-- Eltanque tiene una
capacidadde 5 galones americanos de gasolina sin
contenido de plomo.
B-Disyuntorbipolar (CA)-- Hayun disyuntor bipolar que
protege latoma de 30 A y el generadorcontra las
sobrecargas el6ctricas.
C-Disyuntores(CA) -- Se incluyen disyuntores con funci6n
"oprimir para reiniciar" que protegen el generadorcontra
sobrecargas el6ctricas.
D - fomacorriente Doblesde 120 VoltiosAC, 20 Amp--
Puedenser utilizados para suministrar alimentaci6n
el_ctrica para el funcionamiento de cargas del motor,
herramientas, aparatosespeciales e iluminaci6n el_ctrica
de 120 Voltios AC a 20 Amperios, monof_.sicade 60 Hz.
E - Tapa del Dep6sitodel Aceite-- Lleneel motor con
aceiteaqui.
F-Tap6n de Vaciado de Aceite -- Permite vaciar el aceite
del motor.
G - Tomacorrientecon DispositivodeSeguridadde
120/240 Voltios, 30 Amp-- Puedeser utilizado para
suministrar alimentaci6n el6ctrica para el funcionamiento
de cargas del motor, herramientas,aparatos especialese
iluminaci6n el6ctrica de 120 y/o 240 Voltios AC a
30 Amperios, monof_.sicade 60 Hz.
H-Conectorde Tierra -- Consulte con el organismo
responsablede la normativa vigente de conexi6n a tierra.
J- Silenciador Apagachispas - El silenciador disminuye el
ruido del motor y est,. equipadocon una pantalla
apagachispas.
K- Etiqueta de Identificaci6n -- Proporciona el modelo,
revisi6n y el nt_merode serie de generador. Tengapor
favor estos prontamente disponible cu_.ndoIlamar para la
ayuda.
L-Depuradorde Aire -- Filtra el aire de entrada a medida
que penetra en el motor.
M - Identificaci6ndel Motor-- Indicael modelo, tipo y
c6digo del motor. Tenga por favor estos prontamente
disponible cu_.ndoIlamar para laayuda.
N-Culatazoel Principio -- Us6 paracomenzar motor.
P-InterruptorBalancindel Motor-- Deber_.estar en la
posici6n "On" (En) paradarle arranque al motor.
Col6quelo en la posici6n "Off" (Apagado) para detener un
motor en funcionamiento.
R-Palancadel Cebador- Usadacuando se est,.dando
arranquea un motor frio.
S - V_lvula de Combustible-- Permite abrir y cerrar la
alimentaci6n de combustible al motor.
10 BRIGGSandSTRATTON.COM

Juegosde cordonesy enchufesconectores
Utilice exclusivamentecables prolongadores de alta calidad,
bien aislados y con conexi6n a tierra para la toma doble de
120 V del generador. Examinelos cables prolongadores
antes de cada uso.
Reviselas capacidadesde todos las cordones de extensi6n
antes de usarlos. Los juegos de cordones de extensi6n
utilizados debedm tener una capacidadde 125 Voltios AC a
20 Amperios o mayor para la mayoria de los dispositivos
el6ctricos. Sin embargo, algunos dispositivos podrian no
requerir este tipo de cord6n de extensi6n. Reviseel manual
del propietario de esos dispositivos paraver las
recomendacionesdel fabricante.
Utilice cablesprolongadoresde la menor Iongitud posible para
reducir al minimo la caidadetensi6n.
_i, ADVERTENCIA:Los cables el6ctricos sobrecargados
pueden recalentarse,formar un arco o
quemarse, provocando la muerte, lesionesy/o
da_os materiales.
• Utiliceexclusivamentecablesreguladosparalascargas
aplicadas.
• Respetetodaslasmedidasdeseguridadde loscables
el_ctricos.
La unidad incluye un disyuntor basculante bipolar para
proteger la toma blocante. Si el disyuntor salta, se
desconectantodas las tomas del panel.
Dispositivode seguridadde 120/240 V, 30 A
Useun tap6n NEMAL14-30 con este recept_.culo.Conecte
un juego de cable de 4 alambres, clasificado como
250 Voltios ACa 30 Amps (o mayor). Usted puedeusar el
mismo cable de4-alambres si planeatrabajar con una carga
de 120 Voltios.
Cablede 4 Alambres
NEMA L14-30
Y (Cargado)
W (Neutro)
fi_ X (Cargado)
Tierra (Verde)
Este recept_.culole provee poder a cargas de 120/240 Voltios
AC,de 60 Hz,fase sencilla, que requierenhasta 2,750 vatios
de energia a 22.9 Amperios, para 120 Voltios; 5,500 vatios
de energia (5,5 kW) a 22.9 Amperios para 240 Voltios. El
enchufe est,. protegido por un disyuntor basculante.
AVISO:.Las tomas el6ctricas pueden marcar un valor
nominal mayor que la capacidad de salida del generador.
• NUNCAintente conectar un dispositivo que requiera m_s
amperaje delque el generador o la toma el_ctrica pueden
suministrar.
• NOsobrecargar el generador. V_ase No sobrecargar elgenerador.
Tomaseldctricasdoblesde 120V CAy 20 A
Los dos tomacorrientes dobles est_.nprotegidos contra
sobrecargas por medio de un disyuntors "oprimir para
reiniciar".
Use cada recept_.culopara operar 120 Voltios AC,de fase
sencilla, de cargas de 60Hz que requieren hasta2,400 vatios
(2.4 kW) a corrientes de 20 Amps. Use los juegos de cables
que son calificados para cargasde 125 Voltios AC,a
20 Amps (o mayores).
Espafiol
11

Operando
Enciendael motor
Desconectetodas las cargas el6ctricasdel generador. Uselas
siguientes instrucciones paraencender(vea Controlesy
caracterfsticaspara la ubicaci6nde controles descritos abajo):
1. Aseg0resede que la unidad est,. en una superficie
plana.
IMPORTANTE:Si la unidad no se arranca y utiliza en una
superficie plana,se pueden producir problemas de arranque
y de paradadurante el funcionamiento.
2. Gire la v_.lvuladel combustible a la posici6n "On".
3. Mueva la palancaestranguladora hasta la posici6n
"ChoRe" (Estrangular).
4. Sit0e el interruptor balancin en la posici6n "On".
5. Halela manija de retroceso, en forma suave hasta que
sienta resistencia, Luego para arrancar el motor hacer
tracci6n en forma r_.pidauna sola vez.
• Si el motor arranca,contint_econ el paso 7.
• Si el motor no arranca, proceda con el paso 6.
_i, ADVERTENCIA:El retroceso(replieguer_.pido)del cable
del arrancadorpuedeproducir lesiones.El
_._.< retrocesoimpedir_,que el usuario suelteel cablea
tiempoy tirar_,de su manoy brazohacia el
motor.
Como resultado, podrian producirse fracturas,
contusiones o esguinces.
• Cuandoarranqueelmotor,tire lentamentedelcablehasta
sentirunaresistenciay, acontinuaci6n,tire r_pidamentede_1
paraevitarsu retroceso.
• NUNCAarranqueo pareelmotorcuandohayaaparatos
el_ctricosconectadosyen funcionamiento.
6. Mueva la palanca de choque hasta la posici6n "Half"
(media) y accione dos veces la manija de retroceso.
• Si el motor no arranca, repita los pasos desde
5 hasta 7.
7. Coloque la palancade retroceso en la posici6n de "Run"
(I _I). Si el motor vacila, mueva la palancade retroceso
hasta la posici6n media "Half" hasta que el motor
marche suavementey luego col6quelo en la posici6n de
marcha "Run"(1+1).
IMPORTANTE:Si el motor se desborda,coloque la palanca
estranguladora en la posici6n "Run"(! +I) e intente arrancarlo
hasta conseguirlo.
NOTA:Si el motor arranca despu6sde tirar tres veces del
arrancador pero no sigue funcionando, o si la unidad se para
en funcionamiento, aseg0resede que la unidad est,. en una
superficie planay compruebe que el nivel de aceitedel
cig0efial es correcto. La unidad puedeequiparse con un
dispositivo de protecci6n de bajo nivel deaceite. Encaso
afirmativo, el nivel del aceite debeser adecuado para que el
motor arranque.
_i, ADVERTENCIA: El contacto con la zona del silenciador
puede producir quemaduras graves.
'_,, _ Los gases y el calor de escape pueden
inflamar los materiales combustibles y
las estructuras 0 dafiar el dep6sito de combustible y
provocar un incendio.
• NOtoque las superficies calientes y EVITElos gasesdel escape
a alta temperatura.
• Permita que el equipo se enfrieantes detocarlo.
• Deje un espacio minimo de 1.5 m (5 pies) alrededor del
generador, incluida la parte superior.
• Utilizar el motor en un terreno boscoso,con malezao cubierto de
hierbaconstituye una infracci6nal C6digode recursos p0blicos
de California,a menos que el sistema de escapeest_equipado
con una pantallaapagachispas,de acuerdoa la definici6n de la
Secci6n4442, que se mantengaen buenascondicionesde
funcionamiento. Enotros estadoso jurisdiccionesfederales
puedehaber leyessimilares envigor.
P6ngaseencontacto con el fabricante,el vendedoro el
distribuidor del equipo original paraobteneruna pantalla
apagachispasdise_adaparael sistemade escapeinstaladoen
estemotor.
• Las piezasde recambio debenser las mismas que las piezas
originales y estar instaladasen la misma posici6n.
12 BRIGGSandSTRATTON.COIVl

Conexi6n de cargasel6ctricas
1. Dejeque el motor se estabilice y se caliente por dos
minutos despu6s del arranque.
2. Aseg0resede que el disyuntor del panel de control est6
en la posici6n ON.
3. Ench0feloy encienda la carga el6ctrica deseada
(120 y/o 240 V CA, monof_.sico,60 Hz.)
IMPORTANTE:AI tapar en los 120 Voltio recept_.culos,los
articulos del tap6n para ser enchufados en la sucesi6n
mostrada abajo.
NOTA:
•NO conectar cargas de 240 V en las tomas el6ctricas
dobles.
• NO conectar cargastrif_.sicasal generador.
• NO conectar cargas de 50 Hzal generador.
• NO SOBRECARGAREL GENERADOR.V6ase No
sobrecargar elgenerador.
AVISO: El sobrepasar la capacidad del amperaje y vataje del
generador, puede da_ar al generador y los aparatos
el6ctricos conectados al mismo.
• Vea No sobrecargue generador.
• Enciendasu generador y deje que el motor se estabiliceantes de
conectar las cargas el_ctricas.
• Conecte las cargas el_ctricas en la posici6n de apagado(OFF),
luego encienda (ON) parasu operaci6n.
• Apague (OFF)las cargas el_ctricasy descon_ctelasdel generador
antes de parar el generador.
Parada del motor
1. Desconectetodas las cargas el6ctricas de los
tomacorrientes del paneldel generador. Nunca de
arranque o detenga el motor con todos los dispositivos
el6ctricos conectados y encendidos.
2. Deje que el motor funcione sin cargas por algunos
minutos para estabilizar las temperaturas internas del
motor y el generador.
3. Sit0e el interruptor On/Off en la posici6n "Off".
_i, ADVERTENClA:El motor podria petardear,incendiarse
o da_arse.
• NOcoloque la palancaestranguladoraen la posici6n "Choke"
(i",l) para parar el motor.
4. Gire la v_.lvulade combustible hasta la posici6n "Off".
Fonctionnementpar tempschaud
El motor del generador esterequipado con un innovador
protector climg.ticoque evita la congelaci6n del carburador
en condiciones de tiempo frio. El protector clim_ttico se ha
dise_ado parafuncionar en todo tipo de condiciones
climg.ticas.No obstante, se puede mejorar el rendimiento del
producto retirando el protector clim_.tico(A) en condiciones
de tiempo caluroso.
Quite las dos tuercas (B) y afloje el cierre (C) como se
muestra en la ilustraci6n. Guardeel protector y los cierres
para usos futuros en condiciones de tiempo frio.
Espafiol
13

No sobrecargarel generador
Capacidad
Debeasegurarsede que su generador puede proveer los
suficientes vatios de potencia continua (vatiaje nominal) y
vatios de salida para los elementos que deseealimentar al
mismo tiempo. Siga estos sencillos pasos:
1. Seleccionelos elementos que quiere alimentar al
mismo tiempo.
2. Sume la potencia nominal de esos elementos. Esaes la
cantidad de energia que su generador debe producir
para mantener sus elementos en funcionamiento. Vea
Guiade Referencia de Potencia.
3. Calculecu_.ntosvatios de salida necesitar_..La potencia
de salida se refiereal corto arranquede energiaque se
necesitaparaarrancar herramientaso dispositivos a
motor, como una radialo un refrigerador.Como no
todos los motores arrancanal mismo tiempo, eltotal de
vatios de salidapuedecalcularsea_adiendos61oel
elementocon la potenciade salida m_.salta al total de
vatios de potenciacontinuaque obtuvimos en el paso 2.
Ejemplo:
Herramienta o Aparato EI6ctrico
Aire Acondicionado de Ventana
Refrigerador
Congelador industrial
Televisi6n
Luz (75 Vatios)
Vatios Calificados (cuando
est6 funcionando)
1200
800
500
500
75
Total = 3075 Vatios para
funcionar
Vatios Adicionales de
Carga (alencender)
1800
1600
50O
Vatios de potencia continua totales
Potenciade salida adicional m_s alta = 1800
Salida total del generador requerida = 4875
1800 (Vatios de
Carga m_s alto)
= 3075
Controlde la energia
Paraprolongar la vida de su generadory los aparatos que
conecte a 61,es muy importante tener cuidado cuando se le
a_adencargas el6ctricas. No deber haber nadaconectado a
las tomas del generadorantes de encender el motor. El
modo seguro y correcto de gestionar la energia del
generador es a_adir las cargas secuencialmente,como se
indica a continuaci6n:
1. Sin tener nadaconectado al generador, enciendael
motor tal como se describe en este manual.
2. Conectey encienda la primera carga, preferiblemente la
mayor que usted tenga.
3. Permitaque la salida del generador se estabilice (el
motor funciona suavementey el aparato funciona
adecuadamente).
4. Conectey encienda la pr6xima carga.
5. De nuevo, permita que el generador se estabilice.
B_slcos
Bombilla de 75 vatios
Congelador industrial
Bomba para sumideros
Refrigerador /Congelador - 18 pies
ct3bicos
Bomba de agua- 1/3 HP
Calelacci6n /Alre Acondlcionado
Aire acondicionado de ventana - 10.000
BTU
Ventilador de ventana
Ventilador de caldera - 1/2 HP
Coclna
Horno microondas - 1000 vatios
Cafetera
Estufa el6ctrica - Elemento simple
Plancha de cocina
Habitacl6n familiar
Reproductor de DVD/CD
VCR
Receptor est6reo
Televisi6n en color - 27"
Ordenadorpersonalcon monitor de 17"
Otros
Sistema de seguridad
Radio-reloj AM/FM
Dispositivo de apertura de garage - 1/2
HP
Calentador de agua el6ctrico - 150 litros
aprox. (40 galones)
Taller
Luz hal6genade cuarzo para trabajar
Rociador sin aire- 1/3 HP
Sierra sable
Taladro el6ctrico - 1/2 HP
Sierra Radial- 10"
Sierra inglete - 10"
Cepilladora de mesa - 6"
Sierra de mesa /Sierra de brazo radial -
6. Repita los pasos 4 y 5 para cada carga adicional que
usted tenga.
NUNCAa_ada cargas que sobrepasen la capacidad del
generador. Tenga especialcuidado en contar con las cargas
adicionales en la capacidad del generador, como se describe
arriba.
Guiade Referenciade Potencia
Herramienta o aparato Vatios de potencia* Vatios de potencia
continua de salida adicional
75
500 500
800 1200
800 1600
1000 2000
1200 1800
300 600
800 1300
1000
1500
1500
2500
100
100
450
500
800
180
300
480 520
4000
1000
600 1200
960 960
1000 1000
1500 1500
1800 1800
1800 1800
10" 2000 2000
Compresor de aire - 1-1/2 HP 2500 2500
*La potencia que aparece en la lista es aproximada.
Compruebe la herramienta o aparato el6ctrico paraobtener
la potencia real.
14 BRIGGSandSTRATTON.COIVl

IVlantenimiento
Plan de mantenimiento
Siga los intervalos de horas o de calendario, los que sucedan
antes. Si opera en condiciones adversas (se_aladasmD.s
abajo) es necesario un mantenimiento mD.sfrecuente.
• Cambieel aceitedel motor
• Limpie los residuos
• Compruebe el nivel de aceite
• Mantenimiento del filtrode aire'
• Cambie el aceite del motor'
• Servicio a la bujia
• Inspeccioneel silenciadory la pantalla apagachispas
• Limpie el sistema de refrigeraci6n'
• Compruebe la holgura de la v_lvula
' Servicio m_s a menudo bajo condiciones de suciedad o polvo.
Recomendacionesgenerales
El mantenimiento peri6dico mejorarD,el rendimiento y
prolongarD,la vida t]til del generador. Acuda a un distribuidor
autorizado para reparar la unidad.
Lagarantia del generador no cubre los elementos que hayan
sido sujetos al abuso o negligencia del operador. Para recibir
el valor completo de la garantia, el operador deberD.
mantener el generador de la forma descrita en este manual.
Se deberD.nIlevara cabo algunos ajustes peri6dicamente
para mantener correctamente su generador.
Todos los ajustes de la secci6n Servicio y Ajustes de este
manual debedm ser hechos por Io menos una vezen cada
estaci6n. Cumpla con los requisitos de la tabla "Programa de
Mantenimiento" descrita anteriormente.
NOTA: Una vezal a_o deberD,limpiar o reemplazarla bujia y
reemplazarel filtro de aire. Una bujia nuevay un filtro deaire
limpio garantizan una mezcla de combustible-aire adecuaday
ayuda a que su motor funcione mejor y tenga una vida t]til
mD.sprolongada.
Controlde emisiones
Cualquierestablecimientooindividuoespecializadoen la
reparaci6nde motoresque nosean de automoci6npuede
encargarsedel mantenimiento,la sustituci6ny la
reparaci6nde losdispositivosy sistemasde controlde
emisiones.Noobstante, pararealizar la revisi6n gratuita de
control de emisiones, deberD,acudir a un distribuidor
autorizado por el fabricante.V6ase Garantfade emisiones.
Mantenimientodel generador
El mantenimiento del generador consiste en conservar la
unidad limpia y seca. Operey almacenela unidad en un
ambiente limpio y seco donde no sedt expuesta al polvo,
suciedad, humedad o vapores corrosivos. Las ranuras del
aire de enfriamiento del generador no deben estar tapadas
con nieve, hojas, o cualquier otro material extra_os.
Revisefrecuentementela limpiezadelgeneradory limpielo
cuandoest6con polvo,sucio,con aceite,humedad,o cuando
otrassubstanciasextra,asseanvisiblesensu superficieexterior.
NOTA:No utilice agua u otros liquidos para limpiar el
generador. Los liquidos pueden penetrar en el circuito de
combustible del motor y provocar p6rdidas de rendimiento o
fallos. Asimismo, si penetran liquidos en el generadora
trav6s de las ranuras del aire de refrigeraci6n, parte del
liquido puedepermaneceren los huecosy rendijas del
aislamiento del devanado del rotor y del estator. El liquido y
la acumulaci6n de suciedad en los devanadosinternos del
generador pueden reducir la resistenciadel aislamiento.
Limpieza
Limpie a diario, o antesde cadauso, los residuosacumulados
en el generador.Mantengalimpias lasconexiones,los muelles
y los mandos. Limpietodo restode combustiblede la zonaque
rodeaal silenciadory de detrAsdel mismo. Inspeccionelas
ranuras paraairede enfriamientoy la aperturadel generador.
EstasaperturasdeberD.nmantenerselimpiasy despejadas.
Mantenga limpios los componentes del generador para
reducir el riesgo de sobrecalentamiento e ignici6n de los
residuos acumulados.
• Utilice un trapo ht]medo para limpiar las superficies
exteriores.
AVIS#. El tratamiento inadecuado del generador puede
da_arlo y acortar su vida productiva.
• NOexponga al generadora una humedadexcesiva, polvo,
suciedad o vapores corrosivos.
• NOinsertecualquierobjeto atrav_s de las ranurasdeenfriamiento.
• Puedeusar un cepillo de cerdas suaves para retirar la
suciedad endurecida,aceite, etc.
• Puedeusar una mD.quinaaspiradora para eliminar
suciedady residuos sueltos.
Espafiol
15

Mantenimientodel motor
_i, ADVERTENClA:Chispearinvoluntario puedetener
"_=l=, como resultado el fuego o el golpe
el6ctrico.
CUANDOAJUSTE0 HAGAREPARACIONESA SUMAQUINA
GENERADOR
•Siempredesconecteelalambredelabujiay col6quelodonde
no puedaentrarencontactoconlabujia.
CUANDOPRUEBELABUJiADELMOTOR
• Utilice un comprobador de bujias homologado.
• NOcomprueba la chispa sin la bujia instalada.
Aceite
Recomendacionessobreel aceite
Paraobtener el mejor rendimiento, recomendamos utilizar
aceites certificados con garantia Briggs & Stratton. Tambi6n
se pueden utilizar otros aceites detergentesde alta calidad
con clasificaci6n de servicio SF,SG, SH, SJ o superior. NO
utilice aditivos especiales.
Las temperaturas exteriores determinan la viscosidad
adecuadadel aceite para el motor. Utilice el cuadro para
seleccionar la mejor viscosidad parael intervalo de
temperatura
oF
104
86--
68
5O
32
14
-4
-22
exterior previsto.
7' oC
__"_ 20304010
°
_ -10
-20
-30
* Pordebajode4 °C(40°F), el uso deaceiteSAE30 provocar_
dificultadesdearranque.
** Porencimade 27°C(80°F)el usodeaceite10W30puede
aumentarelconsumodeaceite.Compruebeel niveldeaceite
conmayorfrecuencia.
NOTA:Todo aceitesint6tico que cumpla las
especificacionesILSACGF-2,con marcade
certificaci6n API y con simbolo de servicio API (se
O muestra a la izquierda) con "SJ/CF ENERGY
CONSERVING"o superior es un aceiteaceptablea
todas las temperaturas. El uso de aceite sint6tico no
altera los intervalos de cambio de aceite indicados.
Comprobaci6ndel nivel de aceite
Compruebeel nivel de aceiteantes de cada uso o cada
8 horas de funcionamiento, como minimo. Rellenesi es
necesario.
1. Coloque el generador sobre una superficie nivelada.
2. Quite el tap6n de Ilenado de aceitey limpielo con un
trapo.
3. Compruebeque el aceite Ilega hastael punto de
desbordamiento en el orificio de Ilenado.
4. Instale el tap6n de Ilenadode aceite, apriete
firmemente.
Adici6nde aceite del motor
1. Aseg0resede que la generadorest6 en una superficie
plana.
2. Compruebeel nivel de aceitetal como se indica en la
secci6n Comprobaci6n del nivel de aceite.
3. Si es necesario, vierta lentamenteaceite por el orificio
de Ilenado hasta el punto de desbordamiento en el
tap6n de Ilenado de aceite.
4. Instale el tap6n de Ilenadode aceite, apriete
firmemente.
Cambiode aceite del motor
Si est_ utilizando su generador bajo condiciones de extrema
suciedad o polvo, o en un clima demasiadocaliente, hagael
cambio de aceitem_s frecuentemente.
_i, PRECAUCION: Evite el contacto prolongado o repetido
de piel con aceite usado de motor.
• Elaceite usado del motor hasido mostrado al cancer de la piel
de la causa en ciertos animalesdel laboratorio.
• Completamentelavado expuso _reascon el jab6n y el agua.
MANTENERFUERADEL ALCANCEDE LOSNINOS.
NO CONTAMINE.CONSERVELOS RECURSOS.
DEPOSITEELACEITEUSADOEN UN PUNTODE
RECOGIDA.
Cambieel aceite cuando el motor siga estando caliente
despu6sde haberfuncionado:
1. Aseg0resede que la unidad est6 en una superficie
plana.
2. Desconecteel cable de la bujia de esta y col6quelo
donde no puedaentrar en contacto con la bujia.
16 BRIGGSandSTRATTON.COIVl

3. Limpie la zona de alrededor del tap6n devaciado de
aceite (A), situado en la basedel motor, al otro lado del
carburador.
4. Quite el tap6n de Ilenadode aceitey vacietodo el aceite
en un recipienteadecuado.
5. Vuelva a colocar el tap6n de vaciado y apri6telo bien.
Quite el tap6n de Ilenado de aceite.
6. Vierta lentamente unos 0,83 litros (28 onzas) de aceite
por el orificio de Ilenado (B) hasta el punto de
desbordamiento (6). NO a_adaaceite en exceso.
7. Vuelva a colocar el tap6n de Ilenadode aceite Apri6telo
firmemente a mano.
8. Limpie los residuos de aceite.
Serviciodel depuradorde aire
Si se utiliza con un filtro de aire sucio, el motor no
funcionar_ correctamentey puede sufrir da_os. Haga
cambios m_s frecuentes si trabaja en zonas sucias o donde
hay polvo.
Para dar servicioal filtro de aire, siga lospasos que se
detallan a continuaci6n:
1. Afloje los tornillos (D) y quite aire la cubierta m_s
limpia (E).
2. Con cuidado quite cartucho (F) de base (G).
3. Instale limpie (o nuevo) aire la asambleam_.slimpia
dentro de la cubierta. Desh_gasedel filtro viejo
apropiadamente.
4. Arme la cubierta m_s limpia a6reaen la base y apriete
los tornillos.
Servicio del bujia
Cambiela bujia ayudar_ a su motor a arrancar m_s
f_.cilmentey funcionar mejor.
1. Limpie lazona de alrededor de la bujia.
2. Retire e inspeccione la bujia.
3. Compruebela separaci6ndel electrodo con un
calibrador de alambre y ajuste el espacio de la bujia a la
medida recomendadasi fuera necesario(v6ase
Especificaciones).
4. Cambiela bujiasi los electrodosest_n picadoso
quemadoso si la porcelanaest_agrietada.Utilice la bujia
de repuestorecomendada.Consulte Especificaciones.
5. Instale la bujia y apriete firmemente.
Inspeccioneel silenciadory la pantalla apagachispas
Inspeccione que el silenciador no presentefisuras, corrosi6n
u otros da_os. Desmontela pantalla apagachispas,si cuenta
con una, y verifique que no presenteda_os ni obstrucci6n
por carb6n. Encaso de que se necesiten piezasde recambio,
aseg0resede usar solamente piezasde recambio originales
para el equipo.
_i, ADVERTENCIA: El contacto con la zona del silenciador
puede producir quemaduras graves.
_A_.,,_,, _ Los gases y el calor de escape pueden
inflamar los materiales combustibles y
las estructuras o da_ar el dep6sito de combustible y
provocar un incendio.
• NOtoque las superficies calientes y EVITElos gasesdel escape
a alta temperatura.
• Permita que el equipo se enfrieantes detocarlo.
• Deje un espacio minimo de 1.5 m (5 pies) alrededor del
generador, incluida la parte superior.
• Utilizar el motor en un terreno boscoso,con malezao cubierto de
hierbaconstituye una infracci6nal C6digode recursos p0blicos
de California,a menos que el sistema de escapeest_equipado
con una pantallaapagachispas,de acuerdoa la definici6n de la
Secci6n4442, que se mantengaen buenascondicionesde
funcionamiento. Enotros estadoso jurisdiccionesfederales
puedehaber leyessimilares envigor.
P6ngaseencontacto con el fabricante,el vendedoro el
distribuidor del equipo original paraobteneruna pantalla
apagachispasdise_adaparael sistemade escapeinstaladoen
estemotor.
• Las piezasde recambio debenser las mismas que las piezas
originales y estar instaladasen la misma posici6n.
Espa_ol
17

Limpie e inspeccioneel apagachispasde la siguiente
manera:
1. Pararetirar la protecci6n del silenciador (A) de
silenciador (B), retire los cuatro tornillos que conectan
la protecci6n a la m6nsuladel silenciador.
2. Retire los cuatro tornillos que sostienen la pantalla
apagachispas (C).
3. Inspeccionela pantallay reempl_.celasi est,. rota,
perforada o da_ada. No use pantallasdefectuosas.Si la
pantalla no est,. da_ada, limpiela con un disolvente
comercial.
4. Vuelvaa instalarla pantallay la protecci6n delsilenciador.
Sistema de refrigeraci6nde aire
Con eltiempo, se puedenacumular residuosen lasaletasde
refrigeraci6ndel cilindro y pasarinadvertidosmientrasno se
desmonteparcialmenteel motor. Recomendamosqueencargue
la limpiezadel sistemade refrigeraci6n(D) a undistribuidor
autorizadode Briggs& Stratton siguiendolos intervalos
recomendados(consultela secci6nPlande Mantenimientoen
la secci6nMantenimiento).Esigualmenteimportanteque no se
acumulenresiduosen la partesuperior del motor ni en la
pantallagiratoria.Consultela secci6nLimpieza.
Comprobaci6nde holgurade la vdlvula
Si comprueba y ajusta la holgura de la v_.lvularegularmente,
el funcionamiento del motor mejorar_,y tendr_,una mayor
vida 0til. Esteprocedimiento no puede Ilevarsea cabo sin
desmontar parcialmente el motor y sin usar herramientas
especiales.Por esta raz6n,le recomendamosque un
distribuidor autorizado compruebe y ajuste la holgura de la
v_.lvulasiguiendo los intervalos recomendados (consulte la
secci6n Plan de Mantenimiento en la secci6n Mantenimiento.
Ajustedel carburador
El carburador de este motor es de bajaemisi6n. Est,.
equipado con una v_.lvulade mezclade ralenti no ajustabley,
en algunos casos, con ralenti regulado. Los niveles de ralenti
regulado y velocidad mg.ximase ajustan en la f_.brica.Si es
necesario modificarlos, acuda a un distribuidor autorizado.
_i, PRECAUCION:Las velocidades de operaci6n en
exceso,aumentan los riesgos de heridas y da_os al
generador.
Las velocidades bajanen exceso, imponen una carga muy
pesada.
•NOcambieningunavelocidaddeterminada.Elgenerador
suministraunafrecuenciay unvoltajecalificadocuando
funcionaa unavelocidaddeterminada.
• NOmodifiqueal generadorenningunaforma.
18 BRIGGSandSTRATTON.COIVl

Almacenamiento
El generador deberAser encendido al menos unavez cada
siete dias y deberAdejarlo funcionar al menos durante
30 minutos. Si no puedehacer esto y debealmacenar la
unidad por mAsde 30 dias, siga las siguientes instrucciones
para preparar su unidad paraalmacenamiento.
Generador
1. Limpie el generador como estAdescrito en Limpieza en
la secci6n Mantenimiento.
2. Reviseque las ranuras para el aire de enfriamiento y las
aperturas del generadorse encuentrenabiertas y
despejadas.
Almacenamientopara periodos prolongados
El combustible puede estar pasado 30 dias despu6sde su
almacenamiento. El combustible pasado provoca la
formaci6n de residuos Acidos y de carbonilla en el circuito
de combustible yen los componentes bAsicos del
carburador. Paramantener el combustible en buen estado,
utilice el estabilizador de combustible FRESHSTART® de
Briggs & Stratton en cualquiera de sus variantes: liquido o
cartucho concentrado con goteo.
Si se a_ade un estabilizador de combustible conforme alas
instrucciones, no serAnecesario vaciar el motor de
combustible. Hagafuncionar el motor durante dos minutos
para que el estabilizador circule por todo el circuito de
combustible. El motor y el combustible se puedenalmacenar
hasta 24 meses.
A. ADVERTENClA:La gasolina y sus vapores son
extremadamenteinflamables y
_ explosivos.
Elfuego o una explosi6n pueden causar
quemaduras severase inclusive la muerte.
CUANDOALMACENE0 GUARDEELEQUIPOCONCOMBUSTIBLE
ENELTANQUE
•Almacenealejado de calderas,estufas, calentadoresde agua,
secadorasde ropa u otros aparatoselectrodom_sticos que
posean pilotos u otras fuentes de ignici6n, porque ellos pueden
encender los vapores de la combustible.
CUANDOVACIEELDEPOSITO
• Apague el generador (posici6n OFF)y d6jelo enfriar al menos
por 2 minutos antes de remover la tapa de la combustible.
Afloje latapa lentamente para dejar que la presi6n salga del
tanque.
• Vacieel dep6sito de combustible a la intemperie.
• Mantenga la combustible alejada dechispas, llamas abiertas,
pilotos, calory otras fuentes de ignici6n.
• NO enciendaun cigarrillo o fume.
Si no se ha a_adido un estabilizador de combustible a la
gasolina, deberAvaciar completamente el motor utilizando
un contenedor homologado. Dejefuncionar el motor hasta
que se agote el combustible. Se recomienda utilizar un
estabilizador de combustible en el contenedor de
almacenamientopara mantener la gasolina en buen estado.
Cambiode aceite
Con el motor todavia caliente, drene el aceitede la caja del
cigOe_al.Vuelva a Ilenarlo con el grado de aceite
recomendado.
Otrassugerenciaspara el almacenamiento
1. NO guarde combustible de una temporada a otra a
menos que Io hayatratado como se indica en la
secci6n Almacenamiento Para Periodos Prolongados.
2. Reemplacela canecade gasolina si comienza a
oxidarse. El6xido y/o la suciedad en la gasolina le
causarAproblemas.
3. Cubra su unidad con una cubierta de protecci6n
adecuadaque no retenga humedad.
A. ADVERTENCIA:Las cubiertas para almacenamiento
puedenser inflamables.
• NOcoloqueunacubiertaencimadeungeneradorcaliente.
• Dejequela unidadseenfrieIo suficientementeantesdequele
coloquelacubierta.
4. Almacenela unidad en un Arealimpia y seca.
Espafiol
19

Resoluci6nde problemas
Problemo
El motorest_ funcionando
pero no existe salida de AC
disponsible.
El motorfuncionabien sin
carga pero "funciona mal"
cuandose le contectan
cargas.
El motor nose enciende;o se
Cagsa
1. El interruptor autom_tico de
circuito est,. abierto.
2. Conexi6nmal o defectuosadel
juego de cables.
3. Eldispositivo conectado est,.
daSado.
4. Averia en el generador.
1. Corto circuito en una de las
cargasconectadas.
2. Elgenerador est_ sobrecarga.
3. Velocidad del motor es muy lenta.
4. Circuito del generador en corto.
1. V_lvula del combustible en
posici6n "Off".
2. Interruptor On/Off poscioando en
"Off".
3. Nivel de aceite insuficiente.
4. Depurador de aire sucio.
5. Sin combustible.
6. Combustiblevieja.
7. Elcable de la bujia no est_en
Accion
1. Reposicioneel interruptor.
2. Revisey repare.
,
4.
1.
Conecte otro dispositivo que est6 buenas
condiciones.
Contacteel distribuidor de servicio autorizado.
Desconectela carga el6ctrica en corto.
2. Vea No Sobrerecarque Generador.
3. Contacteel distribuidor de servicio autorizado.
4. Contacteel distribuidor de servicio autorizado.
1. Girela v_.lvuladel combustible a la posici6n
"On".
2. Coloque del interruptor On/Off en "On".
3. Lleneel c_rter hasta el nivel correcto o sit0e
el generador en una superficie plana.
4. Limpie o reemplaceel depurador de aire.
5. LI6nelocon combustible fresco.
6. Dreneel tanque de gasolina; 116nelocon
combustible fresco.
7. Conecte el cable a la bujia.
enciendey funcionamal. malas la bujia.
8. Bujia defectuosa.
9. Agua en la combustible.
10. Sobrecebado.
11. Mezclade combustible
excesivamenterica.
12. Lav_lvula de entrada est_
atascadaest_ cerrada.
8. Reemplacela bujia.
9. Dreneel tanque de gasolina; 116nelocon
combustible fresco.
10. Abra por completo el cebador y haga girar el
motor.
11. Contacteel distribuidor de servicio autorizado.
12. Contacteel distribuidor de servicio autorizado.
El motorse apaga en pleno
funcionamiento.
AI motor le hace falta
potencia.
El motor"no funciona
continuamente"o se detiene.
13. El motor ha perdido compresi6n.
1. Sin gasolina.
2. Nivel de aceite insuficiente.
13.
1.
2.
Carburador con mezcla de aire-
combustible muy ricao muy pobre.
1. La carga es muy alta. 1.
2. Filtro de aire sucio. 2.
Contacte el distribuidor de servicio autorizado.
Contacteel distribuidor de servicio autorizado.
Lleneel tanque de combustible.
Lleneel c_.rterhasta el nivel correcto o sitOe
el generador en una superficie plana.
Vea No Sobrerecarque Generador.
Reemplaceel filtro de aire.
20 BRIGGSandSTRATTON.C01VI

Garantias
Garantiade controlde emisionesde California,
U.S. EPAy Briggs& StrattonCorporation
Derechosy obligacionesde la garantia
California Air Resources Board, U.S. EPAy Briggs & Stratton
(B&S) le explican a continuaci6n la garantia del sistema de
control de emisiones de su motor/equipo modelo 2008 y
posteriores. En California, los nuevos motores peque_os
para m_.quinasde servicio debenestar dise_ados, fabricados
y equipados conforme a los exigentes est_.ndaresde lucha
contra la contaminaci6n del Estado. B&S garantizael sistema
de control de emisiones de su motor/equipo durante los
periodos que se indican a continuaci6n, siempre que no haya
habido uso indebido, negligencia o mantenimiento indebido
del motor peque_opara mg.quinasde servicio.
Su sistema de control de emisiones puedeincluir
componentescomo el carburadoro el sistema de inyecci6nde
combustible, el tanque de combustible, el sistema de arranque
y el convertidor catalitico. Tambi6npuedeincluir mangueras,
correas, conectores,detectoresy otros conjuntos
relacionadoscon las emisiones.Si se cumplen las condiciones
de la garantia, B&S reparar_,el motor/equipo sin costealguno,
incluido el diagn6stico, los componentesy la mano de obra.
Coberturade la garantia del fabricante:
Los motores peque_os para mg.quinasde servicio tienen dos
a_os de garantia. Si alg0n componente del motor/equipo
relacionadocon las emisiones estuviera defectuoso, B&S Io
reparar_,o sustituir_..
Responsabilidadesde la garantfadel propietario:
• Como propietariodel motor/equipo peque_o,ustedes
responsablede Ilevara cabo todas las operacionesde
mantenimientoquese enumeranen el manualdel
propietario. B&S recomiendaconservartodas las facturas
relativasal mantenimientodel motor/equipo,pero B&S
no puededenegarlagarantia bas_.ndose0nicamenteen la
falta defacturaso en la imposibilidadpor partedel
propietario deasegurar lacorrecta realizaci6ndetodas
las operacionesde mantenimiento.
• Como propietario del motor/equipo, debeser consciente
de que B&S puededenegarla coberturade la garantia si
el motor/equipo o uno de sus componentesfalla debido
a un uso indebidoo negligente,un mantenimiento
inadecuadoo modificacionesno autorizadas.
• Usted es responsablede presentar su motor/equipo a
un centro de distribuci6n de B&S, distribuidor
autorizado de servicio u otra entidad equivalente, seg0n
corresponda, en el momento en que surja un problema.
Las reparacionescubiertas por la garantia se Ilevar_.na
cabo en un plazo razonable,no superior a 30 dias en
ning0n caso. Encaso de preguntas sobre los derechos
y responsabilidadesrelativos a la garantia, p6ngase en
contacto con B&S Ilamandoal (414) 259-5262.
Disposicionesde la garantfa contradefectosdel sistema
de controlde emisionesde Briggs& Stratton
A continuaci6n se detallan las disposiciones concretas
relativas a la Cobertura de la garantia contra defectos del
sistema de control de emisiones. Se a_adena la garantia de
motores de B&S paramotores no regulados,que figura en el
Manual del Operario.
1. Piezasgarantizadas
La presente garantia cubre 0nicamente las piezasque
se enumeran a continuaci6n (piezas del sistema de
control de emisiones) siempre que tales piezas
estuvieran presentes en el motor adquirido.
a. Sistemade regulaci6n de combustible
• Sistema de enriquecimiento paraarranque en frio
(estrangulador electr6nico)
• Carburador y piezas internas
• Bomba de combustible
• Conducto de combustible, acoplamientos del
conducto de combustible, abrazaderas
• Dep6sito de combustible, tap6n y cadena
• Bote de carbono
b. Sistema de inducci6n de aire
• Filtro de aire
• Colector deadmisi6n
• Linea de purga y ventilaci6n
c. Sistema de encendido
• Bujia(s)
• Sistema de encendido magn6tico
d. Sistema catalizador
• Convertidor catalitico
• Colector de escape
• Sistema de inyecci6nde aire o v_lvula de impulso
e. Elementos diversos utilizados en los sistemas
anteriores
• V_.lvulasy conmutadores de aspiraci6n,
temperatura, posici6n y temporizados
• Conectoresy unidades
2. Duraci6n de la cobertura
Durante un periodo de dos a_os desde la fecha de
compra original, B&S garantizaal propietario original y
a todo propietario posterior que el motor est,.dise_ado,
fabricado y equipadoconforme a la normativa vigente
adoptada por el Air Resources Board; que no tiene
defectos de materiales ni de mano de obra que
provoquen el fallo de un componente cubierto; y que es
id6ntico en todos los aspectos materiales al motor
descrito en la aplicaci6n de certificaci6n del fabricante.
El periodo de garantia comienza en lafecha de
adquisici6n original del motor.
Espafiol
21

Lagarantiadeloscomponentesrelacionadosconlas
emisioneseslasiguiente:
• Losfallosdetodocomponentecubiertoporlagarantia
quenosedebasustituircomopartedelplande
mantenimientoobligatoriodetalladoenelmanualdel
propietarioentregadoquedar_.ncubiertosporla
garantiaduranteelperiododelagarantiaespecificado
anteriormente.Sialgunodeestoscomponentesfalla
duranteelperiododecoberturadelagarantia,deber_.
serreparadoosustituidoporB&Ssincargoalguno
paraelpropietario.Loscomponentesqueserepareno
sustituyanenvirtuddelagarantiaestar_.ncubiertospor
lagarantiaduranteelperiododegarantiarestante.
• Losfallosdetodocomponentecubiertoporlagarantia
ques61osedebainspeccionarperi6dicamenteseg0nel
manualdelpropietarioentregadoquedar_.ncubiertos
porlagarantiaduranteelperiododelagarantia
especificadoanteriormente.Loscomponentesquese
reparenosustituyanenvirtuddelagarantiaestar_.n
cubiertosporlagarantiaduranteelperiododegarantia
restante.
• Losfallosdetodocomponentecubiertoporlagarantia
quesedebasustituircomopartedelplande
mantenimientoobligatoriodetalladoenelmanualdel
propietarioentregadoquedar_.ncubiertosporla
garantiahastaelmomentoenqueseindiquequees
necesariohacerlaprimerasustituci6n.Siel
componentefallaantesdelafechadelaprimera
sustituci6n,ser_.reparadoosustituidoporB&Ssin
cargoalgunoparaelpropietario.Loscomponentesque
sereparenosustituyanenvirtuddelagarantiaestar_n
cubiertosporlagarantiaduranteelperiododegarantia
hastaIlegaralafechadelaprimerasustituci6n.
• Nosepodr_.nutilizarcomponentescomplementarioso
modificadosnoexentosporelAirResourcesBoard.El
usodecomponentescomplementariosomodificados
noexentosporpartedelpropietariodar_.lugarala
anulaci6ndelagarantia.Elfabricantenoser_.
responsabledelosfallosdecomponentescubiertospor
lagarantiaquesedebanalusodeuncomponente
complementarioomodificadonoexento.
3. Coberturadeda_osderivados
Lacoberturaseampliar_,alosfallosdecualquier
componentedelmotorderivadosdelfallodecualquier
componenterelacionadoconelsistemadeemisiones
cubiertoporlagarantia.
4. Solicitudesyexclusionesdecobertura
Lassolicitudesdegarantiasecumplimentar_.ncon
arregloalasdisposicionesdelapoliticadegarantiade
motoresB&S.Lacoberturanoaplicaalosfallosde
componentesrelacionadosconelsistemadeemisiones
cubiertosporlagarantiaquenoseanoriginalesdeB&S
nialosfallosdebidosausoindebido,negligenciao
mantenimientoinadecuado,conformealas
disposicionesdelapoliticadegarantiademotores
B&S.B&Snoser_.responsabledelacoberturadela
garantiadefallosdecomponentesrelacionadosconel
sistemadeemisionescubiertosporlagarantia
provocadosporelusodecomponentes
complementariosomodificados.
Consultela informaci6nsobre el periodo de durabilidadde
las emisionesy el [ndice de aire en la etiqueta de
emisionesdel motor
Los motores con certificaci6n de cumplimiento de la
normativa sobre emisiones del California Air Resources
Board (CARB)deben mostrar informaci6n sobre el periodo
de durabilidad de las emisiones y el indice de aire. Briggs &
Stratton ofrece esta informaci6n al consumidor mediante
etiquetas de emisiones. La etiquetade emisiones del motor
contiene la informaci6n de certificaci6n.
El Periodo de Durabilidad de lasEmisionesindica el
n0mero de horas durante las cuales el motor puede
funcionar cumpliendo las normas sobre emisiones, siempre
que se realicen las operacionesde mantenimiento que se
detallan en las instrucciones de uso y mantenimiento. Se
utilizan las siguientes categofias:
Moderado:El motor est,. certificado para cumplir la
normativa sobre emisiones durante 125 horas de
funcionamiento real.
Intermedio: El motor est,.certificado para cumplir la
normativa sobre emisiones durante 250 horas de
funcionamiento real.
Prolongado:El motor est,. certificado paracumplir la
normativa sobre emisiones durante 500 horas de
funcionamiento real.
Por ejemplo, un cortac6spedcon operario a pie se suele
utilizar entre 20 y 25 horas al a_o. Por tanto, el Periodode
Durabilidad de las Emisionesde un motor con clasificaci6n
intermedia equivaldria a 10-12 a_os.
Los motores Briggs & Stratton cuentan con la certificaci6n
de cumplimiento de la fase 2 de las normativas sobre
emisiones de la United States Environmental Protection
Agency (USEPA,Agencia estadounidensede protecci6n del
medioambiente). En el caso de los motores con certificaci6n
de fase 2, el periodo de cumplimiento de la normativa sobre
emisiones que figura en la etiqueta de cumplimiento de
emisiones indica el n0mero de horas de funcionamiento
durante las cuales el motor ha demostrado cumplir los
requisitos federales sobre emisiones.
Para motores de menos de 225 cc:
CategoriaC = 125 horas
CategoriaB = 250 horas
CategoriaA = 500 horas.
Para motores de 225 cc o m_.s:
CategoriaC = 250 horas
CategoriaB = 500 horas
CategoriaA = 1000 horas.
22 BRIGGSandSTRATTON.COIVI

Fechade entrada en vigor:l de Febrero de 2006. Sustituye a todas las garantias sin fecha y alas de fecha anterior al 1 Febrero de 2006
GARANT|A LIMITADA
Briggs & Stratton Power Products Group, LLC reparar_ o sustituir_ sin cargo alguno cualquier componente del generador port_til que presente defectos
de materiales y/o mano de obra. Los gastos de transporte de las producto enviadas para reparar o sustituir conforme a los tOrminos de esta garantia
correr_n a cargo del comprador. El periodo de vigencia y las condiciones de esta garantia son los que se estipulan acontinuaci6n. Para obtener servicio
en garantia, Iocalice el distribuidor de servicio autorizado m_s pr6ximo en nuestro mapa de distribuidores, en www.BRIGGSandSTRATTON.COM.
NO EXISTE NINGUNAOTRAGARANTIA EXPLICITA.LAS GARANTIASIMPLICITAS, INCLUIDASLAS DECOMERCIABILIDADO IDONEIDADPARA UN
FIN CONCRETO,SE LIMITAN A UN ANO DESDELA FECHADE COMPRA OAL LIMITE DE TIEMPO PERMITIDOPOR LA LEY.QUEDANEXCLUIDAS
TODASLAS GARANTIASIMPLICITAS QUEDAEXCLUIDA LA RESPONSABILIDADPOR DANOSSECUNDARIOSY DERIVADOSHASTAEL LIMITE
PERMITIDO POR LA LEY.Algunos paises o estados no permiten limitar la duraci6n de una garantia implicita ni excluir o limitar los da_os secundarios y
derivados. Por tanto, es posible que las limitaciones y exclusiones mencionadas no sean aplicables en su caso. Esta garantia le otorga determinados
derechos legales yes posible que tenga otros derechos que pueden variar de un pals o estado a otro.
USO comercial 1 a_o :
* Segundoa_odespidesolo
El periodo de garantia comienza en la fecha de compra del primer usuario final y se prolonga durante el tiempo especificado. "Uso del consumidor" significa
uso domOstico personal por parte de un consumidor final. "Uso comercial" significa cualquier otro uso, incluidos los usos con fines comerciales, de
generaci6n de ingresos o alquiler. Una vez que el equipo se hayausado con fines comerciales, se considerar_ como equipo de uso comercial a efectos de
esta garantia.
NO ES NECESARIOREGISTRARLA GARANTIAPARA OBTENERSERVICIODE BRIGGS& STRATTONPRODUCTS.GUARDESU RECIBODE COMPRA.SI NO
APORTA LA PRUEBA DE LA FECHADE COMPRAINICIAL, SE UTILIZARA LA FECHADE FABRICACIONDEL PRODUCTOPARADETERMINAR EL PERiODO DE
GARANTIA.
Esperamos que disfrute de nuestra garantia y le pedimos disculpas por las molestias causadas. Cualquierdistribuidor de servicio autorizado puede Ilevara
cabo reparaciones en garantia. La mayoria de las reparaciones en garantia se gestionan normalmente, pero algunas veces la solicitud de servicio en garantia
puede no ser procedente. Por ejemplo, la garantia no ser_ v_lida si el equipo presenta da_os debidos al real uso, la falta de mantenimiento, el transporte, la
manipulaci6n, el almacenamiento o la instalaci6n inadecuados. De manera similar, la garantia quedar_ anulada si se ha borrado la fecha de fabricaci6n o el
nOmero de seriedel generador port_til, o si el equipo ha sido alterado o modificado. Durante el periodo de garantia, el distribuidor de servicio autorizado
podr_ reparar o sustituir, a su libre elecci6n, cualquier pieza que, previa inspecci6n, sea defectuosa en condiciones normales de uso y servicio. Esta garantia
no cubre las reparacionesy equipos que se detallan a continuaci6n:
Desgastenormal: AI igual que cualquier otro aparato mec_nico, los equipos de uso en exteriores necesitan piezasy mantenimiento peri6dicos para
funcionar correctamente. Esta garantia no cubre las reparaciones cuando el uso normal hayaagotado la vida 0til de una pieza concreta del equipo.
InstalaciOn y mantenimiento: Estagarantia no cubre los equipos ni las piezascuya instalaciOn sea incorrecta o no haya sido autorizada, ni aquellos
que hayan sido objeto de cualquier tipo de alteraciOn,mal uso, negligencia, accidente, sobrecarga, exceso de velocidad o mantenimiento, reparaciOno
almacenamiento inadecuados que, a nuestro juicio, haya afectado negativamente a su funcionamiento y su fiabilidad. La garantia tampoco cubre el
mantenimiento normal, como los filtres de aire, los ajustes y la limpieza o la obstrucci6n del sistema de combusti6n (debido a materias quimicas,
suciedad, carb6n, cal, y asi sucesivamente).
Otras ex¢lusiones:TambiOnquedan excluidos de esta garantia el desgaste de los articulos tales como juntas t6ricas, filtros, etc., o los da_os
derivados de accidentes, uso indebido, modificaciones, alteraciones, servicio inadecuado, congelaci6n o deterioro quimico. Los accesorios tales como
empezar baterias, juego de cables del adaptador del generadory cubiertas para almacenamiento quedan excluidos de la garantia del producto. TambiOn
se excluyen los equipos usados 0 reacondicionados y los destinados a demostraciones; los equipos utilizados como fuente principal de energia en
lugar de un servicio pOblicoy los equipos sanitarios destinados al mantenimiento de las constantes vitales. Esta garantia excluye los fallos debidos a
hechos fortuitos y a otros acontecimientos de fuerza mayor que escapan al control del fabricante. 198189s,Rev.B,12/31/2006
BRIGGS & STRATTON POWER PRODUCTS GROUP, LLC
JEFFERSON, Wl, EE.UU
Espa_ol
23

®
Generadorport itil
Especificacionesdel producto
Para Modelos 030439(A)
Vataje que Empieza.............. 6,250 Vatios (6,25 kW)
Vataje ........................ 5,000 Vatios (5,0 kW)*
Corriente Carga de C.A.
a 120 Voltios ........................ 41.6 Amperios
a 240 Voltios ........................ 20.8 Amperios
FrecuenciaNominal .................. 60Hza 3600 rpm
Fase ................................... Monof_.sica
Uesplazamiento................ 305 cc (18,61 pulgadas)
BujiaSeparaci6n ............. 0,030 pulgadas (0,76 ram)
Capacidadde Gasolina ..... 18.9 L (5 galones americanos)
Capacidadde Aceite .............. 0,83 litros (28 onzas)
Para Modelos030440(A)
Vataje que Empieza.............. 8,250 Vatios (8,25 kW)
Vataje ........................ 5,500 Vatios (5,5 kW)*
Corriente Cargade C.A.
a 120 Voltios ........................ 45.8 Amperios
a 240 Voltios ........................ 22.9 Amperios
FrecuenciaNominal .................. 60Hza 3600 rpm
Fase................................... Monof_sica
Desplazamiento................ 305 cc (18,61 pulgadas)
Bujia Separaci6n ............. 0,030 pulgadas (0,76 mm)
Capacidadde Gasolina ..... 18.9 L (5 galones americanos)
Capacidadde Aceite .............. 0,83 litros (28 onzas)
Serviciocomt ndespide
Depurador de aire ........................ 491588 o 5043
Bujia de re6stato ............................... 491055
Bujia de EMS ................................. 691043
Botella de aceite de motor ....................... 100028
Estabilizador de combustible ............... 100002 o 5041
Apagachispas ................................ 83083GS
Potencia nominal: Elvalor de potencia bruta de cada modelo de motor de gasolina se indica en la etiqueta conforme a los requisitos del
c6digo J1940 (Procedimiento de valoraci6n de potencia y par de peque_os motores) de la SAE(Society of Automotive Engineers,Sociedad
de ingenieros deautomoci6n). Los valores nominales se han obtenido y corregido conforme al c6digo SAEJ1995 (Revisi6n 2002-05). Los
valores de par se obtienena 3060 rpm, y los valores de potencia, a 3600 rpm. La potencia bruta real del motor ser_ inferior y dependerA,
entre otros factores, de las condiciones ambientales de uso y de las variaciones entre distintos motores del mismo modelo. Dada la amplia
variedad de productos que utilizan nuestros motores y la multitud de factores ambientales que pueden afectar a su funcionamiento, es
posible que el motor de gasolina no desarrolle toda su potencia bruta nominal en determinados equipos (potencia "en la aplicaci6n" o neta
real). Estadiferencia se debe, entre otros, a los siguientes factores: accesorios (filtro de aire, escape,carga, refrigeraci6n, carburador,
bomba de combustible, etc.), limitaciones de la aplicaci6n, condiciones ambientales de uso (temperatura, humedad, altitud) y variaciones
entre distintos motores de un mismo modelo. Briggs & Stratton podr_ sustituir el motor de esta serie por otro de mayor potencia nominal
en caso de limitaciones de fabricaci6n o capacidad.
* Estegenerador est_ clasificado conforme a la norma C22.2 No. 100-04 (motores y generadores) de la CSA(Canadian Standards
Association [Asociaci6n canadiensede normalizaci6n]).
Briggs& Stratton PowerProducts Group,LLC
900 N. Parkway
Jefferson, Wisconsin,53549 U.S.A.
24 (800) 743-4115 BRIGGSandSTRATTON.COM

®
G_n_ratriceportative
Manueld'utilisation
Les caract6ristiques nominales de cette g6n6ratrice sont conformes ) la norme C22.2 No. 100-04
(moteurs et g6n6ratrices) de I'ACNOR (Association canadiennede normalisation).
BRIGGS & STRATTON POWER PRODUCTS GROUP, LLC
JEFFERSON, WISCONSIN, U.S.A.

Merci d'avoir achet6 cette g6n6ratricede qualit6 Briggs & Stratton. Nous sommes heureux que vous fassiez confiance & la
marque Briggs & Stratton. Si vous respectezles instructions d'utilisation et d'entretien de ce manuel, vous pourrez vous fiez 9.
votre g6n6ratrice Briggs & Stratton durant de nombreuses ann6es.
Ce manuel contientdes renseignementssur la s6curit6 pour vous informer des dangers et des risques associ_s aux
g6n6ratrices et A lafagon de les 6viter. Cette g6n6ratricea 6t6 congue pour _tre utilis6e seulement pour alimenter les circuits
d'6clairage compatibles, les 61ectrom6nagers,les outils et les moteurs et pour aucune autre utilisation. II est important de bien
lire et comprendre enti_rement ces directives avant de tenter de d6marrer et d'utiliser cet 6quipement. Conservezces
instructionspour rdfdrencefuture.
Cette gdndratriceexige un assemblagefinal avant utilisation. Consultezla section Assemblagede ce manuel pour les
directives sur les proc6dures d'assemblagefinales. Suivez ces instructions _ la lettre.
Otl flOUStrouver
Vous n'aurez jamais &chercher bien loin pour trouver un centre de support et service Briggs & Stratton pour votre
g6n6ratrice. Consultezles PagesJaunes. II y a plus de 30 000 distributeurs de service apr_s-vente agr66s Briggs & Stratton
dans le monde qui offrent un service de qualit6. Vous pouvezaussi t61_phonerau Service& la clientele de Briggs & Stratton au
(800) 743-4115 ou communiquer aveceux par Internet &I'adresse BRIGGSandSTRATTON.COM.
G6n6ratrice
Num6ro de modele
Revision
Numero de serie
III
Moteur
Numero de modele
Numero de type
Numero de code
III
Date d'achat IIIIIIIII
Briggs & Stratton Power Products Group, LLC.
900 North Parkway
Jefferson, WI 53549
Copyright © 2009 Briggs & Stratton Power Products Group,
LLC. Reservadostodos los derechos. Quedaprohibida la
reproducci6n o transmisi6n total o parcial de este material,
sea cual sea la forma y el medio empleados para ello, sin el
permiso previo y por escrito de Briggs & Stratton Power
Products Group, LLC.
2 BRIGGSandSTRATTON.COM

TabledesMati res
S6curit6 de I'op6rateur ............................ 4
Description de I 6quipement .................................... 4
Renseignementsimportants de s6curit6 ........................... 4
Assemblage.................................... 7
D6ballezla g6n6ratrice......................................... 7
Installation de I'ensemblede roues ............................... 7
V6rification du niveau d'huile du moteur ........................... 8
Ajout de I'essence............................................ 8
Mise 9.la terre du syst_me...................................... 9
Branchementau syst_me 61ectriqued'un 6difice..................... 9
Emplacementde la g6n6ratrice .................................. 9
Fonctionset commandes.......................... 10
Cordons et prises............................................ 11
0p6ration .................................... 12
D6marragedu moteur ........................................ 12
Raccordementde charges 61ectriques............................ 13
Arr_t du moteur ............................................. 13
Fonctionnement par temps chaud ............................... 13
Ne pas surchargez g6n6rateur.................................. 14
Entretien ..................................... 15
Calendrier d'entretien......................................... 15
Entretien de la g6n6ratrice..................................... 15
Entretien du moteur.......................................... 16
Entreposage................................................ 19
D6pannage ................................... 20
Garanties .................................... 21
Garantie du dispositif antipollution .............................. 21
Garantie du propri6taire d'un g6n6ratrice ......................... 23
Caract6ristiqoes ................................ 24
Caract6ristiquesdu produit .................................... 24
Pi_cesd'entretien courant ..................................... 24
Frangais

t_
S curit de I'op rateur
Description de l 6quipement
_isezavecsoince manuelet familiarisez-vousavec
votregdndrateur.Connaissezses applications,ses
limitationset les dangersqu'il implique.
Ce g6n@ateurest un g6n@ateurentraTn6par un moteur
champ magn6tiquerotatif produisant du courant alternatif
(c.a.). IIa 6t6 conou pour fournir du courant 61ectriquepour
faire marcherdes chargescompatibles d'6clairage,d'appareils
m@agers,d'outil et de moteur. Lechamp tournant du
g@@ateurest entraTn6&3,600 T/M par un moteur.
AVIS: D@asser la capacit6 en watts/amperes de la
g6n@atricepeut endommager la g6n@atriceet/ou les
appareils 61ectriquesqui y sont branch6s.
• NEd@assezPASlacapacit_enwatts/amperesdelag_n@atrice.
Voirla rubriqueNesurchargezpasvotreg#n#ratricedansla
sectionOperation.
Tout a 6t6 mis en oeuvre pour que les informations contenues
dans ce manuel soient exacteset Ajour. Cependant,nous se
r6servele droit de changer,d'alt@er ou d'am61iorerle produit
n'importe quel moment sansavis pr@lable.
LeSyst_me de contr61ede 1'6missiondu g6n@ateurest
garanti pour des normes 6tabliespar L'Agence de protection
de I'environnement et le California Air Resources Board.
Renseignements importants de s6curit6
Lefabriquant ne peut anticiper toutes les circonstances
potentielles pouvant comporter un danger. Parcons6quent,
les avertissements contenus dans le pr6sent manuel, ainsi
que les plaques et les d6calquesappos6s sur I'unit6
n'englobent pas toutes les possibilit6s. Si vous utilisez une
proc6dure, une m6thode de travail ou une technique
d'op@ation non sp6cifiquement recommand@ par le
fabricant, vous devezvous assurer qu'elle necompromet pas
votre s6curit6 ni celle des autres. Vous devez6galement
vous assurer que la proc6dure, la m6thode de travail ou la
technique d'op@ation que vous choisissez ne rende pas la
g@@atrice dangereuse.
Symbolesde sdcuritdet leur signification
Emanationstoxiques Effetderecul Choc_lectrique
Feu Explosion Manueld'utilisation
Partiesen mouvement Objets volant Surface chaude
• , Le symbole d'alerte de s6curit6 indique un risque
potentiel de blessure personnelle. Un mot signal (DANGER,
ATTENTIONou AVERTISSEMENT)est utilis6 avec un
symbole d'alerte pour vous indiquer le degr6 ou le niveaudu
risque. Un symbole de s6curit6 peut _tre utilis6 pour
repr6senter le type de risque. Le mot signal AVIS est utilis6
pour traiter les pratiques qui nesont pas reli6esaux
blessures personnelles.
,_, Le mot signal DANGERindique un danger qui, s'il n'est
pas @it6, causerala mort ou des blessures graves.
,_, Le mot signal AVERTISSEMENTindique un risque qui,
s'il n'est pas @it6, pourraitcauser la mort ou des blessures
graves.
,_, Le mot signal ATTENTIONindique un risque qui, s'il n'est
pas @it6, pourrait causer des blessures mineures ou
mod@6es.
Le mot AVlSest utilis6 pour les pratiques qui ne sont pas
reli@s aux blessures personnelles.
4 BRIGGSandSTRATTON.COIVl

L'utilisation d'une gdn_ratrice bI'intdrieur PEUT
PROVOQUER LA MORT EN QUELQUES MINUTES.
Les gaz d'_chappement de la g_n_ratrice contiennent du monoxyde
de carbone. II s'agit d'un poison que vous ne pouvez ni voir ni sentir.
NE JAMAIS utiliser la gen_ratrice
darts une maison ou un garage,
Mr=ME SI les portes et les
fen_tres sont ouvertes.
[]
Utilisez seulement
I'EXTI_RIEUR et loin de
fen_tres, portes et dvents.
A, AVERTISSEIVlENT:Le moteur, Iorsqu'il fonctionne,
produit du monoxyde de carbone, un gaz
inodore et incolore.
toxique
L'inhalationdu monoxydede carbonepeut causer
des mauxdet_te, de la fatigue,des 6tourdissements,le
vomissement,de la confusion,des crises @ileptiques, des
naus6es,1'6vanouissementou la mort.
• Faitesfonctionnerle g_n_ratriceSEULEMENTa I'ext_rieur.
• Installezunavertisseurde monoxydedecarbonea pilespros
deschambresacoucher.
• I_vitezquelesgazd'_chappemententrentdansunespace
restreint,parunefen_.tre,uneporte,uneprised'a_rationou
touteautreouverture.
NEfaites PASfonctionner le g_n_ratricea I'int_rieur d'un
batiment ou d'un abri (m6me si lesfen6tres et les portes sont
ouvertes), y compris a I'int_rieur du compartiment d'un
v_hicule de plaisance.
A, AVERTISSEIVlENT:L'6chappementdu moteur de ce
produit contient des produits chimiques que I'l_tatde
Californie consid_re comme causant le cancer, des
d6formations _ la naissanceou d'autres dangers
concernant la reproduction.
A, AVERTISSEIVlENT:Certainscomposants de ce produit
ainsi que les accessoires reli_s contiennent des produits
chimiques reconnus par I'l_tatde la Californie comme
causant des cancers, des malformations cong6nitales, ou
d'autres probl_mes de reproduction. Nettoyez-vous les
mains apr_s la manipulation.
A, AVERTISSEIVlENT: Un effet de recul (r6troaction rapide)
de la corde du d6marreur pourrait entrainer des
_,_< blessures corporelles. L'effet de recul tirera votre
main et votre bras vers le moteur plus
rapidement que vous ne pouvez relg.cher la corde.
Vous risquez ainsi de subir des fractures, des
ecchymoses ou des entorses.
• Lors du d_marrage du moteur, tirez lentement sur la corde
jusqu'a ce que vous sentiez une r_sistance ettirez alors
rapidement afin d'_viter un effet de recul.
• NEd_marrez JAMAIS ni n'arr6tezjamais le moteur alors que
des appareils _lectriques y sont branch_s et en fonction.
A, AVERTISSEIVlENT: L'essence et ses vapeurs sont
extr_mement inflammables et
_ explosives.
Le feu ou I'explosion risque de
provoquer des blessures graves, pouvant _tre fatales.
LORSDEL'AJOUTOU DELA VIDANGEDU CARBURANT
• I_teignezle g_n_ratriceet laissez-le refroidir au moins 2 minutes
avant de retirer le capuchon du r_servoir de carburant.
Desserrezlentement le capuchon pour laisser la pression
s'6chapper du r6servoir.
• Remplissezou vidangezle r6servoir d'essence a I'ext_rieur.
• NE remplissezPAStrop le r6servoir. LaissezI'expansion de
I'essence.
• Attend le carburant renvers6pour s'6vaporer avant de d6marrer
le moteur.
• I_loignezI'essencedes 6tincelles, desflammes, des veilleuses,
de la chaleur et detoute autre source d'inflammation.
• N'ALLUMEZPASde cigarette ou ne fumez pasa proximit6 de
I'appareil.
LORSDU DI_IVIARRAGEDE L'I_QUIPEMENT
• Assurez-vous que la bougied'allumage, le silencieux, le
bouchon a essence et le filtre a air sont en place.
• NEd6marrez PAS le moteur Iorsque la bougie d'allumage est
enlev_e.
LORSQUEL'I_QUIPEIVIENTFONCTIONNE
• NE penchezPASle moteur ou 1'6quipement,vous risqueriezde
renverserde I'essence.
• N'utilisez PAS1'6trangleurdu carburateur pour arr6ter le moteur.
• Cetteg6n_ratrice n'est pas conque pour 6tre utilis6e dans de
I'_quipement mobile ou les applications marines.
LORSQUEVOUSTRANSPORTEZOU RI_PAREZL'I_QUIPEMENT
• Le r6servoir d'essencedoit 6treVIDE ou le robinet d'arr6t de
carburant doit 6tre a la position ferm6e (OFF)pendant le
transport ou la r@aration.
• D6branchezle cablede bougie.
LORSQUEVOUS ENTREPOSEZL'ESSENCEOUUN I_QUIPEMENT
AVECUN RI_SERVOIRAESSENCE
Entreposez-leloin des appareilsde chauffage,desfours, des
chauffe-eau,dess_cheusesou detout autre appareil
_lectrom_nagerdisposantd'une veilleuseou de toute autre source
d'inflammation risquant d'enflammer lesvapeurs d'essence.
_i, AVERTISSEIVlENT:
• Cetteg_n_ratrice nesatisfait pasaux normes U.S. CoastGuard
Regulation 33CFR-183et ne doit pas 6tre utilis_e pour des
applications marines.
• L'omission d'utiliser une g_n_ratriceappropri_e et approuv_e
par U. S. Coast Guard pourrait entrafner des blessures
corporelles ou des dommages materiels.
_, AVERTISSEIVlENT: D_marreur et autre tourneres peut
emp_trer mains, cheveux, v_tement, ou
accessoires.
• N'utilisez JAMAIS un g_n_ratricesans bati ou couvercles
protecteurs.
• NE portez PASdev6tements laches, de bijoux ou tout ce qui
risquerait d'6tre pris dans le d_marreur ou toute autre piece
rotative.
• Embouteiller des cheveux longs et enl_vela bijouterie.
Frangais

_i, AVERTISSEIVlENT:Tout contact avec la zone du
silencieux peut causer des br01ures
,_ _ graves.
La chaleur et les gaz d'6chappement
peuvent enflammer des mat6riaux combustibles et les
structures ainsi que causer des dommages au r6servoir
d'essence et entrafner un incendie.
• NEtouchez PASaux pi_ces chaudeset I_VITEZle contact avec
les gaz d'_chappement.
• Laissez I'_quipement refroidir avant de le toucher.
• Laissez un d_gagementd'au moins 1,5 m (5 pi) tout autour de
la g_n_ratrice,y compris au-dessus.
• L'utilisation ou lefonctionnement d'un moteur sur unterrain
boise, couvert de broussaillesou gazonn_constitue une violation
dans I'l_tatde la Californie,en vertu de la section4442 du
CaliforniaPublic ResourcesCode,_ moins qu'il ne soit dot_ d'un
pare-_tincellestel que d_fini dans la section 4442 et maintenu en
bon _tatde fonctionnement. II se peut que d'autres (:tatsou
d'autres comp_tencesf_d_rales aientdes lois semblables.
Communiquezavec le fabricant,le d_taillantou le concessionnaire
original deI'appareilafin d'obtenir un pare-_tincellescon£;upour le
syst_med'_chappementinstall_sur ce moteur.
• Les pi_cesderechangedoivent6tre identiquesaux pi_ces
d'origine et 6tre install_es&la m6meposition.
_i, AVERTISSEMENT:Le g6n6ratriceproduit unetension
_ 61ev6e.NE PASisoler le g6n6ratricede I'installation
61ectriquerisque de provoquer des blessures ou
m_me d'etre fatal pour les ouvriers 61ectricienset de
causer des dommages au g6n6ratrice dus _.un "backfeed"
d'6nergie 61ectrique.
• Lorsquevousutilisezleg_n_ratricecommesourced'_nergiede
secours,il estn_cessaired'aviserlesservicespublics
d'_lectricit&
• Utilisez un disjoncteur diff6rentiel Iorsque vous utilisez I'appareil
dans des endroits humides ou extr6mementconductibles,
comme les terrasses en m6tal ou les ouvrages m6talliques.
• NETOUCHEZPASles fils d6nud6s ou les boftiers.
• N'UTILISEZPASle g6n6ratriceavecdescordons 61ectriquesus6s,
effiloch6sou d6nud6s,ouabfm6sde quelquesorte que ce soit.
• N'utilisez PAS la g6n6ratricesous la pluie ou Iors de
temp6ratures pluvieuses.
• NE MANIPULEZPASle g6n6ratriceou les cordons
d'alimentation Iorsque vous 6tes debout dans I'eau, pieds nus
ou avec les mains ou les pieds humides.
• NE LAISSEZPASdes personnes non qualifi6es ou des enfants
se servir ou r@arer le g6n6ratrice.
_i, AVERTISSEMENT: Unintentional peut r6sulter dans feu
_,1_ ou 61ectrique.
LORSQUEVOUS RI_GLEZOURI_PAREZVOTREGI_NI_RATRICE
• D_brancheztoujours le c_ble de bougie et placez-ledefa_on
ce qu'il ne soit pas en contact avec la bougie.
LOBSDETESTSD'ALLUiVIAGEDU IVIOTEUB
• Utilisez un v_rificateur de bougies d'allumage approuv&
• NEv_rifiez PASI'allumage Iorsque la bougie d'allumage est
enlev6e.
_i, ATTENTION:Les vitesses de fonctionnement
excessivement61ev6esaugmentent les risques de
blessure ou risquent d'endommager le g6n6ratrice.
Les vitesses extr_mement lentes entrafnent une charge
importante.
• NEtrafiquezPASlavitesser_gul_e.Leg_n_ratriceproduitune
fr_quencenominaleet unetensioncorrectesIorsqu'il
fonctionne_ unevitesser_gul_e.
• NEmodifiezPASleg_n_ratriced'aucunefa%n.
AVIS: D6passer la capacit6 de puissance ou d'amp6rage du
g6n6ratrice risque d'endommager ce dernier et/ou les
autres appareils 61ectriques qui y sont branch6s.
• Voir la section NE PAS Surcharger G#n#ratrice.
• D_marrezle g_n_ratrice et laissezle moteur se stabiliser avant de
brancher les charges _lectriques.
• Branchez les charges _lectriques en position ARRItT, puis,
remettezen position MARCHE.
• I_teignezles charges _lectriques et d_branchez-lesdu g_n_ratrice
avant de I'arr6ter.
AVIS: Un traitement inappropri6 du g6n6ratrice risque de
I'endommager et de raccourcir sa dur_e d'utilisation.
• Ne vous servez du g_n_ratriceque pour les utilisations pr_vues.
• Si vous avezdes questions & propos de I'utilisation pr_vue decet
appareil, consultez votre d_taillant.
• Nefaites fonctionner le g_n_ratriceque sur des surfaces
horizontales.
• N'exposezPAS le g6n6ratrice& une humidit6 excessive,&de la
poussi_re,_ de la salet_ ou &des vapeurs corrosives.
• N'ins_rez aucun objet dans les fentes de refroidissement.
• Si lesappareils branch_s sont en surchauffe, _teignez-leset
d_branchez-lesdu g_n_ratrice.
• Arr6tez le g_n_ratrice si :
-la puissance _lectrique est inexistante;
-I'_quipementproduitdes_tincelles,de lafum_eou desflammes;
-I'unit_ vibre excessivement.
6 BRIGGSandSTRATTON.COIVl

Assemblage
Votre g6n6ratricedoit _tre assembl6e et vous pourrez I'utiliser
apr_s I'avoir correctement remplie d'huile et d'essence
recommand6es.
Si vous avez n'importe quels probl_mes avec I'assembl6e de
votre g6n6rateur,s'il vous plaTtappeler le helpline de
g6n6rateur _.(800) 743-4115. Si vous t61@honezpour
obtenir de I'aide, veuillezavoir disponibles les
renseignementsdu 6tiquettes d'identification: num6ro de
module, de r6vision et de s6rie. Consultez la section
Commandeset fonctions de la g6n6ratrice pour connaTtre
I'emplacement de 1'6tiquettesd'identification.
D6ballezla g6n6ratrice
1. Placezla boTtede carton sur une surface plane rigide.
2. Enleveztousles composants de la boite d'exp6dition 9.
I'exception de la g6n6ratrice.
3. Ouvrezla boTted'exp6dition en coupant tousles coins
du haut vers le bas.
4. Laissezla g6n6ratrice dans la boTted'exp6dition afin
d'installer les roues.
La gdndratriceest livrdeavec les dldments suivants:
•Manuel d'utilisation
• Roues(2)
• Essieu
• Tige portante
• Ensemblede quincaillerie de roue
Installationde I'ensemblede roues
REIVlARQUE: Les roues n'ont pas 6t6 congues pour le
transport de la g6n6ratricesur la route.
Pour installer ces composants, vous aurez besoin des outils
suivants :
• CI6de13 mm
• CI69.douilles avec une douille de 13 mm
• Pinces
• Lunettes de s6curit6
Pour
1.
2.
3.
installer I'ensemblede roues,procddezcommesuit
Basculezla g6n6ratricede sorte que I'extr6mit6 du
moteur soit vers le haut.
Faitesglisser I'essieu (A) par les ouvertures de la
g,6n6ratrice.
Ins6rez une rondelle (6) et ensuite une roue (B) sur
I'essieu.
REIVlARQUE: Assurez-vous de placer la roueavec le moyeu
sur61ev6du c6t6 int6rieur.
4. Ins6rez une rondelle (C) sur I'essieu et posez I'anneau
en E (D) sur la rainure de I'essieu.
5. InstallezI'anneauen E& I'aidede pinces,en serrant
partir de la partiesup6rieurede I'anneauen Evers la
partie inf6rieurede I'essieu.
6. R6p6tezles 6tapes3 9.5 pourla posede ladeuxi_meroue.
7. Replacezla g6n6ratrice9.sa position normale (sur les
roues).
8. Retirez la poign6e(H) du cadre de la g6n6ratrice en
poussant les tiges (J) et en tirant sur la poign6e.
9. Tournezla poign6etel que montr6 ci-dessouset fixez-la
au cadre de la g6n6ratriceen poussantles tiges du cadre
de la g6n6ratrice.Glissezla poign6evers le bas jusqu'9.
ce que les tiges se placentsur lestrous de lapoign6e.
10. Basculezla g6n6ratricede sorte que la partie lat6raledu
moteur soit vers le bas.
11. Alignez les trous de la tige portante (E)avec ceux du
cadre de la g6n6ratrice.
12. Fixezla tige portante9.I'aidede 2 vis 9.t_te (M8 de 20
mm) (F) et de 2 6crous hexagonaux(G). Serrez9.I'aide
d'une cl69.douilles de13 mm et d'une douille de 13 mm.
13. Replacezla g6n6ratrice9.sa positon normale (sur les
roues et la tige portante).
REMARQUE: NEtournez la poign6esur le cadre de la
g,6n6ratriceQU'9.des fins d'entreposage.
Frangais

V6rification du niveau d'huile du moteur
Lemoteur de la g6n6ratricea 6t6 rempli d'huile (API SJ ou
plus 10W-30) avantson exp6dition de I'usine. Celapermet
la g6n6ratrice defonctionner dans une plage61argiede
temp6ratures et de conditions climatiques. Avant de d6marrer
le moteur, v6rifiez le niveau d'huile et assurez-vous que le
moteur a subi I'entretien d6crit dans la section Entrefien.
AVIS:Toutetentative ded6marrer le moteuravant qu'il ait
6t6 rempli avecI'huile recommand6eentrafneraune pannede
1'6quipement.
• Reportez-vous&la rubriqueEntretienausujetduremplissagede
I'huile.
• La garantie seraannul_e si desdommages _.I'_quipement sont
entrafn6s par le non-respect de cette directive.
REMARQUE: Consultezla rubrique Huilede la section
Entretienau sujet des recommandationsrelatives9.I'huile.
V6rifiezsi laviscosit6 de I'huile du moteur est appropri6e& la
temp6ratureambiante.
Ajoutde I'essence
L'essencedoit satisfaireaux exigencessuivantes :
• Essencesans plomb frafche et propre.
• Un indice d'octane minimal de 87/87 AKI (91 IOR).
Utilisation 9.des altitudes 61ev6es,voir Altitude glevge.
• Uneessence avecjusqu'9.10 % d'6thanol (gazohol) ou
jusqu'& 15 % d'6ther m6thyltertiobutylique est
acceptable.
AVIS: I_vitezd'endommager la g6n6ratrice.
L'omission de suivre les recommandations relatives 9.I'huile
du manuel d'utilisation annule la garantie.
• NEPASutiliserd'essencenonapprouv_etellequeE85.
• NEPASm61angerI'huileavecI'essence.
• NEPASmodifierlemoteurafinqu'ilfonctionneavecd'autres
typesd'essence.
Au moment d'ajouter de I'essence,la m61angeravec un
stabilisateur d'essenceafin de prot6ger le circuit
d'alimentation contre la formation de d6pOtsde gomme.Voir
la rubrique Entreposage.Les essencesne sont pas toutes
pareilles. Si vous @rouvez des probl_mes de d6marrage ou
de performance apr_s avoir utilis6 uneessence,changezde
fournisseur d'essenceou de marque d'essence. Le
fonctionnement du moteur avec de I'essenceest certifi6. Le
dispositif antipollution de ce moteur est de type EM
(Modifications de moteur).
_i, AVERTISSEMENT: L'essence et ses vapeurs sont
extr_mement inflammables et
_ explosives.
Le feu ou I'explosion risque de
provoquer des blessures graves, pouvant _tre fatales.
LORSDEL'AJOUTDU CARBURANT
• I_teignezle g_n_ratriceet laissez-le refroidir au moins 2 minutes
avant de retirer le capuchon du r_servoir de carburant.
Desserrezlentement le capuchon pour laisser la pression
s'6chapper du r6servoir.
Remplissez le r6servoir d'essence & I'ext6rieur.
NE remplissezPAStrop le r6servoir. LaissezI'expansion de
I'essence.
1.
2.
Attend le carburant renvers6pour s'6vaporer avant de d6marrer
le moteur.
I_loignezI'essencedes _tincelles, desflammes, desveilleuses,
de la chaleur et detoute autre source d'inflammation.
N'ALLUMEZPASde cigarette ou ne fumez pas& proximit_ de
I'appareil.
Nettoyez la partie autour du bouchon du r6servoir
d'essence,enlevezle bouchon.
Ajoutez lentement de I'essencesans plomb (A) dans le
r6servoir d'essence(B). Faitesattention de ne pas
d@asser la chicane (C) en remplissant. Celalaisse un
espacead6quat pour I'expansion de I'essence, tel que
montr6.
3. Installez le bouchon & essenceet attend le carburant
renvers_ pour s'_vaporer.
Altitudedlevde
A des altitudes _lev_es(plus de 1 524 m /5 000 pi), il est
acceptabled'utiliser des essencespr_sentant un indice
minimum de 85 octane /85 AKI (89 IOR). Un r_glagepour
les altitudes _lev_esest requis pour respecter les normes
relatives aux _missions. Une utilisation sans ce r_glage
entrafne unediminution de la performance, une
augmentation de la consommation d'essenceet des
_missions. Consultez un d_taillant Briggs & Stratton autoris_
au sujet de renseignements relatifs au r_glage pour les
altitudes _lev_es. L'utilisation 9.des altitudes inf_rieures 9.
762 m_tres (2 500 pieds) avec la trousse pour les altitudes
_lev_esn'est pas recommand_e.
8 BRIGGSandSTRATTON.COIVl

Mise la terre dusyst me
Lag6n6ratrice poss_de une raise 9.la terre du syst_me qui
raccorde les 61ementsdu cadre de la generatriceaux bornes
de mise 9.laterre des prises de sortie C.A. La mise 9.la terre
du syst_me est raccordeeau fil neutre C.A. (le neutre est
raccordeau cadre de la generatrice).
Exigences spdeiales
II se peut que la reglementation d'une agence federaleou
provinciale de sante et de securite du travail, des codes de
securite nationaux ou provinciaux ou des ordonnances
regissent I'utilisation prevue de la generatrice. Veuillez
consulter un electricien qualifie, un inspecteur en electricite
ou I'agencecompetente de votre region.
• Danscertains territoires, il faut enregistrer la
generatriceaupr_s du fournisseur de I'alimentation de
service.
• Desr_glements additionnels regissent peut-_tre
I'utilisation de la generatricesur les chantiers de
construction.
Branchementau syst me 61ectrique d'un6difice
Seuls les electriciens qualifies sont habilites 9.brancher la
generatrice au syst_me electrique d'un edifice pour en faire
une source d'alimentation de reserve. II faut que
I'alimentation de la generatrice soit isolee de I'alimentation
de service ou d'autres sources d'alimentation et que le
branchement soit conforme 9.toute la legislation applicable
et 9.tousles codes de I'electricite.
A, AVERTISSEMENT:Le generatriceproduit unetension
_¢ elevee.NE PASisoler le generatricede I'installation
electrique risque de provoquer des blessures ou
m_me d'etre fatal pour les ouvriers electriciens et de
causer des dommages au generatrice dus 9.un "backfeed"
d'energie electrique.
• Lorsquevousutilisezleg_n_ratricecommesourced'_nergiede
secours,il estn_cessaired'aviserlesservicespublics
d'61ectricit&
• Utilisez un disjoncteur diff6rentiel Iorsque vous utilisez I'appareil
dans des endroits humides ou extr6mementconductibles,
comme les terrasses en m6tal ou les ouvrages m6talliques.
• NETOUCHEZPASles fils d6nud6s ou les boftiers.
• N'UTILISEZPASle g6n6ratriceavecdescordons 61ectriquesus6s,
effiloch6sou d6nud6s,ouabfm6sde quelquesorte que ce soit.
• N'utilisez PAS la g6n6ratricesous la pluie ou Iors de
temp6ratures pluvieuses.
• NE MANIPULEZPASle g6n6ratriceou les cordons
d'alimentation Iorsque vous _,tesdebout dans I'eau, pieds nus
ou avec les mains ou les pieds humides.
• NE LAISSEZPASdes personnes non qualifi6es ou des enfants
se servir ou r@arer le g6n6ratrice.
Emplacementde la g6n6ratrice
Ddgagementde la gdndratrice
A, AVERTISSEMENT:Lachaleur et les gaz
d'echappement peuventenflammer des
materiaux combustibles et les structures ainsi
que causer des dommages au reservoir
d'essence et entrafner un incendie.
• Laissezund_gagementd'aumoins1,5m (5 pi)tout autourde
lag_n_ratrice,y comprisau-dessus.
Placezla generatrice dans un endroit bien ventile qui permet
I'elimination des gaz d'echappement mortels. N'installez PAS
la generatrice dans un endroit o_ les gaz d'echappement (A)
pourraient s'accumuler et penetrer ou _tre aspires dans un
edifice qui pourrait _tre occup& Assurez-vous que les gaz
d'echappement ne puissent entrer par une fen_tre, une porte,
une prise d'aeration ou une autre ouverture qui pourrait leur
permettre de s'accumuler dans un espace restreint. Tenez
aussi compte des vents dominants et des courants d'air au
moment de choisir I'endroit o_ vous installerezla
generatrice.
L'utilisation d'une gdndratrice &I'interieur PEUT
PROVOQUER LA MORT EN QUELQUES MINUTES.
Les gaz d'dchappement de la g_n_ratrice contiennent du monoxyde
de carbone. II s'agit d'un poison que vous ne pouvez ni voir ni sentir.
NE JAMAIS utiliser la g_ndratrice
dans une maison ou un garage,
MEME SI les portes et les
fen_tres sont ouvertes.
Utilisez seulement
I'EXTERIEUR et loin de
fen_tres, portes et events.
|
Frangais

Fonctionset commandes
_isez ce manuel d'utilisation et les r_glesde sdcuritdavant d'utiliser votregdndratrice.
Comparezcette illustration 9.votre g6n6ratrice pour vous familiariser avecI'emplacement des diverses commandes et
r6glages.Conservezce manuel 9.des fins de r6f6rence.
A-Rdservoirde combustible-- Capacit6de cinq (5)
gallons am6ricains (18,9 I).
B-Disjoncteurbipolaire (C.A.) -- Un disjoncteur bipolaire
est fourni afin de prot6ger toutes la 120/240 volts C.A.,30
amperes prise et la g6n6ratrice contre les surtensions.
C-Disjoncteur(C.A.} - La prise double de 120 volts c.a.,
20 A est munie d'un disjoncteur de type <<pousser pour
r6armer >>pour prot6ger la g6n6ratricecontre les
surtensions.
D - Prises doublesde 120 volts C.A., 20 amperes--
Peuvent_tre utilis6es pour alimenter les circuits
d'6clairage, les61ectrom6nagers,les outils et les moteurs
de 120 volts C.A., 20 amperes, monophas6s, 60 Hz.
E - Bouchonde remplissage --V6rifiez le niveau d'huile et
videz I'huile 9.moteur ici.
F - Bouchonde vidanged'huile -- Vidangez I'huile du
moteur ici.
G - Prise verrouillable de 120/240 voltsC.A., 30 amperes
-- Peuvent_tre utilis6es pour alimenter les circuits
d'6clairage, les61ectrom6nagers,les outils et les moteurs
de 120 et/ou de 240 volts C.A., 30 amperes,
monophas6s, 60 Hz.
H-Fixation de raise _ la masse-- Consultez I'agence
comp6tente de votre r6gion au sujet des exigencesde
mise 9.la masse.
J-Silencieux pare-dtincelles-- Le silencieux
d'6chappement r6duit le bruit du moteur et est muni d'un
6cran pare-6tincelles.
K- Etiquettes d'identification --Indique les num6ro de
module,de r6vision et de s6rie de la g6n6ratrice. Veuillez
avoir ces renseignementssous la main Iors d'appel de
service.
I. - Filtre _air-- Protege le moteur en filtrant la poussi_reet
les d6bris dans la prise d'air.
M-Identificationdu moteur -- Fournit le num6ro du
module, le type et le code du moteur. Veuillez avoir ces
renseignementsIors d'appel de service.
N - Lanceur -- Utilis6 pour le d6marrage du moteur.
P- Interrupteur_bascule-- R6glezcet interrupteur sur <<
On >>avant d'utiliser le lanceur. R6glezI'interrupteur sur
<<Off >>pour arr_ter le moteur.
FI-Levier d'dtrangleur-- Utilis6 Iors du d6marrage 9.froid
d'un moteur.
S-Robinetde carburant-- Utilis6 pour alimenter le moteur
en essenceou pour couper I'alimentation en essencedu
moteur.
10 BRIGGSandSTRATTON.COIVI

Cordonset prises
N'utilisez que des rallonges de haute qualit6 mises 9.laterre
et bien isol6es dans la prisedouble de 120 volts de la
g6n6ratrice. Inspectez les rallonges avantchaque utilisation.
V6rifiez le calibre de chacunedes rallonges avant de les
utiliser. Les rallonges utilis6esdoivent pouvoir supporter des
charges de 125 volts CA 9.20 amperes (ou plus) pour la
plupart des appareils 61ectriques.Cependant,certains
appareils n'exigent pas ce type de rallonge. Consultezles
manuels d'utilisation de cesappareils pour obtenir les
recommandations du fabricant.
Utilisezdes rallonges les plus courtes que possible pour
minimiser les chutes de tension.
A, AVERTISSEMENT:Les cordons 61ectriquessurcharg6s
peuvent entraTnerune surchauffe, un arc
61ectriqueet des brQlures risquant de provoquer
la mort, des blessures corporelles et/ou des
dommages mat6riels.
• Utiliserseulementlescordonsayantdesvaleursnominales
appropri_es&voscharges.
• Veuillezsuivretouteslesconsignesdes_curit_relativesaux
cordons_lectriques.
Un disjoncteur bipolaire est fourni afin de prot6ger la prise
verrouillable. Si le disjoncteur est d6clench6,toutes les
prises du panneausont d6connect6es.
Prise verrouillable de 120/240 voltsC.A., 30 A
Utilisezune prise NEMAL14-30 avec cette prise de courant.
Raccordezun ensemblede cordons 9.quatre ills pouvant
r6sister 9.des charges de 250 volts C.A.,9.30 amperes (ou
sup6rieure). Vous pouvezvous servir du m_mecordon 9.
quatre ills- si vous pr6voyezutiliser unecharge de 120 volts.
Cordon_quatrefils
1_20 240 V_V
W (Neutre)
< oustensio. 0arreX< oustension de ise
NEMA L14-30 _ la terre(Vert)
Cette prise alimente des chargesmonophas6es de
120/240 volts C.A.60 Hzn6cessitant jusqu'9.5 500 watts de
puissance (5,5 kW) 9.22,9 A pour 240 volts ou deux charges
ind@endantes de 120 volts _t22,9 A chacune. Un disjoncteur
bipolaire 9.basculeprotege la prise.
AVIS: II se peut que la capacit6 nominale des prises soit
sup6rieure 9. la puissance nominale de la g6n6ratrice.
• NEtentez JAMAIS d'alimenter un appareil dont I'intensit_
nominale est sup_rieure _ la capacit_de la g_n_ratrice ou des
prises.
• NEsurchargez PASla g6n6ratrice.Voir la section Ne Surchargez
Pas G_n_ratrice.
Prisesdoublesde 120 voltsC.A., 20 A
Chaqueprise de courant est prot6g6e contre les surtensions
par un disjoncteur de type "pousser pour r6armer".
Vous pouvezutiliser chacunedes prises pour faire
fonctionner des appareils 61ectriquesde 120 volts CA,
monophas6s, 60 Hzn6cessitantjusqu'9.2 400 watts
(2,4 kW) 9.20 A de courant. Utilisezun ensemble de cordons
pouvant r6sister 9.des charges de 125 volts C.A.,D.20 A (ou
sup6rieur). InspectezI'ensemble de cordons d'alimentation
avant chaque utilisation.
Frangais
11

Operation
D6marrage du moteur
D6connecteztoutes les charges 61ectriquesdu g6n6rateur.
Suivez ces 6tapesd'instructions de d6marrage dans I'ordre
num6rique (consultez la section Fonctions et commandes
pour connaTtreI'emplacementdes commandes d6crites ci-
dessous):
1. Assurez-vous que la g6n6ratricese trouve sur une
surface de niveau.
IMPORTANT:Si la g6n6ratricen'est pas sur une surface de
niveau, elle pourrait ne pas d6marrer ou encore s'arr_ter
spontan6ment.
2. Tournezlavalved'essencesur la position "On" (Marche).
3. Poussezle levier d'6trangleur & la position <, Choke >>.
4. PoussezI'interrupteur 9.basculedu moteur sur <,On >>.
5. Prenezla poign6edu lanceuret tirez-lajusqu'&ce que
vous sentiezune 16g_rer6sistance.Tirezalors
rapidement,unefois seulement,pour d6marrer le moteur.
• Si le moteur d6marre, passez& 1'6tape7.
• Si le moteur ne d6marre pas, passez& 1'6tape6.
_i, AVERTISSEMENT:Un effet de recul (r6troaction rapide)
de la corde du d6marreur pourrait entraTnerdes blessures
corporelles. L'effet de recultirera votre main et votre bras
vers le moteur plus rapidementque vous ne pouvez
relgcherla corde.
Vous risquezainsi de subir des fractures, des
ecchymoses ou des entorses.
• Lorsdu d_marragedumoteur,tirezlentementsur lacorde
jusqu'&cequevoussentiezuner_sistanceettirezalors
rapidementafind'_viteruneffetderecul.
• NEd_marrezJAMAISni n'arr6tezjamaislemoteuralorsque
desappareils_lectriquesy sontbranch_set enfonction.
6. D@lacez_ mi-course le levier d'6trangleur _ la position
"Hair' et tirez deux fois sur la poign6e du lanceur.
• Si le moteur ne d6marre pas, effectuezde nouveau
les 6tapesde 5 _ 6.
7. D@lacezlentement le levier d'6trangleur_ la position
"Run". Si le moteur h6site, d@lacez_ mi-coursele levier
d'6trangleur9.la position "Hlar' jusqu'9,ce que le moteur
tourne endouceur, puis revenez9.la position "Run".
IMPORTANT:Le moteur se <<noie >>si une quantit6
excessived'essence est pr6sentedans le m61ange
air/essence. Si cela se produit, il faut d@lacer le levier
d'6trangleur 9.la position "Run" et tirez plusieurs fois sur la
poign6ejusqu'9, ce que le moteur d6marre.
REMAFIQUE:Si le moteur d6marre apr_s 3 essais, mais qu'il
ne fonctionne pas, ou qu'il s'arr_te, assurez-vous que la
g,6n6ratricese trouve sur une surface de niveau et v6rifiez si
le carter du moteur contient suffisamment d'huile. II se peut
que cette g6n6ratricesoit munie d'un syst_me de protection
en cas de bas niveau d'huile. Si c'est le cas, le niveau d'huile
doit toujours _tre au niveau appropri6 pour permettre le
d6marrage du moteur.
_i, AVERTISSEMENT: Tout contact avec la zone du
silencieux peut causer des brQlures
f_ graves.
La chaleur et les gaz d'6chappement
peuvent enflammer des mat6riaux combustibles et les
structures ainsi que causer des dommages au r6servoir
d'essence et entrafner un incendie.
• NEtouchez PASaux pi_ceschaudes et I_VITEZle contact avec
les gazd'_chappement.
• LaissezI'_quipement refroidir avant de le toucher.
• Laissezun d_gagement d'au moins 1,5 m (5 pi) tout autour de
la g_n_ratrice, y compris au-dessus.
• L'utilisation ou lefonctionnement d'un moteur sur unterrain
boise, couvertde broussaillesou gazonn_constitue uneviolation
dans I'l_tatde laCalifornie,en vertu de la section4442 du
CaliforniaPublic ResourcesCode,& moins qu'il ne soit dot_ d'un
pare-_tincellestel que d_fini dans la section 4442 et maintenuen
bon _tat defonctionnement. II se peut qued'autres I_tatsou
d'autres comp_tencesf_d_ralesaient des lois semblables.
Communiquezavec lefabricant, led_taillantou le concessionnaire
originalde I'appareilafin d'obtenir un pare-_tincellescon(}upour le
syst_med'_chappementinstall_sur ce moteur.
• Les pi_cesde rechangedoivent 6tre identiquesaux pi_ces
d'origine et 6tre install_es&la m6me position.
12 BRIGGSandSTRATTON.COM

Raccordementde charges61ectriques
1. Laissezle moteur se rCchaufferet se stabiliser durant
quelques minutes 9.la suite du dCmarrage.
2. Assurez-vous que le disjoncteur sur le panneaude
commande est 9.la position <,ON >>.
3. Raccordezet tournez 9.la position dCsirCepour les
appareils 61ectriquesfonctionnant sous 120 et ou 240
volts C.A.,monophasCs60 Hz.
IMPORTANT: Lors du branchement dans les prises de 120
Volts, branchezles unitCs9.alimenter selon la sCquence
montrCe ci-dessous.
REMARQUE:
• NE connectez PASde charges de 240 volts aux prises
doubles 120 volts.
• NE connectez PASde chargestriphasCes9.la
gCnCratrice.
• NE connectez PASde charges 50 Hz9.la gCnCratrice.
• NE SURCHARGEZPASLA GI_NI_RATRICE.Consultez la
rubrique Ne surchargez pas votre g_n_ratrice.
AVIS: D@asser la capacit6 de puissance ou d'ampCrage du
gCnCratrice risque d'endommager ce dernier et/ou les
autres appareils 61ectriques qui y sont branchCs.
• Voir la section NE PAS Surcharger G#n#ratrice.
• D_marrezle g_n_ratriceet laissez le moteur se stabiliser avant de
brancher les charges _lectriques.
• Branchez les charges _lectriques en position ARRItT, puis,
remettez en position MARCHE.
• I_teignezles charges _lectriques et d_branchez-lesdu g_n_ratrice
avant de I'arrCter.
Arr t dumoteur
1. I_teigneztousles appareils 61ectriqueset dCbranchez-
les des prises du panneaude la gCnCratrice.Ne
dCmarrezni n'arr_tez JAMAIS le moteur Iorsque des
appareils 61ectriquesy sont branchCset en fonction.
2. Laissez le moteur fonctionner sans charge durant
plusieurs minutes afin de permettre D.la tempCrature
interne du moteur et de la gCnCratricede se stabiliser.
3. Poussez I'interrupteur 9.bascule9.la position <<Off >>.
A, AVERTISSEMENT:Desexplosions dans le silencieux,
un incendie ou desdommages au moteur
peuvent survenir.
• N'arrCtezPASlemoteurenplaqantle levierd'Ctrangleur&la
position"Choke".
4. RCglezla vanne de combustible 9.la position <<Off >>.
Fonctionnement par temps chaud
Ce moteur de gCnCratriceest dot6 de Weatherguard, une
caractCristiquenovatrice qui emp_che I'accumulation de
givre dans le carburateur dans des conditions de
tempCraturefroide. Weatherguarda 6t6 congu pour
fonctionner dans toutes les conditions climatiques. La
performance du produit peut toutefois _tre augmentCe
Iorsque la gCnCratriceest utilisCeseulement dans des
conditions de tempCratureschaudesen enlevant1'Ccran
WeatherGuard(A).
Enlevezles deux 6crous (B) et desserrez lafixation (C) tel
que montrC. Entreposez1'Ccranet les fixations pour
I'utilisation future dans des conditions de tempCraturefroide.
Frangais
13

Ne pas surchargezg6n6rateur
Capacitd
Vous devezvous assurer que votre gCnCrateurpuissefournir
suffisamment de puissance nominale (appareil en marche) et
de surtension (au dCmarrage)pour les appareils quevous
voulez alimenter en m_metemps. Suivez ces 6tapessimples:
1. SClectionnezles appareils que vous voulez alimenter
simultanCment.
2. Additionnez la puissance nominale (en marche) de ces
appareils. Vous obtiendrez le montant de puissance que
votre gCnCrateurdolt produire pour faire fonctionner
ces appareils. Voir le tableau 9.droite.
3. I_valuezle nombre de watts de surtension dont vous
aurez besoin (au dCmarrage).Lapuissancede surtension
est la breveexplosion de puissancenCcessairepour
dCmarrerles outils 9.moteur 61ectriqueou les appareils
61ectromenagerscomme unesole circulaire ou un
rCfrigCrateur.Parceque tous les moteurs nedCmarrent
pas au m_me moment, vous pouvez6valuerla puissance
de surtension totale en additionnantseulement le ou les
article(s) pour le(s)quel(s) la puissancede surtension
supplCmentaireest la plus importante,9.la puissance
nominale indiquCe9.1'Ctape2.
Exemple:
Outilouappareil
Pompe de puits
RCfrigCrateur
Ventilateur de fournaise
TClCviseur
Ampouledectrique(75watts)
Puissancede
fonctionnement
(nominale)
1200
7OO
8OO
5OO
75
Puissancede
fonctionnement
totale de 3 275 watts
Puissancenominale (appareil en marche)
Watts de surtension suppl6mentaire
Puissancetotale du gCnCrateursupplCmentaire
Puissancede
d_marrage(crOte)
suppl_mentaire
2100
2200
2350
m
Puissancede
dCmarragela plus
61evCede 2 350 watts
= 3,275
= 2,350
= 5,625
Gestionde la consommation
Afin de prolonger la durCede vie de votre gCnCrateuret des
accessoires, il est importantde faire attention Iorsquevous
ajoutez des charges 61ectriques_.votre gCnCrateur.Aucun
appareil ne dolt _tre branch6 aux prises du gCnCrateuravant
de dCmarrerle moteur. La mani_re correcte et sansaucun
risque de gCrerla consommation du gCnCrateurest d'ajouter
sCquentiellementdes charges comme indiqu6 ci-dessous:
1. DCmarrezle moteur comme I'indique ce manuel, sans
aucun appareil branch6 au gCnCrateur.
2. Branchezet mettez en marche la premiere charge, la
plus importante de prCfCrence.
3. Laissezla puissance de sortie du gCnCrateurse
stabiliser (le moteur tourne rCguli_rementet les
dispositifs branchCsfonctionnent correctement).
4. Branchezet mettez la charge suivante en marche.
5. De nouveau, laissez le gCnCrateurse stabiliser.
6. RCpCtezles 6tapes4 et 5 pour chaque charge
supplCmentaire.
N'AJOUTEZJAMAIS de charges supCrieures& la puissance
du gCnCrateur.VCrifiezparticuli_rement les charges de
surtension de la capacit6 du gCnCrateur,comme il est
indiqu6 ci-dessus.
GUIDEDE REFERENCEDE PUISSANCE
Puissance (de Puissance de
Outil ou appareil fonctionnement) cr_te (de
nominale* demarrage)
supplementaire
Essentiels
Ampoule 61ectrique-75 watts 75 --
Ventilateur de fournaise -1/2 HP 800 2350
Pompe de puisard -1/3 HP 800 1300
RCfrigCrateur/congClateur 700 2200
Pompe de puits -1/2 HP 1000 2100
Chauffage/refroidissement
Climatiseurdefen_tre-10000BTU 1200 3600
Humidificateur- 49,21 I (13 gal) 175 --
Climatiseurcentral- 24,000 BTU 3800 11400
Cuisine
Four_micro-ondes-1 000watts 1000 --
Cafeti_re 1000 --
Cuisini_re 61ectrique-8" 616ment 2100 --
Grille-pain 850 --
Salle familiale
Lecteur DVD/CD 100 --
MagnCtoscope 100 --
RCcepteurstCrCo 450 --
TClCviseurencouleurs-27 pc 500 --
Ordinateurpersonnel munid'un 800 --
6crande17 pc
Autre
Syst_me des_curit_ 500 --
Radio-r_veil AM/FM 100 --
Ouvre-porte de garage - 1/2 HP 875 2350
Chauffe-eau_lectrique 4700 11700
Sitedetravail/bricolage
Lampe detravail) quartz-halog_ne 1000 --
Pistoletsansair-1/3 HP 600 1200
Sciealternative 960 --
Perceuse_lectrique - 1/2 HP 600 900
Sciecirculaire-7 1/4 pc 1400 2300
Scie_onglet - 10pc 1800 1800
Raboteuse-6 pc 1800 1800
Scied'_tabli/radiale-10 pc 2000 2000
Compresseur d'air-1 HP 1600 4500
La puissance indiqu_eci-dessus est approximative. V_rifiez
les outils ou les appareils _lectrom_nagerspour connaftre
leur puissance en watts.
14 BRIGGSandSTRATTON.COIVI

Entretien
Calendrierd'entretien
Respectezle calendrier d'entretien de la g6n6ratrice selon le
nombre d'heures defonctionnement ou le temps 6coul6, le
premier des deux pr6valant. Lorsque I'appareil est utilis6
dans les conditions adverses d6crites ci-dessous, il faut en
faire I'entretien plus fr6quemment.
_i_ ;ill;ill;ill;ill;ill;ill;ill;ill;ill
•Changementd'huile 9.moteur
• Nettoyez les d6bris
• V6rifier le niveau d'huile
• Faire I'entretien du filtre 9.air'
• Changementd'huile 9.moteur'
• Faire I'entretien des bougie d'allumage
• Inspectezle silencieux et 1'6cranpare-6tincelles
• Nettoyez le syst_me de refroidissement'
• V6rifier le jeu des soupapes
Remplacez les pi_ces plus fr6quemment si vous utilisez I'appareil dans un
milieu sale ou poussi6reux.
Recommandationsgdndrales
Un entretien r6gulier am61iorerala performance et prolongera
la dur6e de vie de la g6n6ratrice.Consultezun d6taillant
autoris6 Briggs & Stratton pour I'entretien.
Lagarantie de la g6n6ratrice ne couvre pas les 616ments
soumis 9.I'abus ou 9.la n6gligence de I'op6rateur. Pour que la
garantie soit enti_rement valide, I'op6rateur doit entretenir la
g6n6ratrice conform6ment aux instructions contenues dans
ce manuel.
Certains ajustements devront _tre faits p6riodiquement pour
assurer un entretienad6quat de la g6n6ratrice.
IIfaut effectuer toutes les op6rations d'entretien et les
r6glagesau moins unefois par saison. Suivez les instructions
du <, Calendrierd'entretien >>ci-dessus.
REIVlARQUE: Unefois par ann6e, vous deveznettoyer ou
remplacerla bougie d'allumage et remplacerle filtre 9.air.
Unenouvelle bougie d'allumage et un filtre _.air propre
permettent de s'assurer que le m61angecombustible-air est
ad6quat en plus de contribuer au meilleur fonctionnement de
votre moteur et d'augmenter sa dur6e de vie.
ContrSledes dmissions
L'entretien, le remplacementou la rdparationdes
dispositifset systbmesantipollutionpeuvent_tre effectuds
par un dtablissement de rdparationde moteurshorsroute
ou par unepersonnequalifide. Pour obtenir un entretien
<<sansfrais >>du dispositif antipollution, le travail doit _tre
effectu6 par un d6taillant autoris6 par le fabricant. Voir la
garantie du dispositif antipollution.
Entretiende la g6n6ratrice
L'entretien de la g6n6ratriceconsiste 9.garder I'unit6 propre
et s_che. Faitesfonctionner et entreposezI'unit6 dans un
environnement propre et sec o_ elle ne serapas expos6e9.la
poussi_re, aux salet6s,9.I'humidit6 excessive ni aux vapeurs
corrosives. Les fentes de refroidissement d'air de la
g6n6ratricene doivent pas _tre obstru6es par de la neige, des
feuilles ou d'autres corps 6trangers.
REMARQUE: N'utilisez PASd'eau ou d'autres liquides pour
nettoyer la g6n6ratrice. Les liquides peuvent s'introduire dans
le syst_me d'alimentation en essenceet causer une
performance m6diocre et/ou des pannes.De plus, si des
liquides entrent dans la g6n6ratricepar les fentes de
refroidissement, une partie des liquides peut _tre retenue
dans les parties vides et les fissures du rotor et les couches
isolantes d'enroulements du stator. L'accumulation de liquide
et de poussi_redans les enroulements internes de la
g6n6ratriceentraTneraune diminution de la r6sistancedes
couches isolantes des enroulements.
Nettoyage
A tous lesjours ou avant de I'utiliser, regardezautour ou sous
la g6n6ratrices'il y a des signes defuites d'huile ou d'essence.
Nettoyezles d6bris accumul6s 9.I'int6rieur et 9.I'ext6rieurde la
g,6n6ratrice.Gardeztoujours la tringlerie, le ressort et les
autres commandesdu moteur propres. Inspectezles fentes de
refroidissement et les orifices de la g6n6ratrice.Ces
ouvertures doivent demeurer propres et non obstru6es.
Les partiesdu moteur doivent _tre gard6espropres afin de
r6duire le risque de surchauffe et d'inflammation des d6bris
accumul6s :
• Utilisez un linge humide pour nettoyer les surfaces
ext6rieures.
AVIS: Un traitement inappropri6 du g6n6ratrice risque de
I'endommager et de raccourcir sa dur6e d'utilisation.
• N'EXPOSEZPASle g_n_ratrice_ une humidit_ excessive,_ de la
poussi_re,_ de la salet_ ou _ des vapeurs corrosives.
• N'INSI_REZaucun objet dans lesfentes de refroidissement.
•Utilisez une brosse 9.soies douces pour d6tacher les
accumulations de salet6s ou d'huile.
• Utilisezun aspirateur pour ramasserles salet6set d6bris.
Frangais
15

Entretien dumoteur
_i, AVERTISSEIVIENT:Unintentional peut r6sulter dans feu
_1_ ou 61ectrique.
LORSQUEVOUSRI_GLEZOURI_PAREZVOTREGI_NI_RATRICE
•D_brancheztoujourslec_bledebougieet placez-ledefa%n
ce qu'il nesoitpasencontactaveclabougie.
LORSDETESTSD'ALLUMAGEDUIVIOTEUR
• Utilisezunv_rificateurdebougiesd'allumageapprouv&
• NEv_rifiezPASI'allumageIorsquelabougied'allumageest
enlev6e.
Huile
Recommandationsrelatives _ rhuile
Nous recommandons I'utilisation des huiles certifi6es par
garantie Briggs & Stratton pour obtenir une meilleure
performance. Les autres huiles d6tergentes de haute qualit6
sont acceptablessi elles ont les cotes pour service SF,SG,
SH, SJ ou plus. N'utilisez pas d'additifs sp6ciaux.
Les temp6ratures ext6rieures d6terminent la viscosit6 de
I'huile requise pour le moteur. Utilisez le tableau pour choisir
la meilleure viscosit6 pour la gamme de temp6ratures
ext6rieures attendues.
oF
1°4 7o
86 _oom_
68 _ m_
50
32
14
-4
-22
oC
__'_ 20304010
n m 0
'-____-10 -20
-30
* Sous40°F(4°C),I'utilisationd'unehuileSAE30entrafneun
d_marragedifficile.
** Au-dessusde80°F(27°C),I'utilisationd'unehuile10W30peut
entrafneruneconsommationd'huile plus_lev_e.V_rifiez
fr_quemmentleniveaud'huile.
REMARQUE• L'huile synth6tique respectant la
marque d'homologation ILSACGF-2,API et portant
le symbole d'entretien API (montr69. la gauche) avec
O a mention <,SJ/CF(6conomie d'6nergie) >>ou plus,
est une huile acceptablepour toutes les
temp6ratures. L'utilisation d'huile synth6tique ne
modifie pas les intervalles de changement d'huile.
Vdrificationdu niveau d'huile
II est n6cessairede v6rifier le niveau d'huile avant chaque
utilisation ou apr_s chaque p6riode de 8 heures d'utilisation.
Gardezun niveau d'huile constant.
1. Assurez-vous que la g6n6ratricese trouve sur une
surface de niveau.
2. Nettoyez la surface autour de I'orifice de remplissage
d'huile et enlevezle bouchon de remplissage d'huile.
3. V6rifiez que I'huile est sur le point de d6border par
I'orifice de remplissage.
4. Replacezle bouchon de remplissaged'huile et serrez-le.
Ajout
1.
2.
3.
,
d'huile _moteur
Assurez-vous que la g6n6ratricese trouve sur une
surface de niveau.
V6rifiez le niveau d'huile de la mani_re d6crite dans la
rubrique V#rification du niveau d'huile.
Au besoin, videz lentement I'huile dans I'orifice de
remplissage d'huile jusqu'9,ce qu'elle d6borde par
I'orifice de remplissage d'huile.
Replacezle bouchon de remplissaged'huile et serrez-le.
Changementd'huile _moteur
Si vous utilisezvotre g6n6ratricedans un endroit tr_s saleou
poussi6reuxou partemps tr_s chaud,changezI'huile plus
fr6quemment.
_i, ATTENTION: I_vitez tout contact cutan6 prolong6 ou
r6p6t6 avec I'huile moteur usag6e.
• IIa _t_ d_montr_ que I'huile moteur usag_erisque de provoquer
un cancer dela peauchezcertains animaux de laboratoire.
• Rincez consciencieusementles zones expos_esavecde I'eau et
du savon.
GARDEZHOSDE PORTI_EDESENFANTS.NEPOLLUEZ
PAS.CONSERVEZLE SURPLUS.RAPPORTEZL'HUILE
USAGI_EAUX CENTRESDERECYCLAGE.
ChangezI'huile Iorsquele moteurest encore chaud,de la
fa_on suivante :
1. Assurez-vous que I'unit6 se trouve sur une surface de
niveau.
2. D6branchezle cD.blede bougie de la bougie et placez-le
9.un endroit o_ il ne peut entrer en contact avec la
bougie.
3. Nettoyez la surface autour du bouchon de vidange
d'huile (A). Le bouchon de vidange d'huile du moteur
se trouve au basdu moteur, D.I'oppos6 du carburateur.
16 BRIGGSandSTRATTON.COIVl

4. D6vissezle bouchon de vidange d'huile et vidangez
compl_tement I'huile dans un contenant appropri6.
5. R6installezle bouchon de vidange d'huile et serrez-le
solidement. Retirez le couvercle de I'orifice de
remplissage d'huile.
6. Videz lentement de I'huile (environ 28 oz (0,83 I))
dans I'orifice de remplissage d'huile (B), jusqu'au point
de d6bordement (6) 9.I'orifice du couvercle de
remplissage d'huile. NE remplissez PAStrop.
7. Revissezle couvercle de I'orifice de remplissage
d'huile. Serrez-lefermement 9.la main.
8. Essuyeztout d6versementd'huile.
Entretiendufiltre bair
Votre moteur ne fonctionnerapas ad6quatementet pourrait
s'endommagersi vous le faitesfonctionner avecun filtre 9.air
sale.Si vous utilisez la g6n6ratricedans des endroits tr_s sales
ou poussi6reux,nettoyez-leou remplacez-leplus souvent.
Pour faire rentretien dufiltre b air, procddez commesuit :
1. D6vissezlesvis (A) et retirezlecouvercledu filtre 9.air (B).
2. Retirezsoigneusement la cartouche (6) de la base(D).
3. Nettoyez le filtre en papier en le frappant doucement
sur une surface sonde. Si le filtre en papier est trop
sale, remplacez-le par un nouveau.Jetez le filtre usag6
selon les r6glementations.
4. InstallezI'ensemble filtre 9.air propre (ou neuf) dans le
couvercle.
5. R6installezle couvercle du filtre 9.air sur la base et
serrez les vis.
Entretiende la bougied'allumage
Changezla bougie d'allumage le moteur d6marrera plus
facilement et fonctionnera mieux.
,
2.
3.
Nettoyez la surface autour de la bougie d'allumage.
Enlevezla bougie d'allumage et examinez-la.
V6rifiez 1'6cartementdes 61ectrodes9.I'aide d'une jauge
d'6paisseur et ajustez 1'6cartementdes 61ectrodeselon
les sp6cifications recommand6esau besoin (voir
Specifications).
4. Si les 61ectrodessont piqu6es, br016esou que la
porcelaine est craqu6e,changezla bougie. Utilisezla
bougie de remplacement recommand6e.Voir
Specifications.
5. Installez la bougie d'allumage et serrez-la solidement.
Inspectezle silencieux et I'dcranpare-dtincelles
Inspectez s'il y a fissures, corrosion ou outre dommage du
silencieux. Retirez1'6cranpare-6tincelles,si inclus, et
inspectezs'il y a dommage ou obstruction de calamine. S'il y
a besoin des pi_cesde rechange,assurez-vous d'installer
seulement pi_cesde rechangeoriginelles pour 1'6quipment.
A, AVERTISSEMENT: Tout contact avec la zone du
silencieux peut causer des br01ures
,_ f_, graves.
La chaleur et les gaz d'6chappement
peuvent enflammer des mat6riaux combustibles et les
structures ainsi que causer des dommages au r6servoir
d'essence et entraTner un incendie.
•NEtouchez PAS aux pi_ceschaudes et I_VITEZle contact avec
les gazd'_chappement.
• LaissezI'_quipement refroidir avant de le toucher.
• Laissezun d_gagement d'au moins 1,5 m (5 pi) tout autour de
la g_n_ratrice, y compris au-dessus.
• L'utilisation ou lefonctionnement d'un moteur sur unterrain
boise, couvertde broussaillesou gazonn_constitue uneviolation
dans I'l_tatde laCalifornie,en vertu de la section4442 du
California PublicResourcesCode,_ moins qu'il ne soit dot_ d'un
pare-_tincellestel que d_fini dans la section 4442 et maintenuen
bon _tat defonctionnement. II se peut qued'autres I_tatsou
d'autres comp_tencesf_d_ralesaient des lois semblables.
Communiquezavec lefabricant, led_taillantou le concessionnaire
originalde I'appareilafin d'obtenir un pare-_tincellescon£;upour le
syst_med'_chappementinstall_sur ce moteur.
• Les pi_cesde rechangedoivent 6tre identiquesaux pi_ces
d'origine et 6tre install_es&la m6me position.
Frangais
17

Nettoyez et inspectezle pare-dtincelles comme suit:
1. Pour retirer 1'6cranthermique (A) du silencieux (B),
enlevezd'abord les quatre vis qui relient le garde au
support du silencieux.
2. Enlevezles quatre vis qui fixent 1'6cranpare-6tincelles(C).
3. V6rifiez 1'6cranet remplacez-les'il est tordu, trou6 ou
autrement endommag6. N'utilisez PASun 6cran
d6fectueux. Si 1'6crann'est pas endommag6, nettoyez-
le avec du dissolvant commercial.
4. Installez1'6cranet le garde du silencieux.
Nettoyer le syst_mede refroidissement
Avec le temps, les d6bris peuvent s'accumuler dans les
ailettes de refroidissement du cylindre (D) et ne peuvent6tre
rep6r6sque par un d6sassemblagepartiel du moteur. Nous
vous recommandons donc de demander 9.un distributeur de
service autoris6 de nettoyerle syst_me de refroidissement
aux intervalles recommand6s (consultez la section Calendrier
d'entretien). II est aussi important de garder le moteur libre
de d6bris. Consultezla section Nettoyagede la g#n#ratrice.
Vdrificationdujeu des soupapes
La v6rification et le r6glager6guliers du jeu des soupapes
am61iorentla performance et prolonge la dur6e devie du
moteur. Cette proc6dure nepeut _tre effectu6esans un
d6sassemblagepartiel du moteur et le recours9.des outils
sp6ciaux. Nousvous recommandons donc de demander_ un
d6taillant autoris6 de v6rifier et de r6gler le jeu des soupapes
9.toutes les 250 heures ou aux intervalles recommand6s
(consultez la section Calendrierd'entretien figurant 9.la
section Entretien).
Rdglage ducarburateur
Le carburateur de ce moteur ne produit que de faibles
6missions. II est muni d'une soupape de m61angede ralenti
non r6glableet d'un ralenti r6gul6, le cas 6ch6ant. Le ralenti
r6gul6 et la vitesse maximale ont 6t6 r6gl6s en usine.
Lorsqu'un r6glageest requis, communiquez avec un
distributeur de service autoris6.
_i, ATTENTION:Les vitesses de fonctionnement
excessivement61ev6esaugmentent les risques de
blessure ou risquent d'endommager le g6n6ratrice.
Les vitesses extr_mement lentes entraTnentune charge
importante.
•Netrafiquezpaslavitesser_gul_e.Leg_n_ratriceproduitune
fr_quencenominaleet unetensioncorrectesIorsqu'il
fonctionne_ unevitesser_gul_e.
• NemodifiezPASleg_n_ratriced'aucunefa(_on.
18 BRIGGSandSTRATTON.COIVl

Entreposage
Leg6n6rateur doit _tre mise en route au moins une fois tous
les sept jours et doit marcher pendantau moins 30 minutes.
Si vous ne pouvezpas faire cela et que vous devezremiser le
g6n6rateur pour plus de 30 jours, utiliser les informations ci-
apr_s comme guide pour pr6parervotre appareilau remisage.
Entreposagede la gdndratrice
•Nettoyez la g6n6ratrice tel qu'indiqu6 & la rubrique
Nettoyagede la section Entretien.
• Assurez-vous que les fentes d'air de refroidissement et
les ouvertures sur la g6n6ratricesont ouvertes et non
obstru6es.
Directivesd'entreposage_longterme
Lecarburant peut _tre 6vent6 apr_s un entreposagede plus
de 30 jours. Un carburant 6vent6cause la formation de
d6p6ts acides et de gomme dans le syst_me d'alimentation
ou sur les pi_ces essentiellesdu carburateur. Pour garder
I'essencepropre, utilisez le stabilisateur d'essence FRESH
START® de Briggs & Stratton, disponible sous forme
d'additif liquide ou de cartouche de liquide concentr6.
II est inutile de vidanger le carburant du moteur Iorsquedu
stabilisateur d'essenceest ajout6 selon les directives. Faites
tourner le moteur pendant 2 minutes pour faire circuler le
stabilisateur dans le syst_me de carburant.
Vous pouvezensuite entreposerle moteur et I'essencedurant
une p6riodemaximale de 24 mois. Si I'essencedu moteur n'a
pas 6t6trait6e avec un stabilisateur d'essence,vous devezla
vidanger dans un contenant approuv6. Faitestourner le
moteur jusqu'9,ce qu'il s'arr_te par manqued'essence.
L'utilisation d'un stabilisateur d'essencedans un contenant
approuv6 est recommand6epour conserver lafraTcheur.
_i, AVERTISSEIVlENT:L'essenceet ses vapeurs sont
extr_mement inflammables et
_ explosives.
Le feu ou I'explosion risque de
provoquer des blessures graves, pouvant _tre fatales.
LORSQUEVOUSENTREPOSEZL'ESSENCEOUUNI_QUIPEIVIENT
AVECUNRI_SERVOIRAESSENCE
Entreposez-leloin des appareils de chauffage,des fours, des
chauffe-eau, dess_cheuses ou detout autre appareil
_lectrom_nager disposant d'une veilleuse ou detoute autre
source d'inflammation risquant d'enflammer les vapeurs
d'essence.
LORSDE L'VIDANGEDU CARBURANT
•I_teignezle g_n_ratriceet laissez-le refroidir au moins 2 minutes
avant de retirer le capuchon du r_servoir de carburant.
Desserrezlentement le capuchon pour laisser la pression
s'_chapper du r_servoir.
• Vidangez le r6servoir d'essence & I'ext6rieur.
• I_loignezI'essencedes 6tincelles, des flammes, desveilleuses,
de la chaleur et de toute autre source d'inflammation.
• N'allumez PASde cigarette ou nefumez pas & proximit_ de
I'appareil.
Changementde I'huile
Alors que le moteur est encore chaud,vidangez I'huile du
carter. Remplissez le carter _ nouveauavec de I'huile de la
qualit6 recommand6e.Consultezla section Changement
d'huile.
Autresiddes de remisage
1. N'entreposezPASd'essence d'une saison _ I'autre
moins qu'elle ne soit trait6e tel que d6crit dans
Directives d'entreposageDlong terme.
2. Remplacezle contenant 9.essences'il commence 9.
rouiller. Un carburant contamin6 peut causer des
probl_mes de moteur.
3. Couvrez I'appareil_ I'aide d'une houssede protection
ad6quatequi ne retient pas I'humidit6.
_i, AVERTISSEIVlENT:Les couvertures de rangement
peuvent _tre inflammables.
• NE placezJAMAIS une couverture de rangement sur un
g_n_ratrice.
• LaissezI'appareil refroidir suffisamment avant de placer la
couverture de rangement dessus.
4. Entreposezla g6n6ratrice dans un endroit propre et sec.
Frangais
19

D pannage
Cause
1. Un des disjoncteurs est ouvert.
2. D6faillancedans la g6n6ratrice.
3. Mauvais branchement ou cordon
d6fectueux.
4. L'appareil branch6 est d6fectueux.
1. Court-circuit dans une des charges
branch6es.
2. R_gime de la g6n6ratrice trop lent.
3. Surcharge de la g6n6ratrice.
Probl_me
Le moteurfonctionne,maisil
n'y a aucunesortiede C.A.
Le moteurtournehiensans
chargemais<<connaitdes
rat_s >>Iorsqueles
chargessontbranch_es. 4. Court-circuitsur un circuitdela
g_n_ratrice.
1. Interrupteur&basculer6g16sur <_Off >>.
2. Lerobinetd'essenceestenposition
<_Off >_.
4. Filtre & air encrass&
5. Panned'essence.
6. Essence6vent6e.
Solution
1. R_armez le disjoncteur.
2. Contactezun centre de service autoris&
3. V_rifiez et r@arez ou remplacez.
4. Branchezun appareil qui est en bon _tat.
1. D6branchezla charge 61ectriqueayant un court-
circuit.
2. Contactezun centre de service autoris&
3. Voir la rubrique Ne surchargezpas votre
gbnbratrice.
4. Contactezun centre de service autoris&
1. R_glezI'interrupteur sur <<On >>.
2. Tournez lavanne de combustible & la position <<
7. Fil de bougie non branch6& la bougie.
8. Bougied6fectueuse.
9. Eaupr6sente dans I'essence.
Open >_.
4. Nettoyez ou remplacez le filtre & air.
5. Faitesle plein du r6servoir.
6. Vidangez le r6servoir et le carburateur; faites le
plein avec de I'essence nouvelle.
Le moteurne d_marrepas,ou il
d_marreeta desrat_s.
10. Moteur noy&
11. M61anged'essence trop riche.
12. Soupape d'admission bloqu6e en position
ouverte ou ferm6e.
13. Pertede compression du moteur.
7. Branchezle fil & la bougie.
8. Remplacezla bougie.
9. Vidangez le r6servoir et le carburateur; faites le
plein avec de I'essence nouvelle.
10. Attendez 5 minutes, d@lacez le levier
d'_trangleur & la position <_RUN >_,et red_marrez
le moteur.
11. Contactezun centre de service autoris&
12. Contactezun centre de service autoris&
13. Contactezun centre de service autoris&
Le moteurs'arrOtequand il Panned'essence. Faitesle plein du r6servoir.
fonctionne.
1. Chargetrop _lev_e. 1. Voir la rubrique Ne surchargezpas votre
Manque de puissancedu g_n_ratrice.
moteur. 2. Filtre_ air encrass& 2. Remplacezle filtre _ air.
Le m61angeest trop riche ou trop pauvre dans Contactezun centre de service autoris&
A-coupsou d_clin du moteur. le carburateur.
20 BRIGGSandSTRATTON.COIVl

Garanties
I_nonc6de garantie du dispositif antipollution
pour la Californie, I'U.S. EPAet Briggs &
Stratton Corporation
Vos droitset obligationsrelatifs bla garantie
LeCalifornia Air ResourcesBoard, I'U.S. EPAet Briggs &
Stratton (B&S) sont heureux de vous expliquer la garantie
couvrant le dispositif antipollution de votre moteur ou de
votre 6quipement, de I'ann6e2008 ou plus r6cent. En
Californie, les nouveauxpetits moteurs hors route doivent
_tre congus, construits et 6quip6s de fagon 9.respecter les
normes anti-smog rigoureuses de 1'6tat.B&S doit garantir le
dispositif antipollution de votre moteur ou de votre
6quipement pour les p6riodes indiqu6es ci-dessous, 9.
condition qu'il n'y ait pas eu d'abus, de n6gligence,de
mauvais entretien sur le petit moteur hors route.
Votre dispositif antipollution peut comprendre des pi_ces
comme le carburateur ou le syst_me d'injection de
combustible, le r6servoir d'essence, le syst_me d'allumage et
le convertisseur catalytique. II peut aussi y avoir des tuyaux,
des courroies, des connecteurs, des capteurs etd'autres
dispositifs reli6s aux 6missions. Dansle cas d'un d6faut
couvert par la garantie, B&S r6pareravotre moteur ou votre
6quipement sans frais, et ce, incluant le diagnostic, les
pi_ces et la main-d'ouvre.
Couverturede garantie dufabricant :
Les petits moteurs hors route sont garantis pour une p6riode
de deux ans. Si une piece reli6eau dispositif antipollution de
votre moteur ou de votre 6quipementest d6fectueuse, B&S
la r6pareraou la remplacera.
Responsabilitdsdupropridtairerelativementbla garantie :
• En tant que propri6taire du petit moteur ou de
1'6quipement,vous _tes responsablede I'ex6cution de
I'entretien requis indiqu6 dans le manuel d'utilisation.
B&S recommande de conserver tousles regus reli6s 9.
I'entretien de votre moteur ou de votre 6quipement;
toutefois, B&S ne peut refuser d'honorer la garantie
uniquement parce que vous _tes dans I'impossibilit6 de
produire les regus ou que vous n'avez pas effectu6
toutes les 6tapesde I'entretien pr6vu.
• N6anmoins, vous devezsavoir, en tant que propri6taire
du moteur ou de 1'6quipement,que B&S peut renier la
garantie si votre moteur ou votre 6quipement ou,
encore, une piecefont d6faut en raison d'abus, de
n6gligence, d'entretien inad6quat ou de modifications
non approuv6es.
• D_squ'un probl_me survient, vous avezla
responsabilit6 de faire examiner votre moteur ou votre
6quipement dans un centre de distribution B&S, un
centre de service ou une autre entit6 6quivalente, selon
le cas. Les r6parations couvertes par la garantiedoivent
_tre effectu6es dans un d61airaisonnable,n'exc6dant
pas 30 jours. Si vous avezdes questions au sujet de
vos droits et responsabilit6s reli6s 9.la garantie,veuillez
communiquer avec B&S au (414) 259-5262.
Dispositionsde la garantie contre les ddfautsdu dispositif
antipollutionde Briggs& Stratton
Les dispositions qui suivent sont sp6cifiques 9.la couverture
de garantie contre les d6fauts du dispositif antipollution. Elle
est un ajout 9.la garantie sur les moteurs de B&S pour les
moteurs non r6gul6s,figurant dans le manuel d'utilisation.
1. Pi_cesgaranties
La couverture de cette garantie n'englobe que les
pi_ces 6num6r6esci-dessous (pi_ces du dispositif
antipollution) dans la mesure o_ ces pi_ces6taient
pr6sentes sur le moteur au moment de I'achat.
a. Syst_me de contr61ed'alimentation en carburant
• Dispositif d'enrichissement pour d6marrage 9.
froid (6trangleur 9.glissement)
• Carburateuret pi_cesinternes
• Pompe 9.carburant
• Conduit d'essence, raccords de conduit
d'essence, brides de serrage
• R6servoir d'essence, bouchon et attache
• Absorbeur de vapeurs d'essence
b. Circuit d'entr6e d'air
• Filtre 9.air
• Collecteur d'admission
• Ligne de purge et d'6vacuation
c. Syst_me d'allumage
• Bougie(s) d'allumage
• Syst_med'allumage 9.magn6to
d. Syst_me de catalyseur
• Catalytic converter
• Collecteur d'6chappement
• Syst_med'injection d'air ou soupape d'impulsion
e. 1_16mentsdivers utilis6s dans les syst_mes
pr6c6demment mentionn6s
• Soupapes et interrupteurs de d6pression, de
temp6rature, de position, 9.d61aicritique
• Connecteurset dispositifs
2. Dur6e de la couverture
Pour une p6riode de deux ans D.compter de la date
d'achat originale, B&S garantit 9.I'acheteur initial et 9.
tous les acheteurs subs6quentsque le moteur a 6t6
congu, construit et 6quip6 de fagon 9.respectertoutes
les normes en vigueur adopt6espar I'Air Resources
Board; qu'il est libre de tout d6faut de mat6riel et de
main-d'ouvre qui pourrait entrainer la d6fectuosit6
d'une piece garantie;et, qu'il est identique d'un point de
vue mat6riel au moteur d6crit dans la demande
d'homologation du fabricant. La p6riode de garantie
d6bute 9.la date d'achat du moteur par le premier
acheteur.
Frangais
21

Lagarantie des pi_cesreli6es au dispositif antipollution est la
suivante :
•Toute piece garantie dont le remplacement nefait pas
partie de I'entretien requis dans le manuel d'utilisation
dolt _tre garantie pour la p6riode de garantie indiqu6e
ci-dessus. Si une telle piece s'av_re d6fectueuseau
cours de la p6riode de la couverture de garantie, B&S
devra la r6parer ou la remplacersans frais pour le
propri6taire. Toute piece r6par6eou remplac6een vertu
de la garantie sera garantie pour la dur6e restante de la
p6riode de garantie.
• Toute piece garantie qui fait partie de I'entretien
uniquement pour une inspection r6guli_re dans le
manuel d'utilisation est garantie pour la p6riode de
garantie indiqu6e ci-dessus. Toute piece r6par6eou
remplac6een vertu de la garantie sera garantie pour la
dur6e restantede la p6riode de garantie.
• Toute piece garantie dont le remplacementfait partie de
I'entretien requis dans le manuel d'utilisation est
garantie pour la p6riode de temps avant le premier
point de remplacementpr6vu pour cette piece.Si une
telle piece s'av_re d6fectueuseavant son remplacement
pr6vu, B&S devra la r6parer ou la remplacer sans frais
pour le propri6taire. Toute piece r6par6eou remplac6e
en vertu de la garantie sera garantie pour la dur6e
restantede la p6riode avant le premier point de
remplacementpr6vu pour la piece.
• Les pi_cesajout6es ou modifi6es ne faisant pas partie
d'une exemption par I'Air ResourcesBoard ne doivent
pas _tre utilis6es. L'utilisation de pi_cesajout6esou
modifi6es par le propri6taire qui ne font pas partie
d'une exemption pourrait entraTnerle refus d'une
r6clamation au titre de la garantie. Le fabricant n'a pas
la responsabilit6 de garantir les d6fectuosit6sdes
pi_ces garanties caus6espar I'utilisation de pi_ces
ajout6es ou modifi6es qui nefont pas partie d'une
exemption.
3. Couverture indirecte
Lacouverture englobe toute d6fectuosit6 de I'un des
composants du moteur caus6e9.la suite d'une
d6fectuosit6 d'une des pi_ces reli6esau dispositif
antipollution garanties.
4. R6clamationset exclusions de couverture
Les r6clamations au titre de la garantie doivent _tre
pr6sent6es conform6ment aux dispositions de la
politique de garantie du moteur de B&S. La couverture
de garantie n'englobe pas lesd6fectuosit6s des pi_ces
reli6esau dispositif antipollution qui ne sont pas des
pi_ces originales de B&S ni les d6fectuosit6s de pi_ces
reli6es9.un abus, de la n6gligence ou un entretien
inappropri6 tel que d6taill6 dans la politique de garantie
du moteur de B&S. B&S n'est pas responsablede
couvrir les d6fectuosit6sdes pi_ces reli6es au dispositif
antipollution caus6espar I'utilisation de pi_ces ajout6es
ou modifi6es.
Recherchezla pdriode de durabilitddes dmissions et
I'indice de pollutionatmosphdriquesur I'dtiquette
d'dmissionsdu moteur
Les renseignementsconcernant la p6riode de durabilit6 des
6missions et I'indice de pollution atmosph6rique doivent _tre
fournis avec les moteurs qui r6pondent aux normes relatives
aux 6missions de la California Air ResourcesBoard (CARB).
Briggs & Stratton dolt fournir ces renseignementsaux
consommateurs sur des 6tiquettes d'6missions. L'6tiquette
des 6missions du moteur fournit des renseignementssur la
certification.
La pdriodede durabilitddes dmissions d6crit le nombre
d'heures pendant lesquellesle moteur peut fonctionner en
respectant les normes relatives aux 6missions, en supposant
que I'entretien est effectu6 conform6ment aux directives de
fonctionnement et d'entretien. Les cat6gories utilis6es sont
les suivantes :
Moddrd :Le moteur peut fonctionner pendant 125 heures
tout en respectant la norme relative aux 6missions.
Intermddiaire : Le moteur peut fonctionner pendant 250
heures tout en respectant la norme relativeaux 6missions.
Prolongd: Le moteur peut fonctionner pendant 500 heures
tout en respectant la norme relative aux 6missions.
Par exemple, I'utilisation d'une tondeuse pouss6eest
d'environ 20 9.25 heures par ann6e. Parcons6quent, la
pdriode de durabilitd des dmissions d'un moteur de
cat6gorie interrnddiaire 6quivaut 9.une p6riodede 10 9.12
ann6es.
Les moteurs Briggs & Stratton respectentles normes
relatives aux 6missions de phase 2 de I'USEPA(United
States Environmental Protection Agency). Dansle cas des
moteurs homologu6s phase 2, la p6riode de conformit6 des
6missions indiqu6e sur 1'6tiquettede conformit6 des
6missions indique le nombre d'heures de fonctionnement
pendant lesquellesle moteur a d6montr6 qu'il respectait les
exigencesf6d6rales en mati_re d'6missions.
Pour les moteurs de cylindr6e inf6rieure 9.225 cc:
Cat6gorieC =125 heures
Cat6gorieB =250 heures
Cat6gorieA =500 heures.
Pour les moteurs de cylindr6e 6gale ou sup6rieure 9.225 cc:
Cat6gorieC =250 heures
Cat6gorieB =500 heures
Cat6gorieA =1000 heures.
22 BRIGGSandSTRATTON.COIVl

,&,partir du ler F6vrier 2006, la pr6sente garantie remplace toute garantie non dat6e et toute garantie dont la date est ant6rieure au ler F6vrier 2006
GARANTIE LIMITI_E
Briggs & Stratton Power Products Group, LLC r6parera ou remplacera, sans frais, toutes pi_ces d'g6n6ratrice portative d6fectueuses comportant un vice
de mat6riau ou un d6faut de fabrication ou les deux. Envertu de la pr6sente garantie, les frais de transport des produit soumises pour r6paration ou
remplacement sont ) la charge de I'acheteur. La pr6sente garantie sera en vigueur durant les p6riodes stipul6es ci-dessous et est assujettie aux
conditions stipul6es ci-dessous. Pour obtenir des services en vertu de la garantie, veuillez consulter notre Outil de recherche d'un Service apr_s-vente
agr66 au http://www.BRIGGSandSTRATTON.COMafin de trouver un distributeur de service apres-vente agr66 dans votre r6gion.
IL N'EXISTEAUCUNEAUTRE GARANTIEEXPRESSE.LESGARANTIESIMPLICITES, INCLUANT CELLESDE QUALITt_MARCHANDEET D'ADAPTATION,&,
UN USAGEPARTICULIER,SONTLIMITC:ES,_ UNE Pt_RIODED'UN AN ,_ PARTIR DE LA DATE D'ACHATOU JUSQU',_ LA LIMITE PERMISEPAR LA LOI
TOUTEGARANTIEIMPLICITE EST EXCLUE.LA RESPONSABILITt_POURDOMMAGESACCESSOIRESOU INDIRECTSEST EXCLUEDANS LA MESURE
.... OU UNETELLEEXCLUSIONEST PERMISEPAR LA LOI. Certains t_tats/provincesou pays n'autorisent aucune restriction sur la dur6e d'une garantie
.... implicite, et certains t_tats/provinces ou pays n'autorisent pas rexclusion ou la limitation des dommages cons6cutifs ou indirects. Parcons6quent, les
restrictions et exclusions d6crites ci-dessus pourraient ne pas s'appliquer dans votre cas. La pr6sente garantie vous accorde certains droits 16gaux
sp6cifiques et vous pourriez 6galement en avoir d'autres, qui peuvent varier d'un I_tatou d'une province _ I'autre et d'un pays _ I'autre.
*deuxieme an s@are seulement
La p6riode de garantie d6bute _ la date d'achat par le premier utilisateur final, et se prolonge pour la dur6e stipul6e ci-dessus. "Usage par un consommateur"
signifie utilisation domestique personnelle darts une r6sidence, par I'acheteur au d6tail. "Usage ) des fins commerciales" signifie toute autre utilisation, y
compris ) des fins commerciales, g6n6rant de revenus ou de location. Aux fins de la pr6sente garantie, d_s qu'un 6quipement a 6t6 utilis6 commercialement
une fois, il est par la suite consid6r6 comme 6tant d'usage & des fins commerciales.
POUR EXERCERLA GARANTIESUR TOUT PRODUIT FABRIQUt_PAR BRIGGS& STRATTON,IL N'EST PAS Nt_CESSAIREDE L'ENREGISTRER.CONSERVEZ
LE REOUCOMMEPREUVED'ACHAT.SI, LORSD'UNE Rt_CLAMATIONDE GARANTIE,VOUS NE POUVEZPROUVERLA DATE INITIALE DE L'ACHAT, NOUS
UTILISERONSLA DATE DE FABRICATIONDU PRODUITCOMME DATEDE RI_Ft_RENCEPOURDt_TERMINERLA PI_RIODEDE GARANTIE.
Nous acceptons de faire effectuer les r6parations couvertes par la garantie et tenons ) nous excuser pour tout inconv6nient subi. Tout agent d'un service
apr_s-vente agr66 peut ex6cuter les r6parations couvertes par la garantie. La plupart des r6parations couvertes par la garantie sont trait6es automatiquement;
cependant, il arrive parfois que les demandes de service en vertu de la garantie soient non fond6es. Par exemple, la garantie ne couvre pas les dommages
caus6s ) 1'6quipement par une utilisation abusive, par un manque d'entretien p6riodique, durant I'exp6dition, la manutention ou I'entreposage, ou en raison
d'une installation inad6quate. Dememe, la garantie sera annul6e si la date de fabrication ou le num6ro de s6rie appos6 ) I'g6n6ratrice portative a 6t6 enlev6
ou si 1'6quipementa 6t6 chang6 ou modifi6. Durant la p6riode de garantie, le distributeur de service apres-vente agr66 r6parera ou remplacera, ) son gr6,
toute piece qui, apres examen, est trouv6e d6fectueuse _ la suite d'une utilisation et d'un entretien normaux. La pr6sente garantie ne couvre pas les
r6parations et les 6quipements suivants:
•Usure normale: Comme tout autre dispositif m6canique, les groupes 61ectrogenesd'ext6rieur n6cessitent I'entretien p6riodiques de certaines pieces
pour fonctionner ad6quatement. La pr6sente garantie ne couvre pas les frais de r6paration des pieces ou des 6quipements dont la dur6e de vie utile a
6t6 d6pass6e ) la suite d'une utilisation normale.
• Installation et entretien: La pr6sente garantie ne couvre pas les 6quipements ou les pieces qui ont fait I'objet d'une installation ou de modifications et
de changements inad6quats ou non autoris6s, d'une mauvaise utilisation, de n6gligence, d'un accident, d'une surcharge, d'emballement, d'entretien
inad6quat, de r6paration ou d'entreposage qui, selon nous, auraient nui ) la performance et ) la fiabilit6 du produit. De plus, la garantie ne couvre pas
I'entretien normal tel que les filtres ) air, le r6glage, le nettoyage du circuit d'alimentation et son obstruction (caus6e par I'accumulation de produits
chimiques, de salet6s, de calamine, decalcaire, et ainsi de suite).
•Exclusionssuppl_mentaires: La pr6sente garantie exclut les pieces qui s'usent telles que les les joints toriques, lesfiltres, etc., ou tout mauvais
fonctionnement r6sultant d'un accident, d'une utilisation abusive, de modifications, de changements ou d'un entretien inad6quat du systeme, du gel ou
d'une d6t6rioration chimique. La garantie du produit ne couvre pas les pieces accessoires telles que les commencer piles, les s6rie de corde
d'adaptateur de g6n6rateur et les couverture d'emmagasinage. Est aussi exclu tout 6quipement us6, remis ) neuf ou de d6monstration, tout
6quipement utilis6 pour I'alimentation principale en remplacement de I'alimentation de service et tout 6quipement utilis6 pour I'alimentation d'appareils
de maintien des fonctions vitales. Cette garantie exclut toute d6faillance due ) une catastrophe naturelle ou ) toute autre force majeure hors du contr61e
du fabricant. 198189F,Rev.B,12/31/2006
BRIGGS &STRATTON POWER PRODUCTS GROUP, LLC
JEFFERSON, WI, USA
Frangais
23

®
G n ratrice portative
Caract ristiquesdu produit
Pour rnod_le030439(A)
Puissanceen watts commewant ........... 6,250 Watts
Puissanceen watts ..................... 5,000 Watts*
Courant nominal
9.120 Volts CA ...................... 41,6 Amperes
9.240 Volts CA ...................... 20,8 Amperes
Fr6quencec.a...................... 60 Hzat 3600 rpm
Phase ................................. iVIonophas6
Cylindr6e ....................... 305 cc (18,61 cu. in.)
I_cartementdes 61ectrodes .......... 0.76 mm (0.030 in.)
Volume du r6servoir .......... 18,9 Litres (5 gallons US)
Capacit6du carter d'huile ......... 0.83 Litres (28 Onces)
Pour rnod_le030440(A)
Puissance en watts commen(_ant ........... 8,250 Watts
Puissance en watts ..................... 5,500 Watts*
Courant nominal
9.120 Volts CA ...................... 45,8 Amperes
9.240 Volts CA ...................... 22,9 Amperes
Fr6quencec.a...................... 60 Hzat 3600 rpm
Phase ................................. Monophas6
Cylindr6e ....................... 305 cc (18,61 cu. in.)
I_cartementdes 61ectrodes .......... 0.76 mm (0.030 in.)
Volume du r6servoir .......... 18,9 Litres (5 gallons US)
Capacit6du carter d'huile ......... 0.83 Litres (28 Onces)
Pi ces d'entretiencourant
Filtre 9.air ........................... 491588 ou 5043
Bougie antiparasite ........................... 491055
Bougie de EMS .............................. 691043
Bouteille d'huile 9.moteur ...................... 100028
Stabilisateur d'essence ................. 100002 ou 5041
Pare-6tincelles ............................. 83083GS
Puissancenominale: La puissance nominale brute des modulesavec moteur 9.essenceest indiqu6e sur une 6tiquette,
conform6ment au code J1940 (Small Engine Power & Torque Rating Procedure) de la SAE(Society of Automotive Engineers),
et la performance nominale a 6t6 obtenue et corrig6e conform6ment au code J1995 (r6vision 05-2002) de la SAE. Les valeurs
de couple ont 6t6 mesur6es 9.3 060 tr/min; lesvaleurs de puissance ont 6t6 mesur6es 9.3 600 tr/min. La puissance brute
r6elledu moteur sera inf6rieureet sera affect6e, entre autres choses, par lesconditions de fonctionnement ambiantes ainsi que
par les diff_rents entre moteurs. I_tantdonn6 la vaste gamme de produits sur lesquels nos moteurs sont install6s, ainsi que la
vari_t6 de probl_mesenvironnementaux reli_s au fonctionnement de 1'6quipement,il est possible que le moteur 9.essence que
vous avezachet6ne d6veloppe pas la puissance nominale brute indiqu6e Iorsqu'il est utilis6 pour entraTnerun appareil
61ectriquedonn6 (puissance <,sur site >>ou net r6elle). Cettedifference est caus6e par diff6rents facteurs dont, entre autres, les
accessoires (filtre 9.air, 6chappement,chargement, refroidissement, carburateur, pompe 9.essence,etc.), les limites de
I'appareil, les conditions defonctionnement ambiante (temp6rature, humidit6, I'altitude) et les diff6rences entre moteurs. En
raison des limites de fabrication et de capacit6, Briggs & Stratton peut substituer un moteur de plus grande puissance pour un
moteur de cette s6rie.
* Les caract6ristiques nominales de cette g6n6ratricesont conformes 9.la norme C22.2 No. 100-04 (moteurs et g6n6ratrices)
de I'ACNOR(Association canadiennede normalisation).
Briggs& Stratton PowerProducts Group,LLC
900 N. Parkway
Jefferson, Wisconsin,53549 U.S.A.
24 (800) 743-4115 BRIGGSandSTRATTON.COM