Brother Bas 342F Owner S Manual
Ke-434C, Ke-435C Instructions KE-434C, KE-435C INSTRUCTIONS KE-434C, KE-435C INSTRUCTIONS BROTHER a.teamworksales.com
2014-07-05
: Brother Brother-Bas-342F-Owner-S-Manual brother-bas-342f-owner-s-manual brother pdf
Open the PDF directly: View PDF
.
Page Count: 83
- front
- SAFETY INSTRUCTIONS
- CONTENTS
- 1. NAME OF EACH PART
- 2. SPECIFICATIONS
- 3. INSTALLATION
- 3-1. Power table
- 3-2. Installing the control box
- 3-3. Installing the rubber cushions
- 3-4. Installing the oil pan
- 3-5. Installing the cushions
- 3-6. Installing the switching plate
- 3-7. Installing the machine head
- 3-8. Installing the head rest
- 3-9. Installing the liquid cooling tank, optional
- 3-10. Installing the operation panel
- 3-11. Connecting the ground wire
- 3-12. Connecting the cords
- 3-13. Piping (for pneumatic)
- 3-14. Installing the belt cover
- 3-15. Installing the foot switch
- 3-16. Installing the needle sub plate
- 3-17. Installing the spool stand
- 3-18. Installing the eye guard
- 4. LUBRICATION
- 5. OPERATION
- 6. CHECKING THE SEWING PATTERN
- 7. CORRECT USE
- 8. SEWING
- 9. MAINTENANCE AND INSPECTION
- 10. STANDARD ADJUSTMENTS
- 10-1. Adjusting the needle bar height
- 10-2. Adjusting the needle bar lift amount
- 10-3. Adjusting the driver needle guard
- 10-4. Adjusting the needle clearance
- 10-5. Adjusting the shuttle race thread guide
- 10-6. Adjusting the thread take-up amount
- 10-7. Adjusting the movable knife
- 10-8. Adjusting the work clamp lift amount
- 10-9. Work clamp interchangeability
- 10-10. Adjusting the needle up stop position
- 10-11. Adjusting the thread wiper
- 10-12. Checking the input sensor and DIP switch input
- 10-13. Checking the input voltage
- 10-14. Clearing all memory settings
- 10-15. Moving stitch patterns
- 10-16. Adjustment of air pressure (for pneumatic)
- 10-17. Adjustment of inner clamping device
- 10-18. Work clamp adjustment (KE-435C)
- 10-19. Changing the work clamp lift (KE-435C)
- 11. USING THE COUNTERS
- 12. CHANGING FUNCTIONS USING THE DIP SWITCHES
- 13. CHANGING SPECIAL FUNCTIONS USING THE MEMORY SWITCHES
- 14. SETTING THE WORK CLAMP MODE
- 15. TABLE OF ERROR CODES
- 16. GAUGE PARTS LIST ACCORDING TO SUBCLASSES
- 17. MAKING THE FEED PLATE AND WORK CLAMP PLATE FOR INNER CLAMPING DEVICE
- 18. TROUBLESHOOTING
- 19. OPTIONAL PARTS
- back

KE-434C
KE-435C
Please read this manual before using the machine.
Please keep this manual within easy reach for quick reference.
ELECTRONIC LOCKSTITCH PATTERN TACKER
ELECTRONIC LOCKSTITCH PATTERN TACKER WITH STEPPING FOOT
INSTRUCTION MANUAL

i KE-434C,435C
Thank you very much for buying a BROTHER sewing machine. Before using your new machine, please read the safety
instructions below and the explanations given in the instruction manual.
With industrial sewing machines, it is normal to carry out work while positioned directly in front of moving parts such as the
needle and thread take-up lever, and consequently there is always a danger of injury that can be caused by these parts.
Follow the instructions from training personnel and instructors regarding safe and correct operation before operating the
machine so that you will know how to use it correctly.
SAFETY INSTRUCTIONS
1. Safety indications and their meanings
This instruction manual and the indications and symbols that are used on the machine itself are provided in order to ensure
safe operation of this machine and to prevent accidents and injury to yourself or other people.
The meanings of these indications and symbols are given below.
Indications
DANGER The instructions which follow this term indicate situations where failure to follow the
instructions will almost certainly result in death or severe injury.
CAUTION The instructions which follow this term indicate situations where failure to follow the
instructions could cause injury when using the machine or physical damage to equipment
and surroundings.
Symbols
··········· This symbol ( ) indicates something that you should be careful of. The picture inside the triangle
indicates the nature of the caution that must be taken.
(For example, the symbol at left means “beware of injury”.)
··········· This symbol ( ) indicates something that you must not do.
··········· This symbol ( ) indicates something that you must do. The picture inside the circle indicates the
nature of the thing that must be done.
(For example, the symbol at left means “you must make the ground connection”.)

ii
KE-434C,435C
2. Notes on safety
DANGER
Wait at least 5 minutes after turning off the power switch and disconnecting the power cord from the wall outlet before
opening the face plate of the control box. Touching areas where high voltages are present can result in severe injury.
CAUTION
Environmental requirements
Use the sewing machine in an area which is free from
sources of strong electrical noise such as high-
frequency welders.
Sources of strong electrical noise may cause prob-
lems with correct operation.
Any fluctuations in the power supply voltage should
be within ±10% of the rated voltage for the machine.
Voltage fluctuations which are greater than this may
cause problems with correct operation.
The power supply capacity should be greater than the
requirements for the sewing machine’s electrical
consumption.
Insufficient power supply capacity may cause prob-
lems with correct operation.
The pneumatic delivery capability should be greater
than the requirements for the sewing machine’s total
air consumption.
Insufficient pneumatic delivery capability may cause
problems with correct operation.
The ambient temperature should be within the range
of 5°C to 35°C during use.
Temperatures which are lower or higher than this may
cause problems with correct operation.
The relative humidity should be within the range of
45% to 85% during use, and no dew formation should
occur in any devices.
Excessively dry or humid environments and dew for-
mation may cause problems with correct operation.
Avoid exposure to direct sunlight during use.
Exposure to direct sunlight may cause problems with
correct operation.
In the event of an electrical storm, turn off the power
and disconnect the power cord from the wall outlet.
Lightning may cause problems with correct operation.
Installation
Machine installation should only be carried out by a
qualified technician.
Contact your Brother dealer or a qualified electrician
for any electrical work that may need to be done.
The sewing machine weighs more than 56 kg. The
installation should be carried out by two or more
people.
Do not connect the power cord until installation is
complete, otherwise the machine may operate if the
foot switch is depressed by mistake, which could
result in injury.
Hold the machine head with both hands when tilting it
back or returning it to its original position.
Furthermore, after tilting back the machine head, do
not push the face plate side or the pulley side from
above, as this could cause the machine head to
topple over, which may result in personal injury or
damage to the machine.
Be sure to connect the ground. If the ground connec-
tion is not secure, you run a high risk of receiving a
serious electric shock, and problems with correct
operation may also occur.
All cords should be secured at least 25 mm away from
any moving parts. Furthermore, do not excessively
bend the cords or secure them too firmly with staples,
otherwise there is the danger that fire or electric
shocks could occur.
Install the belt covers to the machine head and motor.
If using a work table which has casters, the casters
should be secured in such a way so that they cannot
move.
Be sure to wear protective goggles and gloves when
handling the lubricating oil and grease, so that they do
not get into your eyes or onto your skin, otherwise
inflammation can result.
Furthermore, do not drink the oil or eat the grease
under any circumstances, as they can cause vomiting
and diarrhoea.
Keep the oil out of the reach of children.

iii KE-434C,435C
CAUTION
Sewing
This sewing machine should only be used by opera-
tors who have received the necessary training in safe
use beforehand.
The sewing machine should not be used for any
applications other than sewing.
Be sure to wear protective goggles when using the
machine.
If goggles are not worn, there is the danger that if a
needle breaks, parts of the broken needle may enter
your eyes and injury may result.
Set the needle to the needle up stop position before
turning off the power.
If this is not done, the wiper may strike the needle,
which might cause the needle to break.
Turn off the power switch at the following times,
otherwise the machine may operate if the foot switch
is depressed by mistake, which could result in injury.
•When threading the needle
•When replacing the needle and bobbin
•When not using the machine and when leaving the
machine unattended
If using a work table which has casters, the casters
should be secured in such a way so that they cannot
move.
Attach all safety devices before using the sewing
machine. If the machine is used without these devices
attached, injury may result.
Do not touch any of the moving parts or press any
objects against the machine while sewing, as this may
result in personal injury or damage to the machine.
If an error occurs in machine operation, or if abnormal
noises or smells are noticed, immediately turn off the
power switch. Then contact your nearest Brother
dealer or a qualified technician.
If the machine develops a problem, contact your
nearest Brother dealer or a qualified technician.
Cleaning
Set the needle to the needle up stop position before
turning off the power.
If this is not done, the wiper may strike the needle,
which might cause the needle to break.
Turn off the power switch before carrying out
cleaning, otherwise the machine may operate if the
foot switch is depressed by mistake, which could
result in injury.
Be sure to wear protective goggles and gloves when
handling the lubricating oil and grease, so that they do
not get into your eyes or onto your skin, otherwise
inflammation can result.
Furthermore, do not drink the oil or eat the grease un-
der any circumstances, as they can cause vomiting
and diarrhoea.
Keep the oil out of the reach of children.
Maintenance and inspection
Maintenance and inspection of the sewing machine
should only be carried out by a qualified technician.
Ask your Brother dealer or a qualified electrician to
carry out any maintenance and inspection of the
electrical system.
Set the needle to the needle up stop position before
turning off the power.
If this is not done, the wiper may strike the needle,
which might cause the needle to break.
Turn off the power switch and disconnect the power
cord from the wall outlet at the following times,
otherwise the machine may operate if the foot switch
is depressed by mistake, which could result in injury.
•When carrying out inspection, adjustment and main-
tenance
•When replacing consumable parts such as the ro-
tary hook
Disconnect the air hoses from the air supply and wait
for the needle on the pressure gauge to drop to “0”
before carrying out inspection, adjustment and repair
of any parts which use the pneumatic equipment.
If the power switch and air need to be left on when
carrying out some adjustment, be extremely careful to
observe all safety precautions.
Hold the machine head with both hands when tilting it
back or returning it to its original position.
Furthermore, after tilting back the machine head, do
not push the face plate side or the pulley side from
above, as this could cause the machine head to
topple over, which may result in personal injury or
damage to the machine.
Use only the proper replacement parts as specified by
Brother.
If any safety devices have been removed, be abso-
lutely sure to re-install them to their original positions
and check that they operate correctly before using the
machine.
Any problems in machine operation which result from
unauthorized modifications to the machine will not be
covered by the warranty.

iv
KE-434C,435C
3. Warning labels
The following warning labels appear on the sewing machine.
Please follow the instructions on the labels at all times when using the machine. If the labels have been removed or are
difficult to read, please contact your nearest Brother dealer.
1 2
3High temperature warning display
Safety devices
Eye guard
Finger guard
Thread take-up cover
Thread take-up solenoid cover
Belt cover
Frame side cover, etc.
4Be sure to connect the ground. If the ground connection is not secure, you run a high risk of receiving a
serious electric shock, and problems with correct operation may also occur.
5Direction of operation
2743Q
Finger guard
Eye guard
Thread take-up
solenoid cover
Thread take-up
cover
Belt cover
Frame
side cover 2592Q
KE-434C,435C
CONTENTS
1. NAME OF EACH PART .............................. 1
2. SPECIFICATIONS ...................................... 2
2-1. Specifications......................................................... 2
2-2. Examples of sewing patterns................................. 3
3. INSTALLATION .......................................... 4
3-1. Power table............................................................ 4
3-2. Installing the control box ........................................ 5
3-3. Installing the rubber cushions ................................ 6
3-4. Installing the oil pan............................................... 6
3-5. Installing the cushions............................................ 6
3-6. Installing the switching plate .................................. 7
3-7. Installing the machine head ................................... 7
3-8. Installing the head rest........................................... 8
3-9. Installing the liquid cooling tank, optional............... 8
3-10. Installing the operation panel............................... 9
3-11. Connecting the ground wire................................. 9
3-12. Connecting the cords.......................................... 10
3-13. Piping (for pneumatic)......................................... 13
3-14. Installing the belt cover ....................................... 16
3-15. Installing the foot switch...................................... 16
3-16. Installing the needle sub plate ............................ 17
3-17. Installing the spool stand .................................... 18
3-18. Installing the eye guard....................................... 18
4. LUBRICATION........................................... 19
4-1. Lubrication points.................................................. 19
5. OPERATION.............................................. 20
5-1. Name and function of each operation panel item ..... 20
5-2. Operating procedure............................................. 22
5-3. Operating the foot switch ...................................... 24
5-4. Operating the emergency stop switch................... 25
5-5. Operating the thread wiper switch (KE-435C)....... 25
6. CHECKING THE SEWING PATTERN........ 26
7. CORRECT USE......................................... 27
7-1. Selecting the needle and thread ........................... 27
7-2. Installing the needle.............................................. 27
7-3. Threading the upper thread .................................. 27
7-4. Winding the lower thread ...................................... 28
7-5. Replacing the bobbin case and
threading the thread.............................................. 29
7-6. Thread tension...................................................... 29
8. SEWING .................................................... 32
9. MAINTENANCE AND INSPECTION.......... 33
9-1. Checking the needle............................................. 33
9-2. Cleaning the rotary hook....................................... 33
9-3. Lubrication ............................................................ 34
9-4. Draining the oil...................................................... 35
9-5. Cleaning the control box air inlet port.................... 35
9-6. Cleaning the air holes of belt cover
and frame side cover ............................................ 35
9-7. Cleaning the eye guard......................................... 35
10. STANDARD ADJUSTMENTS...................36
10-1. Adjusting the needle bar height...........................36
10-2. Adjusting the needle bar lift amount ....................36
10-3. Adjusting the driver needle guard........................37
10-4. Adjusting the needle clearance ...........................37
10-5. Adjusting the shuttle race thread guide ...............37
10-6. Adjusting the thread take-up amount...................38
10-7. Adjusting the movable knife.................................39
10-8. Adjusting the work clamp lift amount ...................42
10-9. Work clamp interchangeability.............................43
10-10. Adjusting the needle up stop position................43
10-11. Adjusting the thread wiper.................................44
10-12. Checking the input sensor and DIP switch input .....45
10-13. Checking the input voltage ................................46
10-14. Clearing all memory settings .............................46
10-15. Moving stitch patterns .......................................47
10-16. Adjustment of air pressure (for pneumatic)........48
10-17. Adjustment of inner clamping device.................48
10-18. Work clamp adjustment (KE-435C) ...................49
10-19. Changing the work clamp lift (KE-435C)............49
11. USING THE COUNTERS .........................50
11-1. Using the bobbin thread counter .........................50
11-2. Using the production counter...............................50
12. CHANGING FUNCTIONS USING
THE DIP SWITCHES................................51
12-1. Operation panel DIP switches .............................51
12-2. DIP switches inside the control box.....................52
12-3. Using user programs...........................................53
13. CHANGING SPECIAL FUNCTIONS
USING THE MEMORY SWITCHES .........55
13-1. Using the cycle sewing function ..........................58
14. SETTING THE WORK CLAMP MODE.....60
14-1. Setting solenoid work clamp mode......................60
14-2. Setting pneumatic work clamp mode...................60
14-3. Light work clamp .................................................62
14-4. Setting reverse work clamp mode .......................63
15. TABLE OF ERROR CODES ....................64
16. GAUGE PARTS LIST ACCORDING TO
SUBCLASSES.........................................66
17. MAKING THE FEED PLATE AND WORK CLAMP
PLATE FOR INNER CLAMPING DEVICE.........69
17-1. Sewing area ........................................................69
17-2. How to make a sewing pattern ............................69
17-3. How to make the feed plate.................................70
17-4. How to make the work clamp plate......................71
17-5. Replacing the work clamp crank and work clamp
plate holder..........................................................72
18. TROUBLESHOOTING .............................73
19. OPTIONAL PARTS ..................................76

1. NAME OF EACH PART
1
KE-434C,435C
1. NAME OF EACH PART
Specifications with inner clamping device
0298Q
2593Q
(1) Power switch
(2) Control box
(3) Operation panel
(4) Foot switch
(5) Motor
(6) Tension release lever
(7) EMERGENCY STOP switch
(8) Pulley
(9) Spool stand
(10) Thread take-up lever
(11) Wiper solenoid cover
(12) Thread wiper switch
Safety devices;
(13) Finger guard
(14) Eye guard
(15) Thread take-up cover
(16) Belt cover
(17) Frame side cover
(18) Thread take-up solenoid cover
2477Q
2594Q
KE-435C
2476Q [KE-434C/Solenoid specifications]
[KE-434C/Pneumatic specifications]
Specifications with inner clamping device

2. SPECIFICATIONS
2KE-434C,435C
2. SPECIFICATIONS
2-1. Specifications
KE-434C
Electronic lockstitch pattern tacker
KE-435C
Electronic lockstitch pattern tacker
with stepping foot
Stitch formation Single needle lock stitch
Maximum sewing speed 2,500 rpm (Pitch 3 mm)
Maximum pattern size 100 × 60 mm max.
Feed mechanism R-θ intermittent feed mechanism (pulse-motor driven mechanism)
Stitch length 0.1 - 10.0 mm
Number of stitches Variable
Maximum stitch number 20,000 stitches (including 10,000 stitches which can be added)
Work clamp lifter Solenoid type or pneumatic type
Work clamp height 17 mm max. (for solenoid), 25 mm max. (for pneumatic)
(Max. 17 mm for inner clamping device)
Rotary hook Shuttle hook (shuttle hook 2, optional)
Wiper device Standard equipment
Thread trimmer device Standard equipment
Thread take-up device Standard equipment
Stepping foot lift amount 18 mm
Stepping foot stroke 0 mm, 3 - 8 mm
Safety device built-in stopping mechanism
Data storage method P-ROM (Any sewing pattern can be added using PS-3000.)
Number of user programs 16
Number of cycle programs 4
Number of stored data Up to 100 patterns can be added. Total number of stitches of stored data
which can be added is within 10,000.
Motor Three-phase 400W induction motor
Weights Machine head: 56 kg, Operation panel: 0.6 kg,
Control box: 9 - 19 kg (depending on destination)
Power source Single-phase 110, 220 - 230, 240V
3-phase 220-230, 380, 400V
Maximum electric power consumption; 600VA
[Main use]
Patterns up to a maximum size of 100 mm × 60 mm can be sewn.
For plain stitching of small articles, curtain darts, etc.
Two-stage work clamp, light work clamp and inner clamping device can be used (for pneumatic).
For attaching items, sewing labels, etc.
If you want to sew a pattern, you can create your original pattern using the PS-3000.
Consult with your local Brother Sales Office for details.
1
2
Medium materials
Heavy materials

2. SPECIFICATIONS
3
KE-434C,435C
2-2. Examples of sewing patterns
The following are examples of possible patterns.
Sewing patterns
Uses Decorative tacking Triangular chain tacking Rectangular decorative tacking
Number of stitches 42 98 28
Sewing patterns
Uses Cross tacking Open cross tacking Buckle stitching
Number of stitches 56 42 56
Sewing patterns
Uses Square tacking Bullet-nose tacking Round tacking
Number of stitches 63 42 63
Sewing patterns
Uses Heart-shaped tacking Half-moon tacking L-shaped tacking
Number of stitches 70 64 28
Note when creating additional data
When sewing data with a small number of stitches (15 stitches or less) is sewn repeatedly (short cycle operation), the upper
shaft motor may overheat and the “E-20” error code may be generated.
0307Q 0308Q 0309Q
0310Q 0311Q 0312Q
0301Q 0302Q 0303Q
0304Q 0305Q 0306Q

3. INSTALLATION
4KE-434C,435C
3. INSTALLATION
CAUTION
Machine installation should only be carried out by a
qualified technician.
Contact your Brother dealer or a qualified electrician
for any electrical work that may need to be done.
The sewing machine head weighs more than 56 kg.
The installation should be carried out by two or more
people.
Do not connect the power cord until installation is
complete, otherwise the machine may operate if the
foot switch is depressed by mistake, which could
result in injury.
Hold the machine head with both hands when tilting it
back or returning it to its original position.
Furthermore, after tilting back the machine head, do
not push the face plate side or the pulley side from
above, as this could cause the machine head to
topple over, which may result in personal injury or
damage to the machine.
All cords should be secured at least 25 mm away from
any moving parts. Furthermore, do not excessively
bend the cable or secure it too firmly staples,
otherwise there is the danger that fire or electric
shocks could occur.
Be sure to connect the ground. If the ground
connection is not secure, you run the risk of receiving
a serious electric shock, and problems with correct
operation may also occur.
Install the belt covers to the machine head and motor.
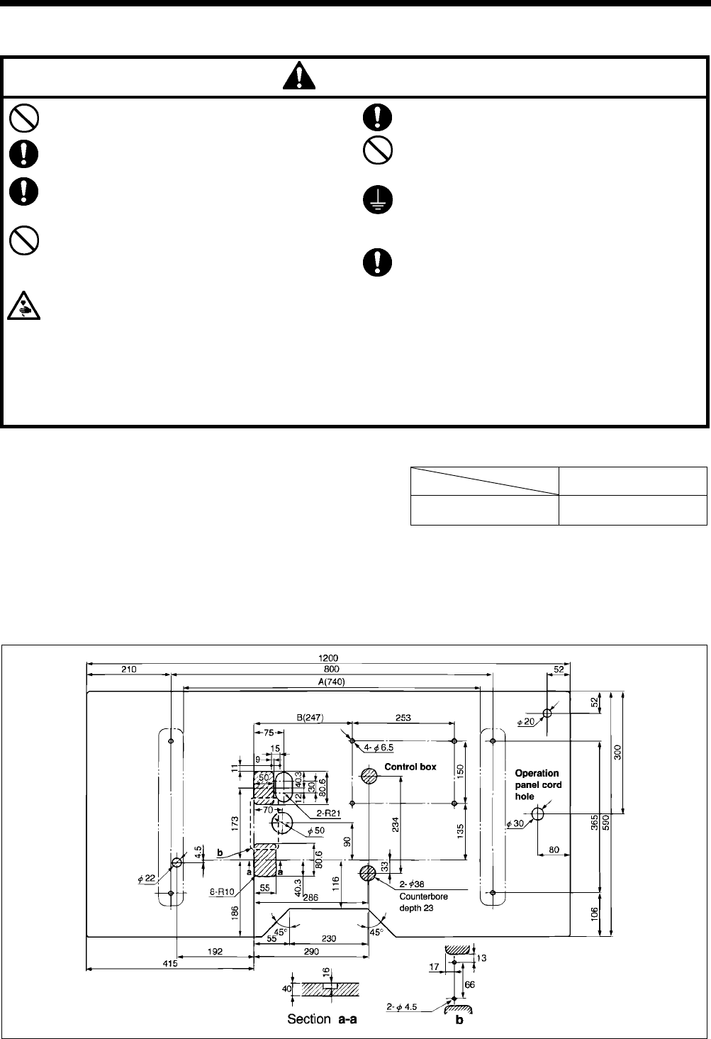
3-1. Power table
Model code
•Use the power table which has been specially designed for each
sewing machines.
* If using a commercially-available table, process it as shown in
the illustration below. Table/ legs assembly 127-V30-50001
Note:
The thickness of the table should be at least 40 mm, and it should be strong enough to bear the weight and vibration of the
sewing machine.
If the distance A between the insides of the legs is less than 740 mm, move the control box installation position to the left (B
= 247 mm).
Check that the control box is at least 10 mm away from the leg. If the control box and leg are touching, it could cause the
sewing machine to operate incorrectly.
2739Q

3. INSTALLATION
5
KE-434C,435C
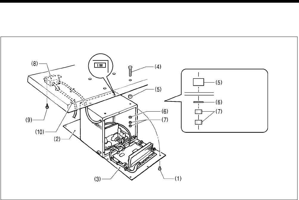
3-2. Installing the control box
Check that the IM sticker is attached to the side of the control box (in the position shown in the illustration).
(KE series machine heads can only be used with control boxes which have the IM sticker attached.)
1. Remove the 12 screws (1), and then open the covers (panel mounting assembly (2) and main P.C. board mounting plate
(3)).
Note:
When opening the cover, hold it securely so that it does not fall down.
2. Install the control box with the four accessory bolts (4), spacers (5), flat washers (6) and nuts (7) as shown in the illustration
above.
* Use two nuts (7) at each installation location, and make sure that both nuts are tightened.
3. Close the covers (panel mounting assembly (2) and main P.C. board mounting plate (3)), and tighten them with the screws
(1).
* The main P.C. board mounting plate (3) will be opened again during “3-12. Connecting the cords”, so provisionally tighten
it with the screw (1).
4. Install the power switch (8) with the two screws (9).
5. Secure the power switch cord with the three staples (10).
2454Q
Spacers
Flat washers
Nuts

3. INSTALLATION
6KE-434C,435C
3-3. Installing the rubber cushions
Install the rubber cushions (1) with the nails (2).
* Install so that the head of the nail does not protrude from the
rubber surface
3-4. Installing the oil pan
1. Insert the tabs of the oil pan (2) into the holes for the
cushions (1), and then secure it in place with the five nails
(3) so that the oil pan (2) is not at an angle.
2. While pushing the oil pan (2) down from above, screw in the
oil container (4).
3-5. Installing the cushions
Place the two cushions (1) into the holes in the work table so
that the notches are aligned with the tabs in the oil pan, and
secure them in place with the nails (2).
2489Q
2492Q
2491Q
2490Q

3. INSTALLATION
7
KE-434C,435C
3-6. Installing the switching plate
Install the switching plate (1) to the work table with the two wood
screws (2) in the position shown in the illustration.
* The switching plate and the switch bracket which is attached to
the machine head prevent the sewing machine from starting
when the machine head is tilted back. Therefore, this means
that the sewing machine will not start if the switching plate is
not installed.
3-7. Installing the machine head
1. Insert the head hinges (1) into the machine head so that they are parallel, and then secure them with the two set screws (2).
2. Place the machine head gently on top of the rubber cushions (3) and cushions (4).
Note:
Pull the cords (5) out as shown in the illustration above in order to prevent them from being clamped by the machine head.
3. Install the hinge presser (6) with the two bolts and two nuts.
4. Check that the head position switch is turned on as shown in Figure 1.
5. Connect the motor cord connector (7) to the accessory cord connector (8).
2493Q
2494Q
2495Q 2496Q
Fig. 1

3. INSTALLATION
8KE-434C,435C
3-8. Installing the head rest
Tap the head rest (1) into the table hole.
Note:
Tap the head rest securely into the table hole.
3-9. Installing the liquid cooling tank, optional
1. Remove the rubber plug, and then push the liquid cooling tank
(1).
2. Tighten it with the set screw (2).
2497Q
2498Q

3. INSTALLATION
9
KE-434C,435C
3-10. Installing the operation panel
The operation panel can be installed to either the top or bottom of the work table.
1. Install the rear frame (1) to the work table (top or bottom) with the four wood screws (2).
* At this time, tighten the wood screws (2) until the thickness of the rubber sheet is 2 to 2.5 mm.
2. Install the front frame (3) to the rear frame (1) with the four screws (4).
* The vertical orientation of the front frame (3) is the same whether it is installed to the top or the bottom of the work table.
3. Insert the connector cord (5) into the control box through the hole at the side of the box. Refer to “3-12. Connecting the cords” for
details on connecting the cord.
4. Secure the connector cord (5) with the staples (in three places).
3-11. Connecting the ground wire
CAUTION
Be sure to connect the ground. If the ground connection is not secure, you run the risk of receiving a serious electric shock,
and problems with correct operation may also occur.
2499Q
2500Q
0419Q
Top of work table Bottom of work table
Table
Table
Rubber sheet
2 - 2.5mm
2741Q
Connect to the power switch. However, the
black wire is insulated to the inside of the
box and is not used.
Connect to ground

3. INSTALLATION
10 KE-434C,435C
3-12. Connecting the cords
2744Q
2502Q 2503Q 2504Q

3. INSTALLATION
11
KE-434C,435C
1. Gently tilt back the machine head.
Note:
After tilting back the machine head, do not push the face side or the pulley side from above.
2. Pass the cord bundle (1) from the machine head through the hole (2) in the work table.
3. Gently return the machine head to its original position.
4. Remove the six screws (3), and then open the control box cover (main P.C. board mounting plate (4)).
Note:
When opening the cover, hold it securely so that it does not fall down.
5. Loosen the two screws (5), and then open the cord presser plate (6) in the direction of the white arrow and pass the cord bundle
(1) through the opening.
6. Remove the screw (7), and then pass it through the terminal holes in the ground cord (8) from the machine head and the ground
cord (9) from the operation panel. Then re-tighten the screw (7) so that the ground cords (8) and (9) are secured as shown in the
illustration.
7. Remove the screw (10) , and then pass it through the terminal hole in the ground cord (11) from the upper shaft motor. Then re-
tighten the screw (10) so that the ground cord (11) is secured as shown in the illustration.
Note:
Make sure that the ground connections are secure in order to ensure safety.
8. Securely connect connectors P1 to P8, P11, P14 (for pneumatic) and P18 as indicated in the table below.
Note:
Check that the connector is facing the correct way, and then insert it firmly until it locks into place.
Furthermore, lock the cord clamp at the top.
Machine head connectors
Connection location No. of pins Cord mark
Connection location
on circuit board Cord clamps used
Head position switch 9-pin [1A] P1 - A (ORG1) None
X, Y, Sewing sensor 12-pin [1] P1 - B (ORG2) None
Synchronizer 5-pin [2] P2 (SYNCHRO) (G)
Machine specification
select connector 8-pin [3] P3 (SELECT) None
Thread wiper solenoid*
Thread take-up solenoid 5-pin [4] P4 (SOL2) (G) (H)
Presser solenoid
Thread trimmer solenoid 4-pin [5] P5 (SOL) (G) (H)
Pulse motor, Y 4-pin (blue) [6] P6 (YPM) (G) (H)
Pulse motor, X 4-pin [7] P7 (XPM) (G) (H)
Operation panel 26-pin None P8 (PANEL) None
Upper shaft motor 3-pin None P11 (UVW) (A)(B)(C)(D)(E)(F)
EMERGENCY STOP switch 6-pin [18] P18 (HEAD) None
Solenoid valve (for pneumatic) 12-pin None P14 (AIR) (A)(B)(C)(D)
* Provided as an option for solenoid specifications.
9. Secure the cord bundle (1) with the cord clamps (12) and (13).
10. Close the cord presser plate (6) in the direction of the black arrow, and secure it by tightening the screws (5).
Note:
Check that the cords do not get pulled when the machine head is tilted back gently.

3. INSTALLATION
12 KE-434C,435C
11. Replace PROM control assembly with one which contains sewing data.
1) Use the special tool to remove the PROM control assembly (14) from the PROM socket (15).
* Store the removed PROM control assembly in the special case provided.
2) Bend the pins of the PROM control assembly which contains sewing data (16) so that they are at an angle of approximately
90°.
3) Make the directions of the PROM control assembly (16) and the PROM socket (15) same so that the portions (a) come on the
same side, and press the PROM gently into the socket while checking that the pins of the PROM are going into the socket
properly.
Note:
•If the PROM has been replaced, press the RESET switch (17) while turning on the power in order to initialize the memory.
All of the user programs, cycle programs and memory switches which have been recorded will then be cleared.
•The PROM which is installed at the time of shipment from the factory does not include any sewing data. If you try to change
the program number without replacing the PROM, error “E-b1” will be displayed.
To create sewing data, use the PS-3000 electronic pattern sewer/reader (sold separately).
12. Tighten the cover (main P.C. board mounting plate (4)) with the six screws (3).
Note:
Check that the cords do not come into contact with the fan (18) and that they are not clamped by the cover at this time.
Note:
Check that the main PROM ( * ) is version MN-G or later.
2479Q
2544Q 2597Q
2595Q 2596Q

3. INSTALLATION
13
KE-434C,435C
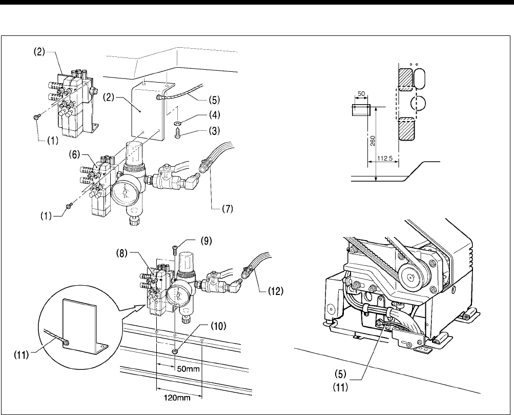
3-13. Piping (for pneumatic)
Connect air tubes in accordance with the identified numbers in the figure.
* Light work clamp mode can be used by changing over the air tube connections.
(Refer to “14. Setting the work clamp mode”.)
0746Q
[KE-434C]
Pneumatic work clamp
Upper knob
Lower knob
Switch
0319Q
Reverse work clamp
0023Q
[KE-435C]
0433Q 0434Q
Cylinder L Cylinder R
Reversal
cylinder
Stepping cylinder
Upper knob
Lower knob
Switch
Cylinder L Cylinder R

3. INSTALLATION
14 KE-434C,435C
3-13-1. Installing the air unit
Make sure that the air unit does not touch the control box or the work table leg.
<When installing to the underside of the work table>
1. Remove the two screws (1) and the valve setting plate (2).
2. Turn the valve setting plate (2) upside down, and install it to the underside of the work table using the two wood screws (3) and
washers (4) which are provided as accessories.
* At this time, install the valve setting plate (2) in a position where it will not be in the way when using the machine. (The
recommended installation position is shown in Figure 1.)
3. Install the ground cord (5) to the machine head.
4. Install the air unit (6) to the valve setting plate (2) with two screws (1).
5. Connect the air hose (7).
6. Adjust the air pressure. (Refer to “10-16. Adjusting the air pressure”.)
<When installing to a beam>
1. Make holes in the beam as shown in the illustration above. (Button hole diameter is 5.4 mm.)
Pneumatic work clamp ...... Pitch 50 mm Reverse work clamp ...... Pitch 120 mm
2. Install the air unit (8) to the beam with two accessory screws (9) and two bolts (10).
3. Install the ground cord (11) to the machine head.
4. Connect the air hose (12).
5. Adjust the air pressure. (Refer to “10-16. Adjusting the air pressure”.)
2480Q 1093Q
2598Q
Fig. 1
2481Q

3. INSTALLATION
15
KE-434C,435C
3-13-2. Adjusting the speed controller
The speeds at which the work clamps are raised and lowered can be adjusted by loosening or tightening the valve control knobs.
The speeds should be adjusted to speeds which are suitable for the intended application.
•If the upper control knob is tightened, the raising speed becomes slower; if it is loosened, the raising speed becomes faster.
•If the lower control knob is tightened, the lowering speed becomes slower; if it is loosened, the lowering speed becomes faster.
•When the power is turned off, the work clamps can be operated by pressing the switch.
Note:
Pneumatic work clamp (KE-434C)
Adjust the control knobs so that the left and right work clamps both operate at the same speed. (Valve 1 and 2)
Reverse work clamp (KE-434C)
First, adjust the speed for the reverse work clamp. (Valve 1)
Next, turn on the power and then adjust the speed of the left work clamp. (Valve 2)
Adjust the control knobs so that the lowering speed of the left work clamp becomes faster than that of the reverse work clamp
and the raising speed of it becomes slower than that of the reverse work clamp.
Next, adjust the control knobs so that the reverse work clamp operates more quickly. (Valve 3)
Stepping work clamp (KE-435C)
Adjust the control knobs so that the left and right work clamps both operate at the same speed. (Valve 1 and 2)
Adjust the control knobs so that the stepping work clamp operates more quickly. (Valve 3)

3. INSTALLATION
16 KE-434C,435C
3-14. Installing the belt cover
1. Loosen the screw (2) of the upper cover (1).
2. Insert the belt cover (3) in the direction of the arrow, and then
secure it with the two screws (2) and the two screws (4).
Check that the cords do not get clamped by the belt cover at
this time.
* It is not necessary to remove the belt cover (3) when tilting
back the machine head.
3-15. Installing the foot switch
1. Insert the connector of the foot switch (3) into the connector (2) of the control box (1).
2. Install the foot switch (3) to the work table leg (12) with foot switch support plate A (4), foot switch support plate C (5), the bolt (6),
spring washer (7), flat washer (8), bolt (9), spring washer (10) and flat washer (11) as shown in Figure A.
If foot switch support plate B (13) is used in a back-to-front position, it can be used as shown in Figure B.
1. Remove the screw (14) and rubber plug (15).
* Note that the spring (16) will come out when the screw (14) is removed.
2. Turn foot switch support plate B (13) back to front, and then install it with the bolt (17), spring washer (18) and flat washer (19) as
shown in Figure B.
Note:
If using the foot switch without installing it to the work table leg, move the foot switch at least 10 mm away from the leg. If the
foot switch is not fully in contact with the work table leg when the foot switch is used, for example, if it is just hooked loosely onto
the work table leg, it may cause the sewing machine to operate incorrectly.
If using the two-pedal foot switch as an option for solenoid specifications, change the setting of DIP switch A on the operation
panel while referring to “Setting the work clamp mode” on page 60.
2456Q
2508Q
2507Q
2506Q
[A]
[B]

3. INSTALLATION
17
KE-434C,435C
3-16. Installing the needle sub plate
1. Install the four needle sub plate supports (1) with the four
screws (2).
2. Insert the needle sub plate (3) from the front of the machine
so that it is level.
Note:
Insert the needle sub plate (3) so that the X feed lever cap
(4) sits on top of the needle sub plate (3).
3. Install the needle sub plate (3) with the four screws (5).
4. Loosen the screws (2) and make fine adjustments to the
height of the needle sub plate (3) so that it is at the same
height as the needle plate (6).
5. Provisionally secure the two auxiliary plate supports (7) with
the washers (8) and the screws (9) and (10), and then firmly
tighten the screws (9) and (10) in that order.
2599Q
2601Q
2600Q

3. INSTALLATION
18 KE-434C,435C
3-17. Installing the spool stand
Assemble the spool stand (1) while referring to the spool stand
instruction manual, and then install the spool stand (1) at the right
side of the work table.
3-18. Installing the eye guard
CAUTION
Attach all safety devices before using the sewing machine.
If the machine is used without these devices attached, injury may result.
Install the eye guard assy (2) to the face plate (1) with the two
screws (3).
2509Q
2510Q

4. LUBRICATION
19
KE-434C,435C
4. LUBRICATION
CAUTION
Turn off the power switch before starting lubricating, otherwise the machine may operate if the foot switch is depressed by
mistake, which could result in injury.
Be sure to wear protective goggles and gloves when handling the lubricating oil and grease, so that they do not get into
your eyes or onto your skin, otherwise inflammation can result.
Furthermore, do not drink the oil or eat the grease under any circumstances, as they can cause vomiting and diarrhoea.
Keep the oil out of the reach of children.
Note 1: Fill the machine with oil when the oil level is down to about one-third full in the oil sight glass.
If oil is not added and the oil drops below this level, there is the danger that the machine may seize during operation.
Note 2: Be sure to let the machine operate for a while after adding the oil.
Note 3: If there is no more oil on the felt of the shuttle race base, problems with sewing may result, so add oil to the felt until it is
slightly soaked.
Note 4: Use only specified Brother oil (Nisseki Mitsubishi Sewing Lube 10N;VG10) for the machine oil.
4-1. Lubrication points
1. Fill the arm-side oil tank with oil. 2. Fill the bed-side oil tank with oil
3. Add oil to the felt (1) of the shuttle race base.
* When setting up the sewing machine and when it hasn’t
been used for an extended period of time, be sure to add
2-3 drops oil to the felt.
4. If using the liquid cooling tank (2), fill it with silicon oil (100
mm2/s).
2512Q 2513Q
0325Q2457Q

5. OPERATION
20 KE-434C,435C
5. OPERATION
5-1. Name and function of each operation panel item
(1) POWER indicator .................... Illuminates when the power switch has been turned on.
(2) RESET switch ......................... Press this switch to reset the machine when an error occurs.
(3) TEST switch ........................... Use this switch when you want to operate only the feed mechanism in order to check a pattern.
(4) TEST indicator ........................ Illuminates when the TEST switch has been pressed.
(5) BOBBIN. WIND switch ........... Press this switch to wind the lower thread.
(6) SELECT switch ....................... Use this switch to select a menu (program number, X and Y feed, speed and counter). Each
time the switch is pressed, one of the menu indicators ((7) to (11)) illuminates, and the setting
for that menu item appears in the display (14). The illuminated indicator changes as follows
each time the switch is pressed.
PROGRAM NO. indicator (7)→X-SCALE indicator (8)→‚x -SCALE indicator (9)→SPEED indicator (10)→COUNTER indicator(11)
(7) PROGRAM NO. indicator........ Illuminates when the SELECT switch (6) is pressed to shown the program number setting.
2514Q

5. OPERATION
21
KE-434C,435C
(8) X-SCALE indicator................... Illuminates when the SELECT switch (6) is pressed to shown the X-scale setting.
(9) Y-SCALE indicator................... Illuminates when the SELECT switch (6) is pressed to shown the Y-scale setting.
(10) SPEED indicator...................... Illuminates when the SELECT switch (6) is pressed to shown the speed setting.
(11) COUNTER indicator ................ Illuminates when the SELECT switch (6) is pressed to show the bobbin thread or production
counter setting.
(12) DISPLAY SET switches........... Used to change the menu details which are displayed in the window (14).
(13) User program switches............ Used to set and select user programs.
(14) Display window........................ This display window will indicate the current statu for the selected menu, error or memory
switch.
2515Q

5. OPERATION
22 KE-434C,435C
5-2. Operating procedure
Preparation
Turn on the power switch.
* The POWER indicator (1) will illuminate and the
program number will flash in the display window (14).
*1 For checking the origin points for X and Y feed
*2 Custom-made program
Note when creating additional data
When sewing data with a small number of stitches (15 stitches or less) is sewn repeatedly (short cycle operation), the
upper shaft motor may overheat and the “E-20” error code may be generated.
5-2-1. Setting the program number
1Press the SELECT switch (6)
until the PROGRAM NO. in-
dicator illuminates. 2Press the DISPLAY SET
switches (12) until the desired
program number is flashing in
the display window.
3Depress the foot switch to the
second step.
Note: For two-pedal foot switch,
depress the work clamp switch
to lower the work clamp,
before depressing the start
switch.
* The display will stop flashing and
illuminates steadily, and the feed
mechanism will move to the sewing
start position.
This completes the setting of the program
number.
5-2-2. Setting the X-scale and Y-scale
3Depress the foot switch to the
second step.
Note: For two-pedal foot switch,
depress the work clamp switch
to lower the work clamp,
before depressing the start
switch.
1Press the SELECT switch (6)
until the X-scale or Y-scale
indicator illuminates. 2Press the DISPLAY SET
switches (12) until the desired
scale setting is flashing in the
display window.
(The setting is displayed as a per-
centage.)
* The display will stop flashing and
illuminates steadily, and the feed
mechanism will move to the sewing
start position.
This completes the setting of the X-scale or Y-
scale.
Note:
* Be sure to check the sewing pattern (refer to page 26) after setting has been completed to make sure that the needle hole
does not go out of the area circumscribed by the work clamp.
* The needle racking width for backtack stitches (with stitch widths of 1 mm or less) is not enlarged or reduced. If this results
in problems, set memo-0d to “ON”.
2518Q 2519Q
0085Q
1st step
2nd step
1st step
2nd step
0085Q
2516Q 2602Q
Factory default Variable range
Program No. 0*1100- *2
X-scale (%) 100 20 - 200
Y-scale (%) 100 20 - 200
Speed (rpm) 2,000 1,000 - 2,500

5. OPERATION
23
KE-434C,435C
5-2-3. Setting the sewing speed
1Press the SELECT switch (6)
until the SPEED indicator il-
luminates. 2Press the DISPLAY SET
switches (12) until the desired
speed setting is flashing in the
display window.
Note:
Be sure to check the sewing pattern (refer to page 26) after setting has been completed to make sure that the needle hole
does not go out of the area circumscribed by the work clamp.
2520Q 2603Q

5. OPERATION
24 KE-434C,435C
5-3. Operating the foot switch
Single-pedal foot switch (two steps)
When the foot switch is depressed to step 1, the work clamp is
lowered, and when it is depressed to step 2, sewing starts.
Two-pedal foot switch (one step + one step)
When the work clamp switch (left side) is depressed, the work
clamp is lowered, and when the start switch (right side) is
depressed, sewing starts.
Two-pedal foot switch (two steps + one step)
* For pneumatic
When the work clamp switch (left side) is depressed to step 1,
the work clamp on one side is lowered, and when it is pressed
to step 2, the work clamps on both sides are lowered.
The work clamp lowering pattern can be set to a variety of
different patterns. (Refer to “14. SETTING THE WORK CLAMP
MODE”.
When the start switch (right side) is depressed, sewing starts.
0329Q
Start switch
Work clamp switch
0330Q
Start switch
Work clamp switch
1st step
2nd step
0328Q
1st step
2nd step

5. OPERATION
25
KE-434C,435C
5-4. Operating the emergency stop switch
If the emergency stop switch is pressed while normal sewing or test sewing is being carried out, the sewing machine will
immediately stop operating.
Canceling an emergency stop
1. Turn the emergency stop switch (1) clockwise and then
pull it out to release the lock.
2. Press the RESET switch (2) on the control panel.
* The electronic alarm will stop sounding.
3. If not joining a new thread, press the RESET switch (2)
once more so that the display panel flashes. Turn the
pulley by hand to set the needle to the needle up stop
position, and then continue with sewing.
Continuing sewing from a stopping point
If the emergency stop switch was pressed because a thread
breakage occurred or the lower thread ran out, sewing can
be resumed from the point where the thread ended.
1. Turn the emergency stop switch (1) clockwise and then
pull it out to release the lock.
2. Press the RESET switch (2) on the control panel.
* The electronic alarm will stop sounding.
3. Press the BOBBIN. WIND switch (3) to trim the thread.
4. Press the BOBBIN. WIND switch (3) once more.
* The work clamp will move backward one stitch at a
time while this switch is being pressed. If the work
clamp moves back too far, press the TEST switch (4) to
move the work clamp forward. Press the TEST switch
(4) once more when you would like the work clamp to
stop.
5. Once the work clamp has returned to the desired
position, depress the foot switch. The sewing machine
will then resume sewing.
5-5. Operating the thread wiper switch (KE-435C)
The thread wiper can be turned on and off using the thread
wiper switch (1).
2608Q
2604Q
2605Q
2606Q
2607Q
0093Q

6. CHECKING THE SEWING PATTERN
26 KE-434C,435C
6. CHECKING THE SEWING PATTERN
When checking by operating only the feed mechanism
1. Turn on the power switch.
(The POWER indicator will illuminate and the program number will flash in the display window.)
2. Press the TEST switch.
(The TEST indicator will illuminate.)
3. Depress the foot switch to the second step.
* For two-pedal foot switch, lower the work clamp before depressing the start switch (right
side.)
(The feed mechanism will move to the sewing start position and the program number will
stop flashing.)
* This operation is only carried out the first time that a program has been selected or the
size ratio has been changed.
4. Depress the foot switch to the second step.
Only the feed mechanism will move.
[Check that the needle hole (1) does not protrude past the frame of the work clamp (2).]
* If you depress the foot switch again and keep it depresses after the feed mechanism has
started to move, the feeding speed will increase.
* If you would like to stop the feed while it is moving, press the TEST switch.
5. Press the TEST switch.
(The TEST indicator will switch off and the test mode will be cleared.)
6. Depress the foot switch.
The work clamp will rise and the preparation for sewing will be completed.
To ensure safety during use ......
You can prevent accidental changes being made to programs by
setting DIP switches 7 and 8 to ON.
When DIP switch 7 is ON
... The sewing pattern cannot be enlarged.
When DIP switch 8 is ON
... The program number cannot be changed.
0090Q
1st step
2nd step
0085Q
0093Q
0092Q
2459Q
1st step
2nd step
2609Q
0085Q

7. CORRECT USE
27
KE-434C,435C
7. CORRECT USE
7-1. Selecting the needle and thread
Different needles and threads are used for different sewing
applications.
Refer to the table at right for details on which needle and thread to
select.
Note:
For inner clamping device, use only the DP × 17 needle.
7-2. Installing the needle
CAUTION
Turn off the power switch before installing the needle,
otherwise the machine may operate if the foot switch
is depressed by mistake , which could result in injury.
Loosen the set screw (1), insert the needle (2) as far as it will go
so that the groove is facing toward you, and then tighten the set
screw (1).
7-3. Threading the upper thread
CAUTION
Turn off the power switch before threading the thread, otherwise the machine may operate if the foot switch is depressed
by mistake, which could result in injury.
Thread the upper thread correctly as shown in the illustration below.
* If the tension release lever (1) is raised in the direction of the arrow, it will be easier to open the tension disc (2) and pull the thread
through.
Needle Thread Main application
DP × 5 #14 #80 - #50 Medium materials
DP × 17NY #19 #50 - #20 Heavy materials
2460Q
2525Q
[When using the liquid cooling tank]
0102Q
[Two holes]
Spun rayon yarn
Synthetic thread
[One hole]
2526Q
A
pprox. 40mm
2524Q
2523Q

7. CORRECT USE
28 KE-434C,435C
7-4. Winding the lower thread
CAUTION
Do not touch any of the moving parts or press any objects against the machine while winding the lower thread, as this may
result in personal injury or damage to the machine.
1. Place the bobbin all the way onto the shaft.
2. Thread the thread as shown in the illustration at
right, wind the thread around the bobbin several
times in the direction of the arrow, and then press
the bobbin presser (1).
3. Turn on the power switch.
(The POWER indicator on the operation panel will illuminate.)
4. Depress the foot switch (2) to move the feed mechanism to the
sewing start.
5. Check that the needle is not touching the presser foot, and then while pressing the
BOBBIN. WIND switch (3), depress the foot switch (2) to start the machine. Keep
depressing the foot switch (2) until the lower thread stops being wound onto the
bobbin.
Release the BOBBIN. WIND switch (3) after the machine starts operating. If you release the foot
switch before winding is completed, depress it once more while pressing and holding the BOBBIN.
WIND switch (3).
6. The bobbin presser (1) will automatically return to its original position after a set amount of thread (80 - 90% of the
bobbin capacity) has been wound on.
7. Release the foot switch (2).
<<If the thread winds onto the bobbin unevenly>>
If the thread winds onto the bobbin unevenly, loosen
the nut (6) and turn the bobbin winder thread tension
stud (7) to adjust.
* If the thread winds on as shown in A, turn the bobbin
winder thread tension stud (7) clockwise; if it winds on as
shown in B, turn the bobbin winder thread tension stud (7)
counterclockwise.
8. Remove the bobbin,
hook the thread onto
the knife (4), and then
pull the bobbin in the
direction of the arrow to
cut the thread.
9. To wind more thread
onto the bobbin, loosen
the set screw (5) and
pull the bobbin presse
r
(1) outward.
2530Q
2531Q
2532Q
Case A
Case B
2527Q
2528Q
2529Q

7. CORRECT USE
29
KE-434C,435C
7-5. Replacing the bobbin case and threading the thread
CAUTION
Turn off the power switch before removing or inserting the bobbin case, otherwise the machine may operate if the foot
switch is depressed by mistake, which could result in injury.
1. Pull the shuttle race cover (1) toward you to open it.
2. Insert a new bobbin into the bobbin case, and then pas the thread through the slot (2) and pull it out from the thread hole (3).
Check that the bobbin turns in the direction of the arrow when the thread is pulled at this time.
3. Pass the thread through the lever thread hole (4), and then pull out approximately 30 mm of thread.
7-6. Thread tension
7-6-1. Sewing conditions and thread tension
Medium materials Heavy materials
Use Standard hook Large hook Standard hook Large hook
Upper thread #50 or
equivalent ←#30 or
equivalent ←
Lower thread #60 or
equivalent ←#50 or
equivalent ←
Upper thread tension (N) 0.6 - 0.9 1.0 - 1.3 1.2 - 1.6 1.4 - 1.8
Lower thread tension (N) 0.2 - 0.3 ←0.2 - 0.3 ←
Thread take-up spring height (mm) 9 - 11 ←9 - 11 ←
Thread take-up spring tension (N) 0.15 - 0.35 ←0.4 - 0.6 ←
Pre-tension (N) 0.1 - 0.3 ←0.3 - 0.5 ←
Needle DP × 5 #14 ←DP × 17NY #19 ←
The sewing conditions given in the above table may need to be changed depending on the article being sewn.
2610Q 2534Q
2535Q
30mm

7. CORRECT USE
30 KE-434C,435C
7-6-2. Guide to maximum sewing speed
Max. sewing speed(rpm)
Use Standard hook Large hook
8 layers of denim 2,500 2,500
12 layers of denim 2,300
Ordinary materials 2,500 2,500
Note:
The thread may break due to heat under some sewing conditions.
If this happens, reduce the sewing speed, or use the liquid cooling tank (option).
7-6-3. Lower thread tension
Adjust the thread tension to the weakest possible tension by
turning the thread tension nut (1) until the bobbin case will not
drop by its own weight while the thread end coming out of the
bobbin case is held.
7-6-4. Upper thread tension
Turn the tension nut (1) (main tension) to adjust the tension as
appropriate for the material being sewn.
Furthermore, turn the thread nut (2) (sub-tension) to adjust the
remaining length of upper thread to 35 - 40 mm, when the thread
take-up lever is not used.
2536Q
Weaker Stronger
2537Q
Weaker
Stronger
Weaker
Stronger

7. CORRECT USE
31
KE-434C,435C
7-6-5. Thread take-up spring height 7-6-6. Thread take-up spring tension
Loosen the set screw (1) and turn the tensioner body to
adjust the thread take-up spring height. Turn the tension stud (1) with a screwdriver.
7-6-7. Adjusting arm thread guide R
The standard position of arm thread guide R (1) is the posi-
tion where the screw (2) is in the center of the adjustable
range for arm thread guide R (1).
To adjust the position, loosen the screw (2) and then move
arm thread guide R (1).
* When sewing thick material, move arm thread guide R (1)
to the left. (The thread take-up amount will become
greater.)
* When sewing thin material, move arm thread guide R (1)
to the right. (The thread take-up amount will become
less.)
7-6-8. Thread take-up amount
Loosen the screw (1) and move the stopper (3.57 nut) (2) to
adjust the operating angle of the thread take-up solenoid
(3).
[KE-434C]
* To reduce the thread take-up amount, move the stopper
(2) upward.
* To increase the thread take-up amount, move the
stopper (2) downward.
[KE-435C]
* To reduce the thread take-up amount, move the stopper
(2) downward.
* To increase the thread take-up amount, move the
stopper (2) upward.
Become greater Become less
2540Q
2538Q
Lower Higher
2539Q
WeakerStronger
2611Q
[KE-434C] 2541Q
Become less
Become greater
Become greater
Become less
[KE-435C]

8. SEWING
32 KE-434C,435C
8. SEWING
CAUTION
Turn off the power switch at the following times, otherwise the machine may operate if the foot switch is depressed
by mistake, which could result in injury.
•When threading the needle
•When replacing the needle and bobbin
•When not using the machine and when leaving the machine unattended.
Do not touch any of the moving parts or press any objects against the machine while sewing, as this may result in
personal injury or damage to the machine.
Before starting sewing ......
•Check that the needle bar is at its highest position. Turn the
machine pulley so that the index mark (1) on the pulley is
between the marks (2) on the belt cover.
* If the machine pulley stop position is incorrect, error “E-
50” may be displayed, or the wiper may come into
contact with the needle and break the tip of the needle.
1. Turn on the power switch.
(The POWER indicator will illuminate and the program number will flash in the display.)
2. Depress the foot switch to the 2nd step.
* For two-pedal foot switch, depress the start switch (right
side).
The feed mechanism will move to the starting position and
the work clamp will rise.
* Note that if the foot switch is pressed to the 2nd step while
the program number is illuminated, the machine will start
operating.
3. Place the material to be sewn under the work clamp (3),
and then depress the foot switch.
When the foot switch is pressed to the 1st step, the work
clamp (3) will lower.
If you would like to shift the position of the material, release
the foot switch. The work clamp (3) will then rise again.
When the foot switch is pressed to the 2nd step, the
machine will start operating.
* For two-pedal foot switch, depress the work clamp switch
(left side) to lower the work clamp before depressing the
start switch (right side) in order to start the machine.
4. Once sewing is completed and the thread has been trimmed, feed will move automatically to the next starting
point and the work clamp (3) will rise.
1st step
2nd step
0085Q
2612Q
2462Q

9. MAINTENANCE AND INSPECTION
33
KE-434C,435C
9. MAINTENANCE AND INSPECTION
CAUTION
Turn off the power switch before carrying out cleaning, otherwise the machine may operate if the foot switch is
pressed by mistake, which could result in injury.
Be sure to wear protective goggles and gloves when handling the lubricating oil and grease, so that they do not get
into your eyes or onto your skin, otherwise inflammation can result.
Furthermore, do not drink the oil or eat the grease under any circumstances, as they can cause vomiting and
diarrhoea. Keep the oil out of the reach of children.
Wait until the motor has cooled down before cleaning the air holes.
The motor may be hot immediately after it has been used, and it may cause burns if touched.
9-1. Checking the needle
Always check that the tip of the needle is not broken and
also the needle is not bent before starting sewing.
9-2. Cleaning the rotary hook
1. Pull the shuttle race cover toward you to open it, and then
remove the bobbin case.
2. Open the setting claw (1) in the direction indicated by the
arrow, and then remove the shuttle race body (2) and the
shuttle hook (3).
3. Clean all the dust and thread ends from around the driver
(4), the top of the rotary hook thread guide and the shuttle
race.
0121Q
0122Q
2548Q
2549Q

9. MAINTENANCE AND INSPECTION
34 KE-434C,435C
9-3. Lubrication
Note1: Fill the machine with oil when the oil level is down to about one-third full in the oil sight glass. If oil is not added and
the oil drops below this level, there is the danger that the machine may seize during operation.
Note2: Be sure to let the machine operate for a while after adding the oil.
Note3: If there is no more oil on the felt of the shuttle race base, problems with sewing may result, so add oil to the felt until it
is slightly soaked.
Note4: Use only specified Brother oil (Nisseki Mitsubishi Sewing Lube 10N;VG10) for the machine oil.
1. Fill the arm-side oil tank with oil.
2. Fill the bed-side oil tank with oil.
3. Add oil to the felt (1) of the shuttle race base.
* When setting up the sewing machine and when it
hasn’t been used for an extended period of time, be
sure to add 2-3 drops oil to the felt.
4. If using the liquid cooling tank (2), fill it with silicon oil (100
mm2/s).
2457Q
0325Q
2513Q
2512Q

9. MAINTENANCE AND INSPECTION
35
KE-434C,435C
9-4. Draining the oil
1. Remove and empty the waste oil container (1) whenever
it is full.
2. After emptying the waste oil container (1), screw it back
into its original position.
9-5. Cleaning the control box air inlet port
Use a vacuum cleaner to clean the filter in the air inlet port
(2) of the control box (1) at least once a month.
* If the machine is used while the air inlet port is blocked,
the inside of the control box will overheat.
When this happens, the overheating error code “E-d0” will
be displayed and you will not be able to operate the
sewing machine.
9-6. Cleaning the air holes of belt cover and frame side cover
Remove the belt cover (1) and the frame side cover (2), and
then clean the air holes (3).
After cleaning, install the belt cover (1) and the frame side
cover (2).
* If dust collects in the air holes, it may cause the motor to
overheat. The air holes should be cleaned at regular
intervals.
In addition, be careful not to let any foreign matter get into
the air holes.
9-7. Cleaning the eye guard
Wipe the eye guard clean with a soft cloth.
Note:
Do not use solvents such as kerosene or thinner to clean
the eye guard.
2550Q
2551Q
0128Q
2463Q

10. STANDARD ADJUSTMENTS
36 KE-434C,435C
10. STANDARD ADJUSTMENTS
CAUTION
Maintenance and inspection of the sewing machine
should only be carried out by a qualified technician.
Ask your Brother dealer or a qualified electrician to
carry out any maintenance and inspection of the
electrical system.
Turn off the power switch and disconnect the power
cord from the wall outlet at the following times,
otherwise the machine may operate if the foot switch
is depressed by mistake, which could result in injury.
•When carrying out inspection, adjustment and
maintenance
•When replacing consumable parts such as the
rotary hook and knife
Hold the machine head with both hands when tilting it
back or returning it to its original position.
Furthermore, after tilting back the machine head, do
not push the face plate side or the pulley side from
above, as this could cause the machine head to
topple over, which may result in personal injury or
damage to the machine.
If the power switch and air need to be left on when
carrying out some adjustment, be extremely careful
to observe all safety precautions.
If any safety devices have been removed, be
absolutely sure to re-install them to their original
positions and check that they operate correctly
before using the machine.
10-1. Adjusting the needle bar height
Turn the machine pulley to move the needle bar to the lowest position. Then remove the rubber plug (2), loosen the set screw
(3) and then move the needle bar up or down to adjust so that the second reference line from the bottom of the needle
(reference line A) is aligned with the lower edge of the needle bar bush (1).
* If using a DP × 5 needle, use the highest reference line (reference line a).
10-2. Adjusting the needle bar lift amount
Turn the machine pulley to raise the needle bar from the lowest position until the lowest reference line on the needle
(reference line B) is aligned with the lower edge of the needle bar bush (1). Then loosen the screw (2) and move the driver (3)
to adjust so that the tip of the rotary hook is aligned with the needle center line.
* If using a DP × 5 needle, use the second reference line from the top of the needle (reference line b).
2552Q 2553Q
2554Q 2464Q

10. STANDARD ADJUSTMENTS
37
KE-434C,435C
10-3. Adjusting the driver needle guard
Turn the machine pulley to align the tip of the rotary hook with the needle center line. Then loosen the set screw (2) and turn
the eccentric shaft (3) to adjust so that the driver needle guard (1) contacts the needle.
If the needle contact pressure is too great, skipped stitches may occur. On the other hand, if the driver needle guard (1) is not
touching the needle, the tip of the inner rotary hook will obstruct the needle, resulting in an excessively high amount of friction.
10-4. Adjusting the needle clearance
Turn the machine pulley to align the tip of the rotary hook with the needle center line. Then loosen the set screw (1) and turn
the eccentric shaft (2) to adjust so that the clearance between the needle and the rotary hook is 0.01 - 0.08 mm.
10-5. Adjusting the shuttle race thread guide
Install the shuttle race thread guide (1) by pushing it in the direction of the arrow so that the needle groove is aligned with the
center of the needle plate hole.
Note:
If the shuttle race thread guide is in the wrong position, thread breakages, soiled thread or catching of the thread may
occur.
The position of the shuttle race thread guide is adjusted at the time of shipment from the factory. It should not be changed
if at all possible.
0135Q
Needle center line
Tip
2555Q 2556Q
0138Q 2557Q
0.01 - 0.08mm
2558Q

10. STANDARD ADJUSTMENTS
38 KE-434C,435C
10-6. Adjusting the thread take-up amount
At the time of shipment from the factory, the thread take-up amount (stroke) of the thread take-up lever (1) is set to the
standard setting of 5 mm. You may need to adjust this setting depending on the sewing conditions to prevent the thread from
pulling out at the sewing start.
[Adjustment method]
Loosen the screw (2) and move the stopper (3.57 nut) (3) to adjust the operating angle of the thread take-up solenoid (4).
[KE-434C]
* To reduce the thread take-up amount, move the stopper (3) upward.
* To increase the thread take-up amount, move the stopper (3) downward.
[KE-435C]
* To reduce the thread take-up amount, move the stopper (3) downward.
* To increase the thread take-up amount, move the stopper (3) upward.
Note:
Do not increase the stroke of the thread take-up lever any more than is necessary.
If the sub-thread tension is too high, the needle thread length may become too short and the thread may come out of the
needle. Furthermore, if the sub-thread tension is too weak, the needle thread length may become too long and the
underside of the article being sewn may become untidy.
‘½‚-‚È‚é
Thread take-up amount (stroke)
2560Q
2614Q 2559Q
Become greater
Become less
[KE-434C]
[KE-435C]
Become greater
Become less

10. STANDARD ADJUSTMENTS
39
KE-434C,435C
10-7. Adjusting the movable knife
1. Remove the top cover (1) while making this adjustment.
2. Press down on the plunger (2) of the thread trimming solenoid as shown in the illustration, and fit the roller (3) into the
groove of the thread trimmer cam (4).
3. In this condition, turn the machine pulley to align the position of the roller (3) with the mark on the thread trimmer cam (4).
4. Loosen the nut (6) and move the connecting rod lever (7) to the left or right to adjust so that the V section A is aligned with
the index mark B on the needle plate when in this condition (the procedure 3.) and the movable knife (5) is pushed to the
machine pulley side so that there is no play.
2465Q 2561Q
Mark
2562Q 2563Q

10. STANDARD ADJUSTMENTS
40 KE-434C,435C
10-7-1. Replacing the movable knife and fixed knife
1. Open the large shuttle hook cover, remove the bolts (1) and the feed plate (2).
2. Remove the two screws (3) and the two screws (4), and then remove the needle plate (5).
3. Remove the thread trimmer connecting rod (6) from the connecting rod lever pin (7).
4. Remove the movable knife (8) and replace it with a new one. At this time, check that the movable knife (8) and the fixed
knife (9) cut the thread cleanly. If necessary, adjust by using the apropriate movable knife washer (10) (supplied as
accessories).
* Apply grease to the outside of the collar (11) at this time.
5. Install the fixed knife (9) at a distance of 0.5 mm from the needle hole plate (12).
6. Place the thread trimming connecting rod (6) onto the connecting rod lever pin (7), and then install to the needle plate(5).
2615Q 2485Q
2946Q 2947Q

10. STANDARD ADJUSTMENTS
41
KE-434C,435C
10-7-2. Adjusting the engagement of the movable knife and fixed knife
A. After the movable knife and fixed knife are properly engaged, tighten the screw as shown in Fig. 1.
B. Turn the movable knife (in the direction of the arrow) while the screw is still tightened.
C. Loosen the screw.
D. Turn the movable knife (in the direction of the arrow) while the screw is still loosened.
Repeat above steps A , B, C and D four or five times to maintain the cutting performance of the knife.
0149Q
Fig. 1 Movable knife
Fixed knife
0150Q
Cutting
edge
Cutting
edge
2949Q
Cutting
edge
Cutting
edge

10. STANDARD ADJUSTMENTS
42 KE-434C,435C
10-8. Adjusting the work clamp lift amount
The maximum work clamp lift amount is 17 mm (25 mm for
pneumatic, 17 mm for machines with inner clamping device) from
the top of the needle plate.
The lift amount is adjusted as shown in the table at the time of
shipment.
[Solenoid type]
To adjust the work clamp lift amount, loosen the bolt (1) and move the presser arm lever plate (2) up or down.
* If movement is sluggish when the work clamp (3) is being raised and lowered, it may not be possible to increase the work
clamp (3) lift amount.
Apply grease to the bottom of the presser plate (4) to the top of the presser arm lever plate (2) and to the sliding part of the work
clamp (3) (grease is already applied at the time of shipment), and check that the movement becomes easier.
* If the work clamp (3) cannot be raised or lowered, error code “E-61” or “E-63” will be displayed.
* Check that there is a gap between the presser arm lever plate (2) and the presser plate (4) when the work clamp (3) is lowered.
[Pneumatic type]
1. Raise the work clamp (1) and loosen the screws (2).
2. Adjust the work clamp lift by moving the presser levers (3) and (4) up and down and then tighten the screws (2).
* If movement is sluggish when the work clamp (1) is being raised and lowered, it may not be possible to increase the work
clamp (1) lift amount.
Apply grease to the sliding part of the work clamp (1) (grease is already applied at the time of shipment), and check that
the movement becomes easier.
0339Q 2617Q
17mm max.
Uses Medium
materials Heavy
materials
Lift amount 10 mm 14 mm
+1
0 +1
0
2618Q
25 mm max.
(17 mm max. for machines
with inner clamping device)

10. STANDARD ADJUSTMENTS
43
KE-434C,435C
10-9. Work clamp interchangeability
The BAS-311F work clamp can also be used with the KE-
434C, 435C.
Replace the feed bar guide cover (1) with the feed bar guide
cover assembly, LL (2) (optional).
Then, change the installation position for the presser arm
assembly (3) from the standard installation position A to
installation position B.
To use the BAS-311F work clamp and the KE-434C, KE-
435C work clamp interchangeably
Use the optional work clamp 434EMK2 air (5) with the KE-
434C, KE-435C work clamp.
It can then be used interchangeably with the BAS- 311F work
clamp (6) at installation position B.
10-10. Adjusting the needle up stop position
The needle up stop position is adjusted so that the index
mark (2) on the machine pulley (1) is inside the mark (4) on
the belt cover (3).
If adjustment is necessary, loosen the screw (5) at the “U”
mark of the machine pulley (1) and adjust the position of the
machine pulley (1). The machine pulley (1) stops later if it is
turned clockwise, and it stops earlier if it is turned counter-
clockwise.
Note:
The screw (6) at the “D” mark is an adjusting screw for the
needle down detection function and is adjusted to match
the feed timing, so it should not be loosened.
The screw (7) is a screw for detecting the machine stop
position, and should not be loosened.
* If the index mark (2) is not inside the mark (4) when the
sewing machine is started, error code “E-50” will be
displayed. Turn the machine pulley to move the index mark
(2) to the correct position and then start the sewing
machine.
2619Q
2620Q
2576Q

10. STANDARD ADJUSTMENTS
44 KE-434C,435C
10-11. Adjusting the thread wiper
[Solenoid type]
1. Loosen the set screw (2) and move the wiper arm support (3) up or down to adjust so that the clearance between the top
of the thread wiper and the needle point (1) is 2 ± 0.5 mm when the thread wiper is aligned with the center of the needle.
* Before carrying out this adjustment, check that the needle bar is lowered 5 to 5.5 mm from the needle up stop position
when the sewing machine stops.
2. Loosen the screw (4) and move the thread guide connecting plate (5) up or down so that the thread wiper is approximately
20 mm from the needle when it is at the standby position.
[Pneumatic type]
1. Loosen the set screw (2) and move the wiper arm support (3) up or down to adjust so that the clearance between the top
of the thread wiper and the needle point (1) is 2 ± 0.5 mm when the thread wiper is aligned with the center of the needle.
* Before carrying out this adjustment, check that the needle bar is lowered 5 to 5.5 mm from the needle up stop position
when the sewing machine stops.
2. Loosen the two bolts (4) and move the wiper solenoid cover (5) up or down so that the thread wiper is approximately 30
mm from the needle when it is at the standby position.
2578Q
2577Q
2
±
0.5mm
2579Q
2948Q
A
pprox.
30 mm
2578Q
2577Q 2579Q
2580Q
2 ± 0.5mm
A
pprox.
20mm

10. STANDARD ADJUSTMENTS
45
KE-434C,435C
10-12. Checking the input sensor and DIP switch input
1. When the X-SCALE indicator (1) is illuminated and the RESET switch (3) is pressed while the TEST switch (2) is being
pressed, the state of the X home position signal will appear on the display window (4).
• When sensor is ON • When sensor is OFF
2. Each time the SELECT switch (5) is pressed, a different indicator will illuminate and the operating condition for the
corresponding item will appear on the display window (4).
•When X-SCALE indicator is illuminated................. X home position sensor (ON when home position detected)
•When Y-SCALE indicator is illuminated................. Y home position sensor (ON when home position detected)
•When SPEED indicator is illuminated .................... Synchronizer ( * 1)
•When COUNTER indicator is illuminated ..............Presser sensor (ON when presser is lowered).....For solenoid
specification
*1The synchronizer display simultaneously displays the needle up signal (3rd digit), the 24-section signal (2nd digit) and
the needle down signal (1st digit).
[ H L L] “H” when the sensor is on, and “L” when the sensor is off
Needle down signal
24-section signal
Needle up signal
If the DIP switches at the side of the operation panel are changed at this time, the number of the DIP switch which was
changed will be displayed in the 4th digit position of the display window (4) for about one second.
Note:
The DIP switch can be changed at this time without turning off the power so that you can check the DIP switch input.
However, you should normally always turn off the power when changing DIP switch settings.
3. Press the TEST switch (2) again to return the display to the normal condition.
2581Q

10. STANDARD ADJUSTMENTS
46 KE-434C,435C
10-13. Checking the input voltage
1. Turn on the power switch.
2. Press the SELECT switch (1) until the Y-SCALE indicator (2) illuminates.
3. While pressing the TEST switch (3), press the RESET switch (4).
4. If the input voltage is normal, the input voltage conditions will be shown in the display window (5) as indicated in the table above.
5. Press the TEST switch (3) again to return the display to the normal condition.
10-14. Clearing all memory settings
If the sewing machine stops operating normally, the cause may be that an incorrect memory setting may have been made by means
of the memory switch, for instance. In such cases, carry out the following procedure to clear the memory, and also check the DIP
switch settings.
[ Method ]
While pressing the RESET switch, turn on the power. This will clear all of the memory setting.
Note:
This operation causes memory switches to be returned to their initial settings, and user program setting to be cleared.
Specifications Display Notes
200V [090 - 110]
220V [100 - 120]
230V [105 - 125]
“100” is displayed when the input voltage is 200 V.
100V
380V
400V
415V
[100 - 120] “110” is displayed when the input voltage is
100V (for 100-V specs), 380V (for 380-V specs),
400V (for 400-V specs) or 415V (for 415-V specs).
2582Q

10. STANDARD ADJUSTMENTS
47
KE-434C,435C
10-15. Moving stitch patterns
•Programs which have already been programmed can be moved up, down and to the left and right.
* Once the power switch has been turned off, the amount of movement that has been stored in memory is reset. However, if
memory switch memo-28 is set to ON, you can keep the amount of movement recorded in memory. (The amount of movement
is retained in memory even when the power switch is turned off.)
* The amount of movement is reset when you change the program number.
•The feed position can be set to the any position desired.
1. Select the program number, and then press the start switch once to move the feed mechanism to the sewing start position.
2. Press the SELECT switch (1) until the PROGRAM NO. indicator (2) illuminates.
3. While pressing the TEST switch (3), press the RESET switch (4).
* The TEST indicator (5) will illuminate and < > will appear in the display window (6).
4. Press the SELECT switch (1) so that either the X-SCALE indicator (7) or Y-SCALE indicator (8) illuminates.
5. Press the DISPLAY SET switches (9) to move the feed mechanism one pulse at a time.
•If the DISPLAY SET ( ) switch is pressed while the X-SCALE indicator is illuminated, the feed mechanism will move to the
left.
•If the DISPLAY SET ( ) switch is pressed while the X-SCALE indicator is illuminated, the feed mechanism will move to the
right.
•If the DISPLAY SET ( ) switch is pressed while the Y-SCALE indicator is illuminated, the feed mechanism will move down.
•If the DISPLAY SET ( ) switch is pressed while the Y-SCALE indicator is illuminated, the feed mechanism will move up.
6. When the TEST switch (3) is pressed after the above fine adjustments have been made, the TEST indicator (5) and display
window (6) will both switch off and movement of the stitch pattern will be completed.
Note:
When moving the stitch pattern, take the whole of the pattern area into consideration so that no parts extend outside the sewing
area when the pattern is sewn.
* If you would like to set the feed position to a desired position, carry out steps 2. to 6. above while the display window (6) is
flashing. The stitch pattern will not be moved at this time.
2583Q

10. STANDARD ADJUSTMENTS
48 KE-434C,435C
10-16. Adjustment of air pressure (for pneumatic)
1. Air pressure should be 0.5 Mpa.
The air pressure can be adjusted by pulling up and turning the
control knob (2) on the integrator (1).
After adjustment is complete, push the control knob (2)
downward to lock it.
2. Adjust the air pressure for the reversal cylinder to stay within
such a range that the presser crank (4) rotates reversely when
pressing the sewing material with the pressure plate (3).
(Approx. 0.3 Mpa)
For adjustment, pull up and, turn the control knob (6) on the
air regulator (5).
After adjustment is complete, push the control knob (6)
downward to lock it.
3. If water stands in the bottle of the integrator (1), turn the drain
cock (7) in the direction indicated by an arrow to drain the
water.
10-17. Adjustment of inner clamping device
Adjustment of the positioning plates
Loosen the screws (2), and adjust the position of the positioning
plate R (3) so that the label (1) can be evenly laid out between
the front and back seams (A).
Next, loosen the screws (4), and adjust the position of the
positioning plate L (5) so that the presser plate can be evenly laid
out between the left and right seams (B).
Adjustment of the presser crank horizontal position
Loosen the nut (3) and push in or pull out the adjusting bolt (4) so
that the presser crank (2) can be horizontal when the reversal
cylinder piston rod (1) is moved to the left extreme.
2624Q
2623Q
2621Q
Increase pressure
Increase pressure
2622Q

10. STANDARD ADJUSTMENTS
49
KE-434C,435C
10-18. Work clamp adjustment (KE-435C)
Turn the pulley to hand to lower the work clamp to the down position, and then proceed with the steps below.
1. Loosen screw (1), set the bottom of the work clamp (2) lightly
against the work piece, and then tighten screw (1).
Note:
If the work clamp is lowered too far, the work piece will shift
when sewing. Also, if the work clamp is too high, skipped
stitches may occur.
2. Turn the pulley by hand, and make sure the needle enters the
center of the needle hole in the work clamp (2). If the needle is
not aligned with the center of the needle hole, remove cap (3),
loosen screw (4), and turn the work camp (presser bar) to
adjust.
10-19. Changing the work clamp lift (KE-435C)
Standard work clamp (1) lift is 3 mm (max. 8 mm).
Adjusting work clamp lift to 3 - 5 mm
1. Loosen the screw (2) and open the stepping cover (3).
2. Loosen the nut (4) and adjust the stepping work clamp connecting rod (5) position.
* When the stepping work clamp connecting rod is raised, the lift will increase. When lowered, the lift will decrease.
Adjusting work clamp lift to 5 - 8 mm
1. Turn the upper shaft to set the work clamp to its lowest point. Loosen the screw (9) of stepping work clamp arm (R) (8). Adjust the
clearance between the presser bar lifter (6) and the presser ber bush (7) to 0.5 - 1 mm.
2. Loosen the nut (4) and adjust the stepping work clamp connecting rod (5) position.
* When the stepping work clamp connecting rod is raised, the lift will increase. When lowered, the lift will decrease.
If vertical movement of the work clamp is not required
1. Remove the face plate (10).
2. Remove the stud screw (11) and re-attach the stepping
connecting rod (12) to the upper screw hole (14) of the
stepping work clamp arm (F) (13).
2625Q
2628Q 2629Q
2626Q 2483Q 2627Q
3 - 5mm
0.5 - 1mm
Increase
Decrease

11. USING THE COUNTERS
50 KE-434C,435C
11. USING THE COUNTERS
11-1. Using the bobbin thread counter
If you use the bobbin thread counter to set the number of articles which can be sewn with the amount of bobbin thread
available, you can stop the bobbin thread running out in the middle of sewing a pattern.
1. Press the SELECT switch (1) until the COUNTER
indicator (2) illuminates.
2. While pressing the TEST switch (3), press the RESET
switch (4).
* The COUNTER indicator (2) will flash and the counter
will switch to bobbin thread counter setting mode.
3. Press the DISPLAY SET switches (5) to set the number of
articles to be sewn.
•The bobbin thread counter can be set to sew a number
of articles from one (“0001”) through to 9999 (“9999”).
If the bobbin thread counter is set to “0000”, sewing is
carried out without the number of articles sewn being
counted.
•If you press the RESET switch (4) while setting the
bobbin thread counter, the setting will return to “0000”.
4. Press the TEST switch (3).
* The number displayed in the display window (6) will
then be stored as the bobbin thread counter setting.
5. Each time the sewing of a single article is completed, the number being displayed in the display window (6) will become
smaller. When the number of articles set by the bobbin thread counter have all been sewn, “0000” will be displayed in the
display window (6), and an alarm will start sounding continuously.
* The sewing machine will not operate during this time, even if the foot switch is depressed.
6. Replace the bobbin, and then press the RESET switch (4).
* The alarm will then stop sounding, and the number which was set in step 3. above will be re-displayed in the display
window (6).
11-2. Using the production counter
The production counter can be displayed in the display window (6) separately from the bobbin thread counter.
1. Press the SELECT switch (1) until the SPEED indicator
(2) illuminates.
2. While pressing the TEST switch (3), press the RESET
switch (4).
* The COUNTER indicator (5) and the SPEED indicator
(2) will illuminate, and the production counter will be
displayed in the display window (6).
•Press the RESET switch (4) to reset the production
counter to “0000”.
•You can also press the DISPLAY SET switches (7) to
set the production counter to the desired value.
3. When the foot switch is depressed, the sewing machine
will start sewing.
4. If you press the TEST switch (3) or the SELECT switch (1),
the display will return to showing the bobbin thread
counter.
11. USING THE COUNTERS 2585Q
2584Q

12. CHANGING FUNCTIONS USING THE DIP SWITCHES
51
KE-434C,435C
12. CHANGING FUNCTIONS USING THE DIP SWITCHES
12-1. Operation panel DIP switches
The functions shown in the table below can be changed by
means of these DIP switches (1).
* All DIP switches are set to OFF at the time of shipment.
Note:
Always turn off the power before setting the DIP switches.
Switch Motion when set to ON
DIPA-1 Presser does not automatically lift after sewing is completed.
DIPA-2 Pedal mode is switched. See “14. Setting the presser mode”
DIPA-3 User program mode is available.
DIPA-4 −
DIPA-5 The presser does not rise automatically when a split is found.
DIPA-6 Displays the enlargement/reduction ratio in millimeter units instead of as a percentage. (After
changing this setting, be sure to carry out the auto-clear operation by referring to page 46.)
DIPA-7 Enlargement of pattern size is not available.
DIPA-8 Program number is fixed.
0176Q
2586Q

12. CHANGING FUNCTIONS USING THE DIP SWITCHES
52 KE-434C,435C
12-2. DIP switches inside the control box
DANGER
Wait at least 5 minutes after turning off the power switch and disconnecting the power cord from the wall outlet
before opening the face plate of the control box. Touching areas where high voltages are present can result in
severe injury.
The functions can be changed as shown in the table below
by changing the positions of the DIP switches (1).
* All DIP switches are set to OFF at the time of shipment.
Note:
When opening the cover, hold it securely so that it does not
fall down.
Switch Motion when set to ON
DIPB-1 First two stitches are sewn at a low speed of 260 rpm.
DIPB-2 Last two stitches are sewn at a low speed of 260 rpm.
DIPB-3 −
DIPB-4 Last two stitches are sewn at a low speed of 700 rpm.
DIPB-5 First two stitches are sewn at a low speed of 400 rpm.
DIPB-6 Low speed sewing is not performed at the start of sewing.
DIPB-7 The motor operates in reverse when the upper shaft stops, to return the needle bar to close to its
highest position. *NOTE
DIPB-8 −
*Note:
When the motor operates in reverse to raise the needle, the thread take-up will stop at a position which is lower than its
normal stopping position. As a result, the thread take-up will rise slightly at the sewing start, and this may result in the
thread pulling out under certain conditions.
2484Q

12. CHANGING FUNCTIONS USING THE DIP SWITCHES
53
KE-434C,435C
12-3. Using user programs
Recording a user program
1. Turn off the power switch and then set DIP switch A-3
of the DIP switches (1) to ON.
2. Turn on the power switch.
While pressing the TEST switch (2), press the SELECT
switch (3).
* All of the menu indicators ((4) to (8)) will illuminate and the mode
will switch to recording mode.
* In addition, “PP 1” will appear in the display window (9) to
indicate that user program No.1 is being recorded. (Once
recording of No.1 is completed, No.2 will be displayed; once
No.2 is completed, No.3 will be displayed. Thus the next
unrecorded program letter is always displayed.)
3. Press the SELECT switch (3).
* The PROGRAM NO. indicator (4) will illuminate.
4. Press the DISPLAY SET switches (10) to select the number for the program that you would like to record.
5. Press the SELECT switch (3). * The X-SCALE indicator (5) will illuminate.
6. Press the DISPLAY SET swithes (10) to select the X scale setting that you would like to record.
7. Press the SELECT switch (3). * The Y-SCALE indicator (6) will illuminate.
8. Press the DISPLAY SET switches (10) to select the Y scale setting that you would like to record.
9. Press the SELECT switch (3). * The SPEED indicator (7) will illuminate.
10. Press the DISPLAY SET switches (10) to select the speed setting that you would like to record.
11. Press the SELECT switch (3). * This completes the recording of user program No.1.
* “PP 2” will then appear in the display window (9), to indicate that user program No.2 is now being recorded.
Repeat steps 3. through to 11. to record further programs as desired.
12. Press the TEST switch (2). This completes the recording.
* The menu indicators ((4) to (8)) will all illuminate and “P1” will appear in the display to indicate that user program No.1 is currently
selected.
It can store sixteen different programs which can include details such as the program number, X scale, Y scale and sewing
speed. If you are sewing certain patterns over and over again, it is useful to record the settings for these patterns into a use
r
program.
User program...
2589Q
2588Q

12. CHANGING FUNCTIONS USING THE DIP SWITCHES
54 KE-434C,435C
Using a user program
1. Press the DISPLAY SET switches (10) to select the speed program number for the user program that you would
like to use.
* The user program except P16 can also be selected using the user program switches (11). (See below.)
2. Depress the foot switch to the second step.
3. Check the sewing pattern (see P.26), and then sew the pattern selected.
* P1 to P4 can be selected using the P1 to P4 user program switches (11). P5 to P15 can be selected by pressing the P1 to
P4 switches together in various combinations as shown below.
The switches with solid lines are valid switches for selection.
Clearing the user programs
1. Switch the machine to recording mode by the procedure in steps 2. of recording a user program.
2. Use the DISPLAY SET switches (10) to specify the user program number which is to be cleared of data.
3. Press the RESET switch (12).
* The buzzer will sound and the user program with the number selected will be cleared.
* If you press and hold the RESET switch (12) until after the buzzer has sounded twice, all user programs will be cleared.
Note:
If data has been recorded in user programs P1, P2, P3 and P4 and you then clear the data in user program P2, the
contents of P3 will be transferred to P2, and the contents of P4 will be transferred to P3.
0472Q
To select P5 To select P10To select P9To select P8To select P7To select P6
To select P15To select P14To select P13To select P12To select P11

13. CHANGING SPECIAL FUNCTIONS USING THE MEMORY SWITCHES
55
KE-434C,435C
13. CHANGING SPECIAL FUNCTIONS USING THE MEMORY SWITCHES
The functions of the switches on the operation panel (1) can be changed to carry out special functions.
Note:
After changing the memory switch settings, press the power switch to turn the power off and then back on again.
1. Turn on the power switch.
2. While pressing the TEST switch (2), press the BOBBIN.
WIND switch (3).
* “00 - - ” will appear in the display window (4).
3. Press the DISPLAY SET switches (5) to set the two
digits at the left of the display window (4) to the
corresponding number (00 to 4F) of the function shown
in the table below that you would like to select.
4. When the BOBBIN. WIND switch (3) is pressed, the
two spaces at the right in the display window will
change from “ - - ” to “ON”.
* If you press the RESET switch (6) at this time,
memory switches will be returned to their initial
settings (factory default settings).
5. Press the TEST switch (2).
* The display will return to normal.
<Memory switches 00 - 0F>
Initial value
Switch Motion when set to ON Solenoid Pneumatic
memo-00 At the end of sewing, the feed plate will be returned to the sewing start point via
mechanical home position. -- --
memo-01 Work clamp will move to the sewing start point, and then will be lifted. ON ON
memo-02 Feed will move automatically to the next starting point at the same time as a user
program is switched.
(Normally it moves to the starting point after sewing starts.) -- --
memo-03 When sewing using programs, the programs which have been set will be sewn in
numerical order. (Cycle sewing mode is set.) -- --
memo-04 The sewing speed will be fixed at the minimum speed for the maximum pitch of
the sewing data. (Set this to ON if you are concerned that variations in pitch may
cause changes in the sewing speed.) -- --
memo-05 Increases the presser solenoid lifting force (Set to ON when using the optional
spring for extra-heavy material) * 1 --
memo-06 Enlargement and reduction ratio settings for X and Y become the same. -- --
memo-07 The inner clamping device can be used with pneumatic specifications. -- * 2
memo-08 Test feeding is carried out stitch by stitch when the foot switch is depressed. -- --
memo-09 The sewing start point becomes the reference point for enlargements and
reductions. (The reference point for enlargements and reductions is
normally the center of the sewing frame.) -- --
memo-0A −-- --
memo-0b −-- --
memo-0c Needle stops in up position during emergency stop. -- --
memo-0d The bar tacking stitches (with a pitch of less than 1 mm) are also enlarged and
reduced. (Normally stitches with a pitch of less than 1 mm are not enlarged or
reduced.) -- --
memo-0E Test feeding will be performed at the same speed as that for actual sewing. (This
is used for checking feeding operation.) -- --
memo-0F After sewing is finished, the work clamp automatically opens and closes once
(practice operation). -- --
*1 ON for solenoid/heavy material specifications, and “--” for solenoid/medium material specifications -- : OFF
*2 ON when the inner clamping device is being used, and “--” at other times
2590Q

13. CHANGING SPECIAL FUNCTIONS USING THE MEMORY SWITCHES
56 KE-434C,435C
<Memory switches 10 - 1F>
Initial value
Switch Motion when set to ON Solenoid Pneumatic
memo-10 −-- --
memo-11
ON when a two-stage tensioner is used.
(Special order device that outputs from option output No. 1)
(Normally the tension opens when output is OFF, and the tension closes when
option output No. 1 is ON)
-- --
memo-12 Pneumatic wiper can be used.
(Special order device that outputs from option output No. 2) -- --
memo-13 The inner clamping device moves forward at the 1/4-way mark and returns at the
3/4-way mark for the pattern being sewn.
(The device does not retract at this time, regardless of the setting for memo-15.) -- --
memo-14 Solenoid wiper can be used. -- ON
memo-15 When using the inner clamping device, shunting to prevent interference between
the inner clamping device and the needle is not carried out after the sewing end. -- --
memo-16 Needle cooler can be used. (available by special order). -- --
memo-17 Thread take-up device is not operated at the sewing end. -- --
memo-18 Thread take-up device operates one stitch before the sewing end. -- --
memo-19 For solenoid specifications, presser position errors are not detected. -- --
memo-1A Needle up stop position errors are not detected. -- --
memo-1b Presser can be moved up and down before the home position is detected.
(Normally the presser cannot be moved up and down until after the home position
has been detected.) -- --
memo-1c −-- --
memo-1d For pneumatic specifications, the air pressure detection switch is enabled.
(The air pressure sensor is a special-order option.) -- --
memo-1E Errors can be reset using the EMERGENCY STOP switch. -- --
memo-1F Thread is not trimmed when an emergency stop occurs during sewing. -- --
-- : OFF
<Memory switches 20 - 2F>
Initial value
Switch Motion when set to ON Solenoid Pneumatic
memo-20 −-- --
memo-21 Rotating-type thread breakage detector operates.
(Device is available by special order.) -- --
memo-22 During thread breakage detection, sensitivity is decreased from 8 to 14 stitches at
the sewing start. (Sensitivity during sewing is three stitches.) -- --
memo-23 When DIP switch A-8 is simultaneously ON, setting values changed using the
operation panel are ignored. -- --
memo-24 −-- --
memo-25 −-- --
memo-26 Enables the fiber-type thread breakage detector (when memo-21 is ON) -- --
memo-27 −-- --
memo-28 Stores the amount of parallel movement in memory.
(Use the memory all clear operation to clear the setting.) -- --
memo-29
-
memo-2F −-- --
-- : OFF

13. CHANGING SPECIAL FUNCTIONS USING THE MEMORY SWITCHES
57
KE-434C,435C
<Memory switches 30 - 4F>
30 to 4F are set by entering two-digit values.
These values are incremented using the P2 switch, and decremented using the P4 switch.
Switch Possible setting range Units Initial value Explanation
memo-30 0 - 99 mm 99 Limits the maximum area in the horizontal direction (X).
(If the value is set to 99, the maximum length allowed will be 100
mm)
memo-31 0 - 60 mm 60 Limits the maximum area in the vertical direction (Y).
memo-32 12 - 25 × 100rpm 25 Changes the maximum sewing speed.
memo-33 1 - 10 × 7.5°5Changes the feed timing.
1 (Fast) ← 5 (Standard) → 10 (Slow)
memo-34 0 - 5 Stitch 0 The (setting value + 1) number of stitches are sewn at the speed
set by memo-35 at the sewing start. (No low-speed sewing if set
to 0.)
memo-35 3 - 9 × 100rpm 4 Changes the sewing start speed for the number of stitches
specified by memo-34.
memo-36 −−−
−
memo-37 1 - 20 × 7.5°10 Changes the feed timing one stitch before the sewing end.
1 (Fast) ← 10 (Standard) → 20 (Slow)
memo-38 1 - 20 × 7.5°10 Changes the feed timing two stitches before the sewing end.
memo-39 1 - 20 × 7.5°10 Changes the feed timing for the third stitch at the sewing start.
memo-3A 1 - 20 × 7.5°10 Changes the feed timing for the second stitch at the sewing start.
memo-3b 1 - 20 × 7.5°10 Changes the feed timing for the first stitch at the sewing start.
memo-3c 0 - 99 Stitch 0
Sets the number of stitches for which the feed timing (memo-33
setting) is enabled.
0: Enabled for all stitches
1 - 99: Enabled for the specified number of stitches from the
sewing start
memo-3d −−−
−
memo-3E −−−
−
memo-3F −−−
−
memo-40 1 - 5 −4Changes the test feeding speed (with no material).
1 (Fast) ←→ 5 (Slow)
memo-41* 1 - 99 × 10ms 10 Changes the standby time after the stepping foot is raised.
0 - 10 −0
For KE-434C solenoid specifications, the work clamp operating
mode can be changed. (When set to “0”, the mode is selected
according to the settings for DIP switches A-1 and A-2.)
Refer to “14. SETTING THE WORK CLAMP MODE” for details of
the available modes.
0KE-434C pneumatic specifications and KE-435C
memo-42
0 - 13 −5KE-434C inner clamping device specifications
memo-43 1 - 3 −3Changes the allowable speed/sewing pitch.
1 (Fast) ←→ 3 (Standard)
0
Changes the path taken when moving from the machine home
position to the start position.
0: Across inside of work clamp, 1: Top-left, 2: Bottom-left,
3: Bottom-right
memo-44 0 - 3 −
1KE-434C inner clamping device specifications (Does not pass
across inside of clamp)
memo-45
-
memo-4F −−−
−
*KE-435C only.

13. CHANGING SPECIAL FUNCTIONS USING THE MEMORY SWITCHES
58 KE-434C,435C
13-1. Using the cycle sewing function
What is the cycle sewing function?
The cycle sewing function lets you program up to four patterns for cycle sewing of patterns in a predeter mined order.
Recording a cycle sewing program
1. Set DIP switch (1)-3 to ON, and then record the
patterns which you would like to use for cycle
sewing. (Refer to “12-3. Using user programs”.)
* Cycle sewing cannot be performed using patterns (P1 to P16)
which have not had a user program assigned.
2. Set the memo-03 switch to ON. (Refer to page 55 for
how to do this.)
3. While pressing the TEST switch (2), press the
SELECT switch (3).
* All of the menu indicators ((4) to (8)) will illuminate and the
mode will switch to recording mode.
4. Press the P1 switch (9).
•“Pc 1” will appear in the display window (10) to
indicate that cycle sewing program No. 1 is being
recorded.
* Programs P2, P3 and P4 switches can also be used for
programming.
5. Press the SELECT switch
(
3
)
. *The PROGRAM No. indicator (4) will illuminate and “1- -” will appear in the display window (10).
6. Press the DISPLAY SET switches (11) to select the number for the user program that you would like to record.
7. Press the SELECT switch (3). *“2- -” will appear in the display window (10).
8. Press the DISPLAY SET switches (11) to select the number for the user program that you would like to record.
9. Repeat steps 5. and 6. to record all programs which you would like to include for cycle sewing.
* After “9- -” is displayed, “A- -”, “b- -”, “c- -”, “d- -”, “E- -” and “F- -” will be displayed in that order so that up to the 15th pattern can be
recorded.
* If you would like to return to a previous number during the recording procedure, press the P1 switch so that “Pc 1” is displayed, and
then return to step 4.
10. Press the TEST switch (2).
• This completes the setting of cycle sewing program No. 1.
* The menu indicators ((4) to (8)) will all illuminate and “c1-1” will appear in the display window (10) to indicate that the cycle sewing
program No.1 is currently selected.
2589Q
2591Q

13. CHANGING SPECIAL FUNCTIONS USING THE MEMORY SWITCHES
59
KE-434C,435C
Using a cycle sewing program
1. When “c1-1” is flashing in the display window (10), press the foot switch to the second step.
2. Start sewing.
3. “c1-1”, “c1-2”, “c1-3” are sewn in order for each article, and when the last-recorded pattern has been sewn, the
display returns to “c1-1".
* If you press one of the DISPLAY SET switches (11) when “c1-*” is displayed, you can return to the previous stitch pattern or skip a
stitch pattern.
* If you press the SELECT switch (3) when “c1-*” is displayed, you can check the contents of the recorded user program.
Clearing a cycle sewing program
1. Switch the machine to recording mode by the procedure in step 3. of recording a user program.
2. Use one of the P* switches (user program switches) to specify which cycle sewing program to clear.
* Press the P1 switch (9) if you would like to clear cycle sewing program No. 1. (“Pc 1” will be displayed.)
3. Press the RESET switch (12).
* The recorded contents of the specified cycle sewing program will then be cleared.
* If you press and hold the RESET switch (12) until after the buzzer has sounded twice, all cycle sewing programs will be cleared.
Note:
If you clear a user program after any cycle sewing programs have been recorded, all recorded cycle sewing programs will
also be cleared.

14. SETTING THE WORK CLAMP MODE
60 KE-434C,435C
14. SETTING THE WORK CLAMP MODE
14-1. Setting solenoid work clamp mode
Through the combination of DIP switches A-1 and A-2 on the operation panel, presser motions can be set as follows:
DIPA-1 DIPA-2 Pedal specifications Raising the presser at the sewing end
−−Single pedal Presser is raised automatically. (factory default settings)
ON −Single pedal Presser is raised by pressing the pedal.
−ON Two pedals Presser is raised automatically, then it is lowered by pressing
the pedal.
ON ON Two pedals Presser is kept lifted while the presser pedal is pressed.
14-2. Setting pneumatic work clamp mode
Through the combination of DIP switches A-1 and A-2 on the operation panel, presser motions can be set as follows:
When memo-42 = 0 (initial value for all specifications other than inner clamping specifications)
DIPA-1 DIPA-2 Pedal specifications Raising the presser at the sewing end
−ON Single pedal Presser is raised automatically.
ON ON Single pedal Presser is raised by pressing the pedal.
−−Two pedals Presser is raised automatically, then it is lowered by pressing
the pedal. (factory default settings)
ON −Two pedals Presser is kept lifted while the presser pedal is pressed.
Special memo-42 settings for pneumatic specifications
memo-42 Pedal specifications Raising the presser at the sewing end
5 Two pedals
Left presser drops when presser pedal is at the 1st step, and right presser drops
when presser pedal is at the 2nd step.
Raising is carried out in the reverse order.
* Initial value for inner clamping specifications only
* Setting used when using the light work clamp function (Refer to “14-3. Light work
clamp”.)
6 Two pedals Right presser drops when presser pedal is at the 1st step, and left presser drops
when presser pedal is at the 2nd step.
Raising is carried out in the reverse order.
7 Two pedals The left/right operating sequence changes alternately for each item sewn when
using two-pedal operation.
Starts with right → left.
8Three pedals
(Option)
The left pedal is used to raise and lower the left presser, and the right (center) pedal
is used to raise and lower the right presser.
The start (right) pedal is used to start sewing.
Furthermore, when DIP switch A-2 is at ON, and if one presser is already lowered,
pressing the start pedal causes the other presser to be lowered and then sewing
starts.
9 Two pedals When the presser pedal is depressed to the 1st step, both left and right pressers are
raised simultaneously.
When it is pressed to the 2nd step, sewing starts.
10 Two pedals When the start pedal is depressed, both left and right pressers are lowered
simultaneously.
When the start pedal is released, sewing starts.

14. SETTING THE WORK CLAMP MODE
61
KE-434C,435C
memo-42 Pedal specifications Raising the presser at the sewing end
11 Three pedals
(Option)
The left pedal raises and lowers the left and right work clamps, and the right pedal
(center) detects the home position.
The start (right) pedal is used to start sewing. For the KE-435C, both work clamps
are lowered when DIP switch A-2 is ON, and the stepping foot is also lowered at the
same time.
12 Three pedals
(Option)
The left pedal raises and lowers the left work clamp, and the right pedal (center)
detects the home position.
When the start pedal (right side) is depressed for a short time (200 ms), the right
work clamp is lowered, and when it is depressed for a longer time the right work
clamp is lowered and then sewing starts.
For the KE-435C, the right work clamp is lowered when DIP switch A-2 is ON, and
the stepping foot is also lowered at the same time.
13 Two pedals Two-pedal operation raises and lowers the left and right work clamps
simultaneously, and the stepping foot is lowered at the sewing start.
When memo-42 has been used to make a special setting, DIP switches A-1 and A-2 function as follows.
•When DIP switch A-1 is at ON, the pressers are not raised automatically at the sewing end.
•DIP switch A-2 is ignored except when memo-42 = 8, 11, 12.

14. SETTING THE WORK CLAMP MODE
62 KE-434C,435C
14-3. Light work clamp
For pneumatic specifications, the hose connections can be changed so that the pressers are made to lower gently when the
presser pedal is depressed to the 1st step, and firmly when the presser pedal is depressed to the 2nd step. This makes it
easier to carry out position matching when attaching small articles such as labels.
[Memory switch setting]
Set memo-42 to 5 for two-pedal mode so that the pressers lower in the order of left then right for the standard hose
connection. (Refer to “13. Changing special functions using the memory switches”.)
Hose connections for light work clamp operation by both pressers
[How to use]
1. Depress the presser pedal to the 1st step to lower the pressers and apply a light pressure. You can then position small
articles such as labels at this time.
2. After checking that everything is positioned correctly, depress the presser pedal to the 2nd step to firmly clamp the article
being sewn.
3. Press the start pedal to start sewing.
Other hose connections and corresponding operations
The hoses can be connected in combinations other than the one shown above so that only one side of the presser operates
in light work clamp mode.
Cylinder connectors
Branch and plug
connectors ABCD
Operation when presser pedal is depressed to the 1st step
Branch: 1B, 2A
Plug: 1A, 2B 1B 2A 1B 2A Both pressers operate in light work clamp mode
(example shown above)
Branch: 1B
Plug: 2B 1B 2A 1B 1A Only left presser lowers, and it lowers in light work clamp mode
Branch: 1B
Plug: 2B 1B 1A 1B 2A Only right presser lowers, and it lowers in light work clamp
mode
Branch: 2A
Plug: 1A 1B 2A 2B 2A Both pressers lower, but only left presser lowers in light work
clamp mode
Branch: 2A
Plug: 1A 2B 2A 1B 2A Both pressers lower, but only right presser lowers in light work
clamp mode
Plug
Branch
0344Q

14. SETTING THE WORK CLAMP MODE
63
KE-434C,435C
14-4. Setting reverse work clamp mode
Basic setting
1. If installing the inner clamping device as a later option, set the memory switches as follows.
(This will complete inner clamping specification settings.)
•Set the memo-07 switch to ON.
•Set the memo-42 switch to “5”.
2. Make the following settings if necessary.
1. 1/2 reverse mode
The inner clamping device operates at the 1/2-way mark for the pattern being sewn.
Example
2. 1/4 reverse mode
The inner clamping device operates at the 1/4-way and 3/4-way marks for the pattern being sewn.
Example
[Notes to sewing]
1. Reverse stitching is possible within 4.5 mm left and right
from the reference point.
However, note that if a non-standard work clamp is being
used, the reverse stitching area will become smaller.
2. When the work clamp (1) reverses after sewing is completed,
the work clamps are retracted so that they do not touch the
needle. However, sometimes it is not necessary to retract
the work clamps if the material is thin.
In such cases, if memory switch memo-15 is set to on, the
work clamps will not be retracted so that the cycle time can
be shortened. However, if making this change to the setting,
move the work clamp to the sewing end position (release the
air and move the work clamp by hand) to check that the
work clamps do not touch the needle.
4.5mm
4.5mm
Reference point0032Q
2630Q
Lift
Thickness of material
0025Q
memo-13
−
memo-13
ON
0026Q
start
reverse
end
start
reverse
reverse

15. TABLE OF ERROR CODES
64 KE-434C,435C
15. TABLE OF ERROR CODES
DANGER
Wait at least 5 minutes after turning off the power switch and disconnecting the power cord from the wall outlet before
opening the face plate of the control box. Touching areas where high voltages are present can result in severe injury.
If a malfunction should occur with the sewing machine, a buzzer will sound and an error code will appear in the display window.
Follow the remedy procedure to eliminate the cause of the problem.
Code Cause Remedy
E-10 Emergency stop switch was pressed. Turn the EMERGENCY STOP switch clockwise to release
the lock, and then press the RESET switch to reset the error.
E-11 Emergency stop switch was pressed during sewing.
Turn the EMERGENCY STOP switch clockwise to release
the lock, and then press the RESET switch to reset the error.
You can then press the BOBBIN. WIND switch to repeat the
sewing.
E-12 Emergency stop switch is being continually pressed,
or emergency switch connection error. Turn off the power and check.
E-13 Machine specification select connector is not
connected properly. Turn off the power and check if connectors P3 is
disconnected.
E-17
The foot switch was pressed or the operation panel
was used while the machine head was tilted back, or
the machine head was tilted back while it was
operating.
Turn off the power, and then return the machine head to its
original position.
E-20 Problem with machine motor stopping, or synchro-
nizer connection error. Or thermostat inside sewing
machine motor has operated.
Turn off the power, and then turn the machine pulley to check
if the machine has locked up. Check the synchronizer
connection.
Check if connectors P11, P12 and P13 are disconnected.
Check that the correct combination of motor and PROM has
been installed.
E-21 Machine motor operation error. Turn off the power and check the ground wire connection.
E-30 Data is outside possible sewing area due to enlarge-
ment ratio setting. Press the RESET switch, and then set the enlargement ratio
again.
E-31 Stitch pattern data overlaps the sewing area when
area limiting is active. Press the RESET switch, and then reset the memory
switches “30” and “31” or enlargement ratio.
E-32 The data format of the user program (% or mm) does
not match the setting of DIP switch A-6. After changing the setting of DIP switch A-6, clear all memory
settings. (Refer to “10-14. Clearing all memory settings”.)
E-40 Length of a stitch exceeds 10 mm. Press the RESET switch, and then set the enlargement ratio
again.
E-41 Abnormality in the sewing data. If programming a new sewing data, repeat the procedure
from the beginning.
E-42 Invalid program number specified. Press the RESET switch and specify a correct number.
E-50 Needle bar does not stop when the needle is raised. Turn the pulley to align the index mark with the needle up
stop position. (Refer to “10-10. Adjusting the needle up stop
position”.)
E-60 Presser has not been lowered.
E-61 Presser cannot be raised.
E-62 Presser is not raised.
E-63 Presser cannot be lowered.
Refer to “18. Troubleshooting”.
Turn off the power and check the connection of presser
sensor connector P1.
E-70 Cooling fan does not operate. Turn off the power, and then check if the cooling fan is
blocked with scraps of thread.

15. TABLE OF ERROR CODES
65
KE-434C,435C
Code Cause Remedy
E-80 Motor PROM is not correctly inserted. Turn off the power and check.
E-81 Foot switch was depressed when the power was
turned on. Turn off the power and check.
E-82 An operation panel switch was depressed when the
power was turned on. Turn off the power and check the operation panel.
Check that all panel cords are normal.
E-90 Abnormal drop in power supply voltage, or power
was turned on again immediately after it was turned
off.
Turn off the power and check the input voltage. After turning
off the power, wait 3 seconds or more before turning it on
again. (Refer to “10-13. Checking the input voltage”.)
E-91 Abnormal rise in power supply voltage. Turn off the power and check the input voltage.
(Refer to “10-13. Checking the input voltage”.)
E-A0 Home position cannot be detected (malfunction of
home position sensor), or malfunction of power
supply circuit board.
Turn off the power and check the connection of home
position sensor connector P1.
E-b0 You tried to change the program number when DIP
switch A-8 was set to ON. Press the RESET switch. Set DIP switch A-8 to OFF before
trying to change the program number.
E-b1 No sewing data available. Replace the PROM with one which contains sewing data.
E-d0 Heat sink of control circuit board is abnormally hot. Turn off the power and clean the air intake port of the box.
E-E0 Malfunction of EEPROM (malfunction of main circuit
board). Turn off the power, and turn it back on. If the error continually
occurs, contact a qualified service technician.
E-E1 Corrupted EEPROM data, or main PROM version
has been upgraded.
Press the RESET switch to reset the error. However, the
data (memory switches, display and user programs) will be
reset to the backup data or initialized.
E-E2 Corrupted EEPROM control information data. Press the RESET switch to reset the error. However, the
data (memory switches, display and user programs) will all
be initialized.
E-F0 Solenoid or feed motor short-circuit (malfunction of
main circuit board), or power relay is not operating
(malfunction of power supply circuit board). Turn off the power and contact a qualified service technician.
E-F1 Bad connection in cable between power supply
circuit board and main circuit board. Turn off the power and check if connectors P16 is
disconnected.
E-F2 Abnormal current detected in power supply circuit
board. Turn off the power and contact a qualified service technician.
<Errors generated when optional equipment is connected>
Code Cause Remedy
E-14 Thread breakage detected.
Turn the EMERGENCY STOP switch clockwise to release
the lock, and then press the RESET switch to reset the error.
You can then press the BOBBIN. WIND switch to repeat the
sewing.
E-15 Air pressure drop error. Turn off the power and check. If drops in air pressure are not
being detected, clear all memory settings and then set the
memo-1d switch to OFF.
E-16 Bobbin thread sensor mechanism error Turn off the power and check. If the bobbin thread amount is
not being detected, clear all memory settings and then set
the memo-24 switch to OFF.
REFERENCE segment LED alphabet
Panel display
Text display A b c d E F 6 H L O

16. GAUGE PARTS LIST ACCORDING TO SUBCLASSES
66 KE-434C,435C
16. GAUGE PARTS LIST ACCORDING TO SUBCLASSES
The following are standard gauge parts according to each specification.
(In the following table, parts marked with are common with the LK3-B430E; parts with are common with the BAS-311F.)
Specification
Part name Medium materials Heavy materials Extra heavy materials
Needle hole plate
(φ2.2)
S49980-001 FM (φ2.6)
S10212-101 E
159610-301 A 152690-401 B
Bobbin case assy
S59221-001 LC
154339-101 A 154340-101 B
Tension
spring
S48664-001 AN
154341-001
Screw
S16492-101 LA
159612-001 A 154342-001 B
Spring, anti-spin
S15667-001 LA
159613-051 154663-001 B
Bobbin
S44633-001 LAN
152685-903 A 152687-902 B
Shuttle hook, W/BOX
S59161-991 LF S59162-991 LG
Shuttle race body
152682-101 A 152686-101 B
Spring tension
104525-001 107606-001 S06548-001 C
Spring
145519-001 144588-001 B

16. GAUGE PARTS LIST ACCORDING TO SUBCLASSES
67
KE-434C,435C
Specification
Part name Medium materials Heavy materials Extra heavy materials
152890-001 A
Thread guide, needle
bar
S41222-101 B For stepping foot
(KE-435C)
S02438-001 A
S02439-001 B
Needle assy 107415-414
For spec. with inner
clamping device:
145646-419
S37928-419 145646-425
Needle DP×5 #14
107415-014 DP×17NY #19
S37928-019 DP×17 #25
145646-025
Part name blank for
Medium materials blank for
Heavy materials blank for spec. With
inner clamping device Stepping foot
(KE-435C)
434-1R
S42030-001 434-2R
S42032-001 434ESF-2R
S46544-001
434-1L
S42031-001 434-2L
S42033-001
154256-101 A 434ESF-2L
S46545-001
434-1
S42034-001 434-2
S42035-001 434-R1
S43459-001
434ESF-2
S44942-001
<Gauge parts>
The following are provided as optional gauge parts.
Each work clamp pair is used in combination with the feed plate directly below them.
•Work clamps R, L and feed plate
1234
R 153493-001 S23377-001 (519) S27836-001 (895) 156085-001 (M)
L 153498-001 S23378-001 (519) S27837-001 (895) 156086-001 (M)
Work
clamp
153503-001 S23379-001 (519) S27838-001 (895) 156087-001 (M)
Feed plate
For spec. with inner
clamping device:
145646-014
Work clamp
Feed plate

16. GAUGE PARTS LIST ACCORDING TO SUBCLASSES
68 KE-434C,435C
56
R 156082-001 (L) 156088-001 (S)
L 156083-001 (L) 156089-001 (S)
Work
clamp
156084-001 (L) 156090-001 (S)
Feed
plate
•Gauge assy, 434E MK2
S54984-001
•Needle hole plate
A S10211-001 AF S51449-001 BZ S41013-001 D S29997-001 E S10212-101 ED S30925-001
F S10213-001 FD S30926-001 FM S49980-001 H S30450-001 L S25127-001 M S34348-001
3S40217-001
Home position standard plate

17. MAKING THE FEED PLATE AND WORK CLAMP PLATE FOR INNER CLAMPING DEVICE
69
KE-434C,435C
17. MAKING THE FEED PLATE AND WORK CLAMP PLATE FOR INNER CLAMPING DEVICE
17-1. Sewing area
Use within the range given below.
* If Y is within the range of 13 mm up to less than 20 mm, the following optional parts will be necessary. In addition, the method of creating
the sewing pattern and the feed plate and work clamp plate will also be different.
Condition 1 Condition 2 Condition 3
Y = 20 mm to 60 mm Y = 16 mm to less than 20 mm Y = 13 mm to less than 16 mm
Name of Parts Code Name of Parts Code Name of Parts Code
Work clamp crank, LA Accessory Work clamp crank, S 154297-001 Work clamp crank, SS S04516-001
Work clamp plate holder, L Accessory Work clamp plate holder, S 154291-001 Work clamp plate holder, S 154291-001
17-2. How to make a sewing pattern [Condition 1 and Condition 2]
Align the center point for the top edge of the sewing pattern with
the center point A at the top edge of the sewing area.
[Condition 3]
Align the center point for the top edge of the sewing pattern at
point B 3 mm below the center point A at the top edge of the
sewing area.
* Refer to “Note to sewing” on page 62 for details of the reverse
stitching area.
X (mm) × Y (mm)
Max. 100 × 60
Min. 20 × 13
0001Q
2715Q
Sewing
pattern
Sewing area

17. MAKING THE FEED PLATE AND WORK CLAMP PLATE FOR INNER CLAMPING DEVICE
70 KE-434C,435C
17-3. How to make the feed plate
1. Align the center of the top edge of the seam with the reference point C on the feed plate (1).
2. Make the dimensions 6 mm larger than the size of the stitch.
3. Measure the size of positioning plate L (2) and positioning plate R (3) (shaded section).
4. Make the feed plate (1) so that the size overlaps the sizes in 2. and 3. above.
* If the size in step 2. is larger than the size in 3., then use the size in step 2. for processing.
Condition 1 & 2: a = 77
Condition 3: a = 74
2632Q 2633Q
Label
Stitch
Stitch
2631Q

17. MAKING THE FEED PLATE AND WORK CLAMP PLATE FOR INNER CLAMPING DEVICE
71
KE-434C,435C
17-4. How to make the work clamp plate
[Condition 1]
1. Align the stitch with reference point D which is 11 mm above the center of the screw hole in the work clamp plate.
2. Make the work clamp plate so that it is 1.5 mm smaller than the size of the seam.
3. Make a 1 mm bevel all along the side of the work clamp plate that does not have a ridge line.
[Condition 2]
1. Align the stitch with reference point E which is 9 mm above the center of the screw hole in the work clamp plate.
2. Make the work clamp plate so that it is 1.5 mm smaller than the size of the seam.
3. Make a 1 mm bevel all along the side of the work clamp plate that does not have a ridge line.
4. Then make a step of 0.5 mm as shown in the illustration.
[Condition 3]
1. Align the stitch with reference point F which is 6 mm above the center of the screw hole in the work clamp plate.
2. Make the work clamp plate so that it is 1.0 mm smaller than the size of the seam.
3. Make a 1 mm bevel all along the side of the work clamp plate that does not have a ridge line.
4. Then make a step of 0.5 mm as shown in the illustration.
Condition 1 Condition 2 Condition 3
2634Q
2637Q 2638Q
2636Q
2635Q
Work clamp

17. MAKING THE FEED PLATE AND WORK CLAMP PLATE FOR INNER CLAMPING DEVICE
72 KE-434C,435C
17-5. Replacing the work clamp crank and work clamp plate holder
For Condition 2 and Condition 3, the work clamp crank and work clamp plate holder must be replaced.
1. Remove the screw (1), and remove the work clamp crank (3) from the work clamp crank holder (2).
2. Remove the screw (4) to replace the work clamp plate holder (5) with the optional one, and install it with the screw (4).
3. Insert the work clamp crank (6) into the work clamp crank holder (2). Then while pulling out the reversal cylinder piston rod
(7) (Fig. 1), set the work clamp crank (6) so that it faces as shown in the illustration, align its groove with the washer (8), and
then tighten the screw (1) to secure it.
2639Q
2640Q
Fig. 1

18. TROUBLESHOOTING
73
KE-434C,435C
18. TROUBLESHOOTING
CAUTION
Turn off the power switch and disconnect the power cord before carrying out troubleshooting, otherwise the machine
will operate if the foot switch is depressed by mistake, which could result in injury.
Problem Cause Check Remedy Page
Work clamp operation is
sluggish. Sliding part of the work
clamp lubrication Grease the sliding part of
the work clamp. 42
Work clamp lift amount is
too great.
Distance between work
clamp and top of needle
plate
Adjust the height of the
work clamp to within 17
mm (25 mm). 42
Too much friction be-
tween presser plate and
presser arm lever sup-
port.
Presser plate and presser
arm lever support
lubrication
Grease the presser plate
and presser arm lever
support. 42
Work clamp does not
rise.
Work clamp is contacting
thread wiper. Thread wiper standby po-
sition Adjust the position of the
thread wiper. 44
Work clamp is not
lowered. Presser lifter link is not
moving back. Link return spring is un-
hooked. Hook the link return
spring properly.
Work clamp lift amount
is incorrect. Incorrect position of
presser arm lever plate.
Distance between work
clamp and top of needle
plate.
Adjust the work clamp lift
amount. 42
Clearance between
thread wiper and needle
tip
Adjust the height of the
thread wiper. 44
The thread wiper is ob-
structing the needle. Thread wiper position Adjust the operating
distance of the thread
wiper. 44
Thread wiper does not
operate correctly.
Thread wiper position is
incorrect. Thread wiper position Adjust the operating
distance of the thread
wiper. 44
Lower thread winds to
one side.
Bobbin winder thread
tension stud height is
incorrect.
Bobbin winder thread
tension stud height Adjust the height of the
thread tension stud. 28
Lower thread winding
amount is incorrect. Bobbin presser position is
incorrect. Thread winding amount Adjust the position of the
bobbin presser. 28
Stitches being skipped at
the sewing start. Refer to “Skipped stitches
occur” Refer to “Skipped stitches
occur” 74
Uneven upper thread
length. Upper thread length Adjust the sub-tension 30
Thread comes
unthreaded.
Upper thread is too short. Thread take-up lever
stroke Adjust the thread take-up
lever stroke. 38

18. TROUBLESHOOTING
74 KE-434C,435C
Problem Cause Check Remedy Page
Upper thread tension is
too strong. Upper thread tension Adjust the upper thread
tension. 30
Needle is installed incor-
rectly. Needle direction Install the needle cor-
rectly. 27
Thread is too thick for the
needle. Thread and needle Use the correct thread for
the needle. 27
Thread take-up spring
tension and height are
incorrect.
Thread take-up spring
tension and height
Adjust the tension and
height of the thread take-
up spring. 31
Damaged or burred
rotary hook, needle hole
plate or needle. Damage or burring File smooth or replace
the affected part.
Upper thread breaks.
Thread melting (synthetic
thread) Thread edge Use a thread cooling
device (optional). 76
Lower thread tension is
too strong. Lower thread tension Adjust the lower thread
tension. 30
Lower thread breaks.
Corners of needle hole
plate or bobbin care are
damaged. Damage File smooth or replace
the affected part.
Clearance between nee-
dle and rotary hook tip is
too great. Needle clearance Adjust the needle clear-
ance. 37
Incorrect needle and
rotary hook timing. Needle bar lift amount Adjust the needle bar lift
amount. 36
Driver is contacting nee-
dle more than is nec-
essary.
Clearance between driver
and needle Adjust the driver needle
guard. 37
Needle is bent. Bent needle Replace the needle.
Skipped stitches occur.
Needle is installed incor-
rectly. Needle direction Install the needle cor-
rectly. 27
Needle clearance Adjust the needle clear-
ance. 37
Needle is touching the
rotary hook. Needle bar lift amount. Adjust the needle bar lift
amount. 36
Needle is bent. Bent needle Replace the needle.
Needle breaks.
Needle is too thin. Needle and thread Use the correct needle
for the material.
Inner clamping device
does not operate. Work clamp pressure is
too strong. Work clamp pressure
Adjust the work clamp
pressure so that the inner
clamping device oper-
ates.
48

18. TROUBLESHOOTING
75
KE-434C,435C
Problem Cause Check Remedy Page
Movable knife is blunt. Movable knife blade Replace the movable
knife. 40
Fixed knife is blunt. Fixed knife blade Sharpen or replace the
fixed knife. 40
Shuttle race thread guide
position Adjust the position of the
shuttle race thread guide. 37
Movable knife does not
pick up the thread. Needle bar lift amount Adjust the needle bar lift
amount. 36
The movable knife does
not pick up the thread
because of skipped
stitches at the sewing
end.
Skipped stitches at sew-
ing end Refer to “Skipped stitches
occur”. 74
Movable knife position is
incorrect. Movable knife position Adjust the position of the
movable knife. 39
Upper thread is not
trimmed.
Sub-tension is too weak. Sub-tension Turn the sub-tension nut
to adjust the tension. 30
Thread take-up spring
tension and height are
incorrect.
Thread take-up spring
tension and height
Adjust the tension and
height of the thread take-
up spring. 31
Incorrect needle and
rotary hook timing. Needle bar lift amount Adjust the needle bar lift
amount. 36
Thread jamming.
Shuttle race thread guide
is not separating the
threads.
Shuttle race thread guide
position Adjust the position of the
shuttle race thread guide. 37
Shuttle race thread guide
is separating the threads
insufficiently.
Shuttle race thread guide
position Adjust the position of the
shuttle race thread guide. 37
Upper thread is not prop-
erly tight. Upper thread tension Adjust the upper thread
tension. 30
Uneven upper thread
length. Upper thread length Adjust the sub-tension. 30
Poor seam finish on
reverse side of
material.
Upper thread is too long. Thread take-up lever
stroke Adjust the thread take-up
lever stroke. 38
Upper thread tension is
too weak. Upper thread tension Adjust the upper thread
tension. 30
Lower thread tension is
too weak. Lower thread tension Adjust the lower thread
tension. 30
Incorrect thread
tightness.
Thread take-up spring
tension and height are
incorrect.
Thread take-up spring
tension and height
Adjust the tension and
height of the thread take-
up spring. 31
Head position switch cord
connection Check if the cord is dis-
connected. 10, 11
Switching plate position Adjust the position of the
switching plate. 7
Machine does not
operate when power is
turned on and foot
switch is depressed. Head position switch
does not work.
Head position switch is
broken. Replace the head posi-
tion switch.

19. OPTIONAL PARTS
76 KE-434C,435C
19. OPTIONAL PARTS
Two-pedal foot switch Two-step foot switch
The presser switch and the start switch have been
separated, giving the operator more flexibility to select the
best method of working.
This is a pedal-type foot switch.
Liquid cooling tank Solenoid thread wiper
This helps to prevent thread breakage caused by friction
when using synthetic threads.
Fill the tank with silicone oil (100mm2/s)
This wipes the thread independently of the work clamp
operation.
Three-pedal foot switch (for pneumatic) Work clamp plate, OT (for KE-435C only)
Use according to particular sewing needs in order to provide
an even clamping force.
* Refer to the separate parts book for further details.
The switch has an independent left work clamp switch (left
side), right work clamp switch (center) and start switch (right
side).
0271Q 0272Q
0273Q 0275Q
0362Q

INSTRUCTION MANUAL
15-1, Naeshiro-cho, Mizuho-ku, Nagoya 467-8561, Japan. Phone: 81-52-824-2177
Printed in Japan 118-V34
S91V34-202
2002.10.B(1)