Bryant Legacy 580J Users Manual
580J to the manual 0e3081b5-8240-478b-a75c-010ffa90a7d9
2015-02-02
: Bryant Bryant-Legacy-580J-Users-Manual-411739 bryant-legacy-580j-users-manual-411739 bryant pdf
Open the PDF directly: View PDF
.
Page Count: 94

580J
GAS HEAT/ELECTRIC COOLING PACKAGED ROOFTOP
3 TO 15 NOMINAL TONS
Product Data
C08515
(Unit shown with optional louvered hail guard.)
the environmentally sound refrigerant

2
TABLE OF CONTENTS
PAGE
FEATURES AND BENEFITS 3....................
MODEL NUMBER NOMENCLATURE 4............
FACTORY OPTIONS AND/OR ACCESSORIES 6.....
AHRI COOLING RATING TABLES 8...............
HEAT RATING TABLE 9.........................
SOUND PERFORMANCE TABLE 10...............
PHYSICAL DATA 12.............................
CURBS & WEIGHTS DIMENSIONS 18.............
APPLICATION DATA 30.........................
PAGE
COOLING TABLES 33...........................
STATIC PRESSURE ADDERS 53..................
FAN PERFORMANCE 56.........................
ELECTRICAL INFORMATION 69.................
MCA / MOCP 73................................
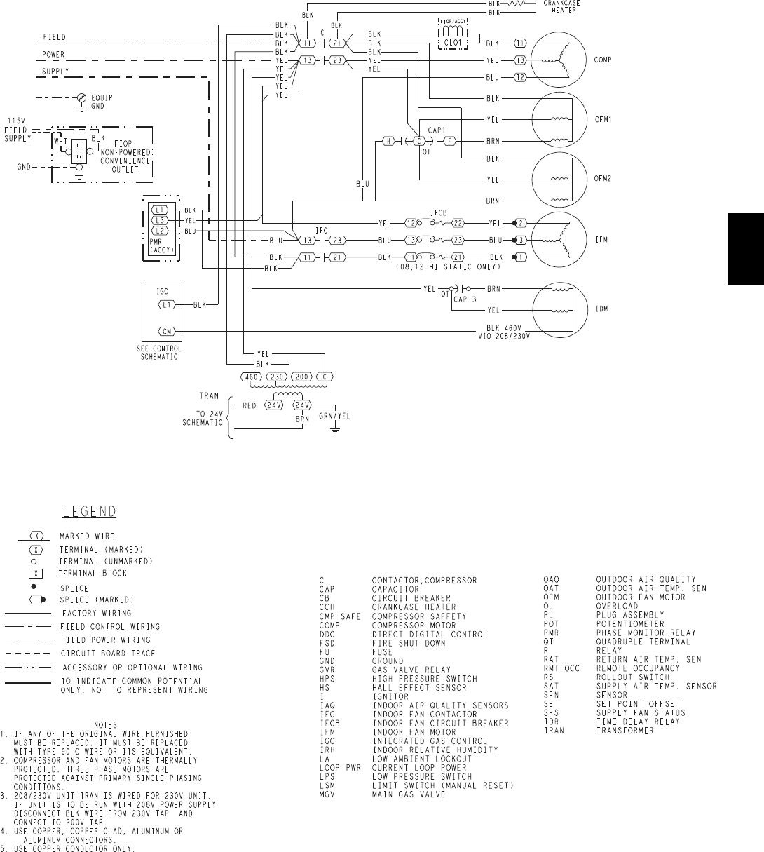
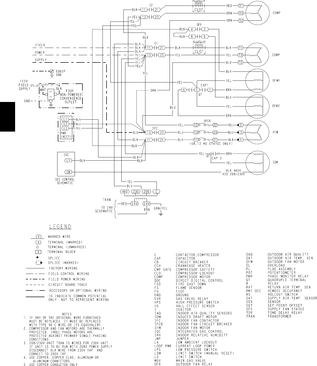
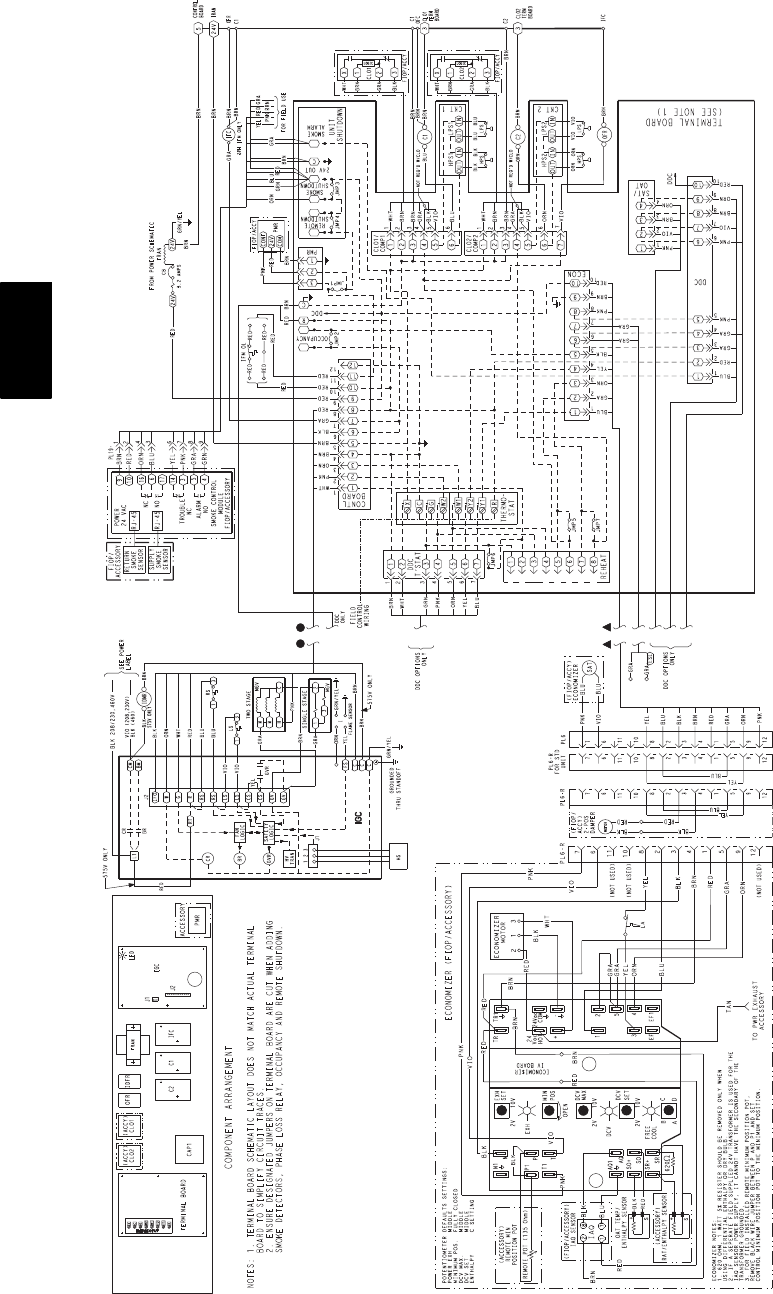
TYPICAL WIRING DIAGRAMS 77................
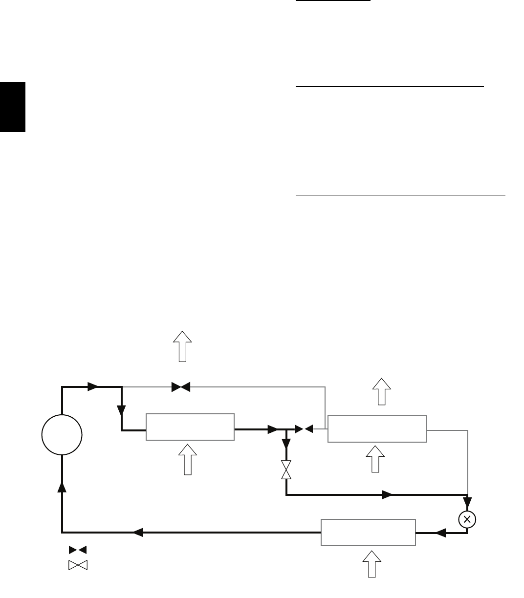
SEQUENCE OF OPERATION 81...................
GUIDE SPECIFICATIONS 84......................
Your Bryant rooftop unit (RTU) was designed by customers for customers. With “no--strip screw” collars, handled access
panels, and more we’ve made your unit easy to install, easy to maintain and easy to use.
Easy to install:
All Legacy Linerunits are field--convertible to horizontal air flow which makes it easy to adjust to unexpected job site
complications. Lighter units make easy replacement. Bryant 3--15 ton 580J rooftops fit on existing Bryant curbs dating
back to 1989. Also, our large control box gives you room to work and room to mount Bryant accessory controls.
Easy to maintain:
Easy access handles by Bryant provide quick and easy access to all normally serviced components. Our “no--strip” screw
system has superior holding power and guides screws into position while preventing the screw from stripping the unit’s
metal. Take accurate pressure readings by reading condenser pressure with panels on. Simply remove the black, composite
plug, route your gauge line(s) through the hole, and connect them to the refrigeration service valve(s).
Easy to use:
The newly designed, central terminal board by Bryant puts all your connections and troubleshooting points in one
convenient place, standard. Most low voltage connections are made to the same board and make it easy to find what you’re
looking for and easy to access it. Bryant rooftops have high and low pressure switches, a filter drier, and 2--in (51mm)
filters standard.
the environmentally sound refrigerant
580J

3
FEATURES AND BENEFITS
SSingle cooling stage models are available from 3 -- 10 ton.
STwo cooling stage models are available from 7.5 -- 15 ton.
SSEER up to 13.0.
SEER’s up to 11.1.
SIEER’s up to 11.8.
SUp to 28% lighter than similar industry units. Lighter rooftops make easier replacement jobs.
SUtility connections are the same because 3 -- 12.5 ton units fit on existing Bryant rooftop curbs. This saves time and
money on replacement jobs.
SStandardized components and layout. Standardized components and controls make service and stocking parts easier.
SScroll compressors on all units. This makes service, stocking parts, replacement, and troubleshooting easier.
SField convertible airflow (3 -- 15 ton). Being able to convert a unit from vertical airflow to horizontal makes it easy to
overcome job site complications. 15 ton models require a simple supply duct cover to field convert from factory vertical
to horizontal.
SEasy--adjust, belt--drive motor available. Bryant provides a factory solution for most points in the fan performance table.
SProvisions for bottom or side condensate drain.
SCapable of thru--the--base or thru--the--curb gas line routing.
SSingle--point gas / electrical connection.
SSloped, composite drain pan. Sloped, composite drain pan sheds water; and won’t rust.
SStandardized controls & control box layout. Standardized components & controls make stocking parts & service easier.
STool--less filter access door.
SClean, easy to use control box.
SColor--coded wiring.
SLarge, laminated wiring and power wiring drawings which are affixed to unit make troubleshooting easy.
SSingle, central terminal board for test and wiring connections.
SFast--access, handled, panels for easy access on normally accessed service panels.
S“No--strip” screw system guides screws into the panel & captures them tightly without stripping the screw, the panel, or
the unit.
SExclusive, newly--design indoor refrigerant header for easier maintenance and replacement.
SMechanical cooling (115_Fto40_For46_Cto4_C) standard on all models. Winter Start Kit allows cooling operation
downto25_F(--4_C) and Motor Master to --20_F(--29_C).
SHigh efficiency, gas heat with induced--draft flue exhaust design (3 -- 15 tons).
SInduce draft motor ensures no flue gas can escape into the indoor air stream.
SBryant designed naturally draining heat exchanger, unlike positive pressure heat exchangers, do not need to be
periodically, manually drained. This saves labor and maintenance expense.
S2--in (51mm) disposable filters on all units.
SRefrigerant filter--drier on each circuit.
SEach circuit is protected with a high and low pressure switch.
SMany factory--installed options ranging from air management economizers, 2 position dampers, plus convenience
outlets, disconnect switch and smoke detectors.
SStandard Parts Warranty: 10 yr. aluminized heat exchanger, 5 yr. compressor, 3 yr. Novation condenser coil, 1 yr. parts.
SFactory--installed Perfect Humidity system on 3 -- 12.5 ton models, includes MotorMaster I controller.
580J

4
MODEL NUMBER NOMENCLATURE
1234567891011121314151617
5 8 0 J E 0 6 A 0 7 2 A 1 A 0 A A
____________ ______ ________ ______
Unit Type Packaging
580J = Cooling/Gas Heat RTU A=Standard
Legacy Series w/Puron Refrigerant B=LTL
Voltage Factory Installed Options
E = 4 6 0 --- 3 --- 6 0 0A = None
J = 208/230---1---60
P = 208/230---3---60 Intake/Exhaust Options
T = 5 7 5 --- 3 --- 6 0 A=None
B=Tempeconow/barorelief
Cooling Tons E=Tempeconow/barorelief&CO
2
04 = 3 Ton H = Enthalpy econo w/ baro relief
05 = 4 Ton L = Enthalpy econo w/ baro relief & CO2
06 = 5 Ton Q = Motorized 2 pos damper
07 = 6 Ton
08 = 7.5 Ton Indoor Fan Options
09 = 8.5 Ton 1 = Standard static option
12 = 10 Ton 2 = Medium static option
14 = 12.5 Ton 3 = High static option
16 = 15 Ton C = High Static Option w/High Efficiency Motor
(Size 16 only)
Refrig. System/Gas Heat Options Coil Options
A = Standard 1---Stage Cooling models/Nat gas heat Models w/Round Tube Plate Fin (RTPF) condenser coil
B = Standard 1 ---Stage Cooling models/Low NOxheat ( O u t d o o r --- I n d o o r --- H a i l G u a r d )
C = Standard 1---Stage Cooling models/SS Gas HX A = Al/Cu ---Al/Cu
D = 2 --- S t a g e C o o l i n g m o d e l s 0 8 --- 1 6 B = P r e c o a t A l / C u --- A l / C u
F = 2 --- S t a g e C o o l i n g m o d e l s a n d S S G a s H X ( 0 8 --- 1 6 ) C = E --- c o a t A l / C u --- A l / C u
G = 1---Stage Cooling/Al HX w/Perfect Humidity 04--- 07 D = E --- c o a t A l / C u --- E --- c o a t A l / C u
H = 1 --- S t a g e C o o l i n g / L o w N o xHeat w/Perfect Humidity
04---07 E = C u / C u --- A l/ C u
J = 1 --- S t a g e C o o l i n g / S S G a s H X w / P e r f e c t H u m i d i t y
04---07 F = Cu/Cu --- Cu/Cu
K = 2--- Stage Cooling/Al Gas HX w/Perfect Humidity 08-14 M = A l / C u --- A l / C u --- L o u v e r e d H a i l g u a r d s
M = 2---Stage Cool/SS Gas HX w/Perfect Humidity 08-14 N = P r e c o a t A l / C u --- A l / C u --- L o u v e r e d H a i l G u a r d s
P = E c o a t A l/ C u --- A l / C u --- L o u v e r e d H a i l G u a r d s
Heat Level Input Q = E c o a t A l / C u --- E c o a t A l / C u --- L o u v e r e d H a i l G u a r d s
Standard/Stainless Steel R = C u / C u --- A l / C u --- L o u v e r e d H a i l G u a r d s
072 = 72,000 S = C u / C u --- C u / C u --- L o u v e r e d H a i l G u a r d s
115 = 115,000 Models w/All aluminum, Novation condenser coils
125 = 125,000 ( O u t d o o r --- I n d o o r --- H a i l G u a r d )
150 = 150,000 G = Al/Al --- Al/ Cu
180 = 180,000 H = Al/Al --- Cu/Cu
224 = 224,000 J = A l / A l --- E c o a t A l/ C u
240 = 240,000 K = E coat Al/Al --- Al/ Cu
250 = 250,000 L=EcoatAl/Al---EcoatAl/Cu
350 = 350,000 T = A l / A l --- A l / C u --- L o u v e r e d H a i l G u a r d s
Low NOxU = Al/Al --- Cu/ Cu, Louvered Hail Guards
060 = 60,000 V = Al/Al --- E coat Al/Cu, Louvered Hail Guards
090 = 90,000 W = E coat Al/Al --- Al/ Cu, Louvered Hail Guards
120 = 120,000 X = E coat Al/Al --- E coat Al/Cu, Louvered Hail Guards
580J

5
Table 1 – FACTORY--INSTALLED OPTIONS AND FIELD--INSTALLED ACCESSORIES
CATEGORY ITEM
FACTORY
INSTALLED
OPTION
FIELD
INSTALLED
ACCESSORY
Cabinet Thru---the---base electrical or gas ---line connections X X
Supply Duct Cover X
Coil Options
Cu/Cu indoor and/or outdoor coils1X
Pre---coated outdoor coils1X
Premium, E ---coated outdoor coils1X
Humidity Control Perfect Humidity System (3 --- 12.5 ton) X
Condenser Protection Condenser coil hail guard (louvered design) X X
Controls
Thermostats, temperature sensors, and subbases X
RTU Open ---protocol controller X
Smoke detector (supply and/or return air) X
Time Guard II compressor delay control circuit X
Phase Monitor X
Economizers
& Outdoor Air
Dampers
EconoMi$ertIV (for electro---mechanical controlled RTUs) X X
EconoMi$ert2 (for DDC controlled RTUs) X X
Motorized 2 position outdoor air damper X X
Manual outdoor air damper (25% and 50%) X
Barometric relief2X X
Power exhaust X
Economizer Sensors
&
IAQ Devices
Single dry bulb temperature sensors3X X
Differential dry bulb temperature sensors3X
Single enthalpy sensors3X X
Differential enthalpy sensors3X
Wall or duct mounted CO2sensor3X
Unit mounted CO2sensor3X
Gas Heat
Propane conversion kit X
Stainless steel heat exchanger X
High altitude conversion kit X
Flue Shield X
Flue Discharge Deflector X
Indoor Motor & Drive Multiple motor and drive packages X
Low Ambient
Control
Winter start kit4X
Motormasterhead pressure controller4X
Power
Options
Convenience outlet (powered) X
Convenience outlet (un---powered) X
Non --- fused disconnect5X
Disconnect Switch Bracket X
Roof Curbs Roof curb 14 ---in (356mm) X
Roof curb 24 ---in (610mm) X
NOTES:
1. Novation coated coils only available with E ---coat.
2. Included with economizer.
3. Sensors used to optimize economizer performance.
4. See application data for assistance.
5. Available on units with MOCP’s of 80 amps or less.
580J

6
FACTORY OPTIONS AND/OR ACCESSORIES
Economizer (dry--bulb or enthalpy)
Economizers save money. They bring in fresh, outside air
for ventilation; and provide cool, outside air to cool your
building. This is the preferred method of low ambient
cooling. When coupled to CO2sensors, economizers can
provide even more savings by coupling the ventilation air
to only that amount required.
Economizers are available, installed and tested by the
factory, with either enthalpy or dry--bulb temperature
inputs. There are also models for electromechanical as
well as direct digital controllers. Additional sensors are
available as accessories to optimize the economizers.
Economizers include gravity controlled, barometric relief
which equalizes building pressure and ambient air
pressures. This can be a cost effective solution to prevent
building pressurization.
CO2Sensor
Improves productivity and saves money by working with
the economizer to intake only the correct amount of
outside air for ventilation. As occupants fill your building,
the CO2sensor detects their presence through increasing
CO2levels, and opens the economizer appropriately.
When the occupants leave, the CO2levels decrease, and
the sensor appropriately closes the economizer. This
intelligent control of the ventilation air, called Demand
Control Ventilation (DCV) reduces the overall load on the
rooftop, saving money.
Smoke Detectors
Trust the experts. Smoke detectors make your application
safer and your job easier. Bryant smoke detectors
immediately shut down the rooftop unit when smoke is
detected. They are available, installed by the factory, for
supply air, return air, or both.
Louvered Hail Guards
Sleek, louvered panels protect the condenser coil from
hail damage, foreign objects, and incidental contact.
Convenience Outlet (powered or un--powered)
Reduce service and/or installation costs by including a
convenience outlet in your specification. Bryant will
install this service feature at our factory. Provides a
convenient, 15 amp, 115v GFCI receptacle with “Wet in
Use” cover. The “powered” option allows the installer to
power the outlet from the line side of the disconnect or
load side as required by code. The “un--powered” option is
to be powered from a separate 115/120v power source.
Non--fused Disconnect
This OSHA--compliant, factory installed, safety switch
allows a service technician to locally secure power to the
rooftop.
Power Exhaust with Barometric Relief
Superior internal building pressure control. This field
installed accessory may eliminate the need for costly,
external pressure control fans.
RTU Open, Multi--Protocol Controller
Connect the rooftop to an existing BAS without needing
complicated translators or adapter modules using the RTU
Open controller. This new controller speaks the 4 most
common building automation system languages (Bacnet,
Modbus, N2, and Lonworks). Use this controller when
you have an existing BAS.
Time Guard II Control Circuit
This accessory protects your compressor by preventing
short--cycling in the event of some other failure, prevents
the compressor from restarting for 30 seconds after
stopping. Not required with RTU Open, or authorized
commercial thermostats.
Motorized 2--Position Damper
The new Bryant 2--position, motorized outdoor air damper
admits up to 100% outside air. Using reliable, gear--driven
technology, the 2--position damper opens to allow
ventilation air and closes when the rooftop stops, stopping
unwanted infiltration.
Manual OA Damper
Manual outdoor air dampers are an economical way to
bring in ventilation air. The dampers are available in 25%
and 50% versions.
Optional Perfect Humidity System
Bryant’s Perfect Humidity system is an all--inclusive
factory installed option that can be ordered with any
Legacy Line 580J--04--14 rooftop unit.
This system expands the envelope of operation of Bryant’s
Legacy Line rooftop products to provide unprecedented
flexibility to meet year round comfort conditions.
The Perfect Humidity system has the industry’s only dual
dehumidification mode setting. The Perfect Humidity
system includes two new modes of operation.
580J

7
FACTORY OPTIONS AND/OR ACCESSORIES (cont.)
The Legacy Line 580J--04--14 rooftop coupled with the
Perfect Humidity system is capable of operating in normal
design cooling mode, subcooling mode, and hot gas reheat
mode. Normal design cooling mode is when the unit will
operate under its normal sequence of operation by cycling
compressors to maintain comfort conditions.
Subcooling mode will operate to satisfy part load type
conditions when the space requires combined sensible and
a higher proportion of latent load control. Hot Gas Reheat
mode will operate when outdoor temperatures diminish
and the need for latent capacity is required for sole
humidity control. Hot Gas Reheat mode will provide
neutral air for maximum dehumidification operation.
Motormaster Head Pressure Controller
The Motormaster motor controller is a low ambient, head
pressure controller kit that is designed to maintain the
unit’s condenser head pressure during periods of low
ambient cooling operation. This device should be used as
an alternative to economizer free cooling when
economizer usage is either not appropriate or desired. The
Motormaster will either cycle the outdoor fan motors or
operate them at reduced speed to maintain the unit
operation, depending on the model.
Winter Start Kit
The winter start kit by Bryant extends the low ambient
limit of your rooftop to 25_F(--4_C). The kit bypasses the
low pressure switch, preventing nuisance tripping of the
low pressure switch. Other low ambient precautions may
still be prudent.
Propane Heating
Convert your gas heat rooftop from standard natural gas
operation to propane using this field installed kit.
High Altitude Heating
High altitudes have less oxygen, which means heat
exchangers need less fuel. The new gas orifices in this
field installed kit make the necessary adjustment for high
altitude applications. They restore the optimal fuel to air
mixture and maintain healthy combustion at altitudes
above 2000 ft (610m). Kits may not be required in all
areas.
Flue Discharge Deflector
The flue discharge deflector is a useful accessory when
flue gas recirculation is a concern. By venting the flue
discharge upwards, the deflector minimizes the chance for
a neighboring unit to intake the flue exhaust.
Optional Stainless Steel Heat Exchanger
The stainless steel heat exchanger option provides the
tubular heat exchanger be made out of a minimum 20
gauge type 409 stainless steel for applications where the
mixed air to the heat exchanger is expected to drop below
45_F(7_C). Stainless steel may be specified on
applications where the presence of airborne contaminants
require its use (applications such as paper mills) or in
areas with very high outdoor humidity that may result in
severe condensation in the heat exchanger during cooling
operation.
Flue Discharge Heat Shield
The flue discharge heat shield keeps people from touching
the rooftop unit’s potentially hot flue discharge. This is
especially useful for ground level applications, where
more, untrained people could have access to the unit’s
exterior.
Alternate Motors and Drives
Some applications need larger horsepower motors, some
need more airflow, and some need both. Regardless of the
case, your Bryant expert has a factory installed
combination to meet your application. A wide selection of
motors and pulleys (drives) are available, factory
installed, to handle nearly any application.
Thru--the--Base Connections
Thru--the--base connections, available as either an
accessory or as a factory option, are necessary to ensure
proper connection and seal when routing wire and piping
through the rooftop’s basepan and curb. These couplings
eliminate roof penetration and should be considered for
gas lines, main power lines, as well as control power.
Disconnect Switch Bracket
Provides a pre--engineered and sized mounting bracket for
applications requiring a unit mounted fused disconnect of
greater than 100 amps. Bracket assures that no damage
will occur to coils when mounting with screws and other
fasteners.
Supply Duct Cover
This supply duct cover is required when field converting
the factory standard vertical duct supply to horizontal duct
supply configuration. One required per unit. (16 size only)
580J

8
Table 2 – AHRI COOLING RATING TABLE
Unit Cooling
Stages
Nom.
Capacity
(tons)
Net Cooling
Capacity (MBH)
To ta l P ow e r
(KW) SEER EER IEER
A04 1 3 34.6 3.1 13.0 11.00 N/A
A05 1 4 45.0 4.0 13.0 11.00 N/A
A06 1 5 59.0 5.5 13.0 10.75 N/A
A07 1 6 70.0 6.4 N/A 11.00 11.2
A08 17.5 88.0 8.0 N/A 11.00 11.2
D08 27.5 83.0 7.5 N/A 11.00 11.7
A09 18.5 97.0 8.8 N/A 11.00 11.2
D09 28.5 99.0 9.0 N/A 11.00 11.7
A12 110 117.0 10.6 N/A 11.00 11.2
D12 210 114.0 10.3 N/A 11.10 11.8
D14 212.5 140.0 12.9 N/A 10.80 11.0
D16 215 174.0 16.1 N/A 10.80 11.7
LEGEND
AHRI --- Air Conditioning, Heating and Refrigeration
Institute Test Standard
ASHRAE --- American Society of Heating, Refrigerating
and Air Conditioning, Inc.
EER --- Energy Efficiency Ratio
IEER --- Integrated Energy Efficiency Ratio
SEER --- Seasonal Energy Efficiency Ratio
Use of the AHRI Certified
TM Mark indicates a
manufacturer’s
participation in the
program For verification
of certification for individual
products, go to
www.ahridirectory.org.
NOTES:
1. Rated in accordance with AHRI Standard 210/240 or
340/360, as appropriate.
2. Ratings are based on:
Cooling Standard: 80_F(27_C) db, 67_F(19_C) wb
indoor air temp and 95_F(35_C) db outdoor air temp.
IEER Standard: A measure that expresses cooling
part---load EER efficiency for commercial unitary air
conditioning and heat pump equipment on the basis of
weighted operation at various load capacities.
3. All 580J units comply with ASHRAE 90.1 Energy
Standard for minimum SEER and EER requirements.
4. 580J units comply with US Energy Policy Act (2005).
To evaluate code compliance requirements, refer to
state and local codes or visit the following website:
http://bcap ---energy.org.
580J

9
Table 3 – HEATING RATING TABLE -- NATURAL GAS & PROPANE
Units Gas Heat
AL/SS HEAT EXCHANGER TEMP RISE
(DEG F)
THERMAL
EFFICIENCY
(%)
AFUE
(%)
INPUT / OUTPUT
STAGE 1 (MBH)
INPUT / OUTPUT
STAGE 2 (MBH)
Single Phase
04
LOW --- 72 / 59 25 --- 55 82% 81%
MED --- 115 / 93 55 --- 85 80% 80%
HIGH --- --- --- --- ---
05
LOW --- 72 / 59 25 --- 55 82% 81%
MED --- 115 / 93 35 --- 65 81% 80%
HIGH --- 150 / 120 50 --- 80 80% 80%
06
LOW --- 72 / 59 20 --- 55 82% 81%
MED --- 115 / 93 30 --- 65 81% 80%
HIGH --- 150 / 120 40 --- 80 80% 80%
Three Phase
04
LOW --- 72 / 59 25 --- 55 82% N/A
MED 82 / 66 115 / 93 55 --- 85 80% N/A
HIGH --- --- --- --- ---
05
LOW --- 72 / 59 25 --- 55 82% N/A
MED --- 115 / 93 35 --- 65 81% N/A
HIGH 120 / 96 150 / 120 50 --- 80 80% N/A
06
LOW --- 72 / 59 20 --- 55 82% N/A
MED --- 115 / 93 30 --- 65 81% N/A
HIGH 120 / 96 150 / 120 40 --- 80 80% N/A
07
LOW --- 72 / 59 15 --- 55 82% N/A
MED --- 115 / 93 25 --- 65 81% N/A
HIGH 120 / 96 150 / 120 35 --- 80 80% N/A
08
LOW --- 125 / 103 20 --- 50 82% N/A
MED 120 / 98 180 / 148 35 --- 65 82% N/A
HIGH 180 / 147 224 / 184 45 --- 75 82% N/A
09
LOW --- 125 / 103 20 --- 50 82% N/A
MED 120 / 98 180 / 148 30 --- 65 82% N/A
HIGH 180 / 147 224 / 184 40 --- 75 82% N/A
12
LOW 120 / 98 180 / 148 25 --- 65 82% N/A
MED 180 / 147 224 / 184 30 --- 65 82% N/A
HIGH 200 / 160 250 / 205 35 --- 70 80% N/A
14
LOW 120 / 98 180 / 148 20 --- 65 82% N/A
MED 180 / 147 224 / 184 25 --- 65 82% N/A
HIGH 200 / 160 250 / 205 25 --- 70 80% N/A
16
LOW 144 / 118 180 / 146 15 --- 55 81% N/A
MED 192 / 156 240 / 195 20 --- 60 81% N/A
HIGH 280 / 224 350 / 280 35 --- 65 80% N/A
NOTES:
Heat ratings are for natural gas heat exchangers operated at or below 2000 ft (610 m). For information on propane or alti-
tudes above 2000 ft (610 m), see the Application Data section of this book. Accessory Propane/High Altitude kits are also
available.
In the USA the input rating for altitudes above 2000 ft (610m) must be derated by 4% for each 1000 ft (305 m) above sea
level. In Canada, the input rating must be derated by 10% for altitudes of 2000 ft (610 m) to 4500 ft (1372 m) above sea level.
580J

10
Table 4 – HEATING RATING TABLE -- LOW NOx1
UNIT GAS HEAT
LOW NOx HEAT EXCHANGER TEMP RISE
(DEG F)
THERMAL
EFFICIENCY
(%)
AFUE
(%)
INPUT / OUTPUT
STAGE 1 (MBH)
INPUT / OUTPUT
STAGE 2 (MBH)
Single Phase
04
LOW --- 60 / 50 20 --- 50 81% 80%
MED --- 90 / 74 30 --- 60 81% 81%
HIGH --- --- --- --- ---
05
LOW --- 60 / 50 20 --- 50 81% 80%
MED --- 90 / 74 30 --- 60 81% 81%
HIGH --- 120 / 101 40 --- 70 81% 80%
06
LOW --- 60 / 50 15 --- 50 81% 80%
MED --- 90 / 74 25 --- 60 80% 81%
HIGH --- 120 / 101 35 --- 70 80% 81%
Three Phase
04
LOW --- 60 / 50 20 --- 50 81% N/A
MED --- 90 / 74 30 --- 60 81% N/A
HIGH --- --- --- --- ---
05
LOW --- 60 / 50 20 --- 50 81% N/A
MED --- 90 / 74 30 --- 60 81% N/A
HIGH --- 120 / 101 40 --- 70 81% N/A
06
LOW --- 60 / 50 15 --- 50 81% N/A
MED --- 90 / 74 25 --- 60 80% N/A
HIGH --- 120 / 101 35 --- 70 80% N/A
NOTE:
1. Units meet California’s South Coast Air Quality Management District (SCAQMD) Low---NOxemissions requirement of 40
nanograms per joule or less.
Table 5 – SOUND PERFORMANCE TABLE
UNIT COOLING
STAGES
OUTDOOR SOUND (dB)
A --- W E I G H T E D 63 125 250 500 1000 2000 4000 8000
04A 180 90.6 80.9 80.2 76 74.6 71.3 68.5 63.9
05A 181 90.9 84.6 79.5 77.9 76.5 71.1 66.9 62.5
06A 178 84.0 82.2 76.3 74.8 72.5 68.8 65.6 61.8
07A 178 88.8 81.8 76.9 74.4 73.3 69.8 66.3 62.7
08A 182 90.1 82.6 81.0 79.4 77.0 73.0 70.4 66.7
08D 282 85.8 84.3 80.5 78.7 76.4 72.7 68.3 65.1
09A 183 91.2 86.4 81.9 81.0 78.3 73.9 71.4 67.3
09D 282 88.6 85.0 81.6 79.5 77.4 74.1 71.0 66.3
12A 182 88.6 85.0 81.6 79.5 77.4 74.1 71.0 66.3
12D 282 89.0 83.1 80.5 78.5 75.5 71.6 69.6 69.3
14D 287 87.0 85.2 84.6 84.9 82.2 78.4 75.3 72.9
16D 287 87.0 85.2 84.6 84.9 82.2 78.4 75.3 72.9
LEGEND
dB --- Decibel
NOTES:
1. Outdoor sound data is measure in accordance with
AHRI standard 270---2008.
2. Measurements are expressed in terms of sound power.
Do not compare these values to sound pressure values
because sound pressure depends on specific environ-
mental factors which normally do not match individual
applications. Sound power values are independent of
the environment and therefore more accurate.
3. A---weighted sound ratings filter out very high and very
low frequencies, to better approximate the response of
“average” human ear. A ---weighted measurements for
Bryant units are taken in accordance with AHRI stand-
ard 270---2008.
580J

11
Table 6 – MINIMUM -- MAXIMUM AIRFLOW RATINGS -- NATURAL GAS & PROPANE
UNIT HEAT LEVEL COOLING HEATING
MINIMUM MAXIMUM MINIMUM MAXIMUM
580J**04
LOW
900 1500
990 2190
MED 1000 1550
HIGH --- ---
580J**05
LOW
1200 2000
990 2190
MED 1330 2460
HIGH 1390 2220
580J**06
LOW
1500 2500
990 2730
MED 1330 2880
HIGH 1390 2780
580J**07
LOW
1800 3000
990 3640
MED 1330 3450
HIGH 1390 3170
580J**08
LOW
2250 3750
1900 4750
MED 2100 3900
HIGH 2270 3780
580J**09
LOW
2550 4250
1900 4750
MED 2100 4560
HIGH 2270 4250
580J**12
LOW
3000 5000
2100 5470
MED 2620 5670
HIGH 2650 5290
580J**14
LOW
3600 6000
2100 6830
MED 2620 6800
HIGH 2650 7410
580J**16
LOW
4500 7500
2450 7500
MED 3000 6750
HIGH 3990 7200
580J

12
Table 7 – PHYSICAL DATA (COOLING) 3 -- 6 TONS
580J*04A 580J*05A 580J*06A 580J*07A
Refrigeration System
#Circuits/#Comp./Type 1/1/Scroll 1/1/Scroll 1/1/Scroll 1/1/Scroll
Puronrrefrig. (R--- 410A) (lbs---oz) 5 --- 1 0 8 --- 8 10---11 1 4 --- 2
O p e r a t i n g c h a r g e ( l b s --- o z ) --- Pe r f e c t H u m i d i t y U n i t 8 --- 1 1 14---13 1 6 --- 0 2 2 --- 5
Metering Device Acutrol Acutrol Acutrol Acutrol
High--- press. Trip / Reset (psig) 630 / 505 630 / 505 630 / 505 630 / 505
Low--- press. Trip / Reset (psig) 54 / 117 54 / 117 54 / 117 54 / 117
Compressor Capacity Staging (%) 100% 100% 100% 100%
Evap. Coil
Material (Tube/Fin) Cu / Al Cu / Al Cu / Al Cu / Al
Coil type 3/8---in RTPF 3 / 8 --- i n R T P F 3 / 8 --- i n R T P F 3 / 8 --- i n R T P F
Rows / FPI 2 / 15 2/15 4/15 4/15
Tota l Fa c e A r ea ( f t2)5.5 5.5 5.5 7.3
Condensate Drain Conn. Size 3/4---in 3 / 4 --- i n 3 / 4 --- i n 3 / 4 --- i n
Evap. Fan and Motor
Standard Static
1phase
Motor Qty / Drive Type 1/Belt 1/Belt 1/Belt ---
Max BHP 1.2 1.2 1.2 ---
RPM Range 560---854 560---854 770---1175 ---
Motor Frame Size 48 48 48 ---
Fan Qty / Type 1/Centrifugal 1/Centrifugal 1/Centrifugal ---
Fan Diameter (in) 10 x 10 10 x 10 10 x 10 ---
Medium Static
1phase
Motor Qty / Drive Type 1/Belt 1/Belt 1/Belt ---
Max BHP 1.2 1.2 1.5 ---
RPM Range 770---1175 770---1175 1035---1466 ---
Motor Frame Size 48 48 56 ---
Fan Qty / Type 1/Centrifugal 1/Centrifugal 1/Centrifugal ---
Fan Diameter (in) 10 x 10 10 x 10 10 x 10 ---
Standard Static
3phase
Motor Qty / Drive Type 1/Belt 1/Belt 1/Belt 1/Belt
Max BHP 1.2 1.2 1.5 2.4
RPM Range 560---854 560---854 770---1175 1073---1457
Motor Frame Size 48 48 48 56
Fan Qty / Type 1/Centrifugal 1/Centrifugal 1/Centrifugal 1/Centrifugal
Fan Diameter (in) 10 x 10 10 x 10 10 x 10 10 x 10
Medium Static
3phase
Motor Qty / Drive Type 1/Belt 1/Belt 1/Belt 1/Belt
Max BHP 1.2 1.2 2.4 2.9*
RPM Range 770---1175 770---1175 1035---1466 1173---1518
Motor Frame Size 48 48 56 56
Fan Qty / Type 1/Centrifugal 1/Centrifugal 1/Centrifugal 1/Centrifugal
Fan Diameter (in) 10 x 10 10 x 10 10 x 10 10 x 10
High Static
3phase
Motor Qty / Drive Type 1/Belt 1/Belt 1/Belt 1/Belt
Max BHP 2.4 2.4 2.9 3.7
RPM Range 1035---1466 1035---1466 1303--- 1687 1474--- 1788
Motor Frame Size 56 56 56 56
Fan Qty / Type 1/Centrifugal 1/Centrifugal 1/Centrifugal 1/Centrifugal
Fan Diameter (in) 10 x 10 10 x 10 10 x 10 10 x 10
Cond. Coil
Material (Tube/Fin) Cu / Al Cu / Al Cu / Al Cu / Al
Coil type 3/8---in RTPF 3 / 8 --- i n R T P F 3 / 8 --- i n R T P F 3 / 8 --- i n R T P F
Rows / FPI 1 / 17 2/17 2/17 2/17
Tota l Fa c e A r ea ( f t2) 14.6 16.5 16.5 21.3
Perfect Humidity Coil
Material (Tube/Fin) Cu / Al Cu / Al Cu / Al Cu / Al
Rows..Fins/in. 1 / 17 2/17 2/17 2/17
Tota l Fa c e A r ea ( f t2)3.9 3.9 3.9 5.2
Cond. fan / motor
Qty / Motor Drive Type 1/ Direct 1/ Direct 1/ Direct 1/ Direct
Motor HP / RPM 1/4 / 1100 1/4 / 1100 1/4 / 1100 1/4 / 1100
Fan diameter (in) 22 22 22 22
Filters
RA Filter # / Size (in) 2 / 16 x 25 x 2 2/16x25x2 2/16x25x2 4/16x16x2
OA inlet screen # / Size (in) 1/20x24x1 1/20x24x1 1/20x24x1 1/20x24x1
NOTE: Perfect Humidity is not available with Novation condenser coil models. Only Round Tube / Plate Fin (RTPF).
* 575V motor utilizes 3.7 BHP.
580J

13
Table 8 – PHYSICAL DATA (HEATING) 3 -- 6 TONS
580J**04 580J**05 580J**06 580J**07
Gas Connection
#ofGasValves 1 1 1 1
Nat. gas supply line press (in. w.g.) / (PSIG)
4 --- 1 3 / 0 . 1 8 ---
0.47
4 --- 1 3 / 0 . 1 8 ---
0.47
4 --- 1 3 / 0 . 1 8 ---
0.47
4 --- 1 3 / 0 . 1 8 ---
0.47
LP supply line press (in. w.g.) / (PSIG)
1 1 --- 1 3 / 0 . 4 0 ---
0.47
1 1 --- 1 3 / 0 . 4 0 ---
0.47
1 1 --- 1 3 / 0 . 4 0 ---
0.47
1 1 --- 1 3 / 0 . 4 0 ---
0.47
Heat Anticipator setting (Amps)
1st stage 0.14 0.14 0.14 0.14
2nd stage 0.14 0.14 0.14 0.14
Natural Gas Heat
LOW
#ofstages/#ofburners(total) 1/2 1/2 1/2 1/2
Connection Size 1/2” NPT 1/2” NPT 1/2” NPT 1/2” NPT
Rollout switch opens / closes 195 / 115 195 / 115 195 / 115 195 / 115
Te mp e r a tu r e R i s e 25 --- 55 25 --- 55 20 --- 55 15 --- 55
MED
#ofstages/#ofburners(total) 1or2/3 1/3 1/3 1/3
Connection Size 1/2” NPT 1/2” NPT 1/2” NPT 1/2” NPT
Rollout switch opens / closes 195 / 115 195 / 115 195 / 115 195 / 115
Te mp e r a tu r e R i s e 55 --- 85 35 --- 65 30 --- 65 25 --- 65
HIGH
#ofstages/#ofburners(total) --- 1or2/3 1or2/3 2/3
Connection Size --- 1/2” NPT 1/2” NPT 1/2” NPT
Rollout switch opens / closes --- 195 / 115 195 / 115 195 / 115
Te mp e r a tu r e R i s e --- 50 --- 80 40 --- 80 35 --- 80
Liquid Propane Heat
LOW
#ofstages/#ofburners(total) 1/2 1/2 1/2 1/2
Connection Size 1/2” NPT 1/2” NPT 1/2” NPT 1/2” NPT
Rollout switch opens / closes 195 / 115 195 / 115 195 / 115 195 / 115
Te mp e r a tu r e R i s e 25 --- 55 25 --- 55 20 --- 55 15 --- 55
MED
#ofstages/#ofburners(total) 1or2/3 1/3 1/3 1/3
Connection Size 1/2” NPT 1/2” NPT 1/2” NPT 1/2” NPT
Rollout switch opens / closes 195 / 115 195 / 115 195 / 115 195 / 115
Te mp e r a tu r e R i s e 55 --- 85 35 --- 65 30 --- 65 25 --- 65
HIGH
#ofstages/#ofburners(total) --- 1or2/3 1or2/3 2/3
Connection Size --- 1/2” NPT 1/2” NPT 1/2” NPT
Rollout switch opens / closes --- 195 / 115 195 / 115 195 / 115
Te mp e r a tu r e R i s e --- 50 --- 80 40 --- 80 35 --- 80
Low NOx Gas Heat
LOW
#ofstages/#ofburners(total) 1/2 1/2 1/2 ---
Connection Size 1/2” NPT 1/2” NPT 1/2” NPT ---
Rollout switch opens / closes 195 / 115 195 / 115 195 / 115 ---
Te mp e r a tu r e R i s e 20 --- 50 20 --- 50 15 --- 50 ---
MED
#ofstages/#ofburners(total) 1/3 1/3 1/3 ---
Connection Size 1/2” NPT 1/2” NPT 1/2” NPT ---
Rollout switch opens / closes 195 / 115 195 / 115 195 / 115 ---
Te mp e r a tu r e R i s e 30 --- 60 30 --- 60 25 --- 60 ---
---
HIGH
#ofstages/#ofburners(total) --- 1/3 1/3 ---
Connection Size --- 1/2” NPT 1/2” NPT ---
Rollout switch opens / closes --- 195 / 115 195 / 115 ---
Te mp e r a tu r e R i s e --- 40 --- 70 35 --- 70 ---
580J

14
Table 9 – PHYSICAL DATA (COOLING) 7.5 -- 8.5 TONS
580J*08A 580J*08D 580J*09A 580J*09D
Refrigeration System
# Circuits / # Comp. / Type 1/1/Scroll 2/2/Scroll 1/1/Scroll 2/2/Scroll
RTPF models R---410a charge A/B (lbs --- oz) 1 3 --- 1 2 / --- 8 --- 5 / 8 --- 2 1 5 --- 4 / --- 1 0 --- 5 / 1 0 --- 1 2
Alternate (MCHX) R--- 410a charge A/B (lbs --- oz) --- 4 --- 6 / 4 --- 6 --- ---
Alternate (Perfect Humidity) R--- 410a charge A/B (lbs --- oz) --- 1 3 --- 3 / 1 3 --- 3 --- 1 6 --- 1 3 / 1 6 --- 1 3
Metering device Accutrol Accutrol Accutrol Accutrol
High--- press. Trip / Reset (psig) 630 / 505 630 / 505 630 / 505 630 / 505
Low--- press. Trip / Reset (psig) 54 / 117 54 / 117 54 / 117 54 / 117
Loss of charge Trip / Reset (psig) --- --- --- ---
Evap. Coil
Material Cu / Al Cu / Al Cu / Al Cu / Al
Coil type 3/8” RTPF 3/8” RTPF 3/8” RTPF 3/8” RTPF
Rows / FPI 3/15 3/15 3/15 3/15
total face area (ft2)8.9 8.9 11.1 11.1
Condensate drain conn. size 3/4” 3/4” 3/4” 3/4”
Perfect Humidity Coil
Material --- Cu / Al --- Cu / Al
Coil type --- 3/8” RTPF --- 3/8” RTPF
Rows / FPI --- 2/17 --- 2/17
total face area (ft2)--- 6.3 --- 8.4
Evap. fan and motor
Standard Static
3 phase
Motor Qty / Drive type 1/Belt 1/Belt 1/Belt 1/Belt
Max BHP 1.7 1.7 1.7 1.7
RPM range 489---747 489---747 518---733 518---733
motor frame size 56 56 56 56
Fan Qty / Type 1/Centrifugal 1/Centrifugal 1/Centrifugal 1/Centrifugal
Fan Diameter (in) 15 x 15 15 x 15 15 x 15 15 x 15
Medium Static
3 phase
Motor Qty / Drive type 1/Belt 1/Belt 1/Belt 1/Belt
Max BHP 2.9 2.9 2.4 2.4
RPM range 733---949 733---949 690---936 690---936
motor frame size 56 56 56 56
Fan Qty / Type 1/Centrifugal 1/Centrifugal 1/Centrifugal 1/Centrifugal
Fan Diameter (in) 15 x 15 15 x 15 15 x 15 15 x 15
High Static
3 phase
Motor Qty / Drive type 1/Belt 1/Belt 1/Belt 1/Belt
Max BHP 4.7 4.7 3.7 3.7
RPM range 909--- 1102 909--- 1102 838---1084 838---1084
motor frame size 14 14 56 56
Fan Qty / Type 1/Centrifugal 1/Centrifugal 1/Centrifugal 1/Centrifugal
Fan Diameter (in) 15 x 15 15 x 15 15 x 15 15 x 15
Cond. Coil
Material Cu / Al Cu / Al Cu / Al Cu / Al
Coil type 3/8” RTPF 3/8” RTPF 3/8” RTPF 3/8” RTPF
Rows / FPI 2/17 2/17 2/17 2/17
total face area (ft2) 20.5 20.5 21.4 25.1
Alternate (MCHX) Cond. Coil ---
Material --- Al / Al --- ---
Coil type --- Novation™--- ---
Rows / FPI --- 1/20 --- ---
total face area (ft2) --- 20.5 --- ---
Cond. fan / motor
Qty / Motor drive type 2/direct 2/direct 2/direct 2/direct
Motor HP / RPM 1/4 / 1100 1/4 / 1100 1/4 / 1100 1/4 / 1100
Fan diameter (in) 22 22 22 22
Filters
RAFilter#/Size(in) 4/16x20x2 4/16x20x2 4/20x20x2 4/20x20x2
OA inlet screen # / Size (in) 1/20x24x1 1/20x24x1 1/20x24x1 1/20x24x1
NOTE: Perfect Humidity is not available with Novation condenser coil models. Only Round Tube/Plate Fin (RTPF).
580J

15
Table 10 – PHYSICAL DATA (HEATING) 7.5 -- 8.5 TONS
580J**08 580J**09
Gas Connection
#ofGasValves 1 1
Nat. gas supply line press (in. w.g.) / (PSIG) 4 --- 1 3 / 0 . 1 8 --- 0 . 4 7 4 --- 1 3 / 0 . 1 8 --- 0 . 4 7
LP supply line press (in. w.g.) / (PSIG) 11 --- 13 / 0.40 --- 0.47 11 ---13 / 0.40 --- 0.47
Heat Anticipator setting (Amps)
1st stage 0.14 0.14
2nd stage 0.14 0.14
Natural Gas Heat
LOW
#ofstages/#ofburners(total) 1/3 1/3
Connection Size 1/2” NPT 1/2” NPT
Rollout switch opens / closes 195 / 115 195 / 115
Te mp e r a tu r e R i s e 20 --- 50 20 --- 50
MED
#ofstages/#ofburners(total) 2/4 2/4
Connection Size 3/4” NPT 3/4” NPT
Rollout switch opens / closes 195 / 115 195 / 115
Te mp e r a tu r e R i s e 35 --- 65 30 --- 65
HIGH
#ofstages/#ofburners(total) 2/5 2/5
Connection Size 3/4” NPT 3/4” NPT
Rollout switch opens / closes 195 / 115 195 / 115
Te mp e r a tu r e R i s e 45 --- 75 40 --- 75
Liquid Propane Heat
LOW
#ofstages/#ofburners(total) 1/3 1/3
Connection Size 1/2” NPT 1/2” NPT
Rollout switch opens / closes 195 / 115 195 / 115
Te mp e r a tu r e R i s e 20 --- 50 20 --- 50
MED
#ofstages/#ofburners(total) 2/4 2/4
Connection Size 3/4” NPT 3/4” NPT
Rollout switch opens / closes 195 / 115 195 / 115
Te mp e r a tu r e R i s e 35 --- 65 30 --- 65
HIGH
#ofstages/#ofburners(total) 2/5 2/5
Connection Size 3/4” NPT 3/4” NPT
Rollout switch opens / closes 195 / 115 195 / 115
Te mp e r a tu r e R i s e 45 --- 75 40 --- 75
Low NOx Gas Heat
LOW
#ofstages/#ofburners(total) --- ---
Connection Size --- ---
Rollout switch opens / closes --- ---
Te mp e r a tu r e R i s e --- ---
MED
#ofstages/#ofburners(total) --- ---
Connection Size --- ---
Rollout switch opens / closes --- ---
Te mp e r a tu r e R i s e --- ---
HIGH
#ofstages/#ofburners(total) --- ---
Connection Size --- ---
Rollout switch opens / closes --- ---
Te mp e r a tu r e R i s e --- ---
580J

16
Table 11 – PHYSICAL DATA (COOLING) 10 -- 15 TONS
580J*12A 580J*12D 580J*14D 580J*16D
Refrigeration System
# Circuits / # Comp. / Type 1/1/Scroll 2/2/Scroll 2/2/Scroll 2/2/Scroll
RTPF models R---410a charge A/B (lbs --- oz) 2 0 --- 0 1 0 --- 5 / 1 0 --- 3 1 1 --- 0 / 1 1 --- 6 1 5 --- 1 4 / 1 6 --- 1 2
Alternate (MCHX) R---410a charge A/B (lbs --- oz) --- 6 --- 0 / 6 --- 0 7 --- 6 / 8 --- 0 ---
Alternate (Perfect Humidity) R---410a charge A/B (lbs --- oz) --- 1 6 --- 1 0 / 1 6 --- 0 1 7 --- 1 0 / 1 8 --- 3 ---
Metering device Accutrol Accutrol Accutrol Accutrol
High---press. Trip / Reset (psig) 630 / 505 630 / 505 630 / 505 630 / 505
Low---press. Trip / Reset (psig) 54 / 117 54 / 117 54 / 117 54 / 117
Loss of charge Trip / Reset (psig) --- --- --- ---
Evap. Coil
Material Cu / Al Cu / Al Cu / Al Cu / Al
Coil type 3/8” RTPF 3/8” RTPF 3/8” RTPF 3/8” RTPF
Rows / FPI 4/15 4/15 4/15 3/15
total face area (ft2)11.1 11.1 11.1 17.5
Condensate drain conn. size 3/4” 3/4” 3/4” 3/4”
Perfect Humidity Coil
Material --- Cu / Al Cu / Al ---
Coil type --- 3/8” RTPF 3/8” RTPF ---
Rows / FPI --- 2/17 2/17 ---
total face area (ft2)--- 8.4 8.4 ---
Evap. fan and motor
Standard Static
3 phase
Motor Qty / Drive type 1/Belt 1/Belt 1/Belt 1/Belt
Max BHP 2.4 2.4 2.9 2.9
RPM range 591 ---838 591---838 652---843 507 ---676
motor frame size 56 56 56 56
Fan Qty / Type 1/Centrifugal 1/Centrifugal 1/Centrifugal 1/Centrifugal
Fan Diameter (in) 15 x 15 15 x 15 15 x 15 18 x 18
Medium Static
3 phase
Motor Qty / Drive type 1/Belt 1/Belt 1/Belt 1/Belt
Max BHP 3.7 3.7 3.7 3.7
RPM range 838---1084 838 ---1084 838---1084 627---851
motor frame size 56 56 56 56
Fan Qty / Type 1/Centrifugal 1/Centrifugal 1/Centrifugal 1/Centrifugal
Fan Diameter (in) 15 x 15 15 x 15 15 x 15 18 x 18
High Static
3 phase
Motor Qty / Drive type 1/Belt 1/Belt 1/Belt 1/Belt
Max BHP 4.7 4.7 4.7 6.1
RPM range 1022---1240 1022 ---1240 1022 ---1240 776---955
motor frame size 14 14 14 S184T
Fan Qty / Type 1/Centrifugal 1/Centrifugal 1/Centrifugal 1/Centrifugal
Fan Diameter (in) 15 x 15 15 x 15 15 x 15 18 x 18
High Static
-- H i g h
Efficiency
3 phase*
Motor Qty / Drive type 1/Belt
Max BHP 6.1
RPM range 776 ---955
motor frame size S184T
Fan Qty / Type 1/Centrifugal
Fan Diameter (in) 15 x 15 18 x 18
Cond. Coil
Material Cu / Al Cu / Al Cu / Al Cu / Al
Coil type 3/8” RTPF 3/8” RTPF 3/8” RTPF 3/8” RTPF
Rows / FPI 2/17 2/17 3/17 2/17
total face area (ft2) 25.1 25.1 25.1 2 @ 23.1
Alternate (MCHX) Cond. Coil
Material --- Al / Al Al / Al ---
Coil type --- Novation™Novation™---
Rows / FPI --- 1/20 2/20 ---
total face area (ft2) --- 25.1 25.1 ---
Cond. fan / motor
Qty / Motor drive type 2/direct 2/direct 1/direct 3/direct
Motor HP / RPM 1/4 / 1100 1/4 / 1100 1 / 1175 1/4 / 1100
Fan diameter (in) 22 22 30 22
Filters
RAFilter#/Size(in) 4/20x20x2 4/20x20x2 4/20x20x2 16 / 18 x 24 x 2
V2 / 24 x 27 x 1
OA inlet screen # / Size (in) 1/20x24x1 1/20x24x1 1/20x24x1 H1 / 30 x 39 x 1
NOTE: Perfect Humidity is not available with Novation condenser coil models. Only Round Tube/Plate Fin (RTPF) up to 14 size.
* Section 313 of the Energy Independence and Security Act of 2007 (EISA 2007) mandates that the efficiency of general purpose motors we use in our Light
Commercial Rooftops rated at 5.0HP and larger be increased on or after December 19, 2010. We will offer both high and standard efficient motors until
inventory is depleted and then shift over solely to the high efficient motors only.
580J

17
Table 12 – PHYSICAL DATA (HEATING) 10 -- 15 TONS
580J**12 580J**14 580J**16
Gas Connection
#ofGasValves 1 1 1
Nat. gas supply line press (in. w.g.) / (PSIG) 4 --- 1 3 / 0 . 1 8 --- 0 . 4 7 4 --- 1 3 / 0 . 1 8 ---
0.47
5 --- 1 3 / 0 . 1 8 ---
0.47
LP supply line press (in. w.g.) / (PSIG) 11 --- 13 / 0.40 --- 0.47 1 1 --- 1 3 / 0 . 4 0 ---
0.47
1 1 --- 1 3 / 0 . 4 0 ---
0.47
Heat Anticipator setting (Amps)
1st stage 0.14 0.14 0.14
2nd stage 0.14 0.14 0.14
Natural Gas Heat
LOW
#ofstages/#ofburners(total) 2/4 2/4 2/6
Connection Size 3/4” NPT 3/4” NPT 3/4” NPT
Rollout switch opens / closes 195 / 115 195 / 115 225 / 145
Te mp e r a tu r e R i s e 25 --- 65 25 --- 65 20 --- 55
MED
#ofstages/#ofburners(total) 2/5 2/5 2/8
Connection Size 3/4” NPT 3/4” NPT 3/4” NPT
Rollout switch opens / closes 195 / 115 195 / 115 225 / 145
Te mp e r a tu r e R i s e 30 --- 65 30 --- 65 25 --- 60
HIGH
#ofstages/#ofburners(total) 2/5 2/5 2/10
Connection Size 3/4” NPT 3/4” NPT 3/4” NPT
Rollout switch opens / closes 195 / 115 195 / 115 225 / 145
Te mp e r a tu r e R i s e 35 --- 70 35 --- 70 35 --- 65
Liquid Propane Heat
LOW
#ofstages/#ofburners(total) 2/4 2/4 2/6
Connection Size 3/4” NPT 3/4” NPT 3/4” NPT
Rollout switch opens / closes 195 / 115 195 / 115 225 / 145
Te mp e r a tu r e R i s e 25 --- 65 25 --- 65 20 --- 55
MED
#ofstages/#ofburners(total) 2/5 2/5 2/8
Connection Size 3/4” NPT 3/4” NPT 3/4” NPT
Rollout switch opens / closes 195 / 115 195 / 115 225 / 145
Te mp e r a tu r e R i s e 30 --- 65 30 --- 65 25 --- 60
HIGH
#ofstages/#ofburners(total) 2/5 2/5 2/10
Connection Size 3/4” NPT 3/4” NPT 3/4” NPT
Rollout switch opens / closes 195 / 115 195 / 115 225 / 145
Te mp e r a tu r e R i s e 35 --- 70 35 --- 70 35 --- 65
Low NOx Gas Heat
LOW
#ofstages/#ofburners(total) --- ---
Connection Size --- ---
Rollout switch opens / closes --- ---
Te mp e r a tu r e R i s e --- ---
MED
#ofstages/#ofburners(total) --- ---
Connection Size --- ---
Rollout switch opens / closes --- ---
Te mp e r a tu r e R i s e --- ---
HIGH
#ofstages/#ofburners(total) --- ---
Connection Size --- ---
Rollout switch opens / closes --- ---
Te mp e r a tu r e R i s e --- ---
580J

18
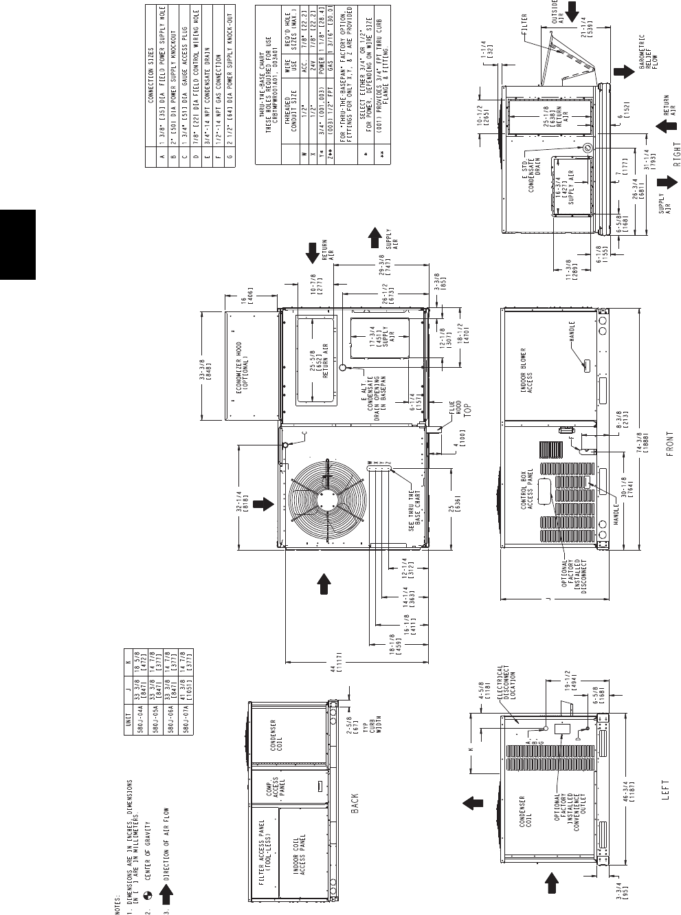
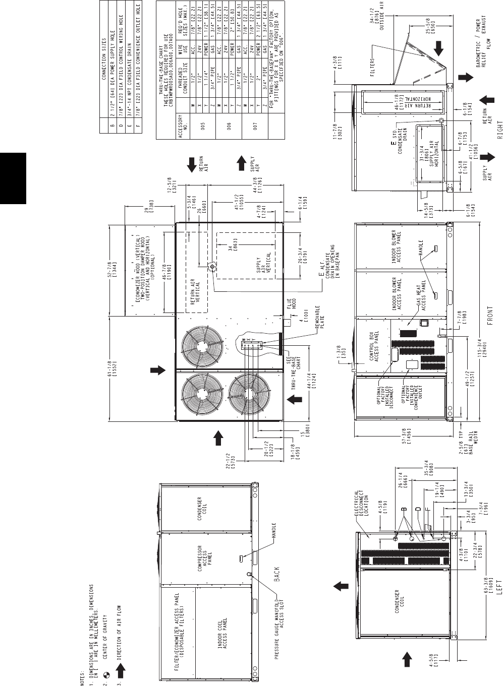
CURBS & WEIGHTS DIMENSIONS -- 580J 04--07
C101225
Fig. 1 -- Dimensions 580J 04--07
580J

19
CURBS & WEIGHTS DIMENSIONS -- 580J 04--07 (cont.)
C101226
Fig. 2 -- Dimensions 580J 04--07
C
B
A
D
C08337
Fig. 3 -- Service Clearance
LOC DIMENSION CONDITION
A
48---in (1219 mm) Unit disconnect is mounted on panel
18---in (457 mm) No disconnect, convenience outlet option
18---in (457 mm) Recommended service clearance
12---in (305 mm) Minimum clearance
B
42---in (1067 mm) Surface behind servicer is grounded (e.g., metal, masonry wall)
36---in (914 mm) Surface behind servicer is electrically non---conductive (e.g., wood, fiberglass)
Special Check for sources of flue products within 10---ft of unit fresh air intake hood
C36---in (914 mm) Side condensate drain is used
18---in (457 mm) Minimum clearance
D
48---in (1219 mm) No flue discharge accessory installed, surface is combustible material
42---in (1067 mm) Surface behind servicer is grounded (e.g., metal, masonry wall, another unit)
36---in (914 mm) Surface behind servicer is electrically non---conductive (e.g., wood, fiberglass)
Special Check for adjacent units or building fresh air intakes within 10---ft of this unit’s flue outlet
580J

20
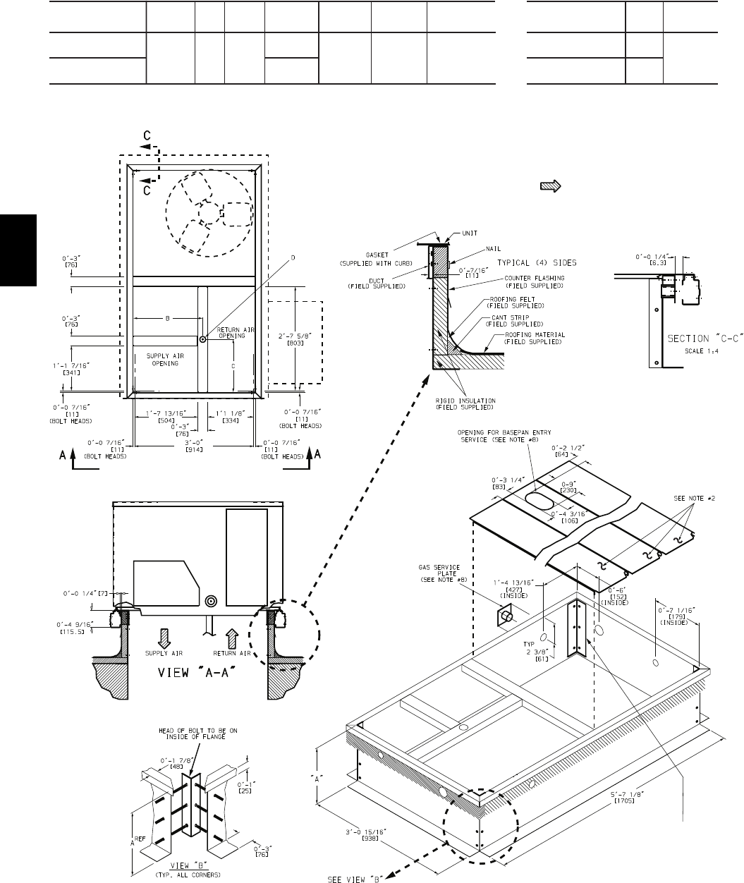
CURBS & WEIGHTS DIMENSIONS -- 580J 04--07 (cont.)
CONNECTOR
PKG. ACCY. BC
D ALT
DRAIN
HOLE GAS POWER CONTROL ACCESSORY
POWER
CRBTMPWR001A01 1’-9
11
/
16
”
[551] 1
3
/
4
”
[44.5]
1’-4”
[406]
3
/
4
” [19]
NPT
CRBTMPWR003A01
3
/
4
” [19]
NPT
1
/
2
” [12.7]
NPT
1
/
2
” [12.7]
NPT
1
/
2
” [12.7]
NPT
ROOFCURB
ACCESSORY A UNIT SIZE
CRRFCURB002A01
CRRFCURB001A01 1’-2”
[356]
2’-0”
[610]
580J*
04-07
NOTES:
1. Roof curb accessory is shipped disassembled.
2. Insulated panels.
3. Dimensions in [ ] are in millimeters.
4. Roof curb: galvanized steel.
5. Attach ductwork to curb (flanges of duct rest on curb).
6. Service clearance: 4 ft on each side.
7. Direction of airflow.
8. Connector package CRBTMPWR001A01 is for
thru-the-curb type gas.
CRBTMPWR003A01 is for thru-the-base type
gas connections.
TYPICAL CORNER FASTENING DEVICE
C10480
Fig. 4 -- Roof Curb Details
580J

21
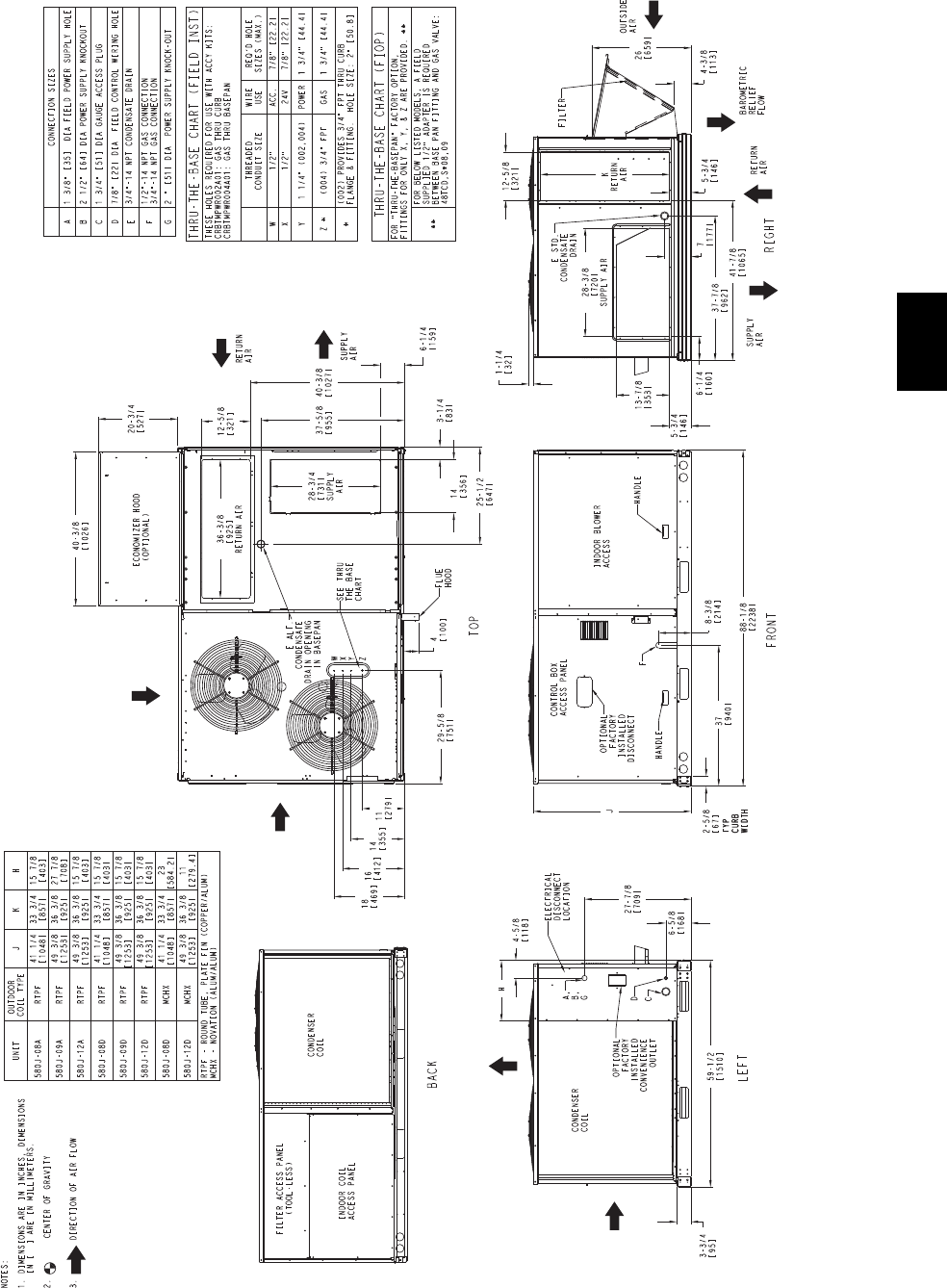
CURBS & WEIGHTS DIMENSIONS -- 580J 08--12
C101217
Fig. 5 -- Dimensions 580J 08--12
580J

22
CURBS & WEIGHTS DIMENSIONS -- 580J 08--12 (cont.)
C101218
Fig. 6 -- 580J 08--12
C
B
A
D
C08337
Fig. 7 -- Service Clearance
LOC DIMENSION CONDITION
A
48---in (1219 mm) Unit disconnect is mounted on panel
36---in (914 mm) I f d i m e n s i o n --- B i s 1 2 --- i n ( 3 0 5 m m )
18---in (457 mm) No disconnect, convenience outlet option
18---in (457 mm) Recommended service clearance (use electric screwdriver)
12---in (305 mm) Minimum clearance (use manual ratchet screwdriver)
B
36---in (914 mm) Unit has economizer
12---in (305 mm) I f d i m e n s i o n --- A i s 3 6 --- i n ( 9 1 4 m m )
Special Check for sources of flue products within 10---ft of unit fresh air intake hood
C36---in (914 mm) Side condensate drain is used
18---in (457 mm) Minimum clearance
D
48---in (1219 mm) No flue discharge accessory installed, surface is combustible material
42---in (1067 mm) Surface behind servicer is grounded (e.g., metal, masonry wall, another unit)
36---in (914 mm) Surface behind servicer is electrically non --- conductive (e.g., wood, fiberglass)
Special Check for adjacent units or building fresh air intakes within 10---ft of this unit’s flue outlet
580J

23
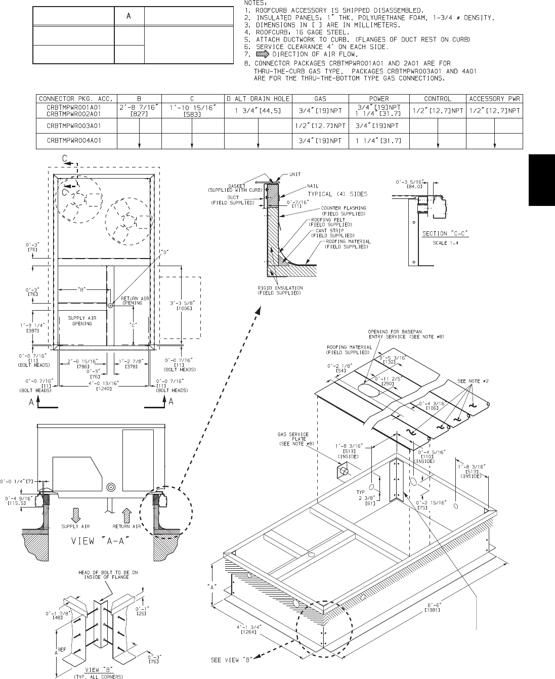
CURBS & WEIGHTS DIMENSIONS -- 580J 08--14
580J
580J*
08 –
08 –
14
14
UNIT SIZE
ROOFCURB
ACCESSORY
CRRFCURB003A01
CRRFCURB004A01
1’ - 2”
(356)
2’ - 0”
(610)
TYPICAL CORNER FASTENING DEVICE
C10481
Fig. 8 -- Roof Curb Details
580J

24
CURBS & WEIGHTS DIMENSIONS -- 580J 14
C101223
Fig. 9 -- Dimensions 580J--14
580J

25
CURBS & WEIGHTS DIMENSIONS -- 580J 14 (cont.)
C101224
C
B
A
D
C08337
Fig. 10 -- Service Clearance
LOC DIMENSION CONDITION
A
48---in (1219 mm) Unit disconnect is mounted on panel
36---in (914 mm) I f d i m e n s i o n --- B i s 1 2 --- i n ( 3 0 5 m m )
18---in (457 mm) No disconnect, convenience outlet option
18---in (457 mm) Recommended service clearance (use electric screwdriver)
12---in (305 mm) Minimum clearance (use manual ratchet screwdriver)
B
36---in (914 mm) Unit has economizer
12---in (305 mm) I f d i m e n s i o n --- A i s 3 6 --- i n ( 9 1 4 m m )
Special Check for sources of flue products within 10---ft of unit fresh air intake hood
C36---in (914 mm) Side condensate drain is used
18---in (457 mm) Minimum clearance
D
48---in (1219 mm) No flue discharge accessory installed, surface is combustible material
42---in (1067 mm) Surface behind servicer is grounded (e.g., metal, masonry wall, another unit)
36---in (914 mm) Surface behind servicer is electrically non --- conductive (e.g., wood, fiberglass)
Special Check for adjacent units or building fresh air intakes within 10---ft of this unit’s flue outlet
580J

26
CURBS & WEIGHTS DIMENSIONS -- 580J 16
C101231
580J

27
CURBS & WEIGHTS DIMENSIONS -- 580J 16 (cont.)
C101232
580J

28
CURBS & WEIGHTS DIMENSIONS -- 580J 16
C10772
580J

29
OPTIONS & ACCESSORY WEIGHTS
OPTION / ACCESSORY
OPTION / ACCESSORY WEIGHTS
04 05 06 07 08 09 12 14 16
lb kg lb kg lb kg lb kg lb kg lb kg lb kg lb kg lb kg
Perfect Humidity115 723 10 25 11 29 13 38 17 47 21 47 21 47 21 na na
Power Exhaust --- vertical 50 23 50 23 50 23 50 23 75 34 75 34 75 34 75 34 85 39
Power Exhaust --- horizontal 30 14 30 14 30 14 30 14 30 14 30 14 30 14 30 14 75 34
EconoMi$er(IV or 2) 50 23 50 23 50 23 50 23 75 34 75 34 75 34 75 34 115 52
Two Position damper 39 18 39 18 39 18 39 18 58 26 58 26 58 26 58 26 65 29
Manual Dampers 12 512 512 512 518 818 818 818 825 11
Medium Gas Heat 12 594949415 715 718 818 828 13
High Gas Heat --- --- 17 817 817 829 13 29 13 35 16 35 16 50 23
Hail Guard (louvered) 16 716 716 716 734 15 34 15 34 15 34 15 45 20
Cu/Cu Condenser Coil26 3 13 613 615 712 523 10 23 10 23 10 190 86
Cu/Cu Condenser and Evaporator Coils212 519 921 10 26 12 25 11 49 22 49 22 49 22 280 127
Roof Curb (14---in. curb) 115 52 115 52 115 52 115 52 143 65 143 65 143 65 143 65 180 82
Roof Curb (24---in. curb) 197 89 197 89 197 89 197 89 245 111 245 111 245 111 245 111 255 116
CO2sensor 525252525252525252
Flue Discharge Deflector 737373737373737373
Optional Indoor Motor/Drive 10 510 510 510 515 715 715 715 745 20
Motor Master Controller 35 16 35 16 35 16 35 16 35 16 35 16 35 16 40 18 40 18
Return Smoke Detector 525252525252525252
Supply Smoke Detector 525252525252525252
Non ---Fused Disconnect 15 715 715 715 715 715 715 715 715 7
Powered Convenience outlet 35 16 35 16 35 16 35 16 35 16 35 16 35 16 35 16 35 16
Non ---Powered Convenience outlet 525252525252525252
Enthalpy Sensor 212121212121212121
Differential Enthalpy Sensor 313131313131313131
NOTE: Where multiple variations are available, the heaviest combination is listed.
1For Perfect Humidity add MotorMaster Controller.
2Where available.
580J

30
APPLICATION DATA
Min operating ambient temp (cooling):
In mechanical cooling mode, your Bryant rooftop unit can
safely operate down to an outdoor ambient temperature of
40_F(4_C) and 25_F(--4_C), with an accessory winter
start kit. It is possible to provide cooling at lower outdoor
ambient temperatures by using less outside air,
economizers, and/or accessory low ambient kits.
Max operating ambient temp (cooling):
The maximum operating ambient temperature for cooling
mode is 115_F(46_C). While cooling operation above
115_F(46_C) may be possible, it could cause either a
reduction in performance, reliability, or a protective action
by the unit’s internal safety devices.
Min mixed air temp (heating):
Using the factory settings, the minimum temperatures for
the mixed air (the combined temperature of the warm
return air and the cold outdoor air) entering the dimpled,
gas heat exchangers are:
Aluminized Stainless Steel
50_F(10_C) continuous
45_F(7_C) intermittent
40_F(4_C) continuous
35_F(2_C) intermittent
Operating at lower mixed--air temperatures may be
possible, if a field supplied, outdoor air thermostat
initiates both heat stages when the temperature is less than
the minimum temperatures listed above. Please contact
your local Bryant representative for assistance.
Min and max airflow (heating and cooling):
To maintain safe and reliable operation of your rooftop,
operate within the heating airflow limits during heating
mode and cooling airflow limits during cooling mode.
Operating above the max may cause blow--off, undesired
airflow noise, or airflow related problems with the rooftop
unit. Operating below the min may cause problems with
coil freeze--up and unsafe heating operation. Heating and
cooling limitations differ when evaluating operating CFM,
the minimum value is the HIGHER of the cooling and
heating minimum CFM values published in Table 7 and
the maximum value is the LOWER of the cooling and
heating maximum values published in Table 7.
Heating--to--cooling changeover:
Your unit will automatically change from heating to
cooling mode when using a thermostat with an
auto--changeover feature.
Airflow:
All units are draw--through in cooling mode and
blow--through in heating mode.
Outdoor air application strategies:
Economizers reduce operating expenses and compressor
run time by providing a free source of cooling and a
means of ventilation to match application changing needs.
In fact, they should be considered for most applications.
Also, consider the various economizer control methods
and their benefits, as well as sensors required to
accomplish your application goals. Please contact your
local Bryant representative for assistance.
Motor limits, Brake horsepower (BHP):
Due to internal design of Bryant units, the air path, and
specially designed motors, the full horsepower (maximum
continuous BHP) band, as listed in Table 8 and 10, can be
used with the utmost confidence. There is no need for
extra safety factors, as Bryant motors are designed and
rigorously tested to use the entire, listed BHP range
without either nuisance tripping or premature motor
failure.
Propane heating:
Propane has different physical qualities than natural gas.
As a result, propane requires different fuel to air mixture.
To optimize the fuel/air mixture for propane, Bryant sells
different burner orifices in an easy to install accessory kit.
To select the correct burner orifices or determine the heat
capacity for a propane application, use either the selection
software, or the unit’s service manual.
High altitude heating:
High altitudes have less oxygen, which affects the fuel/air
mixture in heat exchangers. In order to maintain a proper
fuel/air mixture, heat exchangers operating in altitudes
above 2000 ft (610 m) require different orifices. To select
the correct burner orifices or determine the heat capacity
for a high altitude application, use either the selection
software, or the unit’s service manual.
High altitudes have less oxygen, which means heat
exchangers need less fuel. The new gas orifices in this
field installed kit make the necessary adjustment for high
altitude applications. They restore the optimal fuel to air
mixture and maintain healthy combustion on altitudes
above 2000 ft (610 m).
NOTE: Typical natural gas heating value ranges from
975 to 1050 Btu/ft3at sea level nationally. The heating
value goes down approximately 1.7% per every thousand
feet elevation. Standard factory orifices can typically be
used up to 2000 ft (610m) elevation without any
operational issues.
NOTE: For installations in Canada, the input rating
should be derated by 10% for altitudes from 2000 ft
(610m) to 4500 ft (1372m) above sea level.
580J

31
APPLICATION DATA (cont.)
Sizing a rooftop
Bigger isn’t necessarily better. While an air conditioner
needs to have enough capacity to meet the design loads, it
doesn’t need excess capacity. In fact, excess capacity
typically results in very poor part load performance and
humidity control.
Using higher design temperatures than ASHRAE
recommends for your location, adding “safety factors” to
the calculated load, are all signs of oversizing air
conditioners. Oversizing the air conditioner leads to poor
humidity control, reduced efficiency, higher utility bills,
larger indoor temperature swings, excessive noise, and
increased wear and tear on the air conditioner.
Rather than oversizing an air conditioner, engineers
should “right size” or even slightly undersize air
conditioners. Correctly sizing an air conditioner controls
humidity better; promotes efficiency; reduces utility bills;
extends equipment life, and maintains even, comfortable
temperatures. Please contact your local Bryant
representative for assistance.
Low ambient applications
The optional Bryant economizer can adequately cool your
space by bringing in fresh, cool outside air. In fact, when
so equipped, accessory low ambient kit may not be
necessary. In low ambient conditions, unless the outdoor
air is excessively humid or contaminated, economizer
based “free cooling” is the preferred less costly and
energy conscious method.
In low ambient applications where outside air might not
be desired (such as contaminated or excessively humid
outdoor environments), your Bryant rooftop can operate at
ambient temperatures down to --20_F(--29_C) using the
recommended accessory Motormaster low ambient
controller.
580J

32
SELECTION PROCEDURE (WITH 580J*07A EXAMPLE)1
I. Determine cooling and heating loads.
Given:
Mixed air dry bulb 80_F(27_C)
Mixed air wet bulb 67_F(19_C)
Ambient dry bulb 95_F(35_C)
TCLoad 72.0 MBH
SHCLoad 54.0 MBH
Vertical supply air 2100 CFM
Heating load 85.0 MBH
External static pressure 0.67 in. wg
Electrical characteristics 230--3--60
II. Make an initial guess at cooling tons.
Refrig. tons = TCLoad / 12 MBH per ton
Refrig. tons = 72.0 / 12 = 6.0 tons
In this case, start by looking at the 580J**07.
III. Look up the rooftop’s TC and SHC.
Table 15 shows that, at the application’s supply air
CFM, mixed air and ambient temperatures, the
580J*07A supplies:
TC = 73.7 MBH2
SHC = 54.4 MBH2
IV. Calculate the building latent heat load.
LCLoad =TC
Load -- S H C Load
LCLoad = 72.0 MBH -- 54.0 MBH = 18.0 MBH
V. Calculate RTU latent heat capacity.
LC = TC -- SHC
LC = 73.7 MBH -- 54.4 MBH = 19.3 MBH
VI. Compare RTU capacities to loads.3
Compare the rooftop’s SHC and LC to the
building’s sensible and latent heat loads.
VII. Select factory options (FIOP)
Local code requires an economizer for any unit with
TC greater than 65.0 MBH.
VIII. Calculate the total static pressure.
External static pressure 0.67 in. wg
Sum of FIOP / Accessory static +0.13 in. wg
Total Static Pressure 0.80 in. wg
IX. Look up the indoor fan RPM & BHP.
Table 36 shows, at 2100 CFM & ESP= 0.8,
RPM = 1358 & BHP = 1.52
X. Convert BHP (Step VIII) into fan motor heat.
Fan motor heat = 2.546* BHP/Motor Eff.4
Fan motor heat = 4.9 MBH
XI. Calculate RTU heating capacity.
Building heating load 85.0 MBH
Fan motor heat --4.9 MBH
Required heating capacity 80.1 MBH
XII. Select a gas heater.
Table 4 shows the heating capacities of the
580JE07A = 93.0 MBH. Select the 580JE07A
XIII. Determine electrical requirements.
Table 56 shows the MCA and MOCP of a 580J*07A
(without convenience outlet) as:
MCA = 30.5 amps & MOCP = 45.0 amps
Min. disconnect size: FLA = 30 & LRA = 157.
LEGEND
BHP — Brake horsepower
FLA — Full load amps
LC — Latent capacity
LRA — Lock rotor amp
MBH — (1,000) BTUH
MCA — Min. circuit ampacity
MOCP — Max. over ---current protection
RPM — Revolutions per minute
RTU — Rooftop unit
SHC — Sensible heat capacity
TC — Total capacity
NOTES:
1. Selection software by Bryant saves time by performing
many of the steps above. Contact your Bryant sales
representative for assistance.
2. Unit ratings are gross capacities and do not include the
effect of evaporator fan motor heat. See Step X. for de-
termining amount of evaporator fan motor heat to sub-
tract from total and sensible capacities to obtain net
cooling and net sensible capacities.
3. Selecting a unit with a SHC slightly lower than the
SHCLoad is often better than oversizing. Slightly lower
SHC’s will help control indoor humidity, and prevent
temperature swings.
4. Indoor fan motor efficiency is available in Table 45. Use
the decimal form in the equation, eg. 80% = .8.
580J

33
Table 13 – COOLING CAPACITIES 1--STAGE COOLING 3 TONS
580J*04A
(RTPF)
AMBIENT TEMPERATURE
85 95 105 115
EAT (db) EAT (db) EAT (db) EAT (db)
75 80 85 75 80 85 75 80 85 75 80 85
900 Cfm
EAT (wb)
58 TC 28.1 28.1 31.7 26.3 26.3 29.8 24.5 24.5 27.7 22.6 22.6 25.5
SHC 24.4 28.1 31.7 22.9 26.3 29.8 21.3 24.5 27.7 19.6 22.6 25.5
62 TC 30.3 30.3 31.0 27.8 27.8 29.8 25.1 25.1 28.4 22.6 22.6 26.5
SHC 22.6 26.8 31.0 21.5 25.7 29.8 20.2 24.3 28.4 18.7 22.6 26.5
67 TC 35.5 35.5 35.5 33.1 33.1 33.1 30.5 30.5 30.5 27.5 27.5 27.5
SHC 19.5 23.7 27.9 18.5 22.7 26.9 17.4 21.6 25.8 16.2 20.4 24.6
72 TC 39.0 39.0 39.0 37.1 37.1 37.1 35.1 35.1 35.1 32.7 32.7 32.7
SHC 15.3 19.5 23.7 14.5 18.8 23.0 13.7 17.9 22.2 12.9 17.1 21.3
76 TC --- 41.4 41.4 --- 39.6 39.6 --- 37.6 37.6 --- 35.4 35.4
SHC --- 16.0 21.0 --- 15.4 20.2 --- 14.6 19.3 --- 13.8 18.3
1050 Cfm
EAT (wb)
58 TC 30.2 30.2 34.2 28.4 28.4 32.2 26.5 26.5 30.0 24.5 24.5 27.7
SHC 26.3 30.2 34.2 24.7 28.4 32.2 23.1 26.5 30.0 21.3 24.5 27.7
62 TC 31.9 31.9 34.2 29.4 29.4 32.8 26.7 26.7 31.2 24.5 24.5 28.8
SHC 24.6 29.4 34.2 23.4 28.1 32.8 22.0 26.6 31.2 20.3 24.5 28.8
67 TC 36.7 36.7 36.7 34.8 34.8 34.8 32.2 32.2 32.2 29.1 29.1 29.1
SHC 20.6 25.4 30.2 19.8 24.6 29.4 18.8 23.6 28.4 17.6 22.4 27.2
72 TC 40.1 40.1 40.1 38.2 38.2 38.2 36.1 36.1 36.1 33.7 33.7 33.7
SHC 15.7 20.5 25.3 15.0 19.8 24.6 14.2 19.0 23.8 13.4 18.2 23.0
76 TC --- 42.4 42.4 --- 40.6 40.6 --- 38.5 38.5 --- 36.2 36.2
SHC --- 16.6 22.2 --- 15.9 21.3 --- 15.2 20.4 --- 14.4 19.5
1200 Cfm
EAT (wb)
58 TC 32.2 32.2 36.4 30.4 30.4 34.3 28.4 28.4 32.1 26.3 26.3 29.7
SHC 28.0 32.2 36.4 26.4 30.4 34.3 24.7 28.4 32.1 22.8 26.3 29.7
62 TC 33.3 33.3 37.0 30.8 30.8 35.5 28.4 28.4 33.4 26.3 26.3 30.9
SHC 26.4 31.7 37.0 25.1 30.3 35.5 23.4 28.4 33.4 21.7 26.3 30.9
67 TC 37.7 37.7 37.7 35.6 35.6 35.6 33.4 33.4 33.4 30.4 30.4 30.4
SHC 21.7 27.0 32.4 20.9 26.3 31.6 20.0 25.4 30.8 18.8 24.2 29.6
72 TC 40.9 40.9 40.9 39.0 39.0 39.0 36.9 36.9 36.9 34.4 34.4 34.4
SHC 16.1 21.5 26.8 15.4 20.8 26.1 14.7 20.0 25.4 13.8 19.2 24.5
76 TC --- 43.1 43.1 --- 41.3 41.3 --- 39.1 39.1 --- 36.8 36.8
SHC --- 17.1 23.1 --- 16.4 22.3 --- 15.7 21.4 --- 14.9 20.5
1350 Cfm
EAT (wb)
58 TC --- --- --- 32.1 32.1 36.3 30.0 30.0 34.0 27.9 27.9 31.5
SHC --- --- --- 27.9 32.1 36.3 26.1 30.0 34.0 24.2 27.9 31.5
62 TC 28.4 28.4 30.5 32.2 32.2 37.8 30.1 30.1 35.3 27.9 27.9 32.8
SHC 17.6 24.1 30.5 26.6 32.2 37.8 24.8 30.1 35.3 23.0 27.9 32.8
67 TC 33.2 33.2 33.2 36.4 36.4 36.4 34.1 34.1 34.1 31.5 31.5 32.0
SHC 15.0 21.4 27.9 21.9 27.8 33.7 21.0 26.9 32.9 20.0 26.0 32.0
72 TC 37.5 37.5 37.5 39.7 39.7 39.7 37.5 37.5 37.5 35.0 35.0 35.0
SHC 11.8 18.3 24.8 15.8 21.7 27.5 15.0 20.9 26.8 14.2 20.1 26.0
76 TC --- 40.1 40.1 --- 41.8 41.8 --- 39.6 39.6 --- 37.3 37.3
SHC --- 15.3 22.7 --- 16.8 23.2 --- 16.1 22.3 --- 15.3 21.5
1500 Cfm
EAT (wb)
58 TC 28.1 28.1 34.2 33.7 33.7 38.1 31.6 31.6 35.7 29.3 29.3 33.2
SHC 21.9 28.1 34.2 29.3 33.7 38.1 27.4 31.6 35.7 25.5 29.3 33.2
62 TC 30.3 30.3 33.8 33.7 33.7 39.6 31.6 31.6 37.1 29.4 29.4 34.5
SHC 19.8 26.8 33.8 27.8 33.7 39.6 26.1 31.6 37.1 24.2 29.4 34.5
67 TC 35.5 35.5 35.5 36.9 36.9 36.9 34.6 34.6 34.9 32.0 32.0 34.0
SHC 16.7 23.7 30.7 22.8 29.2 35.7 21.9 28.4 34.9 21.0 27.5 34.0
72 TC 39.0 39.0 39.0 40.2 40.2 40.2 38.0 38.0 38.0 35.5 35.5 35.5
SHC 12.4 19.5 26.6 16.1 22.5 28.8 15.4 21.7 28.1 14.6 21.0 27.4
76 TC --- 41.4 41.4 --- 42.2 42.2 --- 40.0 40.0 --- --- ---
SHC --- 16.0 24.3 --- 17.2 24.0 --- 16.5 23.2 --- --- ---
LEGEND:
--- --- D o n o t o p e r a t e
Cfm --- Cubic feet per minute (supply air)
EAT(db) --- Entering air temperature (dry bulb)
EAT(wb) --- Entering air temperature (wet bulb)
SHC --- Sensible heat capacity
TC --- Total capacity
580J

34
Table 14 – COOLING CAPACITIES 1--STAGE COOLING 3 TONS
580J04 (3 TONS) --- UNIT WITH PERFECT HUMIDITY SYSTEM IN SUBCOOLING MODE
A i r E n t e r i n g E v a p o r a t o r --- C F M
Te m p ( F ) A i r E n t
Condenser (Edb)
80 dry bulb 80 dry bulb 80 dry bulb
72 wet bulb 67 wet bulb 62 wet bulb
900 1200 1500 900 1200 1500 900 1200 1500
75
TC 40.6 43.2 45.3 37.0 39.4 41.3 33.4 35.6 37.4
SHC 21.6 23.9 25.6 25.6 27.7 29.3 29.6 31.6 33.1
kW 2.0 2.0 2.0 2.0 2.0 2.0 2.0 2.0 2.0
85
TC 37.0 39.6 41.7 33.6 36.0 37.9 30.2 32.3 34.1
SHC 17.7 20.2 22.2 22.7 25.0 26.9 27.7 29.9 31.6
kW 2.3 2.3 2.3 2.3 2.3 2.3 2.3 2.3 2.3
95
TC 33.5 36.0 38.1 30.2 32.5 34.4 26.9 29.1 30.8
SHC 13.7 16.6 18.8 19.7 22.4 24.4 25.7 28.2 30.1
kW 2.6 2.6 2.6 2.5 2.5 2.5 2.5 2.5 2.5
105
TC 29.9 32.4 34.5 26.8 29.1 31.0 23.6 25.8 27.5
SHC 9.8 12.9 15.3 16.8 19.7 22.0 23.8 26.5 28.6
kW 2.9 2.9 2.9 2.8 2.8 2.8 2.8 2.8 2.8
115
TC 26.3 28.8 30.9 23.3 25.7 27.5 20.4 22.5 24.2
SHC 5.8 9.2 11.9 13.8 17.0 19.5 21.9 24.8 27.1
kW 3.2 3.2 3.2 3.1 3.1 3.1 3.1 3.1 3.1
580J04 (3 TONS) --- UNIT WITH PERFECT HUMIDITY SYSTEM IN HOT GAS REHEAT MODE
A i r E n t e r i n g E v a p o r a t o r --- C F M
Te m p ( F ) A i r E n t
Condenser (Edb)
75 dry bulb 75 dry bulb 75 dry bulb
62.5 wet bulb (50% relative) 64 wet bulb (55% relative) 65.3 wet bulb (60% relative)
1050 1200 1350 1050 1200 1350 1050 1200 1350
80
TC 14.7 15.5 16.2 15.9 16.7 17.4 16.9 17.7 18.4
SHC 6.7 7.6 8.5 4.8 5.7 6.6 3.2 4.1 5.0
kW 2.0 2.0 2.0 2.0 2.0 2.0 2.0 2.0 2.0
75
TC 15.1 15.8 16.4 16.2 17.0 17.6 17.2 18.0 18.6
SHC 7.5 8.4 9.2 5.8 6.7 7.5 4.4 5.2 6.0
kW 1.9 1.9 1.9 2.0 2.0 2.0 2.0 2.0 2.0
70
TC 15.5 16.1 16.7 16.6 17.3 17.9 17.5 18.2 18.8
SHC 8.4 9.3 10.0 6.9 7.7 8.5 5.5 6.4 7.1
kW 1.9 1.9 1.9 1.9 1.9 1.9 1.9 1.9 1.9
60
TC 16.2 16.8 17.3 17.2 17.8 18.3 18.1 18.7 19.2
SHC 10.2 10.9 11.6 8.9 9.7 10.4 7.8 8.6 9.3
kW 1.8 1.8 1.8 1.8 1.8 1.8 1.9 1.9 1.9
50
TC 17.0 17.5 17.9 17.9 18.4 18.8 18.7 19.2 19.6
SHC 11.9 12.6 13.2 11.0 11.6 12.2 10.1 10.8 11.4
kW 1.7 1.7 1.7 1.8 1.8 1.8 1.8 1.8 1.8
40
TC 17.7 18.1 18.5 18.6 19.0 19.3 19.3 19.7 20.1
SHC 13.7 14.3 14.8 13.0 13.6 14.1 12.4 13.0 13.5
kW 1.7 1.7 1.7 1.7 1.7 1.7 1.7 1.7 1.7
LEGEND
Edb --- E n t e r i n g D r y --- B u l b
Ewb --- E n te r i n g We t --- B u l b
kW --- Compressor Motor Power Input
Idb --- L e a v i n g D r y --- B u l b
Iwb --- L e a v i n g W e t --- B u l b
SHC --- Sensible Heat Capacity (1000 Btuh) Gross
TC --- Total Capacity (1000 Btuh) Gross
NOTES:
1. Direct interpolation is permissible. Do not extrapolate.
2. The following formulas may be used:
tldb =t
edb –sensible capacity (Btuh)
1.10 x cfm
tlwb = Wet--- bulb temperature corresponding to enthalpy of air
leaving evaporator coil (hlwb)
hlwb =h
ewb –total capacity (Btuh)
4.5 x cfm
Where: hewb = Enthalpy of air entering evaporator coil
580J

35
Table 15 – COOLING CAPACITIES 1--STAGE COOLING 4 TONS
580J*05A
(RTPF)
AMBIENT TEMPERATURE
85 95 105 115
EAT (db) EAT (db) EAT (db) EAT (db)
75 80 85 75 80 85 75 80 85 75 80 85
1200 Cfm
EAT (wb)
58 TC --- --- --- --- --- --- 36.1 36.1 40.7 34.3 34.3 38.6
SHC --- --- --- --- --- --- 31.5 36.1 40.7 29.9 34.3 38.6
62 TC 43.1 43.1 43.1 40.8 40.8 40.8 38.4 38.4 39.4 35.9 35.9 38.2
SHC 31.2 36.4 41.7 30.1 35.3 40.6 28.9 34.1 39.4 27.8 33.0 38.2
67 TC 47.4 47.4 47.4 45.2 45.2 45.2 42.9 42.9 42.9 40.3 40.3 40.3
SHC 25.9 31.2 36.4 25.0 30.2 35.5 23.9 29.2 34.4 22.9 28.2 33.4
72 TC 51.1 51.1 51.1 49.1 49.1 49.1 46.8 46.8 46.8 43.9 43.9 43.9
SHC 20.1 25.5 30.9 19.4 24.7 30.1 18.4 23.7 29.0 17.4 22.7 28.0
76 TC --- 53.3 53.3 --- 51.5 51.5 --- 49.2 49.2 --- 45.9 45.9
SHC --- 20.8 27.4 --- 20.2 26.8 --- 19.3 25.7 --- 18.3 24.6
1400 cfm
EAT (wb)
58 TC 41.9 41.9 47.3 40.1 40.1 45.3 38.2 38.2 43.2 36.3 36.3 41.0
SHC 36.6 41.9 47.3 35.0 40.1 45.3 33.3 38.2 43.2 31.7 36.3 41.0
62 TC 44.6 44.6 45.4 42.3 42.3 44.2 39.8 39.8 42.9 37.3 37.3 41.6
SHC 33.4 39.4 45.4 32.3 38.3 44.2 31.0 37.0 42.9 29.8 35.7 41.6
67 TC 48.7 48.7 48.7 46.6 46.6 46.6 44.2 44.2 44.2 41.4 41.4 41.4
SHC 27.3 33.2 39.2 26.4 32.3 38.3 25.3 31.3 37.3 24.2 30.2 36.2
72 TC 52.2 52.2 52.2 50.3 50.3 50.3 47.8 47.8 47.8 44.8 44.8 44.8
SHC 20.6 26.7 32.7 19.9 25.9 32.0 18.9 24.9 30.9 17.9 23.8 29.7
76 TC --- 54.1 54.1 --- 52.3 52.3 --- 49.9 49.9 --- 46.4 46.4
SHC --- 21.5 29.0 --- 20.8 28.0 --- 19.9 26.9 --- 18.8 25.7
1600 Cfm
EAT (wb)
58 TC 44.0 44.0 49.6 42.1 42.1 47.4 40.1 40.1 45.2 38.1 38.1 43.0
SHC 38.3 44.0 49.6 36.7 42.1 47.4 34.9 40.1 45.2 33.2 38.1 43.0
62 TC 45.7 45.7 48.6 43.5 43.5 47.5 41.0 41.0 46.0 38.5 38.5 44.4
SHC 35.3 42.0 48.6 34.2 40.8 47.5 32.9 39.4 46.0 31.6 38.0 44.4
67 TC 49.8 49.8 49.8 47.6 47.6 47.6 45.1 45.1 45.1 42.3 42.3 42.3
SHC 28.4 35.0 41.6 27.6 34.2 40.9 26.5 33.2 39.9 25.4 32.1 38.7
72 TC 53.0 53.0 53.0 51.1 51.1 51.1 48.6 48.6 48.6 45.4 45.4 45.4
SHC 21.0 27.6 34.3 20.3 27.0 33.6 19.4 26.0 32.6 18.3 24.8 31.3
76 TC --- 54.6 54.6 --- 52.8 52.8 --- 50.4 50.4 --- 46.8 46.8
SHC --- 22.0 29.9 --- 21.3 29.0 --- 20.3 27.9 --- 19.2 26.6
1800 Cfm
EAT (wb)
58 TC 44.0 44.0 50.3 42.1 42.1 48.1 40.1 40.1 45.9 38.0 38.0 43.5
SHC 37.6 44.0 50.3 36.0 42.1 48.1 34.3 40.1 45.9 32.6 38.0 43.5
62 TC 45.7 45.7 49.5 43.5 43.5 48.3 41.0 41.0 46.8 38.4 38.4 45.2
SHC 34.5 42.0 49.5 33.4 40.8 48.3 32.1 39.4 46.8 30.8 38.0 45.2
67 TC 49.8 49.8 49.8 47.6 47.6 47.6 45.1 45.1 45.1 42.3 42.3 42.3
SHC 27.6 35.0 42.5 26.8 34.2 41.7 25.7 33.2 40.7 24.6 32.1 39.5
72 TC 53.0 53.0 53.0 51.1 51.1 51.1 48.6 48.6 48.6 45.4 45.4 45.4
SHC 20.2 27.6 35.1 19.5 27.0 34.4 18.5 26.0 33.4 17.5 24.8 32.1
76 TC --- 54.6 54.6 --- 52.8 52.8 --- 50.4 50.4 --- 46.8 46.8
SHC --- 22.0 30.9 --- 21.3 30.0 --- 20.3 28.9 --- 19.2 27.5
2000 Cfm
EAT (wb)
58 TC 46.9 46.9 52.9 45.0 45.0 50.8 42.9 42.9 48.4 40.7 40.7 45.9
SHC 40.9 46.9 52.9 39.3 45.0 50.8 37.4 42.9 48.4 35.5 40.7 45.9
62 TC 47.5 47.5 54.0 45.3 45.3 52.5 43.0 43.0 50.3 40.7 40.7 47.7
SHC 38.5 46.3 54.0 37.3 44.9 52.5 35.6 43.0 50.3 33.8 40.7 47.7
67 TC 51.2 51.2 51.2 49.1 49.1 49.1 46.5 46.5 46.5 43.5 43.5 43.5
SHC 30.5 38.3 46.0 29.8 37.6 45.5 28.7 36.6 44.5 27.5 35.4 43.2
72 TC 54.0 54.0 54.0 52.1 52.1 52.1 49.7 49.7 49.7 46.2 46.2 46.2
SHC 21.7 29.2 36.8 21.1 28.7 36.4 20.1 27.8 35.4 18.9 26.4 33.9
76 TC --- 55.2 55.2 --- 53.5 53.5 --- 51.0 51.0 --- 47.3 47.3
SHC --- 22.7 31.4 --- 22.0 30.6 --- 21.1 29.6 --- 19.9 28.1
LEGEND:
--- --- D o n o t o p e r a t e
Cfm --- Cubic feet per minute (supply air)
EAT(db) --- Entering air temperature (dry bulb)
EAT(wb) --- Entering air temperature (wet bulb)
SHC --- Sensible heat capacity
TC --- Total capacity
580J

36
Table 16 – COOLING CAPACITIES 1--STAGE COOLING 4 TONS
580J05 (4 TONS) --- UNIT WITH PERFECT HUMIDITY SYSTEM IN SUBCOOLING MODE
A i r E n t e r i n g E v a p o r a t o r --- C F M
Te m p ( F ) A i r E n t
Condenser (Edb)
80 dry bulb 80 dry bulb 80 dry bulb
72 wet bulb 67 wet bulb 62 wet bulb
1200 1600 2000 1200 1600 2000 1200 1600 2000
75
TC 52.5 55.9 58.6 47.1 50.2 52.7 41.7 44.5 46.8
SHC 22.6 25.5 27.8 27.1 29.9 32.0 31.6 34.2 36.2
kW 2.5 2.5 2.5 2.5 2.5 2.5 2.5 2.5 2.5
85
TC 48.7 52.2 54.9 43.4 46.5 49.0 38.0 40.8 43.1
SHC 18.0 21.3 23.9 23.6 26.8 29.2 29.3 32.2 34.4
kW 2.9 2.9 2.9 2.9 2.9 2.9 2.9 2.9 2.9
95
TC 44.9 48.4 51.2 39.6 42.8 45.3 34.3 37.1 39.4
SHC 13.4 17.2 20.0 20.2 23.7 26.4 27.0 30.2 32.7
kW 3.4 3.4 3.4 3.3 3.3 3.3 3.3 3.3 3.3
105
TC 41.1 44.7 47.5 35.9 39.1 41.7 30.6 33.5 35.8
SHC 8.8 13.0 16.1 16.7 20.6 23.6 24.6 28.2 31.0
kW 3.8 3.8 3.8 3.7 3.7 3.7 3.7 3.7 3.7
115
TC 37.4 41.0 43.9 32.1 35.4 38.0 26.8 29.8 32.1
SHC 4.3 8.8 12.2 13.3 17.5 20.7 22.3 26.2 29.2
kW 4.2 4.2 4.2 4.2 4.2 4.2 4.1 4.1 4.1
580J05 (4 TONS) --- UNIT WITH PERFECT HUMIDITY SYSTEM IN HOT GAS REHEAT MODE
A i r E n t e r i n g E v a p o r a t o r --- C F M
Te m p ( F ) A i r E n t
Condenser (Edb)
75 dry bulb 75 dry bulb 75 dry bulb
62.5 wet bulb (50% relative) 64 wet bulb (55% relative) 65.3 wet bulb (60% relative)
1200 1600 2000 1200 1600 2000 1200 1600 2000
80
TC 11.6 13.8 15.5 13.5 15.8 17.6 15.2 17.5 19.3
SHC --- 1 . 0 1.2 3.0 --- 3 . 1 --- 0 . 8 0.9 --- 4 . 8 --- 2 . 6 --- 0 . 9
kW 2.5 2.5 2.5 2.5 2.5 2.5 2.5 2.5 2.5
75
TC 12.5 14.6 16.2 14.3 16.4 18.1 15.9 18.1 19.8
SHC --- 0 . 7 1.4 3.0 --- 2 . 7 --- 0 . 6 1.1 --- 4 . 3 --- 2 . 2 --- 0 . 6
kW 2.5 2.5 2.5 2.5 2.5 2.5 2.5 2.5 2.5
70
TC 13.4 15.3 16.8 15.1 17.1 18.7 16.6 18.7 20.3
SHC --- 0 . 5 1.5 3.0 --- 2 . 3 --- 0 . 3 1.2 --- 3 . 8 --- 1 . 9 --- 0 . 3
kW 2.5 2.5 2.5 2.5 2.5 2.5 2.5 2.5 2.5
60
TC 15.1 16.8 18.1 16.7 18.4 19.8 18.1 19.9 21.2
SHC 0.0 1.7 3.1 --- 1 . 5 0.2 1.5 --- 2 . 8 --- 1 . 1 0.2
kW 2.6 2.6 2.6 2.6 2.6 2.6 2.6 2.6 2.6
50
TC 16.9 18.3 19.4 18.3 19.8 20.9 19.6 21.0 22.2
SHC 0.6 2.0 3.1 --- 0 . 7 0.7 1.8 --- 1 . 8 --- 0 . 4 0.7
kW 2.6 2.6 2.6 2.6 2.6 2.6 2.6 2.6 2.6
40
TC 18.7 19.8 20.7 19.9 21.1 22.0 21.0 22.2 23.2
SHC 1.1 2.2 3.1 0.1 1.2 2.1 --- 0 . 8 0.4 1.3
kW 2.6 2.6 2.6 2.7 2.7 2.7 2.7 2.7 2.7
LEGEND
Edb --- E n t e r i n g D r y --- B u l b
Ewb --- E n te r i n g We t --- B u l b
kW --- Compressor Motor Power Input
Idb --- L e a v i n g D r y --- B u l b
Iwb --- L e a v i n g W e t --- B u l b
SHC --- Sensible Heat Capacity (1000 Btuh) Gross
TC --- Total Capacity (1000 Btuh) Gross
NOTES:
1. Direct interpolation is permissible. Do not extrapolate.
2. The following formulas may be used:
tldb =t
edb –sensible capacity (Btuh)
1.10 x cfm
tlwb = Wet--- bulb temperature corresponding to enthalpy of air
leaving evaporator coil (hlwb)
hlwb =h
ewb –total capacity (Btuh)
4.5 x cfm
Where: hewb = Enthalpy of air entering evaporator coil
580J

37
Table 17 – COOLING CAPACITIES 1--STAGE COOLING 5 TONS
580J*06A
(RTPF)
AMBIENT TEMPERATURE
85 95 105 115
EAT (db) EAT (db) EAT (db) EAT (db)
75 80 85 75 80 85 75 80 85 75 80 85
1500 Cfm
EAT (wb)
58 TC 52.9 52.9 60.0 49.9 49.9 56.6 46.6 46.6 52.9 43.1 43.1 48.9
SHC 45.8 52.9 60.0 43.2 49.9 56.6 40.4 46.6 52.9 37.3 43.1 48.9
62 TC 56.2 56.2 57.6 52.2 52.2 55.7 47.8 47.8 53.5 43.2 43.2 51.0
SHC 41.8 49.7 57.6 39.9 47.8 55.7 37.8 45.6 53.5 35.5 43.2 51.0
67 TC 62.4 62.4 62.4 58.8 58.8 58.8 54.4 54.4 54.4 49.5 49.5 49.5
SHC 34.8 42.8 50.7 33.2 41.2 49.1 31.4 39.3 47.3 29.4 37.3 45.3
72 TC 68.2 68.2 68.2 64.8 64.8 64.8 60.8 60.8 60.8 56.2 56.2 56.2
SHC 27.2 35.2 43.2 25.9 33.9 41.9 24.4 32.4 40.4 22.6 30.6 38.6
76 TC --- 71.1 71.1 --- 69.0 69.0 --- 65.4 65.4 --- 60.9 60.9
SHC --- 28.4 36.6 --- 27.6 35.9 --- 26.3 34.6 --- 24.8 33.0
1750 Cfm
EAT (wb)
58 TC 56.5 56.5 64.0 53.3 53.3 60.4 49.8 49.8 56.5 46.1 46.1 52.3
SHC 48.9 56.5 64.0 46.1 53.3 60.4 43.1 49.8 56.5 39.9 46.1 52.3
62 TC 58.5 58.5 63.4 54.4 54.4 61.3 49.9 49.9 58.9 46.1 46.1 54.4
SHC 45.2 54.3 63.4 43.2 52.2 61.3 41.0 49.9 58.9 37.9 46.1 54.4
67 TC 64.3 64.3 64.3 60.5 60.5 60.5 56.2 56.2 56.2 51.3 51.3 51.3
SHC 36.9 46.1 55.2 35.3 44.5 53.7 33.6 42.8 51.9 31.6 40.8 49.9
72 TC 69.5 69.5 69.5 66.5 66.5 66.5 62.4 62.4 62.4 57.7 57.7 57.7
SHC 27.8 36.9 45.9 26.7 35.9 45.1 25.2 34.5 43.7 23.5 32.8 42.0
76 TC --- 72.2 72.2 --- 70.1 70.1 --- 66.6 66.6 --- --- ---
SHC --- 29.3 38.9 --- 28.6 38.2 --- 27.4 36.8 --- --- ---
2000 Cfm
EAT (wb)
58 TC 59.3 59.3 67.3 56.1 56.1 63.6 52.5 52.5 59.5 48.6 48.6 55.1
SHC 51.4 59.3 67.3 48.6 56.1 63.6 45.4 52.5 59.5 42.1 48.6 55.1
62 TC 60.1 60.1 68.5 56.2 56.2 66.3 52.5 52.5 62.0 48.7 48.7 57.4
SHC 48.1 58.3 68.5 46.2 56.2 66.3 43.1 52.5 62.0 39.9 48.7 57.4
67 TC 65.7 65.7 65.7 61.9 61.9 61.9 57.5 57.5 57.5 52.6 52.6 54.4
SHC 38.8 49.1 59.5 37.3 47.7 58.1 35.6 46.0 56.4 33.6 44.0 54.4
72 TC 70.1 70.1 70.1 67.6 67.6 67.6 63.6 63.6 63.6 58.9 58.9 58.9
SHC 28.3 38.1 48.0 27.4 37.7 48.0 26.0 36.4 46.7 24.3 34.7 45.2
76 TC --- 72.9 72.9 --- 70.8 70.8 --- 67.4 67.4 --- --- ---
SHC --- 30.1 40.7 --- 29.3 39.9 --- 28.2 38.7 --- --- ---
2250 Cfm
EAT (wb)
58 TC 61.5 61.5 69.8 58.4 58.4 66.2 54.8 54.8 62.1 50.8 50.8 57.6
SHC 53.2 61.5 69.8 50.5 58.4 66.2 47.4 54.8 62.1 43.9 50.8 57.6
62 TC 61.6 61.6 72.6 58.4 58.4 68.9 54.8 54.8 64.6 50.8 50.8 59.9
SHC 50.6 61.6 72.6 47.9 58.4 68.9 45.0 54.8 64.6 41.7 50.8 59.9
67 TC 66.8 66.8 66.8 63.0 63.0 63.0 58.5 58.5 60.6 53.6 53.6 58.6
SHC 40.5 52.0 63.4 39.1 50.7 62.3 37.4 49.0 60.6 35.5 47.0 58.6
72 TC 70.8 70.8 70.8 68.5 68.5 68.5 64.5 64.5 64.5 59.8 59.8 59.8
SHC 28.7 39.5 50.2 28.0 39.3 50.5 26.7 38.1 49.6 25.0 36.6 48.1
76 TC --- 73.4 73.4 --- 71.2 71.2 --- 67.9 67.9 --- --- ---
SHC --- 30.7 42.1 --- 30.0 41.4 --- 28.9 40.4 --- --- ---
2500 Cfm
EAT (wb)
58 TC 63.3 63.3 71.8 60.1 60.1 68.2 56.5 56.5 64.1 52.6 52.6 59.6
SHC 54.8 63.3 71.8 52.1 60.1 68.2 49.0 56.5 64.1 45.5 52.6 59.6
62 TC 63.4 63.4 74.7 60.2 60.2 71.0 56.6 56.6 66.7 52.6 52.6 62.1
SHC 52.0 63.4 74.7 49.4 60.2 71.0 46.5 56.6 66.7 43.2 52.6 62.1
67 TC 67.6 67.6 67.6 63.8 63.8 66.2 59.3 59.3 64.6 54.4 54.4 62.5
SHC 42.1 54.6 67.1 40.9 53.5 66.2 39.2 51.9 64.6 37.2 49.8 62.5
72 TC 71.3 71.3 71.3 69.0 69.0 69.0 65.1 65.1 65.1 60.4 60.4 60.4
SHC 29.1 40.7 52.2 28.5 40.7 52.9 27.3 39.7 52.2 25.7 38.3 50.9
76 TC --- 73.8 73.8 --- 71.4 71.4 --- 68.3 68.3 --- --- ---
SHC --- 31.2 43.3 --- 30.5 42.6 --- 29.6 41.9 --- --- ---
LEGEND:
--- --- D o n o t o p e r a t e
Cfm --- Cubic feet per minute (supply air)
EAT(db) --- Entering air temperature (dry bulb)
EAT(wb) --- Entering air temperature (wet bulb)
SHC --- Sensible heat capacity
TC --- Total capacity
580J

38
Table 18 – COOLING CAPACITIES 1--STAGE COOLING 5 TONS
580J06 (5 TONS) --- UNIT WITH PERFECT HUMIDITY SYSTEM IN SUBCOOLING MODE
A i r E n t e r i n g E v a p o r a t o r --- C F M
Te m p ( F ) A i r E n t
Condenser (Edb)
80 dry bulb 80 dry bulb 80 dry bulb
72 wet bulb 67 wet bulb 62 wet bulb
1750 2000 2250 1750 2000 2250 1750 2000 2250
75
TC 73.1 78.7 84.5 63.2 66.9 70.8 53.2 55.1 57.1
SHC 35.3 37.2 38.8 42.0 43.7 45.3 48.7 50.3 51.8
kW 3.3 3.3 3.3 3.3 3.3 3.3 3.3 3.3 3.3
85
TC 67.6 71.2 75.0 59.1 61.2 63.3 50.6 51.1 51.5
SHC 27.9 30.0 31.9 36.3 38.3 40.1 44.8 46.6 48.2
kW 3.8 3.8 3.8 3.8 3.8 3.8 3.8 3.8 3.8
95
TC 62.1 63.8 65.5 55.1 55.4 55.8 48.0 47.0 46.0
SHC 20.5 22.9 24.9 30.7 32.9 34.8 40.9 42.9 44.7
kW 4.3 4.3 4.3 4.3 4.3 4.3 4.3 4.3 4.3
105
TC 56.6 56.3 56.0 51.0 49.6 48.3 45.4 43.0 40.5
SHC 13.1 15.7 18.0 25.0 27.5 29.6 36.9 39.2 41.2
kW 4.8 4.8 4.8 4.8 4.8 4.8 4.7 4.7 4.7
115
TC 51.1 48.8 46.5 46.9 43.9 40.7 42.8 39.0 35.0
SHC 5.8 8.6 11.0 19.4 22.0 24.4 33.0 35.5 37.7
kW 5.3 5.3 5.3 5.3 5.3 5.3 5.2 5.2 5.2
580J06 (5 TONS) --- UNIT WITH PERFECT HUMIDITY SYSTEM IN HOT GAS REHEAT MODE
A i r E n t e r i n g E v a p o r a t o r --- C F M
Te m p ( F ) A i r E n t
Condenser (Edb)
75 dry bulb 75 dry bulb 75 dry bulb
62.5 wet bulb (50% relative) 64 wet bulb (55% relative) 65.3 wet bulb (60% relative)
1750 2000 2250 1750 2000 2250 1750 2000 2250
80
TC 23.0 24.4 25.6 24.7 26.2 27.4 26.3 27.7 29.0
SHC 5.3 6.1 6.8 3.2 4.0 4.7 1.4 2.2 2.9
kW 2.9 2.9 2.9 2.9 2.9 2.9 2.9 2.9 2.9
75
TC 23.3 24.6 25.7 25.0 26.3 27.5 26.4 27.8 29.0
SHC 5.1 5.8 6.5 3.1 3.9 4.5 1.4 2.2 2.8
kW 2.9 2.9 2.9 2.9 2.9 2.9 2.9 2.9 2.9
70
TC 23.5 24.8 25.9 25.2 26.4 27.5 26.6 27.9 29.0
SHC 4.8 5.5 6.2 3.0 3.7 4.3 1.4 2.1 2.8
kW 3.0 3.0 3.0 3.0 3.0 3.0 3.0 3.0 3.0
60
TC 24.1 25.2 26.1 25.6 26.7 27.7 26.9 28.0 29.0
SHC 4.3 5.0 5.5 2.8 3.4 3.9 1.4 2.0 2.6
kW 3.0 3.0 3.0 3.0 3.0 3.0 3.0 3.0 3.0
50
TC 24.7 25.6 26.4 26.1 27.0 27.8 27.2 28.2 29.0
SHC 3.8 4.4 4.8 2.5 3.1 3.5 1.4 2.0 2.4
kW 3.1 3.1 3.1 3.1 3.1 3.1 3.1 3.1 3.1
40
TC 25.3 26.0 26.7 26.5 27.3 27.9 27.6 28.3 29.0
SHC 3.3 3.8 4.2 2.3 2.8 3.1 1.4 1.9 2.3
kW 3.1 3.1 3.1 3.2 3.2 3.2 3.2 3.2 3.2
LEGEND
Edb --- E n t e r i n g D r y --- B u l b
Ewb --- E n te r i n g We t --- B u l b
kW --- Compressor Motor Power Input
Idb --- L e a v i n g D r y --- B u l b
Iwb --- L e a v i n g W e t --- B u l b
SHC --- Sensible Heat Capacity (1000 Btuh) Gross
TC --- Total Capacity (1000 Btuh) Gross
NOTES:
1. Direct interpolation is permissible. Do not extrapolate.
2. The following formulas may be used:
tldb =t
edb –sensible capacity (Btuh)
1.10 x cfm
tlwb = Wet--- bulb temperature corresponding to enthalpy of air
leaving evaporator coil (hlwb)
hlwb =h
ewb –total capacity (Btuh)
4.5 x cfm
Where: hewb = Enthalpy of air entering evaporator coil
580J

39
Table 19 – COOLING CAPACITIES 1--STAGE COOLING 6 TONS
580J*07A
(RTPF)
AMBIENT TEMPERATURE
85 95 105 115
EAT (db) EAT (db) EAT (db) EAT (db)
75 80 85 75 80 85 75 80 85 75 80 85
1800 Cfm
EAT (wb)
58 TC 64.9 64.9 73.3 62.1 62.1 70.0 58.9 58.9 66.4 55.6 55.6 62.7
SHC 56.6 64.9 73.3 54.1 62.1 70.0 51.4 58.9 66.4 48.5 55.6 62.7
62 TC 68.7 68.7 70.3 64.9 64.9 68.5 60.8 60.8 66.4 56.4 56.4 64.0
SHC 51.7 61.0 70.3 49.9 59.2 68.5 47.9 57.2 66.4 45.7 54.9 64.0
67 TC 75.6 75.6 75.6 71.7 71.7 71.7 67.4 67.4 67.4 62.5 62.5 62.5
SHC 42.8 52.2 61.5 41.2 50.5 59.8 39.3 48.6 58.0 37.2 46.5 55.8
72 TC 82.6 82.6 82.6 78.5 78.5 78.5 73.7 73.7 73.7 67.8 67.8 67.8
SHC 33.5 42.8 52.2 31.9 41.3 50.6 30.0 39.3 48.6 27.8 36.9 45.9
76 TC --- 87.5 87.5 --- 83.3 83.3 --- 77.7 77.7 --- 70.9 70.9
SHC --- 35.0 44.9 --- 33.5 43.4 --- 31.6 41.5 --- 29.3 39.1
2100 Cfm
EAT (wb)
58 TC 68.9 68.9 77.7 65.9 65.9 74.3 62.5 62.5 70.5 58.7 58.7 66.2
SHC 60.1 68.9 77.7 57.4 65.9 74.3 54.5 62.5 70.5 51.2 58.7 66.2
62 TC 70.9 70.9 76.9 67.1 67.1 75.0 63.0 63.0 72.5 58.7 58.7 68.7
SHC 55.6 66.3 76.9 53.8 64.4 75.0 51.6 62.1 72.5 48.7 58.7 68.7
67 TC 77.8 77.8 77.8 73.7 73.7 73.7 69.2 69.2 69.2 64.0 64.0 64.0
SHC 45.4 56.1 66.8 43.7 54.4 65.2 41.8 52.5 63.2 39.6 50.2 60.7
72 TC 84.5 84.5 84.5 80.3 80.3 80.3 75.1 75.1 75.1 68.8 68.8 68.8
SHC 34.5 45.2 55.9 32.9 43.5 54.2 30.9 41.4 52.0 28.5 38.7 48.9
76 TC --- 89.2 89.2 --- 84.7 84.7 --- 78.8 78.8 --- 71.6 71.6
SHC --- 36.3 47.8 --- 34.7 46.0 --- 32.6 43.7 --- 30.1 40.9
2400 Cfm
EAT (wb)
58 TC 72.0 72.0 81.2 68.7 68.7 77.5 65.2 65.2 73.5 61.1 61.1 68.9
SHC 62.8 72.0 81.2 60.0 68.7 77.5 56.9 65.2 73.5 53.3 61.1 68.9
62 TC 72.8 72.8 82.8 68.9 68.9 80.7 65.2 65.2 76.4 61.2 61.2 71.6
SHC 59.1 71.0 82.8 57.2 68.9 80.7 54.1 65.2 76.4 50.7 61.2 71.6
67 TC 79.4 79.4 79.4 75.2 75.2 75.2 70.5 70.5 70.5 65.1 65.1 65.3
SHC 47.7 59.8 71.8 46.0 58.1 70.2 44.0 56.0 68.1 41.6 53.5 65.3
72 TC 86.0 86.0 86.0 81.6 81.6 81.6 76.1 76.1 76.1 69.6 69.6 69.6
SHC 35.3 47.2 59.2 33.7 45.6 57.5 31.7 43.3 55.0 29.1 40.3 51.4
76 TC --- 90.3 90.3 --- 85.7 85.7 --- 79.6 79.6 --- 72.1 72.1
SHC --- 37.3 49.8 --- 35.6 48.0 --- 33.5 45.6 --- 30.8 42.5
2700 Cfm
EAT (wb)
58 TC 60.3 60.3 74.1 71.1 71.1 80.2 67.4 67.4 76.0 63.0 63.0 71.1
SHC 46.4 60.3 74.1 62.0 71.1 80.2 58.8 67.4 76.0 55.0 63.0 71.1
62 TC 65.4 65.4 69.3 71.2 71.2 83.3 67.5 67.5 79.0 63.1 63.1 73.8
SHC 41.0 55.1 69.3 59.0 71.2 83.3 55.9 67.5 79.0 52.3 63.1 73.8
67 TC 72.7 72.7 72.7 76.3 76.3 76.3 71.5 71.5 72.6 65.8 65.8 69.4
SHC 33.8 48.0 62.2 48.2 61.6 74.9 46.1 59.3 72.6 43.5 56.5 69.4
72 TC 79.7 79.7 79.7 82.5 82.5 82.5 76.9 76.9 76.9 70.1 70.1 70.1
SHC 25.8 40.2 54.6 34.5 47.5 60.5 32.3 45.0 57.7 29.7 41.7 53.8
76 TC --- 85.1 85.1 --- 86.4 86.4 --- 80.2 80.2 --- 72.5 72.5
SHC --- 33.5 48.4 --- 36.5 49.9 --- 34.3 47.3 --- 31.5 44.0
3000 Cfm
EAT (wb)
58 TC 64.9 64.9 78.8 73.1 73.1 82.5 69.2 69.2 78.0 64.5 64.5 72.7
SHC 51.1 64.9 78.8 63.8 73.1 82.5 60.3 69.2 78.0 56.2 64.5 72.7
62 TC 68.7 68.7 76.5 73.2 73.2 85.7 69.2 69.2 81.0 64.5 64.5 75.5
SHC 45.5 61.0 76.5 60.7 73.2 85.7 57.4 69.2 81.0 53.5 64.5 75.5
67 TC 75.6 75.6 75.6 77.2 77.2 79.4 72.2 72.2 76.8 66.3 66.3 73.0
SHC 36.6 52.2 67.7 50.2 64.8 79.4 48.0 62.4 76.8 45.1 59.1 73.0
72 TC 82.6 82.6 82.6 83.3 83.3 83.3 77.5 77.5 77.5 70.5 70.5 70.5
SHC 27.2 42.8 58.5 35.1 49.2 63.3 32.9 46.6 60.3 30.2 43.0 55.9
76 TC --- 87.5 87.5 --- 86.9 86.9 --- 80.6 80.6 --- 72.8 72.8
SHC --- 35.0 51.5 --- 37.3 51.6 --- 35.0 48.9 --- 32.1 45.3
LEGEND:
--- --- D o n o t o p e r a t e i n t h i s r e g i o n
Cfm --- Cubic feet per minute (supply air)
EAT(db) --- Entering air temperature (dry bulb)
EAT(wb) --- Entering air temperature (wet bulb)
SHC --- Sensible heat capacity
TC --- Total capacity
580J

40
Table 20 – COOLING CAPACITIES 1--STAGE COOLING 6 TONS
580J07 (6 TONS) --- UNIT WITH PERFECT HUMIDITY SYSTEM IN SUBCOOLING MODE
A i r E n t e r i n g E v a p o r a t o r --- C F M
Te m p ( F ) A i r E n t
Condenser (Edb)
80 dry bulb 80 dry bulb 80 dry bulb
72 wet bulb 67 wet bulb 62 wet bulb
2100 2400 2700 2100 2400 2700 2100 2400 2700
75
TC 86.7 89.9 92.8 79.3 82.3 84.9 71.9 74.6 77.0
SHC 40.1 41.8 43.3 46.9 48.5 49.9 53.7 55.2 56.5
kW 4.3 4.3 4.3 4.2 4.2 4.2 4.2 4.2 4.2
85
TC 79.5 82.6 85.4 72.5 75.3 77.9 65.4 68.0 70.3
SHC 32.1 34.0 35.7 40.7 42.5 44.1 49.4 51.0 52.5
kW 5.0 5.0 5.0 5.0 5.0 5.0 4.9 4.9 4.9
95
TC 72.4 75.3 78.1 65.6 68.3 70.8 58.8 61.3 63.6
SHC 24.1 26.3 28.1 34.6 36.6 38.3 45.1 46.9 48.5
kW 5.8 5.8 5.8 5.7 5.7 5.7 5.6 5.6 5.6
105
TC 65.2 68.1 70.7 58.7 61.4 63.8 52.3 54.7 56.8
SHC 16.2 18.5 20.5 28.5 30.6 32.6 40.7 42.8 44.6
kW 6.5 6.5 6.5 6.4 6.4 6.4 6.3 6.3 6.3
115
TC 58.0 60.8 63.3 51.9 54.4 56.7 45.7 48.0 50.1
SHC 8.2 10.7 13.0 22.3 24.7 26.8 36.4 38.6 40.6
kW 7.2 7.2 7.2 7.1 7.1 7.1 7.0 7.0 7.0
580J07 (6 TONS) --- UNIT WITH PERFECT HUMIDITY SYSTEM IN HOT GAS REHEAT MODE
A i r E n t e r i n g E v a p o r a t o r --- C F M
Te m p ( F ) A i r E n t
Condenser (Edb)
75 dry bulb 75 dry bulb 75 dry bulb
62.5 wet bulb (50% relative) 64 wet bulb (55% relative) 65.3 wet bulb (60% relative)
2100 2400 2700 2100 2400 2700 1750 2000 2700
80
TC 16.7 19.8 22.5 18.8 21.9 24.7 16.2 19.4 26.7
SHC 0.6 0.6 0.6 --- 0 . 4 --- 0 . 4 --- 0 . 4 --- 1 . 3 --- 1 . 3 --- 1 . 3
kW 4.0 4.0 4.0 4.0 4.0 4.0 4.0 4.0 4.0
75
TC 17.7 20.6 23.1 19.6 22.6 25.3 17.3 20.3 27.1
SHC 0.6 0.6 0.6 --- 0 . 3 --- 0 . 3 --- 0 . 3 --- 1 . 2 --- 1 . 2 --- 1 . 2
kW 4.0 4.0 4.0 4.0 4.0 4.0 4.0 4.0 4.0
70
TC 18.6 21.3 23.7 20.5 23.3 25.8 18.3 21.1 27.6
SHC 0.7 0.7 0.7 --- 0 . 2 --- 0 . 2 --- 0 . 2 --- 1 . 0 --- 1 . 0 --- 1 . 0
kW 4.0 4.0 4.0 4.1 4.1 4.1 4.1 4.1 4.1
60
TC 20.5 22.9 25.0 22.2 24.7 26.8 20.4 22.8 28.5
SHC 0.7 0.7 0.7 --- 0 . 0 --- 0 . 0 --- 0 . 0 --- 0 . 7 --- 0 . 7 --- 0 . 7
kW 4.1 4.1 4.1 4.1 4.1 4.1 4.1 4.1 4.1
50
TC 22.4 24.4 26.2 24.0 26.0 27.9 22.4 24.5 29.3
SHC 0.8 0.8 0.8 0.1 0.1 0.1 --- 0 . 4 --- 0 . 4 --- 0 . 4
kW 4.1 4.1 4.1 4.1 4.1 4.1 4.2 4.2 4.2
40
TC 24.3 25.9 27.4 25.7 27.4 28.9 24.5 26.3 30.2
SHC 0.8 0.8 0.8 0.3 0.3 0.3 --- 0 . 1 --- 0 . 1 --- 0 . 1
kW 4.1 4.1 4.1 4.2 4.2 4.2 4.2 4.2 4.2
LEGEND
Edb --- E n t e r i n g D r y --- B u l b
Ewb --- E n te r i n g We t --- B u l b
kW --- Compressor Motor Power Input
Idb --- L e a v i n g D r y --- B u l b
Iwb --- L e a v i n g W e t --- B u l b
SHC --- Sensible Heat Capacity (1000 Btuh) Gross
TC --- Total Capacity (1000 Btuh) Gross
NOTES:
1. Direct interpolation is permissible. Do not extrapolate.
2. The following formulas may be used:
tldb =t
edb –sensible capacity (Btuh)
1.10 x cfm
tlwb = Wet--- bulb temperature corresponding to enthalpy of air
leaving evaporator coil (hlwb)
hlwb =h
ewb –total capacity (Btuh)
4.5 x cfm
Where: hewb = Enthalpy of air entering evaporator coil
580J

41
Table 21 – COOLING CAPACITIES 1--STAGE COOLING 7.5 TONS
580J*08A
(RTPF)
AMBIENT TEMPERATURE
85 95 105 115
EAT (db) EAT (db) EAT (db) EA (db)
75 80 85 75 80 85 75 80 85 75 80 85
2250 Cfm
EAT (wb)
58 TC 81.2 81.2 91.8 77.5 77.5 87.7 73.6 73.6 83.3 69.5 69.5 78.7
SHC 70.5 81.2 91.8 67.3 77.5 87.7 63.9 73.6 83.3 60.4 69.5 78.7
62 TC 86.9 86.9 86.9 82.3 82.3 84.0 77.2 77.2 81.5 71.9 71.9 78.8
SHC 63.6 74.9 86.2 61.4 72.7 84.0 58.9 70.2 81.5 56.3 67.6 78.8
67 TC 95.2 95.2 95.2 90.7 90.7 90.7 85.7 85.7 85.7 79.9 79.9 79.9
SHC 52.8 64.2 75.6 50.9 62.2 73.6 48.8 60.1 71.5 46.3 57.6 68.9
72 TC 103.5 103.5 103.5 98.9 98.9 98.9 93.8 93.8 93.8 87.3 87.3 87.3
SHC 41.5 53.1 64.6 39.7 51.2 62.7 37.7 49.2 60.6 35.3 46.6 57.8
76 TC --- 109.6 109.6 --- 104.8 104.8 --- 99.1 99.1 --- 91.6 91.6
SHC --- 43.7 56.0 --- 42.0 54.3 --- 40.0 52.4 --- 37.4 49.8
2625 Cfm
EAT (wb)
58 TC 85.9 85.9 97.2 82.2 82.2 93.1 78.1 78.1 88.4 73.9 73.9 83.6
SHC 74.6 85.9 97.2 71.4 82.2 93.1 67.9 78.1 88.4 64.1 73.9 83.6
62 TC 89.6 89.6 94.1 85.1 85.1 91.7 80.1 80.1 89.1 74.6 74.6 86.0
SHC 68.1 81.1 94.1 65.9 78.8 91.7 63.4 76.3 89.1 60.6 73.3 86.0
67 TC 97.9 97.9 97.9 93.2 93.2 93.2 88.1 88.1 88.1 82.0 82.0 82.0
SHC 55.7 68.7 81.7 53.7 66.7 79.8 51.6 64.6 77.6 49.0 62.0 74.9
72 TC 106.0 106.0 106.0 101.3 101.3 101.3 95.9 95.9 95.9 89.0 89.0 89.0
SHC 42.7 55.8 68.9 40.9 53.9 67.0 38.8 51.8 64.7 36.2 48.9 61.7
76 TC --- 111.8 111.8 --- 106.9 106.9 --- 100.7 100.7 --- 92.7 92.7
SHC --- 45.3 59.8 --- 43.6 58.0 --- 41.4 55.6 --- 38.7 52.6
3000 Cfm
EAT (wb)
58 TC 89.6 89.6 101.4 85.9 85.9 97.2 81.7 81.7 92.5 77.0 77.0 87.1
SHC 77.9 89.6 101.4 74.6 85.9 97.2 71.0 81.7 92.5 66.9 77.0 87.1
62 TC 91.8 91.8 101.1 87.2 87.2 98.6 82.3 82.3 95.5 77.1 77.1 90.6
SHC 72.2 86.7 101.1 69.9 84.3 98.6 67.2 81.3 95.5 63.5 77.1 90.6
67 TC 99.9 99.9 99.9 95.2 95.2 95.2 89.9 89.9 89.9 83.6 83.6 83.6
SHC 58.3 72.9 87.5 56.4 71.0 85.5 54.2 68.8 83.4 51.6 66.1 80.5
72 TC 107.9 107.9 107.9 103.0 103.0 103.0 97.3 97.3 97.3 90.1 90.1 90.1
SHC 43.7 58.3 72.8 41.9 56.4 70.9 39.7 54.1 68.4 37.0 51.0 65.0
76 TC --- 113.8 113.8 --- 108.4 108.4 --- 102.0 102.0 --- 93.4 93.4
SHC --- 46.7 62.5 --- 44.8 60.4 --- 42.6 57.9 --- 39.6 54.7
3375 Cfm
EAT (wb)
58 TC 92.7 92.7 104.9 88.8 88.8 100.5 84.6 84.6 95.7 79.6 79.6 90.0
SHC 80.5 92.7 104.9 77.1 88.8 100.5 73.4 84.6 95.7 69.1 79.6 90.0
62 TC 93.7 93.7 107.3 89.1 89.1 104.7 84.6 84.6 99.5 79.6 79.6 93.6
SHC 75.8 91.6 107.3 73.5 89.1 104.7 69.8 84.6 99.5 65.6 79.6 93.6
67 TC 101.5 101.5 101.5 96.7 96.7 96.7 91.3 91.3 91.3 84.8 84.8 85.7
SHC 60.8 76.9 93.0 58.8 74.9 91.0 56.7 72.8 88.9 53.9 69.8 85.7
72 TC 109.4 109.4 109.4 104.3 104.3 104.3 98.4 98.4 98.4 90.9 90.9 90.9
SHC 44.6 60.5 76.4 42.8 58.6 74.4 40.5 56.2 71.8 37.7 52.8 68.0
76 TC --- 115.1 115.1 --- 109.5 109.5 --- 102.8 102.8 --- 94.0 94.0
SHC --- 47.8 64.9 --- 45.9 62.7 --- 43.5 60.1 --- 40.4 56.5
3750 Cfm
EAT (wb)
58 TC 95.3 95.3 107.8 91.3 91.3 103.3 86.9 86.9 98.3 81.7 81.7 92.4
SHC 82.7 95.3 107.8 79.3 91.3 103.3 75.5 86.9 98.3 70.9 81.7 92.4
62 TC 95.5 95.5 112.2 91.3 91.3 107.4 87.0 87.0 102.2 81.7 81.7 96.0
SHC 78.7 95.5 112.2 75.3 91.3 107.4 71.7 87.0 102.2 67.4 81.7 96.0
67 TC 102.8 102.8 102.8 97.9 97.9 97.9 92.3 92.3 94.0 85.7 85.7 90.5
SHC 63.1 80.6 98.2 61.2 78.7 96.3 59.0 76.5 94.0 56.0 73.2 90.5
72 TC 110.6 110.6 110.6 105.4 105.4 105.4 99.2 99.2 99.2 91.5 91.5 91.5
SHC 45.5 62.7 79.9 43.5 60.7 77.8 41.3 58.1 75.0 38.3 54.5 70.7
76 TC --- 116.1 116.1 --- 110.3 110.3 --- 103.5 103.5 --- 94.5 94.5
SHC --- 48.9 67.0 --- 46.8 64.8 --- 44.4 62.0 --- 41.1 58.1
LEGEND:
--- --- D o n o t o p e r a t e i n t h i s r e g i o n
Cfm --- Cubic feet per minute (supply air)
EAT(db) --- Entering air temperature (dry bulb)
EAT(wb) --- Entering air temperature (wet bulb)
SHC --- Sensible heat capacity
TC --- Total capacity
580J

42
Table 22 – COOLING CAPACITIES 2--STAGE COOLING 7.5 TONS
580J*08D
(RTPF & Novation)
AMBIENT TEMPERATURE
85 95 105 115
EAT (db) EAT (db) EAT (db) EA (db)
75 80 85 75 80 85 75 80 85 75 80 85
2250 Cfm
EAT (wb)
58 TC 77.4 77.4 87.8 73.8 73.8 83.8 70.1 70.1 79.5 66.0 66.0 74.9
SHC 66.9 77.4 87.8 63.9 73.8 83.8 60.6 70.1 79.5 57.1 66.0 74.9
62 TC 82.2 82.2 83.9 77.5 77.5 81.7 72.6 72.6 79.2 67.3 67.3 76.4
SHC 60.8 72.4 83.9 58.6 70.1 81.7 56.3 67.7 79.2 53.6 65.0 76.4
67 TC 90.1 90.1 90.1 86.0 86.0 86.0 81.4 81.4 81.4 75.9 75.9 75.9
SHC 50.2 61.8 73.3 48.5 60.1 71.6 46.5 58.1 69.7 44.2 55.8 67.4
72 TC 98.0 98.0 98.0 94.0 94.0 94.0 89.5 89.5 89.5 84.3 84.3 84.3
SHC 39.1 50.7 62.4 37.5 49.2 60.9 35.8 47.5 59.2 33.8 45.5 57.2
76 TC --- 104.3 104.3 --- 100.4 100.4 --- 95.9 95.9 --- 90.7 90.7
SHC --- 41.7 54.0 --- 40.3 52.7 --- 38.7 51.0 --- 36.8 49.0
2625 Cfm
EAT (wb)
58 TC 82.1 82.1 93.2 78.4 78.4 89.0 74.4 74.4 84.4 70.0 70.0 79.5
SHC 71.0 82.1 93.2 67.8 78.4 89.0 64.3 74.4 84.4 60.6 70.0 79.5
62 TC 84.9 84.9 91.8 80.4 80.4 89.5 75.4 75.4 86.7 70.2 70.2 82.9
SHC 65.4 78.6 91.8 63.2 76.3 89.5 60.6 73.7 86.7 57.6 70.2 82.9
67 TC 92.5 92.5 92.5 88.3 88.3 88.3 83.6 83.6 83.6 78.3 78.3 78.3
SHC 53.0 66.3 79.5 51.3 64.6 78.0 49.4 62.8 76.1 47.2 60.6 73.9
72 TC 100.4 100.4 100.4 96.4 96.4 96.4 91.7 91.7 91.7 86.4 86.4 86.4
SHC 40.2 53.5 66.7 38.7 52.0 65.3 36.9 50.3 63.7 35.0 48.4 61.8
76 TC --- 106.5 106.5 --- 102.6 102.6 --- 98.0 98.0 --- 92.7 92.7
SHC --- 43.3 57.6 --- 41.8 55.9 --- 40.2 54.1 --- 38.4 52.2
3000 Cfm
EAT (wb)
58 TC 85.7 85.7 97.3 82.2 82.2 93.3 78.0 78.0 88.6 73.5 73.5 83.4
SHC 74.1 85.7 97.3 71.1 82.2 93.3 67.5 78.0 88.6 63.6 73.5 83.4
62 TC 86.9 86.9 98.7 82.8 82.8 96.4 78.2 78.2 92.3 73.6 73.6 86.9
SHC 69.3 84.0 98.7 67.2 81.8 96.4 64.1 78.2 92.3 60.3 73.6 86.9
67 TC 94.3 94.3 94.3 90.1 90.1 90.1 85.2 85.2 85.2 79.8 79.8 80.1
SHC 55.6 70.5 85.4 54.0 68.9 83.9 52.1 67.1 82.2 49.9 65.0 80.1
72 TC 102.2 102.2 102.2 98.1 98.1 98.1 93.3 93.3 93.3 87.9 87.9 87.9
SHC 41.2 56.0 70.7 39.7 54.6 69.5 38.0 53.0 68.0 36.0 51.1 66.2
76 TC --- 108.1 108.1 --- 104.2 104.2 --- 99.5 99.5 --- 94.2 94.2
SHC --- 44.5 60.2 --- 43.2 58.7 --- 41.6 57.0 --- 39.8 55.2
3375 Cfm
EAT (wb)
58 TC 88.5 88.5 100.4 85.0 85.0 96.4 81.0 81.0 92 76.5 76.5 86.8
SHC 76.5 88.5 100.4 73.5 85.0 96.4 70.1 81.0 92 66.1 76.5 86.8
62 TC 88.9 88.9 103.9 85.1 85.1 100.4 81.1 81.1 95.7 76.5 76.5 90.3
SHC 72.3 88.1 103.9 69.7 85.1 100.4 66.5 81.1 95.7 62.7 76.5 90.3
67 TC 95.8 95.8 95.8 91.5 91.5 91.5 86.6 86.6 87.9 81.1 81.1 85.8
SHC 58.0 74.4 90.9 56.4 73.0 89.6 54.6 71.3 87.9 52.4 69.1 85.8
72 TC 103.6 103.6 103.6 99.4 99.4 99.4 94.6 94.6 94.6 89.1 89.1 89.1
SHC 42.0 58.3 74.5 40.6 57.0 73.4 38.9 55.5 72.0 37.0 53.7 70.3
76 TC --- 109.2 109.2 --- 105.4 105.4 --- 100.7 100.7 --- 95.3 95.3
SHC --- 45.6 62.6 --- 44.4 61.3 --- 42.8 59.7 --- 41.0 58.0
3750 Cfm
EAT (wb)
58 TC 90.8 90.8 103.0 87.3 87.3 99.1 83.3 83.3 94.5 78.8 78.8 89.4
SHC 78.5 90.8 103.0 75.5 87.3 99.1 72.0 83.3 94.5 68.2 78.8 89.4
62 TC 90.9 90.9 107.2 87.4 87.4 103.1 83.3 83.3 98.4 78.9 78.9 93.1
SHC 74.5 90.9 107.2 71.6 87.4 103.1 68.3 83.3 98.4 64.7 78.9 93.1
67 TC 97.0 97.0 97.0 92.6 92.6 95.1 87.6 87.6 93.4 82.1 82.1 91.2
SHC 60.3 78.2 96.2 58.8 76.9 95.1 56.9 75.2 93.4 54.8 73.0 91.2
72 TC 104.7 104.7 104.7 100.5 100.5 100.5 95.6 95.6 95.6 90.1 90.1 90.1
SHC 42.9 60.5 78.1 41.4 59.3 77.1 39.8 57.8 75.9 37.9 56.1 74.3
76 TC --- 110.2 110.2 --- 106.2 106.2 --- 101.6 101.6 --- 96.1 96.1
SHC --- 46.7 64.8 --- 45.4 63.6 --- 44.0 62.3 --- 42.2 60.6
LEGEND:
--- --- D o n o t o p e r a t e i n t h i s r e g i o n
Cfm --- Cubic feet per minute (supply air)
EAT(db) --- Entering air temperature (dry bulb)
EAT(wb) --- Entering air temperature (wet bulb)
SHC --- Sensible heat capacity
TC --- Total capacity
580J

43
Table 23 – COOLING CAPACITIES 2--STAGE COOLING 7.5 TONS
580J08 COOLING CAPACITIES, UNIT WITH PERFECT HUMIDITY SYSTEM IN SUBCOOLING MODE
TEMP (F) AIR ENT
CONDENSER (Edb)
AIR ENTERING EVAPORATOR --- CFM
2250/0.05 3000/0.07 3750/0.09
A i r E n t e r i n g E v a p o r a t o r --- E w b ( F )
72 67 62 72 67 62 72 67 62
75
TC 103.05 93.02 83.60 109.77 99.52 90.08 114.01 103.69 95.19
SHC 43.66 55.34 67.09 50.99 66.29 81.31 57.49 76.27 92.20
kW 4.90 4.83 4.77 4.82 4.88 4.96 4.99 4.91 4.85
85
TC 95.39 85.83 76.88 101.59 91.89 82.95 105.53 95.76 87.77
SHC 36.42 48.47 60.60 43.24 58.99 74.40 49.44 68.68 84.90
kW 5.49 5.42 5.36 5.40 5.47 5.54 5.58 5.50 5.44
95
TC 87.48 78.44 69.97 93.21 84.05 75.61 96.84 87.63 80.14
SHC 28.98 41.46 53.97 35.32 51.53 67.34 41.21 60.92 77.41
kW 6.16 6.09 6.03 6.08 6.14 6.21 6.24 6.17 6.11
105
TC 79.35 70.83 62.84 84.57 75.96 68.04 87.88 79.23 72.26
SHC 21.34 34.26 47.18 27.17 43.86 60.08 32.73 52.95 69.70
kW 6.93 6.86 6.81 6.85 6.91 6.97 7.00 6.93 6.88
115
TC 70.87 62.89 55.42 75.58 67.54 60.15 78.56 70.51 64.06
SHC 13.40 26.79 40.14 18.70 35.89 52.54 23.94 44.68 61.67
kW 7.79 7.74 7.69 7.73 7.78 7.83 7.86 7.80 7.76
580J08 COOLING CAPACITIES, UNIT WITH PERFECT HUMIDITY SYSTEM IN HOT GAS REHEAT MODE
TEMP (F) AIR ENT
CONDENSER (Edb)
AIR ENTERING EVAPORATOR --- Ewb (F)
75 Dry Bulb
62.5 Wet Bulb
(50% Relative)
75 Dry Bulb
64 Wet Bulb
(56% Relative)
75 Dry Bulb
65.3 Wet Bulb
(60% Relative)
A i r E n t e r i n g E v a p o r a t o r --- C f m
2250 3000 3750 2250 3000 3750 2250 3000 3750
80
TC 27.60 32.75 30.19 40.09 39.43 37.73 45.06 45.25 44.25
SHC ---3.12 5.20 6.71 3.75 5.24 6.75 3.77 5.26 6.78
kW 4.56 4.51 4.46 4.63 4.60 4.56 4.70 4.67 4.64
75
TC 35.40 33.78 31.20 41.14 40.51 38.80 46.15 46.37 45.38
SHC 4.67 6.17 7.69 4.71 6.21 7.73 4.74 6.24 7.76
kW 4.41 4.36 4.39 4.41 4.36 4.36 4.41 4.39 4.36
70
TC 36.36 34.71 32.18 42.10 41.47 39.77 47.08 47.31 46.32
SHC 5.63 7.14 8.66 5.67 7.18 8.71 5.70 7.21 8.74
kW 4.43 4.49 4.41 4.44 4.40 4.39 4.49 4.47 4.44
60
TC 38.25 36.64 34.15 43.97 43.37 41.72 48.98 49.22 48.26
SHC 7.56 9.09 10.62 7.60 9.13 10.66 7.62 9.15 10.69
kW 4.56 4.55 4.43 4.57 4.53 4.46 4.56 4.55 4.50
50
TC 40.15 38.60 36.14 45.95 45.37 43.73 50.57 50.97 49.56
SHC 9.48 11.03 12.58 9.52 11.07 12.62 9.54 11.10 12.64
kW 4.63 4.52 4.38 4.45 4.41 4.33 5.25 4.91 5.60
40
TC 42.18 40.62 38.11 47.80 47.25 45.43 52.65 52.75 51.83
SHC 11.41 12.98 14.54 11.45 13.02 14.58 11.47 13.04 14.60
kW 4.32 4.37 4.37 4.65 4.60 4.89 4.96 5.20 5.12
NOTE: Perfect Humidity only available on 2---stage RTPF models.
LEGEND
Edb --- E n t e r i n g D r y --- B u l b
Ewb --- E n te r i n g We t --- B u l b
kW --- Compressor Motor Power Input
Idb --- L e a v i n g D r y --- B u l b
Iwb --- L e a v i n g W e t --- B u l b
SHC --- Sensible Heat Capacity (1000 Btuh) Gross
TC --- Total Capacity (1000 Btuh) Gross
NOTES:
1. Direct interpolation is permissible. Do not extrapolate.
2. The following formulas may be used:
tldb =t
edb –sensible capacity (Btuh)
1.10 x cfm
tlwb = Wet--- bulb temperature corresponding to enthalpy of air
leaving evaporator coil (hlwb)
hlwb =h
ewb –total capacity (Btuh)
4.5 x cfm
Where: hewb = Enthalpy of air entering evaporator coil
580J

44
Table 24 – COOLING CAPACITIES 1--STAGE COOLING 8.5 TONS
580J*09A
(RTPF)
AMBIENT TEMPERATURE
85 95 105 115
EAT (db) EAT (db) EAT (db) EAT (db)
75 80 85 75 80 85 75 80 85 75 80 85
2550 Cfm
EAT (wb)
58 TC 88.1 88.1 99.9 84.1 84.1 95.3 79.6 79.6 90.3 74.9 74.9 84.9
SHC 76.4 88.1 99.9 72.8 84.1 95.3 69.0 79.6 90.3 64.9 74.9 84.9
62 TC 93.9 93.9 95.2 88.6 88.6 92.6 82.8 82.8 89.7 76.6 76.6 86.5
SHC 69.4 82.3 95.2 66.8 79.7 92.6 64.1 76.9 89.7 61.0 73.8 86.5
67 TC 103.8 103.8 103.8 98.7 98.7 98.7 93.0 93.0 93.0 86.7 86.7 86.7
SHC 57.8 70.7 83.6 55.6 68.5 81.4 53.1 66.1 79.0 50.5 63.4 76.4
72 TC 113.1 113.1 113.1 108.0 108.0 108.0 102.4 102.4 102.4 96.1 96.1 96.1
SHC 45.2 58.3 71.3 43.2 56.3 69.3 41.1 54.1 67.1 38.7 51.7 64.7
76 TC --- 119.9 119.9 --- 114.7 114.7 --- 109.0 109.0 --- 102.7 102.7
SHC --- 47.9 61.9 --- 46.0 60.1 --- 44.1 58.1 --- 41.9 55.8
2975 Cfm
EAT (wb)
58 TC 93.6 93.6 106.1 89.3 89.3 101.2 84.6 84.6 96.0 79.6 79.6 90.3
SHC 81.1 93.6 106.1 77.4 89.3 101.2 73.3 84.6 96.0 69.0 79.6 90.3
62 TC 97.5 97.5 104.3 92.0 92.0 101.4 86.1 86.1 98.3 79.8 79.8 94.1
SHC 74.7 89.5 104.3 72.0 86.7 101.4 69.1 83.7 98.3 65.6 79.8 94.1
67 TC 106.7 106.7 106.7 101.5 101.5 101.5 95.7 95.7 95.7 89.2 89.2 89.2
SHC 61.0 75.8 90.6 58.8 73.6 88.5 56.4 71.3 86.1 53.8 68.7 83.6
72 TC 115.8 115.8 115.8 110.6 110.6 110.6 104.9 104.9 104.9 98.4 98.4 98.4
SHC 46.5 61.3 76.2 44.5 59.4 74.2 42.3 57.2 72.1 40.0 54.8 69.7
76 TC --- 122.4 122.4 --- 117.0 117.0 --- 111.1 111.1 --- 104.5 104.5
SHC --- 49.8 66.1 --- 47.8 63.9 --- 45.7 61.6 --- 43.4 59.0
3400 Cfm
EAT (wb)
58 TC 98.1 98.1 111.3 93.7 93.7 106.2 88.9 88.9 100.8 83.7 83.7 94.9
SHC 85.0 98.1 111.3 81.2 93.7 106.2 77.0 88.9 100.8 72.5 83.7 94.9
62 TC 100.0 100.0 112.3 94.9 94.9 108.6 89.1 89.1 104.9 83.8 83.8 98.7
SHC 79.3 95.8 112.3 76.3 92.5 108.6 73.2 89.1 104.9 68.8 83.8 98.7
67 TC 109.0 109.0 109.0 103.6 103.6 103.6 97.6 97.6 97.6 91.0 91.0 91.0
SHC 63.9 80.5 97.2 61.8 78.5 95.2 59.4 76.1 92.9 56.8 73.5 90.3
72 TC 117.9 117.9 117.9 112.5 112.5 112.5 106.6 106.6 106.6 100.0 100.0 100.0
SHC 47.6 64.1 80.6 45.6 62.1 78.7 43.4 60.0 76.6 41.1 57.6 74.2
76 TC --- 124.2 124.2 --- 118.6 118.6 --- 112.5 112.5 --- 105.7 105.7
SHC --- 51.2 69.0 --- 49.2 66.7 --- 47.0 64.4 --- 44.7 61.9
3825 Cfm
EAT (wb)
58 TC 101.6 101.6 115.1 97.2 97.2 110.1 92.3 92.3 104.6 87.0 87.0 98.6
SHC 88.0 101.6 115.1 84.2 97.2 110.1 80.0 92.3 104.6 75.4 87.0 98.6
62 TC 101.9 101.9 120.0 97.3 97.3 114.6 92.4 92.4 108.9 87.1 87.1 102.6
SHC 83.7 101.8 120.0 79.9 97.3 114.6 75.9 92.4 108.9 71.6 87.1 102.6
67 TC 110.7 110.7 110.7 105.3 105.3 105.3 99.2 99.2 99.3 92.5 92.5 96.7
SHC 66.7 85.0 103.4 64.6 83.0 101.5 62.2 80.8 99.3 59.6 78.2 96.7
72 TC 119.4 119.4 119.4 114.0 114.0 114.0 108.0 108.0 108.0 101.3 101.3 101.3
SHC 48.5 66.6 84.6 46.6 64.7 82.7 44.4 62.6 80.7 42.1 60.2 78.4
76 TC --- 125.5 125.5 --- 119.8 119.8 --- 113.6 113.6 --- 106.7 106.7
SHC --- 52.4 71.5 --- 50.4 69.3 --- 48.2 67.0 --- 45.9 64.4
4250 Cfm
EAT (wb)
58 TC 104.4 104.4 118.3 99.9 99.9 113.2 95.0 95.0 107.6 89.5 89.5 101.5
SHC 90.4 104.4 118.3 86.6 99.9 113.2 82.3 95.0 107.6 77.6 89.5 101.5
62 TC 104.4 104.4 123.0 99.9 99.9 117.8 95.0 95.0 112.0 89.6 89.6 105.6
SHC 85.8 104.4 123.0 82.1 99.9 117.8 78.1 95.0 112.0 73.6 89.6 105.6
67 TC 112.1 112.1 112.1 106.6 106.6 107.5 100.4 100.4 105.3 93.6 93.6 102.7
SHC 69.2 89.2 109.2 67.2 87.3 107.5 64.9 85.1 105.3 62.3 82.5 102.7
72 TC 120.7 120.7 120.7 115.1 115.1 115.1 109.0 109.0 109.0 102.2 102.2 102.2
SHC 49.4 68.9 88.4 47.4 67.0 86.5 45.3 64.9 84.6 42.9 62.6 82.3
76 TC --- 126.6 126.6 --- 120.8 120.8 --- 114.5 114.5 --- 107.4 107.4
SHC --- 53.5 73.9 --- 51.5 71.7 --- 49.3 69.4 --- 46.9 66.8
LEGEND:
--- --- D o n o t o p e r a t e i n t h i s r e g i o n
Cfm --- Cubic feet per minute (supply air)
EAT(db) --- Entering air temperature (dry bulb)
EAT(wb) --- Entering air temperature (wet bulb)
SHC --- Sensible heat capacity
TC --- Total capacity
580J

45
Table 25 – COOLING CAPACITIES 2--STAGE COOLING 8.5 TONS
580J*09D
(RTPF)
AMBIENT TEMPERATURE
85 95 105 115
EA (dB) EA (dB) EA (dB) EA (dB)
75 80 85 75 80 85 75 80 85 75 80 85
2550 Cfm
EAT (wb)
58 TC 89.7 89.7 101.6 85.2 85.2 96.5 79.6 79.6 90.1 73.8 73.8 83.6
SHC 77.8 89.7 101.6 73.9 85.2 96.5 69.0 79.6 90.1 64.0 73.8 83.6
62 TC 94.3 94.3 97.9 88.7 88.7 95.2 81.3 81.3 91.5 74.3 74.3 86.5
SHC 71.0 84.4 97.9 68.2 81.7 95.2 64.7 78.1 91.5 60.6 73.6 86.5
67 TC 105.0 105.0 105.0 99.3 99.3 99.3 92.2 92.2 92.2 84.1 84.1 84.1
SHC 59.0 72.6 86.1 56.6 70.1 83.7 53.6 67.1 80.7 50.3 63.8 77.3
72 TC 115.9 115.9 115.9 110.4 110.4 110.4 104.2 104.2 104.2 96.0 96.0 96.0
SHC 46.4 60.0 73.6 44.3 57.9 71.5 41.9 55.5 69.1 38.8 52.4 65.9
76 TC --- 123.7 123.7 --- 118.3 118.3 --- 112.4 112.4 --- 105.7 105.7
SHC --- 49.3 63.3 --- 47.3 61.4 --- 45.3 59.3 --- 42.9 56.7
2975 Cfm
EAT (wb)
58 TC 95.3 95.3 107.9 90.7 90.7 102.7 84.8 84.8 96.1 78.7 78.7 89.1
SHC 82.6 95.3 107.9 78.6 90.7 102.7 73.5 84.8 96.1 68.2 78.7 89.1
62 TC 97.9 97.9 107.8 92.1 92.1 104.7 85.4 85.4 99.4 78.8 78.8 92.8
SHC 76.7 92.2 107.8 73.9 89.3 104.7 69.6 84.5 99.4 64.8 78.8 92.8
67 TC 108.5 108.5 108.5 102.6 102.6 102.6 95.4 95.4 95.4 86.9 86.9 86.9
SHC 62.8 78.4 94.1 60.4 76.0 91.7 57.4 73.1 88.8 54.0 69.7 85.3
72 TC 119.1 119.1 119.1 113.5 113.5 113.5 107.2 107.2 107.2 99.2 99.2 99.2
SHC 47.9 63.5 79.2 45.8 61.5 77.1 43.5 59.2 74.9 40.6 56.3 72.0
76 TC --- 126.4 126.4 --- 120.8 120.8 --- 114.8 114.8 --- 108.2 108.2
SHC --- 51.1 67.4 --- 49.2 65.3 --- 47.0 63.0 --- 44.8 60.7
3400 Cfm
EAT (wb)
58 TC 100.0 100.0 113.3 95.2 95.2 107.9 89.3 89.3 101.1 82.9 82.9 93.9
SHC 86.7 100.0 113.3 82.6 95.2 107.9 77.4 89.3 101.1 71.8 82.9 93.9
62 TC 101.1 101.1 115.8 95.7 95.7 111.7 89.4 89.4 105.3 83.0 83.0 97.7
SHC 81.5 98.7 115.8 78.2 94.9 111.7 73.5 89.4 105.3 68.2 83.0 97.7
67 TC 111.1 111.1 111.1 105.1 105.1 105.1 97.8 97.8 97.8 89.1 89.1 93.0
SHC 66.2 83.9 101.6 63.9 81.6 99.3 61.0 78.7 96.5 57.5 75.3 93.0
72 TC 121.3 121.3 121.3 115.6 115.6 115.6 109.4 109.4 109.4 101.5 101.5 101.5
SHC 49.2 66.7 84.3 47.1 64.7 82.3 44.9 62.5 80.2 42.1 59.9 77.7
76 TC --- 128.3 128.3 --- 122.6 122.6 --- 116.3 116.3 --- 109.7 109.7
SHC --- 52.7 70.7 --- 50.7 68.6 --- 48.6 66.4 --- 46.4 64.2
3825 Cfm
EAT (wb)
58 TC 104.0 104.0 117.8 99.1 99.1 112.3 93.2 93.2 105.5 86.5 86.5 97.9
SHC 90.2 104.0 117.8 86.0 99.1 112.3 80.8 93.2 105.5 75.0 86.5 97.9
62 TC 104.2 104.2 122.7 99.3 99.3 116.9 93.3 93.3 109.8 86.6 86.6 101.9
SHC 85.7 104.2 122.7 81.7 99.3 116.9 76.7 93.3 109.8 71.2 86.6 101.9
67 TC 113.1 113.1 113.1 107.1 107.1 107.1 99.9 99.9 103.8 91.0 91.0 100.3
SHC 69.4 89.1 108.8 67.1 86.8 106.5 64.3 84.1 103.8 60.9 80.6 100.3
72 TC 123.0 123.0 123.0 117.2 117.2 117.2 110.9 110.9 110.9 103.3 103.3 103.3
SHC 50.3 69.7 89.0 48.3 67.7 87.1 46.1 65.6 85.2 43.5 63.3 83.0
76 TC --- 129.7 129.7 --- 124.0 124.0 --- 117.5 117.5 --- 110.8 110.8
SHC --- 54.0 73.7 --- 52.1 71.7 --- 50.0 69.5 --- 47.8 67.4
4250 Cfm
EAT (wb)
58 TC 107.4 107.4 121.7 102.5 102.5 116.1 96.5 96.5 109.3 89.5 89.5 101.4
SHC 93.1 107.4 121.7 88.9 102.5 116.1 83.7 96.5 109.3 77.6 89.5 101.4
62 TC 107.5 107.5 126.6 102.6 102.6 120.8 96.6 96.6 113.7 89.6 89.6 105.5
SHC 88.4 107.5 126.6 84.4 102.6 120.8 79.5 96.6 113.7 73.7 89.6 105.5
67 TC 114.7 114.7 115.6 108.7 108.7 113.5 101.7 101.7 110.8 92.6 92.6 107.2
SHC 72.5 94.0 115.6 70.2 91.8 113.5 67.5 89.2 110.8 64.0 85.6 107.2
72 TC 124.3 124.3 124.3 118.5 118.5 118.5 112.1 112.1 112.1 104.7 104.7 104.7
SHC 51.3 72.4 93.4 49.3 70.5 91.7 47.2 68.5 89.9 44.7 66.4 88.1
76 TC --- 130.7 130.7 --- 125.0 125.0 --- 118.5 118.5 --- 111.6 111.6
SHC --- 55.3 76.5 --- 53.5 74.6 --- 51.3 72.4 --- 49.2 70.3
LEGEND:
--- --- D o n o t o p e r a t e i n t h i s r e g i o n
Cfm --- Cubic feet per minute (supply air)
EAT(db) --- Entering air temperature (dry bulb)
EAT(wb) --- Entering air temperature (wet bulb)
SHC --- Sensible heat capacity
TC --- Total capacity
580J

46
Table 26 – COOLING CAPACITIES 2--STAGE COOLING 8.5 TONS
580J09 COOLING CAPACITIES, UNIT WITH PERFECT HUMIDITY SYSTEM IN SUBCOOLING MODE
TEMP (F) AIR ENT
CONDENSER (Edb)
AIR ENTERING EVAPORATOR --- CFM
2550/0.04 3400/0.05 4250/0.07
A i r E n t e r i n g E v a p o r a t o r --- E w b ( F )
72 67 62 72 67 62 72 67 62
75
TC 119.20 107.44 96.41 126.95 114.98 103.92 131.87 119.81 109.54
SHC 50.63 63.94 77.40 59.17 76.72 94.21 66.80 88.44 108.22
kW 5.67 5.57 5.47 5.54 5.63 5.74 5.79 5.68 5.59
85
TC 110.40 99.22 88.76 117.63 106.26 95.77 122.21 110.77 101.07
SHC 42.39 56.16 70.07 50.42 68.45 86.38 57.71 79.86 99.95
kW 6.33 6.23 6.14 6.20 6.30 6.40 6.45 6.34 6.25
95
TC 101.37 90.79 80.86 108.07 97.31 87.39 112.29 101.47 92.38
SHC 33.97 48.22 62.56 41.46 60.01 78.39 48.40 71.09 91.47
kW 7.08 6.99 6.90 6.96 7.05 7.16 7.20 7.09 7.01
105
TC 92.04 82.06 72.71 98.19 88.05 78.72 102.07 91.86 83.40
SHC 25.31 40.06 54.88 32.24 51.33 70.17 38.85 62.06 82.67
kW 7.94 7.85 7.77 7.83 7.91 8.01 8.06 7.95 7.87
115
TC 82.37 73.01 64.24 87.95 78.45 69.73 91.46 81.90 74.09
SHC 16.38 31.65 46.95 22.71 42.37 61.69 28.94 52.74 73.52
kW 8.92 8.84 8.77 8.82 8.89 8.98 9.02 8.93 8.86
580J09 COOLING CAPACITIES, UNIT WITH PERFECT HUMIDITY SYSTEM IN HOT GAS REHEAT MODE
TEMP (F) AIR ENT
CONDENSER (Edb)
AIR ENTERING EVAPORATOR --- Ewb (F)
75 Dry Bulb
62.5 Wet Bulb
(50% Relative)
75 Dry Bulb
64 Wet Bulb
(56% Relative)
75 Dry Bulb
65.3 Wet Bulb
(60% Relative)
A i r E n t e r i n g E v a p o r a t o r --- C f m
2550 3400 4250 2550 3400 4250 2550 3400 4250
80
TC 37.61 33.13 26.77 44.74 41.60 36.46 50.96 48.99 44.93
SHC ---0.52 ---0.63 ---0.73 --- 0.46 ---0.57 --- 0.67 ---0.42 ---0.53 --- 0.62
kW 5.88 5.68 5.44 6.13 5.97 5.76 6.35 6.24 6.06
75
TC 38.71 34.24 27.86 45.84 42.73 37.59 52.05 50.11 46.06
SHC 0.45 0.34 0.25 0.50 0.40 0.31 0.54 0.44 0.36
kW 5.68 5.47 5.22 5.94 5.78 5.56 6.18 6.07 5.88
70
TC 39.70 35.25 28.83 46.80 43.70 38.59 52.97 51.04 47.02
SHC 1.41 1.32 1.23 1.47 1.37 1.29 1.50 1.41 1.34
kW 5.65 5.42 5.24 5.97 5.79 5.53 6.26 6.13 5.91
60
TC 41.77 37.33 30.76 48.86 45.80 40.71 55.00 53.10 49.12
SHC 3.34 3.26 3.18 3.40 3.32 3.25 3.43 3.36 3.29
kW 5.42 5.15 5.17 5.80 5.59 5.30 6.16 6.01 5.75
50
TC 43.83 39.27 32.61 50.92 47.89 42.70 57.04 55.16 51.22
SHC 5.27 5.21 5.14 5.32 5.27 5.21 5.36 5.31 5.25
kW 5.18 5.15 5.17 5.62 5.39 5.05 6.04 5.87 5.59
40
TC 45.75 41.13 34.50 53.08 50.00 44.64 59.24 57.40 53.44
SHC 7.20 7.15 6.95 7.26 7.21 7.16 7.29 7.25 7.21
kW 4.79 4.98 4.80 5.25 5.01 5.23 5.68 5.51 5.21
NOTE: Perfect Humidity only available on 2---stage RTPF models.
LEGEND
Edb --- E n t e r i n g D r y --- B u l b
Ewb --- E n te r i n g We t --- B u l b
kW --- Compressor Motor Power Input
Idb --- L e a v i n g D r y --- B u l b
Iwb --- L e a v i n g W e t --- B u l b
SHC --- Sensible Heat Capacity (1000 Btuh) Gross
TC --- Total Capacity (1000 Btuh) Gross
NOTES:
1. Direct interpolation is permissible. Do not extrapolate.
2. The following formulas may be used:
tldb =t
edb –sensible capacity (Btuh)
1.10 x cfm
tlwb = Wet--- bulb temperature corresponding to enthalpy of air
leaving evaporator coil (hlwb)
hlwb =h
ewb –total capacity (Btuh)
4.5 x cfm
Where: hewb = Enthalpy of air entering evaporator coil
580J

47
Table 27 – COOLING CAPACITIES 1--STAGE COOLING 10 TONS
580J*12A
(RTPF)
AMBIENT TEMPERATURE
85 95 105 115
EAT (db) EAT (db) EAT (db) EAT (db)
75 80 85 75 80 85 75 80 85 75 80 85
3000 Cfm
EAT (wb)
58 TC 106.3 106.3 120.5 101.7 101.7 115.2 96.6 96.6 109.4 91.0 91.0 103.1
SHC 92.2 106.3 120.5 88.2 101.7 115.2 83.8 96.6 109.4 78.9 91.0 103.1
62 TC 112.5 112.5 115.2 106.5 106.5 112.3 99.9 99.9 109.0 92.7 92.7 105.2
SHC 83.8 99.5 115.2 81.0 96.6 112.3 77.8 93.4 109.0 74.2 89.7 105.2
67 TC 123.5 123.5 123.5 117.8 117.8 117.8 111.3 111.3 111.3 104.0 104.0 104.0
SHC 69.2 85.0 100.7 66.8 82.5 98.3 64.1 79.8 95.5 61.0 76.8 92.5
72 TC 134.3 134.3 134.3 128.5 128.5 128.5 122.0 122.0 122.0 114.7 114.7 114.7
SHC 53.8 69.6 85.5 51.6 67.4 83.2 49.1 64.9 80.7 46.3 62.1 77.9
76 TC --- 142.4 142.4 --- 136.3 136.3 --- 129.5 129.5 --- 121.8 121.8
SHC --- 56.8 73.3 --- 54.7 71.2 --- 52.3 68.8 --- 49.7 66.2
3500 Cfm
EAT (wb)
58 TC 112.9 112.9 127.8 108.0 108.0 122.3 102.7 102.7 116.3 96.8 96.8 109.7
SHC 97.9 112.9 127.8 93.6 108.0 122.3 89.0 102.7 116.3 83.9 96.8 109.7
62 TC 116.3 116.3 126.2 110.5 110.5 123.3 103.8 103.8 119.5 97.1 97.1 114.3
SHC 90.2 108.2 126.2 87.4 105.3 123.3 84.0 101.8 119.5 79.8 97.1 114.3
67 TC 126.9 126.9 126.9 120.9 120.9 120.9 114.3 114.3 114.3 106.8 106.8 106.8
SHC 73.2 91.3 109.4 70.8 88.9 107.1 68.1 86.2 104.4 65.0 83.2 101.3
72 TC 137.5 137.5 137.5 131.4 131.4 131.4 124.7 124.7 124.7 117.2 117.2 117.2
SHC 55.3 73.4 91.5 53.1 71.1 89.2 50.6 68.7 86.7 47.8 65.9 83.9
76 TC --- 145.1 145.1 --- 138.8 138.8 --- 131.7 131.7 --- 123.6 123.6
SHC --- 59.0 78.2 --- 56.7 75.8 --- 54.3 73.1 --- 51.5 70.0
4000 Cfm
EAT (wb)
58 TC 117.8 117.8 133.5 113.0 113.0 128.0 107.5 107.5 121.8 101.5 101.5 115.0
SHC 102.2 117.8 133.5 98.0 113.0 128.0 93.3 107.5 121.8 88.0 101.5 115.0
62 TC 119.1 119.1 136.0 113.5 113.5 132.5 107.7 107.7 126.7 101.6 101.6 119.6
SHC 95.8 115.9 136.0 92.8 112.6 132.5 88.6 107.7 126.7 83.6 101.6 119.6
67 TC 129.4 129.4 129.4 123.3 123.3 123.3 116.5 116.5 116.5 108.9 108.9 109.8
SHC 76.9 97.3 117.7 74.5 95.0 115.4 71.8 92.3 112.8 68.8 89.3 109.8
72 TC 139.7 139.7 139.7 133.5 133.5 133.5 126.6 126.6 126.6 118.8 118.8 118.8
SHC 56.7 76.8 97.0 54.4 74.6 94.7 51.9 72.1 92.3 49.1 69.3 89.5
76 TC --- 147.0 147.0 --- 140.5 140.5 --- 133.2 133.2 --- 124.9 124.9
SHC --- 60.6 81.7 --- 58.4 79.3 --- 55.8 76.5 --- 53.0 73.5
4500 Cfm
EAT (wb)
58 TC 121.7 121.7 137.9 116.8 116.8 132.3 111.2 111.2 126.0 105.0 105.0 118.9
SHC 105.6 121.7 137.9 101.3 116.8 132.3 96.4 111.2 126.0 91.0 105.0 118.9
62 TC 121.8 121.8 143.4 116.9 116.9 137.6 111.3 111.3 131.0 105.1 105.1 123.7
SHC 100.2 121.8 143.4 96.1 116.9 137.6 91.6 111.3 131.0 86.5 105.1 123.7
67 TC 131.3 131.3 131.3 125.1 125.1 125.1 118.2 118.2 120.8 110.5 110.5 117.7
SHC 80.3 102.9 125.5 78.0 100.7 123.3 75.3 98.0 120.8 72.3 95.0 117.7
72 TC 141.5 141.5 141.5 135.1 135.1 135.1 128.0 128.0 128.0 120.1 120.1 120.1
SHC 57.9 80.0 102.1 55.6 77.7 99.9 53.1 75.2 97.4 50.3 72.4 94.6
76 TC --- 148.3 148.3 --- 141.8 141.8 --- 134.3 134.3 --- 125.8 125.8
SHC --- 62.1 84.9 --- 59.8 82.5 --- 57.3 79.7 --- 54.4 76.6
5000 Cfm
EAT (wb)
58 TC 125.0 125.0 141.6 120.0 120.0 135.9 114.3 114.3 129.5 107.9 107.9 122.3
SHC 108.4 125.0 141.6 104.0 120.0 135.9 99.1 114.3 129.5 93.6 107.9 122.3
62 TC 125.1 125.1 147.2 120.1 120.1 141.4 114.4 114.4 134.7 108.0 108.0 127.2
SHC 102.9 125.1 147.2 98.8 120.1 141.4 94.1 114.4 134.7 88.9 108.0 127.2
67 TC 132.8 132.8 133.0 126.5 126.5 130.8 119.6 119.6 128.2 111.8 111.8 125.1
SHC 83.6 108.3 133.0 81.2 106.0 130.8 78.6 103.4 128.2 75.6 100.3 125.1
72 TC 142.8 142.8 142.8 136.3 136.3 136.3 129.1 129.1 129.1 121.1 121.1 121.1
SHC 59.0 82.9 106.9 56.7 80.7 104.7 54.1 78.2 102.2 51.3 75.4 99.4
76 TC --- 149.4 149.4 --- 142.8 142.8 --- 135.1 135.1 --- 126.5 126.5
SHC --- 63.4 87.9 --- 61.2 85.5 --- 58.6 82.7 --- 55.6 79.4
LEGEND:
--- --- D o n o t o p e r a t e i n t h i s r e g i o n
Cfm --- Cubic feet per minute (supply air)
EAT(db) --- Entering air temperature (dry bulb)
EAT(wb) --- Entering air temperature (wet bulb)
SHC --- Sensible heat capacity
TC --- Total capacity
580J

48
Table 28 – COOLING CAPACITIES 2--STAGE COOLING 10 TONS
580J*12D
(RTPF & Novation)
AMBIENT TEMPERATURE
85 95 105 115
EAT (db) EAT (db) EAT (db) EAT (db)
75 80 85 75 80 85 75 80 85 75 80 85
3000 Cfm
EAT (wb)
58 TC 107.6 107.6 121.9 102.5 102.5 116.2 96.8 96.8 109.7 90.5 90.5 102.6
SHC 93.2 107.6 121.9 88.8 102.5 116.2 83.9 96.8 109.7 78.4 90.5 102.6
62 TC 113.6 113.6 116.5 107.1 107.1 113.4 99.7 99.7 109.8 91.8 91.8 104.9
SHC 84.6 100.6 116.5 81.5 97.4 113.4 78.0 93.9 109.8 73.7 89.3 104.9
67 TC 124.4 124.4 124.4 118.4 118.4 118.4 111.5 111.5 111.5 103.3 103.3 103.3
SHC 69.7 85.7 101.7 67.1 83.2 99.2 64.3 80.3 96.3 60.8 76.8 92.8
72 TC 135.8 135.8 135.8 129.7 129.7 129.7 122.8 122.8 122.8 115 115 115
SHC 54.3 70.4 86.6 52.0 68.1 84.2 49.3 65.4 81.6 46.4 62.5 78.6
76 TC --- 145.3 145.3 --- 139 139 --- 131.9 131.9 --- 124.1 124.1
SHC --- 57.8 74.3 --- 55.6 72.1 --- 53.1 69.6 --- 50.4 66.9
3500 Cfm
EAT (wb)
58 TC 114.2 114.2 129.4 108.9 108.9 123.4 102.9 102.9 116.6 96.3 96.3 109.1
SHC 98.9 114.2 129.4 94.3 108.9 123.4 89.1 102.9 116.6 83.4 96.3 109.1
62 TC 117.2 117.2 127.9 111.0 111.0 124.7 104.0 104.0 119.5 96.5 96.5 113.7
SHC 91.1 109.5 127.9 88.1 106.4 124.7 83.9 101.7 119.5 79.3 96.5 113.7
67 TC 127.8 127.8 127.8 121.7 121.7 121.7 114.5 114.5 114.5 106.6 106.6 106.6
SHC 73.8 92.3 110.8 71.3 89.8 108.3 68.4 87.0 105.5 65.2 83.8 102.3
72 TC 139.4 139.4 139.4 133.0 133.0 133 125.8 125.8 125.8 117.9 117.9 117.9
SHC 56.0 74.6 93.1 53.7 72.2 90.8 51.0 69.6 88.2 48.1 66.7 85.4
76 TC --- 148.8 148.8 --- 142.2 142.2 --- 134.9 134.9 --- 126.8 126.8
SHC --- 60.2 79.5 --- 58.0 77.1 --- 55.4 74.5 --- 52.7 71.6
4000 Cfm
EAT (wb)
58 TC 119.0 119.0 134.9 114.0 114.0 129.2 108.0 108.0 122.4 101.1 101.1 114.6
SHC 103.1 119.0 134.9 98.7 114.0 129.2 93.6 108.0 122.4 87.6 101.1 114.6
62 TC 120.3 120.3 137.1 114.7 114.7 132.8 108.2 108.2 127.5 101.3 101.3 119.3
SHC 96.5 116.8 137.1 93.0 112.9 132.8 88.9 108.2 127.5 83.2 101.3 119.3
67 TC 130.5 130.5 130.5 124.1 124.1 124.1 116.8 116.8 116.8 108.7 108.7 111.1
SHC 77.7 98.6 119.5 75.2 96.2 117.2 72.3 93.3 114.4 69.1 90.1 111.1
72 TC 142.1 142.1 142.1 135.5 135.5 135.5 128.2 128.2 128.2 120.0 120.0 120.0
SHC 57.6 78.4 99.3 55.2 76.1 97.1 52.5 73.6 94.6 49.7 70.7 91.8
76 TC --- 151.4 151.4 --- 144.7 144.7 --- 137.1 137.1 --- --- ---
SHC --- 62.3 83.8 --- 60.0 81.4 --- 57.5 78.8 --- --- ---
4500 Cfm
EAT (wb)
58 TC 123.0 123.0 139.5 117.8 117.8 133.6 111.9 111.9 126.9 105.3 105.3 119.3
SHC 106.6 123.0 139.5 102.1 117.8 133.6 97.0 111.9 126.9 91.2 105.3 119.3
62 TC 123.4 123.4 144.4 117.9 117.9 139.0 112.0 112.0 132.0 105.4 105.4 124.2
SHC 100.9 122.7 144.4 96.9 117.9 139 92.1 112.0 132 86.6 105.4 124.2
67 TC 132.6 132.6 132.6 126.0 126 126.0 118.7 118.7 122.9 110.4 110.4 119.6
SHC 81.4 104.6 127.9 78.9 102.3 125.7 76.1 99.5 122.9 72.9 96.2 119.6
72 TC 144.2 144.2 144.2 137.4 137.4 137.4 129.9 129.9 129.9 121.6 121.6 121.6
SHC 59.0 82.1 105.2 56.6 79.8 103.1 54.0 77.3 100.7 51.1 74.5 98
76 TC --- 153.4 153.4 --- 146.6 146.6 --- 138.9 138.9 --- --- ---
SHC --- 64.1 87.8 --- 61.9 85.6 --- 59.4 83 --- --- ---
5000 Cfm
EAT (wb)
58 TC 126.5 126.5 143.3 121.2 121.2 137.4 115.1 115.1 130.5 108.4 108.4 122.8
SHC 109.6 126.5 143.3 105.0 121.2 137.4 99.8 115.1 130.5 93.9 108.4 122.8
62 TC 126.5 126.5 149.1 121.3 121.3 142.9 115.2 115.2 135.8 108.5 108.5 127.8
SHC 104.0 126.5 149.1 99.7 121.3 142.9 94.7 115.2 135.8 89.1 108.5 127.8
67 TC 134.2 134.2 135.9 127.5 127.5 133.8 120.1 120.1 131.0 111.9 111.9 127.6
SHC 84.9 110.4 135.9 82.4 108.1 133.8 79.6 105.3 131 76.4 102.0 127.6
72 TC 145.8 145.8 145.8 139.0 139.0 139.0 131.3 131.3 131.3 122.9 122.9 122.9
SHC 60.3 85.6 110.8 57.9 83.4 108.9 55.3 81.0 106.6 52.5 78.2 104
76 TC --- 155.1 155.1 --- 148.2 148.2 --- --- --- --- --- ---
SHC --- 65.9 91.5 --- 63.7 89.5 --- --- --- --- --- ---
LEGEND:
--- --- D o n o t o p e r a t e i n t h i s r e g i o n
Cfm --- Cubic feet per minute (supply air)
EAT(db) --- Entering air temperature (dry bulb)
EAT(wb) --- Entering air temperature (wet bulb)
SHC --- Sensible heat capacity
TC --- Total capacity
580J

49
Table 29 – COOLING CAPACITIES 2--STAGE COOLING 10 TONS
580J12 COOLING CAPACITIES, UNIT WITH PERFECT HUMIDITY SYSTEM IN SUBCOOLING MODE
TEMP (F) AIR ENT
CONDENSER (Edb)
AIR ENTERING EVAPORATOR --- CFM
3000/0.04 4000/0.06 5000/0.07
A i r E n t e r i n g E v a p o r a t o r --- E w b ( F )
72 67 62 72 67 62 72 67 62
75
TC 142.85 129.44 116.93 152.09 138.44 125.76 157.99 144.23 132.06
SHC 58.38 74.88 91.58 67.96 89.45 111.02 76.63 102.94 127.93
kW 7.19 6.97 6.79 6.92 7.12 7.35 7.45 7.22 7.02
85
TC 132.33 119.68 107.86 140.92 128.03 116.10 146.41 133.41 121.98
SHC 48.44 65.56 82.83 57.37 79.50 101.68 65.65 92.58 118.12
kW 7.98 7.77 7.58 7.72 7.92 8.14 8.25 8.01 7.82
95
TC 121.41 109.52 98.43 129.35 117.22 106.04 134.43 122.20 111.50
SHC 38.19 55.92 73.78 46.47 69.22 92.01 54.34 81.92 107.96
kW 8.87 8.66 8.48 8.61 8.80 9.03 9.14 8.90 8.71
105
TC 110.04 98.92 88.56 117.27 105.94 95.53 121.88 110.46 100.54
SHC 27.59 45.94 64.39 35.16 58.57 81.98 42.56 70.82 97.40
kW 9.86 9.66 9.48 9.61 9.79 10.02 10.12 9.89 9.70
115
TC 98.09 87.74 78.13 104.62 94.08 84.45 108.76 98.13 89.01
SHC 16.52 35.47 54.53 23.37 47.44 71.46 30.32 59.25 86.31
kW 10.95 10.76 10.60 10.72 10.89 11.10 11.19 10.98 10.81
580J12 COOLING CAPACITIES, UNIT WITH PERFECT HUMIDITY SYSTEM IN HOT GAS REHEAT MODE
TEMP (F) AIR ENT
CONDENSER (Edb)
AIR ENTERING EVAPORATOR --- Ewb (F)
75 Dry Bulb
62.5 Wet Bulb
(50% Relative)
75 Dry Bulb
64 Wet Bulb
(56% Relative)
75 Dry Bulb
65.3 Wet Bulb
(60% Relative)
A i r E n t e r i n g E v a p o r a t o r --- C f m
3000 4000 5000 3000 4000 5000 3000 4000 5000
80
TC 44.78 39.41 31.89 53.22 49.44 43.38 60.56 58.12 53.32
SHC ---0.44 ---0.57 ---0.69 --- 0.37 ---0.51 --- 0.61 ---0.33 ---0.46 --- 0.56
kW 6.96 6.77 6.52 7.26 7.13 6.91 7.54 7.45 7.27
75
TC 45.84 40.46 32.86 54.28 50.51 44.45 61.61 59.19 54.40
SHC 0.53 0.40 0.29 0.60 0.47 0.37 0.64 0.52 0.42
kW 6.77 6.56 6.29 7.11 6.95 6.72 7.41 7.31 7.12
70
TC 46.91 41.48 33.50 55.36 51.59 45.50 62.69 60.28 55.49
SHC 1.51 1.38 1.27 1.57 1.45 1.35 1.61 1.50 1.40
kW 6.54 6.32 6.02 6.90 6.74 6.49 7.23 7.13 6.92
60
TC 48.88 43.42 35.76 57.29 53.56 47.48 64.56 62.16 57.42
SHC 3.44 3.34 3.24 3.51 3.40 3.31 3.55 3.45 3.37
kW 6.45 6.16 6.70 6.93 6.72 6.39 7.38 7.24 6.96
50
TC 50.83 45.28 37.67 59.22 55.52 49.43 66.05 64.03 59.34
SHC 5.38 5.29 5.20 5.45 5.36 5.28 5.48 5.40 5.33
kW 6.46 6.01 6.34 6.98 6.71 6.29 8.15 7.38 7.02
40
TC 52.82 47.29 39.50 61.14 57.48 51.39 68.23 65.88 61.25
SHC 7.32 7.24 7.20 7.38 7.31 7.24 7.43 7.36 7.29
kW 6.29 6.09 6.12 7.05 6.72 6.29 7.78 7.55 7.10
NOTE: Perfect Humidity only available on 2---stage RTPF models.
LEGEND
Edb --- E n t e r i n g D r y --- B u l b
Ewb --- E n te r i n g We t --- B u l b
kW --- Compressor Motor Power Input
Idb --- L e a v i n g D r y --- B u l b
Iwb --- L e a v i n g W e t --- B u l b
SHC --- Sensible Heat Capacity (1000 Btuh) Gross
TC --- Total Capacity (1000 Btuh) Gross
NOTES:
1. Direct interpolation is permissible. Do not extrapolate.
2. The following formulas may be used:
tldb =t
edb –sensible capacity (Btuh)
1.10 x cfm
tlwb = Wet--- bulb temperature corresponding to enthalpy of air
leaving evaporator coil (hlwb)
hlwb =h
ewb –total capacity (Btuh)
4.5 x cfm
Where: hewb = Enthalpy of air entering evaporator coil
580J

50
Table 30 – COOLING CAPACITIES 2--STAGE COOLING 12.5 TONS
580J*14D
(RTPF & Novation)
AMBIENT TEMPERATURE
85 95 105 115
EAT (db) EAT (db) EAT (db) EAT (db)
75 80 85 75 80 85 75 80 85 75 80 85
3600 Cfm
EAT (wb)
58 TC 127.6 127.6 142.9 121.7 121.7 137.6 115.0 115.0 130 108.3 108.3 122.6
SHC 110.3 126.6 142.9 105.8 121.7 137.6 99.9 115.0 130 94.1 108.3 122.6
62 TC 136.1 136.1 136.1 131.1 131.1 131.1 123.8 123.8 124.5 114.9 114.9 120.3
SHC 96.6 112.8 129.0 94.7 111.2 127.7 91.4 108.0 124.5 87.3 103.8 120.3
67 TC 146.2 146.2 146.2 142.0 142.0 142.0 136.2 136.2 136.2 128.8 128.8 128.8
SHC 78.5 94.4 110.3 76.9 93.1 109.2 74.7 91.0 107.3 71.7 88.1 104.6
72 TC 155.9 155.9 155.9 152.4 152.4 152.4 147.2 147.2 147.2 140.1 140.1 140.1
SHC 60.1 76.6 93.2 58.7 75.2 91.7 56.8 73.3 89.7 54.2 70.6 87.0
76 TC --- 163.0 163 --- 160.0 160 --- 155.1 155.1 --- 148.2 148.2
SHC --- 62.0 81.8 --- 61.1 80.9 --- 59.5 79.3 --- 57.0 76.3
4200 Cfm
EAT (wb)
58 TC 132.2 132.2 149.5 128.2 128.2 144.9 121.9 121.9 137.8 115.0 115.0 130.1
SHC 115.0 132.2 149.5 111.5 128.2 144.9 106.0 121.9 137.8 99.9 115.0 130.1
62 TC 139.6 139.6 139.6 134.7 134.7 138 128.0 128.0 135.6 119.1 119.1 131.2
SHC 102.5 120.8 139 100.8 119.4 138 98.1 116.8 135.6 93.9 112.6 131.2
67 TC 149.5 149.5 149.5 145.4 145.4 145.4 139.6 139.6 139.6 132.1 132.1 132.1
SHC 81.8 99.6 117.4 80.6 98.7 116.8 78.5 96.9 115.2 75.7 94.3 112.8
72 TC 159.0 159.0 159.0 155.5 155.5 155.5 150.3 150.3 150.3 143.1 143.1 143.1
SHC 61.4 79.6 97.8 60.2 78.5 96.8 58.3 76.7 95 55.8 74.2 92.5
76 TC --- 165.7 165.7 --- 162.8 162.8 --- 157.8 157.8 --- 150.8 150.8
SHC --- 64.6 87.7 --- 63.5 86.3 --- 61.5 83.3 --- 58.9 79.9
4800 Cfm
EAT (wb)
58 TC 136.7 136.7 154.5 133.0 133.0 150.3 127.7 127.7 144.3 120.6 120.6 136.4
SHC 118.9 136.7 154.5 115.7 133.0 150.3 111.0 127.7 144.3 104.9 120.6 136.4
62 TC 142.2 142.2 147.8 137.4 137.4 147.1 131.0 131.0 144.7 122.8 122.8 140.3
SHC 107.7 127.8 147.8 106.2 126.7 147.1 103.6 124.2 144.7 99.3 119.8 140.3
67 TC 152.1 152.1 152.1 148.0 148 148 142.2 142.2 142.2 134.6 134.6 134.6
SHC 84.8 104.3 123.7 83.8 103.8 123.7 82.0 102.3 122.6 79.4 99.9 120.4
72 TC 161.3 161.3 161.3 157.8 157.8 157.8 152.5 152.5 152.5 145.4 145.4 145.4
SHC 62.6 82.2 101.9 61.4 81.4 101.3 59.7 79.7 99.8 57.2 77.3 97.5
76 TC --- 167.7 167.7 --- 164.9 164.9 --- 159.9 159.9 --- 152.8 152.8
SHC --- 66.4 91.4 --- 65 89.2 --- 63.1 86.4 --- 60.5 83.1
5400 Cfm
EAT (wb)
58 TC 140.5 140.5 158.8 136.9 136.9 154.7 131.8 131.8 149 125.2 125.2 141.6
SHC 122.2 140.5 158.8 119 136.9 154.7 114.7 131.8 149 108.9 125.2 141.6
62 TC 144.3 144.3 155.7 139.6 139.6 155 133.5 133.5 152.4 125.8 125.8 147.8
SHC 112.2 133.9 155.7 110.9 132.9 155 108.1 130.2 152.4 103.9 125.8 147.8
67 TC 154.2 154.2 154.2 150.0 150.0 150.0 144.2 144.2 144.2 136.7 136.7 136.7
SHC 87.6 108.6 129.6 86.8 108.5 130.1 85.2 107.3 129.4 82.8 105.1 127.4
72 TC 163.1 163.1 163.1 159.7 159.7 159.7 154.3 154.3 154.3 147.1 147.1 147.1
SHC 63.6 84.6 105.6 62.5 83.9 105.4 60.8 82.5 104.2 58.4 80.2 102
76 TC --- 169.3 169.3 --- 166.5 166.5 --- 161.5 161.5 --- 154.2 154.2
SHC --- 67.6 93.7 --- 66.4 91.7 --- 64.5 89.2 --- 61.9 86.1
6000 Cfm
EAT (wb)
58 TC 143.6 143.6 162.3 140.1 140.1 158.3 135.1 135.1 152.7 128.7 128.7 145.5
SHC 124.9 143.6 162.3 121.8 140.1 158.3 117.5 135.1 152.7 111.9 128.7 145.5
62 TC 146.1 146.1 162.4 141.7 141.7 161.5 135.6 135.6 159.2 128.8 128.8 151.2
SHC 116.1 139.3 162.4 114.7 138.1 161.5 112.1 135.6 159.2 106.4 128.8 151.2
67 TC 155.8 155.8 155.8 151.6 151.6 151.6 145.9 145.9 145.9 138.3 138.3 138.3
SHC 90.1 112.6 135 89.6 112.8 136 88.3 112.0 135.8 85.9 110.0 134.1
72 TC 164.5 164.5 164.5 161.2 161.2 161.2 155.8 155.8 155.8 148.5 148.5 148.5
SHC 64.5 86.7 108.9 63.5 86.3 109.1 61.9 85.1 108.2 59.6 82.9 106.3
76 TC --- 170.6 170.6 --- 167.8 167.8 --- 162.8 162.8 --- 155.5 155.5
SHC --- 68.7 95.8 --- 67.5 94.1 --- 65.7 91.8 --- 63.3 88.8
LEGEND:
--- --- D o n o t o p e r a t e i n t h i s r e g i o n
Cfm --- Cubic feet per minute (supply air)
EAT(db) --- Entering air temperature (dry bulb)
EAT(wb) --- Entering air temperature (wet bulb)
SHC --- Sensible heat capacity
TC --- Total capacity
580J

51
Table 31 – COOLING CAPACITIES 2--STAGE COOLING 12.5 TONS
580J14 COOLING CAPACITIES, UNIT WITH PERFECT HUMIDITY SYSTEM IN SUBCOOLING MODE
TEMP (F) AIR ENT
CONDENSER (Edb)
AIR ENTERING EVAPORATOR --- CFM
3750/0.02 5000/0.06 6250/0.05
A i r E n t e r i n g E v a p o r a t o r --- E w b ( F )
72 67 62 72 67 62 72 67 62
75
TC 183.66 166.86 151.43 194.90 177.83 162.05 201.97 184.84 170.53
SHC 79.39 100.52 121.91 91.70 119.42 147.05 102.94 137.00 166.71
kW 9.82 9.63 9.46 9.58 9.76 9.96 10.04 9.84 9.67
85
TC 172.71 156.78 142.09 183.32 167.13 152.17 189.98 173.73 160.25
SHC 69.03 90.92 112.95 80.69 109.17 137.51 91.49 126.33 156.65
kW 10.82 10.63 10.45 10.57 10.76 10.96 11.04 10.84 10.67
95
TC 161.37 146.24 132.38 171.36 156.04 141.86 177.62 162.22 149.50
SHC 58.44 81.04 103.77 69.42 98.67 127.71 79.83 115.45 146.15
kW 11.92 11.73 11.56 11.68 11.86 12.05 12.14 11.93 11.77
105
TC 149.57 135.32 122.21 158.89 144.45 131.10 164.74 150.27 138.35
SHC 47.57 70.92 94.32 57.85 87.91 117.61 67.79 104.26 135.30
kW 13.12 12.94 12.77 12.89 13.06 13.24 13.32 13.13 12.97
115
TC 137.22 123.88 111.55 145.85 132.33 119.84 151.27 137.71 126.67
SHC 36.31 60.47 84.57 45.87 76.77 107.19 55.34 92.66 123.98
kW 14.41 14.25 14.10 14.20 14.35 14.53 14.59 14.42 14.28
580J14 COOLING CAPACITIES, UNIT WITH PERFECT HUMIDITY SYSTEM IN HOT GAS REHEAT MODE
TEMP (F)AIR ENT
CONDENSER(Edb)
AIR ENTERING EVAPORATOR --- Ewb (F)
75 Dry Bulb
62.5 Wet Bulb
(50% Relative)
75 Dry Bulb
64 Wet Bulb
(56% Relative)
75 Dry Bulb
65.3 Wet Bulb
(60% Relative)
A i r E n t e r i n g E v a p o r a t o r --- C f m
3750 5000 6250 3750 5000 6250 3750 5000 6250
80
TC 52.42 45.88 36.99 62.64 58.07 51.07 71.56 68.64 63.23
SHC ---0.39 ---0.54 ---0.67 --- 0.31 ---0.46 --- 0.58 ---0.26 ---0.40 --- 0.52
kW 9.65 9.39 9.07 9.97 9.77 9.50 10.25 10.11 9.89
75
TC 53.45 46.63 36.10 63.77 59.11 51.87 72.76 69.80 64.31
SHC 0.59 0.44 0.30 0.67 0.52 0.40 0.72 0.58 0.47
kW 9.09 8.83 8.49 9.39 9.20 8.94 9.67 9.53 9.32
70
TC 54.33 46.91 37.58 64.77 60.01 52.30 73.80 70.80 65.24
SHC 1.56 1.41 1.29 1.64 1.50 1.38 1.70 1.56 1.45
kW 8.81 8.53 8.62 9.15 8.94 8.65 9.46 9.31 9.08
60
TC 55.47 49.48 40.48 66.62 62.07 54.88 75.68 72.76 67.28
SHC 3.50 3.38 3.27 3.59 3.47 3.36 3.65 3.52 3.42
kW 8.36 8.84 8.98 9.88 9.56 9.10 9.83 9.64 9.31
50
TC 58.33 51.72 42.81 68.72 63.93 55.84 77.74 74.77 69.24
SHC 5.47 5.35 5.24 5.54 5.43 5.32 5.60 5.49 5.39
kW 8.98 9.25 9.43 9.33 8.97 8.73 9.55 9.33 9.70
40
TC 60.33 53.69 46.89 70.67 65.93 49.83 79.46 76.62 71.24
SHC 7.42 7.31 7.22 7.49 7.39 7.23 7.55 7.45 7.37
kW 9.16 9.88 9.06 9.50 9.05 9.47 10.31 10.00 9.48
NOTE: Perfect Humidity only available on 2---stage RTPF models.
LEGEND
Edb --- E n t e r i n g D r y --- B u l b
Ewb --- E n te r i n g We t --- B u l b
kW --- Compressor Motor Power Input
Idb --- L e a v i n g D r y --- B u l b
Iwb --- L e a v i n g W e t --- B u l b
SHC --- Sensible Heat Capacity (1000 Btuh) Gross
TC --- Total Capacity (1000 Btuh) Gross
NOTES:
1. Direct interpolation is permissible. Do not extrapolate.
2. The following formulas may be used:
tldb =t
edb –sensible capacity (Btuh)
1.10 x cfm
tlwb = Wet--- bulb temperature corresponding to enthalpy of air
leaving evaporator coil (hlwb)
hlwb =h
ewb –total capacity (Btuh)
4.5 x cfm
Where: hewb = Enthalpy of air entering evaporator coil
580J

52
Table 32 – COOLING CAPACITIES 2--STAGE COOLING 15 TONS
580J*16D (RTPF)
Ambient Temperature
85 95 105 115
EA (dB) EA (dB) EA (dB) EA (dB)
75 80 85 75 80 85 75 80 85 75 80 85
4500 Cfm
EAT (wb)
58 THC 156.6 156.6 175.2 149.4 149.4 169.1 141.6 141.6 160.2 133.3 133.3 150.9
SHC 134.7 154.9 175.2 129.8 149.4 169.1 123.0 141.6 160.2 115.7 133.3 150.9
62 THC 166.7 166.7 166.9 158.0 158.0 162.6 147.6 147.6 157.2 136.8 136.8 150.3
SHC 122.8 144.9 166.9 118.6 140.6 162.6 113.5 135.3 157.2 107.4 128.8 150.3
67 THC 184.1 184.1 184.1 175.6 175.6 175.6 165.6 165.6 165.6 154.5 154.5 154.5
SHC 101.6 123.7 145.7 98.1 120.2 142.3 94.0 116.1 138.2 89.4 111.5 133.6
72 THC 200.3 200.3 200.3 192.0 192.0 192.0 182.9 182.9 182.9 172.2 172.2 172.2
SHC 78.7 101.1 123.5 75.5 97.9 120.2 72.1 94.4 116.7 68.2 90.5 112.7
76 THC -211.4 211.4 -203.1 203.1 -193.8 193.8 -183.9 183.9
SHC -82.2 107.0 -79.3 103.8 -76.0 100.2 -72.6 96.5
5250 Cfm
EAT (wb)
58 THC 165.2 165.2 186.9 158.2 158.2 179.0 150.0 150.0 169.7 141.3 141.3 160.0
SHC 143.5 165.2 186.9 137.4 158.2 179.0 130.2 150.0 169.7 122.7 141.3 160.0
62 THC 172.3 172.3 181.7 163.4 163.4 176.9 153.1 153.1 169.3 143.4 143.4 161.4
SHC 131.6 156.6 181.7 127.1 152.0 176.9 120.5 144.9 169.3 114.1 137.8 161.4
67 THC 189.5 189.5 189.5 180.9 180.9 180.9 170.7 170.7 170.7 159.1 159.1 159.1
SHC 107.2 132.4 157.5 103.8 129.0 154.1 99.9 125.1 150.4 95.3 120.6 145.8
72 THC 205.0 205.0 205.0 196.5 196.5 196.5 187.1 187.1 187.1 176.4 176.4 176.4
SHC 80.9 106.1 131.3 77.7 102.9 128.1 74.4 99.5 124.7 70.6 95.8 121.0
76 THC -215.4 215.4 -206.8 206.8 -197.1 197.1 -186.9 186.9
SHC -85.0 113.0 -82.0 109.8 -78.8 106.4 -75.4 102.8
6000 Cfm
EAT (wb)
58 THC 172.7 172.7 195.4 165.5 165.5 187.3 157.1 157.1 177.8 148.1 148.1 167.7
SHC 150.0 172.7 195.4 143.8 165.5 187.3 136.4 157.1 177.8 128.6 148.1 167.7
62 THC 176.6 176.6 195.7 168.1 168.1 187.6 158.9 158.9 180.2 148.9 148.9 172.1
SHC 139.6 167.7 195.7 133.2 160.4 187.6 127.1 153.7 180.2 120.7 146.4 172.1
67 THC 193.6 193.6 193.6 184.8 184.8 184.8 174.7 174.7 174.7 162.7 162.7 162.7
SHC 112.3 140.3 168.3 108.9 137.0 165.2 105.2 133.5 161.7 100.7 129.0 157.3
72 THC 208.4 208.4 208.4 199.6 199.6 199.6 190.2 190.2 190.2 179.5 179.5 179.5
SHC 82.7 110.5 138.3 79.6 107.3 135.1 76.2 104.0 131.8 72.6 100.6 128.5
76 THC -218.2 218.2 -209.5 209.5 -199.5 199.5 -189.0 189.0
SHC -87.5 118.6 -84.5 115.2 -81.1 111.3 -77.5 107.3
6750 Cfm
EAT (wb)
58 THC 178.8 178.8 202.4 171.6 171.6 194.2 163.1 163.1 184.6 153.8 153.8 174.1
SHC 155.3 178.8 202.4 149.0 171.6 194.2 141.6 163.1 184.6 133.5 153.8 174.1
62 THC 181.0 181.0 203.6 173.0 173.0 197.5 163.8 163.8 190.1 153.9 153.9 181.1
SHC 144.1 173.9 203.6 139.1 168.3 197.5 133.3 161.7 190.1 126.7 153.9 181.1
67 THC 196.8 196.8 196.8 187.9 187.9 187.9 177.7 177.7 177.7 165.5 165.5 167.9
SHC 117.0 147.7 178.4 113.7 144.5 175.4 110.1 141.1 172.2 105.6 136.8 167.9
72 THC 211.0 211.0 211.0 202.2 202.2 202.2 192.5 192.5 192.5 181.8 181.8 181.8
SHC 84.3 114.5 144.7 81.2 111.5 141.7 77.9 108.1 138.4 74.4 104.9 135.4
76 THC -220.2 220.2 -211.5 211.5 -201.3 201.3 -190.6 190.6
SHC -89.5 122.8 -86.4 119.4 -83.0 115.4 -79.4 111.5
7500 Cfm
EAT (wb)
58 THC 183.9 183.9 208.2 176.6 176.6 199.8 168.2 168.2 190.3 158.6 158.6 179.5
SHC 159.7 183.9 208.2 153.3 176.6 199.8 146.0 168.2 190.3 137.7 158.6 179.5
62 THC 185.1 185.1 212.5 177.1 177.1 206.2 168.3 168.3 197.9 158.7 158.7 186.7
SHC 149.5 181.0 212.5 144.5 175.4 206.2 138.7 168.3 197.9 130.8 158.7 186.7
67 THC 199.3 199.3 199.3 190.3 190.3 190.3 180.0 180.0 181.7 167.8 167.8 177.8
SHC 121.3 154.6 187.9 118.1 151.6 185.1 114.4 148.1 181.7 110.1 144.0 177.8
72 THC 213.0 213.0 213.0 204.1 204.1 204.1 194.2 194.2 194.2 183.5 183.5 183.5
SHC 85.8 118.2 150.5 82.7 115.2 147.7 79.4 111.9 144.4 76.0 108.8 141.6
76 THC -221.9 221.9 -213.0 213.0 -202.7 202.7 -191.8 191.8
SHC -91.2 126.5 -88.2 123.1 -84.7 119.2 -81.2 115.3
LEGEND
Edb --- E n t e r i n g D r y --- B u l b
Ewb --- E n te r i n g We t --- B u l b
kW --- Compressor Motor Power Input
Idb --- L e a v i n g D r y --- B u l b
Iwb --- L e a v i n g W e t --- B u l b
SHC --- Sensible Heat Capacity (1000 Btuh) Gross
TC --- Total Capacity (1000 Btuh) Gross
NOTES:
1. Direct interpolation is permissible. Do not extrapolate.
2. The following formulas may be used:
tldb =t
edb –sensible capacity (Btuh)
1.10 x cfm
tlwb = Wet--- bulb temperature corresponding to enthalpy of air
leaving evaporator coil (hlwb)
hlwb =h
ewb –total capacity (Btuh)
4.5 x cfm
580J

53
Table 33 – STATIC PRESSURE ADDERS (Factory Options and/or Accessories)
PERFECT HUMIDITY
3 --- 6 T O N S
CFM (in. wg) 1000 1250 1500 1750 2000 2250 2500 2750 3000
3Tons 0.04 0.052 0.07 --- --- --- --- --- ---
4Tons --- 0.106 0.138 0.172 0.21 --- --- --- ---
5Tons --- --- 0.138 0.172 0.21 0.252 0.30 --- ---
6Tons --- --- --- 0.112 0.125 0.161 0.19 0.22 0.25
7.5---12.5 TONS
CFM (in. wg) 2250 2500 2750 3000 3250 3500 3750 4000 4250 4500 4750 5000 5250 5500 5750 6000
7.5 Tons 0.12 0.14 0.16 0.19 0.21 0.23 0.26 --- --- --- --- --- --- --- --- ---
8.5 Tons --- 0.11 0.12 0.13 0.15 0.17 0.18 0.20 0.22 --- --- --- --- --- --- ---
10 Tons --- --- --- 0.13 0.15 0.17 0.18 0.20 0.22 0.24 0.26 0.28 --- --- --- ---
12.5 Tons --- --- --- --- --- 0.17 0.18 0.20 0.22 0.24 0.26 0.28 0.31 0.33 0.36 0.39
ECONOMIZER, BAROMETRIC RELIEF AND PE PERFORMANCE
0
500
1000
1500
2000
2500
0 0.05 0.1 0.15 0.2 0.25 0.3
RETURN DUCT STATIC PRES SURE (in. wg)
RELIEF FLOW (CFM)
3 -6 Ton
7½ - 12½ Ton
Horizontal Economizers
C08070
Fig. 11 -- Barometric Relief Flow Capacity
0
5
10
15
20
25
30
0.00 0.10 0.20 0.30 0.40 0.50
STATIC PRES SURE DELTA (in. wg)
LEAKAGE ACROSS DAMPER (CFM)
3 - 6 Ton
7 1/2 - 12 1/2 Ton
Horizontal Economizers
C08071
Fig. 12 -- Outdoor Air Damper Leakage
0
1000
2000
3000
4000
5000
6000
0 0.1 0.2 0.3 0.4
RETURN DUCT STATIC PRES SURE DROP (in. wg)
RETURN AIR FLOW (CFM)
3 - 6 TON
7 1/2 - 12 1/2 Ton
Horizontal Economizers
C08072
Fig. 13 -- Return Air Pressure Drop
0
500
1000
1500
2000
2500
0 0.1 0.2 0.3 0.4 0.5
EXHAUST AIRFLOW
(cfm)
RETURN DUCT
STATIC PRESSURE (in. wg)
Horizontal Power Exhaust
C08012
Fig. 14 -- Horizontal Power Exhaust Performance
580J

54
0
500
1000
1500
2000
2500
0 0.05 0.1 0.15 0.2 0.25 0.3
RETURN DUCT STATIC PRES SURE (in. wg)
RELIEF FLOW (CFM)
3 -6 Ton
7½ - 12½ Ton
Vertical Economizers
C08073
Fig. 15 -- Barometric Relief Flow Capacity
0
5
10
15
20
25
30
0.00 0.10 0.20 0.30 0.40 0.50
STATIC PRES SURE DELTA (in. wg)
LEAKAGE ACROSS DAMPER (CFM)
3 - 6 Ton
7 1/2 - 12 1/2 Ton
Vertical Economizers
C08074
Fig. 16 -- Outdoor Air Damper Leakage
0
1000
2000
3000
4000
5000
6000
0 0.1 0.2 0.3 0.4
RETURN DUCT STATIC PRES SURE DROP (in. wg)
RETURN AIR FLOW (CFM)
3 - 6 TON
7 1/2 - 12 1/2 Ton
Vertical Economizers
C08075
Fig. 17 -- Return Air Pressure Drop
0
1000
2000
3000
4000
5000
0 0.1 0.2 0.3 0.4 0.5
RETURN DUCT STATIC PRESSURE (in. wg)
EXHAUST AIRFLOW
(cfm)
Vertical Power Exhaust
2 - 6 Ton
7.5 - 15 Ton
101125
Fig. 18 -- Vertical Power Exhaust Performance
0
500
1000
1500
2000
2500
0 0.05 0.1 0.15 0.2 0.25 0.3
RELIEF FLOW (CFM)
RETURN DUCT STATIC PRESSURE (in. wg)
15 -Ton
Horizontal Economizers
C101120
Fig. 19 -- Barometric Relief Flow--Horizontal 15 Ton
0
1000
2000
3000
4000
5000
6000
0 0.1 0.2 0.3 0.4
RETURN AIR FLOW (CFM)
RETURN DUCT STATIC PRESSURE DROP (in. wg)
15 -Ton
Horizontal Economizers
C101121
Fig. 20 -- Return Air Pressure Drop--Horizontal 15 Ton
0
500
1000
1500
2000
2500
0 0.05 0.1 0.15 0.2 0.25 0.3
RELIEF FLOW (CFM)
RETURN DUCT STATIC PRESSURE (in. wg)
15 -Ton
Vertical Economizers
C101122
Fig. 21 -- Barometric Relief Flow--Vertical 15 Ton
580J

55
0
1000
2000
3000
4000
5000
6000
0 0.1 0.2 0.3 0.4
RETURN AIR FLOW (CFM)
RETURN DUCT STATIC PRESSURE DROP (in. wg)
15-Ton
Vertical Economizers
C101123
Fig. 22 -- Return Air Pressure Drop--Vertical 15 Tons
0
500
1000
1500
2000
2500
0 0.1 0.2 0.3 0.4 0.5
STATIC PRESSURE (in. wg)
FLOW (cfm)
3-15 Ton
C101124
Fig. 23 -- Horizontal Power Exhaust Performance
General fan performance notes:
1. Interpolation is permissible. Do not extrapolate.
2. External static pressure is the static pressure difference between the return duct and the supply duct plus the static
pressure caused by any FIOPs or accessories.
3. Tabular data accounts for pressure loss due to clean filters, unit casing, and wet coils. Factory options and accessories
may add static pressure losses, as shown in the tables above. Selection software is available, through your salesperson,
to help you select the best motor/drive combination for your application.
4. The Fan Performance tables offer motor/drive recommendations. In cases when two motor/drive combinations would
work, Bryant recommended the lower horsepower option.
5. For information on the electrical properties of Bryant motors, please see the Electrical information section of this
book.
6. For more information on the performance limits of Bryant motors, see the application data section of this book.
7. The EPACT (Energy Policy Act of 1992) regulates energy requirements for specific types of indoor fan motors. Motors
regulated by EPACT include any general purpose, T--frame (three--digit, 143 and larger), single--speed, foot mounted,
polyphase, squirrel cage induction motors of NEMA (National Electrical Manufacturers Association) design A and B,
manufactured for use in the United States. Ranging from 1 to 200 Hp, these continuous--duty motors operate on 230
and 460 volt, 60 Hz power. If a motor does not fit into these specifications, the motor does not have to be replaced by
an EPACT compliant energy efficient motor. Variable speed motors are exempt from EPACT compliance require-
ments. Therefore, the indoor fan motors for Bryant 580J04--16 units are exempt from these requirements.
580J

56
FAN PERFORMANCE
Table 34 – 580J**04 1 PHASE 3 TON HORIZONTAL SUPPLY
CFM
AVAILABLEEXTERNALSTATICPRESSURE(in.wg)
0.2 0.4 0.6 0.8 1.0
RPM BHP RPM BHP RPM BHP RPM BHP RPM BHP
FieldSuppliedDrive
1Standard Static Option Medium Static Option
900 553 0.14 681 0.22 782 0.32 870 0.42 948 0.53
975 575 0.16 700 0.25 801 0.35 888 0.46 965 0.57
1050 597 0.18 720 0.28 820 0.38 906 0.49 983 0.61
1125 620 0.21 741 0.31 839 0.42 925 0.54 1001 0.66
1200 643 0.23 762 0.34 859 0.46 944 0.58 1020 0.71
1275 667 0.27 783 0.38 879 0.50 963 0.63 1038 0.76
1350 691 0.30 805 0.42 900 0.55 983 0.68 1057 0.82
1425 715 0.34 827 0.47 920 0.60 1002 0.74 1076 0.88
1500 740 0.38 849 0.52 941 0.66 1023 0.80 1096 0.95
CFM
AVAILABLEEXTERNALSTATICPRESSURE(in.wg)
1.2 1.4 1.6 1.8 2.0
RPM BHP RPM BHP RPM BHP RPM BHP RPM BHP
Medium Static Option FieldSuppliedDrive
2
900 1019 0.64 1084 0.76 1146 0.89 1203 1.02 1258 1.16
975 1036 0.69 1101 0.81 1162 0.94 1219 1.08 --- ---
1050 1053 0.74 1118 0.86 1179 1.00 1236 1.14 --- ---
1125 1071 0.79 1135 0.92 1196 1.06 1253 1.20 --- ---
1200 1089 0.84 1153 0.98 1213 1.12 --- --- --- ---
1275 1107 0.90 1171 1.04 1231 1.19 --- --- --- ---
1350 1126 0.96 1189 1.11 --- --- --- --- --- ---
1425 1144 1.03 1208 1.18 --- --- --- --- --- ---
1500 1163 1.10 --- --- --- --- --- --- --- ---
NOTE: For more information, see General Fan Performance Notes.
Boldface indicates field supplied drive is required.
1. Recommend using field supplied fan pulley (part no. KR11AG006) and belt (part no. KR30AE039).
2. Recommend using field supplied motor pulley (part no. KR11HY161) and belt (part no. KR30AE035).
Table 35 – 580J**04 1 PHASE 3 TON VERTICAL SUPPLY
CFM
AVAILABLEEXTERNALSTATICPRESSURE(in.wg)
0.2 0.4 0.6 0.8 1.0
RPM BHP RPM BHP RPM BHP RPM BHP RPM BHP
FieldSuppliedDrive
1Standard Static Option Medium Static Option
900 567 0.15 688 0.22 786 0.30 871 0.37 947 0.44
975 591 0.17 710 0.26 807 0.34 891 0.42 966 0.49
1050 615 0.20 732 0.29 828 0.38 911 0.47 985 0.55
1125 641 0.23 755 0.33 849 0.42 931 0.52 1005 0.61
1200 666 0.26 778 0.37 871 0.47 952 0.57 1025 0.67
1275 693 0.29 802 0.41 893 0.53 974 0.63 1046 0.74
1350 719 0.33 826 0.46 916 0.58 995 0.70 1067 0.81
1425 746 0.38 850 0.51 939 0.64 1017 0.76 1088 0.89
1500 773 0.42 875 0.57 963 0.70 1040 0.84 1110 0.96
CFM
AVAILABLEEXTERNALSTATICPRESSURE(in.wg)
1.2 1.4 1.6 1.8 2.0
RPM BHP RPM BHP RPM BHP RPM BHP RPM BHP
Medium Static Option Field Supplied Drive2
900 1016 0.51 1080 0.57 1139 0.64 1195 0.71 1249 0.77
975 1034 0.57 1098 0.64 1157 0.72 1213 0.79 1266 0.86
1050 1053 0.63 1116 0.71 1176 0.79 1231 0.87 1284 0.95
1125 1073 0.70 1135 0.79 1194 0.87 1250 0.96 1302 1.04
1200 1093 0.77 1155 0.87 1213 0.96 1268 1.05 1321 1.14
1275 1113 0.85 1174 0.95 1232 1.05 1287 1.15 --- ---
1350 1133 0.92 1194 1.03 1252 1.14 --- --- --- ---
1425 1154 1.01 1215 1.12 --- --- --- --- --- ---
1500 1175 1.09 --- --- --- --- --- --- --- ---
NOTE: For more information, see General Fan Performance Notes.
Boldface indicates field supplied drive is required.
1. Recommend using field supplied fan pulley (part no. KR11AG006) and belt (part no. KR30AE039).
2. Recommend using field supplied motor pulley (part no. KR11HY161) and belt (part no. KR30AE035).
580J

57
FAN PERFORMANCE (cont.)
Table 36 – 580J**04 3 PHASE 3 TON HORIZONTAL SUPPLY
CFM
AVAILABLEEXTERNALSTATICPRESSURE(in.wg)
0.2 0.4 0.6 0.8 1.0
RPM BHP RPM BHP RPM BHP RPM BHP RPM BHP
FieldSuppliedDrive
1Standard Static Option Medium Static Option
900 553 0.14 681 0.22 782 0.32 870 0.42 948 0.53
975 575 0.16 700 0.25 801 0.35 888 0.46 965 0.57
1050 597 0.18 720 0.28 820 0.38 906 0.49 983 0.61
1125 620 0.21 741 0.31 839 0.42 925 0.54 1001 0.66
1200 643 0.23 762 0.34 859 0.46 944 0.58 1020 0.71
1275 667 0.27 783 0.38 879 0.50 963 0.63 1038 0.76
1350 691 0.30 805 0.42 900 0.55 983 0.68 1057 0.82
1425 715 0.34 827 0.47 920 0.60 1002 0.74 1076 0.88
1500 740 0.38 849 0.52 941 0.66 1023 0.80 1096 0.95
CFM
AVAILABLEEXTERNALSTATICPRESSURE(in.wg)
1.2 1.4 1.6 1.8 2.0
RPM BHP RPM BHP RPM BHP RPM BHP RPM BHP
Medium Static Option High Static Option
900 1019 0.64 1084 0.76 1146 0.89 1203 1.02 1258 1.16
975 1036 0.69 1101 0.81 1162 0.94 1219 1.08 1274 1.22
1050 1053 0.74 1118 0.86 1179 1.00 1236 1.14 1290 1.28
1125 1071 0.79 1135 0.92 1196 1.06 1253 1.20 1307 1.35
1200 1089 0.84 1153 0.98 1213 1.12 1270 1.27 1324 1.42
1275 1107 0.90 1171 1.04 1231 1.19 1287 1.34 1341 1.50
1350 1126 0.96 1189 1.11 1249 1.26 1305 1.42 1358 1.58
1425 1144 1.03 1208 1.18 1267 1.34 1323 1.50 1376 1.66
1500 1163 1.10 1226 1.25 1285 1.41 1341 1.58 1394 1.75
NOTE: For more information, see General Fan Performance Notes.
1. Recommend using field supplied drive (part no. KR11AG006) and belt (part no. KR30AE039)
Table 37 – 580J**04 3 PHASE 3 TON VERTICAL SUPPLY
CFM
AVAILABLEEXTERNALSTATICPRESSURE(in.wg)
0.2 0.4 0.6 0.8 1.0
RPM BHP RPM BHP RPM BHP RPM BHP RPM BHP
FieldSuppliedDrive
1Standard Static Option Medium Static Option
900 567 0.15 688 0.22 786 0.30 871 0.37 947 0.44
975 591 0.17 710 0.26 807 0.34 891 0.42 966 0.49
1050 615 0.20 732 0.29 828 0.38 911 0.47 985 0.55
1125 641 0.23 755 0.33 849 0.42 931 0.52 1005 0.61
1200 666 0.26 778 0.37 871 0.47 952 0.57 1025 0.67
1275 693 0.29 802 0.41 893 0.53 974 0.63 1046 0.74
1350 719 0.33 826 0.46 916 0.58 995 0.70 1067 0.81
1425 746 0.38 850 0.51 939 0.64 1017 0.76 1088 0.89
1500 773 0.42 875 0.57 963 0.70 1040 0.84 1110 0.96
CFM
AVAILABLEEXTERNALSTATICPRESSURE(in.wg)
1.2 1.4 1.6 1.8 2.0
RPM BHP RPM BHP RPM BHP RPM BHP RPM BHP
Medium Static Option High Static Option
900 1016 0.51 1080 0.57 1139 0.64 1195 0.71 1249 0.77
975 1034 0.57 1098 0.64 1157 0.72 1213 0.79 1266 0.86
1050 1053 0.63 1116 0.71 1176 0.79 1231 0.87 1284 0.95
1125 1073 0.70 1135 0.79 1194 0.87 1250 0.96 1302 1.04
1200 1093 0.77 1155 0.87 1213 0.96 1268 1.05 1321 1.14
1275 1113 0.85 1174 0.95 1232 1.05 1287 1.15 1339 1.25
1350 1133 0.92 1194 1.03 1252 1.14 1307 1.25 1358 1.35
1425 1154 1.01 1215 1.12 1272 1.24 1326 1.35 1378 1.46
1500 1175 1.09 1235 1.22 1292 1.34 1346 1.46 1397 1.58
NOTE: For more information, see General Fan Performance Notes.
Boldface indicates field supplied drive is required.
1. Recommend using field supplied fan pulley (part no. KR11AG006) and belt (part no. KR30AE039).
580J

58
FAN PERFORMANCE (cont.)
Table 38 – 580J**05 1 PHASE 4 TON HORIZONTAL SUPPLY
CFM
AVAILABLEEXTERNALSTATICPRESSURE(in.wg)
0.2 0.4 0.6 0.8 1.0
RPM BHP RPM BHP RPM BHP RPM BHP RPM BHP
Standard Static Option Medium Static Option
1200 643 0.23 762 0.34 859 0.46 944 0.58 1020 0.71
1300 675 0.28 790 0.40 886 0.52 969 0.65 1044 0.78
1400 707 0.33 819 0.45 913 0.58 996 0.72 1070 0.86
1500 740 0.38 849 0.52 941 0.66 1023 0.80 1096 0.95
1600 773 0.45 879 0.59 970 0.73 1050 0.88 1123 1.04
1700 807 0.52 910 0.67 999 0.82 1078 0.98 1150 1.14
1800 841 0.59 942 0.75 1029 0.91 1106 1.08 1177 1.25
1900 875 0.68 974 0.85 1059 1.02 1135 1.19 1205 1.37
2000 910 0.77 1006 0.95 1090 1.13 1165 1.31 1234 1.49
CFM
AVAILABLEEXTERNALSTATICPRESSURE(in.wg)
1.2 1.4 1.6 1.8 2.0
RPM BHP RPM BHP RPM BHP RPM BHP RPM BHP
Medium Static Option Field Supplied Drive1
1200 1089 0.84 1153 0.98 1213 1.12 --- --- --- ---
1300 1113 0.92 1177 1.06 --- --- --- --- --- ---
1400 1138 1.01 1201 1.15 --- --- --- --- --- ---
1500 1163 1.10 --- --- --- --- --- --- --- ---
1600 1189 1.20 --- --- --- --- --- --- --- ---
1700 --- --- --- --- --- --- --- --- --- ---
1800 --- --- --- --- --- --- --- --- --- ---
1900 --- --- --- --- --- --- --- --- --- ---
2000 --- --- --- --- --- --- --- --- --- ---
NOTE: For more information, see General Fan Performance Notes.
Boldface indicates field supplied drive is required.
1. Recommend using field supplied motor pulley (part no. KR11HY161) and belt (part no. KR30AE035).
Table 39 – 580J**05 1 PHASE 4 TON VERTICAL SUPPLY
CFM
AVAILABLEEXTERNALSTATICPRESSURE(in.wg)
0.2 0.4 0.6 0.8 1.0
RPM BHP RPM BHP RPM BHP RPM BHP RPM BHP
Standard Static Option Medium Static Option
1200 666 0.26 778 0.37 871 0.47 952 0.57 1025 0.67
1300 701 0.31 810 0.43 901 0.54 981 0.65 1053 0.76
1400 737 0.36 842 0.49 931 0.62 1010 0.74 1081 0.86
1500 773 0.42 875 0.57 963 0.70 1040 0.84 1110 0.96
1600 810 0.49 909 0.65 994 0.79 1070 0.94 1140 1.08
1700 847 0.57 943 0.73 1027 0.89 1101 1.05 1170 1.20
1800 885 0.66 978 0.83 1060 1.00 1133 1.16 1200 1.32
1900 923 0.75 1014 0.94 1093 1.11 1165 1.29 1231 1.46
2000 962 0.85 1049 1.05 1127 1.24 1198 1.42 1263 1.61
CFM
AVAILABLEEXTERNALSTATICPRESSURE(in.wg)
1.2 1.4 1.6 1.8 2.0
RPM BHP RPM BHP RPM BHP RPM BHP RPM BHP
Medium Static Option Field Supplied Drive1
1200 1093 0.77 1155 0.87 1213 0.96 1268 1.05 1321 1.14
1300 1119 0.87 1181 0.98 1239 1.08 1294 1.18 --- ---
1400 1147 0.98 1208 1.09 --- --- --- --- --- ---
1500 1175 1.09 --- --- --- --- --- --- --- ---
1600 --- --- --- --- --- --- --- --- --- ---
1700 --- --- --- --- --- --- --- --- --- ---
1800 --- --- --- --- --- --- --- --- --- ---
1900 --- --- --- --- --- --- --- --- --- ---
2000 --- --- --- --- --- --- --- --- --- ---
NOTE: For more information, see General Fan Performance Notes.
Boldface indicates field supplied drive is required.
1. Recommend using field supplied motor pulley (part no. KR11HY161) and belt (part no. KR30AE035).
580J

59
FAN PERFORMANCE (cont.)
Table 40 – 580J**05 3 PHASE 4 TON HORIZONTAL SUPPLY
CFM
AVAILABLEEXTERNALSTATICPRESSURE(in.wg)
0.2 0.4 0.6 0.8 1.0
RPM BHP RPM BHP RPM BHP RPM BHP RPM BHP
Standard Static Option Medium Static Option
1200 643 0.23 762 0.34 859 0.46 944 0.58 1020 0.71
1300 675 0.28 790 0.40 886 0.52 969 0.65 1044 0.78
1400 707 0.33 819 0.45 913 0.58 996 0.72 1070 0.86
1500 740 0.38 849 0.52 941 0.66 1023 0.80 1096 0.95
1600 773 0.45 879 0.59 970 0.73 1050 0.88 1123 1.04
1700 807 0.52 910 0.67 999 0.82 1078 0.98 1150 1.14
1800 841 0.59 942 0.75 1029 0.91 1106 1.08 1177 1.25
1900 875 0.68 974 0.85 1059 1.02 1135 1.19 1205 1.37
2000 910 0.77 1006 0.95 1090 1.13 1165 1.31 1234 1.49
CFM
AVAILABLEEXTERNALSTATICPRESSURE(in.wg)
1.2 1.4 1.6 1.8 2.0
RPM BHP RPM BHP RPM BHP RPM BHP RPM BHP
Medium Static Option High Static Option
1200 1089 0.84 1153 0.98 1213 1.12 1270 1.27 1324 1.42
1300 1113 0.92 1177 1.06 1237 1.21 1293 1.36 1347 1.52
1400 1138 1.01 1201 1.15 1261 1.31 1317 1.47 1370 1.63
1500 1163 1.10 1226 1.25 1285 1.41 1341 1.58 1394 1.75
1600 1189 1.20 1252 1.36 1310 1.53 1365 1.70 1418 1.87
1700 1216 1.31 1277 1.48 1335 1.65 1390 1.83 1442 2.01
1800 1242 1.42 1303 1.60 1361 1.78 1415 1.96 1467 2.15
1900 1270 1.55 1330 1.73 1387 1.92 1441 2.11 1493 2.30
2000 1297 1.68 1357 1.87 1414 2.07 1467 2.26 --- ---
NOTE: For more information, see General Fan Performance Notes.
Boldface indicates field supplied drive is required.
1. Recommend using field supplied fan pulley (part no. KR11AZ506), motor pulley (part no. KR11HY181) and belt (part no. KR30AE041).
Table 41 – 580J**05 3 PHASE 4 TON VERTICAL SUPPLY
CFM
AVAILABLEEXTERNALSTATICPRESSURE(in.wg)
0.2 0.4 0.6 0.8 1.0
RPM BHP RPM BHP RPM BHP RPM BHP RPM BHP
Standard Static Option Medium Static Option
1200 666 0.26 778 0.37 871 0.47 952 0.57 1025 0.67
1300 701 0.31 810 0.43 901 0.54 981 0.65 1053 0.76
1400 737 0.36 842 0.49 931 0.62 1010 0.74 1081 0.86
1500 773 0.42 875 0.57 963 0.70 1040 0.84 1110 0.96
1600 810 0.49 909 0.65 994 0.79 1070 0.94 1140 1.08
1700 847 0.57 943 0.73 1027 0.89 1101 1.05 1170 1.20
1800 885 0.66 978 0.83 1060 1.00 1133 1.16 1200 1.32
1900 923 0.75 1014 0.94 1093 1.11 1165 1.29 1231 1.46
2000 962 0.85 1049 1.05 1127 1.24 1198 1.42 1263 1.61
CFM
AVAILABLEEXTERNALSTATICPRESSURE(in.wg)
1.2 1.4 1.6 1.8 2.0
RPM BHP RPM BHP RPM BHP RPM BHP RPM BHP
Medium Static Option High Static Option
1200 1093 0.77 1155 0.87 1213 0.96 1268 1.05 1321 1.14
1300 1119 0.87 1181 0.98 1239 1.08 1294 1.18 1346 1.28
1400 1147 0.98 1208 1.09 1265 1.21 1320 1.32 1371 1.43
1500 1175 1.09 1235 1.22 1292 1.34 1346 1.46 1397 1.58
1600 1204 1.21 1263 1.35 1320 1.48 1373 1.61 1424 1.74
1700 1233 1.34 1292 1.49 1348 1.63 1401 1.77 1451 1.91
1800 1262 1.48 1321 1.64 1376 1.79 1428 1.94 1479 2.09
1900 1293 1.63 1350 1.79 1405 1.96 1457 2.12 1506 2.28
2000 1323 1.79 1380 1.96 1434 2.13 1486 2.31 --- ---
NOTE: For more information, see General Fan Performance Notes.
Boldface indicates field supplied drive is required.
1. Recommend using field supplied fan pulley (part no. KR11AZ506), motor pulley (part no. KR11HY181) and belt (part no. KR30AE041).
580J

60
FAN PERFORMANCE (cont.)
Table 42 – 580J**06 1 PHASE 5 TON HORIZONTAL SUPPLY
CFM
AVAILABLEEXTERNALSTATICPRESSURE(in.wg)
0.2 0.4 0.6 0.8 1.0
RPM BHP RPM BHP RPM BHP RPM BHP RPM BHP
Standard Static Option
1500 800 0.39 904 0.49 999 0.60 1087 0.72 1169 0.85
1625 849 0.48 947 0.59 1038 0.70 1122 0.83 1201 0.96
1750 899 0.59 992 0.70 1078 0.82 1159 0.95 1235 1.08
1875 950 0.70 1038 0.82 1120 0.95 1198 1.08 1271 1.22
2000 1001 0.84 1085 0.96 1163 1.09 1238 1.23 1309 1.38
2125 1053 0.99 1133 1.12 1208 1.26 1280 1.40 --- ---
2250 1106 1.16 1182 1.29 1254 1.44 --- --- --- ---
2375 1159 1.34 1231 1.49 --- --- --- --- --- ---
2500 --- --- --- --- --- --- --- --- --- ---
CFM
AVAILABLEEXTERNALSTATICPRESSURE(in.wg)
1.2 1.4 1.6 1.8 2.0
RPM BHP RPM BHP RPM BHP RPM BHP RPM BHP
Medium Static Option
1500 1247 0.98 1320 1.13 1390 1.28 1457 1.44 --- ---
1625 1276 1.10 1348 1.24 1416 1.40 --- --- --- ---
1750 1308 1.22 1377 1.38 --- --- --- --- --- ---
1875 1342 1.37 --- --- --- --- --- --- --- ---
2000 --- --- --- --- --- --- --- --- --- ---
2125 --- --- --- --- --- --- --- --- --- ---
2250 --- --- --- --- --- --- --- --- --- ---
2375 --- --- --- --- --- --- --- --- --- ---
2500 --- --- --- --- --- --- --- --- --- ---
NOTE: For more information, see General Fan Performance Notes.
Table 43 – 580J**06 1 PHASE 5 TON VERTICAL SUPPLY
CFM
AVAILABLEEXTERNALSTATICPRESSURE(in.wg)
0.2 0.4 0.6 0.8 1.0
RPM BHP RPM BHP RPM BHP RPM BHP RPM BHP
Standard Static Option Medium Static Option
1500 848 0.42 968 0.55 1069 0.68 1158 0.80 1238 0.94
1625 897 0.51 1013 0.65 1111 0.79 1198 0.93 1277 1.07
1750 947 0.61 1059 0.76 1155 0.91 1240 1.06 1318 1.21
1875 997 0.72 1105 0.89 1199 1.05 1283 1.21 1359 1.37
2000 1048 0.85 1153 1.03 1244 1.20 1326 1.37 --- ---
2125 1100 1.00 1201 1.19 1290 1.37 --- --- --- ---
2250 1152 1.16 1250 1.36 --- --- --- --- --- ---
2375 1205 1.34 --- --- --- --- --- --- --- ---
2500 --- --- --- --- --- --- --- --- --- ---
CFM
AVAILABLEEXTERNALSTATICPRESSURE(in.wg)
1.2 1.4 1.6 1.8 2.0
RPM BHP RPM BHP RPM BHP RPM BHP RPM BHP
Medium Static Option F i e l d --- S u p p l i e d D r i v e 1
1500 1312 1.07 1380 1.20 1445 1.34 1506 1.48 --- ---
1625 1350 1.21 1418 1.35 1482 1.50 --- --- --- ---
1750 1390 1.36 --- --- --- --- --- --- --- ---
1875 --- --- --- --- --- --- --- --- --- ---
2000 --- --- --- --- --- --- --- --- --- ---
2125 --- --- --- --- --- --- --- --- --- ---
2250 --- --- --- --- --- --- --- --- --- ---
2375 --- --- --- --- --- --- --- --- --- ---
2500 --- --- --- --- --- --- --- --- --- ---
NOTE: For more information, see General Fan Performance Notes.
Boldface indicates field supplied drive is required.
1. Recommend using field supplied motor pulley (part no. KR11HY171) and belt (part no. KR30AE039).
580J

61
FAN PERFORMANCE (cont.)
Table 44 – 580J**06 3 PHASE 5 TON HORIZONTAL SUPPLY
CFM
AVAILABLEEXTERNALSTATICPRESSURE(in.wg)
0.2 0.4 0.6 0.8 1.0
RPM BHP RPM BHP RPM BHP RPM BHP RPM BHP
Standard Static Option
1500 800 0.39 904 0.49 999 0.60 1087 0.72 1169 0.85
1625 849 0.48 947 0.59 1038 0.70 1122 0.83 1201 0.96
1750 899 0.59 992 0.70 1078 0.82 1159 0.95 1235 1.08
1875 950 0.70 1038 0.82 1120 0.95 1198 1.08 1271 1.22
2000 1001 0.84 1085 0.96 1163 1.09 1238 1.23 1309 1.38
2125 1053 0.99 1133 1.12 1208 1.26 1280 1.40 1348 1.55
2250 1106 1.16 1182 1.29 1254 1.44 1323 1.59 1389 1.74
2375 1159 1.34 1231 1.49 1300 1.64 1367 1.80 1430 1.96
2500 1212 1.55 1281 1.70 1348 1.86 1412 2.02 1473 2.19
CFM
AVAILABLEEXTERNALSTATICPRESSURE(in.wg)
1.2 1.4 1.6 1.8 2.0
RPM BHP RPM BHP RPM BHP RPM BHP RPM BHP
Medium Static Option High Static Option
1500 1247 0.98 1320 1.13 1390 1.28 1457 1.44 1522 1.61
1625 1276 1.10 1348 1.24 1416 1.40 1481 1.56 1544 1.73
1750 1308 1.22 1377 1.38 1444 1.53 1507 1.70 1569 1.87
1875 1342 1.37 1409 1.52 1473 1.69 1536 1.86 1596 2.03
2000 1377 1.53 1442 1.69 1505 1.86 1565 2.03 1624 2.21
2125 1414 1.71 1477 1.87 1538 2.04 1597 2.22 1654 2.40
2250 1452 1.91 1514 2.08 1573 2.25 1630 2.43 1686 2.62
2375 1492 2.12 1551 2.30 1609 2.48 1665 2.66 1719 2.85
2500 1533 2.36 1591 2.54 1647 2.73 --- --- --- ---
NOTE: For more information, see General Fan Performance Notes.
Boldface indicates field supplied drive is required.
1. Recommend using field supplied fan pulley (part no. KR11AZ506), motor pulley (part no. KR11HY191) and belt (part no. KR30AE042).
Table 45 – 580J**06 3 PHASE 5 TON VERTICAL SUPPLY
CFM
AVAILABLEEXTERNALSTATICPRESSURE(in.wg)
0.2 0.4 0.6 0.8 1.0
RPM BHP RPM BHP RPM BHP RPM BHP RPM BHP
Standard Static Option Medium Static Option
1500 848 0.42 968 0.55 1069 0.68 1158 0.80 1238 0.94
1625 897 0.51 1013 0.65 1111 0.79 1198 0.93 1277 1.07
1750 947 0.61 1059 0.76 1155 0.91 1240 1.06 1318 1.21
1875 997 0.72 1105 0.89 1199 1.05 1283 1.21 1359 1.37
2000 1048 0.85 1153 1.03 1244 1.20 1326 1.37 1401 1.54
2125 1100 1.00 1201 1.19 1290 1.37 1370 1.55 1444 1.73
2250 1152 1.16 1250 1.36 1336 1.55 1415 1.75 1487 1.94
2375 1205 1.34 1299 1.55 1384 1.76 1460 1.96 1532 2.17
2500 1258 1.54 1349 1.76 1431 1.98 1506 2.20 1576 2.41
CFM
AVAILABLEEXTERNALSTATICPRESSURE(in.wg)
1.2 1.4 1.6 1.8 2.0
RPM BHP RPM BHP RPM BHP RPM BHP RPM BHP
Medium Static Option High Static Option
1500 1312 1.07 1380 1.20 1445 1.34 1506 1.48 1564 1.62
1625 1350 1.21 1418 1.35 1482 1.50 1542 1.64 1600 1.79
1750 1390 1.36 1457 1.51 1520 1.67 1580 1.83 1637 1.98
1875 1430 1.53 1496 1.69 1559 1.86 1618 2.02 1675 2.19
2000 1471 1.72 1536 1.89 1598 2.06 1657 2.24 1713 2.41
2125 1513 1.92 1577 2.10 1638 2.28 1696 2.47 1752 2.65
2250 1555 2.13 1619 2.33 1679 2.52 1736 2.72 --- ---
2375 1598 2.37 1661 2.57 1720 2.78 --- --- --- ---
2500 1642 2.63 1704 2.84 --- --- --- --- --- ---
NOTE: For more information, see General Fan Performance Notes.
Boldface indicates field supplied drive is required.
1. Recommend using field supplied fan pulley (part no. KR11AZ506), motor pulley (part no. KR11HY191) and belt (part no. KR30AE042).
580J

62
FAN PERFORMANCE (cont.)
Table 46 – 580J**07 3 PHASE 6 TON HORIZONTAL SUPPLY
CFM
AVAILABLEEXTERNALSTATICPRESSURE(in.wg)
0.2 0.4 0.6 0.8 1.0
RPM BHP RPM BHP RPM BHP RPM BHP RPM BHP
FieldSuppliedDrive
1Standard Static Option
1800 913 0.64 1010 0.80 1098 0.98 1178 1.16 1252 1.35
1950 972 0.78 1065 0.96 1148 1.14 1226 1.34 1298 1.54
2100 1032 0.95 1120 1.14 1200 1.33 1275 1.54 1345 1.75
2250 1093 1.14 1177 1.34 1254 1.55 1325 1.76 1393 1.98
2400 1155 1.36 1234 1.57 1308 1.78 1377 2.01 1443 2.24
2550 1217 1.60 1293 1.82 1363 2.05 1430 2.28 1494 2.53
2700 1280 1.87 1352 2.10 1420 2.34 1484 2.59 1546 2.84
2850 1343 2.17 1412 2.42 1477 2.67 1539 2.93 1599 3.19
3000 1406 2.50 1472 2.76 1535 3.03 1595 3.29 1653 3.57
CFM
AVAILABLEEXTERNALSTATICPRESSURE(in.wg)
1.2 1.4 1.6 1.8 2.0
RPM BHP RPM BHP RPM BHP RPM BHP RPM BHP
Standard Static Option Medium Static Option High Static Option
1800 1322 1.56 1388 1.77 1451 1.98 1510 2.21 1568 2.44
1950 1366 1.75 1430 1.97 1491 2.20 1550 2.43 1606 2.67
2100 1411 1.97 1473 2.20 1533 2.43 1590 2.67 1645 2.92
2250 1457 2.21 1518 2.45 1576 2.69 1632 2.94 1686 3.20
2400 1505 2.48 1564 2.73 1621 2.98 1676 3.24 1729 3.51
2550 1554 2.78 1612 3.03 1667 3.30 1721 3.57 --- ---
2700 1604 3.10 1660 3.37 1715 3.64 --- --- --- ---
2850 1656 3.46 --- --- --- --- --- --- --- ---
3000 --- --- --- --- --- --- --- --- --- ---
NOTE: For more information, see General Fan Performance Notes.
Boldface indicates field --- supplied drive is required.
1. Recommend using field--- supplied fan pulley (part no. KR11AZ406), motor pulley (part no. KR11HY151) and belt (part no. KR29AF035).
Table 47 – 580J**07 3 PHASE 6 TON VERTICAL SUPPLY
CFM
AVAILABLEEXTERNALSTATICPRESSURE(in.wg)
0.2 0.4 0.6 0.8 1.0
RPM BHP RPM BHP RPM BHP RPM BHP RPM BHP
F i e l d --- S u p p l i e d D r i v e 1Standard Static Option
1800 967 0.63 1075 0.80 1170 0.97 1255 1.13 1333 1.28
1950 1029 0.77 1132 0.96 1223 1.14 1306 1.32 1382 1.49
2100 1091 0.93 1189 1.14 1278 1.33 1358 1.52 1433 1.71
2250 1154 1.11 1248 1.33 1333 1.55 1411 1.75 1484 1.96
2400 1218 1.32 1308 1.55 1390 1.78 1466 2.01 1537 2.23
2550 1283 1.55 1369 1.80 1448 2.05 1521 2.29 1590 2.52
2700 1348 1.80 1431 2.07 1507 2.33 1578 2.59 1645 2.84
2850 1414 2.09 1493 2.37 1566 2.65 1636 2.92 1701 3.19
3000 1479 2.40 1556 2.70 1627 3.00 1694 3.29 1757 3.57
CFM
AVAILABLEEXTERNALSTATICPRESSURE(in.wg)
1.2 1.4 1.6 1.8 2.0
RPM BHP RPM BHP RPM BHP RPM BHP RPM BHP
Medium Static Option High Static Option
1800 1406 1.43 1475 1.58 1540 1.72 1601 1.87 1660 2.00
1950 1454 1.65 1521 1.82 1585 1.98 1645 2.13 1703 2.29
2100 1502 1.89 1568 2.07 1631 2.25 1690 2.42 1747 2.59
2250 1552 2.15 1617 2.35 1678 2.54 1737 2.73 1793 2.922
2400 1603 2.44 1666 2.65 1727 2.86 1784 3.06 1839 3.26
2550 1655 2.75 1717 2.98 1776 3.20 1833 3.42 1887 3.64
2700 1709 3.09 1769 3.33 1827 3.57 --- --- --- ---
2850 1763 3.45 --- --- --- --- --- --- --- ---
3000 --- --- --- --- --- --- --- --- --- ---
NOTE: For more information, see General Fan Performance Notes.
Boldface indicates field supplied drive is required.
1. Recommend using field supplied fan pulley (part no. KR11AZ406), motor pulley (part no. KR11HY151) and belt (part no. KR29AF035).
2. Recommend using field supplied fan pulley (part no. KR11AZ506), motor pulley (part no. KR11HY191) and belt (part no. KR29AF042).
580J

63
FAN PERFORMANCE (cont.)
Table 48 – 580J**08 3 PHASE 7.5 TON HORIZONTAL SUPPLY
CFM
AVAILABLEEXTERNALSTATICPRESSURE(in.wg)
0.2 0.4 0.6 0.8 1.0
RPM BHP RPM BHP RPM BHP RPM BHP RPM BHP
Standard Static Option Medium Static Option
2250 505 0.52 586 0.73 657 0.97 722 1.22 782 1.50
2438 533 0.62 610 0.85 679 1.09 742 1.36 800 1.65
2625 562 0.74 635 0.98 701 1.23 762 1.51 819 1.81
2813 591 0.88 661 1.13 725 1.39 783 1.68 839 1.98
3000 621 1.03 688 1.29 749 1.57 806 1.87 859 2.18
3188 652 1.21 715 1.48 774 1.77 829 2.07 881 2.40
3375 682 1.40 743 1.68 800 1.98 853 2.30 903 2.63
3563 713 1.61 772 1.91 826 2.22 878 2.55 927 2.89
3750 745 1.85 801 2.15 853 2.48 903 2.82 951 3.18
CFM
AVAILABLEEXTERNALSTATICPRESSURE(in.wg)
1.2 1.4 1.6 1.8 2.0
RPM BHP RPM BHP RPM BHP RPM BHP RPM BHP
Medium Static Option High Static Option
2250 838 1.81 891 2.12 941 2.46 988 2.82 1033 3.19
2438 854 1.96 906 2.28 955 2.63 1001 2.99 1046 3.37
2625 872 2.12 922 2.46 970 2.81 1016 3.17 1060 3.56
2813 890 2.31 940 2.65 986 3.01 1031 3.38 1074 3.77
3000 910 2.51 958 2.86 1004 3.23 1048 3.61 1090 4.01
3188 930 2.74 977 3.10 1022 3.47 1065 3.86 1107 4.261
3375 951 2.99 997 3.35 1041 3.74 1083 4.13 1124 4.54
3563 973 3.26 1018 3.63 1061 4.02 1103 4.43 --- ---
3750 996 3.55 1040 3.93 1082 4.34 --- --- --- ---
NOTE: For more information, see General Fan Performance Notes.
Boldface indicates field supplied drive is required.
1. Recommend using field supplied fan pulley (part no. KR11AZ002) and belt (part no. KR29AF054).
Table 49 – 580J**08 3 PHASE 7.5 TON VERTICAL SUPPLY
CFM
AVAILABLEEXTERNALSTATICPRESSURE(in.wg)
0.2 0.4 0.6 0.8 1.0
RPM BHP RPM BHP RPM BHP RPM BHP RPM BHP
Standard Static Option Medium Static Option
2250 513 0.54 595 0.76 665 1.01 728 1.27 786 1.56
2438 541 0.65 620 0.89 688 1.14 750 1.42 806 1.71
2625 570 0.77 645 1.02 712 1.29 772 1.58 827 1.88
2813 600 0.91 672 1.18 736 1.46 794 1.76 848 2.07
3000 629 1.07 699 1.35 761 1.64 818 1.95 871 2.28
3188 660 1.25 726 1.54 787 1.85 842 2.17 894 2.51
3375 690 1.45 754 1.75 813 2.07 867 2.41 917 2.76
3563 721 1.67 783 1.98 840 2.32 892 2.67 941 3.03
3750 752 1.91 812 2.24 867 2.59 918 2.95 966 3.32
CFM
AVAILABLEEXTERNALSTATICPRESSURE(in.wg)
1.2 1.4 1.6 1.8 2.0
RPM BHP RPM BHP RPM BHP RPM BHP RPM BHP
Medium Static Option High Static Option
2250 839 1.86 889 2.18 935 2.52 980 2.87 1022 3.23
2438 858 2.02 907 2.35 953 2.70 997 3.06 1039 3.43
2625 878 2.20 926 2.54 972 2.89 1015 3.26 1056 3.64
2813 899 2.40 946 2.75 991 3.11 1033 3.49 1074 3.88
3000 920 2.62 966 2.98 1010 3.35 1052 3.74 1093 4.14
3188 942 2.86 987 3.23 1031 3.61 1072 4.01 1112 4.421
3375 964 3.12 1009 3.50 1052 3.89 1093 4.30 --- ---
3563 988 3.41 1032 3.80 1074 4.20 1114 4.61 --- ---
3750 1011 3.71 1054 4.11 1096 4.53 --- --- --- ---
NOTE: For more information, see General Fan Performance Notes.
Boldface indicates field --- supplied drive is required.
1. Recommend using field---supplied fan pulley (part no. KR11AZ002) and belt (part no. KR29AF054).
580J

64
FAN PERFORMANCE (cont.)
Table 50 – 580J**09 3 PHASE 8.5 TON HORIZONTAL SUPPLY
CFM
AVAILABLEEXTERNALSTATICPRESSURE(in.wg)
0.2 0.4 0.6 0.8 1.0
RPM BHP RPM BHP RPM BHP RPM BHP RPM BHP
F i e l d --- S u p p l i e d D r i v e 1Standard Static Option Medium Static Option
2550 497 0.48 579 0.61 651 0.75 717 0.90 777 1.05
2763 524 0.58 602 0.72 671 0.87 735 1.03 794 1.19
2975 551 0.70 626 0.86 693 1.01 754 1.18 812 1.35
3188 580 0.84 651 1.00 716 1.17 775 1.34 831 1.52
3400 609 1.00 677 1.17 739 1.35 797 1.53 851 1.71
3613 638 1.17 703 1.35 763 1.54 819 1.73 871 1.93
3825 668 1.37 730 1.56 788 1.76 842 1.96 893 2.16
4038 698 1.59 758 1.79 813 2.00 866 2.20 915 2.42
4250 728 1.83 786 2.04 839 2.26 890 2.47 938 2.70
CFM
AVAILABLEEXTERNALSTATICPRESSURE(in.wg)
1.2 1.4 1.6 1.8 2.0
RPM BHP RPM BHP RPM BHP RPM BHP RPM BHP
Medium Static Option High Static Option
2550 833 1.21 886 1.38 936 1.56 984 1.74 1029 1.93
2763 849 1.36 900 1.53 950 1.72 996 1.90 1041 2.10
2975 865 1.52 916 1.70 964 1.89 1010 2.09 1054 2.29
3188 883 1.70 933 1.89 980 2.09 1025 2.29 1068 2.50
3400 902 1.90 950 2.10 996 2.30 1041 2.51 1083 2.73
3613 921 2.13 969 2.33 1014 2.54 1057 2.76 1099 2.982
3825 941 2.37 988 2.58 1032 2.80 1075 3.02 1116 3.25
4038 963 2.63 1008 2.86 1051 3.08 1093 3.31 1133 3.55
4250 984 2.92 1029 3.15 1071 3.39 1112 3.63 1152 3.87
NOTE: For more information, see General Fan Performance Notes.
Boldface indicates field --- supplied drive is required.
1. Recommend using field---supplied fan pulley (part no. KR11AK012) and belt (part no. KR29AF055).
2. Recommend using field--- supplied motor pulley (part no. KR11HY310), fan pulley (part no. KR11AZ002) and belt (part no. KR29AF054).
Table 51 – 580J**09 3 PHASE 8.5 TON VERTICAL SUPPLY
CFM
AVAILABLEEXTERNALSTATICPRESSURE(in.wg)
0.2 0.4 0.6 0.8 1.0
RPM BHP RPM BHP RPM BHP RPM BHP RPM BHP
Standard Static Option Medium Static Option
2550 526 0.51 600 0.65 666 0.79 727 0.93 783 1.07
2763 557 0.62 627 0.77 690 0.92 749 1.08 804 1.23
2975 588 0.75 655 0.91 716 1.08 772 1.24 825 1.40
3188 621 0.90 684 1.07 743 1.25 797 1.42 848 1.60
3400 653 1.06 714 1.25 770 1.44 822 1.62 872 1.81
3613 687 1.25 744 1.45 798 1.65 849 1.84 897 2.04
3825 720 1.45 775 1.67 827 1.88 876 2.09 922 2.30
4038 754 1.69 807 1.91 856 2.13 904 2.35 949 2.57
4250 788 1.94 839 2.17 886 2.41 932 2.64 976 2.88
CFM
AVAILABLEEXTERNALSTATICPRESSURE(in.wg)
1.2 1.4 1.6 1.8 2.0
RPM BHP RPM BHP RPM BHP RPM BHP RPM BHP
Medium Static Option High Static Option
2550 836 1.20 886 1.34 934 1.48 979 1.61 1022 1.74
2763 855 1.37 904 1.52 950 1.67 995 1.82 1037 1.97
2975 875 1.56 923 1.72 968 1.88 1012 2.04 1053 2.20
3188 897 1.77 943 1.94 987 2.11 1030 2.29 1071 2.46
3400 919 1.99 964 2.18 1007 2.36 1049 2.55 1089 2.731
3613 943 2.24 986 2.44 1029 2.63 1069 2.83 1108 3.02
3825 967 2.51 1010 2.71 1051 2.92 1090 3.13 1129 3.34
4038 992 2.80 1034 3.02 1074 3.24 1112 3.46 1150 3.68
4250 1018 3.11 1058 3.34 1097 3.57 --- --- --- ---
NOTE: For more information, see General Fan Performance Notes.
Boldface indicates field supplied drive is required.
1. Recommend using field supplied motor pulley (part no. KR11HY310), fan pulley (part no. KR11AZ002) and belt (part no. KR29AF054).
580J

65
FAN PERFORMANCE (cont.)
Table 52 – 580J**12 3 PHASE 10 TON HORIZONTAL SUPPLY
CFM
AVAILABLEEXTERNALSTATICPRESSURE(in.wg)
0.2 0.4 0.6 0.8 1.0
RPM BHP RPM BHP RPM BHP RPM BHP RPM BHP
FieldSuppliedDrive
1Standard Static Option Medium Static Option
3000 579 0.70 660 0.89 732 1.09 799 1.29 860 1.50
3250 613 0.85 690 1.06 760 1.27 823 1.49 883 1.71
3500 648 1.03 721 1.25 788 1.48 850 1.71 907 1.95
3750 683 1.23 753 1.47 817 1.71 877 1.96 933 2.21
4000 719 1.45 786 1.71 848 1.97 905 2.23 959 2.50
4250 756 1.71 819 1.98 879 2.26 934 2.53 987 2.81
4500 792 1.99 853 2.28 910 2.57 964 2.87 1015 3.16
4750 830 2.31 888 2.62 943 2.92 995 3.23 1044 3.54
5000 867 2.66 923 2.98 976 3.30 1026 3.63 1074 3.95
CFM
AVAILABLEEXTERNALSTATICPRESSURE(in.wg)
1.2 1.4 1.6 1.8 2.0
RPM BHP RPM BHP RPM BHP RPM BHP RPM BHP
Medium Static Option High Static Option
3000 917 1.70 970 1.91 1021 2.13 1070 2.34 1117 2.56
3250 938 1.93 991 2.16 1041 2.38 1089 2.61 1134 2.85
3500 961 2.18 1013 2.42 1062 2.66 1108 2.91 1153 3.15
3750 985 2.46 1035 2.71 1083 2.97 1129 3.23 1173 3.49
4000 1011 2.76 1059 3.03 1106 3.30 1151 3.58 1194 3.85
4250 1037 3.09 1084 3.38 1130 3.66 1174 3.95 1216 4.24
4500 1064 3.46 1110 3.76 1155 4.06 1198 4.36 1239 4.66
4750 1091 3.85 1137 4.16 1180 4.48 --- --- --- ---
5000 1120 4.28 1164 4.61 --- --- --- --- --- ---
NOTE: For more information, see General Fan Performance Notes.
Boldface indicates field supplied drive is required.
1. Recommend using field supplied fan pulley (part no. KR11AD912) and belt (part no. KR29AF051).
Table 53 – 580J**12 3 PHASE 10 TON VERTICAL SUPPLY
CFM
AVAILABLEEXTERNALSTATICPRESSURE(in.wg)
0.2 0.4 0.6 0.8 1.0
RPM BHP RPM BHP RPM BHP RPM BHP RPM BHP
Standard Static Option Medium Static Option
3000 616 0.79 689 0.97 757 1.16 821 1.36 882 1.57
3250 655 0.96 724 1.16 788 1.37 849 1.58 907 1.80
3500 695 1.17 760 1.38 821 1.60 879 1.83 934 2.06
3750 736 1.41 797 1.63 855 1.86 910 2.10 963 2.35
4000 777 1.68 834 1.91 889 2.16 942 2.41 993 2.67
4250 818 1.98 873 2.23 925 2.49 976 2.75 1025 3.02
4500 860 2.32 912 2.58 962 2.85 1010 3.13 1057 3.41
4750 902 2.69 951 2.97 999 3.26 1046 3.55 1091 3.84
5000 944 3.11 991 3.40 1037 3.70 1082 4.00 1125 4.31
CFM
AVAILABLEEXTERNALSTATICPRESSURE(in.wg)
1.2 1.4 1.6 1.8 2.0
RPM BHP RPM BHP RPM BHP RPM BHP RPM BHP
Medium Static Option High Static Option
3000 939 1.79 994 2.01 1047 2.24 1098 2.47 1147 2.71
3250 962 2.03 1015 2.26 1066 2.50 1115 2.75 1163 3.00
3500 987 2.30 1038 2.54 1088 2.80 1135 3.05 1181 3.32
3750 1014 2.60 1063 2.86 1111 3.12 1157 3.39 1202 3.66
4000 1042 2.93 1090 3.20 1136 3.48 1180 3.76 1224 4.04
4250 1072 3.30 1118 3.58 1162 3.87 1205 4.16 --- ---
4500 1103 3.70 1147 4.00 1190 4.29 1232 4.60 --- ---
4750 1135 4.14 1177 4.45 --- --- --- --- --- ---
5000 1167 4.63 --- --- --- --- --- --- --- ---
NOTE: For more information, see General Fan Performance Notes.
Boldface indicates field supplied drive is required.
580J

66
FAN PERFORMANCE (cont.)
Table 54 – 580J**14 3 PHASE 12.5 TON HORIZONTAL SUPPLY
CFM
AVAILABLEEXTERNALSTATICPRESSURE(in.wg)
0.2 0.4 0.6 0.8 1.0
RPM BHP RPM BHP RPM BHP RPM BHP RPM BHP
Standard Static Option Medium Static Option
3438 639 0.98 713 1.20 781 1.43 843 1.65 901 1.88
3750 683 1.23 753 1.47 817 1.71 877 1.96 933 2.21
4063 728 1.52 794 1.78 855 2.04 912 2.31 966 2.57
4375 774 1.85 836 2.13 894 2.41 949 2.70 1001 2.98
4688 820 2.23 879 2.53 935 2.83 987 3.14 1037 3.44
5000 867 2.66 923 2.98 976 3.30 1026 3.63 1074 3.95
5313 914 3.15 967 3.49 1018 3.83 1066 4.17 1112 4.52
5625 962 3.69 1012 4.05 1061 4.42 --- --- --- ---
5938 1009 4.30 1058 4.68 --- --- --- --- --- ---
6250 --- --- --- --- --- --- --- --- --- ---
CFM
AVAILABLEEXTERNALSTATICPRESSURE(in.wg)
1.2 1.4 1.6 1.8 2.0
RPM BHP RPM BHP RPM BHP RPM BHP RPM BHP
Medium Static Option High Static Option
3438 955 2.12 1007 2.35 1056 2.59 1103 2.83 1148 3.08
3750 985 2.46 1035 2.71 1083 2.97 1129 3.23 1173 3.49
4063 1017 2.84 1066 3.12 1112 3.39 1157 3.67 1200 3.95
4375 1050 3.27 1097 3.56 1142 3.86 1186 4.15 1228 4.45
4688 1084 3.75 1130 4.06 1174 4.37 1216 4.68 1257 5.00
5000 1120 4.28 1164 4.61 --- --- 1248 5.27 1288 5.60
5313 --- --- --- --- --- --- --- --- --- ---
5625 --- --- --- --- --- --- --- --- ---
5938 --- --- --- --- --- --- --- --- --- ---
6250 --- --- --- --- --- --- --- --- --- ---
NOTE: For more information, see General Fan Performance Notes.
Boldface indicates field supplied drive is required.
Table 55 – 580J**14 3 PHASE 12.5 TON VERTICAL SUPPLY
CFM
AVAILABLEEXTERNALSTATICPRESSURE(in.wg)
0.2 0.4 0.6 0.8 1.0
RPM BHP RPM BHP RPM BHP RPM BHP RPM BHP
Standard Static Option Medium Static Option
3438 685 1.12 751 1.32 813 1.54 871 1.76 927 1.99
3750 736 1.41 797 1.63 855 1.86 910 2.10 963 2.35
4063 787 1.75 844 1.99 898 2.24 951 2.49 1001 2.75
4375 839 2.14 892 2.40 943 2.67 993 2.94 1041 3.21
4688 891 2.60 941 2.87 990 3.15 1037 3.44 1082 3.73
5000 944 3.11 991 3.40 1037 3.70 1082 4.00 1125 4.31
5313 997 3.69 1042 4.00 1085 4.32 1128 4.64 --- ---
5625 1051 4.34 1093 4.67 --- --- --- --- --- ---
5938 --- --- --- --- --- --- --- --- --- ---
6250 --- --- --- --- --- --- --- --- --- ---
CFM
AVAILABLEEXTERNALSTATICPRESSURE(in.wg)
1.2 1.4 1.6 1.8 2.0
RPM BHP RPM BHP RPM BHP RPM BHP RPM BHP
Medium Static Option High Static Option
3438 981 2.23 1032 2.47 1082 2.72 1130 2.97 1177 3.23
3750 1014 2.60 1063 2.86 1111 3.12 1157 3.39 1202 3.66
4063 1049 3.02 1097 3.29 1142 3.57 1186 3.85 1230 4.14
4375 1087 3.49 1132 3.78 1176 4.08 1218 4.37 1260 4.68
4688 1126 4.03 1169 4.33 1211 4.64 --- --- --- ---
5000 1167 4.63 --- --- --- --- --- --- --- ---
5313 --- --- --- --- --- --- --- --- --- ---
5625 --- --- --- --- --- --- --- --- --- ---
5938 --- --- --- --- --- --- --- --- --- ---
6250 --- --- --- --- --- --- --- --- --- ---
NOTE: For more information, see General Fan Performance Notes.
Boldface indicates field supplied drive is required.
580J

67
Table 56 – 580J*16 3 PHASE 15 TON VERTICAL SUPPLY
CFM
Available External Static Pressure (in. wg)
0.2 0.4 0.6 0.8 1.0
RPM BHP RPM BHP RPM BHP RPM BHP RPM BHP
4500 487 0.98 552 1.26 610 1.55 665 1.86 718 2.20
4875 515 1.18 578 1.49 633 1.80 685 2.13 735 2.47
5250 544 1.42 604 1.75 657 2.09 707 2.43 754 2.78
5625 572 1.68 631 2.05 682 2.40 730 2.76 775 3.13
6000 601 1.98 657 2.37 707 2.75 753 3.13 797 3.52
6375 630 2.31 684 2.73 733 3.13 777 3.53 819 3.94
6750 659 2.68 711 3.12 759 3.55 802 3.98 843 4.40
7125 689 3.09 739 3.55 785 4.01 827 4.46 867 4.91
7500 718 3.53 766 4.02 811 4.51 852 4.98 891 5.46
CFM
Available External Static Pressure (in. wg)
1.2 1.4 1.6 1.8 2.0
RPM BHP RPM BHP RPM BHP RPM BHP RPM BHP
4500 769 2.56 819 2.95 866 3.36 912 3.79 957 4.24
4875 784 2.84 831 3.23 877 3.65 921 4.09 964 4.54
5250 800 3.16 845 3.56 889 3.98 932 4.43 974 4.89
5625 819 3.52 862 3.93 903 4.36 944 4.81 985 5.28
6000 839 3.92 880 4.34 920 4.77 959 5.23 997 5.70
6375 860 4.36 899 4.79 937 5.23 975 5.70 --- --- --- --- --- --- --- ---
6750 882 4.84 920 5.28 957 5.74 --- --- --- --- --- --- --- --- --- --- --- --- --- --- --- ---
7125 904 5.36 941 5.82 --- --- --- --- --- --- --- --- --- --- --- --- --- --- --- --- --- --- --- --- --- --- --- ---
7500 928 5.93 --- --- --- --- --- --- --- --- --- --- --- --- --- --- --- --- --- --- --- --- --- --- --- --- --- --- --- --- --- --- --- ---
NOTE: For more information, see General Fan Performance Notes.
Boldface indicates field supplied drive is required.
Table 57 – 580J**16 3 PHASE 15 TON HORIZONTAL SUPPLY
CFM
Available External Static Pressure (in. wg)
0.2 0.4 0.6 0.8 1.0
RPM BHP RPM BHP RPM BHP RPM BHP RPM BHP
4500 479 0.97 540 1.23 596 1.50 651 1.80 703 2.13
4875 508 1.19 566 1.47 619 1.75 670 2.06 719 2.39
5250 537 1.43 592 1.73 643 2.03 691 2.35 737 2.69
5625 566 1.71 619 2.03 667 2.35 713 2.68 757 3.03
6000 596 2.02 646 2.36 692 2.70 736 3.05 778 3.41
6375 625 2.36 674 2.73 718 3.09 760 3.46 800 3.83
6750 655 2.75 701 3.14 744 3.52 785 3.91 824 4.30
7125 685 3.17 729 3.58 771 3.99 810 4.40 848 4.81
7500 715 3.64 758 4.07 798 4.50 836 4.93 872 5.36
CFM
Available External Static Pressure (in. wg)
1.2 1.4 1.6 1.8 2.0
RPM BHP RPM BHP RPM BHP RPM BHP RPM BHP
4500 755 2.48 805 2.87 853 3.28 900 3.72 945 4.17
4875 768 2.75 815 3.14 862 3.55 907 3.99 951 4.45
5250 783 3.06 828 3.45 872 3.86 916 4.30 958 4.77
5625 800 3.40 843 3.80 885 4.21 926 4.66 967 5.12
6000 819 3.79 860 4.19 900 4.61 939 5.06 978 5.53
6375 840 4.23 878 4.63 916 5.06 954 5.51 991 5.98
6750 861 4.70 898 5.12 935 5.56 971 6.01 --- --- --- --- --- --- --- ---
7125 884 5.23 919 5.66 --- --- --- --- --- --- --- --- --- --- --- --- --- --- --- --- --- --- --- --- --- --- --- ---
7500 907 5.79 --- --- --- --- --- --- --- --- --- --- --- --- --- --- --- --- --- --- --- --- --- --- --- --- --- --- --- --- --- --- --- ---
NOTE: For more information, see General Fan Performance Notes.
Boldface indicates field supplied drive is required.
580J

68
FAN PERFORMANCE (cont.)
Table 58 – PULLEY ADJUSTMENT
UNIT MOTOR/DRIVE
COMBO
MOTOR PULLEY TURNS OPEN
0.0 0.5 1.0 1.5 2.0 2.5 3.0 3.5 4.0 4.5 5.0
04
1phase
Standard Static 854 825 795 766 736 707 678 648 619 589 560
Medium Static 1175 1135 1094 1054 1013 973 932 892 851 811 770
High Static --- --- --- --- --- --- --- --- --- --- ---
3phase
Standard Static 854 825 795 766 736 707 678 648 619 589 560
Medium Static 1175 1135 1094 1054 1013 973 932 892 851 811 770
High Static 1466 1423 1380 1337 1294 1251 1207 1164 1121 1078 1035
05
1phase
Standard Static 854 825 795 766 736 707 678 648 619 589 560
Medium Static 1175 1135 1094 1054 1013 973 932 892 851 811 770
High Static --- --- --- --- --- --- --- --- --- --- ---
3phase
Standard Static 854 825 795 766 736 707 678 648 619 589 560
Medium Static 1175 1135 1094 1054 1013 973 932 892 851 811 770
High Static 1466 1423 1380 1337 1294 1251 1207 1164 1121 1078 1035
06
1phase
Standard Static 1175 1135 1094 1054 1013 973 932 892 851 811 770
Medium Static 1466 1423 1380 1337 1294 1251 1207 1164 1121 1078 1035
High Static --- --- --- --- --- --- --- --- --- --- ---
3phase
Standard Static 1175 1135 1094 1054 1013 973 932 892 851 811 770
Medium Static 1466 1423 1380 1337 1294 1251 1207 1164 1121 1078 1035
High Static 1687 1649 1610 1572 1533 1495 1457 1418 1380 1341 1303
07
3phase
Standard Static 1457 1419 1380 1342 1303 1265 1227 1188 1150 1111 1073
Medium Static 1518 1484 1449 1415 1380 1346 1311 1277 1242 1208 1173
High Static 1788 1757 1725 1694 1662 1631 1600 1568 1537 1505 1474
08
3phase
Standard Static 747 721 695 670 644 618 592 566 541 515 489
Medium Static 949 927 906 884 863 841 819 798 776 755 733
High Static 1102 1083 1063 1044 1025 1006 986 967 948 928 909
09
3phase
Standard Static 733 712 690 669 647 626 604 583 561 540 518
Medium Static 936 911 887 862 838 813 788 764 739 715 690
High Static 1084 1059 1035 1010 986 961 936 912 887 863 838
12
3phase
Standard Static 838 813 789 764 739 715 690 665 640 616 591
Medium Static 1084 1059 1035 1010 986 961 936 912 887 863 838
High Static 1240 1218 1196 1175 1153 1131 1109 1087 1066 1044 1022
14
3phase
Standard Static 838 813 789 764 739 715 690 665 640 616 591
Medium Static 1084 1059 1035 1010 986 961 936 912 887 863 838
High Static 1240 1218 1196 1175 1153 1131 1109 1087 1066 1044 1022
16
3phase
Standard Static 643 619 596 572 548 525 501 477 456 430 406
Medium Static 936 900 864 828 792 756 719 683 647 611 575
High Static 888 872 857 841 826 810 794 779 763 748 732
NOTE: Do not adjust pulley further than 5 turns open.
--- F a c t o r y s e t t i n g s
580J

69
ELECTRICAL INFORMATION
Table 59 – 580J*04A 1--Stage Cooling 3 TONS
V --- P h --- H z
VOLTAGE
RANGE
COMP (ea) OFM (ea) IFM
RLA LRA WATTS FLA TYPE EFF at Full Load FLA
MIN MAX
2 0 8 --- 1 --- 6 0 187 253 16.6 79 325 1.5 Std Static 70% 4.9
Med Static 70% 4.9
2 3 0 --- 1 --- 6 0 187 253 16.6 79 325 1.5 Std Static 70% 4.9
Med Static 70% 4.9
2 0 8 --- 3 --- 6 0 187 253 10.4 73 325 1.5
Std Static 70% 4.9
Med Static 70% 4.9
High Static 80% 5.2
2 3 0 --- 3 --- 6 0 187 253 10.4 73 325 1.5
Std Static 70% 4.9
Med Static 70% 4.9
High Static 80% 5.2
4 6 0 --- 3 --- 6 0 414 506 5.8 38 325 0.8
Std Static 70% 2.1
Med Static 70% 2.1
High Static 80% 2.6
5 7 5 --- 3 --- 6 0 518 633 3.8 37 325 0.6
Std Static 71% 1.9
Med Static 71% 1.9
High Static 80% 2.0
Table 60 – 580J*05A 1--Stage Cooling 4 TONS
V --- P h --- H z
VOLTAGE
RANGE
COMP (ea) OFM (ea) IFM
RLA LRA WATTS FLA TYPE EFF at Full Load FLA
MIN MAX
2 0 8 --- 1 --- 6 0 187 253 21.8 117 325 1.5 Std Static 70% 4.9
Med Static 78% 7.0
2 3 0 --- 1 --- 6 0 187 253 21.8 117 325 1.5 Std Static 70% 4.9
Med Static 78% 7.0
2 0 8 --- 3 --- 6 0 187 253 13.7 83 325 1.5
Std Static 70% 4.9
Med Static 70% 4.9
High Static 80% 5.2
2 3 0 --- 3 --- 6 0 187 253 13.7 83 325 1.5
Std Static 70% 4.9
Med Static 70% 4.9
High Static 80% 5.2
4 6 0 --- 3 --- 6 0 414 506 6.2 41 325 0.8
Std Static 70% 2.1
Med Static 70% 2.1
High Static 80% 2.6
5 7 5 --- 3 --- 6 0 518 633 4.8 37 325 0.6
Std Static 71% 1.9
Med Static 71% 2.1
High Static 80% 2.0
Table 61 – 580J*06A 1--Stage Cooling 5 TONS
V --- P h --- H z
VOLTAGE
RANGE
COMP (ea) OFM (ea) IFM
RLA LRA WATTS FLA TYPE EFF at Full Load FLA
MIN MAX
2 0 8 --- 1 --- 6 0 187 253 26.2 134 325 1.5 Std Static 70% 4.9
Med Static 78% 7.0
2 3 0 --- 1 --- 6 0 187 253 26.2 134 325 1.5 Std Static 70% 4.9
Med Static 78% 7.0
2 0 8 --- 3 --- 6 0 187 253 15.6 110 325 1.5
Std Static 70% 4.9
Med Static 80% 5.2
High Static 81% 7.5
2 3 0 --- 3 --- 6 0 187 253 15.6 110 325 1.5
Std Static 70% 4.9
Med Static 80% 5.2
High Static 81% 7.5
4 6 0 --- 3 --- 6 0 414 506 7.7 52 325 0.8
Std Static 70% 2.1
Med Static 80% 2.6
High Static 81% 3.4
5 7 5 --- 3 --- 6 0 518 633 5.8 39 325 0.6
Std Static 71% 1.9
Med Static 81% 2.0
High Static 81% 2.8
580J

70
ELECTRICAL INFORMATION (cont.)
Table 62 – 580J*07A 1--Stage Cooling 6 TONS
V --- P h --- H z
VOLTAGE
RANGE
COMP (ea) OFM (ea) IFM
RLA LRA WATTS FLA TYPE EFF at Full Load FLA
MIN MAX
2 0 8 --- 3 --- 6 0 187 253 19.0 123 325 1.5
Std Static 80% 5.2
Med Static 81% 7.5
High Static 81% 7.5
2 3 0 --- 3 --- 6 0 187 253 19.0 123 325 1.5
Std Static 80% 5.2
Med Static 81% 7.5
High Static 81% 7.5
4 6 0 --- 3 --- 6 0 414 506 9.7 62 325 0.8
Std Static 80% 2.6
Med Static 81% 3.4
High Static 81% 4.4
5 7 5 --- 3 --- 6 0 518 633 7.4 50 325 0.6
Std Static 80% 2.0
Med Static 81% 2.8
High Static 81% 2.8
Table 63 – 580J*08A 1--Stage Cooling 7.5 TONS
V --- P h --- H z
VOLTAGE
RANGE
COMP (ea) OFM (ea) IFM
RLA LRA WATTS FLA TYPE EFF at Full Load FLA
MIN MAX
2 0 8 --- 3 --- 6 0 187 253 25.0 164 325 1.5
Std Static 80% 5.2
Med Static 81% 7.5
High Static 81% 15.0
2 3 0 --- 3 --- 6 0 187 253 25.0 164 325 1.5
Std Static 80% 5.2
Med Static 81% 7.5
High Static 81% 15.0
4 6 0 --- 3 --- 6 0 414 506 12.2 100 325 0.8
Std Static 80% 2.6
Med Static 81% 3.4
High Static 81% 7.4
5 7 5 --- 3 --- 6 0 518 633 9.0 78 325 0.6
Std Static 80% 2.4
Med Static 81% 2.8
High Static 81% 5.6
Table 64 – 580J*08D 2--Stage Cooling 7.5 TONS
V --- P h --- H z
VOLTAGE
RANGE
COMP (Cir 1) COMP (Cir 2) OFM (ea) IFM
RLA LRA RLA LRA WATTS FLA TYPE EFF at
Full Load FLA
MIN MAX
2 0 8 --- 3 --- 6 0 187 253 13.6 83 13.6 83 325 1.5
STD 80% 5.2
MED 81% 7.5
HIGH 81% 15.0
2 3 0 --- 3 --- 6 0 187 253 13.6 83 13.6 83 325 1.5
STD 80% 5.2
MED 81% 7.5
HIGH 81% 15.0
4 6 0 --- 3 --- 6 0 414 506 6.1 41 6.1 41 325 0.8
STD 80% 2.6
MED 81% 3.4
HIGH 81% 7.4
5 7 5 --- 3 --- 6 0 518 633 4.2 33 4.2 33 325 0.6
STD 80% 2.4
MED 81% 2.8
HIGH 81% 5.6
580J

71
ELECTRICAL INFORMATION (cont.)
Table 65 – 580J*09A 1--Stage Cooling 8.5 TONS
V --- P h --- H z
VOLTAGE
RANGE
COMP (ea) OFM (ea) IFM
RLA LRA WATTS FLA TYPE EFF at Full Load FLA
MIN MAX
2 0 8 --- 3 --- 6 0 187 253 29.5 195 325 1.5
Std Static 80% 5.2
Med Static 80% 5.2
High Static 80% 10.0
2 3 0 --- 3 --- 6 0 187 253 29.5 195 325 1.5
Std Static 80% 5.2
Med Static 80% 5.2
High Static 80% 10.0
4 6 0 --- 3 --- 6 0 414 506 14.7 95 325 0.8
Std Static 80% 2.6
Med Static 80% 2.6
High Static 80% 4.4
5 7 5 --- 3 --- 6 0 518 633 12.2 80 325 0.6
Std Static 80% 2.4
Med Static 80% 2.0
High Static 81% 2.8
Table 66 – 580J*09D 2--Stage Cooling 8.5 TONS
V --- P h --- H z
VOLTAGE
RANGE
COMP (Cir 1) COMP (Cir 2) OFM (ea) IFM
RLA LRA RLA LRA WATTS FLA TYPE EFF at
Full Load FLA
MIN MAX
2 0 8 --- 3 --- 6 0 187 253 14.5 98 13.7 83 325 1.5
STD 80% 5.2
MED 80% 5.2
HIGH 80% 10.0
2 3 0 --- 3 --- 6 0 187 253 14.5 98 13.7 83 325 1.5
STD 80% 5.2
MED 80% 5.2
HIGH 80% 10.0
4 6 0 --- 3 --- 6 0 414 506 6.3 55 6.2 41 325 0.8
STD 80% 2.6
MED 80% 2.6
HIGH 80% 4.4
5 7 5 --- 3 --- 6 0 518 633 6.0 41 4.8 33 325 0.6
STD 80% 2.4
MED 80% 2.0
HIGH 81% 2.8
Table 67 – 580J*12A 1--Stage Cooling 10 TONS
V --- P h --- H z
VOLTAGE
RANGE
COMP (ea) OFM (ea) IFM
RLA LRA WATTS FLA TYPE EFF at Full
Load FLA
MIN MAX
2 0 8 --- 3 --- 6 0 187 253 30.1 225 325 1.5
Std Static 80% 5.2
Med Static 81% 10.0
High Static 81% 15.0
2 3 0 --- 3 --- 6 0 187 253 30.1 225 325 1.5
Std Static 80% 5.2
Med Static 81% 10.0
High Static 81% 15.0
4 6 0 --- 3 --- 6 0 414 506 16.7 114 325 0.8
Std Static 80% 2.6
Med Static 81% 4.4
High Static 81% 7.4
5 7 5 --- 3 --- 6 0 518 633 12.2 80 325 0.6
Std Static 80% 2.0
Med Static 81% 2.8
High Static 81% 5.6
580J

72
ELECTRICAL INFORMATION (cont.)
Table 68 – 580J*12D 2--Stage Cooling 10 TONS
V --- P h --- H z
VOLTAGE
RANGE
COMP (Cir 1) COMP (Cir 2) OFM (ea) IFM
RLA LRA RLA LRA WATTS FLA TYPE EFF at
Full Load FLA
MIN MAX
2 0 8 --- 3 --- 6 0 187 253 15.6 110 15.9 110 325 1.5
STD 80% 5.2
MED 81% 10.0
HIGH 81% 15.0
2 3 0 --- 3 --- 6 0 187 253 15.6 110 15.9 110 325 1.5
STD 80% 5.2
MED 81% 10.0
HIGH 81% 15.0
4 6 0 --- 3 --- 6 0 414 506 7.7 52 7.7 52 325 0.8
STD 80% 2.6
MED 81% 4.4
HIGH 81% 7.4
5 7 5 --- 3 --- 6 0 518 633 5.8 39 5.7 39 325 0.6
STD 80% 2.0
MED 81% 2.8
HIGH 81% 5.6
Table 69 – 580J*14D 2--Stage Cooling 12.5 TONS
V --- P h --- H z
VOLTAGE
RANGE
COMP (Cir 1) COMP (Cir 2) OFM (ea) IFM
RLA LRA RLA LRA WATTS FLA TYPE EFF at
Full Load FLA
MIN MAX
2 0 8 --- 3 --- 6 0 187 253 19.0 123 22.4 149 1288 6.2
STD 81% 7.5
MED 81% 10.0
HIGH 81% 15.0
2 3 0 --- 3 --- 6 0 187 253 19.0 123 22.4 149 1288 6.2
STD 81% 7.5
MED 81% 10.0
HIGH 81% 15.0
4 6 0 --- 3 --- 6 0 414 506 9.7 62 10.6 75 1288 3.1
STD 81% 3.4
MED 81% 4.4
HIGH 81% 7.4
5 7 5 --- 3 --- 6 0 518 633 7.4 50 7.7 54 1288 2.5
STD 81% 2.8
MED 81% 2.8
HIGH 81% 5.6
Table 70 – 580J*16D 2--Stage Cooling 15 TONS
V --- P h --- H z
VOLTAGE
RANGE
COMP (Cir 1) COMP (Cir 2) OFM (ea) IFM
RLA LRA RLA LRA WATTS FLA TYPE EFF at Full
Load FLA
MIN MAX
208-3-60 187 253 25.0 164 25.0 164 1288 1.5
STD 81% 7.5
MED 81% 10.0
HIGH 81% 17.0
230-3-60 187 253 25.0 164 25.0 164 1288 1.5
STD 81% 7.5
MED 81% 10.0
HIGH 81% 15.0
460-3-60 414 506 12.2 100 12.8 100 1288 0.8
STD 81% 3.4
MED 81% 4.4
HIGH 81% 7.6
575-3-60 518 633 9.8 78 9.6 78 1288 0.6
STD 81% 2.8
MED 81% 2.8
HIGH 81% 6.1
580J

73
Table 71 – MCA/MOCP DETERMINATION NO C.O. OR UNPWRD C.O.
UNIT
NOM.
V --- P h --- H z
IFM
TYPE
COMBUSTION
FAN MOTOR
FLA
POWER
EXHAUST
FLA
NO C.O. or UNPWRD C.O.
NO P.E. w/ P.E. (pwrd fr/ unit)
MCA MOCP DISC. SIZE MCA MOCP DISC. SIZE
FLA LRA FLA LRA
580J*04A
208/230--- 1--- 60 STD 0.48 1.9 27.2 40.0 26 95 29.1 45.0 29 97
MED 27.2 40.0 26 95 29.1 45.0 29 97
208/230--- 3--- 60
STD
0.48 1.9
19.4 25.0 19 89 21.3 30.0 22 91
MED 19.4 25.0 19 89 21.3 30.0 22 91
HIGH 19.7 30.0 20 107 21.6 30.0 22 109
4 6 0 --- 3 --- 6 0
STD
0.25 1.0
10.2 15.0 10 46 11.2 15.0 11 47
MED 10.2 15.0 10 46 11.2 15.0 11 47
HIGH 10.7 15.0 11 55 11.7 15.0 12 56
5 7 5 --- 3 --- 6 0
STD
0.24 1.9
7.3 15.0 744 9.2 15.0 946
MED 7.3 15.0 744 9.2 15.0 946
HIGH 7.4 15.0 750 9.3 15.0 10 52
580J*05A
208/230--- 1--- 60 STD 0.48 1.9 33.7 50.0 32 133 35.6 50.0 35 135
MED 33.7 50.0 32 133 35.6 50.0 35 135
208/230--- 3--- 60
STD
0.48 1.9
23.5 30.0 23 99 25.4 30.0 25 101
MED 23.5 30.0 23 99 25.4 30.0 25 101
HIGH 23.8 30.0 23 117 25.7 30.0 25 119
4 6 0 --- 3 --- 6 0
STD
0.25 1.0
10.7 15.0 10 49 11.7 15.0 12 50
MED 10.7 15.0 10 49 11.7 15.0 12 50
HIGH 11.2 15.0 11 58 12.2 15.0 12 59
5 7 5 --- 3 --- 6 0
STD
0.24 1.9
8.5 15.0 844 10.4 15.0 11 46
MED 8.5 15.0 844 10.4 15.0 11 46
HIGH 8.6 15.0 950 10.5 15.0 11 52
580J*06A
208/230--- 1--- 60 STD 0.48 1.9 39.2 60.0 37 150 41.1 60.0 40 152
MED 41.3 60.0 40 175 43.2 60.0 42 177
208/230--- 3--- 60
STD
0.48 1.9
25.9 30.0 25 126 27.8 40.0 27 128
MED 26.2 40.0 26 144 28.1 40.0 28 146
HIGH 28.5 40.0 29 170 30.4 45.0 30 172
4 6 0 --- 3 --- 6 0
STD
0.25 1.0
12.5 20.0 12 60 13.5 20.0 13 61
MED 13.0 20.0 13 69 14.0 20.0 14 70
HIGH 13.8 20.0 14 82 14.8 20.0 15 83
5 7 5 --- 3 --- 6 0
STD
0.24 1.9
9.8 15.0 10 46 11.7 15.0 12 48
MED 9.9 15.0 10 52 11.8 15.0 13 54
HIGH 10.7 15.0 11 63 12.6 15.0 13 65
580J*07A
208/230--- 3--- 60
STD
0.48 1.9
30.5 45 30 157 32.4 50 32 159
MED 32.8 50 32 183 34.7 50 34 185
HIGH 32.8 50 32 183 34.7 50 34 185
4 6 0 --- 3 --- 6 0
STD
0.25 1.0
15.5 25 15 79 16.5 25 16 80
MED 16.3 25 16 92 17.3 25 17 93
HIGH 17.3 25 17 101 18.3 25 18 102
5 7 5 --- 3 --- 6 0
STD
0.24 1.9
11.9 15 12 63 13.8 20 14 65
MED 12.7 20 12 74 14.6 20 15 76
HIGH 12.7 20 12 74 14.6 20 15 76
580J*08A
208/230--- 3--- 60
STD
0.48 3.8
39.5 60 38 191 43.3 60 43 195
MED 41.8 60 41 228 45.6 60 45 232
HIGH 49.3 60 49 254 53.1 60 54 258
4 6 0 --- 3 --- 6 0
STD
0.25 1.8
19.5 30 19 113 21.3 30 21 115
MED 20.3 30 20 132 22.1 30 22 134
HIGH 24.3 30 24 145 26.1 30 26 147
5 7 5 --- 3 --- 6 0
STD
0.24 3.8
14.9 20 14 89 18.7 25 19 93
MED 15.3 20 15 104 19.1 25 19 108
HIGH 18.1 25 18 118 21.9 30 23 122
580J

74
TABLE 67 (cont.) MCA/MOCP DETERMINATION NO C.O. OR UNPWRD C.O.
UNIT
NOM.
V--Ph--Hz IFM TYPE
COMBUSTION
FAN MOTOR
FLA
POWER
EXHAUST
FLA
NO C.O. or UNPWRD C.O.
NO P.E. w/ P.E. (pwrd fr/ unit)
MCA MOCP DISC. SIZE MCA MOCP DISC. SIZE
FLA LRA FLA LRA
580J*08D
208/230--- 3---60
STD
0.48 3.8
38.8 50 41 193 42.6 50 45 197
MED 41.1 50 43 230 44.9 50 48 234
HIGH 49.0 60 52 256 52.8 60 56 260
4 6 0 --- 3 --- 6 0
STD
0.25 1.8
17.9 20 19 95 19.7 25 21 97
MED 18.7 25 20 114 20.5 25 22 116
HIGH 23.1 30 24 127 24.9 30 26 129
5 7 5 --- 3 --- 6 0
STD
0.24 3.8
13.1 15 14 77 16.9 20 18 81
MED 13.5 15 14 92 17.3 20 19 96
HIGH 16.6 20 17 106 20.4 25 22 110
580J*09A
208/230--- 3---60
STD
0.48 3.8
45.1 60 43 222 48.9 60 48 226
MED 45.1 60 43 233 48.9 60 48 237
HIGH 49.9 60 49 276 53.7 80 53 280
4 6 0 --- 3 --- 6 0
STD
0.25 1.8
22.6 30 22 108 24.4 30 24 110
MED 22.6 30 22 114 24.4 30 24 116
HIGH 24.4 30 24 136 26.2 30 26 138
5 7 5 --- 3 --- 6 0
STD
0.24 3.8
18.9 30 18 91 22.7 30 23 95
MED 18.5 30 18 95 22.3 30 22 99
HIGH 19.3 30 19 106 23.1 30 23 110
580J*09D
208/230--- 3---60
STD
0.48 3.8
40.0 50 42 208 43.8 50 46 212
MED 40.0 50 42 219 43.8 50 46 223
HIGH 44.8 50 47 262 48.6 60 52 266
4 6 0 --- 3 --- 6 0
STD
0.25 1.8
18.3 20 19 109 20.1 25 21 111
MED 18.3 20 19 115 20.1 25 21 117
HIGH 20.1 25 21 137 21.9 25 23 139
5 7 5 --- 3 --- 6 0
STD
0.24 3.8
15.9 20 17 85 19.7 25 21 89
MED 15.5 20 16 89 19.3 25 20 93
HIGH 16.3 20 17 100 20.1 25 21 104
580J*12A
208/230--- 3---60
STD
0.48 3.8
45.8 60 44 263 49.6 60 48 267
MED 50.6 60 50 306 54.4 80 54 310
HIGH 55.6 80 55 315 59.4 80 60 319
4 6 0 --- 3 --- 6 0
STD
0.25 1.8
25.1 30 24 133 26.9 40 26 135
MED 26.9 40 26 155 28.7 45 28 157
HIGH 29.9 45 30 159 31.7 45 32 161
5 7 5 --- 3 --- 6 0
STD
0.24 3.8
18.5 30 18 95 22.3 30 22 99
MED 19.3 30 19 106 23.1 30 23 110
HIGH 22.1 30 22 120 25.9 30 26 124
580J*12D
208/230--- 3---60
STD
0.48 3.8
43.7 50 46 258 47.5 60 50 262
MED 48.5 60 51 301 52.3 60 56 305
HIGH 53.5 60 57 310 57.3 70 61 314
4 6 0 --- 3 --- 6 0
STD
0.25 1.8
21.5 25 23 123 23.3 30 25 125
MED 23.3 30 25 145 25.1 30 27 147
HIGH 26.3 30 28 149 28.1 35 30 151
5 7 5 --- 3 --- 6 0
STD
0.24 3.8
16.2 20 17 93 20.0 25 21 97
MED 17.0 20 18 104 20.8 25 22 108
HIGH 19.8 25 21 118 23.6 30 25 122
580J*14D
208/230--- 3---60
STD
0.48 3.8
60.7 80 63 360 64.5 80 68 364
MED 63.2 80 66 377 67.0 80 71 381
HIGH 68.2 80 72 386 72.0 80 76 390
4 6 0 --- 3 --- 6 0
STD
0.25 1.8
29.5 40 31 181 31.3 40 33 183
MED 30.5 40 32 190 32.3 40 34 192
HIGH 33.5 40 35 194 35.3 45 37 196
5 7 5 --- 3 --- 6 0
STD
0.24 3.8
22.3 30 23 142 26.1 30 28 146
MED 22.3 30 23 142 26.1 30 28 146
HIGH 25.1 30 27 156 28.9 35 31 100
580J*16D
208/230--- 3---60
STD
0.48 3.8
68.3 80 71 396 72.1 80 76 400
MED 70.8 80 74 413 74.6 90 79 417
HIGH 77.8/75.8 100/100 82/80 424 81.6/79.6 100/100 87/84 428
High High Eff. 0.48 3.8 81.2 100 86 432 85.0 100 91 436
4 6 0 --- 3 --- 6 0
STD
0.25 1.8
34.0 45 35 234 35.8 45 37 236
MED 35.0 45 37 243 36.8 45 39 245
HIGH 38.2 50 40 248 40.0 50 42 250
High High Eff. 0.25 1.8 40.8 50 43 252 42.6 50 45 254
5 7 5 --- 3 --- 6 0
STD
0.24 3.8
26.5 30 28 184 30.3 40 32 188
MED 26.5 30 28 184 30.3 40 32 188
HIGH 29.8 35 31 187 33.6 40 36 191
High High Eff. 0.24 3.8 32.7 40 35 196 36.5 45 39 200
580J

75
Table 72 – MCA/MOCP DETERMINATION W/ PWRD C.O.
UNIT
NOM.
V --- P h --- H z
IFM
TYPE
COMBUSTION
FAN MOTOR
FLA
POWER
EXHAUST
FLA
w/ PWRD C.O.
NO P.E. w/ P.E. (pwrd fr/ unit)
MCA MOCP DISC. SIZE MCA MOCP DISC. SIZE
FLA LRA FLA LRA
580J*04A
208/230--- 1--- 60 STD 0.48 1.9 32.0 45.0 32 100 33.9 50.0 34 102
MED 32.0 45.0 32 100 33.9 50.0 34 102
208/230--- 3--- 60
STD
0.48 1.9
24.2 30.0 25 94 26.1 30.0 27 96
MED 24.2 30.0 25 94 26.1 30.0 27 96
HIGH 24.5 30.0 25 112 26.4 30.0 27 114
4 6 0 --- 3 --- 6 0
STD
0.25 1.0
12.4 15.0 13 48 13.4 15.0 14 49
MED 12.4 15.0 13 48 13.4 15.0 14 49
HIGH 12.9 15.0 13 57 13.9 20.0 14 58
5 7 5 --- 3 --- 6 0
STD
0.24 1.9
9.0 15.0 946 10.9 15.0 11 48
MED 9.0 15.0 946 10.9 15.0 11 48
HIGH 9.1 15.0 952 11.0 15.0 12 54
580J*05A
208/230--- 1--- 60 STD 0.48 1.9 38.5 60.0 38 138 40.4 60.0 40 140
MED 38.5 60.0 38 138 40.4 60.0 40 140
208/230--- 3--- 60
STD
0.48 1.9
28.3 40.0 29 104 30.2 40.0 31 106
MED 28.3 40.0 29 104 30.2 40.0 31 106
HIGH 28.6 40.0 29 122 30.5 40.0 31 124
4 6 0 --- 3 --- 6 0
STD
0.25 1.0
12.9 15.0 13 51 13.9 20.0 14 52
MED 12.9 15.0 13 51 13.9 20.0 14 52
HIGH 13.4 15.0 14 60 14.4 20.0 15 61
5 7 5 --- 3 --- 6 0
STD
0.24 1.9
10.2 15.0 10 46 12.1 15.0 13 48
MED 10.2 15.0 10 46 12.1 15.0 13 48
HIGH 10.3 15.0 10 52 12.2 15.0 13 54
580J*06A
208/230--- 1--- 60 STD 0.48 1.9 44.0 60.0 43 155 45.9 60.0 45 157
MED 46.1 60.0 45 180 48.0 60.0 48 182
208/230--- 3--- 60
STD
0.48 1.9
30.7 45.0 31 131 32.6 45.0 33 133
MED 31.0 45.0 31 149 32.9 45.0 33 151
HIGH 33.3 45.0 34 175 35.2 50.0 36 177
4 6 0 --- 3 --- 6 0
STD
0.25 1.0
14.7 20.0 15 62 15.7 20.0 16 63
MED 15.2 20.0 15 71 16.2 20.0 16 72
HIGH 16.0 20.0 16 84 17.0 20.0 17 85
5 7 5 --- 3 --- 6 0
STD
0.24 1.9
11.5 15.0 12 48 13.4 15.0 14 50
MED 11.6 15.0 12 54 13.5 15.0 14 56
HIGH 12.4 15.0 13 65 14.3 20.0 15 67
580J*07A
208/230--- 3--- 60
STD
0.48 1.9
35.3 50.0 35 162 37.2 50.0 37 164
MED 37.6 50.0 38 188 39.5 50.0 40 190
HIGH 37.6 50.0 38 188 39.5 50.0 40 190
4 6 0 --- 3 --- 6 0
STD
0.25 1.0
17.7 25.0 18 81 18.7 25.0 19 82
MED 18.5 25.0 19 94 19.5 25.0 20 95
HIGH 19.5 25.0 20 103 20.5 30.0 21 104
5 7 5 --- 3 --- 6 0
STD
0.24 1.9
13.6 20.0 13 65 15.5 20.0 16 67
MED 14.4 20.0 14 76 16.3 20.0 17 78
HIGH 14.4 20.0 14 76 16.3 20.0 17 78
580J*08A
208/230--- 3--- 60
STD
0.48 3.8
44.3 60 44 196 48.1 60 48 200
MED 46.6 60 46 233 50.4 60 51 237
HIGH 54.1 70 55 259 57.9 80 59 263
4 6 0 --- 3 --- 6 0
STD
0.25 1.8
21.7 30 21 115 23.5 30 23 117
MED 22.5 30 22 134 24.3 30 24 136
HIGH 26.5 30 27 147 28.3 40 29 149
5 7 5 --- 3 --- 6 0
STD
0.24 3.8
16.6 25 16 91 20.4 25 21 95
MED 17.0 25 17 106 20.8 25 21 110
HIGH 19.8 25 20 120 23.6 30 24 124
580J

76
TABLE 68 (cont.) MCA/MOCP DETERMINATION W/ PWRD C.O.
UNIT
NOM.
V --- P h --- H z IFM TYPE
COMBUSTION
FAN MOTOR
FLA
POWER
EXHAUST
FLA
w/ PWRD C.O.
NO P.E. w/ P.E. (pwrd fr/ unit)
MCA MOCP DISC. SIZE MCA MOCP DISC. SIZE
FLA LRA FLA LRA
580J*08D
208/230--- 3--- 60
STD
0.48 3.8
43.6 50 46 198 47.4 60 51 202
MED 45.9 50 49 235 49.7 60 53 239
HIGH 53.8 60 58 261 57.6 70 62 265
4 6 0 --- 3 --- 6 0
STD
0.25 1.8
20.1 25 21 97 21.9 25 23 99
MED 20.9 25 22 116 22.7 25 24 118
HIGH 25.3 30 27 129 27.1 30 29 131
5 7 5 --- 3 --- 6 0
STD
0.24 3.8
14.8 20 16 79 18.6 20 20 83
MED 15.2 20 16 94 19.0 25 21 98
HIGH 18.3 20 19 108 22.1 25 24 112
580J*09A
208/230--- 3--- 60
STD
0.48 3.8
49.9 60 49 227 53.7 80 53 231
MED 49.9 60 49 238 53.7 80 53 242
HIGH 54.7 80 54 281 58.5 80 59 285
4 6 0 --- 3 --- 6 0
STD
0.25 1.8
24.8 30 24 110 26.6 40 26 112
MED 24.8 30 24 116 26.6 40 26 118
HIGH 26.6 40 26 138 28.4 40 28 140
5 7 5 --- 3 --- 6 0
STD
0.24 3.8
20.6 30 20 93 24.4 30 24 97
MED 20.2 30 20 97 24.0 30 24 101
HIGH 21.0 30 21 108 24.8 30 25 112
580J*09D
208/230--- 3--- 60
STD
0.48 3.8
44.8 50 47 213 48.6 60 52 217
MED 44.8 50 47 224 48.6 60 52 228
HIGH 49.6 60 53 267 53.4 60 57 271
4 6 0 --- 3 --- 6 0
STD
0.25 1.8
20.5 25 22 111 22.3 25 24 113
MED 20.5 25 22 117 22.3 25 24 119
HIGH 22.3 25 24 139 24.1 30 26 141
5 7 5 --- 3 --- 6 0
STD
0.24 3.8
17.6 20 19 87 21.4 25 23 91
MED 17.2 20 18 91 21.0 25 22 95
HIGH 18.0 20 19 102 21.8 25 23 106
580J*12A
208/230--- 3--- 60
STD
0.48 3.8
50.6 60 50 268 54.4 80 54 272
MED 55.4 80 55 311 59.2 80 59 315
HIGH 60.4 80 61 320 64.2 80 65 324
4 6 0 --- 3 --- 6 0
STD
0.25 1.8
27.3 40 27 135 29.1 45 29 137
MED 29.1 45 29 157 30.9 45 31 159
HIGH 32.1 45 32 161 33.9 50 34 163
5 7 5 --- 3 --- 6 0
STD
0.24 3.8
20.2 30 20 97 24.0 30 24 101
MED 21.0 30 21 108 24.8 30 25 112
HIGH 23.8 30 24 122 27.6 35 28 126
580J*12D
208/230--- 3--- 60
STD
0.48 3.8
48.5 60 51 263 52.3 60 56 267
MED 53.3 60 57 306 57.1 70 61 310
HIGH 58.3 70 62 315 62.1 70 67 319
4 6 0 --- 3 --- 6 0
STD
0.25 1.8
23.7 30 25 125 25.5 30 27 127
MED 25.5 30 27 147 27.3 30 29 149
HIGH 28.5 35 31 151 30.3 35 33 153
5 7 5 --- 3 --- 6 0
STD
0.24 3.8
17.9 20 19 95 21.7 25 23 99
MED 18.7 25 20 106 22.5 25 24 110
HIGH 21.5 25 23 120 25.3 30 27 124
580J*14D
208/230--- 3--- 60
STD 0.48 3.8 65.5 80 69 365 69.3 80 73 369
MED 68.0 80 72 382 71.8 80 76 386
High Model not available due to high amperage draw.
4 6 0 --- 3 --- 6 0
STD
0.25 1.8
31.7 40 33 183 33.5 40 35 185
MED 32.7 40 35 192 34.5 45 37 194
HIGH 35.7 45 38 196 37.5 45 40 198
5 7 5 --- 3 --- 6 0
STD
0.24 3.8
24.0 30 25 144 27.8 30 30 148
MED 24.0 30 25 144 27.8 30 30 148
HIGH 26.8 30 29 158 30.6 35 33 162
580J*16D
208/230--- 3--- 60
STD
0.48 3.8
73.1 80 77 401 76.9 100 81 405
MED 75.6 100 80 418 79.4 100 84 422
High 82.6/80.6 100/100 88/85 429 86.4/84.4 100/100 92/90 433
High---High Eff. 0.48 3.8 86.0 100 92 437 89.8 100 96 441
4 6 0 --- 3 --- 6 0
STD
0.25 1.8
36.2 45 38 236 38.0 50 40 238
MED 37.2 50 39 245 39.0 50 41 247
HIGH 40.4 50 43 250 42.2 50 45 252
High---High Eff. 0.25 1.8 43.0 50 46 254 44.8 50 48 256
5 7 5 --- 3 --- 6 0
STD
0.24 3.8
28.2 35 30 186 32.0 40 34 190
MED 28.2 35 30 186 32.0 40 34 190
HIGH 31.5 40 33 189 35.3 45 38 193
High---High Eff. 0.24 3.8 34.4 40 37 198 38.2 45 41 202
580J

77
TYPICAL WIRING DIAGRAMS
C08518B
Fig. 24 -- 1--Stage Cooling Typical Power Diagram
580J

78
C08577B
Fig. 25 -- 2--Stage Cooling Typical Power Diagram
580J

79
C08524
Fig. 26 -- 1--Stage Typical Wiring Diagram
580J

80
C08578
Fig. 27 -- 2--Stage Typical Wiring Diagram
580J

81
SEQUENCE OF OPERATION
General
The sequence below describes the sequence of operation
for an electromechanical unit with and without a factory
installed EconoMi$er IV (called “economizer” in this
sequence). For information regarding a direct digital
controller, see the start--up, operations, and
troubleshooting manual for the applicable controller.
Electromechanical units with no economizer
Cooling —
When the thermostat calls for cooling, terminals G and Y1
are energized. As a result, the indoor fan contactor (IFC)
and the compressor contactor (C1) are energized, causing
the indoor fan motor (IFM), compressor #1, and outdoor
fan to start. If the unit has 2 stages of cooling, the
thermostat will additionally energize Y2. The Y2 signal
will energize compressor contactor #2 (C2), causing
compressor #2 to start. Regardless of the number of
stages, the outdoor fan motor runs continuously while unit
is cooling.
Heating
NOTE: Legacy Line (580J) units have either 1 or 2
stages of gas heat.
When the thermostat calls for heating, power is sent to W
on the Integrated Gas Controller (IGC) board. An LED
(light--emitting diode) on the IGC board turns on and
remains on during normal operation. A check is made to
ensure that the rollout switch and limit switch are closed.
If the check was successful, the induced--draft motor is
energized, and when its speed is satisfactory, as proven by
the “hall effect” sensor, the ignition activation period
begins. The burners will ignite within 5 seconds. If the
burners do not light, there is a 22--second delay before
another 5--second attempt. This sequence is repeated for
15 minutes or until the burners light. If, after the 15
minutes, the burners still have not lit, heating is locked
out. To reset the control, break 24--v power to the
thermostat.
When ignition occurs, the IGC board will continue to
monitor the condition of the rollout switch, the limit
switches, the “hall effect” sensor, as well as the flame
sensor. 45 seconds after ignition occurs, assuming the unit
is controlled through a room thermostat set for fan auto,
the indoor fan motor will energize (and the outdoor air
dampers will open to their minimum position). If, for
some reason, the over--temperature limit opens prior to the
start of the indoor fan blower, the unit will shorten the
45--second delay to 5 seconds less than the time from
initiation of heat to when the limit tripped. Gas will not be
interrupted to the burners and heating will continue. Once
the fan--on delay has been modified, it will not change
back to 45 seconds until power is reset to the control.
On units with 2 stages of heat, when additional heat is
required, W2 closes and initiates power to the second
stage of the main gas valve. When the thermostat is
satisfied, W1 and W2 open and the gas valve closes,
interrupting the flow of gas to the main burners.
If the call for W1 lasted less than 1 minute, the heating
cycle will not terminate until 1 minute after W1 became
active. If the unit is controlled through a room thermostat
set for fan auto, the indoor fan motor will continue to
operate for an additional 45 seconds then stop. If the
over--temperature limit opens after the indoor motor is
stopped, but within 10 minutes of W1 becoming inactive,
on the next cycle the time will be extended by 15 seconds.
The maximum delay is 3 minutes. Once modified, the fan
off delay will not change back to 45 seconds unless power
is reset to the control. A LED indicator is provided on the
IGC to monitor operation.
Electromechanical units with an economizer
Cooling —
When free cooling is not available, the compressors will
be controlled by the zone thermostat. When free cooling is
available, the outdoor air damper is modulated by the
EconoMi$er IV control to provide a 50_F(10_C) to 55_F
(13_C) mixed air temperature into the zone. As the mixed
air temperature fluctuates above 55_F(13_C)or below
50_F(10_C) dampers will be modulated (open or close)
to bring the mixed air temperature back within control. If
mechanical cooling is utilized with free cooling, the
outdoor air damper will maintain its current position at the
time the compressor is started. If the increase in cooling
capacity causes the mixed air temperature to drop below
45_F(7_C), then the outdoor air damper position will be
decreased to the minimum position. If the mixed air
temperature continues to fall, the outdoor air damper will
close. Control returns to normal once the mixed air
temperature rises above 48_F(9_C). The power exhaust
fans will be energized and de--energized, if installed, as
the outdoor air damper opens and closes.
If field installed accessory CO2sensors are connected to
the EconoMi$er IV control, a demand controlled
ventilation strategy will begin to operate. As the CO2
level in the zone increases above the CO2setpoint, the
minimum position of the damper will be increased
proportionally. As the CO2level decreases because of the
increase in fresh air, the outdoor air damper will be
proportionally closed. For EconoMi$er IV operation, there
must be a thermostat call for the fan (G). If the unit is
occupied and the fan is on, the damper will operate at
minimum position. Otherwise, the damper will be closed.
When the EconoMi$er IV control is in the occupied mode
and a call for cooling exists (Y1 on the thermostat), the
control will first check for indoor fan operation. If the fan
is not on, then cooling will not be activated. If the fan is
on, then the control will open the EconoMi$er IV damper
to the minimum position.
580J

82
SEQUENCE OF OPERATION (cont.)
On the initial power to the EconoMi$er IV control, it will
take the damper up to 2 1/2 minutes before it begins to
position itself. After the initial power--up, further changes
in damper position can take up to 30 seconds to initiate.
Damper movement from full closed to full open (or vice
versa) will take between 1 1/2 and 2 1/2 minutes. If free
cooling can be used as determined from the appropriate
changeover command (switch, dry bulb, enthalpy curve,
differential dry bulb, or differential enthalpy), then the
control will modulate the dampers open to maintain the
mixed air temperature setpoint at 50_F(10_C) to 55_F
(13_C). If there is a further demand for cooling (cooling
second stage -- Y2 is energized), then the control will
bring on compressor stage 1 to maintain the mixed air
temperature setpoint. The EconoMi$er IV damper will be
open at maximum position. EconoMi$er IV operation is
limited to a single compressor.
Heating
The sequence of operation for the heating is the same as
an electromechanical unit with no economizer. The only
difference is how the economizer acts. The economizer
will stay at the Economizer Minimum Position while the
evaporator fan is operating. The outdoor air damper is
closed when the indoor fan is not operating.
Optional Perfect Humidity System
Units with the factory equipped Perfect Humidity option
are capable of providing multiple modes of improved
dehumidification as a variation of the normal cooling
cycle. The Perfect Humidity option includes additional
valves in the liquid line and discharge line of each
refrigerant circuit, a small reheat condenser coil
downstream of the evaporator, and Motormaster
variable--speed control of some or all outdoor fans.
Operation of the revised refrigerant circuit for each mode
is described below.
NOTE: x = refrigerant circuit A, B, or C.
Normal Cooling
Refrigerant flows from the outdoor condenser through the
normally open Cooling Valve (CV.x) to the expansion
device. Reheat1 Valve (RH1.x) and Reheat2 Valve
(RH2.x) are closed.
Reheat1 (Subcooling Mode) -- 580J04--16
This mode increases latent cooling and decreases sensible
cooling compared to normal cooling. Refrigerant flows
from the outdoor condenser, through the normally open
Reheat1 Valve (RH1.x), and through the reheat condenser
coil to the expansion device. Cooling Valve (CV.x) and
Reheat2 Valve (RH2.x) are closed.
Reheat2 (Hot Gas Reheat Mode) -- 580J04--16
This mode provides maximum latent cooling with little to
no sensible capacity. This mode can operate to provide
dehumidification when there is no cooling demand. Like
Reheat1 mode, refrigerant flows from the outdoor
condenser, through the normally open Reheat1 Valve
(RH1.x), and through the reheat condenser coil to the
expansion device. The Cooling Valve (CV.x) is closed.
Reheat2 Valve (RH2.x) is open which provides some
compressor discharge gas to the reheat condenser to
further increase the reheat of the evaporator airstream.
COMP
COND COIL PERFECT HUMIDITY
COIL
EVAP COIL
INDOOR ENTERING
AIR
OUTDOOR AIR
METERING
DEVICE
CLOSED VALVE
OPEN VALVE
RH1.x
RH2.x
CV.x
a48-8172
C09455
Normal Cooling Mode -- Perfect Humidity System (580J04--16)
580J

83
COMP
COND COIL PERFECT HUMIDITY
COIL
EVAP COIL
INDOOR ENTERING
AIR
OUTDOOR AIR
METERING
DEVICE
CLOSED VALVE
OPEN VALVE
RH1.x
RH2.x
CV.x
a48-8173
C09456
Subcooling Mode (Reheat 1) -- Perfect Humidity System (580J04--16)
COMP
COND COIL PERFECT HUMIDITY
COIL
EVAP COIL
INDOOR ENTERING
AIR
OUTDOOR AIR
METERING
DEVICE
CLOSED VALVE
OPEN VALVE
RH1.x
RH2.x
CV.x
a48-8174
C09457
Hot Gas Reheat Mode (Reheat2) -- Perfect Humidity System (580J04--16)
580J

84
GUIDE SPECIFICATIONS -- 580J**04--16
Gas Heat/Electric Cooling Packaged Rooftop
HVAC Guide Specifications
SizeRange: 3to15NominalTons
Section Description
23 06 80 Schedules for Decentralized HVAC Equipment
23 06 80.13 Decentralized Unitary HVAC Equipment Schedule
23 06 80.13.A. Rooftop unit schedule
1. Schedule is per the project specification requirements.
23 07 16 HVAC Equipment Insulation
23 07 16.13 Decentralized, Rooftop Units:
23 07 16.13.A. Evaporator fan compartment:
1. Interior cabinet surfaces shall be insulated with a minimum 1/2--in. thick, minimum 1 1/2 lb density, flexible
fiberglass insulation bonded with a phenolic binder, neoprene coated on the air side.
2. Insulation and adhesive shall meet NFPA 90A requirements for flame spread and smoke generation.
23 07 16.13.B. Gas heat compartment:
1. Aluminum foil--faced fiberglass insulation shall be used.
2. Insulation and adhesive shall meet NFPA 90A requirements for flame spread and smoke generation.
23 09 13 Instrumentation and Control Devices for HVAC
23 09 13.23 Sensors and Transmitters
23 09 13.23.A. Thermostats
1. Thermostat must
a. energize both “W” and “G” when calling for heat.
b. have capability to energize 2 different stages of cooling, and 2 different stages of heating.
c. include capability for occupancy scheduling.
23 09 23 Direct--digital Control system for HVAC
23 09 23.13 Decentralized, Rooftop Units:
23 09 23.13.B. RTU Open -- Open protocol, direct digital controller:
1. Shall be ASHRAE 62--2001 compliant.
2. Shall accept 18--30VAC, 50--60Hz, and consumer 15VA or less power.
3. Shall have an operating temperature range from --40_F(--40_C) to 130_F(54_C), 10% -- 90% RH (non--condens-
ing).
4. Shall include built--in protocol for BACNET (MS/TP and PTP modes), Modbus (RTU and ASCII), Johnson N2
and LonWorks. LonWorks Echelon processor required for all Lon applications shall be contained in separate com-
munication board.
5. Shall allow access of up to 62 network variables (SNVT). Shall be compatible with all open controllers
6. Baud rate Controller shall be selectable using a dipswitch.
7. Shall have an LED display independently showing the status of serial communication, running, errors, power, all
digital outputs, and all analog inputs.
8. Shall accept the following inputs: space temperature, setpoint adjustment, outdoor air temperature, indoor air qu-
ality, outdoor air quality, compressor lock--out, fire shutdown, enthalpy switch, and fan status/filter status/ humid-
ity/ remote occupancy.
9. Shall provide the following outputs: economizer, fan, cooling stage 1, cooling stage 2, heat stage 1, heat stage 2,
heat stage 3/ exhaust/ reversing valve.
10. Shall have built--in surge protection circuitry through solid state polyswitches. Polyswitches shall be used on in-
coming power and network connections. Polyswitches will return to normal when the “trip” condition clears.
11. Shall have a battery back--up capable of a minimum of 10,000 hours of data and time clock retention during power
outages.
12. Shall have built--in support for Bryant technician tool.
580J

85
13. Shall include an EIA--485 protocol communication port, an access port for connection of either a computer or a
Bryant technician tool, an EIA--485 port for network communication to intelligent space sensors and displays, and
a port to connect an optional LonWorks communications card.
14. Software upgrades will be accomplished by either local or remote download. No software upgrades through chip
replacements are allowed.
23 09 33 Electric and Electronic Control System for HVAC
23 09 33.13 Decentralized, Rooftop Units:
23 09 33.13.A. General:
1. Shall be complete with self--contained low--voltage control circuit protected by a resettable circuit breaker on the
24--v transformer side. Transformer shall have 75VA capability.
2. Shall utilize color--coded wiring.
3. Shall include a central control terminal board to conveniently and safely provide connection points for vital con-
trol functions such as: smoke detectors, phase monitor, gas controller, economizer, thermostat, DDC control op-
tions, and low and high pressure switches.
4. The heat exchanger shall be controlled by an integrated gas controller (IGC) microprocessor. See heat exchanger
section of this specification.
5. Unit shall include a minimum of one 8--pin screw terminal connection board for connection of control wiring.
23 09 33.23.B. Safeties:
1. Compressor over--temperature, over--current. High internal pressure differential.
2. Low pressure switch.
a. Units with 2 compressors shall have different sized connectors for the circuit 1 and circuit 2 low and high pres-
sure switches. They shall physically prevent the cross--wiring of the safety switches between circuits 1 and 2.
b. Low pressure switch shall use different color wire than the high pressure switch. The purpose is to assist the
installer and service technician to correctly wire and or troubleshoot the rooftop unit.
3. High pressure switch.
a. Units with 2 compressors shall have different sized connectors for the circuit 1 and circuit 2 low and high pres-
sure switches. They shall physically prevent the cross--wiring of the safety switches between circuits 1 and 2.
b. High pressure switch shall use different color wire than the low pressure switch. The purpose is to assist the
installer and service technician to correctly wire and or troubleshoot the rooftop unit.
4. Automatic reset, motor thermal overload protector.
5. Heating section shall be provided with the following minimum protections:
a. High temperature limit switches.
b. Induced draft motor speed sensor.
c. Flame rollout switch.
d. Flame proving controls.
23 09 93 Sequence of Operations for HVAC Controls
23 09 93.13 Decentralized, Rooftop Units:
23 09 93.13 INSERT SEQUENCE OF OPERATION
23 40 13 Panel Air Filters
23 40 13.13 Decentralized, Rooftop Units:
23 40 13.13.A. Standard filter section
1. Shall consist of factory installed, low velocity, disposable 2--in. thick fiberglass filters of commercially available
sizes.
2. Unit shall use only one filter size. Multiple sizes are not acceptable.
3. Filters shall be accessible through an access panel with “no--tool” removal as described in the unit cabinet section
of this specification (23 81 19.13.H).
23 81 19 Self--Contained Air Conditioners
23 81 19.13 Small--Capacity Self--Contained Air Conditioners (580J**04--16)
23 81 19.13.A. General
1. Outdoor, rooftop mounted, electrically controlled, heating and cooling unit utilizing a fully hermetic scroll com-
pressor(s) for cooling duty and gas combustion for heating duty.
2. Factory assembled, single--piece heating and cooling rooftop unit. Contained within the unit enclosure shall be all
factory wiring, piping, controls, and special features required prior to field start--up.
3. Unit shall use environmentally sound, Puron refrigerant.
580J

86
4. Unit shall be installed in accordance with the manufacturer’s instructions.
5. Unit must be selected and installed in compliance with local, state, and federal codes.
23 81 19.13.B. Quality Assurance
1. Unit meets ASHRAE 90.1 minimum efficiency requirements.
2. Unit shall be rated in accordance with AHRI Standards 210/240 and 340/360.
3. Unit shall be designed to conform to ASHRAE 15, 2001.
4. Unit shall be UL--tested and certified in accordance with ANSI Z21.47 Standards and UL--listed and certified
under Canadian standards as a total package for safety requirements.
5. Insulation and adhesive shall meet NFPA 90A requirements for flame spread and smoke generation.
6. Unit casing shall be capable of withstanding 500--hour salt spray exposure per ASTM B117 (scribed specimen).
7. Unit casing shall be capable of withstanding Federal Test Method Standard No. 141 (Method 6061) 5000--hour salt
spray.
8. Unit shall be designed in accordance with ISO 9001, and shall be manufactured in a facility registered by ISO
9001.
9. Roof curb shall be designed to conform to NRCA Standards.
10. Unit shall be subjected to a completely automated run test on the assembly line. The data for each unit will be
stored at the factory, and must be available upon request.
11. Unit shall be designed in accordance with UL Standard 1995, including tested to withstand rain.
12. Unit shall be constructed to prevent intrusion of snow and tested to prevent snow intrusion into the control box up
to 40 mph.
13. Unit shake tested to assurance level 1, ASTM D4169 to ensure shipping reliability.
14. High Efficient Motors listed shall meet section 313 of the Energy Independence and Security Act of 2007 (EISA
2007)
23 81 19.13.C. Delivery, Storage, and Handling
1. Unit shall be stored and handled per manufacturer’s recommendations.
2. Lifted by crane requires either shipping top panel or spreader bars.
3. Unit shall only be stored or positioned in the upright position.
23 81 19.13.E. Project Conditions
1. As specified in the contract.
23 81 19.13.F. Operating Characteristics
1. Unit shall be capable of starting and running at 115_F(46_C) ambient outdoor temperature, meeting maximum
load criteria of AHRI Standard 210/240 or 340/360 at ±10% voltage.
2. Compressor with standard controls shall be capable of operation down to 40_F(4_C), ambient outdoor temperat-
ures. Accessory winter start kit is necessary if mechanically cooling at ambient temperatures down to 25_F
(--4_C).
3. Unit shall discharge supply air vertically or horizontally as shown on contract drawings.
4. Unit shall be factory configured for vertical supply & return configurations.
5. Unit shall be field convertible from vertical to horizontal airflow on all models. No special kit required on 04--14
models. Supply duct kit required for 16 size model only
6. Unit shall be capable of mixed operation: vertical supply with horizontal return or horizontal supply with vertical
return.
23 81 19.13.G. Electrical Requirements
1. Main power supply voltage, phase, and frequency must match those required by the manufacturer.
23 81 19.13.H. Unit Cabinet
1. Unit cabinet shall be constructed of galvanized steel, and shall be bonderized and coated with a prepainted baked
enamel finish on all externally exposed surfaces.
2. Unit cabinet exterior paint shall be: film thickness, (dry) 0.003 inches minimum, gloss (per ASTM D523, 60_F/
16_C): 60, Hardness: H--2H Pencil hardness.
3. Evaporator fan compartment interior cabinet insulation shall conform to AHRI Standards 210/240 or 340/360
minimum exterior sweat criteria. Interior surfaces shall be insulated with a minimum 1/2--in. thick, 1 lb density,
flexible fiberglass insulation, neoprene coated on the air side. Aluminum foil--faced fiberglass insulation shall be
used in the gas heat compartment.
4. Base of unit shall have a minimum of four locations for thru--the--base gas and electrical connections (factory
installed or field installed), standard.
580J

87
5. Base Rail
a. Unit shall have base rails on a minimum of 2 sides.
b. Holes shall be provided in the base rails for rigging shackles to facilitate maneuvering and overhead rigging.
c. Holes shall be provided in the base rail for moving the rooftop by fork truck.
d. Base rail shall be a minimum of 16 gauge thickness.
6. Condensate pan and connections:
a. Shall be a sloped condensate drain pan made of a non--corrosive material.
b. Shall comply with ASHRAE Standard 62.
c. Shall use a 3/4” --14 NPT drain connection, possible either through the bottom or side of the drain pan. Con-
nection shall be made per manufacturer’s recommendations.
7. Top panel:
a. Shall be a single piece top panel on 04 thru 12 sizes, two piece on 14 and 16 sizes.
8. Gas Connections:
a. All gas piping connecting to unit gas valve shall enter the unit cabinet at a single location on side of unit (ho-
rizontal plane).
b. Thru--the--base capability
(1.) Standard unit shall have a thru--the--base gas--line location using a raised, embossed portion of the unit
basepan.
(2.) Optional, factory approved, water--tight connection method must be used for thru--the--base gas connec-
tions.
(3.) No basepan penetration, other than those authorized by the manufacturer, is permitted.
9. Electrical Connections
a. All unit power wiring shall enter unit cabinet at a single, factory prepared, knockout location.
b. Thru--the--base capability.
(1.) Standard unit shall have a thru--the--base electrical location(s) using a raised, embossed portion of the unit
basepan.
(2.) Optional, factory approved, water--tight connection method must be used for thru--the--base electrical con-
nections.
(3.) No basepan penetration, other than those authorized by the manufacturer, is permitted.
10. Component access panels (standard)
a. Cabinet panels shall be easily removable for servicing.
b. Unit shall have one factory installed, tool--less, removable, filter access panel.
c. Panels covering control box, indoor fan, indoor fan motor, gas components (where applicable), and com-
pressors shall have molded composite handles.
d. Handles shall be UV modified, composite. They shall be permanently attached, and recessed into the panel.
e. Screws on the vertical portion of all removable access panel shall engage into heat resistant, molded compos-
ite collars.
f. Collars shall be removable and easily replaceable using manufacturer recommended parts.
23 81 19.13.I. Gas Heat
1. General
a. Heat exchanger shall be an induced draft design. Positive pressure heat exchanger designs shall not be al-
lowed.
b. Shall incorporate a direct--spark ignition system and redundant main gas valve.
c. Gas supply pressure at the inlet to the rooftop unit gas valve must match that required by the manufacturer.
2. The heat exchanger shall be controlled by an integrated gas controller (IGC) microprocessor.
a. IGC board shall notify users of fault using an LED (light--emitting diode).
b. The LED shall be visible without removing the control box access panel.
c. IGC board shall contain algorithms that modify evaporator fan operation to prevent future cycling on high
temperature limit switch.
d. Unit shall be equipped with anti--cycle protection with one short cycle on unit flame rollout switch or 4 con-
tinuous short cycles on the high temperature limit switch. Fault indication shall be made using an LED.
580J

88
3. Standard Heat Exchanger construction
a. Heat exchanger shall be of the tubular--section type constructed of a minimum of 20--gauge steel coated with a
nominal 1.2 mil aluminum--silicone alloy for corrosion resistance.
b. Burners shall be of the in--shot type constructed of aluminum--coated steel.
c. Burners shall incorporate orifices for rated heat output up to 2000 ft (610m) elevation. Additional accessory
kits may be required for applications above 2000 ft (610m) elevation, depending on local gas supply condi-
tions.
d. Each heat exchanger tube shall contain multiple dimples for increased heating effectiveness.
4. Optional Stainless Steel Heat Exchanger construction
a. Use energy saving, direct--spark ignition system.
b. Use a redundant main gas valve.
c. Burners shall be of the in--shot type constructed of aluminum--coated steel.
d. All gas piping shall enter the unit cabinet at a single location on side of unit (horizontal plane).
e. The optional stainless steel heat exchanger shall be of the tubular--section type, constructed of a minimum of
20--gauge type 409 stainless steel.
f. Type 409 stainless steel shall be used in heat exchanger tubes and vestibule plate.
g. Complete stainless steel heat exchanger allows for greater application flexibility.
5. Optional Low NOxHeat Exchanger construction
a. Low NOxreduction shall be provided to reduce nitrous oxide emissions to meet California’s Air Quality Man-
agement District (SCAQMD) low--NOxemissions requirement of 40 nanograms per joule or less.
b. Primary tubes and vestibule plates on low NOxunits shall be 409 stainless steel. Other components shall be
aluminized steel.
6. Induced draft combustion motor and blower
a. Shall be a direct--drive, single inlet, forward--curved centrifugal type.
b. Shall be made from steel with a corrosion--resistant finish.
c. Shall have permanently lubricated sealed bearings.
d. Shall have inherent thermal overload protection.
e. Shall have an automatic reset feature.
23 81 19.13.J. Coils
1. Standard Aluminum Fin -- Copper Tube Coils:
a. Standard evaporator and condenser coils shall have aluminum lanced plate fins mechanically bonded to seam-
less internally grooved copper tubes with all joints brazed.
b. Evaporator coils shall be leak tested to 150 psig, pressure tested to 450 psig, and qualified to UL 1995 burst
test at 1775 psig.
c. Condenser coils shall be leak tested to 150 psig, pressure tested to 650 psig, and qualified to UL 1995 burst
test at 1980 psig.
2. Optional Pre--coated aluminum--fin condenser coils:
a. Shall have a durable epoxy--phenolic coating to provide protection in mildly corrosive coastal environments.
b. Coating shall be applied to the aluminum fin stock prior to the fin stamping process to create an inert barrier
between the aluminum fin and copper tube.
c. Epoxy--phenolic barrier shall minimize galvanic action between dissimilar metals.
3. Optional Copper--fin evaporator and condenser coils:
a. Shall be constructed of copper fins mechanically bonded to copper tubes and copper tube sheets.
b. Galvanized steel tube sheets shall not be acceptable.
c. A polymer strip shall prevent coil assembly from contacting the sheet metal coil pan to minimize potential for
galvanic corrosion between coil and pan.
4. Optional E--coated aluminum--fin evaporator and condenser coils:
a. Shall have a flexible epoxy polymer coating uniformly applied to all coil surface areas without material
bridging between fins.
b. Coating process shall ensure complete coil encapsulation of tubes, fins and headers.
c. Color shall be high gloss black with gloss per ASTM D523--89.
d. Uniform dry film thickness from 0.8 to 1.2 mil on all surface areas including fin edges.
e. Superior hardness characteristics of 2H per ASTM D3363--92A and cross--hatch adhesion of 4B--5B per ASTM
D3359--93.
f. Impact resistance shall be up to 160 in.--lb (ASTM D2794--93).
580J

89
g. Humidity and water immersion resistance shall be up to minimum 1000 and 250 hours respectively (ASTM
D2247--92 and ASTM D870--92).
h. Corrosion durability shall be confirmed through testing to be no less than 1000 hours salt spray per ASTM
B117--90.
5. Standard All Aluminum Novation Coils:
a. Standard condenser coils shall have all aluminum NOVATION Heat Exchanger Technology design consisting
of aluminum multi port flat tube design and aluminum fin. Coils shall be a furnace brazed design and contain
epoxy lined shrink wrap on all aluminum to copper connections.
b. Condenser coils shall be leak tested to 150 psig, pressure tested to 650 psig, and qualified to UL 1995 burst
test at 1980 psig.
6. Optional E--coated aluminum--fin, aluminum tube condenser coils:
a. Shall have a flexible epoxy polymer coating uniformly applied to all coil external surface areas without mater-
ial bridging between fins or louvers.
b. Coating process shall ensure complete coil encapsulation, including all exposed fin edges.
c. E--coat thickness of 0.8 to 1.2 mil with top coat having a uniform dry film thickness from 1.0 to 2.0 mil on all
external coil surface areas, including fin edges, shall be provided.
d. Shall have superior hardness characteristics of 2H per ASTM D3363--00 and cross--hatch adhesion of 4B--5B
per ASTM D3359--02.
e. Shall have superior impact resistance with no cracking, chipping or peeling per NSF/ANSI 51--2002 Method
10.2.
23 81 19.13.K. Refrigerant Components
1. Refrigerant circuit shall include the following control, safety, and maintenance features:
a. Fixed orifice metering system shall prevent mal--distribution of two--phase refrigerant by including multiple
fixed orifice devices in each refrigeration circuit. Each orifice is to be optimized to the coil circuit it serves.
b. Refrigerant filter drier -- Solid core design.
c. Service gauge connections on suction and discharge lines.
d. Pressure gauge access through a specially designed access port in the top panel of the unit.
2. There shall be gauge line access port in the skin of the rooftop, covered by a black, removable plug.
a. The plug shall be easy to remove and replace.
b. When the plug is removed, the gauge access port shall enable maintenance personnel to route their pressure
gauge lines.
c. This gauge access port shall facilitate correct and accurate condenser pressure readings by enabling the read-
ing with the compressor access panel on.
d. The plug shall be made of a leak proof, UV--resistant, composite material.
3. Compressors
a. Unit shall use fully hermetic, scroll compressor for each independent refrigeration circuit.
b. Compressor motors shall be cooled by refrigerant gas passing through motor windings.
c. Compressors shall be internally protected from high discharge temperature conditions.
d. Compressors shall be protected from an over--temperature and over--amperage conditions by an internal, motor
overload device.
e. Compressor shall be factory mounted on rubber grommets.
f. Compressor motors shall have internal line break thermal, current overload and high pressure differential pro-
tection.
g. Crankcase heaters shall not be required for normal operating range, unless required by compressor manufac-
turer due to refrigerant charge limits.
23 81 19.13.L. Filter Section
1. Filters access is specified in the unit cabinet section of this specification.
2. Filters shall be held in place by a pivoting filter tray, facilitating easy removal and installation.
3. Shall consist of factory installed, low velocity, throw--away 2--in. thick fiberglass filters.
4. Filters shall be standard, commercially available sizes.
5. Only one size filter per unit is allowed.
23 81 19.13.M. Evaporator Fan and Motor
1. Evaporator fan motor:
a. Shall have permanently lubricated bearings.
b. Shall have inherent automatic--reset thermal overload protection or circuit breaker.
580J

90
c. Shall have a maximum continuous bhp rating for continuous duty operation; no safety factors above that rating
shall be required.
2. Belt--driven Evaporator Fan:
a. Belt drive shall include an adjustable pitch motor pulley.
b. Shall use sealed, permanently lubricated ball--bearing type.
c. Blower fan shall be double--inlet type with forward--curved blades.
d. Shall be constructed from steel with a corrosion resistant finish and dynamically balanced.
23 81 19.13.N. Condenser Fans and Motors
1. Condenser fan motors:
a. Shall be a totally enclosed motor.
b. Shall use permanently lubricated bearings.
c. Shall have inherent thermal overload protection with an automatic reset feature.
d. Shall use a shaft--down design on 04 to 12 models and shaft--up on 14 size with rain shield.
2. Condenser Fans:
a. Shall be a direct--driven propeller type fan.
b. Shall have aluminum blades riveted to corrosion--resistant steel spiders and shall be dynamically balanced.
23 81 19.13.O. Special Features Options and Accessories
1. Integrated Economizers:
a. Integrated, gear--driven parallel modulating blade design type capable of simultaneous economizer and com-
pressor operation.
b. Independent modules for vertical or horizontal return configurations shall be available. Vertical return modules
shall be available as a factory installed option.
c. Damper blades shall be galvanized steel with composite gears. Plastic or composite blades on intake or return
shall not be acceptable.
d. Shall include all hardware and controls to provide free cooling with outdoor air when temperature and/or hu-
midity are below setpoints.
e. Shall be equipped with gear driven dampers for both the outdoor ventilation air and the return air for positive
air stream control.
f. Shall be equipped with low--leakage dampers, not to exceed 2% leakage at 1 in. wg pressure differential.
g. Shall be capable of introducing up to 100% outdoor air.
h. Shall be equipped with a barometric relief damper capable of relieving up to 100% return air.
i. Shall be designed to close damper(s) during loss--of--power situations with spring return built into motor.
j. Dry bulb outdoor air temperature sensor shall be provided as standard. Outdoor air sensor setpoint shall be
adjustable and shall range from 40 to 100_F/4to38_C. Additional sensor options shall be available as ac-
cessories.
k. The economizer controller shall also provide control of an accessory power exhaust unit function. Factory set
at 100%, with a range of 0% to 100%.
l. The economizer shall maintain minimum airflow into the building during occupied period and provide design
ventilation rate for full occupancy. A remote potentiometer may be used to override the damper setpoint.
m. Dampers shall be completely closed when the unit is in the unoccupied mode.
n. Economizer controller shall accept a 2--10 Vdc CO2sensor input for IAQ/DCV control. In this mode, dampers
shall modulate the outdoor air damper to provide ventilation based on the sensor input.
o. Compressor lockout sensor shall open at 35_F(2_C) and close closes at 50_F(10_C).
p. Actuator shall be direct coupled to economizer gear. No linkage arms or control rods shall be acceptable.
q. Economizer controller shall provide indications when in free cooling mode, in the DCV mode, or the exhaust
fan contact is closed.
2. Two--Position Damper
a. Damper shall be a Two--Position Damper. Damper travel shall be from the full closed position to the field ad-
justable %--open setpoint.
b. Damper shall include adjustable damper travel from 25% to 100% (full open).
c. Damper shall include single or dual blade, gear driven dampers and actuator motor.
d. Actuator shall be direct coupled to damper gear. No linkage arms or control rods shall be acceptable.
e. Damper will admit up to 100% outdoor air for applicable rooftop units.
f. Damper shall close upon indoor (evaporator) fan shutoff and/or loss of power.
g. The damper actuator shall plug into the rooftop unit’s wiring harness plug. No hard wiring shall be required.
h. Outside air hood shall include aluminum water entrainment filter.
580J

91
3. Manual damper
a. Manual damper package shall consist of damper, air inlet screen, and rain hood which can be preset to admit
up to 25 or 50% outdoor air for year round ventilation.
4. Perfect Humidity System:
a. The Perfect Humidity System shall be factory installed in single stage 580J04--07 and two stage 580J08--14
models with RTPF (round tube plate tin) condenser coils, and shall provide greater dehumidification of the
occupied space by two modes of dehumidification operations in addition to its normal design cooling mode:
(1.) Subcooling mode further sub cools the hot liquid refrigerant leaving the condenser coil when both temperat-
ure and humidity in the space are not satisfied.
(2.) Hot gas reheat mode shall mix a portion of the hot gas from the discharge of the compressor with the hot
liquid refrigerant leaving the condenser coil to create a two--phase heat transfer in the system, resulting in a
neutral leaving air temperature when only humidity in the space is not satisfied.
(3.) Includes head pressure controller.
5. Head Pressure Control Package
a. Controller shall control coil head pressure by condenser fan speed modulation or condenser fan cycling and
wind baffles.
b. Shall consist of solid--state control and condenser coil temperature sensor to maintain condensing temperature
between 90_F(32_C) and 110_F(43_C) at outdoor ambient temperatures down to --20_F(--29_C).
6. Propane Conversion Kit
a. Package shall contain all the necessary hardware and instructions to convert a standard natural gas unit for use
with liquefied propane, up to 2000 ft (610m) elevation.
b. Additional accessory kits may be required for applications above 2000 ft (610m) elevation.
7. Flue Shield
a. Flue shield shall provide protection from the hot sides of the gas flue hood.
8. Condenser Coil Hail Guard Assembly
a. Shall protect against damage from hail.
b. Shall be either hood style or louvered.
9. Unit--Mounted, Non--Fused Disconnect Switch (Available on units with MOCP’s of 80 amps or less):
a. Switch shall be factory installed, internally mounted.
b. National Electric Code (NEC) and UL approved non--fused switch shall provide unit power shutoff.
c. Shall be accessible from outside the unit.
d. Shall provide local shutdown and lockout capability.
10. Convenience Outlet:
a. Powered convenience outlet.
(1.) Outlet shall be powered from main line power to the rooftop unit.
(2.) Outlet shall be powered from line side or load side of disconnect by installing contractor, as required by
code. If outlet is powered from load side of disconnect, unit electrical ratings shall be UL certified and
rated for additional outlet amperage.
(3.) Outlet shall be factory installed and internally mounted with easily accessible 115--v female receptacle.
(4.) Outlet shall include 15 amp GFI receptacles with independent fuse protection.
(5.) Voltage required to operate convenience outlet shall be provided by a factory installed step--down trans-
former.
(6.) Outlet shall be accessible from outside the unit.
(7.) Outlet shall include a field installed “Wet in Use” cover.
b. Non--Powered convenience outlet.
(1.) Outlet shall be powered from a separate 115/120v power source.
(2.) A transformer shall not be included.
(3.) Outlet shall be factory installed and internally mounted with easily accessible 115--v female receptacle.
(4.) Outlet shall include 15 amp GFI receptacles with independent fuse protection.
(5.) Outlet shall be accessible from outside the unit.
(6.) Outlet shall include a field installed “Wet in Use” cover.
580J

92
c. Disconnect Switch Bracket
(1.) Provides a pre--engineered and sized mounting bracket for applications requiring a unit mounted fused
disconnect of greater than 100 amps. Bracket assures that no damage will occur to coils when mounting
with screws and other fasteners.
11. Flue Discharge Deflector:
a. Flue discharge deflector shall direct unit exhaust vertically instead of horizontally.
b. Deflector shall be defined as a “natural draft” device by the National Fuel and Gas (NFG) code.
12. Thru--the--Base Connectors:
a. Kits shall provide connectors to permit gas and electrical connections to be brought to the unit through the
unit basepan.
b. Minimum of four connection locations per unit.
13. Supply Duct Cover (16 size only):
a. Required when field converting the factory standard vertical duct supply to horizontal duct supply configura-
tion. One required per unit.
14. Propeller Power Exhaust:
a. Power exhaust shall be used in conjunction with an integrated economizer.
b. Independent modules for vertical or horizontal return configurations shall be available.
c. Horizontal power exhaust shall be mounted in return ductwork.
d. Power exhaust shall be controlled by economizer controller operation. Exhaust fans shall be energized when
dampers open past the 0--100% adjustable setpoint on the economizer control.
15. Roof Curbs (Vertical):
a. Full perimeter roof curb with exhaust capability providing separate air streams for energy recovery from the
exhaust air without supply air contamination.
b. Formed galvanized steel with wood nailer strip and shall be capable of supporting entire unit weight.
c. Permits installation and securing of ductwork to curb prior to mounting unit on the curb.
16. High Altitude Gas Conversion Kit:
a. Package shall contain all the necessary hardware and instructions to convert a standard natural gas unit to op-
erate from 2000--7000 ft (610 to 2134m) elevation with natural gas or from 0--7000 ft (90--2134m) elevation
with liquefied propane.
17. Outdoor Air Enthalpy Sensor:
a. The outdoor air enthalpy sensor shall be used to provide single enthalpy control. When used in conjunction
with a return air enthalpy sensor, the unit will provide differential enthalpy control. The sensor allows the unit
to determine if outside air is suitable for free cooling.
18. Return Air Enthalpy Sensor:
a. The return air enthalpy sensor shall be used in conjunction with an outdoor air enthalpy sensor to provide dif-
ferential enthalpy control.
19. Indoor Air Quality (CO2)Sensor:
a. Shall be able to provide demand ventilation indoor air quality (IAQ) control.
b. The IAQ sensor shall be available in duct mount, wall mount, or wall mount with LED display. The setpoint
shall have adjustment capability.
20. Smoke detectors (factory installed only):
a. Shall be a Four--Wire Controller and Detector.
b. Shall be environmental compensated with differential sensing for reliable, stable, and drift--free sensitivity.
c. Shall use magnet--activated test/reset sensor switches.
d. Shall have tool--less connection terminal access.
e. Shall have a recessed momentary switch for testing and resetting the detector.
f. Controller shall include:
(1.) One set of normally open alarm initiation contacts for connection to an initiating device circuit on a fire
alarm control panel.
(2.) Two Form--C auxiliary alarm relays for interface with rooftop unit or other equipment.
(3.) One Form--C supervision (trouble) relay to control the operation of the Trouble LED on a remote test/reset
station.
(4.) Capable of direct connection to two individual detector modules.
(5.) Can be wired to up to 14 other duct smoke detectors for multiple fan shutdown applications
580J

93
21. Winter start kit
a. Shall contain a bypass device around the low pressure switch.
b. Shall be required when mechanical cooling is required down to 25_F(--4_C).
c. Shall not be required to operate on an economizer when below an outdoor ambient of 40_F(4_C).
22. Time Guard
a. Shall prevent compressor short--cycling by providing a 5--minute delay (±2 minutes) before restarting a com-
pressor after shutdown for any reason.
b. One device shall be required per compressor.
580J

94
Manufacturer reserves the right to discontinue, or change at any time, specifications or designs without notice and without incurring obligations.
E2011 Bryant Heating & Cooling Systems D7310 W. Morris St. DIndianapolis, IN 46231 Printed in U.S.A. Edition Date: 01/11
Replaces: PDS580J---08
Catalog No. PDS580J---10
580J