Bryant Series E F 310Aav Users Manual II310A 45 14
310AAV to the manual 5826e13e-9a9c-468a-b36c-85569c5df161
2015-02-02
: Bryant Bryant-Series-E-F-310Aav-Users-Manual-411928 bryant-series-e-f-310aav-users-manual-411928 bryant pdf
Open the PDF directly: View PDF
.
Page Count: 52

Installation, Start--Up Operating and
Service and Maintenance Instructions
Series E/F
310AAV/JAV
SINGLE--STAGE DELUXE, INDUCED--COMBUSTION
4--WAY MULTIPOISE GAS FURNACE
SAFETY CONSIDERATIONS 2........................
INTRODUCTION 3..................................
CODES AND STANDARDS 4..........................
Safety 4.........................................
General Installation 4...............................
Combustion and Ventilation Air 4.....................
Duct Systems 5...................................
Acoustical Lining and Fibrous Glass Duct 5.............
Gas Piping and Gas Pipe Pressure Testing 5.............
Electrical Connections 5............................
Venting 5........................................
LOCATION 5.......................................
AIR FOR COMBUSTION AND VENTILATION 7.........
INSTALLATION 10..................................
Bottom Return Air Inlet 10..........................
Side Return Air Inlet 10.............................
Leveling Legs (If Desired) 11........................
Bottom Return Air Inlet 12..........................
Suspended Furnace Support 12.......................
Platform Furnace Support 12.........................
Roll--Out Protection 12.............................
Bottom Return Air Inlet 12..........................
Side Return Air Inlet 12.............................
General Requirements 13............................
Ductwork Acoustical Treatment 13....................
Supply Air Connections 13..........................
Return Air Connections 19..........................
115--V Wiring 21..................................
J--box Relocation 21...............................
Electrical Connection to J--Box 21.....................
Power Cord Installation in Furnace J--Box 22............
BX Cable Installation in Furnace J--Box 22..............
24--V Wiring 24...................................
Accessories 24....................................
General Venting Requirements 24.....................
Masonry Chimney Requirements 25...................
Appliance Application Requirements 27................
Sidewall Venting 27................................
START--UP, ADJUSTMENT, AND SAFETY CHECK 32.....
General 32.......................................
Start--Up Procedures 32.............................
Adjustments 37...................................
Check Safety Controls 37...........................
Checklist 38......................................
SERVICE AND MAINTENANCE PROCEDURES 43.......
Introduction 43...................................
Care and Maintenance 44...........................
Sequence of Operation 47...........................
Wiring Diagrams 48...............................
Troubleshooting 48................................
Accessory listing 51
................................
PARTS REPLACEMENT INFORMATION GUIDE 52.......
D
E
S
I
G
N
C
E
R
T
I
F
I
E
D
REGISTERED
ISO 9001:2000
Always Ask For
Use of the AHRI Certified TM Mark indicates a
manufacturer’s participation in the program. For
verification of certification for individual products,
go to www.ahridirectory.org.
NOTE: Read the entire instruction manual before starting the
installation.
Portions of the text and tables are reprinted from NFPA 54/ANSI
Z223.1--2009E, with permission of Nation Fire Protection
Association, Quincy, MA 02269 and American Gas Association,
Washington DC 20001. This reprinted material is not the
complete and official position of the NFPA or ANSI on the
referenced subject, which is represented only by the standard in
its entirely.

2
SAFETY CONSIDERATIONS
FIRE, EXPLOSION, ELECTRICAL SHOCK, AND
CARBON MONOXIDE POISONING HAZARD
Failure to follow this warning could result in personal
injury, death, or property damage.
Improper installation, adjustment, alteration, service,
maintenance, or use can cause carbon monoxide poisoning,
explosion, fire, electrical shock, or other conditions which
may cause personal injury or property damage. Consult a
qualified service agency, local gas supplier, or your
distributor or branch for information or assistance. The
qualified service agency must use only factory--authorized
and listed kits or accessories when modifying this product.
!WARNING
FURNACE RELIABILITY HAZARD
Failure to follow this caution may result in unit component
damage.
Application of this furnace should be indoors with special
attention given to vent sizing and material, gas input rate,
air temperature rise, unit leveling, and unit sizing.
CAUTION
!
CUT HAZARD
Failure to follow this caution may result in personal injury.
Sheet metal parts may have sharp edges or burrs. Use care
and wear appropriate protective clothing, safety glasses and
gloves when handling parts, and servicing furnaces.
CAUTION
!
Improper installation, adjustment, alteration, service,
maintenance, or use can cause explosion, fire, electrical shock, or
other conditions which may cause death, personal injury, or
property damage. Consult a qualified installer, service agency, or
your distributor or branch for information or assistance. The
qualified installer or agency must use factory--authorized kits or
accessories when modifying this product. Refer to the individual
instructions packaged with the kits or accessories when installing.
Follow all safety codes. Wear safety glasses, protective clothing,
and work gloves. Have a fire extinguisher available. Read these
instructions thoroughly and follow all warnings or cautions
include in literature and attached to the unit. Consult local
building codes, the current editions of the National Fuel Gas
Code (NFGC) NFPA 54/ANSI Z223.1 and the National
Electrical Code (NEC) NFPA 70.
Recognize safety information. This is the safety--alert symbol .
When you see this symbol on the unit and in instructions or
manuals, be alert to the potential for personal injury.
Understand the signal words DANGER,WARNING,and
CAUTION. These words are used with the safety--alert symbol.
DANGER identifies the most serious hazards which will result in
severe personal injury or death. WARNING signifies hazards
which could result in personal injury or death. CAUTION is
used to identify unsafe practices which may result in minor
personal injury or product and property damage. NOTE is used
to highlight suggestions which will result in enhanced
installation, reliability, or operation.
1. Use only with type of gas approved for this furnace. Refer
to the furnace rating plate.
2. Install this furnace only in a location and position as spe-
cified in the “Location” section of these instructions.
3. Provide adequate combustion and ventilation air to the
furnace space as specified in “Air for Combustion and
Ventilation” section.
4. Combustion products must be discharged outdoors. Con-
nect this furnace to an approved vent system only, as spe-
cified in the “Venting” section of these instructions.
5. Never test for gas leaks with an open flame. Use a com-
mercially available soap solution made specifically for the
detection of leaks to check all connections, as specified in
the “Gas Piping” section.
6. Always install furnace to operate within the furnace’s in-
tended temperature--rise range with a duct system which
has an external static pressure within the allowable range,
as specified in the “Start--Up, Adjustments, and Safety
Check” section. See furnace rating plate.
7. When a furnace is installed so that supply ducts carry air
circulated by the furnace to areas outside the space con-
taining the furnace, the return air shall also be handled by
duct(s) sealed to the furnace casing and terminating out-
side the space containing the furnace. See “Air Ducts” sec-
tion.
8. A gas--fired furnace for installation in a residential garage
must be installed as specified in the warning box in the
“Location” section.
9. The furnace may be used for construction heat provided
that the furnace installation and operation complies with
the first CAUTION in the LOCATION section of these in-
structions.
10. These Multipoise Gas--Fired Furnaces are CSA (formerly
A.G.A. and C.G.A.) design--certified for use with natural
and propane gases (see furnace rating plate) and for install-
ation in alcoves, attics, basements, closets, utility rooms,
crawlspaces, and garages. The furnace is factory--shipped
for use with natural gas. A CSA (A.G.A. and C.G.A.) lis-
ted accessory gas conversion kit is required to convert fur-
nace for use with propane gas.
11. See Fig. 1 for required clearances to combustible construc-
tion.
12. Maintain a 1--in. (25 mm) clearance from combustible ma-
terials to supply air ductwork for a distance of 36 in. (914
mm) horizontally from the furnace. See NFPA 90B or loc-
al code for further requirements.
13. These furnaces SHALL NOT be installed directly on car-
peting, tile, or any other combustible material other than
wood flooring. In downflow installations, factory access-
ory floor base MUST be used when installed on combust-
ible materials and wood flooring. Special base is not re-
quired when this furnace is installed on manufacturer’s
Coil Assembly Part No. CNPV, CNRV, CAR or CAP or
when Coil Box Part No. KCAKC is used. See Fig. 1 for
clearance to combustible construction information.
310AAV

3
A
A
B
[736.9]
[736.9]
29
29
Ø7/8
Ø7/8
[22.2]
[22.2]
ACCESSORY
ACCESSORY
5 15/16
5 15/16
[150.7]
[150.7]
28.39
28.39
[721.2]
[721.2]
Ø7/8
Ø7/8
[22.2]
[22.2]
ACCESSORY
ACCESSORY
14 7/8
14 7/8
[337.3]
[337.3]
(BOTH SIDES)
(BOTH SIDES)
Ø7/8
Ø7/8
[22.2]
[22.2]
ACCESSORY
ACCESSORY
Ø7/8
Ø7/8
[22.2]
[22.2]
ACCESSORY
ACCESSORY
Ø1 3/4
Ø1 3/4
[44.5]
[44.5]
GAS ENTRY
GAS ENTRY
Ø1/2
Ø1/2
[12.7]
[12.7]
THERMOSTAT WIRE ENTRY
THERMOSTAT WIRE ENTRY
22 1/16
22 1/16
[560]
[560]
SIDE INLET
SIDE INLET
(BOTH SIDES)
(BOTH SIDES)
11 7/16
11 7/16
[290.7]
[290.7]
9 11/16
9 11/16
[245.4]
[245.4]
[197.8]
[197.8]
7 13/16
7 13/16
Ø7/8
Ø7/8
[22.2]
[22.2]
J.BOX PROVISION
J.BOX PROVISION
Ø7/8
Ø7/8
[22.2]
[22.2]
JUNCTION BOX
JUNCTION BOX
LOCATION
LOCATION
Ø1 3/4
Ø1 3/4
[44.5]
[44.5]
GAS ENTRY
GAS ENTRY
1 15/16
1 15/16
[49.2]
[49.2]
1
[25.4]
[25.4]
1 1/4
1 1/4
[31.8]
[31.8]
29 9/16
29 9/16
[750.7]
[750.7]
1 15/16
1 15/16
[49.2]
[49.2]
5 5/8
5 5/8
[143.3]
[143.3]
5 7/16
5 7/16
[138.5]
[138.5]
6 13/16
6 13/16
[172.3]
[172.3]
Ø1/2
Ø1/2
[12.7]
[12.7]
THERMOSTAT WIRE ENTRY
THERMOSTAT WIRE ENTRY
19
19
[481.7]
[481.7]
OUTLET
OUTLET
D
21.6
21.6
[549.5]
[549.5]
BOTTOM INLET
BOTTOM INLET
C
33 1/4
33 1/4
[843.9]
[843.9]
9 9/16
9 9/16
[243.3]
[243.3]
3/4
3/4
[19.1]
[19.1]
5 7/8
5 7/8
[148.5]
[148.5]
3 7/16
3 7/16
[86.8]
[86.8]
9 7/8
9 7/8
[250.7]
[250.7]
27 3/4
27 3/4
[704.7]
[704.7]
2 5/16
2 5/16
[59]
[59]
FRONT OF CASING
FRONT OF CASING
TOP OF CASING
TOP OF CASING
4 13/16
4 13/16
[122.2]
[122.2]
27 3/4
27 3/4
[704.7]
[704.7]
5 7/8
5 7/8
[148.5]
[148.5]
8 5/8
8 5/8
[219]
[219]
5 1/2
5 1/2
[140.3]
[140.3]
8 7/16
8 7/16
[213.5]
[213.5]
FRONT OF CASING
FRONT OF CASING
TOP OF CASING
TOP OF CASING
6.1
6.1
[155.7]
[155.7]
2 1/16
2 1/16
[51.6]
[51.6]
5.1
5.1
[130.5]
[130.5]
1.7
1.7
[43.5]
[43.5]
Ø7/8
Ø7/8
[22.2]
[22.2]
ACCESSORY (2)
ACCESSORY (2)
AIR FLOW
AIR FLOW
AIR FLOW
AIR FLOW
BOTTOM RETURN
BOTTOM RETURN
WIDTH
WIDTH
AIR FLOW
AIR FLOW
KNOCK OUTS FOR
KNOCK OUTS FOR
VENTING(5
VENTING(5
PLACES)
PLACES)
A10290
NOTES:
1. Two additional 7/8 ---in. (22 mm) diameter holes are located in the top plate.
2. Minimum return---air openings at furnace, based on metal duct. If flex duct is used, see flex duct manufacturer’s recommendations for equivalent diameters.
(a.) For 800 CFM---16 ---in. (406 mm) round or 14 1/2 x 12 ---in. (368 x 305 mm) rectangle.
(b.) For 1200 CFM---20---in. (508 mm) round or 14 1/2 x 19 1/2 ---in. (368 x 495 mm) rectangle.
(c.) For 1600 CFM---22---in. (559 mm) round or 14 1/2 x 22 1/16 ---in. (368 x 560mm) rectangle.
(d.) For airflow requirements above 1800 CFM, see Air Delivery table in Product Data literature for specific use of single side inlets. The use of both side
inlets, a combination of 1 side and the bottom, or the bottom only will ensure adequate return air openings for airflow requirements above 1800 CFM.
Fig. 1 --- Dimensional Drawing
Table 1—Dimensions -- In. (mm)
FURNACE SIZE
A
CABINET
WIDTH
B
OUTLET
WIDTH
C
TOP & BOTTOM
FLUE COLLAR
LOCATION
D
BOTTOM
INLET WIDTH
VENT
CONNECTION
SIZE
SHIP WT
LB (KG)
045---08/024045 14---3/16 (360) 12---9/16 (319) 9---5/16 (237) 12---11/16 (322) 4 (102) 104 (47)
045---12/036045 14---3/16 (360) 12---9/16 (319) 9---5/16 (237) 12---11/16 (322) 4 (102) 107 (49)
070---08/024070 14---3/16 (360) 12---9/16 (319) 9---5/16 (237) 12---11/16 (322) 4 (102) 111 (50)
070---12/036070 14---3/16 (360) 12---9/16 (319) 9---5/16 (237) 12---11/16 (322) 4 (102) 115 (52)
070---16/048070 17---1/2 (445) 15---7/8 (403) 11---9/16 (294) 16 (406) 4 (102) 126 (57)
090---14/042090 17---1/2 (445) 15---7/8 (403) 11---9/16 (294) 16 (406) 4 (102) 127 (58)
090---16/048090 21 (533) 19---3/8 (492) 13---5/16 (338) 19---1/2 (495) 4 (102) 140 (64)
090---20/060090 21 (533) 19---3/8 (492) 13---5/16 (338) 19---1/2 (495) 4 (102) 146 (66)
110---12/036110 17---1/2 (445) 15---7/8 (403) 11---9/16 (294) 16 (406) 4 (102) 135 (61)
110---16/048110 21 (533) 19---3/8 (492) 13---5/16 (338) 19---1/2 (495) 4 (102) 146 (66)
110---22/066110 21 (533) 19---3/8 (492) 13---5/16 (338) 19---1/2 (495) 4 (102) 152 (69)
135---16/048135 21 (533) 19---3/8 (492) 13---5/16 (338) 19---1/2 (495) 4 (102)* 149 (68)
135---22/066135 24---1/2 (622) 22---7/8 (581) 15---1/16 (383) 23 (584) 4 (102)* 163 (74)
155---20/060155 24---1/2 (622) 22---7/8 (581) 15---1/16 (383) 23 (584) 4 (102)* 170 (77)
*135 and 155 size furnaces require a 5 or 6 ---in. (127 or 152 mm) vent. Use a vent adapter between furnace and vent stack. See Installation Instructions for
complete installation requirements.
310AAV

4
A10269
Fig. 2 --- Clearances to Combustibles
60
80 / 27 C
/ 16 C
A06745
Fig. 3 --- Return Air Temperature
INTRODUCTION
Series 140/E 4--way multipoise Category I fan--assisted furnace is
CSA design--certified. A Category I fan--assisted furnace is an
appliance equipped with an integral mechanical means to either
draw or force products of combustion through the combustion
chamber and/or heat exchanger. The furnace is factory--shipped
for use with natural gas. This furnace is not approved for
installation in mobile homes, recreational vehicles, or outdoors.
This furnace is designed for minimum continuous return--air
temperature of 60_F(16_C) db or intermittent operation down to
55_F(13_C) db such as when used with a night setback
thermostat. Return--air temperature must not exceed 80_F(27_C)
db. Failure to follow these return--air temperature limits may
affect reliability of heat exchangers, motors, and controls. (See
Fig. 3.)
For accessory installation details, refer to the applicable
instruction literature.
NOTE: Remove all shipping brackets and materials before
operating the furnace.
CODES AND STANDARDS
Follow all national and local codes and standards in addition
to these instructions. The installation must comply with
regulations of the serving gas supplier, local building, heating,
plumbing, and other codes. In absence of local codes, the
installation must comply with the national codes listed below and
all authorities having jurisdiction. In the United States , follow all
codes and standards for the following:
Step 1 —Safety
310AAV

5
SNational Fuel Gas Code (NFGC) NFPA
54--2009/ANSI Z223.1--2009 and the Installation
Standards, Warm Air Heating and Air Conditioning
Systems ANSI/NFPA 90B
Step 2 —General Installation
SCurrent edition of the NFGC and the NFPA 90B. For
copies, contact the National Fire Protection Association
Inc., Batterymarch Park, Quincy, MA 02269;
(www.NFPA.org) or for only the NFGC, contact the
American Gas Association, 400 N. Capitol Street,
N.W., Washington, DC 20001 (www.AGA.org).
Step 3 —Combustion and Ventilation Air
SSection 9.3 of the NFGC, NFPA 54 / ANSI
Z223.1--2009 Air for Combustion and Ventilation
Step 4 —Duct Systems
SAir Conditioning Contractors Association (ACCA)
Manual D, Sheet Metal and Air Conditioning Contract-
ors National Association (SMACNA), or American
Society of Heating, Refrigeration, and Air Condition-
ing Engineers (ASHRAE) 2001 Fundamentals Hand-
book Chapter 34 or 2000 HVAC Systems and Equip-
ment Handbook Chapters 9 and 16.
Step 5 —Acoustical Lining and Fibrous Glass
Duct
SCurrent edition of SMACNA and NFPA 90B as tested
by UL Standard 181 for Class I Rigid Air Ducts
Step 6 —Gas Piping and Gas Pipe Pressure
Testing
SNFGC; NFPA 54 / ANSI Z223.1--2009 chapters 5, 6, 7
and 8 and National Plumbing Codes
Step 7 —Electrical Connections
SNational Electrical Code (NEC) ANSI/NFPA 70--2008
Step 8 —Venting
SNFGC NFPA 54 / ANSI Z223.1--2009; chapters 12
and 13
ELECTROSTATIC DISCHARGE (ESD)
PRECAUTIONS PROCEDURE
FURNACE RELIABILITY HAZARD
Failure to follow this caution may result in furnace
component damage.
Electrostatic discharge can affect electronic components.
Follow the Electrostatic Discharge Precautions Procedure
listed below during furnace installation and servicing to
protect the furnace electronic control. Precautions will
prevent electrostatic discharges from personnel and hand
tools which are held during the procedure. These
precautions will help to avoid exposing the control to
electrostatic discharge by putting the furnace, the control,
and the person at the same electrostatic potential.
CAUTION
!
1. Disconnect all power to the furnace. Multiple disconnects
may be required. DO NOT TOUCH THE CONTROL OR
ANY WIRE CONNECTED TO THE CONTROL PRIOR
TO DISCHARGING YOUR BODY’S
ELECTROSTATIC CHARGE TO GROUND.
2. Firmly touch the clean, unpainted, metal surface of the fur-
nace chassis which is close to the control. Tools held in a
person’s hand during grounding will be satisfactorily dis-
charged.
3. After touching the chassis, you may proceed to service the
control or connecting wires as long as you do nothing to
recharge your body with static electricity (for example;
DO NOT move or shuffle your feet, do not touch un-
grounded objects, etc.).
4. If you touch ungrounded objects (and recharge your body
with static electricity), firmly touch a clean, unpainted
metal surface of the furnace again before touching control
or wires.
5. Use this procedure for installed and uninstalled (ungroun-
ded) furnaces.
6. Before removing a new control from its container, dis-
charge your body’s electrostatic charge to ground to pro-
tect the control from damage. If the control is to be in-
stalled in a furnace, follow items 1 through 4 before
bringing the control or yourself in contact with the fur-
nace. Put all used and new controls into containers before
touching ungrounded objects.
7. An ESD service kit (available from commercial sources)
mayalsobeusedtopreventESDdamage.
LOCATION
CARBON MONOXIDE POISONING AND UNIT
DAMAGE HAZARD
Failure to follow this warning could result in personal
injury or death, and unit component damage.
Corrosive or contaminated air may cause failure of parts
containing flue gas, which could leak into the living space.
Air for combustion must not be contaminated by halogen
compounds, which include fluoride, chloride, bromide, and
iodide. These elements can corrode heat exchangers and
shorten furnace life. Air contaminants are found in aerosol
sprays, detergents, bleaches, cleaning solvents, salts, air
fresheners, and other household products. Do not install
furnace in a corrosive or contaminated atmosphere. Make
sure all combustion and circulating air requirements are met,
in addition to all local codes and ordinances.
!WARNING
GENERAL
This multipoise furnace is shipped in packaged configuration.
Some assembly and modifications are required when used in any
of the four applications shown in Fig. 4.
This furnace must:
Sbe installed so the electrical components are protected
from water.
Snot be installed directly on any combustible material
other than wood flooring for upflow applications.
Downflow installations require use of a factory--ap-
proved floor base or coil assembly when installed on
combustible materials or wood flooring. (Refer to
SAFETY CONSIDERATIONS).
310AAV

6
THE BLOWER IS LOCATED
TO THE RIGHT OF THE
BURNER SECTION, AND
AIR CONDITIONED AIR IS
DISCHARGED TO THE LEFT.
THE BLOWER IS
LOCATED BELOW THE
BURNER SECTION, AND
CONDITIONED AIR IS
DISCHARGED UPWARD.
THE BLOWER IS
LOCATED ABOVE THE
BURNER SECTION, AND
CONDITIONED AIR IS
DISCHARGED DOWNWARD
THE BLOWER IS
LOCATED TO THE LEFT
OF THE BURNER SECTION,
AND CONDITIONED AIR IS
DISCHARGED TO THE RIGHT.
A02097
Fig. 4 --- Multipoise Orientations
Sbe located as close to the chimney or vent and attached
to an air distribution system. Refer to Air Ducts section.
Sbe provided ample space for servicing and cleaning.
Always comply with minimum fire protection clear-
ances shown on the furnace clearance to combustible
label.
SThe following types of furnace installations may re-
quire OUTDOOR AIR for combustion due to chemical
exposures:
SCommercial buildings
SBuildings with indoor pools
SLaundry rooms
SHobby or craft rooms, and
SChemical storage areas
If air is exposed to the following substances, it should not be used
for combustion air, and outdoor air may be required for
combustion:
SPermanent wave solutions
SChlorinated waxes and cleaners
SChlorine based swimming pool chemicals
SWater softening chemicals
SDe--icing salts or chemicals
SCarbon tetrachloride
SHalogen type refrigerants
SCleaning solvents (such as perchloroethylene)
SPrinting inks, paint removers, varnishes, etc.
SHydrochloric acid
SCements and glues
SAntistatic fabric softeners for clothes dryers
SMasonry acid washing materials
All fuel--burning equipment must be supplied with air for fuel
combustion. Sufficient air must be provided to avoid negative
pressure in the equipment room or space. A positive seal must be
made between the furnace cabinet and the return--air duct to
prevent pulling air from the burner area and from draft safeguard
opening.
FIRE AND EXPLOSION HAZARD
Failure to follow this warning could result in personal
injury, death, and/or property damage.
When the furnace is installed in a residential garage, the
burners and ignition sources must be located at least 18
inches above the floor. The furnace must be located or
protected to avoid damage by vehicles. When the furnace is
installed in a public garage, airplane hangar, or other
building having a hazardous atmosphere, the furnace must
be installed in accordance with the NFGC. (See Fig. 5.)
!WARNING
310AAV

7
PERSONAL INJURY AND/OR PROPERTY
DAMAGE HAZARD
Failure to follow this caution may result in furnace
component damage.
This gas furnace may be used for heating buildings under
construction provided that:
--The furnace is permanently installed with all electrical
wiring, piping, venting and ducting installed according to
these installation instructions. A return air duct is provided,
sealed to the furnace casing, and terminated outside the
space containing the furnace. This prevents a negative
pressure condition as created by the circulating air blower,
causing a flame rollout and/or drawing combustion
products into the structure.
--The furnace is controlled by a thermostat. It may not be
hot wired to provide heat continuously to the structure
without thermostatic control.
--Clean outside air is provided for combustion. This is to
minimize the corrosive effects of adhesives, sealers and
other construction materials. It also prevents the
entrainment of drywall dust into combustion air, which can
cause fouling and plugging of furnace components.
--The temperature of the return air to the furnace is
maintained between 55_F(13_C) and 80_F(27_C), with
no evening setback or shutdown. The use of the furnace
while the structure is under construction is deemed to be
intermittent operation per our installation instructions.
--The air temperature rise is within the rated rise range on
the furnace rating plate, and the gas input rate has been set
to the nameplate value.
--The filters used to clean the circulating air during the
construction process must be either changed or thoroughly
cleaned prior to occupancy.
--The furnace, ductwork and filters are cleaned as necessary
to remove drywall dust and construction debris from all
HVAC system components after construction is completed.
--Verify proper furnace operating conditions including
ignition, gas input rate, air temperature rise, and venting
according to these installation instructions.
CAUTION
!
18-IN. (457.2 mm)
MINIMUM TO BURNERS
A93044
Fig. 5 --- Installation in a Garage
FIRE HAZARD
Failure to follow this warning could result in personal
injury, death and/or property damage.
Do not install the furnace on its back or hang furnace with
control compartment facing downward. Safety control
operation will be adversely affected. Never connect
return--air ducts to the back of the furnace. (See Fig. 6.)
!WARNING
A02054
Fig. 6 --- Prohibit Installation on Back
LOCATION RELATIVE TO COOLING EQUIPMENT
The cooling coil must be installed parallel with, or on the
downstream side of the unit to avoid condensation in the heat
exchangers. When installed parallel with the furnace, dampers or
other flow control must prevent chilled air from entering the
furnace. If the dampers are manually operated, they must be
equipped with means to prevent operation of either unit unless
the damper is in the full--heat or full--cool position.
AIR FOR COMBUSTION AND
VENTILATION
Provisions for adequate combustion, ventilation, and dilution air
must be provided in accordance with:
SSection 9.3 of the NFPA 54 / ANSI Z223.1--2009, Air
for Combustion and Ventilation, and applicable provi-
sions of the local building codes.
FURNACE CORROSION HAZARD
Failure to follow this caution may result in furnace damage.
Air for combustion must not be contaminated by halogen
compounds, which include fluoride, chloride, bromide, and
iodide. These elements can corrode heat exchangers and
shorten furnace life. Air contaminants are found in aerosol
sprays, detergents, bleaches, cleaning solvents, salts, air
fresheners, and other household products.
CAUTION
!
310AAV

8
CARBON MONOXIDE POISONING HAZARD
Failure to follow this warning could result in personal
injury or death.
The operation of exhaust fans, kitchen ventilation fans,
clothes dryers, attic exhaust fans or fireplaces could create a
NEGATIVE PRESSURE CONDITION at the furnace.
Make--up air MUST be provided for the ventilation devices,
in addition to that required by the furnace. Refer to Carbon
Monoxide Poisoning Hazard warning in venting section of
these instructions to determine if an adequate amount of
make--up air is available.
!WARNING
The requirements for combustion and ventilation air depend
upon whether or not the furnace is located in a space having a
volume of at least 50 cu/ft. per 1,000 Btuh input rating for all gas
appliances installed in the space.
SSpaces having less than 50 cu/ft. per 1,000 Btuh re-
quire the OUTDOOR COMBUSTION AIR
METHOD.
SSpaces having at least 50 cu/ft. per 1,000 Btuh may use
the INDOOR COMBUSTION AIR, STANDARD or
KNOWN AIR INFILTRATION METHOD.
Outdoor Combustion Air Method
1. Provide the space with sufficient air for proper combus-
tion, ventilation, and dilution of flue gases using perman-
ent horizontal or vertical duct(s) or opening(s) directly
communicating with the outdoors or spaces that freely
communicate with the outdoors.
2. Fig. 7 illustrates how to provide TWO OUTDOOR
OPENINGS, one inlet and one outlet combustion and
ventilation air opening, to the outdoors.
e. One opening MUST commence within 12 in. (300
mm) of the ceiling and the second opening MUST
commence within 12 in. (300 mm) of the floor.
f. Size openings and ducts per Fig. 7 and Table 2.
g. TWO HORIZONTAL DUCTS require 1 sq./in. of free
area per 2,000 Btuh (1,100 mm2/kW) of combined
input for all gas appliances in the space per Fig. 7 and
Table 2.
h. TWO OPENINGS OR VERTICAL DUCTS require 1
sq./in. of free area per 4,000 Btuh (550 mm2/kW) for
combined input of all gas appliances in the space per
Fig. 7 and Table 2.
3. ONE OUTDOOR OPENING requires:
a. 1 square inch of free area per 3,000 Btuh (734
mm2/kW) for combined input of all gas appliances in
the space per Table 2 and
b. Not less than the sum of the areas of all vent connect-
ors in the space.
The opening shall commence within 12 in. (300 mm) of the
ceiling. Appliances in the space shall have clearances of at least 1
in. (25 mm) from the sides and back and 6 in. (150 mm) from the
front. The opening shall directly communicate with the outdoors
or shall communicate through a vertical or horizontal duct to the
outdoors or spaces (crawl or attic) that freely communicate with
the outdoors.
Indoor Combustion Air NFPA & AGA
Standard and Known--Air--Infiltration Rate Methods
Indoor air is permitted for combustion, ventilation, and dilution,
if the Standard or Known--Air--Infiltration Method is used.
CARBON MONOXIDE POISONING HAZARD
Failure to follow this warning could result in death and/or
personal injury.
Many homes require air to be supplied from outdoors for
furnace combustion, ventilation, and dilution of flue gases.
The furnace combustion air supply must be provided in
accordance with this instruction manual.
!WARNING
Table 2—Minimum Free Area Required for Each Combustion Air Opening of Duct to Outdoors
FURNACE
INPUT
(BTUH)
TWO HORIZONTAL DUCTS SINGLE DUCT OR OPENING TWO OPENINGS OR VERTICAL
DUCTS
(1 SQ. IN./2,000 BTUH)
(1,100 SQ. MM/KW)
(1 SQ. IN./3,000 BTUH)
(734 SQ. MM/KW)
(1 SQ. IN./4,000 BTUH)
(550 SQ. MM/KW)
Free Area of Open-
ing and Duct
Sq. In. (Sq. mm)
Round Duct
Dia.
In. (mm)
Free Area of Open-
ing and Duct
Sq. In. (Sq. mm)
Round Duct
Dia.
In. (mm)
Free Area of Open-
ing and Duct
Sq. In. (Sq. mm)
Round Duct
Dia.
In. (mm)
44,000 22 (14194) 6 (152) 14.7 (9484) 5 (127) 11 (7096) 4 (102)
66,000 33 (21290) 7 (178) 22.0 (14193) 6 (152) 16.5 (10645) 5 (127)
88,000 44 (28387) 8 (203) 29.3 (18903) 7 (178) 22 (14193) 6 (152)
110,000 55 (35484) 9 (229) 36.7 (23677) 7 (178) 27.5 (17742) 6 (152)
132,000 66 (42580) 10 (254) 44 .0 (28387) 8 (203) 33 (21290) 7 (178)
154,000 77 (49677) 10 (254) 51.3 (33096) 9 (229) 38.5 (24839) 8 (203)
EXAMPLES: Determining Free Area
FURNACE WATER HEATER TOTAL INPUT
110,000 + 30,000 = (140,000 divided by 4,000) = 35.0 Sq. In. for each two Vertical Ducts or Openings
66,000 + 40,000 = (106,000 divided by 3,000) = 35.3 Sq. In. for a Single Duct or Opening
88,000 +30,000 =(118,000 divided by 2,000) =59.0 Sq. In. for each of two Horizontal Ducts
310AAV

9
Table 3—Minimum Space Volumes for 100% Combustion, Ventilation, and Dilution from Indoors
OTHER THAN FAN-ASSISTED TOTAL
(1,000’S BTUH GAS INPUT RATE)
FAN-ASSISTED TOTAL
(1,000’S BTUH GAS INPUT RATE)
ACH 30 40 50 44 66 88 110 132 154
SpaceVolumeFt
3(M3)
0.60 1,050
(29.7)
1,400
(39.6)
1,750
(49.5)
1,100
(31.1)
1,650
(46.7)
2,200
(62.2)
2,750
(77.8)
3,300
(93.4)
3,850
(109.0)
0.50 1,260
(35.6)
1,680
(47.5)
2,100
(59.4)
1,320
(37.3)
1,980
(56.0)
2,640
(74.7)
3,300
(93.4)
3,960
(112.1)
4,620
(130.8)
0.40 1,575
(44.5)
2,100
(59.4)
2,625
(74.3)
1,650
(46.7)
2,475
(70.0)
3,300
(93.4)
4,125
(116.8)
4,950
(140.1)
5,775
(163.5)
0.30 2,100
(59.4)
2,800
(79.2)
3,500
(99.1)
2,200
(62.2)
3,300
(93.4)
4,400
(124.5)
5,500
(155.7)
6,600
(186.8)
7,700
(218.0)
0.20 3,150
(89.1)
4,200
(118.9)
5,250
(148.6)
3,300
(93.4)
4,950
(140.1)
6,600
(186.8)
8,250
(233.6)
9,900
(280.3)
11,550
(327.0)
0.10 6,300
(178.3)
8,400
(237.8)
10,500
(297.3)
6,600
(186.8)
9,900
(280.3)
13,200
(373.7)
16,500
(467.2)
19,800
(560.6)
23,100
(654.1)
0.00 NP NP NP NP NP NP NP NP NP
NP = Not Permitted
1 SQ IN .
PER
4000
BTUH*
DUCTS
TO
O UTDOORS
1 SQ IN.
PER 4000
BTUH*
C IRCULA TING
AIR DUCTS
VENT
THR OUGH
R OOF
D
B
A
C
E
1 SQ IN.
PER 4000
BTUH*
DUCT
TO
OUTDOORS
CIRCULA TING AIR DUCT S
1 SQ IN.
PER 2000
BTUH*
1 SQ IN.
PER 2000
BTUH*
DUCT S
TO
OUTDOORS
12 ″ MAX
12 ″ MAX
12 ″ MAX
12 ″
MAX
12 ″
MAX
OUTDOORS
1 SQ IN .
PER
4000
BTUH*
F
G
CLEARANCE IN FRONT
OF COMB USTION AIR
OPENINGS SHALL BE
AT LEAST 3 IN .
(305mm)
(305mm)
(305mm)
(305mm)
(305mm)
(76mm)
*Minimum dimensions of 3--- in. (76 mm).
NOTE: Use any of the following combinations of openings:
A&BC&DD&EF&G
A03174
Fig. 7 --- Air for Combustion, Ventilation, and Dilution for
Outdoors
CIRCULATING AIR
DUCTS
6" MIN
(FRONT)Ü
CIRCULATING AIR DUCTS
VENT THROUGH ROOF
1 SQ IN.
PER 1000
BTUH* IN DOOR
OR WALL
12" MAX
1 SQ IN.
PER 1000
BTUH* IN DOOR
OR WALL
12" MA X
UNCONFINED
SPACE
INTERIOR
HEATED
SPACE
CLEARANCE IN FRONT OF COMBUSTION AIR
OPENINGS SHALL BE AT LEAST 3 IN.
(305mm)
(152mm)
(305mm)
* Minimum opening size is 100 sq in. (64516 sq. mm)with minimum dimensions
of3in.(76mm)
†Minimumof3in.(76mm)whentype-B1ventisused.
A03175
Fig. 8 --- Air for Combustion, Ventilation, and Dilution from
Indoors
310AAV

10
The Standard Method:
1. The space has no less volume than 50 cu/ft. per 1,000
Btuh of the maximum input ratings for all gas appliances
installed in the space and
2. The air infiltration rate is not known to be less than 0.40
air changes per hour (ACH).
The Known Air Infiltration Rate Method shall be used, if the
infiltration rate is known to be:
1. Less than 0.40 ACH and
2. Equal to or greater than 0.10 ACH
Infiltration rates greater than 0.60 ACH shall not be used. The
minimum required volume of the space varies with the number of
ACH and shall be determined per Table 3 or Equations 1 and 2.
Determine the minimum required volume for each appliance in
the space and add the volumes together to get the total minimum
required volume for the space.
Table 3 -- Minimum Space Volumes were determined by using
the following equations from the National Fuel Gas Code ANSI
Z223.1--2009/NFPA 54--2009, 9.3.2.2:
1. For other than fan--assisted appliances, such as a draft
hood--equipped water heater:
Volume
Other
=21ft
3
ACH
I
other
1000 Btu/hr
A04002
2. For fan--assisted appliances such as this furnace:
Volume
Fan
=15ft
3
ACH
I
fan
1000 Btu/hr
A04003
If:
Iother = combined input of all other than fan--assisted
appliances in Btuh/hr
Ifan = combined input of all fan--assisted appliances in Btuh/hr
ACH = air changes per hour (ACH shall not exceed 0.60.) The
following requirements apply to the Standard Method and to the
Known Air Infiltration Rate Method.
1. Adjoining rooms can be considered part of a space if:
a. There are no closeable doors between rooms.
b. Combining spaces on same floor level. Each opening
shall have free area of at least 1 in.2/1,000 Btuh (2,000
mm2/kW) of the total input rating of all gas appliances
in the space, but not less than 100 in.2(0.06 m2). One
opening shall commence within 12 in. (300 mm) of
the ceiling and the second opening shall commence
within 12 in. (300 mm) of the floor. The minimum
dimension of air openings shall be at least 3 in. (80
mm). (See Fig. 8.)
c. Combining space on different floor levels. The
volumes of spaces on different floor levels shall be
considered as communicating spaces if connected by
one or more permanent openings in doors or floors
having free area of at least 2 in.2/1,000 Btuh (4,400
mm2/kW) of total input rating of all gas appliances.
2. An attic or crawlspace may be considered a space that
freely communicates with the outdoors provided there are
adequate permanent ventilation openings directly to out-
doors having free area of at least 1--in.2/4,000 Btuh of total
input rating for all gas appliances in the space.
3. In spaces that use the Indoor Combustion Air Method, in-
filtration should be adequate to provide air for combus-
tion, permanent ventilation and dilution of flue gases.
However, in buildings with unusually tight construction,
additional air MUST be provided using the methods de-
scribedintheOutdoor Combustion Air Method section.
Unusually tight construction is defined as Construction with:
a. Walls and ceilings exposed to the outdoors have a con-
tinuous, sealed vapor barrier. Openings are gasketed or
sealed and
b. Doors and openable windows are weatherstripped and
c. Other openings are caulked or sealed. These include
joints around window and door frames, between sole
plates and floors, between wall--ceiling joints, between
wall panels, at penetrations for plumbing, electrical
and gas lines, etc.
Combination of Indoor and Outdoor Air
1. Indoor openings shall comply with the Indoor Combus-
tion Air Method below and,
2. Outdoor openings shall be located as required in the Out-
door Combustion Air Method mentioned previously and,
3. Outdoor openings shall be sized as follows:
a. Calculate the Ratio of all Indoor Space volume divided
by required volume for Indoor Combustion Air
Method below.
b. Outdoor opening size reduction Factor is 1 minus the
Ratio in a. above.
c. Minimum size of Outdoor openings shall be the size
required in Outdoor Combustion Air Method above
multiplied by reduction Factor in b. above. The min-
imum dimension of air openings shall be not less than
3in.(80mm).
INSTALLATION
UPFLOW INSTALLATION
Bottom Return Air Inlet
These furnaces are shipped with bottom closure panel installed in
bottom return--air opening. Remove and discard this panel when
bottom return air is used. To remove bottom closure panel,
perform the following:
1. Tilt or raise furnace and remove 2 screws holding bottom
filler panel. (See Fig. 9.)
Bottom
Closure Panel
Bottom Filler Panel
A10273
Fig. 9 --- Removing Bottom Closure Panel
2. Rotate bottom filler panel downward to release holding
tabs.
3. Remove bottom closure panel.
4. Reinstall bottom filler panel and screws.
Side Return Air Inlet
These furnaces are shipped with bottom closure panel installed in
bottom return--air opening. This panel MUST be in place when
only side return air is used.
310AAV

11
NOTE: Side return--air openings can be used in UPFLOW and
most HORIZONTAL configurations. Do not use side return--air
openings in DOWNFLOW configuration.
In upflow position with side return inlet(s), leveling legs may be
used. (See Fig. 10.) Install field--supplied, 5/16 x 1--1/2 in. (8 x
38 mm) (max) corrosion--resistant machine bolts, washers and
nuts.
NOTE: Bottom closure must be used when leveling legs are
used. It may be necessary to remove and reinstall bottom closure
panel to install leveling legs. To remove bottom closure panel, see
Item 1. in Bottom Return Air Inlet section.
1
3
/
4
″
1
3
/
4
″
1
3/
4
″
1
3/
4
″
5/
16
″
5
/
16
″
5/
16
″
5/
16
″
(44mm)
(8mm)
(44mm)
(8mm)
(8mm)
(8mm)
(44mm)
(44mm)
A89014
Fig. 10 --- Leveling Legs
Leveling Legs (If Desired)
To install leveling legs:
1. Position furnace on its back. Locate and drill a hole in
each bottom corner of furnace. (See Fig. 10.)
2. For each leg, install nut on bolt and then install bolt and
nut in hole. (Install flat washer if desired.)
3. Install another nut on other side of furnace base. (Install
flat washer if desired.)
4. Adjust outside nut to provide desired height, and tighten
inside nut to secure arrangement.
5. Reinstall bottom closure panel if removed.
DOWNFLOW INSTALLATION
NOTE: For downflow applications, this furnace is approved for
use on combustible flooring when any one of the following 3
accessories are used:
SSpecial Base, KGASB
SCased Coil Assembly Part No. CNPV, CNRV, CAR,
or CAP
SCoil Box Part No. KCAKC
1. Determine application being installed from Table 4.
2. Construct hole in floor per Table 4 and Fig. 11.
3. Construct plenum to dimensions specified in Table 4 and
Fig. 11.
4. If downflow subbase, KGASB is used, install as shown in
Fig. 12. If Coil Assembly Part No. CNPV, CNRV, CAR,
or CAP or Coil Box Part No. KCAKC is used, install as
shown in Fig. 13.
PLENUM
OPENING
C
A
BD
FLOOR
OPENING
A96283
Fig. 11 --- Floor and Plenum Opening Dimensions
NOTE: It is recommended that the perforated supply--air duct
flanges be completely folded over or removed from furnace when
installing the furnace on a factory--supplied cased coil or coil box.
To remove the supply--air duct flange, use wide duct pliers or
hand seamers to bend flange back and forth until it breaks off. Be
careful of sharp edges. (See Fig. 14.)
DOWNFLOW
SUBBASE
SHEET METAL
PLENUM
FLOOR
OPENING
FURNACE
(OR COIL CASING
WHEN USED)
COMBUSTIBLE
FLOORING
A96285
Fig. 12 --- Furnace, Plenum, and Subbase Installed on a
Combustible Floor
310AAV

12
APPROVED
COIL ASSEMBLY
OR
COIL BOX
FURNACE
SHEET METAL
PLENUM
FLOOR
OPENING
COMBUSTIBLE
FLOORING
A08556
Fig. 13 --- Furnace, Plenum, and Coil Assembly or Coil Box
Installed on a Combustible Floor
Bottom Return Air Inlet
These furnaces are shipped with bottom closure panel installed in
bottom return--air opening. Remove and discard this panel when
bottom return air is used. To remove bottom closure panel,
perform the following:
1. Tilt or raise furnace and remove 2 screws holding bottom
filler panel. (See Fig. 9.)
2. Rotate bottom filler panel downward to release holding
tabs.
3. Remove bottom closure panel.
4. Reinstall bottom filler panel and screws.
HORIZONTAL INSTALLATION
FIRE, EXPLOSION, AND CARBON MONOXIDE
POISONING HAZARD
Failure to follow this warning could result in personal
injury, death, or property damage.
Do not install the furnace on its back or hang furnace with
control compartment facing downward. Safety control
operation will be adversely affected. Never connect
return--air ducts to the back of the furnace.
!WARNING
The furnace can be installed horizontally in an attic or crawl
space on either the left--hand (LH) or right--hand (RH) side. The
furnace can be hung from floor joists, rafters or trusses or
installed on a non--combustible platform, blocks, bricks or pad.
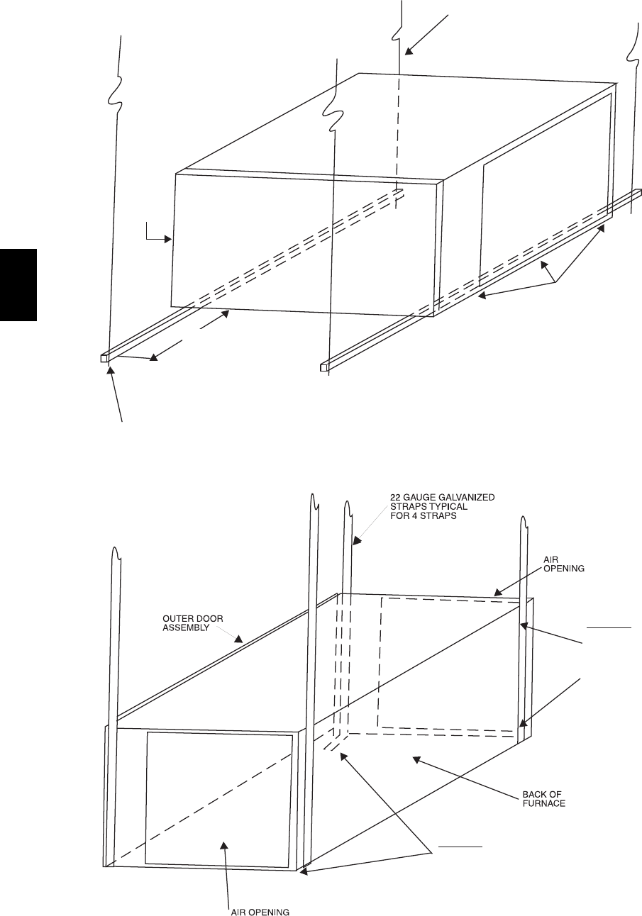
Suspended Furnace Support
The furnace may be supported under each end with threaded rod,
angle iron or metal plumber’s strap as shown. (See Fig. 15 and
16.) Secure angle iron to bottom of furnace as shown.
Heavy--gauge sheet metal straps (plumber’s straps) may be used
to suspend the furnace from each bottom corner. To prevent
screws from pulling out, use 2 #8 x 3/4--in. (19 mm) screws into
the side and 2 #8 x 3/4--in. (19 mm) screws in the bottom of the
furnace casing for each strap. (See Fig. 15 and 16.)
If the screws are attached to ONLY the furnace sides and not the
bottom, the straps must be vertical against the furnace sides and
not pull away from the furnace sides, so that the strap attachment
screws are not in tension (are loaded in shear) for reliable support.
Platform Furnace Support
Construct working platform at location where all required furnace
clearances are met. (See Fig. 2 and 17.) For furnaces with 1--in.
(25 mm) clearance requirement on side, set furnace on non--
combustible blocks, bricks or angle iron. For crawl space
installations, if the furnace is not suspended from the floor joists,
the ground underneath furnace must be level and the furnace set
on blocks or bricks.
Roll--Out Protection
Provide a minimum 17--3/4 in. x 22 in. (451 x 559 mm) piece of
sheet metal for flame roll--out protection in front of burner area
for furnaces closer than 12 inches (305 mm) above the
combustible deck or suspended furnaces closer than 12 inches
(305 mm) to joists. The sheet metal MUST extend underneath the
furnace casing by 1 in. (25 mm) with the door removed.
The bottom closure panel on furnaces of widths 17--1/2 in. (445
mm) and larger may be used for flame roll--out protection when
bottom of furnace is used for return air connection. See Fig. 17
for proper orientation of roll--out shield.
Bottom Return Air Inlet
These furnaces are shipped with bottom closure panel installed in
bottom return--air opening. Remove and discard this panel when
bottom return air is used. To remove bottom closure panel,
perform the following:
1. Tilt or raise furnace and remove 2 screws holding bottom
filler panel. (See Fig. 9.)
2. Rotate bottom filler panel downward to release holding
tabs.
3. Remove bottom closure panel.
4. Reinstall bottom filler panel and screws.
Side Return Air Inlet
These furnaces are shipped with bottom closure panel installed in
bottom return--air opening. This panel MUST be in place when
side return air inlet(s) is used without a bottom return air inlet.
Not all horizontal furnaces are approved for side return air
connections. (See Fig. 20.)
FILTER ARRANGEMENT
CARBON MONOXIDE AND POISONING HAZARD
Failure to follow this warning could result in personal
injury, death and/or property damage.
Never operate a furnace without a filter or with filter access
door removed.
!WARNING
There are no provisions for an internal filter rack in these
furnaces.
Refer to the instructions supplied with accessory Media Cabinet
for assembly and installation options.
This furnace requires a field--supplied external filter rack or a
suitable field--supplied substitute, such as the media cabinet. See
Table 17 for accessory list.
Refer to the instructions supplied with external filter rack for
assembly and installation options.
310AAV

13
Table 4—Opening Dimensions -- In. (mm)
FURNACE
CASING
WIDTH
APPLICATION PLENUM OPENING FLOOR OPENING
A B C D
14–3/16
(360)
Upflow Applications on Combustible or Noncombustible Floor-
ing (KGASB subbase not required)
12---11/16
(322)
21---5/8
(549)
13---5/16
(338)
22---1/4
(565)
Downflow Applications on Noncombustible Flooring (KGASB
subbase not required)
12---9/16
(319)
19
(483)
13---3/16
(335)
19---5/8
(498)
Downflow applications on combustible flooring (KGASB sub-
base required)
11---13/16
(284)
19
(483)
13---7/16
(341)
20---5/8
(600)
Downflow Applications on Combustible Flooring with CNPV,
CNRV, CAR, or CAP Coil Assembly or KCAKC coil box
(KGASB subbase not required)
12---5/16
(319)
19
(483)
13---5/16
(338)
20
(508)
17–1/2
(445)
Upflow Applications on Combustible or Noncombustible Floor-
ing (KGASB subbase not required)
16
(406)
21---5/8
(549)
16---5/8
(422)
22---1/4
(565)
Downflow Applications on Noncombustible Flooring (KGASB
subbase not required)
15---7/8
(403)
19
(483)
16---1/2
(419)
19---5/8
(498)
Downflow applications on combustible flooring (KGASB sub-
base required)
15---1/8
(384)
19
(483)
16---3/4
(425)
20---5/8
(600)
Downflow Applications on Combustible Flooring with CNPV,
CNRV, CAR, or CAP Coil Assembly or KCAKC coil box
(KGASB subbase not required)
15---1/2
(394)
19
(483)
16---1/2
(419)
20
(508)
21
(533)
Upflow Applications on Combustible or Noncombustible Floor-
ing (KGASB subbase not required)
19---1/2
(495)
21---5/8
(549)
20---1/8
(511)
22---1/4
(565)
Downflow Applications on Noncombustible Flooring (KGASB
subbase not required)
19---3/8
(492)
19
(483)
20
(508)
19---5/8
(498)
Downflow applications on combustible flooring (KGASB sub-
base required)
18---5/8
(473)
19
(483)
20---1/4
(514)
20---5/8
(600)
Downflow Applications on Combustible Flooring with CNPV,
CNRV, CAR, or CAP Coil Assembly or KCAKC coil box
(KGASB subbase not required)
19
(483)
19
(483)
20
(508)
20
(508)
24---1/2
(622)
Upflow Applications on Combustible or Noncombustible Floor-
ing (KGASB subbase not required)
23
(584)
21---1/8
(537)
23---5/8
(600)
22---1/4
(565)
Downflow Applications on Noncombustible Flooring (KGASB
subbase not required)
22---7/8
(581)
19
(483)
23---1/2
(597)
19---5/8
(498)
Downflow applications on Combustible flooring (KGASB sub-
base required)
22---1/8
(562)
19
(483)
23---3/4
(603)
20---5/8
(600)
Downflow Applications on Combustible Flooring with CNPV,
CNRV, CAR, or CAP Coil Assembly or KCAKC coil box
(KGASB subbase not required)
22---1/2
(572)
19
(483)
23---1/2
(597)
20
(508)
AIR DUCTS
General Requirements
The duct system should be designed and sized according to
accepted national standards such as those published by: Air
Conditioning Contractors Association (ACCA), Sheet Metal and
Air Conditioning Contractors National Association (SMACNA)
or American Society of Heating, Refrigerating and Air
Conditioning Engineers (ASHRAE) or consult The Air Systems
Design Guidelines reference tables available from your local
distributor. The duct system should be sized to handle the
required system design CFM at the design external static pressure.
The furnace airflow rates are provided in Table 5 -- AIR
DELIVERY--CFM (With Filter).
When a furnace is installed so that the supply ducts carry air
circulated by the furnace to areas outside the space containing the
furnace, the return air shall also be handled by duct(s) sealed to
the furnace casing and terminating outside the space containing
the furnace.
Secure ductwork with proper fasteners for type of ductwork used.
Seal supply-- and return--duct connections to furnace with code
approved tape or duct sealer.
NOTE: Flexible connections should be used between ductwork
and furnace to prevent transmission of vibration. Ductwork
passing through unconditioned space should be insulated and
sealed to enhance system performance. When air conditioning is
used, a vapor barrier is recommended.
Maintain a 1--in. (25 mm) clearance from combustible materials
to supply air ductwork for a distance of 36 in. (914 mm)
horizontally from the furnace. See NFPA 90B or local code for
further requirements.
Ductwork Acoustical Treatment
NOTE: Metal duct systems that do not have a 90 degree elbow
and 10 ft. (3 M) of main duct to the first branch take--off may
require internal acoustical lining. As an alternative, fibrous
ductwork may be used if constructed and installed in accordance
with the latest edition of SMACNA construction standard on
fibrous glass ducts. Both acoustical lining and fibrous ductwork
shall comply with NFPA 90B as tested by UL Standard 181 for
Class 1 Rigid air ducts.
Supply Air Connections
For a furnace not equipped with a cooling coil, the outlet duct
shall be provided with a removable access panel. This opening
shall be accessible when the furnace is installed and shall be of
such a size that the heat exchanger can be viewed for possible
openings using light assistance or a probe can be inserted for
sampling the air stream. The cover attachment shall prevent leaks.
310AAV

14
Table 5—Air Delivery -- CFM (with Filter)*
FURNACE
SIZE
RETURN---AIR
INLET SPEED EXTERNAL STATIC PRESSURE (In. W.C.)
0.1 0.2 0.3 0.4 0.5 0.6 0.7 0.8 0.9 1.0
045---08/
024045
Bottom or
Side(s)
High
M e d --- H i g h
M e d --- L o w
1035
865
760
995
830
720
945
790
680
895
745
635
835
690
580
770
625
520
675
545
445
565
440
345
390
250
220
195
195
195
045---12/
036045
Bottom or
Side(s)
High
M e d --- H i g h
M e d --- L o w
1440
1360
1250
1375
1300
1210
1305
1240
1160
1240
1175
1100
1160
1115
1040
1070
1040
965
975
950
885
870
850
790
730
725
670
560
575
520
070---08/
024070
Bottom or
Side(s)
High
M e d --- H i g h
M e d --- L o w
1030
835
725
1005
815
700
965
790
675
925
755
635
870
710
595
810
660
545
740
590
460
645
480
350
465
325
250
280
205
--- ---
070---12/
036070
Bottom or
Side(s)
High
M e d --- H i g h
M e d --- L o w
1425
1320
1200
1375
1280
1175
1320
1240
1145
1265
1205
1105
1200
1140
1050
1125
1075
990
1035
995
920
940
905
840
830
790
725
655
620
555
070---16/
048070
Bottom or
Side(s)
High
M e d --- H i g h
M e d --- L o w
1755
1550
1355
1700
1520
1340
1635
1475
1310
1570
1430
1280
1505
1375
1240
1435
1310
1190
1350
1240
1125
1260
1155
1060
1160
1070
975
1055
970
890
090---14/
042090
Bottom or
Side(s)
High
M e d --- H i g h
M e d --- L o w
1605
1470
1310
1570
1445
1295
1535
1410
1265
1465
1380
1230
1385
1300
1195
1285
1220
1120
1175
1115
1025
1055
990
915
895
830
710
645
600
565
090---16/
048090
Bottom or
Side(s)
High
M e d --- H i g h
M e d --- L o w
1940
1740
1505
1880
1700
1505
1805
1650
1480
1720
1590
1440
1635
1525
1375
1540
1440
1300
1425
1335
1190
1290
1195
1045
1090
1010
890
830
820
740
090---20/
060090
Bottom Only
High
M e d --- H i g h
M e d --- L o w
2405
2170
1920
2310
2110
1875
2220
2040
1835
2130
1970
1780
2025
1895
1715
1920
1785
1630
1790
1675
1535
1660
1565
1420
1530
1420
1275
1350
1260
1135
Both Sides or 1
Side & Bottom
High
M e d --- H i g h
M e d --- L o w
2530
2230
1895
2450
2170
1890
2365
2110
1845
2270
2050
1815
2165
1985
1755
2065
1890
1685
1940
1780
1600
1805
1660
1480
1670
1525
1350
1505
1360
1180
1Side Only
High
M e d --- H i g h
M e d --- L o w
2475
2105
1850
2395
2145
1860
2300
2070
1810
2200
2010
1770
2090
1940
1715
1985
1845
1650
1865
1735
1555
1730
1620
1445
1585
1475
1310
1425
1325
1150
110---12/
036110
Bottom or
Side(s)
High
M e d --- H i g h
M e d --- L o w
1600
1475
1315
1550
1435
1295
1490
1395
1265
1425
1335
1220
1355
1285
1155
1260
1185
1080
1135
1070
985
990
890
810
785
725
675
530
450
440
110---16/
048110
Bottom or
Side(s)
High
M e d --- H i g h
M e d --- L o w
1980
1745
1530
1915
1710
1515
1835
1650
1470
1750
1560
1400
1655
1450
1310
1495
1340
1215
1365
1205
1095
1185
1090
990
965
865
830
700
605
670
110---22/
066110
Bottom Only
High
M e d --- H i g h
M e d --- L o w
2485
2135
1855
2415
2100
1840
2340
2060
1815
2255
2000
1775
2160
1930
1725
2080
1860
1675
1950
1765
1600
1840
1670
1510
1720
1555
1405
1565
1425
1290
Bottom Sides
or 1 Side & Bot-
tom
High
M e d --- H i g h
M e d --- L o w
--- ---
2140
1855
--- ---
2100
1840
2355
2050
1815
2285
1990
1775
2190
1935
1725
2090
1865
1675
1965
1760
1600
1850
1670
1510
1705
1545
1405
1535
1410
1290
1Side Only
High
M e d --- H i g h
M e d --- L o w
2495
2030
--- ---
2440
2025
1735
2370
2000
1725
2290
1950
1695
2205
1905
1650
2120
1850
1595
2015
1750
1535
1910
1660
1455
1775
1555
1335
1625
1425
1230
* A filter is required for each return ---air inlet. Airflow performance included 3/4 ---in. (19 mm) washable filter media such as contained in factory --- a u th o r iz e d a c -
cessory filter rack. To determine airflow performance without this filter, assume an additional 0.1 In. W.C. available external static pressure.
--- --- Indicates unstable operating conditions.
310AAV

15
Table 5⎯Air Delivery -- CFM (with Filter)* (Continued)
FURNACE
SIZE
RETURN---AIR
INLET SPEED EXTERNAL STATIC PRESSURE (In. W.C.)
0.1 0.2 0.3 0.4 0.5 0.6 0.7 0.8 0.9 1.0
135---16/
048135
Bottom or
Side(s)
High
M e d --- H i g h
M e d --- L o w
2065
1790
1480
2000
1755
1480
1930
1705
1480
1835
1640
1450
1710
1550
1380
1590
1465
1295
1420
1295
1160
1235
1145
1005
1025
945
855
835
775
670
135---22/
066135
Bottom Only
High
M e d --- H i g h
M e d --- L o w
2445
2130
1860
2365
2080
1830
2280
2025
1800
2190
1960
1755
2085
1880
1705
1980
1795
1630
1850
1690
1530
1705
1550
1415
1520
1405
1280
1355
1255
1140
Bottom, Sides
or 1 Side & Bot-
tom
High
M e d --- H i g h
M e d --- L o w
--- ---
2120
1860
--- ---
2075
1830
2355
1995
1800
2280
1970
1755
2160
1905
1725
2065
1835
1630
1930
1735
1530
1805
1645
1415
1655
1515
1280
1465
1325
1140
1SideOnly
High
M e d --- H i g h
M e d --- L o w
--- ---
2070
1860
--- ---
2015
1830
2215
1970
1800
2130
1935
1755
2030
1855
1725
1920
1765
1630
1795
1655
1530
1675
1550
1415
1540
1445
1280
1385
1265
1140
155---20/
060155
Bottom Only
High
M e d --- H i g h
M e d --- L o w
2465
2115
1800
2430
2095
1790
2375
2055
1770
2305
2005
1735
2215
1940
1695
2110
1845
1640
2000
1820
1570
1865
1675
1465
1715
1525
1345
1530
1390
1225
Both Sides Or 1
Side & Bottom
High
M e d --- H i g h
M e d --- L o w
--- ---
2155
1800
--- ---
2125
1790
2375
2075
1770
2285
2015
1735
2185
1935
1695
2105
1830
1640
1995
1780
1570
1870
1635
1465
1720
1485
1345
1555
1365
1225
1Side Only
High
M e d --- H i g h
M e d --- L o w
--- ---
2140
1800
--- ---
2085
1790
2260
2020
1770
2180
1950
1735
2070
1850
1695
1975
1745
1640
1865
1695
1570
1740
1545
1465
1595
1415
1345
1440
1290
1225
* A filter is required for each return ---air inlet. Airflow performance included 3/4 ---in. (19 mm) washable filter media such as contained in factory --- a u th o r iz e d a c -
cessory filter rack. To determine airflow performance without this filter, assume an additional 0.1 In. W.C. available external static pressure.
--- --- Indicates unstable operating conditions.
UPFLOW DOWNFLOW HORIZONTAL
YES
NO NO
YES
YES
YES
NO
120°
MIN YES 120°
MIN YES
120°
MIN
90°90°
A02020
Fig. 14 --- Duct Flanges
310AAV

16
1
/ 4
" (6mm) THREADED ROD
4 REQ.
SECURE ANGLE
IRON TO BOTTOM
OF FURNACE WITH
3 #8 x
3/4" (19mm) SCREWS
TYPICAL FOR 2 SUPPORTS
1” (25mm) SQUARE, 1-1/4”x1-1/4”x1/8” (32x32x3mm)
ANGLE IRON OR UNI-STRUT MAY BE USED
(2) HEX NUTS, (2) WASHERS & (2) LOCK WASHERS
REQ. PER ROD
8" (203mm) MIN
FOR DOOR REMOVAL
OUTER DOOR
A S SEMBLY
A10130
Fig. 15 --- Horizontal Unit Suspension
METHOD 2
USE (4) #8 x 3/4 (19 mm) SHEET
METAL SCREWS FOR EACH
STRAP. THE STRAPS
SHOULD BE VERTICAL
AGAINST THE FURNACE
SIDES AND NOT PULL AWAY
FROM THE FURNACE
SIDES.
METHOD 1
FOLD ALL STRAPS UNDER
FURNACE AND SECURE WTH
(4) #8 x 3/4 (19 mm) SHEET METAL SCREWS
(2 SCREWS IN SIDE AND 2 SCREWS
IN BOTTOM).
A10131
Fig. 16 --- Horizontal Suspension with Straps
310AAV

17
30-IN . (762mm)
MIN WORK AREA
6 ″ M IN
*
TYPE-B
VENT
17
3
/
4
″
22
″
SHEET
MET AL
SEDIMENT
TRAP
EQUIPMENT MANU AL
SHUT -OFF GAS VA LV E
LINE CONT A CT ONL Y PERMISSIBLE BETWEEN
LINES FORMED BY INTERSECTIONS OF
THE T OP AND TW O SIDES OF THE FURNA CE
JA CKET AND BUILDING JOISTS ,
STUDS , OR FRAMING.
GAS
ENTR Y
17
3
/
4
″
(451mm)
OVERALL
4
3
/
4
″
(121mm)
UNDER DOOR
1 ″
(25mm)
UNDER FURNACE
EXTEND OUT 12 ″
(305mm)
FR OM FA CE OF DOOR
* WHEN USED W ITH
SINGLE W ALL VEN T
CONNECTIONS
UNION
(152mm)
(451mm)
(559mm)
A10164
Fig. 17 --- Typical Attic Installation
A02075
Fig. 18 --- Upflow Return Air Configurations and Restrictions
310AAV

18
A02163
Fig. 19 --- Downflow Return Air Configurations and Restrictions
A02162
Fig. 20 --- Horizontal Return Air Configurations and Restrictions
Upflow and Horizontal Furnaces
Connect supply--air duct to flanges on furnace supply--air outlet.
Bend flange upward to 90_with wide duct pliers. (See Fig. 14.)
The supply--air duct must be connected to ONLY the furnace
supply--outlet--air duct flanges or air conditioning coil casing
(when used). DO NOT cut main furnace casing side to attach
supply air duct, humidifier, or other accessories. All accessories
MUST be connected to duct external to furnace main casing.
NOTE: For horizontal applications, the top--most flange may be
bent past 90_to allow the evaporator coil to hang on the flange
temporarily while the remaining attachment and sealing of the
coil are performed.
Downflow Furnaces
Connect supply--air duct to supply--air outlet on furnace. Bend
flange inward past 90_with wide duct pliers. (See Fig. 14.) The
supply--air duct must be connected to ONLY the furnace
supplyoutlet or air conditioning coil casing (when used). When
installed on combustible material, supply--air duct must be
connected to ONLY the factory--approved accessory subbase or a
factory--approved air conditioning coil casing. DO NOT cut main
furnace casing to attach supply side air duct, humidifier, or other
310AAV

19
accessories. All accessories MUST be connected to duct external
to furnace casing.
FIRE HAZARD
A failure to follow this warning could result in personal
injury, or death and/or property damage.
Never connect return--air ducts to the back of the
furnace. Follow instructions below.
!WARNING
Return Air Connections
Downflow Furnaces
The return--air duct must be connected to return--air opening
(bottom inlet) as shown in Fig. 19. DO NOT cut into casing sides
(left or right). Side opening is permitted for only upflow and most
horizontal furnaces. (See Fig. 19.) Bypass humidifier connections
should be made at ductwork or coil casing sides exterior to
furnace.
Upflow and Horizontal Furnaces
The return--air duct must be connected to bottom, sides (left or
right), or a combination of bottom and side(s) of main furnace
casing as shown in Fig. 18 and 20. Bypass humidifier may be
attached into unused return air side of the furnace casing. (See
Fig. 18 and 20.)
Not all horizontal furnaces are approved for side return air
connections. (See Fig. 20.)
GAS PIPING
FIRE OR EXPLOSION HAZARD
Failure to follow this warning could result in personal
injury, death, and/or property damage.
Never purge a gas line into a combustion chamber. Never
test for gas leaks with an open flame. Use a commercially
available soap solution made specifically for the detection
of leaks to check all connections.
!WARNING
FIRE OR EXPLOSION HAZARD
Failure to follow this warning could result in personal
injury, death, and/or property damage.
Use proper length of pipe to avoid stress on gas control
manifold and a gas leak.
!WARNING
Gas piping must be installed in accordance with national and
local codes. Refer to current edition of NFGC.
Installations must be made in accordance with all authorities
having jurisdiction. If possible, the gas supply line should be a
separate line running directly from meter to furnace.
NOTE: In the state of Massachusetts:
1. Gas supply connections MUST be performed by a li-
censed plumber or gas fitter.
2. When flexible connectors are used, the maximum length
shall not exceed 36 inches (915 mm).
3. When lever handle type manual equipment shutoff valves
are used, they shall be T--handle valves.
4. The use of copper tubing for gas piping is NOT approved
by the state of Massachusetts.
Refer to Table 6 for recommended gas pipe sizing. Risers must be
used to connect to furnace and to meter. Support all gas piping
with appropriate straps, hangers, etc. Use a minimum of 1 hanger
every 6 ft. (1.8 M) Joint compound (pipe dope) should be applied
sparingly and only to male threads of joints. Pipe dope must be
resistant to the action of propane gas.
Table 6—Maximum Capacity of Pipe
NOMINAL
IRON PIPE
SIZE
IN. (MM)
INTERNAL
DIA.
IN. (MM)
LENGTH OF PIPE --- FT (M)
10
(3.0)
20
(6.0)
30
(9.1)
40
(12.1)
50
(15.2)
1/2 (12.7) 0.622
(158) 175 120 97 82 73
3/4 (19.0) 0.824
(20.9) 360 250 200 170 151
1( 25.4) 1.049
(26.6) 680 465 375 320 285
1-1/4
(31.8)
1.380
(35.0) 1400 950 770 660 580
1-1/2
(38.1)
1.610
(40.9) 2100 1460 1180 990 900
* Cubic ft. of natural gas per hr for gas pressures of 0.5 psig (14---In. W.C.)
or less and a pressure drop of 0.5 ---In. W.C. (based on a 0.60 specific
gravity gas). Ref: Table 6 and ANSI Z223---2009/NFPA 54 ---2009.
FIRE OR EXPLOSION HAZARD
Failure to follow this warning could result in personal
injury, death, and/or property damage.
If local codes allow the use of a flexible gas appliance
connector, always use a new listed connector. Do not use a
connector which has previously served another gas
appliance. Black iron pipe shall be installed at the furnace
gas control valve and extend a minimum of 2 in. (51 mm)
outside the furnace.
!WARNING
FURNACE OVERHEAT HAZARD
Failure to follow this caution may result in unit component
damage.
Connect gas pipe to gas valve using a backup wrench to
avoid damaging gas controls and burner misalignment.
CAUTION
!
An accessible manual equipment shutoff valve MUST be
installed external to furnace casing and within 6 ft. (1.8 M) of
furnace. A 1/8--in. (3 mm) NPT plugged tapping, accessible for
test gauge connection, MUST be installed immediately upstream
of gas supply connection to furnace and downstream of manual
equipment shutoff valve.
NOTE: The furnace gas valve inlet pressure tap connection is
suitable to use as test gauge connection providing test pressure
DOES NOT exceed maximum 0.5 psig (14--In. W.C.) stated on
gas control valve. (See Fig. 42.)
Some installations require gas entry on right side of furnace (as
viewed in upflow.) (See Fig. 21.)
Install a sediment trap in riser leading to furnace as shown in Fig.
22. Connect a capped nipple into lower end of tee. Capped nipple
should extend below level of furnace gas controls. Place a ground
joint union between furnace gas control valve and exterior
manual equipment gas shutoff valve. A 1/8--in. (3 mm) NPT
plugged tapping, accessible for test gauge connection, MUST be
installed immediately upstream of gas supply connection to
furnace and downstream of manual equipment shutoff valve.
310AAV

20
2” (51mm)
Street Elbow
A08551
Fig. 21 --- Burner and Manifold
UNION
SEDIMENT
TRAP
MANUAL
SHUTOFF
VALVE
(REQUIRED)
GAS
SUPPLY
A02035
Fig. 22 --- Typical Gas Pipe Arrangement
Piping should be pressure and leak tested in accordance with
NFGC, local, and national plumbing and gas codes before the
furnace has been connected. After all connections have been
made, purge lines and check for leakage at furnace prior to
operating furnace.
If pressure exceeds 0.5 psig (14--In. W.C.), gas supply pipe must
be disconnected from furnace and capped before and during
supply pipe pressure test. If test pressure is equal to or less than
0.5 psig (14--In. W.C.), turn off electric shutoff switch located on
furnace gas control valve and accessible manual equipment
shutoff valve before and during supply pipe pressure test. After
all connections have been made, purge lines and check for
leakage at furnace prior to operating furnace.
The gas supply pressure shall be within the maximum and
minimum inlet supply pressures marked on the rating plate with
the furnace burners ON and OFF.
Factory
Factory
Installed
Installed
Alternate
Alternate
Location
Location
A10291
Fig. 23 --- Relocating J--Box
A10141
Fig. 24 --- Field--Supplied Electrical Box on Furnace Casing
ELECTRICAL CONNECTIONS
ELECTRICAL SHOCK HAZARD
Failure to follow this warning could result in personal
injury or death.
Blower access panel door switch opens 115--v power to
control. No component operation can occur. Do not bypass
or close switch with panel removed.
!WARNING
See Fig. 26 for field wiring diagram showing typical field 115--v
wiring. Check all factory and field electrical connections for
tightness.
310AAV

21
ELECTRICAL SHOCK AND FIRE HAZARD
Failure to follow this warning could result in personal
injury, death, or property damage.
The cabinet MUST have an uninterrupted or unbroken
ground according to NEC ANSI/NFPA 70--2008 or local
codes to minimize personal injury if an electrical fault
should occur. This may consist of electrical wire, conduit
approved for electrical ground or a listed, grounded power
cord (where permitted by local code) when installed in
accordance with existing electrical codes. Refer to the
power cord manufacturer’s ratings for proper wire gauge.
Do not use gas piping as an electrical ground.
!WARNING
FURNACE MAY NOT OPERATE
Failure to follow this caution may result in intermittent
furnace operation.
Furnace control must be grounded for proper operation or
else control will lock out. Control must remain grounded
through green/yellow wire routed to gas valve and manifold
bracket screw.
CAUTION
!
115--V WIRING
Verify that the voltage, frequency, and phase correspond to that
specified on unit rating plate. Also, check to be sure that service
provided by utility is sufficient to handle load imposed by this
equipment. Refer to rating plate or Table 7 for equipment
electrical specifications.
Make all electrical connections in accordance with National
Electrical Code (NEC) ANSI/NFPA 70--2008 and any local codes
or ordinances that might apply.
FIRE HAZARD
Failure to follow this warning could result in personal
injury, death, or property damage.
Do not connect aluminum wire between disconnect switch
and furnace. Use only copper wire.
!WARNING
Use a separate, fused branch electrical circuit with a properly
sized fuse or circuit breaker for this furnace. See Table 7 for wire
size and fuse specifications. A readily accessible means of
electrical disconnect must be located within sight of the furnace.
NOTE: Proper polarity must be maintained for 115--v wiring. If
polarity is incorrect, control LED status indicator light will flash
rapidly and furnace will NOT operate.
J--BOX RELOCATION
NOTE: If factory location of J--Box is acceptable, go to next
section (ELECTRICAL CONNECTION TO J--BOX).
NOTE: On 14--in. (356 mm) wide casing models, the J--Box
shall not be relocated to other side of furnace casing when the
vent pipe is routed within the casing.
1. Remove and save two screws holding J--Box. (See Fig.
23.)
NOTE: The J--Box cover need not be removed from the J--Box
in order to move the J--Box. Do NOT remove green ground
screw inside J--Box. The ground screw is not threaded into the
casing flange and can be lifted out of the clearance hole in casing
while swinging the front edge of the J--Box outboard of the
casing.
2. Cut wire tie on loop in furnace wires attached to J--box.
3. Move J--Box to desired location.
4. Fasten J--Box to casing with two screws removed in Step
1.
5. Route J--Box wires within furnace away from sharp edges,
rotating parts and hot surfaces.
ELECTRICAL CONNECTION TO J--BOX
Field--Supplied Electrical Box on Furnace J--Box Bracket See
Fig. 24.
1. Remove cover from furnace J--Box.
2. Attach electrical box to furnace J--Box bracket with at least
two field--supplied screws through holes in electrical box
into holes in bracket. Use blunt--nose screws that will not
pierce wire insulation.
3. Route furnace power wires through holes in electrical box
and J--Box bracket, and make field--wire connections in
electrical box. Use best practices (NEC in U.S.) for wire
bushings, strain relief, etc.
4. Route and secure field ground wire to green ground screw
on J--Box bracket.
5. Connect line voltage leads as shown in Fig. 26.
6. Reinstall cover to J--Box. Do not pinch wires between
cover and bracket. Electrical Box on Furnace Casing Side
See Fig. 24.
FIRE OR ELECTRICAL SHOCK HAZARD
Failure to follow this warning could result in personal
injury, death, or property damage.
If field--supplied manual disconnect switch is to be mounted
on furnace casing side, select a location where a drill or
fastener cannot damage electrical or gas components.
!WARNING
1. Select and remove a hole knockout in the casing where the
electrical box is to be installed.
NOTE: Check that duct on side of furnace will not interfere with
installed electrical box.
2. Remove the desired electrical box hole knockout and posi-
tion the hole in the electrical box over the hole in the fur-
nace casing.
3. Fasten the electrical box to casing by driving two field
supplied screws from inside electrical box into casing
steel.
4. Remove and save two screws holding J--Box. (See Fig.
23.)
5. Pull furnace power wires out of 1/2--in. (12 mm) diameter
hole in J--Box. Do not loosen wires from strain--relief
wire--tie on outside of J--Box.
6. Route furnace power wires through holes in casing and
electrical box and into electrical box.
7. Pull field power wires into electrical box.
8. Remove cover from furnace J--Box.
9. Route field ground wire through holes in electrical box
and casing, and into furnace J--Box.
10. Reattach furnace J--Box to furnace casing with screws re-
movedinStep4.
11. Secure field ground wire to J--Box green ground screw.
310AAV

22
Table 7—Electrical Data
FURNACE SIZE
V O L T S ---
H E R T Z ---
PHASE
OPERATING VOLTAGE
RANGE MAXIMUM
UNIT AMPS
UNIT
AMPACITY#
MAXIMUM
WIRE
LENGTH FT.
(M)‡
MAXIMUM
FUSE OR
CKT BKR
AMPS†
MINIMUM
WIRE
GAUGE
Maximum* Minimum*
045---08/024045 1 1 5 --- 6 0 --- 1 127 104 5.2 7.26 49 (14.9) 15 14
045---12/036045 1 1 5 --- 6 0 --- 1 127 104 7.2 9.79 37 (11.2) 15 14
070---08/024070 1 1 5 --- 6 0 --- 1 127 104 5.1 7.14 51 (15.5) 15 14
070---12/036070 1 1 5 --- 6 0 --- 1 127 104 7.2 9.72 38 (11.5) 15 14
070---16/048070 1 1 5 --- 6 0 --- 1 127 104 9.5 12.60 29 (8.8) 15 14
090---14/042090 1 1 5 --- 6 0 --- 1 127 104 8.6 11.39 32 (9.7) 15 14
090---16/048090 1 1 5 --- 6 0 --- 1 127 104 10.0 13.09 28 (8.5) 15 14
090---20/060090 1 1 5 --- 6 0 --- 1 127 104 14.1 18.2 31 (9.4) 20 12
110---12/036110 1 1 5 --- 6 0 --- 1 127 104 8.6 11.27 32 (9.7) 15 14
110---16/048110 1 1 5 --- 6 0 --- 1 127 104 10.2 13.34 27 (8.2) 15 14
110---22/066110 1 1 5 --- 6 0 --- 1 127 104 15.1 19.42 29 (8.8) 20 12
135---16/048135 1 1 5 --- 6 0 --- 1 127 104 10.5 13.63 27 (8.2) 15 14
135---22/066135 1 1 5 --- 6 0 --- 1 127 104 14.5 18.72 30 (9.1) 20 12
155---20/060155 1 1 5 --- 6 0 --- 1 127 104 15.4 19.83 29 (8.8) 20 12
* Permissible limits of the voltage range at which the unit operates satisfactorily.
# Unit ampacity = 125 percent of largest operating component’s full load amps plus 100 percent of all other potential operating components’ (EAC, humidifier,
etc.) full load amps.
{Time---delay type is recommended.
}Length shown is as measured 1 way along wire path between unit and service panel for maximum 2 percent voltage drop.
12. Complete electrical box wiring and installation. Connect
line voltage leads as shown in Fig. 26. Use best practices
(NEC) for wire bushings, strain relief, etc.
13. Reinstall cover to J--Box. Do not pinch wires between
cover and bracket.
POWER CORD INSTALLATION IN FURNACE J--BOX
NOTE: Power cords must be able to handle the electrical
requirements listed in Table 7. Refer to power cord
manufacturer’s listings.
1. Remove cover from J--Box.
2. Route listed power cord through 7/8--in. (22 mm) diameter
hole in J--Box.
3. Secure power cord to J--Box bracket with a strain relief
bushing or a connector approved for the type of cord used.
4. Secure field ground wire to green ground screw on J--Box
bracket.
5. Connect line voltage leads as shown in Fig. 26.
6. Reinstall cover to J--Box. Do not pinch wires between
cover and bracket.
BX CABLE INSTALLATION IN FURNACE J--BOX
1. Remove cover from J--Box.
2. Route BX cable into 7/8--inch (22 mm) diameter hole in
J--Box.
3. Secure BX cable to J--Box bracket with connectors ap-
proved for the type of cable used.
4. Secure field ground wire to green ground screw on J--Box
bracket.
5. Connect line voltage leads as shown in Fig. 26.
6. Reinstall cover to J--Box. Do not pinch wires between
cover and bracket.
310AAV

23
BLW
NUETRAL
STATUS CODE LED
SEC-2 SEC-1
EAC-2 L2
FUSE 3-AMP
0.5 AMP@24VAC
HUM
TEST/TWIN
G Com W Y R
24V
120 180
90 150
BLOWER OFF-DELAY
PLT 1
COOL HEAT
SPARE-1 SPARE-2 EAC-1
1-AMP@
115VAC PR-1
L1
PL2 1
24-V THERMOSTAT
TERMINALS
3-AMP FUSE
LED OPERATION &
DIAGNOSTIC LIGHT
115-VAC(L2)NEUTRAL
CONNECTIONS
COOL
HEAT
SPARE-1
SPARE-2
BLOWER SPEED
SELECTION TERMINALS
EAC-1 TERMINAL
(115-VAC 1.0 AMP MAX.)
115 VAC (L1) LINE
VOLTAGE CONNECTION
PL2-HOT SURFACE
IGNITER & INDUCER
MOTOR CONNECTOR
PL1-LOW VOLTAGE MAIN
HARNESS CONNECTOR
TRANSFORMER 24-VAC
CONNECTIONS
HUMIDIFIER TERMINAL
(24-VAC 0.5 AMP MAX.)
TWINNING AND/OR
COMPONENT TEST
TERMINAL
BLOWER OFF-DELAY
J2
J2 JUMPER
PLT
A02100
Fig. 25 --- Furnace Control
115-V FIELD-
SUPPLIED
DISCONNECT
AUXILIARY
J-BOX
24-V
TERMINAL
BLOCK
THREE-WIRE
HEATING-ONLY
FIVE WIRE
NOTE 1
NOTE 2
FIELD-SUPPLIED
DISCONNECT
CONDENSING
UNIT
TWO
WIRE
FURNACE
C
O
N
T
R
O
L
R
G
COM
WCR GY
GND
GND
FIELD 24-V WIRING
FIELD 115-, 208/230-, 460-V WIRING
FACTORY 24-V WIRING
FACTORY 115-V WIRING
208/230- OR
460-V
THREE
PHASE
208/230-V
SINGLE
PHASE
BLOWER DOOR SWITCH
WHT
BLK
WHT
BLK
NOTES: Connect Y-terminal in furnace as shown for proper blower operation.
Some thermostats require a "C" terminal connection as shown.
If any of the original wire, as supplied, must be replaced, use
same type or equivalent wire.
W
Y/Y2
GND
THERMOSTAT
TERMINALS
1.
2.
3.
A99440
Fig. 26 --- Heating and Cooling Application Wiring Diagram with Single Stage Thermostat
310AAV

24
24--V WIRING
Make field 24--v connections at the 24--v terminal strip. (See Fig.
25.) Connect terminal Y as shown in Fig. 26 for proper cooling
operation. Use only AWG No. 18, color--coded, copper
thermostat wire.
The 24--v circuit contains an automotive--type, 3--amp. fuse
located on the control. Any direct shorts during installation,
service, or maintenance could cause this fuse to blow. If fuse
replacement is required, use ONLY a 3--amp. fuse of identical
size.
ACCESSORIES
1. Electronic Air Cleaner (EAC)
Connect an accessory Electronic Air Cleaner (if used) us-
ing 1/4--in female quick connect terminals to the two male
1/4--in quick--connect terminals on the control board
marked EAC--1 and EAC--2. The terminals are rated for
115 VAC, 1.0 amps maximum and are energized during
blower motor operation. (See Fig. 24.)
2. Humidifier (HUM)
Connect an accessory 24 VAC, 0.5 amp. maximum hu-
midifier (if used) to the 1/4--in male quick--connect HUM
terminal and COM--24V screw terminal on the control
board thermostat strip. The HUM terminal is energized
when gas valve relay (GVR) is energized. (See Fig. 24.)
NOTE: A field--supplied, 115--v controlled relay connected to
EAC terminals may be added if humidifier operation is desired
during blower operation.
NOTE: DO NOT connect furnace control HUM terminal to
HUM (humidifier) terminal on Thermidistatt, Zone Controller
or similar device. See Thermidistatt, Zone Controller,
thermostat, or controller manufacturer’s instructions for proper
connection.
VENTING
The furnace shall be connected to a listed factory built chimney
or vent, or a clay--tile lined masonry or concrete chimney. Venting
into an unlined masonry chimney or concrete chimney is
prohibited.
When an existing Category I furnace is removed or replaced, the
original venting system may no longer be sized to properly vent
the attached appliances. An improperly sized Category I venting
system could cause the formation of condensate in the furnace
and vent, leakage of condensate and combustion products, and
spillage of combustion products into the living space.
Vent system or vent connectors may need to be resized. Vent
systems or vent connectors, must be sized to approach minimum
size as determined using appropriate table found in the NFGC.
GENERAL VENTING REQUIREMENTS
Follow all safety codes for proper vent sizing and installation
requirements, including local building codes, the National Fuel
Gas Code ANSI Z223.1--2009/NFPA 54--2009 (NFGC), Parts 12
and 13, local building codes, and furnace and vent manufacturers’
instructions.
CARBON MONOXIDE POISONING HAZARD
Failure to follow the steps outlined below for each
appliance connected to the venting system being placed into
operation could result in carbon monoxide poisoning or
death.
The following steps shall be followed for each appliance
connected to the venting system being placed into
operation, while all other appliances connected to the
venting system are not in operation:
1. Seal any unused openings in venting system.
2. Inspect the venting system for proper size and horizontal
pitch, as required in the National Fuel Gas Code, ANSI
Z223.1/NFPA 54 and these instructions. Determine that
there is no blockage or restriction, leakage, corrosion and
other deficiencies, which could cause an unsafe condition.
3. As far as practical, close all building doors and windows
and all doors between the space in which the appliance(s)
connected to the venting system are located and other
spaces of the building.
4. Close fireplace dampers.
5. Turn on clothes dryers and any appliance not connected
to the venting system. Turn on any exhaust fans, such as
range hoods and bathroom exhausts, so they are operating
at maximum speed. Do not operate a summer exhaust fan.
6. Follow the lighting instructions. Place the appliance
being inspected into operation. Adjust the thermostat so
appliance is operating continuously.
7. Test for spillage from draft hood equipped appliances at
the draft hood relief opening after 5 minutes of main burner
operation. Use the flame of a match or candle.
8. If improper venting is observed during any of the above
tests, the venting system must be corrected in accordance
with the National Fuel Gas Code, ANSI Z223.1/NFPA 54 .
9. After it has been determined that each appliance
connected to the venting system properly vents when tested
as outlined above, return doors, windows, exhaust fans,
fireplace dampers and any other gas--fired burning
appliance to their previous conditions of use.
!WARNING
These furnaces are design--certified as Category I furnaces in
accordance with ANSI Z21.47--2009/CSA 2.3--2009 and operate
with a non--positive vent static pressure to minimize the potential
for vent gas leakage. Category I furnaces operate with a flue loss
not less than 17 percent to minimize the potential for
condensation in the venting system. These furnaces are approved
for common venting and multistory venting with other fan
assisted or draft hood equipped appliances in accordance with the
NFGC, the local building codes, and furnace and vent
manufacturers’ instructions.
The following information and warning must be considered in
addition to the requirements defined in the NFGC.
CARBON MONOXIDE POISONING HAZARD
Failure to follow this warning could result in personal
injury or death.
Do not bypass the draft safeguard switch, as an unsafe
condition could exist which must be corrected.
!WARNING
310AAV

25
1. If a vent (common or dedicated) becomes blocked, the fur-
nace will be shut off by the draft safeguard switch located
on the vent elbow.
2. Do not connect this Category I furnace into a single--wall
dedicated or common vent. The dedicated or common
vent is considered to be the vertical portion of the vent
system that terminates outdoors.
3. Vent connectors serving Category I furnaces shall not be
connected into any portion of a mechanical draft system
operating under positive pressure.
4. Do not vent this appliance with any solid fuel burning ap-
pliance.
5. Category I furnaces must be vented vertically or nearly
vertically unless equipped with a listed power venter.
6. Do not vent this appliance into an unlined masonry chim-
ney. Refer to Chimney Inspection Chart, Fig. 27.
MASONRY CHIMNEY REQUIREMENTS
NOTE: These furnaces are CSA design--certified for use in
exterior clay tile--lined masonry chimneys with a factory
accessory Chimney Adapter Kit. Refer to the furnace rating plate
for correct kit usage. The Chimney Adapter Kits are for use with
ONLY furnaces having a Chimney Adapter Kit numbers marked
on the furnace rating plate.
If a clay tile--lined masonry chimney is being used and it is
exposed to the outdoors below the roof line, relining might be
required. Chimneys shall conform to the Standard for Chimneys,
Fireplaces, Vents, and Solid Fuel Burning Appliances
ANSI/NFPA 211--2009 and must be in good condition.
U.S.A.--Refer to NFPA 54/ANSI Z223.1--2009 Sections 13.1.8
and 13.2.20 of the NFGC or the authority having jurisdiction to
determine whether relining is required. If relining is required, use
a properly sized listed metal liner, Type--B vent, or a listed
alternative venting design.
NOTE: See the NFPA 54 / ANSI Z223.1--2009, 13.1.8 and
13.2.20 regarding alternative venting design and the Exception,
which cover installations such as the Chimney Adapter Kits
which are listed for use with these furnaces. The Chimney
Adapter Kit is listed alternative venting system for these furnaces.
See the kit instructions for complete details. See Table 17 for
accessory list.
This furnace is permitted to be vented into a clay tile--lined
masonry chimney that is exposed to the outdoors below the roof
line, provided:
1. Vent connector is Type--B double--wall, and
2. This furnace is common vented with at least 1 draft hood
equipped appliance, and
3. The combined appliance input rating is less than the max-
imum capacity given in Table 8 , and
4. The input rating of each space heating appliance is greater
than the minimum input rating given in Table 9 for the
local 99% Winter Design Temperature. Chimneys having
internal areas greater than 38 in2(24516 mm2) require fur-
nace input ratings greater than the input ratings of these
furnaces. See footnote at bottom of Table 9, and
5. The authority having jurisdiction approves.
If all of these conditions cannot be met, an alternative venting
design shall be used, such as the listed chimney adapter kit with
these furnaces, which are listed for use with the kit, a listed
chimney--lining system, or a Type--B common vent.
Inspections before the sale and at the time of installation will
determine the acceptability of the chimney or the need for repair
and/or (re)lining. Refer to the Fig. 27 to perform a chimney
inspection. If the inspection of a previously used tile--lined
chimney:
a. Shows signs of vent gas condensation, the chimney
should be relined in accordance with local codes and
the authority having jurisdiction. The chimney should
be relined with a listed metal liner, Type--B vent, or a
listed chimney adapter kit shall be used to reduce con-
densation. If a condensate drain is required by local
code, refer to the NFPA 54 / ANSI Z223.1--2009, Sec-
tion 12.10 for additional information on condensate
drains.
b. Indicates the chimney exceeds the maximum permiss-
ible size in the tables, the chimney should be rebuilt or
relined to conform to the requirements of the equip-
ment being installed and the authority having jurisdic-
tion.
A chimney without a clay tile liner, which is otherwise in good
condition, shall be rebuilt to conform to ANSI/NFPA 211 or be
lined with a UL listed metal liner or UL listed Type--B vent.
Relining with a listed metal liner or Type--B vent is considered to
be a vent--in--a--chase.
If a metal liner or Type--B vent is used to line a chimney, no other
appliance shall be vented into the annular space between the
chimney and the metal liner.
310AAV

26
A10133
Fig. 27 --- Chimney Inspection Chart
310AAV

27
APPLIANCE APPLICATION REQUIREMENTS
Appliance operation has a significant impact on the performance
of the venting system. If the appliances are sized, installed,
adjusted, and operated properly, the venting system and/or the
appliances should not suffer from condensation and corrosion.
The venting system and all appliances shall be installed in
accordance with applicable listings, standards, and codes.
The furnace should be sized to provide 100 percent of the design
heating load requirement plus any margin that occurs because of
furnace model size capacity increments. Heating load estimates
can be made using approved methods available from Air
Conditioning Contractors of America (Manual J); American
Society of Heating, Refrigerating, and Air--Conditioning
Engineers; or other approved engineering methods. Excessive
oversizing of the furnace could cause the furnace and/or vent to
fail prematurely.
When a metal vent or metal liner is used, the vent must be in
good condition and be installed in accordance with the vent
manufacturer’s instructions.
To prevent condensation in the furnace and vent system, the
following precautions must be observed:
1. The return--air temperature must be at least 60_F(16_C)
db except for brief periods of time during warm--up from
setback at no lower than 55_F(13_C) db or during initial
start--up from a standby condition.
2. Adjust the gas input rate per the installation instructions.
Low gas input rate causes low vent gas temperatures, caus-
ing condensation and corrosion in the furnace and/or vent-
ing system. Derating is permitted only for altitudes above
2000 ft. (610 M).
3. Adjust the air temperature rise to the midpoint of the rise
range or slightly above. Low air temperature rise can cause
low vent gas temperature and potential for condensation
problems.
4. Set thermostat heat anticipator or cycle rate to reduce short
cycling.
Air for combustion must not be contaminated by halogen
compounds which include chlorides, fluorides, bromides, and
iodides. These compounds are found in many common home
products such as detergent, paint, glue, aerosol spray, bleach,
cleaning solvent, salt, and air freshener, and can cause corrosion
of furnaces and vents. Avoid using such products in the
combustion--air supply. Furnace use during construction of the
building could cause the furnace to be exposed to halogen
compounds, causing premature failure of the furnace or venting
system due to corrosion.
Vent dampers on any appliance connected to the common vent
can cause condensation and corrosion in the venting system. Do
not use vent dampers on appliances common vented with this
furnace.
ADDITIONAL VENTING REQUIREMENTS
A 4--in. (102 mm) round vent elbow is supplied with the furnace.
A 5--in. (127 mm) or 6--in. (152 mm) vent connector may be
required for some model furnaces. A field--supplied 4--in. (102
mm) to 5--in. (127 mm) or 4--in. (102 mm) to 6--in. (152 mm)
sheet metal increaser fitting is required when 5--in. (127 mm) or
6--in. (152 mm) vent connector is used. See Fig. 28 -- 40 Venting
Orientation for approved vent configurations.
NOTE: Vent connector length for connector sizing starts at
furnace vent elbow. The 4--in. (102 mm) vent elbow is shipped
for upflow configuration and may be rotated for other positions.
Remove the 3 screws that secure vent elbow to furnace, rotate
furnace vent elbow to position desired, reinstall screws. The
factory--supplied vent elbow does NOT count as part of the
number of vent connector elbows.
The vent connector can exit the cabinet of the furnace through
one of 5 locations.
1. Attach the single wall vent connector to the furnace vent
elbow, and fasten the vent connector to the vent elbow
with at least two field--supplied, corrosion--resistant, sheet
metal screws located 180_apart.
NOTE: An accessory flue extension is available to extend from
the furnace elbow to outside the furnace casing. See Table 17 for
accessory list. If flue extension is used, fasten the flue extension
to the vent elbow with at least two field--supplied,
corrosion--resistant, sheet metal screws located 180_apart. Fasten
the vent connector to the flue extension with at least two
field--supplied, corrosion resistant sheet metal screws located
180_apart.
2. Vent the furnace with the appropriate connector as shown
in Fig. 28 -- 40.
CUT HAZARD
Failure to follow this caution may result in personal injury.
Sheet metal parts may have sharp edges or burrs.
Use care and wear appropriate protective clothing, safety
glasses and gloves when handling parts and servicing
furnaces.
CAUTION
!
3. Determine the correct location of the knockout to be re-
moved.
4. Use a hammer and screwdriver to strike a sharp blow
between the tie points and work the slug back and forth
until the slug breaks free.
BURN HAZARD
Failure to follow this caution may cause personal injury.
Hot vent pipe is within reach of small children when
installed in downflow position.
See the following instruction.
CAUTION
!
An accessory Vent Guard Kit is REQUIRED for downflow
applications for use where the vent exits through the lower
portion of the furnace casing. Refer to the Vent Guard Kit
Instructions for complete details. See Table 17 for accessory list.
The horizontal portion of the venting system shall slope upwards
not less than 1/4--in. (6 mm) per linear ft. (21 mm/m) from the
furnace to the vent and shall be rigidly supported every 5 ft. (1.5
M) or less with metal hangers or straps to ensure there is no
movement after installation.
SIDEWALL VENTING
This furnace is not approved for direct sidewall horizontal
venting.
Per section 12.4.3 of the NFPA 54 / ANSI Z223.1--2009, any
listed mechanical venter may be used, when approved by the
authority having jurisdiction.
310AAV

28
Table 8—Exterior Masonry Chimney Fan + Nat Installations
with Type--B Double Wall Vent Connectors ENFPA & AGA
Combined Appliance Maximum Input
Rating in Thousands of Btuh per Hour
VENT HEIGHT
FT. (M)
INTERNAL AREA OF CHIMNEY
SQ. IN. (SQ. MM)
12
(7741)
19
(12258)
28
(18064)
38
(24516)
6 (1.8) 74 119 178 257
8 (2.4) 80 130 193 279
10 (3.0) 84 138 207 299
15 (4.5) NR 152 233 334
20 (6.0) NR NR 250 368
30 (9.1) NR NR NR 404
Table 9—Minimum Allowable Input Rating of Space--Heat-
ing Appliance in Thousands of Btuh per Hour
VENT HEIGHT
FT. (M)
INTERNAL AREA OF CHIMNEY
SQ. IN. (SQ. MM)
12
(7741)
19
(12258)
28
18064)
38
(24516)
Local 99% Winter Design Temperature: 17 to 26 degrees F
6 0 55 99 141
852 74 111 154
10 NR 90 125 169
15 NR NR 167 212
20 NR NR 212 258
30 NR NR NR 362
Local 99% Winter Design Temperature: 5 to 16 degrees F*
6NR 78 121 166
8NR 94 135 182
10 NR 111 149 198
15 NR NR 193 247
20 NR NR NR 293
30 NR NR NR 377
Local 99% Winter Design Temperature: ---10 to 4 degrees F*
6NR NR 145 196
8NR NR 159 213
10 NR NR 175 231
15 NR NR NR 283
20 NR NR NR 333
30 NR NR NR NR
Local 99% Winter Design Temperature: ---11_F(16_C) or
lower
Not recommended for any vent configuration.
*The 99.6% heating db temperatures found in the 1997 or 2001 ASHRAE
Fundamentals Handbook, Climatic Design Information chapter, Table 1A
(United States) or the 2005 ASHRAE Fundamentals handbook, Climatic
Design Information chapter, and the CD---ROM included with the 2005
ASHRAE Fundamentals Handbook.
310AAV

29
Table 10—Minimum Vent Heights
Caution!! for the following applications, use the minimum vertical vent heights as specified below.
For all other applications, follow exclusively the national fuel gas code.
FURNACE
ORIENTATION
VENT
ORIENTATION
FURNACE
INPUT (BTUH/HR)
MINIMUM VENT
DIAMETER
IN. (mm)*
MINIMUM VERTICAL VENT
HEIGHT
FT. (M)**
Downflow Vent elbow left, then
up Fig. 32
154,000
132,000
110,000(036/--- 12 only)
5 (127) 12 (3.6)
Horizontal Left Vent elbow right,
then up Fig. 35
154,000
132,000 5 (127) 7 (.65)
Horizontal Left Vent Elbow up
Fig. 36
154,000
132,000 5 (127) 7 (,65)
Horizontal Left Vent elbow right
Fig. 37 154,000 5 (127) 7 (.65)
Downflow Vent elbow up then
left Fig. 30
110,000
(036/--- 12 only) 5 (127) 10 (3.0)
Downflow Vent elbow up, then
right Fig. 33
110,000
(036/--- 12 only) 5 (127) 10 (3.0)
* 4 in. (102 mm) inside casing or vent guard
** Including 4 in. (102 mm) vent section (s)
NOTE: All vent configurations must also meet National Fuel Gas Code (NFGC) venting requirements
NOTE: For all unlisted vent configurations, refer to National Fuel Gas Code (NFGC) venting requirements.
SEE NOTES: 1,2,4,7,8,9
on the page following
these figures
A03208
Fig. 28 --- Upflow Application--Vent Elbow Up
SEE NOTES: 1,2,3,4,7,8,9
on the pages following
these figures
A03209
Fig. 29 --- Upflow Application--Vent Elbow Right
310AAV

30
SEE NOTES:1,2,3,4,5,7,8,9
on the page following
these figures
A03210
Fig. 30 --- Downflow Application--Vent Elbow Up then Left
SEE NOTES: 1,2,4,5,7,8,9
on the page following
these figures
A03211
Fig. 31 --- Downflow Application--Vent Elbow Up
SEE NOTES: 1,2,4,5,6,7,8,9,10
on the page following these figures
A03207
Fig. 32 --- Downflow Application--Vent Elbow Left then Up
SEE NOTES:1,2,3,4,5,7,8,9
on the page following
these figures.
A03212
Fig. 33 --- Downflow Application--Vent Elbow Up then Right
SEE NOTES: 1,2,4,7,8,9 on the page
following these figures
A03213
Fig. 34 --- Horizontal Left Application--Vent Elbow Left
310AAV

31
SEE NOTES: 1,2,4,5,7,8,9 on the page
following these figures
A03214
Fig. 35 --- Horizontal Left Application--Vent Elbow Right
then Up
SEE NOTES: 1,2,4,5,7,8,9 on the page
following these figures
A03215
Fig. 36 --- Horizontal Left Application--Vent Elbow Up
SEE NOTES: 1,2,4,5,7,8,9 on the page
following these figures
A03216
Fig. 37 --- Horizontal Left Application--Vent Elbow Right
SEE NOTES: 1,2,4,7,8,9 on the page
following these figures
A03218
Fig. 38 --- Horizontal Right Application--Vent Elbow Right
SEE NOTES: 1,2,4,5,7,8,9 on the page
following these figures
A03219
Fig. 39 --- Horizontal Right Application--Vent Elbow Left
then Up
SEE NOTES: 1,2,4,5,7,8,9
A02068
Fig. 40 --- Horizontal Right Application--Vent Elbow Left
NOTES FOR FIGS. 33 -- 45
1. For common vent, vent connector sizing and vent material, use the NFGC.
2. Immediately increase to 5--in. (127 mm) or 6--in. (152 mm) vent connector outside furnace casing when 5--in. (127 mm) vent connector is required,
refer to Note 1 above.
3. Side outlet vent for upflow and downflow installations must use Type B vent immediately after exiting the furnace, except when field--approved
Downflow Vent Guard Kit, is used in the downflow position. See Table 17 for accessory list.
4. Type--B vent where required, refer to the Note 1 above.
5. A 4--in. (102 mm) single--wall (26 ga. minimum) vent must be used inside furnace casing and when the field--approved Downflow Vent Guard Kit is
used external to the furnace. See Table 17 for accessory list.
6. Accessory Downflow Vent Guard Kit required in downflow installations with lower vent configuration. See Table 17 for accessory list.
7. Chimney Adapter Kit may be required for exterior masonry chimney applications. Refer to Chimney Adapter Kit for sizing and complete application
details. See Table 17 for accessory list.
8. Secure vent connector to furnace elbow with (2) corrosion--resistant sheet metal screws, spaced approximately 180°apart.
9. Secure all other single wall vent connector joints with (3) corrosion resistant screws spaced approximately 120°apart. Secure Type--B vent connect-
ors per vent connector manufacturer’s recommendations.
10. The total height of the vent and connector shall be at least seven ft. (2.1 M) for the 154,000 Btuh gas input rate model when installed in a downflow
application with furnace elbow turned to left side with the connector elbow outside furnace casing pointing upward. (See Fig. 31.)
310AAV

32
START--UP, ADJUSTMENT, AND SAFETY
CHECK
Step 1 —General
FIRE HAZARD
Failure to follow this warning could result in personal
injury, death and/or property damage.
This furnace is equipped with manual reset limit switches in
the gas control area. The switches open and shut off power
to the gas valve if a flame rollout or overheating condition
occurs in the gas control area. DO NOT bypass the
switches. Correct inadequate combustion air supply
problem before resetting the switches.
!WARNING
CUT HAZARD
Failure to follow this caution may result in personal injury.
Sheet metal parts may have sharp edges or burrs.
Use care and wear appropriate protective clothing, safety
glasses, and gloves when handling parts and servicing
furnaces.
CAUTION
!
1. Maintain 115--v wiring and ground. Improper polarity will
result in rapid flashing LED and no furnace operation.
2. Make thermostat wire connections at the 24--v terminal
block on the furnace control. Failure to make proper con-
nections will result in improper operation. (See Fig. 26.)
3. Gas supply pressure to the furnace must be greater than
4.5--In. W.C. (0.16 psig ) but not exceed 14--In. W.C. (0.5
psig).
4. Check all manual--reset switches for continuity.
5. Install blower compartment door. Door must be in place to
operate furnace.
6. Replace outer door.
Step 2 —Start--Up Procedures
FIRE AND EXPLOSION HAZARD
Failure to follow this warning could result in personal
injury, death and or property damage.
Never test for gas leaks with an open flame. Use a
commercially available soap solution made specifically for
the detection of leaks to check all connections.
!WARNING
1. Purge gas lines after all connections have been made.
2. Check gas lines for leaks.
ELECTRICAL SHOCK HAZARD
Failure to follow this warning could result in personal
injury, or death.
Blower access door switch opens 115--v power to control.
No component operation can occur unless switch is closed.
Caution must be taken when manually closing this switch
for service purposes.
!WARNING
3. To Begin Component Self--Test: Remove blower access
door. Disconnect the thermostat R lead from the furnace
control board. Manually close the blower door switch.
Short (jumper) the COM--24v terminal on control to the
TEST/TWIN 3/16--inch quick connect terminal on control
until LED goes out (approximately 2 sec). Gas valve and
humidifier will not be turned on. (See Fig. 25.)
NOTE: The furnace control allows all components, except the
gas valve, to be run for short period of time. This feature helps
diagnose a system problem in case of a component failure.
Component test feature will not operate if any thermostat signal is
present at the control.
Component test sequence is as follows:
Refer to service label attached to furnace or see Fig. 45.
a. LED will display previous status code 4 times.
b. Inducer motor starts and continues to run until Step f
of component test sequence.
c. Hot surface igniter is energized for 15 sec., then off.
d. Blower motor operates on HEAT speed for 10 sec.
e. Blower motor operates on COOL speed for 10 sec.
f. Inducer motor stops.
g. Reconnect R lead to furnace control board, release
blower door switch and re--install blower door.
4. Operate furnace per instruction on door.
5. Verify furnace shut down by lowering thermostat setting
below room temperature.
6. Verify furnace restarts by raising thermostat setting above
room temperature.
Step 3 —Adjustments
Table 11—Altitude Derate Multiplier for U.S.A.
ALTITUDE
FT. (M)
PERCENT
OF DERATE
DERATE MULTIPLIER
FACTOR*
0–2000
(0---610) 01.00
2001–3000
(610---914) 8–12 0.90
3001–4000
(914---1219) 12–16 0.86
4001–5000
(1219---1524) 16–20 0.82
5001–6000
1524---1829) 20–24 0.78
6001–7000
(1829---2134) 24–28 0.74
7001–8000
(2134---2438) 28–32 0.70
8001–9000
(2438---2743) 32–36 0.66
9001–10,000
(2743---3048) 36–40 0.62
* Derate multiplier factors are based on midpoint altitude for altitude
range.
FIRE HAZARD
Failure to follow this warning could result in injury, death
and/or property damage.
DO NOT bottom out gas valve regulator adjusting screw.
This can result in unregulated manifold pressure and result
in excess overfire and heat exchanger failures.
!WARNING
310AAV

33
FURNACE DAMAGE HAZARD
Failure to follow this caution may result in reduced furnace
life.
DO NOT redrill orifices. Improper drilling (burrs, out--of
round holes, etc.) can cause excessive burner noise and
misdirection of burner flames. This can result in flame
impingement of heat exchangers, causing failures. (See Fig.
43.)
CAUTION
!
Furnace gas input rate on rating plate is for installations at
altitudes up to 2000 ft. (610 M). Furnace input rate must be
within +/--2 percent of furnace rating plate input.
1. Determine the correct gas input rate.
The input rating for altitudes above 2,000 ft. (610 M) must
be reduced by 4 percent for each 1,000 ft. (305 M) above
sea level. For installations below 2000 ft., refer to the unit
rating plate. For installations above 2000 ft. (610 M), mul-
tiply the input on the rating plate by the derate multiplier
in Table 11 for the correct input rate.
2. Determine the correct orifice and manifold pressure adjust-
ment. There are two different orifice and manifold adjust-
ment tables. All models in all positions, except Low NOx
models in downflow or horizontal positions, use Table 15
(22,000 Btuh/Burner).
Low NOx models in the downflow or horizontal positions
must use Table 16 (21,000 Btuh/Burner). See input listed
on rating plate.
a. Obtain average yearly gas heat value (at installed alti-
tude) from local gas supplier.
b. Obtain average yearly gas specific gravity from local
gas supplier.
c. Find installation altitude in Table 15 or 16.
d. Find closest natural gas heat value and specific gravity
in Table 15 or 16.
e. Follow heat value and specific gravity lines to point of
intersection to find orifice size and manifold pressure
settings for proper operation.
f. Check and verify burner orifice size in furnace.
NEVER ASSUME ORIFICE SIZE. ALWAYS
CHECK AND VERIFY.
g. Replace orifice with correct size if required by Table
15 or 16. Use only factory--supplied orifices. See
EXAMPLE 2.
EXAMPLE 2: (0--2000 ft. (0--610 M) altitude)
For 22,000 Btuh per burner application use Table 15.
Heating value = 1000 Btuh/cu ft.
Specific gravity = 0.62
Therefore: Orifice No. 43*
Manifold pressure: 3.7--In. W.C.
*Furnace is shipped with No. 43 orifices. In this example all
main burner orifices are the correct size and do not need to be
changed to obtain proper input rate.
3. Adjust manifold pressure to obtain correct input rate.
a. Turn gas valve ON/OFF switch to OFF.
b. Remove manifold pressure tap plug from gas valve.
(See Fig. 42.)
c. Connect a water column manometer or similar device
to manifold pressure tap.
d. Turn gas valve ON/OFF switch to ON.
e. Manually close blower door switch.
f. Set thermostat to call for heat.
g. Jumper R and W thermostat connections on furnace
control board to start furnace.
h. Remove regulator seal cap and turn regulator adjusting
screw counterclockwise (out) to decrease input rate of
clockwise (in) to increase input rate.
i. Install regulator seal cap.
j. Leave manometer or similar device connected and
proceed to Step 4.
NOTE: DO NOT set manifold pressure less than 3.2--In. W.C. or
more than 3.8--In. W.C. for natural gas at sea level. If manifold
pressure is outside this range, change main burner orifices or refer
Table 15 or 16.
NOTE: If orifice hole appears damaged or it is suspected to have
been redrilled, check orifice hole with a numbered drill bit of
correct size. Never redrill an orifice. A burr--free and squarely
aligned orifice hole is essential for proper flame characteristics.
4. Verify natural gas input rate by clocking meter.
NOTE: Gas valve regulator adjustment cap must be in place for
proper input to be clocked.
a. Turn off all other gas appliances and pilots served by
the meter.
b. Run furnace for 3 minutes in heating operation.
c. Measure time (in sec) for gas meter to complete 1 re-
volution and note reading. The 2 or 5 cubic feet dial
provides a more accurate measurement of gas flow.
d. Refer to Table 13 for cubic ft. of gas per hr.
e. Multiply gas rate (cu ft./hr) by heating value (Btu/cu
ft.) to obtain input.
If clocked rate does not match required input from Step 1,
increase manifold pressure to increase input or decrease manifold
pressure to decrease input. Repeat steps b through e until correct
input is achieved. Reinstall regulator seal cap on gas valve.
5. Set temperature rise. The furnace must operate within the
temperature rise ranges specified on the furnace rating
plate. Do not exceed temperature rise range specified on
unit rating plate. Determine the temperature rise as fol-
lows:
NOTE: Blower access door must be installed when taking
temperature rise reading. Leaving blower access door off will
result in incorrect temperature measurements.
a. Place thermometers in return and supply ducts as close
to furnace as possible. Be sure thermometers do not
see radiant heat from heat exchangers. Radiant heat
affects temperature rise readings. This practice is par-
ticularly important with straight--run ducts.
b. When thermometer readings stabilize, subtract return--
air temperature from supply--air temperature to determ-
ine air temperature rise.
NOTE: Blower access door must be installed for proper
temperature rise measurement.
NOTE: If the temperature rise is outside this range, first check:
SGas input for heating operation.
SDerate for altitude if applicable.
SReturn and supply ducts for excessive restrictions caus-
ing static pressures greater than 0.50--In. W.C.
SDirty filter.
310AAV

34
ELECTRICAL SHOCK HAZARD
Failure to follow this warning could result in personal
injury or death.
Disconnect 115--v electrical power and install lockout tag
before changing speed tap.
!WARNING
c. Adjust air temperature rise by adjusting blower speed.
Increase blower speed to reduce temperature rise.
Decrease blower speed to increase temperature rise.
d. Turn thermostat down below room temperature and
remove blower access door.
e. To change motor speed selection for heating, remove
blower motor lead from control HEAT terminal (See
Fig. 25.) Select desired blower motor speed lead from
one of the other terminals and relocate it to the HEAT
terminal (See Table 12 for lead color identification).
Reconnect original lead to SPARE terminal.
Table 12—Speed Selection
COLOR SPEED AS SHIPPED
White Common BLW
Black High COOL
Yellow{M e d --- H i g h SPARE
Blue* M e d --- L o w SPARE
Red* Low HEAT
* 1/5 HP motor models: BLUE to HEAT, RED to SPARE
{Not available on 1/5 HP motors.
NOTE: Continuous blower is the HEAT speed.
f. Repeat steps a through e.
g. When correct input rate and temperature rise is
achieved, turn gas valve ON/OFF switch to OFF.
h. Remove manometer or similar device from gas valve.
i. Reinstall manifold pressure tap plug in gas valve.
FIRE HAZARD
Failure to follow this warning could result in personal
injury, death and/or property damage.
Reinstall manifold pressure tap plug in gas valve to
prevent gas leak.
!WARNING
j. Reinstall blower access door if removed.
k. Turn gas valve ON/OFF switch to ON.
FURNACE OVERHEATING HAZARD
Failure to follow this caution may result in reduced furnace
life.
Recheck temperature rise. It must be within limits specified
on the rating plate. Recommended operation is at the
midpoint of rise range or slightly above.
CAUTION
!
6. Set thermostat heat anticipator.
a. Mechanical thermostat -- Set thermostat heat anticipat-
or to match the amp. draw of the electrical components
in the R--W circuit. Accurate amp. draw readings can
be obtained at the wires normally connected to ther-
mostat subbase terminals, R and W. The thermostat
anticipator should NOT be in the circuit while measur-
ing current. (1.) Remove thermostat from subbase or
from wall. (2.) Connect an amp. meter as shown in
Fig. 44 across the R and W subbase terminals or R and
W wires at wall.
(3.) Record amp. draw across terminals when furnace
is in heating and after blower starts.
(4.) Set heat anticipator on thermostat per thermostat
instructions and install on subbase or wall.
b. Electronic thermostat: Set cycle rate for 4 cycles per
hr.
7. Adjust blower off delay The blower off delay has 4 ad-
justable settings from 90 sec to 180 sec. The blower off
delay jumpers are located on the furnace control board.
(See Fig. 25.) To change the blower off delay setting,
move the jumper from one set of pins on the control to the
pins used for the selected blower off delay. Factory off
delay setting is 120 sec.
8. Set airflow CFM for cooling Select the desired blower
motor speed lead for cooling airflow. See Table 5--Air De-
livery--CFM (With Filter). See Table 12 for lead color
identification.
310AAV

35
A08411
Fig. 41 --- Wiring Diagram
310AAV

36
A06666
Fig. 42 --- Gas Control Valve
BURNER
ORIFICE
A93059
Fig. 43 --- Orifice Hole
R Y W G
10 TURNS
THERMOSTAT SUBBASE
TERMINALS WITH
THERMOSTAT REMOVED
(ANITICIPATOR, CLOCK, ETC.,
MUST BE OUT OF CIRCUIT.)
HOOK-AROUND
AMMETER
EXAMPLE: 5.0 AMPS ON AMMETER
10 TURNS AROUND JAWS
= 0.5 AMPS FOR THERMOSTAT
ANTICIPATOR SETTING
FROM UNIT 24-V
CONTROL TERMINALS
A96316
Fig. 44 --- Amp. Draw Check With Ammeter
310AAV

37
Step 4 —Check Safety Controls
The flame sensor, gas valve, and pressure switch were all checked
in the Start--up procedure section as part of normal operation.
1. Check Main Limit Switch(es)
This control shuts off combustion control system and en-
ergizes air--circulating blower motor, if furnace overheats.
By using this method to check limit control, it can be es-
tablished that limit is functioning properly and will operate
if there is a restricted duct system or motor failure. If limit
control does not function during this test, cause must be
determined and corrected.
a. Run furnace for at least 5 minutes.
b. Gradually block off return air with a piece of card-
board or sheet metal until the limit trips.
c. Unblock return air to permit normal circulation.
d. Burners will re--light when furnace cools down.
2. Check draft safeguard switch.
The purpose of this control is to cause the safe shutdown
of the furnace during certain blocked vent conditions.
a. Verify vent pipe is cool to the touch.
b. Disconnect power to furnace and remove vent con-
nector from furnace vent elbow.
c. Restore power to furnace and set room thermostat
above room temperature.
d. After normal start--up, allow furnace to operate for 2
minutes, then block vent elbow in furnace 80 percent
of vent area with a piece of flat sheet metal.
e. Furnace should cycle off within 2 minutes. If gas does
not shut off within 2 minutes, determine reason draft
safeguard switch did not function properly and correct
condition.
f. Remove blockage from furnace vent elbow.
g. Switch will auto--reset when it cools.
h. Re--install vent connector.
NOTE: Should switch remain open longer than 3 minutes,
furnace control board will lockout the furnace for 3 hrs. To reset
furnace control board, turn thermostat below room temperature or
from HEAT to OFF and turn 115v power OFF, then back ON.
3. Check Pressure Switch This control proves operation of
the draft inducer blower.
a. Turn off 115--v power to furnace.
b. Disconnect inducer motor lead wires from wire har-
ness.
c. Turn on 115--v power to furnace.
d. Set thermostat to “call for heat” and wait 1 minute.
When pressure switch is functioning properly, hot sur-
face igniter should NOT glow and control diagnostic
light flashes a status code 32. If hot surface igniter
glows when inducer motor is disconnected, shut down
furnace immediately.
e. Determine reason pressure switch did not function
properly and correct condition.
f. Turn off 115--v power to furnace.
g. Reconnect inducer motor wires, replace outer door,
andturnon115--vpower.
h. Blower will run for 90 sec before beginning the call
for heat again.
i. Furnace should ignite normally.
Step 5 —Checklist
1. Put away tools and instruments. Clean up debris.
2. Verify that blower OFF--DELAY time is selected as de-
sired.
3. Verify that blower and burner access doors are properly in-
stalled.
4. Cycle test furnace with room thermostat.
5. Check operation of accessories per manufacturer’s instruc-
tions.
6. Review User’s Guide with owner.
7. Attach literature packet to furnace.
310AAV

38
Table 13—Gas Rate (cu ft./hr)
SECONDS FOR 1
REVOLUTION
SIZE OF TEST DIAL SECONDS FOR 1
REVOLUTION
SIZE OF TEST DIAL
1CuFt 2CuFt 5CuFt 1CuFt 2CuFt 5CuFt
10 360 720 1800 50 72 144 360
11 327 655 1636 51 71 141 355
12 300 600 1500 52 69 138 346
13 277 555 1385 53 68 136 340
14 257 514 1286 54 67 133 333
15 240 480 1200 55 65 131 327
16 225 450 1125 56 64 129 321
17 212 424 1059 57 63 126 316
18 200 400 1000 58 62 124 310
19 189 379 947 59 61 122 305
20 180 360 900 60 60 120 300
21 171 343 857 62 58 116 290
22 164 327 818 64 56 112 281
23 157 313 783 66 54 109 273
24 150 300 750 68 53 106 265
25 144 288 720 70 51 103 257
26 138 277 692 72 50 100 250
27 133 267 667 74 48 97 243
28 129 257 643 76 47 95 237
29 124 248 621 78 46 92 231
30 120 240 600 80 45 90 225
31 116 232 581 82 44 88 220
32 113 225 563 84 43 86 214
33 109 218 545 86 42 84 209
34 106 212 529 88 41 82 205
35 103 206 514 90 40 80 200
36 100 200 500 92 39 78 196
37 97 195 486 94 38 76 192
38 95 189 474 96 38 75 188
39 92 185 462 98 37 74 184
40 90 180 450 100 36 72 180
41 88 176 439 102 35 71 178
42 86 172 429 104 35 69 173
43 84 167 419 106 34 68 170
44 82 164 409 108 33 67 167
45 80 160 400 110 33 65 164
46 78 157 391 112 32 64 161
47 76 153 383 116 31 62 155
48 75 150 375 120 30 60 150
49 73 147 367
Table 14—Filter Size Information (In. / mm)
FURNACE CASING WIDTH
FILTER SIZE
FILTER TYPESIDE
RETURN
BOTTOM
RETURN
14---1/2 (368) 16 x25 x3/4
(406 x635 x19)
14 x25 x3/4
(356 x635 x19) Washable*
17---1/2 (445) 16 x25 x3/4
(406 x635 x19)
16 x25 x3/4
(406 x635 x19) Washable*
21 (533) 16 x25 x3/4
(406 x635 x19)
20 x25 x3/4
(508 x635 x19) Washable*
24 (610) 16 x25 x3/4
(406 x635 x19)
24 x25 x3/4
(610 x635 x19) Washable*
* Recommended
** Some furnaces may have 2 filters.
310AAV

39
Table 15—Orifice Size* and Manifold Pressure (In. W.C.) for Gas Input Rate
(Tabulated data based on 22,000 btuh per burner, derated 4 percent for each 1000 ft. (305 M) above sea level)
ALTITUDE RANGE
FT. (M)
AVG. GAS
HEAT VALUE
AT ALTITUDE
(BTU/CU FT.)
SPECIFIC GRAVITY OF NATURAL GAS
0.58 0.60 0.62 0.64
Orifice
No.
Manifold
Pressure
Orifice
No.
Manifold
Pressure
Orifice
No.
Manifold
Pressure
Orifice
No.
Manifold
Pressure
U.S.A.
0to
2000
(0 to
610)
900 42 3.5 42 3.6 42 3.7 41 3.5
925 42 3.3 42 3.4 42 3.5 42 3.7
950 43 3.8 42 3.3 42 3.4 42 3.5
975 43 3.6 43 3.8 42 3.2 42 3.3
1000 43 3.5 43 3.6 43 3.7 43 3.8
1025 43 3.3 43 3.4 43 3.5 43 3.6
1050 44 3.6 43 3.2 43 3.4 43 3.5
1075 44 3.4 44 3.5 43 3.2 43 3.3
1100 44 3.3 44 3.4 44 3.5 43 3.2
U.S.A.
2001 to
3000
(610 to
914)
800 42 3.4 42 3.5 42 3.6 42 3.7
825 42 3.2 42 3.3 42 3.4 42 3.5
850 43 3.7 43 3.8 42 3.2 42 3.3
875 43 3.5 43 3.6 43 3.7 43 3.8
900 43 3.3 43 3.4 43 3.5 43 3.6
925 43 3.1 43 3.2 43 3.3 43 3.4
950 43 2.9 43 3.0 43 3.1 43 3.2
975 43 2.8 43 2.9 43 3.0 43 3.1
1000 43 2.6 43 2.7 43 2.8 43 2.9
U.S.A.
3001 to
4000
(914 to
1219)
775 42 3.2 42 3.3 42 3.4 42 3.5
800 43 3.6 43 3.8 42 3.2 42 3.3
825 43 3.4 43 3.5 43 3.7 43 3.8
850 43 3.2 43 3.3 43 3.4 43 3.6
875 43 3.0 43 3.1 43 3.3 43 3.4
900 43 2.9 43 3.0 43 3.1 43 3.2
925 43 2.7 43 2.8 43 2.9 43 3.0
950 43 2.6 43 2.7 43 2.8 43 2.8
U.S.A.
4001 to
5000
(1219 to
1524)
750 43 3.6 43 3.8 42 3.2 42 3.3
775 43 3.4 43 3.5 43 3.6 43 3.8
800 43 3.2 43 3.3 43 3.4 43 3.5
825 43 3.0 43 3.1 43 3.2 43 3.3
850 43 2.8 43 2.9 43 3.0 43 3.1
875 43 2.7 43 2.8 43 2.9 43 2.9
900 43 2.5 43 2.6 43 2.7 43 2.8
925 43 2.4 43 2.5 43 2.6 43 2.6
* Orifice numbers 43 are factory installed.
310AAV

40
Table 15–Orifice Size* and Manifold Pressure (In. W.C.) for Gas Input Rate (Continued)
(Tabulated data based on 22,000 btuh per burner, derated 4 percent for each 1000 ft. (305 M) above sea level)
ALTITUDE RANGE
FT. (M)
AVG. GAS
HEAT VALUE
AT ALTITUDE
(BTU/CU FT.)
SPECIFIC GRAVITY OF NATURAL GAS
0.58 0.60 0.62 0.64
Orifice
No.
Manifold
Pressure
Orifice
No.
Manifold
Pressure
Orifice
No.
Manifold
Pressure
Orifice
No.
Manifold
Pressure
U.S.A.
5001 to
6000
(1524
to
1829)
725 43 3.4 43 3.5 43 3.6 43 3.7
750 43 3.2 43 3.3 43 3.4 43 3.5
775 43 3.0 43 3.1 43 3.2 43 3.3
800 43 2.8 43 2.9 43 3.0 43 3.1
825 43 2.6 43 2.7 43 2.8 43 2.9
850 43 2.5 43 2.5 43 2.6 43 2.7
875 43 2.3 43 2.4 43 2.5 43 2.6
900 43 2.2 43 2.3 43 2.3 43 2.4
U.S.A.
6001 to
7000
(1829
to
2134)
675 43 3.4 43 3.5 43 3.6 43 3.7
700 43 3.1 43 3.3 43 3.4 43 3.5
725 43 2.9 43 3.0 43 3.1 43 3.2
750 43 2.7 43 2.8 43 2.9 43 3.0
775 43 2.6 43 2.7 43 2.7 43 2.8
800 43 2.4 43 2.5 43 2.6 43 2.7
825 43 2.3 43 2.3 43 2.4 43 2.5
850 43 2.1 43 2.2 43 2.3 43 2.4
U.S.A.
7001 to
8000
(2134
to
2438)
650 43 3.1 43 3.2 43 3.4 43 3.5
675 43 2.9 43 3.0 43 3.1 43 3.2
700 43 2.7 43 2.8 43 2.9 43 3.0
725 43 2.5 43 2.6 43 2.7 43 2.8
750 43 2.4 43 2.4 43 2.5 43 2.6
775 43 2.2 43 2.3 43 2.4 43 2.4
800 43 2.1 43 2.1 43 2.2 43 2.3
825 48 3.7 43 2.0 43 2.1 43 2.2
U.S.A.
8001 to
9000
(2438
to
2743)
625 43 2.9 43 3.0 43 3.1 43 3.2
650 43 2.7 43 2.8 43 2.9 43 3.0
675 43 2.5 43 2.6 43 2.7 43 2.8
700 43 2.3 43 2.4 43 2.5 43 2.6
725 43 2.2 43 2.2 43 2.3 43 2.4
750 43 2.0 43 2.1 43 2.2 43 2.2
U.S.A.
9001 to
10,000
(2743
to
3048)
600 43 2.7 43 2.8 43 2.9 43 3.0
625 43 2.5 43 2.6 43 2.6 43 2.7
650 43 2.3 43 2.4 43 2.4 43 2.5
675 43 2.1 43 2.2 43 2.3 43 2.3
700 48 3.7 43 2.0 43 2.1 43 2.2
725 48 3.5 48 3.6 48 3.7 43 2.0
775 48 3.6 48 3.7 43 2.0 43 2.1
* Orifice numbers 43 are factory installed.
310AAV

41
Table 16—Orifice Size* and Manifold Pressure (In. W.C.) for Gas Input Rate
(Tabulated data based on 21,000 btuh per burner, derated 4 percent for each 1000 ft. (305 M) above sea level)
ALTITUDE
RANGE
FT. (M)
SPECIFIC GRAVITY OF NATURAL GAS
AVG. GAS
HEAT VALUE
AT ALTITUDE
(BTU/CU FT.)
0.58 0.60 0.62 0.64
Orifice
No. Manifold
Pressure Orifice
No. Manifold
Pressure Orifice
No. Manifold
Pressure Orifice
No. Manifold
Pressure
U.S.A. 0 to 2000
(0 to 610)
900 42 3.2 42 3.3 42 3.4 42 3.5
925 43 3.7 43 3.8 42 3.2 42 3.3
950 43 3.5 43 3.6 43 3.7 43 3.8
975 43 3.3 43 3.4 43 3.5 43 3.7
1000 44 3.6 43 3.3 43 3.4 43 3.5
1025 44 3.4 44 3.6 43 3.2 43 3.3
1050 44 3.3 44 3.4 44 3.5 43 3.2
1075 45 3.8 44 3.2 44 3.3 44 3.4
1100 46 3.8 45 3.7 44 3.2 44 3.3
U.S.A.
2001 to
3000
(610 to
914)
800 43 3.8 42 3.2 42 3.3 42 3.4
825 43 3.5 43 3.7 43 3.8 42 3.2
850 43 3.3 43 3.5 43 3.6 43 3.7
875 43 3.2 43 3.3 43 3.4 43 3.5
900 43 3.0 43 3.1 43 3.2 43 3.3
925 43 2.8 43 2.9 43 3.0 43 3.1
950 43 2.7 43 2.8 43 2.9 43 2.9
975 43 2.5 43 2.6 43 2.7 43 2.8
1000 43 2.4 43 2.5 43 2.6 43 2.7
U.S.A.
3001 to
4000
(914 to
1219)
775 43 3.5 43 3.7 43 3.8 42 3.2
800 43 3.3 43 3.4 43 3.5 43 3.7
825 43 3.1 43 3.2 43 3.3 43 3.4
850 43 2.9 43 3.0 43 3.1 43 3.2
875 43 2.8 43 2.9 43 3.0 43 3.1
900 43 2.6 43 2.7 43 2.8 43 2.9
925 43 2.5 43 2.6 43 2.7 43 2.7
950 43 2.4 43 2.4 43 2.5 43 2.6
U.S.A.
4001 to
5000
(1219 to
1524)
750 43 3.3 43 3.4 43 3.5 43 3.6
775 43 3.1 43 3.2 43 3.3 43 3.4
800 43 2.9 43 3.0 43 3.1 43 3.2
825 43 2.7 43 2.8 43 2.9 43 3.0
850 43 2.6 43 2.7 43 2.8 43 2.8
875 43 2.4 43 2.5 43 2.6 43 2.7
900 43 2.3 43 2.4 43 2.5 43 2.5
925 43 2.2 43 2.2 43 2.3 43 2.4
* Orifice numbers 43 are factory installed.
310AAV

42
Table 16—Orifice Size* and Manifold Pressure (In. W.C.) for Gas Input Rate (Continued)
(Tabulated data based on 21,000 btuh per burner, derated 4 percent for each 1000 ft. (305 M) above sea level)
ALTITUDE
RANGE
FT. (M)
AVG. GAS
HEAT VALUE
AT
ALTITUDE
(BTU/CU FT.)
SPECIFIC GRAVITY OF NATURAL GAS
0.58 0.60 0.62 0.64
Orifice
No.
Manifold
Pressure
Orifice
No.
Manifold
Pressure
Orifice
No.
Manifold
Pressure
Orifice
No.
Manifold
Pressure
U.S.A.
5001 to
6000
(1524 to
1829)
725 43 3.1 43 3.2 43 3.3 43 3.4
750 43 2.9 43 3.0 43 3.1 43 3.2
775 43 2.7 43 2.8 43 2.9 43 3.0
800 43 2.5 43 2.6 43 2.7 43 2.8
825 43 2.4 43 2.5 43 2.5 43 2.6
850 43 2.2 43 2.3 43 2.4 43 2.5
875 43 2.1 43 2.2 43 2.3 43 2.3
900 43 2.0 43 2.1 43 2.1 43 2.2
U.S.A.
6001 to
7000
(1829 to
2134)
675 43 3.1 43 3.2 43 3.3 43 3.4
700 43 2.9 43 3.0 43 3.1 43 3.2
725 43 2.7 43 2.8 43 2.9 43 2.9
750 43 2.5 43 2.6 43 2.7 43 2.8
775 43 2.3 43 2.4 43 2.5 43 2.6
800 43 2.2 43 2.3 43 2.3 43 2.4
825 43 2.1 43 2.1 43 2.2 43 2.3
850 48 3.7 43 2.0 43 2.1 43 2.1
U.S.A.
7001 to
8000
(2134 to
2438)
650 43 2.9 43 3.0 43 3.1 43 3.2
675 43 2.7 43 2.7 43 2.8 43 2.9
700 43 2.5 43 2.6 43 2.6 43 2.7
725 43 2.3 43 2.4 43 2.5 43 2.5
750 43 2.1 43 2.2 43 2.3 43 2.4
775 43 2.0 43 2.1 43 2.2 43 2.2
800 48 3.6 48 3.7 43 2.0 43 2.1
825 48 3.3 48 3.5 48 3.6 48 3.7
U.S.A.
8001 to
9000
(2438 to
2743)
625 43 2.7 43 2.7 43 2.8 43 2.9
650 43 2.5 43 2.5 43 2.6 43 2.7
675 43 2.3 43 2.4 43 2.4 43 2.5
700 43 2.1 43 2.2 43 2.3 43 2.3
725 48 3.7 43 2.0 43 2.1 43 2.2
750 48 3.5 48 3.6 48 3.7 43 2.0
U.S.A.
9001 to
10,000
(2743 to
3048)
600 43 2.4 43 2.5 43 2.6 43 2.7
625 43 2.3 43 2.3 43 2.4 43 2.5
650 43 2.1 43 2.2 43 2.2 43 2.3
675 48 3.6 48 3.8 43 2.1 43 2.1
700 48 3.4 48 3.5 48 3.6 48 3.7
725 49 3.7 49 3.8 48 3.4 48 3.5
775 49 3.8 48 3.4 48 3.5 48 3.6
* Orifice numbers 43 are factory installed.
310AAV

43
To initiate the component test sequence, shut OFF the room thermostat or disconnect the "R"
thermostat lead. Briefly short the TEST/TWIN terminal to the "Com 24V" terminal. Status LED
will flash code and then turn ON the inducer motor. The inducer motor will run for the entire
component test. The hot surface ignitor, blower motor fan speed (on AMBER LED boards
only) blower motor-heat speed, and blower motor-cool speed will be turned ON for 10-15
seconds each. Gas Valve and Humidifier will not be turned on.
CONTINUOUS OFF - Check for 115VAC at L1 and L2, and 24VAC at SEC-1 and SEC-2.
CONTINUOUS ON - Control has 24VAC power.
RAPID FLASHING - Line voltage (115VAC) polarity reversed. If twinned, refer to twinning kit instructions.
LED CODE STATUS
11 NO PREVIOUS CODE - Stored status code is erased automatically after 72 hours. On
RED LED boards stored status codes can also be erased when power
(115 VAC or 24 VAC) to control is interrupted.
12 BLOWER ON AFTER POWER UP (115 VAC or 24 VAC) -Blower runs for 90 seconds,
if unit is powered up during a call for heat (R-W closed) or R-W opens during blower
on-delay.
13 LIMIT CIRCUIT LOCKOUT - Lockout occurs if the limit, draft safeguard, flame rollout, or
blocked vent switch (if used) is open longer than 3 minutes.
- Control will auto reset after three hours. - Refer to #33.
14 IGNITION LOCKOUT - Control will auto-reset after three hours. Refer to #34.
21 GAS HEATING LOCKOUT - Control will NOT auto reset.
Check for: - Mis-wired gas valve -Defective control (valve relay)
22 ABNORMAL FLAME-PROVING SIGNAL - Flame is proved while gas valve is de-
energized. Inducer will run until fault is cleared. Check for: - Leaky gas valve
- Stuck-open gas valve
23 PRESSURE SWITCH DID NOT OPEN Check for:
- Obstructed pressure tubing. - Pressure switch stuck closed.
24 SECONDARY VOLTAGE FUSE IS OPEN Check for:
- Short circuit in secondary voltage (24VAC) wiring.
If status code recall is needed, briefly remove then reconnect one main limit wire to display stored status code. On RED LED boards do not remove power or blower door before initiating status code recall. After
status code recall is completed component test will occur.
327596-101 REV. B
31 PRESSURE SWITCH DID NOT CLOSE OR REOPENED - If open longer than five minutes,
inducer shuts off for 15 minutes before retry. Check for: - Excessive wind
- Proper vent sizing - Defective inducer motor
- Low inducer voltage (115VAC) - Defective pressure switch
- Inadequate combustion air supply - Disconnected or obstructed pressure tubing
- Low inlet gas pressure (if LGPS used) - Restricted vent
If it opens during blower on-delay period, blower will come on for the selected blower
off-delay.
33 LIMIT CIRCUIT FAULT - Indicates a limit, draft safeguard, flame rollout, or blocked vent
switch (if used) is open. Blower will run for 4 minutes or until open switch remakes
whichever is longer. If open longer than 3 minutes, code changes to lockout #13.
If open less than 3 minutes status code #33 continues to flash until blower shuts off.
Flame rollout switch and BVSS require manual reset. Check for: - Restricted vent
- Proper vent sizing - Loose blower wheel. - Excessive wind
- Dirty filter or restricted duct system.
- Defective blower motor or capacitor. - Defective switch or connections.
- Inadequate combustion air supply (Flame Roll-out Switch open).
34 IGNITION PROVING FAILURE - Control will try three more times before lockout #14
occurs. If flame signal lost during blower on-delay period, blower will come on for the
selected blower off-delay. Check for: - Flame sensor must not be grounded
- Oxide buildup on flame sensor (clean with fine steel wool).
- Proper flame sense microamps (.5 microamps D.C. min., 4.0 - 6.0 nominal).
- Gas valve defective or gas valve turned off - Manual valve shut-off
- Defective Hot Surface Ignitor - Control ground continuity
- Low inlet gas pressure - Inadequate flame carryover or rough ignition
- Green/Yellow wire MUST be connected to furnace sheet metal
45 CONTROL CIRCUITRY LOCKOUT Auto-reset after one hour lockout due to;
- Gas valve relay stuck open - Flame sense circuit failure - Software check error
Reset power to clear lockout. Replace control if status code repeats.
SERVICE
COMPONENT TEST
EACH OF THE FOLLOWING STATUS CODES IS A TWO DIGIT NUMBER WITH THE FIRST DIGIT DETERMINED BY THE NUMBER OF SHORT FLASHES AND THE SECOND DIGIT BY THE NUMBER OF LONG FLASHES.
A04223
Fig. 45 --- Service Label
SERVICE AND MAINTENANCE
PROCEDURES
FIRE, EXPLOSION, ELECTRICAL SHOCK
HAZARD
Failure to follow this warning could result in personal
injury, death and/or property damage.
The ability to properly perform maintenance on this
equipment requires certain knowledge, mechanical
skills, tools, and equipment. If you do not possess these,
do not attempt to perform any maintenance on this
equipment other than those procedures recommended in
the User’s Manual.
!WARNING
ELECTRICAL SHOCK, FIRE OR EXPLOSION
HAZARD
Failure to follow this warning could result in personal
injury or death, or property damage.
Before servicing, disconnect all electrical power and install
lockout tag to furnace. Verify proper operation after
servicing.
!WARNING
ELECTRICAL OPERATION HAZARD
Failure to follow this caution may result in improper
furnace operation.
Label all wires prior to disconnection when servicing
controls. Wiring errors can cause improper and dangerous
operation.
CAUTION
!
ENVIRONMENTAL HAZARD
Failure to follow this caution may result in environmental
pollution.
Remove and recycle all components or materials (i.e. oil,
refrigerant, et.) before unit final disposal.
CAUTION
!
Step 1 —Introduction
GENERAL
These instructions are written as if the furnace is installed in an
upflow application. An upflow furnace application is where the
blower is located below the combustion and controls section of
the furnace, and conditioned air is discharged upward. Since this
furnace can be installed in any of the 4 positions shown in Fig. 4,
you must revise your orientation to component location
accordingly.
ELECTRICAL CONTROLS AND WIRING
ELECTRICAL SHOCK HAZARD
Failure to follow this warning could result in personal
injury or death.
Before installing, modifying, or servicing system, main
electrical disconnect switch must be in the OFF position and
install a lockout tag. There may be more than one electrical
supply to the furnace. Check accessories and cooling unit
for additional electrical supplies that must be shut off during
furnace servicing. Lockout and tag switch with a suitable
warning label. Verify proper operation after servicing.
!WARNING
The electrical ground and polarity for 115--v wiring must be
properly maintained. Refer to Fig. 26 for field wiring information
and to Fig. 41 for furnace wiring information.
NOTE: If the polarity is not correct, the STATUS LED on the
control will flash rapidly and prevent the furnace from heating.
310AAV

44
The control system also requires an earth ground for proper
operation of the control and flame--sensing electrode.
The 24--v circuit contains an automotive--type, 3--amp. fuse
located on the control. (See Fig. 25.) Any shorts of the 24--v
wiring during installation, service, or maintenance will cause this
fuse to blow. If fuse replacement is required, use ONLY a 3--amp.
fuse. The control LED will display status code 24 when fuse
needs to be replaced.
Proper instrumentation is required to service electrical controls.
The control in this furnace is equipped with a Status Code LED
(Light--Emitting Diode) to aid in installation, servicing, and
troubleshooting. It can be viewed through the sight glass in
blower access door. The furnace control LED is either ON
continuously, rapid flashing, or a code composed of 2 digits. The
first digit is the number of short flashes, the second digit is the
number of long flashes.
For an explanation of status codes, refer to service label located
on blower access door or Fig. 45 and the troubleshooting guide
which can be obtained from your distributor. The furnace control
will store 1 status code for 72 hrs.
See Fig. 49, a brief Troubleshooting Guide.
1. To retrieve status code, proceed with the following:
NOTE: NO thermostat signal may be present at control, and all
blower--OFF delays must be completed.
a. Leave 115--v power to furnace turned on.
b. Remove outer access door.
c. Look into blower access door sight glass for current
LED status.
d. BRIEFLY remove insulated terminal wire from the
draft safeguard (DSS) switch until LED goes out (1 to
2 sec), then reconnect it.
2. When above items have been completed, the LED flashes
status code 4 times. Record this status code for further
troubleshooting.
3. Component self--test will begin. Refer to component
TEST section for complete test sequence.
4. Check LED status.
5. Refer to SERVICE label on front of the blower access
door for more information.
6. Check LED status. If no previous faults in history, control
will flash status code 11.
7. If LED status indicates proper operation, RELEASE
BLOWER ACCESS DOOR SWITCH, reattach wire to R
terminal on furnace control board, replace blower access
door, and replace burner access door.
Step 2 —Care and Maintenance
FIRE OR EXPLOSION HAZARD
Failure to follow this warning could result in personal
injury, death and/or property damage.
Never store anything on, near, or in contact with the
furnace, such as:
1. Spray or aerosol cans, rags, brooms, dust mops, vacuum
cleaners, or other cleaning tools.
2. Soap powders, bleaches, waxes or other cleaning
compounds, plastic or plastic containers, gasoline, kerosene,
cigarette lighter fluid, dry cleaning fluids, or other volatile
fluids.
3. Paint thinners and other painting compounds, paper bags,
or other paper products.
!WARNING
For continuing high performance and to minimize possible
equipment failure, periodic maintenance must be performed on
this equipment. Consult your local dealer about proper frequency
of maintenance and the availability of a maintenance contract.
ELECTRICAL SHOCK AND FIRE HAZARD
Failure to follow this warning could result in personal
injury, death or property damage.
Turn off the gas and electrical supplies to the unit and install
lockout tag before performing any maintenance or service.
Follow the operating instructions on the label attached to
the furnace.
!WARNING
CARBON MONOXIDE POISONING AND FIRE
HAZARD
Failure to follow this warning could result in personal
injury, death and/or property damage.
Never operate unit without a filter or with filter access door
removed.
!WARNING
CUT HAZARD
Failure to follow this caution may result in personal injury.
Sheet metal parts may have sharp edges or burrs. Use care
and wear appropriate protective clothing, safety glasses and
gloves when handling parts and servicing furnaces.
CAUTION
!
The minimum maintenance on this furnace is as follows:
1. Check and clean air filter each month or more frequently if
required. Replace if torn.
2. Check blower motor and wheel for cleanliness each heating
and cooling season. Clean as necessary.
3. Check electrical connections for tightness and controls for
proper operation each heating season. Service as necessary.
4. Inspect burner compartment before each heating season for
rust, corrosion, soot or excessive dust. If necessary, have furnace
and burner serviced by a qualified service agency.
5. Inspect the vent pipe/vent system before each heating season
for rust, corrosion, water leakage, sagging pipes or broken
fittings. Have vent pipes/vent system serviced by a qualified
service agency.
6. Inspect any accessories attached to the furnace such as a
humidifier or electronic air cleaner. Perform any service or
maintenance to the accessories as recommended in the accessory
instructions.
CLEANING AND/OR REPLACING AIR FILTER
The air filter arrangement will vary depending on the application.
The filter is exterior to the furnace casing.
NOTE: If the filter has an airflow direction arrow, the arrow
must point towards the blower.
310AAV

45
CUT HAZARD
Failure to follow this caution may result in personal injury.
Sheet metal parts may have sharp edges or burrs. Use care
and wear appropriate protective clothing, safety glasses and
gloves when handling parts and servicing furnaces.
CAUTION
!
Media cabinet filter procedures:
NOTE: Media cabinet or 3/4--in. (19 mm) filter rack are
accessories and are not included from the factory.
1. Turn off electrical supply to furnace before removing filter
access door.
2. Remove filter cabinet door.
3. Slide filter out of cabinet.
4. If equipped with permanent, washable 3/4--in. (19 mm) filter,
clean filter by spraying cold tap water through filter in opposite
direction of airflow. Rinse filter and let dry. Oiling or coating of
the filter is not recommended. See Table 14 for size information.
5. If equipped with factory--specified disposable media filter,
replace only with media filter having the same part number and
size. For expandable replacement media, refer to the instructions
included with the replacement media.
6. Slide filter into cabinet.
7. Replace filter cabinet door.
8. Turn on electrical supply to furnace.
BLOWER MOTOR AND WHEEL
ELECTRICAL SHOCK HAZARD
Failure to follow this warning could result in personal injury
or death.
Blower access door switch opens 115--v power to control. No
component operation can occur unless switch is closed.
Caution must be taken when manually closing this switch for
service purposes.
!WARNING
NOTE: The blower wheel should not be dropped or bent as
balance will be affected.
The following steps should be performed by a qualified
service agency.
To ensure long life and high efficiency, clean accumulated dirt
and grease from blower wheel and motor annually.
The inducer and blower motors are pre--lubricated and require no
additional lubrication. These motors can be identified by the
absence of oil ports on each end of the motor.
Clean blower motor and wheel as follows:
1. Turn off electrical supply to furnace.
2. Remove outer door.
3. For downflow or horizontal furnaces having vent pipes
within the furnace that pass in front of the blower access
door:
a. Disconnect vent connector from furnace vent elbow.
b. Disconnect and remove short piece of vent pipe from
within furnace.
4. Remove 2 screws from blower access door and remove
blower access door.
5. All factory wires can be left connected, but field thermo-
stat connections may need to be disconnected depending
on their length and routing.
6. Remove 2 screws holding blower assembly to blower
deck and slide blower assembly out of furnace.
7. Clean blower wheel and motor using a vacuum with soft
brush attachment. Blower wheel blades may be cleaned
with a small paint or flux brush. Do not remove or disturb
balance weights (clips) on blower wheel blades.
8. Vacuum any loose dust from blower housing, wheel and
motor.
9. If a greasy residue is present on blower wheel, remove
wheel from the blower housing and wash it with an appro-
priate degreaser. To remove wheel:
NOTE: Before disassembly, mark blower motor, and blower
housing so motor and each arm is positioned at the same location
during reassembly.
a. Disconnect capacitor wires and ground wire attached
to blower housing.
b. Remove screws securing cutoff plate and remove
cutoff plate from housing.
c. Loosen set screw holding blower wheel on motor shaft
(160+/--20 in.--lb. when reassembling).
d. Remove bolts holding motor to blower housing and
slide motor out of wheel (40+/--10 in.--lb. when reas-
sembling).
e. Remove blower wheel from housing.
f. Clean wheel and housing.
10. Reassemble motor and blower by reversing steps 9f
through 9a, finishing with 9a. Be sure to reattach ground
wire to the blower housing.
11. Verify that blower wheel is centered in blower housing
and set screw contacts the flat portion of the motor shaft.
Loosen set screw on blower wheel and reposition if neces-
sary.
12. Spin the blower wheel by hand to verify that the wheel
does not rub on the housing.
13. Reinstall blower assembly in furnace.
UNIT DAMAGE HAZARD
Failure to follow this caution may result in shortened heat
exchanger life.
Heating fan speed(s) MUST be adjusted to provide proper
air temperature rise as specified on the rating plate.
Recommended operation is at the midpoint of the rise range
or slightly above. Refer to SET TEMPERATURE RISE
under START--UP, ADJUSTMENT, and SAFETY
CHECK.
CAUTION
!
14. Connect thermostat leads if previously disconnected.
15. To check blower for proper rotation:
a. Turn on electrical supply.
ELECTRICAL SHOCK HAZARD
Failure to follow this warning could result in personal
injury, or death.
Blower access door switch opens 115--v power to furnace
control. No component operation can occur unless switch is
closed. Exercise caution to avoid electrical shock from
exposed electrical components when manually closing this
switch for service purposes.
!WARNING
b. Manually close blower access door switch.
310AAV

46
NOTE: If thermostat terminals are jumpered at the time blower
access door switch is closed, blower will run for 90 sec before
beginning a heating or cooling cycle.
c. Perform component self--test as shown at the bottom
of the SERVICE label, located on the front of blower
access door.
d. Verify blower is rotating in the correct direction
16. If furnace is operating properly, RELEASE BLOWER
ACCESS DOOR SWITCH. Remove any jumpers or re-
connect any disconnected thermostat leads. Replace
blower access door.
17. Downflow or horizontal furnaces with vent pipe through
furnace only:
a. Install and connect short piece of vent pipe inside fur-
nace to existing vent.
b. Connect vent connector to vent elbow.
18. Reinstall casing door.
19. Turn on gas supply and cycle furnace through one com-
plete heating and cooling cycle. Verify the furnace temper-
ature rise as shown in Adjustments Section. Adjust tem-
perature rise as shown in Adjustments Section. If outdoor
temperature is below 70_F, (21_C) turn off circuit breaker
to outdoor unit before running furnace in the cooling
cycle. Turn outdoor circuit breaker on after completing
cooling cycle.
CLEANING HEAT EXCHANGER
The following steps should be performed by a qualified
service agency:
NOTE: If the heat exchangers get a heavy accumulation of soot
and carbon, they should be replaced rather than trying to clean
them thoroughly. A heavy build--up of soot and carbon indicates
that a problem exists which needs to be corrected, such as
improper adjustment of manifold pressure, insufficient or poor
quality combustion air, incorrect size or damaged manifold
orifice( s), improper gas, or a restricted heat exchanger. Action
must be taken to correct the problem.
If it becomes necessary to clean the heat exchangers because of
dust or corrosion, proceed as follows:
1. Turn OFF gas and electrical power to furnace.
2. Remove outer access door.
3. Disconnect vent connector from furnace vent elbow.
4. For downflow or horizontal furnace having an internal
vent pipe, remove internal vent pipe within the casing.
5. Disconnect wires to the following components. Mark
wires to aid in reconnection of (be careful when discon-
necting wires from switches because damage may occur):
a. Draft safeguard switch.
b. Inducer motor.
c. Pressure switch(es).
d. Limit overtemperature switch.
e. Gas valve.
f. Hot surface igniter.
g. Flame--sensing electrode.
h. Flame rollout switches.
i. Remove NOx baffles on low NOx models.
6. Remove screws that fasten the collector box assembly to
the cell panel. Be careful not to damage the collector box.
Inducer assembly and elbow need not be removed from
collector box.
7. Disconnect gas line from gas manifold.
8. Remove the 5 screws that attach the burner assembly to
the cell panel. The gas valve and individual burners need
not be removed from support assembly.
NOTE: Be very careful when removing burner assembly to
avoid breaking igniter. See Fig. 46 and 47 for correct igniter
location.
9. Using field--provided 25--caliber rifle cleaning brush,
36--in. (914 mm) long, 1/4 in. (6 mm) diameter steel
spring cable, a variable speed, reversible electric drill, and
vacuum cleaner, clean cells as follows:
a. Remove metal screw fitting from wire brush to allow
insertion into cable.
b. Insert the twisted wire end of brush into end of spring
cable, and crimp tight with crimping tool or crimp by
striking with ball--peen hammer. TIGHTNESS IS
VERY IMPORTANT.
NOTE: The materials needed in item 9 can usually be purchased
at local hardware stores.
(1) Attach variable--speed, reversible drill to the end of spring
cable (end opposite brush).
(2) Insert brush end of cable into the outlet opening of cell and
slowly rotate with drill. DO NOT force cable. Gradually insert
cable into upper pass of cell. (See Fig. 48.)
(3) Work cable in and out of cell 3 or 4 times to obtain sufficient
cleaning. DO NOT pull cable with great force. Reverse drill and
gradually work cable out.
A05025
Fig. 46 --- Igniter Position--Side View
310AAV

47
1-7/8
(47.6 mm)
A05026
Fig. 47 --- Igniter Position--Top View
A01050
Fig. 48 --- Cleaning Heat Exchanger Cell
(4) Insert brush end of cable in burner inlet opening of cell, and
proceed to clean 2 lower passes of cell in same manner as upper
pass.
(5) Repeat foregoing procedures until each cell in furnace has
been cleaned.
(6) Using vacuum cleaner, remove residue from each cell.
(7) Using vacuum cleaner with soft brush attachment, clean
burner assembly.
(8) Clean flame sensor with fine steel wool.
(9) Install NOx baffles (if removed).
(10) Reinstall burner assembly. Center burners in cell openings.
10. Remove old sealant from cell panel and collector box
flange.
11. Spray releasing agent on the heat exchanger cell panel
where collector box assembly contacts cell panel.
NOTE: A releasing agent such as cooking spray or equivalent
(must not contain corn or canola oil, aromatic or halogenated
hydrocarbons or inadequate seal may occur) and RTV sealant
(G.E. 162, 6702, or Dow--Corning 738) are needed before
starting installation. DO NOT substitute any other type of RTV
sealant. G.E. 162 (P771--9003) is available through RCD in 3--oz
tubes.
12. Apply new sealant to flange of collector box and attach to
cell panel using existing screws, making sure all screws
are secure.
13. Reconnect wires to the following components. (Use con-
nection diagram on wiring label, if wires were not marked
for reconnection locations.):
a. Draft safeguard switch.
b. Inducer motor.
c. Pressure switch(es).
d. Limit over--temperature switch.
e. Gas valve.
f. Hot surface igniter.
g. Flame--sensing electrode.
h. Flame rollout switches.
i. Install NOx baffles (if removed).
14. Reinstall internal vent pipe, if applicable.
15. Reinstall vent connector on furnace vent elbow. Securely
fasten vent connector to vent elbow with 2 field--supplied,
corrosion--resistant, sheet metal screws located 180_apart.
16. Replace blower access door only, if it was removed.
17. Set thermostat above room temperature and check furnace
for proper operation.
18. Verify blower airflow and speed changes between heating
and cooling.
FIRE OR EXPLOSION HAZARD
Failure to follow this warning could result in personal
injury, death and/or property damage.
Never test for gas leaks with an open flame. Use a
commercially available soap solution made specifically for
the detection of leaks to check all connections.
!WARNING
19. Check for gas leaks.
20. Replace outer access door.
Step 3 —Sequence of Operation
NOTE: Furnace control must be grounded for proper operation
or control will lock out. Control is grounded through
green/yellow wire routed to gas valve and manifold bracket
screw.
Using the schematic diagram in Fig. 41, follow the sequence of
operation through the different modes. Read and follow the
wiring diagram very carefully.
NOTE: If a power interruption occurs during a call for heat (W),
the control will start a 90--sec blower--only ON period two
seconds after power is restored, if the thermostat is still calling for
gas heating. The amber LED light will flash code 12 during the
90--sec period, after which the LED will be ON continuous, as
long as no faults are detected. After the 90--sec period, the furnace
will respond to the thermostat normally.
The blower door must be installed for power to be conducted
through the blower door interlock switch ILK to the furnace
control CPU, transformer TRAN, inducer motor IDM, blower
motor BLWM, hot--surface igniter HSI, and gas valve GV.
1. Heating
(See Fig. 26 for thermostat connections.) The wall thermo-
stat “calls for heat,” closing the R--to--W circuit. The fur-
nace control performs a self--check, verifies the pressure
switch contacts PRS are open, and starts the inducer motor
IDM.
a. Inducer Prepurge Period-- As the inducer motor
IDM comes up to speed, the pressure switch contacts
PRS close, 24 VAC power is supplied for a field in-
stalled humidifier at the HUM terminal and the control
begins a 15--sec prepurge period.
b. Igniter Warm--Up-- At the end of the prepurge period,
the Hot--Surface igniter HSI is energized for a
17--second igniter warm--up period.
c. Trial--for--Ignition Sequence-- When the igniter
warm--up period is completed, the main gas valve re-
lay contacts GVR close to energize the gas valve GV,
the gas valve opens, The gas valve GV permits gas
flow to the burners where it is ignited by the HSI. Five
seconds after the GVR closes, a 2--second flame prov-
ing period begins. The HSI igniter will remain ener-
gized until the flame is sensed or until the 2--second
flame proving period begins.
310AAV

48
d. Flame--Proving-- When the burner flame is proved at
the flame--proving sensor electrode FSE, the furnace
control CPU begins the blower--ON delay period and
continues to hold the gas valve GV open. If the burner
flame is not proved within two seconds, the control
CPU will close the gas valve GV, and the control CPU
will repeat the ignition sequence for up to three more
Trials--For--Ignition before going to Ignition--Lockout.
Lockout will be reset automatically after three hours
or by momentarily interrupting 115 vac power to the
furnace, or by interrupting 24 vac power at SEC1 or
SEC2 to the furnace control CPU (not at W, G, R, etc.)
If flame is proved when flame should not be present,
the furnace control CPU will lock out of Gas--Heating
mode and operate the inducer motor IDM until flame
is no longer proved.
e. Blower--On Delay-- If the burner flame is proven, the
blower motor is energized on HEAT speed 25 sec after
the gas valve GV is energized.
Simultaneously, the electronic air cleaner terminal
EAC--1 is energized and remains energized as long as
the blower motor BLWM is energized.
f. Blower--Off Delay-- When the thermostat is satisfied,
the R--to--W circuit is opened, de--energizing the gas
valve GV, stopping gas flow to the burners, and de--
energizing the humidifier terminal HUM. The inducer
motor IDM will remain energized for a 5--second
post--purge period. The blower motor BLWM and air
cleaner terminal EAC--1 will remain energized for 90,
120, 150, or 180 seconds (depending on the blower--
OFF delay selection). The furnace control CPU is fact-
ory--set for a 120--second blower--OFF delay.
2. Cooling Mode
(See Fig. 26 for thermostat connections.) The thermostat
closes the R--to--G--and--Y circuits. The R--to--Y circuit
starts the outdoor unit, and the R--to--G and Y circuits start
the furnace blower motor BLWM on COOL speed. The
electronic air cleaner terminal EAC--1 is energized with
115 vac when the blower motor BLWM is operating.
When the thermostat is satisfied, the R--to--G--and--Y cir-
cuits are opened. The outdoor unit will stop, and the fur-
nace blower motor BLWM will continue operating on the
COOL speed for an additional 90 sec. Cut jumper J2 to
reduce the cooling off--delay to 5 sec. (See Fig. 25.)
3. Continuous Blower Mode
When the R--to--G circuit is closed by the thermostat, the
blower motor BLWM will operate on continuous--blower
speed (same as HEAT speed). Terminal EAC--1 is ener-
gized as long as the blower motor BLWM is energized.
During a call for heat, the blower BLWM will stop during
igniter warm--up (17 sec), ignition, and blower--ON delay
(25 sec), allowing the furnace heat exchangers to heat up
more quickly, then restarts at the end of the blower--ON
delay period at HEAT speed.
When the thermostat “calls for cooling”, the blower motor
BLWM will operate at COOL speed. When the thermostat
is satisfied, the blower motor BLWM will operate an addi-
tional 90 sec, on COOL speed before reverting back to
continuous blower speed.
When the R--to--G circuit is opened, the blower motor
BLWM will continue operating for an additional 5 sec, if
no other function requires blower motor BLWM opera-
tion.
4. Heat Pump
When installed with a heat pump, the furnace control auto-
matically changes the timing sequence to avoid long
blower off times during demand defrost cycles. When the
R--to--Wand-- Y or R--to--W--and--Y--and--G circuits are
energized the furnace control CPU will continue to turn on
the blower motor BLWM at HEAT speed, and begin a
heating cycle. The blower motor BLWM will remain on
until the end of the prepurge period, then shut off for 24
sec then come back on at HEAT speed. When the W input
signal disappears, the furnace control begins a normal in-
ducer post--purge period and the blower switches to
COOL speed after a 3 sec delay. If the R--to--W--and--
Y--and--G signals disappear at the same time, the blower
motor BLWM will remain on for the selected blower--
OFF delay period. If the R--to--W--and--Y signals disap-
pear, leaving the G signal, the blower motor BLWM will
continue running the blower motor at HEAT speed after
the selected blower--OFF delay period is completed.
Step 4 —Wiring Diagrams
Refer to Fig. 25 and 41 for wiring diagrams.
Step 5 —Troubleshooting
Refer to the service label. (See Fig. 45–Service Label.)
The Troubleshooting Guide can be a useful tool in isolating
furnace operation problems. Beginning with the word Start,
answer each question and follow the appropriate arrow to the next
item.
The Guide will help to identify the problem or failed component.
After replacing any component, verify correct operation
sequence.
310AAV

49
Is LED status light on?
Is LED status light blinking rapidly without a
pause?
Is LED status light blinking ON/OFF slowly
with a combination of short and long flashes?
Determine status code. The status code is a
2 digit number with the first digit determined
by the number of short flashes and the second
digit by the number of long flashes?
Go to section below for the status code that
was flashed.
Is there 115V at L1 and L2?
Is there 24V at SEC-1 and SEC-2?
Replace furnace control.
Check for correct line voltage polarity. If units
are twinned, check for proper low-voltage
(24V) transformer phasing.
To recall status code briefly remove and reconnect one RED wire from the draft
safeguard switch to display stored status code. On RED LED control do not
remove power or blower access panel before initiating status code recall. You
can also recall the previous status code by momentarily shorting the TEST/TWIN
terminal to Com24V terminal until the LED goes out. LED will flash the status
code of the previous fault or status code #11 (1 short and 1 long flash) if there
was no previous fault. After the control repeats the code 4 times, the control
will go through a brief component test sequence. The inducer will start and run
for the entire component test. The HSI, blower motor FAN speed (AMBER LED
boards only) HEAT speed, and COOL speed will run for 10 – 15 seconds each.
Gas valve and humidifier will not be turned on.
Was there a previous status code
other than #11?
Is door switch closed?
Is there 115V going to switch?
Replace door switch.
Replace transformer.
Does the control respond to W, Y1 (if present),
Y/Y2, and G (24V) thermostat signals?
Run system through a heating or cooling cycle
to check operation. Status codes are erased
after 72 hours. On RED LED boards stored
status codes can also be erased whenever
(115V or 24V) is interrupted.
Replace furnace control.
Is door switch closed?
Is circuit breaker closed?
Check for continuity in wire from circuit breaker
to furnace.
Close circuit breaker and go back to START.
Check room thermostat or
interconnecting cable.
Is 24V present at W, Y1 (if present), Y/Y2 or
G thermostat terminals on the furnace control?
Disconnect all the thermostat wires from the
furnace control.
Does the problem repeat when using
a jumper wire?
The thermostat is not compatible with the
furnace control. Either install a ballast resistor,
connect the Com24V thermostat terminal to
the thermostat, or replace the thermostat.
NO
YES
YES
NO
NO
YES
YES
YES
YES
NO
YES
YES
NO
YES
NO
YES
NO
NO
NO
YES
NO
YES
NO
START
NO
A02106a
Fig. 49 --- Troubleshooting Guide
310AAV

50
11 NO PREVIOUS CODE – Stored codes
are erased after 72 hours. On RED LED
boards stored status codes can also be
erased whenever power (115V or 24V)
is interrupted. Run system through a
heating or cooling cycle to check system.
12 BLOWER ON AFTER POWER UP –
(115V OR 24V) – Normal operation.
Blower runs for 90 seconds, if unit is
powered up during a call for heat (R-W
closed) or when (R-W opens) during the
blower on-delay period.
13 LIMIT CIRCUIT LOCKOUT – Lockout
occurs if the limit, draft safeguard, flame
rollout, or blocked vent switch*(if used) is
open longer than 3 minutes. Control will
auto-reset after 3 hours. See code 33.
14 IGNITION LOCKOUT – System failed to
ignite gas and prove flame in 4 attempts.
Control will auto-reset after 3 hours.
See status code 34.
21 GAS HEATING LOCKOUT – Turn off
power and wait 5 minutes to retry.
Check for:
- Stuck closed gas valve relay on control.
- Miswire or short to gas valve wire.
22 ABNORMAL FLAME-PROVING SIGNAL
Flame is proved while gas valve is de-
energized. Inducer will run until fault is
cleared. Check for:
- Stuck open or leaky gas valve.
23 PRESSURE SWITCH DID NOT OPEN
Check for:
- Obstructed pressure tube.
- Pressure switch stuck closed.
24 SECONDARY VOLTAGE FUSE IS OPEN
Check for:
- Short circuit in secondary voltage (24V)
wiring including thermostat leads.
Disconnect thermostat leads to isolate
short circuit.
31 PRESSURE SWITCH DID NOT CLOSE
OR REOPENED – If open longer than 5
minutes, inducer shuts off for 15 minutes
before retry. If opens during blower on-
delay period, blower will come on for the
selected blower off-delay. Check for:
- Proper vent sizing.
- Low inducer voltage (115V).
- Low inlet gas pressure (if LGPS used).
- Inadequate combustion air supply.
- Disconnected or obstructed pressure
tubing.
- Defective inducer motor.
-Defective pressure switch.
- Excessive wind.
- Restricted vent.
33 LIMIT CIRCUIT FAULT – Indicates the
limit, draft safeguard, flame rollout, or
blocked vent switch* (if used) is open.
Blower will run for 4 minutes or until open
switch remakes whichever is longer. If
open longer than 3 minutes, code
changes to lockout #13. If open less
than 3 min. status code #33 continues
to flash until blower shuts off. Flame
rollout switch and BVSS requires manual
reset. Check for:
- Dirty filter or restricted duct system.
- Loose blower wheel.
-D
efective switch or connections.
- Defective blower motor or capacitor.
- Inadequate combustion air supply
(flame rollout switch open).
- Restricted vent.
-P
roper vent sizing.
- Excessive wind.
34 IGNITION PROVING FAILURE – If flame
is not sensed during the trial for ignition
period, the control will repeat the ignition
sequence 3 more times before lockout
#14 occurs. If flame signal is lost during
the blower on-delay period, blower will
come on for the selected blower off-delay.
Check the following items first before
proceeding to the next step.
- Gas valve turned off.
- Manual shut-off valve.
-Green/Yellow wire MUST be connected
to furnace sheet metal.
- Flame sensor must not be grounded.
To determine whether the problem is in
the gas valve, igniter, or flame sensor the
system can be operated in the component
test mode to check the igniter. First
remove the R thermostat connection from
the control and initiate the component
test sequence. Does the igniter glow
orange/white by the end of the 15 second
warm-up period?
Unplug igniter harness from control and initiate
another component test sequence. Check
for 115V between pin 1 and NEUTRAL-L2 on
the control. Was 115V present for the 15
second period?
Reconnect the R thermostat lead and set
thermostat to call for heat. Connect voltmeter
across gas valve connections. Does gas valve
receive 24V?
Does gas valve open and allow gas to flow?
Do the main burners ignite?
Do the main burners stay on?
Repeat call for heat and check flame sensor
current during trial for ignition period. Is the
DC microamps below 0.5?
Is current near typical value?
Will main burners ignite and stay on?
Fixed.
Clean flame sensor with fine steel wool and
recheck current. Nominal current is 4.0 to 6.0
microamps.
45 CONTROL CIRCUITRY LOCKOUT
Auto-reset after 1 hour lockout due to:
- Flame circuit failure.
- Gas valve relay stuck open.
- Software check error.
Reset power to clear lockout. Replace
control if code repeats.
Replace furnace control.
Check for continuity in the harness and igniter.
Replace defective component.
Check connections. If OK, replace control.
Check that all gas valves are turned on.
Replace valve.
Check for:
-Inadequate flame carryover or rough
ignition.
-Low
inlet gas pressure.
- Proper firing rate.
- Blocked or incorrect carry- over gap.
(.045” nominal)
Allow blower to come on and repeat test to
check for intermittent operation.
Check connections and retry. If current is
near typical value (4.0-6.0 nominal) and
burners will not stay on, replace control.
Replace electrode.
Replace furnace control.
* Blocked vent switch used in Chimney Adapter Kit
YES
YES
YES
YES
NO
YES
YES
YES
NO
YES
NO
NO
NO
YES
NO
NO
NO
NO
310AAV

51
Table 17—Accessory List
DESCRIPTION PART NUMBER NOTES
Media Filter Cabinet
FILCABXX0016 Filter cabinet 16” (406 mm) for 4” (102 mm) wide filter
FILCABXX0020 Filter cabinet 20” (508 mm) for 4” (102 mm) wide filter
FILCABXX0024 Filter cabinet 24” (610 mm) for 4” (102 mm) wide filter
Cartridge Media Filter
FILXXCAR0016 Filter Cartridge replacements for FILCAB media cabinet
FILXXCAR0020 Filter Cartridge replacements for FILCAB media cabinet
FILXXCAR0024 Filter Cartridge replacements for FILCAB media cabinet
EZ Flex Media Filter with End Caps
EXPXXUNV0016 16” (406 mm) Replacement Expandable Filter assembly
EXPXXUNV0020 20” (508 mm) Replacement Expandable Filter assembly
EXPXXUNV0024 24” (610 mm) Replacement Expandable Filter assembly
Replacement EZ Flex Filter Media
EXPXXFIL0016 16” (406 mm) Replacement filter for EXPUNV assembly
EXPXXFIL0020 20” (508 mm) Replacement filter for EXPUNV assembly
EXPXXFIL0024 24” (610 mm) Replacement filter for EXPUNV assembly
External Bottom Return Filter Rack
KGAFR0401B14 Bottom return filter rack 14” (356 mm) casing
KGAFR0501B17 Bottom return filter rack 17” (432 mm) casing
KGAFR0601B21 Bottom return filter rack 21” (533 mm) casing
KGAFR0701B24 Bottom return filter rack 24” (610 mm) casing
External Side Return Filter Rack KGAFR0801SRE E x t . S i d e f i l t e r r a c k --- a l l c a s i n g s --- i n c l u d e s f i l t e r
Unframed Filter 3/4--- in. (19 mm)
KGAWF1301UFR† (1) unframed filter 16x25x3/4 (406x635x19 mm)
KGAWF1401UFR (1) unframed filter 20x25x3/4 (508x635x19 mm)
KGAWF1501UFR (1) unframed filter 24x25x3/4 (610x635x19 mm)
KGAWF1306UFR† (6) unframed filter 16x25x3/4 (406x635x19 mm)
KGAWF1406UFR (6) unframed filter 20x25x3/4 (508x635x19 mm)
KGAWF1506UFR (6) unframed filter 24x25x3/4 (610x635x19 mm)
Flue Extension KGAFE0112UPH (12) vent extension 4” (102 mm) dia. x 3--- 1/2” (89 mm)
*Twinning Kit KGATW0601HSI Single or two stage PSC equipped units only
Combustible Floor Base KGASB0201ALL Adjustable floor base --- fits all casing sizes
Downflow Vent Guard KGBVG0101DFG Vent flue shield --- downflow venting outside casing
Vent Extension Kit KGAVE0101DNH Downflow, through casing vent extension
Chimney Adapter Kit KGACA02014FC Masonry chimney adapter 4” (102 mm)
KGACA02015FC Masonry chimney adapter 5” (127 mm)
N a t u r a l --- t o --- P r o p a n e C o n v e r s i o n K i t KGANP4601ALL Gas conversion natural to propane all
P r o p a n e --- t o --- N a t u r a l C o n v e r s i o n K i t KGAPN3901ALL Gas conversion propane to natural all
Label Kit KGALB0101KIT Downflow orientation label replacement
**ECM Motor Simulator KGASD0301FMS ECM blower and inducer simulator --- variable speed units
**Advanced Product Monitor KGAFP0301APM PC software and hardware for Troubleshooting variable speed units
* Not for ECM or variable---speed ECM models
** Variable---speed ECM models only
310AAV

52
PARTS REPLACEMENT INFORMATION GUIDE
CASING GROUP
Outer door
Blower door
Top filler plate
Bottom filler plate
Bottom enclosure
ELECTRICAL GROUP
Control bracket
Junction box
Limit switch(es)
Circuit board
Door switch
Transformer
Wiring harness 115v
Wiring harness 24v
BLOWER GROUP
Blower housing
Blower cutoff
Blower motor
Blower wheel
Capacitor (where used)
Capacitor strap (where used)
Grommet
Power choke (where used)
GAS CONTROL GROUP
Manifold
Burner assembly
Orifice
Flame sensor
Hot surface igniter
Gas valve
Manual reset limit switches
Burner support assembly
HEAT EXCHANGER GROUP
Heat exchanger cell
Cell panel
Lox NOx baffle (California models only)
INDUCER GROUP
Housing assembly
Pressure switch
Inducer motor
Inducer wheel
Vent elbow assembly
Draft safeguard switch
TO OBTAIN INFORMATION ON PARTS: Consult your installing dealer or classified section of your local telephone directory under
“Heating Equipment” or “Air Conditioning Contractors and Systems” headings for dealer listing by brand name or contact:
BRYANT HEATING & COOLING SYSTEMS
Consumer Relations Department
P.O. Box 4952
Syracuse, New York 13221--4952
1--800--428--4326
Have available the model number, series number, and serial number located on the unit rating plate to ensure correct replacement part.
Example of Model Number
MODEL VOLTAGE IGNITION
TYPE
COOLING
SIZE
(AIRFLOW)
HEATING
SIZE VARIATION SERIES VARIATION
310A A V 066 135 A E JA
WARNING: Improper installation, adjustment, alteration, service, or maintenance can cause personal injury, property damage, or death.
Consult a qualified installer, service agency, or your local gas supplier for information or assistance. The qualified installer or service agency
must use only factory--authorized replacement parts, kits, or accessories when modifying this product.
Manufacturer reserves the right to discontinue, or change at any time, specifications or designs without notice and without incurring obligations.
EBryant Heating & Cooling Systems 7310 W. Morris St. Indianapolis, IN 46231 Edition Date: 05/12
Replaces: II310A--- 45--- 13
Catalog No. II310
A
--- 4 5 --- 1 4
310AAV