CARRIER Package Units(both Units Combined) Manual L0520534
User Manual: CARRIER CARRIER Package Units(both units combined) Manual CARRIER Package Units(both units combined) Owner's Manual, CARRIER Package Units(both units combined) installation guides
Open the PDF directly: View PDF
.
Page Count: 55

48HJ004-007
Single-Package Rooftop Heating/Cooling
Standard and Low NOx Units
Installation, Start-Up and
Service Instructions
CONTENTS
Page
SAFETY CONSIDERATIONS ...................... 1
INSTALLATION ................................ 1-36
Step 1 -- Provide Unit Support ................... 1
• ROOF CURB
• SLAB MOUNT
• ALTERNATE UNIT SUPPORT
Step 2 -- Field Fabricate Ductwork ............... 2
Step 3 -- Install External Trap for
Condensate Drain .............................. 4
Step 4-- Rig and Place Unit ..................... 4
• POSITIONING
Step 5-- Install Flue Hood ....................... 5
Step 6 -- Install Gas Piping ...................... 5
Step 7 -- Make Electrical Connections ........... 5
• FIELD POWER SUPPLY
• FIELD CONTROL WIRING
• HEAT ANTICIPATOR SETTINGS
Step 8 -- Adjust Factory-Installed Options ...... 13
• COBRA TM ENERGY RECOVERY UNITS
• HUMIDI-MIZER TM ADAPTIVE
DEHUMIDIFICATION SYSTEM
• MANUAL OUTDOOR-AIR DAMPER
•CONVENIENCE OUTLET
• NOVAR CONTROLS
• PREMIERLINK TM CONTROL
• OPTIONAL ECONOMISER IV AND ECONOMISER2
• ECONOMISER IV STANDARD SENSORS
• ECONOMISER IV CONTROL MODES
Step 9 -- Adjust Evaporator-Fan Speed ......... 25
PRE-START-UP .................................. 37
START-UP .................................... 37-42
SERVICE ..................................... 42-48
TROUBLESHOOTING ......................... 49-53
INDEX ........................................... 54
START-UP CHECKLIST ........................ CL-I
SAFETY CONSIDERATIONS
Installation and servicing of air-conditioning equipment can
be hazardous due to system pressure and electric_d compo-
nents. Only trained and qualifed service personnel should
install, repair, or service ai>conditioning equipment.
Untrained personnel can perform basic maintenance func-
tions of cleaning coils and filters and replacing filters. All other
operations should be performed by trained service personnel.
When working on ai>conditioning equipment, observe precau-
tions in the literature, tags and labels attached to the unit, and
other safety precautions that may apply.
Follow all safety codes. Wear safety glasses and work
gloves. Use quenching cloth for unbrazing operations. Have
fire extinguishers avaihtble for all brazing operations.
Before performing service or maintenance operations on
unit, turn off main power switch to unit and install lockout
tag. Ensure electrical service to rooftop unit agrees with
voltage and amperage listed on the unit rating phtte. Elec-
tricgd shock could cause personal injury.
Disconnect gas piping from unit when leak
testing at pressure greater than 1/2psig. Pres-
sures greater than ]h psig will cause gas valve
damage resulting in haz_u'dous condition. If
gas valve is subjected to pressure greater titan
1hpsig, it mustbe replaced before use. When
_ressure testing field-supplied gas piping at
_ressures of I/2 psig or less, a unit connected
o such piping must be isohtted by manu_dly
closing the gas valve(s).
INSTALLATION
Unit is shipped in the vertical dischtuge configuration. To
convert to horizontal discharge application, remove duct open-
ing coveLs. Using the same screws, install covers on duct open-
ings in basepan of unit with insulation-side down. Seals around
openings must be tight. See Fig. 1.
Step 1 -- Provide Unit Support
ROOF CURB -- Assemble and install accessory roof curb in
accor&mce with instructions shipped with curb. See Fig. 2. In-
stall insulation, cant strips, roofing felt, and counter flashing as
shown. Ductwork must be attached to curb, not to the unit.
If electric control power or gas service is to be routed through
the basepan, attach the accessory thin-the-bottom service con-
nections to the basepan in accordance with the accessory instal-
lation instructions. Connections must be inst_dled before unit is
set on roof curb.
IMPORTANT: The gasketing of the unit to the roof curb is ]
critical for a watertight seal. Install gasket supplied with the I
roof curb as shown in Fig. 2. hnproperly applied gasket can
result in air leaks and poor unit performance.
Curb should be level. Unit leveling tolerances are shown in
Fig. 3. This is necessary for unit drain to lhnction properly.
Refer to Accessory Roof Curb [nstalhttion Instructions for
additional infomtation as required.
Manufacturer reserves the right to discontinue, or change at any time, specifications or designs without notice and without incurring obligations.
Catalog No. 04-53480013-01 Printed in U,S.A. Form 48HJ-33SI Pg 1 9-05 Replaces: 48HJ-29SI

SLAB MOUNT (Horizontal Units Only) -- Provide a level
concrete slab that extends a minimum of 6 in. beyond unit cab-
inet. Install a gravel apron in front of condenser-coil air inlet to
plevent grass and foliage from obstructing airflow.
NOTE: Horizontal units may be installed on a roof curb if
required.
ALTERNATE UNIT SUPPORT -- When the curb or adapter
cannot be used, suppoll unit with sleeper rails using unit curb
or adapter suppoll area. If sleeper rails cannot be used, suppoll
the long sides of the unit with a minimum of 3 equally spaced
4-in. x 4-in. pads on each side.
Step 2 -- Field Fabricate Ductwork -- Secure _fll
ducts to roof curb and building structure on veltical discharge
units. Do not connect ductwork to unit. For horizontal applica-
tions, field-supplied isolation flanges should be attached to hor-
izont_d discharge openings and _11ductwork should be secured
to the flanges. Insulate and weatherproof all external ductwork,
joints, and roof openings with counter flashing and mastic in
accor&mce with applicable codes.
Ducts passing through an unconditioned space must be in-
sulated and covered with a vapor barriel:
If a plenum return is used on a vertical unit, the return
should be ducted through the roof deck to comply with applica-
ble fire codes.
A minimum clearance is not required around ductwork.
Cabinet return-air static pressure (a negative condition) shall
not exceed 0.35 in. wg with economizer or 0.45 in. wg without
economizeE
These units are designed for a minimum continuous return-
air temperature in heating of 50 F (di_ bulb), or an intermittent
operation down to 45 F (di_ bulb), such as when used with a
night setback thermostat.
To operate at lower return-air temperatures, a field-supplied
outdoor air temperature control must be used to initiate both
stages of heat when the temperature is below 45 F. Indoor com-
fort may be compromised when these lower air temperatures
are used with insufficient heating temperature rise.
REMOVABLE HORIZONTAL
RETURN DUCT OPENING COVER '_k k
\\\\\
\
_ REMOVABLE HORIZONTAL
SUPPLY DUCT OPENING COVER
Fig. 1 -- Horizontal Conversion Panels

D ALT
CONNECTOR B C DRAIN GAS POWER CONTROL ACCESSORY
PKG. ACCY. HOLE POWER
CRBTMPWROO1A01 3/41' 3/4" [19] NPT
CRBTMPWROO2A01 [19] NPT 11/4" [31.7]
1'-911/16" 1'-4" 13/4', 1/2" 3/4"1119]NPT 1/21' 1/2"
CRBTMPWROO3A01 [551] [406] [44.5] [12.7] NPT [12.7] [12.7]
3/4" 11/4" [31.7]
CRBTMPWROO4A01 [19] NPT
o' 3"
1753
I
I
I
O" 3" I
[76] I
I
I
I
1" 1 7/16" I
E341 ]
+
O" O 7116"
nl]
(DOLT HEAD5)
O' 0 7/16"
HEADS)
C
I
I
'_4I jl /_ _" ",\ ",,\
C / ' J
1 _ I IX
\\ I iI
\1 i I
_B
SUPPLY AIR
OPENING C
Y
1" 7 13/1D3._
[504]
O'
E7B]
3' O"
[914]
O' 0 1/4"[73
8
SUPPLY AIR
VIEW
E
RETURN AIR••
"A-A"
B GASKET
(SUPPLIED WITH CURS)
DUCT
(FIELD DUPPLIED)
I
I 2" 7 5/D"
I[803]
-1 _
O" 0 7116" #
[II] I
(BOLT HEADD) #
#
O' 0 7/15"
n. _A
(BOLT #
#
GAD 5ERVICE
PLATE
• (SEE
$
I
I
HEAD OF DOLT TO BE ON
INDIDE OF FLANGE
ROOF CURB A UNIT
ACCESSORY SIZE
CRRFCURBOOIA01 ] 48HJ
I 2'-0" I 004-007
CRRFCURB002A01 [610]
NOTES:
1. Roof curb accessory is shipped disassembled.
2. Insulated panels.
3. Dimensions in [ ] are in millimeters.
4. Roof curb: galvanized steel.
5. Attach ductwork to curb (flanges of duct rest
on curb).
6. Service clearance: 4 ft on each side.
7. I_ Direction of airflow.
8. Connector packages CRBTMPWROO1A01
and 002A01 are for thru-the-curb type gas.
Packages CRBTMPWROO3A01 and 004A01
are for thru-the-bottom type gas connections.
TYPICAL (4) SIDES
O" 7/16"
FLASHING
(FIELD SUPPLIED)
o.
(APPROXD ..
5TRIP
(FIELD SUPPLIED)
MATERIAL
(FIELD 5UPPL[ED)
0
SECTION "C C"
SCALE 1:4
RIGID INSULATION o
(FIELD DUPPLIED) I I
OPENING FOR BADEPAN ENTRY
SERVICE. (SEE NOTE #D)
O' 2 1/2"
O' 3 1/4"
[83]_ O" 9"
DEE NOTE #2
1' 4 13/15"
[427] " 6"
(INSIDE) [152]
:IND[DE)
23/8 °
[Bl]
I
I
I
I
I
Fig. 2 -- Roof Curb Details
1/8"
E1705]
NOTE: CAMBRIDGEPORT "SURE LOCK" CORNER
FASTENING DEVICE IS ACCEPTABLE
ALTERNATE CONSTRUCTION.

UM ALLOWABLE
DIFFERENCE (in.)
B OlOCl C
0.5 1.0 1.0
Fig. 3 -- Unit Leveling Tolerances
Step 3 -- Install External Trap for Condensate
Drain -- The unit's 3h-in. condensate drain connections am
located on the bottom and side of file unit. Unit discharge
connections do not determine the use of drain connections;
either &ain connection can be used with vertic_d or horizontal
applications.
When using the standard side &ain connection, ensure the
plug (Red) in the ;alternate bottom connection is tight before
installing the unit.
To use the bottom &ain connection for a roof curb installa-
tion, relocate the factory-inst;dled plug (Red) from the bottom
connection to the side connection. Tile center drain plug looks
like a star connection, however it can be removed with a m/2-in.
socket drive extension. See Fig. 4. The piping for the conden-
sate &ain find external trap can be completed after the unit is in
place.
All units must have fin external trap for condensate drain-
age. Install a trap 4-in. deep and protect against freeze-up. If
drain line is installed downstream from the external trap, pitch
the line away from the unit fit 1 in. per 10 ft of run. Do not use a
pipe size smaller than the unit connection (3/4 in.). See Fig. 5.
Step 4 -- Rig and Place Unit-- Inspect unit for
transportation dmnage, and tile any claim with transpollation
agency. Keep unit upright and do not drop. Spreader bars are
not required if top crating is left on unit, and rollers may be
used to move unit across a roof. Level by using unit fl_lme as a
reference. See Table 1 and Fig. 6 for additional information.
Operating weight is shown in Table 1 and Fig. 6.
Lifting holes m'e provided in base rfdls as shown in Fig. 7.
Refer to rigging instructions on unit.
HORIZONTAL DRAIN PLUG
DRAIN OUTLET
NOTE: Drain plug is shown in factory-installed position.
Fig. 4- Condensate Drain Pan
All panels must be in place when rigging and lifting.
POSITIONING -- Maintain clefuance around find above unit
to provide minimum distance from combustible materials, prop-
er airflow, and service access. See Fig. 7.
Position unit on roof curb so that file following clearances are
maintained: 1/4 in. clearance between the roof curb find the base
rail inside the front and refu'. 0.0 in. clearance between the roof
curb and the base rail inside on the duct end of the unit. This will
result in the distance between the roof curb and the base rail
inside on file condenser end of the unit being approximately
equal to Fig. 2, section C-C.
Do not install unit in an indoor location. Do not locate unit
air inlets near exhaust vents or other sources of contmninated
air
Be sure flint unit is installed such that snow will not block
the combustion intake or flue outlet.
Unit may be installed directly on wood flooring or on
Class A, B, or C roof-covering material when roof curb is used.
Although unit is weafllerproof, guard against water from
higher level runoff and overhangs.
Ix>cate mechanical draft system flue assembly at least 48 in.
from an adjacent building or combustible materiffl. When unit
is located adjacent to public walkways, flue assembly must be
fit least 7 fl above grade.
NOTE: When unit is equipped with an accessory flue dis-
chmge deflector, allowable clearance is 18 inches.
Flue gas can deteriorate building materials. Orient unit such
that flue gas will not affect building materials.
Adequate combustion-air space must be provided for proper
operation of this equipment. Be sure that installation complies
with all local codes and Section 5.3, Air for Combustion find
Ventilation, NFGC (National Fuel Gas Code), ANSI (Ameri-
can National Standards Institute) Z223.1-1984 find addendum
Z223.1a-1987. In Canada, installation must be in accordance
with the CANI.BI49.1 and CANI.BI49.2 installation codes
for gas burning appliances.
Flue vent dischmge must have a minimum horizontal clear-
ance of 4 fl from electric and gas meters, gas regulators, find
gas relief equipment.
After unit is in position, remove shipping materials and rig-
ging skids.
\ OPEN 2" MINI IIIII
VENT / I I IIII
SEE
NOTE
_L_
.,,_ROOF
CURB
NOTE: Trap should be deep enough to offset maximum unit static
difference. A 4-in. trap is recommended.
Fig. 5 -- Condensate Drain Piping Details

36"- 54"
(914-1371)
POSITION ALL SEAL STRIPS
IN PLACE BEFORE POSITIONING
UNIT ON ROOF CURB,
DUCT END
SEE "A_DETAIL
PLACE UNIT ON CURB AS CLOSE
TO DUCT END AS POSSIBLE
DETAIL "A"
NOTES:
1. Place unit on curb as close as possible to the duct end.
2. Dimension in ( ) is in millimeters.
3. Hook rigging shackles through holes in base rail as shown in
detail "A." Holes in base rails are centered around the unit
center of gravity. Use wooden top skid when rigging to prevent
rigging straps from damaging unit.
4. Weights include base unit without economizer. See Table 1 for
unit operating weights with accessory economizer.
6. Weights include base unit without the Humidi-MiZer TM adaptive
dehumidification system. See Table 1 for unit operating weights
with the Humidi-MiZer system.
UNIT
48HJ
004
005
006
007
All panels must be in place when rigging.
OPERATING
WEIGHT
Ib kg
530 240
540 245
560 254
635 288
"A"
in. mm
73.69 1872
73.69 1872
73.69 1872
73.69 1872
"g"
in. mm
35.50 902
35.50 902
35.50 902
35.50 902
Fig. 6 -- Rigging Details
"C"
in. mm
33.31 847
33.31 847
33.31 847
33.31 847
Step 5-- Install Flue Hood -- Flue hood is shipped
screwed to the burner comp;utment access panel. Remove
from shipping location and, using screws provided, inst;dl flue
hood in location shown in Fig. 7 and 8.
For units being installed in California Air Quality Manage-
ment Districts which require NOx emissions of 40 nanogrmns/
joule or less, a low NOx unit must be installed.
NOTE: Low NOx units are available for 3 to 5 ton units.
Step 6-- Install Gas Piping -- Unit is equipped for
use with type of gas shown on nameplate. Refer to local
building codes, or in the absence of local codes, to
ANSI Z223.1-1984 and addendum Z223. IA- 1987 entitled
National Fuel Gas Code. In Canada, installation must be in
accordance with the CANI .B149.1 and CANI .B149.2 instal-
lation codes for gas burning appliances.
For natural gas applications, gas pressure at unit gas con-
nection must not be less than 4 in. wg or greater than 13 in. wg
while the unit is operating. On 48HJ005-007 high-heat units,
the gas pressure at unit gas connection must not be less than
5 in. wg or greater than 13 in. wg while the unit is operating.
For propane applications, the gas pressure must not be less than
5 in. wg or greater than 13 in. wg at the unit connection.
Size gas supply piping for 0.5 in. wg maximum pressure
drop. Do not use supply pipe sm_dler than unit gas connection.
Support gas piping as shown in the table in Fig. 9. For ex-
ample, a 3/4-in. gas pipe must have one field-fabricated support
bemn every 8 ft. Therefore, an 18-ft long gas pipe would have a
minimum of 3 support beams, and a 48-ft long pipe would
have a minimum of 6 support beams.
See Fig. 9 for typical pipe guide and locations of extermd
manual gas shutoff valve.
NOTE: If accessory thin-the-bottom connections and roof curb
are used, refer to the Thin-the-Bottom Accessory Installation
Instructions for information on power wiring and gas
connection piping. The power wiring, control wiring and gas
piping can be routed through field-drilled holes in the basepan.
The basepan is speci_dly designed and dimpled for drilling the
access connection holes.
When connecting the gas line to the unit gas v_dve, the
installer MUST use a backup wrench to prevent damage to
the v_dve.
Step 7 -- Make Electrical Connections
Unit cabinet must have an unintenupted, unbroken electri-
c_d ground to minimize the possibility of pel.sonal injury if
an electrical fault should occm: This ground may consist of
electric_d wire connected to unit ground lug in control com-
partment, or conduit approved for electrical ground when
installed in accordance with NEC (Natiomd Electrical
Code), ANSI/NFPA (National Fire Protection Associa-
tion), latest edition, and local electrical codes. Do not use
gas piping as an electrical ground Failure to follow this
warning could result in the installer being liable for per-
sonal injury of others.
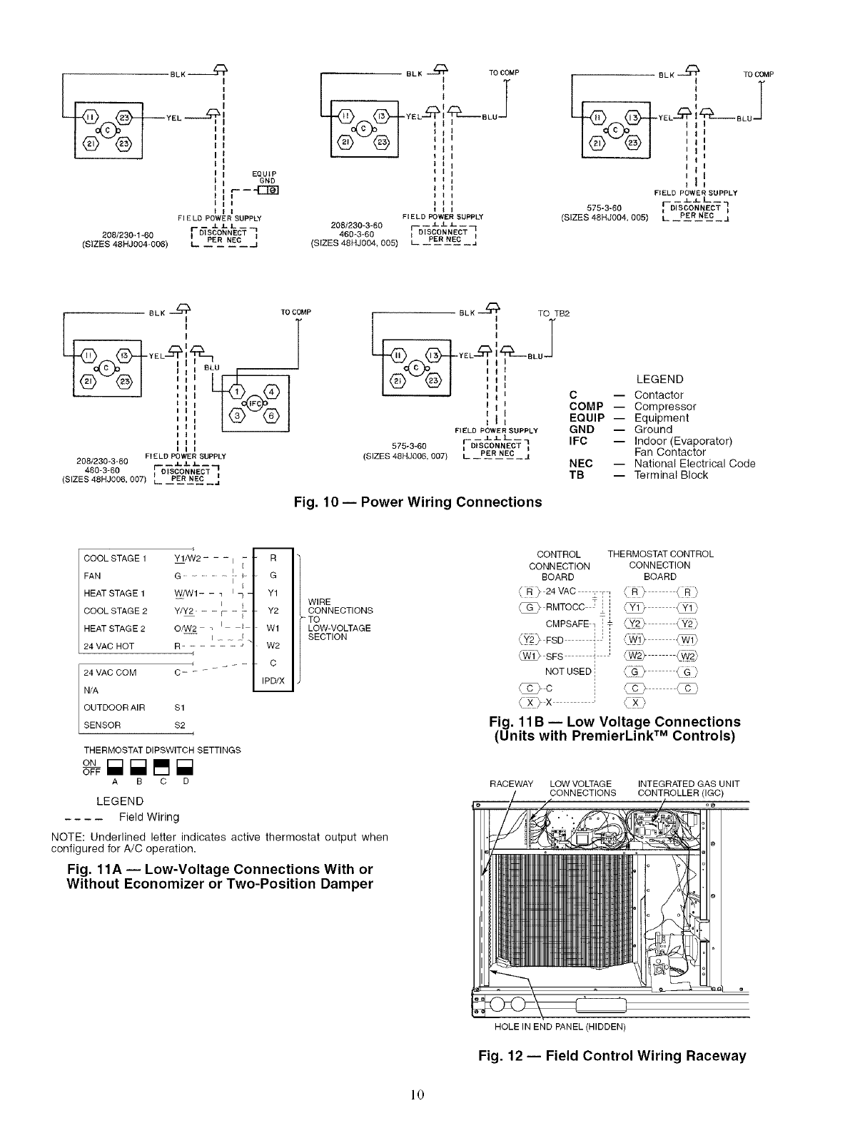
FIELD POWER SUPPLY -- All units except 208/230-v
units are factory wired for the voltage shown on the nameplate.
If the 208/230-v unit is to be connected to a 208-v power sup-
ply, the transformer must be rewired by moving the black wire
from the 230-v terminal on the transformer and connecting it to
the 200-v terminal from the transformel:
Refer to unit label diagram for additional information.
Pigtails me provided for field service. Use factory-supplied
splices or UL (Underwriters' Laboratories) approved copper
connectoE

UNIT
48HJ_004
4BHJ_OO5
4BHJ_OO5
4BHJ_O07
STD. UNIT !CONOMI_ERI_ VERT. ECONIV (A) (SI (C) (D)
WEIGHT WEIGHT W/P.E. WEIGHT CORNER WEIGHT CORNER WEIGHT CORNER WEIGHT CORNER WEIGHT "J"
LB KG LB KG LB KG LB KG LB KG LB KG LB KG FT iN. MM
530 240 50 22,7 go 40,S 127 57,G 122 55,3 138 62.8 143 84,9 2" S 5/16" 84G.5
540 245 129 SS.5 124 55.2 141 54.0 145 55.2 ; ;
560 254 134 60.8 129 58.5 148 66.2 151 88.5
G35 288 152 68.S 147 55.7 1S5 74.8 171 77.5 3" 5 5/15" 1050
NOTES=
1. DIMENSIONS IN [ ] ARE IN MILLIMETERS.
2. _CENTER OF GRAVITY.
3. _ DIRECTION OF AIR FLOW.
4. ON VERTICAL DISCHARGE UNITS, DUCTWORK TO BE ATTACHED
TO ACCESSORY ROOF CURB ONLY. FOR HORIZONTAL DISCHARGE
UNITS FIELD SUPPLIED FLANGES SHOULD BE ATTACHED TO
HORIZONTAL DISCHARGE OPENINGS, AND ALL DUCTWORK SHOULD
BE ATTACHED TO THE FLANGES.
CORNER
S. MINIMUM CLEARANCE (LOCAL CODES OR JURISDICTION MAY
PREVAIL):
a. BETWEEN UNIT, FLUE SIDE AND COMBUSTIBLE SURFACES,
35 IN.,18 IN. WHEN USING ACCESSORY FLUE DISCHARGE DEFLTR.
b. BOTTOM OF UNIT TO COMBUSTIBLE SURFACES (WHEN NOT USING
CURB) 1 INCH.
BOTTOM OF BASE RAiL TO COMBUSTIBLE SURFACES (WHEN NOT
USING CURB) O INCHES.
c. CONDENSER COIL, FOR PROPER AiR FLOW, 3B iNCHES
ONE SIDE, 12 iNCHES THE OTHER. THE SIDE GETTING THE
GREATER CLEARANCE IS OPTIONAL.
d. OVERHEAD, SO iNCHES TO ASSURE PROPER CONDENSER FAN
OPERATION. 3" 9"
e. BETWEEN UNITS, CONTROL BOX SIDE, 42 IN. PER NEC. [1144]
F. BETWEEN UNIT AND UNGROUNDED SURFACES, CONTROL BOX
SIDE, 38 IN. PER NEC.
g. BETWEEN UNIT AND BLOCK OR CONCRETE WALLS AND OTHER
GROUNDED SURFACES, CONTROL BOX SIDE, 42 IN. PER NEC.
h. HORIZONTAL SUPPLY AND RETURN END, 0 INCHES WHEN THE
ALTERNATE CONDENSATE DRAIN IS USED.
B. WITH THE EXCEPTION OF THE CLEARANCE FOR THE CONDENSER
COIL AND COMBUSTION SIDE AS STATED IN NOTE #Sa, b,
AND c, A REMOVABLE FENCE OR BARRICADE REQUIRES NO
CLEARANCE.
7. UNITS MAY BE INSTALLED ON COMBUSTIBLE FLOORS MADE
FROM WOOD OR CLASS A, S, OR C ROOF COVERING MATERIAL
IF SET ON BASE RAIL. CORNER
8. THE VERTICAL CENTER OF GRAVITY IS 1' G'[457] UP FROM
FROM THE BOTTOM OF THE BASE RAIL.
971"7
IllS.B] TYP [104B]
8/1 G"
EG5_LEFT SIDE BISGONNEGTLooATION
O' 3 13/1B"
[97]
FACTORY
REAR
F [ LTER/ECONOM [ ZER ACCESS
ICONDENSER _L PANEL_
(BO_#"_4_f 4
c ft
FLUE HOOD
l" 4 5/16"
[414.5]
O' B S/B"
[168.23
BOTTOM POWER CHART:
THE5E HOLE5 REG'D FOR U5E
WITH ACCE550RY PACKAGES
CRBTMPWROO1A01, 2A01, 3A01, OR 4A01
THREADED WIRE REQ'D HOLE
CONDUIT 5]ZE USE SIZES (MAX.)
1/2" ACC. 7/8"[22.2]
1/2" 24V 7/B'[22.2]
3/4" (001,003) DOWER_ 1 1/8"[28.4]
1/4" (O02,004) DOWER_ 1 3/4"[44,4]
(003) 1/2"FPT GA5 1 1/4"[31.8]
EVAPORATORI I
COIL RETURN AIR OPENING
VERTIGALI,
' E/' I----i
ALTI CONDENSATE
, DRAIN OPENING I I
IN SASEPAN SUPPLY AIR
1" S 1/4" [438]
FOR ECONOM]$ER [V
(DISPOSABLE FILTERS)
BLOCKOFF
PANEL
_O' S3Zl@" RIGHT SIDE
[81]
CONNECTION SIZES
1 3/8" DIA. [3B] FIELD POWER SUPPLY HOLE
2" DIA. [51] POWER SUPPLY KNOCK OUT
DO r---1
VIEW 5 5
2"11
[BOB]
3" O"
[gl 4]
1S/1B"
[4S]
O" 3 SW1B"
[99.4]
FRONT
O" 3 1/16"
[78]_
G" 1 11/1G"
[1872]
L__IJ
O' I0 1S/1B" _.____j RETURN AIR
[278]
O" S 3/8"
_ [137]
l _°'2Ss_G'EBs
1 'G 1/2"_
1'53/4"[451] _ SUPPLY AIR _ [470]
O" S7/1B" 1" S 1/4" [Sl4] //
[13B] //4/`
,£4 O" 0 7/IS'Ell.l]
"C" O' 7 1/4" L
_[81] _[1B4] _ ECONOM[$ER IV
l' S SW1B" O" lO 13/15" O' 4 1/1B"
[439.7] W/ POWER EXHAUST
O' O 3/8"
CONTROL BOX/COMPRESSOR/
BURNER ACCESS
PANEL
2" 5 3/8
[74B. 2]
INDOOR FAN MOTOR
SLOWER ACCESS PANEL
_0" 3 5/IB"
Egl.O] 1" 2 7/8"
[375.B]
h
h 2" 1 ll/1G"
[852.5]
HOR[ h
x ZONTAL h
lli N h
III SUPPLY AIR Nil 7" h l' 8 1/4" [5143
OPENING j
III HORIZONTAL II h OUTSIDE AIR
IlL Ill h O" 0 7/8"
_0' S ll/1B"
[144.3]
RETURN AIR BAROMETRIC RELIEF DISCHARGE
_®1
O" [2141B7/1B "FORK TRUCK SLOTSo, 2 1/4"DIA O' 5 [14B]3/4" OUT_J_L'y[BSB'B]lAIR15/1B"
[573 OF PANEL
FRONT (TYPsPLACES) R IGHT S IDE E STD. CONDENSATE DRAIN
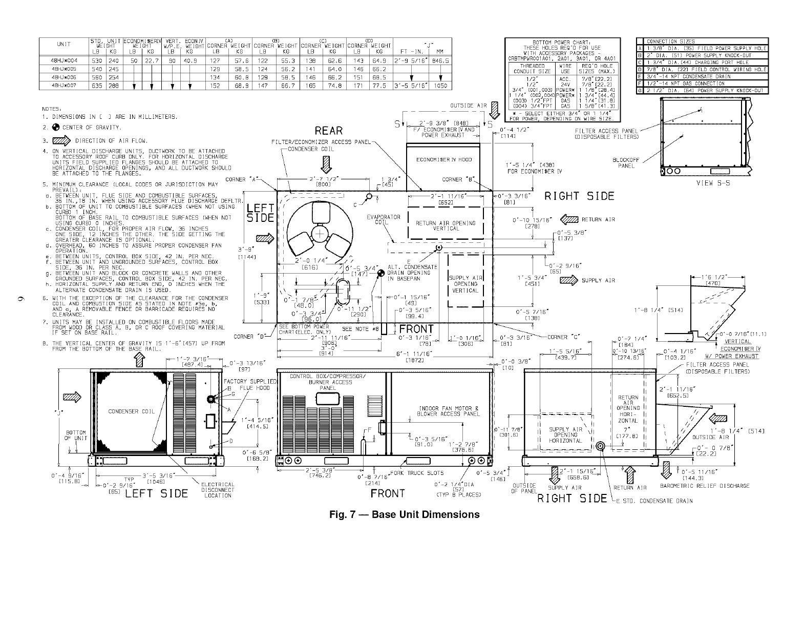
Fig. 7 -- Base Unit Dimensions

k -41
\
INTAKE LOUVERS FLUE OPENING
Fig. 8-- Flue Hood Details
i= X
9" MINIMUM CLEARANCE
4 SUPPORT*
FROM GAS METER
LEGEND
NFGC -- National Fuel Gas Code
*Field supplied,
NOTE: Follow all local codes.
SPACING OF SUPPORTS
STEEL PIPE SPACING OF SUPPORTS
NOMINAL DIAMETER (in.) X DIMENSION (ft)
1/2 6
a/4or I 8
1V4 or larger 10
Fig. 9 -- Gas Piping Guide (With Accessory
Thru-the-Curb Service Connections)
When installing units, provide a disconnect per NEC.
All field wiring must comply with NEC and local
requirements.
Install conduit through side panel openings indicated in
Fig. 7. Route power lines through connector to terminal con-
nections as shown in Fig. 10.
Voltage to compressor terminals during operation must be
within voltage range indicated on unit nmneplate (also see
Tables 2A-2D). On 3-phase units, voltages between phases
must be balanced within 2% and the current within 10%. Use
the formula shown in Tables 2A-2D, Note 3 to determine the
percent voltage imbalance. Operation on improper line voltage
or excessive phase imbalance constitutes abuse and may cause
&image to electric_d components. Such operation would inv_di-
&_te any applicable Carrier warranty.
NOTE: If accessory thin-the-bottom connections and roof curb
tu'e used, refer to the Thru-the-Bottom Accessory Installation
Instructions for information on power wiring and gas connec-
tion piping. The power wiring, control wiring and gas piping
can be routed through field-drilled holes in the baseptm. The
basepan is specially designed and dimpled for drilling the
access connection holes. See Fig. 2.
FIELD CONTROL WIRING -- Install a Carrier-approved
accessory thermostat assembly according to inst_dlation in-
structions included with the accessory. Ix)cate thermostat
assembly on a solid wail in the conditioned space to sense aver-
age temperature in accor&mce with thermostat installation
instructions.
Route thermostat cable or equivalent single leads of colored
wire from subbase termin_ds through connector on unit to low-
voltage connections (shown in Fig. 11A and 11B).
Connect thermostat wires to matching screw termimds of
low-voltage connection bozud. See Fig. 11A and I lB.
NOTE: For wire runs up to 50 fl, use no. 18 AWG (American
Wire Gage) insulated wire (35 Cminimum). For 50 to 75 It,
use no. 16 AWG insulated wire (35 Cminimum). For over
75 ft, use no. 14 AWG insulated wire (35 Cminimum). All
wire larger than no. 18 AWG cannot be directly connected to
the thermostat and will require a junction box and splice at the
thermostat.
Pass the control wires through the hole provided in the
corner post; then feed wires through the raceway built into the
corner post to the 24-v barrier located on the left side of the
control box. See Fig. 12. The raceway provides the UL re-
quired cle_u'ance between high and low-voltage wiring.
HEAT ANTICIPATOR SETTINGS -- Set heat anticipator set-
tings at 0.14 amp for first stage and 0.14 for second stage heat-
ing, when available.

Table 1 -- Physical Data
BASE UNIT 48 HJE/F/H/K]M/NO04 HJD/E/F/G/H/K]L/M/NO05 HJD/E/F/G/H/K]L/M/NO06 HJD/E/FO07
NOMINAL CAPACITY 3 4 5 6
OPERATING WEIGHT (Ib)
Unit 530 540 560 635
Humidi-MiZer TM Adaptive Dehumidification System 15 23 25 29
EconoMi$er IV 50 50 50 50
Roof Curb 115 115 115 115
COMPRESSOR Scroll
ouontity 1 I 1 I 1 I 1
Oil (oz) 42 53 50 60
REFRIGERANT TYPE R-22
Expansion Device Acutrol TM Metering Device
Operating Charge (Ib-oz)
Standard Unit 5-8 I10-2 I10-0 I12-8
Unit With Humidi-Mizer Adaptive Dehumidification System 12-5 16-8 20-5 23-14
CONDENSER FAN Propeller
Nominal Cfm 3500 3500 4100 4100
Motor Hp...Rpm V4 ,825 V4 ..825 V4_1100 V4_1100
Watts Input (Total) 180 180 320 320
CONDENSER COIL Enhanced Copper Tubes, Aluminum Lanced Fins
Rows...Fins/in, 1_,17 I2_.17 I2_,17 I 2.17
Total Face Area (sq ft) 146 165 165 21 3
EVAPORATOR COIL Enhanced Copper Tubes, Aluminum Double-Wavy Fins
Standard Unit
Rows.,,Finslin, 2._15 2_15 4_15 4_,15
Total Face Area (sq ft) 5,5 5.5 5.5 73
Unit with Humidi-Mizer Adaptive Dehumidification System 1_,17 2_.17 2_17
3,9 3.9 5.2
Rows,..Finslin,
Total Face Area (sq ft)
EVAPORATOR FAN
°uantity..,Size (in.)
Nominal Cfm
Maximum Continuous Bhp
Motor Frame Size
Fan Rpm Range
Motor Bearing Type
Maximum Fan Rpm
Motor Pulley Pitch Diameter A/B (in.)
Nominal Motor Shaft Diameter (in,)
Fan Pulley Pitch Diameter (in,)
Belt -- Type,.,Length (in.)
Pulley Center Line Distance (in.)
Speed Change per Full Turn of
Movable Pulley Flange (rpm)
Movable Pulley Maximum Full
Turns from Closed Position
Factory Setting -- Full Turns Open
Factory Speed Setting (rpm)
Fan Shaft Diameter at Pulley (in.)
Std
Hi-Static
Std
Hi-Static
Std
Hi-Static
Std
Hi-Static
Std
Hi-Static
Std
Hi-Static
Std
Hi-Static
Std
Hi-Static
Std
Hi-Static
Std
Hi-Static
Std
Hi-Static
1...10 x 10
1200
1.20
2.40
48
56
680-1044
1075-1455
Ball
2100
1.9/2.9
2.8/3.8
l&
%
4.5
4.5
1...A...36
1_.A_.39
10.0-12.4
65
65
5
6
3
31/2
826
1233
%
2...17
3.9
Centrifugal Type, Belt Drive
1...10 x 10
1600
1.20
2,40
48
56
770-1185
1075-1455
Ball
2100
1.9/2.0
2.8/3.8
1/2
5/s
4.0
4.0
1..,A.,.36
1,_A_.39
10.0-12.4
7O
65
5
6
3
31/2
936
1233
5/s
1,.,10 x 10
2000
1.30/2.40"
2,90
48/56"
56
1035-1460
1300-1685
Ball
2100
2.4/3.4
3.4/4,4
%
5/8
4.0
4.5
1..-4-.40
1,..A-.40
14.7-15.5
75
6O
6
5
3
31/2
1248
1396
5/8
1..,10 x 10
2400
2,40
2,90
56
56
1119-1585
1300-1685
Ball
2100
2,4/3,4
3,4/3,4
5/8
7&
4.0
4.5
1..,A,..38
1..,A_.40
14.7-15.5
95
60
5
5
3
1305
1396
5/8
LEGEND
Bhp-- Brake Horsepower
*Single phase/three phase,
tlndicates automatic reset,
**60,000 and 72,000 Btuh heat input units have 2 burners, 90,000 and
120,000 Btuh heat input units have 3 burners. 115,000 Btuh heat input units
and 150,000 Btuh Heat input units have 3 burners.
l-tAn LP kit is available as an accessory. Kit may be used at elevations as high
as 2000 ft, If an LP kit is used with Low NOx units, the Low N©x baffle must
be removed and the units will no longer be classified as Low N©x units.
IIThree-phase standard models have heating inputs as shown, Single-
phase standard models have one-stage heating with heating input values
as follows:
HJD005-006,HJE004 -- 72,000 Btuh
HJE005-006,HJF004 -- 115,000 Btuh
HJF005-006 -- 150,000 Btuh
***California compliant three-phase models.
tttCalifornia SCAQMD compliant low NO× models have combustion products
that are controlled to 40 nanograms per joule or less,

Table 1 -- Physical Data (cont)
BASE UNIT 48 HJE/F/H/K]M/N004 HJD/E/FIGIHIK/L/M/NO05 HJD/EIF/GIH/K/LIM/NO06 HJD/E/F007
FURNACE SECTION
Rollout Switch Cutout Temp (F)t
Burner Orifice Diameter (in, ..,drill size)**
Natural Gas -- Std
Liquid Propane -- Alttt
Thermostat Heat Anticipator Setting (amps)
208/230/460/575 v
First Stage
Second Stage
Gas Input (Btuh)
First Stage/Second Stage
Efficiency (Steady State) (%)
Temperature Rise Range
Manifold Pressure (in. wg)
Natural Gas -- Std
Liquid Propane -- Alttt
Maximum Static Pressure (in, wg)
Field Gas Connection Size (in.)
HIGH-PRESSURE SWITCH (psig)
195
HJE.113...33
HJF,113..,33
HJH,113-.33
HJK,113-.33
HJM .102,,.38
HJN.102-.38
HJE,089.,.43
HJF,089..,43
HJH,089.,.43
HJK,089-.43
HJM .082,.,45
HJN ,082,,.45
,14
.14
195
HJD.113...33
HJE .113...33
HJF.129-.30
HJG .113...33
HJH.113...33
HJK.129...30
HJL.102...38
HJM ,102,..38
HJN.116...32
HJD.089...43
HJE .089...43
HJF.104...37
HJG .089...45
HJH .089...45
HJK.102...38
HJL.082-.45
HJM .082.,.45
HJN.094...42
.14
.14
195
HJD.113.-33
HJE .113.-33
HJF.129-.30
HJG .113...33
HJH .113...33
HJK.129.-30
HJL.102.-38
HJM .102...38
HJN.116-.32
HJD.089.-43
HJE .089...43
HJF.104...37
HJG .089...43
HJH .089...43
HJK.104.-37
HJL.082-.45
HJM.082...45
HJN .094.,.42
.14
.14
HJEll50,000/ 72,000
HJFI182,000/115,000
HJH***--/ 72,000
HJK***--/115,000
HJMTTT--/ 60,000
HJNttt--/ 90,000
HJE 82,8
HJF80
HJH 82
HJK 80
HJM 80.2
HJN 81
HJE 25-55
HJF 55-85
HJH 25-55
HJK 55-85
HJM 20-50
HJN 30-60
3.5
3.5
1.0
1/2
HJDll 50,000/ 72,000
HJEII 82,000/115,000
HJFl1120,000/150,000
HJG***--/ 72,000
HJH*** --/115,000
HJK*** --/150,000
HJLttt --/ 60,000
HJMttt--/ 90,000
HJNttt --/120,000
HJD 82.8
HJE 81
HJF 80.4
HJG 82
HJH 81
HJK 80
HJL 80.2
HJM 81
HJN 80.7
HJD 25-25
HJE 35-65
HJF 50-80
HJG 25-55
HJH 35-85
HJK 50-80
HJL 20-50
HJM 30-60
HJN 40-70
3.5
3.5
1.0
HJDII 50,000/ 72,000
HJEII 82,000/115,000
HJFI1120,000/150,000
HJG***--/ 72,000
HJH*** --/115,000
HJK*** --/150,000
HJLttt--/ 60,000
HJMftt--/ 90,000
HJNttt --/120,000
HJD 82.8
HJE 81
HJF 80.4
HJG 82
HJH 81
HJK 80
HJL 80.2
HJM 81
HJN 80.7
HJD 25-55
HJE 35-65
HJF 50-80
HJG 25-55
HJH 35-65
HJK 50-80
RJL 20-50
HJM 30-60
HJN 40-70
3.5
3.5
1.0
l&
Standard Compressor Internal Relief
Cutout
Reset (Auto.)
LOSS-OF-CHARGE SWITCH/LOW=PRESSURE
SWITCH (Liquid Line) (psig)
Cutout
Reset (Auto.)
FREEZE PROTECTION THERMOSTAT
Opens (F)
Closes (F)
OUTDOOR-AIR INLET SCREENS
RETURN-AIR FILTERS
Quantity...Size (in.)
LEGEND
Bhp-- Brake Horsepower
*Single phase/three phase.
tlndicates automatic reset.
**60,000 and 72,000 Btuh heat input units have 2 burners. 90,000 and
120,000 Btuh heat input units have 3 burners. 115,000 Btuh heat input units
and 150,000 Btuh Heat input units have 3 burners.
ttAn LP kit is available as an accessory. Kit may be used at elevations as high
as 2000 ft. If an LP kit is used with Low NOx units, the Low NOx baffle must
be removed and the units will no longer be classified as Low N©x units.
450 _+50
428
32O
7_+3
22 _+5
195
HJD,113-,33
HJE ,113-.33
HJF,129.-30
HJD .089_.43
HJE ,089-.43
HJF.104.-37
.14
.14
HJD 50,000/ 72,000
HJE 82,000/115,000
HJF 120,000/150,000
HJD 82
HJE 81
HJF 80
HJD 25-55
HJE 35-65
HJF 50-80
3.5
3.5
1.0
1/2
30_+5
45_+5
Cleanable. Screen quantity and size varies with option selected.
Throwaway
2._16x25x2 I 4_.16x 16x2
IIThree-phase standard models have heating inputs as shown. Single-
phase standard models have one-stage heating with heating input values
as follows:
HJD005-006,HJE004 -- 72,000 Btuh
HJE005-006,HJF004- 115,000 Btuh
HJF005-006- 150,000 Btuh
***California compliant three-phase models.
tttCalifornia SCAQMD compliant low NOx models have combustion products
that are controlled to 40 nanegrams per joule or less.

BLK
1
YEL
208/230-1-60
(SIZES 48HJ004-006)
EQUIP
GND
F--t_I
i
1
PI ELD POWER SUPPLY
_ .L .L L__
FDISOON.EDT7
PER NEC
L* .... J
BLK _ TO COMP
I
,,
I;%F'i'
FIELD POWERSUPPLY
_.L.L .L --
208/230-3-60460-3-60 _F-DISCONNEcT 7
(SIZES 48HJ004, 005) L.. PERNEC ,{
BLK _ TO COMP
[;% I
I
I
FIELD POWERSUPPLY
r -- a-.L L--7
575-3-60 _ DISCONNECT I
(SIZES 48HJ004, 005) PER NECL ..... J
BLK _ TO COMP
i ' !
ii I
I,
FIELD POWER SUPPLY
208/230-3-50 _,.L_ .L --
460-3-80 ,r-DISCONNECT 7
(SIZES 48HJ006, 007) LZE._"_"EC_:
BLK ---_J TO TB2
I
I®®1
1
I
FIELD POWER SUPPLY
_I.LL__
575-3-50 [-DI SCONNECT 7
(SIZES48HJ006, 007) LPE?NEC j
Fig. 10 -- Power Wiring Connections
LEGEND
C -- Contactor
COMP -- Compressor
EQUIP -- Equipment
GND -- Ground
IFC -- Indoor (Evaporator)
Fan Contactor
NEC -- National Electrical Code
TB -- Terminal Block
COOL STAGE 1
FAN
HEAT STAGE 1
COOL STAGE 2
HEAT STAGE 2
24 VAC HOT
24 VAC COM
N/A
OUTDOOR AIR $1
SENSOR $2 4
]
Y/Y2 - - f- -
O/W2 • I
F__J
R
m
R
G
Y1
Y2
W1
W2
C
IPD/X
WIRE
CONNECTIONS
TO
LOW-VOLTAGE
SECTION
THERMOSTAT DIPSWITCH SETTINGS
ON
A B C D
LEGEND
Field Wiring
NOTE: Underlined letter indicates active thermostat output when
configured for A/C operation.
Fig. 11A -- Low-Voltage Connections With or
Without Economizer or Two-Position Damper
CONTROL THERMOSTAT CONTROL
CONNECTION CONNECTION
BOARD BOARD
{_ RMTOCC T_i *_1_'- _YY11/_
CMPSAFE1 !_ {£_i '_ {:_)
(Wl_, SFS 4 = /'W2_ (W2}
NOT USED i 7 G \
,\/\/
( %?x {:::_}
Fig. 11B-- Low Voltage Connections
(Units with PremierLink TM Controls)
RACEWAY LOW VOLTAGE INTEGRATED GAS UNIT
CONNECTIONS CONTROLLER (IGC)
HOLE IN END PANEL (HIDDEN)
Fig. 12- Field Control Wiring Raceway
10

UNIT
48HJ
OO4
(3 Tons)
005
(4 Tons)
006
(5 Tons)
0O7
(6 Tons)
Table 2A -- Electrical Data -- Standard Motor Units Without Electrical Convenience Outlet
VOLTAGE COMPRESSOR OFM COMBUSTION POWER SUPPLY* MINIMUM UNIT
NOMINAL VOLTAGE RANGE (each) (each) IFM FAN MOTOR DISCONNECT SIZEt
(V-Ph-Hz) Min Max Qty RLA LRA FLA FLA FLA MCA MOCP** FLA LRA
208/230-1-60 187 254 16.0 88.0 0.7 4.9 .60 25.6/25.6 30/30 25/25 101/101
208/230-3-60 187 254 10.3 77.0 0.7 4.9 .60 18.5/18.5 25/25 18/18 90/90
1
460-3-60 414 508 8.1 39.0 0.4 2.2 .30 9.0 20 9 46
575-3-60 518 632 4.2 31.0 0.4 2.2 .30 7.3 20 7 37
208/230-1-60 187 284 23.7 126.0 0.7 4.9 .60 35.2/35.2 45/45 34/34 139/139
208/230-3-60 187 254 13.5 93.0 0.7 4.9 .60 22.5/22.8 30/30 22/22 106/106
1
460-3-60 414 508 6.4 46.5 0.4 2.2 .30 10.6 20 10 54
575-3-60 518 632 6.4 40.0 0.4 2.2 .30 10.1 20 10 46
208/230-1-60 187 254 28.8 169.0 1.5 8.8 .60 46.3/46.3 60/60 45/45 216/216
208/230-3-60 187 284 17.3 123.0 1.5 5.8 .60 28.9/28.9 38/35 28/28 168/168
1
460-3-60 414 508 9.0 62.0 0.8 2.6 .30 14.7 20 14 84
575-3-60 518 632 7.1 50.0 0.8 2.6 .30 11.6 20 12 68
208/230-3-60 187 254 20.5 186.0 1.4 5.8 .60 32.8/32.8 40/40 32/32 200/200
460-3-60 414 508 1 9.6 75.0 0.6 2.6 .30 15.2 20 15 97
575-3-60 518 632 7.7 56.0 0.6 2.6 .30 12.2 20 12 74
UNIT
48HJ
004
(3 Tons)
005
(4 Tons)
006
(5 Tons)
007
(6 Tons)
Table 2B -- Electrical Data -- Standard Motor Units With Electrical Convenience Outlet
VOLTAGE COMPRESSOR OFM COMBUSTION POWER SUPPLY
NOMINAL VOLTAGE RANGE (each) (each) IFM FAN MOTOR WITH OUTLET*
(V-Ph-Hz) Min Max Qty RLA LRA FLA FLA FLA MCA MOCP**
208/230-1-60 187 254 16.0 88.0 0.7 4.9 .60 31.6/31.6 38/38
208/230-3-60 187 254 10.3 77.0 0.7 4.9 .60 24.5/24.5 30/30
1
460-3-60 414 508 5.1 39.0 0.4 2.2 .30 11.7 20
575-3-60 818 632 4.2 31.0 0.4 2.2 .30 9.5 20
208/230-1-60 187 284 23.7 126.0 0.7 4.9 .60 41.2/41.2 50/80
208/230-3-60 187 254 13.5 93.0 0.7 4.9 .60 28.8/28.5 35/35
1
460-3-60 414 508 6.4 46.5 0.4 2.2 .30 13.3 20
575-3-60 518 632 6.4 40.0 0.4 2.2 .30 12.2 20
208/230-1-60 187 284 28.8 169.0 1.5 8.8 .60 52.3/52.3 60/60
208/230-3-60 187 254 17.3 123.0 1.5 5.8 .60 34.9/34.9 40/40
1
460-3-60 414 508 9.0 62.0 0.8 2.6 .30 17.4 20
575-3-60 518 632 7.1 50.0 0.8 2.6 .30 13.8 20
208/230-3-60 187 284 20.5 156.0 1.4 8.8 .60 38.8/38.8 45/45
460-3-60 414 508 1 9.6 75.0 0.6 2.6 .30 17.9 20
575-3-60 518 632 7.7 56.0 0.6 2.6 .30 14.3 20
MINIMUM UNIT
DISCONNECT SIZEt
FLA LRA
30/30 106/106
24/24 98/98
11 48
9 38
39/39 144/144
27/27 111/111
13 56
12 47
50/50 221/221
34/34 173/173
17 87
13 70
37/37 205/205
17 99
14 75
LEGEND
FLA -- Full Load Amps
HACR -- Heating, Air Conditioning and
Refrigeration
IFM -- Indoor (Evaporator) Fan Motor
LRA -- Locked Rotor Amps
MCA -- Minimum Circuit Amps
MOCP -- Maximum Overcurrent Protection
NEC -- National Electrical Code
OFM -- Outdoor (Condenser) Fan Motor
RLA -- Rated Load Amps
UL -- Underwriters' Laboratories
*The values listed in this table do not include power exhaust. See table at
right for power exhaust requirements.
tUsed to determine minimum disconnect per NEC.
**Fuse or HACR circuit breaker.
NOTES:
1. In compliance with NEC requirements for multimotor and combination
load equipment (refer to NEC Articles 430 and 440), the overcurrent
protective device for the unit shall be fuse or HACR breaker. The UL,
Canada units may be fuse or circuit breaker.
2. Electrical data based on 95 F ambient outdoor-air temperature _+10%
voltage.
3, Unbalanced 3-Phase Supply Voltage
Never operate a motor where pbase imbalance in supply voltage is
greater than 2%. Use the following formula to determine the pereent
voltage imbalance.
% Voltage Imbalance
= 100 x max voltage deviation from average voltage
average voltage
Example: Supply voltage is 460-3-60.
AB C AB = 452 V
BC = 464 v
_) AC = 455 v
Average Voltage = 452 + 464 + 455
3
1371
3
= 457
Determine maximum deviation from average voltage.
(AB) 457 - 482 = 5 v
(BC) 464 - 487 = 7 v
(AC) 487 -488 = 2 v
Maximum deviation is 7 v.
Determine percent of voltage imbalance.
7
% Voltage Imbalance = 100x
= 1.83%
This amount of phase imbalance is satisfactory as it is below the maxi-
mum allowable 2%.
I MPORTANT: If the supply voltage phase imbalance is more than I
2%, contact your local electric utility company immediately. I
POWER EXHAUST ELECTRICAL DATA
POWER EXHAUST MCA MCA MCA MOCP
(for separate
PART NO. (230 v) (460 v) (575 v) power source)
CRPWREXH021A01 N/A 0.9 N/A 15
CRPWREXH022A01 3.3 N/A 1.32 15
CRPWREXH023A01 N/A 1.8 N/A 15
CRPWREXH028A01 1.7 N/A 0.68 15
CRPWREXH029A01 N/A 1.0 N/A 15
CRPWREXH030A01 1.6 N/A 0.64 15
N/A -- Not available
NOTE: If a single power source is to be used, size wire to include power
exhaust MCA and M©CR
Check MCA and MOCP when power exhaust is powered through the unit.
Determine the new MCA including the power exhaust using the following
formula:
MCA New = MCA unit only + MCA of Power Exhaust
For example, using a 48HJD006---5 unit with MCA = 28.9 and MOCP = 35.
with CRPWREXH030A01 power exhaust.
MCA New = 28.9 amps + 1.6 amps = 30.5 amps
If the new MCA does not exceed the published MOCE then M©CP would net
change. The MOCP in this example is 35 amps and the MCA New is below
35; therefore the MOCP is acceptable. If "MCA New" is larger than the pub-
lished MOCE raise the MOCP to the next larger size. For separate power, the
MOCP for the power exhaust will be 15 amps per NEC.
))

Table 20 -- Electrical Data -- High-Static Motor Units Without Electrical Convenience Outlet
UNIT
48HJ
O04
005
006
007
NOMINAL VOLTAGE
VOLTAGE RANGE
(V-Ph-Hz) Min Max
208/230-3-60 187 284
460-3-60 414 508
575-3-60 518 632
208/230-3-60 187 254
460-3-60 414 508
875-3-60 818 632
208/230-3-60 187 254
460-3-60 414 508
575-3-60 518 632
208/230-3-60 187 254
460-3-60 414 508
575-3-60 518 632
COMPRESSOR MINIMUM UNIT
(each) DISCONNECT
SIZEt
Qty RLA LRA FLA FLA RLA MCA MOCP** FLA LRA
10.3 77.0 0.7 5.8 0.6 19.4 28 19 120
1 5.1 39.0 0.4 2.6 0.3 9.4 20 9 60
4.2 31.0 0.4 2.6 0.3 7.7 20 8 48
13.5 93.0 0.7 5.8 0.6 23.4 30 23 136
1 6.4 46.5 0.4 2.6 0.3 11.0 20 11 68
6.4 40.0 0.4 2.6 0.3 10.4 20 10 57
17.3 123.0 1.5 7.5 0.6 30.6 35 30 187
1 9.0 62.0 0.8 3.4 0.3 15.5 20 15 94
7.1 50.0 0.8 3.4 0.3 12.2 20 12 76
20.5 156.0 1.4 7.5 0.6 34.8 40 34 219
1 9.6 75.0 0.6 3.4 0.3 16 20 16 107
7.7 56.0 0.6 3.4 0.3 12.8 20 13 81
OFM IFM COMBUSTION POWER SUPPLY*
(each) FAN MOTOR
Table 2D -- Electrical Data -- High-Static Motor Units With Electrical Convenience Outlet
UNIT NOMINAL
48HJ VOLTAGE
(V-Ph-Hz)
208/230-3-60
004 460-3-60
575-3-60
208/230-3-60
005 460-3-60
575-3-60 518
208/230-3-60 187
006 460-3-60 414
575-3-60 518
208/230-3-60 187
007 460-3-60 414
575-3-60 518
LEGEND
FLA -- Full Load Amps
VOLTAGE COMPRESSOR OFM IFM COMBUSTION
RANGE (each) (each) FAN MOTOR
Min Max Qty RLA LRA FLA FLA RLA
187 254 10.3 77.0 0.7 5.8 0.6
414 508 1 5.1 39.0 0.4 2.6 0.3
518 632 4.2 31.0 0.4 2.6 0.3
187 254 13.8 93.0 0.7 5.8 0.6
414 508 1 6.4 46.5 0.4 2.6 0.3
632 6.4 40.0 0.4 2.6 0.3
254 17.3 123.0 1.5 7.5 0.6
508 1 9.0 62.0 0.8 3.4 0.3
632 7.1 50.0 0.8 3.4 0.3
254 20.5 156.0 1.4 7.5 0.6
508 1 9.6 75.0 0.6 3.4 0.3
632 7.7 56.0 0.6 3.4 0.3
Maximum deviation is 7 v.
HACR -- Heating, Air Conditioning and
Refrigeration
IFM -- Indoor (Evaporator) Fan Motor
LRA -- Locked Rotor Amps
MINIMUM UNIT
POWER SUPPLY* DISCONNECT
SIZEt
MCA MOCP** FLA LRA
28.4 30 28 124
12.1 20 12 63
9.8 20 10 50
29.4 35 29 140
13.7 20 13 70
12.6 20 12 59
36.6 40 36 192
18.2 20 18 96
14.4 20 14 77
40.5 45 39 224
18.7 25 18 109
15.0 20 15 83
Determine percent of voltage imbalance.
7
% Voltage Imbalance =100 x 4_
= 1.53%
MCA -- Minimum Circuit Amps C @
MOCP -- Maximum Overcurrent Protection
NEC -- National Electrical Code
OFM -- Outdoor (Condenser) Fan Motor I1__
RLA -- Rated Load Amps ,w_,la
UL -- Underwriters' Laboratories
*The values listed in this table do not include power exhaust. See table at
right for power exhaust requirements.
l-Used to determine minimum disconnect per NEC.
**Fuse or HACR circuit breaker.
NOTES:
1. In compliance with NEC requirements for multimotor and combination
load equipment (refer to NEC Articles 430 and 440), the overcurrent
protective device for the unit shall be fuse or HACR breaker. The UL.
Canada units may be fuse or circuit breaker.
2. Electrical data based on 95 F ambient outdoor-air temperature _+10%
voltage.
3. Unbalanced 3-Phase Supply Voltage
Never operate a motor where phase imbalance in supply voltage is
greater than 2%. Use the following formula to determine the pement
voltage imbalance.
% Voltage Imbalance
= 100 x max voltage deviation from average voltage
average voltage
Example: Supply voltage is 460-3-60.
AB c AB = 452 v
BC = 464 v
(_ AC = 455 v
Average Voltage = 452 + 464 + 458
3
1371
3
= 457
Determine maximum deviation from average voltage.
(AB) 457 - 482 = 8 v
(BC) 464 - 457 = 7 v
(AC) 487 - 488 = 2 v
This amount of phase imbalance is satisfactory as it is below the maxi-
mum allowable 2%.
I MPORTANT: If the supply voltage phase imbalance is more than I
2%, contact your local electric utility company immediately. I
POWER EXHAUST ELECTRICAL DATA
POWER EXHAUST MCA MCA MCA MOCP
PART NO, (230 v) (460 v) (875 v) (for separate
power source)
CRPWREXH021A01 N/A 0.9 N/A 15
CRPWREXH022A01 3.3 N/A 1.32 15
CRPWREXH023A01 N/A 1.8 N/A 15
CRPWREXH028A01 1.7 N/A 0.88 15
CRPWREXH029A01 N/A 1.0 N/A 15
CRPWREXH030A01 1.8 N/A 0.84 15
N/A -- Not available
NOTE: If a single power source is to be used, size wire to include power
exhaust MCA and MOCR
Check MCA and MOCP when power exhaust is powered through the unit.
Determine the new MCA including the power exhaust using the following
formula:
MCA New = MCA unit only + MCA of Power Exhaust
For example, using a 48HJD006---5 unit with MCA = 28.9 and MOCP = 38,
with CRPWREXH030A01 power exhaust.
MCA New = 28.9 amps + 1.6 amps = 30.5 amps
If the new MCA does not exceed the published MOCE then MOCP would not
change. The M©CP in this example is 35 amps and the MCA New is below
35; therefore the M©CP is acceptable. If "MCA New" is larger than the pub-
lished MOCP, raise the MOCP to the next larger size. For separate power, the
MOCP for the power exhaust will be 15 amps per NEC.
)2

Step 8 -- Adjust Factory-Installed Options
COBRA TM ENERGY RECOVERY UNITS -- Please lefer
to the supplement provided for information on installing and
operating the factory optional COBRA Energy Recovery
Units. These units are equipped with a factou-installed energy
recoveUunit and have different installation and operation pro-
cedums than the stan&u'd unit.
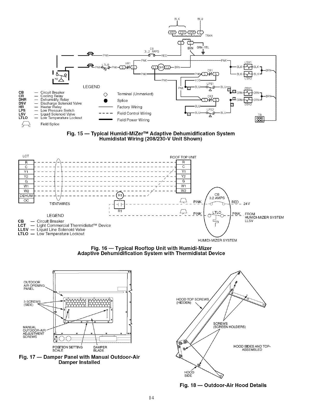
HUMIDI-MIZER TM ADAPTIVE DEHUMIDIFICATION
SYSTEM--Humidi-MiZer system operation can be con-
trolled by field installation of a Carrie>approved humidistat
(Fig. 13).
NOTE: A light commercial Thermidistat TM device (Fig. 14)
can be used instead of the humidistat if desimdi The Thermi-
distat device includes a thermostat and a humidistat. The humi-
distat is norm',flly used in applications where a temperature
sensor is already provided (units with PremierLink TM control).
To install the humidistat:
1. Route humidistat cable through hole provided in unit
comer post.
2. Feed wires through the raceway built into the corner post
to the 24-v bamer located on the left side of the control
box. See Fig. 12. The raceway provides the UL-mquimd
clemance between high-voltage and low-voltage wiring.
3. Use a wire nut to connect humidistat cable into low-
voltage wiring as shown in Fig. 15.
To install Thermidistat device:
1. Route Thermidistat cable through hole provided in
unit corner post.
2. Feed the wires through the raceway built into the
corner post to the 24-v barrier located on the left
side of the control box. See Fig. 12. The raceway
provides the UL-required clearance between high
and low voltage wiring.
3. A field-supplied relay must be installed between the
thermidistat and the Humidi-Mizer circuit (recom-
mended relay: HN612KK324). See Fig. 16. The
relay coil is connected between the DEHUM output
and C (common) of the unit. The relay controls the
Humidi-MiZer solenoid valve and must be wired
between the Humidi-MiZer fuse and the low-pres-
sure switch. Refer to the installation instructions
included with the Carrier Light Commercial Ther-
midistat device for more information.
MANUAL OUTDOOR-AIR DAMPER -- The outdoor-air
hood and screen me attached to the basepan at the bottom of
the unit for shipping.
Assemb122:
1. Determine quantity of ventilation required for building.
Record amount for use in Step 8.
2. Remove and save outdoor air opening panel and screws.
See Fig. 17.
Fig. 13- Accessory Field-Installed Humidistat
Fig. 14 -- Light Commercial Thermidistat Device
3. Remove evaporator coil access panel. Separate hood and
screen from basepan by removing the 4 screws securing
them. Save all screws.
4. Replace ewtporator coil access panel.
5. Place hood on front of outdoor air opening panel. See
Fig. 18 for hood details. Secure top of hood with the
4 screws removed in Step 3. See Fig. 19.
6. Remove and save 6 screws (3 on each side) from sides of
the manual outdoo>air &_mpel:
7. Align screw holes on hood with screw holes on side of
manual outdoo>air dampel: See Fig. 18 and 19. Secure
hood with 6 screws from Step 6.
8. Adjust minimum position setting of the damper blade by
adjusting the manual outdoo>air adjustment screws on
the fiont of the dmnper blade. See Fig. 17. Slide blade
vertically until it is in the appropriate position determined
by Fig. 20. Tighten screws.
9. Remove and save screws cunently on sides of hood.
Insert screen. Secure screen to hood using the screws. See
Fig. 19.
13

CB -- Circuit Breaker
CR -- Cooling Relay
DHR -- Dehumidify Relay
DSV -- Discharge Solenoid Valve
HR -- Heater Relay
LPS -- Low Pressure Switch
LSV -- Liquid Solenoid Valve
LTLO -- Low Temperature Lockout
Field Splice
BLK BIU
_TRAN
3.2 AHPS
_REO I
PNK LSV]
L ILO IIR1 BLK _BLK
•_1_" PNK"O-_-.,,_O-PNK BRN "I
I--.Z.J
CRI BRN--_
Term,ha, (_-n:]: d_LPN<'_ 1 _LPS1 LBLK'E_BLK"_LBV2
LEGEND O P K BLU_ I'm
ke _ OR2 __ _ ..T--BRN-*,
• Splice _ _'_ 0RN "_3L 0R";
Factory Wiring i,_ BL U,_ I pDSV2
/LPS2
Field Control Wiring 6"E_BLU'_O_BLUJ TB
Field Power Wiring I_:x_--
Fig. 15- Typical Humidi-MiZer TM Adaptive Dehumidification System
Humidistat Wiring (208/230-V Unit Shown)
LCT
TSTATWIRES
......
EE]-
R1
LEGEND
CB -- Circuit Breaker
LCT i Light Commercial Thermidistat TM Device
LLSV i Liquid Line Solenoid Valve
LTLO i Low Temperature Lockout
ROOFTOPUNIT
//7-- --
PINK _RE_D_ 24V
HUMIDI-MIZER SYSTEM
Fig. 16- Typical Rooftop Unit with Humidi-Mizer
Adaptive Dehumidification System with Thermidistat Device
PINK_ . FROM
HUMIDI-MIZER SYSTEM
LLSV
OUTDOOR
AIR OPENING
PANEL
3 SCREWS
(SIDE) _
MANUAL
OUTDOOR-AtR _/
ADJUSTMENT
SCREWS
POSITION SE_ING DAMPER
SCALE BLADE
Fig. 17 -- Damper Panel with Manual Outdoor-Air
Damper Installed
HOOD TOP SCREWS
(HIDDEN) _
SCREWS
(SCREEN HOLDERS)
HOOD SIDES AND TOP-
ASSEMBLED
HOOD
SIDE
Fig. 18 -- Outdoor-Air Hood Details
14

SCREW
HOLES
(TOP)
HOOD_
SCREEN
LOCATIOK
(SCREEN
NOT SHOWN)
Fig. 19 -- Outdoor-Air Damper with
Hood Attached
0.6
0.5
_" 0,4
UI
o3
03
LU
m 0.3
13.
LU
>
0.2
Z
o
o 1 2 3 4 5 6 7
OUTDOOR AIRFLOW (cfm x 100)
Fig. 20 -- Outdoor-Air Damper Position Setting
CONVENIENCE OUTLET -- An optiomfl convenience out-
let provides power for rooftop use. For maintenance personnel
safety, the convenience outlet power is off when the unit dis-
connect is off. Adjacent unit outlets may be used for service
tool s.
NOVAR CONTROLS -- Optiomd Novar controls (ETM
3051 ) me available for replacement or new construction jobs.
PREMIERLIN K TM CONTROL -- The PremierLink control-
ler is compatible with Carrier Comfort Network® (CCN)
devices. This control is designed to tdlow users the access and
ability to change factory-defined settings, thus expanding the
function of file standmd unit control board. Carder's diagnostic
standard tier display tools such as Navigato( r_'_or Scrolling
Marquee can be used wifli the PremierLink controllec
The PremierLink controller (see Fig. 21A and 21B) requires
the use of a Carrier electronic thermostat or a CCN connection
for time broadcast to initiate its internal timeclock. This is
necessmy for broadcast of time of &ty functions (occupied/
unoccupied). No sensors are supplied with the field-mounted
PremierLink control. The factory-installed PremierLink con-
trol includes only the supply-air temperature (SAT) sensor and
file outdoor air temperature (OAT) sensor as stan&lrd. An
indoor air quality (CO2) sensor can be added as an option.
Refer to Table 3 for sensor usage. Refer to Fig. 22 for
PremierLink controller wiring. The PremierLink control may
be mounted in the control panel or tin mea below the control
panel.
NOTE: PremierLink controller versions 1.3 and later are
shipped in Sensor mode. If used with a thermostat, the Pre-
mierLink controller must be configured to Thermostat mode.
Insttfll file Supply Air Temperature (SAT) Sensor -- When the
unit is supplied with a factory-mounted PremierLink control,
the supply-air temperature (SAT) sensor (33ZCSENSAT) is
factory-supplied and wired. The wiring is routed from the
PremierLink control over the control box, flirough a grommet,
into the fan section, down along the back side of the fan, and
along the fan deck over to the supply-air opening.
The SAT probe is wire-tied to file supply-air opening (on the
horizontal opening end) in its shipping position. Remove the
sensor for installation. Re-position the sensor in the flange of
file supply-air opening or in the supply air duct (as required by
local codes). Drill or punch a l/2-in, hole in the flange or duct.
Use two field-supplied, self-drilling screws to secure the sensor
probe in a horizontal orientation.
NOTE: The sensor must be mounted in the dischmge airstream
downstream of the cooling coil and any heating devices. Be
sure the probe tip does not come in contact with tiny of the unit
or heat surfaces.
Outdoor Air Temperature (OAT) Sensor -- When the unit is
supplied with a factoly-mounted PremierLink control, the
outdoor-air temperature (OAT) sensor is factory-supplied and
wired.
Install the Indoor Air Quality (COe) Sensor -- Mount the
optional indoor air quality (CO2) sensor according to manufac-
turer specifications.
A separate field-supplied transformer must be used to pow-
er the CO2 sensoc
Wire the CO2 sensor to the COM and IAQI terminals of J5
on the PremierLink controllec Refer to the PremierLink Instal-
lation, Start-up, and Configuration Instructions for detailed
wiring and configuration information.
Enthalpy Sensors and Control -- The enthalpy control
(HH57AC077) is supplied as a field-installed accessory to be
used with the EconoMiSer2 damper control option. The out-
door air enthalpy sensor is part of the enthalpy control. The
septu'ate field-installed accessory return air enthalpy sensor
(HH57AC078) is required for differentkd enthalpy control.
NOTE: The enthalpy control must be set to the "D" setting for
differential enthalpy control to work properly.
The enthtdpy control receives the indoor and return
enthalpy from the outdoor and return air enthtdpy sensors and
provides a @ contact switch input to the PremierLink control-
lec Locate the controller in place of an existing economizer
controller or near the actuatoc The mounting plate may not be
needed if existing bracket is used.
A closed contact indicates that outside air is preferred to the
return aic An open contact indicates that the economizer
should remain tit minimum position.
15

Table 3- PremierLink TM Sensor Usage
OUTDOOR AIR RETURN AIR OUTDOOR AIR RETURN AIR
APPLICATION TEMPERATURE SENSOR TEMPERATURE SENSOR ENTHALPY SENSOR ENTHALPY SENSOR
Differential Dry Bulb
Temperature with Required --
PremierLink* Included -- 33ZCT55SPT -- --
(PremierLink CRTEMPSN001A00
requires 4-20 mA or Equivalent
Actuator)
Single Enthalpy with
PremierLink* Required --
(PremierLink Included --
requires 4-20 mA Not Used -- orHH57AC077Equivalent --
Actuator)
Differential Enthalpy
with PremierLink* Included -- Required -- Required --
(PremierLink Not Used -- HH57AC077 HH57AC078
requires 4-20 mA or Equivalent or Equivalent
Actuator)
*PremierLink control requires Supply Air Temperature sensor 33ZCSENSAT and
Outdoor Air Temperature sensor CRTEMPSN001A00 -- Included with factory-installed PremierLink control;
field-supplied and field-installed with field-installed PremierLink control.
NOTES:
1. CO2 Sensors (Optional):
33ZCSENCO2 -- Room sensor (adjustable). Aspirator box is required for duct mounting of the sensor.
33ZCASPCO2 -- Aspirator box used for duct-mounted CO2 room sensor.
33ZCT55CO2 -- Space temperature and CO2 room sensor with override.
33ZCT56CO2 -- Space temperature and CO2 room sensor with override and set point.
2. All units include the following Standard Sensors:
Outdoor-Air Sensor -- 50HJ540569 -- Opens at 67 F, closes at 52 F, not adjustable.
Mixed-Air Sensor -- HH97AZ001 -- (PremierLink control requires Supply Air Temperature sensor 33ZCSENSAT
and Outdoor Air Temperature Sensor CRTEMPSN001A00)
Compressor Lockout Sensor -- 50HJ540570 -- Opens at 35 F, closes at 50 E
HVAC SENSOR INPUTS
SL
DUAL MODE SENSOR/STAT
REMOTE OCCUPANCY
COMP SAFETY (Y1) ._
FIRE SHUTDOWN (Y2) Z
SUPPLY FAN STATUS (Wl)
NOT USED
ENTHALPY STATUS (ENTk
00 (
/,/ t "4 "-4 "-..
CCN/LEN NAVIGATOR 4-20MA INDOOR COMPR HEAT EXHAUST
PORT PORT ECONOMIZER FAN MOTOR 1 & 2 LOW/HIGH RVSVALVE
OUTPUTS
Fig. 21A -- PremierLink Controller
16

PREMIERLINK
CONTROL
©©
HINGED
DOOR
PANEL
PREMIERLINK
COVER
Fig. 21B -- PremierLink TM Controller (Installed)
OUTD_R AiR i ' GRAY '
ENTHALPY SENSOR [
Economi$er2
4 - 20mA
:0 0 _"
[
::::::::Q
CCN
Comm
: • BLK i
i RED,[
RETURN AIR
ENTHALPY
SENSOR
7F" _
\L_
8_[)..............
WHT
.... BLK .............................................................................................................
LEGEND
COMMS -- Communications
OAT -- Outdoor Air Temperature Sensor
PWR -- Power
RTU -- Rooftop Unit
SAT -- Supply Air Temperature Sensor
TB -- Terminal Block
6(]t G w_
7 ",C
'_(][j
8_-lhX
\ /
RTU Terminal
Board
Fig. 22 -- Typical PremierLink Controls Wiring
]7

Outdoor Air Enthalpy Sensor/Enthalpy Controller
(HH57AC077) -- To wire the outdoor tfir enthalpy sensor.
perform the following (see Fig. 23 and 24):
NOTE: The outdoor air sensor can be removed from the back
of the enth_dpy controller and mounted remotely.
1. Use a 4-conductor. 18 or 20 AWG cable to connect the
enthalpy control to the PremierLink controller and power
tmnsformec
2. Connect the following 4 wires from the wire hmness
located in rooftop unit to the enthalpy controller:
a. Connect the BRN wire to the 24 vac terminal (TRI)
on enthalpy control and to pin 1on 12-pin harness.
b. Connect the RED wire to the 24 vac GND terminal
(TR) on enth_dpy sensor and to pin 4 on 12-pin
hmness.
c. Connect the GRAY/ORN wire to J4-2 on Premier-
Link controller and to terminal (3) on enthalpy sensoc
d. Connect the GRAY/RED wire to J4-1 on Premier-
Link controller and to terminal (2) on enthalpy sensoc
NOTE: [f installing in a Carrier rooftop, use the two gray wires
provided from the control section to the economizer to connect
PremierLink controller to terminals 2 and 3 on enth_dpy sensoc
Return Air Enthalpy Sensor -- Mount the return-air enthalpy
sensor (HH57AC078) in the return-air duct. The return air
sensor is wired to the enth_dpy controller (HH57AC077). The
outdoor enth_dpy changeover set point is set at the controller.
To wire the return air enthalpy sensor perform the follow-
ing (see Fig. 23):
1. Use a 2-conductor, 18 or 20 AWG. twisted pair cable to
connect the return air enthalpy sensor to the enthalpy
controller.
2. At the enthalpy control remove the factory-installed
resistor from the (SR) and (+) termimds.
3. Connect the field-supplied RED wire to (+) spade
connector on the return air enthalpy sensor and the (SR+)
terminal on the enth_dpy controllel: Connect the BLK
wire to (S) spade connector on the return air enthalpy
sensor and the (SR) terminal on the enthalpy controller
OPTIONAL ECONOM[$ER IV AND ECONOM[$ER2 --
See Fig. 25 for EconoMiSer IV component locations. See
Fig. 26 for EconoMiSer2 component locations.
NOTE: These instructions are for installing the optiomd
EconoMiSer IV and EconoMi$er2 only. Refer to the accessory
EconoMiSer IV or EconoMiSer2 inst_dlation instructions when
field installing an EconoMiSer [V or EconoMi$er2 accessory.
1. To remove the existing unit filter access panel, rgfise the
panel and swing the bottom outwmd. The panel is now
disengaged from the track and can be removed. See
Fig. 27.
2. The box with the economizer hood components is
shipped in the compartment behind the economizer The
EconoMiSer IV controller is mounted on top of the
EconoMiSer [V in the position shown in Fig. 25. The
optiomd EconoMiSer2 with 4 to 20 mA actuator signal
control does not include the EconoMi$er IV controllec
To remove the component box from its shipping position,
remove the screw holding the hood box bracket to the top
of the economizec Slide the hood box out of the unit. See
Fig. 28.
HH57AC077
ENTHALPY
CONTROL AND
OUTDOOR AIR
ENTHALPYSENSOR
HH57AC078 ENTHALPY
SENSOR (USED WITH
ENTHALPY CONTROL
FOR DIFFERENTIAL
ENTHALPY OPERATION)
MOUNTING PLATE
Fig. 24 -- Differential Enthalpy Control,
Sensor and Mounting Plate (33AMKITENT006)
EOO Oo E v
OUTSIDE AIR
HARNESS TEMPERATURE SENSOR
AI // LOWAMO,ENT
........ g,_ Y / SENSOR
ACTUATOR _ _r,_ ,_= /
x_ 0_-/
Fig. 25 -- EconoMi$er IV Component Locations
A6O
ENTHALPYCONTROLLER RED r_ t (OUTDOORAIR
TRra']TRI__ BRN ENTHALPY
SENSOR)
LED
soO +13--
SRCq+D----q
BLK
RED
' FIs (RETURNAIRI
FI + ENTHALPY
-- SENSOR
GRAY/ORN
,,.WIRE HARNESS
GRAY/RED jIN UNIT
NOTES:
1. Remove factory-installed jumper across SR and + before connecting
wires from return air sensor.
2. Switches shown in high outdoor air enthalpy state. Terminals 2 and 3
close on low outdoor air enthalpy relative to indoor air enthalpy.
3. Remove sensor mounted on back of control and locate in outdoor
airstream.
Fig. 23 -- Outdoor and Return Air Sensor Wiring
Connections for Differential Enthalpy Control
OUTDOOR
AIR HOOD
ECONOMI$ER2_
PWO
/
BAROMETRIC
RELIEF
DAMPER
HOOD
BRACKET
GEAR DRIVEN
DAMPER
Fig. 26 -- EconoMi$er2 Component Locations
18

FILTER ACCESS PANEL
_COMPRESSOR
ACCESS PANEL
OUTDOOR-AIR OPENING AND
INDOOR COIL ACCESS PANEL
Fig. 27- Typical Access Panel Locations
HOOD BOX
BRACKET
iI
ii II
11 i I
I
I
I
I
/0
1 I
i I
Fig. 28- Hood Box Removal
IIMPORTANT: If the power exhaust accessory is to be
installed on the unit, the hood shipped with the unit will not
be used and must be discarded. Save the aluminum filter
for use in the power exhaust hood assembly.
3. The indoor coil access panel will be used as the top of the
hood. Remove the screws along the sides and bottom of
the indoor coil access panel. See Fig. 29.
4. Swing out indoor coil access panel and insert the hood
sides under the panel (hood top). Use the sclews provided
to attach the hood sides to the hood top. Use screws pro-
vided to attach the hood sides to the unit. See Fig. 30.
5. Remove the shipping tape holding the economizer baro-
metric relief &_mper in place.
6. Insert the hood divider between the hood sides. See
Fig. 30 and 31. Secure hood divider with 2 screws on
each hood side. The hood divider is also used as the bot-
tom tilter rock for file aluminum filter.
7. Open the tilter clips which are located underneath the
hood top. Insert the aluminum tilter into the bottom tilter
rack (hood divider). Push the tilter into position past the
open filter clips. Close the filter clips to lock the tilter into
place. See Fig. 31.
8. Caulk the ends of the joint between the unit top panel and
the hood top. See Fig. 29.
9. Replace the filter access panel.
10. Install all EconoMi$er IV accessories. EconoMi$er IV
wiring is shown in Fig. 32. EconoMi$er2 wiring is shown
in Fig. 33.
Barometric flow capacity is shown in Fig. 34. Outdoor air
leakage is shown in Fig. 35. Return air pressure drop is shown
in Fig. 36.
SIDE
PANEL
TOP
SIDE
PANEL
N
INDOOR ", INDOOR
COIL "', COIL
ACCESS
PANEL PANEL
Fig. 29 -- Indoor Coil Access Panel Relocation
TOP
PANEL
INDOOR COIL
ACCESS PANEL
HOOD DIVIDER
Fig. 30 -- Outdoor-Air Hood Construction
17 1/4"
HOOD
ALUMINUM
FI_ER
LEFT
SIDE
Fig. 31 -- Filter Installation
BAROMETRIC
RELIEF
FILTER
CLIP
19

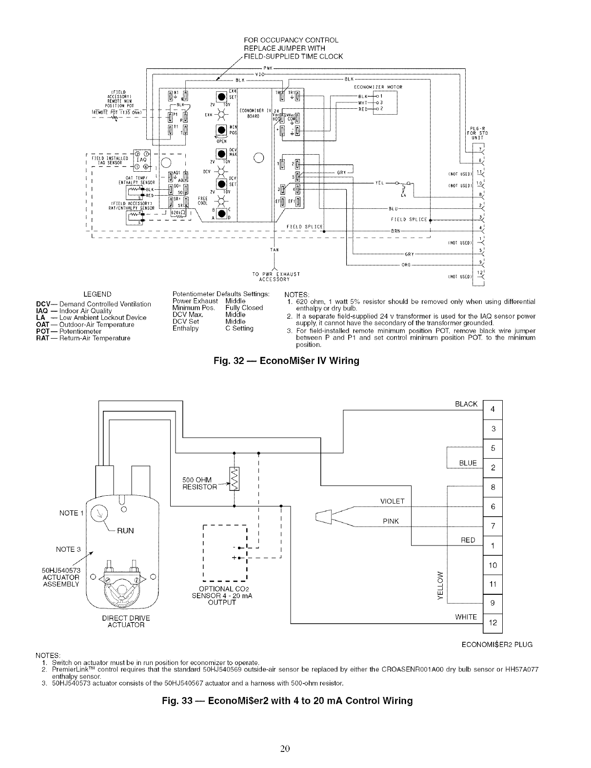
FOR OCCUPANCY CONTROL
REPLACE JUMPER WITH
FIELD-SUPPLIED TIME CLOCK
/
(F]ELD
ACCESSORY)
REMOTE MI_
POSiI[O_ POT
IR_M0_FOT71_ 0_-m}--
8LK
ECONO_I ZZR MOTOR
WHT_
REO
PL6-R
FOR STD
UNIT
FIELD ]ICSTALLED _ _
IAO SEICSOR
OAr TEMPI
E_T_AL_Y DE_SOR
L_ -RED --
/FIELD ACCESDORYI
RAT/ENrHAIPY SE_DOR
TAN
FIELD SPLICE
--GRyJ
LEGEND
DCV-- Demand Controlled Ventilation
IAQ -- Indoor Air Quality
LA -- Low Ambient Lockout Device
OAT-- Outdoor-Air Temperature
POT-- Potentiometer
RAT-- Return-Air Temperature
TO PWR EXHAUST
ACCESSORY
Potentiometer Defaults Settings: NOTES:
(R0f USED}
BLU 2_
FIELD SPLICE, 3_
E
BRN 4<
IROT gSEOl
GRY 5_
ORG 9_
(_of USED} !_
Power Exhaust Middle
Minimum Pos. Fully Closed
DCV Max. Middle
DCV Set Middle
Enthalpy C Setting
1. 620 ohm, 1 watt 5% resistor should be removed only when using differential
enthalpy or dry bulb.
2. If a separate field-supplied 24 v transformer is used for the IAQ sensor power
supply, it cannot have the secondary of the transformer grounded.
3. For field-installed remote minimum position POT, remove black wire jumper
between P and P1 and set control minimum position POT to the minimum
position.
Fig. 32 -- EconoMi$er IV Wiring
NOTE 1
NOTE3
J
50HJ540573
ACTUATOR
ASSEMBLY
Jo
'_RUN
DIRECT DRIVE
ACTUATOR
f
500 OHM _[_>1
RESISTOR? T
I
I
II
Ii
- e--I- _ I
I
-{- III-- I.... J
I
I
OPTIONAL CO2
SENSOR 4 - 20 mA
OUTPUT
BLACK
VIOLET
PINK
RED
s
W
>-
WHITE
4
3
5
2
8
6
7
1
10
11
9
12
ECONOMIZER2 PLUG
NOTES:
1. Switch on actuator must be in run position for economizer to operate,
2. PremierLink TM control requires that the standard 50HJ540569 outside-air sensor be replaced by either the CROASENR001A00 dry bulb sensor or HH57A077
enthalpy sensor.
3. 50HJ540573 actuator consists of the 50HJ540567 actuator and a harness with 500-ohm resistor,
Fig. 33 -- EconoMi$er2 with 4 to 20 mA Control Wiring
20

2500
W
z 2000
w 1500
W
m 1000
o
500
0
Z
f
I
0.05 0] 15 0.25
STATIC PRESSURE (in. wg)
Fig. 34 -- Barometric Flow Capacity
"5 30
LU
h-
z_ 25
cc 20
LU
D_
I-- 15
LU
LU
EL 10
Ca 5
D
©
z 0
q
LL
0.13 0.20 0.22 0.25 0.30 0.35 0.40 0.45 0.50
STATIC PRESSURE (in. wg)
Fig. 35 -- Outdoor-Air Damper Leakage
6ooe
w
D 500_
Z
m 400_
w
3000
w
w
L
©2000
100_
Z
0
S
L
0.05 0.10 0.15 0.20 0.25 0.30 0.35
STATIC PRESSURE (in. wg)
Fig. 36 -- Return-Air Pressure Drop
ECONOMI$ER IV STANDARD SENSORS
Outdoor Air Temperature (OAT) Sensor -- The outdoor air
temperature sensor (HH57AC074) is a 10 to 20 mA device
used to measure the outdoor-air temperature. The outdoor-air
temperature is used to determine when the EconoMiSer IV can
be used for free cooling. The sensor is factory-installed on the
EconoMiSer IV in the outdoor airstream. See Fig. 25. The op-
erating range of temperature measurement is 40 to 100 E
Supply Air Temperature (SAT) Sensor -- The supply air
temperature sensor is a 3 K themristor located at the inlet of the
indoor fan. See Fig. 37. This sensor is factory installed. The op-
erating range of temperature measurement is 0 ° to 158 E See
Table 4 for sensor temperature/resistance v_dues.
The temperature sensor looks like an eyelet terminal with
wires running to it. The sensor is located in the "crimp end"
and is sealed fi_m moisture.
Outdoor Air Lockout Sensor -- The EconomiSer IV is
equipped with an mnbient temperature lockout switch located
in the outdoor air stream which is used to lockout the compres-
sors below a 42 F ambient temperature. See Fig. 25.
SUPPLY AIR
TEMPERATURE
SENSOR
MOUNTING
LOCATION
SUPPLY AIR
TEMPERATURE
SENSOR
v
Fig. 37 -- Supply Air Sensor Location
Table 4 -- Supply Air Sensor Temperature/
Resistance Values
TEMPERATURE (F) RESISTANCE (ohms)
-58 200,250
-40 100,680
-22 53,010
-4 29,091
14 16,590
32 9,795
50 5,970
68 3,747
77 3,000
86 2,416
104 1,597
122 1,080
140 746
158 525
176 376
185 321
194 274
212 203
230 153
248 116
257 102
266 89
284 70
302 55
ECONOMISER IV CONTROL MODES
IMPORTANT: The optional EconoMiSer2 does not
include a controllel: The EconoMiSer2 is operated by a 4 to
20 mA signN from an existing field-supplied controller
(such as PremierLink TM control). See Fig. 33 for wiring
information.
Determine fl3e EconoMiSer IV control mode before set up of
the control. Some modes of operation may require different sen-
sors. Refer to Table 5. The EconoMiSer IV is supplied from the
factory with a supply air temperature sensor and an outdoor air
temperature sensol: This allows for operation of the
EconoMiSer IV with outdoor air dry bulb changeover control.
Additional accessories can be added to allow for diffelent types
of changeover control and operation of the EconoMiSer IV and
unit.
Outdoor DLy Bulb Changeover -- The standard controller is
shipped from the facto qconfigured for outdoor dlT bulb
changeover control. The outdoor air and supply air temperature
sensors tue included as stan&ud. For this control mode, the
21

outdoortemperatureis comptu'edto anadjustablesetpoint
selectedonthecontrol.If theoutdoor-airtemperatureisabove
thesetpoint,theEconoMiSerIV will adjusttheoutsideair
dmnperstominimumposition.Iftheoutdoor-airtemperatureis
belowthesetpoint,thepositionoftheoutdoorairdamperswill
becontrolledtoprovidefleecoolingusingoutdoorair.When
inthismode,theLEDnexttofilefreecoolingsetpointpotenti-
ometerwill beon.Thechangeovertemperaturesetpointis
controlledbythefreecoolingsetpointpotentiometerlocated
onthecontrol.SeeFig.38.ThescaleonthepotentiometerisA,
B,C,andD. SeeFig.39fortheconespondingtemperature
changeovervalues.
Differential Dry Bulb Control -- For differential dry bulb
control the standard outdoor dry bulb sensor is used in conjunc-
tion with an additional accessory dry bulb sensor (part number
CRTEMPSN002A00). Tile accessory sensor must be mounted
in the return ailstream. See Fig. 40. Wiring is provided in the
EconoMiSer IV wiring harness. See Fig. 32.
In this mode of operation, the outdoor-air temperatme is
compared to the return-air temperature and the lower tempera-
ture airsheam is used for cooling. When using this mode of
changeover control, turn the enthalpy setpoint potentiometer
fully clockwise to the D setting. See Fig. 38.
Table 5 -- EconoMi$er IV Sensor Usage
APPLICATION
Outdoor Air
Dry Bulb
Differential
Dry Bulb
Single Enthalpy
Differential
Enthalpy
CO2 for DCV
Control using a
Wall-Mounted
CO2 Sensor
CO2 for DCV
Control using a
Duct-Mounted
CO2 Sensor
ECONOMI$ER IV WITH OUTDOOR AIR
DRY BULB SENSOR
Accessories Required
None. The outdoor air dry bulb sensor
is factory installed.
CRTEMPSN002A00*
HH57AC078
HH57AC078
and
CRENTDIF004A00*
33ZCSENCO2
33ZCSENCO2t I_ I
and CRCBDIOX005A00tt
33ZCASPCO2**
*CRENTDIF004A00 and CRTEMPSN002A00 accessories are used on
many different base units. As such, these kits may contain parts that
will not be needed for installation.
t33ZCSENCO2 is an accessory CO2 sensor.
**33ZCASPCO2 is an accessory aspirator box required for duct-
mounted applications.
ttCRCBDiOX005A00 is an accessory that contains both 33ZCSENCO2
and 33ZCASPCO2 accessories.
EXHAUST
FAN SET POINT
LED LIGHTS
WHEN EXHAUST
CONTACT IS MADE
MINIMUM DAMPER
POSITION SETTING
MAXIMUM DAMPER _
DEMAND CONTROL
VENTILATION SET POINT
LED LIGHTS WHEN_
DEMAND CONTROL
VENTILATION INPUT
ISABOVE SET POINT
DEMAND CONTROL
VENTILATION SET POINT
LED LIGHTS WHEN
OUTDOOR AIR IS
SUITABLE FOR
FREE COOLING
ENTHALPY
CHANGEOVER SET POINT
Fig. 38 -- EconoMiSer IV Controller Potentiometer
and LED Locations
19 ,, i [
17
16- _ -LED OF[
15
13
12
11
10
9
4O 46 5O
LED ON
_LED ON
_m. LED ON-- --
LED OFF "%
I
55 60 65 70 75 80 85 90 95 100
DEGREES FAHRENHEIT
Fig. 39 -- Outside Air Temperature
Changeover Set Points
ECONOMI$ER
I
,
I
I
ECONOMI$ER ]_
_ CONTROLLER
7
/
_ GROMMET
_f_- RETURNAIR
SENSOR
RETURN DUCT
(FIELD-PROVIDED)
Fig. 40 -- Return Air Temperature or Enthalpy
Sensor Mounting Location
Outdoor Enthalpy Changeover -- For enthalpy control, ac-
cessory enthalpy sensor (p_u-t number HH57AC078) is re-
quired. Replace the standard outdoor @ bulb temperature sen-
sor with file accessory enthalpy sensor in the same mounting
location. See Fig. 25. When the outdoor air enthalpy rises
above the outdoor enthalpy changeover set point, the outdoor-
air damper moves to its minimum position. Tile outdoor
enthalpy changeover set point is set with the outdoor enth_dpy
set point potentiometer on file EconoMiSer IV controllel: The
set points are A, B, C, and D. See Fig. 41. The factory-installed
620-ohln jumper must be in place across terrainals SR and SR+
on file EconoMiSer IV controllel: See Fig. 25 and 42.
Differential Enthalpy Control -- For differential enthalpy
control, the EconoMiSer IV controller uses two enthalpy sen-
sors (HH57AC078 and CRENTDIF004A00), one in the out-
side air and one in the return air duct. The EconoMiSer IV
controller compmes file outdoor air enthalpy to the return air
enthalpy to determine EconoMi$er IV use. Tile controller
selects the lower enthalpy air (return or outdoor) for cooling.
For example, when file outdoor air has a lower enthalpy than
the return air. the EconoMi$er IV opens to bring in outdoor air
for free cooling.
Replace the standard outside air dry bulb temperature sen-
sor with file accessory enthalpy sensor in the same mounting
location. See Fig. 25. Mount the return air enthalpy sensor in
the return air duct. See Fig. 40. Wiring is provided in the
EconoMiSer IV wiring harness. See Fig. 32. The outdoor en-
thalpy changeover set point is set with the outdoor enthalpy set
point potentiometer on the EconoMiSer IV controllel: When
22

usingthismodeof changeovercontrol,turntheenthalpyset-
pointpotentiometerfullyclockwisetotheDsetting.
Indoor Air Quality (IAQ) Sensor Input -- The IAQ input
can be used for demand control ventilation control based on the
level of CO2 measured in the space or return air duct.
Mount the accessory IAQ sensor according to manufacturer
specifications. The IAQ sensor should be wired to the AQ and
AQI terminals of file controller Adjust the DCV potentiome-
ters to correspond to the DCV voltage output of file indoor air
quality sensor at the user-determined set point. See Fig. 43.
If a separate field-supplied transformer is used to power the
IAQ sensor, the sensor must not be grounded or the
EconoMi$er IV control board will be damaged.
CONTROL CONTROL POINT
CURVE APPROXI°F(°C)
AT 50% RH
A 73123)
B 70121)
C 67119 )
D 63(17)
85 90 95 100 105 110
(29) (32) (35) (38) (41) (43)
\
\
\
\
\
HIGH LIMIT
\ CURVE
35 40 45 50 55 60 65 70 75 80 85 90 95 100 105 110
(2) (4) (7) (10) (13) (16) (18) (21) (24) (27) (29) (32) (35) (38) (41) (43)
APPROXIMATE DRY BULB TEMPERATURE-- °F (°C)
Fig. 41 -- Enthalpy Changeover Set Points
TRIP-1 T_
24T_24 Vac
Vac COM
HO
...... @
..................................................J
Fig. 42 -- EconoMi$er IV Control
2
5
......_ 4
EF_ EF1
6000
5000
z
2 4000
3000
Z
2000
W
z 1000
<
o
CO 2 SENSOR MAX RANGE SETTING
+800 ppm
+900 ppm
_1000 ppm
+1100 ppm
2345678
DAMPER VOLTAGE FOR MAX VENTILATION RATE
Fig. 43 -- CO2 Sensor Maximum Range Setting
23

Exhaust Set Point Adjustment -- The exhaust set point will
determine when the exhaust fan runs based on dmnper position
(if accessory power exhaust is installed). The set point is modi-
fied with the Exhaust Fan Set Point (EXH SET) potentiometer
See Fig. 38. The set point represents the damper position above
which the exhaust fans will be turned on. When there is a call
for exhaust, the EconoMiSer IV controller provides a 45 _+15
second delay before exhaust fan activation to allow the damp-
ers to open. This delay _fllows file damper to reach the appro-
priate position to avoid unnecessary fan overload.
Minimum Position Control -- There is a minimum damper
position potentiometer on the EconoMiSer [V controllel: See
Fig. 38. The minimum damper position maintains the mini-
mum airflow into the building during the occupied period.
When using demand ventihttion, the minimum dmnper po-
sition represents the minimum ventilation position for VOC
(volatile organic compound) ventilation requirements. The
maximum demand ventilation position is used for fully occu-
pied ventilation.
When demand ventilation control is not being used, the
minimum position potentiometer should be used to set the oc-
cupied ventilation position. The maximum demand ventilation
position should be turned fully clockwise.
Adjust the minimum position potentiometer to allow the
minimum mnount of outdoor aik as required by local codes, to
enter the building. Make minimum position adjustments with
at least 10 F temperature difference between the outdoor and
return-air temperatures.
To determine the minimum position setting, perform the
following procedure:
1. Calculate the appropriate mixed air temperature using the
following formula:
OA RA
(To x l---ff_ ) + (TR x _ = TM
To = Outdoor-Air Temperature
OA = Percent of Outdoor Air
TR = Return-Air Temperature
RA = Percent of Return Air
TM = Mixed-Air Temperature
As an example, if local codes require 10% outdoor air
during occupied conditions, outdoor-air temperature is
60 E and return-air temperature is 75 E
(60 x .10) + (75 x .90) =73.5 F
2. Disconnect the supply air sensor from terminals T and
TI.
3. Ensure that the factory-installed jumper is in place across
terminals P and PI. If remote damper positioning is being
used, make sure that the terminals are wired according to
Fig. 32 and that the minimum position potentiometer is
turned fully clockwise.
4. Connect 24 vac across terminals TR and TRI.
5. Carelhlly adjust the minimum position potentiometer
until the measured supply air temperature matches the
calculated value.
6. Reconnect the supply air sensor to termimfls T and TI.
Remote control of the EconoMiSer IV damper is desirable
when requiring additiomfl tempormy ventilation. If a
field-supplied remote potentiometer (Honeywell part number
$963B1128) is wired to the EconoMiSer IV controllek the
minimum position of the damper can be controlled from a re-
mote location.
To control the minimum damper position remotely, remove
the factory-installed jumper on the P and PI terminals on the
EconoMiSer IV controllel: Wire the field-supplied potentiome-
ter to the P and PI terminals on the EconoMi$er IV controller.
See Fig. 42.
Damper Movement -- Damper movement trom full open to
full closed (or vice versa) takes 2112minutes.
Thermostats -- The EconoMi$er IV control works with con-
ventiomd thermostats that have a YI (cool stage 1), Y2 (cool
stage 2), Wl (heat stage 1), W2 (heat stage 2), and G (fan). The
EconoMi$er IV control does not support space temperature
sensors. Connections are made at the thermostat termimd con-
nection board located in the main control box.
Occupancy Control -- The factoUdefault configuration for
the EconoMi$er IV control is occupied mode. Occupied status
is provided by the black jumper fiom terminal TR to terminal
N. When unoccupied mode is desired, install a field-supplied
time clock function in place of the jumper between TR and N.
See Fig. 32. When the time clock contacts me closed, the
EconoMi$er IV control will be in occupied mode. When the
time clock contacts are open (removing the 24-v signal from
terminal N), the EconoMi$er IV will be in unoccupied mode.
Demand Controlled Ventilation (DCV) -- When using the
EconoMi$er IV for demand controlled ventilation, them are
some equipment selection criteria which should be considered.
When selecting the heat capacity and cool capacity of the
equipment, the maximum ventilation rote must be evaluated for
design conditions. The maximum damper position must be cal-
culated to provide the desired fresh air
Typically the maximum ventilation rate will be about 5 to
10% more than the typical cfin required per person, using
normal outside air design criteria.
A proportional anticipatory strategy should be taken with
the following conditions: a zone with a large area, varied occu-
pancy, and equipment that cannot exceed the required ventila-
tion rate at design conditions. Exceeding the required ventila-
tion rate means the equipment can condition air at a maximum
ventilation rate that is greater than the required ventilation rate
for maximum occupancy. A proportional-anticipato Ustrategy
will cause the fresh air supplied to increase as the room CO2
level increases even though the CO2 set point has not been
reached. By the time the CO2 level roaches the set point, the
damper will be at maximum ventilation and should maintain
the set point.
In order to have the CO2 sensor control the economizer
damper in this manner, fil.'stdetermine the damper voltage out-
put for minimum or base ventilation. Base ventilation is the
ventilation required to remove contmninants during unoccu-
pied periods. The following equation may be used to determine
the percent of outside-air entering the building for a given
damper position. For best results there should be at least a
10 degree difference in outside and return-air temperatures.
OA RA
(To x l---ff_-) + (TR x _ = TM
To = Outdoor-Air Temperature
OA = Percent of Outdoor Air
TR = Return-Air Temperature
RA = Percent of Return Air
TM = Mixed-Air Temperature
Once base ventilation has been determined, set the mini-
mum damper position potentiometer to the correct position.
The same equation can be used to deterlnine the occupied or
maximum ventilation rate to the building. For example, an out-
put of 3.6 volts to the actuator provides a base ventilation rate
of 5% and an output of 6.7 volts provides the maximum venti-
lation rate of 20% (or base plus 15 cfm per person). Use Fig. 43
to determine the maximum setting of the CO2 sensol: For ex-
ample, a 1100 ppm set point relates to a 15 cfm per person de-
sign. Use the 1100 ppm curve on Fig. 43 to find the point when
the CO2 sensor output will be 6.7 volts. Line up the point on the
graph with the left side of the chart to determine that the range
configuration for the CO2 sensor should be 1800 ppm. The
24

EconoMiSerIV controllerwilloutputthe6.7voltsfiomthe
CO2sensortotheactuatorwhentheCO2concentrationinthe
spaceisfit1100ppm.TheDCVsetpointmaybeleftfit2volts
sincethe CO2sensorvoltagewill be ignoredby the
EconoMiSerIVcontrolleruntilitrisesabovethe3.6voltset-
tingoftheminimumpositionpotentiometer
Oncethefullyoccupieddmnperpositionhasbeendeter-
mined,setfilemaximumdamperdemandcontrolventilation
potentiometertothisposition.Donotsettofilemaximumposi-
tionasfliiscanlesultinover-ventilationtothespacefindpoten-
tialhigh-humiditylevels.
C02 Sensor Configuration -- The CO2 sensor has preset
standard voltage settings flint can be selected anytime after the
sensor is powered up. See Table 6.
Use setting 1 or 2 for Carrier equipment. See Table 6.
1. Pless Clear and Mode buttons. Hold fit least 5 seconds
until the sensor enters the Edit mode.
2. Pless Mode twice. The STDSET Menu will appem:
3. Use file Up/Down button to select the pleset numbel: See
Table 6.
4. Pless Enter to lock in the selection.
5. Pless Mode to exit and resume normal operation.
The custom settings of the CO2 sensor can be changed any-
time after the sensor is energized. Follow the steps below to
change file non-stan&trd settings:
1. Pless Clear and Mode buttons. Hold fit least 5 seconds
until the sensor enters the Edit mode.
2. Pless Mode twice. The STDSET Menu will appem:
3. Use the Up/Down button to toggle to the NONSTD menu
and press Entec
4. Use the Up/Down button to toggle through each of the
nine variables, stinting with Altitude, until the desired set-
ting is reached.
5. Press Mode to move through the variables.
6. Press Enter to lock in the selection, then press Mode to
continue to the next vmiable.
Dehumidification of Fresh Air with DCV Control -- Infor-
mation from ASHRAE indicates that the largest humidity load
on any zone is the fresh air introduced. For some applications,
a device such as a 62AQ energy recovery unit is added to re-
duce the moisture content of the fresh air being brought into the
building when file enthalpy is high. In most cases, the normfd
heating and cooling processes are morn than adequae to m-
move the humidity loads for most commemial applications.
If normal rooftop heating and cooling operation is not ade-
quate for the outdoor humidity level, fin energy recovery unit
and/or a dehumidification option should be considered.
Step 9- Adjust Evaporator-Fan Speed --Adjust
evaporator-fan speed to meet jobsite conditions.
Tables 7 and 8 show fan rpm fit motor pulley settings.
Tables 9 and 10 show maximum amp draw of belt-di'ive motol:
Table 11 shows sound data. Refer to Tables 12-29 for perfor-
mance data. See Table 30 for accessory static pressure drop.
See Fig. 44 for the Humidi-MiZer r_q system static pressure
diops.
BELT-DRIVE MOTORS -- Fan motor pulleys are facto qset
for speed shown in Table 1. Check pulley alignment find belt
tension prior to start-up.
NOTE: Befole adjusting fan speed, make sure the new fan
speed will provide an air temperature rise range as shown in
Table 1.
To change fan speed:
1. Shut off unit power supply, tag disconnect.
2. Ix_osen belt by loosening fan motor mounting nuts. See
Fig. 45.
3. Ix_osen movable pulley flange setscrew (see Fig. 46).
4. Screw movable flange toward fixed flange to increase
speed and away from fixed flange to decrease speed.
Increasing fan speed increases load on motol: Do not
exceed maximum speed specified in Table 1.
5. Set movable flange at nearest keyway of pulley hub and
tighten setscrew. (See Table 1 for speed change for each
lull turn of pulley flange.)
To align fan and motor pulleys, loosen fan pulley setscrews
find slide fan pulley along fan shaft. Make angular alignment
by loosening motor from mounting.
To adjust belt tension:
1. Ix_osen fan motor mounting nuts.
2. Slide motor mounting plate away from fan scroll for
proper belt tension (1/2-in. deflection wifli 8 to 10 lb of
force) and tighten mounting nuts.
3. Adjust lock bolt and nut on mounting plate to secure
motor in fixed position.
Table 6 -- 002 Sensor Standard Settings
EQUIPMENT OUTPUT ANALOG
OUTPUT
SETTING
1
2
3
4
5
6
7
8
Interface w/Standard
Building Control System
Economizer
Health & Safety
Parking/Air Intakes/
9Loading Docks
Proportional
Proportional
Exponential
Proportional
Proportional
Exponential
Exponential
Proportional
Proportional
VENTILATION
RATE
(cfm/Peraon)
Any
Any
Any
15
20
15
2O
0-10V
4-20 mA
2-10V
7-20 mA
0-10V
4-20 mA
0-10V
4-20 mA
0-10V
4-20 mA
0-10V
4-20 mA
0-10V
4-20 mA
0-10V
4-20 mA
0-10V
4-20 mA
002
CONTROLRANGE
(ppm)
0-2000
0-2000
0-2000
0-1100
0- 900
0-1100
0- 900
0-9999
0-2000
OPTIONAL
RELAY SETPOINT
(ppm)
1000
1000
1100
1100
900
1100
900
5000
7OO
LEGEND
ppm -- Parts Per Million
RELAY
HYSTERESIS
(ppm)
5O
5O
5O
5O
5O
5O
5O
5OO
5O
25

0.35
0.25 -
0.1
0.05
4&5ton
6 ton
3 ton
0 iiii [
0 1000 2000 3000 4000 5000 6000
Fig. 44 -- Humidi-MiZer TM Adaptive Dehumidification System Static Pressure Drop (in. wg)
MOTOR MOUNTING
PLATE NUTS
Fig. 45 -- Belt-Drive Motor Mounting
STRAIGHT EDGE MUST
WITH BELT
MOTOR AND FAN
SHAFTS MUST BE
PARALLEL
MOVABLE
FLANGE
SETSCREW£__'_
FIXED FLANGE
SINGLE-GROOVE
Fig. 46 -- Evaporator-Fan Pulley Adjustment
Table 7 -- 48HJ Fan Rpm at Motor Pulley Setting With Standard Motor*
UNIT MOTOR PULLEY TURNS OPEN
48HJ 0l& 1 11_ 2 2_& 3 3l& 4 4_ 5 5l& 6
004 1044 1008 971 935 898 862 826 789 753 716 680 -- --
005 1185 1144 1102 1061 1019 978 936 895 853 812 770 -- --
006 1460 1425 1389 1354 1318 1283 1248 1212 1177 1141 1106 1070 1035
007 1585 1538 1492 1445 1399 1352 1305 1259 1212 1166 1119 -- --
*Approximate fan rpm shown (standard motor/drive).
UNIT
48HJ Ol& 1
004 1455 1423 1392
005 1455 1423 1392
006 1685 1589 1557
007 1685 1589 1557
Table 8 -- 48HJ Fan Rpm at Motor Pulley Setting With High-Static Motor*
MOTOR PULLEY TURNS OPEN
1l& 221& 3 3 l& 44 l& 5 5l& 6
1360 1328 1297 1265 1233 1202 1170 1138 1107 1075
1360 1328 1297 1265 1233 1202 1170 1138 1107 1075
1525 1493 1460 1428 1396 1364 1332 1300 -- --
1525 1493 1460 1428 1396 1364 1332 1300 -- --
*Approximate fan rpm shown (high-static motor/drive).
26

UNIT UNIT
48HJ PHASE
Single
O04 Three
Single
005 Three
Single
006 Three
007 Three
LEGEND
Bhp i Brake Horsepower
Table 9 -- Evaporator-Fan Motor Data -- Standard Motor
MAXIMUM
CONTINUOUS BHP*
1.20
1.20
1.20
1.20
1.30
2.40
MAXIMUM
OPERATING WATTS*
1000
1000
1000
1000
1650
2120
21202.40
UNIT VOLTAGE
208_30
208_30
460
575
208_30
208_30
460
575
208_30
208_30
460
575
208_30
460
575
MAXIMUM
AMPDRAW
4.9
4.9
2.2
2.2
4.9
4.9
2.2
2.2
10.1
6.7
3.0
3.0
6.7
3.0
3.0
*Extensive motor and electrical testing on these units ensures that the
full horsepower and watts range of the motors can be utilized with confi-
dence. Using the fan motors up to the ratings shown in this table will not
result in nuisance tripping or premature motor failure. Unit warranty will
not be affected.
UNIT UNIT
48HJ PHASE
004 Three
005 Three
006 Three
007 Three
LEGEND
Bhp -- Brake Horsepower
Table 10- Evaporator-Fan Motor Data- High-Static Motors
MAXIMUM MAXIMUM
CONTINUOUS BHP* OPERATING WATTS*
2.40
2.40
2.90
2120
2120
2615
26152.90
UNIT VOLTAGE
208/230
460
575
208/230
460
575
208/230
460
575
208/230
460
575
MAXIMUM
AMP DRAW
6.7
3.0
3.0
6.7
3.0
3.0
8.6
3.9
3.9
8.6
3.9
3.9
*Extensive motor and electrical testing on these units ensures that the
full horsepower and watts range of the motors can be utilized with confi-
dence. Using the fan motors up to the ratings shown in this table will not
result in nuisance tripping or premature motor failure. Unit warranty will
not be affected.
Table 11 -- Outdoor Sound Power (Total Unit)
ARI OCTAVE BANDS
UNIT RATING
48HJ (decibels) 63 125 250 500 1000 2000 4000 8000
004,005 76 55.9 66.0 64.0 66.2 68.4 64.5 61.7 57.3
006,007 80 59.1 68.9 68.7 71.9 74.0 68.9 65.7 59.0
LEGEND
ARI -- Air Conditioning and Refrigeration Institute
GENERAL FAN PERFORMANCE NOTES
1. Values include losses for filters, unit casing, and wet coils. See Table 30
and Fig. 44 for accessory/FlOP static pressure information.
2. Extensive motor and electrical testing on these units ensures that the full
range of the motor can be utilized with confidence. Using the fan motors up
to the ratings shown will not result in nuisance tripping or premature motor
failure. Unit warranty will not be affected. See Tables 9 and 10 on this page
for additional information.
3. Use of a field-supplied motor may affect wire sizing. Contact your Carrier
representative to verify.
4. Interpolation is permissible. Do not extrapolate.
27

Table 12 -- Fan Performance 48HJ004 -- Vertical Discharge Units; Standard Motor (Belt Drive)*
AIRFLOW
CFM
900
1000
1100
1200
1300
1400
1500
EXTERNAL STATIC PRESSURE (in. wg)
0.2 0.4 0.6 0.8 1.0
Rpm Bhp Watts Rpm Bhp Watts Rpm Bhp Watts Rpm Bhp Watts Rpm Bhp Watts
567 0.15 145 688 0.22 222 786 0.30 296 871 0.37 368 947 0.44 437
599 0.18 177 717 0.27 265 814 0.35 349 897 0.43 430 972 0.51 509
632 0.22 215 747 0.31 313 842 0.41 407 925 0.50 498 999 0.59 587
666 0.26 257 778 0.37 367 871 0.47 471 952 0.57 572 1025 0.67 670
701 0.31 306 810 0.43 426 901 0.54 540 981 0.65 651 1053 0.76 760
737 0.36 361 842 0.49 491 931 0.62 616 1010 0.74 738 1081 0.86 856
773 0.42 422 875 0.57 564 963 0.70 699 1040 0.84 831 1110 0.96 960
AIRFLOW
CFM
90O
1000
1100
1200
1300
1400
1500
Bhp -- Brake Horsepower
Watts -- Input Watts to Motor
*Motor drive range: 680 to 1044 rpm. All other rpms require field-
supplied drive.
EXTERNAL STATIC PRESSURE (in. wg)
1.2 1.4 1.6 1.8 2.0
Rpm Bhp Watts Rpm Bhp Watts Rpm Bhp Watts Rpm Bhp Watts Rpm Bhp Watts
1016 0.51 505 1080 0.57 572 1139 0.64 637 1195 0.71 702 1249 0.77 765
1041 0.59 587 1104 0.67 662 1163 0.74 737 1219 0.81 811 1272 0.89 883
1066 0.68 674 1129 0.76 759 1188 0.85 843 1243 0.93 925 1296 1.01 1007
1093 0.77 767 1155 0.87 861 1213 0.96 955 1268 1.05 1047 1321 1.14 1137
1119 0.87 866 1181 0.98 970 1239 1.08 1073 1294 1.18 1175 -- -- --
1147 0.98 972 1208 1.09 1086 .........
1175 1.09 1086 ............
LEGEND NOTES:
1. Boldface indicates field-supplied drive is required.
2. Maximum continuous bhp is 1.20.
3. See page 27 for general fan performance notes.
Table 13 -- Fan Performance 48HJ004 --Vertical Discharge Units; High-Static Motor (Belt Drive)*
AIRFLOW
CFM
90O
1000
1100
1200
1300
1400
1500
EXTERNAL STATIC PRESSURE (in. wg)
0.2 0.4 0.6 0.8 1.0
Rpm Bhp Watts Rpm Bhp Watts Rpm Bhp Watts Rpm Bhp Watts Rpm Bhp Watts
567 0.15 145 688 0.22 222 786 0.30 296 871 0.37 368 947 0.44 437
599 0.18 177 717 0.27 265 814 0.35 349 897 0.43 430 972 0.51 509
632 0.22 215 747 0.31 313 842 0.41 407 925 0.50 498 999 0.59 587
666 0.26 257 778 0.37 367 871 0.47 471 952 0.57 572 1025 0.67 670
701 0.31 306 810 0.43 426 901 0.54 540 981 0.65 651 1053 0.76 760
737 0.36 361 842 0.49 491 931 0.62 616 1010 0.74 738 1081 0.86 856
773 0.42 422 875 0.57 564 963 0.70 699 1040 0.84 831 1110 0.96 960
AIRFLOW
CFM
90O
1000
1100
1200
1300
1400
1500
Bhp -- Brake Horsepower
Watts -- Input Watts to Motor
EXTERNAL STATIC PRESSURE (in. wg)
1.2 1.4 1.6 1.8 2.0
Rpm Bhp Watts Rpm Bhp Watts Rpm Bhp Watts Rpm Bhp Watts Rpm Bhp Watts
1016 0.51 505 1080 0.57 572 1139 0.64 637 1195 0.71 702 1249 0.77 765
1041 0.59 587 1104 0.67 662 1163 0.74 737 1219 0.81 811 1272 0.89 883
1066 0.68 674 1129 0.76 759 1188 0.85 843 1243 0.93 925 1296 1.01 1007
1093 0.77 767 1155 0.87 861 1213 0.96 955 1268 1.05 1047 1321 1.14 1137
1119 0.87 866 1181 0.98 970 1239 1.08 1073 1294 1.18 1175 1346 1.28 1275
1147 0.98 972 1208 1.09 1086 1265 1.21 1199 1320 1.32 1310 1371 1.43 1419
1175 1.09 1086 1235 1.22 1209 1292 1.34 1332 1346 1.46 1452 1397 1.58 1572
LEGEND NOTES:
1. Boldface indicates field-supplied drive is required.
2. Maximum continuous bhp is 2.40.
3. See page 27 for general fan performance notes.
*Motor drive range: 1075 to 1455 rpm. All other rpms require field-
supplied drive.
28

Table 14 -- Fan Performance 48HJ005 -- Vertical Discharge Units; Standard Motor (Belt Drive)*
AIRFLOW
CFM
1200
1300
1400
1500
1600
1700
1800
1900
2000
EXTERNAL STATIC PRESSURE (in. wg)
0.2 0.4 0.6 0.8 1.0
Rpm Bhp Watts Rpm Bhp Watts Rpm Bhp Watts Rpm Bhp Watts Rpm Bhp Watts
666 0.26 257 778 0.37 367 871 0.47 471 952 0.57 572 1025 0.67 670
701 0.31 306 810 0.43 426 901 0.54 540 981 0.65 651 1053 0.76 760
737 0.36 361 842 0.49 491 931 0.62 616 1010 0.74 738 1081 0.86 856
773 0.42 422 875 0.57 564 963 0.70 699 1040 0.84 831 1110 0.96 960
810 0.49 491 909 0.65 643 994 0.79 790 1070 0.94 932 1140 1.08 1070
847 0.57 567 943 0.73 730 1027 0.89 888 1101 1.05 1040 1170 1.20 1189
885 0.66 652 978 0.83 826 1060 1.00 994 1133 1.16 1157 -- -- --
923 0.75 745 1014 0.94 930 1093 1.11 1109 ......
962 0.85 847 1049 1.05 1043 .........
AIRFLOW
CFM
1200
1300
1400
1500
1600
1700
1800
1900
2000
LEGEND
Bhp -- Brake Horsepower
Watts -- Input Watts to Motor
EXTERNAL STATIC PRESSURE (in. wg)
1.2 1.4 1.6 1.8 2.0
Rpm Bhp Watts Rpm Bhp Watts Rpm Bhp Watts Rpm Bhp Watts Rpm Bhp Watts
1093 0.77 767 1155 0.87 861 1213 0.96 955 1268 1.05 1047 1321 1.14 1137
1119 0.87 866 1181 0.98 970 1239 1.08 1073 1294 1.18 1175 -- -- --
1147 0.98 972 1208 1.09 1086 .........
1175 1.09 1086 ............
NOTES:
1. Boldface indicates field-supplied drive is required.
2. Maximum continuous bhp is 1.20.
3. See page 27 for general fan performance notes.
*Motor drive range: 770 to 1185 rpm. All other rpms require field-
supplied drive.
Table 15 -- Fan Performance 48HJ005 -- Vertical Discharge Units; High-Static Motor (Belt Drive)*
AIRFLOW
CFM
1200
1300
1400
1500
1600
1700
1800
1900
2000
EXTERNAL STATIC PRESSURE (in. wg)
0.2 0.4 0.6 0.8 1.0
Rpm Bhp Watts Rpm Bhp Watts Rpm Bhp Watts Rpm Bhp Watts Rpm Bhp Watts
666 0.26 257 778 0.37 367 871 0.47 471 952 0.57 572 1025 0.67 670
701 0.31 306 810 0.43 426 901 0.54 540 981 0.65 651 1053 0.76 760
737 0.36 361 842 0.49 491 931 0.62 616 1010 0.74 738 1081 0.86 856
773 0.42 422 875 0.57 564 963 0.70 699 1040 0.84 831 1110 0.96 960
810 0.49 491 909 0.65 643 994 0.79 790 1070 0.94 932 1140 1.08 1070
847 0.57 567 943 0.73 730 1027 0.89 888 1101 1.05 1040 1170 1.20 1189
885 0.66 652 978 0.83 826 1060 1.00 994 1133 1.16 1157 1200 1.32 1316
923 0.75 745 1014 0.94 930 1093 1.11 1109 1165 1.29 1283 1231 1.46 1453
962 0.85 847 1049 1.05 1043 1127 1.24 1233 1198 1.42 1417 1263 1.61 1598
AIRFLOW
CFM
1200
1300
1400
1500
1600
1700
1800
1900
2000
Bhp -- Brake Horsepower
Watts -- Input Watts to Motor
EXTERNAL STATIC PRESSURE (in. wg)
1.2 1.4 1.6 1.8 2.0
Rpm Bhp Watts Rpm Bhp Watts Rpm Bhp Watts Rpm Bhp Watts Rpm Bhp Watts
1093 0.77 767 1155 0.87 861 1213 0.96 955 1268 1.05 1047 1321 1.14 1137
1119 0.87 866 1181 0.98 970 1239 1.08 1073 1294 1.18 1175 1346 1.28 1275
1147 0.98 972 1208 1.09 1086 1265 1.21 1199 1320 1.32 1310 1371 1.43 1419
1175 1.09 1086 1235 1.22 1209 1292 1.34 1332 1346 1.46 1452 1397 1.58 1572
1204 1.21 1207 1263 1.35 1340 1320 1.48 1472 1373 1.61 1603 1424 1.74 1732
1233 1.34 1336 1292 1.49 1480 1348 1.63 1622 1401 1.77 1762 1451 1.91 1901
1262 1.48 1473 1321 1.64 1627 1376 1.79 1779 1428 1.94 1930 1479 2.09 2078
1293 1.63 1620 1350 1.79 1784 1405 1.96 1946 1457 2.12 2106 1506 2.28 2265
1323 1.79 1776 1380 1.96 1950 1434 2.13 2123 1486 2.31 2293 -- -- --
LEGEND NOTES:
1. Boldface indicates field-supplied drive is required.
2. Maximum continuous bhp is 2.40,
3. See page 27 for general fan performance notes.
*Motor drive range: 1075 to 1455 rpm. All other rpms require field-
supplied drive.
29

AIRFLOW
CFM
1500
1600
1700
1800
1900
2000
2100
2200
2300
2400
2500
Table 16 -- Fan Performance 48HJ006, Single-Phase -- Vertical Discharge Units;
Standard Motor (Belt Drive)*
EXTERNAL STATIC PRESSURE (in. wg)
0.2 0.4 0.6 0.8 1.0
Rpm Bhp Watts Rpm Bhp Watts Rpm Bhp Watts Rpm Bhp Watts Rpm Bhp Watts
848 0.42 371 968 0.55 486 1069 0.68 600 1158 0.80 715 1238 0.94 831
887 0.49 433 1004 0.63 556 1103 0.76 678 1190 0.90 800 1269 1.04 922
927 0.57 502 1040 0.71 633 1137 0.86 763 1223 1.00 892 1302 1.15 1022
967 0.65 579 1077 0.81 718 1172 0.96 856 1257 1.12 993 1334 1.27 1130
1007 0.75 663 1115 0.91 811 1208 1.08 957 1291 1.24 1101 -- -- --
1048 0.85 757 1153 1.03 913 1244 1.20 1066 ......
1090 0.97 859 1191 1.15 1023 .........
1131 1.09 970 1230 1.29 1143 .........
1173 1.23 1091 ............
AIRFLOW
CFM
1500
1600
1700
1800
1900
EXTERNAL STATIC PRESSURE (in. wg)
1.2 1.4 1.6 1.8 2.0
Rpm Bhp Watts Rpm Bhp Watts Rpm Bhp Watts Rpm Bhp Watts Rpm Bhp Watts
1312 1.07 948 1380 1.20 1067 .........
1342 1.18 1047 ............
1374 1.30 1153 ............
2000 ..............
2100 ..............
2200 ..............
2300 ..............
2400 ..............
2500 ..............
LEGEND NOTES:
Bhp -- Brake Horsepower 1. Boldface indicates field-supplied drive is required,
Watts -- Input Watts to Motor 2. Maximum continuous bhp is 1.30.
3. See page 27 for general fan performance notes.
*Motor drive range: 1035 to 1460 rpm. All other rpms require field-
supplied drive.
m
m
m
m
m
m
AIRFLOW
CFM
1500
1600
1700
1800
1900
2000
2100
2200
2300
2400
2500
Table 17 -- Fan Performance 48HJ006, Three-Phase -- Vertical Discharge Units;
Standard Motor (Belt Drive)*
EXTERNAL STATIC PRESSURE (in. wg)
0.2 0.4 0.6 0.8 1.0
Rpm Bhp Watts Rpm Bhp Watts Rpm Bhp Watts Rpm Bhp Watts Rpm Bhp Watts
848 0.42 371 968 0.55 486 1069 0.68 600 1158 0.80 715 1238 0.94 831
887 0.49 433 1004 0.63 556 1103 0.76 678 1190 0.90 800 1269 1.04 922
927 0.57 502 1040 0.71 633 1137 0.86 763 1223 1.00 892 1302 1.15 1022
967 0.65 579 1077 0.81 718 1172 0.96 856 1257 1.12 993 1334 1.27 1130
1007 0.75 663 1115 0.91 811 1208 1.08 957 1291 1.24 1101 1368 1.40 1246
1048 0.85 757 1153 1.03 913 1244 1.20 1066 1326 1.37 1219 1401 1.54 1371
1090 0.97 859 1191 1.15 1023 1281 1.33 1185 1361 1.51 1345 1435 1.69 1505
1131 1.09 970 1230 1.29 1143 1318 1.48 1313 1397 1.67 1481 1470 1.86 1649
1173 1.23 1091 1269 1.43 1273 1355 1.63 1451 1433 1.83 1627 1505 2.03 1803
1215 1.38 1223 1309 1.59 1413 1393 1.80 1600 1470 2.01 1784 1540 2.21 1967
1258 1.54 1365 1349 1.76 1564 1431 1.98 1759 1506 2.20 1951 -- -- --
AIRFLOW
CFM
1500
1600
1700
1800
1900
2000
2100
2200
2300
2400
2500
LEGEND
Bhp -- Brake Horsepower
Wa_s -- Input Watts to Motor
*Motor drive range: 1035 to 1460 rpm. All other rpms require field-
supplied drive.
EXTERNAL STATIC PRESSURE (in. wg)
1.2 1.4 1.6 1.8 2.0
Rpm Bhp Watts Rpm Bhp Watts Rpm Bhp Watts Rpm Bhp Watts Rpm Bhp Watts
1312 1.07 948 1380 1.20 1067 1445 1.34 1189 1506 1.48 1312 1564 1.62 1437
1342 1.18 1047 1411 1.32 1173 1474 1.46 1300 1535 1.61 1429 1593 1.76 1560
1374 1.30 1153 1441 1.45 1286 1505 1.60 1420 1565 1.75 1555 1622 1.91 1692
1406 1.43 1268 1473 1.58 1407 1535 1.74 1548 1595 1.90 1690 1652 2.06 1833
1438 1.57 1391 1504 1.73 1537 1567 1.90 1685 1626 2.06 1833 1682 2.23 1983
1471 1.72 1523 1536 1.89 1677 1598 2.06 1831 1657 2.24 1986 -- -- --
1504 1.87 1665 1569 2.06 1825 1630 2.24 1986 ......
1538 2.04 1816 1602 2.23 1984 .........
1572 2.23 1978 ............
NOTES:
1. Boldface indicates field-supplied drive is required.
2. Maximum continuous bhp is 2,40.
3. See page 27 for general fan performance notes.
3O

Table 18 -- Fan Performance 48HJ006 -- Vertical Discharge Units; High-Static Motor (Belt Drive)*
AIRFLOW
CFM
1500
1600
1700
1800
1900
2000
2100
2200
2300
2400
2500
EXTERNAL STATIC PRESSURE (in. wg)
0.2 0.4 0.6 0.8 1.0
Rpm Bhp Watts Rpm Bhp Watts Rpm Bhp Watts Rpm Bhp Watts Rpm Bhp Watts
848 0.42 371 968 0.55 486 1069 0.68 600 1158 0.80 715 1238 0.94 831
887 0.49 433 1004 0.63 556 1103 0.76 678 1190 0.90 800 1269 1.04 922
927 0.57 502 1040 0.71 633 1137 0.86 763 1223 1.00 892 1302 1.15 1022
967 0.65 579 1077 0.81 718 1172 0.96 856 1257 1.12 993 1334 1.27 1130
1007 0.75 663 1115 0.91 811 1208 1.08 957 1291 1.24 1101 1368 1.40 1246
1048 0.85 757 1153 1.03 913 1244 1.20 1066 1326 1.37 1219 1401 1.54 1371
1090 0.97 859 1191 1.15 1023 1281 1.33 1185 1361 1.51 1345 1435 1.69 1505
1131 1.09 970 1230 1.29 1143 1318 1.48 1313 1397 1.67 1481 1470 1.86 1649
1173 1.23 1091 1269 1.43 1273 1355 1.63 1451 1433 1.83 1627 1505 2.03 1803
1215 1.38 1223 1309 1.59 1413 1393 1.80 1600 1470 2.01 1784 1540 2.21 1967
1258 1.54 1365 1349 1.76 1564 1431 1.98 1759 1506 2.20 1951 1576 2.41 2142
AIRFLOW
CFM
1500
1600
1700
1800
1900
2000
2100
2200
2300
2400
2500
Bhp -- Brake Horsepower
Watts -- Input Watts to Motor
*Motor drive range: 1300 to 1685 rpm. All other rpms require field-
supplied drive.
EXTERNAL STATIC PRESSURE (in. wg)
1.2 1.4 1.6 1.8 2.0
Rpm Bhp Watts Rpm Bhp Watts Rpm Bhp Watts Rpm Bhp Watts Rpm Bhp Watts
1312 1.07 948 1380 1.20 1067 1445 1.34 1189 1506 1.48 1312 1564 1.62 1437
1342 1.18 1047 1411 1.32 1173 1474 1.46 1300 1535 1.61 1429 1593 1.76 1560
1374 1.30 1153 1441 1.45 1286 1505 1.60 1420 1565 1.75 1555 1622 1.91 1692
1406 1.43 1268 1473 1.58 1407 1535 1.74 1548 1595 1.90 1690 1652 2.06 1833
1438 1.57 1391 1504 1.73 1537 1567 1.90 1685 1626 2.06 1833 1682 2.23 1983
1471 1.72 1523 1536 1.89 1677 1598 2.06 1831 1657 2.24 1986 1713 2.41 2142
1504 1.87 1665 1569 2.06 1825 1630 2.24 1986 1688 2.42 2149 1744 2.60 2312
1538 2.04 1816 1602 2.23 1984 1663 2.42 2152 1720 2.61 2321 1775 2.81 2491
1572 2.23 1978 1635 2.42 2153 1695 2.62 2328 1753 2.82 2504 -- -- --
1607 2.42 2150 1669 2.63 2332 1729 2.83 2515 ......
1642 2.63 2333 1704 2.84 2523 .........
LEGEND NOTES:
1. Boldface indicates field-supplied drive is required.
2. Maximum continuous bhp is 2.90.
3. See page 27 for general fan performance notes.
Table 19 -- Fan Performance 48HJ007 -- Vertical Discharge Units; Standard Motor (Belt Drive)*
AIRFLOW
CFM
1800
1900
2000
2100
2200
2300
2400
2500
2600
2700
2800
2900
3000
EXTERNAL STATIC PRESSURE (in. wg)
0.2 0.4 0.6 0.8 1.0
Rpm Bhp Watts Rpm Bhp Watts Rpm Bhp Watts Rpm Bhp Watts Rpm Bhp Watts
967 0.63 563 1075 0.80 715 1170 0.97 861 1255 1.13 1002 1333 1.28 1139
1008 0.72 643 1112 0.91 805 1205 1.08 960 1289 1.25 1111 1366 1.42 1258
1049 0.82 731 1151 1.02 903 1241 1.20 1068 1323 1.38 1228 1399 1.56 1384
1091 0.93 827 1189 1.14 1008 1276 1.33 1183 1358 1.52 1353 1433 1.71 1519
1133 1.05 933 1229 1.26 1123 1315 1.47 1308 1393 1.67 1487 1467 1.67 1662
1176 1.18 1047 1268 1.40 1247 1352 1.62 1441 1429 1.84 1630 1501 2.04 1815
1216 1.32 1170 1308 1.55 1380 1390 1.78 1584 1466 2.01 1782 1537 2.23 1977
1261 1.47 1304 1349 1.72 1523 1429 1.96 1736 1503 2.19 1945 -- -- --
1305 1.63 1448 1390 1.89 1677 1468 2.14 1900 1540 2.38 2117 -- -- --
1348 1.80 1602 1431 2.07 1841 1507 2.33 2073 ......
1392 1.99 1768 1472 2.27 2016 .........
1435 2.19 1945 ............
1479 2.40 2135 ............
AIRFLOW
CFM
1800
1900
2000
2100
2200
2300
2400
2500
2600
2700
2800
2900
3000
LEGEND
Bhp -- Brake Horsepower
Watts -- Input Watts to Motor
EXTERNAL STATIC PRESSURE (in. wg)
1.2 1.4 1.6 1.8 2.0
Rpm Bhp Watts Rpm Bhp Watts Rpm Bhp Watts Rpm Bhp Watts Rpm Bhp Watts
1406 1.43 1273 1475 1.58 1403 1540 1.72 1531 1601 1.87 1657 1660 2.00 1780
1438 1.58 1401 1505 1.73 1541 1569 1.89 1678 1630 2.04 1813 1689 2.19 1945
1470 1.73 1537 1537 1.90 1686 1600 2.06 1833 1660 2.23 1977 1718 2.38 2118
1502 1.89 1681 1568 2.07 1840 1631 2.25 1996 --
1535 2.06 1834 1600 2.25 2002 .........
1569 2.25 1996 ............
NOTES:
1. Boldface indicates field-supplied drive is required.
2. Maximum continuous bhp is 2.40.
3. See page 27 for general fan performance notes.
*Motor drive range: 1119 to 1585 rpm. All other rpms require field-
supplied drive.
3!

Table 20 -- Fan Performance 48HJ007 -- Vertical Discharge Units; High-Static Motor (Belt Drive)*
AIRFLOW
CFM
1800
1900
2000
2100
2200
2300
2400
2500
2600
2700
2800
2900
3000
EXTERNAL STATIC PRESSURE (in. wg)
0.2 0.4 0.6 0.8 1.0
Rpm Bhp Watts Rpm Bhp Watts Rpm Bhp Watts Rpm Bhp Watts Rpm Bhp Watts
967 0.63 563 1075 0.80 715 1170 0.97 861 1255 1.13 1002 1333 1.28 1139
1008 0.72 643 1112 0.91 805 1205 1.08 960 1289 1.25 1111 1366 1.42 1258
1049 0.82 731 1151 1.02 903 1241 1.20 1068 1323 1.38 1228 1399 1.56 1384
1091 0.93 827 1189 1.14 1008 1278 1.33 1183 1358 1.52 1353 1433 1.71 1519
1133 1.05 933 1229 1.26 1123 1315 1.47 1308 1393 1.67 1487 1467 1.87 1662
1176 1.18 1047 1268 1.40 1247 1352 1.62 1441 1429 1.84 1630 1501 2.04 1815
1218 1.32 1170 1308 1.55 1380 1390 1.78 1584 1466 2.01 1782 1537 2.23 1977
1261 1.47 1304 1349 1.72 1523 1429 1.96 1736 1503 2.19 1945 1572 2.42 2149
1305 1.63 1448 1390 1.89 1677 1468 2.14 1900 1540 2.38 2117 1608 2.62 2331
1348 1.80 1602 1431 2.07 1841 1507 2.33 2073 1578 2.59 2301 1645 2.84 2524
1392 1.99 1768 1472 2.27 2016 1547 2.54 2258 1616 2.81 2495 -- -- --
1435 2.19 1945 1514 2.48 2203 1587 2.76 2455 ......
1479 2.40 2135 1556 2.70 2402 .........
AIRFLOW
CFM
1800
1900
2000
2100
2200
2300
2400
2500
2600
2700
2800
2900
3000
EXTERNAL STATIC PRESSURE (in. wg)
1.2 1.4 1.6 1.8 2.0
Rpm Bhp Watts Rpm Bhp Watts Rpm Bhp Watts Rpm Bhp Watts Rpm Bhp Watts
1406 1.43 1273 1475 1.58 1403 1540 1.72 1531 1601 1.87 1657 1660 2.00 1780
1438 1.58 1401 1505 1.73 1541 1569 1.89 1678 1630 2.04 1813 1689 2.19 1945
1470 1.73 1537 1537 1.90 1686 1600 2.06 1833 1660 2.23 1977 1718 2.38 2118
1502 1.89 1681 1568 2.07 1840 1631 2.25 1996 1690 2.42 2149 1747 2.59 2300
1535 2.06 1834 1600 2.25 2002 1662 2.44 2167 1721 2.62 2330 1778 2.80 2490
1569 2.25 1996 1633 2.45 2174 1694 2.64 2348 1752 2.84 2520 -- -- --
1603 2.44 2167 1666 2.65 2355 1727 2.86 2539 ......
1638 2.64 2349 1700 2.87 2546 .........
1673 2.86 2541 ............
LEGEND
Bhp -- Brake Horsepower
Watts -- Input Watts to Motor
*Motor drive range: 1300 to 1685 rpm. All other rpms require field-
supplied drive.
NOTES:
1. Boldface indicates field-supplied drive is required.
2. Maximum continuous bhp is 2.90.
3. See page 27 for general fan performance notes.
Table 21 -- Fan Performance 48HJ004 -- Horizontal Discharge Units; Standard Motor (Belt Drive)*
AIRFLOW
CFM
90O
1000
1100
1200
1300
1400
1500
EXTERNAL STATIC PRESSURE (in. wg)
0.2 0.4 0.6 0.8 1.0
Rpm Bhp Watts Rpm Bhp Watts Rpm Bhp Watts Rpm Bhp Watts Rpm Bhp Watts
553 0.14 134 681 0.22 221 782 0.32 316 870 0.42 417 948 0.53 526
582 0.16 163 707 0.26 257 807 0.36 358 894 0.47 466 971 0.58 580
612 0.20 196 734 0.30 297 833 0.41 405 919 0.52 519 995 0.64 639
643 0.23 234 762 0.34 343 859 0.46 458 944 0.58 579 1020 0.71 705
675 0.28 277 790 0.40 394 886 0.52 517 969 0.65 644 1044 0.78 777
707 0.33 326 819 0.45 452 913 0.58 581 996 0.72 716 1070 0.86 855
740 0.38 382 849 0.52 515 941 0.66 653 1023 0.80 795 1096 0.95 941
AIRFLOW
CFM
90O
1000
1100
1200
1300
1400
1500
Bhp -- Brake Horsepower
Watts -- Input Watts to Motor
*Motor drive range: 680 to 1044 rpm. All other rpms require field-
supplied drive.
EXTERNAL STATIC PRESSURE (in. wg)
1.2 1.4 1.6 1.8 2.0
Rpm Bhp Watts Rpm Bhp Watts Rpm Bhp Watts Rpm Bhp Watts Rpm Bhp Watts
1019 0.64 640 1084 0.76 760 1146 0.89 885 1203 1.02 1016 1258 1.16 1152
1042 0.70 700 1107 0.83 825 1168 0.96 956 1225 1.10 1091 -- -- --
1065 0.77 765 1130 0.90 896 1190 1.04 1032 1247 1.18 1173 -- -- --
1089 0.84 837 1153 0.98 974 1213 1.12 1115 ......
1113 0.92 915 1177 1.06 1058 .........
1138 1.01 1000 1201 1.15 1149 .........
1163 1.10 1092 ............
LEGEND NOTES:
1. Boldface indicates field-supplied drive is required.
2. Maximum continuous bhp is 1.20.
3. See page 27 for general fan performance notes.
32

Table 22 iFan Performance 48HJ004 iHorizontal Discharge Units; High-Static Motor (Belt Drive)*
AIRFLOW
CFM
900
1000
1100
1200
1300
1400
1500
EXTERNAL STATIC PRESSURE (in. wg)
0.2 0.4 0.6 0.8 1.0
Rpm Bhp Watts Rpm Bhp Watts Rpm Bhp Watts Rpm Bhp Watts Rpm Bhp Watts
553 0.14 134 681 0.22 221 782 0.32 316 870 0.42 417 948 0.53 526
582 0.16 163 707 0.26 257 807 0.36 358 894 0.47 466 971 0.58 580
612 0.20 196 734 0.30 297 833 0.41 405 919 0.52 519 995 0.64 639
643 0.23 234 762 0.34 343 859 0.46 458 944 0.58 579 1020 0.71 705
675 0.28 277 790 0.40 394 886 0.52 517 969 0.65 644 1044 0.78 777
707 0.33 326 819 0.45 452 913 0.58 581 996 0.72 716 1070 0.86 855
740 0.38 382 849 0.52 515 941 0.66 653 1023 0.80 795 1096 0.95 941
AIRFLOW
CFM
900
1000
1100
1200
1300
1400
1500
Bhp -- Brake Horsepower
Watts -- Input Watts to Motor
*Motor drive range: 1075 to 1455 rpm. All other rpms require field-
supplied drive.
EXTERNAL STATIC PRESSURE (in. wg)
1.2 1.4 1.6 1.8 2.0
Rpm Bhp Watts Rpm Bhp Watts Rpm Bhp Watts Rpm Bhp Watts Rpm Bhp Watts
1019 0.64 640 1084 0.78 780 1146 0.89 885 1203 1.02 1018 1258 1.18 1152
1042 0.70 700 1107 0.83 825 1168 0.96 958 1225 1.10 1091 1279 1.24 1232
1065 0.77 765 1130 0.90 896 1190 1.04 1032 1247 1.18 1173 1301 1.33 1319
1089 0.84 837 1153 0.98 974 1213 1.12 1115 1270 1.27 1262 1324 1.42 1413
1113 0.92 915 1177 1.08 1058 1237 1.21 1205 1293 1.36 1358 1347 1.52 1514
1138 1.01 1000 1201 1.15 1149 1261 1.31 1303 1317 1.47 1461 1370 1.63 1623
1163 1.10 1092 1226 1.25 1247 1285 1.41 1407 1341 1.58 1571 1394 1.75 1740
LEGEND NOTES:
1. Boldface indicates field-supplied drive is required.
2. Maximum continuous bhp is 2.40.
3. See page 27 for general fan performance notes.
Table 23 iFan Performance 48HJ005 iHorizontal Discharge Units; Standard Motor (Belt Drive)*
AIRFLOW
CFM
1200
1300
1400
1500
1600
1700
1800
1900
2000
EXTERNAL STATIC PRESSURE (in. wg)
0.2 0.4 0.6 0.8 1.0
Rpm Bhp Watts Rpm Bhp Watts Rpm Bhp Watts Rpm Bhp Watts Rpm Bhp Watts
643 0.23 234 762 0.34 343 859 0.48 458 944 0.58 579 1020 0.71 705
675 0.28 277 790 0.40 394 886 0.52 517 989 0.65 644 1044 0.78 777
707 0.33 326 819 0.45 452 913 0.58 581 996 0.72 716 1070 0.86 855
740 0.38 382 849 0.52 515 941 0.66 653 1023 0.80 795 1096 0.95 941
773 0.45 444 879 0.59 586 970 0.73 731 1050 0.88 880 1123 1.04 1034
807 0.52 513 910 0.87 683 999 0.82 817 1078 0.98 973 1150 1.14 1134
841 0.59 589 942 0.75 749 1029 0.91 910 1106 1.08 1074 -- -- --
875 0.68 674 974 0.85 842 1059 1.02 1012 1135 1.19 1184 -- -- --
910 0.77 767 1006 0.95 944 1090 1.13 1122 ......
AIRFLOW
CFM
EXTERNAL STATIC PRESSURE (in. wg)
1.2 1.4 1.6 1.8 2.0
Rpm Bhp Watts Rpm Bhp Watts Rpm Bhp Watts Rpm Bhp Watts Rpm Bhp Watts
1089 0.84 837 1153 0.98 974 1213 1.12 1115 ......
1113 0.92 915 1177 1.06 1058 .........
1138 1.01 1000 1201 1.15 1149 .........
1163 1.10 1092 ............
1189 1.20 1191 ............
NOTES:
1. Boldface indicates field-supplied drive is required.
2. Maximum continuous bhp is 1.20.
3. See page 27 for general fan performance notes.
1200
1300
1400
1500
1600
1700
1800
1900
2000
LEGEND
Bhp -- Brake Horsepower
Watts -- Input Watts to Motor
*Motor drive range: 770 to 1185 rpm. All other rpms require field-
supplied drive.
33

Table 24 iFan Performance 48HJ005 iHorizontal Discharge Units; High-Static Motor (Belt Drive)*
AIRFLOW
CFM
1200
1300
1400
1500
1600
1700
1800
1900
2000
EXTERNAL STATIC PRESSURE (in. wg)
0.2 0.4 0.6 0.8 1.0
Rpm Bhp Watts Rpm Bhp Watts Rpm Bhp Watts Rpm Bhp Watts Rpm Bhp Watts
643 0.23 234 762 0.34 343 859 0.46 458 944 0.58 579 1020 0.71 705
675 0.28 277 790 0.40 394 886 0.52 517 969 0.65 644 1044 0.78 777
707 0.33 326 819 0.45 452 913 0.58 581 996 0.72 716 1070 0.86 855
740 0.38 382 849 0.52 515 941 0.66 653 1023 0.80 795 1096 0.95 941
773 0.45 444 879 0.59 586 970 0.73 731 1050 0.88 880 1123 1.04 1034
807 0.52 513 910 0.67 663 999 0.82 817 1078 0.98 973 1150 1.14 1134
841 0.59 589 942 0.75 749 1029 0.91 910 1106 1.08 1074 1177 1.25 1242
875 0.68 674 974 0.85 842 1059 1.02 1012 1135 1.19 1184 1205 1.37 1360
910 0.77 767 1006 0.95 944 1090 1.13 1122 1185 1.31 1302 1234 1.49 1485
AIRFLOW
CFM
1200
1300
1400
1500
1600
1700
1800
1900
2000
Bhp -- Brake Horsepower
Watts -- Input Watts to Motor
*Motor drive range: 1075 to 1455 rpm. All other rpms require field-
supplied drive.
EXTERNAL STATIC PRESSURE (in. wg)
1.2 1.4 1.6 1.8 2.0
Rpm Bhp Watts Rpm Bhp Watts Rpm Bhp Watts Rpm Bhp Watts Rpm Bhp Watts
1089 0.84 837 1153 0.98 974 1213 1.12 1115 1270 1.27 1262 1324 1.42 1413
1113 0.92 915 1177 1.06 1058 1237 1.21 1205 1293 1.36 1358 1347 1.52 1514
1138 1.01 1000 1201 1.15 1149 1261 1.31 1303 1317 1.47 1461 1370 1.63 1623
1163 1.10 1092 1226 1.25 1247 1285 1.41 1407 1341 1.58 1571 1394 1.75 1740
1189 1.20 1191 1252 1.36 1353 1310 1.53 1520 1365 1.70 1690 1418 1.87 1865
1216 1.31 1299 1277 1.48 1468 1335 1.65 1640 1390 1.83 1817 1442 2.01 1998
1242 1.42 1414 1303 1.60 1590 1361 1.78 1770 1415 1.96 1953 1467 2.15 2140
1270 1.55 1538 1330 1.73 1721 1387 1.92 1908 1441 2.11 2098 1493 2.30 2292
1297 1.68 1672 1357 1.87 1862 1414 2.07 2055 1467 2.26 2252 -- -- --
LEGEND NOTES:
1. Boldface indicates field-supplied drive is required,
2. Maximum continuous bhp is 2,40.
3. See page 27 for general fan performance notes.
AIRFLOW
CFM
1500
1600
1700
1800
1900
2000
2100
2200
2300
2400
2500
Table 25 i Fan Performance 48HJ006, Single-Phase iHorizontal Discharge Units;
Standard Motor (Belt Drive)*
EXTERNAL STATIC PRESSURE (in. wg)
0.2 0.4 0.6 0.8 1.0
Rpm Bhp Watts Rpm Bhp Watts Rpm Bhp Watts Rpm Bhp Watts Rpm Bhp Watts
800 0.39 350 904 0.49 438 999 0.60 535 1087 0.72 640 1169 0.85 753
839 0.46 412 938 0.57 505 1030 0.68 605 1115 0.80 714 1195 0.93 829
879 0.54 483 974 0.65 580 1062 0.77 684 1144 0.90 796 1221 1.03 914
919 0.63 561 1010 0.75 663 1095 0.87 771 1174 1.00 886 1250 1.14 1008
960 0.73 648 1047 0.85 754 1129 0.98 867 1206 1.11 986 1279 1.25 1111
1001 0.84 744 1085 0.96 855 1163 1.09 972 1238 1.23 1095 -- -- --
1043 0.96 850 1123 1.09 965 1199 1.22 1086 ......
1085 1.09 966 1162 1.22 1086 .........
1127 1.23 1092 ............
AIRFLOW
CFM
1500
1600
1700
1800
1900
2000
2100
2200
2300
2400
2500
EXTERNAL STATIC PRESSURE (in. wg)
1.2 1.4 1.6 1.8 2.0
Rpm Bhp Watts Rpm Bhp Watts Rpm Bhp Watts Rpm Bhp Watts Rpm Bhp Watts
m m
m m
m m
m m
m m
m m
m m
LEGEND
1247 0.98 873 1320 1.13 1002 1390 1.28 1137 -- -- --
1270 1.07 952 1342 1.22 1083 ......
1295 1.17 1040 .........
1321 1.28 1137 .........
Bhp -- Brake Horsepower
Watts -- Input Watts to Motor
NOTES:
m
m
m
m
m
m
m
m m
m m
m m
m m
1. Boldface indicates field-supplied drive is required.
2. Maximum continuous bhp is 1.30.
3. See page 27 for general fan performance notes.
m
m
m
m
m
m
m
m
m
m
m
m
m
m
m
m
m
m
*Motor drive range: 1035 to 1460 rpm. All other rpms require field-
supplied drive.
34

AIRFLOW
CFM
1500
1600
1700
1800
1900
2000
2100
2200
2300
2400
2500
Table 26 -- Fan Performance 48HJ006, Three-Phase -- Horizontal Discharge Units;
Standard Motor (Belt Drive)*
EXTERNAL STATIC PRESSURE (in. wg)
0.2 0.4 0.6 0.8 1.0
Rpm Bhp Watts Rpm Bhp Watts Rpm Bhp Watts Rpm Bhp Watts Rpm Bhp Watts
800 0.39 350 904 0.49 438 999 0.60 535 1087 0.72 640 1169 0.85 753
839 0.46 412 938 0.57 505 1030 0.68 605 1115 0.80 714 1195 0.93 829
879 0.54 483 974 0.65 580 1062 0.77 684 1144 0.90 796 1221 1.03 914
919 0.63 561 1010 0.75 663 1095 0.87 771 1174 1.00 886 1250 1.14 1008
960 0.73 648 1047 0.85 754 1129 0.98 887 1206 1.11 986 1279 1.25 1111
1001 0.84 744 1085 0.98 855 1163 1.09 972 1238 1.23 1095 1309 1.38 1224
1043 0.98 850 1123 1.09 985 1199 1.22 1086 1271 1.37 1213 1340 1.52 1348
1085 1.09 986 1162 1.22 1086 1235 1.36 1211 1305 1.51 1342 1372 1.67 1479
1127 1.23 1092 1201 1.37 1217 1272 1.52 1347 1340 1.67 1482 1405 1.83 1623
1169 1.38 1229 1241 1.53 1359 1310 1.68 1493 1375 1.84 1633 1439 2.00 1778
1212 1.55 1378 1281 1.70 1513 1348 1.88 1652 1412 2.02 1796 1473 2.19 1945
AIRFLOW
CFM
1500
1600
1700
1800
1900
2000
2100
2200
2300
2400
2500
Bhp -- Brake Horsepower
Watts -- Input Watts to Motor
EXTERNAL STATIC PRESSURE (in. wg)
1.2 1.4 1.6 1.8 2.0
Rpm Bhp Watts Rpm Bhp Watts Rpm Bhp Watts Rpm Bhp Watts Rpm Bhp Watts
1247 0.98 873 1320 1.13 1002 1390 1.28 1137 1457 1.44 1280 1522 1.61 1430
1270 1.07 952 1342 1.22 1083 1411 1.37 1221 1476 1.54 1365 1540 1.71 1517
1295 1.17 1040 1365 1.32 1173 1432 1.48 1313 1497 1.64 1459 1559 1.82 1612
1321 1.28 1137 1390 1.43 1273 1455 1.59 1415 1518 1.76 1563 1579 1.93 1718
1348 1.40 1243 1415 1.58 1381 1479 1.72 1526 1541 1.89 1677 1601 2.06 1834
1377 1.53 1359 1442 1.69 1500 1505 1.86 1648 1565 2.03 1801 1624 2.21 1961
1406 1.67 1485 1470 1.83 1629 1531 2.00 1780 1591 2.18 1936 1648 2.36 2098
1437 1.83 1621 1499 1.99 1769 1559 2.16 1923 1617 2.34 2082 -- -- --
1468 1.99 1769 1529 2.16 1920 1587 2.34 2077 ......
1500 2.17 1928 1559 2.35 2083 .........
1533 2.36 2098 ............
LEGEND NOTES:
1. Boldface indicates field-supplied drive is required.
2. Maximum continuous bhp is 2.40,
3. See page 27 for general fan performance notes.
*Motor drive range: 1035 to 1460 rpm. All other rpms require field-
supplied drive.
Table 27 -- Fan Performance 48HJ006 -- Horizontal Discharge Units; High-Static Motor (Belt Drive)*
AIRFLOW
CFM
1500
1600
1700
1800
1900
2000
2100
2200
2300
2400
2500
EXTERNAL STATIC PRESSURE (in. wg)
0.2 0.4 0.6 0.8 1.0
Rpm Bhp Watts Rpm Bhp Watts Rpm Bhp Watts Rpm Bhp Watts Rpm Bhp Watts
800 0.39 350 904 0.49 438 999 0.60 535 1087 0.72 640 1169 0.85 753
839 0.46 412 938 0.57 505 1030 0.68 605 1115 0.80 714 1195 0.93 829
879 0.54 483 974 0.65 580 1062 0.77 684 1144 0.90 796 1221 1.03 914
919 0.63 561 1010 0.75 663 1095 0.87 771 1174 1.00 886 1250 1.14 1008
960 0.73 648 1047 0.85 754 1129 0.98 867 1206 1.11 986 1279 1.25 1111
1001 0.84 744 1085 0.96 855 1163 1.09 972 1238 1.23 1095 1309 1.38 1224
1043 0.96 850 1123 1.09 965 1199 1.22 1086 1271 1.37 1213 1340 1.52 1346
1085 1.09 966 1162 1.22 1086 1235 1.36 1211 1305 1.51 1342 1372 1.87 1479
1127 1.23 1092 1201 1.37 1217 1272 1.52 1347 1340 1.67 1482 1405 1.83 1623
1169 1.38 1229 1241 1.53 1359 1310 1.68 1493 1375 1.84 1633 1439 2.00 1778
1212 1.55 1378 1281 1.70 1513 1348 1.86 1652 1412 2.02 1798 1473 2.19 1945
AIRFLOW
CFM
1500
1600
1700
1800
1900
2000
2100
2200
2300
2400
2500
Bhp -- Brake Horsepower
Watts -- Input Watts to Motor
*Motor drive range: 1300 to 1685 rpm. All other rpms require field-
supplied drive.
EXTERNAL STATIC PRESSURE (in. wg)
1.2 1.4 1.6 1.8 2.0
Rpm Bhp Watts Rpm Bhp Watts Rpm Bhp Watts Rpm Bhp Watts Rpm Bhp Watts
1247 0.98 873 1320 1.13 1002 1390 1.28 1137 1457 1.44 1280 1522 1.61 1430
1270 1.07 952 1342 1.22 1083 1411 1.37 1221 1476 1.54 1365 1540 1.71 1517
1295 1.17 1040 1365 1.32 1173 1432 1.48 1313 1497 1.64 1459 1559 1.82 1612
1321 1.28 1137 1390 1.43 1273 1455 1.59 1415 1518 1.78 1563 1579 1.93 1718
1348 1.40 1243 1415 1.58 1381 1479 1.72 1528 1541 1.89 1677 1601 2.08 1834
1377 1.53 1359 1442 1.69 1500 1505 1.88 1648 1565 2.03 1801 1624 2.21 1961
1406 1.67 1485 1470 1.83 1629 1531 2.00 1780 1591 2.18 1938 1648 2.36 2098
1437 1.83 1621 1499 1.99 1769 1559 2.16 1923 1617 2.34 2082 1673 2.53 2246
1488 1.99 1769 1529 2.16 1920 1587 2.34 2077 1644 2.52 2239 1699 2.71 2406
1500 2.17 1928 1559 2.35 2083 1616 2.53 2243 1672 2.71 2408 1726 2.90 2579
1533 2.36 2098 1591 2.54 2257 1647 2.73 2421 ......
LEGEND NOTES:
1. Boldface indicates field-supplied drive is required.
2. Maximum continuous bhp is 2.90.
3. See page 27 for general fan performance notes.
35

Table 28 -- Fan Performance 48HJ007 -- Horizontal Discharge Units; Standard Motor (Belt Drive)*
AIRFLOW
CFM
1800
1900
2000
2100
2200
2300
2400
2500
2600
2700
2800
2900
3000
EXTERNAL STATIC PRESSURE(in. wg)
0.2 0.4 0,6 0,8 1,0
Rpm Bhp Watts Rpm Bhp Watts Rpm Bhp Watts Rpm Bhp Watts Rpm Bhp Watts
913 0.64 569 1010 0.80 715 1098 0.98 869 1178 1.16 1032 1252 1.35 1203
952 0.73 652 1046 0.91 805 1131 1.09 965 1210 1.28 1134 1282 1.48 1311
992 0.84 744 1083 1.02 903 1166 1.21 1070 1242 1.40 1245 1313 1.61 1427
1032 0.95 844 1120 1.14 1010 1200 1.33 1184 1275 1.54 1365 1348 1.75 1553
1073 1.07 954 1158 1.27 1127 1236 1.47 1307 1308 1.68 1495 1377 1.90 1689
1114 1.21 1074 1196 1.41 1254 1272 1.62 1440 1343 1.84 1634 1409 2.07 1834
1155 1.36 1204 1234 1.57 1391 1308 1.78 1584 1377 2.01 1784 1443 2.24 1990
1196 1.51 1345 1273 1.73 1538 1348 1.96 1738 1412 2.19 1945 -- -- --
1238 1.69 1497 1312 1.91 1697 1382 2.14 1904 1448 2.38 2117 -- -- --
1280 1.87 1660 1352 2.10 1867 1420 2.34 2081 ......
1322 2.07 1835 1392 2.31 2050 .........
1364 2.28 2023 ............
AIRFLOW
CFM
1800 -- --
1900 -- --
2000 .....
2100 1411 1.97 1748 1473 2.20 1950 .........
2200 1441 2.13 1890 1503 2.36 2097 .........
2300 1473 2.30 2041 ............
2400 ...............
2500 ...............
2600 ...............
2700 ...............
2800 ...............
2900 ...............
3000 ...............
LEGEND NOTES:
1. Boldface indicates field-supplied drive is required.
Bhp -- Brake Horsepower 2. Maximum continuous bhp is 2.40.
Watts -- Input Watts to Motor 3. See page 27 for general fan performance notes.
EXTERNAL STATIC PRESSURE (in. wg)
1.2 1.4 1.6 1.8 2.0
Rpm Bhp Watts Rpm Bhp Watts Rpm Bhp Watts Rpm Bhp Watts Rpm Bhp Watts
1322 1.56 1382 1388 1.77 1568 1451 1.98 1762 1510 2.21 1962 --
1351 1.68 1495 1416 1.90 1686 1477 2.12 1885 1536 2.35 2090 --
1380 1.82 1617 1444 2.04 1814 1505 2.27 2017 --
*Motor drive range: 1119 to 1585 rpm. All other rpms require field-supplied
drive.
Table 29 -- Fan Performance 48HJ007 -- Horizontal Discharge Units; High-Static Motor (Belt Drive)*
AIRFLOW
CFM
EXTERNAL STATIC PRESSURE(in. wg)
0.2 0.4 0,6 0,8 1.0
Rpm Bhp Watts Rpm Bhp Watts Rpm Bhp Watts Rpm Bhp Watts Rpm Bhp Watts
913 0.64 569 1010 0.80 715 1098 0.98 869 1178 1.16 1032 1252 1.35 1203
952 0.73 652 1046 0.91 805 1131 1.09 965 1210 1,28 1134 1282 1,48 1311
992 0.84 744 1083 1.02 903 1166 1,21 1070 1242 1.40 1245 1313 1.61 1427
1032 0,95 844 1120 1.14 1010 1200 1,33 1184 1275 1,54 1365 1345 1.75 1553
1073 1.07 954 1158 1.27 1127 1236 1.47 1307 1308 1.68 1495 1377 1.90 1689
1114 1.21 1074 1196 1.41 1254 1272 1.62 1440 1343 1.84 1634 1409 2.07 1834
1155 1.36 1204 1234 1.57 1391 1308 1.78 1584 1377 2.01 1784 1443 2.24 1990
1196 1,51 1345 1273 1.73 1538 1348 1.96 1738 1412 2.19 1945 1477 2.43 2157
1238 1,69 1497 1312 1.91 1697 1382 2.14 1904 1448 2.38 2117 1511 2.63 2335
1280 1.87 1660 1352 2.10 1867 1420 2.34 2081 1484 2.59 2300 1546 2.84 2526
1322 2.07 1835 1392 2.31 2050 1458 2.56 2270 1521 2.81 2496 -- -- --
1364 2.28 2023 1432 2.53 2245 1496 2.78 2472 ......
1406 2.50 2224 1472 2.76 2452 .........
1800
1900
2000
2100
2200
2300
2400
2500
2600
2700
2800
2900
3000
AIRFLOW
CFM
1800
1900
2000
2100 -- --
2200 -- --
2300 .....
2400 1505 2,48 2203 1564 2.73 2422 .........
2500 1537 2.68 2376 ............
2600 1571 2.88 2560 ............
2700 ...............
2800 ...............
2900 ...............
3000 ...............
LEGEND NOTES:
1. Boldface indicates field-supplied drive is required.
Bhp -- Brake Horsepower 2. Maximum continuous bhp is 2.90.
Watts -- Input Watts to Motor 3. See page 27 for general fan performance notes.
EXTERNAL STATIC PRESSURE (in. wg)
1.2 1.4 1.6 1.8 2.0
Rpm Bhp Watts Rpm Bhp Watts Rpm Bhp Watts Rpm Bhp Watts Rpm Bhp Watts
1322 1,58 1382 1388 1.77 1568 1451 1.98 1762 1510 2,21 1962 1568 2,44 2169
1351 1.68 1495 1416 1,90 1686 1477 2,12 1885 1536 2.35 2090 1593 2.59 2302
1380 1.82 1617 1444 2.04 1814 1505 2.27 2017 1563 2.51 2227 1619 2.75 2443
1411 1.97 1748 1473 2.20 1950 1533 2.43 2159 1590 2.67 2374 --
1441 2.13 1890 1503 2.36 2097 1562 2.60 2311 1618 2.85 2532 --
1473 2.30 2041 1533 2.54 2254 1591 2.79 2474 --
*Motor drive range: 1300 to 1685 rpm. All other rpms require field-supplied
drive.
Table 30 -- Accessory/FlOP EconoMi$er IV and EconoMi$er2 Static Pressure* (in. wg)
II I
COMPONENT 1250 1500 1750 2000 2250 2500 2750
0.045 0,065 0.08 0.12 0.145 0.175 0,22
-- -- 0.1 0.125 0.15 0.18 0.225
Vertical EconoMi$er2 and EconoMi$er IV
Horizontal EconoMi$er2 and EconoMi$er IV
LEGEND
FlOP -- Factory-Installed Option
I 3000
0.255
0.275
*The static pressure must be added to external static pressure. The sum and
the evaporator entering-air cfm should be used in conjunction with the Fan
Performance tables to determine indoor blower rpm and watts.
36

PRE-START-UP
Failure to observe the following warnings could result in
serious pel.sonal injuu:
1. Follow recognized safety practices and wear protec-
tive goggles when checking or servicing refi'igerant
system.
2. Do not operate compressor or provide any electric
power to unit unless compressor terminal cover is in
place and secured.
3. Do not remove complessor terminal cover until all
electrical sources +uedisconnected.
4. Relieve all pressure from system before touching or
disturbing anything inside terminal box if refiigerant
leak is suspected around complessor terminals.
5. Never attempt to repair soldered connection while re-
fiigemnt system is under pressure.
6. Do not use torch to remove any component. System
cont+fins oil and refiigerant under pressure. To mauve
a component, wear protective goggles and proceed as
follows:
a. Shut off electrical power and then gas to unit.
b. Recover refrigerant to relieve all pressure from
system using both high-pressure and low-
pressure ports.
c. Cut component connection tubing with tubing
cutter and remove component from unit.
d. Carefully unsweat remaining tubing stubs
when necessa U. Oil can ignite when exposed
to torch flame.
Proceed as follows to inspect and prepare the unit for initial
start-up:
1. Remove all access panels.
2. Read and follow instructions on all WARNING, CAU-
TION, and INFORMATION labels attached to, or
shipped with, unit.
3. Make the following inspections:
a. Inspect for shipping and handling damages such as
broken lines, loose parts, or disconnected wires, etc.
b. Inspect for oil at all refrigerant tubing connections
and on unit base. Detecting oil generally indicates
a refrigerant leak. Leak-test all refrigerant tubing
connections using electronic leak detector, halide
torch, or liquid-soap solution.
c. Inspect all field-wiring and factou-wiring con-
nections. Be sure that connections are completed
and tight. Be sure that wires are not in contact with
refiigerant tubing or sharp edges.
d. Inspect coil tins. If damaged during shipping and
handling, carefully straighten fins with a fin comb.
4. Verify the following conditions:
a. Make sure that condenser-fan blade are correctly
positioned in fan orifice. See Condenser-Fan
Adjustment section on page 43 for more details.
b. Make sure that air filter(s) is in place.
c. Make sure that condensate drain trap is filled with
water to ensure proper drainage.
d. Make sure that all tools and miscellaneous loose
parts have been removed.
START-UP
Unit Preparation--Make sure that unit lms been
installed in accordance with installation instructions and appli-
cable codes.
Gas Piping -- Check gas piping for leaks.
Disconnect gas piping from unit when leak
testing at pressure greater than 1/2 psig. Pres-
sures greater than 1/2 psig will cause gas
valve damage resulting in hazardous condi-
tion. If gas valve is subjected to pressure
greater than 1/2 psig, it must be replaced
before use. When pressure testing field-
supplied gas piping at pressures of 1/2 psig
or less, a unit connected to such piping must
be isolated by manu_dly closing the gas
valve.
Return-Air Filters--Make sure correct filters am
installed in unit (see Table 1). Do not operate unit without
return-air filte_.s.
Outdoor-Air Inlet Screens- Outdoor-air inlet screen
must be in place before operating unit.
Compressor Mounting -- Compressorsme internally
spring mounted. Do not loosen or remove compressor hold-
down bolts.
Internal Wiring- Check all electrical connections in
unit control boxes. Tighten as required.
Refrigerant Service Ports--Each unit system has
4 Schrader-type service ports: one on the suction line, one on
the liquid line, and 2 on the compressor discharge line. Be sum
that caps on the ports are tight. Two additional Schmder valves
;ue located under the high-pressure and low-pressure switches,
respectively.
High Flow Refrigerant Valves -- Two high flow valves
;u'e located on the hot gas tube coining out of the colnpressor and
the suction tube going into the compressol: Large black plastic
caps identify these valves. These valves have O-rings inside
which screw the cap onto a brass body to prevent leaks. No field
access to these valves is available at this time. Ensure the plastic
caps remain on the valves and are tight or the possibility of
refrigerant leakage could occm:
Compressor Rotation -- On 3-phase units with scroll
compressors, it is important to be certain compressor is rotating
in the proper direction. To determine whether or not compres-
sor is rotating in the proper direction:
1. Connect service gages to suction and disch;uge pressure
fittings.
2. Energize the compressoc
3. The suction pressure should drop and the disch;uge pres-
sure should rise, as is normal on any st;u't-up.
If the suction pressure does not diop and the discharge pres-
sure does not rise to normal levels:
1. Note that the evaporator fan (size 006 and 007 only) is
probably also rotating in the wrong direction.
2. Turn off power to the unit and install lockout tag.
3. Reverse any two of the unit power leads.
4. Reenergize to the compressol: Check pressures.
37

Thesuctionanddischm'gepressurelevelsshouldnowmove
totheirnorm_flstart-uplevels.
NOTE:Whenthecompressorisrotatinginthewrongdirec-
tion,fileunitwillmakeanelevatedlevelofnoiseandwillnot
providecooling.
Cooling -- SetspacethermostattoOFFposition.Tostmt
unit,turnonmainpowersupply.Setsystemselectorswitchat
COOLpositionandfanswitchatAUTO.position.Adjustther-
mostattoasettingbelowroomtemperature.Compressorstarts
onclosureofcontacto_:
Checkunitcharge.RefertoRefrigerantChargesectionon
page43.
Resetthermostatat a positionaboveroomtemperature.
Compressorwillshutoff.Evaporatorfanwillshutoffaftera
30-seconddelay.
TOSHUTOFFUNIT-- SetsystemselectorswitchatOFF
position.Resettingthermostatatapositionaboveroomtem-
peratureshutsunitofftemporarilyuntilspacetemperatureex-
ceedsthermostatsetting.Unitsmeequippedwith Cycle-
LOCTM protection device. Unit shuts down on any safety trip,
and indicator light on thermostat comes on. Check reason for
all safety trips.
Compressor restart is accomplished by manual reset at the
thermostat by turning the selector switch to OFF and then to
ON position.
Main Burners -- Main burnel_ me factory set and should
require no adjustment.
TO CHECK ignition of main burners and heating controls,
move thermostat set point above room temperature and verify
that the burners light and evaporator fan is energized. Check
heating effect, fllen lower the thermostat setting below the
room temperature and verify that the burners and evaporator
fan turn off.
Refer to Tables 3 IA and 31B for the correct orifice to use at
high altitudes.
Table 31A -- Altitude Compensation* --
48HJ004-007 Standard Units
ELEVATION
(ft)
0-2,000
2,000
3,000
4,000
5,000
6,000
7,000
8,000
9,000
10,000
11,000
12,000
13,000
14,000
72,000 AND
115,000 BTUH
NOMINAL INPUT
Natural Liquid
Gas Propane
Orifice Orifice
Sizet Size]-
33 43
36 44
36 45
37 45
38 46
40 47
41 48
42 49
43 50
44 50
45 51
46 52
47 52
48 53
Natural
Gas
Orifice
Size]-
3O
31
31
32
32
34
35
36
37
39
41
42
43
44
150,000 BTUH
NOMINAL INPUT
Liquid
Propane
Orifice
Size]-
37
39
40
41
42
43
43
44
45
46
47
48
49
50
*As the height above sea level increases, there is less oxygen per
cubic foot of air. Therefore, heat input rate should be reduced at
higher altitudes.
1-Orifices available through your Carrier distributor.
Table 31 B -- Altitude Compensation* --
48HJ004-006 Low NOx Units
ELEVATION
(ft)
0-2,000
2,000
3,000
4,000
5,000
6,000
7,000
8,000
9,000
10,000
11,000
12,000
13,000
14,000
60,000 AND
90,000 BTUH
NOMINAL INPUT
Natural Liquid
Gas Propane
Orifice Orifice
Size]- Size]-
38 45
40 47
41 48
42 49
43 49
43 50
44 50
45 51
46 52
47 52
48 53
49 53
50 54
51 54
120,000 BTUH
NOMINAL INPUT
Natural Liquid
Gas Propane
Orifice Orifice
Size Size]-
32 42
33 43
35 43
36 44
37 45
38 45
39 46
41 47
42 48
43 49
44 50
44 51
46 52
47 52
*As the height above sea level increases, there is less oxygen per
cubic foot of air. Therefore, the input rate should be reduced at
higher altitudes.
1-Orifices are available through your local Carrier distributor.
Heating
1. Purge gas supply line of air by opening union ahead of
the gas valve. If gas odor is detected, tighten union and
wait 5 minutes before proceeding.
2. Turn on electrical supply and manual gas valve.
3. Set system switch selector at HEAT position and fan
switch at AUTO. or ON position. Set heating temperature
lever above room temperature.
4. The induced-draft motor will start.
5. After a call for heating, the main burnel_ should light
wifllin 5 seconds. If the burner does not light, then fllere is
a 22-second delay before anofller 5-second try. If the
burner still does not light, file time delay is repeated. If the
burner does not light within 15 minutes, there is a lock-
out. To reset the control, break the 24 v power to WI.
6. The evaporator-fan motor will turn on 45 seconds after
burner ignition.
7. The evaporator-fan motor will turn off in 45 seconds after
the fllermostat temperature is satisfied.
8. Adjust airflow to obtain a temperature rise within the
range specified on the unit nameplate.
NOTE: The default value for the evaporator-fan motor on/off
delay is 45 seconds. The Integrated Gas Unit Controller (IGC)
modifies this v_flue when abnormal limit switch cycles occm:
Based upon unit operating conditions, the on delay can be
reduced to 0 seconds and the off delay can be extended to
180 seconds. When one flash of the LED (light-emitting diode)
is observed, the evaporator-fan on/off delay has been modified.
If the limit switch trips at the st_ut of the heating cycle dur-
ing the evaporator on delay, the time period of the on delay for
the next cycle will be 5 seconds less than the time at which the
switch tripped. (Example: If the limit switch trips at 30 sec-
onds, the evaporator-fan on delay for the next cycle will occur
at 25 seconds.) To prevent short-cycling, a 5-second leduction
will only occur if a minimum of 10 minutes has elapsed since
the last call for heating.
38

Theevaporator-fanoffdelaycanalsobemodified.Oncethe
callforheatinghasended,thereisa10-minuteperiodduring
whichthemodificationcanoccm:If thelimitswitchtripsdur-
ingthisperiod,theevaporator-fanoffdelaywill increaseby
15seconds.A maximumof9 tripscanoccm:extendingthe
evaporator-fanoffdelayto180seconds.
Torestoretheoriginaldefaultvalue,resetthepowertothe
unit.
TOSHUTOFFUNIT--Set systemselectorswitchat off
position.Resettingheatingselectorleverbelowroomtempera-
turewilltemponuilyshutunitoffuntilspacetemperaturefalls
belowthermostatsetting.
Safety Relief --A soft-solder joint at the suction service
Schmder port provides pressure relief under abnorm_fl tempera-
ture and pressure conditions.
Ventilation (Continuous Fan)- Set fan and system
selector switches at ON and OFF positions, lespectively.
Evaporator ftm operates continuously to provide constant air
circulation. When the evaporator-fan selector switch is turned
to the OFF position, there is a 30-second delay before the fan
turns off.
Operating Sequence
COOLING. UNITS WITHOUT ECONOMIZER -- When
thermostat c',_ls for cooling, terminals G and YI me energized.
The indoor-fan contactor (IFC) and complessor contactor tue en-
ergized and indoor-fan motol: complessol: and outdoor fan start.
The outdoor fan motor runs continuously while unit is cooling.
HEATING. UNITS WITHOUT ECONOMIZER --When the
thermostat calls for heating, terminal WI is energized. To pre-
vent thermostat short-cycling, the unit is locked into the
Heating mode for at least 1 minute when WI is energized. The
induced-draft motor is energized and the burner ignition
sequence begins. The indoor (evaporator) fan motor (IFM) is
energized 45 seconds after a flame is ignited. On units equipped
for two stages of heat, when additiomfl heat is needed, W2 is
energized and the high-fire solenoid on the main gas valve
(MGV) is energized. When the therlnostat is satisfied and WI
is deenergized, the [FM stops after a 45-second time-off dek%
COOLING. UNITS WITH ECONOMISER IV -- When free
cooling is not available, the compressoLs will be controlled by
the zone thermostat. When fiee cooling is available, the
outdoor-air damper is modulated by the EconoMiSer IV con-
trol to provide a 50 to 55 F supply-air temperature into the
zone. As the supply-air temperatme fluctuates above 55 or be-
low 50 H the dampeLs will be modulated (open or close) to
bring the supply-air temperatme back within the set points.
Integrated EconoMiSer IV operation on single-stage units
requires a 2-stage thermostat (YI and Y2).
For EconoMiSer IV operation, there must be a thermostat
call for the fan (G). This will move the damper to its minimum
position during the occupied mode.
If the increase in cooling capacity causes the supply-air tem-
perature to drop below 45 F, then the outdoor-air damper posi-
tion will be fi._lly closed. If the supply-air temperature contin-
ues to frill, the outdoor-air dmnper will close. Control returns to
norm_d once the supply-air temperature rises above 48 E
If optional power exhaust is inst_dled, as the outdoor-air
damper opens and closes, the power exhaust fans will be ener-
gized and deenergized.
If field-installed accessory CO2 sensors are connected to the
EconoMiSer IV control, a demand controlled ventilation strate-
gy will begin to operate. As the CO2 level in the zone increases
above the CO2 set point, the minimum position of the damper
will be increased proportionally. As the CO2 level decreases
because of the inoease in fresh ail: the outdoor-air damper will
be proportionally closed. Damper position will follow the high-
er demand condition from DCV mode or free cooling mode.
Damper movement from full closed to full open (or vice
versa) will take between 11/2and 21/2 minutes.
If free cooling can be used as determined fi_m the appropri-
ate changeover command (switch, dry bulb, enthalpy curve,
differential dry bulb, or differential enthalpy), a c;dl for cooling
(YI closes at the thermostat) will cause the control to modulate
the dmnpers open to maintain the supply air temperature set
point at 50 to 55 E
As the supply air temperature drops below the set point
range of 50 to 55 H the control will modulate the outdoor-air
dampers closed to maintain the proper supply-air temperature.
HEATING. UNITS WITH ECONOMISER IV -- When the
room temperature calls for heat, the heating controls are ener-
gized as described in the Heating, Units Without Economizer
section. When the thermostat is satisfied, the economizer
damper moves to the minimum position.
COOLING. UNITS WITH ECONOMISER2, PREMIER-
LINK TM CONTROL AND A THERMOSTAT -- When free
cooling is not available, the compressors will be controlled by
the PremierLink control in response to the YI and Y2 inputs
fi_m the thermostat.
The PremierLink control will use the following information
to determine if free cooling is available:
•Indoor fan has been on for at least 30 seconds.
• The SPT. SAT. and OAT inputs must have valid readings.
•OAT must be less than 75 E
• OAT must be less than SPT.
• Enthalpy must be LOW (may be jumpered if an enthalpy
sensor not available).
• Economizer position is NOT forced.
Pre-cooling occurs when the is no call from the thermostat
except G Pre-cooling is defined as the economizer modulates
to provide 70 F supply all:
When free cooling is available the PremierLink control will
control the compressors and economizer to provide a supply-
air temperature determined to meet the YI and Y2 calls from
the thermostat using the following three routines. The three
control routines are based on OAT.
The 3 routines are based on OAT where:
SASP = Supply Air Set Point
DXCTLO = Direct Expansion Cooling Lockout Set Point
PID = Proportional Integral
Routine 1 (OAT < DXCTLO)
• YI energized - economizer maintains a SASP =
(SATLOI + 3).
• Y2 energized - economizer maintains a SASP =
(SATLO2 + 3).
Routine 2 (DXCTLO < OAT < 68 F)
• If only YI energized, the economizer maintains a SASP
=(SATLOI +3).
• If SAT >SASP +5and economizer position >80%,
economizer will go to minimum position for 3 minutes or
until SAT > 68 E
• First stage of mechanical cooling will be energized.
• Integrator resets.
• Economizer opens again and controls to current SASP
after stage one on for 90 seconds.
• With YI and Y2 energized Economizer maintains an
SASP = SATLO2 + 3.
• If SAT > SASP + 5 and economizer position >80%.
economizer will go to minimum position for 3 minutes or
until SAT > 68 E
39

•If compressor one is on then second stage of mechanical
cooling will be energized. Otherwise the first stage will
be energized.
• Integrator resets.
• Economizer opens again and controls to SASP after
stage one on for 90 seconds.
Routine 3 (OAT > 68)
• Economizer is opened 100%.
• Compressors 1and 2 are cycled based on YI and Y2
using minimum on and off times and watching the sup-
ply air temperature as compared to SATLOI and
SATLO2 set points.
If optional power exhaust is installed, as the outdoor-air
damper opens and closes, the power exhaust fans will be ener-
gized and deenergized.
If field-installed accessoly CO2 sensors ale connected to the
PremierLink TM control, a PID-controlled demand ventilation
strategy will begin to operate. As the CO2 level in the zone
increases above the CO2 set point, the minimum position of the
dmnper will be increased proportionally. As the CO2 level
decreases because of the increase in fresh aik the outdoor-air
dmnper will be proportionally closed.
HEATING, UNITS WITH ECONOMISER2, PREMIERLINK
CONTROL AND A THERMOSTAT -- When the thermostat
calls for heating, terminal Wl is energized. The PremierLink
control will move the economizer damper to the minimum po-
sition if there is a call for G and closed if there is a call for WI
without G In order to prevent thermostat from short cycling,
the unit is locked into the heating mode for at least 10 minutes
when WI is energized. The induced-draft motor is then ener-
gized and the burner ignition sequence begins.
On units equipped for two stages of heat, when additional
heat is needed, W2 is energized and the high-fire solenoid on
the main gas valve (MGV) is energized. When the thermostat
is satisfied and WI is deenergized, the IFM stops after a
45-second time-off delay unless G is still maintained.
COOLING. UNITS WITH ECONOMI$ER2, PREMIER-
LINK CONTROL AND A ROOM SENSOR -- When free
cooling is not available, the compressors will be controlled by
the PremierLink controller using a PID Error reduction calcula-
tion as indicated by Fig 47.
The PremierLink controller will use the following informa-
tion to determine if fiee cooling is available:
• Indoor fan has been on for at least 30 seconds.
• The SPT, SAT, and OAT inputs must have valid readings.
• OAT must be less than 75 E
•OAT must be less than SPT.
• Enthalpy must be LOW (may be jumpered if an enthalpy
sensor is not available).
•Economizer position is NOT forced.
When flee cooling is available, the outdoor-air damper is
positioned through the use of a Proportional Integral (PID) con-
trol process to provide a calculated supply-air temperature into
the zone. The supply air will maintain the space temperature be-
tween the heating and cooling set points as indicated in Fig. 48.
The PmmierLink control will integrate the compressol.s
stages with the economizer based on similm logic as the three
routines listed in the previous section. The SASP will float up
and down based on the error reduction calculations that com-
pme space temperature and space set point.
When outside-air temperature conditions require the econo-
mizer to close for a compressor stage-up sequence, the econo-
mizer control integrator is reset to zero after the stage-up se-
quence is completed. This prevents the supply-air temperature
fiom dropping too quickly and creating a fieeze condition that
would make the compressor turn off prematurely.
The high space set point is used for DX (direct expansion)
cooling control, while the economizer space set point is a
calculated value between the heating and cooling set points.
The economizer set point will always be at least one degree
below the cooling set point, allowing for a smooth transition
fi'om mechanical cooling with economizer assist, back to
economizer cooling as the cooling set point is achieved.
The compressors may be used for initial cooling then the
PremierLink controller will modulate the economizer using an
error reduction calculation to hold the space temperature
between the heating and cooling set points. See Fig. 48.
The controller uses the following conditions to determine
economizer cooling:
• Enthalpy is Low
• SAT reading is available
• OAT reading is available
• SPT reading is available
• OAT < SPT
• Economizer Position is NOT forced
If any of the above conditions are not met, the economizer
submaster reference (ECSR) is set to maximum limit and the
damper moves to minimum position. The operating sequence
is complete. The ECSR is recalculated evely 30 seconds.
If an optional power exhaust is installed, as the outdoor-air
damper opens and closes, the power exhaust fans will be
energized and deenergized.
If field-installed accessoly CO: sensors me connected to
the PremierLink TM control, a PID-controlled demand ventila-
tion strategy will begin to operate. As the CO2 level in the zone
increases above the CO: set point, the minimum position of the
damper will be increased proportionally. As the CO2 level
decreases because of the increase in flesh aik the outdoor-air
damper will be proportionally closed.
TEMPERATURE CONTROL
75_
LU
; 741 ...............................................
'_ 73
Lu ...... SET POINT
m_'_"71 -- TEMPERATURE
ua 70
o
694
CO 68J
TIME
NOTE: PremierLink control performs smart staging of 2 stages of DX
cooling and upto 3 stages of heat.
Fig. 47 -- DX Cooling Temperature
Control Example
LU
££
£[2
LU
0.
LU
p-
LU
©
O3
TEMPERATURE CONTROL
75
741_"
73
72 ......... _ .................................... ------ COOL SETPOINT
71 I _ // X_.,__ __ TEMPERATURE
70Ji - ....... _ .......................... --- HEAT SETPOINT
J
69
68
TIME
Fig. 48 -- Economizer Temperature
Control Example
4O

HEATING. UNIT WITH ECONOMISER2, PREMIERLINK
CONTROL AND A ROOM SENSOR -- Every 40 seconds
the controller will calculate the required heat stages (maximum
of 3) to maintain supply-air temperature (SAT) if the following
qu_flifying conditions ale met:
• Indoor fan has been on for at least 30 seconds.
• COOL mode is not active.
• OCCUPIED, TEMRCOMPENSATED START or HEAT
mode is active.
• SAT reading is available.
• Fire shutdown mode is not active.
If all of the above conditions are met, the number of heat
stages is c_dculated; otherwise file required number of heat
stages will be set to 0.
If the PremierLink controller determines that heat stages are
required, the economizer damper will be moved to minimum
position if occupied and closed if unoccupied.
Staging should be as follows:
If Heating PID STAGES=2
• HEAT STAGES=I (50% capacity) will energize HSI
• HEAT STAGES=2 (100% capacity) will energize HS2
If Heating PID STAGES=3 and AUXOUT = HS3
• HEAT STAGES=I (33% capacity) will energize HSI
• HEAT STAGES=2 (66% capacity) will energize HS2
• HEAT STAGES=3 (100% capacity) will energize HS3
In order to prevent short cycling, the unit is locked into the
Heating mode for at least 10 minutes when HS 1 is deenergizedi
When HSI is energized the induced-&aft motor is then
energized and the burner ignition sequence begins. On units
equipped for two stages of heat, when additional heat is need-
ed, HS2 is energized and the high-fire solenoid on the main gas
valve (MGV) is energized. When the space condition is satis-
fied and HSI is deenergized file IFM stops after a 45-second
time-off delay unless in the occupied mode. The fan will mn
continuously in the occupied mode as required by natiomfl
energy and fresh _fir standards.
UNITS WITH HUMIDI-MIZER TM ADAPTIVE DEHU-
MIDIFICATION SYSTEM
Normal Design Cooling Operation -- When the rooftop op-
erates under the normal sequence of operation, the compressors
will cycle to maintain indoor conditions. See Fig. 49.
The Humidi-MiZer a&tptive dehumidification system in-
cludes a factory-installed Motormastel@ low ambient control
to keep the head and suction pressure high, allowing normal
design cooling mode operation down to 0°E
Subcooling Mode -- When subcooling mode is initiated, this
will energize (close) file liquid line solenoid valve (LLSV)
forcing the hot liquid refiigemnt to enter into the subcooling
coil (see Fig. 50).
As the hot liquid refrigerant passes through the subcooling/
reheat dehumidification coil, it is exposed to the cold supply
airflow coming through the evaporator coil. The liquid is
runlet subcooled to a temperature approaching the evaporator
leaving-air temperature. The liquid then enters a thermostatic
expansion valve (TXV) where the liquid drops to a lower pres-
sure. The TXV does not have a pressure drop great enough to
change the liquid to a 2-phase fluid, so the liquid then enters
the Acutrol TM device at the evaporator coil.
The liquid entel_ file evaporator coil at a temperature lower
than in standard cooling operation. This lower temperature in-
creases the latent capacity of the rooftop unit. The refrigerant
passes through the evaporator and is turned into a vapol: Tile
air passing over the evaporator coil will become colder than
during normal operation. However. as this same air passes over
the subcooling coil, it will be slightly warmed, parti_flly reheat-
ing the air.
/
Fig. 49 -- Humidi-MiZer Normal
Design Cooling Operation
Fig. 50 -- Humidi-MiZer Subcooling
Mode Operation
Subcooling mode operates only when the outside air
temperature is winmet than 40 E A factory-installed tempera-
ture switch located in the condenser section will lock out sub-
cooling mode when the outside temperature is cooler than 40 IF.
The scroll compressors are equipped with crankcase heaters
to provide protection for the compressors due to the additional
refrigerant charge required by the subcoolin_reheat coil.
When in subcooling mode, there is a slight decrease in
system total gross capacity (5% less), a lower gross sensible
capacity (20% less), and a greatly increased latent capacity (up
to 40% more).
Hot Gas Reheat Mode -- When the humidity levels in the
space require humidity control, a hot gas solenoid valve (spe-
cific to hot gas reheat mode only) will open to bypass a portion
of hot gas lefiigerant mound the condenser coil (see Fig. 51).
This hot gas will mix with liquid refrigerant leaving file con-
denser coil and flow to the subcoolin_reheat dehumidification
coil. Now the conditioned air coming off the evaporator will be
cooled and dehumidified, but will be warmed to neutral condi-
tions (72 F to 75 F) by the subcooling/reheat dehumidification
coil.
41

Theneteffectoftherooftopwheninhotgasreheatmodeis
toprovidenearly_dllatentcapacitylemovalfiomthespace
whensensibleloadsdiminish(whenoutdoortemperatmecon-
ditionsaremoderate).Wheninhotgasreheatmode,fileunit
willoperatetoprovidemostlylatentcapacityandextremely
lowsensibleheatratiocapability.
Similartothesubcoolingmodeofoperation,hotgasreheat
modeoperatesonlywhentheoutsideairtemperatureiswanner
than40E Belowthistemperature,afactoryinst_flledoutside
airtemperatureswitchwilllockoutthismodeofoperation.
SeeTable32fortheHumidi-Mizera&tptivedehumidifica-
tionsystemsequenceofoperation.
LPS j
Fig. 51 -- Humidi-Mizer TM Hot Gas
Reheat Mode Operation
SERVICE
When servicing unit, shut off all electrical power to unit
and inst',_l lockout tag to avoid shock hazard or injury from
rotating parts.
Cleaning -- Inspect unit interior at the beginning of heat-
ing and cooling season and as operating conditions requile.
EVAPORATOR CO[L
1. Turn unit power off. tag disconnect. Remove evaporator
coil access panel.
2. [f economizer or two-position dmnper is installed, re-
move economizer by disconnecting Molex plug and
removing mounting screws.
3. Slide filters out of unit.
4. Clean coil using a commercial coil cleaner or dishwasher
detergent in a pressurized spray canister. Wash both sides
of coil and flush with clean watel: For best results,
back-flush towmd return-air section to remove foreign
material. Flush condensate pan after completion.
5. Reinst_dl economizer and filters.
6. Reconnect wiring.
7. Replace access panels.
CONDENSER COIL--Inspect coil monthly. Clean con-
denser coil annually, and as required by location and outdoor
air conditions.
One-Row Coil -- Wash coil with commercial coil cleanel: It
is not necessary to remove top panel.
2-Row Coils
Clean coil as follows:
1. Turn offunit powel: tag disconnect.
2. Remove top panel screws on condenser end of unit.
3. Remove condenser coil corner post. See Fig. 52. To hold
top panel open, place coil corner post between top panel
and center post. See Fig. 53.
4. Remove screws securing coil to complessor plate and
compressor access panel.
5. Remove fastener holding coil sections together at return
end of condenser coil. Carefully separate the outer coil
section 3 to 4 in. from the inner coil section. See Fig. 54.
6. Use a water hose or other suitable equipment to flush
down between the 2 coil sections to remove dirt and
debris. Clean the outer surfaces with a stiff brush in the
norm_d mannel:
7. Secure inner and outer coil rows together with a field-
supplied fastenel:
8. Reposition the outer coil section and remove the coil cor-
ner post fiom between the top panel and center post.
Reinstall the coil corner post and replace all screws.
CONDENSATE DRAIN- Check and clean each year at
start of cooling season. In wintel: protect against freeze-up.
FILTERS -- Clean or replace at start of each heating and cool-
ing season, or more often if operating conditions require it. Re-
placement filters must be stone dimensions as origimd filters.
OUTDOOR-AIR INLET SCREENS -- Clean screen with
steam or hot water and a mild detergent. Do not use disposable
filters in place of screen.
Table 32 -- Humidi-Mizer Adaptive Dehumidification System Sequence of Operation and
System Response -- Single Compressor Unit (48HJ004-007)
THERMOSTAT INPUT ECONOMIZER FUNCTION 48HJ UNIT OPERATION
H OAT. < Economizer Set Point IEconomizer Comp. 1 I Subcooling Mode IHot Gas Reheat Mode
Off Normal Operation
On No Off
On No Off
On Yes On
On Yes On
On No Off
OAT
Y1 Y2
On On
On Off
On On
On Off
Off Off
LEGEND
-- OutdoorAirTemperature
On Yes No
On Yes No
On Yes No
On No Yes
On No Yes
NOTE: On a thermostat call for W1, all cooling and dehumidification will
be off.
42

Lubrication
COMPRESSORS -- Each compressor is chmged with correct
amount of oil at the factory.
FAN MOTOR BEARINGS -- Fan motor bemings are of the
permanently lubricated type. No further lubrication is required.
No lubrication of condenser-fan or evaporator-fan motors is
required.
Condenser-Fan Adjustment (Fig. 55) -- Shut off
unit power supply. Relnove condenser-fan assembly (grille,
motol: motor cover, and fan) and loosen fan hub setscrews.
Adjust fan height as shown in Fig. 55. Tighten setsclews and
replace condenser-fan assembly.
EconoMi$er IV Adjustment-- Refer to Optional
EconoMi$er IV and EconoMi$er2 section on page 18.
Evaporator Fan Belt Inspection -- Check con-
dition of evaporator belt or tension during heating and cooling
inspections or as conditions lequile. Replace belt or adjust as
necessary.
High-Pressure Switch -- The high-pressure switch
contains a Schrader core depressor, and is located on the com-
pressor hot gas line. This switch opens at 428 psig and closes at
320 psig. No adjustments are necessary.
Loss-of-Charge Switch -- The loss-of-charge switch
contains a Schrader core depressor, and is located on the com-
pressor liquid line. This switch opens at 7 psig and closes at
22 psig. No adjustments me necessary.
Freeze-Stat -- _n_e freeze-stat is a bimetal temperature-
sensing switch that is located on the "hair-pin" end of the
evaporator coil. The switch protects the evaporator coil from
fleeze-up due to lack of airflow. The switch opens at 30 F and
closes at 45 E No adjustments are necessary.
Refrigerant Charge--Amount of refrigerant charge is
listed on unit namepkite (also refer to Table 1). Refer to HVAC
Servicing Procedures literature available at your local distribu-
tor and the following procedures.
Unit panels must be in place when unit is operating during
chm'ging procedure. Unit must operate a minimum of 10 min-
utes before checking or adjusting refrigerant charge.
An accurate superheat, themlocouple-type or thermistor-
type thermometer, and a gage manifold are required when us-
ing the supeflleat charging method for evaluating the unit
chage. Do not use menuiw or small dia/-_'pe thermometers
be_ztu.w they am not adequaW _br this 0)')e qf measurement.
NO CHARGE- Use standard evacuating techniques. After
evacuating system to 500 microns, weigh in the specified
mnount of refrigerant. (Refer to Table 1 and unit information
plate.)
LOW CHARGE COOLING -- Using Cooling Charging
Ch;uts, Fig. 56-59, vary refrigerant until the conditions of the
chmls are met. Note the charging charts are different from type
normally used. Chmls are based on charging the units to the
correct superheat for the various operating conditions. Accu-
rate pressure gage and temperature sensing device are required.
Connect the pressure gage to the service port on the suction
line. Mount the temperature sensing device on the suction line
and insulate it so that outdoor ambient temperature does not
affect the reading. Indoor-air cfm must be within the normal
operating range of the unit.
COIL CORNER CENTER BAFFLE TOP PANEL
POST
COMPRESSOR
ACCESS
PANEL CONDENSER COIL
Fig. 53 -- Propping Up Top Panel
TOP VIEW
PANEL
ENTER BAFFLE
CONDENSER
COIL
INNERCOIL
TOP REMOVE
PANEL SCREWS
\
REMOVE REMOVE
SCREWS
CONDENSER CONTROL POST
CORNER POST
OUTER
COILSECTION
102 mm
(4") MAX
/CLEAN
HAIRPIN END
Fig. 54 -- Separating Coil Sections
COILCENTER
POST
ACCESS CONDENSER REMOVE COIL
PANEL COIL CORNER POST
Fig. 52 -- Cleaning Condenser Coil
REMOVE
SCREWS UNIT 48HJ FAN HEIGHT-- "A" (in.)
004-006 and 007 (208/230 V) 2.75
007 (460 and 575 V) 3.50
Fig. 55- Condenser-Fan Adjustment
43

HUMIDI-MIZER TM SYSTEM CHARGING -- The system
charge for units wifll the Humidi-MiZer a&tptive dehumidifi-
cation system is greater than that of the standard unit _flone.
The charge for units with this option is indicated on the unit
nmneplate &awing. Also lefer to Fig. 60-63. To charge
systems using the Humidi-MiZer a&tptive dehumidification
system, fully evacuate, recoven and recharge the system to the
nmneplate specified charge level. To check or adjust refrigerant
chalge on systems using the Humidi-MiZer adaptive dehumid-
ification system, charge per Fig. 60-63.
NOTE: When using the charging chin-Is, it is important that
only the subcooling/reheat dehumidification coil liquid line
solenoid valve be energized. The subcooling/reheat dehumidi-
fication coil liquid line solenoid valve MUST be energized to
use the charging charts and the outdoor motor speed controller
jumpered to run the fan at full speed.
The chin-Is reference a liquid pressure (psig) and tempera-
ture at a point between the condenser coil and the subcooling/
reheat dehumidification coil. A tap is provided on the unit to
measure liquid pressure entering the subcooling/reheat dehu-
midification coil.
IMPORTANT: The subcooling mode charging ch_u-ts
(Fig. 60-63) me to be used ONLY with units having the
Humidi-MiZer adaptive dehumidification system. IN) NOT
use stan&Lrd chm'ge (Fig. 56-59) for units with Humidi-
MiZer system, and DO NOT use Fig. 60-63 for standmd
units.
75[
68_
_621
o
1.3
<
o
B55;
u
w
_ 48."
w
uJ
_41,
z
o
34 _,
27(
!!!!!
::: ::
!!!!!
iiiii
: :: : :
; ;; ; :
iiiii
Ill [A-
I L--Ill I.
IIIFI lJ._
IJlrl
Atrt I_l.-
r I £...t,q I
_'gl I 3_"-
_P'_.. ! !
:::11
::::1
_iiiii
_iiiii
:::::
_llll
:::::
i!!ii!
::::::
!ll]lI
iiiiii
40
I
i12_
SUCTION LINE TEMPERATURE (*F)
I I I
4 10 16 211 _7
SUCTION LINE TEMPERATURE ('C)
Fig. 56 -- Cooling Charging Chart,
Standard 48HJ004
312
vsE11_ IIIIIIII
IIIIIIII
IIIIIIII
68£ I00- I I I I I [| !
_621 90 -- 125 52
_BO- F_-.-rqI_t--
65 18
48: _70- _ "i 55 13
_ 45 ?
llllll 1Io=6°- _ it_Jl
s IIIIIllt
llllllll
llllllll
IIIIIIII
IIIIIIII
IIIIIIII
80
SUCTION LINE TEMPERATURE ('F)
I
SUCTION LINE TEMPERATURE ('C)
Fig. 58 -- Cooling Charging Chart,
Standard 48HJ006
SUCTION LINE TEMPERATURE (*F)
,CTiONLIRETEMPERATURE
Fig. 57 -- Cooling Charging Chart,
Standard 48HJ005
758 110
68_ 100
,
_n
g
g
48: N?O
o_ Z
ill
34._ g50
Ul
27f 40
IIIIIIIIIIIIIIIIIII
IIIIIIIIIIItll I
lllllllll]llllllllll
IIIII IIIIIIIII
'Ill llllll'lll
IIIIIII IIIIIIIIIII
IIIII llllll[
IIIII1,,,,,_-.
IIIIIIlIL-'VL--'r/
II IItII III L_M_J/1 .l_1 _M
i[lllllllll_lII_I
iiiIfli/_i/rl/f t_11111/
!!llllll_A_l_ll1_Ifllll,_
I I I I I 11_ IIF I _I I I I I IYl/
I II I I I I'IA_I I_ /
$ g
III_I I_I I I I I I I IY_XI
llllll_l IIIIIIIII/IVII
!'III I_I IIIIA IN I I
l,,_,,llllt, z,_,,,
ll,x,,,,,,,l,,,
,,,,,,, ,,Aq_ll,
lllllllIIIlIIIIIl/lllII
lllllllllllllllll
IIllllllllllll I
Illl!l Illlllllll!,
lllllll]llllllllllll
IIIIIIIIIIIIII
IIIIIIIIIIIII
llllllllIlllllll I
llllllllllll,,lllll,
IIIIIIIIIIIIIIIIIIII
llllllllllllIlllllllll
IIIIIIIIIIIIIIIIIIIIII
70
SUCTION LINE TEM_RATURE ('F)
l _ 1_ 116 211
_CTIOM LINE TENPERAT_E OC)
ii Ii
,°'
5 ,
,,iii
,, I I
IIIII
iiii"'
lllll
l',IIl
II I I I
iiiii
IIIIII I
Fig. 59- Cooling Charging Chart,
Standard 48HJ007
44

TO USE COOLING CHARGING CHART, STANDARD
UNIT--Take the outdoor ambient temperature trod mad
the suction pressure gage. Refer to ch_uts to detennine what
suction temperature should be. If suction temperature is high,
add refrigerant. If suction temperature is low. carefully recover
some of file charge. Recheck the suction pressure as charge is
adjusted.
Exmnple (Fig. 58):
Outdoor Temperature ............................... 75 F
Suction Pressure ................................ 70 psig
Suction Temperature should be ....................... 48 F
(Suction temperature may vtu'y _+5 ° E)
If a charging device is used, temperature and pressure read-
ings must be accomplished using the charging charts.
TO USE COOLING CHARGING CHARTS, UNITS WITH
HUMIDI-MIZER TM ADAPTIVE DEHUMIDIFICATION
SYSTEM--Refer to charts (Fig. 60-63) to determine the
proper leaving condenser pressure and temperature.
Exmnple (Fig. 60):
Leaving Condenser Pressure ..................... 250 psig
Leaving Condenser Temperature ................... 105 F
NOTE: When using the charging charts, it is important that
only the subcooling/reheat dehumidification coil liquid line
solenoid valve be energized. The subcooling/reheat dehumidi-
fication coil liquid line solenoid valve MUST be energized to
use the charging charts and the outdoor motor speed controller
jumpered to run the fan at full speed.
CAIN N CHARGING CHART
3TON - 60HZ
(APPI ICABLE ONLY WHEN CO!l 15IN SUBCOOLING'P_30E)
OUTOOORFAN MUST_ OPERATIN6
LI_UI_ PRESSUR_L_AVING CO_DENS_R(PSIG)
NOTE: When using the charging charts, it is important that only the subcoolin( _reheat
dehumidification coil liquid line solenoid valve be energized. The subcooling/reheat dehu-
midification coil liquid line solenoid valve MUST be energized to use the charging charts
and the outdoor motor speed controller jumpered to run the fan at full speed.
Fig. 60 -- Cooling Charging Chart, 48HJ004 with
Optional Humidi-MiZer Adaptive Dehumidification
System
CODLIN8 MODE CHARSINt'3 CHART
4 TON 50HZ
(APPLICABLE ONLY WHEN COIL IS IN 5UBOOOLING MODE)
OUTOOORFAN MUSTBE OPERATING
SD mo 1so _ 2_ _o _o 4_
LIgtllD PRESSURELEAVIN6 CONDENSER(PSIG)
680LIN6 _ C_IIR6Itl6 CHART
5 tON GOHZ
(APPL ICABLE ONLY WHEN COIL IS IN SUBCOOLiNG MODE )
_o i_ 1so 2oo 2so _oo 3so 4oo
Lt_UID PRESSURELEAVING CONOE_SER_SIS)
NOTE: When using the charging charts, it is important that only the subcooling/reheat
dehumidification coil liquid line solenoid valve be energized. The subcooling/reheat dehu-
midification coil liquid line solenoid valve MUST be energized to use the charging charts
and the outdoor motor speed controller jumpered to run the fan at full speed.
Fig. 62 -- Cooling Charging Chart, 48HJ006 with
Optional Humidi-MiZer Adaptive Dehumidification
System
COOLING _CHkR61_ CHi_T
6 TON 60HZ
(APPLICABLE ONLY WHEN COIL ISIN SUBCOOLING MODE )
oumooRFANMUSTaE OPERATING
4Do
NOTE: When using the charging charts, it is important that only the subcooling/reheat
dehumidification coil liquid line solenoid valve be energized. The subcooling/reheat dehu-
midgication coil liquid line solenoid valve MUST be energized to use the charging charts
and the outdoor motor speed controller jumpered to run the fan at full speed.
Fig. 61 -- Cooling Charging Chart, 48HJ005 with
Optional Humidi-MiZer Adaptive Dehumidification
System
NOTE: When using the charging charts, it is important that only the subcooling/reheat
dehumidification coil liquid line solenoid valve be energized. The subcoofing/reheat dehu-
midgication coil liquid line solenoid valve MUST be energized to use the charging charts
and the outdoor motor speed controller jumpered to run the fan at full speed.
Fig. 63 -- Cooling Charging Chart, 48HJ007 with
Optional Humidi-MiZer Adaptive Dehumidification
System
45

Flue Gas Passageways -- To inspect the flue collec-
tor box and upper areas of the heat exchanger:
1. Remove the combustion blower wheel and motor assem-
bly according to directions in Combustion-Air Blower
section below.
2. Remove the 3 screws holding the blower housing to the
flue coveg
3. Remove the flue cover to inspect the heat exchangel:
4. Clean all surfaces as required using a wire blush.
Combustion-Air Blower-- Clean periodically to en-
sure proper airflow and heating eft]ciency. Inspect blower
wheel every fall and periodically during heating season. For the
fil.st heating season, inspect blower wheel bimonthly to deter-
mine proper cleaning frequency.
To inspect blower wheel, remove draft hood and screen.
Shine a flashlight into opening to inspect wheel. If cleaning is
required, remove motor and wheel as follows:
1. Slide burner access panel out.
2. Remove the 5 screws that altach induced-draft motor
assembly to the vestibule covel:
3. Slide the motor and blower wheel assembly out of the
blower housing. The blower wheel can be cleaned at this
point. If additional cleaning is required, continue with
Steps 4 and 5.
4. To remove blower from the motor shaft, remove
2 setscrews.
5. To remove motor, remove the 4 screws that hold the
motor to mounting plate. Remove the motor cooling fan
by removing one setscrew. Then remove nuts that hold
motor to mounting plate.
6. To reinstall, reverse the procedure outlined above.
Limit Switch- Remove blower access panel (Fig. 7).
Limit switch is located on the fan deck.
Burner Ignition -- Unit is equipped with a direct spark
ignition 100% lockout system. Integrated Gas Unit Controller
(IGC) is located in the control box (Fig. 12). A single LED on
the [GC provides a visual display of operational or sequentkd
problems when the power supply is uninterrupted. The LED
can be observed through the viewport. When a break in power
occurs, the IGC will be reset (resulting in a loss of fault history)
and the evaporator fan on/off times delay will be reset. Dnring
servicing, refer to the label on the control box cover or Table 33
for an explanation of LED error code descriptions.
If lockout occurs, unit may be reset by interrupting power
supply to unit forat least 5 seconds.
Table 33-- LED Error Code Description*
LED INDICATION ERROR CODE DESCRIPTION
ON Normal Operation
OFF Hardware Failure
1Flasht Evaporator Fan On/Off Delay Modified
2 Flashes Limit Switch Fault
3 Flashes Flame Sense Fault
4 Flashes 4 Consecutive Limit Switch Faults
5 Flashes Ignition Lockout Fault
6 Flashes Induced-Draft Motor Fault
7 Flashes Rollout Switch Fault
8 Flashes Internal Control Fault
9 Flashes Software Lockout
LEGEND
LED-- Light-Emitting Diode
*A 3-second pause exists between LED error code flashes. If more than one
error code exists, all applicable codes will be displayed in numerical
sequence.
]-Indicates a code that is not an error. The unit will continue to operate when
this code is displayed,
IMPORTANT: Refer to Troubleshooting Tables 34-38 for additional _
information. I
Main Burners -- At the beginning of each heating sea-
son, inspect for deterioration or blockage due to corrosion or
other causes. Observe the main burner flames and adjust, if
necessary.
When servicing gas train, do not hit or plug orifice spuds.
REMOVAL AND REPLACEMENT OF GAS TRAIN
(See Fig. 64 and 65)
1. Shut offmanual gas valve.
2. Shut off power to unit, tag disconnect.
3. Remove compressor access panel.
4. Slide out burner compartment side panel.
5. Disconnect gas piping at unit gas valve.
6. Remove wires connected to gas valve. Mark each wire.
7. Remove induced-draft motol, ignitor, and sensor wires at
the Integrated Gas Unit Controller (IGC).
8. Remove the 2 screws that attach the burner rack to the
vestibule plate.
9. Remove the gas valve bracket.
10. Slide the burner tray out of the unit (Fig. 65).
11. To reinstall, reverse the procedure outlined above.
INDUCED- ROLLOUT
DRAFT SWITCH
MOTOR
PLATE
SECTION
DRAFT
MOTOR
EXHAUST
- VESTIBULE
PLATE
"BLOWER
HOUSING
PRESSURE "GAS
TAP VALVE
Fig. 64 -- Burner Section Details
GAS
VALVE
S MANIFOLD PRESSURE TAP
f-_ _ F¸
BURNERS
Fig. 65 -- Burner Tray Details
46

CLEANING AND ADJUSTMENT
1. Remove burner rack from unit as described above.
2. Inspect burners and, if dirty, remove burners from rack.
3. Using a soft blush, clean burners and cross-over port as
required.
4. Adjust spark gap. See Fig. 66.
5. Reinst_dl burners on rack.
6. Reinst_dl burner rock as described above.
Replacement Parts -- A complete list of replacement
parts may be obtained froln any Carrier distributor upon re-
quest. Refer to Fig. 67 for a typical unit wiring schelnatic.
SEEDETAIL"(3"
/
/
SEEDETAIL"E"
LOW HEAT
48HJE/H004, 48HJD/G005-007- 72,000 BTUH INPUT
48HJM004, 48HJL005,006 -- 60,000 BTUH INPUT
L
2
Lt" \
./
MEDIUM AND HIGH HEAT
48HJE/H005-007, 48HJF/K004 -- 115,000 BTUH INPUT
48HJF/K005-007 -- 150,000 BTUH INPUT
48HJM005,006; 48HJN004 -- 90,000 BTUH INPUT
48HJN005,006- 120,000 BTUH INPUT
SPARK GAP
.120/.141 IN. (3.05/3.56 mm) SPARK GAP MUST BE POSITIONED TO
IGNITE ON FIRST TRY. (PLACE
SPARK GAP WITHIN BURNER
CIRCUMFERENCE AS SHOWN)
DETAIL *C*
Fig. 66 -- Spark Gap Adjustment
"F
\ L
SEE DETAIL _"
,yN. (4.60 ram)
DETAIL "E"
47

SCHEHATIC
208/2303 BO
SEE NOTE *3 _
EQUP GND
i i GRN/YELI_
CLO
PL6 R
FOR STD
UNIT PL6
--<_l-
Y
ECONOMI*ERI_
--PNK RED
I
ONNECTIOI
BOARD
.YEL*
.BLU.
-BLK-
--BRN.
--RED°
--GRA.
--pNKI
o iovoc/420MA CONTROLLER
J CONNECTIONFOR ECONOMIZER
FACTORYOR FIELD
L INSTALLED
O@
COMPOIENTARRANGEMENT
NOTES:
1, If any of the original wire furnished must be replaced, it must
be replaced with type 90 C wire or its equivalent.
2, Three phase motors are protected under primary single
phasing conditions.
3, Use copper conductors only.
4, TRAN is wired for 230 v unit. If unit is to be run with 208 v
power supply, disconnect BLK wire from 230 v tap (ORN)
and connect to 208 v tap (RED). Insulate end of 230 v tap.
LEGEND
C -- Contactor, Compressor OFM -- Outdoor (Condenser) Fan Motor
CAP -- Capacitor OLR -- Overload Relay O Splice
CLO -- Compressor Lockout P -- Plug
COMP -- Compressor Motor PL -- Plug Assembly _ Splice (Marked)
EQUIP -- Equipment QT -- Quadruple Terminal
FPT -- Freeze Up Protection Thermostat RS -- Rollout Switch Factory Wiring
FU -- Fuse SAT -- Supply Air Temperature Sensor
GND -- Ground TRAN -- Transformer Field Control Wiring
HPS -- High-Pressure Switch
HS -- Hall-Effect Sensor Field Splice _ Field Power Wiring
I-- Ignitor ----- Accessory or Optional Wiring
IDM -- Induced-Draft Motor _ Marked Wire
IFC -- Indoor Fan Contactor _ To indicate common potential only;
IFM -- Indoor Fan Motor _ Terminal (Marked) not to represent wiring.
IGC -- Integrated Gas Unit Controller
LPS -- Low-Pressure Switch O Terminal (Unmarked)
LS -- Limit Switch
MGV -- Main Gas Valve Terminal Block
Fig. 67 -- Typical Wiring Schematic and Component Arrangement (208/230-3-60 Shown)
48

TROUBLESHOOTING
Unit Troubleshooting -- Refer to Tables 34-38 for unit
troubleshooting details.
Table 34 -- LED Error Code Service Analysis
SYMPTOM CAUSE REMEDY
Hardware Failure. Loss of power to control module (IGC). Check 5 amp fuse on IGC, power to unit, 24-v circuit breaker, and
(LED OFF) transformer. Units without a 24-v circuit breaker have an internal
overload in the 24-v transformer. If the overload trips, allow
10 minutes for automatic reset.
Fan ON/OFF Delay Modified High limit switch opens during heat Ensure unit is fired on rate and temperature rise is correct.
(LED/FLASH) exchanger warm-up period before fan-on
delay expires.
Limit switch opens within three minutes Ensure units' external static pressure is within application guidelines.
after blower-oft delay timing in Heating mode
Limit Switch Fault. High temperature limit switch is open. Check the operation of the indoor (evaporator) fan motor.
(LED 2 Flashes) Ensure that the supply-air temperature rise is in accordance with
the range on the unit nameplate.
Flame Sense Fault. The IGC sensed flame that should not be Reset unit. If problem persists, replace control board.
(LED 3 Flashes) )resent.
4 Consecutive Limit Inadequate airflow to unit. Check operation of indoor (evaporator) fan motor and that supply-air
Switch Faults. temperature rise agrees with range on unit nameplate information.
(LED 4 Flashes)
Ignition Lockout. Unit unsuccessfully attempted ignition for Check ignitor and flame sensor electrode spacing, gaps, etc.
(LED 5 Flashes) 15 minutes. Ensure that flame sense and ignition wires are properly
terminated. Verify that unit is obtaining proper amount of gas.
Induced-Draft Motor Fault. IGC does not sense that induced-draft Check for proper voltage. If motor is operating, check the
(LED 6 Flashes) motor is operating, speed sensor plug/IGC Terminal J2 connection. Proper
connection: PIN 1-- White, PIN 2 -- Red, PIN 3-- Black.
Rollout Switch Fault. Rollout switch has opened. Rollout switch will automatically reset, but IGC will continue to
(LED 7 Flashes) lock out unit. Check gas valve operation. Ensure that induced-
draft blower wheel is properly secured to motor shaft.
Reset unit at unit disconnect.
Internal Control Fault. Microprocessor has sensed an error in the If error code is not cleared by resetting unit power, replace the IGC.
(LED 8 Flashes) software or hardware.
Temporary Software Electrical interference is impeding the IGC Reset 24-v to control board or turn thermostat off and then on. Fault
Lockout software, will automatically reset itself in one hour.
(LED 9 Flashes)
If the IGC must be replaced, be sure to ground yourself to dissi-
pate any electrical charge that may be present before handling
new control board. The IGC is sensitive to static electricity and
may be damaged if the necessary precautions are not taken.
IMPORTANT: Refer to heating troubleshooting for additional I
heating section troubleshooting information. I
LEGEND
IGC -- Integrated Gas Unit Controller
LED -- Light-Emitting Diode
49

PROBLEM
Burners Will Not
Ignite.
Table 35 -- Heating Service Analysis
CAUSE
Misaligned spark electrodes.
No gas at main burners.
Water ingas line.
No power to furnace.
No 24 v power supply to control circuit.
Miswired or loose connections.
Burned-out heat anticipator in thermostat.
Broken thermostat wires.
Inadequate Heating, Dirty air filter.
Gas input to unit too low.
Unit undersized for application.
Restricted airflow.
Blower speed too low.
Limit switch cycles main burners.
Too much outdoor air.
Poor Flame
Characteristics. Incomplete combustion (lack of
combustion air) results in:
Aldehyde odors, CO (carbon monoxide),
sooting flame, or floating flame.
Burners Will Not Unit is locked into Heating mode for a
Turn Off. one minute minimum.
Table 36 -- Humidi-MiZer TM Adaptive Dehumidification System Subcooling Mode Service Analysis
REMEDY
Check flame ignition and sensor electrode positioning. Adjust as needed.
Check gas line for air purge as necessary. After purging gas line of air, allow gas
to dissipate for at least 5 minutes before attempting to relight unit.
Check gas valve.
Drain water and install drip leg to trap water.
Check power supply, fuses, wiring, and circuit breaker.
Check transformer. Transformers with internal overcurrent protection require a
cool-down period before resetting. Check 24-v circuit breaker; reset if necessary.
Check all wiring and wirenut connections.
Replace thermostat.
Run continuity check. Replace wires, if necessary.
Clean or replace filter as necessary.
Check gas pressure at manifold. Clock gas meter for input, if too low, increase
manifold pressure or replace with correct orifices.
Replace with proper unit or add additional unit.
Clean filter, replace filter, or remove any restrictions.
Use high speed tap, increase fan speed, or install optional blower, as suitable for
individual units, Adjust pulley.
Check rotation of blower, thermostat heat anticipator settings, and temperature
rise of unit. Adjust as needed.
Adjust minimum position.
Check economizer operation.
Check all screws around flue outlets and burner compartment. Tighten as nec-
essary.
Cracked heat exchanger.
Overtired unit -- reduce input, change orifices, or adjust gas line or manifold
)ressure.
Check vent for restriction. Clean as necessary.
Check orifice to burner alignment.
Wait until mandatory one-minute time period has elapsed or reset power to unit.
PROBLEM
Subcooling Mode (Liquid Reheat)
Will Not Energize.
Low System Capacity,
CAUSE
No power to control transformer from
evaporator-fan motor.
No power from control transformer to liquid line
solenoid valve.
Liquid line solenoid valve will not operate.
Liquid line solenoid valve will not open.
Low refrigerant charge or frosted evaporator coil.
Loss of Compressor Superheat Thermostatic expansion valve (TXV).
Conditions with Subcooling/Beheat
Dehumidification Coil Energized.
Table 37 -- Humidi-MiZer TM Adaptive Dehumidification System Hot Gas Reheat Mode Service Analysis
PROBLEM
Reheat Mode Will Not Energize.
REMEDY
Check power source and evaporator-fan relay. Ensure all
wire connections are tight.
1. Fuse open; check fuse. Ensure continuity of wiring.
2. Low-pressure switch open. Cycle unit off and allow low-
pressure switch to reset. Replace switch if it will not
close.
3. Transformer bad; check transformer.
1. Solenoid coil defective; replace.
2. Solenoid valve stuck open; replace.
Valve is stuck closed; replace valve.
1. Check charge amount. Charge per Fig. 60-63.
2. Evaporator coil frosted; check and replace low-pres-
sure switch if necessary.
1. Check TXV bulb mounting, and secure tightly to suc-
tion line.
2. Replace TXV if stuck open or closed.
Loss of Compressor Superheat
Conditions with Subcooling/Reheat
Dehumidification Coil Energized,
Excessive Superheat,
CAUSE
No power to control transformer from
evaporator-fan motor.
No power from control transformer to hot gas
line solenoid valve
Hot gas line solenoid valve will not operate.
Low refrigerant charge or frosted evaporator coil.
Thermostatic expansion valve (TXV).
Liquid line solenoid valve will not operate.
Hot gas line solenoid valve will not close.
REMEDY
Check power source and evaporator-fan relay. Ensure all
wire connections are tight.
1. Fuse open; check fuse. Ensure continuity of wiring.
2. Low-pressure switch open. Cycle unit off and allow low-
pressure switch to reset. Replace switch if it will not
close.
3. Transformer bad; check transformer.
1. Solenoid coil defective; replace.
2. Solenoid valve stuck closed; replace.
1. Check charge amount. Charge per Fig. 60-63.
2. Evaporator coil frosted; check and replace low-pres-
sure switch if necessary.
1. Check TXV bulb mounting, and secure tightly to suc-
tion line.
2. Replace TXV if stuck open or closed.
Valve is stuck, replace valve.
Valve is stuck; replace valve.
50

Table 38 -- Cooling Service Analysis
PROBLEM
Compressor and Condenser Fan
Will Not Start.
Compressor Will Not Start
But Condenser Fan Runs.
Compressor Cycles (Other Than
Normally Satisfying Thermostat).
Compressor Operates Continuously.
Excessive Head Pressure.
Head Pressure Too Low.
Excessive Suction Pressure.
Suction Pressure Too Low.
Evaporator Fan Will Not Shut Off.
CAUSE
Power failure.
Fuse blown or circuit breaker tripped.
Defective thermostat, contactor, trans-
former, or control relay.
Insufficient line voltage.
Incorrect or faulty wiring.
Thermostat setting too high.
Faulty wiring or loose connections in com-
pressor circuit.
Compressor motor burned out, seized, or
internal overload open.
Defective run/start capacitor, overload, start
relay.
One leg of 3-phase power dead.
Refrigerant overcharge or undercharge.
Defective compressor.
Insufficient line voltage.
Blocked condenser.
Defective run/start capacitor, overload, or
start relay.
Defective thermostat.
Faulty condenser-fan motor or capacitor.
Restriction in refrigerant system.
Dirty air filter.
Unit undersized for load.
Thermostat set too low.
Low refrigerant charge.
Leaking valves in compressor.
Air in system.
Condenser coil dirty or restricted.
Dirty air filter.
Dirty condenser coil.
Refrigerant overcharged.
Air in system.
Condenser air restricted or air short-cycling.
Low refrigerant charge.
Compressor valves leaking.
Restriction in liquid tube.
High heat load.
Compressor valves leaking.
Refrigerant overcharged.
Dirty air filter.
Low refrigerant charge.
Metering device or low side restricted.
Insufficient evaporator airflow.
Temperature too low in conditioned area.
Outdoor ambient below 25 E
Time off delay not finished.
REMEDY
Call power company.
Replace fuse or reset circuit breaker.
Replace component.
Determine cause and correct.
Check wiring diagram and rewire correctly.
Lower thermostat setting below room temperature.
Check wiring and repair or replace.
Determine cause. Replace compressor.
Determine cause and replace.
Replace fuse or reset circuit breaker. Determine
cause.
Recover refrigerant, evacuate system, and
recharge to nameplate.
Replace and determine cause.
Determine cause and correct.
Determine cause and correct.
Determine cause and replace.
Replace thermostat.
Replace.
Locate restriction and remove.
Replace filter.
Decrease load or increase unit size.
Reset thermostat.
Locate leak, repair, and recharge.
Replace compressor.
Recover refrigerant, evacuate system, and
recharge.
Clean coil or remove restriction.
Replace filter.
Clean coil.
Recover excess refrigerant.
Recover refrigerant, evacuate system, and
recharge.
Determine cause and correct.
Check for leaks, repair, and recharge.
Replace compressor.
Remove restriction.
Check for source and eliminate.
Replace compressor.
Recover excess refrigerant.
Replace filter.
Check for leaks, repair, and recharge.
Remove source of restriction.
Increase air quantity. Check filter and replace if
necessary.
Reset thermostat.
Install low-ambient kit.
Wait for 30-second off delay.
5!

EconoMiSer IV Troubleshooting -- See Table 39
for EconoMi$er IV logic.
A functional view of the EconoMi$er is shown in Fig. 68.
Typical settings, sensor ranges, and jumper positions tue
also shown. An EconoMi$er IV simulator program is
available fiom Ctmier to help with EconoMi$er IV muning
and troubleshooting.
ECONOMI$ER IV PREPARATION -- This procedure is
used to prepare the EconoMi$er IV for troubleshooting. No
troubleshooting or testing is done by performing the following
procedme.
NOTE: This procedure requires a 9-v battely, 1.2 kilo-ohm
resistol: and a 5.6 kilo-ohm resistor which are not supplied
with the EconoMi$er IV.
IMPORTANT: Be sure to record the positions of all poten- ]
tiometers before starting troubleshooting. 1
1. Disconnect power at TR and TRI. All LEDs should be
off. Exhaust fan contacts should be open.
2. Disconnect device at P and PI.
3. Jumper P to PI.
4. Disconnect wires at T and TI. Place 5.6 kilo-ohm resistor
across T and TI.
5. Jumper TR to 1.
6. Jumper TR to N.
7. If connected, remove sensor from terminals So and +.
Connect 1.2 kilo-ohm 4074EJM checkout resistor across
terminals So and +.
8. Put 620-ohm resistor across terminals SR and +.
9. Set minimum position, DCV set point, and exhaust
potentiometers fully CCW (counterclockwise).
10. Set DCV maximum position potentiometer fully CW
(clockwise).
11. Set enthalpy potentiometer to D.
12. Apply power (24 vac) to terminals TR and TRI.
DIFFERENTIAL ENTHALPY-- To check differential
enthalpy:
1. Make sure EconoMiSer IV preparation procedure has
been performed.
2. Place 620-ohm resistor across So and +.
3. Place 1.2 kilo-ohm resistor across SR and +. The Free
Cool LED should be lit.
4. Remove 620-ohm resistor across So and +. The Free
Cool LED should turn off.
5. Return EconoMiSer IV settings and wiring to normal
after completing troubleshooting.
SINGLE ENTHALPY -- To check single enthalpy:
1. Make sure EconoMiSer IV preparation procedure has
been performed.
2. Set the enthalpy potentiometer to A (fully CCW). The
Free Cool LED should be lit.
3. Set the enth_dpy potentiometer to D (fully CW). The Free
Cool LED should turn off.
4. Return EconoMiSer IV settings and wiring to normal
after completing troubleshooting.
DCV (DEMAND CONTROLLED VENTILATION) AND
POWER EXHAUST -- To check DCV and Power Exhaust:
1. Make sure EconoMiSer IV preparation procedure has
been performed.
2. Ensure terminals AQ and AQI _ue open. The LED for
both DCV and Exhaust should be off. The actuator
should be lhlly closed.
3. Connect a 9-v battery to AQ (positive node) and AQl
(negative node). The LED for both DCV and Exhaust
should turn on. The actuator should chive to between 90
and 95% open.
4. Turn the Exhaust potentiometer CW until the Exhaust
LED turns off. The LED should turn off when the
potentiometer is approximately 90%. The actuator should
remain in position.
5. Turn the DCV set point potentiometer CW until the DCV
LED turns off. The DCV LED should turn off when the
potentiometer is approximately 9-v. The actuator should
drive fully closed.
6. Turn the DCV and Exhaust potentiometers CCW until
the Exhaust LED turns on. The exhaust contacts will
close 30 to 120 seconds after the Exhaust LED turns on.
7. Return EconoMi$er IV settings and wiring to normal
after completing troubleshooting.
DCV MINIMUM AND MAXIMUM POSITION -- To check
the DCV minimum and maximum position:
1. Make sure EconoMiSer IV prep_uation procedure has
been performed.
2. Connect a 9-v battery to AQ (positive node) and AQI
(negative node). The DCV LED should turn on. The
actuator should chive to between 90 and 95% open.
3. Turn the DCV Maximum Position potentiometer to mid-
point. The actuator should drive to between 20 and 80%
open.
4. Turn the DCV Maximum Position potentiometer to lhlly
CCW. The actuator should drive fully closed.
5. Turn the Minimum Position potentiometer to midpoint.
The actuator should chive to between 20 and 80% open.
6. Turn the Minimum Position Potentiometer lhlly CW. The
actuator should drive fully open.
7. Remove the jumper from TR and N. The actuator should
drive fully closed.
8. Return EconoMiSer IV settings and wiring to norm_d
after completing troubleshooting.
SUPPLY-AIR INPUT -- To check supply-air input:
1. Make sure EconoMi$er IV prepmation procedure has
been performed.
2. Set the Enthalpy potentiometer to A. The Free Cool LED
turns on. The actuator should drive to between 20 and
80% open.
3. Remove the 5.6 kilo-ohm lesistor and jumper T to TI.
The actuator should chive lhlly open.
4. Remove the jumper across T and TI. The actuator should
drive fully closed.
5. Return EconoMiSer IV settings and wiring to norm;d
after completing troubleshooting.
ECONOMISER IV TROUBLESHOOTING COMPLE-
TION -- This procedure is used to return the EconoMiSer IV
to operation. No troubleshooting or testing is done by perform-
ing the following procedure.
1. Disconnect power at TR and TRI.
2. Set enthalpy potentiometer to previous setting.
3. Set DCV maximum position potentiometer to previous
setting.
4. Set minimum position, DCV set point, and exhaust
potentiometers to previous settings.
5. Remove 620-ohm resistor from terminals SR and +.
6. Remove 1.2 kilo-ohm checkout resistor from terminals
So and +. If used, reconnect sensor from terminals So and
+.
52

7. Remove jumper flom TR to N.
8. Remove jumper fiom TR to 1.
9. Remove 5.6 kilo-ohm resistor from T and TI. Reconnect
wiles tit T and TI.
l 0. Remove jumper fiom P to Pl. Reconnect device a P and
PI.
11. Apply power (24 vac) to terminals TR and TRI.
Table 39 -- EconoMi$er IV Input/Output Logic
Demand Control
Ventilation (DCV)
Below set
(DCV LED Off)
Above set
(DCV LED On)
INPUTS
Enthalpy* Compressor
Y1 Y2 Stage Stage
Outdoor Return 1 2
High Low On On On On
(Free Cooling LED Off) On Off On Off
Off Off Off Off
Low High On On On Off
(Free Cooling LED On) On Off Off Off
Off Off Off Off
High Low On On On On
(Free Cooling LED Off) On Off On Off
Off Off Off Off
Low High On On On Off
(Free Cooling LED On) On Off Off Off
Off Off Off Off
*For single enthalpy control, the module compares outdoor
enthalpy to the ABCD set point.
1-Power at N terminal determines Occupied/Unoccupied setting:
24 vac (Occupied), no power (Unoccupied).
**Modulation is based on the supply-air sensor signal.
1-1-Modulation is based on the DCV signal.
OUTPUTS
N Terminalt
Occupied Unoccupied
Damper
Minimum position Closed
Modulating** (between rain.
3osition and full-open)
Minimum position
Modulating1-1- (between rain.
3osition and DCV maximum)
Modulating***
Modulating** (between
closed and full-open)
Closed
Modulating1-1- (between
closed and DCV
maximum)
Modulating1-1-1-
***Modulation is based on the greater of DCV and supply-air sen-
sor signals, between minimum position and either maximum
position (DCV) or fully open (supply-air signal).
I-I-I-Modulation is based on the greater of DCV and supply-air sen-
sor signals, between closed and either maximum position (DCV)
or fully open (supply-air signal).
Fig. 68 -- EconoMi$er IV Functional View
53

INDEX
Access panels 19 Filter
Altitude compensation 38 Cleaning 42
Barometric flow capacity 21 Installation 19
Burner ignition 46 Size 9
Burner rack 46 Flue gas passageways 46
Burner section 46 Flue hood .5,7
Burner spark gap 47 Freeze protection thermostat 9,43
Carrier Comfort Network 15 Gas connection 9
ChaEzing chart, ret_igerant 44,45 Gas input 9
Clearance 6Gas piping .5,Z 37
CO2 sensor Gas pressure 1, 9
Configuration 25 Heat anticipator settings Z 9
Settings 23,25 Heat exchanger 9
Combustion blower wheel 46 High flow valves 37
Compressor High pressure switch 9, 4.?
Lubrication 43 Horizontal units 1, 2
Mounting 37 Humidistat 13
Rotation 37 Humidi-MiZeradaptive dehumidification
Condensate drain system 13,26,41,42,44, 4.5,50
Cleaning 42 Indoor-airquality (IAQ) sensor 15,23
Location 4Integrated gas controller 46
Condenser coil 8Error codes 46, 49
Cleaning 42 Leak test 37
Condenser fan 8Limit switch 46
Adjustment 43 Liquid propane 9
Control circuit Low pressure switch 9,43
Wiring 7Main burners 3&46
Wiring raceway 10 Manual outdoor air damper 13
Convenience outlet 15 Mounting
Demand control ventilation 24 Compressor 37
Dehunfidification 25 Unit 4
Dimensions 3, 6 Natural gas 9
Ductwork 2Novar controls 15
EconoMi$er2 11_ Operating limits 2
4to 20 mAcontrol 20 Operating sequence 39-42
Wiring 20 Cooling 39
EconoMi$er IV 18-25 EconoMi$er IV 39
Control mode 21 EconoMi$er2 39-41
Damper movement 24 Heating 39
Troubleshooting .52,53 Hunfidi-MiZer adaptive dehumidification
Wiring 20 system 41,42
Electrical connections 5 Outdoor air hood 14,1.5,19
Electrical data 11,12 Outdoor air inlet screens 9,3Z 42
Enthalpy changeover set points 23 Outdoor-air temperature sensor 15,21
Evaporator coil 8Physical data 8, 9
Cleaning 42 Power supply 5
Evaporator fan motor Wiring 10
Lubrication 43 PremierLink controls 15-17
Motor data 27 Pressure, drop
Performance 28-36 EconoMiSer IV 36
Pulley adjustment 2.5,26 EconoMiSer2 36
Pulley setting 8,26 Humidi-MiZer adaptive dehumidification
Speed 8system 26
Factory-installed options Pro-Start-Up 37
Convenience outlet 15 Pressure switches
EconoMiSer IV 18-25 High pressure 9
EconoMiSer2 18 Low pressure 9
Humidistat 13 Refrigerant
Humidi-MiZer TM dehumidification Charge 8, 43
system 14 Type 8
Manual outdoor air damper 13 Refrigerant selwice ports 37
Novar controls 15 Replacement parts 47
PremierLink TM controls 15-17
Return air filter 9, 37
Return-air temperature sensor
Rigging unit 4, 5
Roof curb
Assembly 1
Dimensions 3
Connector package 3
Leveling tolerances 4
Weight 8
Safety considerations 1
Safety relief 39
Service 42-48
Sel_.ice ports 37
Slab mount 2
Start-up 37-42
Start-up checklist (_'L-I
Supply-air temperature sensor
Thermostat 10
Troubleshooting 40-53
Ventilation 39
Weight
Comer 6
EconoMiSer IV 6, 8
Unit .5,6,8
Wiring
4 to 20 mA control 20
Differential enthalpy 18
Humidistat 14
EconoMiSer2 20
EconoMiSer IV 20
Power connections 10
PremierLink control 10, 17
Thermostat 10
Unit 48
22
1.5,21
Copyright 2005 Carrier Corporation
Manufacturer reserves the right to discontinue, or change at any time, specifications or designs without notice and without incurring obligations.
Catalog No. 04-53480013-01 Printed in U.S.A. Form 48HJ-33SI Pg 54 9-05 Replaces: 48HJ-29SI

I. PRELIMINARY INFORMATION
MODEL NO.:
DATE:
START-UP CHECKLIST
(Remove and Store in Job File)
SERIAL NO.:
TECHNICIAN:
II. PRE-START-UP (insert checkmark in box as each item is completed)
[] VERIFY THAT JOBSITE VOLTAGE AGREES WITH VOLTAGE LISTED ON RATING PLATE
[] VERIFY THAT ALL PACKING MATERIALS HAVE BEEN REMOVED FROM UNIT
[] REMOVE ALL SHIPPING HOLDDOWN BOLTS AND BRACKETS PER INSTALLATION INSTRUCTIONS
[] VERIFY THAT CONDENSATE CONNECTION IS INSTALLED PER INSTALLATION INSTRUCTIONS
[] CHECK ALL ELECTRICAL CONNECTIONS AND TERMINALS FOR TIGHTNESS
[] CHECK GAS PIPING FOR LEAKS
[] CHECK THAT RETURN (INDOOR) AIR FILTERS ARE CLEAN AND IN PLACE
[] VERIFY THAT UNIT INSTALLATION IS LEVEL
[] CHECK FAN WHEELS AND PROPELLER FOR LOCATION IN HOUSING/ORIFICE AND SETSCREW TIGHTNESS
[] CHECK TO ENSURE THAT ELECTRICAL WIRING IS NOT IN CONTACT WITH REFRIGERANT LINES
OR SHARP METAL EDGES
[] CHECK PULLEY ALIGNMENT AND BELT TENSION PER INSTALLATION INSTRUCTIONS
III. START-UP
ELECTRICAL
SUPPLY VOLTAGE L 1-L2 L2-L3 L3-L 1
COMPRESSOR AMPS LI L2 L3
INDOOR-FAN AMPS LI L2 L3
TEMPERATURES
OUTDOOR-AIR TEMPERATURE
RETURN-AIR TEMPERATURE
COOLING SUPPLY AIR
GAS HEAT SUPPLY AIR
PRESSURES
GAS INLET PRESSURE
GAS MANIFOLD PRESSURE
REFRIGERANT SUCTION
REFRIGERANT DISCHARGE
DB
DB
DB
DB
IN. WG
IN. WG (HIGH FIRE)
PSIG
PSIG
WB
[] VERIFY REFRIGERANT CHARGE USING CHARGING TABLES
[] VERIFY THAT 3-PHASE SCROLL COMPRESSOR ROTATING IN CORRECT DIRECTION
Copyright 2005 Carrier Corporation
Manufacturer reserves the right to discontinue, or change at any time, specifications or designs without notice and without incurring obligations.
Book 1 14 Catalog No. 04-53480013-01 Printed in U.S,A. Form 48HJ-33SI Pg CL-1 9-05 Replaces: 48HJ-29SI
Tab 1a 16a
LU
2:
m
c_
LU
I--
rm
Z
o,
<
I-
o
LU
2:
m
rm
LU
I-
c_
Z
o,
<
I-
o