CARRIER Package Units(both Units Combined) Manual L0811828
User Manual: CARRIER CARRIER Package Units(both units combined) Manual CARRIER Package Units(both units combined) Owner's Manual, CARRIER Package Units(both units combined) installation guides
Open the PDF directly: View PDF
.
Page Count: 36

WEATHERMAKER ®
48A2,A3,A4,A5020-060
Single Package Gas Heating/Electric Cooling
Rooftop Units with COMFORTLINK TMControls
and PURON ®(R-410A) Refrigerant
Installation Instructions
CONTENTS
Page
SAFETY CONSIDERATIONS ...................... 1
INSTALLATION ................................ 1-35
Step 1 -- Provide Unit Support ................... 1
•ROOF CURB
• ALTERNATE UNIT SUPPORT
Step 2 -- Rig and Place Unit ..................... 2
• POSITIONING
• ROOF MOUNT
Step 3 -- Field Fabricate Ductwork ............... 2
Step 4 -- Make Unit Duct Connections ........... 2
Step 5 -- Install Flue Hood ...................... 17
Step 6 -- Trap Condensate Drain ................ 17
Step 7 -- Install Gas Piping ..................... 17
Step 8 -- Make Electrical Connections .......... 18
• POWER WIRING
• FIELD POWER SUPPLY
• FIELD CONTROL WIRING
Step 9 -- Make Outdoor-Air Inlet
Adjustments .................................. 30
• ECONOMIZER AND FIXED OUTDOOR
AIR DAMPER
Step 10 -- Position Power Exhaust/Barometric
Relief Damper Hood ........................... 30
Step 11 -- Route VAV Static Pressure Sensor... 30
Step 12 --Install All Accessories ............... 32
Step 13 -- Field Modifications ................... 34
SAFETY CONSIDERATIONS
Installation and servicing of air-conditioning equipment can
be hazardous due to system pressure and electrical compo-
nents. Only trained and qualified service personnel should in-
stall, repair, or service air-conditioning equipment.
Untrained personnel can perform the basic maintenance
functions of cleaning coils and filters and replacing filters. All
other operations should be performed by trained service per-
sonnel. When working on air-conditioning equipment, observe
precautions in the literature, tags and labels attached to the unit,
and other safety precautions that may apply.
Follow all safety codes. Wear safety glasses and work
gloves. Use quenching cloth for unbrazing operations. Have
fire extinguishers available for all brazing operations.
Before performing service or maintenance operations on
unit, turn off main power switch to unit. Electrical shock
could cause personal injury.
1. Improper installation, adjustment, alteration, service,
or maintenance can cause property damage, personal
injury, or loss of life. Refer to the User's Information
Manual provided with this unit for more details.
2. Do not store or use gasoline or other flalmnable va-
pors and liquids in the vicinity of this or any other
appliance.
What to do if you smell gas:
1. DO NOT try to light any appliance.
2. DO NOT touch any electrical switch, or use any
phone in your building.
3. IMMEDIATELY call your gas supplier from a neigh-
bor's phone. Follow the gas supplier's instructions.
4. If you cannot reach your gas supplier, call the fire
department.
Disconnect gas piping from unit when pressure testing at
pressure greater than 0.5 psig. Pressures greater than
0.5 psig will cause gas valve damage resulting in hazardous
condition. If gas valve is subjected to pressure greater than
0.5 psig, it must be replaced before use. When pressure
testing field-supplied gas piping at pressures of 0.5 psig or
less, a unit connected to such piping must be isolated by
closing the manual gas valve(s).
Puron (R-410A) refrigerant systems operate at higher pres-
sures than standard R-22 systems. Do not use R-22 service
equipment or components on Puron refrigerant equipment.
If service equipment is not rated for Puron refrigerant,
equipment damage or personal injury may result.
INSTALLATION
Step 1-- Provide Unit Support
1. All panels must be in place when rigging or damage
to unit may occur.
2. Unit is not designed for handling by fork truck. Dam-
age to unit may occur.
Manufacturer reserves the right to discontinue, or change at any time, specifications or designs without notice and without incurring obligations.
Catalog No. 04%3480051-01 Printed in U.S.A. Form 48A-6SI Pg 1 5-08 Replaces: 48A-4SI

ROOF CURB -- For vertical discharge units, assemble or in-
stall accessory roof curb in accordance with instructions
shipped with this accessory. See Fig. 1-3. Install insulation,
cant strips, roofing, and counter flashing as shown. Ductwork
can be installed to roof curb before unit is set in place. Curb
should be level. This is necessary to permit unit drain to func-
tion properly. Unit leveling tolerance is shown in Fig. 1-3.
Refer to Accessory Roof Curb Installation Instructions for
additional reformation as required. When accessory roof curb
is used, unit may be installed on class A, B, or C roof covering
material.
IMPORTANT: The gasketing of the unit to the roof curb is
critical for a watertight seal. Install gasket with the roof
curb as shown in Fig. 1-3. Improperly applied gasket can
also result in air leaks and poor unit performance.
ALTERNATE UNIT SUPPORT -- When the preferred curb
or slab mount cannot be used, support unit with sleepers on pe-
rimeter, using unit curb support area. If sleepers cannot be
used, support long sides of unit (refer to Fig. 4-10) with a mini-
mum number of 4-in. x 4-in. pads spaced as follows:
48A2,A3,A4,A5020-035 units require 3 pads on each side;
48A2,A3,A4,A5040-050 units require 4 pads on each side;
48A2,A3,A4,A5060 units require 6 pads on each side. Unit
may sag if supported by corners only.
Step 2 -- Rig and Place Unit -- Inspect unit for
transportation damage. See Tables 1-6 for physical data and
specifications. File any claim with transportation agency.
Do not drop unit; keep upright. Use spreader bars over unit
to prevent sling or cable damage. This unit must be handled
with a crane and can not be handled by a fork truck. Level by
using unit frame as a reference; leveling tolerance is shown in
Fig. 1-3. See Fig. 11 for additional information. Unit operating
weight is shown in Table 2.
NOTE: On retrofit jobs, ductwork may be attached to the old
unit instead of a roof curb. Be careful not to damage ductwork
when removing old unit. Attach existing ductwork to roof curb
instead of unit.
Four lifting lugs are provided on the unit base rails as shown
in Fig. 4-10. Refer to rigging instructions on unit.
POSITIONING -- Maintain clearance, per Fig. 4-10, around
and above unit to provide minimum distance from combustible
materials, proper airflow, and service access.
Do not install unit in an indoor location. Do not locate unit
air inlets near exhaust vents or other sources of contaminated
air. For proper unit operation, adequate combustion and venti-
lation air must be provided in accordance with Section 5.3 (Air
for Combustion and Ventilation) of the National Fuel Gas
Code, ANSI Z223.1 (American National Standards Institute).
Although unit is weatherproof, guard against water from
higher level runoff and overhangs.
Locate mechanical draft system flue assembly at least 4 ft
from any opening through which combustion products could
enter the building, and at least 4 ft from any adjacent building.
When unit is located adjacent to public walkways, flue assem-
bly must be at least 7 ft above grade.
ROOF MOUNT -- Check building codes for weight distribu-
tion requirements. See Fig. 11. Unit operating weight is shown
in Table 2.
Step 3 -- Field Fabricate Ductwork -- Secure all
ducts to building structure. Use flexible duct connectors be-
tween unit and ducts as required. Insulate and weatherproof all
external ductwork, joints, and roof openings with counter
flashing and mastic in accordance with applicable codes.
NOTE: Due to width of the horizontal supply and return duct-
work, provisions should be made for servicing of the outdoor
air filters (i.e., catwalk over ductwork).
Ducts passing through an unconditioned space must be in-
sulated and covered with a vapor barrier. Outlet grilles must not
lie directly below unit discharge. The return duct must have a
90-degree elbow before opening into the building space if the
unit is equipped with power exhaust.
To attach ductwork to roof curb, insert duct approximately
10 to 11 in. up into roof curb. Connect ductwork to 14-gage
roof curb material with sheet metal screws driven from reside
the duct.
Follow AMCA (Air Movement and Control Association)
guidelines relating to ductwork connections to the unit. These
guidelines recolrunend a minflnum 21/2 equivalent duct diame-
ters of straight duct connected to supply air inlet and outlet
openings before any transitions, fittings, dampers, etc. Failure
to adhere to these guidelines may result in system effects which
can impact the unit's ability to achieve published performance.
For vertical supply and return units, tools or parts could
drop into ductwork and cause an injury. Install a 90-degree
elbow turn in the supply and return ductwork between the
unit and the conditioned space. Ifa 90-degree elbow cannot
be installed, then a grille of sufficient strength and density
should be installed to prevent objects from falling into the
conditioned space.
Step 4 -- Make Unit Duct Connections
48A2 AND A3 UNITS -- Unit is shipped for through-the-
bottom duct connections. Field-fabricated ductwork should be
attached to the roof curb. Supply and return duct dflnensions
are shown in Fig. 4-6. Air distribution is shown in Fig. 12.
Refer to installation instructions shipped with roof curb for
more reformation.
48A4 AND A5 UNITS -- Remove shipping covers from
supply and return air openings. Attach field-supplied ductwork
to unit. Connect to the unit with a single duct for all supply
openings and with a single duct for all return openings.
Splitting of the airflow into branch ducts should not be done at
the unit. Sufficient duct length should be used prior to branch-
ing to ensure the air temperatures are well mixed within the
ductwork. See Fig. 7-9 for duct opening dimensions. Secure all
ducts to building structure. Air distribution is shown in Fig. 7-9
and Fig. 13.
Install accessory barometric relief or power exhaust in the
field-fabricated return ductwork. Refer to Step 10 -- Position
Power Exhaust/Barometric Relief Damper Hood section on
page 30 for more information.
Instructions continued on page 17.

NOTES:
1, Unless otherwise specified, all dimensions are to outside of part.
2. Roof curb accessory CRRFCURBOO5AOO is shipped disassembled.
3. All roof curb parts are to be 14 ga. galvanized steel,
4. Dimensions in [] are in millimeters. All other dimensions are in inches.
f40:
TO >i _ '\f IAI) NO W_k[ R if ill D[_\ 4 >AN OF Ill
{N_OOR SECT]01i _!49 TiE HEDT EXCiiAI46_RS
N T CAI,, ,ONL? BE i CHED AS qlO,_,iN
C,t,nd: SSOR
/
]q NS ON5
{ EOIEE DI4 4C S
__ :n::- ::- 21
U ] 1£\11 NG Oi i!A IS
_FRO_ EDGE or U!4{T TO HOR{-OITAI
......._ 27i32121 _ .......
! csi
.............................. ii
i/32
sol
t76]
AS R_i[ CROSS SECTiO,I
/" 2 SOiS
l-,,,,_ ii4 S'S{Zgil]
.....................................................................................62716 ...........................................................................................................
[4126i
(aLL ©']i ERS}
3 7i6
DETAit 'Z
SCAt{ i:8
_YP 4 ODR_iERS
i¸1¸¸¸¸4
[57]
{356]
{76]
700 CURB CROSS SEC ZON
TY? 4 S !IS
I
24
1_i0
/....................................... ........... .........................
i
114 S18
{29111
162 7i18
[4126]
iOOl: {}tJl:!l 1)17 i_iI '[)'
i' 48£D{ 3C_ qOI GAS qD 3'i" ''7
Fig. 1 -- Roof Curb -- 48A2,A3020-035 Units

NOTES:
1. Unless otherwise specified, all dimensions are to outside of part.
2. Roof curb accessory CRRFCURBOOGAO0 is shipped disassembled.
3. All roof curb parts are to be 14 ga. galvanized steel.
4. Dimensions in [] are in millimeters. All other dimensions are in inches.
NOTE:
TO PREVENT STANDING WATER IN THE DRAIN PAN OF THE
INDOOR SECTION, AND THE HEAT EXCHANGERS
UNIT CAN ONLY BE PITCHED AS SHOWN,
_/
B
81-I14
_64 ]
43-II16
[1094]
3-7/16
i[ST] I
16101
[610]
I-3/4
[44] TYP_
I14-518
[2911]
I
212-3/4
r<_n_l
4_
UNI
DI MENS IONS
(DEGREES AND INCHES)
A B
DEG. IN mm DEG IN mm
1.0 29 73 .50 75 19
LEVELING TOLERANCES
,FROM EDGE OF UNIT TO HORIZONTAt.
[44]
GASKET
FLASHING
(FIELD SUPPLIED)
STRIP
5-9/32
[134]
2-27132
_I i 1-31132
__ [ 736] _,,] [50]
BASE RAIL CROSS SECTION
TYP (2) SIDES
1-314
[321
14
[3561
._t_ S
[T61
ROOF CURB CROSS SECTION
TYP 4 SIDES
DETAIL
SCALE 1:8
-SEE DETAIL
RIGID INSULATIO
(FIELD SUPPLIED)
Fig. 2 -- Roof Curb -- 48A2,A3040-050 Units

NOTES:
1. Unless otherwise specified, all dimensions are to outside of part.
2. Roof curb accessory CRRFCURBO14AO0 is shipped disassembled.
3. All roof curb parts are to be 14 ga. galvanized steel.
4. Dimensions in [] are in millimeters. All other dimensions are in inches.
Bl-I/4
[2064]
NOTE:
TO PREVENT STANDING WATER IN THE DRAIN PAN OF THE
iNDOOR SECTION, AND THE HEAT EXCHANGERS
UNIT CAN ONLY BE PITCHED AS SHOWN.
43-1/16
[1094]
24
[610]
[3
f
DIMENS IONS
(DEGREES ARD INCHES)
A R
DEG I N. mm BEG I N. mm
I O 543 138 50 .TS 19
UNIT LEVELING TOLERANCES
,FROM EDGE OF UNiT TO HORIZONTAL
[44]
GASKET
I-3/8 DIA
[35]
3-9116
[90]
ROOFING FELT
5-9132
[134]
LUG
I-3/4
[44]
J
2-27/32 T
(721
E4
_] l-3W3R
3 -[501
_[76]
BASE RAiL CROSS SECTION
TYP (2) SIDES
3
--_,-L [ 76]
16940
[43F0]
308.64
[7839]
DETAIL Z
SCALE 1:8
ROOF CURB CROSS SECTION
TYP 4SIDES
DETAIL Z
(FIELD SUPPLIED)
Fig. 3 -- Roof Curb -- 48A2,A3060 Units

o',
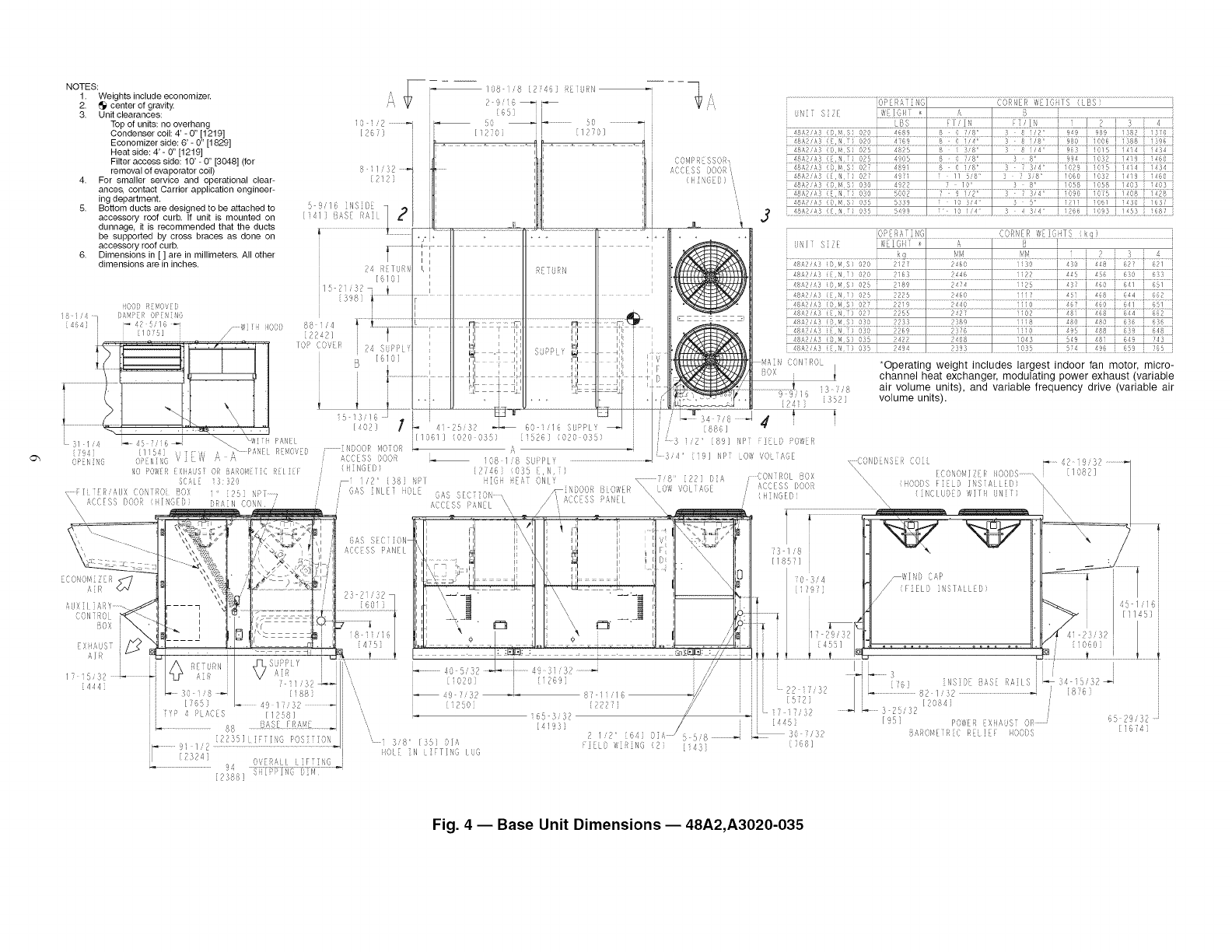
NOTES:
1. Weights include economizer.
2. _ center of gravit}L
3. Unit clearances:
Top of units: no overhang
Condenser coil: 4' - 0" [1219]
Economizer side: 6' - 0" [1829]
Heat side: 4' - 0" [1219]
Filter access side: 10' - 0" [3048] (for
removal of evaporator coil)
4. For smaller service and operational clear-
ances, contact Carrier application engineer-
ing department.
5. Bottom ducts are designed to be attached to
accessory roof curb. If unit is mounted on
dunnage, it is recommended that the ducts
be supported by cross braces as done on
accessory roof curb.
6. Dimensions in [] are in millimeters. All other
dimensions are in inches.
i60 1/6 $,,PP[
CO'qP SSO ,
ACCI SS ()0:4
(H N('@ )
{886]
\\
0H0 w......, '.'. ............
ixs .....
_]R i ::
i 88]
[ 6 ] ...... 9 / '32 ............
ii _'P ': LACiS 112!,81
................. 88 ..... [[!'% .....
sp_
_] TFTI,6 POS T ON
I_ 91 ........................
/
q,4
[P3881 i _s
....8ONiI!OL BOX
&CCESS DOOR
(HINGED}
COND@NS COiL
ECONO,II/ I, iOODS
( ()ODS F EL ]XS AiIE[
([NCIUD D V,[[i LN
...... 42195?
{/082]
45 //6
111451
Fig. 4 -- Base Unit Dimensions -- 48A2,A3020-035

--4
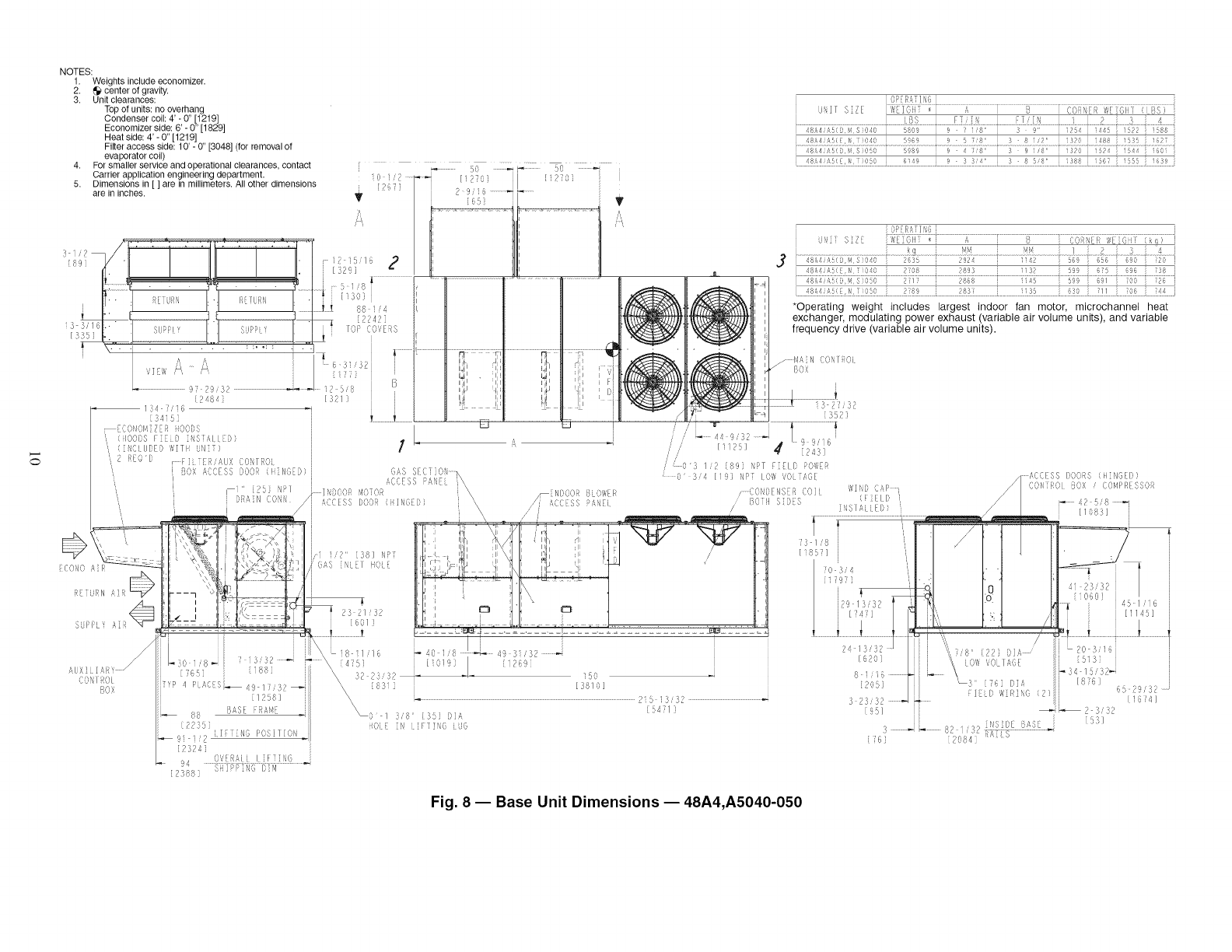
NOTES:
1, Weights include economizer,
2. _ center of gravity.
3, Unit clearances:
Top of units: no overhang
Condenser coil: 4' - 0" [1219]
Economizer side: 6' - 0" [1829]
Heat side: 4'- 0" [1219]
Filter access side: 10' - 0" [3048] (for
removal of evaporator coil)
4. For smaller service and operational clearances,
contact Carrier application engineering depart-
ment,
5. Bottom ducts are designed to be attached to ac-
cessory roof curb. If unit is mounted on dunnage,
it is recommended that the ducts be supported by
cross braces as done on accessory roof curb.
6. Dimensions in [ ] are in millimeters. All other di-
mensions are in inches.
i8 S,x _ _ 42 5,14_ i00 REI,I,)\
,164i riols] DA4P R OPE'\
80 .............'/ '::,
iO[;! N[N{] SCS, J E I 3[ 520'
NO PO,*i]R i XH:USI OR 8AR04 I[(} REL]
....._{i,_i ,,2
126'
'_, 14}] S]) ]
BASE RAI
[6!0]
88 1/4
[2242]
lOP COVERS
24 SLJ'_ ;* v
5 1952 --
[2i8i
112'01 [I 70
2 9,16
65]
0H \1 _OI
08 18 P: R £ ppl _ ,,_
2 461
_,1,s]N ¢0 TRO[
B0 >
,,&,
'///'
," '_---44 9 52
" {1/25]
,/'
*Operating weight includes largest indoor fan motor, microchannel heat
exchanger, modulating power exhaust (variable air volume units), and
variable frequency drive (variable air volume units).
[245
0 5 i/2 [89] NPi FIELD [}O_i_ii@R
• O' 54 i9] NPT 0 \i _101T/_0
l XI/A JST AIR
/
::OW P X A S OP
cA @,'ERiC i EF
I1(( S 0 ION
EO'D
123241
[2588] Si P:NG _;I l,!
Fig. 5 -- Base Unit Dimensions -- 48A2,A3040-050

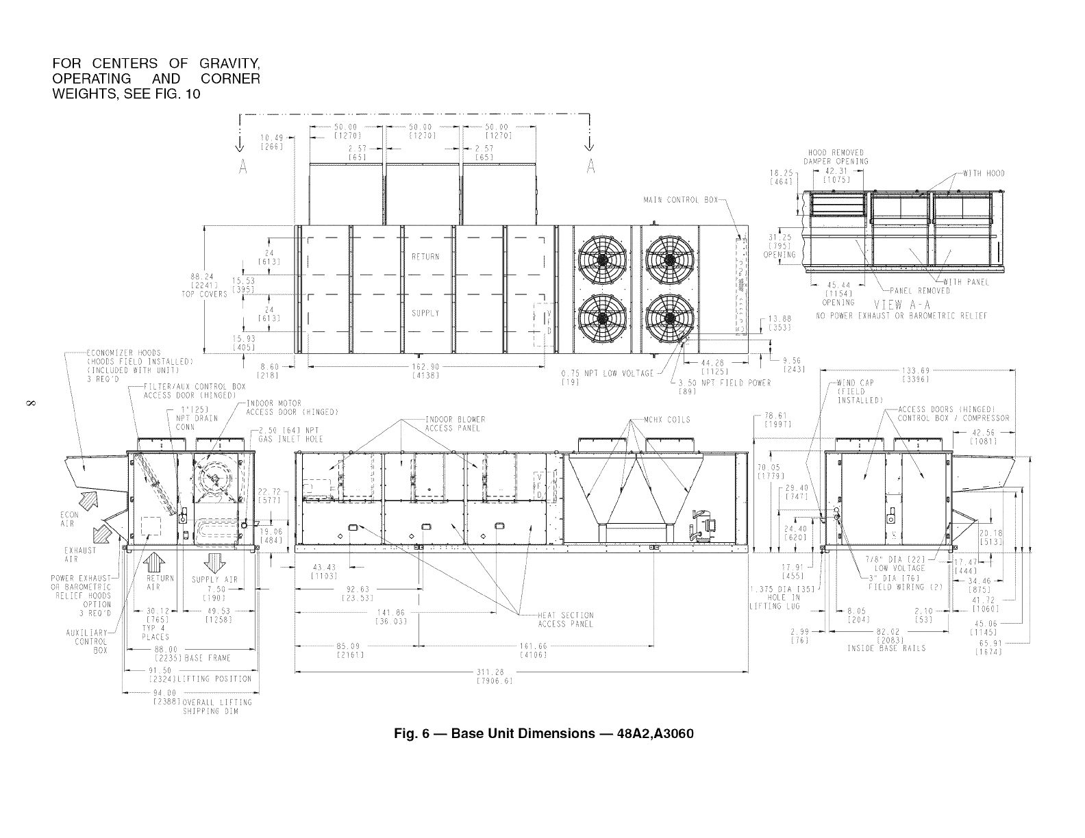
FOR CENTERS OF GRAVITY,
OPERATING AND CORNER
WEIGHTS, SEE FIG. 10
CONOVlZ r_ nO0'S
(HOODS F L© INS A_ LD
(INCLu) D ,/,iT UN T)
3 RE©'
CON
A.R
X AUST
AIR
POWR
0 BARO\I T;;iC
Li F HOODS
OPTION
CONTROL
80X
I
: _ !10 O0
_r 1-
24
[6/ ]
88 24 /5 53
[22411
0°COVERS {3951 f 1
24
I SUPP 'f _ I
5 95
{405] i i
860 _ _ 16290
2!8] 4 38]
F _ LRiAUX CON RO BOX
ACCESS 1000_ (H NG t /I N3OOR '400
RETUR
1
,,i,
\IAI CONT:_Ok BOX \,',,,
..L \'\
o1
?L
@:i
c
/25]
075 NPi LOW VOL ASE / /
[191 -3 50 NP _ItLD DOWLR
891
HOOFs'R{\IOVR f)
DAMPER OPt}, I NG
/8 25 _ 42 31
14641 i i i075]
56
[243]
15 88
353]
/_ 6N HOOD
//-
,, ,I
L is4,, J "' \/W!T _'A,
/54] " PAI,,,L REMOV D
OPE\IN{ Yi W A A
0 >06 _, [XHAsS 0 A'iOV T,, C < L Fr
13369
5396]
ji INS A Lb')
Y
Fig. 6-- Base Unit Dimensions -- 48A2,A3060

NOTES:
1• Weights include economizer.
2. @ center of gravity.
3• Unit clearances:
Top of units: no overhang
Condenser coil: 4' - 0" [1219]
Economizer side: 6' - 0" [1829]
Heat side: 4'- 0" [1219]
Filter access side: 10' - 0" [3048] (for
removal of evaporator coil)
4. For smaller service and operational clearances,
contact Carrier application engineering depart-
ment,
5. Dimensions in [ ] are in millimeters. All other
dimensions are in inches.
i0 i,2
P6i
2 9i6 _,
v--.............50 ........,-_ 56
P,3 , [ '0]
..... I
1
CC,] RO[
BOX
, '_Iil C01,1 IOL
BOX
//
'L3 i/2' 89] NPT LID °OW i
4-3/4; 9] NP] OW VOLTAG
75 /8
1/857]
[76]
82 / i}Z
12084]
5 "5/32
195]
45 //i6
[1145]
41 23/32
11060]
Fig. 7-- Base Unit Dimensions -- 48A4,A5020-035

S
NOTES:
1. Weights include economizer.
2. @ center of gravity.
3. Unit clearances:
Top of units: no overhang
Condenser coil: 4' - O" [1219]
Economizer side: 6' - O" [1829]
Heat side: 4' - O" [1219]
Filter access side: 10' - O" [3048] (for removal of
evaporator coil)
4. For smaller service and operational clearances, contact
Carrier application engineering department,
5. Dimensions in [ ] are in millimeters. All other dimensions
are in inches. Ti6s] i T
OP RAT]NC
u IT s ZE ,_,R'F? ,...............;i......................................................................................................................................................co_\ _ s[ GH _ss
48#,1\5 l, ),4 56 9 78' 3 8 i_2' 132, 1,88 i555 ii, 27
_8A4_'_5_0_1_S_050 5_89 9 _ 7_8_ 3 9 i/_8 _ i320 i52_ i i54_ i _60_ i
[._-] VY , "_ ....
, % ......... ;
i 28 ]
]2 i5/6
[329]
:,i I..........
:1so:
_ 88 I /4
[274'1
i TOi (OiEiS
631,32
39,8
[321
COl,iO ,s
i [URI/ ]
5Ui>J>L
j/i [381 NP[
(#S ]NL]I HOiE
23 2/32
[601 ]
3
...............................................................................................................................................................................J
_N J S /,',[ 611 x A :' CO_iNF! ,',E 6i ',kal !
48A4iAS(D,N,S)050 2/ : 2868 ii,_> 59 61 00 26
*Operating weight includes largest indoor fan motor, microchannel heat
exchanger, modulating _ower exhaust (variable air volume units), and variable
frequency drive (variable air volume units).
73 //8
[1857]
u3/4
971
j:9 13/3?
[ 47]
DOORS (H[NGEI))
CONIRO[ BOX COMPRESSOR
42 5/8
[/083]
[10601
I
401 8 49 31,52
i C19] ] 269 50
[38/}]
...................................................................................... 2i5 1332 .................................
i54ZI
/
24 /3/32 7/8' 122i DIA
[620] LOW VO_IAGE
8 i/16
[2051 _ 1761 DIA
FIELD WIRING (2)
323/32
19b] _2 3/32
153]
INSIDE BASE
3 _ ¼s2 i,s2 iK[[:S
[,%1 120843
Fig. 8 -- Base Unit Dimensions -- 48A4,A5040-050

I
$
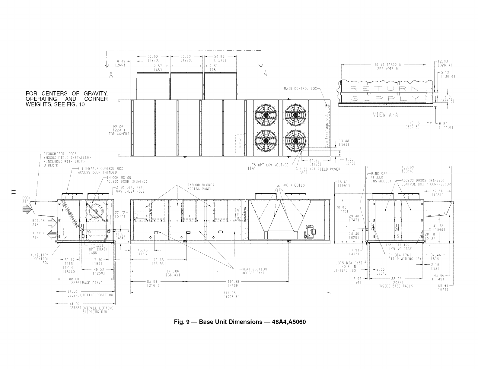
FOR CENTERS OF GRAVITY
OPERATING AND CORNER
WEIGHTS, SEE FIG. 10
_- C0",0[,1i Z HOOS
(,OODS i LI) iNS-AL b)
([NCLUD _; W PH UN T)
0 00
0 49_ _ [1270]
2661 j [65]b:' .
_S0 00 _S0 00
1270 i [10
Ji
i :>'65]
T
(01,,
3 ,_EO'D
/
/
AUX IAR" /
CONT;_0L
OX
_IL ERiLLX CON RO BOX
/ACCESS DOOR ( ZN6 D)
/IN:(',OR VO OR
A,';{ESS O00R (H N6 )
2:)0 6A] NP
':'AS NL R HOLE
_'_ 30 12 _4 /,%0
[765i [/90
TYP 4 49 53 -
:'LACES [I _81
88 00 ...................................................
[2235] BASE AI,/E
43 3
[1103!
/4 8(:
36031
_85 09
[2 6 i
1
$
VAIN_,,£CONTROL BOX ,,,,,,,,,,,,,,,, !.
... . :
5047 [3820:
(SEE NOT 9
161 66
1/106]
N/2 93
j 1328 3]
5i2
[i30 0]
i
J13 h'O
[335 3]
YEW A-A
12 65 97
3?0 8] 177 O]
31 l 28
7906 61
:.... , ......._: ..... . ,..:.
786/
ii9971
oo5
1779]
r
i
i
i
FA- SECTION
ACCESS ANEL
i33 69
3396]
CAP
(F E_;)
INSTAL ED) ,_'?CESS DOORS ([HOED)
, \ CONTROL BOX COMPRESSOR
X
/" _ 4 56
08/]
LIP iNC LUG
7/8" DIA [P2]
_OW VO_'AOE
DIA[ 6]
IE!D WIRING (2)
-805
2041
299_ 8202
[761 IR0831
iN iiE BASE RAILS
[/i461
65 91
[/6i/-
[23881 OVERA_L LiFTINC
SHiPPiNG DiV
Fig. 9 -- Base Unit Dimensions -- 48A4,A5060

NOTES:
1. Weights include economizer or outdoor air damper.
2. _ center of gravity.
3. Unit clearances:
Top of units: no overhang
Condenser coil: 4'- 0" [1219]
Economizer side: 6' - 0" [1829]
Heat side: 4' - 0" [1219]
Filter access side: 10' - 0" [3048] (for removal of evaporator
coil)
4. For smaller service and operational clearances, contact Carrier
application engineering department.
5. Bottom ducts are designed to be attached to accessory roof curb.
If unit is mounted on dunnage, it is recommended that the ducts
be supported by cross braces as done on accessory roof curb.
6. Base unit weights include outdoor air hoods and filters (indoor fan
motor is not included). Add indoor fan motor, FlOPs, and acces-
sories for total operating weight.
7. VAV motor weights include indoor motor, VFD, VFD transducer,
and associated wiring•
8. Dimensions in [] are in millimeters. All other dimensions are in
inches.
9. For side-supply/return applications, a single return and supply
ductwork connection is recommended for covering all three re-
turn and all three supply openings. The entire area around the
duct openings is available for a 1.5" duct flange attachment.
i
-,sS UX T _,i]Olq-SLS ( ){S il I,OT[{ 6)
] 60
48/\2D A3D '36(; 3205
• i
48i28/A!@ 3,36 33 4)
48S4D,At, D 7106 3223}
48/\4E i,5E '356 333
OslZONS SCCESSOTZES (SEE NOT£ 6 )
B;,ROl,[ R C RE EF 4<" sO '
x " i
i\0"1 NOD *C",[R E, AdbTI 67_ 306) i
MO[} 30 li'C [ EXI{AUST i il 2 5 5_ g )
i
• J
2t 1',4 COl, i} CO£L _6
UNIT SIZE
48A2,A3 (D, M, S) 060
48A2,A3 (E, N, T) 060
48A4,A5 (D, M, S) 060
48A4,A5 (E, N, T) 060
OPERATING
WEIGHT*
(Ib)
8386
8626
8426
8676
CENTER OF GRAVITY
(ft - in.)
A B
14- 9 5/8 3- 5 1/4
14-23/8 3-31/4
14-15/8 3-91/4
13-71/4 3-71/4
CORNER WEIGHTS (Ib)
1 2 3 4
1909 1693 2243 2541
2159 1745 2100 2622
1763 2072 2259 2333
2000 2126 2134 2417
UNIT SIZE
48A2,A3 (D, M, S) 060
48A2,A3 (E, N, T) 060
48A4,A5 (D, M, S) 060
48A4,A5 (E, N, T) 060
OPERATING
WEIGHT*
(kg)
3804
3913
3822
3936
CENTER OF GRAVITY
(ram)
A B
4514 1048
4329 997
4310 1150
4146 1099
CORNER WEIGHTS
(kg)
1 2 3 4
866 768 1017 1153
979 792 953 1189
800 940 1024 1058
907 964 968 1096
*Operating weight includes largest indoor fan motor, microchannel heat exchanger, modulating
power exhaust (variable air volume units), and variable frequency drive (variable air volume
units).
Co
CV MQfOR WEZGHTS VAV MOfOR WEZGHFS
LBS (KQ) LBS (_a)(SEE NO E 7)
,_Eou i_F<i:uIuM...........;:iii_i:i........ .....
EFF(]'? {F#,l rPrC'" [7M EFFC'?Irr,l i _TF{:'_'m771
25 HP 230i460 240 (i09 309 /sO) 3ib (170) 444 (20i)
(/8 6_ K_,;' 575 . 240 (i09 ,5i9 /45) 375 (1;"0) j 454 (206) •
30 HP 233=_60 28_ (28) 35J lol, 418 (190) j ,190 (222) i
......................................................................... ' ..................... i
(22 55 Kw) 57t 283 (28) 359 163) 4/8 (190) £94 (224) i
40 HP 230/460 3i2 (69) 4i5 1881 o07 (230) 5tO (249) i
(29 84 Kw) 575 3/2 (169) 410 /86) 507 (P30) 545 (247) i
2
L
1r
A
@
i
i
i
i
i
i
i
i
i
i
i.
i
i
i
i
i
i
i
i
i
i
0i:!I#i 'Of 1441
T
0,!tl " 07414
3
Fig. 10 -- Center of Gravity and Weights -- 48A2,A3,A4,A5060

Table1-- Physical Data -- 48A2,A3,A4,A5 Units
UNIT 48A2,A3,A4,A5
NOMINAL CAPACITY (tons)
BASE UNIT
OPERATING WEIGHT (Ib)
COMPRESSOR
Quantity ... Type (Ckt l/Ckt 2)
Number of Refrigerant Circuits
Oil
REFRIGERANT TYPE
Operating Charge (Ib-oz)
Circuit 1
Circuit 2
MCHX CONDENSER*
Quantity
Total Face Area (sq ft)
CONDENSER FAN
Nominal Cfm
Quantity... Diameter (in.)
Motor Hp
EVAPORATOR COIL
Tube Size (in.)
Rows ... Fins/in.
Total Face Area (sq ft)
EVAPORATOR FAN
Quantity ... Size (in.)
Type Drive
Nominal Cfm
Motor Hp
Motor Frame Size
Motor Bearing Type
Maximum Allowable Rpm
Motor Pulley Pitch Diameter
Nominal Motor Shaft Diameter (in.)
Fan Pulley Pitch Diameter (in.)
Nominal Fan Shaft Diameter (in.)
Belt Quantity
Belt Type
Belt Length (in.)
Pulley Center Line Distance (in.)
Factory Speed Setting (rpm)
FURNACE SECTION
Supply Line Pressure Range
Rollout Switch Cutout
Temp (F)t
Burner Orifice Diameter (in....drill size)
Natural Gas Std
Liquid Propane AIt
Thermostat Heat Anticipator Setting
Stage 1 (amps)
Stage 2 (amps)
Gas Input (Btuh) Stage 1
(Low Heat/High Heat)
Stage 2
(Low Heat/High Heat)
Efficiency (Steady State) (%)
Temperature Rise Range
(Low Heat/High Heat)
Manifold Pressure (in, wg)
Natural Gas Std
Liquid Propane AIt
Gas Valve Quantity
HIGH-PRESSURE SWITCH (psig)
Cutout
Reset (Auto.)
MIXED-AIR FILTERS
Quantity ... Size (in,) Standard
Pleated
5
184T
4.8
1
BX56
56
16.0-18.7
717
020DIE20 I 025DIE25 I 027DIE27 I030DIE30
See Unit Weights Table
I
2ZP67/1 ZP90 2 _ ZP90/1 .ZP90 I 2 ZP90/1 ZP90 2ZP72, 2..ZP72
2 2 I 2 2
Precharged Precharged Precharged Precharged
R-410A
14-14 I 20-6 I 20-6 I 15-2
11-13 12-13 12-13 15-5
1 I 1 I 1 I t
32.9 32.9 32.9 32.9
Propeller Type
19,500 I 19,500 I 19,500 I 19,500
2 30 2 30 9 30 9 .. 30
1 1 1 1
Cross-Hatched Copper Tubes, Aluminum Plate Fins with Intertwined Circuits
" I " I " I "
3...15 4...14 4...15 4. 15
31.7 31.7 31.7 31.7
Centrifugal Type
2...20X 15
Belt
8,000
10 I 15215T 254T
Ball
1200
4.4 I 5.7
13/8 15/8
8.6 9.1
115/16
BXSO 5VX530
63 53
15.6-18.4 15.0-17.9
924 1096
225
.111 ...34
.089 ... 43
0.1
0.1
262,500/394,000
350,000/525000
81
15-45/35-65
3.5
3.5
2
4.8
1
BX56
56
15.6-18.4
717
2...20X 15
Belt
10,000
10
215T
Ball
1200
6.1
115/16
1
5VX570
57
15.6-18.4
962
15
254T
5.5
D
2
5VX530
53
150-17.9
1106
2..20X15
Belt
11,000
10 15 20
215T 254T 256T
Ball
1200
4.4 49 59
13/8 15/8 15_
9.4 8.1 .
115/16
2 2 I 2
BXSO 5VX500 I 5VX530
50 50 53
15.6-18.4 15.0-17.9 15.0-17.9
848 1059 1187
5.0-in wg min/13 5-in. wg max.
225
111 _.34
069 _ 43
01
01
262,500/394,000
350,000/525,000
81
15-45/35-65
225
.111 ...34
.089 ... 43
0.1
0.1
262,500/394,000
350000/525000
81
15-45/35-65
3.5
3.5
2
3.5
3.5
2
2...20X 15
Belt
12,000
10 15
215T 254T
Ball
1200
4.4 5.7
1s/8 1s/s
9.0 9.1
115/16
2 2
BX50 5VX530
50 53
15.6-18.4 15.0-17.9
856 1096
225
.111 ...34
.089 ... 43
0.1
0.1
262,500/394,000
350,000/525,000
81
15-45/35-65
3.5
3.5
2
650 650 650 650
500 500 500 500
10...20 x24 x2 10 ... 20 x24x2 10...20 x24 x2 10...20x24 x2
5...20 x20 x4 5... 20 x20x4 5...20 x20 x4 6...20x20 x4
5...20 x24 x4 5...20x24x4 5...20 x24 x4 6...20x24 x4
OUTDOOR-AIR FILTERS 8 .16x25x2
Quantity...Size (in.) 4...20 x 25 x 2
POWER EXHAUST Direct Drive, Single-Phase Motors (Factory-Wired for High Speed Operation), Forward-Curved Fan Wheels
with Backdraft Dampers on Each Fan Housing
Motor, Quantity...Hp 4...1
Fan, Diameter...Width/in.! 11 x 10
LEGEND Sizes 040 and 050: Circuit 1 uses the left condenser coil, Circuit 2 the right.
MCHX-- Microchannel Heat Exchanger
*Sizes 020 to 027: Circuit 1 uses the lower portion of condenser coil, Circuit 2 uses the
upper portion.
Sizes 030 and 036: Circuit 1 uses the upper portion of condenser coil, Circuit 2 uses the
lower portion.
20
256T
5.9
1%
8.7
2
5VX530
53
15.0-17.9
1187
Size 060: Circuit A uses the two MCHX coils near the bulkhead, Circuit B uses the two
MCHX coils near the control box.
1-Rollout switch is manual reset.
]3

Table I -- Physical Data -- 48A2,A3,A4,A5 Units (cont)
UNIT 48A2,A3,A4,A5
NOMINAL CAPACITY (tons)
BASE UNIT
OPERATING WEIGHT (Ib)
COMPRESSOR
Quantity ... Type (Ckt l/Ckt 2)
Number of Refrigerant Circuits
Oil
REFRIGERANT TYPE
Operating Charge (Ib-oz)
Circuit 1
Circuit 2
MCHX CONDENSER*
Quantity
Total Face Area (sq ft)
CONDENSER FAN
Nominal Cfm
Quantity... Diameter (in.)
Motor Hp
EVAPORATOR COIL
Tube Size (in.)
Rows ... Fins/in.
Total Face Area (sq ft)
EVAPORATOR FAN
Quantity ... Size (in.)
Type Drive
Nominal Cfm
Motor Hp
Motor Frame Size
Motor Bearing Type
Maximum Allowable Rpm
Motor Pulley Pitch Diameter
Nominal Motor Shaft Diameter (in.)
Fan Pulley Pitch Diameter (in.)
Nominal Fan Shaft Diameter (in.)
Belt Quantity
Belt Type
Belt Length (in.)
Pulley Center Line Distance (in.)
Factory Speed Setting (rpm)
FURNACE SECTION
Supply Line Pressure Range
Rollout Switch Cutout
Temp (F)t
Burner Orifice Diameter (in ...drill size)
Natural Gas
Liquid Propane
Thermostat Heat Anticipator Setting
Stage 1 (amps)
Stage 2 (amps)
Gas Input (Btuh) Stage 1
(Low Heat/High Heat)
Stage 2
(Low Heat/High Heat)
Efficiency (Steady State) (%)
Temperature Rise Range
(Low Heat/High Heat)
Manifold Pressure (in. wg)
Natural Gas
Liquid Propane
Gas Valve Quantity
HIGH-PRESSURE SWITCH (psig)
Cutout
Reset (Auto.)
MIXED-AIR FILTERS
Quantity ... Size (in.) Standard
Pleated
Std
AIt
Std
AIt
15
254T
5.1
15/s
8.7
2
5VXS00
5O
15.0-17.9
1025
035DIE35 I 040DIE40 I 050DIE50 I 060DIE60
See Unit Weights Table
I I I
2 ... ZP67/2...ZP103precharged2I2...ZPlO3/2...ZPlO3precharged2 I2...ZP120/2...ZP120precharged2 I2...SM154/2...ZP154precharged2
R-410A
22-0 I25-8 I31-11 I30-10
30-11 26-0 31-11 38-5
t I 2 I 2 I 4
32.9 65.8 65.8 1052
Propeller Type Shrouded Axial Type
19500 I32000 I35,000 40000
2..30 4. 30 4...30 4..30.5
1 1 1 1
Cross-Hatched Copper Tubes Aluminum Plate Fins
1/2 I1/2
6... 16 4...17
31.3 48.1
2...20X 15
Belt
14,000
20 25
256T 284T
Ball
1300
5.7 8.2
t
8,7
115/16
5VX530 5VX550
t50178
15.0-17.. c
1147 1247
225
.111...34(Iow)/.120...31
(high)
,089,..43
0.1
0.1
262,500/800,000
350,000/800,000
81
15-45/30-80
3.5
3.5
2
15
254T
5.3
15/8
9.5
2
5VX530
53
15.0-
17.9
976
with Intertwined Circuits
" I I
4.17 6..16
31.3 31.3
Centrifugal Type
2...20X 15 2...20X 15
Belt
16000
20 25 30
256T 284T 286T
Ball
1300
5.7 _:_/_ i!i
15/8
9.5 .
115/16
2 I 2 2
5VX550 I5VX590 5VX570
55 59 57
15.0- 14.6- 14.6-
17.9 17.6 17.6
1050 1182 1234
Belt
18,000
20 25
256T 284T
Ball
1300
5.7 6.2
15/8 17/8
9.5 9.5
115/16
5VX550 5VX570
55 57
15.0- 14.6-
17.9 17.6
1050 1142
5,0-in. wg min/13.5-in, wg max.
225
.120.,.31
.098 .,.41
0.24
0.13
300,000/600,000
400,000/800,000
81
10-40/30-60
225
.120 ... 31
.096 ... 41
0.1
0.1
300,000/600,000
400,000/800,000
81
10-40/30-80
3.5
3.5
2
3.5
3.5
2
3...20X 15
Belt
24,000
25 30
284T 1200
5.3 5.9
17/8 17/8
9.1 9.5
115/16
5VX530 5VX550
53 55
15.2- 14.7-
17.5 17.2
1019 1087 .
225
.120...31
.096...41
0.1
0.1
582,000/873,000
776,000/1,164,000
82
10-40/30-60
3.3
3.3
3
650 650 650 650
500 500 500 500
10... 20 x 24 x2 10 ... 20 x 24 x 2 10 ... 20 x24x 2 16...20 x 24 x 2
5...20x20x4 5... 20 x20x4 5...20x20x4 8...20 x 20 x4
5...20x24x4 5...20 x24x4 5...20x24x4 8...20 x 24 x 4
OUTDOOR-AIR FILTERS
Quantity...Size (in.) 8...16 x 25 x 2 I 8 16x25x2 I 8...16 x 25 x 2 I 12. 16x25x24...20 x 25 x 2 4...20 x 25 x 2 4...20 x 25 x 2 6...20 x 25 x 2
POWER EXHAUST Direct Drive, Single-Phase Motors (Factory-Wired for High Speed Operation) Forward-Curved Fan Wheels
with Backdraft Dampers on Each Fan Housing
Motor,Quant,ty...Rp 4...1 I 4...1 I 4t I 6...1
Fan, Diameter...Width/in.) 11 x 10 11 x 10 11 x 10 11 x 10
LEGEND Sizes 040 and 050: Circuit 1 uses the left condenser coil, Circuit 2 the right.
MCHX i Microchannel Heat Exchanger
*Sizes 020 to 027: Circuit 1 uses the lower portion of condenser coil, Circuit 2 uses the
upper portion.
Sizes 030 and 035: Circuit 1 uses the upper portion of condenser coil, Circuit 2 uses the
lower portion.
4O
324T
6.5
21/8
9.5
3
5VX570
57
14.2-
17.0
1197
Size 060: Circuit A uses the two MCHX coils near the bulkhead, Circuit B uses the two
MCHX coils near the control box.
1-Rollout switch is manual reset.
14

CAUTION-NOTICE TO RIGGERS:
iiiil; i i_ i__i ALL PANELS MUST BEIN PLACE WHEN RIGGING.
NOTE: Rig with four cables and spread with two 92 inch (2337 MM) spreader bars.
Maintain a distance of 74 inches (1880 MM) from top of unit to eyehook,
CENTER
OF
GRAVITY
NOTE:
Add 3t2 Ibs (t42 kg) for export crating. (020-035 units)
Add 346 Ibs (157 kg)for export crating. (040-050 units)
Add 588 Ibs (266 kg) for export crating. (060 units)
Add the weights shown below for round tube plate fin coils
MODEL WEIGHT A BC
LBS KGS INCHES MM INCHES MM INCHES MM
50A2tA3 020 4599 2086 87.7 2227 98.0 2489 44.9 1141
48A21A3D 020 4689 2127 87.7 2227 96.8 2460 44.5 1130
48A2tA3E 020 4769 2163 87.7 2227 96.3 2446 44.2 1122
50A4/A5 020 4677 2122 87.7 2227 94.2 2394 49.5 1257
48A4/A5D 020 4729 2145 87.7 2227 93.2 2368 49.1 1246
48A41A5E 020 4809 2182 87.7 2227 92.8 2358 48.7 1237
50A2tA3 025 4735 2148 87.7 2227 98.5 2503 44.7 1135
48A21A3D 025 4825 2189 87.7 2227 97.4 2474 44.3 1125
48A2tA3E 025 4905 2225 87.7 2227 96.9 2460 44.0 1117
50A4/A5 025 4813 2183 87.7 2227 94.9 2410 49.1 1248
48A4/A5D 025 4865 2207 87.7 2227 93.9 2385 48.7 1238
48A41A5E 025 4945 2243 87.7 2227 93.5 2374 48.4 1229
50A2tA3 027 4801 2178 87.7 2227 97.2 2468 44.1 1120
48A21A3D 027 4891 2219 87.7 2227 96.1 2440 43.7 1110
48A2tA3E 027 4971 2255 87.7 2227 95.6 2427 43.4 1102
50A4/A5 027 4879 2213 87.7 2227 93.6 2377 48.5 1232
48A4/A5D 027 4931 2237 87.7 2227 92.6 2353 48.1 1221
48A41A5E 027 5011 2273 87.7 2227 92.2 2343 47.7 1213
50A2tA3 030 4832 2192 87.7 2227 95.2 2417 44.4 1128
48A21A3D 030 4922 2233 87.7 2227 94.1 2389 44.0 1118
48A2tA3E 030 5002 2269 87.7 2227 93.6 2376 43.7 1110
50A4/A5 030 4910 2227 87.7 2227 91.6 2327 48.8 1238
48A4/A5D 030 4962 2251 87.7 2227 90.7 2303 48.3 1228
48A41A5E 030 5042 2287 87.7 2227 90.3 2293 48.0 1219
50A2tA3 035 5134 2329 87.7 2227 95.9 2435 41.5 1053
48A21A3D 035 5339 2422 87.7 2227 94.8 2408 41.0 1043
48A2tA3E 035 5499 2494 87.7 2227 94.2 2393 40.7 1035
50A4/A5 035 5327 2416 87.7 2227 92.7 2353 45.7 1161
48A4/A5D 035 5379 2440 87.7 2227 91.7 2329 45.3 1151
48A41A5E 035 5539 2513 87.7 2227 91.2 2317 44.9 1141
50A2tA3 040 5564 2524 87.7 2227 121.8 3093 41 1052
48A2tA3D 040 5769 2617 87.7 2227 120.3 3056 41 1041
48A2tA3E 040 5929 2690 87.7 2227 118.8 3018 41 1034
50A4/A5 040 5757 2612 87.7 2227 116.5 2958 45.4 1152
48A4/A5D 040 5809 2635 87.7 2227 115.1 2924 44.9 1142
48A41A5E 040 5969 2708 87.7 2227 113.9 2893 44.6 1132
50A2tA3 050 5744 2606 87.7 2227 119.5 3035 42 1059
48A2tA3D 050 5949 2699 87.7 2227 118.1 2999 41 1048
48A2tA3E 050 6109 2771 87.7 2227 116.6 2962 41 1040
50A4/A5 050 5937 2693 87.7 2227 114.3 2904 45.5 1156
48A4/A5D 050 5989 2717 87.7 2227 112.9 2868 45.1 1145
48A41A5E 050 6149 2789 87.7 2227 111.7 2837 44.7 1135
50A2tA3 060 8311 3770 161.7 4106 184.9 4698 43 1102
48A2tA3D 060 8386 3804 161.7 4106 177.6 4511 41 1049
48A2tA3E 060 8626 3913 161.7 4106 170.4 4329 39 996
50A4/A5 060 8526 3868 161.7 4106 176.5 4484 47.1 1196
48A4/A5D 060 8426 3822 161.7 4106 169.6 4309 45.2 1149
Unit Size --cccc e20:027 030035 040 050 060 48A4/ASE 060 8676 3936 161.7 4106 163.3 4147 43.2 1097
Co_Rer Tube/Aluminum Fin Cond Coil_ 1001bst45kq _ f 15elbs[68k.} _ 1871bs_85k=q} t3171bs _144k_L)_ 261bst12kql I ..............
_ _ _ _ _ _ ,_ _ _ The weight d_stnbut_onand center of grawty _nformatlon are representative of a standard unit and include the impact of factory _nstalled economizer, largest IFN
Copper Tube/Copper Fm Cond Cod 263 Ibs (119 kg) 370 Ibs (168 kg) 512 Ibs 1232 kg) 751 Ibs (341 kg) 677 Ibs {307 kg)
I.| | | | | kg) I motor & VFD, modulatin power exhaust (both facto installed and tield installed options), and electric heat (on 50A onl ). 50EJ 500305 REV. 3.0
Fig. 11 -- Rigging Information

UNIT
48A2D,A3D
48A2E,A3E
48A4D,A5D
48A4E,A5E
020
3825
3905
3865
3945
Table 2 -- Unit Operating Weights (Ib)
025 027 030 035
3961 3961 3992 4340
4041 4041 4072 4500
4001 4001 4032 4380
4081 4081 4112 4540
040
4770
4930
4810
4970
050
4914
5074
4954
5114
060
7066
7306
7106
7356
Table 3-- Option and Accessory Weights (Ib)
UNIT
Barometric Relief
Non-Modulating Power Exhaust
Modulating Power Exhaust
Cu Tube/Alum Fin Cond. Coil
Cu Tube/Cu Fin Cond. Coil
OA Hood Crate/Packaging
(Less Hoods' Weight)
Outdoor Air Hoods/Filters (included with unit)
Hail Guards
Roof Curb (14-in.)
020 I025 I 027 I 030 I035 I 040 I 050 I060
OPTIONS/ACCESSORIES (WEIGHT ADDERS) (Ib)
300 300 300 300 300 300 300 450
450 450 450 450 450 450 450 675
500 500 500 500 500 500 500 725
100 100 100 150 150 187 317 26
263 263 263 370 370 512 751 677
45 45 45 45 45 45 45 45
(Packaging Only)
170I 170I 170I 170I 170I 170I 170I 255
73 73 I73 I73 I73 I146 I146I219
365 365 365 365 365 410 410 540
Table 4 -- Constant Volume Fan
Motor Weights (Ib)
MOTOR HIGH PREMIUM
HP UNIT VOLTAGE EFFICIENCY EFFICIENCY
IFM IFM
230/460 78 94
5HP 575 78 92
230/460 118 164
10 HP 575 118 156
230/460 150 217
15 HP 575 150 220
230/460 212 250
20 HP 575 212 258
230/460 240 309
25 HP 575 240 319
230/460 283 355
30 HP 575 283 359
230/460 372 415
40 HP 575 372 410
Table 5-- Variable Volume Fan Motor Weights (Ib)
MOTOR HIGH PREMIUM
HP UNIT VOLTAGE EFFICIENCY EFFICIENCY
IFM IFM
230/460 136 152
5HP 575 147 161
230/460 187 233
10 HP 575 187 225
230/460 249 316
15 HP 575 249 319
230/460 347 385
20 HP 575 311 357
230/460 375 444
25 HP 575 375 454
230/460 418 490
30 HP 575 418 494
230/460 507 550
40 HP 575 507 545
LEGEND AND NOTES FOR TABLES 2-5
LEGEND
Cu -- Copper
FlOP -- Factory-Installed Option
HP -- Horsepower
IFM -- Indoor-Fan Motor
OA -- Outdoor Air
VAV -- Variable Air Volume
VFD -- Variable Frequency Drive
*Outdoor-air hoods and filters included in base unit weights; indoor-fan motors are NOT
included.
NOTES:
1. Base unit weight includes OA hoods (economizer or outdoor air damper); does not include
an indoor-fan motor. ADD indoor motor, FlOPs and Accessories for TOTAL operating weight.
2. VAV motor weights include the indoor motor and the VFD, optional VFD bypass, VFD trans-
ducer and associated wiring.
[d

Table 6 -- Evaporator Fan Motor Data
MOTOR
UNIT FAN
SIZE MOTOR MOTOR SHAFT MOTOR SHEAVE
48A2,A3, HP SHAFT DIA. SPEED SHEAVE PITCH
A4,A5 (in.) (rpm) (P/N) DIAMETER
(in .)
5 1.125 717 BKS5 4.8
020 10 1.375 924 2BK50 4.4
15 1.625 1096 2B5V56 5.7
5 1.125 717 BK55 4.8
025 10 1.375 962 1B5V60 6.1
15 1.625 1106 2B5V54 5.5
10 1.375 848 2BK50 4.4
027 15 1.625 1059 2B5V56 4.9
20 1.625 1187 2B5V58 5.9
10 1.375 856 2BK50 4.4
030 15 1.625 1096 2B5V56 5.7
20 1.625 1187 2B5V58 5.9
15 1.625 1025 2B5V50 5.1
035 20 1.625 1147 2B5V56 5.7
25 1.875 1247 2B5V62 6.2
15 1.625 976 2B5V52 5.3
040 20 1.625 1050 2B5V56 5.7
25 1.875 1182 2B5V74 7.5
20 1.625 1050 2B5V56 5.7
050 25 1.875 1142 2B5V62 6.2
30 1.875 1234 2B5V66 6.7
25 1.875 1019 3B5V52 5.3
060 30 1.875 1086 3B5V58 5.9
40 2.125 1197 3B5V64 6.5
NOTES:
1. Motor shaft speed is 1750 rpm. The fan shaft diameter is 115/16
FAN
BUSHING FAN SHEAVE
DIAMETER SHEAVE PITCH
(in.) (P/N) DIAMETER
(in .)
NONE - 1.125 1B5V124 12.4
NONE - 1.375 2B5V86 8.6
B - 1.625 2B5V90 9.1
NONE - 1.125 1B5V124 12.4
H - 1.375 1B5V110 11.1
B - 1.625 2B5V86 8.7
NONE - 1.375 2B5V94 9.4
B - 1.625 2B5V90 8.1
B - 1.625 2B5V86 8.7
H - 1.375 2B5V94 9.0
B - 1.625 2B5V90 9.1
B - 1.625 2B5V86 8.7
B - 1.625 2B5V86 8.7
B - 1.625 2B5V86 8.7
B - 1.875 2B5V86 8.7
B - 1.625 2B5V94 9.5
B - 1.625 2B5V94 9.5
B - 1.875 2B5V110 11.1
B - 1.625 2B5V94 9.5
B - 1.875 2B5V94 9.5
B - 1.875 2B5V94 9.5
B - 1.875 3B5V90 9.1
B - 1.875 3B5V94 9.5
B - 2.125 3B5V94 9.5
BUSHING
DIAMETER
(in.)
B - 1.9375
B - 1.9375
B - 1.9375
B - 1.9375
B - 1.9375
B - 1.9375
B - 1.9375
B - 1.9375
B - 1.9375
B - 1.9375
B - 1.9375
B - 1.9375
B - 1.9375
B - 1.9375
B - 1.9375
B - 1.9375
B - 1.9375
B - 1.9375
B - 1.9375
B - 1.9375
B - 1.9375
B - 1.9375
B - 1.9375
B - 1.9375
BELT
(Quantity)
(P/N)
BX56
(2) BX50
(2) 5VX530
BX56
5VX570
(2) 5VX530
(2)BX50
(2) 5vx530
(2) 5vx530
(2)BX50
(2) 5vx530
(2) 5vx530
(2) 5vx500
(2) 5vx530
(2) 5vx530
(2) 5vx530
(2) 5vx550
(2) 5vx590
(2) 5vx550
(2) 5vx570
(2) 5vx570
(3) 5vx530
(3) 5vx550
(3) 5vx570
BELT
TENSION
(Ib at .25 in.)
8
8
9
8
11
9
8
10
11
8
9
11
9
10
11
10
11
11
10
11
13
12
12
14
inches. 2. All indoor fan motors meet the minimum efficiency requirements
as established by the Energy Policy Act of 1992 (EPACT), effective
October 24, 1997.
EXHAUST
AIR
©o
(
q>
RETURN SUPPLY
AIR AIR
CONDENSATE DRAIN
Fig. 12 -- Air Distribution -- Thru-the-Bottom
Step 5_Install Flue Hood
48A2,A3,A4,A5020-050 UNITS -- Flue hood is shipped in-
side gas section of unit. To install, secure flue hood to access
panel. See Fig. 14.
48A2,A3,A4,A5060 UNITS- Flue hood and wind baffle
are shipped inside gas section of unit. To install, secure flue
hood to access panel. Install the two pieces of the wind baffle
over the flue hood. See Fig. 15.
NOTE: When properly installed, flue hood will line up with
combustion fan housing. See Fig. 16.
Step 6 -- Trap Condensate Drain -- See Fig. 4-9
for drain location. Condensate drain is open to atmosphere and
must be trapped. Install a trapped dram at the drain location.
One 1-in. female coupling is provided inside the unit evapora-
tor section for condensate drain connection. A trap at least 4-in.
deep must be used. See Fig. 17. Trap must be installed to pre-
vent freeze-up.
Condensate pans are sloped so that water will completely
dram from the condensate pan to comply with indoor air quali-
ty guidelines. The condensate dram pans are not insulated.
AIR
RETURN AIR @_
SUPPLY AIR@
"<_x"_S
CONDENSATE DRAIN
Fig. 13 -- Air Distribution -- Thru-the-Side
Step 7-- Install Gas Piping -- Unit is equipped for
use with natural gas. Installation must conform with local
building codes or, m the absence of local codes, with the Na-
tional Fuel Gas Code, ANSI Z223.1.
Install manual gas shutoff valve with a Ys-in. _ pressure
tap for test gage connection at unit. Field gas piping must in-
clude sediment trap and union. See Fig. 18. An vs-m. NPT is
also located on the gas manifold adjacent to the gas valve.
Do not pressure test gas supply while connected to unit.
Always disconnect union before servicing. Personal injury
or damage to unit may occur.
IMPORTANT: Natural gas pressure at unit gas connection ]must not be less than 5 m. wg or greater than 13.5 in. wg. I
Size gas-supply piping for 0.5-in. wg lnaxhnum pressure
drop. Do not use supply pipe smaller than unit gas connection.
17

GAS SECTION
ACCESS PANEL
FLUE
HOOD
Fig. 14 nFlue Hood Location
(48A2,A3,A4,A5020-050 Units)
GAS SECTION
ACCESS PANEL
FLUE HOOD ,/
/
I! I BAFFLE I X '',( II
TOP VIEW SIDE VIEW
Fig. 15- Flue Hood Location
(48A2,A3,A4,A5060 Units)
FLUE HOOD
COMBUSTION SHIPPING
FAN HOUSING LOCATION
Fig. 16- Combustion Fan Housing Location
(48A2,A3,A4,A5020-050 Shown)
o o'o J
Fig. 17 -- Condensate Drain Trap Piping Details
(Typical Roof Curb or Slab Mount Shown)
MANUALSHUTOFF_
GAS
| PRESSURE TAP
(1/8" NPT PLUG)
'--- "_---- SEDIMENT TRAP
Fig. 18 -- Field Gas Piping
OPTIONAL STAGED GAS UNITS -- See Table 7 for staged
gas information. Staging pattern is selected during controls
start-up.
For complete information and service instructions for
staged gas control units, see Control Operation and Trouble-
shooting literature.
Step 8 -- Make Electrical Connections
POWER WIRING -- Units are factory wired for the voltage
shown on the unit nameplate.
Provide a unit safety disconnect switch in the main power
supply to each unit (see Fig. 19). Select switch size and mount-
ing location in accordance with applicable local codes or
National Electrical Code (NEC). If combining the functions of
safety disconnect with lnaxilnum overcurrent protection
(MOCP) fuses ("fused disconnect"), coordinate safety switch
size with MOCP size data as marked on unit informative plate.
18

Table 7 -- 48A Series Staged Gas Control
NUMBER OF
STAGES
5 stages
HEAT SIZE
MODEL NUMBER POSITION
5 6,7,8
020
025
027
S 030
035
040
050
035
T 040
050
020
T 025
027
030
T 060
S 060
Low
High
7 stages High
9stages High
11 stages Low
Unit may be equipped with optional factory-installed non-
fused disconnect switch (see Fig. 19). Provide maximum
overcurrent protection devices (fuses or HACR breakers, per
local codes) in branch circuit wiring remote from unit. Observe
requirements of NEC Article 440. Install service switch
upstream of remote fuses if required.
The main power terminal block is suitable for use with
aluminum or copper wire. See Fig. 19. Units have circuit
breakers for compressors, fan motors, and control circuit. The
unit must be electrically grounded in accordance with local
codes, or in absence of local codes, with NEC, ANSI Cl-latest
year.
FIELD POWER SUPPLY -- Unit is factory wired for volt-
age shown on unit nameplate. See Tables 8A and 8B for elec-
trical data.
Field wiring can be brought into the unit from bottom
(through basepan and roof curb) or through side of unit (corner
post next to control box).
A 31/2-in.NPT coupling for field power wiring and a 3/4-in.
NPT coupling for 24-v control wiring are provided in basepan.
In the side post, there are two 21/2-in. (sizes 020-035) or 3-in.
(sizes 040-060) knockouts for the field power wiring. See
Fig. 4-9. If control wiring is to be brought in through the side of
I
I
i
,?,l
ciz I
wcc i
_m
O) w
C3Z
-JZ
Luo
Eo
C3
TB1
FIELD =_
POWER =_]
SUPPLY __
rqN
EQUIP GND
FIELD-INSTALLED DISCONNECT
I
I
I
I
zI
O
D-
C3
d
LU
,7"
OPTIONAL
FACTORY-INSTALLED
DISCONNECT
.FTN
GND
FACTORY-INSTALLED DISCONNECT
LEGEND
GND- Ground
NEC -- National Electrical Code
TB -- Terminal Block
Fig. 19- Field Power Wiring Connections
unit, a Y/s-in. diameter hole is provided in the condenser side
post next to the control box.
Do not route control wiring in the same conduit as power
wiring.
If disconnect box is mounted to corner post, be careful not
to drill or screw into the condenser coil.
LEGEND AND NOTES FOR TABLES 8A AND 8B
LEGEND
FLA -- Full Load Amps
HAOR -- Heating, Air Conditioning and Refrigeration
LRA -- Locked Rotor Amps
MCA -- Minimum Circuit Amps ¢_._R%.
MOHX- Uicrochannel Heat Exchanger _//_l,_ o
MOCP -- Maximum Overcurrent Protection
NEC -- National Electrical Code
RLA -- Rated Load Amps
RTPF -- Round Tube Plate Fin Coil O S
&/ST_O
*Fuse or HACR circuit breaker per NEC.
NOTES:
1. In compliance with NEC requirements for multimotor and combination load
equipment (refer to NEC Articles 430 and 440), the overcurrent protective
device for the unit shall be fuse or HACR breaker. The Canadian units may
be fuse or circuit breaker.
2. Unbalanced 3-Phase Supply Voltage
Never operate a motor where a phase imbalance in supply voltage is
greater than 2%. Use the following formula to determine the percent of volt-
age imbalance.
% Voltage imbalance
max voltage deviation from average voltage
= 100x average voltage
Example: Supply voltage is 460-3-60.
A8 c AB = 452 v
BC = 464 v
AC = 455 v
Average Voltage = 452 + 464 + 455
3
1371
3
= 457
Determine maximum deviation from average voltage.
(AB) 457 - 452 = 5 v
(BC) 464 - 457 = 7 v
(AC) 457 - 455 = 2 v
Maximum deviation is 7 v.
Determine percent of voltage imbalance.
7
% Voltage Imbalance = 100 x 457
= 1.53%
This amount of phase imbalance is satisfactory as it is below the maximum
allowable 2%.
IIMPORTANT: If the supply voltage phase imbalance is more than 2%, I
contact your local electric utility company immediately. I
19

Table 8A -- 48A2,A3,A4,A5020-060 Units Without Convenience Outlet
UNIT
SIZE
48A
020
025
VOLTAGE COMPRESSOR CONDENSER EVAPORATOR POWER
VOLTAGE RANGE Cir A, No. 1 Cir A, No. 2 Cir B, No. 1 Cir B, No. 2 FAN MOTOR FAN MOTOR EXHAUST
3 PH, 60 Hz
208
230
380
46O
575
208
230
380
46O
575
POWER SUPPLY
Min Max RLA LRA RLA LRA RLA LRA RLA LRA Qty FLA Hp
187 229 22.4 149 22.4 149 29.5 195 -- -- 2
207 253 22.4 149 22.4 149 29.5 195 -- -- 2
342 418 11.0 88 11.0 88 16.7 123 -- -- 2
414 508 10.6 75 10.6 75 14.7 95 -- -- 2
518 632 7.7 54 7.7 54 12.2 80 -- -- 2
187 229 29.5 195 29.5 195 29.5 195 -- -- 2
207 253 29.5 195 29.5 195 29.5 195 -- -- 2
342 418 16.7 123 16.7 123 16.7 123 -- -- 2
414 508 14.7 95 14.7 95 14.7 95 -- -- 2
518 632 12.2 80 12.2 80 12.2 80 -- -- 2
5
6.5
(ea) 10
15
5
6.6 10
(ea)
15
5
3.6
(ea) 10
15
5
3.3
(ea) 10
15
5
2.6 10
(ea)
15
5
6.5 10
(ea)
15
5
6.6
(ea) 10
15
5
3.6 10
(ea)
15
5
3.3 10
(ea)
15
5
2.6
(ea) 10
15
FLA FLA (total) MCA MOCP*
-- 111.4 125
16.7 23.6 135.0 150
-- 125.8 150
30.8 23.6 149.4 175
-- 145.1 175
46.2 23.6 168.7 200
-- 110.1 125
15.2 23.6 133.7 150
-- 122.9 150
28.0 23.6 146.5 175
-- 140.0 175
42.0 23.6 163.6 200
-- 59.2 70
9.1 14.8 74.0 90
-- 66.8 80
16.7 14.8 81.6 90
-- 76.5 100
24.5 14.8 91.3 110
-- 53.8 60
7.6 12.6 66.4 80
-- 60.2 70
14.0 12.6 72.8 80
-- 68.8 80
21.0 12.6 81.4 100
-- 42.0 50
6.1 9.6 51.6 60
-- 46.9 50
11.0 9.6 56.5 60
-- 54.1 70
17.0 9.6 63.7 80
-- 125.6 150
16.7 23.6 149.2 175
-- 140.0 150
30.8 23.6 163.6 175
-- 159.3 200
46.2 23.6 182.9 225
-- 124.3 150
15.2 23.6 147.9 175
-- 137.1 150
28.0 23.6 160.7 175
-- 154.2 175
42.0 23.6 177.8 200
-- 70.6 80
9.1 14.8 85.4 100
-- 78.2 90
16.7 14.8 93.0 100
-- 87.9 110
24.5 14.8 102.7 125
-- 62.0 70
7.6 12.6 74.6 80
-- 68.4 80
14.0 12.6 81.0 90
-- 77.0 90
21.0 12.6 89.6 110
-- 51.0 60
6.1 9.6 60.6 70
-- 55.9 60
11.0 9.6 65.5 70
-- 63.1 80
17.0 9.6 72.7 80
See Legend and Notes on page 19.
20

Table 8A -- 48A2,A3,A4,A5020-060 Units Without Convenience Outlet (cont)
UNIT
SIZE
48A
027
030
VOLTAGE COMPRESSOR CONDENSER EVAPORATOR POWER
VOLTAGE RANGE Cir A, No. 1 Cir A, No. 2 Cir B, No. 1 Cir B, No. 2 FAN MOTOR FAN MOTOR EXHAUST
3 PH, 60 Hz
208
230
380
46O
575
208
230
380
46O
575
POWER SUPPLY
Min Max RLA LRA RLA LRA RLA LRA RLA LRA Qty FLA Hp
187 229 29.5 195 29.5 195 29.5 195 --
10
6.5
(ea) 15
20
FLA FLA (total) MCA MOCP*
-- 140.0 150
30.8 23.6 163.6 175
-- 159.3 200
46.2 23.6 182.9 225
-- 175.8 225
59.4 23.6 199.4 250
-- 137.1 150
28.0 23.6 160.7 175
-- 154.2 175
42.0 23.6 177.8 200
-- 169.2 200
54.0 23.6 192.8 225
-- 78.2 90
16.7 14.8 93.0 100
-- 87.9 110
24.5 14.8 102.7 125
-- 94.8 110
30.0 14.8 109.6 125
-- 68.4 80
14.0 12.6 81.0 90
-- 77.0 90
21.0 12.6 89.6 110
-- 84.5 110
27.0 12.6 97.1 110
-- 55.9 60
11.0 9.6 65.5 70
-- 63.1 80
17.0 9.6 72.7 80
-- 69.3 90
22.0 9.6 78.9 110
-- 144.3 175
30.8 23.6 167.9 175
-- 163.6 200
46.2 23.6 187.2 225
-- 180.1 225
59.4 23.6 203.7 250
-- 141.0 150
28.0 23.6 164.6 175
-- 158.5 200
42.0 23.6 182.1 200
-- 173.5 225
54.0 23.6 197.1 250
-- 76.9 90
16.7 14.8 91.7 100
-- 86.6 110
24.5 14.8 101.4 125
-- 93.5 110
30.0 14.8 108.3 125
-- 68.9 80
14.0 12.6 81.5 90
-- 77.7 90
21.0 12.6 90.3 110
-- 85.2 110
27.0 12.6 97.8 110
-- 50.6 60
11.0 9.6 60.2 70
-- 58.1 70
17.0 9.6 67.7 80
-- 64.3 80
22.0 9.6 73.9 90
207 253 29.5 195 29.5 195 29.5 195 --
10
6.6 15
(ea)
20
342 418 16.7 123 16.7 123 16.7 123 --
10
3.6
(ea) 15
20
414 508 14.7 95 14.7 95 14.7 95 -- -- 2
518 632 12.2 80 12.2 80 12.2 80 -- -- 2
10
3.3
(ea) 15
20
10
2.6 15
(ea)
20
187 229 23.2 184 23.2 164 23.2 164 23.2 164 2
10
6.5 15
(ea)
20
207 253 23.2 164 23.2 164 23.2 164 23.2 164 2
342 418 12.2 73 12.2 73 12.2 73 12.2 73 2
10
6.6
(ea) 15
20
10
3.6 15
(ea)
20
414 508 11.2 75 11.2 75 11.2 75 11.2 75 2
10
3.3 15
(ea)
20
518 632 7.9 54 7.9 54 7.9 54 7.9 54 2
10
2.6
(ea) 15
20
See Legend and Notes on page 19.
21

Table 8A -- 48A2,A3,A4,A5020-060 Units Without Convenience Outlet (cont)
UNIT
SIZE
48A
035
040
VOLTAGE COMPRESSOR CONDENSER EVAPORATOR POWER
VOLTAGE RANGE Cir A, No. 1 Cir A, No. 2 Cir B, No. 1 Cir B, No. 2 FAN MOTOR FAN MOTOR EXHAUST
3 PH, 60 Hz
208
230
380
46O
575
208
230
380
46O
575
POWER SUPPLY
Min Max RLA LRA RLA LRA RLA LRA RLA LRA Qty FLA Hp
187 229 22.4 149 22.4 149 30.1 225 30.1 225 2
207 253 22.4 149 22.4 149 30.1 225 30.1 225 2
342 418 11.0 88 11.0 88 19.2 140 19.2 140 2
414 508 10.6 75 10.6 75 16.7 114 16.7 114 2
518 632 7.7 54 7.7 54 12.2 80 12.2 80 2
187 229 30.1 225 30.1 225 30.1 225 30.1 225 4
207 253 30.1 225 30.1 225 30.1 225 30.1 225 4
342 418 19.2 140 19.2 140 19.2 140 19.2 140 2
414 508 16.7 114 16.7 114 16.7 114 16.7 114 4
518 632 12.2 80 12.2 80 12.2 80 12.2 80 4
15
6.5
(ea) 20
25
15
6.6 20
(ea)
25
15
3.6
(ea) 20
25
15
3.3
(ea) 20
25
15
2.6 20
(ea)
25
15
6.5 20
(ea)
25
15
6.6
(ea) 20
25
15
3.6 20
(ea)
25
15
3.3 20
(ea)
25
15
2.6
(ea) 20
25
FLA FLA (total) MCA MOCP*
-- 175.8 200
46.2 23.6 199.4 225
-- 192.3 250
59.4 23.6 215.9 250
-- 211.5 250
74.8 23.6 235.1 300
-- 170.7 200
42.0 23.6 194.3 225
-- 185.7 225
54.0 23.6 209.3 250
-- 203.2 250
68.0 23.6 226.8 250
-- 98.2 110
24.5 14.8 113.0 125
-- 105.1 125
30.0 14.8 119.9 125
-- 115.1 150
38.0 14.8 129.9 150
-- 87.5 100
21.0 12.6 100.1 110
-- 95.0 110
27.0 12.6 107.6 125
-- 103.7 125
34.0 12.6 116.3 150
-- 66.3 80
17.0 9.6 75.9 90
-- 72.5 90
22.0 9.6 82.1 100
-- 78.8 100
27.0 9.6 88.4 110
-- 204.2 250
46.2 23.6 227.8 250
-- 220.7 250
59.4 23.6 244.3 300
-- 239.9 300
74.8 23.6 263.5 300
-- 199.3 225
42.0 23.6 222.9 250
-- 214.3 250
54.0 23.6 237.9 250
-- 231.8 250
68.0 23.6 255.4 300
-- 121.8 125
24.5 14.8 136.6 150
-- 128.7 150
30.0 14.8 143.5 150
-- 138.7 175
38.0 14.8 153.5 175
-- 106.3 125
21.0 12.6 118.9 125
-- 113.8 125
27.0 12.6 126.4 150
-- 122.5 150
34.0 12.6 135.1 150
-- 80.5 90
17.0 9.6 90.1 100
-- 86.7 100
22.0 9.6 96.3 110
-- 93.0 110
27.0 9.6 102.6 125
See Legend and Notes on page 19.
22

Table 8A -- 48A2,A3,A4,A5020-060 Units Without Convenience Outlet (cont)
UNIT
SIZE
48A
050
060
(MCHX)
060
(RTPF)
VOLTAGE
3 PH, 60 Hz
208
23O
38O
46O
575
208
23O
38O
46O
575
208
23O
38O
46O
575
VOLTAGE COMPRESSOR CONDENSER EVAPORATOR POWER POWER SUPPLY
RANGE Cir A, No. 1 Cir A, No. 2 Cir B, No. 1 Cir B, No. 2 FAN MOTOR FAN MOTOR EXHAUST
Min Max RLA LRA RLA LRA RLA LRA RLA LRA Qty FLA Hp FLA FLA (total) MCA MOCP*
187 229 33.3 239 33.3 239 33.3 239 33.3 239 4
207 253 33.3 239 33.3 239 33.3 239 33.3 239 4
342 418 23.7 145 23.7 145 23.7 145 23.7 145 4
414 508 17.9 125 17.9 125 17.9 125 17.9 125 4
518 632 12.8 80 12.8 80 12.8 80 12.8 80 4
187 229 51.3 300 51.3 300 51.3 300 51.3 300 4
207 253 51.3 300 51.3 300 51.3 300 51.3 300 4
342 418 26.9 139 26.9 139 26.9 139 26.9 139 4
414 508 22.4 150 22.4 150 22.4 150 22.4 150 4
518 632 19.9 109 19.9 109 19.9 109 19.9 109 4
187 229 51.3 300 51.3 300 51.3 300 51.3 300 6
207 253 51.3 300 51.3 300 51.3 300 51.3 300 6
342 418 26.9 139 26.9 139 26.9 139 26.9 139 6
414 508 22.4 150 22.4 150 22.4 150 22.4 150 6
518 632 19.9 109 19.9 109 19.9 109 19.9 109 6
See Legend and Notes on page 19.
233.5 250
20 59.4 23.6 257.1 300
6.5 -- 252.7 300
(ea) 25 74.8 23.6 276.3 350
269.2 350
30 88.0 23.6 292.8 350
227.1 250
20 54.0 23.6 250.7 300
6.6 -- 244.6 300
(ea) 25 68.0 23.6 268.2 300
259.6 300
30 80.0 23.6 283.2 350
146.7 175
20 30.0 14.6 161.5 175
3.6 -- 157.7 175
(ea) 25 38.0 14.6 171.5 200
163.6 200
3O 43.5 14.6 178.4 200
116,6 125
2O 27.O 12.6 131.2 180
3.3 -- 127.3 180
25 34.O
(ea) 12.6 139.9 180
134.6 150
3O 4O.O 12.6 147.4 178
89.1 110
2O 22.0 9.6 98.7 110
2.6 -- 95.4 110
25 27.O
(ea) 9.6 105.0 125
101,6 125
30 32.0 9.6 111.2 125
320.7 350
25 74.8 35.4 356.1 400
5.5 -- 337.2 400
(ea) 30 88.0 35.4 372.6 450
369.7 450
40 114.0 35.4 405.1 500
313.4 350
25 68.0 35.4 348.8 400
5.8 -- 328.4 400
(ea) 30 80.0 35.4 363.8 400
358.4 450
40 104.0 35.4 393.8 450
169.9 200
25 38.0 22.2 192.1 228
3.7 -- 176.6 200
(ea) 30 43.8 22.2 199.0 228
192.7 228
4O 56.2 22.2 214.9 280
143.7 178
25 34.O 16.9 162.6 178
2.9 -- 181.2 178
3O 4O.O
(ea) 16.9 170.1 200
166.2 200
4O 52.0 18.9 185.1 225
122.6 125
25 27.0 14.4 137.0 150
2.3 -- 128.8 150
30 32.0
(ea) 14.4 143.2 175
140.1 175
40 41.0 14.4 154.5 175
337.7 400
25 74.8 35.4 373.1 400
6.5 -- 354.2 400
(ea) 30 88.0 35.4 389.6 450
386.7 500
40 114.0 35.4 422.1 500
329.8 350
25 68.0 35.4 365.2 400
6.6 -- 344.8 400
(ea) 30 80.0 35.4 380.2 450
374.8 450
40 104.0 35.4 410.2 500
151.9 175
25 38.0 22.2 170.6 200
3.6 -- 159.4 175
3O 43.5
(ea) 22.2 178.3 200
174.4 228
4O 56.2 22.2 193.3 228
151.9 175
25 34.O 16.9 170.6 200
3.3 -- 159.4 175
(ea) 30 40.0 16.9 178.3 200
174.4 228
4O 52.0 18.9 193.3 225
129.0 150
25 27.0 14.4 143.4 150
2.6 -- 135.2 150
30 32.0
(ea) 14.4 149.6 175
146.5 175
40 41.0 14.4 160.9 200
23

Table 8B -- 48A2,A3,A4,A5020-060 Units With Convenience Outlet
COMPRESSOR
VOLTAGE
UNIT VOLTAGE RANGE Cir A, No. 1 Cir A, No. 2 Cir B, No. 1 Cir B, No. 2 FAN MOTOR FAN MOTOR EXHAUST
SIZE 3 PH, 60 Hz
48A
CONDENSER EVAPORATOR POWER CONVENIENCE POWER SUPPLY
Min Max RLA LRA RLA LRA RLA LRA RLA LRA Qty FLA
208 187 229 22.4 149 22.4 149 29.5 195
207 253 22.4 149 22.4 149 29.5 195
75 10.6 75 14.7 95414 508 10.6
230
020
460
OUTLET
575 518 632 7.7 54 7.7 54 12.2 80
187 229 29.5 195 29.5 195 29.5 1952O8
207 253 29.5 195 29.5 195 29.5 195
95 14.7 95 14.7 95
FLA
Hp FLA (total) FLA MCA MOCP*
-- 7.0 118.4 125
5 16.7 23.6 7.0 142.0 150
6.5 -- 7.0 132.8 150
2 (ea) 10 30.8 23.6 7.0 156.4 175
-- 7.0 152.1 175
15 46.2 23.6 7.0 175.7 200
-- 7.0 117.1 125
5 15.2 23.6 7.0 140.7 150
6.6 -- 7.0 129.9 150
2 (ea) 10 28.0 23.6 7.0 153.5 175
-- 7.0 147.0 175
15 42.0 23.6 7.0 170.6 200
-- 3.5 57.3 70
5 7.6 12.6 3.5 69.9 80
3.3 -- 3.5 63.7 70
2 (ea) 10 14.0 12.6 3.5 76.3 90
-- 3.5 72.3 90
15 21.0 12.6 3.5 84.9 100
-- 2.5 44.5 50
5 6.1 9.6 2.5 54.1 60
2.6 -- 2.5 49.4 60
2 (ea) 10 11.0 9.6 2.5 59.0 70
-- 2.5 56.6 70
15 17.0 9.6 2.5 66.2 80
-- 7.0 132.6 150
5 16.7 23.6 7.0 156.2 175
6.5 -- 7.0 147.0 175
2 (ea) 10 30.8 23.6 7.0 170.6 200
15 46.2 -- 7.0 166.3 200
23.6 7.0 189.9 225
5 15.2 -- 7.0 131.3 150
23.6 7.0 154.9 175
6.6 -- 7.0 144.1 150
2 (ea) 10 28.0 23.6 7.0 167.7 175
-- 7.0 161.2 200
15 42.0 23.6 7.0 184.8 225
-- 3.5 65.5 80
5 7.6 12.6 3.5 78.1 90
3.3 -- 3.5 71.9 80
2 (ea) 10 14.0 12.6 3.5 84.5 90
15 21.0 -- 3.5 80.5 100
12.6 3.5 93.1 110
-- 2.5 53.5 60
5 6.1 9.6 2.5 63.1 70
2.6 -- 2.5 58.4 70
2 (ea) 10 11.0 9.6 2.5 68.0 80
15 17.0 -- 2.5 65.6 80
9.6 2.5 75.2 90
-- 7.0 147.0 175
10 30.8 23.6 7.0 170.6 200
6.5 -- 7.0 166.3 200
2 (ea) 15 46.2 23.6 7.0 189.9 225
-- 7.0 182.8 225
20 59.4 23.6 7.0 206.4 250
-- 7.0 144.1 150
10 28.0 23.6 7.0 167.7 175
6.6 -- 7.0 161.2 200
2 (ea) 15 42.0 23.6 7.0 184.8 225
-- 7.0 176.2 225
20 54.0 23.6 7.0 199.8 250
-- 3.5 71.9 80
10 14.0 12.6 3.5 84.5 90
3.3 -- 3.5 80.5 100
2 (ea) 15 21.0 12.6 3.5 93.1 110
-- 3.5 88.0 110
20 27.0 12.6 3.5 100.6 125
-- 2.5 58.4 70
10 11.0 9.6 2.5 68.0 80
2.6 -- 2.5 65.6 80
2 (ea) 15 17.0 9.6 2.5 75.2 90
-- 2.5 71.8 90
20 22.0 9.6 2.5 81.4 100
414 508 14.7
575 518 632 12.2 80 12.2 80 12.2 80
230
025
460
187 229 29.5 195 29.5 195 29.5 1952O8
207 253 29.5 195 29.5 195 29.5 195
95 14.7 95 14.7 95414 508 14.7
23O
O27
46O
575 518 632 12.2 80 12.2 80 12.2 80
See Legend and Notes on page 19.
24

Table 8B -- 48A2,A3,A4,A5020-060 Units With Convenience Outlet (cont)
COMPRESSOR
VOLTAGE
UNIT VOLTAGE RANGE Cir A, No. 1 Cir A, No. 2 Cir B, No. 1 Cir B, No. 2 FAN MOTOR FAN MOTOR EXHAUST
SIZE 3 PH, 60 Hz
48A
208
230
030
460
575
2O8
230
035
460
575
2O8
230
040
46O
CONDENSER EVAPORATOR POWER CONVENIENCE POWER SUPPLY
Min Max RLA LRA RLA LRA RLA LRA RLA LRA Qty FLA Hp
187 229 23.2 184 23.2 164 23.2 164 23.2 164
207 253 23.2 164 23.2 164 23.2 164 23.2 164
414 508 11.2 75 11.2 75 11.2 75 11.2 75
518 632 7.9 54 7.9 54 7.9 54 7.9 54
187 229 22.4 149 22.4 149 30.1 225 30.1 225
207 253 22.4 149 22.4 149 30.1 225 30.1 225
414 508 10.6 75 10.6 75 16.7 114 16.7 114
518 632 7.7 54 7.7 54 12.2 80 12.2 80
187 229 30.1 225 30.1 225 30.1 225 30.1 225
207 253 30.1 225 30.1 225 30.1 225 30.1 225
414 508 16.7 114 16.7 114 16.7 114 16.7 114
518 632 12.2 80 12.2 80 12.2 80 12.2 80
OUTLET
575
FLA FLA FLA MCA MOCP*
(total)
-- 7.0 151.3 175
10 30.8 23.6 7.0 174.9 200
6.5 -- 7.0 170.6 200
2 (ea) 15 46.2 23.6 7.0 194.2 225
-- 7.0 187.1 225
20 59.4 23.6 7.0 210.7 250
-- 7.0 148.0 175
10 28.0 23.6 7.0 171.6 175
6.6 -- 7.0 165.5 200
2 (ea) 15 42.0 23.6 7.0 189.1 225
-- 7.0 180.5 225
20 54.0 23.6 7.0 204.1 250
-- 3.5 72.4 80
10 14.0 12.6 3.5 85.0 90
3.3 -- 3.5 81.2 100
2 (ea) 15 21.0 12.6 3.5 93.8 110
-- 3.5 88.7 110
20 27.0 12.6 3.5 101.3 125
-- 2.5 53.1 60
10 11.0 9.6 2.5 62.7 70
2.6 -- 2.5 60.6 70
2 (ea) 15 17.0 9.6 2.5 70.2 80
-- 2.5 66.8 80
20 22.0 9.6 2.5 76.4 90
-- 7.0 182.8 225
15 46.2 23.6 7.0 206.4 250
6.5 -- 7.0 199.3 250
2 (ea) 20 59.4 23.6 7.0 222.9 250
-- 7.0 218.5 250
25 74.8 23.6 7.0 242.1 300
-- 7.0 177.7 200
15 42.0 23.6 7.0 201.3 225
6.6 -- 7.0 192.7 225
2 (ea) 20 54.0 23.6 7.0 216.3 250
-- 7.0 210.2 250
25 68.0 23.6 7.0 233.8 300
-- 3.5 91.0 110
15 21.0 12.6 3.5 103.6 110
3.3 -- 3.5 98.5 125
2 (ea) 20 27.0 12.6 3.5 111.1 125
-- 3.5 107.2 125
25 34.0 12.6 3.5 119.8 150
-- 2.5 68.8 80
15 17.0 9.6 2.5 78.4 90
2.6 -- 2.5 75.0 90
2 (ea) 20 22.0 9.6 2.5 84.6 100
-- 2.5 81.3 100
25 27.0 9.6 2.5 90.9 110
-- 7.0 211.2 250
15 46.2 23.6 7.0 234.8 250
6.5 -- 7.0 227.7 250
2 (ea) 20 59.4 23.6 7.0 251.3 300
-- 7.0 246.9 300
25 74.8 23.6 7.0 270.5 300
-- 7.0 206.3 225
15 42.0 23.6 7.0 229.9 250
6.6 -- 7.0 221.3 250
2 (ea) 20 54.0 23.6 7.0 244.9 250
-- 7.0 238.8 300
25 68.0 23.6 7.0 262.4 300
-- 3.5 109.8 125
15 21.0 12.6 3.5 122.4 125
3.3 -- 3.5 117.3 125
2 (ea) 20 27.0 12.6 3.5 129.9 150
-- 3.5 126.0 150
25 34.0 12.6 3.5 138.6 150
-- 2.5 83.0 90
15 17.0 9.6 2.5 92.6 100
2.6 -- 2.5 89.2 110
2 (ea) 20 22.0 9.6 2.5 98.8 110
-- 2.5 95.5 110
25 27.0 9.6 2.5 105.1 125
See Legend and Notes on page 19.
25

Table 8B -- 48A2,A3,A4,A5020-060 Units With Convenience Outlet (cont)
VOLTAG COMPRESSOR CONDENSER EVAPORATOR POWER CONVENIENCE
E
UNIT VOLTAGE RANGE Cir A, No. 1 Cir A, No. 2 Cir B, No. 1 Cir B, No. 2 FAN MOTOR FAN MOTOR EXHAUST OUTLET
SIZE 3PH, 60Hz
48A
208
230
050
460
575
208
230
060
(MCHX)
460
575
208
230
060
(RTPF)
460
575
POWER SUPPLY
Min Max RLA LRA RLA LRA RLA LRA RLA LRA Qty FLA Hp FLA
187 229 33.3 239 33.3 239 33.3 239 33.3 239
207 253 33.3 239 33.3 239 33.3 239 33.3 239
FLA
(total) FLA
414 508 17.9 125 17.9 125 17.9 125 17.9 125
m
20 59.0 23.6
6.5
4 (ea) 25 75.0 23.6
30 88.0 23.6
20 54.0 23.6
6.6
4 (ea) 25 68.0 23.6
30 80.0 23.6
518 632 12.8 80 12.8 80 12.8 80 12.8 80
m
20 27.0 12.6
3.3
4 (ea) 25 34.0 12.6
30 40.0 12.6
187 229 51.3 300 51.3 300 51.3 300 51.3 300
207 253 51.3 300 51.3 300 51.3 300 51.3 300
m
20 22.0 9.6
2.6
4 (ea) 25 27.0 9.6
30 32.0 9.6
414 508 22.4 150 22.4 150 22.4 150 22.4 150
m
25 75.0 35.4
5.5
4 (ea) 30 88.0 35.4
40 114.0 35.4
25 68.0 35.4
5.8
4 (ea) 30 80.0 35.4
40 104.0 35.4
518 632 19.9 109 19.9 109 19.9 109 19.9 109
187 229 51.3 300 51.3 300 51.3 300 51.3 300
m
25 34.0 18.9
2.9
4 (ea) 30 40.0 18.9
40 52.0 18.9
207 253 51.3 300 51.3 300 51.3 300 51.3 300
m
25 27.0 14.4
2.3
4 (ea) 30 32.0 14.4
40 41.0 14.4
25 74.8 35.4
6.5
6 (ea) 30 88.0 35.4
40 114.0 35.4
414 508 22.4 150 22.4 150 22.4 150 22.4 150
518 632 19.9 109 19.9 109 19.9 109 19.9 109
m
25 68.0 35.4
6.6
6 (ea) 30 80.0 35.4
40 104.0 35.4
7.0
7.0
7.0
7.0
7.0
7.0
7.0
7.0
7.0
7.0
7.0
7.0
3.5
3.5
3.5
3.5
3.5
3.5
2.5
2.5
2.5
2.5
2.5
2.5
7.0
7.0
7.0
7.0
7.0
7.0
7.0
7.0
7.0
7.0
7.0
7.0
3.5
3.5
3.5
3.5
3.5
3.5
2.5
2.5
2.5
2.5
2.5
2.5
7.0
7.0
7.0
7.0
7.0
7.0
7.0
7.0
7.0
7.0
7.0
7.0
3.5
3.5
3.5
3.5
3.5
3.5
2.5
2.5
2.5
2.5
2.5
2.5
MCA MOCP*
m
25 34.0 18.9
3.3
6 (ea) 30 40.0 18.9
40 52.0 18.9
25 27.0 14.4
2.6
6 (ea) 30 32.0 14.4
40 41.0 14.4
240.5
264.1
259.7
283.3
276.2
299.8
234.1
257.7
251.6
275.2
266.6
290.2
122.1
134.7
130.8
143.4
138.3
150.9
91.6
101.2
97.9
107.5
104.1
113.7
327.7
363.1
344.2
379.6
376.7
412.1
320.4
355.8
335.4
370.8
365.4
400.8
147.2
166.1
154.7
173.6
169.7
188.6
125.1
139.5
131.3
145.7
142.6
157.0
344.7
380.1
361.2
396.6
393.7
429.1
336.8
372.2
351.8
387.2
381.8
417.2
155.4
174.3
162.9
181.8
177.9
196.8
131.5
145.9
137.7
152.1
149.0
163.4
250
300
300
350
350
350
250
300
300
300
300
350
125
150
150
175
175
175
110
110
110
125
125
125
400
400
400
450
450
500
350
400
400
450
450
500
175
200
175
200
200
225
150
150
150
175
175
175
400
450
400
450
500
500
400
400
400
450
450
500
175
200
200
200
225
225
150
150
150
175
175
200
See Legend and Notes on page 19.
26

Routing Through Bottom of Unit -- If wiring is brought in
through bottom of unit, use field-supplied watertight conduit to
route power wiring through the 31/2-in. diameter hole provided
in the unit basepan.
Install conduit connector in unit basepan as shown in
Fig. 4-9. Route power and ground lines through connector to
terminal connections in unit control box as shown on unit
wiring diagram and Fig. 19.
Use strata relief going into control box through 35/s-in.
diameter hole provided. After wires are in unit control box,
connect to power terminal block (see Power Wiring section on
page 18).
Low-voltage wiring must be mn in watertight conduit from
the basepan to control box and through 7/s-in. diameter hole
provided in bottom of unit control box. Field-supplied strata
relief must be used going into the box. After wiring is in
control box, make connections to proper terminals on terminal
blocks (see Field Control Wiring section on this page).
Routing Through Side of Unit -- Route power wiring in
field-supplied watertight conduit into unit through 21/2-m. (siz-
es 020-035) or 3-m. (sizes 040-060) hole.
Use field-supplied strain relief going into control box
through 35/s-in. diameter hole provided. After wires are in unit
control box, connect to power terminal block (see Power Wir-
ing section on page 18).
Bring low-voltage control wiring through the 7/s-in. diame-
ter hole provided in the condenser section side post. Use strain
relief going into 7/s-in. diameter hole in bottom of unit control
box.
After wiring is in control box, make connection to proper
terminals on terminal blocks (see Field Control Wiring section
below).
IMPORTANT: The VAV (variable air volume) units use
variable frequency drives, which generate and can radiate
radio frequency energy. If units are not installed and used
in accordance with these instructions, they may cause radio
interference. They have been tested and found to comply
with lhnits of a Class A computing device as defined by
FCC (Federal Colmnunications Colmnission) regulations,
Subpart J of Part 15, which are designed to provide reason-
able protection against such interference when operated in
a colmnercial enviromnent.
The unit must be electrically grounded in accordance with
local codes and NEC ANSI/NFPA 70 (National Fire
Protection Association). Personal injury may result.
Affix crankcase heater sticker (located in the installers
packet) to unit disconnect switch.
Voltage to compressor terlninals during compressor operation
must be within the voltage range indicated on the unit name-
plate. Phases must be balanced within 2%.
Use the formula in Tables 8A and 8B to determine the per-
centage of voltage hnbalance.
IMPORTANT: If the supply voltage phase imbalance is
more than 2%, contact your local electric utility company
ilmnediately.
Unit failure as a result of operation on improper line voltage
or excessive phase imbalance constitutes abuse and may cause
damage to electrical components.
On 208/230-v units, transformers 1-5 are wired for 230-v. If
208/230-v unit is to be mn with 208-v power supply, the trans-
formers must be rewired as follows:
For transformer 1 move the black wires connected to termi-
nal H2 and connect it to terminal H3.
For transformers 2-4, that are used for the 24-volt control
circuits, connect as follows:
1. Remove cap from red (208 v) wire.
2. Remove cap from spliced orange (230 v) wire. Discon-
nect orange wire from black unit power wire.
3. Cap orange wire.
4. Splice red wire and black unit power wire. Cap wires.
If the unit is equipped with the optional convenience outlet
connect the yellow wire to H2 on transformer 5.
IMPORTANT: BE CERTA1N UNUSED WIRES ARE ]
CAPPED. Failure to do so may damage the transformers.
FIELD CONTROL WIRING- The 48A Series units sup-
port a large number of control options that can impact the field
control wiring.
The control options that the unit can provide relate to the
following parameters:
• CV (constant volume), VAV (variable air volume),
VVT :R:(variable volume variable temperature) or Carrier
TEMP system control operation.
• Standalone with a thermostat (CV) or with a space sensor
(CV and VAV)
• Network application with CCN (Carrier Comfort
Network R) or other networks
• Demand ventilation with CO2 sensor
• Economizer and economizer with changeover control
• Staged gas heat
• Building and duct static pressure control
• Fire shutdown and smoke control
• Diagnostics and monitoring
For constant volume applications a thermostat (T-Stat) or
space temperature sensor (SPT) will be required.
T-STAT (Conventional Thermostat) -- Unit can be con-
trolled with a Carrier-approved accessory electro-mechanical
or electronic thermostat that has two stages of cooling, two
stages of heating control and an output for indoor fan control. It
may also include thne of day scheduling or use the scheduling
routines built into the (_mfortLink TM controls.
Install thermostat according to the installation instructions
included with accessory thermostat and the unit wiring dia-
grams. Locate thermostat assembly on a solid interior wall in
the conditioned space to sense average temperature.
Route thermostat cable or equivalent single leads of colored
wire from subbase terminals through conduit into unit to low-
voltage connection in the mare control box. For thermostat
TB4 connections see Fig. 20.
NOTE: For wire runs up to 50 ft, use no. 18 AWG (American
Wire Gage) insulated wire (35 C minimum). For 50 to 75 ft,
use no. 16 AWG insulated wire (35 C minhnum). For over
75 ft, use no. 14 AWG insulated wire (35 C Minimum). All
wire larger than no. 18 AWG cannot be directly connected at
the thermostat and will require a junction box and splice at the
thermostat. Set heat anticipator settings as follows:
STAGE 1STAGE 2
SIZE (Wl) ON (Wl and W2) ON
020-050 0.24 0.13
060 0.36 0.13
Settings may be changed slightly to provide a greater degree of
comfort for a particular installation.
27

Staged Gas Control Option Thermistors -- If the unit is
equipped with the staged gas heat option, supply-air ther-
mistors must be installed. Three supply-air thermistors are
shipped with staged gas units and are inside the heating sec-
tion. The supply-air thennistors should be located in the supply
duct with the following criteria:
• Downstream of the heat exchanger cells
• Equally spaced as far as possible from the heat
exchanger cells
• In a duct location where none of the supply-air ther-
mistors are within sight of the heat exchanger cells
• In a duct location with good mixed supply-air portion of
the unit.
SPT (Space Temperature Sensor) -- For constant volume ap-
plications the (_mfortLink TM controls can also be used with
T55 and T56 space temperature sensors that use a 10K ther-
mistor. The T56 sensor also has the capability for a config-
urable temperature set point offset. For variable air volume ap-
plications only the T55 sensor can be used.
Install sensor according to the installation instructions
included with accessory sensor. Locate sensor assembly on a
solid interior wall in the conditioned space to sense average
temperature.
Run wiring to the space sensor as shown in Fig. 21.
Note that when the remote sensor is used, the red jumper
wires provided must be connected from TB4 terminal 4 to 5
and TB4 terminal 5 to 1.
Both the T55 and T56 have a CCN colrnnunications port and
this should be wired to the CCN Colmnunications TB3 board if
it is desired to have access to the CCN system through the sen-
sor. If more than one T-55 sensor is being used and averaged,
sensors must be wired in multiples of 4 or 9 as shown in Fig. 22.
T58 Colmnunicating Thermostat -- Carrier also has a fully
COlrnnunicating thermostat which, if used, will be wired to the
CCN communication connections on TB3 as described in the
Carrier Comfort Network :R:Interface section below.
Carrier Comfort Network Interface -- The rooftop units can
be connected to the CCN system. The colrununication bus
wiring is supplied and installed in the field. Wiring consists of
shielded, 3-conductor cable with drain wire. The system
elements are connected to the colmnunication bus in a daisy
chain arrangement. The positive pin of each system element
colmnunication connector must be wired to the positive pins of
the system element on either side of it, the negative pins must be
wired to the negative pins, and the signal pins must be wired to
signal ground pins. Wiring connections for CCN system should
be made at the TB3 terminal block using the screw terminals.
The TB3 board also contains an RJ14 CCN plug that can be
used to connect a field service computer or other CCN device
temporarily. There is also an RJ14 LEN (local equipment net-
work) connection that is used to connect a NavigatorTM device or
download software.
Conductors and drain wire must be 20 AWG minimum
stranded, tinned copper. Individual conductors must be insulat-
ed with PVC, PVC/nylon, vinyl, Teflon, or polyethylene. An
aluminum!polyester 100% foil shield and an outer jacket of
PVC, PVC/nylon, chrome vinyl, or Teflon with a minimum
operating temperature range of-20 C to 60 C (-4 F to 140 F) is
required. Table 9 lists cables that meet the requirements.
Table 9 -- CCN Connection Approved Shield Cable
MANUFACTURER CABLE PART NO.
Alpha 2413 or 5463
American A22503
Belden 8772
Columbia 02525
IMPORTANT: When connecting to CCN cmmnuni-
cation bus to system elements, use color coding
system for the entire network to simplify installation
and checkout. See Table 10.
Table 10- Color Code Recommendations
CCN BUS CONDUCTOR CCN PLUG PIN
SIGNAL TYPE INSULATION COLOR NO.
Positive (+) RED 1
Ground WHITE 2
Negative (-) BLACK 3
If a cable with a different color scheme is selected, a similar
color code should be adopted for the entire network. At each
system element, the shields of the colmnunication bus cables
must be tied together. If the colrnnunication bus is entirely
within one building, the resulting continuous shield must be
connected to a ground at one point only. If the colmnunication
bus cable exits from one building and enters another, the
shields must be connected to grounds at the lightning suppres-
sor in each building where the cable enters or exits the building
(one point per building only).
To connect the unit to the network:
1.
2.
3.
Turn offpower to the control box.
Cut the CCN wire and strip the ends of the red (+), white
(ground), and black (-) conductors. (If a different net-
work color scheme is used, substitute appropriate colors.)
Remove the 3-pin male plug from the base control board
in the main control box, and connect the wires as follows:
a. Insert and secure the red (+) wire to terminal 1 of
the 3-pin plug.
b. Insert and secure the white (ground) wire to termi-
nal 2 of the 3-pin plug.
c. Insert and secure the black (-) wire to terminal 3 of
the 3-pin plug.
1
FIELD-SUPPLIED THERMOSTAT
LIGHT
2 3 4 5 6 7 8
TB4
Fig. 20 -- Field Control Thermostat Wiring UNIT
TB5
T55 SPT T56 SPT
'1 I
DDDD[]
%%DD%
Fig. 21 -- Space Temperature Sensor Wiring
28

4. Insert the plug into the existing 3-pin mating connector on
the base module in the main control box.
VAV Units With Heat -- For variable air volume units that
will use heat, the variable air volume terminals should be
interlocked with the unit at TB5 terminals 1 and 2.
Demand Ventilation -- The unit can be equipped with a CO2
sensor for use in demand ventilation. This can be factory
supplied and will be mounted in the return duct. It can also be
field supplied and mounted in the return duct or in the space.
Connect the field-installed 4 to 20 mA sensor to TB5 terminals
6 and 7. Do not remove the factory-installed 182-olun resistor.
If an outdoor air quality sensor is used then it should be
wired to terminal 11 and 12 on TB6. This will require the use
of the optional controls expansion module.
Remote IAQ Ovemde -- If the control is being used with non
Carrier building management system it supports the use of the
remote IAQ ovemde switch. This should be connected to
TB6 terminal 13 and 14. Use of this will require the optional
controls expansion module.
Remote Economizer Position Control -- The (_mfortLink TM
controls will normally control the position of the economizer,
but it can also support field control of the economizer position
through a 4 to 20 mA signal. If this is used it should be con-
nected to TB5 terminal 6 and 7. If the signal is a 4 to 20 mA
signal then leave the 182-olun resistor in place.
Remote Economizer Enable -- If the control is being used
with other building management systems and the system will
control the enabling and disabling of the economizer free cool-
ing, this switch input can be connected to TB6 terminals 1 and
2. Note that the controls also support integrated economizer
changeover using outdoor dry bulb, differential dry bulb,
outdoor enthalpy and differential enthalpy.
Remote Occupancy Switch -- For interface to other building
management systems the control also supports a switch input
for remote occupancy signals. This wiring should be connected
to terminal TB6 terminal 1 and 3.
Remote Economizer Minimum Position Control -- If the
(_mfortLink control is controlling the economizer, but a remote
minhnum position is required, then an external 100K potentiom-
eter can be connected to TB5 tenninal 6 and 7. Remove the
factory-installed 182-olun resistor.
Smoke Sensor Interface -- The (_mfortLink control includes
an optional factory-installed return air smoke detector. Remote
alarm circuits can be wired to TB5 terminal 8 and 9.
Fire Shutdown and Smoke Control -- The control supports
interface to fire and smoke control systems and allows for the
following system ovemdes from remote switch inputs.
• Fire Shutdown -- Connect to TB6 terminals 8 and 9.
• Smoke Pressurization -- Connect to TB6 terminals
12 and 13. This requires the use of the optional con-
trols expansion module.
• Smoke Evacuation-- Connect to TB6 terminals 12 and
14. This requires the use of the optional controls expan-
sion module.
• Smoke Purge -- Connect to TB6 terminals 12 and 15.
This requires the use of the optional controls expansion
module.
Demand Limiting -- The control can also be used with demand
limiting control from remote building management systems. If a
two-stage system is going to be used with redline lhniting where
the machine is not allowed to increase load and load shed where
TB5 [
.....................RED r.................................................._ .........................................
D oL, .--, r i i.........i
L2YjY
SENSOR 1 SENSOR 2 SENSOR 3 SENSOR 4
SPACE TEMPERATURE AVERAGING (4 SENSOR APPLICATION)
TB5
[] ..............U...............U.........
SENSOR1 SENSOR2 SENSOR3
'U...................U...............U...........
! SENSOR5 SENSOR6
i SENSOR4
..........[J U..............U...........
SENSOR 7 SENSOR 8 SENSOR 9
SPACE TEMPERATURE AVERAGING (9 SENSOR APPLICATION)
NOTE: Use T55 sensor only.
Fig. 22 -- Space Temperature Averaging Wiring
29

the load is decreased to a configurable lhnit in capacity then these
can be connected to TB6 terminals 4 and 5, and 5 and 6. This re-
quires use of the controls expansion module.
Step 9 EMake Outdoor-Air Inlet Adjustments
ECONOMIZER AND FIXED OUTDOOR AIR
DAMPER -- Hoods are used on all units with economizer or
adjustable self-closing fixed outdoor air damper.
NOTE: If accessory power exhaust or barometric relief pack-
ages are being added to the unit, install power exhaust or baro-
metric relief before installing economizer hoods.
Economizer Hood Assembly -- The economizer hood is
shipped in a package secured to the outside of the unit. The
hood assemblies must be field-assembled. The 48A4,A5 units
are side supply and side return. The return duct lhnits access to
economizer filters from below. Filter tracks (mounting angle
without tabs) must be installed correctly to allow access to
economizer filters from each side.
The 48A2,A3,A4,A5020-050 units have two hoods on ev-
ery unit. Each hood has two lower filter tracks, one slotted side
and one side without slots. Construct the assembly so that the
slotted side is adjacent to the other hood when mounted on the
unit.
The 48A2,A3,A4,A5060 units have 3 hoods on every unit.
Each hood has two lower filter tracks, one slotted side and one
side without slots. Construct the two outer hood assemblies so
that the slotted sides are adjacent to the center hood when
mounted on the unit.
NOTE: Before assembly of the economizer hood, check along
the outer edges of the economizer assembly for any seal strip
protruding past the flanges. Trim the excess seal strip so that it
is flush with the economizer assembly flanges.
Perform the following procedure to assemble the economizer
hood.
1. Apply black seal strip (provided) to outside top-edge of
hood sides. Wrap seal strip over edge to cover top flange
(6 hood sides). Make sure seal strip covers screw holes.
Allow strip to overhang l/s-in, past the end opposite the
mounting flange. See Fig. 23.
2. Assemble hood sides, top, and cross lnember with
gasketed screws provided. See Fig. 24.
3. Attach 15 green speed clips (provided) to hood top.
4. Apply black seal strip (provided) to mounting flanges of
hood sides being sure to cover mounting holes. See
Fig. 25.
5. Apply black seal strip (provided) to back of hood top
mounting flange. Seal strip of hood top mounting flange
must press tightly against seal strip of hood side mount-
ing flanges. See Fig. 26.
6. Add gray foam strip (provided) to cross members on bot-
tom tray. See Fig. 27.
7. Place gray foam strip (provided) on inside of slotted hood
side between filter and cross member opposite the mount-
ing end. See Fig. 28.
8. Attach gray foam strip (provided) to block-off baffle on
outer face of flange. See Fig. 29.
9. Remove the screws on each end and along top of damper
assembly of unit. Remove top 4 screws on each side of
filter panel under damper assembly. Set hood assembly in
place and attach to unit using these screws.
10. Remove screws along bottom of damper assembly.
Locate and mount blockoff baffle using these screws.
11. Assemble 2 filter tracks side-by-side with the assembled
ends together.
12. Attach mounting angle (without tabs) to the assembled
end of the filter track. See Fig. 30.
13. Attach 9 green speed clips (provided) to hood side panels
without slots. Engagement section of clip faces up and to-
wards the outside of the hood side panels.
14. Attach remaining mounting angle (with tabs) to other end
of the filter track with no. 10 screws provided. See
Fig. 31.
15. Place filter track assembly in bottom of hood by placing
tabbed end into slotted side (with tab on bottom) and
attaching opposite end to hood with speed clips and
gasketed screws provided. Tabs can be hand bent after
they have been inserted into the side.
NOTE: The filter track assembly end with screws should face
away from the other hood when mounted on the unit. Be sure
the filters are installed with the airflow in the correct direction.
NOTE: Tabs from both filter tracks will be in the same space.
After one filter track has been inserted into hood side, bend the
tabs so they will not interfere with installation of the center
hood.
16. Attach black seal strip (provided) to filter cover. Seal strip
should be applied centered over the holes of the one
flange, making sure to fully cover holes and centered over
the other large flange. See Fig. 32.
17. Slide two 20 x 25-in. filters into cross members of hood
assembly. Attach filter cover over filters with screws and
speed clips provided.
Step 10 EPosition Power Exhaust/Barometric
Relief Damper Hood -- All units are shipped with the
hoods folded inside the unit in a shipping position. For 48A2,
and A3 units the hood must be tilted out once the unit is in-
stalled. On 48A4, A5 units, (designed for horizontal supply and
return) the assemblies will have to be relocated to return duct-
work. See Fig. 33 for dimensions and details.
All electrical connections have been made and adjusted at
the factory. The power exhaust blowers and barometric relief
dampers are shipped assembled and tilted back into the unit for
shipping. Brackets and extra screws are shipped in shrink wrap
around the dampers. If ordered, each unit will have 4
(48A2,A3,A4,A5020-050 units) or 6 (48A2,A3,A4,A5060
units) power exhaust blowers and motors or barometric relief
dampers.
1. Remove 9 screws holding each dmnper assembly in
place. See Fig. 34. Each damper assembly is secured with
3 screws on each side and 3 screws along the bottom.
Save screws.
Be careful when tilting blower assembly. Hoods and blow-
ers are heavy and can cause injury if dropped.
2. Pivot each damper assembly outward until edges of
damper assembly rest against inside wall of unit.
3. Secure each damper assembly to unit with 6 screws
across top (3 screws provided) and bottom (3 screws
from Step 1) of damper.
4. With screws saved from Step 1, install brackets on each
side of dmnper assembly.
5. Remove tape from damper blades.
Step 11 -- Route VAV Static Pressure Sensors
VAV DUCT PRESSURE TRANSDUCER -- The VAV duct
pressure transducer (VAV inverter pressure transducer) is locat-
ed behind the filter access door on the lower inner panel. See
Fig. 35. A section of field-supplied */4-in. plastic tubing must
be run from the high pressure tap on the differential pressure
switch and connected to a field-supplied tap in the supply-air
duct. The tap is usually located 2/3 of the way out on the main
supply duct. Remove plug button in panel to route robing.
3O

TOP
FLANGE
BLACK
SEAL HOOD SIDE
Fig. 23 -- Adding Seal Strip to Top of Hood Sides
HOOD TOP
HOOD SIDE //__ _
Fig. 26 -- Adding Seal Strip to Back of Hood Top
Mounting Flange
FILTER HOOD SIDE ECONOMIZER
COVER
FILTERS 'MOUNTING
ANGLE SIDE
CROSSMEMBER- (W/O TABS)
FILTER TRACK BLOCKOFF
ASSEMBLY BAFFLE
(WITH SCREWS)
NOTE: Left side economizer hood has mounting angle without tabs
and filter rack assembled end on the opposite side.
Fig. 24- Economizer Hood Assembly
(Right Side/Center Economizer Hood Shown)
MOUNTING
FLANGE
HOOD SIDE
GRAY FOAM STRIP
CROSS MEMBER
Fig. 27 -- Adding Foam Strip to Cross Member
HOODSIDE
(SLOTTED)
HOOD
Fig. 28 -- Adding Foam Strip to Hood Side
Fig. 25 -- Adding Seal Strip to Sides of Hood Top
Mounting Flange
3!

BLOCKOFF BAFFLE
GRAY FOAM STRIP
BLACK SEAL STRIP
(CENTERED)
FILTER COVER
Fig. 32 -- Attaching Seal Strip to Filter Cover
Fig. 29 -- Adding Seal Strip to Blockoff Baffle
MOUNTING ANGLE
(WITHOUT TABS)
FILTER TRACK
ASSEMBLY
Fig. 30 -- Mounting Angle (Without Tabs)
Attached to Filter Track Assembly
....
MOUNTING ANGLE
(WITH TABS)
Fig. 31 -- Mounting Angle (With Tabs) Attached to
Filter Track Assembly
VAV BUILD1NG PRESSURE TRANSDUCER -- The VAV
building pressure transducer (modulating power exhaust pres-
sure transducer) is located behind the filter access door on the
lower inner panel. See Fig. 35. A section of field-supplied
1/4-in. plastic tubing must be run from the high pressure tap on
the differential pressure switch to the conditioned space. The
pressure robe must be terminated in the conditioned space
where a constant pressure is required. This location is usually
in an entrance lobby so that the building exterior doors will
open and close properly. Remove plug button in panel to route
mbing.
The low pressure tap is factory-routed to the atmosphere.
For a positive-pressure building, route the high tap to building
air and low tap to atmosphere. For a negative-pressure
building, route the high tap to atmosphere and the low tap to
building air.
Step 12 -- Install All Accessories -- After all the
factory-installed options have been adjusted, install all field-
installed accessories. Refer to the accessory installation instruc-
tions included with each accessory.
The 48A Series units have a large number of factory-
installed options which were previously available only as
accessories. Some of the available options can also be installed
in the field if needed. In most cases the units have been
pre-wired so that the accessories can be easily installed.
Instructions are shipped with each accessory. Configuration of
the controls for these accessories as well as the factory-installed
options can be found in the Controls, Start-up, Operation,
Service and Troubleshooting book. The following is a list of
some of the COlnmon accessories:
• Thermostats and space temperature sensors
• LP (liquid propane) conversion kit
• Accessory barometric relief damper
• Accessory power exhaust
• Non-modulating to modulating power exhaust
• Condenser coil hail guards
• Outdoor humidity sensor (used for economizer enthalpy
changeover)
• Return air humidity sensors (used for economizer
differential enthalpy changeover)
• Return air smoke detector
• Controls expansion module (used for interface to build-
ing management systems, not typically needed on
system with the Carrier Comfort Network R_ [CCN]
system)
32

LOCATION
BAROMETRIC RELIEF
OR POWER EXHAUST
"SIDE #2"
ALTERNATE
LOCATION
(END)
ECONOMIZER
HOOD
42.56"
J
\
\\ ECONOMIZER
HOOD
\\
\
\
12.94
(UNIT
)PENING)
J BOX
PLENUM RATED
CABLE
(FIELD SUPPLIED)
J BOX
NOTE: 027-050 SIZES SHOWN (2 POWER EXHAUST FANS).
SIZE 060 HAS 3 POWER EXHAUST FANS. ALL
UNIT SIZES HAVE THE SAME SIZE POWER EXHAUST.
Fig. 33 -- Power Exhaust Relocated to Side Return Duct
I" 142.58
____°jL% i
i°o -L-_? 31
_,o19..
NOTES:
1. Unless otherwise specified, all dimensions are to outside of part.
2. Dimensions are in inches.
_0.90
_23.24
2_L
L1.38
3, On 48A4,A5 units, accessory barometric relief or power exhaust must be mounted in the field-supplied return ductwork,
Fig. 34 -- Barometric Relief Damper and Power Exhaust Mounting Details
-11.03----"
'k
33

AUXILIARY PRESSURE TRANSDUCERS
CONTROL BOX (INSIDE OF PANEL)
Fig. 35 -- Pressure Transducer Locations
• Plugged filter sensor
• MotormasteKR)V low ambient head pressure control
IMPORTANT: Carrier recommends the installation of
field-fabricated wind baffles on all vertically oriented
condenser coils when operating in enviromnents with
prevailing winds of more than 5 MPH and where tem-
peratures drop below 32 F. See the Motormaster
accessory installation guide for instructions.
Step 13 EField Modifications
DUCTWORK
Bottom Return Units (48A2 and A3) Field-Modified for
Side Return -- The 48A2 and A3 units with bottom return air
connections may be field-modified to accolrnnodate side return
air connections.
IMPORTANT: The following section is a guideline and not
a comprehensive procedure to field modify the units. The
installing contractor must provide some design initiative.
Field-conversion is complex and is not recommended.
Conversion to horizontal return requires that the bottom
return openings of the unit must be sealed with airtight panels
capable of supporting the weight of a person. The return
ductwork connection locations on the side of the unit are higher
than normal (31-m. high). Unit-mounted power exhaust or
barometric relief cannot be used because of return air ductwork
will cover the power exhaust or barometric relief installation
locations. Power exhaust or barometric relief may be installed
in the return air ductwork.
To convert the unit, perform the following:
1. Seal the bottom return openings of the unit with airtight
panels capable of supporting the weight of a person.
2. Remove the panels located below the economizer
outdoor-air dampers. These openings will be used for the
return-air ductwork. There are 2 panels on 48A2,A3020-
050 units. There are 3 panels on 48A2,A3060 units.
These openings are normally used for power exhaust or
barometric relief.
3. Run the return air ductwork up to the openings. One
single duct is recolrnnended to connect to the unit over
the return air openings. See Fig. 36. The return duct must
incorporate a minimum 3/4-in. flange for connection to
the unit cabinet. The unit does not have duct flanges for
this conversion.
Side Supply and Return Units (48A4.A5) With Field-
Installed Power Exhaust in Return Duct -- Space must be
available in the return duct to mount the power exhaust fan
(gravity relief) modules. Dimensions and suggested locations
are shown in Fig. 36. These instructions are a guideline and not
a comprehensive procedure. The design contractor must pro-
vide some design initiative.
The wiring harness that is provided with the power exhaust
accessory is not long enough for the fan modules to be mount-
ed in the return air duct. Field-supplied wiring must be spliced
into the harness. Use a junction box at each splice. The wiring
may be mn in the return duct, or externally in conduit. A ser-
vice access panel will be needed near each power exhaust fan.
34

97.78" (027-050), 150.4T' (060)
INSIDE DIMENSION
31.25"
INSIDE
Fig. 36 -- Side Return Air Conversion
35

Copyright 2008 Carrier Corporation
Manufacturer reserves the right to discontinue, or change at any time, specifications or designs without notice and without incurring obligations.
Catalog No. 04-53480051-01 Printed in U.S.A. Form 48A-6SI Pg 36 5-08 Replaces: 48A-4Sl