CATERPILLAR UNDERGROUND MINING 4470328 MODULE GP-CONTROL (Fleet for Underground) 447-0328 User Manual Exhibit D Users Manual per 2 1033 b3
CATERPILLAR UNDERGROUND MINING PTY LTD MODULE GP-CONTROL (Fleet for Underground) 447-0328 Exhibit D Users Manual per 2 1033 b3
Exhibit D Users Manual per 2 1033 b3

© 2014 Caterpillar Inc.
1
THE INFORMATION CONTAINED HEREIN IS THE PROPERTY OF CATERPILLAR UNDERGROUND MINING PTD LTD. WITHOUT WRITTEN PERMISSION, ANY
COPYING, TRANSMITTAL TO OTHERS, AND ANY USE EXCEPT THAT FOR WHICH IT IS LOANED, IS PROHIBITED
Confidential Yellow
Creation Date 27/02/14
Revision No: 00
Module Gp-Control 447-0328 (Fleet for Underground) User Manual (English)
Module Gp-Control
(Fleet for Underground)
User Manual (English)
Part No: 447-0328
19 March, 2015

© 2014 Caterpillar Inc.
2
THE INFORMATION CONTAINED HEREIN IS THE PROPERTY OF CATERPILLAR UNDERGROUND MINING PTD LTD. WITHOUT WRITTEN PERMISSION, ANY
COPYING, TRANSMITTAL TO OTHERS, AND ANY USE EXCEPT THAT FOR WHICH IT IS LOANED, IS PROHIBITED
Confidential Yellow
Creation Date 27/02/14
Revision No: 00
Module Gp-Control 447-0328 (Fleet for Underground) User Manual (English)
Change History
Date
Version
19 March 2015
Draft 1.1
Information in this document is subject to change without notice. While every effort has
been made to ensure that the information contained within this document and the features and
changes described are accurate, Caterpillar cannot accept any type of liability for errors in, or
omissions arising from, the use of this information.
This document and all related documentation are the property of Caterpillar and may not be
reproduced, transferred, sold, or otherwise disposed of, without the written permission of the
owners.
Safety Warnings
This device complies with Industry Canada licence-exempt RSS standard(s). Operation is subject to
the following two conditions: (1) this device may not cause interference, and (2) this device must
accept any interference, including interference that may cause undesired operation of the device.
Le présent appareil est conforme aux CNR d'Industrie Canada applicables aux appareils radio
exempts de licence. L'exploitation est autorisée aux deux conditions suivantes: (1) L'appareil ne doit
pas produire de brouillage, et (2) L'utilisateur de l'appareil doit accepter tout brouillage
radioélectrique subi, même si le brouillage est susceptible d'en compromettre le fonctionnement.

© 2014 Caterpillar Inc.
3
THE INFORMATION CONTAINED HEREIN IS THE PROPERTY OF CATERPILLAR UNDERGROUND MINING PTD LTD. WITHOUT WRITTEN PERMISSION, ANY
COPYING, TRANSMITTAL TO OTHERS, AND ANY USE EXCEPT THAT FOR WHICH IT IS LOANED, IS PROHIBITED
Confidential Yellow
Creation Date 27/02/14
Revision No: 00
Module Gp-Control 447-0328 (Fleet for Underground) User Manual (English)
The Module Gp Control 447-0328 is a designed for Caterpillar Inc. Fleet for Underground
applications. It uses a P412 Time Domain PulsON® Ranging and Communications Module. The P412
is an Ultra Wide Band (UWB) transceiver that is used to provide reliable distance measurements at a
high update rate. It is designed to communicate between two or more P412’s.
The Module Gp Control 447-0328 transmits and receives trains of RF pulses at a nominal rate of
10MHz. This module uses the Two Way Time of Flight (TW-TOF) to measure distance. The module
requesting the range measurement (the Requester) will transmit a packet of pulses that will be
received by one or more units (the Responders). The Responder will then measure the leading edge
of the waveform and will transmit this information in a return responding packet. This return packet
is returned after a precise delay. The Requester will then determine the leading edge of the received
waveform. The time between the leading edge measurements less the fixed delay is twice the
distance between the units. The result is divided by two and multiplied by the speed of light results
in the distance between the Responder and the Requester.
Certification:
FCC Compliant (FCC 15.519) – UWB Emissions
FCC Compliant (FCC 15.109) – Class A digital device
FCC Compliant Part 15, Subpart C, Subpart F for Ultra Wide Band Intentional Radiators

© 2014 Caterpillar Inc.
4
THE INFORMATION CONTAINED HEREIN IS THE PROPERTY OF CATERPILLAR UNDERGROUND MINING PTD LTD. WITHOUT WRITTEN PERMISSION, ANY
COPYING, TRANSMITTAL TO OTHERS, AND ANY USE EXCEPT THAT FOR WHICH IT IS LOANED, IS PROHIBITED
Confidential Yellow
Creation Date 27/02/14
Revision No: 00
Module Gp-Control 447-0328 (Fleet for Underground) User Manual (English)
Specifications
Power supply
Wide range power supply, from 9V to
60VDC, 8W min, with polarity protection.
M12 4-pole connector
Ethernet interface
Number of ports
2
Type of ports
10 BASE T or 100 BASE Tx
Two Ultra-lock® M12 4-pole female
connectors
Bandwidth (Effective)
3.18GHz – 4.0GHz
The bandwidth is defined as the frequency
band bounded by the points that are 10dB
below the highest radiated emission.
Program - USB Interface
Micro B connector (USB 2.0)
RF Filtering
Filtering in the presence of 2.4 and 5.8GHz
Signals

© 2014 Caterpillar Inc.
5
THE INFORMATION CONTAINED HEREIN IS THE PROPERTY OF CATERPILLAR UNDERGROUND MINING PTD LTD. WITHOUT WRITTEN PERMISSION, ANY
COPYING, TRANSMITTAL TO OTHERS, AND ANY USE EXCEPT THAT FOR WHICH IT IS LOANED, IS PROHIBITED
Confidential Yellow
Creation Date 27/02/14
Revision No: 00
Module Gp-Control 447-0328 (Fleet for Underground) User Manual (English)
Indicator Status Lights
Indicator Status Light – Status/Diag
Amber LED Toggles 1Hz
Indicates that the module has passed the
Built-in Test (BIT)
Amber LED Flashing 10Hz
Built-In Test (BIT) Failed
Green LED
Initially off the green LED will blink rapidly
and then flashes constantly
Green LED Flashing
Clock signal is being received
Green LED On solid or Off
Indicates a failure condition
Indicator Status Light - LAN1 and LAN2 LED
Green Flashing
The ACT LEDs indicate that there is activity in
the respective Ethernet port.
USB 2.0 Micro B connector Interface
Signals names
Pin 1 : +VE
Pin 2 : D-
(Data -)
Pin 3 : D+
(Data +)
Pin 4 : -VE
(Ground)

© 2014 Caterpillar Inc.
6
THE INFORMATION CONTAINED HEREIN IS THE PROPERTY OF CATERPILLAR UNDERGROUND MINING PTD LTD. WITHOUT WRITTEN PERMISSION, ANY
COPYING, TRANSMITTAL TO OTHERS, AND ANY USE EXCEPT THAT FOR WHICH IT IS LOANED, IS PROHIBITED
Confidential Yellow
Creation Date 27/02/14
Revision No: 00
Module Gp-Control 447-0328 (Fleet for Underground) User Manual (English)
Antenna Port
Main antenna is configured to Transmit and Receive. This is an N-Type connector used for
connection to a Broadspec antenna.
N type female Connector
Antenna
Antenna As. (Fleet for Underground) 447-0331 (1) is an Ultra Wide Band (UWB) planar elliptical
dipole antenna. It has a standard N-Type male connector that allows connection to the Module Gp-
Control 447-0328 main antenna port. When installed onto 448-9465 Plate (2) the triangle and bolt
hole must align to ensure correct orientation of the antenna when fitted onto a machine and
offboard infrastructure.
When installed offboard a machine the arrow or red dot must face in the direction shown below.

© 2014 Caterpillar Inc.
7
THE INFORMATION CONTAINED HEREIN IS THE PROPERTY OF CATERPILLAR UNDERGROUND MINING PTD LTD. WITHOUT WRITTEN PERMISSION, ANY
COPYING, TRANSMITTAL TO OTHERS, AND ANY USE EXCEPT THAT FOR WHICH IT IS LOANED, IS PROHIBITED
Confidential Yellow
Creation Date 27/02/14
Revision No: 00
Module Gp-Control 447-0328 (Fleet for Underground) User Manual (English)

© 2014 Caterpillar Inc.
8
THE INFORMATION CONTAINED HEREIN IS THE PROPERTY OF CATERPILLAR UNDERGROUND MINING PTD LTD. WITHOUT WRITTEN PERMISSION, ANY
COPYING, TRANSMITTAL TO OTHERS, AND ANY USE EXCEPT THAT FOR WHICH IT IS LOANED, IS PROHIBITED
Confidential Yellow
Creation Date 27/02/14
Revision No: 00
Module Gp-Control 447-0328 (Fleet for Underground) User Manual (English)
Power Connection
This device must be powered from a 9 – 60VDC (8W minimum) source. The device has no on/off
switch and turns on automatically when power is applied.
M12 4 poles Male connector A-coded
Signal
Name
Pin
(M12)
Power
VDC1
1
GND
3

© 2014 Caterpillar Inc.
9
THE INFORMATION CONTAINED HEREIN IS THE PROPERTY OF CATERPILLAR UNDERGROUND MINING PTD LTD. WITHOUT WRITTEN PERMISSION, ANY
COPYING, TRANSMITTAL TO OTHERS, AND ANY USE EXCEPT THAT FOR WHICH IT IS LOANED, IS PROHIBITED
Confidential Yellow
Creation Date 27/02/14
Revision No: 00
Module Gp-Control 447-0328 (Fleet for Underground) User Manual (English)
Program Ethernet port characteristics
The Ethernet ports are labelled LAN port 1 and LAN port 2. You can connect to a network via an
appropriate 4 Pole D-Coded Male M12 cable to LAN Port 1 or LAN Port 2. The module supports both
10 and 100 base T Ethernet.
M12 Ultra-lock® 4 poles Female connector D-Coded
Signals names
Pin 1 : Tx+
Pin 2 : Rx+
Pin 3 : Tx-
Pin 4 : Rx-
1
4
3
2

© 2014 Caterpillar Inc.
10
THE INFORMATION CONTAINED HEREIN IS THE PROPERTY OF CATERPILLAR UNDERGROUND MINING PTD LTD. WITHOUT WRITTEN PERMISSION, ANY
COPYING, TRANSMITTAL TO OTHERS, AND ANY USE EXCEPT THAT FOR WHICH IT IS LOANED, IS PROHIBITED
Confidential Yellow
Creation Date 27/02/14
Revision No: 00
Module Gp-Control 447-0328 (Fleet for Underground) User Manual (English)
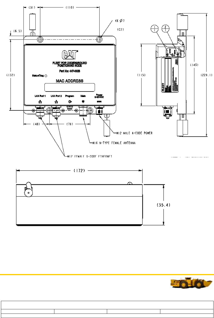
Product Dimensions

© 2014 Caterpillar Inc.
11
THE INFORMATION CONTAINED HEREIN IS THE PROPERTY OF CATERPILLAR UNDERGROUND MINING PTD LTD. WITHOUT WRITTEN PERMISSION, ANY
COPYING, TRANSMITTAL TO OTHERS, AND ANY USE EXCEPT THAT FOR WHICH IT IS LOANED, IS PROHIBITED
Confidential Yellow
Creation Date 27/02/14
Revision No: 00
Module Gp-Control 447-0328 (Fleet for Underground) User Manual (English)
Mounting Instructions
Using Mount As. 454-7328 attach module to mount using 4x (M6x1) Bolts

© 2014 Caterpillar Inc.
12
THE INFORMATION CONTAINED HEREIN IS THE PROPERTY OF CATERPILLAR UNDERGROUND MINING PTD LTD. WITHOUT WRITTEN PERMISSION, ANY
COPYING, TRANSMITTAL TO OTHERS, AND ANY USE EXCEPT THAT FOR WHICH IT IS LOANED, IS PROHIBITED
Confidential Yellow
Creation Date 27/02/14
Revision No: 00
Module Gp-Control 447-0328 (Fleet for Underground) User Manual (English)
Node Programmer Set-Up Guide
Step 1 – Offboard UWB Configure
Click Node Programmer shortcut.

© 2014 Caterpillar Inc.
13
THE INFORMATION CONTAINED HEREIN IS THE PROPERTY OF CATERPILLAR UNDERGROUND MINING PTD LTD. WITHOUT WRITTEN PERMISSION, ANY
COPYING, TRANSMITTAL TO OTHERS, AND ANY USE EXCEPT THAT FOR WHICH IT IS LOANED, IS PROHIBITED
Confidential Yellow
Creation Date 27/02/14
Revision No: 00
Module Gp-Control 447-0328 (Fleet for Underground) User Manual (English)
Enter the appropriate User Name and Password as provided by an authorised Caterpillar Inc.
professional installer.
Connect Antenna cable to “Main” port on UWB node
Connect the 379-9909 Cable As. to the 9 to 60VDC port on the UWB node
Connect an M12 to RJ45 Cable from LAN Port 1 on the UWB node to the Ethernet connection on the
PC and observe the “Connect Dialog” window.

© 2014 Caterpillar Inc.
14
THE INFORMATION CONTAINED HEREIN IS THE PROPERTY OF CATERPILLAR UNDERGROUND MINING PTD LTD. WITHOUT WRITTEN PERMISSION, ANY
COPYING, TRANSMITTAL TO OTHERS, AND ANY USE EXCEPT THAT FOR WHICH IT IS LOANED, IS PROHIBITED
Confidential Yellow
Creation Date 27/02/14
Revision No: 00
Module Gp-Control 447-0328 (Fleet for Underground) User Manual (English)
The CAT® Minestar™ UGPS Node Programmer window will open displaying the connected devices
configuration and status.
Interface - Active connection type (USB or Ethernet).
MAC Address – MAC address of connected device will be displayed.
Comms Address – Communications port connectivity port.
Firmware – Provides information on whether or not the firmware is current (Latest).
Antenna – Allows the user to determine what antenna is installed.
Config – Displays the current mode of operation for the device (Mobile or Fixed) node.
Status - Displays a description of the status of the device.
Idle – Indicates that there are no messages between the PC and the node.
Reading Config. – Indicates that the PC is actively reading the devices configuration.
Writing Config. – Indicates that the PC is actively writing the configuration to the device.
Reading Status – Indicates that the PC is checking the firmware version and device statistics.
Updating Firmware – Indicates that the PC is actively updating and writing the firmware to
the device.
Rebooting – Indicates that the device is rebooting.
Firmware needs updating – Indicates that the device’s firmware is out of date and requires to be
updated.

© 2014 Caterpillar Inc.
15
THE INFORMATION CONTAINED HEREIN IS THE PROPERTY OF CATERPILLAR UNDERGROUND MINING PTD LTD. WITHOUT WRITTEN PERMISSION, ANY
COPYING, TRANSMITTAL TO OTHERS, AND ANY USE EXCEPT THAT FOR WHICH IT IS LOANED, IS PROHIBITED
Confidential Yellow
Creation Date 27/02/14
Revision No: 00
Module Gp-Control 447-0328 (Fleet for Underground) User Manual (English)
The antenna type and node usage can be changed if the highlighted row is selected which will
populate the MAC address field for the device. The drop-down menu on the Node Usage and
Antenna can be changed as required for the application followed by selecting the “configure”
button.
Troubleshooting
The “VIEW LOG” can be accessed to determine the status of the device by providing information
such as any error messages and firmware update information.