Carrier 58MVP060 User Manual FURNACE Manuals And Guides L0411125
CARRIER Furnace/Heater, Gas Manual L0411125 CARRIER Furnace/Heater, Gas Owner's Manual, CARRIER Furnace/Heater, Gas installation guides
User Manual: Carrier 58MVP060 58MVP060 CARRIER FURNACE - Manuals and Guides View the owners manual for your CARRIER FURNACE #58MVP060. Home:Heating & Cooling Parts:Carrier Parts:Carrier FURNACE Manual
Open the PDF directly: View PDF
.
Page Count: 52

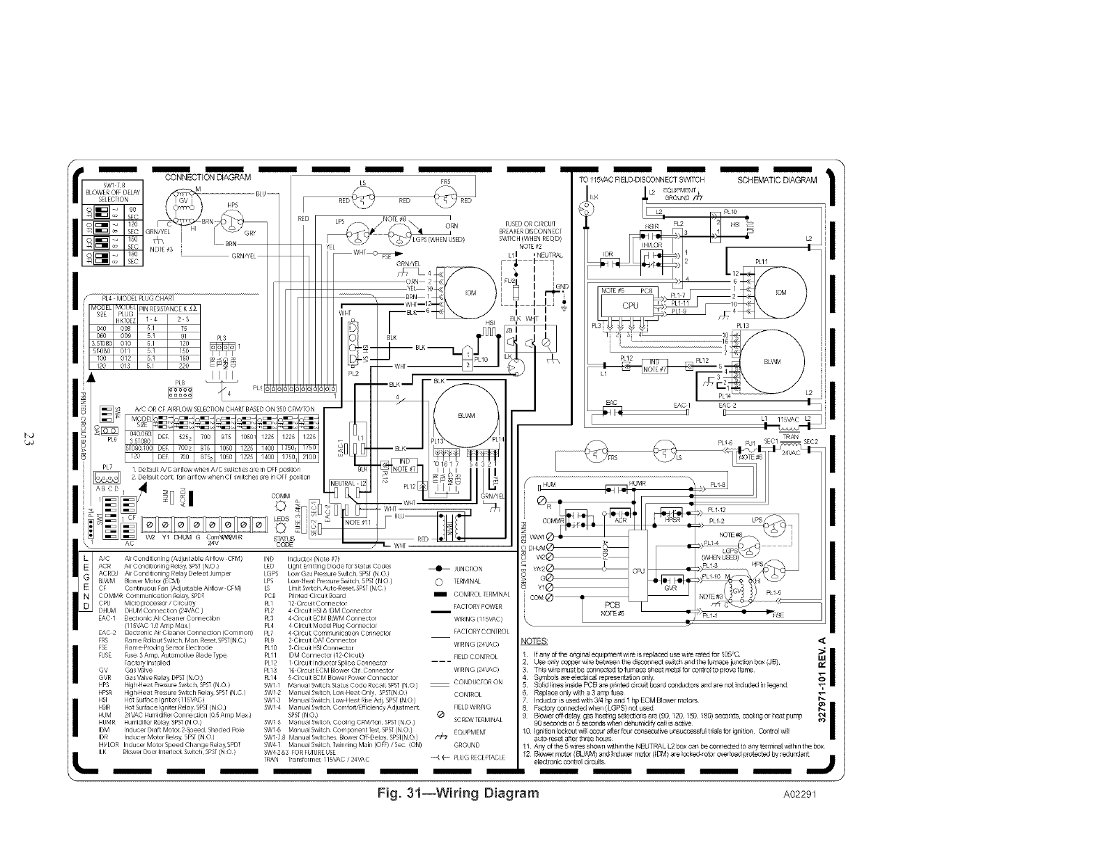
58NVP
4-VVay MuMtipoise Dkect-Vent
VariabMe-Capacity Condensing Gas Furnace
\isit_ v_wcarrier.corn
tnstammation, Start-Up, and Operating
For Sizes 040 120, Series t70
[HEATING & COOUNG
NOTE: Read the entire instruction
manual bei\_re starting the installation
A93040
This symbol --> indicates a change since the last issue,
Index Page
DIMENSIONAL DRAWING ........................................................ 3
SAFETY CONSIDERATIONS ..................................................... 2
Clearances to Combustibles ...................................................... 4
<ODES AND STANDARDS ........................................................ 5
ELE< TROSTATIC DIS<HARGE (ESD) PRE(AUTIONS ........ 5
INTRODU< TION .......................................................................... 5
APPLICATIONS ............................................................................ 5
General ...................................................................................... 5
Upf]ow Applications ................................................................. 5
Downflow Applications ............................................................ 8
Horizontal Left (Supply-Air Discharge) Applications ............ 9
Horizontal Right (Supply-Air Discharge) Applications ........ 11
LO< ATION .................................................................................. 13
General .................................................................................... ] 3
Low-Heat Only Installation .................................................... 14
Furnace Location Relative to ( ooling Equipment ................ 14
Hazardous Locations ............................................................... i4
INSTALLATION ......................................................................... 15
Leveling Legs (If Desired) ..................................................... 15
Installation In [pflow or Downflow Applications ................ 15
Installation In Horizontal Applications .................................. 15
Air Ducts ................................................................................. ] 5
General Requirements ....................................................... 15
Ductwork Acoustical Treatment ....................................... 17
Supply-Air Connections .................................................... 17
Return=Air < onnections ..................................................... 18
Filter Arrangement .................................................................. 18
Bottom Closure Panel ............................................................. i8
Gas Piping ............................................................................... l 8
Electrical ( onnections ............................................................ 20
] 15-v Wiring ...................................................................... 20
24-v Wiring ........................................................................ 21
Accessories ........................................................................ 22
Direct Venting ......................................................................... 22
Removal of Existing Furnaces fl'om
( ommon Vent Systems ......................... 22
Combustion-Air and Vent Piping .................... 24
Concentric Vent and Combustion-Air Temaination
Kit Installation ................................ 28
Multiventing and Vent Tem_inations ................. 3 l
Condensate Drain ................................. 34
As an ENERGY STAR're
Pmmer, Carrier CoLvora-
don has detem*ined that
this product meets the EN'-
FR(SY S fAR_ guidelines
fbr energy effldency
REGISTERED QUALITY SYSTEM
AIRFLOW
O
¢HORIZONTAL HORIZONTAL
LEFT RIGHT
AIRFLOW AIRFLOW
©
AIRFLOW
Fig. 1--NuRipoise Orientations A93041
General ............................................................................... 34
Application ........................................ 34
Condensate Drain Protection ...................... 35
START-UP, ADJUSTMENTS AND SAFETY CHECK. _ 35
General ......................................... 35
Select Setup Switch Positions ........................................... 35
Prime < ondensate Trap With Water ................................. 36
Purge Gas Lines ................................................................ 36
Sequence of Operation ...................................................... 37
Single-Stage Thermostat and Two-Stage Heating
(Adaptive Mode) .......................... 37
Two-Stage Them_ostat and Two-Stage Heating ...... 39
Cooling Mode .............................. 39
Them_idistat Mode .......................... 40
Supe*-Dehumidif) Mode ............................ 40
Continuous Blower Mode ...................... 40
Heat Pump ................................ 40
Component Test ............................ 41
Ac{iustments ................................... 4 l
Set Gas Input Rate .......................... 41
Set Temperam*e Rise .......................... 48
Set Them_ostat Heat Anticipator .................. 48
Manufacturer reserves the right to discontinue, or change at any time, specifications or designs without notice and without incurring obligations.
PC 101 Catalog No 535-80110 Printed in U.S.A. Form 58MVP-13SI Pg 1 1-04 Replaces: 58MVP-12SI

(heck Safety Controls 49
Check Primary Limit Control 49
Check Pressure Switch ................................................. 49
(HE(KLIS7 ...................................................................... 49
SAFETY CONSIDERATtONS
Application of this furnace should be indoors with special
attention given to vent sizing and material, gas input rate, air
temperature rise, unit leveling, and unit sizing. Improper
installation or misapplication of furnace can require excessive
servicing or cause premature component _hilure.
Improper installatiom adjustment, aheration, sela'ice, mainte-
nanc< or use can cause carbon monoxide poisoning, explo-
sion, tire, electrical shock, or other conditions which may
cause personal Jr!iraYor property damage. Consult a qualified
installer, sela-ice agency, local gas supplier, or your distribu-
tor or branch _br information or assistance. The qualified
installer or agency must use only _i_ctory-authorized and
listed kits or accessories when modit)'ing this product. Failure
to follow this warning could result in electrical shock, firQ
personal injury; or death.
Installing and servicing heating equipment can be hazardous due to
gas and electrical components. Only trained and qualified
personnel should install, repair, or service heating equipment°
Untrained personnel can perform basic maintenance fhnctions
such as cleaning and replacing air Jilters. All other operations nmst
be performed by trained service personnel. When working on
heating equipment, observe precautions in literature, on tags, and
on labels attached to or shipped with unit and other safety
precautions that may apply.
These instructions cover the minimum requirements and conform
to existing national standards and safety codes. In some instances,
these instructions exceed certain local codes and ordinances,
especially those that may not have kept up with changing residen-
tial construction practices. We require these instructions as a
minimum ibr a saf_ installation.
Wear safety" glasses and work gloves. Have a fire extinguisher
available during start-up and adjustment procedures and service
calls.
Recognize safety informatiom This is the safety=alert symbol _.
When you see this symbol on the unit and in instructions or
manuals, be alert to the potential for personal injury.
Understand these signal words: DANGER, WARNING, CAU=
TION, and NOTE. These words are used with the safety-alert
symbol. DANGER identifies the most serious hazards which will
result in severe personal injury or death. WARNING signifies
hazards which could resuh in personal Jr!jury or death. CAUTION
is used to identi_}' unsafe practices which would result in minor
personal injury or product and property damage. NOTE is used to
highlight suggestions which will result in enhanced installation,
reliability, or operation.
Sheet metal parts may have sharp edges or bun's. Use care and
wear appropriate protective clothing and gloves when hart=
dling parts. Failure to _bllow this caution could result in
personal injury.
The 58MVP Muhipoise Condensing Gas=Fired Furnaces are
CSA, (formerly AGA and CGA) design-certified _br natural and
propane gases (see t\trnace rating plate) and for installation in
alcoves, attics, basements, closets, utility rooms, crawlspaces, and
garages. The furnace is factory-shipped :_br use with natural gas A
C.S.A. (formerly AGA and CGA) listed gas conversion kit is
required to convert fhmace fbr use with propane gas
See Fig. 3 for required clearances to combustibles
Maintain a l-in clearance fi'om combustible materials to supply air
ductwork for a distance of 36 inches horizontally from the fl/rnace.
See NFPA 90B or local code ibr t:t_rther requirements.
These furnaces SHALL NOT be installed directly or* carpeting,
tile, or any other combustible material other than wood flooring. In
downflow installations, factory accessow floor base MUST be
used when installed on combustible materials and wood flooring.
Special base is not required when this Nmace is installed on
manufacturer's (?oil Assembly Part No. CD5 or CK5, or when (Toil
Box Part No. KCAKC is used. These fl/rnaces are suitable for
.............. a structure built on site or a manufi_ctured building
completed at final site. The design of this Nmace line is NOT
C.S.A. (formerly AGA and CGA) design=certified for installation
in recreation vehicles or outdoors.
This t_umace is designed for continuous return-air minimum
temperature of 60 °F dh or intermittent operation down to 55°F db
such as when used with a night setback thermostat. Return-air
temperature must not exceed 85°F dh. Failure to lbllow these
return air limits may affect reliability of heat exchangers, motors
and controls. (See Fig. 4.)
These furnaces are shipped with the drain and pressure robes
connected for UPFLOW applications. Minor modifications are
required when used in DOW_NFLOW, HORIZONTAL RIGHT, or
HORIZONTAL LEFT (supply=air discharge direction) applica-
tions as shown in Fig. 1. See details in Applications section.
This furnace must be installed with a direct=vent (combustion air
and flue) system and a fi_ctory accessory temlination kit. In a
direct-vent system, all air for combustion is taken directly fiom the
outside atmosphere and all flue products are discharged to the
outside atmosphere. See fl/mace and factoo" accesso_' termination
kit instructions for proper installation.
Never test for gas leaks with an open flame. Use a commercially
available soap solution made specifically for the detection of leaks
to check all connections as specified in the GAS PIPING section
of these instructions.
Always install furnace to operate within the furnace's intended
temperature=rise range with a duct system which has an external
static pressure within the allowable range as specified in the SET
TEMPERATURE RISE section of these instructions.
When a furnace is installed so that the supply ducts car_- air
circulated by the fimaace to areas outside the space containing the
furnace, the remm air must also be handled by a duct(s) sealed to
the furnace casing and tem_inating outside the space containing the
ftmaace
A gas=fired furnace _br installation in a residential garage must be
installed as specified in the Hazardous Locations section and Fig.
5.
The furnace is not to be used for temporaw heating of buildings or
structures under construction unless the furnace installation and
operation complies with first CAUTION in the LOCATION
section of these instructions.

SiDE iNLET
27
CONDENSATE
DRAIN LOCATION
(UPFLO\A/}
O
AIRFLOW
TYP
OUTLET
Am
CONDENSATE DRAIN
TRAP LOCATION _
(DOWNFLOW &
HORIZONTAL RIGHT)
OR ALTERNATE
, 1biN DiA GAS CONN
30 i_,, 1
18 _,_
i
INLE_ DRA{N LOCATION
DIMPLE LOCATORS
FOR HORIZON 17_,L
HANGING
7m-IN DIA
POWER CONN
I_z-IN DIA
THERMOSTAT ENTRY
)NN
I SiDE INLET
I
I
I
NOTES: 1. Minimum return-air openings at furnace, based on metal duct. If flex duct is used,
see flex duct manufacturer's recommendations for equivalent diameters.
2. Minimum return-air opening at furnace:
a, For 800 CFM-16qn, round or 14V_x 12in, rectangle.
b. For 1200 CFM-20qn. round or 14V, x 19V2qn.rectangle.
c. For 1600 CFM-22-in. round or !4_/_x 23V,-in. rectangle.
d. For airflow requirements above 1800 CFM, see Air Delivery table in Product Data
literature for specific use of single side inlets. The use of both side inlets, a
combination of 1 side and the bottom, or the bottom only will ensure adequate
return air openings for airflow requirements above 1800 CFM.
Dimensions (in.)
UNIT SBZE A D E
040-14* 24-1/2" 22-7/8" 23*
060-14 17-1/2 15-7/8 16
080-14 21 19_3/8 19-1/2
080-20 21 19_3/8 19-1/2
100=20 21 19_3/8 19-1/2
120=20 24-1/2 22-7/8 23
* These dimensions reflect the wider casing for the Trophy (96,6 percent AFUE) furnace
Fig. 2--Dimensional Drawing
A99111

•This forced air furnace is equipped for use with natural gas at altitudes 0 - 10,000 ft (0 - 3,050m), except 140size furnaces are only approved for altitudes 0 - 7,000 ft.
(C0- 2,135m).
• An accessory kit, supplied by the manufacturer, shall be used to convert topropane gas use or may be required for some natural gas applications.
• This furnace is for indoor installation in a building constructed on site. This furnace nay be installedin a manufactured (mobile) home wden stated on rating plate and
using factory authorized kit.
This furnace may de installed on combustible flooring in alcove or closet at Minimum Inches Clearance To Combustible Construction as described below.
This furnace requires a special venting system. Refer to the installation instructions for parts list and method of installation. This furnace is for use with schedule-40 PVC,
PVC-DWV, CPVC, or ABS-DWV pipe, and must not be vented in seron-on with other Igas-fired appliances. Construction through which vent/air intake pipes may be
installed is maximum 24 inches (600 ram), minimum 3/4 inches (19 mm) thickness (including roofing n',atedals).
For upflow and downflow applications, furnace must be installed level, or pitched within 1/2" of level. For a
horizontal application, the furnace must be pitched ninimum 1/4" to maximum of 1/2" fo_verd for proper
drainage. See Installation Manual for IMPORTANT unit support details on horizontal applications.
LEVEL (0")TO ,,#_1_,._=_
1/2"MAX __
UPFLOW OR r_-,i/J
DOWNFLOW L_..Y
MIN 1/4" TO t/2" MAX
HORIZONTAL
MINIMUM INCHES CLEARANCE TO COMBUSTIBLE CONSTRUCTION
ALL POSITIONS:
*Mimimum front clearance for service 30 inches (762mm).
DOWNFLOWPOSITIONS:
1" For installation on combustible floors only when installed on special bas,_ No.
KGASB0201ALL, Coil Assembly, Part No. CD5 or CK5, or Coil Casing, Part No. KCAKC.
HORIZONTALPOSITIONS:
Line contact is permissible only between lines fon-ned by intersections of top and two sides
of furnace jacket, and building joists, studs, or framing.
,_ Clearance shown is for air inlet and air outlet ends.
O 120 size furnace requires 1 inch bottom clearance to combustible materials.
328068-201 REV. A
LtT - TOP
Thisfurnace isapl_oved for UPFLOW, DOWNFLOWand
HORIZONTALinstallations
Clearancearrows
do not change,with
fumace orientation.
Fig. 3--Clearances to CombustiNes
J
A02250
MAX 85°F
MIN 55°F
A93042
Fig. 4_Return-Air Temperature
These timaaces are shipped with the following materials to assist in
proper furnace installation, These materials are shipped in the main
blower compa_lment,
18-IN. MINIMUM
TO BURNERS
Fig. 5--installation in a Garage
Installer Packet includes:
Installation, Start=Up, and Operating Insm/ctions
Service and Maintenance Instructions
User's Inforn_ation Manual
Wan'anty Certificate
Loose Parts Bag includes:
Pressure tube extension
Collector box or condensate trap extension tube
A93044
Quantity1
1

Inducer housing drain robe 1
1/2°in CPVC street elbow 2
Drain tube coupling 1
Drain tube coupling grommet 1
Vent and combustion°air pipe support 2
Combustion-air pipe perforated disk assembly 1
Condensate trap hole Illler plug 3
Vent and combustion°air intake hole filler plug 2
For accessory installation details, refBr to applicable installation
literature
CODES AND STANDARDS
Follow all national and local codes and standards in addition {o
these instructions° The installation must comply with regulations
of the serving gas supplier, local building, heating, plumbing, and
other codes. In absence of local codes, the installation must
comply with the national codes listed below and all authorities
having jurisdiction in Canada.
In the United States and Canada, follow all codes and standards for
the fbllowing:
Step l--Safety
* US: National Fuel Gas Code (NFGC) NFPA 54-2002/ANSI
Z223.1o2002 and the Installation Standards, Warm Air Heating
and Air Conditioning Systems ANSI NFPA 90B
* CANADA: National Standard of Canada, Natural Gas and
Propane Installation Code (NSCNGPIC) CSA BI49.!-00
Step 2--General hstaHation
* US: NFGC and the NFPA 90B. For copies, contact the National
Fire Protection Association Inc., Battewmarch Park, Quincy,
MA 02269; or for only the NFGC contact the American Gas
Association, 400 N. Capitol, N.W., Washington DC 20001
* CANADA: NSCNGPIC. For a copy, contact Standard Sales,
CSA International, 178 Rexdale Boulevard, Etobicoke (Tor-
onto), Ontario, M9W 1R3, Canada.
Step a--Combustion and Ventilation Air
* US: Section 8.3 of the NFGC, Air for (ombustion and
Ventilation
* CANADA: Part 7 of the NSCNGPIC, Venting Systems and Air
Supply fbr Appliances
Step 4--Duct Systems
* US and CANADA: Ab" (onditioning (ontractors Association
(ACCA) Manual D, Sheet Metal and Air Conditioning Con=
tractors National Association (SMACNA), or American Soci=
ety of Heating, Refrigeration, and Air Conditioning Engineers
(ASHRAE) 2001 Fundamentals Handbook Chapter 34.
Step 5--Acoustical Lining and Fibrous Glass Duct
* US and CANADA: current edition ofSMACNA, NFPA 90B as
tested by UL Standard 181 for Class I Rigid Air Ducts
Step 6--Gas Piping and Gas Pipe Pressure Testing
* US: NFG(; chapters 5, 6, 7, and 12 and national plumbing
codes
* CANADA: NSCNGPIC Parts 3, 4, 5, A, B, E, G, and H
Step 7--Electrical Connections
* US: National Electrical Code (NEC) ANSIiNFPA 70°2002
* CANADA: Canadian Electrical Code CSA C2Z1
ELECTROSTATIC DBSCNARGE {ESD) PRECAUTIONS
Electrostatic discharge can affect electronic components.
Take precautions during furnace installation and servicing to
protect tl_e l\lrnace electlonic control. Precautions will pre-
vent electrostatic discharges tiom personnel and hand tools
which are held during the procedure. These precautions will
help to avoid exposing the control to electlostatic discharge
by putting the t:ornace, the control, and the person at the same
electrostatic potential
1. Disconnect all power to the furnace. Multiple disconnects may
be require& DO NOT TOUCH THE CONTROL OR ANY
WIRE CONNECTED TO THE CONTROL PRIOR TO DIS-
CHARGING YOUR BODY'S ELECTROSTATIC CHARGE
TO GROUND.
2. Firmly touch a clean, unpainted, metal surface of the fimaace
chassis which is close to the control. Tools held in a person's
hand during grounding will be satisfactorily discharged.
3. After touching the chassis, you may proceed to service ff*e
control or connecting wires as long as you do nothing that
recharges your body with static electricity (fbr example; DO
NOT move or shuffle your feet, DO NOT touch ungrounded
objects, etc.).
4. If you touch ungrounded objects (recharge your bo@ with
static electricity), firmly touch fi/mace again befbre touching
control or wires.
5. Use this procedure for installed and uninstalled (ungrounded)
_/fnaces
6. Before removing a new contlol fiom its container, discharge
your bo@'s electrostatic charge to ground to protect the
control f?om damage. If d_e control is to be installed in a
fhmace, fbllow items 1 through 5 befbre bringing the control
or yourself into contact with the Nrnace. Put all used AND
new controls into containers before touching ungrounded
objects.
7. An ESD service kit (available from commercial sources) may
also be used to prevent ESD damage.
mNTRODUCTION
The model 58MVP 4-way multipoise, Gas-Fired, Categow IV,
direct=vent condensing fhmace is available in model sizes ranging
in input capacities of 40,000 to 120,000 Btuh,
APPLICATIONS
Step i--General
Some assembly and modifications are required %r l\zrnaces
installed in any of the 4 applications shown in Fig. 1. All drain and
pressure tubes are connected as shown in Fig 7 See appropriate
application instructions for these procedures.
NOTE: In Canada, installations shall be in accordance with
cmTent NSCNGPIC and/or local codes.
Step 2--Upflow Applications
An upflow ihmace application is where f_/rnace blower is located
below combustion and controls section of furnace, and conditioned
air is discharged upwards.

__D FURNACE
OOR
TRAP (INSIDE_ X[
TU% OOSO ETRAP
DRAIN TUBE LOCATION
UPFLOW APPLICATIONS
FIELD--
DRAIN
CONN
/-- CONDENSATE
/TRA uRNAOE7
JSIDV
/o
£_2% ......
SIDE VIEW FRONT VIEW
DOWNFLOW AND ALTERNATE
EXTERNAL UPFLOW APPLICATIONS
_1 FURNACE
OOR
FIELD --
DRAIN
CONN
-- FURNACE
SIDE
¾
END VIEW FRONT VIEW
HORIZONTAL
APPLICATIONS
s'-°7'-%:°:U7
(OPTIONAL) /
GUIDES
(WHEN USED)
71/8
l
COD
COLLECTOR BOX TO
TRAP RELIEF PORT
_OD
INDUCER HOUSING
DRAIN CONNECTION
'_OD
COLLECTOR BOX
DRAIN CONNECTION
SCREW HOLE FOR
UPFLOW OR DOWN-
FLOW APPLICATIONS
(OPTIONAL)
Y2-1N. PVC OR CPVC
FRONT VIEW SIDE VIEW
A93026
Fig. 6--Condensate Trap
CONDENSATE TRAP LOCATION (FACTORY-SHIPPED
ORIENTATION)
The condensate trap is _lactory installed in the blower shelf and
_%cto*yconnected for UPFLOW applications A factow-supplied
tube is used to extend the condensate trap drain connection to the
desired furnace side for field drain attachment See Condensate
Trap Tubing (Factory=Shipped Orientation) section _br drain tube
extension details, (See Fig 6)
CONDENSATE TRAP TUBING (FA(TORY-SHIPPED
ORIENTATION)
NOTE: See Fig 7 or tube roudng label on main flul_ace door to
confirm tocation of these tubes
l. (ollector Box Drain, Inducer Housing Drain, Relief Pro1, and
Pressure Switch Tubes
These robes should be factory attached to condensate trap and
pressure switch tea@ for use in UPFLOW applications. These
robes can be identified by their connection location and also
by a color label on each robe. These robes are identified as
_bllows: collector box drain robe (blue label), inducer housing
&ain robe (violet label or molded), relief port tube (green
label), and pressure switch robe (pink label).
2. (ondensate Trap Drain Tube
The condensate trap drain connection must be extended for
field attachment by doing the ibllowing:
a Detemine location of field drain connection (See Fig. 2or
7)
NOTE: If internal filter or side filter media cabinet is used, &ain
robe should be located to opposite side of casing fiom remm duct
attachment to assist in filter removal
b. Remove and discard casing drain hole plug button from
desired side.
c Install &ain robe coupling grommet (factow-supplied in
loose parts bag) in selected casing hole.
d. Slide &ain robe coupling (fi_ctory=supplied in loose parts
bag) through grommet so tong end of coupling _i_ces
blower.
e Cement 2 factory=supplied 1/2-in. street CPVC elbows to
rigid &ain tube connection on condensate trap (See Fig. 7)
These elbows must be cemented together and cemented to
condensate trap &ain connection.
NOTE: Failure to use CPVC elbows may allow &ain to kink,
preventing draining.
£ Connect larger diameter drain tube and clamp (factory-
supplied in loose parts bag) to condensate trap and clamp
securely,

PLUG
CAP
COLLECTOR
DRAIN TUBE (BLUE
& WHITE STRIPED)
COLLECTOR
TUBE (PINK)
DRAIN TUBE (BLUE
& WHITE STRIPED)
COLLECTOR BOX
TUBE (PINK)
©
(MOLDED) DRAIN
TUBE (BEHIND
COLLECTOR BOX
DRAIN TUBE)
DRAIN TUBE (BLUE)
COLLECTOR BOX
TUBE (GREEN)
FACTORY-SUPPLIED
DRAIN TUBE
COUPLING (LEFT
DRAIN OPTION)
FIELD-INSTALLED
FACTORY-SUPPLIED
DRAIN TUBE
FIELD-INSTALLED
FACTORY-SUPPLIED
//2 -IN CPVC STREET
ELBOWS (2) FOR
LEFT DRAIN OPTION
FIELD-INSTALLEE
FACTORY-SUPPLIED
DRAIN TUBE
COUPLING (RIGHT
DRAIN OPTION)
A94213
Fig. 7--Factory-SNpped Upflow Tube Configuration
(Shown With Blower Access Pane_ Removed}
g. Route tube to coupling and cut [o appropriate length
1",. Attach robe to coupling and clamp securely.
CONDENSATE TRAP LO(ATION (ALTERNATE UPFLOW
ORIENTATION)
An alteraate location _Pr the condensate tlap is the left=hand side
of casing. (See Fig 2 and 8)
NOTE: If the alternate lek=hand side of casing location is used,
the _i_ctory=cormected &ain and relief port robes must be discon=
nected and modified fo* attachment. See Condensate Trap Tubing
(Alternate Upflow Orientation) section for tubing attachment
To relocate condensate t_ap to the tef_-hand side, perfbm_ the
following:
1. Remove 3 tubes connected to condensate trap.
2. Remove trap from blower shelf by gently pushing tabs inward
and rotating t_ap.
3. Instal! casing hole filler cap ditctow-supplied in loose parts
bag) into blower shelf hole where trap was removed.
COLLECTOR BOX
TUBE (GREEN)
COLLECTOR BOX
DRAIN TUBE (GREEN)
TRAP
HOUSING
DRAIN TUBE
(VIOLET)
O O
A94214
Fig. 8--ARernate Upflow Tube Configuration and
Trap Location
(using hole filler cap must be installed in blower shelf hole
when condensate trap is relocated. Failure to tbllow d_is
warning could result in electrical shock, fire, personal injury
or death.
4. Install condensate trap into left=hand side casing hole by
inserting tube connection stubs through casing hole and
rotating until tabs snap into locking position.
5. Fill unused condensate trap casing holes with plastic filler
caps (factory=supplied in loose parts bag).
CONDENSATE TRAP TUBING (ALTERNATE UPFLOW
ORIENTATION)
NOTE: See Fig. 8 or robe routing label on main Nrnace door to
confirm location of these robes.
1. Collector Box Drain Tube
Connect collector box &ain robe (blue label) to condensate
trap.
NOTE: On 17=1/2=in. wide fi/rnaces ONLY, cut robe between
con'ugated sections to prevent kinks.
2. Inducer Honsing Drain Tube
a. Remove and discard LOWER (molded) inducer housing
drain robe which was previously connected to condensate
trap

COLLECTOR BOX
DRAIN TUBE (BLUE)
CA_
PLUG
COLLECTOR BOX
TUBE (GREEN)
O O
TUBE (GREEN)
DRAIN TUBE (BLUE)
TUBE (PINK) TUBE (PINK)
COLLECTOR
DRAIN TUBE (BLUE
& WHITE STRIPED)
EXTENSION TUBE
COLLECTOR BOX
DRAIN TUBE (BLUE
& WHITE STRIPED)
COLLECTOR BOX
EXTENSION TUBE
TRAP ©
DRAIN TUBE
(VIOLET)
CONDENSATE
TRAP
INDUCER HOUSING
DRAIN TUBE(VIOLET) ._
A94215
Fig. 9--Downflow Tube Configuration
(Left-Hand Trap Installation)
b. Use inducei housing &ain extension tube (violet label and
thctow-supplied in toose parts bag) to connect LOWER
inducer housing &ain connection to condensate trap.
c. Detem_ine appropriate tength, then cut and connect tube.
d. Ctamp robe to prevent any condensate leakage.
3. Relief Port Tube
a. (onnect relief port tube (green label) to condensate trap.
b. Extend this tube (if required) by splicing to small diameter
tube (fhctowosupplied in toose parts bag)
c. Detem_ine appropriate tength, then cut and connect tube.
(ONDENSATE TRAP FIELD DRAIN ATTACHMENT
Refkr to Condensate Drain section for recommendations and
procedures
PRESSURE SWITCH TUBING
The LOWER collector box pressure tube (pink 1abel) is factor
connected to the pressure switch and should not require any
modification.
NOTE: See Fig 7 or g or tube routing label on main [:umace door
to check fbr proper connections.
UPPER COLLECTOR BOX AND INDUCER HOUSING
(UNUSED) DRAIN CONNE(TIONS
Upper Collector Box Drain (7onnection
Attached to the UPPER collector box drain connection is a
fhctory=installed corn/gated, plugged robe (blue and white striped
label) This robe is plugged to prevent condensate leakage in this
application Ensure this robe is plugged
NOTE: See Fig. 7 or 8 or robe routing label on main furnace door
to check fbr proper connections.
EXTENSION
DRAIN TUBE
'DRAIN TUBE
COUPLING
A94216
Fig. 10--Downflow Tube Configuration
(Right=Hand Trap Insta{lation)
Upper Inducer [Iousing Drain (onnection
Attached to the UPPER (unused) inducer housing &ain connection
is a cap and clamp. This cap is used to prevent condensate leakage
in this application. Ensure this connection is capped.
NOTE: See Fig. 7 or 8 or tube routing label on main fhrcmce door
to check fbr proper connections.
CONDENSATE TRAP FREEZE PROTECTION
Refer to Condensate Drain Protection section for recommenda-
tions and procedures.
Step 3--Downflow Applications
A downflow fm'nace application is where furnace blower is located
above combustion and controls section of furnace, and conditioned
air is discharged downwards.
CONDENSATE TRAP LOCATION
The condensate trap must be removed ti"om the fhctow-installed
blowe* shelf'location and relocated in selected application tocation
as shown in Fig. 2, 9, or 10
To relocate condensate trap fi'om the blower shelf to desired
location, per%tin the following:
1. Remove 3 tnbes connected to condensate t_ap.
2. Remove trap from blower shelf by gently pushing tabs inward
and rotating trap.
3. Remove casing hole filler cap flora casing hole (See Fig. 2
and 10.)
4. Install casing hole filler cap (fhctow-supplied in toose parts
bag) into blower shelf hole where trap was removed

Casing hole filler cap must be installed in blower shelf hole
when condensate trap is relocated. Failure to %llow this
warning could result in electrical shock, fire, personal injury
or death.
5. Install condensate trap into left-hand side casing hole by
inserting tube connection stubs through casing hole and
rotating until tabs snap into locking position,
6. Fill unused condensate trap casing holes with plastic filler
caps (flactory°supplied in toose parts bag)
CONDENSATE TRAP TUBING
NOTE: See Fig. 9 or 10 or robe routing label on main fm'nace
door to check for proper connections
1. (ollector Box Drain Tube
a. Remove fi_ctory=installed plug flora LOWER collector box
drain robe (blue and white striped label).
b. Instal! removed clamp and plug into UPPER collector box
&ain tube Cblue label) which was connected to condensate
t_ap.
c. Connect LOWER collector box drain connection to con=
densate tlap.
(1.) Condensate Trap Located on Left Side of Casing
(aj Connect LOWER collector box &ain robe (blue
and white striped label) to condensate trap. Tube
does not need to be cut.
Cb.) Clamp tube to prevent any condensate leakage.
CZ) Condensate Trap Located on Right Side of (asing
Caj Install drain tube coupling (fhctow-supplied in
loose parts bag) into collector box drain robe
(blue and white striped label) which was previ=
ously plugged.
Cb.) Connect larger diameter &ain robe (g_ctory=
supplied in loose parts bag) to &ain tube cou=
piing, extending collector box drain robe for
connection to condensate trap
Cc) Route extended collector box &ain tube between
gas valve and inlet housing as shown in Fig. 10.
Cd) Dete*mine app*opriate length and cut
(e) Connect to condensate t*ap
(f.) Clamp tube to prevent any condensate leakage.
2. Inducer Housing Drain Tube
a. Remove titctoEv=installed cap and clamp from LOWER
inducer housing drain connection.
b. Remove and discard UPPER (molded) indocer housing
&ain robe which was previously connected to condensate
tlap.
c Install cap and clamp on UPPER inducm housing &ain
connection where molded &ain robe was removed.
d. Lse inducer housing &ain robe (violet 1abel and factory=
supplied in loose parts bag) to connect LOWER inducer
housing &ain connection to the condensate trap
e. (onnect inducer housing drain connection to condensate
trap.
Cij (ondensate Trap Located on Left Side of (asing
Ca.) Detem_ine appropriate lengd_ and cut.
(b.) Connect robe to condensate trap.
(c.) Clamp robe to prevent any condensate leakage.
(20 (ondensate Trap Located on Right Side of Casing
Ca.) Route inducer housing drain robe (violet label)
directly from inducer housing to condensate trap.
Cb) Determine appropriate length and cut
(c.) (onnect robe to condensate trap.
C&) Clamp robe to prevent any condensate leakage.
3. Relief Port Tube
Re_kr to Pressure Switch Tubing section ibr connection
procedure.
CONDENSATE TRAP FIELD DRAIN ATTACHMENT
Re_kr to Condensate Drain section %r recommendations and
procedures.
PRESSURE SWITCH TUBING
One collector box pressure tube (pink label) is factory connected to
the pressure switch %r use when furnace is installed in UPFLOW
or HORIZONTAL LEFT applications. This robe MUST be dis-
connected and used ibr the condensate trap relief port robe. The
other collector box pressure robe (green label) which was ifctory
connected to the condensate trap relief port connection MUST be
connected to the pressure switch in DOVv_FLOW or HORIZON-
TAL RIGHT applications.
NOTE: See Fig. 9 or 10 or robe routing label on main furnace
door to check %r proper connections.
Relocate tubes as described below.
1. Disconnect collector box pressure robe (pink label) attached to
pressure switch.
2. Extend collector box pressure robe Cgreen label) which was
previously connected to condensate trap relief port connection
by splicing to small diameter robe Cflactou-supptied in loose
parts bag).
3. (onnect collector box pressure robe (green label) to pressure
switch connection labeled COLLECTOR BOX.
4. Extend collector box pressure tube (pink label) which was
previously connected to pressure switch by splicing to remain-
ing small diameter tube Cfactow-supplied in loose parts bag).
5Route this extended tube {pink label) to condensate trap relief
port connection.
6. Determine appropriate length, cut, and connect robe.
7. (lamp robe to relief port connection.
CONDENSATE TRAP FREEZE PROTECTION
Refer to (ondensate Drain Protection section for recommenda-
tions and procedures.
Step 4--Horizontal Left (Supply°Air Discharge)
Applications
A horizontal te_ _hmace application is where furnace blower is
located to the right of combustion and controls section of _hrnace,
and conditioned air is discharged to the left.
Local codes may require a drain pan under entire furnace and
condensate trap when a condensing thmace is used in an attic
application or over a finished ceiling.
NOTE: In Canada, installations shall be in accordance with
cmTent NSCNGPI( and/or local codes
CONDENSATE TRAP LO(ATION
The condensate trap must be removed from the fi_ctory=installed
blower shelf location and relocated in selected application location
as shown in Fig 2or 11.

PLUG --
VCAP
AUXILIARY "J" BOX --_ \ ] f-- COLLECTOR BOX
\ \ ] / DRAIN TUBE
_/ / / (BLUE AND WHITE STRIPED)
TRAP X\\ XX \ TUBE(GREEN)
t Ii_ \ \ \ \\ ""--INDUCER HOUSING
COLLECTOR BOX _ & _ \\ DRAIN TUBE (VIOLET)
EXTENSION TUBE X X X _COLLECTOR BOX
.... C_(D_-_L_E.C_T.O_R_ N \ DRAIN TUBE (BLUE)
BOX EXTENSION N \
DRAIN TUBE X X
DRAIN TUBE COUPLING _ x
COLLECTOR BOX TUBE (PINK)
RELOCATE TUBE BETWEEN BLOWER SHELF AND INDUCER HOUSING FOR
060, AND 080 HEATING INPUT FURNACES
Fig. 11--Horizontal Left Tube Configuration
A02288
To relocate condensate trap from the blower shelf to desired
location, perform the tbllowing:
1 Remove 3 robes connected to condensate trap
2Remove trap fiom blower shelf by gently pushing tabs inward
and rotating trap
3 Remove casing hole filler cap fiom casing hole (See Fig 2or
11.)
4. Install casing hole filler cap (facto_ supplied in loose parts
bag) into blower shelf hole where trap was removed
N
Casing hole filler cap must be installed in blower shelf hole
when condensate tIap is relocate& Failure to follow this
warning could result in electrical shock, fire, personal injury
or death
5. Install condensate trap into tell hand side casing hole by
inserfing robe connection stubs through casing hole and
rotating until tabs snap into locking position
6 Fill unused condensate trap casing holes with plastic filler
caps (ihctoryosupptied in loose parts bag)
CONDENSATE TRAP TUBING
NOTE: See Fig 11 or robe routing label on main ihrnace door to
check for proper connections
1 Collector Box Drain Tube
a. Install &ain tube coupling (fhctovosupplied in loose parts
bag) into collector box drain tube (blue label) which was
previously connected to condensate trap
10
b (onnect large diameter drain tube and clamp (factory
supplied in loose parts bag) to drain robe coupling, extend
ing collector box &ain robe
c Route extended tube (blue label) to condensate nap and cut
to appropriate lengfl_
d (lamp robe to prevent any condensate leakage
2 Inducer Housing Drain Tube
a Remove and discard LOWER (molded) inducer housing
drain robe which was previously connected to condensate
trap
b Use inducer housing &ain extension tube (violet label and
ihctoryosupplied in loose parts bag) to connect LOWER
inducer housing &ain connection to condensate trap
c Determine appropriate length, cut, and connect tube
d (lamp robe to prevent any condensate leakage
3 Relief Port Tube
a Extend collector box robe (green label) which was previ
ously connected to condensate trap by splicing to small
diameter robe (fhctoryosupplied in loose parts bag)
b Route extended collector box pressure robe to relief port
connection on condensate trap
c Determine appropriate length, cut, and connect robe
& Clamp robe to prevent any condensate leakage
CONDENSATE TRAP FIELD DRAIN ATTACHMENT
Ref?r to (ondensate Drain section fbr recommendations and
procedures

INTAKE
A 12-1N MIN HORIZONTAL PIPE
SECTION IS RECOMMENDED WITH
SHORT (5 TO 8 FT) VENT SYSTEMS
TO REDUCE EXCESSIVE
CONDENSATE DROPLETS FROM
EXITING THE VENT PIPE
SHUTOFF
GAS VALVE ACCESS OPENING
FOR TRAP
SEDIMENT
TRAP CONDENSATE
TRAP
DRAIN
NOTE: LOCAL CODES MAY REQUIRE A DRAIN PAN UNDER THE
FURNACE AND CONDENSATE TRAP WHEN A CONDENSING
FURNACE IS INSTALLED ABOVE FINISHED CEILINGS.
Fig. 12--Attic Location and Working Platform
A93031
PRESSL RE SWIT(H TL BING
The LOWER collector box pressure tube (pink label) is factor
connected to the High Pressure Switch fbr use when _hrnace is
installed in UPFLOW applications. This robe MUST be discon-
nected, extende& rerouted, and then reconnected to the pressure
switch in HORIZONTAL LEFT applications _br 050 and 080
heating input ihrnaces.
NOTE: See Fig. 11 or tube routing label on main Nrnace door to
check for proper connections.
Modif}" robe as described below.
1. Disconnect collector box pressure tube (pink label) attached to
High Pressure Switch.
2. Use smaller diameter tube (factory-supplied in loose parts
bag) to extend robe disconnected in item 1
3. Route extended robe:
a. Behind inducer housing.
b. Between blower shelf and inducer housing.
4. Detem_ine appropriate length, cut, and reconnect tribe to High
Pressure Switch connection labeled COLLE(TOR BOX.
CONDENSATE TRAP FREEZE PROTECTION
Re_kr to Condensate Drain Protection section %r recommenda-
tions and procedures,
CONSTRUCT A WORKING PLATFORM
(onstruct working platfbm_ where all required [k_rnace clearances
are met. (See Fig 3 and 12)
NOTE: (ombustion=air and vent pipes are restricted to a mira-
mum length of 5 ft. (See Table 7.)
NOTE: A 12-in. minimum offset pipe section is recommended
with short (5 to 8 ft) vent systems. This recommendation is to
reduce excessive condensate droplets flora exiting the vent pipe.
(See Fig. 12 or 35.)
Step 5--Horizontal Right (SupplyoAir Discharge)
Applications
A horizontal right furnace application is where t:urnace blowei is
located to d_e left of combustion and conhols section of _i/rnace,
and conditioned air is discharged to the right.
11
NOTE: In (anada, installations shall be in accordance with
cun'ent NSCNGPIC Installation Codes and/or local codes
NOTE: The auxiliaLy junction box (J-box) MUST be relocated to
opposite side of furnace casing. (See Fig. 13.) See Electrical
Connection section for J-box relocation.

CAP
O
O
BOX DRAIN TUBE (BLUE)
COLLECTOR BOX TUBE (GREEN)
-- COLLECTOR BOX TUBE (PINK)
BOX RELOCATED HERE
COLLECTOR BOX DRAIN TUBE
(BLUE AND WHITE STRIPED)
CONDENSATE
TRAP
DRAIN TUBE (VIOLET)
COLLECTOR BOX
EXTENSION TUBE
Fig. 13--Horizontal Right Tube Configuration
A02289
CONDENSATE TRAP LOCATION
The condensate tlap n-rest be removed from the factow-installed
blower shelf location and relocated in selected application location
as shown in Fig. 2 or 13.
To relocate condensate trap from the blower shelf to desired
location, perfom_ the [bllowing:
1. Remove 3 robes connected to condensate trap.
2. Remove trap fiorn blower shelf by gently pushing tabs inward
and rotating trap.
3. Install casing hole filler cap (factory-supplied in loose parts
bag) into blower shelf hole where trap was removed.
Casing hole filler cap must be installed in blower shelf hole
when condensate trap is relocated. Failure to follow this
warning could result in electrical shock, fire, personal injury
or death.
4. Install condensate trap into rightohand side casing hole by
inserting robe connection stubs through casing hole and
rotating until tabs snap into locking position
5. Fill unused condensate trap casing holes with plastic filler
caps (fi_ctoryosupplied in loose parts bag)
(ONDENSATE TRAP TUBING
NOTE: See Fig. 13 or robe routing label on main fhrnace door to
check for proper connections.
1. (ollector Box Drain Tube
a. Remove fi_ctoryoinstalled plug fiom LOWER collector box
&ain robe (blue and white striped label).
b. Install removed clamp and plug into UPPER collector box
&ain robe (blue label) which was previously connected to
condensate trap.
c (onnect LOWER collector box drain robe (blue and white
striped label) to condensate trap Tube does not need to be
cut.
d. Clamp robe to prevent any condensate leakage.
2. Inducer Housing Drain Tube
a. Remove fhctoryoinstalled cap and clamp from LOWER
inducer housing drain connection.
b. Remove and discard UPPER (molded) inducer housing
&ain robe which was previously connected to condensate
tlap.
c. Install cap and clamp on UPPER inducer housing &ain
connection where molded &ain robe was removed.
d. Use inducer housing &ain extension robe (violet label and
factoryosupplied in loose parts bag) to connect LOWER
inducer housing &ain connection to condensate trap.
e. Detem_ine appropriate length, cuk and connect robe to
condensate trap.
f\ (lamp robe to prevent any condensate leakage.
3. Relief Port Tube
Refer to Pressure Switch Tubing section for connection
procedure.
CONDENSATE TRAP FIELD DRAIN ATTACHMENT
Refkr to Condensate Drain section for recommendations and
procedures.
PRESSURE SWITCH TUBING
One collector box pressure tube (pink label) is J:ilctory connected to
the pressure switch fbr use when ft_rnace is installed in UPFLOW
or HORIZONTAL LEFT applications. This tube MUST be dis-
connected and used for the condensate trap relief port robe. The
other collector box pressure robe (green label) which was fhcto_
12

--€
connected to the condensate trap relief port connection MUST be
connected to the pressure switch in DOWNFLOW or HORIZON°
TAL RIGHT applications,
ROTE: See Fig. 13 or tube routing 1abel on main fhmace door to
check for proper connections
Relocate tubes as described below,
1, Disconnect collector box pressu*e tube (pink 1abet) attached to
pressure switch.
2. Extend collector box pressure robe (green label) which was
previously connected to condensate trap relief port connection
by splicing to small diameter robe (factow-supplied in loose
parts bag).
3. (onnect collector box pressure tube (green label) to pressure
switch connection labeled COLLE(TOR BOX.
4. Use remaining small diameter tube (factory-supplied in loose
parts bag) to extend collector box pressure robe (pink label)
which was previously connected to pressure switch.
5. Route this extended robe (pink label) to condensate trap relief
port connection.
6. Detem_ine appropriate length, cut, and connect robe.
7. Clamp robe to relief port connection.
CONDENSATE TRAP FREEZE PROTECTION
Re*kr to Condensate Drain Protection section for recommenda=
tions and procedores.
CONSTRUCT A WORKING PLATFORM
Construct working platfbrm where all required [:urnace clearances
are met, (See Fig. 3 and 12.)
The condensate trap MUST be installed below fimaace See
Fig. 6_br dimensions. The drain connection to condensate
trap must also be properly sloped to an open &ain Failure to
follow this caution will result in intermittent unit operation.
ROTE: Combustion-air and vent pipes are restricted to a mira°
mum length of 5 ft. (See Table 7.)
ROTE: A 12-in. n_ininlum offset pipe section is recommended
with short (5 to 8 ft) vent systems. This recommendation is to
reduce excessive condensate &oplets fi'om exiting the vent pipe.
(See Fig. 12 or 35.)
LOCATION
Step l--General
This _hmace must
* be installed so the electrical components are protected from
water.
* not be installed directly on any combustible material other than
wood flooring (refer to SAFETY CONSIDERATIONS).
* be located so combustion-air and vent pipe maximum lengths
are not exceeded. Re_kr m Table 7.
* be located where available electric power and gas supplies meet
specifications on the furnace rating plate.
* be attached to an air distribution system and be located as close
to the center of the distribution system as possible. Re_r to Air
Ducts section.
* be provided with ample space for servicing and cleaning.
Always comply with minimum fire protection clearances
shown on the Nrnace clearance-to-combustibles label. (See
Fig. 3.)
This Nmace may be located in a confined space without special
provisions for dilution or ventilation air.
13
NOTE: For upflowidownflow applications install fi_.rnace so that
it is level or pitched fbrward within 1/2=in. for proper fitmace
operation. For horizontal applications pitch 1/4-in. minimum to
1/2=in maximum forward to ensure proper condensate &ainage
from secondaw heat exchangers (See Fig. 14)
LEVEL (0")
TOL_ MIN 1/4"
1/2" MAX TO
_/2"MAX
UPFLOW OR DOWNFLOW HORIZONTAL
A02146
Fig. 14--Proper Condensate Drainage
When a t\N'nace is installed so that supply ducts car W air circulated
by d_e furnace to areas outside the space containing the flu_ace.
the return air shall also be handled by ducts sealed to filrnace
casing. The ducts terminate outside the space containing the
furnace to ensure there will not be a negative pressure condition
within equipment room or space.
Do not operate this fitrnace during construction. If the furnace
is required _br temporary heating of buildings or structures
under constrllction, use clean outside air fl'ee of chlorine and
fluorine compounds for combustion and ventilation. These
compounds fbma acids that corrode tiae heat exchangers
These compounds are tbund in paneling and dw- wai! adiae=
sires, paints, thinners, masom'y cleaning materials, and many
other solvents.
The furnace and its return air system shall be designed and
installed so that negative pressure created by the air circulating fan
cannot affect another appliance's combustion air supply or act to
mix prodtlcts of combustion with circulating air, and that the air
circulating _hn of the furnace, if installed in an enclosure comnm-
nicating with another fuel-burning appliance not of the direct-vent
type, shall be operable only when any door or panel covering an
opening in the 5m_ace fan compartment or in a return air plenum
on ducts is in the closed position.
Do not install fllrnace on its back. Safety control operation
will be adversely affected. Never connect return-air ducts to
back of furnace. Failure to _bllow this warning could result in
fire, personal injury, or death (See Fig. 15.)

BACK
A93043
--€
Fig. 15--Prohibit Installation on Back
,_ , t 1
If d-*ese furnaces are installed in an unconditioned space
where ambient temperatures may be 32°F or lower, t'reeze
protection measures must be taken. (See Fig. 16) Failure to
follow d_is caution will result in minor property or unit
damage.
°F MINIMUM INSTALLED
I//I AMBIENT OR FREEZE II
_/ PROTECTION REQUIRED II
A93058
Fig. 16--Freeze Protection
Step 2--Low-Heat Only mnstallation
7his 58MVP furnace can be installed to operate in [he low°heat
only heating mode when sized using the low°heat heating capacity.
This is accomplished by placing setup switch SW1-2 in the ON
position to provide only tow-heat operation. See Fig. 32 and Table
9. With this setup_ high=heat operation will not occur.
When the model no. or* the ft/mace rating plate is followed by an
asterisk (*), the fitmace has an alternate low-heat only efficiency
rating as listed in the GAMA and CEC directories. This alternate
rating will be listed as the fi/mace model number _bllowed by an
(-L) suffix.
The fi_rnace can operate in the high-heat mode when certain
fault conditions occur. The following precautions should be
taken:
1Size gas piping based or* the high-heat input
2(hock dte high-heat input and adjust it per the main
literature instrnctions.
NEVER assume the high°heat input rate is not important for
tow°heat=only installation.
Step 3--Furnace Location Relative to Cooting
Equipment
The cooling coil must be installed parallel with or on downstream
side of furnace to avoid condensation in heat exchanger When
installed parallel with a filmace, dampers or other means used to
control flow of air shal! be adequate to prevent chilled air from
entering furnace If dampers are manually operated, they must be
equipped with a means to prevent operation of either unit unless
damper is in fidl=iaeat or full-cool position
Step 4--Hazardous Locations
18-1N. MINIMUM
TO BURNERS
A93044
Fig. 17--Installation in a Garage
When furnace is installed in a residential garage, it must be
installed so that burners and ignition sources are located a
mininmm of 18 in. above floor. The fi/mace must be located
or protected to avoid physical damage by vehicles. Wiaen
furnace is installed in a public garage, airplane hangar, or
other building having a hazardous atmosphere, unit must be
installed in accordance with requirements of National Fire
Protection Association, Inc. (See Fig. 170
14

mNSTALLATION
Step l--Leveling Legs (If Desired)
When f_lmace is need in upgow position with side inlet(s), leveling
togs may be desire& (See Fig. 18) Install field=supplied,
cmTosion=resistant 5716-in machine bolts arid nuts.
NOTE: The maximum length of bolt should not exceed 1=1/2 in.
1. Position ihmace on its back. Locate and dril! a 5/16=in.
diameter hole in each bottom corner of furnace. (See Fig. 1K)
Holes in bottom closure panel may be used as guide locations.
2. For each hole, install nut on bolt and then install bolt and nut
in hole. (Install flat washer if desired.)
3. Install another nut on other side of _i/rnace base. (Install flat
washer if desired.)
4. A({iust outside nut to provide desired height, and tighten inside
nut to secure arrangement.
NOTE: Bottom closure must be used when leveling legs are used.
See Bottom Closure Panel section.
Step 2--hstaHation in Upf!ow or Downflow
Applications
NOTE: This furnace is approved for use on combustible flooring
when manuf_cturer's accesso W floor base, Part No
KGASB0201ALL, is used. Manufacturers accessory floor base in
not required when this filmace is installed on manufhcmrer's (Toil
Assembly Part No. CD5 or CK5, or Coil Box Part No. KCAKC is
used.
1. Detem_ine application being installed t'rom Table 1.
2. (onstruct hole in floor per dimensions specified in Table 1
and Fig. 19.
3. (onstruct plenum to dimensions specified in Table 1 and Fig.
19.
4. If downflow subbase (KGASB) is used, install as shown in
Fig. 20.
If coil assembly (D5 or CK5 or (Toil Box KCAKC is used,
install as shown in Fig. 21.
NOTE: Remove furnace perforated discharge duct ganges when
they interfere with mating flanges on coil on downflow subbase.
To remove Nrnace peribrated discharge duct flange, use hand
seamers, wide duct pliers or duct flange tool to bend flange back
Fig. 18--Leveling Legs
A89014
and %rth until it breaks off, Be careful of sharp edges, (See Fig.
22 )
--€
15
Do not bend duct flanges inward as shown in Fig. 22, This
will affect airflow across heat exchangers and may cause limit
cycling or premature heat exchanger ihilnre, Remove duct
flange completely or bend it inward a mininmna of 210° as
shown in Fig. 22
Step 3--installation in Horizontal Applications
These thrnaces can be installed in either horizontal left or right
discharge position. In a crawlspace. :[hmace can either be hung
from floor joist or installed on suitable blocks or pad. Furnace can
be suspended fiom each comer by hanger bolts and angle iron
supports. (See Fig. 23.) Cut hanger bolts (4 each 3/8=in. all-thread
rod) to desired length. Use 1 X 3/8-in. flat washers, 3/8=in.
tockwashers, and 3/8=in. nuts on hanger rods as shown in Fig. 23.
Dimples are provided for hole locations. (See Fig. 2.)
The entire length of ihrnace MUST be supported when
furnace is used in a horizontal position to ensure proper
&aining. When suspended, bottom brace supports sides and
center blower shelf When unit is supported fi'om the ground,
blocks or pad should support sides and center blower shelf
area. Failure to follow this caution will result in intermittent
unit operation or perfbnnance satisfaction.
Step 4--Ak Duets
GENERAL REQUIREMENTS
The duct system should be designed and sized according to
accepted national standards such as those published by: Air
(onditioning (ontractors Association (A((A), Sheet Metal arid
Air Conditioning ( ontractors National Association (SMA(NA) or
American Society of Heating, Refrigerating and Air (onditioning
Engineers (ASHRAE) or consuh The Ah + <_)'st_'ms Desigs_ Gzlide-
line,s re_krence tables available fiom your local distributor. The
duct system should be sized to handle the required system design
CFM at the design static pressure.
When a furnace is installed so that the supply ducts can'y air
circulated by the _ilrnace to areas outside the space containing the
furnace, the remm air must also be handled by a duct(s) sealed to
the fimaace casing and terminating outside the space containing the
furnace.
Secure ductwork with proper ihsteners for type of ductwork used.
Seal supply° and return=duct connections to furnace with code
approved tape or duct sealer.
Flexible connections should be used between ductwork and
furnace to prevent transmission of vibration. Ductwork passing
through unconditioned space should be insulated to enhance
system peribnnance. When air conditioning is used, a vapor
ban'ier is recommended.
Maintain a 1=in. clearance fiom combustible materials to supply air
ductwork for a distance of 36 in. horizontally t'rom the ihmace. See
NFPA 90B or local code for Nrther requirements.
For a thmace not equipped with a cooling coil, the outlet duct shall
be provided with a removable access panel. This opening shall be
accessible when the furnace is installed and shall be of such a size
that the heat exchanger can be viewed _br possible openings using
light assistance or a probe can be inserted ibr sampling the air
stIeam. The cover attachment shall prevent leaks.

A96283
Fig. 19--Floor and Plenum Opening Dimensions
FURNACE
(OR COiL CASING
WHEN USED)
FLOORING
SUBBASE
SHEET METAL
PLENUM
-- FLOOR --
OPENING
FURNACE
CD5OR CK5
COILASSEMBLY
OR KCAKC
COILBOX
FLOORING
SHEET METAL._
PLENUM
__ FLOOR __
OPENING
A96285 A96284
Fig. 20--Furnace, Plenum, and Subbase Fig. 21--Furnace, Plenum, and Coil
Installed on a Combustib{e Floor Assembly or Coi! Box Installed
on a Combustible Floor
Tab{e 1--Opening Dimensions (In.)
FURNACE
CASING
WIDTH
APPUCATION C
Upftow Applications 16-5/8
Downflow Applications on Non-Combustible Flooring 16-1/2
17olt2 Downflow Applications on Combustible Flooring Using KGASB Subbase 16-3/4
Furnace with or without CD5 or CK5 Coil Assembly or KCAKC Coil Box
Downflow Applications on Combustible Ftooring NOT Using KGASB Subbase 16-1/2
Furnace with CD5 or CK5 Coil Assembly or KCAKC Coil Box
Upflow Applications 20-1/8
Downflow Applications on Non-Combustible Flooring 20
21 Downflow Applications on Combustible Flooring Using KGASB Subbase 20-1/4
Furnace with or without CD5 or CK5 Coil Assembiy or KCAKC Coil Box
Downflow Applications on Combustible Flooring NOT Using KGASB Subbase 20
Furnace with CD5 or CK5 Coit Assembly or KCAKC Coil Box
Upftow Applications 23-5/8
Downflow Applications on Non-Combustible Flooring 23-1/2
24o112 Downflow Applications on Combustible Flooring Using KGASB Subbase 23-3/4
Furnace with or without CD5 or CK5 Coil Assembly or KCAKC Coil Box
Downflow Applications on Combustible Ftooring NOT Using KGASB Subbase 23-1/2
Furnace with CD5 or CK5 Coil Assembly or KCAKC Coil Box
PLENUM OP_=N_NG
A B
16 24-1/8
15-7/8 19
15-1/8 19
15-1/2 19
19-1/2 24-1/8
19-3/8 19
18-5/8 19
19 19
23 24-1/8
22-7/8 19
22-1/8 19
22-1/2 19
FLOOR OPENING
D
24-3/4
19-5/8
20-3/8
20
24-3/4
19-5/8
20-3/8
20
24-3/4
19-5/8
20-3/8
20
16

DISCHARGE DUCT
FLANGE
/210°
MIN
NO
YES
YES
Fig. 22--Duct Flanges A93029
D[ CTWORK ACOUSTI(AL TREATMENT
Metal duct systems that do not have a 90 degree elbow and 10 f_
of main duct to the first brauch take-off may require internal
acoustical lining. As an alternative, fibrous ductwork may be used
if constructed and installed in accordance with the latest edition of
SMA(NA constrllction standard on fibrous glass ducts. Both
acoustical lining and fibrous ductwork shall comply with NFPA
90B as tested by UL Standard 18! for (?lass 1 Rigid air ducts.
SUPPLY AIR (ONNECTIONS
Upflow Furnaces
Connect supply=air duct to 3/4-in. flange on ftlmace supply-air
outlet. The supply-air duct attachment must ONLY be connected
to _hmace supply-/outlet-air duct flanges or air conditioning coil
casing (when used). DO NOT cut main _aruace casing to attach
supply side air duct, humidifier, or other accessories. All accesso-
ries MUST be connected external to _hrnace main casing.
Downflow Furnaces
Connect supply-air duc_ to supply-air opening on _hmace. The
supply-air dtlct attachment must ONLY be connected to _itmace
supply/outlet or air conditioning coil casing (when used), when
installed on non°combustible material. When installed on combus-
tible material, supply=air duct attachment must ONLY be con-
nected to an accessory subbase or factory approved air condition-
ing coil casing. DO NOT cut main furnace casing to attach supply
side air duct, humidifier, or other accessories. Al! accessories
MUST be connected external to f_mace main casing. Supply air
opening duct flanges must be modified per Fig. 22.
Horizontal Furnaces
Connect supply=air duct to supply air opening on [:urnace. The
supply-air duct attachment must ONLY be connected to _imaace
supply/outlet or air conditioning coil casing (when used). DO NOT
II
II
II
II
ANGLE
IRON OR
EQ
(B)
(A) ROD LOCATION
USING DIMPLE
LOCATORS
(SEE DIMENSIONAL
DWG FOR
LOCATIONS)
3/8-1N.
& WASHER (4)
REQD PER ROD
I
I A:: MAX
(B) ALTERNATE SUPPORT
LOCATION FROM BACK
(A) PREFERRED ROD LOCATION
(B) ALTERNATE ROD LOCATION
NOTES: 1. A 1 In. clearance minimum between top of
furnace and combustible material.
2. The entire length of furnace must be
supported when furnace is used in horizontal
position to ensure proper drainage.
Fig. 23--Crawispace HorizontN Application
17
ALTERNATE SUPPORT
LOCATION 4-IN. MIN
8-IN. MAX
A93304

cut main furnace casing to attach supply side air duct, humidifier,
or other accessories Al! accessories MUST be connected external
to fhmace main casing
RETURN AIR CONNE(TIONS
Never connect return-air ducts to the back of the t'urnace
Return-air duct connections on furnace side(s) permitted in
upflow applications only. A failure to follow this warning
could result in fire, personal injury, or deatl'L
Lpflow Furnaces
The return-air duct must be connected to bottom, sides (left or
right), or a combination of bottom and side(s) of main furnace
casing Bypass humidifier may be attached into unused side remm
air portion of the fire, ace casing. DO NOT connect any portion of
return-air duct to back of furnace casing
Downflow and Horizontal Furnaces
The return-air duct must be connected to return-air opening
provided DO NOT cut into casing sides or back to attach any
portion of return-air duct Bypass humidifier connections should
be made at ductwork or coil casing sides exterior to fhmace.
Step 5--Filter Arrangement
--> / Ne\er operate unit without a filter or with filter access door
[removed. Failure to [bllow this caution wi!l result in inter-
mittent unit operation or performance satisfhction.
The air filter arrangement will yaw due to application, t'umace
orientation, and fiher type. The filter may be installed in an
external Filter/Media cabinet (if provided) or the furnace blower
compartment. FactoLw supplied washable filters are shipped in the
blower compa_qha_ent,
If a factow°supplied external Filter/Media cabinet is provided,
instructions for its application, assembly, and installation are
packaged with the cabinet, The FiheffMedia cabinet can be used
with the fi_ctory°supplied washable filter or a factowospecified
high°e*ficiency disposable filter (see cabinet instructions)
If installing the filter in the furnace blower compartment, deter-
mine location fbr filter and relocate filter retaining wire, if
necessary. See Table 2 to detem_ine correct filter size for desired
filter location. Table 2indicates filter size, location, and quantity
shipped with this Nrnace. See Fig. 2fbr location and size of
bottom and side return=air openings.
Use care _ben cutting support rods in filters to protect against
flying pieces and sharp rod ends. Wear safety glasses, gloves,
and appropiate protective clothing Failure to t'ollox_ this
caution will result in intermittent personal i*_iury
Table 2--Filter information
AiR FILT_:R LOCATED BNBLOWER COMPARTMENT
Furnace Filter Size (in.) Fitter Type
Casing Framed
Width (_n.) Side Return Bottom Return
17-1/2 (1) 16 X 25 X 11- (1) 16 X 25 X 11- Cteanabte
21 (1) 16X 25X 1" (1) 20 X 25 X 11. Cteanabte
24-112 (1or2) 16X25X1* (1) 24 X 25 X11- Cteanable
Filtersmay be field modified by cutting filter material and support rods (3) in
filters. Alternate sizes can be ordered from your distributor or dealer
1 Factory-provided with furnace.
--€
lg
RETAINER
\
A93045
Fig. 24_FHter Installed for Side 1Net
For airflow requirements above 1800 CFM, see Air Deliver-
table in Product Data titeratore fbr specific use of single side
inlets. The use of both side inlets, a combination of 1 side and
the bottom, or the bottom only will ensure adequate return air
openings fbr airflow requirements above 1800 (FM Failure
to fbllow this caution will result in intemlittent unit operation
or perfbmlance satisl:action
NOTE: Side return=air openings can ONLY be used in UPFLOW
configurations. Install filter(s) as shown in Fig. 24.
For bottom return-air applications, filter may need to be cut to fit
some Nrnace widths. Install filter as shown in Fig. 25.
NOTE: Remove and discard bottom closure panel when bottom
inlet is used,
Step 6--Bottom Cmosure Panel
These t'umaces are shipped with bottom closure panel installed in
bottom return=air opening This panel MUST be in place when side
remm air is used
To remove bottom closure panel, perfbm_ fbltowing:
1. Tilt or raise fm'nace and remove 2screws holding fi'ont filler
panel. (See Fig 260
2. Rotate f?ont filler panel downward to release holding tabs
3. Remove bottom closure panel
4. Reinstall fiont filler panel and screws.
Step 7--Gas Piping
Gas piping must be installed in accordance with national and local
codes. Refer to NFG( in the U.S Canadian installations must be
made in accordance with NS(NGPI( and all authorities having
jurisdiction. Gas supply line should be a separate line running
directly fi'om meter to fhmace, if possible Refer to Table 3 fbr
recommended gas pipe sizing. Risers must be used to connect to
furnace and to meter. Support all gas piping with appropriate
straps, hangers, etc Use a minimum of 1 hanger eveo- (5 It. Joint
compound (pipe dope) should be applied sparingly and only to
male threads of joints Pipe dope must be resistant to propane gas.

171/2dR, WIDE
CASINGS ONLY:
INSTALL FIELD-SUPPLIED
FILTER FILLER STRIP
UNDER FILTER.
21-IN,WIDE
CASINGS ONLY:
SUPPORT RODS (3)
EXTEND 1/4" ON EACH
SIDE OF FILTER AND
REST ON CASING FLANGE
c
Table 3--Maximum Capacity of Pipe*
NOMINAL
IRON
P_PE
SiZE
(BN.}
t/2
3/4
1
1o1/4
1-112
INTERNAL
DIAMETER
(IN.)
0.622
0.824
1.049
1.380
1.610
* Cubic fi of gas per hr for gas
a pressure drop of 05qn wc
Table 9-2 NFPA 54-2002.
LENGTH OF PiPE (FT)
10 20 30 40 50
175 120 97 82 73
360 250 200 170 151
680 465 375 320 285
1400 950 770 660 580
2100 1460 1180 990 900
_ressuresof 0.5 psig (14qn wc) orless, and
based on a 0.60 specific gravity gas)Ref:
"WASHABLE
FINER
FILTER
RETAINER
SUPPORT
Fig. 25--Bottom FUter Arrangement
A00290
L FRONT FILLER
PANEL
BOTTOM
CLOSURE
PANEL
A93047
Fig. 26--Removing Bottom Closure Panel
-->
19
iii_,_, Hh,
Gas valve shutoff s_itch MUST be _cing for_,_ard or tilted
upward. Failure to _bllow this x_aming coutd result in
property damage or death
Never purge a gas line into a combustion changber. Never test
_br gas leaks with an open flame Use a commercially
available soap solution made specifically fbr the detection of
leaks to check all connections. A failure to tb!!ow this
warning could result in _re, explosion, personal injury, or
death.
Use proper length of pipe to a\oid stress on gas control
mani_bld. Failure to follow this warning could result in a gas
leak resulting in _]re, explosion, personal inim T or death.
Install a sediment trap in riser leading to furnace Trap can be
installed by connecting a tee to riser leading to furnace so
stlaight-through section of tee is vertical Then connect a capped
nipple into lower end of tee Capped nipple should extend below
level of gas controls Place a grotmd joint union between gas
contIol manifold and manual gas shutoff valve (See Fig. 27)
If a flexible connector is required or allowed by authority
having jurisdiction, black iron pipe shall be installed at
furnace gas control valve and extend a rnininaum of 2in.
outside fm'nace casing. Failure to follow this caution will
result in potential chaJ:_[ing of flexible gas connection.
An accessible manual shutoffvalve MUST be installed external to
furnace casing and within 6 ft of furnace. A 1/8-in. NPT plugged
tapping, accessible _br test gattge connection, MUST be installed
immediately upstream of gas supply connection to _hmace and
downsneam of manual shutoff valve
NOTE: The gas valve inlet pressure tap connection is suitable to
use as test gauge connection providing test pressure DOES NOT
exceed maximma_ 0.5 psig (14=in wc) stated on gas valve (See
Fig 62.)

GAS _ _-
SUPPLY
MANUAL _/ II
SHUTOFF
(REQUIRED)/_ f
A93324
Fig. 27--TyNcal Gas Pipe Arrangement
Piping should be pressure and leak tested in accordance with
NFGC in the [nited States or NSCNGPIC in Canada, local, and
national plumbing and gas codes before the famace has been
connected. If pressure exceeds 0.5 psig (I4-in. we), gas supply
pipe must be disconnected f?om furnace and capped bel\_re
pressure test
If test pressure is equal to or less than 0.5 psig (14-in. wc), mm off
electric shutoff switch located on gas valve befPre test. It is
recommended that ground joint union be loosened before pressure
testing. Afier all connections have been made, purge lines and
check for leakage at fftmace prior to placing it into service.
The gas supply pressure shall be within the maxinmm and
minimum inlet supply pressures marked on the rating plate with
the f:umace burners ON at HI=HEAT and OFF.
Step 8--EleetricN Connections
See Fig. 28 for field wMng diagram showing typical field 115-v
and 24-v wiring. Check all factow and field electrical connections
for tightness.
Blower access door switch opens l15=v power to fhmace
control. No component operation can occur. Do not bypass or
close switch with panel removed. Failure to follow this
warning could result in personal ir_jury or death.
--€ Furnace control must be grounded for proper operation or
conhol will lock out. (ontrol is grounded through
green yellow wire connected to gas valve and burner box
screw. Failure to follow this caution will result in intem_ittent
unit operation.
115-V WIR1NG
Be%re proceeding with electrical connections, make certain that
voltage, fiequency, and phase correspond to that specified on
fftrnace rating plate. Also, check to be sure d_at service provided
by power supply is sufficient to handle load imposed by d_is
equipment Refer to rating plate or Table 4 for equipment electrical
specifications
Make all electrical connections in accordance with National
Electrical Code (NEC) ANSI NFPA 70°2002 and any local codes
or ordinances that might apply For Canadian installations, all
electrical connections must be made in accordance with Canadian
Electrical Code CSA (722.1 or authorities having jurisdiction
Field-supplied wiring shall conform with the limitations of 63°F
(33%7) rise
Use a separate branch electrical circuit containing a properly sized
fuse or circuit breaker for this furnace. See Table 4 fbr wire size
and fuse specifications A disconnecting means must be located
within sight from and readily accessible to ftmaace
HOT'Z: Proper polarity must be maintained for l15-v wiring. If
polarity is incmTect, fhmace control stares code indicator light will
flash rapidly and f:umace will NOT operate.
The cabinet MUST have an unintemlpted or unbroken ground
according to NEC ANSI NFPA 70-2002 and Canadian Elec=
trical (7ode CSA (7221 or local codes to minimize personal
ir_iury if an electrical fhult should occur. This may consist of
electrical wire or conduit approved fbr electrical ground when
installed in accordance with existing electrical codes. Do not
use gas piping as an electrical ground. Failure to follow this
warning could result in electric shock, fire, or death.
J°Box Relocation
1. Remove 2 screws holding auxiliary J-box. (See Fig 30.)
2. Rotate J-box 180 ° and attach box to left side, using holes
provided
TaMe 4--Electrical Data
UNIT
SBZE
MAXIMUM FUSE OR
CKT BKR AMPS**
VOLTS--
HERTZ--
PHASE
115--60--1
115--60--1
115--60--1
115--60--1
115--60--1
115--60--1
OPERATING
VOLTAGE RANGE
Maximum* Minimum*
127 104
127 104
127 104
127 104
127 104
127 104
MAXIMUM
UN}T
ANPS
8.9
8.9
8.9
13.8
13.8
13.8
MINIMUM
WIRE
SIZE
14
14
14
12
12
12
MAXBNUM WIRE
LENGTH (FT).I:
31
31
31
32
32
32
040-14 15
060-14 15
080o14 15
080°20 20
100-20 20
120-20 20
*Permissible limits of voltage range at which unit will operate satisfactorily.
1 Unit ampacity = 125 percent of largest operating component's fu{I load amps plus 100 percent of all other potential operating components' (EAC, humidifier, etc.) full
load amps
$ Length shown is as measured 1 way along wire path between unit and service panel for maximum 2 percent voltage drop.
** Time-delay type is recommended
2O

115-V
SINGLE
PHASE
.... FIELD 24-V WIRING
.... FIELD 115-, 208/230-, 460-V WIRING
-- FACTORY 24-V WIRING
-- FACTORY 115-, 208/230-, 460-V WIRING
NOTE 5, ' THERMOSTAT
FtVE_ I (_ (_) (_ @ @ ITERMINALS FIELD-SUPPLIED
WIRE _ ' _ I J J I DISCONNECT
I I I I I
THREE-WIRE _ "_ I I i-_4...
H I E _ J
_ 208/230- OR
ONLY 460-V
r___U27 __EEEExJ-® ,
)I-----I In I-- I @ NOTE',
\ --!2.I / Gi:iW-i
-- - 208/230-V
_ / _ .... L__ r--I--- ' SINGLE
115-V AUXILIARY | _ s- J iI I PHASE
i. / j '
FIELD-SUPPLIED J-BOX J( _ ....... I F
DISCONNECT /_ _J/m ____NOTE 1..... j }
SWITCH /......... CONDENStNGuNIT
/24-V TWO WIRE
FURNACE ---" TERMINAL
CONTROL BLOCK NOTES:
CENTER 1. Connect Y or Y/Y2 terminal as shown for proper cooling operation.
2. Proper polarity must be maintained for 115-v wiring.
3. Use W2 with 2-stage thermostat when zoning.
4. If any of the original wire, as supplied, must be replaced, use
same type or equivalent wire.
5. Some thermostats require a "C" terminal connection as shown.
A98325
Fig. 28--Heating and Cooling Application Wiring Diagram
ELECTRIC
DISCONNECT
SWITCH
®
A93033
Fig. 2g--Disconnect Switch and Furnace
maintenance may cause fuse to blow. If fi/se replacement is
required, use only a t_t_se of identical size (3 amp) and type The
£urnace contIol will flash status code 24 when fi/se needs replace-
n'lent
NOTE: Use AWG No 18 color-coded copper them_ostat wire for
lengths up to 100 ft For wire lengths over 100 _L use AWG No.
1d wire.
NOTE: For additional them_ostat connection diagrams, reference
Fig 54o6!
--€
Do not connect aluminum wire between disconnect switch
and f_/mace. Use only copper wire (See Fig 29) Failure to
follow this caution will result in intem_ittent unit operation or
performance satisfl_ction.
If manual disconnect switch is to be mounted on furnace,
select a location where a drill or _hstener will not contact
electrical or gas components Failure to J:bllow this caution
will result in intem_ittent unit operation or perfbm_aace
satisfitction.
24oV WIRING
Make field 24-v thermostat connections at 24ov tem_inal block on
£umace control Y wire from d_em_ostat MUST be connected to
YY2 terminal on contlot, as shown in Fig. 28, for proper cooling
operation. The 24ov tem_inal block is marked for easy connection
of field wiring. (See Fig. 32.) The 24ov circuit contains a 3-amp,
automotiveotype fuse located on fi/mace control. (See Fig. 32.)
Any electrical shorts of 24ov wiring during installation, service, or
2i
FIELD
LOCATION f//'_ FACTORY
INSTALLED
LOCATION
Y
A00212
Fig. 30--Relocating J=Box

AC( ESSORIES
1. Electronic Air (leaner (hA()
The t:arnace control EAC terminals are energized with 115v
(1 0-amp maximum) during blower operation.
Connect an accesso_ Electronic Air (?leaner (if used) using
1i4oin. female quick connect terminals to the two male 1i4oin.
quick-connect terminals on the control board marked EAC-1
and EACo2. The terminals are rated _br 115VA(, 1.0 amps
n_axinmm and are energized during blower motor operation.
(See Fig. 32.)
2. Humidifier (HUM)
Connect an accessow 24 VA(, 0.5 amp maximmn humidifier
(if used) to the 1/4-in. male quickoconnect HUM terminal and
( o\_-24V screw terminal on the control board thermostat strip.
The HUM terminal is energized when blower is energized in
heating. (See Fig. 32.)
DO NOT connect _i/rnace contwl HUM terminal to HUM
(humidifier) terminal on Thermidistat-r_L Zone Controller or
similar device. See Thern'lidistaff M, Zone Controller, thermoo
star, or controller manui:acturer's instructions %r proper
connection.
Step 0--Direct Venting
The 58MVP ft_rnaces require a dedicated (one 58MVP furnace
only) directovent system. In a direct-vent system, al! air for
combustion is taken directly fi'om outdoor atmosphere, and all flue
gases are discharged to outdoor atmosphere.
REMOVAL OF EXISTING FURNA(ES FROM
COMMON VENT SYSTEMS
---5 When an existing (ategory I fitrnace is removed or replaced, the
original venting system may no longer be sized to properly vent
the remaining attached appliances. An improperly sized Categoo-
I venting system could cause the %rmation of condensate in the
_hmace and vent, leakage of condensate and combustion products,
and spillage of combustion products into the living space, etc.
CARBON MONOXIDE POISONING HAZARD
Failure to fbllow the steps outlined below for each appliance
connected to the venting system being placed into operation
could result in carbon monoxide poisoning or death
The following steps shall be followed for each appliance
connected to the venting system being placed into operation,
xxhile all other appliances connected to the _ enting system are
not in operation:
1. Seal any unused openings in _enting system.
2. Inspect the x enting system for proper size and horizontal
pitch, as required in the National Fuel Gas (;ode, ANSI
Z223A NFPA 54 or the (SA B149.1. Natural Gas and
Propane Installation (?ode and these instructions. Deter-
mine that there is no blockage or restriction, leakage,
corrosion and other deficiencies, which could cause an
unsafe condition.
3. As far as practical, close all building doors and windows
and all doors between the space in which the applio
ance(s) connected to the xenting system are located and
other spaces of the building.
4. (?lose fireplace dampers.
5. Turn on clothes dQ'ers and any appliance not connected
to the x enting system. Turn on any exhaust fans, such as
range hoods and bathroom exhausts, so they are opera°
ing at maximum speed. Do not operate a summer
exhaust fan.
6. Follow the lighting instructions. Place the appliance
being inspected into operation. Adjust the them_ostat so
appliance is operating continuously.
7. Test for spillage from draft hood equipped appliances at
the drak hood relief opening aker 5 minutes of main
burner operation. Use the flame of a match or candle.
8. If improper x enting is observed during any of the above
tests, the venting system must be corrected in accordance
with the National Fuel Gas (7ode. ANSI Z223.INFPA
54 andor (SA B149A, Natural Gas and Propane Instal°
lation (?ode.
9. After it has been determined that each appliance con°
nected to the xenting system properly vents when tested
as outlined above, return doors windows, exhaust _hns,
fireplace dampers and any other gas-fired burning applio
ance to their previous conditions of use.
Vent system or vent connectors may need to be resized. For any
other appliances when resizing vent systems or vent connectors,
system or connector must be sized to approach n_ininmm size as
determined using appropriate vent sizing table fbund in the NFGC
or NSCNGPI(
22

CONNECTION DIAGRAM
sw178
MODEL ...... 1
D _ )D O _ D_ O D o
040060 4
38_080 DE_ 5252 700 875 1050 1225 1225 122
5T0 0 0,DE,700 ,050,225,400 I
120 DE_ 700 875Z 1050 1ZZ5 1400 1750 210
-- I 3161 7 54 3 2 1
1 Det HtA/C ir_ow vhen, /Cswlt hesa )in O_ posi_on IIIII IIII I
2 Oet _lt cont fan ai ]ow w len CF Mtch_ ar_ in )FF position r_ _ m _ N
_[_ _ _ F_ --_P -writ- :L
V'72 Y1 DHUM G Corn_V]R S] IJS _ RED_ -
AC 24V c _
I C A_rCondiBoning(AdjustableAHow CFM) IND Inductor(Note#7)
ACR Air Conditioning Relay SPSI (N O ) LED Light Emitting Diode for Stdtus Codes UNC ON
ACRDJ _rCond_ioning Relay Detent Jumper LGPS Low Gas Pressure Swath SPST(NO/
BLWM Blower Motor (ECM) LPS Low Heat Pressure Switch SPST(NC)) O TERMINAL
C[ Con_nuous Fan (Adjustable Airflow C[M) IS Limit Switch Auto Reset,SPST(NC)
COMMR Communication Relay SPDT PC£ Printed CimuK Board _ CONfROL fERMINAL
CPU Microwocessor /Circuitry PL1 12 Circuit Connector FACTORYPOWER
DHUM DHUM Connection (24VAC) PL2 4 Circuit HSI & IDM Connector
EAC1 Electronic Air Clea net Connection PL3 4 CircuK ECM BLWM Connector WIRING (115VAC)
(115VAC 1 0 Amp Max) PL4 4 CircuR Model Plug Connector
EAC 2 ElectroNc AirCleaner Connection (Common) PLY 4 Circuit Communication Connector FACTORYCONTROL
FRS Rarne Rollout Switch Man Reset SPST(NC ) PL9 2 Circuit OAT Connector
I FSE Flame Proving Sensor Electrode
FUSE Fuse 3 Amp Aulomotive Blade Type
Factory Installed
GV Gas V_lve
GVR Gas Valve Relay OPSf (NO)
HPS High Heat Ressure Sw_tN1 SPST(NO)
HPSR High Heat Ressure Swlt{ h Re]ay SPST(NC)
i HSI Hot Surtdc e Ign_er (115VAC)
HSIR Hot Surtdce Igniter Relay SPST(NO)
HUM 24VAC Humidifier Connection (05 Amp Max)
HUMR Humidiaer Rela_ SPST(N O )
IDM Inducer Draft Motor 2 Speed Shaded Pole
IDR Inducer Motor Relay SPST(NO)
IHI/LOR Induc_ Motor Speed Change Re4ay SPDT
PL10 2 Circuit HSI Connector WIRING (24VAC)
PL11 IDM Connector (12 Circu_c) FIELDCONTROL
PL12 1 CirruK Inductor Splice Connector -----
PL13 16 Circuit ECM Bbwer Cod Connector WIRING (24VAC)
PL14 5 Circuit ECM Blower Power Connector
SW11 Manual Switch Status Code Recall SPSf (N O) CONDUCfOR ON
SW1 2 ManuaISwitdl Low Heat Only SPST(NO) CONTROL
go/1 3 Manual Switch Low Heat Rise Adj SPST(NO)
SW1 4 ManuaISwitch Comtort/Efficiency Adjustment FIELDWIRING
SPST(NO) _l
SW1 5ManuaISwitch Cooling CfM_or SPST(NO) SCREWTERMINAL
gCll 6 Manual Switch Component Test SPST(NO) EQUIPMENT
SW1 78 Manual Switches Blower OfFDelay SPST(NO)
SW41 Manual Switch TWlnning Main (O_F)/Sec (ON) GROUND
I
I
NOTES:
f If any °f tl_e °rgin_ equipl_enl wire is replace_ use wire rated f°r f05°C
Use oNy copper w_re bel_teen tbe disconr'ecl _,vitch and tl_e fiarnace junclion bex (J B}
This N_e r_dst be cc4?nected to furnace sr_et rr_lal for cout_ o! to prove f!ar_
:S}n_bols are electric_ lepresental_on only
Sdid iiees inskte PCB ale pnnted cimuit beard conYdcto_s alld are pot i_clt_ ied in legend
il Replace only w_lJ_a 3 amp fuse
Inductc{ is used with 3/4 I_p aid 1 hp ECM Blower motors
] Faclory connected vZqen (LGPS) not used
Blower off delag gas beatir N selecl_ons are (90,12011501180) seconds, o:)oling or [_at pump
90 seconds or 5 seconds _'_'en behurr<dify Call is aqive
f 0 Igrlitiol_ lockout _t_ll Cccur after four consecutive unsuccess_JI tda_s for ignition Control _qi
auto-rest4 after three hours
i I A_ of tbe 5 wires shown v4 bin t i_e NEUTRAL L2 box c_ be connected to any termmal w_thin the box
Fig. 31--Wiring Diagram A02291

COMMUNICATION CONTINUOUS FAN FUTURE
CONNECTOR (CF) AIRFLOW APPLICATIONS
SETUP SWITCHES
MODEL PLUG
CONNECTOR "\
SW1 SETUP
SWITCHES AND
BLOWER OFF-
DELAY
AIR CONDITIONING
(A/C) AIRFLOW
SETUP SWITCHES f _=====a
24W THERMOSTAT /ACRDJ
TERMINALS <X ¢,======_
D
D
7
STATUSANDCOMM_ _--_-_ !_ 0 0
m_ COMM
LED LIGHTS , _ _ []
3-AMP FUSE _ sEcFUSE23-AMPsEc1 [] E,_C-1 q
LI
TRANSFORMER 24-VAC PL2
CONNECTIONS _=a _===a 1 4_O_h
115-VAC (L2) NEUTRAL EAC-1 TERMINAL
CONNECTIONS (115WAC 10 AMP MAX}
PL1 - LOW VOLTAGE MAIN
HARNESS CONNECTOR
(OMBUSTION-AIR AND VENT PIPING
General
( ombustion-air and vent pipe, fittings, primers, and solvents must
confbrm to American National Standards Institute (ANSI) stan=
dards and American Society for Testing and Materials (ASTM)
standards See Table 5 fbr approved materials fbr use in the U.SA
See 7able 7 for maximma_ pipe lengths and Fig. 37, 38, 39, 40, and
41 fbr exterior piping arrangements
In Canada, construct all combustion-air and vent pipes fbr this unit
of (SA or ULC listed sche&de=40 PVC, PVC=DWV or ABS=
DWV pipe and pipe cement SDR pipe is NOT approved in
Canada,
NOTE: Furnace combustion-air and vent pipe connections are
sized for 2-in. pipe Any pipe size change should be made outside
furnace casing in vertical pipe. (See Fig. 330 This allows proper
drainage of vent condensate
(ombustion=air and vent pipes must terminate together in same
atmospbe*ic pressure zone, either through roof" or sidewall (roof
termination preferred), using accesso W termination kit
See Table 6 for required clearances
HUMIDIFIER
TERMINAL (24-VAC
05 AMP MAX
ACRDJ -AIR
CONDITIONING
RELAY DISABLE
JUMPER
b FLASH
UPGRADE
CONNECTOR
(FACTORY
ONLY)
NPL3-ECM BLOWER
HARNESS
CONNECTOR
115WAC (L1) LINE PL2 -HOT SURFACE
VOLTAGE CONNECTIONS IGNITER & INDUCER
MOTOR CONNECTOR
A02278
Fig. 32--Control Center
Furnace combustion<@ and vent pipe connections must be at-
tached as shown in Fig. 34 Combustion=air intake plug fitting and
inducer housing alternate vent cap may need to be relocated in
some applications.
NOTE: Slope combustion-air and vent pipes a n_ininmm of 1/4
in. per linear ft with no sags between hangers.
When combustion-air pipe is installed above a suspended
ceiling, pipe must be insulated with 3/8=in. thick Armaftex=
Wpe insulation Combustion=air pipe should also be insulated
when it passes through a warm, humid space.
___>
, e l{
When vent pipe is exposed to temperatures below fieezing,
such as when it passes through an unheated space or when a
chimney is used as a raceway, pipe must be insulated as
shown in Table 8 with Armaflex-type insulation Failure to
follow this caution will result in minor unit operation,
24

TABLE 8--APPROVED COMBUSTION-AIR AND VENT PIPE, FiTTiNG AND CEMENT MATERIALS
ASTM SPECBFRCATION _,_ATERIAL PIPE FITTtNGS SOLVENT CEMENT AND PRBNERS
(MARKED ON NATERIAL) DESCRBPTION
D1527
D1785
D2238
D2241
D2468
D2468
D2564
D2G61
D2G65
F438
F441
F442
F493
F628
F656
F891
ABS Pipe --
PVC Pipe --
For ABS -- --
PVC Pipe --
PVC -- Fittings
ABS -- Fittings
For PVC -- --
ABS Pipe Fittings
PVC Pipe Fittings
CPVC -- Fittings
CPVC Pipe --
CPVC Pipe --
For CPVC -- --
ABS Pipe --
For PVC -- --
PVC Pipe --
Solvent
Cement
Solvent
Cement
Solvent
Cement
Primer
Schedule-40
Schedule-40
For ABS
SDR-21 & SDR-26
Schedule-40
Schedule-40
For PVC
DWV at Schedule-40 IPS sizes
DWV
Schedule-40
Schedule-40
SDR
For CPVC
Cellular Core DWV at Schedule-40 IPS sizes
For PVC
Cellular Core Schedule-40 & DWV
Combustion air must not be taken fiom inside structure
because that air is frequently contaminated by halogens,
which include fluorides, chlorides, bromides, and iodides.
These elements are found in aerosols, detergents, bleaches,
cleaning solvents, salts, air fresheners, adhesives, paint, and
other household products. Locate combustion=air inlet as _r
as possible fi'om swimming pool and swimming pool pump
house,
Excessive exposure to contaminated combustion air will
result in safety and perfbrmance related problems.
Solvent cements are combustible. Keep away fiom heat,
sparks, and open flame. Use only in well ventilated areas.
Avoid breathing in vapor or allowing contact with skin or
eyes. Failure to follow this warning could result in fire,
property damage, personal injury, or death.
All combustion-air and vent pipes must be airtight and
watertight Pipes must also tem_inate exactly as shown in Fig
37, 38, 39, 40, or 41. Failure to fbllow this warning could
result in property damage, personal ir_jury, or death.
NOTE: The minimum combustion-air and vent pipe length (each)
for d_ese [i/maces is 5 ft. Short pipe lengths (5-8 ft) may discharge
water &oplets. These droplets may be undesirable, and a 12-in.
minimum offset pipe section is recommended, as shown in Fig. 35,
to reduce excessive droplets fi'om exiting vent pipe outlet.
Combustion-Air and Vent Pipe Diameter
Detem_ine combustion-air and vent pipe diameter.
1. Using Table 7, individtlally determine the smallest
confbustion-air and vent pipe diameters. Pick the larger of
these 2pipe diameters and use this diameter fbr both
combustion=air and vent pipes,
2, When installing vent systems of" short pipe tength, use the
smallest allowable pipe diameter Do not use pipe size greater
25
than reqnired or incomplete combustion, flame disturbance, or
flame sense lockout may occur.
NOTE: Do not count elbows or pipe sections in terminations or
within furnace See shaded areas in Fig. 37, 38, 39, 40, and 41.
EXAMPLE:
An 080o14 size filrnace located in Indianapolis, elevafion
650 ft above sea tevel, could be installed in an application
reqniring 3 elbows and 17 ft of vent pipe, along with 5
elbows and 16 t't of combustion=air pipe Table 6 indicates
this application would allow a l-li2=in, dianreter vent pipe,
but require a 2-in. diameter combustion air pipe (1°li2-in.
pipe is good for 20 ft with 3 elbows, but only 10 ft with 5
elbows). Therefore, 2=in. diameter pipe must be used fbr
both vent arid combustion-air pipes since larger required
diameter must always be used fbr both pipes. If same
installation were in Albuquerque, elevation 5250 ft above
sea level, installation would require 2-in. vent pipe and
combustion-air pipe. At 5001o to d000=ft elevation, 1ol/2-
in. pipe is not allowed with 5 elbows, but 2-in. pipe is good
for 68 ft with 5 elbows.
Combustion-Air arid Vent Pipe Attachment
NOTE: All pipe joints must be cemented except attachment of
combustion-air pipe to inlet housing connection since it may be
necessary to remove pipe fbr servicing.
1. Attach combustion-air pipe as follows:
a. Determine location of combustion-air intake pipe connec-
tion to combustion-air intake housing as shown in Fig. 34
for application.
b. Reposition combustion=air intake housing plug fitting in
appropriate unused intake housing connection.
c. Insert perforated disk assembly (fi_ctoD- supplied) in intake
housing where combustion-air intake pipe will be con-
nected.
d. Install pipe support (fi_ctory=supplied in loose parts bag)
into selected ftlrnace casing combustion-air pipe hole. Pipe
support should be positioned to bottom of casing hole.
e. Insert 2-in. diameter pipe into intake housing.

_lr *a
_] VENT TERMINAL (_AIR SUPPLY INLET E_ AREA WHERE TERMINAL IS NOT PERMITED
item Clearance Description Canadian Installation (I) U.S Installation (2)
A Clearance above grade, veranda, porch, deck, balcony, or 12" (30cm) # 12" (30 cm)
anticipated snow level
B Clearance to a window or door that may be opened 6"(15crn)forappliances<10,OOOBTUH(3kW),12"(30 6" (15 crn) for appliances < 10,600 BTUH (3kW), 9" (23 cm)
cm) for appliances > 16,000 Btuh (3 kW) and <100,600 Btuh for appliances > 10.0O0 Btuh (3 kW) and < 50,000 Btuh (15
(30 kW), 36" (91 cm) for appliances > 160,000 Btuh (30 kW) kW), 12" (30 cm) for appliances > 56,006 Btuh (15 kW)
C Clearance to a permanently closed window
D Vetfical clearance to a ventilated soffit located above the
terminal within a horizontal distance of 2"(61 cm) from the
centerline of the terminal
E Clearance to an unventilated soffit
P Clearance to an outside corner
G Clearance to an inside corner
H Clearance to each side of the centedine extended above 3" (91 cm) within 15 (4.5 m) above the meter/regulator 3" (91 cm) within 15"(45 m) above the meter/regulator
electrical meter or gas service regulator assembly assembly assembly
I Clearance to service regulator vent outlet 3" (91 cm)
J Clearance to non-mechanical air supply inlet to building or 6" (15 ore) for appliances < 10,OOOBTUH (3kW), 9" (23 ore) 6" (t 5 ore) for appliances < 10,OOOBTUH (3kW), 9" (23 ore)
the combustion air inlet to any other appliance for appliances > 10.0O0 Btuh (3 kW) and < t 06,000 Btuh (30 for appliances > 10.0O0 Btuh (3 kW) and < 50,000 Btuh (15
kW)and < 50,000 Btuh (15kW), 12"(30cm) forappliances kW), 12" (30cm)for appliances > 50,060 Btuh (15 kW)
> 50,000 Btuh (I5 kW)
K Clearance to a mechanical air supply inlet 6" (1.83 m) 3" (91 cm) above if within 10'(3m horizontally)
L Clearance under a veranda, porch, deck. or balcony 12" (30 cm) +
M Clearance to each side of the centedine extended above or 12" (30 cm) 12" (30 cm)
below vent terminat of the furnace to a dryer or water heater
vent, or other appliances direct vent intake or exhaust
N Clearance to the vent terminal of a dryer vent, water heater 3" (91 cm) 3" (91 cm)
vent. or other appliances direct vent intake or exhaust.
O Clearance from a plumbing vent stack 3" (91 cm) 3" (91 cm)
(1) In accordance with the current CSA B149 1, Natural Gas and Propane Installafion Code
(2) In accordance with the current ANSl Z223.1/NFPA 54. Nafional Fuel Gas Code
# 18" (46cm)aboveroofsurface
+ Permitted only if veranda, porch, deck, or balcony is fully open on a minimum of t_vo sides beneath the floor
For clearances not specified in ANSi Z223.1/N PPA 54 or CSA B149.1, clearances shall be in accordance with local installation codes and the requirements of the gas supplier and the
manufactureCs installation instructions
Notes:
1. The vent for this appliance shall not terminate
a Over public walkways; or
b. Near soffit vents or crawl space vents or other areas where condensate or vapor could create a nusiance or hazard or property damage; or
c Where condensate vapor could cause damage or could be detrimental to the operafion of regulators, relief valves, or other equiprnent.
2. When Iocafing vent terminations, consideration must be given to prevailing winds, location, and other conditions which may cause recirculation of the combusfiob products of adjacent vents
Recirculafion can cause poor combustion, inlet condensate problems, and accelerated corrosion of the heat exchangers.
A03227
-_ Table 6--Direct Vent Termination Clearance
26

(
NOT IN
HORIZONTAL
SECTION
FURNACE
TRANSITION IN
VERTICAL SECTION
A93034
Fig. 33--Combustion-Air and Vent Pipe Diameter
Transition Location and Elbow Configuration
NOTE: Select 1 vent pipe connection and
1 combustion-air pipe connection.
AIR
COMBUSTION-AIR 7 COMBUSTION-AIR
._T
UPFLOW
COMBUSTION-
AIR VENT
HORIZONTAL-LEFT DISCHARGE
NOTE: Select 1 vent pipe connection and
1 combustion-air pipe connection.
COMBUSTION- _ COMBUSTION-
AIR AiR AIR
FLOW
DOWNFLOW
COMBUSTION-
AIR
VENT
HORIZONTAL-RIGHT DISCHARGE
A96187
Fig. a4_Combustion-Air and Vent Pipe
Connections
NOTE: A 2=in, diameter pipe must be used within the furnace
casing Make all pipe diameter transitions outside _:urnace casing,
£ Install casing hole filler cap (factou-supplied in loose parts
bag) in mmsed combustion=air pipe casing hole
g, Drill a 1/8-in, hole iu 2-in, combustion-air pipe using hole
in intake housing as a guide
h, Install a field-supplied No, 6 or No, 8 sheet metal screw
into combustion=air pipe,
NOTE: DO NOT OVERTIGHTEN SCREW. Breakage of intake
housing or fitting may cause air leakage to occur.
NOTE: Do not attach combustion-air intake pipe pem_anently to
combustion-air intake housing since it may be necessary to remove
pipe for service of igniter or flame sensor,
27
COMBUSTION=AIR INTAKE HOUSING PLUG FITTKNG
The combustion-air intake plug fitting must be installed in
unused combustion=air intake housing This fitting must be
attached by using RTV sealant, or by &tiling a 1i8=im hole in
fitting, using hole iu intake housing as a guide Install a
field=supplied No 6 or No. 8 sheet metal screw.
NOTE: DO NOT OVERTIGHTEN SCREW Breakage of intake
housing or fitting may cause air leakage to occur
A plugged &ain connection has been provided on this fitting
fk_r use when moisture is found in combustion-air intake pipe
and combustion box
NOTE: Moisture in combustion=air intake may be result of
improper termination Ensure combustion-air intake pipe tem_ina-
tion is similar to that shown in Fig. 37, 38, 39, 40, or 41 so it will
not be susceptible to areas where light snow or other sources of
moisture could be pulled in
If use of this drain connection is desired, drill out fitting's tap
plug with a 3/16=in. drill and conuect a field-supplied 3/8-in.
tube This tube should be routed to open condensate &ain fk_r
f_/mace and AiC (if used), and should be trapped (See Fig.
36.)
2. Attach vent pipe as fbllows:
a. Determine location of vent pipe connection to inducer
housing as shown in Fig. 34 for application.
b. Reposition elastomeric (rubber) inducer housing outlet cap
and clamp to appropriate unused inducer housing connec-
tion. Tighten clan?p.
Inducer housing outlet cap must be installed and _idly seated
against inducer housing. Clamp must be tightened to prevent
any condensate leakage. Failme to follow this warning could
result in electrical shock, fire, personal injury, or death.
c Install pipe support (ii_ctory-supplied in loose parts bag)
into selected furnace casing vent pipe hole, Pipe support
should be positioned to bottom of casing hole,
Vent pipe must be installed and fully seated against inducer
housing internal stop (lamp must be tightened to prevent any
condensate leakage. Failure to _bllow this warning could
result in electrical shock, fire, personal injury, or death.
NOTE: A 2-in. diameter pipe must be used within the furnace
casing. Make all pipe diameter transitions outside I:umace casing.
d. Be certain that mating sur_itces of inducer housing connec-
tion, elastomeric coupling, and 2=in. diameter vent pipe are
clean and dw-. Assemble the elastomeric (rubber) vent
coupling (with 2loose clamps) onto inducer housing
connection. Insert the 2°in. diameter vent pipe _hrough the
elastomeric {rubber) coupling and Nlly into inducer iaous-
ing connection until it bottoms on the internal stop. Tighten
both clamps to secure the pipe to inducer iaousing. Tighten
the clamp screws to 15 inAb. of torque.
e. Install casing hole filler cap (ti_ctory=supplied in loose parts
bag) in unused combustion-air pipe casing hole.
3. Working fi'om ti/rnace to outside, cut pipe to required
length(s).
4 Deburr inside and outside of pipe,
5 Chamfer outside edge of pipe _br better distribution of primer
and cemeut.
6. Clean and dV all surfaces to be joined.

VENT 121M,Nd,H
PIPE -'-_11 _jJ- COMBUSTI:N-AIR PIPE
HORIZONTAL TO ROOF
-.,_ 12" MIN _,_ 9 ÷
/'
VENT PIPE
COMBUSTION-AIR PIPE
HORIZONTAL TO SIDEWALL
COMBUSTION-AIR
PIPE J-_
Z_ 12" MIN-_D,--
COMBUSTION-AIR PIPE
f VENT PIPE
VENT PIPE
VERTICALTO ROOF VERTICAL TO SIDEWALL
NOTE: A 12 In. minimum offset pipe section is recommended with
short (5 to 8 ft) vent systems. This recommendation is to reduce
excessive condensate droplets from exiting the vent pipe.
Fig. 38--Short Vent (8 to 8 Ft) System
A96230
7. Check &y fit of pipe and mark insertion depth on pipe.
NOTE: It is recommended that all pipes be cut, prepared, and
preassembled beK_re pem_anently cementing any.joint.
g. After pipes have been cut and preassembled, apply generous
layer of cement primer to pipe fitting socket and end of pipe
to insertion mark. Quickly apply approved cement to end of
pipe and fitdng socket (over primer) Apply cement in a light,
unii:orm coat on inside 05"socket to prevent buildup 05"excess
cement Apply second coat
9. While cement is still wet, twist pipe into socket with 1/4 mm
Be sure pipe is fully inserted into fitting socket
10. Wipe excess cement fi'om joint. A continuous bead of cement
will be visible around perimeter of a prope*ly made joint.
11. Handle pipe joints carefhlly until cement sets
12. Support combustion-air and vent piping a minimum of eve W
5 ft (3 k5br SDR-21 or -26 PVC) using perSbrated metal
hanging strap
13. Slope combustion-air and vent pipes downward toward 5hr-
nace a minimum of 1/4 in per tinear ft with no sags between
hangers
14. [se appropriate methods to seal openings where vent and
combustion=air pipes pass through roof or sidewall
--9
28
CONCENTRI( VENT AND COMBUSTION=AIR
TERMINATION KIT INSTALLATION
NOTg:: If these instructions dif_'cr flora those packaged with
tem_ination kit, follow kit instructions.
Combustion-air and vent pipes must terminate outside structure. A
factoQ' accessory termination kit must be installed in 1 of the
installations shown in Fig. 37, 38, 39, 40, or 41. Four temaination
kits are available.
See Table 6 for additional termination information.
1. The 2-in. termination bracket kit is 5br l=in. 1ol/2 in., and
2°in. diameter 2°pipe termination systems.
2. The 3=in temaination bracket kit is 5br 2ol/2 in. and 3=in.
diameter 2-pipe termination systems.
3. The 2-in. concentric vent/air termination kit is for l-in, 1-1/2
in., 2=in. and 2-!/2 in. diameter pipe systems when single
penetlation of wall or roof is desired.
4. The 3-in. concentric vent/air termination kit is £_r 2-1/2 in. and
3=ira diameter pipe systems when single penetlation of wall or
roof is desired.
NOTE: Shaded parts in Fig. 37, 3g, 39, 40, and 41 are considered
to be tet_ninations. These components should NOT be counted
when dote*mining pipe diametm Root" tem_ination is preferred
since it is less susceptible to damage, has reduced chances to take

ALTITUDE
0 to 2000
A_titude
2001 to 3000
A_titude
3001 to 4000
A_titude
4001 to 5000$
A_titude
5001 to 60005
See notes on next page.
Tab{e 7--Maximum AHowable Pipe Length (Ft)
UNIT
SRZE
040-14
060-14
080-14
080-20
100-20
120-20
Unit
Size
040-14
060-14
080-14
080-20
100-20
120-20
Unit
Size
040-14
060-14
080-14
080-20
100-20
120-20
Unit
Size
040-14
060-14
080-14
080-20
100-20
120-20
Unit
Size
040-14
060-14
080-14
080-20
100-20
120-20
TERMINATBON
TYPE
2 Pipe or 2-tn.
Concentric
2 Pipe or 2-tn.
Concentric
2 Pipe or 24n.
Concentric
2 Pipe or 2-tn.
Concentric
2 Pipe or 3-tn.
Concentric
Termination
Type
2 Pipe or 2-tn.
Concentric
2 Pipe or 2-tn.
Concentric
2 Pipe or 2-in.
Concentric
2 Pipe or 2-in.
Concentric
2 Pipe or 3-in.
Concentric
Termination
Type
2 Pipe or 2-in.
Concentric
2 Pipe or 24n.
Concentric
2 Pipe or 2-tn.
Concentric
2 Pipe or 2-tn.
Concentric
2 Pipe or 3-tn.
Concentric
Termination
Type
2 Pipe or 2-tn.
Concentric
2 Pipe or 2-tn.
Concentric
2 Pipe or 2-tn.
Concentric
2 Pipe or 2-tn.
Concentric
2 Pipe or 3-tn.
Concentric
Termination
Type
2 Pipe or 2-tn.
Concentric
2 Pipe or 2-tn.
Concentric
2 Pipe or 2-tn.
Concentric
2 Pipe or 2-tn.
Concentric
2 Pipe or 3-tn.
Concentric
PIPE DIAMETER
(IN.)*
1-1/2
2
1-1/2
2
1-1/2
2
2
2-1/2
2-1/2
3
31:
Pipe Diameter
(In.)*
1-1/2
2
1-1/2
2
1-1/2
2
2
2-1/2
3
31
Pipe Diameter
(In.)*
1-1/2
2
1-1/2
2
1-1/2
2
2
2-1/2
3
31
Pipe Diameter
(In.)*
1-1/2
2
1-1/2
2
1-1/2
2
2
2-1/2
31
Pipe Diameter
(In.)*
1-1/2
2
1-1/2
2
1-1/2
2
2
2-1/2
31
NUMBER OF 90 ° ELBOWS
123456
50 45 40 35 30 25
70 70 70 70 70 70
50 45 40 35 30 25
70 70 70 70 70 70
30 25 20 15 10 5
70 70 70 70 70 70
45 40 35 30 25 20
70 70 70 70 70 70
10 NA NA NA NA NA
35 30 15 NA NA NA
70 70 70 70 70 70
Number of 90 ° Elbows
123456
45 40 35 30 25 20
70 70 70 70 70 70
45 40 35 30 25 20
70 70 70 70 70 70
26 21 16 11 6 NA
70 70 70 70 70 70
40 35 30 25 20 15
70 70 70 70 70 70
31 26 12 NA NA NA
63 62 62 61 61 61
Number of 90 ° Elbows
123456
42 37 32 27 22 17
70 70 70 70 70 70
42 37 32 27 22 17
70 70 70 70 70 70
25 20 15 10 5 NA
70 70 70 70 70 70
38 33 28 23 18 13
70 70 70 70 70 70
29 24 10 NA NA NA
50 59 58 57 57 56
Number of 90 ° Elbows
123456
40 35 30 25 20 15
70 70 70 70 70 70
40 35 30 25 20 15
70 70 70 70 70 70
23 18 13 8 NA NA
70 70 70 70 70 68
36 31 26 21 16 11
70 70 70 70 70 70
56 55 54 53 52 52
Number of 90 ° Elbows
123456
37 32 27 22 17 12
70 70 70 70 70 70
37 32 27 22 17 12
70 70 70 70 70 70
22 17 12 7 NA NA
70 70 70 70 68 63
33 28 23 18 13 8
70 70 70 70 70 70
53 52 50 49 48 47
29

Table7--MaximumAJtowablePipeLength (Ft) Continued
ALTITUDE
6001 to 7000_
A_tJtude
7001 to 80OO_
A_titude
8001 to 9000_
A_titude
9001 to t0O0O_
UNIT
SRIE
040-14
060-14
080-14
080-20
100-20
120-20
Unit
Size
040-14
060-14
080-14
080-20
100-20
120-20
Unit
Size
040-14
060-14
080-14
080-20
100-20
120-20
Unit
Size
040-14
060-14
080-14
080-20
100-20
120-20
TERMINATION
TYPE
2 Pipe or 2-In.
Concentric
2 Pipe or 2-In.
Concentric
2 Pipe or 2-In.
Concentric
2 Pipe or 2-In.
Concentric
2 Pipe or 3-In.
Concentric
Termination
Type
2 Pipe or 2-In.
Concentric
2 Pipe or 2-In.
Concentric
2 Pipe or 2-In.
Concentric
2 Pipe or 2-In.
Concentric
2 Pipe or 3-In.
Concentric
Termination
Type
2 Pipe or 2-In.
Concentric
2 Pipe or 2-In.
Concentric
2 Pipe or 2-In.
Concentric
2 Pipe or 2-In.
Concentric
2 Pipe or 3-In.
Concentric
Termination
Type
2 Pipe or 2-In.
Concentric
2 Pipe or 2-In.
Concentric
2 Pipe or 2-In.
Concentric
2 Pipe or 2-In.
Concentric
2 Pipe or 3-In.
Concentric
PiPE DIAMETER
(_N.)*
1-1/2
2
1-1/2
2
1-1/2
2
2
2-1/2
31-
Pipe Diameter
(In.)*
1-1/2
2
1-1/2
2
1-1/2
2
2
2-1/2
31-
Pipe Diameter
(In.)*
1-1/2
2
1-1/2
2
1-1/2
2
2
2-1/2
31-
Pipe Diameter
(In.)*
1-1/2
2
1-1/2
2
1-1/2
2
2
2-1/2
31-
NUMBER OF 90 ° ELBOWS
1 2 3 4 5 6
35 30 25 20 15 10
70 70 68 67 66 64
35 30 25 20 15 10
70 70 68 67 66 64
20 15 10 5 NA NA
70 70 68 67 62 57
31 26 21 16 11 6
70 70 68 67 66 64
49 48 47 45 44 43
Number of 90 ° Elbows
1 2 3 4 5 6
32 27 22 17 12 7
66 65 63 62 60 59
32 27 22 17 12 7
66 65 63 62 60 59
18 13 8 NA NA NA
66 65 63 62 57 52
29 24 19 14 9 NA
66 65 63 62 60 59
46 44 43 41 40 38
Number of 90 ° Elbows
1 2 3 4 5 6
30 25 20 15 10 5
62 60 58 56 55 53
30 25 20 15 10 5
62 60 58 56 55 53
17 12 7 NA NA NA
62 80 58 56 51 46
27 22 17 12 7 NA
62 60 58 56 55 53
43 41 39 37 35 34
Number of 90 ° Elbows
1 2 3 4 5 6
27 22 17 12 7 NA
57 55 53 51 49 47
27 22 17 12 7 NA
57 55 53 51 48 47
15 10 5 NA NA NA
57 55 53 51 46 41
24 19 14 9 NA NA
57 55 53 51 49 47
39 37 35 33 31 29
Disk usage--Unless othepMse stated, use perforated disk assembly (factory-supplied in loose parts bag)
1 Wide radius elbow
$ Vent sizing for Canadian installations over 4500 ft (1370m) above sea level are subject to acceptance by the local authorities having jurisdiction.
NA--Not AHowed; pressure switch will not make
NOTES:
1 Do not use pipe size greater than those specified in table or incomplete combustion, flame disturbance, or flame sense lockout may occur
2 Size both the combustion-air and vent pipe independently, determine the smallest diameter allowed by the table for each pipe, then use the larger diameter for both
pipes.
3 Assume two 45 ° elbows equal one 90 ° elbow Long radius elbows are desirable and may be required in some cases
4 Elbows and pipe sections within the furnace casing and at the vent termination should not be included in vent length or elbow count.
5 The minimum pipe length is 5 ft for all applications
3O

COMBUSTION - AIR
INTAKE HOUSING
BURNER
BOX
DRILL _COMBUSTION -
AIR PIPE
TO OPEN
DRAIN
Fig. 36--Intake Housing Plug Fitting Drai_ 93°35
contaminants, and has less visible vent vapors (See Fig. 37 or 38)
Sidewall terns!nation may require sealing or shielding of building
surfaces with a corrosive resistance material due to corrosive
combustion prodacts of vent system.
Extended Exposed Sidewall Pipes
Sidewall confbustion=air and vent pipe terns!nations may be
extended beyond area shown in Fig. 40 or 41 in outside ambient by
insulating pipes as indicated in Table 8.
1. Detem_ine combustion-air and vent pipe diameters, as stated
above, using tota! pipe length and number of elbows.
2. Using winter design temperature (used in load calculations),
find appropriate temperature ibr your application and Ihrnace
model.
3. Detem_ine required insulation thickness ibr exposed pipe
lengths.
NOTE: Pipe length (it) specified J:Pr maximan_ pipe lengths
located in unconditioned spaces cannot exceed total allowable pipe
length as specified in Table 7.
Two=Pipe Termination Kit
1. Detemaine location ibr termination.
Consideration of the fPllowing should be made when deter=
mining an appropriate location for termination kit.
a. < ompty with all clearance requirements as stated in Table
(5.
b. Temaination kit should be positioned where vent vapors
will not damage plants/shrubs or air conditioning equip=
nlent.
c. Termination kit should be positioned so it wil! not be
affected by wind ed@ (such as inside building comers) or
accumnlation of airborne leaves or light snow, or allow
recirculation of flue gases.
d. Terns!nation kit should be positioned where it will not be
damaged by or subjected to foreign objects, such as stones,
balls, etc.
e. Termination kit should be positioned where vent vapors are
not objectionable.
2. <ut 2holes, 1 ibr each pipe, of appropriate size l\_r pipe size
being used.
3. Loosely instal! elbow in bracket and place assembly on
combustion=air pipe.
Roof terminations Loosely install pipe coupling on prop=
erly cut vent pipe. Coupling mnst be positioned so bracket will
mount as shown in Fig. 37.
For applications nsing combustion-air pipe option indicated
by dashed lines in Fig. 37, install 90 ° street elbow into 90 °
elbow, making U-fitting. A 180 _ U-fitting may be used.
Sidewall terminations Insta!l bracket as shown in Fig. 40 or
41.
For applications using vent pipe option indicated by dashed
lines in Fig 40, rotate vent elbow 90 _>from position shown in
Fig. 40
4 Disassemble loose pipe fittings Clean and cement using same
procedures as used [br system piping.
5 Check required dimensions as shown in Fig. 37, 40, or 41.
Concentric Vent/Air Termination Kit
1. Determine location ibr termination.
( onsideration of the following should be made when deter-
mining an appropriate location ibr termination kit.
a. Comply with all clearance requirements as stated in Table
6.
b. Termination kit should be positioned where vent vapors
wil! not damage plants/shrubs or air conditioning equip-
nlent.
c. Termination kit should be positioned so it will not be
affected by wind eddy (such as inside building comers) or
accumulation of airborne leaves or light snow, or allow
recirculation of flue gases.
d. Termination kit shou!d be positioned where it will not be
damaged by or subjected to foreign objects, such as stones,
balls, etc.
e. Termination kit should be positioned where vent vapors are
not objectionable.
2. <ut one 4-in. diameter hole for 2=in. kit, or one 5=in. diameter
hole _br 3=in. kit.
3 Loosely assemble concentric vent/air tom,!nation components
together using instructions in kit
4. Slide assembled kit with rain shield REMOVED through hole.
NOTE: Do not allow insulation or other materials to accmnntate
inside of pipe assembly when installing it through hole.
Roof terminations Locate assembly through roof to appro-
priate height as shown in Fig. 38.
Sidewall terminations Locate assembly through sidewall
wit}* rain shield positioned no more than 1-in. from walt as
shown in Fig 38.
5 Disassenfble loose pipe fittings Clean and cement using same
procedures as used fPr system piping.
6. Check required dimensions as shown in Fig. 38 or 39.
MULTIVENTING AND VENT TERMINATIONS
When 2 or more 58MVP Furnaces are vented near each other, each
furnace must be individually vented. NEVER common vent or
breach vent 58MVP fhmaces. When 2or more 58MVP furnaces
are vented near each other. 2 vent terminations may be installed as
shown in Fig. 42, 43, 44, 45, or 46, but next vent termination must
be at least 36 in. away from first 2 terns!nations. It is important that
vent terminations be made as shown to avoid recirculation of flue
gases. Dimension "A" in Fig. 42, 43, 44, 45, and 46 represents
distance between pipes or rain shields, as touching or 2-in.
max!n-ram separation.
31

AIR AND VENT
8 3/4" FOR 3" KIT
6 3/4" FOR 2" KIT
MAINTAIN 12 IN.
CLEARANCE ABOVE HIGHEST
ANTICIPATED SNOW LEVEL.
MAXIMUM OF 24 IN. ABOVE ROOF.
/
MAINTAIN 12 IN. ,.\__
(18 IN. FOR CANADA)
MINIMUM CLEARANCE
ABOVE HIGHEST
ANTICIPATED SNOW
LEVEL. MAXIMUM OF
24 IN. ABOVE ROOF.
A93054
Fig. 38--Concentric Vent and Combustion-Air Roof
Termination {Preferred}
jJJ
_-_ 12 IN.
.. . :..." CLEARANCE
ABOVE HIGHEST
ANTICIPATED SNOW
LEVEL OR GRADE,
WHICHEVER IS
GREATER.
A93055
Fig. 39--Concentric Vent and Combustion-Air Side
Termination
IN. SEPARATION
BOTTOM OF
•COMBUSTION AIR AND
OF VENT
12 IN.
CLEARANCE
ABOVE HIGHEST
ANTICIPATED SNOW
LEVEL OR GRADE,
COMBUSTION-AIR WHICHEVER IS
GREATER.
A87225
Fig. 40--Sidewall Termination of 12 in. or More 32
BOTTOM OF
COMBUSTION AIR AND
,,7 OF VENT
12 IN.
:...' CLEARANCE
ABOVE HIGHEST
ANTICIPATED SNOW
/
Z-COMBUSTION-AIR LEVEL OR GRADE,
(ELBOW PARALLEL WHICHEVER IS
TO WALL) GREATER.
A87226
Fig. 41--Sidewall Termination of Less than 12 in.

A96128
Fig. 42--Rooftop Termination (Dimension "A" is Touching or 2-In. Maximum Separation)
AIR
A93056
Fig. 43--Concentric Vent and Combustion-Air Roof
Termination (Dimension "A" is Touching or
2qn. Maximum Separation)
VENT
A93057
Fig. 44_Concentric Vent and Combustion-Air Side
Termination (Dimension "A" is Touching or
2qn. Maximum Separation)
/
ff
COMBUSTION
AIR
A96129
Fig. 45--Sidewall Termination of 12 in. or Less
(Dimension "A '° is Touching or 2-In.
Maximum Separation)
33
A96130
Fig. 46--Sidewall Termination of More Than 12 in.
(Dimension "A" is Touching or 2-In.
Maximum Separation)

Table8--MaximumAllowableExposedVentPipeLength(Ft)WithInsulationinWinterDesign
TemperatureAmbient*
UNIT
SiZE
iNSULATiON TNIDKNESS (N.)t
3/8 1/2 3/4
W_NTER DESIGN
TEMPERATURE
(°F)
20
0
-20
20
0
-20
20
0
-20
20
0
-20
20
0
-20
MAXIMUM PIPE
DIAMETER
(iN.) 0
2 21
2 10
2 5
2 30
2 16
2 9
2 37
2 20
2 11
2-1/2 41
2-1/2 21
2-1/2 11
3 49
3 26
3 15
37 42 50
040ot4 22 25 30
14 17 21
55 61 70
060ot4 33 38 46
23 26 33
65 70 70
080ot4 39 45 55
080°20 27 31 39
70 70 70
100o20 42 48 59
28 33 41
70 70 70
120o20 51 58 70
35 40 50
Pipe length (ft) specified for maximum pipe lengths located in unconditioned spaces. Pipes located in
as specified in Table 7
t Insulation thickness based on R value of 35 per in
1
57
35
25
7O
53
38
7O
63
45
7O
68
49
7O
7O
59
unconditioned space cannot exceed total allowable pipe length
Step 10--Condensate Drain
GENERAL
Condensate trap is shipped installed in the blower shetf and facto W
connected for UPFLOW applications Condensate trap must be
RELOCATED for use in DOWTNFLOW and HORIZONTAL
applications
(ondensate trap MUST be used for all applications.
An external trap is not required when connecting the field drain to
this condensate trap
The field drain connection (condensate trap or drain robe coupling)
is sized _br 1/2=in (PVC, 1/2=in PV(, or 5/8-in ID tube
connection_
Drain pipe and fittings must con_brm m ANSI standards and
ASTM D1785, D246d, or D2846. CPVC or PV( cement must
confbnn to ASTM D2564 or F493 Primer must conform to ASTM
F656. In Canada, use CSA or ELC certified schedule 40 (PVC or
PVC drain pipe, fittings, and cement.
When a condensate pump is required, select a pmnp which is
approved ibr condensing _lmace applications. To avoid conden=
sate spillage, select a pump wit}* an overflow switch
Furnace condensate is mildly acidic, typically in the pH range of
3 2 to 45. Due to corrosive nature of d_is condensate, a condensate
pH neutralizing filter may be desired. Check with local authorities
to detem_ine if a pH neutralizer is required
APPLI( ATION
The fimaace, A/C, and humidifier &ains may be combined and
drained together. The Air &ain must have an external, tield=
supplied trap prior to the furnace &ain connection All &ain
connections (furnace, A/C, or humidifier) must be terminated into
art open or vented drain as close to the respective equipment as
possible to prevent siphoning of d_e equipment's &ain
See Fig 48 ibr example of possible field drain attachment using
1/2-in. CPV( or PVC tee ibr vent and Ai( or humidifier &ain
connection
Outdoor draining of the _i/rnace is permissible if allowed by local
codes ( aution should be taken when freezing ambient may freeze
drain pipe and prohibit draining.
-->
34
32°F MINIMUM INSTALLED
AMBIENT OR FREEZE
PROTECTION REQUIRED
/
Fig. 47--Freeze Protection
A93058
Unit must not be installed, operated, and then mined and left
off in an unoccupied structure during cold weather when
temperature &ops to 32°F or below unless &ain trap and
drain line have adequate freeze protection. See Service and
Maintenance Instructions _br winterizing procedure. (See Fig.
47.) Failure to follow this caution will result in intermittent
unit operation.
Caution should be taken to prevent draining where slippew
conditions may cause personal injuries. Excessive condensate
draining may cause saturated soil conditions which may result
in damage to plants.

OPEN STAND y
PIPE FOR
A/C OR
HUMIDIFIER
DRAIN
A94054
Fig. 48--ExamNe of Field Drain Attachment
(ONDENSATE DRAIN PROTE(TION
Freezing condensate left in condensate trap and drain line may
cause cracks, and possible water damage may occur. If fieeze
protection is required, use condensate freeze protection accesso_
or equivalent 3 to 6 watt per ff at 120v and 40°F self_regulating,
shielded, and waterproof heat tape. See Installation Instructions
supplied with accessory or heat tape manufacturer's recommenda=
tions.
1. Fold heat tape in half" and wrap on itself 3 times.
2. Locate heat tape between sides of condensate trap back. (See
Fig. 49.)
3. Use wire ties to secure heat tape in place. Wire ties can be
positioned in notches of condensate trap sides. (See Fig. 49.)
4. Wrap field drain pipe with remaining heat tape, approximately
1 wrap per ft.
5. When using field-supplied heat tape, fbllow heat tape manu=
fScmrer's instructions for all other installation guidelines.
CONDENSATE
WIRE TIE(S)_
HEAT TAPE_
(3 WRAPS MINIMUM)_
A93036
Fig. 49--Condensate Trap Heat Tape
--€
35
START-UP, ADJUSTMENTS AND SAFETY CHECK
Step l--General
1 Furnace must have a 115=v power supply properly connected
and grounded.
NOTE: Proper polarity must be maintained for 115-v wiring. If
polarity is incorrect, control stares indicator light flashes rapidly
and fhmace does not operate.
2. Thermostat wire connections at terminals R, W/W1, G, and
Y/Y2 must be made at 24-v terminal block on furnace control.
3. Natural gas service pressure must not exceed 0.5 psig (14=in.
wc), but must be no tess than 0.1d psig (4.5=in. wc).
4. Blower access panel must be in place to complete l15=v
electrical circuit to ff_rnace.
These furnaces are equipped with a manual reset limit switch
in burner box This switch opens and shuts off power to the
gas valve if an overheat condition (flame rollout) occurs in
burner enclosure. Correct inadequate combustion=air supply
or improper venting condition before resetting switch. DO
NOT jumper this switch. Failure to fbltow this caution will
result in intermittent unit operation or performance satisfac-
tion.
Before operating furnace, check flame rollout manual reset switch
for continuity If necessm% press button to reset switch.
Step 2--Semect Setup Switch Positions
AIR (ONDITIONING (A/C) SETUP SWIT(HES
The air conditioning setup switches are used to match furnace
airflow to cooling unit used.
To set the desired cooling airflow:
1 Remove main f_./mace door and blower access panel.
2Locate Ai(2 sett_p switches on l_urnace control. (See Fig 32)
3 Detem_ine air conditioning tonnage used.
4 Use Fig. 50 or wiring schematic to determine proper setup
position of AiC switches (See Fig. 31 and 51)
NOTE: Excessive airflow caused by improper Aid switch setup
may cause condensate blowoff in cooling mode
5 Replace main furnace door and blower access panel
NOTE: EAC=I terminal is energized whenever blower operates.
HUM terminal is only energized when blower is energized in
heating.
CONTINUOUS FAN (CF) SETUP SWITCHES
The CF setup switches are used to select desired airflow when
thermostat is in continuous tim mode or to select tow-cooling
airflow for two-speed cooling units. This setup feature allows
continuous fan airflow or low-cooling airflow to be adjusted. To
set desired continuous fan airflow or low-cooling airflow:
1. Remove main Nrnace door and blower access panel.
2. Locate CF setup switches on I:umace control. (See Fig. 32.)
3. Detem_ine desired continuous fan airflow or tow-cooling
airflow.
4. Use Fig. 58 or wiring schematic to determine proper setup
position of CF switches. (See Fig. 31 and 51.)
5. Replace main I:umace door and blower access panel.
SETUP SWITCHES (SWI)
The furnace control has 8 setup switches that may be set to meet
the application requirements, Position these setup switches fbr the
appropriate requiremenL

AIR CONDITIONING AIRFLOW 040,060 & 080-14 080-20 & 106
TONS (12,000 BTU/HR) (CFM) MODEL MODEL 120 MODEL
1-1/2 525 X
2 700 X X X
2-1/2 875 X X X
3 1050 X X X
3-1/2 1225 X X X
4 1400 X X
5 1750 X X
6 2100 X
X-INDICATES AN ALLOWABLE SELECTION.
A/C OR CF AIRFLOW SELECTION CHART
BASED ON 350 CFM/TON
MODEL _ _ _ _ _ _ _
SiZE _ _ _ _ _ _ _
040,060,
080-14 DEF 5252 700 875 10501 1225 1225 1225
080-20,100 DEF 7002 875 1050 1225 1400 17501 1750
120 DEF 700 8752 1050 1225 1400 17501 2100
1DEFAULT A/C AIRFLOW WHEN A/C SWITCHES ARE IN OFF POSITION
2.DEFAULT CONT. FAN AIRFLOW WHEN CF SWITCHES ARE IN OFF POSITION
Fig. 50--A/C or OF Airflow Selection Chart
Based on 3500FN/Ton
Step 3--Prime Condensate Trap With Water
A02349
A04001
-_ Fig. 51--Example of Setup Switch in OFF
Position
1, Remove main filrnace dooI and blower access panel
2. Locate setup switches on fm'nace control. (See Fig. 32.)
3. See Table 9 for setup switch description. (See Fig. 31 and 51.)
4. Replace main fire, ace door and blower access panel.
NOTE: Ifa bypass humidifier is used. setup switch SWI_3 (Low
HEAT Rise Adjust) should be in ON position. This compensates
%r the increased temperature in return air resulting fiom bypass.
NOTE: If modulating dampers are used, blower motor automatio
cally compensates %r modulating dampers.
--€ Condensate trap must be PRIMED or proper draining may not
occur The condensate trap has 2internal chambers which can
ONLY be primed by pouring water into the inducer drain side
of condensate trap. Failure to £41ow this caution will result in
intermittent malt operation or performance satis_tction.
1. Remove upper inducer housing &aia connection cap. (See
Fig. 52j
2. Connect fieldosupplied 1i2oin. ID robe to upper inducer
housing &ain connection.
3. Insert fieldosupplied fimnel into tube.
4. Pont 1 quart of water into fannetimbe. Water should run
throngh inducer housing, overfill condensate trap, and flow
into open field drain. (See Fig. 53j
5. Remove fmmet and robe t'rom inducer housing and replace
&ain connection cap and clamp.
Step 4--Purge Gas Lines
If not previously done, purge the lines aJ:_er all connections have
been made and check %r leaks.
36

Table 9--Furnace Setup Switch Description
SETUP SWITCH NORMAL DESCRIPTION
SWITCH NO. NAME POSiTiON OF USE
Turn ON to retrieve up to 7 stored status codes for troubleshooting
SWI-1 Status Code Recovery OFF assistance when R thermostat lead is disconnected.
AHows 2-stage operation with a single stage thermostat.
Turn ON when using 2 stage thermostat to NIow Low Heat opera-
SW1-2 Adaptive Heat Mode OFF tion when R to W/W1 closes and High Heat operation when R to
W/W1 and W2 close
Turn ON to increase Low Heat airflow by 18 percent This compen-
Low Heat
8W1-3 Rise Adjust OFF sates for increased return air temperature caused with bypass hu-
midifier
Turn ON to decrease Low Heat airflow by 7 percent and High Heat
aWl-4 Comfort/Efficiency Adjustment ON airflow 8 percent for maximum comfort. On 040 unit will decrease
Low-Heat Airflow 11 percent and High-Heat Airflow 10 percent.
8W1-5 CFM per ton adjust OFF Turn ON for 400 CFM per ton. Turn OFF for 350 CFM per ton
Turn ON to initiate Component Self-Test for troubleshooting assis-
SWI-¢ Component Self-Test OFF tance when R thermostat lead is disconnected
Turn OFF when Self-Test is completed.
SW1-7 Blower OFF delay ON or OFF Control blower Off Delay time Used in conjunction with SW1-8. See
Table 10
8W1-8 Blower OFF delay ON or OFF Control blower Off Delay time Used in conjunction with SW1-7. See
Table 10
Table 10--Blower Off Delay Setup Switch
Position
DESIRED HEATING
MODE SLOWER
OFF DELAY (SEC)
90
120
t50
180
SETUP SWITCH (SW1o7 AND SW1-8) POSITION
SW1-7 SW1-8
OFF OFF
ON OFF
OFF ON
ON ON
Never purge a gas line into a combustion chamber Never test
for gas leaks with an open flame LTse a commercially
available soap solution made specifically for the detection of
teaks to check all connections Failure to follow this warning
could result in fire, explosion, personal inju% or death
Step 5--Sequence of Operation
1
Furnace control must be grounded fbr proper operation, or
control will lock out. Control is grounded through
green@ellow wire routed to gas valve and burner box screw.
Failure to fbllow this caution will result in intermittent unit
operation.
Using schematic diagram, %llow sequence of operation through
different modes (See Fig. 31.) Read and follow wiring diagram
carefully
NOTE: If a power intelTuption occurs during a call for heat
(WiWI or WiWl=and-W2), the control will start a 90-second
blower-only ON period two seconds after power is restored, if the
thermostat is still calling for gas heating. The amber LED light wilt
flash code 12 during the 90=second period, after which the LED
will be ON continuous, as tong as no limits are detected. After d_e
90=second period, the furnace will respond to the thermostat
normally
The blower door must be installed for power to be conducted
through the blower door interlock switch ILK to the furnace
control (PI_, transformer TRAN, inducer motor IDM, blower
motor BLWM, hot-surface igniter HSI, and gas valve GV,
37
SINGLE=STAGE THERMOSTAT AND TWO-STAGE
HEATING (ADAPTIVE MODE)
See Fig. 28 or 61 fbr thernlostat connections
NOTE: Low-heat=only switch, SWI=2, selects either d-le low-
heat=only operation mode when ON, (see item 2 below) or
adaptive heating mode when OFF, in response to a call for heat.
(See Fig. 32) When the W2 them_ostat terminal is eneigized, it
will always cause high=heat operation when the R to W circuit is
closed, regardless of the setting of the tow-heat only switch
This furnace can opeiate as a two-stage fi/mace with a single-stage
thernrostat because fm'nace control CPEr includes a programmed
adaptive sequence of controlled opeiation, which selects low-heat
or high-heat operation. This selection is based upon the stored
histo W of the tength of previous gas heating periods of the
single-stage thermostat.
The t:m'nace will start up in either tow= or high-heat If the _i.V.T,ace
starts up in low=heat, the t'umace control (PI_ detem_ines the
tow=heat on time (flora 0 to 16 minutes) which is permitted befbre
switching to high=heat.
If power is intmrupted, the stored histo W is erased When this
happens, the control (7PErwill initially select low=heat for up to 16
minutes and then switch to high-heat, as tong as the the*mostat
continues to call t'o, heat Subsequent selection is based on stored
histo W of d_em_ostat cycle dines.
The wall daermostat %alls for heat", closing the Rto W circuit.
The furnace control (PU perfbm_s a self-check, verifies the
tow=heat and high=heat pressure switch contacts LPS and HPS are
open
1 Inducer Prepurge Period-The fi/mace control CPI_ rams on
inducer motor IDM and slowly increases the inducer nrotor
speed. When the low-heat pressure switch LPS closes, in&cer
motor RPM is noted by the filmace control CPU, and a 25-sec.
prepurge period begins. The RPM is used to evaluate vent
system resistance. This evaluation is then used to dete*mine
the required RPM necessa W to operate the induce, motor
du*ing the tow-heat prepurge pe*iod and tow-heat mode.
NOTE: The }teat cycle can start in either high-or tow=heat If a
high-heat cycle is initiated, the furnace control CPU will de-
energize the high=heat pressure switch relay HPSR to close the NC
contact and continues to increase the inducer motor speed after the
tow=heat pressure switch LPS closes. When the high-heat pressure
switch closes, inducer motor RPM is noted by the Nrnace control

A99118
Fig. 52--Inducer Housing Drain Tube
-\
A99119
Fig. 53--Filling Condensate Trap
CPU before the 25-sec prepurge period begins The RPM is used
to evaluate vent system resistance This evaluation is then used to
determine the required RPM necessary to operate the inducer
motor in high-heat mode
--9
38
2. Igniter Warm-! p-At end of the prepurge period, the Hot
Surface Igniter HSI is energized for a 17-sec igniter warm-up
period.
3. Trial-For-Ignition Sequence-When the igniter warm-up pe-
riod is completed, the main gas valve relay contacts GVR
close to energize the gas valve GV, the gas valve opens. The
gas valve GV permits gas flow to the burners where it is
ignited by the Hot Surface Igniter HSI. Five seconds afler the
GVR closes, a 2-second flame period begins. The HSI igniter
will remain energized until the flame is sensed or until the
2-second flame proving period begins.
If the f_urnace control CPU selects high-heat operation, the
high-heat gas valve solenoid GV-HI is also energized.
4. Flame-Proving-When burner flame is proved at the flame-
proving sensor electrode FSE, the filrnace control CPU begins
the blower-ON delay period and continues to hold the gas
valve GV-M open. If the burner flame is not prm'ed within
two seconds, the control (PU will close the gas valve GV-M,
and the fire, ace control CPU will repeat the ignition sequence
fbr up to three more Trials-For-Ignition before going to
Ignition-Lockout. Lockout will be reset automatically after
three hours, by monmntarily interrupting 115 vac power to the
f;arnace, or by interrupting 24 vac power at SEC1 or SEC2 to
the fmnace control CPU (not at W/W1, G, R, etc.).
If flame is proved when flame should not be present, the
fi/mace control CPU will lock out of Gas-Heating mode and
operate the inducer motor IDM on high speed until flanm is no
longer proved.
5. Inducer Speed Change-If the cycle starts in low-heat, d_e
furnace control CPU reduces the inducer speed slightly after
flame sense. If cycle starts in high-heat, the fmnace contlol
(PLY increases the inducer speed 15 seconds after flanm sense.
The reduction in speed in tow-heat is to optimize combustion
for n_aximum efficiency.
6. Blower-On delay-If the burner flame is proven, the
blower-ON delay for low-heat and high-heat are as ]:bllows:
Low-heat-d0 seconds after the gas valve GV-M is opened, the
BLWM is tarried ON at low-heat airflow.
High-heat-35 seconds after gas valve GV-M is opened, the
BLWM is mined ON at high-heat airflow.
Simultaneously, the humidifier terminal HUM and electronic
air cleaner tem_inal EAC-I are energized and remain ener-
gized throughout the heating cycle.
7. Switching From Low- To High- Heat- If the filmace contlot
(:PLY switches from low-heat to high-heat, the fiu'nace control
(:PLY will de-energize the the high-heat pressure switch relay
HPSR to close the N( contact and slowly increase the inducer
motor speed until the high-heat pressure switch HPS closes.
When the high-heat pressure switch HPS closes, the high-heat
gas valve solenoid GV-HI is energized and the inducer motor
RPM is noted by the f_arnace control CPU. The RPM is used
to evaluate vent system resistance. This evaluation is then
used to detem_ine the required RPM necessary to operate the
inducer motor in high-heat mode. The blower motor BLWM
will transition to high-heat airflow five seconds after the
fi/mace contIol CPU switches I)om tow-heat to high-heat.
8. Switching From High- To Low- Heat-The fi/rnace control
(PLY will not switch fi'om high-heat to tow-heat while the
thermostat R-to-W circuit is closed when using a single-stage
thermostat.
9. Blower-Off delay- When the themmstat is satisfie& the R to
W circuit is opened, de-energizing the gas valve GV-M,
stopping gas flow to the burners, and de-energizing the

humidifierterminalHUM TheinducermotorIDMwill
remainenergizedfora 15=secondpost-purgeperiod.The
blowermotorBLWMandaircleanerterminalEA(-Iwill
remainenergizedatlow=heatairflowortransitiontolow=heat
airflowfor 90, 120, 150, or 180 seconds (depending on
selection at blower-OFF delay switches). The fim'lace control
CPU is *:actory=set [br a 120=second blower-OFF delay
TWO=STAGE THERMOSTAT AND TWO=STAGE HEATING
See Fig. 60 fbr thermostat connections
NOTE: In this mode, the tow-heat only switch SWI=2 must be
ON to select the tow-heat only operation mode in response to
closing the thermostat R-to=W1 circuit. (;losing the thermostat
R-to-Wl-and=W2 circuits always causes high=heat operation, re=
gardless of the setting of the low-heat-only switch.
The wal! themxostat "calls for heat _', closing the R to W1 circuit for
tow-heat or closing the R to Wl=and-W2 circuits for high-heat.
The [:ornace control per_brms a self-check and verifies the low=
heat and high-heat pressure switch contacts LPS and HPS are
open.
The start=up and shutdown functions and delays described in item
1. above apply to 2-stage heating mode as well, except for
switching fiom low- to high-heat and vice versa.
1. S_itehing Front Low- To High- Heat-If the thermostat R to
WI circuit is closed and the R to W2 circuit closes, the [:urnace
control CPU will de=energize the high-heat pressure switch
relay HPSR to close the NC contact and slowly increase the
inducer motor speed until the high=heat pressure switch HPS
closes. When the high=heat pressure switch closes, the high-
heat gas valve solenoid GV-HI is energized and the inducer
motor RPM is noted by the ft_rnace contlol CPU. The RPM is
used to evaluate vent system resistance. This evaluation is
then used to determine the required RPM necessa_- to operate
the inducer motor in high-heat mode. The blower motor
BLWM will tlansition to high=heat airflow five seconds aJ_er
the R to W2 circuit closes.
2. Switching Front High- To Low- Heat= If the thermostat R to
W2 circuit opens, and the R to W1 circuit remains closed, the
_hrnace control CPU will energize the high=heat pressure
switch relay HPSR to open the N( contact and slowly
decrease the inducer motor speed to the required low=heat
RPM. When the high=heat pressm'e switch HPS opens, the
high=heat gas valve solenoid GV-HI is de-energized. When
the inducer motor IDM reduces pressure sufficiently, tl_e
high=heat pressure switch HPS will open. The gas valve
solenoid GV-M will remain energized as tong as the low=heat
pressure switch LPS remains closed. The blower motor
BLWM will tlansition to tow-heat airflow five seconds a_:_er
the R to W2 circuit opens.
(70()LING MODE
The thellnostat "calls for cooling"
1, Single-Speed Cooling
(See Fig. 28 fi_r them_ostat connections.)
The tl",ermostat closes R-to=G=and-Y circuits. The R=to-Y
circuit starts the outdoor unit, and R-to-G-and-YiY2 circuits
start the furnace blower motor BLWM on cooling airflow.
Cooling airflow is based on the AiC selection shown in Fig.
50.
The electronic air cleaner termina! EAC-1 is energized with
115=v when blower motor BLWM is operating
When the tl",ermostat is satisfied, the R=to-G-and-Y circuits are
opened. The outdoor unit will stop, and filmace blower motor
BLWM will continue operating at cooling airflow for an
39
additional 90 sec. Jumper Y/Y2 to DHUM to reduce the
cooling off'delay to 5 seconds (See Fig. 32)
2Single-Stage T]hermostat and Two-Speed Cooling (Adap-
tive Mode)
(See Fig. 61 for them_ostat connections.)
This fi/mace can operate a two=speed cooling unit with a
single=stage themaostat because the fiu'nace contlol CPU
includes a programmed adaptive sequence of contIolled op-
eration, which selects low-cooling or high-cooling operation.
This selection is based upon the stored history of the length of
previous cooling period of the single-stage thermostat.
NOTE: The air conditioning relay disable jumper A(RDJ must
be connected to enable the adaptive cooling mode in response to a
call for cooling. (See Fig. 32.) When in place the furnace control
CPU can mm on the air conditioning relay A(R to energize the
Y/Y2 temfinal and switch the outdoor unit to high=cooling.
The _u_aace control CPU can start up the cooling unit in either
low- or high-cooling. If starting up in tow-cooling, the t:iu'nace
control CPU determines the tow-cooling on-time (from 0 to 20
minutes) which is permitted befbre switching to high-cooling.
If the power is interrupted, the stored histoQ" is erased and the
_hmace control CPU will select tow=cooling [br up to 20
minutes and then energize the air conditioning relay ACR to
energize the Y/Y2 terminal and switch the outdoor unit to
high=cooling, as long as the thermostat continues to call _br
cooling. Subsequent selection is based on stored history of the
thermostat cycle times.
The wall tlaermostat "calls for cooling", closing the R to
G=and-Y circuits. The R to Y1 circuit starts the outdoor unit
on low-cooling speed, and the R to G=and-Y1 circuits starts
the filmace blower motor BLWM at low-cooling airflow
which is the true on=board CF selection as shown in Fig. 50.
If the Nmace control CPU switches ti'om tow-cooling to
high-cooling, the Nrnace control CPU will energize the air
conditioning relay ACR. When the air conditioning relay ACR
is energized the R to Yl-and=Y2 circuits switch the outdoor
unit to high-cooling speed, and the R to G=and=Yl-and=YiY2
circuits tlansition the f:tmaace blower motor BLWM to high-
cooling airflow. High-cooling airflow is based on the AiC
selection shown in Fig. 50.
NOTE: When transitioning from low-cooling to high-cooling the
outdoor unit compressor will shut down for 1 minute while the
furnace blower motor BLWM transitions to rnn at high-cooling
airflow.
The electronic air cleaner terminal EAC-! is energized with
115 vac whenever the blower motor BLWM is operating.
When the thermostat is satisfied, the R to G=and-Y circuit are
opened. The outdoor unit stops, and the t\m_ace blower
BLWM and electronic air cleaner terminal EAC-1 will remain
energized fbr an additional 90 seconds. Jumper Y1 to DHUM
to reduce the cooling off-delay to 5 seconds. (See Fig. 32.)
3. Two-Stage Thermostat and Two-Speed Cooling
(See Fig. 60 for thetanostat connections)
NOTE: The air conditioning relay disable jumper ACRDJ must
be disconnected to allow thermostat contlol of the outdoor unit
staging. (See Fig. 32.)
The thermostat closes the R to G and=Y1 circuits l:br low-
cooling or closes the R to G and=Yl-and=Y2 circuits fi_r
high-cooling. The R to Y1 circuit starts the outdoor unit on
low-cooling speed, and the R to G=and=Y1 circuit starts the
Nmace blower motor BLWM on tow-cooling airflow which is
the true on-board (F selection as shown in Fig. 50. The R to
Yl-and-Y2 circuits start the outdoor unit on high=cooling

spee& and the Rto G=and-YY2 circuits start the furnace
blower motor BLWM at high=cooling ariflow. High-cooling
airflow is based on the A/C selection shown in Fig. 50.
The electronic air cleaner terminal EAC=I is energized with
115 vac whenever the blower motor BLWM is operating
When the thermostat is satisfied, the Rto G-and=Y1 o1"Rto
G=and=Yl-and=Y2 circuits are opened. The outdoor unit stops,
and the furnace blower BLWM and electlonic air cleaner
terminal EAC=I wilt remain energized ibr an additional 90
seconds. Jumper YI to DHUM to reduce the cooling off-delay
to 5 seconds (See Fig. 32)
THERMIDISTAT MODE
See Fig 54=57 %* Thexmidistat connections
The dehumidification output, DHUM on the Thermidistat should
be connected to the furnace control thermostat tem_inal DHUM.
When there is a dehumidK}" demand, the DHLM input is activated,
which means 24 vac signal is removed fiom the DHUM input
terminal. In other words, the DHUM input logic is reversed. The
DHUM input is mined ON when no dehumidify demand exists.
Once 24 vac is detected by the furnace contlol on the DHUM
input, the furnace control operates in Thennidistat mode. [f the
DHUM input is low for more than 48 hours, the furnace control
reverts back to non-Thermidistat mode.
The cooling operation described in item 3. above applies to
operation with a Thermidistat. The exceptions are listed below:
a. Low cooling=When the R to G=and-Yl circuit is closed and
there is a demand fbr dehumidification, the Nrnace blower
motor BLWM will &op the blower airflow to 86% of
low-cooling airflow which is the true on=board CF selec=
tion as shown in Fig. 50.
b. High cooling-When the Rto G-and Y/Y2 circuit is closed
and there is a demand for dehumidification, the furnace
blower motor BLWM will &op the blower airflow to 86%
of high-cooling airflow High=cooling airflow is based on
the AiC selection shown in Fig. 50
c. Cooling off-delay=When the "call for cooling" is satisfied
and there is a demand for dehumidification, the cooling
blower=off delay is decreased fiom 90 seconds to 5
seconds.
SUPER=DEHUMIDIFY MODE
Super-Dehumidify7 mode can only be entered it"the furnace control
is in Thermidistat mode and d_ere is a demand ibr dehmnidifica=
tion. The cooling operation desc*ibed in item 3 above also applies
to operation with a Thermidistat The exceptions are tisted betow:
a. Low coMing=When the R to Y1 circuit is closed, R to G
circuit is open, and there is a demand for dehumidification,
the furnace blower motor BLWM will &op the blower
airflow to 65% of tow-cooling airflow for a maximmn of
10 minutes each cooling cycle or until the R to G circuit
closes or the demand fbr dehumidification is satisfied.
Low-cooling airflow is the true on=board CF selection as
shown in Fig. 50.
b. High coMing=When the R to Y/Y2 cicuit is closed, R to G
circuit is open, and there is a demand for dehumidifiation,
the furnace blower motor BLWM will drop the blower to
65% of high=cooling airflow fbr a maximmn of 10 minutes
each cooling cycle or until the R to G circuit closes or the
demand for dehumidification is satisfied. High-cooling
airflow is based on the Ai( selection shown in Fig. 50.
c. Cooling off-delay=When the "call for cooling" is satisfied
and there is a demand for dehumidification, the cooling
blower=off delay is decreased fiom 90 seconds to 5
seconds.
CONTINL OUS BLOWER MODE
When the R to G circuit is closed by the thermostat, the blower
motor BLWM will operate at continuous-blower airflow. (ontinu-
ous blower airflow selection is initially based on the CF selection
shown in Fig. 50 Factory default is shown in Fig 58. Terminal
EA(-1 is energized as tong as the blower motor BLWM is
energized.
During a call for heat, the blower BLWM will transition the blower
motor BLWM to continuous blower airflow, low=heat airflow, or
the midrange airflow, whichever is lowest. The blower motor
BLWM will remain ON until the main burners ignite then shut
OFF and remain OFF for the blower-ON delay (60 seconds in
tow-heat and 35 seconds in high-heat) allowing the furnace heat
exchangers to heat more quickly, then restarts at the end of the
blower-ON delay period at tow=heat or high-heat airflow respec-
tively.
The blower motor BLWM will revert to continuous-blower airflow
after d_e heating cycle is completed. In high-heat, the furnace
control CPU will &op the blower motor BLWM to low=heat
airflow during the selected blower=OFF delay period be%re
transitioning to continuous-blower airflow.
When the thermostat "calls for high-cooling", the blower motor
BLWM will operate at high-cooling airflow. When the thermostat
is satisfied, the blower motor BLWM will operate an additional 90
seconds at high=cooling airflow befbre transitioning back to
continuous=blower airflow.
When the R to G circuit is opened, the blower motor BLWM will
continue operating %r an additional 5 seconds, if no other function
requires blower motor BLWM operation.
Continuous Blower Speed Selection from Thermostat
To select different continuous=blower speeds fiom the room
thermostat, momentarily turn off the FAN" switch or push-
button on the room them_ostat for 1=3 seconds after the blower
motor BLWM is operating. The furnace contlol CPU will shift
the continuous=blower airflow fi'om the factory setting to the
next highest CF selection airflow as shown in Fig. 50.
Momentarily turning off the FAN switch again at the thermo-
stat will shift the continuous-blower airflow up one more
increment. If you repeat this procedure enough, you will
eventually shift the continuous-blower airflow to the lowest
(F selection as shown in Fig. 50. The selection can be
changed as many times as desired and is stored in the memow
to be automatically used following a power inten'uption.
HEAT PUMP
See Fig. 56-59 for thermostat connections.
When installed with a heat pump, the furnace control automatically
changes the timing sequence to avoid long blower ofttimes during
demand deiiost cycles. Whenever WiWI is energized along with
Y1 or Y/Y2, the furnace control CPU will transition to or bring on
the blower motor BLWM at cooling airflow, tow=heat airflow, or
the midrange airflow, whichever is the lowest. The blower motor
BLWM will remain on until the main burners ignite, then shut OFF
and remain OFF for 25 seconds befbre coming back on at heating
airflow. When the W/W1 input signal disappears, the furnace
control begins a normal inducer post=purge period while changing
the blower airflow. If YY2 input is still energized, the furnace
control CPU will transition the blower motor BLWM airflow to
cooling airflow. If Y/Y2 input signal disappears and the Y 1 input
is still energized, the furnace control CPU wil! transition the
blower motor BLWM to low-cooling airflow. If both the Y1 and
YY2 signals disappear at the same time, the blower motor BLWM
will remain on at low-heat airflow ibr d-_e selected blower-OFF
delay period. At the end of the blower=OFF delay, the blower
4O

motor BLWM will shut OFF unless O is still energized, in which
case the blower motor BLWM will operate at continuous blower
airflow.
( OMPONENT TEST
The t\_rnace features a component test system to help diagnose a
system problem in the case of a component failure. To initiate the
component test procedure, ensure that there are no them_ostat
inputs to the control and all time delays have expired. Turn on
setup switch SW1-6 (See Fig. 32.)
NOTE: The component test feature will not operate if the control
is receiving any thermostat signals or until all time delays have
expired.
The component test sequence is as fbllows:
a. The furnace control CPU tn*ns the inducer motor IDM ON
at medium speed and keeps it ON through step c.
b. After waiting 15 seconds, the furnace control CPU rams
the hot surface igniter ON fbr 15 seconds, then OFF.
c. The furnace control CPU then turns the blower motor
BLWM ON at midrange airflow fbr 15 seconds, then OFF.
d. After shutting the blower motor BLWM OFF, the I:urnace
colmol CPU shuts the inducer motor IDM OFF.
NOTE: The EAC terminals are energized when the blower is
operating.
After the component test is completed, 1 or more stares codes (11,
25, 41, or 42) will flash. See Smwice Label on blower access panel
or Service/Stares (ode Instructions fbr explanation of stares codes.
NOTE: To repeat component test, turn setup switch SWI=6 to
OFF and then back ON.
Step g--Adiustments
SET GAS INP[T RATE
Furnace gas input rate on rating ptate is for installations at altitudes
up to 2000 It.
In the [ .S.A, the input rating for altitudes above 2000 ft must be
reduced by 2 percent fbr each 1000 ft above sea tevel
In Canada, the input rating must be derated by 5 percent for
altitudes of 2000 ft to 4500 ft above sea level.
Adjust manifold pressure to obtain input rate.
Furnace input rate n-rest be within _+2 percent of input rate on
furnace rating plate
1. Detem_ine natural gas orifice size and manifbld pressure for
correct input
a Obtain ave*age heat value (at installed altitude) from tocal
gas supplier.
b. Obtain ave*age specific gravity from tocal gas supplie*
c Verii}' fire, ace model. Table 11 can only be used fbr model
58MVP Furnaces
d. Find installation ahimde in Table 11.
NOTE: For Canadian altitudes of 2000 to 4500 It, use USA
altitudes of 2001 to 3000 ft in Table 11.
e Find closest natural gas heat value and specific gravity in
Table 11.
f_ Follow heat value and specific gravity lines to point of
intersection to find orifice size and low= and high=heat
manifbld pressure settings for proper operation
41
EXAMPLE: (0 2000 ff altitude)
Heating value 1050 Btuicu ft
Specific gravity 0.62
Therefore: Orifice No. 45
Manifold pressure: 3%in. wc fbr high heat
16-in wc fbr tow heat
* Furnace is shipped with No. 45 orifices In this example,
all main burner orifices are the correct size and do not need
to be changed to obtain proper input rate.
g (heck and verif) burner orifice size in furnace. NEVER
ASSUME ORIFI(E SIZE; ALWAYS CHECK AND
VERIFY.
2Adjust manifold pressure to obtain input rate
a Remove burner enclosure fl'ont
NOTE: Manifbld pressure MUST always be measured with the
burner box cover REMOVED.
b Remove regulator seal caps that conceal adjustment screws
fbr low- and high-heat gas valve regulators. (See Fig. (52)
c Move setup switch SWI°2 on cont*ol center to ON posi-
tion. (See Fig. 32.) This keeps fire, ace locked in low-heat
operation.
d. Jumper R and W/W1 thermostat connections on control to
start furnace,
e Turn low=heat adjnsting screw (3/32) hex Allen wrench)
counterclockwise (out) to decrease input rate or clockwise
(in) to increase input rate.
NOTE: DO NOT set tow=heat manifbld pressure less than 1.3-in.
wc or more than 1.7-in. wc tbr natural gas. If manitbld pressure is
outside this range, change main burner orifices to obtain manifPld
pressure in this range.
_' . e IR
DO NOT bottom out gas valve regulator a_[iusting screw.
This can result in unregulated manifPld pressure and result in
excess overfire and heat exchanger f_ilures.
NOTE: If orifice hole appears damaged or it is suspected to have
been redrilled, check orifice hole with a numbered &ill bit of
con'ect size. Never redrill art orifice. A burr-free and squarely
aligned orifice hole is essential for proper flame characteristics.
f\ Move setup switch SWI-2 to OFF position after completing
low-heat adjustment.
g. Jumper R and W/W1 and W2 thermostat connections on
fhmace control. (See Fig. 32.) This keeps I:urnace locked in
high=heat operation
h Turn high-heat adjusting screw (5/64 hex Allen w*ench)
counterclockwise (out) to decrease input rate or clockwise
(in) to increase rate.
NOTE: DO NOT set high=heat mani%1d pressure less than 3.2-in.
we or more than 3 8-in. wc fbr natural gas If manifbld pressure is
outside this range, change main burner orifices to obtain manifPld
pressures in this range.
i When con'ect input is obtained, replace caps that conceal
gas valve regulator adjustment screws Main burner flame
should be clear blue, almost transparent. (See Fig 640
jRemove jumpers R to WiWI and R to W2
3 Verify natural gas input rate by clocking gas meter.
NOTE: Be sm'e all pressure robing, combustion-air and vent
pipes, and burner enclosure f?ont are in place when checking input
by clocking gas meter.

THERMIDISTAT TWO-STAGE SINGLE-SPEED THERMIDISTAT TWO-STAGE SINGLE-SPEED
FURNACE AIR CONDITIONER FURNACE HEAT PUMP
HEAT STAGE 2
N/A
HEAT STAGE 1
COOL STAGE 1
FAN [_
24 VAC HOT [_
DEHUMIDIFY [_
24 VAC COMM [_
HUMIDIFY [_
N/A
OUTDOOR
coS_S°,%_[2_
NOTE 11
[_ HUM
HUMIDIFIER
(24 VAC)
See notes 2, 5, 7, 10, and 11
A00275
Fig. 54_Two-Stage Furnace with Single-Speed Air
Conditioner
RVSCOOLING_
HEATSTAGE3
(FURNACEHi)_
HEAT STAGE 2 [_
(FURNACE LO)
HEAT/COOL STAGE 1
(COMPRESSOR)
FAN [_
24 VAC HOT [_
DEHUMIDIFY
24 VAC COMM [_
HUMIDIFY
N/A [_
OONNEDT'ON_[2_
NOTE11
[Z2_
[_ HUM
/.........
_[ HUMIDIFIER ........../ 4VAC/I
_/_c [ OUTDOOR _,,
SENSOR
See notes 1, 2, 4, 6, 7, 9,10,11, and 15
A00277
Fig. 56--Two-Stage Furnace with Single-Speed Heat
Pump (Dual Fue{)
THERMIDISTAT TWO-STAGE TWO-SPEED
FURNACE AIR CONDITIONER
HEAT STAGE 2
COOL STAGE 1
HEAT STAGE t
COOL STAGE 2
FAN [_
24 VAC HOT [_
DEHUMIDIFY [_
24 VAC COMM [_
HUMIDIFY
N/A [_
Os_00__
DONNEOT,ON
NOTE11
NOTE12
_ HUM "'"-. .............
_ / HUMIDIFIER .....
...... 4VAC, i
OUTDOOR
SENSOR
See notes 2, 5, 8,10, I1, and 12
A00276
Fig. 55--Two-Stage Furnace with Two-Speed Air Con-
ditioner
THERMIDISTAT TWO-STAGE TWO-SPEED
FURNACE HEAT PUMP
RVS COOLING
HEA(_CMOpQRLSslAGLEo1)_ ....... [_
HEA_FSTAGEE3 _ ...... _ ......
NEAT/COOLSTAGE2_ "fiTE_2 _ .....
(COMPRESSORHI)
FAN[_ ......................[_
_VACHO_[_ ..........[_
DEHOM'D'FY_..........................
_4MAOOOMM[2_ ............. [_:
HUMIDIFY
N/A [_
OUTDOOR_1:_
coS_Sc°,_o,l_
[_ HUM
............... HUMIDIFIER(24VAC)
See notes 1,2, 3, 4, 6, 8, 9, t0,12,13, and 15
A00278
Fig. 57--Two-Stage Furnace with Two-Speed Heat
Pump (Dual Fue{)
42

DUAL FUEL TWO-STAGE SINGLE-SPEED TWO-STAGE TWO-STAGE TWO-SPEED
THERMOSTAT FURNACE HEAT PUMP THERMOSTAT FURNACE AIR CONDITIONER
HEAT STAGE 2
(FURNACE LO)
HEAT/COOL STAGE 1
(COMPRESSOR)
FAN [_
24 VAC HOT [_
24 VAC COMM [_
N/A [_
RVS SENSING [_
o_o_R_
OONNECT,ON_
NOTE 11 [_
_ HUM
oo oOO s, so
See notes 1, 2, 4, 11, 14, 15, and 16
A00279
Fig. 58--Dual FuemThermostat with Two-Stage
Furnace and Single-Speed Heat Pump
NOTE 11
NOTE 12
E2_
[_ HUM
See notes 2, tl, and 12
A00281
Fig. 60--Two-Stage Thermostat With Two-Stage Fur-
nace and Two=Speed Air Conditioner
DUAL FUEL TWO-STAGE TWO-SPEED
THERMOSTAT FURNACE HEAT PUMP
RVS COOLING
HEA_c_o_OO_ESs_o_4_ .....................C_ ...............................
HEA_FS_C_E__ ..............._ ,,_
HEA_,cCOO_EST_o_,__ NOTE,__ ............................
FAN [_
24 VAC HOT [_ ................ [_
_4MACCOMM_..................._ ...............................
N_A[2_ BNUM
RVS SENSING [_
CONNECT,ON/_ .... See notes 1, 2, 3, 4, 12, 13,14, 15, and _00280
Fig. 59--Dual Fuel Thermostat With Two-Stage
Furnace and Two-Speed Heat Pump
S;NGLE-STAGE TWO-STAGE TWO-SPEED
THERMOSTAT FURNACE AIR CONDITIONER
] HUM
See note 2
A02348
Fig. 61--Single-Stage Thermostat With Two-Stage
Furnace and Two-Speed Air Conditioner
43

Notes for Fig. 54-61:
1. Heat pump MUST have a high pressure switch fbr dual fi/el applications,
2. Refer to outdoor equipment Installation Instn/ctions for additional infbrmation and setup procedure.
3. Select the "ZONE" position on the two=speed heat pump control.
4. Outdoor Air Temperature Sensor must be attached in all dual iq/el applications.
5. Dip switch No.1 on Thermidistat should be set in OFF position for air conditioner installations. This is f_ctolw deJitult.
6. Dip switch No. 1 on Them_idistat should be set in ON position for heat pump installations.
7. Dip switch No. 2on Them_idistat should be set in OFF position for single-speed compressor operation.
This is fhctow delimit.
8. Dip switch No. 2on Thermidistat should be set in ON position for two-speed compressor operation.
9. Configuration Option No. 10 "Dual Fuel Selection" must be turned ON in all dual 1:i/el applications.
10. NO connection should be made to the furnace HUM terminal when using a Thermidistat.
11. Optional connection. If wire is connected, dip switch SWI=2 on filrnace control should be set in ON position
to allow ThermidistatiThem_ostat to control furnace staging.
12. Optional connection. If wire is connected, ACRDJ jumper on Nrnace control should be removed to allow
Them_idistatiThem_ostat to control outdoor unit staging.
13. Furnace must control its own high°stage heating operation via fm'nace control algorithm This is Pactory del:ault.
14. The RVS Sensing terminal "L" should not be connected This is internally used to sense defrost operation
15. DO NOT SELECT the "F[ RNACE INTERFACE" or "BALANCE POINT" option on the two-speed heat pump
control board, This is controlled internally by the Them_idistatiDual Fuel The*mostat.
16. Dip switch D on Dual Fuel Thermostat shoutd be set in OFF position fbr single-speed compressor operation
This is f_cto W defitult
17. Dip switch D on Dual Fuel Thermostat shoutd be set in ON position for two-speed compressor operation,
44

c
c
C
c
<:
¢q.
c
o
<:
¢q.
c
o
<:
¢o
TABLE 11 - ORBFmCE B{ZE* AND MANIFOLD PRESSURES FOR GAS iNPUT RATE
(TABULATED DATA BASED ON 20,000 BTUN HIGH-HEAT / 13,000 BTUH LOW-HEAT PER BURNER,
BERATED 2%/t000 FT ABOVE SEA LEVEL)
ALTITUDE AVG, GAB
RANGE HEAT VALUE
AT ALTITUDE
(ft) (Btu/cu it)
900
925
0950
975
to 1000
t025
2000 t050
t075
1100
U,S,A 800
Altitudes 825
2001 850
to 3000 875
or 900
Canada 925
Attitudes 950
2001 075
to 4500 1000
775
3001 800
825
to 850
875
4000 900
925
950
750
4001 775
800
to 825
850
5000 875
000
025
725
5001 750
775
to 800
825
6000 850
875
900
675
6001 700
725
to 750
775
7000 800
825
85O
SPECIFIC GRAVITY OF NATURAL GAS
0,58 0,60
Orifice MnfldPress Orifice Mrffid Press
No. High/Low No. High/Low
43 3.5 /1.5 43 3.6 /1.5
44 3.8 /1.6 43 3.5 /1.5
44 3.6 /1.5 44 3.8 /1.6
44 3.4 /1.5 44 3.6 /1.5
44 3.3 /14 44 3.4 /1.4
45 3.8 /t.5 44 3.2 /1.4
45 3.5 /1,5 45 3.7 t1.5
45 3.4 /t.4 45 3.5 /1.5
45 3.3 /t,4 45 3.4 /1.4
43 3.8 /16 42 3.2 /1.4
43 3.6 /15 43 3.7 /1.6
43 3.4 /1.4 43 3.5 /1.5
44 3.7 /1.5 44 3.8 /1.6
44 3.5 /1.5 44 3.6 /1.5
44 3.3 /14 44 3.4 /1.4
45 3.7 tt,5 44 3.2 /1.4
45 3.5 /1,5 45 3.7 t1.5
45 3,4 t1.4 45 3,5 /1,5
43 3.7 /1.6 42 3.2 /1.3
43 3.5 /1.5 43 3.6 /1.5
44 3.8 /1.6 43 3.4 /1.4
44 3.6 /1.5 44 3.7 /1.6
44 3.4 /1.4 44 3.5 /1.5
44 3.2 /1.3 44 3.3 /1.4
45 3.7 /1.5 45 3.8 t1.5
45 3.5 /t,5 45 3.6 /1.5
43 3.7 /16 43 3.8 /1.6
43 3.5 /15 43 3.6 /1.5
44 3.7 /16 43 3.4 /1.4
44 3.5 /15 44 3.6 /1.5
44 3.3 /14 44 3.4 / 1.4
45 3.8 /1.6 44 3.2 /1.4
45 3.5 /t,5 45 3.7 t1.5
45 3.4 /1.4 45 3.5 / '1.5
43 3.6 /15 43 3.8 /1.6
43 3.4 /14 43 3.5 /1.5
44 3.7 /15 44 3.8 /1.5
44 3.4 /1.5 44 3.6 /1.5
44 3.2 /14 44 3.3 /1.4
45 3.7 t1,6 45 3.8 / 1.5
45 3.5 /t,5 45 3.6 t1.5
45 3.3 /1,4 45 3.4 t1.4
42 3.2 /1.3 42 3.3 /1.4
43 3.6 /1.5 43 3.7 /1.6
44 3.8 /1.6 43 3.5 /1.5
44 3.6 /1.5 44 3.7 /1.6
44 3.4 / 14 44 3.5 / 1.5
45 3.8 /1.6 44 3.3 /1.4
45 3.5 /t.5 45 3.7 /1.6
45 3,4 tt.4 45 3,5 /1,5
0.62 0.64
Orifice Mnfld Press Orifice Mnfld Press
No High/Low No. High/Low
43 3.8 /1.6 42 32 /1.3
43 3.6 /1.5 43 37 /1.6
43 3.4 /1.4 43 35 /1.5
44 3.7 /1.6 44 38 /1.6
44 3.5 /1.5 44 35 /1.5
44 3.3 /1.4 44 34 /1.5
45 3.8 /1.5 44 33 /1.4
45 3.7 /1.5 45 3.8 /1.6
45 3.5 t1.5 45 3,6 /1.5
42 3.3 /1.4 42 35 /1.5
43 3.8 /1.6 42 32 /1.4
43 3.6 /1.5 43 37 /1.6
43 3.4 /1.4 43 35 /1.5
44 3.7 /1.6 44 38 /1.6
44 3.5 /1.5 44 35 /1.5
44 3.3 /1.4 44 34 /1.4
45 3.8 / 1.6 44 32 /1.4
45 3.6 /1.5 45 3.7 /1.6
42 3.3 /1.4 42 34 /1.4
43 3.8 /1.6 42 32 /1.3
43 3.5 /1.5 43 37 /1.5
44 3.8 /1.6 43 34 /1.5
44 3.6 /1.5 44 37 /1.6
44 3.4 / 1.4 44 35 / 1.5
44 3.2 / 1.4 44 33 / 1.4
45 3.7 /1.6 45 3,8 / 1.6
42 3.2 / 1.4 42 33 /1.4
43 3.7 /1.6 43 38 /1.6
43 3.5 /1.5 43 35 /1.5
44 3.7 /1.6 43 34 /1.4
44 3.5 /1.5 44 35 /1.5
44 3.3 /1.4 44 34 /1.5
45 3.8 /1.5 44 32 /1.4
45 3.6 /1.5 45 3,7 / 1.6
42 3.2 /1.4 42 33 /1.4
43 3.6 /1.5 43 38 /1.6
43 3.4 /1.4 43 35 /1.5
44 3.7 /1.6 44 38 /1.6
44 3.4 /1.5 44 35 /1.5
44 3.2 /1.4 44 34 /1.4
45 3.7 /1.5 45 3.8 11.6
45 3.5 /1.5 45 3.6 t1.5
42 3.4 / 1.4 42 35 /1.5
43 3.8 /1.6 42 33 /1.4
43 3.6 /1.5 43 37 /1.6
44 3.8 / 1.6 43 35 /1.5
44 3.6 /1.5 44 37 /1.6
44 3.4 /1.4 44 35 /1.5
45 3,8 t1,6 44 33 /1.4
45 3.6 t1.5 45 3,7 !1.6
* Orifice numbers showr_ in BOLD are factory-installed
45

TABLE li -ORIFICE SBZE* AND MANIFOLD PRESSURES FOR GAS mNPUT RATE
(TABULATED DATA BASED ON 20,000 BTUH HIGH-HEAT/13,000 BTUH LOW-HEAT PER BURNER,
BERATED 2%!1000 FT ABOVE SEA LEVEL)
ALTITUDE
RANGE
(ft)
700i
c
o to
8000
>, 800i
"E
0
< to
9000
-_ 900i
c
o
<. to
i0000
AVG. GAS
HEAT VALUE
AT ALTITUDE
(Btu/cu ft)
650
675
700
725
750
775
800
825
625
650
675
700
725
750
775
600
625
650
675
700
725
SPECIFIC GRAVITY OF NATURAL GAS
0.58 0.60
Orifice Mnfld Press Orifice Mnfld Press Orifice
No. High/Low
43 3.8 /1.6
43 3.5 /1.5
44 3.8 /1.6
44 3.5 /1.5
44 3.3 /1.4
45 3.7 /i.6
45 3.5 t1.5
45 3.3 / 1.4
43 3.8 /1.6
43 3.5 /1.5
44 3.7 /1.6
44 3.5 / 1.5
44 3.2 /1.4
45 3.7 /i.5
45 3.4 / 1.5
43 3.8 /1.6
43 3.5 /1.5
44 3.7 / 1.6
44 3.4 /1.4
44 3.2 /1.3
45 3.6 /1.5
0.62
Mnfld Press
No. High/Low No. High/Low
42 3.2 /1.4 42 34 /1.4
43 3.7 /1.6 43 38 /1.6
43 3.4 /1.4 43 35 /1.5
44 3.6 / 1.5 44 38 / 1.6
44 3.4 /1.4 44 35 / 1.5
44 3.2 /1.3 44 33 /1.4
45 3.6 / i.5 45 3.7 ti.6
45 3.4 t1.4 45 3,5 /1.5
42 3.2 / 1.4 42 33 / 1.4
43 3.6 /1.5 43 38 /1.6
43 3.4 /1.4 43 35 /1.5
44 3.6 /1.5 44 37 /1.6
44 3.4 / 1.4 44 35 / 1.5
45 3.8 t1.8 44 32 /1.4
45 3.6 / 1.5 45 3.7 / 1.6
42 3.2 /1.4 42 33 / 1.4
43 3.6 /1.5 43 37 /1.6
44 3.8 /1.6 43 34 /1.5
44 3.5 / 1.5 44 37 / 1.5
44 3.3 / 1.4 44 34 /1.4
45 3.7 / 1.6 45 3.8 t1.6
0,64
Orifice Mnfid Press
No. High/Low
42 35 /1.5
42 32 /1.4
43 36 /1.5
43 34 /1.4
44 36 /1.5
44 34 /1.4
44 32 /1.4
45 3,6 / 1.5
42 34 /1.5
42 32 /1.3
43 36 /1.5
44 38 /1.6
44 36 /1.5
44 33 /1.4
45 3,8 / 1.6
42 34 /1.4
43 38 /1.6
43 36 /1.5
44 38 /16
44 35 /15
44 33 /1.4
* Orifice numbers shown in BOLD are factory-installed
4d

INLET
PRESSURE
TAP
ONtOFF
SWITCH ADJUSTMENT
ALLEN SCREW
(UNDER CAP)
ADJUSTMENT
ALLEN SCREW
(UNDER CAP)
ENCLOSURE
REFERENCE
PRESSURE TAP MANIFOLD
PRESSURE
TAP
A97386
Fig. 62--Redundant Automat{c Gas Valve
BURNER FLAME
MANIFOLD J
A89020
Fig. 64_Bumer Flame
Table 12--Altitude Derate Multiplier for U.S.A.
ALTITUDE % OF DERATE MULTIPUER
{FT} DERATE FACTOR FOR U.S.A.*
0--2000 0 1.00
2001--3000 4--6 0.95
3001--4000 6--8 0.93
4001--5000 8--10 0.91
5001--6000 10--12 0.89
6001--7000 12--14 0.87
7001--8000 14--16 0.85
8001--9000 16--18 0.83
9001--10,000 18--20 0.81
* Derate multiplierfactorb based on midpointaltitude _raltituderange.
r--- BURNER A
_ ORIFICE
A93059
Fig. 83--Burner Orifice
DO NO]: re&ill orifices Improper drilling (burrs, ont-oi:
ronnd holes, etc,) can cause excessive burner noise and
misdirection of burner flanles 7his will result in flame
impingement of burners and heat exchangers, causing f3il°
ures. (See Fig. 630
a Calculate high-altitude adjustment (if required),
UNITED STATES
At altitudes above 2000 ft, this _ilrnace has been approved
for a 2percent derate %r each 1000 J:'tabove sea level. See
Table 12 %r derate multiplier _hctor and example
_=XAMPLE: I00,000 BTUN NIGH-NEAT INPUT FURNACE
INBTALL'_D AT 4300 FT.
Derate Furnace Input Rate
Furnace Input Rate X Multiplier = at Installation
at Sea Leve_ Factor ANtude
t00,000 X 0.91 = 91,000
47
CANADA
At installation altitudes J:i"om 2000 to 4500 ft, this furnace
must be derated 5 percent by an authorized Gas ( onversion
Station or Dealer To determine correct input rate £_r
altitude, see example above and use 095 as derate multi-
plier fitctor.
b Reinstall burner box cover.
NOTI::: Clocking gas input rate MUST always be per%treed with
the burner box cover INSTALLED
c Check that gas valve adjustment caps are in place %r
proper input to be clocked
d Obtain average heat value (at altitude) fiom local gas
supplier.
NOTI::: Be sure heating value of gas used fbr calculations is
correct for your altitude Consult local gas utility for altitude
adjustment of gas heating value
e Check and veriJ:)- orifice size in furnace. NEVER ASSUME
THE ORIFICE SIZE ALWAYS CHECK AND VERIFY.
i\ Turn off all other gas appliances and pilots.
g. Move setup switch SWI-2 to ON position. (See Fig 32)
This keeps fire, ace locked in tow-heat operation.
h Jumper R to W/W1
i Let f_/mace run for 3 minutes in tow-heat operation,
j Measure time (in sec) for gas meter to complete 1 revolu-
tion. Note reading.
k. Reikr m Table 13 for cubic ft of gas per hr.
1. Multiply gas rate cu ftihr by heating value (Bmicu ft).

m MovesetupswitchSW1-2toOFFpositionandjmllperR
andWiWlandW2tl-iermostatconnections.(SeeFig32.)
Thiskeepsfurnacelockedinhigh-heatoperationRepeat
itemsi through1tbrhigh-heatoperation.
EXAMPLE:(High=heatoperationat0 2000 ft altitude)
Furnace input from rating plate is 100,000 Bmh
Btu heating input Btuicu fi X cu ft&r
Heating value of gas 975 Bmicu ft
Time for 1 revolution of 2=cu fi dial 70 sec
Gas rate 103 cu ftihr (from Table 13)
Btu heating input 103 X 975 100,425 Bmh In this
example, the orifice size and manifold pressure adjustment
is within _+2 percent of the I:umace input rate.
NOTE: Measured gas inputs (high heat and tow heat) must be
within _+2 percent of that stated on furnace rating plate when
installed at sea level or derated per that stated above when installed
at higher altitudes
n. Remove jumper across R, WiWl, arid W2 thermostat
connections to terminate call for heat.
TaNe 13--Gas Rate Cu Ft/Hr
SECONDS
FOR 1 1 2
REVOLUTION cu fl cu
10 360 720
11 327 655
12 300 600
13 277 555
14 257 514
15 240 480
16 225 450
17 212 424
18 200 400
19 189 379
20 180 360
21 171 343
22 164 327
23 157 313
24 150 300
25 144 288
26 138 277
27 133 267
28 129 257
29 124 248
30 120 240
31 116 232
32 113 225
33 109 218
34 106 212
35 103 206
36 100 200
37 97 195
38 95 189
39 92 185
40 90 180
41 88 176
42 86 172
43 84 167
44 82 164
45 80 160
46 78 157
47 76 153
48 75 150
49 73 147
SIZE OF TEST DiAL SECONDS SIZE OF TEST DiAL
125
cu fl cu fl cu fl
72 144 360
71 141 355
69 138 346
68 136 340
67 133 333
65 131 327
64 129 321
63 126 316
62 124 310
61 122 305
60 120 300
58 116 290
56 112 281
54 109 273
53 106 265
51 103 257
50 100 250
48 97 243
47 95 237
46 92 231
45 90 225
44 88 220
43 86 214
42 84 209
41 82 205
40 80 200
39 78 196
38 76 192
38 75 188
37 74 184
36 72 180
35 71 178
35 69 173
34 68 170
33 67 167
33 65 164
32 64 161
31 62 155
30 60 150
5 FOR 1
cu R REVOLUTION
1800 50
1636 51
1500 52
1385 53
1286 54
1200 55
1125 56
1059 57
1000 58
947 59
900 60
857 62
818 64
783 66
750 68
720 70
692 72
667 74
643 76
621 78
600 80
581 82
563 84
545 86
529 88
514 90
500 92
486 94
474 96
462 98
450 100
439 102
429 104
419 108
409 108
4OO 110
391 112
383 118
375 120
367
48
SET TEMPERATURE RISE
1
TelTlperature rise must be within limits specified oll unit
rating plate. Operation is within a few degrees of mi@oint of
rise range when setup switch SW1-4 is OFF. Failure to follow
this caution may result in overheating the heat exchangers or
condensing flue gas in heat exchanger areas not designed for
condensate.
Furnace must operate within ranges of temperature rise specified
on the furnace rating plate. Determine air temperature rise as
follows:
1. Place thermometers in return and supply ducts as near f:urnace
as possible. Be sure thern_on_eters do not see heat exchanger
so that radiant heat does not affect readings This practice is
particularly important with stlaight-run ducts.
2. When them_ometer readings stabilize, subtract return-air ten>
peramre from supply=air temperature to detem_ine air ten>
perature rise.
NOTE: Temperature rise can be determined for tow=heat opera-
tion by placing setup switch SWI=2 on fire, ace conUoi in ON
position For high=heat operation, place setup switch SW1-2 in
OFF position arid jumper R-W2 on furnace contlol. DO NOT
forget to return setup switch to OFF position and remove R=W2
jumper upon completion of testing. (See Fig. 32 for switch and
tem_inai location.)
3. This Nmace is capable of automatically providing proper
airflow to maintain d_e temperatme rise within the range
specified on fine, ace rating plate. If temperature rise is outside
this range, proceed as follows:
a. Check gas input for low- and high-heat operation.
b. (heck &rate for altitude if applicable.
c. (heck all return and supply ducts tbr excessive restrictions
causing static pressure greater than 0.5=in. wc.
d. Ensure Low Heat Rise Adjust switch SW1-3 on furnace
control is in ON position when a bypass humidifier is used.
(See Fig. 32 fbr switch location.)
e. Check Troubleshooting Guide for Variable-Speed 2=Stage
Electronic Condensing Furnaces Series 170 and later.
SET THERMOSTAT HEAT ANTICIPATOR
When using a non-electronic thermostat, the thermostat heat
anticipator must be set to match the amp draw of components in
the R=WiWl circuit. Accurate amp draw measurements can be
obtained only at the thermostat subbase terminals R and W.
The thermostat and anticipator should NOT be in d_e circuit while
measuring cmTent. If thermostat has no subbase, the tlaermostat
must be disconnected fi'om R and WiWI wires during current
nleasurement.
Fig. 65 illustrates an easy method of obtaining thermostat amp
draw measurements. The amp reading should be taken after blower
motor has started and Nmace is operating in low=heat.
1. To operate finl_ace in low-heat, mm setup switch SW1-2 to
ON position (See Fig. 32) and connect ammeter leads across
thermostat subbase R-W.
2. See thermostat manufhcturer's instructions for adjusting the
heat anticipator and for varying heating cycle length.
NOTE: When using an electronic them_ostat, set cycle rate for 3
cycles per hr.
3. Remm setup switch SW1-2 to OFF position and replace
thermostat on subbase,

TERMINALS WITH
THERMOSTAT REMOVED
(ANIT!CIPATOR, CLOCK, ETC.,
MUST BE OUT OF CIRCUIT.)
AMMETER
10 TURNS
FROM UNIT 24-V
CONTROL TERMINALS
EXAMPLE: 50 AMPS ON AMMETER = 0.5 AMPS FOR THERMOSTAT
10 TURNS AROUND JAWS ANTICIPATOR SETTING
A96316
Fig. 65--Amp Draw Check with Ammeter
Step 7--Check Safety Controls
This section covers the safety controls that must be checked be_bre
the installation is complete The flame sensor, gas valve, and
pressure switches were all checked in the Start-up procedure
section as part of nomaal operation.
CHECK PRIMARY LIMIT (ONTROL
This control shuts off the gas control system and energizes the
air-circulating blower motor if t'tu'nace overheats.
1. The recommended method of checking this limit control is to
gradually block off remm air after Nmace has been operating
£_r a period of at least 5 minutes.
2. As soon as limit control has shut off burners, a status code 33
will appear on furnace contlol.
3. The return-air opening should be unblocked to permit nomaal
air circulation.
By using this method to check the limit control, it can be
established that the limit is functioning properly and the furnace
will operate sa_?ly if there is a restricted return-air duct or motor
failure. If the limit control does not _hnction during this test, the
cause must be detemained and corrected.
CHECK PRESSURE SWITCHES
This control proves operation of the &aft inducer Check switch
operation as _bllows:
1 Turn off ll5-v power to fk/mace.
2Remove control access door and disconnect inducer motor
12=pin wire harness at inducer motor
3 Tufa on 115=v power to furnace
4 Set d'*em_ostat to "call _br heat." When pressure switches are
fhnctioning properly, stares code 42 will flash on t:m'nace
control approximately 20 sec after them_ostat switch is closed.
If either a status code 31 or 32 is flashed when inducer motor
is disconnected, the t_urnace will shut itself down immediately.
Detem_ine the reason pressure switches did not flmction
properly and cot_'ect the condition.
5. Turn off 115=v power to _hrnace.
6. Reconnect inducer motor wire harness. Reinstall furnace
access door.
7. Turn on 115-v power to furnace.
8Reset them_ostat to desired temperature
CHECKLIST
1 Put away tools and instruments (lean up debris.
2Verify flame rollout manual reset switch has continuity.
3. Verii) that blower and main access doors are properly
installed.
4 (ycle test _i/rnace with room thermostat.
5 (hock operation of accessories per manul:acturer's instruc-
tions
6. Review User's Manual with owner.
7. Leave literature packet near furnace.
49

CH ECKLmST--BNSTALLATION
LOAD CALCULATION
Heating Load (Btuh)
Cooling Load (Btuh)
Furnace Model Selection
COMBUSTION AND VENT PIPING
Termination Location
Roof or Sidewalt
Termination Kit -- 2 Pipe or Concentric
Combustion-Air Pipe Length
Combustion-Air Pipe Elbow Quantity
Vent Pipe Length
Vent Pipe Elbow Quantity
Pipe Diameter Determined from Sizing Tabte
Pipe Sloped To Furnace
Pipe Insulation
Over Ceitings
Low-Ambient Exposed Pipes
Condensate Brain
Unit Level or Pitched Forward
Internal Tubing Connections Free of Kinks
and Traps
External Drain Connection Leak Tight and
Sloped
Condensate Trap Primed before Start-Up
Heat Tape Installed if Required
CBECKMBT--BTARToUp
Gas Input Rate
(Set Within 2 percent of Rating Plate)
Temperature Rise Adjusted
Thermostat Anticipator
Anticipator Setting Adjusted or
Cycle Rate (3 Cycles per Hr) Selected
Safety Controls Cheek Operation
Primary Limit
Pressure Switches
5O

5i

Copyright 2004 CARRIER Corp., 7310 W. Morris St • Indianapolis, IN 46231 58mvp13si
Manufacture_ reserves the right to discontinue, or change at any time, specifications or designs without notice and without incurring obligations,
B°°kLL_. PC 101 Catalog No 535-80110 Pd_ted in U.S.A. Form 58MVP-13SI Pg 52 1-04 Replaces: 58MVP-12SI
Tab 16al 8a