Carrier 30Hr Product Data ManualsLib Makes It Easy To Find Manuals Online!
2014-12-12
: Carrier Carrier-30Hr-Product-Data-119361 carrier-30hr-product-data-119361 carrier pdf
Open the PDF directly: View PDF
.
Page Count: 36

The Flotronic™ Plus Chiller Com-
bines These Extra-Performance Fea-
tures for Increased Energy Savings:
• microprocessor-based control
system
• electronic expansion valve
• increased part-load efficiency
• multiple compressors — extra ca-
pacity steps
Features/Benefits
30HR,HS units are designed
for easy installation and
maintenance
Starting with installation, these ma-
chines keep costs low. Each is
completely factory engineered and
assembled to ensure a perfectly bal-
anced refrigeration system that can be
installed with minimal field labor.
Only external fluid and power connec-
tions need to be completed at the
jobsite to make the fluid-cooled (30HR)
units operational. Condenserless (30HS)
units require the addition of a remote
condenser.
The 30HR model is a packaged
unit complete with cooler, condensers,
compressors, controls, refrigerant
and oil charge, and internal piping and
wiring. The 30HS unit is a condens-
erless version of the basic 30HR,
shipped with a holding charge of refrig-
erant and specially designed for ap-
plications with remote fluid- or
air-cooled, or evaporative type, con-
densers. All the easy-rigging 30H
series chillers are extremely trim and
compact. They can pass easily
through standard doorways, and re-
quire minimal floor space on the job.
Product
Data
30HR,HS
Model E
Reciprocating Liquid Chillers
Nominal Capacities:
70 to 160 Tons (250 to 560 kW)
Copyright 1994 Carrier Corporation Form 30HR,HS-4PD
Rated in accordance with
ARI Standard 590-92.

Additional features ensure smooth,
trouble-free operation. Compres-
sors are mounted on heavy-duty spring
vibration isolators to minimize poten-
tially damaging vibration transmis-
sion to the building structure. Sound-
deadening mufflers dampen hot gas
pulsations. Servicing is made easy by
bolted, readily-accessible semi-hermetic
compressors that can be removed
with minimal field labor when adjust-
ments or repairs are needed.
Flotronic™ Plus control sys-
tem regulates the refriger-
ant cycle for optimum
efficiency
The 30HR,HS Flotronic Plus chillers
feature an electronic expansion valve
(EXV) operated by a microprocessor-
based control system. The system
monitors safety functions and controls
unit capacity to maintain leaving
chilled fluid temperature. The micro-
processor controls loading and un-
loading of compressors to match
changing cooling load requirements.
The control system consists of a
control box with a keypad and display
module, an EXV for each refrigera-
tion circuit, and thermistors (tempera-
ture sensors) which provide analog
inputs to the microprocessor. The
control also operates a quick test pro-
gram to check input and output sig-
nals to and from the microprocessor.
The 30HR,HS control system is self
contained and can operate on a
stand-alone basis if desired.
Components
The control box — All the
microprocessor-based controls re-
quired to optimize chiller operation
and protect it against unsafe con-
ditions are contained in the control
box. This includes the processor mod-
ule, relay module, EXV driver mod-
ule, keypad and display module, relays,
and transformers. The box has a
hinged door for ready access.
The EXV driver — The driver posi-
tions the EXVs (based on commands
from the microprocessor) and
monitors the status of the oil and
refrigerant pressure switches.
The keypad and display module
—This module consists of a key-
pad with 11 function keys and 12 nu-
meric keys (0 to 9,.,-)andan
alphanumeric 8-character liquid crystal
display. The module allows the op-
erator to perform the following
functions:
• read and change set point
• configure unit
• run quick test unit checkout
• observe diagnostic information
• schedule chiller operation
Control features
Leaving fluid temperature control
with return compensation —
The rate at which the compressors
are turned on will depend on the dif-
ference between the actual leaving
fluid temperature and the set point,
the rate of change of leaving fluid
temperature, the return fluid tempera-
ture, and the number of compressor
stages on. The control is primarily
from leaving fluid temperature, and
the other factors are used as compen-
sation. Because the control operates
from leaving fluid, the chiller is in-
dependent of cooling gpm (L/s). It is a
true droopless control.
Return temperature reset — The
control system is capable of han-
dling leaving fluid temperature reset
based on return cooler temperature.
Because the change in temperature
through the cooler is a measure of the
building load, the return temperature
reset is in effect an average build-
ing load reset method. All sensors re-
quired to activate return reset are
standard with the unit.
Space and outdoor-air tempera-
ture reset — Space temperature
reset and outdoor-air temperature
reset allow for the reset of the leaving
fluid temperature based on an exter-
nal temperature sensor. (Accessory
thermistor required.)
Energy management system reset
—Many energy management sys-
tems have the capability to transmit a
4 to 20 mA signal in proportion to
the desired leaving chilled-fluid set
point. The Flotronic Plus chillers have
the ability to recognize a propor-
tioned signal to establish the reset
condition (field-installed components
are required).
Remote alarm — Upon initialization
of an alarm condition, an internal
contact will close to activate a signal
suitable for remote alarm activation.
Load shed (demand limit) — A
2-step demand limit can be pro-
grammed through the Flotronic Plus
controls. The control limits total power
draw of the unit by controlling the
number of steps of capacity operating
during the demand limiting period.
Pulldown control — Pulldown con-
trol is used to minimize compressor
usage and reduce the peak kW that
occurs at start-up, when the cooler
fluid temperature is very warm but the
load is small. When activated, this
feature limits the pulldown rate to
1° F (.56° C) per minute.
Unit checkout (quick test) — The
quick test feature allows determination
of the status (on or off) of various
Flotronic Plus control components (i.e.,
solenoid valves, compressors, and
unloaders). When the unit is in standby
mode, these steps will energize these
components and indicate whether
or not the components are operational.
Diagnostics — The Flotronic Plus
control system features extensive self-
diagnostics as standard. The display
will show a 2-digit diagnostic code,
and will scroll an explanation of the
code for failures that cause the unit to
shut down, terminate a reset option,
or use a default value as set point.
Time schedule — The Flotronic Plus
control system has an integral func-
tion that allows scheduling of the cir-
culating pump and chiller operation
for up to 8 occupied/unoccupied peri-
ods per schedule, with 7 different
schedule days.
Table of contents Page
Features/Benefits ........................................ 1-4
Model Number Nomenclature ............................... 4
Physical Data ........................................... 5-8
Accessories (Field Installed) ................................. 9
Base Unit Dimensions .................................... 10-12
Application Data ........................................13-16
Selection Procedure ....................................... 17
Performance Data .......................................18-28
Electrical Data ............................................29
Typical Field Control Wiring ..................................30
Controls ............................................... 31
Typical Piping and Wiring ................................... 32
Guide Specifications ......................................33-36
2

Increased part-load perfor-
mance reduces operating
costs
Multiple compressors — Multiple
compressors on a refrigerant cir-
cuit further enhance part-load effi-
ciency. This allows compressor to
operate fully loaded with 100% of
cooler and condenser surface active at
50% unit capacity, optimizing evapo-
rating and condensing temperatures.
Since the chiller normally works at
part load for 97% of its operating
time, a substantial reduction in operat-
ing cost can be realized.
Suction cutoff unloading — Un-
loading on 06E compressors eliminates
unnecessary pumping of refrigerant
gases during unloader operation. This
substantially reduces part-load power
consumption.
Liquid refrigerant subcooling —
Integral subcooler uses coldest
condenser fluid to increase system
capacity without extra horsepower.
CONTROL PANEL
1—Compressor ON Lights
2—Alarm Light
3—Keypad and Display
Module
4—RUN/STANDBY
Switch
5—Control Circuit Fuses
6—Control Power ON
Light
–
KEYPAD AND DISPLAY
MODULE ELECTRONIC EXPANSION
VALVE (EXV)
SUBCOOLER
06E COMPRESSOR
3

Features/Benefits (cont)
Safety features provide
protection and increase
reliability
Auto. lead/lag control — Control
balances operating hours between
refrigerant circuits.
Standby protection — If a malfunc-
tion or safety cutout occurs, these
2-circuit chillers have the capability for
standby operation. This benefit is
especially desirable in commercial ap-
plications where even brief equip-
ment shutdowns can be extremely
costly.
Electronic expansion valve (EXV)
—The EXV is controlled to main-
tain approximately 20 F (11 C) refrig-
erant superheat entering the
compressor cylinders. (Ordinary ther-
mostatic expansion valves typically
operate at 45 F [25 C] superheat
entering compressor cylinders.) Pre-
cise superheat control is obtained
through actuation of the 760-step,
long-stroke,
3
⁄
4
-in. (19 mm) valve
positioner to ensure optimized refrig-
erant metering. The accurate refrig-
erant metering provided by the EXV
reduces compressor motor temperature
and extends motor life.
Filter drier — Refrigerant circuits are
kept free of harmful moisture and
contaminants by a factory-installed
filter drier.
Crankcase heater — The compres-
sor crankcase heater protects the
compressors against refrigerant migra-
tion and oil dilution.
Moisture-indicating sight glass —
Easy-to-read color indicator immedi-
ately shows moisture content of refrig-
erant system.
Oil pressure safety switch —
Safety switch shuts compressor(s) off if
the oil pressure drops below a safe
operating point.
Protection against single-phasing
—Manual reset, magnetic trip cir-
cuit breakers protect the compressor
motors against both overload and
single-phasing, and eliminate potential
problems before they become ser-
vice headaches.
Motor overtemperature protec-
tion — Servicing dollars are saved
because the compressor motors are
thoroughly protected against overheat-
ing by quick-sensing elements.
Other safeties — Additional safeties
include: Loss of refrigerant charge
protection, low fluid flow protection,
low chilled fluid temperature pro-
tection, low and high superheat pro-
tection, low oil protection for each
compressor circuit, and low con-
trol voltage (to unit) protection.
Thermistors — Six thermistors are
used for temperature sensing inputs to
microprocessor (a seventh may be
used as a remote temperature sensor
for space or outdoor-air tempera-
ture reset):
• Cooler leaving and entering (return)
chilled fluid temperature control
• Cooler saturation temperatures —
Circuit A and Circuit B
• Return gas temperatures entering
compressor cylinder —Circuit A
and Circuit B
• Remote temperature sensor
(accessory)
Model number nomenclature
NOTE: Refrigerant 134a is not available for these units.
These units are listed with Underwrit-
ers’ Laboratories (UL) and Cana-
dian Standards Association (CSA), and
these pressure vessels have ASME
(American Society of Mechanical
Engineers) certification.
UNDERWRITERS’
LABORATORIES ASME
‘U’ STAMP CANADIAN
STANDARDS
ASSOCIATION
4

Physical data — English
30HR,HS UNIT AND COMPRESSOR
UNIT 30HR,HS SIZE 070 080 090 100 110 120 140 160
APPROXIMATE OPERATING
WEIGHT (lb)* HR 4760 4945 5070 6436 6575 6714 7355 7775
HS 3305 3360 3420 4360 4420 4480 5065 5175
REFRIGERANT (R-22)
OPERATING CHG (lb)† HR 104 119 129 138 146 154 172 192
HS 15.3 15.3 15.3 21.0 21.0 21.0 27.0 27.0
COMPRESSOR 06E**
(Reciprocating,
Semi-Hermetic,
1750 rpm)
HR Ckt A 2150 A150 6175 A150 6175 F175 6175 A150 6175 F175 6175 F175 6299 F175 6299 F299
Ckt B 6175 6175 6175 6175 A150 6175 A150 6175 F175 6299 F175 6299 F299
HS Ckt A 2250 A250 6275 A250 6275 F275 6275 A250 6275 F275 6275 F275 6299 F275 6299 F299
Ckt B 6275 6275 6275 6275 A250 6275 A250 6275 F275 6299 F275 6299 F299
Capacity Control Steps
(see page 31) 66688888
Circuit Split, % Capacity Ckt A 57 62.5 67 50 55 50 50 50
Ckt B 43 37.5 33 50 45 50 50 50
CONDENSER PART NO. 09RP---
HR Ckt A 043 054 070 054 070 070 070 084
Ckt B 033 033 033 054 054 070 070 084
REFRIGERANT CONN. (in. ODM)
Liquid Line
HS
Ckt A
7
⁄
8
1
1
⁄
8
1
1
⁄
8
1
1
⁄
8
1
1
⁄
8
1
1
⁄
8
1
1
⁄
8
1
1
⁄
8
Ckt B
7
⁄
87
⁄
87
⁄
8
1
1
⁄
8
1
1
⁄
8
1
1
⁄
8
1
1
⁄
8
1
1
⁄
8
Discharge Line Ckt A 1
5
⁄
8
1
5
⁄
8
2
1
⁄
8
1
5
⁄
8
2
1
⁄
8
2
1
⁄
8
2
1
⁄
8
2
1
⁄
8
Ckt B 1
3
⁄
8
1
3
⁄
8
1
3
⁄
8
1
5
⁄
8
1
5
⁄
8
2
1
⁄
8
2
1
⁄
8
2
1
⁄
8
LEGEND
ODM — Outside Diameter Male
*Includes refrigerant operating charge.
†The 30HR unit is shipped with full operating charge; 30HS unit is shipped with holding charge only
(cooler operating charge shown — condenser and interconnecting piping charge must be added for
total system charge).
**Prefix (no. of unloaders): A, F = none; 2, 6 = one.
5

Physical data — English (cont)
COOLER
30HR,HS SIZE 070,080,090 100,110,120 140,160
COOLER PART NO. 10HA401--- 664 684 704
DIMENSIONS
OD (ft-in.) 1-
3
⁄
4
1- 4 1-4
Length (ft-in.)* 6-9 6-11 9-0
NET FLUID VOLUME (gal.)† 21.7 40.4 52.4
REFRIGERANT CIRCUITS 222
MAXIMUM DESIGN WORKING
PRESSURE (psig)
Refrigerant Side 235 235 235
Fluid (Shell) Side 300 300 300
FLUID CONN. (in.)
Inlet and Outlet 4** 5** 6**
Drain
3
⁄
4
FPT
3
⁄
4
MPT
3
⁄
4
MPT
*Between tube sheets.
†Includes nozzles.
**Victaulic-type water connections.
CONDENSER
CONDENSER PART NO. 09RP--- 033 043 054 070 084
DIMENSIONS
OD (in.) 10
3
⁄
4
12
3
⁄
4
12
3
⁄
4
12
3
⁄
4
14
Length (in.)* 67
1
⁄
2
77 83
3
⁄
8
95
1
⁄
4
83
NET FLUID VOLUME (gal.) 5.7 8.5 9.9 11.4 13.7
FLUID CONN. — in. diameter†
Inlet IPS** 2
1
⁄
2
3332
1
⁄
2
††
Outlet IPS** 2
1
⁄
2
333 4
FLUID PASSES 33333or6
MAXIMUM DESIGN WORKING Refrigerant Side — 385
PRESSURE (psig) Fluid Side — 250
LEGEND
IPS — Iron Pipe Size
OD — Outside Diameter
*Between tube sheets.
†On part no. 084 condensers, data is for 3-pass only. For 6-pass, inlet and outlet connections are 2
1
⁄
2
inches.
**Field welded (flange with weld stub provided for all connections).
††The 09RP084 has 2 inlet connections.
NOTES:
1. The 2
1
⁄
2
-in. and 3-in. condenser connections are equipped with slip-on flanges bolted to the condensers and
designed for field welding of field-supplied 2
1
⁄
2
-in. and 3-in. schedule 40 pipe.
The 4-in. condenser connections are equipped with welding neck flanges bolted to the condensers and designed
for field welding of field-supplied 4-in. schedule 40 pipe.
2. Standard 30HR,HS160 unit is supplied with 3-pass condensers. To convert from 3 to 6 pass, proceed as follows:
a. Remove 4-in. outlet flanges.
b. Cover 4-in. (09RP084) 3-pass condenser water outlets with blind flanges (field supplied).
3. Water outlet and inlet connections are rated according to ANSI/ASME B 16.5 (American National Standards
Institute/American Society of Mechanical Engineers) latest revision.
6

Physical data —SI
30HR,HS UNIT AND COMPRESSOR
UNIT 30HR,HS SIZE 070 080 090 100 110 120 140 160
APPROXIMATE OPERATING
WEIGHT (kg)* HR 2159 2243 2300 2919 2982 3045 3336 3527
HS 1499 1524 1551 1978 2005 2032 2297 2347
REFRIGERANT (R-22)
OPERATING CHG (kg)† HR 47 54 59 63 66 70 78 87
HS 6.9 6.9 6.9 9.5 9.5 9.5 12.2 12.2
COMPRESSOR 06E**
(Reciprocating,
Semi-Hermetic,
29.2 r/s)
HR Ckt A 2150 A150 6175 A150 6175 F175 6175 A150 6175 F175 6175 F175 6299 F175 6299 F299
Ckt B 6175 6175 6175 6175 A150 6175 A150 6175 F175 6299 F175 6299 F299
HS Ckt A 2250 A250 6275 A250 6275 F275 6275 A250 6275 F275 6275 F275 6299 F275 6299 F299
Ckt B 6275 6275 6275 6275 A250 6275 A250 6275 F275 6299 F275 6299 F299
Capacity Control Steps
(see page 31) 66688888
Circuit Split, % Capacity Ckt A 57 62.5 67 50 55 50 50 50
Ckt B 43 37.5 33 50 45 50 50 50
CONDENSER PART NO. 09RP---
HR Ckt A 043 054 070 054 070 070 070 084
Ckt B 033 033 033 054 054 070 070 084
REFRIGERANT CONN. (in. ODM)
Liquid Line
HS
Ckt A
7
⁄
8
1
1
⁄
8
1
1
⁄
8
1
1
⁄
8
1
1
⁄
8
1
1
⁄
8
1
1
⁄
8
1
1
⁄
8
Ckt B
7
⁄
87
⁄
87
⁄
8
1
1
⁄
8
1
1
⁄
8
1
1
⁄
8
1
1
⁄
8
1
1
⁄
8
Discharge Line Ckt A 1
5
⁄
8
1
5
⁄
8
2
1
⁄
8
1
5
⁄
8
2
1
⁄
8
2
1
⁄
8
2
1
⁄
8
2
1
⁄
8
Ckt B 1
3
⁄
8
1
3
⁄
8
1
3
⁄
8
1
5
⁄
8
1
5
⁄
8
2
1
⁄
8
2
1
⁄
8
2
1
⁄
8
LEGEND
ODM — Outside Diameter Male
*Includes refrigerant operating charge.
†The 30HR unit is shipped with full operating charge; 30HS unit is shipped with holding charge only
(cooler operating charge shown — condenser and interconnecting piping charge must be added for
total system charge).
**Prefix (no. of unloaders): A, F = none; 2, 6 = one.
7

Physical data — SI (cont)
COOLER
30HR,HS SIZE 070,080,090 100,110,120 140,160
COOLER PART NO. 40HA401--- 664 684 704
DIMENSIONS
OD (mm) 324 406 406
Length (mm)* 2057 2108 2743
NET WATER VOLUME (L)† 82.1 152.9 198.3
REFRIGERANT CIRCUITS 222
MAXIMUM DESIGN WORKING
PRESSURE (kPa)
Refrigerant Side 1620 1620 1620
Fluid (Shell) Side 2068 2068 2068
FLUID CONN. (in.)
Inlet and Outlet 4** 5** 6**
Drain
3
⁄
4
FPT
3
⁄
4
MPT
3
⁄
4
MPT
*Between tube sheets.
†Includes nozzles.
**Victaulic-type water connections.
CONDENSER
CONDENSER PART NO. 09RP--- 033 043 054 070 084
DIMENSIONS
OD (mm) 273 324 324 324 356
Length (mm)* 1715 1956 2118 2419 2108
NET FLUID VOLUME (L) 21.6 32.2 37.5 43.1 51.9
FLUID CONN. — in. diameter†
Inlet IPS** 2
1
⁄
2
3332
1
⁄
2
††
Outlet IPS** 2
1
⁄
2
333 4
FLUID PASSES 33333or6
MAXIMUM DESIGN WORKING Refrigerant Side — 2654
PRESSURE (kPa) Fluid Side — 1724
LEGEND
IPS — Iron Pipe Size
OD — Outside Diameter
*Between tube sheets.
†On part no. 084 condensers, data is for 3-pass only. For 6-pass, inlet and outlet connections are 2
1
⁄
2
inches.
**Field welded (flange with weld stub provided for all connections).
††The 09RP084 has 2 inlet connections.
NOTES:
1. The 2
1
⁄
2
-in. and 3-in. condenser connections are equipped with slip-on flanges bolted to the condensers and
designed for field welding of field-supplied 2
1
⁄
2
-in. and 3-in. schedule 40 pipe.
The 4-in. condenser connections are equipped with welding neck flanges bolted to the condensers and designed
for field welding of field-supplied 4-in. schedule 40 pipe.
2. Standard 30HR,HS160 unit is supplied with 3-pass condensers. To convert from 3 to 6 pass, proceed as follows:
a. Remove 4-in. outlet flanges.
b. Cover 4-in. (09RP084) 3-pass condenser fluid outlet with blind flanges (field supplied).
3. Water outlet and inlet connections are rated according to ANSI/ASME B 16.5 (American National Standards
Institute/American Society of Mechanical Engineers) latest revision.
8

Accessories (field installed)
Condenser manifold package — This accessory is avail-
able for all 30HR models except the size 160 unit. The
manifold provides common fluid inlet and outlet connec-
tions and consists of 2 steel manifolds, each in 2 sections.
Field welding is required.
Control circuit transformer—Fieldinstalledtransformer
provides 115-v control circuit power if separate control
power source is not available.
Remote reset thermistor — Enables control for space
and outdoor-air temperature reset.
Unit sound enclosure panels — These panels, with fi-
berglass insulation, completely enclose the compressor and
condenser sections.
Gage panel package — One package is required per unit.
Package includes one suction pressure gage and one dis-
charge pressure gage per circuit mounted on a common
panel. Each gage is equipped with a shutoff valve.
Temperature reset — Leaving fluid temperature reset ac-
cessory board may be installed in chiller to provide reset of
LCWT (leaving chilled fluid temperature) in constant fluid
flow systems. Three reset control options are: from return-
fluid temperature, space temperature, and outdoor-air
temperature.
Demand limit control — This control provides 2 demand
limit steps: 1) between 50% and 100% of maximum com-
pressor displacement; or 2) between 0% and 49% displace-
ment. The external switching device determines when to
limit unit capacity.
Chilled Fluid Flow Switch — Although low fluid flow de-
tection is provided by the unit internal control devices, this
accessory is available for field installation for redundant
protection.
Oil-pressure safety switch — Standard on condenser-
less (30HS) models, accessory on fluid-cooled (30HR) mod-
els. Switch protects compressors against loss of oil pressure
in the event of a loss of lubricating oil. One switch package
is needed for each lead compressor.
9

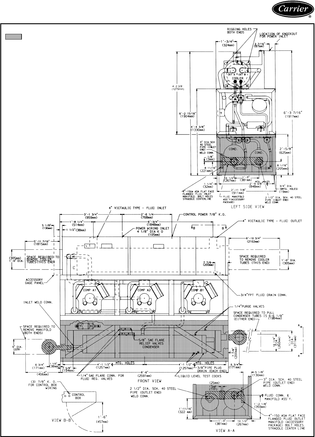
Base unit dimensions — 30HR,HS070-090
CONDENSER SECTION — 30HR ONLY
LEGEND
ASA — American Standards Association
COMP — Compressor
COND — Condenser
CONN — Connection
KO — Knockout
MTG — Mounting
REG — Regulatory
SAE — Society of Automotive Engineers (U.S.A.)
SCH 40 — Schedule 40 Pipe
NOTES:
1. Allow 24 in. in front of unit to fully open electric panel door.
2. Shaded piping indicates accessory manifold fluid package available with
weld connections for connections to stub of condenser fluid connec-
tions. Sleeve coupling permits customer adjustment before welding.
10

Base unit dimensions — 30HR,HS100-120
CONDENSER SECTION — 30HR ONLY
LEGEND
ASA — American Standards Association
COMP — Compressor
COND — Condenser
CONN — Connection
KO — Knockout
MTG — Mounting
REG — Regulatory
SAE — Society of Automotive Engineers (U.S.A.)
SCH 40 — Schedule 40 Pipe
NOTES:
1. Allow 24 in. in front of unit to fully open electric panel door.
2. Shaded piping indicates accessory manifold fluid package avail-
able with weld connections for connections to stub of condenser
fluid connections. Sleeve coupling permits customer adjustment
before welding.
11

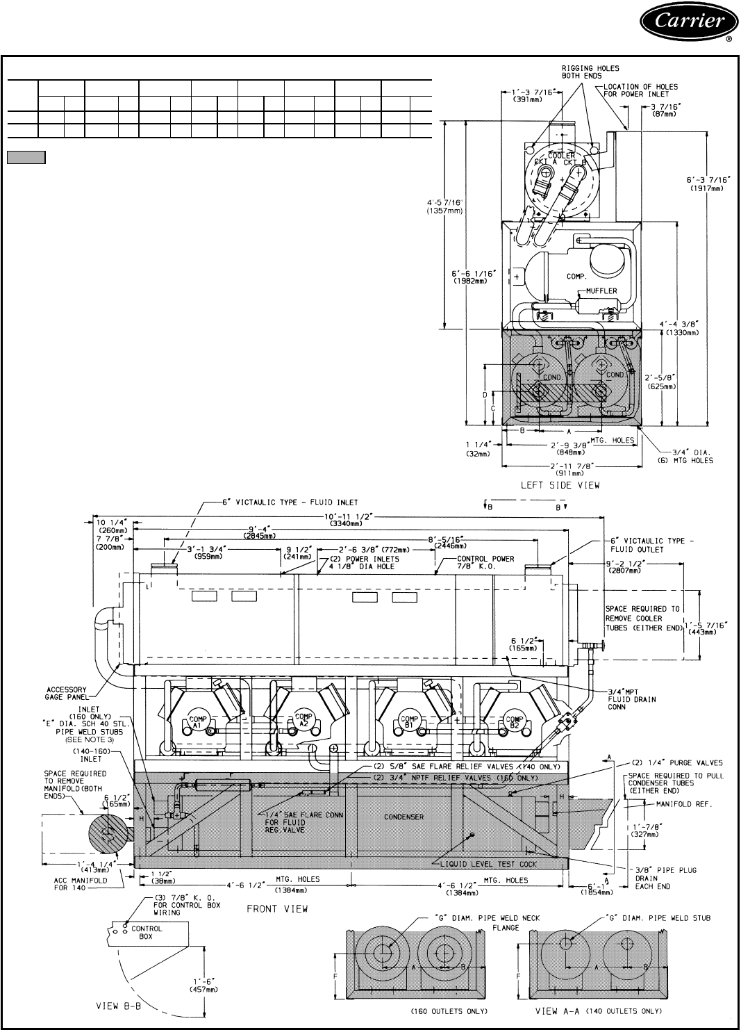
Base unit dimensions — 30HR,HS140,160
DIMENSIONS
UNIT
30HR,
HS
‘‘A’’ ‘‘B’’ ‘‘C’’ ‘‘D’’ ‘‘E’’ ‘‘F’’ ‘‘G’’ ‘‘H’’
Ft-in. mm Ft-in. mm Ft-in. mm Ft-in. mm Ft-in. mm Ft-in. mm Ft-in. mm Ft-in. mm
140 1-2
5
⁄
8
371 0-10
7
⁄
16
265 0-8
11
⁄
16
224 1-2
1
⁄
8
359 0-3 76 1-2
1
⁄
8
359 0-3 76 0-5
1
⁄
8
146
160 1-4 406 0-9
7
⁄
16
240 0-7
5
⁄
8
193 1-3
5
⁄
8
397 0-3 76 0-11
5
⁄
8
295 0-4 102 0-6
5
⁄
16
160
CONDENSER SECTION — 30HR ONLY
LEGEND
ASA — American Standards Association
COMP — Compressor
COND — Condenser
CONN — Connection
KO — Knockout
MTG — Mounting
REG — Regulatory
SAE — Society of Automotive Engineers (U.S.A.)
SCH 40 — Schedule 40 Pipe
NOTES:
1. Allow 24 in. in front of unit to fully open electric panel door.
2. Shaded piping indicates accessory manifold fluid package available with weld con-
nections for connections to stub of condenser fluid connections. Sleeve coupling
permits customer adjustment before welding.
3. A total of 4 condenser inlet connections are required for the 30HR160.
12

Application data
Leveling unit
To assure proper oil return, be sure that unit is level,
particularly in its major lengthwise dimension, as com-
pressor oil return piping runs in that direction.
Determine prior to installation if any special treat-
ment is required to assure a level installation.
Cooler fluid temperature
1. Maximum leaving chilled fluid temperature (LCWT) is
70 F (21 C). Unit can start and pull down with up to
95F (35C) enteringfluid temperaturedue toMOP (maxi-
mum operating pressure) feature of the expansion valve.
For sustained operation, it is recommended that enter-
ing fluid temperature not exceed 85 F (29 C).
2. Minimum LCWT is 40 F (4 C) for standard units. Spe-
cial order medium temperature brine units must be
ordered for operation with leaving fluid temperatures
in the range of 39 to 15 F (4 to −9 C). For ratings
below 40 F (4 C) LCWT, contact your local Carrier
representative.
Condenser fluid temperature
1. Maximum leaving condenser fluid temperature is
104 F (40 C) on all 30HR models (except 30HR160,
which has a maximum temperature of 120 F [49 C]).
2. Minimum entering condenser fluid temperature without
condenser flow regulation is 70 F (21 C).
MINIMUM COOLER AND CONDENSER FLUID
FLOW RATES AND MINIMUM LOOP VOLUME
UNIT
30HR,HS
MINIMUM FLOW MINIMUM
VOLUME†
Cooler Condenser*
Gpm L/s Gpm L/s Gal. L
070 95 5.99 110 6.94 208 787.3
080 95 5.99 115 7.26 232 878.1
090 95 5.99 124 7.82 257 972.7
100 135 8.52 128 8.08 294 1112.8
110 135 8.52 138 8.71 315 1192.3
120 135 8.52 150 9.46 336 1271.8
140 156 9.84 150 9.46 405 1532.9
160 156 9.84 243 15.30 449 1699.5
LEGEND
ARI — Air Conditioning and Refrigeration Institute (U.S.A.)
N—Liters per kW
V—Gallons per ton
*Applicable to 30HR units only.
†Minimum system fluid volumes:
Gallons=VxARICapacity in Tons
Liters = N x ARI Capacity in kW
(Based on Normal Air Conditioning value)
APPLICATION V N
Normal Air Conditioning 3 3.25
Process Type Cooling 6 to 10 6.5 to 10.8
Low Ambient Operation 6 to 10 6.5 to 10.8
NOTE: Minimum condenser fluid flow based on 3 ft/sec (0.9 m/s) to
minimize condenser fouling. Flow rates below 3 ft/sec (0.9 m/s) may
require more frequent tube cleaning.
Cooler and fluid-cooled condenser
temperature rise
Ratings and performance data in this publication are for a
cooling temperature rise of 10° F (5.6° C). Units may be
operated at a different temperature rise, provided flow lim-
its are not exceeded and corrections to capacity, etc., are
made. For minimum flow rates, see Minimum Cooler and
Condenser Fluid Flow Rates and Minimum Loop Volume
table on this page. High flow rate is limited by pressure drop
that can be tolerated. If another temperature rise is used,
apply LCWT correction as given in Selection Procedure sec-
tion on page 17.
Minimumcooler flow—This value (maximumcooler tem-
peraturerise) for standard units isshown in Minimum Cooler
and Condenser Fluid Flow Rates and Minimum Loop Vol-
ume table. When gpm (L/s) required is lower (or rise is
higher), follow recommendations below:
a. Multiple smaller chillers may be applied in series, each
providing a portion of the design temperature rise.
b. Chilled fluid may be recirculated to raise flow rate. How-
ever, mixed temperature entering cooler must be main-
tained at a minimum of at least 5° F (2.8° C) above the
leaving chilled fluid temperature.
c. Special cooler baffling is required to allow minimum flow
rate to be reduced 12%.
NOTE: Recirculation flow is shown below.
Maximum cooler flow (.5 gpm/ton or ,5° F rise
[.0.09 L/s •kW or ,2.7° C rise]) — The rise results
in practical maximum pressure drop through cooler.
Return fluid may bypass the cooler to keep pressure drop
throughcooler withinacceptable limits. Thispermits ahigher
DT with lower fluid flow through cooler and mixing after
the cooler.
Special cooler baffling is available by special order, to per-
mit a cooler flow rate increase of 10%.
NOTE: Bypass flow is shown below.
RECIRCULATION FLOW
BYPASS FLOW
13

Application data (cont)
Minimum fluid-cooled condenser flow — This value
(maximum rise) is shown in Minimum Cooler and Con-
denser Fluid Flow Rates and Minimum Loop Volume table
on page 13. Condensers may be piped in series. Ensure
leaving fluid temperature does not exceed 104 F (40 C).
Variable cooler flow rates —These rates may be applied
to standard chillers. However, the unit will attempt to main-
tainaconstant leavingchilledfluid temperature.Insuch cases,
minimum flow must be in excess of minimum flow given in
the Minimum Cooler and Condenser Fluid Flow Rates and
Minimum Loop Volume table, and flow rate must change
in steps of less than 10% per minute. Apply 6 gal per ton
(6.5 L per kW) fluid loop volume minimum if flow rate
changes more rapidly.
Chilled fluid loop volume — The volume in circulation
must equal or exceed 3 gal per nominal ton of cooling
(3.25 L per kW) for temperature stability and accuracy in
normal air conditioning applications. See Minimum Cooler
and Condenser Fluid Flow Rates and Minimum Loop Vol-
ume table on page 13. (For example, a 30HR100 would
require 294 gal [1112.8 L] in circulation in system loop —
see Minimum Cooler and Condenser Fluid Flow Rates and
Minimum Loop Volume table on page 13.) For process jobs
where accuracy is vital, or for operation at ambient tem-
perature below 32 F (0° C) with low unit loading conditions,
there should be from 6 to 10 gal. per ton (6.5 to 10.8 L
per kW). To achieve this volume, it is often necessary to
install a tank in the loop. Tank should be baffled to ensure
there is no stratification, and that water (or brine) entering
tank is adequately mixed with liquid in the tank.
NOTE: Tank installation is shown below.
Fouling factor — The fouling factor used to calculate tabu-
lated ratings was 0.00025 ft
2
•hr •F/Btu (0.000044 m
2
•
KW). As fouling factor is increased, unit capacity decreases
and compressor power increases. Standard ratings should
be corrected using following multipliers:
FOULING FACTOR CORRECTION
FOULING FACTOR COOLER CONDENSER
English SI Cap. Power Cap. Power
0.0005 0.000088 0.995 1.000 0.990 1.005
0.001 0.000176 0.980 1.000 0.969 1.033
0.002 0.000352 — — 0.908 1.098
Rating tables are based on 10° F (5.6° C) DT in the cooler and 0.00025
ft
2
•hr •F/Btu (0.000044 m
2
•K/W) fouling factor in both cooler and con-
denser. Also, 10° F (5.6° C) DT in condenser for 3-pass parallel, 20° F
(11.1° C) DT for 6-pass parallel, and 40° F (22.2° C) DT for 6-pass se-
ries circuiting arrangements.
PERFORMANCE CORRECTIONS
1. Corrected Cooling Capacity = Rated Cooling Capacity x all correc-
tion factors.
2. Corrected Compressor Power Input = Rated Power Input x all cor-
rection factors.
Cooler and fluid-cooled condenser freeze
protection
If chiller or fluid lines are in an area where ambient con-
ditions fall below 32 F (0° C), it is recommended that an
antifreeze solution be added to protect the unit and fluid
piping to a temperature 15° F (8.3° C) below the lowest
anticipated temperature. Corrections to performance as in-
dicated in Capacity Correction and Selection Procedure sec-
tions on pages 15 and 17 must be applied.
Useonly antifreeze solutions approved forheat exchanger
duty. Use of automotive antifreezes is not recommended
because of the fouling that can occur once their relatively
short-lived inhibitor breaks down.
Ifnot protectedwith anantifreeze solution, draining cooler
and outdoor piping is recommended if system is not to be
used during freezing weather conditions.
30HS condenser requirements
1. Ensure each refrigerant circuit has its own head pres-
sure control.
2. Condenser must provide 15° F (8.3° C) subcooling, a
maximum of 40° F (22.2° C) difference between satura-
ted condensing temperature and outdoor ambient
temperature (to prevent overload at high ambient
temperatures), and a minimum of 20° F (11.1° C) dif-
ference (to assure subcooling).
3. Do not manifold independent refrigerant circuits into a
single condenser.
4. Condenser should not be located more than 50 ft
(15 m) below chiller to maintain subcooling.
5. Design discharge and liquid piping according to Carrier
System Design Manual.
TANK INSTALLATION
14

Oversizing chillers
Oversizing chillers by more than 15% at design conditions
must be avoided as the system operating efficiency would
be adversely affected (resulting in greater and/or excessive
electrical demand and cycling of compressors). When future
expansion of equipment is anticipated, install a single chiller
tomeet present loadrequirements, and installa second chiller
to meet the additional load demand.
It is also recommended that the installation of 2 smaller
chillers be considered where operation at minimum load is
critical. The operation of a smaller chiller loaded to a greater
percent of minimum is preferred to operating a single chiller
at or near its minimum recommended value.
Hot gas bypass should not be used as a means to allow
oversizing chillers. Hot gas bypass should be given consid-
eration where substantial operating time is anticipated be-
low the minimum unloading step.
Multiple chillers
Where chiller capacities required are greater than can be
furnished by a 30H chiller, or where standby capability is
desired, chillers may be installed in parallel. Units of equal
size help to ensure balanced fluid flows. Where a large tem-
perature drop (.25° F [13.9° C]) is desired, chillers may
be installed in series. Fluid temperature sensors need not
be moved for multiple chiller operation.
Part-wind start
Part-wind start is not generally required on 30H chillers due
to use of multiple small compressors allowing smaller elec-
trical load increments, but it is available if required. Maxi-
mum instantaneous current flow (see ICF in Electrical Data
table on page 29) should be used in determining need.
Vibration isolation
Compressors are spring isolated. External vibration isola-
tion is not generally required.
Strainers
For 30HR units, a strainer with a minimum of 20 mesh
should be installed in both the cooler and condenser fluid
inlet lines just ahead of the cooler and condenser, and as
close to the cooler and condenser as possible. For 30HS
units, this recommendation applies only to the cooler.
Capacity correction (antifreeze)
If unit or fluid lines connected to the unit are in an area
where ambient temperature falls below 32 F (0° C), it is
stronglyrecommended that antifreeze(or other suitablebrine)
be used in the chilled fluid circuit. Unit performance data
must be corrected as shown in the following example (us-
ing inhibited ethylene glycol solution):
EXAMPLE — ENGLISH
I Determine concentration of inhibited ethylene
glycol (EG) solution required to protect the sys-
tem to 0° F (at zero flow).
From Solution Crystallization Point correction curve on
page 16: 35% EG concentration is required for solu-
tion crystallization at 0° F.
Consider the 30HR080 unit selected in the Selection
Procedure section on page 17.
II Correct unit capacity.
On Capacity Correction curve on page 16, read 0.965
correction factor at 35% concentration.
Corrected Capacity = 0.965 x Rated Capacity
= 0.965 x 77.2
= 74.5 Tons
III Correct cooler water flow rate (Gpm).
On Cooler Flow Correction curve on page 16, read
1.112 correction factor at 35% concentration.
Cooler Water Flow
(at corrected capacity) ==
Tonsx24 74.5 x 24
DT10
= 178.8 Gpm
Cooler Water Flow
(35% EG) = 1.112x 178.8 = 198.8Gpm
IV Correct cooler pressure drop.
On Cooler Pressure Drop Correction curve on
page 18, read 1.28 correction factor at 35%
concentration.
On Cooler Pressure Drop curve, (page 19) for
198.8 gpm of water, Pressure Drop = 12.1 ft of
water.
For 35% EG solution,
Pressure Drop = 1.28 x 12.1
= 15.5 ft of water
V Correct compressor power input (kW).
On Power Correction curve on page 16, read 0.988
correction factor at 35% concentration.
Corrected Power Input = 0.988 x 68.6
= 67.8 kW
15

Application data (cont)
EXAMPLE — SI
I Determine concentration of inhibited ethylene
glycol (EG) solution required to protect the sys-
tem to −17.8 C (at zero flow).
From Solution Crystallization Point correction curve at
right: 35% EG concentration is required for solution
crystallization at −17.8 C.
Consider the 30HR080 unit selected in the Selection
Procedure section on page 17.
II Correct unit capacity.
On Capacity Correction curve at right, read 0.965 cor-
rection factor at 35% concentration.
Corrected Capacity = 0.965 x Rated Capacity
= 0.965 x 273.1
= 263.4 kW
III Correct cooler water flow rate (L/s).
On Cooler Flow Correction curve at right, read 1.112
correction factor at 35% concentration.
Cooler Water Flow
(at corrected capacity) =kW x .239
DT
=263.4 x .239
5.6
= 11.2 L/s
Cooler Water Flow
(35% EG) =1.112 x 11.2 = 12.5 L/s
IV Correct cooler pressure drop.
On Cooler Pressure Drop Correction curve at right,
read 1.28 correction factor at 35% concentration.
OnCooler Pressure Drop curve (page19), for 12.5 L/s
of water, Pressure Drop = 36.4 kPa.
For 35% EG solution,
Pressure Drop = 1.28 x 36.4
= 46.6 kPa
V Correct compressor power input (kW).
On Power Correction curve at right, read 0.988 cor-
rection factor at 35% concentration.
Corrected Power Input = 0.988 x 69.6
= 68.8 kW
ETHYLENE GLYCOL PERFORMANCE
CORRECTION FACTORS AND SOLUTION
CRYSTALLIZATION POINTS
Correction factors apply to published chilled water
performance ratings from 40 to 60 F
(4.4 to 15.6 C) leaving water temperature.
16

Selection procedure (with example)
ENGLISH
NOTE: Contact your local Carrier representative for a com-
puter selection (based on the Reciprocating Chiller Selec-
tion program of Carrier’s electronic catalog), or follow the
procedure below.
I Determine unit size and operating conditions
required to meet given capacity at given
conditions.
Given:
Capacity .........................77Tons
Leaving Chilled Water Temp (LCWT) .......44F
Cooler Water Temp Rise ...............10°F
Entering Condenser Water Temp .......... 85F
Condenser Water Temp Rise ............ 10°F
Fouling Factor (Cooler and
Condenser) ..................... .00025
NOTE: For other than 10° F temperature rise, data
correctionsmust bemade; also, on some units a change
of controls is necessary.
FOR HR (Fluid-Cooled Condenser):
Enter the Performance data table on page 21 at 44 F
LCWT and 85 F Condenser Entering Water Tempera-
ture. Read down the capacity column to a capacity that
equals or exceeds the given capacity. Read across to
obtain the operating conditions required to obtain the
listedcapacity. Usecooler and condenser pressure drop
curves to determine the respective pressure drops. Fi-
nal unit selection should be based on present and fu-
ture job requirements and the economics of the job.
FOR 30HS (Condenserless):
Use same method. For remote condenser data,
refer to appropriate Carrier condenser Product Data
literature.
Contact your local Carrier representative for a com-
puter selection of chiller system combinations with
Carrier air-cooled condensers other than those shown
in Performance Data tables.
II From Performance Datatable andpressuredrop
curves, determine operating data for selected
unit.
Unit ...........................30HR080
Capacity ........................ 77.2 tons
Compressor Motor Power Input ........68.6 kW
Cooler Water Flow..................185gpm
Cooler Pressure Drop .................10.6 ft
Condenser Water Flow .............229.3 gpm
Condenser PressureDrop ..............10.0 ft
SI
NOTE: Contact your local Carrier representative for a com-
puter selection (based on the Reciprocating Chiller Selec-
tion program of Carrier’s electronic catalog), or follow the
procedure below.
I Determine unit size and operating conditions
required to meet given capacity at given
conditions.
Given:
Capacity .........................270kW
Leaving Chilled Water Temp (LCWT) ........7C
Cooler Water Temp Rise ...............5.6° C
Entering Condenser Water Temp ..........30C
Condenser Water Temp Rise ............5.6° C
Fouling Factor (Cooler and
Condenser) ....................... .044
NOTE: For other than 5.6° C temperature rise, data
correctionsmust bemade; also, on some units a change
of controls is necessary.
FOR 30HR (Fluid-Cooled Condenser):
Enter the Performance Data table on page 25 at 7 C
LCWT and 30 C Condenser Entering Water Tempera-
ture. Read down the capacity column to a capacity that
equals or exceeds the given capacity. Read across to
obtain the operating conditions required to obtain the
listedcapacity. Usecooler and condenser pressure drop
curves to determine the respective pressure drops. Fi-
nal unit selection should be based on present and fu-
ture job requirements and the economics of the job.
FOR 30HS (Condenserless):
Use same method. For remote condenser data,
refer to appropriate Carrier condenser Product Data
literature.
Contact your local Carrier representative for a com-
puter selection of chiller system combinations with
Carrier air-cooled condensers other than those shown
in Performance Data tables.
II From Performance Datatable andpressuredrop
curves, determine operating data for selected
unit.
Unit ...........................30HR080
Capacity ........................273.0 kW
Compressor Motor Power Input ........69.6 kW
Cooler Water Flow .................11.6 L/s
Cooler Pressure Drop ...............31.5 kPa
Condenser Water Flow ..............14.5 L/s
Condenser Pressure Drop ............29.8 kPa
17

Performance data
Ratings
Performance Data tables for 30HR fluid-cooled condenser
models appear on pages 21 and 25. Ratings for 30HS con-
denserless models appear on pages 22 and 26. Ratings for
30HS condenserless models in combination with air-cooled
condensers appear on pages 23-24, and 27-28. Ratings
data beyond limits shown and/or brine ratings are available
in Carrier Application Data publications.
1. All performance data is based on:
a. Coolerwater temperaturerise of10° F (5.6° C). When
more accuracy is desired, correct LCWT by amount
determined from LCWT Correction curve below be-
fore entering Performance Data tables.
b. Cooler fouling factor of .00025 (.000044) (same for
condenser on 30HR).
c. 10° F (5.6° C) subcooling (30HS).
d. Refrigerant 22.
2. Whencorrected LCWT isused, cooler pressuredrop must
also be corrected for the new LCWT:
a. Enter Performance Data table at corrected LCWT.
By interpolation, determine corrected Capacity (tons
or kW), saturated discharge temperature (in Perfor-
mance Data tables on pages 21 and 25 for 30HS
condenserlessunits),andkW (compressor motorpower
input at rated voltage).
b. Calculate:
corrected gpm = corrected capacity (tons) x 24
temperature rise (°F)
corrected L/s = corrected capacity (kW) x .239
temperature rise (°C)
c. Enter Cooler Pressure Drop curve at corrected gpm
(L/s) and find pressure drop.
Where cooler water temperature rise is less than 7° F
(3.9° C), the high flow rate will normally be accom-
plished by excessive pressure drop. In these cases, con-
tact your local Carrier representative for selection of a
cooler with suitable baffle spacing.
Combining 30HS units with remote condensers which
have greater than (less than) the 10° F (5.6° C)
subcooling in the ratings increases (decreases) system
capacity. To adjust capacity, multiply capacity ratings by
0.96; then adjust this result upward by 0.4% for each
degree F (0.7% for each degree C) of available
subcooling.
30HS ARI (Air Conditioning and Refrigeration Institute,
U.S.A.) ratings are based on:
• Leaving chilled water temperature of 44 F (6.7 C).
• Entering cooler water temperature of 54 F (12.2 C).
• Saturated discharge temperature of 120 F (48.9 C).
30HR ARI ratings are based on:
• Leaving chilled water temperature of 44 F (6.7 C).
• Entering cooler water temperature of 54 F (12.2 C).
• Entering condenser water temperature of 85 F
(29.4 C).
• Condenser flow of 3 gpm per ton (0.054 L/s per kW).
Performance data for 30HS chillers in combination with
remote air-cooled condensers includes the following sys-
tem combinations:
CHILLER AIR-COOLED
CONDENSER CHILLER AIR-COOLED
CONDENSER
30HS070 09DK044/09DK034 30HS110 (2) 09DK064
30HS080 09DK054/09DK034 30HS120 (2) 09DK064
30HS090 09DK064/09DK034 30HS140 (2) 09DK084
30HS100 (2) 09DK054 30HS160 (2) 09DK094
NOTE: Numbers in ( ) are quantities.
LCWT CORRECTION
ENGLISH
NOTE: For rise above 10° F, ADD correction to design LCWT; below
10° F, SUBTRACT.
SI
NOTE: For rise above 5.6° C, ADD correction to design LCWT;
below 5.6° C, SUBTRACT.
18

COOLER PRESSURE DROP
NOTE: Ft of water = 2.31 x change in psig.
CONDENSER PRESSURE DROP
NOTE: Ft of water = 2.31 x change in psig.
19

Performance data (cont)
ARI RATINGS
UNIT
30
CAPACITY INPUT
POWER
(kW)
COOLER FLOW COOLER
PRESSURE DROP CONDENSER
FLOW CONDENSER
PRESSURE DROP EER IPLV
Tons kW Gpm L/s Ft of
Water kPa Gpm L/s Ft of
Water kPa
HR070 69.4 244.1 60.1 166.3 10.49 8.6 25.7 208.2 13.14 7.0 20.9 13.9 17.5
HR080 77.2 271.5 68.6 185.1 11.68 10.6 31.7 231.6 14.61 10.2 30.5 13.5 17.1
HR090 85.5 300.7 77.4 204.9 12.93 12.9 38.5 256.5 16.18 9.8 29.3 13.3 17.3
HR100 98.0 344.7 85.4 234.8 14.81 9.0 26.9 294.0 18.55 11.5 34.3 13.8 18.4
HR110 105.0 369.3 93.8 251.6 15.87 10.3 30.8 315.0 19.87 10.8 32.2 13.4 18.3
HR120 112.0 393.9 102.3 268.6 16.95 11.7 34.9 336.0 21.20 10.3 30.8 13.1 18.2
HR140 135.0 474.8 126.0 323.7 20.42 9.4 28.1 405.0 25.55 14.4 43.0 12.9 16.3
HR160 149.8 526.8 141.6 359.2 22.66 11.6 34.6 449.4 28.35 10.4 31.1 12.7 16.4
LEGEND
EER — Energy Efficiency Ratio (Capacity
[Btuh] 4Input Power [W])
IPLV — Integrated Part-Load Value
Rated in accordance with ARI Standard 590-92.
NOTES:
1. Rated in accordance with ARI Standard 590-92 at standard rating
conditions.
2. Standard rating conditions are as follows:
Cooler Conditions:
Leaving water temperature: 44 F (6.7 C)
Entering water temperature: 54 F (12.2 C)
Condenser Conditions:
Entering water temperature: 85 F (29.4 C)
Flow: 3 gpm per ton (0.054 L/s per kW)
Fouling Factor (Cooler and Condenser): 0.00025 hr-sq ft-F per Btuh
(0.000044 m
2
x C per W)
3. IPLV is a single number part-load efficiency value calculated from
100, 75, 50, and 25% system full-load efficiency values and corrected
for a typical building air-conditioning application.
4. All data in this table is certified in accordance withARI Standard 590-92
as represented in the Reciprocating Chiller Selection Program (E-
Cat) version 2.13.
20

Performance data
30HR Water-Cooled — English
30HR
UNIT
SIZE
LCWT
(F)
CONDENSER ENTERING WATER TEMPERATURE (F)
75.0 80.0 85.0 90.0
Cap.
(Tons) Input
kW
Cooler
Flow
Rate
(Gpm)
Cond
Flow
Rate
(Gpm)
Cap.
(Tons) Input
kW
Cooler
Flow
Rate
(Gpm)
Cond
Flow
Rate
(Gpm)
Cap.
(Tons) Input
kW
Cooler
Flow
Rate
(Gpm)
Cond
Flow
Rate
(Gpm)
Cap.
(Tons) Input
kW
Cooler
Flow
Rate
(Gpm)
Cond
Flow
Rate
(Gpm)
070
40.0
67.6 53.9 161.9 196.7 65.7 56.4 157.2 193.7 63.7 58.8 152.4 190.5 61.7 61.1 147.6 187.3
080 75.3 61.5 180.2 219.9 73.2 64.3 175.3 216.8 71.1 67.0 170.2 213.6 68.9 69.6 165.0 210.2
090 83.3 69.5 199.3 244.2 81.0 72.6 194.0 240.9 78.8 75.6 188.6 237.6 76.5 78.4 183.0 233.9
100 95.8 76.5 229.4 278.8 93.3 80.2 223.4 275.3 90.8 83.7 217.4 271.7 88.2 87.1 211.2 267.9
110 102.7 84.3 246.0 300.3 100.1 88.1 239.7 296.7 97.5 91.9 233.4 293.0 94.8 95.6 227.0 289.1
120 109.6 91.9 262.4 321.7 106.9 96.1 255.9 318.0 104.2 100.0 249.6 314.4 101.4 103.9 242.8 310.2
140 131.9 113.5 315.8 388.9 128.4 118.2 307.5 383.8 125.0 122.7 299.2 378.6 121.5 127.1 290.7 373.2
160 146.3 127.9 350.1 432.4 142.5 132.8 341.2 426.9 138.8 137.7 332.3 421.3 135.1 142.3 323.3 415.6
070
42.0
70.5 54.4 168.9 203.9 68.5 57.0 164.1 200.9 66.5 59.5 159.2 197.7 64.4 61.9 154.3 194.5
080 78.4 62.2 187.8 227.8 76.3 65.0 182.7 224.7 74.1 67.8 177.5 221.4 71.9 70.5 172.2 218.0
090 86.6 70.2 207.6 252.7 84.4 73.4 202.1 249.5 82.1 76.5 196.6 246.1 79.7 79.5 190.9 242.5
100 99.4 77.2 238.2 287.9 96.9 80.9 232.2 284.5 94.3 84.6 225.8 280.6 91.7 88.1 219.6 276.8
110 106.6 85.0 255.3 310.0 103.9 89.0 248.8 306.2 101.2 92.9 242.4 302.5 98.5 96.7 235.9 298.6
120 113.6 92.8 272.0 331.7 110.8 97.0 265.5 328.0 108.1 101.2 259.0 324.4 105.2 105.3 251.9 320.1
140 137.0 114.8 328.3 402.1 133.5 119.7 319.8 396.9 129.9 124.4 311.2 391.6 126.3 129.0 302.6 386.2
160 151.9 129.4 363.9 447.0 148.1 134.6 354.8 441.5 144.3 139.6 345.6 435.8 140.4 144.5 336.4 430.0
070
44.0
73.5 54.9 176.1 211.4 71.4 57.6 171.1 208.2 69.4 60.1 166.3 208.2 67.2 62.8 161.0 201.7
080 81.5 62.7 195.5 235.8 79.4 65.7 190.4 232.7 77.2 68.6 185.1 231.6 74.9 71.5 179.7 225.9
090 90.1 70.9 215.9 261.4 87.8 74.2 210.4 258.2 85.5 77.4 204.9 256.5 83.0 80.6 199.0 251.2
100 103.1 77.9 247.1 297.1 100.5 81.7 240.9 293.6 98.0 85.4 234.8 294.0 95.2 89.1 228.2 285.9
110 110.4 85.7 264.6 319.6 107.7 89.9 258.2 316.0 105.0 93.8 251.6 315.0 102.2 97.9 244.9 308.3
120 117.6 93.6 281.8 341.9 114.9 98.0 275.3 338.4 112.0 102.3 268.6 336.0 109.1 106.5 261.5 330.5
140 142.3 116.0 341.1 415.5 138.6 121.1 332.4 410.2 135.0 126.0 323.7 405.0 131.3 130.8 314.8 399.4
160 157.7 130.9 378.0 461.9 153.8 136.4 368.6 456.2 149.8 141.6 359.2 449.4 145.9 146.6 349.8 444.6
070
46.0
76.4 55.4 183.3 218.8 74.4 58.2 178.4 215.9 72.2 60.9 173.3 212.6 70.1 63.6 168.0 209.2
080 84.8 63.2 203.4 243.9 82.6 66.4 198.1 240.7 80.4 69.4 192.8 237.5 78.1 72.4 187.2 234.0
090 93.6 71.5 224.5 270.3 91.3 74.9 218.9 267.0 88.8 78.4 213.1 263.6 86.4 81.6 207.3 260.0
100 106.8 78.3 256.1 306.3 104.2 82.4 249.9 302.8 101.5 86.3 243.5 299.1 98.8 90.1 236.9 295.2
110 114.3 86.3 274.1 329.4 111.6 90.6 267.6 325.8 108.8 94.8 260.9 322.1 106.0 98.9 254.2 318.1
120 121.7 94.4 291.9 352.3 118.8 98.9 285.0 348.5 116.0 103.4 278.3 344.8 113.0 107.7 271.1 340.7
140 147.6 117.2 354.1 429.1 143.9 122.5 345.2 423.8 140.2 127.6 336.2 418.4 136.4 132.6 327.2 412.8
160 163.6 132.4 392.4 477.1 159.6 138.0 382.8 471.3 155.6 143.5 373.2 465.5 151.5 148.7 363.5 459.5
070
48.0
79.5 55.9 190.9 226.6 77.4 58.7 185.7 223.4 75.2 61.6 180.6 220.2 73.0 64.4 175.3 216.9
080 88.1 63.7 211.4 252.1 85.8 67.0 206.0 248.9 83.5 70.2 200.5 245.6 81.2 73.3 194.9 242.2
090 97.2 72.0 233.2 279.3 94.8 75.7 227.5 276.0 92.4 79.1 221.7 272.6 89.9 82.6 215.7 269.0
100 110.6 78.9 265.4 315.8 107.8 83.0 258.8 312.1 105.2 87.0 252.5 308.6 102.4 91.0 245.8 304.6
110 118.2 87.0 283.7 339.3 115.5 91.4 277.1 335.7 112.6 95.7 270.3 331.9 109.8 100.0 263.5 328.1
120 125.9 95.0 302.1 362.8 123.0 99.8 295.1 359.1 120.1 104.4 288.2 355.3 117.0 108.9 280.9 351.1
140 153.2 118.4 367.6 443.2 149.3 123.9 358.3 437.6 145.5 129.2 349.1 432.1 141.6 134.3 339.9 426.5
160 169.6 133.8 407.1 492.5 165.5 139.6 397.3 486.7 161.4 145.3 387.4 480.7 157.3 150.8 377.4 474.6
070
50.0
82.6 56.3 198.3 234.2 80.4 59.3 193.1 231.1 78.2 62.2 187.9 227.9 76.0 65.1 182.5 224.5
080 91.4 64.2 219.5 260.5 89.1 67.6 214.0 257.3 86.8 70.9 208.4 254.0 84.5 74.1 202.8 250.6
090 100.8 72.6 242.1 288.4 98.4 76.3 236.2 285.1 95.9 80.0 230.3 281.6 93.4 83.6 224.3 278.1
100 114.4 79.4 274.7 325.4 111.7 83.6 268.2 321.8 108.9 87.8 261.4 317.9 106.2 91.8 254.9 314.2
110 122.3 87.5 293.5 349.4 119.4 92.1 286.7 345.7 116.6 96.6 279.9 342.0 113.7 101.0 273.1 338.2
120 130.0 95.7 312.1 373.1 127.1 100.6 305.3 369.6 124.2 105.3 298.2 365.8 121.1 110.0 290.7 361.6
140 158.8 119.5 381.2 457.4 154.9 125.1 371.9 451.9 151.0 130.7 362.5 446.3 146.9 136.0 352.8 440.4
160 175.7 135.3 422.0 508.2 171.6 141.3 411.9 502.2 167.4 147.1 401.8 496.2 163.1 152.8 391.7 490.1
070
55.0
90.6 57.2 217.8 254.2 88.3 60.5 212.3 250.9 86.0 63.7 206.7 247.5 83.7 66.8 201.1 244.1
080 100.2 65.2 240.8 282.3 97.8 68.9 235.0 279.0 95.3 72.5 229.1 275.5 92.8 76.1 223.1 272.0
090 110.4 73.7 265.3 312.1 107.7 77.8 258.9 308.6 105.1 81.8 252.6 305.0 102.5 85.8 246.4 301.6
100 124.4 80.4 298.9 350.0 121.5 85.0 292.1 346.4 118.6 89.5 285.1 342.5 115.7 94.0 278.0 338.5
110 132.6 88.7 318.6 375.0 129.6 93.7 311.6 371.4 126.7 98.5 304.4 367.6 123.7 103.2 297.4 363.8
120 140.9 97.1 338.6 400.2 137.8 102.4 331.1 396.4 134.7 107.6 323.7 392.6 131.6 112.5 316.4 388.7
140 173.2 122.1 416.3 493.8 169.1 128.3 406.4 488.1 164.9 134.3 396.4 482.4 160.8 140.1 386.4 476.4
160 191.7 138.6 460.8 548.8 187.3 145.2 450.1 542.6 182.8 151.6 439.4 536.3 178.2 157.8 428.4 529.7
070
60.0
99.2 58.0 238.5 275.3 96.7 61.5 232.5 271.7 94.0 64.9 226.1 267.6 91.3 68.2 219.5 263.4
080 109.4 66.0 263.0 304.9 106.8 70.0 256.9 301.4 104.3 73.9 250.9 298.1 101.4 77.8 244.0 294.0
090 120.3 74.6 289.4 336.7 117.7 79.1 283.2 333.5 114.9 83.4 276.3 329.6 111.8 87.7 269.0 325.3
100 134.7 81.3 324.0 375.4 131.7 86.2 316.9 371.7 128.7 91.0 309.7 367.9 125.7 95.8 302.4 363.9
110 143.5 89.7 345.1 401.9 140.4 95.0 337.8 398.2 137.3 100.4 330.2 394.3 134.1 105.4 322.5 390.1
120 152.1 98.3 366.0 428.2 149.0 103.9 358.4 424.4 145.7 109.6 350.6 420.5 142.5 115.0 342.8 416.5
140 188.3 124.4 453.1 531.8 184.0 131.1 442.7 526.0 179.7 137.7 432.2 520.0 175.2 144.0 421.4 513.7
160 208.4 141.7 501.4 591.0 203.7 148.8 490.1 584.6 199.0 155.8 478.7 578.0 194.2 162.5 467.3 571.4
indicates performance data rated in accordance with ARI 590-92.
See ARI Ratings table on page 20 for more details.
LEGEND
ARI — Air Conditioning and Refrigeration Institute (U.S.A.)
Cap. — Capacity
kW — Compressor Motor Power Input at Rated Voltage
LCWT — Leaving Chilled Water Temperature
21

Performance data
30HS Condenserless — English
30HS
UNIT
SIZE
LCWT
(F)
SATURATED DISCHARGE TEMPERATURE (F)
95.0 110.0 120.0 135.0
Cap.
(Tons) Input
kW
Cooler
Flow
Rate
(Gpm)
THR
(Tons) Cap.
(Tons) Input
kW
Cooler
Flow
Rate
(Gpm)
THR
(Tons) Cap.
(Tons) Input
kW
Cooler
Flow
Rate
(Gpm)
THR
(Tons) Cap.
(Tons) Input
kW
Cooler
Flow
Rate
(Gpm)
THR
(Tons)
070
40.0
67.8 54.2 162.3 81.8 61.5 61.7 147.3 77.5 57.2 66.1 137.0 74.3 50.6 71.7 121.1 69.1
080 75.0 62.3 179.5 91.1 68.4 70.6 163.7 86.7 63.8 75.5 152.8 83.4 56.8 81.7 136.0 78.0
090 83.0 70.5 198.6 101.2 75.9 79.6 181.8 96.5 71.1 84.9 170.2 93.1 63.6 91.8 152.3 87.4
100 95.2 77.9 228.0 115.4 87.3 88.6 209.0 110.2 81.8 95.1 195.8 106.4 73.3 103.6 175.4 100.1
110 102.2 85.8 244.7 124.4 94.0 97.3 225.0 119.2 88.3 104.2 211.4 115.3 79.4 113.3 190.1 108.8
120 109.1 93.6 261.2 133.3 100.6 105.7 240.7 127.9 94.7 113.1 226.6 123.9 85.5 122.7 204.7 117.2
140 132.1 113.9 316.3 161.6 121.2 128.0 290.3 154.4 113.9 136.4 272.6 149.2 102.7 147.6 245.8 140.9
160 148.2 132.5 354.7 182.5 136.3 147.7 326.4 174.6 128.4 156.9 307.5 169.0 116.5 169.2 279.0 160.3
070
42.0
70.8 54.6 169.6 84.9 64.4 62.4 154.3 80.6 60.0 67.1 143.8 77.4 53.2 73.2 127.5 72.2
080 78.2 62.8 187.4 94.5 71.5 71.5 171.2 90.0 66.8 76.6 160.1 86.7 59.7 83.3 142.9 81.2
090 86.5 71.0 207.2 104.9 79.3 80.6 190.0 100.2 74.4 86.3 178.1 96.7 66.7 93.6 159.8 90.9
100 98.9 78.3 237.0 119.2 90.9 89.6 217.7 114.1 85.3 96.4 204.3 110.2 76.6 105.5 183.5 103.9
110 106.1 86.3 254.2 128.5 97.8 98.3 234.2 123.2 92.0 105.6 220.3 119.3 82.9 115.3 198.7 112.8
120 113.2 94.2 271.1 137.6 104.5 106.9 250.4 132.2 98.4 114.6 235.8 128.1 89.2 124.8 213.6 121.5
140 137.5 114.9 329.4 167.3 126.4 129.7 302.7 159.9 118.8 138.5 284.6 154.7 107.3 150.3 257.1 146.2
160 154.3 133.9 369.6 188.9 142.0 149.8 340.1 180.7 133.8 159.4 320.6 175.1 121.6 172.4 291.2 166.2
070
44.0
73.9 54.9 177.1 88.1 67.4 63.1 161.5 83.7 62.9 68.1 150.7 80.5 55.9 74.6 134.0 75.2
080 81.5 63.1 195.4 97.9 74.6 72.2 178.9 93.3 69.9 77.7 167.6 90.0 62.6 84.9 150.0 84.5
090 90.1 71.4 216.0 108.6 82.8 81.5 198.4 103.8 77.7 87.5 186.3 100.3 69.9 95.4 167.5 94.6
100 102.8 78.7 246.3 123.1 94.5 90.4 226.6 117.9 88.8 97.6 212.9 114.1 80.0 107.2 191.7 107.7
110 110.1 86.8 263.9 132.6 101.6 99.3 243.5 127.3 95.7 106.9 229.4 123.4 86.5 117.2 207.4 116.8
120 117.3 94.7 281.3 141.9 108.5 108.0 260.2 136.5 102.5 116.1 245.8 132.6 92.9 126.9 222.7 125.8
140 143.0 115.7 342.9 173.0 131.6 131.2 315.4 165.5 123.8 140.5 296.9 160.2 112.0 153.0 268.6 151.7
160 160.2 135.0 384.1 195.2 147.7 151.7 354.1 187.0 139.3 161.8 334.0 181.2 126.7 175.6 303.8 172.2
070
46.0
77.1 55.1 184.8 91.3 70.4 63.7 168.8 86.9 65.8 68.9 157.8 83.6 58.7 75.9 140.8 78.3
080 84.9 63.4 203.7 101.3 77.9 73.0 186.8 96.8 73.0 78.8 175.2 93.4 65.5 86.4 157.2 87.9
090 93.8 71.8 224.9 112.4 86.3 82.3 207.0 107.6 81.1 88.7 194.6 104.1 73.1 97.1 175.4 98.2
100 106.6 79.1 255.6 127.0 98.2 91.2 235.6 121.8 92.4 98.7 221.8 118.0 83.4 108.9 200.2 111.6
110 114.2 87.2 273.8 136.7 105.5 100.2 253.1 131.4 99.5 108.2 238.7 127.5 90.1 119.0 216.2 120.9
120 121.6 95.2 291.6 146.2 112.6 109.0 270.1 140.8 106.4 117.5 255.2 136.8 96.7 128.9 232.0 130.1
140 148.7 116.5 356.6 178.8 136.9 132.6 328.5 171.3 129.0 142.5 309.4 165.9 116.9 155.7 280.4 157.2
160 166.5 136.2 399.3 201.7 153.6 153.6 368.4 193.3 145.0 164.2 347.8 187.5 132.0 178.6 316.7 178.3
070
48.0
80.3 55.3 192.7 94.6 73.5 64.3 176.4 90.1 68.8 69.8 165.0 86.8 61.5 77.1 147.6 81.5
080 88.4 63.7 212.1 104.8 81.2 73.7 194.9 100.3 76.2 79.7 183.0 96.9 68.6 87.8 164.6 91.3
090 97.5 72.1 234.1 116.2 89.9 83.1 215.7 111.4 84.6 89.8 203.1 107.9 76.4 98.7 183.4 102.0
100 110.5 79.3 265.2 131.0 102.0 92.0 244.8 125.8 96.1 99.8 230.7 122.0 87.0 110.5 208.7 115.6
110 118.3 87.5 283.9 140.9 109.5 101.1 262.7 135.6 103.4 109.4 248.1 131.7 93.9 120.8 225.3 125.1
120 125.9 95.6 302.1 150.7 116.8 110.0 280.3 145.3 110.5 118.8 265.1 141.2 100.6 130.8 241.5 134.5
140 154.4 117.1 370.6 184.7 142.4 134.0 341.8 177.1 134.3 144.3 322.3 171.6 121.9 158.2 292.5 162.8
160 172.8 137.2 414.8 208.3 159.6 155.4 382.9 199.8 150.8 166.5 361.9 193.9 137.5 181.7 329.9 184.5
070
50.0
83.5 55.4 200.5 97.9 76.6 64.8 184.0 93.4 71.9 70.6 172.6 90.1 64.4 78.3 154.7 84.7
080 91.9 63.9 220.7 108.4 84.6 74.3 203.1 103.8 79.5 80.6 191.0 100.4 71.7 89.2 172.2 94.8
090 101.4 72.3 243.4 120.1 93.6 83.8 224.7 115.3 88.2 90.8 211.8 111.7 79.8 100.3 191.7 105.8
100 114.5 79.5 274.9 135.1 105.9 92.6 254.3 129.9 99.9 100.8 239.9 126.0 90.6 112.0 217.5 119.6
110 122.5 87.8 294.1 145.2 113.5 101.8 272.6 139.9 107.3 110.6 257.7 135.9 97.6 122.5 234.5 129.3
120 130.3 96.0 312.8 155.1 121.0 110.9 290.6 149.7 114.6 120.1 275.2 145.7 104.5 132.7 250.9 138.8
140 160.2 117.6 384.7 190.7 148.0 135.3 355.4 183.0 139.7 146.0 335.4 177.5 127.0 160.7 304.9 168.6
160 179.3 138.1 430.6 215.1 165.9 157.1 398.4 206.6 156.7 168.7 376.3 200.4 143.0 184.6 343.4 190.8
070
55.0
92.1 55.5 221.3 106.5 84.7 65.8 203.7 101.8 79.7 72.2 191.6 98.4 72.0 81.1 173.2 93.0
080 101.1 64.0 242.9 117.6 93.4 75.5 224.5 112.9 88.1 82.6 211.7 109.5 79.8 92.4 191.9 103.7
090 111.4 72.6 267.7 130.2 103.2 85.3 248.0 125.3 97.5 93.1 234.4 121.6 88.7 103.9 213.2 115.6
100 124.8 79.7 300.0 145.5 115.8 94.0 278.4 140.2 109.7 103.0 263.6 136.3 99.9 115.6 240.1 129.8
110 133.3 88.2 320.4 156.1 124.0 103.5 298.0 150.8 117.5 113.1 282.5 146.8 107.4 126.4 258.2 140.1
120 141.6 96.5 340.3 166.6 132.0 112.8 317.2 161.1 125.3 122.9 301.1 157.1 114.8 137.0 275.9 150.3
140 175.7 118.5 422.2 206.3 162.6 138.0 390.9 198.4 153.8 150.0 369.7 192.6 — — — —
160 196.3 139.8 471.8 232.5 181.9 160.9 437.1 223.5 172.8 173.8 414.1 217.3 157.6 191.7 378.7 207.2
070
60.0
101.2 55.2 243.4 115.5 93.0 66.4 223.8 110.2 86.9 73.3 209.0 105.9 77.4 82.7 186.2 98.8
080 110.7 63.8 266.4 127.2 102.5 76.3 246.7 122.3 96.6 84.1 232.3 118.4 87.2 94.8 209.6 111.7
090 121.9 72.4 293.2 140.6 113.0 86.3 271.9 135.3 106.7 94.9 256.6 131.2 96.9 106.7 233.0 124.5
100 135.7 79.6 326.4 156.3 126.4 95.0 304.0 150.9 119.9 104.8 288.4 147.0 109.4 118.6 263.1 140.1
110 144.6 88.1 347.8 167.4 134.9 104.7 324.5 162.0 128.2 115.1 308.4 158.0 117.4 129.8 282.4 151.0
120 153.4 96.5 369.0 178.4 143.4 114.2 344.9 172.9 136.4 125.3 328.1 168.8 125.5 140.9 301.9 162.0
140 191.8 118.7 461.5 222.5 178.2 140.1 428.6 214.4 168.7 153.4 405.9 208.4 — — — —
160 214.1 140.8 515.1 250.6 198.9 164.0 478.3 241.3 188.6 178.3 453.6 234.7 173.0 198.2 416.1 224.3
LEGEND
ARI — Air Conditioning and Refrigeration Institute (U.S.A.)
Cap. — Capacity
kW — Compressor Motor Power Input at Rated Voltage
LCWT — Leaving Chilled Water Temperature
THR — Total Heat Rejection
22

Performance data
30HS/Air-Cooled Condenser Combinations
— English
Performance data for 30HS chillers in combination with remote air-cooled con-
densers includes the following system combinations:
CHILLER AIR-COOLED CONDENSER CHILLER AIR-COOLED CONDENSER
30HS070 09DK044/09DK034 30HS110 (2) 09DK064
30HS080 09DK054/09DK034 30HS120 (2) 09DK064
30HS090 09DK064/09DK034 30HS140 (2) 09DK084
30HS100 (2) 09DK054 30HS160 (2) 09DK094
NOTE: Numbers in ( ) indicate quantity.
30HS
UNIT
SIZE
LCWT
(F)
CONDENSER ENTERING AIR TEMPERATURE (F)
85.0 95.0 105.0 115.0 125.0
Cap.
(Tons) Input
kW
Cooler
Flow
Rate
(Gpm)
Cap.
(Tons) Input
kW
Cooler
Flow
Rate
(Gpm)
Cap.
(Tons) Input
kW
Cooler
Flow
Rate
(Gpm)
Cap.
(Tons) Input
kW
Cooler
Flow
Rate
(Gpm)
Cap.
(Tons) Input
kW
Cooler
Flow
Rate
(Gpm)
070
40.0
62.1 61.7 148.6 58.1 65.7 139.1 54.1 69.2 129.5 50.0 72.3 119.6 — — —
080 68.9 70.7 164.9 64.7 75.1 154.9 60.4 79.0 144.6 56.0 82.4 134.1 — — —
090 76.6 79.5 183.5 72.1 84.4 172.7 67.5 88.8 161.7 62.9 92.6 150.5 — — —
100 87.6 89.4 209.6 82.4 95.3 197.4 77.3 100.6 185.0 71.9 105.3 172.2 — — —
110 93.5 99.5 223.9 88.2 105.6 211.1 82.7 111.0 198.1 — — — — — —
120 101.3 105.9 242.4 95.8 112.6 229.3 90.2 118.7 215.8 84.4 124.2 202.0 — — —
140 123.1 127.0 294.6 116.2 134.8 278.2 109.2 141.9 261.4 102.2 148.4 244.6 — — —
160 142.2 139.6 340.4 134.7 148.8 322.4 127.1 157.3 304.2 119.4 165.2 285.8 111.8 172.5 267.5
070
42.0
64.7 62.9 154.9 60.6 67.1 145.2 56.5 70.8 135.3 52.3 74.1 125.3 — — —
080 71.7 72.1 171.8 67.4 76.7 161.5 63.0 80.9 150.9 58.5 84.5 140.3 — — —
090 79.7 81.1 191.0 75.1 86.2 179.9 70.4 90.8 168.7 65.6 94.9 157.2 — — —
100 90.8 91.0 217.4 85.6 97.1 205.1 80.3 102.6 192.3 74.9 107.6 179.4 — — —
110 96.9 101.4 232.1 91.5 107.7 219.1 85.9 113.4 205.8 — — — — — —
120 104.9 107.7 251.3 99.3 114.7 237.8 93.6 121.2 224.1 87.7 126.9 210.0 — — —
140 127.7 129.4 305.9 120.7 137.5 289.2 113.6 145.0 272.2 106.4 151.7 254.8 — — —
160 147.6 141.9 353.6 139.9 151.5 335.1 132.1 160.4 316.4 124.3 168.7 297.7 116.3 176.3 278.7
070
44.0
67.3 64.1 161.4 63.2 68.5 151.5 59.0 72.4 141.3 54.7 75.9 131.0 — — —
080 74.6 73.5 178.7 70.2 78.3 168.2 65.7 82.7 157.4 61.1 86.5 146.5 — — —
090 82.8 82.6 198.6 78.1 88.0 187.3 73.3 92.8 175.8 68.4 97.1 164.0 — — —
100 94.1 92.6 225.5 88.8 98.9 212.8 83.4 104.7 199.8 — — — — — —
110 100.3 103.2 240.5 94.8 109.8 227.3 89.2 115.8 213.7 — — — — — —
120 108.6 109.6 260.3 102.8 116.8 246.5 97.0 123.5 232.5 91.0 129.6 218.2 — — —
140 132.5 131.7 317.6 125.3 140.2 300.4 118.0 148.0 283.0 110.7 155.1 265.3 — — —
160 153.1 144.2 367.0 145.2 154.1 348.0 137.2 163.4 328.9 129.2 172.1 309.6 — — —
070
46.0
70.0 65.4 167.9 65.8 69.9 157.8 61.5 74.0 147.4 57.1 77.7 136.9 — — —
080 77.5 74.9 185.8 73.0 79.9 175.1 68.4 84.5 164.0 — — — — — —
090 86.0 84.2 206.4 81.2 89.8 194.8 76.3 94.8 183.0 71.3 99.4 171.0 — — —
100 97.4 94.2 233.7 92.0 100.8 220.7 86.5 106.8 207.4 — — — — — —
110 103.8 105.1 249.1 98.3 112.0 235.7 92.5 118.2 221.9 — — — — — —
120 112.3 111.5 269.5 1-6.5 119.0 255.4 100.5 125.9 241.0 — — — — — —
140 137.4 134.0 329.5 130.0 142.9 311.8 122.5 151.0 294.0 115.0 158.5 275.9 — — —
160 158.8 146.5 380.9 150.6 156.8 361.2 142.4 166.5 341.6 134.2 175.5 321.8 — — —
23

Performance data
30HS/Air-Cooled Condenser Combinations
— English (cont)
30HS
UNIT
SIZE
LCWT
(F)
CONDENSER ENTERING AIR TEMPERATURE (F)
85.0 95.0 105.0 115.0 125.0
Cap.
(Tons) Input
kW
Cooler
Flow
Rate
(Gpm)
Cap.
(Tons) Input
kW
Cooler
Flow
Rate
(Gpm)
Cap.
(Tons) Input
kW
Cooler
Flow
Rate
(Gpm)
Cap.
(Tons) Input
kW
Cooler
Flow
Rate
(Gpm)
Cap.
(Tons) Input
kW
Cooler
Flow
Rate
(Gpm)
070
48.0
72.8 66.6 174.7 68.4 71.3 164.3 64.0 75.6 153.7 — — — — — —
080 80.5 76.3 193.1 75.9 81.5 182.0 71.2 86.3 170.8 — — — — — —
090 89.3 85.7 214.4 84.4 91.6 202.5 79.4 96.9 190.4 — — — — — —
100 100.9 95.9 242.1 95.3 102.6 228.8 89.7 108.9 215.3 — — — — — —
110 107.5 107.0 257.9 101.7 114.1 244.1 95.8 120.6 229.9 — — — — — —
120 116.1 113.3 278.7 110.2 121.1 264.5 104.1 128.3 249.7 — — — — — —
140 142.4 136.4 341.8 134.8 145.6 323.5 127.2 154.1 305.2 — — — — — —
160 164.5 148.8 394.8 156.1 159.5 374.7 147.7 169.6 354.5 139.3 179.0 334.3 — — —
070
50.0
75.6 67.8 181.5 71.2 72.7 170.9 66.7 77.2 160.0 — — — — — —
080 83.5 77.7 200.5 78.8 83.1 189.2 74.0 88.1 177.7 — — — — — —
090 92.7 87.2 222.5 87.6 93.3 210.4 82.5 98.9 198.0 — — — — — —
100 104.3 97.5 250.5 98.8 104.5 237.1 92.9 111.0 223.2 — — — — — —
110 111.0 108.9 266.6 105.2 116.2 252.6 99.2 123.0 238.2 — — — — — —
120 120.0 115.2 288.1 114.0 123.3 273.6 107.7 130.8 258.7 — — — — — —
140 147.5 138.8 354.1 139.7 148.3 335.5 131.8 157.1 316.6 — — — — — —
160 170.4 151.1 409.2 161.8 162.2 388.5 153.2 172.6 367.8 144.5 182.4 347.0 — — —
070
55.0
82.8 70.9 199.0 78.2 76.3 187.9 73.4 81.3 176.5 — — — — — —
080 91.3 81.3 219.5 86.4 87.2 207.6 81.3 92.7 195.4 — — — — — —
090 101.3 91.2 243.4 96.0 97.8 230.6 90.5 104.0 217.6 — — — — — —
100 113.3 101.6 272.3 107.4 109.2 258.2 101.3 116.4 243.6 — — — — — —
110 120.3 113.7 289.1 114.2 121.7 274.5 — — — — — — — — —
120 129.9 119.9 312.2 123.5 128.7 296.9 117.0 136.9 281.3 — — — — — —
140 160.7 145.0 386.2 152.4 155.3 366.3 — — — — — — — — —
160 185.5 156.8 445.9 176.4 168.9 424.1 167.4 180.3 402.2 158.0 191.0 379.8 — — —
070
60.0
89.6 73.8 215.6 84.0 79.2 202.1 78.3 84.2 188.4 — — — — — —
080 99.2 84.8 238.6 93.7 91.1 225.4 87.9 96.8 211.6 — — — — — —
090 109.8 95.1 264.2 103.9 102.1 250.0 97.9 108.6 235.5 — — — — — —
100 122.5 105.8 294.6 116.4 114.0 280.0 109.9 121.7 264.4 — — — — — —
110 129.9 118.6 312.5 123.5 127.2 297.2 — — — — — — — — —
120 140.1 124.6 337.1 133.5 134.1 321.2 126.7 143.0 304.9 — — — — — —
140 174.4 151.2 419.5 165.7 162.3 398.7 — — — — — — — — —
160 201.4 162.4 484.5 191.8 175.5 461.3 182.1 187.9 438.0 172.3 199.7 414.4 — — —
LEGEND
Cap. — Capacity
kW — Compressor Motor Power Input at Rated Voltage
LCWT — Leaving Chilled Water Temperature
24

Performance data
30HR Water-Cooled — SI
30HR
UNIT
SIZE
LCWT
(C)
CONDENSER ENTERING WATER TEMPERATURE (C)
25.0 30.0 35.0 40.0
Cap.
(kW) Input
kW
Cooler
Flow
Rate
(L/s)
Cond
Flow
Rate
(L/s)
Cap.
(kW) Input
kW
Cooler
Flow
Rate
(L/s)
Cond
Flow
Rate
(L/s)
Cap.
(kW) Input
kW
Cooler
Flow
Rate
(L/s)
Cond
Flow
Rate
(L/s)
Cap.
(kW) Input
kW
Cooler
Flow
Rate
(L/s)
Cond
Flow
Rate
(L/s)
070
4.0
231.1 54.7 9.9 12.2 218.7 59.0 9.4 11.8 205.9 62.9 8.8 11.4 — — — —
080 257.6 62.4 11.1 13.6 244.4 67.1 10.5 13.2 230.9 71.6 9.9 12.9 — — — —
090 285.1 70.5 12.2 15.1 271.0 75.7 11.6 14.7 256.5 80.6 11.0 14.3 — — — —
100 328.5 77.7 14.1 17.3 312.8 84.0 13.4 16.9 296.2 89.8 12.7 16.4 — — — —
110 352.5 85.5 15.1 18.6 336.0 92.2 14.4 18.2 319.0 98.4 13.7 17.7 — — — —
120 376.3 93.2 16.2 20.0 359.1 100.3 15.4 19.5 341.7 106.9 14.7 19.1 — — — —
140 452.0 114.8 19.4 24.1 430.2 122.9 18.5 23.5 408.0 130.4 17.5 22.9 — — — —
160 501.3 129.2 21.5 26.8 478.0 137.8 20.5 26.2 454.6 145.8 19.5 25.5 — — — —
070
5.0
240.1 55.2 10.3 12.6 227.4 59.6 9.8 12.2 214.3 63.8 9.2 11.8 — — — —
080 267.2 63.0 11.5 14.0 253.8 67.9 10.9 13.7 240.0 72.6 10.3 13.3 — — — —
090 295.6 71.1 12.7 15.6 281.2 76.6 12.1 15.2 266.5 81.7 11.5 14.8 — — — —
100 340.0 78.4 14.6 17.8 323.5 84.8 13.9 17.4 306.9 90.9 13.2 16.9 — — — —
110 364.3 86.2 15.6 19.2 347.5 93.1 14.9 18.7 330.2 99.7 14.2 18.3 — — — —
120 388.6 94.1 16.7 20.5 371.4 101.4 16.0 20.1 353.3 108.3 15.2 19.6 — — — —
140 468.0 116.1 20.1 24.8 445.6 124.5 19.1 24.2 423.0 132.3 18.2 23.6 — — — —
160 518.9 130.7 22.3 27.6 495.0 139.6 21.3 27.0 471.1 148.0 20.2 26.3 — — — —
070
6.0
249.2 55.7 10.7 13.0 236.2 60.3 10.2 12.6 222.9 64.7 9.6 12.2 — — — —
080 277.1 63.5 11.9 14.5 263.4 68.7 11.3 14.1 249.4 73.5 10.7 13.7 — — — —
090 306.3 71.8 13.2 16.1 291.7 77.5 12.5 15.7 276.7 82.8 11.9 15.3 — — — —
100 351.3 79.0 15.1 18.3 334.9 85.7 14.4 17.9 317.8 92.0 13.7 17.4 — — — —
110 376.4 86.9 16.2 19.7 359.2 94.1 15.4 19.3 341.6 100.9 14.7 18.8 — — — —
120 401.1 94.8 17.2 21.1 383.4 102.5 16.5 20.7 365.3 109.6 15.7 20.2 — — — —
140 484.2 117.3 20.8 25.6 461.5 126.0 19.8 25.0 438.2 134.2 18.8 24.3 — — — —
160 536.8 132.2 23.1 28.4 512.4 141.4 22.0 27.8 487.9 150.1 21.0 27.1 — — — —
070
7.0
258.6 56.2 11.1 13.4 245.3 61.0 10.6 13.0 231.8 65.5 10.0 12.7 — — — —
080 287.1 64.1 12.4 14.9 273.0 69.6 11.6 14.5 258.9 74.5 11.1 14.2 — — — —
090 317.2 72.4 13.6 16.6 302.4 78.4 13.0 16.2 287.1 83.9 12.3 15.8 — — — —
100 362.8 79.6 15.6 18.8 346.2 86.5 14.9 18.4 329.0 93.0 14.2 18.0 — — — —
110 388.5 87.6 16.7 20.3 371.2 95.0 16.0 19.8 353.2 102.0 15.2 19.4 — — — —
120 413.8 95.6 17.8 21.7 395.9 103.5 17.0 21.2 377.4 110.9 16.2 20.8 — — — —
140 500.9 118.5 21.5 26.3 477.6 127.5 20.5 25.7 453.8 136.0 19.5 25.1 — — — —
160 555.2 133.6 23.9 29.3 530.1 143.2 22.8 28.6 505.1 152.2 21.7 27.9 — — — —
070
8.0
268.0 56.6 11.5 13.8 254.6 61.6 11.0 13.5 240.7 66.3 10.4 13.1 — — — —
080 297.4 64.6 12.8 15.4 283.2 70.2 12.2 15.0 268.6 75.4 11.6 14.6 — — — —
090 328.4 73.0 14.1 17.1 313.1 79.2 13.5 16.7 297.7 85.0 12.8 16.3 — — — —
100 374.4 80.0 16.1 19.4 357.7 87.2 15.4 18.9 340.3 94.1 14.6 18.5 — — — —
110 400.8 88.2 17.2 20.8 383.3 95.9 16.5 20.4 365.0 103.1 15.7 19.9 — — — —
120 426.9 96.4 18.4 22.3 408.7 104.5 17.6 21.8 390.0 112.1 16.8 21.4 — — — —
140 517.8 119.6 22.3 27.1 494.0 129.0 21.3 26.5 469.8 137.8 20.2 25.8 — — — —
160 573.9 135.0 24.7 30.1 548.3 144.9 23.6 29.5 522.6 154.3 22.5 28.8 — — — —
070
9.0
277.8 57.1 12.0 14.3 264.1 62.2 11.4 13.9 250.0 67.1 10.8 13.5 — — — —
080 307.7 65.1 13.2 15.9 293.3 70.9 12.6 15.5 278.5 76.3 12.0 15.1 — — — —
090 339.7 73.6 14.6 17.6 324.3 79.9 14.0 17.2 308.4 86.0 13.3 16.8 — — — —
100 386.2 80.6 16.6 19.9 369.4 87.9 15.9 19.5 351.6 95.0 15.1 19.0 — — — —
110 413.3 88.8 17.8 21.4 395.5 96.7 17.0 21.0 377.2 104.2 16.2 20.5 — — — —
120 440.1 97.0 18.9 22.9 421.5 105.4 18.1 22.4 402.6 113.4 17.3 22.0 — — — —
140 535.3 120.7 23.0 27.9 510.8 130.4 22.0 27.3 486.0 139.6 20.9 26.6 — — — —
160 592.9 136.3 25.5 31.0 566.8 146.6 24.4 30.3 540.6 156.3 23.3 29.7 — — — —
070
10.0
287.4 57.5 12.4 14.7 273.6 62.8 11.8 14.3 259.4 67.8 11.2 13.9 — — — —
080 318.3 65.6 13.7 16.4 303.6 71.5 13.1 16.0 288.5 77.2 12.4 15.6 — — — —
090 351.2 74.1 15.1 18.1 335.5 80.7 14.5 17.7 319.4 86.9 13.8 17.3 — — — —
100 398.6 81.1 17.2 20.4 380.9 88.7 16.4 20.0 363.1 96.0 15.6 19.6 — — — —
110 426.0 89.3 18.4 22.0 407.9 97.5 17.6 21.5 389.4 105.3 16.8 21.1 — — — —
120 453.1 97.6 19.5 23.5 434.6 106.3 18.7 23.0 415.2 114.5 17.9 22.6 — — — —
140 552.9 121.8 23.8 28.7 528.1 131.8 22.7 28.1 502.6 141.3 21.6 27.4 — — — —
160 612.2 137.7 26.4 31.9 585.6 148.3 25.2 31.2 558.6 158.4 24.1 30.5 — — — —
070
13.0
317.8 58.6 13.7 16.1 303.1 64.4 13.1 15.7 288.0 70.0 12.4 15.3 — — — —
080 351.5 66.8 15.2 17.8 335.9 73.3 14.5 17.5 319.7 79.6 13.8 17.0 — — — —
090 387.3 75.5 16.7 19.7 370.4 82.7 16.0 19.3 353.4 89.7 15.2 18.9 — — — —
100 436.2 82.4 18.8 22.1 417.8 90.7 18.0 21.7 399.1 98.5 17.2 21.2 — — — —
110 465.1 90.8 20.1 23.7 446.3 99.8 19.2 23.3 426.9 108.1 18.4 22.8 — — — —
120 494.3 99.3 21.3 25.3 474.4 108.8 20.5 24.9 454.8 117.8 19.6 24.4 — — — —
140 607.5 124.8 26.2 31.2 581.2 135.8 25.1 30.5 554.4 146.3 23.9 29.9 — — — —
160 672.6 141.5 29.0 34.7 644.2 153.2 27.8 34.0 615.1 164.4 26.5 33.2 — — — —
070
16.0
347.3 59.5 15.0 17.4 329.4 65.5 14.2 16.9 311.0 71.4 13.4 16.3 — — — —
080 385.6 67.7 16.6 19.4 368.1 74.8 15.9 18.9 350.1 81.6 15.1 18.4 — — — —
090 424.0 76.6 18.3 21.4 405.3 84.4 17.5 20.9 386.5 92.0 16.7 20.4 — — — —
100 475.4 83.4 20.5 23.9 456.3 92.3 19.7 23.4 436.8 100.8 18.9 23.0 — — — —
110 506.5 92.0 21.9 25.5 486.7 101.6 21.0 25.1 466.2 110.8 20.1 24.6 — — — —
120 537.1 100.7 23.2 27.2 516.6 110.9 22.3 26.8 495.6 120.8 21.4 26.3 — — — —
140 665.0 127.5 28.7 33.8 637.2 139.5 27.5 33.1 608.4 150.9 26.3 32.4 — — — —
160 736.0 145.1 31.8 37.6 705.8 157.8 30.5 36.8 675.4 169.9 29.2 36.0 — — — —
LEGEND
Cap. — Capacity
kW — Compressor Motor Power Input at Rated Voltage
LCWT — Leaving Chilled Water Temperature
25

Performance data
30HS Condenserless — SI
30HS
UNIT
SIZE
LCWT
(C)
SATURATED DISCHARGE TEMPERATURE (C)
35.0 45.0 50.0 55.0
Cap.
(kW) Input
kW
Cooler
Flow
Rate
(L/s)
THR
(kW) Cap.
(kW) Input
kW
Cooler
Flow
Rate
(L/s)
THR
(kW) Cap.
(kW) Input
kW
Cooler
Flow
Rate
(L/s)
THR
(kW) Cap.
(kW) Input
kW
Cooler
Flow
Rate
(L/s)
THR
(kW)
070
4.0
234.3 54.1 10.1 283.5 208.0 62.7 8.9 265.1 194.4 66.5 8.3 254.9 180.5 69.8 7.7 244.0
080 259.3 62.1 11.1 315.8 231.5 71.7 9.9 296.8 217.1 75.9 9.3 286.2 202.5 79.6 8.7 274.9
090 287.0 70.3 12.3 350.9 257.4 80.8 11.0 330.9 242.1 85.4 10.4 319.8 226.4 89.4 9.7 307.8
100 329.7 77.7 14.2 400.4 296.4 90.2 12.7 378.5 279.0 95.8 12.0 366.2 261.1 100.9 11.2 352.9
110 354.1 85.6 15.2 432.0 319.4 98.9 13.7 409.5 301.4 104.9 12.9 396.8 282.8 110.3 12.1 383.2
120 378.0 93.3 16.2 462.9 342.0 107.5 14.7 439.8 323.4 113.8 13.9 426.9 304.2 119.5 13.1 413.0
140 457.3 113.5 19.6 560.6 411.7 129.9 17.7 529.9 388.6 137.1 16.7 513.4 365.2 143.7 15.7 496.0
160 512.8 132.0 22.0 632.9 463.5 149.7 19.9 599.7 438.7 157.6 18.8 582.2 413.9 164.9 17.8 564.0
070
5.0
243.7 54.4 10.5 293.2 216.9 63.5 9.3 274.7 203.0 67.5 8.7 264.4 188.9 71.0 8.1 253.5
080 269.4 62.6 11.6 326.3 241.1 72.6 10.4 307.2 226.5 77.0 9.7 296.5 211.5 80.9 9.1 285.2
090 298.0 70.8 12.8 362.4 267.8 81.8 11.5 342.3 252.2 86.6 10.8 331.1 236.3 91.0 10.2 319.1
100 341.4 78.1 14.7 412.5 307.5 91.2 13.2 390.5 289.8 97.0 12.5 378.1 271.7 102.4 11.7 364.9
110 366.3 86.1 15.7 444.7 331.1 100.0 14.2 422.2 312.8 106.3 13.4 409.5 294.0 112.0 12.6 395.9
120 390.8 93.9 16.8 476.3 354.3 108.7 15.2 453.2 335.4 115.3 14.4 440.3 315.9 121.3 13.6 426.3
140 474.1 114.4 20.4 578.3 427.5 131.5 18.4 547.2 403.8 139.1 17.3 530.5 379.9 146.1 16.3 512.9
160 532.0 133.2 22.9 653.3 480.8 151.7 20.7 618.9 455.4 159.9 19.6 601.0 430.0 167.6 18.5 582.5
070
6.0
253.3 54.7 10.9 303.0 226.0 64.2 9.7 284.4 211.9 68.4 9.1 274.1 197.4 72.2 8.5 263.1
080 279.7 62.9 12.0 337.0 250.9 73.4 10.8 317.7 236.0 78.1 10.1 307.0 220.7 82.3 9.5 295.6
090 309.2 71.2 13.3 374.0 278.5 82.7 12.0 353.8 262.6 87.9 11.3 342.5 246.3 92.5 10.6 330.5
100 353.0 78.5 15.2 424.5 318.8 92.1 13.7 402.6 300.9 98.2 12.9 390.2 282.4 103.8 12.1 377.0
110 378.8 86.5 16.3 457.5 343.0 101.0 14.7 435.0 324.4 107.6 13.9 422.3 305.3 113.6 13.1 408.7
120 403.8 94.4 17.4 489.8 366.8 109.8 15.8 466.8 347.3 116.7 14.9 453.5 327.8 123.0 14.1 439.7
140 491.3 115.2 21.1 596.2 443.6 133.1 19.1 564.8 419.4 141.1 18.0 547.8 394.9 148.4 17.0 530.0
160 550.6 134.3 23.7 672.9 498.6 153.6 21.4 638.4 472.5 162.2 20.3 620.2 446.4 170.3 19.2 601.4
070
7.0
263.3 54.9 11.3 313.3 235.3 64.8 10.1 294.3 220.9 69.3 9.5 284.0 206.2 73.3 8.9 272.9
080 290.2 63.2 12.5 347.8 260.9 74.2 11.2 328.4 245.7 79.1 10.6 317.7 230.1 83.5 9.9 306.2
090 320.7 71.6 13.8 385.8 289.4 83.6 12.4 365.5 273.2 89.0 11.7 354.2 256.6 93.9 11.0 342.1
100 365.6 78.8 15.7 437.3 330.3 92.9 14.2 414.9 312.1 99.3 13.4 402.5 293.4 105.3 12.6 389.2
110 391.4 86.9 16.8 470.6 355.2 102.0 15.3 448.0 336.3 108.8 14.5 435.3 316.8 115.1 13.6 421.6
120 417.1 94.9 17.9 503.5 379.5 110.8 16.3 480.4 360.2 118.1 15.5 467.7 339.8 124.7 14.6 453.4
140 508.9 116.0 21.9 614.4 460.1 134.6 19.8 582.6 435.4 142.9 18.7 565.5 410.3 150.6 17.6 547.4
160 570.0 135.4 24.5 693.2 516.7 155.5 22.2 658.2 490.0 164.5 21.1 639.7 463.2 172.9 19.9 620.6
070
8.0
273.2 55.1 11.8 323.4 244.8 65.5 10.5 304.4 230.1 70.1 9.9 294.0 215.1 74.4 9.3 282.8
080 301.0 63.5 13.0 358.8 271.1 74.9 11.7 339.3 255.6 80.1 11.0 328.5 239.8 84.8 10.3 316.9
090 332.4 71.9 14.3 397.8 300.5 84.5 12.9 377.4 284.0 90.1 12.2 366.0 267.1 95.3 11.5 353.8
100 377.5 79.1 16.2 449.5 342.0 93.7 14.7 427.3 323.5 100.4 13.9 414.9 304.5 106.6 13.1 401.6
110 404.3 87.3 17.4 483.8 367.5 102.9 15.8 461.1 348.3 110.0 15.0 448.4 328.5 116.6 14.1 434.7
120 430.6 95.3 18.5 517.3 392.4 111.9 16.9 494.3 372.6 119.4 16.0 481.2 352.1 126.4 15.2 467.1
140 526.8 116.6 22.7 633.0 477.0 136.0 20.5 600.8 451.7 144.7 19.4 583.4 426.1 152.8 18.3 565.2
160 589.8 136.4 25.4 713.9 535.2 157.3 23.0 678.4 507.8 166.7 21.9 659.6 480.3 175.5 20.7 640.1
070
9.0
283.5 55.3 12.2 333.8 254.7 66.0 11.0 314.8 239.6 70.9 10.3 304.1 224.3 75.4 9.7 292.9
080 312.0 63.7 13.4 370.0 281.5 75.6 12.1 350.4 265.8 81.0 11.4 339.5 249.6 85.9 10.7 327.8
090 344.4 72.1 14.8 410.0 311.9 85.3 13.4 389.5 295.0 91.2 12.7 378.0 277.8 96.6 12.0 365.7
100 390.0 79.3 16.8 462.2 354.0 94.5 15.2 439.9 335.2 101.4 14.4 427.5 315.9 107.9 13.6 414.1
110 417.4 87.6 18.0 497.1 380.0 103.7 16.4 474.5 360.5 111.1 15.5 461.7 340.5 118.1 14.7 448.0
120 444.3 95.7 19.1 531.4 405.6 112.8 17.5 508.3 385.4 120.6 16.6 495.2 364.6 128.0 15.7 481.1
140 545.1 117.2 23.5 651.8 494.3 137.3 21.3 619.3 468.4 146.4 20.2 601.7 442.2 154.9 19.0 583.2
160 610.1 137.3 26.3 735.0 553.7 158.9 23.8 698.4 526.1 168.8 22.7 679.8 497.9 178.1 21.4 660.0
070
10.0
293.7 55.4 12.7 344.2 264.5 66.5 11.4 325.1 249.4 71.7 10.7 314.6 233.6 76.4 10.1 303.1
080 323.2 63.9 13.9 381.3 292.2 76.2 12.6 361.6 276.1 81.8 11.9 350.6 259.6 87.1 11.2 338.9
090 356.6 72.3 15.4 422.4 323.5 86.0 13.9 401.8 306.3 92.2 13.2 390.2 288.7 97.9 12.4 377.8
100 402.6 79.5 17.3 475.0 366.1 95.1 15.8 452.7 347.0 102.4 14.9 440.2 327.4 109.2 14.1 426.8
110 430.7 87.8 18.6 510.6 392.8 104.5 16.9 487.9 373.0 112.2 16.1 475.2 352.6 119.4 15.2 461.4
120 458.2 96.0 19.7 545.6 418.9 113.7 18.0 522.4 398.4 121.9 17.2 509.3 377.3 129.5 16.3 495.2
140 563.4 117.6 24.3 670.5 511.9 138.6 22.0 638.0 485.4 148.1 20.9 620.2 458.6 157.0 19.8 601.5
160 630.7 138.1 27.2 756.4 573.5 160.6 24.7 719.7 544.8 170.9 23.5 700.3 515.9 180.5 22.2 680.2
070
13.0
326.4 55.5 14.1 376.9 295.1 67.8 12.7 356.8 279.0 73.6 12.0 345.9 262.9 79.0 11.3 334.8
080 358.1 64.0 15.4 416.4 325.4 77.8 14.0 396.2 308.4 84.1 13.3 385.0 291.0 90.1 12.5 373.0
090 394.6 72.6 17.0 460.6 359.7 87.8 15.5 439.6 341.5 94.8 14.7 427.8 322.9 101.4 13.9 415.2
100 441.9 79.7 19.1 514.5 403.7 96.9 17.4 491.9 383.9 104.9 16.6 479.4 363.3 112.6 15.7 465.7
110 471.9 88.2 20.3 552.2 432.3 106.5 18.6 529.3 411.6 115.1 17.7 516.4 390.3 123.3 16.8 502.5
120 501.2 96.5 21.6 589.1 460.2 116.0 19.8 565.8 438.8 125.1 18.9 552.7 416.7 133.7 18.0 538.4
140 622.2 118.5 26.8 730.1 566.9 141.9 24.4 696.1 538.7 152.6 23.2 677.6 — — — —
160 695.2 139.9 30.0 822.5 634.0 165.1 27.3 784.3 603.5 176.7 26.0 764.4 572.2 187.6 24.7 743.0
070
16.0
359.4 55.1 15.5 409.5 321.1 68.5 13.9 383.5 301.4 74.6 13.0 369.3 281.4 80.3 12.1 354.5
080 394.6 63.7 17.0 452.6 357.7 78.8 15.4 429.4 338.2 85.7 14.6 416.2 316.5 92.1 13.7 400.3
090 433.8 72.3 18.7 499.6 394.6 89.0 17.0 475.7 374.3 96.8 16.2 462.4 353.3 104.0 15.2 447.9
100 483.4 79.5 20.9 555.8 443.6 98.1 19.1 532.9 422.7 107.0 18.2 520.1 397.4 115.2 17.2 502.2
110 515.0 88.1 22.2 595.1 473.7 108.1 20.4 572.1 452.1 117.5 19.5 559.0 427.6 126.4 18.5 542.6
120 546.2 96.5 23.6 634.0 503.5 117.8 21.7 610.7 481.1 127.8 20.8 597.4 458.0 137.4 19.8 583.0
140 684.0 118.6 29.5 792.0 625.1 144.5 27.0 756.6 593.3 156.3 25.6 735.6 — — — —
160 763.4 140.9 32.9 891.7 698.2 168.9 30.1 852.0 665.3 181.8 28.7 830.8 632.4 194.0 27.3 809.0
LEGEND
Cap. — Capacity
kW — Compressor Motor Power Input at Rated Voltage
LCWT — Leaving Chilled Water Temperature
THR — Total Heat Rejection
26

Performance data
30HS/Air-Cooled Condenser Combinations
—SI
Performance data for 30HS chillers in combination with remote air-cooled con-
densers includes the following system combinations:
CHILLER AIR-COOLED CONDENSER CHILLER AIR-COOLED CONDENSER
30HS070 09DK044/09DK034 30HS110 (2) 09DK064
30HS080 09DK054/09DK034 30HS120 (2) 09DK064
30HS090 09DK064/09DK034 30HS140 (2) 09DK084
30HS100 (2) 09DK054 30HS160 (2) 09DK094
NOTE: Numbers in ( ) indicate quantity.
30HS
UNIT
SIZE
LCWT
(C)
CONDENSER ENTERING AIR TEMPERATURE (C)
30.0 35.0 40.0 45.0 50.0
Cap.
(kW) Input
kW
Cooler
Flow
Rate
(L/s)
Cap.
(kW) Input
kW
Cooler
Flow
Rate
(L/s)
Cap.
(kW) Input
kW
Cooler
Flow
Rate
(L/s)
Cap.
(kW) Input
kW
Cooler
Flow
Rate
(L/s)
Cap.
(kW) Input
kW
Cooler
Flow
Rate
(L/s)
070
4.0
213.4 61.6 9.2 201.0 65.1 8.6 188.3 68.3 8.1 175.4 71.0 7.5 — — —
080 237.0 70.6 10.2 223.7 74.5 9.6 210.3 78.0 9.0 196.7 81.0 8.4 — — —
090 263.7 79.4 11.3 249.6 83.7 10.7 235.2 87.6 10.1 220.5 91.0 9.5 — — —
100 301.6 89.4 12.9 285.6 94.5 12.3 269.4 99.3 11.6 252.6 103.5 10.8 — — —
110 322.2 99.4 13.8 305.6 104.7 13.1 288.5 109.6 12.4 271.1 113.9 11.6 — — —
120 349.3 105.9 15.0 332.1 111.8 14.3 314.3 117.2 13.5 296.2 122.1 12.7 — — —
140 423.9 126.8 18.2 402.4 133.7 17.3 380.4 140.0 16.3 358.5 145.8 15.4 — — —
160 490.0 139.6 21.0 466.4 147.7 20.0 442.6 155.3 19.0 418.6 162.3 18.0 394.7 168.9 16.9
070
5.0
221.5 62.8 9.5 208.8 66.4 9.0 195.9 69.7 8.4 182.7 72.6 7.9 — — —
080 245.7 71.9 10.6 232.2 75.9 10.0 218.5 79.6 9.4 204.6 82.8 8.8 — — —
090 273.3 80.9 11.7 258.9 85.3 11.1 244.2 89.4 10.5 229.2 93.0 9.8 — — —
100 311.8 90.8 13.4 295.3 96.2 12.7 278.8 101.1 12.0 261.9 105.5 11.3 — — —
110 332.9 101.1 14.3 315.9 106.6 13.6 298.5 111.7 12.8 — — — — — —
120 360.4 107.5 15.5 342.9 113.7 14.7 325.2 119.3 14.0 306.6 124.5 13.2 — — —
140 438.5 129.0 18.8 416.5 136.1 17.9 394.4 142.7 16.9 371.7 148.8 16.0 — — —
160 506.9 141.7 21.8 482.7 150.1 20.7 458.4 158.0 19.7 434.0 165.4 18.6 409.2 172.2 17.6
070
6.0
229.7 63.9 9.9 216.8 67.7 9.3 203.6 71.1 8.8 190.2 74.2 8.2 — — —
080 254.7 73.2 10.9 240.9 77.4 10.4 226.9 81.2 9.8 212.7 84.6 9.1 — — —
090 283.1 82.3 12.2 268.3 86.9 11.5 253.3 91.2 10.9 238.1 95.0 10.2 — — —
100 322.2 92.3 13.8 305.4 97.8 13.1 288.4 102.9 12.4 271.3 107.6 11.7 — — —
110 343.7 102.8 14.8 326.4 108.5 14.0 308.7 113.8 13.3 — — — — — —
120 372.0 109.2 16.0 354.2 115.6 15.2 335.8 121.5 14.4 317.3 126.9 13.6 — — —
140 453.4 131.1 19.5 430.9 138.5 18.5 408.3 145.4 17.6 385.1 151.7 16.6 — — —
160 524.0 143.8 22.5 499.3 152.5 21.5 474.4 160.7 20.4 449.4 168.4 19.3 424.1 175.5 18.2
070
7.0
238.1 65.0 10.2 224.9 68.9 9.7 211.5 72.5 9.1 197.8 75.8 8.5 — — —
080 263.7 74.4 11.3 249.7 78.8 10.7 235.4 82.8 10.1 220.9 86.4 9.5 — — —
090 293.1 83.7 12.6 278.0 88.5 12.0 262.7 93.0 11.3 247.1 97.0 10.6 — — —
100 332.7 93.8 14.3 315.7 99.5 13.6 298.4 104.8 12.8 280.7 109.6 12.1 — — —
110 354.6 104.5 15.3 337.0 110.4 14.5 319.0 115.9 13.7 — — — — — —
120 383.8 110.9 16.5 365.4 117.5 15.7 346.7 123.6 14.9 327.8 129.2 14.1 — — —
140 468.5 133.3 20.2 445.6 140.9 19.2 422.4 148.1 18.2 399.0 154.8 17.2 — — —
160 541.5 145.9 23.3 516.3 154.9 22.2 490.8 163.4 21.1 465.2 171.4 20.0 439.4 178.9 18.9
27

Performance data
30HS/Air-Cooled Condenser Combinations
— SI (cont)
30HS
UNIT
SIZE
LCWT
(C)
CONDENSER ENTERING AIR TEMPERATURE (C)
30.0 35.0 40.0 45.0 50.0
Cap.
(kW) Input
kW
Cooler
Flow
Rate
(L/s)
Cap.
(kW) Input
kW
Cooler
Flow
Rate
(L/s)
Cap.
(kW) Input
kW
Cooler
Flow
Rate
(L/s)
Cap.
(kW) Input
kW
Cooler
Flow
Rate
(L/s)
Cap.
(kW) Input
kW
Cooler
Flow
Rate
(L/s)
070
8.0
246.7 66.1 10.6 233.2 70.2 10.0 219.5 73.9 9.4 205.6 77.4 8.8 — — —
080 273.0 75.7 11.7 258.7 80.2 11.1 244.1 84.4 10.5 229.3 88.2 9.9 — — —
090 303.2 85.1 13.0 287.9 90.1 12.4 272.2 94.8 11.7 256.3 99.0 11.0 — — —
100 343.2 95.2 14.8 326.0 101.2 14.0 308.5 106.7 13.3 290.5 111.7 12.5 — — —
110 365.9 106.2 15.7 348.0 112.4 15.0 329.7 118.1 14.2 — — — — — —
120 395.7 112.6 17.0 377.1 119.4 16.2 358.1 125.8 15.4 338.5 131.6 14.6 — — —
140 484.0 135.4 20.8 460.5 143.4 19.8 436.8 150.8 18.8 412.9 157.7 17.8 — — —
160 559.5 148.1 24.1 533.4 157.4 23.0 507.5 166.2 21.8 481.3 174.4 20.7 454.9 182.2 19.6
070
9.0
255.4 67.2 11.0 241.7 71.4 10.4 227.7 75.4 9.8 213.5 79.0 9.2 — — —
080 282.4 77.0 12.2 267.8 81.7 11.5 252.9 86.0 10.9 237.8 90.0 10.2 — — —
090 313.6 86.5 13.5 297.9 91.7 12.8 281.9 96.6 12.1 265.7 101.0 11.4 — — —
100 354.1 96.7 15.2 336.5 102.8 14.5 318.7 108.6 13.7 — — — — — —
110 377.2 107.9 16.2 359.0 114.3 15.5 340.2 120.2 14.6 — — — — — —
120 407.8 114.3 17.6 388.9 121.3 16.7 369.5 127.9 15.9 349.6 134.0 15.1 — — —
140 499.9 137.6 21.5 475.7 145.8 20.5 451.5 153.6 19.4 427.0 160.8 18.4 — — —
160 577.6 150.1 24.9 551.0 159.8 23.7 524.4 168.9 22.6 497.7 177.5 21.4 470.6 185.6 20.3
070
10.0
264.4 68.3 11.4 250.3 72.7 10.8 236.0 76.8 10.2 221.5 80.5 9.5 — — —
080 292.0 78.3 12.6 277.1 83.1 11.9 261.9 87.7 11.3 — — — — — —
090 324.1 87.9 14.0 308.1 93.3 13.3 291.8 98.4 12.6 275.3 103.0 11.9 — — —
100 365.0 98.2 15.7 347.3 104.5 15.0 329.1 110.4 14.2 — — — — — —
110 388.4 109.7 16.7 369.9 116.2 15.9 351.0 122.4 15.1 — — — — — —
120 419.9 116.0 18.1 400.8 123.3 17.3 381.1 130.0 16.4 — — — — — —
140 516.0 139.8 22.2 491.4 148.3 21.2 466.5 156.3 20.1 — — — — — —
160 596.4 152.2 25.7 569.0 162.2 24.5 541.7 171.6 23.3 514.4 180.5 22.2 486.7 188.9 21.0
070
13.0
291.7 71.7 12.6 276.8 76.6 11.9 262.0 81.2 11.3 — — — — — —
080 321.7 82.2 13.9 305.9 87.5 13.2 289.8 92.6 12.5 — — — — — —
090 356.7 92.2 15.4 339.9 98.2 14.7 322.6 103.8 13.9 — — — — — —
100 398.9 102.7 17.2 380.2 109.6 16.4 360.9 116.1 15.6 — — — — — —
110 423.6 114.9 18.3 404.2 122.1 17.4 384.3 128.9 16.6 — — — — — —
120 457.4 121.2 19.7 437.1 129.1 18.8 416.5 136.6 18.0 — — — — — —
140 566.0 146.5 24.4 539.6 155.8 23.3 — — — — — — — — —
160 653.7 158.5 28.2 624.8 169.4 26.9 595.9 179.8 25.7 566.2 189.6 24.4 — — —
070
16.0
313.4 74.4 13.5 295.6 79.2 12.8 277.6 83.7 12.0 — — — — — —
080 349.9 85.8 15.1 331.2 91.3 14.3 311.7 96.3 13.5 — — — — — —
090 387.6 96.2 16.7 368.8 102.6 15.9 349.6 108.6 15.1 — — — — — —
100 433.9 107.3 18.7 414.5 114.8 17.9 389.6 121.0 16.8 — — — — — —
110 460.2 120.3 19.9 439.6 128.0 19.0 — — — — — — — — —
120 496.4 126.4 21.4 475.3 135.0 20.5 453.7 143.1 19.6 — — — — — —
140 619.0 153.4 26.7 587.7 163.0 25.4 — — — — — — — — —
160 714.0 164.7 30.8 683.6 176.6 29.5 652.4 187.9 28.2 621.2 198.8 26.8 — — —
LEGEND
Cap. — Capacity
kW — Compressor Motor Power Input at Rated Voltage
LCWT — Leaving Chilled Water Temperature
28

Electrical data
COMPLETE UNIT
VOLT-
AGE
NOMINAL 208/230-3-60 460-3-60 575-3-60 06E COMPRESSOR
USAGE†
Supply
Range* 187-253 414-508 518-632 Circuit A Circuit B
Compressor Number
UNIT 30 MkW MCA ICF Rec MFA MCA ICF Rec MFA MCA ICF Rec MFAA1A2B1B2Fuse Fuse Fuse
Amps Amps Amps
HR
070 73.4 218 503 250 300 101 249 125 125 93 188 110 125 2150 A150 6175
—080 82.3 244 529 300 300 114 262 125 150 105 200 125 125 6175 A150 6175
090 91.2 270 612 300 350 127 301 150 150 117 236 150 150 6175 F175 6175
100 103.8 161 529 200 225 140 262 150 175 129 200 150 150 6175 A150 6175 A150
110 112.7 187 669 225 250 153 327 175 175 141 260 150 175 6175 F175 6175 A150
161 200 225
120 121.6 187 695 225 250 166 340 200 200 153 272 175 175 6175 F175 6175 F175
140 155.8 241 816 300 350 112 403 150 150 95 323 110 125 6299 F175 6299 F175
160 190.0 284 1068 350 400 131 519 150 175 106 417 125 150 6299 F299 6299 F299
HS
070 84.7 271 579 300 350 113 282 125 150 102 203 125 125 2250 A250 6275
—080 95.3 298 606 350 350 128 297 150 150 113 214 125 150 6275 A250 6275
090 105.9 325 706 350 400 143 341 175 175 124 252 150 150 6275 F275 6275
100 120.0 198 618 225 250 157 297 175 200 140 223 150 175 6275 A250 6275 A250
110 130.6 225 779 250 300 172 370 200 200 151 279 175 175 6275 F275 6275 A250
198 225 250
120 141.2 225 806 250 300 187 385 200 225 162 290 175 175 6275 F275 6275 F275
140 176.8 279 892 350 400 121 419 150 175 105 329 125 150 6299 F275 6299 F275
160 212.4 322 1119 400 450 138 528 175 175 120 435 150 150 6299 F299 6299 F299
INDIVIDUAL COMPRESSORS
UNIT 30 COMPRESSOR 208/230-3-60 460-3-60 575-3-60
06E kW RLA LRA MTA RLA LRA MTA RLA LRA MTA
HR 150 21.5 57 283 88 26 142 40 24 98 33
175 30.4 83 446 128 39 223 56 36 164 50
299 47.5 126 690 196 58 345 90 47 276 73
HS 250 24.7 73 345 112 29 173 45 27 120 40
275 35.3 100 506 156 44 253 68 38 176 57
299 53.1 143 690 222 61 345 95 53 276 82
LEGEND AND NOTES
Two electrical power circuits are required. A separate
entrance and a terminal block are provided for each cir-
cuit. Run 6 wires to unit from disconnect switch, 3 to
each circuit.
For size 110 units, the upper value is circuit A and lower
value is circuit B. For other size units, the value given is
per electrical circuit.
For all unshaded areas: Only 1 power circuit is required,
with a single entrance. Run 3 wires to unit, to a single
terminal block.
ICF — Maximum Instantaneous Current Flow during starting (the
point in the compressor starting sequence where the
sum of the LRA for the starting compressor plus the RLA
for all running compressors is maximum).
Not for wire
sizing.
kW — Maximum allowable power input (each compressor).
LRA — Locked Rotor Amps.
MCA — Minimum Circuit Amps (for wire sizing); complies with
NEC, Section 430-24 (U.S.A. Standard).
MFA — Maximum FuseAmps; 225% of largest compressor RLA
plus 100% of remaining compressor RLA. Size down to
the next standard fuse size.
MkW — Maximum unit power input.
MTA — Must Trip Amps (compressor circuit breaker).
NEC — National Electrical Code (U.S.A.).
Rec Fuse
Amps —Recommended dual element fuse amps; 150% of larg-
est compressor RLA plus 100% of remaining compres-
sor RLA. Size up to next standard fuse size.
RLA — Rated Load Amps.
*Units are suitable for use on electrical systems where voltage supplied
to the unit terminals is not below or above the listed range limits.
†Circuits and compressors are numbered from left to right when viewed
from the front of the unit.
NOTES:
1. Maximum incoming wire size for 208/230 v is as follows:
Units 070-090 have one terminal block, 3 wires, 500 kcmil.
Units 100-160 have 2 terminal blocks, 3 wires per block, 500 kcmil.
2. Maximum incoming wire size for 460 and 575 v is as follows:
Wire size maximum is 500 kcmil for units 070-160.
Units 070-120 have one terminal block, 3 wires; units 140 and 160
have 2 terminal blocks, 3 wires per block.
3. Across-the-start is standard at all voltages.
4. Control circuit requires a separate-fused (15 amp), 115-v, single-ph,
60 Hz power supply, or accessory control power transformer.
5. Control circuit MCA is 7.2 and control circuit MFA is 15.
6. Compressor motors on all units are thermally protected by overtem-
perature sensors in the discharge side of the compressor.
7. Maximum allowable phase imbalance is: volts 2%; amps 10%.
8. Use copper, copper-clad aluminum, or aluminum conductors for field
power wiring.
29

Typical field control wiring
CHILLED FLUID PUMP RELAY
CHILLED FLUID PUMP STARTER
AUXILIARY CONTACTS
FIELD-SUPPLIED TEMPERATURE RESET
TWO-STAGE DEMAND LIMIT
CONTACTOR COIL FOR CONDENSER FLUID PUMP
OR FOR FAN MOTORS
CONNECTIONS FOR EXTERNAL
CARRIER COMFORT NETWORK (CCN)
COMMUNICATIONS (RS485)
LEGEND
C—Common
CR — Control Relay
J—Jumper
NO—Normally Open
OL — Overload
TB — Terminal Block
Field Wiring
Factory Wiring
REMOTE ALARM
30

Controls
Control sequence
Standby—During unit offcycle whenthe RUN/STANDBY
switch is in the STANDBY position, the crankcase heaters
and the control system are energized.
NOTE: The control circuit power must be on at all times
even when the main unit power is off.
Run — When the RUN/STANDBY switch is moved from
STANDBY to RUN position, there will be a 1
1
⁄
2
minute de-
lay while the microprocessor monitors data. If in occupied
mode, after 1
1
⁄
2
minutes the chilled fluid pump will start. If
there is a call for cooling, the first compressor will start un-
loaded. The first circuit to start may be circuit A or B due to
the automatic and random lead/lag feature.
Capacity control sequence
On a call for cooling, the control system starts the initial
compressor. The control will randomly select either circuit
A or B. The liquid line solenoid valve remains closed for 10
seconds after the initial compressor on that refrigeration
circuit starts (unless the compressor has run in the 15 min-
utes prior to the latest call for cooling). This permits a pum-
pout cycle at start-up to minimize refrigerant floodback to
the compressor. If the compressor has run in the 15 min-
utes before the call for cooling, the pumpout cycle is
eliminated.
After the pumpout, the liquid line solenoid valve and the
EXV open.
The EXV will open gradually to provide a controlled
start-up to prevent liquid floodback to the compressor. Also
during this period, the oil pressure switch will be bypassed
for one minute.
As additional cooling is required, the control system will
ramp up through the capacity steps available until the load
requirement is satisfied. As capacity steps are added, com-
pressors are added, alternating between the lead and lag
refrigerant circuits. The speed at which capacity is increased
or decreased is controlled by the temperature deviation from
the set point and the rate of change in the chilled fluid
temperature.
When the second or lag refrigeration circuit is started,
that circuit will go through a 10-second pumpout unless the
circuit has been operating in the 15 minutes prior to this
start.
Upon load reduction, the control system will unload the
unit in the reverse order of loading until the capacity nearly
matches the load. Each time the lead compressor in a cir-
cuit is cycled off, the liquid solenoid valve and EXV will be
closedfor 10 seconds prior tocompressor shutdown to clear
the cooler of liquid refrigerant.
To stop unit, move the RUN/STANDBY switch to the
STANDBY position. Any refrigeration circuit that is oper-
ating at this time will continue to run for 10 seconds to
complete the pumpout cycle.
CAPACITY CONTROL STEPS
UNIT
30HR,
30HS
CONTR
STEPS
SEQUENCE A SEQUENCE B
%
Disp.
Oper Cylinders
%
Disp.
Oper Cylinders
Tot.
Ckt A Ckt B
Tot.
Ckt A Ckt B
Compr Compr
A1 A2 B1 B2 A1 A2 B1 B2
070
1 14.3 2 2 — — — 28.6 4 — — 4 —
2 42.9 6 2 — 4 — 42.9 6 2 — 4 —
3 57.2 8 2 — 6 — 57.2 8 4 — 4 —
4 71.2 10 4 — 6 — 71.2 10 4 — 6 —
5 85.7 12 2 4 6 — 85.7 12 2 4 6 —
6 100.0 14 4 4 6 — 100.0 14 4 4 6 —
080
1 25.0 4 4 — — — 25.0 4 — — 4 —
2 50.0 8 4 — 4 — 50.0 8 4 — 4 —
3 62.5 10 4 — 6 — 62.5 10 6 — 4 —
4 75.0 12 6 — 6 — 75.0 12 6 — 6 —
5 87.5 14 4 4 6 — 87.5 14 4 4 6 —
6 100.0 16 6 4 6 — 100.0 16 6 4 6 —
090
1 22.2 4 4 — — — 22.2 4 — — 4 —
2 44.4 8 4 — 4 — 44.4 8 4 — 4 —
3 55.5 10 4 — 6 — 55.5 10 6 — 4 —
4 66.7 12 6 — 6 — 66.7 12 6 — 6 —
5 88.8 16 4 6 6 — 88.8 16 4 6 6 —
6 100.0 18 6 6 6 — 100.0 18 6 6 6 —
100
1 20.0 4 4 — — — 20.0 4 — — 4 —
2 40.0 8 4 — 4 — 40.0 8 4 — 4 —
3 50.0 10 4 — 6 — 50.0 10 6 — 4 —
4 60.0 12 6 — 6 — 60.0 12 6 — 6 —
5 70.0 14 4 4 6 — 70.0 14 6 — 4 4
6 80.0 16 6 4 6 — 80.0 16 6 — 6 4
7 90.0 18 4464 90.0 18 6444
8 100.0 20 6464100.0 20 6464
110
1 18.2 4 4 — — — 18.2 4 — — 4 —
2 36.3 8 4 — 4 — 36.3 8 4 — 4 —
3 45.4 10 4 — 6 — 45.4 10 6 — 4 —
4 54.5 12 6 — 6 — 54.5 12 6 — 6 —
5 72.7 16 4 6 6 — 63.6 14 6 — 4 4
6 81.8 18 6 6 6 — 72.7 16 6 — 6 4
7 90.9 20 4664 90.9 20 6644
8 100.0 22 6664100.0 22 6664
120,
160
1 16.6 4 4 — — — 16.6 4 — — 4 —
2 33.3 8 4 — 4 — 33.3 8 4 — 4 —
3 41.6 10 4 — 6 — 41.6 10 6 — 4 —
4 50.0 12 6 — 6 — 50.0 12 6 — 6 —
5 66.7 16 4 6 6 — 66.7 16 6 — 4 6
6 75.0 18 6 6 6 — 75.0 18 6 — 6 6
7 91.6 22 4666 91.6 22 6646
8 100.0 24 6666100.0 24 6666
140
1 19.0 4 4 — — — 19.0 4 — — 4 —
2 38.0 8 4 — 4 — 38.0 8 4 — 4 —
3 47.6 10 4 — 6 — 47.6 10 6 — 4 —
4 57.0 12 6 — 6 — 57.0 12 6 — 6 —
5 69.0 16 4 6 6 — 69.0 16 6 — 4 6
6 78.6 18 6 6 6 — 78.6 18 6 — 6 6
7 90.4 22 4666 90.4 22 6646
8 100.0 24 6666100.0 24 6666
LEGEND
Ckt — Circuit
Compr — Compressor
CONTR — Control
Disp. — Displacement
Oper — Operating
Tot — Total
NOTE: Circuits and compressors designated from left to right when viewed from
front of unit.
31

Typical piping and wiring
FD FD FD FD FD
ST ST ST ST
POWER
SUPPLY ROOM THERMOSTAT
CONDENSER
WATER
TO AND FROM
COOLING TOWER
COOLER
OUT
IN
AIR HANDLING
UNIT
EXPANSION
TANK
FROM OTHER
AIR HANDLING
UNITS
TO OTHER
AIR HANDLING
UNITS
CHILLED WATER
30HR 100
SHOWN
FD — Field-Supplied
Disconnect
ST — Starter
Power Wiring
Control Wiring
Piping
NOTES:
1. Wiring and piping shown are general points-of-connection guides only and are not intended
to be used for, or to include all details of, a specific installation.
2. All wiring must comply with applicable local and national codes.
3. All piping must follow standard piping techniques. Refer to Carrier System Design Manual
for details.
32

Guide specifications — 30HR
Fluid-Cooled Reciprocating Liquid Chiller
HVAC Guide Specifications
Size Range: 70 to 160 Tons (250 to 560 kW)
Carrier Model Number: 30HR070-160
Part 1 — General
1.01 SYSTEM DESCRIPTION
A. Electronicallycontrolled reciprocating-typeliquidchiller
utilizing semi-hermetic type compressors.
1.02 QUALITY ASSURANCE
A. Unit performance shall be rated in accordance with
ARI Standard 590 (U.S.A.) at standard rating
conditions.
B. Unit construction shall comply with ASHRAE 15 lat-
est revision safety standard, NEC, and applicable
ASME codes (U.S.A.).
C. Unit(s) shall be UL (U.S.A.) listed and CSA certified.
D. Unit shall be certified in accordance with ISO 9002
manufacturing quality standard.
1.03 DELIVERY, STORAGE AND HANDLING
A. Unit shall be shipped factory assembled with all re-
frigerant piping and control wiring factory installed.
B. Unit shall be shipped pre-charged with a complete
operating charge of R-22.
C. Unit to be stored and handled according to manufac-
turer’s recommendations.
Part2—Products
2.01 EQUIPMENT
A. General:
Factory-assembled, single-piece, liquid chiller consist-
ing of motors, compressors, direct expansion cooler,
condensers,initialoiland refrigerant operatingcharges,
and all controls, safeties, and hardware required prior
to start-up.
B. Compressor(s):
1. Reciprocating, serviceable, semi-hermetic type
only.
2. Each compressor shall be equipped with an auto-
matically reversible oil pump, operating oil charge,
suction and discharge shutoff valves and oil sight
glass.
3. Factory mounted on spring vibration isolators.
4. Motors shall be cooled by suction gas passing
around motor windings and shall be thermally
protected.
5. Each compressor shall be factory equipped with
an insert-type crankcase heater to control oil di-
lution during shutdown.
6. Motorspeed shallnot exceed 1750 rpm (29.2 r/s).
7. Equipped with electrically-actuated suction cut-off
cylinder unloaders.
8. Same manufacturer as chiller.
C. Cooler:
1. Shell-and-tube type with removable heads. Seam-
less copper tubes shall be rolled into tube sheets.
2. Singlefluid pass typewith multipleinternalpolypro-
pylene baffles.
3. Design shall be dual independent, direct expan-
sion, refrigerant circuit type.
4. Shell shall be insulated with
3
⁄
4
-in. (19 mm) closed
cell polyvinyl chloride foam insulation or suitable
alternate.
5. Cooler shall be tested and stamped in accordance
withASME code (U.S.A.) for refrigerantside work-
ing pressure of 235 psig (1620 kPa). Cooler shall
have a maximum fluid side working pressure of
300 psig (2068 kPa).
D. Condensers:
1. Two fluid-cooled shell-and-tube type with seam-
less integrally finned copper tubes and removable
heads.
2. Design and construction shall provide positive sub-
cooling of liquid refrigerant.
3. Each equipped with a pressure relief device, purge
cock and liquid line shutoff valve.
4. Condensers shall be tested and stamped in accor-
dancewith ASMEcode (U.S.A.) for refrigerant side
working pressure of no less than 385 psig
(2654kPa). Condensershall have a maximum fluid
side working pressure of 250 psig (1724 kPa).
E. Refrigerant Components:
Eachrefrigerant circuitshall includethe following mini-
mum components:
1. Hot gas muffler.
2. Moisture indicating sight glass.
3. Hermetic filter drier.
4. Maximum operating pressure type electronic
expansion valve with a minimum of 760-step
control and
3
⁄
4
-in. (19 mm) variable refrigerant
metering.
5. Liquid line solenoid valve.
6. Charging valve.
7. Discharge gas thermostat.
8. Close-fitting cellular foam insulation on all suction
lines.
33

Guide specifications — 30HR (cont)
F. Controls, Safeties and Diagnostics:
1. Controls:
a. Unit controls shall include the following mini-
mum components:
1) Microprocessor.
2) Power and control circuit terminal blocks.
3) RUN/STANDBY control power switch.
4) Replaceable solid-state relay panel and
electronic expansion valve control.
5) Control panel with keypad and display
module.
6) Thermistors.
7) External communication port.
b. Capable of performing the following
functions:
1) Pumpout at beginning and end of every
circuit cycle.
2) Return temperature reset based on return
cooler fluid temperature outdoor-air tem-
perature, space temperature, or 4-20 mA
signal.
3) Scheduling of circulating pump and chiller
operationforoccupied/unoccupiedperiods.
4) Capacity control based on leaving chilled
fluidtemperature and compensatedby rate
of change of return fluid temperature.
5) Limit the chilled fluid temperature pull-
down rate at start-up to 1° F (.56° C) per
minuteto prevent excessivedemand spikes
(charges) at start-up.
6) Automatic lead/lag control of refrigerant
circuits.
7) Two-stage demand limiting from remote
signal.
8) Remote alarm activation.
2. Safeties:
a. Unit shall be equipped with thermistors and
all necessary components in conjunction with
the control system to provide the unit with
the following protections:
1) Loss of refrigerant charge protection.
2) Low fluid flow protection.
3) Low chilled fluid temperature protection.
4) Low and high superheat protection.
5) Low oil protection for each compressor
circuit.
6) Low control voltage (to unit) protection.
b. Compressors shall be equipped with the fol-
lowing manual reset type protections:
1) Thermal overload.
2) Pressure overload.
3) Electrical overload through the use of con-
tactors and calibrated, ambient compen-
sated, magnetic trip circuit breakers. Cir-
cuit breakers shall open all 3 phases in the
event of either an overload in any one
phase, or a single-phasing condition.
3. Diagnostics:
a. Diagnostic display module shall be capable of
indicating the safety lockout condition by dis-
playing a code for which an explanation may
bescrolled atthe display.Protections included
for display shall be:
1) Compressor lockout.
2) Loss of charge.
3) Low fluid flow.
4) Low oil pressure.
5) Cooler freeze protection.
6) High or low suction superheat.
7) Thermistor malfunction.
b. Unitcontrol must also be capableof perform-
ing a run test to verify operation of every
switch, thermistor, solenoid valve, unloader,
and compressor before chiller is started.
G. Electrical Requirements:
1. Control voltage shall be 115-v, single-phase, sepa-
rate power supply.
2. Unit shall be shipped with factory control and
power wiring installed.
3. Each primary electrical power supply shall be con-
nected at a single location.
H. Special Features:
Certain standard features are not applicable when the
features designated by * are specified.
* 1. Condensermanifoldpackage(070-140),fieldwelded.
* 2. Control circuit transformer (115 v), field installed.
* 3. Remote reset thermistor, field installed.
4. Unit sound enclosure panels, field installed.
5. Suction and discharge pressure gages with valves,
field installed.
* 6. Oil-pressure safety switch, field installed.
* 7. Leavingchilled fluidtemperature reset.LCWT shall
be reset from occupied space, outdoor air, or re-
turn fluid temperature.
* 8. Demand limit control. Unit shall be equipped with
a 2-point demand limit control (0-49% and 50-
100%) actuated remotely by an electronic signal.
9. Chilled fluid flow switch, field installed.
34

Guide specifications — 30HS
Condenserless Reciprocating Liquid Chiller
HVAC Guide Specifications
Size Range: 70 to 160 Tons (250 to 560 kW)
Carrier Model Number: 30HS070-160
Part 1 — General
1.01 SYSTEM DESCRIPTION
A. Electronically controlled reciprocating-type liquid
condenserless chiller utilizing semi-hermetic type
compressors.
1.02 QUALITY ASSURANCE
A. Unit performance shallbe basedon ARIStandard 590
(U.S.A.) at standard rating conditions.
B. Unit construction shall comply with ASHRAE 15 lat-
est revision safety standard, NEC, and applicable
ASME codes (U.S.A.).
C. Unit(s) shall be UL (U.S.A.) listed and CSA certified.
D. Unit shall be certified in accordance with ISO 9002
manufacturing quality standard.
1.03 DELIVERY, STORAGE AND HANDLING
A. Unit shall be shipped factory assembled with all re-
frigerant piping and control wiring factory installed.
B. Unit shall be shipped pre-charged with a holding
charge of R-22.
C. Unit to be stored and handled according to manufac-
turer’s recommendations.
Part2—Products
2.01 EQUIPMENT
A. General:
Factory-assembled, single-piece, liquid chiller consist-
ing of motors, compressors, direct expansion cooler,
initialoil operating charge, refrigerantholding charge,
and all controls, safeties, and hardware required prior
to start-up.
B. Compressors:
1. Reciprocatingserviceable semi-hermetictype only.
2. Each compressor shall be equipped with an auto-
matically reversible oil pump, operating oil charge,
suction and discharge shutoff valves, and oil sight
glass.
3. Factory mounted on spring vibration isolators.
4. Motors shall be cooled by suction gas passing
around motor windings and shall be thermally
protected.
5. Each compressor shall be factory equipped with
an insert-type crankcase heater to control oil di-
lution during shutdown.
6. Motorspeed shallnot exceed 1750 rpm (29.2 r/s).
7. Equipped with electrically-actuated suction cut-off
cylinder unloaders.
8. Same manufacturer as chiller.
C. Cooler:
1. Shell-and-tube type with removable heads. Seam-
less copper tubes shall be rolled into tube sheets.
2. Singlefluid pass typewith multipleinternalpolypro-
pylene baffles.
3. Design shall be dual independent, direct expan-
sion, refrigerant circuit type.
4. Shell shall be insulated with
3
⁄
4
-in. (19 mm) closed
cell polyvinyl chloride foam insulation or suitable
alternate.
5. Cooler shall be tested and stamped in accordance
withASME code (U.S.A.) for refrigerantside work-
ing pressure of 235 psig (1620 kPa). Cooler shall
have a maximum fluid-side working pressure of
300 psig (2068 kPa).
D. Condensers:
1. Remotely located type (normally air-cooled).
2. Design and construction shall provide positive sub-
cooling of liquid refrigerant.
E. Refrigerant Components:
Eachrefrigerant circuitshall includethe following mini-
mum components:
1. Hot gas muffler.
2. Moisture indicating sight glass.
3. Hermetic filter drier.
4. Maximum operating pressure type electronic ex-
pansion valve with a minimum 760-step control
with
3
⁄
4
-in. (19 mm) variable refrigerant metering.
5. Liquid line solenoid valve.
6. Charging valve.
7. Discharge gas thermostat.
8. Close-fitting cellular foam insulation on all suction
lines.
F. Controls, Safeties and Diagnostics:
1. Controls:
a. Unit controls shall include the following mini-
mum components:
1) Microprocessor.
2) Power and control circuit terminal blocks.
3) RUN/STANDBY control power switch.
4) Replaceable solid-state relay panel and
electronic expansion valve control.
5) Control panel with keypad and display
module.
6) Thermistors.
7) External communication port.
35

Guide specifications — 30HS (cont)
b. Capable of performing the following
functions:
1) Pumpout at beginning and end of every
circuit cycle.
2) Return temperature reset based on return
cooler fluid temperature, outdoor-air tem-
perature, space temperature, or 4-20 mA
signal.
3) Scheduling of circulating pump and chiller
operation for occupied/unoccupied
periods.
4) Capacity control based on leaving chilled
fluidtemperature and compensatedby rate
of change of return fluid temperature.
5) Limit the chilled fluid temperature pull-
down rate at start-up to 1° F (.56° C) per
minuteto prevent excessivedemand spikes
(charges) at start-up.
6) Automatic lead/lag control of refrigerant
circuits.
7) Two-stage demand limiting from remote
signal.
8) Remote alarm activation.
2. Safeties:
a. Unit shall be equipped with thermistors and
all necessary components in conjunction with
the control system to provide the unit with
the following protections:
1) Loss of refrigerant charge protection.
2) Low fluid flow protection.
3) Low chilled fluid temperature protection.
4) Low and high superheat protection.
5) Low oil protection for each compressor
circuit.
6) Low control voltage (to unit) protection.
b. Compressors shall be equipped with the fol-
lowing manual reset type protections:
1) Thermal overload.
2) Pressure overload.
3) Electrical overload through the use of con-
tactors and calibrated, ambient compen-
sated, magnetic trip circuit breakers. Cir-
cuit breakers shall open all 3 phases in the
event of either an overload in any one
phase, or a single-phasing condition.
3. Diagnostics:
a. Diagnostic display module shall be capable of
indicating the safety lockout condition by dis-
playing a code for which an explanation may
bescrolled atthe display.Protections included
for display shall be:
1) Compressor lockout.
2) Loss of charge.
3) Low fluid flow.
4) Low oil pressure.
5) Cooler freeze protection.
6) High or low suction superheat.
7) Thermistor malfunction.
b. Unitcontrol must also be capableof perform-
ing a run test to verify operation of every
switch, thermistor, solenoid valve, unloader
and compressor before chiller is started.
G. Electrical Requirements:
1. Control voltage shall be 115-v, single-phase, sepa-
rate power supply.
2. Unit shall be shipped with factory control and
power wiring installed.
3. Each primary electrical power supply shall be con-
nected at a single location.
H. Special Features:
Certain standard features are not applicable when the
features designated by * are specified.
* 1. Control circuit transformer (115 v), field installed.
* 2. Remote reset thermistor, field installed.
3. Unit sound enclosure panels, field installed.
4. Suction and pressure gages and valves, field
installed.
* 5. Leavingchilled fluidtemperature reset.LCWT shall
be reset from occupied space, outdoor air, or re-
turn fluid temperature.
* 6. Demand limit control. Unit shall be equipped with
a 2-point demand limit control (0-49% and 50-
100%) activated remotely by an electronic signal.
7. Chilled fluid flow switch, field installed.
Carrier Corporation • Syracuse, New York 13221 12-94
Manufacturer reserves the right to discontinue, or change at any time, specifications or designs without notice and without incurring obligations.
Book 2
Tab 5c
Page 36 Catalog No. 523-033 Printed in U.S.A. PC 903 Form 30HR,HS-4PD
Replaces: 30HR,HS-3PD