Carrier 40Ru Users Manual 07SI
40RU to the manual 7efdd1e1-8a5d-4c47-a38a-d11abea60b7f
2015-01-24
: Carrier Carrier-40Ru-Users-Manual-310505 carrier-40ru-users-manual-310505 carrier pdf
Open the PDF directly: View PDF
.
Page Count: 40

40RU
Packaged Air---Handling Units
60 Hz
With PuronR(R---410A) Refrigerant
Sizes 25, 28, 30
Installation, Start---Up and
Service Instructions
TABLE OF CONTENTS
SAFETY CONSIDERATIONS 1...................
PRE--INSTALLATION 2.........................
Moving and Storage 2..........................
Rigging 2....................................
INSTALLATION 2–22..........................
General 2....................................
Uncrating 2..................................
Accessories 2.................................
Unit Positioning 11............................
Unit Isolation 13..............................
Refrigerant and Chilled Water Piping Access 13.....
Refrigerant Piping 13..........................
Chilled Water Piping 17........................
Condensate Drain 18...........................
Fan Motors and Drives 18.......................
Power Supply and Wiring 19....................
Connecting Ductwork 21.......................
Return--Air Filters 21..........................
START--UP 23.................................
SERVICE 23–36...............................
Panels 23....................................
Fan Motor Lubrication 24.......................
Fan Shaft Bearings 24..........................
Centering Fan Wheel 24........................
Fan Shaft Position Adjustment 24................
Individual Fan Wheel Adjustment 25..............
Fan Belts 25.................................
Fan Rotation 25...............................
Fan Pulley Alignment 25.......................
Pulley and Drive Adjustment 25..................
Condensate Drains 25..........................
Return--Air Filters 25..........................
Chilled Water Coil Freeze Protection 26...........
Coil Removal 26..............................
Cleaning Cooling Coil 26.......................
Cleaning Insulation 26.........................
Replacing Filters 26...........................
START--UP CHECKLIST 39--40..................
SAFETY CONSIDERATIONS
Improper installation, adjustment, alteration, service,
maintenance, or use can cause explosion, fire, electrical
shock or other conditions which may cause personal
injury or property damage. Consult a qualified installer,
service agency, or your distributor or branch for
information or assistance. The qualified installer or
agency must use factory--authorized kits or accessories
when modifying this product. Refer to the individual
instructions package
Follow all safety codes. Wear safety glasses and work
gloves. Use quenching cloths for brazing operations and
have a fire extinguisher available. Read these instructions
thoroughly and follow all warnings or cautions attached to
the unit. Consult local building codes and appropriate
national electrical codes (in USA, ANSI/NFPA70,
National Electrical Code (NEC); in Canada, CSA C22.1)
for special requirements.
It is important to recognize safety information. This is the
safety--alert symbol . When you see this symbol on the
unit and in instructions or manuals, be alert to the
potential for personal injury.
Understand the signal words DANGER, WARNING,
CAUTION, and NOTE. These words are used with the
safety--alert symbol. DANGER identifies the most serious
hazards which will result in severe personal injury or
death. WARNING signifies hazards which could result in
personal injury or death. CAUTION is used to identify
unsafe practices, which may result in minor personal
injury or product and property damage. NOTE is used to
highlight suggestions which will result in enhanced
installation, reliability, or operation.

2
ELECTRICAL SHOCK HAZARD
Failure to follow this warning could cause in personal
injury or death.
Before performing service or maintenance operations
on unit, always turn off main power switch to unit and
install lockout tag. Unit may have more than one
power switch.
!WARNING
UNIT OPERATION AND SAFETY HAZARD
Failure to follow this warning could cause in personal
injury,death and/or equipment damage.
PuronR(R--410A) refrigerant systems operate at
higher pressures than standard R--22 systems. Do not
use R--22 service equipment or components on Puron
refrigerant equipment.
!WARNING
PERSONAL INJURY AND ENVIRONMENTAL
HAZARD
Failure to follow this warning could cause in personal
injury or death.
Relieve pressure and recover all refrigerant before
system repair or final unit disposal.
Wear safety glasses and gloves when handling
refrigerants. Keep torches and other ignition sources
away from refrigerants and oils.
!WARNING
CUT HAZARD
Failure to follow this caution may result in personal
injury.
Sheet metal parts may have sharp edges or burrs. Use
care and wear appropriate protective clothing, safety
glasses and gloves when handling parts and servicing
40RU units.
CAUTION
!
UNIT OPERATION HAZARD
Failure to follow this caution could cause equipment
damage.
Ensure voltage listed on unit data plate agrees with
electrical supply provided for the unit.
CAUTION
!
PRE--INSTALLATION
1. The power supply (v, ph, and Hz) must correspond to
that specified on unit rating plate.
2. The electrical supply provided by the utility must be
sufficient to handle load imposed by this unit.
3. Refer to Installation, General section (page 2) and
Fig. 1 and Fig. 2 for locations of electrical inlets, con-
densate drain, duct connections, and required clear-
ances before setting unit in place.
4. This installation must conform with local building
codes and with the NEC (National Electrical Code) or
ANSI (American National Standards Institute)/NFPA
(National Fire Protection Association) latest revision.
Refer to provincial and local plumbing or wastewater
codes and other applicable local codes.
Moving and Storage -- To transfer unit from truck to
storage site, use a fork truck. Do not stack units more than
2 high during storage. If unit is to be stored for more than
2 weeks before installation, choose a level, dry storage
site free from vibration. Do not remove plastic wrap or
skid from unit until final installation.
Rigging -- All 40RU Series units can be rigged by using
the shipping skid. Units are shipped fully assembled. Do
not remove shipping skids or protective covering until
unit is ready for final placement; damage to bottom panels
can result. Use slings and spreader bars as applicable to
lift unit.
INSTALLATION
General -- Allow the following clearances for service
access and airflow:
SRear: 3 ft (914 mm) [21/2ft (762 mm) with electric heat
accessory]
SFront: 21/2ft (762 mm)
SRight Side: 31/2ft (1067 mm)
SLeft Side: 21/2ft (762 mm)
For units equipped with an economizer, refer to the
accessory installation instructions for additional clearance
requirements. Be sure floor, wall, or ceiling can support
unit weight (Tables 1A – 1F). See Fig. 1 and Fig. 2 for
dimensions.
Uncrating -- Move unit as near as possible to final
location before removing shipping skid.
Remove metal banding, top skid, and plastic wrap.
Examine unit for shipping damage. If shipping damage is
evident, file claim with transportation agency. Remove
base skid just prior to actual installation.
Check nameplate information against available power
supply and model number description in Fig. 3.
NOTE: Be sure to remove the styrofoam shipping pad
from the thermostatic expansion valve (TXV). Verify that
it has been removed. See Fig. 5.
Accessories -- Refer to instructions shipped with each
accessory for specific information.
40RU

3
Table 1A — 40RUA Physical Data, English — Cooling Units
UNIT 40RUA* 25 28 30
NOMINAL CAPACITY (Tons) 20 25 30
OPERATING WEIGHT (lb)
Base Unit with TXV 730 1050 1062
Plenum 225 325 325
FANS
Qty...Diam. (in.) 2...15 2...18 2...18
Nominal Airflow (cfm) 8000 10000 12000
Airflow Range (cfm) 6000 – 10000 7500 – 12500 9000 – 15000
Nominal Motor Hp (Standard Motor)
208/230---3---60 and 460---3---60 5.0 7.5 10.0
5 7 5 --- 3 --- 6 0 5.0 7.5 10.0
Motor Speed (rpm)
208/230---3---60 and 460---3---60 1745 1745 1745
5 7 5 --- 3 --- 6 0 1745 1755 1755
REFRIGERANT R--- 410A
Operating charge (lb)
(approx per circuit){3.5 4.5 5.0
DIRECT---EXPANSION COIL Enhanced Copper Tubes, Aluminum Sine---Wave Fins
Max Working Pressure (psig) 650
Face Area (sq ft) 19.88 24.86 29.83
No. of Splits 2 2 2
No. of Circuits per Split 18 20 24
Split Type...Percentage Face...50/50
Rows...Fins/in. 4...15 4...15 4...15
PIPING CONNECTIONS,
Quantity...Size (in.)
DX Coil — Suction (ODF) 2...11/82...13/82...13/8
DX Coil — Liquid Refrigerant (ODF) 2...5/8
Steam Coil, In (MPT) 1...21/2
Steam Coil, Out (MPT) 1...1/2
Hot Water Coil, In (MPT) 1...2
Hot Water Coil, Out (MPT) 1...2
Condensate (PVC) 1...11/4ODM/1 IDF
FILTERS Throwaway — Factory Supplied
Quantity...Size (in.) 4...16 x 20 x 2
4...16 x 24 x 2
4...20 x 24 x 2
4...20 x 25 x 2
Access Location Either Side
STEAM COIL}
Max Working Pressure (psig at 260° F) 20
To ta l F a ce A r e a ( s q f t ) 13.33 15.0 15.0
Rows...Fins/in. 1...10 1...10 1...10
HOT WATER COIL}
Max Working Pressure (psig) 150
To ta l F a ce A r e a ( s q f t ) 13.33 15.0 15.0
Rows...Fins/in. 2...8.5 2...12.5 2...12.5
Water Volume
(gal) 13.9 14.3
(ft3)1.90
LEGEND
DX — Direct Expansion
TXV — Thermostatic Expansion Valve
{Units are shipped without refrigerant charge.
}Field installed accessory only.
40RU

4
Table 1B — 40RUA Physical Data, SI — Cooling Units
UNIT 40RUA* 25 28 30
NOMINAL CAPACITY (kW) 70 87 105
OPERATING WEIGHT (kg)
Base Unit with TXV 331 477 482
Plenum 102 148 148
FANS
Qty...Diam. (mm) 2...381 2...457 2...457
Nominal Airflow (L/s) 3775 4119 5663
Airflow Range (L/s) 2831 – 4719 3539 – 5899 4247 – 7079
Nominal Motor kW (Standard Motor)
208/230---3---60 and 460---3---60 3.73 5.60 7.46
5 7 5 --- 3 --- 6 0 3.73 5.60 7.46
Motor Speed (r/s)
208/230---3---60 and 460---3---60 29.1 29.1 29.1
5 7 5 --- 3 --- 6 0 29.1 29.3 29.3
REFRIGERANT R--- 410A
Operating charge (kg)
(approx per circuit){1.59 2.04 2.27
DIRECT---EXPANSION COIL Enhanced Copper Tubes, Aluminum Sine---Wave Fins
Max Working Pressure (kPag) 4481
Face Area (sq m) 1.85 2.30 2.77
No. of Splits 2 2 2
No. of Circuits per Split 18 20 24
Split Type...Percentage Face...50/50
Rows...Fins/m 4...591 4...591 4...591
PIPING CONNECTIONS,
Quantity...Size (in.)
DX Coil — Suction (ODF) 2...11/82...13/82...13/8
DX Coil — Liquid Refrigerant (ODF) 2...5/8
Steam Coil, In (MPT) 1...21/2
Steam Coil, Out (MPT) 1...1/2
Hot Water Coil, In (MPT) 1...2
Hot Water Coil, Out (MPT) 1...2
Condensate (PVC) 1...11/4ODM/1 IDF
FILTERS Throwaway — Factory Supplied
Quantity...Size (mm.) 4...406 x 508 x 51
4...406 x 610 x 51
4...508 x 610 x 51
4...508 x 635 x 51
Access Location Either Side
STEAM COIL}
Max Working Pressure (kPag at 126° C) 138
To ta l F a ce A r e a ( s q m ) 1.24 1.39 1.39
Rows...Fins/m 1...394 1...394 1...394
HOT WATER COIL}
Max Working Pressure (kPag) 1034
To ta l F a ce A r e a ( s q m ) 1.24 1.39 1.39
Rows...Fins/m 2...335 2...335 2...335
Water Volume
(L) 52.6 54.1
(m3)0.052 0.054
LEGEND
DX — Direct Expansion
TXV — Thermostatic Expansion Valve
{Units are shipped without refrigerant charge.
}Field installed accessory only.
40RU

5
Table 1C — 40RUQ Physical Data, English — Heat Pump Units
UNIT 40RUQ* 25
NOMINAL CAPACITY (Tons) 20
OPERATING WEIGHT (lb)
Base Unit with TXV 720
Plenum 140
FANS
Qty...Diam. (in.) 2...15
Nominal Airflow (cfm) 8000
Airflow Range (cfm) 6000---10000
Nominal Motor Hp (Standard Motor)
208/230---3---60 and 460---3---60 5.0
5 7 5 --- 3 --- 6 0 5.0
Motor Speed (rpm)
208/230---3---60 and 460---3---60 1745
5 7 5 --- 3 --- 6 0 1745
REFRIGERANT R--- 410A
Operating charge (lb)
(approx per circuit){3.5/3.5
DIRECT---EXPANSION COIL Enhanced Copper Tubes, Aluminum Sine---Wave Fins
Max Working Pressure (psig) 650
Face Area (sq ft) 19.9
No. of Splits 2
No. of Circuits per Split 2
Split Type...Percentage Face....50/50
Rows...Fins/in. 4...15
PIPING CONNECTIONS,
Quantity...Size (in.)
DX Coil — Suction (ODF) 2...11/8
DX Coil — Liquid Refrigerant (ODF) 2...5/8
Steam Coil, In (MPT) 1...21/2
Steam Coil, Out (MPT) 1...11/2
Hot Water Coil, In (MPT) 1...2
Hot Water Coil, Out (MPT) 1...2
Condensate (PVC) 1...11/4ODM/1 IDF
FILTERS Throwaway — Factory Supplied
Quantity...Size (in.) 4...16 x 20 x 2
4...16 x 24 x 2
Access Location RightorLeftSide
STEAM COIL}
Max Working Pressure (psig at 260° F) 20
To ta l F a ce A r e a ( s q f t ) 13.33
Rows...Fins/in. 1...10
HOT WATER COIL}
Max Working Pressure (psig) 150
To ta l F a ce A r e a ( s q f t ) 13.33
Rows...Fins/in. 2...8.5
Water Volume
(gal) 13.9
(ft3)1.85
LEGEND
DX — Direct Expansion
TXV — Thermostatic Expansion Valve
{Units are shipped without refrigerant charge.
}Field installed accessory only.
40RU

6
Table 1D — 40RUA Physical Data, SI — Heat Pump Units
UNIT 40RUQ* 25
NOMINAL CAPACITY (kW) 70
OPERATING WEIGHT (kg)
Base Unit with TXV 326
Plenum 44
FANS
Qty...Diam. (mm) 2...381
Nominal Airflow (L/s) 3775
Airflow Range (L/s) 2831--- 4719
Nominal Motor kW (Standard Motor)
208/230---3---60 and 460---3---60 3.73
5 7 5 --- 3 --- 6 0 3.73
Motor Speed (r/s)
208/230---3---60 and 460---3---60 29.1
5 7 5 --- 3 --- 6 0 29.1
REFRIGERANT R--- 410A
Operating charge (kg)
(approx per circuit){1.59/1.59
DIRECT---EXPANSION COIL Enhanced Copper Tubes, Aluminum Sine---Wave Fins
Max Working Pressure (kPag) 4482
Face Area (sq m) 1.85
No. of Splits 2
No. of Circuits per Split 2
Split Type...Percentage Face...50/50
Fins/m 591
PIPING CONNECTIONS,
Quantity...Size (in.)
DX Coil — Suction (ODF) 2...11/8
DX Coil — Liquid Refrigerant (ODF) 2...5/8
Steam Coil, In (MPT) 1...21/2
Steam Coil, Out (MPT) 1...11/2
Hot Water Coil, In (MPT) 1...2
Hot Water Coil, Out (MPT) 1...2
Condensate (PVC) 1...11/4ODM/1 IDF
FILTERS Throwaway — Factory Supplied
Quantity...Size (mm) 4...406 x 610 x 51
4...406 x 508 x 51
Access Location RightorLeftSide
STEAM COIL}
Max Working Pressure (kPag at 126° C) 138
To ta l F a ce A r e a ( s q m ) 1.24
Rows...Fins/m 1...394
HOT WATER COIL}
Max Working Pressure (kPag) 1034
To ta l F a ce A r e a ( s q m ) 1.24
Rows...Fins/m 2...335
Water Volume
(L) 52.6
(m3)0.052
LEGEND
DX — Direct Expansion
TXV — Thermostatic Expansion Valve
{Units are shipped without refrigerant charge.
}Field installed accessory only.
40RU

7
Table 1E — 40RUS Physical Data, English — Chilled Water Units
UNIT 40RUS* 25 28 30
NOMINAL CAPACITY (Tons) 20 25 30
OPERATING WEIGHT (lb)
Base Unit 683 1035 1042
Plenum 225 325 325
FANS
Qty...Diam. (in.) 2...15 2...18 2...18
Nominal Airflow (cfm) 8000 10000 12000
Airflow Range (cfm) 6000 – 10000 7500 – 12500 9000 – 15000
Nominal Motor Hp (Standard Motor)
208/230---3---60 and 460---3---60 5.0 7.5 10.0
5 7 5 --- 3 --- 6 0 5.0 7.5 10.0
Motor Speed (rpm)
208/230---3---60 and 460---3---60 1745 1745 1745
5 7 5 --- 3 --- 6 0 1745 1755 1755
CHILLED WATER COIL Enhanced Copper Tubes, Aluminum Sine---Wave Fins
Max Working Pressure (psig) 435
Face Area (sq ft) – Upper 11.0 12.4 15.5
Face Area (sq ft) – Lower 8.3 12.4 12.4
Rows...Fins/in. 3...15
PIPING CONNECTIONS,
Quantity...Size (in.)
Chilled Water — In.2...13/8ODM 2...21/8ODM 2...21/8ODM
Chilled Water — Out 2...21/8ODM 2...21/8ODM 2...21/8ODM
Steam Coil, In (MPT) 1...21/2
Steam Coil, Out (MPT) 1...11/2
Hot Water Coil, In (MPT) 1...2
Hot Water Coil, Out (MPT) 1...2
Condensate (PVC) 1...11/4ODM/1 IDF
FILTERS Throwaway — Factory Supplied
Quantity...Size (in.) 4...16 x 20 x 2
4...16 x 24 x 2
4...20 x 24 x 2
4...20 x 25 x 2
Access Location Either Side
STEAM COIL}
Max Working Pressure (psig at 260° F) 20
To ta l F a ce A r e a ( s q f t ) 13.33 15.0 15.0
Rows...Fins/in. 1...10 1...10 1...10
HOT WATER COIL}
Max Working Pressure (psig) 150
To ta l F a ce A r e a ( s q f t ) 13.33 15.0 15.0
Rows...Fins/in. 2...8.5 2...12.5 2...12.5
Water Volume
(gal) 13.9 14.3
(ft3)1.1 1.90
LEGEND
}Field installed accessory only.
40RU

8
Table 1F — 40RUS Physical Data, SI — Chilled Water Units
UNIT 40RUS* 25 28 30
NOMINAL CAPACITY (kW) 70 87 105
OPERATING WEIGHT (kg)
Base Unit 310 469 473
Plenum 102 148 148
FANS
Qty...Diam. (mm) 2...381 2...457 2...457
Nominal Airflow (L/s) 3775 4719 5663
Airflow Range (L/s) 2831 – 4719 3539 – 5899 4247 – 7079
Nominal Motor kW (Standard Motor)
208/230---3---60 and 460---3---60 3.73 5.60 7.46
5 7 5 --- 3 --- 6 0 3.73 5.60 7.46
Motor Speed (r/s)
208/230---3---60 and 460---3---60 29.1 29.1 29.1
5 7 5 --- 3 --- 6 0 29.1 29.3 29.3
CHILLED WATER COIL Enhanced Copper Tubes, Aluminum Sine---Wave Fins
Max Working Pressure (kPag) 2999
Face Area (sq m) – Upper 1.02 1.15 1.44
Face Area (sq m) – Lower 0.77 1.15 1.15
Rows...Fins/m 3...591 3...591 3...591
PIPING CONNECTIONS,
Quantity...Size (in.)
Chilled Water — In 2...13/8ODM 2...21/8ODM 2...21/8ODM
Chilled Water — Out 2...13/8ODM 2...21/8ODM 2...21/8ODM
Steam Coil, In (MPT) 1...21/2
Steam Coil, Out (MPT) 1...11/2
Hot Water Coil, In (MPT) 1...2
Hot Water Coil, Out (MPT) 1...2
Condensate (PVC) 1...11/4ODM/1 IDF
FILTERS Throwaway — Factory Supplied
Quantity...Size (mm.) 4...406 x 508 x 51
4...406 x 610 x 51
4...508 x 610 x 51
4...508 x 635 x 51
Access Location Either Side
STEAM COIL}
Max Working Pressure (kPag at 125° C) 138
To ta l F a ce A r e a ( s q m ) 1.24 1.39 1.39
Rows...Fins/m 1...394 1...394 1...394
HOT WATER COIL}
Max Working Pressure (kPag) 1034
To ta l F a ce A r e a ( s q m ) 1.24 1.39 1.39
Rows...Fins/m 2...335 2..493 2...493
Water Volume
(L) 52.6 54.1
(m3) 0.052 0.054
LEGEND
}Field installed accessory only.
40RU

9
UNIT UNIT WEIGHT
lb (kg)
40RUA*25 730 (331)
40RUQ*25 720 (326)
40RUS*25 683 (310)
LEGEND
TXV — Thermostatic Expansion Valve
NOTES:
1. Dimensions in [ ] are in millimeters.
2. Direction of airflow.
3. Recommended clearance:
• Rear: 3 in. [914 mm] (2 ft, 6 in. [762 mm]
with electric heat accessory)
• Front: 2 ft, 6 in. [762 mm]
• Right Side: 2 ft, 6 in. [762 mm]
• Left Side: 2 ft, 6 in. [762 mm]
• Local codes or jurisdiction may prevail.
4. Liquid piping not supplied by Carrier.
5. Duct flange is factory supplied and field
installed.
C10722
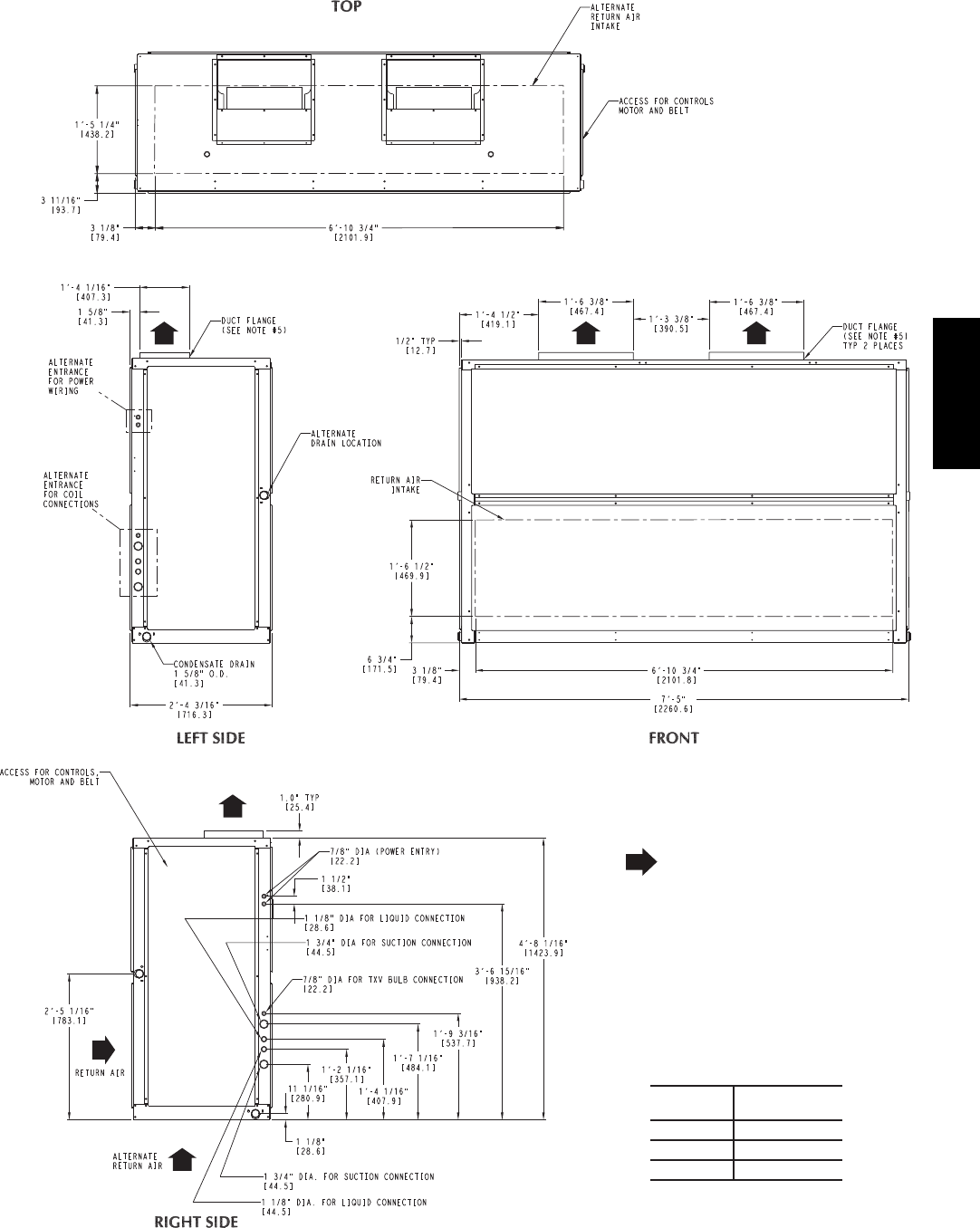
Fig. 1 -- Dimensions – Size 25
40RU

10
6. 40RUS may require alternate or additional
field favricated poping access holes
UNIT
40RUA*28
40RUA*30
40RUS*28
40RUS*30
UNIT WEIGHT
lb (kg)
1050 (477)
1062 (482)
1035 (469)
1042 (473)
LEGEND
TXV — Thermostatic Expansion Valve
NOTES:
1. Dimensions in [ ] are in millimeters.
2. Direction of airflow.
3. Recommended clearance:
• Rear: 3 in. [914 mm] (2 ft, 6 in. [762 mm]
with electric heat accessory)
• Front: 2 ft, 6 in. [762 mm]
• Right Side: 2 ft, 6 in. [762 mm]
• Left Side: 2 ft, 6 in. [762 mm]
• Local codes or jurisdiction may prevail.
4. Liquid piping not supplied by Carrier.
5. Duct flange is factory supplied and field
installed.
C10723
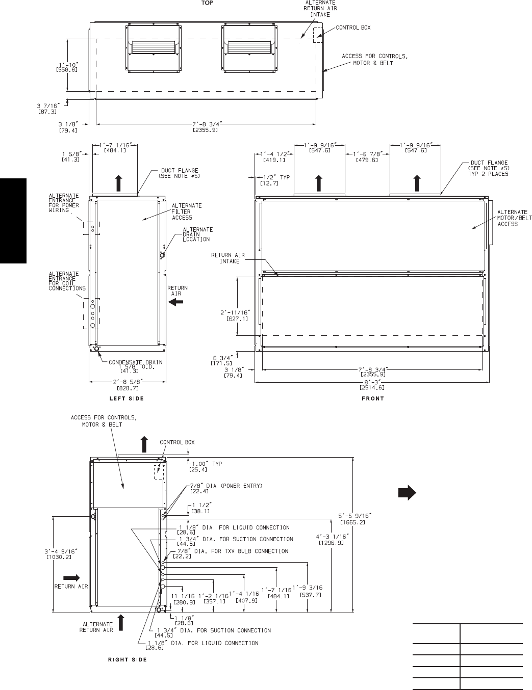
Fig. 2 -- Dimensions – Sizes 28 and 30
40RU

11
Model Type
40RU = Carrier Fan Coil
PuronrR–410ARefrigerant
Type of Coil
Q = Heat Pump
A = StandardDXCoil
S = Chilled Water Coil
Refrigerant Options
A = None
Nominal Tonnage
25 = 20 Tons
28 = 25 Tons
30 = 30 Tons
Not Used
A=PlaceHolder
Indoor Fan Options
1 = Fan Drive and Motor - Low / Motor Efficiency - Standard
2 = Fan Drive and Motor - Med / Motor Efficiency - Standard
3 = Fan Drive and Motor - High / Motor Efficiency - Standard
Coil Options
A=Al/Cu
Voltage
1 = 575/3/60
5 = 208/ 230/3/60
6 = 460/3/60
Design Rev
– = Catalog Model Number
1 = Design Revision (original)
Not Used
0=PlaceHolder
Not Used
A=PlaceHolder
Service Options
0 = Non-Painted Cabinet
1 = Painted Cabinet
Not Used
A=PlaceHolder
Brand / Packaging
0=Standard
1 2 3 4 5 6 7 8 9 10 11 12 13 14 15 16 17 18
40RUAA25A1A6 –0A0A0
_____________ ____
C!0724
Fig. 3 -- Model Number Nomenclature
SETANGISEDNOITISOP
)radnelac lacsif( erutcafunam fo keeW1−2
)ASU ,saxeT ,PTE = G( noitacol gnirutcafunaM5
rebmun laitneuqeS6−10
12345678910
2610G12345
POSITION NUMBER
TYPICAL
Year of manufacture (“10” = 2010)3−4
C!0725
Fig. 4 -- Serial Number Nomenclature
TXV COIL
REMOVE FOAM BLOCK
LEGEND
TXV — Thermostatic Expansion Valve
C10683
Fig. 5 -- Foam Block Location
Unit Positioning -- The unit can be mounted on the floor
for vertical application with return air entering the face of
the unit and supply air discharging vertically through the
top of the unit. The unit can also be applied in a
horizontal arrangement with return air entering
horizontally and the supply air discharging horizontally.
When applying the unit in a horizontal arrangement,
ensure the condensate drain pan is located at the bottom
center of the unit for adequate condensate disposal. See
Fig. 6 for condensate connections for each unit position.
LEGEND
Accessory Line
Alternate Air Intake and Discharge
Air Intake and Discharge
Note: Maintain recommended clearances
per Fig. 1 and Fig. 2
PLUG
PLUG CONDENSATE
DRAIN
C10684
Fig. 6 -- Typical Unit Positioning
40RU

12
Typical positioning and alternate return air locations are
shown in Fig. 6. Alternate return air locations can be used
by moving the unit panel from the alternate return air
location to the standard return air location. Refer to
overhead suspension accessory drawing (Fig. 7) for
preferred suspension technique. The unit needs support
underneath to prevent sagging.
IMPORTANT: Do NOT attempt to install unit with return
air entering top panel of unit. Condensate will not drain from
unit.
NOTE: Dimensions in [ ] are millimeters
OVERHEAD SUSPENSION ACCESSORY — UNIT SIZE 25
OVERHEAD SUSPENSION ACCESSORY — UNIT SIZES 28, 30
C10728
Fig. 7 -- Preferred Suspension Technique
40RU

13
Unit Isolation -- Where extremely quiet operation is
essential, install isolators between floor and base of unit,
or between ceiling and top section of unit.
Be sure that unit is level and adequately supported. Use
channels at front and sides of unit for reference points
when leveling.
Refrigerant and Chilled Water Piping Access -- The
40RU Series units come with standard knockouts for
refrigerant and chilled water piping. These knockouts are
located on both sides of the unit for installation flexibility.
The standard knockouts provide sufficient access to the
unit’s coils for all 40RUA*25, 28, and 30 units.
40RUQ*25 units, as well as 40RUS*25, 28, and 30 units
require additional holes which must be field--fabricated to
accommodate the piping. See Fig. 8 for the positions and
dimensions of the additional access holes required for
40RUQ and 40RUS units. Recommended access hole use
is also listed for all units. Note that Fig. 8 shows the
access holes on the control--box side of the unit; this is the
side of the unit with the coil headers, so it is used most
often for piping access.
IMPORTANT: Do not bury refrigerant piping
underground.
Refrigerant Piping -- See Tables 1A–1F for refrigerant
pipe connection sizes. For ease in brazing, it is
recommended that all internal solder joints be made
before unit is placed in final position.
The 40RU direct--expansion units have internal
factory--installed thermostatic expansion valves (TXVs),
distributors, and nozzles for use with R--410A. See Table
2 for part numbers. Knockouts are provided in the unit
corner posts for 40RU refrigerant piping. See Fig. 8,
which also lists recommended knockouts and access holes
to use for each 40RU unit size. Recommended fittings are
listed in Table 3.
The sensor bulb capillary tubes must be routed from the
TXVs inside the unit through one of the piping access
holes. Clamp the TXV sensor bulb on a vertical portion of
the suction line, outside the unit. See Fig. 9.
NOTE: Be sure to remove the styrofoam shipping pad
from the TXV. Verify that it has been removed. See Fig. 5.
IMPORTANT: Never attach the sensor to the suction
manifold. Do NOT mount the sensor on a trapped portion
of the suction line.
The 40RU Series evaporator coils have a face--split
design. Ensure that lower circuit of coil is first on/last off
when connected to the condensing unit and/or system
controls. See Fig. 10.
External TXV equalizer connections are provided and
factory--brazed into the coil suction manifolds.
If suction line must be horizontal, clamp bulb to suction
line at least 45 degrees above bottom, at approximately
the 4 o’clock or 8 o’clock position. See Fig.11.
4
3
2
1
7
6
5
ABCD
8
C10727
UNIT USE HOLE
NUMBERS
FIELD -- FABRICATED HOLE DIAMATERS
in. (mm)
FIELD --FABRICATED HOLE POSITION DIMENSIONS
in. (mm)
No. 5 No. 6 No. 7 No. 8 A B C D
40RUA*25, 28, 30 1,2, 3, 4 — — — — — — — —
40RUS*25 4, 5, 6, 7 13/4(44.5) 13/4(44.5) 13/4(44.5) —3.0 (76.2) 6.0 (152.5) 10.5 (266.7) —
40RUQ*25 3{,5,6,7 11/8(28.6) 11/8(28.6) 13/4(44.5) —3.25 (82.6) 6.125 (155.6) 10.38 (263.7)
40RUS*28, 30 5, 6, 7, 8 21/2(63.5) 21/2(63.5) 21/2(63.5) 21/2(63.5) 6.0 (152.5) 9.625 (244.5) 13.38 (339.9) 17.0 (431.8)
{Must be enlarged from 11/8in. (28.6mm) to 13/4in. (44.5mm)
N O T E : A c c e s s h o l e k n o c k o u t s 1 --- 4 a r e f a c t o r y --- su p p l i e d .
Fig. 8 -- Refrigerant and Chilled Water Piping Access Holes
40RU

14
LEGEND:
TXV – Thermostatic Expansion Valve
NOTE: Component location arrangemetshown for field installation of
sight glasses, solenoid valves, filter driers, and TXV sensing bulbs.
The TXVs and equilizer lines are factory installed.
UPPER
SPLIT
AIRFLOW
LOWER
SPLIT
AIRFLOW
15 DIAMS
MIN 10
DIAMS
8 DIAMS
MIN
TXV
SENSING
BULB
EQUALIZER LINE
SIGHT
GLASS
TXV
SOLENOID
VALVE
FILTER
DRIER
TXV
SENSING
BULB
TXV
8 DIAMS
MIN
15 DIAMS
MIN 10
DIAMS
INDOOR
COIL
EQUALIZER
LINE
C10726
Fig. 9 -- Face--Split Coil Suction and Liquid Line Piping (Typical)
FIRST ON/LAST OFF = B
VERTICAL INSTALLATION
FIRST ON/LAST OFF = A
HORIZONTAL INSTA LLATIO N
C10688
Fig. 10 -- Typical Evaporator Coil Connections (40RU)
LEGEND
TXV — Thermostatic Expansion Valve
NOTE: The 8 o’clock position is shown above.
C10689
Fig. 11 -- TXV Sensing Bulb Location
40RU

15
Table 2 – Factory--Installed Nozzle and Distributor Data
UNIT COIL TYPE
STD
TXV
Qty...Part No.
DISTRIBUTOR
Qty...Part No.
FEEDER TUBES
PER DISTRIBUTOR{
Qty...Size (in.)
NOZZLE
Qty...Part No.
40RUA*25 4Row 2 . . . B B I Z E --- 8 --- G A 2...D196--- 18--- 3/16 18...3/16 2...G6
40RUA*28 4Row 2 . . . B B I Z E --- 1 5 --- G A 2...1126 20...3/16 2...C15
40RUA*30 4Row 2 . . . B B I Z E --- 1 5 --- G A 2...1126 24...3/16 2...C17
40RUQ*25 4Row 2 . . . B B I Z E --- 1 2 . 5 --- G A 2...113--- 12--- 3/16 2 --- 1 2 . . . 3/16 2...G8
{Feeder tube size is 1/4in. (6.35 mm).
NOTE: Hot gas bypass applications require field ---supplied auxiliary side connector.
Table 3 – Fitting Requirements
UNIT ACCESS
HOLE NO.}CONNECTION
TYPE CIRCUIT FITTINGS REQUIRED†
(in.)
40RUA*25
1Suction Lower
11/8Street Elbow
11/8Nipple, 75/8L
11/8Long Radius Elbow
2Liquid Lower
5/8Street Elbow
5/8Nipple, 61/2L
5/8Long Radius Elbow
3Liquid Upper
5/8Street Elbow
5/8Nipple, 91/2L
5/8Long Radius Elbow
4Suction Upper
11/8Nipple, 55/8L
11/8Long Radius Elbow
11/8Nipple, 11 L
11/8Long Radius Elbow
40RUQ*25
3Suction Lower 11/8Nipple, 3 L
11/8Long Radius Elbow
5Suction Lower
5/8Nipple, 27/8L
5/845_Elbow
5/8Nipple, 15/8L
5/8Long Radius Elbow
6Liquid Upper
5/8Nipple, 27/8L
5/845_Elbow
5/8Nipple, 41/4L
5/8Long Radius Elbow
7Suction Upper
11/8Nipple, 5 L
11/845_Elbow
11/8Nipple, 83/4L
11/8Long Radius Elbow
40RUS*25
4Supply Lower
13/8Long Radius Elbow
13/8Nipple, 33/4L
13/8Long Radius Elbow
5Return Lower
13/8Long Radius Elbow
13/8Nipple, 33/8L
13/8Long Radius Elbow
6Return Upper
13/8Long Radius Elbow
13/8Nipple, 7 L
13/8Long Radius Elbow
7Supply Upper
13/8Long Radius Elbow
13/8Nipple, 113/4L
11/8Long Radius Elbow
}See Fig. 8 for access hole location by number.
†Fittings are listed in order from header or tee stub connection out to access hole in corner support post.
40RU

16
Table 3 — Fitting Requirement (cont)
UNIT ACCESS
HOLE NO.}CONNECTION
TYPE CIRCUIT FITTINGS REQUIRED†
(in.)
40RUA*28
1Suction Lower
13/8Street Elbow
13/8Nipple, 11 L
13/8Long Radius Elbow
2Liquid Lower
5/8Street Elbow
5/8Nipple, 11/2L
5/8Long Radius Elbow
3Liquid Upper
5/8Street Elbow
5/8Nipple, 191/2L
5/8Long Radius Elbow
4Suction Upper
13/8Nipple, 43/16 L
13/8Long Radius Elbow
13/8Nipple, 231/4L
13/8Long Radius Elbow
40RUS*28, 30
5Supply Lower
21/8Long Radius Elbow
21/8Nipple, 31/2L
21/8Long Radius Elbow
6Return Lower
21/8Long Radius Elbow
21/8Nipple, 3 L
21/8Long Radius Elbow
7Return Upper
21/8Long Radius Elbow
21/8Nipple, 67/8L
21/8Long Radius Elbow
8Supply Upper
21/8Long Radius Elbow
21/8Nipple, 117/8L
21/8Long Radius Elbow
40RUA*30
1Suction Lower
13/8Street Elbow
13/8Nipple, 3 L
13/8Long Radius Elbow
2Liquid Lower
5/8Street Elbow
5/8Nipple, 73/4L
5/8Long Radius Elbow
3Liquid Upper
5/8Street Elbow
5/8Nipple, 181/2L
5/8Long Radius Elbow
4Suction Upper
13/8Nipple, 43/16 L
13/8Long Radius Elbow
13/8Nipple, 191/4L
13/8Long Radius Elbow
}See Fig. 8 for access hole location by number.
†Fittings are listed in order from header or tee stub connection out to access hole in corner support post.
40RU

17
Chilled Water Piping -- See Tables 1E and 1F for chilled
water connection sizes. For ease in brazing, it it
recommended that all internal solder joints be made
before unit is placed in final position.
Knockouts are provided in the unit corner posts for
40RUS refrigerant piping. Additional field--fabricated
access holes are required for 40RUS chilled water piping.
See Fig. 8, which lists recommended knockouts and
access holes to use for each 40RUS unit size.
To size, design, and install chilled water piping, consult
the Carrier System Design manual. See Fig. 12 for an
example of a typical installation. Recommended fittings
are listed in Table 3.
To access 40RUS coil vents and drains, remove the unit
side panel over the coil header. Vent and drain plugs are
on the top and bottom of header, respectively. See the
Service section for information on preventing coil
freeze--up during winter.
C10690
Fig. 12 -- Typical 40RUS Chilled Water Piping
40RU

18
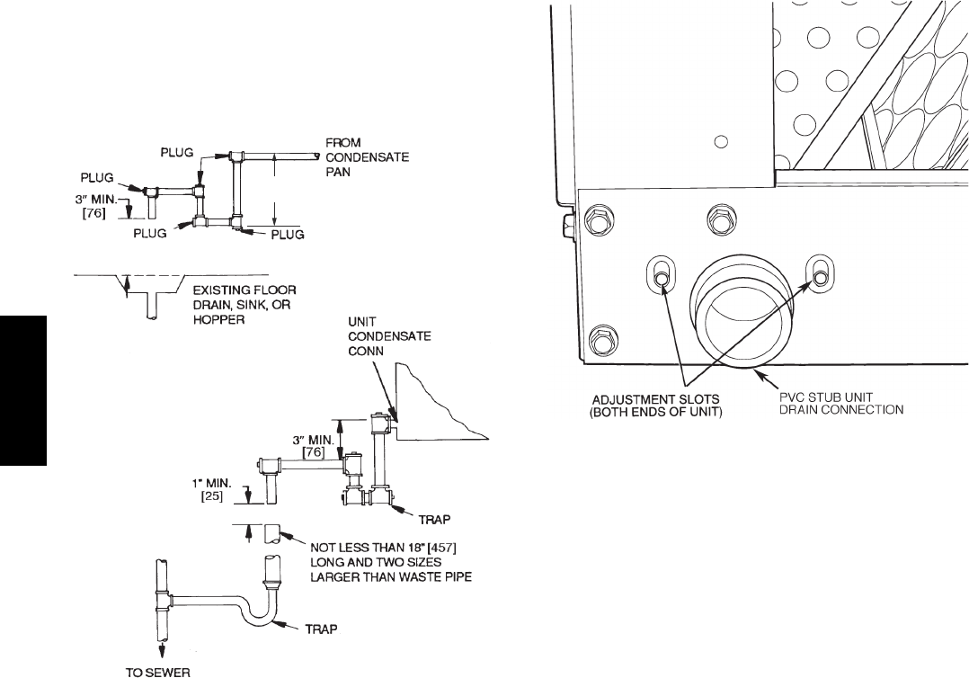
Condensate Drain -- Install a trapped condensate drain
line to unit connection as shown in Fig. 13. The unit drain
connection is a PVC stub. See Fig. 14. Some areas may
require an adapter to connect to either galvanized steel or
copper pipe. For these applications, install a
field--supplied threaded PVC adapter.
3” MIN.
[76]
NOTE: Dimensions in [ ] are in millimeters
C10691
Fig. 13 -- Condensate Drains
NOTE: A trap must be installed in the condensate drain
line to ensure that the static pressure of fans is balanced with
the water column in the drain line and that condensate can
drain completely from pan. Without a trap, air can be drawn
up drain line until water level in condensate pan becomes
equal to static pressure created by fans, preventing complete
drainage. Conditions will worsen as filters become dirty.
Install clean--out plugs in trap. Pitch drain line downward
to an open floor drain or sump. Provide service clearance
around drain line to permit removal of unit panels.
Observe all local sanitary codes.
C10692
Fig. 14 -- Drain Pan Slope Adjustment
As shipped, the unit’s condensate drain pan is NOT sloped
towards the drain connection. The pan slope must be
changed to pitch towards the side of the unit with the
drain connection. See Fig. 14. Loosen the 2 screws next to
the drain outlet at both ends of the unit, push drain pan
down in the slots near the drain connection, and up in the
slots on the opposite end. Re--tighten screws. The pan
should have a pitch of at least 1/4--in. over its length
toward the drain connection.
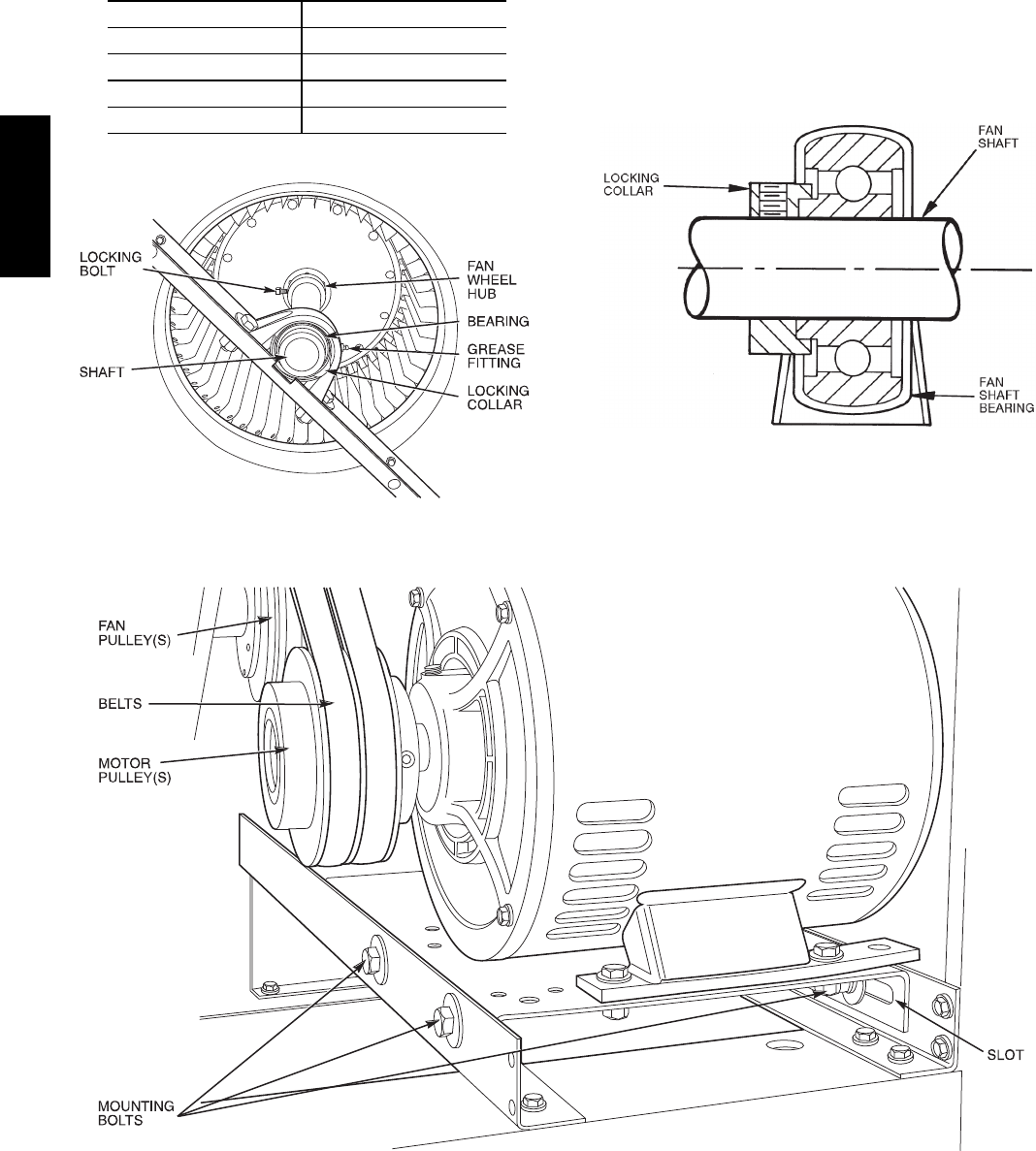
Fan Motors and Drives -- Motor and drive packages are
factory installed in all units. The motor and drive
packages consist of the following items:
1 — fan motor
1 — adjustable motor pulley
1—fanpulley
2 — matched fan belts
(40RUA*25--30, 40RUQ*25, 40RUS*25--30 units)
For instructions on changing fan rotation, changing drive
speeds and adjusting drives, see Pulley and Drive
Adjustment in the Service section.
40RU

19
Power Supply and Wiring -- Check the unit data plate to
ensure that available power supply matches electrical
characteristics of the unit. Provide a disconnect switch
with an integrated lock--out feature of size required to
provide adequate fan motor starting current. See Tables
4--6 for unit electrical data.
ELECTRICAL SHOCK HAZARD
Failure to follow this warning could result in personal
injury or death.
Do not use gas piping as an electrical ground. Unit
cabinet must have an uninterrupted, unbroken electrical
ground to minimize the possibility of personal injury if
an electrical fault should occur. This ground may consist
of electrical wire connected to unit ground lug in control
compartment, or conduit approved for electrical ground
when installed in accordance with NEC (National
Electrical Code); ANSI/NFPA 70, latest edition (in
Canada, Canadian Electrical Code CSA [Canadian
Standards Association] C22.1), and local electrical
codes.
!WARNING
FIRE HAZARD
Failure to follow this warning could result in intermittent
operation or performance satisfaction.
Do not connect aluminum wire between disconnect
switch and fan coil unit. Use only copper wire.
(See Fig. 15)
!WARNING
COPPER
WIRE ONLY
ELECTRIC
DISCONNECT
SWITCH
ALUMINUM
WIRE
A93033
Fig. 15 -- Disconnect Switch and Unit
Install disconnect switch and power wiring in accordance
with all applicable local codes. See Fig. 15--17 and the
unit label diagram. Connect power wiring with 1/4-- i n .
ring terminal.
FILTER
ELEMENTS
FILTER
RETAINER
CLIP
FAN SCROLL
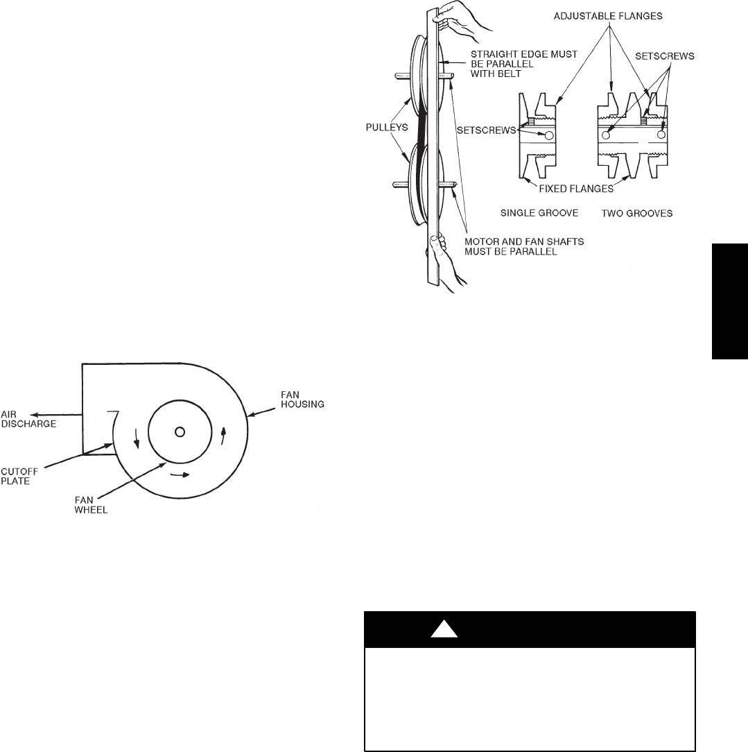
CONDENSATE
DRAIN
CONNECTION
(HORIZONTAL)
MOTOR
A
ND DRIVE
FAN
CONTACTOR
BOX
WIRE
ACCESS
COIL
FAN DRIVE
PULLEY
TXV BULB
ACCESS
REFRIGERANT
PIPING ACCESS
CONDENSATE
DRAIN
CONNNECTION
(VERTICAL)
LEGEND
TXV — Thermostatic Expansion Valve
C10693
Fig. 16 -- Wiring and Service Access
(Side Panel Removed)
Fan motors are factory--installed on all units. Indoor--fan
contactors are located in the fan contactor box behind the
side access panel (see Fig. 16 and 17). Wire the thermostat
to the 24--v control circuit terminal block located in the
side of the fan contactor control box, according to Fig. 18
or the unit label diagram. If the air handler is part of a
split system, complete the wiring from the condensing
unit to the thermostat shown in Fig. 18.
23
22
21
1
3
1
2
1
1
105°C600VR
JA
W
FAN
CONTACTOR
24V
TERMINAL
BLOCK
POWER
WIRING
KNOCKOUT
C10694
Fig. 17 -- Fan Contactor Box and Terminal Block
(Cover Removed) (Typical)
40RU

20
Table 4 – Electrical Data, Standard Motors
UNIT V --- P H --- H z {VOLTAGE
LIMITS
FAN MOTOR POWER SUPPLY
Hp (kW) FLA Minimum
Circuit Amps MOCP
40RUA*25
40RUQ*25
40RUS*25
208/230--- 3--- 60 187--- 253 5.0 (3.73) 14.7/13.6 18.4/17.0 30/25
4 6 0 --- 3 --- 6 0 414--- 506 5.0 (3.73) 6.8 8.5 15
5 7 5 --- 3 --- 6 0 518--- 632 5.0 (3.73) 5.1 6.4 15
40RUA*28
40RUS*28
208/230--- 3--- 60 187--- 253 7.5 (5.59) 21.4/19.4 26.9/24.3 45/40
4 6 0 --- 3 --- 6 0 414--- 506 7.5 (5.59) 9.7 12.1 20
5 7 5 --- 3 --- 6 0 518--- 632 7.5 (5.59) 7.8 9.8 15
40RUA30
40RUS30
208/230--- 3--- 60 187--- 253 10.0 (7.46) 28.0/25.2 35.0/31.5 60/50
4 6 0 --- 3 --- 6 0 414--- 506 10.0 (7.46) 12.6 15.8 25
5 7 5 --- 3 --- 6 0 518--- 632 10.0 (7.46) 10.3 12.9 20
See Legend and Notes below.
Table 5 – Electrical Data, Alternate Motors
UNIT V --- P H --- H z {VOLTAGE
LIMITS
FAN MOTOR POWER SUPPLY
Hp (kW) FLA Minimum
Circuit Amps MOCP
40RUA*25
40RUQ*25
40RUS*25
208/230--- 3--- 60 187--- 253 7.5 (5.59) 21.4/19.4 26.9/24.3 45/40
4 6 0 --- 3 --- 6 0 414--- 506 7.5 (5.59) 9.7 12.1 20
5 7 5 --- 3 --- 6 0 518--- 632 7.5 (5.59) 7.8 9.8 15
40RUA*28
40RUA*30
40RUS*28
40RUS*30
208/230--- 3--- 60 187--- 253 10.0 (7.46) 28.0/25.2 35.0/31.5 60/50
4 6 0 --- 3 --- 6 0 414--- 506 10.0 (7.46) 12.6 15.8 25
5 7 5 --- 3 --- 6 0 518--- 632 10.0 (7.46) 10.3 12.9 20
See Legend and Notes below.
Legend and Notes for Tables 4 and 5
LEGEND:
F L A --- F u l l L o a d A m p s
MOCP --- Maximum Overcurrent Protection
{Motors are designed for satisfactory operation within 10% of
normal voltage shown. Voltages should not exceed the limits
shown in the Voltage Limits column.
NOTES:
1. Minimum circuit amps (MCA) and MOCP values are calcu-
lated in accordance with The NEC. Article 440.
2. Motor FLA values are established in accordance with Under-
writers’ Laboratories (UL). Standard 1995.
3. Unbalanced 3-Phase Supply Voltage
Never operate a motor where a phase imbalance in supply
voltage is greater than 2%. Use the formula in the example
(see column to the right) to determine the percentage of volt-
age imbalance.
4. Installation with Accessory Electric Heaters
Size the Field Power Wiring between the heater TB1 and the
40RU indoor fan motor per NEC Article 430--- 28 (1) or (2)
(depends on length of conduit between heater enclosure and
40RU power entry location). Install wires in field --- installed
conduit.
Example: Supply voltage is 230-3-60
% Voltage Imbalance = 100 x
max voltage deviation from average voltage
average voltage
AB = 393 v
BC = 403 v
AC = 396 v
Average Voltage =
(393 + 403 + 396)
=
1192
33
= 397
Determine maximum deviation from average voltage.
(AB) 397 – 393 = 4 v
(BC) 403 – 397 = 6 v
(AC) 397 – 396 = 1 v
Maximum deviation is 4 v.
Determine percent of voltage imbalance.
% Voltage Imbalance = 100 x
6
397
=1.5%
This amount of phase imbalance is satisfactory as it is below the
maximum allowable 2%.
IMPORTANT: If the supply voltage phase imbalance is more than
2%, contact your local electric utility company immediately.
40RU

21
C10695
Fig. 18 -- Unit Wiring
Table 6 – Fan Contactor Coil Data
UNIT
40RU*
VOLTAGE
(vac)
MAXIMUM
HOLDING VA
25, 28, 30 24 10
Connecting Ductwork -- Refer to the Carrier System
Design Manual for the recommended design and layout of
ductwork. Fig. 19 shows recommended duct connection to
units with 2 fans.
UNIT OPERATION HAZARD
Failure to follow this caution could cause equipment
damage.
Do not operate unit without ductwork or discharge
plenum unless fan speed has been adjusted for
external static pressure of zero in. wg. Failure to do so
may result in motor overload.
CAUTION
!
DISCHARGE CONNECTIONS — Duct flanges are
factory--supplied; they are shipped inside the unit attached
to the hairpin end of the coil tube sheet for field
installation. Using the existing screws, install the duct
flanges on the unit’s fan deck. Each fan discharge requires
2 flanges; each flange must be bent in the middle to
conform to the discharge opening. See Fig. 20. After
flanges are installed, connect them to the supply duct
using a canvas connection to prevent vibration. It is
important that this connection be properly fabricated to
prevent high air friction losses and air noise.
RETURN CONNECTIONS — When using return--air
ductwork, route return--air duct to the unit’s return air inlet
near the filter rack, using a canvas connection to prevent
transmission of unit vibration. If the duct blocks off the
unit’s access panel, provide a slip joint in the ductwork to
permit removal for servicing.
OUTDOOR--AIR INLET CONNECTIONS — Connect
outdoor--air inlet to field--installed accessory economizer.
Refer to Economizer Installation Instructions.
Return--Air Filters -- Type and size of filters are shown
in Tables 1A – 1F and are factory--supplied and
factory--installed. In all units with 2 fans, a filter
replacement tool (hook) is shipped inside the unit for field
use when replacing filters. See the Service section for
instructions on filter element replacement.
40RU

22
C10696
Fig. 19 -- Typical Fan Discharge Connections for Multiple Fan Units
C10697
Fig. 20 -- Duct Flange Installation
40RU

23
START--UP
Before starting unit, check the following and correct as
necessary:
SIs unit solidly supported?
SIs fan adjusted for speed and pulley alignment?
SAre pulleys, motor, and bearings securely mounted?
SAre there any loose parts that will rattle or vibrate?
SIs condensate drain pan pitched for correct drainage?
SAre coil baffle plates tight against coil to prevent air
bypass?
SAre all panels securely fastened?
SAre all electrical connections correct and tight?
40RUA and 40RUQ ONLY —
SIs TXV bulb located on suction tube per Fig. 21?
SIs the capillary tube to the bulb free of kinks and not
subject to pinching?
SIs the bulb well secured to the suction tube with strap?
Also refer to condensing unit or outdoor heat pump section
instructions before starting a split system. A split system
start--up checklist is provided at the end of these instructions.
IMPORTANT! / IMPORTANT
40RU500072 2.0
The sensor bulb capillary tubes must be routed from the TXVs inside the unit through one of the piping
access holes. Clamp the TXV sensor bulb on a vertical portion of the suction line, outside the unit.
See Fig. 7 in the installation, start-up and service instruction. Super heat must be adjusted in field.
Les tubes capillaires du capteur doivent être acheminé à partir du détendeur thermostatique situé à l'intérieur
de l'appareil au travers de l'un des trous d'accès de conduites. Attacher le capteur sur une portion verticale
de la conduite de succion, à l'extérieur de l'appareil. Voir la Figure 7 dans le manuel d'installation, de mise
en marche, et d'entretien. La surchauffe doit être ajustée sur place.
AIR FLOW
CIRCULATION
D'AIR
UPPER SPLIT
BLOC SUPÉRIEUR
LOWER
SPLIT
BLOC
INFÉRIEUR
AIR FLOW
CIRCULATION
D'AIR
15 DIAMS MIN
15 x DIA. MIN
10 DIAMS
10 x DIA. MIN
TXV SENSING
BULB
CAPTEUR TXV
15 DIAMS MIN
15 x DIA. MIN
10 DIAMS
10 x DIA. MIN
TXV
SENSING
BULB
CAPTEUR TXV
EQUALIZER LINE
CONDUITE D'ÉQUILIBRAGE
SIGHT GLASS
HUBLOT
8 DIAMS MIN
8 x DIA. MIN
TXV
SOLENOID
VALVE
VANNE
SOLÉNOÏDE
FILTER
DRIER
FILTRE
DESSICCATEUR
TXV
EQUALIZER LINE
CONDUITE D'ÉQUILIBRAGE
8 DIAMS MIN
8 x DIA. MIN
INDOOR COIL
ÉCHANGEUR INTÉRIEUR
C10827
Fig. 21 -- Label, TXV Bulb Location
Adjusting TXV for Superheat
(40RUA and 40 RUQ only) —
The unit--mounted thermostatic expansion valve(s) is/are
factory set to provided superheat at the bulb location in
10_Fto15_F (5.5_Cto8.3_C) range. Actual system load
conditions may require adjustment of the factory setting.
To adjust the TXV superheat setting:
1. Remove the seal cap from the bottom of the TXV
body.
2. To increase superheat, turn the stem clockwise. To de-
crease the superheat, turn the stem counterclockwise.
Do not turn the stem more than one full turn.
3. Wait until suction pressure and superheat stabilize.
This may take more than 30 minutes.
4. Continue adjustment until superheat reaches 10_Fto
15_F (5.5_Cto8.3_C).
5. Replace the seal cap; tighten.
INSTALLER / INSTALLATEUR
TXV superheat must be checked at initial
unit start-up and adjusted if necessary.
Superheat must be 10 - 15 deg F.
La surchauffe TXV doit être vérifiée au
moment de la mise en route initiale et
ajustée si nécessaire. La surchauffe doit
être comprise entre 10 et 15 degrés F.
40RU500073 2.0
C10828
Fig. 22 -- Label, TXV Adjustment
SERVICE
Inspection and maintenance should be performed at
regular intervals and should include the following:
SComplete cleaning of cabinet, fan wheel, cooling coil,
condensate pan and drain, heating coils, and return--air
grille (if present).
SInspection of panels and sealing of unit against air
leakage.
SAdjustment of fan motor, belt, bearings, and wheels.
SCleaning or replacement of filters.
STesting for cooling/heating system leaks.
SChecking of all electrical connections.
ELECTRICAL SHOCK HAZARD
Failure to follow this warning could result in personal
injury or death.
Before performing service or maintenance operations
on unit, always turn off main power switch to unit and
install lockout tag. Unit may have more than one
power switch.
!WARNING
Most unit service can be performed by removing one or
both of the unit’s side panels. Coil cleaning or removal or
insulation cleaning may require removal of a rear, top, or
bottom panel, depending on the unit’s orientation. When
service is completed, replace unit panels.
Panels -- Panels are fastened to unit frame with sheet
metal screws. Fan and coil compartment must be sealed
tightly after service to prevent air from bypassing the
cooling coil.
40RU

24
Fan Motor Lubrication -- Fan motor supplied with unit is
permanently lubricated and requires no further
lubrication.
Fan Shaft Bearings -- Size 25--30 units have pillow--block
bearings (Fig. 23) that must be lubricated with suitable
bearing grease approximately every 3 months. See Table 7
for suitable lubricants.
Table 7 – Lubricant Data
MANUFACTURER LUBRICANT
Mobil Mobilplex EP No. 2
Sunoco Prestige 42
Te x a co Multifak 2
Te x a co R e g a l A F B --- 2 *
*Preferred lubricant, contains rust and oxidation inhibitors.
C10698
Fig. 23 -- Fan Shaft, Bearings, and Fan Wheel (Typical)
Centering Fan Wheel -- If fan and fan shaft assembly are
not properly centered, blades may scrape against the
blower side scroll plate or may create an objectionable
whistling noise. It may be necessary to adjust individual
fan wheels or move entire fan shaft. See the following two
sections.
Fan Shaft Position Adjustment -- Loosen setscrew or
locking collar of each fan shaft bearing. Slide shaft into
correct position and replace locking collar (Fig. 24). To
replace locking collar, push collar up against inner face of
bearing. Turn collar in direction of fan rotation until tight,
and tighten setscrew. Tightening locking collar in
direction of fan rotation results in further tightening of
collar should setscrew work itself loose.
C10699
Fig. 24 -- Fan Shaft Bearing
C10700
Fig. 25 -- Fan Motor Mounting
40RU

25
Individual Fan Wheel Adjustment -- Loosen the 2
locking bolts holding fan wheel hub to shaft. See Fig. 23.
Position fan wheel in center of the fan housing and tighten
locking bolts. Clearance between wheel and housing
should be the same on both sides.
Fan Belts -- Motor mounting plate and motor support
angles are slotted to permit both vertical and horizontal
adjustment. Adjust belt(s) for correct deflection by
loosening motor plate mounting bolts, moving motor/plate
assembly forward or back, and re--tightening bolts. Press
down on belt with one finger midway between fan and
motor pulleys to check deflection. The correct deflection
is 1/8--in. (3.2 mm). See Fig. 25.
If complete belt replacement is required during servicing,
loosen the motor plate mounting bolts (Fig. 25), move
motor/plate assembly towards fan pulley, and pull belt(s)
off pulleys. Reverse the procedure with new bolts and
readjust deflection.
Fan Rotation -- Correct fan rotation with respect to fan
outlet is shown in Fig. 26.
C10701
Fig. 26 -- Fan Rotation
To reverse the direction of rotation of a 3--phase fan
motor, reverse any 2 of the power leads. Refer to the
connection diagram on the inside of motor terminal box
cover for proper reversing procedure of single--phase
motor.
Fan Pulley Alignment -- Align as follows:
1. Loosen setscrews on pulleys.
2. Align pulleys visually and tighten setscrews on fan
pulley to lock it in place.
3. Use the methods shown in Fig. 27 to check proper
pulley alignment.
C10702
Fig. 27 -- Fan Pulley Adjustments
4. If pulleys are not in correct alignment, loosen the mo-
tor holddown bolts and slide the motor axially until
the pulleys are aligned.
5. Tighten motor holddown bolts.
Pulley and Drive Adjustment -- To obtain desired fan
speed, refer to the fan motor and drive data in Tables
8A--11D and adjust fan motor pulley as follows:
1. Remove belt from fan motor pulley after loosening
motor from motor base.
2. Loosen setscrew in moveable flange of pulley. Screw
moveable flange toward fixed flange to increase the
fan speed and away from fixed flange to reduce
speed. Before tightening setscrew, make certain that
setscrew is over nearest flat surface of pulley hub
(Fig. 27).
UNIT OPERATION HAZARD
Failure to follow this caution could cause equipment
damage.
Increasing fan speed produces a greater load on motor.
Do not exceed rated capacity of motor.
CAUTION
!
Condensate Drains -- Keep condensate drains free of dirt
and foreign matter.
Return--Air Filters -- Refer to Replacing Filters section
for filter accessibility and removal. Replace with clean
filters of the sizes listed in Tables 1A--1F.
40RU

26
Chilled Water Coil Freeze Protection -- Shut off water
supply to unit. Remove side panel of unit and remove vent
and drain plugs in top and bottom of coil header. Drain
coil and blow out remaining water. Reinstall plugs and
side panel.
Alternative freeze protection methods follow:
SCirculate hot water within the water coil’s supply main
or supplementary space heating.
SClose off supply lines to unit and open a union or
field--supplied drain valve in the return line.
IMPORTANT: Draining from return line will not
completely drain water from coils.
SAfter draining as much water as possible from coils, add
sufficient antifreeze to prevent residual water in the coil
from freezing.
SAdd a sufficient quantity of non--corrosive antifreeze to
the entire system to prevent all water within the system
from freezing.
Coil Removal -- Remove unit panels and corner posts as
required. Disconnect coil connections and remove fastening
screws. Remove coil through end or side sections of unit.
Cleaning Cooling Coil -- Remove return--air filters.
Remove any heavy dirt that may have accumulated on
underside of coil. Coil can be cleaned more easily with a
stiff brush, vacuum cleaner, or compressed air when coil
is dry. If coil is wet or if water is to be used for cleaning,
guard against splashing water on electrical components or
damaging surrounding area. Clean coil baffles as
applicable and check for tight fit to be sure air does not
bypass coil.
Cleaning Insulation -- The insulation contains an
immobilized antimicrobial agent that helps prevent the
growth of bacteria and fungi. Clean the inner surface of
the insulation according to the separate maintenance
instructions shipped with the unit.
Replacing Filters -- Filters can be removed and installed
from either side of the unit. Install new filters in units that
have one fan as follows:
1. Remove the side access panel (retain screws).
2. Remove the filter retainer clip (see Fig. 28).
3. Remove old filters by lifting and tilting them out of
the filter track. See Fig. 16 and 29. Use the factory--
supplied filter hook to slide filters within reach for re-
moval. The filter hook is shipped inside the unit in
the filter track
4. Reverse the procedure to install new filters.
UNIT OPERATION HAZARD
Failure to follow this caution could cause equipment
damage.
Do not operate unit without air filters.
CAUTION
!
SLIDE
FILTER
RETAINER
CLIP
C10703
Fig. 28 -- Remove Filter Retainer Clip
C10704
Fig. 29 -- Filter Removal/Replacement
40RU

27
Table 8A -- Fan Motor Data, Standard Motor — English
UNIT
40RUA*25
40RUQ*25
40RUS*25
40RUA*28
40RUS*28
40RUA*30
40RUS*30
208/230---3---60 and 460---3---60
Speed (rpm) 1745 1745 1745
Hp 5.0 7.5 10.0
Frame (NEMA) S184T S213T S215T
Shaft Dia (in.) 11/813/813/8
5 7 5 --- 3 --- 6 0
Speed (rpm) 1745 1755 1755
Hp 5.0 7.5 10.0
Frame (NEMA) 184T S213T D215T
Shaft Dia (in.) 11/813/813/8
LEGEND
NEMA — National Electrical Manufacturers Association
Table 8B -- Fan Motor Data, Alternate Motor — English
UNIT
40RUA*25
40RUQ*25
40RUS*25
40RUA*28
40RUS*28
40RUA*30
40RUS*30
208/230---3---60 and 460---3---60
Speed (rpm) 1745 1745 1745
Hp 7.5 10.0 10.0
Frame (NEMA) S213T S215T S215T
Shaft Dia (in.) 13/813/813/8
5 7 5 --- 3 --- 6 0
Speed (rpm) 1755 1750 1750
Hp 7.5 10.0 10.0
Frame (NEMA) S213T D215T D215T
Shaft Dia (in.) 13/813/813/8
LEGEND
NEMA — National Electrical Manufacturers Association
40RU

28
Table 8C -- Fan Motor Data, Standard Motor — SI
UNIT
40RUA*25
40RUQ*25
40RUS*25
40RUA*28
40RUS*28
40RUA*30
40RUS*30
208/230---3---60 and 460---3---60
Speed (r/s) 29.08 29.08 29.08
Shaft kW 3.73 5.60 7.46
Frame (NEMA) S184T S213T S215T
Shaft Dia (mm) 28.6 34.9 34.9
5 7 5 --- 3 --- 6 0
Speed (r/s) 29.08 29.25 29.25
Shaft kW 3.73 5.60 7.46
Frame (NEMA) 184T S213T S215T
Shaft Dia (mm) 28.6 34.9 34.9
LEGEND
NEMA — National Electrical Manufacturers Association
Table 8D -- Fan Motor Data, Alternate Motor — SI
UNIT
40RUA*25
40RUQ*25
40RUS*25
40RUA*28
40RUS*28
40RUA*30
40RUS*30
208/230---3---60 and 460---3---60
Speed (r/s) 29.08 29.17 29.17
Shaft kW 5.60 7.46 7.46
Frame (NEMA) S213T S215T S215T
Shaft Dia (mm) 34.9 34.9 34.9
5 7 5 --- 3 --- 6 0
Speed (r/s) 29.25 29.17 29.17
Shaft kW 5.60 7.46 7.46
Frame (NEMA) S213T D215T D215T
Shaft Dia (mm) 34.9 34.9 34.9
LEGEND
NEMA — National Electrical Manufacturers Association
40RU

29
Table 9A -- Standard Drive Data, 60 Hz — English
UNIT
40RUA*25
40RUQ*25
40RUS*25
40RUA*28
40RUS*28
40RUA*30
40RUS*30
MOTOR DRIVE
Motor Pulley Pitch Diameter (in.) 3.7--- 4.7 4.3--- 5.3 4.3--- 5.3
Pulley Factory Setting
Full Turns Open 3.0 3.0 3.0
FAN DRIVE
Pulley Pitch Dia (in.) 9.4 11.0 11.0
Pulley Bore (in.) 17/16 115/16 115/16
Belt No. — Section 2—B 2—B†2—B†
Belt Pitch (in.) 41.8 (2) 42.8
(2) 43.8
(2) 42.8
(2) 43.8
FAN SPEEDS (rpm)
Factory Setting 771 752 752
Range 679---863 682--- 841 674--- 831
Max Allowable Speed (rpm) 1200 1100 1100
Change per 1/2Turn of
Moveable Motor Pulley
Flange
15.3 13.1 13.1
MAX FULL TURNS FROM
CLOSED POSITION 666
SHAFTS CENTER DISTANCE (in.) 9.12--- 10.99 6.67--- 9.43 6.67--- 9.43
†Four belts shipped with unit. Use correct set of 2 belts sized according to the pulley setting.
Table 9B -- Medium--Static Drive Data, 60 Hz — English
UNIT
40RUA*25
40RUQ*25
40RUS*25
40RUA*28
40RUS*28
40RUA*30
40RUS*30
MOTOR DRIVE
Motor Pulley Pitch Diameter (in.) 4.3--- 5.3 4.3--- 5.3 4.3--- 5.3
Pulley Factory Setting
Full Turns Open 3.0 3.0 3.0
FAN DRIVE
Pulley Pitch Dia (in.) 9.4 9.4 9.4
Pulley Bore (in.) 17/16 115/16 115/16
Belt No. — Section 1—B 2—B†2—B†
Belt Pitch (in.) 41.8 (2) 38.8
(2) 39.8
(2) 38.8
(2) 39.8
FAN SPEEDS (rpm)
Factory Setting 881 881 881
Range 798---984 798--- 984 798--- 984
Max Allowable Speed (rpm) 1200 1100 1100
Change per 1/2Turn of
Moveable Motor Pulley
Flange
15.3 15.3 15.3
MAX FULL TURNS FROM
CLOSED POSITION 666
SHAFTS CENTER DISTANCE (in.) 9.16--- 10.99 6.67--- 9.43 6.67--- 9.43
†Four belts shipped with unit. Use correct set of 2 belts sized according to the pulley setting.
40RU

30
Table 9C -- High--Static Drive Data, 60 Hz — English
UNIT
40RUA*25
40RUQ*25
40RUS*25
40RUA*28
40RUS*28
40RUA*30
40RUS*30
MOTOR DRIVE
Motor Pulley Pitch Diameter (in.) 4.3--- 5.3 4.3--- 5.3 4.3--- 5.3
Pulley Factory Setting
Full Turns Open 3.0 3.0 3.0
FAN DRIVE
Pulley Pitch Dia (in.) 7.4 8.6 8.6
Pulley Bore (in.) 17/16 115/16 115/16
Belt No. — Section 2—B 2—B 2—B
Belt Pitch (in.) 36.8 378 37.8
FAN SPEEDS (rpm)
Factory Setting 1118 1024 1024
Range 1014---1200†873--- 1075 873--- 1075
Max Allowable Speed (rpm) 1200 1100 1100
Change per 1/2Turn of
Moveable Motor Pulley
Flange
19.4 16.7 16.7
MAX FULL TURNS FROM
CLOSED POSITION 666
SHAFTS CENTER DISTANCE (in.) 8.16--- 10.02 6.67--- 9.43 6.67--- 9.43
†It is possible to adjust drive so that fan speed exceeds maximum allowable. DO NOT exceed 1200 rpm.
Table 9D-- Standard Drive Data, 60 Hz — SI
UNIT
40RUA*25
40RUQ*25
40RUS*25
40RUA*28
40RUS*28
40RUA*30
40RUS*30
MOTOR DRIVE
Motor Pulley Pitch Diameter (mm) 94.0--- 119.4 109.2--- 134.6 109.2--- 134.6
Pulley Factory Setting
Full Turns Open 3.0 3.0 3.0
FAN DRIVE
Pulley Pitch Dia (mm) 239 279 279
Pulley Bore (mm) 36.5 49.2 49.2
Belt No. — Section 2—B 2—B†2—B†
Belt Pitch (mm) 1062 (2) 1987
(2) 1113
(2) 1987
(2) 1113
FAN SPEEDS (r/s)
Factory Setting 12.9 12.5 12.5
Range 11.3---14.4 11.4--- 14.0 11.2--- 13.9
Max Allowable Speed (r/s) 20.0 18.3 18.3
Change per 1/2Turn of
Moveable Motor Pulley
Flange
0.255 0.218 0.218
MAX FULL TURNS FROM
CLOSED POSITION 666
SHAFTS CENTER DISTANCE (mm) 232---279 169--- 240 169--- 240
†Four belts shipped with unit. Use correct set of 2 belts sized according to the pulley setting.
40RU

31
Table 9E -- Medium--Static Drive Data, 60 Hz — SI
UNIT
40RUA*25
40RUQ*25
40RUS*25
40RUA*28
40RUS*28
40RUA*30
40RUS*30
MOTOR DRIVE
Motor Pulley Pitch Diameter (mm) 109.2--- 134.6 109.2--- 134.6 109.2--- 134.6
Pulley Factory Setting
Full Turns Open 3.0 3.0 3.0
FAN DRIVE
Pulley Pitch Dia (mm) 239 239 239
Pulley Bore (mm) 36.5 49.2 49.2
Belt No. — Section 1—B 2—B†2—B†
Belt Pitch (mm) 1062 (2) 986
(2) 1011
(2) 986
(2) 1011
FAN SPEEDS (r/s)
Factory Setting 14.7 14.7 14.7
Range 13.3---16.4 13.3--- 16.4 13.3--- 16.4
Max Allowable Speed (r/s) 20.0 18.3 18.3
Change per 1/2Turn of
Moveable Motor Pulley
Flange
0.255 0.255 0.255
MAX FULL TURNS FROM
CLOSED POSITION 666
SHAFTS CENTER DISTANCE (mm) 232--- 279 169--- 240 169--- 240
†Four belts shipped with unit. Use correct set of 2 belts sized according to the pulley setting.
Table 9F -- High--Static Drive Data, 60 Hz — SI
UNIT
40RUA*25
40RUQ*25
40RUS*25
40RUA*28
40RUS*28
40RUA*30
40RUS*30
MOTOR DRIVE
Motor Pulley Pitch Diameter (mm) 109.2--- 134.6 109.2--- 134.6 109.2--- 134.6
Pulley Factory Setting
Full Turns Open 3.0 3.0 3.0
FAN DRIVE
Pulley Pitch Dia (mm) 188 203†203
Pulley Bore (mm) 36.5 49.2 49.2
Belt No. — Section 2—B 2—B 2—B
Belt Pitch (mm) 935 935 960
FAN SPEEDS (r/s)
Factory Setting 18.6 17.1 17.1
Range 16.9---20.0†14.6--- 17.9 14.6--- 7.9
Max Allowable Speed (r/s) 20.0 18.3 18.3
Change per 1/2Turn of
Moveable Motor Pulley
Flange
0.323 0.278 0.278
MAX FULL TURNS FROM
CLOSED POSITION 666
SHAFTS CENTER DISTANCE (mm) 207---255 169--- 240 169--- 240
†It is possible to adjust drive so that fan speed exceeds maximum allowable. DO NOT exceed 20 r/s
40RU

32
Table 10A -- 40RU Standard Fan Performance Data —
0.0--2.4 in. wg External Static Pressure — English
UNIT AIRFLOW
(Cfm)
EXTERNAL STATIC PRESSURE (in. wg)
0.0 0.2 0.4 0.6 0.8 1.0 1.2
Rpm Bhp Rpm Bhp Rpm Bhp Rpm Bhp Rpm Bhp Rpm Bhp Rpm Bhp
40RUA*25
40RUQ*25
40RUS*25
6,000 532 1.25 569 1.39 639 1.69 711 2.06 781 2.48 846 2.93 905 3.60
7,000 608 1.93 641 2.09 702 2.42 763 2.08 824 3.23 885 3.71 943 4.23
8,000 686 2.83 716 3.01 770 3.38 823 3.77 876 4.21 930 4.70 983 5.24
9,000 764 3.97 791 4.18 841 4.59 888 5.02 935 5.47 982 5.96 1030 6.51
10,000 843 5.38 868 5.62 914 6.09 957 6.55 1000 7.02 1042 7.53 1084 8.08
40RUA*28
40RUS*28
7,500 456 1.29 490 1.47 556 1.85 621 2.25 678 2.64 729 3.06 778 3.60
8,750 521 1.98 551 2.18 608 2.61 664 3.07 720 3.53 770 3.99 816 4.45
10,000 587 2.88 614 3.11 664 3.59 714 4.09 763 4.62 812 5.15 857 5.68
11,250 653 4.03 678 4.29 724 4.82 768 5.37 812 5.95 856 6.54 899 7.14
12,500 720 5.46 743 5.75 785 6.33 825 6.93 865 7.55 904 8.20 944 8.86
15,000 829 8.84 850 9.19 888 9.88 924 10.57 958 11.27 991 11.99 1024 12.73
40RUA*30
40RUS*30
9,000 521 1.99 550 2.25 616 2.77 676 3.23 731 3.72 782 4.20 829 4.70
10,500 596 3.16 623 3.40 672 3.89 720 4.40 767 4.94 814 5.50 859 6.05
12,000 673 4.63 698 4.90 743 5.45 785 6.02 826 6.62 867 7.23 908 7.87
13,500 751 6.51 773 6.82 815 7.44 853 8.06 890 8.71 927 9.38 963 10.07
15,000 829 8.84 850 9.19 888 9.88 924 10.57 958 11.27 991 11.99 1024 12.73
See Legend and Notes on page 36.
Table 10A -- 40RU Standard Fan Performance Data —
0.0--2.4 in. wg External Static Pressure — English (cont)
UNIT AIRFLOW
(Cfm)
EXTERNAL STATIC PRESSURE (in. wg)
1.4 1.6 1.8 2.0 2.2 2.4
Rpm Bhp Rpm Bhp Rpm Bhp Rpm Bhp Rpm Bhp Rpm Bhp
40RUA*25
40RUQ*25
40RUS*25
6,000 954 3.83 1005 4.27 1052 4.72 1098 5.22 1142 5.67 — —
7,000 990 4.74 1040 5.24 1090 5.80 1135 6.30 1176 6.84 — —
8,000 1028 5.79 1078 6.38 1130 7.00 1173 7.60 — — — —
9,000 1073 7.11 1120 7.72 1169 8.37 — — — — — —
10,000 1126 8.75 1166 9.37 — — — — — — — —
40RUA*28
40RUS*28
7,500 831 4.41 870 5.10 913 5.90 950 6.88 985 7.70 — —
8,750 859 4.97 901 5.59 944 6.42 980 7.20 1020 8.10 — —
10,000 900 6.20 939 6.74 976 7.33 1013 8.00 1050 8.82 — —
11,250 941 7.73 980 8.32 1017 8.90 1052 9.51 1088 10.16 — —
12,500 984 9.53 1022 10.19 1058 10.84 1093 11.49 — — — —
15,000 1057 13.49 1090 14.28 — — — — — — — —
40RUA*30
40RUS*30
9,000 866 5.20 899 5.85 950 6.65 989 7.38 1029 8.32 1077 9.74
10,500 902 6.60 942 7.14 980 7.70 1016 8.31 1051 8.99 1085 9.77
12,000 949 8.50 988 9.14 1026 9.76 1062 10.38 1095 11.01 — —
13,500 1000 10.78 1036 11.49 1073 12.21 — — — — — —
15,000 1057 13.49 1090 14.28 — — — — — — — —
See Legend and Notes on page 36.
40RU

33
Table 10B -- 40RU Standard Fan Performance Data —
0--600 kPa External Static Pressure — SI
UNIT AIRFLOW
(L/s)
EXTERNAL STATIC PRESSURE (kPa)
050 100 150 200 250 300
r/s kW r/s kW r/s kW r/s kW r/s kW r/s kW r/s kW
40RUA*25
40RUQ*25
40RUS*25
2830 8.86 0.94 9.48 1.04 10.65 1.26 11.84 1.53 13.01 1.85 14.10 2.19 15.08 2.53
3300 10.14 1.44 10.69 1.56 11.70 1.81 12.71 2.08 13.73 2.41 14.74 2.77 15.71 3.15
3780 11.43 2.11 11.93 2.25 12.84 2.52 13.71 2.81 14.60 3.14 15.49 3.51 16.39 3.91
4250 12.74 2.96 13.19 3.12 14.02 3.43 14.81 3.74 15.59 4.08 16.37 4.45 17.17 4.85
4720 14.05 4.01 14.47 4.19 15.23 4.54 15.96 4.88 16.66 5.24 17.36 5.62 18.07 6.03
40RUA*28
40RUS*28
3540 7.60 0.96 8.16 1.09 9.27 1.38 10.34 1.68 11.30 1.97 12.15 2.28 12.97 2.68
4130 8.68 1.47 9.18 1.62 10.13 1.94 11.07 2.29 11.99 2.63 12.84 2.97 13.60 3.32
4720 9.78 2.15 10.23 2.32 11.07 2.67 11.89 3.05 12.72 3.45 13.53 3.84 14.29 4.23
5310 10.89 3.01 11.30 3.20 12.06 3.59 12.80 4.00 13.53 4.43 14.27 4.88 14.99 5.33
5900 12.00 4.07 12.38 4.29 13.09 4.72 13.75 5.17 14.41 5.63 15.07 6.11 15.74 6.61
40RUA*30
40RUS*30
4250 8.68 1.48 9.17 1.68 10.27 2.07 11.27 2.41 12.19 2.77 13.03 3.13 13.81 3.50
4960 9.93 2.35 10.38 2.53 11.21 2.90 11.99 3.28 12.78 3.68 13.56 4.10 14.32 4.51
5660 11.21 3.45 11.63 3.66 12.38 4.07 13.08 4.49 13.76 4.93 14.45 5.39 15.14 5.87
6370 12.51 4.85 12.89 5.08 13.58 5.54 14.22 6.01 14.83 6.49 15.44 6.99 16.05 7.51
7080 13.82 6.59 14.17 6.85 14.81 7.36 15.40 7.88 15.97 8.40 16.52 8.94 17.06 9.49
See Legend and Notes on page 36.
Table 10B -- 40RU Standard Fan Performance Data —
0--600 kPa External Static Pressure — SI (cont)
UNIT AIRFLOW
(L/s)
EXTERNAL STATIC PRESSURE (kPa)
350 400 450 500 550 600
r/s kW r/s kW r/s kW r/s kW r/s kW r/s kW
40RUA*25
40RUQ*25
40RUS*25
2830 15.90 2.86 16.75 3.18 17.53 3.52 18.30 3.89 19.03 4.23 — —
3300 16.50 3.53 17.33 3.91 18.17 4.32 18.92 4.70 19.60 5.10 — —
3780 17.13 4.32 17.97 4.76 18.83 5.22 19.55 5.67 ————
4250 17.88 5.30 18.67 5.76 19.48 6.24 ——————
4720 18.77 6.52 19.43 6.99 ————————
40RUA*28
40RUS*28
3540 13.85 3.29 14.50 3.80 15.22 4.40 15.83 5.13 16.42 5.74 — —
4130 14.31 3.71 15.01 4.17 15.74 4.79 16.33 5.37 17.00 6.04 — —
4720 14.99 4.62 15.65 5.02 16.27 5.46 16.88 5.97 17.50 6.57 — —
5310 15.68 5.77 16.34 6.20 16.95 6.64 17.53 7.09 18.09 7.58 — —
5900 16.39 7.10 17.03 7.60 17.64 8.08 18.22 8.57 ————
40RUA*30
40RUS*30
4250 14.43 3.88 14.98 4.36 15.84 4.96 16.48 5.50 17.16 6.21 17.96 7.26
4960 15.04 4.92 15.71 5.32 16.33 5.74 16.93 6.20 17.51 6.70 18.09 7.29
5660 15.81 6.34 16.47 6.81 17.10 7.28 17.69 7.74 18.26 8.21 — —
6370 16.66 8.04 17.27 8.57 17.88 9.10 ——————
7080 17.61 10.06 18.16 10.64 ————————
See Legend and Notes on page 36.
40RU

34
Table 10C -- 40RU High--Capacity Fan Performance Data —
0.0--2.4 in. wg External Static Pressure — English
UNIT AIRFLOW
(Cfm)
EXTERNAL STATIC PRESSURE (in. wg)
0.0 0.2 0.4 0.6 0.8 1.0 1.2
Rpm Bhp Rpm Bhp Rpm Bhp Rpm Bhp Rpm Bhp Rpm Bhp Rpm Bhp
40RUA*25
40RUQ*25
40RUS*25
6,000 542 1.29 577 1042 646 1.72 716 2.09 785 2.51 849 2.95 907 3.40
7,000 620 1.99 652 2.15 711 2.48 771 2.85 831 3.28 890 3.76 947 4.27
8,000 700 2.92 728 3.10 781 3.46 833 3.85 885 4.29 938 4.78 990 5.32
9,000 781 4.10 806 4.30 854 4.71 900 5.13 946 5.58 993 6.08 1039 6.62
10,000 862 5.56 885 5.79 929 6.24 971 6.70 1012 7.18 1054 7.69 1096 8.24
40RUA*28
40RUS*28
7,500 476 1.39 510 1.58 579 1.99 644 2.40 701 2.81 752 3.29 804 3.96
8,750 545 2.14 574 2.35 633 2.81 691 3.29 747 3.77 797 4.25 842 4.76
10,000 615 3.12 641 3.36 692 3.87 743 4.41 794 4.96 843 5.51 888 6.05
11,250 685 4.37 709 4.64 754 5.20 800 5.79 845 6.40 891 7.02 935 7.64
12,500 756 5.92 778 6.22 819 6.83 860 7.47 901 8.14 942 8.83 983 9.52
40RUA*30
40RUS*30
9,000 539 2.18 569 2.39 626 2.85 683 3.34 739 3.83 791 4.32 837 4.82
10,500 620 3.37 646 3.62 695 4.13 744 4.68 793 5.25 842 5.83 888 6.41
12,000 701 4.94 724 5.22 769 5.80 811 6.40 854 7.04 897 7.69 940 8.36
13,500 783 6.95 804 7.27 844 7.91 883 8.57 920 9.26 958 9.97 996 10.71
15,000 865 9.45 884 9.81 921 10.52 956 11.24 991 11.98 1025 12.75 1059 13.54
See Legend and Notes on page 36.
Table 10C -- 40RU High--Capacity Fan Performance Data —
0.0--2.4 in. wg External Static Pressure — English (cont)
UNIT AIRFLOW
(Cfm)
EXTERNAL STATIC PRESSURE (in. wg)
1.4 1.6 1.8 2.0 2.2 2.4
Rpm Bhp Rpm Bhp Rpm Bhp Rpm Bhp Rpm Bhp Rpm Bhp
40RUA*25
40RUQ*25
40RUS*25
6,000 961 3.86 1011 4.31 1058 4.77 1104 5.24 1147 5.71 — —
7,000 1000 4.79 1050 5.32 1097 5.85 1142 6.38 1184 6.91 — —
8,000 1041 5.88 1090 6.47 1137 7.07 1181 7.67 — — — —
9,000 1086 7.21 1133 7.82 1178 8.47 ——————
10,000 1138 8.83 1180 9.46 ————————
40RUA*28
40RUS*28
7,500 874 5.33 897 5.91 940 6.80 990 7.50 — — — —
8,750 886 5.36 930 6.13 982 7.32 1020 8.10 — — — —
10,000 930 6.60 969 7.20 1007 7.89 1045 8.71 — — — —
11,250 976 8.25 1014 8.86 1051 9.49 1086 10.17 — — — —
12,500 1023 10.20 1061 10.88 1097 11.56 ——————
40RUA*30
40RUS*30
9,000 881 5.37 923 6.03 967 6.89 1020 8.25 — — — —
10,500 930 6.97 970 7.55 1008 8.17 1045 8.86 — — — —
12,000 981 9.02 1021 9.67 1058 10.32 1094 10.97 — — — —
13,500 1035 11.45 1072 12.20 ————————
15,000 1093 14.35 ——————————
See Legend and Notes on page 36.
40RU

35
Table 10D -- 40RU High--Capacity Fan Performance Data —
0--600 kPa External Static Pressure — SI
UNIT AIRFLOW
(L/s)
EXTERNAL STATIC PRESSURE (kPa)
050 100 150 200 250 300
r/s kW r/s kW r/s kW r/s kW r/s kW r/s kW r/s kW
40RUA*25
40RUQ*25
40RUS*25
2830 9.03 0.96 9.62 1.06 10.77 1.29 11.94 1.56 13.08 1087 14.15 2.20 15.12 2.54
3330 10.34 1.48 10.86 1.60 11.85 1.85 12.84 2.12 13.85 2.45 14.84 2.80 15.78 3.18
3780 11.67 2.17 12.14 2.31 13.02 2.58 13.88 2.87 14.75 3.20 15.63 3.56 16.50 3.96
4250 13.01 3.05 13.44 3.21 14.23 3.51 15.00 3.82 15.77 4.16 16.54 4.53 17.32 4.94
4720 14.36 4.15 14.75 4.32 15.48 4.66 16.18 4.99 16.87 5.35 17.56 5.73 18.26 6.14
40RUA*28
40RUS*28
3540 7.94 1.04 8.51 1.18 9.65 1.48 10.73 1.79 11.68 2.10 12.53 2.46 13.40 2.95
4130 9.08 1.59 9.57 1.75 10.55 2.10 11.52 2.46 12.45 2.81 13.28 3.17 14.04 3.55
4720 10.24 2.33 10.68 2.51 11.53 2.88 12.39 3.29 13.24 3.70 14.05 4.11 14.80 4.51
5310 11.42 3.26 11.81 3.46 12.57 3.88 13.33 4.32 14.09 4.77 14.85 5.24 15.58 570
5900 12.60 4.42 12.96 4.64 13.65 5.09 14.33 5.57 15.01 6.07 15.40 6.58 16.38 7.10
40RUA*30
40RUS*30
4250 8.99 1.62 9.49 1.78 10.44 2.12 11.39 2.49 12.32 2.86 13.18 3.22 13.95 3.59
4960 10.33 2.51 10.77 2.70 11.59 3.08 12.40 3.49 13.22 3.92 14.03 4.35 14.79 4.78
5660 11.68 3.68 12.07 3.90 12.81 4.33 13.52 4.77 14.23 5.25 14.95 5.74 15.66 6.23
6370 13.04 5.18 13.40 5.42 14.07 5.90 14.71 6.39 15.34 6.90 15.97 7.44 16.61 7.98
7080 14.42 7.05 14.74 7.31 15.36 7.84 15.94 8.38 16.51 8.93 17.08 9.51 17.65 10.10
See Legend and Notes on page 36.
Table 10D -- 40RU High--Capacity Fan Performance Data —
0--600 kPa External Static Pressure — SI (cont)
UNIT AIRFLOW
(L/s)
EXTERNAL STATIC PRESSURE (kPa)
350 400 450 500 550 600
r/s kW r/s kW r/s kW r/s kW r/s kW r/s kW
40RUA*25
40RUQ*25
40RUS*25
2830 16.01 2.88 16.85 3.22 17.64 3.56 18.39 3.91 19.12 4.26 — —
3300 16.67 3.57 17.50 3.96 18.28 4.36 19.03 4.75 19.73 5.15 — —
3780 17.35 4.39 18.17 4.82 18.95 5.27 19.68 5.72 — — — —
4250 18.11 5.37 18.88 5.83 19.63 6.31 ——————
4720 18.96 6.58 19.67 7.05 ————————
40RUA*28
40RUS*28
3540 14.57 3.97 14.95 4.41 15.67 5.07 16.50 5.59 — — — —
4130 14.76 3.99 15.51 4.57 16.36 5.46 17.00 6.04 — — — —
4720 15.49 4.92 16.15 5.37 16.78 5.88 17.42 6.50 — — — —
5310 16.26 6.15 16.91 6.61 17.51 7.08 18.10 7.58 — — — —
5900 17.04 7.61 17.68 8.11 18.28 8.62 ——————
40RUA*30
40RUS*30
4250 14.68 4.00 15.38 4.49 16.12 5.14 17.00 6.15 — — — —
4960 15.51 5.20 16.17 5.63 16.80 6.09 17.41 6.61 — — — —
5660 16.35 6.72 17.01 7.21 17.64 7.69 18.23 8.18 — — — —
6370 17.24 8.54 17.87 9.10 ————————
7080 18.22 10.70 ——————————
See Legend and Notes on page 36.
40RU

36
Legend and Notes for Tables 10A and 10C
LEGEND
Bhp --- Brake Horsepower Input to Fan
ESP --- External Static Pressure
NOTES:
1. Maximum allowable fan speed for size 25 units is 1200 rpm . Maximum
allowable fan speed for size 28 and 30 units is 1100 rpm.
2. Fan performance is based on deductions for wet coil, clean 2-in. filters,
and unit casing. See table at right for factory-supplied filter pressure drop.
3. Refer to fan motor and drive tables for additional data.
FACTORY-SUPPLIED PRESSURE DROP — ENGLISH
UNIT AIRFLOW
(Cfm)
PRESSURE DROP
(in. wg)
40RUA*25
40RUQ*25
40RUS*25
6,000 0.12
8,000 0.19
10,000 0.26
40RUA*28
40RUS*28
7,500 0.15
10,000 0.22
12,500 0.30
40RUA*30
40RUS*30
9,000 0.19
12,000 0.29
15,000 0.40
Legend and Notes for Tables 10B and 10D
LEGEND
ESP --- External Static Pressure
NOTES:
1. Maximumallowablefanspeedforsize25unitsis20r/s.Maximum
allowable fan speed for size 28 and 30 units is 18.3 r/s.
2. Fanperformanceisbasedondeductionsforwetcoil,clean51---mm
filters, and unit casing. See table at right for factory-supplied filter
pressure drop.
3. Refer to fan motor and drive tables for additional data.
FACTORY-SUPPLIED PRESSURE DROP — SI
UNIT AIRFLOW
(L/s)
PRESSURE DROP
(Pa)
40RUA*25
40RUQ*25
40RUS*25
2900 32
3800 47
4700 64
40RUA*28
40RUS*28
3500 36
4700 55
5900 76
40RUA*30
40RUS*30
4250 47
5650 71
7050 98
40RU

37
40RU

38
Copyright 2011 Carrier Corp. D7310 W. Morris St. DIndianapolis, IN 46231 Printed in U.S.A. Edition Date: 01/11
Manufacturer reserves the right to change, at any time, specifications and designs without notice and without obligations.
Catalog No: 40RU---07SI
Replaces: 40RU--- 05SI
40RU

39
START--UP CHECKLIST
(SPLIT SYSTEMS WITH 40RU UNITS)
I. PRELIMINARY INFORMATION
OUTDOOR: MODEL NO. INDOOR: MODEL NO.
SERIAL NO. SERIAL NO.
ADDITIONAL ACCESSORIES
II. PRE--START--UP
OUTDOOR UNIT
IS THERE ANY SHIPPING DAMAGE? (Y/N)
IF SO, WHERE:
WILL THIS DAMAGE PREVENT UNIT START--UP? (Y/N)
CHECK POWER SUPPLY. DOES IT AGREE WITH UNIT? (Y/N)
HAS THE GROUND WIRE BEEN CONNECTED? (Y/N)
HAS THE CIRCUIT PROTECTION BEEN SIZED AND INSTALLED PROPERLY? (Y/N)
ARE THE POWER WIRES TO THE UNIT SIZED AND INSTALLED PROPERLY? (Y/N)
HAVE COMPRESSOR HOLDDOWN BOLTS BEEN LOOSENED? (Y/N)
CONTROLS
ARE THERMOSTAT(S) & INDOOR FAN CONTROL WIRING CONNECTIONS MADE & CHECKED? (Y/N)
ARE ALL WIRING TERMINALS (including main power supply) TIGHT? (Y/N)
HAVE OUTDOOR UNIT CRANKCASE HEATERS BEEN ENERGIZED FOR 24 HOURS? (Y/N)
INDOOR UNIT
HAS WATER BEEN PLACED IN DRAIN PAN TO CONFIRM PROPER DRAINAGE? (Y/N)
ARE PROPER AIR FILTERS IN PLACE? (Y/N)
HAVE FAN AND MOTOR PULLEYS BEEN CHECKED FOR PROPER ALIGNMENT? (Y/N)
DO THE FAN BELTS HAVE PROPER TENSION? (Y/N)
PIPING
40RUA, 40RUQ
HAS FOAM SHIPPING BLOCK BEEN REMOVED FROM THE TXV (Thermostatic Expansion Valve)? (Y/N)
ARE LIQUID LINE SOLENOID VALVES LOCATED AT THE INDOOR UNIT (40RUA) OR OUTDOOR UINT
(40RUQ) COILS AS REQUIRED? (Y/N)
HAVE LEAK CHECKS BEEN MADE AT COMPRESSORS, CONDENSERS, INDOOR COILS,
TXVs (Thermostatic Expansion Valves) SOLENOID VALVES, FILTER DRIERS, AND FUSIBLE PLUGS
WITH A LEAK DETECTOR? (Y/N)
LOCATE, REPAIR, AND REPORT ANY LEAKS
HAVE ALL COMPRESSOR SERVICE VALVES BEEN FULLY OPENED (BACKSEATED) (Y/N)
ARE THE COMPRESSOR OIL SIGHT GLASSES SHOWING CORRECT LEVELS? (Y/N)
40RUS
HAS AIR BEEN BLED FROM SYSTEM? (Y/N)
HAVE LEAK CHECKS BEEN MADE AT COMPRESSORS, CHILLERS, VALVES, & INDOOR COILS? (Y/N)
LOCATE, REPAIR, AND REPORT ANY LEAKS.
40RU

40
CHECK VOLTAGE IMBALANCE
LINE-TO-LINE VOLTS: AB V AC V BC V
(AB + AC + BC)/3 = AVERAGE VOLTAGE = V
MAXIMUM DEVIATION FROM AVERAGE VOLTAGE = V
VOLTAGE IMBALANCE = 100 X (MAX DEVIATION)/(AVERAGE VOLTAGE) =
IF OVER 2% VOLTAGE IMBALANCE, DO NOT ATTEMPT TO START SYSTEM!
CALL LOCAL POWER COMPANY FOR ASSISTANCE.
III. START--UP
CHECK INDOOR FAN MOTOR SPEED AND RECORD.
AFTER AT LEAST 10 MINUTES RUNNING TIME, RECORD THE FOLLOWING MEASUREMENTS:
COMP A1 COMP B1
OIL PRESSURE
SUCTION PRESSURE
SUCTION LINE TEMP
DISCHARGE PRESSURE
DISCHARGELINETEMP
ENTERING OUTDOOR UNIT AIR TEMP
LEAVING OUTDOOR UNIT AIR TEMP
INDOOR UNIT ENTERING AIR DB TEMP
INDOOR UNIT ENTERING AIR WB TEMP
INDOOR UNIT LEAVING AIR DB TEMP
INDOOR UNIT LEAVING AIR WB TEMP
OUTDOOR UNIT ENTERING WATER TEMP
(40RUS ONLY)
OUTDOOR UNIT LEAVING WATER TEMP
(40RUS ONLY)
INDOOR UNIT ENTERING WATER TEMP
(40RUS ONLY)
INTDOOR UNIT LEAVING WATER TEMP
(40RUS ONLY)
COMPRESSOR AMPS (L1/L2/L3) ____/____/____ ____/____/____
CHECK THE COMPRESSOR OIL LEVEL SIGHT GLASSES, ARE THE SIGHT GLASSES SHOWING
OIL LEVEL AT 1/8to 1/3FULL? (Y/N)
NOTES:
Copyright 2011 Carrier Corp. D7310 W. Morris St. DIndianapolis, IN 46231 Printed in U.S.A. Edition Date:01/11
Manufacturer reserves the right to change, at any time, specifications and designs without notice and without obligations.
Catalog No: 40RU---07SI
Replaces: 40RU--- 05SI
40RU