Carrier 50Xp Users Manual 05PD
50XP to the manual 6e085886-5a07-4bb8-b8d5-8466a80c0ddb
2015-01-24
: Carrier Carrier-50Xp-Users-Manual-310489 carrier-50xp-users-manual-310489 carrier pdf
Open the PDF directly: View PDF
.
Page Count: 24

1
50XP
Performancet13 SEER
Single---Packaged Air Conditioner System with PuronR
(R ---410A) Refrigerant Single and Three Phase
2 to 5 Nominal Tons (Sizes 024---060)
Product Data
C99064
Fig. 1 -- Unit 50XP
Single--Packaged Products with Energy--Saving Features and
PuronRrefrigerant.
SUp to 13.5 SEER
SFactory--Installed TXV
SVariable Speed Blower--Standard
SLow Sound Levels
FEATURES/BENEFITS
One--piece cooling unit with optional electric heater, low
installation cost, dependable performance and easy maintenance.
Efficient operation
High--efficiency design with a SEER (Seasonal Energy Efficiency
Ratio) of up to 13.5.
Puron Environmentally Sound Refrigerant is Carrier’s unique
refrigerant designed to help protect the environment. Puron is an
HFC refrigerant which does not contain chlorine that can harm the
ozone layer. Puron refrigerant is in service in millions of systems
proving highly reliable, environmentally sound performance.
IdealHumidity Technology featuring Thermidistat control and
Variable Speed Blower motor that provides greater comfort,
humidity control, and energy efficiency. You can expect up to 30
times better dehumidification; economical constant fan for less
than $50 a year, which provides improved indoor air quality and
more even temperatures from room to room; and reduced indoor
noise due to lower air velocity. In addition, you’ll realize improved
installation flexibility with 3 different airflow choices for best
overall comfort.
Easy Installation
Factory--assembled package is a fully self--contained, electric
cooling unit that is prewired, pre--piped, and pre--charged for
minimum installation expense. These units are available in a
variety of standard cooling sizes with voltage options to meet
residential and light commercial requirements. Units are
lightweight and install easily on a rooftop or at ground level. The
high tech composite base eliminates rust problems associated with
ground level applications.
Durable, dependable components
Scroll Compressors are designed for high efficiency. Each
compressor is hermetically sealed against contamination to help
promote longer life and dependable operation. Each compressor
also has vibration isolation to provide quieter operation. All
compressors have internal high pressure and overcurrent
protection.
Convertible duct configuration
Unit is designed for easy use in either downflow or horizontal
applications. Each unit is easily converted from horizontal to
downflow. Downflow operation is easily provided in the field to
allow vertical ductwork connections. The basepan utilizes
knockout style seals on the bottom openings to ensure a positive
seal in the horizontal airflow mode.
Direct--drive variable speed blower motor is standard on all
models.
Direct--drive PSC condenser--fan motors are designed to help
reduce energy consumption and provide for cooing operation
downto55_F(13_C) outdoor temperature. MotormasterrII low
ambient kit is available as a field--installed accessory.
Thermostat controls
Time GuardrII anti--short cycle protection circuitry. If a
non--corporate thermostat without anti--short cycle protection is
used the Time Guard II field--installed anti--short cycle kit is
recommended.
Refrigerant system is designed to provide dependability. Liquid
filter driers are used to promote clean, unrestricted operation. Each
unit leaves the factory with a full refrigerant charge. Refrigerant
service connections make checking operating pressures easier.
Thermostatic Expansion Valve -- A hard shutoff, balance port
TXV maintains a constant superheat at the evaporator exit (cooling
cycle) resulting in higher overall system efficiency.
Evaporator and condenser coils are computer--designed for
optimum heat transfer and cooling efficiency. The evaporator coil
is fabricated from copper tube and aluminum fins and is located
inside the unit for protection again damage. The condenser coil is
internally mounted on the top tier of the unit. Copper fin coils and
pre--coated fin coils are available from the factory by special order.
these coils are recommended in applications where aluminum fins
are likely to be damaged due to corrosion. They are ideal for
seacoast applications.
High and Low Pressure Switches provide added reliability for the
compressor.

2
Low sound ratings ensure a quiet indoor and outdoor
environment with sound ratings as low as 72dBA. (See Page 4.)
Easy to service cabinets provide easy single--panel accessibility to
serviceable components during maintenance and installation. The
basepan with integrated drain pan provides easy ground level
installation with or without a mounting pad. Convenient handholds
are provided to manipulate the unit on the jobsite. A nesting feature
ensures a positive basepan to roof curb seal when the unit is roof
mounted. A convenient 3/4--in. (19.05 mm) wide perimeter flange
makes frame mounting on a rooftop easy.
Louvered Grille provides hail and vandalism protection for the
coil.
Cabinets are constructed of heavyduty, phosphated, zinc--coated
prepainted steel capable of withstanding 500 hours of salt spray.
Interior surfaces of the evaporator and electric heater compartments
are insulated with cleanable semi--rigid insulation board, which
keeps the conditioned air from being affected by the outdoor
ambient temperature and provides improved indoor air quality.
(Conforms to American Society of Heating, Refrigeration and Air
Conditioning Engineers No. 62P.) The sloped drain pan minimizes
standing water in the drain. An external drain is provided.
TABLE OF CONTENTS
FEATURES/BENEFITS 1--2.............................
MODEL NUMBER NOMENCLATURE 3.................
ARI CAPACITIES 4...................................
PHYSICAL DATA 5...................................
OPTIONS AND ACCESSORIES 6.......................
BASE UNIT DIMENSIONS 8--9.........................
ACCESSORY ROOF CURB 10..........................
SELECTION PROCEDURE 11..........................
PERFORMANCE DATA 12--16..........................
TYPICAL PIPING AND WIRING 17.....................
APPLICATION DATA 18...............................
ELECTRICAL DATA 19--20............................
TYPICAL WIRING SCHEMATICS 21--23.................
CONTROLS 24.......................................
GUIDE SPECIFICATIONS 25--26........................
50XP

3
MODEL NUMBER NOMENCLATURE
50XP --- ---
--- --- --- 1
Type of U nit
50XP --- Single Packaged
Air Conditioner
System
Nominal Cooling Capacity
024 --- 2.0 Tons
030 --- 2.5 Tons
036 --- 3.0 Tons
042 --- 3.5 Tons
048 --- 4.0 Tons
060 --- 5.0 Tons
024
N/A Electrical Supply
3 --- 208/230---1 ---60
5 --- 208/230---3 ---60
30
Series
Packaging
Options
B T --- AL e v ap, v in y l co n den se r
C C --- A L e v a p , C U c o n d e n s e r
CU --- CU evap & condenser
TP --- Base unit with tin plated indoor coil hairpins
TV --- TP with vinyl coating on outdoor coil
TC --- TP with AL indoor coil & CU/CU outdoor
coil
See Price Page for full list of factory options.
Only used if ordering an option
LEGEND
AL --- Aluminum
CU --- Co
pp
er
---
N/A
REGISTERED
ISO 9001:2000
50XP

4
ARI* CAPACITIES
Cooling Capacities and Efficiencies
UNIT 50XP NOMINAL TONS STANDARD CFM NET COOLING
CAPACITIES (Btuh) EER** SEER†
024 2770 24,000 11.0 13.2
030 2--1/2 960 29,000 11.0 13.0
036 31100 36,000 11.2 13.5
042 3--1/2 1450 41,000 11.2 13.0
048 41450 45,000 11.0 13.0
060 51710 57,000 11.0 13.0
LEGEND
d B --- Sound Levels (decibels)
db—Dry Bulb
SEER—Seasonal Energy Efficiency Ratio
wb—Wet Bulb
COP---Coefficient of Performance
* Air Conditioning & Refrigeration Institute.
**At “A” conditions---80_F (26.7_C) indoor db/67_F (19.4_C) indoor wb &
95_F(35_C) outdoor db.
{Rated in accordance with U.S. Government DOE Department of Energy)
test procedures and/or ARI Standards 210/240.
Notes:
1. Ratings are net values, reflecting the effects of circulating fan heat.
Ratings are based on:
Cooling Standard: 80°F (26.7_C) db, 67°F wb (19.4_C ) i n d o o r e n t e r i n g --- a i r
temperature and 95°Fdb(35_C) outdoor entering ---air temperature.
2. Before purchasing this appliance, read important energy cost and effi-
ciency information available from your retailer.
A--Weighted Sound Power (dBA)
50XP
STANDARD
RATING
(dBA)
TYPICAL OCTAVE BAND SPECTRUM (dBA) (without tone adjustment)
125 250 500 1000 2000 4000 8000
024 72 58.8 63.5 67.2 66.9 63.7 58.3 50.0
030 72 58.8 63.5 67.2 66.9 63.7 58.3 50.0
036 72 60.7 63.3 66.8 66.5 64.2 60.3 53.0
042 72 56.7 62.8 67.8 67.4 63.7 57.7 50.8
048 78 62.4 69.9 71.3 73.4 70.0 66.3 60.1
060 78 63.5 67.6 71.8 75.5 71.0 68.1 59.9
* Tested in accordance with ARI Standard 270 (not listed in ARI).
50XP

5
PHYSICAL DATA
Physical Data--Unit 50XP
UNIT SIZE 024 030 036 042 048 060
NOMINAL CAPACITY (ton) 22 --- 1 / 2 33 --- 1 / 2 4 5
SHIPPING WEIGHT (lb)
SHIPPING WEIGHT (kg)
356
161
360
163
378
171
436
198
470
213
515
234
COMPRESSORS
Quantity
Scroll
1
REFRIGERANT (R --- 410A)
Quantity (lb.)
Quantity (kg)
7.3
3.3
8.0
3.6
9.5
4.3
10.7
4.9
11.25
5.1
13.2
6.0
REFRIGERANT METERING DEVICE TXV
OUTDOOR COIL
Rows...Fins/in.
Face Area (sq ft)
2...21
11.95
2...21
12.0
2...21
13.6
2...21
15.4
2...21
17.4
2...21
19.3
OUTDOOR FAN
Nominal Cfm
Diameter (in.)
Diameter (mm)
Motor Hp (Rpm)
2350
22
558.8
1/8 (825)
2700
22
558.8
1/8 (825)
2350
22
558.8
1/8 (825)
2800
22
558.8
1/8 (825)
3300
22
558.8
1/4 (1100)
3300
22
558.8
1/4 (1100)
INDOOR COIL
Rows...Fins/in.
Face Area (sq ft)
3...15
3.7
3...15
3.7
4...15
3.7
3...15
4.7
4...15
4.7
4...17
5.7
INDOOR BLOWER
Nominal Cooling Airflow (Cfm)
Size (in.)
Size (mm.)
Motor HP (RPM)
800
10x10
254x254
1/2 (1050)
1000
10x10
254x254
1/2 (1050)
1100
11x10
279.4x254
3/4 (1000)
1400
11x10
279.4x254
3/4 (1075)
1400 1750
11x10
279.4x254
11x10
279.4x254
3/4 (1075) 1.0 (1040)
HIGH --- PRESSURE SWITCH
(psig) Cut---out Reset (Auto)
650 +/--- 15
420 +/--- 25
L O S S --- O F --- C H A R G E / L O W --- P R E S S U R E
SWITCH (Liquid Line) (psig) cut--- out Re-
set (auto)
2 0 + / --- 5
45 +/--- 10
RETURN--- AIR FILTERS†}
Throwaway Size (in.)
Throwaway Size (mm)
20x20x1
508x508x25
20x24x1
508x610x25
24x30x1
610x762x25
{Required filter sizes shown are based on the larger of the ARI (Air Conditioning and Refrigeration Institute) rated cooling airflow or the heating airflow velocity
of 300 ft/minute for throwaway type or 450 ft/minute for high---capacity type. Air filter pressure drop for non---standard filters must not exceed 0.08 IN. W.C..
}If using accessory filter rack refer to the filter rack installation instructions for correct filter sizes and quantity.
50XP

6
OPTIONS AND ACCESSORIES
Factory--installed options
Coil options include Tin--Plated* indoor hairpins, copper/copper
and vinyl--coated construction for refrigerant coils. Units are
shipped standard with copper tube/aluminum fin construction. See
model number nomenclature for coil options.
*Tin--Plated indoor coils are built with special hairpins that are
designed to resist both general pitting corrosion and excessive
indoor corrosion(Formicary Corrosion).
Field--installed accessories
Economizer with Solid--State Controls and Barometric
Relief Dampers
Manual Air Damper (25% open)
Electric Heaters
Filter Rack
Flat Roof Curbs (8--in. and 14--in.) (203.2 and 355.6 mm)
Square--to--Round Duct Transition Kit
Thermidistatt
Thermostats
Crankcase Heater
Compressor Start Kit (for use on single--phase units only)
Rigging Kit
Low Ambient Kit (Motormaster®II Control)
Solid--State Time Guard®II Device
Lifting Kit
Economizer with solid--state controls and barometric relief
dampers includes filter racks and provide outdoor air during
cooling and reduce compressor operation.
Manual outside air damper includes hood and filter rack with
adjustable damper blade for up to 25% outdoor air.
Electric heaters provide additional heat in the unit when required.
Each package has a heater module that slides into the controls
compartment. Heater sizes range from 5.0 to 20.0 kW. The electric
heater design allows the use of a single--point power supply for the
entire unit, resulting in lower installed costs.
Filter Rack features easy installation, serviceability, and
high--filtering performance for vertical or horizontal applications.
Flat roof curbs in both 8 in. (203.2 mm) and 14 in. (355.6 mm)
sizes are available for roof mounted applications.
Square--to--round duct transition kit enables 024--048 size units
to be fitted to 14 in. (355.6 mm) round ductwork.
Thermidistat Control coupled with the system’s variable speed
indoor blower delivers Carrier’s patented IdealHumidity
Technology that allows for even greater humidity control. Along
with more precisely controlling temperature and humidity, the
Thermidistat offers full seven--day programmability allowing you
to further customize your comfort and energy savings.
Thermostats provide control for the system heating and cooling
functions. Thermostat models are available in both programmable
and non--programmable versions.
Crankcase Heater provides anti--floodback protection for
low--load cooling applications.
Compressor start kit assists compressor start--up by providing
additional starting torque on single phase units and prolongs
compressor motor life.
Rigging kit includes lifting brackets which are inserted into the
unit base rigging holds to lift unit for rooftop applications.
Low--ambient kit (Motormaster II control) allows the use of
mechanical cooling down to outdoor temperatures as low as 0_F
(--17_C) when properly installed.
Solid--state Time Guard II device provides short--cycling
protection for the compressor. Not required with corporate
electronic thermostats.
Lifting kit, including 4 metal brackets that are available to assist in
lifting this product onto a roof application.
Electric Heaters
CATALOG
ORDERING NO.
NOMINAL
CAPACITY (kW) FUSES USED WITH SIZES
024 030 036 042 048 060
ELECTRIC HEATERS (208/230 — SINGLE PHASE — 60 Hz)
CPHEATER052A00 5.0 0 XXXXX X
CPHEATER069A00 7.5 0XXXXX X
CPHEATER065A00 10.0 0 XXXXXX
CPHEATER051A00 15.0 4 X X X X X
CPHEATER053A00 20.0 6 X X
CPHEATER054A00 20.0 6 X
ELECTRIC HEATERS (208/230 — THREE PHASE — 60 Hz)
CPHEATER055A00 5.0 0 X X X X X
CPHEATER056A00 10.0 0XXXX X
CPHEATER057A00 15.0 0 X X X X
CPHEATER059A00 20.0 6 X X X
NOTE: Electric heaters are rated at 240v. Refer to Multiplication Factors table for other voltages.
X = Approved combinations.
Minimum Airflow for Reliable Electric Heater Operation (CFM)
UNIT SIZE 024 030 036 042 048 060
AIRFLOW 750 1000 1250 1400 1500 1800
50XP

7
ECONOMIZER
COIL
FILTER
SIDE VIEW
CAULK BOTTOM CORNER
OF ECONOMIZER
ON EACH SIDE
BASE
COIL
FLANGE
ON BASE
DETAIL
ECONOMIZER
FI LTER
FILTER ACCESS DOOR
(HORIZONTAL
APPLICATION ONLY.)
DO NOT REMOVE
FROM DOWNFLOW
DISCHARGE.
REPLACEMENT
PANEL
HOLE FOR
ECONOMIZER
WIRING HARDNESS
DOOR
LATCH ANGLE
HINGED FILTER
ACCESS DOOR INSTALL
FILTER ACCESS
DOOR STICKER
ALUMINUM
FILTER
RAINHOOD
11 13/32”
17 13/32
16 1/4”
EV APORATOR
COIL
TOP FILTER RACK
BEND FLANGE AT 90˚-SCREW TO
DIVIDER WITH 1-IN. SCREW
BOTTOM FILTER
RACK
DAMPER
BLADE
MANUAL OUTSIDE
AIR HOOD
REPLACEMENT
PANEL
ECONOMIZER
FILTER RACK MANUAL OUTSIDE AIR DAMPER
A05239
50XP

8
UNIT DIMENSIONS -- 50XP024--036
A08452
50XP

9
UNIT DIMENSIONS -- 50XP042--060
A08453
50XP

10
ACCESSORY ROOF CURB -- 50XP024--060
Gask et around
outer edge
Insulated
deck pan
Gask et around
duct
S/A
R/A
HVAC unit
base
*Gask eting
outer flange
Flashing field
supplied
Roofing material
field supplied
Cant str ip
field supplied
*Provided with roofcurb
Roof
Duct wo
rk
field supplied
Insulation (field
supplied)
Roofcurb*
Wood nailer*
Gask eting
inner flange*
Scre w
(NO TE A)
Roof Curb for Small Cabinet
Note A: When unit mounting scre w is used,
retainer must also be used.
HVAC unit
base
*Gask eting
outer flange
Flashing field
supplied
Roofing material
field supplied
Cant str ip
field supplied
*Provided with roofcurb
Roof
Duct wo rk
field supplied
Insulation (field
supplied)
Roofcurb*
Wood nailer*
Gask eting
inner flange*
Scre w
(NOTE A)
Roof Curb for
Large Cabinet
Note A: When unit mounting scre w is used,
retainer bra cket must also be used.
A
B Typ.
Supply opening
(B x C)
Long
Support
D
44
5
/
16
"
Return opening
(B X C)
Insulated
deck pan
Short
Support
C Typ.
bracket
(1126 mm)
C00076
UNIT SIZE ORDERING NUMBER A
IN. (MM)
B
IN. (MM)
C
IN. (MM)
D
IN. (MM)
50XP024--036 CPRFCURB006A00 8 (203) 11 (279) 16--1/2 (419) 28--3/4 (730)
CPRFCURB007A00 14 (356) 11 (279) 16--1/2 (419) 28--3/4 (730)
50XP042--060 CPRFCURB008A00 8 (203) 16--3/16 (411) 17--3/8 (441) 40--1/4 (1022)
CPRFCURB009A00 14 (356) 16--3/16 (411) 17--3/8 (441) 40--1/4 (1022)
NOTES:
1. Roof curb must be set up for unit being installed.
2. Seal strip must be applied, as required, to unit being installed.
3. Roof curb is made of 16--gauge steel.
4. Attach ductwork to curb (flanges of duct rest on curb).
5. Insulated panels: 1--in. (25.4 mm) thick fiberglass 1 lb. density.
6. When unit mounting screw is used (see Note A), a retainer bracket must be used as well. This bracket must also be used when required by code for hurricaneorseismic
conditions. This bracket is available through Micrometl.
50XP

11
50XP UNIT SUGGESTED RIGGING
12
34
A07216
DETAIL A
(914 mm)
A08005
Unit*
SMALL CABINET LARGE CABINET
024 024 030 030 036 036 Unit* 042 042 048 048 060 060
lb kg lb kg lb kg lb kg lb kg lb kg
Rigging
Weight 345 156 349 158 367 166 Rigging
Weight 425 193 459 208 504 229
NOTE: See dimensional drawing for corner weight distribution. Corner weights shown on drawing are based on unit---only weights and do not include pack-
aging.
SELECTION PROCEDURE (WITH EXAMPLE)
1. Determine cooling and heating requirements at
design conditions:
Given:
Required Cooling Capacity (TC) 34,500 Btuh..........
Sensible Heat Capacity (SHC) 26,000 Btuh............
Required Heating Capacity 15,000 Btuh...............
Condenser Entering Air Temperature 95°F(35°C)........
Indoor--Air Temperature 80°F(26°C) edb.............
67°F(19°C) ewb
Evaporator Air Quantity 1200 CFM..................
External Static Pressure 0.20 IN. W.C..................
Electrical Characteristics 230--1--60...................
2. Select unit based on required cooling capacity.
Enter Net Cooling Capacities table at condenser entering
temperature of 95°F(35°C). The 036 unit at 1225 CFM and 67°F
(19°C) ewb (entering wet bulb) will provide a total capacity of
36,500 Btuh and a SHC of 27,600 Btuh. Calculate SHC correction,
if required, using Note 4 under Cooling Capacities tables.
3. Select electric heat.
The required heating capacity is 15,000 Btuh.
Determine additional electric heat capacity in kW.
15,000 Btuh = 4.4kW of heat required
3,414 Btuh/kW
Enter the Electric Heater Packages table for 208/240, single--phase,
036 unit. The 5 kW heater at 240v most closely satisfies the
heating required. To calculate kW at the 208v, multiply the heater
kW by multiplication factor 0.75 found in the Wattage
Multiplication Factors table.
5 kW x 0.75 = 3.75 kW
3.75 kW x 3414 = 12,802.50 Btuh
4. Determine fan speed and power requirements at
design conditions.
Before entering the air delivery tables, calculate the total static
pressure required. From the given example, the Filter Pressure
Drop Table, and the Accessory Electric Heat Pressure Drop table,
find:
External Static Pressure 0.200 IN. W.C.
Filter 0.130 IN. W.C.
Wet Coil Pressure Drop 0.032 IN. W.C.
Total Static Pressure 0.362 IN. W.C.
Enter the table for Dry Coil Air Delivery—At 0.362 IN. W.C. ESP
(external static pressure) and NOM speed pin selection, the motor
will deliver 1235 cfm.
5. Select unit that corresponds to power source
available.
The Electrical Data Table shows that the unit is designed to operate
at 208--1--60.
50XP

12
PERFORMANCE DATA
50XP024
Te m p _F(_C)
Outdoor Air Entering
Condenser
Evaporator Air --- CFM/BF
800/0.026 900/0.032 1000/0.04
Evaporator Air --- Ewb _F(_C)
62
(16.7)
63*
(17.2)
67
(19.4)
72
(22.2)
62
(16.7)
63*
(17.2)
67
(19.4)
72
(22.2)
62
(19.7)
63*
(17.2)
67
(19.4)
72
(22.2)
75
(23.9)
TC 24.0 24.5 26.5 29.1 24.6 25.1 27.1 29.8 25.1 25.5 27.4 30.4
SHC 21.9 21.3 18.7 15.4 23.5 22.8 19.8 16.1 25.0 24.2 20.8 16.7
kW 1.7 1.7 1.8 1.8 1.8 1.8 1.8 1.8 1.8 1.8 1.8 1.9
85
(29.4)
TC 22.9 23.3 25.3 27.9 23.5 23.9 25.8 28.5 23.9 24.3 26.2 28.9
SHC 21.4 20.7 18.1 14.9 22.9 22.2 19.2 15.6 24.3 23.6 20.3 16.2
kW 1.9 1.9 2.0 2.0 2.0 2.0 2.0 2.0 2.0 2.0 2.1 2.1
95
(35)
TC 21.8 22.2 24.0 26.5 22.3 22.6 24.5 27.0 22.7 23.0 24.8 27.4
SHC 20.8 20.2 17.6 14.3 22.3 21.6 18.7 15.0 23.6 22.9 19.7 15.6
kW 2.2 2.2 2.2 2.2 2.2 2.2 2.2 2.2 2.2 2.2 2.3 2.3
105
(104.6)
TC 20.5 20.9 22.6 25.0 21.0 21.3 23.0 25.4 21.6 21.7 23.3 25.7
SHC 20.2 19.5 16.9 13.7 21.6 20.9 18.0 14.3 22.5 22.2 19.0 14.9
kW 2.4 2.4 2.4 2.4 2.4 2.4 2.5 2.5 2.5 2.5 2.5 2.5
115
(46.1)
TC 19.2 19.5 21.1 23.3 19.8 19.9 21.5 23.7 20.7 20.4 21.7 23.6
SHC 19.4 18.8 16.3 13.0 20.6 20.2 17.3 13.7 21.5 21.2 18.3 14.1
kW 2.7 2.7 2.7 2.7 2.7 2.7 2.7 2.7 2.7 2.7 2.8 2.8
125
(51.7)
TC 17.8 18.0 19.4 21.4 18.5 18.5 19.5 21.7 19.0 19.0 19.9 21.9
SHC 18.5 18.1 15.5 12.3 19.2 19.2 16.5 12.9 19.8 19.7 17.6 13.5
kW 2.9 2.9 3.0 3.0 3.0 3.0 3.0 3.0 3.0 3.0 3.1 3.1
50XP030
Te m p _F(_C) Outdoor
Air Entering
Condenser
Evaporator Air --- CFM/BF
875/0.06 1000/0.07 1125/0.08
Evaporator Air --- Ewb _F(_C)
62
(16.7)
63*
(17.2)
67
(19.4)
72
(22.2)
62
(16.7)
63*
(17.2)
67
(19.4)
72
(22.2)
62
(19.7)
63*
(17.2)
67
(19.4)
72
(22.2)
75
(23.9)
TC 27.9 28.6 30.7 33.6 28.8 29.4 31.6 34.5 29.3 30 32.2 35.2
SHC 24.1 20 20.6 16.8 26 21.2 22.1 17.8 27 22.6 23.5 18.7
kW 2.1 2.1 2.1 2.1 2.1 2.1 2.1 2.2 2.1 2.1 2.1 2.2
85
(29.4)
TC 26.9 27.5 29.5 32.3 27.6 28.1 30.2 33.1 28.3 28.7 30.8 33.7
SHC 23.8 19.5 20.3 16.4 25.6 20.8 21.7 17.4 26.5 22.1 23.1 18.3
kW 2.3 2.3 2.4 2.4 2.3 2.4 2.4 2.4 2.4 2.4 2.4 2.4
95
(35)
TC 25.6 26.2 28.2 30.8 26.3 26.8 28.8 31.5 27 27.3 29.3 32
SHC 23.1 19.1 19.9 16 24.7 20.5 21.3 16.9 26.2 21.7 22.6 17.8
kW 2.6 2.6 2.6 2.6 2.6 2.6 2.6 2.6 2.6 2.6 2.6 2.6
105
(40.6)
TC 24.3 24.7 26.6 29.2 25.1 25.3 27.2 29.7 25.9 25.7 27.5 30.1
SHC 22.4 18.6 19.3 15.4 23.8 19.9 20.8 16.3 24.4 21.1 22.1 17.2
kW 2.9 2.9 2.9 2.9 2.9 2.9 2.9 2.9 2.9 2.9 2.9 2.9
115
(46.1)
TC 22.8 23.2 24.9 27.3 23.8 23.6 25.3 27.7 24.5 24 25.7 28.1
SHC 21.7 18 18.8 14.8 22.3 19.3 20.2 15.7 23.7 20.5 21.5 16.6
kW 3.2 3.2 3.2 3.2 3.2 3.2 3.2 3.2 3.2 3.2 3.2 3.2
125
(51.7)
TC 21.4 21.4 24.9 27.3 23.8 23.6 25.3 27.7 24.5 24 25.7 28.1
SHC 20.7 17.3 18.8 14.8 22.3 19.3 20.2 15.7 23.7 20.5 21.5 16.6
kW 3.5 3.5 3.2 3.2 3.2 3.2 3.2 3.2 3.2 3.2 3.2 3.2
See Legend and Notes on Page 15.
50XP

13
PERFORMANCE DATA (CONT)
50XP036
Te m p _F(_C) Outdoor
Air Entering
Condenser
Evaporator Air --- CFM/BF
1100/0.06 1225/0.07 1400/0.08
Evaporator Air --- Ewb _F(_C)
62
(16.7)
63*
(17.2)
67
(19.4)
72
(22.2)
62
(16.7)
63*
(17.2)
67
(19.4)
72
(22.2)
62
(19.7)
63*
(17.2)
67
(19.4)
72
(22.2)
75
(23.9)
TC 36.2 36.8 39.7 43.8 36.9 37.4 40.3 44.4 37.9 38.1 41.0 45.1
SHC 33.2 26.7 27.8 22.3 34.7 27.9 29.0 23.1 36.9 29.6 30.9 24.2
kW 2.7 2.7 2.7 2.7 2.7 2.7 2.7 2.8 2.8 2.8 2.8 2.9
85
(29.4)
TC 34.6 35.1 37.9 41.8 35.3 35.6 38.4 42.4 36.4 36.3 39.1 43.1
SHC 32.4 26.0 27.1 21.6 34.0 27.1 28.3 22.4 35.6 28.9 30.2 23.6
kW 2.9 2.9 3.0 3.0 3.0 3.0 3.0 3.0 3.1 3.1 3.1 3.2
95
(35)
TC 33.0 33.4 36.0 39.7 33.7 33.8 36.5 40.2 34.8 34.4 37.0 40.8
SHC 31.6 25.3 26.4 20.9 32.9 26.4 27.6 21.7 34.4 28.1 29.4 22.8
kW 3.2 3.2 3.3 3.3 3.3 3.3 3.3 3.4 3.4 3.4 3.4 3.5
105
(104.6)
TC 31.3 31.5 34.0 37.5 32.1 31.9 34.3 37.9 33.1 32.4 34.9 38.4
SHC 30.6 24.5 25.6 20.1 31.5 25.7 26.8 20.9 32.8 27.3 28.6 22.0
kW 3.6 3.6 3.6 3.6 3.6 3.6 3.7 3.7 3.8 3.7 3.8 3.8
115
(46.1)
TC 29.6 29.4 31.8 35.0 30.4 29.8 32.1 35.4 31.3 30.3 32.6 35.8
SHC 29.3 23.7 24.8 19.3 30.0 24.8 26.0 20.0 31.0 26.4 27.7 21.1
kW 4.0 4.0 4.0 4.0 4.0 4.0 4.0 4.0 4.1 4.1 4.1 4.2
125
(51.7)
TC 27.8 27.2 29.4 32.4 28.4 27.5 29.7 32.7 29.3 28.0 30.1 33.0
SHC 27.5 22.8 23.9 18.4 28.2 23.8 25.0 19.1 29.0 25.4 26.7 20.2
kW 4.4 4.3 4.4 4.4 4.4 4.4 4.4 4.4 4.5 4.5 4.5 4.5
50XP042
Te m p _F(_C) Outdoor
Air Entering
Condenser
Evaporator Air --- CFM/BF
1225/0.06 1400/0.07 1575/0.08
Evaporator Air --- Ewb _F(_C)
62
(16.7)
63*
(17.2)
67
(19.4)
72
(22.2)
62
(16.7)
63*
(17.2)
67
(19.4)
72
(22.2)
62
(19.7)
63*
(17.2)
67
(19.4)
72
(22.2)
75
(23.9)
TC 39.6 40.4 43.4 47.6 40.5 41.2 44.2 48.4 41.5 42.1 45.1 49.4
SHC 33.5 27.6 28.6 23.4 35.4 29.0 30.0 24.3 37.9 30.8 31.9 25.6
kW 3.0 3.0 3.0 3.1 3.0 3.0 3.0 3.1 3.0 3.0 3.0 3.1
85
(29.4)
TC 37.9 38.7 41.5 45.5 38.7 39.4 42.3 46.3 39.7 40.2 43.2 47.2
SHC 32.8 26.9 27.8 22.7 34.6 28.2 29.2 23.6 37.0 30.0 31.1 24.8
kW 3.3 3.3 3.4 3.4 3.3 3.3 3.4 3.4 3.3 3.3 3.4 3.4
95
(35)
TC 36.2 36.8 39.6 43.4 36.9 37.5 40.3 44.1 37.8 38.2 41.0 44.9
SHC 32.0 26.1 27.0 21.9 33.8 27.4 28.4 22.8 35.9 29.1 30.3 24.0
kW 3.7 3.7 3.7 3.8 3.7 3.7 3.7 3.8 3.7 3.7 3.7 3.8
105
(104.6)
TC 34.2 34.8 37.4 41.0 34.9 35.4 38.0 41.6 36.0 36.0 38.7 42.3
SHC 31.0 25.2 26.2 21.1 32.7 26.5 27.6 22.0 34.3 28.3 29.4 23.2
kW 4.1 4.1 4.1 4.1 4.1 4.1 4.1 4.1 4.1 4.1 4.1 4.1
115
(46.1)
TC 32.1 32.6 35.0 38.4 32.8 33.1 35.5 38.9 34.0 33.7 36.1 39.5
SHC 30.0 24.3 25.2 20.2 31.4 25.6 26.6 21.0 32.8 27.3 28.5 22.2
kW 4.5 4.5 4.5 4.5 4.5 4.5 4.5 4.6 4.5 4.5 4.5 4.6
125
(51.7)
TC 29.8 30.1 32.3 35.3 30.6 30.5 32.7 35.7 31.7 31.0 33.2 36.2
SHC 28.6 23.2 24.2 19.1 29.6 24.5 25.5 20.0 30.6 26.1 27.3 21.1
kW 4.9 4.9 4.9 5.0 4.9 4.9 4.9 5.0 4.9 4.9 4.9 5.0
See Legend and Notes on Page 15.
50XP

14
PERFORMANCE DATA (CONT)
50XP048
Te m p _F(_C) Outdoor
Air Entering
Condenser
Evaporator Air --- CFM/BF
1260/0.06 1400/0.06 1600/0.08
Evaporator Air --- Ewb _F(_C)
62
(16.7)
63*
(17.2)
67
(19.4)
72
(22.2)
62
(16.7)
63*
(17.2)
67
(19.4)
72
(22.2)
62
(19.7)
63*
(17.2)
67
(19.4)
72
(22.2)
75
(23.9)
TC 45.0 45.8 49.6 54.7 46.7 47.3 51.2 56.3 48.1 48.7 52.5 57.8
SHC 39.3 32.0 33.4 27.2 42.6 34.3 35.8 28.9 45.8 36.8 38.4 30.6
kW 3.4 3.4 3.4 3.4 3.4 3.4 3.4 3.5 3.4 3.4 3.4 3.5
85
(29.4)
TC 42.8 43.6 47.2 52.1 44.3 44.9 48.6 53.5 45.6 46.1 49.9 54.8
SHC 38.2 30.9 32.3 26.2 41.3 33.2 34.7 27.7 44.3 35.5 37.3 29.4
kW 3.7 3.7 3.8 3.8 3.7 3.7 3.8 3.8 3.8 3.8 3.8 3.8
95
(35)
TC 40.6 41.3 44.7 49.4 41.8 42.4 46.0 50.7 44.2 43.7 47.0 51.8
SHC 36.9 29.8 31.2 25.2 39.9 32.0 33.6 26.7 43.0 34.6 36.1 28.3
kW 4.1 4.1 4.2 4.2 4.1 4.1 4.2 4.2 4.2 4.1 4.2 4.2
105
(104.6)
TC 38.2 38.9 42.1 46.4 39.6 39.8 43.1 47.6 41.5 40.8 44.0 48.5
SHC 35.7 28.7 30.1 24.0 38.3 30.7 32.3 25.5 40.0 33.2 34.8 27.0
kW 4.6 4.6 4.6 4.6 4.6 4.6 4.6 4.7 4.6 4.6 4.6 4.7
115
(46.1)
TC 35.7 36.3 39.3 43.3 38.2 37.1 40.1 44.2 38.7 37.9 40.8 45.0
SHC 34.4 27.5 28.9 22.9 35.7 29.5 31.0 24.3 38.2 31.8 33.5 25.8
kW 5.0 5.0 5.1 5.1 5.1 5.0 5.1 5.1 5.1 5.1 5.1 5.1
125
(51.7)
TC 33.4 33.4 36.2 39.4 34.6 34.1 36.9 40.5 36.1 34.8 37.5 41.2
SHC 32.1 26.2 27.6 21.5 33.8 28.2 29.7 22.9 35.6 30.2 31.9 24.4
kW 5.6 5.6 5.6 5.7 5.6 5.6 5.6 5.6 5.6 5.6 5.6 5.6
50XP060
Te m p _F(_C) Outdoor
Air Entering
Condenser
Evaporator Air --- CFM/BF
1500/0.04 1750/0.07 2000/0.01
Evaporator Air --- Ewb _F(_C)
62
(16.7)
63*
(17.2)
67
(19.4)
72
(22.2)
62
(16.7)
63*
(17.2)
67
(19.4)
72
(22.2)
62
(19.7)
63*
(17.2)
67
(19.4)
72
(22.2)
75
(23.9)
TC 57.2 58.2 62.4 68.1 58.8 59.7 64.0 69.8 60.0 60.8 64.9 70.8
SHC 49.4 47.9 41.6 33.8 53.6 51.8 44.5 35.4 57.6 55.4 47.1 36.8
kW 4.1 4.1 4.2 4.2 4.2 4.3 4.3 4.4 4.4 4.4 4.5 4.6
85
(29.4)
TC 54.7 55.6 59.7 65.2 56.2 57.0 61.1 66.6 57.4 58.1 61.9 67.4
SHC 48.2 46.7 40.4 32.6 52.4 50.5 43.2 34.2 56.3 54.2 45.8 35.6
kW 4.5 4.5 4.6 4.7 4.7 4.7 4.8 4.9 4.8 4.9 5.0 5.0
95
(35)
TC 52.2 53.0 56.9 62.0 53.5 54.3 58.0 63.2 55.0 55.3 58.7 64.1
SHC 47.0 45.4 39.2 31.4 51.1 49.2 41.9 32.9 55.0 52.9 44.5 34.4
kW 5.0 5.0 5.1 5.2 5.1 5.2 5.3 5.3 5.2 5.3 5.5 5.5
105
(104.6)
TC 49.4 50.2 53.8 58.7 50.7 51.4 54.8 59.6 52.5 52.4 55.4 60.2
SHC 45.7 44.1 37.9 30.1 49.8 47.9 40.6 31.6 52.5 51.6 43.2 33.0
kW 5.5 5.6 5.6 5.7 5.7 5.7 5.8 5.9 5.8 5.8 6.0 6.1
115
(46.1)
TC 46.5 47.2 50.5 55.0 48.1 48.3 51.3 56.8 49.7 49.7 51.8 57.0
SHC 44.3 42.7 36.4 28.7 48.1 46.6 39.2 30.6 49.7 49.7 41.8 31.7
kW 6.1 6.2 6.2 6.3 6.2 6.3 6.4 6.4 6.4 6.4 6.6 6.6
125
(51.7)
TC 43.3 43.9 46.7 52.2 45.2 45.1 47.4 52.5 46.4 46.4 47.9 52.2
SHC 42.8 41.2 34.9 27.8 45.2 45.1 37.6 28.9 46.4 46.4 40.2 29.7
kW 6.7 6.8 6.8 6.8 6.8 6.9 7.0 7.0 7.0 7.0 7.2 7.2
See Legend and Notes on Page 15.
50XP

15
PERFORMANCE DATA (CONT)
*At75°F(24°C) entering dry bulb---Tennessee Valley Authority (TVA) rating conditions; all others at 80°F(27°C) dry bulb.
LEGEND
BF— Bypass Factor
edb— Entering Dry --- Bulb
Ewb— Entering Wet---Bulb
kW — Total Unit Power Input
SHC— Sensible Heat Capacity (1000 Btuh)
TC — Total Capacity (1000 Btuh) (net)
rh—Relative Humidity
COOLING NOTES:
1. Ratings are net; they account for the effects of the evaporator---fan motor power and heat.
2. Direct interpolation is permissible. Do not extrapolate.
3. The following formulas may be used:
Sensible capacity (Btuh)
1.10 x cfm
tldb = tedb ---
Wet---bulb temperature corresponding to enthalpy
air leaving evaporator coil (hlwb)
tlwb = total capacity (Btuh)
4.5 x cfm
hlwb = he w b ---
Where: hewb = Enthalpy of air entering evaporator coil
4. The SHC is based on 805 F (26.6_C) edb temperature of air entering evaporator coil. Below 80_F (26.6_C) edb, subtract (corr factor x cfm) from SHC.
Above 80_F (26.6_C) edb, add (corr factor x cfm) to SHC.
Correction Factor = 1.10 x (1 + BF) x (edb + 80).
5. Integrated capacity is maximum (instantaneous) capacity less the effect of frost on the outdoor coil and the heat required to defrost it.
50XP

16
PERFORMANCE DATA (CONT)
Economizer 1--in. Filter Pressure Drop (IN. W.C.)
UNIT50XP PRESSURE DROP
024--036 0.20
042--060 0.25
Multiplication Factors
HEATER kW RATING VOLTAGE DISTRIBUTION V/3/60 MULTIPLICATION FACTOR
240
200
208
230
240
0.69
0.75
0.92
1.00
Filter Pressure Drop Table (IN. W.C.)
FILTER SIZE
in. (mm)
CFM
500 600 700 800 900 1000 1100 1200 1300 1400 1500 1600 1700 1800 1900 2000 2100 2200 2300
20X20X1
(508X508X25) 0.05 0.07 0.08 0.10 0.12 0.13 0.14 0.15 ———————————
20X24X1
(508X610x25) ——— 0.09 0.10 0.11 0.13 0.14 0.15 0.16 — — — — — — — —
24X30X1
(610X762x25) ———————0.07 0.08 0.09 0.10 0.11 0.12 0.13 0.14 0.15 0.16 0.17 0.18
Electric Heat Pressure Drop Tables (IN. W.C.)
Small Cabinet: 024--036
STATIC CFM
500 600 700 800 900 1000 1100 1200 1300 1400 1500 1600
5kW 0.00 0.00 0.00 0.00 0.00 0.00 0.00 0.00 0.02 0.04 0.06 0.07
7.5 kW 0.00 0.00 0.00 0.00 0.00 0.00 0.02 0.03 0.05 0.07 0.08 0.09
10 kW 0.00 0.00 0.00 0.00 0.00 0.02 0.04 0.06 0.07 0.09 0.10 0.11
15 kW 0.00 0.00 0.00 0.02 0.04 0.06 0.08 0.10 0.12 0.14 0.16 0.18
Large Cabinet: 042--060
STATIC CFM
1100 1200 1300 1400 1500 1600 1700 1800 1900 2000 2100 2200 2300 2400 2500
5kW 0.00 0.00 0.00 0.01 0.02 0.03 0.04 0.05 0.06 0.07 0.08 0.09 0.10 0.11 0.12
7.5 kW 0.00 0.00 0.01 0.02 0.03 0.04 0.05 0.06 0.07 0.08 0.09 0.10 0.11 0.12 0.13
10 kW 0.00 0.00 0.01 0.02 0.03 0.04 0.05 0.06 0.07 0.08 0.09 0.10 0.11 0.12 0.13
15 kW 0.00 0.02 0.03 0.04 0.05 0.06 0.07 0.08 0.09 0.10 0.11 0.12 0.13 0.14 0.15
20 kW 0.02 0.03 0.04 0.05 0.06 0.07 0.08 0.09 0.10 0.11 0.12 0.13 0.14 0.15 0.16
ECM Dry Coil Airflow--Small Cabinet
UNIT
SIZE
CFM ADJUST PIN SELECT LO PIN NOM PIN HI PIN
EXTERNAL STATIC
PRESSURE RANGE 0.0--0.39 0.4--0.69 0.7--1.0 0.0--0.39 0.4--0.69 0.7--1.0 0.0--0.39 0.4--0.69 0.7--1.0
024 COOLING 800 725 -- 885 805 730 990 930 855
COOLING DEHUMIDIFY 715 670 -- 715 695 645 795 775 745
030 COOLING 1010 920 825 1105 1030 930 1255 1160 1050
COOLING DEHUMIDIFY 890 845 795 890 865 825 1010 980 925
036 COOLING 1110 1025 970 1235 1175 1115 1400 1355 1280
COOLING DEHUMIDIFY 990 960 910 990 975 940 1125 1110 1085
ECM Dry Coil Airflow--Large Cabinet
UNIT SIZE CFM ADJUST PIN SELECT LO PIN NOM PIN NOM PIN
EXTERNAL STATIC PRESSURE RANGE 0.1--1.0 0.1--1.0 0.1--1.0
042 COOLING 1100 1225 1410
COOLING DEHUMIDIFY 980 980 1125
048 COOLING 1260 1400 1610
COOLING DEHUMIDIFY 1120 1120 1290
060 COOLING 1575 1750 2010
COOLING DEHUMIDIFY 1400 1400 1610
Wet Coil Pressure Drop (IN. W.C.)
Unit
Size
Standard CFM (S.C.F.M)
600 700 800 900 1000 1100 1200 1300 1400 1500 1600 1700 1800 1900 2000 2100
024 0.005 0.007 0.010 0.012 0.015
030 0.007 0.010 0.012 0.015 0.018 0.021 0.024
036 0.019 0.023 0.027 0.032 0.037 0.042 0.047
042 0.014 0.017 0.020 0.024 0.027 0.031 0.035 0.039 0.043
048 0.027 0.032 0.036 0.041 0.046 0.052 0.057 0.063 0.068
060 0.029 0.032 0.036 0.040 0.045 0.049 0.053
50XP

17
TYPICAL PIPING AND WIRING
ROOF
RETURN-AIR
FLEXIBLE DUCT
CEILING
CONCENTRIC DIFFUSER BOX
(FIELD-SUPPLIED)
SUPPLY-AIR
FLEXIBLE DUCT
ROOF-MOUNTING
CURB
C00023
INDOOR
THERMOSTAT
DISCONNECT
PER NEC*
FROM
POWER
SOURCE
RETURN
AIR
TOP COVER
*NEC - NATIONAL ELECTRICAL CODE
C00063
50XP

18
APPLICATION DATA
Condensate trap — A 2--in. (51 mm) condensate trap must be
field supplied.
1” (25 mm) MIN.
2” (51 mm) MIN.
TRAP
OUTLET
A08001
Ductwork — Secure downflow discharge ductwork to roof curb.
For horizontal discharge applications, attach ductwork to unit with
flanges.
To convert a unit to downflow discharge — Units are equipped
with factory--installed inserts in the downflow openings. Removal
of the inserts is similar to removing an electrical knock--out. Leave
on duct covers to seal the horizontal discharge openings in the unit.
Units installed in horizontal discharge orientation do not require
duct covers.
Maximum cooling airflow — To minimize the possibility of
condensate blow--off from the evaporator, airflow through the units
should not exceed 450 cfm per ton.
Minimum cooling airflow — Minimum cooling airflow is 350
cfm per ton for standard cooling modes. Airflow can be lower in
certain modes when humidity removal is an issue.
Minimum cooling operating outdoor air temperature —All
standard units have a minimum outdoor operating temperature of
55_F(13_C). With accessory low ambient temperature kit, units
can operate at temperatures down to 0_F(--17_C).
Maximum cooling operating outdoor air temperature —
Maximum outdoor operating air temperature is 125_F(52_C).
50XP

19
ELECTRICAL DATA
UNIT NOMINAL
V --- P H --- H Z
VOLTAGE
RANGE COMPRESSOR OFM IFM ELECTRIC HEAT POWER SUPPLY
NOMINAL
KW FLA MCA
MAX
FUSE or
CKT BKR
MOCP
MIN MAX RLA LRA FLA FLA
50XP-024 208/230-1-60 187 253 13.5 61.0 0.8 4.3
-/- -/- 22.0/22.0 30/30 ---
3.8/5 18.1/20.8 27.9/31.4 30/35 ---
5.4/7.2 26/30 37.9/42.9 40/45 ---
7.5/10 36.1/41.7 50.5/57.5 60/60 ---
50XP-030 208/230-1-60 187 253 15.9 73.0 0.8 4.3
-/- -/- 23.6/23.6 30/30 ---
3.8/5 18.1/20.8 27.9/31.4 30/35 ---
5.4/7.2 26/30 37.9/42.9 40/45 ---
7.5/10 36.1/41.7 50.5/57.5 60/60 ---
11.3/15 54.2/62.5 73.1/83.5 -80/90
50XP-036
208/230-1-60 187 253 16.9 83.0 0.8 6.8
-/- -/- 26.9/26.9 35/35 ---
3.8/5 18.1/20.8 31.1/34.5 35/35 ---
5.4/7.2 26/30 41.0/46.0 45/50 ---
7.5/10 36.1/41.7 53.6/60.6 --- 60/70
11.3/15 54.2/62.5 76.2/86.6 --- 80/90
208/230-3-60 187 253 12.2 77.0 0.8 6.8
-/- -/- 23.0/23.0 30/30 ---
510.4/12 23.0/23.5 30/30 ---
10 20.8/24.1 34.6/38.6 35/35 ---
15 31.3/36.1 47.6/53.6 50/60 ---
50XP-042
208/230-1-60 187 253 22.4 105.0 0.8 6.8
-/- -/- 30.9/30.9 45/45 ---
3.8/5 18.1/20.8 31.1/34.5 45/45 ---
5.4/7.2 26/30 41.0/46.0 45/50 ---
7.5/10 36.1/41.7 53.6/60.6 --- 60/70
11.3/15 54.2/62.5 76.2/86.6 --- 80/90
15/20 72.2/83.3 98.8/112.7 --- 100/125
208/230-3-60 187 253 15.4 88.0 0.8 6.8
-/- -/- 27.0/27.0 35/35 ---
3.8/5 10.4/12 27.0/27.0 35/35 ---
7.5/10 20.8/24.1 34.6/38.6 35/35 ---
11.3/15 31.3/36.1 47.6/53.6 50/60 ---
15/20 41.6/48 60.5/68.5 --- 70/70
50XP-048
208/230-1-60 187 253 21.3 109.0 1.6 6.8
-/- -/- 33.9/33.9 45/45 ---
3.8/5 18.1/20.8 33.9/34.5 45/45 ---
5.4/7.2 26/30 41.0/46.0 45/50 ---
7.5/10 36.1/41.7 53.6/60.6 --- 60/70
11.3/15 54.2/62.5 76.2/86.6 --- 80/90
15/20 72.2/83.3 98.8/112.7 --- 100/125
208/230-3-60 187 253 14.7 91.0 1.6 6.8
-/- -/- 26.7/26.7 35/35 ---
3.8/5 10.4/12 26.7/26.7 35/35 ---
7.5/10 20.8/24.1 34.6/38.6 35/35 ---
11.3/15 31.3/36.1 47.6/53.6 50/60 ---
15/20 41.6/48 60.5/68.5 --- 70/70
50XP-060
208/230-1-60 187 253 27.0 145.0 1.6 9.1
-/- -/- 44.3/44.3 60/60 ---
3.8/5 18.1/20.8 44.3/44.3 60/60 ---
5.4/7.2 26/30 44.3/48.9 60/60 ---
7.5/10 36.1/41.7 56.5/63.5 --- 60/70
11.3/15 54.2/62.5 79.1/89.5 --- 80/90
15/20 72.2/83.3 101.6/115.5 --- 100/125
208/230-3-60 187 253 19.2 137.0 1.6 9.1
-/- -/- 33.0/33.0 40/40 ---
3.8/5 10.4/12 33.0/33.0 40/40 ---
7.5/10 20.8/24.1 37.4/41.4 40/45 ---
11.3/15 31.3/36.1 50.5/56.5 60/60 ---
15/20 41.6/48 63.3/71.3 --- 70/80
452 v
464 v
455 v
452 464 455
1371
457
457
464
457
452
455
457 5
7
2
7
7
457
1.53
460-3-60.
*Heater capacity (kW) based on heater voltage of 208v, 240v, &
480v. If power distribution voltage to unit varies from rated
heater voltage, heater kW will vary accordingly.
50XP

20
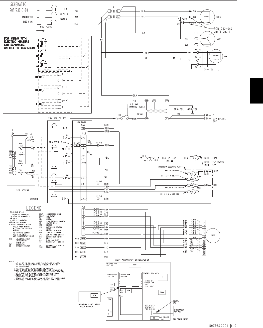
TYPICAL WIRING SCHEMATIC 208/230--1--60
A08460
50XP

21
TYPICAL WIRING SCHEMATIC 208/230--3--60
A08461
50XP

22
CONTROLS
Operating sequence
Cooling — When the system thermostat calls for cooling, 24 V is
supplied to the “Y” and “G” terminals of the thermostat. This
completes the circuit to the contactor coil (C) and indoor fan
board. The normally open contacts of C close and complete the
circuit to compressor motor (COMP) and to outdoor (condenser)
fan motor (OFM). Both motors start instantly. The IFM starts
according to the selection pin set--up on the Easy Select Board.
On the loss of the thermostat call for cooling, 24 V is removed
from both the “Y” and “G” terminals (provided the fan switch is in
the “AUTO” position) de--energizing the compressor contactor and
opening the contacts supplying power to compressor/OFM. After a
preselected delay, the IFM shuts off. If the thermostat fan selector
switch is in the “ON” position, the IFM will run continuously at
speed selected on Easy Select Board
Heating — If accessory electric heaters are installed, on a call for
heat, circuit R--W is made through the thermostat contacts. Circuit
R--G is made which energizes the IFM. If the heaters are staged,
then the thermostat closes a second set of contacts (W2) when
second stage is required. When thermostat is satisfied, contacts
open, deenergizing the heater relay. After a preselected delay, the
IFM shuts off. If the thermostat fan selector switch is in the “ON”
position, the IFM will run continuously at speed selected on Easy
Select Board.
NOTE: On units with a Time Guard®II device: Once the
compressor has started and then stopped, it cannot be restarted
again until 5 minutes have elapsed.
The indoor blower operation with a call for fan operation (G) in
cooling mode will perform by the on/off delay profile selected at
start up on the Easy Select Board.
50XP

23
GUIDE SPECIFICATIONS
Packaged Electric Cooling Unit
Constant Volume Application
HVAC Guide Specifications
Size Range: 2to5Tons,NominalCooling
Model Number: 50XP
Part 1 — General
SYSTEM DESCRIPTION
Outdoor rooftop mounted or ground mounted, electric cooling
unit utilizing a hermetic compressor for cooling duty and
optional electric heating. Unit shall discharge supply air
vertically or horizontally as shown on contract drawings.
Condenser fan/coil section shall have a draw--thru design with
vertical discharge for minimum sound levels.
QUALITY ASSURANCE
A. Unit shall be rated in accordance with ARI Standards
210/240 and 270.
B. Unit shall be designed in accordance with UL Standard
1995.
C. Unit shall be manufactured in a facility registered to ISO
9001 manufacturing quality standard.
D. Unit shall be UL listed and c--UL certified as a total
package for safety requirements.
E. Roof curb shall be designed to conform to NRCA
Standards.
F. Insulation and adhesives shall meet NFPA 90A
requirements for flame spread and smoke generation.
G. Cabinet insulation shall meet ASHRAE Standard 62P.
DELIVERY, STORAGE AND HANDLING
Unit shall be stored and handled per manufacturer’s
recommendations.
Part 2 — Products
EQUIPMENT
A. General:
Factory--assembled, single--piece, cooling unit. Contained
within the enclosure shall be all factory wiring, piping,
controls, refrigerant charge with R--410A refrigerant, and
special features required prior to field start--up.
B. Unit Cabinet:
1. Unit cabinet shall be constructed of phosphated,
zinc--coated, pre--painted steel capable of with--standing 500
hours in salt spray.
2. Normal service shall be through a single removable cabinet
panel.
3. The unit shall be constructed on a rust proof unit base that
has an externally trapped, integrated sloped drain pan.
4. Evaporator fan compartment top surface shall be insulated
with a minimum 1/2--in. (13 mm) thick, flexible fiberglass
insulation, coated on the air side and retained by adhesive
and mechanical means. The evaporator wall sections will be
insulated with a minimum semi--rigid foil--faced board ca-
pable of being wiped clean. Aluminum foil--faced fiberglass
insulation shall be used in the entire indoor air cavity
section.
5. Unit shall have a field--supplied condensate trap.
C. Fans:
1. The evaporator fan shall be direct--drive variable speed
motor and control, as shown on equipment drawings.
2. Fan wheel shall be made from steel, be double--inlet type
with forward curved blades with corrosion resistant finish.
Fan wheel shall be dynamically balanced.
3. Condenser fan shall be direct drive propeller type with alu-
minum blades riveted to corrosion resistant steel spiders, be
dynamically balanced, and discharge air vertically.
D. Compressor:
1. Fully hermetic compressors with factory--installed vibration
isolation.
2. Scroll compressors shall be standard on all units.
E. Coils:
Evaporator and condenser coils shall have aluminum plate fins
mechanically bonded to seamless copper tubes with all joints
brazed. (Copper/copper and vinyl--coated construction
available as option). Tube sheet openings shall be belled to
prevent tube wear.
F. Refrigerant Components:
Refrigerant expansion device shall be of the TXV
(thermostatic expansion valve) type.
G. Filters:
Filter section shall consist of field--installed, throwaway, 1--in.
(25 mm) thick fiberglass filters of commercially available
sizes.
H. Controls and Safeties:
1. Unit controls shall be complete with a self--contained low
voltage control circuit.
2. Units shall incorporate an internal compressor protector that
provides reset capability.
3. Unit shall provide High and Low/Loss--of--Charge Pressure
Safety Protection.
I. Operating Characteristics:
1. Unit shall be capable of starting and running at 125_F
(51_C) ambient outdoor temperature,exceeding maximum
load criteria of ARI Standard 210.
2. Compressor with standard controls shall be capable of op-
erationdownto55_F(13_C) ambient outdoor temperature.
3. Indoor Fan on/off delay profile is selected (for cooling) on
the Easy Select board.
J. Electrical Requirements:
All unit power wiring shall enter the unit cabinet at a single
location.
K. Motors:
1. Compressor motors shall be of the refrigerant--cooled type
with line--break thermal and current overload protection.
2. All fan motors shall have permanently lubricated bearings,
and inherent, automatic reset, thermal overload protection.
3. Condenser fan motor shall be totally enclosed.
L. Grille:
1. Louvered Grille:
Louvered grille shall be standard on all units.
50XP

24
GUIDE SPECIFICATIONS (CONT)
M. Special Features:
1. Coil Options:
Shall include factory--installed optional tin--plated indoor,
copper/copper and vinyl--coated refrigerant coils.
2. Economizer:
a. Economizer controls capable of providing free cooling
using outside air.
b. Equipped with low leakage dampers not to exceed 3%
leakage, at 1.0 IN. W.C. pressure differential.
c. Spring return motor shuts off outdoor damper on power
failure.
3. Flat Roof Curb:
Curbs shall have seal strip and a wood nailer for flashing
and shall be installed per manufacturer’s instructions.
4. Manual Outdoor Air Damper:
Package shall consist of damper, birdscreen, and rainhood
which can be preset to admit outdoor air for year--round
ventilation.
5. Thermostat:
To provide for one--stage heating and cooling in addition
manual or automatic changeover and indoor fan control.
6. Low Ambient Package:
Shall consist of a solid--state control and condenser coil
temperature sensor for controlling condenser--fan motor op-
eration, which shall allow unit to operate down to 0_F
(--18_C) outdoor ambient temperature when properly
installed.
7. Filter Rack Kit:
Shall provide filter mounting for downflow or horizontal
applications.
8. Square--To--Round Duct Transitions (024--048):
Shall have the ability to convert the supply and return open-
ings from rectangular to round. (024--048 only)
9. Compressor Protection:
Solid--state control shall protect compressor by preventing
“short cycling.“
10. Crankcase Heater:
Shall provide anti--floodback protection for low--load cool-
ing applications.
11. Electric Heaters:
a. Electric heater shall be availabel as a field--installed
option.
b. Heater elements shall be open wire type, adequately
supported and insulated with ceramic bushings.
c. Electric heater packages must provide single point
power connection capability.
12. Compressor Start Kit (single phase units only):
Shall provide additional starting torque for single--phase
compressors.
Copyright 2008 Carrier Corp. D7310 W. Morris St. DIndianapolis, IN 46231 Printed in U.S.A. Edition Date: 09/08
Manufacturer reserves the right to change, at any time, specifications and designs without notice and without obligations.
Catalog No: 50XP---05PD
Replaces: 50XP--- 4PD
50XP