Carrier FX4BNB060000AAAA User Manual FAN COIL Manuals And Guides L0411154
CARRIER Air Handler (indoor blower&evap) Manual L0411154 CARRIER Air Handler (indoor blower&evap) Owner's Manual, CARRIER Air Handler (indoor blower&evap) installation guides
User Manual: Carrier FX4BNB060000AAAA FX4BNB060000AAAA CARRIER FAN COIL - Manuals and Guides View the owners manual for your CARRIER FAN COIL #FX4BNB060000AAAA. Home:Heating & Cooling Parts:Carrier Parts:Carrier FAN COIL Manual
Open the PDF directly: View PDF
.
Page Count: 16

Installation Instructions
Direct Expansion Fan Coil Units
For Puron® Refrigerant FX4B
J
J
Fig. 1--Model FX4B
Ag8023
NOTE: Read the entire thstraction malmM before star_thg the thstallation.
_is symhol ,_ indicates a change sirice the last issue.
SAFETY CONSIDERATIONS
Improper installer thn, adj ustmeitt, _dtcl ation, service, maintenance, or use can cause explosion, fire, electrical shock, or othel conditions which may
cause personal injury or property damage¸ Consul_ a qLlalified installer, service agency, or yoLlr distributor or branch for in fonnatthn or assis_nce
_e qtl_lified installer or agency must Llse factory-atlthorized ki_ or _ccessories witch modifying this pl_dLIc t Refer 1o the individual instructions
packaged with kits or accessories witch instaIlthg
Follow all safety codes¸ Wear safety glasses and work gloves¸ Use quenching cloth for brazing opel-at ions Have fire extinguisher available¸ Read
these instructions thoroughly aod follow all warnings or cautions attached 1o the unit. Consult local building codes and National Electrical Code
(NEC) for special requirements
Recognize safety information This is the safoty-aler_ synthol _ When you see this symbol on the unit _od in instructions manuals, be alert 1o
the polential for personal iniury
Form: IM-FX4B-02 Cancels: IM-FX4B-01 Printed in U.SA 6-03 Catalog No. 63FX481

POWER ENTRY_ SUPPLIED
OPTIONS_& SUPPLY DUCT
0t8,030-048 21dN.
060 24qN FRONT SERVICE
CLEARANCE
UPFLOW/DOWNFLOW -- -
SECONDARYO ,N
UPFLOW/DOWNFLOW J
PRIMARY DRAIN
SECONDARY DRAIN
PRIMARY DRAIN
ENTRY
OPTIONS
UNff A
018 12IN.
030 171N
036 191N
FIELD MODIFIED
ASIDE RETURN
LOCATION FOR
2_/2_ SLOPE COIL
UNITS ONLY
FIELD SUPPLIED
RETURN PLENUM
A00415
Fig. 2--Slope Coil Unit in Upflow Application
Understand the signal words DANGER, WARNING, CAUTION, and NOTE l'imse words me used with the safety-alm_ symbol DANGER
identifies the most serious hazards which will result in severe personal injury or dealh. WARNING sight fies hazards which could result in personal
m_ury or death. CAUTION is used m identify unsafe practices which would result in miner personal injury ol prcduct and properly damage NOTE
is used to highlight suggestions which will result in enhanced instafafon, reliabitgy, or opemfon
WARNING: Before installing or servicing unit, always turn off all power to unit. There may be more than t disconnect
switch. Turn off accessory heater power if applicable. Electrical shock can cause personal injury or death.
INTRODUCTION
Model FX4B Fan Coil Units are designed for flexibility and can be used for upfiow, horizontal, or down flow (kit required and manuPactured and
mobile home) applications These units are designed to meet the low air leak requirements currently in e fi'eet Because of this, the units need special
attention in the condensate pan and drain connection area and when brazing tubing These tlnits ale designed specifically for Puron and must be
used only with Pmon air conditioners and heat pinups as shipped "l_ese units are available for applications in systems of 18,000 through 60,000
13tuh nominal cooling capacities Pactory-autholized, feId-instMled electric beater packages are available in 5through 30 kw See prcduct data
for available accesso Wkits
HEATER PACKAGES
I_ds unit may or may not be equipped with an electric heater package For ungs not equipped with l_ack_ry installed heah a factory approved, field
instadled UL listed heater package is available Prom yam equipment supplier See unit rating plate for a list of l_actory approved beaters. Healers
that are not Paetory approved could cause damage which would not be covered under the equipment wm_an_y/f l_n coil contains a factory installed
hemer package, minimum circuit ampac fly (MCA) andmaximum fuse/breaker may be different than units with a same size field installed accessory
healer fhe difference is not an er;or and is due to calculation difl'_rence per UL guidelines
INSTALLATION
PROCEDURE f--CHECK EQUIPMENT
Unpack t_ng and move to final location. Remove car[on laking care not to damage t_nit
Inspect equipment for damage prior to instaIlaflen File claim with shipping company if shipment is damaged or incomplete Locate unit raflng
plate which contains proper installation information Check rating plate to be sure unit matches job specifications
PROCEDURE 2--MOUNT UNIT
Unit can stand or lie on floor, or hang fiom ceiling or wall. Allow space for wiring, piping, and servicing mdt
IMPORTANT: When unit is installed over a finished ceiling and/or living mea, building cedes may require a field-supplied secondary condensate
pan _o be inslalled under the entire unik Some lecaliges may allow as an alternafve, file running of a separate, secondary condensate line Consult
local cedes fol additional restrictions or plecautions
2

A. Upflow Installation
If return air is to be dueled through a floor, sc'l unit on flOOl over opening and use 1/8- to I/d-in thick fireproof resilient gasket between duct, unit,
and floor
Side return is a field option on slope coil models ("ut opening per dimensions (See Pig. 2) A fleld-seppbed botlom closure is required
B. Downflow Installation
I11this applicaflon, field conversion of tile evaporator is required using accessoly do_snflow kit along with ari accessory base kit Use fireproof
resilient gasket, 1/8- to l/4-in thick, between duct, unit, and floor.
NOTE: IZ_ convert ulgts for downflow epplicaflons, refer to Installation lnslruc_ions supplied with kit fol proper installation. FOl slope _ln coils,
use kit Part No KFADC0201SLP For A Pan coils use kit Par_ No KFADC0401 ACE Use fireproof resilient gasket, 1/8- m l/4-in thick, between
duct, unit, and floor
NOTE: Gasket kit number KFAHD01OISLP is also required for all downflow appbeations to maintain low air leak/low sweat performance.
CAUTION: The conversion of the fan coil to downflow requires special procedures for the condensate drains on both
A-coil and Slope units. The vertical drains have an overflow hole between the primary and secondary drain holes. This hole
is plugged for all applications except downflow, but must be used for downflow. During the conversion process, remove the
plastic cap covering the vertical drains only and discard. Remove the plug from the overflow hote and discard. At completion
of the downfiow installation, caulk around the vertical pan fitting to door joint to retain the low air leak performance of the
unit. Failure to follow this CAUTION coutd result in minor personal injury or product and property damage.
C. Horizontal Installation
Units must not be installed with access panels Pacing up or down All units are factory built for horizontad left installaflon. (See Fig 3 and 8) When
suspending unit from ceiling, dimples in c_sing indicate suitable locagon of screws for mounting metM support straps. (gee Fig 3)
CAUTION: For optimum condensate drainage performance in horizontal installations, unit should be leveled along its
length and width. Failure to follow this CAUTION could result in minor personal injury or product and property damage.
NOTE: Modular units can be disassemhled and componems moved separately to installation area fol reassemhly fhis process accommodates
small scuttle holes and limiting entrances to installation sites. (gee Pig 4)
HORIZONTAL LEFT
SECONDARY PRIMARY
FIELD _ _RA_N
SUPPLIED
HANGING
STRAp
• 0_8,030-048 2_- IN
06024= IN
FRONT SERVICE
CLEARANCE
FULL FACE
_F UNIT i
ENTRY
OPTIONS
PRIMARY
DRA_N
SECONDARY
DRA_N
POWER
ENTRY OPTIONS
A00416
Fig. 3---Slope Coil Unit in Horizontal Left Application
HORIZONTAL RIGHT CONVERSION OF UNITS WITH SLOPE COILS
NOTE: Gasket kit number KFAHDgI01SLP is required for horizontal slope coil conversion to maintain low air leak/low sweat performance
t. Remove blower and coil access p;meI and fi_flng panel (See Pig. 5)
2. Remove coil mounting screw securing coil assembly 1o right side casing flange.
3

-2SCREWS r\
I
I
BLOWERBOX
_2SCREWS
CORNER
BRACKET
2SCREWS
COILBOX
Fig. 4--Removal of Brackets on Modular Units
COIL MOUNTING
-SCREW
Ag5293
-SECONDARYDRAEN
Fig. 5--Conversion for Horizontal Right Applications Using a Slope Coil
3. Remove coil assembly
4. L;ly _llt coil unit o11 its right side and reinstall coit assembly with condensate pan down (See Fig 5.)
5. Attach COil to casing flange using coil mounting screw previously removed
6. Make sine tile pan cap in the fitting door is properly seated on the fitting door to retain the low air leak rating of the unit.
7. Add gaskeI_ from kit KFAHD per kit instructions
8. Align holes with tubing connections and condensate pan connections, and reinstall access panels and filling panel
Make sure liquid and suction tube grommets are in place Io prevent air leaks and cabinet sweating. Install after br_aTing
HORIZONTAL RIGHT CONVERSION OF UNITS WITH A-COIL
1+ Remove blower and coil access panels. (See Fig 6)
2. Remove metal clip securing fitting panel to condensale pan Remove fitting panel
3. Remove 2 snap-in clips securing A-coil in unit
A03001

-AIRSEAL
CONNECTIONS HORIZONTAL
RIGHT
APPLICATION
SUPPORT
RAiL
BRACKET
DRAINpAN
HORIZONTAL RIGHT
SECONDARy DRAIN
HORIZONTAL RIGHT A00071
Fig. 6--Conversion for Horizontal Right Applications Using A-Coil
4. Slide coil and pan assembly out of mlg.
5. Remove horizomal drain pan support bracket from coil suppor_ rail on leR side of unit and reinslall on coil suppor_ rail on right side of unit.
6. Convert air-seal assembly for horizontal right.
a Remove air-seal assembly from coil by removing 4 screws (See Fig 6)
b Remove air splgler (B) Prom coil seal assembly by removing 3 screws {See Fig. 6 factor3, sldpped inseL}
c Remove filler plate (A) and install air splitter (B) in place of filter plale.
d Inslall fihm plate {A) as shown in I_orizontal right applicagon
e Remove condensate troughs {C) and install on opposite tube sheels
f Install hose onto plastic spout
7. Install hodzomal pan on right side of coil assembly.
8. Slide coil assembly into casing. Be sure coil bracket on e_h comer of vertical pan engages coil suppor_ raiix
9. Reinstall 2 snap-in clips to correcqy position and secure coil assembly in unit. Be sure clip with lmge ofl2set s is used on right side oPmlg
to secure horizontal pan
lO. Remove lwo oval fil_ing caps from the left side of the coil door and filfing panel
11. Remove insulation knockouts on right side of coil access panel
12. Remove 2 oval coil access panel plugs and reinstall into I_oles on leR side of coil access panel and filling panel
13. Install condensate pan fitting caps (from Sic't) 10) in lhe light side of gte coil door making sine that the cap snaps and seats cleanly on the
back side of the coil door Make sure no insulation interferes with seating of the cap.
14. Reinstall access fil_ing panels, aligning holes wgh tubing connections and condensate pan collnectiolls _e sure Io reinstall metal clip
between fitting panel and vertical condensate pan
Make sure liquid and suction tube grommets are in place Io prevent air leaks and cabinet sweating.
D, Manufactured and Mobile Home Housing Applications
1. Pan coil unit must be secured to the s_ructme using field-supplied hardware
2. Allow a minimum of 24" clearance from access panels
3. Recommended mefllod of securing for typical appticagons
a If Fan coil is away from walt, attach pipe s_rap to top of Pan coil using No 10 self tapping screws Angle strap down and away from back
of l_on coil, remove all slack, and l_osten to wail stud of s_ructure using 5/I6-in. lag screws Typical both sides of l_on coil
b If fan coil is against wail, secme Pan coil to wall stud using l/8-in, ddck right-angle b_ackets Attach brackels 1o fan coil using No 10
self tapping screws and m wall stud using 5/16-in lag screws {See Fig. 7)
PROCEDURE 3--AIR DUCTS
Connect supply-air duct over the (mtside of 3/d-in flanges provided on supply-air opening Secrete duct 1o flange, using proper Pasteners fol type
of duct used, and seal duct-to-unit joint If return-air flanges ale required, inslall Paclory-a_thorized accessory kit
5

4" MAX
SECURE FAN COIL TO STRUCTURE
UNETAWAY FROM WALL
P_PE STRAP
(TYPICAL BOTH SIDES I
OR
_184N THICK ANGLE
MOUNTING BRACKET
(TYPICAL BOTH SIDES)
DOWN FLOW
(KFACB)
_,_ SECURE UNITTO FLOOR
ANGLE BRACKET OR PIPE STRAp
4"MAX
A02003
Fig 7--A-Coil
use flexible conn_lors between ductwork and unit 1o plevent transmission ef vibration Wbeit elecrdc beatel is instafied, use beal-]esistant material
for flexible connector belween duclwork and unit at discbarge connecgon Ductwerk p_ssing tilrough tlnconditioned space must be insulated and
covered with vapor barrier
Units equipped with 20-30kw electric beaters require a l-in cleat'.nee 1o combustiMe materials for the first 36 in of sopply duct,
A. Ductwork Acoustical Treatment
Metal duct systems dlat do not ilave a 90 ° elbew and 10 fi of main duct to first branch t_keo fl" m_y require int elTial acoustical insulaflon lining
As an a]telal_flve, fibreus ductwerk m_y be used if consm_cted and installed in accord;lnce with the latest cdflion ef _MACNA COllStrllcgon
standard on fibreus gl_ss ducts Botil _lcoustical lining and fibrous ductwork shall comply with N_flona] Fire Protection Association as tested by
UL Standard 181 for Class I air duels
PROCEDURE 4--ELECTRICAL CONNECTIONS
All producls from the fectory utilize _1printed-circuit b_md (PCB) which has a low voltage circuit pint.five pose (5 amp), Pan reeler speed tap
selecflon terminal (SPT), _lod time delay relay (TDR) jumpel To disable the TDR feature, sever the jumper wire JWI (See Fig q )
When a Pactory-approved accessory control package h_s been installed, check all Paclory wiring per unit wiring diagram and inspect l_actory wiring
connections to be sine none were loosened in transit or installation. If a difl_rent control package is required, see unit rating plale.
_& CAUTION: If a disconnect switch is to be mounted on unit, select a location where dritl or fastener will not contact
electrical or refrigerant components. Failure to follow this CAUTION could result in minor personal injury or product and
property damage,
IBefore proceeding wflh efect]icM connections, make certain thai supply voltage, frequency, phase, and ampac fly me as specified on the unit ragng
plate. See unit wiring label for proper field high- and few-vol_ge wiring¸ Make all electrical connections in accordance with the NEC aod any
local codes or erdinpa_ces _bat may apply¸ Use copper wire only¸
_e unit must have a sep_trale bmncb electric circuit with a field-soppliod disconnect sw flcb located within sight from and readily accessible from
the unfl
On units with a faclory installed disconnect with pull-out removed, service and maintenance can be safely performed o11 only the load side of the
control package.
_WARNING: Field wires on the line side of the disconnect found in the fan coil unit remain live, even when the pull-out
is removed. Service and maintenance to incoming wiring can not he performed until the main disconnect switch (remote to
the unit) is turned off. Faiture to do so will result in electrical shock causing personal injury or death,
A. Line Voltage Connections
]f unfl contains _lecessory electric heater, remove and discard power plug from Pall coil _nd connect male plug Prom healer to female plug from
unit wiring harness. (See Elecrdc Heater Installagon festructions )
For units without electric beat:
1. Connect 208/23fly power leads Prom field disconnect 1o yellow and black slripped leads
2. Connect ground wire to unfl ground lug

FACTORY SH_PPED CO IL
HORIZONTAL LEFT
APPMCATEON
CO_L
SUPPORT
-- RAiL
DRA_N pAN
SUPPORT
HORIZONTAL
DRA_N PAN
AIR SEAL
REFRIGERANT
CONNECTIONS
PRIMARY DRAIN
-- HORIZONTAL LEFT
SECONDARY DRAIN
HORIZONTAL LEFT
Fig. 8--A=Coit in Horizontal Left Application (Factory Ready)
A00072
C8
R10_
R7
<z >
F1
F
z_-
A03010
Fig 9--Fan Coil Printed-Circuit Board
NOTE: Units installed without eleclric heat should have a field-supplied si_eet metal block-off'plate covering the healer opening This will reduce
air leakage and fom_afion of exterior condensation.
B, 24v Control System
CONNECTION TO UNiT
Wire low voltage in accordance with wiring label on the blower. (See Fig. l0 through 15,} Use no. I8 AWG color-coded, insulated (35°C
mimmum) wire to make the low-voltage connecgons between the thermostat, tile trait, and tile outdoor equipment, If the tbermostat is located more
than 10O ft from the _nit (as measured along the low-voltage wire), use No 16 AWG color-ceded, insulated (35°C minimum) wire All wiring
must be NEC ('lass I and must be separated from inconfing power leads
Refer to outdoor unit wiring instructions for any additional wiring procedure recommendagons.
TRANSFORMER INFORMATION
Transformer is Pactory-wired for 230v operation. For 208v applications, disconnec_ the black wire from the 23gv terminal on transformer and
connect it 1o the 208v terminal (See Fig 15)
HEATER STAGING
z_ CAUTION: If W2, W3, and E on any 3 stage heater (t8, 20, 24, or 30kw), are individually connected as with outdoor
thermostats or any other situation, emergency heat relay must be used. This relay is in kit Part No. KNAOTO20tSEC and is
normally used with kit Part No. KHAOT03Ot FST for 2outdoor thermostat system. Failure to follow this CAUTION could result
in minor personal injury or product and property damage,
7

FAN COIL
THERMOSTAT (CONTROL)
] WHT WHT W2
BLU W3
AiR COND
Fig, 1S--Wiring Layout Air Conditioning Unit
(Cooling Only)
A94058
FAN CelL
THERMOSTAT (CONTROL)
E
AIR COND
A94059
Fig. it--Wiring Layout Air Conditioning Unit
(Cooling and t-Stage Heat)
I]te controls ale factoly circuited for single-stage operation Fo] 2-stage operation, use outdo, or thennostal kit Par_ No KHAOT030I FST, and for
3-stage use both kits Pm_ No. KHAO'] 02OlSEC _ed KHAOT0301FST
When 2 stages me desired, cut W3 at the W2 wire nut, strip and reconnect per d_e thermostat kit instruction (See Fig. 13) When 3 stages are
desired, cut the W2 wire nut Off and discard Strip W2, W3, znd E and reconnect per thermostat kit inslrucgons. (See Fig lb)
NOTE: When 3 stages are used or znytime the E terminal is not tied to W2, tile emergency hezl relay, part of outdoor kit Part No
KHAOT0201SEC must be used
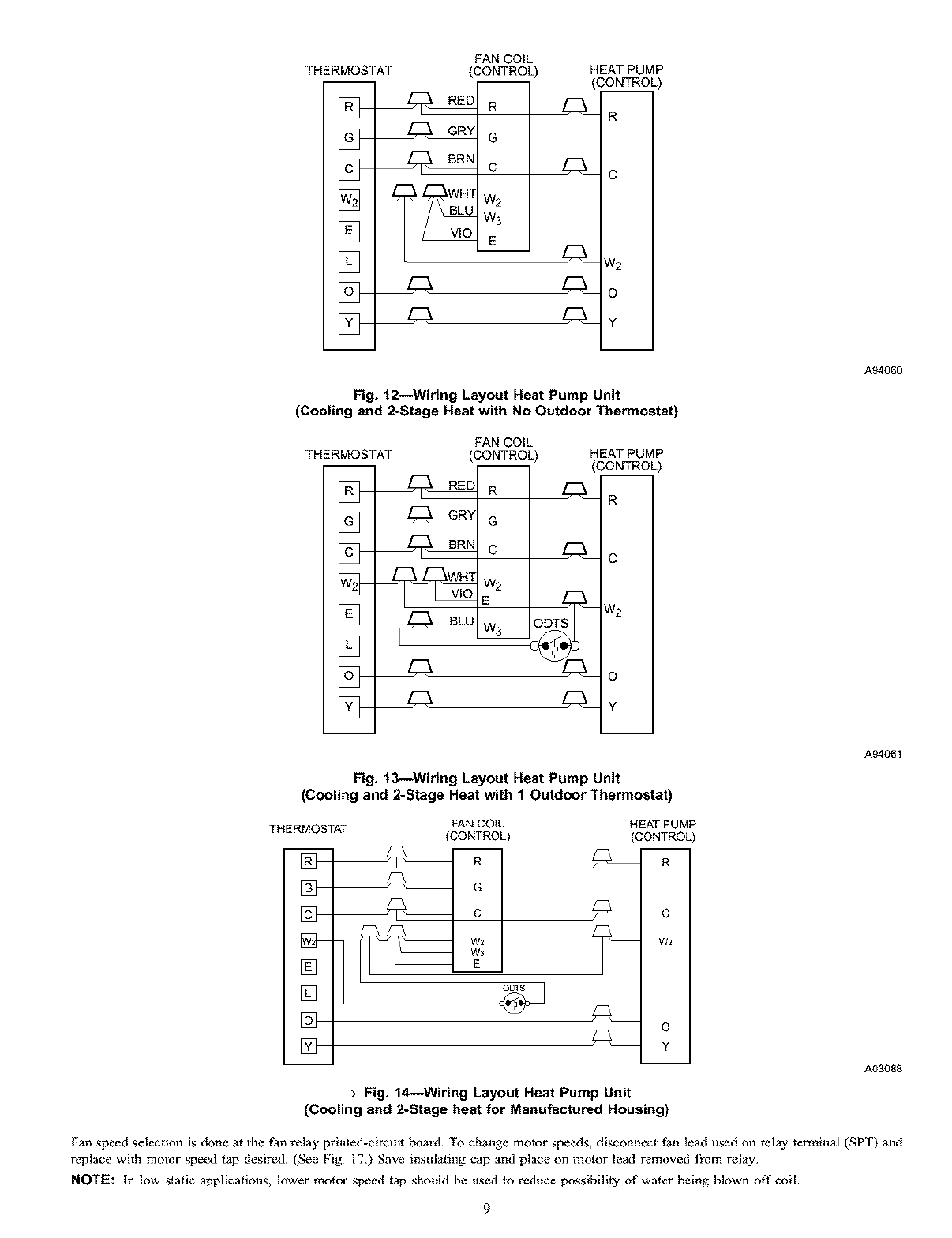
--_ C, Manufactured Housing
In M_nuPactured Housing applications, ti_e ('ode of Pedel_at Regulations, ride 24, Chapter XX, Pm_ 3280714 requires th_ supplemented electric
ile_t be locked out at outdoor temperatures above 40 dog P, except re1 a ileal primp defrost cycle. Refer 1o Fig 14 re1 typicM low vob_ge wiring
with oudoor thermostat
D. Ground Connections
WARNING: According to NEC, ANSI/NFPA 70, and local codes, the cabinet must have an uninterrupted or unbroken
ground to minimize personal injurJ if an electrical fault should occur. The ground may consist of electrical wire or metal
conduit when installed in accordance with existing electrical codes, if conduit connection uses reducing washers, a separate
ground wire must be used. Failure to follow this warning could result in electric shock, fire, or death.
NOTE: Use UL-listed conduit and conduit connector for connecgng supply wire(s) to unit to obtain proper grounding. Grounding may also be
accomplished by using grounding lugs provided in control box
E, Minimum CFM and Motor Speed Selection
Units with or without electric heaters require a minimum C'FM Refer to the unit wiring label to ensure that tile Pall speed selected is not lower
th_n the minimum P_n speed indicated

FAN COIL
THERMOSTAT {CONTROL)
[_ WH] W2
BLU W3
[]
HEAT PUMP
(CONTROL)
L;_ R
L;_ c
L_ N2
Z:q o
L:q y
Fig. t2--Widng Layout Heat Pump Unit
(Cooling and 2-Stage Heat with No Outdoor Thermostat)
A94060
THERMOSTAT
[]
[]
FAN COIL
{CONTROL) HEAT PUMP
-- (CONTROL1
_ R _ R
_G
c:ko
WH1 W2
[_ BLU W30DTS
o
L_ y
Fig. t3--Widng Layout Heat Pump Unit
(Cooling and 2-Sfage Heat with 1 Outdoor Thermostat)
THERMOSTAT FAN COiL
(CONTROL)
__ c
W_
[]
[]
[]
HEAT PUMP
(CONTROL)
R
S
w2
O
Fig. 14---Wiring Layout Heat Pump Unit
(Cooling and 2-Stage heat for Manufactured Housing)
A_I
A03088
P_n speed selection is done _t file Pan relay primed-circuit b_lmd "l_ change motor speeds, disconnect l_an lead used o11 relay temtinal (SPT) and
rephlce with motor speed tap desired. (See Fig 17.) Save insui_gng cap _nd place on motor lead removed from relay
NOTE: In low static applications, lower molol speed tap should be used to reduce possibility of waler being blown off coil
9

_AN COIL
_HE_MOS_A_ {CONTROL} HEAT PUMP
{CONTROL I
W2 _W
_MERG_NCY HEAT REtAY
Fig. tS--Wiring Layout Neat Pump Unit
(Cooling and 2-Stage heat with 2 Outdoor Thermostats)
A94062
BRN
A94067
Fig. 1&--Transformer Connections
All unils have 3 motor speed taps. lx)w speed (red) is designed for mismatch outdoor unit applications Medium speed {blue) is designed for
straight matched operagons High s_eed (biack) is used with high external static duct s_tems of straight malcbed systems¸
PROCEDURE 5--REFRIGERANT TUBING CONNECTION AND EVACUATION
Use accessory tubing package o] field-supplied tubing of refrigerant grade Suction tube must be insulated. Do not use damaged, dirly, or
contaminated tubing because it may plug refrigerant grade Suction tub_ must be insulated Do not use damaged, dirty, or contaminated tubing
because it may plug refrigerant flow-control device ALWAYS evacuate the coil and fieid-suppbed tubing before opening outdoor unit service
Valves
Z_ CAUTION: A brazing shield MUST be used when tubing sets are being brazed to the unit connections to prevent
damage to the unit surface and condensate pan fitting caps. Failure to follow this CAUTION could result in minor personal
injury or product and property damage.
Units have sweat suction and bquid tube connections. Make suction tube connection first.
1. Cut tubing to correct lengg_.
2. Insert tube illtO sweat connection on unit until it bottoms
3. Braze connection using silvm bearing or non-silver beming brazing materials. Do not use solder (materials which melt below 800°F)
Consult local cede requirements
CAUTION: Wrap a wet cloth around rear of fitting to prevent damage to TXV and factory-made joints. Failure to follow
this CAUTION could result in minor personal injury or product and property damage.
4. Evacuate coil and tubing system 1o 500 microns using deep vacuum me,bed.

_FAN DEC_
Fig. t7--Fan Coil Relay and Speed Tap Terminal
PROCEDURE 6--REFRIGERANT FLOW-CONTROL DEVICE
{]te FX4B is equipped with a Puron fXV Use outdoor units designed for Preen only.
PROCEDURE 7--CONDENSATE DRAINS
A97529
CAUTION: The conversion of the fan coil to downflow requires special procedures for the condensate drains on both
A-colt and Slope units. The vertical drains have an overflow hole between the primary and secondary drain holes. This hole
is plugged for all applications except downflow, but must be used for downflow. During the conversion process, remove the
plastic cap covering the vertical drains only and discard. Remove the plug from the overflow hote and discard. At completion
of the downflow installation, caulk around the vertical pan fitting to door joint to retain the low air leak performance of the
unit. Failure to follow this CAUTION coutd result in minor personal injury or product and property damage.
To connect draths the cap openings must be removed Use a knife to start the opening near the tab and using pliers, poll the tab lo remove the
disk. Clean the edge of the opening if necessary and instail the condensate tine Finally caulk around the lines where they exit the fitting to retain
the Iew leak rating of the mlit
Units are equipped with primary and secondary 3/4-in FPT drain connections¸ For proper condensale ithe instailations see Fig 2, 3, 5, 6, and 8
To prevent property damage and achieve opgnmm drainage performance, BOTH primary alld secondary drath gnes should be instaiIed arid include
properly-sized condensate traps¸ (See Fig. 18 and 20) Factory-approved condensate traps are avadabie, It is recommended tha_ PVC fittings be
used o11 the piastic condensate pan Finger_tigthen plus I_1/2 turns¸ Do no_ over_tigllten Use pipe dope¸
/_ CAUTION: Shallow, running traps are inadequate and DO NOT allow proper condensate drainage. (See Fig. t9.)
Failure to follow this CAUTION could result in minor personal injury or product and property damage.
NOTE: When connecting condensate dr_ain lines, avoid blocking filter access panel, thus preventing filler removal Afler connection, pdme both
primary and second_]y condensate h'aps.
NOTE: !f unit is located in or above a living sp_e where d_mage may result from condensate overflow, a field-supplied, external condensate
pan sbould be installed underneath the entire unit, and a secondary condensate line {with approprialc trap) should be run from the unit into the
pan Any condensate ill this external condensate pan sfiould be dl ained _o a noticeable place. As an alternative _o using an external COlldensate pan,
some localities may allow the use of ;1 separate 3/d-in condensalc line (with apprepriate trap) to a place where the condensate will be noticeable
{'he owner of the structure must be informed th_l witch condensate flows from the secondary dlain el external condensale pan, the unit requires
servicing or water d_mage will occur
Inst;dl traps in the condensate lines as close to the coil as possible (See Fig 20) Make sine that the outlet of e_h trap is below it connection to
the condensate p_n to prevent condensale from overgowing the dry,in pan Prime all traps, test fol leaks, _nd insulate traps if located above a living
area
C_ndensate dlain lines should be pitched downward at a minimum slop of 1 in for ever?, I0 fi of length
Consult local codes for eddifional restrictions or precautions.
PROCEDURE 8--ACCESSORIES
A. Electronic Air Cleaner
{]te Electronic Air Cleaner m_y be connected to Pan coil as shown in Pig. 21. {]tis method requires a field sopplied transformer See Electronic
Air Cleaner lileralure for kit requirements¸
il

UNIT t
2" MIN
t
2" MIN
Fig, t 8--Recommended Condensate Trap
A03002
DO NOT USE SHALLOW RUNNING TRAPS!
Fig. 1g---Insufficient Condensate Trap
A03013
B. Humidifier
Connect humidifier and ilumidistal to Fan coil unit as silown in Fig. 22 and Fig. 23 [_te cooling lockout relay is optional (See Fig 24)
12

ACCESS
PANEL
SECONDARY DRA_N WITH
APPROPRIATE TRAp REQUIRED
(USE FACTORY KIT OR
FIELD-SUPPLkED TRAp)
{USE FACTORY KIT OR
F_ELD-SUPPLIED TRAp OF
SUFFICIENT DEPTH
STANDARD P=TRAPS ARE
NOT SUFFiCiENT SEE
FIGURE OF RECOMMENDED
CONDENSATE TRAp)
A03003
Fig* 20--Condensate Drain
PROCEDURE 9--SEQUENCE OF OPERATION
A. Continuous Fan
['hennost_l Closes R to G G energizes fan relay on PCB which comple_es circuit 1o indeor blower motor When G is de-energized, there is a 90
sec delay befot_ rel_y opens
B, Cooling Mode
13temlost_l energizes Rlo G, R to Y, _nd R to O (beat pump only) (3 energizes fro1 relay on PCB whicb completes circuit 1o indoor blower motor
When G is de-energized, lbere is a 90 sec del_y before _an relay opens
C, Heat Pump Heating with Auxiliary Electric Heat
I_tennost_l eriergizes R 1o G, R 1o Y, and R to W G energizes fan relay on PCB whicb compleles ci]ct_it to indoor blower motor W energizes
electric beat rel_y(s) which completes circuit to beater element(s) Wbeit W is de-energized, electric beat rel_y(s) open, turning oil" heater elements
When G is de-e_crgized there is a 90 sec delay befole _alt rel_y opens
D, Electric Heat or Emergency Heat Mode
I_temmstal closes R to W, W energizes electric beat relay(s) which compleles circuit to beater eIementls) Blower mo_or is energized through
normally closed contacts on fan relay When W is de-energized, electric heal relay(s) opens.
13

CONTROLBOARD
C C
II
z
208/
3O
TO EAC
FROM MOLEX
PLUG AND
TRANSFORMER
(IN UNIT)
222324
Fig. 2t--Wiring Layout of Electronic Air Cleaner to Fan Coil
_AN COIL
_HE_MOS_AT {CONTROL) H_AT PUMP
RED {CONTROL)
[_o
BaN C
V_T BLU 2
[] ?
[Z_ Y
A03011
A95294
Fig. 22--Wiring Layout of Humidifier
to Heat Pump

FANCOIL
THERMOSTAT (CONTROL)
[_ IWHr WHT W2
i BLLJ W3
BRN CAI I_ COND
i
i
[5_ ' ,
L _ .
A95295
Fig. 23--Wiring Layout of Humidifier to Fan Coil
with Electric Heat
SPDT
24VAC COIL
230VAC_5A
TO
tLOW
DEHUMIDISTAT SPEED SPEED
(OPENS ON R_NSE) MOTOR MOTOR
A03012
Fig 24--Latent Capacity Controt
START-UP
Refer to outdoor unil [nstal)ation Instructions for system start-up instructions and refrigerant cbarging method details
CAUTION: Never operate unit without a filter Damage to blower motor or coil may result Factory authorized filter kits
must be used when locating the filter inside the unit. For those applications where access to an internal filter is impractical,
a field-supplied filter must be installed in the return duct system. Failure to follow this CAUTtON could result in minor
personal injury or product and property damage.
CARE AND MAINTENANCE
Ikl continae higb performance and minimize possible eqt_ipment Pailure, it is essential tb_l periodic maintenance be performed ori Ibis equlpmerit
C_nstdt your local dealer as _o tbe proper frequency of maintenance cer_tlact
[]te _lbibty to properly pelform mair_ten_nee oll t|ds equipment reqtdres ee]lain mecbanicaI ski){s and tools [f you do not possess these, contac_
yore dealer fol maintenance []te only consumer service recommended or required if filter replacement or cleaning on a monthly basis
15

PIJRON® QUICK REFERENCE GUIDE
FOR INSTALLERS AND TECHNICIANS
• Puron refrigerant operates at 50-70 pel_ent higher pressures thari R-22. Be sure that servicing equipment and
replm:ement components ale designed _o operale x_sith Puron
• Pmon refrigerant cylinders are rose colored.
Recovery cylinder service pressure rating must be 400 psig, D(_F 4BA400 or DO'I Bwq00
Pmon systems should be charged widl liquid refrigeront. Use a commel_ial lype melering device in the manifold hose
Manifold sels should be 750 psig high-side and 200 psig low-side wgh 52g psig low-side retard
Use hoses with 750 psig service pressure rating
Leak delectors should be designed to detect HFC refrigerant
Pmon, as other HFC's, ix only compatible with POE oils
Vacuum pumps will not remove moisture from oil
Do not use liquid-line fiber driers with rated working pressures less than g00 psig
Do not ins_atl a suction-line filter drier in liquid line.
POE oils absorb moisture rapidly Do not expose oil to ammsphere
POE oils may cause d_mage Io certain plastics and roofing malelials
Wrap all fifier dliers and service valves wilh wet cloth when brazing
A liquid-line fil_er drier ix required on every umt.
Do not t_se an R-22 TXV
If indoor unit is equipped wilh an R-22 TXV, it must be changed 1o a Pmon TXV
Never open syslem _o atmosphere while it is t_nder a vacuum
When system must be opened for service, break vacuum with dry nitrogen and replace fifier dliers
Do not vent Pumn into gte almosphere.
Do not use capillary tube indoor coils
Observe all warnings_ cautions and boht lext.
© 2003 CAC/BDP 7310 W Mo_ns St, In(fianapolis, iN 46231 [mf×4b02 16 Book/Tab: 1/4,3d12e Catalog No 63FX-4B1