Chungear Co CE9908 Ceiling Fan Remote Controller (Transmitter) User Manual
Chungear Industrial Co Ltd Ceiling Fan Remote Controller (Transmitter)
Users Manual

CEILING FAN REMOTE CONTROLLER 
OPERATION AND INSTALLATION INSTRUCTIONS
(Please keep this instruction pamphlet.) 
IMPORTANT POINTS TO REMEMBER:   
1.  Please read and save these instructions. 
2.  Please note that all fixed wiring appliances should be installed by a qualified electrician. 
3.  The supply to the remote control receiver should be connected through a mains switch, i.e. existing 
wall switch. 
4.  Disconnect from power supply at wall switch before working on remote control receiver or ceiling fan. 
5.  Install receiver into the ceiling fan canopy of the fan to ensure proper protection. 
6.  This unit is to be used for the control of ceiling fan and in an AC120V 60Hz power supply only, rated 
max 1.25A for fan, max 300W for light. 
7.  Do not install in damp locations or immerse in water. (For indoor use only.) 
8.  Do not pull on or cut leads shorter. 
9.  Do not drop or bump the unit. 
10.  PLEASE NOTE: The battery will weaken with age and should be replaced before leaking takes place   
    as this will damage the transmitter. Dispose of used battery properly, keep the battery out of reach of     
  children.  
11.  CAUTION: To reduce the risk of fire or injury, do not use this product in conjunction with any variable 
(rheostat) wall control. 
INSTALLATION INSTRUCTIONS 
1.  Ceiling fan must be set at HIGH speed and light kit (If any) at ON position by pressing the “Light 
Switch” after installation. 
2.  Once the connection has been made, the receiver inserts into the drop rod hanging bracket. The 
canopy comes up to cover the receiver and bracket. 
IMPORTANT 
YOU MUST SET CEILING FAN MANUAL SWITCH TO HIGH SPEED AND LIGHT KIT (IF ANY) 
TO ON POSITION BEFORE OPERATING REMOTE CONTROL. 
CAUTION: INCORRECT WIRE CONNECTION WOULD DAMAGE THIS RECEIVER. 

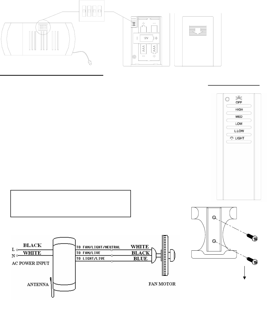
CODE SWITCH 
1.  CODE SWITCH: Codes are set by pushing dip switches up or down. It is imperative that the code 
used for both transmitter and receiver is exactly the same, otherwise remote controller will not work. 
Please note the code switch will enable you to operate a second remote controller independently. For 
example, if you have two ceiling fans with 2 remote control units, set 2 different codes for each set of 
transmitter/receivers. This means you can operate each ceiling fan independently. 
2. 
Your remote control is ready for use after battery installation(need 12V battery 1pc).
ON DIP
1234
RECEIVER
ANTENNA
DIP SWITCH
TO OPEN BATTERY HOUSING 
COVER BY PRESS DOWN AND
 SLIDE OUT
FUNCTIONS OF TRANSMITTER 
OFF    : Turn off the ceiling fan. 
HI          :Turn on the fan at high speed 
MED      :Turn on the fan at medium speed 
LOW      : Turn on the fan at low speed 
L.LOW    : Turn on the fan at lowest speed 
LIGHT ON/OFF: Press and release immediately to turn on or off the light. 
DIMMER     :Press and hold to dim or brighten lights to the desired level and 
release. (Only for the tungsten bulb.) 
Ceiling Fan Remote Control 
Wiring Connection 
TRANSMITTER 
To install the Transmitter 
Wall Mount Holder with two 
screws. 
FEDERAL COMMUNICATIONS COMMISSION 
INTERFERENCE STATEMENT   
This equipment has been tested and found to comply with the limits for a Class B digital device, pursuant to Part 15 of 
the FCC Rules. These limits are desi
g
ned    to 
p
rovide reasonable 
p
rotection a
g
ainst harmful interference in a residential 
installation. This equipment generates, uses and can radiate radio frequency energy and, if not installed and used in 
accordance with the instructions, may cause harmful interference to radio communications. However, there is no 
guarantee that interference will not occur in a particular installation. If this equipment does cause harmful interference to 
radio or television rece
p
tion
,
 which can be determined b
y
 turnin
g
 the e
q
ui
p
ment off and on
,
 the user is encoura
g
ed to tr
y
to correct the interference by one or more of the following measures:   
--Reorient or relocate the receiving antenna. --Increase the separation between the equipment and receiver. 
--Connect the equipment into an outlet on a circuit different from that to which the receiver is connected. 
--Consult the dealer or an experienced radio/TV technician for help.   
CAUTION:   
To assure continued FCC compliance:   
Any changes or modifications not expressly approved by the grantee of this device could void the user's authority to 
operate the equipment.   
FCC ID:KUJCE9908 
This device complies with Part 15 of the FCC Rules. Operation is subject to the following two 
conditions: (1) This device may not cause harmful interference, and (2) this device must accept any 
interference received, including interference that may cause undesired operation.