Corbin Russwin CL3300 Parts Manual CL3300Partsmanual
User Manual: Corbin Russwin Corbin CL3300 Parts Manual Parts Manual
Open the PDF directly: View PDF
.
Page Count: 20

CL3300 Series
Cylindrical Lockset Parts Manual

2
Table of Contents CL3300 Parts Manual
How to Order Parts
1. In order to simplify the ordering procedure and maintain regulatory compliance, parts are only available as listed
2. To order parts, provide the appropriate quantity, part number, finish, hand (when required) and description as directed and
illustrated below.
For example, use the following configuration to order:
A) ten chassis in satin chrome
B) one outside spring housing assembly in bright brass
Quantity Part Number Finish Hand Description
A 10 785F008 626 — Passage Function Chassis
B 1 783F208 605 — Outside Spring Housing Assembly
For assistance, contact your authorized Corbin Russwin distributor, sales agency or visit our website at www .corbinrusswin .com .
Finishes
ANSI/BHMA Code Finish Description
605 Bright Brass, Clear Coated
606 Satin Brass, Clear Coated
611 Bright Bronze, Clear Coated
612 Satin Bronze, Clear Coated
613 Dark Oxidized Satin Bronze, Oil Rubbed
613E Dark Oxidized Satin Bronze, Equivalent
613L Dark Oxidized Satin Bronze, Clear Coated
618 Bright Nickel, Clear Coated
619 Satin Nickel Plated, Clear Coated
619C Satin Nickel Plated with MicroShield®
625 Bright Chrome Plated
626 Satin Chrome Plated
626C Satin Chrome Plated with MicroShield®
722 Black Oxidized Satin Bronze, Oil Rubbed
Mechanical Drawing ................................................................................................................................................................... 3
Chassis & Buttons ....................................................................................................................................................................... 4
Spring Housing Assemblies .........................................................................................................................................................5
Roses/Liners and Misc .................................................................................................................................................................6
Latches ....................................................................................................................................................................................... 7
Strikes ......................................................................................................................................................................................... 8
Standard Levers and Components ..............................................................................................................................................9
Cylinders ................................................................................................................................................................................... 10
Installation Instructions ............................................................................................................................................................. 11
Door Manufacturers Template ..................................................................................................................................................15
BPS Power Supply ..................................................................................................................................................................... 16
ElectroLynx® Connector System................................................................................................................................................. 17

3
Mechanical Drawing CL3300 Parts Manual
7
6
5
3
2
15
12
11
9
13
1
10
16
14
7
5
4
8
17
17
Outside
Inside
Item Description Page #
1 Chassis 4
2 Liner 6
3Spring Housing Assembly, Outside 5
4Spring Housing Assembly, Inside 4
5 Rose 6
6 Cylinder 10
7 Lever 9
8 Button 4
9 Latch 7
10 Screw pack 6
11 Strike 8
12 Strike Box 8
13 Thru Bolt Mounting Pack
14 Thumbturn Assembly (CL3390/CL3391 only)
15 Emergency Release Tool (CL3320 only) 6
16 Tailpiece Packet
17 Cylinder Retainer

4
Chassis & Buttons CL3300 Parts Manual
Buttons
Part # Function
585F76 Fin* Turnbutton (CL3351)
585F77 Fin* Pushbutton (CL3320, CL3320H, CL3320TO, CL3340, CL3361, CL3375)
585F78 Fin* Hotel button (CL3329)
585F79 Fin* Slotted button (CL3393)
*Specify Finish
Part # LFIC Part # Function Description
785F008 N/A CL3310 Passage or Closet
785F118 Fin* N/A CL3320 Privacy, Bedroom or Bathroom
785F128 Fin* N/A CL3320H Hospital Privacy
785F138 Fin* N/A CL3320TO Time Out Lock
785F078 Fin* 785F268 Fin* CL3329 Hotel or Motel
785F068 785F258 CL3332 Institutional or Utility
785F028 Fin* N/A CL3340 Patio or Privacy
785F038 N/A CL3340NT Exit Latch
785F018 Fin* 785F218 Fin* CL3351 Entrance or Office
785F048 785F238 CL3352 Classroom Intruder
785F048 785F228 CL3355 Classroom
785F018 785F218 CL3357 Storeroom or CLoset
785F148 785F308 CL3359 Barrier Free Storeroom or Public Restroom
785F118 Fin* 785F298 Fin* CL3361 Entry or Office
785F058 785F248 CL3362 Communicating
785F088 785F278 CL3372 Apartment, Exit or Public Toilet
785F158 Fin* 785F318 Fin* CL3375 Corridor
785F098 N/A CL3380 Passage x Blank
785F108 785F288 CL3381 Keyed Lever x Blank
785F098 N/A CL3390 Passage Lever x Turnpiece
785F108 785F288 CL3391 Keyed Lever x Turnpiece
785F378 Fin* 785F388 Fin* CL3393 Service Station
N/A N/A CL3350 Half Dummy
N/A N/A CL3370 Full Dummy
785F188 785F348 CL33903 Fail Safe - 12AD
785F168 785F328 CL33903 Fail Safe - 24AD
785F198 785F358 CL33905 Fail Secure - 12AD
785F178 785F338 CL33905 Fail Secure - 24AD
Chassis Standard Chassis Half Trim Chassis
(e.g. CL3380, CL3381,
CL3390, CL3391)
* Specify Finish

5
Spring Housing Assemblies CL3300 Parts Manual
PART No. 783F208
Spring Housing Assembly, Outside
All functions except CL3380 and CL3381
Part No. 783F308
Spring Housing Assembly, Inside
(1-3/4"-2" Door)
All functions except CL3390 and CL3391
Part No. 783F408
Spring Housing Assembly, Inside
(over 2" - 2-1/4" doors)
All functions except CL3390 and CL3391
Spring Housing Assemblies
Part # Description
783F208 Spring Housing Assembly Outside
783F308 Spring Housing Assembly Inside 1-3/4"-2"
783F408 Spring Housing Assembly Inside 2-1/4"
686F858 Dummy Housing Inside
686F868 Dummy Housing Oustside

6
Roses/Liners and Misc CL3300 Parts Manual
Roses
Part No. Description
678F25 Fin* Rose
598F59 Fin* Blank Rose
710F618 Rose Liner Inside 1-3/4" - 2"
710F628 Rose Liner Inside Over 2"
678F248 Rose Liner Outside 1-3/4" - 2"
678F498 Rose Liner Outside Over 2"
586F51 Fin* Thumbturn Assembly 1-3/4" - 2"
686F88 Fin* Thumbturn Assembly over 2"
682F788 Rose Liner CL3380, CL3381
Emergency Release Tool
Part No. Description
679F818 Emergency Release Tool (CL3320)
601F829 Emergency Release Label (CL3320)
Mounting Screw packs
Part No. Description
710F658 1-3/4" - 2" Doors
710F668 Over 2" up to 2-1-4" Doors
682F628 CL3380, CL3381 1-3/4" - 2" Doors
682F638 CL3380, CL3381 Over 2" Doors
682F64 Fin* CL3390, CL3391 1-3/4" - 2" Phillips Head
682F67 Fin* CL3390, CL3391 1-3/4" - 2" Spanner Head
682F68 Fin* CL3390, CL3391 1-3/4" - 2" Torx Head
682F65 Fin* CL3390, CL3391 Over 2" Phillips Head
682F86 Fin* CL3390, CL3391 Over 2" Spanner Head
682F87 Fin* CL3390, CL3391 Over 2" Torx Head
684F44 Fin* CL3350 Half Dummy Trim - Phillips Head
684F45 Fin* CL3350 Half Dummy Trim - Spanner Head
684F46 Fin* CL3350 Half Dummy Trim - Torx Head
684F528 Fin* CL3370 Half Dummy Trim
* Specify Finish

7
Latches CL3300 Parts Manual
Plain Latch - CL3310, CL3320TO, CL3380, CL3390
PLAIN
DEADLOCKING
THROW-OFF
3/4" THROW
DEADLOCKING
FIRE LATCH
for Pair of Doors
Part No. Front Front Width Backset
586F16 Square Corner 1-1/8” (29mm) 2-3/4” (70mm)
596F66 Rounded Corner 1-1/8” (29mm) 2-3/4” (70mm)
586F80 Square Corner 1-1/8” (29mm) 3-3/4” (95mm)
586F86 Rounded Corner 1-1/8” (29mm) 3-3/4” (95mm)
598F20 Square Corner 1-1/8” (29mm) 5” (127mm)
601F24 Rounded Corner 1-1/8” (29mm) 5” (127mm)
Deadlocking Latch - All Other Functions
Part No. Front Front Width Backset
586F17 Square Corner 1-1/8” (29mm) 2-3/4” (70mm)
596F67 Rounded Corner 1-1/8” (29mm) 2-3/4” (70mm)
586F81 Square Corner 1-1/8” (29mm) 3-3/4” (95mm)
586F87 Rounded Corner 1-1/8” (29mm) 3-3/4” (95mm)
598F21 Square Corner 1-1/8” (29mm) 5” (127mm)
601F25 Rounded Corner 1-1/8” (29mm) 5” (127mm)
Throw-Off Latch - CL3320, CL3320H, CL3329, CL3340, CL3375, CL3393
Part No. Front Front Width Backset
586F18 Square Corner 1-1/8” (29mm) 2-3/4” (70mm)
596F68 Rounded Corner 1-1/8” (29mm) 2-3/4” (70mm)
586F82 Square Corner 1-1/8” (29mm) 3-3/4” (95mm)
586F88 Rounded Corner 1-1/8” (29mm) 3-3/4” (95mm)
598F22 Square Corner 1-1/8” (29mm) 5” (127mm)
601F26 Rounded Corner 1-1/8” (29mm) 5” (127mm)
3/4” Throw Deadlocking Fire Latch
Part No. Front Front Width Backset
601F69 Square Corner 1-1/8” (29mm) 2-3/4” (70mm)
When ordering latchbolt, specify Part No. x Finish (e.g., 586F16 x 626)
Plain
Deadlocking
Throw Off
3/4" Throw Deadlocking
Fire Latch
for pair of doors
PLAIN
DEADLOCKING
THROW-OFF
3/4" THROW
DEADLOCKING
FIRE LATCH
for Pair of Doors

8
Strikes CL3300 Parts Manual
Strikes - 4-7/8" ANSI Curved Lip
Part No. Description
217L13M016 Fin* 1" Lip Length
217L13M018 Fin* 1-1/8" Lip Length
217L13M020 Fin* 1-1/4" Lip Length
217L13M022 Fin* 1-3/8" Lip Length
217L13M024 Fin* 1-1/2" Lip Length
217L13M028 Fin* 1-3/4" Lip Length
217L13M032 Fin* 2" Lip Length
217L13M036 Fin* 2-1/4" Lip Length
217L13M040 Fin* 2-1/2" Lip Length
217L13M044 Fin* 2-3/4" Lip Length
217L13M048 Fin* 3" Lip Length
Strikes - 2-3/4" T- Curved Lip
Part No. Description
586L19M016 Fin* 1" Lip Length
586L19M018 Fin* 1-1/8" Lip Length
586L19M020 Fin* 1-1/4" Lip Length
586L19M022 Fin* 1-3/8" Lip Length
586L19M024 Fin* 1-1/2" Lip Length
586L19M028 Fin* 1-3/4" Lip Length
586L19M032 Fin* 2" Lip Length
586L19M036 Fin* 2-1/4" Lip Length
586L19M040 Fin* 2-1/2" Lip Length
586L19M044 Fin* 2-3/4" Lip Length
586L19M048 Fin* 3" Lip Length
Strike Box
Part No. Description
120F768 4-7/8" ANSI strike box
Front Plate Rabbetted Strike
Part No. Description
315F93 Fin* Fin 606, 612, 619, 626, 605, 611, 613, 625
Rabbetted Strike
Part No. Description
315F94 Fin* Fin 606, 612, 619, 626, 605, 611, 613, 625
601F283 Fin* Rabbetted Strike & Front
ANSI Curved Lip (standard)
Brass or stainless steel.
4-7
/
8" (124mm) x 1-1
/
4" (32mm) x 1-1
/
4" (32mm)
lip to center.
Optional lip lengths: 1" (25mm), 1-1
/
8" (29mm),
1-3
/
8" (35mm), 1-1
/
2" (38mm), 1-3
/
4" (44mm), 2"
(51mm), 2-1
/
4" (57mm), 2-1
/
2" (64mm), 2-3
/
4"
(70mm), 3" (76mm).
To order separately, specify 217L13 x
Lip Length x Finish.
Rabbeted Front and Strike
Brass or bronze.
4" (102mm) x 5
/
8" (16mm) for 1
/
2" (13mm) rabbet.
No optional lip lengths.
To order separately, specify 601F28 x Finish.
Curved Lip "T" Strike
Brass.
2-3
/
4" (70mm) x 1-1
/
8" (29mm) x 1-1
/
4"
(32mm) lip to center.
Optional lip lengths: 1" (25mm),
1-1
/
8" (29mm), 1-3
/
8" (35mm), 1-1
/
2" (38mm),
1-3
/
4" (44mm), 2" (51mm), 2-1
/
4" (57mm),
2-1
/
2" (64mm), 2-3
/
4" (70mm), 3" (76mm).
To order separately, specify 586L19 x Lip Length
x Finish.
ANSI Wrought Strike Box
To order separately, specify 120F76-8.
Latch & Strike Screw packs
Part No. Description
604F228 Fin* Latch & ANSI Strike (4-7/8") - Phillips Head
604F238 Fin* Latch & ANSI Strike (4-7/8") - Spanner Head
604F248 Fin* Latch & ANSI Strike (4-7/8") - Torx Head
604F268 Fin* Latch & T-Strike (2-3/4") - Phillips Head
604F278 Fin* Latch & T-Strike (2-3/4") - Spanner Head
604F288 Fin* Latch & T-Strike (2-3/4") - Torx Head
480F688 Fin* Rabbetted Front & Strike - Phillips Head
596F618 Fin* Rabbetted Front & Strike - Spanner Head
596F628 Fin* Rabbetted Front & Strike - Torx Head
*Specify finish

9
Standard Levers and Components CL3300 Parts Manual
Newport
NZD
Lever:
Rose:
Die cast zinc
Wrought brass
3/”
12
2/”
13 16
5”
Princeton
PZD
Lever:
Rose:
Die cast zinc
Wrought brass
3/”
12
2/”
13 16
5 / ”
34
Armstrong
AZD
Lever:
Rose:
Die cast zinc
Wrought brass
3/”
12
2/”
13 16
4/”
11 16
Frascati
FZD
Lever:
Rose:
Die cast zinc
Wrought brass
2/”
916
2/”
58
5 / ”
14
Application NZD AZD PZD FZD x RH FZD x LH
Plain 563F945 563F885 799F505 712F505 712F205
Cylinder or Button 563F955 563F895 799F515 712F515 712F215
Intruder 714F065 714F005 799F535 712F685 712F385
Emergency Key Hole 563F965 563F905 799F525 712F525 712F225
LFIC Cylinder - 6 Pin 585F715 585F705 799F565 712F545 712F245
LFIC Cylinder - 6 Pin Intruder 714F365 714F305 799F575 712F705 712F405
LFIC Cylinder - 7 Pin 600F415 600F425 799F585 712F555 712F255
LFIC Cylinder - 7 Pin Intruder 714F375 714F315 799F595 712F715 712F415
SFIC Cylinder Cutout 596F825 NA 799F805 712F565 712F265
SFIC Cylinder Cutout Intruder 714F425 NA 799F815 712F725 712F425
Schlage® LFIC Cylinder Cutout 690F975 NA 799F825 712F575 712F275
Schlage® LFIC Cylinder Cutout - Intruder 714F455 NA 799F835 712F735 712F435
Sargent® Cylinder Cutout 578F435 695F075 799F545 712F535 712F235
Sargent® Cylinder Cutout - Intruder 714F125 714F035 799F555 712F695 712F395
Levers for Doors 1-3/4" - 2" Doors*
Levers for Doors 2" - 2-1/4" Doors*
Application NZD AZD PZD FZD x RH FZD x LH
Plain 684F825 684F775 799F605 712F605 712F305
Cylinder or Button 684F835 684F785 799F615 712F615 712F315
Intruder 714F215 714F155 799F635 712F745 712F445
Emergency Key Hole 684F845 684F795 799F625 712F625 712F325
LFIC Cylinder - 6 Pin 684F865 684F805 799F665 712F645 712F345
LFIC Cylinder - 6 Pin Intruder 714F545 714F485 799F675 712F765 712F465
LFIC Cylinder - 7 Pin 684F875 684F815 799F685 712F655 712F355
LFIC Cylinder - 7 Pin Intruder 714F555 714F495 799F695 712F775 712F475
SFIC Cylinder Cutout 684F885 NA 799F845 712F665 712F365
SFIC Cylinder Cutout Intruder 714F605 NA 799F855 712F785 712F485
Schlage® LFIC Cylinder Cutout 690F985 NA 799F865 712F675 712F375
Schlage® LFIC Cylinder Cutout - Intruder 714F635 NA 799F875 712F795 712F495
Sargent® Cylinder Cutout 684F855 697F995 799F645 712F635 712F335
Sargent® Cylinder Cutout - Intruder 714F275 714F185 799F655 712F755 712F455
*Specify Finish

10
Cylinders CL3300 Parts Manual
â
â
Access 3® - .510” plug diameter
Pyramid - .496" plug diameter
Conventional - .509" plug diameter
Security - .552" plug diameter
Brass, 6-pin
2 nickel silver keys
Finishes: 606, 626
Access 3® - .510" plug diameter
Pyramid - .496" plug diameter
Conventional - .509" plug diameter
Security - .552" plug diameter
Brass, 6-pin
2 nickel silver keys
Finishes: 605, 606, 611, 612, 613,
613E, 613L, 618, 619, 625, 626, 722
Compatibility with Competitive Cylinders
Competitive Cylinders Parts Required for Installation
Schlage® conventional 21-002, 23-001 or 23-013 (Quick
Code M06)
682F39-8
Tailpiece included with M06 options.
Schlage® Primus
20-548, 20-78 or 20-750 (Quick Code M06)
682F39-8
Tailpiece included with M06 options.
SFIC style core, 6 or 7 Pin (Quick Code M08)
682F95-8
specify option M08
Accommodates 6 and 7 pin cores
Sargent® 13-3268 (Quick Code M09)682F96-9
Tailpiece Kit and Special Lever specify option M09
Schlage® LFIC Core (Quick Code M69)697F942
Tailpiece and Special Lever specify option M69
Corbin Russwin LFIC Tailpiece 631F248
Standard Cylinder Interchangeable Core
Conventional 6-Pin 2000-033 (Std.) 8000
Conventional 7-Pin 2000-033-7 8000-7
Emhart Security 2010-033 8010
Hotel 6-Pin 2001-034 8001-034
Hotel 7-Pin 2001-034-7 8001-034-7
Access 3® - AP Type 2500-033 8500
Access 3® - AS Type 2600-033 8600
Access 3® - AHS Type 2700-033 8700
Pyramid Security 2027-033 8027
Pyramid High Security 2020-033 8020
Schlage® C Keyway (0-Bitted) 2400-033-C NA
Schlage® C Keyway (Keyed
Random) 2400-033-C-KR NA
Sargent® LA Keyway (0-Bitted) 2400-033-LA NA
Cylinder Parts
Part # Description
622F308 Tailpiece 6-pin
682F298 Tailpiece 7-pin
631F248 Corbin Russwin LFIC core kit
682F958 SFIC tailpiece kit
682F969 Sargent® tailpiece kit
697F942 Schlage® LFIC tailpiece kit
682F398 Schlage® tailpiece kit

11
Installation Instructions CL3300 Parts Manual
®
ASSA ABLOY
In U.S.:
Corbin Russwin, Inc.
225 Episcopal Road
Berlin, CT 06037 USA
www.corbinrusswin.com
In Canada:
ASSA ABLOY Door Security Solutions Canada
160 Four Valley Drive
Vaughan, Ontario, Canada L4K4T9
www.assaabloy.ca
Technical Product Support: Phone: 888-607-5703
Installation Instructions
Grade 1 Key-In-Lever
Cylindrical Lockset
CL3300 Series
FM533 (07/12) Copyright © 2012 Corbin Russwin Inc., an ASSA ABLOY Group company.
All rights reserved. Reproduction in whole or in part without the express written
Permission of Corbin Russwin, Inc. is prohibited. 1 of 4
IMPORTANT: The accuracy of the door preparation is critical for the proper functioning and security of this lever
handle lock.Misalignment can cause premature wear and a lessening of security.
Attention Installer
Please read these instructions carefully to prevent
missing important steps.
Please note:Improper installation may result in
damage to the lock and void the factory warranty.
TEST OPERATION:Rotate levers to see that latchbolt moves freely.
DO NOTFORCE.
If lockset does not operate properly, remove lockset from door and check door preparation.
*Standard Installation for 1-3/4" doors.
See page 2 to adjust for other door thicknesses.
AInstall Latchbolt 12
Install Lockbody 3
CInstall Inside Trim
4567
B
DOOR
EDGE
DOOR
EDGE
7
6
5
4
3
1
2
LOCK OR
LATCH
SINGLE
POINT
LOCK OR
LATCH
SINGLE POINT
Line-up Notches
C
A
B
OR
mlw - 07/25/08

12
Installation Instructions CL3300 Parts Manual
®
ASSA ABLOY
FM533 (07/12)
Copyright © 2012 Corbin Russwin Inc., an ASSA ABLOY Group company.
All rights reserved. Reproduction in whole or in part without the express written
permission of Corbin Russwin, Inc. is prohibited.
2 of 4
Mark door
Locate and mark horizontal center line at desired height above
floor. Fold template over edge of door, centering on horizontal
line.Mark centers of holes at proper backset. Mark both sides
of the door.
Note:
Be sure to verify backset before marking & drilling door.
Drill door
A. 2-1/8” (54mm) hole thru door. Cut ANSI tab notche s
as shown on template (except CL3350 and CL3370).
B. Drill 1” (25mm) hole in edge of door. Cut out for
latch front 5/32” (4mm) deep.1-1/8” (29mm) wide
x 2-1/4” (57mm) high. Check latch unit for proper
width front and square or round corners
(except CL3350 and CL3370).
C. Drill two (2) 11/32”(8mm) Dia. holes through door
for all functions.
Caution:
To avoid splintering wood doors, drill holes from both sides.
Adjust lock to door thickness
if other than 1-3/4” (44mm)
doors.
*(Lock pre-set from factory for 1-3/4” door).
A. Remove outside lever (see page 4)
B. Slide off outside cassette assembly.
C. Rotate rose liner to adjust lock to fit door thickness, so
that the distance (Dim. “A”) from the inside of the liner to
the centerline of the retractor is one half of the thickness
of the door (see chart) .
D. Re-assemble outside cassette assembly onto chassis
assembly (except CL3380 and CL3381 functions).
*Note: For doors more than 2”,verify
lock package is labeled with “D214” option.
Door
Thickness* “A”
1-3/4” (44)
2” (50)
2-1/4” (57)
7/8” (22)
1” (25)
1-1/8” (29)
Install Strike
Outside
Rose Liner
Chassis
Assembly
Outside
Cassette
Assembly Lever
Catch
Door & Frame Preparation Adjust Lock for Door
Thickness

13
Installation Instructions CL3300 Parts Manual
®
ASSA ABLOY
FM533 (07/12) Copyright © 2012 Corbin Russwin Inc., an ASSA ABLOY Group company.
All rights reserved. Reproduction in whole or in part without the express written
Permission of Corbin Russwin, Inc. is prohibited. 3 of 4
A. Install Tailpiece
To Install Interchangeable Core
(With lever already installed on lock)
Tailpiece
Other product brand names may be trademarks or registered trademarks of their respective owners and are mentioned for reference only.
C. Insert core into lever and return
key to its original horizontal
position locking core in place.
See Figure 3.
D. Withdraw key.
Te st lockset for
correct function
with operating key.
E. Control key has no
further use in lockset
installation and must
be safeguarded for
return to Security personnel
when installation is complete.
A. Insert key marked
CONTROL and turn
clockwise approximately
15 degrees. See Figure 4.
B. Pull core and tailpiece
completely out of lever.
Make sure lock is unlocked.
A. Make sure cylinder tailpiece is aligned in same direction as
cylinder bible.Slide cylinder all the way into lever.
•For 6-pin cylinder: Fold retainer at hinge and press fit
retainer halves together as shown.
•For 7-pin cylinder: Break retainer at hinge and discard
spacer section.Also remove black cylinder spacer from
inside of chassis rollback for clearance.
7/8"
(22) 11/16"
(17)
Standard Cylinder Tailpieces
6 PIN 7 PIN
ACTUAL
SIZE
SHOWN
Tailpiece
Corbin Russwin
Core
B. Insert key marked
CONTROL and turn
clockwise approximately
15 degrees.
See Figure 2.
Schlage®Core
Ta ilpiece
Set for
Primus
Ta ilpiece set
for all Schlage
cores except
Primus
Corbin Russwin conversion kit for Schlage®
cylinders with CL3300 lockset.
1. Remove threaded collar and Schlage®tailpiece.
2. Install CL3300 tailpiece
with threaded collar.
(adjust collar for proper
end play of plug.)
Figure 4
Figure 2
Figure 3
To Remove
Interchangeable Core
Install Standard Cylinder
CORRECT WRONG
Cam
Lever Catch
6
3
9
12
6
3
9
12
CL3355 Classroom or CL3352 Intruder (outside cylinder)
Function Timing
Before installing cylinder:
• Tu rn Cam so points are up and down, 6 o’clock and 12 o’clock
(See Below)
After installing
cylinder, test
operation:
• Key should rotate
180°both ways
• If cylinder rotates 360°,
remove cylinder and check cam orientation.
Cylinder Installation
Spacer
(Used with 6 Pin
Cylinder Only)
Security Disc**
** Verify that security disc
is installed for either 6 or
7 pin Corbin Russwin or
small format cores.

14
Installation Instructions CL3300 Parts Manual
®
ASSA ABLOY
FM533 (07/12)
Copyright © 2012 Corbin Russwin Inc., an ASSA ABLOY Group company.
All rights reserved. Reproduction in whole or in part without the express written
permission of Corbin Russwin, Inc. is prohibited.
4 of 4
LEVER STYLE REMOVALINSTALL
Push / Turn Button
Hold in button,
push release tool into
release hole,
remove lever
Push button in,
slide lever on.
Make sure lever
will not pull off
Plain Lever
Push release tool
into release hole,
remove lever
Slide lever over
lever catch.
Make sure lever
will not pull off
Cylinder Lever Rotate key 45°clockwise
(from shed position),
Push in release tool into
release hole,remove lever
Insert key and rotate
45°(from shed
position), slide lever
on.
Make sure lever
will not pull off
Interchangeable Core Lever
Remove cylinder and
tailpiece,(see page 3)
Use flat blade screwdriver
to pull back lever catch,
remove lever
Slide lever over
lever catch
Make sure lever
will not pull off
LEVER CATCH
(Move in direction of arrow)
LEVER
ROSE
45°
FRONT VIEW
OF TURNPIECE
45°
#8-32 SELF
TA PPING SCREWS
For CL3380 & CL3381 Function Only.
Optional Installations
For CL3390 & CL3391 Function Only.
RELEASE
TOOL
RELEASE
TOOL
RELEASE
TOOL
Lever Removal and Installation

15
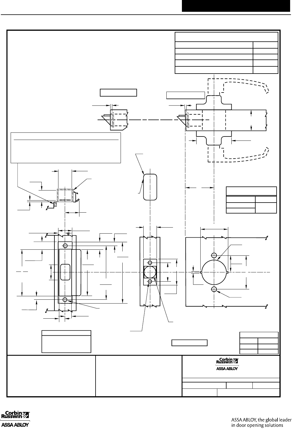
Door Manufacturer’s Template CL3300 Parts Manual
14
Door Manufacturers Template CL3300 Parts Manual
DESCRIPTIONTEMPLATE
CL3350 & CL3370 Dummy Trim
586L19 Optional Strike
M16 3/4" Latch
601F28 Rabbeted Front & Strike
T30685
T30476
T30528
T30640
TOLERENCES
INCHES (mm)
.005
.015
(.127)
(.381)
C
L
C
L
C
L
C
L
C
L
Strike/Lock
Strike/Loc k/Door
1
(25.4)
Plaster Guard by
Fr ame Manuf acturer
1-1/4
(31.8)
3/32
(2.4) 1-1/4
(31.8)
C
L
5/8
(15.9)
1-1/4
(31.8) Strike/
Lock/
Prep
1-13/16
(46)
5/16
(7.9)
Max
3/8
(9.5)
#12-24 Tap for
Combination Screw
(2 Places)
#8-32Tap for
Combination Scre w
(2 Places)
1/2
(13)
9/16
(14.3)
+.015
-.000
+.015
-.000
+.015
-.000
+.015
-.000
+/-.005
4-7/8
(123.8)
Notes:
(See Note 4)
Profile of
optional
rounded
corner
front
9/32 R.
(7.1)
(4 Places)
Lock/Door
Lock/Prep
1-1/4
(31.8)
3-3/8
(85.7)
3/4
(19)
4-1/8
(104.8)
1-5/8
(41.3)
1-1/8
(28.6)
5/32
(4)
2-1/8
(54)
5/16
(8)
DOOR DETAIL
5/32
(4)
5/32
(4)
+/-.005 +/-.005
SQUARE EDGE BEVELED EDGE
BEVEL
1/8" in 2"
(3 2) (50.8).
3-1/2
(89)
Door
Thickness
BACKSET "A"
2-3/4 (69.9)
3-3/4 (95.3)
5 (127)
Regular
Optional
A
Backset
(See Note 1)
Dia.
2-15/32
(62.7)
1-3/8
(35)
Dia. thru
Dia. thru
(2 Places)
1" (25.4) Dia. or
1" (25.4) Square
to prep hole
+.015
-.000
2-1/4
(57.2)
+/-.005
Min Min
Min
Min
2-3/4
(70)
3-1/2
(88.9)
Min
RESPONSIBILITY
Door and Frame Manufacturers are responsible
for providing adequate construction or
reinforcements for proper installation of hardware
shown.All architectural builders hardware must
be installed on proper ly reinforced doors and
frames, regardless of the type, material, or
method of construction.
CL3300 Series
Cylindrical Lever Lockset
All Functions AndTr ims
Except DummyTrim,
and M16 latch (3/4")
Do Not Scale Drawing
2-00
Supersedes
Template
Number
Date
Dr. App.
T30684
FRAME DETAIL
ANSI Strike 217L13
and Box 120F76
(Regularly Furnished)
www.corbinrusswin.com
1. Backset is measured from centerline of bevel which is centerpoint
of door thickness.
2. Door prep with 2-3/4” (69.9) backset meets ANSI/BHMA A156.115
for steel doors and A156.115W for wood doors plus through bolt holes shown.
3. Dimensions given in inches and (MM).
4. 1-1/4” strike lip suits frame for 1-3/4” thick door. Lip will vary for other
door thickness.
5. Door prep will vary for 3/4” (19) latch assembly. Refer to template
T30528 for details.
CAUTION: DOOR AND FRAME MANUFACTURERS
When door gasketing or silencers are used, proper
allowances must be made for strike location to
maintain a common centerline with lock and door
as shown so that bolt will freely enter strike.
TEMPLATE CROSS REFERENCE

16
BPS Power Supply CL3300 Parts Manual
Power supplies are designed to provide reliable filtered and regulated power for long life to a variety of electrified
hardware components. All modular power supplies are voltage specific and are designed to meet UL 1481
Standards.
Features
• Fire panel emergency release input
• PC Board mounted system LED indicator
• Voltage specific 12 or 24VDC
• Regulated and filtered with input and output protection
• Battery charging is provided from a separate output terminal
Model Input Output
BPS-12-1 115VAC @ 50/60 Hz 1 Amp @ 12VDC
BPS-12-3 3 Amp @ 12VDC
BPS-24-1 115VAC @ 50/60 Hz 1 Amp @ 24VDC
BPS-24-2 2 Amp @ 24VDC

17
ElectroLynx® Connector System CL3300 Parts Manual
12 or 24VDC
Power Supply
(Recommended Securitron BPS
series)
Input
L N
120VAC
60HZ
GND + -
12 or
24VDC
120VAC L/N/G
Normally Closed Fire
Alarm Contact
(If Required) C
NC
Switch or
relay contacts
Red (+), 2
Black (-), 1
Pigtail harness (Supplied with
McKinney Hinge)
(2 wires with 8-pin connector)
Plug into
8-pin hinge
connector
at door
ElectroLynx® Connector System
For ASSA ABLOY Group Doors and Hinges with ElectroLynx® Connector System
• Plug 8-pin lock connector into 8-pin door
connector (4-pin door connector not used for
this application).
• Install lock per instruction sheet provided
• Plug 8-pin door connector into 8-pin hinge
connector (4-pin door connector not used for
this application).
Use template T30971 for door preparation
• Electrical Specifications
24 Volts AC/DC +/-10%
Operating Current .150 AMP
12 Volts AC/DC +/- 10%
Operating current .250 AMP
X
Not Used
• Wire hinge to power source
For non ElectroLynx Connector System, door
install available retrofit harness and use with
ElectroLynx hinge. Follow installation instructions
for ElectroLynx Connector System.
For non ElectroLynx Connector System door and
hinge, remove connector on lock (warranty void
if rectifier module is removed). Use proper crimp
splices or wire nuts in accordance with local code
for terminating connections. No polarity of wires
is required.
ElectroLynx®
As part of their promise to provide innovative, fast and effective high security solutions to their customers, ASSA ABLOY Group companies offer
ElectroLynx®, a universal quick-connect system that simplifies the electrification of the door opening. ElectroLynx® is a registered trademark of
ASSA ABLOY Inc.

18
Notes CL3300 Parts Manual

19
Notes CL3300 Parts Manual

For more information regarding Corbin Russwin Locksets,
Exit Devices, Door Controls and Key Systems, contact your
authorized Corbin Russwin Distributor or Sales Representative.
In U.S.
Corbin Russwin
Architectural Hardware
225 Episcopal Road
Berlin, CT 06037
Phone: 800-543-3658
Fax: 800-447-6714
corbinrusswin.com
In Canada
ASSA ABLOY Door
Security Solutions Canada
160 Four Valley Drive
Vaughan, Ontario
Canada L4K 4T9
Phone: 800-461-3007
Fax: 905-738-2478
www.assaabloy.ca
Corbin Russwin and Design® is a registered trademark of Corbin Russwin, Inc, an ASSA ABLOY Group company. Other products' brand names may be trademarks or
registered trademarks of their respective owners and are mentioned for reference purposes only. These materials are protected under US copyright laws. All contents current
at time of publication. Corbin Russwin, Inc., an ASSA ABLOY Group company reserves the right to change availability of any item in this catalog, its design, construction,
and/or its materials. Copyright © 2000-2016 Corbin Russwin, Inc., an ASSA ABLOY Group company. All rights reserved. Reproduction in whole or in part without the express
written permission of Corbin Russwin, Inc. is prohibited.
45260-3/16R
ElectroLynx®
As part of their promise to provide innovative, fast and effective high security solutions to their customers, certain ASSA ABLOY Group brands
offer ElectroLynx®, a universal quick-connect system that simplifies the electrification of the door opening.
ElectroLynx® is a registered trademark of ASSA ABLOY Inc.