Corbin Russwin ED4000/ED5000 Series Aadss1010106
User Manual: Corbin Russwin ED4000/ED5000 Series Parts Manual
Open the PDF directly: View PDF
.
Page Count: 72

ED4000, ED5000 Series
Mechanical Pushpad Exit Devices
Parts and Service Manual

2
Table of Contents ED4000, ED5000 Parts Manual
Introduction
Installation Notes ...................................................................... 3
How to Order Parts..................................................................... 3
Finish Chart .......................................................................... 3
Exit Devices
ED5200(A), ED4200 Rim Exit Device ....................................................... 4
ED4200M(A) Rim Exit Device ............................................................. 5
ED5200(A), ED4200S Rim Exit Device ...................................................... 6
ED4200SM(A) Rim Exit Device . . . . . . . . . . . . . . . . . . . . . . . . . . . . . . . . . . . . . . . . . . . . . . . . . . . . . . . . . . . . 7
ED4400, ED5400(A) Surface Vertical Rod ................................................... 8-9
ED4400M(A) Surface Vertical Rod ...................................................... 10-11
ED5470(B) Surface Vertical Rod . . . . . . . . . . . . . . . . . . . . . . . . . . . . . . . . . . . . . . . . . . . . . . . . . . . . . . . . 12-13
ED5470(B) x M55 (Less Bottom Rod) Surface Vertical Rod .................................... 14-15
ED4800, ED5800(A) Concealed Vertical Rod Exit Device ..................................... 16-17
ED4800M(A) Concealed Vertical Rod Exit Device . . . . . . . . . . . . . . . . . . . . . . . . . . . . . . . . . . . . . . . . . . . 18-19
ED5860(B) Concealed Exit Device ....................................................... 20-21
ED5860B x M55 (Less Bottom Rod) Concealed Exit Device .................................... 22-23
ED5600(A), ED5602(A) Mortise Exit Device ............................................... 24-25
ED5000DB Dummy Bar............................................................... 26-27
ED4000/ED5000 Pushpad Components .................................................. 28-29
Trim
910, 950, 955, 959 Trim.............................................................. 30-31
957 Trim .......................................................................... 32-33
9M10, 9M50, 9M55, 9M57 Trim ....................................................... 34-35
F950, F957, F9M57 Trim .............................................................. 36-37
910, 950, 955, 959 Parabolic Trim ......................................................38-39
957 Parabolic Trim ..................................................................40-41
9M10, 9M50, 9M55, 9M57 Parabolic Trim ................................................42-43
F950, F957, F9M57 Parabolic Trim ......................................................44-45
TH910, TH950, TH955, TH957, TH959 Trim ...............................................46-47
TH9M10, TH9M55, TH9M57 Trim.......................................................48-49
P950, P957, P9M57 Trim ................................................................50
P1050, P1057 Trim .....................................................................51
810, 850, 855, 859 Trim.............................................................. 52-53
F450, F457, 0810, 0855, 0859 Trim . . . . . . . . . . . . . . . . . . . . . . . . . . . . . . . . . . . . . . . . . . . . . . . . . . . . . 54-55
T1455, T1410, T1459 Trim . . . . . . . . . . . . . . . . . . . . . . . . . . . . . . . . . . . . . . . . . . . . . . . . . . . . . . . . . . . . 56-57
01455, 01459, 01410 Trim............................................................ 58-59
T1450, T1457 Trim .................................................................. 60-61
Muséo Levers .........................................................................62
Cylinders ...........................................................................63-64
Strikes ................................................................................65
Accessories .......................................................................... 66
Handing Instructions ................................................................ 67-68
Surface Vertical Rod Exit Devices....................................................... 69
Concealed Vertical Rod Exit Devices .................................................... 70
Troubleshooting ...................................................................... 71

3
Introduction
Finishes
Installation Notes
1. Any retrofit or other field modification to a fire rated opening can potentially impact the fire rating of the opening, and Yale Locks & Hardware
makes no representations or warranties concerning what such impact may be in any specific situation. When retrofitting any portion of an
existing fire rated opening, or specifying and installing a new fire rated opening, please consult with a code specialist or local code
official (Authority Having Jurisdiction) to ensure compliance with all applicable codes and ratings.
2. Refer to the templates and installation instructions for complete door preparation and installation requirements.
3. Machine screws are provided for steel reinforced doors, threaded-to-the-head AB Type screws are provided for wood door applications. In
addition, sex nuts and bolts are provided for fire rated devices and are optional for non-rated devices. It is recommended that sex nuts and
bolts be used for all exit device applications. This will improve the performance and extend the life of the product.
How to Order Parts
1. In order to simplify the ordering procedure and maintain regulatory compliance, parts are only available as listed
2. To order parts, provide the appropriate quantity, part number, finish, hand (when required) and description as directed and
illustrated below.
For example, use the following configuration to order:
A) ten escutcheon assemblies (page 30) in satin chrome
B) one surface vertical rod latch cover (page 10) in bright brass
For assistance, contact your authorized Corbin Russwin distributor, sales agency or visit our website at www.corbinrusswin.com.
ANSI/BHMA Code Finish Description
605 Bright Brass, Clear Coated
606 Satin Brass, Clear Coated
611 Bright Bronze, Clear Coated
612 Satin Bronze, Clear Coated
613 Dark Oxidized Satin Bronze, Oil Rubbed
613E Dark Oxidized Satin Bronze, Equivalent
618 Bright Nickel, Clear Coated
619 Satin Nickel Plated, Clear Coated
625 Bright Chrome Plated
626 Satin Chrome Plated
626C Satin Chromium Plated with MicroShield®
629 Bright Stainless Steel
630 Satin Stainless Steel
630C Satin Stainless Steel with MicroShield®
722 Black Oxidized Satin Bronze, Oil Rubbed
Quantity Part Number Finish Hand Description
A 10 677F01 626 — Escutcheon Assemblies
B 1 650F64 605 — Top Latch Cover
Finish available with MicroShield® antimicrobial coating, additional finishes by special
application. Consult factory for availability.
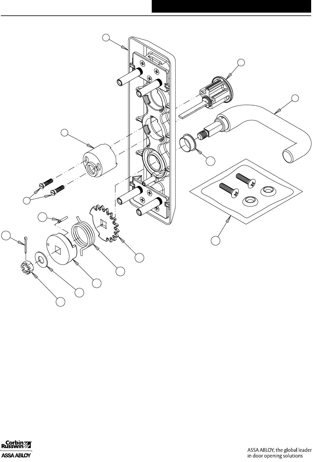
ED4000, ED5000 Parts Manual

4
ED5200(A), ED4200
Rim Exit Device
Item Part No. Description
1
Latch Assembly
650F358 ED5200
650F368 ED5200A
650F378 ED4200
2
Cover
650F00 x Fin ED5200
Not Available ED5200(A)
650F03 x Fin ED4200
31 650F308 ED5200(A) Strike Packet
32 650F318 ED4200 Strike Packet
33 655F718 (S02) ED5200 Rim x VR Strike
Not Shown
See Pushpad section for
Pushpad components
Pages 28 & 29
UL
STRIKE PKG.
ED5200(A)
ED4200
ED5200(A)
STRIKE PKG.
ED4200
ED4200
HUB POSITION
ED5200(A)
HUB
POSITION
ED4000, ED5000 Parts Manual

5
ED4200M(A) Rim Exit Device
See Pushpad section for
Pushpad components
Pages 28 & 29
Item Part No. Description
1
Latch Assembly
650F378 ED4200M
756F008 ED4200MA
2650F03 x Fin Cover ED4200M only
Not Available Cover ED4200MA
31 650F308 ED4200M(A) Strike Packet
STRIKE PKG.
ED4200M(A)
HUB
POSITION
ED4000, ED5000 Parts Manual

6
ED5200S(A), ED4200S Rim Exit Device
See Pushpad section for
Pushpad components
Pages 28 & 29
Item Part No. Description
1
Latch Assembly
681F608 ED5200S, ED5200SA
681F618 ED4200S
2
Cover
681F62 x Fin ED5200S
Not Available ED5200SA
681F63 x Fin ED4200S
30 730F778 ED5200S(A) Strike Packet
31 650F318 ED4200S Strike Packet
33 655F718 ED5200S Rim x VR Strike (S02)
Not Shown
UL
STRIKE PKG.
ED5200S(A)
ED5200S(A)
ED4200S
STRIKE PKG.
ED4200S
ED4200S
HUB POSITION
ED5200S(A)
HUB
POSITION
ED4000, ED5000 Parts Manual

Item Part No. Description
1 Latch Assembly
681F618 ED4200SM(A)
2 Cover
681F63 x Fin ED4200SM
30 730F778 ED4200SM(A) Strike Packet
7
ED4200SM(A) Rim Exit Device
See Pushpad section for
Pushpad components
Pages 28 & 29
STRIKE PKG.
ED4200SM(A)
ED4200SM(A)
HUB
POSITION
ED4000, ED5000 Parts Manual

8
ED4400, ED5400(A)
Surface Vertical Rod
Item Part No. Description
1
Active Head
650F388 ED5400, ED5400A RHR
650F398 ED5400, ED5400A LHR
650F408 ED4400 RHR
650F418 ED4400 LHR
2
Cover
650F01 x Fin ED5400
Not Available ED5400A
650F04 x Fin ED4400
3 650F298 x Fin Sex Nut Pack (2) required
23 704F63 x Fin
Screw Packet, Cover
#8-32 x 5/16"
UFPHMS (5)
32 650F64 x Fin Cover, Top & Bottom
Latches (2)
33
Top Latch
650F558 ED5400, ED4400
650F568 ED5400A
Item Part No. Description
34
650F578 SVR Pack
Consists of the following:
Top Mtg. Plate
Bottom Mtg. Plate
Top Rod Connector
Rod Connecting Pin
Drill Jig
Floor Bolt
650F548 Strike -
Latch Mounting Screw Packet
Top Strike Packet
35
Bottom Bolt Case
650F588 ED5400, ED4400
650F598 ED5400A
36 650F60 x Fin Top Rod
37 649F99 x Fin Bottom Rod Assembly
39 650F62 x Fin Rod Guide Packet
40 650F978 Pillow Block Packet ED4400
41 675F99 x Fin Rod Guide Cover (2)
42 654F208 Wood Screw Packet
Not Shown
UL
ED4000, ED5000 Parts Manual

9
ED4400, ED5400(A)
Surface Vertical Rod
See Pushpad section for
Pushpad components
Pages 28 & 29
STRIKE PACKET
ED4000, ED5000 Parts Manual
STRIKE PKG.
PART OF
ITEM 34
41
ED4400
ED4400
HUB POSITION
ED5400(A)
HUB
POSITION

10
ED4400M(A) Surface Vertical Rod
Item Part No. Description
1
Active Head
650F408 ED4400M(A)
(Must Specify Hand)
2
Cover
650F04 x Fin ED4400M
Not Available ED4400M(A)
3 650F298 Sex Nut Pack (4) 2 required
Fire Rated Only or M54 option
23 704F63 x Fin
Screw Packet, Cover
#8-32 x 5/16"
UFPHMS (5)
32 650F64 x Fin Cover, Top & Bottom Latches (2)
33
Top Latch
650F558 ED4400M
650F568 ED4400MA
34
650F578 SVR Pack
Consists of the following:
Top Mtg. Plate
Bottom Mtg. Plate
Top Rod Connector
Rod Connecting Pin
Drill Jig
Floor Bolt
Strike
Latch Mounting Screw Pack
652F298 Sex Nut Pack (4) Fire Rated Only
650F548 Top Strike Packet
Item Part No. Description
35
Bottom Bolt Case
650F588 ED4400M
650F598 ED4400M(A)
36 650F60 x Fin Top Rod
37 649F99 x Fin Bottom Rod Assembly
39 650F62 x Fin
Rod Guide Packet
Consists of the following:
Guide, Rod (1)
Screw, #8 x 1/2 (2) RPHMS (4)
Screw, #8-32 x 1/4" (2)
FPHMS (4)
40 675F99 x Fin Rod Guide Cover (2)
41 654F208 Wood Screw Packet
Not Shown
ED4000, ED5000 Parts Manual
UL

11
ED4400M(A) Surface Vertical Rod
See Pushpad section for
Pushpad components
Pages 28 & 29
STRIKE
PACKET
ED4000, ED5000 Parts Manual
(2) REQUIRED
40
ED4400M(A)
HUB POSITION

12
ED5470(B) Surface Vertical Rod
Item Part No. Description
1 Active Head
650F388 ED5470(B) RHR
650F398 ED5470(B) LHR
2
Cover
650F01 x Fin ED5470
Not Available ED5470B
3 652F298 Sex Nut Pack (4) (Fire Rated Only)
or M54 Quick Code
4 684F42 x Fin Rod Extension Assy., 24"
5 655F17 x Fin Rod Extension Assy., 12"
23 704F63 x Fin
Screw Packet, Cover
#8-32 x 5/16"
UFPHMS (5)
32 650F64 x Fin Cover, Top & Bottom Latches (2)
33
Top Latch
650F558 ED5470
650F568 ED5470B
34
697F978 SVR Pack
Consists of the following:
Top Mtg. Plate
Bottom Mtg. Plate
Top Rod Connector
Rod Connecting Pin
Drill Jig
Floor Bolt
Strike
Latch Mounting Screw Pack
Latch Mounting Screw (4)
(Wood Door Panic)
681F708 Top Strike Packet
Item Part No. Description
35
Bottom Bolt Case
650F588 ED5470
650F598 ED5470B
36 650F60 x Fin Top Rod
37 649F99 x Fin Bottom Rod Assembly
39 650F62 x Fin Rod Guide Packet
40 675F99 x Fin Rod Guide Cover (2-covers)
41 654F208 Wood Screw Packet
Not Shown
ED4000, ED5000 Parts Manual
UL

13
ED5470(B) Surface Vertical Rod
See Pushpad section for
Pushpad components
Pages 28 & 29
STRIKE
PACKET
ED4000, ED5000 Parts Manual
ED5470(B)
HUB
POSITION
40

14
ED5470(B) x M55 (Less Bottom Rod)
Surface Vertical Rod
Item Part No. Description
1 Active Head
650F388 ED5470(B) RHR
650F398 ED5470(B) LHL
2
Cover
650F01 x Fin ED5470
Not Available ED5470B
3 652F298 Sex Nut Pack (4), Fire Only
& M54
4 684F42 x Fin Rod Extension Assy., 24"
5 655F17 x Fin Rod Extension Assy., 12"
23 704F63 x Fin
Screw Packet, Cover
#8-32 x 5/16"
UFPHMS (5)
32 650F64 x Fin Cover, Top & Latch
33 650F558 Top Latch, ED5470
650F568 Top Latch, ED5470B
Item Part No. Description
34
654F158 SVR Pack
Consists of the following:
Top Mtg. Plate
Top Rod Connector
Rod Connecting Pin
Drill Jig
Latch Mounting Screw Pack
Latch MountingScrew(2)
(wood doors, panic)
681F708 Top Strike Packet
36 650F60 x Fin Top Rod
39
650F62 x Fin Rod Guide Packet
Consists of the following:
Guide, Rod (1)
Cover, Rod Guide (1)
Screw, #8 x 1/2 (2) RPHMS (4)
Screw, #8-32 x 1/4" (2) FPHMS (4)
55 744F688 x Fin Popper Packet [Fire Rated (B) Only]
40 675F99 x Fin Rod Guide Cover
41 654F208 Wood Screw Packet
Not Shown
ED4000, ED5000 Parts Manual

15
ED5470(B) x M55 (Less Bottom Rod)
Surface Vertical Rod
See Pushpad section for
Pushpad components
Pages 28 & 29
STRIKE
PACKET
ED4000, ED5000 Parts Manual
ED5470(B)
HUB
POSITION

16
ED4800, ED5800(A)
Concealed Vertical Rod
Item Part No. Description
1
Active Head
650F438 ED5800(A) RHR
650F448 ED5800(A) LHR
650F458 ED4800 RHR
650F468 ED4800 LHR
2
Cover, Latch Assembly
650F02 x Fin ED5800
Not Available ED5800A
650F05 x Fin ED4800
35
Bottom Bolt Case
650F748 ED5800
650F758 ED5800A
650F768 ED4800
36 650F808 Top Rod
46
707F268 CVR Pack for ED5800(A) & ED4800
Consists of the following:
Floor Bolt
Strike
650F548 Top Strike Packet
Pin, Rod Yoke (2)
Set Screw, Yoke Pin
Cotter Pin (5)
Ring, Retaining (2)
2" Temp Screw (2)
Screw Pack
47
Top Latch & Bracket Assembly
650F718 ED5800
650F728 ED5800A
650F738 ED4800
49 650F798 Bottom Rod & Coupler Assembly
51 650F818 Top Rod Tube
52 707F257 Arm & Bracket Assy (2)
53 654F208 Wood Screw Packet
Not Shown
ED4000, ED5000 Parts Manual

17
ED4800, ED5800(A)
Concealed Vertical Rod
See Pushpad section for
Pushpad components
Pages 28 & 29
STRIKE
PACKET
ED4000, ED5000 Parts Manual
ED5800(A) LATCH
BRACKETS FOR
METAL DOORS
ED5800(A) &
ED4800
ED4800
HUB POSITION
ED5800(B)
HUB
POSITION

18
ED4800M(A)
Concealed Vertical Rod
Item Part No. Description
1
Active Head
650F458 ED4800M(A) RHR
650F468 ED4800M(A) LHR
2
Cover, Latch Assembly
650F05 x Fin ED4800M
Not Available ED4800MA
35
Bottom Bolt Case
650F748 ED4800M
650F758 ED4800MA
36 650F808 Top Rod
46
707F268 CVR Pack
Consists of the following:
Floor Bolt
Strike
650F548 Top Strike Packet
Pin, Rod Yoke (2)
Set Screw, Yoke Pin
Cotter Pin (5)
Ring, Retaining (2)
Screw Pack
2" Temp Screw (2)
47
Top Latch & Bracket Assembly
650F748 ED4800M
650F758 ED4800MA
49 650F798 Bottom Rod & Coupler Assembly
51 650F818 Top Rod Tube
52 707F257 Arm & Bracket Assy (2)
53 654F208 Wood Screw Packet
Not Shown
UL
ED4000, ED5000 Parts Manual

19
ED4800M(A)
Concealed Vertical Rod
See Pushpad section for
Pushpad components
Pages 28 & 29
STRIKE
PACKET
ED4000, ED5000 Parts Manual
TOP STRIKE
PACKET PART OF
CVR PACK ITEM
46
ED4200M(A)
LATCH BRACKETS
FOR METAL
DOORS
ED4800M(A)
HUB
POSITION

20
ED5860(B) Concealed Vertical Rod
Item Part No. Description
1
Latch Case Assembly
650F438 ED5860(B) RHR
650F448 ED5860(B) LHR
2
Cover, Latch Assembly
650F02 x Fin ED5860
Not Available ED5860B
35 650F748 Bottom Bolt Case ED5860
650F758 Bottom Bolt Case ED5860B
36 650F808 Top Rod
37
Rod Extension Assembly
655F17 x Fin 12" Rod Assembly
684F42 x Fin 24" Rod Assembly
46
698F048 CVR Pack
Consists of the following:
Floor Bolt
Strike
681F778 Top Strike Packet
Pin, Rod Yoke (2)
Set Screw, Yoke Pin
Yoke Pin Spacer (2)
Cotter Pin (5)
Ring, Retaining (2)
Screw Pack
2" Temp Screw (2)
49 650F798 Bottom Rod & Coupler Assembly
51 650F818 Top Rod Tube
52 707F257 Arm & Bracket Assy. (2)
53 654F208 Wood Screw Packet
Not Shown
UL
ED4000, ED5000 Parts Manual

21
ED5860(B) Concealed Vertical Rod
See Pushpad section for
Pushpad components
Pages 28 & 29
STRIKE PACKET
ED4000, ED5000 Parts Manual

22
Item Part No. Description
1
Latch Case Assembly
650F438 ED5860(B) RHR
650F448 ED5860(B) LHR
2
Cover, Latch Assembly
650F02 x Fin ED5860
Not Available ED5860B
36 650F808 Top Rod
37
Rod Extension Assembly
655F17 x Fin 12" Rod Assembly
684F42 x Fin 24" Rod Assembly
46
698F058 CVR Pack
Consists of the following:
681F778 Top Strike Packet
Pin, Rod Yoke (1)
Set Screw, Yoke Pin
Yoke Pin Spacer (1)
Cotter Pin (3)
Ring, Retaining (1)
Screw, 10-24 x 1/2 FHM-PH (6)
8x32x2 Temp Screw (1)
47 681F768 Top Latch & Bracket Assembly,
ED5860(B)
51 650F818 Top Rod Tube
52 707F257 Arm & Bracket Assembly (1)
55 744F688 Popper Pack (Fire Rated Only)
56 654F208 Wood Screw Packet
Not Shown
UL
ED4000, ED5000 Parts Manual
ED5860(B) x M55 (Less Bottom Rod)
Concealed Vertical Rod

23
See Pushpad section for
Pushpad components
Pages 28 & 29
STRIKE
PACKET
ED4000, ED5000 Parts Manual
ED5860(B) x M55 (Less Bottom Rod)
Concealed Vertical Rod

24
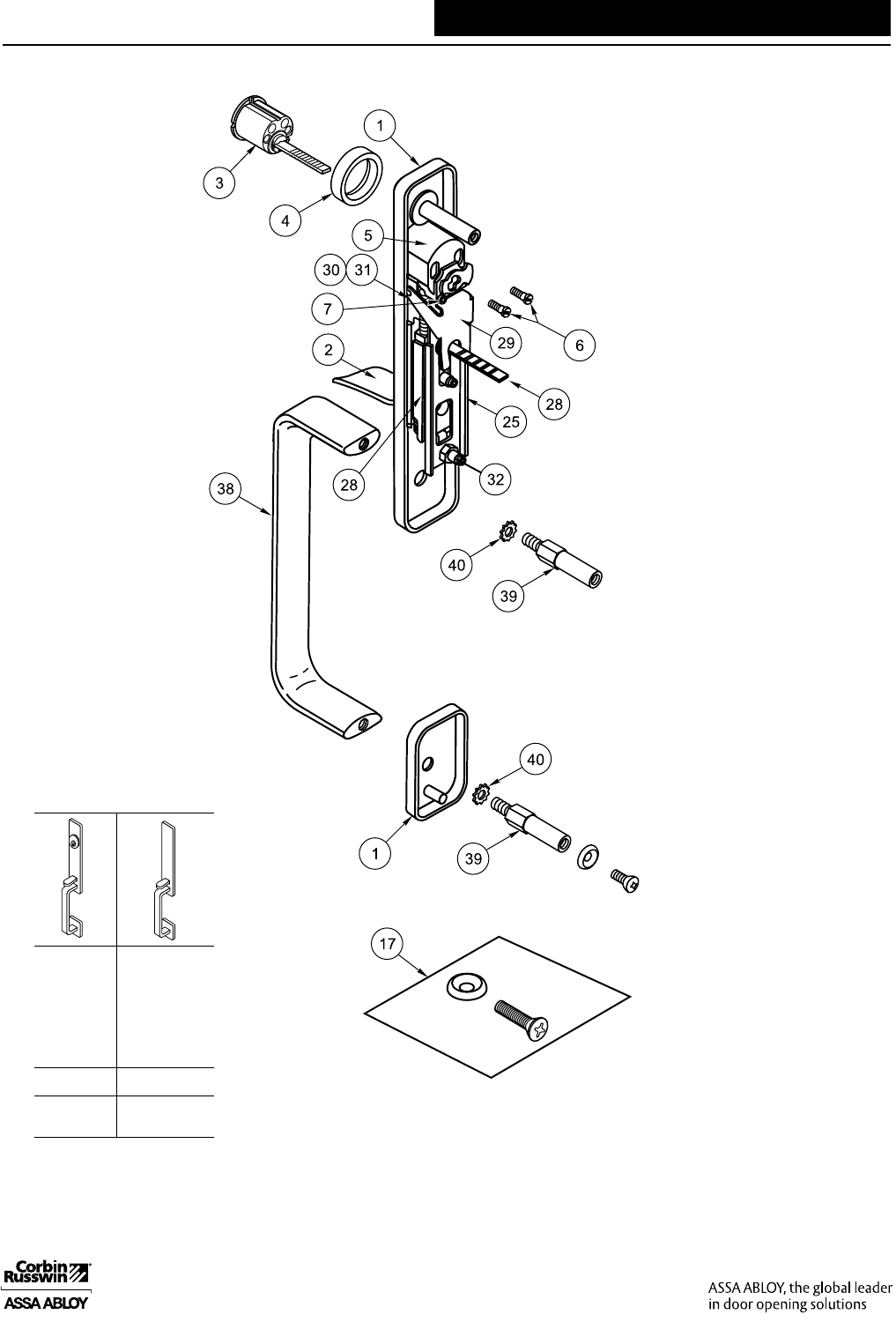
ED5600(A), ED5602(A) Mortise
Exit Device
Item Part No. Description
1
706F098 Active Head ED5602(A) RHR
706F108 Active Head ED5602(A) LHR
650F428 ED5600(A)
2
706F15 Cover ED5602 RHR
706F16 Cover ED5602 LHR
650F02 x Fin ED5600
Not Available ED5600A
42
Mortise Lock Body Specify Hand
678F008 x Hand ED5600T(A)
650F678 x Hand ED5657K(A), ED5657T(A), ED5657K(A)
655F488 x Hand ED5600K(A)
655F698 x Hand ED5600L(A)
43 650F06 x Fin Armored Front
45 650L657020622 Strike Packet
46 706F485 Cylinder Housing ED5602(A) Not Shown
47 706F462 Mortise Cylinder Adapter ED5602(A)
Not Shown
48
429F41 x Fin Mounting Pack Not Shown
Screw, 8-32 x 1/4 UFPHMS (2)
Screw, #12/12-24 Comb.UFPHMS (2) & Cyl
49
Open Back Strike - Optional Not Shown
653L163016 622 Straight Lip 1-3/4 Door
653L183016 622 Curved Lip 1-3/4 Door
50 654F208 Wood Screw Packet
Not Shown
ED4000, ED5000 Parts Manual

25
ED5600(A), ED5602(A) Mortise
Exit Device
48
45
See Pushpad section for
Pushpad components
Pages 28 & 29
ED4000, ED5000 Parts Manual

26
ED5000DB Dummy Bar
Item Part No. Description
4 650F21 x Fin Bottom Rail, 48"
5 650F93 x Fin Cover
7 650F998 Carrier Bar
11 704F642 x Fin End Cap (2)
21
704F648 Device Mounting Pack (2)
Consists of the following:
End Clamp
Screw, 1/4-20 X 1 PPHMS
22 704F63 x Fin Packet, Cover Screw
23 654F208 Wood Screw Packet
Not Shown
ED4000, ED5000 Parts Manual

27
ED5000DB Dummy Bar ED4000, ED5000 Parts Manual
22

28
Pushpad Parts List
Item Part No. Description
1 See specific
devices - Active Heads
2 See specific
devices - Active Heads Covers
3
Bottom Rail
691F16 Fin 24" ED4000
656F75 Fin 24" ED5000
650F20 FIn 36" ED4000
650F19 Fin 36" ED5000
650F21 Fin 48" ED4000, ED5000, ED5000DB
5
Bar & Carrier Assembly
691F148 24" ED4000
656F768 24" ED5000
650F238 36" ED4000
650F228 36" ED5000
650F248 48" ED4000, ED5000
650F998 48” ED5000DB
6
Cover, Bar
656F72 Fin 24" ED4000, ED5000
650F07 Fin 36" ED4000, ED5000
650F08 Fin 48" ED4000, ED5000
676F29 Fin 24" ED4000, ED5000 Embossed (M22)
656F69 Fin 36" ED4000, ED5000 Embossed (M22)
656F70 Fin 48" ED4000, ED5000 Embossed (M22)
710F797 24" ED4000, ED5000 Photoluminescent (M49)
710F737 36" ED4000, ED5000 Photoluminescent (M49)
710F747 48" ED4000, ED5000 Photoluminescent (M49)
7
Cover, End
691F15 Fin 24" ED4000 Hexkey Dogging
691F17 Fin 24" ED4000 Cylinder Dogging
656F73 Fin 24" ED5000 Hexkey Dogging
656F74 Fin 24" ED5000 Cylinder Dogging
650F13 Fin 36" ED4000 Hexkey Dogging
650F14 Fin 36" ED4000 Cylinder Dogging
650F11 Fin 36" ED5000 Hexkey Dogging
650F12 Fin 36" ED5000 Cylinder Dogging
650F15 Fin 48" ED4000, ED5000 Hexkey Dogging
650F16 Fin 48" ED4000, ED5000 Cylinder Dogging
650F93 Fin 48" ED5000DB
8 711F685
622 Touch Pad Cap, Front
9 710F495
622 Touch Pad Cap, Rear
10 650F189 Bar Cap, Black Nylon
11 704F62 Fin End Cap
12
Trim Slide
650F489 All Except Mortise
N/A Mortise Trim Slide (attached to Active Head)
13
Trim Slide Retainer
650F489 All Except Mortise
694F848 Mortise Trim Slide Retainer
ED4000, ED5000 Parts Manual
Item Part No. Description
14
Dogging Assembly
650F528 HexKey (Standard)
650F968 Cylinder Dogging
15 656F408 Dogging Key (5/32" Hex)
16 650F279 Dogging Hole Plug
17 697F862 Cylinder Nut
18 650F959 Cylinder Spacer
19
Collar, Dogging Cylinder
None Required 1 1/8" Cylinder
270F15 x Fin 1-1/4" Cylinder
610F02 x Fin 1-3/8" Cylinder
654F07 x Fin 1-1/2" Cylinder
20 Cylinder Dogging Cylinder
As Ordered Mortise Cylinder x A02 Cam
21
End Clamp Packet
704F648 All except SecureBolt
704F658 SecureBolt Devices
22 650F288 622 Screw, Pushpad Caps (4)
23 704F63 Fin Screw Pack, Ecn Cap & Active Head Cover
#8-32 x 5/8" PHT-PH
24 711F608 Screw Dogging Assembly (2)
#10-32 x 1/2" PHT-PH (1)
25 650F508 Screw, Trim Slide
#8-32 x 1/2" FHT-PH (1)
26 650F518 Screw, Active Head to Carrier
#8-32 x 1/4" PHT-C-PH (2)
28 650F298 Fin Sex Nut Packet (4-SNB’s) ED5200(A) S
681F698 Fin SecureBolt (6SNB’s) ED5200SA
56 704F888 High Impact End Clamp (M109) Optional

29
Pushpad
56
ED4000, ED5000 Parts Manual
23
ED5000
HUB
POSITION
ED4000,
ED4000M
(F) HUB
POSITION

30
*910, *950, *955, *959 Trim
Item Part No. Description
1
Escutcheon Assembly
(All other knobs/levers)
783F055 x Fin *910
733F44 x Fin *910, *950
783F06 x Fin *955, *959
Escutcheon Assembly
(Muséo Levers)
733F48 x Fin *910
733F53 x Fin *950
733F50 x Fin *955, *959
2
Lever and Spindle (non-Muséo)
677F04 X Fin Lustra
677F05 X Fin Newport
677F13 X Fin Essex
677F14 X Fin Regis
677F15 X Fin Citation
677F16 X Fin Armstrong
677F26 X Fin Dirke RHR
677F27 X Fin Dirke LHR
677F28 X Fin Princeton
698F31 X Fin Tuscany
698F32 X Fin Merlot
698F64 X Fin Frascati RHR
698F66 X Fin Frascati LHR
698F68 X Fin Zinfandel RHR
698F70 X Fin Zinfandel LHR
Knob & Spindle SA
656F45 X Fin Global
See Page 62 Muséo Levers
3See Pages 63-64 Rim Cylinder
5 651F675 Cylinder Housing (*955, *959)
6 655F028 Screw Cylinder Mounting (2)
7Included with
Cylinder Housing
Function Selector Screw
(*955, *959)
9 651F508 Screw, Tailpiece Plate (2)
ED4000, ED5000 Parts Manual
Item Part No. Description
10
Tailpiece Assembly
677F068 1 3/4" Door w/o Shim Kit
655F708 2 -21/4" Door or Std. Door w/Shim Kit
701F648 2 1/2"-3 1/2" Door
701F658 3 1/2"-4 1/2"
11
Gear, Drive
651F648 Lever
677F258 Knob
12 677F085 Hub, Spring Retaining
14 677F098 Cotter Pin
15 677F078 Nut, Spindle
16
Bushing, Nylon
677F029 Lever (All except Muséo)
651F389 Knob
806F069 Lever - Muséo
17
Screw Pkt., Mtg.
652F128 x Fin 1 3/4"-2" Doors
652F138 x Fin 2"-2 1/4" Doors
18
Torsion Springs Not Shown
651F618 Lever, LHR (Red)
651F628 Lever RHR (Blue)
651F758 Knob
19 651F408 Compression Spring (Under tailpiece)
21 651F708 Bushing, Spacer
27 651F768 Groove Pin (Knob Only)

31
*910, *950, *955, *959 Trim
14
11
18
12
21
15
27
17
9
10
6
19
5
7
3
1
2
16
ED4000, ED5000 Parts Manual

32
*957 Trim
Item Part No. Description
1
Escutcheon Assy. 623F, 627F
733F47 x Fin Standard
733F52 x Fin Muséo
2
Lever and Spindle (non-Muséo)
677F04 X Fin Lustra
677F05 X Fin Newport
677F13 X Fin Essex
677F14 X Fin Regis
677F15 X Fin Citation
677F16 X Fin Armstrong
677F26 X Fin Dirke RHR
677F27 X Fin Dirke LHR
677F28 X Fin Princeton
698F31 X Fin Tuscany
698F32 X Fin Merlot
698F64 X Fin Frascati RHR
698F66 X Fin Frascati LHR
698F68 X Fin Zinfandel RHR
698F70 X Fin Zinfandel LHR
Knob & Spindle SA
656F45 X Fin Global
See Page 62 Muséo Levers
ED4000, ED5000 Parts Manual
3See Pages 63-64 Cylinder, Rim
5 651F425 Housing, Cylinder
6 655F028 Screw, Cylinder Mounting (2)
11 651F648 Gear, Drive
12 677F085 Spring Retainer Hub
14 677F098 Cotter Pin
15 677F078 Nut, Spindle
16 677F029 Bushing Lever
17
Screw Packet, Mtg.
652F128 x Fin 1-3/4" - 2" Doors
652F138 x Fin 2-1/4" Doors
18
Spring, Grip Return
651F758 Knob
651F628 Lever Return Spring RHR
651F618 Lever Return Spring LHR
27 651F768 Groove Pin (Knob Only)

33
*957 Trim
14
11
18
12
21
15
27
17
6
5
3
1
2
16
ED4000, ED5000 Parts Manual

34
*9M10, *9M50, *9M55,
*9M57 Trim
Item Part No. Description
1
Escutcheon Assembly
733F45 x Fin Cylinder x Lever or Knob
733F43 x Fin Blank x Lever or Knob
Escutcheon Assembly Muséo
733F51 x Fin Lever & Cylinder Hole
733F49 x Fin Lever Hole Only
2
653F50 x Fin Essex
653F53 x Fin Lustra
653F56 x Fin Regis
653F59 x Fin Citation
653F62 x Fin Dirke RHR
653F65 x Fin Dirke LHR
653F68 x Fin Newport
653F71 x Fin Armstrong
653F74 x Fin Princeton
698F32 x Fin Tuscany
698F34 x Fin Merlot
698F65 x Fin Frascati RHR
698F67 x Fin Frascati LHR
698F69 x Fin Zinfandel RHR
698F71 x Fin Zinfandel LHR
See Page 62 Muséo Levers
ED4000, ED5000 Parts Manual
Item Part No. Description
3See Pages 63-64 Cylinder, Mortise*
11 651F648 Gear
14 677F098 Cotter Pin
15 698F088 Nut, Spindle
16
Thimble Insert, Nylon
677F029 Levers
651F389 Knob
806F069 Muséo
17
Screw Packet, Mtg.
652F128 x Fin 1-3/4" - 2" Doors
652F138 x Fin 2-1/4" Doors
Consists of the following:
Screw, 1/4-20 x 1 OPHMS (2)
Washer, #14 Finish (2)
25 Spindle
698F108 1-3/4" - 2-1/4"

*9M10, *9M50, *9M55,
*9M57 Trim ED4000, ED5000 Parts Manual
35
14
11
15
17
25
3
1
2
16

F950, F957, F9M57 Trim ED4000, ED5000 Parts Manual
Item Part No. Description
1
Escutcheon Assembly
733F41 x Fin F950
733F42 x Fin F957
733F46 x Fin F9M57
3See Pages 63-64 Cylinder, Rim or Mortise
5 651F425 Housing, Cylinder F957
6 655F028 Screw, Cylinder F957 Mounting (2)
17
Screw Packet, Mtg.
651F128 x Fin 1-3/4"- 2" DOor
651F138 x Fin 2-1/4" Door
Consists of the following:
Screw, 1/4-20 x 1 OPHMS (2)
Washer, #14 Finish (2)
36

37
F950, F957, F9M57 Trim ED4000, ED5000 Parts Manual
17
6
5
3
1
5
(EO)
Blank Plate
(NL) Access
by Key
(NL)
Access by
Key
01 03 07
F950 F957 F9M57

*910, *950, *955, *959
Parabolic Trim ED4000, ED5000 Parts Manual
38
Item Part No. Description
1
Parabolic Escutcheon
(All other knobs/levers)
708F26 x Fin *910, *950
708F23 x Fin *955, *959
Parabolic Escutcheon
(Muséo Levers)
806F03 x Fin *910, *950
806F04 x Fin *955, *959
2
Lever and Spindle (non-Muséo)
677F04 X Fin Lustra
677F05 X Fin Newport
677F13 X Fin Essex
677F14 X Fin Regis
677F15 X Fin Citation
677F16 X Fin Armstrong
677F26 X Fin Dirke RHR
677F27 X Fin Dirke LHR
677F28 X Fin Princeton
698F31 X Fin Tuscany
698F32 X Fin Merlot
698F64 X Fin Frascati RHR
698F66 X Fin Frascati LHR
698F68 X Fin Zinfandel RHR
698F70 X Fin Zinfandel LHR
Knob & Spindle SA
656F45 X Fin Global
See Page 62 Muséo Levers
3See Pages 63-64 Rim Cylinder
5 651F675 Cylinder Housing (*955, *959)
6 655F028 Screw Cylinder Mounting (2)
7Included with
Cylinder Housing
Function Selector Screw
(*955, *959)
9 651F508 Screw, Tailpiece Plate (2)
Item Part No. Description
10
Tailpiece Assembly
677F068 1 3/4" Door w/o Shim Kit
655F708 2 -21/4" Door or Std. Door w/Shim Kit
701F648 2 1/2"-3 1/2" Door
701F658 3 1/2"-4 1/2"
11
Gear, Drive
651F648 Lever
677F258 Knob
12 677F085 Hub, Spring Retaining
14 677F098 Cotter Pin
15 677F078 Nut, Spindle
16
Bushing, Nylon
677F029 Lever (All except Muséo)
651F389 Knob
806F069 Lever - Muséo
17
Screw Pkt., Mtg.
652F128 x Fin 1 3/4"-2" Doors
652F138 x Fin 2"-2 1/4" Doors
18
Torsion Springs
651F618 Lever, LHR (Red)
651F628 Lever RHR (Blue)
651F758 Knob
19 651F408 Compression Spring (Under tailpiece)
20 651F398 Hex Nut Bushing for Spring
21 651F708 Bushing, Spacer
22 783F048 Threaded Post (4)
24 677F128 Set Screw (1) 1/4"-20 x 1"
26 677F118 Set Screw (10 1/4"-20 x 5/8"
(hex nut bushing)
27 651F768 Groove Pin (Knob Only)

ED4000, ED5000 Parts Manual
39
*910, *950, *955, *959
Parabolic Trim
14
11
18
12
21
15
27
17
9
10
6
19
5
7
3
1
2
16
20
21
22
24
8
26

*957 Parabolic Trim ED4000, ED5000 Parts Manual
40
Item Part No. Description
1708F25 x Fin Standard Parabolic Escutcheon
806F05 x Fin Muséo Parabolic Escutcheon
2
Lever and Spindle (non-Muséo)
677F04 X Fin Lustra
677F05 X Fin Newport
677F13 X Fin Essex
677F14 X Fin Regis
677F15 X Fin Citation
677F16 X Fin Armstrong
677F26 X Fin Dirke RHR
677F27 X Fin Dirke LHR
677F28 X Fin Princeton
698F31 X Fin Tuscany
698F32 X Fin Merlot
698F64 X Fin Frascati RHR
698F66 X Fin Frascati LHR
698F68 X Fin Zinfandel RHR
698F70 X Fin Zinfandel LHR
Knob & Spindle SA
656F45 X Fin Global
See Page 62 Muséo Levers
3See Pages
63-64 Cylinder, Rim
5 651F425 Housing, Cylinder
6 655F028 Screw, Cylinder Mounting (2)
11 651F648 Gear, Drive
12 677F085 Spring Retainer Hub
14 677F098 Cotter Pin
15 677F078 Nut, Spindle
16 677F029 Bushing Lever
17
Screw Packet, Mtg.
652F128 x Fin 1-3/4" - 2" Doors
652F138 x Fin 2-1/4" Doors
18
Spring, Grip Return
651F758 Knob
651F628 Lever Return Spring RHR
651F618 Lever Return Spring LHR
22 783F048 Threaded Post (4)
24 677F128 Set screw (1) 1/4"-2Dx1"
27 651F768 Groove Pin (Knob Only)
Not Shown

ED4000, ED5000 Parts Manual
41
*957 Parabolic Trim
14
11
18
12
15
17
6
5
7
3
1
2
16
22
21
22
24

*9M10, *9M50, *9M55,
*9M57 Parabolic Trim ED4000, ED5000 Parts Manual
42
Item Part No. Description
1
Parabolic Escutcheon Assembly
708F23 x Fin Cylinder x Lever
708F26 x Fin Blank x Lever
Parabolic Escutcheon Muséo
806F04 x Fin Lever & Cylinder Hole
806F03 x Fin Lever Hole Only
2
653F50 x Fin Essex
653F53 x Fin Lustra
653F56 x Fin Regis
653F59 x Fin Citation
653F62 x Fin Dirke RHR
653F65 x Fin Dirke LHR
653F68 x Fin Newport
653F71 x Fin Armstrong
653F74 x Fin Princeton
698F32 x Fin Tuscany
698F34 x Fin Merlot
698F65 x Fin Frascati RHR
698F67 x Fin Frascati LHR
698F69 x Fin Zinfandel RHR
698F71 x Fin Zinfandel LHR
See Page 62 Muséo Levers
Item Part No. Description
3See Pages 63-64 Cylinder, Mortise
11 651F648 Gear
14 677F098 Cotter Pin
15 698F088 Nut, Spindle
16
Thimble Insert, Nylon
677F029 Levers
651F389 Knob
806F069 Muséo
17
Screw Packet, Mtg.
652F128 x Fin 1-3/4" - 2" Doors
652F138 x Fin 2-1/4" Doors
Consists of the following:
Screw, 1/4-20 x 1 OPHMS (2)
Washer, #14 Finish (2)
22 783F048 Threaded Post (4)
25 Spindle
698F108 1-3/4" - 2-1/4"

ED4000, ED5000 Parts Manual
43
*9M10, *9M50, *9M55,
*9M57 Parabolic Trim
14
11
15 17
3
1
2
16
25
22
22

F950, F957, F9M5
Parabolic Trim ED4000, ED5000 Parts Manual
44
Item Part No. Description
1
Parabolic Escutcheon
708F20 x Fin F950
708F24 x Fin F957
708F22 x Fin F9M57
3See Pages 63-64 Cylinder, Rim or Mortise
5 651F425 Housing, Cylinder F957
6 655F028 Screw, Cylinder F957 Mounting (2)
17
Screw Packet, Mtg.
651F128 x Fin 1-3/4"- 2" DOor
651F138 x Fin 2-1/4" Door
Consists of the following:
Screw, 1/4-20 x 1 OPHMS (2)
Washer, #14 Finish (2)
22 783F048 Threaded Post (4)

ED4000, ED5000 Parts Manual
45
F950, F957, F9M5
Parabolic Trim
17
6
5
3
22
22
(EO)
Blank Plate
(NL) Access
by Key
(NL)
Access by
Key
01 03 07
F950 F957 F9M57

46
TH910, TH950, TH955, TH957,
TH959 Trim ED4000, ED5000 Parts Manual
Item Part # Description
1
566F522 x Fin Escutcheon - TH950
566F532 x Fin Escutcheon - TH910
566F542 x Fin Escutcheon - TH957
566F552 x Fin Escutcheon - TH955, TH959
2 566F50M x Fin Thumbpiece - TH910, TH955, TH959
3 566F572 x Fin Grip
4 677F118 Screw, Set 1/4-20 x 5/8 - TH910, TH955, TH959
5 566F588 Spacer, Grip - TH910, TH955, TH959
6 651F468 Thumbpiece Support Bracket - TH910, TH955, TH959
8 651F448 Lock Washer
9651F418 Screw, RHM-PH #1/4-20 x 5/8” - TH950, TH957
704F898 Screw, PHM-PH #1/4-20 x 1” - TH910, TH955, TH959
10 651F498 Thumbpiece Slider - TH910, TH955, TH959
11 651F488 Thumbpiece Pin - TH910, TH955, TH959
13 651F478 Thumbpiece Spring - TH910, TH955, TH959
14 651F545 Clutch Housing SA - TH910, TH955, TH959
15 651F398 Spring, Bushing, Comp - TH910, TH955, TH959
16 651F408 Compression Spring - TH910, TH955, TH959
17 566F598 Spindle SA - TH910, TH955, TH959
655F698 Spindle SA - TH910, TH955, TH959
18 651F508 Screw, PHT-T-PH #6 x 3/8” - TH910, TH955, TH959
19 651F438 Threaded Post
20 386F018 Retaining Ring
21
655K03MSECFIN Rim Cylinder Assembly - TH955, TH959 (Non X Class)
655K04MSECFIN Rim Cylinder Assembly - TH955, TH959 (X Class)
684K40MSECFIN Rim Cylinder Assembly - TH957 (Non X Class)
684K43MSECFIN Rim Cylinder Assembly - TH957 (X Class)
22 651F675 Cylinder Housing SA - TH955, TH959
651F425 Nightlatch Cylinder Housing - TH957
23 652F148 x Fin Screw Packet - 1-3/4” - 2” doors
652F158 x Fin Screw Packet - 2-1/4” doors
24 651F10M x Fin Bottom Escutcheon SA

47
TH910, TH950, TH955, TH957,
TH959 Trim ED4000, ED5000 Parts Manual

TH9M10, TH9M55, TH9M57 Trim ED4000, ED5000 Parts Manual
48
Item Part # Description
1
566F532 x Fin Escutcheon - TH9M10
566F552 x Fin Escutcheon - TH9M55
566F562 x Fin Escutcheon - TH9M57
2 566F51M x Fin Thumbpiece - TH9M10, TH9M55
3 566F572 x Fin Grip
5 566F588 Spacer, Grip - TH9M10, TH9M55
6 651F578 Thumbpiece Support Bracket - TH9M10, TH9M55
7 651F568 Thumbpiece Tab - TH9M10, TH9M55
8 651F448 Lock Washer
9651F418 Screw, RHM-PH #1/4-20 x 5/8" - TH9M57
704F898 Screw, PHM-PH #1/4-20 x 1" - TH9M10, TH9M55
11 651F587 Thumbpiece Pin - TH9M10, TH9M55
12 651F608 Retaining Ring - TH9M10, TH9M55
13 651F028 Mortise Thumbpiece Spring - TH9M10, TH9M55
19 651F438 Threaded Post
20 386F018 Retaining Ring
21 504K57MSECFIN Mortise Cylinder Assembly - TH9M55, TH9M57 (Non X Class)
594K24MSECFIN Mortise Cylinder Assembly - TH9M55, TH9M57 (Non X Class)
23 652F148 x Fin Screw Packet - 1-3/4” - 2” doors
652F158 x Fin Screw Packet - 2-1/4” doors
24 651F10M x Fin Bottom Escutcheon SA

ED4000, ED5000 Parts Manual
49
TH9M10, TH9M55, TH9M57 Trim

50
P950, P957, P9M57 Trim ED4000, ED5000 Parts Manual
Item Part No. Description
1
652F12 x Fin
652F13 x Fin
Screw Packet, Mtg.
1-3/4" - 2" Door
2-1/4" Door
Consists of the following:
Screw 1/4-20 x 1 OPHMS(2)
Washer #14 Finish (2)
3See Pages 63-64 Cylinder, Rim or Mortise
5 651F425 Housing, Cylinder (681F)
6 655F028 Screw, Cylinder Mtg. (2)
7
Escutcheon & Pull Assembly
711F22 x Fin P950
711F23 x Fin P957
7155F53 x Fin P9M57
Dummy
Pull Nightlatch Mortise
Nightlatch
02 03 03
P950 P957 P9M57
7

51
P1050, P1057 Trim ED4000, ED5000 Parts Manual
Dummy
Pull Nightlatch
02 03
P1050 P1057
7
6
5
1
3
Item Part No. Description
1
Screw Packet, Mtg.
Consists of the following:
652F12 x Fin Screw 1/4-20 x 1 OPHMS(2)
652F13 x Fin Washer #14 Finish (2)
3See Pages 63-64 Cylinder, Rim
5 651F425 Housing, Cylinder
6 655F028 Screw, Cylinder Mtg. (2)
7676F12 x Fin Escutcheon & Pull Assembly (P1050)
676F13 x Fin Escutcheon & Pull Assembly (P1057)

52
*810, *850, *855, *859 Trim ED4000, ED5000 Parts Manual
Item Part No. Description
1
Escutcheon Assembly
651F02 x Fin (Std. lever)
651F02 x Fin (Muséo Lever) *855, *859
651F03 x Fin (Std. lever)
651F03 x Fin (Muséo lever) *810, *850
2
677F04 X Fin Lustra
677F05 X Fin Newport
677F13 X Fin Essex
677F14 X Fin Regis
677F15 X Fin Citation
677F16 X Fin Armstrong
677F26 X Fin Dirke RHR
677F27 X Fin Dirke LHR
677F28 X Fin Princeton
698F31 X Fin Tuscany
698F32 X Fin Merlot
698F64 X Fin Frascati RHR
698F66 X Fin Frascati LHR
698F68 X Fin Zinfandel RHR
698F70 X Fin Zinfandel LHR
Knob & Spindle SA
656F45 X Fin Global
See Page 62 Muséo Levers
3See Pages 63-64 Rim Cylinder
4See Pages 63-64 Cylinder Collar
5
Housing & Cam Assembly
651F965 *855, *859, Housing, Cyl.
655F665 *810, *850
6 655F028 Screw, Cylinder Mounting
(2)
7 656F658 Screw, NL Function
16
Thimble Insert, Nylon Not
Shown
118F299 Standard
651F389 Knob
806F069 Muséo
19 651F408 Spring Under Tailpiece
Not Shown
25 651F858 Plate, Cover
26 651F948 Spring, Extension (Levers
Only)
27 651F928 Nut, Spring Post (Levers
Only)
Item Part No. Description
2
656F46 x Fin Global Knob & Spindle
Assembly
652F84 x Fin Essex
652F87 x Fin Lustram
652F90 x Fin Regis
652F93 x Fin Citation
652F96 x Fin Dirke RHR
652F99 x Fin Dirke LHR
653F02 x Fin Newport
653F05 x Fin Armstrong
653F08 x Fin Princeton
See Page 62 Muséo Levers
28
Rack & Tailpiece Assy.
Levers/Knobs
651F828 *810, *855, *859
652F218 *850
29 651F538 Lever, Clutch
30 651F838 Pin, Clutch Lever
31 651F898 Retainer, Clutch Lever
Pin (2)
32 651F888 Nut, Cover Plate (2)
Not Shown
33 652F228 Cam Not Shown
34 652F239 Bushing, Nylon
Not Shown
35 651F848 Washer, Grip Not Shown
36 651F878
Screw, 8-32 x 7/16,
Spindle
Not Shown
37
Spring, Rack (2)
651F938 Lever
651F868 Knob, Thumbturn
38
651F17 x Fin Thimble - Std. Levers
Not Shown
806F22 x Fin Thimble - Muséo Levers
Not Shown

53
*810, *850, *855, *859 Trim ED4000, ED5000 Parts Manual
Cylinder
Controls
Knob
Passage
Trim Knob
Rigid
Dummy
Knob
Cylinder
Controls
Lever
Passage
Trim Lever
Rigid
Dummy
Lever
09 -- 02 08 -- 02
G855,
G859 G810 G850 *855, *859 *810 *850
*850
*855, *859
*810

54
F450, F457, 0810, 0855,
0859 Trim ED4000, ED5000 Parts Manual
Item Part No. Description
1
Escutcheon Assembly
651F00 x Fin F450
651F01 x Fin F457
651F02 x Fin 0855, 0859
652F03 x Fin 0810
2656F53 x Fin Thumbturn / Spindle Assembly
3See Pages 63-64 Cylinder, Rim
4See Pages 63-64 Collar, Cylinder
5
Housing & Cam Assembly
651F965 0855, 0859
651F425 F457, Housing, Cylinder
6 655F028 Screw, Cylinder Mounting (2)
7 656F658 Screw, NL Function
16 651F389 Thimble Insert, Nylon Not Shown
19 651F408 Spring Under Tailpiece for 0810, 0855, 0859
Not Shown
25 651F858 Plate, Cover
28 651F878 Rack & Tailpiece Assembly
29 651F538 Lever, Clutch 0855, 0859
30 651F838 Pin, Clutch Lever 0855, 0859
31 651F898 Retainer, Clutch Lever Pin (2) 0855, 0859
32 651F888 Nut, Cover Plate (2)
33 652F228 Cam Not Shown
34 652F239 Bearing, Nylon Not Shown
35 651F848 Washer, Grip Not Shown
36 651F878 Screw, 8-32 x 7/16 Spindle Not Shown
37 651F868 Spring, Rack (2)

55
F450, F457, 0810, 0855,
0859 Trim ED4000, ED5000 Parts Manual
(EO)
Blank
Plate
(NL)
Access by
Key
Cylinder Controls
Thumbturn
Passage
Active
Turn
-- 03 11/12 --
F450 F457 0855, 0859 0810
F457
F450
0810, 0855,
0859

56
T1455, T1410, T1459 ED4000, ED5000 Parts Manual
Item Part No. Description
1
Escutcheon Assembly
651F09 x Fin T1440 Top
651F08 x Fin T1455, T1459 Top
651F10 x Fin Bottom
2566F50 x Fin Thumbpiece
3See Pages 63-64 Cylinder, Rim
4See Pages 63-64 Collar, Cylinder
5
Housing, Cylinder, Gear
655F675 T1410
655F685 T1455, T1459
6 655F028 Screw, Cylinder Mounting (2)
7 656F658 Screw, NL Function
17 652F10 x Fin 1 3/4" - 2" Door Screw Packet, Mtg.
652F11 x Fin 2-1/4" Door Screw Packet, Mtg.
Consists of the following:
Screw, 1/4-20 x 1 OPHMS (1)
Washer, #14 Finish (1)
19 Spring Under Tailpiece T1455, T1459, T1410 Not Shown
25 651F858 Plate, Cover
28 695F608 Rack & Tailpiece Assy
29 651F538 Lever, Clutch T1455, T1459
30 651F838 Pin, Clutch Lever T1455, T1459
31 651F898 Retainer, Clutch Lever Pin (2)T1455, T1459
32 651F888 Nut, Cover Plate (2)
37 651F868 Spring, Rack (2) Not Shown
38 651F37 x Fin Pull, Offset
39 651F438 Screw Post (2)
40 651F448 Lockwasher, Screw (2)
50 651F988 Pin, 5/32 x 1-1/8, Groove Not Shown

57
T1455, T1410, T1459 Trim ED4000, ED5000 Parts Manual
Cylinder
Controls
T-Piece
Passage
Active
T-Piece
05/06 --
T1455,
T1459 T1410

58
01455, 01459, 01410 Trim ED4000, ED5000 Parts Manual
Item Part No. Description
1
Escutcheon Assembly
656F63 x Fin 01455, 01459 top
656F62 x Fin 01410 Top
651F10 x Fin Bottom
2656F53 x Fin Thumbturn/Spindle Assy.
3See Pages 63-64 Cylinder, Rim
4See Pages 63-64 Collar, Cylinder
5
Housing , Cylinder
655F685 01455, 01459
655F675 01410
6 655F028 Screw, Cylinder Mounting (2)
7 656F658 Screw, NL Function
16 651F389 Thimble Insert, Nylon Not Shown
17
Screw Packet, Mtg.
652F108 x Fin 1-3/4" - 2” Door
652F118 x Fin 2-1/4" Door
Consists of the following:
Screw, 1/4-20 x 1 OPHMS (1)
Washer, #14 Finish (1)
19 651F408 Spring Under Tailpiece 01455, 01459 Not Shown
25 651F858 Plate, Cover
28 651F828 Rack & Tailpiece Assy
29 651F538 Lever, Clutch 01455, 01459
30 651F838 Pin, Clutch Lever 01455, 01459
31 651F898 Retainer, Clutch Lever Pin (2) 01455, 01459
32 651F888 Nut, Cover Plate (2)
33 652F228 Cam Not Shown
34 652F239 Bearing, Nylon Not Shown
35 651F848 Washer, Grip Not Shown
37 651F868 Spring, Rack (2) Not Shown
38 651F37 x Fin Pull, Offset
39 651F438 Screw Post (2)
40 651F448 Lockwasher, Screw Post (2)
50 651F958 Pin, 5/32 x 1-1/8, Groove Not Shown

59
01455, 01459, 01410 Trim ED4000, ED5000 Parts Manual
Cylinder
Controls
T-Turn
(Passage)
Active
T-Turn
11/12 --
01455,
01459 01410

60
T1450, T1457 Trim ED4000, ED5000 Parts Manual
Item Part No. Description
1
Escutcheon Assembly
651F04 x Fin T1457 Top
651F06 x Fin T1450 Top
651F10 x Fin Bottom
3See Pages 63-64 Cylinder, Rim
4See Pages 63-64 Collar, Cylinder
5 651F425 Housing, Cylinder T1457
6 655F028 Screw, Cylinder Mounting (2)
17
Screw Packet, Mtg.
652F108 x Fin 1-3/4" - 2" Door
652F118 x Fin 2-1/4" Door
Consists of the following:
Screw, 1/4-20 x 1 OPHMS (1)
Washer, #14 Finish (1)
38 651F37 x Fin Pull, Offset
39 651F438 Screw Post (2)
40 651F448 Lockwasher, Screw Post (2)

61
T1450, T1457 Trim ED4000, ED5000 Parts Manual
(NL)
Cylinder
by Pull
(DT)
Pull Plate
03 02
T1457 T1450
T1450
T1457

ED4000, ED5000 Parts Manual
62
Muséo Levers
Georgia
Part No. Description
800*02 x Fin 101
800*807 x Fin 102
800*12 x Fin 103
800*17 x Fin 104
801*72 x Fin 124
801*77 x Fin 125
Salvador
Part No. Description
800*27 x Fin 106
800*32 x Fin 107
800*37 x Fin 108
800*42 x Fin 109
800*47 x Fin 110
801*62 x Fin 123
802*02 x Fin 128
Pablo
Part No. Description
801*12 x Fin 117
801*82 x Fin 126 RHR
801*87 x Fin 126 LHR
Marc
Part No. Description
800*52 x Fin 111 RHR
800*57 x Fin 111 LHR
800*62 x Fin 112 RHR
800*67 x Fin 112 LHR
800*72 x Fin 113 RHR
800*77 x Fin 113 LHR
800*82 x Fin 114 RHR
800*87 x Fin 114 LHR
800*92 x Fin 115 RHR
800*97 x Fin 115 LHR
801*02 x Fin 116 RHR
801*07 x Fin 116 LHR
802*12 x Fin 130 RHR
802*17 x Fin 130 LHR
800*22 x Fin 131 RHR
800*827 x Fin 131 LHR
800*32 x Fin 132 RHR
800*37 x Fin 132 LHR
Jackson
Part No. Description
800*22 x Fin 105
801*27 x Fin 119 RHR
801*32 x Fin 119 LHR
801*42 x Fin 121 RHR
801*47 x Fin 121 LHR
801*52 x Fin 122 RHR
801*57 x Fin 122 LHR
801*92 x Fin 127 RHR
801*97 x Fin 127 LHR
Piet
Part No. Description
802*46 x 629 21G 29 29 29
803*56 x 629 21G 29 30 29
804*91 x 630 21G 30 30 30
804*96 x 630 21G 30 29 30
802*82 x 630 21L 30 BK 30
802*87 x 630 21L 30 BN 30
802*92 x 629 21L 29 BK 29
807*97 x 629 21L 29 BN 29
803*02 x 629 21M 29 30 29
803*07 x 630 21S 30 BK 30
803*12 x 629 21S 29 BK 30
803*17 x 630 21W 30 BH 30
803*22 x 629 21W 29 BH 29
803*27 x 629 23M 29 00 30
803*42 x 629 23M 29 00 29
803*47 x 630 23M 30 00 30
803*52 x 630 23M 30 00 29
803*32 x 629 25M 29 00 29
803*37 x 630 25M 30 00 30
804*877 x 629 27M 29 00 29
804*877 x 629 27M 30 00 30

63
Cylinders ED4000, ED5000 Parts Manual
*For K157, substitute -200
**K157 uses the 270F15 cylinder ring
900 Series Trim
Rim cylinders
900 Series Mortise
Trim
Mortise cylinders
Description Part Number Cylinder Collar
6-pin 1000-112-A02 None Required
7-pin 1000-112-A02-7 None Required
6-pin, IC 1080-112-A02 None Required
7-pin, IC 1080-112-A02-7 None Required
6-pin, IC, less core 1070-112-A02 None Required
7-pin, IC, less core 1070-112-A02-7 None Required
6-pin, Security 1010-112-A02 None Required
6-pin, Security IC 1090-112-A02 None Required
7-pin, Pyramid High Security 1020-112-A02 None Required
7-pin, Pyramid IC High Security 1030-112-A02 None Required
7-pin, Pyramid Security 1027-112-A02 None Required
7-pin, Pyramid Security IC 1037-112-A02 None Required
Description Part Number Cylinder Collar 57 Function Part Number Cylinder Collar**
6-pin 3000-058 None Required 3000-200N* None Required
7-pin 3000-058-7 422F88 3000-200-7 422F88
6-pin, IC 3080-058 422F88 3080-178 422F88
7-pin, IC 3080-058-7 686F98 3080-178-7 686F98
6-pin, IC, less core 3070-058 422F88 3070-178 422F88
7-pin, IC, less core 3070-058-7 686F98 3070-178-7 686F98
6-pin, Security 3010-058 None Required 3010-200 422F88
6-pin, Security IC 3090-058 422F88 3090-178 422F88
7-pin, Pyramid 3020-058 422F88 3020-200N 422F88
7-pin, Pyramid IC 3030-058 422F88 3030-178 422F88
7-pin, Pyramid Security 3027-058 422F88 3027-200N 422F88
7-pin, Pyramid Security 3037-058 422F88 3037-178 422F88
700 Series KRM* &
Cylinder Dogging
Mortise cylinders
Description Part Number
Cylinder
Dogging
Collars
Key Removable Mullions*
Part Number Cylinder Collar
6-pin 1000-118-A02 N/A 1000-118-A02 None Required
7-pin 1000-114-A02-7 270F15 1000-114-A02-7 None Required
6-pin, IC 1080-114-A02 270F15 1080-114-A02 None Required
7-pin, IC 1080-112-A02-7 654F07 1080-112-A02-7 447F42
6-pin, IC, less core 1070-114-A02 270F07 1070-114-A02 None Required
7-pin, IC, less core 1070-112-A02-7 654F07 1070-112-A02-7 447F42
6-pin, Security 1010-118-A02 N/A 1010-118-A02 None Required
6-pin, Security IC 1090-114-A02 270F15 1090-114-A02 None Required
7-pin, Pyramid Security 1027-114-A02 270F15 1027-114-A02 None Required
7-pin, Pyramid Security IC 1037-114-A02 270F15 1037-114-A02 None Required
7-pin, Pyramid High Security 1020-114-A02 270F15 1020-114-A02 None Required
7-pin, Pyramid IC High Security 1030-114-A02 270F15 1030-114-A02 None Required
*The 700 series key removable mullion was discontinued on January 1, 2010. The cylinders and cylinder rings are listed for reference only.
*Specify Finish
900 Series KRM
Mortise cylinders Description Part Number Quick
Code
900 Series Cylinder Collar WS700 Series Cylinder Collar
1-1/8" 1-1/4" or
1-1/4" IC 1-1/2" IC 1-1/8" 1-1/4" or
1-1/4" IC 1-1/2" IC
6-Pin 1000-118-A62 6P
610F01* 447F43* 609F37* 447F42* 610F01* 609F36*
7-Pin 1000-114-A62-7 7P
6-Pin, IC 1080-114-A62 C6
7-Pin, IC 1080-112-A62-7 C7
7-pin, Pyramid High Security 1020-114-A62 PHS
7-pin, Pyramid Security 1027-114-A62 PS
7-pin, Pyramid High Security IC 1030-114-A62 PCHS
7-pin, Pyramid Security IC 1037-114-A62 PCS
Security 1010-118-A62 HS
Security IC 1090-114-A62 CHS
6-pin, IC, less core 1070-114-A62 CL6
7-pin, IC, less core 1070-112-A62-7 CL7
900 Series KRM
Mortise cylinders

Cylinders ED4000, ED5000 Parts Manual
64
Mullion Series Cylinder Length and Type
1-1/8" 1-1/4" 1-1/4" IC 1-1/2" IC
WS707AKM
WS708AKM 447F42* 610F01* 609F36*
907BKM
908BKM
910KM
610F01* 447F43* 609F37*
Note: Cylinder collar packets contain a collar and spring washer.
*Specify finish when ordering packets.
900 Series
KRM Cylinder
Collar Packet
Description Part Number Cylinder Collar
6-pin 3000-200 270F15
7-pin 3000-200-7 654F07
6-pin, IC 3080-178 654F07
7-pin, IC 3080-178-7 654F08
6-pin, IC, less core 3070-178 654F07
7-pin, IC, less core 3070-178-7 654F08
6-pin, Security 3010-200 654F07
6-pin, Security IC 3090-178 654F07
7-pin, Pyramid 3020-200 654F07
7-pin, Pyramid IC 3030-178 654F07
7-pin, Pyramid Security 3027-200 654F07
7-pin, Pyramid Security 3037-178 654F07
Inside Cylinder For
ED5602 Double Cylinder
Exit Device
Rim cylinders
Description Part Number Cylinder Collar
6-pin 3000-138 270F15
7-pin 3000-138-7 654F07
6-pin, IC 3080-114 654F07
7-pin, IC 3080-114-7 654F08
6-pin, IC, less core 3070-114 654F07
7-pin, IC, less core 3070-114-7 654F08
6-pin, Security 3010-138 654F07
6-pin, Security IC 3090-114 654F07
7-pin, Pyramid 3020-138 654F07
7-pin, Pyramid IC 3030-114 654F07
7-pin, Pyramid Security 3027-138 654F07
7-pin, Pyramid Security 3037-114 654F07
ED5202 Double Cylinder
Exit Device
Rim cylinders
ED5202 Double Cylinder Exit Device
Rim cylinders
ED5602 Double Cylinder Exit Device
Rim cylinders
Description Part Number
Rim Thumbturn - 1-3/8" 3300 -138
Rim Thumbturn - 1-3/8" - Ergonomic 3300-138-M34
Rim Thumbturn - 2" 3300-200
Rim Thumbturn - 2" - Ergonomic 3300-200-M34
Rim Thumbturn

ED4000, ED5000 Parts Manual
65
Strikes
Rim Devices
standard
650F308 ED5200 (A)
ED4200M (A)
730F778 ED5200S (A)
ED4200SM (A)
11/16"
(17mm)
Rim Devices
1-1/8"
(41mm)
2"
(50mm)
2-1/8"
(54mm)
1"
(25mm)
optional (S02)
655F718 ED5200
ED5200S
ED4200S
ED4200SM
standard
650F318 ED4200
ED4200S
7200 Rim
standard
650F548 ED5400 (A) Top
ED5800 (A) Top
standard
650F878 Bracket for SVR
Top Strike in
Flush Transom
Opening
standard
681F778 ED5860B Top
standard
681F708 ED5470B
650F578 650F888
Mortise Devices
standard
650L657020 All mortise
(non-Handed)
standard box
120F768 for ANSI Prep
open back strike
653L183016 for door pair
when code
allows use

Shim Kits
Cylinder Dogging Kits
Designed to convert a panic device
from hex key dogging to cylinder
dogging.
Not permitted on fire-rated devices.
Surface and Concealed
Vertical Rod Extension Kits
Used to extend the height of standard
length rods for 7110(F)(8'max), 7120,
7160(F), 7170(F), and 7210 Series exit
devices.
Bar Length Part No.
36" 653F12 x Fin
36" NS 653F14 x Fin
48" 653F13 x Fin
Shim Packets
697F348 ED5400 Series
697F368 ED4400 Series
Shim Packets
697F338 ED5200, ED5600,
ED5800 Series
697F358 ED4200, ED4800 Series
Rod Extension Assembly
2" 655F15 x Fin (Panic)
6" 655F16 x Fin (Panic)
12" 655F17 x Fin (Panic)
12" 655F17 x Fin (Fire rated)
24” 684F42 x Fin (Fire rated)
Extension Link
Retro Fit Kits
Schlage® Cam and Housing Assembly
Part Number: 720F688
66
Accessories ED4000, ED5000 Parts Manual

67
Handing Instructions ED4000, ED5000 Parts Manual
Handing
Left Hand Reverse: Hinges on left, opens outward.
For handed devices, specify LHR.
Right Hand Reverse: Hinges on right, opens
outward. For handed devices, specify RHR.
Note: Doors with Panic-Exit and Fire Exit hardware must
open out. Therefore, hands must be reverse bevel.
Rim Devices
ED5200 (A), ED5200S (A), ED4200,
ED4200S, ED4200SM (A), ED4200M (A)
Series
These devices are non-handed.
Vertical Rod Devices, Surface and
Concealed ED5400 (A), ED5470 (B),
ED5800 (A), ED5860 (B), ED4400,
ED4400M (A), ED4800, ED4800M (A)
Remove four screws and vertical lifter
assembly. Turn device to opposite (180 degrees)
orientation, insert lifter assembly and reinstall
screws.
NOTE: Lifter must fit under lift block
as shown.

68
Handing Instructions ED4000, ED5000 Parts Manual
Mortise Devices
5600(A) Series
To reverse, remove latch bolt and deadlatch, flip
both over and reinstall. Also flip cylinder set screw
and clamp assembly.
Illustration depicts typical lockbody with cover
removed. Only components relevant to lock handing
are shown. Other components vary according to
lock function.
x7 Lever Handle Trim
1. Remove cotter pin.
2. Remove castle nut.
3. Observe spring orientation:
LHR: Red spring (part # 651F61-8)
Short lead is at 11 o’clock and long lead is to lever side
of stump at 6 o’clock.
RHR: Blue spring (part # 651 F62-B)
Short lead is at 11 o’clock and long lead is to lever side
of stump at 6 o’clock.
4. Remove round housing, spring and spacer.
5. Note orientation of Mgap” which governs rotation in
gear and remove gear.
6. Rotate lever 180°.
7. Flip gear over and reinstall, observing proper gap orien-
tation for new direction of rotation:
LHR 6 - 8 o’clock
RHR 4 - 6 o’clock
8. Install spring of opposite hand (color). Place spring
around spindle with long lead against gear and to lever
side of post. Place housing (gap side toward lever) over
spring and spindle until square in housing begins to slide
down on spindle. While applying downward pressure
on housing, wind short lead of spring toward lever until
housing snaps Into place.
9. Replace spacer in housing. Spring, housing and spacer
should now be oriented as indicated in step 3 above.
Note: Housing gap will always be to the lever side and
spring will be slightly pre loaded when properly installed.
10. Be sure lever thimble is seated properly in escutcheon.
Reinstall nut but do not over tighten. Lever should rotate
freely.
11. Replace cotter pin.

69
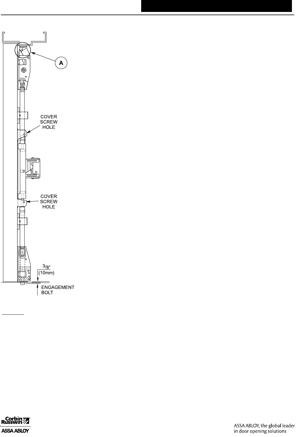
Surface Vertical Rod Exit Devices ED4000, ED5000 Parts Manual
If top latch does not engage properly, check alignment. When locked,
latch bolt should not be preloaded by strike (Area A). Shim or reposition
strike if necessary.
Bolts extend automatically when door closes and top strike hits tripping
lever. Top bolt should retract flat. Bottom bolt should travel 1/2” and
engage 3/8” into strike in down position, without dragging on floor
surface in up position.
Rod Adjustment
1. Remove active case cover screws and cover.
2. Remove rod guide cover screws and rod guide covers. Tilt rods, top
and bottom, out of engagement in active case and out of rod guides.
3. Adjust top rod first. Push up on top rod to fully retract top latch
with hold back feature engaged. With device in dogged position
(panic devices) or Pushpad fully depressed (fire devices), adjust top
rod so that the square head of the rod connector slides into engage-
ment in the active case. Shorten rod an additional 1/2 turn.
4. Adjust bottom rod. With top rod engaged, top latch retracted in
hold back position, and touch bar dogged or fully depressed, adjust
bottom rod so that the deadbolt clears the strike by 1/16”. The bot-
tom rod should be in position in the active case with the square head
of the connector hanging in the slide.
5. Check device operation by opening and closing the door. When
present, operate the device with the outside trim. An additional
minor adjustment may be required for full retraction and correct
strike engagement.
6. Reinstall the rod guide covers and the active case cover.
Maintenance
1 . Periodically remove covers and coat mechanisms with an appropri-
ate lubricant. This is regularly required in corrosive environments for
proper product operation.
2. Check mounting fasteners periodically. Retighten if found loose.
Apply screw locking compound or change part fasteners if screws
continue to back out.
3. Periodic checks and adjustments of rods may be required to compen-
sate for door or frame sag.
ED5400

70
Concealed Vertical Rod
Exit Devices ED4000, ED5000 Parts Manual
Rods should move freely inside door. Bolts extend automatically when
door closes and top strike is tripped. Top bolt should retract flat. Bottom
bolt should travel 1/2” and engage 3/8” into strike in down position,
without dragging on floor surface in up position.
If top latch does not engage properly check alignment. When locked,
latch bolt should not be preloaded by strike (Area A). Shim or reposition
strike if necessary.
Rod Adjustment for Bolt Throw
1. Remove Latch assembly cover screws and cover.
2. Use 3/32” Allen wrench to loosen set screws C1 and C2.
3. Adjusting screws B1 and B2 only provide fine rod adjustment. If
screws bottom out before proper device operation, door and device
must be removed. Larger adjustments may then be made either by
threading rod in or out, or by moving cotter pin to different hole in
rod.
4. Adjust top rod first. With device in dogged position (panic
devices) or Pushpad fully depressed (fire devices), adjust top rod so
that the top latchbolt is flush and the hold back feature is engaged.
Lengthen top rod an additional 1/2 turn.
5. Adjust bottom rod. With top latch retracted in hold back
position, and touch bar dogged or fully depressed, adjust bottom
rod so that the deadbolt clears the strike by 1/16”. The bottom rod
should be in position in the active case with the square head of the
connector hanging in the slide.
6. Check device operation by opening and closing the door.
When present, operate the device with the outside trim. An
additional minor adjustment may be required for full retraction and
correct strike engagement.
7. When finished, lock adjusting screws in place with Allen set screws.
Caution: To avoid thread damage and provide positive locking, be
sure Allen set screws engage flats on adjusting screws.
Maintenance
1. Periodically remove covers and coat exposed mechanisms with
an appropriate lubricant. This is regularly required in corrosive
environments for proper product operation.
2. Check mounting fasteners periodically. Retighten if found loose.
Apply screw locking compound or change part fasteners if screws
continue to back out.
3. Periodic checks and adjustments of rods may be required to
compensate for door or frame sag.
ED5800

71
Troubleshooting Guide ED4000, ED5000 Parts Manual
1. Many problems with the operation
of exit devices are caused by factors
other than the device itself. Among
the most common is a misalignment or
an improper fit of the door within the
frame.
2. Another common source of problems is
improper installation. Even if all cutouts
and screw holes are properly located,
exit devices must be securely fastened to
properly reinforced doors. Hollow doors
and frames with a structural thickness
(metal skin plus reinforcement, or solid
hardwood) must have at least three full
screw threads to be considered
reinforced.
3. Most problems with dogging occur
on vertical rod devices. When the
dogging function is hard to engage
or will not work at all, the rods may
be incorrectly adjusted allowing the
mechanism to bottom out. Readjust
rods per the device instructions or as
outlined on the previous pages.
ED4000,
ED4000M
HUB POSITION
ED5000
HUB POSITION

For more information regarding Corbin Russwin Locksets,
Exit Devices, Door Controls and Key Systems, contact your
authorized Corbin Russwin Distributor or Sales Representative.
In U.S.
Corbin Russwin
Architectural Hardware
225 Episcopal Road
Berlin, CT 06037
Phone: 800-543-3658
Fax: 800-447-6714
corbinrusswin.com
In Canada
ASSA ABLOY Door
Security Solutions Canada
160 Four Valley Drive
Vaughan, Ontario
Canada L4K 4T9
Phone: 800-461-3007
Fax: 905-738-2478
www.assaabloy.ca
Corbin Russwin and Design® is a registered trademark of Corbin Russwin, Inc, an ASSA ABLOY Group company. Other products’ brand names may be trademarks or
registered trademarks of their respective owners and are mentioned for reference purposes only. These materials are protected under US copyright laws. All contents current
at time of publication. Corbin Russwin, Inc., an ASSA ABLOY Group company reserves the right to change availability of any item in this catalog, its design, construction,
and/or its materials. Copyright © 2000-2016 Corbin Russwin, Inc., an ASSA ABLOY Group company. All rights reserved. Reproduction in whole or in part without the express
written permission of Corbin Russwin, Inc. is prohibited.
45255-9/16