Craftsman 502255193 User Manual TRACTOR Manuals And Guides L0804430
CRAFTSMAN Lawn, Tractor Manual L0804430 CRAFTSMAN Lawn, Tractor Owner's Manual, CRAFTSMAN Lawn, Tractor installation guides
User Manual: Craftsman 502255193 502255193 CRAFTSMAN TRACTOR - Manuals and Guides View the owners manual for your CRAFTSMAN TRACTOR #502255193. Home:Lawn & Garden Parts:Craftsman Parts:Craftsman TRACTOR Manual
Open the PDF directly: View PDF .
Page Count: 68

o_vne
1
Model No.
502.255193
CAUTION:
Read And Follow
All Safety Rules
And Instructions Before
Operating This
Equipment.
, ,i iiil,ii
12 HP. LECTRIC
40" MOWER
SPEED
LAWN TRACTOR
START
®Assembly
oOperation
e Maintenance
eService and Adjustment
®Repair Parts
F-91726 12-01-90 Sears, Roebuck and Co, Chicago, IL 60684 UoS.A. PrintedinUSA

SAFETY RULES
Safe Operation Practices for Riding Vehicles
As Recommended by American National Standards Institute
/
This cutting machine is capable of amputating hands and feet and throwing objects. Failure to observe the following
safety instructions could result in serious injury or death to the operator or bystanders.
GENERAL OPERATION:
1o Read, understand, and follow all instructions in the instruction Book, on the machine, on the engine, and with any attachments
before starting_
2 Only aliow responsible adults familiar with the instructions to operate the machine.
3.. Clear the area of objects such as rocks, toys, wire, etc_ which could be picked up and thrown by the b|adav
4o Be sure the area is clear of other people before mowing. Stop the machine if anyone enters the area°
5. Never carry passengers.
6. Disengage all attachment ctutches and shift into Neutral before attempting to start the engine_
7,_ Disengage power to the mower or any attachments before backing up. Do not mow in reverse untess absolutely necessary. Always
look down and behind before and while backing.
8. Be aware of the directlon the mower discharge_ Do not point discharge from the mower at anyone or at places where people may bee Do
not operate the mower without either the entire grass bagger or the mower guard in place,
9. Slow down before turning.
100 Never leave amachine unattended with the engine running, Always disengage the blade(s), set the parking brake, stop the engine and
remove the key before dismounting
1 1, Disengage power to attachment(s) when transporting or not {n use,, Disengage the blade(s) when not mowing°
12. Stop the engine before removing the grass bagger or unclogging the chute.
13. Mow only in daylight orgood artificial light,
14. Do not operate the machine while under the influence of alcohol or drugs or when very tired,,
15,. Watch for traffic when operating near or crossing roadways,
16. Use extra caution when loading or unloading the machine when using a trailer or truck for transporting.
17,. Always wear safety glasses or an eye shield when you operate the unit to protect your eyes from foreign objects that can be thrown
from the unit, Aiways wear eye protection when you make an adjustment or repair to the machine,
18, Use care when puliing loads or using heavy equipment°
ao Use oniy approved drawbar hitch points.
b., Limit loads to those you can safely control
c. Do not turn sharply,. Use care when backing.
d. Use counterweights or wheel weights when suggested in the Instruction Book.
CHILDREN:
Tragic accidents can occur if the operator is not alert to the presence of children, Children are often attracted to the machine and the
mowing activity. Never assume that children will remain where you last saw them,
1. Keep children out of the mowing area and in the watchful care of an adult other than the operator.
2, Be alert and turn the engine off if children enter the area.
3Before and when backing, look behind and down for small children,
4. Never carry children or any passengers They may fall off and be seriously injured or interfere with the safe operation of the
machine,
5, Never allow children to operate the machine_ Instruct chitdren in the dangers of the machine
6 Use extra care when approaching blind corners, shrubs, trees or other objects that may obscure vision.
F-91726 2

SAFETY RULES -continued
SLOPE OPERATION:
Slopes and rough terrain are major factors related to loss of control and tip over accidents which can result in severe injury or death.
All slopes require extra caution. If you cannot back up the slope or if you feet uneasy on the slope, do not mow ito See the "Slope
Guide" in the back of this book to check for safe operation,
DO
1. Mow up and down slopes, not across.
2o Remove obstacles such as rocks, limbs, etCo..
3 Watch for holes, ruts or bumps° Uneven terrain could overturn the machine., Tall grass can hide obstacles
4. Use slow speed, Choose alow enough gear so that you will not have to stop or shift while on the slope°
5,, Follow the manufacturer's recommendations for wheel weights or counterweights to improve stability.
6. Use extra care with grass baggers or other attachments, they can change the stability of the machine.
7. Keep all movement on the slopes slow and gradual., Do not make sudden changes in speed or direction
8Avoid starting or stopping on aslope. If tires lose traction, disengage the blades and proceed slowly straight down the slope,
DO NOT
1o Do not turn on slopes unless absolutely necessary, then only turn slowly and gradually downhill, if possible,
Z, Do not mow near drop-offs, ditches or embankments. A wheel over the edge or an edge caving in could cause a sudden overturn and an
injury or death.
3. Do not mow on wet grass. Reduced traction could cause sliding.
4. Do not try to stabilize the machine by putting your foot on the ground.
5, Do not use a grass bagger or other rear mounted accessories on steep slopes (greater than 10 °}
SERVICE:
1, Use extra care when handling gasoline and other fuels, Fuels are flammable and the vapors are explosive,
a Use only an approved container,,
b Never remove the gas cap or add fuel with the engine running, Allow the engine to cool for several minutes before refueling Do
not smoke.
c, Never refuel the machine indoors
d° Never store the machine with fuel in the tank or fuel container inside where there is an open flame, such as a water
heater,
2. Never start or run the engine inside an enclosed area
3o Keep all nuts and bolts, especially the blade attachment nuts tight. Frequently check the blade(s) for wear or damage such as cracks
and nicks A blade that is bent or damaged must be immediately replaced with a factory reptacement blade. For safety, replace the
blade every two years. Keep the equipment in good condition
4, Never tamper with the safety devices. Check their proper operation regularly,
5. To reduce fire hazards keep the machine free of grass, leaves or other debris build-up Clean uP oil or fuel sPilfage Allow the machine to
cool before storing
6, Stop and inspect the equipment if you strike an object, Repair, if necessary, before re-starting
7. Never make adjustments or repairs with the engine running,, The carburetor can be adjusted with the engine running, Do not change
the engine governor settings or overspeed the engine,.
8 Grass bagger components are subject to wear, damage and deterioration, which could expose moving parts or allow objects to be
thrown, For storage, always make sure the grass bag is empty Frequently check components and replace with manufacturer's
recommended parts when necessary
9, Mower blade(s) are sharp and can cut Wrap the blade(s) or wear gloves and use extra caution when servicing them or the blade
housing area.
10, Check the brake operation frequently, Adjust and service as required,
1 1 Wait for all movement to stop before servicing any part of the uniL
Look for this symbol to indicate important safety
precautions,. This symbol indicates: "Attention!
Become Alert! Your Safety Is At Risks _
F-91726 3

Congratulationson your purchase of a Sears Tractor. It has been
designed, engineered and manufactured to give you the best poss-
ible dependability and performance.
If you experience any problem you cannot easily remedy, please
see your nearest Sears Service Department. We have competent,
well trained technicians and the proper tools to service or repair
this unit.
Please read and retain this manual. The instructions will enable you
to assemble and maintain your unit properly. Always observe the
"Safety Rules".
CUSTOMER RESPONSIBILITIES
oCarefully read and foilow the rules for safe operation.. Inspect
the unit
• Follow all the assembly instructions_ Correctly adjust the
unit.
= Know how to operate all standard and accessory equipment
on the unit° Make sure that the operator can correctly
operate the unit.
= Operate the unit only with guards, shields, and other safety
items in place and working correctly..
t Complete all maintenance on the unit. Service the unit only
with authorized or approved replacement parts.
NOTE: This unit is equipped with an internal combustion engine
and must not be used on or near any unimproved forest-covered,
brush-covered or grass-covered land unless the englne's exhaust
system is equipped with a spark arrester meeting applicable loca|
or state laws (if any).. If a spark arrester is used, it must be
maintained in effective working order by the operator:
in the State of California the above is required by law (Section
4442 of the California Public Resources Code). Other states may
have similar laws_ Federal laws apply on federal lands., See an
Authorized Service Center for a spark attester for the muffler.
MAINTENANCE AGREEMENT
A Sears Maintenance Agreement is available on this unit See the
nearest Sears Store for information..
PRODUCT SPECIFICATIONS
Briggs & Stratton Engine 12 HP,.
Charging System 3 amperes at 3600 rpmr.
Fuel Tank Size 1gaIIon
Type Of Fuel Unleaded Regular
Oil Capacity 3pints
Oil Type Above 32 °
Below 32 °
Spark Plug (Gap 0,.030")
SAE 30 or 10W30
SAE 5W30
Champion J 19LM
Sears 71-33312
STD361458
Tire Air Pressure Front and Rear 12 psi
All Gear Transaxle Six forward speeds and one reverse.,
Ground Speed Forward 0-5,4 MPH.
Reverse 0-1 _6 MPH.
Tilt Seat The seat tilts forward for easy access to the battery.
Mower Housing The full=floating suspension and twin blades
give an even cut,,The lift lever has six height positions from 2 to
4inches,
Blade Nut Torque 30 foot pounds
Grass Bagger Size 4 bushels
iiiiii ..........................
LAWN TRACTOR
Record in the space below the serial number and the date
of purchase of this unit.
The model number and serial number are found on adecal
attached to the back of the frame
Model Number: 502.255193
Serial Number:
Date of Purchase:
Keep these numbers for future reference.
i,,111, ,, i, ii
LIMITED TWO YEAR WARRANTY
ON ELECTRIC START RIDING EQUIPMENT AND GRASS BAGGER ATrACHMENT
For two years from the date of purchase, when this riding equipment and grass bagger attachment are maintained, lubricated, and
tuned up according to the operating and maintenance instructions in the Owner's Manual, Sears will repair free of charge any defect in
material or workmanship in this electric start riding equipment and grass bagger attachment°
This warranty excludes blade(s), blade adapter(s), spark plug(s), air cleaner, and belt(s), which are expendable arrd become worn during
normal use.
This warranty does not cover:
-tire replacement or repair caused by punctures from outside objects (such as nails, thorns, stumps, or glass); and
-repairs necessary because of operator' abuse or negligence, including the failure to maintain the equipment according to
instructions contained in the Owner's Manual; and
-riding equipment and grass bagger attachment used for commercial or rental purposesv
FULL 90-DAY WARRANTY ON BATTERY
For 90 days from the date of purchase, if any battery included with this riding equipment proves defective in material or workmanship
and our testing determines the battery will not hold a charge, Sears will replace the battery at no charge.
WARRANTY SERVICE IS AVAILABLE BY CONTACTING THE NEAREST SEARS SERVICE CENTER/DEPARTMENT tN THE UNITED
STATES, This warranty applies only while this product is in use in the United States_
This warranty gives you specific legal rights, and you may also have other rights which vary from state to state.
Sears. Roebuck and Coo, D/731CR-W, Sears Tower, Chicago, IL 60684
F-91726 4

i i
TABLE OF CONTENTS
SAFETY RULES ............................................... 2-3
CUSTOMER RESPONSIBILITIES ......................... 4
PRODUCT SPECIFICATIONS ............................... 4
WARRANTY ...................................................... 4
TABLE OF CONTENTS ....................................... 5
INDEX ............................................................... 5
TRACTOR ATTACHMENTS ................................ 6
ASSEMBLY .................................................. 7-20
OPERATION ............................................... 21-26
MAINTENANCE .......................................... 27-34
SERVICE AND ADJUSTMENT ...................... 35-41
STORAGE ........................................................ 41
TROUBLE SHOOTING CHART .......................... 42
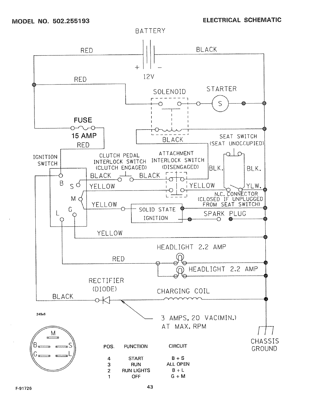
ELECTRICAL SCHEMATIC ................................ 43
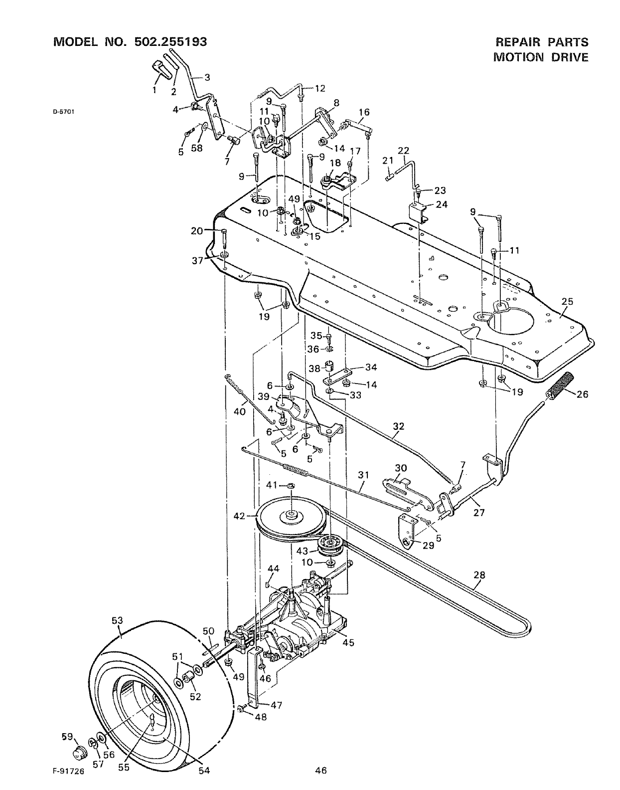
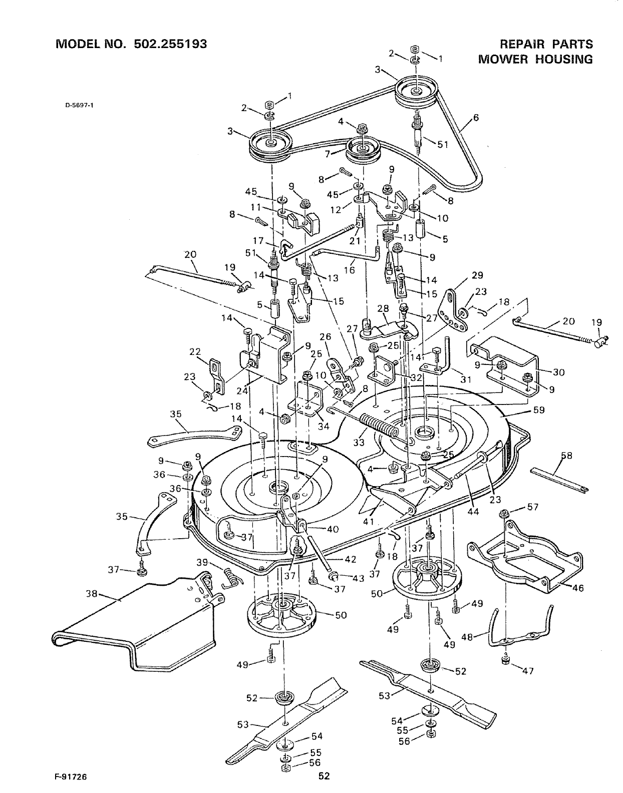
REPAIR PARTS, MOWER ............................ 44-57
REPAIR PARTS, GRASS BAGGER ............... 58-59
REPAIR PARTS, TRANSAXLE ..................... 60-61
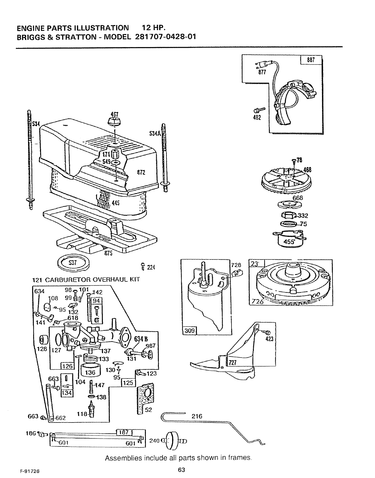
REPAIR PARTS, ENGINE ............................. 62-66
PARTS ORDERING/SERVICE ................ Back Page
A
Adjustments:
Blade Engagement Control 29 .....................
Brake, Drive ........................................................ 30
Carburetor ....................................................................35
Clutch .........................................................................30
Mower Housing Level ......................................38
Throttle Control Cable ................................ 35
Assembly .... ...................................................................... 7-20
Attachments ...................................................................6
B
Bagging Tips ...................................................................26
Battery:
Charge ..............................................................................8
Clean and Check .............................................32
Emergency Start ............................................ 41
Install .......................................................................20
Storage ............................................................................41
Belt:
Motion Drive, Adjust .......................................... 30
Motion Drive, Replace .......................................... 38
Mower Drive, Adjust ......................................29
Mower Drive, Replace ........................... 37
Rooting, Check ................................................10
Blade, Remove and Install .......................................28
Blade, Sharpen ........................................................28
Blade Engagement Control:
Adjust ................................................................ 29
Operatlon .................................................................... 23
Brake, Check and Adjust Drive .............................30
Brake Pedal, Operation .................................. 21
C
Carburetor Adjust .................................................35
Charge Battery ................................................................8
Clutch/Brake Pedal ............................................21
Controls .........................................................................21
Cutting Height ......................................................23
E
Electrical Schematic ..................................... 43
Engine:
Carburetor .....................................................35
Oil, Change ................................................ 33
Oil Level, Check ........................................ 33
Oil Type ...............................................................33
Operation Speed Chart .................................22
Starting ....................................................... 25
Stopping ................................................... 22
Storage ...........................................................41
Throttle Control .......................... 21, 35
Trouble Shooting Chart .................. 42
iNDEX
F
Filter Air .................................................................34
Filter Fuel ........................................................... 34
Fuel .... ...................................................................... 25
Fuel System Storage ...............................................41
Fuse ..........................................................4t, 43, 54
G
Grass Bagger:
Assembly ............................................................13 20
Operation ..................................................................24
Service and Adjustment ................................40
I
Ignition Switch .........................................................21
L
Lift Lever ........................................................ 21 23
Lights ...................................................................... 21 40
Lubrication ...................................................................27
M
Maintenance .....................................................27 34
Air Filter ......... ....................................................... 34
Battery .................................................................32
Blade ...........................................................................28
Blade Engagement Control .............................29
Brake ....................................................................... 30
Clutch ......................................................................30
Engine 011 .............................................................. 33
Lubrication .........................................................27
Muffler, Check ............................................................ 34
Spark Arrestor ...........................................4 34
Spark Plug ................................................ 34
Tires .......................................................................... 32
Maintenance Schedule ................................... 27
Mower Housing
Clean ......................................................................40
Level Adjustment ...............................................39
Remove and Install .........................................36
Mowing and Bagging _t_ps ...............................26
v
Oih
Check ..............................................................33
Change ................................................... 33
Operating Tips ...................................................26
Operation ............................................................21 - 26
Grass Bagger .................................................24
LiftLever ....................................... 21, 23
Mower Housing ............................................23
Operation On Hills ......................................23
Parking Brake .................................... 2I, 22
Shift Lever ............................. 21 22
Start Engine ................................... 25
Stop The Unit ..................................... 22
P
Parking Brake ............................ ........................ 21, 22
Parts Bag, Grass Bagger ...........................11 - 12
Parts Bag, Lawn Tractor .........................................7
R
Replace Motion Drive Belt .............................. 38
Replace Mower Drive Belt .................................37
S
Safety Rules .......................................................2-3
Seat, Install ...............................................................9
Service and Adjustments .........................35 - 40
Battery, Emergency Start ...............................40
Carburetor ........................................................35
Fuel Filter ............................ ..................................... 34
Fuse ....................................................................41
Level Mower Housing .......................................38
Light Bulb, Replace ......................................... 40
Motion Drive Belt ................................................38
Mower Ddve Belt ..................................................37
Mower Housing, Install ......................................36
Mower Housing, Remove ............................36
Sharpen Blade ..............................................................28
Shift Lever ................................................21, 22 31
Shift Gate, Adjust ..............................................31
Slope Guide ....... ................................................... 67
Spark Arrestor .............................................. 4 34
Spark Plug ...........................................................................34
Specifications, Product ............................................4
Speed Control Chart .............................................22
Start Engine .....................................................................25
Steering Whee! ..........................................................9
Stop Unit ..................................................................22
Storage ................................ .................................... 41
T
Throttle Control .....................................................23
Throttle Control Cable Adjust ..........................35
Tire Pressure .................................... 4, 10, 32
Trouble Shooting Chart ......................................42
W
Warranty ........................................................ 4
Wheel Align Front ....................................... 41
Wiring Schematic .......................................... 43
F91726 5

ii illl iiiiiillllllllllll
TRACTOR ATTACH M ENTS
Attachments That Add to the Usefulness of Your
Craftsman Lawn Tractor
Sears offers a wide variety of attachments that fit your iawn tractor Many of these are listed below with brief explanations of how they can
help you°This list was current at the time of publication; however, it may change in future years- more attachments may be added, changes
may be made in these attachments, or some may no longer be available_
Most of these attachments do not require additional hitches orconversion kits (those that doare indicated) and are designed for easy attaching
and detaching° You may order these attachments at most Sears retail stores, catalog sales offices and thru the catalog,
PERMANEX BAGGER lets you collect grass clippings and leaves for a healthier, neater-looking lawn. Two Permanex containers hold
33-gallon plastic bags.
LAWN SWEEPERS let you collect grass clippings and leaves_Select from these:
=30-in, Path with a capacity of 9.0 cu. ft,
=32-in_ Path with acapacity of 10_0 cu_ ft_
=32=in High Performance Path with acapacity of 10=0 cu=ft.
=38-in, High Performance Path with a capacity of 12_5 cuoft_
LAWN MAC for powerful collection of heavy grass clippings and leaves Accepts optional wand attachment to pick up debris in
hard-to-reach places Has a 3hp. engine with 12 bushel capacity° Requires a Chute Adapter.
CARTS make hauling easy. Choose from these:
= 4 cubic foot Dump Cart with a capacity of 400 Ib,
= 10 cubic foot Hauling Cart with acapacity of 1,000 {b=
= I0 cubic foot Dump Cart with acapacity of t,000 ib.
=14 cubic foot Dump Cart with acapacity of 1,250 Ib=
= 17 cubic foot Dump Cart with acapacity of t,500 Ibo
ROLLER for smoother lawn surface. 36-1nch wide, 1B-inch diameter water-tight drum holds upto 390 Iboof weight. Rounded edges prevent
harm to turf_Adjustable scraper automatlcally cleans drum°
SPREADER/SEEDERS make seeding, fertilizing, and weed killing easy. Broadcast spreaders also useful for granular de-lcers and sand°
=Drop type, 36-inch. 12-1nch semi-pneumatic wheels. I00 lb=capacity steel hopper.
= Broadcasts a4 to 12 foot swath 70 lb. capacity steel hooper= Non-corrosive spreading
spinner.. Nylon gear box. Stainless steel shaft_
o Broadcasts t0 to 12 foot swath. 160 lb_ capacity (covers 40,000 sq. ft°) No-rust
polypropylene hopper and impeller. Vinyl hopper cover.
= Broadcasts t 0 to 12 foot swath. 100 Ibocapacity_ No-rust polypropylene hopper and
impeller, Vinyl hopper cover.
AERATOR promotes deep root growth for ahealthy lawn. Tapered 2_5-inch steel spikes mounted on 10-inch dia meter discs puncture holes
in soil at close intervals to let moisture soak in. Steel weight box for increased penetration_
CORING AERATOR takes small plugs out of soil to allow moisture and nutrients to reach grass roots., 36-inch swath. 24 hardened steel
coring tips. 150 lb capacity weight tray.
DETHATCHER loosens and flips thatch and matted leaves to lawn surface for easy pick up. Twenty spring steel tines (t 0 pairs) dethatch
40-inch swath. Useful to prepare bare areas for reseeding and for seed bed preparation after tilling. Rear mount
DETHATCHER loosens and lifts thatch to fawn surface for easy pick up (with bagger, sweeper or vac). Ten spring steel tines, each with two
"teeth", dethatch 3B-inch path_ Front mount_
TRACTOR COVER protects tractor from weather. Made of Evolution 3 fabric (water repellent, extremely breathable, lightweight, soft, non
abrasive, pliable over a wide temperature range, durable, stain-tear-and puncture-resistant, wilf not shdnk or stretchL
SEAT COVER is dense polyester shag, machine washable. Provides cooler, more comfortable ride in the summer heat. Protects seat for
longer lifeo
SPRAYERS uses 12-volt DC electric motor that connects to tractor battery or other 12 volt source, Includes booms for automatic spraying
when pulling, and hand held wand for spot spraying. Wand has adjustable spray pattern_ For applying herbicides, insecticides, fungicides,
and liquid fertilizers.
'_ 50 psi maximum pressure with 12 foot wand length
= 25 psi maximum pressure with 10 foot wand length
SNOW BLADE for snow removal only. t 4-inch high, 42-inch wide blade clears 38-inch path when angled left or right, Raises, lowers with
side lever_ Adjustable skids; replaceable, reversible scraper bar. (Use with tire chains, wheel weights.)
SNOW THROWER has 40-inch swath. Dru m-type auger handles powdery and wetJheavy snow_ Mounts easily with simple pin arrangement,
Discharge chute adjusts to 210 °arc from tractor seat. 6-inch diameter spout discharges snow 10 to 50 feet. Lift controlled at tractor seat.
(Use wlth tire chains, rear wheel weights)
CART-N-VAC Large 12 bushel capaclty. Converts to 4 cuoft. hauling cart. Load capacity 250 lbs.
TIRE CHAINS ere heavy duty; closely-spaced extra-large cross links give smooth rlde, outstanding traction_
WHEEL WEIGHTS for rear wheels provide needed traction for snow removal. In pairs. (30 Ibs ea )
F-91726
NOTE: Do not use pull-behind attachments on slopes that are greater than 10 degrees,
6

ASSEMBLY
i,,,,,,, ,u ,,,,,,,,,
PREPARATION
Before being put in the carton, the unit was carefu[iy inspected The
carton was made to protect the unit during shipment,
The unit is comptetety assembled except for the items shown on
this page These items are in the carton with aparts bag which
contains the fasteners to assemble the unit Find and remove these
items,, The fasteners are shown on the next page,
HOW TO REMOVE FROM THE CARTON
To remove the unit from the carton, follow the instructions below,.
1. Open the top of the carton,,
2. Remove the wood frame at the top of the carton_
3,, Remove the boxes labeled (A) and (B) from the carton,.
Remove the seat,, NOTE: the seat is covered with a protective
sleeve. Remove the Grass Bagger Cover, the outer tube, the
connector tube and the protective pad,
4., The items shown at the right are in a small unmarked box.
Remove and check each item Remove the small box°
5. Cut each corner of the carton from the top to the bottom with
a knife,
NOTE: See the Operation section for the location of
the controls,,
6o Move the shift lever to the NEUTRAL position
7, Move the lift lever to the HIGH position
CAUTION: Check the bottom of the carton for staples,,
Remove any staples that are in the path of the tires.
9, From the back of the unit, carefully pull the unit backwards
off the wood frame,
i,,, u ..................., , i ,,,,,,,,,,,,,, i, ,, ,,, ,,,
Owner's Manual
Bellows
TOOLS YOU NEED TO ASSEMBLE THE UNIT
1. Adjustable wrench (2 required) 5Phillips screwdriver
2. Open end wrench 1/2" - 9/16" 6, Low Tire pressure gauge
3, Open end wrench 7/16" - 1/2" 7o Knife
4. Blade type screwdriver 8Socket Set (Optional)
___. PARTS BAG -contents for Lawn Tractor ........
The fasteners and other loose parts are shown below,, The fasteners are shown at full size with the quantities in brackets { ),
® @ © @
(2) Locknut (1) Flange Hax Nut (2) Lockwasher
For Battery Terminals For Steering Wheel For Seat [Notshownrut}slzti)
1/_'2B 5/t 6"-24 I.Do 5116" (4) Hub Cap
15×66 15x90 18xl 624582
(Notshawn fullSize)
(1) Battery Clip
91941
(2) Ignition Key
91275
12) He× Bolt {2} HBx Bolt (t) Hex Bolt _J_
For Battery Termlnais For Seat For Steering Wheel
V_"-20x%" 5116"_18x_ls" B/16'L24x1 ¥0" (1) Screw
1x38 tx45 lx66 For Battery Clip
26x 184
F-91726 7

ASSEMBLY
HOW TO PREPARE AND
CHARGE THE BATTERY
NOTE; Before you install the battery, add the battery acid
(Electrolyte) and charge the battery° Battery acid will damage
paint and parts,
WARNING: Read the instructions included with
the battery acid container. Protect your hands
_nd eyes from the battery acid_ Use clothing that
will protect you.
1. If the vent caps are not installed on the battery, remove the
vent caps from the plastic bag Read the instructions
included with the vent caps_ Your unit will have one or the
other types of batteries as shown.
2_ If metal tape covers the vents, remove the metal tape from
the vents. Discard the metal tape.
3. Pour battery acid into each battery cell until the battery acid
touches the bottom of the vent as shown. Do not add the
battery acid above the bottom of the vent. tf you add too
much battery acid, the excessive battery acid will flow from
the battery when you charge the battery.
4. Wait 20 to 30 minutes before you put the vent caps on the
battery° While you wait for the battery, you can continue with
the assembfy of the unit°
5o The level of the battery acid can drop below the vent
described in step 3, Add more battery acid until the correct
battery acid level is reached. Install the vent caps_ Wash the
top of the battery with water to remove any battery acid._
6. Discard the battery acid container and any battery acid that
was not used as follows. Fill the container half full with watery
Add baking soda and mix together using a piece of wood,
Add more baking soda until the solution does not foam.
Discard the solution and wash the container with water..
Destroy the container
WARNING; When you chargethe battery, do notsmoke, Keep the battery away from any sparks_
The fumes from the battery acid can cause an
explosion.
7, Use a 12 volt battery charger to charge the battery. Charge at
arate of 6 amperes for 1 hour,
8o After the battery is charged, check the level of the battery
acid. If the level of the battery acid falls, add water. Do not
add battery acid to a charged battery or the result can be
an explosion.
9. The engine has a 3 amperes charging system If you frequently
start the engine or frequently use the headlight (if equipped),
the battery will not stay fully charged. For longer life of the
battery, charge the battery every three months.
ii ii
Remove and discard
the meta_
Vent Cap
Battery
ii ...................
CUT AWAY VIEW
Vent
Correct
Liquid
Level
DANGER
BATTERY ACID WILL
CAUSE SEVERE BURNS
Contains sulphuric acid.
Do not let the battery acid come in contact with the skin, the eyes. orthe
clothing
To prevent accidents, neutralize the battery acid that was not used To
neutralize, fill the container half full with water Add baking soda and
mix using a piece of wood until the solution does not foam, Discard the
solution and wash the container with water Destroy the container
ANTIDOTE:
External = Wash the area with water, then wash with a solution of
water and sodium bicarbonate
Internal =Drink large amounts of water milk, or milk of magnesia
Drink water mixed with the whites of eggs_ Call a Doctor
immediately
Eyes -Flush with water for t5 minutes and then get immediate
medical help
POISION
-KEEP AWAY FROM CHILDREN -
D-5213
F-91726 8

ASSEMBLY
_OW TO ASSEMBLE
rilE STEERRNG WHEEL
Jse the fasteners shown below to install the steering wheeE The
;asteners are shown at full size @
B
ix66 t5×90
1 Make sure the front wheels point forward. Slide the bellows
over the steering post. Make sure the collar of the bellows is
on top. Push on the top of the bellows.
2,, Attach the steering wheel to the steering post with the
fasteners as shown Tighten the fasteners
e 5699
B
Bellows
S1eedng Wheel
Steering Posl
HOW TO INSTALL THE SEAT
Use the fasteners shown below to install the seat, The fasteners are
shown at full size°
(A)
Ix45 (8)
18×16
1. Carefully remove the protective sleeve and the plastic bag
from the seat, Do not damage the wire attached to the
bottom of the seat.
2. Align the holes in the seat hinge to the holes in the seat..
Fasten the seat to the seat hinge with the fasteners as
shown Tighten the fasteners
3, Check the operating position of the seat. If the seat needs to
be adjusted, loosen the seat adjusting nuts on the seat hinge.
Slide the seat forward or backward along the adjusting holes
as shown.To keep the seat straight, align the rear edge of the
seat hinge with the marks on the top of the console_ Tighten
the hex nuts.
4" Connect the wire from the seat switch sensor to the wire
harness. Make sure the tab part of the connector, from the
seat switch sensor, Jocks into the latch of the wire harness
connector,
WARNING: For correct and safe operation ofthe
unit, connect the wire from the seat switch
sensor to the wire harness.
Seat
F-91726 9

= == =l= H =l=l,====,l,l,l,l,l==l,l=ll=l===
ASSEMBLY
= 111 i= iH ,lliHi,i,ll
HOW TO ATTACH THE HUB CAPS
Push each hub cap onto the center' hub of each wheel, Make sure
the washer holds the hub cap in place_
CHECK THE TIRES
CHECK THE DRIVE BRAKE
The drive brake can be easily checked as foHows_ Set the parking
brake Move the shift lever to the neutral (N) position Push the unit.
If the rear wheels rotate, adjust the drive brake. Seo "How To Chock
And Adjust The Drive Brako'_
Check the air pressure in the tireSr.Tires with too much airpressure
will cause the unit to ride rough. Also, the wrong air pressure will
keep the mower housing from cutting level, The correct air
pressure (PSI) is 12 PSI (0,B5 kg/cm2),
CHECK THE BELTS
Check the routing of the belts. Make sure the belts are not twisted.
Make sure the belts are inside all the belt guides_
CHECK THE LEVEL OF
THE MOWER HOUSING
The lever of cut was set at the factory,, After the unit is fully assemble,
completely read the Operation Section.
Make sure the level of cut is set at the height you like for your lawn,.
Check the operation of the mower housing° Mow a short distance
and look at the area that was cut. If the mower housing does not cut
level, see the instructions on "How To Level The Mower Housing"_
HOW TO CHECK THE ALIGNMENT OF THE
SHIFT GATE
Belt Guides
Follow the instructions in the Operation Section on "How To Use
The Shift Lever"., If it is difficult to change gears, first check the
_nstructions, "How To Check And Adjust The Clutch". Then, adjust
the shift gate.. See the irrstructions, "How To Check And Adjust The
Shift Gate",
Blade Drive
Pulley
Transaxle Pulley
idler Pulley
Mower Drive
Belt
Belt Guides
Stack
Pulley
Belt Guides
Idler Put{ey
F-91726 t 0

iMPORTANT: Remove and identify the contents of each box as shown below:
CONTENTS OF BOX A
Containers
Frame Mount Bracket _L=_
Weight Bracket
Hin_
CONTENTS OF BOX B
Fr°ntWi_"
Window
(In paper bag_
Extension Tube
and Plate Assembly
Parts Bag
(2) Plastic Bags
(Not shown)
Elbow
\
Channel
D-81_8
F_91726 I 1

PARTS BAG - conterlts for Grass Bagger
The fasteners and other loose parts are shown below. The fasteners are shown full size with the quantities in brackets ().
NOTE: Some of the fasteners will not be required for your modoLi_., ..,..
_,_"-20 x½"
3 For Cover Hinge (4)(5)Bolt,Special For Handle (1)
For Outer Tuba (3)
(2) Bolt, Carriage For Center Tube (2)
For Extension Tube 5/16"-24 x 1% _
5/16"-18 x ¾" 6x93
2x64
(2) Bolt, Hax
For Frame Bracket
5/t6"-1B x 1_
I x84
(1) Bolt, Hex
For Frame Bracket
½"-13 x t¼_
lx125
(6) LocknQ
(1) Bolt, Carriage For cover Hinge [4)
For Latch Pin For Handle (2)
1/4"-20 xs/a" ¼"-20
2x39 15x66
@
(2) Hex Nut, Flanged
For Latch Pin (1)
For Rubber Latch (1)
¼"-20
15x89
L4x24
(t) Locknut
For Frame Bracket
_;_143
151Washer 121 Washer (NotShownFullSize)
For Outer Tube (3) For Frame Bracket (I) Handle, Plastic
For Center Tube (2) LD. °39" For Cover
18xl 5 17x51 54537
{Not Shown Full Size}
(1) Latch, Rubber
54695
{Not Shown Futl Size|
(1) Pin, Latch
54563 (NotShowni_[t Size)
(1) Pin, Hinge
54407Z
(4) Bolt, Carriage
(Not shown actual size)
(8} Fastener, Plastic
For Containers (4 each)
193xl
(1) Screw
For Rubber Latch
1/_-20 x 1_For Elbow
¼" x¾" AB
4x71 26x239
(1_) Screw 131 Screw
For Front Weight
5/16_-18 x ¾_
2x74
#10-t6 x½" AB For Cover Handle (2)
@
(3) Nut, Hax
For Cover Handle (2)
For Window Clip (1)
Q#10-24
15x81
(4) Nut, Jam
For Front Weight
5/16"-t8
;; 15x109
(2) Nut, Wing
For Extension Tube
5/16'_18
@14x83 _
For Window For Window Ctip (1)
26x246 #10-24 X %"
4x21
(Not ShownFullSize) (NotShownFullSize)
(1) Plug, Weight (3) Cap
24863 For Outer Tube (2)
For Center Tube (1)
2
For Connector Tube
54416E7011
151Nut, Hex
For Outer Tube (3) {NotShownFullSizel
For Center Tube (2) 5/16"-24 (1) Clip, Window (NotShownFullSize}
16X32 54571Z (1) Bracket
For Extension Tube
54566
(4) Locknut, Flange
For Front Weight
5/16"-18
15x88
121 Nut -Flange, Hex
For Frame Bracket
5116"-18
15xl 08
ForCover Hinge
31x6
(1) Expansion Nut
For Window
28x56
F-91726 12

ASSEMBLY
HOW TO ASSEMBLE THE FRONT WEIGHT
Assemble the front weight support with the fasteners shown full
size below,
©
(B)
15x 109
(A) (c)
2x74 15x88
1, Assemble the four carriage bolts (A) and four jam nuts (B) to
the tractor as shown,, Make sure jam nuts (B) are tight°
2, Fit the front weight into the weight support with the hole for
the plug on top as shown,
3o Set the weight and weight support in position on the carriage
bolts you assembled in Step 1- Fasten the weight support
with the four Iocknuts (C} as shown, Make sure Iocknuts (C}
are tight,
4_ Fill the front weight with sand,, Install the plug in the front
weight.
WARNING: Use the front weight when you mow
on a slope or where the lawn is rough or not
even.
WARNING: Do not ride up or down slopes that
are too steep to back straight up. Never ride the
unit across a slope. See the "Slope Guide" in the
back of this book for information on how to
check slopes_
C_ .3_ Weight Support
O-e130 Weight Support
F-91726 13

iii iiiiiii1,,111
ASSEMBLY
H =l= =H,N ::::::::::::::::::::::::::::::::
HOW TO MOUNT
THE FRAME ASSEMBLY
Remove and discard the two self=tapping screws from the
rear of the framer Use these two holes to mount the
frame bracket_ FrameBracket
,
Attach the bottom of the frame bracket to the frame with hex
bolt (A} and Iocknut (B) Do not tighten at this t_me=
(A)
lx125
(D)
17x51
2.
15x41 __
(E)
15x108
0-8t19 (A)
Channel
3_ Attach the back of the frame bracket to the frame with bolts
(C), washers (D) and flange nuts (E)._Make sure botts (C) and
flange nuts (E) are tight.
NOTE: For easier assembly, use a ratchet and socket to
tighten bolts (C).
4_ Tighten bolt (A) and Iocknut (B}.
5.. Slide the channel in to the "U" shape opening in the top oftha
frame bracket as shown,
"U" Shape
Opening \
D-8_20 Frame Bracket
F-91726 14

6,
7_
From the right side of the unit, install the channel pin throug h
the channel as shown, Rotate the channel pin to lock the
channe_ in place,
Mount the outer tube to the channel as shown, Make sure the
holes on one end of the outer tube are on the right side of the
unit, Use the fasteners shown full size below Make sure the
fasteners are tight_
CAUTION: If the fasteners are tightened too much, the
outer tube can be damaged. ©
IF) (G)
6xg3 t8x 15
@
(H)
15x32
(F)
Channel Pin
(G)
Rotate
Channel Pin
Counterclockwise
Make sure these
holes are to the
right side of the
unit
e-8!21
8Mount the center tube to the channel as shown Make sure
the fasteners are tight,
CAU'flON: If the fasteners are tightened too much, the
center tube can be damaged,
9. Attach the caps to the end of the tubes as shown Channel
Center Tube
(F}
6x93
G Q
(G) (H)
! 8x 15 15x32
(F)
F-91726 1 5

HOW TO MOUNT THE COVER
1o Assemble the hinge to the cover with the fasteners shown
full size below,. Push tire hinge toward the top of the cover,,
Make sure the screws are at the bottom of the holes in the
hinge,, Tighten the fasteners.
2 Attach the handle to the cover with the fasteners as shown.
3_
4.
O
F-9t726
Tighten the fasteners,
_(A) (a)
4x24 15x66
(c) (D)
4x21 15x81
Push expansion nut (F) into the slot in the cover as shown,,
Mount the window to the cover with the fasteners as shown°
Make sure the cover fits between the plastic flange and the
cover, at the end of the window° Push on each side of the
window until the two plastic tabs are locked in position°
Fasten with screw (E) as shown, Put the window clip in
position on the inside of the window,. Align the hole in the
window clip with the hole in the cover° Fasten the window
clip with screw (C) and nut (D) as shown,
Set the cover in the operating position on the top of the outer
tube assembly as shown. Align the holes in the hinge and the
channel. Fasten the cover and hinge assembly to the channel
with hinge pin and hair pin shown full size below.
),
31x6
(El
26_.46
IF)
28x56
(H)
54407Z
IIIHII=I=IIIll i= i
ASSEMBLY
D-S124
W_ndow
Pfastic Flange
!6
(H)
Plastic Tab

................................ i,, ,lui un,lllli,l_Jii
ASSEMBLY
HOW TO MOUNT THE EXTENSION TUBE
1,, Assembfe latch pin (A) to the extension tube with the
fasteners shown below
54563 15x89 2x39
ABC
2, Move the lift lever to the highest cut position,
3. Disconnect the wire to the spark plug. Raise the deflector,
Rotate the blade away from the discharge openir;g, Remove
the carriage bolt and Iocknut from the mower housing as
shown.,
_ARNING: The blade has sharp edges_ Always
be careful of the position of the blade.
4, Slide the extension tube under the deflector bracket as
shown_ Fasten the extension tube to the front of the mower
housing with the bolt (D) and wing nut (E) as shown. Make
sure the wing nut is tight,
5- ff not assembled to the extension tube, put the bracket in
position at the back of the extension tube_ Fasten the
extension tube and the bracket with bolt (D) and wing nut (E)
as shown. Make sure the wing nut is tlght,,
2x64
D
14x83
E
A
D-B126
Mower Housing
Extension Tube
Deflector
Bracket
Deflector
Bracket
a-8151-2
F-91726 17

ASSEMBLY
HOW TO MOUNT
THE CONNECTOR TUBE
Mount the connector tube with the fasteners shown full size
below,,
(B)
26x239 15x89 4x24
(E)
4x71 15x66
1 Assemble the handle and the rubber latch to the connector'
tube with the fasteners as shown,_ Hoid the screws with a
screwdriver and tighten the Iocknuts,
2, Atign the hole in the connector tube with the hole in the
elbow as shown_
3, Fasten the elbow to the connector tube with the self=tapping
screw as shown Tighten the screw until the head of the
screw touches the elbow,
4, Move the lift lever to the lowest cut position_
5_ Hold tire handle on the connector tube,, Put the end of the
elbow in the hole of cover as shown,,
NOTE: To help the elbow slide when you open or close the
cover, put wax or polish on the elbow,
6. Rotate the efbow and connector tube assembly until the
rubber latch is aligned whh the latch pin
7 Slide the bottom end of the connector tube over the
extension tube Lock in place with the rubber latch,
Elbow
Slide elbow into
hole in cover_
D-8133 CoRRecter
Tube_
Lock in piece
whh rubber latch
Handle,
hole in
with hole in elbow
Conoector
Tube
Rubber Latch
(D)
D-S129-f
F-91726 18

ASSEMBLY
HOW TO ASSEMBLE THE CONTAINERS
NOTE: There is only one way that these containers can be put
together. Carefully read and follow the instructions below_,
1 Separate the six container pieces into two groups You will
have 2 tops, 2 middle and 2 bottoms pieces as shown,
2, Look for a number on one side of each top piece The
numbers for the two top pieces are I arid 3. Set the two top
pieces on the ground with the flange part up as shown,
3. Look for two numbers on one side of each middle piece_ One
middle piece has the numbers 1 and 2, The other middle
piece has the numbers 3and 4. Match the middle piece with
the numbers 1 and 2 with top piece 1. Set the middle piece
inside the matching top piece as shown
4. Match the middle piece with numbers 3 and 4 with top piece
3as shown Set the middle piece inside the matching top
piece as shown,,
5, Look for a number on one side of each bottom piece The
numbers for the two bottom pieces are 2 and 4o
6, Match bottom piece 2 with the top piece 1 and middle piece1
that has the numbers 1 and 2. Set the matching bottom
piece inside the middle piece as shown
7 Match bottom piece 4 with the top piece 3 and middle piece
that has the numbers 3 and 4, Set the matching bottom
piece inside the middle piece as shown_
8, Put one foot inside the three pieces and lift the top piece until
the three pieces connect together Make sure all four corners
of each piece are locked together.,
9, Fasten the top and middle pieces of each container together
using four fasteners for each container Push each fastener
into the hole in each side of the container from the inside
as shown,
(No_ shown _ctua! s_ze} BOTTOM PIECE
MIDDLE PIECE
D_8177
TOP PIECE
BOTTOM PIECES
TOP PIECES Flange
of Top
i i
GROUND
Fasteners
F-91726 1 9

ASSEMBLY
i lllll illll i
HOW TO ATTACH THE CONTAINERS
1 Tilt the seat forward Hold the handle on the back of the
cover,, Pull back on the handle and lift to raise the cover
2 Two plastic bag linings, not shown in the illustration, are
included with the grass bagger The plastic bag linings are
optiona] accessories that can be used for easy removal of
the grass,, I
3,. Put the plastic bag linings in to the containers
4, Slide the containers on to the frame tubes as shown Make
sure the "CAUTION" is to the rear' as si_own
5, Lower the cover Pull back on the handle and push the cover
down unti_ it locks into place
IMPORTANT: For the grass bagger to work correctly, the cover
must be in the down position,.
FINAL ASSEMBLY
1, The grass bagger has two containers. For easy removal of the
grass, use a plastic lining inside the container Use one ofthe
following sizes°
2+
e 33 gallons
e 4 bushels
e 145 litres
Check the fasteners° Make sure that alt bolts and nuts are
tight,,
HOW TO INSTALL THE BATTERY
Use the fasteners shown below to install the battery, The fasteners
are shown at full size,
(A) (B) (C)
lx38 t5x66 26x184
1o Tilt the seat forward Install the battery tray_ Make sure the
drain on the bottom ofthe battery tray goes through the hote
in the frame as shown,
2,, Set the battery in the battery tray, Make sure the battery
terminals are toward the front of the unit,
NOTE: Make sure the battery fits under the tabs at the
back of the unit.
3° Fasten the battery clip in the slot in the frame,, Attach the
battery clip with the fastener as shown,
_WARNING: To prevent sparks, fasten the red
cable to the positive (+) terminal before you
connect the black cable,
4. Fasten the red cable to the positive (+) terminal with the
fasteners as shown_
5, Fasten the black cable to the negative (--) terminal with the
fasteners as shown,
F-91726 2O
0-8131
;_ Caution
to rear

i , ,
OPERATION
KNOW THE PRODUCT
Before you operate the unit, read this instruction book° If you understand the unit and how the unit operates, you will get the best performance.
When you read this instruction book, compare the illustrations to the unit. Learn the location of the controls. To help prevent an accident,
follow the operating instructions and the safety rules Keep this instruction book for future reference
Position w _en Enga(
!
Clutch/Brake lgnitloniLight
Pedaf Switch,
Button
Parking Brake Lever
Blade Engagement Control
O Q
Position when Disengaged
ill ill,ii u i i ii ii ii i ,llllll,lll,ii ii ii ii ,i,,ll i ,, illUll,,i ,,i i
MEETS CPSC SAFETY REQUIREMENTS
Sears Mowers conform to the safety standards of the American National Standards Institute, and the US Consumer Product Safety
Commission,,
i illlUHlll i Hu, .ll UUlmlIHH 'llHJl I I III,H
BLADE ENGAGEMENT CONTROL LEVER: Use the control
lever to start and stop the rotation of the blade
CLUTCH/BRAKE PEDAL: The pedal has two functions The first
function is a clutch The second function is a brake
IGNIT|ON/LIGHT SWITCH: The switch has two funct}ons The
first function is for starting the engine The second function is to
turn on the headlight
PARKING BRAKE: Use the parking brake to engage the brake
when you leave the unit
LIFT LEVER: Use the lift lever to change the height of the
attachment
SHIFT LEVER: Use the sh_ft lever to change the speed of the
unit
THROTTLE CONTROL LEVER: Use the throttle control to
increase or decrease the speed of the engine
F191726 2t

OPERATBON
The operation of any lawn mower can result in
foreign objects thrown in the eyes, which can
result in severe eye damage° Always wear
safety glasses or eye shields before starting
your lawn mower and while mowing. We
recommend the Wide Vision Safety Mask for
over the spectacles or standard safety glasses.
available at Sears Retail or Catalog Stores.
HOW TO USE THE MOWER
HOW TO SET THE PARKING BRAKE
2
3,
Completely push the clutch/brake pedal forward.
Lift the perking brake lever_
Remove your foot from the clutch!brake pedal and then
release the paddng brake lever Make sure the parking brake
will hold the unit,
To release the parking brake, completely push the
clutch/brake pedal forward. The parking brake will
automatically release,
WARNING: Before you leave the operator's
position, move the shift lever to the neutral (N)
position+ Set the parking brake. Move the blade
engagement control to the DISENGAGE position.
Stop the engine and remove the ignition key.
HOW TO STOP THE UNIT
1, Push the clutch!brake pedal completely forward to stop the
unit Keep your foot on the pedal.
2 Move the blade engagement control to the DISENGAGE
position.
3., Move the shift lever to the NEUTRAL position,,
4_ Set the parking brake,.
5. Move the throttle control to the SLOW position,
& To stop the engine, turn the ignition key to the OFF position,
Remove the key,
HOW TO US[ =TH[= SHIFT L[=V[=R
HOW TO CHANGE DIRECTIONS
To change the direction of the unit, follow the steps below:
1. Completely push the clutch/brake pedal _orward
WARNING: Before you change directions oftravel, fully depress the clutch/brake pedal,,
2. Pull the shift lever toward the seat until the lever disengages
from the shift gate_ Move the shift lever to FIRST or
REVERSE, Make sure the shift lever engages into the shift
gate
3 Slowly release the clutch!brake pedal Do not ride with your
foot on the clutch/brake pedal
1 i[ tShlftLever
Shift Ga
!
t
I
I
e-5732 iJ
FUNCTION
Trimming
Snow Thrower
:z mm
Bagging grass
Normal mowing
Light mowing
Snow Blade
"°7"
Pull Behind
Attachments
SHIFT LEVER
I
,,! or 2
,2o!3
4or5
6
2or3
THROTTLE
,, =,,,,u
CHOKE i --
O5
CHOKE ""
SLOW-F_:r
HOW TO USE THE SHIFT-ON-THE-GO
I. While the unit moves forward, you can select any forward.
speed Just move the shift lever to the next faster or next
slower speed, You do not have to use the clutch/brake
pedal
2, The shift lever positions for operation of your unit are shown
in the chart
NOTE: Belt noise can occur when the clutch is engaged_ This
noise is normal and does not affect the operation of the unit°
F-91726 22

OPEBATnON
iii ,
HOW TO USE THE THROTTLE CONTROL
Use the throttle control to increase or decrease the speed of tile
engine_
1 To start a cold engine, move the lever to the START or
CHOKE position
2, The FAST position is marked with adetent, For normal
operations and when using a grass bagger, move the lever to
the FAST position For maximum charging of the battery and
also for a cooler running engine, aperate the engine in the
FAST position,
3, For transport and to tow pull behind attachments, move the
throttle control to the needed speed,
4,, The engine governor is set at the factory for maximum
performance,, Do not adjust the governor to increase the
speed of the engine
HOW TO CHANGE THE CUTTING HEIGHT
To change the cutting height, raise or lower the lift lever Push the
button on top of the lever to release the lever. Move the lever
forward to lower the mower housing and back to raise the mower
housing. The cutting height can be set from 2 to 4 inches When
you ride on a sidewalk or a road, move the lift lever to the hightest
position and move the blade engagement control to the
DISENGAGE position
HOW TO USE THE BLADE ENGAGEMENT
CONTROL
See the location of the blade engagement control in the illustration.
Use the blade engagement control to start and stop the rotation of
the blade
1Before you start the engine, make sure the centre! lever is in
the DISENGAGE position
2, Move the control lever to the ENGAGE position to rotate
the blade°
Note: If the engine stops when you engage the blade{s),
the seat switch is not activated. Make sure you sit in the
middle of the seat. Also, make sure the wire is connected
to the seat switch,
3 Move the control lever to the DISENGAGE position to stop
the rotary blade. Before you feave the operatoKs position,
make sure the blade has stopped rotating,,
4, Before you ride the unit on a sidewalk or a road, move the
controI lever to the DISENGAGE position,,
WARNING: Always keep your hands and feet
away from the blade, deflector opening, and the
mower housing when the engine runs,
HOW TO TRANSPORT THE UNIT
To transport the unit, follow the steps below,
1. Move the blade engagement control to the DISENGAGE
position.
2 Raise the lift lever to the HI position.
3,, Move the throttle control to a position between SLOW
and FAST
4 To go faster, move the shift lever to a faster speed
F-91726
HOW TO OPERATE WITH
THE MOWER HOUSING
WARNING: The deflector is a safety device,, Do
not remove the deflector° The deflector forces
the discharged material toward the ground.
Always keep the deflector in the down position.
If the deflector is damaged, replace it with a
factory replacement part.
1Start the engine_
2+ Move the lift Iever to aheight of cut position, in high or thick
grass, cut the grass in the high position first and then lower
the mower housing to a lower position°
3. Move the throttle control to the SLOW position°
4° Move the blade engagement Control to the ENGAGE
position,
5o Push the clutch/brake pedal completely forward,
6o Move the shift lever to one of the speed settings°
NOTE: When you mow in heavy grass or mow with a
bagger, put the shift lever in the slowest speed,
7° Slowly release the clutch/brake pedal.
B° Move the throttte control to the FAST position Ifyouneedto
go faster or slower, move the shift lever to another speed
setting,
9 Make sure the level of cut, set at the factory, is still correct,
After you mow a short distance, look at the area that was cut.
If the mower housing does not cut level, see the instructions
on "How To Lever The Mower Housing" in the maintenance
section.
WARNING: For better control of the unit, always
select a safe speed.
23
HOW TO OPERATE THE UNIT ON HILLS
WARNING: Do not ride up or down slopes that
are too steep to back straight up. Never ride the
unit across a slope. See the "Slope Guide" in the
back of this book for information on how to
check slopes,
14 Before you ride up or down a hill, move the shift lever to the
slowest speed.
2+ Do not stop or change speed settings on a hill If you must
stop, quickly push the clutch/bra ke pedal forward and set the
parking brake,
3+ To start again, make sure the shift lever is the slowest speed,
Move the throttle control to the SLOW position, Slowly
release the pedal
4+ If you must stop or eta rt on a hill. always have enough space
for the unit to roll when you release the brake and engage
the clutch.
5 Be very careful when you change directions on a hill, When
on aslope or in a turn on a hilt, move the throttle control to the
SLOW position to help prevent an accident.

HOW TO USE THE GRASS BAGGER
WARNING: Do not ride up or down slopes that
are too steep to back straight up. Never tide the
unit across a slope.. See the "Slope Guide" in the
back of this book for information on how to
check slopes..
To operate the unit with the grass bagger, follow the steps below.
1,
2,
3,
Put the throttte control in FAST position
Put the shift lever in FIRST (1) position
If the height of the grass is more than 3-1/2 inches (9 cm),
move the mower housing to the highest position and cut the
grass.. Lower' the mower housing and cut the grass again
You also can mow high thick grass at 1/2 to 2/3 of the full
cutting width of the mower housing
IMPORTANT: Do not cut wet grass. Wet grass will not
discharge correctly in to the bagger.
4 Look at the wlndow(s) in the cover, When the containers are
full, grass will begin to fill the cover which can be seen
through the window(s}, As soon as grass can be seen, empty
the containers as follows,
5 Move the blade control lever to the DISENGAGE position,
6 Put the shift lever in NEUTRAL (N) position,
7 Engage the parking brake_
8 Stop the engine.
9 Raise the cover, Pull the handle back and lift the cover
10o Remove the containers from the frame,
Ile
Contalners
Frame_tTubea _ __C a
Frame Tubes t J
D-S13_ ution
to rear
WARNING: Check the condition of the grass
bagger and the connector tube for wear or
deterioration, tf worn or damaged, replace the
parts only with approved factory replacement
parts. For replacement parts, see the parts list in
this book.
The connector tube is made of clear pEastic, if the connector tube
becomes filled with grass, remove and clean the connector tube
and the extension tube_ Before you remove the connector tube,
stop the unit as follows_
1, Put the blade control lever in the DISENGAGE position
2_ Put the shift lever in neutral position..
3. Engaged the parking brake.
4. Stop the engine.
F-91726 24

OPERATRON
BEFORE STARTING THE ENGINE HOW TO START THE ENGINE
CHECK OIL - Add as needed
NOTE; Do not check the level of the oil while the engine
runs.
1, Make sure the unit is level,
2. Clean the area around the dipstick, Remove the dipstick,
Wipe the oil from the dipstick.
3_ Insert the dipstick into the oil fill tube Turn the dipstick
clockwise until it is tight, Remove the dipstick, Check the oil
level on the dipstick., The oil level must reach the FULL mark
on the dipstick.
4,, If necessary, add oil until the oil reaches the FULL mark on
the dipstick The quantity of oil needed from ADD to FULL is
shown on the dipstick_ Do not add too much oil,
ADD GASOLINE
Fill the fuel tank with regular unleaded gasoline., Make sure the
gasoline is fresh and clean_ Leaded gasoline will increase deposits
and shorten the life of the valves. Do not use premium unleaded
gasoline,
CAUTION: A mixture of alcohol (ethanol or methanol) and
gasoline (called gasoholl, will attract moisture and cause acid
deposits during storage. While the unit is in storage, the acids
in the fuel can damage the fuel system,,
To prevent engine problems with the fuel system, empty the
fuel system before storage of 30 days or longer° Drain the fuel
tank° Start the engine. Let the engine run until the fuel lines and
the carburetor are empty. After storage, make sure you use
fresh fuel. See the storage instructions for additional information°
Never use engine cleaner or carburetor cleaner in the fuel tank
or permanent damage can occur.
WARNING: The electrical system has an
operator presence system that includes asensor
switch mounted in the seat. These components
tell the electrical system if the operator is sitting
on the seat° For your protection, always make
sure this system operates correctly. This system
will stop the engine when the operator leaves
the seat if the blade engagement control is
engaged.
NOTE: The engine will not start un!ess you depress the
clutch/brake pedal, move the shift lever to the NEUTRAL
position, and move the blade engagement control to the
DISENGAGED position°
t_ Sit in the middle of the seat. Completely push the
clutch/brake pedal forward, Keep your foot on the pedal
2. Move the shift lever to the NEUTRAL (N) position
3, Move the blade engagement control to the DISENGAGE
position.
4., Move the throttle control to the CHOKE position,
5o Turn the ignition key to the START position, Release the key
when the engine starts,
NOTE: tf the engine does not start after four or five tries,
move the throttle control to the FAST position° Again try
to start the engine° If the engine will not start, see the
TROUBLE SHOOTING CHART°
6, After the engine starts, move the throttle control from
CHOKE to a needed speed,
7, Before you begin work, let acold engine run for several
minutes To start a hot engine, move the throttle control to a
position between FAST and SLOW
WARNING: Always use a safety gasoline
container. Do not smoke when adding gasoline
to the fuel tank. Do not add gasoline when you
are inside an enclosure,, Before you add
gasoline, stop the engine and let the engine coot
for several minutes.
CARBURETOR
The factory settings for the carburetor are for most conditions If
the engine is operated under the following conditions, you can
adjust the carburetor mixture. See "How To Adjust The Ca rburetor"
in the maintenance section,
1. The engine has a loss of power or does not run smooth_
2 A change from summer to winter operation
3A 40 °change in the operation temperature. The carburetor
was adjusted at 80 °at the factory
4. The engine is operated above 4,000 feet
F-91726 25

OPERATION
OPERATING TIPS
1. Check the blade engagement control for correct adjustment.
For the blade(s) to disengage correctly, the adjustment must
be correct
2, Before you use the unit, check the oil in the engine and add oil
if necessary
3, If the engine will not start, first make sure the wire is attached
to the spark plug,,
4, Make sure all the belts are inside alf the belt guides_ See the
instructions on how to remove and install the motion dt'ive
and mower drive belts,
5, Before you make an inspection, adjustment (except for the
carburetor) or repair, make sure the wire from the spark plug
is disconnected_
6_ Make sure the seat switch wire is connected, If the wire is not
connected, the engine will not start
7, For longer tlfe of the battery_ charge the battery every
three month&
8. Use the shift lever to change the ground speed, not the
throttle control
9 Belt noise can occur when the blade or clutch is engaged
This noise is normal and does not affect the operation of
the unit_
MOWING AND BAGGING TIPS
1 For a lawn to look better,, check the cutting leveF of the
mower housing,, See "How To Level The Mower Housing" in
the maintenance section_
2o For the mower housing to cut level, make sure the tkes have
the correct amount of air pressure (PS!},
3, Every time you use the unit, check the blade If the blade is
bent or damaged, immediately replace the blade Also, make
sure the nut for the blade is tight,
4, Keep the blade(s) sharpened. Worn blades will cause the
ends of the grass to turn brown,
5. Do not cut or bag grass that is wet. Wet grass will not
discharge correctly Let the grass dry before cutting,
6, Use the left side of the mower housing to trim near an
object.
7.. Discharge the cut grass onto the mowed are& The result is a
more even discharge of cut grass.
8. When you mow large areas, start by turning to the right so
that the cut grass will discharge away from shrubs, fences,
driveways, etc_ After one or two rounds, mow in the opposite
direction making left turns until finished,
9 If the grass is very high, cut two times to decrease the load on
the engine First cut with the mower housing in the HIGH
position and then lower the mower housing for the
second cut,.
10 For better engine performance and an even discharge of the
cut grass, always operate the engine with the throttle in
FAST position,,
11o When you use a bagger, operate the engine with the throttle
in FAST position and the shift lever in first or second gear,
12,, For better cutting performance and a quality cut, mow with
the shift lever in one of the slower speed gears.
13 After each use, clean the bottom and top of the mower housing
for better performance. Also, a clean mower housing will
help prevent a fire,
F-91726 26

MAINTENANCE SCHEDULE
PROCEDURE
Blade, Inspect & Sharpen
RT B!ade Engagement Control, Check
_ Brake, Check
T Clutch, Check
O Shift Check
Lever,
Tires, Check
......Battery, Check &Char_3e
_ Battery, Ctean
Lubrication
1 Oil, Check
GCoolin 9 System, Clean
i_ Oil, Chan£1e ,
E Air Filter, Clean .........
Muffler, Check
Spark Plug, Check
Fuel Filter, Replace
Spark Plut3, Replace
EACH
USE
X
X
FIRST
2
HOURS
EVERY EVERY
25 50
HOURS HOURS
X
X
X
X
X
X
X
X
X
X X
X
EVERY
100 BEFORE
HOURS STORAGE
X
X
X
X
X
X
X
X
STORAGE
DATES
MOWER
GENERAL RECOMMENDATIONS
1., It is the owner's responsibility to correctly maintaln this
product which extends the iife of the product and to maintain
warranty coverage
2. Once a year you must check the spark plug, drive brake,
lubricate the unit, and clean the air filter.
3_ Check the fasteners and make sure they are tight.
4., Follow the Maintenance Section to keep your unit in good
operating condition.
WARNING; Before you make an inspection.
adjustment (except carburetor), or repair,
disconnect the wire from the spark plugo
WHERE TO LUBRICATE
Lubricate the areas shown with engine oil.
'=='_li_ Apply grease with a brush to the areas shown,
NOTE; Apply grease to the steering gear assembly.
NOTE: If the unit is operated in dry areas that have sand, use a
dry graphite spray to lubricate the unit.
CAUTION: Do not lubricate the nylon bearings for the front
wheeiso Oil or grease will damage the bearings,,
C
C
X
X
X
F-91726 27

MAINTENANCE
_NSPECT BLADE
WARNING: Before you inspect or remove the
blade, disconnect the wire to the spark plug, If
the blade hits an object, stop the engine° Check
the unit for damage The blade has sharp edges,.
When you hold the blade, use gloves or cloth
material to protect your hands,.
If you keep the blade sharp and inspect the blade for damage, the
blade will cut better and be safer to operate, Frequently check the
blade for excessive wear cracks, or other damage Frequently
check the nut that holds the blade_ Keep the nut tight If the blade
hits an object, stop the engine Disconnect the wire to the spark
plug, See if the blade is bent or damaged Check the blade adapte_
for damage Before you operate the unit, replace damaged parts
with a replacement part from the factory Every three years, have
an authorized service person inspect the blade or replace the old
blade with a replacement blade from the factory
HOW TO REMOVE AND INSTALL THE BLADE
1 Remove the mower housing,_ See the instructions on "How
To Remove The Mower Housing".
2, Use a piece of wood to keep the blade from rotating
3 Remove the nut that holds the blade.
4, Check the blade and the blade adapter according to the
instructions for "Blade Service" Replace a badly worn or
damaged blade with a replacement blade from the factory
5 Clean the top and bottom of the mower housing, Remove all
the grass and debris.
6, Mount the blade and blade adapter on the mandrel as shown.
7 Mount the blade so that the hHfft edges are up as shown If
the blade is upside down, the blade will not cut cot rectly and
can cause an accident
8, Fasten the blade with the odginat washers and nut, Make
sure the outside rim of the belleville washer is against the
blade as shown,.
9 Tighten the nut that holds the blade to a torque of 30 foot
pounds (41 5N-m)
10 Connect the wire to the spark plug,
HOW TO
,&
WARN1NG: Always keep the nut tight that holds
the blade_ A loose nut or blade can cause an
accident=,
SHARPEN THE BLADE
WARNING: Vibration can be caused if the blade
is not correctly balanced or if the blade is damaged.
A blade that is damaged with cracks can break
and cause an accident_
Keep a sharp edge on the blade A blade that is not sharp will cause
the tips of the grass to become brown.
1. Sharpen the blade two times a year or every 25 hours,
2 Remove the biade according to the instructions in "How To
Remove And Instalt The Blade",
3 Clean the blade with a brush soap and water Check the
bfade Look fo_ cracks, nicks, or other damage Replace a
badly worn or damaged blade with a replacement blade from
the factory
4 Sharpen the blade with a file Make sure you keep the original
bevel angle.
5 Make sure the blade is balanced Use a screwdriver and hold
the blade paralleJ to the ground as shown A blade that is
balanced will stay parallel to the ground if the blade is not
balanced, the heavy end will rotate toward the ground
Sharpen the heavy end until the bfade is balanced,
6 A new blade witl cut better than a badly worn blade Every
three years, have an authorized service person inspect the
blade or repiace the old blade with areplacement blade from
the factory
7 Assembie the blade according to the instructions "How To
Remove And Instafl The Blade"
F-91726
\,
Mandrel
Blade Adapter
Hi-Lift Edge Up
Blade
D 41563
Blade
t/,
I )
I Betleville Washe_'
Washer
Nut
28
Ground
,lure ,u mH..HH ,.,..,
D_4169-1

MAUNTENANCE
HOW TO CHECK AND ADJUST
THE BLADE ENGAGEMENT CONTROL
WARNING: To prevent an injury, the blade
engagement control must operate correctly..
1 Stop the engine.. Disconnect the wire from the spark pEug..
2 Before you adjust the blade engagement control lever, check
and level the mower housing. See "How To Level The
Mower Housing"
3 Set the height of the mower housing in the lowest position.
4 Move the blade engagement control to the ENGAGE position..
(_heck the blade drive spring.. The end of the plastic indicator
must be aligned with the last coil of the blade drive spring
(+ 1/B inch / 3 mm)_
5.. If the plastic indicator is more than 1/8 inch (3 mm) from the
last sprihg coil, an adjustment is needed. Move the blade
engagement control to the DISENGAGE position. Disconnect
the blade control rod from the pivot bracket_ Turn the
adjustable nut clockwise tO increase the length of the coils
Turn the adjustable nut counterclockwise to decrease the
length of the coils,
6 Connect the blade control rod tO the pivot bracket. Move the
blade engagement control to the ENGAGE position Check
the adjustment of the brade drive spring..
7 Move the blade engagement control to the DISENGAGE
position., Check the operation of the blade brake. Rotate the
pulley with your hand Make sure the blade brake pads press
tightly against the pulleys.
8.1 Move the blade engagement control to the ENGAGE position_
Check the blade brake pads If the blade brake pads are
excessively worn or damaged, replace the blade brake pad
assemblies.. Correct replacement parts and assistance are
available from an authorized service center
9 Attach the wire to the spark plug. Mow for a short distance
and again check the operation of the blade engagement
control.
10. When you move the blade engagement control to the
DISENGAGE position, all movement will stop within five
seconds if the adjustment is correct. If all movement does
not stop, again adjust the blade engagement control
beginning with the first step If you need assistance, take the
unit to an authorized service center..
11. lfyou replace ti_e mower drive belt, adjust the blade engagement
control lever..
Completely
Engaged
Position
Completely
Disengaged
Position
Blade Engagement
Control Lever --
Blade Control Rod
Adjustable
(_ Plastle,ndicater J
Brake Pad
Against Pulley
Pivot
Blade Brake Pad
D-5707-t
Blade Drive
Spring Mower Drive Belt
F-91726 29

MAnNTENANCE
HOW TO CHECK AND ADJUST
THE DRIVE BRAKE
Completely push the clutch/brake pedal forward,, Set the parking
brake Movethe shlfttevertotheneutral(N)position, Push the unlt.
If the rear wheels rotate, adjust or replace the brake pads Adjust
the drive brake as follows
1 The location of tile brake is on the right side of the
gearbox
2 Make sure the parking brake is set and the shift lever is in
neutral (N), Turn the hex nut in a clockwise direction untit the
rear wheels do not turn when the unit is pushed forward,
3 Release the parking brake and push the unite if the unit does
not roll, turn the hex nut in a counterclockwise direction until
the unit rolls,
4 Set the parking brake. Push the unit. If the rear wheels do not
turn, the brake is correctly adjusted Release the parking
brake
WARNING: if you cannot correctly adjust the
drive brake, replace the brake pads, Correct
replacement parts and assistance are available
from an authorized service center,
D-5720
Brake Arm
HOW TO CHECK AND ADJUST
THE CLUTCH
If the unit will not move when the clutch is engaged or if the belt
slips when going uphill or when pulling a toad, the motion drive belt
is loose. Check the clearance between the rear of the pedal and the
back of the hole as shown_ If there is more or less than the clearance
shown in the illustration, adjust the pedal as follows,
1= Disconnect the adjustable nut from the lever assembly as
shown
2., Turn the adjustable nut clockwise to decrease the lengtil of
the clutch rod_ This adjustment will decrease the clearance at
the pedal
3 Assemble the adjustable nut to the lever assembly Check
the clearance at the pedal
4 After making an adjustment to the pedal, check the brake rod
as described in the instructions on "How To Check And
Adjust The Drive Brake," Also, check the adjustment of the
shift lever, See the instructions on "How To Adjust The
Shift Lever"
5 If the belt is loose after the clutch has been adjusted, then the
belt has stretched and must be replaced,,
NOTE: Replace the motion drive belt with a factory
replacement belt.
Assembly
D-5724
Adjustable Nut
To decrease the
clearance t.urn
clockwlse 3/16" (4,7ram)
Clearance
F-91726 30

5AAtNTENANCE
HOW TO ADJUST THE SHOFT LEVER
NOTE: To help show the shif_ gate, the shift cover was removed
in the illustration,
t. Move the shift lever to the NEUTRAL position Carefufly pull
the shift cover away so that you can see the shift gate
2 Carefully push the shift lever towards the seat until you feel
the spring begin to extend, Measure the distance between
the shift lever and the shift gate as shown The distance must
be approximately t/8" to 3/16" (3mm to 5ram)
3, If the distance between the shift lever and the gate is
incorrect, disconnect the adjustable nut at the shift lever
as shown
4. Check and adjust the clutch/brake pedal See the instructions
How To Check and Adjust The Clutch
5. Turn the adjustable nut at the shift lever clockwise to
decrease the distance between the shift lever and the gate or
counterclockwise to increase the distance, Connect the
adjustable nut to the shift tever,,
6, Check the dista nce between the shift lever and the gate See
Step 2, If the distance is incorrect, repeat Steps 3 and 5
Shift Gate
Cotter Pin
D-5733
Shift Cover
Shift Lever
Washer
Adjustable Nut
HOW TO CHECK AND ADJUST
THE SHIFT GATE
If it is difficuit to change gears, adjust the shift gate as follows:
1 Set the parking brake
2, Loosen the two bolts at the shift gate as shown
3. Move the shift lever to the REVERSE position
4,, Make sure the shift indicator is in the center of the reverse
notch in the shift gate Push on the top of the shift gate while
you tighten the rear bolt
5, Then, tighten the front bolt
6, Move the shift lever to the NEUTRAL pos_tlon Release the
parking brake, Push the unit to make sure the rear wheels will
turn.
REAR FRONT
Shift Lever
in I
Shift
|ndicat(
_,!
.....
1/8" - 3/16"
(3mm - 5ram)
NEUTRAL
Shift Gate
t
D-5732
F-91726 3 1

MAINTENANCE
_JL_L_
BATTERY
To charge or clean the battery, remove the battery from the unit
as follows
WARNING: To prevent sparks, disconnect the
black battery cable from the negative (--)
terminal before you disconnect the red cable..
WARNING: The battery contains sulphuric acid
which is harmful to the skin, eyes and clothing. If
the acid gets on your body or clothing, wash
with water immediately,
CUT AWAY VIEW
Vent
Correct
Liquid
Level
1 Remove the black cable from the negative (--) terminal,
2, Remove the red cable from the positive (+) terminal
3 Remove the battery clamp from the battery
4. Remove the battery from the unit
HOW TO CHECK AND
CHARGE THE BATTERY
WARNING: When you charge the battery, do not
smoke, Keep the battery away from any sparks°
The fumes from the battery acid can cause an
explosion,
1, The battery will be damaged If the battery acid is not kept at
the correct level, Check the level of the battery acid The battery
acid must touch the bottom of the vent. If the battery acid has
fallen below the correct level, add water to the correct level
Do not add battery acid to a charged battery or the result can
be an explosion_
2. The engine has a 3 amperes charging system. If you frequently
start the engine or' frequently use the headlight, the battery
wilt not stay fully charged. For longer life of the battery,
charge the battery every three months.
3 Before you charge the battery, remove the battery,
4. Use a 12 volt battery charger to charge the battery. Charge at
a rate of 3 amperes for 2 to 3 hours, After the battery is
charged, check the level of the battery acid, If the level of the
battery acid falls, add water, Do not add battery acid to a
charged battery or the result can be an explosion
5. Install the battery° See "How To Install The Battery" in the
assembly section.
y Clip
0=5725
HOW TO CLEAN THE BATTERY CHECK THE TIRES
t _ Remove the battery from the unit,
2 Wash the battery with a solution of one gallon of water and
four tablespoons of baking soda (sodium bicarbonateL Make
sure the solution does not get into the battery cells°
3 Clean the terminals and the ends of the cables with a
wire brush.
4, Install the battery, See "How To Install The Battery" in the
assembly section°
5, To prevent corrosion, apply grease to the battery terminals,
Check the air pressure in the tires,, Tires with too much air pressure
will cause the unit to ride rough,, Also, the wrong air pressure will
keep the mower housing from cutting level,. The correct air'
pressure (PSI)is 12 PSI (0,85 kgicm2)
F-91726 32

IENGONE
MAINTENANCE
i ii Hi ,ll ill lllil liiNil i i = =
HOW TO CHECK THE OIL
NOTE: Do not check the le;vel of the oil while the engine
runs.
1. Make sure the unit is level.
2_ Clean the area around the dipstick, Remove the dipstick_
Wipe the oil from the dipstick°
3o Insert the dipstick into the oil fill tube. Turn the dipstick
clockwise until it is tight, Remove the dipstick. Check the oil
level on the dlpstick. The oil level must reach the FULL mark
on the dipstick_
4, If necessary, add oil untit the oil reaches the FULL mark on
the dipstick. The quantity of oil needed from ADD to FULL is
shown on the dipstick_ Do not add too much oil
HOW TO CHANGE THE OIL
NOTE: Do not drain the oil from a cold engine. Before you drain
the oil, let the engine run for several minutes. Make sure you do
not get oil on the belts.
1. Remove the oil drain cap, Drain the oil completely from the
engine. Install and tighten the oll drain cap,
2Use a SD, SE or SF detergent grade oi!, Detergent oil helps to
clean the engine Noth!ng must be added to the oli.
3., BEfore you change the oil, use the temperature chart below
to select the viscosity grade of the oil to use.
Temperature range before the next oil change° Oil must be a
SD. SE or SF grade oil,
Required SAE viscosity grades
!11
-20 ° 0o 32° 40 °60° 80°100°
D=4SS2-1
CAUTION: To protect the starting system, use SAE 5W30 oil
when the temperature is less than 32 °F.
4 Clean the area around the dipstick, Remove the dipstick.
Slowly pour approximately 3 pints (1 4 liters) of oil into the
oil extension tube
5 Insert the dipstick into the oil extension tube., Turn the
dipstick _n a clockwise direction until it is tight Remove the
dipstick Check the oil level on the dipstick The oil level must
reach the FULL mark on the dipstick,
Draln Cap
HOW TO CLEAN
THE ENGINE COOLING SYSTEM
The engine on this unit is air cooled. The air that cools the
engine enters through the air screen on top of the engine.
2.
Remove any grass, dirt or debris from the air screen with a
clotl_ or brush.
Inspect the edge of the engine shroud for grass or debris,
Remove any grass or debris v!sible at the bottom edge of the
engine shroud.
i1,,i ,11 iillPlll, i,
Cleangrassand dcbris
from bottom edge of shroud
l=....................
F-91726 33

MAgNTENANCE
,=,,,J,iLiJ ,,, N H ii iHi ii ii =
HOW TO CLEAN THE AIR FILTERS
Some engines have two filters, an outer foam filter around an inner
paper filter. Clean the air filters every 50 hours. If you operate in
dirty conditions, service more often
NOTE: Never run the engine with the air filters re moved_ The a ir
filters will help protect the engine against wear° For the correct
replacement filter, see the parts list for the engine°
1, Remove the two wingnuts from the cover,
2Remove the cover from the air cleaner°
3o Remove the two nuts from the filterso
4_ Remove the filters°
5,, Clean the inside of the base and the cover with a cloth.
6. Remove the foam filter, (if equipped ), from the paper
filter_
7o If equipped, wash the foam filter in a detergent and water
solution. To remove the water solution, tightly roll the foam
filter in adry cloth Remove the foam filter from the cloth,.
Completely dry the foam filter
CAUTION: Do not wash the filters in gasoline or other
solvents that will burn.
8Evenly apply S, AE 30W oil to the dry foam filter
9 To clean the paper filter, lightly tap the paper filter against a
hard flat surface,,
10° If the paper filter is very dirty, replace the filter,,
11_ Assemble the air filters with the two nuts
12, Install the cover. Fasten the cover with the two wingnuts.
HOW TO CHECK THE MUFFLER
Check the muffler every 50 hours. Make sure the muffler is correctly
mounted and is not loose, If the muffler is worn or burnt, replace
with anew muffler. A worn muffler is afire hazard and also can
damage the engine
If you mount a spark arrestor to the muffler, also check the spark
arrestor when you check the muffler:, If the spark arrestor is worn or
damaged, replace it with a new spark arrestor.
HOW TO CHECK THE SPARK PLUG
1. Check the gap of the spark plug with a feeler gauge. The
correct gap is 0,030",
2, For easy starting and good performance, replace the spark
plug every two years,
CHECK THE FUEL FILTER
NOTE: Before you replace the fuel filter or the fuel line, the fuel
tank must be empty°
If the fuel filter is ditty, the engine will run rough and have iess
performance° Remove the old filter. Replace the old filter with a
new filter,, Use a factory replacement part
=I,HI,==,= = == =
0=5431
F-91726 34

HOW TO ADJUST THE CARBURETOR
The factory settings for the carburetor are for most conditions, if
the engine is operated under the following conditions, you can
adjust the carburetor mixture.
1o The engine has aloss of power or does not run smooth.
2. A change from summer to winter operation
3. A 40 °change in the operation temperature. The carburetor
was adjusted at 80 ° at the factory
4, The engine is operated above 4,000 feet
if an adjustment is needed, follow the steps below
1., Turn the needle valve clockwise until it just closes Turn the
idle valve until it just closes.
CAUTION: If you turn the valves until they are tight, you
can damage the valves,
2Turn the needle valve 1~1/2 turns counterclockwise Turn
the idle valve I-1/4 turns counterclockwise., This first
adjustment will permit the engine to start and get warm so
that a last adjustment can be done.,
3. Move the throttle control to the FAST position Turn the needle
valve clockwise untll the engine starts missing (lean
mixture). Then turn the needle valve counterclockwise past
the smooth operating position (rich mixture).,
4. Turn the needle valve to a position between rich and Iean so
that the engine can run smooth. (3400 + 100 FIPM),r
5. Adjust the RPM, Move the throttle control to the SLOW
position. Tu rn the idle speed screw until a fast idle is obtaine d
(1750 + 200 RPM),. Turn the idle valve clockwise {Teen) and
counterclockwise (rich) until the engine idles smoothly,
Then, turn the idle speed screw so that the engine idles at
1750 _+ 200 RPM),
6o Move the throttle control to the FAST position_ If the engine
does not accelerate correctly, adjust the carburetor to a
rich mixture.
Idfe Speed
Screw
Needle Valve
11
HOW TO ADJUST
THE THROTTLE CONTROL
If the engine is difficult to start or will not run at 3500 RPM in FAST
position, then adjust the throttle control as follows:
! ,, Move the throttle control to the FAST position.
2. Loosen screw {C) that holds the throttle cable in position.
3. Pull the throttle cable up until the lever (E) touches link
(F) as shown,
4o Tighten screw (C) Move the throttle control to the SLOW
position and then back to the FAST position. Make sure lever
(E} touches link (F) as shown.
NOTE: Do not change the engine governor° Ifthe engine governor
needs an adjustment, go to the nearest Sears Service Center_
They have the equipment and experience to make the
adjustment°
F-91726 35

SERVICE AND ADJUSTMENT
.,I,,,,,,,,,UUl1' J =l, n ,1 Iml Un
HOW TO REMOVE THE MOWER HOUSING
1- Move the lift lever to the lowest position,
2_ Move the blade engagement control lever to the
DISENGAGE position.
3- Remove the hair pins and the washers from the adjusting
rods. See illustrations "C" and "D" below,,
4. Remove the hair pins and the washers from the suspension
link and the adjuster p!ateo See illustrations "A" and "B"
below.
5 Remove the hair pin and washer from the blade control rod.
See illustration "E" belowo
6. Disconnect the front hanger from the axle support._ See
illustration "F" below°
7,. Remove the mower drive belt from the stack pulley,
& Pull the mower housing away from the dght side of the
unit,,
HOW TO INSTALL THE MOWER HOUSING
1.
2_
Push the mower housing under the right side of the unit.
Put the mower drive belt around the stack pulley,,Make sure
the "V" side of the mower drive belt is against the stack
pulley_Also, make sure the mower drive belt is not twisted.
3. Attach the front hanger to the axle support with the hanger
rod. Fasten with the fasteners as shown. See illustration
"F" beEow,.
4. Make sure the mower drive belt is between the stack pulley
and the belt guide.
5,, Fasten the control rod to the blade engagement c0ntrol with
the washer and hair pin. See illustration "E" below.
6. Attach the suspension link and the adjuster plate to the lifter
assembly, Fasten with the washers and hair pins, See
illustrations "A" and "B" below.
7, Attach the right and,the left adjusting rods to the suspension
brackets, Fasten with the washers and hair pins,.-See
illustrations "C" and "D" below_
8. Move the blade engagement control to the ENGAGE posi=
tion. Make sure the mower drive belt is inside all the belt
guides
9. Make sure the mower housing is level See the instructions
on "How To Level The Mower Housing"
! 0,. Check the operation of the blade engagement control° See
the instructions on "How To Check And Adjust The Blade
Engagement Control".
Lifter Assembly
Blade Engagement
Control Lever
D=5705
F-91726
BeEtGulde
Mower Orive
Be_t
36
D
Rod

SERVICE AND ADJUSTMENT
HOW TO REPLACE THE
MOWER DRIVE BELT
1 Remove the mower housing, See the instructions on "How
To Remove The Mower Housing'L
2, Pull the belt retainer away from the idler pulley and remove
the mower drive bett_
3, Pull the belt retainer away from the right mandreE pulley and
remove the mower drive belt,
4, Remove the mower drive belt from the left mandrel pulley.
NOTE: Replace the mower drive belt with a factory
replacement belto
5, Install the new mower drive belt, Pull the belt retainer away
from the right mandrel pulley° Put the beh around the right
mandrel pulley,
6, Pull the belt retainer away from the idler putley, Put the flat
side of the mower drive belt around the idler pulley
7, Put the belt around the left mandrel putley
8, Make sure the "V" side of the mower drive belt is against the
mandrel pulleys as shown,
9 Make sure the mower drive belt is under the end of the cross
link rod as shown
10, Make sure the mower drive belt is inside alt the beft guides.
1 1 Install the mower housing See the instructions on "How To
Install The Mower Housing".
12o Before you mow, check the blade engagement control, See
the instructions on "How To Check And Adjust The Blade
Engagement Cent rol'L
Belt Retainer
Cross Link Rod
Belt Retainer
Right Mandrel \
Pulley
Belt Guide Left Mandrel
Pulley
Belt Guide
Belt Guide
Idler Pulley Mower Drive
Bert
D-5707-1
F_91726 37

SERVICE AND ADJUSTMENT
HOW 70 REPLACE
THE MOTION DRRVE BELT
1 • Remove the mower housing, See the instructions on "How
To Remove The Mower Housing" in this instruction book
2o Completely push the pedal forward and engage the
parking brake,
3o Remove the idler pulley
4o Loosen the belt guides that are arqund the drive pulley,
5o Remove the bett from the drive pulley and the stack pulley,.
6, Remove the two screws fi'om the support bracket as shown.
Remove the support bracket
7o Disconnect the shifter link as shown.
8o Remove the motion drive belt Reptace the drive belt with a
replacement belt from the factory,
9° Install the motion drive belt on the top pulley of the stack
pulley. Make sure that the "V _' side of the belt is against
the pulley,
10. Install the end of the belt around the drive pulley
11. Tighten the belt guides that are around the drive pulley as
shown,
12_ Put the bett around the idler pulleyo Assemble the idler pulley,
Fasten the pulley with the hex nut Make sure the fiat side of
the belt is against the idler pulley as shown. Also, make sure
the belt is not twisted°
13, Connect the shifter link as shown
14, Assemble the support bracket. Fasten with the two screws
as shown.
15_ Make sure the motion drive belt is inside all the belt
guides as shown.
16. Before you use the unit, check the pedal adjustment See the
instructions on "How To Check And Adjust The Clutch",.
t7. Install the mower housing° See the instructions on "How To
Install The Mower Housing" in this instruction book°
Motion
Loosen The"
Belt Guides
Drive Pulte,
Belt Guides
,<
Screws_
Support Bracket "_
{)-5734
Motion Drive Belt
Stack Putle_
D_5723
Stack Pulley
Belt Guides
F_91726 38

SERVICE AND ADJUSTMENT
HOW TO LEVEL THE MOWER HOUSaNG
If the mower housing is level, the blade wilt cut easier and the
lawn will look better.
WARNING: Before you make an inspection,
adjustment, or repair to the unit, disconnect the
wlre to the spark plug_ Remove the spark plug
wire to prevent the engine from starting by
accident,,
1, Make sure the unit is on a hard {evet surface
2 Check the air pressure in the tires., ff the air pressure is
incorrect, the mower housing will not cut level Make sure
the tires are inflated to 12 psi (085 kg/cm2),
3 Move the lever for the blade engagement control to the
DISENGAGE position Move the lift lever to the number "4"
cutting height position.
4 There are two adjustment procedures below that will fevel
the mower housing
THE FRONT TO BACK ADJUSTMENT
Use a ruler and measure the distance from the fevei surface to the
bottom of the mower housing Measure from the locations
indicated by the smaN rou nd dimples (or X marks) at points B and D
In correct adjustment, the front of the mower housing at point B
wilt be from 0" to 1/2" (0 mm to 12 ram) higher than the back of the
mower housing at point D.
1 Disconnect both adiuster rods from the adjuster rod brackets
as shown.
2,. Turn the adjustable nut clockwise to lower the front or
counterclockwise to raise the front of the mower housing
3., Connect the left adjuster rod to the adjuster rod bracket.
Check the housing for the correct adjustment. Fasten the
adjustable nut with the washer and hair pin
4 Repeat the above steps for the right side using the small
round dimples (or X marks) at points A and C,
THE SIDE TO SIDE ADJUSTMENT
Use a ruler and measure the distance from the level surface to the
bottom of the mower housing Measure from the locations
indicated by the small round dimples (or X marks) at points A and B
In correct adjustment, the mower housing at points Aand B must
be within I/4" (6 ram) of the same height If the difference in the
measurement is more than 1/4" (6 mm), adjust as follows,
1 Disconnect the adjuster plate from the mower housing as
shown,
2 Move the adjuster plate to the front to raise or to the back to
!ower the [eft side of the mower housing, Connect the adjuster
plate.,
3 Check the housing for the correct adjustment., If necessary,
repeat the adjustment,
F-91726
A
D
D_5722_1
7 djusterRodBr,c.,
Adju
D-57 _1
39 Adjuster Plate

SERVnCE AND ADJUSTMENT
HOW TO REPLACE THE LIGHT BULB
1, Raise the tractor hood,
2. Pull the tight socket from the bezel.
3Pull the light bulb from the socket
4 Install anew light bulb Push the socket into the bezel.
HOW TO CLEAN THE MOWER HOUSING
_ WARNING: Before you clean the mower housing.
stop the engine and disconnect the wire to the
spark plug.
Grass and other debris 0n top of the mower housing can keep the
belt,from working correctly. Clean the mower' housing as follows=
1, Move the lever for the blade engagement control to the
ENGAGE position°
2,, Clean the top of the mower housingv
3. Move the lever for the blade engagement control to the
DISENGAGE position.
4,, Again clean the top of the mower housing_
5. After you out the grass, clean the bottom of the mower
housing° D-5748
,H. i
HOW TO CLEAN THE UNIT
WARNING: Before you clean the grass bagger or
the top of the mower housing, stop the engine_
Disconnect the wire to the spark plug.
For good performance, frequently clean the grass bagger as
follows,,
1 Clean the extension tube, the connector tube, and the elbow
with soap and water
2_ To clean the wlndow(s), first remove the screws that hold the
window(s). To release the window tabs, press on the cover
directly above the window tabs. Clean the window(s} with
soap and water.
3. For correct operation of the belt drive system, clean the top
and the bottom of the mower housing as follows.
4, Put the blade control lever in the ENGAGE position
5Remove grass and debris from the top of the mower
housing°
6. Put the blade control lever in the DISENGAGE position.
7_ Remove grass from the top of the mower' housing.
8_ Clean the bottom of the mower housing,
Push Cover Here
To Remove Wi
W_ndow
Elbow
F-91726 40

SERVICE AND ADJUSTMENT
HOW TO START WITH A WEAK BATTERY
Ifthe batter,/is too weak to start the engine, the battery needs to be
charged If ",Jumper Cables" are used to start the engine in an
emergency, follow the procedure below,
NOTE: The unit is equipped with a 12 volt negative to ground
system. Also, the other vehicle must have a 12 volt negative to
ground system°
HOW TO REPLACE THE FUSE
If the fuse is blown, the engine will not start, The location of the fuse
is next to the battery. Remove the fuse and replace with a 15 amp.
Automotive fuse
WARNING: Do not smoke. The fumes from the
battery acid can cause an explosion, Keep the
battery away from any flames or sparks., To
prevent sparks, fasten the red jumper cable to
the positive (+} terminal before connecting the
black jumper cable.
FRONT WHEEL ALIGNMENT
The alignment of the front wheels cannot be adjusted tf the steering
is damaged and the alignment has changed, see your nearest Sears
Service Center
1 Put a wet cloth over the vent caps of each battery_
2 Connect each end of the RED "Jumper Cable" to the positive
(+) terminals of each battery Make sure you do not touch the
chassis with the cables
3 Connect one end of the BLACK _tJumper Cable" to the
negative (--) terminal of the charged battery.
4, Connect the other end of the BLACK "Jumper Cable" to the
engine block,
5. Start the engine that has the weak battery tast_ Allow the
engine to run.
6. To disconnect the "Jumper Cables". reverse the above steps,
,IIHI ,nlllll II I I iin in ,ll
STORAGE (Over 30 Days)
At the end of each year, prepare the unit for storage as follows,
MOWER
Ct.EAN THE UNIT
1, Clean the mower housing. See "How To Clean The Mower
Housing",,
2_ Wash the unit Use wax to protect the unit
LUBRICATE THE UNIT
See the "Lubrication" instructionsinthisbook,,
ENGINE
1 Clean the dirt and grass from the engine
2 Change the oil., See the instructions. "How To Change The
Oil".
3 Check the spark plug See "How To Check The Spark
Plug"
_91726
THE FUEL SYSTEM
WARNING; Do not drain the gasoline inside a
building or near a fire. Do not smoke or the
fumes from the fuel can cause an explosion.
CAUTION: During storage, it is important to prevent deposits
from occuring in fuel system parts like the carburetor, fuel
filter, fuel hose and the fuel tank. Alcohol gasoline mixtures
(called gasohol or using ethanol or methanol) attract moisture
causing acid deposits during storage° While the unit is in
storage, the acids in the fuel can damage the fuel system° To
prevent engine problems with the fuel system, empty the fuel
system before storage of 30 days or longer.
41
1. Start the engine.
2o Run the engine until the fuel tank and the carburetor are out
of fuel and the engine stops. Do not leave fuel in the fuel tank
or the carburetor° The fuel can damage the function of the
fuel system,,
3 After storage, make sure you use fresh fuel
BATTERY
1. Completely charge the battery.r See the instructions, "How
To Check And Charge The Battery".
2 Clean the battery terminals of any deposits See "How To
Clean The Battery "
NOTE: After along period of time in storage, the battery must
be charged°

TROUBLE SHOOTING CHART
(Recoil-Start And Electric Models)
PROBLEM: The engine will not start.
1. Follow the steps, How To Start The Engine in this book.
2 Clean the battery terminals Tighten the cables
3 Check for a loose wire_ Tighten the limit switches. (See tire
wiring diagram..)
4. Drain the fuel tank. Clean the fuel tineo Replace the fuel
filter
5. Remove the spark plug(s} Move the throttle to the SLOW
position Turn the ignition key to the ON position. Try to star_
the engine several times.. Install the spark plug..
6.. Replace the spark plug
7 Adjust the carburetor°
PROBLEM: The engine will hot turn over.
l. Follow the steps, How To Start The Engine in this book.
2,, Check the level of the acid in the battery° If needed, add
water, Charge tile battery,
3. Replace the fuse,
4Check the wiring harness for damage or aloose connection
Repair the damaged wire_
5. Electric-Start Models: replace the solenoid
Recoil-Start Models: replace the module,
PROBLEM: The engine is difficult to start.
1, Adjust the carburetor,
2. Replace the spark plug.
3 Replace the fuel filter,
PROBLEM: A hot engine causes a decrease in power°
1.. Clean the air screen
2.. Check the oil
3 Adjust the carburetor
4. Reptace the fuel filter..
PROBLEM: Excessive vibration.
1 Replace the blade
2Check for loose engine botts_
3Decrease the air pressure in the tires
4 Adjust the carburetor..
5 Check for a damaged belt or damaged pulley. Replace the
damaged parts
PROBLEM: The grass does not discharge correctly.
1 .. Stop the engine_ Clean the mower housing.
2_ Raise the height of cut
3. Replace or sharpen the blade(s).
4 Move the shift lever to a slower speed..
5 Move the throttle control to the FAST position.
6. Replace the spring for the blade idler.
PROBLEM: The mower housing does not cut level.
I _ Check the air pressure in the tiros.
2. Adjust the level of the mower housing.
3. Check the front axle, If the front axle does not freely pivot,
loosen the two axle bolts.
PROBLEM: The engine does not run smooth or has a loss of
power.
1. Check the oil.
2Clean the air filter.
3. Clean the air screen.
4. Replace the spark plUgr
5, The engine is working to hard,,Use a lower gear.
6. Adjust the carburetor.
7. Replace the fuel filter,
PROBLEM: The engine does not run smooth at fast speed.
1o Replace the spark plug,
2Adjust the throttle control.
3. Clean the air filter,
4, Replace the fuel filter.
PROBLEM: The engine stops when the
blades are engaged.
1. To activate the seat sensor, always sit in the middle of
the seat.
2, Checkthe wiring harness for damage or aloose connection.
Repair the damaged wire.
PROBLEM: On slopes, the engine stops,
1. Mow up and down slopes,, Never mow across a slopeo
2.. To activate the seat sensor, always sit in the middle of
the seat
PROBLEM: The mower blades will not rotate.
1o Check the mower drive belt Make sure the belt is
installed correctly°
2. Replace the mower drive belt.
PROBLEM: The unit will not move when the clutch is
engaged,.
1 .. Adjust the clutch.
2.. Replace the motion drive belt..
3. Check the motion drive belt Make sure the belt is
installed correctly..
PROBLEM: The unit moves slower or stops when the ct_ch
is engaged,
1_ Repface the motion drive belto
2. Adjust the clutch
PROBLEM: When the clutch/brake pedal is released, belt noise
can be heard,
1. Temporary belt noise does not change the operation of the
unit. If belt noise is continuous, check the routing of the belt,,
Make sure the beit is inside all bait guides.
2,, If the noise is continuous, adjust the clutch.,
PROBLEM: The rear wheels spin over'uneven terrain,
1. Check the front axle. if the front axle does not freely pivot,
loosen the two axle bolts.
PROBLEM: The engine will not idle,
1Replace the spark plug.
2o Clean the air filter,
3o Adjust the carburetor,.
4. Adjust the throttle control,
5o Drain the fuel tank.. Clean the fuel line. Replace the fuel
filter
F-91726 42

MODEL NO. 502.255193 ELECTRICAL SCHEMATIC
BATTERY
RED
RED
+
12V
BLACK
IGNITION [
B
L
FUSE
15 AMP
RED
CLUTCH PEDAL ATTACHMENT
SOLENOID STARTER
t r
t
I I
I
I
_/ ,, |
-- I
BLACK SEAT SWITCH
(SEAT UNOCCUPIED
INTERLOCK SWITCH INTERLOCK SWITCH
BLAcK(CLUTCHo_ENGAGED)oBLACK (DISENGAGED)!_,r- _ -_ BLK. BLK.
YELLOW ;L__O_4YELLOW _ ,_ YLW.
N'C i"_0N N EC-_--R
(CLOSED IF UNPLUGGED
YELLOW? _ FROM SEAT SWITCH)
SOLID STATE SPARK PLUG
IGNITION 0@-
YELLOW
BLACK
249x6
RED
RECTIFIER
HEADLIGHT 2.2 AMP
--_)0 HEADLIGHT 2.2 AMP
(DIODE) CHARGING COIL
3AMPS, 20 VAC(MIN.)
AT MAX, RPM
POS.. FUNCTION CIRCUIT
4
3
2
1
START B + S
RUN ALL OPEN
RUN LIGHTS B + L
OFF G + M
#--7
CHASSIS
GROUND
F-91726 43

MODEL NO. 502.255193
D-5736
31
REPAIR PARTS
CHASStS & HOOD
32
t5 37
14
t2
13
17
34
38
35 y 45 46
41
_39 44 /52
40 #
16
18 20
22 /
F-91726 44

MODEL NO. 502.255193 REPAIR PARTS
CHASSIS & HOOD
KEY
NO. DESCRIPTION
PART
NO.
KEY
NO. DESCRIPTION
PART MFG.
NO, NO,
1 Seat
2 Plate Assembly, Switch
3 Spring, Compression
4 Spring, Seat
5 Glide, Spring
6 Bolt, Shoulder
7 Support, Seat
8 Leckwasher
9 Bolt, Hex
10 Locknut, Flange
11 Bracket, Pivot
12 Rod, Pivot
13 Cap, Push On
14 Cap, Console
15 Screw, Tap
16 Cover, Shift
17 Fender, Apron
18 Bolt, Hex
19 Washer
20 Gate, Shift
2t Screw
22 Tray, Battery
23 Fender, Left
24 Clip, Battery
25 Screw
26 Locknut
27 Strut, Console
28 Screw
29 Channel Assembly
30 Console
31 Trim, Edge
32 Hood Assembly
56542
91963Z
164x25
91964
91822
9x38
91728E700
STD551131
STD523_06
STD541431
91729E700
91730E700
28x23
91704E601
26x250
91905
91724E601
STD522506
17x38Z
91892Z
26x214
91895
91715E601
91941
26xt84
STD541425
91910E601
26x249
91857E601
9t731E601
21765
92089E601
18x16
Ix45
15x88
1x38
15x66
33 Panel, Left
34 Panel, Right
35 Clip, CabIe
36 Dash Assembly
37 Bearing
38 Cable
39 U-Fastener
40 Rod, Hinge
41 Washer
42 Spring, Hood
43 Bracket, Hood Mount
44 Screw
45 Nut, Speed
46 Shield, Heat
47 Screw
48 Support, Grille
49 Frame
50 Mat
51 Fender, Right
52 Grille
53 Lens
54 Screw
-Instruction Book
-Decal, Left Hood
-- Decal, Left Front Hood
-- Decal, Right Hood
-- Decal, Console Panel
-- Decal, Top Console
-- Decal, Right Fender
-- Decal, Fender Apron
- Decal, Right Channel
-- Decal, Left Channel
91779E60t
91778E601
92013
91858E601
91759
92087
28x59
91980Z
17x143
91979
91978
26x253
28x61
92005Z
26x252
9!723E6Ot
91700E60t
92058
9t894E601
92168SE
91850
26x220
F-91726
44x1081
44x1063
44x1080
44xt095
44x656
44x1168
44x1065
44xi082
44x1165
F-91726 45

MODEL NO. 502.255193
I_5701
1 2
5 58
19
816
•14 17
oJ 21 22
REPAIR PARTS
MOTION DRmVE
25
32
31 3O
27
5
29
28
53
51
45
59\
57
F-91726 54 46

MODEL NO. 502.255393 REPAaR PARTS
_,qOTnON DRDVE
KEY PART IVlFG. KEY PART rvlFG,
NO, DESCRIPTION NO, NO. NO, DESCRIPTION NOv NO,
1 Grip 92055 32 Rod, Clutch 91808Z
2 Grip, Inner 20476 33 Washer 17x148
3 Handle, Shift 9203tZ 34 Yoke, Shift 92041Z
4 Bolt, Shoulder 9x39 35 Bolt, Hex lx82
5 Pin, Cotter STD560907 30x20 36 Lockwasher STD551125 t8x32
6 Washer STD55t031 17x47Z 37 Washer 17x146Z
7 Nut, Adjustable 21920 38 Pilot, Support 91889
8 Shifter Assembly 92044E700 39 Bracket Assembly, Idler 92029Z
9 Guide, Belt 91754 40 Spring, Motion Drive 165x76
10 Locknut, Flange STD541437 15x84 41 Ring, Retainer STD582062 1 lx7
11 Screw 26x249 42 Pulley, Motion Drive 91807
12 Link, Clutch 91877 43 Pulley, Backside Idler 91179
14 Locknut, Flange STD541537 15x87 44 Key, Woodruff #9 STD580025 20697
15 Washer 17x45 45 Transaxle, Complete *_ 92216
16 Shifter Link Assembly 92085 Peerless No 143930-011
17 Screw 26x249 46 Bolt, Carriage STD533 t07 2x64
18 Bracket, Support 9 t 899Z 47 Support, Transaxle 91804E700
19 Nut, Flange STD541031 ! 5x79Z 48 Screw 26x216
20 Bolt, Hex lx124 49 Locknut, Flange STD54t431 15x88
21 Grip 91079 50 Key, Square STD580105 21553
22 Rod, Control 91727E700 51 Washer 17x 160
23 Screw 26x214 52 Spacer, Transaxle 9 I757E700
24 Guide, Bracket 91825E700 53 Tire (Incl'd with Key 54)* 90586
25 Frame 91700E601 -- Tube (Incl'd with Key 54) 407049
26 Clutch and Brake Pedal 21544 54 Wheel and Tire Assembly 91504E601
27 Lever Assembly 91862E700 55 Stem, Valve (Incl'd with 24373
28 Belt, Motion Drive 37x61 Key 54)
29 Bracket, Support 91713E700 56 Washer 17xl 15
30 Latch, Park Brake 9t712Z 57 E-Ring STD581075 t Ix3
3 t Spring, Brake Extension t65x82 58 Washer STD551037 17x53Z
59 Hub Cap 24582
* When you order a tire, make sure to give the brand name of the tire so that the tread pattern on the tire will match.
** For repair parts, see the transaxte parts list page.
F-91726 47

MODEL NO, 502.255193
D-5699-3
REPAIR PARTS
STEERING
0
10
I
1
38\
27 29
22
24
25
30 28
29
F=91726 4.8

MODEL NO. 502.255193
KEY PART MFG.
NO. DESCRIPTION NO. NO.
1 Wheel, Steering 92077
2 Nut, Hex STD541531
3 Bolt, Hex STD623115
4 Shaft, Steering 91860Z
5 Bolt, Hex STD623112
6 Screw 26x249
7 Bracket, Sector ** 91716E700
8 Gear, Pinion 402075
9 Bearing ** 9t756
10 Bolt, Hex ** STD523110
1 ! Locknut, Flange STD541537
13 Gear, Sector 402075
14 Bracket, Sector ** 91708E700
15 Link, Drag 91749E700
16 Bolt, Hex 1x138
17 Support -Rear, Axle 91702E700
18 Rod, Tie 90038E700
19 Pin, Cotter STD561220
20 Bearing 90035
21 Washer STD551043
22 Pin, Cotter STD560907
23 Washer 17xt 13
24 Spindle Assembly, Right 91828E700
25 Spindle Assembly, Axle & Left 9t827E700
26 Support, Front Axle 9 t 701E700
27 Tire (Incrd with Key 31)* 90591
-- Tube (lncrd with Key 31) 407047
28 Stem, Valve (Incl'd with Key 31) 24373
29 Bearing, Wheel (Incrd with Key 31) 91334
30 Washer 17xl 15
31 Wheel and Tire Assembly 90593E601
32 Bearing ** 92097
33 Locknut, Flange ** 15xl 13
36 Washer** 17x83
37 Bellows, Steering Post 91298
38 Hub Cap 24582
REPAmR PARTS
STEERaNG
15x90
lx66
lx74
t x84
15x87
30x49
17x57
30x20
* When you order a tire, make sure to give the brand name of the tire so that the tread pattern on the tire will match
** These parts are included when you order part number 402075 (key number 8 or 13).
F-91726 49

MODEL NO. 502.255193 REPAIR PARTS
MOWER SUSPENSION
D-5698
26 \
27
3o !
13
12 21
22
3
/
18
/
13
6 13
/11
\
o
10
\
_% 20
kt3
\
15
F-91726 50

MODEL NO. 502.255193 REPAIR PARTS
MOWER SUSPENSION
KEY
NO. DESCRIPTION
PART
NO.
iViFG.
NO.
1 Grip
2 Lever, Blade Control
3 Bolt, Hex
4Locknut, Hex
5 Lever Assembly, Switch
6 Bolt, Carriage
7 Spring, Torsion
8 Bracket, Left Rear Hanger
9 Nut, Flange
10 Nut, Adjusting
1 I Bracket, Adjuster Rod
12 Washer
13 Pin, Hair
14 Washer
15 Pin, Pull
17 Lever, Lower Blade Control
18 Rod, Blade Control
19 Plate, Adjuster
20 Washer
21 Bracket, Pivot
22 Lifter Assembly
23 Knob, Steel
24 Grip
25 Spring, Compression
26 Handle Assembly
27 Screw
28 Link, Suspension
29 Washer
30 Washer
31 Cover, Lift Lever
32 Screw
33 Nut, Adjusting
92055
91781Z
25x3
STD541425
91917E700
STD533107
166x32
92066E700
STD54t031
92131
92133E700
STD551037
STD624005
STD551050
90827Z
91787E700
91795Z
91741E700
STD551050
92033E700
92065E700
91261
91398
164x21
91823E700
26x49
92064E700
STD551031
17x91Z
92157
26x238
21920
15x67
2x53
15x79
t7x124
31x4
17x67
17x103
17x47Z
F_91726 51

MODEL NO. 502.255193
D,-5697-t
23
35
F-91726
45
t9
9
12/
/
16
26
37
I9
/
29
,23
31
41
3 37
REPAIR PARTS
MOWER HOUSING
19

MODEL NO. 502.255193 REPAIR PARTS
MOWER HOUSING
KEY
NO. DESCRIPTION
PART
NO.
iVIFG, KEY PART NIFG.
NO. NO. DESCRIPTION NO. NO.
1 Nut, Hex
2 LOckwasher
3Pulley, Jackshaft
4 Locknut, Flange
5 Spacer
6 Belt, Blade Drive
7 Pultey, Idter
B Pin, Cotter
9 Locknut, Range
10 Washer
11 Brake Assembly, Right
12 Brake Assembly, Left
13 Spring, Torsion
14 Bolt, Hex
15 Bracket Assembly, Brake
16 Rod, Brake
!7 Rod, Cross Link
18 Pin, Hair
t9 Nut, Adjustable
20 Rod, Adjuster
21 Nut, Adjustable
22 Link, Suspension
23 Washer
24 Bracket Assy_, Right Lifter
25 Nut, Flange
26 Bracket, Pivot
27 Bolt, Carriage
28 Arm Assembly, Idler
29 Plate, Adjuster
30 Cover, Pulley
15xlO1
18x33
91943
STD541437
91903
37x62
91801
STD560907
STD541431
STD551031
92186E700
92187 E700
166x27
25x6
92072E700
91745Z
92183Z
STD624005
92131
91872Z
21920
92064E700
STD551050
92194E700
STD541031
92033E700
9x39
92032E700
9!741E700
91792E700
15x84
30x20
15x88
17x46Z
3 Ix4
t 7xI 03
15x79
3I Guide, Belt
32 Bracket Assy.,o Left Lifter
33 Spring, Extension
34 Bracket, Pivot
35 Plate
36 Washer
37 Bolt, Carriage
38 Deflector Assembly, Chute
39 Spring, Torsion
40 Bracket, Hinge
41 Bracket, Front Hanger
42 Rod, Deflector
43 Cap, Push On
44 Rod, Hanger
45 Washer
46 Hanger, Front
47 Screw
48 Guide, Belt
49 Bolt, Hex
50 Housing, Jackshaft
51 Jackshaft
52 Adapter, Blade
53 Blade (2 required)
54 Washer, Belleville
55 Washer
56 Nut, Hex
57 Locknut, Flange
58 Indicator, Plastic
t-59 Complete Mower Housing
9t797E700
91813E700
165x72
91743E700
91770E700
STD551043 17x57
STD533t07 2x53
91982SE
166x4
91765E700
9!875E700
91767Z
28x23
91739Z
17x124
92119E700
25x4
92095E700
STD523110 tx84
90905
91922
91926
9187tE700
17x166
17x165
15x100
STD541425 15x82
92163
403229
F-91726 53

MODEL NO. 502.255193
o
REPAIR PARTS
WiRiNG
D-5749
ILl
I-
N3_19
\
oo
731
G3_
M07731
03
M3V7'8
I"
F-91726 54

MODEL NO. 502.255193 REPAIR PARTS
WIRING
II1
E
_o _
03 _.0 03 03 t._J"r
F-9!726 55

_ODEL NO. 502.255193 REPAIR PARTS
ENGINE MOUNT
3
4
I0
20
21
13 12
oo
F-91726
17
t9
56

MODEL NO. 502.255193 REPAIR PARTS
ENGINE MOUNT
KEY PART
NOo DESCRIPTION NO.
1 Fuel Cap 55988
2Fuel Tank 91869
3Hose Clamp 91174
4 Fuel Line 92160
5 Hose Clamp 23713
6 Screw 26x214
7 Screw STD610803
8 Throttle Control 91983
9 Engine Briggs & Stratton * 92099PA
Model: 281707-O428-01
10 Bolt, Hex lx134
11 Shield, Muffler Heat 91277
12 Muffler 91271
13 Gasket 91309
14 Washer STD551237
15 Bolt, Engine Mount 25x7
16 Stack Pulley Assembly 92246Z
17 Washer 17x170
18 Lockwasher STD551243
19 Bolt, Hex lx140
20 Tube, Oil Drain 24066
21 Cap, Oil Drain 21651
NIFG.
NO.
26x201
19x8
19x35
* For repair parts, see the engine parts list pages.
F-91726 57

MODEL NO. 502.255193
)
/
2
D-8t76
8t0
1
18
922
REPAIR PARTS
GRASS BAGGER
11
14
21
20
25 2 26
41
39
40 I
33
34
F-91726 58

MODEL NO. 502.255193 REPAIR PARTS
GRASS BAGGER
KEY
NO. DESCRIPTION
I Fastener (Included with key noo 2)
2Containers (Quantity of 2 included)
3 Window Clip
7 Locknut, Hex
8 Handle, Plastic
9 Screw
10 Cover
11 Screw
12 Window
13 Nut, Expansion
14 Screw
15 Nut, Keps
16 Hinge, Cover
17 Cap, End
18 Pin, Hinge Cover
19 Tube, Center
20 Pin, Hair
21 Tube, Outer
22 Bolt, Special
24 Lockwasher
25 Nut, Hex
26 Channel Assembly
27 Pin, Channel
28 Elbow
29 Screw
30 Bolt, Hex
31 Bolt, Hex
32 Washer
33 Bracket, Frame
34 Locknut, Flange
35 Nut, Stover Hex
36 Plug, Weight
37 Weight, Front
38 Support, Front Weight
39 Bolt, Carriage
40 Nut, Jam
41 Locknut, Flange
42 Locknut, Flange
43 Latch, Rubber
44 Handle, Connector Tube
45 Screw
46 Tube, Connector
47 Tube, Extension
48 Bolt, Carriage
48 Screw
49 Nut, Wing
51 Pin, Latch (Square Hole)
53 Bracket
-- Bag, Assembly Hardware
PART
NO.
193xl
54727SE
54571Z
STD5414t0
54537
STD511007
91968
26x246
54557
28x56
STD512505
STD541425
54398E700
24862
54407Z
544t2E700
STD624003
544t0E700
6x93
STD551131
STD541131
54422E700
54408Z
91944
26x239
STD5231t0
STD525012
17x51Z
91961E700
15xi08
STD541450
24863
55441
54552E700
2x74
STD541231
STD541431
STD541425
54695
54416E701
STD512510
91967
54564SE
STD533107
4x70
STD54163!
54563
54566
91966
MFG.
NO.
15x8 t
4x21
4x24
15x66
31x6
t8x15
15x32
I x84
lx125
t 5x41
15x109
t 5x88
15x89
4x71
2x64
14x83
* These parts are included when ordering key number 64
F-9172S 59

MODEL NO, 502.255193 REPAIR PARTS
SiX SPEED TRANSAXLE
_.PEERLESS MODEL NO. 930-011
E
I
23
/
7
3_
47
9
6
8
8
5
31
35
34
13 26
16
77 76
_970
49
62 30
34
33
F-91726 60 43

MODEL NO. 502.255193 REPAIR PARTS
SIX SPEED TRANSAXLE
PEERLESS MODEL NO. 930-011
KEY
NO. DESCRIPTION
PART
NO.
KEY PART
NO. DESCRIPTION NO.
1Cover, Transaxle
2 Bearing, Needle
3 Case, Transaxle
4 Shaft, Counter
5 Shaft Pinion Assembly, Output
6 Gear, Output
7Gear, Spur (15 teeth)
8 Key, Shifter
9Collar, Shifter
10 Rod &Fork Assembly, Shift
t 1 Gear, Bevel (42 teeth)
12 Bevel Pinion, Input
t3 Gear, Bevel
14 Gear, Bevel Pinion
!5 Gear, Ring
17 Pin, Drive
18 Spacer
20 Ball, Steel (5/16" diao)
2 ! Set Screw 3/a-16x3/e
22 Spring
23 Ring, Felt
25 Screw, Flange Hex Hd. ¼-20xt ¼
26 Ring, Retainer (Pkg of 2)
27 Ring, Retainer
28 Ring, Retainer
29 Washer, Thrust
30 Washer, Thrust
31 Washer
32 "0" Ring
33 Seal, Square Cut
34 Bushing, Flanged
35 Bushing, Flanged
36 Disk, Brake
37 Plate, Brake Pad
38 Pad, Brake
39 Pin, Dowel
40 Washer, Flat
772108
780086
770102
776260
776219
778139
778272
792136
784352
784358
778229
778113A
778221
778068
778260
786139
786102
792077
792078
792079
788061
792073
792125
792035
788040
780072
780108
780001
792001
788051
780105A
7801!8A
790003
790007
790006
786026
792076
41 Lever, Brake
42 Screw, Flanged Hex hd.. ¼-2Oxl V4
43 Nut, Lock 5/16-24
44 Holder, Brake Pad
45 Shaft, Brake (2 keyed)
46 Shaft, Input
47 Axle ( 12-3/8" Long)
48 Axle ( t7" Long)
49 Gear, S }ur (37 teeth)
50 Gear S )ur (35 teeth)
51 Gear S)ur (30 teeth)
52 Gear S]ur (25 teeth)
53 Gear
53A Gear
54 Gear
55 Gear
56 Gear
57 Gear
58 Gear
59 Gear
S _ur (22 teeth)
S )ur ( 19 teeth)
S _ur (12 teeth)
Spur ( 15 teeth)
Spur (20 teeth)
Spur (25 teeth)
Spur (28 teeth)
Spur (31 teeth)
60 Chain, Roller (No.. 41 chain, 24 Links)
61 Sprocket (9 teeth)
62 Sprocket (18 teeth)
65 Washer, Thrust
68 Bracket, Brake Lever
69 Washer, Thrust
70 Spacer
72 Plug, Threaded
75 Disk
76 Washer, Thrust
77 Ring, Retaining
790060
792073
792075
790025
776315
776135
774638
774837
778191
778125
778124A
778123A
778122A
778209
778230
778151
778126A
778127A
778128A
778163
786081
786082
786123
780109
786086
780051
786118
792074
786116
780090
788075
F-9 t726 61

ENGINE PARTS iLLUSTRATION 12 HP.
BRIGGS & STRA'R'ON - MODEL 281707-O428-O1
_5
307
305
1I
1021 1020
74]
46
36
26
_ _353
520
_)354
66,3
F-91726
634A
219
232
_1564
230 ,___._62
757
*SPECIAL TOOLS REQUIRED SEE REPAIR INSTRUCTION
TO INSTALL,. MANUAL
Assemblies include all parts shown in frames
62
]1019lABEl.KITI
[___58GAs_ETI
SET !
524

ENGINE PARTS ILLUSTRATION 12 HP.
BRIGGS & STRATTON -MODEL 281707-0428-01
877
482
121 CARBURETOR OVERHAUL KIT
634 98,
104
33
95
131
123
!
_5
216
Assemblies include all parts shown in frames
F_91726 63

ENGINE PARTS iLLUSTRATiON 12 HP.
BRIGGS & STRATTON - MODEL 281707-0428-01
896
310
i
513
FHousing Length --_
_=== O__ 803
801
NOTE:
To identify Briggs & Stratton manufactured
starter motors, measure the housing length,.
F-91726
Assemblies include all parts shown in frames.
64

ENGINE PARTS LIST 12 HP.
BRIGGS & STRATFON -MODEL 281707-0428-01
MFG.
KEY PART KEY
NO. DESCRIPTION NO. NOo
1Cylinder Assembly
2Bearing, Cylinder
NOTE: Requires special tools
for instatlation_
3 Seal -Oil
5 Head -Cylinder
7 Gasket _Cylinder Head
8 Breather Assembly
9 Gasket -Valve Cover
10 Screw -Sere
11 Tube -Breather
12 Gasket =Crankcase Cover 1/64"
Gasket -Crankcase Cover 0,005"
Gasket -Crankcase Cover 0,009"
13 Screw -Cylinder Head (3")
15 Plug -Oil Drain
16 Crankshaft
NOTE: To Replace Crankshaft
Woodruff Key, Order 94196.
18 Base -Engine
20 Seal -Oil
22 Screw -Base Mounting Sere
23 Flywheel & Ring Gear Assy
24 Key -Flywheel
25 Piston Assembly -Standard
Piston Assembly -0010" OS
Piston Assembly -0020" OS
Piston Assembly -0030" O S
PISTON RING SET:
NOTE: For Chrome Ring Set _
Standard Size- Order 392331
26 Ring Set -Piston -Std
Ring Set -Piston _0.010" 0 S
Ring Set -Piston -0,020" O S
Ring Set -Piston -0,030" O S,
27 Lock -Piston Pin
28 Pin Assembly -Piston Std
Pin Assy -Piston 0,005" O S
29 Rod Assembly -Connecting
NOTE; For Connecting Rod
with 0 020" undersize
Crankpin Bore -Order 490469
31 Lock -Connecting Rod Screw
490450
399265
391086
491491
*271866
3914O6
*27803
93394
280100
*271916
*271996
*271997
93723
91084
*490466
490452
291675
94305
492326
222698
394661
394662
394663
394664
394665
391781
391782
391783
260924
299691
391286
490348
222299
DESCRIPTION
32 Screw -Connecting Rod
33 Valve -Exhaust
34 Valve -Intake
35 Spring -Intake Valve
36 Spring -Exhaust Valve
37 Guard -Flywheel
40 Retainer -Intake Valve
41 Rotocoil -Exhaust Valve
42 Retainer -Exhaust Valve (2)
45 Tappet _Valve
46 Gear -Cam
52 Gasket -Carburetor Mounting
78 Screw -Sere
94 Valve Assy, -Carburetor Idle
95 Screw -Throttle &Choke Valve
98 Screw _Machine 8-32x5/8"
99 Spring -Throttle Adjustment
101 Pin -Throttle Stop
104 Pin _Float Hinge
108 Valve Choke
118 Valve -Needle
121 Carburetor Overhaul Kit
123 Screw -Carburetor Mtg,
125 Carburetor Assembly
126 Body Assembly -Carburetor
127 Plug-Welch
!28 Venturi -Curburetor
130 Valve -Throttle
131 Shaft and Lever _Throttle
132 Stop -Throttle
133 Float -Carburetor
134 Valve -Fuel Inlet
136 Bow1 *Float
137 Gasket -Float Bowl
138 Washer -Roat Bowl
141 Shaft and Lever _Choke
142 Nozzle -Carburetor
147 Screw -Nozzle
171 Nut, Air Cleaner Mtg
186 Connector -Fuel Pipe
187 Line -Fuel
188 Screw _Sem (3/4" long)
201 Link -Governor
209 Spring -Governor
216 Link-Choke
MFG.
PART
NO.
92909
262246
262247
65906
26828
223752
221596
292260
93630
262248
212897
"270872
93805
+292681
93499
91920
26157
93043
+ 230896
222010
+ 396568
394698
93357
491031
490473
+221997
211960
222433
491006
211712
299707
+ 394681
221995
+ 270511
+ 222014
390684
+ 299740
+ 231323
231532
67218
66608
93535
262348
260695
261610
F-91726 65

ENGINE PARTS LIST 12 HP.
BRIGGS & STRATTON - MODEL 281707-0428-01
IV1FG.
KEY PART KEY
NO, DESCRIPTION NO, NO.
219 Oil Slinger, Gov. Gear &Bkt. 490815 544
222 Plate -Governor Control 491594 549
224 Screw -Air Cleaner Sere 94018 552
225 Crank -Governor (1/4" dia,) 231058 562
227 Lever Assy Governor 490927 592
230 Washer =Governor Crank 222450 601
232 Spring -Governor Link 260584 614
240 Filter -Fuel 298090 615
265 Clamp -Casing 221535 618
284 Screw -Clamp Mtgo 93572 634
304 Housing -Blower 490689 634A
305 Screw -Blower Housing Mtgo 93158 634B
306 Shield -Cylinder 223715 635
307 Screw -Cylinder Shield Mtg 93163 657
308 Cover -Cylinder Head 491490 662
309 Motor -Starting (12 Volt) 394805 663
310 Thru Bolt Assembly 94003 668
311 Brush Assembly 395538 726
332 Nut -Hex 92284 727
333 Armature -Magneto 492341 728
334 Screw-Armature Mtg 93381 741
337 Plug -Spark 802592 757
346 Screw -Hex Head 93705 758
353 Washer-Lock Shakeproof 92791 759
354 Nut-Hex No.8-32 90576 761
356 Wire -Ground 398808 801
358 Gasket Set 490525 802
363 Puller -Flywheel 19203 803
383 Wrench -Spark Plug 89838 842
422 Clamp -Oil Fill Tube 223721 847
423 Screw -Sere 93984 851
445 Cartridge =Air Cleaner 399806 869
455 Cup -Screen Mounting 222561 870
467 Knob -Air Cleaner 212706 871
468 Screen -Fiush Rotating 222562
482 Screw -Sem 93621
510 Drive Assembly 490421
lnclo Keys 513, 783,876, 896 872
5t3 Clutch Assembly 398003 875
520 Terminal -Spade 93722 877
523 Cap and Dipstick -Oil 490327
524 Seal -Filler Tube 68838 887
525 Tube -Oil Filler 280741
534 Stud -Air Cleaner 94248 985
534A Stud -Air Cleaner 94246 987
537 Gasket -Air Cleaner 270853 1005
1006
1019
1020
1021
DESCRIPTION
Armature Assembly
Washer -Air Cleaner
Bushing -Governor Crank
Bolt -Governor Lever'
Nut -Hex. No 10-24
Clamp -Fuel Pipe
Cotter -Hair Pin
Retainer, E-Ring
Spring -Choke Return
Washer -Choke Shaft
Seal -Oil
Washer -Throttle Shaft Seal
Etbow -Spark Plug
Screw -Sere
Bracket -Carburetor
Screw -Carburetor
Spacer
Gear-Ring (lncf Mtg Parts)
Cover -Starter (lncl Screws)
Screw -Sere
Gear -Timing
Link -Counterweight
Counterweight Assembly
Pin -Counterweight (1)
Screw -Counterweight {1 )
Drive, End Cap Assy
Commutator, End Cap Assy
Housing Assy (3-21/32" Long)
Seal -Oil Fill Cap
Fill Group -Oil
Terminal -Ignition Cable
Seat -Intake Valve (Standard)
Seat -Exhaust Valve (Standard)
Guide -Exhaust Valve
NOTE: Guide -Intake Valve
(Brass) 231218
See Repair Manual
Cover -Air Cleaner
Body -Air Cleaner'
Diode & Connector Assy
(Dual Circuit)
Stator Assembly
Alternator (DC)
Insulator Assembly
Seal Throttle Shaft
Fan -Flywheel
Retainer -Fan
Label Kit
Eccentric -Crankshaft
Pin -Eccentric
MFG.
PART
NO.
390837
94249
231597
92613
231082
93053
93306
93307
261116
270382
491323
271853
66538
93496
222311
93572
280848
392134
490324
93535
262135
212359
399891
298909
93875
394857
395537
393825
270920
490474
221798
261463
210940
261961
223700
490332
393814
391529
398525
398970
280687
223726
491155
262243
94160
* Included in Gasket Set -Part No 490525
+ Included in Carburetor Overhaul Kit _Part No 394698
F_91726 66

"4
0
O
o
, ; : g
4)
e
0
e
0
e
el
:
0
:
a
g
e
0
O
0
e_
r=,
0
m
I
m
F-91726 67

How to Order
Repair Parts
®
2HP. ELECTRIC START
40" MOWER
6 SPEED
LAWN TRACTOR
The Model Number for the mower is found on a decal attached to the back of the
frame. The Model Number for the engine is found on the blower housing above the
spark plug. Always give the Model Number when you call for service or' order repair
parts for your unit.
Repair parts can be ordered from any Sears Service Center/Departments and most
Sears Steres,
WHEN ORDERING REPAIR PARTS, ALWAYS HAVETHE FOLLOWING INFORMATION
AS SHOWN IN THIS LIST.
= PRODUCT - [_WN TRACTOR
o MODEL NUMBER - 502.255193
6 ENGINE MODEL NO.- 281707-0428-01
=PART NUMBER
• PART DESCRIPTION
Your' Sears merchandise has added value when you consider Sears has service units
nationwide staffed with Sears trained technicians, Sears technicians have the
necessary parts, tools, and equipment to meet the Sears pledge, "We Service What
We Sell",
F-91726 12-01-90
,,1
Sears, Roebuck and Co., Chicago, IL. 60684 U..S.A_
.... i- =l,, !
PrTntedin USA