Craftsman 917255917 User Manual GT 18 TWIN GARDEN TRACTOR Manuals And Guides L0709203
CRAFTSMAN Lawn, Tractor Manual L0709203 CRAFTSMAN Lawn, Tractor Owner's Manual, CRAFTSMAN Lawn, Tractor installation guides
User Manual: Craftsman 917255917 917255917 CRAFTSMAN GT 18 TWIN GARDEN TRACTOR - Manuals and Guides View the owners manual for your CRAFTSMAN GT 18 TWIN GARDEN TRACTOR #917255917. Home:Lawn & Garden Parts:Craftsman Parts:Craftsman GT 18 TWIN GARDEN TRACTOR Manual
Open the PDF directly: View PDF
.
Page Count: 52

SEARS
OWNERS
MANUAL
MODEL NO.
917.255917
Caution:
Read and Follow
All Safety Rules
And Instructions
Before Operating
This Equipment
[RRFTSMRN
GT 18HP TWIN
6 SPEED -44"" MOWER
GARDEN TRACTOR
Assembly
Operation
Maintenance
Repair and Adjustment
Repair Parts
Sears, Roebuck and Co., Chicago, IL 60684 U.S.A.

SAFETY RULES
1. Know the con_ols, and,J_ow_t_ s_p quickly. READ THIS
OPERA_OB_wS_,_JA&_n_ /pst_ctions furnished with
attachr_nt_
2, Do not allow Children to t_pefate the machine, Do not allow
adults to operate it without proper instruction.
3. Do not carry passengers. Do not mow when children and
others are around.
4, Always wear substantial footwear. Do not wear loose fit-
ting clothing that could get caught in moving parts.
5. Keep your eyes and mind on your tractor, mower and the
area being cut. Do not let other interests distract you.
6. Do not attempt to operate your tractor or mower when
not in the drivers seat.
7. Always get on or off your tractor from the operator's left
hand side.
8. Clear the work area of objects (wire, rocks, etc,) which
might be picked up and thrown.
9. Disengage all attachment clutches before attempting to
start the engine.
10. Disengage power to attachments and stop the engine
before leaving the operator's position•
I 1. Disengage power to mower, stop the engine and discon-
•nect spark plug wire(s) from spark plug(s) before clean-
ing, making an adjustment or repair• Be careful to avoid
touching hot muffler or engine components.
I 2, Disengage power to attachments when transporting or not
in use.
13. Take all possible precautions when leaving the vehicle un-
attended. Disengage the power take off, lower the at-
tachments, shift into neutral, set the parking brake, stop
the engine and remove the key.
!4. Do not stop or start suddenly when going uphill or
downhill. Mow up and down the face of slopes (not
greater than 15 °); never across the face. Refer to page 51.
1 5. Reduce speed on slopes and make turns gradually to pre-
vent tipping or loss of control. Exercise extreme caution
when changing direction on slopes.
1 6. While going up or down slopes, place Gear Shift Control
Lever in 1st gear position to negotiate the slope without
stopping•
1 7. Never mow in wet or slippery grass, when traction is un-
sure or at a #peed which could cause a skid.
18. Stay alert for holes in the terrain and other hidden hazards:
Keep away from drop-offs.
I 9. Do not drive too close to creeks, ditches and public
high ways.
20. Exercise special care when mowing around fixed objects
in order to prevent the blades from striking them. Never
deliberately run tractor or mower into or over any foreign
objects.
2 1. Never shift gears until tractor comes to a stop.
2 2. Never place hands or feet under the mower, in discharge
chute or near any moving parts while tractor or mower
are running. Always keep clear of discharge chute.
23. Use care when pulling loads or using heavy equipment.
a. Use only approved drawbar hitch points.
b. Limit loads to those you can safely control.
c, Do not turn sharply. Use care when backing.
d, Use counterweight or wheel weights when suggested
in the owner's manual.
24 Watch out for traffic when crossing or near roadways.
2 5 When using any attachments, never direct discharge of
material toward bystanders nor allow anyone near the
vehicle while in operation,
2 6 Handle gasoline with care -it is highly flammable.
a. Use approved gasoline containers .
b. Never remove the fuel cap of the fuel tank or add
gasoline to a running or hot engine or an engine that
has not been allowed to cool for several minutes after
running. Never fill tank indoors, always clean up spill-
ed gasoline.
c, Open doors if the engine is run in the garage exhaust
fumes are dangerous. Do not run the engine indoors.
2 7. Keep the vehicle and attachments in good operating con-
dition, and keep safety devices in place and working,
2 8. Keep all nuts, bolts and screws tight to be sure the equip-
ment is in safe working condition.
2 9. Never store the equipment with gasoline in the tank in-
side a building where fumes may reach an open flame or
spark. Allow the engine to cool before storing in any
enclosure.
30. To reduce fire hazard, keep the engine free of grass, leaves
or excessive grease, Do not clean product while engine
is running•
3 1. Except for adjustments; DO NOT operate Engine if air
cleaner or cover directly over carburetor air intake is
removed. Removal of such part could create a fire hazard.
32. Do not operate without a muffler or tamper with exhaust
system. Damaged mufflers or spark attesters could create
a fire hazard, Inspect periodicafly and replace if necessary,
33. The vehicle and attachments should be stopped and in-
spected for damage after striking a foreign object and the
damage should be repaired before restarting and operating
the equipment.
34. Do not change the engine governor settings or overspeed
the engine; severe damage or injury may result.
35. When using the vehicle with me wet, proceed as follows;
a. Mow only in daylight or in good artificial light.
b. Shut the engine off when unclogging chute.
c. Check the blade mounting bolts for proper tightness
at frequent intervals.
3 6. Do not operate the mower without the deflector shield in
place.
3 7, Disengage power to mower before backing up. Do not
mow in reverse unless absolutely necessary and then on-
ly after careful observation of the entire area behind the
mower,
3 B. Under normal usage the grass catcher bag material is sub-
ject to deterioration and wear. It should be checked fre-
quently for bag replacement. Replacement bags should
be checked to ensure compliance with the original
manufacturer's recommendations or specifications•
LOOK FOR THIS SYMBOL TO POINT OI_T_t4NI_DR_TANT
SAFETY PRECAUTIONS. IT MEANS -- ATTEI_I_N[ BEcoME;
ALERT! YOUR SAFETY IS INVOLVED.
CAUTION: LOOK FOR THIS WORD TO POINT OUT IMPORTANT EQUIP-
MENT PRECAUTIONS.
WARNING: This unit is equipped with an internal combustion engine and should not be used on or near any unimproved forest=covered,
brush-covered or grass covered land unless the engine's exhaust system is equipped with a spark arrester meeting applicable local
or state laws (if any). If a spark arrestor is used, it should be maintained in effective working order by the operator.
In the State of Cahfornia the above is required by law (Section 4442 of the California Public Resources Code). Other states may
have similar laws. Federal laws apply on federal lands• See your Sears Authorized Service Center for spark arrester. See
Repair Parts page 34.
2

CONGRATULATIONS on your purchase of a Sears GT
18HP Garden Tractor. It has been designed, engineered
and manufactured to give you the best possible depen-
dability and performance.
Should you experience any problem you cannot easily
remedy, please contact your nearest Sears Service
Department. They have competent, well-trained techni-
cians and the proper tools to service or repair this unit.
Please read and retain this manual. The instructions will
enable you to assemble and maintain your Tractor pro-
perly. Always observe the "'SAFETY RULES".
MODEL
NUMBER
SERIAL
NUMBER
DATE OF
PURCHASE
THE MODEL AND SERIAL NUMBERS WILL BE
FOUND ON THE MODEL PLATE ATTACHED TO
THE FENDER.
YOU SHOULD RECORD BOTH SERIAL NUMBER
AND DATE OF PURCHASE AND KEEP iN A
SAFE PLACE FOR FUTURE REFERENCE.
MAINTENANCE AGREEMENT
A Sears Maintenance Agreement is available on this
product. Contact your nearest Sears store for details.
YOUR NEW GT 18 HP GARDEN TRAC-
TOR FEATURES...
CRAFTSMAN ! 8 H.P. TWIN- CYLINDER ENGINE--cool-
running performance and long life with plenty of power
to take on a variety of yard, gardening or snow removal
tasks.
ALL GEAR TRANSAXLE--six speeds forward, two
reverse speeds--to let you select the proper speed for
the terrain and the job. Automotive--type differential
helps guard against turf scuffing.
CONTROL PANEL--with Throttle, Choke, Light Switch,
Ignition Switch, Parking Brake Lever and Clutch Switch--
conveniently grouped for ease of use.
ATIACHMENT VERSATfLITY--handles a large variety of
Sears Yard and Garden Tractor Attachments. See
pages 49-50.
CUSTOMER RESPONSIBILITIES
Read and observe the safety rules. Always use care when using your tractor. Keep away from moving parts.
DO NOT work on your tractor with engine running. Always keep your tractor and mower clean.
Follow a regular schedule in maintaining, caring for and using your tractor. A well cared for tractor will run and last longer.
Follow the instructions under "Maintenance" and "Storage" sections of this Owner's Manual.
LIMITED TWO YEAR WARRANTY
ON ELECTRIC START RIDING EQUIPMENT
For two years from date of purchase, when this riding equipment is maintained, lubricated, and tuned up
according t° the operating and maintenance instruction in the owner's manual, Sears will repair free of charge
any defect in material or workmanship in this electric start riding equipment.
This warra.nty excludes blade(s), blade adapter(s), spark plug(s), air cleaner and belt(s), which are expen-
dable and become worn during normal use.
This warranty does not cover:
Tire replacement or repair caused by punctures from outside objects (such as nails, thorns, stumps,
or glass); and
repairs necessary because of operator abuse or negfigence, including the failure to maintain the
equipment according to instructions contained in the owner's manual; and
riding equipment used for commercial or rental purposes.
FULL 90-DAY WARRANTY ON BATTERY
For 90 days from the date of purchase, if any battery included with this riding equipment proves defective
in material or workmanship and our testing determines the battery will not hold a charge, Sears will replace
the battery at no charge.
WARRANTY SERVICE tS AVAILABLE BY CONTACTING THE NEAREST SEARS SERVICE CENTER/DEPART-
MENT IN THE UNITED STATES. This warranty applies only while this product is in use in the United States.
This warranty gives you specific legal rights, and you may also have other rights which may vary from state
to state.
SEARS, ROEBUCK and CO., D/698-731A, Sears Tower, Chicago, II 60684
34

INDEX
Adjustments:
Attachment Lift Spring ........ 25
Brake ...................... 16
Carburetor .................. 20
Electric Clutch ............... 21
Gauge Wheels ............... 13
Motion Drive Belt ............. 22
Mower Drive Belt ............. 10
Mower
Front-To-Rear ........... 24
Side-To-Side ............ 24
Throttle Control Cable ......... 20
Air Filter
Cleaning .................... 17
Paper Cartridge ............... 17
Air Intake Screen, Engine ......... 19
Assembly ................... 5-10
Attachment Lift Spring Adjustment 25
Attachments ...................... 49-50
Battery:
Charging ................... 7
Cleaning ................ 18
Installation 8
Levels ...................... 17
Preparation ................... 7
Starting with Weak Battery ..... 19
Storage .................... 26
Terminals .................. t 8
Belt: ...........................
Blade Drive (Blade to Blade)
Removal/Replacement .... 25
Motion Drive Adjustment ...... 22
Motion Drive, Remove/Replace 21
Mower Drive (Engine-to Mower
Adjustment ............... 10
Mower Drive Belt Installation 10
Blade:
Sharpening ............... 17
Replacement .......... 26
Brake Adjustment ............. 16
C
Carburetor Adjustment ........... 20
Clutch, Electric, Adjustment 21
Controls, Tractor ............... 11
Cutting Level, Mower ........... 10
Engine:
Air Screen ...... 19
Oil Change 18
Oil Level 16
Oil Type 16
Starting .......... 12
Storage ................ 26
Filter, Air ...................... 17
Fuel:
Type ....................... 12
Storage .................... 26
Fuse .............. 23
G
Gauge Wheels .................. 73
H
Hood Removal ................. 23
Lubrication:
Chart ...................... 18
Steering & Front Wheels ....... 19
Tractor Pifzot Points ........ 18
M
Maintenance .............. 15-19
Air Filter ................... 17
Air Filter Paper Cartridge ....... 17
Air Screen ................... 19
Battery ..................... 17
Blade Sharpening ............ 1 7
Brake Adjustment ............. 16
Engine oil ................... 15
Lubrication ................... 18
Spark Plugs ................. 19
Tire Care .... 17
Mower:
Adjustment, Front-to-Rear ...... 24
Adjustment, Side to Side ....... 24
Blade Sharpening ............. 17
Blade Replacement ............ 26
Cutting Level ........... 10
Installation ............... 10
Operation ................... 13
Removal ................... 23
Mowing Tips ............... 14
Muffler ................... 19
Spark Arrester .............. 2
0
Oil
Cold Weather Conditions ....... 16
Engine ............ 15
Transaxle ................... 23
Storage ...................... 26
Operation ................... 11-14
Operating/Tractor and Mower t3
Speed ...................... 14
Starting the Engine ............ 12
Stopping Your Tractor ......... 12
Tractor Operation on Hills ..... 14
Options
Attachments
Spark Attester ................ 49,50
................... 2
P
Parts Bag ................... 5, 6
R •
Repair and Adjustments ....... 1,9-26
Attachment Lift Spring ......... 25
Blade Drive Belt ............. 25
Blade ..................... 26
Carburetor ................. 20
Electric Clutch .............. 21
Fuse ...................... 23
Hood Removal .............. 23
Motion Drive Belt ............ 21
Motion Drive Belt Replacement 21
Mower Front-to-Rear .......... 24
Mower Side-to-Side ........... 24
Mower Removal ............. 23
Throttle Control Cable ........ 20
Transaxle Oil Level ............ 23
Safety Rules .................... 2
Seat ......................... 7
Service Record ................. 28
Slope Guide Sheet ............. 51
Spark Plugs ................... 19
Speed Control Chart ............ 14
Starting the Engine .............. 12
Steering Wheel .................. 8
Stopping the Tractor ......... 12
Storage ..................... 26
T¸
Throttle Control Cable Adjustment 20
Tires ....................... 17
Transaxle Oil Level ............ 23
Trouble Shooting Chart ......... 27
W
Warranty ..................... 3
Wiling (Schematic) .............. 29

A SSEMBL Y
Know Your Tractor
READ THIS OWNER'S MANUAL BEFORE OPERATING YOUR GARDEN TRACTOR. If you unders-
tand the machine and its operation, you will achieve efficient and peak performance. While reading
the manual, compare the illustrations with your Garden Tractor to familiarize yourself with the loca-
tion of various controls and adjustments. Study the operating instructions and safety precautions
thoroughly to insure proper functioning of your Garden Tractor and to prevent injury to yourself
and others. Be sure to pay strict attention to all notes and cautions; they are included for your safe-
ty. Save this manual for future reference.
Unpacking Instructions
1, Remove. box from carton. The box contains the/terns
shown below.
2. Cut down four corners of the carton with a utility
knife and fold down sides.
3. Remove mower deck from skid.
4. Oisengage Parking Brake.
5. Carefully guide the tractor backwards off the skid.
The operation of any tractor can result in
foreign objects thrown i#to the eyes, which
can result in severe eye damage. Always
wear safety glasses or eye shields before
starting your tractor and while mowing. We
recommend Wide Vision Safety Mask for
over the spectacles or standard safety
glasses, available at Sears Retail or Catalog
Stores.
C.
e.
a, seat
b. steering wheel
c. battery
d. battery acid
e. owner's manual
f. parts ba9
Parts Bag Contents Not Shown Full Size:
"¢_l_llwJlll K ''
(2) Battery Carriage Bolts -1/4 -20 x 7 -1/2
Terminal Guard
(2) Keys
15 0Slope Instruction Sheet
V-Belt
BA T FERY
CAPS &
iNSTRUCTIONS
Steering Wheel Cap

ASSEMBL Y
A SSEMBL Y
LOCA "lION
BA TTERY
BATTERY
TERMINALS
SUSPENSION
ARMS
SEA T
PARTS BAG CONTENTS SHOWN FULL SIZE
(2) Lockwasher, 1/4 Int/Ext Tooth (2) Wing Nut -1/4 -20
(2) Hex Bolt, I/4-20x 3/4
©
(2) Lockwasher 1/4
(2) Washer 9/32 x 5/8 x 16 Ga. Q
(2) Hex Nut, 1/4 -20
(4) Spring Retainer (4) Washer 17/32x 1 -!/16x 13 Ga.
(I) Hex Bolt, 1/2 -13 xI
Grade 5
(1) Shoulder Bolt 5/16 -18
(J) Lockwasher 1/2
(1) Washer 15/32x i x 16 Ga.
(1) Washer 17/32 xI-3/16
x12 Ga.

To assemble and adjust your tractor you wil! need:
II(2) 7/!6- wrenches (2) 1/2" wrenches
(1) 3/4"" wrench Tire Pressure Gauge
(!) 9/16"" wrenches Screwdriver
Utility Knife
NOTE: RIGHT HAND IR.H.)AND LEFT HAND (L.H.)ARE
DETERMINED FROM OPERATOR'S POSITION WHILE
SEATED ON THE TRACTOR.
d,
ASSEIVIBL Y
Place seat in operating position. Sit on the seat and
press clutch/brake pedal all the way down. if oper
atlng position is not comfortable, adjust seat
To adjust" Raise seat. Loosen adjustment bolt Slide
seat to desired position, Tl_qhten adjustment belt
securely.
WEAR EYE AND FACE SHIELD.
WASH HANDS OR CLOTHING IM-
MEDIATELY IF ACCIDENTALLY IN CON-
TACT WITH ELECTROLYTE.
DO NOT SMOKE, FUMES FROM CHARG-
ED ELECTROLYTE ARE EXPLOSIVE.
NOTE: THIS TRACTOR IS EQUIPPED WITH AN
OPERATOR PRESENCE SENSING SWITCH, ANY AT-
TEMPT BY THE OPERATOR TO LEAVE THE SEAT WITH
THE ENGINE RUNNING AND ATTACHMENT CLUTCH
ENGAGED WILL SHUT OFF THE ENGINE.
1. Prepare Battery
CUT AWAY VIEW
LIQUID
LEVEL
VENT CAP
BATTERY
TUBE
BATTERY
CELL
FIGURE 1
READ INSTRUCTIONS INCLUDED WITH
THE BATTERYVENT CAPS FOUND IN BAG
OF PARTS. ALWAYS WEAR GLOVES.
CLOTHING AND GOGGLES TO PROTECT
YOUR HANDS, SKIN AND EYES.
a. Fill and charge battery (before installing). NOTE:
SEE DETAILED INSTRUCTIONS PACKAGED WITH
BATTERY VENT CAPS IN BAG OF PARTS.
b. Fill battery with electrolyte to bottoms of tubes
in cells (Fig. 1). NOTE: DO NOT OVERFILL.
OVERFILLING WILL RESULT IN DAMAGE TO
TRACTOR.
c. Check level of electrolyte after 30 minutes. Add
additional electrolyte if necessary. NOTE:
TIGHTEN VENT CAPS SECURELY.
d. Charge battery at a rate of six amperes for one
hour.
e, Neutralize excess electrolyte for disposal by add-
ing it to four inches of water in a five gallon
plastic container. Stir with a wooden or plastic
paddle while adding baking soda until the addi-
tion of more soda causes no more foaming.
2. Install Seat
Seat position should be adjusted forward or backward so that
the operator can comfortably reach Clutch/Brake Pedal and
safely operate the tractor (Fig 2).
a. Place seat on seat pan. Screw hex head bolt, lock-
washer and flat washer into seat (Fig 2). Screw
shoulder bolt and flat washer into seat (Fig 2), Hex
bolt, shoulder bolt and washers found in bag of parts
(shown full size page 5),
b. Tighten shoulder bolt and flat washer usmg a 1/2""
wrench.
c. Tighten hex bolt (adjustment bolt), /ockwasher and
flat washer using a 3/4"" wrench.
SEAT PAN
SHOULDER
BOLT i
ADJUSTMENT
BOLT
!
/
/
CLUTCH/BRAKE PEDAL
(
FUEL
TANK
CAP
FIGURE 2
THE MACHINE SCREW-LOCKWASHER-
FLAT WASHER MUST BE TIGHTENED SE-
CURELY TO PREVENT MOVEMENT OF
SEAT.

ASSEMBL Y
STEERING WHEEL CAP
HEX BOLT
LOCKWASHER
2 - 318" DIA. WASHER
STEERING WHEEL
FIGURE 3
BATTERY
COMPARTMENT
--- STEERING WHEEL ADAPTER
STEERING SHAFT
HOOD
FIGURE 4
GRILL
NUT
ER
WASHER
LOCKWASHER
HEX
BOLTS
BLACK
(NEGATIVE)
CABLE
3. Install Steering Wheel
NOTE: POSITION FRONT WHEELS FORWARD,
a. Use a 9/16" wrench to remove hex bolt,
Iockwasher and 2-3/8" diameter washer (shown
full size below) from steering shaft (Fig, 3)
b. Position steering wheel over steering adaptor.
c. Secure steering wheel to steering shaft using
hex bolt, Iockwasher and 2=3/8"" diameter
washer (Fig. 3).
d. Snap steering wheel cap in place on steering
wheel. Steering wheel cap found in bag of parts.
4. Check Tires
Reduce tire.pressure to 14 PSI in front and 10 PSI in rear
tires, (Tires were overinflated for shipping purposes).
DO NOT SHORT BATTERY TERMINALS.
BEFORE INSTALLING BATTERY, REMOVE
METAL BRACELETS, WRISTWATCH
BANDS, RINGS, ETC.
5. Install Battery
a. Remove hood -See page 23.
b. Remove tape from plastic tray. Make sure drain
tube (Fig. 5) is fastened to drain hole in battery
tray and battery tray is positioned in hole of bat-
tery support.
c . Place battery in plastic tray (Battery terminals to
front of tractor)(Fig. 5).
FIGURE 5
DRAIN TUBE

POSITIVE TERMINAL MUST BE CON- 1
NECTED FIRST TO PREVENT SPARKS
FROM ACCIDENTAL GROUNDING.
d, Connect RED battery cable to positive (+) bat-
tery terminal with hex bolt, flat washer,
Iockwasher and hex nut (shown full size on page
6) found in bag of parts (Fig. 6). Tighten securely,
with two 7/16" wrenches.
e, Connect BLACK ground cable to negative (-) bat-
tery terminal with remaining hex bolt, flat
washer, Iockwasher and hex nut (shown full size
on page 5) found in bag of parts (Fig. 6). Tighten
securely.
NOTE: IF YOU HAVE A WEAK BATTERY, SEE "STARTING
YOUR TRACTOR WITH AWEAK BATTERY" PAGE 19.
f.
g°
Using the square hole on one side of the battery
support (Fig. 6) insert one battery bolt, head of
bolt down. Fasten the battery bolt to the terminal
guard using int./ext. Iockwasher and wing nut as
shown in Fig. 6.
Assemble the remaining battery bolt to other side
of battery support and fasten terminal guard to
it with remaining int./ext. Iockwasher and wing
nut. Tighten wing nuts securely by hand (Fig. 6).
0
h. Remove Plastic on tractor hood and close
NOTE: USE TERMINAL ACCESS DOORS (FIG. 6) FOR:
1 INSPECTION FOR SECURE CONNECTIONS
(TIGHTEN HARDWARE)
2 INSPECTION FOR CORROSION
3 TESTING BATTERY
4 JUMPING (IF REQUIRED)
5 CHARGING (IF REQUIRED)
KEEP TERMINAL ACCESS DOORS
CLOSED WHEN NOT IN USE.
DO NOT START ENGINE UNTIL
MOWER SUSPENSION BRACKET HAS
BEEN RELEASED. SEE MOWER DRIVE
BELT INSTALLATION, PAGE 10.
/
\
ASSEMBL Y
INT./EXT.
LOCKWASHER
WING
NUT WING NUT
,,_ INT./EXT.
LOCKWASHER
),L
ACCESS
DOOR
,L
GUARD
TERMINAL
ACCESS DOOR
BOLT
BATTERY
SUPPORT
FIGURE 6
HEIGHT
ADJUSTMENT
KNOB
r i_
ARM
y
ATTACHMENT
LIFT LEVER
"HIGHEST'"
POSITION
ATTACHMENT
LIFT LEVER
.... "'LOWEST'"
POSITION
RELEASE
FRONT
SUSPENSION
BRACKET
FIGURE 7
RETAINER
SPRING
BRACKET
SUSPENSION
ARM
RETAINER
SPRING
LIFT LINK
STUD
FIGURE 8
9

AY
PRIMARY
MANDREL
MOWER DRIVE
BELT FRONT
SUSPENSION
BRACKET
FIGURE 9
GAUGE
WHEEL
\
GAUGE/
WHEEL
BAR
BRACKET
_CLEVIS
FIGURE 10/I PIN
CLUTCH
PULLEY
MOWER
DRIVE
BELT
LEVER
TENSION
PULLEY
IDLER
_GURE 11
PULL FORWARD
TO LOOSEN BELT
FOR EASIER BELT
INSTALLATION
IDLER BRACKET
6. Mower Installation
a. Remove band from mower suspension bracket.
b.Remove banding from suspension arms (Fig. 7),
c. Slide mower under tractor, deflector to R.H.
side.
d. Slide front suspension brackets into mower
brackets. Retain with release pins (Fig. 7).
e. Turn depth adjustment knob counterclockwise
(_)until it stops.
f. Push attachment lift lever forward to lower
mower to ground (page 11),
g. Slide studs through lift links on both sides of
tractor (Fig. 8). Retain with washers and re-
tainer springs found in bag of parts.
h. Place the suspension arms on brackets on both
sides of frame (Fig. 8). Retain with washers and
retainer springs found in bag of parts,
Turn height adjustment knob (Fig. 7) clockwise
(_) to remove slack from mower
suspension.
I. Roll drive belt over primary mandrel (Fig. 9).
7. Mower Drive Belt Installation
a. Remove hood and grill (See page 23).
b. Place mower drive belt over clutch pulley, and
under idler pulley and tension pulley (Fig, 11).
NOTE: PULL LEVER UP TO SWING TENSION
PULLEY FOR BELT CLEARANCE. Make sure
narrow "'V'" side of belt is engaged in each
pulley.
c . Putl mower drive belt over front mower suspen-
sion bracket (Fig. 9).
d. Replace hood and grill.
8. Mower Drive Belt Adjustment
a. Lower mower using attachment lift lever.
b. If dimension "A'" on idler bracket assembly
measures !/4"" or less, mower drive belt must
be adjusted (Fig. 1 I-Inset).
c. Disengage attachment clutch switch.
d. Using two 9/16" wrenches, remove bolt, (2)
washers, Iockwasher and nut from idler pulley
(Fig. 1 l-Inset) (original position).
e. Place v-belt and idler pulley in "'NEW" pulley
position (Fig. 1 I-Inset). Replace bolt, (2)
washers, Iockwasher and nut, Tighten securely.
f.Check v-belt for proper installation on all pulley
grooves.
9. Check the Cutting Level
The blade housing was set at the factory to cut level.
After mowing a short distance, look at the area that was
cut. If the blade housing cuts uneven; see the instruc-
tions on "'Side-to-Side And Front-to Rear Mower Adjust-
ment" (page 24)".
10. Final Assembly
a. Make sure all fasteners are tight.
b. Read and follow the operation instructions
(page 1 !). Know the location and purpose of
all controls.
c. Check oil and gasoline before starting
the tractor.
!O

KNOW YOUR TRACTOR
OPERA TION
READ THIS OWNER'S MANUAL BEFORE OPERATING YOUR GARDEN TRACTOR. If you understand the machine and
its operation, you will achieve efficient and peak performance. While reading the manual, compare the illustrations with
you Garden Tractor to familiarize yourself with the location of various controls and adjustments. Study the operating
instructions and safety precautions thoroughly to insure proper functioning of your Garden Tractor and to prevent in-
jury to yourself and others. Be sure to pay strict attention to all notes and cautions; they are included for your safety.
Save this manual for future reference.
Light Switch Arnmeter
Attachment Clutch Switch
Clutch/Brake Pedal
Height
Adjustment
Knob
Gear Shift Lever
Attachment
Lift Lever
.Choke
,ttle Control
Parking Brake
,ge Shift Lever
ATTACHMENT CLUTCH SWITCH: Pull switch out and
up to engage attachment. There will be an engine hesita-
tion as the clutch engages.
A TTACHMENT LIFT LEVER: Use the attachment lift lever
to raise and lower the attachment mounted to your trac-
tor. Move the lift lever forward to lower attachment.
CHOKE: To start a cold engine, pull choke out to engage.
CLUTCH/BRAKE PEDAL: The pedal has 2 functions: a
clutch and a brake. To engage push the pedal com-
pletely down.
HEIGHT ADJUSTMENT KNOB: Use the height adjust-
ment knob to adjust the mower height. With attachment
lift lever in the full "'UP" position, turn clockwise ( F_.)
to raise mower and counterclockwise (/f_) to lower
mower.
GEARSHIFT: Press the clutch/brake pedal down firmly
and move gear shift lever to desired speed.
IGNITION: Place key in ignition and turn to the right to
start.
AMMETER: Each time you start your tractor, check your
ammeter. The needle should move towards the (+)
charging mark indicating the battery is being charged as
you operate the tractor. The headlights will not show a
discharge on the ammeter because they are not con-
nected to the battery (they have their own electrical
source).
LIGHT SWITCH: Turns on and off the headlights.
PARKING BRAKE LOCK: To set the parking brake, push
the clutch/brake pedal completely forward. Place the
parking brake lever in "Engaged" position and release
pressure from pedal. Clutch/brake pedal will remain in
brake position.
RANGE SHIFT LEVER: The Hi-Lo range shift lever gives
you the versatility of 6 speed selections: Lo 1, 2, 3, and
Hil, 2,3.
THROTTLE CONTROL: Use the throttle control to in-
crease or decrease the speed of the engine.
11

OPERA TION
FIGURE 12
SEAT PAP,
/
CLUTCH BRAKE PEDAL
FIGURE 13
ENGINE
DIPSTICK
\
A AO.M.NT
CLUTCH SWI;CH
,O.,T.O. ,- T.ROTTLE
"-L. !/"°_d_V/ CONTROL
LOWE%. Z_--J c.oK.
ADJUSTMENT \"S_,,_r_r ",_,_;._ .....
.....-_------_)..Jl ,'_ "\, /PARKING
N.F ,_//X_ \_ _ _' BRAKE
___ s HIFT
/\ LEVER
GEAR SHIFT
FIGURE 14 CONTROLLEVER
1. Stopping Your Tractor
NOTE: REMOVE KEY WHEN LEAVING TRACTOR TO
PREVENT UNAUTHORIZED USE.
a. Push clutch/brake pedal into full "'BRAKE'"
position.
b. Place parking brake in "ENGAGED" position and
release pressure from clutch/brake. Pedal should
remain in "BRAKE" position. NOTE: MAKE SURE
PARKING BRAKE WILL HOLD TRACTOR
SECURE.
c . Move gear shift lever to "NEUTRAL" position.
d. Place attachment clutch switch in "DISENGAG-
ED" position.
e. Move throttle control to "'S'" (slow) position.
f . Turn ignition key to "OFF" position. Never use
choke to stop engine.
2. Starting The Engine
_LEARN TO START, STOP AND REVERSE
YOURTRACTORIN A LARGE, OPEN AREA.
NOTE: THIS TRACTOR IS EQUIPPED WITH INTERLOCK
SWITCHES TO PREVENT STARTING OF THE TRACTOR
ENGINE WHILE THE ATTACHMENT CLUTCH OR THE
CLUTCH/BRAKE PEDAL IS ENGAGED.
IMMEDIATELY REPLACE SWITCHES THAT
ARE NOT IN PROPER WORKING ORDER.
DO NOT ATTEMPT TO DEFEAT THE PUR-
POSE OF THESE SWITCHES.
a. This engine has been shipped filled with summer
weight oil (for cold weather operation see Chart
page 16). Check engine oil level with tractor on
level ground. Wipe dipstick (Fig. !2) clean, screw
it in tight for a few seconds, remove and read oil
level. If necessary, add oil until "FULL'" mark is
reached.
CAUTION: EXPERIENCE INDICATES THAT ALCOHOL
BLENDED FUELS (CALLED GASOHOL OR
USING ETHANOL OR METHANOL) CAN AT-
TRACT MOISTURE WHICH LEADS TO
SEPARATION AND FORMATION OF ACIDS
DURING STORAGE. ACIDIC GAS CAN
DAMAGE THE FUEL SYSTEM OF AN ENGINE
WHILE IN STORAGE.
TO AVOID ENGINE PROBLEMS, THE FUEL
SYSTEM SHOULD BE EMPTIED BEFORE
STORAGE FOR 30 DAYS OR LONGER. DRAIN
THE GAS TANK, START THE ENGINE AND
LET IT RUN UNTIL THE FUEL LINES AND
CARBURETOR ARE EMPTY. USE FRESH
FUEL NEXT SEASON. SEE STORAGE IN-
STRUCTIONS FOR ADDITIONAL INFOR-
MATION. (PAG E 26).
NEVER USE ENGINE OR CARBURETOR
CLEANER PRODUCTS IN THE FUEL TANK
OR PERMANENT DAMAGE MAY OCCUR.
12

b. Fill fuel tank (Fig. 13). Use fresh, clean, regular
unleaded automotive gasoline. (Use of leaded
gasoline will increase carbon and lead oxide
deposits and reduce valve life). Capacity is 3- 1/2
gallons,
c. Place attachment clutch switch in "'DISENGAG-
ED" position,
d. Push clutch/brake pedal fully into brake position,
e. Place gear shift lever in "'N'" neutral, start posi-
tion (Fig. 14).
f . Place range shift lever in "N'" neutral position (Fig.
14).
g. Pull choke out (Fig. 14),
h.Move throttle control to middle position (Fig, 14).
i. Turn ignition to "START" position until engine
starts (Fig. 14). NOTE: DO NOT RUN STARTER
CONTINUOUSLY FOR MORE THAN FIFTEEN
SECONDS PER MINUTE. If engine does not start
after several attempts, move throttle control to
"'F'" (fast) position, wait a few minutes and try
again.
j. After engine is warm, push choke in.
The first time you start the engine, it will take extra
cranking time to move fuel from tank to engine. NOTE:
ALLOW ENGINE TO WARM UP FOR A FEW MINUTES
BEFORE ENGAGING CLUTCH/BRAKE PEDAL OR AT-
TACHMENT CLUTCH SWITCH.
k. When restarting a warm engine, move throttle
control midway between "'S'" (slow) and "'F'"
(fast) position. Choke may not have to be used.
I,_ BEFORE DRIVING THE TRACTOR, INSTALL
MOWER OR REMOVE FRONT MOWER
SUSPENSION ARM (FIG. 8,.
7 .
2.
3.
4.
5.
6.
7.
8.
9.
10.
lf.
ii-,llli.i
CAUTION
TO AVOID INJURY
Read owner's manual.
Know location and function of all controls.
Keep guards, safety shield and switches in place
and working.
Remove objects that can be thrown by blades.
Do not mow when children and others are around.
Never carry children or passengers.
Always look behind machine before backing.
Do not mow where machine can tip or slip.
If machine stops going uphill, stop blades and back
slowly down.
Be sure blades end engine have stopped before
placing hands or feet near the blades.
Remove key when leaving machine.
NEVER PLACE YOUR HANDS OR FEET IN
OR UNDER ANY POWERED ATTACHMENT
OR NEAR ANY MOVING PART WHILE
TRACTOR OR ANY POWERED ATTACH-
MENT IS RUNNING.
DO NOT OPERATE THE MOWER WITHOUT
THE DEFLECTOR SHIELD IN PLACE,
TION
DO NOT OPERATE THE MOWER WITHOUT
THE DEFLECTOR SHIELD IN PLACE.
IMPORTANT: DO NOT ADD ADDITIONAL WEIGHT
TO THE TRACTOR OTHER THAN THE
OPTIONAL WHEEL WEIGHTS. EX-
CESSIVE WEIGHT MAY OVERLOAD
AND DAMAGE THE TRANSMISSION.
DEPTH
ADJUSTMENT
KNOB
PLUNGER
ATTACHMENT
LIFT LEVER
_: RETAINER
SPRING
CLEVIS PIN FIGURE 15
GAUGE WHEEL _--
3. Operating Your Tractor and Mower
NOTE: THIS TRACTOR IS EQUIPPED WITH AN
OPERATOR PRESENCE SENSING SWITCH. ANY AT-
TEMPT BY THE OPERATOR TO LEAVE THE SEAT WITH
THE ENGINE RUNNING AND THE ATTACHMENT
CLUTCH ENGAGED WILL SHUT OFF THE ENGINE.
READ THE "SAFETY RULES" CAREFULLY
BEFORE OPERATING YOUR MOWER.
Use the height adjustment knob (Fig. 14) to adjust
mower height. With the attachment lift lever in the full
"'UP" position, turn height adjustment knob clockwise
("-_) to raise cutting height and counterclockwise (_-_)
to lower cutting height. Lower attachment lift lever to
check adjustment.
a. To adjust gauge wheels (Fig. 15) lower attach-
ment lift lever,
b. Remove retainer spring and clevis pin from gauge
wheels.
c. Move gauge wheels to the adjustment hole that
will provide the desired cut.
d. Replace retainer spring and clevis pin.
e. Move attachment lift lever to its full "'UP"
position.
f . With engine running and warm, place throttle con-
trol midway between "S'" (slow) and "'F'" (fast)
position (Fig. 14).
g. To engage mower pull attachment clutch switch
(Fig. 14) out and up.
13

OPERA TiON
FUNCTION
Normal
Mowing
Heavy
Mowing
Snow
Removal
Tilling
Plowing
Dozing
Grading
Transport
GEARSHIFT THROTTLE
CI
MID
THROTTLE
SLOW-FAST
2H* or 3L*
1H or 2L
1L
1L
1L
2L
3H
FIGURE 16 * Indicates Range Shift Lever position:
"H" for High. "L" for low
Li
R.H. RUNNER
DISCHARGE GUARD
_GURE 17
!t!
..... ,lil
' _, Jj
FIGURE 18
h.Move range shift lever to "'LO'" (low) postion (Fig.
14).
i. Move gear shift lever to desired gear (Fig. 14).
j. Use attachment rift lever to lower mower into cut-
ting position.
k. Release clutch/brake pedal SLOWLY to start
movement.
I. Start mowing at slow and increase ground speed
by increasing throttle as conditions will permit.
NOTE: BRING TRACTOR TO COMPLETE STOP BEFORE
SHIFTING GEARS.
5. Mowing Tips
NOTE: TIRE CHAINS CANNOT BE USED WITH THE
MOWER HOUSING ATTACHED
READ THE "SAFETY RULES" CAREFULLY I
BEFORE OPERATING YOUR MOWER. I
REFER TO PAGE 2.
a. Use the runner on the R.H. side as a guide; the
blade cuts approximately an inch outside the run-
ner (Fig. 17).
b. Drive so that clippings are discharged onto the
area that has been cut. Have the cut area to the
right of the machine. This will result in a more
even distribution of clippings and more uniform
cutting.
c. When mowing large areas (Fig. 18), start by tur-
ning to the right so that the clippings will be
discharged away from shrubs, fences, driveways,
etc. After two or three rounds, mow in the op-
posite direction making left hand turns until
finished.
d. If grass is extremely tall, it should be mowed
twice. The first time cut relatively high. The se-
cond time to the desired height.
e. The left hand side of mower should be used for
trimming.
5. Operating The Tractor On Hills
a. Choose the lowest gear BEFORE starting up or
down hills.
DO NOT DRIVE UP OR DOWN HILLS WITH
SLOPES GREATER THAN 15 ° AND DO
NOT DRIVE ACROSS ANY SLOPE, REFER
TO PAGE 51.
b. Avoid stopping or shifting on hills.
c.If slowing is necessary, move throttle control lever
to middle position.
LEAVE ENOUGH ROOM WHEN STOPPING
AND STARTING TO ALLOW SLIGHT TRAC-
TOR ROLL DOWNHILL AS CLUTCH/BRAKE
PEDAL MOVES THROUGH CLUTCH
POSITION.
d. If stopping is absolutely necessary, push
clutch/brake pedal quickly to brake position and
engage parking brake.
14

e. To restart your tractor, make sure tractor is in 1st
gear and that you have allowed room to roll slight-
ly downhill. Disengage parking brake and release
clutch/brake pedal SLOWLY to start tractor for-
ward movement.
f. Make all turns slowly.
To keep your tractor running better,
longer, perform necessary service using
the following maintenance schedule:
BEFORE MAKING ANY INSPECTION,
ADJUSTMENT OR REPAIR: (FIG. 19):
1. PUSH TRACTOR CLUTCH/BRAKE
PEDAL COMPLETELY INTO BRAKE
POSITION.
2. MOVE GEAR SHIFT CONTROL
LEVER TO NEUTRAL POSTION.
3. PLACE PARKING BRAKE IN
"ENGAGED" POSITION :AND RE-
MOVE FOOT FROM PEDAL,
4. TURN OFF ATTACHMENT
CLUTCH SWITCH.5. SHUT OFF THE ENGINE.
6. MAKE ABSOLUTELY SURE THE
BLADES AND ALL MOVING PARTS
HAVE COMPLETELY STOPPED.
7. DISCONNECT THE SPARK PLUG
WIRES FROM THE SPARK PLUGS
AND KEEP WIRES AWAY FROM
THE SPARK PLUGS TO PREVENT
INJURY FROM ACCIDENTAL
STARTING. BE CAREFUL TO
AVOID TOUCHING HOT ENGINE
OR MUFFLER COMPONENTS.
With Every Mowing
I. Make sure all nuts on bolts are tight and cotter pins
and retainer springs are secure.
2. Observe all safety precautions.
3. Keep tractor _vell lubricated (refer to page !8).
First 2 Hours (Two Mowings)
1. Change Engine Oil
MAINTENANCE
\
L,H.
SIDE
PANEL_
FIGURE 19
ENGINE OIL L.H. SIDE
DIPSTICK .
AND FILL TUBE .... _
t
Changing off after the first two hours (or two mow-
ings) will help eliminate break-in residue which might
be damaging to your engine.
NOTE: BE CAREFUL NOT TO ALLOW DIRT TO ENTER
THE ENGINE WHEN CHANGING OIL.
FIGURE 20
a. Drain oil with engine warm.
b. Remove hood and grill (see page 23).
c. Loosen oil drain wing nut (Fig. 20 -Inset).
Catch oil in a suitable container.
d. Tighten oil drain wing nut after all oil has been
removed from engine.
e. Refill engine oil. Refill capacity is 3 pints.
NOTE: DO NOT OVERFILL.
f. Replace dipstick.
15

MAINTENANCE
SHIFT
COVER
\
FIGURE 21
D
G"E
FIGURE 22
Ii
CENTER
_HOLE
,,,oE) \I
ii
FIGURE 23
Recommended SAE Viscosity Grades
Determine temperature expected before next oft change.
All oft must meet A.P.I. service classification SD, SE or
SF.
_20 o 0o32 °60 °80 °100 °
30 or lOW-30 _;_
IIF]
Capacity is 3pints. NOTE: DO NOT OVERFILL. Dipstick
assembly must be securely tightened into tube at all
times when engine is operating.
IMPORTANT: TO AVOID DAMAGE TO THE STAR-
"rING SYSTEM, USE SAE 5W30 OIL
WHEN THE TEMPERATURE FALLS
BELOW 32 ° .
f Replace dipstick.
Every 5 Hours (l_ve Mowings)
1. Check Engine Oil Level
NOTE: DO NOT CHECK ENGINE OIL LEVEL
WITH ENGINE RUNNING.
Several minutes after stopping engine, check engine oft
level with tractor on level ground. Wipe dipstick (Fig. 20)
clean, screw ff down tight for a few seconds, remove
and read oft level. If necessary, add oil until "FULL" mark
is reached. NOTE: DO NOT OVERFILL.
Every 25 Hours (Twice a Mowing Season)
(Operating in dusty conditions may require more frequent
servicing.)
1. Brake Adjustment
IF TRACTOR REQUIRES MORE THAN
SIX FEET STOPPING DISTANCE IN
HIGHEST GEAR ON A LEVEL DRY
CONCRETE OR PAVED SURFACE
THEN BRAKE MUST BE ADJUSTED.
a.Remove (4) hex washer head tapping screws from
shift cover plate (Fig. 21), located on top of trac-
tor frame. Remove the cover plate.
b. Loosen jam nut (G) on brake rod (B) at clevis (c)
(Fig. 22). If you find it difficult to loosen jam nut
(G), remove cover plate in L.H. frame raft.
c. Rotate brake rod (B) counterclockwise (,#-_) tur-
ning brake rod out of clevis (C) four to six turns.
d. Start tractor with tramsmission in "N'" (neutral)
position.
e . Depress clutch/brake pedal to the point where belt
stops moving.
16

f . Engage parking brake to hold clutch/brake pedal
in position. If belt begins to move after engaging
parking brake, depress clutch/brake pedal to next
notch on parking brak e.
g. Shut engine off. Rotate brake rod (B) clockwise
(f-_) by hand, turning brake rod into clevis (C),
until tight. Tighten jam nut (G) on brake rod. (B)
at clevis (C) (Fig. 22).
h. Reinstall shift cover plate and four (4) mounting
screws. Replace cover plate if removed in step b.
2. Tire Care
Maintain tire pressure in front at 14 PSI and rear tires
at 10 PSI,
3. Blade Care
For best results mower blades must be kept sharp. The
blades can be sharpened with a few strokes of a file or
on a grinding wheel. We suggest they be sharpened after
every 25 hours of mowing, Do not attempt to sharpen
while on mower.
a. When grinding, care should be taken to main-
tain blade balance and the blade should be
checked for proper balance before reinstallation
on mower.
b, Unbalanced or bent blade will cause excessive
vibration when running and eventual damage to
mower or engine. Replace bent or damaged
blades.
To check blade balance, drive a nail into a beam or wall.
Leave about one inch of the straight nail exposed. Place
center hole of clean blade over the head of the nail (Fig.
23). NOTE: CENTER HOLE OF BLADE ON NAIL. IF
BLADE IS PROPE[RLY BALANCED, BLADE SHOULD RE-
MAIN IN POSITION SHOWN iN FIG. 23. IF EITHER END
OF THE BLADE MOVES DOWNWARD, BLADE IS NOT
BALANCED, SHARPEN THE HEAVY END UNTIL THE
BLADE IS BALANCED.
Every 50 Hours (Once a Mowing Season)
(Operating in dusty conditions may require more frequent
servicing)
1. Check Battery
a. Electrolyte solution level in each battery cell
should be even with bottoms of tubes in cells
(Fig. 24). Add only distilled water if necessary,
NO-FE: DO NOT OVERFILL, DO NOT ADD ACID.
b.Keep battery and terminals clean. Refer to page
18.
c. Keep battery bolts tight.
d. Keep vent caps tight and small vent holes in
caps open.
MAINTENANCE
CUT AWAY VIEW
LIQUID
LEVEL
VENT CAP
BATTERY
BATTERY
CELL
FIGURE 24
COVER
_= NUT
WASHER
CARTRIDGE
PLATE
PAPER
CARTRIDGE
OIL FOAM
PRE-CLEANER
2, Clean Air Filter
BODY
FIGURE 25
a. Unscrew knob (Fig. 25) to remove cover.
b. Remove nut and washer to remove cartridge
plate, paper cartridge and oil foam pre-cleaner.
c. Wash foam pre-cleaner in detergent and water.
d. Rinse, squeeze (rather than twist) allow to dry
throughly.
e. Lightly coat with S.A.E. 30engine oil. Donot
saturate. Squeeze in a rag or towel to distribute
evenly and remove excess.
f. Check paper cartridge. Replace if excessively
dirty.
g. Reassemble paper cartridge and re-position on
tractor. NOTE: NEVER RUN ENGINE WITH AIR
FILTER REMOVED AS DIRT (DUST) WILL
DAMAGE THE ENGINE.
17

MAINTENANCE
3. Clean Battery and Terminals
Corrosion and dirt on the battery and terminals cause the
battery to "leak" power and hinders the operation of the
charger.
a. Remove terminal guard.
b. Remove the battery from the tractor and wash
with four tablespoons of baking soda to one
gallon of water. NOTE: BE CAREFUL NOT TO
GET THE SODA SOLUTION INTO THE CELLS.
c . Clean terminals and cable ends with a wire brush
until bright.
d. Rinse the battery with plain water, dry and
reinstall on tractor.
e . Replace cables and terminal guard. Refer to page
8.
4. Change Engine Oil
The best time to drain engine oil is at the end of a day's
operation when all dirt and foreign materials are suspend-
ed in the hot oil. Refer to page t 5.
5. Lubricate Pivot Points
Place several drops of S.A.E. 30 oil at points where parts
move against each other, especially:
a. Front Axle Pivot
b. Hood Hinges
c. Foot Pedal Shaft (both ends)
d. Lift Shaft (both ends)
e. Sector gear end pivot points
Lubrication Chart
SPINDLE
@WHEEL BEARINGS--_
BOTH ENDS OF
FOOT PEDAL
SAE 30 (SC, SD OR SE)
MOTOR OIL
CHASSIS GREASE
SEARS PART NO. 2557R
_REFER TO ENGINE OIL SPEC'S.
(UNDER INITAL PREPARATION
IN OWNERS MANUAL)
CHASSIS GREASE
WITH BRUSH
i_ SPINDLE @
_WHEEL
ENGINE (_
SECTOR GEAR
BEARINGS @
--BOTH ENDS LIFT SHAFT@
TRANSAXLE
(CHECK LEVEL AT REAR
FILL PLUG) @
18

6. Clean Air Screen
Air screen (Fig. 26) must allow free-flow of air to pre-
vent engine damage from overheating, Clean with a wire
brush or compressed air to remove dirt, stubborn dried
gum and fibers.
7. Clean Front Grill
Brush debris from front grill to allow free-flow of air,
preventing engine damage from overheating.
MAIIVTENANCE
.,_ HEAT SHIELD
MUFFLER i._L
ENGINE
COOLING
FINS
8. Lubricate Steering and Front Wheels
There are four grease fittings on your tractor (Fig. 27).
Using a grease gun, give each grease fitting two shots
of chassis grease (available through your Sears Service
Center). Sears Part No. 2557R.
AIR
SCREEN
AIR GUIDE Figure 26
COVER
9. Check Muffler
Inspect and replace corroded muffler as it could create
a fire hazard and/or engine damage.
EVERY 100 HOURS (Every Two Years)
IDISCONNECT SPARK PLUG WIRES TO PRE4
_1= VENT ACCIDENTAL STARTING BEFORE MAK-_
ING ANY INSPECTION, ADJUSTMENT O1_
REPAIR (EXCEPT CARBURETOR). |
/
1. Replace Spark Plugs
Replace spark plugs at the beginning of each season or
every 1O0 hours, whichever comes first. Gap should be
set at 0.030 inch (Fig. 28).
2. Replace Air Filter Paper Cartridge
Refer to page 77.
I
,,,¢_-, _,,_-L:_I! |_.__.- AXLE
F
_-. _'_:_=m_'ll II F.ONT SPINDLE
/""_FIi] k_LEFT_R'GHT_
.s.,r%_."E-%A-T3___P'_'I y___
IN AREA OF SECTOR ._"_ _FRONT WHEEL
FIGURE 27
REPAIR AND ADJUSTMENT
1. Starting Your Tractor with a Weak Battery
If your battery is too low to start the engine, it should
be recharged, If "'jumper cables" are used for emergen-
cy starting follow this procedure:
NOTE: YOUR TRACTOR IS EQUIPPED WITH A 12 VOLT
NEGATIVE GROUNDED SYSTEM, THE OTHER VEHICLE
MUST ALSO BE A 12 VOLT NEGATWE GROUNDED
SYSTEM.
LEAD-ACID BATTERIES GENERATE EXPLOSIVE
GASES. KEEP SPARKS, FLAME AND SMOKING
MATERIALS AWAY FROM BATTERIES,
ALWAYS WEAR EYE PROTECTION AROUND
BATTERY.
PLUG
,030" FEELER
GAUGE
FIGURE 28
19

REPAIR AND ADJUSTMENT
NEGATIVE
(BLACK CABLE)
TERMINAL
BATTERY
a. Connect each end of the RED cable to the
POSITIVE (+) terminals of each battery (taking
care not to short against chassis). (Fig. 29).
b, Connect one end of the BLACK cable to the
NEGATIVE (-) terminal of fully charged battery.
c. Connect the other end of the cable to L.H. side
penel bolt (Fig. 19). NOTE: KEEPAWAY FROM
GAS TANK AND BATTERY.
d. Disconnect cables in reverse order:
1. L.H. Side Panel Bolt (Fig. 19),
2. Negative Terminal of fully' charged Battery
3. Postive Terminals
CAUTION: DO NOT USE YOUR BATTERY TO
START OTHER VEHICLES.
POSITIVE
IRED CABLE)
TERMINAL
FIGURE 29
2. THROTTLE CONTROL CABLE ADJUSTMENTS
Never attempt to change maximum engine speed. This is
preset at the factory (3400 .*_ 100RPM) and should only
be change by a qualified service technician who has the
necessary equipment.
a Remove hood, page 23.
b. Loosen casing clamp screw until throttle cable is free
to move
c Move throttle control (on the dash board) to "Fast"
posLhon
d Pu!l throttle cable tight tantil swivel _s agapnst side of
quartercircei Fig. 30 Retighten casing clamp screw.
REFER TO "STARTING THE ENGINE",
PAGE 12.
FIGURE 30
URE
FIGURE 31 20
3 CARBURETOR ADJUSTMENT
NOTE: Adiust throttle control cable before making any ad-
lustment to carburetor Air cleaner must be asserobied to
carDuretor when running engbne.
Minor carburetor adjustments may be required to cornpen
sate for differences in fuel, temperature or altitude. Adjust
the carburetor fuel mixture as follows:
a Gently turn idle mixture valve clockwise ("-_) Fig 31
until it iust closes and then counterclockwise (_'-'_)
1 1/2 turns .
CAUTION: Valvernay be damaged if turned in too far
b. Start engine and allow to warm for five minutes. Make
final adiustments with engine runnbng and choke push-
ed in.
c Move throttle control lever (on dashboard) to slow
posit_on.
d, Hold governor control lever against idle speed screw,
and adjust idle speed screw to obtain 1200 to1400 RPM.
Fig, 31.
e While still holding the governor control lever against id)e
stop, turn idle mixture valve slowly clockwise !r-_)
(lean mixture) until speed just starts to slow.
f. Turn idle mixture vatve back to the midpoint between
rich and lean.
g. Adjust the idle speed screw to obtain 900 to 1200
RPM, ReFease governor control lever.
f. Move throttle control (on the dashboard) to "FAST".
If engine hesitates or dies. turn idle mixture valve ap-
proximately 1/8 turn counterclockwise (-J'_"_) until
engine wi!l accelerate as throttle control is moved from
"SLOW" to "FAST",

4. Electric Clutch Adjustment
The electric clutch (Fig. 32) should provide years of ser-
vice. The clutch incorporates a built-in brake that stops
the pulley almost immediately. Eventually, the internal
brake will wear so the mower blades will not stop as
recommended, Adjustment must be made by a Sears
Service Technician.
5. Motion Drive Belt Ren_oval
The belt on this tractor is special for this application.
Always replace with the Sears belt number in the parts

REPAIR AND ADJUSTMENT
c. Place belt around transaxle pulley. "V" part of
_i belt should engage transaxle pulley.
0
d. Make sure "V" part of belt engages "'V'" idler.
NEPULLEY e. Roll belt over engine pulley.
_ _ f.
BELT GUIDE
© 0 ©,_
FIGURE 36 J
g,
Loosen L.H. engine pulley belt guide bolt and
swivel belt guide bolt and swivel belt guide on-
to R.H. bolt. Tighten L.H. and R.H. bolts securely
(Fig. 36).
Release parking brake. NO'rE: WHEN A NEW
BELT HAS BEEN INSTALLED, YOU MUST
CHECK V-BELT ADJUSTMENT AND BRAKE
ADJUSTMENT.
h. Tighten nut "'A "'_
TOP OF
FRAME
,_- 1116""
TOP OF
PIN
R.H. SIDE OF TRACTOR
11/16"" NUT "'A'"
_. CLUTCH
FIGURE 37 IDLER
/
ENGINE
PULLEY
TAKE-UP
IDLER
IDLER
BRACKET
LOCKWASHER
tNUT
LEVER
7. Motion Drive Belt Adjustment
To assure maximum belt life check belt adjustment
seasonally.
a. To tighten belt, remove (4) hex washer head tap-
ping screws from shift cover plate (Fig. 35)
located on top of tractor frame. Remove the
cover plate.
b. Place parking brake lever in "ENGAGED" posi-
tion. Refer to "Stopping Your Tractor", page 12.
c. Loosen nut "A" located on outside of R,H.
chassis frame (Fig, 35), slide take-up idler down
approximately 1/2"" and tighten nut "'A".
d. Disengage parking brake.
e. Check position of clutch idler bracket (Fig. 37).
f. Repeat steps (b) thru (e) until I -1/16" dimen-
sion is obtained between top of pin and top of
frame as shown in Fig, 37.
g.
h,
Retighten nut "A" securely. NOTE: AFTER AD-
JUSTING V-BELT YOU MUST RE-ADJUST
BRAKE, SEE "BRAKE ADJUSTMENT",
PAGE !6.
Reinstall shift cover plate and (4) screws remov-
ed in step (a).
8. Idler Bracket Removal
NOTE: WHEN OPERATING TRACTOR WITHOUT
MOWER, REMOVE IDLER BRACKET FROM FRONT OF
TRACTOR.
a. Pull belt up through idler bracket and out of trac-
tor. Use lever to swing tension pulley for belt
removal.
b. Remove Iockwashers and nuts from idler bracket
(Fig, 38).NUT
LOCKWASHER 2.2

REPAIR AND ADJUSTMENT
9. Fueo Replacement /4_, TRANSAXLE
Replace with 30 amp automotive -type, plug-in !FILLER PLUG
fuse. Fuses can be purchased at alt Sears Service
Centers and most retail stores.
10. Check Transexle Oil Level
a. Block up rear axle (Fig, 39) securely or use a
tractor jack.
b. Remove left rear wheel by removing hub bolts.
c. Remove filler plug (Fig. 39) from transaxle. Oil
level must be even with plug threads. See your Sears
Service Center ff additional oil is required, Replace
filler plug.
d. Reposition wheel. Secure with hub bolts.
? 1. Hood Removal
a. Lift hood. Disconnect headlight wiring connec-
tion (Fig. 40).
b, Unscrew one screw at rear of each side panel
(Fig. 40).
c. Pivot hood and side panel forward and lift off
tractor (Fig. 4 I).
d. To replace, reverse the above procedure.
12. Mower Removal
a Lower mower.
b Pull the four (4) release pins out of suspension
brackets (Fig. 42).
c Pull back on attachment lift lever and lock into
place.
d, Slide mower forward and remove belt from
primary mandrel.
e. Slide mower out from under tractor.
NOTE: IF AN ATTACHMENT OTHER THAN THE
MOWER DECK IS TO BE MOUNTED ON THE TRACTOR,
REMOVE THE L.H. AND R.H. SUSPENSION ARMS (FIG.
42).
FIGURE 39
WIRE
CONNECTION
FIGURE 40
SUSPENS!ON ARM
BRACKETS
'/ ,_/I )
RELEASE
PiN
ATTACHMENT
HANDLE
BELT....
BRACKETS
/
23 FIOURE42

REPAIR AND ADJUSTMENT
13, Level Mower Housing Front to Rear Mower Adjustment
Adjust the mower while tractor is parked on level ground
or driveway. Make sure tire pressures are 14 PSI in front;
10 PSI in rear.
Side to Side Mower Adjustment
a. Move attachment rift lever to full "'UP"position
(Fig. 46).
b. Use a ruler to make sure bottom of curl at rear of
mower deck are the same height from the ground
on each side (Fig. 44).
Move attachment lift lever to full "'UP" position. After
leveling side to side, measure Bottom of Curl at FRONT
AND REAR OF MOWER. The bottom of curl at the R.H.
front flanges should measure 3/4"" lower than at the R.H.
REAR flange (Fig. 44). If adjustment is required follow
the procedure below.
a. To raise front of mower loosen nuts "'D". Screw
nuts "'C'" up onto suspension arms (Fig. 45).
NOTE: SCREW NUTS "'C'" ON BOTH SUSPEN-
SION ARMS THE SAME NUMBER OF TURNS
SO MOWER WILL REMAIN LEVEL. Tighten nuts
"'D'" securely.
C,
d.
If adjustment is required, snap out access cover
on L,H. side of tractor above footrest (Fig. 43).
To raise left side of mower, loosen nut "'B'" and
screw nut "'A" down on adjustment rod.
b. To lower front of mower loosen nuts "'C".
Screw nuts "'D'" down suspension arms. NOTE:
SCREW NUTS "D" THE SAME NUMBER OF
TURNS SO MOWER WILL REMAIN LEVEL.
Tighten nuts "'C'" securely.
e. Adjust until both rear mower flanges are the
same height above the ground. Tighten nuts
"'A'" and "'B'" securely.
c. With mower deck at desired height, set gauge
wheels (Fig. 46) to lowest position without
touching the ground.
f, Snap access cover in place. d . Use attachment lift lever to set mower at the ap-
proximate cutting height you need.
_AD JU'STMEN'I"
// .oo
FIGURE 43
NUT "A"
©
NUT "'B'"
e. Use clevis pin (Fig. 46) to set gauge wheels at
lowest point without touching the ground.
BOTTOM
CURL
IFRONT FLANGES)
FtGURE 44
BOTTOM
OF CURL
{REAR FLANGESI
24
_'_ BOTTOM
OF CURL
{REAR FLANGES)

REPAIR AND ADJUSTMENT
14. Blade Drive Belt Removal and Replacement 0
BELT ROUTING DECAL UNDER MOWER DECK COVER.
a. Remove mower from tractor (see page 23).
b. Remove top cover self tapping screws,
Iockwashers and nuts from idler arm bolt.
c. Roll belt over the top of the R.H. mandrel.
NUT "'D"
d. Pull belt off all other mandrels,
e. Remove any dirt and grass which may have ac-
cumulated around mandrels and idler arm.
f.
g.
h.
J.
Check deck idler arm assembly and flat idler to
see that they rotate freely (Fig. 47).
Be sure spring is hooked in deck idler arm
assembly and on bolt in mower housing IFig. 4 7).
Install new belt in groove of L.H. mandrel
sheave, lower groove of center mandrel sheave
and around flat idler as shown (Fig. 47).
From a position at discharge end of mower, roll
belt into groove of R.H. mandrel sheave (Fig.
47).
Rotate center mandrel sheave by hand to make
sure belt is in grooves properly.
SUSPENSION
NUT "D'" ARMS
FIGURE 45
->- 7i_/
_'_ ATTACHMENT
LIFT LEVER
RETAINER
SPRING
ILADES WILL ROTATE WITH CENTER
MANDREL SHEAVES.
k. Reassemble top cover to deck. Tighten all
screws securely.
GAUGE ;
WHEEL CLEVIS -
PIN FIGURE 46
I. Install mower to tractor (see page 10).
15. Attachment Lift Spring Adjustment
Due to different weights of attachments, the attchment
lift spring may require adjustment. The adjustment bolt
is located on rear of tractor top left side (Fig. 48).
a . Holding spring bushing with wrench, loosen jam
nuts.
IDLER ARM CENTRAL MANDREL SHEAVE
NUT .....
FLAT IDLER R.H, MANDREL
L.H. MANDREL SHEAVE
SHEAVE
b. Turn adjustment bolt clockwise (F-_k) to extend
spring and reduce lift effort (for heavier
attachments).
c. Turn adjustment bolt counterclockwise (jF_)
(for lighter attachments).
d. Retighten jam nut against spring bushing.
NOTE: DO NOT ADJUST FOR MAXIMUM SPRING TEN-
SION WHEN USING UGHT ATTCHMENTS SUCH AS A
MOWER. ADJUST LIFT LEVER SPRING TO AiD IN LiF-
TING ATTCHMENT. DO NOT OVER POWER SPRING.
WHEN REMOVING ATTACHMENT ALWAYS ADJUST
WITH SPRING TENSION TO ITS LOWEST POSITION
25
J
FIGURE 47
SPRING
BUSHING
ENT
SPRING
JAM NUT
FIGURE 48

REPAIR AND ADJUSTMENT
FLAT WASHER
LOCKWASHER---.-_<_
HEX HEAD HEAT--_)
TREATED BOLT
GRADE 5
FIGURE 49
ADE
A. Fuel System
It is important to prevent gum deposits from forming
in essential fuel system parts such as the carburetor,
fuel filter, fuel hose, or tank during storage. Also,
experience indicates that alcohol blended fuels (cafled
gasoho/ or using ethanol or methanol) can attract mois-
ture which leads to separation and formation of acids
during storage. Acidic gas can damage the fuel system
of an engine while in storage. To avoid engine problems,
the fuel system should be emptied before storage of 30
days or longer.
B. Engine Oil
Drain (with engine warm) and replace with clean
engine oil, (See chart page 16).
16. Blade Replacement
It is not necessary to remove mower from tractor for
blade replacement. Moving adjustment rift lever to up
(Rear) position will permit access to blades.
C, Cylinders
1. Remove spark plugs.
2, Pour one ounce of off through spark plug holes
into cylinders.
a. Remove the hex head bott, Iockwasher and flat
washer (Fig. 49).
3, 1-urnignition key to "'START" position for a few
seconds to distribute oil.
b, Remove and discard old blade. 4. Replace with new spark plugs.
C.
d
Clean top and bottom of mower housing.
Instafl new blade with SHARP EDGE DOWN and
secure with flat washer, Iockwasher and hex
head bolt. TIGHTEN SECURELY.
ALWAYS USE GRADE 5 HEAT TREATED
BOLTS TO ATTACH BLADES. CHECK
BOLTS IN BLADES OCCASIONALLY TO
MAKE SURE BOLTS ARE TIGHT. TORQUE
BOLTS 30 -35 FT, LBS,
A GRADE 5 HEAT TREATED BOLT
CAN BE IDENTIFIED BY THREE
LINES ON THE BOLT HEAD AS
SHOWN ON LEFT.
D. Battery
1. Prior to storage, clean terminals and top of
battery.
2. After a period of time in storage, battery may
require recharging.
E. General Cleaning
Clean engine, battery, seat, finish, etc. of all foreign
matter.
F. Store in aClean Dry Area
17. Storage
Remove mower from tractor for winter storage. When
mower is to be stored for a period of time, clean it
thoroughly, cemove all dirt, grease, leaves, etc. Store in
aclean dry area.
26

TROUBLESHOOTING
POSSIBLE CAUSE
WILL NOT START
WILL NOT TURN OVER
ENGINE CLICKS BUT WON'T START
HARD TO START
ENGINE MISSES OR LACKS POWER
ENGINE OVERHEATS
NO LIGHTS
WON'T CHARGE
OPERATOR PRESENCE SYSTEM WILL NOT SHUT
DOWN ENGINE WHEN OPERATOR LEAVES SEAT
NOTE: THIS TRACTOR IS EQUIPPED WITH AN OPERATOR
PRESENCE SENSING SYSTEM. ANY ATTEMPT BY THE
OPERATOR TO LEAVE THE SEAT WITH THE ENGINE RUN
NING AND THE ATTACHMENT CLUTCH ENGAGED WILL SHUT
DOWN THE ENGINE.
CAUSE/REMEDY (SEE INDEX)
Push Clutch/Brake Pedal into Brake Position
Move Attachment Clutch Switch to "'Disengaged Position"
Fill Tank with Gasoline, Check Fuel Line and Carburetor
(clean if necessary) Replace Fuel Filter
Check fuse for fault and replace
Recharge or replace Battery
Check Wiring
Replace Spark Pluc.ls and adjust _lap
Charge Battery
Replace Ignition Switch
Engage Clutch/Brake Pedal
Move Attachment Clutch Switch to "'Diseng#_ged Poe#ion'"
Replace Interlock Switch
Replace Solenoid
Replace Spark Plugs
Replace Fuse
Check All Wire Connections
Replace Starter
Char_le or Replace Battery
Piece Throttle Control in "FAST" position
and run starter several times to clear out gas
Remove and clean Fuel Tank and lines. Replace Fuel Filter
Remove Air Filter and clean
Replace Spark Plugs and adjust gap
Replace Battery
Check the wiring and Spark Plugs
Drain Fuel Tank and Carburetor, use fresh fuel end
replace Spark Plugs
Make necessary adjustments to Carburetor
Major Engine Overhaul
Shift to a lower gp.ar or reduce load
Remove and clean Tank; replace Fuel Filter
Remove and clean Air Cleaner
Make necessary carburetor adjustments
Clean Air Screen
Repace Spark Plugs
Add or change oil
Check Spark Plugs and cheek for any loose wires
Major Engine overhaul
Drain Gas Tank and Carburetor and refill
Clean Air Screen
Add or change oi!
Clean Engine Cooling Fins
Remove and clean Muffler or replace
Remove and clean Air Filter
Use fresh fuel and _Carburetor
Check Fuse, Switch and Wire Connections
Replace Headlight Bulbs
Check for Fuse fault and replace
Replace Battery
Replace Regulator
Replace Alternator
Engage Attachment Clutch
Check All Wire Connections
Check Seat Switch
Check Operator Presence Relay
Check PTO Switch
Check proper installation of washers under seat springs -
see page 33
27

TROUBLESHOOTING
UNSATISFACTORY MOWER PERFORMANCE
UNEVEN DISTRIBUTION OF CLIPPINGS
MOWER BLADES WILL NOT ROTATE
Check air pressure in tires
Check front to rear and side to side mower adjust-
ment
Use a slower ground speed
Replace mower blades
Reinstall mower blades with top of blades up
Re-adjust mower drive belt
Clean underside of mower deck
Sharpen blades
Install new Mower Drive Belt
Reinstall Mower Drive Belt
Replace Attachment Clutch Switch
Replace Frozen Mandrel
Replace Frozen Pulley
Replace Bent or Unbalanced Blade
EXCESSIVE MOWER VIBRATION Replace Mandrel, Straighten Deck or replace
Let grass dry out
WIND ROWING STRIPPING OR DROPPING Clean undersideof Mower Deck
OF GRASS CUPPINGS Level Mower
Replace Blades
Level Mower
UNEVEN CUT OR SCALPING Adjust GaugeWheels
Replace Blades
SERWCE RECORD
SERVICE RECORD
Fill in dates as you complete regular service
Blades
Brake Adjustment
Check Battery
Change Engine Oil-
Check Engine Oil Level
Clean Air Cleaner Element
Check IVluff[er
Clean Air Screen
Clean Front Grill
Lubricate Tractor
Replace Spark Plugs
Replace Air Cleaner Element
Tires
FIRST
2
HOURS
X
EVERY
5
HOURS
X
SCHEDULE
EVERY EVERY
25 50
HOURS HOURS
X
X
X
X
X
X
X
X
X
28
EVERY
100
HOURS
X
X
X
Sears, Roebuck and Co. reserves the right to make any
changes in design or improvements without imposing
any obligation to install the same upon its terms
heretofore manufactured,

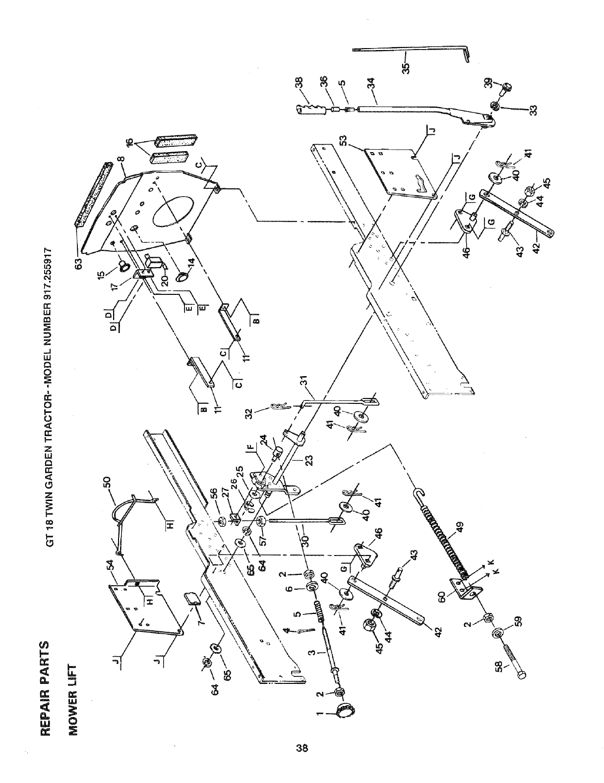
REPAIR PARTS
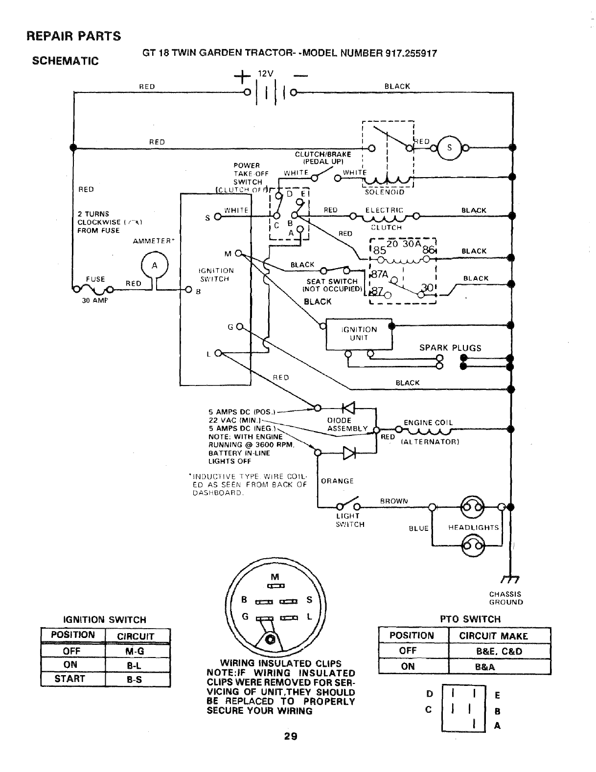
GT 18 TWIN GARDEN TRACTOR- -MODEL NUMBER 917,255917
SCHEMATIC
12V
RED
RED
2TURNS
CLOCKWISE(F_)
FROM FUSE
F USE
30 AMP
AMMETER _
RED_
M
IGNITION
SWITCH
-Oa
POWER
TAKE.OFF
SWITCH
CLUTCH OF_ I
D _ SOLENOID
RED ELECTRIC BLACK
CLUTCH
RED [852030A B,,CK
BLACK '_ i I
SEAT SWITCH I I BLACK
{NOT OCCUPIED_ J
BLACK L ...... ..a
RED
}GNITION
UNIT
SPARK PLUGS
8
BLACK
IGNITION SWITCH
POSITION CIRCUIT
OFF M-G i.
ON B-L
START B-S
5 AMPS DC (POS. 1
22 VAC {MIN.)-__ DIODE IENGINE COIL
5 AMPS DC INEG )__ASSEMBLY_'I_ _L_._j
NOTE: WITH ENGINE "_ _IRED ....
RUNNING @ 3600 RPM,_'_ P_ iI (ALTERNATOR)
BATTERY IN-LINE
LIGHTS OFF I v
I
*UqDUCIIVE TYPE WIRE COIL- I .......
ED AS SEEN FROr(i'£A-CK-OF I ORANGE
DASHBOARD.
owN
LIGHT
SWITCH BLUE
WIRING INSULATED CLIPS
NOTE:IF WIRING INSULATED
CLIPS WERE REMOVED FOR SER-
VICING OF UNIT,THEY SHOULD
BE REPLACED TO PROPERLY
SECURE YOUR WIRING
29
POSITION
OFF
ON
D
C
/"
CHASSIS
GROUND
PTO SWITCH
CIRCUIT MAKE
B&E. C&O
B&A
E
B
A

r_
T_w
o_
Tm_
iJl
cn
Lu
O
m
r_
0
LU
Z _
_w
co
!
\
im
a_
cE_
_mm
_u
t_
ml
€_
!
_€
Im
Ull
30

REPAIR PARTS
ELECTRICAL
GT 18 TWIN GARDEN TRACTOR- -MODEL NUMBER 917.255917
KEY
NO.
1
2
3
4
5
6
7
8
9
!0
!1
12
!3
14
!5
!6
!7
18
19
20
21
22
23
24
PART
NO.
!09310X
STD365402
109787X
109788X
417! R
108240X
9!38R
7603J
100541K
109596X
I09081X
10090400
STD541225
17190408
104445X
71031008
73951000
106315X
121041X
4152J
108824X
74610628
STD523707
I21080X
DESCRIPTION KEY PART
NO. NO.
Key 25 11050600
Switch Ignition 2 6 4021J
Bezel -Ignition 2 7 4022J
Nut _Ignition 2 8 4799J
Clip 29 7!9J
Switch Light 30 74641008
Battery 3 1 5115J
Tray Battery 32 109550X
Tube Drain 33 106367X
Clamp -Hose 3 4108170X
Solenoid 35 19132203
Washer Lock 1/4 36 STD55! 137
*Nut - Hex Jam I/4 - 20 3 7 72240460
Screw - Hex Washer Thread Cutting 38 11030400
1/4 20 x 1/2 39 STD541625
Switch Interlock 40 102476X
Screw -Hex Washer No. 10 -32 x 1/2 4 1 STD522507
Nut -Keps No. !0 - 32 42 STD551025
Diode Assembly 4 3 STD54 !025
Harness - Ignition 4 4 STD551125
Bulb -Headlight 4 5 110859X
Fuse _30 Amp 46 12!064X
Bolt -Hex 3/8 24 x t -3/4 48 109748X
*Bolt _ Hex 3/8 16 x 3/4 49 120353X
Cable _Ground 50 121111X
!01539X
110917X
DESCRIPTION
Washer -Lock -Ext. Tooth 3/8 '"
Switch -P, T. O.
Nut -Hex
Cable -Battery
Cover -Terminal
Screw 10- 32x I/2
Cable -Starter
Clutch -Electric
Spacer -Clutch
Stop -Clutch
Washer
*Washer -Lock 3/8
Bolt -Carriage 1/4 -20 x 7 -I/2
Washer -Lock -Int./Ext. Tooth I/4
*Nut- Wing 1/4-20
Guard- Terminal
*Bolt - Hex 1/4 -20 x 3/4
*Washer 9/32 x 5/8 x 16 Go.
*Nut- Hex 1/4 -20
" Washer -Lock 1/4
Harness -Light Socket
Switch - Seat
Relay -Operator Presence
Cap Set -Battery
Ammeter
Sheet Instruction, Tractor 15 ° Slope
Manual -Owners
A B C
13 14 16
*STANDARD HARDWARE--PURCHASE LOCALLY
O F
25 (-_ 30

REPAIR PARTS
GT 18 TWIN GARDEN TRACTOR- -MODEL NUMBER 917.255917
CHASSIS AND ENCLOSURES 42
77,
6
10\
11
26
Gc
c
65
M
"39 _/52
48 _ 64
44
37
79

REPAIR PARTS
GT 18 TWIN GARDEN TRACTOR- -MODEL NUMBER 917.255917
CHASSIS AND ENCLOSURES
KEY PART DESCRIPTION KEY PART
NO. NO. NO. NO.
1 120066X Seat 46 108513X
2 121069X Pan. Seat 47 1060,03X
3 105529X Bolt -Shoulder 48 106004X
5 73680500 Nut- Lock 5/16 -18 49 110897X
6 2751R Clip 51 108067X
7 109641X Grommet 52 106091X
8 105513X Bracket -Pivot, Seat 53 106090X
9 73680600 Nut- Lock 3/8 -16 54 110350X
10 109593X Fender 55 109139X
11 106202X Reflector -Taillight 56 106868X
12 105801X Decal 57 4900J
13 STD523707 *Bolt- Hex 3/8 -16 x 3/4 58 3645J
14 105567X Decal- Chassis 59 8710J
15 17490608 Screw -Hex Washer Thread Rolling 60 105806X
3/8- 16 x 1/2 61 105568X
16 17490616 Screw-HexWasherThreadRoliing 62 19131416
3/8- 16x 1 63 106092X
17 1055!1X Strap-Fender
18 121068X Spring -Compression, LH. 64 106088X
19 121067X Spring -Compression, R.H. 65 106813X
21 105531X Nut -Push 66 106814X
22 105509X Bracket- Fender 67 !06974X
23 106020X Tank -Fuel 70 106909X
24 109462X Cap- Fuel 71 106910X
25 106082X Pad- Spacer 72 108402X
26 6999R Clamp -Hose 73 121093X
27 7834R Line-Fuel 74 19131614
28 7833R Line -Fuel 75 120609X
29 I05465X Footrest -L.H. 77 108743X
30 105466X Pad- Footrest 78 108744X
31 105464X Footrest- R.H. 79 I05500X
32 1 I0892X Rail- Frame -R.H. 80 121094X
33 110893X RaiI-FrameLH. 81 19151616
34 7982J Drawbar 82 74330808
35 74760716 Bolt- Hex 7/16- 14 x 1 83 10040800
36 73680700 Nut- Lock 7/16- 14 84 19171912
37 108403X Panel- Side, R.H.
38 105562X Decal
39 1084 IOX Panel -Side, LH.
40 121054X Bracket-Pivot, Frame, R.H. **
41 121055X Bracket- Pivot, Frame, L.H.
42 106013X Hood
43 110875X Shield -Heat, Front
44 105528X Grill
45 !08512X Bracket- Pivot, Grill, R.H.
DESCRIPTION
Bracket- Pivot, Grill, L.H.
Lens R.H.
Lens L.H.
Bezel
Nut- Pal
Hinge- Roll.
Hinge -L.H.
Strap -Grill
Decal -Fender
Deca! -Drive Belt Schemahc
Decal- Clutch/Brake
Bushing
Stern -Fuel Tank
Decal- Grill
Decal -Grill (S tripe)
Washer 13/32x 7/8x 16 Ga.
Support -Heat Shield
Strip -Foam
Decal- Stripe, Side Panel, LH.
Decal- Stripe, Side Panel, R.H.
Decal- Caution
Screw -Special
Washer
U-Clip
Cap, Spring
Washer, 13/32 x 1 x 14 Ga.
**Washer 7/16 x 2 x 12 Ga.
Decal Stripe, Hood, L.H.
Decal Stripe, Hood, R, H.
Retainer, Belt, Lower
Shoulder Bolt, 5/16 -18 UNC
Washer, 5/16x 1 x 16 Ga.
Screw. Hex 1/2 -13 x3/4 Gr. 5
Lockwasher, 1/2
Washer, !7/32x 1 3/16x12 Ga.
*STA NDA RD HARD WA RE- PURCHA SE LOCA LLY
IT IS IMPORTANT THAT THE CORRECT WASHERS
BE INSTALLED UNDER THE SEAT SPRINGS. KEY
# 75 IS INSTALLED UNDER THE LEFT SPRING
ONLY, KEY#74 IS INSTALLED UNDER BOTH LEFT
AND RIGHT SPRINGS. THE OPERATOR PRE-
SENCE SYSTEM (page 13) WILL NOT OPERATE
WITHOUT THESE WASHERS.
A B C D E F G H J
_ 3 _ 9_13 _ "15 _16 _ 9135 _ 70 _ 51
_5 _ 71
_9 _)36 _72
LMp Q
_16_ )13 _80 _82
_-_ 62 _ 81
83
84
33

REPAIR PARTS
GT 18 TWIN GARDEN TRACTOR- -MODEL NUMBER 917.255917
GROUND DRIVE
G H
90
94
49
66
/ /.43
32
98 //
/96
./ 93
A
/8
iW

REPAIR PARTS
GT 18 TWIN GARDEN TRACTOR- -MODEL NUMBER 917.255917
GROUND DRIVE
KEY PART DESCRIPTION KEY PART
NO. NO, NO. NO.
2110864X Engine Model Number 422437
Type 1209 Trim 0! 67 STD571812
4120374 XValve, Oil Drain 68 !06021X
6110890X Tube- Fxhaust 6,0 120055X
8170887X Muffler 70 ;7720408
98545J Gasket. Muftler 71 110879X
10 74570412 S¢,rew. SocketHd., 1/4-20x3/4 72 ;1050600
11 STD551125 *Washer,Lock, !/4 73 $7D541137
12 1 I0867X Base, Engine 74 8883R
13 STD523707 *Bolt, Hex, 3/8- 16 x 3/4 75 677A637
14 STD523112 Bolt 5/16-18x 1-1/4 76 74370612
15 STD551131 Washer Lock5/16 77 74760614
16 STD54103 1 Nut 5/16- 18 78 7920J
17. 73680600 Nut, Lock, 3/8- 16 79 72740405
18 _ Pufley, Ground Drive, 80 STD541025
19 STD551137 *Washer, Lock, 3/8 81 7229J
20 19131674 Washer, 13/32 x1x14 Ga. 82 1685H
22 72110608 Bolt, Carnage3/8- 16x 1 83 STD533110
23 121063X Bracket, V-Pulley, Drive, Mule 84 5308J
24 19131612 Washer, 13/32 x 1 x12 Ga. 85 7241J
2,5 _Pulley _ 5 L_ _ L 86 73530600
26 121065"x Bracket, Idler, Flat 87 100604K
27 120157X Guard, Belt, Mule Drive, Flat Idler 88 5102J
28 106023X Guard, Belt, Mule Drive, V-Idler 89 71673
29 72110616 Bolt, Cart., 3/8- 16x2 90 109767X
30 STD533707 *Bolt, Car_, 3/8 -16 x 3/4 91 110042X
31 102403X Idler, Flat 92 634A 692
32 STD551037 *Washer, !3/32 x13/16 x16 Ga. 93 7563R
33 101347L Bracket, Flat Idler 94 12000034
34 STD533710 "Bolt, Cart.. 3/8- 16 x 1 95 1304H
35 STD541037 *Nut, Hex, 3/8 _16 96 106277X
36 105592X Bracket, Clutch w/Bearing(Inc. Key 97 105588X
No. !06) 98 7154J
37 207J Washer, Hardened 99 65139
38 12000039 Klip Ring 1 O0 59192
39 110484X Idler, Grooved 101 214J
40 STD523715 =Bolt, Hex, 3/8- 16x 1 -1/2 102 $7D541410
41 73930600 Nut, Lock, 3/8- 16 103 633A109
42 101355X Sprino. Extension !04 2228M
43 STD570907 *Pin, Cotter 3/32 x 3/4 ;05 74760724
44 101356L Rod, Clutch 106 101350K
45 104360X Idler, Flat 108 9858M1
46 STD523720 *Bolt, Hex, 3/8- 16 x2 109 5304J
47 19131413 Washer, !3/32x7/8x13Ga, 110 74321016
48 105597X Retainer, Belt 111 2751R
49 104577X Adapter ! 12 104601X
50 STD523710 *Bolt, Hex, 3/8 -16 x1Gr. 5 113 STD522507
51 1.7190512 Screw. Hex, Slotted, 5/16- 18x3/4 114 73680400
54 122253X Rod, Sh_ft, Hi-Lo 715 19131210
55 105598X Bracket, Rod, Shill 116 73680700
56 100196K Knob 117 11050500
57 73680500 Nut. Lock, 5/!6 - 18 118 76020816
58 122268X Connecting Link, Spring K!ip 119 101358K
59 110883X V-Belt 120 19131512
60 !20404X Bracket, Support, Transaxle 121 STD551025
61 74760716 Bolt. Hex, 7/16- 14 x I 122 72140506
62 STD551143 *Washer, Lock 7116 124 74760624
63 120332X Pulley, 7ransaxie 125 74760620
64 9204H Nut, Lock, 1/2 -20 126 110895X
65 104375X Shaft, Foot Pedal 127 120615X
66 19252016 Washer, 25/32 x1-1/4 x16 Ga.
DESCRIPTION
*Pin, Roll, 3/16x 1-1/4
Spring, Extension
Control, Throttle
Screw, He_, Thd. Cut. 1/4-20x 1/2
Control, Choke
Washer rock. Ext Tooth. 3/8
"Nut, 3/8-24
Cover, Pedal
Bracket, Brake
Screw, Mach., Unct. FL Hd.,
3/8- 16x3/4
Bolt, Hex, 3/8 -16 x 7/8
Band, Brake
Bolt, Carr., 1/4 20x5/8
*Nut, Hex, I/4 -20
Guide, Rod, Brake
Nut, Lock, 5/16 - !8
*Bolt, Cart., 5/16 - 18 x3/4
Rod, Brake
Spring, Compression
Nut, Lock, 3/8 -24
Yoke
Pin, Clevis
Cap. Plunger
Rod, Parking Brake
Decal, Engine
Bushing and Wheel Hub
Washer, Thrust, Axle
Klnp Ring
Bolt, Hub
Wheel, Rear
Tire, Rear
Tube, Tire (Not furnished)
Valve, Tire
Cap. Valve
Drum. Brake
*Nut- Lock No. 10-24
Gear Shift Lever Assembly
Key, Woodruff
Bolt, Hex 7/16- 14 x 1 -1/2
Bearing -Idler
Key- Woodruff
Actuator- Switch, Interlock
Screw- Fin 10-24x 1
Clip
Bracket -Interlock
*Bolt- Hex 1/4- 20x3/4
Nut- Crownlock 1/4 -20
Washer 13/32x 3/4 x I0 Ga.
Nut -Crownlock 7/16 -14
Washer- Lock Ext. Tooth 5/16
Pin Cotter 1/4 x 1
Bracket- Assembly Clutch
Washer 13/32x 1 x 12 Ga.
* Washer 9/32 x 5/8 x 16 Ga.
Bolt- Carriage 5/16 -18 x3/4
Bolt -3/8 -16 x .1 - 1/2
Bolt-Hex, 3/8- 16x 1 -1/4
Nyliner
Spark Arrester Kit
*STANDARD HARDWARE-PURCHASE LOCALLY 35

REPAIR PARTS
GT 18 TWIN GARDEN TRACTOR- -MODEL NUMBER 917.255917
STEERING
O----50
/_ .82 /38
51 ._.___39 (
22 , _ _'8_J
10 44
71
21
4
2/
84
17
14 /
.18
36

REPAIR PARTS
GT 18 TWIN GARDEN TRACTOR- -MODEL NUMBER 917.255917
STEERING
KEY
NO.
4
5
6
7
8
9
10
11
12
13
14
15
16
17
18
19
20
21
22
23
24
25
26
27
28
29
3O
31
32
33
34
35
36
37
38
39
4O
41
42
43
44
45
PART
NO.
106230X
8134H
106228X
278H
9040H
106045X
6266H
12000029
5284J
STD523707
73680600
674A244
1309H
5298J
74781044
STD551162
STD541052
6855M
106046X
120424X
110497X
STD551137
STD541137
5292J
108137X
19292016
109849X
STD523720
73510600
102439X
104239X
72110608
101274N
17490612
102458X
12000034
700713N
100711L
19133808
106014X
6266H
1055!9X
108408X
105525X
19171416
A B
_10 _ 32
L
_11 _11
DESCRIPTION KEY PART
NO. NO.
Tire, 16x 6.50 46
Tube, Front (not furnished with 47
tractor) 48
Front Wheel (inc. Key No. 3 and 49
of Key No. 4)
Fitting, Grease 5 0
Bearing 5 1
Spindle, R.H. 5 2
Bearing, Thrust 5 3
Klip Ring 5 4
Bracket, Axle 5 5
*Bolt- Hex 3/8- !6 x 3/4 56
Nut, Lock, 3/8- 16 57
Axle. Front (Inc. Key 13) 5 8
Bearing 5 9
Tube, Pivot, Axle 60
Bolt, Hex 5/8-11 x 2 3/4 Gr. 5 61
*Washer. Lock 5/8 62
*Nut, Hex 5/8 .11 63
Fitting, Grease 64
Spindle, L.H. 6 5
Sector Assembly 6 6
Link, Drag 6 7
"Washer, Lock 3/8 68
"Nut, Hex 3/8 -24 69
Bushing, Beflcrank 7 0
Bellcrank 71
Washer 29/32x 1 -1/4 x 16 Ga. 72
Rod; Tie 73
*Bolt, Hex 3/8 -16 x 2 Gr. 5 74
Nut, Keps 3/8- 16 75
Bracket, Support, Steering 76
Bearing, Flanged 77
Bolt, Carr. 3/8- 16 x 1 Gr. 5 78
Support, Steering 79
Screw, Hex Washer T,hd, Rolling 80
3/8- 16x3/4 81
Shaft, Steering 82
Klip Ring 83
Wheel, Steering 84
Adapter, Steering 85
Washer 86
Sleeve, Steering 87
Bearing 88
Dash, Lower 89
Dash
Bracket, Support, Dash
Washer !7/32 x 7/8 x 16 Ga.
C D E F
®,, ?,,9
G
(_ 59
@22
82
37
DESCRIPTION
72110622
106486X
106042X
17240408
105810X
100710L
STD525020
73680800
19172610
120542X
677A451
7190J
STD523720
19131413
STD541037
52!3J
73680500
7985J
65139
59192
108811X
108456X
106615X
120200X
109850X
I09851X
7919J
73700600
STD54!337
STD533707
19132007
19252616
74930516
104757X
100644K
19117416
STD523710
100207K
108367X
120!99X
120195X
110946X
120800X
8022J
Bolt- Carr. 3/8 -16x 2-3/4
Spacer
Cover, Gate, Shift
Screw, Hex Washer Thd. Cutting
1/4-20x 1/2
Decal, Insert
Cap, Steering Wheel
*Bolt- Hex 1/2 -13x 2
Nut, Lock lJ2 -13
Washer 17/32 x 1 -5/8 x 10 Ga.
Bracket, Idler
Pulley, Idler
Spring
"Bolt, Hex 38 -16x2
Washer 13 32 x 7 8 x 13 Ga.
"Nut -Hex 3/8 -16
Bracket,. Frame Front
Nut, Lock 5 16 -78
Support, Battery
Stem, Valve
Cap, Valve
Decal, Dash, Instruction
Decal, Instruction
Pin, Mounting, Idler Bracket
Nyliner
Joint -Tie Rod -R,H. Thread
Joint -Tie Rod -L.H, Thread
Rod- Tie
Nut -Hex Jam 3 8 - 24 L.H.
*Nut - Hex Jam 3 8 -24
*Bolt - Carriage 5 16- 78x 34
Washer 13 32 x 1 -1 4 x 7 Ga,
Washer 25 32 x 1 -58,x 16 Ga.
Bolt, Hex 5,76- 18x 1
Cap -Hub, Front
Bushing -Handle
Washer 11 32 x78x 16 Ga.
*Bolt, Hex 3/8 -16 x I Gr. 5
Clip -3'8
Decal -Adjustment
Tube
Collar Weld Assy
Spindle Stop
Clamp, Hose
Dash Plug
*STANDARD HARDWARE--PURCHASE LOCALLY
H J K L M N
_60_59 _75 i46_32@ 22 _22 _78
68 _'_62 345 L;
'L_ 22 @22 _q8O
60 @45 _60 _ 81
[_ 47 _ 62
@ 22
6o

\
° \ \
\\ \
l
/
/
38

REPAIR PARTS
MOWER LiFT GT 18 TWIN GARDEN TRACTOR- -MODEL NUMBER 917.255917
(4
KEY
NO.
!
2
3
4
5
6
7
8
9
10
!1
12
13
14
15
16
17
18
19
20
21
22
23
24
25
26
27
28
29
30
31
32
33
PART
NO.
100734K
11OS07X
110811X
STD570907
2876H
19131016
105505X
110871X
STD523107
73680500
12035DX
STD522505
73680400
106351X
110436X
105036X
105040X
74750806
STD561108
105041X
STD511005
73631000
120137X
110 1ox
19151216
12000037
7594J
7901J
73900400
7596J
105503X
4939M
74,760616
DESCRIPTION KEY PART
NO. NO.
Handle, Adjust, Lift 34 !21002X
Nut 3 5 12'1006X
Rod, Adjust, Lift 36 105723X
*Pin, Cotter, 3/32 x 3/4 37 STD523710
Spring 38 109413X
Washer 13/32 x 5/8 x 16 Ga. 39 74780616
Cover, Access
Shield, Heat, Rear 40 STD55_050
*Bolt, Hex, 5/16 -18 x3/4
Nut, Lock, 5/16 -18 4 1 9135R
Brace, Heat Shield 4 2 !05429X
*Bolt, Hex, t/4 -20 x1/2 Gr. 5 43 105413X
Nut, Lock, 1/4 -20 44 STD55! 150
Plug 4 5 STD541050
Grommet, Split 46 105501X
Foam -Strip 6" 4 7 STD533707
Bracket, Fuel Pump 4 8 73680600
Screw, Sl. Hex Hd. No. 8 -32 x 49 674A247
3/8 5 0 105589X
*Washer, Lock No. 8 5 1 STD533110
Pump, Fuel 52 19111610
*Screw, Hex Hd. No. 10- 24 x 53 121045X.
1/2 64 121046X
Nut, Lock No. 10 -24 5 5 17490608
Shaft, Lift
Trunnion, Stop Depth 5 6 73800600
Washer 15/32 x 3/4 x 16 Ga. 57 STD54!037
Klip Ring 5 8 5328J
Bracket, Lift, L.H. 59 STD551037
Bolt, Shoulder 60 5329J
Nut, Hex Flange 1/4 -20
Link, Lift, L.H. 62 73930600
Link, Lift, R.H. 63 106086X
Retainer, Spring 64 12000022
Washer, Lock3/8 55 !9 292016
*STANDARD HARDWARE--PURCHASE LOCALLY
B C D
(_ 19
Q 13 © lo
E F G H
(_21 _ 28 _)47 _51
@220z9 ©6z
_1o
DESCRIPTION
Lever Lift
Rod, Detent
Plunger, Lever
*Bolt - Hex 3/8- 16x 1
Grip, Handle
Bolt, Hex, 3/8- 16x I
*Washer 17/32x 1-1/16x 13
Ga.
Retainer Spring
Arm, Suspension
Stud, Pivot Center
"Washer, Lock, 1/2
*Nut, Hex, 1/2- 13
Bracket, Suspension, Mower
*Bolt, Carriage, 3/8 -16 x 3/4
Nut, Lock, 3/8 - 16
Spring -Ass'y. - Assist, Lift
Guard, Belt, Engine
*Bolt, Carriage, 5/18- 18 x 1
Washer 11/32 x 1 x 10 Ga.
Panel, Pnt. Side, R.H.
Panel, Pntr 5ide,'L H.
Bolt, Hex Washer Thd. Rolhng
3/8- 16x 1/2
Nut, Lock, 3/8 - 16
*Nut, Hex 3/8 -16
Bolt- Adjust, Spring, Assist
*Washer 13/32 x 13/16 x 16 Ga.
Bracket, Spring .Assist
Nut -Centerlock 3/8 -16
Strip -Foam
Klip Ring
Washer 29/32 x 1 -1/4 x !6 Ga.
J K
55 _j 37
48

REPAIR PARTS
GT 18 TWIN GARDEN TRACTOR- =MODEL NUMBER 917.255917
MOWER
38
/
4O
47\ 69_
55
\
71 \45
51
\
52
41
12 35
/
35
4O
53
35
35
34
73
40
9
38

REPAIR PARTS
MOWER
KEY PART
NO. NO.
GT 18 TWIN GARDEN TRACTOR- -MODEL NUMBER 917.255917
DESCRIPTION KEY PART
NO. NO. DESCRIPTION
1 I05415X
2 106022X
3 17490508
4 7631J
5 72110505
6STD551137
7 STD54 1031
8 8418J
9 72140506
1 0 !685H
1 t STD557031
12 106037X
13 106038X
14 17490612
1 5 106635X
1 6 STD623715
1 7 STD551137
1 8 19732012
1 9 674A213
2 O 7834J
2 1 7835J
22 72110522
23 19111610
2 4 102403X
25 STD5237!5
2 6 STD541037
27 104361X
28 STD523712
29 19117216
3 0 8438J
3 I 106224X
32 105448X
33 105449X
34 STD533707
3 5 73680600
Housing, Mower 3 6 I05453X
Cover -Drive, Deck 3 7 5565J
Screw Hex Washer Thd. Roll 38 4939M
5/16- 18 x1/2 39 4898H
Runner, L.H. 4 0 105455X
Bolt, Cart. 5/16 - 18 x 5/8 41 105433X
"Washer -Lock, 5/16 42 110237X
*Nut Hex 5/76 18 43 705434X
Runner, R H. 4 4 105436X
Bolt, Carr. 5/16- 18x 3/4 45 105441X
Nut, Lock 5/16- !8 46 78850
"Washer 11/32x !t/76x 76 Ca. 47 3146R
Mandrel Secondary 48 !06381X
Mandrel Primary 4 9 STD541050
Screw -Hex Washer Thd. Roll 5 0 74 760622
3/8 16 x 3/4 5 1 !05435X
Blade 5 2 3720R
"Bolt Hex, 3,/8-24 x 1 1/2 Gr.5 53 12000039
"Washer Lock, 3/8 54 19171612
Washer 13/32 x 1 !/4 x 12 Ca. 55 105440X
Arm Assembly, idler 5 6 !05458X
Liner, Bearing 5 7 105460X
Bea ring 5 8 105461X
Bolt, Carriage 5/16 18 x 2 3/4 59 105459X
Washer I 1/32 x 1 x 10 Ca. 50 73680500
Pulley, Idler 6 1 120135X
"Bolt Hex 3/8 16x 1 1/2 62 !9711016
*Nut Hex 3/8 16 63 !09785X
Spring 6 4 706734X
*Bolt Hex 5/16 18 x I t/4 Gr 5 65 109743X
Washer 11/32 x 3/4 x 16 Ga 66 I06735X
Spacer 6 8 110452X
Decal .V-Belt, Dr., Schematic, 6 9 3713J
Mower 70 - - -
Bracket, Ga Wheel, R.H.
Bracket, Ca. Wheel, L.H. 7 1 73580800
*Bolt, Carriage 3/8 !6 x 3/4 73 19171512
Nut, Crownloek 3/8 76 74 72240608
7 5 706679X
7 6 110884X
Bar, Ca. Wheel
Pin, Clevis
Retainer, Spring
Bolt, Shoutder
Wheel, Gauge
Brkt., Suspension
Spacer
Brace, Suspension
Parallel Link
Brkt., Suspension
Decal- Warning
Retainer -Spring
V-Belt
*Not, 1/2- 13
Bolt, Hex 3/8 -16 x 1 -3/8
Pit], Release
Spring
Ring, Klip
Washer 17/32 x 1 x !2 Ca.
Pin, Clevis
Brkt., Outer, R.H.
Brkt., Inner, R.H
Brtk., Inner, L.H.
BrkL, Outer, L.H.
Locknut 5/16 18
Spacer
Washer 77/32 x 5/8 x 16 Ca.
Shield, Deflector
Spring, Deflector
Bracket, Deflector
Rod, Hinge
Push Not
Instruction _Caution Decal
Decal -Safety Standard
-Not Serviced
Nut Hex 1/2 . 13
Washer 17/32 x t5/16 x 12 Ga.
Bolt, Carriage 3/8 16 x1
Decal- Warning
V Belt
*STANDARD HARDWARE-PURCHASE LOCALLY
A
35
BCD E F G H
14 _ 74
135
41

REPAIR PARTS
GT 18 TWIN GARDEN TRACTOR- -MODEL NUMBER 917.255917
TRANSAXLE
45
520 19
r
73
6
J2
J
57
7
°
929] 25
24
42

REPAIR PARTS
GT 18 TWIN GARDEN TRACTOR- -MODEL NUMBER 917,255917
TRANSAXLE
KEY PART DESCRIPTIO*J KEY PART DESCRIPTION
NO. NO. NO NO.
1
2
3
4
5
6
7
8
g
10
11
12
13
14
15
16
17
18
19
2O
21
22
23
24
25
26
27
28
29
3O
31
32
33
34
35
36
37
38
39
40
45
46
47
48
4197R Axle Shaft 49 4895H
5845R Retaining Ring 50 4222R
4199R Final Drive Gear 51 1529R
4216R Differential Gear 52 8119M
42!BR Differential Pinion 53 4220R
42!7R Differential Carrier 54 4209R
6256H Axle Thrust Washer 55 4213R
74020652 Hex Bolt 3/8 - 24 x 3 - 1/4 56 4442"R
(1 '1 Thread Length) 57 4195R
7392M Steel Ball 58 4214R
6272H Spring Shift Fork Detent 59 4194R
4985R Shift Fork, High - Low Range 60 7528R
6266H Thrust Bearing 61 4208R
4212R 4th Reduction Pinion 62 4207R
4196R 3rd Reduction Gear Shaft 63 739BH
6276H Snap Ring - Crescent Type 64 4203R
633A63 High - Low Range Gears
8118M Needle Bearing 6,5, 4204R
874QH1 Sintered Iron Bearing 66 2898J
122238X Shift Fork Shaft. High - Low Range 67 4926H
4218R Differential Pinion Spacer 68 4205R
6252H1 Differential Pinion Bushing 69 4206R
781 OH Gripco C_nterlock Nut 3/8- 24 70 1370H
4986R Shift Fork- L.H. 71 633A69
7393R Oil Seal
992 R1 Sintered Iron Bearing 72 208J
6216H Shift Fork Shaft 73 4201R
6262H Shift Fork- R.H. 74 12000002
122254X Shift Shaft, High -Low Range 75 1153R
6269H Oil Seal 76 7392H
5855H Pressure Relief Valve 77 3990H
105406X Gearcase, Reverse Idler Shaft and 78
Bearings - R.H. (Inc. Key No's. 17, 79
18, 25, 33, 50, 63, 76, 77 and 82) 80
6277 H Dowel Pin 81
4225R Needle Bearing 82
7396H Thrust Bearing 83
4198R 4th Reduction Gear Shaft 84
4200R 4th Reduction Gear Spacer 85
7395H Thrust Bearing Race 86
6275H Gearcase Gasket 87
105402X Gearcase and Bearings - LH. 88
(Inc. Key No's. 18, 25, 49, 50 (2), 89
,51 and 52) 90
13060400 Pipe Plug 1/2 - 14 N.PT. 91
627 ] H Oil Seal 92
13020200 Pipe Plug 1/4 -18 N.PT. 93
STD523115 *HexBolt 5/16- 18x 1 .1/2 94
Grade 5 95
10140500 Lockwasher 5/16 Extra Heavy 96
97
g8
Needle Bearing
Needle Bearing
Needle Bearing
Needle Bearing
Thrust Bearing Race
3rd Reduction Pinion -Low
4th Reduction Gear
3rd Reduction Pinion Spacer
2nd Reduction Gear Shaft
Final Drive Pinion
1st Reduction Gear Shaft
1st Reduction Shaft Spacer
3rd Reduction Pinion -High
2nd Reduction Gear
Needle Bearing
Low Speed Gear and 2nd Reduction
Pinion Cluster
Reverse Gear
Key Hi Pro l/8 x 17/32
Snap Ring - Crescent Type
Intermediate Speed Gear
High Speed Gear
Thrust Washer
Intermediate and High Speed Cluster
Pinions
Input Shaft
Low Speed Pinion
ERIng
Reverse Idler Gear
Reverse Idler Thrust Washer
Needle Bearing
STD541031 "Hex Nut 5/16- 18
1167R Sealing Washer
73360700 Hex Jam Nut 7/16 - 20
6270H Oil Seal
7384H Reverse Idler Shaft
100196K Control Knob
5384J Gear Shift Lever Bent
2978J Gear Shift Cap
633A85 Gear Shift Ball Cover and Pin
8739H 1 Shift Lever Guide Ball -Keyed
4924H Spring
19151516 Washer 15/32 × 15/16x 16Ga.
8105R Shift Mechanism Seal
19181511 Washer 9/16 x15/16 x 11 Ga.
7bJ Gear Shift Gate and Reinforcement
6274H Shift Ball Cover Gasket
76020412 Cotter 1/8 x 3/4
STD551!31 *Lockwasher5/16
STD523108 *Hex Bo115/16-18 UNCx7/8
633A109 Gear Shift Lever Ass'y.
122286X Transaxte Assembly (Service)
*STANDARD HARDWARE--PURCHASE LOCALLY
43

REPAIR PARTS
GT 18 TWIN GARDEN TRACTOR--MODEL NUMBER 917.255917
ENGINE BRIGGS & STRATTON--MODEL NUMBER 422437, TYPE NUMBER 1209-01
2O
44

REPAIR PARTS
GT 18 TWIN GARDEN TRACTOR--MODEL NUMBER 917.255917
ENGINE BRIGGS & STRATTON--MODEL NUMBER 422437, TYPE NUMBER 1209-01
CYLINDER,CRANKSHAFT AND ENGINE BASE GROUP
KEY PART DESCRIPTION KEY PART DESCRIPTION
N O. NO, NO. NO.
01
02
03
04
05
06
07
08
09
10
;.1
11
11
13
14
15
16
17
18
19
19
19
19
2O
2O
2O
20
2!
22
23
23
24
25
26
27
28
29
3O
31
32
33
491685 Cylinder Assembly 34 212337
391086 Seal-Oil 35 491287
2 ! 2461 Head- Cylinder No. ! 36 296004
212462 Head-Cylinder No. 2 37 394348
271867 Gasket-Cylinder Head No. 1 38 89838
271868 Gasket-Cylinder Head No. 2 39 220863
393243 Breather Assembly No. 1 40 394539
393153 Breather Assembly No. 2
27803 Gasket-Valve Cover 41 90576
94382 Screw-Sem
270982 Gasket-Crankcase Cover
1/64" Thick 44 398924
271145 Gasket-Crankcase Cover 45 88838
.005" Thick 46 280220
271146 Gasket-Crankcase Cover 47 93783
.009" Thick 48 223055
93211 Screw-Cylinder Head 49 394391
(2-21/32" long) 50 270981
91084 Plug Oil Drain 51 222700
394430 Crankshaft -order part 94 !96 52 93053
Key for retaining timing gear 53 94298
394535 Cover Assembly -Crankcase 54 49!53t9
291675 Seal-Oi! 55 66538
93847 Screw-Crankcase cover Mtg Sere 56 93448
394955 Piston Assembly.Standard Inc. Key No. 's 57 222698
20 & 22) 58 220863
394956 Piston Assembly -010" O.S. 59 222773
394957 Piston Assembly - .020" O.S. 60 231445
394958 Piston Assembly - .030" O.S, 61 393606
394959 Ring Set -Piston -Standard 82 393741
394960 Ring Set -Piston - .010" O.S. 83 261961
394961 Ring Set -Piston - .020" O.S.
394962 Ring Set -Piston - 030" O.S.
398990 Dipstick and Tube Assembly (Inc. 64 210949
Key No's. 44, 45 & 46) 65 261463
260924 Lock-Piston Pin 88 262332
299691 Pin Assembly -Piston 87 398808
Standard (Inc. Key No, 22) 68 230318
391286 Pin -Assembly-Prston-,O05" O.S. 69 92791
394306 Rod Assembly-Connecting 70 93722
For Connecting Rod with .020" 71 261528
Crankpin bore order No 397158 72 92268
223053 Dipper.Connecting Rod 73 491523
92909 Screw-Connecting Rod 74 262331
390420 Valve-Exhaust 75 93886
65906 Spring-Intake Valve 76 271170
26828 Spring-Exhaust Valve 77 271174
221596 Retainer.Intake Valve 78 223882
292260 RotocoikExhaust
93630 Retainer-Exhaust Valve Rote- Cap
26 ! 368 Tappet- Valve
Gear-Cam
Foam Seal -Governer Shaft
Ptpe- Fue! 23" cut to length
Gear -Governor
Wrench-Spark Plug
Washer-Coy. Crank (inside)
Plug.Spark (Resistor) 2-3/8
high-6Omm)
Nut-Hex 8 32
Cap and Dipstick-Oil Filter
Sea!-Filler Tube
Tube -Oi! Fzlter
Screw-Hex Hd.
Trough-Dipper
Base-Engine
Gasket-Engine Base
Guide Air
Clamp-Fuel Pipe
Retainer-E.Ring
Crank-Governor
Elbow*Spark Plug
Plug-Hex Socket
Key-Flywheel
Washer
Washer- Thrust
Gear-T_ming
Sea! Ass'y. and Retainer
Beanng-Ball (P T O. side)
Guide-Exhaust Valve
NOTE: 231218 Intake Valve Guide
Only (Brass)
Seat-Exhaust Valve (Standard)
Seat-intake Valve (Standard)
Lower Bushing -Gov
Wire-Ground
Connector-Fuel Pipe
Washer.Lock Shakeproof
Terminal-Spade
Valve-Intake
Washer
Bearing-Cyfinder
Upper Bushing-Governor
Screw
Sea! Tube
Gasket -Exhaust
Washer -Coy Shaft
"INCLUDED IN GASKET SET 394501
+ SPECIAL TOOLS REQUIRED TO INSTALL
45

REPAIR PARTS
GT 18 TWIN GARDEN TRACTOR-=MODEL NUMBER 917.255917
ENGINE BRIGGS & STRATTON--MODEL NUMBER 422437, TYPE NUMBER 1209-01
AIR CLEANER--CARBURETOR GROUP 38
--3!
_54
_69 16
59
\
27
56
39
55
5
GASKET lSET
34
37
33 41
f
.9
[71 Carburetor Overhaul Kit ]
4@

REPAIR PARTS
GT 18 TWIN GARDEN TRACTOR--MODEL NUMBER 917.255917
ENGINE--MODEL NUMBER 422437, TYPE NUMBER 1209-01
AIR CLEANER--CARBURETOR GROUP
KEY PART DESCRIPTION KEY PART DESCRIPTION
NO. NO. NO. NO.
!
2
3
4
5
6
7
8
10
11
12
13
14
15
16
17
18
t9
20
21
22
23
24
25
27
28
29
30
280819 Tube-Breather 31 93715
280198 Tube-Intake 32 262333
213288 Manifold Ass'y. Intake 33 94298
271412 + "Gasket-Carb. Mtg 34 262351
270884 Gasket-lntake Manifold Mlg. 35 251563
934 !5 Screw Carb. MTG. Sere 36 491282
94367 Screw Intake Manifold Mtg, Sere 37 262337
491630 Carburetor Ass'y. (Inc. Key No's 38 94297
9, 10, 1!, 12, 13, 14, 15, 18, 17, 39 491298
18, 19, 20, 21, 22, 23, 24, 25,
28, 44, 46, 47, 48, 49, 50, 51, 40 222289
61, 63, 64 & 65 4 ! 223882
49154 ! Body Assembly -Upper CarlJuretor 43 93893
(Inc, Key No's. 10, 13. 18, 23 & 44 397882
24) 52 271271
230318 Connector -Fuel 53 271411
231209 Bushing* Throttle Shaft 54 271180
491538 + Valve Ass'y,-Carb. Idle 55 93853
93499 Screw-Throttle and Choke Valve 56 92278
Mtg. Sere 57 223001
221939 Valve- Throttle 58 222835
392672 Shaft and Lever-Throttle 59 93868
91920 Screw-Mach. Pil Hd. 8-32 x 5/8 60 392643
26157 Spring -Throttle Adj
271607 + "Gasket-Carburetor Body 62 394018
298514 Float-Carburetor Body 63 271013
230896 + Pin-Float Hinge 67 394358
394681 + Valve-Fue! Inlet 68 93053
49 t685 Body -Lower Carburetor (Inc. Key 69 393815
No's, 11, 13, t4, 15&65)
223534 Valve-Choke 70 39450 !
392673 Shaft and Lever-Choke 71 49 !539
94152 Screw-Hex Head Sere 10/32 x 3/4 72 223472
93897 Screw-Casing Clamp 73 280474
231338 oJet-Needle Valve
222752 Body-Air Cleaner
212706 Knob Air Cleaner
Nut-Hex
Link Governor
Nut-Square
Spring-Governor
Spring -Governor Idle
Bracket-Speed Control
Spring-Compression
Screw Pan Head
Lever Ass'y Governor (Inc. Key
No's 40, 55 & 56)
Washer
Washer
Screw-Sem
Plug (Inc Key No 73)
Element-Air Cleaner
+ Gaeket-A_r Cleaner
Washer
Bolt-Governor Lever
Nut-Hex
Cover-Air Cleaner
Cartridge 'Plate-Air Cleaner
Screw-Sere
Mounting Strap Ass'y, Air Cleaner
(Inc. Key No. 43)
Cartridge-Air Cleaner
÷Washer-Choke Shaft
Filter-Fuel
Clamp-Fuel Pipe
Fuel-Line (cut to required
length )
Gasket Set
Carburetor Overhaul Kit
Plug- Welch
O-Ring Seal
*INCLUDED IN GASKET SET
+INCLUDED IN CARBURETOR OVERHAUL KIT
OForhigh altitude -use jet #231333
47

REPAIR PARTS
GT 18 TWiN GARDEN TRACTOR--MODEL NUMBER 917.255917
ENGINE BRIGGS AND STRATTON--MODEL NUMBER 422437° TYPE NUMBER 1209-01
lO
30 7
615
16-.-=_i
17
18
KEY PART DESCRIPTION KEY PART
NO. NO. NO. NO. DESCRIPTION
I 394891 Armature Group (lnc Key No's. 18 394808
2,3&5)
2 394970 Trigger Coil Assembly Magnatron
Ignition 19 390837
3 221798 Terminal- Ignition Cable 20 394860
493381 Screw -Armature Mtg Sem 21 398003
5 394988 Armature Ass'y, 22 280104
6 491180 Flywheel and Ring Gear Ass'y. -Maoneze 23 90366
7 93621 Screw -Sere 24 9I 162
8 223726 Retainer-Fan
9 392595 Stator -Alternator 25 393254
10 391362 Gear -Flywheel Ring (Includes
Mounting Parts) 26 94192
11 280815 Fan -Flywheel 27 94385
12 213472 Fan -Booster 28 223008
!3 93535 Screw-Sere 29 230674
14 19203 Puller -Flywheel (Optional 30 393537
Accessory) 31 93808
15 94003 Thru Bolt
16 395538 Brush Set 33 396865
17 395537 Commutator End Cap Ass'y -
Starter (Inc. Key No. 16) 34 222511
35 393825
Motor -Starting (Inc. Key No's
13. 15, 16, 17, 19, 20, 2I, 22,
23 & 24)
Amature Assembly (Motor)
Drive End Cap Ass'y. -Starter
Clutch Ass 'y.
Gear
Lockwauhur
Screw -Hex Hd. -5/I6 _18 x 1 -
1/2"
Kit -Pinion Spring (tnc Key No's
22&26)
Rof! Pin
Screw -Hex Hd.
Screen -Rotating
Nut- He>:
Connector -Tri Circuit
Screw-Sem
Starter Drive Group (Inc. Key No's.
21, 22, 25 & 26)
Washer -Spring
Housing A ssembty
MUFFLER, AIR GUIDE AND HOUSING GROUP 4
KEY PART DESCRIPTION
NO. NO.
1491243 Housing-Blower
2 93158 Screw Sere
3 93777 Screw -Hex H.
4 491444 Back Plate Assembly
5 222848 Cover -Air Guide
222846 Shield- Cylinder
93163 Screw -Sere
223734 Shield -Cylinder
222849 Cover -Air Guide
6
7
8
9
L
i
7;> 7_
48 8

Attachments That Add to the Usefulness of Your
Craftsman Garden Tractor
Sears offers a wide variety of attachments that fit your tractor. Many of these are listed below with brie! explanations
of how they can help you, This list was current at the time of publication; however, it may change in future years --
more attachments may be added, changes (including changes in the stock number) may be made in these attach-
ments, or some may no longer be available.
Most of these attachments do not require additional hitches or conversion kits (those that do are indicated) and are
designed for easy attaching and detaching. You may order these attachments at most Sears retail stores, catalog
sales offices, and through the catalog.
LAWN SWEEPERS let you collect grass clippings and leaves.
Stock No. Path Capacity
71-24030 30-in. 6.5 cu. ft,
71-24032 32-in. 10.0 cu. ft.
71-24038 38-in. 12.5 cu. ft.
LAWN VACS for powerful collection of heavy grass clippings and leaves. All accept optional wand attachment to pick
up debris in hard-to-reach places.
Stock No. Engine Capacity Also Required
71-2455 3HP 8 bu. 71-24474 chute
71-2452 3HP 12 bu. 71-24474 chute
71-2452 5HP 25 bu. 71-24474 chute
10 cu. ft. cart
CARTS make hauling easy.
Stock No. Size Capacity
71-24354 10 cu. ft. 1,000 lb, Hauling cart
71 24355 10 cu. ft. 1,000 lb, Dump cart
71-24356 14 cu, ft. 1,250 lb. Dump cart
71-24358 18 cu. ft. 1,500 lb. Dump cart
ROLLER for smoother lawn surface. 36-inch wide, 18 inch diameter water-tight drum holds up to 390 lb. of weight.
Rounded edges prevent harm to turf. Adjustable scraper automatically cleans drum. Stock No. 71-24084.
SPREADER/SEEDERS make seeding, fertilizing, and weed killing easy. Broadcast spreaders are also useful for granu-
lar de-icers and sand.
71-24194
71-24394
71-24395
71-2416
AERATOR promotes deep root
puncture holes in soil at close
71-2435.
Drop type, 36 inch. 12-in. semi-pneumatic wheels. 100 lb. capacity
steel hopper.
Broadcasts over a 5 to 8 foot swath. 70 lb. capacity steel hopper. Non-
corrosive spreading spinner, nylon gear box, stainless steel shaft.
Broadcasts 8 to 10 foot swath. 160 lb. capacity (covers 40,000 sq. ft.) No-rust
polypropylene hopper and impeller. Vinyl hopper cover.
Broadcasts 6 to 8 foot swath. 50 lb. capacity. Corrosion-resistant construction.
Polyethylene hopper.
growth for a healthy lawn. Tapered 2.5" steel spikes mounted on 10-in. diameter discs
intervals to let moisture soak it. Steel weight box for increased penetration. Stock No.
CORING AERATOR takes small plugs out of soil to allow moisture and nutrients to reach grass roots. 36-inch swath.
24 hardened steel coring tips. 150 lb. capacity weight tray. Stock No. 71-24351.
DETHATCHE.R loosens and flips thatch and matted leaves to lawn surface for easy pick up. Useful to prepare bare
areas for reseeding and for seed bed preparation after tilling,
71-24303 Two rows of five double tooth spring tines dethatch 36-inch swath. Rear mount.
71-24301 Ten spring steel tines each with two "teeth" de thatch 30 inch path. Front mount.
SPRAYERS use 12-volt DC electric motor that connects to tractor battery or other 12 volt source. Includes booms for
automatic spraying when pulting, and hand held wand for spot spraying. Wand has adjustable spray pattern. For
applying herbicides, insecticides, fungicides, and liquid fertilizers.
71-2458 50 psi maximum pressure with 20 foot wand length
71-24398 25 psi maximum pressure with 10 foot wand length
DOZER BLADE removes snow; grades dirt, sand and gravel, 48 inches wide, 17 inches high, clears 44 inch path when
angled. Master lift control lever for operator ease, Spring trip for snow removal on uneven pavement; built-in float for
blade to follow ground contour. Reversible, replaceable scraper bar. (Use with tire chains, wheel weights or rear
drawbar weight). Stock No, 71- 24402
SNOWTHROWER has 40-inch swath. Drum-type auger handles powdery and wet/heavy snow. Mounts easily with
simple pin arrangement. Discharge chute adjusts to 240 degree arc from tractor seat. 6-inch diameter spout dis-
49

charges snow 10 to 50 ft. Lift controlled at tractor seat. (Use with tire chains, wheel weights or rear drawbar weight),
Stock No. 71-24071
-FIRECHAINS are heavy duty; closely spaced extra-large cross links give smooth ride, outstanding traction. Stock No.
7!- 26946
WHEEL WEIGHTS provide stability, reduce tearing of turf when moving on hills, stopping, turning, starting. Provides
extra weight for traction to pull low-loads, lawn vac. Required for snow removal. For plowing; one in front frame, one
in right rear tire, two on left rear tire. For snowblower or dozer blade: one on right rear tire, one on left rear tire. 55
pounds, Stock No. 71-26234. (Front or rear mounting frame bracket Stock No. 71-26235.)
TRACTOR CAB has heavy-duty vinyl fabric over tubular steel frame, fiberglass top; clear plastic windshield offers 360
degree visability. Hinged metal frame doors with catch. Keeps operator warm and dry. Remove vinyl and windshield
for use as sun protector in summer. Stock No. 71- 241 73
Optional accessories for tractor cab: tinted/tempered solid safety glass windshield with hand-operated wiper (Stock
No. 71-26!68); 12- volt amber flashing caution light for mounting on cab top (Stock No. 71-26169).
"TILLER has 8HP engine to prepare seed beds, cultivate and compost garden residue. Chain-drive transmission. Six
l 1-in. dia,, one-piece heat-treated steel tines. Tills 30-inch path. (Requires sleeve hitch Stock No. 71-25231.)
Stock No. 71-25249,
"PLOW turns soil 6 inches deep, cuts 10-inch furrow, Crank adjustment controls depth, 3-position yoke sets width.
Heavy steel landslide for straight furrowing. Stock No. 71-24233.
*DISC HARROW has 2 gangs of 4 steel blades that angle from 10 to 20 degrees 40 inches wide. Can hook 2 units in
tandem. Stock No. 71-24234.
REAR GRADER/LEVELER BLADE is 42-inches wide Operated from driver's seat. Reversible steel blade can be angled
at 30 degrees for grading. Reverses for snow plowing. Stock No. 71-24239.
"SLEEVE CULTIVATOR is 43-inches wide. Prepares ground for seeding, helps weed control. Steel frame holds 5
adjustable sweeps. Adjusts vertically, horizontally, Stock No. 71-25304. Optional accessory for cultivator: steel
furrow opener for wide openings for potatoes, corn, other deep-seeded crops (Stock No. 71-25305).
ELECTRICAL ASSIST KIT mounts to master lift. Raises and lowers front, mid and rear mount attachments with flip of
switch.
Stock No. 71-25242,
"Asterisked attachments require sleeve hitch (Stock No. 71-25231) for use with master lift system Single pin couples/
uncouples.
50 ¸

/
/51

SEARS
OWNERS
MANUAL
MODEL NO.
917.255917
HOW TO ORDER
REPAIR PARTS
[RAFTSMAN
GT 18HP TWIN
6 SPEED -44"" MOWER
GARDEN TRACTOR
The Model Number will be found on the Model Ptate located under
the seat. Always provide the Model Number when requesting
service or repa/_" parts for your Garden Tractor.
Aft parts listed herein may be ordered from any Sears Service
Center!Departments and most Sears Stores.
WHEN ORDERING REPAIR PARTS, ALWA YS GIVE THE FOLLOW-
ING INFORMATION:
•THE PART NUMBER
•THE PART DESCRIPTION
•THE MODEL NUMBER
•THE NAME OF MERCHANDISE
Your Sears merchandise has added value when you consider Sears
has service units nationwide staffed with Sears trained technicians
having the parts, tools and the equipment to insure that we meet
our pledge to you,"We Service What We Sell".
Sears, Roebuck and Co. Chicago, IL 60684 U.S.A.
122390XOE 9.19.88
PRINTED IN U.S.A.