Crown Equipment Stockpicker Sp 3500 Series Users Manual Specifications
SP 3500 Series to the manual fd2dcd5c-0143-48a6-ae7f-e614a6335b58
2015-02-05
: Crown-Equipment Crown-Equipment-Stockpicker-Sp-3500-Series-Users-Manual-536011 crown-equipment-stockpicker-sp-3500-series-users-manual-536011 crown-equipment pdf
Open the PDF directly: View PDF
.
Page Count: 6

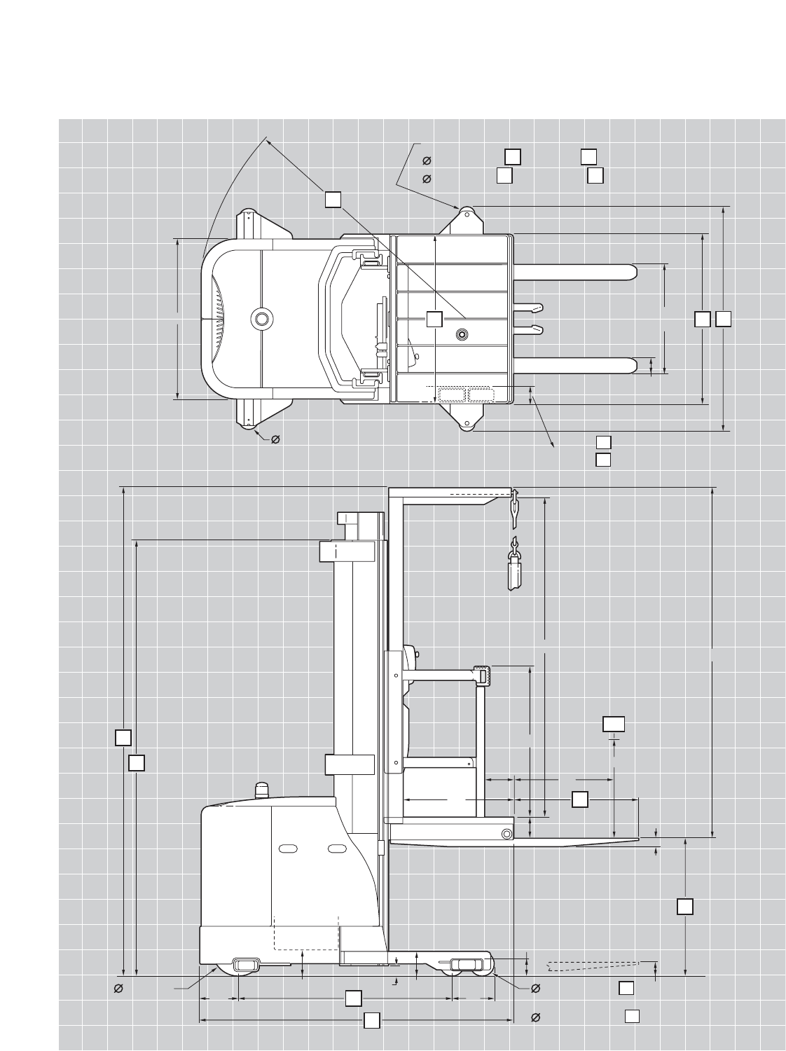
CSpecifications
SP 3500 Series
Stockpicker
SP 3500
Series

79"
12
11
87"
10
3"
2"
24"
7. 5"
36"
5"
13
10"
6"
15
13" x 5.5" 7" 2"
9.5"
18
24 – 30"
adjustable
40"
4"
Poly Wheels
2.5" x 2" when is less than + 8.5
4" x 2" when is greater than + 8
16
3.7"
14
LC
4" x 2"
17
17
18
18
17
19
24"
27"
6" x 2.8" when 10
is 348" or less
6" x 4.25" when 10
is greater than 348"
4" when 10 is 348" or less
8" when 10 is greater than 348"
CSP 3500 Series Stockpicker

1Manufacturer
Crown Equipment Corporation Crown Equipment Corporation
2Model SP 3505-30 SP 3510-30
3Load Capacity* lb See Chart See Chart
4Load Center Platform face to load CG in 24 24
5Power Electric Volts 24 24
6Operator Type Stand-up Rider Stockpicker Stockpicker
7Tire Type Load/Drive Poly/Poly Poly/Poly
8Wheels (x = driven) Load/Drive 4/1x 4/1x
10 Lifting Height in See Chart See Chart
13 Head Length TL/TT in 74.6/75.6 74.6/75.6
14 Forks Standard L x W x T in 36 x 4 x 2 36 x 4 x 2
Optional Lengths in
30, 39, 42, 45, 48, 54, 60, 72, 84 30, 39, 42, 45, 48, 54, 60, 72, 84
15 Wheelbase TL/TT in 52/51 52/51
16 Turning Radius TL/TT in 69/68 69/68
20 Speed Travel Empty/Loaded mph See Chart See Chart
21 Speed Lift TL Empty/Loaded fpm 45/28 45/28
TT Empty/Loaded fpm 40/26 40/26
22 Speed Lower TL Empty/Loaded fpm 40/38 Low, 80/75 High 40/38 Low, 80/75 High
TT Empty/Loaded fpm 40/38 Low, 80/75 High 40/38 Low, 80/75 High
23 Battery Type Lead Acid Lead Acid
Min Weight/Max Amp 975/660 1520/1085
Max Battery Size 13.12 x 31.75 x 23.25 High 14.25 x 36.25 x 31 High
TL
10 Lifting Height in 136 148 172 194 214
3Load Capacity SP 3505 lb 3000 3000 3000 3000 3000
SP 3510 lb 3000 3000 3000 3000 3000
SP 3520 lb 3000 3000 3000 3000 3000
SP 3550H lb na na na na na
Free Lift in 3 6 6 6 6
11 Collapsed Height in 89.5 95 107 119 131
12 Extended Height in 223 235 259 281 301
18 Straddle Width in 42 42 42 42 42
19 Operator Compartment Width in 42 42 42 42 42
17 Aisle Guide Wheel Range† in 45.50 to 65.25 45.50 to 65.25 45.50 to 65.25 45.50 to 65.25 45.50 to 65.25
Truck Weight SP 3505 lb 5027 5086 5216 5504 5634
Without Battery
SP 3510 lb 5027 5086 5216 5504 5634
SP 3520 lb 5088 5147 5277 5565 5695
SP 3550H lb na na na na na
General Information
Dimensions
Performance
* Contact factory. Capacity may be subject to derating, depending upon lifting height, load center and fork length.
Battery
Mast
† In .25" increments.
†† 48" straddle width on SP 3405 only.
Capacity
Truck Weight

Crown Equipment Corporation Crown Equipment Corporation
SP 3520-30 SP 3550H-30
See Chart See Chart
24 24
24 24
Stockpicker Stockpicker
Poly/Poly Poly/Poly
4/1x 4/1x
See Chart See Chart
74.6/75.6 na/75.6
36 x 4 x 2 36 x 4 x 2
30, 39, 42, 45, 48, 54, 60, 72, 84 30, 39, 42, 45, 48, 54, 60, 72, 84
52/51 na/51
69/68 na/68
See Chart See Chart
45/28 Low, 80/46 High na
40/26 Low, 71/43 High 40/26 Low, 71/43 High
40/38 Low, 80/75 High na
40/38 Low, 80/75 High 40/38 Low, 80/75 High
Lead Acid Lead Acid
1520/1085 1520/1085
14.25 x 36.25 x 31 High 14.25 x 36.25 x 31 High
TT
195 210 240 276 294 312 330 348 366
3000 3000 3000 na na na na na na
3000 3000 3000 na na na na na na
3000 3000 3000 2000 1750 1500 na na na
na na na 2500 2350 2200 2050 1900 1750
3 8 20 32 38 44 56 62 68
89.5 95 107 119 125 131 143 149 155
283 298 328 364 382 400 418 436 454
42 42 42†† 48 54 54 56 60 60
42 42 42 48 54 54 54 60 60
45.50 to 65.25 45.50 to 65.25 45.50 to 65.25 48.75 to 71.25 54.75 to 77.25 54.75 to 77.25 56.75 to 79.25 60.75 to 83.25 60.75 to 83.25
5601 5686 6200 na na na na na na
5601 5686 5872 na na na na na na
5662 5747 5933 6354 6536 6629 na na na
na na na 6444 6626 6718 6914 7060 7490
Steered Wheel < 10° (1)
Lift Height Power Unit First (PUF) (2)
(inches) Travel Speed (mph) Empty/Loaded
SP 3510
SP 3505 SP 3520 SP 3550H
0-24 6.5 7.5 7.5
24-64 6.5-5.5 7.5-6.0 7.5-6.5
64-120 5.5-3.3 6.0-3.8 6.5-4.5
120-152 3.3-2.1 3.8-2.7 4.5-3.4
152-176 2.1-1.2 2.7-2.0 3.4-2.6
176-192 1.2 2.0-1.5 2.6-2.2
192-216 1.2 1.5 2.2-1.5
216-max 1.2 1.5 1.5
(1) Top travel speed is reduced to 80% at a 10° steering angle, beyond
10° travel speeds gradually reduce down to 50% of top travel speed.
Steering angle is automatically limited to within 10° straight travel as
indicated below:
• SP 3505 above 176"
• SP 3510 and SP 3520 above 192"
• SP 3550H above 216"
(2) From 0-60 inches, travel speeds in the Forks First (FF) direction of
travel are approximately .5 mph less than travel speeds in the
Power Unit First (PUF) direction.
SP 3500 Series Specifications

Standard Equipment
1. Crown’s Access 1 2 3®
Comprehensive System Control
2. Crown’s AC traction
control system
3. 24-volt electrical system
4. Electronic steering
5. Linear Height Speed Contol
6. High-speed lift (SP 3520 and
SP 3550H)
7. Two-speed lower with soft
start and stop
8. Programmable lift/lower
cut outs
9. Intelligent Braking System (IBS)
with low-profile brake pedal
10. Crown Display
• Battery discharge indicator
with lift interrupt
• Hour meters/travel
distance/stop watch
• PIN code access capable
• Access 1 2 3 diagnostics
• P1, P2, P3 Performance
• Standard steer tire
direction indicator
(non wire-guided trucks)
• Enhanced steer tire
direction indicator
(wire-guided trucks)
11. Lift motor brush wear and
overtemp indicator (SP 3550H).
12. Soft urethane twist grip
with “cam grip”
13. 10° angled steer wheel with
soft feel spinner
14. Storage compartment
15. Premium platform cushion
16. Clear visibility platform
window
17. Clear visibility mast design
18. Key switch
19. Horn
20. Strobe light, amber
21. Hinged side gates with
power disconnect
22. 14.25" battery compartment
(13.12" on SP 3505)
23. 350 amp battery connector
(175 amp on SP 3505)
24. 2" diameter battery
compartment rollers
25. Top battery access for service
26. Removable steel battery
side covers
27. Adjustable battery retainer
28. Hinged, lift off steel power
unit doors
29. Emergency power cut-out
30. Operator belt and lanyard
Operator Platform
The operator area is designed for
maximum visibility and stability for
increased operator confidence
and comfort.
The operator platform features
a large window (1088 sq in) for
excellent visibility. A Crown-
designed clear-visibility mast
affords the platform window one
forward and two peripheral win-
dows for maximum visibility, even
when the platform is lowered.
The clear-visibility mast, with
full free lift, extends the platform
window above the mast
channels for unobstructed
visibility when raised.
A low-profile power unit, low
placement of the lower cross
brace and an outer C-channel
rail assembly also contribute to
excellent visibility.
A soft urethane twist grip is solidly
mounted to the truck console to
provide excellent stability for the
operator during travel, plugging
and braking. Controls for lift/lower,
horn and emergency disconnect
are conveniently located for
efficient operation and minimal
operator fatigue. The steering
wheel is angled at 10° and
recessed to maximize the work
area and reduce steer effort. The
steering wheel and spinner knob
are covered with soft urethane to
reduce grip force and insulate
against vibration. Control location
keeps the operator’s posture
neutral at all times.
The platform cushion, made of
a microcellular composition,
absorbs shock and vibration.
The brake pedal has a low-profile
design and when engaged is flush
with the platform cushion for
maximum comfort. Heavy-duty
side gates, with two horizontal
and one vertical support rails,
communicate security to the
operator. For additional safety,
cut-out switches disengage
truck operation when side gates
are raised.
Two work lights, two dome lights
and a two-speed fan are optional.
“Power-on” key prevents unau-
thorized operation of the truck.
The Access 1 2 3 Display Panel
provides concise, clear feedback
for the operator during truck
operation.
31. Pallet clamp
32. InfoPoint®Quick Reference
Guide and Maps
33. Color-coded wiring
34. 6" diameter tandem
load wheels
Optional Equipment
1. Crown wire guidance
(broadband technology)
operates on all frequencies
ranging from 5.2 through
10 Khz without changing
components.
2. End of Aisle Control System
(wire or rail guidance required)
3. Aisle guide wheels for
rail guidance
4. Lift motor brush wear and
overtemp indicator (SP 3520).
5. Enhanced steer tire
direction indicator
(non-wire guided trucks)
6. Battery retainer
interlock switch
7. Work lights, dome light
and two-speed fan
8. Spotlights
9. Flashing light, amber
10. Programmable lift/lower
cutouts with over-rides.
11. Zone select key switch
12. 48", 54", and 60" wide
operator platforms
13. Corrosion conditioning
14. Freezer conditioning
(Includes corrosion condi-
tioning, ribbed floor mat,
and wire mesh windshield)
15. EE Rating available on
SP 3520 and SP 3550H
16. Wire mesh screen (Standard
with freezer conditioning)
17. Retractable tether
18. Load wheel and drive
tire compounds
19. 30" lanyard boom
20. InfoLink™ Ready
21. Positive / negative
accessory cable
22. Special paint
23. Work Assist™ Accessories
• Clip pad and hook
• Plate
• Pocket
24. Fire extinguisher
Crown’s Access 1 2 3...
The Comprehensive Access 1 2 3
System Control is a modular
based communications and
control system. It monitors all
on-board sensors, makes
decisions based on the sensor
readings, and subsequently, con-
trols all system movements safely
and smoothly. All five modules are
in constant communications with
each other via a CAN (Control
Area Network) bus so that real
information is accessible to the
system at all times.
• Interactive Display Module
• Traction Control Module
• Vehicle Control Module
• Steering Control Module
• Guidance Control Module
Crown Drive System
Crown has applied the latest
generation AC drive system,
enhanced with Access 1 2 3
technology. A Crown-manufac-
tured drive unit uses spiral bevel
and helical gears from motor to
drive wheel axle.
Fixed, mounted drive motor does
not rotate minimizing wear on
electricall cables. Drive tire
changing is simplified with this
drive unit.
Crown’s AC Drive system dra-
matically improves travel speeds,
acceleration and deceleration,
thus increasing productivity.
The standard linear speed control
provides smooth travel speed
transition as lift heights change
and increases productivity.
SP 3500 Series Technical Information

Travel System
Truck performance specifications
(maximum travel speed, coast,
plugging, acceleration, travel
speed at height, and low speed
lowering) are adjustable using
Access 1 2 3. This enables cus-
tomizing truck performance to
meet specific application or
operator requirements.
Crown’s InfoPoint system offers
evolutionary refinement for
service simplicity. The InfoPoint
Quick Reference Guide, on-truck
component maps and informa-
tion nuggets located throughout
the truck allow technicians to
troubleshoot without schematics,
wiring diagrams, or service
manuals for more than 95
percent of repairs.
The InfoPoint Quick Reference
Guide provides code definition
and overall component ID so
the technician knows what it is,
where it is, and what it does
(Three W’s). InfoPoint ensures
faster, simpler, and higher
quality service.
Intelligent Steering
Standard on the SP 3500
Series is electronic steering
that is microprocessor based.
Crown’s intelligent steering fea-
ture slows the truck automatically
when the steer wheel is turned
beyond 10°. Access 1 2 3 moni-
tors the height of the operator
platform, truck speed and steer
wheel position.
Steering wheel rotation provides
smooth, operator feedback.
Steer effort is minimal, lock to
lock revolutions is 4.5 turns.
Drive wheel rotates a full 180° for
maximum maneuverability. Auto
centering drive tire for trucks
equipped with rail guidance.
Steering is connected to the
Control System for full diagnos-
tics and operator interface.
Intelligent Braking System
(IBS)
Crown’s patented Intelligent
Braking System combines
motor braking with optimum
amounts of friction braking
(three varying levels of force).
The appropriate level of braking
is applied dependent upon plat-
form height, direction of travel,
and truck weight. Braking force
is automatically reduced as
height increases and speed
decreases. Optimum braking
for the right elevation gives
operators more confidence and
better control, while eliminating
abrupt stops and reducing plat-
form sway. Brake lining life can
be expected to last up to twice
as long before replacement
is necessary.
Braking can also be accom-
plished by proportional plugging,
which permits the operator to
control the rate of deceleration
when extended stopping
distance is preferred.
Simplified Hydraulics
Heavy-duty series wound pump
motors and gear pumps are
assembled into an integral unit.
High-speed lift is standard on
SP 3520 and SP 3550H models.
Crown-manufactured solenoid
type manifolds with built-in
checks and relief valves.
Two-speed lowering (high/low)
with soft start is standard on all
models. Low speed lowering is
adjustable with the use of the
Access 1 2 3 Display. Soft-start
lowering feature reduces the
harshness at the beginning and
end of the lowering cycle. The
softer start is accomplished by
controlling how quickly the
proportional valve is opened
or closed. Valve actuation is
controlled by a driver in the
steering control module.
Maximum lowering speed
is regulated by a pressure
compensating flow control valve.
Velocity fuses are used in all
cylinders to stop lowering should
lowering speed exceed a preset
value due to a line rupture. A
hydraulic accumulator is used to
cushion raise and lower func-
tions. Manual lowering control on
manifold block allows lowering of
platform from ground level. Oil
reservoir is designed with a 100
mesh screen at the fill location,
a suction strainer, spin-on type
10 micron return line filter and a
magnetic drain plug.
The Crown Mast Assembly
High visibility two- and three-
stage masts feature nested rail
design with lift cylinders posi-
tioned behind mast rails. Three-
stage mast has a low center
position cylinder for free lift.
Routing of hosing and cables
optimizes visibility through mast.
Built-in sensors detect chain
slack and shut down primary
lower function. Exclusive
spring-loaded staging bumpers
virtually eliminate platform
impact as platform stages.
Negative rail drop allows shim-
ming of mast rollers without
major disassembly.
Stronger Low Profile
Power Unit
Power unit is fabricated from
heavy-gauge steel. Lower skirt
is .75" steel that runs 9" high for
component protection. Rugged
steel doors suspended on
heavy-duty pin hinges cover
power unit componentry. Doors
swing wide for open access.
Doors can also be lifted off for
unrestricted service access.
Door bolts have exclusive
convex design that mates with
concave door holes for fast
reinstallation of door bolts.
Battery side covers are all steel.
An optional battery retainer
interlock switch is available. Top
battery access is available by
lifting cover. Cover has integral
support post.
Wheels and Tires
Polyurethane drive tire, 13"
diameter x 5.5" wide x 8" hub
diameter. Tandem load wheels
are 6" diameter polyurethane
x 2.8" wide (4.25" wide for lift
heights above 348"). Optional
polyurethane aisle guide
wheels are 2" wide with a 4"
or 2.5" diameter.
Forks
2" thick x 4" wide forged steel.
Fork spread (adjustable) 24" to
30". Standard length is 36".
Optional lengths available.
Pallet Clamp
Standard equipment includes a
foot-applied, hand-released pallet
clamp designed for use with
pallets having center stringers.
Safety Shield
Safety glass to protect operator
from chains and moving parts
while in his normal operating
position.
Audible Travel Alarm Option
Safety considerations and
dangers associated with audible
travel alarms include:
• Multiple alarms can cause
confusion.
• Workers ignore the alarms
after day-in and day-out
exposure.
• Operator may transfer the
responsibility for “looking out”
to the pedestrians.
• Annoys operators and
pedestrians.
Other Options Available
Contact your local Crown dealer.
Dimensions and performance
data given may vary due to manu-
facturing tolerances. Performance
is based on an average size vehi-
cle and is affected by weight, con-
dition of truck, how it is equipped
and the conditions of the operat-
ing area. Crown products and
specifications are subject to
change without notice.
SP 3500 Series Technical Information
Because Crown is continually improving its products,
specifications are subject to change without notice.
Crown, the Crown logo, the color beige, the
Momentum symbol, Work Assist, Access 1 2 3 ,
InfoLink and InfoPoint are trademarks of
Crown Equipment Corporation.
Copyright 2005 Crown Equipment Corporation
SF14832 10/07
Printed in U.S.A.
Crown Equipment Corporation
New Bremen, Ohio 45869 USA
Tel 419-629-2311
Fax 419-629-3796
crown.com
You can count on Crown to build lift trucks
designed for safe operation, but that’s
only part of the safety equation. Crown
encourages safe operating practices through
ongoing operator training, safety-focused
supervision, maintenance and a safe working
environment. Go to crown.com and view our
safety section to learn more.
C