Cleveland SteamCraft Ultra 5 Generator Style High Speed Convection Steamer 21 CGA Spec Sheet Steam Craft 570 044
User Manual: SteamCraft 21-CGA-5
Open the PDF directly: View PDF
.
Page Count: 2

Project ________________________________
™
Item __________________________________
Quantity _______________________________
Cleveland
FCSI Section ____________________________
Approval _______________________________
STEAMCRAFT® GENERATOR STYLE
Date __________________________________
HIGH SPEED CONVECTION STEAMERS
Shall be CLEVELAND, SteamCraft Ultra 5, one compartment,
Counter-Type Steamer, Model 21-CGA-5, 70 M BTU, heavy duty all
Stainless Steel construction; rear mounted, insulated Steam
Generator with Remote Probe Type Water Level Controls and
Automatic Steam Generator Blowdown with “Water Jet” Drain
Cleaning feature.
Short Form Specifications
Shown with optional
Electronic Timer
SteamCraft ® Ultra 5 MODEL: �21-CGA-5
COUNTER TYPE DESIGN
PRESSURELESS CONVECTION STEAMER
GAS STEAM GENERATOR, 70,000 BTU
Cleveland Standard Features
■ ■Cooking Capacity for up to five 12˝ x 20˝ x 21⁄2˝ deep Cafeteria
Pans (OR) 10 - 1” Cafeteria Pans.
■ ■Innovative PowerPak Gas Steam Generator:
■ Naturally Fired 70 MBTU Generator is 72% Efficient
■ Strong 14 Gauge Stainless Steel Construction
■ Fully Automatic Electronic Spark Ignition (pilotless)
■
■Simple ON/OFF Start Switch: Ignites Burners and Water Fills
into Pressureless Generator with ease.
■ ■Easy Access Cleaning Port: Generator Cleaning Port
located on the outside, top of the unit. Not necessary to
remove hot panels or pan rack guides.
■ ■Generator Cleaning Light: Indicator Light located on the
front of the unit warns operator it is time to delime generator.
■ ■Steam Generator Stand By Mode: Holds generator at a
steaming temperature. Allows unit to start cooking instantly.
■ ■One 60 Minute Electro-Mechanical Timer and Switch for
manual operation: Audible signal for cooking time
completion. (MCS)
■ ■4˝ Adjustable Legs.
■ ■Durable 14 Gauge Stainless Steel Construction:
For compartment door, cavity, and steam generator.
■ ■Automatic Generator Drain with a “Water Jet” drain clean-
ing feature.
■ ■Exclusive Automatic Remote Float Type Water Level
Control: Separate from the generator for easy access.
■ ■Exclusive Steam Cooking Distribution System:
Maintenance Free Exclusive Brass Steam Jets produce a high
velocity convection steam without fans. Coved Corner design
in cooking compartment distributes heat evenly, and is easy to
keep clean. Creased top & bottom enhance drainage. Cold
water condenser behind drain maintains a dry steam. Fully
Insulated cooking compartment for thermal efficiency.
Removable Stainless Steel Slide Racks for easy cleaning.
❐ 34" (864mm) High Stainless Steel Economy Stand, for one 21-
■ ■Exclusive “Cool to the Touch” Two-Piece Compartment
CGA-5 (UniStand34)
Door Design: Free floating inner door with reversible gasket
❐ POSK Pull-Out Shelf Kit for UniStand (P/N 111724)
provides an air tight seal. Stainless Steel Slam/Latch Door
❐ URK Pan Rack Kit UniStand (P/N 111726)
Latch mechanism for reliability. ❐ Compartment Door Steam Shut Off (SCS)
■ ■Standard with Cord & Plug for 115 volt controls. ❐ Cafeteria Pans in depths of 1˝, 21⁄2˝, 4” and 6”
■ ■Left Hand Door Hinging: Compartment door hinged on left, ❐ Dissolve ® Descale Solution, 6 one gallon container w/quart
controls on the right. markings (106174)
❐ Propane Gas option (PG)
Options & Accessories
❐ Water Filters
❐ Electronic Timer with Compensating Load Feature (ETC) SECT. IV PAGE 7
❐ Simple ON/OFF Switch for Compartment Controls (MC)
1333 East 179 St., Tel: 1-216-481-4900 Web Site: www.ClevelandRange.com
Cleveland, Ohio, U.S.A. 44110 Fax: 1-216-481-3782 Email: Steam@ClevelandRange.com
Central Restaurant Products
0411

1
2
WATER QUALITY
REQUIREMENTS
The quality of water varies
greatly from region to
region. Steam equipment
generators must be
drained daily and chemi-
cally descaled periodically
to ensure proper operation.
To minimize service prob-
lems caused by the accu-
mulation of minerals and
chemicals in water review
the following quality guide-
lines with a local water
treatment specialist. Inlet
water that is beyond these
specified guidelines should
be treated to achieve these
acceptable limits. Total
Dissolved Solids less than
60 ppm, Alkalinity less than
20 ppm, Silica less than 13
ppm, pH factor greater
than 7.5, Chlorine less
than 30 ppm.
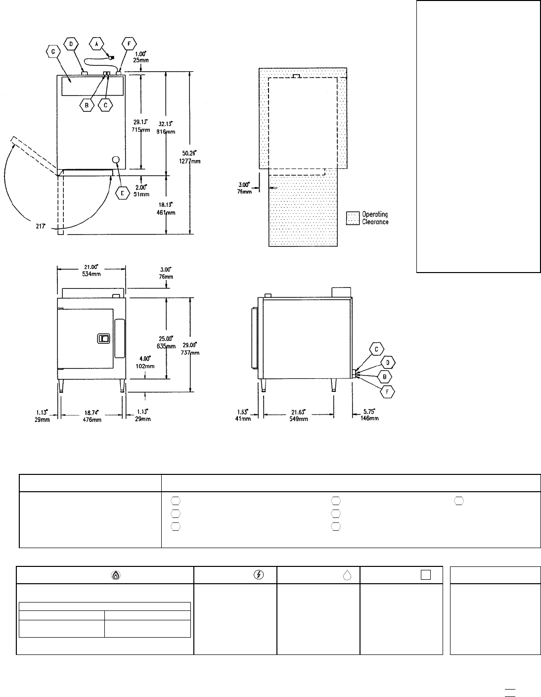
TOTAL CAPACITY UTILITY CONNECTIONS
5 — 12˝ x 20˝ x 21⁄2˝ Cafeteria Pans or A G
Electrical Supply Drain: 1-1/4˝ Dia. IPS Flue Gas Exhaust
D
10 — 12˝ x 20˝ x 1˝ Cafeteria Pans or from Generator
3 — 12˝ x 20˝ x 4˝ Cafeteria Pans B E
Cold Water Supply for Condenser 1/4˝ Dia. NPT Inlet for Generator Deliming Solution
C Cold Water Supply for Generator. F Gas Supply 1/2˝ Dia. IPS
1/4˝ Dia. NPT (for water treatment conn.)
Unit comes with a 40 Mesh Water Strainer
GAS ELECTRIC COLD WATER
C
DRAINAGE D
1/2˝ Dia. IPS
SUPPLY PRESSURE
NATURAL PROPANE
4.00˝ W.C. minimum 12.00˝ W.C. minimum
14.00˝ W.C. maximum 14.00˝ W.C. maximum
Manufacturer must be notified if unit will be used above 2,000
ft. altitude.
115V - 1 Phase
35 Watts
4 Amps
Cold water:
35 psi min., 60 psi max.
Two 3/4” NH-F (Garden
Thread) Connections.
Use NSF approved hose.
- one for Condenser
- one for Steam Generator
11⁄4˝ Dia. IPS
Do not connect any other
units to this drain.
Drain line must be vented.
No PVC pipe for drain.
CLEARANCE
Right - 3”, Left - 3”, Rear - 3”
(12” on control side if adjoin-
ing wall or equipment is over
30” high for service access)
Contact factory
for variances to clearances.
NOTES: (NOT TO SCALE)
Cleveland Range reserves right of design improvement or modification, as warranted. SECT. IV PAGE 8
Many regional, state and local codes exist and it is the responsibility of the owner and installer to comply with the codes.
Cleveland Range equipment is built to comply with applicable standards for manufacturers. Included among those approval agencies are UL/NSF#4 and CSA (AGA, CGA). Litho in U.S.A.
Central Restaurant Products
0411