Manual For The 62366 Portable Saw Mill With 301cc Gas Engine
User Manual: Manual for the 62366 Portable Saw Mill with 301cc Gas Engine Saw Mill with 301cc Gas Engine
Open the PDF directly: View PDF  .
.
Page Count: 44

!"#"$%&'(%)*+#"$*%,$-%.$$/-00)))1.,(+&(2(*"3.$14&5
%65,"7%&'(%$*4.8"4,7%#'//&($%,$-%/(*9,$&(:.,(+&(2(*"3.$14&5
65,"7%&'(%*83"8*%#'//&($%,$-%/(*9,$&(:.,(+&(2(*"3.$14&5
;#"83%,8%*83"8*%"89&&(#%
<=>%?@AA%BC;%@>%D@>;E6F1
683"8*%*G.,'#$%4&8$,"8#%4,(+&8%5&8&G"9*1%%
E."#%"#%,%/&"#&8%H&'%4,88&$%#**%&(%#5*771
>6!6I%'#*%"8#"9*%
,%.&5*%&(%3,(,3*J%
6!6>%@K%9&&(#%,89%
)"89&)#%,(*%&/*81
C87H%'#*%C;EF@L6%
,89%2,(%,),H%2(&5%
)"89&)#J%9&&(#J%
,89%M*8$#1
Owner’s Manual & Safety Instructions
Save This Manual%Keep this manual for the safety warnings and precautions, assembly, 
operating, inspection, maintenance and cleaning procedures.  Write the product’s serial number in the 
back of the manual near the assembly diagram (or month and year of purchase if product has no number). 
Keep this manual and the receipt in a safe and dry place for future reference.
When unpacking, make sure that the product is intact 
and undamaged.  If any parts are missing or broken, 
please call 1-888-866-5797 as soon as possible.
Copyright© 2013 by Harbor Freight Tools®.  All rights reserved.  
No portion of this manual or any artwork contained herein may be reproduced in 
any shape or form without the express written consent of Harbor Freight Tools.  
Diagrams within this manual may not be drawn proportionally.  Due to continuing 
improvements, actual product may differ slightly from the product described herein.  
Tools required for assembly a nd service may not be i ncluded.
I*,9%$."#%5,$*(",7%+*2&(*%'#"83%$."#%/(&9'4$1%
K,"7'(*%$&%9&%#&%4,8%(*#'7$%"8%#*("&'#%"8N'(H1%
F=!6%EO@F%D=>;=A1
I6!%PQ7

Page 2 K&(%$*4.8"4,7%R'*#$"&8#J%/7*,#*%4,77%PSTTTSTQQSUVWV1 301cc Engine 
E,+7*%&2%<&8$*8$#
Specifications ............................................. 2
Safety ......................................................... 3
Setup .......................................................... 6
Operation .................................................... 8
Maintenance .............................................. 12
Troubleshooting ......................................... 16
Warranties ................................................. 18
Parts Lists and Diagrams .......................... 20
F/*4"2"4,$"&8#
Displacement 301cc
Engine Type Horizontal Single Cylinder
4-stroke OHV
Cooling System Forced air cooled
Fuel Type 87+ octane stabilizer-treated 
unleaded gasoline
Capacity 1.72 Gallon
Engine Oil Type SAE 10W-30 above 32° F
 5W30 at 32° F or below
Capacity 1 Quart
Run Time @ 50% Load  
with full tank 3 hr.
Sound Level 106 dB
Bore x Stroke 80 mm x 60 mm
Compression Ratio 8.2:1
Rotation viewed from PTO  
(power takeoff - the output shaft) Counterclockwise
Spark Plug Type F6TC (Torch)
Gap 0.7 - 0.8 mm
Valve Clearance Intake 0.006" ±0.0008"
Exhaust 0.008" ±0.0008"
Speed Idle 1950 ±50 RPM
Shaft
Shaft Ø1″ x 3.48″ 
Keyway 0.25″
End Tapped 7/16″ - 20 UNF
The emissions control system for this Engine is warranted for standards set by the 
U.S. Environmental Protection Agency and by the California Air Resources Board (also known as CARB).  
For warranty information, refer to the last pages of this manual.

Page 3K&(%$*4.8"4,7%R'*#$"&8#J%/7*,#*%4,77%PSTTTSTQQSUVWV1301cc Engine 
F=K6EBCX6I=E@C>D=@>E6>=><6 F6E;X
Y=I>@>Z%FBD[CAF%=>L%L6K@>@E@C>F
This is the safety alert symbol.  It is used to alert you to potential 
personal injury hazards.  Obey all safety messages that 
follow this symbol to avoid possible injury or death.
Indicates a hazardous situation which, if not avoided,  
will result in death or serious injury.
Indicates a hazardous situation which, if not avoided,  
could result in death or serious injury.
Indicates a hazardous situation which, if not avoided,  
could result in minor or moderate injury.
Addresses practices not related to personal injury.
FH5+&7%L*2"8"$"&8#
FH5+&7 X(&/*($H%&(%F$,$*5*8$
IXD Revolutions Per Minute
OX Horsepower
WARNING marking concerning 
Risk of Eye Injury.  Wear ANSI-approved 
safety goggles with side shields.
Read the manual before 
set-up and/or use.
WARNING marking concerning 
Risk of Hearing Loss.  
Wear hearing protection.
FH5+&7 X(&/*($H%&(%F$,$*5*8$
WARNING marking concerning 
Risk of Respiratory Injury.  
Operate engine OUTSIDE and far away 
from windows, doors, and vents.
WARNING marking concerning 
Risk of Fire while handling fuel.  
Do not smoke while handling fuel.
WARNING marking concerning 
Risk of Fire.   
Do not refuel while operating. 
Keep flammable objects 
away from engine.
@DXCIE=>E%F=K6EB%@>FEI;<E@C>F
% Y=I>@>Z\%I*,9%,77%"8#$('4$"&8#1 
K,"7'(*%$&%2&77&)%,77%"8#$('4$"&8#%7"#$*9%+*7&)%5,H%(*#'7$%"8%2"(*J%#*("&'#%"8N'(H%,890&(%L6=EO1%
The warnings and precautions discussed in this manual cannot cover all possible conditions and 
situations that may occur.  It must be understood by the operator that common sense and caution 
are factors which cannot be built into this product, but must be supplied by the operator.
F=!6%EO6F6%@>FEI;<E@C>F

Page 4 K&(%$*4.8"4,7%R'*#$"&8#J%/7*,#*%4,77%PSTTTSTQQSUVWV1 301cc Engine 
F=K6EB CX6I=E@C> D=@>E6>=><6F6E;X
F*$%'/%X(*4,'$"&8#
1.  Gasoline fuel and fumes are flammable, and 
potentially explosive.  Use proper fuel storage 
and handling procedures.  Do not store fuel 
or other flammable materials nearby.
2.  Have multiple ABC class fire extinguishers nearby.
3.  Operation of this equipment may create sparks that 
can start fires around dry vegetation.  
A spark arrestor may be required. The operator 
should contact local fire agencies for laws or 
regulations relating to fire prevention requirements.
4.  Set up and use only on a flat, level, 
well-ventilated surface.
5.  Wear ANSI-approved safety goggles, heavy-duty 
work gloves, and dust mask/respirator during set up.
6.  Use only lubricants and fuel recommended 
in the Specifications chart of this manual.
C/*(,$"83%X(*4,'$"&8#
1.  <=I[C>%DC>C]@L6%O=^=IL%
;#"83%,8%*83"8*%"89&&(#%%
<=>%?@AA%BC;%@>%D@>;E6F1%
Engine exhaust contains 
carbon monoxide.  This is a poison 
you cannot see or smell. 
NEVER use inside a home or garage,  
EVEN IF doors and windows are open. 
Only use OUTSIDE and far away from windows, 
doors, and vents.
2.  Keep children away from the equipment, 
especially while it is operating. 
3.  Keep all spectators at least six feet 
from the Engine during operation.
4.  Fire Hazard! Do not fill gas tank while engine is 
running. Do not operate if gasoline has been spilled. 
Clean spilled gasoline before starting engine. 
Do not operate near pilot light or open flame.
5.  Do not touch engine during use. 
Let engine cool down after use. 
6.  Never store fuel or other flammable 
materials near the engine.
7.  Only use a suitable means of transport and 
lifting devices with sufficient weight bearing 
capacity when transporting the engine.
8.  Secure the engine on transport vehicles to 
prevent it from rolling, slipping, and tilting.
9.  Industrial applications must follow 
OSHA requirements.
10.  Do not leave the engine unattended when it is 
running.  Turn off the engine (and remove safety 
keys, if available) before leaving the work area.
11.  The engine can produce high noise levels.  
Prolonged exposure to noise levels 
above 85 dBA is hazardous to hearing. 
Wear ear protection when operating the engine 
or when working nearby while it is operating.
12.  Wear ANSI-approved safety glasses 
and hearing protection during use.
13.  People with pacemakers should consult their 
physician(s) before use.  Electromagnetic fields in 
close proximity to a heart pacemaker could cause 
pacemaker interference or pacemaker failure.  
Caution is necessary when near the 
engine’s magneto or recoil starter.
14.  Use only accessories that are recommended 
by Harbor Freight Tools for your model.  
Accessories that may be suitable for one 
piece of equipment may become hazardous 
when used on another piece of equipment.
15.  Do not operate in explosive atmospheres, 
such as in the presence of flammable 
liquids, gases, or dust.  Gasoline-powered 
engines may ignite the dust or fumes.
16.  Stay alert, watch what you are doing and 
use common sense when operating this 
engine.  Do not use while tired or under the 
influence of drugs, alcohol or medication.
17.  Dress properly.  Do not wear loose clothing or 
jewelry.  Keep hair, clothing and gloves away 
from moving parts.  Loose clothes, jewelry or 
long hair can be caught in moving parts.
18.  Parts, especially exhaust system components, 
get very hot during use.  Stay clear of hot parts.
19.  Do not cover the engine during operation.
20.  Keep the engine and surrounding 
area clean at all times.
21.  Do not smoke, or allow sparks, flames, 
or other sources of ignition around the 
equipment, especially when refuelling.

Page 5K&(%$*4.8"4,7%R'*#$"&8#J%/7*,#*%4,77%PSTTTSTQQSUVWV1301cc Engine 
F=K6EBCX6I=E@C>D=@>E6>=><6 F6E;X
22.  Use the equipment, accessories, etc., in 
accordance with these instructions and in the 
manner intended for the particular type of 
equipment, taking into account the working 
conditions and the work to be performed.  
Use of the equipment for operations different from 
those intended could result in a hazardous situation.
23.  Do not operate the equipment with known 
leaks in the engine’s fuel system.
24.  This product contains or, when used, produces a 
chemical known to the State of California to cause 
cancer and birth defects or other reproductive harm.  
(California Health & Safety Code § 25249.5, et seq.)
25.  When spills of fuel or oil occur, they must be 
cleaned up immediately.  Dispose of fluids and 
cleaning materials as per any local, state, or 
federal codes and regulations.  Store oil rags in 
a bottom-ventilated, covered, metal container.
26.  Keep hands and feet away from moving parts.   
Do not reach over or across 
equipment while operating.
27.  Before use, check for misalignment or binding of 
moving parts, breakage of parts, and any other 
condition that may affect the equipment’s operation.  
@2%9,5,3*9J%.,M*%$.*%*R'"/5*8$%#*(M"4*9%
+*2&(*%'#"831  Many accidents are caused 
by poorly maintained equipment.
28.  Use the correct equipment for the application.  
Do not modify the equipment and do not use the 
equipment for a purpose for which it is not intended.
F*(M"4*%X(*4,'$"&8#
1.  [*2&(*%#*(M"4*J%5,"8$*8,84*J%&(%47*,8"83-
a.  E'(8%$.*%*83"8*%#)"$4.%$&%"$#%_CKK`%/&#"$"&81
b.  =77&)%$.*%*83"8*%$&%4&5/7*$*7H%4&&71
c.  E.*8J%(*5&M*%$.*%#/,(a%/7'3%4,/%
2(&5%$.*%#/,(a%/7'31
2.  Keep all safety guards in place and in 
proper working order.  Safety guards include 
muffler, air cleaner, mechanical guards, 
and heat shields, among other guards.
3.  L&%8&$%,7$*(%&(%,9N'#$%,8H%/,($%&2%$.*%
*R'"/5*8$%&(%"$#%*83"8*%$.,$%"#%#*,7*9%+H%$.*%
5,8'2,4$'(*(%&(%9"#$("+'$&(1%%C87H%,%R',7"2"*9%
#*(M"4*%$*4.8"4",8%5,H%,9N'#$%/,($#%$.,$%5,H%
"84(*,#*%&(%9*4(*,#*%3&M*(8*9%*83"8*%#/**91
4.  Wear ANSI-approved safety goggles, 
heavy-duty work gloves, and  
dust mask/respirator during service.
5.  Maintain labels and nameplates on the equipment.   
These carry important information.   
If unreadable or missing, contact 
Harbor Freight Tools for a replacement.
6.  Have the equipment serviced by a qualified repair 
person using only identical replacement parts.  
This will ensure that the safety of the equipment 
is maintained.  Do not attempt any service or 
maintenance procedures not explained in this 
manual or any procedures that you are uncertain 
about your ability to perform safely or correctly.
7.  Store equipment out of the reach of children.
8.  Follow scheduled engine and 
equipment maintenance.
I*2'*7"83-
1.  Do not refill the fuel tank while the 
engine is running or hot.
2.  Do not smoke, or allow sparks, flames, 
or other sources of ignition around the 
equipment, especially when refuelling.
3.  L&%8&$%2"77%2'*7%$,8a%$&%$.*%$&/1%%%
Leave a little room for the fuel to expand as needed. 
Refuel in a well-ventilated area only.
4.  Wipe up any spilled fuel and allow excess 
to evaporate before starting engine. 
E&%/(*M*8$%K@I6J%9&%8&$%#$,($%$.*%*83"8*%
)."7*%$.*%#5*77%&2%2'*7%.,83#%"8%$.*%,"(1
%F=!6%EO6F6%@>FEI;<E@C>F1
C/*(,$"83%X(*4,'$"&8#%b4&8$1c

Page 6 K&(%$*4.8"4,7%R'*#$"&8#J%/7*,#*%4,77%PSTTTSTQQSUVWV1 301cc Engine 
F=K6EB CX6I=E@C> D=@>E6>=><6F6E;X
F*$%;/
I*,9%$.*%6>E@I6%@DXCIE=>E%F=K6EB%@>KCID=E@C>%#*4$"&8%,$%$.*%+*3"88"83%&2%$."#%5,8',7%
"847'9"83%,77%$*G$%'89*(%#'+.*,9"83#%$.*(*"8%+*2&(*%#*$%'/%&(%'#*%&2%$."#%/(&9'4$1
EC%XI6!6>E%F6I@C;F%@>d;IB-%
C/*(,$*%&87H%)"$.%/(&/*(%#/,(a%,((*#$&(%"8#$,77*91
C/*(,$"&8%&2%$."#%*R'"/5*8$%5,H%4(*,$*%#/,(a#%$.,$%4,8%#$,($%2"(*#%,(&'89%9(H%M*3*$,$"&81%
=%#/,(a%,((*#$&(%5,H%+*%(*R'"(*91%
E.*%&/*(,$&(%#.&'79%4&8$,4$%7&4,7%2"(*%,3*84"*#%2&(%7,)#%&(%(*3'7,$"&8#%
(*7,$"83%$&%2"(*%/(*M*8$"&8%(*R'"(*5*8$#1
Y=I>@>Z\%%LC%>CE%@>FE=AA%EO@F%6>Z@>6%C>%=%!6O@<A61
Y=I>@>Z\%%@>FE=AA%EO@F%6>Z@>6%=<<CIL@>Z%EC%6e;@XD6>E%@>FEI;<E@C>F%[6KCI6%;F61
<&5/&8*8$#%,89%<&8$(&7#
683"8*%
F)"$4.
F$,($*(%
O,897*
C"7%L(,"8%X7'3
="(%<7*,8*(
K'*7%!,7M*
<.&a*
K'*7%<,/
E.(&$$7*
D'227*(
L"/#$"4a

Page 7K&(%$*4.8"4,7%R'*#$"&8#J%/7*,#*%4,77%PSTTTSTQQSUVWV1301cc Engine 
F=K6EBCX6I=E@C>D=@>E6>=><6 F6E;X
O"3.%=7$"$'9*%C/*(,$"&8%=+&M*%fggg%2**$
Y=I>@>Z\ EC%XI6!6>E%F6I@C;F%@>d;IB%KICD%K@I6- 
Follow instructions in a well-ventilated area away from ignition sources.   
If the engine is hot from use, shut the engine off and wait for it to cool before proceeding.  Do not smoke.
>CE@<6 Warranty void if necessary adjustments are not made for high altitude use.
At high altitudes, the engine’s carburetor, governor (if so equipped), and any other parts that control the fuel-air 
ratio will need to be adjusted by a qualified mechanic to allow efficient high-altitude use and to prevent damage 
to the engine and any other devices used with this product.  The fuel system on this engine may be influenced by 
operation at higher altitudes.  Proper operation can be ensured by installing an altitude kit at altitudes higher than 
3000 ft. above sea level.  At elevations above 8000 ft, the engine may experience decreased performance, even 
with the proper main jet.  Operating this engine without the proper altitude kit installed may increase the engine’s 
emissions and decrease fuel economy and performance. The kit should be installed by a qualified mechanic.
1.  Turn off the engine.
2.  Close the fuel valve.
3.  Place a bowl under the fuel cup to catch any spilled fuel.
4.  Unthread the bolt holding the fuel cup.
<=;E@C>\ Carburetor bowl may have gas in it 
which will leak upon removing the bolt.
5.  Remove the bolt, Bolt Seal, fuel cup, Fuel Cup Seal and  
Main Jet from the body of the carburetor assembly.   
A carburetor screwdriver (not included) is needed 
to remove and install the Main Jet.
>&$*-  The mixing tube is held in place by the main jet and 
might fall out when it is removed.  If it falls out, replace it in 
the same orientation before replacing the main jet.
6.  Replace the Main Jet with the replacement Main Jet 
needed for your altitude range (part 1a or 2a).
>&$*- The Fuel Cup Seal and Bolt Seal may be damaged during removal 
and should be replaced with the new ones from the kit.
7.  Replace the Fuel Cup Seal (4a), fuel cup, Bolt Seal (3a), and bolt. Tighten in place.
>CE@<6- Do not cross thread bolt when tightening.  
Finger tighten first and then use a wrench to make sure the bolt is properly threaded.
8.  Wipe up any spilled fuel and allow excess to evaporate before starting engine. 
To prevent FIRE, do not start the engine while the smell of fuel hangs in the air.
O"3.%=7$"$'9*%?"$%X,($#%A"#$%S%=
X,($ L*#4("/$"&8 e$H
1a Main Jet 3000-6000 ft. 1
2a Main Jet 6000-8000 ft. 1
3a Bolt Seal 1
4a Fuel Cup Seal 1
<,(+'(*$&(%
=##*5+7H
D,"8%d*$
K'*7%<'/%F*,7
D"G"83%E'+*
b5"3.$%(*5,"8%
"8#"9*%4,(+'(*$&(c
K'*7%<'/
[&7$%F*,7
[&7$

Page 8 K&(%$*4.8"4,7%R'*#$"&8#J%/7*,#*%4,77%PSTTTSTQQSUVWV1 301cc Engine 
F=K6EB CX6I=E@C> D=@>E6>=><6F6E;X
C/*(,$"&8%
I*,9%$.*%6>E@I6%@DXCIE=>E%F=K6EB%@>KCID=E@C>%#*4$"&8%,$%$.*%+*3"88"83%&2%$."#%5,8',7%
"847'9"83%,77%$*G$%'89*(%#'+.*,9"83#%$.*(*"8%+*2&(*%#*$%'/%&(%'#*%&2%$."#%/(&9'4$1
X(*SF$,($%<.*4a#
Inspect engine and equipment looking for damaged, loose, and missing parts before set up and starting.   
If any problems are found, do not use equipment until fixed properly.
<.*4a"83%,89%K"77"83%683"8*%C"7
>CE@<6-%%B&'(%Y,((,8$H%"#%!C@L%"2%$.*%*83"8*h#%
4(,8a4,#*%"#%8&$%/(&/*(7H%2"77*9%)"$.%&"7%+*2&(*%
*,4.%'#*1%%[*2&(*%*,4.%'#*J%4.*4a%$.*%&"7%7*M*71  
Engine%)"77%8&$%#$,($%)"$.%7&)%&(%8&%*83"8*%&"71
1.  Make sure the engine is stopped and is level.
2.  Close the Fuel Valve.
3.  Clean the top of the Dipstick and the area around it.  
Remove the Dipstick by turning it counterclockwise, 
and wipe it off with a clean, lint free rag.
4. 
Full level
Full level
Reinsert the Dipstick without threading it in and 
remove it to check the oil level.  The oil level 
should be up to the full level as shown above.
5.  If the oil level is at or below the low mark add the 
appropriate type of oil until the oil level is at the 
proper level.  SAE 10W-30 oil is recommended for 
general use.  (The SAE Viscosity Grade chart on 
page 13 in the Maintenance section shows other 
viscosities to use in different average temperatures.)
6.  Thread the dipstick back in clockwise.
>CE@<6-%%L&%8&$%('8%$.*%*83"8*%)"$.%$&&%7"$$7*%&"71  
Engine%)"77%#.'$%&22%"2%*83"8*%&"7%7*M*7%"#%$&&%7&)1

Page 9K&(%$*4.8"4,7%R'*#$"&8#J%/7*,#*%4,77%PSTTTSTQQSUVWV1301cc Engine 
F=K6EBCX6I=E@C>D=@>E6>=><6 F6E;X
<.*4a"83%,89%K"77"83%K'*7
Y=I>@>Z\ EC%XI6!6>E%F6I@C;F%
@>d;IB%KICD%K@I6- 
Fill the fuel tank in a well-ventilated area 
away from ignition sources.  If the engine 
is hot from use, shut the engine off and 
wait for it to cool before adding fuel. Do not smoke. 
1.  Clean the Fuel Cap and the area around it.
2.  Unscrew and remove the Fuel Cap.
3.  Remove the Strainer and remove any dirt 
and debris.  Then replace the Strainer. 
>&$*-%%L&%8&$%'#*%3,#&7"8*%4&8$,"8"83%5&(*%$.,8%
Pgi%*$.,8&7%b6Pgc1%%L&%8&$%'#*%6TU%*$.,8&71%%=99%2'*7%
#$,+"7"j*(%$&%$.*%3,#&7"8*%&(%$.*%Y,((,8$H%"#%!C@L1
>&$*-%%L&%8&$%'#*%3,#&7"8*%$.,$%.,#%+**8%#$&(*9%"8%,%
5*$,7%2'*7%4&8$,"8*(%&(%,%9"($H%2'*7%4&8$,"8*(1%%@$%4,8%
4,'#*%/,($"47*#%$&%*8$*(%$.*%4,(+'(*$&(J%,22*4$"83%
*83"8*%/*(2&(5,84*%,890&(%4,'#"83%9,5,3*1
4.  If needed, fill the Fuel Tank to about 1 inch under 
the fill neck of the Fuel Tank with 87 octane or 
higher unleaded gasoline that has been treated 
with a fuel stabilizer additive.  Follow fuel stabilizer 
manufacturer’s recommendations for use.
5.  Then replace the Fuel Cap.
6.  Wipe up any spilled fuel and allow excess 
to evaporate before starting engine. 
To prevent FIRE, do not start the engine 
while the smell of fuel hangs in the air.
F$,($"83%$.*%683"8*
[*2&(*%F$,($"83%$.*%683"8*
[*2&(*%#$,($"83%$.*%*83"8*-
a.  K&77&)%$.*%F*$%;/%@8#$('4$"&8#%"8%$.*%*R'"/5*8$%5,8',7%$&%/(*/,(*%$.*%*R'"/5*8$1
b.  @8#/*4$%$.*%*R'"/5*8$%,89%*83"8*1
c.  K"77%$.*%*83"8*%)"$.%$.*%/(&/*(%,5&'8$%,89%$H/*%&2%
+&$.%#$,+"7"j*(S$(*,$*9%'87*,9*9%3,#&7"8*%,89%&"71
d.  I*,9%$.*%6R'"/5*8$%C/*(,$"&8%#*4$"&8%"8%$.*%*R'"/5*8$%5,8',71

Page 10 K&(%$*4.8"4,7%R'*#$"&8#J%/7*,#*%4,77%PSTTTSTQQSUVWV1 301cc Engine 
F=K6EB CX6I=E@C> D=@>E6>=><6F6E;X
D,8',7%F$,($
1.  To start a cold engine, move the Choke to the 
START position.  
To restart a warm engine, leave the 
Choke in the RUN position.
2.  Open the Fuel Valve.
3.  Slide the Throttle or Speed Control Lever to 1/3 
away from the SLOW position (the “turtle”).
>&$*- Some tools have a Speed Control Lever located 
elsewhere on the tool which functions the same as 
the Throttle. Use the Speed Control Lever in place 
of the Throttle when the tool is so equipped.
4.  Turn the Engine Switch on.
>&$*- If engine does not start, check engine oil level. 
Engine will not start with low or no engine oil.
5.  Grip the Starter Handle of the Engine loosely and pull 
it slowly several times to allow the gasoline to flow into 
the Engine’s carburetor. Then pull the Starter Handle 
gently until resistance is felt. Allow Cable to retract fully 
and then pull it quickly. Repeat until the engine starts.
>&$*- Do not let the Starter Handle snap back against the engine.  
Hold it as it recoils so it doesn't hit the engine.
 1 
2
3
C>
CKK
C@
C>
4
5 

Page 11K&(%$*4.8"4,7%R'*#$"&8#J%/7*,#*%4,77%PSTTTSTQQSUVWV1301cc Engine 
F=K6EBCX6I=E@C>D=@>E6>=><6 F6E;X
6.  Allow the Engine to run for several seconds.  
Then, if the Choke lever is in the START position, 
move the Choke Lever very slowly to its RUN position. 
>&$*- Moving the Choke Lever too 
fast could stall the engine.
@DXCIE=>E-  Allow the engine to run at no load for five minutes with no 
load after each start-up so that the engine can stabilize.
7.  Adjust the Throttle as needed.
[(*,aS"8%X*("&9-
a.  Breaking-in the engine will help to ensure proper equipment and engine operation.
b.  The operational break-in period will last about 3 hours of use.  During this period:
•  Do not apply a heavy load to the equipment.
•  Do not operate the engine at its maximum speed.
c.  The maintenance break-in period will last about 20 hours of use.
•  Change the engine oil after this period.
Under normal operating conditions subsequent maintenance follows 
the schedule explained in the MAINTENANCE section.
F$&//"83%$.*%683"8*
1.  To stop the engine in an emergency,  
turn the Engine Switch off.
2.  Under normal conditions, use the following procedure:
a.  Slide the Throttle to SLOW (the “turtle”).
b.  Turn the Engine Switch off.
c.  Close the Fuel Valve.
NOTICE
See Long-Term Storage on page 15 
for complete storage instructions.
6 
C@
CKK

Page 12 K&(%$*4.8"4,7%R'*#$"&8#J%/7*,#*%4,77%PSTTTSTQQSUVWV1 301cc Engine 
F=K6EB CX6I=E@C> D=@>E6>=><6F6E;X
D,"8$*8,84*
Y=I>@>Z
EC%XI6!6>E%F6I@C;F%@>d;IB%KICD%=<<@L6>E=A%FE=IE@>Z-%
E'(8%$.*%X&)*(%F)"$4.%&2%$.*%*R'"/5*8$%$&%"$#%_CKK`%/&#"$"&8J%),"$%2&(%$.*%*83"8*%$&%4&&7J%,89%9"#4&88*4$%
$.*%#/,(a%/7'3%4,/%+*2&(*%/*(2&(5"83%,8H%"8#/*4$"&8J%5,"8$*8,84*J%&(%47*,8"83%/(&4*9'(*#1
EC%XI6!6>E%F6I@C;F%@>d;IB%KICD%6e;@XD6>E%K=@A;I6-%
L&%8&$%'#*%9,5,3*9%*R'"/5*8$1%%@2%,+8&(5,7%8&"#*J%M"+(,$"&8J%&(%*G4*##%
#5&a"83%&44'(#J%.,M*%$.*%/(&+7*5%4&((*4$*9%+*2&(*%2'($.*(%'#*1
K&77&)%,77%#*(M"4*%"8#$('4$"&8#%"8%$."#%5,8',71%%E.*%*83"8*%5,H%2,"7%4("$"4,77H%"2%8&$%#*(M"4*9%/(&/*(7H1
D,8H%5,"8$*8,84*%/(&4*9'(*#J%"847'9"83%,8H%8&$%9*$,"7*9%"8%$."#%5,8',7J%)"77%8**9%$&%+*%/*(2&(5*9%
+H%,%R',7"2"*9%$*4.8"4",8%2&(%#,2*$H1%%@2%H&'%.,M*%,8H%9&'+$#%,+&'$%H&'(%,+"7"$H%$&%#,2*7H%#*(M"4*%$.*%
*R'"/5*8$%&(%*83"8*J%.,M*%,%R',7"2"*9%$*4.8"4",8%#*(M"4*%$.*%*R'"/5*8$%"8#$*,91
<7*,8"83J%D,"8$*8,84*J%,89%A'+("4,$"&8%F4.*9'7*
>&$*- This maintenance schedule is intended solely as a general guide.  If performance decreases or if 
equipment operates unusually, check systems immediately.  The maintenance needs of each piece of equipment 
will differ depending on factors such as duty cycle, temperature, air quality, fuel quality, and other factors.
>&$*- The following procedures are in addition to the regular checks and maintenance 
explained as part of the regular operation of the engine and equipment.
X(&4*9'(* [*2&(*%
6,4.%;#*
D&8$.7H%&(%
*M*(H%kg%
.(1%&2%'#*
6M*(H%f%5&1%&(%
Ug%.(1%&2%'#*
6M*(H%Q%5&1%&(%
Pgg%.(1%&2%'#*%
B*,(7H%&(%%
*M*(H%fgg%
.(1%&2%'#*
6M*(H%
k%B*,(#
Brush off outside of engine
Check engine oil level
Check air filter
Check deposit cup
Change engine oil
Clean/replace air filter *
Check and clean spark plug
1.  Check/adjust idle speed
2.  Check/adjust valve clearance
3.  Clean fuel tank, strainer 
and carburetor
4.  Clean carbon build-up from 
combustion chamber
** **
Replace fuel line if necessary **
  *Service more frequently when used in dusty areas.
**These items should be serviced by a qualified technician.

Page 13K&(%$*4.8"4,7%R'*#$"&8#J%/7*,#*%4,77%PSTTTSTQQSUVWV1301cc Engine 
F=K6EBCX6I=E@C>D=@>E6>=><6 F6E;X
<.*4a"83%,89%K"77"83%K'*7
Y=I>@>Z\ EC%XI6!6>E%F6I@C;F%
@>d;IB%KICD%K@I6- 
Fill the fuel tank in a well-ventilated area 
away from ignition sources.  If the engine 
is hot from use, shut the engine off and 
wait for it to cool before adding fuel. Do not smoke. 
1.  Clean the Fuel Cap and the area around it.
2.  Unscrew and remove the Fuel Cap.
3.  Remove the Strainer and remove any dirt 
and debris.  Then replace the Strainer. 
>&$*-%%L&%8&$%'#*%3,#&7"8*%4&8$,"8"83%5&(*%$.,8%
Pgi%*$.,8&7%b6Pgc1%%L&%8&$%'#*%6TU%*$.,8&71%%=99%2'*7%
#$,+"7"j*(%$&%$.*%3,#&7"8*%&(%$.*%Y,((,8$H%"#%!C@L1
>&$*-%%L&%8&$%'#*%3,#&7"8*%$.,$%.,#%+**8%#$&(*9%"8%,%
5*$,7%2'*7%4&8$,"8*(%&(%,%9"($H%2'*7%4&8$,"8*(1%%@$%4,8%
4,'#*%/,($"47*#%$&%*8$*(%$.*%4,(+'(*$&(J%,22*4$"83%
*83"8*%/*(2&(5,84*%,890&(%4,'#"83%9,5,3*1
4.  If needed, fill the Fuel Tank to about 1 inch under 
the fill neck of the Fuel Tank with 87 octane or 
higher unleaded gasoline that has been treated 
with a fuel stabilizer additive.  Follow fuel stabilizer 
manufacturer’s recommendations for use.
5.  Then replace the Fuel Cap.
6.  Wipe up any spilled fuel and allow excess 
to evaporate before starting engine. 
To prevent FIRE, do not start the engine 
while the smell of fuel hangs in the air.
683"8*%C"7%<.,83*
<=;E@C>\  Oil is very hot during operation and can 
cause burns.  Wait for engine to cool before changing oil.
1.  Make sure the engine is stopped and is level.
2.  Close the Fuel Valve.
3.  Place a drain pan (not included) underneath 
the crankcase’s drain plug.
4.  Remove the drain plug and, if possible, 
tilt the crankcase slightly to help drain 
the oil out.  Recycle used oil.
5.  Replace the drain plug and tighten it.
6.  Clean the top of the Dipstick and the area around it.  
Remove the Dipstick by turning it counterclockwise, 
and wipe it off with a clean, lint free rag.
7. 
Full level
Full level
Add the appropriate type of oil until the oil level is at 
the full level.  SAE 10W-30 oil is recommended for 
general use.  
The SAE Viscosity Grade chart shows other 
viscosities to use in different average temperatures.
PgYSfg
fg
UYSfg
-20 0 20 40 60 80 100°F
F=6%!"#4&#"$H%Z(,9*#
=M*(,3*%&'$9&&(%$*5/*(,$'(*
8.  Thread the dipstick back in clockwise.
>CE@<6-%%L&%8&$%('8%$.*%*83"8*%)"$.%$&&%7"$$7*%&"71  
Engine%)"77%8&$%#$,($%)"$.%7&)%&(%8&%*83"8*%&"71

Page 14 K&(%$*4.8"4,7%R'*#$"&8#J%/7*,#*%4,77%PSTTTSTQQSUVWV1 301cc Engine 
F=K6EB CX6I=E@C> D=@>E6>=><6F6E;X
="(%K"7$*(%67*5*8$%D,"8$*8,84*
1.  Remove the air cleaner cover and 
the air filter element(s) and check for 
dirt. Clean as described below.
2.  <7*,8"83-
•  For “paper” filter elements: 
To prevent injury from dust and debris, 
wear ANSI-approved safety goggles, 
NIOSH-approved dust mask/respirator, and 
heavy-duty work gloves.  In a well-ventilated 
area away from bystanders, use pressurized 
air to blow dust out of the air filter. 
If this does not get the filter clean, replace it.
•  For foam filter elements: 
Wash the element in warm water and 
mild detergent several times. Rinse. 
Squeeze out excess water and allow it to dry 
completely.  Soak the filter in lightweight oil 
briefly, then squeeze out the excess oil.
3.  Install the cleaned filter.  Secure the 
Air Cleaner Cover before use.
F/,(a%X7'3%D,"8$*8,84*
1. 
F/,(a%
X7'3%
<,/
Disconnect spark plug cap from end of plug.  
Clean out debris from around spark plug.
2.  Using a spark plug wrench, remove the spark plug.
3.  Inspect the spark plug: 
If the electrode is oily, clean it using a clean, dry rag.  
If the electrode has deposits on it, polish it using 
emery paper. If the white insulator is cracked or 
chipped, the spark plug needs to be replaced.
I*4&55*89*9%F/,(a%X7'3#
NGK®BP-6ES
NHSP® / TORCH®F6TC
>CE@<6- Using an incorrect spark plug 
may damage the engine.
4.  When installing a new spark plug, 
adjust the plug’s gap to the specification on the 
Specifications chart.  Do not pry against the 
electrode, the spark plug can be damaged.
5.  Install the new spark plug or 
the cleaned spark plug into the engine.
•  Z,#a*$S#$H7*:   
Finger-tighten until the gasket 
contacts the cylinder head, 
then tighten about 1/2-2/3 turn more.
•  >&8S3,#a*$S#$H7*:  
Finger-tighten until the plug 
contacts the cylinder head,  
then tighten about 1/16 turn more.
>CE@<6- Tighten the spark plug properly.   
@2%7&&#*, the spark plug will cause the 
engine to overheat.   
@2%&M*($"3.$*8*9, the threads in the 
engine block will be damaged.
6.  Apply dielectric spark plug boot protector 
(not included) to the end of the spark plug 
and reattach the wire securely.

Page 15K&(%$*4.8"4,7%R'*#$"&8#J%/7*,#*%4,77%PSTTTSTQQSUVWV1301cc Engine 
F=K6EBCX6I=E@C>D=@>E6>=><6 F6E;X
A&83SE*(5%F$&(,3*
When the equipment is to remain idle for longer than 
20 days, prepare the engine for storage as follows:
1.  <A6=>@>Z: 
Wait for engine to cool, then clean engine with 
dry cloth.  >CE@<6-  L&%8&$%47*,8%'#"83%),$*(1  
The water will gradually enter the engine 
and cause rust damage.  Apply a thin coat 
of rust preventive oil to all metal parts.
2.  K;6A-
To protect the fuel tank during storage, fill the 
tank with gasoline that has been treated with 
a fuel stabilizer additive.  Follow fuel stabilizer 
manufacturer’s recommendations for use.  Refer 
to Checking and Filling Fuel on page 9.
Y=I>@>Z\ EC%XI6!6>E%F6I@C;F%
@>d;IB%KICD%K@I6- 
Fill tank in a well-ventilated area away from 
ignition sources.  If the engine is hot from 
use, shut the engine off and wait for it to 
cool before adding fuel.  Do not smoke.  
3.  A;[I@<=E@C>-
a.  Change engine oil.
b.  Clean out area around spark plug.   
Remove spark plug and pour one tablespoon of 
engine oil into cylinder through spark plug hole.
c.  Replace spark plug, but leave 
spark plug cap disconnected.
d.  Pull Starter Handle to distribute oil in cylinder.  
Stop after one or two revolutions when you 
feel the piston start the compression stroke 
(when you start to feel resistance).
4.  FECI=Z6%=I6=-%
Cover and store in a dry, level, well-ventilated 
area out of reach of children.  Storage area 
should also be away from ignition sources, such 
as water heaters, clothes dryers, and furnaces.
>CE@<6- During extended storage periods the 
Engine must be started every 3 months and allowed 
to run for 15 – 20 minutes or the Warranty is VOID. 
5.  FE=IE@>Z%6>Z@>6%L;I@>Z0=KE6I%FECI=Z6-%
Before starting the Engine during or after 
storage, keep in mind that untreated gasoline 
will deteriorate quickly.  Drain the fuel tank and 
change to fresh fuel if untreated gasoline has 
been sitting for a month, if treated gasoline 
has been sitting beyond the fuel stabilizer’s 
recommended time period, or if the Engine 
does not start.  For Engine starting instructions 
refer to Starting the Engine on page 9.

Page 16 K&(%$*4.8"4,7%R'*#$"&8#J%/7*,#*%4,77%PSTTTSTQQSUVWV1 301cc Engine 
F=K6EB CX6I=E@C> D=@>E6>=><6F6E;X
E(&'+7*#.&&$"83
X(&+7*5 X&##"+7*%<,'#*# X(&+,+7*%F&7'$"&8#
Engine will not start FUEL RELATED:
1.  No fuel in tank or fuel valve closed. 
2.  Choke not in START position, cold engine.
3.  Gasoline with more than 10% ethanol used. 
(E15, E20, E85, etc.) 
4.  Low quality or deteriorated, old gasoline. 
5.  Carburetor not primed.
6.  Dirty fuel passageways. 
7.  Carburetor needle stuck.  
Fuel can be smelled in the air.
8.  Too much fuel in chamber. This can be caused 
by the carburetor needle sticking. 
9.  Clogged Fuel Filter.
FUEL RELATED:
1.  Fill fuel tank with fresh 87+ octane stabilizer-
treated unleaded gasoline and open fuel 
valve.%
L&%8&$%'#*%3,#&7"8*%)"$.%5&(*%$.,8%
Pgi%*$.,8&7%b6PUJ%6kgJ%6TUJ%*$41c1
2.  Move Choke to START position.
3.  Clean out ethanol rich gasoline from fuel 
system.  Replace components damaged by 
ethanol.  Use fresh 87+ octane stabilizer-
treated unleaded gasoline only. %%
L&%8&$%'#*%3,#&7"8*%)"$.%5&(*%$.,8%
Pgi%*$.,8&7%b6PUJ%6kgJ%6TUJ%*$41c1
4.  Use fresh 87+ octane stabilizer-treated 
unleaded gasoline.%
L&%8&$%'#*%3,#&7"8*%)"$.%5&(*%$.,8%
Pgi%*$.,8&7%b6PUJ%6kgJ%6TUJ%*$41c1
5.  Pull on Starter Handle to prime.
6.  Clean out passageways using fuel additive.  
Heavy deposits may require further cleaning.
7.  Z*8$7H tap side of carburetor float 
chamber with screwdriver handle.
8.  Turn Choke to RUN position.  Remove 
spark plug and pull the start handle several 
times to air out the chamber.  Reinstall 
spark plug and set Choke to START position.
9.  Replace Fuel Filter.
IGNITION (SPARK) RELATED:
1.  Spark plug cap not connected securely.
2.  Spark plug electrode wet or dirty.
3.  Incorrect spark plug gap.
4.  Spark plug cap broken.
5.  Incorrect spark timing or faulty ignition system.
IGNITION (SPARK) RELATED:
1.  Connect spark plug cap properly.
2.  Clean spark plug.
3.  Correct spark plug gap.
4.  Replace spark plug cap.
5.  Have qualified technician diagnose/
repair ignition system.
COMPRESSION RELATED:
1.  Cylinder not lubricated.   
Problem after long storage periods. 
2.  Loose or broken spark plug.   
(Hissing noise will occur  
when trying to start.) 
3.  Loose cylinder head or damaged head gasket.  
(Hissing noise will occur when trying to start.) 
4.  Engine valves or tappets mis-adjusted or stuck. 
ENGINE OIL RELATED:
1.  Low engine oil. 
2.  Engine mounted on slope, 
triggering low oil shutdown.
COMPRESSION RELATED:
1.  Pour tablespoon of oil into spark plug 
hole.  Crank engine a few times 
and try to start again.
2.  Tighten spark plug.   
If that does not work, replace spark plug.   
If problem persists, may have head 
gasket problem, see #3.
3.  Tighten head.   
If that does not remedy problem, 
replace head gasket.
4.  Have qualified technician adjust/
repair valves and tappets.
ENGINE OIL RELATED:
1.  Fill engine oil to proper level.  
Check engine oil before EVERY use.
2.  Operate engine on level surface. 
Check engine oil level.
K&77&)%,77%#,2*$H%/(*4,'$"&8#%).*8*M*(%9",38&#"83%&(%#*(M"4"83%$.*%*R'"/5*8$%&(%*83"8*1

Page 17K&(%$*4.8"4,7%R'*#$"&8#J%/7*,#*%4,77%PSTTTSTQQSUVWV1301cc Engine 
F=K6EBCX6I=E@C>D=@>E6>=><6 F6E;X
X(&+7*5 X&##"+7*%<,'#*# X(&+,+7*%F&7'$"&8#
Engine misfires 1.  Spark plug cap loose.
2.  Incorrect spark plug gap or 
damaged spark plug.
3.  Defective spark plug cap.
4.  Old or low quality gasoline. 
5.  Incorrect compression.
1.  Check cap and wire connections.
2.  Re-gap or replace spark plug. 
3.  Replace spark plug cap.
4.  Use only fresh 87+ octane stabilizer-treated 
unleaded gasoline.%
L&%8&$%'#*%3,#&7"8*%)"$.%5&(*%$.,8%
Pgi%*$.,8&7%b6PUJ%6kgJ%6TUJ%*$41c1
5.  Diagnose and repair compression. 
(Use 683"8*%)"77%8&$%#$,($-%
<CDXI6FF@C>%I6A=E6L section.)
Engine stops 
suddenly
1.  Fuel tank empty or full of impure or low quality 
gasoline. 
2.  Low oil shutdown. 
3.  Defective fuel tank cap creating vacuum,  
preventing proper fuel flow.
4.  Faulty magneto.
5.  Disconnected or improperly 
connected spark plug cap.
1.  Fill fuel tank with fresh 87+ octane stabilizer-
treated unleaded gasoline.%
L&%8&$%'#*%3,#&7"8*%)"$.%5&(*%$.,8%
Pgi%*$.,8&7%b6PUJ%6kgJ%6TUJ%*$41c1
2.  Fill engine oil to proper level.  
Check engine oil before EVERY use.
3.  Test/replace fuel tank cap. 
4.  Have qualified technician service magneto.
5.  Secure spark plug cap.
Engine stops when 
under heavy load
1.  Dirty air filter
2.  Engine running cold.
1.  Clean element.
2.  Allow engine to warm up prior 
to operating equipment.
Engine knocks 1.  Old or low quality gasoline. 
2.  Engine overloaded.
3.  Incorrect spark timing, deposit buildup, 
worn engine, or other mechanical problems.
1.  Fill fuel tank with fresh 87+ octane stabilizer-
treated unleaded gasoline. %%
L&%8&$%'#*%3,#&7"8*%)"$.%5&(*%$.,8%
Pgi%*$.,8&7%b6PUJ%6kgJ%6TUJ%*$41c1
2.  Do not exceed equipment’s load rating.
3.  Have qualified technician diagnose 
and service engine.
Engine backfires 1.  Impure or low quality gasoline. 
2.  Engine too cold. 
3.  Intake valve stuck or overheated engine. 
4.  Incorrect timing.
1.  Fill fuel tank with fresh 87+ octane stabilizer-
treated unleaded gasoline. %%
L&%8&$%'#*%3,#&7"8*%)"$.%5&(*%$.,8%
Pgi%*$.,8&7%b6PUJ%6kgJ%6TUJ%*$41c1
2.  Use cold weather fuel and oil additives 
to prevent backfiring.
3.  Have qualified technician diagnose 
and service engine.
4.  Check engine timing.
After sudden 
impact, engine will 
run, but equipment 
will not operate  
Shaft key or other shear pin 
broken by impact to disconnect 
engine and limit damage.  
Have qualified technician check and replace 
broken shaft key or other shear pins.  
K&77&)%,77%#,2*$H%/(*4,'$"&8#%).*8*M*(%9",38&#"83%&(%#*(M"4"83%$.*%*R'"/5*8$%&(%*83"8*1

Page 18 K&(%$*4.8"4,7%R'*#$"&8#J%/7*,#*%4,77%PSTTTSTQQSUVWV1 301cc Engine 
F=K6EB CX6I=E@C> D=@>E6>=><6F6E;X
Y,((,8$"*#
A"5"$*9%Wg%L,H%Y,((,8$H%bI*$,"7c
Harbor Freight Tools Co. makes every effort to assure that its products meet high quality and durability standards, 
and warrants to the original purchaser that this product is free from defects in materials and workmanship for the 
period of 90 days from the date of purchase. This warranty does not apply to damage due directly or indirectly, 
to misuse, abuse, negligence or accidents, repairs or alterations outside our facilities, criminal activity, improper 
installation, normal wear and tear, or to lack of maintenance. We shall in no event be liable for death, injuries 
to persons or property, or for incidental, contingent, special or consequential damages arising from the use of 
our product. Some states do not allow the exclusion or limitation of incidental or consequential damages, so 
the above limitation of exclusion may not apply to you. THIS WARRANTY IS EXPRESSLY IN LIEU OF ALL 
OTHER WARRANTIES, EXPRESS OR IMPLIED, INCLUDING THE WARRANTIES OF MERCHANTABILITY 
AND FITNESS, EXCEPT FOR THE EMISSIONS CONTROL SYSTEM WARRANTY BELOW.
To take advantage of this warranty, the product or part must be returned to us with transportation charges prepaid. 
Proof of purchase date and an explanation of the complaint must accompany the merchandise. If our 
inspection verifies the defect, we will either repair or replace the product at our election or we may elect to 
refund the purchase price if we cannot readily and quickly provide you with a replacement. We will return 
repaired products at our expense, but if we determine there is no defect, or that the defect resulted from 
causes not within the scope of our warranty, then you must bear the cost of returning the product.
This warranty gives you specific legal rights and you may also have other rights which vary from state to state.
65"##"&8#%<&8$(&7%FH#$*5%Y,((,8$H
The California Air Resources Board and Harbor Freight Tools (HFT) are pleased to explain the emissions control 
system warranty on your 2017 Small Off-Road Engine, in addition to the Retail Warranty above. In California, new 
equipment that uses small off-road engines must be designed, built, and equipped to meet the State’s stringent anti-smog 
standards.  HFT must warrant that the emissions control system on your engine will be free from defects in material and 
workmanship for two (2) years, provided there has been no abuse, neglect, or improper maintenance of your engine.
Your  emissions  control system may  include  parts  such  as  the  carburetor  or  fuel-injection  system,  the ignition 
system, catalytic converter, fuel tanks, fuel lines, fuel caps, valves, canisters, vapor hoses, clamps, connectors, and 
other emissions-related assemblies.
Where a warrantable condition exists, HFT will repair or replace, at our option, your engine if at no cost to you, 
including diagnosis, parts and labor.
D=>;K=<E;I6IhF%Y=II=>EB%<C!6I=Z6
This emissions control system is warranted for two years.  If any emission-related part on your engine is defective, 
the part will be repaired or replaced by HFT.
CY>6IhF%Y=II=>EB%I6FXC>F@[@A@E@6F
As  the  engine  owner,  you  are  responsible  for  the  performance  of  the  required  maintenance  listed  in  your 
Owner’s Manual.
As the engine owner, you should however be aware that HFT may deny you warranty coverage if your engine or 
a part has failed due to abuse (including failure to follow the fuel use instructions contained in this manual), neglect, 
improper maintenance, or unapproved modifications.
You are responsible for contacting HFT as soon as the problem exists in order to obtain warranty repair or replacement, 
by doing either of the following: (a) contact HFT product support at 1-888-866-5797 or predator@harborfreight.com; 
or (b) bring the to your nearest Harbor Freight Tools retail store.  The nearest Harbor Freight Tools retail store can 
be found on the internet at http://www.harborfreight.com.  The warranty repairs or replacement should be completed 
in a reasonable amount of time, not to exceed 30 days.  If you have a question regarding your warranty coverage, 
you should contact HFT product support at 1-888-866-5797 or predator@harborfreight.com.

Page 19K&(%$*4.8"4,7%R'*#$"&8#J%/7*,#*%4,77%PSTTTSTQQSUVWV1301cc Engine 
F=K6EBCX6I=E@C>D=@>E6>=><6 F6E;X
Z6>6I=A%6D@FF@C>F%Y=II=>EB%<C!6I=Z6
a)  The warranty period begins on the date the engine or equipment is delivered to an ultimate purchaser. The warranty 
period is two years.
b)  HFT warrants to the initial owner and each subsequent owner that the engine is:
1.  Designed, built, and equipped so as to conform with all applicable regulations adopted by the Air Resources 
Board; and
2.  Free from defects in materials and workmanship that causes the failure of a warranted part for a period of two 
years.
c)  The warranty on emissions-related parts is as follows:
1.  Any warranted part that is not scheduled for replacement as required maintenance in the written instructions 
provided, is warranted for the warranty period stated above. If any such part fails during the period of warranty 
coverage, it will be repaired or replaced HFT.  Any such part repaired or replaced under the warranty will be 
warranted for the remaining warranty period. 
2.  Any warranted part  that is  scheduled  only for  regular  inspection in  the  written instructions  is warranted for 
the warranty period stated above. A statement in the written instructions to the effect of “repair or replace as 
necessary” does not reduce the period of warranty coverage.  Any such part repaired or replaced under warranty 
will be warranted for the remaining warranty period. 
3.  Any warranted part that is scheduled for replacement as required maintenance in the written instructions will 
be warranted for the period of time prior to the first scheduled replacement point for that part. If the part fails 
prior to the first scheduled replacement, the part will be repaired or replaced by HFT. Any such part repaired or 
replaced under warranty will be warranted for the remainder of the period prior to the first scheduled replacement 
point for the part. 
4.  Repair or replacement of any warranted part under the warranty will be performed at no charge to the owner 
at a retail store or by HFT paying for shipping the product for repair. 
5.  Notwithstanding the provisions herein, warranty services or repairs will be provided at all retail stores or by 
contacting HFT product support at 1-888-866-5797 or predator@harborfreight.com. 
6.  The owner will not be charged for diagnostic labor that leads to the determination that a warranted part is in 
fact defective, provided that such diagnostic work is performed at a retail store.
7.  HFT is liable for damages to other engine components proximately caused by a failure under warranty of any 
warranted part. 
8.  Throughout the emissions warranty period stated above, HFT will maintain a supply of warranted parts sufficient 
to meet the expected demand for such parts. 
9.  Any replacement part may be used in the performance of any warranty maintenance or repairs and will be 
provided without charge to the owner. Such use will not reduce the warranty obligations of HFT.
10.  Add-on or modified parts that are not approved by HFT may not be used. The use of any non-exempted add-
on or modified parts will be grounds for disallowing a warranty claim. HFT is not liable to warrant failures of 
warranted parts caused by the use of a non-exempted add-on or modified part.
d)  Emission Warranty Parts List.
1.  Fuel Metering System
a.  Carburetor and its internal parts (and/or pressure 
regulator or fuel injection system).
b.  Fuel tank.
c.  Cold start enrichment system.
d.  Air/fuel ratio feedback and control system.
2.  Air Induction System
a.  Controlled hot air intake system.
b.  Intake manifold.
c.  Air filter.
3.  Ignition System
a.  Spark plugs.
b.  Magneto ignition system.
c.  Spark advance/retard system.
4.  Catalyst System (if so equipped)
a.  Exhaust pipe stud/exhaust manifold.
b.  Thermal reactor.
c.  Catalytic converter (if so equipped).
5.  Particulate Controls
a.  Traps, filters, precipitators, and any other device 
used to capture particulate emissions.
6.  Miscellaneous Items Used in Above Systems
a.  Vacuum,  temperature  and  time  sensitive  valves 
and switches.
b.  Hoses, belts, connectors, and assemblies.
7.  Evaporative Emission Control System
a.  Fuel tank.
b.  Fuel caps, valves, canisters, filters, vapor hoses, 
clamps, connectors, belts, and assemblies.
HFT provides with each product written instructions for the maintenance and use of the product by the owner.

Page 20 K&(%$*4.8"4,7%R'*#$"&8#J%/7*,#*%4,77%PSTTTSTQQSUVWV1 301cc Engine 
F=K6EB CX6I=E@C> D=@>E6>=><6F6E;X
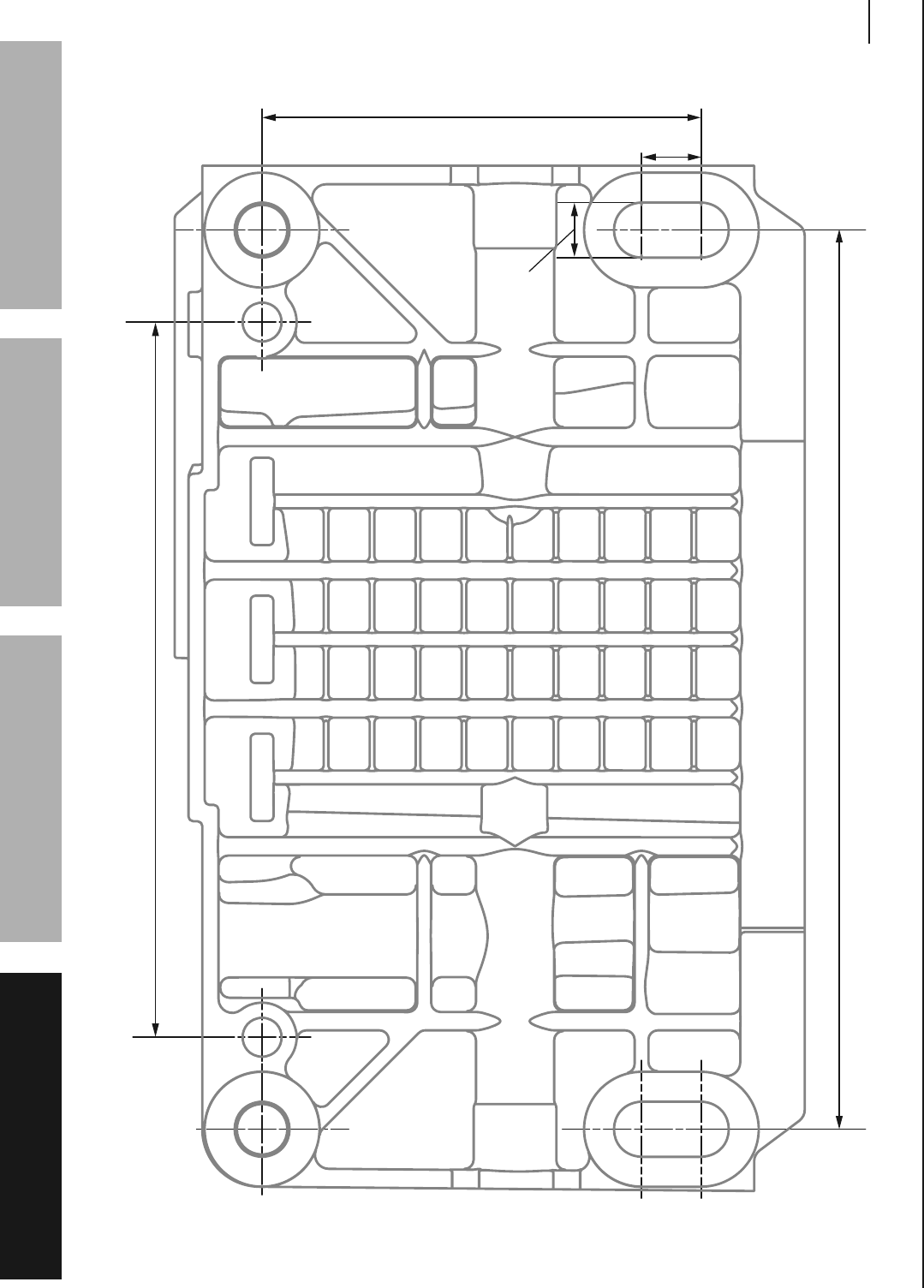
X,($#%A"#$#%,89%L",3(,5#
X,($#%A"#$
X,($ L*#4("/$"&8 e$H
1 Head Subassembly, Cylinder 1
2 Plug, Spark 1
3 Bolt, Cylinder Head 4
4 Pin 2
5 Gasket, Cylinder Head 1
6 Cover Subassembly, Cylinder Head 1
7 Gasket, Cylinder Head Cover 1
8 Tube, Breather 1
9 Bolt Subassembly, Cylinder Head Cover 1
10 Bolt Subassembly, Cylinder Head Cover 1
11 Stud 2
12 Stud 2
13 Crankcase Subassembly 1
14 Seal, Oil 1
15 Sensor, Engine Oil 1
16 Frame, Fuel Tank Installation 2
17 Plug, Rubber 2
18 Protector, Oil 1
19 Bolt 1
20 Washer 2
21 Bolt, Drain Plug 2
22 Clip 1
23 Arm, Governor 1
24 Ring, Seal 1
25 Pin 1
26 Bolt 4
27 Bolt 2
28 Cover , Crankcase 1
29 Gasket, Crankcase 1
30 Plug Subassembly, Engine Oil 1
31 Dipstick Subassembly, Oil 1
32 Pin 2
33 Bolt 7
34 Bearing 1
35 Gear Asm, Governor 1
36 Seal, Oil 1
37 Crankshaft Asm. 1
38 Piston 2
39 Pin, Piston 1
40 Clip, Piston Pin 1
41 Rod, Connecting 1
42 Primary Ring 1
43 Secondary Ring 1
44 Ring Set, Oil 1
45 Camshaft Asm. 1
46 Valve, Intake 1
47 Valve, Exhaust 1
48 Spring, Valve 2
49 Retainer, Valve Spring 1
50 Valve Key 2
51 Guide, Seal 1
52 Retainer, Valve Spring 2
53 Lifter, Valve 2
X,($ L*#4("/$"&8 e$H
54 Tappet, Valve 2
55 Plate Subassembly, Lifter Stopper 1
56 Bolt, Valve Adjusting 2
57 Rocker, Valve 2
58 Nut, Valve Adjusting 2
59 Nut, Valve Lock 2
60 Starter Asm, Recoil 1
61 Bolt 4
62 Shroud 1
63 Shroud, Cylinder Body 1
64 Bolt 1
65 Switch Subassembly, Stop Engine 1
66 Bolt 5
67 End Cap 1
68 Carburetor Asm. 1
69 Gasket, Air Cleaner 1
70 Gasket, Carburetor 1
71 Plate, Carburetor Insulator 1
72 Gasket, Carburetor Insulator 1
73 Nut 2
74 Cleaner, Air 1
75 Block, Muffler Seat Reinforcing 1
76 Pipe, Exhaust 1
77 Gasket, Exhaust Outlet 1
78 Nut 5
79 Muffler Asm. 1
80 Tank, Fuel 1
81 Strainer, Fuel 1
82 Cover, Fuel Tank 1
83 Outlet Subassembly, Fuel Tank Oil 1
84 Clamp 2
85 Tube, Fuel 1
86 Clip 1
87 Nut 2
88 Valve, One Way 1
89 Clamp 2
90 Hose, Fuel Vapor Rubber 1
91 Hose, Air Cleaner Rubber 1
92 Nut, Flywheel 1
93 Pulley,Starter 1
94 Impeller 1
95 Flywheel Subassembly 1
96 Bolt 2
97 Coil, Ignition 1
98 Control Subassembly, Throttle 1
99 Spring, Throttle Valve Returning 1
100 Rod, Governor 1
101 Spring, Governor 1
102 Support Subassembly, Governor 1
103 Bolt 1
104 Nut 1
105 Bolt, Governor Support  1

Page 21K&(%$*4.8"4,7%R'*#$"&8#J%/7*,#*%4,77%PSTTTSTQQSUVWV1301cc Engine 
F=K6EBCX6I=E@C>D=@>E6>=><6 F6E;X
=##*5+7H%L",3(,5
7
8
6
9
2
1
5
11
12 4
3
12
11
3
33
4
37
39 40
38
41
38
45
46
47
53
54
53
54
48
52
51
52
55
56
57
58
59
48 56
57
58
59
49
68
69
70
71
72
92
93
94
95
97
96
96
98
99
100
101
102
103
104
105
103
15
27
27
13
14
16
17
18
19
20
21
22
23
24
25
26
20
21
26
26
26
28
30
33
34
36
35
31
33
33
33 33
33
33
29
32
32
62
63
64 66
66
66
66
65
66
42 43 44
86
11
50
50
61
61
61
60
67
80
83
84
84
81
82
85
87
87
90
89
91
88
73
73
74
78
78 77
78
78
79
75
78
I*4&(9%X(&9'4$h#%F*(",7%>'5+*(%O*(*-%
>&$*- If product has no serial number,  
record month and year of purchase instead.
>&$*- Some parts are listed and shown for illustration purposes only, 
and are not available individually as replacement parts.

Page 22 K&(%$*4.8"4,7%R'*#$"&8#J%/7*,#*%4,77%PSTTTSTQQSUVWV1 301cc Engine 
F=K6EB CX6I=E@C> D=@>E6>=><6F6E;X
D&'8$"83%O&7*%L",3(,5
>&$*-  Not to scale.
V1QWl%0%PWU1U55
Q1Pkl%0%PUU1U55
f1VTl%0%WU1U55
g1UPl%0%Pf55
g1mVl%0%Pk55
%

Page 23K&(%$*4.8"4,7%R'*#$"&8#J%/7*,#*%4,77%PSTTTSTQQSUVWV1301cc Engine 
F=K6EBCX6I=E@C>D=@>E6>=><6 F6E;X
X&)*(%E,a*SC22%L",3(,5
>&$*-  Not to scale.
nf1mT%"81%0%TT1U55
nk1k%"81%0%UQ55
nP1P%"81%0%kT55
nP1fVU%"81%0%fU55
nk1Tm%"81%0%Vk1k55
V0PQSkg%;>K
nP%"81%0%kU1m55
nP%"81%0%kU1m55
g1kU%"81%0%Q1f55
g1fQ%"81%0%W1Pf55
nU1mf%"81%
0%PfT55
nQ1U%"81%0%
PQU1P55
nm1mU%"81%0%PPf55
f0TSPQ%;><
U0PQSkm%;>K
fgo
mUo
fgo
mUo

fmWP%D"##"&8%C,a#%[7M91%%p%%XC%[&G%QggW%%p%%<,5,("77&J%<=%WfgPP%%p%%PSTTTSTQQSUVWV
XA6=F6%I6=L%EO6%KCAACY@>Z%<=I6K;AAB
THE MANUFACTURER AND/OR DISTRIBUTOR HAS PROVIDED THE PARTS LISTS AND ASSEMBLY 
DIAGRAMS IN THIS MANUAL AS A REFERENCE TOOL ONLY.  NEITHER THE MANUFACTURER OR 
DISTRIBUTOR MAKES ANY REPRESENTATION OR WARRANTY OF ANY KIND TO THE BUYER THAT HE 
OR SHE IS QUALIFIED TO MAKE ANY REPAIRS TO THE PRODUCT, OR THAT HE OR SHE IS QUALIFIED 
TO REPLACE ANY PARTS OF THE PRODUCT.  IN FACT, THE MANUFACTURER AND/OR DISTRIBUTOR 
EXPRESSLY STATES THAT ALL REPAIRS AND PARTS REPLACEMENTS SHOULD BE UNDERTAKEN BY 
CERTIFIED AND LICENSED TECHNICIANS, AND NOT BY THE BUYER.  THE BUYER ASSUMES ALL RISK 
AND LIABILITY ARISING OUT OF HIS OR HER REPAIRS TO THE ORIGINAL PRODUCT OR REPLACEMENT 
PARTS THERETO, OR ARISING OUT OF HIS OR HER INSTALLATION OF REPLACEMENT PARTS THERETO.

!"#"$%&'(%)*+#"$*%,$-%.$$/-00)))1.,(+&(2(*"3.$14&5
65,"7%&'(%$*4.8"4,7%#'//&($%,$-%/(&9'4$#'//&($:.,(+&(2(*"3.$14&5%
&(%*83"8*%$*4.8"4,7%#'//&($%,$-%/(*9,$&(:.,(+&(2(*"3.$14&5
;6!%<=7
>#"83%,8%*83"8*%"89&&(#%
?@A%BCDD%EF>%CA%GCA>H6I1
683"8*%*J.,'#$%4&8$,"8#%4,(+&8%5&8&J"9*1%%
H."#%"#%,%/&"#&8%K&'%4,88&$%#**%&(%#5*771
A6!6;%'#*%"8#"9*%
,%.&5*%&(%3,(,3*L%
6!6A%CM%9&&(#%,89%
)"89&)#%,(*%&/*81
F87K%'#*%F>HICN6%
,89%2,(%,),K%2(&5%
)"89&)#L%9&&(#L%
,89%O*8$#1
Owner’s Manual & Safety Instructions
Save This Manual%Keep this manual for the safety warnings and precautions, assembly, 
operating, inspection, maintenance and cleaning procedures.  Write the product’s serial number in the 
back of the manual near the assembly diagram (or month and year of purchase if product has no number). 
Keep this manual and the receipt in a safe and dry place for future reference.
When unpacking, make sure that the product is intact 
and undamaged.  If any parts are missing or broken, 
please call 1-888-866-5797 as soon as possible.
Copyright© 2014 by Harbor Freight Tools®.  All rights reserved.  
No portion of this manual or any artwork contained herein may be reproduced in 
any shape or form without the express written consent of Harbor Freight Tools.  
Diagrams within this manual may not be drawn proportionally.  Due to continuing 
improvements, actual product may differ slightly from the product described herein.  
Tools required for assembly a nd service may not be i ncluded.
;*,9%$."#%5,$*(",7%+*2&(*%'#"83%$."#%/(&9'4$1%
M,"7'(*%$&%9&%#&%4,8%(*#'7$%"8%#*("&'#%"8P'(K1%
I@!6%HQCI%G@A>@D1

Page 2 M&(%$*4.8"4,7%R'*#$"&8#L%/7*,#*%4,77%<STTTSTUUSVWXW1 ITEM 62366 
I@M6HE I6H>Y FY6;@HCFA G@CAH6A@A?6
H,+7*%&2%?&8$*8$#
Safety ......................................................... 3
Specifications ............................................. 6
Assembly .................................................... 6
Operation ................................................... 10
Maintenance .............................................. 12
Parts List and Diagrams ............................ 14
Warranty .................................................... 19
Z@;ACA[%IEG\FDI%@AN%N6MCACHCFAI
This is the safety alert symbol.  It is used to alert you to potential 
personal injury hazards.  Obey all safety messages that 
follow this symbol to avoid possible injury or death.
Indicates a hazardous situation which, if not avoided,  
will result in death or serious injury.
Indicates a hazardous situation which, if not avoided,  
could result in death or serious injury.
Indicates a hazardous situation which, if not avoided,  
could result in minor or moderate injury.
Addresses practices not related to personal injury.

Page 3M&(%$*4.8"4,7%R'*#$"&8#L%/7*,#*%4,77%<STTTSTUUSVWXW1ITEM 62366 
I@M6HEI6H>YFY6;@HCFAG@CAH6A@A?6
CGYF;H@AH%I@M6HE%CAMF;G@HCFA
% Z@;ACA[]%;*,9%,77%"8#$('4$"&8#1 
M,"7'(*%$&%2&77&)%,77%"8#$('4$"&8#%7"#$*9%+*7&)%5,K%(*#'7$%"8%2"(*L%#*("&'#%"8P'(K%,890&(%N6@HQ1%
The warnings and precautions discussed in this manual cannot cover all possible conditions and 
situations that may occur.  It must be understood by the operator that common sense and caution 
are factors which cannot be built into this product, but must be supplied by the operator.
I@!6%HQ6I6%CAIH;>?HCFAI
I*$%>/%Y(*4,'$"&8#
1.  Gasoline fuel and fumes are flammable, and 
potentially explosive.  Use proper fuel storage 
and handling procedures.  Do not store fuel 
or other flammable materials nearby.
2.  Have multiple ABC class fire extinguishers nearby.
3.  Operation of this equipment may create sparks that 
can start fires around dry vegetation. 
A spark arrestor may be required. 
The operator should contact local fire 
agencies for laws or regulations relating 
to fire prevention requirements.
4.  Set up and use only on a flat, level, 
well-ventilated surface.
5.  Wear ANSI-approved safety goggles, heavy-duty 
work gloves, and dust mask/respirator during set up.
6.  Use only lubricants and fuel recommended 
in the engine manual or in the 
Specifications chart of this manual.
683"8*%Y(*4,'$"&8#
Follow engine precautions and instructions 
in the included engine instruction manual.
F/*(,$"83%Y(*4,'$"&8#
1.  ?@;\FA%GFAF^CN6%Q@_@;N%
>#"83%,8%*83"8*%"89&&(#%?@A%BCDD%
EF>%CA%GCA>H6I1%
Engine exhaust contains carbon 
monoxide.  This is a poison you cannot 
see or smell. 
NEVER use inside a home or garage,  
EVEN IF doors and windows are open. 
Only use OUTSIDE and far away from windows, 
doors, and vents.
2.  Keep children away from the equipment, 
especially while it is operating.
3.  Do not leave the equipment unattended when it is 
running.  Turn off the equipment (and remove safety 
keys, if available) before leaving the work area.
4.  Wear ANSI-approved safety glasses, hearing 
protection, and NIOSH-approved dust mask/
respirator under a full face shield during use.
5.  Wear heavy-duty work gloves 
when handling the blade.
6.  People with pacemakers should consult their 
physician(s) before use.  Electromagnetic 
fields in close proximity to a heart pacemaker 
could cause pacemaker interference or 
pacemaker failure.  Caution is necessary when 
near the engine's magneto or recoil starter.
7.  Use only accessories that are recommended 
by Harbor Freight Tools for your model.  
Accessories that may be suitable for one 
piece of equipment may become hazardous 
when used on another piece of equipment.

Page 4 M&(%$*4.8"4,7%R'*#$"&8#L%/7*,#*%4,77%<STTTSTUUSVWXW1 ITEM 62366 
I@M6HE I6H>Y FY6;@HCFA G@CAH6A@A?6
8.  Do not operate in explosive atmospheres, 
such as in the presence of flammable 
liquids, gases, or dust.  Gasoline-powered 
engines may ignite the dust or fumes.
9.  Stay alert, watch what you are doing and 
use common sense when operating this 
piece of equipment.  Do not use this piece 
of equipment while tired or under the 
influence of drugs, alcohol or medication.
10.  Do not overreach.  Keep proper footing and 
balance at all times.  This enables better control 
of the equipment in unexpected situations.
11.  Dress properly.  Do not wear loose clothing 
or jewelry.  Keep hair, clothing and gloves away 
from moving parts.  Loose clothes, jewelry or 
long hair can be caught in moving parts.
12.  Parts, especially exhaust system components, 
get very hot during use.  Stay clear of hot parts.
13.  Do not cover the engine or 
equipment during operation.
14.  Keep the equipment, engine, and 
surrounding area clean at all times.
15.  Use the equipment, accessories, etc., in 
accordance with these instructions and in the 
manner intended for the particular type of 
equipment, taking into account the working 
conditions and the work to be performed.  Use of 
the equipment for operations different from those 
intended could result in a hazardous situation.
16.  Do not operate the equipment with known 
leaks in the engine's fuel system.
17.  WARNING: The brass components of this product 
contain lead, a chemical known to the State 
of California to cause cancer and birth defects 
or other reproductive harm.  (California Health 
& Safety Code § 25249.5, et seq.)
18.  WARNING: Some dust created by power sanding, 
sawing, grinding, drilling, and other construction 
activities, contains chemicals known to the State 
of California to cause cancer and birth defects or 
other reproductive harm.  Some examples of these 
chemicals are: 
•  Lead from lead-based paints 
•  Crystalline silica from bricks and cement or other 
masonry products 
•  Arsenic and chromium from chemically 
treated lumber 
Your risk from these exposures varies, depending 
on how often you do this type of work.  To reduce 
your exposure to these chemicals: work in a well 
ventilated area, and work with approved safety 
equipment, such as those dust masks that are 
specially designed to filter out microscopic particles.  
(California Health & Safety Code § 25249.5, et seq.)
19.  WARNING: This product contains or, when 
used, produces a chemical known to the State 
of California to cause cancer and birth defects 
or other reproductive harm.  (California Health 
& Safety Code § 25249.5, et seq.)
20.  When spills of fuel or oil occur, they must be 
cleaned up immediately.  Dispose of fluids and 
cleaning materials as per any local, state, or 
federal codes and regulations.  Store oil rags in 
a bottom-ventilated, covered, metal container.
21.  Keep hands and feet away from moving parts.  
Do not reach over or across 
equipment while operating.
22.  Before use, check for misalignment or binding 
of moving parts, breakage of parts, and any 
other condition that may affect the equipment's 
operation.  C2%9,5,3*9L%.,O*%$.*%*R'"/5*8$%
#*(O"4*9%+*2&(*%'#"831  Many accidents are 
caused by poorly maintained equipment.
23.  Use the correct equipment for the application.  
Do not modify the equipment and do not use the 
equipment for a purpose for which it is not intended.

Page 5M&(%$*4.8"4,7%R'*#$"&8#L%/7*,#*%4,77%<STTTSTUUSVWXW1ITEM 62366 
I@M6HEI6H>YFY6;@HCFAG@CAH6A@A?6
I*(O"4*%Y(*4,'$"&8#
1.  \*2&(*%#*(O"4*L%5,"8$*8,84*L%&(%47*,8"83-
a.  H'(8%$.*%*83"8*%#)"$4.%$&%"$#%`FMMa%/&#"$"&81
b.  @77&)%$.*%*83"8*%$&%4&5/7*$*7K%4&&71
c.  H.*8L%(*5&O*%$.*%#/,(b%/7'3%)"(*c#d%
2(&5%$.*%#/,(b%/7'3c#d1
2.  Keep all safety guards in place and in 
proper working order.  Safety guards include 
muffler, air cleaner, mechanical guards, 
and heat shields, among other guards.
3.  N&%8&$%,7$*(%&(%,9P'#$%,8K%/,($%&2%$.*%
*R'"/5*8$%&(%"$#%*83"8*%$.,$%"#%#*,7*9%+K%$.*%
5,8'2,4$'(*(%&(%9"#$("+'$&(1%%F87K%,%R',7"2"*9%
#*(O"4*%$*4.8"4",8%5,K%,9P'#$%/,($#%$.,$%5,K%
"84(*,#*%&(%9*4(*,#*%3&O*(8*9%*83"8*%#/**91
4.  Wear ANSI-approved safety goggles, 
heavy-duty work gloves, and dust 
mask/respirator during service.
5.  Maintain labels and nameplates on the equipment.  
These carry important information.  
If unreadable or missing, contact 
Harbor Freight Tools for a replacement.
6.  Have the equipment serviced by a qualified repair 
person using only identical replacement parts.  
This will ensure that the safety of the equipment 
is maintained.  Do not attempt any service or 
maintenance procedures not explained in this 
manual or any procedures that you are uncertain 
about your ability to perform safely or correctly.
7.  Store equipment out of the reach of children.
8.  Follow scheduled engine and 
equipment maintenance.
9.  Refueling:
a.  Do not smoke, or allow sparks, flames, 
or other sources of ignition around the 
equipment, especially when refuelling.
b.  Do not refill the fuel tank while the 
engine is running or hot.
c.  Do not fill fuel tank to the top.  Leave a little 
room for the fuel to expand as needed.
d.  Refuel in a well-ventilated area only.
%I@!6%HQ6I6%CAIH;>?HCFAI1

Page 6 M&(%$*4.8"4,7%R'*#$"&8#L%/7*,#*%4,77%<STTTSTUUSVWXW1 ITEM 62366 
I@M6HE I6H>Y FY6;@HCFA G@CAH6A@A?6
I/*4"2"4,$"&8#
Fuel Type
87+ octane stabilizer-
treated unleaded 
gasoline
Capacity 1 Gallon
Coolant Tank Capacity 4.2 Quarts
Blade Speed 3,279 FPM
Log Diameter 20″ Maximum
Board Width 20″ Maximum
Cutting Thickness 4-1/2″ Maximum
Cutting Length 9′-2″ Maximum (110″)
A&$*-  Engine specifications are found in the 
engine manual supplied with this equipment.
@##*5+7K
% ;*,9%$.*%6AHC;6%CGYF;H@AH%I@M6HE%CAMF;G@HCFA%#*4$"&8%,$%$.*%+*3"88"83%&2%$."#%5,8',7%
"847'9"83%,77%$*J$%'89*(%#'+.*,9"83#%$.*(*"8%+*2&(*%#*$%'/%&(%'#*%&2%$."#%/(&9'4$1%
HF%Y;6!6AH%I6;CF>I%CAe>;E-%
F/*(,$*%&87K%)"$.%/(&/*(%#/,(b%,((*#$&(%"8#$,77*91%%F/*(,$"&8%&2%$."#%*R'"/5*8$%5,K%4(*,$*%#/,(b#%$.,$%4,8%
#$,($%2"(*#%,(&'89%9(K%O*3*$,$"&81%@%#/,(b%,((*#$&(%5,K%+*%(*R'"(*91%
H.*%&/*(,$&(%#.&'79%4&8$,4$%7&4,7%2"(*%,3*84"*#%2&(%7,)#%&(%
(*3'7,$"&8#%(*7,$"83%$&%2"(*%/(*O*8$"&8%(*R'"(*5*8$#1
HF%Y;6!6AH%I6;CF>I%CAe>;E-%%H.*%I,)%G"77%"#%9,83*(&'#%"2%,##*5+7*9%"84&((*4$7K1%%%
C2%K&'%9&%8&$%2**7%4&5/7*$*7K%4&52&($,+7*%,##*5+7"83%"$L%$.*8%.,O*%,%R',7"2"*9%$*4.8"4",8%,##*5+7*%"$1
A&$*-  For additional information regarding 
the parts listed, refer to Assembly Diagram 
near the end of this manual.
1.  Secure Wheels (1) onto Right Wheel Frame (7a) 
with two Bolts M20x100 (6) and Nuts M20 (2).  
Attach Right Wheel Frame, Round Post (20) 
and the Round Clamp (10) with 
two Bolts M12x80 (8) and Nuts M12 (9). 
A&$*- Do not tighten Bolts (8) and Nuts (9) yet.
<
W,
UL%f
fg
<g
TL%X
M"3'(*%@-%%;"3.$%Z.**7%M(,5*
2.  Secure Wheels (1) onto Left Wheel Frame (3a) 
with two Bolts M20x100 (6) and Nuts 
M20 (2). Then attach Left Wheel Frame, 
Square Post (48) and Square Clamp (4) 
with two Bolts (58) and Hex Nuts (5). 
A&$*- Do not tighten Bolts (58) and Nuts (5) yet.
<
h,
UL%f
=T
=
VTL%V
M"3'(*%\-%%D*2$%Z.**7%M(,5*
3.  Slide the Round Post (20) into the Blade Guard (50), 
as shown below.  Adjust the bolts until Blade 
Guard can move smoothly on the round post. Then 
secure it in place with the Right Lock Handle (59). 
\7,9*%
[',(9%
cVgd
;"3.$%
D&4b%
Q,897*%
cVXd
;&'89%Y&#$%cfgd
M"3'(*%?-%%;"3.$%D&4b%Q,897*

Page 7M&(%$*4.8"4,7%R'*#$"&8#L%/7*,#*%4,77%<STTTSTUUSVWXW1ITEM 62366 
I@M6HEI6H>YFY6;@HCFAG@CAH6A@A?6
4.  Slide the Square Post (48) into the Blade Guard, 
as shown below.  Adjust the bolts until it can 
move smoothly on the square post. Then secure 
it in place with the Left Lock Handle (54).
\7,9*%
[',(9%cVgd
D*2$%D&4b%
Q,897*%cV=d
IR',(*%
Y&#$%%
c=Td
M"3'(*%N-%%D*2$%D&4b%Q,897*
5.  Lay out the Track sections (78, 92) as shown below.
6.  Use the Bolts (22) and Nuts (25) to fasten the End 
Stops (79) to the Track Sections, as shown below.  
7.  Use the Flange Bolts (77) and Flange 
Nuts (84) to fasten the Center Support (90a) 
and Middle Supports (81a) to the Track 
Sections (78, 92), as shown below.
AFH6-%The Track (78) and Track (92) must be aligned 
not only on the top surface, but also on the side surface. 
The gap between these two parts must be small.  
If the top surface of the Tracks are not aligned, use 
a grinder or file (not included) to smooth them out.
8.  Install the Rocker Tube (88) and Round 
Tube (85) assembly as shown below.
WW
WT
Xf
Th T=
TV
TU,
TW TX
TT
M"3'(*%M-%%;&4b*(%H'+*
9.  Place the carriage onto the track.
10.  Place the Top Frame (23) on the Posts (20, 48).
M"3'(*%[-%%H&/%M(,5*
M"3'(*%6-%%H(,4b%@##*5+7K
AFH6-  After assembly, the central distance 
of the Track must be 30.315″ + 0.04″
Tg,
WW
WT
WX
T<,
Tf
Xf
WT
Xg,
X<
Xf
I,)%5"77%
2"8"#.*#%4'$%
,$%$."#%*891
I,)%5"77%%
#$,($#%4'$%2(&5%
$."#%*891
ff
fV

Page 8 M&(%$*4.8"4,7%R'*#$"&8#L%/7*,#*%4,77%<STTTSTUUSVWXW1 ITEM 62366 
I@M6HE I6H>Y FY6;@HCFA G@CAH6A@A?6
11.  Secure the two Bolts (22) attaching 
the Top Frame (23) to the 
Round Post (20) as shown below.
M"3'(*%Q-%%H&/%M(,5*%\&7$#
12.  Attach the Top Frame (23) to the 
Square Post (48) using the Bolts (49) and 
Top Frame Brace (101) as shown below.
M"3'(*%C-%%H&/%M(,5*%\&7$#%f
13.  Tighten the Bolts (8,58) and Nuts (5,9).
14.  Attach the External Tube (34) and the Water Tank 
Tray (45) to the Top Frame (23) using the Bolts (44), 
Spring Washer (98), and Nut (99), as shown below.
==
h=
fh
=V
XT
XX
M"3'(*%e-%%Z,$*(%H,8b%H(,K%,89%6J$*(8,7%H'+*
15.  Thread the Cable Anchor Bolts (46) into 
the Blade Guard (50) as shown below.
M"3'(*%B-%%?,+7*%@84.&(%\&7$%D&4,$"&8#
16.  Route Cables as shown below.   
Hook the loops around the two posts on the 
back of the External Tube (34).  The lower cable 
attaches to the lower post.  Adjust the Cable 
Anchor Bolts (46) until the two cables are equal.
M"3'(*%D-%%?,+7*%;&'$*
17.  Loosen the Bolt (70) and the Fixed Block (71) to 
move the Fixed Block away from the Blade. Rotate 
the Tension Handle (14) in a clockwise direction 
to properly tension the Blade, as shown below.
M"3'(*%G-%%H*8#"&8%Q,897*
AFH6-  Pull up on Blade at Center Guard.  
Allow for no more than 1/4″ - 1/2″ 
movement up or down (“give”) on the Blade.  
The 1/4″ - 1/2″ give indicates proper Blade tension.

Page 9M&(%$*4.8"4,7%R'*#$"&8#L%/7*,#*%4,77%<STTTSTUUSVWXW1ITEM 62366 
I@M6HEI6H>YFY6;@HCFAG@CAH6A@A?6
18.  Slide Fixed Block until it gently touches the Blade.  
Then tighten the Bolt, fastening it in place.  
See below. Repeat for the remaining Fixed 
Blocks until there is 0.02″-0.04″ clearance 
between Fixed Blocks and Blade.
M"3'(*%A-%%M"J*9%\7&4b%,89%G,8',7%;&$,$"&8
M"J*9%\7&4b%cW<d \&7$%cWgd
19.  Rotate the Bandwheel (66) slowly 
counterclockwise, watching relative position 
of the Blade (69) and the Bandwheels (66).
20.  If the Blade stays centered on the wheels, tighten 
the lock nuts shown on Figure O.  If the Blade 
does not stay centered, adjust the bolts shown 
on Figure O slightly and then rotate the belt 
wheel again.  See instructions that follow.
[@\
6
M
?
N
,9P'#$"83%+&7$,9P'#$"83%7&4b%8'$
M"3'(*%F-%%@9P'#$5*8$%\&7$#
AFH6- Adjust Blade again after replacement.
Refer to Figure O for the following instructions:
BEFORE any adjustment, loosen Bolts 
E and F and Nuts C and D.
If after replacement Blade starts to shift back 
towards operator, loosen Nut A and hold Bolt G with 
a wrench.  Then tighten Nut A after adjustment.
If the Blade shifts back from the operator, 
loosen Nut B and hold Bolt G with a wrench.  
Then tighten Nut B after Blade adjustment.
Continue making small adjustments until 
Blade stays centered,  AFTER any adjustment, 
tighten Bolts E and F and Nuts C and D.
21.  Install Throttle Control (93) on Pushing 
Handle (94) as shown below.
M"3'(*%Y-%%H.(&$$7*%?&8$(&7
22.  Lubricate the Round Post (20) and the 
Square Post (48) with lithium grease to 
allow the sawhead to move smoothly.
23.  Install the Water Tank (95) into 
the Water Tank Tray (45).
24.  Route the Water Tube (97) through the 
bracket on the lower right of the Blade 
Guard (50)  Secure in place with the tip facing 
the blade using the water tube holding bolt 
shown below, but do not overtighten.
M"3'(*%i-%%Z,$*(%H'+*
\7,9*%
[',(9%
cVgd%
7&)*(%
("3.$%
+(,4b*$
Z,$*(%
H'+*%cXWd
Z,$*(%H'+*%
Q&79"83%
\&7$
25.  For horizontal Blade adjustment, loosen the Nut (47) 
and adjust the left and right Lock Handles (54,59) 
until the distance between the ends of the Blade and 
the top of the Middle Support (81a) are the same.
AFH6- Use a tape measure to verify distances match.

Page 10 M&(%$*4.8"4,7%R'*#$"&8#L%/7*,#*%4,77%<STTTSTUUSVWXW1 ITEM 62366 
I@M6HE I6H>Y FY6;@HCFA G@CAH6A@A?6
F/*(,$"83%C8#$('4$"&8#
% ;*,9%$.*%6AHC;6%CGYF;H@AH%
I@M6HE%CAMF;G@HCFA%#*4$"&8%,$%$.*%
+*3"88"83%&2%$."#%5,8',7%"847'9"83%
,77%$*J$%'89*(%#'+.*,9"83#%$.*(*"8%
+*2&(*%#*$%'/%&(%'#*%&2%$."#%/(&9'4$1
683"8*%F/*(,$"&8
% C8#/*4$%*83"8*%,89%*R'"/5*8$%7&&b"83%
2&(%9,5,3*9L%7&&#*L%,89%5"##"83%
/,($#%+*2&(*%#*$%'/%,89%#$,($"831%%
C2%,8K%/(&+7*5#%,(*%2&'89L%9&%8&$%'#*%
*R'"/5*8$%'8$"7%2"J*9%/(&/*(7K1
I$,($%Y(&4*9'(*
% \*2&(*%#$,($"83%$.*%*83"8*-
a.  M&77&)%$.*%I*$%>/%C8#$('4$"&8#%$&%
/(*/,(*%$.*%*R'"/5*8$1%%M&77&)%,77%
"8#$('4$"&8#%"8%$.*%#*/,(,$*%*83"8*%
5,8',7%/(&O"9*9%)"$.%$.*%*83"8*1
b.  C8#/*4$%$.*%*R'"/5*8$%,89%*83"8*1
c.  M"77%$.*%*83"8*%)"$.%$.*%/(&/*(%
,5&'8$%,89%$K/*%&2%2'*7%,89%&"71
d.  ;*,9%$.*%6R'"/5*8$%F/*(,$"&8%
#*4$"&8%$.,$%2&77&)#1
1.  Start and operate the engine according 
to the provided engine manual.
2.  Replacement engine operating instructions can 
be obtained from the engine manufacturer.
6R'"/5*8$%F/*(,$"&8
1.  Wear heavy-duty work gloves, ANSI-approved 
goggles behind a full face shield, steel-toed 
work boots, and a dust mask.  
2.  Operate only with assistance.  
3.  Fill the Water Tank with clean water.
4.  The maximum log diameter that can be cut is 20″.  
The maximum board width that can be cut is 20″.  
The lumber must be at least 3′ 8″ long and 
must rest on at least two Supports (81a, 90a) 
to prevent instability.
5.  Cut branches off the lumber to be 
processed before milling.
6.  Z@;ACA[]%H&%/(*O*8$%9*,$.%,89%
#*("&'#%"8P'(K1%%Do not cut lumber containing 
foreign objects (nails, metal, etc.).
7.  Choose the Short Log Supports (91) or the Long 
Log Supports (82) according to the lumber diameter.
8.  Place the lumber to be cut on the Supports.  
See picture below.  Brace the lumber against 
the Log Supports (82, 91) to prevent movement 
during milling.  The lumber should be positioned so 
that the force of cutting holds it against the supports.
M"3'(*%;-%%D'5+*(%Y&#"$"&8
D'5+*(%&8%
I'//&($#
?7,5/%
D'5+*(%
Q*(*
9.  Clamp the lumber in place against the Log 
Supports (82, 91) using the Log Clamp (89) in 
the location shown above.  Y&#"$"&8%$.*%D&3%
?7,5/%"#%+*7&)%$.*%7*O*7%&2%$.*%+7,9*1
10.  Tighten all Bolts and T-Handles on the Log 
Clamp (89) and the Log Supports (82, 91).  Verify 
that they are securely in place before proceeding.

Page 11M&(%$*4.8"4,7%R'*#$"&8#L%/7*,#*%4,77%<STTTSTUUSVWXW1ITEM 62366 
I@M6HEI6H>YFY6;@HCFAG@CAH6A@A?6
11.  Align the Blade with the top of the lumber, loosen 
the Scale Knob and adjust the Scale Pointer to point 
at 0″ on the Scale.  Tighten the Scale Pointer Knob.
M"3'(*%I-%%I4,7*%,89%I4,7*%Y&"8$*(
I4,7*
Q*"3.$%
@9P'#$5*8$%
Q,897*%chgd
I4,7*%
Y&"8$*(%
B8&+
I4,7*%
Y&"8$*(
12.  Release both Lock Handles (54, 59). Turn the Height 
Adjustment Handle (30) and adjust the cutting 
height until the Scale Pointer points to the desired 
thickness.  Engage both Lock Handles (54, 59).
13.  The cut direction must be as shown below.  If the 
log is cut from the other direction, the saw blade 
will push the lumber away from the supports and 
may cause the lumber to become unstable.
M"3'(*%H-%%N"(*4$"&8%&2%?'$
I$,($%
&2%4'$
689%
&2%4'$
?>HHCA[%NC;6?HCFA
14.  Z@;ACA[]%%H.*%&/*(,$&(%,89%,8K%,##"#$,8$#%
5'#$%#$,K%47*,(%&2%$.*%2(&8$%,89%+,4b%&2%$.*%
+7,9*%).*8*O*(%$.*%*83"8*%"#%('88"831%%
15.  Start and operate the engine according 
to the provided engine manual.
16.  Adjust the Throttle to bring the Blade 
up to speed.  The Locking Ring can be 
turned to lock the Throttle in place.
M"3'(*%>-%%H.(&$$7*%?&8$(&7
D&4b"83%;"83
H.(&$$7*%D*O*(
17.  Throttle speed may need to be increased 
when the Saw is under load.
18.  Move the Saw Head slowly along the track 
and against the lumber to make the cut.
AFH6- Repeated adjustments will 
need to be made during cutting.
19.  I.'$%&22%*83"8*%"2%+7,9*%+"89#L%+(*,b#L%
&(%,8&$.*(%/(&+7*5%"#%#'#/*4$*91%%
N&%8&$%$(K%$&%+,4b%$.*%+7,9*%&'$%&2%,8%
"84&5/7*$*%+'$%)."7*%*83"8*%"#%('88"831
20.  Trim off the rounded sides of the lumber.  
21.  After the lumber is squared-off, 
boards or posts can be cut.
22.  To prevent accidents, turn off the engine and 
disconnect its spark plug wire after use.  Wait for the 
engine to cool, clean external parts with clean cloth, 
then store the equipment out of children's reach 
according to the Storage instructions in this manual.

Page 12 M&(%$*4.8"4,7%R'*#$"&8#L%/7*,#*%4,77%<STTTSTUUSVWXW1 ITEM 62366 
I@M6HE I6H>Y FY6;@HCFA G@CAH6A@A?6
I*(O"4"83
HF%Y;6!6AH%I6;CF>I%CAe>;E%M;FG%@??CN6AH@D%IH@;HCA[-%
H'(8%$.*%Y&)*(%I)"$4.%&2%$.*%*R'"/5*8$%$&%"$#%`FMMa%/&#"$"&8L%),"$%2&(%$.*%*83"8*%$&%4&&7L%,89%9"#4&88*4$%
$.*%#/,(b%/7'3%)"(*c#d%+*2&(*%/*(2&(5"83%,8K%"8#/*4$"&8L%5,"8$*8,84*L%&(%47*,8"83%/(&4*9'(*#1
HF%Y;6!6AH%I6;CF>I%CAe>;E%M;FG%6i>CYG6AH%M@CD>;6-%
N&%8&$%'#*%9,5,3*9%*R'"/5*8$1%%C2%,+8&(5,7%8&"#*L%O"+(,$"&8L%&(%*J4*##%
#5&b"83%&44'(#L%.,O*%$.*%/(&+7*5%4&((*4$*9%+*2&(*%2'($.*(%'#*1
G,"8$*8,84*%Y(&4*9'(*#
% G,8K%5,"8$*8,84*%/(&4*9'(*#L%"847'9"83%$.&#*%8&$%9*$,"7*9%"8%$."#%5,8',7L%)"77%8**9%$&%+*%
/*(2&(5*9%+K%,%R',7"2"*9%$*4.8"4",8%2&(%#,2*$K1%%C2%K&'%.,O*%,8K%9&'+$#%,+&'$%K&'(%,+"7"$K%$&%#,2*7K%
#*(O"4*%$.*%*R'"/5*8$%&(%*83"8*L%.,O*%,%R',7"2"*9%$*4.8"4",8%#*(O"4*%$.*%*R'"/5*8$%"8#$*,91
A&$*-  These procedures are in addition to the regular checks and maintenance 
explained as part of the regular operation of the engine and equipment.
683"8*%G,"8$*8,84*%,89%I*(O"4*
Follow the instructions found in the 
included engine manual.
6R'"/5*8$%D'+("4,$"&8
1.  Lubricate the Bandwheel Axles and Square and 
Round Posts with machine oil before each use.
2.  Lubricate the Tension Handle with grease monthly.
I$&(,3*
1.  Wait for engine to cool, then clean 
equipment with clean cloth.
2.  Clean the engine and/or prepare it for storage 
according to engine manual instructions.
3.  Apply a thin coat of rust preventive 
oil to all uncoated metal parts.
4.  Cover and store in a dry, well-ventilated 
area out of reach of children.
5.  For cold weather operation, store the 
equipment in a cool dry area to prevent 
condensation and premature wear.

Page 13M&(%$*4.8"4,7%R'*#$"&8#L%/7*,#*%4,77%<STTTSTUUSVWXW1ITEM 62366 
I@M6HEI6H>YFY6;@HCFAG@CAH6A@A?6
6R'"/5*8$%H(&'+7*#.&&$"83
Y(&+7*5 Y&##"+7*%?,'#*# Y(&+,+7*%I&7'$"&8#
Excessive blade 
breakage.
1.  Insufcient blade tension.
2.  Incorrect speed or feed rate.
3.  Lumber loose. 
4.  Blade rubs against wheel ange.
5.  Blade teeth too coarse for 
lumber, or blade too thick.
6.  Teeth contacting lumber before 
blade up to full speed.
7.  Misaligned guides.
1.  Increase blade tension.
2.  Adjust speed or feed rate for the lumber being cut.
3.  Make sure lumber is securely positioned 
against supports.  Remove stray branches 
that prevent proper positioning.
4.  Adjust blade tracking.
5.  Use recommended blade only. 
6.  Allow blade to reach operating speed before 
cutting. 
7.  Align guides.
Premature 
blade dulling.
1.  Teeth too coarse.
2.  Blade rotating too quickly.
3.  Hard spots or scale in/on material.
4.  Blade installed backwards.
5.  Insufcient blade tension.
1.  Use recommended blade only.
2.  Use lower speed.
3.  Reduce speed, increase feed pressure.
4.  Properly install blade.
5.  Tension blade properly.
Blade cuts crooked. 1.  Lumber not square.
2.  Feed pressure/rate too great.
3.  Inadequate blade tension.
4.  Dull blade.
5.  Blade guide loose.
1.  Adjust lumber so that it is square with the blade.
2.  Reduce feed rate.
3.  Increase blade tension slightly.
4.  Replace blade.
5.  Adjust and secure blade guide.
Blade cuts rough. 1.  Too much blade speed and/
or rate of feed.
2.  Blade is too coarse.
1.  Reduce blade speed and feed rate. 
2.  Use recommended blade only.
Blade is twisting. 1.  Cut is binding blade.
2.  Blade tension too high.
1.  Decrease feed pressure.
2.  Decrease blade tension.
Unusual wear 
on back or side 
of blade.
1.  Blade guides worn.
2.  Blade guide bearing bracket is loose.
1.  Replace blade guides.
2.  Tighten blade guide bearing bracket.
Teeth ripping 
from blade.
1.  Teeth too coarse.
2.  Feed rate incorrect.
3.  Lumber loose. 
4.  Teeth lled with debris.
1.  Use recommended blade only.
2.  Adjust feed rate.
3.  Make sure lumber is securely positioned 
against supports.  Remove stray branches 
that prevent proper positioning.
4.  Clean debris off blade.
% M&77&)%,77%#,2*$K%/(*4,'$"&8#%).*8*O*(%9",38&#"83%&(%#*(O"4"83%$.*%*R'"/5*8$%&(%*83"8*1

Page 14 M&(%$*4.8"4,7%R'*#$"&8#L%/7*,#*%4,77%<STTTSTUUSVWXW1 ITEM 62366 
I@M6HE I6H>Y FY6;@HCFA G@CAH6A@A?6
Y,($ N*#4("/$"&8 i$K
1 Wheel 4
2 Nut M20 4
3a Left Wheel Frame 1
4 Clamp 1 1
5 Nut M12 6
6 Bolt M20×100 4
7a Right Wheel Frame 1
8 Bolt M12×80 5
9 Nut M12 6
10 Clamp 2 1
11 Bolt M8×20 9
12 Bolt M10×25 21
13 Bolt M12×65 3
14 Tension Handle 1
15 Flat Washer 12 2
16 Bolt M12×145 1
17 Hanging Plate 1
18 Bolt M8×16 5
19 Right Clamp 1
20 Round Post 1
21 Lumber Thickness Scale 1
22 Bolt M8×25 12
23 Top Frame 1
24 Flat Washer 8 9
25 Nut M8 36
26 Taper Pin B6×40 2
27 Elastic Pin 5×20 1
28 Round Nut M14×1.5 2
29 Height Adjustment Arm 1
30 Height Adjustment Handle 1
31 Bolt M12×65 3
32 Nut M12 6
33 Guide Screw Base 1
34 External Tube 1
35 Pulley 5
36 Bolt M12×20 3
37 Snap Ring 12 3
38 Washer 3
39 Internal Tube 1
40 Bolt M12×70 1
41 Washer 1
42 Flat Washer 2
43 Nut M12 1
44 Bolt M10×45 2
45 Water Tank Tray 1
46 Cable Anchor Bolt 2
47 Nut M10 4
48 Square Post 1
49 Bolt M12×65 2
50 Blade Guard 1
51 Bolt M12×45 1
Y,($ N*#4("/$"&8 i$K
52 Nut M12 4
53 Bolt M12×100 1
54 Left Lock Handle 1
55 Bolt M8×45 6
56 Support Tube 1
57 Beam 1
58 Bolt M12×80 2
59 Right Lock Handle 1
60 Bolt M10×25 2
61 Elastic Washer 10 2
62 Flat Washer 10 2
63 Snap Ring 62 2
64 Bearing 6305 RZ 4
65 V- Belt B1900 1
66 Bandwheel 2
67 Clutch 1
68 Pin 1
69 Blade 1
70 Bolt M8×45 4
71 Fixed Block 4
72 Blade Guide 2
73 Blade Guide Shaft 2
74 Short Bandwheel Axle 1
75 Long Bandwheel Axle 1
76 V- Belt B1422 1
77 Flange Bolt M10×25 28
78 Track 1 2
79 End Stop 4
80a End Support 2
81a Middle Support 2
82 Log Support 2
83 Rod Support 2
84 Flange Nut M10 32
85 Round Tube 1
86a Rocker Tube Sleeve 1
87 Log Support T-Handle M10x1.5x30 5
88 Rocker Tube 1
89 Log Clamp 1
90a Center Support 1
91 Short Log Support 2
92 Track 2 2
93 Throttle Control 1
94 Pushing Handle 1
95 Water Tank 1
96 Switch 1
97 Water Tube 1
98 Spring Washer 10 2
99 Nut M10 4
100 Blade Roller Bearing 2
101 Top Frame Brace 1
Y,($#%D"#$%,89%N",3(,5#
Y,($#%D"#$

Page 15M&(%$*4.8"4,7%R'*#$"&8#L%/7*,#*%4,77%<STTTSTUUSVWXW1ITEM 62366 
I@M6HEI6H>YFY6;@HCFAG@CAH6A@A?6
@##*5+7K%N",3(,5
<g<

Page 16 M&(%$*4.8"4,7%R'*#$"&8#L%/7*,#*%4,77%<STTTSTUUSVWXW1 ITEM 62366 
I@M6HE I6H>Y FY6;@HCFA G@CAH6A@A?6
@##*5+7K%N",3(,5%c4&8$"8'*9d
<gg
<gg

Page 17M&(%$*4.8"4,7%R'*#$"&8#L%/7*,#*%4,77%<STTTSTUUSVWXW1ITEM 62366 
I@M6HEI6H>YFY6;@HCFAG@CAH6A@A?6
@##*5+7K%N",3(,5%c4&8$"8'*9d
92
90a
84
83
81a
80a
22
25
79
78
77
92
82
85 86A
87
88 89
91
78

Page 18 M&(%$*4.8"4,7%R'*#$"&8#L%/7*,#*%4,77%<STTTSTUUSVWXW1 ITEM 62366 
I@M6HE I6H>Y FY6;@HCFA G@CAH6A@A?6
YD6@I6%;6@N%HQ6%MFDDFZCA[%?@;6M>DDE
THE MANUFACTURER AND/OR DISTRIBUTOR HAS PROVIDED THE PARTS LIST AND ASSEMBLY DIAGRAM 
IN THIS MANUAL AS A REFERENCE TOOL ONLY.  NEITHER THE MANUFACTURER OR DISTRIBUTOR 
MAKES ANY REPRESENTATION OR WARRANTY OF ANY KIND TO THE BUYER THAT HE OR SHE IS 
QUALIFIED TO MAKE ANY REPAIRS TO THE PRODUCT, OR THAT HE OR SHE IS QUALIFIED TO REPLACE 
ANY PARTS OF THE PRODUCT.  IN FACT, THE MANUFACTURER AND/OR DISTRIBUTOR EXPRESSLY 
STATES THAT ALL REPAIRS AND PARTS REPLACEMENTS SHOULD BE UNDERTAKEN BY CERTIFIED AND 
LICENSED TECHNICIANS, AND NOT BY THE BUYER.  THE BUYER ASSUMES ALL RISK AND LIABILITY 
ARISING OUT OF HIS OR HER REPAIRS TO THE ORIGINAL PRODUCT OR REPLACEMENT PARTS 
THERETO, OR ARISING OUT OF HIS OR HER INSTALLATION OF REPLACEMENT PARTS THERETO.
;*4&(9%Y(&9'4$j#%I*(",7%A'5+*(%Q*(*-%
A&$*-  If product has no serial number, record month and year of purchase instead.
A&$*-  Some parts are listed and shown for illustration purposes only, 
and are not available individually as replacement parts.

Page 19M&(%$*4.8"4,7%R'*#$"&8#L%/7*,#*%4,77%<STTTSTUUSVWXW1ITEM 62366 
I@M6HEI6H>YFY6;@HCFAG@CAH6A@A?6
D"5"$*9%Xg%N,K%Z,((,8$K
Harbor Freight Tools Co. makes every effort to assure that its products meet high quality and durability 
standards, and warrants to the original purchaser that this product is free from defects in materials 
and workmanship for the period of 90 days from the date of purchase. This warranty does not apply to 
damage due directly or indirectly, to misuse, abuse, negligence or accidents, repairs or alterations outside 
our facilities, criminal activity, improper installation, normal wear and tear, or to lack of maintenance. 
We shall in no event be liable for death, injuries to persons or property, or for incidental, contingent, 
special or consequential damages arising from the use of our product. Some states do not allow the 
exclusion or limitation of incidental or consequential damages, so the above limitation of exclusion 
may not apply to you. THIS WARRANTY IS EXPRESSLY IN LIEU OF ALL OTHER WARRANTIES, 
EXPRESS OR IMPLIED, INCLUDING THE WARRANTIES OF MERCHANTABILITY AND FITNESS.
To take advantage of this warranty, the product or part must be returned to us with transportation charges prepaid.  
Proof of purchase date and an explanation of the complaint must accompany the merchandise.  
If our inspection verifies the defect, we will either repair or replace the product at our election or  
we may elect to refund the purchase price if we cannot readily and quickly provide you with a replacement.  
We will return repaired products at our expense, but if we determine there is no defect, or that the defect resulted 
from causes not within the scope of our warranty, then you must bear the cost of returning the product.
This warranty gives you specific legal rights and you may also have other rights which vary from state to state.

h=X<%G"##"&8%F,b#%\7O91%%k%%YF%\&J%UggX%%k%%?,5,("77&L%?@%Xhg<<%%k%%<STTTSTUUSVWXW