Grundfos CR1 Pump User Manual
User Manual: Grundfos CR1 Pump User Manual
Open the PDF directly: View PDF
.
Page Count: 84
- Product data
- Introduction
- Performance range - CR, CRI, CRN
- Performance range - CRE, CRIE, CRNE
- Applications
- Product range
- Pump
- Motor
- Terminal box positions
- Ambient temperature
- Viscosity
- Control of E-pumps
- Examples of E-pump applications
- Central management system
- Remote control
- Control panel
- Control modes for E-pumps
- CRE, CRIE, CRNE with integrated pressure sensor
- CRE, CRIE and CRNE without sensor
- Construction
- CR(E) 1s, 1, 3, 5, 10, 15 and 20
- CRI(E), CRN(E) 1s, 1, 3, 5, 10, 15 and 20
- CR(E) 32, 45, 64 and 90
- CRN(E) 32, 45, 64 and 90
- Type keys
- Operating and inlet pressures
- Maximum operating pressure and temperature range
- Operating range of the shaft seal
- Maximum inlet pressure
- Selection and sizing
- Selection of pumps
- How to read the curve charts
- Guidelines to performance curves
- Performance curves Technical data
- CR 1s
- CRI, CRN 1s
- CR, CRE 1
- CRI, CRN, CRIE, CRNE 1
- CR, CRE 3
- CRI, CRN, CRIE, CRNE 3
- CR, CRE 5
- CRI, CRN, CRIE, CRNE 5
- CRI, CRN, CRIE, CRNE 10
- CR, CRE 15
- CRI, CRN, CRIE, CRNE 15
- CR, CRE 20
- CRI, CRN, CRIE, CRNE 20
- CRN, CRNE 64
- CR, CRE 90
- CRN, CRNE 90
- Motor data
- Standard motors for CR, CRI, CRN, 50 Hz
- E-motors for CRE, CRIE, CRNE, 50 Hz
- Pumped liquids
- Pumped liquids
- List of pumped liquids
- Accessories
- Pipework connection
- Counter flanges for CR(E)
- Counter flanges for CRN(E)
- PJE couplings for CRN(E)
- FlexiClamp base connections
- Potentiometer for CRE, CRIE, CRNE
- G10-LON interface for CRE, CRIE, CRNE
- LiqTec for CR(E), CRI(E) and CRN(E)
- Remote control, R100
- EMC-filter for CRE, CRIE, CRNE
- Sensors for CRE, CRIE, CRNE
- Variants
- Lists of variants - on request
- Further product documentation
- WinCAPS
- WebCAPS

GRUNDFOS DATA BOOKLET
CR, CRI, CRN,
CRE, CRIE, CRNE
Vertical multistage centrifugal pumps
50 Hz

2
Contents
Product data
Introduction 3
Performance range - CR, CRI, CRN 4
Performance range - CRE, CRIE, CRNE 4
Applications 5
Product range 6
Pump 7
Motor 7
Terminal box positions 8
Ambient temperature 8
Viscosity 8
Control of E-pumps
Examples of E-pump applications 9
Central management system 10
Remote control 10
Control panel 10
Control modes for E-pumps 11
CRE, CRIE, CRNE with integrated pressure sensor 11
CRE, CRIE and CRNE without sensor 11
Construction
CR(E) 1s, 1, 3, 5, 10, 15 and 20 12
CRI(E), CRN(E) 1s, 1, 3, 5, 10, 15 and 20 12
CR(E) 32, 45, 64 and 90 13
CRN(E) 32, 45, 64 and 90 13
Type keys 14
Operating and inlet pressures
Maximum operating pressure and temperature range 15
Operating range of the shaft seal 15
Maximum inlet pressure 16
Selection and sizing
Selection of pumps 17
How to read the curve charts 21
Guidelines to performance curves 21
Performance curves
Technical data
CR 1s 22
CRI, CRN 1s 24
CR, CRE 1 26
CRI, CRN, CRIE, CRNE 1 28
CR, CRE 3 30
CRI, CRN, CRIE, CRNE 3 32
CR, CRE 5 34
CRI, CRN, CRIE, CRNE 5 36
CRI, CRN, CRIE, CRNE 10 40
CR, CRE 15 42
CRI, CRN, CRIE, CRNE 15 44
CR, CRE 20 46
CRI, CRN, CRIE, CRNE 20 48
CRN, CRNE 64 60
CR, CRE 90 62
CRN, CRNE 90 64
Motor data
Standard motors for CR, CRI, CRN, 50 Hz 66
E-motors for CRE, CRIE, CRNE, 50 Hz 67
Pumped liquids
Pumped liquids 68
List of pumped liquids 68
Accessories
Pipework connection 70
Counter flanges for CR(E) 70
Counter flanges for CRN(E) 72
PJE couplings for CRN(E) 74
FlexiClamp base connections 74
Potentiometer for CRE, CRIE, CRNE 77
G10-LON interface for CRE, CRIE, CRNE 77
LiqTec for CR(E), CRI(E) and CRN(E) 77
Remote control, R100 77
EMC-filter for CRE, CRIE, CRNE 77
Sensors for CRE, CRIE, CRNE 78
Variants
Lists of variants - on request 79
Further product
documentation
WinCAPS 80
WebCAPS 81

3
CR, CRI, CRN, CRE, CRIE, CRNE
Product data
Introduction
This data booklet deals with CR, CRI and CRN as well
as CRE, CRIE and CRNE pumps.
Fig. 1 CR, CRI and CRN pumps
CR, CRI and CRN pumps are vertical multistage centri-
fugal pumps. The in-line design enables the pump to be
installed in a horizontal one-pipe system where the suc-
tion and discharge ports are in the same horizontal
plane and have the same pipe dimensions. This design
provides a more compact pump design and pipework.
Grundfos CR pumps come with various pump sizes and
various numbers of stages to provide the flow and the
pressure required.
CR pumps are suitable for a variety of applications from
pumping of potable water to pumping of chemicals. The
pumps are therefore used in a wide diversity of pump-
ing systems where the performance and material of the
pump meet specific demands.
The CR pumps consist of two main components: The
motor and the pump unit. The motor of CR pumps is a
Grundfos motor designed to EN standards.
The pump unit consists of optimised hydraulics, various
types of connections, an outer sleeve, a pump head
and various other parts.
CR pumps are available in various material versions
according to the pumped liquid.
CRE, CRIE, CRNE pumps
Fig. 2 CRE, CRIE and CRNE pumps
CRE, CRIE and CRNE pumps are built on the basis of
CR, CRI, CRN pumps.
CRE, CRIE and CRNE pumps belong to the so-called
E-pump family. CRE, CRIE and CRNE pumps are
referred to as E-pumps.
The difference between the CR and the CRE pump
range is the motor. CRE, CRIE and CRNE pumps are
fitted with an E-motor, i.e. a motor with built-in fre-
quency control.
The motor of the CRE pump is a Grundfos MGE or
MMGE motor designed to EN standards.
Frequency control enables continuously variable con-
trol of motor speed, which makes it possible to set the
pump to operation at any duty point. The aim of contin-
uously variable control of the motor speed is to adjust
the performance to a given requirement.
CRE, CRIE and CRNE pumps are available with an
integrated pressure sensor connected to the frequency
control.
The pump materials are the same as those of the CR,
CRI and CRN pump range.
Selecting a CRE pump
Select a CRE pump if:
• controlled operation is required, i.e. consumption
fluctuates,
• constant pressure is required,
• communication with the pump is required.
Adaptation of performance through frequency-control-
led speed control offers obvious advantages:
• Energy savings.
• Increased comfort.
• Control and monitoring of the pump performance.
GR5381
TM02 7397 3403

4
Product data CR, CRI, CRN, CRE, CRIE, CRNE
Performance range - CR, CRI, CRN
Performance range - CRE, CRIE, CRNE
TM02 1192 3605
TM02 7281 3605
10.8 11 2 3 4 5 6 8 1010 20 30 40 50 60 80 100100 Q [m³/h]
20
30
40
60
80
100
200
300
400
H
[m] 50 Hz
CR 1
CR 3
CR 5
CRI 1
CRN 1
CRI 3
CRN 3
CRI 5
CRN 5
CRN 32
CRN 64
CRN 90CRN 45
CR 32
CR 45
CR 64
CR 90
CR 10
CRI 10
CRN 10
CR 15
CRI 15
CRN 15
CR 20
CRI 20
CRN 20
CR 1s
CRI 1s
CRN 1s
10.8 11 2 3 4 5 6 8 1010 20 30 40 50 60 80 100100 Q [m³/h]
0
20
40
60
80
[%]
Eta
High pressure range
10.8 11 2 3 4 5 6 8 1010 20 30 40 50 60 80 100100 Q [m³/h]
20
30
40
60
80
100
200
300
H
[m] 50 Hz
CRE 1
CRE 3
CRE 5 CRE 32
CRE 45
CRE 64
CRE 90
CRE 10
CRE 15
CRE 20
CRIE 1
CRNE 1
CRIE 3
CRNE 3
CRIE 5
CRNE 5
CRIE 10
CRNE 10
CRIE 15
CRNE 15
CRIE 20
CRNE
CRNE
CRNE 45
CRNE 64
CRNE 90
20
32

5
Product data CR, CRI, CRN, CRE, CRIE, CRNE
Applications
Application CR, CRI CRN CRE, CRNE
Water supply
Filtration and transfer at waterworks
Distribution from waterworks
Pressure boosting in mains
Pressure boosting in high-rise buildings, hotels, etc.
Pressure boosting for industrial water supply
Industry
Pressure boosting in...
process water systems
washing and cleaning systems
vehicle washing tunnels
fire fighting systems
Liquid transfer in...
cooling and air-conditioning systems (refrigerants)
boiler feed and condensate systems
machine tools (cooling lubricants)
aquafarming
Transfer of...
oils and alcohols
acids and alkalis
glycol and coolants
Water treatment
Ultra-filtration systems
Reverse osmosis systems
Softening, ionising, demineralizing systems
Distillation systems
Separators
Swimming baths
Irrigation
Field irrigation (flooding)
Sprinkler irrigation
Drip-feed irrigation
Recommended version.
Alternative version.
CRT, CRTE version available. For further information about CRT, CRTE pumps see, "Pumped liquids" page 68 or related CRT, CRTE data booklet.

6
Product data CR, CRI, CRN, CRE, CRIE, CRNE
Product range
Range CR 1s CR,
CRE 1 CR,
CRE 3 CR,
CRE 5 CR,
CRE 10 CR,
CRE 15 CR,
CRE 20 CR,
CRE 32 CR,
CRE 45 CR,
CRE 64 CR,
CRE 90
Nominal flow rate [m3/h] 0.8 1 3 5 10152032456490
Temperature range [°C] –20 to +120 –30 to +120
Temperature range [°C] – on request –40 to +180 –40 to +180
Max. pump efficiency [%] 35 48 58 66 70 72 72 78 79 80 81
CR pumps
Flow range [m3/h] 0.3-1.1 0.7-2.4 1.2-4.5 2.5-8.5 5-13 9-24 11-29 15-40 22-58 30-85 45-120
Max. pressure [bar] 21 22 24 24 22 23 25 28 26 20 20
High pressure [bar] – on request - 47 47 47 47 47 47 39 40 39 39
Motor power [kW] 0.37-1.1 0.37-2.2 0.37-3 0.37-5.5 0.37-7.5 1.1-15 1.1-18.5 1.5-30 3-45 4-45 5.5-45
CRE pumps
Flow range [m3/h] - 0.7-2.4 1.2-4.5 2.5-8.5 5-13 8.5-23.5 10.5-29 15-40 22-58 30-85 45-120
Max. pressure [bar] - 22 24 24 22 23 25 28 26 20 20
Motor power [kW] - 0.37-2.2 0.37-3 0.37-5.5 0.37-7.5 1.1-15 1.1-18.5 1.5-22 3-22 4-22 5.5-22
Version
CR, CRE:
Cast iron and
stainless steel EN 1.4301/AISI 304
CRI, CRIE:
Stainless steel EN 1.4301/AISI 304 ----
CRN, CRNE:
Stainless steel EN 1.4401/AISI 316
CRT, CRTE:
Titanium See the CRT, CRTE data booklet.
CR, CRE pipe connection
Oval flange (BSP) Rp 1 Rp 1 Rp 1 Rp 1¼ Rp 1½ Rp 2 Rp 2 - - - -
Oval flange (BSP) – on request Rp 1¼ Rp 1¼ Rp 1¼ Rp 1 Rp 1¼
Rp 2 Rp 2½ Rp 2½ - - - -
Flange DN 25/
DN 32 DN 25/
DN 32 DN 25/
DN 32 DN 25/
DN 32 DN 40 DN 50 DN 50 DN 65 DN 80 DN 100 DN 100
Flange – on request - - - - DN 50 - - DN 80 DN 100 DN 125 DN 125
CRI, CRIE pipe connection
Oval flange (BSP) Rp 1 Rp 1 Rp 1¼ Rp 1¼ Rp 1½ Rp 2 Rp 2 - - - -
Oval flange (BSP) – on request Rp 1¼ Rp 1¼ Rp 1 Rp 1 Rp 2 - - - - - -
Flange DN 25/
DN 32 DN 25/
DN 32 DN 25/
DN 32 DN 25/
DN 32 DN 40 DN 50 DN 50 - - - -
Flange – on request - - - - DN 50 - - - - - -
PJE coupling (Victaulic) R 1¼
DN 32 R 1¼
DN 32 R 1¼
DN 32 R 1¼
DN 32 R 2
DN 50 R 2
DN 50 R 2
DN 50 ----
Clamp coupling (L-coupling) ø48.3 ø48.3 ø48.3 ø48.3 ø60.3 ø60.3 ø60.3 - - - -
Union (+GF+) G 2 G2 G 2 G 2 G 2¾ G 2¾ G 2¾ - - - -
CRN(E) pipe connection
Oval flange (BSP) Rp 1 Rp 1 Rp 1¼ Rp 1¼ Rp 1½ Rp 2 Rp 2 - - - -
Oval flange (BSP) – on request Rp 1¼ Rp 1¼ Rp 1 Rp 1 Rp 2 - - - - - -
Flange DN 25/
DN 32 DN 25/
DN 32 DN 25/
DN 32 DN 25/
DN 32 DN 40 DN 50 DN 50 DN 65 DN 80 DN 100 DN 100
Flange – on request - - - - DN 50 - - DN 80 DN 100 DN 125 DN 125
PJE coupling (Victaulic) R 1¼
DN 32 R 1¼
DN 32 R 1¼
DN 32 R 1¼
DN 32 R 2
DN 50 R 2
DN 50 R 2
DN 50 R 3 1) R 4 1) R 4 1) R 5 1)
Clamp coupling (L-coupling) ø48.3 ø48.3 ø48.3 ø48.3 ø60.3 ø60.3 ø60.3 - - - -
Union (+GF+) G 2 G2 G 2 G 2 G 2¾ G 2¾ G 2¾ - - - -
1) On request

7
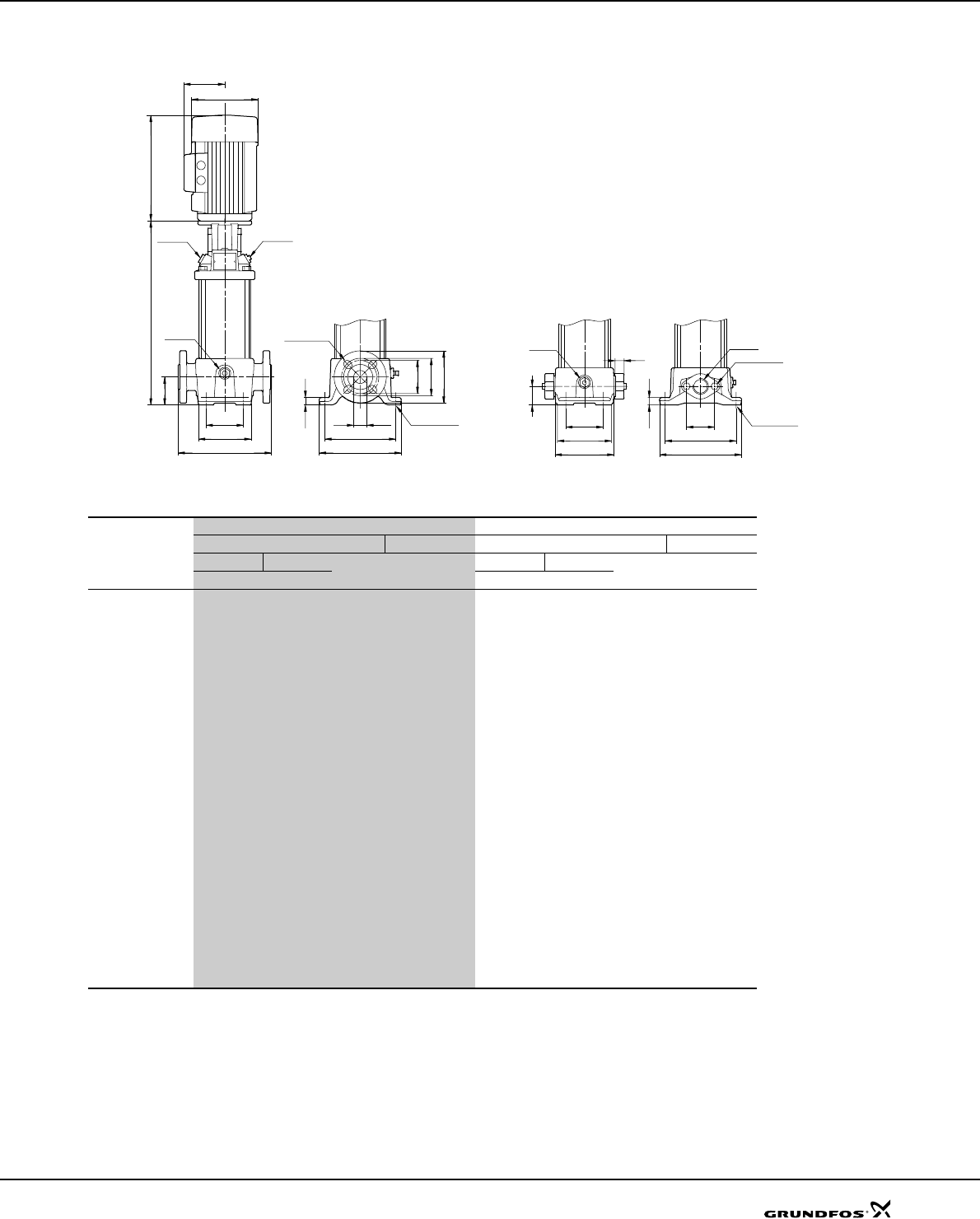
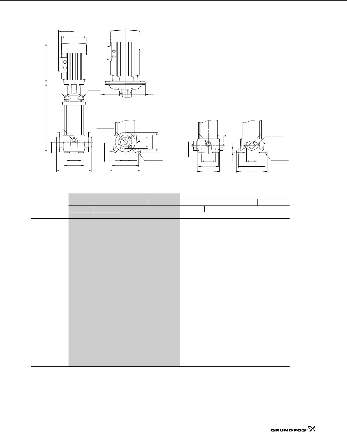
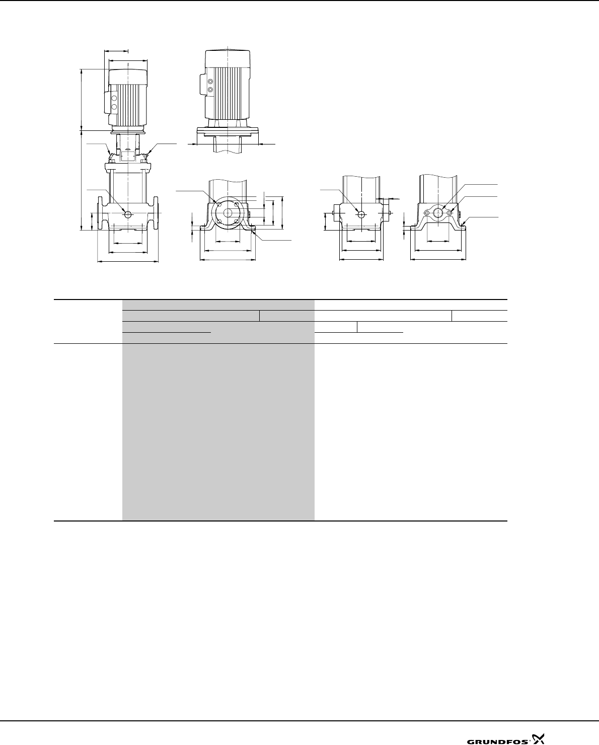
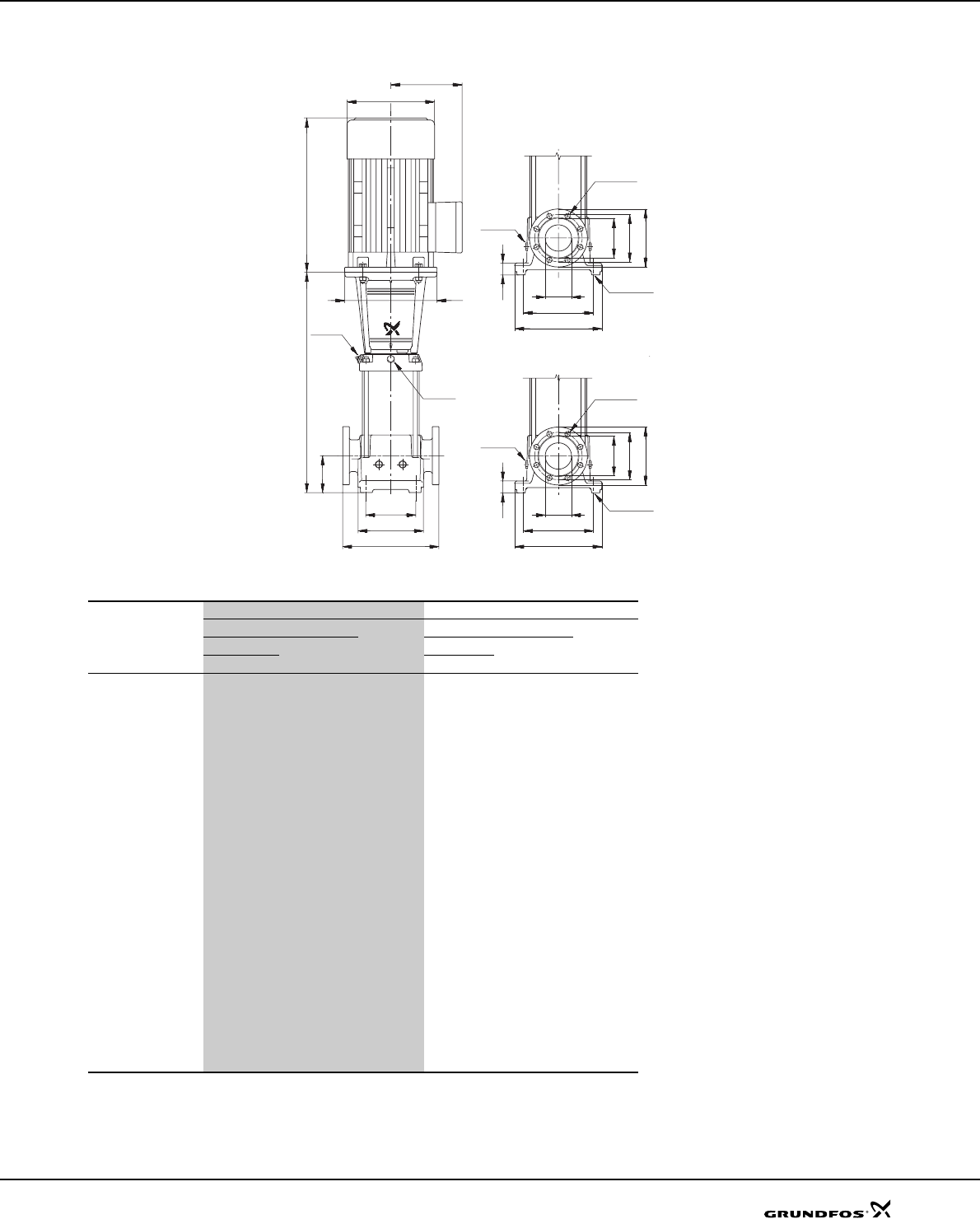
Product data CR, CRI, CRN, CRE, CRIE, CRNE
Pump
The CR and CRE pumps are non-self-priming, vertical
multistage centrifugal pumps.
The pumps are available with a Grundfos standard
motor (CR pumps) or a frequency-controlled motor
(CRE pumps).
The pump consists of a base and a pump head. The
chamber stack and the outer sleeve are secured
between the pump head and the base by means of
staybolts. The base has suction and discharge ports on
the same level (in-line). All pumps are equipped with a
maintenance-free mechanical shaft seal of the car-
tridge type.
Fig. 3 CR pump
Motor
Grundfos standard motors - MG and Siemens motors
CR, CRI and CRN pumps are fitted with a totally
enclosed, fan-cooled, 2-pole Grundfos standard motor
with principal dimensions in accordance with the EN
standards.
Electrical tolerances according to EN 60034.
From 0.37 to 2.2 kW Grundfos offers CR pumps fitted
with single-phase MG motors (1 x 220-230/240 V).
Frequency-controlled motors - MGE
CRE, CRIE and CRNE pumps are fitted with a totally
enclosed, fan-cooled, 2-pole frequency-controlled
motor with principal dimensions in accordance with the
EN standards.
Electrical tolerances according to EN 60034.
From 0.37 to 1.1 kW Grundfos offers CRE pumps fitted
with single-phase MGE motors (1 x 200-240 V).
Electrical data
CR, CRI, CRN pumps
CRE, CRIE, CRNE pumps
Optional motors
The Grundfos standard range of motors covers a wide
variety of application demands. However, for special
applications or operating conditions, custom-built motor
solutions can be provided.
For special applications or operating conditions, Grund-
fos offers custom-built motors such as:
• ATEX approved motors,
• MG motors with anti-condensation heating unit,
• motors with thermal protection.
GR5357 - GR3395
Impellers
Base
Motor
Coupling
Pump head
Outer sleeve
Staybolts
Base plate
Shaft seal
(Cartridge
type
MG motor
Mounting designation Up to 4 kW: V 18
From 5.5 kW: V 1
Insulation class F
Efficiency class EFF 1
(0.37-0.75 kW and 3 kW are EFF 2)
Enclosure class IP 55
Supply voltage
(Tolerance: ±10%)
P2: 0.37-1.5 kW:
3 x 220-240/380-415 V, 50 Hz
P2: 2.2-45 kW:
3 x 380-415, 50 Hz
Supply frequency 50 Hz
IP 44, IP 54 and IP 65 - on request.
MGE motor
(P2 ≤ 7.5 kW) MGE motor
(P2 ≥ 11-22 kW)
Mounting designation Up to 4 kW: V 18
From 5.5 kW: V 1
Insulation class F
Efficiency class EFF 1EFF 2
Enclosure class IP 54
Supply voltage
(Tolerance: ±10%)
P2: 0.37-1.1 kW:
1 x 200-240 V
P2: 0.75-7.5 kW:
3 x 380-480 V
P2: 11-22 kW:
3 x 380-415 V
Supply frequency 50/60 Hz
Single-phase MGE motors are EFF 2.

8
Product data CR, CRI, CRN, CRE, CRIE, CRNE
Motor protection
MG and Siemens motors
Single-phase Grundfos motors have a built-in thermal
overload switch (IEC 34-11: TP 211).
Three-phase motors must be connected to a motor
starter in accordance with local regulations.
Three-phase Grundfos motors from 3 kW and upwards
have a built-in thermistor (PTC) according to DIN
44 082 (IEC 34-11: TP 211).
MGE motors
CRE, CRIE, CRNE pumps require no external motor
protection. The MGE motor incorporates thermal pro-
tection against slow overloading and blocking (IEC 34-
11: TP 211).
Terminal box positions
As standard the terminal box is mounted on the suction
side of the pump.
Fig. 4 Terminal box positions
Ambient temperature
0.37-0.75 kW motors (EFF 2, MG): Max. +40°C.
1.1-11 kW motors (EFF 1, MG): Max. +60°C.
15-45 kW motors (EFF 1, Siemens): Max. +55°C.
If the ambient temperature exceeds above maximum
values or if the motor is located 1000 metres above sea
level, the motor output (P2) must be reduced due to the
low density and consequently low cooling effect of the
air. In such cases, it may be necessary to use a motor
with a higher rated output.
Fig. 5 Relationship between motor output (P2) and am-
bient temperature
Viscosity
The pumping of liquids with densities or kinematic vis-
cosities higher than those of water will cause a consid-
erable pressure drop, a drop in the hydraulic
performance and a rise in the power consumption.
In such situations the pump should be equipped with a
larger motor. If in doubt, contact Grundfos.
TM02 18 05 2001
Stellung 6 Stellung 9 Stellung 12 Stellung 3
Position 6
Standard Position 9 Position 12 Position 3
TM03 1868 3305
20 25 30 35 40 45 50 55 60 65 70 75 80
50
60
70
80
90
100
[%]
P2
EFF 2, MG
EFF 1, MG
EFF 1, Siemens
t [°C]
1000 2250 3500 4750 m

9
CR, CRI, CRN, CRE, CRIE, CRNE
Control of E-pumps
Examples of E-pump applications
CRE, CRIE and CRNE pumps are the ideal solution in
a number of applications characterized by a need for
variable flow at constant pressure. The pumps are
suited for water supply systems and pressure boosting,
but also industrial applications.
Depending on the nature of the application, the pumps
offer energy-savings, increased comfort and improved
processing.
E-pumps in the service of industry
Industry uses a large number of pumps in many differ-
ent applications. Demands on pumps in terms of pump
performance and mode of operation make speed con-
trol a must in many applications.
Below is mentioned some of the applications in which
E-pumps are often used.
Constant pressure
• Water supply,
• Washing and cleaning systems,
• Distribution from waterworks,
• Humidifying systems,
• Water treatment systems,
• Process boosting systems, etc.
Example: Within industrial water supply, E-pumps with
integrated pressure sensor are used to ensure a con-
stant pressure in the piping network. From the sensor,
the E-pump receives inputs about changes of pressure
as a result of changes in the consumption. The E-pump
responds to the input by adjusting the speed until the
pressure is equalized. The constant pressure is stabi-
lized once more on the basis of a preset setpoint.
Constant temperature
• Air-conditioning systems at industrial plants,
• Industrial cooling systems,
• Industrial freezing systems,
• Casting and moulding tools, etc.
Example: In industrial freezing systems, E-pumps with
temperature sensor increase comfort and lower operat-
ing costs compared with pumps without a temperature
sensor.
An E-pump continuously adapts its performance to the
changing demands reflected in the differences in tem-
perature of the liquid circulating in the freezing system.
Thus, the lower the demand for cooling, the smaller the
quantity of liquid circulated in the system and vice
versa.
Constant flow
• Steam boiler systems,
• Condensate systems,
• Sprinkler irrigation systems,
• Chemical industry, etc.
Example: In a steam boiler, it is important to be able to
monitor and control pump operation to maintain a con-
stant level of water in the boiler.
By using an E-pump with level sensor in the boiler, it is
possible to maintain a constant water level.
A constant water level ensures optimum and cost-effi-
cient operation as a result of a stable steam production.
Dosing applications
• Chemical industry (i.e. control of pH-values),
• Petrochemical industry,
• Paint industry,
• Degreasing systems,
• Bleaching systems, etc.
Example: In the petrochemical industry, E-pumps with
pressure sensor are used as dosing pumps. The E-
pumps helps to ensure that the correct mixture ratio is
achieved when more liquids are combined.
E-pumps functioning as dosing pumps improves
processing and offer energy-savings.
E-pumps in commercial building services
Commercial building services use E-pumps to maintain
a constant pressure or a constant temperature based
on a variable flow.
Constant pressure
• Water supply in high-rise buildings i.e. office build-
ings, hotels, etc.
Example: E-pumps with pressure sensor are used for
water supply in high-rise buildings to ensure a constant
pressure even at the highest draw-off point. As the con-
sumption pattern and thus the pressure changes during
the day, the E-pump continuously adapts its perform-
ance until the pressure is equalized.
Constant temperature
• Air-conditioning systems in hotels, schools,
• Building cooling systems, etc.
Example: E-pumps are an excellent solution in build-
ings where constant temperature is essential. E-pumps
keep the temperature constant in air-conditioned high-
rise glass buildings, irrespective of the seasonal fluctu-
ations of the out-door temperature, and various heat
impacts inside the building.

10
Control of E-pumps CR, CRI, CRN, CRE, CRIE, CRNE
Control options of E-pumps
Communication with CRE, CRIE, CRNE pumps is pos-
sible by means of
• a central management system,
• remote control (Grundfos R100) or
• a control panel.
The purpose of controlling an E-pump is to monitor and
control the pressure, temperature, flow and liquid level
of the system.
Central management system
Communication with the E-pump is possible even
though the operator is not present near the E-pump.
Communication is enabled by having connected the E-
pump to a central management system allowing the
operator to monitor and change control modes and set-
point settings of the E-pump.
Fig. 6 Structure of a central management system
Remote control
The R100 remote control produced by Grundfos is
available as an accessory.
The operator communicates with the E-pump by point-
ing the IR-signal transmitter at the control panel of the
E-pump terminal box.
Fig. 7 R100 remote control
On the R100 display it is possible to monitor and
change control modes and settings of the E-pump.
Control panel
The control panel of the E-pump terminal box makes it
possible to change the setpoint settings manually.
Fig. 8 Control panel on CRE pump
TM02 6592 1404
Control manage-
ment system
LON connection
LON
Interface
eg.G10 or G100
GENIbus connection
E-pump
TM00 4498 2802TM00 7600 0404
Buttons
Light fields
Indicator lights

11
Control of E-pumps CR, CRI, CRN, CRE, CRIE, CRNE
Control modes for E-pumps
Grundfos offers CRE, CRIE and CRNE pumps in two
different variants:
• CRE, CRIE and CRNE with integrated pressure
sensor
• CRE, CRIE and CRNE without sensor.
CRE, CRIE, CRNE with integrated
pressure sensor
CRE, CRIE and CRNE pumps with integrated pressure
sensor are suitable for applications where you want to
control the pressure after the pump, irrespective of the
flow. For further information, see the section "Examples
of E-pump applications" page 9.
Signals of pressure changes in the piping system are
transmitted continuously from the sensor to the pump.
The pump responds to the signals by adjusting its per-
formance up or down to compensate for the pressure
difference between the actual and the desired pres-
sure. As this adjustment is a continuous process, a con-
stant pressure is maintained in the piping system.
Fig. 9 CRE, CRIE and CRNE pumps
A CRE, CRIE or CRNE pump with integrated pressure
sensor facilitates installation and commissioning.
CRE, CRIE and CRNE pumps with integrated pressure
sensor can be set to:
• constant-pressure mode (factory setting) or
• constant-curve mode.
In constant-pressure mode, the pump maintains a
preset pressure after the pump, irrespective of the flow,
see figure below.
Fig. 10 Constant pressure mode
In constant-curve mode, the pump is not controlled. It
can be set to pump according to a preset pump charac-
teristic within the range from min. curve to max. curve,
see figure below.
Fig. 11 Constant curve mode
CRE, CRIE and CRNE without sensor
CRE, CRIE and CRNE pumps without sensor are suit-
able for applications where
• uncontrolled operation is required
• you want to fit another sensor later in order to con-
trol the flow, temperature, differential temperature,
liquid level, pH value, etc at some arbitrary point in
the system.
CRE, CRIE and CRNE pumps without sensor can be
set to:
• controlled-operation mode or
• uncontrolled-operation mode (factory-setting).
In controlled-operation mode, the pump adjusts its
performance to the desired setpoint, see figure below.
Fig. 12 Constant flow mode
In uncontrolled-operation mode, the pump operates
according to the constant curve set, see figure below.
Fig. 13 Constant curve mode
CRE, CRIE and CRNE pumps can be fitted with sensor
types meeting the requirements mentioned in the data
booklet titled "Grundfos E-pumps".
TM02 7398 3403TM00 9322 4796
set
H
H
Q
TM00 9323 1204TM02 7264 2803TM00 9323 1204
H
Q
Min.
Max.
Q
set
H
Q
Min.
Max.
H
Q
Min.
Max.

CR, CRI, CRN, CRE, CRIE, CRNE
12
Construction
CR(E) 1s, 1, 3, 5, 10, 15 and 20
Sectional drawing
Materials: CR(E)
CRI(E), CRN(E) 1s, 1, 3, 5, 10, 15
and 20
Sectional drawing
Materials: CRI(E), CRN(E)
TM02 1198 0601 - GR7377 - GR7379TM02 1194 1403
Pos. Designation Materials EN/DIN AISI/ASTM
1 Pump head Cast iron
EN-GJL-200 EN-JL1030 ASTM 25B
3 Shaft Stainless steel 1.4401 AISI 316
AISI 431
4 Impeller Stainless steel 1.4301 AISI 304
5 Chamber Stainless steel 1.4301 AISI 304
6 Outer sleeve Stainless steel 1.4301 AISI 304
7O-ring for
outer sleeve EPDM or FKM
8Base Cast iron
EN-GJL-200 EN-JL1030 ASTM 25B
9 Neck ring PTFE
10 Shaft seal
Rubber parts EPDM or FKM
1
3
10
4
5
9
8
6
7
TM02 1808 2001 - GR7373 - GR7375TM02 1195 1403
Pos. Designation Materials EN/DIN AISI/ASTM
1 Pump head Cast iron
EN-GJL-200 1) EN-JL1030 ASTM 25B
2Pump head
cover Stainless steel 1.4408 CF 8M eq. to
AISI 316
3 Shaft Stainless steel 1.4401 2)
1.4460 3) AISI 316
AISI 329
8 Base Stainless steel 1.4408 CF 8M eq. to
AISI 316
9Neck ring PTFE
10 Shaft seal Cartridge type
11 Base plate Cast iron
EN-GJL-200 1) EN-JL1030 ASTM 25B
Rubber parts EPDM or FKM
CRI(E)
4 Impeller Stainless steel 1.4301 AISI 304
5 Chamber Stainless steel 1.4301 AISI 304
6 Outer sleeve Stainless steel 1.4301 AISI 304
7O-ring for
outer sleeve EPDM or FKM
CRN(E)
4 Impeller Stainless steel 1.4401 AISI 316
5 Chamber Stainless steel 1.4401 AISI 316
6 Outer sleeve Stainless steel 1.4401 AISI 316
7O-ring for
outer sleeve EPDM or FKM
1) Stainless steel available on request.
2) CRI(E), CRN(E) 1S, 1, 3, 5
3) CRI(E), CRN(E) 10, 15, 20
1
210
4
5
9
8
6
3
11
7

13
Construction CR, CRI, CRN, CRE, CRIE, CRNE
CR(E) 32, 45, 64 and 90
Sectional drawing
Materials: CR(E)
CRN(E) 32, 45, 64 and 90
Sectional drawing
Materials: CRN(E)
TM01 2150 1298 - GR5952TM01 1836 1403
Pos. Designation Materials EN/DIN AISI/ASTM
1 Pump head Cast iron
EN-GJS-500-7 EN-JS1050 ASTM
80-55-06
2 Motor stool Cast iron
EN-GJL-200 EN-JL1030 ASTM 25B
3 Shaft Stainless steel 1.4057 AISI 431
4 Impeller Stainless steel 1.4301 AISI 304
5 Chamber Stainless steel 1.4301 AISI 304
6 Outer sleeve Stainless steel 1.4301 AISI 304
7O-ring for
outer sleeve EPDM or FKM
8Base Cast iron
EN-GJS-500-7 EN-JS1050 ASTM
80-55-06
9Neck ring Carbon-graphite
filled PTFE
10 Shaft seal
11 Bearing ring Bronze
12 Bottom bear-
ing ring
Tungsten car-
bide/Tungsten
carbide
Rubber parts EPDM or FKM
2
3
1
5
9
4
6
11
8
12
10
7
TM02 7399 3403TM01 1837 1403
Pos. Designation Materials EN/DIN AISI/ASTM
1 Pump head Stainless steel 1.4408 CF 8M eq. to
AISI 316
2 Motor stool Cast iron
EN-GJL-200 1) EN-JL1030 ASTM 25B
3 Shaft Stainless steel 1.4462
4 Impeller Stainless steel 1.4401 AISI 316
5 Chamber Stainless steel 1.4401 AISI 316
6 Outer sleeve Stainless steel 1.4401 AISI 316
7O-ring for
outer sleeve EPDM or FKM
8 Base Stainless steel 1.4408 CF 8M eq. to
AISI 316
9 Neck ring Carbon-graphite
filled PTFE
10 Shaft seal
11 Bearing ring Carbon-graphite
filled PTFE
12 Bottom bear-
ing ring
Tungsten car-
bide/Tungsten
carbide
13 Base plate Cast iron
EN-GJS-500-71) EN-JS1050 ASTM
88-55-06
Rubber parts EPDM or FKM
1) Stainless steel available on request.
2
1
5
9
4
6
11
8
12
7
13
3
10
2
1
5
9
4
6
11
8
12
7
13
3
10

14
Construction CR, CRI, CRN, CRE, CRIE, CRNE
Type keys
CR(E), CRI(E), CRN(E)
Codes
Example CR E32 (s) -4 -2 -A -F -G -E -HQQE
Type range:
CR, CRI, CRN
Pump with integrated frequency
control
Flow rate [m3/h]
All impellers with reduced diameter
(applies only to CR, CRI, CRN 1s)
Number of impellers
Number of reduced-diameter impellers
(CR(E), CRN(E) 32, 45, 64, 90)
Code for pump version
Code for pipe connection
Code for materials
Code for rubber parts
Code for shaft seal
Example A -F -A -E -H QQ E
Pump version
ABasic version
B Oversize motor
FCR pump for high temperatures
(air-cooled top assembly)
H Horizontal version
HS High-pressure pump with high
speed MGE motor
I Different pressure rating
J Pump w/different max. speed
K Pump with low NPSH
M Magnetic drive
N Fitted with sensor
P Undersize motor
RHorizontal version with bearing
bracket
SF High pressure pump
X Special version
Pipe connection
A Oval flange
BNPT thread
CA FlexiClamp (CRI(E), CRN(E)
1, 3, 5, 10, 15, 20)
F DIN flange
G ANSI flange
J JIS flange
N Changed diameter of ports
P PJE coupling
X Special version
Materials
ABasic version
DCarbon-graphite filled PTFE
(bearings)
G Wetted parts 1.4401/AISI 316
GI All parts stainless steel, wetted
parts 1.4401/AISI 316
I Wetted parts 1.4301/AISI 304
II All parts stainless steel, wetted
parts 1.4301/AISI 304
K Bronze (bearings)
S SiC bearings + PTFE neck rings
X Special version
Code for rubber parts
E EPDM
FFXM
KFFKM
VFKM
Shaft seal
H Balanced cartridge seal
Q Silicon carbide
U Tungsten carbide
B Carbon
E EPDM
FFXM
KFFKM
VFKM

15
CR, CRI, CRN, CRE, CRIE, CRNE
Operating and inlet
pressures
Maximum operating pressure and
temperature range
Operating range of the shaft seal
The operating range of the shaft seal depends on oper-
ating pressure, pump type, type of shaft seal and liquid
temperature. The following curves apply to clean water
and water with anti-freeze liquids. For selecting the
right shaft seal, see ’List of pumped liquids’ page 68.
Fig. 14 Operating range of standard shaft seals
In case of extreme temperatures, i.e.
• low temperatures down to –40°C or
• high temperatures up to +180°C,
see "List of variants - on request" on page 79.
Oval flange PJE, Clamp, UNION, DIN
TM02 1379 1101
TM02 1383 1101
Maximum operating pressureand temperature range Max. permissible
operating pressure Liquid temperature
range Max. permissible
operating pressure Liquid temperature
range
CR, CRI, CRN 1s 16 bar –20°C to +120°C 25 bar –20°C to +120°C
CR(E), CRI(E), CRN(E) 1 16 bar –20°C to +120°C 25 bar –20°C to +120°C
CR(E), CRI(E), CRN(E) 3 16 bar –20°C to +120°C 25 bar –20°C to +120°C
CR(E), CRI(E), CRN(E) 5 16 bar –20°C to +120°C 25 bar –20°C to +120°C
CR(E), CRI(E), CRN(E) 10-1
CR(E), CRI(E), CRN(E) 10-16 16 bar –20°C to +120°C 16 bar –20°C to +120°C
CR(E), CRI(E), CRN(E) 10-17
CR(E), CRI(E), CRN(E) 10-22 - - 25 bar –20°C to +120°C
CR(E), CRI(E), CRN(E) 15-1
CR(E), CRI(E), CRN(E) 15-7 10 bar –20°C to +120°C - -
CR(E), CRI(E), CRN(E) 15-1
CR(E), CRI(E), CRN(E) 15-10 - - 16 bar –20°C to +120°C
CR(E), CRI(E), CRN(E) 15-12
CR(E), CRI(E), CRN(E) 15-17 - - 25 bar –20°C to +120°C
CR(E), CRI(E), CRN(E) 20-1
CR(E), CRI(E), CRN(E) 20-7 10 bar –20°C to +120°C - -
CR(E), CRI(E), CRN(E) 20-1
CR(E), CRI(E), CRN(E) 20-10 - - 16 bar –20°C to +120°C
CR(E), CRI(E), CRN(E) 20-12
CR(E), CRI(E), CRN(E) 20-17 - - 25 bar –20°C to +120°C
CR(E), CRN(E) 32-1-1 CR(E), CRN(E) 32-7 - - 16 bar –30°C to +120°C
CR(E), CRN(E) 32-8-2 CR(E), CRN(E) 32-14 - - 30 bar –30°C to +120°C
CR(E), CRN(E) 45-1-1 CR(E), CRN(E) 45-5 - - 16 bar –30°C to +120°C
CR(E), CRN(E) 45-6-2 CR, CRN 45-11 - - 30 bar –30°C to +120°C
CR, CRN 45-12-2 CR, CRN 45-13-2 - - 33 bar –30°C to +120°C
CR(E), CRN(E) 64-1-1 CR(E), CRN(E) 64-5 - - 16 bar –30°C to +120°C
CR, CRN 64-6-2 CR, CRN 64-8-1 - - 30 bar –30°C to +120°C
CR(E), CRN(E) 90-1-1 CR(E), CRN(E) 90-4 - - 16 bar –30°C to +120°C
CR, CRN 90-5-2 CR, CRN 90-6 - - 30 bar –30°C to +120°C
TM03 2107 3705
-60 -40 -20 020 40 60 80 100 120 140
0
5
10
15
20
25
30
35
p [bar]
HQQE
HQQV
H
Q
Q
E
H
Q
Q
E
t [°C]
Shaft
seal Description Max. temp. range [°C]
HQQE O-ring (cartridge) (balanced
seal), SiC/SiC, EPDM –40°C to +120°C
HQQV O-ring (cartridge) (balanced
seal), SiC/SiC, FKM –20°C to +90°C

16
Operating and inlet
pressures
CR, CRI, CRN, CRE, CRIE, CRNE
Maximum inlet pressure
The following table shows the maximum permissible
inlet pressure. However, the current inlet pressure + the
pressure against a closed valve must always be lower
than the maximum permissible operating pressure.
If the maximum permissible operating pressure is
exceeded, the conical bearing in the motor may be
damaged and the life of the shaft seal reduced.
Examples of operating and inlet pressures
The values for operating and inlet pressures shown in
the table must not be considered individually but must
always be compared, see the following examples:
Example 1:
The following pump type has been selected:
CR 5-16 A-A-A
Max. operating pressure: 16 bar
Max. inlet pressure: 10 bar
Discharge pressure against a closed valve: 10.6 bar,
see page 41.
This pump is not allowed to start at an inlet pressure of
10 bar, but at an inlet pressure of 16.0 – 10.6 = 5.4 bar.
Example 2:
The following pump type has been selected:
CR 10-2 A-A-A
Max. operating pressure: 16 bar
Max. inlet pressure: 8.0 bar
Discharge pressure against a closed valve: 2.0 bar,
see page 73.
This pump is allowed to start at an inlet pressure of 8.0
bar, as the discharge pressure against a closed valve is
only 2.0 bar, which results in an operating pressure of
8.0 + 2.0 = 10.0 bar. On the contrary, the max. operat-
ing pressure of this pump is limited to 16.0 bar, as a
higher operating pressure will require an inlet pressure
of more than 8.0 bar.
In case the inlet or operating pressure exceeds the
pressure permitted, see "Lists of variants - on request"
page 79.
CR, CRI, CRN 1s
1s-2 › 1s-36 10 bar
CR(E), CRI(E), CRN(E) 1
1-2 › 1-36 10 bar
CR(E), CRI(E), CRN(E) 3
3-2 › 3-29
3-31 › 3-36 10 bar
15 bar
CR(E), CRI(E), CRN(E) 5
5-2 › 5-16
5-18 › 5-36 10 bar
15 bar
CR(E), CRI(E), CRN(E) 10
10-1 › 10-6
10-7 › 10-22 8 bar
10 bar
CR(E), CRI(E), CRN(E) 15
15-1 › 15-3
15-4 › 15-17 8 bar
10 bar
CR(E), CRI(E), CRN(E) 20
20-1 › 20-3
20-4 › 20-17 8 bar
10 bar
CR(E), CRN(E) 32
32-1-1 › 32-4
32-5-2 › 32-10
32-11 › 32-14
4 bar
10 bar
15 bar
CR(E), CRN(E) 45
45-1-1 › 45-2
45-3-2 › 45-5
45-6-2 › 45-13-2
4 bar
10 bar
15 bar
CR(E), CRN(E) 64
64-1-1 › 64-2-2
64-2-1 › 64-4-2
64-4-1 › 64-8-1
4 bar
10 bar
15 bar
CR(E), CRN(E) 90
90-1-1 › 90-1
90-2-2 › 90-3-2
90-3 › 90-6
4 bar
10 bar
15 bar

17
CR, CRI, CRN, CRE, CRIE, CRNE
Selection and sizing
Selection of pumps
Selection of pumps should be based on:
• The duty point of the pump (see section 1)
• Dimensional data such as pressure loss as a result
of height differences, friction loss in the pipework,
pump efficiency etc. (see section 2)
• Pump materials (see section 3)
• Pump connections (see section 4)
• Shaft seal (see section 5).
1. Duty point of the pump
From a duty point it is possible to select a pump on the
basis of the curve charts shown in "Performance
curves" from page 29.
Fig. 15 Example of a curve chart
2. Dimensional data
When sizing a pump the following must be taken into
account:
• Required flow and pressure at the draw-off point.
• Pressure loss as a result of height differences
(Hgeo).
• Friction loss in the pipework (Hf).
It may be necessary to account for pressure loss in
connection with long pipes, bends or valves, etc.
• Best efficiency at the estimated duty point.
• NPSH value.
For calculation of the NPSH value, see "Minimum
inlet pressure - NPSH", page 20.
Pump efficiency
Before determining the best efficiency point, the opera-
tion pattern of the pump needs to be identified.
Is the pump expected to operate at the same duty point,
then select a CR pump which is operating at a duty
point corresponding with the best efficiency of the
pump.
Fig. 16 Example of a CR pump’s duty point
As the pump is sized on the basis of the highest possi-
ble flow, it is important always to have the duty point to
the right on the efficiency curve (eta) in order to keep
efficiency high when the flow drops.
Fig. 17 Best efficiency
Fig. 18 Dimensional data
TM02 7302 3103
04812 16 20 24 28 32 36
Q [m³/h]
0
20
40
60
80
100
120
140
160
180
200
220
240
260
280
H
[m]
0246810
Q [l/s]
0.0
0.4
0.8
1.2
1.6
2.0
2.4
[MPa]
p
CR, CRE 32
50 Hz
ISO 9906 Annex A
-11 -11-2
-12 (E) -12-2
-13 -13-2
-14 -14-2
-1 (E) -1-1 (E)
-10 (E) -10-2
-2 (E) -2-2 (E)
-3 (E) -3-2
-4 (E) -4-2
-5 -5-2
-6 (E) -6-2
-7 -7-2
-8 (E) -8-2
-9 -9-2
04812 16 20 24 28 32 36
Q [m³/h]
0.0
0.5
1.0
1.5
2.0
P2
[kW]
0
20
40
60
80
[%]
Eta
0.0
0.8
1.6
2.4
[hp]
P2
P2 1/1
P2 2/3
Eta
04812 16 20 24 28 32 36
Q [m³/h]
0
5
10
15
20
[m]
H
0
2
4
6
8
NPSH
[m]
0
40
80
120
160
200
[kPa]
p
QH 2900 rpm 1/1
QH 2900 rpm 2/3 NPSH
TM02 7302 3103TM00 9190 1303TM02 6711 1403
0 4 8 12 16 20 24 28 32 36
Q [m³/h]
0
20
40
60
80
100
120
140
160
180
200
220
240
260
280
H
[m]
0246810
Q [l/s]
0.0
0.4
0.8
1.2
1.6
2.0
2.4
[MPa]
p
CR, CRE 32
50 Hz
ISO 9906 Annex A
-11 -11-2
-12 (E) -12-2
-13 -13-2
-14 -14-2
-1 (E) -1-1 (E)
-10 (E) -10-2
-2 (E) -2-2 (E)
-3 (E) -3-2
-4 (E) -4-2
-5 -5-2
-6 (E) -6-2
-7 -7-2
-8 (E) -8-2
-9 -9-2
0 4 8 12 16 20 24 28 32 36
Q [m³/h]
0.0
0.5
1.0
1.5
2.0
P2
[kW]
0
20
40
60
80
[%]
Eta
0.0
0.8
1.6
2.4
[hp]
P2
P2 1/1
P2 2/3
Eta
0 4 8 12 16 20 24 28 32 36
Q [m³/h]
0
5
10
15
20
[m]
H
0
2
4
6
8
NPSH
[m]
0
40
80
120
160
200
[kPa]
p
QH 2900 rpm 1/1
QH 2900 rpm 2/3 NPSH
Duty
point
Best effi-
ciency
Eta
Q [ m
3
/h ]
NPSH
Hgeo
HfRequired flow,
required pressu
r

18
Selection and sizing CR, CRI, CRN, CRE, CRIE, CRNE
Normally, E-pumps are used in applications character-
ized by a variable flow. Consequently, it is not possible
to select a pump that is constantly operating at optimum
efficiency.
In order to achieve optimum operating economy, the
pump should be selected on the basis of the following
criteria:
• The max. duty point required should be as close as
possible to the QH curve of the pump.
• The required duty point should be positioned so that
P2 is close to the max. point of the QH curve.
Between the min. and max. performance curve E-
pumps have an infinite number of performance curves
each representing a specific speed. Therefore it may
not be possible to select a duty point close to the 100%
curve.
Fig. 19 Min. and max. performance curves
In situations where it is not possible to select a duty
point close to the 100% curve the below affinity equa-
tions can be used. The head (H), the flow (Q) and the
input power (P) are all the appropriate variables for the
motor speed (n).
Note:
The approximated formulas apply on condition that the
system characteristic remains unchanged for nn and nx
and that it is based on the formula H = k x Q2 , where k
is a constant.
The power equation implies that the pump efficiency is
unchanged at the two speeds. In practice this is not
quite correct.
Finally, it is worth noting that the efficiencies of the fre-
quency converter and the motor must be taken into
account if a precise calculation of the power saving
resulting from a reduction of the pump speed is wanted.
Fig. 20 Affinity equations
Legend
WinCAPS and WebCAPS
WinCAPS and WebCAPS are both selection pro-
grammes offered by Grundfos.
The two programmes make it possible to calculate an
E-pump’s specific duty point and energy consumption.
By entering the dimensional data of the pump, Win-
CAPS and WebCAPS can calculate the exact duty point
and energy comsumption. For further information see
page 80 and page 81.
TM01 4916 4803
Max. curve
Min. curve
TM00 8720 3496
HnRated head in metres
HxCurrent head in metres
QnRated flow in m3/h
QxCurrent flow in m3/h
nnRated motor speed in min-1 (nn = 2900 min-1)
nxCurrent motor speed in min-1
ηnRated efficiency in %
ηxCurrent efficiency in %
H
Q
Eta
Q
P
Q
Qn
Qx
--------nn
nx
------
=
Hn
nn
nx
ηn
ηx
-------1≈
Qn
Qx
Hx
Qx
Pn
Px
------- nn
nx
------
⎝⎠
⎜⎟
⎛⎞
3
=
Qn
Pn
Hn
Hx
------- nn
nx
------
⎝⎠
⎜⎟
⎛⎞
2
=
Px
nn
nx
nxnn

19
Selection and sizing CR, CRI, CRN, CRE, CRIE, CRNE
3. Pump material
The material variant (CR(E), CRI(E), CRN(E)) should
be selected based of the liquid to be pumped. The prod-
uct range covers the following three basic types.
• The CR(E), CRI(E) pump types are suitable for
clean, non-aggressive liquids such as potable wa-
ter, oils, etc.
• The CRN(E) pump type is suitable for industrial liq-
uids and acids, see” "List of pumped liquids" on
page 68 or contact Grundfos.
For saline or chloride-containing liquids such as sea
water, CRT(E) pumps of titanium are available.
4. Pump connections
Selection of pump connection depends on the rated
pressure and pipework. To meet any requirement the
CR(E), CRI(E) and CRN(E) pumps offer a wide range
of flexible connections such as:
• Oval flange (BSP)
• DIN flange
• PJE coupling
• Clamp coupling
• Union (+GF+)
• Other connections on request.
5. Shaft seal
As standard, the CR(E) range is fitted with a Grundfos
shaft seal (cartridge type) suitable for the most common
applications.
The following key parameters must be taken into
account, when selecting the shaft seal:
• Type of pumped liquid
• liquid temperature and
• maximum pressure.
Grundfos offers a wide range of shaft seal variants to
meet specific demands see "List of pumped liquids" on
page 68.
Inlet pressure and operating pressure
The limit values stated on page 15 and page 16 must
not be exceeded as regards ...
• maximum inlet pressure and
• maximum operating pressure.
Fig. 21 CR pump
Fig. 22 Pump connections
Fig. 23 Shaft seal (cartridge type)
Fig. 24 Inlet and operating pressure
TM01 2100 1198TM02 1201 0601TM02 0538 4800TM02 1204 060
A (oval)
F (DIN)
P (PJE)

20
Selection and sizing CR, CRI, CRN, CRE, CRIE, CRNE
Minimum inlet pressure - NPSH
Calculation of the inlet pressure "H" is recommended
when
• the liquid temperature is high,
• the flow is significantly higher than the rated flow,
• water is drawn from depths,
• water is drawn through long pipes,
• inlet conditions are poor.
To avoid cavitation, make sure that there is a minimum
pressure on the suction side of the pump. The maxi-
mum suction lift "H" in metres head can be calculated
as follows:
H = pb x 10.2 – NPSH – Hf – Hv – Hs
pb= Barometric pressure in bar.
(Barometric pressure can be set to 1 bar).
In closed systems, pb indicates the system
pressure in bar.
NPSH= Net Positive Suction Head in metres head.
(To be read from the NPSH curve at the
highest flow the pump will be delivering).
Hf = Friction loss in suction pipe in metres head.
(At the highest flow the pump will be deliver-
ing.)
Hv= Vapour pressure in metres head.
(To be read from the vapour pressure scale.
"Hv" depends on the liquid temperature "Tm").
Hs = Safety margin = minimum 0.5 metres head.
If the "H" calculated is positive, the pump can operate
at a suction lift of maximum "H" metres head.
If the "H" calculated is negative, an inlet pressure of
minimum "H" metres head is required.
Fig. 25 Minimum inlet pressure - NPSH
Note: In order to avoid cavitation never select a pump
with a duty point too far to the right on the NPSH curve.
Always check the NPSH value of the pump at the high-
est possible flow.
TM02 7439 3403
20
15
12
10
8,0
6,0
5,0
4,0
3,0
2,0
1,0
0,8
0,6
0,4
0,3
0,2
0,1
1,5
120
110
90
100
80
70
60
50
40
30
20
10
0
Hv
(m)
tm
(°C)
150
130
140
25
35
45
40
30
160
170
180
190
62
79
100
126
Hf
Pb
H
Hv
NPSH

21
Selection and sizing CR, CRI, CRN, CRE, CRIE, CRNE
How to read the curve charts
Fig. 26 How to read the curve charts
Guidelines to performance curves
The guidelines below apply to the curves shown on the
following pages:
• Tolerances to ISO 9906, Annex A, if indicated.
• The motors used for the measurements are stand-
ard Grundfos motors (MG or MGE).
• Measurements have been made with airless water
at a temperature of 20°C.
• The curves apply to a kinematic viscosity of
υ=1mm
2/s (1 cSt).
• Due to the risk of overheating, the pumps should not
be used at a flow below the minimum flow rate.
• The QH curves apply to a rated motor speed of
2900 min-1. All curves are based on current motor
speeds.
The curve below shows the minimum flow rate as a per-
centage of the nominal flow rate in relation to the liquid
temperature. The dotted line shows a CR pump fitted
with an air-cooled top assembly.
Fig. 27 Minimum flow rate
TM02 7302 3103
0 4 8 12 16 20 24 28 32 36
Q [m³/h]
0
20
40
60
80
100
120
140
160
180
200
220
240
260
280
H
[m]
0246810
Q [l/s]
0.0
0.4
0.8
1.2
1.6
2.0
2.4
[MPa]
p
CR, CRE 32
50 Hz
ISO 9906 Annex A
-11 -11-2
-12 (E) -12-2
-13 -13-2
-14 -14-2
-1 (E) -1-1 (E)
-10 (E) -10-2
-2 (E) -2-2 (E)
-3 (E) -3-2
-4 (E) -4-2
-5 -5-2
-6 (E) -6-2
-7 -7-2
-8 (E) -8-2
-9 -9-2
0 4 8 12 16 20 24 28 32 36
Q [m³/h]
0.0
0.5
1.0
1.5
2.0
P2
[kW]
0
20
40
60
80
[%]
Eta
0.0
0.8
1.6
2.4
[hp]
P2
P2 1/1
P2 2/3
Eta
0 4 8 12 16 20 24 28 32 36
Q [m³/h]
0
5
10
15
20
[m]
H
0
2
4
6
8
NPSH
[m]
0
40
80
120
160
200
[kPa]
p
QH 2900 rpm 1/1
QH 2900 rpm 2/3 NPSH
QH curve for each individual impeller. Curves for complete (1/1) and reduced-diameter (2/3) impellers are
Number of stages.
First figure: number of
stages; second figure:
number of reduced-diameter
impellers.
The power curves indicate
pump input power per stage.
Curves are shown for com-
plete (1/1) and for reduced-
diameter (2/3) impellers.
Pump type, frequency and
ISO standard.
QH curve for the individual pump.
The bold curves indicate the rec-
ommended duty range for best
efficiency.
The eta curve shows the effi-
ciency of the pump. The eta curve
is an average curve of all the
pump types shown in the chart.
The efficiency of pumps with re-
duced-diameter impellers is ap-
prox. 2% lower than the eta curve
shown in the chart.
The NPSH curve is an average
curve for all the variants shown.
When sizing the pumps, add a
safety margin of at least 0.5 m.
TM01 2816 0303
40 60 80 100 120 140 160 180t [°C]
0
10
20
30
Qmin
[%]
CR

22
Performance curves
Technical data
CR 1s
TM02 7424 3605
0.0 0.1 0.2 0.3 0.4 0.5 0.6 0.7 0.8 0.9 1.0
Q [m³/h]
0
20
40
60
80
100
120
140
160
180
200
220
H
[m]
0.00 0.05 0.10 0.15 0.20 0.25 0.30
Q [l/s]
0
400
800
1200
1600
2000
p
[kPa]
CR 1s
50 Hz
ISO 9906 Annex A
-10 -11
-12 -13
-15
-17
-19
-2
-21
-23
-25
-27
-3
-30
-33
-36
-4 -5
-6 -7
-8 -9
0.0 0.1 0.2 0.3 0.4 0.5 0.6 0.7 0.8 0.9 1.0
Q [m³/h]
0.00
0.01
0.02
0.03
P2
[kW]
0
10
20
30
Eta
[%]
0.00
0.01
0.02
0.03
0.04
[hp]
P2
P2
Eta
0.0 0.1 0.2 0.3 0.4 0.5 0.6 0.7 0.8 0.9 1.0
Q [m³/h]
0
2
4
6
H
[m]
0
2
4
6
NPS
H
[m]
0
20
40
60
[kPa]
p
QH 2900 rpm
NPSH
CR 1s

23
Technical data
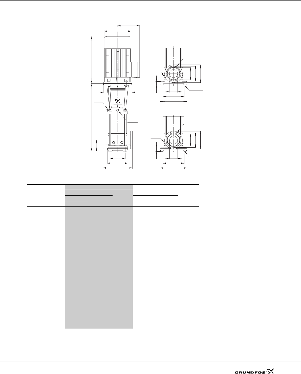
Dimensional sketch
Dimensions and weights
TM03 1721 2805
ø35
ø140
75
75
20
180
B1 B2
141
100
250
ø100
ø89
180
220 220
100
160
20
4 x ø13.5
19 x 24.5
G 1/2
22
G 1/2
50
4 x ø13.5
D2
D1
M10 x 40
Rp 1
145
G 1/2 G 1/2
FGJ (DIN-ANSI-JIS)
PN 25 / DN 25/32 A (Oval)
Pump
type
Motor
P2
[kW]
Dimension [mm] Net weight [kg]
Oval flange DIN flange D1 D2 Oval
flange DIN
flange
B1 B1+B2 B1 B1+B2
CR 1s-2 0.37 254 445 279 470 141 109 18 23
CR 1s-3 0.37 254 445 279 470 141 109 18 23
CR 1s-4 0.37 272 463 297 488 141 109 19 23
CR 1s-5 0.37 290 481 315 506 141 109 19 24
CR 1s-6 0.37 308 499 333 524 141 109 19 24
CR 1s-7 0.37 326 517 351 542 141 109 20 24
CR 1s-8 0.37 344 535 369 560 141 109 20 25
CR 1s-9 0.37 362 553 387 578 141 109 21 25
CR 1s-10 0.37 380 571 405 596 141 109 21 26
CR 1s-11 0.37 398 589 423 614 141 109 21 26
CR 1s-12 0.37 416 607 441 632 141 109 22 26
CR 1s-13 0.37 434 625 459 650 141 109 22 27
CR 1s-15 0.55 470 661 495 686 141 109 24 28
CR 1s-17 0.55 506 697 531 722 141 109 25 29
CR 1s-19 0.55 542 733 567 758 141 109 25 30
CR 1s-21 0.75 584 815 609 840 141 109 28 32
CR 1s-23 0.75 620 851 645 876 141 109 29 33
CR 1s-25 0.75 656 887 681 912 141 109 29 34
CR 1s-27 1.1 692 923 717 948 141 109 32 37
CR 1s-30 1.1 - - 771 1002 141 109 - 38
CR 1s-33 1.1 - - 825 1056 141 109 - 39
CR 1s-36 1.1 - - 879 1110 141 109 - 41
CR 1s

24
Performance curves
CRI, CRN 1s
TM02 7425 3605
0.0 0.1 0.2 0.3 0.4 0.5 0.6 0.7 0.8 0.9 1.0
Q [m³/h]
0
20
40
60
80
100
120
140
160
180
200
220
H
[m]
0.00 0.05 0.10 0.15 0.20 0.25 0.30
Q [l/s]
0
400
800
1200
1600
2000
p
[kPa]
CRI, CRN 1s
50 Hz
ISO 9906 Annex A
-10 -11
-12 -13
-15
-17
-19
-2
-21
-23
-25
-27
-3
-30
-33
-36
-4 -5
-6 -7
-8 -9
0.0 0.1 0.2 0.3 0.4 0.5 0.6 0.7 0.8 0.9 1.0
Q [m³/h]
0.00
0.01
0.02
0.03
P2
[kW]
0
10
20
30
Eta
[%]
0.00
0.01
0.02
0.03
0.04
[hp]
P2
P2
Eta
0.0 0.1 0.2 0.3 0.4 0.5 0.6 0.7 0.8 0.9 1.0
Q [m³/h]
0
2
4
6
H
[m]
0
2
4
6
NPS
H
[m]
0
20
40
60
[kPa]
p
QH 2900 rpm
NPSH
CRI, CRN 1s

25
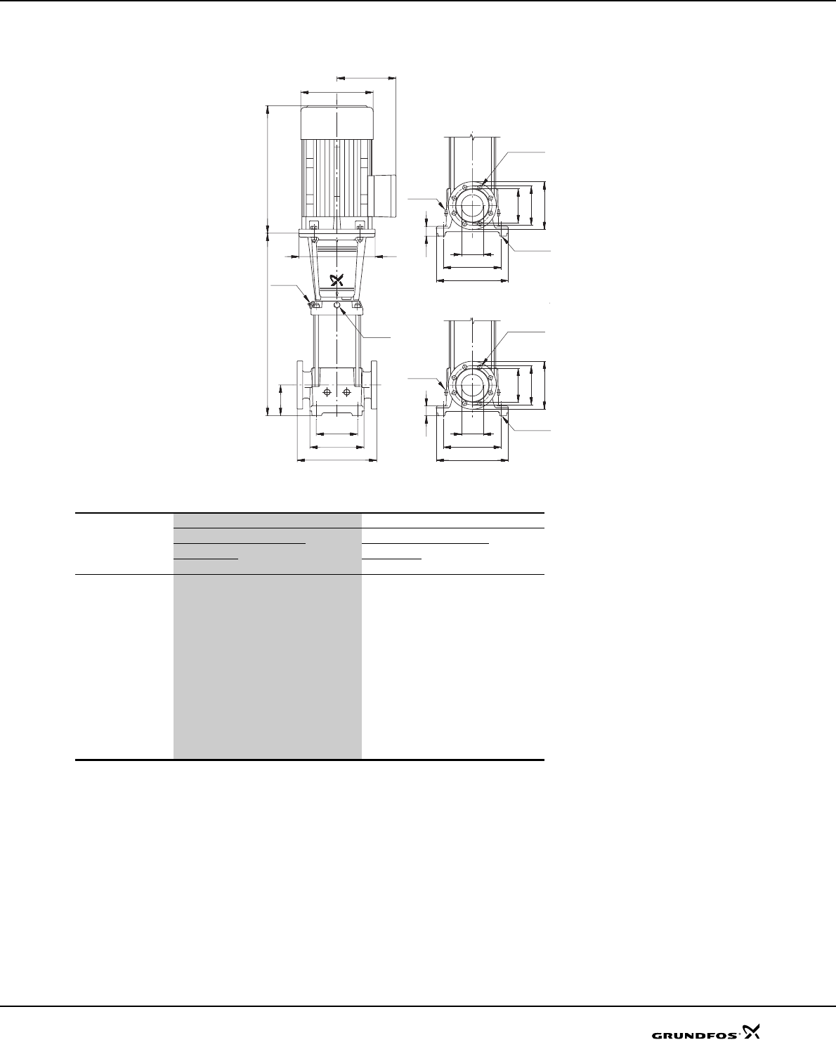
Technical data
Dimensional sketch
Dimensions and weights
TM03 1722 2805
P (PJE) CA (FlexiClamp)
ø59
162 ø32
50
22
G 1/2 G 1/2
ø32
ø140
50
22
180
B1 B2
150
100
210
ø105
ø89
210
4 x ø13
G 1/2
D2
D1
250
ø42.2
75
ø85
34
19 x 27
ø14
PN 25 / DN 25/32
FGJ (DIN-ANSI-JIS)
Pump
type
Motor
P2
[kW]
Dimension [mm] Net weight [kg]
PJE/CA DIN flange B2 D1 D2 PJE/CA DIN
flange
B1 B1+B2 B1 B1+B2
CRI/CRN 1s-2 0.37 257 448 282 473 191 141 109 16 20
CRI/CRN 1s-3 0.37 257 448 282 473 191 141 109 16 21
CRI/CRN 1s-4 0.37 275 466 300 491 191 141 109 17 21
CRI/CRN 1s-5 0.37 293 484 318 509 191 141 109 17 21
CRI/CRN 1s-6 0.37 311 502 336 527 191 141 109 18 22
CRI/CRN 1s-7 0.37 329 520 354 545 191 141 109 18 22
CRI/CRN 1s-8 0.37 347 538 372 563 191 141 109 18 23
CRI/CRN 1s-9 0.37 365 556 390 581 191 141 109 19 23
CRI/CRN 1s-10 0.37 383 574 408 599 191 141 109 19 23
CRI/CRN 1s-11 0.37 401 592 426 617 191 141 109 19 24
CRI/CRN 1s-12 0.37 419 610 444 635 191 141 109 20 24
CRI/CRN 1s-13 0.37 437 628 462 653 191 141 109 20 25
CRI/CRN 1s-15 0.55 473 664 498 689 191 141 109 22 26
CRI/CRN 1s-17 0.55 509 700 534 725 191 141 109 23 27
CRI/CRN 1s-19 0.55 545 736 570 761 191 141 109 23 28
CRI/CRN 1s-21 0.75 587 818 612 843 231 141 109 26 31
CRI/CRN 1s-23 0.75 623 854 648 879 231 141 109 27 31
CRI/CRN 1s-25 0.75 659 890 684 915 231 141 109 28 32
CRI/CRN 1s-27 1.1 695 926 720 951 231 141 109 31 35
CRI/CRN 1s-30 1.1 749 980 774 1005 231 141 109 32 36
CRI/CRN 1s-33 1.1 803 1034 828 1059 231 141 109 33 37
CRI/CRN 1s-36 1.1 857 1088 882 1113 231 141 109 34 39
CRI, CRN 1s

26
Performance curves
CR, CRE 1
TM02 7290 3605
0.0 0.2 0.4 0.6 0.8 1.0 1.2 1.4 1.6 1.8 2.0 2.2 Q [m³/h]
0
20
40
60
80
100
120
140
160
180
200
220
H
[m]
0.0 0.1 0.2 0.3 0.4 0.5 0.6 Q [l/s]
0
400
800
1200
1600
2000
p
[kPa] CR, CRE 1
50 Hz
ISO 9906 Annex A
-2 -3 (E)
-4 -5
-6 -7 (E)
-8 -9
-10 -11 (E)
-12 -13
-15 (E)
-17
-19 (E)
-21
-23 (E)
-25
-27
-30 (E)
-33
-36 (E)
0.0 0.2 0.4 0.6 0.8 1.0 1.2 1.4 1.6 1.8 2.0 2.2 Q [m³/h]
0.00
0.03
0.06
P2
[kW]
0
20
40
Eta
[%]
P2
Eta
0.0 0.2 0.4 0.6 0.8 1.0 1.2 1.4 1.6 1.8 2.0 2.2 Q [m³/h]
0
3
6
H
[m]
0
2
4
NPSH
[m]
QH 2900 rpm
NPSH
CR, CRE 1

27
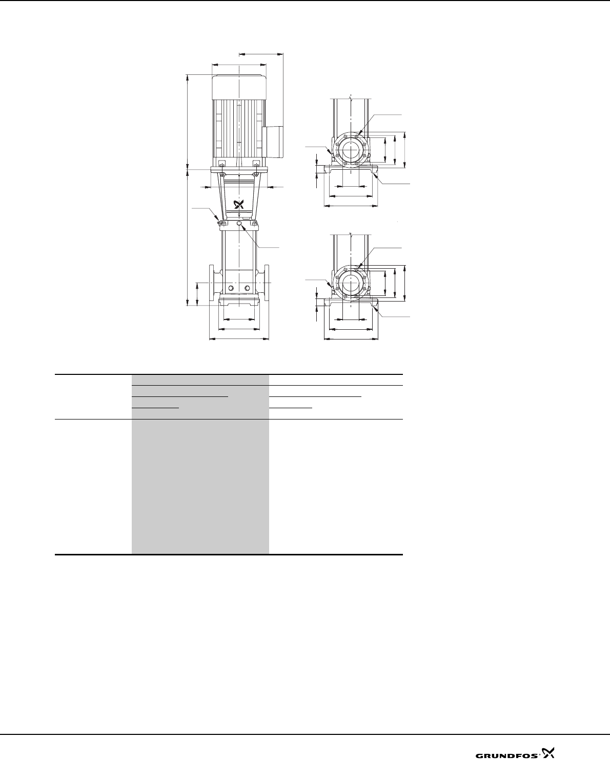
Technical data
Dimensional sketch
Dimensions and weights
TM03 1721 2805
ø35
ø140
75
75
20
180
B1 B2
141
100
250
ø100
ø89
180
220 220
100
160
20
4 x ø13.5
19 x 24.5
G 1/2
22
G 1/2
50
4 x ø13.5
D2
D1
M10 x 40
Rp 1
145
G 1/2 G 1/2
FGJ (DIN-ANSI-JIS)
PN 25 / DN 25/32 A (Oval)
Pump
type
Motor
P2
[kW]
CR CRE
Dimension [mm] Net weight [kg] Dimension [mm] Net weight [kg]
Oval flange DIN flange D1 D2 Oval
flange DIN
flange
Oval flange DIN flange D1 D2 Oval
flange DIN
flange
B1 B1+B2 B1 B1+B2 B1 B1+B2 B1 B1+B2
CR 1-2 0.37 254 445 279 470 141 109 18 23------- -
CR(E) 1-3 0.37 254 445 279 470 141 109 18 23 254 445 279 470 141 140 19.8 23.9
CR 1-4 0.37 272 463 297 488 141 109 19 23------- -
CR 1-5 0.37 290 481 315 506 141 109 19 24------- -
CR 1-6 0.37 308 499 333 524 141 109 20 24------- -
CR(E) 1-7 0.37 326 517 351 542 141 109 20 25 326 517 351 542 141 140 21.2 25.3
CR 1-8 0.55 344 535 369 560 141 109 21 26------- -
CR 1-9 0.55 362 553 387 578 141 109 21 26------- -
CR 1-10 0.55 380 571 405 596 141 109 22 26------- -
CR(E) 1-11 0.55 398 589 423 614 141 109 22 27 398 589 423 614 141 140 24.0 28.1
CR 1-12 0.75 422 653 447 678 141 109 24 29------- -
CR 1-13 0.75 440 671 465 696 141 109 25 29------- -
CR(E) 1-15 0.75 476 707 501 732 141 109 26 30 476 707 501 732 178 167 28.7 32.7
CR 1-17 1.1 512 743 537 768 141 109 29 33------- -
CR(E) 1-19 1.1 548 779 573 804 141 109 29 34 548 779 573 804 178 167 30.8 34.9
CR 1-21 1.1 584 815 609 840 141 109 30 35------- -
CR(E) 1-23 1.1 620 851 645 876 141 109 31 36 620 851 645 876 178 167 32.4 36.5
CR 1-25 1.5 - - 697 978 178 110 -44------- -
CR 1-27 1.5 - - 733 1014 178 110 -44------- -
CR(E) 1-30 1.5 - - 787 1068 178 110 -46 - - 787 1068 178 167 - 51.2
CR 1-33 2.2 - - 841 1162 178 110 -47------- -
CR(E) 1-36 2.2 - - 895 1216 178 110 -49 - - 895 1216 178 167 - 58.3
CR, CRE 1

28
Performance curves
CRI, CRN, CRIE, CRNE 1
TM02 7291 3605
0.0 0.2 0.4 0.6 0.8 1.0 1.2 1.4 1.6 1.8 2.0 2.2 Q [m³/h]
0
20
40
60
80
100
120
140
160
180
200
220
H
[m]
0.0 0.1 0.2 0.3 0.4 0.5 0.6 Q [l/s]
0
400
800
1200
1600
2000
p
[kPa] CRI, CRN 1
50 Hz
ISO 9906 Annex A
CRIE, CRNE 1
-2 -3 (E)
-4 -5
-6 -7 (E)
-8 -9
-10 -11 (E)
-12 -13
-15 (E)
-17
-19 (E)
-21
-23 (E)
-25
-27
-30 (E)
-33
-36 (E)
0.0 0.2 0.4 0.6 0.8 1.0 1.2 1.4 1.6 1.8 2.0 2.2 Q [m³/h]
0.00
0.03
0.06
P2
[kW]
0
20
40
Eta
[%]
P2
Eta
0.0 0.2 0.4 0.6 0.8 1.0 1.2 1.4 1.6 1.8 2.0 2.2 Q [m³/h]
0
3
6
H
[m]
0
2
4
NPSH
[m]
QH 2900 rpm
NPSH
CRI, CRN, CRIE, CRNE 1

29
Technical data
Dimensional sketch
Dimensions and weights
TM03 1722 2805
P (PJE) CA (FlexiClamp)
ø59
162 ø32
50
22
G 1/2 G 1/2
ø32
ø140
50
22
180
B1 B2
150
100
210
ø105
ø89
210
4 x ø13
G 1/2
D2
D1
250
ø42.2
75
ø85
34
19 x 27
ø14
PN 25 / DN 25/32
FGJ (DIN-ANSI-JIS)
Pump
type
Motor
P2
[kW]
CRI/CRN CRIE/CRNE
Dimension [mm] Net weight [kg] Dimension [mm] Net weight [kg]
PJE/CA DIN flange D1 D2 PJE/
CA DIN
flange
PJE/CA DIN flange D1 D2 PJE/
CA DIN
flange
B1 B1+B2 B1 B1+B2 B1 B1+B2 B1 B1+B2
CRI/CRN 1-2 0.37 257 448 282 473 141 109 16 20------- -
CRI(E)/CRN(E) 1-3 0.37 257 448 282 473 141 109 16 21 257 448 282 473 141 140 17.0 20.6
CRI/CRN 1-4 0.37 275 466 300 491 141 109 17 21------- -
CRI/CRN 1-5 0.37 293 484 318 509 141 109 17 21------- -
CRI/CRN 1-6 0.37 311 502 336 527 141 109 18 22------- -
CRI(E)/CRN(E) 1-7 0.37 329 520 354 545 141 109 18 22 329 520 354 545 141 140 18.4 22.0
CRI/CRN 1-8 0.55 347 538 372 563 141 109 19 23------- -
CRI/CRN 1-9 0.55 365 556 390 581 141 109 20 24------- -
CRI/CRN 1-10 0.55 383 574 408 599 141 109 20 24------- -
CRI(E)/CRN(E) 1-11 0.55 401 592 426 617 141 109 20 24 401 592 426 617 141 140 21.2 24.8
CRI/CRN 1-12 0.75 425 656 450 681 141 109 23 27------- -
CRI/CRN 1-13 0.75 443 674 468 699 141 109 23 28------- -
CRI(E)/CRIN(E) 1-15 0.75 479 710 504 735 141 109 24 28 479 710 504 735 178 167 25.9 29.5
CRI/CRN 1-17 1.1 515 746 540 771 141 109 27 31------- -
CRI(E)/CRN(E) 1-19 1.1 551 782 576 807 141 109 28 32 551 782 576 807 178 167 28.0 31.6
CRI/CRN 1-21 1.1 587 818 612 843 141 109 29 33------- -
CRI(E)/CRN(E) 1-23 1.1 623 854 648 879 141 109 30 34 623 854 648 879 178 167 29.6 33.2
CRI/CRN 1-25 1.5 675 956 700 981 178 110 37 41------- -
CRI/CRN 1-27 1.5 711 992 736 1017 178 110 38 42------- -
CRI(E)/CRN(E) 1-30 1.5 765 1046 790 1071 178 110 39 43 765 1046 790 1071 178 167 44.3 47.9
CRI/CRN 1-33 2.2 819 1140 844 1165 178 110 41 45------- -
CRI(E)/CRN(E) 1-36 2.2 873 1194 898 1219 178 110 42 46 873 1194 898 1219 178 167 51.4 55.0
CRI, CRN, CRIE, CRNE 1

30
Performance curves
CR, CRE 3
TM02 7292 3605
0.0 0.4 0.8 1.2 1.6 2.0 2.4 2.8 3.2 3.6 4.0 4.4 Q [m³/h]
0
20
40
60
80
100
120
140
160
180
200
220
240
H
[m]
0.0 0.2 0.4 0.6 0.8 1.0 1.2 Q [l/s]
0
400
800
1200
1600
2000
p
[kPa] CR, CRE 3
50 Hz
ISO 9906 Annex A
-10 (E) -11
-12 -13
-17
-19 (E)
-21
-23 (E)
-25
-27
-29 (E)
-31
-33
-36 (E)
-15 (E)
-2 -3
-4 -5 (E)
-6 -7 (E)
-8 -9
0.0 0.4 0.8 1.2 1.6 2.0 2.4 2.8 3.2 3.6 4.0 4.4 Q [m³/h]
0.00
0.03
0.06
0.09
P2
[kW]
0
20
40
60
[%]
Eta
P2
Eta
0.0 0.4 0.8 1.2 1.6 2.0 2.4 2.8 3.2 3.6 4.0 4.4 Q [m³/h]
0
2
4
6
H
[m]
0
1
2
3
NPSH
[m]
QH 2900 rpm
NPSH
CR, CRE 3

31
Technical data
Dimensional sketch
Dimensions and weights
TM03 1721 2805
ø35
ø140
75
75
20
180
B1 B2
141
100
250
ø100
ø89
180
220 220
100
160
20
4 x ø13.5
19 x 24.5
G 1/2
22
G 1/2
50
4 x ø13.5
D2
D1
M10 x 40
Rp 1
145
G 1/2 G 1/2
FGJ (DIN-ANSI-JIS)
PN 25 / DN 25/32 A (Oval)
Pump
type
Motor
P2
[kW]
CR CRE
Dimension [mm] Net weight [kg] Dimension [mm] Net weight [kg]
Oval flange DIN flange D1 D2 Oval
flange DIN
flange
Oval flange DIN flange D1 D2 Oval
flange DIN
flange
B1 B1+B2 B1 B1+B2 B1 B1+B2 B1 B1+B2
CR 3-2 0.37 254 445 279 470 141 109 18 23------- -
CR 3-3 0.37 254 445 279 470 141 109 18 23------- -
CR 3-4 0.37 272 463 297 488 141 109 19 23------- -
CR(E) 3-5 0.37 290 481 315 506 141 109 19 24 290 481 315 506 141 140 20.4 24.5
CR 3-6 0.55 308 499 333 524 141 109 20 25------- -
CR(E) 3-7 0.55 326 517 351 542 141 109 21 25 326 517 351 542 141 140 21.8 25.9
CR 3-8 0.75 350 581 375 606 141 109 23 27------- -
CR 3-9 0.75 368 599 393 624 141 109 23 28------- -
CR(E) 3-10 0.75 386 617 411 642 141 109 24 28 386 617 411 642 178 167 26.9 31.0
CR 3-11 1.1 404 635 429 660 141 109 26 31------- -
CR 3-12 1.1 422 653 447 678 141 109 26 31------- -
CR 3-13 1.1 440 671 465 696 141 109 27 31------- -
CR(E) 3-15 1.1 476 707 501 732 141 109 28 32 476 707 501 732 178 167 29.6 33.7
CR 3-17 1.5 528 809 553 834 178 110 36 40------- -
CR(E) 3-19 1.5 564 845 589 870 178 110 37 41 564 845 589 870 178 167 42.5 46.6
CR 3-21 2.2 600 921 625 946 178 110 38 42------- -
CR(E) 3-23 2.2 636 957 661 982 178 110 39 43 636 957 661 982 178 167 48.1 52.2
CR 3-25 2.2 - - 697 1018 178 110 -44------- -
CR 3-27 2.2 - - 733 1054 178 110 -45------- -
CR(E) 3-29 2.2 - - 769 1090 178 110 -46 - - 769 1090 178 167 - 54.7
CR 3-31 3.0 - - 809 1144 198 120 -51------- -
CR 3-33 3.0 - - 845 1180 198 120 -51------- -
CR(E) 3-36 3.0 - - 899 1234 198 120 -53 - - 899 1234 198 177 - 62.3
CR, CRE 3

32
Performance curves
CRI, CRN, CRIE, CRNE 3
TM02 7293 3605
0.0 0.4 0.8 1.2 1.6 2.0 2.4 2.8 3.2 3.6 4.0 4.4 Q [m³/h]
0
20
40
60
80
100
120
140
160
180
200
220
240
H
[m]
0.0 0.2 0.4 0.6 0.8 1.0 1.2 Q [l/s]
0
400
800
1200
1600
2000
p
[kPa] CRI, CRN 3
50 Hz
ISO 9906 Annex A
CRIE, CRNE 3
-10 (E) -11
-12 -13
-17
-19 (E)
-21
-23 (E)
-25
-27
-29 (E)
-31
-33
-36 (E)
-15 (E)
-2 -3
-4 -5 (E)
-6 -7 (E)
-8 -9
0.0 0.4 0.8 1.2 1.6 2.0 2.4 2.8 3.2 3.6 4.0 4.4 Q [m³/h]
0.00
0.03
0.06
0.09
P2
[kW]
0
20
40
60
[%]
Eta
P2
Eta
0.0 0.4 0.8 1.2 1.6 2.0 2.4 2.8 3.2 3.6 4.0 4.4 Q [m³/h]
0
2
4
6
H
[m]
0
1
2
3
NPS
H
[m]
QH 2900 rpm
NPSH
CRI, CRN, CRIE, CRNE 3

33
Technical data
Dimensional sketch
Dimensions and weights
TM03 1722 2805
P (PJE) CA (FlexiClamp)
ø59
162 ø32
50
22
G 1/2 G 1/2
ø32
ø140
50
22
180
B1 B2
150
100
210
ø105
ø89
210
4 x ø13
G 1/2
D2
D1
250
ø42.2
75
ø85
34
19 x 27
ø14
PN 25 / DN 25/32
FGJ (DIN-ANSI-JIS)
Pump
type
Motor
P2
[kW]
CRI/CRN CRIE/CRNE
Dimension [mm] Net weight [kg] Dimension [mm] Net weight [kg]
PJE/CA DIN flange D1 D2 PJE/
CA DIN
flange
PJE/CA DIN flange D1 D2 PJE/
CA DIN
flange
B1 B1+B2 B1 B1+B2 B1 B1+B2 B1 B1+B2
CRI/CRN 3-2 0.37 257 448 282 473 141 109 16 19------- -
CRI/CRN 3-3 0.37 257 448 282 473 141 109 16 19------- -
CRI/CRN 3-4 0.37 275 466 300 491 141 109 17 19------- -
CRI(E)/CRN(E) 3-5 0.37 293 484 318 509 141 109 17 20 293 484 318 509 141 140 17.6 21.2
CRI/CRN 3-6 0.55 311 502 336 527 141 109 18 21------- -
CRI(E)/CRN(E) 3-7 0.55 329 520 354 545 141 109 19 21 329 520 354 545 141 140 19.0 22.6
CRI/CRN 3-8 0.75 353 584 378 609 141 109 21 24------- -
CRI/CRN 3-9 0.75 371 602 396 627 141 109 22 24------- -
CRI(E)/CRN(E) 3-10 0.75 389 620 414 645 141 109 22 25 389 620 414 645 178 167 24.1 27.7
CRI/CRN 3-11 1.1 407 638 432 663 141 109 25 27------- -
CRI/CRN 3-12 1.1 425 656 450 681 141 109 25 28------- -
CRI/CRN 3-13 1.1 443 674 468 699 141 109 26 28------- -
CRI(E)/CRN(E) 3-15 1.1 479 710 504 735 141 109 26 29 479 710 504 735 178 167 26.8 30.4
CRI/CRN 3-17 1.5 531 812 556 837 178 110 34 36------- -
CRI(E)/CRN(E) 3-19 1.5 567 848 592 873 178 110 34 37 567 848 592 873 178 167 39.7 43.3
CRI/CRN 3-21 2.2 603 924 628 949 178 110 36 38------- -
CRI(E)/CRN(E) 3-23 2.2 639 960 664 985 178 110 37 39 639 960 664 985 178 167 45.3 48.9
CRI/CRN 3-25 2.2 675 996 700 1021 178 110 37 40------- -
CRI/CRN 3-27 2.2 711 1032 736 1057 178 110 38 41------- -
CRI(E)/CRN(E) 3-29 2.2 747 1068 772 1093 178 110 39 42 747 1068 772 1093 178 167 47.8 51.4
CRI/CRN 3-31 3.0 787 1122 812 1147 198 120 44 47------- -
CRI/CRN 3-33 3.0 823 1158 848 1183 198 120 45 47------- -
CRI(E)/CRN(E) 3-36 3.0 877 1212 902 1237 198 120 46 49 877 1212 902 1237 198 177 55.4 59.0
CRI, CRN, CRIE, CRNE 3

34
Performance curves
CR, CRE 5
TM02 7294 3605
0 1 2 3 4 5 6 7 8 Q [m³/h]
0
20
40
60
80
100
120
140
160
180
200
220
240
260
H
[m]
0.0 0.5 1.0 1.5 2.0 2.5 Q [l/s]
0
400
800
1200
1600
2000
2400
p
[kPa] CR, CRE 5
50 Hz
ISO 9906 Annex A
-10 (E) -11
-12 -13
-14 -15
-16 (E)
-18
-2 (E)
-20 (E)
-22
-24
-26
-29 (E)
-3
-32
-36 (E)
-4 (E) -5
-6 -7
-8 (E) -9
0 1 2 3 4 5 6 7 8 Q [m³/h]
0.00
0.05
0.10
0.15
P2
[kW]
0
20
40
60
Eta
[%]
P2
Eta
0 1 2 3 4 5 6 7 8 Q [m³/h]
0
2
4
6
H
[m]
0
1
2
3
NPSH
[m]
QH 2900 rpm
NPSH
CR, CRE 5

35
Technical data
Dimensional sketch
Dimensions and weights
TM03 1723 2805
ø35
ø140
75
75
20
180
B1 B2
141
100
250
ø100
ø89
180
220 220
100
160
20
4 x ø13.5
19 x 24.5
G 1/2
22
G 1/2
50
4 x ø13.5
D2
D1
M10 x 40
Rp 1
145
G 1/2 G 1/2
FGJ (DIN-ANSI-JIS)
PN 25 / DN 25/32 A (Oval)
D3
Pump
type
Motor
P2
[kW]
CR CRE
Dimension [mm] Net weight [kg] Dimension [mm] Net weight [kg]
Oval flange DIN flange D1 D2 D3 Oval
flange DIN
flange
Oval flange DIN flange D1 D2 D3 Oval
flange DIN
flange
B1 B1+B2 B1 B1+B2 B1 B1+B2 B1 B1+B2
CR(E) 5-2 0.37 254 445 279 470 141 109 -18 23 254 445 279 470 141 140 - 19.8 23.9
CR 5-3 0.55 281 472 306 497 141 109 -20 24 - - - - - - - - -
CR(E) 5-4 0.55 308 499 333 524 141 109 -20 25 308 499 333 524 141 140 - 21.2 25.3
CR 5-5 0.75 341 572 366 597 141 109 -22 27 - - - - - - - - -
CR 5-6 1.1 368 599 393 624 141 109 -25 30 - - - - - - - - -
CR 5-7 1.1 395 626 420 651 141 109 -26 30 - - - - - - - - -
CR(E) 5-8 1.1 422 653 447 678 141 109 -26 31 422 653 447 678 178 167 - 28.8 32.9
CR 5-9 1.5 465 746 490 771 178 110 -34 38 - - - - - - - - -
CR(E) 5-10 1.5 492 773 517 798 178 110 -34 39 492 773 517 798 178 167 - 41.3 45.4
CR 5-11 2.2 519 840 544 865 178 110 -36 40 - - - - - - - - -
CR 5-12 2.2 546 867 571 892 178 110 -36 41 - - - - - - - - -
CR 5-13 2.2 573 894 598 919 178 110 -37 41 - - - - - - - - -
CR 5-14 2.2 600 921 625 946 178 110 -37 42 - - - - - - - - -
CR 5-15 2.2 627 948 652 973 178 110 -38 43 - - - - - - - - -
CR(E) 5-16 2.2 654 975 679 1000 178 110 -38 43 654 975 679 1000 178 167 - 48.5 52.6
CR 5-18 3.0 712 1047 737 1072 198 120 -44 48 - - - - - - - - -
CR(E) 5-20 3.0 766 1101 791 1126 198 120 -45 50 766 1101 791 1126 198 177 - 55.1 59.2
CR 5-22 4.0 820 1194 845 1217 220 134 -56 62 - - - - - - - - -
CR 5-24 4.0 - - 899 1271 220 134 - - 63 - - - - - - - - -
CR 5-26 4.0 - - 953 1325 220 134 - - 64 - - - - - - - - -
CR(E) 5-29 4.0 - - 1034 1406 220 134 - - 66 - - 1034 1406 220 188 - - 76.5
CR 5-32 5.5 - - 1145 1536 220 134 300 -82 - - - - - - - - -
CR(E) 5-36 5.5 - - 1253 1644 220 134 300 -84 - - 1253 1644 220 188 - - 95.5
CR, CRE 5

36
Performance curves
CRI, CRN, CRIE, CRNE 5
TM02 7295 3605
0 1 2 3 4 5 6 7 8 Q [m³/h]
0
20
40
60
80
100
120
140
160
180
200
220
240
260
H
[m]
0.0 0.5 1.0 1.5 2.0 2.5 Q [l/s]
0
400
800
1200
1600
2000
2400
p
[kPa] CRI, CRN 5
50 Hz
ISO 9906 Annex A
CRIE, CRNE 5
-10 (E) -11
-12 -13
-14 -15
-16 (E)
-18
-2 (E)
-20 (E)
-22
-24
-26
-29 (E)
-3
-32
-36 (E)
-4 (E) -5
-6 -7
-8 (E) -9
0 1 2 3 4 5 6 7 8 9Q [m³/h]
0.00
0.05
0.10
0.15
P2
[kW]
0
20
40
60
Eta
[%]
P2
Eta
0 1 2 3 4 5 6 7 8 9Q [m³/h]
0
2
4
6
H
[m]
0
1
2
3
NPSH
[m]
QH 2900 rpm
NPSH
CRI, CRN, CRIE, CRNE 5

37
Technical data
Dimensional sketch
Dimensions and weights
TM03 1724 2805
P (PJE) CA (FlexiClamp)
D3
ø59
162 ø32
50
22
G 1/2 G 1/2
ø32
ø140
50
22
180
B1 B2
150
100
210
ø105
ø89
210
4 x ø13
G 1/2
D2
D1
250
ø42.2
75
ø85
34
19 x 27
ø14
PN 25 / DN 25/32
FGJ (DIN-ANSI-JIS)
Pump
type
Motor
P2
[kW]
CRI/CRN CRIE/CRNE
Dimension [mm] Net weight
[kg] Dimension [mm] Net weight
[kg]
PJE/CA DIN flange D1 D2 D3 PJE/
CA DIN
flange
PJE/CA DIN flange D1 D2 D3 PJE/
CA DIN
flange
B1 B1+B2 B1 B1+B2 B1 B1+B2 B1 B1+B2
CRI(E)/CRN(E) 5-2 0.37 257 448 282 473 141 109 -16 21 257 448 282 473 141 140 - 17.0 20.6
CRI/CRN 5-3 0.55 284 475 309 500 141 109 -18 22---------
CRI(E)/CRN(E) 5-4 0.55 311 502 336 527 141 109 -18 22 311 502 336 527 141 140 - 18.4 22.0
CRI/CRN 5-5 0.75 344 575 369 600 141 109 -21 25---------
CRI/CRN 5-6 1.1 371 602 396 627 141 109 -24 28---------
CRI/CRN 5-7 1.1 398 629 423 654 141 109 -24 28---------
CRI(E)/CRN(E) 5-8 1.1 425 656 450 681 141 109 -25 29 425 656 450 681 178 167 - 26.0 29.6
CRI/CRN 5-9 1.5 468 749 493 774 178 110 -32 36---------
CRI(E)/CRN(E) 5-10 1.5 495 776 520 801 178 110 -32 37 495 776 520 801 178 167 - 38.5 42.1
CRI/CRN 5-11 2.2 522 843 547 868 178 110 -34 38---------
CRI/CRN 5-12 2.2 549 870 574 895 178 110 -34 38---------
CRI/CRN 5-13 2.2 576 897 601 922 178 110 -35 39---------
CRI/CRN 5-14 2.2 603 924 628 949 178 110 -35 40---------
CRI/CRN 5-15 2.2 630 951 655 976 178 110 -36 40---------
CRI(E)/CRN(E) 5-16 2.2 657 978 682 1003 178 110 -36 41 657 978 682 1003 178 167 - 45.7 49.3
CRI/CRN 5-18 3.0 715 1050 740 1075 198 120 -42 46---------
CRI(E)/CRN(E) 5-20 3.0 769 1104 794 1129 198 120 -43 47 769 1104 794 1129 198 177 - 52.3 55.9
CRI/CRN 5-22 4.0 823 1195 848 1220 220 134 -55 59---------
CRI/CRN 5-24 4.0 877 1249 902 1274 220 134 -56 61---------
CRI/CRN 5-26 4.0 931 1303 956 1328 220 134 -58 62---------
CRI(E)/CRN(E) 5-29 4.0 1012 1384 1037 1409 220 134 -59 64 1012 1384 1037 1409 220 188 - 69.6 73.2
CRI/CRN 5-32 5.5 1123 1514 1148 1539 220 134 300 75 79---------
CRI(E)/CRN(E) 5-36 5.5 1231 1622 1256 1647 220 134 300 77 81 1231 1622 1256 1647 220 188 - 88.6 92.2
CRI, CRN, CRIE, CRNE 5

38
Performance curves
CR, CRE 10
TM02 7296 3605
0 1 2 3 4 5 6 7 8 9 10 11 12 Q [m³/h]
0
20
40
60
80
100
120
140
160
180
200
220
240
H
[m]
0.0 0.5 1.0 1.5 2.0 2.5 3.0 3.5 Q [l/s]
0
400
800
1200
1600
2000
p
[kPa] CR, CRE 10
50 Hz
ISO 9906 Annex A
-1 (E)
-10
-12 (E)
-14
-16 (E)
-18
-2 (E)
-20
-22 (E)
-3 (E)
-4 (E)
-5
-6 (E)
-7
-8
-9 (E)
0 1 2 3 4 5 6 7 8 9 10 11 12 Q [m³/h]
0.0
0.1
0.2
0.3
0.4
P2
[kW]
0
20
40
60
80
Eta
[%]
P2
Eta
0 1 2 3 4 5 6 7 8 9 10 11 12 Q [m³/h]
0
4
8
12
H
[m]
0
2
4
6
NPS
H
[m]
NPSH
2900 rpm
CR, CRE 10

39
Technical data
Dimensional sketch
Dimensions and weights
TM03 1725 2805
B2
D2
D1
4 x ø13.5
130
178
80
G 1/2
280
B1
G 1/2
G 1/2
256
18 x 20.2
ø39
20
FJ (DIN-JIS)
ø114
ø150
178
200
A (oval)
100
Rp 1 1/2"
M12 x 45
4 x ø13.5
27
215
ø110
215
256
130
80
20
G 1/2
D3
PN 16-25 / DN 40
Pump
type
Motor
P2
[kW]
CR CRE
Dimension [mm] Net weight [kg] Dimension [mm] Net weight [kg]
Oval flange DIN flange D1 D2 D3 Oval
flange DIN
flange
Oval flange DIN flange D1 D2 D3 Oval
flange DIN
flange
B1 B1+B2 B1 B1+B2 B1 B1+B2 B1 B1+B2
CR(E) 10-1 0.37 343 534 343 534 141 109 -31 34 343 534 343 534 141 140 - 32.9 35.9
CR(E) 10-2 0.75 347 578 347 578 141 109 -34 36 347 347 347 347 178 167 - 35.2 37.2
CR(E) 10-3 1.1 377 608 377 608 141 109 -37 39 377 608 377 608 178 167 - 32.9 35.9
CR(E) 10-4 1.5 423 704 423 704 178 110 -45 47 423 704 423 704 178 167 - 54.5 51.5
CR 10-5 2.2 453 734 453 734 178 110 -46 49 - - - - - - - - -
CR(E) 10-6 2.2 483 764 483 764 178 110 -47 50 483 764 483 764 178 167 - 57.5 60.5
CR 10-7 3.0 518 853 518 853 198 120 -52 55 - - - - - - - - -
CR 10-8 3.0 548 883 548 883 198 120 -53 56 - - - - - - - - -
CR(E) 10-9 3.0 578 913 578 913 198 120 -54 57 578 913 578 913 198 177 - 63.0 66.0
CR 10-10 4.0 608 980 608 980 220 134 -66 69 - - - - - - - - -
CR(E) 10-12 4.0 668 1040 668 1040 220 134 -69 71 668 1040 668 1040 220 188 - 78.3 81.3
CR 10-14 5.5 760 1151 760 1151 220 134 300 91 94 - - - - - - - - -
CR(E) 10-16 5.5 820 1211 820 1211 220 134 300 93 96 820 1211 820 1211 220 188 298 104.9 107.9
CR 10-18 7.5 - - 880 1271 220 134 300 -101 - - - - - - - - -
CR 10-20 7.5 - - 940 1331 220 134 300 -103 - - - - - - - - -
CR(E) 10-22 7.5 - - 1000 1391 220 134 300 -105 - - 1000 1391 220 188 298 - 116.7
CR, CRE 10

40
Performance curves
CRI, CRN, CRIE, CRNE 10
TM02 7297 3605
012345678910 11 12 Q [m³/h]
0
20
40
60
80
100
120
140
160
180
200
220
240
H
[m]
0.0 0.5 1.0 1.5 2.0 2.5 3.0 3.5 Q [l/s]
0
400
800
1200
1600
2000
p
[kPa] CRI, CRN 10
50 Hz
ISO 9906 Annex A
CRIE, CRNE 10
-1 (E)
-10
-12 (E)
-14
-16 (E)
-18
-2 (E)
-20
-22 (E)
-3 (E)
-4 (E)
-5
-6 (E)
-7
-8
-9 (E)
012345678910 11 12 Q [m³/h]
0.0
0.1
0.2
0.3
0.4
P2
[kW]
0
20
40
60
80
Eta
[%]
P2
Eta
012345678910 11 12 Q [m³/h]
0
4
8
12
H
[m]
0
2
4
6
NPSH
[m]
NPSH
2900 rpm
CRI, CRN, CRIE, CRNE 10

41
Technical data
Dimensional sketch
Dimensions and weights
TM03 2498 4405
D3
130
ø60.1
B2
D2
D1
200
80
G 1/2
261
B1
G 1/2
G 1/2
215
248
18.5 x 23.5
26
PN 16-25 / DN 40
ø115
280
4 x ø13
CA (Flexiclamp)
26
ø150
ø105
ø42 ø50
202
ø87
80
P (PJE)
26
80
248
215
200
130 130
200
G 1/2
4 x ø13
248
215
FGJ (DIN-ANSI-JIS)
Pump
type
Motor
P2
[kW]
CRI/CRN CRIE/CRNE
Dimension [mm] Net weight
[kg] Dimension [mm] Net weight
[kg]
PJE/CA DIN flange D1 D2 D3 PJE/
CA DIN
flange
PJE/CA DIN flange D1 D2 D3 PJE/
CA DIN
flange
B1 B1+B2 B1 B1+B2 B1 B1+B2 B1 B1+B2
CRI(E)/CRN(E) 10-1 0.37 353 544 353 544 141 109 -28 32 353 544 353 544 141 140 - 29.9 33.9
CRI(E)/CRN(E) 10-2 0.75 357 588 357 588 141 109 -31 34 357 588 357 588 178 167 - 32.2 35.2
CRI(E)/CRN(E) 10-3 1.1 387 618 387 618 141 109 -34 38 387 618 387 618 178 167 - 29.9 33.9
CRI(E)/CRN(E) 10-4 1.5 433 714 433 714 178 110 -42 46 433 714 433 714 178 167 - 48.5 52.5
CRI/CRN 10-5 2.2 463 784 463 784 178 110 -44 47---------
CRI(E)/CRN(E) 10-6 2.2 493 814 493 814 178 110 -45 48 493 814 493 814 178 167 - 55.5 58.5
CRI/CRN 10-7 3.0 528 863 528 863 198 120 -50 54---------
CRI/CRN 10-8 3.0 558 893 558 893 198 120 -51 55---------
CRI(E)/CRN(E) 10-9 3.0 588 923 588 923 198 120 -52 56 588 923 588 923 198 177 - 61.0 65.0
CRI/CRN 10-10 4.0 618 990 618 990 220 134 -64 68---------
CRI(E)/CRN(E) 10-12 4.0 678 1050 678 1050 220 134 -66 70 678 1050 678 1050 220 188 - 76.3 79.3
CRI/CRN 10-14 5.5 770 1161 770 1161 220 134 300 88 92---------
CRI(E)/CRN(E) 10-16 5.5 830 1221 830 1221 220 134 300 90 94 830 1221 830 1221 220 188 300 102.9 105.9
CRI/CRN 10-18 7.5 890 1281 890 1281 220 134 300 96 99---------
CRI/CRN 10-20 7.5 950 1341 950 1341 220 134 300 98 101---------
CRI(E)/CRN(E) 10-22 7.5 1010 1401 1010 1401 220 134 300 100 104 1010 1401 1010 1401 220 188 298 110.7 114.7
CRI, CRN, CRIE, CRNE 10

42
Performance curves
CR, CRE 15
TM02 7298 3605
0 2 4 6 8 10 12 14 16 18 20 22 Q [m³/h]
0
20
40
60
80
100
120
140
160
180
200
220
240
H
[m]
0123456Q [l/s]
0
400
800
1200
1600
2000
p
[kPa] CR, CRE 15
50 Hz
ISO 9906 Annex A
-1 (E)
-10
-12
-14 (E)
-17 (E)
-2 (E)
-3 (E)
-4
-5 (E)
-6
-7 (E)
-8
-9 (E)
0 2 4 6 8 10 12 14 16 18 20 22 Q [m³/h]
0.0
0.2
0.4
0.6
0.8
P2
[kW]
0
20
40
60
80
Eta
[%]
Eta
P2
0 2 4 6 8 10 12 14 16 18 20 22 Q [m³/h]
0
5
10
15
H
[m]
0
2
4
6
NPSH
[m]
2900 rpm
NPSH
CR, CRE 15

43
Technical data
Dimensional sketch
Dimensions and weights
TM03 1727 2805
B2
D2 D1
G 1/2
G 1/2 D3
130
176
90
G 1/2
300
215
256
ø65
20
PN 16-25 / DN 50
ø125
ø165
GJ (ANSI-JIS)
Rp 2"
M12 x 45
ø165
ø65
18 x 21.5
ø127
ø120
A (oval)
130
30
256
215
20
300
176
130
90
G 1/2
130
178
200
90
215
256
20
G 1/2
B1
F (DIN)
4 x ø13.5 ø18.1
Pump
type
Motor
P2
[kW]
CR CRE
Dimension [mm] Net weight [kg] Dimension [mm] Net weight [kg]
Oval flange DIN flange D1 D2 D3 Oval
flange DIN
flange
Oval flange DIN flange D1 D2 D3 Oval
flange DIN
flange
B1 B1+B2 B1 B1+B2 B1 B1+B2 B1 B1+B2
CR(E) 15-1 1.1 400 631 400 631 141 109 -41 42 400 631 400 631 178 167 - 36.9 37.9
CR(E) 15-2 2.2 415 736 415 736 178 110 -49 50 415 736 415 736 178 167 - 59.5 60.5
CR(E) 15-3 3.0 465 800 465 800 198 120 -54 55 465 800 465 800 198 177 - 63.0 64.0
CR 15-4 4.0 510 882 510 882 220 134 -67 68 - - - - - - - - -
CR(E) 15-5 4.0 555 927 555 927 220 134 -68 69 555 927 555 927 220 188 - 78.3 79.3
CR 15-6 5.5 632 1023 632 1023 220 134 300 90 91 - - - - - - - - -
CR(E) 15-7 5.5 677 1068 677 1068 220 134 300 92 93 677 1068 677 1068 220 188 298 103.9 104.9
CR 15-8 7.5 - - 722 1113 220 134 300 -97 - - - - - - - - -
CR(E) 15-9 7.5 - - 767 1158 220 134 300 -98 - - 767 1158 220 188 298 - 108.7
CR 15-10 11.0 - - 889 1388 260 172 350 -130 - - - - - - - - -
CR 15-12 11.0 - - 979 1478 260 172 350 -134 - - - - - - - - -
CR(E) 15-14 11.0 - - 1069 1568 260 172 350 -138 - - 1069 1518 258 359 350 - 188.0
CR(E) 15-17 15.0 - - 1204 1682 320 197 350 -157 - - 1204 1665 313 377 350 - 190.5
CR, CRE 15

44
Performance curves
CRI, CRN, CRIE, CRNE 15
TM02 7299 3605
0 2 4 6 8 10 12 14 16 18 20 22 Q [m³/h]
0
20
40
60
80
100
120
140
160
180
200
220
240
H
[m]
0123456Q [l/s]
0
400
800
1200
1600
2000
p
[kPa] CRI, CRN 15
50 Hz
ISO 9906 Annex A
CRIE, CRNE 15
-1 (E)
-10
-12
-14 (E)
-17 (E)
-2 (E)
-3 (E)
-4
-5 (E)
-6
-7 (E)
-8
-9 (E)
0 2 4 6 8 10 12 14 16 18 20 22 Q [m³/h]
0.0
0.2
0.4
0.6
0.8
P2
[kW]
0
20
40
60
80
Eta
[%]
Eta
P2
0 2 4 6 8 10 12 14 16 18 20 22 Q [m³/h]
0
5
10
15
H
[m]
0
2
4
6
NPS
H
[m]
2900 rpm
NPSH
CRI, CRN, CRIE, CRNE 15

45
Technical data
Dimensional sketch
Dimensions and weights
TM03 1728 2805
B2
D2 D1
G 1/2
G 1/2 D3
B1
G 1/2
261
215
248
18.5 x 21.8
PN 16-25 / DN50
ø127
300
4 x ø13
CA (Flexiclamp)
ø165
ø120.5
ø65 ø50
202
ø87
90
P (PJE)
26
ø60.1
200
130
248
215
215
248
G 1/2
130
200
130
200
26
26
90
90
FGJ (DIN-ANSI-JIS)
Pump
type
Motor
P2
[kW]
CRI/CRN CRIE/CRNE
Dimension [mm] Net weight
[kg] Dimension [mm] Net weight
[kg]
PJE/CA DIN flange D1 D2 D3 PJE/
CA DIN
flange
PJE/CA DIN flange D1 D2 D3 PJE/
CA DIN
flange
B1 B1+B2 B1 B1+B2 B1 B1+B2 B1 B1+B2
CRI(E)/CRN(E) 15-1 1.1 397 628 400 631 141 109 -34 42 397 628 400 631 178 167 - 29.9 34.9
CRI(E)/CRN(E) 15-2 2.2 413 734 415 736 178 110 -42 50 413 734 415 736 178 167 - 52.5 57.5
CRI(E)/CRN(E) 15-3 3.0 463 798 465 800 198 120 -48 55 463 798 465 800 198 177 - 57.0 61.0
CRI/CRN 15-4 4.0 508 880 510 882 220 134 -60 68---------
CRI(E)/CRN(E) 15-5 4.0 553 925 555 927 220 134 -62 69 553 925 555 927 220 188 - 71.3 76.3
CRI/CRN 15-6 5.5 630 1021 632 1023 220 134 300 83 91---------
CRI(E)/CRN(E) 15-7 5.5 675 1066 677 1068 220 134 300 85 93 675 1066 677 1068 220 188 298 96.9 100.9
CRI/CRN 15-8 7.5 720 1111 722 1113 220 134 300 89 97---------
CRI(E)/CRN(E) 15-9 7.5 765 1156 767 1158 220 134 300 90 98 765 1156 767 1158 220 188 298 100.7 105.7
CRI/CRN 15-10 11.0 887 1386 889 1388 260 172 350 122 130---------
CRI/CRN 15-12 11.0 977 1476 979 1478 260 172 350 126 134---------
CRI(E)/CRN(E) 15-14 11.0 1067 1566 1069 1568 260 172 350 130 138 1067 1516 1069 1518 258 359 350 180.0 185.0
CRI(E)/CRN(E) 15-17 15.0 1202 1680 1204 1682 320 197 350 149 157 1202 1663 1204 1665 313 377 350 181.5 186.5
CRI, CRN, CRIE, CRNE 15

46
Performance curves
CR, CRE 20
TM02 7300 3605
0 2 4 6 8 10 12 14 16 18 20 22 24 26 28 Q [m³/h]
0
20
40
60
80
100
120
140
160
180
200
220
240
260
H
[m]
0 1 2 3 4 5 6 7 8 Q [l/s]
0
400
800
1200
1600
2000
2400
p
[kPa] CR, CRE 20
50 Hz
ISO 9906 Annex A
-1 (E)
-10 (E)
-12
-14 (E)
-17 (E)
-2 (E)
-3 (E)
-4
-5 (E)
-6
-7 (E)
-8
0 2 4 6 8 10 12 14 16 18 20 22 24 26 28 Q [m³/h]
0.0
0.4
0.8
1.2
1.6
P2
[kW]
0
20
40
60
80
Eta
[%]
Eta
P2
0 2 4 6 8 10 12 14 16 18 20 22 24 26 28 Q [m³/h]
0
5
10
15
H
[m]
0
2
4
6
NPSH
[m]
2900 rpm
NPSH
CR, CRE 20

47
Technical data
Dimensional sketch
Dimensions and weights
TM03 1727 2805
B2
D2 D1
G 1/2
G 1/2 D3
130
176
90
G 1/2
300
215
256
ø65
20
PN 16-25 / DN 50
ø125
ø165
GJ (ANSI-JIS)
Rp 2"
M12 x 45
ø165
ø65
18 x 21.5
ø127
ø120
A (oval)
130
30
256
215
20
300
176
130
90
G 1/2
130
178
200
90
215
256
20
G 1/2
B1
F (DIN)
4 x ø13.5 ø18.1
Pump
type
Motor
P2
[kW]
CR CRE
Dimension [mm] Net weight [kg] Dimension [mm] Net weight [kg]
Oval flange DIN flange D1 D2 D3 Oval
flange DIN
flange
Oval flange DIN flange D1 D2 D3 Oval
flange DIN
flange
B1 B1+B2 B1 B1+B2 B1 B1+B2 B1 B1+B2
CR(E) 20-1 1.1 400 631 400 631 141 109 -41 42 400 631 400 631 178 167 - 36.9 37.9
CR(E) 20-2 2.2 415 736 415 736 178 110 -49 50 415 736 415 736 178 167 - 65.8 66.8
CR(E) 20-3 4.0 465 837 465 837 220 134 -65 66 465 837 465 837 220 188 - 75.3 76.3
CR 20-4 5.5 542 933 542 933 220 134 300 87 88 - - - - - - - - -
CR(E) 20-5 5.5 587 978 587 978 220 134 300 89 90 587 978 587 978 220 188 298 100.9 101.9
CR 20-6 7.5 632 1023 632 1023 220 134 300 92 93 - - - - - - - - -
CR(E) 20-7 7.5 677 1068 677 1068 220 134 300 94 95 677 1068 677 1068 220 188 298 104.7 105.7
CR 20-8 11.0 - - 799 1298 260 172 350 -127 - - - - - - - - -
CR(E) 20-10 11.0 - - 889 1388 260 172 350 -130 - - 889 1338 258 359 350 - 181.0
CR 20-12 15.0 - - 979 1457 320 197 350 -148 - - - - - - - - -
CR(E) 20-14 15.0 - - 1069 1547 320 197 350 -152 - - 1069 1530 313 377 350 - 185.5
CR(E) 20-17 18.5 - - 1204 1722 320 197 350 -187 - - 1204 1703 313 377 350 - 226.0
CR, CRE 20

48
Performance curves
CRI, CRN, CRIE, CRNE 20
TM02 7301 3605
0 2 4 6 8 10 12 14 16 18 20 22 24 26 28 Q [m³/h]
0
20
40
60
80
100
120
140
160
180
200
220
240
260
H
[m]
0 1 2 3 4 5 6 7 8 Q [l/s]
0
400
800
1200
1600
2000
2400
p
[kPa] CRI, CRN 20
50 Hz
ISO 9906 Annex A
CRIE, CRNE 20
-1 (E)
-10 (E)
-12
-14 (E)
-17 (E)
-2 (E)
-3 (E)
-4
-5 (E)
-6
-7 (E)
-8
0 2 4 6 8 10 12 14 16 18 20 22 24 26 28 Q [m³/h]
0.0
0.4
0.8
1.2
1.6
P2
[kW]
0
20
40
60
80
Eta
[%]
Eta
P2
0 2 4 6 8 10 12 14 16 18 20 22 24 26 28 Q [m³/h]
0
5
10
15
H
[m]
0
2
4
6
NPSH
[m]
2900 rpm
NPSH
CRI, CRN, CRIE, CRNE 20

49
Technical data
Dimensional sketch
Dimensions and weights
TM03 1728 2805
B2
D2 D1
G 1/2
G 1/2 D3
B1
G 1/2
261
215
248
18.5 x 21.8
PN 16-25 / DN50
ø127
300
4 x ø13
CA (Flexiclamp)
ø165
ø120.5
ø65 ø50
202
ø87
90
P (PJE)
26
ø60.1
200
130
248
215
215
248
G 1/2
130
200
130
200
26
26
90
90
FGJ (DIN-ANSI-JIS)
Pump
type
Motor
P2
[kW]
CRI/CRN CRIE/CRNE
Dimension [mm] Net weight
[kg] Dimension [mm] Net weight
[kg]
PJE/CA DIN flange D1 D2 D3 PJE/
CA DIN
flange
PJE/CA DIN flange D1 D2 D3 PJE/
CA DIN
flange
B1 B1+B2 B1 B1+B2 B1 B1+B2 B1 B1+B2
CRI(E)/CRN(E) 20-1 1.1 397 628 397 628 141 109 -34 39 397 628 397 628 178 167 - 29.9 34.9
CRI(E)/CRN(E) 20-2 2.2 413 734 413 734 178 110 -42 47 413 734 413 734 178 167 - 52.5 57.5
CRI(E)/CRN(E) 20-3 4.0 463 835 463 835 220 134 -59 63 463 835 463 835 220 188 - 68.3 73.3
CRI/CRN 20-4 5.5 540 931 540 931 220 134 300 80 85---------
CRI(E)/CRN(E) 20-5 5.5 585 976 585 976 220 134 300 82 87 585 976 585 976 220 188 298 93.9 98.9
CRI/CRN 20-6 7.5 630 1021 630 1021 220 134 300 85 90---------
CRI(E)/CRN(E) 20-7 7.5 675 1066 675 1066 220 134 300 87 92 675 1066 675 1066 220 188 298 97.7 102.7
CRI/CRN 20-8 11.0 797 1296 797 1296 260 172 350 119 123---------
CRI(E)/CRN(E) 20-10 11.0 887 1386 887 1386 260 172 350 122 127 887 1336 887 1336 258 359 350 173.0 178.0
CRI/CRN 20-12 15.0 977 1455 977 1455 320 197 350 140 145---------
CRI(E)/CRN(E) 20-14 15.0 1067 1545 1067 1545 320 197 350 144 148 1067 1528 1067 1528 313 377 350 177.5 182.5
CRI(E)/CRN(E) 20-17 18.5 1202 1720 1202 1720 320 197 350 179 183 1202 1701 1202 1701 313 377 350 218.0 222.0
CRI, CRN, CRIE, CRNE 20

50
Performance curves
CR, CRE 32
TM02 7302 3605
04812 16 20 24 28 32 36 Q [m³/h]
0
20
40
60
80
100
120
140
160
180
200
220
240
260
280
H
[m]
0 2 4 6 8 10 Q [l/s]
0.0
0.4
0.8
1.2
1.6
2.0
2.4
[MPa]
p
CR, CRE 32
50 Hz
ISO 9906 Annex A
-11 -11-2
-12 (E) -12-2
-13 -13-2
-14 -14-2
-1 (E) -1-1 (E)
-10 (E) -10-2
-2 (E) -2-2 (E)
-3 (E) -3-2
-4 (E) -4-2
-5 -5-2
-6 (E) -6-2
-7 -7-2
-8 (E) -8-2
-9 -9-2
04812 16 20 24 28 32 36 Q [m³/h]
0.0
0.5
1.0
1.5
2.0
P2
[kW]
0
20
40
60
80
[%]
Eta
0.0
0.8
1.6
2.4
[hp]
P2
P2 1/1
P2 2/3
Eta
04812 16 20 24 28 32 36 Q [m³/h]
0
5
10
15
20
[m]
H
0
2
4
6
8
NPS
H
[m]
0
40
80
120
160
200
[kPa]
p
QH 2900 rpm 1/1
QH 2900 rpm 2/3 NPSH
CR, CRE 32

51
Technical data
Dimensional sketch
Dimensions and weights
TM01 1749 3298
ø74
240
298
ø107
ø145
ø185
D2
D1
170
223
320
B1 B2
G 1/2 8 x ø18
G 1/2
G 1/2
4 x ø14
105
D3
30
PN16-25-40/DN65
Pump
type
Motor
P2
[kW]
CR CRE
Dimension [mm] Net weight
[kg]
Dimension [mm] Net weight
[kg]
DIN flange D1 D2 D3 DIN flange D1 D2 D3
B1 B1+B2 B1 B1+B2
CR(E) 32-1-1 1.5 505 786 178 110 135 61 505 786 178 167 135 78.5
CR(E) 32-1 2.2 505 826 178 110 135 62 505 826 178 167 135 89.5
CR(E) 32-2-2 3.0 575 910 198 120 -76 575 910 198 177 145 98.0
CR(E) 32-2 4.0 575 947 220 134 158 87 575 947 220 188 160 109.3
CR 32-3-2 5.5 645 1036 220 134 298 107 - - - - - -
CR(E) 32-3 5.5 645 1036 220 134 298 107 645 1036 220 188 298 119.9
CR 32-4-2 7.5 715 1106 220 134 298 117 - - - - - -
CR(E) 32-4 7.5 715 1106 220 134 298 117 715 1106 220 188 298 126.7
CR 32-5-2 11.0 895 1394 260 172 350 155 - - - - - -
CR 32-5 11.0 895 1394 260 172 350 155 - - - - - -
CR 32-6-2 11.0 965 1464 260 172 350 158 - - - - - -
CR(E) 32-6 11.0 965 1464 260 172 350 158 965 1414 258 359 350 212.0
CR 32-7-2 15.0 1035 1513 320 197 350 175 - - - - - -
CR 32-7 15.0 1035 1513 320 197 350 175 - - - - - -
CR 32-8-2 15.0 1105 1583 320 197 350 178 - - - - - -
CR(E) 32-8 15.0 1105 1583 320 197 350 178 1105 1566 313 377 350 236.5
CR 32-9-2 18.5 1175 1693 320 197 350 211 - - - - - -
CR 32-9 18.5 1175 1693 320 197 350 211 - - - - - -
CR 32-10-2 18.5 1245 1763 320 197 350 214 - - - - - -
CR(E) 32-10 18.5 1245 1763 320 197 350 214 1245 1744 313 377 350 280.0
CR 32-11-2 22.0 1315 1925 363 262 350 250 - - - - - -
CR 32-11 22.0 1315 1925 363 262 350 250 - - - - - -
CR 32-12-2 22.0 1385 1995 363 262 350 254 - - - - - -
CR(E) 32-12 22.0 1385 1995 363 262 350 254 1385 1910 351 399 350 327.0
CR 32-13-2 30.0 1455 2101 415 300 400 322 - - - - - -
CR 32-13 30.0 1455 2101 415 300 400 322 - - - - - -
CR 32-14-2 30.0 1525 2171 415 300 400 325 - - - - - -
CR 32-14 30.0 1525 2171 415 300 400 325 - - - - - -
CR, CRE 32

52
Performance curves
CRN, CRNE 32
TM02 7303 3605
04812 16 20 24 28 32 36 Q [m³/h]
0
20
40
60
80
100
120
140
160
180
200
220
240
260
280
H
[m]
0 2 4 6 8 10 Q [l/s]
0.0
0.4
0.8
1.2
1.6
2.0
2.4
[MPa]
p
CRN, CRNE 32
50 Hz
ISO 9906 Annex A
-11 -11-2
-12 (E) -12-2
-13 -13-2
-14 -14-2
-1 (E) -1-1 (E)
-10 (E) -10-2
-2 (E)
-2-2 (E)
-3 (E) -3-2
-4 (E) -4-2
-5 -5-2
-6 (E) -6-2
-7 -7-2
-8 (E) -8-2
-9 -9-2
04812 16 20 24 28 32 36 Q [m³/h]
0.0
0.5
1.0
1.5
2.0
P2
[kW]
0
20
40
60
80
[%]
Eta
0.0
0.8
1.6
2.4
[hp]
P2
P2 1/1
P2 2/3
Eta
04812 16 20 24 28 32 36 Q [m³/h]
0
5
10
15
20
[m]
H
0
2
4
6
8
NPSH
[m]
0
40
80
120
160
[kPa]
p
QH 2900 rpm 1/1
QH 2900 rpm 2/3 NPSH
CRN, CRNE 32

53
Technical data
Dimensional sketch
Dimensions and weights
TM01 1750 2203
8 x ø18
G 1/2
ø74
240
298
ø107
ø145
ø185
D2
D1
170
226
320
B1 B2
G 1/2
G 1/2
4 x ø14
105
D3
30
PN16-25-40/DN65
Pump
type
Motor
P2
[kW]
CRN CRNE
Dimension [mm] Net weight
[kg]
Dimension [mm] Net weight
[kg]
DIN flange D1 D2 D3 DIN flange D1 D2 D3
B1 B1+B2 B1 B1+B2
CRN(E) 32-1-1 1.5 505 786 178 110 135 61 505 786 178 167 135 78.5
CRN(E) 32-1 2.2 505 826 178 110 135 62 505 826 178 167 135 89.5
CRN(E) 32-2-2 3.0 575 910 198 120 - 76 575 910 198 177 145 97.0
CRN(E) 32-2 4.0 575 947 220 134 158 87 575 947 220 188 160 108.3
CRN 32-3-2 5.5 645 1036 220 134 298 107 - - - - - -
CRN(E) 32-3 5.5 645 1036 220 134 298 107 645 1036 220 188 298 118.9
CRN 32-4-2 7.5 715 1106 220 134 298 117 - - --- -
CRN(E) 32-4 7.5 715 1106 220 134 298 117 715 1106 220 188 298 126.7
CRN 32-5-2 11.0 895 1394 260 172 350 155 - - - - - -
CRN 32-5 11.0 895 1394 260 172 350 155 - - - - - -
CRN 32-6-2 11.0 965 1464 260 172 350 158 - - - - - -
CRN(E) 32-6 11.0 965 1464 260 172 350 158 965 1414 258 359 350 212.0
CRN 32-7-2 15.0 1035 1513 320 197 350 175 - - - - - -
CRN 32-7 15.0 1035 1513 320 197 350 175 - - - - - -
CRN 32-8-2 15.0 1105 1583 320 197 350 178 - - - - - -
CRN(E) 32-8 15.0 1105 1583 320 197 350 178 1105 1566 313 377 350 236.5
CRN 32-9-2 18.5 1175 1693 320 197 350 211 - - --- -
CRN 32-9 18.5 1175 1693 320 197 350 211 - - --- -
CRN 32-10-2 18.5 1245 1763 320 197 350 214 - - - - - -
CRN(E) 32-10 18.5 1245 1763 320 197 350 214 1245 1744 313 377 350 279.0
CRN 32-11-2 22.0 1315 1925 363 262 350 250 - - - - - -
CRN 32-11 22.0 1315 1925 363 262 350 250 - - - - - -
CRN 32-12-2 22.0 1385 1995 363 262 350 254 - - - - - -
CRN(E) 32-12 22.0 1385 1995 363 262 350 254 1385 1910 351 399 350 326.0
CRN 32-13-2 30.0 1455 2101 415 300 400 322 - - - - - -
CRN 32-13 30.0 1455 2101 415 300 400 322 - - - - - -
CRN 32-14-2 30.0 1525 2171 415 300 400 325 - - - - - -
CRN 32-14 30.0 1525 2171 415 300 400 325 - - - - - -
CRN, CRNE 32

54
Performance curves
CR, CRE 45
TM02 7304 3605
0 5 10 15 20 25 30 35 40 45 50 55 Q [m³/h]
0
20
40
60
80
100
120
140
160
180
200
220
240
260
280
300
320
340
H
[m]
0246810 12 14 16 Q [l/s]
0.0
0.4
0.8
1.2
1.6
2.0
2.4
2.8
3.2
[MPa]
p
CR, CRE 45
50 Hz
ISO 9906 Annex A
-13-2
-12-2
-12
-11-2
-11
-1-1 (E)
-10 -10-2
-2 (E)
-2-2 (E)
-3 (E) -3-2
-4 (E) -4-2
-5 (E) -5-2
-6 (E) -6-2
-7 -7-2
-8 -8-2
-9 -9-2
-1 (E)
0 5 10 15 20 25 30 35 40 45 50 55 Q [m³/h]
0
1
2
3
4
P2
[kW]
0
20
40
60
80
[%]
Eta
0
2
4
[hp]
P2
P2 1/1
P2 2/3
Eta
0 5 10 15 20 25 30 35 40 45 50 55 Q [m³/h]
0
5
10
15
20
25
[m]
H
0
1
2
3
4
5
NPSH
[m]
0
50
100
150
200
[kPa]
p
QH 2900 rpm 1/1
QH 2900 rpm 2/3 NPSH
CR, CRE 45

55
Technical data
Dimensional sketch
Dimensions and weights
TM01 1751 3203
8 x ø18
G 1/2
ø80
266
331
ø120
ø160
ø200
D2
D1
190
248
365
B1 B2
G 1/2
G 1/2
4 x ø14
140
D3
45
PN16-25-40/DN80
Pump
type
Motor
P2
[kW]
CR CRE
Dimension [mm] Net weight
[kg]
Dimension [mm] Net weight
[kg]
DIN flange D1 D2 D3 DIN flange D1 D2 D3
B1 B1+B2 B1 B1+B2
CR(E) 45-1-1 3.0 559 894 198 120 -80 559 894 198 177 145 104.0
CR(E) 45-1 4.0 559 931 220 134 158 91 559 931 220 188 160 115.3
CR(E) 45-2-2 5.5 639 1030 220 134 298 108 639 1030 220 188 298 125.9
CR(E) 45-2 7.5 639 1030 220 134 298 110 639 1030 220 188 298 129.7
CR 45-3-2 11.0 829 1328 260 172 350 149 - - - - - -
CR(E) 45-3 11.0 829 1328 260 172 350 149 829 1278 258 359 350 211.0
CR 45-4-2 15.0 909 1387 320 197 350 169 - - - - - -
CR(E) 45-4 15.0 909 1387 320 197 350 169 909 1370 313 377 350 231.5
CR 45-5-2 18.5 989 1507 320 197 350 204 - - - - - -
CR(E) 45-5 18.5 989 1507 320 197 350 204 989 1488 313 377 350 271.0
CR 45-6-2 22.0 1069 1679 363 262 350 240 - - - - - -
CR(E) 45-6 22.0 1069 1679 363 262 350 240 1069 1594 351 399 350 314.0
CR 45-7-2 30.0 1149 1795 415 300 400 321 - - - - - -
CR 45-7 30.0 1149 1795 415 300 400 321 - - - - - -
CR 45-8-2 30.0 1229 1875 415 300 400 336 - - - - - -
CR 45-8 30.0 1229 1875 415 300 400 336 - - - - - -
CR 45-9-2 30.0 1309 1955 415 300 400 341 - - - - - -
CR 45-9 37.0 1309 2012 415 300 400 361 - - - - - -
CR 45-10-2 37.0 1389 2092 415 300 400 366 - - - - - -
CR 45-10 37.0 1389 2092 415 300 400 366 - - - - - -
CR 45-11-2 45.0 1469 2178 442 325 450 478 - - - - - -
CR 45-11 45.0 1469 2178 442 325 450 478 - - - - - -
CR 45-12-2 45.0 1549 2258 442 325 450 483 - - - - - -
CR 45-12 45.0 1549 2258 442 325 450 483 - - - - - -
CR 45-13-2 45.0 1629 2338 442 325 450 488 - - - - - -
CR, CRE 45

56
Performance curves
CRN, CRNE 45
TM02 7305 3605
0 5 10 15 20 25 30 35 40 45 50 55 Q [m³/h]
0
20
40
60
80
100
120
140
160
180
200
220
240
260
280
300
320
340
H
[m]
0 2 4 6 8 10 12 14 16 Q [l/s]
0.0
0.4
0.8
1.2
1.6
2.0
2.4
2.8
3.2
[MPa]
p
CRN, CRNE 45
50 Hz
ISO 9906 Annex A
-13-2
-12-2
-12
-11-2
-11
-1-1 (E)
-10 -10-2
-2 (E)
-2-2 (E)
-3 (E) -3-2
-4 (E) -4-2
-5 (E) -5-2
-6 (E) -6-2
-7 -7-2
-8 -8-2
-9 -9-2
-1 (E)
0 5 10 15 20 25 30 35 40 45 50 55 Q [m³/h]
0
1
2
3
4
P2
[kW]
0
20
40
60
80
[%]
Eta
0
2
4
[hp]
P2
P2 1/1
P2 2/3
Eta
0 5 10 15 20 25 30 35 40 45 50 55 Q [m³/h]
0
5
10
15
20
25
[m]
H
0
1
2
3
4
5
NPS
H
[m]
0
50
100
150
200
[kPa]
p
QH 2900 rpm 1/1
QH 2900 rpm 2/3 NPSH
CRN, CRNE 45

57
Technical data
Dimensional sketch
Dimensions and weights
TM01 1752 3203
G 1/2
PN16-25-40/DN80
ø80
266
331
ø120
ø160
ø200
D2
D1
190
251
365
B1 B2
G 1/2 8 x ø18
G 1/2
4 x ø14
140
D3
45
Pump
type
Motor
P2
[kW]
CRN CRNE
Dimension [mm] Net weight
[kg]
Dimension [mm] Net weight
[kg]
DIN flange D1 D2 D3 DIN flange D1 D2 D3
B1 B1+B2 B1 B1+B2
CRN(E) 45-1-1 3.0 559 894 198 120 - 80 559 894 198 177 145 103.0
CRN(E) 45-1 4.0 559 931 220 134 158 91 559 931 220 188 160 114.3
CRN(E) 45-2-2 5.5 639 1030 220 134 298 108 639 1030 220 188 298 124.9
CRN(E) 45-2 7.5 639 1030 220 148 300 110 639 1030 220 188 298 128.7
CRN 45-3-2 11.0 829 1328 260 172 350 149 - - - - - -
CRN(E) 45-3 11.0 829 1328 260 172 350 149 829 1278 258 359 350 210.0
CRN 45-4-2 15.0 909 1387 320 197 350 169 - - - - - -
CRN(E) 45-4 15.0 909 1387 320 197 350 169 909 1370 313 377 350 231.5
CRN 45-5-2 18.5 989 1507 320 197 350 204 - - - - - -
CRN(E) 45-5 18.5 989 1507 320 197 350 204 989 1488 313 377 350 270.0
CRN 45-6-2 22.0 1069 1679 363 262 350 240 - - - - - -
CRN(E) 45-6 22.0 1069 1679 363 262 350 240 1069 1594 351 399 350 313.0
CRN 45-7-2 30.0 1149 1795 415 300 400 321 - - - - - -
CRN 45-7 30.0 1149 1795 415 300 400 321 - - - - - -
CRN 45-8-2 30.0 1229 1875 415 300 400 336 - - - - - -
CRN 45-8 30.0 1229 1875 415 300 400 336 - - - - - -
CRN 45-9-2 30.0 1309 1955 415 300 400 341 - - - - - -
CRN 45-9 37.0 1309 2012 415 300 400 361 - - - - - -
CRN 45-10-2 37.0 1389 2092 415 300 400 366 - - - - - -
CRN 45-10 37.0 1389 2092 415 300 400 366 - - - - - -
CRN 45-11-2 45.0 1469 2178 442 325 450 478 - - - - - -
CRN 45-11 45.0 1469 2178 442 325 450 478 - - - - - -
CRN 45-12-2 45.0 1549 2258 442 325 450 483 - - - - - -
CRN 45-12 45.0 1549 2258 442 325 450 483 - - - - - -
CRN 45-13-2 45.0 1629 2338 442 325 450 488 - - - - - -
CRN, CRNE 45

58
Performance curves
CR, CRE 64
TM02 7306 3605
010 20 30 40 50 60 70 80 Q [m³/h]
0
20
40
60
80
100
120
140
160
180
200
220
240
H
[m]
0 5 10 15 20 Q [l/s]
0.0
0.4
0.8
1.2
1.6
2.0
[MPa]
p
CR, CRE 64
50 Hz
ISO 9906 Annex A
-8-1
-8-2
-7
-1 (E)
-2 (E)
-2-1
-2-2 (E)
-3
-3-1 (E)
-3-2
-4 (E)
-4-1
-4-2 (E)
-5
-5-1
-5-2
-6
-6-1
-6-2
-7-1
-7-2
-1-1 (E)
010 20 30 40 50 60 70 80 Q [m³/h]
0
2
4
6
8
P2
[kW]
0
20
40
60
80
[%]
Eta
0
2
4
6
8
10
[hp]
P2
P2 1/1
P2 2/3
Eta
010 20 30 40 50 60 70 80 Q [m³/h]
0
8
16
24
32
[m]
H
0
2
4
6
8
NPSH
[m]
0
100
200
300
[kPa]
p
QH 2900 rpm 1/1
QH 2900 rpm 2/3
NPSH
CR, CRE 64

59
Technical data
Dimensional sketch
Dimensions and weights
TM01 1753 5197
ø100
266
331
ø150
ø180
ø220
D2
D1
190
248
365
B1 B2
G 1/2 8 x ø18
G 1/2
G 1/2
4 x ø14
140
D3
45
PN16/DN100
PN25-40/DN100
45
4 x ø14
G 1/2
8 x ø22
ø235
ø190
ø150
331
266
ø100
F (DIN)
F (DIN)
Pump
type
Motor
P2
[kW]
CR CRE
Dimension [mm] Net weight
[kg]
Dimension [mm] Net weight
[kg]
DIN flange D1 D2 D3 DIN flange D1 D2 D3
B1 B1+B2 B1 B1+B2
CR(E) 64-1-1 4.0 561 933 220 134 158 91 561 933 220 188 160 118.3
CR(E) 64-1 5.5 561 952 220 134 298 102 561 952 220 188 298 124.9
CR(E) 64-2-2 7.5 644 1035 220 134 298 114 644 1035 220 188 298 132.7
CR 64-2-1 11.0 754 1253 260 172 350 149 - - - - - -
CR(E) 64-2 11.0 754 1253 260 172 350 149 754 1203 258 359 350 210.0
CR 64-3-2 15.0 836 1314 320 197 350 174 - - - - - -
CR(E) 64-3-1 15.0 836 1314 320 197 350 174 836 1297 313 377 350 231.5
CR 64-3 18.5 836 1354 320 197 350 204 - - - - - -
CR(E) 64-4-2 18.5 919 1437 320 197 350 214 919 1418 313 377 350 270.0
CR 64-4-1 22.0 919 1529 363 262 350 245 - - - - - -
CR(E) 64-4 22.0 919 1529 363 262 350 245 919 1444 351 399 350 309.0
CR 64-5-2 30.0 1001 1647 415 300 400 316 - - - - - -
CR 64-5-1 30.0 1001 1647 415 300 400 316 - - - - - -
CR 64-5 30.0 1001 1647 415 300 400 316 - - - - - -
CR 64-6-2 30.0 1084 1730 415 300 400 336 - - - - - -
CR 64-6-1 37.0 1084 1787 415 300 400 356 - - - - - -
CR 64-6 37.0 1084 1787 415 300 400 356 - - - - - -
CR 64-7-2 37.0 1166 1869 415 300 400 376 - - - - - -
CR 64-7-1 37.0 1166 1869 415 300 400 376 - - - - - -
CR 64-7 45.0 1166 1875 442 325 450 440 - - - - - -
CR 64-8-2 45.0 1249 1958 442 325 450 473 - - - - - -
CR 64-8-1 45.0 1249 1958 442 325 450 473 - - - - - -
CR, CRE 64

60
Performance curves
CRN, CRNE 64
TM02 7307 3605
010 20 30 40 50 60 70 Q [m³/h]
0
20
40
60
80
100
120
140
160
180
200
220
240
H
[m]
0 5 10 15 20 Q [l/s]
0.0
0.4
0.8
1.2
1.6
2.0
[MPa]
p
CRN, CRNE 64
50 Hz
ISO 9906 Annex A
-8-1
-8-2
-7
-1 (E)
-2 (E)
-2-1
-2-2 (E)
-3
-3-1 (E)
-3-2
-4 (E)
-4-1
-4-2 (E)
-5
-5-1
-5-2
-6
-6-1
-6-2
-7-1
-7-2
-1-1 (E)
010 20 30 40 50 60 70 Q [m³/h]
0
2
4
6
8
P2
[kW]
0
20
40
60
80
[%]
Eta
0
2
4
6
8
10
[hp]
P2
P2 1/1
P2 2/3
Eta
010 20 30 40 50 60 70 Q [m³/h]
0
8
16
24
32
[m]
H
0
2
4
6
8
NPSH
[m]
0
100
200
300
[kPa]
p
QH 2900 rpm 1/1
QH 2900 rpm 2/3
NPSH
CRN, CRNE 64

61
Technical data
Dimensional sketch
Dimensions and weights
TM01 1754 0904
ø100
266
331
ø150
ø180
ø220
D2
D1
190
251
365
B1 B2
G 1/2 8 x ø18
G 1/2
G 1/2
4 x ø14
140
D3
45
PN16/DN100
PN25-40/DN100
45
4 x ø14
G 1/2
8 x ø22
ø235
ø190
ø150
331
266
ø100
F (DIN)
F (DIN)
Pump
type
Motor
P2
[kW]
CRN CRNE
Dimension [mm] Net weight
[kg]
Dimension [mm] Net weight
[kg]
DIN flange D1 D2 D3 DIN flange D1 D2 D3
B1 B1+B2 B1 B1+B2
CRN(E) 64-1-1 4.0 561 933 220 134 158 91 561 933 220 188 160 117.3
CRN(E) 64-1 5.5 561 952 220 134 298 102 561 952 220 188 298 123.9
CRN(E) 64-2-2 7.5 644 1035 220 134 298 114 644 1035 220 188 298 131.7
CRN 64-2-1 11.0 754 1253 260 172 350 149 - - - - - -
CRN(E) 64-2 11.0 754 1253 260 172 350 149 754 1203 258 359 350 209.0
CRN 64-3-2 15.0 836 1314 320 197 350 174 - - - - - -
CRN(E) 64-3-1 15.0 836 1314 320 197 350 174 836 1297 313 377 350 229.5
CRN 64-3 18.5 836 1354 320 197 350 204 - - - - - -
CRN(E) 64-4-2 18.5 919 1437 320 197 350 214 919 1418 313 377 350 269.0
CRN 64-4-1 22.0 919 1529 363 262 350 245 - - - - - -
CRN(E) 64-4 22.0 919 1529 363 262 350 245 919 1444 351 399 350 308.0
CRN 64-5-2 30.0 1001 1647 415 300 400 316 - - - - - -
CRN 64-5-1 30.0 1001 1647 415 300 400 316 - - - - - -
CRN 64-5 30.0 1001 1647 415 300 400 316 - - - - - -
CRN 64-6-2 30.0 1084 1730 415 300 400 336 - - - - - -
CRN 64-6-1 37.0 1084 1787 415 300 400 356 - - - - - -
CRN 64-6 37.0 1084 1787 415 300 400 356 - - - - - -
CRN 64-7-2 37.0 1166 1869 415 300 400 376 - - - - - -
CRN 64-7-1 37.0 1166 1869 415 300 400 376 - - - - - -
CRN 64-7 45.0 1166 1875 442 325 450 440 - - - - - -
CRN 64-8-2 45.0 1249 1958 442 325 450 473 - - - - - -
CRN 64-8-1 45.0 1249 1958 442 325 450 473 - - - - - -
CRN, CRNE 64

62
Performance curves
CR, CRE 90
TM02 7308 3605
010 20 30 40 50 60 70 80 90 100 110 Q [m³/h]
0
10
20
30
40
50
60
70
80
90
100
110
120
130
140
150
160
170
180
190
200
210
H
[m]
0 5 10 15 20 25 30 Q [l/s]
0.0
0.2
0.4
0.6
0.8
1.0
1.2
1.4
1.6
1.8
2.0
[MPa]
p
CR, CRE 90
50 Hz
ISO 9906 Annex A
-1 (E)
-1-1 (E)
-2 (E)
-2-2 (E)
-3 (E)
-3-2 (E)
-4
-4-2
-5
-5-2
-6
-6-2
010 20 30 40 50 60 70 80 90 100 110 Q [m³/h]
0
2
4
6
8
P2
[kW]
0
20
40
60
80
[%]
Eta
0
2
4
6
8
10
[hp]
P2
P2 1/1
P2 2/3
Eta
010 20 30 40 50 60 70 80 90 100 110 Q [m³/h]
0
10
20
30
40
[m]
H
0
2
4
6
8
NPSH
[m]
0
100
200
300
[kPa]
p
QH 2900 rpm 1/1
QH 2900 rpm 2/3
NPSH
CR, CRE 90

63
Technical data
Dimensional sketch
Dimensions and weights
TM01 1755 2203
ø100
280
348
ø156
ø180
ø220
D2
D1
199
261
380
B1 B2
G 1/2 8 x ø18
G 1/2
4 x ø14
140
D3
45
G 1/2
PN16/DN100
PN25-40/DN100
45
4 x ø14
G 1/2
8 x ø22
ø235
ø190
ø156
348
280
ø100
F (DIN)
F (DIN)
Pump
type
Motor
P2
[kW]
CR CRE
Dimension [mm] Net weight
[kg]
Dimension [mm] Net weight
[kg]
DIN flange D1 D2 D3 DIN flange D1 D2 D3
B1 B1+B2 B1 B1+B2
CR(E) 90-1-1 5.5 571 962 220 134 298 107 571 962 220 188 298 130.9
CR(E) 90-1 7.5 571 962 220 134 298 109 571 962 220 188 298 133.7
CR(E) 90-2-2 11.0 773 1272 260 172 350 150 773 1222 258 359 350 216.0
CR(E) 90-2 15.0 773 1251 320 197 350 164 773 1234 313 377 350 232.5
CR(E) 90-3-2 18.5 865 1383 320 197 350 214 865 1364 313 377 350 272.0
CR(E) 90-3 22.0 865 1475 363 262 350 245 865 1390 351 399 350 311.0
CR 90-4-2 30.0 957 1603 415 300 400 326 - - - - - -
CR 90-4 30.0 957 1603 415 300 400 326 - - - - - -
CR 90-5-2 37.0 1049 1752 415 300 400 366 - - - - - -
CR 90-5 37.0 1049 1752 415 300 400 366 - - - - - -
CR 90-6-2 45.0 1141 1850 442 325 450 437 - - - - - -
CR 90-6 45.0 1141 1850 442 325 450 437 - - - - - -
CR, CRE 90

64
Performance curves
CRN, CRNE 90
TM02 7309 3605
010 20 30 40 50 60 70 80 90 100 110 Q [m³/h]
0
10
20
30
40
50
60
70
80
90
100
110
120
130
140
150
160
170
180
190
200
210
H
[m]
0 5 10 15 20 25 30 Q [l/s]
0.0
0.2
0.4
0.6
0.8
1.0
1.2
1.4
1.6
1.8
2.0
[MPa]
p
CRN, CRNE 90
50 Hz
ISO 9906 Annex A
-1 (E)
-1-1 (E)
-2 (E)
-2-2 (E)
-3 (E)
-3-2 (E)
-4
-4-2
-5
-5-2
-6
-6-2
010 20 30 40 50 60 70 80 90 100 110 Q [m³/h]
0
2
4
6
8
P2
[kW]
0
20
40
60
80
[%]
Eta
0
2
4
6
8
10
[hp]
P2
P2 1/1
P2 2/3
Eta
010 20 30 40 50 60 70 80 90 100 110 Q [m³/h]
0
10
20
30
40
[m]
H
0
2
4
6
8
NPSH
[m]
0
100
200
300
[kPa]
p
QH 2900 rpm 1/1
QH 2900 rpm 2/3
NPSH
CRN, CRNE 90

65
Technical data
Dimensional sketch
Dimensions and weights
TM02 1570 2203
ø100
280
348
ø156
ø180
ø235
D2
D1
199
261
380
B1 B2
G 1/2 8 x ø18
G 1/2
G 1/2
4 x ø14
140
D3
45
PN16/DN100
PN25-40/DN100
45
4 x ø14
G 1/2
8 x ø22
ø235
ø190
ø156
348
280
ø100
F (DIN)
F (DIN)
Pump
type
Motor
P2
[kW]
CRN CRNE
Dimension [mm] Net weight
[kg]
Dimension [mm] Net weight
[kg]
DIN flange D1 D2 D3 DIN flange D1 D2 D3
B1 B1+B2 B1 B1+B2
CRN(E) 90-1-1 5.5 571 962 220 134 298 107 571 962 220 188 298 130.9
CRN(E) 90-1 7.5 571 962 220 134 298 109 571 962 220 188 298 133.7
CRN(E) 90-2-2 11.0 773 1272 260 172 350 150 773 1222 258 359 350 216.0
CRN(E) 90-2 15.0 773 1251 320 197 350 164 773 1234 313 377 350 232.5
CRN(E) 90-3-2 18.5 865 1383 320 197 350 214 865 1364 313 377 350 272.0
CRN(E) 90-3 22.0 865 1475 363 262 350 245 865 1390 351 399 350 311.0
CRN 90-4-2 30.0 957 1603 415 300 400 326 - - - - - -
CRN 90-4 30.0 957 1603 415 300 400 326 - - - - - -
CRN 90-5-2 37.0 1049 1752 415 300 400 366 - - - - - -
CRN 90-5 37.0 1049 1752 415 300 400 366 - - - - - -
CRN 90-6-2 45.0 1141 1850 442 325 450 437 - - - - - -
CRN 90-6 45.0 1141 1850 442 325 450 437 - - - - - -
CRN, CRNE 90

CR, CRI, CRN, CRE, CRIE, CRNE
66
Motor data
Standard motors for CR, CRI, CRN, 50 Hz
Motor
P2
[kW]
Frame
size Standard voltage
[V] I 1/1 [A] Cos ϕ 1/1 η [%]
TM03 1711 2805
MG
0.37 71 220-240∆/380-415Y 1.7/1 0.8-0.7 78.5 8.5-9.2/4.9-5.3
0.55 71 220-240∆/380-415Y 2.5/1.4 0.8-0.7 80 12-13/6.9-7.5
0.75 80 220-240∆/380-415Y 3.3/1.9 0.81-0.71 81 19.1-20.5/11.0-11.8
1.1 80 220-240∆/380-415Y 4.5/2.6 0.84-0.76 82.8 28.5-31.5/16.3-17.9
1.5 90 220-240∆/380-415Y 5.5/3.2 0.87-0.82 85.5 46.3-50.7/26.8-29.3
2.2 90 380-415∆4.5-4.5 0.89-0.87 87.5 37.8-42.3
3.0 100 220-240∆/380-415Y 11-6.4 0.87-0.8 85 88-96.8/50.8-55.7
4.0 112 380-415∆8-8 0.88-0.84 89 89.6-98.4
5.5 132 380-415∆11.2-11.2 0.88-0.84 90 119.8-131.0
7.5 132 380-415∆15.2-15.2 0.87-0.8 89.5 152-168.7
11 160 380-415∆21.4-21.4 0.9-0.9 91.4 156.2-171.2
Siemens
TM03 1710 2805
15 160 380-415∆/660-690Y 26.5/15.2 0.9-0.9 91.5 185.5/106.4
18.5 160 380-415∆/660-690Y 31.5/18.4 0.92-0.92 92.5 220.5/128.8
22 180 380-415∆/660-690Y 38.5/22 0.88-0.88 94 277.2/158.4
30 200 380-415∆/660-690Y 53/30.5 0.88-0.88 93.5 371/213.5
37 200 380-415∆/660-690Y 64/37 0.89-0.89 94 460.8/266.4
45 225 380-415∆/660-690Y 77/44.5 0.89-0.89 95 562.1/324.9
Istart
I11⁄
-------------

67
Motor data CR, CRI, CRN, CRE, CRIE, CRNE
E-motors for CRE, CRIE, CRNE, 50 Hz
Motor
P2
[kW]
Frame
size Phase Standard
voltage
[V] I 1/1 [A] Cos ϕ 1/1 η [%]
TM03 1712 2805
MGE
0.37 71 1 200-240 2.7-2.5 0.96 68
0.55 71 1200-240 3.9-3.6 0.96 70
0.75 80 1200-240 5.1-4.7 0.97 72
1.1 80 1200-240 7.4-6.8 0.97 73
1.5 90 3380-480 40.74 78
2.2 90 3380-480 5.35 0.77 80
3.0 100 3380-480 6.8 0.83 81
4.0 112 3380-480 90.84 82
5.5 132 3380-480 12 0.86 82
7.5 132 3380-480 16 0.86 84.5
MMGE
TM03 1713 2805
11 160 3380-415 21.4 0.93 84
15 160 3380-415 28 0.94 85.5
18.5 160 3380-415 34 0.95 85.5
22 180 3380-415 42 0.94 85

CR, CRI, CRN, CRE, CRIE, CRNE
68
Pumped liquids
Pumped liquids
Thin, non-explosive liquids, not containing solid parti-
cles or fibres. The liquid must not chemically attack the
pump materials.
When pumping liquids with a density and/or viscosity
higher than that of water, oversized motors must be
used, if required.
Whether a pump is suitable for a particular liquid
depends on a number of factors of which the most
important are the chloride content, pH value, tempera-
ture and content of chemicals, oils, etc.
Please note that aggressive liquids (e.g. sea water and
some acids) may attack or dissolve the protective oxide
film of the stainless steel and thus cause corrosion.
The CR(E), CRI(E), CRN(E) pump types are suitable
for the following liquids:
CR(E), CRI(E)
• Non-corrosive liquids.
For liquid transfer, circulation and pressure boosting of
cold or hot clean water.
CRN(E)
• Industrial liquids.
In systems where all parts in contact with the liquid
must be made of high-grade stainless steel.
CRT(E)
• Saline liquids.
• Hypochlorites.
•Acids.
For saline or chloride-containing liquids such as sea
water or oxidizing agents such as hypochlorites,
CRT(E) pumps of titanium are available. See separate
data booklet on CRT(E).
List of pumped liquids
A number of typical liquids are listed below.
Other pump versions may be applicable, but those
stated in the list are considered to be the best choices.
The table is intended as a general guide only, and can-
not replace actual testing of the pumped liquids and
pump materials under specific working conditions.
The list should, however, be applied with some caution
as factors such as
• concentration of the pumped liquid,
• liquid temperature or
• pressure.
may affect the chemical resistance of a specific pump
version.
Safety precautions must be made when pumping dan-
gerous liquids.
Notes
DOften with additives.
EDensity and/or viscosity differ from that of water.
Allow for this when calculating motor output and pump
performance.
FPump selection depends on many factors.
Contact Grundfos.
HRisk of chrystallization/precipitation in shaft seal.
1The pumped liquid highly inflammable.
2The pumped liquid is combustible.
3Insoluble in water.
4Low self-ignition point.
Pumped liquid Note Liquid concentration,
liquid temperature
CR(E), CRI(E) CRN(E)
1s, 1, 3, 5
10, 15, 20
32, 45, 64, 90
1s, 1, 3, 5
10, 15, 20
32, 45, 64, 90
Acetic acid, CH3COOH - 5%, +20°C - - - HQQE HQQE HQQE
Acetone, CH3COCH31, F 100%, +20°C - - - HQQE HQQE HQQE
Alkaline degreasing agent D, F - HQQE HQQE HQQE - - -
Ammonium bicarbonate, NH4HCO3E 20%, +30°C - - - HQQE HQQE HQQE
Ammonium hydroxide, NH4OH - 20%, +40°C HQQE HQQE HQQE - - -
Aviation fuel 1, 3, 4, F 100%, +20°C HQBV HQBV HQBV - - -
Benzoic acid, C6H5COOH H 0.5%, +20°C - - - HQQV HQQV HQQV
Boiler water - <+120°C HQQE HQQE HQQE - - -
F +120°C - +180°C - - - - - -
Calcareous water - <+90°C HQQE HQQE HQQE - - -
Calcium acetate (as coolant with inhibitor)
Ca(CH3COO)2D, E 30%, +50°C HQQE HQQE HQQE - - -
Calcium hydroxide, Ca(OH)2E Saturated solution, +50°C HQQE HQQE HQQE - - -
Chloride-containing water F <+30°C, max. 500 ppm - - - HQQE HQQE HQQE
Chromic acid, H2CrO4H 1%, +20°C - - - HQQV HQQV HQQV

69
Pumped liquids CR, CRI, CRN, CRE, CRIE, CRNE
Citric acid, HOC(CH2CO2H)2COOH H 5%, +40°C - - - HQQE HQQE HQQE
Completely desalinated water
(demineralized water) - +120°C - - - HQQE HQQE HQQE
Condensate - 120°C HQQE HQQE HQQE - - -
Copper sulfate, CuSO4E 10%, +50°C - - - HQQE HQQE HQQE
Corn oil D, E, 3 100%, +80°C HQQV HQQV HQQV - - -
Diesel oil 2, 3, 4, F 100%, +20°C HQBV HQBV HQBV - - -
Domestic hot water (potable water) - <+120°C HQQE HQQE HQQE - - -
Ethanol (ethyl alcohol), C2H5OH 1, F 100%, +20°C HQQE HQQE HQQE - - -
Ethylene glycol, HOCH2CH2OH D, E 50%, +50°C HQQE HQQE HQQE - - -
Formic acid, HCOOH - 5%, +20°C - - - HQQE HQQE HQQE
Glycerine (glycerol),
OHCH2CH(OH)CH2OH D, E 50%, +50°C HQQE HQQE HQQE - - -
Hydraulic oil (mineral) E, 2, 3 100%, +100°C HQQV HQQV HQQV - - -
Hydraulic oil (synthetic) E, 2, 3 100%, +100°C HQQV HQQV HQQV - - -
Isopropyl alcohol, CH3CHOHCH31, F 100%, +20°C HQQE HQQE HQQE - - -
Lactic acid, CH3CH(OH)COOH E, H 10%, +20°C - - - HQQV HQQV HQQV
Linoleic acid, C17H31COOH E, 3 100%, +20°C HQQV HQQV HQQV - - -
Methanol (methyl alcohol), CH3OH 1, F 100%, +20°C HQQE HQQE HQQE - - -
Motor oil E, 2, 3 100%, +80°C HQQV HQQV HQQV - - -
Naphthalene, C10H8E, H 100%, +80°C HQQV HQQV HQQV - - -
Nitric acid, HNO3F 1%, +20°C - - - HQQE HQQE HQQE
Oil-containing water - <+100°C HQQV HQQV HQQV - - -
Olive oil D, E, 3 100%, +80°C HQQV HQQV HQQV - - -
Oxalic acid, (COOH)2H 1%, +20°C - - - HQQE HQQE HQQE
Ozone-containing water, (O3) - <+100°C - - - HQQE HQQE HQQE
Peanut oil D, E, 3 100%, +80°C HQQV HQQV HQQV - - -
Petrol 1, 3, 4, F 100%, +20°C HQBV HQBV HQBV - - -
Phosphoric acid, H3PO4E 20%, +20°C - - - HQQE HQQE HQQE
Propanol, C3H7OH 1, F 100%, +20°C HQQE HQQE HQQE - - -
Propylene glycol, CH3CH(OH)CH2OH D, E 50%, +90°C HQQE HQQE HQQE - - -
Potassium carbonate, K2CO3E 20%, +50°C HQQE HQQE HQQE - - -
Potassium formate
(as coolant with inhibitor), KOOCH D, E 30%, +50°C HQQE HQQE HQQE - - -
Potassium hydroxide, KOH E 20%, +50°C - - - HQQE HQQE HQQE
Potassium permanganate, KMnO4- 5%, +20°C - - - HQQE HQQE HQQE
Rape seed oil D, E, 3 100%, +80°C HQQV HQQV HQQV - - -
Salicylic acid, C6H4(OH)COOH H 0.1%, +20°C - - - HQQE HQQE HQQE
Silicone oil E, 3 100% HQQV HQQV HQQV - - -
Sodium bicarbonate, NaHCO3E 10%, +60°C - - - HQQE HQQE HQQE
Sodium chloride (as coolant), NaCl D, E 30%, <+5°C, pH>8 HQQE HQQE HQQE - - -
Sodium hydroxide, NaOH E 20%, +50°C - - - HQQE HQQE HQQE
Sodium hypochlorite, NaOCl F 0.1%, +20°C - - - HQQV HQQV HQQV
Sodium nitrate, NaNO3E 10%, +60°C - - - HQQE HQQE HQQE
Sodium phosphate, Na3PO4E, H 10%, +60°C - - - HQQE HQQE HQQE
Sodium sulfate, Na2SO4E, H 10%, +60°C - - - HQQE HQQE HQQE
Softened water - <+120°C - - - HQQE HQQE HQQE
Soya oil D, E, 3 100%, +80°C HQQV HQQV HQQV - - -
Sulfuric acid, H2SO4F 1%, +20°C - - - HQQV HQQV HQQV
Sulfurous acid, H2SO3- 1%, +20°C - - - HQQE HQQE HQQE
Unsalted swimming pool water - Approx. 2 ppm free chlorine (Cl2)HQQE HQQE HQQE - - -
Pumped liquid Note Liquid concentration,
liquid temperature
CR(E), CRI(E) CRN(E)
1s, 1, 3, 5
10, 15, 20
32, 45, 64, 90
1s, 1, 3, 5
10, 15, 20
32, 45, 64, 90

CR, CRI, CRN, CRE, CRIE, CRNE
70
Accessories
Pipework connection
For pipework connection, various sets of counter
flanges and couplings are available.
Counter flanges for CR(E)
A set consists of one counter flange, one gasket, bolts
and nuts.
Counter flange Pump type Description Rated pressure Pipework
connection Product
number
TM03 2115 3705
CR 1s
CR(E) 1
CR(E) 3
CR(E) 5
Threaded 16 bar, EN 1092-2 Rp 1 409901
For welding 25 bar, EN 1092-2 25 mm, nominal 409902
TM03 0400 3705
CR 1s
CR(E) 1
CR(E) 3
CR(E) 5
Threaded 16 bar, EN 1092-2 Rp 1¼ 419901
For welding 25 bar, EN 1092-2 32 mm, nominal 419902
TM03 0401 3705
CR(E) 10
Threaded 16 bar, EN 1092-2 Rp 1½ 429902
Threaded 16 bar, EN 1092-2 Rp 2 429904
For welding 25 bar, EN 1092-2 40 mm, nominal 429901
For welding 40 bar, special flange 50 mm, nominal 429903
TM03 0402 3705
CR(E) 15
CR(E) 20
Threaded 16 bar, EN 1092-2 Rp 2 339903
Threaded 16 bar, special flange Rp 2½ 339904
TM02 7203 2803
Threaded 16 bar, special flange Rp 2½
96509578
TM03 0402 3705
For welding 25 bar, EN 1092-2 50 mm, nominal 339901
For welding 40 bar, special flange 65 mm, nominal 339902
TM03 2116 3705
CR(E) 32
Threaded 16 bar, EN 1092-2 Rp 2½ 349902
Threaded 16 bar, special flange Rp 3 349901
For welding 16 bar, EN 1092-2 65 mm, nominal 349904
For welding 40 bar, DIN 2635 65 mm, nominal 349905
For welding 16 bar, special flange 80 mm, nominal 349903
ø19
ø115
ø85
ø68
ø19
ø140
ø100
ø78
ø19
ø150
ø110
ø88
ø19
ø165
ø125
ø102
ø165
ø125
ø102
ø127
18.5
19.5
ø19
ø165
ø125
ø102
ø19
ø185
ø145
122
ø19
ø190
ø145
ø126
ø19
ø185
ø145
ø122
Rp 2½ / 16 bar Rp 3 / 16 bar 40 bar

71
Accessories CR, CRI, CRN, CRE, CRIE, CRNE
Flange with 20 mm higher collar. With this collar, the installation dimensions of a CR 20 will be identical to those of a CR 32.
If a CR 32 is replaced with a CR 20, the base must be raised by 15 mm.
TM03 2117 3705
CR(E) 45
Threaded 16 bar Rp 3 350540
For welding 16 bar 80 mm, nominal 350541
For welding 40 bar 80 mm, nominal 350542
TM03 2118 3705
CR(E) 64
CR(E) 90
Threaded 16 bar, EN 1092-2 Rp 4 369901
For welding 16 bar, EN 1092-2 100 mm, nominal 369902
For welding 25 bar, EN 1092-2 100 mm, nominal 369905
Counter flange Pump type Description Rated pressure Pipework
connection Product
number
ø19
ø200
ø160
ø132
ø22
ø235
ø190
ø162
ø19
ø220
ø180
ø158
16 bar 25 bar

72
Accessories CR, CRI, CRN, CRE, CRIE, CRNE
Counter flanges for CRN(E)
Counterflanges for CRN(E) pumps are made of stain-
less steel according to EN 1.4401 (AISI 316).
A set consists of one counter flange, one gasket, bolts
and nuts.
Counter flange Pump type Description Rated pressure Pipework
connection Product
number
TM03 2115 3705
CRI(E), CRN(E)
1s, 1, 3 and 5
Threaded 16 bar, EN 1092-2 Rp 1 405284
For welding 25 bar, EN 1092-2 25 mm, nominal 405285
TM03 0400 3705
CRI(E), CRN(E)
1s, 1, 3 and 5
Threaded 16 bar, EN 1092-2 Rp 1¼ 415304
For welding 25 bar, EN 1092-2 32 mm, nominal 415305
TM03 0401 3705
CRI(E) 10
CRN(E) 10
Threaded 16 bar, EN 1092-2 Rp 1½ 425245
TM02 7202 2803
Threaded 16 bar, EN 1092-2 Rp 2 96509570
TM03 0401 3705
For welding 25 bar, EN 1092-2 40 mm, nominal 425246
TM02 7202 2803
For welding 25 bar, special flange 50 mm, nominal 96509571
ø19
ø115
ø85
ø68
ø19
ø140
ø100
ø78
ø19
ø150
ø110
ø88
ø89
ø110
ø150
ø115
18.5
21
ø19
ø150
ø110
ø88
ø89
ø110
ø150
ø115
18.5
21

73
Accessories CR, CRI, CRN, CRE, CRIE, CRNE
Flange with 20 mm higher collar. With this collar, the installation dimensions of a CR 20 will be identical to those of a CR 32.
If a CR 32 is replaced with a CR 20, the base must be raised by 15 mm.
TM00 0402 3705
CRI(E) 15, 20
CRN(E) 15, 20
Threaded 16 bar, EN 1092-2 Rp 2 335254
TM02 7203 2803
Threaded 16 bar, special flange Rp 2½ 96509575
Threaded 16 bar, special flange Rp 2½
96509579
TM03 0402 3705
For welding 25 bar, EN 1092-2 50 mm, nominal 335255
TM00 7203 2803
For welding 25 bar, special flange 65 mm, nominal 96509573
TM03 2119 3705
CRN(E) 32
Threaded 16 bar Rp 2½ 349910
Threaded 16 bar, special flange Rp 3 349911
For welding 16 bar 65 mm, nominal 349906
For welding 40 bar 65 mm, nominal 349908
For welding 16 bar, special flange 80 mm, nominal 349907
For welding 25 bar, special flange 80 mm, nominal 349909
TM03 2117 3705
CRN(E) 45
Threaded 16 bar Rp 3 350543
For welding 16 bar 80 mm, nominal 350544
For welding 40 bar 80 mm, nominal 350545
TM03 2118 3705
CRN(E) 64
CRN(E) 90
Threaded 16 bar Rp 4 369904
For welding 16 bar 100 mm, nominal 369903
For welding 40 bar 100 mm, nominal 369906
Counter flange Pump type Description Rated pressure Pipework
connection Product
number
ø19
ø165
ø125
ø102
ø165
ø125
ø102
ø127
18.5
19.5
ø19
ø165
ø125
ø102
ø165
ø125
ø102
ø127
18.5
19.5
ø19
ø145
ø121
ø19
ø145
ø121
16 bar 25 bar/40 bar
ø19
ø200
ø160
ø132
ø22
ø235
ø190
ø162
ø19
ø220
ø180
ø158
16 bar 40 bar

74
Accessories CR, CRI, CRN, CRE, CRIE, CRNE
PJE couplings for CRN(E)
Materials in contact with the pumped liquid are made of
stainless steel EN 1.4401 (AISI 316) and rubber.
A set consists of two coupling halves (Victaulic type
77), one gasket, one pipe stud (for welding or
threaded), bolts and nuts.
FlexiClamp base connections
All sets comprise the necessary number of bolts and
nuts as well as a gasket/O-ring.
Coupling Pump type Pipe stub PN Pipework
connection Rubber
parts
Number of
coupling
sets needed
Product
number
TM00 3808 1094
CRI(E),
CRN(E)
1, 3 and 5
Threaded 80 bar R 1¼ EPDM 2 419911
FKM 2 419905
For weld-
ing 80 bar DN 32 EPDM 2 419912
FKM 2 419904
CRI(E)
CRN(E)
10, 15 and 20
Threaded 70 bar R 2 EPDM 2 339911
FKM 2 339918
For weld-
ing 70 bar DN 50 EPDM 2 339910
FKM 2 339917
Base connection Pump type Connection Pipework
connection AB Rubber
parts
Number of
coupling
sets needed
Product
number
TM02 7368 3303
CRI(E),
CRN(E)
1, 3 and 5
Oval
(cast iron)
Rp 1
50 210
Klingersil 1 96449748
Rp 1¼ Klingersil 1 96449749
Oval
(stainless steel)
Rp 1 Klingersil 2 96449746
Rp 1¼ Klingersil 2 96449747
TM02 7369 3303
CRI(E),
CRN(E)
1, 3 and 5 Union G 2 50 228
EPDM 2 96449743
FKM 2 96449744
TM02 7370 3303
CRI(E),
CRN(E)
1, 3 and 5
DIN
(stainless steel) DN 25
DN 32 75 250
EPDM 2 96449745
FKM 2 96449900
TM02 7371 3303
CRI(E),
CRN(E)
1, 3 and 5
Clamp, threaded
pipe stub
Rp 1
50
208
EPDM 2 405280
FKM 2 405281
Rp 1¼ EPDM 2 415296
FKM 2 415297
NPT 1 EPDM 2 405291
FKM 2 405292
NPT 1¼ EPDM 2 415311
FKM 2 415312
Clamp, pipe stub
for welding
28.5 - EPDM 2 405282
FKM 2 405283
37.2 - EPDM 2 415300
FKM 2 415301
AB
B
A
AB
AB

75
Accessories CR, CRI, CRN, CRE, CRIE, CRNE
Base connection Pump type Connection Pipework
connection AB Rubber
parts
Number of
coupling
sets needed
Product
number
TM02 7372 3303
CRI(E) 10
CRN(E) 10
Oval
(cast iron)
Rp 1¼
80 260
Klingersil 2 96498775
Rp 1½ Klingersil 2 96498727
Rp 2 Klingersil 2 96498836
Oval
(stainless steel)
Rp 1¼ Klingersil 2 96498776
Rp 1½ Klingersil 2 96498728
Rp 2 Klingersil 2 96498835
TM02 7374 3303
CRI(E) 10
CRN(E) 10 Union G 2¾ 80 288
EPDM 2 96500275
FKM 2 96500276
TM02 7373 3303
CRI(E) 10
CRN(E) 10
FGJ
(cast iron)
DN 40
80 316
EPDM 2 96498840
FKM 2 96500119
FGJ
(stainless steel)
EPDM 2 96500263
FKM 2 96500264
FGJ
(cast iron)
DN 50
EPDM 2 96500265
FKM 2 96500266
FGJ
(stainless steel)
EPDM 2 96500257
FKM 2 96500269
TM02 7375 3303
CRI(E) 10
CRN(E) 10
Clamp,
threaded pipe
stub
Rp 1½
80
259
EPDM 2 425238
FKM 2 425239
Rp 2 EPDM 2 335241
FKM 2 335242
Rp 2½ 346 EPDM 2 96508600
FKM 2 96508601
Clamp, pipe stub
for welding
48.3 (DN 40) - EPDM 2 425242
FKM 2 425243
60.3 (DN 50) - EPDM 2 335251
FKM 2 335252
B
A
AB
AB
AB

76
Accessories CR, CRI, CRN, CRE, CRIE, CRNE
Base connection Pump type Connection Pipework
connection AB Rubber
parts
Number of
coupling
sets needed
Product
number
TM02 7372 3303
CRI(E)
15, 20
CRN(E)
15,20
Oval
(cast iron)
Rp 1¼
90 260
Klingersil 2 96498775
Rp 1½ Klingersil 2 96498727
Rp 2 Klingersil 2 96498836
Oval
(stainless steel)
Rp 1¼ Klingersil 2 96498776
Rp 1½ Klingersil 2 96498728
Rp 2 Klingersil 2 96498835
TM02 7374 3303
CRI(E)
15, 20
CRN(E)
15,20
Union G 2¾ 90 288
EPDM 2 96500275
FKM 2 96500276
TM02 7373 3303
CRI(E)
15, 20
CRN(E)
15, 20
FGJ
(cast iron)
DN 40
90 334
EPDM 2 96498840
FKM 2 96500119
FGJ
(stainless steel)
EPDM 2 96500263
FKM 2 96500264
FGJ
(cast iron)
DN 50
EPDM 2 96500265
FKM 2 96500266
FGJ
(stainless steel)
EPDM 2 96500267
FKM 2 96500269
TM02 7375 3303
CRI(E)
15, 20
CRN(E)
15, 20
Clamp, threaded
pipe stub
Rp 1½
90
259
EPDM 2 425238
FKM 2 425239
Rp 2 EPDM 2 335241
FKM 2 335242
Rp 2½ 346 EPDM 2 96508600
FKM 2 96508601
Clamp, pipe stub
for welding
48.3 (DN 40) - EPDM 2 425242
FKM 2 425243
60.3 (DN 50) - EPDM 2 335251
FKM 2 335252
B
A
AB
AB
AB

77
Accessories CR, CRI, CRN, CRE, CRIE, CRNE
Potentiometer for CRE, CRIE, CRNE
Potentiometer for setpoint setting and start/stop of the
CRE, CRIE, CRNE pump.
G10-LON interface for CRE, CRIE,
CRNE
The G10-LON interface is used in connection with data
transmission between a Locally Operating Network
(LON) and electronically controlled Grundfos pumps
applying the Grundfos bus-protocol GENIbus.
LiqTec for CR(E), CRI(E) and CRN(E)
A dry-running protection device, the LiqTec protects
pump and process against dry-running and tempera-
tures exceeding 130°C ±5°C. Connected to the motor
PTC sensor, LiqTec also monitors motor temperature.
LiqTec is prepared for DIN rail mounting in control cab-
inet.
Enclosure class: IP X0.
Remote control, R100
R100 is used for wireless communication with the CRE,
CRIE, CRNE pump. The communication takes place by
means of infrared light.
EMC-filter for CRE, CRIE, CRNE
EMC-filter required for installation of 11 to 22 kW E-
pumps in residential areas.
Product Product number
External potentiometer with cabinet for wall
mounting 625468
Product Product number
G10-LON interface 00605726
Product Product number
R100 625333
Product Product number
EMC-filter (11 kW)
96478309
EMC-filter (15 kW)
EMC-filter (18.5 kW)
EMC-filter (22 kW)
Dry-running protection Pump type Voltage [V] LiqTec Sensor ½" Cable 5 m Extension
cable 15 m Product
number
TM03 2108 3705
CR(E)
CRI(E)
CRN(E)
200-240 - 96556429
80-130 - 96556430
----96443676
116 mm
90 mm

78
Accessories CR, CRI, CRN, CRE, CRIE, CRNE
Sensors for CRE, CRIE, CRNE
Accessory Type Supplier Measuring range Product number
Flowmeter SITRANS FM MAGFLO
MAG 5100 W Siemens 1 - 5 m3
(DN 25) ID8285
Flowmeter SITRANS FM MAGFLO
MAG 5100 W Siemens 3 - 10 m3
(DN 40) ID8286
Flowmeter SITRANS FM MAGFLO
MAG 5100 W Siemens 6 - 30 m3
(DN 65) ID8287
Flowmeter SITRANS FM MAGFLO
MAG 5100 W Siemens 20 - 75 m3
(DN 100) ID8288
Temperature sensor TTA (0) 25 Carlo Gavazzi 0°C to +25°C 96432591
Temperature sensor TTA (-25) 25 Carlo Gavazzi –25°C to +25°C 96430194
Temperature sensor TTA (50) 100 Carlo Gavazzi +50°C to +100°C 96432592
Temperature sensor TTA (0) 150 Carlo Gavazzi 0°C to +150°C 96430195
Accessory for temperature sensor.
All with ½ RG connection
Protecting tube
ø9 x 50 mm Carlo Gavazzi 96430201
Protecting tube
ø9 x 100 mm Carlo Gavazzi 96430202
Cutting ring bush Carlo Gavazzi 96430203
Temperature sensor, ambient temperature WR 52 tmg
(DK: Plesner) –50°C to +50°C ID8295
Differential temperature sensor ETSD Honsberg 0°C to +20°C 96409362
Differential temperature sensor ETSD Honsberg 0°C to +50°C 96409363
Note: All sensors have 4-20 mA signal output.
Danfoss pressure sensor kits for CRE, CRIE, CRNE 1, 3, 5, 10, 15, 20, 32, 45, 64 and 90
Kit consisting of Pressure range Temperature range Product number
• Danfoss pressure transmitter, type MBS 3000,
with 2 m screened cable
Connection: G ½ A (DIN 16288 - B6kt)
• 5 cable clips (black)
• Instruction manual PT (00 40 02 12)
0 - 4 bar
–40°C to +85°C
96428014
0 - 6 bar 96428015
0 - 10 bar 96428016
0 - 16 bar 96428017
0 - 25 bar 96428018
HUBA differential pressure sensor kit
Kit consisting of.. Pressure range Product number
• 1 sensor incl. 1.5 m screened cable (7/16" connections)
• 1 original HUBA bracket (for wall mounting)
• 1 Grundfos bracket (for mounting on motor)
• 2 M4 screws for mounting of sensor on bracket
• 1 M6 screw (self-cutting) for mounting on MGE 90/100
• 1 M8 screw (self-cutting) for mounting on MGE 112/132
• 2 capillary tubes (short/long)
• 2 brackets (1/4" - 7/16")
• 5 cable clips (black)
0 - 0.6 bar 485450
0 - 1 bar 485441
0 - 1.6 bar 485442
0 - 2.5 bar 485443
0 - 4 bar 485444
0 - 6 bar 485445

79
CR, CRI, CRN, CRE, CRIE, CRNE
Variants
Lists of variants - on request
Although the Grundfos CR(E), CRI(E), CRN(E) product
range offers a number of pumps for different applica-
tions, customers require specific pump solutions to sat-
isfy their needs.
Below please find the range of options available for
customizing the CR(E) pumps to meet the customers’
demands.
Contact Grundfos for further information or for requests
other than the ones mentioned below.
Motors
Shaft seals
Pumps
Connections and other variants
Variant Description
ATEX motor For operation in hazardous atmospheres, ex-
plosion-proof or dust-ignition-proof motors may
be required.
Motor with anti-
condensation
heating unit
For operation in humid environments motors
with built-in anti-condensation heating unit may
be required.
Motor with thermal
protection
Grundfos offers motors with built-in bimetallic
thermal switches or temperature-controlled
PTC sensors (thermistors) incorporated in the
motor windings.
Oversize motor
Ambient temperatures above 40°C or installa-
tion at altitudes of more than 1000 metres
above sea level require the use of an oversize
motor (i.e. derating).
4-pole motor Grundfos offers 4-pole standard motors.
Variant Description
Shaft seal with
FFKM O-ring
material
Shaft seals with FFKM or FXM O-ring material
are recommended for applications where the
pumped liquid may damage the standard O-
ring material.
Seal with flush,
quench seal Recommended for applications involving crys-
tallizing, hardening or sticky liquids.
Air-cooled shaft
seal system
Recommended for applications involving ex-
tremely high temperatures.
No conventional mechanical shaft seal can
withstand liquid temperatures of up to 180°C
for any length of time.
For such applications, Grundfos’ unique air-
cooled shaft seal system is recommended.
In order to ensure a low liquid temperature
around the standard shaft seal, the pump is fit-
ted with a special air-cooled shaft seal cham-
ber.
No separate cooling is required.
Double seal with
pressure chamber
Recommended for applications involving poi-
sonous or explosive liquids.
Protects the surrounding environment and the
people working in the vicinity of the pump.
Consists of two seals mounted in a "back-to-
back" arrangement inside a separate pressure
seal chamber. As the pressure in the chamber
is higher than the pump pressure, leakage is
prevented. A dosing pump or a special pres-
sure-intensifier generates the seal chamber
pressure.
CR MAGdrive
Magnetically driven pumps for industrial appli-
cations.
Key applications are industrial processes in-
voving the handling of aggressive, environmen-
tal, dangerous or volatile liquids, e.g. organic
compounds, solvents, etc.
Variant Description
Horizontally
mounted pump
For safety or height reasons, certain applica-
tions, for instance on ships, require the pump
to be mounted in the horizontal position.
For easy installation the pump is equipped with
brackets that support motor and pump.
Low-temperature
pump
Exposed to temperatures down to –40°C, cool-
ant pumps may require neck-rings with a differ-
ent diameter in order to prevent impeller drag.
High-speed pump
up to 47 bar
For high-pressure applications, Grundfos offers
a unique pump capable of generating up to 47
bar.
The pump is equipped with a high-speed mo-
tor, type MGE. The direction of rotation is the
opposite of that of standard pumps, and the
chamber stack is turned upside-down, as a re-
sult of which the pumped liquid flows in the op-
posite direction.
High-pressure
pump up to 47 bar
For high-pressure applications,Grundfos offers
a unique double pump system capable of gen-
erating a pressure of up to 47 bar pressure.
Low-NPSH pump
(improved suction)
Recommended for boiler-feed applications
where cavitation may occur due to poor inlet
conditions.
Pump with bearing
flange
The bearing flange is suitable for applications
where the inlet pressure is higher than the
maximum pressure recommended.
The bearing flange increases the life of motor
bearings.
(Recommended for standard motors.)
Belt-driven pump Belt-driven pumps designed to operate in
places with limited space or where no electrical
power is available.
Pump for pharma-
ceutical and bio-
technological
applications
CRN(E) pumps designed for applications re-
quiring the sterilization and CIP capability of
pipes, valves and pumps. (CIP = Cleaning-In-
Place.)
Variant Description
Pipe connections
In addition to the wide range of standard flange
connections, a 16 bar DIN standard clamping
flange is available.
Customized flanges are available according to
specifications.
TriClamp
connection
TriClamp connections are of a hygienic design
with a sanitary coupling for use in the pharma-
ceutical and food industry.
Electropolished
pump
To substantially reduce the risk of corrosion of
the materials.
For use in the pharmacentical/food industry.

CR, CRI, CRN, CRE, CRIE, CRNE
80
Further product
documentation
In addition to this printed data booklet, Grundfos offers
the following sources of product documentation.
•WinCAPS
• WebCAPS.
WinCAPS
WinCAPS is a Windows-based Computer Aided Prod-
uct Selection program containing information on more
than 90,000 Grundfos products.
Available on CD-ROM in more than 15 languages, Win-
CAPS offers
• detailed technical information
• selection of the optimum pump solution
• dimensional drawings of each pump
• detailed service documentation
• installation and operating instructions
• wiring diagrams of each pump.
Fig. 28 WinCAPS CD-ROM
Fig. 29 WinCAPS
cd-wincaps
WinCAPS
Click Catalogue and select
a product from the exten-
sive product catalogue.
Click Sizing and select the
most suitable pump for your
application.

81
Further product
documentation
CR, CRI, CRN, CRE, CRIE, CRNE
WebCAPS
WebCAPS is a Web-based Compute Aided Product
Selection program and a web-version of WinCAPS.
WebCAPS is accessible on Grundfos’ homepage,
www.grundfos.com, and offers
• detailed technical information
• dimensional drawings of each pump
• wiring diagrams of each pump.
Fig. 30 WebCAPS
WebCAPS_English
Click Catalogue and
select a product from
the extensive pro-
duct catalogue.
Click Literature to se-
lect and download
Grundfos documenta-
tion by browsing the
product ranges or per-
forming a specific
search.
Literature includes:
– data booklets
– installation and ope-
rating instructions
– service etc.
Click Search and
select a product
from the exten-
sive product
catalogue.
Click Service to
find information on
service kits and
spare parts.
Click on Sizing and
select the most
suitable pump for
your application.
Click Replacement
and select the right
replacement pump
based on the current
installation.
Click CAD drawings to
select and download
CAD drawings in:
–.stp
–.dxf
–.dwg
Being a registered user
click Log in to:
– save your settings
– define and save your
own units
– save personalised
information.
Click Settings and
select your preferred
options.

www.grundfos.com
V7023751 1105 GB
Repl. V7023751 0105 Subject to alterations.
Being responsible is our foundation
Thinking ahead makes it possible
Innovation is the essence
GRUNDFOS A/S . DK-8850 Bjerringbro . Denmark
Telephone: +45 87 50 14 00

