LP 300 Manual
User Manual:
Open the PDF directly: View PDF
.
Page Count: 68

PL 665 REV F
(03/2019)
RIGID LANCING
MACHINE
(BRLM 500-XX)
ACCESSORY
PNEUMATIC X/Y POSITIONER (LP-300) AND
ACCESSORIES USER MANUAL
AUTOBOX® FLEX
LANCE ADAPTER
(ABX-LP-XX)
ACCESSORY

2866-795-1586 • WWW.STONEAGETOOLS.COM
TABLE OF CONTENTS MANUFACTURER’S INFORMATION
MANUFACTURER’S INFORMATION ................................................................ 3
CE DECLARATIONS OF INCORPORATION ..................................................... 4
X/Y POSITIONER ........................................................... 4
RIGID LANCING MACHINE WITH ROTARY DRIVE ........................... 5
AUTOBOX® FLEX LANCE ADAPTER ........................................ 66
SPECIFICATIONS ...................................................................................... 7
X/Y POSITIONER (LP-300)
SPECIFICATIONS ........................................................................................ 7
DESCRIPTION OF EQUIPMENT AND INTENDED USE ................................... 7
KEY FEATURES ........................................................................................... 7
RIGID LANCING MACHINE (BRLM-500-XX)
SPECIFICATIONS ........................................................................................ 8
DESCRIPTION OF EQUIPMENT AND INTENDED USE ................................... 8
KEY FEATURES ........................................................................................... 8
AUTOBOX® FLEX LANCE ADAPTER (ABX-LP-XX)
SPECIFICATIONS ........................................................................................ 9
DESCRIPTION OF EQUIPMENT AND INTENDED USE ................................... 9
KEY FEATURES ........................................................................................... 9
WARNING AND SAFETY INSTRUCTIONS ................................................. 10
OPERATOR TRAINING ................................................................................. 10
PERSONAL PROTECTIVE EQUIPMENT REQUIREMENTS .............................. 10
PRE-RUN SAFETY CHECK .......................................................................... 11
SYSTEM ASSEMBLY - OVERVIEWS ............................................................... 12
RIGID LANCING MACHINE ON X/Y POSITIONER .......................................... 12
CONTROL BOX FOR RIGID LANCE MACHINE CB-LP ................................... 13
X/Y POSITIONER ASSEMBLY (LP-300-XX) SET-UP......................................... 14
REAR SUPPORT ASSEMBLY (LP 320) SET-UP ................................................ 20
RIGID LANCING MACHINE ON X/Y POSITIONER SET-UP ................................ 22
CB-LP CONTROL BOX SET-UP .................................................................... 30
RIGID LANCING MACHINE OPERATION ....................................................... 32
MAINTENANCE AND TROUBLESHOOTING .................................................. 33
AUTOBOX® FLEX LANCE ADAPTER ON X/Y POSITIONER ............................ 34
CBX-TBX-LPA TUMBLE BOX TO CONTROL BOX SET-UP ............................. 35
AUTOBOX® FLEX LANCE ADAPTER SET-UP ................................................ 36
PNEUMATIC CONTROL BOX TO AUTOBOX TRACTOR CONNECTIONS ........ 38
PART DIAGRAMS ............................................................................................. 39
TERMS AND CONDITIONS .............................................................................. 66

3
866-795-1586 • WWW.STONEAGETOOLS.COM
MANUFACTURER’S INFORMATION
StoneAge Inc.
466 S. Skylane Drive
Durango, CO 81303, USA
Phone: 970-259-2869
Toll Free: 866-795-1586
www.stoneagetools.com
StoneAge Europe
Unit 2, Britannia Business Centre
Britannia Way
Malvern WR14 1GZ
United Kingdom
Phone: (+44) (0) 1684 892065
This manual must be used in accordance with all applicable national laws. The manual shall be regarded as a part of the machine
and shall be kept for reference until the nal dismantling of the machine, as dened by applicable national law(s).
Updated manuals can be downloaded at:
https://www.stoneagetools.com/manuals

4866-795-1586 • WWW.STONEAGETOOLS.COM
EU DECLARATION OF CONFORMITY
Manufacturer: StoneAge Incorporated
466 South Skylane Drive
Durango, CO 81303
USA
Authorized Representative: StoneAge Europe
Unit 2, Britannia Business Centre
Britannia Way
Malvern WR14 1GZ
United Kingdom
Steve Ellis, Director StoneAge Europe
Declare that: X/Y Positioner (LP-300)
for high pressure water cleaning of system parts.
Is compliant with the following Directives and Standards:
Directive 2006/42/EC (Machinery Directive)
EN ISO 12100:2010 (E) Safety of machinery – General principles for design – Risk assessment and risk reduction
The Technical File for X/Y Positioner (LP-300)
is maintained at: StoneAge Incorporated, 466 South Skylane Drive, Durango, CO 81303, USA and was compiled by the Engineering Manager.
The Technical File is available through the Authorized Representative.
This Declaration of Conformity is issued under the exclusive responsibility of StoneAge Incorporated.
________________________________________ 02/11/2019
StoneAge Incorporated, Durango, CO, USA Date
Adam Markham, Engineering Manager, Robotics

5
866-795-1586 • WWW.STONEAGETOOLS.COM
EU DECLARATION OF CONFORMITY
Manufacturer: StoneAge Incorporated
466 South Skylane Drive
Durango, CO 81303
USA
Authorized Representative: StoneAge Europe
Unit 2, Britannia Business Centre
Britannia Way
Malvern WR14 1GZ
United Kingdom
Steve Ellis, Director StoneAge Europe
Declare that: Rigid Lance Machine (BRLM 500-XX with BRLM 3XX-XX-XX)
for high pressure water cleaning of system parts.
Is compliant with the following Directives and Standards:
Directive 2006/42/EC (Machinery Directive)
EN ISO 12100:2010 (E) Safety of machinery – General principles for design – Risk assessment and risk reduction
The Technical File for Rigid Lance Machine (BRLM 500-XX with BRLM 3XX-XX-XX)
is maintained at: StoneAge Incorporated, 466 South Skylane Drive, Durango, CO 81303, USA and was compiled by the Engineering Manager.
The Technical File is available through the Authorized Representative.
This Declaration of Conformity is issued under the exclusive responsibility of StoneAge Incorporated.
________________________________________ 02/11/2019
StoneAge Incorporated, Durango, CO, USA Date
Adam Markham, Engineering Manager, Robotics

6866-795-1586 • WWW.STONEAGETOOLS.COM
SPECIFICATIONS X/Y POSITIONER (LP-300)
EU DECLARATION OF CONFORMITY
Manufacturer: StoneAge Incorporated
466 South Skylane Drive
Durango, CO 81303
USA
Authorized Representative: StoneAge Europe
Unit 2, Britannia Business Centre
Britannia Way
Malvern WR14 1GZ
United Kingdom
Steve Ellis, Director StoneAge Europe
Declare that: Autobox® Flex Lance Adapter (ABX-LP-XX)
for high pressure water cleaning of system parts.
Is compliant with the following Directives and Standards:
Directive 2006/42/EC (Machinery Directive)
EN ISO 12100:2010 (E) Safety of machinery – General principles for design – Risk assessment and risk reduction
The Technical File for Autobox® Flex Lance Adapter (ABX-LP-XX)
is maintained at: StoneAge Incorporated, 466 South Skylane Drive, Durango, CO 81303, USA and was compiled by the Engineering Manager.
The Technical File is available through the Authorized Representative.
This Declaration of Conformity is issued under the exclusive responsibility of StoneAge Incorporated.
________________________________________ 02/11/2019
StoneAge Incorporated, Durango, CO, USA Date
Adam Markham, Engineering Manager, Robotics

7
866-795-1586 • WWW.STONEAGETOOLS.COM
SPECIFICATIONS X/Y POSITIONER (LP-300)
LP-300-XX
LP-320
REAR SUPPORT
LP 335-WE SWIVEL
WHEEL KIT
LP 335-JE SWIVEL
WHEEL KIT
LP 335-WJE SWIVEL
WHEEL KIT
WEIGHTS 310 lb
141 kg
96 lb
44 kg
20 lb
9 kg
24 lb
11 kg
35 lb
16 kg
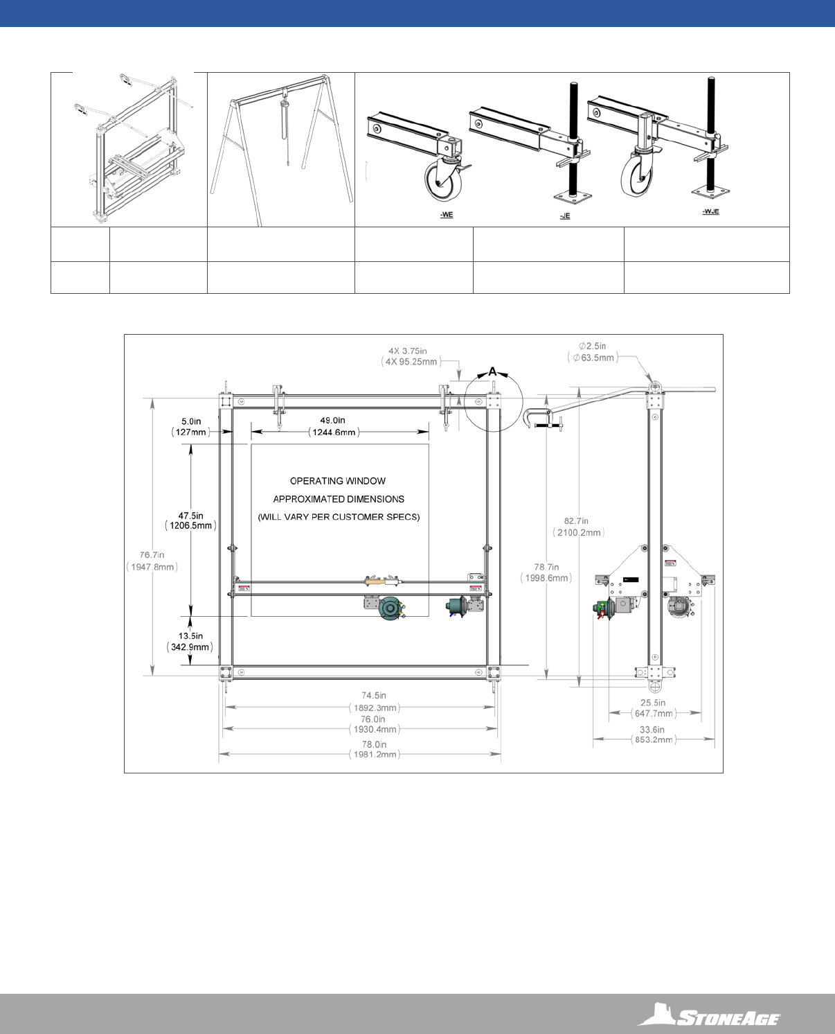
DESCRIPTION OF EQUIPMENT AND INTENDED USE
The X/Y Positioner (LP-300) provides a means for aligning and
indexing the BRLM Rigid Lancing Machines. It moves in a straight
line along the X and Y axes.
The Control Box (CB-LP) allows the operator to control the machinery
from a safe distance away from the blast zone.
KEY FEATURES:
• Control Box - Control all movements of the complete package
from up to 25 ft/8m away.
• Pneumatically driven
• Congurable operating window dimension- Allows for versatility
for cleaning a variety of exchanger sizes.
• Steering control and tilt function - Positioner offers easy mobility
and can be tilted to match the tube pitch angle of a bundle face.

8866-795-1586 • WWW.STONEAGETOOLS.COM
SPECIFICATIONS RIGID LANCE MACHINE (BRLM 500-XX) SPECIFICATIONS AUTOBOX® FLEX LANCE ADAPTER (ABX-LP-XX)
DESCRIPTION OF EQUIPMENT AND INTENDED USE
The Rigid Lancing Machine was designed for the effective cleaning
of the inside of tubes within a heat exchanger bundle.
It is used with a rigid lance and nozzle head. Rigid Lances provide
more forward-hitting power than ex lancing to clean difcult
deposits. It is possible to operate 3 rotary lances simultaneously and
remotely from the control box.
Air or hydraulic motors supply rotation and feed power. Since
the lance is continuously rotated, a fewer number of larger, more
powerful jets are used to completely clean the insides of the tubes.
Larger jets will also penetrate tougher deposits more effectively than
many smaller, non-rotating jets. Rotation of the tip also makes this
tool effective for polishing tube walls. The powered feed allows all
the jet power to be used in attacking the material ahead of the tip.
KEY FEATURES:
RIGID LANCE MACHINE (BRLM 500)
• Adjustable feed rate for lance travel- Both directions of the lance
can be regulated for speed to deliver appropriate cleaning.
• Adjustable lance stops- Forward stop to ensure complete tube
coverage, optional retract stop to protect lances and operator
• Control Box - Control all movements of the complete package
from up to 25 ft/8m away.
• Pneumatically driven
BRLM RIGID LANCE MACHINE SPECIFICATIONS
BRLM 500 (15K) BRLM 500 (22K) BRLM 500 (40K)
Pressure Range 2–15k psi
140–1000 bar
15–22k psi
1000–1500 bar
22–40k psi
1500–2800 bar
Flow Range Up to 50 gpm
Up to 189 l/min
Up to 50 gpm
Up to 189 l/min
Up to 20 gpm
Up to 76 l/min
Flow Coefcient 2.3 Cv 2.0 Cv 0.3 Cv (UHS)
0.5 Cv (UH)
Inlet Connection 1/2 NPT (P8) 3/4 MP (MP12) 9/16 HP (H9)
Lance Connection 1/8, 1/4 NPT 3/8, 9/16 LH 3/8, 9/16 LH
Standard Rail Length BRLM 500-15
15ft / 4.6m
BRLM 500-15
15ft / 4.6m
BRLM 500-15
15ft / 4.6m
Standard Extensions
BRLM 580-X
5, 10, or 15ft
1.5, 3, or 4.6m
BRLM 580-X
5, 10, or 15ft
1.5, 3, or 4.6m
BRLM 580-X
5, 10, or 15ft
1.5, 3, or 4.6m
Stroke Length Up to 60 ft
Up to 18m
Up to 60 ft
Up to 18m
Up to 60 ft
Up to 18m
Weight Complete 1200–1500 lb
544–680 kg
1200–1500 lb
544–680 kg
1200–1500 lb
544–680 kg
Water Swivels SG-P8P8-0 / SL-P8P4-0 SL-MP9AV9-0 /
SL-MP12AV12-0 UH-H9H6-0 / UHS-H9H9
Rotation Air Motor Gast 4AM
20 to 40 cfm @ 80 psi
Gast 4AM
20 to 40 cfm @ 80 psi
Gast 4AM
20 to 40 cfm @ 80 psi
Feed Air Motor Gast 6AM
30 to 50 cfm @ 80 psi
Gast 6AM
30 to 50 cfm @ 80 psi
Gast 6AM
30 to 50 cfm @ 80 psi
Maximum Water
Temperature 160 ºF 70 ºC 160 ºF 70 ºC 160 ºF 70 ºC

9
866-795-1586 • WWW.STONEAGETOOLS.COM
SPECIFICATIONS AUTOBOX® FLEX LANCE ADAPTER (ABX-LP-XX)
DESCRIPTION OF EQUIPMENT AND INTENDED USE
The Tumble Box and Tractor Mount assemblies were designed to
adapt ABX-2L and ABX-3L Flexible Lancing Machines the LP-300
X-Y Positioner. This positioner is also used with the standard Rigid
Lancing Machine.
Flexible Lancing Machines used with the positioner are advantageous
in tight physical locations for cleaning tube bundles on heat
exchangers. For users that already own ABX Flexible Lancing
machines, the Tumble Box and Tractor Mount assemblies provide
additional capability for existing pad cleaning equipment.
Rigid Lancing Machines by contrast require more physical space to
operate. However, rigid lance equipment can provide more unplugging
power due to the ability to run all forward facing jets.
KEY FEATURES:
AUTOBOX® ADAPTER TO LP-300 (ABX-XXX-LP)
• Allows ex lance tractors, AUTOBOX® 2L and 3L to be operated
on the X/Y Positioner LP-300
• Tumble Box mounts to CB-ABX and CBX-ABX universally.
• Tumble Box and adapts 1/4” air lines from the AUTOBOX®
Control Boxes to the 1/2” air lines on the LP-300 Positioner.
ABX-LP-XX SPECIFICATIONS
CB-TBX-LPA ABX-100-LP ABX-300-LP
Weight Per Assembly 11 lbs
5 kg
25 lbs
11.4 kg
29.5 lbs
13.4 kg
Size Per Assembly 14in (W) x 7in (D) x 12in (H)
356mm (W) x 178mm (D) x 305mm (H)
4in (W) x 53in (D) x 4in (H)
102mm (W) x 1349mm (D) x 102mm (H)
4in (W) x 52in (D) x 4in (H)
102mm (W) x 1318mm (D) x 107mm (H)
Minimum System Supply
Pressure 100 psi (7.9 bar)
Minimum/Maximum Air
Supply Volume 78 cfm Minimum /156 cfm Maximum
Recommended Operational
Temperature Range 20 to 140 ºF (-29 to 60 ºC)
Recommended Operational
Relative Humidity Range Up to 100% RH

10 866-795-1586 • WWW.STONEAGETOOLS.COM
WARNING AND SAFETY INSTRUCTIONS
PERSONAL PROTECTIVE EQUIPMENT REQUIREMENTS
Use of Personal Protective Equipment (PPE) is dependent on
the working pressure of water and the cleaning application.
Managers, Supervisors, and Operators MUST carry out a job
specic risk assessment to dene the exact requirements for PPE.
See Protective Equipment for Personnel (Section 6) of WJTA-
IMCA’s Recommended Practices For The Use Of High-pressure
Waterjetting Equipment for additional information.
Hygiene - Operators are advised to wash thoroughly after all
waterjetting operations to remove any waterblast residue which may
contain traces of harmful substances.
First aid provision - users MUST be provided with suitable rst aid
facilities at the operation site.
PPE may include:
• Eye protection: Full face visor
• Foot protection: Kevlar® brand or steel toe capped,
waterproof, non-slip safety boots
• Hand protection: Waterproof gloves
• Ear protection: Ear protection for a minimum of 85 dBA
• Head protection: Hard hat that accepts a full face visor and
ear protection
• Body protection: Multi-layer waterproof clothing approved for
waterjetting
• Hose protection: Hose shroud
• Respiratory protection: May be required; refer to job specic
risk assessment
OPERATOR TRAINING
Managers, Supervisors, and Operators MUST be trained in Health
and Safety Awareness of High-pressure Water Jetting and hold
a copy the Water Jetting Association (WJA) Code of Practice, or
equivalent (see www.waterjetting.org.uk).
Operators MUST be trained to identify and understand all applicable
standards for the equipment supplied. Operators should be trained
in manual handling techniques to prevent bodily injury.
Operators MUST read, understand, and follow the Operational and
Training Requirements (Section 7.0) of WJTA-IMCA’s Recommended
Practices For The Use Of High-pressure Waterjetting Equipment, or
equivalent.
Operators MUST read, understand and follow the Warnings,
Safety Information, Assembly, Installation, Connection, Operation,
Transport, Handling, Storage, and Maintenance Instructions detailed
in this manual.
StoneAge has designed and manufactured this equipment
considering all hazards associated with its operation. StoneAge
assessed these risks and incorporated safety features in the design.
StoneAge WILL NOT accept responsibility for the results of misuse.
IT IS THE RESPONSIBILITY OF THE INSTALLER/OPERATOR
to conduct a job specic risk assessment prior to use. Job specic
risk assessment MUST be repeated for each different set up,
material, and location.
The risk assessment MUST conform to the Health and Safety at
Work Act 1974 and other relevant Health and Safety legislation.
The risk assessment MUST consider potential material or substance
hazards including:
• Aerosols
• Biological and microbiological (viral or bacterial) agents
• Combustible materials
• Dusts
• Explosion
• Fibers
• Flammable substances
• Fluids
• Fumes
• Gases
• Mists
• Oxidizing Agents

11
866-795-1586 • WWW.STONEAGETOOLS.COM
WARNING
Operations with this equipment can be potentially hazardous.
Caution MUST be exercised prior to and during machine and water
jet tool use. Please read and follow all of these instructions, in
addition to the guidelines in the WJTA Recommended Practices
handbook, available online at www.wjta.org. Deviating from safety
instructions and recommended practices can lead to severe injury
and/or death.
• Do not exceed the maximum operating pressure specied for
any component in a system. The immediate work area MUST
be marked off to keep out untrained persons.
• Inspect the equipment for visible signs of deterioration,
damage, and improper assembly. Do not operate until
repaired. Make sure all threaded connections are tight and
free of leaks.
• Users of the BRLM Rigid Lancing System MUST be trained
and/or experienced in the use and application of high-
pressure technology and cleaning, as well as all associated
safety measures, according to the WJTA Recommended
Practices for the use of High-pressure Water jetting
Equipment.
• The Control Box should be located in a safe location where the
operator has good visibility of the pipe and hose. The BRLM
Lancing System and Control Box MUST be supervised at all
times and should never be left unattended.
• Test the Control Box before operating the BRLM Rigid Lancing
System with high-pressure water to verify the control valves
move the hose in the intended direction, and that the dump
valve is working properly.
• Always de-energize the system before opening the door to
service or replace any parts. Failure to do so can result in severe
injury and/or death.
PRE-RUN SAFETY CHECK
Refer to WJTA-IMCA’s, Recommended Practices For The Use
Of High-pressure Water jetting Equipment and/or The Water
Jetting Association’s, WJA Code of Practice for additional safety
information.
• Complete a job specic risk assessment and act on the resulting
actions.
• Ensure the waterblasting zone is properly barricaded and that
warning signs are posted.
• Adhere to all site safety procedures.
• Ensure no personnel are in the hydroblasting zone.
• Ensure the work place is free of unnecessary objects (e.g. loose
parts, hoses, tools).
• Ensure all operators are using the correct Personal Protective
Equipment (PPE).
• Check that the air hoses are properly connected and tight.
• Check all hoses and accessories for damage prior to use. Do
not use damaged items. Only high quality hoses intended for
waterblast applications should be used as high-pressure hoses.
• Ensure that operators never connect, disconnect, or tighten
hoses, adapters, or accessories with the high-pressure water
pump unit running.
• Check all high-pressure threaded connections for tightness.
WARNING AND SAFETY INSTRUCTIONS

12 866-795-1586 • WWW.STONEAGETOOLS.COM
X/Y POSITIONER LP-300-XX
WITH
BRLM RIGID LANCING MACHINE ACCESSORIES
OVERVIEW-X/Y POSITIONER (LP-300-XX) WITH BRLM ACCESSORY
LP-300-XX
X/Y POSITIONER
BRLM 636-XX-XXX
GUIDE BLOCK KIT
BRLM ROTARY PACKAGE
*AVAILABLE OPTIONS
• 15k, 22k, OR 40k psi
• SINGLE, DUAL, OR TRIPLE
LANCE
• PNEUMATIC OR HYDRAULIC
BRLM 500-XX
*AVAILABLE IN 10FT AND 15FT LENGTHS
AND
PNEUMATIC OR HYDRAULIC OPTIONS
BRLM 580-XX RAIL
EXTENSION KITS
*AVAILABLE IN 5FT, 10FT, AND, 15FT
LENGTHS
LP 320 REAR SUPPORT
FOR RAIL ASSEMBLIES OVER
25FT / 7.6M
CB-LP
CONTROL BOX
(LANCES NOT
INCLUDED)
WATER SUPPLY LINE
(NOT INCLUDED)
LP 335-XX WHEEL KIT
LEG OPTIONS (INCLUDED 4 LEGS)
INDIVIDUAL LEGS (LP 330-XX)
-WJE
-JE
-WE
-E
-WC
**SHOWN WITH THE BRLM-310-XX SINGLE
LANCE ROTARY PACKAGE AND THE
LP 335-WE WHEEL KIT

13
866-795-1586 • WWW.STONEAGETOOLS.COM
PNEUMATIC CONTROL BOX
CB-LP
AIR SUPPLY
FITTING
CB158 (X 7)
25’ (7.6 m) x 1/2” DIAMETER
PNEUMATIC SUPPLY HOSE
CONTROL BOX
REAR VIEW
DETACHABLE
LEGS
COLOR CODED
JIC FITTINGS
WITH DUST CAPS
COLOR CODED
JIC FITTINGS
WITH DUST CAPS
LANCE FEED
CONTROL
AIR SUPPLY
VALVE FOR
ROTATION
LANCE FEED
SPEED
CONTROLS
CONTROL BOX
FRONT VIEW
PLACE HOLDER
FOR OPTIONAL
DUMP KIT
(CB 049-K)
X/Y POSITIONER
CONTROL
RIGHT/LEFT
X/Y POSITIONER
CONTROL
UP/DOWN
OVERVIEW - CB-LP CONTROL BOX
**SEE “PART DIAGRAM” SECTION AT THE BACK OF THIS
MANUAL FOR MORE DETAILED PART BREAK DOWNS.

14 866-795-1586 • WWW.STONEAGETOOLS.COM
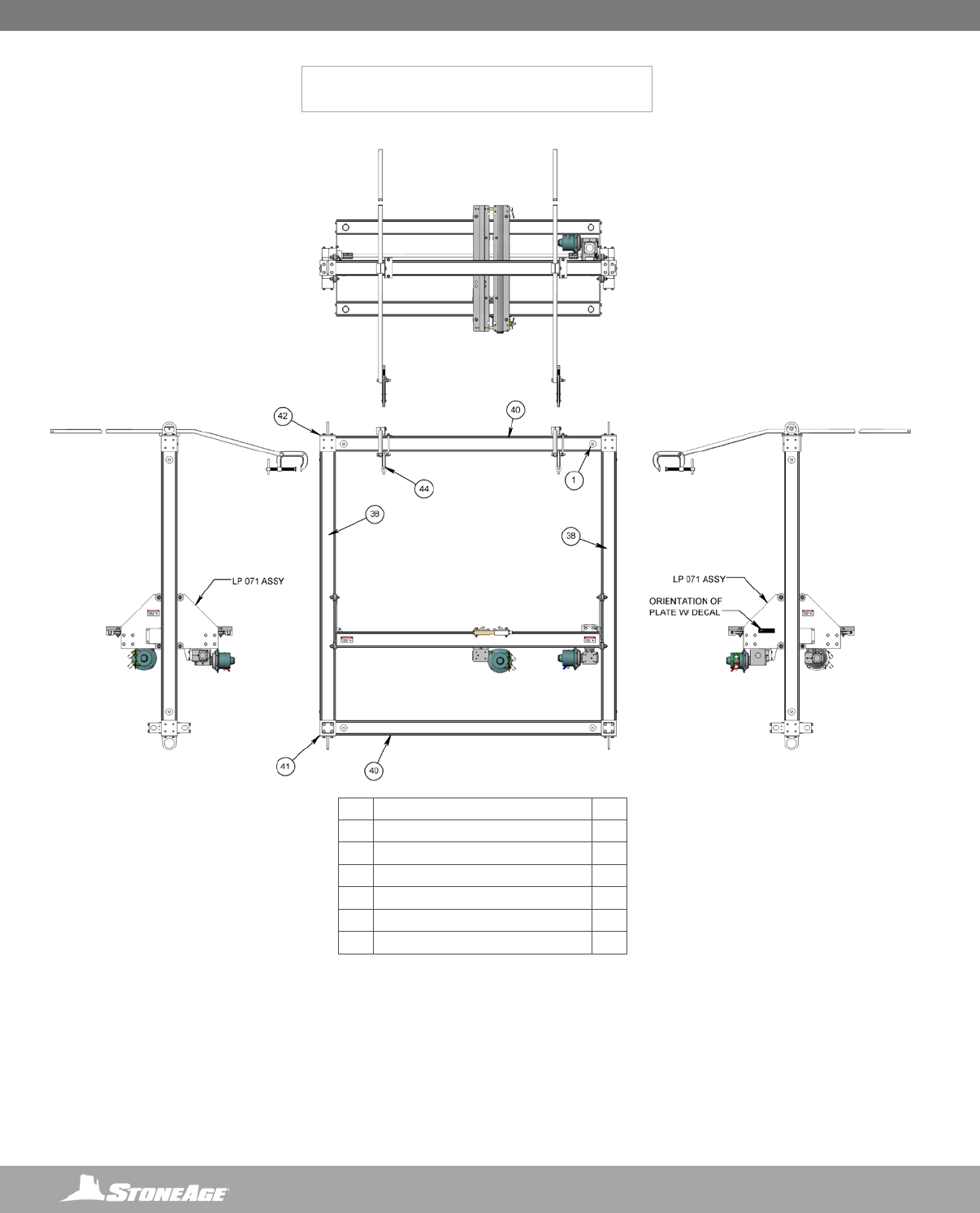
X/Y POSITIONER (LP-300-XX) PACKAGE CONTENTS
PNEUMATIC
X/Y POSITIONER
LP CARRIAGE ASSEMBLY
LP 335-XX WHEEL KIT
LEG OPTIONS (X4)
-WJE
-JE
-WE
-E
-WC
BR 008-BU-001
WEDGE BOLT
(X 11)
LP 094-U
CORNER ASSEMBLY
(X 2)
LP 094-L
CORNER ASSEMBLY
(X 2)
LP 076
SLOTTED VERTICAL
RAIL (X 2)
LP 078-78
CROSS TIE
(X 2)
X/Y POSITIONER (LP-300-XX) PACKAGE PARTS
The diagrams below illustrate a simple overview of the main components included in the LP-300-XX package. The LP Carriage Assembly
comes assembled with either Pneumatic or Hydraulic motors.

15
866-795-1586 • WWW.STONEAGETOOLS.COM
X/Y POSITIONER (LP-300-XX) ASSEMBLY
ASSEMBLY STEPS FOR THE X/Y POSITIONER (LP-300-XX)
1. Assembling the base- All Wheel Kit options fasten to the cross beam with Wedge Bolts. If changing out the leg option is necessary,
it can be done by removing the wedge bolts, replacing the leg option and fastening the wedge bolts as shown. Install all Wedge Bolts
with an adjustable or 9/16” open end wrench.
2. Installing the LP Carriage Assembly- Set the Carriage Assembly onto the Wheel Kit Base. Be sure to center the mounting blocks
between the rollers on each side of the Carriage Assembly.
MOUNTING
BLOCK
ROLLERS
TIGHTEN WITH
9/16” WRENCH
LP 094-L
CORNER ASSEMBLY
(X 2)
DETAIL TO SHOW ORIENTATION
OF WEDGE BOLT

16 866-795-1586 • WWW.STONEAGETOOLS.COM
X/Y POSITIONER (LP-300-XX) ASSEMBLY
ASSEMBLY STEPS FOR THE X/Y POSITIONER (LP-300-XX) CONTINUED......
3. Assemble the Upper Frame Assembly on the ground as shown below. Slide Brace Clamps on but do not tighten the U-Bolts until the
positioner is oriented to the tube bundle face. Install all Wedge Bolts with an adjustable or 9/16” open end wrench.
BR 008-BU-001
WEDGE BOLT
(X 4)
LP 094-U
CORNER ASSEMBLY
(X 2)
LP 076
SLOTTED VERTICAL
RAIL (X 2)
LP 078-78
CROSS TIE
LP 110
BRACE CLAMP (X 2)
4. Slide the vertical rails on the Upper Frame Assembly over the mounting blocks. Align the slots in the vertical rails with the gears on the
Carriage Assembly.
ROLLERS
ROLLERS
VERTICAL
RAIL
ALIGN GEAR
WITH SLOTS
IN RAIL
NOTICE
Make sure the slotted sides of both vertical rails face the same direction.
Make sure Brace Clamps are oriented as shown.

17
866-795-1586 • WWW.STONEAGETOOLS.COM
X/Y POSITIONER (LP-300-XX) ASSEMBLY
5. Connect the Upward Air tting (BLUE) to the Control Box (See Control Box Assembly Instructions) to move the Carriage Assembly
approximately half way up the Vertical Rails. This will help drive the vertical rails into place and make it easier to install the Wedge Bolts.
NOTICE
Make sure the Carriage Assembly is level on both vertical rails before moving the Carriage up
6. Insert Wedge Bolts though the vertical rails and mounting blocks on both sides of the frame assembly. Tighten using an adjustable or
9/16” open end wrench.

18 866-795-1586 • WWW.STONEAGETOOLS.COM
X/Y POSITIONER (LP-300-XX) ASSEMBLY
INSTALLATION OF BRACES AND PLACEMENT OF THE LANCE POSITIONER
7. Loosen both Brace Clamps and insert the Braces with the C-Clamp ends facing the tube bundle face. Do not tighten the Brace Clamps
until the X/Y Positioner has been set in front of the tube bundle.
5’-7’
(152cm-213cm)
8. For lancing rails 15 feet (457 cm) or shorter, the lance positioner may be used as the only support for the lancing machine. The lance
positioner should be placed back from the tube bundle face at 5 to 7 feet (152cm-213cm). If the bundle is on rollers, it should be
positioned so the tube rows are horizontal. It is recommended that the positioner be placed on jacks for stability instead of on the wheels.
Use the leveling jacks to further align the horizontal axis of the positioner with the tube rows. Connect the Braces to the tube bundle face.
LOOSEN
BRACE
CLAMPS

19
866-795-1586 • WWW.STONEAGETOOLS.COM
X/Y POSITIONER (LP-300-XX) ASSEMBLY
9. When the X/Y Positioner is in place, tighten the C-Clamps on the tube bundle face and the Brace Clamps on the X/Y Positioner.
TIGHTEN
WARNING
The X/Y Lance Positioner MUST be rigidly mounted and tied back to tube bundle or other structure to support against thrust force of
machine and reaction force of jetting nozzles. Machine MUST BE securely anchored to the tube bundle. Hydraulicking forces can potentially
reach several thousand pounds and if not avoided, could result in death or serious injury if the machinery were to become unanchored.

20 866-795-1586 • WWW.STONEAGETOOLS.COM
REAR SUPPORT (LP-320) ASSEMBLY
ASSEMBLY STEPS FOR THE REAR SUPPORT (LP-320)
THE REAR SUPPORT IS RECOMMENDED FOR LANCING RAILS GREATER THAN 15 FEET (457 Cm) LONG.
1. Slide the Trolley Assembly onto the Top Beam.
LP 319
TOP BEAM
LP 319
TOP BEAM
BJ 086.4
LINK
BJ 086.4
LINK
LP 310
TROLLEY
LP 310
TROLLEY
BR 008-BU-001
WEDGE BOLT
(X 2)
2. Atach the Top Beam to the Leg Assemblies with the Wedge Bolts and tighten with an adjustable or 9/16” open end wrench.
3. Using an adjustable or 9/16” open end wrench, fasten the two BJ 086.4 Links to the leg assemblies with the provided 3/8” Hex Head
Bolts and Nylock Nuts.

21
866-795-1586 • WWW.STONEAGETOOLS.COM
REAR SUPPORT (LP-320) ASSEMBLY
4. Hook the UD 071-D Chain Hoist onto the Trolley, and the Rear Support is ready for use.
5. Set up the Rear Support behind the X/Y Positioner to catch the extension rail when set in place.
UD 071-D
CHAIN HOIST
WARNING
MAXIMUM WORKING LOAD
NOT TO EXCEED
1000LBS (454 KG)

22 866-795-1586 • WWW.STONEAGETOOLS.COM
ASSEMBLING AND INSTALLING THE DRIVE RAIL
1. If an extension kit (BRLM 580) is used, insert the splice tube into the rear of the drive rail (the end without a slot) and slide the extension
section over the splice tube. The extension rail has no slots and can be installed using either end. Use two wedge bolts oriented to pull
and tighten these sections together. Splice the chain provided with the extension kit onto the chain from the drive section.
2. Loosen the Quick Release Handles on the Carriage Plate and place the completed Drive Rail between the sides of the Carriage Plate.
The long slotted end should face up and be oriented toward the tube bundle face.
3. Secure the Drive Rail in position with the Quick Release Handles.
RIGID LANCING MACHINE AND ROTARY ASSEMBLY (BRLM 500-XX) & (BRLM 3XX-XX-XX)
REARFRONT
QUICK
RELEASE
HANDLE DETAIL

23
866-795-1586 • WWW.STONEAGETOOLS.COM
MASTER
LINK
FRONT IDLER
BR 008-BU-001
WEDGE BOLT
RIGID LANCING MACHINE AND ROTARY ASSEMBLY (BRLM 500-XX) & (BRLM 3XX-XX-XX)
THREADING THE CHAIN THROUGH THE DRIVE RAIL
There are two possible mounting locations (one between each slot) on the underside of the Rail for the Drive Motor Assembly. These positions
allow for clearance of channel heads or other obstructions.
4. Choose the desired slot location (the Drive Motor Assembly will be centered between two slots) and feed a tape measure down through
the rear slot selected out to the end of the rail.
5. Use a piece of wire to attach one chain end to the tape measure, and pull the chain out through the slot.
6. Feed the Chain through and around the Front Idler gear. Then insert the Front Idler into the Drive Rail. Note the Front Idler gear is off center
and should stick through the slot in the rail. Install the Wedge Bolt and tighten to secure the Idler Assembly to the rail.
7. REPEAT the entire procedure for Rear Idler assembly. NOTE: There is no slot in the Drive Rail for the Rear Idler.
DO NOT CONNECT MASTER LINK CONNECTING THE ENDS OF THE CHAIN UNTIL THE DRIVE IS INSTALLED.
REAR IDLER
BR 008-BU-001
WEDGE BOLT
REAR IDLERFRONT IDLER
CHAIN SLACK TO REMAIN
FOR INSTALLATION OF
DRIVE MOTOR ASSEMBLY
CHAIN PATH
(ASSEMBLY IS SHOWN IN SECTION AND CHAIN IS COLORIZED FOR CLARITY)
REAR FRONT
UNDERSIDE
OF
DRIVE RAIL
MOUNTING
LOCATIONS
END OF CHAIN WIRED
TO TAPE MEASURE

24 866-795-1586 • WWW.STONEAGETOOLS.COM
THREADING THE CHAIN THROUGH THE DRIVE MOTOR ASSEMBLY
8. Set the Drive Motor Assembly upside down on the ground and remove the chain guard, the two outside sprockets, and only two of the rail
clamps. Slightly loosen the other two clamps.
9. Center the Drive Motor Assembly between the two rail slots to receive the chain.
10. Thread the chain under the center sprocket. Attach but do not tighten all four rail clamps, two on each side of the rail. This will allow the
Drive Assembly to rock back and forth for ease of installation of the two outside sprockets.
RIGID LANCING MACHINE AND ROTARY ASSEMBLY (BRLM 500-XX) & (BRLM 3XX-XX-XX)
REMOVE
RAIL
CLAMPS
OUTSIDE
SPROCKETS
CHAIN
GUARD
LOOSEN
RAIL
CLAMPS
CENTER
SPROCKET
RAIL CLAMPS
(BOTH SIDES OF RAIL)
RAIL SLOTRAIL SLOT
RIGID LANCING MACHINE AND ROTARY ASSEMBLY (BRLM 500-XX) & (BRLM 3XX-XX-XX)

25
866-795-1586 • WWW.STONEAGETOOLS.COM
RIGID LANCING MACHINE AND ROTARY ASSEMBLY (BRLM 500-XX) & (BRLM 3XX-XX-XX)
11. Install the Outside Sprockets by pulling back on the two bolts, inserting the sprockets and inserting the bolts back through the sprockets.
The Sprockets should be under the chain as shown in the Chain Path below.
12. Replace the Chain Guard, Flat Washers, and Nylock Nuts. NOTE: Make sure to tighten all four rail clamps.
OUTSIDE
SPROCKET
OUTSIDE
SPROCKET
CHAIN PATH
CHAIN
GUARD
NYLOCK
NUT
FLAT
WASHER
RAIL CLAMPS
(BOTH SIDES OF RAIL)

26 866-795-1586 • WWW.STONEAGETOOLS.COM
RIGID LANCING MACHINE AND ROTARY ASSEMBLY (BRLM 500-XX) & (BRLM 3XX-XX-XX)
REAR CHAIN
GUARD
DUAL ROTARY IS SHOWN HERE.
STEPS 14-18 ARE THE SAME FOR
SINGLE AND TRIPLE ROTARY
ROTARY DRIVE
CARRIAGE
ROLLERS
X 4
CHAIN
HOOK
GUIDE
BLOCKS
MASTER LINK
PIN X (2)
KEEPER CLIP
X (2)
SIDE
PLATE X (2)
CHAIN
TENSIONER
ADJUSTMENT BOLT
13. Complete chain loop by attaching the chain to the chain hook link with (2) chain master links. Adjust the chain tension so there is
about 1 inch of chain height for every 5 feet or rail length. This can be done by tightening the tension nut at the end of the rail.
14. Remove Rear Chain Guard and slide the Guide Blocks onto the rail and move them all the way to the front. Next, remove the Chain
Hook from the Rotary Drive Carriage and slide the Rotary Drive Carriage onto the rail. It may be necessary to loosen the rollers on one
side to make it easier to install. Be sure to tighten all the rollers and replace the guard once nished.
CHAIN
HEIGHT

27
866-795-1586 • WWW.STONEAGETOOLS.COM
RIGID LANCING MACHINE AND ROTARY ASSEMBLY (BRLM 500-XX) & (BRLM 3XX-XX-XX)
15. Attach the Rear Stop to the Drive Rail. The exact position of the stop can be easily adjusted at a later time. Next, install the Chain Hook
by slipping it through the carriage plate and in between the pins on the chain link. It often helps to move the carriage back and forth to
lock it into place.
16. Attach the two Cable Coils to the carriage and to the front idler assembly using the slotted anchor bolts. Be sure not to tighten the bolt
over 20 ft-lbs of torque or it may damage the cable.
REAR
STOP
CARRIAGE
PLATE
ROCK CHAIN
HOOK TO ENGAGE
BOTH MASTER LINK
PINS
MASTER
LINK PINS
INSERT
CABLE
INSERT
CABLE
INSERT CABLE
INTO SLOTTED
BOLTS
INSERT
CABLE
INSERT
CABLE

28 866-795-1586 • WWW.STONEAGETOOLS.COM
17. Attach the appropriate sized guide tube assembly to the front of the rail. Advance or retract the carriage so the end of the lance where
the tip will be located is about two inches inside the front splash guard (about the length of the nozzle tip). Install the rear stop up
against the rear carriage rollers at this point to set the retract stop point. On a vertical setup, the rear stop will be way up in the air and
not easily adjusted later.
RIGID LANCING MACHINE AND ROTARY ASSEMBLY (BRLM 500-XX) & (BRLM 3XX-XX-XX)
SINGLE LANCE
DOUBLE LANCE
TRIPLE LANCE
TRIPLE
LANCE
GUIDE
RIGID LANCING MACHINE AND ROTARY ASSEMBLY (BRLM 500-XX) & (BRLM 3XX-XX-XX)

29
866-795-1586 • WWW.STONEAGETOOLS.COM
Lances and Tips:
Lances - It is recommended that high strength, high quality tubing be selected. The material selected should have adequate wall thickness
for the pressure being used. Lances with larger inside diameters will minimize pressure drop at higher ows, but will be limited in their
operating pressure.
Tips - There are several different lance tip types; the most basic and cheapest is the steel tip with drilled orices. Jet patterns can be
selected to optimize unplugging or polishing. Since the lancing machine provides rotation, fewer and larger jets can be used. When rigid
lancing on a securely supported lancing machine, there is no need to put in backward facing jets. While the drilled steel tip can be used up
to 40,000 psi, orice life at this pressure is less than 10 hours. At 20,000 psi, about 20 hours useful life can be expected, while at 10,000
psi (depending on water ltration) a drilled tip can last up to 40 hours. For the higher pressures, replaceable sapphire orices can be used.
Jet angles can be somewhat limited with the replaceable orices; depending on the tip diameter, it may not be possible to put in radial
porting.
RIGID LANCING MACHINE AND ROTARY ASSEMBLY (BRLM 500-XX) & (BRLM 3XX-XX-XX)

30 866-795-1586 • WWW.STONEAGETOOLS.COM
LOWER BOLTS
TUBE INSERT
CB-LP CONTROL BOX ASSEMBLY
The Control Box may be operated with or without installing the detachable legs. Remove the legs for portability or to operate the Control Box in
smaller spaces.
1. To attach the legs, remove the lower bolts and nuts from the Control Box frame.
2. Install the detachable legs onto the tube inserts.
3. Install the lower bolts and nuts through the legs and tube inserts. Use a 7/16 in wrench and socket to tighten the bolts.
PNEUMATIC CONTROL BOX AND LEG ASSEMBLY

31
866-795-1586 • WWW.STONEAGETOOLS.COM
MAIN WATER
SUPPLY HOSE
PNEUMATIC SUPPLY LINES
1. Remove the dust caps from the Joint Industry Council (JIC) ttings on the Control Box and the motors on the LP-300 and BRLM.
2. Following the “Pneumatic Supply Line Color Chart”, connect the hose ends to the ttings on the Control Box. Connect the air supply to
the Control Box and blow out the hoses before connecting to them to the motors on the LP-300 and BRLM to remove any debris.
3. Immediately following the blow out procedure, connect the other end to the motors on the LP-300 and BRLM using the color coding
on the JIC ttings. Use a 7/8 in. wrench to tighten the JIC Swivel nuts.
4. Test the Control Box before operating with high-pressure water to verify the control valves move the hose in the intended direction, and
that the dump valve is working properly.
PNEUMATIC CONTROL BOX CONNECTIONS TO THE X/Y POSITIONER (LP-300) AND BRLM
UP
DOWN RIGHT
LEFT
FROM CONTROL BOX TO X/Y POSITIONER (LP-300)
COLOR CODED CONNECTIONS ON X/Y POSITIONER (LP-300) AND BRLM FROM CONTROL BOX
FROM CONTROL BOX TO BRLM
LANCE FEED
SPEED REVERSE
ROTATION
PNEUMATIC SUPPLY LINE COLOR CHART
LANCE FEED
SPEED FORWARD
MAIN AIR
SUPPLY FITTING

32 866-795-1586 • WWW.STONEAGETOOLS.COM
AIR SUPPLY FITTING
• A universal AIR SUPPLY FITTING (Chicago style) is located
on the back of the Control Box. Connect a compatible com-
pressed air line (not included) according to the manufacturer’s
instructions. If another pneumatic connection is preferred, this
tting can be removed and any male adapter may be used.
*OPTIONAL PNEUMATIC DUMP CONTROL FITTING AND LINE
• Install the PNEUMATIC DUMP CONTROL TOGGLE on the
control panel as shown in Detail A. Remove and discard the
3/8 NPT pipe plug and replace with HRS 564 Fitting with Teon
tape. Cut and Install the included, ¼ in OD tubing (HRS 565)
by pushing the tubing into the tting to connect the HRS 564
Fitting to the pneumatic dump valve. Detail B
LANCE FEED
DIRECTION
SELECTOR
FORWARD & REVERSE
LANCE FEED
SPEED CONTROLS
CONTROL BOX DETAIL B
HRS 564 DUMP
CONTROL FITTING
1/4 IN. O.D.
TUBING
ROTATION
BALL VALVE
CONTROL
UP/DOWN
X/Y POSITIONER
RIGHT/LEFT
X/Y POSITIONER
CB-LP CONTROL BOX
BRLM ROTARY CONTROLS-
• The ROTATION BALL VALVE CONTROL rotates the rigid lance.
This control consists of a ball valve that is used to turn on/off
the rotation of the lance. It can also be partially opened/closed
to regulate the rotation speed. There is a single air line connect-
ed from the exit of the ball valve to the rotation port on the air
motor; the port selected should rotate the lance in a direction
to tighten the nozzle tip onto the lance. Always blow out the air
hoses before connecting to the motor ports.
• The LANCE FEED DIRECTION SELECTOR will move the lance
in the forward (feeding) and reverse (retracting) directions. The
OFF position is at the 6 O’clock position.
• The FORWARD AND REVERSE LANCE FEED SPEED CONTROLS
The two regulators are used to control the feed direction and
speed as well as the push/pull force of the drive.
POSITIONER CONTROLS-
• UP/DOWN will move the X/Y Positioner (LP-300) up and down
the tube face bundle. Turn selector to the left to move the
assembly UP, Turn selector to the right to move the assembly
down.
• LEFT/RIGHT will move the X/Y Positioner (LP-300) from side
to side along the tube face bundle. Turn selector to the left to
move the assembly Right, Turn selector to the right to move the
assembly Left.
*OPTIONAL DUMP CONTROL TOGGLE-
• To use the PNEUMATIC DUMP CONTROL TOGGLE, hold it in
the 12 O’clock, HIGH PRESSURE ON position to route the
high-pressure water to the tool. Release the toggle to the OFF
position to release the high-pressure water away from the tool.
PNEUMATIC CONTROL BOX OPERATION
* LOCATION FOR
OPTIONAL PNEUMATIC
DUMP CONTROL TOGGLE
DETAIL A
SYSTEM OPERATION
MAINTENANCE

33
866-795-1586 • WWW.STONEAGETOOLS.COM
SYSTEM OPERATION
X/Y POSITIONER AND BRLM SYSTEM OPERATION
1. Make sure the far end of the tube bundle is agged off and no one is within this area. A deector plate is recommended for debris and
water, particularly in horizontal bundles.
2. Turn the Forward Speed Control on the control box down to zero, switch the selector valve to “FORWARD” and slowly increase the
speed until the carriage begins to move, switch the selector valve back to “OFF”, leaving the regulator at this low setting. Think of the
regulators as controlling push force as well as speed.
3. Advance the carriage on the lancing machine until the tip is just inside the rst tube if it is open or partially open; if it is a plugged tube,
do not drive the tip into the material until the water pressure has started to come up; stop just short of the tip entering the tube.
4. Start the rotation of the lances and close the dump valve; bring the pressure up slowly with the pump throttle or bypass valve. If it is a
plugged tube, advance the tip into the material.
5. Once operating pressure is reached, advance the lance into the tube. The forward regulator setting may need to be increased at this
time to make the carriage move, as the jet thrust may be pushing back against the feed. Gradually increase the forward regulator,
which is increasing the push force as well as the feed rate. Watch the lances to make sure they are not starting to ex; if they are,
slightly decrease the regulator setting and leave it at this point. Also watch the machine and positioner for evidence of increasing
load. If the machine hydraulicks more than once or twice while cleaning every tube, the feed rate should be decreased to prevent
this. Hydraulicking forces can be high enough to bend and destroy the lances; they can pick up a vertical machine, positioner and
scaffold with two people standing on platforms (at least 500 pounds). Once an optimum feed rate is determined, the regulator has an
adjustable stop that can be set and repeatedly returned to if desired.
6. If the tubes are open and only being polished, there is an optimum feed rate to allow the jets to achieve complete coverage; multiply
the number of jets by the orice size of the jets and the rotation speed of the lance (600 rpm if the rotation speed is set on full). The
result will be the feed rate in inches per minute to achieve complete jet coverage. Sometimes the material may require multiple jet
strikes to be removed. The only way to determine this is to complete a cleaning pass at a certain speed, then check the tube for
cleaning effectiveness and adjust the feed rate accordingly. If desired, set the adjustable stop in the regulator.
7. The direction of the carriage should be reversed when the operator hears or observes the jets exiting at the far end of the tube bundle.
The retract regulator can be slowed to allow an additional cleaning pass on the return stroke, or retracted at full speed if the forward
cleaning pass is sufcient. Dump the pressure when the jets begin to exit the tube. Once a tube is cleaned and the nozzle tip retracted
to clear the tube, use the positioner to move the machine to the next tube or tubes in that row. A practiced operator will be able to
align the machine very quickly and likely in one move, but an inexperienced operator should take time initially to make sure the tip is
aligned, otherwise the tip will run into the tube face and possibly bend and destroy a lance, particularly if the forward regulator is set at
a high push/feed rate. Leaving the forward speed slower helps with tube alignment for an inexperienced operator.
Maintenance Item Maintenance Required
Air Supply A compressed air source of at least 70 cfm at 80 psi is required. Lower pressure will result in slower rotation and
feed rates. Blow air through all hoses before connecting. Drain the lter bowl if it lls with water.
Rail The lance rail should be kept clean. Do not apply any lubrication to the rail, as this tends to collect grit and increase
wear.
Chain Spray with a light oil occasionally to prevent corrosion
Air Motor Air motors should be lubricated after use to prevent internal corrosion and seizing. To do this, remove air hose from
motor tting and squirt in some light oil.
Reconnect air line and run for a few seconds to distribute oil in motor. If the air motor seizes and does not run,
remove air motor from gearbox, squirt some oil into ports, and try to rotate motor shaft with wrench until it breaks
free. This does have the risk of damaging the vanes in the motor, but usually is successful.
COLD WEATHER OPERATION: StoneAge recommends the following solutions to prevent decreased functionality in
air motors during cold weather operations:
Best method: Use regenerative desiccant air dryers in-line with the pneumatic hoses to lower the dew point.
Next method: Use a Pneumatic Tool Anti- Freeze Lubricant in the oiler system of the StoneAge equipment. Common
trade names are Tanner Gas, Killfrost, Dixon, and Polar-lube. These uids act like gasoline antifreeze by drying out
moisture that’s in the line
MAINTENANCE

34 866-795-1586 • WWW.STONEAGETOOLS.COM
OVERVIEW- X/Y POSITIONER WITH AUTOBOX® FLEX LANCING ADAPTER
CB-ABX OR CBX-ABX
CONTROL BOX
AUTOBOX®
ABX-2L OR ABX-3L
AND
HOSE GUIDE
**SHOWN WITH THE
AUTOBOX® ABX-3L AND
CBX-ABX CONTROL BOX
LP-300-XX
X/Y POSITIONER
CB-TBX-LPA TUMBLE BOX
AND PNEUMATIC LINES
FOR ADAPTING
1/4” AIRLINES FROM THE
AUTOBOX CONTROL BOX TO 1/2”
AIR LINES ON THE LP-300-XX
X/Y POSITIONER
X/Y POSITIONER LP-300-XX
WITH
AUTOBOX® FLEX LANCING ADAPTER ACCESSORY
ABX-100-LP
INTERFACE ASSEMBLY
FOR ADAPTING THE AUTOBOX
ABX-2L TO THE
X/Y POSITIONER
ABX-300-LP
INTERFACE ASSEMBLY
FOR ADAPTING THE AUTOBOX
ABX-3L TO THE
X/Y POSITIONER

35
866-795-1586 • WWW.STONEAGETOOLS.COM
INSTALL CB-TBX-LPA TUMBLE BOX ONTO AUTOBOX® CONTROL BOX
ASSEMBLE CONTROL BOX, TUMBLE BOX, FRL, AND
TRIPOD BASE
1. Setup the tripod base in a location with good visibility to the
bundle face, but at a safe distance away from waterblast zone.
2. Slide the vertical tube into the tripod base. Secure with the
supplied thumbscrew knob. Note: The vertical tube has a hole
through one wall that the thumbscrew must engage.
3. Slide the Filter, Regulator, Lubricator (FRL) assembly over the
vertical tube down to the tripod base. Secure with the supplied
thumbscrew knob.
4. Slide the Tumble Box over the vertical tube and align the top
of the clamp with the top of the FRL. Secure with the supplied
thumbscrew knob
5. Slide the Control Box over the vertical tube. The Control Box has
a stop that keeps it located at the top of the vertical tube. Secure
with the supplied thumbscrew knob.
6. Install and tighten the two short 1/2 in. (13 mm) I.D. hoses. The
Tumble Box is marked with “CB” and “FRL”. Connect the hose
marked “CB” to connection marked “AIR” on the back of the
Control Box. Connect the hose marked “FRL” to the FRL.
7. Install and tighten the four short 1/4” hoses from the Tumble Box
to the Control Box. The Tumble Box is marked “L/R” for Left and
Right and “U/D” for Up and Down. Follow the diagram and color
coding below.
CB-ABX OR CBX-ABX
CONTROL BOX
TUMBLE BOX
(CBX-TBX-LPA)
VERTICAL
TUBE
1/4” LINES (X 4)
1/2” LINES (X 2)
TRIPOD
STAND
THUMBSCREW
FRL
3
2
4
5
6
6
7
1

36 866-795-1586 • WWW.STONEAGETOOLS.COM
ABX-XXX-LP INSTALLATION ONTO X/Y POSITIONER CARRIAGE
CONNECT ABX-XXX-LP BEAM TO X/Y POSITIONER CARRIAGE
1. Loosen the Quick Release Handles on the Carriage Plate and place the Beam between the sides of the Carriage Plate. The ABX-300-
LP (for the ABX-3L) has integral plates on the bottom that engage the Carriage. The ABX-100-LP (for the ABX-2L) has corner edges
that will engage with the Carriage. Secure the Beam in position with the Quick Release Handles.
QUICK
RELEASE
HANDLE DETAIL
**SHOWN WITH THE
ABX-300-LP
INTEGRAL PLATES
QUICK
RELEASE PINS
AUTOBOX
TRACTOR
CONNECT AUTOBOX® TRACTOR TO ABX-XXX-LP BEAM
2. Remove the bottom Quick Release Pin from the AUTOBOX® Mounting Bracket. Set the top Quick Release Pin into the top groove on
the Beam. Insert the Bottom Pin and make sure both pins are secure.
BOTTOM
QUICK
RELEASE PIN

37
866-795-1586 • WWW.STONEAGETOOLS.COM
ABX-XXX-LP INSTALLATION ON X/Y POSITIONER
CONNECT HOSE GUIDE TO BEAM
3. Remove the bottom Quick Release Pin from the Hose Guide. Slip the top groove of the Hose Guide under the top Quick Release Pin
on the Beam. Insert the Bottom Pin and make sure both pins are secure.
ASSEMBLY IS NOW READY FOR PNEUMATIC CONNECTIONS
BOTTOM
QUICK
RELEASE PIN
TOP GROOVE
OF HOSE GUIDE

38 866-795-1586 • WWW.STONEAGETOOLS.COM
PNEUMATIC SUPPLY LINE CONNECTIONS
1. Remove the dust caps from the Joint Industry Council (JIC) ttings of the Control Box and the AUTOBOX® Hose Tractor.
2. Connect the AUTOBOX® Hose Tractor to the Control Box with two 1/2 in. (13 mm) JIC hoses and one 1/4 in. (6 mm) JIC hose. Verify the
Control Box rotates the rollers in the appropriate direction and that the clamp functions correctly. (See color coding below)
3. Connect the Horizontal Positioner Drive air motor to the “RGT/LFT” connections on the Tumble Box with two 1/2 in. (13 mm) JIC hoses.
Verify the Control Box moves the horizontal carriage in the appropriate direction. (See color coding below)
4. Connect the Vertical Positioner Drive air motor to the “UP/DWN” connections on the Tumble Box with two 1/2 in. (13 mm) JIC hoses.
Verify the Control Box moves the vertical carriage in the appropriate direction. (See color coding below)
5. Test the Control Box before operating the AUTOBOX® Hose Tractor with high pressure water to verify the control valves move the hose
in the intended direction, and that the dump valve is working properly. (See the appropriate AUTOBOX® Hose Tractor manual for
detailed operating instructions.)
CONTROL BOX TO X/Y POSITIONER AND AUTOBOX TRACTOR CONNECTION
CLAMPREVFWD
COLOR CODED CONNECTIONS FROM CONTROL BOX TO AUTOBOX® TRACTOR
AUTOBOX TRACTOR
CONTROL BOX
UP
DOWN RIGHT
LEFT
PNEUMATIC SUPPLY LINE COLOR CHART
HORIZONTAL
POSITIONER
DRIVE
VERTICAL
POSITIONER
DRIVE
PARTS DIAGRAMS

39
866-795-1586 • WWW.STONEAGETOOLS.COM
PARTS DIAGRAMS
TABLE OF CONTENTS
ABX-100-LP ABX-2L TO LP-300 INTERFACE ASSEMBLY ..................... 40
ABX-300-LP ABX-3L TO LP-300 INTERFACE ASSEMBLY ..................... 40
BRLM 180 DUAL ROTARY GEARBOX ........................................ 41
BRLM 210-CS TRIPLE ROTARY GEARBOX .................................. 42
BRLM 310-P8 SINGLE ROTARY ASSEMBLY 15 KPSI ......................... 43
BRLM 320 SINGLE ROTARY ASSEMBLY 22 KPSI ............................. 44
BRLM 330 SINGLE ROTARY ASSEMBLY 44 KPSI ............................. 45
BRLM 341 DUAL ROTARY ASSEMBLY 15 KPSI .............................. 46
BRLM 351 DUAL ROTARY ASSEMBLY 22 KPSI .............................. 47
BRLM 361 DUAL ROTARY ASSEMBLY 44 KPSI .............................. 48
BRLM 343-CS TRIPLE ROTARY ASSEMBLY 15 KPSI ......................... 49
BRLM 353-CS TRIPLE ROTARY ASSEMBLY 22 KPSI ......................... 50
BRLM 363-CS TRIPLE ROTARY ASSEMBLY 44 KPSI ......................... 51
BRLM 420 REAR IDLER ASSEMBLY ......................................... 52
BRLM 430 FRONT IDLER ASSEMBLY ........................................ 52
BRLM 500-XX RIGID LANCING MACHINE ................................... 53
BRLM 500.1 DRIVE PACKAGE .............................................. 53
BRLM 510-EG FEED DRIVE ASSEMBLY (ELECTRA-GEAR) ................... 54
BRLM 580-XX RAIL EXTENSION PACKAGE .................................. 55
BRLM 636-XXX-XXX GUIDE BLOCK KITS ................................... 56
CB-LP CONTROL BOX FOR LP-300 X/Y POSITIONER ........................ 57
CB-LP.1 CONTROL BOX INTERNALS FOR LP-300 X/Y POSITIONER ........... 58
CB-TBX-LPA LPA TUMBLEBOX ASSEMBLY ................................. 59
LP-300-XX X/Y POSITIONER ................................................ 60
LP-300-XX X/Y POSITIONER CONTINUED ................................... 61
LP 320 REAR SUPPORT .................................................... 62
LP 335-XX WHEEL KITS .................................................... 63
LP 700 CARRIAGE CLAMP ASSEMBLY ...................................... 64
LP 071 2 SIDE PLATES AND ROLLER ASSEMBLY ............................ 65

40 866-795-1586 • WWW.STONEAGETOOLS.COM
AUTOBOX® (ABX-100-LP)
ABX-2L TO LP-300 INTERFACE ASSEMBLY
PARTS DIAGRAM
AUTOBOX® (ABX-300-LP)
ABX-3L TO LP-300 INTERFACE ASSEMBLY
# PART NUMBER QTY.
1 ABX 001-LP REAR BRACKET 1
2 ABX 002-LP BOX RAIL 1
3 ABX 003-LP GUIDE TUBE 2
4 ABX 120-001 MOUNTING BRACKET, INSIDE 1
5 ABX 298 QUICK PIN 17-4 SS .38 X 3.0 2
6 GSF 337-03 FHCS .37-16 X .75 SS 8
# PART NUMBER QTY.
1 ABX 003-LP GUIDE TUBE 3
2 ABX 301-LP REAR BRACKET 1
3 ABX 302-LP RAIL 1
4 ABX 303-LP RAIL BOTTOM PLATE 2
5 ABX 304-LP FRONT BRACKET 1
6 ABX 356 QUICK PIN 17-4 SS .38 X 3.75 2
7 GSF 325-06 FHCS .25-20 X 1.50 SS 8
8 GSF 337-03 FHCS .37-16 X .75 SS 12
PARTS DIAGRAM

41
866-795-1586 • WWW.STONEAGETOOLS.COM
PARTS DIAGRAM
BRLM 180
DUAL ROTARY GEARBOX
# PART NUMBER QTY.
1 BR 155 MUFFLER P8 1
2 BR 167 DUST CAP J8 1
3 BRLM 024-SA BLOCK, MOUNT STD 2
4 BRLM 109 BEARING 4
5 BRLM 172 BOSTONGEAR-GB20 2
6 BRLM 174 BOSTONGEAR-GB30 1
7 BRLM 176 BOSTONGEAR-GB38 1
8 BRLM 178 BOSTONGEAR-NB30B-1 2
9 BRLM 182 HOUSING, SPUR 1
10 BRLM 183 PLATE, COVER REAR 1
11 BRLM 184 PLATE, COVER FRONT 1
12 BRLM 186 SHAFT, SPUR GEAR 2
13 BRLM 188 SHIM, SS 2
14 BRLM 190 SHAFT, FINAL 1
15 BRLM 191 SPRING PIN, .125 X .75 2
16 BRLM 192 SHAFT, INTERMEDIATE 1
17 BRLM 193 SPACER,FINAL SHAFT 1
18 BRLM 195 KEY, SQ .250 X .250 X .75 2
19 FS 004-0 ZERK, STRAIGHT 1
20 GB 531-06 BOLT, HEX .31-18 X 1.50 4
21 GP 010-P PLASTIC ID WASHER P8 1
22 GSF 325-035 FHCS .25-20 X .88 SS 18
23 GSS 525-28-37CU SET SCREW, CUP PT 1
24 GW 531-L LOCK WASHER 4
25 HRS 510 GEAR, 15T 1
26 HRS 510.2 COLLAR ASSY, PINION 1
27 HRS 515 GEAR BUSHING 2
28 HRS 518 RETAINING RING, SL EXTERNAL 4
29 HRS 529 THRUST WASHER 4
30 HRS 573 FTG, ELBOW 90 P8M J8M 1
31 SG 055 AIR MOTOR 1

42 866-795-1586 • WWW.STONEAGETOOLS.COM
BRLM 210-CS
TRIPLE ROTARY GEARBOX
# PART NUMBER QTY.
1 BR 155 MUFFLER P8 1
2 BR 167 90° DUST CAP J8 1
3 BRLM 024-SA BLOCK, MOUNT STD 2
4 BRLM 172 BOSTONGEAR-GB20 3
5 BRLM 182 HOUSING, SPUR 1
6 BRLM 186 SHAFT, SPUR GEAR 3
7 BRLM 190 SHAFT, FINAL 2
8 BRLM 191 SPRING PIN, .125 X .75 3
9 BRLM 192 SHAFT, INTERMEDIATE 1
10 BRLM 195 KEY, SQ .250 X .250 X .75 3
11 BRLM 201 BEARING 6
12 BRLM 203 PLATE, COVER REAR 1
13 BRLM 204 PLATE, COVER FRONT 1
14 BRLM 207 SPACER, SPUR SHAFT 6
15 BRLM 211 GEAR, MODIFIED 3
16 BRLM 212 BOSTONGEAR-GB28 1
17 BRLM 213 BOSTONGEAR-GB37 1
18 BRLM 215 GEAR BUSHING MOD 1
19 FS 004-0 ZERK, STRAIGHT 1
20 GB 531-06 BOLT, HEX .31-18 X 1.50 4
21 GP 010-P PLASTIC ID WASHER P8 1
22 GSF 325-035 FHCS .25-20 X .88 SS 18
23 GSS 525-28-37CU SET SCREW, CUP PT 1
24 GW 531-L LOCK WASHER 4
25 HRS 510 GEAR, 15T 1
26 HRS 510.2 COLLAR ASSY, PINION 1
27 HRS 515 GEAR BUSHING 2
28 HRS 518 RETAINING RING, SL EXTERNAL 5
29 HRS 529 THRUST WASHER 5
30 HRS 573 FTG, ELBOW 90 P8M J8M 1
31 SG 055 AIR MOTOR 1
PARTS DIAGRAM PARTS DIAGRAM

43
866-795-1586 • WWW.STONEAGETOOLS.COM
BRLM 310-P8
SINGLE ROTARY ASSEMBLY 15 KPSI
# PART NUMBER QTY.
1BR 052-2.5 AXLE-ZERK 4
2 BR 055 ROLLER ASSY 4
3 BR 155 MUFFLER P8 1
4 BR 157 FTG, ADAPTER P8M J8M 1
5 BR 167 DUST CAP J8 1
6 BR 190-E5 GEARBOX WITH SHAFT, EG
5TO1
1
7 BRLM 018-D PLATE, DUAL COIL 1
8 BRLM 019 CHAIN HOOK 1
9 BRLM 022 CARRIAGE PLATE 1
10 BRLM 024-EG PEDESTAL 2
11 BRLM 027-SGS BRACKET, TAIL, SG
SINGLE
1
12 BRLM 036 BOLT, COIL ANCHOR 2
13 BRLM 040-1 FRONT PLATE 1
14 BRLM 150 SPLASH GUARD 1
15 BRLM 160 P16 TEE 1
16 BRLM 170 P16 NIPPLE 1
17 BRLM 270 CLAMP, HOSE 2
18 BRLM 271 PLATE, HOSE CLAMP 1
19 BRLM 272 PLATE, TAIL END 1
20 BRLM 273 TAIL CHAIN 1
22 GB 525-12 BOLT, HEX .25-20 X 3.00 4
23 GB 531-03 BOLT, HEX .31-18 X .75 2
24 GB 531-04 BOLT, HEX .31-18 X 1.00 4
25 GB 531-06 BOLT, HEX .31-18 X 1.50 2
26 GB 531-07 BOLT, HEX .31-18 X 1.75 4
27 GB 537-04 BOLT, HEX .37-16 X 1.00 4
28 GB 537-05 BOLT, HEX .37-16 X 1.25 2
29 GB 537-08 BOLT, HEX .37-16 X 2.00 1
30 GB 537-09 BOLT, HEX .37-16 X 2.25 1
31 GN 525-L NYLOK NUT 4
32 GN 531-L NYLOK NUT 6
33 GN 537-L NYLOK NUT 4
34 GN 550-L NYLOK NUT 4
35 GP 010-P PLASTIC ID WASHER P8 1
38 GP 075-375 COLLET 3
39 GP 075-406 COLLET 3
40 GP 075-547 COLLET 3
41 GP 075-562 COLLET 3
42 GP 076 COLLET NUT 3
44 GW 531-L LOCK WASHER 2
45 GW 537-F FLAT WASHER 2
46 GW 537-L LOCK WASHER 4
47 LM 012-06 BUSHING, FRONT 1
48 LM 012-09 BUSHING, FRONT 1
49 LM 014 NIPPLE 1
50 LM 016-4 AIR MOTOR 1
54 SA 056-P8P2 LANCE ADPT 1
55 SA 056-P8P4 LANCE ADPT 1
56 SG-P8P8-0 SWIVEL 1
PARTS DIAGRAM

44 866-795-1586 • WWW.STONEAGETOOLS.COM
BRLM 320-MP12
SINGLE ROTARY ASSEMBLY 22 KPSI
# PART NUMBER QTY.
1 AF 071-MP6 COLLAR 1
2 AF 071-MP9 COLLAR 1
3AF 072-MP6 ANTIVIBE,GLAND ASSY 1
4AF 072-MP9 ANTIVIBE, GLAND ASSY 1
5 AF 073-MP6MP12 COUPLING 1
6 AF 073-MP9MP12 COUPLING 1
7BR 052-2.5 AXLE-ZERK 4
8 BR 055 ROLLER ASSY 4
9 BR 155 MUFFLER P8 1
10 BR 157 FTG, ADAPTER P8M J8M 1
11 BR 167 DUST CAP J8 1
12 BR 190-E5 GEARBOX WITH SHAFT, EG
5TO1
1
13 BRLM 018-D PLATE, DUAL COIL 1
14 BRLM 019 CHAIN HOOK 1
15 BRLM 022 CARRIAGE PLATE 1
16 BRLM 024-EG PEDESTAL 2
17 BRLM 027-SGS BRACKET, TAIL, SG
SINGLE
1
18 BRLM 036 BOLT, COIL ANCHOR 2
19 BRLM 040-1 FRONT PLATE 1
20 BRLM 150 SPLASH GUARD 1
21 BRLM 160 P16 TEE 1
22 BRLM 170 P16 NIPPLE 1
23 BRLM 270 CLAMP, HOSE 2
24 BRLM 271 PLATE, HOSE CLAMP 1
25 BRLM 272 PLATE, TAIL END 1
26 BRLM 273 TAIL CHAIN 1
28 GB 525-12 BOLT, HEX .25-20 X 3.00 4
29 GB 531-03 BOLT, HEX .31-18 X .75 2
30 GB 531-04 BOLT, HEX .31-18 X 1.00 4
31 GB 531-06 BOLT, HEX .31-18 X 1.50 2
32 GB 531-07 BOLT, HEX .31-18 X 1.75 4
33 GB 537-04 BOLT, HEX .37-16 X 1.00 4
34 GB 537-05 BOLT, HEX .37-16 X 1.25 2
35 GB 537-08 BOLT, HEX .37-16 X 2.00 1
36 GB 537-09 BOLT, HEX .37-16 X 2.25 1
37 GN 525-L NYLOK NUT 4
38 GN 531-L NYLOK NUT 6
39 GN 537-L NYLOK NUT 4
40 GN 550-L NYLOK NUT 4
41 GP 010-P PLASTIC ID WASHER P8 1
44 GP 075-375 COLLET 2
45 GP 075-562 COLLET 2
46 GP 076 COLLET NUT 2
48 GW 531-L LOCK WASHER 2
49 GW 537-F FLAT WASHER 2
50 GW 537-L LOCK WASHER 4
51 LM 012-06 BUSHING, FRONT 1
52 LM 012-09 BUSHING, FRONT 1
53 LM 014 NIPPLE 1
54 LM 016-4 AIR MOTOR 1
57 LM 123 FTG, ADAPTER ORB6M J8M -
58 SG-MP12AV12-0 SWIVEL 1
PARTS DIAGRAM PARTS DIAGRAM

45
866-795-1586 • WWW.STONEAGETOOLS.COM
BRLM 330
SINGLE ROTARY ASSEMBLY 44 KPSI
# PART NUMBER QTY.
1 AF 071-H6 COLLAR 1
2 AF 071-H9 COLLAR 1
3AF 072-H6 ANTIVIBE, GLAND ASSY 1
4AF 072-H9 ANTIVIBE, GLAND ASSY 1
5 AF 073-H6 COUPLER 1
6 AF 073-H6H9 COUPLER 1
7BR 052-2.5 AXLE-ZERK 4
8 BR 055 ROLLER ASSY 4
9 BR 155 MUFFLER P8 1
10 BR 157 FTG, ADAPTER P8M J8M 1
11 BR 167 DUST CAP J8 1
12 BR 190-E5 GEARBOX WITH SHAFT, EG
5TO1
1
13 BRLM 018-D PLATE, DUAL COIL 1
14 BRLM 019 CHAIN HOOK 1
15 BRLM 022 CARRIAGE PLATE 1
16 BRLM 024-EG PEDESTAL 2
17 BRLM 027-JES BRACKET, TAIL JE SINGLE
PLATE
1
18 BRLM 036 BOLT, COIL ANCHOR 2
19 BRLM 040-1 FRONT PLATE 1
20 BRLM 150 SPLASH GUARD 1
21 BRLM 160 P16 TEE 1
22 BRLM 170 P16 NIPPLE 1
23 BRLM 270 CLAMP, HOSE 2
24 BRLM 271 PLATE, HOSE CLAMP 1
25 BRLM 272 PLATE, TAIL END 1
26 BRLM 273 TAIL CHAIN 1
28 GB 525-12 BOLT, HEX .25-20 X 3.00 4
29 GB 531-03 BOLT, HEX .31-18 X .75 2
30 GB 531-04 BOLT, HEX .31-18 X 1.00 4
31 GB 531-06 BOLT, HEX .31-18 X 1.50 2
32 GB 531-07 BOLT, HEX .31-18 X 1.75 4
33 GB 537-04 BOLT, HEX .37-16 X 1.00 4
34 GB 537-05 BOLT, HEX .37-16 X 1.25 2
35 GB 537-08 BOLT, HEX .37-16 X 2.00 1
36 GB 537-09 BOLT, HEX .37-16 X 2.25 1
37 GN 525-L NYLOK NUT 4
38 GN 531-L NYLOK NUT 6
39 GN 537-L NYLOK NUT 4
40 GN 550-L NYLOK NUT 4
41 GP 010-P PLASTIC ID WASHER P8 1
44 GP 075-375 COLLET 2
45 GP 075-562 COLLET 2
46 GP 076 COLLET NUT 2
47 GS 525-025-28 SHCS .25-28 X .62 BLK -
48 GW 531-L LOCK WASHER 2
49 GW 537-F FLAT WASHER 2
50 GW 537-L LOCK WASHER 4
51 LM 012-06 BUSHING, FRONT 1
52 LM 012-09 BUSHING, FRONT 1
53 LM 014 NIPPLE 1
54 LM 016-4 AIR MOTOR 1
57 LM 123 FTG, ADAPTER ORB6M J8M -
58 UH-H9H6 SWIVEL ASSEMBLY 1
PARTS DIAGRAM

46 866-795-1586 • WWW.STONEAGETOOLS.COM
BRLM 341
DUAL ROTARY ASSEMBLY 15 KPSI
# PART NUMBER QTY.
1 AF 061-P4 ADAPTER .75 TYPE M TO P4 2
2 AF 061-P8 ADAPTER .75 TYPE M TO P8 2
3BR 052-2.5 AXLE-ZERK 4
4 BR 055 ROLLER ASSY 4
5 BRLM 018-D PLATE, DUAL COIL 1
6 BRLM 019 CHAIN HOOK 1
7 BRLM 022 CARRIAGE PLATE 1
8 BRLM 027-SLD BRACKET, TAIL, SL DUAL 1
9 BRLM 036 BOLT, COIL ANCHOR 2
10 BRLM 041 MULTI CHANNEL 1
11 BRLM 180 DUAL ROTARY GBOX ASSY
- SPUR
1
13 BRLM 268-003 HOSE 2
14 BRLM 269-P12 MANIFOLD 1
15 BRLM 272 PLATE, TAIL END 1
16 BRLM 273 TAIL CHAIN 1
17 GB 525-04 BOLT, HEX .25-20 X 1.00 2
18 GB 525-10 BOLT, HEX .25-20 X 2.50 2
19 GB 531-03 BOLT, HEX .31-18 X .75 2
20 GB 531-04 BOLT, HEX .31-18 X 1.00 4
21 GB 531-06 BOLT, HEX .31-18 X 1.50 2
22 GB 537-04 BOLT, HEX .37-16 X 1.00 2
23 GB 537-08 BOLT, HEX .37-16 X 2.00 1
24 GB 537-09 BOLT, HEX .37-16 X 2.25 1
25 GN 525-L NYLOK NUT 2
26 GN 531-L NYLOK NUT 2
27 GN 537-L NYLOK NUT 2
28 GN 550-L NYLOK NUT 4
29 GP 075-375 COLLET 3
30 GP 075-406 COLLET 3
31 GP 075-547 COLLET 3
32 GP 075-562 COLLET 6
33 GP 076 COLLET NUT 6
34 GW 531-L LOCK WASHER 6
35 GW 537-F FLAT WASHER 2
36 ML 072-P2 GUIDE, LONG ADJ 2
37 ML 072-P4-L GUIDE, LONG ADJ 1
38 ML 072.1 SPRING NUT 2
39 SA 056-P4P2 LANCE ADPT 1
40 SA 056-P4P4 LANCE ADPT 2
41 SL-P8P4-0 SWIVEL 2
PARTS DIAGRAM PARTS DIAGRAM

47
866-795-1586 • WWW.STONEAGETOOLS.COM
BRLM 351
DUAL ROTARY ASSEMBLY 22 KPSI
# PART NUMBER QTY.
1 AF 061-MP6 ADAPTER .75 TYPE M
TO MP6
2
2 AF 061-MP9 ADAPTER .75 TYPE M
TO MP9
2
3 AF 071-MP6 COLLAR 2
4 AF 071-MP9 COLLAR 2
5AF 072-MP6 ANTIVIBE,GLAND ASSY 2
6AF 072-MP9 ANTIVIBE, GLAND ASSY 2
7 AF 073-MP6MP9 COUPLING 2
8 AF 073-MP9 COUPLER 2
9BR 052-2.5 AXLE-ZERK 4
10 BR 055 ROLLER ASSY 4
11 BRLM 018-D PLATE, DUAL COIL 1
12 BRLM 019 CHAIN HOOK 1
13 BRLM 022 CARRIAGE PLATE 1
14 BRLM 027-SLD BRACKET, TAIL, SL
DUAL
1
15 BRLM 036 BOLT, COIL ANCHOR 2
16 BRLM 041 MULTI CHANNEL 1
17 BRLM 180 DUAL ROTARY GBOX ASSY
- SPUR
1
19 BRLM 268-003 HOSE 2
20 BRLM 269-MP12 MANIFOLD 1
21 BRLM 272 PLATE, TAIL END 1
22 BRLM 273 TAIL CHAIN 1
23 GB 525-04 BOLT, HEX .25-20 X 1.00 2
24 GB 525-10 BOLT, HEX .25-20 X 2.50 2
25 GB 531-03 BOLT, HEX .31-18 X .75 2
26 GB 531-04 BOLT, HEX .31-18 X 1.00 4
27 GB 531-06 BOLT, HEX .31-18 X 1.50 2
28 GB 537-04 BOLT, HEX .37-16 X 1.00 2
29 GB 537-08 BOLT, HEX .37-16 X 2.00 1
30 GB 537-09 BOLT, HEX .37-16 X 2.25 1
31 GN 525-L NYLOK NUT 2
32 GN 531-L NYLOK NUT 2
33 GN 537-L NYLOK NUT 2
34 GN 550-L NYLOK NUT 4
35 GP 075-375 COLLET 2
36 GP 075-562 COLLET 4
37 GP 076 COLLET NUT 4
38 GW 531-L LOCK WASHER 6
39 GW 537-F FLAT WASHER 2
40 ML 072-P2 GUIDE, LONG ADJ 2
41 ML 072-P4-L GUIDE, LONG ADJ 2
42 ML 072.1 SPRING NUT 2
43 SL-MP9AV9-0 SWIVEL 2
PARTS DIAGRAM

48 866-795-1586 • WWW.STONEAGETOOLS.COM
BRLM 361
DUAL ROTARY ASSEMBLY 44 KPSI
# PART NUMBER QTY.
1 AF 070-H6 GLAND HP 2
2 AF 070-H9 GLAND HP 2
3 AF 071-H6 COLLAR 4
4 AF 071-H9 COLLAR 4
5AF 072-H6 ANTIVIBE, GLAND ASSY 2
6AF 072-H9 ANTIVIBE, GLAND ASSY 2
7 AF 073-H6 COUPLER 2
8 AF 073-H6H9 COUPLER 2
9BR 052-2.5 AXLE-ZERK 4
10 BR 055 ROLLER ASSY 4
11 BRLM 018-D PLATE, DUAL COIL 1
12 BRLM 019 CHAIN HOOK 1
13 BRLM 022 CARRIAGE PLATE 1
14 BRLM 027-JED PLATE TYPE 1
15 BRLM 036 BOLT, COIL ANCHOR 2
16 BRLM 041 MULTI CHANNEL 1
17 BRLM 180 DUAL ROTARY GBOX ASSY
- SPUR
1
19 BRLM 266 HOSE ASSY 2
20 BRLM 269-H9 MANIFOLD 1
21 BRLM 272 PLATE, TAIL END 1
22 BRLM 273 TAIL CHAIN 1
23 GB 525-04 BOLT, HEX .25-20 X 1.00 2
24 GB 525-10 BOLT, HEX .25-20 X 2.50 2
25 GB 531-03 BOLT, HEX .31-18 X .75 2
26 GB 531-04 BOLT, HEX .31-18 X 1.00 4
27 GB 531-06 BOLT, HEX .31-18 X 1.50 2
28 GB 537-04 BOLT, HEX .37-16 X 1.00 2
29 GB 537-08 BOLT, HEX .37-16 X 2.00 1
30 GB 537-09 BOLT, HEX .37-16 X 2.25 1
31 GN 525-L NYLOK NUT 2
32 GN 531-L NYLOK NUT 2
33 GN 537-L NYLOK NUT 2
34 GN 550-L NYLOK NUT 4
35 GP 075-375 COLLET 4
36 GP 075-562 COLLET 4
37 GP 076 COLLET NUT 4
38 GW 531-L LOCK WASHER 6
39 GW 537-F FLAT WASHER 2
40 ML 072-P2 GUIDE, LONG ADJ 2
41 ML 072-P4-L GUIDE, LONG ADJ 2
42 ML 072.1 SPRING NUT 2
43 UH-H9H6 ASSEMBLY 2
PARTS DIAGRAM PARTS DIAGRAM

49
866-795-1586 • WWW.STONEAGETOOLS.COM
BRLM 343-CS
TRIPLE ROTARY ASSEMBLY 15 KPSI
# PART NUMBER QTY.
1AF 061-MP9 ADAPTER .75 TYPE M TO
MP9
3
2 AF 061-P8 ADAPTER .75 TYPE M TO P8 3
3AF 065-MP12P8 ADAPTER 1
4BR 052-2.5 AXLE-ZERK 4
5 BR 055 ROLLER ASSY 4
6 BRLM 018-D PLATE, DUAL COIL 1
7 BRLM 019 CHAIN HOOK 1
8 BRLM 022 CARRIAGE PLATE 1
9 BRLM 027-SLT-L PLATE, TAIL BRACKET
LONG
1
10 BRLM 036 BOLT, COIL ANCHOR 2
11 BRLM 041 MULTI CHANNEL 1
12 BRLM 060 MID SUPPORT BRACKET
ASSY
1
13 BRLM 181 WRENCH WELDMENT 1
14 BRLM 210-CS TRI ROTARY GBOX ASSY -
COLLET SHAFTS
1
16 BRLM 224 MANIFOLD MP9 1
17 BRLM 225 HOSE, TAIL 20K SHORT 3
18 BRLM 270 CLAMP, HOSE 2
19 BRLM 271 PLATE, HOSE CLAMP 1
20 BRLM 272 PLATE, TAIL END 1
21 BRLM 273 TAIL CHAIN 1
22 BRLM 316 PEDESTAL, MANIFOLD 1
23 BRLM 317 PEDESTAL, TAIL BRACKET 1
24 BRLM 318 SPRING PLUNGER 1
25 GB 525-04 BOLT, HEX .25-20 X 1.00 7
26 GB 525-12 BOLT, HEX .25-20 X 3.00 4
27 GB 531-03 BOLT, HEX .31-18 X .75 2
28 GB 531-04 BOLT, HEX .31-18 X 1.00 4
29 GB 531-08 BOLT, HEX .31-18 X 2.00 4
30 GB 537-04 BOLT, HEX .37-16 X 1.00 2
31 GB 537-08 BOLT, HEX .37-16 X 2.00 2
32 GN 525-L NYLOK NUT 4
33 GN 531-L NYLOK NUT 4
34 GN 537-L NYLOK NUT 2
35 GN 550-L NYLOK NUT 4
36 GP 075-406 COLLET 9
37 GP 075-547 COLLET 9
38 GP 076 COLLET NUT 9
39 GS 525-09 SHCS .25-20 X 2.25 ZINC 4
40 GW 525-F FLAT WASHER 4
41 GW 531-L LOCK WASHER 6
42 GW 537-F FLAT WASHER 2
43 ML 072-P2 GUIDE, LONG ADJ 3
44 ML 072-P4-L GUIDE, LONG ADJ 3
45 ML 072.1 SPRING NUT 3
46 SA 056-P4P2 LANCE ADPT 3
47 SA 056-P4P4 LANCE ADPT 3
48 SL-P8P4-0 SWIVEL 3
PARTS DIAGRAM

50 866-795-1586 • WWW.STONEAGETOOLS.COM
BRLM 353-CS
TRIPLE ROTARY ASSEMBLY 22 KPSI
# PART NUMBER QTY.
1AF 061-MP9 ADAPTER .75 TYPE M TO
MP9
6
2 AF 063-MP12 ADAPTER 1.00 TYPE M
TO MP12
1
3 AF 071-MP6 COLLAR 3
4 AF 071-MP9 COLLAR 3
5AF 072-MP6 ANTIVIBE,GLAND ASSY 3
6AF 072-MP9 ANTIVIBE, GLAND ASSY 3
7 AF 073-MP6MP9 COUPLING 3
8 AF 073-MP9 COUPLER 3
9BR 052-2.5 AXLE-ZERK 4
10 BR 055 ROLLER ASSY 4
11 BRLM 018-D PLATE, DUAL COIL 1
12 BRLM 019 CHAIN HOOK 1
13 BRLM 022 CARRIAGE PLATE 1
14 BRLM 027-SLT-L PLATE, TAIL BRACKET
LONG
1
15 BRLM 036 BOLT, COIL ANCHOR 2
16 BRLM 041 MULTI CHANNEL 1
17 BRLM 060 MID SUPPORT BRACKET ASSY 1
18 BRLM 181 WRENCH WELDMENT 1
19 BRLM 210-CS TRI ROTARY GBOX ASSY -
COLLET SHAFTS
1
21 BRLM 224 MANIFOLD MP9 1
22 BRLM 225 HOSE, TAIL 20K SHORT 3
23 BRLM 270 CLAMP, HOSE 2
24 BRLM 271 PLATE, HOSE CLAMP 1
25 BRLM 272 PLATE, TAIL END 1
26 BRLM 273 TAIL CHAIN 1
27 BRLM 316 PEDESTAL, MANIFOLD 1
28 BRLM 317 PEDESTAL, TAIL BRACKET 1
29 BRLM 318 SPRING PLUNGER 1
30 GB 525-04 BOLT, HEX .25-20 X 1.00 7
31 GB 525-12 BOLT, HEX .25-20 X 3.00 4
32 GB 531-03 BOLT, HEX .31-18 X .75 2
33 GB 531-04 BOLT, HEX .31-18 X 1.00 4
34 GB 531-08 BOLT, HEX .31-18 X 2.00 4
35 GB 537-04 BOLT, HEX .37-16 X 1.00 2
36 GB 537-08 BOLT, HEX .37-16 X 2.00 2
37 GN 525-L NYLOK NUT 4
38 GN 531-L NYLOK NUT 4
39 GN 537-L NYLOK NUT 2
40 GN 550-L NYLOK NUT 4
41 GP 075-375 COLLET 6
42 GP 075-562 COLLET 6
43 GP 076 COLLET NUT 6
44 GS 525-09 SHCS .25-20 X 2.25 ZINC 4
45 GW 525-F FLAT WASHER 4
46 GW 531-L LOCK WASHER 6
47 GW 537-F FLAT WASHER 2
48 ML 072-P2 GUIDE, LONG ADJ 3
49 ML 072-P4-L GUIDE, LONG ADJ 3
50 ML 072.1 SPRING NUT 3
51 SL-MP9AV9-0 SWIVEL 3
PARTS DIAGRAM PARTS DIAGRAM

51
866-795-1586 • WWW.STONEAGETOOLS.COM
BRLM 363-CS
TRIPLE ROTARY ASSEMBLY 44 KPSI
# PART NUMBER QTY.
1AF 060-H9 ADAPTER .56 TYPE M TO
H9
6
2AF 062-H9 ADAPTER .88 TYPE M TO
H9
1
3 AF 071-H6 COLLAR 3
4 AF 071-H9 COLLAR 3
5AF 072-H6 ANTIVIBE, GLAND ASSY 3
6AF 072-H9 ANTIVIBE, GLAND ASSY 3
7 AF 073-H6H9 COUPLER 3
8 AF 073-H9 COUPLING 3
9BR 052-2.5 AXLE-ZERK 4
10 BR 055 ROLLER ASSY 4
11 BRLM 018-D PLATE, DUAL COIL 1
12 BRLM 019 CHAIN HOOK 1
13 BRLM 022 CARRIAGE PLATE 1
14 BRLM 027-SLT-L PLATE, TAIL BRACKET
LONG
1
15 BRLM 036 BOLT, COIL ANCHOR 2
16 BRLM 041 MULTI CHANNEL 1
17 BRLM 060 MID SUPPORT BRACKET
ASSY
1
18 BRLM 181 WRENCH WELDMENT 1
19 BRLM 210-CS TRI ROTARY GBOX ASSY
- COLLET SHAFTS
1
21 BRLM 214 MANIFOLD H9 1
22 BRLM 265 HOSE, TAIL 40K SHORT 3
23 BRLM 270 CLAMP, HOSE 2
24 BRLM 271 PLATE, HOSE CLAMP 1
25 BRLM 272 PLATE, TAIL END 1
26 BRLM 273 TAIL CHAIN 1
27 BRLM 316 PEDESTAL, MANIFOLD 1
28 BRLM 317 PEDESTAL, TAIL BRACKET 1
29 BRLM 318 SPRING PLUNGER 1
30 GB 525-04 BOLT, HEX .25-20 X 1.00 7
31 GB 525-12 BOLT, HEX .25-20 X 3.00 4
32 GB 531-03 BOLT, HEX .31-18 X .75 2
33 GB 531-04 BOLT, HEX .31-18 X 1.00 4
34 GB 531-08 BOLT, HEX .31-18 X 2.00 4
35 GB 537-04 BOLT, HEX .37-16 X 1.00 2
36 GB 537-08 BOLT, HEX .37-16 X 2.00 2
37 GN 525-L NYLOK NUT 4
38 GN 531-L NYLOK NUT 4
39 GN 537-L NYLOK NUT 2
40 GN 550-L NYLOK NUT 4
41 GP 075-375 COLLET 6
42 GP 075-562 COLLET 6
43 GP 076 COLLET NUT 6
44 GS 525-09 SHCS .25-20 X 2.25 ZINC 4
45 GW 525-F FLAT WASHER 4
46 GW 531-L LOCK WASHER 6
47 GW 537-F FLAT WASHER 2
48 ML 072-P2 GUIDE, LONG ADJ 3
49 ML 072-P4-L GUIDE, LONG ADJ 3
50 ML 072.1 SPRING NUT 3
51 UHS-H9H9 ASSY 3
PARTS DIAGRAM

52 866-795-1586 • WWW.STONEAGETOOLS.COM
BRLM 430
FRONT IDLER ASSEMBLY
# PART NUMBER QTY.
1 BR 026 IDLER BOLT 1
2 BR 030 IDLER PLATE 1
3 BRLM 032 FRONT BRACKET 1
4 BRLM 032-D PLATE, DUAL COIL FRONT 1
5 BRLM 036 BOLT, COIL ANCHOR 2
6 BRUD 117 BUSHING 2
7 GB 537-08 BOLT, HEX .37-16 X 2.00 2
8 GN 537-L NYLOK NUT 2
9 GN 550-H HEX NUT 2
10 GN 562-L NYLOK NUT 1
11 LM 025.1 IDLER SPROCKET 1
12 LM 025.2 SWING BOLT 1
13 UD 045-D SPACER 1
BRLM 420
REAR IDLER ASSEMBLY
# PART NUMBER QTY.
1 BR 010 REAR IDLER WELDMENT 1
2 BR 011 LIFTING EYE & BOLT 1
3 BR 137 GUARD, IDLER 2
4 GB 525-02 BOLT, HEX .25-20 X .50 4
5 GB 562-12 BOLT, HEX .62-11 X 3.00 1
6 GN 562-L NYLOK NUT 1
7 GW 525-L LOCK WASHER 4
8 LM 025.1 IDLER SPROCKET 1
9 UD 045-D SPACER 2
PARTS DIAGRAM PARTS DIAGRAM

53
866-795-1586 • WWW.STONEAGETOOLS.COM
BRLM 500-XX
RIGID LANCING MACHINE
BRLM 500.1-15
DRIVE PACKAGE
# PART NUMBER QTY.
1 BR 008-BU-001 WEDGE BOLT 2
2 BR 060 RAIL CLAMP 2
3 BRLM 070, STOP, CARRIAGE 1
4 BRLM 420 REAR IDLER ASSY EXP 1
5 BRLM 430 FRONT IDLER ASSY 1
6 BRLM 510-EG FEED DRIVE ASSY (ELECTRA-GEAR) 1
8 BRLM 520-15D CHAIN FOR BRLM 500-15 1
9 GB 537-04 BOLT, HEX .37-16 X 1.00 4
#PART QTY.
1 BRLM 005-15 DRIVE RAIL 1
2 BRLM 500.1-15 DRIVE PACKAGE 1
4 PL 160 PINCH POINT 1.5X3.0 DECAL 5
5 PL 167 CAUTION LABEL-MOVING-ROTATING 2
6 PL L STONEAGE STICKER, LARGE 2
PARTS DIAGRAM

54 866-795-1586 • WWW.STONEAGETOOLS.COM
PARTS DIAGRAM
# PART NUMBER QTY.
1 BR 060 RAIL CLAMP 4
2 BR 133 CHAIN GUARD 1
3 BR 170-E30 GEARBOX, ELECTRA-GEAR 30-1 1
4 BRLM 023-EG DRIVE PED 2
5 BRLM 051 MID DRIVE PLATE (BONFIG) 1
6 BRLM 056 IDLER MOUNT 2
7 CST 022.1 KEY .187 SQ X 1.00 1
8 GB 531-04 BOLT, HEX .31-18 X 1.00 4
9 GB 537-04 BOLT, HEX .37-16 X 1.00 4
10 GB 537-05 BOLT, HEX .37-16 X 1.25 10
11 GB 537-07 BOLT, HEX .37-16 X 1.75 2
12 GB 537-08 BOLT, HEX .37-16 X 2.00 4
13 GB 550-18 BOLT, HEX .50-13 X 4.50 2
14 GN 537-L NYLOK NUT 2
15 GN 550-L NYLOK NUT 2
16 GP 010-BK BLACK PLASTIC ID WASHER P8 1
17 GP 010-S SILVER PLASTIC ID WASHER P8 1
18 GW 537-L LOCK WASHER 4
19 GW 550-F FLAT WASHER 2
20 LM 016-6 AIR MOTOR 1
21 LM 022.1 IDLER SPROCKET 2
22 LM 518-EG SPROCKET 1
23 ML 017-8.4 FTG, NIPPLE CLOSE P8M P8M 1
24 ML 017-8.8 FTG, ELBOW 45 P8M J8M 2
25 ML 017-8.7 FTG, NIPPLE P8M 4.50 1
26 ML 019 QUICK EXHAUST P8 WITH MUFFLER 2
27 BR 167 DUST CAP J8 2
BRLM 510-EG
FEED DRIVE ASSEMBLY (ELECTRA-GEAR)

BRLM 580-XX
RAIL EXTENSION KIT
PARTS DIAGRAM
# PART NUMBER BRLM 580-05/QTY. BRLM 580-08/QTY. BRLM 580-10/QTY. BRLM 580-15/QTY.
1 BR 004-05 BOX RAIL EXTENSION 1 - - -
2 BR 004-08 BOX RAIL EXTENSION - 1 - -
3 BR 004-10 BOX RAIL EXTENSION - - 1 -
4 BR 004-15 BOX RAIL EXTENSION - - - 1
5 BR 006-N-001 SPLICE TUBE 1 1 1 1
6 BR 008-BU-001 WEDGE BOLT 2 2 2 2
7 BRLM 520 CHAIN 1 1 1 1
8 BRLM 521 MASTER LINK 1 1 1 1
BRLM 580-XX BRLM 580-05 BRLM 580-08 BRLM 580-10 BRLM 580-15
BRLM 520-OAL 119.5” 191.5” 239.5” 359.5”
PARTS DIAGRAM

56 866-795-1586 • WWW.STONEAGETOOLS.COM
BRLM 636-XXX-XXX
GUIDE BLOCK KITS
Attach blocks every 8th coil.
5 FT EXTENSION
(2 BLOCKS, 1 TAIL)
10 FT EXTENSION
(3 BLOCKS, 1 TAIL)
15 FT EXTENSION
(4 BLOCKS, 1 TAIL)
15 FT DRIVE
(4 BLOCKS, 2 TAILS)
20 FT EXTENSION
(6 BLOCKS, 1 TAIL)
25 FT DRIVE
(7 BLOCKS, 2 TAILS)
BRLM 636-XXX-XXX
XX=LENGTH X=DRIVE OR EXTENSION X=NUMBER OF LANCES XX=DIAMETER OF LANCE HOLE
5= 5FT D=DRIVE S=SINGLE 10 = 5/8”
10= 10FT NO “D”= EXTENSION D=DOUBLE 15 = 15/16”
15= 15FT T=TRIPLE 18 = 1 1/8”
20= 20FT
25= 25FT
EXAMPLE: BRLM 636-25D-T10 = 25FT DRIVE FOR TRIPLE LANCE WITH 5/8” HOLES
BRLM 636-K
DUAL COIL HARDWARE KIT
# PART NUMBER QTY.
1 BRLM 239 ASSEMBLY, CARRIAGE DUAL COIL PLATE 1
2 BRLM 240 ASSEMBLY, FRONT DUAL COIL ANCHOR 1
PARTS DIAGRAM

57
866-795-1586 • WWW.STONEAGETOOLS.COM
LANCE POSITIONER (CB-LP)
CONTROL BOX
# PART NUMBER QTY.
1 CB 107 LEG WELDMENT 4
2 CB-LP.1 CONTROL BOX PANEL ASSY 1
3 CB 158 HOSE ASSY, 25 FT J8 7
PARTS DIAGRAMPARTS DIAGRAM

58 866-795-1586 • WWW.STONEAGETOOLS.COM
LANCE POSITIONER (CB-LP.1)
CONTROL BOX SUB ASSEMBLY, DUAL REGULATOR, FOUR FUNCTION
# PART NUMBER QTY.
1 BR 154 MUFFLER P6 3
2 BR 167 DUST CAP J8 7
3 CB 004-D MOUNTING PLATE 1
4 CB 006 MOUNT BLOCK 4
5 CB 010 ROTATION CONTROL PANEL 1
6 CB 012-D PLATE DUAL REGULATOR 1
7 CB 012.2 NUT, NYLOK 10-24 (GN 519-L) 8
8 CB 020 FILTER 1
9 CB 022 OILER 1
10 CB 023 PLATE, DIRECTION 1
11 CB 024 PLATE END 1
12 CB 026 FTG, NIPPLE HEX P6M P6M 2
13 CB 050 PLATE, XYZ 1
14 CB 052-14 HOSE ASSY 4
15 CB 054 FTG, TEE P6M P6F P6F 1
16 CB 058 FTG, CROSS P6F 1
17 CB 100 FRAME SUB ASSY 1
18 CB 114 INLET FITTING 1
19 CB 115 COUPLING 1
20 CB 116 NIPPLE 1
21 CB 120 FTG, ELBOW STREET 90 P6M
P6F
3
22 CB 122 FTG, ADAPTER P6M J8M 6
23 CB 124 BALL VALVE ASSY 1
24 CB 126 FITTING, ELBOW OUTLET 9
25 CB 132 REGULATOR 2
26 CB 142 VALVE, SELECTOR 1
27 CB 142-C VALVE, SELECTOR 1
28 CB 142-C-001 VALVE, SELECTOR 1
29 CB 147 FTG, ELBOW 90 P6M P4F 1
30 CB 148 GAUGE 1
31 CB 508 FSHCS .25-20 X 1.75 SS 8
32 CB 512.1 HHMS .19-24 X .75 SS 8
33 CB 555 FSHCS .19-24 X .50 SS (GSF
319-02)
14
34 GB 531-07 BOLT, HEX .31-18 X 1.75 4
35 GB 531-11 BOLT, HEX .31-18 X 2.75 2
36 GN 525-L NYLOK NUT 10
37 GN 531-L NYLOK NUT 6
38 GP 009-B BLUE PLASTIC ID WASHER P6 1
39 GP 009-BK BLACK PLASTIC ID WASHER
P6
1
40 GP 009-G GREEN PLASTIC ID WASHER P6 1
41 GP 009-P PURPLE PLASTIC ID WASHER
P6
1
42 GP 009-R RED PLASTIC ID WASHER P6 1
43 GP 009-S SILVER PLASTIC ID WASHER P6 1
44 GP 009-Y YELLOW PLASTIC ID WASHER
P6
1
45 GP 025-P6SS HEX SOCKET PLUG 1
46 GS 525-025 SHCS .25-20 X .62 ZINC 4
47 GS 525-05 SHCS .25-20 X 1.25 BLK
(CB 021)
2
48 GW 525-F FLAT WASHER 8
49 GW 531-F FLAT WASHER 4
PARTS DIAGRAM

59
866-795-1586 • WWW.STONEAGETOOLS.COM
# PART NUMBER QTY.
1 CAM 153 HEAT SHRINK (CUT IN HALF) 1
2 CB 052-14 HOSE, INLET FOR LPA 1
3 CB 052-18 HOSE, OUTLET FOR LPA 1
4 CB 314 3-LOBE KNOB 1
5 CB 325 HANDLE TOP 1
6 CB 328-001 POLE MOUNT 1
7 CB 712 HEX STANDOFF 4
8 CB 745-25 SUPPLY HOSE BUNDLE 2
9 CB 825 SPOOL VALVE ASSY, LPA 2
10 CB 828 FTG, ADAPTER SWIVEL P2F
J4F
4
11 CB 829 MANIFOLD ASSY, LPA 1
12 CB 830 FRAME, TUMBLEBOX LPA 1
13 CB 831 COVER, TUMBLEBOX LPA 1
14 GB 337-03 BOLT, HEX .37-16 X .75 SS 2
15 GN 319-L NYLOK NUT SS (HC 025.1) 10
16 GP 012-BK BLACK ID BAND LG 2
17 GP 012-RD RED ID BAND LG 2
18 GPTB 0250-PUR95A-BK (PILOT LEFT)
FOR LPA
1
19 GPTB 0250-PUR95A-BK (PILOT UP)
FOR LPA
1
20 GPTB 0250-PUR95A-RD (PILOT
DOWN) FOR LPA
1
21 GPTB 0250-PUR95A-RD (PILOT
RIGHT) FOR LPA
1
22 GPTB 0500-PUR95A-BK TUBE, .50
FOR LPA
2
23 GSB 319-08 BHCS 10-24 X 2.00 SS 10
24 GTB 319-02-32 BHTS .19-32 X .50
TORX SS
8
25 GTB 331-025 BHTS .31-18 X .62
TORX SS
2
26 HRS 563 FTG, ELBOW SWIVEL 90
P2M PL4
4
AUTOBOX® (CB-TBX-LPA)
LPA TUMBLEBOX ASSEMBLY
PARTS DIAGRAMPARTS DIAGRAM

60 866-795-1586 • WWW.STONEAGETOOLS.COM
LANCE POSITIONER (LP-300-XX)
LANCE POSITIONER ASSEMBLY
# PART NUMBER QTY.
1 BR 008-BU-001 WEDGE BOLT 8
38 LP 076 RAIL SLOTTED VERTICAL 2
40 LP 078-78 CROSS TIE 2
41 LP 094-L CORNER ASSY 2
42 LP 094-U CORNER ASSY 2
44 LP 210 FRONT BRACE ASSY 1
PARTS DIAGRAM

61
866-795-1586 • WWW.STONEAGETOOLS.COM
LANCE POSITIONER (LP-300-XX)
LANCE POSITIONER ASSEMBLY CONTINUED...
# PART NUMBER QTY.
2 BR 167 DUST CAP J8 4
3 BRUD 072 BEAM INSERT 4
4 BRUD 073 BEAM PIN 4
5 BRUD 172 RETAINING RING, EXTERNAL 8
6 CST 022.1 KEY .187 SQ X 1.00 7
7 GB 525-02 BOLT, HEX .25-20 X .50 4
8 GB 525-03 BOLT, HEX .25-20 X .75 4
9 GB 525-05 BOLT, HEX .25-20 X 1.25 4
10 GB 537-04 BOLT, HEX .37-16 X 1.00 28
11 GB 537-05 BOLT, HEX .37-16 X 1.25 4
12 GB 537-06 BOLT, HEX .37-16 X 1.50 4
13 GB 537-025 BOLT, HEX .37-16 X .62 2
14 GN 525-L NYLOK NUT 4
15 GN 537-L NYLOK NUT 8
16 GP 010-B BLUE PLASTIC ID WASHER P8 1
17 GP 010-G GREEN PLASTIC ID WASHER P8 1
18 GP 010-R RED PLASTIC ID WASHER P8 1
19 GP 010-Y YELLOW PLASTIC ID WASHER P8 1
20 GW 525-L LOCK WASHER 8
21 GW 537-L LOCK WASHER 28
22 LM 016-4 AIR MOTOR 2
23 LP 011-PC 2104 400-1 RALR 1
24 LP 012-PC 1304 400-1 ULR 1
25 LP 013 SPACER, VERTICAL GEARBOX 1
26 LP 028 GUARD, GEAR HZ RH 1
27 LP 029 GUARD, GEAR HZ LH 1
28 LP 030 GUARD, GEAR RH 1
29 LP 031 GUARD, GEAR LH 1
30 LP 032-78 SHAFT, DRIVE 1
31 LP 033 SHAFT, STUB 1
32 LP 034-001 COUPLING 2
33 LP 036 BEARING, FLANGE MOUNT (MFR
VARIATIONS)
1
34 LP 050-SS GEARBOX MOUNT HORIZONTAL 1
35 LP 055-SS GEARBOX MOUNT VERTICAL 1
36 LP 071 ASSY, 2 SIDE PLATES & ROLLERS 1
37 LP 074-78 RAIL SLOTTED HORIZONTAL 1
39 LP 077-78 CROSS BEAM 1
43 LP 170 GEAR WELDMENT 2
45 LP 225 TORQUE LIMITER 1
46 LP 270 GEAR, SPUR 1
47 LP 700 CARRIAGE CLAMP ASSY 1
48 ML 017-8.8 FTG, ELBOW 45 P8M J8M 4
49 PL 160 PINCH POINT 1.5X3.0 DECAL 8
50 PL 167 CAUTION LABEL-MOVING-
ROTATING
1
PARTS DIAGRAMPARTS DIAGRAM

62 866-795-1586 • WWW.STONEAGETOOLS.COM
LANCE POSITIONER (LP 320)
REAR SUPPORT ASSEMBLY
# PART NUMBER QTY.
1 BR 008-BU-001 WEDGE BOLT 2
2 BJ 086.4-L LINK 2
3 LP 095-001 CORNER POST 2
4LP 310 TROLLEY ASSY 1
5 LP 313 LEG, PIPE 4
6 LP 319 TOP BEAM 1
7 LP 314 PLATE, END FITTING 2
8 LP 315 PLATE, END FITTING COVER 2
9 UD 071-D CHAIN HOIST (EXT) 1
10 GB 537-14 BOLT, HEX .37-16 X 3.50 8
11 GB 537-13 BOLT, HEX .37-16 X 3.25 4
12 GB 537-17 BOLT, HEX .37-16 X 4.25 8
13 GN 537-L NYLOK NUT 20
PARTS DIAGRAM

63
866-795-1586 • WWW.STONEAGETOOLS.COM
LANCE POSITIONER (LP 330-XX)
LANCE POSITIONER LEG OPTIONS
# PART NUMBER LP 335-WC QTY. LP 335-E QTY. LP 335-WE QTY. LP 335-JE QTY. LP 335-WJE QTY.
1 BR 008-BU-001 WEDGE BOLT - 4 4 4 4
2 GB 543-14 BOLT, HEX .43-14 X 3.50 - - 4 - -
3 GB 543-16 BOLT, HEX .43-14 X 4.00 - - 4 4 4
4 GN 543-L NYLOK NUT - - 8 4 4
5 LP 075 WHEEL INSERT - - 4 4 4
6 LP 079-17.5 WHEEL RAIL - 4 4 4 4
7 LP 085 WASHER, CASTER - - - 4 4
8 LP 086 COLLAR ASSY - - 4 4 4
9 LP 088 JACK ASSY - - - 4 4
10 LP 089 WHEEL 4-4-4
11 LP 093 WHEEL MOUNT ASSY 4 - - - 4
PARTS DIAGRAMPARTS DIAGRAM

64 866-795-1586 • WWW.STONEAGETOOLS.COM
LANCE POSITIONER (LP 700)
CARRIAGE CLAMP ASSEMBLY
# PART NUMBER QTY.
1 LP 701 FIXED RAIL ASSY 1
2 LP 705 CLAMPING RAIL ASSY 1
3 LP 707 END CLAMP 2
4 LP 706 SLIDER 2
5 GS 325-04 SHCS .25-20 X 1.00 SS (BC 053) 16
6LP 652-1.38 AXLE-ZERK 4
7 BR 055 ROLLER ASSY 8
8BR 052-2.0 AXLE-ZERK 4
9 GN 550-L NYLOK NUT 4
10 LP 622 COMPRESSION SPACER 4
11 LP 708 .375-16 SS HANDLE 2
PARTS DIAGRAM

65
866-795-1586 • WWW.STONEAGETOOLS.COM
PARTS DIAGRAMPARTS DIAGRAM
LANCE POSITIONER (LP 071)
2 SIDE PLATES AND ROLLER ASSEMBLY
# PART NUMBER QTY.
1BR 051-2.0-0 AXLE-ZERK 1
2BR 052-2.0 AXLE-ZERK 7
3 BR 055 ROLLER ASSY 8
4 GN 550-L NYLOK NUT 8
5 GSB 313-0075 BHCS 6-32 X .19 SS 4
6 LP 070 SIDE PLATE 1
7 LP 070-001 SIDE PLATE 1
8 LP 072 LABEL, ORIENTATION 1
9 LP 073 CE SERIAL PLATE 1

66 866-795-1586 • WWW.STONEAGETOOLS.COM
TERMS AND CONDITIONS
1. Acceptance of Terms and Conditions. Receipt of these Terms and
Conditions of Sale (“Terms and Conditions”) shall operate as the acceptance
by StoneAge, Inc. (“Seller”) of the order submitted by the purchaser (“Buyer”).
Such acceptance is made expressly conditional on assent by Buyer to these
Terms and Conditions. Such assent shall be deemed to have been given
unless written notice of objection to any of these Terms and Conditions
(including inconsistencies between Buyer’s purchase order and this
acceptance) is given by Buyer to Seller promptly on receipt hereof.
Seller desires to provide Buyer with prompt and efcient service.
However, to individually negotiate the terms of each sales contract would
substantially impair Seller’s ability to provide such service. Accordingly,
the product(s) furnished by Seller are sold only according to the terms and
conditions stated herein and with the terms and conditions stated in any
effective StoneAge Dealer Agreement or StoneAge Reseller Agreement,
if applicable. Notwithstanding any terms and conditions on Buyer’s
order, Seller’s performance of any contract is expressly made conditional
on Buyer’s agreement to these Terms and Conditions unless otherwise
specically agreed to in writing by Seller. In the absence of such agreement,
commencement of performance, shipment and/or delivery shall be for Buyer’s
convenience only and shall not be deemed or construed to be an acceptance
of Buyer’s terms and conditions.
2. Payment/Prices. Unless other arrangements have been made in writing
between Seller and Buyer, payment for the product(s) shall be made upon
receipt of invoice. The prices shown on the face hereof are those currently in
effect. Prices invoiced shall be per pricelist in effect at the time of shipment.
Prices are subject to increase for inclusion of any and all taxes which are
applicable and which arise from the sale, delivery or use of the product(s),
and the collection of which Seller is or may be responsible to provide to any
governmental authority, unless acceptable exemption certicates are provided
by Buyer in accordance with applicable law. Buyer shall pay all charges for
transportation and delivery and all excise, order, occupation, use or similar
taxes, duties, levies, charges or surcharges applicable to the product(s) being
purchased, whether now in effect or hereafter imposed by any governmental
authority, foreign or domestic.
3. Warranty. SELLER MAKES NO WARRANTIES OR REPRESENTATIONS AS
TO THE PERFORMANCE OF ANY PRODUCT EXCEPT AS SET FORTH IN THE
STONEAGE LIMITED WARRANTY PROVIDED WITH THE PRODUCT.
4. Delivery. Seller is not obligated to make delivery by a specied date, but
will always use its best efforts to make delivery within the time requested.
The proposed shipment date is an estimate. Seller will notify Buyer promptly
of any material delay and will specify the revised delivery date as soon as
practicable. UNDER NO CIRCUMSTANCES SHALL SELLER HAVE ANY
LIABILITY WHATSOEVER FOR LOSS OF USE OR FOR ANY DIRECT OR
CONSEQUENTIAL DAMAGES RESULTING FROM DELAY REGARDLESS OF
THE REASON(S).
All product(s) will be shipped F.O.B. point of origin, unless specically agreed
otherwise, and Buyer shall pay all shipping costs and insurance costs from
that point. Seller, in its sole discretion, will determine and arrange the means
and manner of transportation of the product(s). Buyer shall bear all risk of loss
commencing with the shipment or distribution of the product(s) from Seller’s
warehouse. Order shortages or errors must be reported within fteen (15)
business days from receipt of shipment to secure adjustment. No product(s)
may be returned without securing written approval from Seller.
5. Modication. These Terms and Conditions are intended by Seller and
Buyer to constitute a nal, complete and exclusive expression of agreement
relating to the subject matter hereof and cannot be supplemented or amended
without Seller’s prior written approval.
6. Omission. Seller’s waiver of any breach or Seller’s failure to enforce any
of these Terms and Conditions at any time, shall not in any way affect, limit or
waive Seller’s right thereafter to enforce and compel strict compliance with
every term and condition hereof.
7. Severability. If any provision of these Terms and Conditions is held to be
invalid or unenforceable, such invalidity or unenforceability shall not affect the
validity or enforceability of the other portions hereof.
8. Disputes. Seller and Buyer shall attempt in good faith to promptly resolve
any dispute arising under these Terms and Conditions by negotiations
between representatives who have authority to settle the controversy. If
unsuccessful, Seller and Buyer shall further attempt in good faith to settle the
dispute by nonbinding third-party mediation, with fees and expenses of such
mediation apportioned equally to each side. Any dispute not so resolved
by negotiation or mediation may then be submitted to a court of competent
jurisdiction in accordance with the terms hereof. These procedures are the
exclusive procedures for the resolution of all such disputes between the Seller
and Buyer.
9. Governing Law. All sales, agreements for sale, offers to sell, proposals,
acknowledgments and contracts of sale, including, but not limited to,
purchase orders accepted by Seller, shall be considered a contract under the
laws of the State of Colorado and the rights and duties of all persons, and
the construction and effect of all provisions hereof shall be governed by and
construed according to the laws of such state.
10. Jurisdiction and Venue. Seller and Buyer agree that the state or federal
courts located within the City and County of Denver, Colorado shall have
sole and exclusive jurisdiction over any litigation concerning any dispute
arising under these Terms and Conditions not otherwise resolved pursuant
to Section 9 as well as any alleged defects of any Products or damages
sustained as a result of such alleged defects. Seller and Buyer further agree
that should any litigation be commenced in connection with such a dispute,
it shall only be commenced in such courts. Seller and Buyer agree to the
exclusive jurisdiction of such courts and neither will raise any objection to the
jurisdiction and venue of such courts, including as a result of inconvenience.
11. Attorney’s Fees. If any litigation is commenced between Seller and Buyer,
or their personal representatives, concerning any provision hereof, the party
prevailing in the litigation shall be entitled, in addition to such other relief that
is granted, to a reasonable sum as and for their attorneys’ fees and costs in
such litigation or mediation.
STONEAGE TRADEMARK LIST
View the list of StoneAge’s trademarks and service marks and learn how
the trademarks should be used. Use of StoneAge trademarks may be
prohibited, unless expressly authorized.
http://www.StoneAgetools.com/trademark-list/
STONEAGE PATENT DATA
View the list of StoneAge’s current U.S. patent numbers and descriptions.
http://www.sapatents.com
STONEAGE TERMS AND WARRANTY
View StoneAge’s Terms and Warranty Conditions online.
http://www.stoneagetools.com/terms
http://www.stoneagetools.com/warranty

67
866-795-1586 • WWW.STONEAGETOOLS.COM
TERMS AND CONDITIONS
Warranties set forth herein extend only to End-Users, meaning customers
acquiring, or that have previously acquired, a product manufactured by
StoneAge (“Product”) for their own use and not for resale, either directly from
StoneAge Inc. (“StoneAge”) or from a StoneAge Authorized Dealer or Reseller
(“Dealer”). No warranty of any kind or nature is made by StoneAge beyond
those expressly stated herein.
1. LIMITED WARRANTY PERIOD. Subject to the limitations and conditions
hereinafter set forth, StoneAge warrants its Product to be free from defects
in workmanship and material for a period of one (1) year from the date of
purchase by the End-User, provided that the end of the limited warranty
period shall not be later than eighteen (18) months from the date of shipment
of the Product to the Dealer or the End-User by StoneAge (“Limited Warranty
Period”). All replacement parts which are furnished under this Limited
Warranty and properly installed shall be warranted to the same extent as
the original Product under this Limited Warranty if, and only if, the original
parts were found to be defective within the original Limited Warranty Period
covering the original Product. Replacement parts are warranted for the
remainder of the original Limited Warranty Period. This Limited Warranty
does not cover any component part of any Product not manufactured by
StoneAge. Any such component part is subject exclusively to the component
manufacturer’s warranty terms and conditions.
2. LIMITED WARRANTY COVERAGE. StoneAge’s sole obligation under
this Limited Warranty shall be, at StoneAge’s option and upon StoneAge’s
inspection, to repair, replace or issue a credit for any Product which
is determined by StoneAge to be defective in material or workmanship.
StoneAge reserves the right to examine the alleged defective Product to
determine whether this Limited Warranty is applicable, and nal determination
of limited warranty coverage lies solely with StoneAge. No statement or
recommendation made by a StoneAge representative, Dealer or agent to End-
User shall constitute a warranty by StoneAge or a waiver or modication to
any of the provisions hereof or create any liability for StoneAge.
3. WARRANTY SERVICE PROVIDERS. Service and repair of the Product
is to be performed only by StoneAge authorized service representatives,
including Dealers who are authorized repair centers, with StoneAge approved
parts. Information about StoneAge authorized service representatives can
be obtained through the StoneAge website at www.stoneagetools.com/
service. Unauthorized service, repair or modication of the Product or use of
parts not approved by StoneAge will void this Limited Warranty. StoneAge
reserves the right to change or improve the material and design of the Product
at any time without notice to End-User, and StoneAge is not obligated to make
the same improvements during warranty service to any Product previously
manufactured.
4. WARRANTY EXCLUSIONS. This Limited Warranty does not cover, and
StoneAge shall not be responsible for the following, or damage caused by
the following: (1) any Product that has been altered or modied in any way
not approved by StoneAge in advance in writing; (2) any Product that has
been operated under more severe conditions or beyond the rated capacity
specied for that Product; (3) depreciation or damage caused by normal
wear and tear, failure to follow operation or installation instructions, misuse,
negligence or lack of proper protection during storage; (4) exposure to re,
moisture, water intrusion, electrical stress, insects, explosions, extraordinary
weather and/or environmental conditions including, but not limited to lightning,
natural disasters, storms, windstorms, hail, earthquakes, acts of God or any
other force majeure event; (5) damage to any Product caused by any attempt
to repair, replace, or service the Product by persons other than StoneAge
authorized service representatives; (6) costs of normal maintenance parts
and services; (7) damage sustained during unloading, shipment or transit of
the Product; or (8) failure to perform the recommended periodic maintenance
procedures listed in the Operator’s Manual accompanying the Product.
5. REQUIRED WARRANTY PROCEDURES. To be eligible for warranty
service, the End-User must: (1) report the Product defect to the entity where
the Product was purchased (i.e. StoneAge or the Dealer) within the Limited
Warranty Period specied in this Limited Warranty; (2) submit the original
invoice to establish ownership and date of purchase; and (3) make the Product
available to a StoneAge authorized service representative for inspection to
determine eligibility for coverage under this Limited Warranty. This Limited
Warranty shall not extend to any person or entity who fails to provide proof of
original purchase from StoneAge or a Dealer. No Product may be returned for
credit or adjustment without prior written permission from StoneAge.
6. DISCLAIMER OF IMPLIED WARRANTIES AND OTHER REMEDIES.
EXCEPT AS EXPRESSLY STATED HEREIN (AND TO THE FULLEST EXTENT
ALLOWED UNDER APPLICABLE LAW), STONEAGE HEREBY DISCLAIMS
ALL OTHER WARRANTIES, EXPRESS OR IMPLIED, INCLUDING WITHOUT
LIMITATION ALL IMPLIED WARRANTIES OF MERCHANTABILITY OR
FITNESS FOR A PARTICULAR PURPOSE, AND ANY AND ALL WARRANTIES,
REPRESENTATIONS OR PROMISES AS TO THE QUALITY, PERFORMANCE
OR FREEDOM FROM DEFECT OF THE PRODUCT COVERED BY THIS
LIMITED WARRANTY. STONEAGE FURTHER DISCLAIMS ALL IMPLIED
INDEMNITIES.
7. LIMITATION OF LIABILITY. End-User specically acknowledges that the
Product may be operated at high speeds and/or pressures, and that as such it
may be inherently dangerous if not used correctly. End-User shall familiarize
itself with all operation materials provided by StoneAge and shall at all times
use and require its agents, employees and contractors to use all necessary
and appropriate safety devices, guards and proper safe operating procedures.
In no event shall StoneAge be responsible for any injuries to persons or
property caused directly or indirectly by the operation of the Product if End-
User or any agent, employee, or contractor of End-User: (1) fails to use all
necessary and appropriate safety devices, guards and proper safe operating
procedures; (2) fails to maintain in good working order such safety devices
and guards; (3) alters or modies the Product in any way not approved
by StoneAge in advance in writing; (4) allows the Product to be operated
under more severe conditions or beyond the rated capacity specied for the
Product; or (5) otherwise negligently operates the Product. End-User shall
indemnify and hold StoneAge harmless from any and all liability or obligation
incurred by or against StoneAge, including costs and attorneys’ fees, to or by
any person so injured.
TO THE FULL EXTENT ALLOWED BY APPLICABLE LAW, STONEAGE
SHALL NOT BE LIABLE FOR ANY INDIRECT, SPECIAL, INCIDENTAL,
CONSEQUENTIAL, OR PUNITIVE DAMAGES (INCLUDING WITHOUT
LIMITATION, LOSS OF PROFITS, LOSS OF GOODWILL, DIMINUTION OF
VALUE, WORK STOPPAGE, INTERRUPTION OF BUSINESS, RENTAL OF
SUBSTITUTE PRODUCT, OR OTHER COMMERCIAL LOSS EVEN TO THE
EXTENT SUCH DAMAGES WOULD CONSTITUTE DIRECT DAMAGES), WITH
RESPECT TO THE COVERED STONEAGE PRODUCT, OR OTHERWISE
IN CONNECTION WITH THIS LIMITED WARRANTY, REGARDLESS OF
WHETHER STONEAGE HAS BEEN ADVISED OF THE POSSIBILITY OF SUCH
DAMAGES.
IT IS UNDERSTOOD THAT STONEAGE’S LIABILITY, WHETHER IN
CONTRACT, IN TORT, UNDER ANY WARRANTY, IN NEGLIGENCE, OR
OTHERWISE SHALL NOT EXCEED THE AMOUNT OF THE PURCHASE
PRICE PAID BY THE END-USER FOR THE PRODUCT. STONEAGE’S
MAXIMUM LIABILITY SHALL NOT EXCEED, AND END-USER’S REMEDY IS
LIMITED TO EITHER (1) REPAIR OR REPLACEMENT OF THE DEFECTIVE
WORKMANSHIP OR MATERIAL OR, AT STONEAGE’S OPTION, (2) REFUND
OF THE PURCHASE PRICE, OR (3) ISSUANCE OF A CREDIT FOR THE
PURCHASE PRICE, AND SUCH REMEDIES SHALL BE END-USER’S ENTIRE
AND EXCLUSIVE REMEDY.
YOU, THE END-USER, UNDERSTAND AND EXPRESSLY AGREE THAT
THE FOREGOING LIMITATIONS ON LIABILITY ARE PART OF THE
CONSIDERATION IN THE PRICE OF THE STONEAGE PRODUCT YOU
PURCHASED.
Some jurisdictions do not allow the limitation or exclusion of liability for
certain damages, so the above limitations and exclusions may not apply to
you. This Limited Warranty gives you specic legal rights, and you may also
have other rights which vary from jurisdiction to jurisdiction. If any provisions
of this Limited Warranty is held to be invalid or unenforceable, such invalidity
or unenforceability shall not affect the validity or enforceability of the other
portions hereof.

1-866-795-1586 • www.STONEAGETOOLS.com
© 2015 StoneAge, Inc. All Rights Reserved