MW1812 MW1812A 12 32 Station PDS
User Manual: MW1812A 12-32 Station PDS
Open the PDF directly: View PDF
.
Page Count: 18

12 - 32 Station PDS™ Control
Installation and Operators Manual
MW1812AMarch 2004

Chore-Time Warranty 12 - 32 Station PDS™ Control
1MW1812A
Chore-Time Equipment (“Chore-Time”) warrants each new Chore-Time product manufactured by it to be free
from defects in material or workmanship for one year from and after the date of initial installation by or for the
original purchaser. If such a defect is found by the Manufacturer to exist within the one-year period, the
Manufacturer will, at its option, (a) repair or replace such product free of charge, F.O.B. the factory of
manufacture, or (b) refund to the original purchaser the original purchase price, in lieu of such repair or
replacement. Labor costs associated with the replacement or repair of the product are not covered by the
Manufacturer.
Conditions and Limitations
1. The product must be installed by and operated in accordance with the instructions published by the
Manufacturer or Warranty will be void.
2. Warranty is void if all components of the system are not original equipment supplied by the Manufacturer.
3. This product must be purchased from and installed by an authorized distributor or certified representative
thereof or the Warranty will be void.
4. Malfunctions or failure resulting from misuse, abuse, negligence, alteration, accident, or lack of proper
maintenance shall not be considered defects under the Warranty.
5. This Warranty applies only to systems for the care of poultry and livestock. Other applications in industry
or commerce are not covered by this Warranty.
The Manufacturer shall not be liable for any Consequential or Special Damage which any purchaser may suffer
or claim to suffer as a result of any defect in the product. “Consequential” or “Special Damages” as used herein
include, but are not limited to, lost or damaged products or goods, costs of transportation, lost sales, lost orders,
lost income, increased overhead, labor and incidental costs and operational inefficiencies.
THIS WARRANTY CONSTITUTES THE MANUFACTURER’S ENTIRE AND SOLE WARRANTY AND
THIS MANUFACTURER EXPRESSLY DISCLAIMS ANY AND ALL OTHER WARRANTIES,
INCLUDING, BUT NOT LIMITED TO, EXPRESS AND IMPLIED WARRANTIES AS TO
MERCHANTABILITY, FITNESS FOR PARTICULAR PURPOSES SOLD AND DESCRIPTION OR
QUALITY OF THE PRODUCT FURNISHED HEREUNDER.
Chore-Time Distributors are not authorized to modify or extend the terms and conditions of this Warranty in any
manner or to offer or grant any other warranties for Chore-Time products in addition to those terms expressly
stated above. An officer of CTB, Inc. must authorize any exceptions to this Warranty in writing. The Manufacturer
reserves the right to change models and specifications at any time without notice or obligation to improve previous
models.
Effective: March 2004
Chore-Time Equipment
E-mail P.O. Box 2000 • Milford, Indiana 46542-2000 • U.S.A.
Phone (574) 658-4101 • Fax (877) 730-8825
E-mail: poultry@choretime.com • Internet: http//www.choretime.com
Thank You
The employees of Chore-Time Equipment would like to thank your for your recent Chore-Time purchase. If a
problem should arise, your Chore-Time distributor can supply the necessary information to help you.
Chore-Time Warranty
Contents
Topic Page
MW1812A 2
Chore-Time Warranty . . . . . . . . . . . . . . . . . . . . . . . . . . . . . . . . . . . . . . . . . . . . . . . . . . . . . . . . . . . . 1
About This Manual. . . . . . . . . . . . . . . . . . . . . . . . . . . . . . . . . . . . . . . . . . . . . . . . . . . . . . . . . . . . . . . 3
Safety Information . . . . . . . . . . . . . . . . . . . . . . . . . . . . . . . . . . . . . . . . . . . . . . . . . . . . . . . . . . . . . . . 3
Safety Instructions . . . . . . . . . . . . . . . . . . . . . . . . . . . . . . . . . . . . . . . . . . . . . . . . . . . . . . . . . . . . . . . 4
Follow Safety Instructions . . . . . . . . . . . . . . . . . . . . . . . . . . . . . . . . . . . . . . . . . . . . . . . . . . . . . . . . . . . . . . 4
Decal Descriptions . . . . . . . . . . . . . . . . . . . . . . . . . . . . . . . . . . . . . . . . . . . . . . . . . . . . . . . . . . . . . . . . . . . . 4
DANGER: Electrical Hazard . . . . . . . . . . . . . . . . . . . . . . . . . . . . . . . . . . . . . . . . . . . . . . . . . . . . . . . . 4
General. . . . . . . . . . . . . . . . . . . . . . . . . . . . . . . . . . . . . . . . . . . . . . . . . . . . . . . . . . . . . . . . . . . . . . . . . 4
Support Information . . . . . . . . . . . . . . . . . . . . . . . . . . . . . . . . . . . . . . . . . . . . . . . . . . . . . . . . . . . . . . . . . . . 4
General Installation Information . . . . . . . . . . . . . . . . . . . . . . . . . . . . . . . . . . . . . . . . . . . . . . . . . . . 4
The System Layout . . . . . . . . . . . . . . . . . . . . . . . . . . . . . . . . . . . . . . . . . . . . . . . . . . . . . . . . . . . . . . . 5
Cage System Layout Under 600’ . . . . . . . . . . . . . . . . . . . . . . . . . . . . . . . . . . . . . . . . . . . . . . . . . . . . . . . . . 5
Cage System Layout Over 600’ . . . . . . . . . . . . . . . . . . . . . . . . . . . . . . . . . . . . . . . . . . . . . . . . . . . . . . . . . . 5
Broiler System Layout . . . . . . . . . . . . . . . . . . . . . . . . . . . . . . . . . . . . . . . . . . . . . . . . . . . . . . . . . . . . . . . . . 6
Multiple House Layout . . . . . . . . . . . . . . . . . . . . . . . . . . . . . . . . . . . . . . . . . . . . . . . . . . . . . . . . . . . . . . . . . 6
Installation. . . . . . . . . . . . . . . . . . . . . . . . . . . . . . . . . . . . . . . . . . . . . . . . . . . . . . . . . . . . . . . . . . . . . . 7
Hunter® Control . . . . . . . . . . . . . . . . . . . . . . . . . . . . . . . . . . . . . . . . . . . . . . . . . . . . . . . . . . . . . . . . . . . . . . 7
Wiring . . . . . . . . . . . . . . . . . . . . . . . . . . . . . . . . . . . . . . . . . . . . . . . . . . . . . . . . . . . . . . . . . . . . . . . . . . . . . . 7
Chore-Tronics™ . . . . . . . . . . . . . . . . . . . . . . . . . . . . . . . . . . . . . . . . . . . . . . . . . . . . . . . . . . . . . . . . . . 7
Tubing. . . . . . . . . . . . . . . . . . . . . . . . . . . . . . . . . . . . . . . . . . . . . . . . . . . . . . . . . . . . . . . . . . . . . . . . . . . . . . 9
Compressed Air Supply . . . . . . . . . . . . . . . . . . . . . . . . . . . . . . . . . . . . . . . . . . . . . . . . . . . . . . . . . . . . . . . . 9
Water Column Gauge Calibration . . . . . . . . . . . . . . . . . . . . . . . . . . . . . . . . . . . . . . . . . . . . . . . . . . . . . . . .10
Air Leak Test . . . . . . . . . . . . . . . . . . . . . . . . . . . . . . . . . . . . . . . . . . . . . . . . . . . . . . . . . . . . . . . . . . . . . . . .10
Operation. . . . . . . . . . . . . . . . . . . . . . . . . . . . . . . . . . . . . . . . . . . . . . . . . . . . . . . . . . . . . . . . . . . . . . 11
Flushing The System. . . . . . . . . . . . . . . . . . . . . . . . . . . . . . . . . . . . . . . . . . . . . . . . . . . . . . . . . . . . . 11
Flushing Recommendations. . . . . . . . . . . . . . . . . . . . . . . . . . . . . . . . . . . . . . . . . . . . . . . . . . . . . . . 13
When to flush the system . . . . . . . . . . . . . . . . . . . . . . . . . . . . . . . . . . . . . . . . . . . . . . . . . . . . . . . . . . . . . . .13
Flushing for Sediment, Air Locks, and Cleaning . . . . . . . . . . . . . . . . . . . . . . . . . . . . . . . . . . . . . . . . .13
Flushing After Introduction of Water Treatment or Bird Health Products . . . . . . . . . . . . . . . . . . . . . .13
Flush to Stimulate Birds to Drink . . . . . . . . . . . . . . . . . . . . . . . . . . . . . . . . . . . . . . . . . . . . . . . . . . . . .13
Maintenance . . . . . . . . . . . . . . . . . . . . . . . . . . . . . . . . . . . . . . . . . . . . . . . . . . . . . . . . . . . . . . . . . . . 13
Troubleshooting . . . . . . . . . . . . . . . . . . . . . . . . . . . . . . . . . . . . . . . . . . . . . . . . . . . . . . . . . . . . . . . . 14
Parts Listing . . . . . . . . . . . . . . . . . . . . . . . . . . . . . . . . . . . . . . . . . . . . . . . . . . . . . . . . . . . . . . . . . . . 15

About This Manual 12 - 32 Station PDS™ Control
3MW1812A
The intent of this manual is to help you in two ways. One is to follow step-by-step in the order of assembly of your
product. The other way is for easy reference if you have questions in a particular area.
Important: Read ALL instructions carefully before starting construction.
Important: Pay particular attention to all SAFETY information.
• Metric measurements are shown in millimeters and in brackets, unless otherwise specified. “ “ ” equals inches
and “' ” equals feet in English measurements.
Examples:
1" [25.4]
4' [1 219]
• Optional equipment contains necessary instructions for assembly or operation.
• Very small numbers near an illustration (i.e., 1257-48) are identification of the graphic, not a part number.
Caution, Warning and Danger Decals have been placed on the equipment to warn of potentially dangerous
situations. Care should be taken to keep this information intact and easy to read at all times. Replace missing or
damaged safety decals immediately.
Using the equipment for purposes other than specified in this manual may cause personal injury and/or damage to
the equipment.
Safety–Alert Symbol
This is a safety–alert symbol. When you see this symbol on your equipment, be alert to the
potential for personal injury. This equipment is designed to be installed and operated as safely
as possible...however, hazards do exist.
Understanding Signal Words
Signal words are used in conjunction with the safety–alert symbol to identify the severity of the warning.
DANGER indicates an imminently hazardous situation which, if not avoided, WILL result in death or
serious injury.
WARNING indicates a potentially hazardous situation which, if not avoided, COULD result in death or
serious injury.
CAUTION indicates a hazardous situation which, if not avoided, MAY result in minor or moderate
injury.
About This Manual
Safety Information

12 - 32 Station PDS™ Control Safety Instructions
MW1812A 4
Follow Safety Instructions
Carefully read all safety messages in this manual and on your equipment safety signs. Follow recommended
precautions and safe operating practices.
Keep safety signs in good condition. Replace missing or damaged safety signs.
Decal Descriptions
DANGER: Electrical Hazard
Disconnect electrical power before inspecting or servicing equipment
unless maintenance instructions specifically state otherwise.
Ground all electrical equipment for safety.
All electrical wiring must be done by a qualified electrician in accordance
with local and national electric codes.
Ground all non-current carrying metal parts to guard against electrical
shock.
With the exception of motor overload protection, electrical disconnects and
over current protection are not supplied with the equipment.
Support Information
The Chore-Time 12-32 Station Pneumatic Drinking System (PDS™) Control is designed to control water line
regulators in a Chore-Time Nipple Watering System. Using this equipment for any other purpose or in a way not
within the operating recommendations specified in this manual will void the warranty and may cause personal
injury.
This manual is designed to provide comprehensive planning and installation information. The Table of Contents
provides a convenient overview of the information in this manual.
Please read the installation instructions in this manual prior to beginning the installation. This manual provides
the necessary information on the installation, operation and maintenance of the Chore-Time watering equipment
you have purchased.
The 12-32 Station PDS™ Control is available in station increments of 4(ie. 12, 16, 20...). Each station is capable
of controlling up to 2 individual Volumatic™ regulators. For example a 12 station control can regulate and flush
up to 24 individual regulators.
Compressed air must be available and regulated between 6 and 12 psi [41.37 and 68.95 kPa]. Each PDS™ control
consumes a low volume of air. Therefore, one centrally located compressor with a holding tank can easily supply
enough air for multiple PDS™ controls.
Safety Instructions
General
General Installation Information

The System Layout 12 - 32 Station PDS™ Control
5MW1812A
Below are examples of the Chore-Time Nipple Watering system layouts. These are to be used to show different methods for installing the PDS™ system. Refer
to Parts List Section, page 15 for item part numbers.
Cage System Layout Under 600’
Figure 1. (6 Row 5 High Cages)
Cage System Layout Over 600’
Figure 2. (3 Row 5 High Cages)
The System Layout
PATENT NO.
5,967,167
6,240,956
6,253,708
PDS™ CONTROL
Pneumatic Drinking System
ADJUSTMENT
KNOB
INCREASE + DECREASE
LABEL NO.
2529-812
Warranty is void if co ver
is not kept closed.
INCOMING PRESSURE
12 psi MAX
(82.74 kPa)
CHORE-TIME EQUIPMENT
A DIVISION OF CTB INC.
MILFORD, INDIANA 46542-2000
Note: 1 regulator per tier
for both lines.
PATENT NO.
5,967,167
6,240,956
6,253,708
PDS™ CONTROL
Pneumatic Drinking System
ADJUSTMENT
KNOB
INCREASE + DECREASE
LABEL NO.
2529-812
Warranty is void if cover
is not kept closed.
INCOMING PRESSU RE
12 psi MAX
(82.74 kPa)
CHORE-TIME EQUI PMENT
A DIVISION OF CTB I NC.
MILFORD, INDIANA 46542-2000
Note: 1 regulator
for each line.

12 - 32 Station PDS™ Control The System Layout
MW1812A 6
Broiler System Layout
Figure 3. Broiler Layout
Multiple House Layout
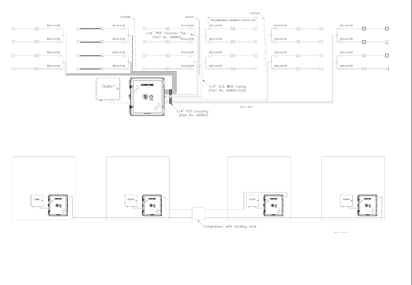
Figure 4. (4 House Layout)
Air can be run from a central location to supply multiple houses. Air lines can consist of Chore-Time Red tubing (Part No. 45895-500), which will supply a
sufficient air supply, or PVC plumbing.
CHORE-TIME EQUIPMENT
A DIVISION OF CTB INC.
MILFO RD, IND IAN A 4654 2-2000
INCOMI NG PRESSURE
12 psi MAX
(82.74 kPa)
Warranty is void if cover
is not kept closed.
LABEL NO.
2529-812
ADJUSTMENT
KNOB
INCREASE + DECREASE
PDS™ CONTROL
Pneumatic Drinking System
PATENT NO.
5,967,167
6,240,956
6,253,708
CHORE-TIME EQUIPMENT
A DIVISION OF CTB INC.
MILFORD, INDIANA 46542-2000
INCOMING PRESSURE
12 psi MAX
(82.74 kPa)
Warranty is void if cover
is not ke pt cl ose d.
LABEL NO.
2529-812
ADJUSTMENT
KNOB
INCREASE + DECREASE
PDS™ CONTROL
Pneumatic Dr inking System
PATENT NO.
5,967,167
6,240,956
6,253,708
PATENT NO.
5,967,167
6,240,956
6,253,708
PDS™ CONTROL
Pneumatic Drinking System
ADJUSTMENT
KNOB
INCREASE + DECREASE
LABEL NO.
2529-812
Warranty is void if cover
is not kept closed.
INCOMING PRESSURE
12 psi MAX
(82.74 kPa)
CHORE-TIME EQUIPMENT
A DIVISION OF CTB INC.
MILFORD, INDIANA 46542-2000
CHORE-TIME EQUIPMENT
A DIVISION OF CTB INC.
MILFORD, INDIA NA 46 5 4 2- 20 00
INCOMING PRESSURE
12 psi MAX
(82.74 kPa)
Warranty is void if cover
is not kept closed.
LABEL NO.
2529-812
ADJUSTMENT
KNOB
INCREASE + DECREASE
PDS™ CONTROL
Pneumatic Drinking System
PATENT NO.
5,967,167
6,240,956
6,253,708
CHORE-TIME EQUIPMENT
A DIVISION OF CTB INC.
MILFORD, INDIANA 46542-2000
INCOMING PRESSURE
12 psi MAX
(82.74 kPa)
Warranty is void if cover
is not kept closed.
LABEL NO.
2529-812
ADJUSTMENT
KNOB
INCREASE + DECREASE
PDS™ CONTROL
Pneumatic D rinking System
PATENT NO.
5,967,167
6,240,956
6,253,708

Installation 12 - 32 Station PDS™ Control
7MW1812A
Locate the control in a convenient location where it can easily be seen and adjusted.
Fasten the control to the wall through the four holes in the corners (mounting hardware not supplied). It is
recommended to use #10 flat head wood screws as mounting hardware.
Connect the PDS control and the Hunter control together with liquid tight connectors and conduit (not supplied),
to allow wires to be run between the controls.
Figure 5. Mounting orientation
Hunter® Control
Caution: Be sure power to the control is still disconnected and no backup battery is
installed!
Install the modules to the Hunter® Control according to the Hunter installation manual.
Wiring
Wire from the circuit breaker to the Hunter control for 120V
•Ground to green wire
•Neutral to blue wire
•120V to black wire
•Brown wire to be capped
Wire from circuit breaker to Hunter control for 240V
•Ground to green wire
•Neutral to blue wire
•240V to blue and brown wires
•Black wire to be capped
With power off to the control connect with 18AWG minimum. Start wiring from any C (common) on Hunter
control then run wires through the conduit to C (common) on the PDS control. Run wire from 1 on Hunter control
to 1 on the PDS control. Continue running wires so the numbered connection in the Hunter control matches the
numbered connection in the PDS control, see figure 6.
Chore-Tronics™
When using Chore-Tronics™ to monitor water consumption, flush water can be automatically subtracted from
the water usage through the meter. To do this connect one wire to common and one wire to P/MV both in
the Hunter control. Run these two wires to a 24VAC Coil Relay (not supplied), from the relay run the two
wires to the Chore-Tronics control, see figure 7.
Installation

12 - 32 Station PDS™ Control Installation
MW1812A 8
Figure 6. Hunter/PDS Wiring
Figure 7. Hunter/Chore-Tronics Wiring
Figure 8. Internal Wiring
C
P/MV
SEN
SEN
TEST
REM
AC
AC
GND
Incoming Air Pressure
Water Column Pressure
Regulator Air Pressure
1812-12 12/03
Common Wire Connections
Connect Wires With Corresponding Numbers
OPTIONAL
SECOND I/O BOARD
MODEL 32/40 ONLY
GND
AC
AC
REM
TEST
SEN
SEN
P/MV
C
1812-14 2/04
CHORE-TRONICS
CONTROL
HUNTER CONTROL
24VAC COIL RELAY
(NOT SUPPLIED)

Installation 12 - 32 Station PDS™ Control
9MW1812A
Tubing
Route the regulator tubing so any condensation in
the air lines will not run into the control. Allow slack
in the regulator tube leads so that they can be
pinched for maintenance and diagnostic purposes,
see figure 9.
Each regulator tubing lead may be used to supply air
to two nipple line regulator inlets. This will assure
enough flush water volume per line to move air and
sediment down the nipple lines and out. Run each air
supply tube across the ceiling and down the water
supply hose to each of the regulators, attaching it to
the provided hose barb on the bottom of each
regulator, see figure 10. Warming the end of the
tubing will aid in installation.
Caution: Over-Heating of tube end can cause
distortion and leaking.
Compressed Air Supply
Turn the red adjustment knob clockwise (Decrease) until the knob stops turning, see figure 13.
BEFORE connecting the compressed air supply to the control, the compressed air supplied to the PDS™
control, must be regulated between 6 and 12 psi [41.37 and 68.95 kPa]. Failure to do this will result in
damage to the gauges and possibly other components. After the air supplied from the compressor is confirmed
to be between 6 and 12 psi [41.37 and 68.95 kPa], connect the air supply to the incoming pressure line on the PDS
control, see figure 9.
The PDS Control has an air pressure gauge to monitor the incoming air
pressure. Under normal operating conditions, this gauge should show between
6 and 12 psi [41.37 and 68.95 kPa] of air pressure.
Incoming Air
Regulator Tubing Lead
Figure 9. Regulator Tube Leads
Figure 10. Air Supply Routing
Air Supply Tube
Figure 11. Air Pressure

12 - 32 Station PDS™ Control Installation
MW1812A 10
Water Column Gauge Calibration
Turn the red adjustment knob counter-clockwise (increase) until the water column gauge reads 8 inches, see figure
13.
After installation of the PDS regulators make sure all the water lines are flushed and charged. Then measure the
water column at one of the Volumatic™ regulators and confirm 8 inches of water column. If anything other than
8 inches is measured at the stand tube, the water column gage will need to be re-calibrated to that measurement.
To re-calibrate the water column gauge remove the plastic
cover with a small screwdriver. Then turn the calibration
screw (see figure 12.) until the gauge reads the correct water
column height. Replace the plastic cover on the gauge.
Air Leak Test
Check each control and house for air leaks with the water column gauge at 8". To check for air leaks in the control
or the house pinch the incoming air supply tube to shut off the incoming air pressure. Watch the air pressure gauge
on the control, the gauge should not drop any more than 2 psi [13.79 kPa] in 1 minute. If the air pressure does drop
faster than 2 psi [13.79 kPa] in 1 minute, refer to the trouble shooting section on page 14. Repeat this procedure
for every PDS control.
Figure 12. Water Column
Calibration
Screw

Operation 12 - 32 Station PDS™ Control
11 MW1812A
Adjusting the water column height in the individual stand
tubes. To adjust the water column height turn the red
adjustment knob counter-clockwise to increase and clock-wise
to decrease (see figure 13.) until the water column gauge reads
the desired water column height.
Note: Individual PDS Volumatic regulators provide a
minimum water column height in
case air pressure is lost. The
regulators CAN NOT be adjusted
below this height regardless of the
water column gauge reading.
Refer to the Hunter Control manual for specific programing details.
The Hunter control has the capacity to have
four individual programs: "A", "B", "C" and
"D". Only programs "A", "B" or "C" should
be used to control the PDS unit. Once a
station is programmed to run on program
"A", "B" or "C" it can’t be assigned to run in
program "D".
Single stations or all stations may be
manually flushed at any time. Refer to
Programming the Controller section in the
Hunter control manual.
When birds go out it is a good idea to turn
the Hunter control to the off position and
turn the adjustment knob on the PDS control
to the minimum setting.
Each program can have up to eight daily
start times. As long as there are start times
entered for stations in a particular program
that program will run. To maintain multiple programs in the control without all of them running, all the start times
in the undesired programs must be set to off. The unused programs (except the start times) are retained but will
not run until the start times are re-entered. This allows you to program one, two or three separate flushing
sequences. For example, one for summer and one for winter or one for brooding and one for finishing.
Each station can be set to run from a minimum of 1 minute to a maximum of 2 hours in 1 minute intervals. The
actual amount of time it takes to completely change the water in a 3/4" drinker line is dependent on the flow rate
through the line. This flow rate can easily be estimated by putting the regulator into flush and timing how long it
takes to fill a container of known volume at the drain end of the line. Once this time is determined use the formula
below to calculate the flow rate in gallons or liters per minute and then refer to the charts on page 12 to determine
the estimated flush time in minutes for your specific line length.
For example, if it takes 185 seconds to fill a 5 gallon container the resulting flow rate would be 1.6 GMP.
Operation
Flushing The System
Volume of Container (Gallons or Liters) = Flow Rate in Gallons or Liters per Minute
Seconds to Fill Container Divided by 60
5 Gallons = 5 = 1.6 Gallons per Minute.
185/60 308
Figure 13. Adjusting the water column
Figure 14. Operating the control

12 - 32 Station PDS™ Control Flushing The System
MW1812A 12
Minutes to Flush and Total Line Capacity
for Chore-Time Nipple Systems
Estimated flush times above are to completely exchange the water in the pipe. The flush time to stimulate bird
drinking may be less, depending on the frequency of flushes.
Water Line Length in Feet
100’ 200’ 300’ 400’ 500’ 600’ 700’ 800’
Gallons per Minute
Flow Rate
13.4 6.8 10.2 13.6 17.0 20.4 23.8 27.2
21.7 3.4 5.1 6.8 8.5 10.2 11.9 13.6
31.1 2.3 3.4 4.5 5.7 6.8 7.9 9.1
40.9 1.7 2.6 3.4 4.3 5.1 6.0 6.8
50.7 1.4 2.0 2.7 3.4 4.1 4.8 5.4
60.6 1.1 1.7 2.3 2.8 3.4 4.0 4.5
70.5 1.0 1.5 1.9 2.4 2.9 3.4 3.9
80.4 0.9 1.3 1.7 2.1 2.6 3.0 3.4
Estimated Flush Time in Minutes
Total Line
Capacity
3.4
Gallons
Total Line
Capacity
6.8
Gallons
Total Line
Capacity
10.2
Gallons
Total Line
Capacity
13.6
Gallons
Total Line
Capacity
17.0
Gallons
Total Line
Capacity
20.4
Gallons
Total Line
Capacity
23.8
Gallons
Total Line
Capacity
27.2
Gallons
Gallons of water in one foot of 3/4" Chore-Time water pipe=.034
Water Line Length in Meters
30m 60m 90m 120m 150m 180m 210m 240m
Liters Per Minute
Flow Rate
43.2 6.3 9.5 12.7 15.8 19.0 22.2 25.3
62.1 4.2 6.3 8.4 10.6 12.7 14.8 16.9
81.6 3.2 4.7 6.3 7.9 9.5 11.1 12.7
10 1.3 2.5 3.8 5.1 6.3 7.6 8.9 10.1
12 1.1 2.1 3.2 4.2 5.3 6.3 7.4 8.4
14 0.9 1.8 2.7 3.6 4.5 5.4 6.3 7.2
16 0.8 1.6 2.4 3.2 4.0 4.7 5.5 6.3
18 0.7 1.4 2.1 2.8 3.5 4.2 4.9 5.6
20 0.6 1.3 1.9 2.5 3.2 3.8 4.4 5.1
22 0.6 1.2 1.7 2.3 2.9 3.5 4.0 4.6
24 0.5 1.1 1.6 2.1 2.6 3.2 3.7 4.2
26 0.5 1.0 1.5 1.9 2.4 2.9 3.4 3.9
28 0.5 0.9 1.4 1.8 2.3 2.7 3.2 3.6
30 0.4 0.8 1.3 1.7 2.1 2.5 3.0 3.4
Estimated Flush Time in Minutes
Total
Line
Capacity
12.7
Liters
Total
Line
Capacity
25.3
Liters
Total
Line
Capacity
38.0
Liters
Total
Line
Capacity
50.6
Liters
Total
Line
Capacity
63.3
Liters
Total
Line
Capacity
76.0
Liters
Total
Line
Capacity
88.6
Liters
Total
Line
Capacity
101.3
Liters
Liters of water in one meter of 3/4" (1.90 cm) Chore-Time water pipe=.422

Flushing Recommendations 12 - 32 Station PDS™ Control
13 MW1812A
Multiple House Application:
Well capacity typically limits the number of water lines that can be flushed at one time. Flushing should be
staggered so 2 lines per well supply are flushed at the same time.
When to flush the system
Single stations or all stations may be manually flushed at any time. Refer to Programming the Controller section
in the Hunter Control manual.
Flushing for Sediment, Air Locks, and Cleaning
Start by flushing several times per flock. Watch the water coming out of the ends of the water lines. If the water
is clean with little or no air you can flush less often. If the water is discolored and has sediment or large
amounts of air you may want to flush more often until these problems disappear. The sediments could react
with medications, vaccines, and electrolytes. They will also hamper the effects of disinfectants and cleaners
(chlorine and acids).
Flushing After Introduction of Water Treatment or Bird Health Products
After running any type of medication, disinfectant, electrolyte, vitamin, or vaccine, see the chart on page 12 for
estimated flush times. Some products or treatments may require longer flushing time to be completely
removed from the water lines.
Flush to Stimulate Birds to Drink
1. In periods of hot weather flushing will provide cool, fresh water.
2. As birds mature, additional flushing can stimulate the birds to drink more water.
Keep the control box lid closed. The control is not capable of operating in a dusty environment. The loading
regulator vents into the control box. When the control box is sealed the positive internal air pressure keeps dust out
Flushing Recommendations
Maintenance

12 - 32 Station PDS™ Control Troubleshooting
MW1812A 14
.
Troubleshooting
Problem Correction
No water in Regulator Stand Tube. 1. Water Off.
2. Defective or plugged Regulator.
3. Regulator plumbed backwards.
Water Column does not change on a Regulator. 1. Stand Tube Cap plugged (not venting).
2. Air line to Regulator pinched.
Water Column to top of Stand Tube. 1. Regulator seat worn.
2. Stand Tube Cap plugged.
3. Air Loading Unit putting out too high pressure (defective solenoid).
Compressor suddenly runs more often than
normal.
1. Shut off or pinch off all lines going to the individual controls to find
which house is the problem.
2. Open one line at a time until you find one that causes the compressor
tank to lose air more quickly.
3. See correction for house leak below.
House seems to leak or lose compressed air too
quickly.
1. Shut off the incoming line to the control and watch the small
INCOMING PRESSURE GAUGE. If the control holds pressure, the
leak is between the air source and that house.
2. With the incoming air off and the gauge indicates that there is a 2
PSI drop or more within 1 minute, the problem is in the control, lines,
or regulators.
3. Shut off or pinch off all lines going out to the regulators and the
incoming line. If the control loses pressure, the problem is inside the
control. See control unit leak below.
4. If the unit holds pressure, release one line at a time to isolate the
cause of the leak.
5. Test line connections and regulator for leaks.
Control unit leaks compressed air. 1. Check the vent hole in the red cover of the Air Loading Unit, see
figure 15. Put soapy water over the hole. A small amount of air
coming out is normal (bubble should grow slowly over several
seconds).
2. Put soapy water on all internal hose connections to find leak.
Regulators do not adjust to the same level. Water in some of the air lines. Drain hose and check for defective
Regulator Diaphragm. This is done by pinching the hose off at the
nipple line regulator and if there is no leak the water column will
remain constant, if the regulator has a leak the water column will
decrease.
Figure 15. Vent Hole
Vent Hole
Adjustment
Knob

Parts Listing 12 - 32 Station PDS™ Control
15 MW1812A
PDS™ Control (part no.’s: 46772-12, 46772-16, 46772-20, 46772-24, 46772-28, 46772-32)
Parts Listing
17
16
13
14
17
18
19
20
1
2
3
4
6
7
8
9
10
11
12
13
14
15
5
WIRING AND TUBING
REMOVED FOR CLARITY.
CHORE-TIME EQUIPMENT
A DIVISION OF CTB INC.
MILFO RD, INDI ANA 46542-2000
INCOMING PRESSURE
6-12 psi
(41.37 - 68.95 kPa)
INCOMING PRESSURE
12 psi MAX
(82.74 k Pa)
Warranty is void if cover
is not kept closed.
LABEL NO.
2529-812
ADJUSTMENT
KNOB
INCREASE + DECREASE
PDS™ CONTROL
Pneumatic Drinking System
PATENT NO.
5,967,167
6,240,956
6,253,708

12 - 32 Station PDS™ Control Parts Listing
MW1812A 16
**These components are individually boxed.
Contact your nearby Chore-Time distributor
or representative for additional Hunter
Control parts and information.
Item Description Part No.
1 Control Box 48583
2 Lower PDS Plate 46333-1
3 Diaphragm 35891
4 8 Station Airloader 44452
5 4 Station Airloader 44451
6 8 Station Airloader W/Knob 48584
7 Seal 34767
8 Flexible Hose 48574
9 Caplug 48588
10 Control Box Lid 42683
11 Control Box Latch 30862
12 Control Box Latch Pivot 30863
13 PSI Gauge 48585
14 Water Column Gauge 44029
15 Panel Hinge 41016
16 PDS Control Decal 2529-812
17 Front Plate 46334-1
18 Neoprene Washer 2955-59
19 Washer 2499
20 Hose Adapter 48586
**21 8 Station Hunter Control 46771-8
**22 4 Station Module 46773-4
**23 8 Station Module 46773-8
21
23
22

Made to work.
Built to last.
Contact your nearby Chore-Time distributor or representative for additional parts and information.
CTB Inc.
P.O. Box 2000 • Milford, Indiana 46542-2000 • U.S.A.
Phone (574) 658-4101 • Fax (800) 333-4191
E-mail: poultry@choretime.com • Internet: http//www.choretime.com
Printed in the U.S.A.