UW50 Utensil Washer Electric Heat 208 240/60/3 WAREWASHING Technical Manual
UW50 to the manual 3062d9da-11dc-42cc-800f-8e540d30c886
User Manual: WAREWASHING UW50
Open the PDF directly: View PDF
.
Page Count: 112 [warning: Documents this large are best viewed by clicking the View PDF Link!]

Item # _____________________________________
Quantity ___________________________________
C.S.I. Section 11400
F-7551 – UW50 Utensil/Pan Washer Page 1 of 8
UW50
UTENSIL/PAN WASHER
701 S Ridge Avenue, Troy, OH 45374
1-888-4HOBART • www.hobartcorp.com
UW50 UTENSIL/PAN WASHER
STANDARD FEATURES
■ 2.1 gallons of water per rack (booster equipped
models)
■ 19 racks per hour
■ Timed wash cycles for 2, 4 or 6 minutes
■ Stainless steel tank, tank shelf, chamber, trim
panels, frame and feet
■ Solid state heat controls
■ Front loading, split-door conguration
■ Flat-bottomed, stainless steel frame rack, with
one at grid rack and two tray support racks
■ Chamber accepts 16 full-sized sheet pans, or
140-quart mixing bowl
■ Two upper and two lower revolving, debossed
non-clogging stainless steel wash arms
■ Two upper and lower revolving stainless steel
rinse arms
■ Heavy-duty door and door hinges
■ Large, removable stainless steel scrap screen
and scrap bucket
■ Choice of 10 KW electric, steam injector/steam
coil or gas tank heat
■ Adjustable wash cycle timer
■ Stainless steel front panel
■ Integrated detergent connections
■ Top-mounted dial thermometers
■ Door actuated drain closer
■ Heavy-duty 5 H.P. motor
■ Door interlock switch
■ Corrosion-resistant impeller
■ Timed ll
■ Positive low water protection
■ Spray hose (standard on electric booster heater
equipped models only)
VOLTAGE
❑ 208/60/3
❑ 240/60/3
❑ 480/60/3
MODEL
❑ UW50
OPTIONS AT EXTRA COST
❑ 10 KW electric tank heat
❑ Natural or LP gas tank heat
❑ 14 KW electric booster heater
❑ Vent fan control
❑ Steam injector or steam coil tank heat
ACCESSORIES
❑ Power vent fan kit
❑ Drain water tempering kit
❑ Rack insert for 30" trays
❑ Spray hose assembly (eld installed for non-
booster equipped machines only)
❑ Operator training video
❑ 20" x 20" peg or combination racks
Specications, Details and Dimensions on Inside and Back.
R
UW50 Untensil Washer 208-240/60/3 Page 3 of 112

701 S Ridge Avenue, Troy, OH 45374
1-888-4HOBART • www.hobartcorp.com
Page 2 of 8 F-7551 – UW50 Utensil/Pan Washer
UW50
UTENSIL/PAN WASHER
DETAILS & DIMENSIONS – ELECTRIC
UW50 Untensil Washer 208-240/60/3 Page 4 of 112

701 S Ridge Avenue, Troy, OH 45374
1-888-4HOBART • www.hobartcorp.com
F-7551 – UW50 Utensil/Pan Washer Page 3 of 8
UW50
UTENSIL/PAN WASHER
DETAILS & DIMENSIONS – ELECTRIC
UW50 Untensil Washer 208-240/60/3 Page 5 of 112

701 S Ridge Avenue, Troy, OH 45374
1-888-4HOBART • www.hobartcorp.com
Page 4 of 8 F-7551 – UW50 Utensil/Pan Washer
UW50
UTENSIL/PAN WASHER
DETAILS & DIMENSIONS – GAS
UW50 Untensil Washer 208-240/60/3 Page 6 of 112

701 S Ridge Avenue, Troy, OH 45374
1-888-4HOBART • www.hobartcorp.com
F-7551 – UW50 Utensil/Pan Washer Page 5 of 8
UW50
UTENSIL/PAN WASHER
DETAILS & DIMENSIONS – GAS
UW50 Untensil Washer 208-240/60/3 Page 7 of 112

701 S Ridge Avenue, Troy, OH 45374
1-888-4HOBART • www.hobartcorp.com
Page 6 of 8 F-7551 – UW50 Utensil/Pan Washer
UW50
UTENSIL/PAN WASHER
DETAILS & DIMENSIONS – STEAM INJECTOR/STEAM COIL
UW50 Untensil Washer 208-240/60/3 Page 8 of 112

701 S Ridge Avenue, Troy, OH 45374
1-888-4HOBART • www.hobartcorp.com
F-7551 – UW50 Utensil/Pan Washer Page 7 of 8
UW50
UTENSIL/PAN WASHER
DETAILS & DIMENSIONS – STEAM INJECTOR/STEAM COIL
UW50 Untensil Washer 208-240/60/3 Page 9 of 112

701 S Ridge Avenue, Troy, OH 45374
1-888-4HOBART • www.hobartcorp.com
Page 8 of 8 F-7551 – UW50 Utensil/Pan Washer
As continued product improvement is a policy of Hobart, specications are subject to change without notice.
UW50
UTENSIL/PAN WASHER
F-7551 (REV. 01/09) LITHO IN U.S.A. (H-01)
SPECIFICATIONS
DESIGN: Heavy-duty, fully automatic, front-loading
utensil/pan washer with large split door system. Upper
door section slides upward as the lower door section is
pulled down. Stainless steel pull-out rack allows easy
loading for large utensils and pans. Three variable wash
cycles ensure thorough cleaning and sanitizing.
CONSTRUCTION: Stainless steel tank and hood, frame,
legs and adjustable feet. Front enclosure panel standard.
PUMP: Cast iron pump integral with motor, Ni-Resist
impeller, horizontally mounted. Pump capacity 343 gpm.
MOTOR: 5 H.P., available in 208/60/3, 240/60/3, or
480/60/3 congurations. Factory sealed lubrication,
drip proof with sealed ball bearings. Thermal overload
protection.
RACKS PER HOUR:
Wash Cycle Racks/Hr.
2 minute 19
4 minute 12
6 minute 9
WASH CYCLE: Complete automatic operation. Cycle may
be interrupted any time by opening door. The selected
cycle will restart from the begining when door is closed
again.
Upper and lower revolving stainless steel wash arms, with
computer designed, debossed, anti-clog wash nozzles,
direct high pressure wash ow to all soiled surfaces.
Large, sloping, perforated, removable stainless steel scrap
screens direct food soils to a deep perforated stainless
steel scrap basket.
Scrap basket and strainer easily removed.
RINSE CYCLE: 180°F nal sanitizing rinse through two
upper and two lower revolving stainless steel rinse arms.
Rinse arms removable without tools.
WATER USAGE PER RACK:
2.1 gallons per rack (booster equipped models)
2.2 gallons per rack (non-booster equipped models)
RACKING: Standard rack assortment consists of one at-
bottomed frame rack, one at grid insert rack, and two tray
support insert racks. External rack dimensions are 407⁄8"
wide, 227⁄8" deep, and 41⁄8" high.
Standard at-bottomed frame rack also accepts (2)
20" x 20" combination or peg racks per cycle.
SPECIFICATIONS: Listed by Underwriters Laboratories
Inc., NSF International and CUL.
UW50 Untensil Washer 208-240/60/3 Page 10 of 112

UW50 WAREWASHING
F-40057 (10/03)
1
Place strainer pan and scrap
basket into position in the
dishwasher tank.
2
Close the access door
(automatically closes drains).
3
Turn selector switch to FILL
and press start.
4
Open door to reset
and load utensils on
rack as necessary,
slide rack into
machine and close
the door.
5
Change selector to
desired wash cycle
length (2, 4, or 6
minutes).
6
Press START.
To Stop:
1
Open machine door.
2
Turn selector to OFF position.
1
Turn selector to OFF position.
2
Open machine door.
3
Lift drain lever inside door
opening.
4
Remove and clean strainer pan
and strainer basket.
5
Spray down machine interior.
6
Visually inspect top and bottom
wash and rinse arms, if
obstructed remove arms and
spray free with water.
7
Remove overflow tube and
wash thoroughly.
8
Inspect tank interior, remove
any soil from heater, probes,
and floats
9
Wipe down exterior with a wet
wash rag.
DO NOT SPRAY THE
EXTERIOR WITH A HOSE
10
Reassemble the machine:
a. Install scrap screen and
basket
b. Install wash and rinse
arms if removed
Leave door open at end of day
to allow interior to air out.
To Operate: To Clean:
1
After placing wash and rinse arms back in the machine,
verify they all spin freely prior to operating the unit.
2
Delime the machine on a regular basis. This assures proper
function of the machine.
Note: Refer to “Troubleshooting”
section of your UW50 Instruction
Manual or call your local Hobart
Sales/Service office if you
experience any difficulties.
Operational Tips:
Hobart Corporation, 701 S. Ridge Avenue, Troy, OH 45374-0001
Phone: (937) 332-3000 www.hobartcorp.com
3
6
7
10
3
4
1
UW50 Untensil Washer 208-240/60/3 Page 11 of 112

701 S. RIDGE AVENUE
TROY, OHIO 45374-0001
937 332-3000
www.hobartcorp.com FORM 18241 Rev. G (Aug. 2007)
UW50 UTENSIL WASHER
MODEL
UW50 ML-27838
UW50 Untensil Washer 208-240/60/3 Page 12 of 112

– 2 –
©HOBART, 2007
TABLE OF CONTENTS
GENERAL ..............................................................................................................................................................3
INSTALLATION ......................................................................................................................................................3
Unpacking ........................................................................................................................................................3
Installation Codes ............................................................................................................................................3
Location ...........................................................................................................................................................3
Installation Diagrams .......................................................................................................................................4
Plumbing Connections .....................................................................................................................................7
Gas Connection (When Specifi ed) ...................................................................................................................7
Steam Connection (When Specifi ed) ...............................................................................................................7
Venting Required With Gas Heat (Optional With Steam or Electric Heat) .......................................................8
Rate Of Exhaust Flow Calculations .................................................................................................................9
Detergent Feeder (Optional By Others) .........................................................................................................10
Rinse Agent Feeder (Optional By Others) .....................................................................................................10
Vent Exit .........................................................................................................................................................10
Vent Fan Control (Optional); Power Vent (Optional) ......................................................................................10
Electrical Connection .....................................................................................................................................10
OPERATION .........................................................................................................................................................11
Controls (Fig. 3) .............................................................................................................................................11
General Operating Instructions ......................................................................................................................12
Cleaning the Utensil Washer ..........................................................................................................................12
Dos and Don'ts For Your New Hobart Utensil Washer ...................................................................................13
MAINTENANCE ...................................................................................................................................................14
Motor ..............................................................................................................................................................14
Wash and Rinse Arms ....................................................................................................................................14
Deliming .........................................................................................................................................................14
TROUBLESHOOTING .........................................................................................................................................15
Service ...........................................................................................................................................................16
Model UW50 Utensil
Washer With Booster
UW50 Untensil Washer 208-240/60/3 Page 13 of 112

– 3 –
INSTALLATION, OPERATION AND CARE OF
MODEL UW50 UTENSIL WASHER
SAVE THESE INSTRUCTIONS
GENERAL
The UW50 Utensil Washer is the answer to volume utensil washing problems in your kitchen, bakery or
supermarket operation. The UW50 occupies a minimum amount of fl oor space (under 48" x 43" with door
open) and does not require separate dishtables. The upper portion of the door raises, while the lower portion
swings out to provide a drain platform. The rack can then be pulled out for easy loading and unloading.
The program selector lets you select a 2-, 4- or 6-minute cycle; each wash cycle is followed by a dwell
and a 24-second rinse. The two upper and two lower wash arms provide thorough cleaning. Four rinse
arms provide a sanitizing rinse at the end of each cycle. The 5-horsepower pump produces 343 gallons
per minute.
The UW50 may be ordered with steam injector, steam coil, electric or gas tank heat. A top-mounted electric
booster is also available. When equipped with a top-mounted electric booster, a spray hose and nozzle
is provided on the left side of the machine. On models without top-mounted electric boosters, the spray
hose and nozzle can be installed in the fi eld as an accessory. Machines equipped with booster heaters
are provided with a pressure-regulating valve and a relief bypass which must be installed in the water
supply line. Machines without booster heaters must have a pressure-regulating valve with relief bypass
(by others) if the incoming line pressure exceeds 25 psig.
Features include: sloping strainer system, self-closing drain with overfl ow, timed fi ll, wash and rinse
thermometers and rack with inserts for trays. The fl at rack can accommodate a 140-quart Hobart mixer
bowl.
INSTALLATION
UNPACKING
Immediately after unpacking the UW50, check for possible shipping damage. If the UW50 is found to be
damaged, save the packaging material and contact the carrier within 15 days of delivery.
If the Utensil Washer is lifted with a lift truck, place the forks so the drain assembly under the tank is not
damaged.
Prior to installation, test the electrical service to ensure that it agrees with the specifi cations on the data
plate located below the controls (lower right front).
INSTALLATION CODES
Installation must be in accordance with state and local codes, with the national Fuel Code, ANSIZ223.1
(latest edition), if applicable, and the National Electrical Code ANSI/NFPA70 (latest edition). In Canada,
the installation codes are: CAN/CGA B149.1, CAN/CGA B149.2 and CSA 22.1 (latest edition).
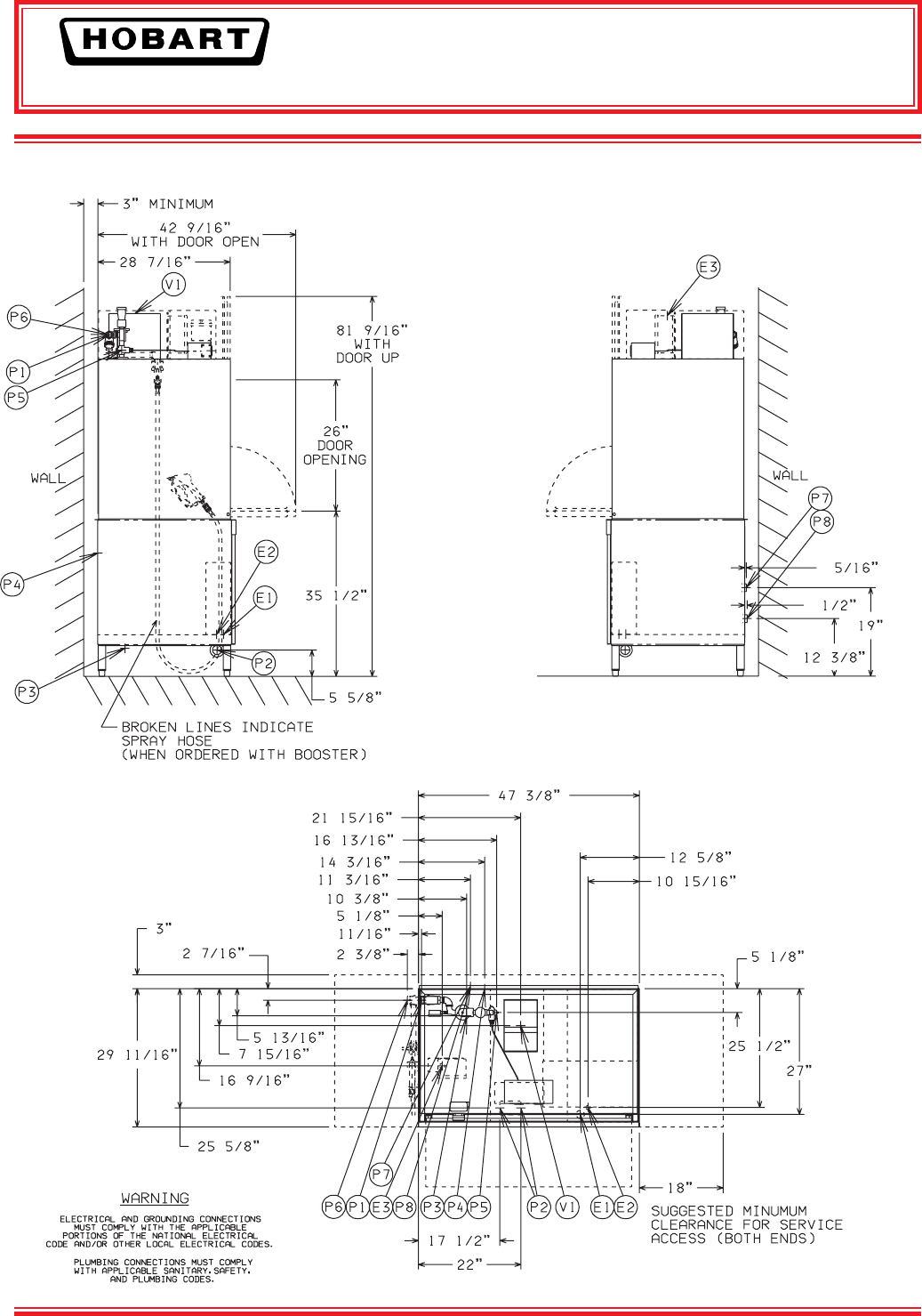
LOCATION
Set the machine in place after the fi nal fl oor covering is installed. Make sure the machine is level before
making any plumbing connections. Machines equipped with gas heat require a minimum 3" clearance
from the rear of the fl ue to any combustible construction. Allow at least 3" at the rear and 18" at the sides
of the machine as a suggested minimum for service access. Allow 13" in front of the machine for the door
to lower and suffi cient additional space for the operator to work.
UW50 Untensil Washer 208-240/60/3 Page 14 of 112

– 4 –
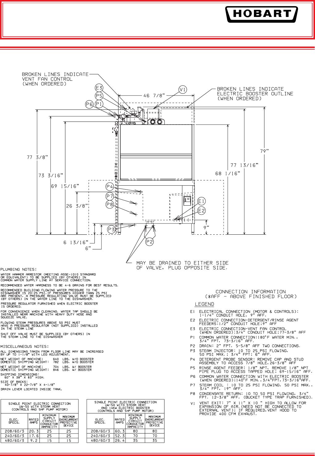
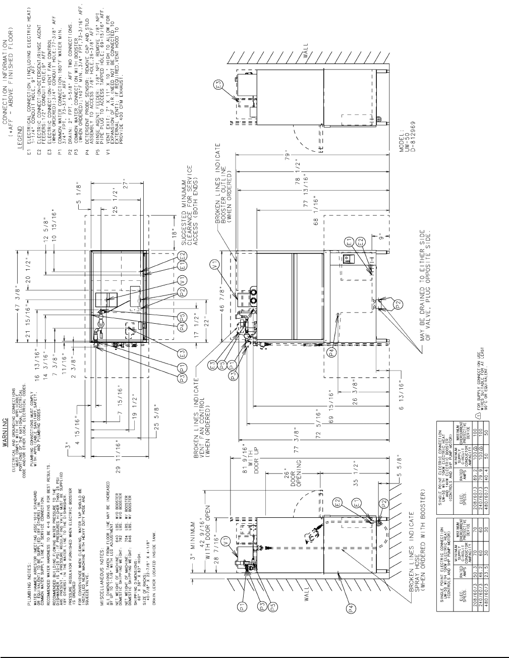
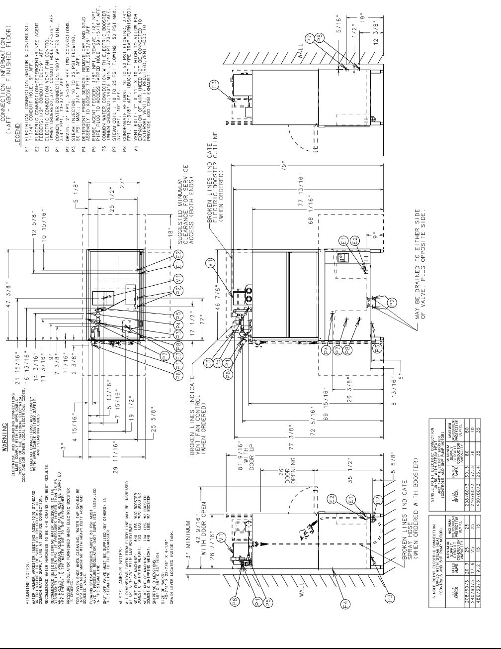
UW50 with 10KW Electric Tank Heat with or without 14KW Electric Booster – Installation Diagram: D-812969 sheet 1
UW50 Untensil Washer 208-240/60/3 Page 15 of 112

– 5 –
UW50 with Steam Tank Heat (Injector or Coil) with or without 14KW Electric Booster – Installation Diagram: D-812969 sheet 2
UW50 Untensil Washer 208-240/60/3 Page 16 of 112

– 6 –
UW50 with Gas Tank Heat with or without 14KW Electric Booster – Installation Diagram: D-812969 sheet 3
UW50 Untensil Washer 208-240/60/3 Page 17 of 112

– 7 –
PLUMBING CONNECTIONS
Plumbing connections must comply with applicable sanitary, safety and plumbing
codes.
Water Supply Connection
Water must be proper hardness. Recommended water hardness is 1 grain or less. Higher hardness may
cause excessive formation of lime scale. Chlorides must not exceed 50 ppm.
A water hammer arrestor (meeting ASSE-1010 Standard) should be provided (by others) in the water
supply line ahead of its connection to the line strainer. The water supply line should be a 3/4" pipe.
A fl owing pressure of 15 to 25 psig is required at the pressure gauge, provided. The pressure gauge may
be connected to a petcock, if equipped, and should remain closed, except when the fl owing pressure
is being checked. If the fl owing pressure exceeds 25 psig, a pressure-reducing valve (not supplied on
machines without booster) must be installed in the water supply line. A pressure-reducing valve with relief
bypass is furnished with machines equipped with a 14KW electric booster.
The water-pressure regulator must have a relief bypass. Failure to use the proper type of
pressure regulator may result in damage to the unit.
The minimum water supply
temperature per cycle time
required to maintain 180°F fi nal
rinse temperature is shown at
the right:
Drain Connection
A proper drain should be connected to the 2" internal threads at the "T" fi tting underneath the machine.
The drain can be connected on either the left or right side of the "T" fi tting. The right side of the "T" fi tting
is plugged at the factory, allowing the drain to be connected on the left side. If it is more convenient to
connect the drain on the right side, remove the plug from the right side of the "T" fi tting, reinstall it on the
left side and connect the drain to the right side.
GAS CONNECTION (WHEN SPECIFIED)
Check the gas data plate attached to the dishwasher or tag attached to the gas burner tubing for type of
gas to be used.
Connect the gas supply to the machine.
The burner is not adjustable. If line pressure is above 7" W.C. (natural gas) or 11" W.C. (propane gas), an
additional regulator valve (not supplied) must be installed in the supply line.
The burner is ignited by solid state electronic circuitry; there is no pilot light. Gas fl ow is regulated by the
temperature control circuit via a blower and centrifugal switch system.
STEAM CONNECTION (WHEN SPECIFIED)
Machines equipped with steam injector tank heat have a steam connection (3/4" female pipe thread) located
under the machine at the rear, 6" above the fl oor. Machines equipped with steam coil tank heat have the
steam supply connection (3/4" female pipe thread) located at the rear of the wash tank, 19" above the fl oor,
and a condensate return connection (3/4" female pipe thread), located at the rear of the wash tank, 123/8"
above the fl oor (a bucket-type trap is furnished). For either type of steam heat, fl owing steam pressure
should be 15 to 25 psig (50 psig maximum). A manually operated steam control valve (supplied by others)
should be installed at a convenient location ahead of the steam supply connection.
Cycle Minimum Water Supply Temperatures
With Optional Booster Heater Without Booster Heater
2 Minute 140°F 180°F
4 Minute 110°F 180°F
6 Minute 80°F 180°F
UW50 Untensil Washer 208-240/60/3 Page 18 of 112

– 8 –
VENTING REQUIRED WITH GAS HEAT (OPTIONAL WITH STEAM OR ELECTRIC HEAT)
The Hobart UW50 Utensil Washer, equipped for gas tank heat, is not provided with a fl ue collar and is not
intended to have the fl ue directly connected to a ventilation system. However, the products of combustion
must be vented to the outside air. A vent hood over the entire utensil washer (Fig. 1) can be employed to
vent both the moist air from the wash chamber and the fl ue gases from the gas tank heat. The volume of
fl ue exhaust required for venting moist air and fl ue gases using a single vent hood over the entire utensil
washer must be calculated using the formulas on the next page.
If a powered means of exhaust is used, an electrical interlock must be provided to allow the fl ow of gas
to the utensil washer burner only when the exhaust system is in operation.
For additional information, refer to the National Fuel Gas Code, ANSI Z223.1, NFPA 54 (latest editions).
In all cases, local codes will prevail.
Type I or Type II canopy hoods are recommended. A factory-built commercial exhaust hood may be listed
as conforming to Underwriters Laboratory's standard 710, titled Exhaust Hoods for Commercial Cooking
Equipment. Hoods must be installed according to the manufacturer's instructions. Make-up air must be
provided so that the exhaust fl ow rate results in a positive building pressure in the room where the unit
is located (more outside air than exhaust air). Factory-built hoods not tested to UL standard 710 and
custom-built hoods must comply with the following specifi cations: Stainless steel should have a minimum
thickness of 0.037 in. (0.94 mm) [No. 20 Gauge] or copper sheet weighing at least 24 ounces per square
foot (7 Kg/m2); the hood must be secured in place by noncombustible supports and must meet the RATE
OF EXHAUST FLOW CALCULATIONS on the next page.
Fig. 1
6" MINIMUM OVERHANG
ON ALL SIDES
EXHAUST DUCT SHOULD
BE CENTERED IN HOOD
1' TO 4'
CLEARANCE
18" MINIMUM OVERHANG
AT FRONT OPENING
UW50 Untensil Washer 208-240/60/3 Page 19 of 112

– 9 –
RATE OF EXHAUST FLOW CALCULATIONS (FIG. 2)
Based on the International Mechanical Code (latest edition).
Fig. 2
Canopy size and location
The inside lower edge of canopy-type Type I and II commercial hoods shall overhang or extend a horizontal
distance of not less than 6 inches (152 mm) beyond the edge of the top horizontal surface of the appliance
on all open sides. The vertical distance between the front lower lip of the hood and such surface shall not
exceed 4 feet (1219 mm).
The RATE of air fl ow required for a vent hood is a minimum of 100 CFM per linear foot of hood length.
LENGTH
CLEARANCE
HEIGHT
WIDTH
UW50 Untensil Washer 208-240/60/3 Page 20 of 112

– 10 –
DETERGENT FEEDER (OPTIONAL BY OTHERS)
If installing a detergent feeder (by others), remove cap to expose 7/8" diameter hole at rear of machine.
RINSE AGENT FEEDER (OPTIONAL BY OTHERS)
If a rinse agent feeder (by others) is being installed, remove the 1/8" NPT pipe plug to access the tapped
hole in the incoming water line below the vacuum breaker on top of the machine.
VENT EXIT
A vent exit (7" x 11" x 10") is provided in the top of the machine to allow for expansion of air. It should not
be directly connected to an external vent.
VENT FAN CONTROL (OPTIONAL); POWER VENT (OPTIONAL)
The Vent Fan Control option (factory- or fi eld-installed) provides switching for a vent fan (by others). The
vent hood comes on when the UW50 is on and goes off when the UW50 is off. This is appropriate for
a hood over a UW50 with gas tank heat. The Vent Fan Control can be rewired by your Hobart service
technician to control the Power Vent option (not available on UW50 with gas tank heat). Power Vent is
used on UW50 with steam or electric tank heat to exhaust moist air from the chamber after the rinse cycle
is fi nished. Power Vent operates for 45 seconds. Power Vent (fi eld installed only) extends upward 131/8"
above the Vent Exit (227/8" above the top of the wash chamber) and terminates in a round duct connection
for a 101/4" O.D. duct.
ELECTRICAL CONNECTION
Electrical and grounding connection must comply with the applicable portions of
the National Electrical Code and/or other local electrical codes.
Disconnect electrical power supply and follow lockout / tagout procedures.
Connect incoming power to the control box in accordance with the wiring diagram located inside the control
box and the electrical data chart. The front trim rail and the front panel must be removed to access the
control box.
ELECTRICAL DATA
10KW Electric
Heat (Single Point
Connections)
10KW Electric Heat
With 14KW Electric
Booster (Single Point
Connections)
Steam Tank Heat
(Injector or Coil)
(Single Point
Connections)
Steam Tank Heat (Injector
or Coil) With 14KW
Electric Booster (Single
Point Connections)
Gas Tank Heat (Single
Point Connections)
Gas Tank Heat With 14KW
Electric Booster (Single
Point Connections)
Volts/Hz/Ph Rated
Amps
Circuit Size*
(Amps)
Rated
Amps
Circuit Size*
(Amps)
Rated
Amps
Circuit Size*
(Amps)
Rated
Amps
Circuit Size*
(Amps)
Rated
Amps
Circuit Size*
(Amps)
Rated
Amps
Circuit Size*
(Amps)
208/60/3 50.3 70 89.2 **100 20.3 25 60.3 80 21.4 30 60.3 80
240/60/3 46.2 60 79.9 **100 17.6 25 52.3 70 18.6 25 52.3 70
480/60/3 23.5 30 40.4 50 9.2 15 26.4 35 9.6 15 26.4 35
* Minimum Circuit Size / Maximum Protective Device (Amps) compiled in accordance with the National Electrical Code (NFPA 70), latest edition.
** For supply connection, use wires suitable for at least 90°F or equivalent.
Rotation of Pump Motor
Before using the machine, check the pump motor rotation to be sure it is rotating in the right direction. From
the front of the machine, the motor should rotate counterclockwise. Looking from the rear of the machine,
the correct rotation is clockwise. Inspection is easiest from the right side using a fl ashlight and mirror to
check the motor fan in front. Be aware that the mirror will reverse the perceived direction.
If the pump motor is rotating in the wrong direction, follow this procedure.
Disconnect electrical power supply and follow lockout / tagout procedures.
Reverse any two of the three incoming line wires (not the ground wire). Reconnect and recheck rotation
of pump motor.
UW50 Untensil Washer 208-240/60/3 Page 21 of 112

– 11 –
Fig. 3
OPERATION
CONTROLS (FIG. 3)
PL-56351
OFF
START
POWER
CYCLE
2
4
6
SELECTOR
SWITCH
FILL
NOTE: Opening the door during cycles will cause cycle to start over at the beginning.
DRAIN LEVER (Fig. 4)
Drain lever is located inside the wash chamber
(middle front with door open). Lower the lever to
close the drain before beginning a timed fi ll. Rotate
lever upward to open the drain after turning the
machine off at the end of the day.
DIAL THERMOMETERS (not shown)
Thermometers indicate the Wash Tank Temperature
and the Rinse Temperature. Thermometers are
located on top of the wash chamber and are clearly
visible when the doors are shut. Minimum Wash Tank
Temperature is 150°F. Minimum Rinse Temperature
is 180°F.
SELECTOR SWITCH
OFF Electric power to machine is off. POWER and CYCLE lights are off.
FILL Timed fi ll requires about 3 minutes. Be sure Drain Lever (Fig. 4) is closed. Press
the START button to begin a timed fi ll.
SELECT WASH CYCLE and press START.
2 A 2-minute wash cycle is followed by a 5-second pause and a 24-second rinse.
4 A 4-minute wash cycle is followed by a 5-second pause and a 24-second rinse.
6 A 6-minute wash cycle is followed by a 5-second pause and a 24-second rinse.
START button Begins a timed fi ll or starts a wash cycle.
POWER light (green) Indicates the machine has power, and the Selector Switch is not off.
CYCLE light (white) Amber light indicates a timed fi ll or wash cycle is in process.
Fig. 4
UW50 Untensil Washer 208-240/60/3 Page 22 of 112

– 12 –
GENERAL OPERATING INSTRUCTIONS
Keep the utensil washer clean to provide best results. Do not allow foreign objects to enter the unit,
especially metallic contaminants.
Do not wash aluminum utensils in the utensil washer. The caustic detergent and high water temperature
will cause aluminum oxide formation (black). Copper utensils may require polishing to remove oxide
formation after exposure to utensil washer cleaning for a period of time. Stainless steel utensils should
clean quickly and easily if the food soil is not baked on.
It may be necessary to scrub or prewash some hard-to-remove substances which may not come clean
in the utensil washer with even a 6-minute washing. For stubborn food soil, a plastic scraper, plastic
abrasive pad, nylon bristle brush or sponge with abrasive surface (Scotch Brite) may be used before
washing in the utensil washer. Never use steel wool on ware to be loaded into the utensil washer. Use
only products formulated to be safe on stainless steel. Rinse items thoroughly after scrubbing to remove
metallic debris.
CLEANING THE UTENSIL WASHER
Disconnect electrical power supply and follow lockout / tagout procedures.
The utensil washer must be thoroughly cleaned at the end of each working shift or at least daily. Never
use steel wool to clean utensil washer surfaces.
Fig. 5
Turn the Selector Switch OFF.
Open the doors and lift up on the drain lever to drain the
tank.
Remove the strainer pan and strainer basket (Fig. 5), and
empty into a waste disposer or garbage container. Wash and
rinse strainer pan and strainer basket thoroughly. Do not bang
strainer pan or basket on tables to remove food soil.
After the tank has drained completely, lower the overfl ow
tube to close the drain. Reconnect the electrical power to
the machine.
Turn the Selector Switch to FILL and press the Start button. The machine will fi ll and rinse any debris into
the tank.
After Fill is complete, turn the Selector Switch OFF, open the doors and lift up on the drain lever to drain
the machine.
Disconnect electrical power supply and follow lockout / tagout procedures.
Remove the overfl ow cover and the overfl ow tube. Wash and rinse the overfl ow tube inside and out.
Thoroughly cleanse and fl ush the interior of the machine. Remove remaining soil with a soft cloth or brush
and a mild cleanser. Rinse again. Do not allow food soil to accumulate in the tank bottom.
Reinstall the overfl ow tube.
Carefully reinstall the strainer pan, strainer basket and drain cover. The opening at the corner of the strainer
pan allows the capillary tube to go into the tank.
On machines with the capillary tube in the tank, use care when assembling strainer pan so the
capillary tube is not damaged during assembly.
Make sure that the wash and rinse arms rotate freely and are free of any obstructions. If any obstructions
are present, remove the wash and rinse arms. Clean the wash and rinse arms under running water in a
sink.
UW50 Untensil Washer 208-240/60/3 Page 23 of 112

– 13 –
DOS AND DON'TS FOR YOUR NEW HOBART UTENSIL WASHER
DO ensure proper water hardness (1 grain or less). Total Dissolved Solids (TDS) must be 50 ppm or
greater. Chlorides must not exceed 50 ppm.
DO pre-scrap dishes thoroughly.
DO use only detergents recommended by your chemical professional.
DO thoroughly cleanse, rinse and dry (leave door open) the machine at the end of the day.
DO closely follow your chemical professional's prescribed deliming schedule.
DO use only products formulated to be safe on stainless steel.
DO NOT use detergents formulated for residential dishwashers.
DO NOT allow food soil to accumulate on the tank bottom.
DO NOT exceed chemical manufacturer's recommended concentrations for detergent, sanitizer, rinse aid
or lime scale remover.
DO NOT use steel wool to clean ware or warewasher surface.
DO NOT allow foreign objects to enter the unit, especially metallic contaminants.
NOTE: Failure to follow use, care and maintenance instructions may void your Hobart warewasher
warranty.
The wash and rinse arms are easily removed for cleaning.
To remove the upper wash and rinse arm (Fig. 6):
• Unscrew the hand knob.
• Remove the upper rinse and wash arms together. Be
careful not to drop these arms.
• Replace after removing any obstructions by reversing
the removal procedure.
To remove the lower wash and rinse arm (Fig. 7):
• Lift off the rinse arm.
• Unscrew the rinse arm bearing pin.
• Lift off the lower wash arm. (It is not necessary to remove
the spacer located on the lower wash arm shaft.)
• Remove any obstructions from the wash arms.
• Replace wash and rinse arms by reversing the removal
procedure.
Leave the doors open to allow the interior to dry and air out.
Fig. 6
Fig. 7
UW50 Untensil Washer 208-240/60/3 Page 24 of 112

– 14 –
MAINTENANCE
Disconnect electrical power supply and follow lockout / tagout procedures.
MOTOR
The motor has permanently sealed bearings and requires no lubrication.
WASH AND RINSE ARMS
All wash arms and rinse arms should turn freely and continue turning for a few seconds after being whirled by
hand. To check, DISCONNECT ELECTRICAL POWER SUPPLY, rotate arms and remove any obstructions
causing improper operation. Refer to CLEANING THE UTENSIL WASHER on pages 12 and 13.
If the slanted strainer pan and strainer basket are not properly in place, obstructions (such as food particles
or toothpicks) may clog the wash arm nozzles.
DELIMING
Deliming solution must not come in contact with bleach or rinse solution containing
bleach. Mixing may cause hazardous gas to form. This entire procedure must be followed step-
by-step for safe and satisfactory results.
The dishwasher should be delimed on a regular basis as required. How often depends on the mineral
content of the water. Deliming should be done when you can see clear signs of lime deposits (a white
chalky substance) on the inside walls and on the wash and rinse arms.
Inspect the machine interior for lime deposits. If deliming is necessary, a deliming agent (available from
your detergent representative) should be used for best results.
Delime as follows:
1. Lift drain lever and drain tank.
2. Remove rack from machine.
3. Close door.
4. Fill machine.
5. Open door and add deliming agent (carefully follow supplier's instructions).
NOTE: The sump holds 27 gallons of water.
6. Close door and allow machine to complete a 6-minute cycle.
7. Open door and lift drain lever to drain tank.
8. Inspect interior of machine for lime deposits. Repeat Steps 3 through 7 if necessary.
Do not allow deliming agent to remain in the machine longer than recommended by the deliming
agent manufacturer. After deliming, run the machine through two 6-minute cycles with no utensils in order
to rinse and fl ush machine interior.
UW50 Untensil Washer 208-240/60/3 Page 25 of 112

– 15 –
TROUBLESHOOTING
SYMPTOM POSSIBLE CAUSE
Utensils spotted or
not clean
Overloaded rack.
Low water level.
Water conditions:
— Incorrect rinse water temperature. Refer to WATER SUPPLY CONNECTION,
page 7.
— Excessive water hardness may indicate that a water softener is needed.
— Incorrect detergent type or concentration for water conditions.
— Incorrect rinse additive for water conditions.
Inadequate rinse.
— Dirty line strainer causing reduced water fl ow. Turn off water supply. Remove
strainer cap. Withdraw and clean screen. Reassemble.
— Low water pressure (supply line).
— Excessive mineral deposits throughout wash and rinse system. Deliming may
be necessary.
Check water level in tank. The machine won't clean well if there isn't enough water
for the pump to maintain adequate wash pressure.
— Drain overfl ow tube may not be seated.
— Worn or torn O-Ring may cause overfl ow tube not to seat.
Loss of water pressure due to pump obstruction.
— DISCONNECT ELECTRIC POWER SUPPLY. Drain tank and check for
obstruction at the strainer, basket and pump intake.
Insuffi cient detergent dispensing.
— Check supply or detergent supplier.
Excessive mineral deposits throughout wash and rinse system.
— Deliming may be necessary.
— Excessive water hardness may indicate that a water softener is needed.
Utensil washer was not cleaned properly. Refer to CLEANING THE UTENSIL
WASHER, pages 12 and 13.
Wash arm blocked with debris. Refer to WASH AND RINSE ARMS, page 14.
UW50 Untensil Washer 208-240/60/3 Page 26 of 112

– 16 –
FORM 18241 Rev G (Aug. 2007) PRINTED IN U.S.A.
SERVICE
In the event a gas orifi ce fi tting shall be adjusted or replaced, have it serviced by qualifi ed personnel.
Contact your Hobart service offi ce for any repairs or adjustments needed on this equipment. Long-term
service contracts are available on this and other Hobart products.
SYMPTOM POSSIBLE CAUSE
Machine won't
operate.
Fuse blown or circuit breaker tripped.
Selector Switch is turned OFF.
Check water level in tank.
— Drain overfl ow tube may not be seated.
— Worn or torn O-Ring may cause overfl ow tube not to seat.
Leaking valves. Solenoid valves.
— Contact Service.
Vacuum breaker.
— Foreign material preventing proper valve operation. A critical period is soon
after installation when pipe compound or metal shavings may lodge at the
valve seat. DISCONNECT ELECTRICAL POWER SUPPLY. Shut off water
supply line. Unscrew and lift bonnet from valve body. Clean valve and
reassemble.
No wash tank heat. The low water detector will shut off heat if water level is too low.
— Check water level. The overfl ow tube may not be seated.
Fuse blown or circuit breaker tripped (if equipped with electric heat).
Manual steam valve not open completely (if equipped with steam heat).
Overtemperature protector tripped (gas or electric tank heat only).
— Contact Service.
No fi ll or slow fi ll. Dirty line strainer causing reduced water fl ow.
— Turn off water supply. Remove strainer cap. Withdraw and clean screen.
Reassemble.
UW50 Untensil Washer 208-240/60/3 Page 27 of 112

WARNING: ELECTRICAL AND GROUNDING CONNECTIONS
MUST COMPLY WITH THE APPLICABLE PORTIONS
OF THE NATIONAL ELECTRICAL CODE AND/OR
OTHER LOCAL ELECTRICAL CODES.
1CON
PUMP
MOTOR
G
2CON
L1
L2
L3
L1
L2
L3
T1
T2
T3
1OL
L1
L2
L3
T1
T2
T3
1MTR
GND LID
1TB
SERVICE
CONNECTION
TRANSFORMER CONNECTIONS
VOLTAGE
240
480
CONNECT
H1 TO H3
H2 TO H4
H2 TO H3
H2H1
X2X1
208 VOLT
TRANSFORMER
CONNECTION
H1 H3 H2 H4
X1
1T
X2
120 VAC
1FU 1SS 1OL 2TB-1
1.5 A 12CNC
2TB-2
1LT
POWER ON
1TAS
OVERTEMP
C1 C3
1HTR
TANK
L3 T3
96
74
L2 T2
L1 T1
2CON
3CR DPS1
DPS2
RPS1
RPS2
*3FU
*2FU
*FUSE SIZE FOR 2FU AND 3FU IS:
2.5 AMP AT 208-240 VOLT
1.6 AMP AT 480 VOLT
SELECTOR
SWITCH
1SS
OFF
FILL
2
4
6
0
1
1
1
10
0
0
1
00
0
1
0
0
0
0
0
1
0
0
0
0
0
1
12345678910
DERIVED FROM F-33187
W2
4
1
TT TTS6 S5
1SST
1FS
1QTM
TANK HEAT
H1
H2
H3
H4
LINE LEADS
(H) TO
H1 AND H4
H1 AND H4
* * SEE INSIDE COVER
OF ELECTRIC BOOSTER
CONTROL BOX FOR
ELECTRICAL DIAGRAM
BOOSTER
CONTACTOR
*
208 VAC
3TB-1 3TB-4
* * ELECTRIC BOOSTER
CONTROLS
1
2
3
4
5
910
214
RELAY 4
1PB
12
START
10CON
10
PWR
VENT CONT
6
11
RELAY 1
1SS
34
FILL
1CON
C1 C3
PUMP MOTOR
5
12
RELAY 2
1SS
56
2 MIN
1SOL
V1 V2
FILL/RINSE
4
13
RELAY 3
1SS
78
4 MIN
3CR
AB
RINSE
3
15
RELAY 5
1SS
910
6 MIN
2LT
RUN
1
1LS
DOOR
INTERLOCK
W
6
7
8
9
10
11
12
18
1A
17
ELECTRICAL WIRING DIAGRAM
UW50 UTENSIL WASHER
BUILT AFTER NOV 2008
ELECTRICAL HEAT
208-240/60/3
AI 33187
UW50 Untensil Washer 208-240/60/3 Page 28 of 112

DERIVED FROM F-33187
ELECTRICAL WIRING DIAGRAM CONTINUED
UW50 UTENSIL WASHER
BUILT AFTER NOV 2008
ELECTRICAL HEAT
208-240/60/3 AI 3138
LID-FRONT
VIEW
1SS
1PB
1LT
2LT
DPS1
DPS2
RPS1
RPS2
CONTROL BOX
2CON SST
1TB
GND
3CR
1CON
1OL
1T
2TB
1FU
VOLTS PHASE HEATER NO.
208 3 K-54
240 3 K-54
480 3 K-39
HEATER CHART
ON
OFF
SS1
ON
OFF
START
BUTTON
(TMR-2)
PUMP
(TMR-11)
RUN LIGHT
(TMR-15)
OFF
ON
OFF
ON
1[133]
(232)
324
OFF
ONFILL
(TMR-12)
[137]
(236)
328
[152]
(251)
343
RINSE
(TMR-13) OFF
ON
[137]
(236)
328
[152]
(251)
343
[203]
(302)
394
[158]
(257)
349
OFF
ONPWR VENT
CONTROL
(TMR-14)
CLOSED
OPENDOOR
INTERLOCK
(TMR-1)
1178
179 224
45
SEC
45
SEC
[160] SECOND/2 MIN CYCLE
(259) SECOND/4 MIN CYCLE
351 SECOND/6 MIN CYCLE
182 SECOND
FILL CYCLE
TMR
UW50 Untensil Washer 208-240/60/3 Page 29 of 112

2TB-2
VENT FAN CONTROL BOX
UW50 CONTROL BOX
WHT
10CON
0
1
POWER OR HOOD VENT
VFC
(1CON-L1)
VFC
(1CON-L2)
VM
24
10CON
3FU
1.5AMP
VENT FAN
CONTROL
CIRCUIT
CONNECTION
POWER VENT
ONLY
TRANSFORMER
CONNECTIONS
50/60 Hz
208V-LINE H1+H2
240V-LINE H1+H3
480V-LINE H1+H4
POWER VENT ONLY
HOOD
VENT
ONLY
3T
H1 H
X1 X2
2TB-1
TMR-14
POWER VENT ONLY
MAXIMUM RATED
LOAD:1.5 AMPS
HOOD VENT ONLY
TO MAIN
CONTROL
BOX SERVICE
GROUND
120V
SERVICE
CONNECTION
FROM MAIN
CONTROL BOX
GND
L2
1TB
L1
L3
L2
L1
3CON
T2
T1
120VAC FROM MAIN CONTROL BOX
1TAS 2TAS
OVERTEMP. THERMOSTATS
C1 C3
3CON W2 4
1
S5 S6
T
TT TT
2SST
3TB-4
2TB-2
3TB-1
2TB-1
DERIVED FROM F-28403 REV A
L3 T3
2 HTR
3 HTR
WARNING
ELECTRICAL AND GROUNDING
CONNECTIONS MUST COMPLY
WITH THE APPLICABLE PORTIONS
OF THE NATIONAL ELECTRICAL
CODE AND/OR OTHER LOCAL
ELECTRICAL CODES.
WARNING
ELECTRICAL AND GROUNDING
CONNECTIONS MUST COMPLY
WITH THE APPLICABLE PORTIONS
OF THE NATIONAL ELECTRICAL
CODE AND/OR OTHER LOCAL
ELECTRICAL CODES.
WIRING DIAGRAM
UW50 UNTENSIL WASHER
14KW ELECTRIC BOOSTER
3 PHASE
DERIVED FROM F35396 REV A
WIRING DIAGRAM
UW50 UNTENSIL WASHER
BULT AFTER MARCH 2007
VENT FAN CONTROL
AI 3140
UW50 Untensil Washer 208-240/60/3 Page 30 of 112

ELECTRICAL WIRING DIAGRAM
UW50 UTENSIL WASHER
BUILT PRIOR TO DEC 2008
ELECTRICAL HEAT
208-240/60/3
DERIVED FROM F-28314 REV G AI 3135
WARNING: ELECTRICAL AND GROUNDING CONNECTIONS
MUST COMPLY WITH THE APPLICABLE PORTIONS
OF THE NATIONAL ELECTRICAL CODE AND/OR
OTHER LOCAL ELECTRICAL CODES.
1CON
PUMP
MOTOR
G
1CR
2CR
W
3CR
2CON
2MTR
3MTR
1CON
L1
L2
L3
L1
L2
L3
T1
T2
T3
1OL
L1
L2
L3
T1
T2
T3
1MTR
GND LID
1TB
SERVICE
CONNECTION
TRANSFORMER CONNECTIONS
VOLTAGE
240
480
CONNECT
H1 TO H3
H2 TO H4
H2 TO H3
H2H1
X2X1
208 VOLT
TRANSFORMER
CONNECTION
H1
H3 H2
H4
X1
1T
X2
120 VAC
1FU 1SS 1OL 2TB-1
1.5 A 12CNC
2TB-2
1LT
POWER ON
1TAS
OVERTEMP
1LS
DOOR INTERLOCK
AB
C1 C3
AB
2CR
96
1CR
9612
1PB
START
3
4
NC
C
2TS
5
6NO C
TIMER MOTORS
2LT
RUN
1CR
3
NC
C
1TS
NO
C
4TS NO
9
10 PUMP MOTOR
C1 C3
C
5TS NO
11
12
FILL/RINSE
V1 V2
1SOL
C
6TS
NC 15
16
AB
1HTR
TANK
L3 T3
96
74
L2 T2
L1 T1
2CON
3CR DPS1
DPS2
RPS1
RPS2
*3FU
*2FU
*FUSE SIZE FOR 2FU AND 3FU IS:
2.5 AMP AT 208-240 VOLT
1.6 AMP AT 480 VOLT
SELECTOR
SWITCH
OFF
FILL
2
4
6
0
1
1
1
10
1
0
0
00
1
1
0
0
0
0
0
1
0
0
0
1
1
1
0
1
0
0
01
1
1
1
0
1234567891011121516
W2
4
1
TT TT S6 S5
1SST
1FS1QTM
TANK HEAT
2TB-3
H1
H2
H3
H4
4 RPM
1/2 RPM
LINE LEADS
(H) TO
H1 AND H4
H1 AND H4
3TS 2CR
71
* SEE INSIDE COVER
OF ELECTRIC BOOSTER
CONTROL BOX FOR
ELECTRICAL DIAGRAM
BOOSTER
CONTACTOR
*
208 VAC
3TB-1 3TB-4
* ELECTRIC BOOSTER
CONTROLS
UW50 Untensil Washer 208-240/60/3 Page 31 of 112

ELECTRICAL WIRING DIAGRAM CONTINUED
UW50 UTENSIL WASHER
BUILT PRIOR TO DEC 2008
ELECTRICAL HEAT
208-240/60/3
DERIVED FROM F-28314 REV G AI 3136
LID-FRONT
VIEW
1SS
1PB
1LT
2LT
DPS1
DPS2
RPS1
RPS2
CONTROL BOX
2CON SST
1TB
GND
1CR 2CR 3CR
1CON
1OL
1T
2TB
6TS
5TS
4TS
3TS
2TS
1TS
1FU
1TS-NO
NC
2TS-NO
NC
3TS-NO
NC
4TS-NO
NC
5TS-NO
NC
6TS-NO
NC
CYCLE/RESET
4 MIN CYCLE
2 MIN CYCLE
PUMP
FILL
RINSE
ALL TIMES STATED IN SECONDS
[2 MIN & FILL CYCLE]
(4 MIN CYCLE)
6 MIN CYCLE
[162] [163]
(262)(283)
354 355
(60) (73)
[30] [58]
[1] [132]
(1) (232)
1324
[1] [158]
[135] [159]
(235)(259)
327 351
VOLTS PHASE HEATER NO.
208 3 K-54
240 3 K-54
480 3 K-39
HEATER CHART
UW50 Untensil Washer 208-240/60/3 Page 32 of 112

WARNING
ELECTRICAL AND GROUNDING
CONNECTIONS MUST COMPLY
WITH THE APPLICABLE PORTIONS
OF THE NATIONAL ELECTRICAL
CODE AND/OR OTHER LOCAL
ELECTRICAL CODES.
1CON-NC
2TB-1
2TB-2
2TB-1
DERIVED FROM F-33023
WIRING DIAGRAM
UW50 UNTENSIL WASHER
BULT BEFORE SEPT. 2005
VENT FAN CONTROL
24
4TR
4TR
18
10 CON
C1 C3
10 CON
L1 T1
VENT FAN
CONTROL CIRCUIT
CONNECTIONS
VFC
GND
1CON
CNC
VFC
5CR
7
4
5
1CON
NCNC
2TB-1
2TB-2
2CR-1
B
A
4TR
VFC
(1CON-L1)
VENT FAN CONTROL BOXUW50 CONTROL BOX
1
DERIVED FROM F-33172 REV C
WHT
WHT
WHT
WHT
10CON
0
1
HOOD VENT ONLY
VFC
(1CON-L2)
POWER VENT ONLY
POWER VENT ONLY
POWER OR HOOD VENT
POWER VENT ONLY
VM
24
10CON
3FU
1.5AMP
VENT FAN
CONTROL
CIRCUIT
CONNECTION
MAXIMUM RATED
LOAD:1.5 AMPS
POWER VENT
ONLY
4TR, 5CR, CON-NC
POWER VENT ONLY
TRANSFORMER
CONNECTIONS
50/60 Hz
208V-LINE H1+H2
240V-LINE H1+H3
480V-LINE H1+H4
POWER VENT ONLY
HOOD
VENT
ONLY
3T
H1 H
X1 X2
2
3
1
5CR
INTERNAL
POTENTIOMETER
TO MAIN
CONTROL
BOX
SERVICE
GROUND
120V
WARNING
ELECTRICAL AND GROUNDING
CONNECTIONS MUST COMPLY
WITH THE APPLICABLE PORTIONS
OF THE NATIONAL ELECTRICAL
CODE AND/OR OTHER LOCAL
ELECTRICAL CODES.
WIRING DIAGRAM
UW50 UNTENSIL WASHER
BULT BETWEEN SEPT. 2005 & MARCH 2007
VENT FAN CONTROL AI 3139
UW50 Untensil Washer 208-240/60/3 Page 33 of 112

UW50
UTENSIL WASHER
ML-27838
CATALOG OF
REPLACEMENT
PARTS
A product of HOBART 701 S. RIDGE AVENUE TROY, OHIO 45374-0001
FORM 18243 Rev. E (May 2009)
UW50 Untensil Washer 208-240/60/3 Page 34 of 112

- 2 -
UW50 UTENSIL WASHER REPLACEMENT PARTS
F-18243 Rev. E (May 2009) © HOBART 2009
UW50 Untensil Washer 208-240/60/3 Page 35 of 112

- 3 -
UW50 UTENSIL WASHER REPLACEMENT PARTS
F-18243 Rev. E (May 2009)
Table of Contents
5 VENT FAN CONTROL (PREVIOUS CONSTRUCTION)
7 VENT FAN CONTROL (PREVIOUS CONSTRUCTION)
9 VENT FAN CONTROL (CURRENT CONSTRUCTION)
11 POWERED VENT FAN CONTROL
13 VENT EXHAUST ASSEMBLY
15 LOWER WASH ARM (2 UNITS REQUIRED) (PREVIOUS CONSTRUCTION)
17 LOWER WASH ARM (2 UNITS REQUIRED) (CURRENT CONSTRUCTION)
19 UPPER WASH ARM (2 UNITS REQUIRED) (PREVIOUS CONSTRUCTION)
21 UPPER WASH ARM (2 UNITS REQUIRED) (CURRENT CONSTRUCTION)
23 OUTSIDE RINSE PIPING (WITHOUT BOOSTER) (PREVIOUS CONSTRUCTION)
25 OUTSIDE RINSE PIPING (WITHOUT BOOSTER) (CURRENT CONSTRUCTION)
27 OUTSIDE RINSE PIPING (WITH BOOSTER) (PREVIOUS CONSTRUCTION)
29 OUTSIDE RINSE PIPING (WITH BOOSTER) (CURRENT CONSTRUCTION)
30 UPPER INSIDE RINSE PIPING
31 LOWER INSIDE RINSE PIPING
32 MANIFOLD FLANGE PIPING (USE WITH BOOSTER)
33 ELECTRIC BOOSTER
35 WASH PUMP (PREVIOUS CONSTRUCTION)
37 WASH PUMP (CURRENT CONSTRUCTION)
38 WASH DUCT
39 DOOR INTERLOCK
40 CHAMBERS, DOORS, AND TRACKS
42 CONTROL BOX (PREVIOUS CONSTRUCTION)
44 CONTROL BOX (CURRENT CONSTRUCTION)
47 ELECTRIC HEAT
49 STEAM INJECTOR HEAT
51 STEAM COIL HEAT
53 GAS HEAT IMMERSION TUBE, SHROUD, AND FLUE
55 CONTROL BOX (GAS HEAT)
57 GAS HEAT COMPONENTS
59 STRAINERS AND DRAIN
60 LOW WATER PROTECTION (STEAM HEAT/WASH TANK)
61 BOOSTER CONTROL BOX
62 THERMOMETER UNIT (WITHOUT BOOSTER)
63 THERMOMETER UNIT (WITH BOOSTER)
65 FRAMES AND PANELS
67 SPRAY HOSE
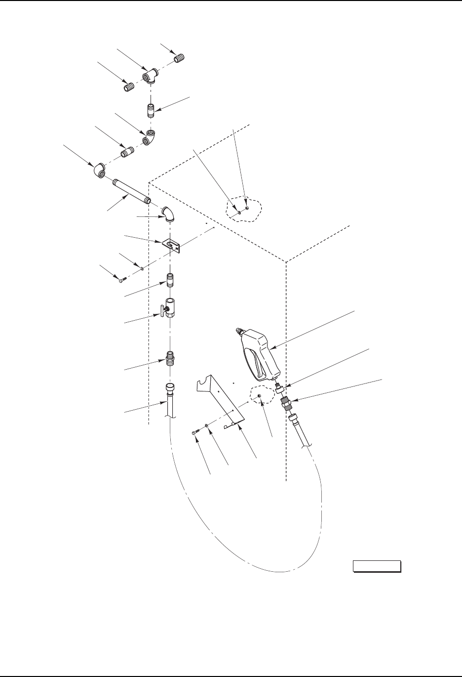
68 RACKS
UW50 Untensil Washer 208-240/60/3 Page 36 of 112

- 4 -
UW50 UTENSIL WASHER REPLACEMENT PARTS
F-18243 Rev. E (May 2009)
VENT FAN CONTROL
(PREVIOUS CONSTRUCTION)
24
1-2
10
3
20 THRU 23
18-19
4-5
6-7
8-9
11-12-13
15-16-17
14
PL-57139
UW50 Untensil Washer 208-240/60/3 Page 37 of 112

- 5 -
UW50 UTENSIL WASHER REPLACEMENT PARTS
F-18243 Rev. E (May 2009)
VENT FAN CONTROL
(PREVIOUS CONSTRUCTION)
ILLUS. PART NO. NAME OF PART AMT.
PL-57139
*1 00-473429 Box – Electrical (Incls. Lid) ........................................................................................................ 1
**2 00-748206-00001 Box – Electrical (Incls. Lid) ........................................................................................................ 1
3 00-473427 Plate – Base ..............................................................................................................................1
4 00-087714-020-1 Relay 24 VAC (DPDT) ............................................................................................................... 2
5 SD-008-18 Self-Tapping Screw 8-18 x 3/8 Phil. Bndg. Hd., Type T ............................................................... 4
6 00-118544-00001 Lug – Solderless ........................................................................................................................1
7 SD-008-25 Self-Tapping Screw 10-16 x 1/2 Phil. Pan Hd., Type B ............................................................... 1
8 00-814301-00004 Block – Terminal.........................................................................................................................1
9 SD-019-29 Self-Tapping Screw 6-20 x 1/2 Phil. Pan Hd., Type B ................................................................. 2
10 SC-041-05 Cap Screw
1/4-20 x 5/8 Hex Hd. ................................................................................................... 1
11 00-294500-00028 Transformer (50VA.) (208/240/380/480/60/3)(200/380/415/50/3) .............................................. 1
12 SD-008-25 Self-Tapping Screw 10-16 x 1/2 Phil. Pan Hd., Type B ...............................................................4
13 WL-007-12 Lockwasher #10 External Shakeproof .......................................................................................4
14 SD-008-18 Self-Tapping Screw 8-18 x 3/8 Phil. Bndg. Hd., Type T ............................................................... 1
15 00-294436-00003 Block – Fuse ..............................................................................................................................1
16 FE-022-28 Fuse (250 V., 0.5 Amp) ..............................................................................................................1
17 SD-008-17 Self-Tapping Screw 6-20 x 3/8 Phil. Bndg. Hd., Type B ..............................................................1
18 00-087713-086-1 Contactor – Double Pole ............................................................................................................1
19 SD-008-25 Self-Tapping Screw 10-16 x 1/2 Phil. Pan Hd., Type B ...............................................................2
20 00-087714-00036 Relay Time Delay (Variable) ......................................................................................................1
21 SD-036-13 Self-Tapping Screw
1/4-20 x 11/4 Hex Washer Hd., Type T ......................................................... 1
22 WL-007-15 Lockwasher
1/4 External Shakeproof ..........................................................................................1
23 00-437070-00001 Module – Plug-On ......................................................................................................................1
24 00-473437 Bracket – Control Panel ............................................................................................................. 1
* Used on Machines Built Before 2/4/98.
** Used on Machines Built After 2/4/98.
UW50 Untensil Washer 208-240/60/3 Page 38 of 112

- 6 -
UW50 UTENSIL WASHER REPLACEMENT PARTS
F-18243 Rev. E (May 2009)
VENT FAN CONTROL
(PREVIOUS CONSTRUCTION)
PL-57137
1
2
3
4
5
6
17
18
19
9
16
14
12
13
15
8
10
11
7
UW50 Untensil Washer 208-240/60/3 Page 39 of 112

- 7 -
UW50 UTENSIL WASHER REPLACEMENT PARTS
F-18243 Rev. E (May 2009)
VENT FAN CONTROL
(PREVIOUS CONSTRUCTION)
ILLUS. PART NO. NAME OF PART AMT.
PL-57137
1 00-328697 Bracket – Terminal Box Mounting ..............................................................................................1
2 SC-041-11 Cap Screw
5/16-18 x 3/4 Hex Hd. ................................................................................................. 2
3 WS-017-01 Washer .......................................................................................................................................4
4 WL-006-23 Lockwasher
5/16 Helical .............................................................................................................. 2
5 NS-015-11 Nut
5/16-18 Hex (SST) .................................................................................................................2
6 WL-006-17 Lockwasher
1/4 Helical (SST) ..................................................................................................... 4
7 SC-041-50 Cap Screw
1/4-20 x 1/2 Hex Hd. ................................................................................................... 4
8 00-892088 Plate – Base ..............................................................................................................................1
9 00-814301-00004 Block – Terminal.........................................................................................................................1
10 SD-019-29 Self-Tapping Screw 6-20 x 1/2 Phil. Pan Hd., Type B .................................................................2
11 SD-008-18 Self-Tapping Screw 8-18 x 3/8 Phil. Bndg. Hd., Type B .............................................................. 2
12 00-087714-046-1 Relay (2-Pole) (30 Amp.) ...........................................................................................................1
13 SD-036-13 Self-Tapping Screw
1/4-20 x 11/4 Hex Washer Hd., Type T ......................................................... 1
14 00-087714-020-2 Relay (3PDT) .............................................................................................................................1
15 SD-019-29 Self-Tapping Screw 6-20 x 1/2 Phil. Pan Hd., Type B .................................................................2
16 00-814123 Relay – Single-Shot Time Delay (With Built-In Potentiometer) ..................................................1
17 SD-034-59 Self-Tapping Screw 10-32 x 3/8 Phil. Pan Hd., Type T ................................................................ 1
18 00-118544-00001 Lug – Solderless ........................................................................................................................ 1
19 00-274949-00004 Box – Terminal (Incls. Lid)..........................................................................................................1
UW50 Untensil Washer 208-240/60/3 Page 40 of 112

- 8 -
UW50 UTENSIL WASHER REPLACEMENT PARTS
F-18243 Rev. E (May 2009)
VENT FAN CONTROL
(CURRENT CONSTRUCTION)
PL-58522
3
4
5
6
7
8
2
1
15
14
12
11 10
13
9
UW50 Untensil Washer 208-240/60/3 Page 41 of 112

- 9 -
UW50 UTENSIL WASHER REPLACEMENT PARTS
F-18243 Rev. E (May 2009)
VENT FAN CONTROL
(CURRENT CONSTRUCTION)
ILLUS. PART NO. NAME OF PART AMT.
PL-58522
1 00-918280 Plate – Base ..............................................................................................................................1
2 00-918282 Box – Terminal ...........................................................................................................................1
3 00-918281 Bracket – Terminal Mounting Box ..............................................................................................1
4 SC-041-11 Cap Screw
5/16-18 x 3/4 Hex Hd. ................................................................................................. 2
5 WS-017-01 Washer .......................................................................................................................................4
6 WL-006-23 Lockwasher
5/16 Helical .............................................................................................................. 2
7 NS-015-11 Nut
5/16-18 Hex (SST) .................................................................................................................2
8 WL-006-17 Lockwasher
1/4 Helical (SST) ..................................................................................................... 4
9 SC-041-50 Cap Screw
1/4-20 x 1/2 Hex Hd. ................................................................................................... 4
10 00-118544-00001 Lug – Solderless ........................................................................................................................ 1
11 SD-034-59 Self-Tapping Screw 10-32 x 3/8 Phil. Pan Hd., Type T ................................................................ 1
12 00-814301-00004 Block – Terminal.........................................................................................................................1
13 SD-019-29 Self-Tapping Screw 6-20 x 1/2 Phil. Pan Hd., Type B .................................................................2
14 SD-008-18 Self-Tapping Screw 8-18 x 3/8 Phil. Bndg. Hd., Type B ..............................................................2
15 00-087714-046-1 Relay (2-Pole) (30 Amp.) ...........................................................................................................1
UW50 Untensil Washer 208-240/60/3 Page 42 of 112

- 10 -
UW50 UTENSIL WASHER REPLACEMENT PARTS
F-18243 Rev. E (May 2009)
POWERED VENT FAN CONTROL
PL-58354
19
20
21
22
23
24
18
16
17
1
4
3
5
6
2
89
10
11 12
13
14
7
15
UW50 Untensil Washer 208-240/60/3 Page 43 of 112

- 11 -
UW50 UTENSIL WASHER REPLACEMENT PARTS
F-18243 Rev. E (May 2009)
POWERED VENT FAN CONTROL
ILLUS. PART NO. NAME OF PART AMT.
PL-58354
1 SD-019-29 Self-Tapping Screw 6-20 x 1/2 Phil. Pan Hd., Type B ................................................................. 2
2 00-087714-020-2 Relay (3PDT) ............................................................................................................................. 1
3 SD-036-13 Self-Tapping Screw
1/4-20 x 11/4 Hex Washer Hd., Type T ......................................................... 1
4 00-087714-046-1 Relay (2-Pole) (30 Amp.) ........................................................................................................... 1
5 SD-008-18 Self-Tapping Screw 8-18 x 3/8 Phil. Bndg. Hd., Type B .............................................................. 2
6 SD-019-29 Self-Tapping Screw 6-20 x 1/2 Phil. Pan Hd., Type B ................................................................. 2
7 00-814301-00004 Block – Terminal.........................................................................................................................1
8 SD-034-59 Self-Tapping Screw 10-32 x 3/8 Phil. Pan Hd., Type T ................................................................ 1
9 00-118544-00001 Lug – Solderless ........................................................................................................................1
10 FE-022-39 Fuse (250 V., 1.5 Amp.) .............................................................................................................1
11 SD-019-29 Self-Tapping Screw 6-20 x 1/2 Phil. Pan Hd. Type B ................................................................... 1
12 00-294436-00003 Block – Fuse ..............................................................................................................................1
13 00-918280 Plate – Base .............................................................................................................................. 1
14 00-814123 Relay – Single Shot Time Delay (With Built In Potentiometer) .................................................. 1
15 00-294500-052-1 Transformer (100 VA.) (50/60 Hz.) ............................................................................................. 1
16 SD-008-25 Self-Tapping Screw 10-16 x 1/2 Phil. Pan Hd. Type B ................................................................4
17 00-918282 Box – Terminal ...........................................................................................................................1
18 00-918281 Bracket – Terminal Mounting Box ..............................................................................................1
19 SC-041-11 Cap Screw
5/16-18 x 3/4 Hex Hd. ................................................................................................. 2
20 WS-017-01 Washer .......................................................................................................................................4
21 WL-006-23 Lockwasher
5/16 Helical .............................................................................................................. 2
22 NS-015-11 Nut
5/16-18 Hex (SST) .................................................................................................................2
23 WL-006-17 Lockwasher
1/4 Helical (SST) ..................................................................................................... 4
24 SC-041-50 Cap Screw
1/4-20 x 1/2 Hex Hd. ................................................................................................... 4
UW50 Untensil Washer 208-240/60/3 Page 44 of 112

- 12 -
UW50 UTENSIL WASHER REPLACEMENT PARTS
F-18243 Rev. E (May 2009)
VENT EXHAUST ASSEMBLY
PL-58355
9
11
10
2-3
1
4
5 THRU 8
UW50 Untensil Washer 208-240/60/3 Page 45 of 112

- 13 -
UW50 UTENSIL WASHER REPLACEMENT PARTS
F-18243 Rev. E (May 2009)
VENT EXHAUST ASSEMBLY
ILLUS. PART NO. NAME OF PART AMT.
PL-58355
1 00-892250 Blade – Fan (101/2-In. Wing) ...................................................................................................... 1
2 00-892353 Motor – Fan (Exhaust) (230 V.) (Previous Construction) ........................................................... 1
3 00-918088 Motor – Fan (Exhaust) (120 V.) (Current Construction) .............................................................1
4 00-892097 Duct – Exhaust ..........................................................................................................................1
5 FE-022-84 Relief – Strain ............................................................................................................................2
6 FE-024-88 Lock Nut – Electric 1/2 (Powered Vent Controls) ......................................................................... 2
7 FE-024-61 Connector – Conduit 1/2 to 45 Deg. (Nonpowered Vent Controls) .............................................1
8 FE-024-65 Connector – Conduit 1/2 to 90 Deg. (Nonpowered Vent Controls) .............................................1
9 00-812500 Vent – Weldment........................................................................................................................1
10 SC-067-07 Mach. Screw 10-24 x 1/2 Hex Hd. ............................................................................................... 4
11 WS-019-20 Washer ....................................................................................................................................... 4
00-814347 Vent – Stack (Incls. Item 9) ........................................................................................................1
00-918959 Kit – Powered Vent Fan (Incls. Items 1, 3, 4, 5, 6, 9, 10, & 11) ................................................. 1
UW50 Untensil Washer 208-240/60/3 Page 46 of 112

- 14 -
UW50 UTENSIL WASHER REPLACEMENT PARTS
F-18243 Rev. E (May 2009)
LOWER WASH ARM
(2 UNITS REQUIRED) (PREVIOUS CONSTRUCTION)
1
2
3
4
5
7
8
9
10
15
16
17
18
25
26
24
23
22
21
20
19
14
13
12
11
6
PL-57140
UW50 Untensil Washer 208-240/60/3 Page 47 of 112

- 15 -
UW50 UTENSIL WASHER REPLACEMENT PARTS
F-18243 Rev. E (May 2009)
LOWER WASH ARM
(2 UNITS REQUIRED) (PREVIOUS CONSTRUCTION)
ILLUS. PART NO. NAME OF PART AMT.
PL-57140
1 SC-021-98 Mach. Screw 8-32 x 3/8 Phil. Rd. Hd. ......................................................................................... 4
2 00-021137 Plate – Pivot Bearing .................................................................................................................1
3 00-122633 Body – Lower Rinse Arm ........................................................................................................... 1
4 00-122443-00002 Arm – Rinse (4 Nozzle Holes) ................................................................................................... 1
5 00-022731-00001 Nozzle – Rinse ........................................................................................................................... 9
6 00-122440 Plug – Rinse Arm .......................................................................................................................2
7 00-286946 Bearing Pin & Washer Assy. ......................................................................................................1
8 SC-027-28 Mach. Screw 8-32 x 3/8 Slotted Rd. Hd. (Brass) .........................................................................3
9 WL-010-01 Lockwasher #8 External Shakeproof ......................................................................................... 3
10 00-067500-00057 O-Ring .......................................................................................................................................1
11 WL-006-23 Lockwasher
5/16 Medium (SST) .................................................................................................. 2
12 SC-041-09 Cap Screw
5/16-18 x 1/2 Hex Hd. ................................................................................................. 2
13 NS-031-29 Stop Nut
5/16-18 (Elastic) ............................................................................................................ 2
14 SC-041-10 Cap Screw
5/16-18 x 5/8 Hex Hd. ................................................................................................. 2
15 00-811816 Bracket – Support ......................................................................................................................1
16 00-289084 Elbow – Upper Wash .................................................................................................................1
17 00-122437 Shaft – Upper Wash Arm ........................................................................................................... 1
18 00-811828 Spacer – Upper Wash Arm ........................................................................................................1
19 00-286948 Hub ............................................................................................................................................1
20 BA-002-40 Ball
1/4 Dia. ................................................................................................................................13
21 00-067500-00019 O-Ring .......................................................................................................................................1
22 00-286947 Retainer – Ball ...........................................................................................................................1
23 00-287987 Wash Arm & Hub Assy. (Incls. Items 19 thru 22) .......................................................................1
24 00-122442-00002 Arm – Rinse (5 Nozzle Holes) ...................................................................................................1
25 SC-110-44 Set Screw
5/16-18 x 3/8 Socket Hdls., Cone Pt. (Nylon) ............................................................... 2
26 WL-006-01 Lockwasher #8 Helical ...............................................................................................................4
00-811831 Lower Rinse Arm Assy. (2 Per Machine) (Incls. Items 1 thru 6, 24, 25, & 26) ........................... 1
UW50 Untensil Washer 208-240/60/3 Page 48 of 112

- 16 -
UW50 UTENSIL WASHER REPLACEMENT PARTS
F-18243 Rev. E (May 2009)
LOWER WASH ARM
(2 UNITS REQUIRED) (CURRENT CONSTRUCTION)
1
3
4
18
13
12
11
10
5
6
7
8
9
14
15
16
17
2
PL-59006
UW50 Untensil Washer 208-240/60/3 Page 49 of 112

- 17 -
UW50 UTENSIL WASHER REPLACEMENT PARTS
F-18243 Rev. E (May 2009)
LOWER WASH ARM
(2 UNITS REQUIRED) (CURRENT CONSTRUCTION)
ILLUS. PART NO. NAME OF PART AMT.
PL-59006
1 00-893093-00001 Arm Assy. – Rinse (2 Per Machine) ...........................................................................................1
2 00-893093-00002 Plug Nut – Rinse Arm ................................................................................................................ 2
3 SC-027-28 Mach. Screw 8-32 x 3/8 Slotted Rd. Hd. (Brass) .........................................................................3
4 WL-010-01 Lockwasher #8 External Shakeproof ......................................................................................... 3
5 00-287987 Wash Arm & Hub Assy. (Incls. Items 6 thru 9) ........................................................................... 1
6 00-286947 Retainer – Ball ........................................................................................................................... 1
7 00-067500-00019 O-Ring ....................................................................................................................................... 1
8 BA-002-40 Ball
1/4 Dia. ................................................................................................................................13
9 00-286948 Hub ............................................................................................................................................1
10 00-811828 Spacer – Upper Wash Arm ........................................................................................................1
11 00-122437 Shaft – Upper Wash Arm ...........................................................................................................1
12 00-289084 Elbow – Upper Wash .................................................................................................................1
13 00-811816 Bracket – Support ......................................................................................................................1
14 SC-041-10 Cap Screw
5/16-18 x 5/8 Hex Hd. ................................................................................................. 2
15 NS-031-29 Stop Nut
5/16-18 (Elastic) ............................................................................................................ 2
16 SC-041-09 Cap Screw
5/16-18 x 1/2 Hex Hd. ................................................................................................. 2
17 WL-006-23 Lockwasher
5/16 Medium (SST) .................................................................................................. 2
18 00-067500-00057 O-Ring .......................................................................................................................................1
UW50 Untensil Washer 208-240/60/3 Page 50 of 112

- 18 -
UW50 UTENSIL WASHER REPLACEMENT PARTS
F-18243 Rev. E (May 2009)
4
6
8
9
5
15
12
10
11
20
21
2
1
3
7
19
14
13
16
17
18
PL-52120
UPPER WASH ARM
(2 UNITS REQUIRED) (PREVIOUS CONSTRUCTION)
UW50 Untensil Washer 208-240/60/3 Page 51 of 112

- 19 -
UW50 UTENSIL WASHER REPLACEMENT PARTS
F-18243 Rev. E (May 2009)
UPPER WASH ARM
(2 UNITS REQUIRED) (PREVIOUS CONSTRUCTION)
ILLUS. PART NO. NAME OF PART AMT.
PL-52120
1 SC-041-09 Cap Screw
5/16-18 x 1/2 Hex Hd. ................................................................................................. 2
2 00-067500-00057 O-Ring ....................................................................................................................................... 1
3 00-289084 Elbow – Upper Wash ................................................................................................................. 1
4 00-122437 Shaft – Upper Wash Arm ...........................................................................................................1
5 00-286948 Hub ............................................................................................................................................1
6 00-067500-00019 O-Ring ....................................................................................................................................... 1
7 BA-002-40 Ball
1/4 Dia. ................................................................................................................................13
8 00-286947 Retainer – Ball ........................................................................................................................... 1
9 00-287987 Wash Arm & Hub Assy. (Incls. Items 5 thru 8) ........................................................................... 1
10 WL-010-01 Lockwasher #8 External Shakeproof .........................................................................................3
11 SC-027-28 Mach. Screw 8-32 x 3/8 Slotted Rd. Hd. (Brass) .........................................................................3
12 00-122438 Upper Rinse Shaft Assy. ............................................................................................................ 1
13 00-122440 Plug – Rinse Arm ....................................................................................................................... 2
14 00-287908 Arm – Outside Rinse (5 Nozzle Holes) ...................................................................................... 1
15 SC-110-44 Set Screw
5/16-18 x 3/8 Socket Hdls., Cone Pt. (Nylon) ............................................................... 2
16 00-122445 Handle .......................................................................................................................................1
17 RR-011-03 Retaining Ring ...........................................................................................................................1
18 00-122632 Washer – Thrust ........................................................................................................................1
19 00-122401 Hub – Rinse Arm ........................................................................................................................1
20 00-287913 Arm – Inside Rinse (6 Nozzle Holes) ......................................................................................... 1
21 00-022731-00001 Nozzle – Rinse .......................................................................................................................... 11
00-811832 Rinse Arm Assy. (Incls. Items 12 thru 21) .................................................................................. 1
UW50 Untensil Washer 208-240/60/3 Page 52 of 112

- 20 -
UW50 UTENSIL WASHER REPLACEMENT PARTS
F-18243 Rev. E (May 2009)
UPPER WASH ARM
(2 UNITS REQUIRED) (CURRENT CONSTRUCTION)
4
6
8
9
12
13
5
10
11
1
2-3
7
PL-59007
UW50 Untensil Washer 208-240/60/3 Page 53 of 112

- 21 -
UW50 UTENSIL WASHER REPLACEMENT PARTS
F-18243 Rev. E (May 2009)
UPPER WASH ARM
(2 UNITS REQUIRED) (CURRENT CONSTRUCTION)
ILLUS. PART NO. NAME OF PART AMT.
PL-59007
1 SC-041-09 Cap Screw
5/16-18 x 1/2 Hex Hd. ................................................................................................. 2
2 00-067500-00057 O-Ring ....................................................................................................................................... 1
3 00-289084 Elbow – Upper Wash ................................................................................................................. 1
4 00-814345 Shaft – Upper Wash Arm ...........................................................................................................1
5 00-286948 Hub ............................................................................................................................................1
6 00-067500-00019 O-Ring ....................................................................................................................................... 1
7 BA-002-40 Ball
1/4 Dia. ................................................................................................................................13
8 00-286947 Retainer – Ball ........................................................................................................................... 1
9 00-287987 Wash Arm & Hub Assy. (Incls. Items 5 thru 8) ........................................................................... 1
10 WL-010-01 Lockwasher #8 External Shakeproof .........................................................................................3
11 SC-027-28 Mach. Screw 8-32 x 3/8 Slotted Rd. Hd. (Brass) .........................................................................3
12 00-893093-00001 Rinse Arm Assy. .........................................................................................................................1
13 00-893093-00002 Plug Nut – Rinse Arm ................................................................................................................2
UW50 Untensil Washer 208-240/60/3 Page 54 of 112

- 22 -
UW50 UTENSIL WASHER REPLACEMENT PARTS
F-18243 Rev. E (May 2009)
OUTSIDE RINSE PIPING
(WITHOUT BOOSTER) (PREVIOUS CONSTRUCTION)
9-10-11
12-13
14
15
16
17
18
19
20
21 THRU 24
25
1 THRU 4 5
6
26
7
8
PL-57142
UW50 Untensil Washer 208-240/60/3 Page 55 of 112

- 23 -
UW50 UTENSIL WASHER REPLACEMENT PARTS
F-18243 Rev. E (May 2009)
OUTSIDE RINSE PIPING
(WITHOUT BOOSTER) (PREVIOUS CONSTRUCTION)
ILLUS. PART NO. NAME OF PART AMT.
PL-57142
1 00-186922 Strainer – Line 3/4 (Brass)........................................................................................................... 1
2 00-186923 Plug – Branch (3/4 Line Strainer) ................................................................................................ 1
3 00-186924 Gasket (3/4 Line Strainer) ........................................................................................................... 1
4 00-186925 Screen (3/4 Line Strainer) ........................................................................................................... 1
5 FP-041-53 Pipe
3/4 x 13/4 Lg. TBE (Brass) .................................................................................................... 1
6 FP-015-23 Elbow
3/4 x 90 Deg. (Brass) ........................................................................................................1
7 00-918460 Gauge – Water Pressure ........................................................................................................... 1
8 00-119066 Tee – Pressure Gauge ...............................................................................................................1
9 00-271002-00001 Valve – Solenoid 3/4 (110-120 V.) ............................................................................................... 1
10 00-271838 Service Kit – 3/4 Solenoid Valve .................................................................................................. 1
11 00-271839-00001 Coil – Solenoid Valve .................................................................................................................1
12 00-277112 Vacuum Breaker (3/4) .................................................................................................................. 1
13 00-118270 Service Kit – Vacuum Breaker (Float & Seal Assy.) ...................................................................1
14 00-812556 Final Rinse Outside Piping (R-L) ...............................................................................................1
15 SC-041-13 Cap Screw
5/16-18 x 1 Hex Hd. (SST) ........................................................................................ 2
16 00-067500-00012 O-Ring .......................................................................................................................................1
17 WL-006-23 Lockwasher
5/16 Medium (SST) ................................................................................................. 2
18 NS-015-11 Nut
5/16-18 Hex ........................................................................................................................... 2
19 00-271001 Piping – Final Rinse ................................................................................................................... 1
20 00-893696 Bracket – Mounting .................................................................................................................... 1
21 SC-041-12 Cap Screw
5/16-18 x 7/8 Hex Hd. ................................................................................................. 2
22 WS-029-05 Washer .......................................................................................................................................4
23 WL-006-23 Lockwasher
5/16 Medium (SST) .................................................................................................. 2
24 NS-015-11 Nut
5/16-18 Hex ........................................................................................................................... 2
25 00-473041 Valve – Ball (1/4 turn) .................................................................................................................. 1
26 FP-028-03 Pipe Plug
1/8 Sq. Hd. (Brass)......................................................................................................1
UW50 Untensil Washer 208-240/60/3 Page 56 of 112

- 24 -
UW50 UTENSIL WASHER REPLACEMENT PARTS
F-18243 Rev. E (May 2009)
OUTSIDE RINSE PIPING
(WITHOUT BOOSTER) (CURRENT CONSTRUCTION)
PL-59008
1 THRU 4
5
6-7-8
9
10
11
12
13
14
17
18
19
20
21
22
26
25
24
23
27
15-16
UW50 Untensil Washer 208-240/60/3 Page 57 of 112

- 25 -
UW50 UTENSIL WASHER REPLACEMENT PARTS
F-18243 Rev. E (May 2009)
OUTSIDE RINSE PIPING
(WITHOUT BOOSTER) (CURRENT CONSTRUCTION)
ILLUS. PART NO. NAME OF PART AMT.
PL-59008
1 00-186922 Strainer – Line 3/4 (Brass)........................................................................................................... 1
2 00-186923 Plug – Branch (3/4 Line Strainer) ................................................................................................ 1
3 00-186924 Gasket (3/4 Line Strainer) ........................................................................................................... 1
4 00-186925 Screen (3/4 Line Strainer) ........................................................................................................... 1
5 FP-041-60 Pipe
3/4 x 25/8 Lg. TBE (Brass) .................................................................................................... 1
6 00-271002-00001 Valve – Solenoid 3/4 (110-120 V.) ............................................................................................... 1
7 00-271838 Service Kit – 3/4 Solenoid Valve ..................................................................................................1
8 00-271839-00001 Coil – Solenoid Valve .................................................................................................................1
9 FP-041-72 Pipe
3/4 x 31/8 Lg. TBE (Brass) .................................................................................................... 1
10 FP-015-23 Elbow
3/4 x 90 Deg. (Brass) ........................................................................................................1
11 FP-041-50 Pipe
3/4 x 13/8 Lg. TBE (Brass) .................................................................................................... 1
12 FP-019-86 Tee
3/4 x 3/4 x 1/4 (Brass) .............................................................................................................. 1
13 00-918460 Gauge – Water Pressure ...........................................................................................................1
14 FP-041-50 Pipe
3/4 x 13/8 Lg. TBE (Brass) .................................................................................................... 1
15 00-277112-00003 Vacuum Breaker (3/4) .................................................................................................................. 1
16 00-118270 Service Kit – Vacuum Breaker (Float & Seal Assy.) ...................................................................1
17 00-812556 Final Rinse Outside Piping (R-L) ...............................................................................................1
18 FP-028-03 Pipe Plug
1/8 Sq. Hd. (Brass)......................................................................................................1
19 SC-041-13 Cap Screw
5/16-18 x 1 Hex Hd. (SST) ........................................................................................ 2
20 WL-006-23 Lockwasher
5/16 Medium (SST) ................................................................................................. 2
21 NS-015-11 Nut
5/16-18 Hex ........................................................................................................................... 2
22 00-067500-00012 O-Ring .......................................................................................................................................1
23 SC-041-12 Cap Screw
5/16-18 x 7/8 Hex Hd. ................................................................................................. 2
24 WS-029-05 Washer .......................................................................................................................................4
25 WL-006-23 Lockwasher
5/16 Medium (SST) .................................................................................................. 2
26 NS-015-11 Nut
5/16-18 Hex ........................................................................................................................... 2
27 00-814272 Bracket – Fill Piping ................................................................................................................... 1
00-814270 Piping – Final Rinse (Incls. Items 1 thru 17) ..............................................................................1
UW50 Untensil Washer 208-240/60/3 Page 58 of 112

- 26 -
UW50 UTENSIL WASHER REPLACEMENT PARTS
F-18243 Rev. E (May 2009)
OUTSIDE RINSE PIPING
(WITH BOOSTER) (PREVIOUS CONSTRUCTION)
27-28-29
30-31
6789
5
36
34 35
123
4
33
32
23 THRU 26
22
21
20
19
18 17
16
12 THRU 15
11
10
PL-57143
UW50 Untensil Washer 208-240/60/3 Page 59 of 112

- 27 -
UW50 UTENSIL WASHER REPLACEMENT PARTS
F-18243 Rev. E (May 2009)
OUTSIDE RINSE PIPING
(WITH BOOSTER) (PREVIOUS CONSTRUCTION)
ILLUS. PART NO. NAME OF PART AMT.
PL-57143
1 FP-041-50 Pipe
3/4 x 13/8 Lg. TBE (Brass) .................................................................................................... 1
2 FP-019-28 Tee – Pipe 3/4 x 3/4 x 3/4 ............................................................................................................... 1
3 FP-041-50 Pipe
3/4 x 13/8 Lg. TBE (Brass) .................................................................................................... 1
4 FP-015-23 Elbow
3/4 x 90 Deg. (Brass) ........................................................................................................1
5 00-812338 Piping – Breaker/Flange ............................................................................................................ 1
6 SC-041-13 Cap Screw
5/16-18 x 1 Hex Hd. (SST) ........................................................................................ 2
7 00-067500-00012 O-Ring ....................................................................................................................................... 1
8 WL-006-23 Lockwasher
5/16 Medium (SST) .................................................................................................. 2
9 NS-015-11 Nut
5/16 -18 Hex ........................................................................................................................... 2
10 00-812716 Piping – Final Rinse ................................................................................................................... 1
11 00-435967 Plate – Fill Piping .......................................................................................................................1
12 SC-041-12 Cap Screw
5/16-18 x 7/8 Hex Hd. ................................................................................................. 2
13 WS-029-05 Washer .......................................................................................................................................4
14 WL-006-23 Lockwasher
5/16 Medium (SST) .................................................................................................. 2
15 NS-015-11 Nut
5/16 -18 Hex ........................................................................................................................... 2
16 FP-041-60 Pipe
3/4 x 25/8 TBE (Brass) .......................................................................................................... 1
17 FP-015-23 Elbow
3/4 x 90 Deg. (Brass) ........................................................................................................1
18 FP-041-60 Pipe
3/4 x 25/8 TBE (Brass) .......................................................................................................... 1
19 00-223220-00003 Valve – Ball (3/4) ......................................................................................................................... 1
20 FP-087-32 Fitting – Hose .............................................................................................................................1
21 FP-041-60 Pipe
3/4 x 25/8 TBE (Brass) .......................................................................................................... 1
22 FP-015-23 Elbow
3/4 x 90 Deg. (Brass) ........................................................................................................1
23 00-186922 Strainer – Line 3/4 (Brass)...........................................................................................................1
24 00-186923 Plug – Branch (3/4 Line Strainer) ................................................................................................1
25 00-186924 Gasket (3/4 Line Strainer) ........................................................................................................... 1
26 00-186925 Screen (3/4 Line Strainer) ........................................................................................................... 1
27 00-271002-00001 Valve – Solenoid 3/4 (110-120 V.) ...............................................................................................1
28 00-271838 Service Kit – 3/4 Solenoid Valve .................................................................................................. 1
29 00-271839-00001 Coil – Solenoid Valve ................................................................................................................. 1
30 00-277112 Vacuum Breaker (3/4) ................................................................................................................. 1
31 00-118270 Service Kit – Vacuum Breaker (Float & Seal Assy.) ...................................................................1
32 FP-015-23 Elbow
3/4 x 90 Deg. (Brass) ........................................................................................................1
33 FP-042-15 Pipe
3/4 x 81/2 TBE (Brass) .......................................................................................................... 1
34 00-918460 Gauge – Water Pressure ...........................................................................................................1
35 00-473041 Valve – Ball (1/4 Turn) ................................................................................................................. 1
36 00-119066 Tee – Pressure Gauge ...............................................................................................................1
UW50 Untensil Washer 208-240/60/3 Page 60 of 112

- 28 -
UW50 UTENSIL WASHER REPLACEMENT PARTS
F-18243 Rev. E (May 2009)
OUTSIDE RINSE PIPING
(WITH BOOSTER) (CURRENT CONSTRUCTION)
PL-59009
1
2
3
4
5
6
7
8
9
15
14
10 THRU 13
16
35
37
36
34
33
20
21
22
23
32
24 27
31
30
29
28
25-26
17-18-19
UW50 Untensil Washer 208-240/60/3 Page 61 of 112

- 29 -
UW50 UTENSIL WASHER REPLACEMENT PARTS
F-18243 Rev. E (May 2009)
OUTSIDE RINSE PIPING
(WITH BOOSTER) (CURRENT CONSTRUCTION)
ILLUS. PART NO. NAME OF PART AMT.
PL-59009
1 FP-087-32 Fitting – Hose .............................................................................................................................1
2 00-223220-00003 Valve – Ball (3/4) ......................................................................................................................... 1
3 FP-041-60 Pipe
3/4 x 25/8 TBE (Brass) .......................................................................................................... 1
4 FP-015-23 Elbow
3/4 x 90 Deg. (Brass) ........................................................................................................1
5 FP-041-60 Pipe
3/4 x 25/8 TBE (Brass) .......................................................................................................... 1
6 FP-015-23 Elbow
3/4 x 90 Deg. (Brass) ........................................................................................................1
7 FP-041-96 Pipe
3/4 x 6 Lg. TBE (Brass) .......................................................................................................1
8 FP-015-23 Elbow
3/4 x 90 Deg. (Brass) ........................................................................................................1
9 FP-041-53 Pipe
3/4 x 13/4 TBE (Brass) .......................................................................................................... 1
10 00-186922 Strainer – Line 3/4 (Brass)...........................................................................................................1
11 00-186923 Plug – Branch (3/4 Line Strainer) ................................................................................................ 1
12 00-186924 Gasket (3/4 Line Strainer) ........................................................................................................... 1
13 00-186925 Screen (3/4 Line Strainer) ........................................................................................................... 1
14 FP-041-50 Pipe
3/4 x 13/8 Lg. TBE (Brass) .................................................................................................... 1
15 FP-019-28 Tee – Pipe 3/4 x 3/4 x 3/4 ............................................................................................................... 1
16 FP-041-60 Pipe
3/4 x 25/8 TBE (Brass) .......................................................................................................... 1
17 00-271002-00001 Valve – Solenoid 3/4 (110-120 V.) ...............................................................................................1
18 00-271838 Service Kit – 3/4 Solenoid Valve .................................................................................................. 1
19 00-271839-00001 Coil – Solenoid Valve ................................................................................................................. 1
20 FP-041-72 Pipe
3/4 x 31/8 Lg. TBE (Brass) .................................................................................................... 1
21 FP-015-23 Elbow
3/4 x 90 Deg. (Brass) ........................................................................................................1
22 FP-041-50 Pipe
3/4 x 13/8 Lg. TBE (Brass) .................................................................................................... 1
23 FP-019-86 Tee – Pipe 3/4 x 3/4 x 1/4 (Brass) ................................................................................................... 1
24 FP-041-50 Pipe
3/4 x 13/8 Lg. TBE (Brass) .................................................................................................... 1
25 00-277112-00003 Vacuum Breaker (3/4) .................................................................................................................. 1
26 00-118270 Service Kit – Vacuum Breaker (Float & Seal Assy.) ...................................................................1
27 00-812338 Piping – Breaker/Flange ............................................................................................................1
28 00-067500-00012 O-Ring .......................................................................................................................................1
29 NS-015-11 Nut
5/16 -18 Hex ........................................................................................................................... 2
30 WL-006-23 Lockwasher 5/16 Medium (SST) ...............................................................................................2
31 SC-041-13 Cap Screw
5/16-18 x 1 Hex Hd. (SST) ........................................................................................ 2
32 00-918460 Gauge – Water Pressure ...........................................................................................................1
33 NS-015-11 Nut
5/16 -18 Hex ........................................................................................................................... 2
34 WL-006-23 Lockwasher
5/16 Medium (SST) .................................................................................................. 2
35 00-814271 Plate – Fill Piping ....................................................................................................................... 1
36 WS-029-05 Washer .......................................................................................................................................4
37 SC-041-12 Cap Screw
5/16-18 x 7/8 Hex Hd. ................................................................................................. 2
UW50 Untensil Washer 208-240/60/3 Page 62 of 112

- 30 -
UW50 UTENSIL WASHER REPLACEMENT PARTS
F-18243 Rev. E (May 2009)
UPPER INSIDE RINSE PIPING
ILLUS. PART NO. NAME OF PART AMT.
PL-50502
1 00-122402-00002 Flange ........................................................................................................................................2
2 00-276407 Gasket – Rinse Pipe ..................................................................................................................4
3 WL-006-23 Lockwasher
5/16 Medium (SST) .................................................................................................. 8
4 SC-041-10 Cap Screw
5/16-18 x 5/8 Hex Hd. ................................................................................................. 8
5 00-811820 Upper Rinse Piping Assy............................................................................................................ 1
6 00-276407 Gasket – Rinse Pipe ..................................................................................................................1
7 SC-041-15 Cap Screw
5/16-18 x 11/4 Hex Hd. ................................................................................................ 2
8 WL-006-23 Lockwasher
5/16 Medium (SST) .................................................................................................. 2
9 NS-015-11 Nut
5/16-18 Hex ........................................................................................................................... 2
7
8
1
2
3
4
5
6
9PL-50502
UW50 Untensil Washer 208-240/60/3 Page 63 of 112

- 31 -
UW50 UTENSIL WASHER REPLACEMENT PARTS
F-18243 Rev. E (May 2009)
LOWER INSIDE RINSE PIPING
ILLUS. PART NO. NAME OF PART AMT.
PL-50503
1 SC-041-10 Cap Screw
5/16-18 x 5/8 Hex Hd. ................................................................................................. 8
2 WL-006-23 Lockwasher
5/16 Medium (SST) .................................................................................................. 8
3 00-276407 Gasket – Rinse Pipe ..................................................................................................................4
4 00-122402-00002 Flange ........................................................................................................................................2
5 00-811819 Lower Rinse Piping Assy............................................................................................................ 1
6 00-067500-00012 O-Ring ....................................................................................................................................... 1
6
1234
5
PL-50503
UW50 Untensil Washer 208-240/60/3 Page 64 of 112

- 32 -
UW50 UTENSIL WASHER REPLACEMENT PARTS
F-18243 Rev. E (May 2009)
MANIFOLD FLANGE PIPING
(USE WITH BOOSTER)
ILLUS. PART NO. NAME OF PART AMT.
PL-51397
1 00-067500-00012 O-Ring ....................................................................................................................................... 1
2 00-812340 Manifold Flange Piping Assy. .....................................................................................................1
3 SC-041-14 Cap Screw
5/16-18 x 11/8 Hex Hd. (SST) ..................................................................................... 2
4 FP-052-20 Pipe Plug
1/8 Sq. Hd. (SST) .......................................................................................................1
PL-51397
2
4
3
1
UW50 Untensil Washer 208-240/60/3 Page 65 of 112

- 33 -
UW50 UTENSIL WASHER REPLACEMENT PARTS
F-18243 Rev. E (May 2009)
ELECTRIC BOOSTER
ILLUS. PART NO. NAME OF PART AMT.
PL-57144
1 00-812347 Booster ...................................................................................................................................... 2
2 00-812341 Upper – Flange Piping ...............................................................................................................1
3 00-271123 Protector – High Limit ................................................................................................................2
4 00-293946 Sleeve – Lead ............................................................................................................................2
5 SC-021-98 Mach. Screw 8-32 x 3/8 Rd. Hd. (SST) ....................................................................................... 4
6 NS-031-08 Stop Nut 8-32 Special ................................................................................................................ 4
7 00-067500-00012 O-Ring ....................................................................................................................................... 2
8 WL-006-17 Lockwasher
1/4 Helical (SST) ..................................................................................................... 4
9 NS-015-01 Nut
1/4-20 Hex (SST) ..................................................................................................................4
10 00-329009 Gasket – Heater Mounting ......................................................................................................... 2
11 WL-006-17 Lockwasher
1/4 Helical (SST) ..................................................................................................... 8
12 NS-014-01 Nut
1/4-20 Hex (Brass) ................................................................................................................8
13 00-812349-00001 Heating Element (240 V., 7000 Watts) ....................................................................................... 2
14 00-812349-00002 Heating Element (208 V., 7000 Watts) ....................................................................................... 2
15 00-812349-00003 Heating Element (480 V., 7000 Watts) ....................................................................................... 2
16 00-812349-00004 Element – Booster Heater (380/415/50/60/3) (7000-8300 Watts) ............................................. 2
17 FP-052-20 Pipe Plug
1/8 Sq. Hd. (SST) ........................................................................................................1
18 SC-041-05 Cap Screw
1/4-20 x 5/8 Hex Hd. ................................................................................................... 6
19 NS-031-19 Stop Nut
1/4-20 (Elastic) (SST) ...................................................................................................6
20 FP-052-20 Pipe Plug
1/8 Sq. Hd. (SST) ........................................................................................................1
21 00-067500-00012 O-Ring .......................................................................................................................................2
22 WL-006-17 Lockwasher
1/4 Helical (SST) ..................................................................................................... 4
23 NS-015-01 Nut
1/4-20 Hex (SST) ..................................................................................................................4
24 00-812339 Lower – Flange Piping ............................................................................................................... 1
25 NS-015-11 Nut
5/16-18 Hex ........................................................................................................................... 4
26 WL-006-23 Lockwasher
5/16 Medium (SST) .................................................................................................. 4
27 FP-052-20 Pipe Plug
1/8 Sq. Hd. (SST) ........................................................................................................1
28 00-289364 Spacer .......................................................................................................................................1
29 00-294677-00003 Clamp – Wire (3/4 I.D.) ................................................................................................................ 1
30 NS-031-50 Stop Nut 6-32 Hex ..................................................................................................................... 1
31 00-328994 Sensor – Probe .......................................................................................................................... 1
00-812344-00001 Booster Enclosure .....................................................................................................................1
SC-041-05 Cap Screw
1/4-20 x 5/8 Hex Hd. ................................................................................................... 3
NS-031-19 Stop Nut
1/4-20 (Elastic) (SST) ...................................................................................................3
00-812346 Cover – Booster Enclosure ........................................................................................................ 1
SC-066-06 Mach. Screw 10-24 x 1/2 Truss Hd. (SST) .................................................................................. 4
1
2
7
3 THRU 6
8
9
10
11
12
21
20 18-19
22
31
17
23
24
25
27
26
28-29-30
13 THRU 16
PL-57144
UW50 Untensil Washer 208-240/60/3 Page 66 of 112

- 34 -
UW50 UTENSIL WASHER REPLACEMENT PARTS
F-18243 Rev. E (May 2009)
WASH PUMP
(PREVIOUS CONSTRUCTION)
1
2
3-4
5
6
7
9
10
11
12
13-14-15
16
17
18
20
21
22
23
24
25
26
27
28
29
30
31
32
33
34 THRU 37
38
39
8
19
PL-57145
UW50 Untensil Washer 208-240/60/3 Page 67 of 112

- 35 -
UW50 UTENSIL WASHER REPLACEMENT PARTS
F-18243 Rev. E (May 2009)
WASH PUMP
(PREVIOUS CONSTRUCTION)
ILLUS. PART NO. NAME OF PART AMT.
PL-57145
1 NS-015-11 Nut
5/16-18 Hex ........................................................................................................................... 4
2 WL-006-22 Lockwasher
5/16 Light ................................................................................................................. 4
*3 00-067036 Gasket – Adapter Plate ..............................................................................................................1
**4 00-813465 Gasket – Wash Duct ..................................................................................................................1
5 00-166258 Discharge ...................................................................................................................................1
6 SC-041-18 Cap Screw
5/16-18 x 13/4 Hex Hd. (SST) ..................................................................................... 4
7 00-811869 Gasket .......................................................................................................................................1
8 00-163409-00001 Nut M10 Hex .............................................................................................................................. 1
9 00-813403 Impeller ...................................................................................................................................... 1
10 KW-003-04 Key – Woodruff 1/8 x 1/2 ............................................................................................................... 1
11 WS-017-08 Washer ....................................................................................................................................... 6
12 00-163407-00002 Screw M8 x 25 mm Hex Hd. ......................................................................................................6
13 00-166686-00017 Motor (208/60/3) ........................................................................................................................ 1
14 00-166686-00018 Motor (240/60/3) ........................................................................................................................ 1
15 00-166686-00016 Motor (480/60/3) ........................................................................................................................ 1
16 00-114696 Shaft Seal Assy. (5/8) .................................................................................................................. 1
17 00-163408-00001 Washer ....................................................................................................................................... 1
18 00-811817 Shroud – Pump ..........................................................................................................................1
19 00-813484 Ring – Clamping ........................................................................................................................1
20 00-163311 Plate – Mounting (Pump Intake Baffl e) ...................................................................................... 2
21 00-163409-00002 Nut M8 Hex ................................................................................................................................ 4
22 WL-006-23 Lockwasher
5/16 Helical .............................................................................................................. 4
23 WS-017-21 Washer .......................................................................................................................................4
24 00-811868 Gasket .......................................................................................................................................1
25 00-163410 Plug
1/2 ......................................................................................................................................1
26 00-811870 Gasket ......................................................................................................................................1
27 00-165034 Plate – Cover ............................................................................................................................. 1
28 WS-017-08 Washer .......................................................................................................................................4
29 WL-006-22 Lockwasher
5/16 Light ................................................................................................................. 4
30 00-163407-00002 Screw M8 x 25 mm Hex Hd. ......................................................................................................4
31 NS-015-11 Nut
5/16-18 Hex ........................................................................................................................... 4
32 WL-006-22 Lockwasher
5/16 Light ................................................................................................................. 4
33 WS-017-08 Washer .......................................................................................................................................4
34 FP-028-46 Pipe Plug
1/4 Slotted Hd. (Brass) ................................................................................................1
35 00-893854 Pet Cock (1/4)..............................................................................................................................1
36 FP-040-08 Pipe
1/4 x 7/8 TBE (Brass) ............................................................................................................ 1
37 00-168438 Pump Shell ................................................................................................................................1
38 00-009934-00001 Gasket – Drain Flange ............................................................................................................... 1
39 SC-041-18 Cap Screw
5/16-18 x 13/4 Hex Hd. (SST) ..................................................................................... 4
*Used on Machines Built Before 1/4/02.
**Used on Machines Built After 1/4/02.
UW50 Untensil Washer 208-240/60/3 Page 68 of 112

- 36 -
UW50 UTENSIL WASHER REPLACEMENT PARTS
F-18243 Rev. E (May 2009)
WASH PUMP
(CURRENT CONSTRUCTION)
PL-58356
1
2
3
4
5
6
7
9
8
11
21
18
17
24
20
19
12
14
15
16
25
26
10
13
23
22
UW50 Untensil Washer 208-240/60/3 Page 69 of 112

- 37 -
UW50 UTENSIL WASHER REPLACEMENT PARTS
F-18243 Rev. E (May 2009)
WASH PUMP
(CURRENT CONSTRUCTION)
ILLUS. PART NO. NAME OF PART AMT.
PL-58356
1 NS-015-11 Nut
5/16-18 Hex (SST) .................................................................................................................4
2 WS-017-08 Lockwasher
5/16 (SST) ................................................................................................................ 4
3 00-813465 Gasket – Wash Duct ..................................................................................................................1
4 00-918457 Flange – Pump/Motor Discharge ...............................................................................................1
5 SC-041-18 Cap Screw
5/16-18 x 13/4 Hex Hd. (SST) ..................................................................................... 4
6 00-918472-00003 Motor (208-230 / 460) ................................................................................................................ 1
7 00-918472-00004 Clamp ........................................................................................................................................ 1
8 00-918472-00002 Seal Assy. .................................................................................................................................. 1
9 00-918472-00005 Impeller – Sleeve Assy. .............................................................................................................. 1
10 00-811817 Shroud – Pump ..........................................................................................................................1
11 00-813484 Ring – Clamping ........................................................................................................................1
12 00-163311 Plate – Mounting (Pump Intake Baffl e) ...................................................................................... 2
13 NS-015-11 Nut
5/16-18 Hex (SST) .................................................................................................................4
14 WL-006-23 Lockwasher
5/16 Helical .............................................................................................................. 4
15 WS-017-21 Washer .......................................................................................................................................4
16 00-811868 Gasket .......................................................................................................................................1
17 NS-015-11 Nut
5/16-18 Hex (SST) .................................................................................................................4
18 WL-006-23 Lockwasher
5/16 Helical (SST) .................................................................................................... 4
19 NS-015-11 Nut
5/16-18 Hex (SST) .................................................................................................................4
20 WL-006-23 Lockwasher
5/16 Helical (SST) ................................................................................................... 4
21 WS-017-08 Washer .......................................................................................................................................4
22 00-918472-00001 Shell – Pump (Incls. Items 23 & 24) ..........................................................................................1
23 00-476738-00008 Gasket – Drain ........................................................................................................................... 1
24 00-476738-00009 O-Ring – Suction Flange ........................................................................................................... 1
25 00-009934-00001 Gasket – Drain Flange ............................................................................................................... 1
26 SC-041-18 Cap Screw
5/16-18 x 13/4 Hex Hd. (SST) ..................................................................................... 4
00-918459 Pump & Motor Assy....................................................................................................................1
UW50 Untensil Washer 208-240/60/3 Page 70 of 112

- 38 -
UW50 UTENSIL WASHER REPLACEMENT PARTS
F-18243 Rev. E (May 2009)
WASH DUCT
ILLUS. PART NO. NAME OF PART AMT.
PL-57146
1 00-163384-00002 Wash Pipe ..................................................................................................................................2
2 00-811676 Wash Duct Assy. ........................................................................................................................1
3 00-067036 Gasket – Adapter Plate (Used on Machines Built Before 1/4/02) .............................................. 1
4 00-813465 Gasket – Wash Duct (Used on Machines Built After 1/4/02) .....................................................1
5 00-811682 Coupling ..................................................................................................................................... 2
5
1
2
3-4
PL-57146
UW50 Untensil Washer 208-240/60/3 Page 71 of 112

- 39 -
UW50 UTENSIL WASHER REPLACEMENT PARTS
F-18243 Rev. E (May 2009)
DOOR INTERLOCK
ILLUS. PART NO. NAME OF PART AMT.
PL-57147
1 00-436072 Cover – Housing ........................................................................................................................1
2 SC-120-35 Mach. Screw 8-32 x 3/8 Phil. Pan Hd. (SST) .............................................................................. 2
3 WL-006-02 Lockwasher #8 Medium ............................................................................................................. 2
4 SC-127-97 Mach. Screw 6-32 x 5/16 Phil. Pan Hd......................................................................................... 2
5 WL-006-42 Lockwasher #6 Medium ............................................................................................................. 2
6 00-436071 Retainer – Switch Weldment (Switch Included) .........................................................................1
7 FE-024-65 Connector 90 Deg. (Nonmetallic) (Sealtite) (1/2 Male)................................................................2
8 SC-123-76 Mach. Screw 10-24 x 1/2 Phil. Pan Hd. .......................................................................................2
9 WL-006-07 Lockwasher #10 Medium ........................................................................................................... 2
10 WS-029-79 Washer .......................................................................................................................................2
11 00-436069 Housing – Cycle Switch ............................................................................................................. 1
12 00-811860 Barrier – Door Interlock ..............................................................................................................1
13 00-436073 Gasket – Housing ......................................................................................................................1
13
12
11
8-9-10
1
2-3
4-5
6
7
PL-57147
UW50 Untensil Washer 208-240/60/3 Page 72 of 112

- 40 -
UW50 UTENSIL WASHER REPLACEMENT PARTS
F-18243 Rev. E (May 2009)
5
6-7
8
9
10
11
60
12
13
14
15
16
17
18
19
22
23
24
25
26
20
Current
Construction
28
27
29
30
31
34
35
38
39
36
37
40
41
42
43
4948
47
46
50
51
52
53
54
64
69
67
68
65-66
63
1
62
61
32
33
Previous
Construction
Previous
Construction
Previous
Construction
Previous
Construction
23
4
55 56
57-58
59
44
45
21
PL-57148
CHAMBERS, DOORS, AND TRACKS
ILLUS. PART NO. NAME OF PART AMT.
PL-57148
1 00-436091 Magnet – Door Cycle Switch .....................................................................................................1
2 NS-031-50 Stop Nut 6-32 Hex (SST) ........................................................................................................... 2
3 00-435950 Retainer – Magnet .....................................................................................................................1
4 SC-066-05 Mach. Screw 10-24 x 3/8 Phil. Truss Hd. .................................................................................... 2
5 00-163285 Upper Door Assy. ....................................................................................................................... 1
UW50 Untensil Washer 208-240/60/3 Page 73 of 112

- 41 -
UW50 UTENSIL WASHER REPLACEMENT PARTS
F-18243 Rev. E (May 2009)
CHAMBERS, DOORS, AND TRACKS (CONT.)
ILLUS. PART NO. NAME OF PART AMT.
PL-57148
6 00-163193 Support – Upper Door (Previous Construction) (Not Shown) .................................................... 1
7 00-474262 Support – Upper Door (Current Construction) ........................................................................... 1
8 NS-031-21 Stop Nut
1/4-20 Hex ....................................................................................................................2
9 SC-066-06 Mach. Screw 10-24 x 1/2 Phil. Truss Hd. (SST) .......................................................................... 6
10 00-163289 Bearing – Bushing ..................................................................................................................... 4
11 00-163287 Pin – Hinge ................................................................................................................................2
12 00-163185 Link ............................................................................................................................................4
13 WL-006-27 Lockwasher
3/8 Light...................................................................................................................2
14 NS-015-13 Nut
3/8-16 Hex (SST) ..................................................................................................................2
15 00-163286 Rod – Door Lift ...........................................................................................................................2
16 00-163287 Pin – Hinge ................................................................................................................................2
17 00-163289 Bearing – Bushing ..................................................................................................................... 4
18 NS-031-21 Stop Nut
1/4-20 Hex ....................................................................................................................2
19 00-811684 Lower Door Assy. .......................................................................................................................1
20 00-812799 Pin – Door Hinge (Current Construction) ................................................................................... 2
21 00-163247 Bushing – Threaded...................................................................................................................2
22 00-814333 Track Assy. – Rack (RH) (Current Construction) ....................................................................... 1
23 SC-041-50 Cap Screw
1/4-20 x 1/2 Hex Hd. ................................................................................................... 2
24 WL-006-17 Lockwasher
1/4 Helical (SST) ..................................................................................................... 2
25 00-436366 Spring – Counterbalance ........................................................................................................... 2
26 00-436367 Tube – Spring ............................................................................................................................ 2
27 00-436358 Support – Spring Weldment .......................................................................................................1
28 NS-015-01 Nut
1/4-20 Hex (SST) ..................................................................................................................4
29 WL-006-17 Lockwasher
1/4 Helical (SST) ..................................................................................................... 4
30 WS-017-06 Washer .......................................................................................................................................4
31 WS-003-47 Washer .......................................................................................................................................8
32 SC-125-85 Mach. Screw
1/4-20 x 5/8 Phil. Truss Hd. (SST) ........................................................................... 4
33 00-811664 Pin (Previous Construction) .......................................................................................................2
34 SC-022-32 Mach. Screw
1/4-20 x 1/2 Flat Hd. (Previous Construction) ......................................................... 2
35 00-814334 Track Assy. – Rack (LH) (Current Construction) ........................................................................1
36 NS-015-01 Nut
1/4-20 Hex (SST) ..................................................................................................................4
37 WL-006-17 Lockwasher
1/4 Helical (SST) ..................................................................................................... 4
38 00-163246 Track Assy. (LH) (Previous Construction) ..................................................................................1
39 WS-017-06 Washer .......................................................................................................................................4
40 SC-125-85 Mach. Screw
1/4-20 x 5/8 Phil. Truss Hd. (SST) ........................................................................... 4
41 SC-125-26 Mach. Screw
5/16-18 x 5/8 Phil. Truss Hd. (SST) ......................................................................... 4
42 00-811821 Bracket – Wash Pipe ................................................................................................................. 2
43 NS-031-29 Stop Nut
5/16-18 (Elastic) ............................................................................................................ 4
44 NS-031-21 Stop Nut
1/4-20 Hex ...................................................................................................................10
45 00-812497 Spacer .......................................................................................................................................4
46 FE-006-46 Clamp
3/4 ....................................................................................................................................1
47 FE-025-10 Clamp 11/4 (Use With Booster) ................................................................................................... 1
48 WL-006-17 Lockwasher
1/4 Helical (SST) ..................................................................................................... 1
49 NS-015-01 Nut
1/4-20 Hex (SST) ..................................................................................................................1
50 NS-015-11 Nut
5/16-18 Hex (SST) .................................................................................................................2
51 WL-006-23 Lockwasher
5/16 Medium (SST) .................................................................................................. 2
52 WS-029-05 Washer .......................................................................................................................................2
53 00-435974 Bracket – Fill Piping ................................................................................................................... 1
54 SC-041-11 Cap Screw
5/16-18 x 3/4 Hex Hd. (SST) ....................................................................................... 2
55 00-812501 Baffl e ..........................................................................................................................................1
56 SC-041-08 Cap Screw
1/4-20 x 2 Hex Hd. (SST)..........................................................................................4
57 00-812504 Stack – Vent ...............................................................................................................................1
58 00-506151 Tape – Foam .............................................................................................................................AR
59 SC-041-50 Cap Screw
1/4-20 x 1/2 Hex Hd. ................................................................................................... 6
60 00-163245 Track Assy. (RH) (Previous Construction) .................................................................................1
61 00-474262 Support – Upper Door Weldment............................................................................................... 1
62 00-112378-00034 Slide – Door ............................................................................................................................... 2
63 SC-127-97 Mach. Screw 6-32 x 5/16 Phil. Pan Hd......................................................................................... 2
64 00-811867-00001 Door Magnet Bracket Assy......................................................................................................... 1
65 00-378591 Spring – Door (Previous Construction) ...................................................................................... 2
66 SC-021-14 Mach. Screw 8-32 x 3/8 Slotted Rd. Hd. (Previous Construction) ............................................... 4
67 00-299109-00002 Roller (Previous Construction) ...................................................................................................2
68 00-163394 Pin – Coil (Previous Construction) ............................................................................................. 2
69 PC-005-11 Cotter Pin
3/32 (Previous Construction) ....................................................................................... 4
00-812813 Door Assy. (Incls. Items 19 & 20) ...............................................................................................1
UW50 Untensil Washer 208-240/60/3 Page 74 of 112

- 42 -
UW50 UTENSIL WASHER REPLACEMENT PARTS
F-18243 Rev. E (May 2009)
1 CON
2 CON
L1 L2 L3
1 TB
GROUND
X1
X2
C1 C3
C1 C3
81 THRU 85
74 THRU 78
33-34
35-36-37
38-39
40
41
42
44-45
46
47-48
56
57
58
59
60
49
50
79-80
62
63-64-65
71 72-73
66
67
68
69
70
43
1-2 3 THRU 7
9-10
11-12-13
14 THRU 17
18 THRU 22
23 THRU 26
27 THRU 30
31-32
8
61
51 THRU 55
PL-57149
CONTROL BOX
(PREVIOUS CONSTRUCTION)
ILLUS. PART NO. NAME OF PART AMT.
PL-57149
1 00-087713-080-2 Contactor (480 V., 60 Hz., 3 Ph.) (30 Amp.) (3 Pole) ................................................................. 1
2 SD-008-25 Self-Tapping Screw 10-16 x 1/2 Phil. Pan Hd., Type B ............................................................... 2
3 00-294687-00027 Heater – Overload (208 V.) (K58) .............................................................................................. 3
4 00-294687-00025 Heater – Overload (240 V.) (K56) .............................................................................................. 3
5 00-294687-00016 Heater – Overload (480 V.) (K41) .............................................................................................. 3
6 00-088196-009-1 Relay – Thermal Overload (3 Ph.) (With Overload Protection) .................................................. 1
7 SD-019-23 Self-Tapping Screw 10-16 x 3/8 Phil. Pan Hd., Type B ............................................................... 2
8 00-811805 Bracket – Relay ......................................................................................................................... 1
9 00-087714-020-2 Relay (3PDT) ............................................................................................................................. 3
10 SD-008-17 Self-Tapping Screw 6-20 x 3/8 Phil. Bndg. Hd., Type B ..............................................................7
11 00-294436-00003 Block – Fuse (1.5 Amp.) ............................................................................................................ 1
12 FE-022-39 Fuse (250 V., 1.5 Amp.) .............................................................................................................1
13 FE-021-19 Fuse (250 V., 3.2 Amp.) .............................................................................................................1
14 00-811804-00002 Base Plate Bracket Assy. (All Voltages, Gas Heat).................................................................... 1
15 00-811804 Base Plate Brkt. Assy. (Incls. Items 8 thru 12 & 18 thru 22) (Steam or Electric)........................1
16 SD-008-17 Self-Tapping Screw 6-20 x 3/8 Phil. Bndg. Hd., Type B ..............................................................2
17 WL-014-03 Lockwasher #6 External Shakeproof .........................................................................................2
18 00-102064-00028 Channel – Mounting ................................................................................................................... 1
19 00-102057 Block – Terminal.........................................................................................................................6
20 00-102058 End – Barrier ..............................................................................................................................1
21 00-101611 Clip – Retaining .........................................................................................................................2
22 SD-008-25 Self-Tapping Screw 10-16 x 1/2 Phil. Pan Hd., Type B ...............................................................2
UW50 Untensil Washer 208-240/60/3 Page 75 of 112

- 43 -
UW50 UTENSIL WASHER REPLACEMENT PARTS
F-18243 Rev. E (May 2009)
CONTROL BOX
(PREVIOUS CONSTRUCTION) (CONT.)
ILLUS. PART NO. NAME OF PART AMT.
PL-57149
23 00-475811 Board – Temperature Control.....................................................................................................1
24 SD-038-02 Self-Tapping Screw 6-20 x 5/8 Phil. Pan Hd., Type B .................................................................3
25 WS-028-12 Washer .......................................................................................................................................1
26 00-476653 Spacer – Circuit Board ...............................................................................................................4
27 00-087713-041-2 Contactor 40 Amp. 3-Pole ..........................................................................................................1
28 00-087714-020-2 Relay (3PDT) .............................................................................................................................1
29 SD-019-23 Self-Tapping Screw 10-16 x 3/8 Phil. Pan Hd., Type B (Use With Item 27) ................................2
30 SD-008-17 Self-Tapping Screw 6-20 x 3/8 Phil. Bndg. Hd., Type B (Use With Item 28) ...............................2
31 00-294677-00003 Clamp – Wire (1 In. I.D.) ............................................................................................................1
32 SD-019-23 Self-Tapping Screw 10-16 x 3/8 Phil. Pan Hd., Type B ...............................................................1
33 FE-008-12 Gasket .......................................................................................................................................2
34 FE-008-33 Connector 90 Deg. (Sealtite) (1 Male Thd. x 1 Flex) ................................................................. 2
35 FE-008-10 1/2 Gasket Assy. .......................................................................................................................... 3
36 FE-007-07 Connector 90 Deg. (Sealtite) (1/2 Male Thd. x 1/2) ...................................................................... 3
37 FE-007-05 Connector 45 Deg. (Sealtite) (1/2 Male Thd. x 1/2) ...................................................................... 1
38 WL-007-12 Lockwasher #10 External Shakeproof .......................................................................................2
39 NS-031-15 Stop Nut 10-24 Hex (SST) .........................................................................................................2
40 00-811807-00001 Light – Pilot (White) ...................................................................................................................1
41 00-811807-00002 Light – Pilot (Green) ...................................................................................................................1
42 00-811830 Switch – Start .............................................................................................................................1
43 00-811806 Switch – Selector .......................................................................................................................1
44 00-294677-00003 Clamp – Wire (3/4 I.D.) ................................................................................................................ 1
45 SD-008-25 Self-Tapping Screw 10-16 x 1/2 Phil. Pan Hd., Type B ...............................................................1
46 00-526409 Tape – Foam 1/8 In. x 1 In. x 25 Ft. Roll .....................................................................................AR
47 00-163158 Lid – Control Box .......................................................................................................................1
48 SC-066-06 Mach. Screw 10-24 x 1/2 Phil. Truss Hd. (SST) .......................................................................... 4
49 FE-023-26 Fitting – Conduit (Elect/Steam/Gas) .......................................................................................... 1
50 FE-024-67 Connector – Conduit (With Electric Heat Booster) ....................................................................1
51 00-119244 Cap & Stud Assy. ......................................................................................................................AR
52 00-119254 Retainer – Cap & Stud ..............................................................................................................AR
53 00-067500-00031 O-Ring ......................................................................................................................................AR
54 WL-006-17 Lockwasher
1/4 Helical (SST) ..................................................................................................... 2
55 NS-015-01 Nut
1/4-20 Hex (SST) ..................................................................................................................2
56 00-294325-004-1 Terminal Block ........................................................................................................................... 1
57 SC-012-36 Mach. Screw 10-24 x 3/4 Slotted Fil. Hd. .................................................................................... 2
58 WL-003-20 Lockwasher #10 Light ................................................................................................................2
59 WL-014-07 Lockwasher #10 External Shakeproof (SST) .............................................................................4
60 NS-011-18 Nut 10-24 Hex (SST) .................................................................................................................8
61 00-811823 Plate – Base ..............................................................................................................................1
62 00-811840 Box – Control .............................................................................................................................1
63 00-118544-00002 Lug – Grounding ........................................................................................................................ 1
64 SD-035-77 Self-Tapping Screw
1/4-20 x 3/8 Phil. Pan Hd., Type T ................................................................ 1
65 WL-007-15 Lockwasher
1/4 External Shakeproof ..........................................................................................1
66 FE-015-02 Fuse (250 V., 2.5 Amp.) (208/240 V.) (Time Delay) ................................................................... 2
67 FE-022-52 Fuse (500 V., 1.6 Amp.) (480 V.) (Time Delay) ..........................................................................2
68 SD-012-20 Self-Tapping Screw 8-32 x 1/2 Phil. Truss Hd., Type T ............................................................... 2
69 00-118544-00001 Lug – Solderless ........................................................................................................................ 1
70 SD-034-59 Self-Tapping Screw 10-32 x 3/8 Phil. Pan Hd., Type T ................................................................ 1
71 00-294488 Board – Terminal ........................................................................................................................ 1
72 00-294677-00002 Clamp – Wire (1/2 I.D.) ................................................................................................................ 1
73 SD-012-20 Self-Tapping Screw 8-32 x 1/2 Phil. Truss Hd., Type T ............................................................... 1
74 00-812410 Timer .......................................................................................................................................... 1
75 SC-093-04 Mach. Screw 8-32 x 1/2 Phil. Pan Hd. (SST) .............................................................................. 4
76 WS-019-06 Washer .......................................................................................................................................4
77 WL-003-12 Lockwasher #8 Medium .............................................................................................................4
78 00-087711-00218 Switch – Timer ...........................................................................................................................6
79 00-294677-00004 Clamp – Wire (3/4 I.D.) ................................................................................................................ 2
80 SD-019-23 Self-Tapping Screw 10-16 x 3/8 Phil. Pan Hd., Type B ...............................................................2
81 00-223452-00001 Transformer (208/60/3) ..............................................................................................................1
82 00-223450-00001 Transformer (240/60/3 & 480/60/3) ............................................................................................ 1
83 00-294500-026-1 Transformer (75VA, 60 Hz.) (Gas Heat) .................................................................................... 1
84 SD-019-23 Self-Tapping Screw 10-16 x 3/8 Phil. Pan Hd., Type B ...............................................................4
85 WL-014-07 Lockwasher #10 External Shakeproof (SST) .............................................................................4
UW50 Untensil Washer 208-240/60/3 Page 76 of 112

- 44 -
UW50 UTENSIL WASHER REPLACEMENT PARTS
F-18243 Rev. E (May 2009)
76 THRU 80
72 THRU 75
35-36
37-38-39
40-41
42
44
45
47-48
46
49
50-51
54
55
56
57
58
52
53
60
61-62-63
69 70-71
64
65
66
67
68
43
1-2 3 THRU 8
10-11
12-13-14
15 THRU 18
19 THRU 24
25 THRU 28
29 THRU 32
33-34
9
59
PL-58357
CONTROL BOX
(CURRENT CONSTRUCTION)
ILLUS. PART NO. NAME OF PART AMT.
PL-58357
1 00-087713-040-2 Contactor (30 Amp.) (3-Pole) .....................................................................................................1
2 SD-008-25 Self-Tapping Screw 10-16 x 1/2 Phil. Pan Hd., Type B ............................................................... 2
3 00-294687-00023 Heater – Overload (208 V.) (K54) .............................................................................................. 3
4 00-294687-00023 Heater – Overload (240 V.) (K54) .............................................................................................. 3
5 00-294687-00015 Heater – Overload (480 V.) (K39) .............................................................................................. 3
6 00-088196-009-1 Relay – Thermal Overload (3 Ph.) (With Overload Protection) .................................................. 1
7 SD-019-23 Self-Tapping Screw 10-16 x 3/8 Phil. Pan Hd., Type B ............................................................... 2
8 00-294687-00023 Element – Overload (208-240V.) (K54) ......................................................................................3
9 00-811805 Bracket – Relay ......................................................................................................................... 1
10 00-087714-020-2 Relay (3PDT) .............................................................................................................................3
11 SD-008-17 Self-Tapping Screw 6-20 x 3/8 Phil. Bndg. Hd., Type B .............................................................. 7
12 00-294436-00003 Block – Fuse (1.5 Amp.) ............................................................................................................1
13 FE-022-39 Fuse (250 V., 1.5 Amp.) .............................................................................................................1
14 FE-021-19 Fuse (250 V., 3.2 Amp.) .............................................................................................................1
15 00-811804-00002 Base Plate Bracket Assy. (All Voltages, Gas Heat).................................................................... 1
16 00-811804 Base Plate Brkt. Assy. (Incls. Items 9 thru 13 & 19 thru 24) (Steam or Electric)........................1
17 SD-008-17 Self-Tapping Screw 6-20 x 3/8 Phil. Bndg. Hd., Type B ..............................................................2
18 WL-014-03 Lockwasher #6 External Shakeproof .........................................................................................2
19 00-102064-00028 Channel – Mounting ................................................................................................................... 1
20 00-102057 Block – Terminal.........................................................................................................................6
21 00-103349 Jumper – Plug-In ....................................................................................................................... 2
22 00-102058 End – Barrier ..............................................................................................................................1
23 00-101611 Clip – Retaining .........................................................................................................................2
UW50 Untensil Washer 208-240/60/3 Page 77 of 112

- 45 -
UW50 UTENSIL WASHER REPLACEMENT PARTS
F-18243 Rev. E (May 2009)
CONTROL BOX
(CURRENT CONSTRUCTION) (CONT.)
ILLUS. PART NO. NAME OF PART AMT.
PL-58357
24 SD-008-25 Self-Tapping Screw 10-16 x 1/2 Phil. Pan Hd., Type B ...............................................................2
25 00-475458-00001 Board Assy. – Temperature Control ........................................................................................... 1
26 SD-038-02 Self-Tapping Screw 6-20 x 5/8 Phil. Pan Hd., Type B .................................................................3
27 WS-028-12 Washer .......................................................................................................................................1
28 00-476653 Spacer – Circuit Board ...............................................................................................................4
29 00-918322 Contactor (40 Amp.) (3-Pole) .....................................................................................................1
30 00-087714-020-2 Relay (3PDT) .............................................................................................................................1
31 SD-019-23 Self-Tapping Screw 10-16 x 3/8 Phil. Pan Hd., Type B (Use With Item 29) ................................2
32 SD-008-17 Self-Tapping Screw 6-20 x 3/8 Phil. Bndg. Hd., Type B (Use With Item 30) ...............................2
33 00-294677-00003 Clamp – Wire (1 In. I.D.) ............................................................................................................1
34 SD-019-23 Self-Tapping Screw 10-16 x 3/8 Phil. Pan Hd., Type B ...............................................................1
35 FE-008-12 Gasket .......................................................................................................................................2
36 FE-008-33 Connector 90 Deg. (Sealtite) (1 Male Thd. x 1 Flex) ................................................................. 2
37 FE-008-10 Gasket Assy.
1/2. .........................................................................................................................3
38 FE-007-07 Connector 90 Deg. (Sealtite) (1/2 Male Thd. x 1/2) ...................................................................... 3
39 FE-007-05 Connector 45 Deg. (Sealtite) (1/2 Male Thd. x 1/2) ...................................................................... 1
40 WL-007-12 Lockwasher #10 External Shakeproof .......................................................................................2
41 NS-031-15 Stop Nut 10-24 Hex (SST) .........................................................................................................2
42 00-811807-00001 Light – Pilot (White) ...................................................................................................................1
43 00-918134 Switch – Selector ....................................................................................................................... 1
44 00-811807-00002 Light – Pilot (Green) ...................................................................................................................1
45 00-811830 Switch – Start .............................................................................................................................1
46 00-811835 Label – Control Panel Logo ....................................................................................................... 1
47 00-294677-00003 Clamp – Wire (3/4 I.D.) ................................................................................................................ 1
48 SD-008-25 Self-Tapping Screw 10-16 x 1/2 Phil. Pan Hd., Type B ...............................................................1
49 00-526409 Tape – Foam 1/8 In. x 1 In. x 25 Ft. Roll .....................................................................................AR
50 00-163158 Lid – Control Box .......................................................................................................................1
51 SC-066-06 Mach. Screw 10-24 x 1/2 Phil. Truss Hd. (SST) .......................................................................... 4
52 FE-023-26 Fitting – Conduit (Elect/Steam/Gas) .......................................................................................... 1
53 FE-024-67 Connector – Conduit (With Electric Heat Booster) ....................................................................1
54 00-294325-004-1 Terminal Block ........................................................................................................................... 1
55 SC-012-36 Mach. Screw 10-24 x 3/4 Slotted Fil. Hd. .................................................................................... 2
56 WL-003-20 Lockwasher #10 Light ................................................................................................................2
57 WL-014-07 Lockwasher #10 External Shakeproof (SST) .............................................................................4
58 NS-011-18 Nut 10-24 Hex (SST) .................................................................................................................8
59 00-811823 Plate – Base ..............................................................................................................................1
60 00-811840 Box – Control .............................................................................................................................1
61 00-118544-00002 Lug – Grounding ........................................................................................................................ 1
62 SD-035-77 Self-Tapping Screw
1/4-20 x 3/8 Phil. Pan Hd., Type T ................................................................ 1
63 WL-007-15 Lockwasher
1/4 External Shakeproof ..........................................................................................1
64 FE-015-02 Fuse (250 V., 2.5 Amp.) (208/240 V.) (Time Delay) ................................................................... 2
65 FE-022-52 Fuse (500 V., 1.6 Amp.) (480 V.) (Time Delay) ..........................................................................2
66 SD-012-20 Self-Tapping Screw 8-32 x 1/2 Phil. Truss Hd., Type T ............................................................... 2
67 00-118544-00001 Lug – Solderless ........................................................................................................................ 1
68 SD-034-59 Self-Tapping Screw 10-32 x 3/8 Phil. Pan Hd., Type T ................................................................ 1
69 00-294488 Board – Terminal ........................................................................................................................ 1
70 00-294677-00002 Clamp – Wire (1/2 I.D.) ................................................................................................................ 1
71 SD-012-20 Self-Tapping Screw 8-32 x 1/2 Phil. Truss Hd., Type T ............................................................... 1
72 00-918130 Timer (Previous Construction) ...................................................................................................1
73 00-814344 Timer (Current Construction) .....................................................................................................1
74 00-087711-00218 Switch – Timer ...........................................................................................................................6
75 SD-037-21 Self-Tapping Screw 8-32 x 1 Phil. Fiil. Hd. Type F ..................................................................... 2
76 00-223452-00001 Transformer (208/60/3) ..............................................................................................................1
77 00-223450-00001 Transformer (240/60/3 & 480/60/3) ............................................................................................ 1
78 00-294500-026-1 Transformer (75VA, 60 Hz.) (Gas Heat) .................................................................................... 1
79 SD-019-23 Self-Tapping Screw 10-16 x 3/8 Phil. Pan Hd., Type B ...............................................................5
80 WL-014-07 Lockwasher #10 External Shakeproof (SST) .............................................................................4
UW50 Untensil Washer 208-240/60/3 Page 78 of 112

- 46 -
UW50 UTENSIL WASHER REPLACEMENT PARTS
F-18243 Rev. E (May 2009)
ELECTRIC HEAT
1 THRU 4
6
TANK WALL
23
22
21
13
15
26
27
28
29
30
31
32
5
16
12
17
18
19
20
14
11
7
8
9
10
24 - 25
PL-57150
UW50 Untensil Washer 208-240/60/3 Page 79 of 112

- 47 -
UW50 UTENSIL WASHER REPLACEMENT PARTS
F-18243 Rev. E (May 2009)
ELECTRIC HEAT
ILLUS. PART NO. NAME OF PART AMT.
PL-57150
1 00-086444 Insulator – Terminal (Above 250 V.) ...........................................................................................1
2 00-436907-00001 Heater – Tank Electric (208 V., 60 Hz./200 V., 50 Hz., 3 Ph.) ....................................................1
3 00-436907-00002 Heater – Tank Electric (240 V., 50/60 Hz., 3 Ph.) ......................................................................1
4 00-436907-00005 Heater – Tank Electric (480 V., 60 Hz., 3 Ph.) ........................................................................... 1
5 SC-041-13 Cap Screw
5/16-18 x 1 Hex Hd. (SST) ........................................................................................ 2
6 00-293598 Gasket – Heater Mounting .........................................................................................................1
7 SC-041-13 Cap Screw
5/16-18 x 1 Hex Hd. (SST) ........................................................................................ 6
8 WS-029-05 Washer ......................................................................................................................................12
9 WL-006-23 Lockwasher
5/16 Medium (SST) .................................................................................................. 6
10 NS-015-11 Nut
5/16-18 Hex ........................................................................................................................... 6
11 RR-010-13 Retaining Ring ........................................................................................................................... 1
12 00-112467 Retainer – Float ......................................................................................................................... 1
13 00-271109 Gasket – Mounting .....................................................................................................................1
14 00-067500-00072 O-Ring .......................................................................................................................................1
15 00-271118-00001 Plate – Mounting ........................................................................................................................ 1
16 00-271621 Probe & Switch Assy. (4 Wire) (Temperature & Water Level) .................................................... 1
17 00-122674 Float Assy...................................................................................................................................1
18 WS-010-40 Washer – Thrust ........................................................................................................................ 1
19 WL-014-31 Lockwasher
1/2 External Shakeproof (SST) ............................................................................... 1
20 NS-018-28 Jam Nut
1/2-20 Hex.....................................................................................................................1
21 WS-017-08 Washer .......................................................................................................................................2
22 WL-006-23 Lockwasher
5/16 Medium (SST) .................................................................................................. 2
23 NS-015-11 Nut
5/16-18 Hex ........................................................................................................................... 2
24 00-474574-00002 Lid Assy. .....................................................................................................................................1
25 NS-031-15 Stop Nut 10-24 Hex (SST) .........................................................................................................4
26 00-474512-00001 Box – Electric Heat .................................................................................................................... 1
27 00-271122 Bracket – Thermostat.................................................................................................................1
28 NS-031-15 Stop Nut 10-24 Hex (SST) .........................................................................................................2
29 00-293946 Sleeve – Lead ............................................................................................................................ 1
30 00-271123 Protector – High Limit ................................................................................................................ 1
31 SC-127-26 Mach. Screw 6-32 x 3/8 Rd. Hd. (SST) ....................................................................................... 2
32 NS-031-50 Stop Nut 6-32 Hex (SST) ...........................................................................................................2
00-294357-00001 Housing – Connector (Nat) ........................................................................................................ 1
00-294357-00002 Housing – Connector (Black) .....................................................................................................1
UW50 Untensil Washer 208-240/60/3 Page 80 of 112

- 48 -
UW50 UTENSIL WASHER REPLACEMENT PARTS
F-18243 Rev. E (May 2009)
STEAM INJECTOR HEAT
PL-57151
TANK ASSY.
18
1
5
12
14
19
20
32
33
34
21
22
23
24
26
27
4
17
28 THRU 31
7
6
2
3
16
8 THRU 11
25
15
13
PL-57151
UW50 Untensil Washer 208-240/60/3 Page 81 of 112

- 49 -
UW50 UTENSIL WASHER REPLACEMENT PARTS
F-18243 Rev. E (May 2009)
STEAM INJECTOR HEAT
ILLUS. PART NO. NAME OF PART AMT.
PL-57151
1 FP-085-05 Pipe 1 x 101/2 STOE (SST) ........................................................................................................ 1
2 00-288671 Silent Water Heater Assy. .......................................................................................................... 1
3 FP-054-27 Pipe
3/4 x 13/8 TBE (SST) ............................................................................................................ 1
4 FP-054-27 Pipe
3/4 x 13/8 TBE (SST) ............................................................................................................ 1
5 FP-077-29 Elbow
3/4 x 45 Deg. (SST) ..........................................................................................................1
6 00-435027 Plate ...........................................................................................................................................1
7 00-435026 Gasket ....................................................................................................................................... 1
8 SC-041-15 Cap Screw
5/16-18 x 11/4 Hex Hd. ................................................................................................ 6
9 WS-017-08 Washer ......................................................................................................................................12
10 WL-006-23 Lockwasher
5/16 Medium (SST) .................................................................................................. 6
11 NS-015-11 Nut
5/16-18 Hex ........................................................................................................................... 6
12 00-271109 Gasket – Mounting .....................................................................................................................1
13 00-271108 Plate – Mounting ........................................................................................................................1
14 FP-036-05 Pipe
3/4 x 3 TBE .......................................................................................................................... 1
15 FP-022-17 Union
3/4 (Grd. Seat) .................................................................................................................. 1
16 FP-036-92 Pipe
3/4 x 13/8 TBE ...................................................................................................................... 1
17 FP-013-22 Elbow
3/4 x 90 Deg. .................................................................................................................... 1
18 FP-036-92 Pipe
3/4 x 13/8 TBE ...................................................................................................................... 1
19 00-074696 Check Valve
3/4 .......................................................................................................................... 1
20 FP-036-92 Pipe
3/4 x 13/8 TBE ...................................................................................................................... 1
21 00-270329-00001 Valve – Solenoid 3/4 (Incls. Items 22 & 23) (Asco) ......................................................................1
22 00-270318-00001 Coil – Solenoid Valve (120 V.) (Asco) ........................................................................................ 1
23 00-270336 Service Kit – Solenoid Valve (Asco)...........................................................................................1
24 FP-036-92 Pipe
3/4 x 13/8 TBE ...................................................................................................................... 1
25 FP-028-06 Plug
1/4 Pipe ...............................................................................................................................1
26 FP-019-79 Tee
3/4 x 1/4 x 3/4 Reducing .......................................................................................................... 1
27 FP-036-92 Pipe
3/4 x 13/8 TBE ...................................................................................................................... 1
28 00-186922 Strainer – Line 3/4 (Brass)...........................................................................................................1
29 00-186923 Plug – Branch ............................................................................................................................1
30 00-186924 Gasket – Branch Plug ................................................................................................................ 1
31 00-186925 Screen – Line Strainer ............................................................................................................... 1
32 00-892004-00002 Valve – Solenoid (3/4) (Parker) ...................................................................................................1
33 00-892363-00002 Coil – Solenoid Valve (110 - 120V.) (Parker).............................................................................. 1
34 00-892072 Service Kit – Solenoid Valve (3/4) (Parker) ................................................................................. 1
UW50 Untensil Washer 208-240/60/3 Page 82 of 112

- 50 -
UW50 UTENSIL WASHER REPLACEMENT PARTS
F-18243 Rev. E (May 2009)
STEAM COIL HEAT
PL-57169
35
34
33
32
31
30
29
39-40-41
42
48
47
1
49
43 THRU 46
16
23
24
21
17
14
13
15
38
11
10
18
20 19
22
25
26
27
28
36 37
12
56
9
8
7
4
3
2
UW50 Untensil Washer 208-240/60/3 Page 83 of 112

- 51 -
UW50 UTENSIL WASHER REPLACEMENT PARTS
F-18243 Rev. E (May 2009)
STEAM COIL HEAT
ILLUS. PART NO. NAME OF PART AMT.
PL-57169
1 FE-024-65 Connector 90 Deg. (Nometallic) (Sealtite) (1/2 Male)..................................................................1
2 NS-018-28 Jam Nut
1/2-20 Hex....................................................................................................................AR
3 WL-014-31 Lockwasher
1/2 External Shakeproof (SST) ..............................................................................AR
4 WS-010-40 Washer – Thrust .......................................................................................................................AR
5 00-067500-00072 O-Ring .......................................................................................................................................1
6 00-186091 Probe & Switch Assy. (4 Wire) (Temperature & Water Level) (Incls. Items 7, 8, & 9) ................ 1
7 RR-010-13 Retaining Ring ........................................................................................................................... 1
8 00-112467 Retainer – Float .........................................................................................................................1
9 00-122674 Float Assy...................................................................................................................................1
10 SC-041-11 Cap Screw
5/16-18 x 3/4 Hex Hd. ................................................................................................. 4
11 00-271112-00001 Box – Steam Heat ......................................................................................................................1
12 SC-041-13 Cap Screw
5/16-18 x 1 Hex Hd. ................................................................................................... 2
13 WS-017-08 Washer .......................................................................................................................................8
14 WL-006-23 Lockwasher
5/16 Helical .............................................................................................................. 4
15 NS-015-11 Nut
5/16-18 Hex ........................................................................................................................... 4
16 00-812757 Coil – Steam ..............................................................................................................................1
17 SC-041-13 Cap Screw
5/16-18 x 1 Hex Hd. ................................................................................................... 2
18 WS-017-08 Washer .......................................................................................................................................2
19 WL-006-23 Lockwasher
5/16 Helical .............................................................................................................. 2
20 NS-015-11 Nut
5/16-18 Hex ........................................................................................................................... 2
21 FP-022-17 Union
3/4 (Grd. Seat) .................................................................................................................. 1
22 FP-036-92 Pipe
3/4 x 13/8 TBE ...................................................................................................................... 1
23 00-435762 Gasket ....................................................................................................................................... 2
24 00-812761 Flange – Pipe .............................................................................................................................1
25 FP-013-22 Elbow
3/4 x 90 Deg. .................................................................................................................... 1
26 FP-059-65 Pipe
3/4 x 6 TBE .......................................................................................................................... 1
27 00-118316 Steam Trap (0-20 PSI) ..............................................................................................................1
28 00-118317 Steam Trap (21-50 PSI) .............................................................................................................1
29 FP-036-92 Pipe
3/4 x 13/8 TBE ...................................................................................................................... 1
30 FP-013-22 Elbow
3/4 x 90 Deg. .................................................................................................................... 1
31 FP-036-92 Pipe
3/4 x 13/8 TBE ...................................................................................................................... 1
32 FP-022-17 Union
3/4 (Grd. Seat) .................................................................................................................. 1
33 NS-015-11 Nut
5/16-18 Hex ........................................................................................................................... 2
34 WL-006-23 Lockwasher
5/16 Helical .............................................................................................................. 2
35 WS-017-08 Washer .......................................................................................................................................2
36 00-812761 Flange – Pipe .............................................................................................................................1
37 00-435762 Gasket ....................................................................................................................................... 2
38 SD-012-20 Self-Tapping Screw 8-32 x 1/2 Phil. Truss Hd., Type T ............................................................... 4
39 00-892004-00002 Valve – Solenoid (3/4) (Parker) ...................................................................................................1
40 00-892363-00002 Coil – Solenoid Valve (110-120V.) (Parker)................................................................................ 1
41 00-892072 Service Kit – Solenoid Valve (3/4) (Parker) ................................................................................. 1
42 FP-083-48 Pipe
3/4 x 81/2 TBE ...................................................................................................................... 1
43 00-186922 Line Strainer
3/4 (Brass) (Incls. Items 42, 43, & 44)....................................................................1
44 00-186923 Plug – Branch ............................................................................................................................1
45 00-186924 Gasket – Branch Plug ................................................................................................................ 1
46 00-186925 Screen – Line Strainer ............................................................................................................... 1
47 00-812506-00017 Conduit – Liquidtite ....................................................................................................................1
48 FE-024-57 Connector – Straight (Nonmetallic) (Sealtite) ............................................................................ 1
49 00-288465 Lid & Gasket Assy. .....................................................................................................................1
00-294357-00001 Housing – Connector (Nat) .......................................................................................................AR
00-294357-00002 Housing – Connector (Black) ....................................................................................................AR
UW50 Untensil Washer 208-240/60/3 Page 84 of 112

- 52 -
UW50 UTENSIL WASHER REPLACEMENT PARTS
F-18243 Rev. E (May 2009)
GAS HEAT IMMERSION TUBE,
SHROUD, AND FLUE
12
10
14 THRU 19
4
1-2-3
PL-57152
6 THRU 9
11
5
13
UW50 Untensil Washer 208-240/60/3 Page 85 of 112

- 53 -
UW50 UTENSIL WASHER REPLACEMENT PARTS
F-18243 Rev. E (May 2009)
GAS HEAT IMMERSION TUBE,
SHROUD, AND FLUE
ILLUS. PART NO. NAME OF PART AMT.
PL-57152
1 WS-003-49 Washer .......................................................................................................................................7
2 WL-006-17 Lockwasher
1/4 Helical (SST) ..................................................................................................... 7
3 NS-015-01 Nut
1/4-20 Hex (SST) ..................................................................................................................7
4 00-812470 Flue – Weldment ........................................................................................................................1
5 00-436100 Gasket – Immersion Tube ..........................................................................................................2
6 SC-121-43 Cap Screw
7/16-14 x 13/4 Hex Hd. ............................................................................................... 4
7 WS-021-07 Washer .......................................................................................................................................8
8 WL-019-77 Lockwasher
7/16 Medium ............................................................................................................ 4
9 NS-047-97 Nut
7/16-14 Hex ........................................................................................................................... 4
10 00-473123 Tube – Immersion ...................................................................................................................... 1
11 00-435952 Flange – Immersion Tube ..........................................................................................................1
12 00-812467-00001 Liner – Shroud ........................................................................................................................... 1
13 SC-066-06 Mach. Screw 10-24 x 1/2 Phil. Truss Hd. (SST) .......................................................................... 5
14 00-812466-00001 Shroud – Weldment ...................................................................................................................1
15 00-812476 Insulation – Shroud .................................................................................................................... 1
16 SC-041-10 Cap Screw
5/16-18 x 5/8 Hex Hd. ................................................................................................. 4
17 WS-017-08 Washer .......................................................................................................................................4
18 WL-006-23 Lockwasher
5/16 Helical .............................................................................................................. 4
19 NS-015-11 Nut
5/16-18 Hex (SST) .................................................................................................................4
UW50 Untensil Washer 208-240/60/3 Page 86 of 112

- 54 -
UW50 UTENSIL WASHER REPLACEMENT PARTS
F-18243 Rev. E (May 2009)
CONTROL BOX
(GAS HEAT)
PL-58358
1
2-3-4
5-6
9-10-11
12
15
16-17
13-14
18-19-20
21-22-23
7
8
UW50 Untensil Washer 208-240/60/3 Page 87 of 112

- 55 -
UW50 UTENSIL WASHER REPLACEMENT PARTS
F-18243 Rev. E (May 2009)
CONTROL BOX
(GAS HEAT)
ILLUS. PART NO. NAME OF PART AMT.
PL-58358
1 00-812480 Box – Control .............................................................................................................................1
2 00-294436-00003 Block – Fuse .............................................................................................................................. 1
3 FE-021-19 Fuse (250 V., 3.2 Amp.) .............................................................................................................1
4 SD-008-17 Self-Tapping Screw 6-20 x 3/8 Phil. Bndg. Hd., Type B .............................................................. 1
5 00-294325-014-1 Terminal Block ........................................................................................................................... 3
6 SD-009-17 Self Tapping Screw 8-32 x 5/8 Phil. Pan Hd., Type F ..................................................................6
7 FE-024-65 Connector 90 Deg. (Nonmetallic) (Sealtite) (1/2 Male)................................................................2
8 FE-024-66 Connector 90 Deg. (Nonmetallic) (Sealtite) (3/4 Male)................................................................1
9 00-294677-00003 Clamp – Wire (3/4 I.D.) ................................................................................................................1
10 SD-008-25 Self-Tapping Screw 10-16 x 1/2 Phil. Pan Hd., Type B ...............................................................1
11 WL-007-12 Lockwasher #10 External Shakeproof ....................................................................................... 1
12 FE-024-63 Connector 45 Deg. (Nonmetallic) (Sealtite) (1 In. Male) ............................................................1
13 SC-071-11 Mach. Screw 10-24 x 3/8 Phil. Truss Hd. .................................................................................... 4
14 WL-007-12 Lockwasher #10 External Shakeproof .......................................................................................4
15 00-812478 Plate – Base .............................................................................................................................. 1
16 00-918223 Ignitor Board 24 VAC ................................................................................................................. 1
17 SD-009-40 Self-Tapping Screw 6-32 x 3/4 Phil. Pan Hd., Type F .................................................................. 4
18 00-294500-046-2 Transformer (300 VA) Pilot Control ............................................................................................ 1
19 WL-014-07 Lockwasher #10 External Shakeproof (SST) .............................................................................4
20 SD-019-23 Self-Tapping Screw 10-16 x 3/8 Phil. Pan Hd., Type B ...............................................................4
21 SC-041-05 Cap Screw
1/4-20 x 5/8 Hex Hd. ................................................................................................... 4
22 WL-006-17 Lockwasher
1/4 Helical (SST) ..................................................................................................... 4
23 NS-015-01 Nut
1/4-20 Hex (SST) ..................................................................................................................4
00-812473-00001 Bracket – Gas Control Box ........................................................................................................1
UW50 Untensil Washer 208-240/60/3 Page 88 of 112

- 56 -
UW50 UTENSIL WASHER REPLACEMENT PARTS
F-18243 Rev. E (May 2009)
GAS HEAT COMPONENTS
4
2
1
10-11
12-13
5
24-25
26
27
28-29
30
35
50
51
54 55 56
58 59
60
61-62
63
14 THRU 17
52-53
46 THRU 49
41 THRU 45
6
9
8
7
3
57
TANK
WALL
18-19
20 THRU 23
31 THRU 34
36
37
38
39
40
PL-52118
UW50 Untensil Washer 208-240/60/3 Page 89 of 112

- 57 -
UW50 UTENSIL WASHER REPLACEMENT PARTS
F-18243 Rev. E (May 2009)
GAS HEAT COMPONENTS
ILLUS. PART NO. NAME OF PART AMT.
PL-52118
1 RR-010-13 Retaining Ring ........................................................................................................................... 1
2 00-112467 Retainer – Float .........................................................................................................................1
3 00-271621 Probe & Switch Assy. (4 Wire) (Temperature & Water Level) .................................................... 1
4 00-067500-00072 O-Ring .......................................................................................................................................1
5 00-122674 Float Assy...................................................................................................................................1
6 00-435960-00001 Plate – Spacer Float/Probe ........................................................................................................ 1
7 NS-018-28 Jam Nut
1/2-20 Hex.....................................................................................................................1
8 WL-014-03 Lockwasher #6 External Shakeproof ......................................................................................... 1
9 WS-010-40 Washer – Thrust ........................................................................................................................1
10 00-436792 Electrode – Spark/Sense (NAT) .................................................................................................1
11 00-436067 Electrode – Spark/Sense (PRO) ................................................................................................1
12 SC-120-35 Mach. Screw 8-32 x 3/8 Phil. Pan Hd. (SST) .............................................................................. 2
13 WL-014-05 Lockwasher #8 External Shakeproof .........................................................................................2
14 00-328476-00001 Blower – Motor & Switch ............................................................................................................ 1
15 SC-041-05 Cap Screw
1/4-20 x 5/8 Hex Hd. ................................................................................................... 4
16 WL-014-10 Lockwasher
1/4 External Shakeproof ..........................................................................................1
17 NS-031-21 Stop Nut – Special 1/4-20 Hex .................................................................................................... 4
18 00-328649 Burner – Weldment (NAT-60 Hz.) ..............................................................................................1
19 00-436761 Burner – Weldment (PRO-60 Hz.) ............................................................................................. 1
20 SC-121-43 Cap Screw
7/16-14 x 13/4 Hex Hd. ............................................................................................... 4
21 WS-021-07 Washer .......................................................................................................................................8
22 WL-019-77 Lockwasher
7/16 Medium ............................................................................................................ 4
23 NS-047-97 Nut
7/16-14 Hex ........................................................................................................................... 4
24 00-328428 Plate – Adjusting ........................................................................................................................1
25 SD-012-20 Self-Tapping Screw 8-32 x 1/2 Phil. Truss Hd., Type T ............................................................... 2
26 00-328427 Plate – Restrictor .......................................................................................................................1
27 00-328450 Plug – Rubber (Conduit) ............................................................................................................ 2
28 00-087711-153-1 Switch – Limit .............................................................................................................................1
29 00-328508 Insulator – Switch ...................................................................................................................... 1
30 00-328465 Box – Heat (LH) ......................................................................................................................... 1
31 00-271123 Protector – High-Limit ................................................................................................................1
32 SC-127-26 Mach. Screw 6-32 x 3/8 Phil. Rd. Hd. (SST) ............................................................................... 2
33 NS-031-50 Stop Nut 6-32 Hex (SST) ...........................................................................................................2
34 00-293946 Sleeve – Lead ............................................................................................................................ 1
35 00-328429 Gasket – Heat Box Lid ............................................................................................................... 1
36 WS-019-06 Washer .......................................................................................................................................4
37 NS-031-16 Stop Nut 10-24 Hex (Elastic) (SST) ...........................................................................................4
38 00-435024 Eye – Box (Gas Heat) ................................................................................................................ 1
39 00-812491 Lid Assy. – Box (Gas Heat) (NAT) .............................................................................................. 1
40 00-812491-00002 Lid Assy. – Box (Gas Heat) (PRO) .............................................................................................1
41 00-812472 Bracket – Gas Valve Mounting...................................................................................................1
42 SC-041-50 Cap Screw
1/4-20 x 1/2 Hex Hd. ................................................................................................... 2
43 WS-017-06 Washer .......................................................................................................................................2
44 WL-006-17 Lockwasher
1/4 Helical (SST) ..................................................................................................... 2
45 NS-015-01 Nut
1/4-20 Hex (SST) ..................................................................................................................2
46 00-328212 Bracket – Valve ..........................................................................................................................2
47 SC-041-10 Cap Screw
5/16-18 x 5/8 Hex Hd. ................................................................................................. 2
48 WL-006-23 Lockwasher
5/16 Medium (SST) .................................................................................................. 2
49 NS-015-11 Nut
5/16-18 Hex ........................................................................................................................... 2
50 00-291988-00003 Valve – Gas Cock ...................................................................................................................... 1
51 FP-035-94 Pipe
1/2 x 11/2 Lg. TBE.................................................................................................................1
52 00-328426-00001 Valve – Regulator (NAT) ............................................................................................................1
53 00-328426-00002 Valve – Regulator (PRO) ........................................................................................................... 1
54 FP-026-14 Bushing –
1/2 to 3/8 ......................................................................................................................1
55 00-435702 Connector – Male 7/16 ................................................................................................................. 1
56 00-328425-00002 Tube – Gas ................................................................................................................................1
57 SC-066-05 Mach. Screw 10-24 x 3/8 Phil. Truss Hd. .................................................................................... 4
58 00-328440 Plate – Gas Line ........................................................................................................................1
59 00-435701-00002 Angle Fitting #43 (LP) ................................................................................................................1
60 00-435701-00003 Angle Fitting
7/16 (NAT) ............................................................................................................... 1
61 00-271122 Bracket – Thermostat.................................................................................................................1
62 SC-066-05 Mach. Screw 10-24 x 3/8 Phil. Truss Hd. .................................................................................... 2
63 00-328473 Gasket – Blower ........................................................................................................................ 1
00-294357-00001 Housing – Connector (Nat) ........................................................................................................ 1
00-294357-00002 Housing – Connector (Black) .....................................................................................................1
UW50 Untensil Washer 208-240/60/3 Page 90 of 112

- 58 -
UW50 UTENSIL WASHER REPLACEMENT PARTS
F-18243 Rev. E (May 2009)
STRAINERS AND DRAIN
2
134567
8
9
10
11
12
13
15
17
18
19
20
21
22
23
16
14
PL-50498
UW50 Untensil Washer 208-240/60/3 Page 91 of 112

- 59 -
UW50 UTENSIL WASHER REPLACEMENT PARTS
F-18243 Rev. E (May 2009)
STRAINERS AND DRAIN
ILLUS. PART NO. NAME OF PART AMT.
PL-50498
1 SC-114-15 Mach. Screw 10-24 x 3/8 Phil. Rd. Hd. (SST) ............................................................................. 1
2 WL-006-07 Lockwasher #10 Medium ........................................................................................................... 1
3 WS-019-06 Washer .......................................................................................................................................1
4 00-163320 Drain Lever Assy. ....................................................................................................................... 1
5 00-119116 Axle – Drain Lever ..................................................................................................................... 1
6 WL-006-17 Lockwasher
1/4 Helical (SST) ..................................................................................................... 1
7 NS-015-01 Nut
1/4-20 Hex (SST) ..................................................................................................................1
8 00-119119 Rod – Overfl ow Lift ....................................................................................................................1
9 00-277025 Guide .........................................................................................................................................1
10 WL-006-17 Lockwasher
1/4 Helical (SST) ..................................................................................................... 2
11 NS-018-01 Jam Nut
1/4-20 Hex.....................................................................................................................2
12 00-119099-00002 Tube – Overfl ow .........................................................................................................................1
13 00-067500-00120 O-Ring ....................................................................................................................................... 1
14 00-067500-00082 O-Ring ....................................................................................................................................... 1
15 00-119239 Sleeve ........................................................................................................................................1
16 00-118976 Body – Drain Valve ....................................................................................................................1
17 FP-028-32 Pipe Plug 2 In. Sq. Hd. ..............................................................................................................1
18 WS-017-08 Washer .......................................................................................................................................8
19 WL-006-23 Lockwasher
5/16 Medium (SST) .................................................................................................. 8
20 SC-041-11 Cap Screw
5/16-18 x 3/4 Hex Hd. (SST) ....................................................................................... 8
21 00-163275 Overfl ow Cover ..........................................................................................................................1
22 00-163283 Strainer Bucket .......................................................................................................................... 1
23 00-811842 Strainer Pan ...............................................................................................................................1
UW50 Untensil Washer 208-240/60/3 Page 92 of 112

- 60 -
UW50 UTENSIL WASHER REPLACEMENT PARTS
F-18243 Rev. E (May 2009)
LOW WATER PROTECTION
(STEAM HEAT/WASH TANK)
ILLUS. PART NO. NAME OF PART AMT.
PL-57154
1 RR-010-13 Retaining Ring ........................................................................................................................... 1
2 00-112467 Retainer – Float .........................................................................................................................1
3 00-271621 Probe & Switch Assy. (4 Wire) (Temperature & Water Level) .................................................... 1
4 00-122674 Float Assy...................................................................................................................................1
5 00-067500-00072 O-Ring .......................................................................................................................................1
6 00-271112-00001 Box – Steam Heat ......................................................................................................................1
7 WS-010-40 Washer – Thrust ........................................................................................................................1
8 WL-014-31 Lockwasher
1/2 External Shakeproof (SST) ............................................................................... 1
9 NS-018-28 Jam Nut 1/2-20 Hex.....................................................................................................................1
10 00-288465 Lid & Gasket Assy. .....................................................................................................................1
11 FE-024-57 Connector – Straight (Nonmetallic) (Sealtite) ............................................................................ 1
12 SD-012-20 Self-Tapping Screw 8-32 x 1/2 Phil. Truss Hd., Type T ............................................................... 4
13 FE-024-65 Connector 90 Deg. (Nonmetallic) (Sealtite) (1/2 Male)................................................................ 1
00-294357-00001 Housing – Connector (NAT) .......................................................................................................1
00-294357-00002 Housing – Connector (Black) .....................................................................................................1
2
3
4
5
6
10
11
12
13
1
8
9
7
PL-57154
UW50 Untensil Washer 208-240/60/3 Page 93 of 112

- 61 -
UW50 UTENSIL WASHER REPLACEMENT PARTS
F-18243 Rev. E (May 2009)
BOOSTER CONTROL BOX
ILLUS. PART NO. NAME OF PART AMT.
PL-57155
1 00-475811 Board – Temperature Control.....................................................................................................1
2 SD-038-02 Self-Tapping Screw 6-20 x 5/8 Phil. Pan Hd., Type B ................................................................. 3
3 WS-028-12 Washer .......................................................................................................................................3
4 00-476653 Spacer – Circuit Board ...............................................................................................................4
5 00-117256 Block – Terminal......................................................................................................................... 1
6 SC-125-42 Mach. Screw 8-32 x 1/2 Phil. Rd. Hd........................................................................................... 2
7 00-087713-041-2 Contactor (3-Pole) (40 Amp.) .....................................................................................................1
8 SC-125-42 Mach. Screw 8-32 x 1/2 Phil. Rd. Hd...........................................................................................2
9 SC-041-05 Cap Screw
1/4-20 x 5/8 Hex Hd. ................................................................................................... 4
10 NS-031-19 Stop Nut
1/4-20 (Elastic) (SST) ...................................................................................................4
11 00-812354 Booster Control Box ...................................................................................................................1
00-812360 Cover – Booster Control Box .....................................................................................................1
SC-066-06 Mach. Screw 10-24 x 1/2 Phil. Truss Hd. (SST) (Fastens Cover to Box) ....................................2
FE-023-53 Bushing – Electric Snap ............................................................................................................. 1
1 THRU 4 5-6 7-8
11
9-10
PL-57155
UW50 Untensil Washer 208-240/60/3 Page 94 of 112

- 62 -
UW50 UTENSIL WASHER REPLACEMENT PARTS
F-18243 Rev. E (May 2009)
THERMOMETER UNIT
(WITHOUT BOOSTER)
ILLUS. PART NO. NAME OF PART AMT.
PL-57156
1 00-107218 Coupling – Thermometer Bulb ...................................................................................................2
2 SC-041-10 Cap Screw
5/16-18 x 5/8 Hex Hd. ................................................................................................. 2
3 SC-066-06 Mach. Screw 10-24 x 1/2 Phil. Truss Hd. (SST) .......................................................................... 4
4 00-074348 Speed Nut 10-24 ........................................................................................................................4
5 WL-006-22 Lockwasher
5/16 Light ................................................................................................................. 2
6 NS-015-11 Nut
5/16-18 Hex ........................................................................................................................... 2
*7 00-074098 Clamp – Thermometer ...............................................................................................................3
*8 SC-053-03 Mach. Screw 10-24 x 3/4 Slotted Truss Hd. ................................................................................ 3
*9 00-276451 Retainer – Wire .......................................................................................................................... 1
*10 WS-022-04 Washer ....................................................................................................................................... 1
*11 NS-015-01 Nut
1/4-20 Hex (SST) ..................................................................................................................1
*12 00-074348 Speed Nut 10-24 ........................................................................................................................ 3
*13 00-065028 Grommet ....................................................................................................................................1
14 00-286684 Ring – Wash Identifi cation ......................................................................................................... 1
15 00-328696-00002 Thermometer (3 Ft.) (Final Rinse) ............................................................................................. 1
16 00-437041-00004 Thermometer (11 Ft.) (Wash) .................................................................................................... 1
17 00-286687 Ring – Final Rinse Identifi cation ................................................................................................ 1
18 00-812401 Thermometer Panel Assy. .......................................................................................................... 1
19 00-292419 Housing – Thermometer (5 In. Lg.) ............................................................................................1
*Previous Construction
1
2
3
4
5
6
17
18
19
Previous
Construction
15
16
14
7
8
9
10
11
12
13
PL-57156
UW50 Untensil Washer 208-240/60/3 Page 95 of 112

- 63 -
UW50 UTENSIL WASHER REPLACEMENT PARTS
F-18243 Rev. E (May 2009)
THERMOMETER UNIT
(WITH BOOSTER)
ILLUS. PART NO. NAME OF PART AMT.
PL-57157
1 00-107218 Coupling – Thermometer Bulb ...................................................................................................1
*2 00-074098 Clamp – Thermometer ...............................................................................................................3
*3 SC-053-03 Mach. Screw 10-24 x 3/4 Slotted Truss Hd. ................................................................................ 3
*4 00-276451 Retainer – Wire .......................................................................................................................... 1
*5 WS-022-04 Washer .......................................................................................................................................1
*6 NS-015-01 Nut
1/4-20 Hex (SST) ..................................................................................................................1
*7 00-074348 Speed Nut 10-24 ........................................................................................................................ 3
*8 00-065028 Grommet .................................................................................................................................... 1
9 00-286684 Ring – Wash Identifi cation ......................................................................................................... 1
10 00-328696-00002 Thermometer (3 Ft.) (Final Rinse) ............................................................................................. 1
11 00-437041-00004 Thermometer (11 Ft.) (Wash) .................................................................................................... 1
12 00-286687 Ring – Final Rinse Identifi cation ................................................................................................ 1
*Previous Construction
2
3
4
5
6
7
8
9
12
10-11
Previous
Construction
1
PL-57157
UW50 Untensil Washer 208-240/60/3 Page 96 of 112

- 64 -
UW50 UTENSIL WASHER REPLACEMENT PARTS
F-18243 Rev. E (May 2009)
FRAMES AND PANELS
1
2
3
4
5
6
7
8
9
10
11
12
13
14
15
16
17
18
19
20
21
22
23
24
25
26
27
28
29
30 31
32
PL-51403
UW50 Untensil Washer 208-240/60/3 Page 97 of 112

- 65 -
UW50 UTENSIL WASHER REPLACEMENT PARTS
F-18243 Rev. E (May 2009)
FRAMES AND PANELS
ILLUS. PART NO. NAME OF PART AMT.
PL-51403
1 00-163217 Trim – Panel ............................................................................................................................... 1
2 00-163235 Side Panel Assy. ........................................................................................................................2
3 SD-017-29 Self-Tapping Screw 6-20 x 3/8 Phil. Truss Hd., Type AB .............................................................2
4 SC-041-01 Cap Screw
1/4-20 x 3/4 Hex Hd. ................................................................................................... 1
5 WS-017-06 Washer .......................................................................................................................................6
6 00-163458 Bracket – Control Box Mounting ................................................................................................3
7 WL-006-17 Lockwasher
1/4 Helical (SST) ..................................................................................................... 6
8 NS-015-01 Nut
1/4-20 Hex (SST) ..................................................................................................................6
9 SC-041-05 Cap Screw
1/4-20 x 5/8 Hex Hd. ................................................................................................... 2
10 00-163230 Panel – Front .............................................................................................................................1
11 00-163290 Front Panel Support Bracket Assy. ............................................................................................2
12 WS-017-06 Washer .......................................................................................................................................2
13 WL-006-17 Lockwasher
1/4 Helical (SST) ..................................................................................................... 2
14 NS-015-01 Nut
1/4-20 Hex (SST) ..................................................................................................................2
15 00-288946-00002 Foot – Adjustable Hex (SST) ..................................................................................................... 4
16 NS-015-11 Nut
5/16-18 Hex ........................................................................................................................... 4
17 WS-017-21 Washer .......................................................................................................................................4
18 WL-006-22 Lockwasher
5/16 Light ................................................................................................................. 8
19 SC-066-06 Mach. Screw 10-24 x 1/2 Phil. Truss Hd. (SST) .......................................................................... 2
20 00-075895 Speed Nut 10-24 ........................................................................................................................ 5
21 WS-017-21 Washer .......................................................................................................................................4
22 SC-041-11 Cap Screw
5/16-18 x 3/4 Hex Hd. (SST) ....................................................................................... 4
23 SC-066-06 Mach. Screw 10-24 x 1/2 Phil. Truss Hd. (SST) .......................................................................... 3
24 NS-015-01 Nut
1/4-20 Hex (SST) ..................................................................................................................1
25 WL-006-17 Lockwasher
1/4 Helical (SST) ..................................................................................................... 1
26 00-119254 Retainer – Cap & Stud ...............................................................................................................1
27 00-067500-00031 O-Ring ....................................................................................................................................... 1
28 00-119244 Cap & Stud Assy. ....................................................................................................................... 1
29 NS-015-01 Nut
1/4-20 Hex (SST) ..................................................................................................................1
30 WL-006-17 Lockwasher
1/4 Helical (SST) ..................................................................................................... 1
31 FE-006-46 Clamp
3/4 ....................................................................................................................................1
32 FE-025-10 Clamp 11/4 (Use With Booster) ................................................................................................... 1
UW50 Untensil Washer 208-240/60/3 Page 98 of 112

- 66 -
UW50 UTENSIL WASHER REPLACEMENT PARTS
F-18243 Rev. E (May 2009)
SPRAY HOSE
PL-57170
18
13
12
10-11
19
20
21
24
23
25
26
1
2
3
4
5
7
9
8
22
17 16 15
14
6
UW50 Untensil Washer 208-240/60/3 Page 99 of 112

- 67 -
UW50 UTENSIL WASHER REPLACEMENT PARTS
F-18243 Rev. E (May 2009)
SPRAY HOSE
ILLUS. PART NO. NAME OF PART AMT.
PL-57170
1 FP-015-23 Elbow
3/4 x 90 Deg. .................................................................................................................... 1
2 FP-041-60 Pipe
3/4 x 25/8 TBE ...................................................................................................................... 1
3 FP-015-23 Elbow
3/4 x 90 Deg. .................................................................................................................... 1
4 FP-041-50 Pipe
3/4 x 13/8 TBE ...................................................................................................................... 1
5 FP-019-28 Tee – Pipe 3/4 x 3/4 x 3/4 ............................................................................................................... 1
6 FP-041-50 Pipe
3/4 x 13/8 TBE ...................................................................................................................... 1
7 FP-041-60 Pipe
3/4 x 25/8 TBE ...................................................................................................................... 1
8 WL-006-17 Lockwasher
1/4 Helical (SST) ..................................................................................................... 2
9 NS-015-01 Nut
1/4-20 Hex ............................................................................................................................2
10 00-812608-00002 Nozzle ........................................................................................................................................ 1
11 00-812608-00003 Gun – Spray ............................................................................................................................... 1
12 FP-088-17 Fitting – Hose .............................................................................................................................1
13 FP-088-18 Fitting – Hose .............................................................................................................................1
14 NS-031-15 Stop Nut 10-24 Hex ................................................................................................................... 2
15 00-748293 Bracket – Sprayer ...................................................................................................................... 1
16 WS-019-06 Washer .......................................................................................................................................2
17 SC-066-06 Mach. Screw 10-24 x 1/2 Phil. Truss Hd. .................................................................................... 2
18 00-293625-00002 Hose – Fill (96 In.) .....................................................................................................................1
19 FP-087-32 Fitting – Hose .............................................................................................................................1
20 00-223220-00003 Valve – Ball (3/4) ......................................................................................................................... 1
21 FP-041-60 Pipe
3/4 x 25/8 TBE ...................................................................................................................... 1
22 SC-041-05 Cap Screw
1/4-20 x 5/8 Hex Hd. ................................................................................................... 2
23 WS-017-06 Washer .......................................................................................................................................2
24 00-748294 Bracket – Piping Support ........................................................................................................... 1
25 FP-015-23 Elbow
3/4 x 90 Deg. .................................................................................................................... 1
26 FP-042-15 Pipe
3/4 x 81/2 TBE ...................................................................................................................... 1
UW50 Untensil Washer 208-240/60/3 Page 100 of 112

FORM 18243 Rev. E MAY 2009 PRINTED IN U.S.A.
UW50 UTENSIL WASHER REPLACEMENT PARTS
RACKS
ILLUS. PART NO. NAME OF PART AMT.
PL-57158
1 00-172829 Insert – Tray ............................................................................................................................... 2
2 00-172830-00001 Tray – Bottom ............................................................................................................................ 1
3 00-812814 Tray (Incls. Items 4, 5, & 6) ........................................................................................................1
4 00-163997 Slide ...........................................................................................................................................4
5 SC-022-40 Mach. Screw
1/4-20 x 3/4 Phil. Flat Hd. ........................................................................................ 8
6 NS-031-21 Stop Nut
1/4-20 Hex ....................................................................................................................8
1
2
3
4-5-6 PL-57158
UW50 Untensil Washer 208-240/60/3 Page 101 of 112

User Guide
Next
select
SMARTPARTS
From
hobartservice.com
select
PARTS
Web Browser Pop-up blocker must be turned off for this site in order for SmartParts to operate
UW50 Untensil Washer 208-240/60/3 Page 103 of 112

This is SmartParts
home page
If the ML Number of
the Equipment is
known,
select
Use SmartParts Now
(We’ll explain what to
do if the ML number of
the Equipment is not
known in Section 2)
Enter the ML number
and click on
Search SmartParts
For this example, the part needed is a Water
Pressure Gauge used on the LX 30 Undercounter
Dishwasher
The ML number of this dishwasher is 104352
104352
104352
Section 1 – If Equipment ML Number is known
UW50 Untensil Washer 208-240/60/3 Page 104 of 112

•
Click on the
Radio button
to select the
Parts Catalog
Then click on
Continue
The Water Pressure Gauge is
on the Base Assembly
Select Base Assembly
Then click on Continue
Section 1 – If Equipment ML Number is known
UW50 Untensil Washer 208-240/60/3 Page 105 of 112

•
Select an appropriate figure size
Locate the part needed (Water
Pressure Gauge) on the drawing
Placing the cursor on the number
will display the Description of the
Part
Click on the number pointing to
the part
Section 1 – If Equipment ML Number is known
19: Gauge – Water Pressure (LX30/40, LXG, & LXiG Series)
UW50 Untensil Washer 208-240/60/3 Page 106 of 112

•Selecting the part on the figure causes the part to be highlighted on the parts list
•Click on the Add button to add the part to the shopping cart
•You can add more parts or change the quantity of the parts already in the cart
•When finished, click on the Confirm Parts Selected and then on Print Parts List if
you want to print
Section 1 – If Equipment ML Number is known
Use SMARTPARTS Now
UW50 Untensil Washer 208-240/60/3 Page 107 of 112

Section 2 – If Equipment ML Number is not known
This (again) is SmartParts
home page
For this example, the part
needed is a Water
Pressure Gauge used on
the LX 30 Undercounter
Dishwasher
If the ML Number of the
Equipment is not known,
click on the Radio button
to select Warewash /
Waste Equipment
Then click on Continue
(Go to Section 1 if you do know
the ML number of the
Equipment)
Click on the Radio button
to select UnderCounter
Dishwasher
Then click on
Continue
UW50 Untensil Washer 208-240/60/3 Page 108 of 112

Click on the Radio button
to select LX Series
Dishwashers
Then click on
Continue
Section 2 – If Equipment ML Number is not known
The Water Pressure Gauge
is on the Base Assembly
Select Base Assembly
Then click on Continue
UW50 Untensil Washer 208-240/60/3 Page 109 of 112

Locate the part needed (Water
Pressure Gauge) on the
drawing
Placing the cursor on the
number will display the
Description of the Part
Click on the number pointing to
the part
Section 2 – If Equipment ML Number is not known
19: Gauge – Water Pressure (LX30/40, LXG, & LXiG Series)
Select an appropriate figure size
UW50 Untensil Washer 208-240/60/3 Page 110 of 112

•Selecting the part on the figure causes the part to be highlighted on the parts list
•Click on the Add button to add the part to the shopping cart
•You can add more parts or change the quantity of the parts already in the cart
•When finished, click on the Confirm Parts Selected and then on Print Parts List if
you want to print
Section 2 – If Equipment ML Number is not known
Use SMARTPARTS Now
UW50 Untensil Washer 208-240/60/3 Page 111 of 112

UW50
November 2010
PRODUCT SERVICE DEPARTMENT TROY, OH. 45374-0001
RECOMMENDED SPARE PARTS LIST
UW50 DISHWASHER
(208/240 V 3 Phase)
Qty
.Part Number Description
3 271002-1 Solenoid Valve 3/4 (110-120 V)
3 118270 Service Kit - Vacuum Breaker
3 87713-41-12Contactor - 3-Pole 40 Amp (115 V)
2 811830 Start - Switch
2 67500-120 O-Ring
2 271621 Probe & Switch Assy 4-Wire (Temp & Water Level)
2 122674 Float Assembly
2 271123 Protector - High Limit
1 475811 Temperature Control Board
1 812349-1 Heating Element Booster 240 V
1 812349-2 Heating Element Booster 208 V
1 328994 Sensor Probe Booster
UW50Page 1 of 1
UW50 Untensil Washer 208-240/60/3 Page 112 of 112


