VORON2 Manual
User Manual:
Open the PDF directly: View PDF
.
Page Count: 81

1
VORON2
v2.1
Assembly Manual

Review the entire manual before beginning assembly
Use common sense when assembling the printer
When in doubt, ask questions
… and good luck
2
!

!
3
Frame
M5x16 BHCS
Blind Joint

4
Frame
M5 Washer
M5x10 BHCS

5
Frame
M5 T-Nut

!
6
Z Rails
Clean and apply grease
M3 T-Nut
MGN9 Rail
M3x8 SHCS
O!set Rail Installation Guides

!
7
Z Rails
M3x8 SHCS
M3 T-Nut

!
8
Z Rails
M5x30 BHCS
M3x12 SHCS
M3x20 SHCS
Rear Right Z Rail

!
9
Z Idlers / Tensioners
F695 Bearing
M5 Washer
GT2 20T Pulley
5x26mm Shaft
M3 Hex nut
M3x16 SHCS

!
10
M5x10 BHCS
Z Idlers / Tensioners
M5x16 BHCS
Z Belt tension adjustment
Loosen when tensioning belt

!
11
Z Drive Units
GT2 40T Pulley (De-flanged)
M3 Hex Nut
M3x10 SHCS

!
12
Z Drive Units
625 Bearing
Ensure bearings are fully seated
GT2 16T Pulley
M3x8 SHCS
M3x6 SHCS
Astrosyn Dampener
NEMA17 Stepper Motor

!
13
Z Drive Units
M5 Washer
5x50mm Shaft
GT2 188mm Belt Loop
M5 Washer
GT2 20T Pulley
See Addendum for shaft specs

!
14
Z Drive Units
M3x16 SHCS
M5x16 BHCS
M5 Washer

!
15
Z Drive Units
M3x12 SHCS

!
16
Deck Panel
Coroplast Sheet
See Addendum for blueprint

!
17
Z Drives
Air Compressor Foot
M5x10 BHCS
M3x8 SHCS

!
18
!

!
19
A / B Drive Units
F695 Bearing Stack
M5 Washer
M5x30 BHCS
GT2 20T Pulley
5x50mm Shaft
F695 Bearing
M5 Washer
B Driveshaft
A Driveshaft
See Addendum for shaft specs
19

!
20
A / B Drive Units
M3x30 SHCS
M5 Hex nut
M3 Hex nut
GT2 20T Pulley
M5 Washer
M3x6 SHCS
Astrosyn Dampener
NEMA17 Stepper Motor

!
21
A / B Drive Units
GT2 110mm Belt Loop
GT2 20T Pulley
M3x8 SHCS
B Drive Unit
A Drive Unit
21

!
22
A / B Drive Units
Z Belt Segment

!
23
Front Idlers
M3 Hex nut
M3x16 SHCS
F695 Bearing
Ensure bearings are fully seated
AB Belt tension adjustment

!
24
Front Idlers
M3x40 SHCS
M3 Hex nut
Z Belt Segment
M5x40 SHCS
M5 Washer
F695 Bearing Stack
5x26mm Shaft
GT2 20T Pulley
M5 Hex Nut

!
25
Y Rails
M3x8 SHCS
MGN9 Rail
Centering Rail Install Guide
Use every other hole on the rail

!
26
Y Gantry
M5x10 BHCS
Y Rail Assembly
M5x10 BHCS

!
27
Y Gantry
Y Rail Assembly
M5x10 BHCS
M5x10 BHCS

28
Y Gantry
M5x10 BHCS

!
29
Z Belts Routing
Loosen belt clamps for installation
Trim belt before side panel install

!
30
XY Joint
F695 Bearing
F695 Bearing
M5 Washer
GT2 20T Pulley
5x26mm Shaft
Ensure bearings are fully seated

!
31
XY Joint
M5x30 BHCS
M3x20 SHCS
M2x8 BHCS
SPDT KW10 Micro Switch

!
32
X Rail
M3x8 SHCS
MGN9 Rail
Centering Rail Install Guide

!
33
X Gantry
M5x20 BHCS
M5x10 BHCS
M5x10 BHCS
M5x16 BHCS
M5x10 BHCS
M5x20 BHCS
Right XY Joint

34
X Gantry

!
35
X Gantry
M3x12 SHCS
M3x16 SHCS
M3x12 SHCS

!
36
X Carriage Frame
M3x30 SHCS
M3 Hex nut
Use M3 screws to seat the nuts

!
37
X Carriage Frame
M3 Hex nut
M3x16 SHCS
M3x8 SHCS

!
38
X Carriage Frame
M3x12 SHCS
1.75mm Filament fragment

!
39
Toolhead
M3x25 SHCS
M3x16 SHCS
M2x8 BHCS
40x40x10 Centrifugal Fan
E3D V6 Hotend

!
40
Toolhead
M2x8 BHCS
M3x25 SHCS

!
41
Toolhead
M3x12 SHCS

!
42
X Carriage
M3x16 SHCS

!
43
AB Belts Routing
A Belt
B Belt

!
44
Toolhead
Seat the toolhead in the paws
Use top screws to secure
Use button to open the doors

!
45
"

!
46
LCD Module
M3x12 SHCS
M3x12 SHCS
RR Full Graphics LCD
M2x12 BHCS
M5x10 BHCS

!
47
Tape Chain
3/4” Tape Measure
Cut to axis travel + 186mm
Harness Tape
Cover sharp edges
Braided Cable Sheathing
Feed the cables in
Heat Shrink Tubing (both ends)

!
48
Gantry Cable Management
M3x8 BHCS
4” Nylon Cable Ties
Use the same method for Y chain

!
49
Gantry Cable Management
M5x10 BHCS
M5x10 BHCS
Cut a hole in the deck for cables

!
50
Build Plate
Silicone Heater
See Addendum for bed specs
MIC6 Plate
PEI Sheet
Cut wrench access holes in PEI
M3x20 BHCS
M3 Washer
M3 Hex Nut
# Ensure bubble-free adhesion!

!
51
Build Plate
2: Tighten hex nut to secure bed
1: Tighten screw into the t-nut

!
52
Tool O!set Switch
M3x20 SCHS
5x40mm Shaft
FSR
Use stainless shaft if available

!
53
Tool O!set Switch
Move bed forward to make room
Move toolhead to the back
Ensure the nozzle can hit the switch
Allow for air gap

!
54
Rear Panel
120mm Fan
1.75mm Filament fragment
Coroplast Sheet
See Addendum for blueprint

!
55
Rear Panel
M3x8 SHCS
3M VHB Tape
M3x12 SHCS

!
56
Rear Panel
M5x10 BHCS
M3x8 SHCS
M5x10 BHCS
M5x10 BHCS

!
57
Bowden Tube
Avoid sharp bends

!
58
Top Panel
M5x10 BHCS
M3x8 SHCS
M5x10 BHCS

!
59
Front Handles and Side Panels
Same brackets as top panel
M5x10 BHCS
Ensure covers don’t touch motors

!
60
Electronics
M3x8 SHCS
RAMPs
M3x16 SHCS
Arduino Mega 2560
LCD Adapter

!
61
Electronics
M2x8 BHCS
Raspberry Pi 3
PSU
Remove this PSU screw

!
62
Electronics
SSR
Use the PSU screw
M4x8 BHCS
AC Inlet
M3x8 SHCS

63
Electronics

!
64
Electronics
Cut holes to access bed extrusions
M5 T-Nut
M5x10 BHCS

!
65
Electronics
M5x10 BHCS
M5x10 BHCS

!
66
Electronics
M5x10 BHCS
M4x8 BHCS

!
67
Electronics
M3x8 SHCS
Install both side skirts

!
68
Bottom Panel
Coroplast Sheet
See Addendum for blueprint

!
69
Bottom Panel
Use 3M VHB Tape
Use 3M VHB Tape
M3x20 SHCS
120x120x15 Fan

!
70
Bottom Panel
M3x10 SHCS

!
71
Front Cover
M3x8 SHCS
3M VHB Tape

!
72
Front Cover
Store the door on the handles

73
Addendum

+V -V N L
+
-
AC
AC
VORON2 Wiring
Power Supply / SSR
Chassis Ground (Connect to frame)
SSR Control
Bed Heater
RAMPs Power

VORON2 Wiring
MCU (RAMPs)
BAT85
Z Probe
FSR Sensor
Bed Temp
SSR Control
Z Motor
Z3 Motor
Z1 Motor
Z2 Motor
Controller Fan
Hotend Fan
Hotend Heater
Print Cooling Fans
E Motor
B Motor
A Motor
X Endstop
Hotend Temp
Y Endstop
Exhaust Fan
LCD
RAMPs Power RAMPs Power
Z Motor Mapping
front
Z
Z1
Z3
Z2
GND
VCC
DO
FSR Sensor Board
FSR Z Min Plug

VORON2 Wiring
Toolhead
Z Probe
Hotend Heater
Hotend Temp
Print Cooling Fans
Hotend Fan

Dept. Technical reference Created by Approved by
Document type Document status
Title DWG No.
Rev. Date of issue Sheet
10/21/18
1/1
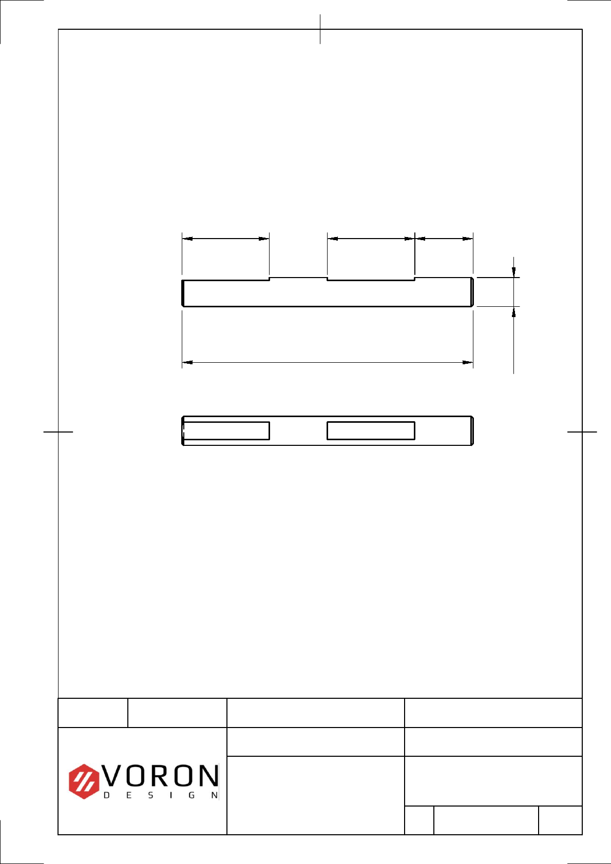
Unified Drive Shaft
VORON2
Maks Zolin
4.98Ø
10
50
1515

Dept. Technical reference Created by Approved by
Document type Document status
Title DWG No.
Rev. Date of issue Sheet
01/12/16
1/1
VORON Bed
Maks Zolin
Ø7
Ø4
75
7
A
A (1:1)
3

Dept. Technical reference Created by Approved by
Document type Document status
Title DWG No.
Rev. Date of issue Sheet
10/21/18
1/1
VORON 2.1 Deck Panel
Maks Zolin
Frame Depth - 40
Frame Width - 40
15
20
150
150
71
141
17
15

Dept. Technical reference Created by Approved by
Document type Document status
Title DWG No.
Rev. Date of issue Sheet
11/07/18
1/1
VORON 2.1 Rear Panel
Maks Zolin
43
147
Frame Height - 24
Frame Width - 24

Dept. Technical reference Created by Approved by
Document type Document status
Title DWG No.
Rev. Date of issue Sheet
10/21/18
1/1
VORON2.1 Bottom Panel
Maks Zolin
Frame Depth - 26
Frame Width - 26
127
120
85
75
7
28
7
20