595665J00_EN 400062 Electrolux Service Manual Dishwashing 11 20111
User Manual: 400062
Open the PDF directly: View PDF .
Page Count: 122 [warning: Documents this large are best viewed by clicking the View PDF Link!]

DOC. NO. 5956.65J.00 P. 1 / 122
Electrolux
EFS - Dishwashing Systems Platform
Electrolux Professional
SERVICE MANUAL
CONTENTS: This document contains the instructions to set electronic board parameters via user
interface for following dishwashers:
EDITION: 11.2011
CODE MODEL CODE MODEL CODE MODEL CODE MODEL
400041 NUC3DD 502033 EUCAIG 504235 EHTAIAU 506052 ZPPWEHG
400055 EUC1 502034 EUCAIWSG 504236 EHTAIMLAU 506053 ZPPWSSG
400056 EUC1DP 502035 EUCAIML 504237 ZHTAWS 506054 EPPWELG
400057 EUC1WS 502036 EUCAIMLWS 504238 ZHTAID 506055 EPPWELG60
400058 EUC1DPWS 502037 EUCAIMLG 504239 ZHTAIWS 506056 ZPPWELG
400059 EUC3 502038 EUCAICL 504240 ZHTAIAU 506057 ZPPWSLG
400060 EUC3WS 502039 EUCAICLG 504241 ZHTA 690028 NUC1G
400061 EUC3DP 502040 EUCAIWL 504242 ZHTA60 698005 NUCA1DDG
400062 EUC3DPWS 502042 EUCAICLW 504243 ZHTAI 698047 OHTAROW
400063 EUC1G 502043 EUCI 504244 EHTAIUSPH5 698048 OHTAROW60
400064 EUC1DP60 502044 EUCIM 504245 EHTAIUSPH6 698083 APPWELG
400065 EUC3DD 502045 EUCIM60 505036 EHTAO 698085 APPWESG
400066 ZUCADDROW 502046 EUCAIDPNW 505046 EHT 698086 APPWEHG
400067 ZUCADDROW6 502047 ZUCI 505047 EHT60 698087 ET5AIIT
400116 FUCA3DD 502048 ZUCID 505048 EHTAG 698088 ET5AIDP
400127 KUC3 502049 ZUCAI 505049 EHTM 698089 ET5AIDPWS
400128 KUC3DP 502050 ZUCAIDP 505050 EHTM60 698091 AUCI
400140 NUC1 502051 ZUCAIDPWS 505051 NHT 698092 AUCAI
400141 NUC1DP 502052 ZUCAIG 505052 NHTD 698093 AUCAIDP
400142 NUC1WS 502053 ZUCAIDDWS 505053 NHT60 698094 AUCAIDPWS
400143 NUC1WSDP 502054 ZUCAID 505054 EHTAROW 698095 AUCAIG
400144 NUC3 502055 ZUCAI60 505055 EHTAROW60 698096 AUCAIWSG
400145 NUC3WS 502056 EUCAIUSPH6 505056 ZHTAROW 698097 ET12AI
400146 NUC3DP 502057 ZUCAIDD 505057 ZHTAROW60 698098 ET12AIT
400147 NUC3DPWS 502058 EUCAIDD 505058 EHTAJ 698110 NHTAG
400148 NUC3DDWS 502059 EUCAIDPJ 505059 EHTAJ60 698115 AHTAWS
400149 NUC1DP60 502060 EUCAIDPJ60 505060 EHTAO60 698116 AHTAIWS
400150 NUC1DPA 504226 EHTA 505061 ZHTAO 698117 AHTAIG
400151 ZUCA1 504227 EHTA60 505062 ZHTAO60 698118 AHTAIWSG
400152 ZUCA3 504228 EHTAWS 505063 KHT 698119 AHTA
400153 EUCADDROW 504229 EHTAI 505064 NHTM 698120 AHTAI
400154 EUCADDROW6 504230 EHTAID 505065 NHTM60 S49JGF
502025 EUCAI 504231 EHTAIWS 506048 EPPWESG S49LBN
502026 EUCAIDP 504232 EHTAIDWS 506049 EPPWESG60 S49QL1
502027 EUCAI60 504233 EHTAIG 506050 EPPWEHG
502028 EUCAIWS 504234 EHTAIWSG 506051 ZPPWESG
TANK
BOILER
3.__
TANK
BOILER
3...__

DOC. NO. 5956.65J.00 P. 2 / 122
Electrolux
EFS - Dishwashing Systems Platform
Electrolux Professional
INDEX
1 KEYBOARDS Pag. 3
1.1 HOOD TYPE Style Pag. 3
1.2 UNDERCOUNTER Style Pag. 4
2 MANUAL ACTIVATION OF DETERGENT AND RINSE AID DISPENSERS Pag. 5
2.1 Detergent Dispenser Activation Pag. 5
2.2 Rinse Aid Dispenser Activation Pag. 5
3 RINSE PUMP MANUAL ACTIVATION Pag. 5
4 DETERGENT AND RINSE AID DOSAGE Pag. 6
4.1 GEn General Parameters Pag. 6
5COUNTERS Pag. 8
5.1 Cnt Counters Pag. 8
6 TEMPERATURE SETTING Pag. 10
6.1 FAC Factory Parameters Pag. 10
7 CYCLE SETTING Pag. 12
7.1 CYCLE DIAGRAM Pag. 13
7.2 CY1 Cycle 1 Parameters Pag. 14
7.3 CY2 Cycle 2 Parameters Pag. 14
7.4 CY3 Cycle 3 Parameters Pag. 14
7.5 drn Drain/Cleaning Cycle Parameters Pag. 15
8 OTHER PARAMETERS Pag. 15
8.1 dPA Dishwashing Parameters Pag. 15
8.2 ron Read Only Parameters Pag. 16
8.3 HCP Communication and HACCP Parameters Pag. 16
8.4 CFG Configuration Parameters Pag. 17
8.5 dbG Parameters for automatic hood type dishwashers Pag. 18
9 SPECIAL FEATURES Pag. 19
9.1 RESIN REGENERATION CYCLE Pag. 19
9.2 MEDICAL LINE DISHWASHER WITH DOOR/HOOD LOCK DEVICE Pag. 19
9.3 DETERGENT AND RINSE AID LEVEL SENSORS ACTIVATION Pag. 19
9.4 DISHWASHER WITH INCORPORATED CONTINUOUS WATER SOFTENER Pag. 20
9.5 HOOD-TYPE DISHWASHER WITH CYCLE THERMAL LABEL Pag. 21
9.6 DISHWASHERS WITH WASH TANK WATER CHANGE FREQUENCY
CONTROL Pag. 21
10 MAIN BOARD CONFIGURATION Pag. 23
10.1 CODE -> Prog. TABLE Pag. 23
10.2 PROGRAMMING SHEETS Pag. 25
11 DEFAULT VALUES Pag. 105
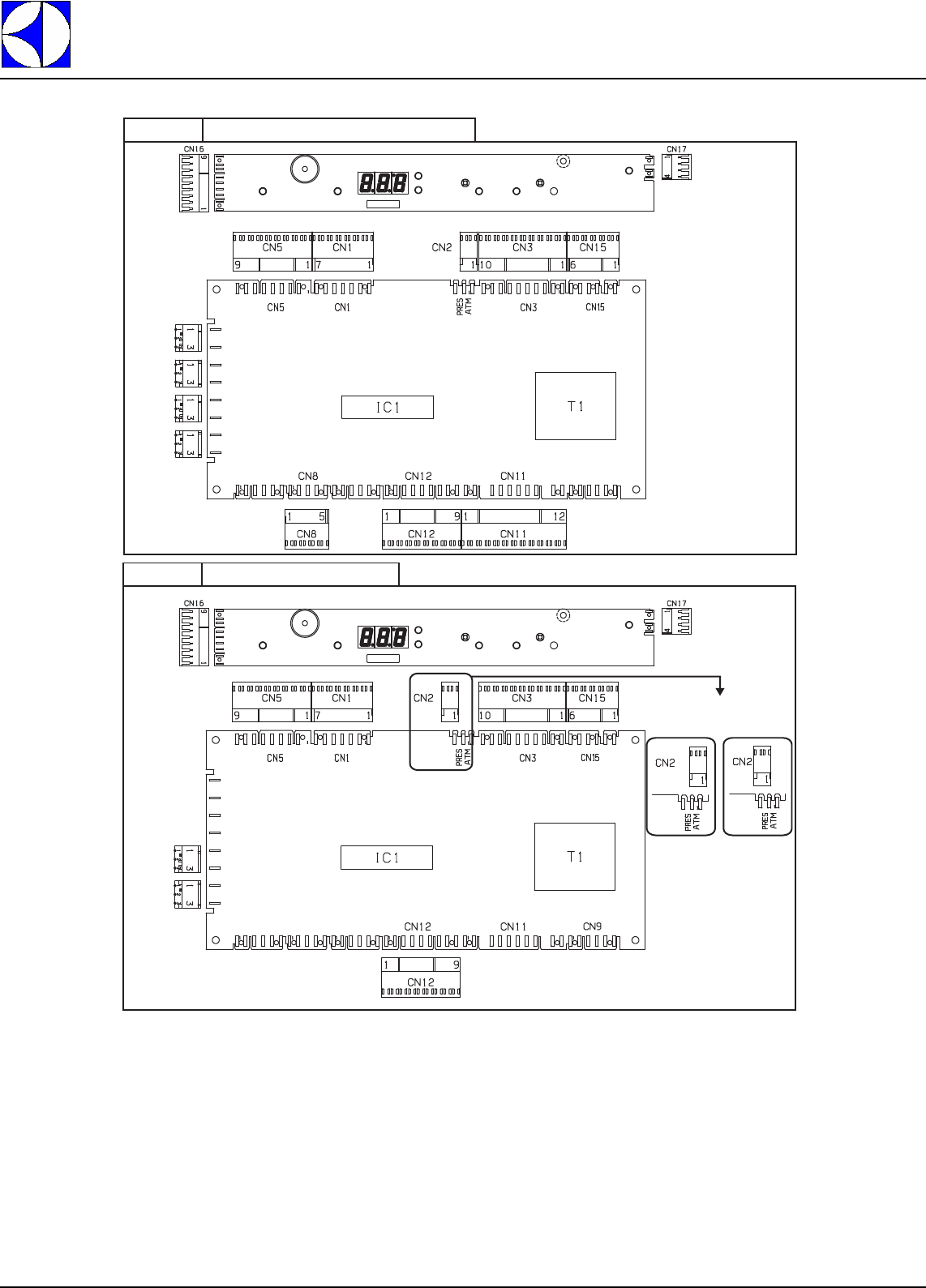
12 USER INTERFACE AND MAIN BOARD CONNECTORS Pag. 108
12.1 Main malfunctions not due to the main board Pag. 108
12.2 CONNECTORS LAYOUT Pag. 108
13 ALARM MESSAGES AND TROUBLESHOOTING Pag. 115
13.1 ALARMS THAT STOP THE DISHWASHER Pag. 115
13.1.1 ALARM CODES FOR AUTOMATIC HOOD TYPE DISHWASHERS Pag. 115
13.2 ALARMS THAT DON'T STOP THE DISHWASHER Pag. 119
13.3 ALARMS THAT DON’T STOP THE DISHWASHER FOR MODELS WITH
INCORPORATED CONTINUOUS WATER SOFTENER Pag. 121
14 LIST OF PARAMETERS FOR SUBSEQUENT VERSIONS Pag. 122

DOC. NO. 5956.65J.00 P. 3 / 122
Electrolux
EFS - Dishwashing Systems Platform
Electrolux Professional
1 KEYBOARDS
1.1 HOOD TYPE Style
SETTING MODES:
To enter into one setting mode (Figure 4),(Figure 5) the appliance should be in stand-by: switch on the appli-
ance, no cycles selected. Is useful keep door open to avoid start cycle in case of not simultaneously pressure
of the two keys.
Fig. 1 Detergent dispenser Manual
Activation.
Fig. 2 Rinse Aid Dispenser Manual
Activation
Fig. 3 Rinse Pump Manual
Activation (used to EMPTY
BOILER)
Fig. 4 Enter into General
Parameters (Hold down buttons for
at least five seconds).
Fig. 5 Enter into Factory
Parameters (Hold down buttons for
at least five seconds)..
Fig. 6 Next Parameter Family OR
Increase Parameter Value(In setting
mode only)
Fig. 7 Decrease Parameter Value(In
setting mode only)
Fig. 8 Confirm Value and go to next
Parameter (In setting mode only).
dEt
rAi
---
GEn
FAC
888
888
888

Electrolux
EFS - Dishwashing Systems Platform
Electrolux Professional
DOC. NO. 5956.65J.00 P. 4 / 122
1.2 UNDERCOUNTER Style
SETTING MODES:
To enter into one setting mode (Figure 12), (Figure 13) the appliance should be in stand-by: switch on the
appliance, no cycles selected. Is useful keep door open to avoid start cycle in case of not simultaneously pres-
sure of the two keys.
Fig. 9 Detergent dispenser Manual
Activation
Fig. 10 Rinse Aid Dispenser
Manual Activation
Fig. 11 Rinse Pump Manual
Activation (used to EMPTY BOILER)
Fig. 12 Enter into General
Parameters (Hold down buttons for
at least five seconds).
Fig. 13 Enter into Factory
Parameters (Hold down buttons for
at least five seconds).
Fig. 14 Next Parameter Family OR
Increase Parameter Value (in setting
mode only)
Fig. 15 Decrease Parameter Value
(In setting mode only)
Fig. 16 Confirm Value and go to
next Parameter (in setting mode
only).
TANK
BOILER
dEt
TANK
BOILER
rAi
TANK
BOILER
---
TANK
BOILER
GEn
TANK
BOILER
FAC
TANK
BOILER
888
TANK
BOILER
888
TANK
BOILER
888

DOC. NO. 5956.65J.00 P. 5 / 122
Electrolux
EFS - Dishwashing Systems Platform
Electrolux Professional
2 MANUAL ACTIVATION OF DETERGENT AND RINSE AID DISPENSERS
When replacing detergents may be necessary activate the dispensers to fill hoses.
2.1 Detergent Dispenser Activation
2.2 Rinse Aid Dispenser Activation
3 RINSE PUMP MANUAL ACTIVATION
Use this function to empty the boiler (if the dishwasher is not to be used for a long time, for maintenance oper-
ation: ex. before replacing main board).
Switch on the dishwasher.
Press and hold down CYCLE_2 and CYCLE INFINITE keys, after two
'beep' the detergent dispenser starts work for 20 sec.
Switch on the dishwasher.
Press and hold down CYCLE_1 and CYCLE INFINITE keys, after two
'beep' the rinse aid dispenser starts work for 40 sec.
Switch on the dishwasher.
Close the door and press and hold down DRAIN and CYCLE INFINITE
keys. A buzzer signal indicates the rinse pump activation and the dis-
play shows three blinking lines. Three beeps indicate the cycle end.
dEt
rAi
---

Electrolux
EFS - Dishwashing Systems Platform
Electrolux Professional
DOC. NO. 5956.65J.00 P. 6 / 122
4 DETERGENT AND RINSE AID DOSAGE
In this paragraph is explained how to set the working time for the detergent and rinse aid dispensers.
For each dispenser there are two parameters: the initial time and the time during cycle execution.
4.1 General Parameters
How change the duration:
• Switch OFF and switch ON the dishwasher;
• Enter into the USER SETTING mode by pressing and hold down ON/OFF and CYCLE_1 keys for at least five sec-
onds the display shows (Figure 17);
• Press CYCLE_INFINITE. The display shows alternatively the symbol dIn and the duration in seconds (Figure 18) and
(Figure 19) ;
• NOTE: If User Interface v.3.00 tank led is on if value correspond to factory default ( Default 1 - HOOD TYPE).
• Use CYCLE_1 key to decrease the duration and CYCLE_2 key to increase (Figure 19);
• After settled the duration press CYCLE_INFINITE key to store value. The display shows the next parameter
(Figure 20) and the corresponding value (Figure 21);
• In the same way is possible to change the other duration; when finished switch OFF and switch ON.
Sym. Parameter Description Unit Min Max Factory Default
Initial Detergent Dosage (during filling tank) [s] 0 240 90
Initial Rinse Aid Dosage (starts when tank filled) [s] 0 180 10
Detergent Dosage During Cycle Execution (during wash
phase)
[s] 0 182 (*) 8
Rinse Aid Dosage During Cycle Execution (when refill-
ing boiler)
[s] 0 62 (*) 4
Fig. 17 Enter into User Mode (press for 5 sec)..
Fig. 18 Initial detergent
dosage.
Fig. 19 Change duration.
(Tank LED indicates default).
Fig. 20 Initial rinse aid
dosage
Fig. 21 Change duration
Fig. 22 Cycle detergent
dosage.
Fig. 23 Change time
activation (Tank LED
indicates default)
Fig. 24 Cycle rinse aid
dosage.
Fig. 25 Change time
activation.
GEn
dIn 90 rIn 24
Val.Fabbr.
dEt 8 rAi 7
Val.Fabbr.

DOC. NO. 5956.65J.00 P. 7 / 122
Electrolux
EFS - Dishwashing Systems Platform
Electrolux Professional
(*) Note for external dispensers:
•if the detergent dispenser works when WASHING PUMP is being activated; at the
same time voltage is supplied between connectors L17–L19 (main terminal box);
•if
the detergent dispenser works when LOADING EV is being activated to re-fill boiler
level; at the same time voltage is supplied between connectors L17–L19 (main ter-
minal box);
•if
the rinse aid dispenser works when LOADING EV is being activated to re-fill boiler
level; at the same time voltage is supplied between connectors L18–L19 (main ter-
minal box);
•if
the rinse aid dispenser works when WASHING PUMP is being activated; at the
same time voltage is supplied between connectors L18–L19 (main terminal box);
- For electrical connections refer to electric diagram -
Example
Suppose there is connected an external detergent dispenser with a probe into the tank. A typical setting
could be:
the dispenser is not activated during filling tank;
the dispenser is supplied during washing phase and the probe automatically dose the right
detergent amount.

Electrolux
EFS - Dishwashing Systems Platform
Electrolux Professional
DOC. NO. 5956.65J.00 P. 8 / 122
5 COUNTERS
This Parameter Family collects cycle counters and water consumption counters.
For water consumption counters a flow meter must be installed. See (calibration parameter) into
section (8 OTHER PARAMETERS).
5.1 Counters
Sym. Parameter Description Unit Min Max Factory
Default
Cycles performed counter.
symbol and two numbers blink consecutively. The cycle number
is obtained by joining the two numbers.
Ex. means 10042 cycles executed.
-
Cycle counter (resettable).
This counter is similar to but is resettable by user (see
parameter below).
-
Water Consumption (only for dishwashers with incorporated continuous
water softener).
Counts m3 of water consumption.
[m3]
Water Consumption (only for dishwashers with incorporated continu-
ous water softener).
Counts litres of water consumption.
The total consumption is given by adding [m3] and [l] values.
[l]
Water Consumption: resettable counter. [present up to software version
3.12]
Counts the litres of water and is resettable by user (see parame-
ter below).
[l]
Reset resettable counters: and
To reset put 1 this parameter, switch off and then on again: and
will show zero. Note that is used to count cycles for
-- message (see next parameter, ).
-
Store thousand of cycles after that -- message appears on dis-
play.
Ex. If this parameter is settled to 20,-- message appears when
reach 20.000 cycles.
-
Drain/Cleaning cycles performed.
Similar to but counts Cleaning Cycles. -
Numbers of cycles that can be made after a regeneration cycle (only for
dishwashers with non-continuous water softener) [See paragraph 9.1
RESIN REGENERATION CYCLE.].
-20
Regeneration cycle counter (only for water softener dishwasher)
[See paragraph 9.4 DISHWASHER WITH INCORPORATED CONTIN-
UOUS WATER SOFTENER]. only counts efficient regeneration
cycles, i.e. those carried out with salt in the special container (only for
dishwashers with incorporated continuous water softener)
-
Counter of regeneration cycles done without salt in the special con-
tainer. (only for dishwashers with incorporated continuous water sof-
tener) [See paragraph 9.4 DISHWASHER WITH INCORPORATED
CONTINUOUS WATER SOFTENER].
-

DOC. NO. 5956.65J.00 P. 9 / 122
Electrolux
EFS - Dishwashing Systems Platform
Electrolux Professional
Fig. 26 USER setting mode
(press for 5s).
Fig. 27 Next Family Fig. 28 Counters Fam.:
ENTER
Fig. 29 CYCLES Fig. 30 Thousand. Fig. 31 Units. Fig. 32 Next counter.
GEn GEn Cnt
CYC 010 042 cYc

Electrolux
EFS - Dishwashing Systems Platform
Electrolux Professional
DOC. NO. 5956.65J.00 P. 10 / 122
6 TEMPERATURE SETTING
In this paragraph is explained how to change temperature thresholds and all parameters related to boiler and
tank.
6.1 Factory Parameters
Sym. Parameter Description Unit Min Max Factory
Default
Boiler Temperature: THRESHOLD.
When boiler temperature reaches this value, heaters switch off. [°C] 45 95 78
Boiler Temperature HISTERESIS, (represent dead band).
Heater switch on if boiler temperature is below: - [°C] 2 10 2
Boiler Temperature: HIGH LIMIT.
When boiler temperature reaches this value alarm appears.
Put 0 to disable alarm.
[°C] 0 98 96
Boiler Temperature: LOW LIMIT.
During boiler warm-up, temperature must increase at least °C
otherwise warning appears.
Put 0 to disable warning.
[°C] 0 10 1
Boiler Filling Timeout.
If filling time is longer than , alarm appears.
Put 0 to disable alarm.
[min] 0 42 5
Boiler Temperature Adjust. [°C] 0 7 4
Boiler Priority (enable boiler wait function)
0=disabled
1=enabled
-01 1
Booster Function
Overheat gap over Boiler Temperature Threshold [°C] 0 15 2
Boiler temperature negative differential: when the dishwasher is in
standby, boiler threshold becomes: -
(Used to save energy during machine inactivity by keeping boiler
water at a lower temperature).
[°C] 0 20 0
Tub Temperature: THRESHOLD
When tank temperature reaches this value, heater switch off. [°C] 40 85 63
Tub Temperature: HISTERESIS, (represent dead band).
Heater switch on if tank temperature is below: - [°C] 2 30 5
Tank Temperature: HIGH LIMIT.
When tank temperature reaches this value alarm appears.
Put 0 to disable alarm.
[°C] 0 95 75
Tank Temperature: LOW LIMIT.
During tank warm-up, temperature must increase at least °C
otherwise warning appears.
Put 0 to disable warning.
[°C] 0 10 1
Tank Filling Timeout.
If filling time is longer than , alarm appears.
Put 0 to disable alarm.
[min] 0 42 20

DOC. NO. 5956.65J.00 P. 11 / 122
Electrolux
EFS - Dishwashing Systems Platform
Electrolux Professional
To modify thresholds do the following:
• Switch OFF and switch ON the dishwasher;
• Enter into the FACTORY SETTING mode by pressing and hold down ON/OFF and CYCLE_2 keys for at
least five seconds (Figure 33);
• Press CYCLE INFINITE. The display shows alternatively the symbol (Figure 34) and the corre-
sponding value (Figure 35);
• Use CYCLE_1 key to decrease the value and CYCLE_2 key to increase (Figure 35);
• Press CYCLE INFITE key to confirm. The display shows the next parameter (Figure 36) and the corre-
sponding value (Figure 37);
• In the same way is possible to change the other parameters; when finished switch OFF and switch ON.
At the end the display will show again and by pressing CYCLE_2 key (Fig. 41) is possible to change
cycle duration (see paragraph 7 CYCLE SETTING).
).
Fig. 33 Factory setting
mode.
Fig. 34 Boiler temp.
threshold
Fig. 35 Change value &
Store
Fig. 36 Boiler Temp
Hysteresis
Fig. 37 Change value &
Store
Fig. 38 Tank temp. High
limit.
Fig. 39 Change value &
Store.
Fig. 40 Factory setting
mode
Fig. 41 Next Family Fig. 42 Cycle 1 Family:
ENTER.
FAC btCbtH 76
°
2 bHi bLo 96
FAC FAC Cy1

Electrolux
EFS - Dishwashing Systems Platform
Electrolux Professional
DOC. NO. 5956.65J.00 P. 12 / 122
7 CYCLE SETTING
IIn this paragraph is explained how to change cycle phases duration (see paragraph 7.1 CYCLE DIAGRAM).
• Switch on the dishwasher;
• Enter into the FACTORY SETTING mode: press and hold down ON/OFF and CYCLE_2 keys for at least 5
seconds (Figure 43);
• Press CYCLE_2 key to select CYCLE_1 parameters.
• Press CYCLE_INFINITE. The display shows alternatively the symbol (Figure 46) and the corre-
sponding value (Figure 47);
• Use CYCLE_1 key to increase the value and CYCLE_2 key to decrease (Figure 47);
• Press CYCLE_INFINITE key to confirm. The display shows the next parameter (Figure 48) and the corre-
sponding value (Figure 49);
• In the same way is possible to change the other parameters;.
After settled all parameters referring Cycle 1, by pressing CYCLE_2 key is possible to change the Cycle 2
parameters (Figure 50), (Figure 51) and so on.
Fig. 43 Factory setting
mode.
Fig. 44 Select next class. Fig. 45 Cycle 1 Family:
ENTER.
Fig. 46 Wash duration [min].
Fig. 47 Change value &
Store
Fig. 48 Wash duration [sec]. Fig. 49 Wash duration
[min]..
Fig. 50 Cycle 1 Parameters. Fig. 51 Cycle 2 Parameters:
ENTER.
Fig. 52 Wash duration [min].
Fig. 53 Cycle 2 Parameters:
next Family
Fig. 54 Cycle 3 Parameters:
ENTER
Fig. 55 Wash duration [min].
FAC FAC Cy1 Ln1
0 5h1 35
Cy1 Cy2 Ln2 …
Cy2 Cy3 Ln3 …

DOC. NO. 5956.65J.00 P. 13 / 122
Electrolux
EFS - Dishwashing Systems Platform
Electrolux Professional
7.1 CYCLE DIAGRAM
CYCLE TYME
LEGENDA: = drain
= wash = rinse pause
= pre rinse = final pause
= rrinse = detergent
= cold rinse = rinse aid
IPA Ln Sh
PA
Pr
ri
cr
FP
dr
rPA
dEt
rAi

Electrolux
EFS - Dishwashing Systems Platform
Electrolux Professional
DOC. NO. 5956.65J.00 P. 14 / 122
7.2 Cycle 1 Parameters
7.3 Cycle 2 Parameters
7.4 Cycle 3 Parameters
Sym. Parameter Description Unit Min Max Factory
Default
Wash Phase Long [min] 0 20 0
Wash Phase Short [s] 1 60 35
Pause [s] 0 20 4
Pre-rinse Duration [s] 0 30 0
Rinse Phase Duration [s] 10 45 16
Cold Rinse Phase Duration [s] 0 50 0
Drain [s] 0 40 16
Final Pause at End of Cycle [s] 0 60 0
Long wash time in mode Thermal Label [min] 0 60 0
Short wash time in mode Thermal Label [s] 0 60 59
Sym. Parameter Description Unit Min Max Factory
Default
Wash Phase Long [min] 0 20 0
Wash Phase Short [s] 1 60 45
Pause [s] 0 20 4
Pre-rinse Duration [s] 0 30 0
Rinse Phase Duration [s] 10 45 16
Cold Rinse Phase Duration [s] 0 50 0
Drain [s] 0 40 16
Final Pause at End of Cycle [s] 0 60 0
Long wash time in mode Thermal Label [min] 0 60 1
Short wash time in mode Thermal Label [s] 0 60 12
Sym. Parameter Description Unit Min Max Factory
Default
Wash Phase Long [min] 0 20 1
Wash Phase Short [s] 1 60 40
Pause [s] 0 20 4
Pre-rinse Duration [s] 0 30 0
Rinse Phase Duration [s] 10 45 16
Cold Rinse Phase Duration [s] 0 50 0
Drain [s] 0 40 16
Final Pause at End of Cycle [s] 0 60 0
Long wash time in mode Thermal Label [min] 0 60 2
Short wash time in mode Thermal Label [s] 0 60 12
Boiler Temperature Threshold: only for Cycle 3.
This parameter allows having a different rinsing temperature for
the third cycle. Only values above 45°C are allowed.
[°C] 0 95 0

DOC. NO. 5956.65J.00 P. 15 / 122
Electrolux
EFS - Dishwashing Systems Platform
Electrolux Professional
7.5 Drain/Cleaning Cycle Parameters
8 OTHER PARAMETERS
8.1 Dishwashing Parameters
Note: ,, , parameters emulates a two levels pressure switch, keep in mind that value
doesn’t correspond to a physical quantity.
Sym. Parameter Description Unit Min Max Factory
Default
Initial Drain Phase Duration [s] 0 240 40
Final Drain Phase Duration [s] 0 240 60
Drain without cleaning cycle -01 0
Number of wash cycles possible between one drain cycle and the
next
[wash
cycles] 0200 0
Sym. Parameter Description Unit Min Max Factory
Default
Initial Pause before start washing (for ALL cycles) [s] 0 10 0
Delay for the 2nd wash pump (PW only) [s] 0 10 3
Active a drain phase at the end of washing phase. [s] 0 40 0
Duration of pause after rinse cycle (valid for dishwashers with
door/hood lock device) [See par. 9.2 MEDICAL LINE DISH-
WASHER WITH DOOR/HOOD LOCK DEVICE].
[s] 0 60 0
Celsius/Fahrenheit selection
0 = Celsius
1 = Fahrenheit
-01 0
Rinse Temperature Display.
Enable rinse temperature probe (if installed).
0 = during rinse phase the display shows boiler temperature;
1 = during rinse phase the display shows rinse temperature;
-01 0
Pulse Per Litre.
This parameter must be settled in according to flow meter
installed [present up to software version 3.12].
[p/l] 0 255 0
Number of wash cycles performable without detergent (only for
dishwashers with external detergent level sensor – par. 9.3
DETERGENT AND RINSE AID LEVEL SENSORS ACTIVATION)
[]
-05 5
Enable mode Thermal Label: if set to 1 it enables the mode and
disables the "endless cycle" button -01 0
Boiler temperature in mode Thermal Label. [°C] 45 97 86
Tank temperature in mode Thermal Label. [°C] 40 90 75
Tank temperature hysteresis in mode Thermal Label. [°C] 0 30 2
Pressure sensor threshold 1 [present up to software version 2.11].
-0255 140
Pressure sensor histeresis 1 [present up to software version 2.11].
-0255 50
Pressure sensor threshold 2 [present up to software version 2.11].
-0255 140
Pressure sensor histeresis 2 [present up to software version 2.11].
-0255 50

Electrolux
EFS - Dishwashing Systems Platform
Electrolux Professional
DOC. NO. 5956.65J.00 P. 16 / 122
8.2 Read Only Parameters
8.3 Communication and HACCP Parameters
Sym. Parameter Description Unit Min Max Factory
Default
Main Board Firmware Release --- -
Water softener board software version. (only for dishwashers with
incorporated continuous water softener). --- -
Active column: indicates through which of the two continuous
water softener columns boiler filling is being carried out: 0 = col-
umn A and 1 = column B (only for dishwashers with incorporated
continuous water softener).
--- -
--
When
--
message appears, the parameter value becomes 3.
After maintenance, to clear -- message, insert 0. --- -
When alarm appears, the machine is frozen and this
parameter is 3.
After maintenance (see alarm codes document), insert 0 to ena-
ble the machine.
--- -
This alarm appears in case of malfunctioning in the continuous
water softener. To facilitate fault-finding, see par. 13.3 ALARMS
THAT DON’T STOP THE DISHWASHER FOR MODELS WITH
INCORPORATED CONTINUOUS WATER SOFTENER.
--- -
Sym. Parameter Description Unit Min Max Factory
Default
Serial Device
0 = 8N1
1 = PC connection (DAAS 8E1)
7 = HACCP network (ECAP 8E1+LK485) (LK485 board is nec-
essary)
9 = Dishwashers with incorporated continuous water softener
11 = Machines with incorporated continuous water softener that
communicate with LK485 board
16 = HACCP printer (8N1)
32 = MODEM GSM (DAAS 8N1)
33 = MODEM GSM (DAAS 8E1)
48 = Hyper Terminal (8N1)
-063 1
Address.
This parameter specifies the address of the appliance into the
‘HACCP_network’.
Works only if ‘HACCP network’ is selected (see above parameter).
- 0 255 1
Print parameter table. -01 1
HACCP ‘Basic’ (printer)
Boiler temperature: high limit. [°C] 45 95 90
HACCP ‘Basic’ (printer)
Boiler temperature: gap below high limit. [°C] 0 20 10
HACCP ‘Basic’ (printer)
Tank temperature: high limit. [°C] 35 75 68
HACCP ‘Basic’ (printer)
Tank temperature: gap below high limit. [°C] 0 20 10

DOC. NO. 5956.65J.00 P. 17 / 122
Electrolux
EFS - Dishwashing Systems Platform
Electrolux Professional
8.4 Configuration Parameters
Sym. Parameter Description Unit Min Max Factory
Default
Dishwasher Model:
0 = HOOD TYPE & UNDERCOUNTER
1 = POT WASHER
2 = AUTOMATIC POT WASHER
3 = MEDICAL LINE DISHWASHER WITH LOCK DOOR/HOOD
DEVICE
-03 0
Boiler type:
0 = ATMOSPHERIC BOILER
1 = PRESSURE BOILER
2 = EXTERNAL BOILER
-02 0
Door type:
0 = AUTOMATIC HOOD
1 = MANUAL HOOD
2 = FRONT LOADING
3 = POT WASHER
03 1
Default model (see Default tables):
1 = HOOD TYPE
2 = POT WASHER
3 = UNDERCOUNTER
-03 -
Solid State Relay (TRIAC).
0 = not enabled;
1 = SOFT START enabled;
3 = SLOW SOFT START enabled
(works only on boards with Solid State Relay).
-03 0
Boiler/Tank heating swap:
0 = boiler heaters and tank heater can work simultaneously;
1 = swap enabled: tank heating starts only boiler temperature is
reached;
(Note: disabling this function changes the global electrical power
of appliance; before enabling this function check available power,
supply cable section, fuses in according to User Manual).
-01 1
Tank Filling Mode
Enable filling tank by means of rinsing cycles.
Ex: = 75 means that boiler water is heated at 75°C, then
follows a rinse phase and so on until tank is full.
If = 0 the tank is filled by solenoid valve in the traditional
way (On machines with incorporated continuous water softener,
even if is set to 0, filling occurs through subsequent rinses).
[°C] 0 85 75
Detergent Level Switches
0 = level switches not enabled;
1 = enable detergent level switches;
-01 0
USER INTERFACE MODEL
8 = ACTIVE function disabled (up to version 3.11 [up to serial
nr. 42100099] set to 0)
9 = hood type, under counter (up to version 3.11 [up to serial
nr. 42100099] set to 1)
13 = LS5 with atmospheric boiler(up to version 3.11 [up to
serial nr. 42100099] set to 5)
15 = LS5 with pressure boiler (user interface without display); (up
to version 3.11 [up to serial nr. 42100099] set to 7)
24 = LS5 with atmospheric boiler (From Ser. Nr.: 821).
See parameter (family ) to check the software version
installed in the board.
-027 9

Electrolux
EFS - Dishwashing Systems Platform
Electrolux Professional
DOC. NO. 5956.65J.00 P. 18 / 122
8.5 Parameters for automatic hood type dishwashers
Sym. Parameter Description Unit Min Max Factory
Default
Enable “regeneration cycle” key (only for dishwashers with non-
continuous water softener) [See paragraph 9.1 RESIN REGEN-
ERATION CYCLE].
-01 0
ALARMS ENABLE
0 = alarms disabled (to disable also warnings see and
);
1 = alarms enabled;
If this function is disabled, faults can be detected so display do not
shows any alarm code.
-01 1
Air gap with float level sensor normally closed (the level sensor is
closed when the boiler is empty). E.g. the boiler level sensor for
machines with incorporated continuous water softener.
-01 0
Forced start of a resin regeneration cycle (only for dishwashers
with incorporated continuous water softener). [See paragraph 9.4
DISHWASHER WITH INCORPORATED CONTINUOUS WATER
SOFTENER].
-02 0
Max. rinse water hardness (only for dishwashers with incorpo-
rated continuous water softener). After modifying, disconnect and
reconnect the machine's main power supply by means of the
main switch. [See paragraph 9.4 DISHWASHER WITH INCOR-
PORATED CONTINUOUS WATER SOFTENER].
°fH 4 14 10
Boiler heating control.
Defines the max. permissible temperature difference during boiler
heating in a time interval of 2 minutes and 30 seconds.
°C 25 80 50
Sym. Parameter Description Unit Min Max Factory
Default
DELAY_K1
Time (during hood lifting) within which S3” must return to the rest
position.
0.1 s 0.0 s. 20.0 s 15
HOOD_TOUT
TIMEOUT – max. time allowed for complete hood opening/clos-
ing.
0.1 s 0.0 s 20.0 s 200
DELAY_K1_S3
During hood lowering, firstly S3” must cut in and then after a time
.the bottom limit switch S3.
0.1 s 0.0 s. 20.0 s 15
DELAY_K
Time within which K and K’ must be both closed or both open. 0.1 s 0.0 s. 20.0 s 10
DELAY_S3
Time during hood lifting within which the bottom limit switch must
return to the rest position..
0.1 s 0.0 s. 20.0 s 20
DELAY_S5
Time during hood lowering within which the top limit switch must
return to the rest position.
0.1 s 0.0 s. 20.0 s 20
Displays the last alarm code relative to automatic hood type dish-
washers. --- 0
Parameter only valid for hood type models.
Hood lifting motor absorption threshold.
(50 units correspond to a current of approx. 1 ampere).
- 0 250 100

DOC. NO. 5956.65J.00 P. 19 / 122
Electrolux
EFS - Dishwashing Systems Platform
Electrolux Professional
9 SPECIAL FEATURES
9.1 RESIN REGENERATION CYCLE
The regeneration cycle is activated by pressing the button shown in the figure, for at least 5 seconds.
For this key to be enabled parameter (in family ) must be set to 1.
At this point you can enter the number of wash cycles that can be performed after each regeneration: param-
eter in the counters family . If is set to zero the counter is disabled, otherwise after the pre-
set number of cycles the message is displayed to confirm that regeneration is possible (this is an
information-only message with no effect on operation of the appliance, so you can continue to use the dish-
washer). The message is cleared when the regeneration cycle is terminated.
The number of regeneration cycles performed can be checked by consulting the parameter in the
family of counters.
When there are just 15 cycles remaining before the next regeneration cycle, at the end of the wash cycle the
display shows the message followed by , at the end of the next wash cycle the display shows
and , and so forth, i.e. the display informs the user of the number of wash cycles still available before resin
regeneration is required.
Before starting the regeneration cycle remove the siphon spillway.
WARNING:
If the regeneration cycle is accidentally started, it can be switched off by pressing the button shown in
the figure, for at least 5 seconds
The hardness of the water exiting the softener can vary between 3°fH - 10 °fH / 1.7 °dH - 5.6 °dH / 2.1 °cH - 7
°cH.
9.2 MEDICAL LINE DISHWASHER WITH DOOR/HOOD LOCK DEVICE
The medical line dishwasher with door/hood lock device has a device that prevents door/hood opening for the
entire duration of the work cycle.
For the door/hood lock to be active, the parameter (in the family) must be set to .
The dishwasher door/hood is locked at the start of a wash cycle and is released at the end of the final pause
after rinse. The wash compartment can be accessed by stopping the work cycle in progress, as the locking
device is thus disabled. .
A pause at the end of rinse can be set by means of the parameter (in the family). This parameter
is common to all 3 wash cycles. The rinse water temperature is displayed during this pause. Another final
pause in the cycle can be set by setting the parameters , , . During the final pause the display
shows the time remaining for completion of the cycle. The door/hood lock device will be deactivated at the end
of the final pause (, , ).
For correct performance of the wash cycle the pause at the end of rinse and the final pause must assume the
default values (see Prog 032 – 034 - 035).
9.3 DETERGENT AND RINSE AID LEVEL SENSORS ACTIVATION
By setting the parameter (in the family) to 1, management of the level sensors located inside the
external detergent and rinse aid tanks is enabled. During the rinse phase, when the rinse aid inside the tank
has finished, the message appears on the display.
TANK
BOILER

Electrolux
EFS - Dishwashing Systems Platform
Electrolux Professional
DOC. NO. 5956.65J.00 P. 20 / 122
When the detergent inside the tank is finished, the message is displayed and after a number of wash
cycles equal to (in the family) the dishwasher inhibits the activation of other wash cycles. There-
fore the detergent level in the tank must be restored.
9.4 DISHWASHER WITH INCORPORATED CONTINUOUS WATER SOFTENER
Dishwashers with incorporated continuous water softener have a continuous softener in the water circuit. By
means of special resins, this device removes the calcareous substances from the feed water, supplying decal-
cified water for washing.
To activate the continuous water softener, set the parameter (in the family) to the value or the
value if the water softener board is connected to the LK485 board.
For the continuous softener to work properly the resins must be regenerated periodically with a frequency
depending on the hardness of the inlet water, the number of wash cycles carried out and the max. hardness
set with the parameter (in the family).
Unlike conventional water softeners, this continuous softener does not require machine stops for regenerating
the resins.
To regenerate the resins it is necessary to put coarse salt in the special container located in the dishwasher.
In particular, the salt container must be filled when the dishwasher is started the first time and whenever the
message appears on the display during or at the end of a wash cycle and an audible alarm
sounds. The salt container holds up to 1.5 kg of salt
WARNING:
Use only coarse salt with a NaCl purity grade of 99.8 %. The use of salt with a lower purity grade may
cause the sale container filter to clog and the water softener to malfunction.
WARNING:
The message may appear for several wash cycles even after topping-up the salt, as the
salt must circulate in the entire system. Correct operation of the dishwasher is not, however, affected.
The number of regeneration cycles performed can be checked by consulting the parameter in the
family of counters.
only counts regeneration cycles carried out with the salt container adequately filled; there is another
counter, (in the family) that indicates the number of regeneration cycles done without salt.
If the parameter SrU is set to the value10, according to the factory setting, the water softener outlet water
hardness can vary between 3°fH - 10 °fH/ 1.7 °dH - 5.6 °dH / 2.1 °cH - 7 ° cH.
AUTONOMY OF A COLUMN OF RESINS ACCORDING TO THE CHANGE IN INLET WATER HARDNESS,
WITH OUTLET WATER HARDNESS OF 10 °fH / 5.6 °dH /7 °cH ( according to the factory
setting).
Maximum outlet water hardness can be modified by setting the value. The outlet water hardness can be
modified from the value of 4° fH to 14° fH.
NB: To save the new water hardness value, in addition to the normal parameter modification and saving oper-
ations it is necessary to disconnect and reconnect the machine's main power supply by means of the main
switch on the external board.
°fH °dH °cH Number of cycles
15 8,4 10,5 14
20 11,2 14 10
25 14 17,5 7
30 16,8 21,1 6
35 19,6 24,6 5
40 22,4 28,1 4

DOC. NO. 5956.65J.00 P. 21 / 122
Electrolux
EFS - Dishwashing Systems Platform
Electrolux Professional
Water softener operation can be checked by forcing the regeneration of resins, without waiting for the outlet
water hardness to reach the set max. value ( ).
To do this, wait for the water softener to finish previous resin washing or regeneration operations and set the
parameter ( family) to for regenerating column A or to for regenerating column B.
Switch the machine off and on again so that it carries out complete regeneration of the set column. If previous
resin washing or regeneration operations were not completed, the manual request for regeneration is not car-
ried out.
It is possible to check which column is being used for boiler filling by querying the parameter ( fam-
ily): if = 0 column “A” is used, if =1 column “B” is used.
The number of litres used by the machine can be checked by querying the parameters (m3 ) and
(litres). To calculate the total number of litres used by the machine, add the and values.
NB: In machines with incorporated continuous water softener, tank filling cannot be carried out through over-
flowing () but only by means of successive rinse cycles (). Therefore the parameter
must be set to
9.5 HOOD-TYPE DISHWASHER WITH CYCLE THERMAL LABEL
WARNING:
Functions present with firmware version 4.04.
If the parameter (Thermal Label enabled) of the family is set to , the "Endless cycle" button has
the "endless cycle" function and the "high productivity" mode is non-settable.
If the parameter (Thermal Label enabled) of the family is set to , the "Endless cycle" button does
not have the "endless cycle" function but that of the "high productivity" mode.
This means that the machine can work in 2 modes, "high productivity" and "Thermal Label". When the
machine is set in "high productivity" mode, the parameters which define the cycle times and temperature set
points are the standard parameters, whereas when the machine is set in "Thermal Label" mode, the
parameters are dedicated (they are new parameters listed below).
The mode Thermal Label provides for cycle times, tank hysteresis and tank and boiler temperatures such as
to pass the "Thermal Label" test.
Press and hold down the button to switch the machine from "high productivity" mode to "Thermal Label" mode
and vice versa.
The "high productivity" button LED is off when the machine is set in "Thermal Label" mode (factory default)
and lights up when the button is pressed and the machine is configured in "high productivity" mode. Whenever
the machine is shut down, it memorises the mode with which is was switched off and reloads it when switched
on the next time.
New parameters:
• (family ): if set to it enables the Thermal Label mode (and disables the “endless cycle” button).
• (family ): temperature set point for the boiler during the cycles Thermal Label.
• (family ): temperature set point for the tank during the cycles Thermal Label.
• (family ): hysteresis temperature for the tank during the cycles Thermal Label.
• (family ): long wash time for cycle 1 in Thermal Label mode.
• (family ): short wash time for cycle 1 in Thermal Label mode.
• (family ): long wash time for cycle 2 in Thermal Label mode.
• (family ): short wash time for cycle 2 in Thermal Label mode.
• (family ): long wash time for cycle 3 in Thermal Label mode.
• (family ): short wash time for cycle 3 in Thermal Label mode.
9.6 DISHWASHERS WITH WASH TANK WATER CHANGE FREQUENCY CONTROL

Electrolux
EFS - Dishwashing Systems Platform
Electrolux Professional
DOC. NO. 5956.65J.00 P. 22 / 122
WARNING:
Function included starting from firmware version 5.00.
If the parameter (Cycles before drain) of the family is set to a value higher than , a wash tank
water change frequency control is enabled. The purpose of this function is to display a message telling the
customer when a tank water drain cycle is required. In this way, if the customer does what the machine sug-
gests, washes will be done with sufficiently clean water.
The value set in the parameter (Cycles before drain) indicates the number of wash cycles possible
between one tank water drain cycle and the next. When the number of wash cycles done since the last tank
water change reaches the value contained in the parameter (Cycles before drain), the display shows the
message “” at the start of a wash cycle and the message “” at the end of the same cycle. When
these messages appear on the display at the start and end of the wash cycle, a tank water drain cycle must
be done to ensure washes with sufficiently clean water.
WARNING:
If the tank drain cycle is not done, the machine does not shut down, but will continue to do wash
cycles, showing the messages and at the start and end of the wash cycle
respectively.

DOC. NO. 5956.65J.00 P. 23 / 122
Electrolux
EFS - Dishwashing Systems Platform
Electrolux Professional
10 MAIN BOARD CONFIGURATION
When receiving an electronic board (spare part) may be necessary to configure it in according to the machine
where has to be replaced
1. With the machine CODE enter into the following table and read the corresponding Prog. number
2. Follow the instructions reported into the corresponding Prog.XXX sheet (next pages).
3. With the machine CODE find the Layout number in Par. 12.2 CONNECTORS LAYOUT.
10.1 CODE -> Prog. TABLE
MODEL CODE Prog. Layout
NUC3DD 400041 103 16
EUC1 400055 101 11
EUC1DP 400056 101 11
EUC1WS 400057 102 21
EUC1DPWS 400058 102 21
EUC3 400059 103 16
EUC3WS 400060 104 17
EUC3DP 400061 103 16
EUC3DPWS 400062 104 17
EUC1G 400063 105 11
EUC1DP60 400064 101 11
EUC3DD 400065 103 16
ZUCADDROW 400066 134 16
ZUCADDROW6 400067 134 16
FUCA3DD 400116 135 16
KUC3 400127 103 16
KUC3DP 400128 103 16
NUC1 400140 101 11
NUC1DP 400141 101 11
NUC1WS 400142 102 21
NUC1WSDP 400143 102 21
NUC3 400144 103 16
NUC3WS 400145 104 17
NUC3DP 400146 103 16
NUC3DPWS 400147 104 17
NUC3DDWS 400148 104 17
NUC1DP60 400149 101 11
NUC1DPA 400150 105 11
ZUCA1 400151 128 11
ZUCA3 400152 128 16
EUCADDROW 400153 134 16
EUCADDROW6 400154 134 16
EUCAI 502025 106 8
EUCAIDP 502026 106 8
EUCAI60 502027 106 8
EUCAIWS 502028 107 8
EUCAIG 502033 106 8
EUCAIWSG 502034 107 8
EUCAIML 502035 108 8
EUCAIMLWS 502036 109 8
EUCAIMLG 502037 110 10
EUCAICL 502038 111 18
EUCAICLG 502039 111 18
EUCAIWL 502040 112 8
EUCAICLW 502042 113 18
EUCI 502043 114 16
EUCIM 502044 115 19
EUCIM60 502045 115 19
EUCAIDPNW 502046 106 8
ZUCI 502047 114 16
ZUCID 502048 114 16
ZUCAI 502049 106 8
ZUCAIDP 502050 106 8
ZUCAIDPWS 502051 107 8
ZUCAIG 502052 106 8
ZUCAIDDWS 502053 107 8
ZUCAID 502054 106 8
ZUCAI60 502055 106 8
EUCAIUSPH6 502056 125 9
ZUCAIDD 502057 106 8
EUCAIDD 502058 106 8
EUCAIDPJ 502059 106 8
EUCAIDPJ60 502060 106 8
EHTA 504226 120 1
EHTA60 504227 120 1
EHTAWS 504228 121 4
EHTAI 504229 120 1
EHTAID 504230 120 4
EHTAIWS 504231 121 4
EHTAIDWS 504232 121 4
EHTAIG 504233 120 4
EHTAIWSG 504234 121 4
EHTAIAU 504235 122 15
EHTAIMLAU 504236 123 4
ZHTAWS 504237 121 4
ZHTAID 504238 120 4
ZHTAIWS 504239 121 4
ZHTAIAU 504240 122 15
ZHTA 504241 120 4
ZHTA60 504242 120 4
ZHTAI 504243 120 4
EHTAIUSPH5 504244 126 2
EHTAIUSPH6 504245 126 2
EHTAO 505036 124 23
EHT 505046 118 13
EHT60 505047 118 13
EHTAG 505048 119 23
EHTM 505049 118 13
EHTM60 505050 118 13
NHT 505051 118 13
NHTD 505052 118 13
NHT60 505053 118 13
EHTAROW 505054 124 23
MODEL CODE Prog. Layout

Electrolux
EFS - Dishwashing Systems Platform
Electrolux Professional
DOC. NO. 5956.65J.00 P. 24 / 122
EHTAROW60 505055 124 23
ZHTAROW 505056 124 23
ZHTAROW60 505057 124 23
EHTAJ 505058 120 23
EHTAJ60 505059 120 23
EHTAO60 505060 124 23
ZHTAO 505061 124 23
ZHTAO60 505062 124 23
KHT 505063 118 13
NHTM 505064 118 13
NHTM60 505065 118 13
EPPWESG 506048 139 4
EPPWESG60 506049 139 4
EPPWEHG 506050 139 4
ZPPWESG 506051 139 4
ZPPWEHG 506052 139 4
ZPPWSSG 506053 139 4
EPPWELG 506054 140 4
EPPWELG60 506055 140 4
ZPPWELG 506056 140 4
ZPPWSLG 506057 140 4
NUC1G 690028 105 11
NUCA1DDG 698005 136 16
OHTAROW 698047 127 23
OHTAROW60 698048 127 23
APPWELG 698083 140 4
APPWESG 698085 139 4
APPWEHG 698086 139 4
ET5AIIT 698087 131 8
ET5AIDP 698088 132 8
ET5AIDPWS 698089 133 8
AUCI 698091 114 16
AUCAI 698092 116 8
AUCAIDP 698093 116 8
AUCAIDPWS 698094 117 8
AUCAIG 698095 106 8
AUCAIWSG 698096 107 8
ET12AI 698097 129 4
ET12AIT 698098 130 4
NHTAG 698110 119 23
AHTAWS 698115 121 4
AHTAIWS 698116 121 4
AHTAIG 698117 120 4
AHTAIWSG 698118 121 4
AHTA 698119 120 4
AHTAI 698120 120 4
S49JGF 103 16
S49LBN 103 16
S49QL1 103 16
MODEL CODE Prog. Layout

DOC. NO. 5956.65J.00 P. 25 / 122
Electrolux
EFS - Dishwashing Systems Platform
Electrolux Professional
10.2 PROGRAMMING SHEETS
NUC1 / EUC1 PROG 101
1. Switch OFF and then switch ON the machine.
2. Enter into CFG parameter family and set the following parameters:
Hood Type and undercounter.
Pressure boiler.
Front loading function.
Default values for Undercounter models.
Disabled (for this appliance SOFT START is NOT possible).
Tank heater works only if boiler temperature reached.
The tank is filled into the traditional way.
Detergent level switches not enabled.
Select user interface for LS5.
Regeneration cycle disabled.
- Alarms not enabled.
Boiler electronic level sensor.
Resin regeneration cycle forcing.
Rinse water max. hardness.
Boiler heating control.
3. Switch OFF and then switch ON the machine.
4. Modify Factory parameters:
Enter into FAC parameter family and set the following parameters.
Boiler Temperature Threshold.
Boiler temperature: alarm threshold.
Boiler Temperature Adjust.
Boiler standby function enabled.
Booster Function.
During stand-by boiler is kept at lower temperature than Temperature Threshold.
Tub Temperature: Threshold.
Tank temperature: alarm threshold.
5. Modify the cycle parameters:
Cycle 1 parameters family.
Long Wash Phase [min].
Short Wash Phase [s].
Pause [s].
Rinse Phase Duration [s].
Drain [s].
Final Pause [s].
Cycle 2 parameters family.
Long Wash Phase [min].
Short Wash Phase [s].
Pause [s].
Rinse Phase Duration [s].
Drain [s].
Final Pause [s].
Cycle 3 parameters family.
Long Wash Phase [min].
Short Wash Phase [s].
Pause [s].
Rinse Phase Duration [s].
Drain [s].
Final Pause [s].
Boiler Temperature Threshold for Cycle 3.

Electrolux
EFS - Dishwashing Systems Platform
Electrolux Professional
DOC. NO. 5956.65J.00 P. 26 / 122
WARNING:
To set the board parameters , carefully follow the order given in this programming file, from point 1 to
point 7.
WARNING:
When modifying parameter , all the parameters (except those belonging to the family)
assume the default values according to the tables in section 11 DEFAULT VALUES. The parameters of
the family are not modified.
NUC1 / EUC1 PROG 101
Drain parameters family.
Initial Drain Phase Duration [s].
Final Drain Phase Duration [s].
Drain and cleaning mode.
Wash tank water change frequency control disabled.
Set other parameters.
Initial Pause [s] (for ALL cycles).
Delay for the 2nd wash pump [s].
Drain Phase Duration at the end of washing phase [s].
Duration of pause after the rinse cycle [s] (for ALL cycles).
Degrees Celsius display.
During the rinse stage, the display shows the boiler temperature.
Enter into HCP parameter family and set the following parameters.
Machine arranged for remote connection to PC.
6. Switch OFF and then switch ON the machine.
Enter into GEn parameter family.
Initial Detergent Dosage.
Initial Rinse Aid Dosage.
Detergent dispenser works when LOAD SOLENOID VALVE in activated.
Rinse Aid dispenser works when LOAD SOLENOID VALVE in activated.
7. Switch OFF and then switch ON the machine.

DOC. NO. 5956.65J.00 P. 27 / 122
Electrolux
EFS - Dishwashing Systems Platform
Electrolux Professional
NUC1WS / EUC1WS PROG 102
1. Switch OFF and then switch ON the machine.
2. Enter into CFG parameter family and set the following parameters:
Hood Type and undercounter.
Atmospheric boiler.
Front loading function.
Default values for Undercounter models.
Disabled (for this appliance SOFT START is NOT possible).
Tank heater works only if boiler temperature reached.
Enable filling tank by means of rinsing cycles.
Detergent level switches not enabled.
Select user interface for LS5.
Regeneration cycle enabled.
- Alarms not enabled.
Boiler electronic level sensor.
Resin regeneration cycle forcing.
Rinse water max. hardness.
Boiler heating control.
3. Switch OFF and then switch ON the machine.
4. Modify Factory parameters:
Enter into FAC parameter family and set the following parameters.
Boiler Temperature Threshold.
Boiler temperature: alarm threshold.
Boiler Temperature Adjust.
Boiler standby function enabled.
Booster Function.
During stand-by boiler is kept at lower temperature than Temperature Threshold.
Tub Temperature: Threshold.
Tank temperature: alarm threshold.
5. Modify the cycle parameters:
Cycle 1 parameters family.
Long Wash Phase [min].
Short Wash Phase [s].
Pause [s].
Rinse Phase Duration [s].
Drain [s].
Final Pause [s].
Cycle 2 parameters family.
Long Wash Phase [min].
Short Wash Phase [s].
Pause [s].
Rinse Phase Duration [s].
Drain [s].
Final Pause [s].
Cycle 3 parameters family.
Long Wash Phase [min].
Short Wash Phase [s].
Pause [s].
Rinse Phase Duration [s].
Drain [s].
Final Pause [s].
Boiler Temperature Threshold for Cycle 3.

Electrolux
EFS - Dishwashing Systems Platform
Electrolux Professional
DOC. NO. 5956.65J.00 P. 28 / 122
WARNING:
To set the board parameters , carefully follow the order given in this programming file, from point 1 to
point 7.
WARNING:
When modifying parameter , all the parameters (except those belonging to the family)
assume the default values according to the tables in section 11 DEFAULT VALUES. The parameters of
the family are not modified.
NUC1WS / EUC1WS PROG 102
Drain parameters family.
Initial Drain Phase Duration [s].
Final Drain Phase Duration [s].
Drain and cleaning mode.
Wash tank water change frequency control disabled.
Set other parameters.
Initial Pause [s] (for ALL cycles).
Delay for the 2nd wash pump [s].
Drain Phase Duration at the end of washing phase [s].
Duration of pause after the rinse cycle [s] (for ALL cycles).
Degrees Celsius display.
During the rinse stage, the display shows the boiler temperature.
Enter into HCP parameter family and set the following parameters.
Machine arranged for remote connection to PC.
6. Switch OFF and then switch ON the machine.
Enter into GEn parameter family.
Initial Detergent Dosage.
Initial Rinse Aid Dosage.
Detergent dispensing during the wash cycle (loading during wash stage).
Rinse aid dispensing during the rinse cycle (loading during boiler filling stage).
7. Switch OFF and then switch ON the machine.

DOC. NO. 5956.65J.00 P. 29 / 122
Electrolux
EFS - Dishwashing Systems Platform
Electrolux Professional
NUC3 / KUC3 / EUC3 PROG 103
1. Switch OFF and then switch ON the machine.
2. Enter into CFG parameter family and set the following parameters:
Hood Type and undercounter.
Pressure boiler.
Front loading function.
Default values for Undercounter models.
SOFT START enabled.
Tank heater works only if boiler temperature reached.
The tank is filled into the traditional way.
Detergent level switches not enabled.
Select user interface for LS5.
Regeneration cycle disabled.
- Alarms not enabled.
Boiler electronic level sensor.
Resin regeneration cycle forcing.
Rinse water max. hardness.
Boiler heating control.
3. Switch OFF and then switch ON the machine.
4. Modify Factory parameters:
Enter into FAC parameter family and set the following parameters.
Boiler Temperature Threshold.
Boiler temperature: alarm threshold.
Boiler Temperature Adjust.
Boiler standby function enabled.
Booster Function.
During stand-by boiler is kept at lower temperature than Temperature Threshold.
Tub Temperature: Threshold.
Tank temperature: alarm threshold.
5. Modify the cycle parameters:
Cycle 1 parameters family.
Long Wash Phase [min].
Short Wash Phase [s].
Pause [s].
Rinse Phase Duration [s].
Drain [s].
Final Pause [s].
Cycle 2 parameters family.
Long Wash Phase [min].
Short Wash Phase [s].
Pause [s].
Rinse Phase Duration [s].
Drain [s].
Final Pause [s].
Cycle 3 parameters family.
Long Wash Phase [min].
Short Wash Phase [s].
Pause [s].
Rinse Phase Duration [s].
Drain [s].
Final Pause [s].
Boiler Temperature Threshold for Cycle 3.

Electrolux
EFS - Dishwashing Systems Platform
Electrolux Professional
DOC. NO. 5956.65J.00 P. 30 / 122
WARNING:
To set the board parameters , carefully follow the order given in this programming file, from point 1 to
point 7.
WARNING:
When modifying parameter , all the parameters (except those belonging to the family)
assume the default values according to the tables in section 11 DEFAULT VALUES. The parameters of
the family are not modified.
NUC3 / KUC3 / EUC3 PROG 103
Drain parameters family.
Initial Drain Phase Duration [s].
Final Drain Phase Duration [s].
Drain and cleaning mode.
Wash tank water change frequency control disabled.
Set other parameters.
Initial Pause [s] (for ALL cycles).
Delay for the 2nd wash pump [s].
Drain Phase Duration at the end of washing phase [s].
Duration of pause after the rinse cycle [s] (for ALL cycles).
Degrees Celsius display.
During the rinse stage, the display shows the boiler temperature.
Enter into HCP parameter family and set the following parameters.
Machine arranged for remote connection to PC.
6. Switch OFF and then switch ON the machine.
Enter into GEn parameter family.
Initial Detergent Dosage.
Initial Rinse Aid Dosage.
Detergent dispenser works when LOAD SOLENOID VALVE in activated.
Rinse Aid dispenser works when LOAD SOLENOID VALVE in activated.
7. Switch OFF and then switch ON the machine.

DOC. NO. 5956.65J.00 P. 31 / 122
Electrolux
EFS - Dishwashing Systems Platform
Electrolux Professional
NUC3WS / EUC3WS PROG 104
1. Switch OFF and then switch ON the machine.
2. Enter into CFG parameter family and set the following parameters:
Hood Type and undercounter.
Atmospheric boiler.
Front loading function.
Default values for Undercounter models.
SOFT START enabled.
Tank heater works only if boiler temperature reached.
Enable filling tank by means of rinsing cycles.
Detergent level switches not enabled.
Select user interface for LS5.
Regeneration cycle enabled.
- Alarms not enabled.
Boiler electronic level sensor.
Resin regeneration cycle forcing.
Rinse water max. hardness.
Boiler heating control.
3. Switch OFF and then switch ON the machine.
4. Modify Factory parameters:
Enter into FAC parameter family and set the following parameters.
Boiler Temperature Threshold.
Boiler temperature: alarm threshold.
Boiler Temperature Adjust.
Boiler standby function enabled.
Booster Function.
During stand-by boiler is kept at lower temperature than Temperature Threshold.
Tub Temperature: Threshold.
Tank temperature: alarm threshold.
5. Modify the cycle parameters:
Cycle 1 parameters family.
Long Wash Phase [min].
Short Wash Phase [s].
Pause [s].
Rinse Phase Duration [s].
Drain [s].
Final Pause [s].
Cycle 2 parameters family.
Long Wash Phase [min].
Short Wash Phase [s].
Pause [s].
Rinse Phase Duration [s].
Drain [s].
Final Pause [s].
Cycle 3 parameters family.
Long Wash Phase [min].
Short Wash Phase [s].
Pause [s].
Rinse Phase Duration [s].
Drain [s].
Final Pause [s].
Boiler Temperature Threshold for Cycle 3.

Electrolux
EFS - Dishwashing Systems Platform
Electrolux Professional
DOC. NO. 5956.65J.00 P. 32 / 122
WARNING:
To set the board parameters , carefully follow the order given in this programming file, from point 1 to
point 7.
WARNING:
When modifying parameter , all the parameters (except those belonging to the family)
assume the default values according to the tables in section 11 DEFAULT VALUES. The parameters of
the family are not modified.
NUC3WS / EUC3WS PROG 104
Drain parameters family.
Initial Drain Phase Duration [s].
Final Drain Phase Duration [s].
Drain and cleaning mode.
Wash tank water change frequency control disabled.
Set other parameters.
Initial Pause [s] (for ALL cycles).
Delay for the 2nd wash pump [s].
Drain Phase Duration at the end of washing phase [s].
Duration of pause after the rinse cycle [s] (for ALL cycles).
Degrees Celsius display.
During the rinse stage, the display shows the boiler temperature.
Enter into HCP parameter family and set the following parameters.
Machine arranged for remote connection to PC.
6. Switch OFF and then switch ON the machine.
Enter into GEn parameter family.
Initial Detergent Dosage.
Initial Rinse Aid Dosage.
Detergent dispensing during the wash cycle (loading during wash stage).
Rinse aid dispensing during the rinse cycle (loading during boiler filling stage).
7. Switch OFF and then switch ON the machine.

DOC. NO. 5956.65J.00 P. 33 / 122
Electrolux
EFS - Dishwashing Systems Platform
Electrolux Professional
NUC1G / EUC1G PROG 105
1. Switch OFF and then switch ON the machine.
2. Enter into CFG parameter family and set the following parameters:
Hood Type and undercounter.
Pressure boiler.
Front loading function.
Default values for Undercounter models.
Disabled (for this appliance SOFT START is NOT possible).
Tank heater works only if boiler temperature reached.
The tank is filled into the traditional way.
Detergent level switches not enabled.
Select user interface for LS5.
Regeneration cycle disabled.
- Alarms not enabled.
Boiler electronic level sensor.
Resin regeneration cycle forcing.
Rinse water max. hardness.
Boiler heating control.
3. Switch OFF and then switch ON the machine.
4. Modify Factory parameters:
Enter into FAC parameter family and set the following parameters.
Boiler Temperature Threshold.
Boiler temperature: alarm threshold.
Boiler Temperature Adjust.
Boiler standby function enabled.
Booster Function.
During stand-by boiler is kept at lower temperature than Temperature Threshold.
Tub Temperature: Threshold.
Tank temperature: alarm threshold.
5. Modify the cycle parameters:
Cycle 1 parameters family.
Long Wash Phase [min].
Short Wash Phase [s].
Pause [s].
Rinse Phase Duration [s].
Drain [s].
Final Pause [s].
Cycle 2 parameters family.
Long Wash Phase [min].
Short Wash Phase [s].
Pause [s].
Rinse Phase Duration [s].
Drain [s].
Final Pause [s].
Cycle 3 parameters family.
Long Wash Phase [min].
Short Wash Phase [s].
Pause [s].
Rinse Phase Duration [s].
Drain [s].
Final Pause [s].
Boiler Temperature Threshold for Cycle 3.

Electrolux
EFS - Dishwashing Systems Platform
Electrolux Professional
DOC. NO. 5956.65J.00 P. 34 / 122
WARNING:
To set the board parameters , carefully follow the order given in this programming file, from point 1 to
point 7.
WARNING:
When modifying parameter , all the parameters (except those belonging to the family)
assume the default values according to the tables in section 11 DEFAULT VALUES. The parameters of
the family are not modified.
NUC1G / EUC1G PROG 105
Drain parameters family.
Initial Drain Phase Duration [s].
Final Drain Phase Duration [s].
Drain and cleaning mode.
Wash tank water change frequency control disabled.
Set other parameters.
Initial Pause [s] (for ALL cycles).
Delay for the 2nd wash pump [s].
Drain Phase Duration at the end of washing phase [s].
Duration of pause after the rinse cycle [s] (for ALL cycles).
Degrees Celsius display.
During the rinse stage, the display shows the boiler temperature.
Enter into HCP parameter family and set the following parameters.
Machine arranged for remote connection to PC.
6. Switch OFF and then switch ON the machine.
Enter into GEn parameter family.
Initial Detergent Dosage.
Initial Rinse Aid Dosage.
Detergent dispenser works when LOAD SOLENOID VALVE in activated.
Rinse Aid dispenser works when LOAD SOLENOID VALVE in activated.
7. Switch OFF and then switch ON the machine.

DOC. NO. 5956.65J.00 P. 35 / 122
Electrolux
EFS - Dishwashing Systems Platform
Electrolux Professional
ZUCAI / AUCAIG / EUCAI PROG 106
1. Switch OFF and then switch ON the machine.
2. Enter into CFG parameter family and set the following parameters:
Hood Type and undercounter.
Atmospheric boiler.
Front loading function.
Default values for Undercounter models.
SOFT START enabled.
Tank heater works only if boiler temperature reached.
Enable filling tank by means of rinsing cycles.
Detergent level switches not enabled.
Select user interface hood type/ undercounter model.
Regeneration cycle disabled.
- Alarms enabled.
Boiler electronic level sensor.
Resin regeneration cycle forcing.
Rinse water max. hardness.
Boiler heating control.
3. Switch OFF and then switch ON the machine.
4. Modify Factory parameters:
Enter into FAC parameter family and set the following parameters.
Boiler Temperature Threshold.
Boiler temperature: alarm threshold.
Boiler Temperature Adjust.
Boiler standby function enabled.
Booster Function.
During stand-by boiler is kept at lower temperature than Temperature Threshold.
Tub Temperature: Threshold.
Tank temperature: alarm threshold.
5. Modify the cycle parameters:
Cycle 1 parameters family.
Long Wash Phase [min].
Short Wash Phase [s].
Pause [s].
Rinse Phase Duration [s].
Drain [s].
Final Pause [s].
Cycle 2 parameters family.
Long Wash Phase [min].
Short Wash Phase [s].
Pause [s].
Rinse Phase Duration [s].
Drain [s].
Final Pause [s].
Cycle 3 parameters family.
Long Wash Phase [min].
Short Wash Phase [s].
Pause [s].
Rinse Phase Duration [s].
Drain [s].
Final Pause [s].
Boiler Temperature Threshold for Cycle 3.

Electrolux
EFS - Dishwashing Systems Platform
Electrolux Professional
DOC. NO. 5956.65J.00 P. 36 / 122
WARNING:
To set the board parameters , carefully follow the order given in this programming file, from point 1 to
point 7.
WARNING:
When modifying parameter , all the parameters (except those belonging to the family)
assume the default values according to the tables in section 11 DEFAULT VALUES. The parameters of
the family are not modified.
ZUCAI / AUCAIG / EUCAI PROG 106
Drain parameters family.
Initial Drain Phase Duration [s].
Final Drain Phase Duration [s].
Drain and cleaning mode.
Wash tank water change frequency control disabled.
Set other parameters.
Initial Pause [s] (for ALL cycles).
Delay for the 2nd wash pump [s].
Drain Phase Duration at the end of washing phase [s].
Duration of pause after the rinse cycle [s] (for ALL cycles).
Degrees Celsius display.
During the rinse stage, the display shows the boiler temperature.
Termal Label mode disabled (Functions present with firmware version 4.04).
Enter into HCP parameter family and set the following parameters.
Machine arranged for remote connection to PC.
6. Switch OFF and then switch ON the machine.
Enter into GEn parameter family.
Initial Detergent Dosage.
Initial Rinse Aid Dosage.
Detergent dispensing during the wash cycle (loading during wash stage).
Rinse aid dispensing during the rinse cycle (loading during boiler filling stage).
7. Switch OFF and then switch ON the machine.

DOC. NO. 5956.65J.00 P. 37 / 122
Electrolux
EFS - Dishwashing Systems Platform
Electrolux Professional
ZUCAI / AUCAI / EUCAI WS PROG 107
1. Switch OFF and then switch ON the machine.
2. Enter into CFG parameter family and set the following parameters:
Hood Type and undercounter.
Atmospheric boiler.
Front loading function.
Default values for Undercounter models.
SOFT START enabled.
Tank heater works only if boiler temperature reached.
Enable filling tank by means of rinsing cycles.
Detergent level switches not enabled.
Select user interface hood type/ undercounter model.
Regeneration cycle disabled (only for dishwashers with non-continuous water softener).
- Alarms enabled.
Boiler float level sensor.
Resin regeneration cycle forcing.
Rinse water max. hardness.
Boiler heating control.
3. Switch OFF and then switch ON the machine.
4. Modify Factory parameters:
Enter into FAC parameter family and set the following parameters.
Boiler Temperature Threshold.
Boiler temperature: alarm threshold.
Boiler Temperature Adjust.
Boiler standby function enabled.
Booster Function.
During stand-by boiler is kept at lower temperature than Temperature Threshold.
Tub Temperature: Threshold.
Tank temperature: alarm threshold.
5. Modify the cycle parameters:
Cycle 1 parameters family.
Long Wash Phase [min].
Short Wash Phase [s].
Pause [s].
Rinse Phase Duration [s].
Drain [s].
Final Pause [s].
Cycle 2 parameters family.
Long Wash Phase [min].
Short Wash Phase [s].
Pause [s].
Rinse Phase Duration [s].
Drain [s].
Final Pause [s].
Cycle 3 parameters family.
Long Wash Phase [min].
Short Wash Phase [s].
Pause [s].
Rinse Phase Duration [s].
Drain [s].
Final Pause [s].
Boiler Temperature Threshold for Cycle 3.

Electrolux
EFS - Dishwashing Systems Platform
Electrolux Professional
DOC. NO. 5956.65J.00 P. 38 / 122
WARNING:
To set the board parameters , carefully follow the order given in this programming file, from point 1 to
point 7.
WARNING:
When modifying parameter , all the parameters (except those belonging to the family)
assume the default values according to the tables in section 11 DEFAULT VALUES. The parameters of
the family are not modified.
ZUCAI / AUCAI / EUCAI WS PROG 107
Drain parameters family.
Initial Drain Phase Duration [s].
Final Drain Phase Duration [s].
Drain and cleaning mode.
Wash tank water change frequency control disabled.
Set other parameters.
Initial Pause [s] (for ALL cycles).
Delay for the 2nd wash pump [s].
Drain Phase Duration at the end of washing phase [s].
Duration of pause after the rinse cycle [s] (for ALL cycles).
Degrees Celsius display.
During the rinse stage, the display shows the boiler temperature.
Enter into HCP parameter family and set the following parameters.
Dishwasher with incorporated continuous water softener.
6. Switch OFF and then switch ON the machine.
Enter into GEn parameter family.
Initial Detergent Dosage.
Initial Rinse Aid Dosage.
Detergent dispensing during the wash cycle (loading during wash stage).
Rinse aid dispensing during the rinse cycle (loading during boiler filling stage).
7. Switch OFF and then switch ON the machine.

DOC. NO. 5956.65J.00 P. 39 / 122
Electrolux
EFS - Dishwashing Systems Platform
Electrolux Professional
EUCAIML PROG 108
1. Switch OFF and then switch ON the machine.
2. Enter into CFG parameter family and set the following parameters:
Hood Type and undercounter.
Atmospheric boiler.
Front loading function.
Default values for Undercounter models.
SOFT START enabled.
Tank heater works only if boiler temperature reached.
Enable filling tank by means of rinsing cycles.
Detergent level switches not enabled.
ACTIVE function disabled.
Regeneration cycle disabled (only for dishwashers with non-continuous water softener).
- Alarms enabled.
Boiler electronic level sensor.
Resin regeneration cycle forcing.
Rinse water max. hardness.
Boiler heating control.
3. Switch OFF and then switch ON the machine.
4. Modify Factory parameters:
Enter into FAC parameter family and set the following parameters.
Boiler Temperature Threshold.
Disable boiler high Temperature alarm ( ).
Boiler Temperature Adjust.
Boiler standby function enabled.
Booster Function.
During stand-by boiler is kept at lower temperature than Temperature Threshold.
Tub Temperature: Threshold.
Tank temperature: alarm threshold.
5. Modify the cycle parameters:
Cycle 1 parameters family.
Long Wash Phase [min].
Short Wash Phase [s].
Pause [s].
Rinse Phase Duration [s].
Drain [s].
Final Pause [s].
Cycle 2 parameters family.
Long Wash Phase [min].
Short Wash Phase [s].
Pause [s].
Rinse Phase Duration [s].
Drain [s].
Final Pause [s].
Cycle 3 parameters family.
Long Wash Phase [min].
Short Wash Phase [s].
Pause [s].
Rinse Phase Duration [s].
Drain [s].
Final Pause [s].
Boiler Temperature Threshold for Cycle 3.

Electrolux
EFS - Dishwashing Systems Platform
Electrolux Professional
DOC. NO. 5956.65J.00 P. 40 / 122
WARNING:
To set the board parameters , carefully follow the order given in this programming file, from point 1 to
point 7.
WARNING:
When modifying parameter , all the parameters (except those belonging to the family)
assume the default values according to the tables in section 11 DEFAULT VALUES. The parameters of
the family are not modified.
EUCAIML PROG 108
Drain parameters family.
Initial Drain Phase Duration [s].
Final Drain Phase Duration [s].
Drain and cleaning mode.
Wash tank water change frequency control disabled.
Set other parameters.
Initial Pause [s] (for ALL cycles).
Delay for the 2nd wash pump [s].
Drain Phase Duration at the end of washing phase [s].
Duration of pause after the rinse cycle [s] (for ALL cycles).
Degrees Celsius display.
During the rinse stage, the display shows the boiler temperature.
Enter into HCP parameter family and set the following parameters.
Machine arranged for remote connection to PC.
6. Switch OFF and then switch ON the machine.
Enter into GEn parameter family.
Initial Detergent Dosage.
Initial Rinse Aid Dosage.
Detergent dispensing during the wash cycle (loading during wash stage).
Rinse aid dispensing during the rinse cycle (loading during boiler filling stage).
7. Switch OFF and then switch ON the machine.

DOC. NO. 5956.65J.00 P. 41 / 122
Electrolux
EFS - Dishwashing Systems Platform
Electrolux Professional
EUCAIMLWS PROG 109
1. Switch OFF and then switch ON the machine.
2. Enter into CFG parameter family and set the following parameters:
Hood Type and undercounter.
Atmospheric boiler.
Front loading function.
Default values for Undercounter models.
SOFT START enabled.
Tank heater works only if boiler temperature reached.
Enable filling tank by means of rinsing cycles.
Detergent level switches not enabled.
ACTIVE function disabled.
Regeneration cycle disabled (only for dishwashers with non-continuous water softener).
- Alarms enabled.
Boiler float level sensor.
Resin regeneration cycle forcing.
Rinse water max. hardness.
Boiler heating control.
3. Switch OFF and then switch ON the machine.
4. Modify Factory parameters:
Enter into FAC parameter family and set the following parameters.
Boiler Temperature Threshold.
Disable boiler high Temperature alarm ( ).
Boiler Temperature Adjust.
Boiler standby function enabled.
Booster Function.
During stand-by boiler is kept at lower temperature than Temperature Threshold.
Tub Temperature: Threshold.
Tank temperature: alarm threshold.
5. Modify the cycle parameters:
Cycle 1 parameters family.
Long Wash Phase [min].
Short Wash Phase [s].
Pause [s].
Rinse Phase Duration [s].
Drain [s].
Final Pause [s].
Cycle 2 parameters family.
Long Wash Phase [min].
Short Wash Phase [s].
Pause [s].
Rinse Phase Duration [s].
Drain [s].
Final Pause [s].
Cycle 3 parameters family.
Long Wash Phase [min].
Short Wash Phase [s].
Pause [s].
Rinse Phase Duration [s].
Drain [s].
Final Pause [s].
Boiler Temperature Threshold for Cycle 3.

Electrolux
EFS - Dishwashing Systems Platform
Electrolux Professional
DOC. NO. 5956.65J.00 P. 42 / 122
WARNING:
To set the board parameters , carefully follow the order given in this programming file, from point 1 to
point 7.
WARNING:
When modifying parameter , all the parameters (except those belonging to the family)
assume the default values according to the tables in section 11 DEFAULT VALUES. The parameters of
the family are not modified.
EUCAIMLWS PROG 109
Drain parameters family.
Initial Drain Phase Duration [s].
Final Drain Phase Duration [s].
Drain and cleaning mode.
Wash tank water change frequency control disabled.
Set other parameters.
Initial Pause [s] (for ALL cycles).
Delay for the 2nd wash pump [s].
Drain Phase Duration at the end of washing phase [s].
Duration of pause after the rinse cycle [s] (for ALL cycles).
Degrees Celsius display.
During the rinse stage, the display shows the boiler temperature.
Enter into HCP parameter family and set the following parameters.
Dishwasher with incorporated continuous water softener.
6. Switch OFF and then switch ON the machine.
Enter into GEn parameter family.
Initial Detergent Dosage.
Initial Rinse Aid Dosage.
Detergent dispensing during the wash cycle (loading during wash stage).
Rinse aid dispensing during the rinse cycle (loading during boiler filling stage).
7. Switch OFF and then switch ON the machine.

DOC. NO. 5956.65J.00 P. 43 / 122
Electrolux
EFS - Dishwashing Systems Platform
Electrolux Professional
EUCAIMLG PROG 110
1. Switch OFF and then switch ON the machine.
2. Enter into CFG parameter family and set the following parameters:
Medical line dishwasher with lock door/hood device.
Atmospheric boiler.
Front loading function.
Default values for Undercounter models.
SOFT START enabled.
Tank heater works only if boiler temperature reached.
Enable filling tank by means of rinsing cycles.
Detergent level switches not enabled.
ACTIVE function disabled.
Regeneration cycle disabled (only for dishwashers with non-continuous water softener).
- Alarms enabled.
Boiler electronic level sensor.
Resin regeneration cycle forcing.
Rinse water max. hardness.
Boiler heating control.
3. Switch OFF and then switch ON the machine.
4. Modify Factory parameters:
Enter into FAC parameter family and set the following parameters.
Boiler Temperature Threshold.
Disable boiler high Temperature alarm ( ).
Boiler Temperature Adjust.
Boiler standby function enabled.
Booster Function.
During stand-by boiler is kept at lower temperature than Temperature Threshold.
Tub Temperature: Threshold.
Tank temperature: alarm threshold.
5. Modify the cycle parameters:
Cycle 1 parameters family.
Long Wash Phase [min].
Short Wash Phase [s].
Pause [s].
Rinse Phase Duration [s].
Drain [s].
Final Pause [s].
Cycle 2 parameters family.
Long Wash Phase [min].
Short Wash Phase [s].
Pause [s].
Rinse Phase Duration [s].
Drain [s].
Final Pause [s].
Cycle 3 parameters family.
Long Wash Phase [min].
Short Wash Phase [s].
Pause [s].
Rinse Phase Duration [s].
Drain [s].
Final Pause [s].
Boiler Temperature Threshold for Cycle 3.

Electrolux
EFS - Dishwashing Systems Platform
Electrolux Professional
DOC. NO. 5956.65J.00 P. 44 / 122
WARNING:
To set the board parameters , carefully follow the order given in this programming file, from point 1 to
point 7.
WARNING:
When modifying parameter , all the parameters (except those belonging to the family)
assume the default values according to the tables in section 11 DEFAULT VALUES. The parameters of
the family are not modified.
EUCAIMLG PROG 110
Drain parameters family.
Initial Drain Phase Duration [s].
Final Drain Phase Duration [s].
Drain and cleaning mode.
Wash tank water change frequency control disabled.
Set other parameters.
Initial Pause [s] (for ALL cycles).
Delay for the 2nd wash pump [s].
Drain Phase Duration at the end of washing phase [s].
Duration of pause after the rinse cycle [s] (for ALL cycles).
Degrees Celsius display.
During the rinse stage, the display shows the boiler temperature.
Enter into HCP parameter family and set the following parameters.
Machine arranged for remote connection to PC.
6. Switch OFF and then switch ON the machine.
Enter into GEn parameter family.
Initial Detergent Dosage.
Initial Rinse Aid Dosage.
Detergent dispensing during the wash cycle (loading during wash stage).
Rinse aid dispensing during the rinse cycle (loading during boiler filling stage).
7. Switch OFF and then switch ON the machine.

DOC. NO. 5956.65J.00 P. 45 / 122
Electrolux
EFS - Dishwashing Systems Platform
Electrolux Professional
EUCAICL PROG 111
1. Switch OFF and then switch ON the machine.
2. Enter into CFG parameter family and set the following parameters:
Hood Type and undercounter.
Atmospheric boiler.
Front loading function.
Default values for Undercounter models.
SOFT START enabled.
Tank heater works only if boiler temperature reached.
Enable filling tank by means of rinsing cycles.
Detergent level switches enabled.
Select user interface hood type/ undercounter model.
Regeneration cycle disabled (only for dishwashers with non-continuous water softener).
- Alarms enabled.
Boiler electronic level sensor.
Resin regeneration cycle forcing.
Rinse water max. hardness.
Boiler heating control.
3. Switch OFF and then switch ON the machine.
4. Modify Factory parameters:
Enter into FAC parameter family and set the following parameters.
Boiler Temperature Threshold.
Boiler temperature: alarm threshold.
Boiler Temperature Adjust.
Boiler standby function enabled.
Booster Function.
During stand-by boiler is kept at lower temperature than Temperature Threshold.
Tub Temperature: Threshold.
Tank temperature: alarm threshold.
5. Modify the cycle parameters:
Cycle 1 parameters family.
Long Wash Phase [min].
Short Wash Phase [s].
Pause [s].
Rinse Phase Duration [s].
Drain [s].
Final Pause [s].
Cycle 2 parameters family.
Long Wash Phase [min].
Short Wash Phase [s].
Pause [s].
Rinse Phase Duration [s].
Drain [s].
Final Pause [s].
Cycle 3 parameters family.
Long Wash Phase [min].
Short Wash Phase [s].
Pause [s].
Rinse Phase Duration [s].
Drain [s].
Final Pause [s].
Boiler Temperature Threshold for Cycle 3.

Electrolux
EFS - Dishwashing Systems Platform
Electrolux Professional
DOC. NO. 5956.65J.00 P. 46 / 122
WARNING:
To set the board parameters , carefully follow the order given in this programming file, from point 1 to
point 7.
WARNING:
When modifying parameter , all the parameters (except those belonging to the family)
assume the default values according to the tables in section 11 DEFAULT VALUES. The parameters of
the family are not modified.
EUCAICL PROG 111
Drain parameters family.
Initial Drain Phase Duration [s].
Final Drain Phase Duration [s].
Drain and cleaning mode.
Wash tank water change frequency control disabled.
Set other parameters.
Initial Pause [s] (for ALL cycles).
Delay for the 2nd wash pump [s].
Drain Phase Duration at the end of washing phase [s].
Duration of pause after the rinse cycle [s] (for ALL cycles).
Degrees Celsius display.
During the rinse stage, the display shows the boiler temperature.
Enter into HCP parameter family and set the following parameters.
Machine arranged for remote connection to PC.
6. Switch OFF and then switch ON the machine.
Enter into GEn parameter family.
Initial Detergent Dosage.
Initial Rinse Aid Dosage.
Detergent dispensing during the wash cycle (loading during wash stage).
Rinse aid dispensing during the rinse cycle (loading during boiler filling stage).
7. Switch OFF and then switch ON the machine.

DOC. NO. 5956.65J.00 P. 47 / 122
Electrolux
EFS - Dishwashing Systems Platform
Electrolux Professional
EUCAIWL PROG 112
1. Switch OFF and then switch ON the machine.
2. Enter into CFG parameter family and set the following parameters:
Hood Type and undercounter.
Atmospheric boiler.
Front loading function.
Default values for Undercounter models.
SOFT START enabled.
Tank heater works only if boiler temperature reached.
Enable filling tank by means of rinsing cycles.
Detergent level switches not enabled.
Select user interface hood type/ undercounter model.
Regeneration cycle disabled (only for dishwashers with non-continuous water softener).
- Alarms enabled.
Boiler electronic level sensor.
Resin regeneration cycle forcing.
Rinse water max. hardness.
Boiler heating control.
3. Switch OFF and then switch ON the machine.
4. Modify Factory parameters:
Enter into FAC parameter family and set the following parameters.
Boiler Temperature Threshold.
Boiler temperature: alarm threshold.
Boiler Temperature Adjust.
Boiler standby function enabled.
Booster Function.
During stand-by boiler is kept at lower temperature than Temperature Threshold.
Tub Temperature: Threshold.
Tank temperature: alarm threshold.
5. Modify the cycle parameters:
Cycle 1 parameters family.
Long Wash Phase [min].
Short Wash Phase [s].
Pause [s].
Rinse Phase Duration [s].
Drain [s].
Final Pause [s].
Cycle 2 parameters family.
Long Wash Phase [min].
Short Wash Phase [s].
Pause [s].
Rinse Phase Duration [s].
Drain [s].
Final Pause [s].
Cycle 3 parameters family.
Long Wash Phase [min].
Short Wash Phase [s].
Pause [s].
Rinse Phase Duration [s].
Drain [s].
Final Pause [s].
Boiler Temperature Threshold for Cycle 3.

Electrolux
EFS - Dishwashing Systems Platform
Electrolux Professional
DOC. NO. 5956.65J.00 P. 48 / 122
WARNING:
To set the board parameters , carefully follow the order given in this programming file, from point 1 to
point 7.
WARNING:
When modifying parameter , all the parameters (except those belonging to the family)
assume the default values according to the tables in section 11 DEFAULT VALUES. The parameters of
the family are not modified.
EUCAIWL PROG 112
Drain parameters family.
Initial Drain Phase Duration [s].
Final Drain Phase Duration [s].
Drain and cleaning mode.
Wash tank water change frequency control disabled.
Set other parameters.
Initial Pause [s] (for ALL cycles).
Delay for the 2nd wash pump [s].
Drain Phase Duration at the end of washing phase [s].
Duration of pause after the rinse cycle [s] (for ALL cycles).
Degrees Celsius display.
During the rinse stage, the display shows the boiler temperature.
Enter into HCP parameter family and set the following parameters.
Machine arranged for remote connection to PC.
6. Switch OFF and then switch ON the machine.
Enter into GEn parameter family.
Initial Detergent Dosage.
Initial Rinse Aid Dosage.
Detergent dispensing during the wash cycle (loading during wash stage).
Rinse aid dispensing during the rinse cycle (loading during boiler filling stage).
7. Switch OFF and then switch ON the machine.

DOC. NO. 5956.65J.00 P. 49 / 122
Electrolux
EFS - Dishwashing Systems Platform
Electrolux Professional
EUCAICLW PROG 113
1. Switch OFF and then switch ON the machine.
2. Enter into CFG parameter family and set the following parameters:
Hood Type and undercounter.
Atmospheric boiler.
Front loading function.
Default values for Undercounter models.
SOFT START enabled.
Tank heater works only if boiler temperature reached.
Enable filling tank by means of rinsing cycles.
Detergent level switches enabled.
Select user interface hood type/ undercounter model.
Regeneration cycle disabled (only for dishwashers with non-continuous water softener).
- Alarms enabled.
Boiler electronic level sensor.
Resin regeneration cycle forcing.
Rinse water max. hardness.
Boiler heating control.
3. Switch OFF and then switch ON the machine.
4. Modify Factory parameters:
Enter into FAC parameter family and set the following parameters.
Boiler Temperature Threshold.
Boiler temperature: alarm threshold.
Boiler Temperature Adjust.
Boiler standby function enabled.
Booster Function.
During stand-by boiler is kept at lower temperature than Temperature Threshold.
Tub Temperature: Threshold.
Tank temperature: alarm threshold.
5. Modify the cycle parameters:
Cycle 1 parameters family.
Long Wash Phase [min].
Short Wash Phase [s].
Pause [s].
Rinse Phase Duration [s].
Drain [s].
Final Pause [s].
Cycle 2 parameters family.
Long Wash Phase [min].
Short Wash Phase [s].
Pause [s].
Rinse Phase Duration [s].
Drain [s].
Final Pause [s].
Cycle 3 parameters family.
Long Wash Phase [min].
Short Wash Phase [s].
Pause [s].
Rinse Phase Duration [s].
Drain [s].
Final Pause [s].
Boiler Temperature Threshold for Cycle 3.

Electrolux
EFS - Dishwashing Systems Platform
Electrolux Professional
DOC. NO. 5956.65J.00 P. 50 / 122
WARNING:
To set the board parameters , carefully follow the order given in this programming file, from point 1 to
point 7.
WARNING:
When modifying parameter , all the parameters (except those belonging to the family)
assume the default values according to the tables in section 11 DEFAULT VALUES. The parameters of
the family are not modified.
EUCAICLW PROG 113
Drain parameters family.
Initial Drain Phase Duration [s].
Final Drain Phase Duration [s].
Drain and cleaning mode.
Wash tank water change frequency control disabled.
Set other parameters.
Initial Pause [s] (for ALL cycles).
Delay for the 2nd wash pump [s].
Drain Phase Duration at the end of washing phase [s].
Duration of pause after the rinse cycle [s] (for ALL cycles).
Degrees Celsius display.
During the rinse stage, the display shows the boiler temperature.
Enter into HCP parameter family and set the following parameters.
Machine arranged for remote connection to PC.
6. Switch OFF and then switch ON the machine.
Enter into GEn parameter family.
Initial Detergent Dosage.
Initial Rinse Aid Dosage.
Detergent dispensing during the wash cycle (loading during wash stage).
Rinse aid dispensing during the rinse cycle (loading during boiler filling stage).
7. Switch OFF and then switch ON the machine.

DOC. NO. 5956.65J.00 P. 51 / 122
Electrolux
EFS - Dishwashing Systems Platform
Electrolux Professional
ZUCI / AUCI / EUCI PROG 114
1. Switch OFF and then switch ON the machine.
2. Enter into CFG parameter family and set the following parameters:
Hood Type and undercounter.
Pressure boiler.
Front loading function.
Default values for Undercounter models.
SOFT START enabled.
Tank heater works only if boiler temperature reached.
The tank is filled into the traditional way.
Detergent level switches not enabled.
ACTIVE function disabled.
Regeneration cycle disabled (only for dishwashers with non-continuous water softener).
- Alarms enabled.
Boiler electronic level sensor.
Resin regeneration cycle forcing.
Rinse water max. hardness.
Boiler heating control.
3. Switch OFF and then switch ON the machine.
4. Modify Factory parameters:
Enter into FAC parameter family and set the following parameters.
Boiler Temperature Threshold.
Boiler temperature: alarm threshold.
Boiler Temperature Adjust.
Boiler standby function enabled.
Booster Function.
During stand-by boiler is kept at lower temperature than Temperature Threshold.
Tub Temperature: Threshold.
Tank temperature: alarm threshold.
5. Modify the cycle parameters:
Cycle 1 parameters family.
Long Wash Phase [min].
Short Wash Phase [s].
Pause [s].
Rinse Phase Duration [s].
Drain [s].
Final Pause [s].
Cycle 2 parameters family.
Long Wash Phase [min].
Short Wash Phase [s].
Pause [s].
Rinse Phase Duration [s].
Drain [s].
Final Pause [s].
Cycle 3 parameters family.
Long Wash Phase [min].
Short Wash Phase [s].
Pause [s].
Rinse Phase Duration [s].
Drain [s].
Final Pause [s].
Boiler Temperature Threshold for Cycle 3.

Electrolux
EFS - Dishwashing Systems Platform
Electrolux Professional
DOC. NO. 5956.65J.00 P. 52 / 122
WARNING:
To set the board parameters , carefully follow the order given in this programming file, from point 1 to
point 7.
WARNING:
When modifying parameter , all the parameters (except those belonging to the family)
assume the default values according to the tables in section 11 DEFAULT VALUES. The parameters of
the family are not modified.
ZUCI / AUCI / EUCI PROG 114
Drain parameters family.
Initial Drain Phase Duration [s].
Final Drain Phase Duration [s].
Drain and cleaning mode.
Wash tank water change frequency control disabled.
Set other parameters.
Initial Pause [s] (for ALL cycles).
Delay for the 2nd wash pump [s].
Drain Phase Duration at the end of washing phase [s].
Duration of pause after the rinse cycle [s] (for ALL cycles).
Degrees Celsius display.
During the rinse stage, the display shows the boiler temperature.
Enter into HCP parameter family and set the following parameters.
Machine arranged for remote connection to PC.
6. Switch OFF and then switch ON the machine.
Enter into GEn parameter family.
Initial Detergent Dosage.
Initial Rinse Aid Dosage.
Detergent dispensing during the wash cycle (loading during wash stage).
Rinse aid dispensing during the rinse cycle (loading during boiler filling stage).
7. Switch OFF and then switch ON the machine.

DOC. NO. 5956.65J.00 P. 53 / 122
Electrolux
EFS - Dishwashing Systems Platform
Electrolux Professional
EUCIM PROG 115
1. Switch OFF and then switch ON the machine.
2. Enter into CFG parameter family and set the following parameters:
Hood Type and undercounter.
Pressure boiler.
Front loading function.
Default values for Undercounter models.
SOFT START enabled.
Tank heater works only if boiler temperature reached.
Enable filling tank by means of rinsing cycles.
Detergent level switches not enabled.
Select user interface hood type/ undercounter model.
Regeneration cycle disabled (only for dishwashers with non-continuous water softener).
- Alarms enabled.
Boiler electronic level sensor.
Resin regeneration cycle forcing.
Rinse water max. hardness.
Boiler heating control.
3. Switch OFF and then switch ON the machine.
4. Modify Factory parameters:
Enter into FAC parameter family and set the following parameters.
Boiler Temperature Threshold.
Disable boiler high Temperature alarm ( ).
Boiler Temperature Adjust.
Boiler standby function enabled.
Booster Function.
During stand-by boiler is kept at lower temperature than Temperature Threshold.
Tub Temperature: Threshold.
Tank temperature: alarm threshold.
5. Modify the cycle parameters:
Cycle 1 parameters family.
Long Wash Phase [min].
Short Wash Phase [s].
Pause [s].
Rinse Phase Duration [s].
Drain [s].
Final Pause [s].
Cycle 2 parameters family.
Long Wash Phase [min].
Short Wash Phase [s].
Pause [s].
Rinse Phase Duration [s].
Drain [s].
Final Pause [s].
Cycle 3 parameters family.
Long Wash Phase [min].
Short Wash Phase [s].
Pause [s].
Rinse Phase Duration [s].
Drain [s].
Final Pause [s].
Boiler Temperature Threshold for Cycle 3.

Electrolux
EFS - Dishwashing Systems Platform
Electrolux Professional
DOC. NO. 5956.65J.00 P. 54 / 122
WARNING:
To set the board parameters , carefully follow the order given in this programming file, from point 1 to
point 7.
WARNING:
When modifying parameter , all the parameters (except those belonging to the family)
assume the default values according to the tables in section 11 DEFAULT VALUES. The parameters of
the family are not modified.
EUCIM PROG 115
Drain parameters family.
Initial Drain Phase Duration [s].
Final Drain Phase Duration [s].
Drain and cleaning mode.
Wash tank water change frequency control disabled.
Set other parameters.
Initial Pause [s] (for ALL cycles).
Delay for the 2nd wash pump [s].
Drain Phase Duration at the end of washing phase [s].
Duration of pause after the rinse cycle [s] (for ALL cycles).
Degrees Celsius display.
During the rinse stage, the display shows the boiler temperature.
Enter into HCP parameter family and set the following parameters.
Machine arranged for remote connection to PC.
6. Switch OFF and then switch ON the machine.
Enter into GEn parameter family.
Initial Detergent Dosage.
Initial Rinse Aid Dosage.
Detergent dispensing during the wash cycle (loading during wash stage).
Rinse aid dispensing during the rinse cycle (loading during boiler filling stage).
7. Switch OFF and then switch ON the machine.

DOC. NO. 5956.65J.00 P. 55 / 122
Electrolux
EFS - Dishwashing Systems Platform
Electrolux Professional
AUCAI PROG 116
1. Switch OFF and then switch ON the machine.
2. Enter into CFG parameter family and set the following parameters:
Hood Type and undercounter.
Atmospheric boiler.
Front loading function.
Default values for Undercounter models.
SOFT START enabled.
Tank heater works only if boiler temperature reached.
Enable filling tank by means of rinsing cycles.
Detergent level switches not enabled.
ACTIVE function disabled.
Regeneration cycle disabled (only for dishwashers with non-continuous water softener).
- Alarms enabled.
Boiler electronic level sensor.
Resin regeneration cycle forcing.
Rinse water max. hardness.
Boiler heating control.
3. Switch OFF and then switch ON the machine.
4. Modify Factory parameters:
Enter into FAC parameter family and set the following parameters.
Boiler Temperature Threshold.
Boiler temperature: alarm threshold.
Boiler Temperature Adjust.
Boiler standby function enabled.
Booster Function.
During stand-by boiler is kept at lower temperature than Temperature Threshold.
Tub Temperature: Threshold.
Tank temperature: alarm threshold.
5. Modify the cycle parameters:
Cycle 1 parameters family.
Long Wash Phase [min].
Short Wash Phase [s].
Pause [s].
Rinse Phase Duration [s].
Drain [s].
Final Pause [s].
Cycle 2 parameters family.
Long Wash Phase [min].
Short Wash Phase [s].
Pause [s].
Rinse Phase Duration [s].
Drain [s].
Final Pause [s].
Cycle 3 parameters family.
Long Wash Phase [min].
Short Wash Phase [s].
Pause [s].
Rinse Phase Duration [s].
Drain [s].
Final Pause [s].
Boiler Temperature Threshold for Cycle 3.

Electrolux
EFS - Dishwashing Systems Platform
Electrolux Professional
DOC. NO. 5956.65J.00 P. 56 / 122
WARNING:
To set the board parameters , carefully follow the order given in this programming file, from point 1 to
point 7.
WARNING:
When modifying parameter , all the parameters (except those belonging to the family)
assume the default values according to the tables in section 11 DEFAULT VALUES. The parameters of
the family are not modified.
AUCAI PROG 116
Drain parameters family.
Initial Drain Phase Duration [s].
Final Drain Phase Duration [s].
Drain and cleaning mode.
Wash tank water change frequency control disabled.
Set other parameters.
Initial Pause [s] (for ALL cycles).
Delay for the 2nd wash pump [s].
Drain Phase Duration at the end of washing phase [s].
Duration of pause after the rinse cycle [s] (for ALL cycles).
Degrees Celsius display.
During the rinse stage, the display shows the boiler temperature.
Enter into HCP parameter family and set the following parameters.
Machine arranged for remote connection to PC.
6. Switch OFF and then switch ON the machine.
Enter into GEn parameter family.
Initial Detergent Dosage.
Initial Rinse Aid Dosage.
Detergent dispensing during the wash cycle (loading during wash stage).
Rinse aid dispensing during the rinse cycle (loading during boiler filling stage).
7. Switch OFF and then switch ON the machine.

DOC. NO. 5956.65J.00 P. 57 / 122
Electrolux
EFS - Dishwashing Systems Platform
Electrolux Professional
AUCAIDPWS PROG 117
1. Switch OFF and then switch ON the machine.
2. Enter into CFG parameter family and set the following parameters:
Hood Type and undercounter.
Atmospheric boiler.
Front loading function.
Default values for Undercounter models.
SOFT START enabled.
Tank heater works only if boiler temperature reached.
Enable filling tank by means of rinsing cycles.
Detergent level switches not enabled.
Select user interface hood type/ undercounter model.
Regeneration cycle disabled (only for dishwashers with non-continuous water softener).
- Alarms enabled.
Boiler float level sensor.
Resin regeneration cycle forcing.
Rinse water max. hardness.
Boiler heating control.
3. Switch OFF and then switch ON the machine.
4. Modify Factory parameters:
Enter into FAC parameter family and set the following parameters.
Boiler Temperature Threshold.
Boiler temperature: alarm threshold.
Boiler Temperature Adjust.
Boiler standby function enabled.
Booster Function.
During stand-by boiler is kept at lower temperature than Temperature Threshold.
Tub Temperature: Threshold.
Tank temperature: alarm threshold.
5. Modify the cycle parameters:
Cycle 1 parameters family.
Long Wash Phase [min].
Short Wash Phase [s].
Pause [s].
Rinse Phase Duration [s].
Drain [s].
Final Pause [s].
Cycle 2 parameters family.
Long Wash Phase [min].
Short Wash Phase [s].
Pause [s].
Rinse Phase Duration [s].
Drain [s].
Final Pause [s].
Cycle 3 parameters family.
Long Wash Phase [min].
Short Wash Phase [s].
Pause [s].
Rinse Phase Duration [s].
Drain [s].
Final Pause [s].
Boiler Temperature Threshold for Cycle 3.

Electrolux
EFS - Dishwashing Systems Platform
Electrolux Professional
DOC. NO. 5956.65J.00 P. 58 / 122
WARNING:
To set the board parameters , carefully follow the order given in this programming file, from point 1 to
point 7.
WARNING:
When modifying parameter , all the parameters (except those belonging to the family)
assume the default values according to the tables in section 11 DEFAULT VALUES. The parameters of
the family are not modified.
AUCAIDPWS PROG 117
Drain parameters family.
Initial Drain Phase Duration [s].
Final Drain Phase Duration [s].
Drain and cleaning mode.
Wash tank water change frequency control disabled.
Set other parameters.
Initial Pause [s] (for ALL cycles).
Delay for the 2nd wash pump [s].
Drain Phase Duration at the end of washing phase [s].
Duration of pause after the rinse cycle [s] (for ALL cycles).
Degrees Celsius display.
During the rinse stage, the display shows the boiler temperature.
Enter into HCP parameter family and set the following parameters.
Dishwasher with incorporated continuous water softener.
6. Switch OFF and then switch ON the machine.
Enter into GEn parameter family.
Initial Detergent Dosage.
Initial Rinse Aid Dosage.
Detergent dispensing during the wash cycle (loading during wash stage).
Rinse aid dispensing during the rinse cycle (loading during boiler filling stage).
7. Switch OFF and then switch ON the machine.

DOC. NO. 5956.65J.00 P. 59 / 122
Electrolux
EFS - Dishwashing Systems Platform
Electrolux Professional
NHT / KHT / EHT PROG 118
1. Switch OFF and then switch ON the machine.
2. Enter into CFG parameter family and set the following parameters:
Hood Type and undercounter.
Pressure boiler.
Manual Hood.
Default values for Hood Type models.
Disabled (for this appliance SOFT START is NOT possible)..
Tank heater works only if boiler temperature reached.
The tank is filled into the traditional way.
Detergent level switches not enabled.
ACTIVE function disabled.
Regeneration cycle disabled (only for dishwashers with non-continuous water softener).
- Alarms enabled.
Boiler electronic level sensor.
Resin regeneration cycle forcing.
Rinse water max. hardness.
Boiler heating control.
3. Switch OFF and then switch ON the machine.
4. Modify Factory parameters:
Enter into FAC parameter family and set the following parameters.
Boiler Temperature Threshold.
Boiler temperature: alarm threshold.
Boiler Temperature Adjust.
Boiler standby function enabled.
Booster Function.
During stand-by boiler is kept at lower temperature than Temperature Threshold.
Tub Temperature: Threshold.
Tank temperature: alarm threshold.
5. Modify the cycle parameters:
Cycle 1 parameters family.
Long Wash Phase [min].
Short Wash Phase [s].
Pause [s].
Rinse Phase Duration [s].
Drain [s].
Final Pause [s].
Cycle 2 parameters family.
Long Wash Phase [min].
Short Wash Phase [s].
Pause [s].
Rinse Phase Duration [s].
Drain [s].
Final Pause [s].
Cycle 3 parameters family.
Long Wash Phase [min].
Short Wash Phase [s].
Pause [s].
Rinse Phase Duration [s].
Drain [s].
Final Pause [s].
Boiler Temperature Threshold for Cycle 3.

Electrolux
EFS - Dishwashing Systems Platform
Electrolux Professional
DOC. NO. 5956.65J.00 P. 60 / 122
WARNING:
To set the board parameters , carefully follow the order given in this programming file, from point 1 to
point 7.
WARNING:
When modifying parameter , all the parameters (except those belonging to the family)
assume the default values according to the tables in section 11 DEFAULT VALUES. The parameters of
the family are not modified.
NHT / KHT / EHT PROG 118
Drain parameters family.
Initial Drain Phase Duration [s].
Final Drain Phase Duration [s].
Drain and cleaning mode.
Wash tank water change frequency control disabled.
Set other parameters.
Initial Pause [s] (for ALL cycles).
Delay for the 2nd wash pump [s].
Drain Phase Duration at the end of washing phase [s].
Duration of pause after the rinse cycle [s] (for ALL cycles).
Degrees Celsius display.
During the rinse stage, the display shows the boiler temperature.
Enter into HCP parameter family and set the following parameters.
Machine arranged for remote connection to PC.
6. Switch OFF and then switch ON the machine.
Enter into GEn parameter family.
Initial Detergent Dosage.
Initial Rinse Aid Dosage.
Detergent dispensing during the wash cycle (loading during wash stage).
Rinse aid dispensing during the rinse cycle (loading during boiler filling stage).
7. Switch OFF and then switch ON the machine.

DOC. NO. 5956.65J.00 P. 61 / 122
Electrolux
EFS - Dishwashing Systems Platform
Electrolux Professional
NHTG / EHTG PROG 119
1. Switch OFF and then switch ON the machine.
2. Enter into CFG parameter family and set the following parameters:
Hood Type and undercounter.
Atmospheric boiler.
Manual Hood.
Default values for Hood Type models.
Disabled (for this appliance SOFT START is NOT possible).
Tank heater works only if boiler temperature reached.
Enable filling tank by means of rinsing cycles.
Detergent level switches not enabled.
ACTIVE function disabled.
Regeneration cycle disabled (only for dishwashers with non-continuous water softener).
- Alarms enabled.
Boiler electronic level sensor.
Resin regeneration cycle forcing.
Rinse water max. hardness.
Boiler heating control.
3. Switch OFF and then switch ON the machine.
4. Modify Factory parameters:
Enter into FAC parameter family and set the following parameters.
Boiler Temperature Threshold.
Boiler temperature: alarm threshold.
Boiler Temperature Adjust.
Boiler standby function enabled.
Booster Function.
During stand-by boiler is kept at lower temperature than Temperature Threshold.
Tub Temperature: Threshold.
Tank temperature: alarm threshold.
5. Modify the cycle parameters:
Cycle 1 parameters family.
Long Wash Phase [min].
Short Wash Phase [s].
Pause [s].
Rinse Phase Duration [s].
Drain [s].
Final Pause [s].
Cycle 2 parameters family.
Long Wash Phase [min].
Short Wash Phase [s].
Pause [s].
Rinse Phase Duration [s].
Drain [s].
Final Pause [s].
Cycle 3 parameters family.
Long Wash Phase [min].
Short Wash Phase [s].
Pause [s].
Rinse Phase Duration [s].
Drain [s].
Final Pause [s].
Boiler Temperature Threshold for Cycle 3.

Electrolux
EFS - Dishwashing Systems Platform
Electrolux Professional
DOC. NO. 5956.65J.00 P. 62 / 122
WARNING:
To set the board parameters , carefully follow the order given in this programming file, from point 1 to
point 7.
WARNING:
When modifying parameter , all the parameters (except those belonging to the family)
assume the default values according to the tables in section 11 DEFAULT VALUES. The parameters of
the family are not modified.
NHTG / EHTG PROG 119
Drain parameters family.
Initial Drain Phase Duration [s].
Final Drain Phase Duration [s].
Drain and cleaning mode.
Wash tank water change frequency control disabled.
Set other parameters.
Initial Pause [s] (for ALL cycles).
Delay for the 2nd wash pump [s].
Drain Phase Duration at the end of washing phase [s].
Duration of pause after the rinse cycle [s] (for ALL cycles).
Degrees Celsius display.
During the rinse stage, the display shows the boiler temperature.
Enter into HCP parameter family and set the following parameters.
Machine arranged for remote connection to PC.
6. Switch OFF and then switch ON the machine.
Enter into GEn parameter family.
Initial Detergent Dosage.
Initial Rinse Aid Dosage.
Detergent dispensing during the wash cycle (loading during wash stage).
Rinse aid dispensing during the rinse cycle (loading during boiler filling stage).
7. Switch OFF and then switch ON the machine.

DOC. NO. 5956.65J.00 P. 63 / 122
Electrolux
EFS - Dishwashing Systems Platform
Electrolux Professional
ZHTA / AHTA / EHTA PROG 120
1. Switch OFF and then switch ON the machine.
2. Enter into CFG parameter family and set the following parameters:
Hood Type and undercounter.
Atmospheric boiler.
Manual Hood.
Default values for Hood Type models.
Disabled (for this appliance SOFT START is NOT possible).
Tank heater works only if boiler temperature reached.
Enable filling tank by means of rinsing cycles.
Detergent level switches not enabled.
Select user interface hood type/ undercounter model.
Regeneration cycle disabled (only for dishwashers with non-continuous water softener).
- Alarms enabled.
Boiler electronic level sensor.
Resin regeneration cycle forcing.
Rinse water max. hardness.
Boiler heating control.
3. Switch OFF and then switch ON the machine.
4. Modify Factory parameters:
Enter into FAC parameter family and set the following parameters.
Boiler Temperature Threshold.
Boiler temperature: alarm threshold.
Boiler Temperature Adjust.
Boiler standby function enabled.
Booster Function.
During stand-by boiler is kept at lower temperature than Temperature Threshold.
Tub Temperature: Threshold.
Tank temperature: alarm threshold.
5. Modify the cycle parameters:
Cycle 1 parameters family.
Long Wash Phase [min].
Short Wash Phase [s].
Pause [s].
Rinse Phase Duration [s].
Drain [s].
Final Pause [s].
Cycle 2 parameters family.
Long Wash Phase [min].
Short Wash Phase [s].
Pause [s].
Rinse Phase Duration [s].
Drain [s].
Final Pause [s].
Cycle 3 parameters family.
Long Wash Phase [min].
Short Wash Phase [s].
Pause [s].
Rinse Phase Duration [s].
Drain [s].
Final Pause [s].
Boiler Temperature Threshold for Cycle 3.

Electrolux
EFS - Dishwashing Systems Platform
Electrolux Professional
DOC. NO. 5956.65J.00 P. 64 / 122
WARNING:
To set the board parameters , carefully follow the order given in this programming file, from point 1 to
point 7.
WARNING:
When modifying parameter , all the parameters (except those belonging to the family)
assume the default values according to the tables in section 11 DEFAULT VALUES. The parameters of
the family are not modified.
ZHTA / AHTA / EHTA PROG 120
Drain parameters family.
Initial Drain Phase Duration [s].
Final Drain Phase Duration [s].
Drain and cleaning mode.
Wash tank water change frequency control disabled.
Set other parameters.
Initial Pause [s] (for ALL cycles).
Delay for the 2nd wash pump [s].
Drain Phase Duration at the end of washing phase [s].
Duration of pause after the rinse cycle [s] (for ALL cycles).
Degrees Celsius display.
During the rinse stage, the display shows the boiler temperature.
Termal Label mode disabled (Functions present with firmware version 4.04).
Enter into HCP parameter family and set the following parameters.
Machine arranged for remote connection to PC.
6. Switch OFF and then switch ON the machine.
Enter into GEn parameter family.
Initial Detergent Dosage.
Initial Rinse Aid Dosage.
Detergent dispensing during the wash cycle (loading during wash stage).
Rinse aid dispensing during the rinse cycle (loading during boiler filling stage).
7. Switch OFF and then switch ON the machine.

DOC. NO. 5956.65J.00 P. 65 / 122
Electrolux
EFS - Dishwashing Systems Platform
Electrolux Professional
ZHTAWS/ AHTAWS/ EHTAWS PROG 121
1. Switch OFF and then switch ON the machine.
2. Enter into CFG parameter family and set the following parameters:
Hood Type and undercounter.
Atmospheric boiler.
Manual Hood.
Default values for Hood Type models.
Disabled (for this appliance SOFT START is NOT possible).
Tank heater works only if boiler temperature reached.
Enable filling tank by means of rinsing cycles.
Detergent level switches not enabled.
Select user interface hood type/ undercounter model.
Regeneration cycle disabled (only for dishwashers with non-continuous water softener).
- Alarms enabled.
Boiler float level sensor.
Resin regeneration cycle forcing.
Rinse water max. hardness.
Boiler heating control.
3. Switch OFF and then switch ON the machine.
4. Modify Factory parameters:
Enter into FAC parameter family and set the following parameters.
Boiler Temperature Threshold.
Boiler temperature: alarm threshold.
Boiler Temperature Adjust.
Boiler standby function enabled.
Booster Function.
During stand-by boiler is kept at lower temperature than Temperature Threshold.
Tub Temperature: Threshold.
Tank temperature: alarm threshold.
5. Modify the cycle parameters:
Cycle 1 parameters family.
Long Wash Phase [min].
Short Wash Phase [s].
Pause [s].
Rinse Phase Duration [s].
Drain [s].
Final Pause [s].
Cycle 2 parameters family.
Long Wash Phase [min].
Short Wash Phase [s].
Pause [s].
Rinse Phase Duration [s].
Drain [s].
Final Pause [s].
Cycle 3 parameters family.
Long Wash Phase [min].
Short Wash Phase [s].
Pause [s].
Rinse Phase Duration [s].
Drain [s].
Final Pause [s].
Boiler Temperature Threshold for Cycle 3.

Electrolux
EFS - Dishwashing Systems Platform
Electrolux Professional
DOC. NO. 5956.65J.00 P. 66 / 122
WARNING:
To set the board parameters , carefully follow the order given in this programming file, from point 1 to
point 7.
WARNING:
When modifying parameter , all the parameters (except those belonging to the family)
assume the default values according to the tables in section 11 DEFAULT VALUES. The parameters of
the family are not modified.
ZHTAWS/ AHTAWS/ EHTAWS PROG 121
Drain parameters family.
Initial Drain Phase Duration [s].
Final Drain Phase Duration [s].
Drain and cleaning mode.
Wash tank water change frequency control disabled.
Set other parameters.
Initial Pause [s] (for ALL cycles).
Delay for the 2nd wash pump [s].
Drain Phase Duration at the end of washing phase [s].
Duration of pause after the rinse cycle [s] (for ALL cycles).
Degrees Celsius display.
During the rinse stage, the display shows the boiler temperature.
Enter into HCP parameter family and set the following parameters.
Dishwasher with incorporated continuous water softener.
6. Switch OFF and then switch ON the machine.
Enter into GEn parameter family.
Initial Detergent Dosage.
Initial Rinse Aid Dosage.
Detergent dispensing during the wash cycle (loading during wash stage).
Rinse aid dispensing during the rinse cycle (loading during boiler filling stage).
7. Switch OFF and then switch ON the machine.

DOC. NO. 5956.65J.00 P. 67 / 122
Electrolux
EFS - Dishwashing Systems Platform
Electrolux Professional
ZHTAIAU / EHTAIAU PROG 122
1. Switch OFF and then switch ON the machine.
2. Enter into CFG parameter family and set the following parameters:
Hood Type and undercounter.
Atmospheric boiler.
Automatic Hood.
Default values for Hood Type models.
Disabled (for this appliance SOFT START is NOT possible).
Tank heater works only if boiler temperature reached.
Enable filling tank by means of rinsing cycles.
Detergent level switches not enabled.
Select user interface hood type/ undercounter model.
Regeneration cycle disabled (only for dishwashers with non-continuous water softener).
- Alarms enabled.
Boiler electronic level sensor.
Resin regeneration cycle forcing.
Rinse water max. hardness.
Boiler heating control.
3. Switch OFF and then switch ON the machine.
4. Modify Factory parameters:
Enter into FAC parameter family and set the following parameters.
Boiler Temperature Threshold.
Boiler temperature: alarm threshold.
Boiler Temperature Adjust.
Boiler standby function enabled.
Booster Function.
During stand-by boiler is kept at lower temperature than Temperature Threshold.
Tub Temperature: Threshold.
Tank temperature: alarm threshold.
5. Modify the cycle parameters:
Cycle 1 parameters family.
Long Wash Phase [min].
Short Wash Phase [s].
Pause [s].
Rinse Phase Duration [s].
Drain [s].
Final Pause [s].
Cycle 2 parameters family.
Long Wash Phase [min].
Short Wash Phase [s].
Pause [s].
Rinse Phase Duration [s].
Drain [s].
Final Pause [s].
Cycle 3 parameters family.
Long Wash Phase [min].
Short Wash Phase [s].
Pause [s].
Rinse Phase Duration [s].
Drain [s].
Final Pause [s].
Boiler Temperature Threshold for Cycle 3.

Electrolux
EFS - Dishwashing Systems Platform
Electrolux Professional
DOC. NO. 5956.65J.00 P. 68 / 122
WARNING:
To set the board parameters , carefully follow the order given in this programming file, from point 1 to
point 7.
WARNING:
When modifying parameter , all the parameters (except those belonging to the family)
assume the default values according to the tables in section 11 DEFAULT VALUES. The parameters of
the family are not modified.
ZHTAIAU / EHTAIAU PROG 122
Drain parameters family.
Initial Drain Phase Duration [s].
Final Drain Phase Duration [s].
Drain and cleaning mode.
Wash tank water change frequency control disabled.
Set other parameters.
Initial Pause [s] (for ALL cycles).
Delay for the 2nd wash pump [s].
Drain Phase Duration at the end of washing phase [s].
Duration of pause after the rinse cycle [s] (for ALL cycles).
Degrees Celsius display.
During the rinse stage, the display shows the boiler temperature.
Enter into HCP parameter family and set the following parameters.
Machine arranged for remote connection to PC.
6. Switch OFF and then switch ON the machine.
Enter into GEn parameter family.
Initial Detergent Dosage.
Initial Rinse Aid Dosage.
Detergent dispensing during the wash cycle (loading during wash stage).
Rinse aid dispensing during the rinse cycle (loading during boiler filling stage).
7. Switch OFF and then switch ON the machine.

DOC. NO. 5956.65J.00 P. 69 / 122
Electrolux
EFS - Dishwashing Systems Platform
Electrolux Professional
EHTAIMLAU PROG 123
1. Switch OFF and then switch ON the machine.
2. Enter into CFG parameter family and set the following parameters:
Hood Type and undercounter.
Atmospheric boiler.
Automatic Hood.
Default values for Hood Type models.
Disabled (for this appliance SOFT START is NOT possible).
Tank heater works only if boiler temperature reached.
Enable filling tank by means of rinsing cycles.
Detergent level switches not enabled.
Select user interface hood type/ undercounter model.
Regeneration cycle disabled (only for dishwashers with non-continuous water softener).
- Alarms enabled.
Boiler electronic level sensor.
Resin regeneration cycle forcing.
Rinse water max. hardness.
Boiler heating control.
3. Switch OFF and then switch ON the machine.
4. Modify Factory parameters:
Enter into FAC parameter family and set the following parameters.
Boiler Temperature Threshold.
Disable boiler high Temperature alarm ( ).
Boiler Temperature Adjust.
Boiler standby function enabled.
Booster Function.
During stand-by boiler is kept at lower temperature than Temperature Threshold.
Tub Temperature: Threshold.
Tank temperature: alarm threshold.
5. Modify the cycle parameters:
Cycle 1 parameters family.
Long Wash Phase [min].
Short Wash Phase [s].
Pause [s].
Rinse Phase Duration [s].
Drain [s].
Final Pause [s].
Cycle 2 parameters family.
Long Wash Phase [min].
Short Wash Phase [s].
Pause [s].
Rinse Phase Duration [s].
Drain [s].
Final Pause [s].
Cycle 3 parameters family.
Long Wash Phase [min].
Short Wash Phase [s].
Pause [s].
Rinse Phase Duration [s].
Drain [s].
Final Pause [s].
Boiler Temperature Threshold for Cycle 3.

Electrolux
EFS - Dishwashing Systems Platform
Electrolux Professional
DOC. NO. 5956.65J.00 P. 70 / 122
WARNING:
To set the board parameters , carefully follow the order given in this programming file, from point 1 to
point 7.
WARNING:
When modifying parameter , all the parameters (except those belonging to the family)
assume the default values according to the tables in section 11 DEFAULT VALUES. The parameters of
the family are not modified.
EHTAIMLAU PROG 123
Drain parameters family.
Initial Drain Phase Duration [s].
Final Drain Phase Duration [s].
Drain and cleaning mode.
Wash tank water change frequency control disabled.
Set other parameters.
Initial Pause [s] (for ALL cycles).
Delay for the 2nd wash pump [s].
Drain Phase Duration at the end of washing phase [s].
Duration of pause after the rinse cycle [s] (for ALL cycles).
Degrees Celsius display.
During the rinse stage, the display shows the boiler temperature.
Enter into HCP parameter family and set the following parameters.
Machine arranged for remote connection to PC.
6. Switch OFF and then switch ON the machine.
Enter into GEn parameter family.
Initial Detergent Dosage.
Initial Rinse Aid Dosage.
Detergent dispensing during the wash cycle (loading during wash stage).
Rinse aid dispensing during the rinse cycle (loading during boiler filling stage).
7. Switch OFF and then switch ON the machine.

DOC. NO. 5956.65J.00 P. 71 / 122
Electrolux
EFS - Dishwashing Systems Platform
Electrolux Professional
ZHTAROW / EHTAROW /
ZHTAO / EHTAO
PROG 124
1. Switch OFF and then switch ON the machine.
2. Enter into CFG parameter family and set the following parameters:
Hood Type and undercounter.
Atmospheric boiler.
Manual Hood.
Default values for Hood Type models.
Disabled (for this appliance SOFT START is NOT possible).
Boiler heaters and tank heater work simultaneously.
Enable filling tank by means of rinsing cycles.
Detergent level switches not enabled.
Select user interface hood type/ undercounter model.
Regeneration cycle disabled (only for dishwashers with non-continuous water softener).
- Alarms enabled.
Boiler electronic level sensor.
Resin regeneration cycle forcing.
Rinse water max. hardness.
Boiler heating control.
3. Switch OFF and then switch ON the machine.
4. Modify Factory parameters:
Enter into FAC parameter family and set the following parameters.
Boiler Temperature Threshold.
Disable boiler high Temperature alarm ( ).
Boiler Temperature Adjust.
Boiler standby function enabled.
Booster Function.
During stand-by boiler is kept at lower temperature than Temperature Threshold.
Tank Temperature: Threshold.
Disable tank high Temperature alarm ( ).
5. Modify the cycle parameters:
Cycle 1 parameters family.
Long Wash Phase [min].
Short Wash Phase [s].
Pause [s].
Rinse Phase Duration [s].
Drain [s].
Final Pause [s].
Long Wash Phase inTermal Label mode [min].
Short Wash Phase inTermal Label mode [s].
Cycle 2 parameters family.
Long Wash Phase [min].
Short Wash Phase [s].
Pause [s].
Rinse Phase Duration [s].
Drain [s].
Final Pause [s].
Long Wash Phase inTermal Label mode [min].
Short Wash Phase inTermal Label mode [s].

Electrolux
EFS - Dishwashing Systems Platform
Electrolux Professional
DOC. NO. 5956.65J.00 P. 72 / 122
WARNING:
To set the board parameters , carefully follow the order given in this programming file, from point 1 to
point 7.
WARNING:
When modifying parameter , all the parameters (except those belonging to the family)
assume the default values according to the tables in section 11 DEFAULT VALUES. The parameters of
the family are not modified.
ZHTAROW / EHTAROW /
ZHTAO / EHTAO
PROG 124
Cycle 3 parameters family.
Long Wash Phase [min].
Short Wash Phase [s].
Pause [s].
Rinse Phase Duration [s].
Drain [s].
Final Pause [s].
Long Wash Phase inTermal Label mode [min].
Short Wash Phase inTermal Label mode [s].
Boiler Temperature Threshold for Cycle 3.
Drain parameters family.
Initial Drain Phase Duration [s].
Final Drain Phase Duration [s].
Drain and cleaning mode.
Wash tank water change frequency control disabled.
Set other parameters.
Initial Pause [s] (for ALL cycles).
Delay for the 2nd wash pump [s].
Drain Phase Duration at the end of washing phase [s].
Duration of pause after the rinse cycle [s] (for ALL cycles).
Degrees Celsius display.
During the rinse stage, the display shows the boiler temperature.
Termal Label mode enabled.
Boiler Temperature in Termal Label mode.
Tank Temperature in Termal Label mode.
Tank Temperature histeresis in Termal Label mode.
Enter into HCP parameter family and set the following parameters.
Machine arranged for remote connection to PC.
6. Switch OFF and then switch ON the machine.
Enter into GEn parameter family.
Initial Detergent Dosage.
Initial Rinse Aid Dosage.
Detergent dispensing during the wash cycle (loading during wash stage).
Rinse aid dispensing during the rinse cycle (loading during boiler filling stage).
7. Switch OFF and then switch ON the machine.

DOC. NO. 5956.65J.00 P. 73 / 122
Electrolux
EFS - Dishwashing Systems Platform
Electrolux Professional
EUCAIUSPH PROG 125
1. Switch OFF and then switch ON the machine.
2. Enter into CFG parameter family and set the following parameters:
Hood Type and undercounter.
Atmospheric boiler.
Manual Hood.
Default values for Hood Type models.
Disabled (for this appliance SOFT START is NOT possible).
Tank heater works only if boiler temperature reached.
Enable filling tank by means of rinsing cycles.
Detergent level switches not enabled.
Select user interface hood type/ undercounter model.
Regeneration cycle disabled (only for dishwashers with non-continuous water softener).
- Alarms enabled.
Boiler electronic level sensor.
Resin regeneration cycle forcing.
Rinse water max. hardness.
Boiler heating control.
3. Switch OFF and then switch ON the machine.
4. Modify Factory parameters:
Enter into FAC parameter family and set the following parameters.
Boiler Temperature Threshold.
Boiler temperature: alarm threshold.
Boiler Temperature Adjust.
Boiler standby function enabled.
Booster Function.
During stand-by boiler is kept at lower temperature than Temperature Threshold.
Tub Temperature: Threshold.
Tank temperature: alarm threshold.
5. Modify the cycle parameters:
Cycle 1 parameters family.
Long Wash Phase [min].
Short Wash Phase [s].
Pause [s].
Rinse Phase Duration [s].
Drain [s].
Final Pause [s].
Cycle 2 parameters family.
Long Wash Phase [min].
Short Wash Phase [s].
Pause [s].
Rinse Phase Duration [s].
Drain [s].
Final Pause [s].
Cycle 3 parameters family.
Long Wash Phase [min].
Short Wash Phase [s].
Pause [s].
Rinse Phase Duration [s].
Drain [s].
Final Pause [s].
Boiler Temperature Threshold for Cycle 3.

Electrolux
EFS - Dishwashing Systems Platform
Electrolux Professional
DOC. NO. 5956.65J.00 P. 74 / 122
WARNING:
To set the board parameters , carefully follow the order given in this programming file, from point 1 to
point 7.
WARNING:
When modifying parameter , all the parameters (except those belonging to the family)
assume the default values according to the tables in section 11 DEFAULT VALUES. The parameters of
the family are not modified.
EUCAIUSPH PROG 125
Drain parameters family.
Initial Drain Phase Duration [s].
Final Drain Phase Duration [s].
Drain and cleaning mode.
Wash tank water change frequency control disabled.
Set other parameters.
Initial Pause [s] (for ALL cycles).
Delay for the 2nd wash pump [s].
Drain Phase Duration at the end of washing phase [s].
Duration of pause after the rinse cycle [s] (for ALL cycles).
Degrees display Fahrenheit.
During the rinse stage, the display shows the boiler temperature.
Enter into HCP parameter family and set the following parameters.
Machine arranged for remote connection to PC.
6. Switch OFF and then switch ON the machine.
Enter into GEn parameter family.
Initial Detergent Dosage.
Initial Rinse Aid Dosage.
Detergent dispensing during the wash cycle (loading during wash stage).
Rinse aid dispensing during the rinse cycle (loading during boiler filling stage).
7. Switch OFF and then switch ON the machine.

DOC. NO. 5956.65J.00 P. 75 / 122
Electrolux
EFS - Dishwashing Systems Platform
Electrolux Professional
EHTAIUSPH PROG 126
1. Switch OFF and then switch ON the machine.
2. Enter into CFG parameter family and set the following parameters:
Hood Type and undercounter.
Atmospheric boiler.
Manual Hood.
Default values for Hood Type models.
Disabled (for this appliance SOFT START is NOT possible).
Tank heater works only if boiler temperature reached.
Enable filling tank by means of rinsing cycles.
Detergent level switches not enabled.
Select user interface hood type/ undercounter model.
Regeneration cycle disabled (only for dishwashers with non-continuous water softener).
- Alarms enabled.
Boiler electronic level sensor.
Resin regeneration cycle forcing.
Rinse water max. hardness.
Boiler heating control.
3. Switch OFF and then switch ON the machine.
4. Modify Factory parameters:
Enter into FAC parameter family and set the following parameters.
Boiler Temperature Threshold.
Boiler temperature: alarm threshold.
Boiler Temperature Adjust.
Boiler standby function enabled.
Booster Function.
During stand-by boiler is kept at lower temperature than Temperature Threshold.
Tub Temperature: Threshold.
Tank temperature: alarm threshold.
5. Modify the cycle parameters:
Cycle 1 parameters family.
Long Wash Phase [min].
Short Wash Phase [s].
Pause [s].
Rinse Phase Duration [s].
Drain [s].
Final Pause [s].
Cycle 2 parameters family.
Long Wash Phase [min].
Short Wash Phase [s].
Pause [s].
Rinse Phase Duration [s].
Drain [s].
Final Pause [s].
Cycle 3 parameters family.
Long Wash Phase [min].
Short Wash Phase [s].
Pause [s].
Rinse Phase Duration [s].
Drain [s].
Final Pause [s].
Boiler Temperature Threshold for Cycle 3.

Electrolux
EFS - Dishwashing Systems Platform
Electrolux Professional
DOC. NO. 5956.65J.00 P. 76 / 122
WARNING:
To set the board parameters , carefully follow the order given in this programming file, from point 1 to
point 7.
WARNING:
When modifying parameter , all the parameters (except those belonging to the family)
assume the default values according to the tables in section 11 DEFAULT VALUES. The parameters of
the family are not modified.
EHTAIUSPH PROG 126
Drain parameters family.
Initial Drain Phase Duration [s].
Final Drain Phase Duration [s].
Drain and cleaning mode.
Wash tank water change frequency control disabled.
Set other parameters.
Initial Pause [s] (for ALL cycles).
Delay for the 2nd wash pump [s].
Drain Phase Duration at the end of washing phase [s].
Duration of pause after the rinse cycle [s] (for ALL cycles).
Degrees display Fahrenheit.
During the rinse stage, the display shows the boiler temperature.
Enter into HCP parameter family and set the following parameters.
Machine arranged for remote connection to PC.
6. Switch OFF and then switch ON the machine.
Enter into GEn parameter family.
Initial Detergent Dosage.
Initial Rinse Aid Dosage.
Detergent dispensing during the wash cycle (loading during wash stage).
Rinse aid dispensing during the rinse cycle (loading during boiler filling stage).
7. Switch OFF and then switch ON the machine.

DOC. NO. 5956.65J.00 P. 77 / 122
Electrolux
EFS - Dishwashing Systems Platform
Electrolux Professional
OHTAROW / OHTAROW60 PROG 127
1. Switch OFF and then switch ON the machine.
2. Enter into CFG parameter family and set the following parameters:
Hood Type and undercounter.
Atmospheric boiler.
Manual Hood.
Default values for Hood Type models.
Disabled (for this appliance SOFT START is NOT possible).
Boiler heaters and tank heater work simultaneously.
Enable filling tank by means of rinsing cycles.
Detergent level switches not enabled.
Select user interface hood type/ undercounter model.
Regeneration cycle disabled (only for dishwashers with non-continuous water softener).
- Alarms enabled.
Boiler electronic level sensor.
Resin regeneration cycle forcing.
Rinse water max. hardness.
Boiler heating control.
3. Switch OFF and then switch ON the machine.
4. Modify Factory parameters:
Enter into FAC parameter family and set the following parameters.
Boiler Temperature Threshold.
Disable boiler high Temperature alarm ( ).
Boiler Temperature Adjust.
Boiler standby function enabled.
Booster Function.
During stand-by boiler is kept at lower temperature than Temperature Threshold.
Tank Temperature: Threshold.
Disable tank high Temperature alarm ( ).
5. Modify the cycle parameters:
Cycle 1 parameters family.
Long Wash Phase [min].
Short Wash Phase [s].
Pause [s].
Rinse Phase Duration [s].
Drain [s].
Final Pause [s].
Long Wash Phase inTermal Label mode [min].
Short Wash Phase inTermal Label mode [s].
Cycle 2 parameters family.
Long Wash Phase [min].
Short Wash Phase [s].
Pause [s].
Rinse Phase Duration [s].
Drain [s].
Final Pause [s].
Long Wash Phase inTermal Label mode [min].
Short Wash Phase inTermal Label mode [s].

Electrolux
EFS - Dishwashing Systems Platform
Electrolux Professional
DOC. NO. 5956.65J.00 P. 78 / 122
WARNING:
To set the board parameters , carefully follow the order given in this programming file, from point 1 to
point 7.
WARNING:
When modifying parameter , all the parameters (except those belonging to the family)
assume the default values according to the tables in section 11 DEFAULT VALUES. The parameters of
the family are not modified.
OHTAROW / OHTAROW60 PROG 127
Cycle 3 parameters family.
Long Wash Phase [min].
Short Wash Phase [s].
Pause [s].
Rinse Phase Duration [s].
Drain [s].
Final Pause [s].
Boiler Temperature Threshold for Cycle 3.
Long Wash Phase inTermal Label mode [min].
Short Wash Phase inTermal Label mode [s].
Drain parameters family.
Initial Drain Phase Duration [s].
Final Drain Phase Duration [s].
Drain and cleaning mode.
Wash tank water change frequency control disabled.
Set other parameters.
Initial Pause [s] (for ALL cycles).
Delay for the 2nd wash pump [s].
Drain Phase Duration at the end of washing phase [s].
Duration of pause after the rinse cycle [s] (for ALL cycles).
Degrees Celsius display.
During the rinse stage, the display shows the boiler temperature.
Termal Label mode enabled.
Boiler Temperature in Termal Label mode.
Tank Temperature in Termal Label mode.
Tank Temperature histeresis in Termal Label mode.
Enter into HCP parameter family and set the following parameters.
Machine arranged for remote connection to PC.
6. Switch OFF and then switch ON the machine.
Enter into GEn parameter family.
Initial Detergent Dosage.
Initial Rinse Aid Dosage.
Detergent dispenser works when WASH PUMP in activated.
Rinse Aid dispenser works when LOAD SOLENOID VALVE in activated.
7. Switch OFF and then switch ON the machine.

DOC. NO. 5956.65J.00 P. 79 / 122
Electrolux
EFS - Dishwashing Systems Platform
Electrolux Professional
ZUCA PROG 128
1. Switch OFF and then switch ON the machine.
2. Enter into CFG parameter family and set the following parameters:
Hood Type and undercounter.
Atmospheric boiler.
Front loading function.
Default values for Undercounter models.
SOFT START enabled.
Tank heater works only if boiler temperature reached.
Enable filling tank by means of rinsing cycles.
Detergent level switches not enabled.
Select user interface hood type/ undercounter model.
Regeneration cycle disabled.
- Alarms not enabled.
Boiler electronic level sensor.
Resin regeneration cycle forcing.
Rinse water max. hardness.
Boiler heating control.
3. Switch OFF and then switch ON the machine.
4. Modify Factory parameters:
Enter into FAC parameter family and set the following parameters.
Boiler Temperature Threshold.
Boiler temperature: alarm threshold.
Boiler Temperature Adjust.
Boiler standby function enabled.
Booster Function.
During stand-by boiler is kept at lower temperature than Temperature Threshold.
Tub Temperature: Threshold.
Tank temperature: alarm threshold.
5. Modify the cycle parameters:
Cycle 1 parameters family.
Long Wash Phase [min].
Short Wash Phase [s].
Pause [s].
Rinse Phase Duration [s].
Drain [s].
Final Pause [s].
Cycle 2 parameters family.
Long Wash Phase [min].
Short Wash Phase [s].
Pause [s].
Rinse Phase Duration [s].
Drain [s].
Final Pause [s].
Cycle 3 parameters family.
Long Wash Phase [min].
Short Wash Phase [s].
Pause [s].
Rinse Phase Duration [s].
Drain [s].
Final Pause [s].
Boiler Temperature Threshold for Cycle 3.

Electrolux
EFS - Dishwashing Systems Platform
Electrolux Professional
DOC. NO. 5956.65J.00 P. 80 / 122
WARNING:
To set the board parameters , carefully follow the order given in this programming file, from point 1 to
point 7.
WARNING:
When modifying parameter , all the parameters (except those belonging to the family)
assume the default values according to the tables in section 11 DEFAULT VALUES. The parameters of
the family are not modified.
ZUCA PROG 128
Drain parameters family.
Initial Drain Phase Duration [s].
Final Drain Phase Duration [s].
Drain and cleaning mode.
Wash tank water change frequency control disabled.
Set other parameters.
Initial Pause [s] (for ALL cycles).
Delay for the 2nd wash pump [s].
Drain Phase Duration at the end of washing phase [s].
Duration of pause after the rinse cycle [s] (for ALL cycles).
Degrees Celsius display.
During the rinse stage, the display shows the boiler temperature.
Enter into HCP parameter family and set the following parameters.
Machine arranged for remote connection to PC.
6. Switch OFF and then switch ON the machine.
Enter into GEn parameter family.
Initial Detergent Dosage.
Initial Rinse Aid Dosage.
Detergent dispensing during the wash cycle (loading during wash stage).
Rinse aid dispensing during the rinse cycle (loading during boiler filling stage).
7. Switch OFF and then switch ON the machine.

DOC. NO. 5956.65J.00 P. 81 / 122
Electrolux
EFS - Dishwashing Systems Platform
Electrolux Professional
ET12AI PROG 129
1. Switch OFF and then switch ON the machine.
2. Enter into CFG parameter family and set the following parameters:
Hood Type and undercounter.
Atmospheric boiler.
Manual Hood.
Default values for Hood Type models.
SOFT START enabled.
Boiler heaters and tank heater work simultaneously.
Enable filling tank by means of rinsing cycles.
Detergent level switches not enabled.
Select user interface hood type/ undercounter model.
Regeneration cycle disabled (only for dishwashers with non-continuous water softener).
- Alarms enabled.
Boiler electronic level sensor.
Resin regeneration cycle forcing.
Rinse water max. hardness.
Boiler heating control.
3. Switch OFF and then switch ON the machine.
4. Modify Factory parameters:
Enter into FAC parameter family and set the following parameters.
Boiler Temperature Threshold.
Boiler temperature: alarm threshold.
Boiler Temperature Adjust.
Boiler standby function enabled.
Booster Function.
During stand-by boiler is kept at lower temperature than Temperature Threshold.
Tub Temperature: Threshold.
Tank temperature: alarm threshold.
5. Modify the cycle parameters:
Cycle 1 parameters family.
Long Wash Phase [min].
Short Wash Phase [s].
Pause [s].
Rinse Phase Duration [s].
Drain [s].
Final Pause [s].
Cycle 2 parameters family.
Long Wash Phase [min].
Short Wash Phase [s].
Pause [s].
Rinse Phase Duration [s].
Drain [s].
Final Pause [s].
Cycle 3 parameters family.
Long Wash Phase [min].
Short Wash Phase [s].
Pause [s].
Rinse Phase Duration [s].
Drain [s].
Final Pause [s].
Boiler Temperature Threshold for Cycle 3.

Electrolux
EFS - Dishwashing Systems Platform
Electrolux Professional
DOC. NO. 5956.65J.00 P. 82 / 122
WARNING:
To set the board parameters , carefully follow the order given in this programming file, from point 1 to
point 7.
WARNING:
When modifying parameter , all the parameters (except those belonging to the family)
assume the default values according to the tables in section 11 DEFAULT VALUES. The parameters of
the family are not modified.
ET12AI PROG 129
Drain parameters family.
Initial Drain Phase Duration [s].
Final Drain Phase Duration [s].
Drain and cleaning mode.
Wash tank water change frequency control disabled.
Set other parameters.
Initial Pause [s] (for ALL cycles).
Delay for the 2nd wash pump [s].
Drain Phase Duration at the end of washing phase [s].
Duration of pause after the rinse cycle [s] (for ALL cycles).
Degrees Celsius display.
During the rinse stage, the display shows the boiler temperature.
Termal Label mode disabled (Functions present with firmware version 4.04).
Enter into HCP parameter family and set the following parameters.
Machine arranged for remote connection to PC.
6. Switch OFF and then switch ON the machine.
Enter into GEn parameter family.
Initial Detergent Dosage.
Initial Rinse Aid Dosage.
Detergent dispenser works when WASH PUMP in activated.
Rinse Aid dispenser works when LOAD SOLENOID VALVE in activated.
7. Switch OFF and then switch ON the machine.

DOC. NO. 5956.65J.00 P. 83 / 122
Electrolux
EFS - Dishwashing Systems Platform
Electrolux Professional
ET12AIT PROG 130
1. Switch OFF and then switch ON the machine.
2. Enter into CFG parameter family and set the following parameters:
Hood Type and undercounter.
Atmospheric boiler.
Manual Hood.
Default values for Hood Type models.
SOFT START enabled.
Tank heater works only if boiler temperature reached.
Enable filling tank by means of rinsing cycles.
Detergent level switches not enabled.
Select user interface hood type/ undercounter model.
Regeneration cycle disabled (only for dishwashers with non-continuous water softener).
- Alarms enabled.
Boiler electronic level sensor.
Resin regeneration cycle forcing.
Rinse water max. hardness.
Boiler heating control.
3. Switch OFF and then switch ON the machine.
4. Modify Factory parameters:
Enter into FAC parameter family and set the following parameters.
Boiler Temperature Threshold.
Boiler temperature: alarm threshold.
Boiler Temperature Adjust.
Boiler standby function enabled.
Booster Function.
During stand-by boiler is kept at lower temperature than Temperature Threshold.
Tub Temperature: Threshold.
Tank temperature: alarm threshold.
5. Modify the cycle parameters:
Cycle 1 parameters family.
Long Wash Phase [min].
Short Wash Phase [s].
Pause [s].
Rinse Phase Duration [s].
Drain [s].
Final Pause [s].
Cycle 2 parameters family.
Long Wash Phase [min].
Short Wash Phase [s].
Pause [s].
Rinse Phase Duration [s].
Drain [s].
Final Pause [s].
Cycle 3 parameters family.
Long Wash Phase [min].
Short Wash Phase [s].
Pause [s].
Rinse Phase Duration [s].
Drain [s].
Final Pause [s].
Boiler Temperature Threshold for Cycle 3.

Electrolux
EFS - Dishwashing Systems Platform
Electrolux Professional
DOC. NO. 5956.65J.00 P. 84 / 122
WARNING:
To set the board parameters , carefully follow the order given in this programming file, from point 1 to
point 7.
WARNING:
When modifying parameter , all the parameters (except those belonging to the family)
assume the default values according to the tables in section 11 DEFAULT VALUES. The parameters of
the family are not modified.
ET12AIT PROG 130
Drain parameters family.
Initial Drain Phase Duration [s].
Final Drain Phase Duration [s].
Drain and cleaning mode.
Wash tank water change frequency control disabled.
Set other parameters.
Initial Pause [s] (for ALL cycles).
Delay for the 2nd wash pump [s].
Drain Phase Duration at the end of washing phase [s].
Duration of pause after the rinse cycle [s] (for ALL cycles).
Degrees Celsius display.
During the rinse stage, the display shows the boiler temperature.
Termal Label mode disabled (Functions present with firmware version 4.04).
Enter into HCP parameter family and set the following parameters.
Machine arranged for remote connection to PC.
6. Switch OFF and then switch ON the machine.
Enter into GEn parameter family.
Initial Detergent Dosage.
Initial Rinse Aid Dosage.
Detergent dispenser works when WASH PUMP in activated.
Rinse Aid dispenser works when LOAD SOLENOID VALVE in activated.
7. Switch OFF and then switch ON the machine.

DOC. NO. 5956.65J.00 P. 85 / 122
Electrolux
EFS - Dishwashing Systems Platform
Electrolux Professional
ET5AIIT PROG 131
1. Switch OFF and then switch ON the machine.
2. Enter into CFG parameter family and set the following parameters:
Hood Type and undercounter.
Atmospheric boiler.
Front loading function.
Default values for Undercounter models.
SOFT START enabled.
Boiler heaters and tank heater work simultaneously.
Enable filling tank by means of rinsing cycles.
Detergent level switches not enabled.
ACTIVE function disabled.
Regeneration cycle disabled.
- Alarms enabled.
Boiler electronic level sensor.
Resin regeneration cycle forcing.
Rinse water max. hardness.
Boiler heating control.
3. Switch OFF and then switch ON the machine.
4. Modify Factory parameters:
Enter into FAC parameter family and set the following parameters.
Boiler Temperature Threshold.
Boiler temperature: alarm threshold.
Boiler Temperature Adjust.
Boiler standby function enabled.
Booster Function.
During stand-by boiler is kept at lower temperature than Temperature Threshold.
Tub Temperature: Threshold.
Tank temperature: alarm threshold.
5. Modify the cycle parameters:
Cycle 1 parameters family.
Long Wash Phase [min].
Short Wash Phase [s].
Pause [s].
Rinse Phase Duration [s].
Drain [s].
Final Pause [s].
Cycle 2 parameters family.
Long Wash Phase [min].
Short Wash Phase [s].
Pause [s].
Rinse Phase Duration [s].
Drain [s].
Final Pause [s].
Cycle 3 parameters family.
Long Wash Phase [min].
Short Wash Phase [s].
Pause [s].
Rinse Phase Duration [s].
Drain [s].
Final Pause [s].
Boiler Temperature Threshold for Cycle 3.

Electrolux
EFS - Dishwashing Systems Platform
Electrolux Professional
DOC. NO. 5956.65J.00 P. 86 / 122
WARNING:
To set the board parameters , carefully follow the order given in this programming file, from point 1 to
point 7.
WARNING:
When modifying parameter , all the parameters (except those belonging to the family)
assume the default values according to the tables in section 11 DEFAULT VALUES. The parameters of
the family are not modified.
ET5AIIT PROG 131
Drain parameters family.
Initial Drain Phase Duration [s].
Final Drain Phase Duration [s].
Drain and cleaning mode.
Wash tank water change frequency control disabled.
Set other parameters.
Initial Pause [s] (for ALL cycles).
Delay for the 2nd wash pump [s].
Drain Phase Duration at the end of washing phase [s].
Duration of pause after the rinse cycle [s] (for ALL cycles).
Degrees Celsius display.
During the rinse stage, the display shows the boiler temperature.
Enter into HCP parameter family and set the following parameters.
Machine arranged for remote connection to PC.
6. Switch OFF and then switch ON the machine.
Enter into GEn parameter family.
Initial Detergent Dosage.
Initial Rinse Aid Dosage.
Detergent dispenser works when WASH PUMP in activated.
Rinse Aid dispenser works when LOAD SOLENOID VALVE in activated.
7. Switch OFF and then switch ON the machine.

DOC. NO. 5956.65J.00 P. 87 / 122
Electrolux
EFS - Dishwashing Systems Platform
Electrolux Professional
ET5AIDP PROG 132
1. Switch OFF and then switch ON the machine.
2. Enter into CFG parameter family and set the following parameters:
Hood Type and undercounter.
Atmospheric boiler.
Front loading function.
Default values for Undercounter models.
SOFT START enabled.
Boiler heaters and tank heater work simultaneously.
Enable filling tank by means of rinsing cycles.
Detergent level switches not enabled.
ACTIVE function disabled.
Regeneration cycle disabled.
- Alarms enabled.
Boiler float level sensor.
Resin regeneration cycle forcing.
Rinse water max. hardness.
Boiler heating control.
3. Switch OFF and then switch ON the machine.
4. Modify Factory parameters:
Enter into FAC parameter family and set the following parameters.
Boiler Temperature Threshold.
Boiler temperature: alarm threshold.
Boiler Temperature Adjust.
Boiler standby function enabled.
Booster Function.
During stand-by boiler is kept at lower temperature than Temperature Threshold.
Tub Temperature: Threshold.
Tank temperature: alarm threshold.
5. Modify the cycle parameters:
Cycle 1 parameters family.
Long Wash Phase [min].
Short Wash Phase [s].
Pause [s].
Rinse Phase Duration [s].
Drain [s].
Final Pause [s].
Cycle 2 parameters family.
Long Wash Phase [min].
Short Wash Phase [s].
Pause [s].
Rinse Phase Duration [s].
Drain [s].
Final Pause [s].
Cycle 3 parameters family.
Long Wash Phase [min].
Short Wash Phase [s].
Pause [s].
Rinse Phase Duration [s].
Drain [s].
Final Pause [s].
Boiler Temperature Threshold for Cycle 3.

Electrolux
EFS - Dishwashing Systems Platform
Electrolux Professional
DOC. NO. 5956.65J.00 P. 88 / 122
WARNING:
To set the board parameters , carefully follow the order given in this programming file, from point 1 to
point 7.
WARNING:
When modifying parameter , all the parameters (except those belonging to the family)
assume the default values according to the tables in section 11 DEFAULT VALUES. The parameters of
the family are not modified.
ET5AIDP PROG 132
Drain parameters family.
Initial Drain Phase Duration [s].
Final Drain Phase Duration [s].
Drain and cleaning mode.
Wash tank water change frequency control disabled.
Set other parameters.
Initial Pause [s] (for ALL cycles).
Delay for the 2nd wash pump [s].
Drain Phase Duration at the end of washing phase [s].
Duration of pause after the rinse cycle [s] (for ALL cycles).
Degrees Celsius display.
During the rinse stage, the display shows the boiler temperature.
Enter into HCP parameter family and set the following parameters.
Dishwasher with incorporated continuous water softener.
6. Switch OFF and then switch ON the machine.
Enter into GEn parameter family.
Initial Detergent Dosage.
Initial Rinse Aid Dosage.
Detergent dispenser works when WASH PUMP in activated.
Rinse Aid dispenser works when LOAD SOLENOID VALVE in activated.
7. Switch OFF and then switch ON the machine.

DOC. NO. 5956.65J.00 P. 89 / 122
Electrolux
EFS - Dishwashing Systems Platform
Electrolux Professional
ET5AIDPWS PROG 133
1. Switch OFF and then switch ON the machine.
2. Enter into CFG parameter family and set the following parameters:
Hood Type and undercounter.
Atmospheric boiler.
Front loading function.
Default values for Undercounter models.
SOFT START enabled.
Tank heater works only if boiler temperature reached.
Enable filling tank by means of rinsing cycles.
Detergent level switches not enabled.
ACTIVE function disabled.
Regeneration cycle disabled.
- Alarms enabled.
Boiler float level sensor.
Resin regeneration cycle forcing.
Rinse water max. hardness.
Boiler heating control.
3. Switch OFF and then switch ON the machine.
4. Modify Factory parameters:
Enter into FAC parameter family and set the following parameters.
Boiler Temperature Threshold.
Boiler temperature: alarm threshold.
Boiler Temperature Adjust.
Boiler standby function enabled.
Booster Function.
During stand-by boiler is kept at lower temperature than Temperature Threshold.
Tub Temperature: Threshold.
Tank temperature: alarm threshold.
5. Modify the cycle parameters:
Cycle 1 parameters family.
Long Wash Phase [min].
Short Wash Phase [s].
Pause [s].
Rinse Phase Duration [s].
Drain [s].
Final Pause [s].
Cycle 2 parameters family.
Long Wash Phase [min].
Short Wash Phase [s].
Pause [s].
Rinse Phase Duration [s].
Drain [s].
Final Pause [s].
Cycle 3 parameters family.
Long Wash Phase [min].
Short Wash Phase [s].
Pause [s].
Rinse Phase Duration [s].
Drain [s].
Final Pause [s].
Boiler Temperature Threshold for Cycle 3.

Electrolux
EFS - Dishwashing Systems Platform
Electrolux Professional
DOC. NO. 5956.65J.00 P. 90 / 122
WARNING:
To set the board parameters , carefully follow the order given in this programming file, from point 1 to
point 7.
WARNING:
When modifying parameter , all the parameters (except those belonging to the family)
assume the default values according to the tables in section 11 DEFAULT VALUES. The parameters of
the family are not modified.
ET5AIDPWS PROG 133
Drain parameters family.
Initial Drain Phase Duration [s].
Final Drain Phase Duration [s].
Drain and cleaning mode.
Wash tank water change frequency control disabled.
Set other parameters.
Initial Pause [s] (for ALL cycles).
Delay for the 2nd wash pump [s].
Drain Phase Duration at the end of washing phase [s].
Duration of pause after the rinse cycle [s] (for ALL cycles).
Degrees Celsius display.
During the rinse stage, the display shows the boiler temperature.
Enter into HCP parameter family and set the following parameters.
Dishwasher with incorporated continuous water softener.
6. Switch OFF and then switch ON the machine.
Enter into GEn parameter family.
Initial Detergent Dosage.
Initial Rinse Aid Dosage.
Detergent dispenser works when WASH PUMP in activated.
Rinse Aid dispenser works when LOAD SOLENOID VALVE in activated.
7. Switch OFF and then switch ON the machine.

DOC. NO. 5956.65J.00 P. 91 / 122
Electrolux
EFS - Dishwashing Systems Platform
Electrolux Professional
ZUCADDROW / EUCADDROW
PROG 134
1. Switch OFF and then switch ON the machine.
2. Enter into CFG parameter family and set the following parameters:
Hood Type and undercounter.
Atmospheric boiler.
Front loading function.
Default values for Undercounter models.
SOFT START enabled.
Tank heater works only if boiler temperature reached.
Enable filling tank by means of rinsing cycles.
Detergent level switches not enabled.
Select user interface hood type/ undercounter model.
Regeneration cycle disabled.
- Alarms not enabled.
Boiler electronic level sensor.
Resin regeneration cycle forcing.
Rinse water max. hardness.
Boiler heating control.
3. Switch OFF and then switch ON the machine.
4. Modify Factory parameters:
Enter into FAC parameter family and set the following parameters.
Boiler Temperature Threshold.
Boiler temperature: alarm threshold.
Boiler Temperature Adjust.
Boiler standby function enabled.
Booster Function.
During stand-by boiler is kept at lower temperature than Temperature Threshold.
Tub Temperature: Threshold.
Tub Temperature: HISTERESIS.
Tank temperature: alarm threshold.
5. Modify the cycle parameters:
Cycle 1 parameters family.
Long Wash Phase [min].
Short Wash Phase [s].
Pause [s].
Rinse Phase Duration [s].
Drain [s].
Final Pause [s].
Cycle 2 parameters family.
Long Wash Phase [min].
Short Wash Phase [s].
Pause [s].
Rinse Phase Duration [s].
Drain [s].
Final Pause [s].
Cycle 3 parameters family.
Long Wash Phase [min].
Short Wash Phase [s].
Pause [s].
Rinse Phase Duration [s].
Drain [s].
Final Pause [s].
Boiler Temperature Threshold for Cycle 3.

Electrolux
EFS - Dishwashing Systems Platform
Electrolux Professional
DOC. NO. 5956.65J.00 P. 92 / 122
WARNING:
To set the board parameters , carefully follow the order given in this programming file, from point 1 to
point 7.
WARNING:
When modifying parameter , all the parameters (except those belonging to the family)
assume the default values according to the tables in section 11 DEFAULT VALUES. The parameters of
the family are not modified.
ZUCADDROW / EUCADDROW
PROG 134
Drain parameters family.
Initial Drain Phase Duration [s].
Final Drain Phase Duration [s].
Drain and cleaning mode.
Wash tank water change frequency control disabled.
Set other parameters.
Initial Pause [s] (for ALL cycles).
Delay for the 2nd wash pump [s].
Drain Phase Duration at the end of washing phase [s].
Duration of pause after the rinse cycle [s] (for ALL cycles).
Degrees Celsius display.
During the rinse stage, the display shows the boiler temperature.
Enter into HCP parameter family and set the following parameters.
Machine arranged for remote connection to PC.
6. Switch OFF and then switch ON the machine.
Enter into GEn parameter family.
Initial Detergent Dosage.
Initial Rinse Aid Dosage.
Detergent dispensing during the wash cycle (loading during wash stage).
Rinse aid dispensing during the rinse cycle (loading during boiler filling stage).
7. Switch OFF and then switch ON the machine.

DOC. NO. 5956.65J.00 P. 93 / 122
Electrolux
EFS - Dishwashing Systems Platform
Electrolux Professional
FUCA3DD PROG 135
1. Switch OFF and then switch ON the machine.
2. Enter into CFG parameter family and set the following parameters:
Hood Type and undercounter.
Atmospheric boiler.
Front loading function.
Default values for Undercounter models.
SOFT START enabled.
Tank heater works only if boiler temperature reached.
Enable filling tank by means of rinsing cycles.
Detergent level switches not enabled.
Select user interface for LS5.
Regeneration cycle disabled.
- Alarms not enabled.
Boiler electronic level sensor.
Resin regeneration cycle forcing.
Rinse water max. hardness.
Boiler heating control.
3. Switch OFF and then switch ON the machine.
4. Modify Factory parameters:
Enter into FAC parameter family and set the following parameters.
Boiler Temperature Threshold.
Boiler temperature: alarm threshold.
Boiler Temperature Adjust.
Boiler standby function enabled.
Booster Function.
During stand-by boiler is kept at lower temperature than Temperature Threshold.
Tub Temperature: Threshold.
Tank temperature: alarm threshold.
5. Modify the cycle parameters:
Cycle 1 parameters family.
Long Wash Phase [min].
Short Wash Phase [s].
Pause [s].
Rinse Phase Duration [s].
Drain [s].
Final Pause [s].
Cycle 2 parameters family.
Long Wash Phase [min].
Short Wash Phase [s].
Pause [s].
Rinse Phase Duration [s].
Drain [s].
Final Pause [s].
Cycle 3 parameters family.
Long Wash Phase [min].
Short Wash Phase [s].
Pause [s].
Rinse Phase Duration [s].
Drain [s].
Final Pause [s].
Boiler Temperature Threshold for Cycle 3.

Electrolux
EFS - Dishwashing Systems Platform
Electrolux Professional
DOC. NO. 5956.65J.00 P. 94 / 122
WARNING:
To set the board parameters , carefully follow the order given in this programming file, from point 1 to
point 7.
WARNING:
When modifying parameter , all the parameters (except those belonging to the family)
assume the default values according to the tables in section 11 DEFAULT VALUES. The parameters of
the family are not modified.
FUCA3DD PROG 135
Drain parameters family.
Initial Drain Phase Duration [s].
Final Drain Phase Duration [s].
Drain and cleaning mode.
Wash tank water change frequency control disabled.
Set other parameters.
Initial Pause [s] (for ALL cycles).
Delay for the 2nd wash pump [s].
Drain Phase Duration at the end of washing phase [s].
Duration of pause after the rinse cycle [s] (for ALL cycles).
Degrees Celsius display.
During the rinse stage, the display shows the boiler temperature.
Enter into HCP parameter family and set the following parameters.
Machine arranged for remote connection to PC.
6. Switch OFF and then switch ON the machine.
Enter into GEn parameter family.
Initial Detergent Dosage.
Initial Rinse Aid Dosage.
Detergent dispensing during the wash cycle (loading during wash stage).
Rinse aid dispensing during the rinse cycle (loading during boiler filling stage).
7. Switch OFF and then switch ON the machine.

DOC. NO. 5956.65J.00 P. 95 / 122
Electrolux
EFS - Dishwashing Systems Platform
Electrolux Professional
NUCA1DDG PROG 136
1. Switch OFF and then switch ON the machine.
2. Enter into CFG parameter family and set the following parameters:
Hood Type and undercounter.
Atmospheric boiler.
Front loading function.
Default values for Undercounter models.
SOFT START enabled.
Tank heater works only if boiler temperature reached.
Enable filling tank by means of rinsing cycles.
Detergent level switches not enabled.
Select user interface for LS5.
Regeneration cycle disabled.
- Alarms not enabled.
Boiler electronic level sensor.
Resin regeneration cycle forcing.
Rinse water max. hardness.
Boiler heating control.
3. Switch OFF and then switch ON the machine.
4. Modify Factory parameters:
Enter into FAC parameter family and set the following parameters.
Boiler Temperature Threshold.
Boiler temperature: alarm threshold.
Boiler Temperature Adjust.
Boiler standby function enabled.
Booster Function.
During stand-by boiler is kept at lower temperature than Temperature Threshold.
Tub Temperature: Threshold.
Tank temperature: alarm threshold.
5. Modify the cycle parameters:
Cycle 1 parameters family.
Long Wash Phase [min].
Short Wash Phase [s].
Pause [s].
Rinse Phase Duration [s].
Drain [s].
Final Pause [s].
Cycle 2 parameters family.
Long Wash Phase [min].
Short Wash Phase [s].
Pause [s].
Rinse Phase Duration [s].
Drain [s].
Final Pause [s].
Cycle 3 parameters family.
Long Wash Phase [min].
Short Wash Phase [s].
Pause [s].
Rinse Phase Duration [s].
Drain [s].
Final Pause [s].
Boiler Temperature Threshold for Cycle 3.

Electrolux
EFS - Dishwashing Systems Platform
Electrolux Professional
DOC. NO. 5956.65J.00 P. 96 / 122
WARNING:
To set the board parameters , carefully follow the order given in this programming file, from point 1 to
point 7.
WARNING:
When modifying parameter , all the parameters (except those belonging to the family)
assume the default values according to the tables in section 11 DEFAULT VALUES. The parameters of
the family are not modified.
NUCA1DDG PROG 136
Drain parameters family.
Initial Drain Phase Duration [s].
Final Drain Phase Duration [s].
Drain and cleaning mode.
Wash tank water change frequency control disabled.
Set other parameters.
Initial Pause [s] (for ALL cycles).
Delay for the 2nd wash pump [s].
Drain Phase Duration at the end of washing phase [s].
Duration of pause after the rinse cycle [s] (for ALL cycles).
Degrees Celsius display.
During the rinse stage, the display shows the boiler temperature.
Enter into HCP parameter family and set the following parameters.
Machine arranged for remote connection to PC.
6. Switch OFF and then switch ON the machine.
Enter into GEn parameter family.
Initial Detergent Dosage.
Initial Rinse Aid Dosage.
Detergent dispensing during the wash cycle (loading during wash stage).
Rinse aid dispensing during the rinse cycle (loading during boiler filling stage).
7. Switch OFF and then switch ON the machine.

DOC. NO. 5956.65J.00 P. 97 / 122
Electrolux
EFS - Dishwashing Systems Platform
Electrolux Professional
NUC1GMS PROG 137
1. Switch OFF and then switch ON the machine.
2. Enter into CFG parameter family and set the following parameters:
Hood Type and undercounter.
Pressure boiler.
Front loading function.
Default values for Undercounter models.
Disabled (for this appliance SOFT START is NOT possible).
Tank heater works only if boiler temperature reached.
The tank is filled into the traditional way.
Detergent level switches not enabled.
Select user interface for LS5.
Regeneration cycle disabled.
- Alarms not enabled.
Boiler electronic level sensor.
Resin regeneration cycle forcing.
Rinse water max. hardness.
Boiler heating control.
3. Switch OFF and then switch ON the machine.
4. Modify Factory parameters:
Enter into FAC parameter family and set the following parameters.
Boiler Temperature Threshold.
Boiler temperature: alarm threshold.
Boiler Temperature Adjust.
Boiler standby function enabled.
Booster Function.
During stand-by boiler is kept at lower temperature than Temperature Threshold.
Tub Temperature: Threshold.
Tank temperature: alarm threshold.
5. Modify the cycle parameters:
Cycle 1 parameters family.
Long Wash Phase [min].
Short Wash Phase [s].
Pause [s].
Rinse Phase Duration [s].
Drain [s].
Final Pause [s].
Cycle 2 parameters family.
Long Wash Phase [min].
Short Wash Phase [s].
Pause [s].
Rinse Phase Duration [s].
Drain [s].
Final Pause [s].
Cycle 3 parameters family.
Long Wash Phase [min].
Short Wash Phase [s].
Pause [s].
Rinse Phase Duration [s].
Drain [s].
Final Pause [s].
Boiler Temperature Threshold for Cycle 3.

Electrolux
EFS - Dishwashing Systems Platform
Electrolux Professional
DOC. NO. 5956.65J.00 P. 98 / 122
WARNING:
To set the board parameters , carefully follow the order given in this programming file, from point 1 to
point 7.
WARNING:
When modifying parameter , all the parameters (except those belonging to the family)
assume the default values according to the tables in section 11 DEFAULT VALUES. The parameters of
the family are not modified.
NUC1GMS PROG 137
Drain parameters family.
Initial Drain Phase Duration [s].
Final Drain Phase Duration [s].
Drain and cleaning mode.
Wash tank water change frequency control disabled.
Set other parameters.
Initial Pause [s] (for ALL cycles).
Delay for the 2nd wash pump [s].
Drain Phase Duration at the end of washing phase [s].
Duration of pause after the rinse cycle [s] (for ALL cycles).
Degrees Celsius display.
During the rinse stage, the display shows the boiler temperature.
Enter into HCP parameter family and set the following parameters.
Machine arranged for remote connection to PC.
6. Switch OFF and then switch ON the machine.
Enter into GEn parameter family.
Initial Detergent Dosage.
Initial Rinse Aid Dosage.
Detergent dispenser works when LOAD SOLENOID VALVE in activated.
Rinse Aid dispenser works when LOAD SOLENOID VALVE in activated.
7. Switch OFF and then switch ON the machine.

DOC. NO. 5956.65J.00 P. 99 / 122
Electrolux
EFS - Dishwashing Systems Platform
Electrolux Professional
NUC3 / KUC3 / EUC3 PROG 138
1. Switch OFF and then switch ON the machine.
2. Enter into CFG parameter family and set the following parameters:
Hood Type and undercounter.
Pressure boiler.
Front loading function.
Default values for Undercounter models.
SOFT START enabled.
Tank heater works only if boiler temperature reached.
The tank is filled into the traditional way.
Detergent level switches not enabled.
Select user interface for LS5.
Regeneration cycle disabled.
- Alarms not enabled.
Boiler electronic level sensor.
Resin regeneration cycle forcing.
Rinse water max. hardness.
Boiler heating control.
3. Switch OFF and then switch ON the machine.
4. Modify Factory parameters:
Enter into FAC parameter family and set the following parameters.
Boiler Temperature Threshold.
Boiler temperature: alarm threshold.
Boiler Temperature Adjust.
Boiler standby function enabled.
Booster Function.
During stand-by boiler is kept at lower temperature than Temperature Threshold.
Tub Temperature: Threshold.
Tank temperature: alarm threshold.
5. Modify the cycle parameters:
Cycle 1 parameters family.
Long Wash Phase [min].
Short Wash Phase [s].
Pause [s].
Rinse Phase Duration [s].
Drain [s].
Final Pause [s].
Cycle 2 parameters family.
Long Wash Phase [min].
Short Wash Phase [s].
Pause [s].
Rinse Phase Duration [s].
Drain [s].
Final Pause [s].
Cycle 3 parameters family.
Long Wash Phase [min].
Short Wash Phase [s].
Pause [s].
Rinse Phase Duration [s].
Drain [s].
Final Pause [s].
Boiler Temperature Threshold for Cycle 3.

Electrolux
EFS - Dishwashing Systems Platform
Electrolux Professional
DOC. NO. 5956.65J.00 P. 100 / 122
WARNING:
To set the board parameters , carefully follow the order given in this programming file, from point 1 to
point 7.
WARNING:
When modifying parameter , all the parameters (except those belonging to the family)
assume the default values according to the tables in section 11 DEFAULT VALUES. The parameters of
the family are not modified.
NUC3 / KUC3 / EUC3 PROG 138
Drain parameters family.
Initial Drain Phase Duration [s].
Final Drain Phase Duration [s].
Drain and cleaning mode.
Number of wash cycles possible between one drain cycle and the next.
Set other parameters.
Initial Pause [s] (for ALL cycles).
Delay for the 2nd wash pump [s].
Drain Phase Duration at the end of washing phase [s].
Duration of pause after the rinse cycle [s] (for ALL cycles).
Degrees Celsius display.
During the rinse stage, the display shows the boiler temperature.
Enter into HCP parameter family and set the following parameters.
Machine arranged for remote connection to PC.
6. Switch OFF and then switch ON the machine.
Enter into GEn parameter family.
Initial Detergent Dosage.
Initial Rinse Aid Dosage.
Detergent dispenser works when LOAD SOLENOID VALVE in activated.
Rinse Aid dispenser works when LOAD SOLENOID VALVE in activated.
7. Switch OFF and then switch ON the machine.

DOC. NO. 5956.65J.00 P. 101 / 122
Electrolux
EFS - Dishwashing Systems Platform
Electrolux Professional
ZPPW / APPW / EPPW
(EX PW1 / PW1H)
PROG 139
1. Switch OFF and then switch ON the machine.
2. Enter into CFG parameter family and set the following parameters:
Pot Washer.
Atmospheric boiler.
Front loading function.
Default values for Pot Washer models.
Disabled (for this appliance SOFT START is NOT possible).
Tank heater works only if boiler temperature reached.
The tank is filled into the traditional way.
Detergent level switches not enabled.
Select user interface hood type/ undercounter model.
Regeneration cycle disabled (only for dishwashers with non-continuous water softener).
- Alarms enabled.
Boiler electronic level sensor.
Resin regeneration cycle forcing.
Rinse water max. hardness.
Boiler heating control.
3. Switch OFF and then switch ON the machine.
4. Modify Factory parameters:
Enter into FAC parameter family and set the following parameters.
Boiler Temperature Threshold.
Boiler temperature: alarm threshold.
Boiler Temperature Adjust.
Boiler standby function enabled.
Booster Function.
During stand-by boiler is kept at lower temperature than Temperature Threshold.
Tub Temperature: Threshold.
Tank temperature: alarm threshold.
5. Modify the cycle parameters:
Cycle 1 parameters family.
Long Wash Phase [min].
Short Wash Phase [s].
Pause [s].
Rinse Phase Duration [s].
Drain [s].
Final Pause [s].
Cycle 2 parameters family.
Long Wash Phase [min].
Short Wash Phase [s].
Pause [s].
Rinse Phase Duration [s].
Drain [s].
Final Pause [s].
Cycle 3 parameters family.
Long Wash Phase [min].
Short Wash Phase [s].
Pause [s].
Rinse Phase Duration [s].
Drain [s].
Final Pause [s].
Boiler Temperature Threshold for Cycle 3.

Electrolux
EFS - Dishwashing Systems Platform
Electrolux Professional
DOC. NO. 5956.65J.00 P. 102 / 122
WARNING:
To set the board parameters , carefully follow the order given in this programming file, from point 1 to
point 7.
WARNING:
When modifying parameter , all the parameters (except those belonging to the family)
assume the default values according to the tables in section 11 DEFAULT VALUES. The parameters of
the family are not modified.
ZPPW / APPW / EPPW
(EX PW1 / PW1H)
PROG 139
Drain parameters family.
Initial Drain Phase Duration [s].
Final Drain Phase Duration [s].
Drain and cleaning mode.
Wash tank water change frequency control disabled.
Set other parameters.
Initial Pause [s] (for ALL cycles).
Delay for the 2nd wash pump [s].
Drain Phase Duration at the end of washing phase [s].
Duration of pause after the rinse cycle [s] (for ALL cycles).
Degrees Celsius display.
During the rinse stage, the display shows the boiler temperature.
Termal Label mode disabled (Functions present with firmware version 4.04).
Enter into HCP parameter family and set the following parameters.
Machine arranged for remote connection to PC.
6. Switch OFF and then switch ON the machine.
Enter into GEn parameter family.
Initial Detergent Dosage.
Initial Rinse Aid Dosage.
Detergent dispensing during the wash cycle (loading during wash stage).
Rinse aid dispensing during the rinse cycle (loading during boiler filling stage).
7. Switch OFF and then switch ON the machine.

DOC. NO. 5956.65J.00 P. 103 / 122
Electrolux
EFS - Dishwashing Systems Platform
Electrolux Professional
ZPPW / APPW / EPPW
(EX PW2)
PROG 140
1. Switch OFF and then switch ON the machine.
2. Enter into CFG parameter family and set the following parameters:
Pot Washer.
Atmospheric boiler.
Front loading function.
Default values for Pot Washer models.
Disabled (for this appliance SOFT START is NOT possible).
Tank heater works only if boiler temperature reached.
The tank is filled into the traditional way.
Detergent level switches not enabled.
Select user interface hood type/ undercounter model.
Regeneration cycle disabled (only for dishwashers with non-continuous water softener).
- Alarms enabled.
Boiler electronic level sensor.
Resin regeneration cycle forcing.
Rinse water max. hardness.
Boiler heating control.
3. Switch OFF and then switch ON the machine.
4. Modify Factory parameters:
Enter into FAC parameter family and set the following parameters.
Boiler Temperature Threshold.
Boiler temperature: alarm threshold.
Boiler Temperature Adjust.
Boiler standby function enabled.
Booster Function.
During stand-by boiler is kept at lower temperature than Temperature Threshold.
Tub Temperature: Threshold.
Tank temperature: alarm threshold.
5. Modify the cycle parameters:
Cycle 1 parameters family.
Long Wash Phase [min].
Short Wash Phase [s].
Pause [s].
Rinse Phase Duration [s].
Drain [s].
Final Pause [s].
Cycle 2 parameters family.
Long Wash Phase [min].
Short Wash Phase [s].
Pause [s].
Rinse Phase Duration [s].
Drain [s].
Final Pause [s].
Cycle 3 parameters family.
Long Wash Phase [min].
Short Wash Phase [s].
Pause [s].
Rinse Phase Duration [s].
Drain [s].
Final Pause [s].
Boiler Temperature Threshold for Cycle 3.

Electrolux
EFS - Dishwashing Systems Platform
Electrolux Professional
DOC. NO. 5956.65J.00 P. 104 / 122
WARNING:
To set the board parameters , carefully follow the order given in this programming file, from point 1 to
point 7.
WARNING:
When modifying parameter , all the parameters (except those belonging to the family)
assume the default values according to the tables in section 11 DEFAULT VALUES. The parameters of
the family are not modified.
ZPPW / APPW / EPPW
(EX PW2)
PROG 140
Drain parameters family.
Initial Drain Phase Duration [s].
Final Drain Phase Duration [s].
Drain and cleaning mode.
Wash tank water change frequency control disabled.
Set other parameters.
Initial Pause [s] (for ALL cycles).
Delay for the 2nd wash pump [s].
Drain Phase Duration at the end of washing phase [s].
Duration of pause after the rinse cycle [s] (for ALL cycles).
Degrees Celsius display.
During the rinse stage, the display shows the boiler temperature.
Termal Label mode disabled (Functions present with firmware version 4.04).
Enter into HCP parameter family and set the following parameters.
Machine arranged for remote connection to PC.
6. Switch OFF and then switch ON the machine.
Enter into GEn parameter family.
Initial Detergent Dosage.
Initial Rinse Aid Dosage.
Detergent dispensing during the wash cycle (loading during wash stage).
Rinse aid dispensing during the rinse cycle (loading during boiler filling stage).
7. Switch OFF and then switch ON the machine.

DOC. NO. 5956.65J.00 P. 105 / 122
Electrolux
EFS - Dishwashing Systems Platform
Electrolux Professional
11 DEFAULT VALUES
Default 1 - HOOD TYPE
ON/OFF +
CYCLE1
keys
ON/OFF +
CYCLE2
keys

DOC. NO. 5956.65J.00 P. 106 / 122
Electrolux
EFS - Dishwashing Systems Platform
Electrolux Professional
Default 2 - POT WASHER
ON/OFF +
CYCLE1
keys
ON/OFF +
CYCLE2
keys

DOC. NO. 5956.65J.00 P. 107 / 122
Electrolux
EFS - Dishwashing Systems Platform
Electrolux Professional
Default 3 - UNDERCOUNTER
ON/OFF +
CYCLE1
keys
ON/OFF +
CYCLE2
keys

Electrolux
EFS - Dishwashing Systems Platform
Electrolux Professional
DOC. NO. 5956.65J.00 P. 108 / 122
12 USER INTERFACE AND MAIN BOARD CONNECTORS
12.1 MAIN MALFUNCTIONS NOT DUE TO THE MAIN BOARD
12.2 CONNECTORS LAYOUT
KEY
CN1 Rinse pump/wash pump/solenoid valve outputs
CN2 Pressure/atmospheric dishwasher solenoid valve connection
CN3 Detergent/rinse aid dispenser and drain pump outputs
CN5 Tank/boiler temperature sensor inputs
CN8 Energy peak controller input
CN12 User interface inputs/outputs
CN15 Overflow/tank level/board feed input
CN16 User interface inputs/outputs and hood/door sensor input
The display shows with door/hood closed Check door/hood micro/sensor
No cycle starts Check the user interface buttons (have they remained
pressed? etc.)
A cycle fails to start Is a user interface button extension missing?
After replacing the main board only the 3rd cycle starts The main board is still configured for LS5/WT4.
Cycle time longer than that foreseen Does the boiler work?
Is the feed water at 50°C?
Noisy wash pump (only on HT and PP versions) Check the current for single phase during operation.
LAYOUT 1 ZHTA / AHTA / EHTA

DOC. NO. 5956.65J.00 P. 109 / 122
Electrolux
EFS - Dishwashing Systems Platform
Electrolux Professional
KEY
CN1 Rinse pump/wash pump/solenoid valve outputs
CN2 Pressure/atmospheric dishwasher solenoid valve connection
CN3 ECOTEMP transformer, detergent/rinse aid dispenser and drain pump outputs
CN5 Tank/boiler temperature sensor inputs
CN7 Hand safety system microswitch input
CN8 Energy peak controller input
CN10 Safety and upper/lower limit switch input
CN11 Hand safety system input - Gear motor current control input - Gear motor polarity inversion connection
CN12 User interface inputs/outputs
CN15 Overflow/tank level/board feed input
CN16 User interface inputs/outputs and hood/door sensor input
LAYOUT 4 ZHTA / AHTA / EHTA / ZHTAWS / AHTAWS / EHTAWS
ZPPW / APPW / EPPW (NO AUT)
ONLY
WS
LAYOUT 8NUC / EUC / NUCWS / EUCWS / NUCI / EUCI / NUCIWS / EUCIWS
ONLY
WS

Electrolux
EFS - Dishwashing Systems Platform
Electrolux Professional
DOC. NO. 5956.65J.00 P. 110 / 122
KEY
CN1 Rinse pump/wash pump/solenoid valve outputs
CN2 Pressure/atmospheric dishwasher solenoid valve connection
CN3 Detergent/rinse aid dispenser and drain pump outputs
CN5 Tank/boiler temperature sensor inputs
CN8 Energy peak controller input
CN11 Door lock electromagnet output
CN12 User interface inputs/outputs
CN15 Overflow/tank level/board feed input
CN16 User interface inputs/outputs and hood/door sensor input
CN17 Door microswitch connector
LAYOUT 10 EUCIM / EUCAIMLG
LAYOUT 11 NUC1 / EUC1 / ZUCA1
(NUC1 / EUC1)
(ZUCA1)
ATM PRES

DOC. NO. 5956.65J.00 P. 111 / 122
Electrolux
EFS - Dishwashing Systems Platform
Electrolux Professional
KEY
CN1 Rinse pump/wash pump/solenoid valve outputs
CN2 Pressure/atmospheric dishwasher solenoid valve connection
CN3 ECOTEMP transformer, detergent/rinse aid dispenser and drain pump outputs
CN5 Tank/boiler temperature sensor inputs
CN8 Energy peak controller input
CN11 Hood lock electromagnet output
CN12 User interface inputs/outputs
CN15 Overflow/tank level/board feed input
CN16 User interface inputs/outputs and hood/door sensor input
LAYOUT 15 ZHTAAU / EHTAAU
LAYOUT 13NHT / EHT / KHT

Electrolux
EFS - Dishwashing Systems Platform
Electrolux Professional
DOC. NO. 5956.65J.00 P. 112 / 122
KEY
CN1 Rinse pump/wash pump/solenoid valve outputs
CN2 Pressure/atmospheric dishwasher solenoid valve connection
CN3 Detergent/rinse aid dispenser and drain pump outputs
CN5 Tank/boiler temperature sensor inputs
CN8 Energy peak controller input
CN9 Salt receptacle drain pump and low pressure solenoid valve outputs
CN11 Brine solenoid valve output
CN12 User interface inputs/outputs
CN15 Overflow/tank level/board feed input
CN16 User interface inputs/outputs and hood/door sensor input
CN17 Door microswitch connection
LAYOUT 16 NUC / EUC / ZUCI / AUCI /EUCI / ZUCA3 / FUCA3DD / NUCA1DDG / KUC / ZUCADDROW / EUCADDROW
LAYOUT 17 NUCWS / EUCWS
(NUC / EUC /
ZUCI / AUCI /
EUCI / KUC)
(ZUCA3 /
FUCA3DD /
NUCA1DDG /
ZUCADDROW /
EUCADDROW)
ATM PRES

DOC. NO. 5956.65J.00 P. 113 / 122
Electrolux
EFS - Dishwashing Systems Platform
Electrolux Professional
KEY
CN1 Rinse pump/wash pump/solenoid valve outputs
CN2 Pressure/atmospheric dishwasher solenoid valve connection
CN3 Detergent/rinse aid dispenser and drain pump outputs
CN5 Tank/boiler temperature sensor inputs
CN7 Detergent/rinse aid level sensors input
CN8 Energy peak controller input
CN12 User interface inputs/outputs
CN15 Overflow/tank level/board feed input
CN16 User interface inputs/outputs and hood/door sensor input
CN17 Door microswitch connection
LAYOUT 18EUCAICL
LAYOUT 19 EUCIM / EUCIM60

Electrolux
EFS - Dishwashing Systems Platform
Electrolux Professional
DOC. NO. 5956.65J.00 P. 114 / 122
KEY
CN1 Rinse pump/wash pump/solenoid valve outputs
CN2 Pressure/atmospheric dishwasher solenoid valve connection
CN3 Detergent/rinse aid dispenser and drain pump outputs
CN5 Tank/boiler temperature sensor inputs
CN8 Energy peak controller input
CN9 Salt receptacle drain pump and low pressure solenoid valve outputs
CN11 Brine solenoid valve output
CN12 User interface inputs/outputs
CN15 Overflow/tank level/board feed input
CN16 User interface inputs/outputs and hood/door sensor input
CN17 Door microswitch connection
LAYOUT 21 NUC1WS / EUC1WS
LAYOUT 23NHTG / EHTG / ZHTAROW / EHTAROW / ZHTAO / EHTAO

DOC. NO. 5956.65J.00 P. 115 / 122
Electrolux
EFS - Dishwashing Systems Platform
Electrolux Professional
13 ALARM MESSAGES AND TROUBLESHOOTING
13.1 ALARMS THAT STOP THE DISHWASHER
13.1.1 ALARM CODES FOR AUTOMATIC HOOD TYPE DISHWASHERS
When the alarm appears, to facilitate fault-finding another parameter providing a more detailed indication
has been introduced.
The parameter is and is found in the family.
The possible cause of the anomaly can be found (see table below) ?according to the value of the parameter
.
With pot washers the cause that generated a type alarm can also be found.
E.g.: With an automatic hood type the alarm appears.
Access the parameter in the family.
the top limit switch could be disconnected or interrupted.
Want of water
Is the water cock open?
Does the water load solenoid valve work?
Is the water feed flow a min. of 5 l/min?
Is the water inlet filter clean?
Is the load solenoid valve filter clean?
Is the overflow inserted?
Is the main board (ATM-PRES) CN2 connector correctly positioned?
Do the tank/boiler pressure switches work properly?
Rinsing is not done regularly for 2 consecutive cycles
Are the rinse arms clogged?
Does the rinse pump work correctly?
Is there water in the level sensor tube?
Is there scale in the boiler?
Does the boiler level sensor work properly?
ONLY FOR MACHINES WITH CONTINUOUS WATER SOFTENER:
Does the boiler level sensor located inside the water softener work properly?
Does the float of the boiler level sensor, located inside the water softener, work properly? Is it free
to move upwards and downwards and vice versa?
Is the connection from the boiler level sensor to the main board efficient?
ATTENZIONE: RESETTING THIS ALARM WITHOUT FIRST ELIMINATING THE CAUSE IS
DANGEROUS; THE BOILER HEATING ELEMENTS COULD WORK DRY, FURTHER DAMAG-
ING THE INTERNAL PARTS OF THE DISHWASHER.
ATTENZIONE: IT MUST BE MANUALLY RESET AFTER ELIMINATING THE CAUSE OF
THE MALFUNCTION.
Automatic hood out of order
See par. 13.1.1 ALARM CODES FOR AUTOMATIC HOOD TYPE DISHWASHERS.

Electrolux
EFS - Dishwashing Systems Platform
Electrolux Professional
DOC. NO. 5956.65J.00 P. 116 / 122
Hood Pot Washer
Appears with hood closed if the top limit switch
(FC_UP) cuts in.
Appears with hood closed, if:
- the bottom limit switch (S3) returns to the rest
position;
- the top limit switch (S5) cuts in;
- S3’’ does not cut in.
During lifting, the bottom limit switch (FC_DW) has
not returned to the rest position.
The limit switch must return to the rest position
within a time given by the parameter :
a) check that the motor works.
During the initial lifting phase the bottom limit
switch (S3) must return to the rest position
within a time given by the parameter ?
otherwise the alarm appears.
- S3 could be stuck.
- S5’ could be disconnected.
On installation this alarm can occur due to
incorrect sequence of the phases: invert the two
phases on the power supply terminal board
Appears if during lifting S3’’ does not return to
the rest position within a time .
Appears if the bottom limit switch (FC_DW) cuts in
during lifting.
(Polarity/motor rotation direction inverted?!).
Appears if the bottom limit switch (S3) cuts in
during lifting.
On installation this alarm can occur due to
incorrect sequence of the phases: invert the two
phases on the power supply terminal board.
S3: FC_DW
S5: FC_UP
(hood CLOSE)
(hood OPEN)
S1: DOOR_CLOSE
S4
S3''
S3
S3'
S5'
S5
S4'''
S4'' S4'

DOC. NO. 5956.65J.00 P. 117 / 122
Electrolux
EFS - Dishwashing Systems Platform
Electrolux Professional
TIMEOUT-The time taken for hood lifting was
more than the time fixed by parameter :
a) check that the motor works.
TIMEOUT- IThe time taken for lifting was more
than the time fixed by parameter .
Check correct operation of the:
a) motor (thermal protection N7);
b) top limit switch (S5 and S5’).
The hood is open but the bottom limit switch
(FC_DW) has cut in.
Appears with hood fully open, if:
- the limit switch (S5) returns to the rest posi-
tion;
- the bottom limit switch (S3) cuts in;
- S3’’ cuts in.
Appears if with hood fully open the "door closed"
microswitch cuts in.
Appears if with hood fully open the "door
closed" microswitch cuts in.
- S5 could be disconnected.
During lowering, the top limit switch (FC_UP) has
not returned to the rest position.
The limit switch must return to the rest position
within a time given by parameter :
a) check that the motor works;
b) (Polarity/motor rotation direction inverted?!)..
During the initial lowering phase the top limit
switch (S5) must return to the rest position
within a time given by the parameter oth-
erwise the alarm appears.
- S5 could be stuck.
- S3’ could be disconnected.
On installation, this alarm can occur due to
incorrect sequence of the phases: invert the two
phases on the power supply terminal board.
-Appears if the bottom limit switch S3 cuts in
before S3" during lowering.
Appears if the top limit switch (FC_UP) cuts in dur-
ing lowering.
(Polarity/motor rotation direction inverted?!).
Appears if the top limit switch (S5) cuts in dur-
ing lowering.
On installation, this alarm can occur due to
incorrect sequence of the phases: invert the two
phases on the power supply terminal board.
TIMEOUT- The time taken for hood closing was
more than the time fixed by parameter :
a) check that the motor works.
TIMEOUT- The time taken for lowering was
more than the time fixed by parameter .
- S3’ could be disconnected.
-
Appears during hood lowering if, after S3’’ cuts
in, the bottom limit switch S3 does not cut in
within the time fixed by parameter .

Electrolux
EFS - Dishwashing Systems Platform
Electrolux Professional
DOC. NO. 5956.65J.00 P. 118 / 122
- The two hand safety contacts K and K' must be
both closed or both open. If this does not occur
the alarm appears.
- One of the two relays (K or K’) could be stuck
or disconnected. (See parameter )
Limit switch combination not allowed:
top limit switch (FC_UP) and bottom limit switch
(FC_DW) activated at the same time!
Limit switch combination not allowed.
Appears if one of the following combina-
tions occurs:
- top limit switch (S5) and bottom limit switch
(S3) both activated (S3 and S5 could be dis-
connected);
- top limit switch S5 and S3’’ both cut in;
- bottom limit switch (S3) cut in but not S3’’.
During lifting, the current absorbed by the lifting
motor has exceeded the threshold (see parameter
):
a) excessive mechanical force during lifting..
-
During lowering, the current absorbed by the lifting
motor has exceeded the threshold (see parameter
):
excessive mechanical force during lowering.
-
The hood should be stopped but the card detects
a high current absorption by the lifting motor:
the relay RL18/RL19 could be stuck;
feeder connector CN32 could be disconnected.
-

DOC. NO. 5956.65J.00 P. 119 / 122
Electrolux
EFS - Dishwashing Systems Platform
Electrolux Professional
13.2 ALARMS THAT DON'T STOP THE DISHWASHER
(SHOWN ON THE USER INTERFACE AT REGULAR INTERVALS)
WARNING:
Alarms marked with the Θ symbol from Serial Number 821 have become alarms
which do not lock the machine.
Drain not efficient
Has the overflow been removed?
Is the water drain blocked?
Is the drain pump blocked?
Are the air trap and tank pressure switch clean?
Is there a constriction in the drain tube?
Is the pump breather pipe returning to the tank clogged or constricted?
Does the tank pressure switch work properly?
Is there a hole in the drain tube (only for versions with drain pump)?
Overflow alarm
Is the water drain blocked?
Are the air trap and tank pressure switch clean?
Does the tank pressure switch work properly?
Is the load solenoid valve blocked? (E1 - LOAD_EV)
Is the load solenoid valve relay stuck? (RL8 - LOAD_EV)
Θ Boiler temperature rise too fast
Does the boiler level sensor work properly? The boiler could be empty.
Are non-original power resistances installed?
Θ Boiler temperature too high
Has the boiler temperature been changed ( - increased above 90°C)?
Has the software alarm value been modified ()?
Does the boiler level sensor work properly?
Is the boiler relay stuck (see RL2, RL3, RL4)?
Θ Tank temperature too high
Is the feed water above 60°C?
Has the software alarm value been modified ()?
Is the rinse water temperature too high?
Is the tank relay stuck (RL5 - TUB_HEAT)?
Θ Tank temperature sensor out of order
Is the temperature sensor broken or disconnected (NT1)?
Is the temperature sensor connector correctly inserted?
Θ Tank temperature sensor out of order
Is the temperature sensor short-circuited (NT1)?

Electrolux
EFS - Dishwashing Systems Platform
Electrolux Professional
DOC. NO. 5956.65J.00 P. 120 / 122
WARNING:
Alarms , and lock the boiler temperature control.
Alarms , and lock the tank temperature control.
In the case of alarms and , the boiler waiting phase is not executed (the rinse may be performed
with cold water) and, during the initial warm-up and subsequent rinses ( > ), the boiler heating
phase is not executed.
In the case of an open probe error ( , e ), the displayed temperature is 10°C
In the case of a shorted probe error ( , e ) , the displayed temperature is 99°C.
Θ Boiler temperature sensor out of order
Is the temperature sensor broken or disconnected (NT2)?
Is the temperature sensor connector correctly inserted?
Θ Boiler temperature sensor out of order
Is the temperature sensor short-circuited (NT2)?
Θ Rinse temperature sensor out of order
(only on machines with temperature sensor on the rinse circuit)
Is the temperature sensor broken or disconnected?
Is the temperature sensor connector correctly inserted?
Θ Rinse temperature sensor out of order
(only on machines with temperature sensor on the rinse circuit)
Is the temperature sensor short-circuited?
Communication error
Is the connection between main board and control panel correct? Are the connectors correctly
connected?
Are connector contacts clean?
Tank temperature low
Does the tank heating element work properly?
Are the connectors correctly connected?
Are the dishwasher feed voltage and current correct?
Is the relay RL5 on the board disconnected or faulty?
Boiler temperature low
Does/do the boiler heating element/s work properly?
Are the connectors correctly connected?
Does the possible remote control switch connected to the heating element work correctly?
Is there power at the remote control switch input terminals?
Does relay RL2 on the board work properly?
CAUTION: IF THERE IS A MALFUNCTION ON RELAY RL2 AND THE BOILER HEATING ELE-
MENTS ARE FED BY MEANS OF A REMOTE CONTROL SWITCH, THE BOARD DOES NOT
HAVE TO BE REPLACED; JUST MOVE THE BOILER HEATING ELEMENT CONNECTOR TO
ONE OF THE TWO FREE POSITIONS ON THE BOARD.
CAUTION: WHEN ONE BRANCH OF THE HEATING ELEMENT DOES NOT WORK AND THE
OTHER TWO CONTINUE TO FUNCTION, ON REACHING THE SET TEMPERATURE VALUE,
ALARM 3 DISAPPEARS AND REAPPEARS IN THE SUBSEQUENT RINSE PHASE. THIS
ALSO OCCURS WHEN A PHASE IS MISSING.

DOC. NO. 5956.65J.00 P. 121 / 122
Electrolux
EFS - Dishwashing Systems Platform
Electrolux Professional
13.3 ALARMS THAT DON’T STOP THE DISHWASHER FOR MODELS WITH
INCORPORATED CONTINUOUS WATER SOFTENER
WARNING:
Alarms marked with the Θ symbol from Serial Number 821 have become alarms
which do not lock the machine.
To facilitate the finding of faults signalled by alarm , another parameter providing a more detailed indication of the
possible cause of malfunction has been introduced in the family (see table below).
To reset error it is necessary to disconnect and reconnect the main power supply to the machine by means
of the main switch on the external power board.
If alarm or appears, the machine indicates it on the display at regular intervals and auto-config-
ures itself in the same way as a machine without water softener. Resin regeneration cycles are not per-
formed and the column used for filling is always the same (column B).
Alarm is reset when the machine is switched off and on from the mains switch (only if the causes that
generated it have been eliminated).
Alarm is reset when the machine is switched off and on from the user interface or from the main switch
(only if the causes that generated it have been eliminated).
Θ Water softener operation errors
This alarm appears in case of malfunctioning in the continuous water softener.
To reset error it is necessary to disconnect and reconnect the main power supply to
the machine by means of the main switch on the external power board.
Θ Communication errors between the mother board and soft-
ener board
This alarm appears in case of problems in communication between the mother board and water
softener board; check the connection between mother board connector J1 and water softener
connector ST8
Water softener conductivity sensor short-circuit
Two or more water softener conductivity sensors are short-circuited. Check the connections
between the water softener board and sensors, replacing the connection wiring if neces-
sary.
Water softener conductivity sensors open
One or more water softener conductivity sensors are disconnected. Check the connections
between the water softener board and sensors, replacing the connection wiring if neces-
sary.
Resin temperature sensor malfunction
Replace the water softener electronic board.

Electrolux
EFS - Dishwashing Systems Platform
Electrolux Professional
DOC. NO. 5956.65J.00 P. 122 / 122
14 LIST OF PARAMETERS FOR SUBSEQUENT VERSIONS
The parameters listed below, even if present inside the software, cannot be used in appliances currently in
production.
Family :
• parameter
•value
Family
Family - alarm
• parameter , the maximum value it can be set to is 3, but actually the only significant values are 0
and 1. By setting to 3, alarm F8 may appear, also implemented by the firmware, but not used in
any current application.
Water softener electronic board malfunction
Replace the water softener electronic board.
Salt water filling malfunction
( up to
version 4.01)
The salt water container in the water softener was not completely filled within the
set max. filling time.
Make sure:
- the water cock is open
- the water filling solenoid valve works correctly
- the salt container solenoid valve works correctly
- the feed water pressure is at least 50 kPa / 0.5 bar
- the water inlet filter is clean
- the filling solenoid valve filter is clean
- the salt container cap is properly closed
- the mother board (ATM-PRES) connector CN2 is correctly positioned
- the water softener board connector ST5 is correctly positioned
- the grille on the bottom of the salt container is clogged with dirt.
Inefficient resin washing
After carrying out the maximum permissible number of resin washes, the resins are not suf-
ficiently cleaned by the salt water used to regenerate them.
Make sure:
- the water filling solenoid valve works correctly
- the feed water pressure is at least 50 kPa / 0.5 bar
- the water inlet filter is clean
- the filling solenoid valve filter is clean
- the mother board (ATM-PRES) connector CN2 is correctly positioned.