Inventec Everest M Schematics. Www.s Manuals.com. Ra01 Schematics
User Manual: Motherboard Inventec Everest-M 6050A2447101 - Schematics. Free.
Open the PDF directly: View PDF
.
Page Count: 98

COVER PAGE
WS BULID
EVEREST-M
2010.01.04
EVEREST-M
97
Tue Jan 04 11:08:28 2011
Frank Hu
1
A01
CS_1310AXXXXXX-MTR
CS
C
SIZE
CHANGE by DATE
8
8 7
7 6
6 5
5 4
4 3
3
2
1
D
D
CC
BB
AA
REV
1
SHEET
2
DOC.NUMBER
of
CODE
INVENTEC
TITLE

INDEX
75. VRAM
67. GPU SW/POWER
65. CARDREADER & USB BOARD
55. MINI1 WLAN/Debug Card
56. MINI2 3G
57. HALL SENSOR
59. CLOCK GENERATOR
61. ME JTAG
73. VRAM
72. GPU-5
71. GPU-4
70. GPU-3
69. GPU-2
68. GPU-1
62. PICK BUTTON BOARD
63. TOUCH PAD SW BOARD
64. POWER BUTTON BOARD
74. VRAM
76. VRAM
PAGE
58. LED
60. XDP
66. EMI
50. SATA HDD/SSD & ODD CONN
41. AUDIO CODEC
40. RJ45 & TRANSFORMER
38. FAN & THERMAL
TABLE OF CONTENTS
34. PCH 7 POWER
35. PCH 8 POWER
54. BLUETOOTH CONN
32. PCH 5 USB
31. PCH 4 AXG
28. PCH 1
29. PCH 2
30. PCH 3
39. LAN
37. EC
PAGE
36. PCH 9 GND
33. PCH 6 MISC
42. AUDIO AMP
43. TPM
52. USB CONN
47. DP CONN
48. eDP CONN
17. POWER +V3S/+V5S/+V1.5S
5. POWER SEQUENCE BLOCK
6. POWER FLOW
4. SMB DIAGRAM
3. BLOCK DIAGRAM
2. INDEX
1. COVER PAGE
14. POWER VCORE
PAGE
7. PCB SCREW
16. POWER GPU NVVDD
20. CPU 1
22. CPU 3 DRAM
25. CPU 6 GND
27. DDR3 DIMM1
26. DDR3 DIMM0
24. CPU 5 POWER
23. CPU 4 POWER
21. CPU 2
18. POWER SEQ
19. POWER SEQ
53. K/B & TP/B CONN
51. E-SATA CONN
49. DB CONN USB & CARDREADER
15. POWER VCORE
46. HDMI CONN
45. CRT CONN
44. LCM CONN
13. POWER +V0.85S/+V1.8S
12. POWER VCCP/+V1.05_LAN_M
11. POWER +V1.5/+V0.75S
10. POWER +3A/+5A
9. POWER BATTERY
8. POWER CHARGER
97
2
Frank Hu
Mon Dec 27 16:49:48 2010
EVEREST-M
CS_1310AXXXXXX-MTR
A01
CS
C
SIZE
CHANGE by DATE
8
8 7
7 6
6 5
5 4
4 3
3
2
1
D
D
CC
BB
AA
REV
1
SHEET
2
DOC.NUMBER
of
CODE
INVENTEC
TITLE

6-Cell
TOUCH PADKEYBOARD
CONN A
DC/DC & IMVP 7
LI-ION BATTERY
SIM CARD
CONNECTOR
HDR(DONGLE)
HDMI 1.4
HDMI 1.4
RJ45
VGA
HDR
HDR
R
R
RGB
HDMI
RGB
PCIE_2
PCIE
PCIE_1
HDR
HDR
35W
ATI WHISTLER XT
AMD
29MM X 29MM
PEGX16
PCIE_6
LVDS
DP
FDI
3D PANEL
15.6 WXGA LED
VRAM*4(64Mb*32)
EDP
PERICOM
eDP
MUX
eDP
VT & TXT
DMI 2.0
QC 45W OR DC 35W
SOCKET-RPGA989
IVY BRIDGE
37.5 X 37.5 X 5 mm
TDP 3.9W
25 X 25 X 2.3 mm
EC WINDBOND
NPCE791LA0DX
PCH
SPI
SATA
TPM V1.2
SPI Flash 1MB
WINB_W25Q80BVSSIG
HDA
JTAG
JTAG
AUDIO CODEC
LS
REALTEK
ALC269Q_VC
USB_13 Minicard 3G
USB_12 Bluetooth
SATA3_1: HDD
SATA3_0: SSD
SATA2_4: mSATA
SATA2_3: eSATA
EXT MIC IN
(TEST ONLY)
HDR
(TEST ONLY)
(TEST ONLY)
INTERNAL MIC IN
60-PIN PCH XDP
RJ-11ME JTAG
60-PIN CPU XDP
JTAG
DUAL CHANNEL
(1600MHZ)
204-PIN SODIMM X2
DDR3@1.5/0.75V
MAX MEMORY 8GB X2
USB 2.0
HEADPHONE/LINEOUT
TOTAL:1GB GDDR5
USB_1 eSATA PORT
USB_0 RESERVE FOR USB3.0
USB_2 RESERVE FOR USB3.0
SATA2_2: ZERO POWER ODD
SLB9635TT1.2_FW3.17
LPC
(TEST ONLY)
Gbe Phy
LEWISVILLE
INTEL 82579LM_BAM271
(100/1000)
LVDS
DISPLAYPORT 1.1
(TEST ONLY)
PCIE_3: WIFI
PCIE_4: 3G/mSATA
CARD READER
RTS5209
TI_TUSB7320
BATTERY CHARGER &
CONN B
USB 3.0
USB3.0
USB_10 Webcam
USB_5 Minicard WLAN
WINB_W25Q64BVSSIG
SPI FLASH 8MB
SPI
COUGAR POINT
Frank Hu
97
3
Mon Dec 27 16:50:03 2010
A01
CS_1310AXXXXXX-MTR
C
CS
CODE
of
2
SHEET
1
REV
A A
B B
C C
DD
1
2
3
34
45
56
67
78
8
DATE
CHANGE by
SIZE
DOC.NUMBER
INVENTEC
TITLE
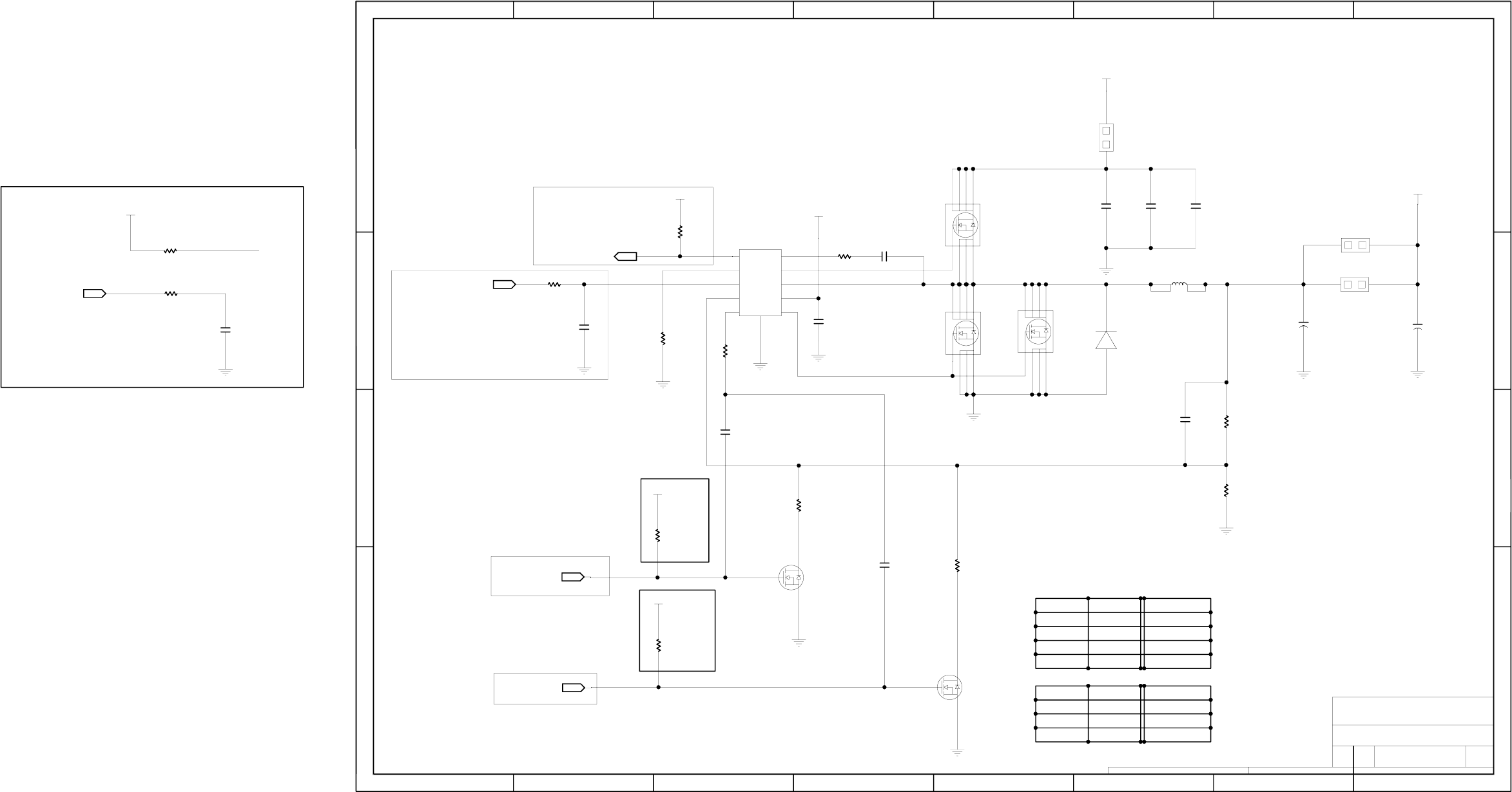
BLOCK DIAGRAM
EVEREST-M

SML1DATA
SML1CLK
SML0DATA
SML1_CLK
SML1_DATA
RES 2.2K
+V3A
SML0_DATA
SML0CLK
RES 2.2K
SMB_DATA
+V3A
RES 2.2K
SSM3K7002
SSM3K7002
+V3A
LAN PHY
RES 2.2K
+V3LA
RES 2.2K
RES 2.2K
LEWISVILLE
SMB_DATA
SMB_CLK
RES 2.2K
+V3A
RES 2.2K
SMB_CLK
+V5S
RES 2.2K
+V3S
RES 2.2K
SMB_DATA_S2
SMB_DATA_S3
SMB_CLK_S3
SMB_CLK_S2
SCL2
SDA2
EC
+V3LA
RES 1.8K
3G
PEG
EC_SMB1_CLK
EC_SMB1_DATA
RES 1.8K
THERMAL IC
CHARGE IC
GPU THERMAL
BATTERY
CK505
SO-DIMM 0 SO-DIMM 1
EC_SMB2_CLK
SDA1
SCL1
MINICAR
SMB_DATA_A1
SMB_CLK_A1
XDP
PCH
WLAN
MINICARD3G
NC
SATA
0
1
SSD
HDD
2
ODD
mSATA
eSATA
5
4
3
PCIE
CardReader_RTS5209
USB3.0_TUSB7320
NC
LAN
NC
1
3
2
6
5
4
7
NC
MINICARD
WIFI
SSM3K7002
SSM3K7002
EC_SMB3_CLK
EC_SMB3_DATA
EC_SMB2_DATA
SMB DIAGRAM
8
USB
MINICARD 3G
BLUE TOOTH
NC
WEBCAM
NC
NC
NC
NC
MINICARD WLAN
NC
NC
eSATA
Reserve for USB3.0
Reserve for USB3.0
1
0
2
4
3
5
6
7
9
8
11
10
12
13
SML0_CLK
RES 3.3K RES 3.3K
+V3LA
97
Mon Dec 27 16:50:16 2010
4
EVEREST-M
Frank Hu
CS_1310AXXXXXX-MTR
CS A01
C
SIZE
CHANGE by DATE
8
8 7
7 6
6 5
5 4
4 3
3
2
1
D
D
CC
BB
AA
REV
1
SHEET
2
DOC.NUMBER
of
CODE
INVENTEC
TITLE

+V0.85S
VCCSA_PG
D0
EN_PSV
+GFX_VDD
BATT_CLK
BATT_DATA
SCL
SDA
CHARGER
GFX_VDD_PG
ACOK
PGOOD
ACIN#
TPS51217
VR_SVID_CLK
VR_SVID_ALRT#
VCLK
VDIO
EN
0.01 OHM
+VPACK
ADAPTER
AM4825P
PMOS
AM4825P
ADP_PRES
KBC_PW_ON
VR_ON
VTT_SELECT
ALERT#
D0
VO
VR_HOT#
VO
VOUT
H_PROCHOT#
TPS51218
VO
EN_PSV
VO
+V1.5
+GFX_PWRGD
VR_PWRGD
+VCC_CORE
+VGFX
PC6014
SLP_S3#_5R
SLP_S5#_5R
SLP_S3#_5R
+V0.75S
+V1.5S
+V5A
+V3LA
PC6014
PC6014
SLP_S3#_5R
+V5S
+V3S
POWER SEQUENCE BLOCK
+V1.05_VCCP
G2997
(TPS51125)
5/3.3V
VCCDRE_EN
VR_SVID_DATA
MAX17039
EN_PSV
TPS51218
EN_PSV
0.01 OHM
PMOS
TPS51218
+V1.05S
EVEREST-M
Frank Hu
Mon Dec 27 16:50:27 2010
97
5
CS_1310AXXXXXX-MTR
A01
CS
C
SIZE
CHANGE by DATE
8
8 7
7 6
6 5
5 4
4 3
3
2
1
D
D
CC
BB
AA
REV
1
SHEET
2
DOC.NUMBER
of
CODE
INVENTEC
TITLE

RST#
TPM
MINICARD X2
RST#
V5LA (-5)
V5A (-1)
V3LA (-3)
V02
V01
VGA
(17)
VCORE
SVID
SVID
AND
GATE
CLK
CPU
SM_DRAMPWROK
SM_DRAMPWROK
RSTIN#
VCORE_PWRGOOD (18)
SVID
PWRGD
EN
IMVP7
EN
(4A)
V3.3M
EN
(10)
(11)
EN
PGD
TPS51218DSCR
TPS51218DSCR
TI
TI
PGD
V0.85S
V1.05S_VCCP
+V1.05S_VCCP_EN
AND GATE
(9)
AND GATE
SLP_S3#3R
V1.8S
(7)
AND GATE
PM_APWROK (5B)
ALLSYS_PWROK (19)
VCORE
EC_PCH_PWROK (15)
H_CPUPWRGD (16)
PM_DRAM_PWRGD (20)
PWROK
V3A
VIN
M_VREF
APWROK
(3B)
V0.75S
V1.05M
DRAMPWROK
PROCPWRGD
BUF_PLT_RST#
SYS_PWROK
GMT_G2997F6U
BUFFER
RST#
VCC
VIN
EN
VIN
V5A
AM3423PAO4406
EN
GMT
G5694F11U
V1.05S
(7)
(5A)
(11)
EN
VIN
AND GATE
(5A)
(14)
GPU_V3S
AND GATE
AM3423P
V1.05_LAN_VR_PWRGD
EN
VIN
EN
V1.05S_VCCP
AO4406
V3S
(7)
(8)
V1.5S V3.3M (4A)
V3S
VIN
EN
GPU_1.5S
(14)
V1.05_LAN_M (4A)
AM4430N
TI_TPS51125
VREG5
V1.5
V1.5_PG
VBAT
EN2
EN1
XDPLAN
(-4)
V5LA (-5)
+V5AUXON
VCC
RESET#
GMT_G686LT11U
EVEREST PWROWSEQUENCE
VBAT
VSEN
VBAT (-6)
VPACK
MAX_MAX17435ETG
ACIN
VCC
VADPTR (-7START)
RST#RST#
PLERST#
SLP_S5#
SLP_S4#
SLP_LAN#
VBAT
(3A)
VCC
PGD
V3A
TPS51218DSCR
SLP_A#
SLP_S3#
V5A
EN
VIN
SLP_S5#_3R
SLP_S4#_3R (3)
(12)
SLP_LAN#_3R (4)
SLP_S3_5R
MAIN_PWRGD
INVERTER
SLP_S3#_3R (6)
SLP_A_3R
GPIO02
V3LA
VCC
PGD
AM3423P
VIN
V1.5
G5694F11U
EN
EN
VIN
(7)
V5S
SLP_S3#_5R
PGD
V1.05S
AO4406
VIN
EN
VIN
EN
(14)
GPU_1.5S
SLP_A_3R (5M)
V1.5_CPU
(8)
AM4430N
AM3423P
V5A
VIN
EN
V1.5
INVERTER
V1.5
AO4406
VIN
EN
VIN
EN
(14)
GPU_VDD
VBAT
VCC
SC475A
SEMTECH
EC_DGPU_PWR_EN#
GPO82_TEEST#
DAO_GPIO94
DA2_GPIO96
PSDAT2_GPIO27
GPIO43_TMS
GPIO50_TD0
NMOS
GPIO03
EC
99ms
GPIO75
EC_PW_ON
V3A(-1)
ACPRES
ACPRES
V5LA
(-2)
NMOS
GPO84_XORTR#
GPIO01
V5A
(13)
VIN
EN
(15)
(0)
PWR_SWIN#_3
EC_PCH_PWROK
AM3423E
EN
POWER FLOW
VDDR_PWRGD
PM_APWROK (5B)
PWRBTN#
EC_PWRSW# (2)
LRESET# PLT_RST# (21)
GPIO36
SLP_LAN#_3R (4)
RSMRST#
(1)
RSMRST#
PCH
SLP_A_3R (5)
GPIO32_D_PWM
ACOK#
6
97
Mon Dec 27 16:50:39 2010
EVEREST-M
Frank Hu
CS_1310AXXXXXX-MTR
A01
C
CS
SIZE
CHANGE by DATE
8
8 7
7 6
6 5
5 4
4 3
3
2
1
D
D
CC
BB
AA
REV
1
SHEET
2
DOC.NUMBER
of
CODE
INVENTEC
TITLE

FAN
MB
CPU
PCH
PCB SCREW
GPU
MINI CARD
EVEREST-M
Fri Dec 31 10:16:56 2010
97
7
Frank Hu
1
S33
1
S19
1
S11
1
S9
1
S27
1
S17
1
S16
1
S7
1
S14
1
S26
1
S25
1
S23
1
S20
1
S12
1
S3
1
S4
1
S24
1
S22
1
S18
1
S10
1
S1
1
FIX8
1
FIX7
1
FIX6
1
FIX5
1
FIX4
1
FIX3
1
FIX2
1
FIX1
SCREW120_500_0_1P
CS_1310AXXXXXX-MTR
A01
SCREW120_0_500_1P
SCREW320_500_400_1P
SCREW300_1000_1P
SCREW330_600_800_1P
SCREW320_500_400_1P SCREW320_500_400_1P
SCREW120_0_500_1P
SCREW120_0_500_1P SCREW120_0_500_1P
SCREW300_1000_1P
SCREW300_700_1P
SCREW300_1000_1P
SCREW300_1000_1P
SCREW320_500_400_1P
SCREW300_1000_1P
FIX_MASK
SCREW330_600_800_1P SCREW330_600_800_1P
FIX_MASK FIX_MASK
SCREW330_600_800_1P
FIX_MASK FIX_MASK FIX_MASK FIX_MASK FIX_MASK
SCREW500_1000_1P SCREW300_1000_1P
C
CS
SIZE
CHANGE by DATE
8
8 7
7 6
6 5
5 4
4 3
3
2
1
D
D
CC
BB
AA
REV
1
SHEET
2
DOC.NUMBER
of
CODE
INVENTEC
TITLE

NEAR EC
3A : 0C00H_3.07A
512MA : 0200H_512MA
12.6V : 3140H
16.8V : 41A0H
8.4V : 40D0H
0X15
POWER CHARGER
1.5A : 0600H_1.54A
0X14
3A
2A
NEAR IC
NEAR EC
(1.68V)
(OVP MIN : 23.106V)
(OVP MAX : 24.67V)
EVEREST-M
Frank Hu
8
97
Mon Jan 03 10:52:57 2011
R6042
DIODES_SMAJ20A_13_F_2P
0_5%_2
2
1
G2
2
1
C6035
8A_125V
10PF_50V_2
ACES_91302_0047L_1_4P
MAX_MAX17435ETG+_TQFN_24P
0.1UF_25V_2_DY
2200PF_50V_2
CHG_CHG_SEN_N
PAD6000
C6812
1
NFE31PT222Z1E9L
R6001
RSC_0603_DY
4
1
2
0.1UF_25V_2
2
R6016
10_5%_5
Q6004
1
SSM3K7002BFU
C6021
1UF_10V_2
P3V3_AL
1
1
0.01UF_25V_2_DY
0.01_1%_6
CHG_VBAT_SEN_P
2
3
R6007
10K_5%_2
12
0.1UF_25V_3
1
2
1
C6023
R6020
4.7K_5%_3
R6005
1
CN6000
FUSE6000
1
C6033
2
POWERPAD_2_0610
CHG_VBAT_SEN_N
2
RSC_0402_DY
R6046
RSC_0603_DY
2
1
1
RSC_0402_DY
C6003
20
0.1UF_16V_2
0.1UF_16V_2
2
10K_5%_2
17435_LDO
TP6002
1
1
1UF_10V_2
C6022
17435_LDO
BAT54C_30V_0.2A
D6001
10K_5%_2
0_5%_2_DY
P_GATE
C6006
FDMC8884
Q6002
C6029
1UF_25V_3
R6000
1
7
2
1
C6811
1
2
1
2
R6044
2
1
R6045
2
1 1
R6043
2
1
C6814
2
1
C6813
2
1
C6817
2
1
3
2
1
1
D6004
1
2
2
2
1
2
1
R6019
R6018
R6017
G1
4
3
2
1
2
R6008
2
1
C6028
2
1
R6013
2
1
R6012
3
2
1
D6000
2
2
R6036
2
1
2
1
C6030
2
1
R6006
3
2
5
6
7
8
Q6005
2
1
4
3
2
1
L6001
3
2
4 5
6
7
8
Q6003
3
2
1
45
6
7
8
2
43
1
2
1
R6010
2
1
C6016
43 2
1
2
1
C6000
2
1
C6001
2
1
C6005
2
1
C6002
2
1
2
2
1
L6000
2
1
C6009
2
1
R6004
2
1
D6003
3 2
1
4
5678
Q6000
3 2
1
4
5678
Q6001
2
1
C6007
2
1
C6026
2
1
C6008
1
R6002
2
1
R6014
2
1
C6025
2
1
2
1
TP6000
2
1
R6003
22
21
2
1
25
14
8
4
18
23
24
5
9
3
16
15
11
17
13
6
10
19
U6000
A01
10K_5%_2
0.1UF_25V_3
CSC0402_DY
FDMC8884
4.7_5%_3 4.7UF_25V_5
4.7UF_25V_5_DY4.7UF_25V_5
0.1UF_25V_2
0_5%_2_DY
CS_1310AXXXXXX-MTR
CHG_HG
CHG_SW
CHG_LG
CHG_CHG_SEN_P
RSC_0603_DY
CSC0402_DY
4.7UF_25V_5
TPC8121
0.02_1%_6
PCMC063T_3R3MN
0_5%_2
4.7UF_25V_5
SBR3U40P1
1000PF_50V_2
0.1UF_25V_3
1K_1%_2
4.7_5%_3
1UF_25V_3
BAV99
0.01UF_50V_2
8>
AM4410NC
150_5%_3
AM4410NC
45.3K_1%_2
4.3K_1%_3
1UF_10V_2
10_5%_2
8>
CS
C
SIZE
CHANGE by DATE
8
8 7
7 6
6 5
5 4
4 3
3
2
1
D
D
CC
BB
AA
REV
1
SHEET
2
DOC.NUMBER
of
CODE
INVENTEC
TITLE
1
2
C
A2
A1
1
G1
2
3
4
G2
IN
G
DS
S
PMOS_4D3S
G
D
NMOS_4D3S
D
G
S
NMOS_4D3S
D
G
S
NMOS_4D3S
D
G
S
NMOS_4D3S
D
G
S
OUT
OUT
ACIN
ACOK
LDO
VAA
GND
VCC
SCL
SDA
EN
DCIN
PDSL
CSSP
CSSN
BST
DHI
LX
DLO
PGND-PAD
CSIP
CSIN
BATT
CC
IINP
ADAPTLIM
ITHR

POWER BATTERY
EVEREST-M
9
97
Mon Jan 03 10:53:36 2011
Frank Hu
715K_1%_2
D6101
EZJZ0V500AA
D6102
2
1
GMT_G686LT11U_SOT23_5P
10K_5%_2
R6105
1
2
C6107
BAT54_30V_0.2A_DY
1
1
4
R6039
1
2
0_5%_2
U6100
360K_1%_2
R6108
1
2
R6109
2
1
R6101
1
1000PF_50V_2
1
1
EZJZ0V500AA_DY
2
FUSE6100
3
2
2
1
R6103
2
1
R6104
2
3
5
2
1
D6099
2
1
2
1
D6100
2
1
R6102
2
1
R6110
2
2
1
R6100
2
1
C6106
5
6
7
3
9
8
G4
G3
G2
G1
2
4
CN6100
EZJZ0V500AA
33_5%_2
33_5%_2
102K_1%_3
1K_5%_2
0.1UF_16V_2
SYN_200045GR009G15JZR_9P
100K_1%_2
510K_1%_2
LITTLEFUSE_R451015_15A_65V
C
CS_1310AXXXXXX-MTR
CS A01
SIZE
CHANGE by DATE
8
8 7
7 6
6 5
5 4
4 3
3
2
1
D
D
CC
BB
AA
REV
1
SHEET
2
DOC.NUMBER
of
CODE
INVENTEC
TITLE
NC
RESET
GND
VCC
MR
VSEN
G
G
G
G
GND
GND
SMC
SMD
TS
B-I
ID
BATT+
BATT+

10A
POWER +3A/+5A
TONSEL
7A
4A
SKIPSEL
>>GND=200/250
>>VREF=245/305
>>VRE3=300/375
>>VRE5=365/460
>>GND=PWM
>>VREF=ASKIP
>>VRE3 OR VRE5=OOA
3.8A
Mon Jan 03 10:54:36 2011
10
Frank Hu
97
EVEREST-M
RSC_0603_DY
U6200
C6212
R6210
Q6203
2
C6209
0.22UF_6.3V_2
C6213
22
17
14
13
TI_TPS51125_QFN_24P
16
18
1
CSC0805_DY
1
0.1UF_25V_3
7
1
2
SSM3K7002BFU
P5V_A
EC_PW_ON#
AON7410
24
23
C6208
VCLK
1
VR5A_HG
PAD6204
10<
POWERPAD1X1M
0.1UF_25V_3
VR3AL_PH
Q6206
4.7UF_25V_5
1
100K_5%_2
2
1
R6200 AON7410
Q6805
7
C6215
0_5%_2
C6211
VCLK
0.1UF_25V_2
19
VR3AL_LG
CSC0402_DY
37>
10<
1
C6214
4.7UF_25V_5
PAD6202
1
POWERPAD_2_0610
4.7UF_25V_5 4.7UF_25V_5
2
120K_1%_2
2200PF_50V_2
2
3
2
2
1
C6216
D6203
BAV99
3
D6202
2
1UF_25V_3
1
R6205
15.4K_1%_2
8
2
3 2
1
4
567
0.1UF_25V_2
BAV99
1
C6218
0.1UF_25V_2
L6200
1
VR5A_LG
11
1
R6204
C6206
1
Q6207
TPC8A05_H
2
1
C6200
R6037
2
1
0.1UF_25V_2
2
C6217
200_5%_2
10>
AON7410
1
1
SSM3K7002BFU
2
100K_5%_2
EC_PW_ON#
37>
10<
2
PAD6203
2
130K_1%_2
C6205
SSM3K7002BFU
2
2
R6212
1
3
1
R6201
Q6202
1
2
8
Q6200
1
PAD6205
3
C6219
R6202
3 2
1
4
5678
32
1
4
5678
Q6205
2
1
1
3
2
32
1
4
56
78
Q6204
2
1
45
6
1
2
1
2
1
C6220
2
1
2
1
1
2
3
2
D6201
2
1
1
1
3
1
R6209
2
C6204
2
1
2
1
R6208
2
1
R6207
2
1
C6202
2
1
PAD6200
2
1
L6201
2
2
1
1
C6201
2
1
C6203
2
1
R6206
2
2
1
2
2
1
PAD6201
1
2
1
2
C6210
22
C6207
2
8
3
5
2
9
4
25
20
15
6
12
10 21
CS
C
POWERPAD_2_0610
POWERPAD_2_0610
10K_1%_2
POWERPAD_2_0610
BAT54C_30V_0.2A
10UF_6.3V_3
2.2UF_25V_5
RSC_0402_DY
1UF_6.3V_2
4.7UF_25V_5
PCMC063T_3R3MN
POWERPAD_2_0610
330UF_6.3V
10K_1%_2
VR3AL_HG
VR5A_PH
TPC8A05_H 330UF_6.3V
PCMC063T_3R3MN
A01
CS_1310AXXXXXX-MTR
6.8K_1%_2
SIZE
CHANGE by DATE
8
8 7
7 6
6 5
5 4
4 3
3
2
1
D
D
CC
BB
AA
REV
1
SHEET
2
DOC.NUMBER
of
CODE
INVENTEC
TITLE
IN
OUT
IN
G
DS
IN
C
A2
A1
1
2
G
DS
G
DS
1
2
1
2
+
1
2
1
2
+
1
2
S
G
D
S
G
D
NMOS_4D3S
D
G
S
NMOS_4D3S
D
G
S
NMOS_4D3S
D
G
S
DRVL1
LL1
DRVH1
VBST1
PGOOD
VO1
EN0
SKIPSEL
GND
VIN
VREG5
VCLK
DRVL2
LL2
DRVH2
VBST2
VREG3
VO2
TML
ENTRIP2
VFB2
TONSEL
VREF
VFB1
ENTRIP1

22A
3.7A
POWER +V1.5/+V0.75S
1.5A
3.7A
1.5A
20/20 mil
Mon Jan 03 17:25:55 2011
97
11
Frank Hu
EVEREST-M
0_5%_2
P3V3_A
RSC_0402_DY
R6314
P3V3_S
TI_TPS51218DSCR_SON_10P 2.2_5%_3
VR15_PH
1
0.1uF_25V_3
2
R6302
V1.5_PG
SLP_S4#
SLP_S3#
0_5%_2_DY
R6307
R6306
+V1.5S_CPUDDR_PG
C6312
1000PF_50V_2_DY
10
1
1uF_10V_2
22uF_6.3V_5
C6306
POWERPAD_2_0610
PCMC104T_1R0MN
5
4
3
2
1
11
200K_1%_2
R6311
CSC0402_DY
C6301
95.3K_1%_2
2
VR15_LG
R6301
4.7uF_25V_5
1
C6305
2
U6302
2
2.2uF_6.3V_3
C6303
4.7uF_25V_5
TPCA8065_H
1
2
10
2
SLP_S4#
6
PAD6300
2
POWERPAD_2_0610
3
U6300
Q6301
TPCA8A02_H
C6815
1
560uF_2.5V
11.5K_1%_2
2200PF_50V_2
2
C6304
2
1
2
C6302
C6309
1
P1V5
4.7uF_25V_5
4
2
VR15_HG
POWERPAD_2_0610
CS
C
POWERPAD_2_0610
10K_1%_2
22uF_6.3V_5
18<
0_5%_2
30>
11<
37<
11<
37<
30>
17<18<37<
CS_1310AXXXXXX-MTR
0.1UF_16V_2
A01
4.7_5%_3
GMT_G2997F6U_MSOP10_10P
30>
9
6
8
7
Q6300
8765
4 3
8765
4
1
23
PAD6301
1
2
PAD6303
1
2
PAD6302
2
1
2
1
2
1
R6310
1 1
2
1
2
C6300
1
2
1
2
R6304
1
R6303
1
8 4
7
9
11
2
5
C6307
1
2
1
C6308
1
2
C6311
1
2
2
L6300
1
2
3
1
1
2
1
2
R6047
1
2
1
2
1
SIZE
CHANGE by DATE
8
8 7
7 6
6 5
5 4
4 3
3
2
1
D
D
CC
BB
AA
REV
1
SHEET
2
DOC.NUMBER
of
CODE
INVENTEC
TITLE
IN
+
IN
IN
IN
1
2
TML
VTTREF
S3
GND
S5
VIN
VTTSNS
PGND
VTT
VLDOIN
VDDQSNS
OUT
1
2
1
2
1
2
S
G
D
NMOS_4D3S
D
G
S
DRVL
V5IN
SW
DRVH
VBST
GND
RF
VFB
EN
TRIP
PGOOD

1.5A
28A
POWER VCCP/+V1.05_LAN_M
3.3A
0.5A
EVEREST-M
12
97
Mon Jan 03 17:26:41 2011
Frank Hu
POWERPAD_2_0610
2
R6403
2.2UF_6.3V_3
2
P3V3_A
U6401
GMT_G5694F11U_SOP_8P
8
2
SLP_LAN#
R6452
1
1
20K_1%_2
1
2
RSC_0402_DY
PAN_ETQP4LR36WFC_4P
0.22UF_25V_3
1
VSS_SENSE_VTT
2
0_5%_2
9.53K_1%_2
R6413
0.1UF_10V_2_DY
C6415
7
3
VRVCCP_PH
3
2
0_5%_2
13<
VTT_PG
1
1
C6410
1
PAD6403
PAD6401
2
POWERPAD_2_0610
4.7UF_25V_5
2
4.7UF_25V_5
2
Q6401
TI_TPS51218DSCR_SON_10P
U6400
R6411
4
VRVCCP_LG
1
10K_5%_2
2
1
PAD6400
2
1
C6450
2
1
C6451
2
1
R6451
2
1
R6450
2
1
R6454
2
1
C6453
2
C6452
2
1
C6454
2
1
L6450
1
9
2
6
7
3
4
5
2
1
R6415
1
R6416
2
R6414
2
1
R6417
1
2
1
R6410
2
1
C6414
2
1
2
1
C6407
1
2
1
PAD6402
2
2
1
C6401
1
C6406
1
C6403
2
4
2
1
L6403
3 2
1
4
5 6 8
Q6400
3 2
1
4
5 6 7 8
2
1
2
1
R6402
1
C6411
2
R6400
2
1
R6405
2
1
C6413
10
7
8
5
11
6
9
+V1.05_LAN_M
44.2K_1%_2
POWERPAD_2_0610
TPCA8065_H
22UF_6.3V_5
CS_1310AXXXXXX-MTR
A01
POWERPAD_2_0610
VRVCCP_HG
VCC_SENSE_VTT
CSC0402_DY
37< 19<
30>
0_5%_2
0.1UF_16V_2
10_5%_3
10UF_6.3V_3
470K_1%_2
P3V3_S
2.2_5%_3
0.1UF_16V_2
LTF5022T_2R2N3R2_LC
10K_1%_2
3.09K_1%_2 CSC0402_DY
23>
TPCA8057_H
1000PF_50V_2_DY
100_5%_2
200_1%_2
23>
560UF_2.5V
4.7UF_25V_5
C
CS
SIZE
CHANGE by DATE
8
8 7
7 6
6 5
5 4
4 3
3
2
1
D
D
CC
BB
AA
REV
1
SHEET
2
DOC.NUMBER
of
CODE
INVENTEC
TITLE
1
2
IN
OUT
REF
FB
LX
TML
GND
PGND
EN
VCC
VIN
IN
IN
+
1
2
1
2
1
2
NMOS_4D3S
D
G
S
NMOS_4D3S
D
G
S
DRVL
V5IN
SW
DRVH
VBST
GND
RF
VFB
EN
TRIP
PGOOD

POWER +V0.85S/+V1.8S
3A
1.6A
6A
LOW - 0.9V
HIGH - 0.8V
EVEREST-M
97
13
Frank Hu
Mon Jan 03 17:27:17 2011
PCMC063T_3R3MN
2
POWERPAD_2_0610
C6508
0.1UF_10V_2_DY
1
PAD6503
330UF_2V_9MR_PANA_-35%
200_1%_2
R6506
6.49K_1%_2
2
1000PF_50V_2_DY
200_1%_2
1
TI_TPS51217DSCR_SON_10P
2
AON7410
Q6500
11
R6509
CSC0402_DY
2
78.7K_1%_2
LMBT3904LT1G
U6500
6
2.2UF_6.3V_3
1
1
5
4.7UF_25V_5
VR85_PH
7
6
1
RSC_0402_DY
Q6501
1
1
R6510
VCCSA_SEL
24>
1
VR85_LG
C6504
P3V3_A
1
0_5%_3
VR85_HG
1
2
10K_5%_2
R6501
10
4
1
C6507
40.2K_1%_2
2
1
R6500
9
1
2
0_5%_2
3
1
2
PVBAT
TPC8A05_H
2
R6511
C6505
47PF_50V_2
0.22UF_25V_3
4.7UF_25V_5
L6500
C6514
10UF_6.3V_3
0.1UF_16V_2
GMT_G5694F11U_SOP_8P
9
LTF5022T_2R2N3R2_LC
13K_1%_2
POWERPAD_2_0610
PAD6501
1
U6502
8
3 2
5 7 8
3 2
1
4
678
4
2
5
8
2
1
R6517
2
1
R6516
2
1
2
1
C6512
2
1
R6515
2
1
R6514
2
1
C6515
2
1
C6511
2
1
2
C6506
2
1
2
1
R6505
R6504
2
1
R6503
2
2
1
2
1
C6501
2
1
C6500
2
1
C6502
C6503
1
2
2 3
Q6502
2
1
3
Q6503
R6507
2
1
C6510
2
1
2
1
R6508
1
R6502
2
2
1
PAD6500
2
2
1
C6513
2
1
L6502
1
2
6
7
3
4
5
CS_1310AXXXXXX-MTR
22UF_6.3V_5
CSC0402_DY
10_5%_3
0.1UF_16V_2
20K_1%_2
P5V_A
1K_1%_2
10K_5%_2
SSM3K7002BFU
10K_1%_2
20K_1%_2
4.7UF_25V_5
POWERPAD_2_0610
CS A01
C
SIZE
CHANGE by DATE
8
8 7
7 6
6 5
5 4
4 3
3
2
1
D
D
CC
BB
AA
REV
1
SHEET
2
DOC.NUMBER
of
CODE
INVENTEC
TITLE
+
IN
B
C E
G
DS
1
2
1
2
1
2
REF
FB
LX
TML
GND
PGND
EN
VCC
VIN
S
G
D
NMOS_4D3S
D
G
S
VFB
VBST
V5IN
TRIP
TRAN
SW
PGOOD
GND
EN
DRVL
DRVH

CATCH R
POWER VCORE
10A
FOLLOW BERLIN 10RG
FOLLOW BERLIN 10RG
CATCH R
Mon Jan 03 17:28:44 2011
Frank Hu
97
14
EVEREST-M
1
470PF_50V_2
20.5K_1%_2
IMAXA
14<
10_1%_2
1
C6608
14<
14<
14<
15<
15<
15<
15<
VRCPU_HG2
2.2UF_6.3V_2
IMONA
14<
53
VRCPU_HG3
CPU_BST3
VRCPU_PH3
VRCPU_LG3
12
10
VRAXG_LG1
GPU_BST1
VRAXG_HG1
14<
14<
IMAXA
51
50
49
R6602
1
100_1%_2
U6600
54
56
52
MAX_MAX17039GTN+_TQFN_56P
0_5%_2
15<
VRCPU_PH2
8
TONA
9
VRAXG_PH1
CCVB
IMONB
FBB
THERMA
THERMB
470PF_50V_2
C6610
TP6600
13
14<
24
25
26
27
28
1
5.1K_1%_2
14>
14>
VBOOTB
SRB
14<
14<
22
40
41
42
15<
14<
SRA
VBOOTA
14
IMAXB
14<
CS
CS_1310AXXXXXX-MTR
C
14<
24>
20.5K_1%_2
23>
14<
0_5%_2 115K_1%_2
470PF_50V_2
0_5%_2 115K_1%_2 100K_5%_2
4.87K_1%_2
14<
14<
14<
14<
14<
P5V_A
14<
14<
14<
14<
14<
P3V3_S
178K_1%_2
+VBAT_CPU
4.87K_1%_2
14<
P5V_A
14<
2.2UF_6.3V_2
TP24
2.2UF_6.3V_2
15<
15<
P5V_A
14<
15<
15<
15<
14<
14<
14<
14<
14<
14<
14<
14<
1000PF_50V_2
1000PF_50V_2
1000PF_50V_2
10_1%_2
10_1%_2
23>
14<
10_1%_2
15<
15<
15<
15<
PVBAT
POWERPAD_2_0610
4.7UF_25V_5
1000PF_50V_2
4.7UF_25V_5 4.7UF_25V_5
PVAXG
4.7UF_25V_5 4.7UF_25V_5 4.7UF_25V_5 4.7UF_25V_5
+VBAT_CPU
4.7UF_25V_5
VSSAXG_SENSE
VSSSENSE
THERMB
SRB
VBOOTB
IMAXB
TONB
THERMA
SRA
VBOOTA
CCVA
TONA
PH3_PWM
GNDSA
CPU_BST2
VRCPU_LG1
VRCPU_LG2
VRCPU_HG1
CPU_BST1
PH3_SKIP#
PH3_PWM
VRCPU_PH1
CCVA
IMONA
GNDSA
FBA
GNDSB
GNDSB
FBB
A01
FBA
14<
P5V_A
178K_1%_2
+VBAT_CPU
P3V3_A
0_5%_2
P5V_A
1UF_6.3V_2
P5V_A
470PF_50V_2
100_1%_2
VCCSENSE
P5V_A
14<
CCVB
P3V3_A
100K_5%_2
1
37
16
48
46
7
36
38
29
19
57
30
18
17
35
43
15
20
34
23
21
5
6
4
3
39
11
2
55
44
45
C6618
1
2
R6623
2
R6611
1
1
2
C6611
1
2
C6617
1
2
C6616
1
2
TP6601
1
R6616
2
R6614
1
2
R6612
1
2
C6614
1
2
C6613
1
2
R6603
1
2
C6609
1
2
R6601
1
2
2
U6602
1
8
4
3
7
9
2
6
5
C6619
1
2
PAD6600
1
2
C6601
1
2
C6600
1
2
C6602
1
2
C6603
1
2
C6604
1
2
C6605
1
2
C6606
1
2
C6607
1
2
R6622
1
2
R6620
1
2
R6624
1
2
R6626
1
2
R6618
1
2
R6619
1
2
C6615
1
2
R6621
1
2
R6606
1
2
R6625
1
2
R6608
1
2
R6627
1
2
R6607
1
2
1
2
R6609
1
2
R6617
1
2
R6604
1
22
1
14<
PH3_SKIP#
33
31
32
9.53K_1%_2
R6605
2
MAX_MAX8791GTA+_TQFN_8P
0_5%_2
C6612
IMONB
14<
TONB
2K_5%_2
1
10K_5%_2
2
R6610
2K_5%_2
15<
47
1
R6038
1
2 2
SIZE
CHANGE by DATE
8
8 7
7 6
6 5
5 4
4 3
3
2
1
D
D
CC
BB
AA
REV
1
SHEET
2
DOC.NUMBER
of
CODE
INVENTEC
TITLE
LX
PWM
SKIP
VDD
PAD
DH
BST
DL
GND
IN
IN
IN
IN
IN
IN
IN
IN
IN
IN
IN
IN
IN
IN
IN
IN
IN
IN
IN
IN
IN
IN
IN
IN
IN
IN
IN
IN
IN
IN
IN
IN
IN
IN
IN
IN
IN
IN
IN
IN
IN
IN
IN
IN
IN
IN
IN
IN
IN
1
2
IN
IN
IN
IN
IN
IN
IN
OUT
OUT
IN
N.C.
IMONA
CCVA
DRSKIP
PWM_OUT
BSTA1
DHA1
DLA2
CSNA3
LXA2
VRA_READY
VRB_READY
CSPA1
CSNA1
CSNA2
CSPA2
CSPA3
IMAXA
IMAXB
TMAX
VR_HOT#
AGND
ALERT#
VDIO
VCLK
VCC
TONA
TONB
CSPB
CSNB
VR_ENABLE
DLG
VDDB
DLB
BSTB
DHB
VBOOTB
VBOOTA
CCI2
CCI1
SRA
SRB
THERMA
THERMB
FBB
GNDSB
IMONB
CCVB
LXB
GND
DHA2
BSTA2
VDDA
DLA1
LXA1
GNDSA
FBA

POWER VCORE
33A
60A
Mon Jan 03 17:29:38 2011
15
97
Frank Hu
EVEREST-M
2
14<
4.7_5%_3
R6718
1
+VBAT_CPU
0.22UF_25V_3
2.2_5%_3
R6716
2.2_5%_3
0.22UF_25V_3
R6723
L6700
2
VRAXG_PH1
1
2
L6703
0.47UF_6.3V_2
2
C6710
RSC_0402_DY
2
3.6K_1%_2
R6714
2
VRCPU_HG2
14<
L6701
TPCA8065_H
CS
C
14<
14<
14<
14<
14<
14<
14<
+VBAT_CPU
2.37K_1%_2
0.47UF_6.3V_2
RSC_0402_DY
10K_5%_NTC
PAN_ETQP4LR36ZFC_4P
4.7_5%_3
14<
14<
TPCA8065_H
14<
14<
TPCA8065_H
PAN_ETQP4LR36ZFC_4P
RSC_0402_DY
PAN_ETQP4LR36ZFC_4P
14<
+VBAT_CPU
1500UF_2V
PVCORE
470UF_2V
VRCPU_LG3
VRCPU_PH3
VRCPU_HG3
VRCPU_LG1
VRCPU_HG1
VRCPU_PH1
CPU_BST3
CPU_BST1
VRAXG_LG1
VRAXG_HG1
GPU_BST1
VRCPU_LG2
CPU_BST2
A01
CS_1310AXXXXXX-MTR
GPU_CSP1
3.6K_1%_2
10K_5%_NTC
2.37K_1%_2
0.47UF_6.3V_2
3300PF_50V_2
TPCA8057_H
3.6K_1%_2
3300PF_50V_2
4.7_5%_3
TPCA8057_H
TPCA8065_H
2.2_5%_3
0.22UF_25V_3
TPCA8057_H
PAN_ETQP4LR36ZFC_4P
4.7_5%_3
2.37K_1%_2
14<
VRCPU_PH2
2.2_5%_3
14<
GPU_CSN1
8765
4
1
23
Q6703
8765
4
1
23
C6707
1
2
R6705
1
2
C6706
1
2
Q6705
8765
4
1
23
1
2
L6702
1
3 4
R6711
1
2
C6709
1
Q6704
8765
4
1
23
C6711
1
2
C6712
1
2
Q6701
8765
4
1
23
Q6700
8765
1
23
C6700
1
2
R6700
1
2
1
3 4
R6717
1
2
C6714
1
2
Q6707
8765
4
1
23
Q6706
8765
4 23
C6713
1
2
1
2
3 4
1
2
C6701
2
1
3
C6704
1
2
3
1
2
3 4
R6706
1
2
R6708
1
2
R6709
2
C6708
1
2
R6701
1
2
R6703
1
2
R6704
1
2
C6703
1
2
R6719
1
2
R6721
1
2
R6722
1
2
C6715
1
2
1
2
1
2
R6715
1
R6707
1
22
R6720
1
2
R6702
1
2
3300PF_50V_2
0.47UF_6.3V_2
1
RSC_0402_DY
TPCA8057_H
2.37K_1%_2 10K_5%_NTC 3.6K_1%_2
3300PF_50V_2
1
R6713
10K_5%_NTC
1
R6712
0.22UF_25V_3
4
1
R6710
2
+VBAT_CPU
Q6702
SIZE
CHANGE by DATE
8
8 7
7 6
6 5
5 4
4 3
3
2
1
D
D
CC
BB
AA
REV
1
SHEET
2
DOC.NUMBER
of
CODE
INVENTEC
TITLE
+
IN
IN
IN
NMOS_4D3S
D
G
S
NMOS_4D3S
D
G
S
IN
IN
IN
IN
NMOS_4D3S
D
G
S
NMOS_4D3S
D
G
S
IN
IN
IN
NMOS_4D3S
D
G
S
IN
IN
IN
NMOS_4D3S
D
G
S
IN
NMOS_4D3S
D
G
S
IN
IN
IN
IN
+
NMOS_4D3S
D
G
S

3.5A
POWER GPU NVVDD
1
0
1
0
VID1
VOLTAGE LEVEL
NVVDD
1V
0.975V
0.825V
30A
CONNECT TO GPU
FOR OPTIMUS SHUTDOWN SOLUTION
VID0
0
0
16
97
Tue Jan 04 00:17:23 2011
EVEREST-M
Frank Hu
TI_TPS51217DSCR_SON_10P
C6800
47PF_50V_2
2
5
11
1
R6805
U6800
8
VRGPU_HG
2
C6803
TPCA8065_H
SSM3K7002BFU
40.2K_1%_2
3
3
10
4.7UF_25V_5
L6800
2
2
470UF_2V
100_5%_2
R6810
2
PAD6801
1
0_5%_3
0.1UF_25V_2
1
PAD6800
POWERPAD_2_0610
2
1
C6810
2
1
R6048
2
1
C6816
2
1
R6808
2
2
1
3
Q6804
2
1
D6800
1
2
1
R6803
2
1
C6807
2
1
C6805
1
3 2
1
4
5 6 7 8
Q6800
2
1
C6809
2
1
R6806
2
1
R6041
2
1
R6040
2
1
R6807
2
1
Q6803
2
1
C6802
2
1
R6809
2
1
C6806
1
C6808
2
1
PAD6803
2
2
1
2
1
43
1
3
2
1
4 5
6
7
8
Q6802
3
2
1
4 5
6
7
8
Q6801
2
1
C6804
2
R6804
4 7
1
6
9
A01
TPCA8A02_H
POWERPAD_2_0610
POWERPAD_2_0610
470UF_2V470UF_2V
0_5%_2
28.7K_1%_2
SBR3U40P1_DY
VRGPU_LG
86.6K_1%_2
CS_1310AXXXXXX-MTR
CS
C
100PF_50V_2
33.2K_1%_2
+GPU_NVVDD_L
VRGPU_PH
68>
4.7UF_25V_5
10.2K_1%_2
CSC0402_DY
4.7UF_25V_5
PAN_ETQP4LR36WFC_4P
TPCA8A02_H
2.2UF_6.3V_3
SSM3K7002BFU
1K_1%_2
0_5%_2
0_5%_2
SIZE
CHANGE by DATE
8
8 7
7 6
6 5
5 4
4 3
3
2
1
D
D
CC
BB
AA
REV
1
SHEET
2
DOC.NUMBER
of
CODE
INVENTEC
TITLE
+
G
DS
OUT
NMOS_4D3S
D
G
S
G
DS
+
+
1
2
1
2
1
2
S
G
D
S
G
D
VFB
VBST
V5IN
TRIP
TRAN
SW
PGOOD
GND
EN
DRVL
DRVH

POWER +V3S/+V5S/+V1.5S
WS
11.5A
EVEREST-M
Frank Hu
Fri Dec 31 10:16:26 2010
97
17
2
1
R7036
3
2
1
45
6
7
8
Q7002
4
36
5
2
1
Q7004
4
36
5
2
1
Q7005
2
1
R7034
2
1
C7027
2
1
R7035
2
1
3
Q7088
2
1
3
Q7090
2
1
R7039
2
1
C7030
2
1
PAD7002
2
1
R7032
2
1
3
Q7000
2
1
3
Q7001
2
1
R7033
2
1
C7026
2
1
C7029
2
1
PAD7001
2
1
3
Q7003
2
1
R7038
2
1
PAD7000
2
1
C7028
2
1
R7037
P1V5
POWERPAD_2_0610
100K_5%_2
SLP_S3#_15R
SLP_S3_5R
CS_1310AXXXXXX-MTR
200_5%_3
17>
SLP_S3#_15R
22_5%_2
POWERPAD_2_0610
SSM3K7002BFU
P15V_A
17<
CS
SLP_S3_5R
SLP_S3_5R
SLP_S3_5R
SLP_S3#_15R
SLP_S3#
P3V3_S
17> 17< 19<
SSM3K7002BFU
P1V5_S
200_5%_2
POWERPAD_2_0610
680PF_50V_2
22UF_6.3V_5
22UF_6.3V_5
CSC0402_DY
17>19<
AON7410
750K_1%_2
19< 18<
24<
SSM3K7002BFU
P0V75_S
SSM3K7002BFU
19< 17< 17>
P3V3_AL
AO6402AL
P5V_AL
0_5%_2
24<
19<18<17<
SSM3K7002BFU
P5V_S
CSC0402_DY
0_5%_2
10K_5%_2
37<
18<
11<
30>
AO6402AL
P5V_A
A01
C
SIZE
CHANGE by DATE
8
8 7
7 6
6 5
5 4
4 3
3
2
1
D
D
CC
BB
AA
REV
1
SHEET
2
DOC.NUMBER
of
CODE
INVENTEC
TITLE
1
2
NMOS_4D3S
D
G
S
D
G
S
NMOS_4D1S
D
G
S
NMOS_4D1S
IN
OUT
IN
G
DS
G
DS
OUT
1
2
OUT
IN
G
DS
OUT
G
DS
IN
1
2
G
DS

POWER SEQ
WS
Frank Hu
EVEREST-M
Fri Dec 31 10:16:27 2010
18
97
2
1
C7000
2 3
1
Q7064
2
1
R7000
2
1
R7009
2
1
R7030
2
1
C7002
2
1
R7029
2
1
3
D7001
2
1
R7001
2
1
C7025
2
1
R7028
2
1
3
Q7053
2
1
C7008
2
1
R7010
2
1
C7003
2
1
R7007
2
1
R7008
2
1
C7005
5
2
4
3
1
U7005
2
1
R7031
2
1
R7027
2
1
R7016
2
1
R7026
2
1
R7014
2
1
R7015
2
1
R7013
2
1
C7013
5
4
3
2
1
U7004
2
1
R7023
2
1
3
D7000
2
1
R7024
2
1
R7025
2
1
3
Q7065
2
1
C7006
2
1
C7004
2
1
R7006
2
1
C7012
5
4
3
2
1
U7003
2
1
R7002
2
1
R7003
2
1
C7001
2
1
R7004
2
1
C7011
5
4
3
2
1
U7002
2
1
C7010
5
4
3
2
1
U7001
2
1
C7009
2
1
R7005
5
4
3
2
1
U7000
P3V3_A
+V1.05_LAN_PG
1K_5%_2
TC7SZ08FU
DRAMRST_CNTRL_CPU
DDR3_DRAMRST#
26>
BSH111
4.99K_1%_2
CPU_DRAMRST#
1K_5%_2
P1V5
27>
20>
0_5%_2
A01
CS_1310AXXXXXX-MTR
CS
C
0_5%_2
EC_PCH_PWROK
38<
0.1UF_16V_2
P3V3_A
59<
11>
+V1.5S_CPUDDR_PG
P3V3_A
SLP_S3#
0_5%_2
+V1.05_LAN_PG
37<
18<
10K_5%_2
TC7SZ08FU
3.3K_5%_2
0.1UF_16V_2
309K_1%_2
10K_5%_2
+V1.05_LAN_M
110K_1%_2
LMBT3904LT1G
0_5%_2
1000PF_50V_2
+V1.5S_CPUDDR_PG
470PF_50V_2
+V1.05S_VCCP_EN
PM_APWROK
ALLSYS_PWROK
VR_PWRGD
DRAMRST_CNTRL_PCH
DRAMRST_CNTRL_EC
SLP_A#
SLP_A#
V1.5_PG
MAIN_PWRGD
VCCSA_PG
SLP_S3#_15R
12<
0.1UF_16V_2
P3V3_A
0_5%_2
0.1UF_16V_2
P3V3_A
30<
P3V3_A
0.1UF_16V_2
TC7SZ08FU
0.1UF_10V_2_DY
37<
17< 11<
30>
14>
37>30<
18<
TC7SZ08FU
P3V3_A
P3V3_A
10K_1%_2
0.1UF_16V_2
1K_5%_2
0_5%_2_DY
BAT54_30V_0.2A
18<19<
37< 30>
0.1UF_16V_2
18>
P3V3_A
0.1UF_16V_2
1UF_6.3V_2
19< 30>
+V3M
100K_5%_2
10K_5%_2_DY
0_5%_2
20<
1M_1%_2
TC7SZ08FU
60> 37<
14<
AZV331KTR_E1
100K_1%_2
1000PF_50V_2
11<
20<
18<
0.1UF_10V_2_DY
P3V3_SP3V3_A
10K_5%_2
SSM3K7002BFU
10K_5%_2
BAT54_30V_0.2A
330_5%_2
19<
17>
24<
17<
P1V5_CPUDDRS
SIZE
CHANGE by DATE
8
8 7
7 6
6 5
5 4
4 3
3
2
1
D
D
CC
BB
AA
REV
1
SHEET
2
DOC.NUMBER
of
CODE
INVENTEC
TITLE
IN
IN
+
-
OUT
OUT
IN
IN
IN
OUT
+
-
IN
NC
G
DS
OUT
OUT
IN
IN
OUT
+
-
IN
IN
OUT
+
-
IN
OUT
B
C E
IN
NC
G
DS
OUT
+
+
-
-
OUT
+
-

POWER SEQ
EVEREST-M
19
97
Fri Dec 31 10:16:27 2010
Frank Hu
3
2
1
45
6
7
8
Q7052
3
2
1
45
6
7
8
Q7062
2
1
C7024
2
1
C7023
2
1
C7022
2
1
C7021
2
1
C7020
2
1
C7007
2
1
R7012
2
1
R7011
2
1
R7017
2
1
C7017
2
1
C7015
2
1
C7014
2
1
R7018
2
1
R7019
2
1
C7019
2
1
R7021
2
1
C7018
2
1
C7016
2
1
R7020
2
1
R7022
2
1
PAD7003
4
3 6
5
2
1
Q7006
2
1
3
Q7051
2
1
3
Q7058
2
1
3
Q7059
2
1
3
Q7060
2
1
3
Q7061
2
1
3
Q7063
A01
P3V3_A
AON7410
0.1UF_10V_2_DY
200_5%_2
CS_1310AXXXXXX-MTR
SLP_S3#_15R
SLP_A#
SLP_S3_5R
SLP_LAN#
17<
24<
18< 17>
37<
18< 30>
SSM3K7002BFU
P1V5
SSM3K7002BFU
0_5%_2
AON7410
17>17<
470PF_50V_2
SSM3K7002BFU
200_5%_2
680PF_50V_2
SSM3K7002BFU
P1V5_CPUDDRS
10K_1%_2
P5V_A
220K_5%_2
P5V_A
+V1.05_LAN_M
10UF_6.3V_3
+V1.05M
P1V05_VCCPS
0.1UF_16V_2 0.1UF_16V_2 0.1UF_16V_2
12<
30>37<
SSM3K7002BFU
0.1UF_16V_2
P1V5
P1V5_CPUDDRS
SSM3K7002BFU
200_5%_3
POWERPAD_2_0610
10UF_6.3V_3
+V1.05S
47K_5%_2
P3V3_A
100K_5%_2
0.01UF_50V_2
330PF_50V_2_DY
AM3423P
10UF_6.3V_3
+V3M
CS
C
SIZE
CHANGE by DATE
8
8 7
7 6
6 5
5 4
4 3
3
2
1
D
D
CC
BB
AA
REV
1
SHEET
2
DOC.NUMBER
of
CODE
INVENTEC
TITLE
S
PMOS_4D1S
G
D
NMOS_4D3S
D
G
S
G
DS
NMOS_4D3S
D
G
S
G
DS
IN
IN
G
DS
G
DS
G
DS
IN
1
2
IN
G
DS

(Default)
Place close to CPT and NVRAM connector
DMI&FDI TerminationVoltage
Set toVss when LOW
Set toVcc when HIGH
NV_CLE
CPU 1
LOW IN C6/C7
CLKOUT_DMI_CLKGEN_DN
WS
REMOVE CLKOUT_DMI_CLKGEN_DP
Frank Hu
EVEREST-M
Fri Dec 31 10:16:28 2010
97
20
2
1
R4513
2
1
3
Q4500
2
1
R4512
2
1
R4511
2
1
C4559
5
4
1
2
3
U4501
4
5
3
1
2
U4502
2
1
R4508
2
1
R4509
2
1
R4558
2
1
R4532
2
1
R4500
2
1
C4504
2
1
R4510
2
1
R4536
2
1
R4516
2
1
R4506
2
1
R4538
2
1
R4537
2
1
R4557
2
1
C4570
2
1
R4552
2
1
R4555
2
1
R4553
2
1
R4554
2
1
R4556
2
1
R4529
2
1
R4505
2
1
R4507
2
1
R4531
2
1
R4530
2
1
R4541
2
1
R4542
2
1
R4533
2
1
R4534
2
1
R4535
2
1
R4517
1
TP4500
AP33
AP30
AR27
AN32
AP26
AR28
AR26
A4
A5
AK1
R8
V8
AN34
AR33
AL32
C26
AP27
AP29
AM34
AN33
A15
A16
AL35
AL33
AR32
AT31
AR31
AP32
AT30
AR30
AR29
AT28
A27
A28
CN4500
0_5%_2
H_SNB_IVB#
H_CATERR#_R
43_5%_2
56_5%_2
0_5%_2
PM_THRMTRIP#_R
SM_RCOMP2
CLK_DP_PCH_CPU_R_DN
CLK_DP_PCH_CPU_R_DP
CLKOUT_DMI_PCH_R_DN
CLKOUT_DMI_PCH_R_DP
CLK_DMI_PCH_DN
0_5%_2
0_5%_2
CLK_DMI_PCH_DP
CLK_DP_PCH_CPU_DP
20>
H_PECI
PM_THRMTRIP#
H_PECI_R
PM_DRAM_PWRGD_R
0_5%_2
H_PM_SYNC
H_CPUPWRGD
FOX_PZ98927_3641_41F_Huronriver_989P_CHIEFRIVER
P3V3_S
H_CPUPWRGD_R
H_PM_SYNC_R
SM_RCOMP1
SYS_RESET#_R
H_TDO
75_5%_2
BUF_PLT_RST# BUF_PLT_RST#_CPU
32<>
43<
56< 55<
43_5%_2
0.1UF_16V_2
P1V05_VCCPS
0_5%_2_DY
20<
TSB_TC7SZ07FU_SSOP_5P
P1V05_VCCPS
37<>
33<
200_5%_2
P1V5_CPUDDRS
H_BPM7_XDP#
H_BPM6_XDP#
H_BPM5_XDP#
H_BPM4_XDP#
H_BPM3_XDP#
H_BPM2_XDP#
H_BPM1_XDP#
H_BPM0_XDP#
H_TDI
H_TRST#
H_TMS
H_TCK
H_PREQ#
H_PRDY#
BUF_PLT_RST#_CPU
H_PROCHOT#_R SM_RCOMP0
CPU_DRAMRST#
H_PROCHOT#
33>
39_5%_2
0.1UF_16V_2
4.7K_5%_2
NV_CLE
130_1%_2
P1V8_S
2.2K_5%_2
14>
30<>
P3V3_A
60>
NXP_74AHC1G09GV_SOT753_5P
SLP_S3_5R
PM_DRAM_PWRGD
P3V3_A
200_5%_2
H_CPUPWRGD_R
+V1.5S_CPUDDR_PG
H_SNB_IVB#
H_TDI
H_PREQ#
H_TRST#
H_TCK
H_TMS
SYS_RESET#
CLK_DP_PCH_CPU_DN
10K_5%_2
18<
18>
30>
20>
100K_5%_2_DY
32>
SSM3K7002BFU
47PF_50V_2
62_5%_2
0_5%_2_DY
20>
33>
0_5%_2
20< 60>
60>20<
20< 60>
20< 60>
60<>
60<>
60>20<
51_5%_2
51_5%_2
51_5%_2_DY
51_5%_2
60<
51_5%_2
P1V05_VCCPS
60<
60<
60<
60<
60<
60<
60<
60<
60<>
20<60>
60> 20<
20<60>
60<>
20<60>
60<>
0_5%_2
60> 30<
20<60>
60<
200_1%_2
25.5_1%_2
140_1%_2
18>
0_5%_2
29>
29>
29>
29>
CS_1310AXXXXXX-MTR
CS A01
C
SIZE
CHANGE by DATE
8
8 7
7 6
6 5
5 4
4 3
3
2
1
D
D
CC
BB
AA
REV
1
SHEET
2
DOC.NUMBER
of
CODE
INVENTEC
TITLE
OUT
IN
OUT OUT
OUT
IN
IN
IN
IN
IN
IN
IN
OUT
OUT
OUT
OUT
OUT
OUT
OUT
OUT
OUT
OUT
OUT
IN
IN
IN
IN
IN
OUT
OUT
IN
IN
IN
IN
IN
OUT
IN
BI
OUT
IN
G
DS
IN
VCC
OUT-Y
NC
IN-A
GND
Y
VCC
GND
B
A
JTAG & BPM
MISCDDR3
PWR MANAGEMENT
THERMAL MISC
CLOCKS
UNCOREPWRGOOD
PROC_SELECT#
SKTOCC#
PM_SYNC
BPM#[7]
BPM#[6]
BPM#[5]
BPM#[4]
BPM#[3]
BPM#[2]
BPM#[1]
BPM#[0]
DBR#
TDO
TDI
TRST#
TMS
TCK
PREQ#
PRDY#
RESET#
SM_DRAMPWROK
THERMTRIP#
PROCHOT#
PECI
CATERR#
DPLL_REF_CLK
DPLL_REF_CLK#
BCLK
BCLK#
SM_RCOMP[0]
SM_DRAMRST#
SM_RCOMP[2]
SM_RCOMP[1]

CPU 2
CLOSE to CPU
21
97
Fri Dec 31 10:16:57 2010
EVEREST-M
Frank Hu
2
1
C4516
2
1
C4515
2
1
C4520
2
1
C4519
2
1
C4518
2
1
C4517
2
1
C4524
2
1
C4523
2
1
C4522
2
1
C4521
2
1
C4526
2
1
C4525
2
1
C4527
2
1
C4528
2
1
C4530
2
1
C4529
2
1
C4531
2
1
C4532
2
1
C4533
2
1
C4534
2
1
C4535
2
1
C4536
2
1
C4537
2
1
C4538
2
1
C4539
2
1
C4540
2
1
C4542
2
1
C4541
2
1
C4543
2
1
C4544
2
1
C4545
2
1
C4546
2
1
R4544
2
1
R4545
H28
J27
J29
K27
K30
L28
L31
M30
D25
E26
D27
F28
E28
G28
M33
M28
H29
J28
J30
K28
K31
L29
L32
M31
E25
F26
D28
F27
E29
G27
M32
M29
E35
F30
F33
G31
G34
H32
H35
K34
B32
C33
E31
D34
F32
E33
L35
J33
F35
G30
G33
H31
H34
J32
J35
L34
C32
B33
D31
D33
E32
E34
M35
K33
H22
J21
J22
H20
F17
D19
C19
B20
E17
D18
C20
B21
H17
J17
G18
E20
G19
A22
F18
E19
H19
A21
J19
J18
G15
C16
F16
C17
F15
D16
E16
C18
A17
B16
A18
D15
C15
C21
F20
D22
G22
D21
F21
E22
G21
B23
A24
B26
B28
B24
A25
B25
B27
CN4500
PEG_RX6_DN
PEG_RX5_DN
PEG_RX4_DN
68>
PEG_TX0_C_DN
PEG_TX1_C_DN
68>
PEG_TX2_C_DN
68>
68>
0.1UF_6.3V_1
0.1UF_6.3V_1
0.1UF_6.3V_1
0.1UF_6.3V_1
0.1UF_6.3V_1
PEG_TX2_DN
PEG_TX3_DN
68<
PEG_TX4_DN
0.1UF_6.3V_1
0.1UF_6.3V_1
PEG_TX7_DN
PEG_TX8_DN
PEG_TX9_DN
PEG_TX6_DN
PEG_TX5_DN
PEG_TX0_DN
0.1UF_6.3V_1
PEG_TX10_C_DP
PEG_TX9_C_DP
21<
21<
21<
21<
PEG_TX10_C_DN
PEG_TX9_C_DN
PEG_TX1_C_DN
PEG_TX0_C_DN
PEG_TX15_C_DP
PEG_TX14_C_DP
PEG_TX13_C_DP
PEG_TX12_C_DP
PEG_TX11_C_DP
PEG_TX10_C_DP
PEG_TX9_C_DP
PEG_TX4_C_DP
PEG_TX5_C_DP
PEG_TX6_C_DP
PEG_TX7_C_DP
PEG_TX8_C_DP
PEG_TX2_C_DN
PEG_TX4_C_DN
PEG_TX6_C_DN
PEG_TX7_C_DN
PEG_TX11_C_DN
PEG_TX12_C_DN
PEG_TX13_C_DN
PEG_RX4_DP
PEG_RX5_DP
PEG_RX6_DP
PEG_RX7_DP
PEG_RX12_DP
PEG_RX13_DP
PEG_RX14_DP
PEG_RX15_DP
PEG_RX0_DN
PEG_RX1_DN
+V1.05S_VCCP_PEG_ICOMPI
FDI_TX_DN<5>
FDI_TX_DP<7..0>
FDI_TX_DN<7..0>
DMI_RX_DP<3..0>
DMI_RX_DN<3..0>
2
DMI_TX_DP<3..0>
3
0
1
DMI_TX_DP<2>
DMI_TX_DP<3>
DMI_TX_DP<0>
DMI_TX_DP<1>
DMI_TX_DN<3..0>
DMI_TX_DN<2>
DMI_TX_DN<3>
DMI_TX_DN<0>
PEG_RX9_DN
DMI_RX_DN<2>
DMI_RX_DN<0>
EDP_TX0_DN
FOX_PZ98927_3641_41F_Huronriver_989P_CHIEFRIVER
PEG_TX0_C_DP
PEG_TX1_C_DP
PEG_TX2_C_DP
PEG_TX4_C_DP
PEG_TX7_C_DP
PEG_TX11_C_DP
PEG_TX14_C_DP
PEG_TX15_C_DP
PEG_RX0_DP
24.9_1%_2
P1V05_VCCPS
PEG_RX15_DN
21<
21<
PEG_TX1_C_DP
PEG_TX0_C_DP
PEG_TX2_C_DP
PEG_TX3_C_DP
21<
21<
21<
21<
21<
21<
21<
21<
21<
21<
21<
21<
21<
21<
21<
21<
PEG_TX3_C_DN
PEG_TX8_C_DN
PEG_TX14_C_DN
PEG_TX15_C_DN
PEG_TX5_C_DN
21<
21<
21<
21<
21<
21<
21<
21<
21<
21<
68>
PEG_RX1_DP
PEG_RX2_DP
PEG_RX3_DP
PEG_RX9_DP
PEG_RX10_DP
PEG_RX11_DP
PEG_RX8_DP
68>
68>
68>
68>
68>
68>
68>
68>
68>
68>
68>
68>
68>
68>
68>
68>
68>
68>
PEG_RX7_DN
PEG_RX8_DN
PEG_RX2_DN
PEG_RX3_DN
PEG_RX10_DN
PEG_RX12_DN
PEG_RX13_DN
PEG_RX11_DN
PEG_RX14_DN
68>
68>
68>
68>
68>
68>
68>
68>
68>
PEG_TX6_C_DP
PEG_TX8_C_DP
PEG_TX13_C_DP
PEG_TX14_C_DN
FDI_TX_DN<6>
FDI_TX_DN<4>
FDI_TX_DN<3>
FDI_TX_DN<2>
FDI_TX_DN<1>
FDI_TX_DN<0>
DMI_RX_DP<2>
DMI_RX_DP<1>
DMI_RX_DN<3>
DMI_TX_DN<1>
EDP_TX0_DP
48>
EDP_AUX_DN
EDP_AUX_DP
48>
48<>
48<>
EDP_HPD#
P1V05_VCCPS
48>
24.9_1%_2
+V1.05S_VCCP_eDP_COMPIO
CS_1310AXXXXXX-MTR
A01
C
CS
FDI_LSYNC1
FDI_LSYNC0
FDI_INT
FDI_FSYNC1
FDI_FSYNC0
FDI_TX_DP<7>
FDI_TX_DP<6>
FDI_TX_DP<5>
FDI_TX_DP<4>
FDI_TX_DP<3>
FDI_TX_DP<2>
FDI_TX_DP<1>
FDI_TX_DP<0>
FDI_TX_DN<7>
DMI_RX_DP<3>
DMI_RX_DP<0>
DMI_RX_DN<1>
3
2
PEG_TX3_C_DP
PEG_TX5_C_DP
0.1UF_6.3V_1
0.1UF_6.3V_1
0.1UF_6.3V_1
0.1UF_6.3V_1
0.1UF_6.3V_1
0.1UF_6.3V_1
PEG_TX9_C_DN
PEG_TX10_C_DN
PEG_TX11_C_DN
PEG_TX12_C_DP
PEG_TX0_DP
PEG_TX2_DP
PEG_TX1_DP
PEG_TX3_DP
PEG_TX4_DP
PEG_TX6_DP
PEG_TX5_DP
PEG_TX7_DP
PEG_TX8_DP
PEG_TX10_DP
PEG_TX9_DP
PEG_TX11_DP
PEG_TX12_DP
PEG_TX3_C_DN
PEG_TX4_C_DN
PEG_TX5_C_DN
PEG_TX6_C_DN
PEG_TX7_C_DN
PEG_TX8_C_DN
PEG_TX13_DP
PEG_TX14_DP
PEG_TX15_DP
PEG_TX1_DN
PEG_TX12_C_DN
PEG_TX13_C_DN
PEG_TX15_C_DN
PEG_TX10_DN
PEG_TX11_DN
PEG_TX12_DN
PEG_TX13_DN
PEG_TX14_DN
PEG_TX15_DN
30>
7
6
5
4
3
2
1
0
7
6
5
4
1
0
3
2
1
0
3
2
1
0
30>
30>
30>
30>
3
2
1
0
0.1UF_6.3V_1
0.1UF_6.3V_1
0.1UF_6.3V_1
0.1UF_6.3V_1
0.1UF_6.3V_1
0.1UF_6.3V_1
0.1UF_6.3V_1
0.1UF_6.3V_1
0.1UF_6.3V_1
0.1UF_6.3V_1
68<
68<
68<
68<
68<
68<
68<
68<
68<
68<
68<
68<
68<
68<
68<
68<
68<
68<
68<
68<
68<
68<
68<
68<
0.1UF_6.3V_1
0.1UF_6.3V_1
0.1UF_6.3V_1
0.1UF_6.3V_1
0.1UF_6.3V_1
0.1UF_6.3V_1
0.1UF_6.3V_1
0.1UF_6.3V_1
68<
68<
68<
68<
68<
68<
68<
SIZE
CHANGE by DATE
8
8 7
7 6
6 5
5 4
4 3
3
2
1
D
D
CC
BB
AA
REV
1
SHEET
2
DOC.NUMBER
of
CODE
INVENTEC
TITLE
IN
OUT
IN
IN
OUT
OUT
BI
BI
IN
IN
IN
IN
IN
IN
IN
OUT
OUT
OUT
OUT
OUT
OUT
OUT
OUT
OUT
OUT
IN
OUT
OUT
OUT
OUT
OUT
OUT
OUT
OUT
OUT
OUT
OUT
OUT
OUT
OUT
OUT
OUT
OUT
OUT
OUT
OUT
OUT
OUT
IN
IN
IN
IN
IN
IN
IN
IN
IN
IN
IN
IN
IN
IN
OUT
IN
OUT
IN
OUT
OUT
IN
IN
IN
IN
IN
IN
IN
IN
IN
IN
IN
IN
IN
IN
IN
IN
IN
OUT
OUT
IN
OUT
OUT
OUT
OUT
OUT
OUT
OUT
OUT
IN
OUT
OUT
OUT
OUT
OUT
OUT
IN
IN
IN
IN
IN
OUT
IN
OUT
IN
IN
OUT
IN
OUT
IN
OUT
IN
IN
OUT
IN
OUT
IN
IN
OUT
IN
IN
IN
IN
IN
OUT
OUT
OUT
OUT
IN
OUT
OUT
IN
IN
IN
OUT
IN
IN
eDP
Intel(R) FDI
DMI
PCI EXPRESS* - GRAPHICS
eDP_ICOMPO
eDP_HDP#
eDP_COMPIO
eDP_TX#[3]
eDP_TX#[2]
eDP_TX#[1]
eDP_TX#[0]
eDP_TX[3]
eDP_TX[2]
eDP_TX[1]
eDP_TX[0]
eDP_AUX#
eDP_AUX
PEG_TX[15]
PEG_TX[14]
PEG_TX[13]
PEG_TX[12]
PEG_TX[11]
PEG_TX[10]
PEG_TX[9]
PEG_TX[8]
PEG_TX[7]
PEG_TX[6]
PEG_TX[5]
PEG_TX[4]
PEG_TX[3]
PEG_TX[2]
PEG_TX[1]
PEG_TX[0]
PEG_TX#[15]
PEG_TX#[14]
PEG_TX#[13]
PEG_TX#[12]
PEG_TX#[11]
PEG_TX#[10]
PEG_TX#[9]
PEG_TX#[8]
PEG_TX#[7]
PEG_TX#[6]
PEG_TX#[5]
PEG_TX#[4]
PEG_TX#[3]
PEG_TX#[2]
PEG_TX#[1]
PEG_TX#[0]
PEG_RX[15]
PEG_RX[14]
PEG_RX[13]
PEG_RX[12]
PEG_RX[11]
PEG_RX[10]
PEG_RX[9]
PEG_RX[8]
PEG_RX[7]
PEG_RX[6]
PEG_RX[5]
PEG_RX[4]
PEG_RX[3]
PEG_RX[2]
PEG_RX[1]
PEG_RX[0]
PEG_RX#[15]
PEG_RX#[14]
PEG_RX#[13]
PEG_RX#[12]
PEG_RX#[11]
PEG_RX#[10]
PEG_RX#[9]
PEG_RX#[8]
PEG_RX#[7]
PEG_RX#[6]
PEG_RX#[5]
PEG_RX#[4]
PEG_RX#[3]
PEG_RX#[2]
PEG_RX#[1]
PEG_RX#[0]
PEG_RCOMPO
PEG_ICOMPO
PEG_ICOMPI
FDI1_LSYNC
FDI0_LSYNC
FDI_INT
FDI1_FSYNC
FDI0_FSYNC
FDI1_TX[3]
FDI1_TX[2]
FDI1_TX[1]
FDI1_TX[0]
FDI0_TX[3]
FDI0_TX[2]
FDI0_TX[1]
FDI0_TX[0]
FDI1_TX#[3]
FDI1_TX#[2]
FDI1_TX#[1]
FDI1_TX#[0]
FDI0_TX#[3]
FDI0_TX#[2]
FDI0_TX#[1]
FDI0_TX#[0]
DMI_TX[2]
DMI_TX[3]
DMI_TX[1]
DMI_TX[0]
DMI_TX#[3]
DMI_TX#[2]
DMI_TX#[1]
DMI_TX#[0]
DMI_RX[3]
DMI_RX[2]
DMI_RX[1]
DMI_RX[0]
DMI_RX#[3]
DMI_RX#[2]
DMI_RX#[1]
DMI_RX#[0]

CPU 3 DRAM
Fri Dec 31 10:16:57 2010
97
22
Frank Hu
EVEREST-M
AB9
AB8
AD4
AE4
R4
R5
AB10
T1
R1
AB7
R3
T5
R2
T3
T4
T2
T6
R7
T7
AA8
AP15
AK12
AP9
AN5
N3
K6
F3
D7
AP14
AK11
AP8
AN6
M3
J6
G3
C7
AT15
AR15
AN15
AT12
AT14
AR14
AN14
AT11
AH12
AJ12
AR8
AH11
AT9
AT8
AJ11
AR9
AR5
AR6
AN8
AP6
AT6
AT5
AN9
AP5
AP2
AN1
AN2
AN3
AP3
AR3
AM6
AM5
M1
M2
N5
M4
N1
N2
N4
M5
K7
K8
J10
J9
K9
K10
J8
J7
G2
F2
F5
G5
G1
F1
F4
G4
D8
D9
A8
A9
C8
D10
A7
C9
AE3
AD3
AD1
AD2
AE1
AE2
R10
R9
AA10
R6
AA7
AA9
AE5
AD5
AE6
AD6
T10
AB1
AA1
T9
AA2
AB2
CN4500
AF9
AD9
AG3
AH3
V7
V5
AF8
W4
V4
AD8
W5
V1
W6
W3
V2
V3
W7
W2
W1
AD10
AM15
AR12
AM8
AL6
M6
J3
G6
C4
AM14
AR11
AM9
AL5
N6
K3
F6
D4
AH15
AJ15
AK14
AL14
AK15
AL15
AH14
AJ14
AN12
AP12
AL11
AM11
AM12
AL12
AN11
AP11
AL8
AL9
AH9
AH8
AK9
AJ9
AK8
AJ8
AJ6
AJ5
AH6
AH5
AK5
AK6
AG5
AG6
M7
N9
M9
M10
N7
N8
N10
M8
K2
J2
J4
J5
J1
K1
K5
K4
G7
G8
F7
F9
G9
G10
F8
F10
C3
C2
C6
D6
D2
D3
D5
C5
AL3
AK3
AB5
AA6
AA5
AB6
V10
V9
AE8
V6
AF10
AE10
AH2
AG2
AH1
AG1
W10
AA3
AB3
W9
AA4
AB4
CN4500
M_A_DQ<10>
M_A_DQ<9>
M_A_DQ<8>
M_A_DQ<7>
M_A_DQ<6>
M_A_DQ<5>
M_CLK_DDR1_DN
M_CKE1
M_B_DQ<36>
M_B_DQ<4>
M_B_DQ<5>
M_B_DQ<6>
M_B_DQ<20>
M_B_DQ<37>
M_B_DQ<38>
M_B_DQ<63>
63
62
1
M_A_A<2>
M_A_A<3>
M_A_DQ<11>
M_A_DQ<0>
22
M_B_DQ<30>
M_B_DQ<32>
M_B_DQ<34>
M_B_DQ<35>
M_B_DQ<39>
M_B_DQ<41>
FOX_PZ98927_3641_41F_Huronriver_989P_CHIEFRIVER
M_B_DQS_DN<6>
M_B_DQS_DN<3>
M_B_DQS_DN<2>
M_B_DQS_DN<0>
M_B_DQS_DN<1>
M_B_DQS_DP<0>
M_B_A<4>
M_B_A<5>
6
27<
M_CS#0
M_CS#1
M_A_DQS_DN<7..0>
40
M_B_DQ<42>
M_B_DQ<43>
M_B_DQ<44>
M_B_DQ<47>
47
M_A_DQS_DP<7..0>
M_B_DQ<46>
M_B_DQ<48>
M_B_DQ<49>
M_B_DQ<0>
M_B_DQ<62>
M_B_DQ<61>
M_B_DQ<60>
M_B_DQ<59>
M_B_DQ<58>
M_B_DQ<57>
M_B_DQ<56>
M_B_DQ<55>
M_B_DQ<54>
M_B_DQ<53>
M_B_DQ<52>
M_B_DQ<51>
M_B_DQ<50>
M_B_DQ<45>
M_B_DQ<40>
M_B_DQ<33>
M_B_DQ<31>
M_B_DQ<29>
M_B_DQ<28>
M_B_DQ<27>
M_B_DQ<26>
M_B_DQ<25>
M_B_DQ<24>
M_B_DQ<23>
M_B_DQ<22>
M_B_DQ<21>
M_B_DQ<19>
M_B_DQ<18>
M_B_DQ<17>
M_B_DQ<16>
M_B_DQ<15>
M_B_DQ<14>
M_B_DQ<13>
M_B_DQ<12>
M_B_DQ<11>
M_B_DQ<10>
M_B_DQ<9>
M_B_DQ<8>
M_B_DQ<7>
M_B_DQ<3>
M_B_DQ<2>
M_B_DQ<1>
M_B_WE#
M_B_RAS#
M_B_CAS#
M_B_BS2
M_B_BS1
M_B_BS0
M_CS#3
M_CS#2
M_B_A<15>
M_B_A<14>
M_B_A<13>
M_B_A<12>
M_B_A<11>
M_B_A<10>
M_B_A<9>
M_B_A<8>
M_B_A<7>
M_B_A<6>
M_B_A<3>
M_B_A<2>
M_B_A<1>
M_B_A<0>
M_B_DQS_DP<3>
M_B_DQS_DP<2>
M_B_DQS_DP<1>
M_B_DQS_DN<7>
M_B_DQS_DP<7>
M_B_DQS_DP<6>
M_B_DQS_DN<5>
M_B_DQS_DP<5>
M_B_DQS_DN<4>
M_B_DQS_DP<4>
M_ODT3
M_ODT2
M_CKE3
M_CKE2
M_CLK_DDR3_DN
M_CLK_DDR2_DN
M_CLK_DDR3_DP
M_CLK_DDR2_DP
3
9
0
1
2
4
5
6
7
8
27<>
10
11
12
13
14
16
15
17
18
19
20
21
23
24
25
26
27
28
29
30
31
32
33
34
35
36
37
38
39
41
42
43
44
45
46
48
49
50
51
52
53
54
55
56
57
58
59
60
61
27<
27<
27<
27<
27<
M_B_DQ<63..0>
26<>
26<
M_CLK_DDR1_DP
M_ODT1
63
M_A_BS0
M_A_DQ<21>
M_A_DQ<22>
M_A_DQ<12>
12
14
M_A_DQ<15>
M_A_DQ<16>
M_A_DQ<17>
M_A_DQ<18>
SOCKET,CPU,989P,TIN,3.0MM,STR,SMD,TR
M_A_DQ<63>
M_A_DQ<62>
M_A_DQ<61>
M_A_DQ<60>
M_A_DQ<59>
M_A_DQ<58>
M_A_DQ<57>
M_A_DQ<56>
M_A_DQ<55>
M_A_DQ<54>
M_A_DQ<53>
M_A_DQ<52>
M_A_DQ<51>
M_A_DQ<50>
M_A_DQ<49>
M_A_DQ<48>
M_A_DQ<47>
M_A_DQ<46>
M_A_DQ<45>
M_A_DQ<44>
M_A_DQ<43>
M_A_DQ<42>
M_A_DQ<41>
M_A_DQ<40>
M_A_DQ<39>
M_A_DQ<38>
M_A_DQ<37>
M_A_DQ<36>
M_A_DQ<35>
M_A_DQ<34>
M_A_DQ<33>
M_A_DQ<32>
M_A_DQ<31>
M_A_DQ<30>
M_A_DQ<29>
M_A_DQ<28>
M_A_DQ<27>
M_A_DQ<26>
M_A_DQ<25>
M_A_DQ<24>
M_A_DQ<23>
M_A_DQ<20>
M_A_DQ<19>
M_A_DQ<14>
M_A_DQ<13>
M_A_DQ<4>
M_A_DQ<3>
M_A_DQ<2>
M_A_DQ<1>
M_A_WE#
M_A_RAS#
M_A_CAS#
M_A_BS2
M_A_BS1
M_A_A<15>
M_A_A<14>
M_A_A<13>
M_A_A<12>
M_A_A<11>
M_A_A<10>
M_A_A<9>
M_A_A<8>
M_A_A<7>
M_A_A<6>
M_A_A<5>
M_A_A<4>
M_A_A<1>
M_A_A<0>
M_A_DQS_DN<7>
M_A_DQS_DP<7>
M_A_DQS_DN<6>
M_A_DQS_DP<6>
M_A_DQS_DN<5>
M_A_DQS_DP<5>
M_A_DQS_DN<4>
M_A_DQS_DP<4>
M_A_DQS_DN<3>
M_A_DQS_DP<3>
M_A_DQS_DN<2>
M_A_DQS_DP<2>
M_A_DQS_DN<1>
M_A_DQS_DP<1>
M_A_DQS_DN<0>
M_A_DQS_DP<0>
M_ODT0
M_CKE0
M_CLK_DDR0_DN
M_CLK_DDR0_DP
FOX_PZ98927_3641_41F_Huronriver_989P_CHIEFRIVER
A01
M_A_A<15..0>
M_A_DQ<63..0>
M_B_A<15..0>
M_B_DQS_DP<7..0>
M_B_DQS_DN<7..0>
26<
26<
26<
62
26<
26<
26<
60
61
58
59
57
55
56
53
54
52
50
51
49
48
47
45
46
44
43
42
14
15
12
13
11
10
9
7
8
6
5
4
2
3
0
6
7
4
5
3
1
2
0
7
6
5
40
41
39
37
38
35
36
34
32
33
31
30
29
27
28
26
25
24
22
23
21
19
20
17
18
16
15
13
11
9
10
8
7
6
4
5
3
2
1
0
4
3
2
0
1
26<
26<
26<
26<
26<
26<
26<
26<
26<
14
15
12
13
11
10
9
7
8
5
4
2
3
1
0
6
7
4
5
3
27<>
1
2
0
7
6
5
4
3
2
0
1
27<
27<
27<
27<
27<
27<
27<
27<
27<
27<
CS_1310AXXXXXX-MTR
CS
C
SIZE
CHANGE by DATE
8
8 7
7 6
6 5
5 4
4 3
3
2
1
D
D
CC
BB
AA
REV
1
SHEET
2
DOC.NUMBER
of
CODE
INVENTEC
TITLE
BI
BI
OUT
OUT
OUT
OUT
OUT
OUT
OUT
OUT
OUT
OUT
OUT
OUT
OUT
OUT
OUT
OUT
BI
OUT
OUT
OUT
OUT
OUT
OUT
OUT
BI
DDR SYSTEM MEMORY B
SB_DQ[0]
SB_DQ[63]
RSVD_TP[20]
RSVD_TP[19]
RSVD_TP[18]
RSVD_TP[17]
SB_CS#[1]
SB_CS#[0]
RSVD_TP[16]
RSVD_TP[15]
RSVD_TP[14]
RSVD_TP[13]
RSVD_TP[12]
RSVD_TP[11]
SB_DQ[62]
SB_DQ[61]
SB_DQ[60]
SB_DQ[59]
SB_DQ[58]
SB_DQ[57]
SB_DQ[56]
SB_DQ[55]
SB_DQ[54]
SB_DQ[53]
SB_DQ[52]
SB_DQ[51]
SB_DQ[50]
SB_DQ[49]
SB_DQ[48]
SB_DQ[47]
SB_DQ[46]
SB_DQ[45]
SB_DQ[44]
SB_DQ[43]
SB_DQ[42]
SB_DQ[41]
SB_DQ[40]
SB_DQ[39]
SB_DQ[38]
SB_DQ[37]
SB_DQ[36]
SB_DQ[35]
SB_DQ[34]
SB_DQ[33]
SB_DQ[32]
SB_DQ[31]
SB_DQ[30]
SB_DQ[29]
SB_DQ[28]
SB_DQ[27]
SB_DQ[26]
SB_DQ[25]
SB_DQ[24]
SB_DQ[23]
SB_DQ[22]
SB_DQ[21]
SB_DQ[20]
SB_DQ[19]
SB_DQ[18]
SB_DQ[17]
SB_DQ[16]
SB_DQ[15]
SB_DQ[14]
SB_DQ[13]
SB_DQ[12]
SB_DQ[11]
SB_DQ[10]
SB_DQ[9]
SB_DQ[8]
SB_DQ[7]
SB_DQ[6]
SB_DQ[5]
SB_DQ[4]
SB_DQ[3]
SB_DQ[2]
SB_DQ[1]
SB_MA[15]
SB_MA[14]
SB_MA[13]
SB_MA[12]
SB_MA[11]
SB_MA[10]
SB_MA[9]
SB_MA[8]
SB_MA[7]
SB_MA[6]
SB_MA[5]
SB_MA[4]
SB_MA[3]
SB_MA[2]
SB_MA[1]
SB_MA[0]
SB_DQS#[3]
SB_DQS[3]
SB_DQS#[2]
SB_DQS[2]
SB_DQS#[1]
SB_DQS[1]
SB_DQS#[0]
SB_DQS[0]
SB_DQS#[7]
SB_DQS[7]
SB_DQS#[6]
SB_DQS[6]
SB_DQS#[5]
SB_DQS[5]
SB_DQS#[4]
SB_DQS[4]
SB_ODT[1]
SB_ODT[0]
SB_CKE[1]
SB_CKE[0]
SB_CLK#[1]
SB_CLK#[0]
SB_CLK[1]
SB_CLK[0]
SB_WE#
SB_RAS#
SB_CAS#
SB_BS[2]
SB_BS[1]
SB_BS[0]
BI
OUT
OUT
OUT
OUT
OUT
OUT
OUT
OUT
OUT
OUT
BI
OUT
DDR SYSTEM MEMORY A
RSVD_TP[10]
RSVD_TP[9]
RSVD_TP[8]
RSVD_TP[7]
RSVD_TP[6]
RSVD_TP[3]
RSVD_TP[5]
RSVD_TP[4]
RSVD_TP[2]
RSVD_TP[1]
SA_DQ[63]
SA_DQ[62]
SA_DQ[61]
SA_DQ[60]
SA_DQ[59]
SA_DQ[58]
SA_DQ[57]
SA_DQ[56]
SA_DQ[55]
SA_DQ[54]
SA_DQ[53]
SA_DQ[52]
SA_DQ[51]
SA_DQ[50]
SA_DQ[49]
SA_DQ[48]
SA_DQ[47]
SA_DQ[46]
SA_DQ[45]
SA_DQ[44]
SA_DQ[43]
SA_DQ[42]
SA_DQ[41]
SA_DQ[40]
SA_DQ[39]
SA_DQ[38]
SA_DQ[37]
SA_DQ[36]
SA_DQ[35]
SA_DQ[34]
SA_DQ[33]
SA_DQ[32]
SA_DQ[31]
SA_DQ[30]
SA_DQ[29]
SA_DQ[28]
SA_DQ[27]
SA_DQ[26]
SA_DQ[25]
SA_DQ[24]
SA_DQ[23]
SA_DQ[22]
SA_DQ[21]
SA_DQ[20]
SA_DQ[19]
SA_DQ[18]
SA_DQ[17]
SA_DQ[16]
SA_DQ[15]
SA_DQ[14]
SA_DQ[13]
SA_DQ[12]
SA_DQ[11]
SA_DQ[10]
SA_DQ[9]
SA_DQ[8]
SA_DQ[7]
SA_DQ[6]
SA_DQ[5]
SA_DQ[4]
SA_DQ[3]
SA_DQ[2]
SA_DQ[1]
SA_DQ[0]
SA_MA[15]
SA_MA[14]
SA_MA[13]
SA_MA[12]
SA_MA[11]
SA_MA[10]
SA_MA[9]
SA_MA[8]
SA_MA[7]
SA_MA[6]
SA_MA[5]
SA_MA[4]
SA_MA[3]
SA_MA[2]
SA_MA[1]
SA_MA[0]
SA_DQS#[7]
SA_DQS[7]
SA_DQS#[6]
SA_DQS[6]
SA_DQS#[5]
SA_DQS[5]
SA_DQS#[4]
SA_DQS[4]
SA_DQS#[3]
SA_DQS[3]
SA_DQS#[2]
SA_DQS[2]
SA_DQS#[1]
SA_DQS[1]
SA_DQS#[0]
SA_DQS[0]
SA_ODT[1]
SA_ODT[0]
SA_CS#[1]
SA_CS#[0]
SA_CKE[1]
SA_CKE[0]
SA_CLK#[1]
SA_CLK#[0]
SA_CLK[1]
SA_CLK[0]
SA_WE#
SA_RAS#
SA_CAS#
SA_BS[2]
SA_BS[1]
SA_BS[0]

20mil
CPU 4 POWER
CLOSE TO POWER IC
WS
EVEREST-M
Frank Hu
23
97
Fri Dec 31 10:16:58 2010
2
1
R4501
2
1
R4502
2
1
C4563
2
1
C4560
2
1
C4562
2
1
C4561
2
1
C4566
2
1
C4564
2
1
C4565
2
1
R4503
2
1
R4504
2
1
R4526
2
1
R4527
2
1
R4546
2
1
R4547
2
1
R4548
2
1
R4525
2
1
R4550
2
1
R4549
2
1
R4551
2
1
R4528
3
2
1
C4569
2
1
C4599
2
1
C4596
2
1
C4598
2
1
C4597
2
1
C4557
2
1
C4503
2
1
C4558
2
1
C4576
2
1
C4575
2
1
C4574
2
1
C4573
2
1
C4572
2
1
C4571
2
1
C4588
2
1
C4589
2
1
C4590
2
1
C4591
2
1
C4592
2
1
C4593
2
1
C4577
2
1
C4578
2
1
C4581
2
1
C4582
2
1
C4583
2
1
C4584
2
1
C4585
2
1
C4586
2
1
C4587
2
1
C4594
2
1
C4580
2
1
C4579
A10
AJ34
AJ28
AJ30
AJ29
B10
J14
L10
P10
U10
Y10
J23
AC10
A11
A12
A13
A14
B12
B14
C11
C12
C13
C14
AG10
D11
D12
D13
D14
E11
E12
E14
F11
F12
F13
AH10
F14
G12
G13
G14
H11
H12
H14
J11
J12
J13
AH13
AJ35
P27
P28
P29
P30
P31
P32
P33
P34
P35
R26
AG27
R27
R28
R29
R30
R31
R32
R33
R34
R35
U26
AG28
U27
U28
U29
U30
U31
U32
U33
U34
U35
V26
AG29
V27
V28
V29
V30
V31
V32
V33
V34
V35
Y26
AG30
Y27
Y28
Y29
Y30
Y31
Y32
Y33
Y34
Y35
AA26
AG31
AA27
AA28
AA29
AA30
AA31
AA32
AA33
AA34
AA35
AC26
AG32
AC27
AC28
AC29
AC30
AC31
AC32
AC33
AC34
AC35
AD26
AG33
AD27
AD28
AD29
AD30
AD31
AD32
AD33
AD34
AD35
AF26
AG34
AF27
AF28
AF29
AF30
AF31
AF32
AF33
AF34
AF35
P26
AG26
AG35
CN4500
+V1.05S_VCCP_VCCIO40
54.9_1%_2
43_1%_2
PVCORE
0_5%_2
P1V05_VCCPS
10_1%_2
VCC_SENSE_VTT
10_1%_2
VSS_SENSE_VTT
100_1%_2
VSSSENSE
VCCSENSE
75_1%_2
0_5%_2
22uF_6.3V_5 22uF_6.3V_5
10uF_6.3V_3 10uF_6.3V_3
22uF_6.3V_5
22uF_6.3V_5
H_CPU_SVIDALRT#
P1V05_VCCPS
PVCORE
22uF_6.3V_5
470UF_2V
FOX_PZ98927_3641_41F_Huronriver_989P_CHIEFRIVER
VCCSENSE_R
VSSSENSE_R
0_5%_2
100_1%_2
14<
14<
H_CPU_SVIDCLK
VR_SVID_DATA
VR_SVID_CLK
VR_SVID_ALRT#
H_CPU_SVIDDAT
130_1%_2
0_5%_2
0_5%_2
P1V05_VCCPS
130_1%_2
14<>
14<
P1V05_VCCPS
22uF_6.3V_5 22uF_6.3V_5 22uF_6.3V_5
22uF_6.3V_5 22uF_6.3V_5 22uF_6.3V_5 22uF_6.3V_5 22uF_6.3V_5 22uF_6.3V_5
10uF_6.3V_310uF_6.3V_3
10uF_6.3V_3
22uF_6.3V_5
A01
22uF_6.3V_5 22uF_6.3V_5 22uF_6.3V_5 22uF_6.3V_5
22uF_6.3V_5 22uF_6.3V_5
22uF_6.3V_5 22uF_6.3V_5
22uF_6.3V_5
22uF_6.3V_5 22uF_6.3V_5
22uF_6.3V_5 22uF_6.3V_5
10uF_6.3V_3
10uF_6.3V_3 10uF_6.3V_3
10uF_6.3V_3 10uF_6.3V_3
C
CS_1310AXXXXXX-MTR
CS
SIZE
CHANGE by DATE
8
8 7
7 6
6 5
5 4
4 3
3
2
1
D
D
CC
BB
AA
REV
1
SHEET
2
DOC.NUMBER
of
CODE
INVENTEC
TITLE
OUT
OUT
OUT
OUT
OUT
OUT
OUT
+
SVID
SENSE LINES
PEG AND DDR
CORE SUPPLY
POWER
VCCIO40
VCCIO_SENSE
VCCIO31
VCCIO30
VCCIO29
VCCIO28
VCCIO27
VCCIO26
VCCIO39
VCCIO38
VCCIO37
VCCIO36
VCCIO35
VCCIO34
VCCIO33
VCCIO32
VCCIO25
VCCIO17
VCCIO16
VCCIO15
VCCIO14
VCCIO13
VCCIO11
VCCIO10
VCCIO9
VCCIO8
VCCIO7
VCCIO6
VCCIO5
VCCIO4
VCCIO3
VCCIO2
VCCIO24
VCCIO23
VCCIO22
VCCIO21
VCCIO20
VCCIO19
VCCIO18
VCCIO12
VCCIO1
VCC100
VCC99
VCC98
VCC97
VCC96
VCC95
VCC94
VCC93
VCC92
VCC91
VCC90
VCC89
VCC88
VCC87
VCC86
VCC85
VCC84
VCC83
VCC82
VCC81
VCC80
VCC79
VCC78
VCC77
VCC76
VCC75
VCC74
VCC73
VCC72
VCC71
VCC70
VCC69
VCC68
VCC67
VCC66
VCC65
VCC64
VCC63
VCC62
VCC61
VCC60
VCC59
VCC58
VCC57
VCC56
VCC55
VCC54
VCC53
VCC52
VCC51
VCC50
VCC49
VCC48
VCC47
VCC46
VCC45
VCC44
VCC43
VCC42
VCC41
VCC40
VCC39
VCC38
VCC37
VCC36
VCC35
VCC34
VCC33
VCC32
VCC31
VCC30
VCC29
VCC28
VCC27
VCC26
VCC25
VCC24
VCC23
VCC22
VCC21
VCC20
VCC19
VCC18
VCC17
VCC16
VCC15
VCC14
VCC13
VCC12
VCC11
VCC10
VCC9
VCC8
VCC7
VCC6
VCC5
VCC4
VCC3
VCC2
VCC1
VSS_SENSE_VCCIO
VIDSOUT
VIDSCLK
VIDALERT#
VSS_SENSE
VCC_SENSE

WS
SNB HIGH
IVB HIGH
WS
WS
20/20 mil
6A
IVB LOW
0.675V
20/20 mil
CPU 5 POWER
1.1A
20/20 mil
0.90V
[[ CPU PIN# C22
xxVccSA_Select[0]
VID1 of VR ]]
0
0
1
VID0 of VR ]]
[[ CPU PIN# C24
xxVccSA_Select[1]
1
1
0
0
SNB LOW
Function
0.725V
VCCSA VR Vout
1
0.80V
WS
WS
24
97
EVEREST-M
Frank Hu
Mon Jan 03 17:28:06 2011
10uF_6.3V_3
VCCSA_SENSE
2
1
R4559
2
1
C4605
2
1
C4604
2
1
C4603
2
1
C4602
2
1
C4601
2
1
C4600
2
1
C4568
2
1
C4567
4
36
5
2
1
Q4501
2
1
R4523
2
1
C4595
2
1
R4524
2
1
R4543
2
1
C4502
2
1
C4501
2
1
C4500
2
1
C4553
2
1
C4552
2
1
C4551
2
1
C4555
2
1
C4556
2
1
C4554
2
1
L4500
2
1
C4547
2
1
C4549
2
1
C4548
2
1
C4550
32
1
C4505
32
1
C4506
2
1
C4507
2
1
C4508
2
1
C4510
2
1
C4509
2
1
C4511
2
1
C4512
2
1
C4513
2
1
C4514
AK34
Y1
Y4
Y7
AC1
AC4
AC7
AF1
AF4
P1
P4
P7
U1
U4
U7
AF7
C24
C22
H23
H25
H26
J24
J25
J26
L26
M26
M27
A2
A6
B6
A19
AK35
AR21
AR23
AR24
AT17
AH17
AH18
AH20
AH21
AH23
AT18
AH24
AJ17
AJ18
AJ20
AJ21
AJ23
AJ24
AK17
AK18
AK20
AT20
AK21
AK23
AK24
AL17
AL18
AL20
AL21
AL23
AL24
AM17
AT21
AM18
AM20
AM21
AM23
AM24
AN17
AN18
AN20
AN21
AN23
AT23
AN24
AP17
AP18
AP20
AP21
AP23
AP24
AR17
AR18
AR20
AT24
AL1
D1
B4
CN4500
22uF_6.3V_5
10uF_6.3V_3
FOX_PZ98927_3641_41F_Huronriver_989P_CHIEFRIVER
0_5%_2_DY
VCCSA_SEL
CPU_CHB_VREFDQ
CPU_CHA_VREFDQ
470UF_2V
22uF_6.3V_5_DY
22uF_6.3V_5 22uF_6.3V_5 22uF_6.3V_5
22uF_6.3V_5_DY
14<
14<
VSSAXG_SENSE
0_5%_2
10uF_6.3V_3
10uF_6.3V_3
13<
22uF_6.3V_5
P0V75_VREF_M
22uF_6.3V_522uF_6.3V_5 22uF_6.3V_522uF_6.3V_5
22uF_6.3V_5
P0V75_VREF_M_H
470pF_50V_2
AO6402AL
PVAXG
C
A01
CS
CS_1310AXXXXXX-MTR
SLP_S3#_15R
VAXG_SENSE
10uF_6.3V_3
220UF_2.5V
220UF_2.5V
10uF_6.3V_3
1uF_6.3V_2 1uF_6.3V_2
22uF_6.3V_5
10K_5%_2
P0V85_S
10uF_6.3V_3 10uF_6.3V_3
P1V5_CPUDDRS
100K_5%_2
P0V75_VREF_M_H
10uF_6.3V_3
10uF_6.3V_3
22uF_6.3V_5
470UF_2V
P1V8_S
FBM_11_160808_181A15T
22uF_6.3V_5
VCCPLL
SIZE
CHANGE by DATE
8
8 7
7 6
6 5
5 4
4 3
3
2
1
D
D
CC
BB
AA
REV
1
SHEET
2
DOC.NUMBER
of
CODE
INVENTEC
TITLE
+
+
D
G
S
NMOS_4D1S
IN
OUT
OUT
OUT
OUT
+
+
MISC VREFSA RAIL
1.8V RAIL
LINES
SENSE
DDR3 -1.5V RAILS
GRAPHICS
POWER
VCCIO_SEL
SB_DIMM_VREFDQ
SA_DIMM_VREFDQ
VCCSA_VID[0]
VCCPLL3
VCCSA_VID[1]
VCCSA_SENSE
VCCSA8
VCCSA7
VCCSA6
VCCSA5
VCCSA4
VCCSA3
VCCSA2
VCCSA1
VCCPLL2
VCCPLL1
VDDQ10
VDDQ9
VDDQ8
VDDQ7
VDDQ6
VDDQ5
VDDQ4
VDDQ3
VDDQ2
VDDQ1
VDDQ15
VDDQ14
VDDQ13
VDDQ12
VDDQ11
VAXG54
VAXG53
VAXG52
VAXG51
VAXG50
VAXG49
VAXG48
VAXG47
VAXG46
VAXG45
VAXG44
VAXG43
VAXG42
VAXG41
VAXG40
VAXG39
VAXG38
VAXG37
VAXG36
VAXG35
VAXG34
VAXG33
VAXG32
VAXG31
VAXG30
VAXG29
VAXG28
VAXG27
VAXG26
VAXG25
VAXG24
VAXG23
VAXG22
VAXG21
VAXG20
VAXG19
VAXG18
VAXG17
VAXG16
VAXG15
VAXG14
VAXG13
VAXG12
VAXG11
VAXG10
VAXG9
VAXG8
VAXG7
VAXG6
VAXG5
VAXG4
VAXG3
VAXG2
VAXG1
VAXG_SENSE
VSSAXG_SENSE
SM_VREF

PEG Defer Training
PCIE Port Bifurcation
LOW eDP ENABLE
STRAP PIN
CPU 6 GND
PEG Static Lan Reversal
0: eDP Enabled
LOW eDP ENABLE
PEG Defer Training
CFG(4)
PCIE Port Bifurcation Straps
00: x8, x4, x4 - Device 1 function 1 and 2 enabled
01: Reserved - (Device 1 function 1 disabled ; function 2 enabled
11: (Default) x16 - Device 1 function 1 and 2 disabled
1: (Default) PEG Train immediately following xxRESETB de assertion
0: PEG Wait for BIOS for training
CFG(7)
CFG(2)
1: (Default) Normal operation
PEG Static Lane Reversal
0: Lane Reversed
1: (Default) eDP Disabled
10: x8, x8 - Device 1 function 1 enabled ; function 2 disabled
CFG[6:5]
EVEREST-M
Frank Hu
97
25
Fri Dec 31 10:16:59 2010
2
1
R4518
2
1
R4519
2
1
R4520
2
1
R4521
2
1
R4522
AH31
AH33
AH26
AJ33
AH27
AJ31
B35
A34
A33
B34
AR34
AP35
AT33
AT34
AR1
AT1
AT2
C35
AR35
F24
F25
AM35
AK32
AJ32
AJ26
G16
H16
J16
T8
AJ27
AM33
AT26
W8
AK2
AE7
AG7
L7
J15
B18
J20
C29
A30
B31
D30
B29
B30
A31
C30
D23
E23
G24
G25
D24
F23
B1
AM30
AM32
AM31
AL30
AL29
AK26
AL27
AL26
AN29
AK31
AM27
AN26
AN31
AN28
AM26
AM28
AK29
AK28
AN35
CN4500
A3
A20
A23
A26
A29
A32
A35
B2
B3
B5
B7
B8
B9
B11
B13
B15
B17
B19
B22
C1
C10
C23
C25
C27
C28
C31
C34
D17
D20
D26
D29
D32
D35
E1
E2
E3
E4
E5
E6
E7
E8
E9
E10
E13
E15
E18
E21
E24
E27
E30
F19
F22
F29
F31
F34
G11
G17
G20
G23
G26
G29
G32
G35
H1
H2
H3
H4
H5
H6
H7
H8
H9
H10
H13
H15
H18
H21
H24
H27
H30
H33
J31
J34
K26
K29
K32
K35
L1
L2
L3
L4
L5
L6
L8
L9
L27
L30
L33
M34
N26
N27
N28
N29
N30
N31
N32
N33
N34
N35
P2
P3
P5
P6
P8
P9
T26
T27
T28
T29
T30
T31
T32
T33
T34
T35
CN4500
AH22
AH25
AH28
AH29
AH30
AH32
AH34
AH35
AJ1
AT13
AJ2
AJ3
AJ4
AJ7
AJ10
AJ13
AJ16
AJ19
AJ22
AJ25
AT16
AK4
AK7
AK10
AK13
AK16
AK19
AK22
AK25
AK27
AK30
AT19
AK33
AL2
AL4
AL7
AL10
AL13
AL16
AL19
AL22
AL25
AT22
AL28
AL31
AL34
AM1
AM2
AM3
AM4
AM7
AM10
AM13
AT25
AM16
AM19
AM22
AM25
AM29
AN4
AN7
AN10
AN13
AN16
AT27
AN19
AN22
AN25
AN27
AN30
AP1
AP4
AP7
AP10
AP13
AT29
AP16
AP19
AP22
AP25
AP28
AP31
AP34
AR2
AR4
AR7
AT32
AR10
AR13
AR16
U2
AR19
U3
U5
U6
U8
U9
W26
W27
W28
W29
W30
AR22
W31
W32
W33
W34
W35
Y2
Y3
Y5
Y6
Y8
AR25
Y9
AB26
AB27
AB28
AB29
AB30
AB31
AB32
AB33
AB34
AT3
AB35
AC2
AC3
AC5
AC6
AC8
AC9
AD7
AE9
AE26
AT4
AE27
AE28
AE29
AE30
AE31
AE32
AE33
AE34
AE35
AF2
AT7
AF3
AF5
AF6
AG4
AG8
AG9
AH4
AH7
AH16
AH19
AT10
AT35
CN4500
FOX_PZ98927_3641_41F_Huronriver_989P_CHIEFRIVER
CFG<16>
CFG<15>
CFG<13>
CFG<12>
FOX_PZ98927_3641_41F_Huronriver_989P_CHIEFRIVER
CFG<5>
CFG<6>
25<
60<
60<
FOX_PZ98927_3641_41F_Huronriver_989P_CHIEFRIVER
CFG<4>
CFG<5>
CFG<2>
CS_1310AXXXXXX-MTR
CS A01
C
CFG<17>
CFG<0>
CFG<14>
CFG<11>
CFG<10>
CFG<9>
CFG<8>
CFG<7>
CFG<4>
CFG<3>
CFG<2>
CFG<1>
CLK_XDP_CLKGEN_DN
CLK_XDP_CLKGEN_DP
25<
60<
60<
60<
60<
25<
60<
25<
60<
60<
60<
60<
60<
1K_1%_2_DY
1K_1%_2_DY
1K_1%_2
1K_1%_2
1K_1%_2_DY
25>60<
CFG<7>
CFG<6>
60<
25<
60<
SIZE
CHANGE by DATE
8
8 7
7 6
6 5
5 4
4 3
3
2
1
D
D
CC
BB
AA
REV
1
SHEET
2
DOC.NUMBER
of
CODE
INVENTEC
TITLE
OUT
OUT
OUT
OUT
OUT
OUT
OUT
OUT
OUT
OUT
OUT
OUT
OUT
OUT
OUT
OUT
OUT
OUT
IN
IN
IN
IN
IN
IN
IN
RESERVED
VSS_DIE_SENSE
VCC_DIE_SENSE
BCLK_ITP#
BCLK_ITP
KEY
VSS_VAL_SENSE
VCC_VAL_SENSE
VSSAXG_VAL_SENSE
VAXG_VAL_SENSE
RSVD5
RSVD10
RSVD_NCTF4
RSVD25
RSVD33
RSVD32
RSVD14
RSVD13
RSVD12
RSVD11
RSVD9
RSVD8
RSVD37
RSVD24
RSVD23
RSVD21
RSVD22
RSVD19
RSVD20
RSVD18
RSVD17
RSVD15
RSVD16
RSVD27
RSVD29
RSVD28
RSVD31
RSVD30
RSVD52
RSVD51
RSVD_NCTF10
RSVD_NCTF9
RSVD_NCTF8
RSVD_NCTF7
RSVD_NCTF6
RSVD_NCTF13
RSVD_NCTF12
RSVD_NCTF11
RSVD_NCTF5
RSVD_NCTF3
RSVD_NCTF1
RSVD40
RSVD39
RSVD_NCTF2
RSVD38
RSVD35
RSVD34
CFG[17]
CFG[16]
CFG[15]
CFG[14]
CFG[13]
CFG[12]
CFG[11]
CFG[10]
CFG[9]
CFG[8]
CFG[7]
CFG[6]
CFG[5]
CFG[4]
CFG[3]
CFG[2]
CFG[1]
CFG[0]
VSS
VSS285
VSS284
VSS283
VSS282
VSS281
VSS280
VSS279
VSS278
VSS277
VSS276
VSS275
VSS274
VSS273
VSS272
VSS271
VSS270
VSS269
VSS268
VSS267
VSS266
VSS265
VSS264
VSS263
VSS262
VSS261
VSS260
VSS259
VSS258
VSS257
VSS256
VSS255
VSS254
VSS253
VSS252
VSS251
VSS250
VSS249
VSS248
VSS247
VSS246
VSS245
VSS244
VSS243
VSS242
VSS241
VSS240
VSS239
VSS238
VSS237
VSS236
VSS235
VSS234
VSS233
VSS232
VSS231
VSS230
VSS229
VSS228
VSS227
VSS226
VSS225
VSS224
VSS223
VSS222
VSS221
VSS220
VSS219
VSS218
VSS217
VSS216
VSS215
VSS214
VSS213
VSS212
VSS211
VSS210
VSS209
VSS208
VSS207
VSS206
VSS205
VSS204
VSS203
VSS202
VSS201
VSS200
VSS199
VSS198
VSS197
VSS196
VSS195
VSS194
VSS193
VSS192
VSS191
VSS190
VSS189
VSS188
VSS187
VSS186
VSS185
VSS184
VSS183
VSS182
VSS181
VSS180
VSS179
VSS178
VSS177
VSS176
VSS175
VSS174
VSS173
VSS172
VSS171
VSS170
VSS169
VSS168
VSS167
VSS166
VSS165
VSS164
VSS163
VSS162
VSS161
VSS
VSS160
VSS159
VSS158
VSS157
VSS156
VSS155
VSS154
VSS153
VSS152
VSS151
VSS150
VSS149
VSS148
VSS147
VSS146
VSS145
VSS144
VSS143
VSS142
VSS141
VSS140
VSS139
VSS138
VSS137
VSS136
VSS135
VSS134
VSS133
VSS132
VSS131
VSS130
VSS129
VSS128
VSS127
VSS126
VSS125
VSS124
VSS123
VSS122
VSS121
VSS120
VSS119
VSS118
VSS117
VSS116
VSS115
VSS114
VSS113
VSS112
VSS111
VSS110
VSS109
VSS108
VSS107
VSS106
VSS105
VSS104
VSS103
VSS102
VSS101
VSS100
VSS99
VSS98
VSS96
VSS95
VSS94
VSS93
VSS92
VSS91
VSS90
VSS89
VSS88
VSS87
VSS86
VSS85
VSS84
VSS83
VSS82
VSS81
VSS80
VSS79
VSS78
VSS77
VSS76
VSS75
VSS74
VSS73
VSS72
VSS71
VSS70
VSS69
VSS68
VSS67
VSS66
VSS65
VSS64
VSS63
VSS62
VSS61
VSS60
VSS59
VSS58
VSS57
VSS56
VSS55
VSS54
VSS53
VSS52
VSS51
VSS50
VSS49
VSS48
VSS47
VSS46
VSS45
VSS44
VSS43
VSS42
VSS41
VSS40
VSS39
VSS38
VSS37
VSS36
VSS35
VSS34
VSS33
VSS32
VSS31
VSS30
VSS29
VSS28
VSS27
VSS26
VSS25
VSS24
VSS23
VSS22
VSS21
VSS20
VSS19
VSS18
VSS17
VSS16
VSS15
VSS14
VSS13
VSS12
VSS11
VSS10
VSS9
VSS8
VSS7
VSS6
VSS5
VSS4
VSS3
VSS2
VSS1

DDR3 DIMM0
NOTE:
1.5A
NOTE:PLACE C4100
ON COMMON PATH
THESE CAPS NEAR
LAYOUT NOTE: PLACE
SO-DIMM0 POWER PIN
IF SA0_DIM0=1 , SA1_DIM0=0
SO-DIMMA SPD ADDRESS IS 0XA2
SO-DIMMA TS ADDRESS IS 0X32
SO-DIMMA TS ADDRESS IS 0X30
SO-DIMMA SPD ADDRESS IS 0XA0
IF SA0_DIM0=0 , SA1_DIM0=0
FOR BOTH DIMM'S
VTT2
CHA
20/20 MIL
20/20 MIL
CLOSE TO VTT1 AND
PLACE THESE CAPS
WS
REMOVE 1UF CAP 1PCS
Fri Dec 31 10:17:00 2010
EVEREST-M
Frank Hu
97
26
2
1
R4127
2
1
R4126
2
1
R4101
2
1
R4100
2
1
R4125
2
1
R4102
2
1
C4110
2
1
C4100
2
1
C4109
2
1
C4128
2
1
C4120
2
1
C4121
2
1
C4119
2
1
C4126
2
1
C4127
2
1
C4122
2
1
C4125
2
1
C4124
2
1
C4123
2
1
C4137
2
1
C4136
2
1
C4135
2
1
C4140
2
1
C4139
2
1
C4138
204
203
25
20
19
14
196
195
190
13
189
185
184
179
178
173
172
168
167
162
9
161
156
155
151
150
145
144
139
138
134
8
133
128
127
72
71
66
65
61
60
55
3
54
49
48
44
43
38
37
32
31
26
2
1
126
199
99
94
93
88
87
82
81
76
124
123
118
117
112
111
106
105
100
75
30
125
122
77
G2
G1
198
CN4101
113
200
202
201
197
121
114
110
120
116
188
171
154
137
64
47
29
12
186
169
152
135
62
45
27
10
23
21
18
194
192
182
180
16
193
191
183
181
176
174
166
164
177
175
6
165
163
160
158
148
146
159
157
149
147
4
142
140
132
130
143
141
131
129
70
68
17
58
56
69
67
59
57
52
50
42
40
15
53
51
41
39
36
34
24
22
35
33
7
5
187
170
153
136
63
46
28
11
74
73
104
102
103
101
115
79
108
109
85
89
86
90
91
92
95
96
78
80
119
83
84
107
97
98
CN4101
M_A_DQS_DN<7..0>
M_A_DQS_DP<7..0>
M_A_DQ<38>
1UF_6.3V_2
BELLW_80001_6021_204P
M_A_DQ<2>
M_A_A<11>
M_A_A<4>
M_A_DQ<10>
P3V3_S
DIMM0_VREF_DQ
0.1UF_16V_2
1UF_6.3V_2
SA1_DIM0
P3V3_S
BELLW_80001_6021_204P
M_A_A<13>
M_A_A<12>
M_A_A<0>
0
M_A_A<6>
8
6
M_A_A<7>
M_A_DQ<24>
M_A_DQ<26>
32
M_A_DQ<31>
M_A_DQ<29>
M_A_DQ<25>
M_A_DQ<27>
M_A_DQ<8>
M_A_DQ<6>
M_A_DQ<19>
16
17
22<>
M_A_DQ<63..0>
P3V3_S
DIMM0_VREF_CA
DDR3_DRAMRST#
PM_EXTTS#1_R
M_A_DQ<4>
M_A_DQ<3>
M_A_A<15..0>
10K_5%_2 10K_5%_2
10K_5%_2_DY
26>
26>
10K_5%_2_DY
SA0_DIM0
10K_5%_2
0_5%_2
26>27>
PM_EXTTS#1
PM_EXTTS#1_R
1UF_6.3V_2
10UF_6.3V_3
10UF_6.3V_3
10UF_6.3V_310UF_6.3V_3
10UF_6.3V_310UF_6.3V_3
1UF_6.3V_21UF_6.3V_21UF_6.3V_2
18>
26< 27>
P0V75_S
1UF_6.3V_21UF_6.3V_2
P1V5
CS
CS_1310AXXXXXX-MTR
A01
C
22>
0
1
2
4
3
5
6
7
8
9
10
11
12
14
15
13
20
18
19
22>
1
2
3
4
5
7
9
10
11
12
13
14
15
22>
22>
22>
21
22
23
24
25
26
27
28
30
29
33
31
35
34
38
36
37
40
39
43
41
42
44
45
46
47
48
49
50
51
52
53
55
54
56
57
58
60
59
61
63
62
22>
22>
22>
22>
22>
22>
22>
22>
22>
60< 27<
59<> 29<>
22>
22>
0
1
2
22<>
3
4
5
6
7
0
1
2
3
4
5
22<>
26<
26<
6
7
M_CS#1
M_A_DQ<0>
M_A_DQ<1>
M_A_DQ<5>
M_A_DQ<7>
M_A_DQ<9>
M_A_DQ<11>
M_A_DQ<12>
M_A_DQ<14>
M_A_DQ<15>
M_A_DQ<13>
M_A_DQ<16>
M_A_DQ<17>
M_A_DQ<20>
M_A_DQ<18>
M_A_A<1>
M_A_A<2>
M_A_A<3>
M_A_A<5>
M_A_A<8>
M_A_A<9>
M_A_A<10>
M_A_A<14>
M_A_A<15>
M_A_BS2
M_A_BS1
M_A_BS0
M_A_DQ<21>
M_A_DQ<22>
M_A_DQ<23>
M_A_DQ<28>
M_A_DQ<30>
M_A_DQ<33>
M_A_DQ<32>
M_A_DQ<35>
M_A_DQ<34>
M_A_DQ<36>
M_A_DQ<37>
M_A_DQ<40>
M_A_DQ<43>
M_A_DQ<41>
M_A_DQ<42>
M_A_DQ<44>
M_A_DQ<45>
M_A_DQ<46>
M_A_DQ<48>
M_A_DQ<49>
M_A_DQ<50>
M_A_DQ<51>
M_A_DQ<52>
M_A_DQ<53>
M_A_DQ<55>
M_A_DQ<54>
M_A_DQ<56>
M_A_DQ<57>
M_A_DQ<58>
M_A_DQ<60>
M_A_DQ<59>
M_A_DQ<61>
M_A_DQ<63>
M_A_DQ<62>
M_CS#0
M_CLK_DDR1_DP
M_CLK_DDR0_DN
M_CLK_DDR0_DP
M_CLK_DDR1_DN
M_CKE0
M_A_WE#
M_A_RAS#
M_A_CAS#
M_CKE1
PCH_3S_SMCLK
PCH_3S_SMDATA
M_ODT0
M_ODT1
M_A_DQS_DP<0>
M_A_DQS_DP<1>
M_A_DQS_DP<2>
M_A_DQS_DP<3>
M_A_DQS_DP<4>
M_A_DQS_DP<5>
M_A_DQS_DP<6>
M_A_DQS_DP<7>
M_A_DQS_DN<0>
M_A_DQS_DN<1>
M_A_DQS_DN<2>
M_A_DQS_DN<3>
M_A_DQS_DN<4>
M_A_DQS_DN<5>
SA0_DIM0
SA1_DIM0
M_A_DQS_DN<6>
M_A_DQS_DN<7>
M_A_DQ<47>
27>
2.2UF_6.3V_2
0.1UF_16V_2
2.2UF_6.3V_2 0.1UF_16V_2
M_A_DQ<39>
22>
SIZE
CHANGE by DATE
8
8 7
7 6
6 5
5 4
4 3
3
2
1
D
D
CC
BB
AA
REV
1
SHEET
2
DOC.NUMBER
of
CODE
INVENTEC
TITLE
IN
IN
BI
OUT
BI
G2
G1
VTT2
VTT1
VSS52
VSS51
VSS50
VSS49
VSS48
VSS47
VSS46
VSS45
VSS44
VSS43
VSS42
VSS41
VSS40
VSS39
VSS38
VSS37
VSS36
VSS35
VSS34
VSS33
VSS32
VSS31
VSS30
VSS29
VSS28
VSS27
VSS26
VSS25
VSS24
VSS23
VSS22
VSS21
VSS20
VSS19
VSS18
VSS17
VSS16
VSS15
VSS14
VSS13
VSS12
VSS11
VSS10
VSS9
VSS8
VSS7
VSS6
VSS5
VSS4
VSS3
VSS2
VSS1
VREF_CA
VREF_DQ
RESET#
EVENT#
NCTEST
NC2
NC1
VDDSPD
VDD18
VDD17
VDD16
VDD15
VDD14
VDD13
VDD12
VDD11
VDD10
VDD9
VDD8
VDD7
VDD6
VDD5
VDD4
VDD3
VDD2
VDD1
IN
IN
IN
OUT
OUT
OUT
OUT
IN
IN
IN
IN
IN
IN
IN
IN
IN
IN
IN
IN
IN
IN
IN
IN
IN
IN
DQ63
DQ62
DQ61
DQ60
DQ59
DQ58
DQ57
DQ56
DQ55
DQ54
DQ53
DQ52
DQ51
DQ50
DQ49
DQ48
DQ47
DQ46
DQ45
DQ44
DQ43
DQ42
DQ41
DQ40
DQ39
DQ38
DQ37
DQ36
DQ35
DQ34
DQ33
DQ32
DQ31
DQ30
DQ29
DQ28
DQ27
DQ26
DQ25
DQ24
DQ23
DQ22
DQ21
DQ20
DQ19
DQ18
DQ17
DQ16
DQ15
DQ14
DQ13
DQ12
DQ11
DQ10
DQ9
DQ8
DQ7
DQ6
DQ5
DQ4
DQ3
DQ2
DQ1
DQ0
DQS#7
DQS#6
DQS#5
DQS#4
DQS#3
DQS#2
DQS#1
DQS#0
DQS7
DQS6
DQS5
DQS4
DQS3
DQS2
DQS1
DQS0
DM7
DM6
DM5
DM4
DM3
DM2
DM1
DM0
ODT1
ODT0
SDA
SCL
SA1
SA0
WE#
RAS#
CAS#
CKE1
CKE0
CK1#
CK1
CK0#
CK0
S1#
S0#
BA2
BA1
BA0
A15
A14
A13
A12
A11
A10_AP
A9
A8
A7
A6
A5
A4
A3
A2
A1
A0

20/20 MIL
PLACE THESE CAPS
DDR3 DIMM1
SO-DIMM0 POWER PIN
PLACE THESE CAPS
CLOSE TO VTT1 AND
VTT2
1.5A
20/20 MIL
CHB
VTT2
CLOSE TO VTT1 AND
WS
NOTE:
LAYOUT NOTE: PLACE
THESE CAPS NEAR
SO-DIMMB TS ADDRESS IS 0X34
REMOVE CPU_CHB_VREFDQ
SO-DIMMB SPD ADDRESS IS 0XA4
20/20 MIL
WS
Fri Dec 31 10:16:30 2010
27
97
EVEREST-M
Frank Hu
2
1
R4139
2
1
R4138
2
1
R4137
2
1
R4136
2
1
R4144
2
1
R4143
2
1
R4142
2
1
R4141
2
1
C4142
2
1
R4140
2
1
C4141
2
1
R4135
2
1
R4134
2
1
R4133
2
1
R4132
2
1
R4131
2
1
R4130
2
1
R4129
2
1
R4128
4
36
5
2
1
Q4101
4
3 6
5
2
1
Q4100
2
1
R4122
2
1
R4117
2
1
R4118
2
1
C4118
2
1
R4110
2
1
R4111
2
1
R4121
2
1
C4103
2
1
R4112
2
1
R4105
204
203
25
20
19
14
196
195
190
13
189
185
184
179
178
173
172
168
167
162
9
161
156
155
151
150
145
144
139
138
134
8
133
128
127
72
71
66
65
61
60
55
3
54
49
48
44
43
38
37
32
31
26
2
1
126
199
99
94
93
88
87
82
81
76
124
123
118
117
112
111
106
105
100
75
30
125
122
77
G2
G1
198
CN4100
113
200
202
201
197
121
114
110
120
116
188
171
154
137
64
47
29
12
186
169
152
135
62
45
27
10
23
21
18
194
192
182
180
16
193
191
183
181
176
174
166
164
177
175
6
165
163
160
158
148
146
159
157
149
147
4
142
140
132
130
143
141
131
129
70
68
17
58
56
69
67
59
57
52
50
42
40
15
53
51
41
39
36
34
24
22
35
33
7
5
187
170
153
136
63
46
28
11
74
73
104
102
103
101
115
79
108
109
85
89
86
90
91
92
95
96
78
80
119
83
84
107
97
98
CN4100
2
1
R4119
2
1
R4120
2
1
R4115
2
1
R4116
2
1
R4114
2
1
R4123
2
1
R4124
2
1
R4103
2
1
R4104
2
1
C4101
2
1
C4102
2
1
C4107
2
1
C4132
2
1
C4133
2
1
C4134
2
1
C4129
2
1
C4130
2
1
C4131
2
1
C4108
2
1
C4106
2
1
C4105
2
1
C4113
2
1
C4114
2
1
C4115
2
1
C4117
2
1
C4112
2
1
C4116
2
1
C4104
SA0_DIM1
27>
P3V3_S
M_B_DQ<2>
M_B_DQ<1>
M_B_A<3>
M_B_DQ<17>
33
M_B_DQ<33>
M_B_DQ<34>
M_B_DQ<24>
M_B_DQ<27>
M_B_BS2
M_B_A<6>
DIMM0_VREF_CA
1UF_6.3V_2
17
M_B_DQ<16>
M_B_DQ<18>
M_B_DQ<19>
20
19
18
M_B_DQ<20>
M_B_DQ<21>
M_B_DQ<22>
M_B_DQ<23>
22
21
26
DIMM1_VREF_DQ
0.1UF_16V_22.2UF_6.3V_2
PM_EXTTS#1_R
DDR3_DRAMRST#
M_B_DQ<10>
M_B_DQ<11>
M_B_DQ<12>
M_B_DQ<13>
M_B_DQ<14>
M_B_DQ<15>
10UF_6.3V_3
P3V3_S
DIMM1_VREF_CA
0_5%_2
0_5%_2
0.1UF_16V_2
M_B_DQ<59>
1K_5%_2_DY
DRAMRST_CNTRL_CPU
0_5%_20_5%_2
1K_5%_2_DY
AO6402AL
0_5%_2_DY
1K_1%_2
P1V5
0_5%_2_DY
DIMM1_VREF_DQ
0_5%_2_DY
0_5%_2_DY
DIMM0_VREF_DQ
P1V5
P1V5_CPUDDRS
CPU_CHB_VREFDQ
1K_5%_2_DY
0_5%_2_DY
0_5%_2
AO6402AL
CPU_CHA_VREFDQ
1K_1%_2
1K_5%_2_DY
1K_5%_2_DY
62
M_B_DQ<63>
M_B_DQS_DN<1>
DRAMRST_CNTRL_CPU
P1V5
0.1UF_16V_2
P1V5
0_5%_2
0.1UF_16V_2_DY
0_5%_2_DY
C
M_B_DQS_DP<7>
M_B_DQ<56>
P0V75_VREF_M
1K_5%_2_DY
0.1UF_16V_2
0_5%_2_DY
0_5%_2
1K_1%_2
10K_5%_2_DY
0_5%_2
0_5%_2
0_5%_2_DY
0_5%_2_DY
M_B_DQ<62>
PCH_3S_SMDATA
SA0_DIM1
SA1_DIM1
63
61
60
59
58
57
56
55
54
53
52
51
M_B_DQ<50>
M_B_DQ<61>
M_B_DQ<60>
M_B_DQ<58>
M_B_DQ<57>
M_B_DQ<55>
M_B_DQ<53>
M_B_DQ<52>
M_B_DQ<51>
50
M_B_DQ<49>
49
M_B_DQS_DN<7>
M_B_DQS_DN<6>
M_B_DQS_DN<0>
M_B_DQ<38>
M_B_DQ<36>
M_B_DQ<43>
CS_1310AXXXXXX-MTR
M_B_DQS_DN<5>
M_B_DQS_DN<4>
M_B_DQS_DN<3>
M_B_DQS_DN<2>
M_B_DQ<48>
M_B_DQ<47>
M_B_DQ<46>
M_B_DQ<45>
M_B_DQ<42>
M_B_DQ<41>
M_B_DQ<40>
M_B_DQ<39>
M_B_DQ<37>
M_B_DQ<35>
M_B_DQ<32>
M_B_DQ<31>
M_B_DQ<30>
M_B_DQ<29>
M_B_DQ<28>
M_B_DQ<26>
M_B_DQ<25>
M_B_DQ<9>
M_B_DQ<8>
M_B_DQ<7>
M_B_DQ<6>
M_B_DQ<5>
M_B_DQ<4>
M_B_DQ<3>
M_B_DQ<0>
M_B_DQS_DP<6>
M_B_DQS_DP<5>
M_B_DQS_DP<4>
M_B_DQS_DP<3>
M_B_DQS_DP<2>
M_ODT3
M_ODT2
PCH_3S_SMCLK
M_B_WE#
M_B_RAS#
M_B_CAS#
M_CKE3
M_CKE2
M_CLK_DDR3_DN
M_CLK_DDR3_DP
M_CLK_DDR2_DN
M_CLK_DDR2_DP
M_CS#3
M_CS#2
M_B_BS1
M_B_BS0
M_B_A<15>
M_B_A<14>
M_B_A<13>
M_B_A<12>
M_B_A<11>
M_B_A<10>
M_B_A<9>
M_B_A<8>
M_B_A<7>
M_B_A<5>
M_B_A<4>
M_B_A<2>
M_B_A<1>
M_B_A<0>
M_B_DQS_DN<7..0>
M_B_A<15..0>
M_B_DQ<63..0>
7
6
5
4
3
2
1
22<>
27<
27<
0
7
6
5
4
3
2
1
0
22>
22>
29<>
60<
59<>
22>
22>
22>
22>
22>
22>
22>
22>
22>
22>
22>
22>
22>
22>
48
47
45
46
44
43
42
40
41
39
38
37
35
36
34
32
30
29
31
28
27
25
24
23
16
22>
15
14
13
12
11
10
9
8
7
6
5
4
3
2
1
0
15
14
13
11
12
10
9
7
6
8
4
5
2
1
3
0
22<>
1UF_6.3V_2
1UF_6.3V_2 1UF_6.3V_2 1UF_6.3V_2 1UF_6.3V_2
BELLW_80001_2021_204P
P0V75_S
1UF_6.3V_2
P1V5
1UF_6.3V_2
10UF_6.3V_3
10UF_6.3V_3
10UF_6.3V_3 10UF_6.3V_3
10UF_6.3V_3
A01
CS
0.1UF_16V_2
M_B_DQ<44>
27>
10K_5%_2
10K_5%_2
SA1_DIM1
10K_5%_2_DY
1K_5%_2_DY
1K_5%_2_DY
M_B_DQS_DP<0>
M_B_DQS_DP<7..0>
M_B_DQS_DP<1>
M_B_DQ<54>
0.1UF_16V_2
2.2UF_6.3V_2
DIMM1_VREF_CA
BELLW_80001_2021_204P
22<>
26<
1K_1%_2
SIZE
CHANGE by DATE
8
8 7
7 6
6 5
5 4
4 3
3
2
1
D
D
CC
BB
AA
REV
1
SHEET
2
DOC.NUMBER
of
CODE
INVENTEC
TITLE
IN
IN
OUT
IN
IN
IN
IN
IN
IN
IN
IN
IN
IN
OUT
IN
IN
BI
IN
IN
IN
IN
IN
IN
IN
D
G
S
NMOS_4D1S
D
G
S
NMOS_4D1S
IN
G2
G1
VTT2
VTT1
VSS52
VSS51
VSS50
VSS49
VSS48
VSS47
VSS46
VSS45
VSS44
VSS43
VSS42
VSS41
VSS40
VSS39
VSS38
VSS37
VSS36
VSS35
VSS34
VSS33
VSS32
VSS31
VSS30
VSS29
VSS28
VSS27
VSS26
VSS25
VSS24
VSS23
VSS22
VSS21
VSS20
VSS19
VSS18
VSS17
VSS16
VSS15
VSS14
VSS13
VSS12
VSS11
VSS10
VSS9
VSS8
VSS7
VSS6
VSS5
VSS4
VSS3
VSS2
VSS1
VREF_CA
VREF_DQ
RESET#
EVENT#
NCTEST
NC2
NC1
VDDSPD
VDD18
VDD17
VDD16
VDD15
VDD14
VDD13
VDD12
VDD11
VDD10
VDD9
VDD8
VDD7
VDD6
VDD5
VDD4
VDD3
VDD2
VDD1
DQ63
DQ62
DQ61
DQ60
DQ59
DQ58
DQ57
DQ56
DQ55
DQ54
DQ53
DQ52
DQ51
DQ50
DQ49
DQ48
DQ47
DQ46
DQ45
DQ44
DQ43
DQ42
DQ41
DQ40
DQ39
DQ38
DQ37
DQ36
DQ35
DQ34
DQ33
DQ32
DQ31
DQ30
DQ29
DQ28
DQ27
DQ26
DQ25
DQ24
DQ23
DQ22
DQ21
DQ20
DQ19
DQ18
DQ17
DQ16
DQ15
DQ14
DQ13
DQ12
DQ11
DQ10
DQ9
DQ8
DQ7
DQ6
DQ5
DQ4
DQ3
DQ2
DQ1
DQ0
DQS#7
DQS#6
DQS#5
DQS#4
DQS#3
DQS#2
DQS#1
DQS#0
DQS7
DQS6
DQS5
DQS4
DQS3
DQS2
DQS1
DQS0
DM7
DM6
DM5
DM4
DM3
DM2
DM1
DM0
ODT1
ODT0
SDA
SCL
SA1
SA0
WE#
RAS#
CAS#
CKE1
CKE0
CK1#
CK1
CK0#
CK0
S1#
S0#
BA2
BA1
BA0
A15
A14
A13
A12
A11
A10_AP
A9
A8
A7
A6
A5
A4
A3
A2
A1
A0
IN
IN
OUT
OUT
BI

HDA_3S_SDOUT_R HIGH:ENABLE
WS
LOW:DISABLE
FLASH DESCRIPTOR SECURITY OVERIDE
WS
Disable - (Default)Internal pull-down
1.05V VRM Enable
high- Enable Internal VRs
STRAP
Enable - pull-up
Flash Override
low-Enable External VRs
INTVRMEN-
SATA SSD
CLOSED TO EC
L- (Default) VCC VRM=1.8V
1: No Reboot enabled
H-VCC VRM=1.5V
No Reboot
Placememt note
PCH 1
CLOSED TO PCH
RTC BATTERY
0: (Default) No Reboot disabled
WS
STRAP
STRAP PIN
LOW - Internal
WS
cap on the "P" signal should be
Distance between the PCH and
identical distance between the
PCH and cap on the "N" signal
for same pair
HIGH - ENABLE ANTITHEFT
STRAP PIN
SATA HDD
SATA ODD
eSATA
WS
mSATA
Sun Jan 02 19:22:09 2011
EVEREST-M
Frank Hu
28
97
AD3
SATA_mSATA_TX_DN
SATA_mSATA_TX_DP
SATA_mSATA_RX_DP
SATA_mSATA_RX_DN
SATA_ESATA_TX_DP
SATA_ESATA_TX_DN
SATA_ESATA_RX_DP
SATA_ESATA_RX_DN
+V1.05S_SATAICOMPO
Y11
PCH_TDI
PCH_TDO
PCH_SPI_CLK
HDA_3S_SDOUT_R
FLASH_OVERRIDE
R4773
1
60>
PCH_TCK
PCH_SPI_CS0#
PCH_SPI_SO
PCH_SPI_SI
28>
PCH_TMS
AF3
AB8
AH4
SATA_ODD_TX_DP
Y5
Y3
HDA_3S_SDOUT
0_5%_3
60> 28>
PCH_TDI
PCH_TMS
PCH_TDO
LPC_3S_AD<0>
37<>
37<>
55<
37<>
55<
210_1%_2
61>
60<>
61>
60>
60<>
28>
60>
60<>
28>
61<
1
210_1%_2
1
R4703
100_1%_2
SATA_SSD_TX_DP
AM2321P_DY
CN4701
+V3M_SPI
1K_5%_2
HDA_3S_SDOUT
28>
60<>
51_5%_2
61>
3
P3V3_A
28<>
1
TP4713
dgnd
SSM3K7002FU
P5V_S
HDA_3S_RST#_R
HDA_3S_SYNC_R
SATA_ODD_RX_DP
R4757
37.4_1%_2
HDA_3S_SDOUT_R
61>
10K_5%_2_DY
28<>
28<>
3.3K_5%_2
28<>
28<>
P3V3_AL
0.1UF_16V_2
28<>
28<>
28<>
33_5%_2
37>
37<
28<>
0_5%_2_DY 0_5%_2_DY
37<
60>
28<>
28<>
1uF_6.3V_2
20K_1%_2
+V_RTC
20K_1%_2
1uF_6.3V_2 10M_5%_2
+V_RTC
18pF_50V_2
28>
58<
+V1.05S
43<
37<>
43<
55<43<
43< 55<
55<
+V1.05S
RSC_0402_DY
P3V3_A
100_1%_2 100_1%_2
210_1%_2
PCH_SPI_CS0#
PCH_SPI_SO
EC_SPI_SO PCH_SPI_SO
1.2K_1%_3
330K_5%_3
750_1%_2
R4758
1
2
R4706
1
2
R4708
2
R4704
1
2
R4702
1
2
R4705
2
1
2
2
1
2
R4890
1
2
1
2
1
2
1
2
R4850
1
R4800
1
2
R4804
1
1
22
2
1
2
1
2
R4797
1
2
R4772
1
2
C4766
1
2
1
2
1
2
R4762
1
2
R4760
1
2
1
2
C4762
1
2
R4761
2
1
1
2
2
R4756
1
2
R4812
1
2
1
2
3
1
2
1
2
R4778
1
2
1
2
R4766
1
2
1
2
R4764
1
2
1
7
6
5
2
4
3
1
1
2 3
4
6
1
5
2
4
7
8
3
WINB_W25Q64BVSSIG_SOIC_8P
R4701
2
PCH_XDPFN11
SATA_ODD_TX_DN
SATA_ODD_RX_DN
SATA_HDD_TX_DP
SATA_HDD_TX_DN
SATA_HDD_RX_DP
SATA_SSD_TX_DN
SATA_SSD_RX_DP
SATA_SSD_RX_DN
LPC_3S_FRAME#
LPC_3S_AD<3>
LPC_3S_AD<2>
LPC_3S_AD<1>
RTCX2
+V_RTC_RTCRST#
+V_RTC_SRTCRST#
PCH_XDPFN10
LED_3S_SATA#
A20
C20
D20
G22
K34
E34
G34
N32
J3
H7
K5
H1
T3
T1
V4
Y14
V14
P3
AH1
AB13
AB12
Y10
AB1
AB3
Y1
AD1
Y7
AF1
AB10
AH5
AD5
AD7
AP10
AP11
AM8
AM10
AP5
AP7
AM1
AM3
V5
K36
E36
C37
B37
C38
2
33_1%_2
+V_RTC_INTRUDER#
K22
C17
N34
L34
U4703
1
C4763
R4759
2
C4761
2
33_1%_2
1
T10
SIG442
2
R4769
HDA_3S_SYNC
PCSPKR_PCH_3
CS A01
C
CS_1310AXXXXXX-MTR
RTCX1
10K_5%_2
PCI_3S_SERIRQ
37<>
+V1.05S_SATA3RCOMPO
2
R4755
PCH_SPI_MOSI_R
2
28>
R4823
0_5%_2_DY
R4891
1
SATA_HDD_RX_DN
2
R4813
3
P5V_S
R4754
1
C36
1
A34
C34
R4768
1
2
2
PCH_SPI_CLK_R
PCH_SPI_CS0#_R
60>
R4801
R4786
1
2
+V3M_SPI
+V3M
18pF_50V_2
C4765
X4701
32.768KHZ
U4700
1
R4767
2
ITL_PANTHERPOINT_FCBGA_989P
1uF_6.3V_2
150_1%_3
R4777
D4704
BAT54_30V_0.2A
+V_RTC
2
33_5%_2
0_5%_2
1
R4765
2
1
P3V3_S
+V1.05S
P3V3_S
R4771
10K_5%_2
P1
U3
33_5%_2
10K_5%_2
R4852
49.9_1%_2
43<
D36
PCH_SPI_CLK
28<>
PCH_SPI_SI
37>
33_5%_2_DY 0_5%_2_DY
RSC_0402_DY
2
C4764
EC_SPI_SI
1
R4798 R4802
33_5%_2_DY
1K_5%_2_DY
PCH_XDPFN10
A36
12pF_50V_2
1
2
1
2
PCH_SPI_SI
1
Q4703
1
2
1K_5%_2_DY
A38
1
2
1
R4707
0_5%_2
+V3M_SPI
ACES_91960_0084L_8P
EC_SMI
P3V3_S
R4783
10K_5%_2_DY
PCH_SPI_SO
PCH_SPI_CS0#
61<
60<>
1
2
Q4705
2
1
60<>
0_5%_2
1
R4893
37>
Q4704
33_1%_2
C4779
R4785
HDA_3S_SYNC_R
1
3
1M_5%_2
MAXELL_ML1220_T10_2P
P3V3_S
0_5%_2_DY
HDA_3S_BITCLK_R
33_1%_2
R4770
R4782
2
R4851
SSM3K7002FU
HDA_3S_SDIN0
HDA_3S_RST#
HDA_3S_BITCLK
28<>
PCH_SPI_CS1#
28<>
8
2
1K_5%_2_DY
R4892
28<>
PCH_SPI_CLK
PCH_SPI_SI
+V3M_SPI
PCH_XDPFN11
0_5%_2_DY
1
R4799
EC_SPI_CS0#
3.3K_5%_2
PCH_SPI_CLK
PCH_SPI_SI
U4702
10K_5%_2
28<>
37>
EC_SPI_CLK
33_5%_2_DY
R4803
R4763
1
PCH_SPI_CS1#
PCH_SPI_CS0#
0_5%_2_DY
37<
P3V3_A
SIZE
CHANGE by
DATE
8
8 7
7 6
6 5
5 4
4 3
3
2
1
D
D
CC
BB
AA
REV
1
SHEET
2
DOC.NUMBER
of
CODE
INVENTEC
TITLE
BI IN
OUT
BIIN
BI
IN
OUT
OUT
BI
BI
OUT
OUT
OUT
OUT
OUT
BI
OUT
OUT
OUT
BI
BI
BI
IN
OUT
IN
BI
OUT
OUT
IN
OUT
IN
IN
OUT
IN
G
DS
G
S D
BI
OUT
G
DS
OUT
DIO_ID0
CLK
/HOLD_IO3
VCC
GND
/WP_IO2
DO_IO1
/CS
BI
IN
OUT
BI
BI
BI
BI
OUT
SI
SCK
HOLD#
VDD
VSS
WP#
SO
CE#
BI
BI
IN
BI
BI
OUT
-
+
OUT
NC
BI
OUT
BI
IN
BI
BI
OUT
OUT
OUT
OUT
OUT
IN
OUT
IN
OUT
OUT
OUT
SATA 6G
JTAG
SPI
LPC
SATA
IHDA RTC
SATA3RBIAS
SATA3RCOMPO
SATA3COMPI
SATAICOMPO
SPKR
SERIRQ
JTAG_TDO
JTAG_TDI
JTAG_TMS
JTAG_TCK
SATA1GP/GPIO19
SATA0GP/GPIO21
SPI_MISO
SPI_MOSI
SPI_CS1#
SPI_CS0#
SPI_CLK
SATAICOMPI
SATA5TXP
SATA5TXN
SATA5RXP
SATA5RXN
SATA4TXP
SATA4TXN
SATA4RXP
SATA4RXN
SATA3TXP
SATA3TXN
SATA3RXP
SATA3RXN
SATA2TXP
SATA2TXN
SATA2RXP
SATA2RXN
SATA1TXP
SATA1TXN
SATA1RXP
SATA1RXN
SATA0TXP
SATA0TXN
SATA0RXP
SATA0RXN
SRTCRST#
HDA_DOCK_RST#/GPIO13
HDA_DOCK_EN#/GPIO33
HDA_SDIN3
RTCRST#
LDRQ0#
FWH4/LFRAME#
LDRQ1#/GPIO23
FWH3/LAD3
FWH2/LAD2
FWH1/LAD1
FWH0/LAD0
SATALED#
HDA_SDO
HDA_SDIN2
HDA_SDIN1
HDA_SDIN0
HDA_RST#
HDA_SYNC
HDA_BCLK
INTRUDER#
INTVRMEN
RTCX2
RTCX1

CLOSE TO PCH
PCH 2
USB3.0
WS
WS
REMOVE CLK_XDP_CLKGEN_DP
REMOVE CLK_XDP_CLKGEN_DN
LAN
WS
WS
WLAN
3G
WS
CARD READER
STUFF FOR INTEGRATED CLK
Frank Hu
97
29
EVEREST-M
Sun Jan 02 15:32:31 2011
2
10K_5%_2
P3V3_A
P3V3_S
2
R4894
PCIE_LAN_RX_DN
PCIE_LAN_RX_DP
PCIE_LAN_TX_DN
PCIE_LAN_TX_DP
CLK_PCIE_WLAN_DP
CLK_PCIE_WLAN_DN
AA47
AA48
AB49
10K_5%_2
TP4711
PCIE_CR_TX_DP
0.1UF_16V_2
0.1UF_16V_2
PCIE_CR_TX_C_DP
2
1
PCIE_WLAN_RX_DN
PCIE_WLAN_RX_DP
PCIE_CR_TX_DN
PCIE_CR_RX_DP
PCIE_CR_RX_DN
PCIE_USB3_TX_DP
PCIE_USB3_TX_DN
PCIE_USB3_RX_DP
PCIE_USB3_RX_DN
CLKREQ_USB3#
R4895
2
2
R4748
CLKREQ_LAN#
1
10K_5%_2_DY
CLKREQ_WLAN#
10K_5%_2_DY
R4730
1
2
10K_5%_2
R4731
1
2
10K_5%_2
1
10K_5%_2
CLKREQ_CR#
1
CLKREQ_CR#
CLKREQ_USB3#
CLK_PCIE_CR_DP
CLK_PCIE_CR_DN
P3V3_S
P3V3_A
CLK_PCIE_3G_DP
CLK_PCIE_3G_DN
CLKREQ_WLAN#
CLK_PCIE_USB3_DP
CLK_PCIE_USB3_DN
R4740
P3V3_A
10K_5%_2
PCIE_3G_TX_DP
1
R4889
R4859
CLK_XDP_DN
P5V_S
CLK_PCIE_LAN_DN
CLK_PCIE_LAN_DP
CLKREQ_LAN#
ITL_PANTHERPOINT_FCBGA_989P
CLKOUT_ITPXDP_DN
CLK_XDP_DP
A01
C
CS_1310AXXXXXX-MTR
CS
10K_5%_2
R4793
CLKIN_SATA1_DN
CLKIN_PCH14
CLKIN_SATA1_DP
CLKIN_BUF_DOT96_DN
CLKIN_BUF_DOT96_DP
CLKIN_DMI_PCH_DP
CLKIN_DMI_PCH_DN
10K_5%_2
R4787
1
2
10K_5%_2
1
2
R4792
R4788
1
2
10K_5%_2
R4794
1
2
10K_5%_2
1
2
R4796
1
R4795
1
2
TP4703
TP4704
CLKREQ_3G#
Y37
Y36
PCIE_3G_TX_DN
PCIE_3G_RX_DP
PCIE_3G_RX_DN
PCIE_WLAN_TX_DP
PCIE_WLAN_TX_DN
Y45
C4760
A8
1
2
BC38
BE38
AY40
BJ40
BG40
BG38
BJ38
AY36
BH37
BB34
AY34
BE36
BF36
AU34
AV34
BJ36
BG36
AY32
BB32
BF34
BE34
PCIE_CR_TX_C_DN
P3V3_A
P3V3_A
10K_5%_2
2.2K_5%_2
2.2K_5%_2
2.2K_5%_2
29>
39<>
P3V3_A
2.2K_5%_2
SSM3K7002BFU
SSM3K7002BFU
29>
39<>
29>
37<>
29>
37<>
29>
1M_5%_2
29>
18pF_50V_2
25MHz
18pF_50V_2
10K_5%_2
+V1.05S
10K_5%_2
29<>
29<>
39<>
29<
39<>
29<
29<
29<>
29<>
55>
55>
55>
20<
59> 29<
29<59>
29>
29>
10K_5%_2
10K_5%_2
0_5%_2
0_5%_2
0_5%_2
0_5%_2
60<
60<
P3V3_A
2.2K_5%_2
2.2K_5%_2
2.2K_5%_2
2.2K_5%_2
27<
60<
26<
59<>
SSM3K7002BFU
SSM3K7002BFU
55<>
29<>
SML1ALERT#
SML0_CLK
SML0_DATA
SML1_CLK
EC_SMB3_CLK
SML1_DATA
EC_SMB3_DATA
XTAL25_OUT
XTAL25_IN
CLKIN_BUF_CPYCLK_DN
CLKIN_BUF_CPYCLK_DP
PCH_3S_SMCLK
PCH_3A_SMCLK
PCH_3A_SMDATA
PCH_3S_SMDATA
22_5%_2
67<
CLK_GPU_27M
90.9_1%_2
55<>
55<>
10K_5%_2
R4753
2
R4854
1
2
R4855
1
2
R4747
1
2
R4700
1
2
X4700
1
2
C4777
1
2
C4776
1
2
R4849
1
2
R4752
1
2
R4741
1
2
R4751
1
2
R4750
1
2
R4749
1
2
Q4701
3
1
2
Q4700
3
1
2
TP4705
1
R4814
1
2
R4774
1
2
2
R4816
1
2
R4815
1
2
1
2
R4858
1
2
Q4703
3
1
2
Q4702
3
1
2
R4745
1
2
R4744
1
2
R4743
1
2
R4742
1
2
U4700
CLKIN_DMI_PCH_DN
CLKIN_DMI_PCH_DP
CLKIN_BUF_DOT96_DN
CLKIN_BUF_DOT96_DP
CLKIN_SATA1_DN
CLKIN_SATA1_DP
XTAL25_IN
XTAL25_OUT
CLKIN_PCH14
CLKIN_PCI_FB
CLK_PEG_GPU_REF_DN
CLK_PEG_GPU_REF_DP
CLKREQ_GPU_PEG#
DGPU_PRSNT#
CLK_DMI_PCH_DN
CLK_DMI_PCH_DP
CLK_DP_PCH_CPU_DP
CLK_DP_PCH_CPU_DN
CLK_PCIE_LAN_R_DP
PCH_3A_SMCLK
PCH_3A_SMDATA
DRAMRST_CNTRL_PCH
SML0_CLK
SML0_DATA
SML1ALERT#
SML1_CLK
SML1_DATA
CL_CLK
CL_DATA
CL_RST#
TP4712
CLK_PCIE_LAN_R_DN
CLKOUT_ITPXDP_DP
BG37
BB36
BB40
Y43
V45
L12
L14
V46
E6
TP4706
1
AK13
AK14
K12
V37
V38
T13
V42
V40
1
AB40
AB42
11
V10
M1
AB47
J2
1
Y39
Y40
AY38
AW38
AV36
10K_5%_2
1
CLK_GPU_27M_SS_R
E12
H14
C9
A12
C8
G12
C13
E14
M16
M7
M10
AB38
AU22
AB37
AV22
AM12
AM13
BF18
BE18
BJ30
G24
AK7
E24
AK5
K45
V49
V47
H45
Y47
K43
F47
K49
H47
T11
P10
BG30
2
1
C4781
2
1
1
PCIE_LAN_TX_C_DN
1
1
2
2
0.1UF_16V_2
C4759
2
1
C4780
AV32
AU32
BJ34
0.1UF_16V_2
PCIE_USB3_TX_C_DP
PCIE_USB3_TX_C_DN
BG34
0.1UF_16V_2
C4757
C4758
1
2
C4783
C4782
0.1UF_16V_2
PCIE_LAN_TX_C_DP
0.1UF_16V_2
AU36
1
C4785
C4784
PCIE_3G_TX_C_DP
PCIE_3G_TX_C_DN
2
PCIE_WLAN_TX_C_DP
PCIE_WLAN_TX_C_DN
0.1UF_16V_2
0.1UF_16V_2
2
1
2
0.1UF_16V_2
SIZE
CHANGE by DATE
8
8 7
7 6
6 5
5 4
4 3
3
2
1
D
D
CC
BB
AA
REV
1
SHEET
2
DOC.NUMBER
of
CODE
INVENTEC
TITLE
OUT
OUT
IN
IN
OUT
OUT
IN
IN
OUT
OUT
OUT
OUT
IN
IN
BI
BI
G
DS
BI
BI
IN
G
DS
IN
IN
IN
BI
OUT
OUT
OUT
OUT
IN
IN
OUT
OUT
IN
IN
IN
IN
IN
IN
IN
IN
OUT
OUT
OUT
BI
OUT
IN
IN
OUT
OUT
IN
IN
OUT
OUT
IN
OUT
OUT
OUT
OUT
IN
IN
OUT
IN
OUT
IN
OUT
OUT
OUT
OUT
IN
IN
IN
OUT
BI
BI
BI
BI
G
DS
G
DS
IN
OUT
IN
IN
IN
IN
OUT
IN
IN
IN
IN
OUT
OUT
OUT
OUT
OUT
IN
OUT
Link
Controller
SMBUS
FLEX CLOCKS
CLOCKS
PCI-E*
PCIECLKRQ6#/GPIO45
CL_RST1#
CL_DATA1
CL_CLK1
SML1DATA/GPIO75
SML1CLK/GPIO58
SML1ALERT#/PCHHOT#/GPIO74
SML0DATA
SML0CLK
SML0ALERT#/GPIO60
SMBDATA
SMBCLK
SMBALERT#/GPIO11
CLKOUT_ITPXDP_P
CLKOUT_ITPXDP_N
CLKOUT_PCIE7P
CLKOUT_PCIE7N
PCIECLKRQ7#/GPIO46
CLKOUT_PCIE6P
CLKOUT_PCIE6N
CLKOUT_DP_N
CLKOUT_DP_P
XCLK_RCOMP
CLKOUT_PEG_B_N
CLKOUT_PEG_B_P
PEG_B_CLKRQ#/GPIO56
CLKOUT_DMI_P
CLKOUT_DMI_N
CLKOUTFLEX3/GPIO67
CLKOUTFLEX2/GPIO66
CLKOUTFLEX1/GPIO65
CLKOUTFLEX0/GPIO64
PCIECLKRQ5#/GPIO44
PCIECLKRQ4#/GPIO26
PCIECLKRQ3#/GPIO25
PCIECLKRQ2#/GPIO20
PCIECLKRQ1#/GPIO18
PCIECLKRQ0#/GPIO73
PEG_A_CLKRQ#/GPIO47
CLKOUT_PEG_A_P
CLKOUT_PEG_A_N
CLKIN_PCILOOPBACK
REFCLK14IN
XTAL25_OUT
XTAL25_IN
CLKIN_SATA_P
CLKIN_SATA_N
CLKIN_DOT_96P
CLKIN_DOT_96N
CLKIN_DMI_P
CLKIN_DMI_N
CLKIN_GND1_P
CLKIN_GND1_N
CLKOUT_PCIE5P
CLKOUT_PCIE5N
CLKOUT_PCIE4P
CLKOUT_PCIE4N
CLKOUT_PCIE3P
CLKOUT_PCIE3N
CLKOUT_PCIE2P
CLKOUT_PCIE2N
CLKOUT_PCIE1P
CLKOUT_PCIE1N
CLKOUT_PCIE0P
CLKOUT_PCIE0N
PETP8
PETN8
PETP7
PETN7
PETP6
PETN6
PETP5
PETN5
PETP4
PETN4
PETP3
PETN3
PETP2
PETN2
PETP1
PETN1
PERP8
PERN8
PERP7
PERN7
PERP6
PERN6
PERP5
PERN5
PERP4
PERN4
PERP3
PERN3
PERP2
PERN2
PERP1
PERN1

STRAP PIN
PCH 3
ISOLATION
low-Disabled
DSWVRMEN - Deep S4/S5 Well On-Die Voltage Regulator Enable
high-Enabled(Default)
CLOSE TO IC
EC
CLOSE TO IC
Frank Hu
EVEREST-M
Sun Jan 02 18:04:44 2011
97
30
SUS_PWR_ACK
L10
0.1UF_10V_2_DY
PM_DRAM_PWRGD
B13
0.1UF_10V_2_DY
C4768
2
1
RSMRST#_R
SUS_PWR_ACK_R
30<
55<>
PCIE_WAKE#
R4775
2
R4735
ITL_PANTHERPOINT_FCBGA_989P
P12
1
10K_5%_2
ALLSYS_PWROK
EC_PCH_PWROK
R4886
1
PM_APWROK
SUSACK#_EC
49.9_1%_2
10K_5%_2
10K_5%_2
P3V3_A
K14
AP14
0_5%_2
R4883
BJ14
AY14
BE14
BH13
BC12
BJ12
BG10
BG9
BG14
BB14
BF14
BG13
BE12
BH9
BJ10
BG12
AW16
AV12
BC10
AV14
BB10
B9
E22
A18
N3
G8
N14
D10
H4
F4
G10
G16
E10
A10
H20
E20
K16
C21
L22
K3
C12
BH21
BG25
BJ24
AV18
AY24
AU18
AY18
AY20
BB18
AW20
AW24
BE24
BC20
BJ18
BJ20
BG20
BG18
BE20
BC24
2
SUSACK#_R
SLP_A#
SLP_LAN#
PCI_3S_CLKRUN#
ACPRESENT
FM_32KHZ
SUS_STAT#
PCIE_WAKE#
PM_RI#
SLP_S5#
SLP_S4#
SLP_S3#
SLP_SUS#
H_PM_SYNC
FDI_INT
FDI_LSYNC1
FDI_LSYNC0
FDI_FSYNC1
FDI_FSYNC0
FDI_TX_DP<7>
FDI_TX_DP<6>
FDI_TX_DP<5>
FDI_TX_DP<4>
FDI_TX_DP<3>
FDI_TX_DP<2>
FDI_TX_DP<1>
FDI_TX_DP<0>
FDI_TX_DN<7>
FDI_TX_DN<6>
FDI_TX_DN<5>
FDI_TX_DN<4>
FDI_TX_DN<3>
FDI_TX_DN<2>
FDI_TX_DN<1>
FDI_TX_DN<0>
DMI_TX_DP<3>
DMI_TX_DP<2>
DMI_TX_DP<1>
DMI_TX_DP<0>
DMI_TX_DN<3>
DMI_TX_DN<2>
DMI_TX_DN<1>
DMI_TX_DN<0>
DMI_RX_DP<3>
DMI_RX_DP<2>
DMI_RX_DP<1>
DMI_RX_DP<0>
DMI_RX_DN<3>
DMI_RX_DN<2>
DMI_RX_DN<1>
DMI_RX_DN<0>
U4700
750_1%_2
0_5%_2_DY
2
1
C4767
2
C4778
2
1
C4769
2
1
R4824
2
1
R4847
2
1
R4733
2
1
1
R4736
2
1
2
1
R4776
2
1
R4732
2
1
3
D4703
2
1
3
D4702
2
1
R4738
2
1
R4846
2
1
R4848
2
1
R4734
2
1
R4887
2
1
R4888
2
1
R4739
2
1
R4884
2
1
R4885
2
1
43<
0.1UF_10V_2_DY
21>
21>
0.1UF_10V_2_DY
37>
P3V3_A
10K_5%_2
0_5%_2
37<
10K_5%_2_DY
P3V3_S
10K_5%_2
XDP_PWRSW#
LOW_BAT#_3
EC_PWRSW#
SUS_PWR_ACK_R
SYS_RESET#
SUSACK#_R
PCI_3S_CLKRUN#
SLP_LAN#
RSMRST#
PM_RI#
ACPRESENT
SUS_PWR_ACK
RSMRST#_R
P3V3_A
60>
37>
BAT54_30V_0.2A
8.2K_5%_2
BAT54_30V_0.2A
60>
20>
0_5%_2
P3V3_S
+V1.05S
19< 12<
30>37<
30<
18>
30<
0_5%_2
0_5%_2
30<
30<37<
8.2K_5%_2
10K_5%_2
20<>
19<12<
37<30>
37<
18<
37<
19<
37<
17<11< 18<
37<
11<
37>
37>
37<
21<
21<
21<
21<
21<
21<
21<
21<
21>
21>
21>
21>
21>
21>
21>
21>
30<
37<>
30<
55<>
21<
21<
21<
21<
21<
21>
21>
21>
21>
21>
21>
21>
21>
21>
21>
21>
21>
21>
21>
330K_5%_2_DY
330K_5%_2
+V_RTC
CS_1310AXXXXXX-MTR
A01
CS
C
SIZE
CHANGE by DATE
8
8 7
7 6
6 5
5 4
4 3
3
2
1
D
D
CC
BB
AA
REV
1
SHEET
2
DOC.NUMBER
of
CODE
INVENTEC
TITLE
IN
OUT
IN
IN
IN
IN
IN
IN
NC
IN
IN
IN
NC
OUT
IN
IN
IN
IN
OUT
IN
IN
IN
IN
IN
IN
IN
IN
OUT
OUT
BI
OUT
OUT
OUT
OUT
OUT
OUT
BI
IN
IN
OUT
OUT
OUT
OUT
OUT
IN
IN
IN
IN
IN
IN
IN
IN
IN
IN
IN
IN
IN
IN
IN
IN
IN
IN
OUT
OUT
OUT
OUT
OUT
OUT
OUT
OUT
IN
OUT
System Power Management
FDI
DMI
SUSACK#
DSWVRMEN
SLP_A#
DMI2RBIAS
DPWROK
APWROK
SLP_LAN#/GPIO29
DRAMPWROK
RSMRST#
SUSWARN#/SUSPWRDNACK/GPIO30
CLKRUN#/GPIO32
PWROK
BATLOW#/GPIO72
ACPRESENT/GPIO31
SUSCLK/GPIO62
SUS_STAT#/GPIO61
WAKE#
RI#
PWRBTN#
SYS_PWROK
SYS_RESET#
SLP_S5#/GPIO63
SLP_S4#
SLP_S3#
SLP_SUS#
PMSYNCH
FDI_INT
FDI_LSYNC1
FDI_LSYNC0
FDI_FSYNC1
FDI_FSYNC0
FDI_RXP7
FDI_RXP6
FDI_RXP5
FDI_RXP4
FDI_RXP3
FDI_RXP2
FDI_RXP1
FDI_RXP0
FDI_RXN7
FDI_RXN6
FDI_RXN5
FDI_RXN4
FDI_RXN3
FDI_RXN2
FDI_RXN1
FDI_RXN0
DMI_IRCOMP
DMI_ZCOMP
DMI3TXP
DMI2TXP
DMI1TXP
DMI0TXP
DMI3TXN
DMI2TXN
DMI1TXN
DMI0TXN
DMI3RXP
DMI2RXP
DMI1RXP
DMI0RXP
DMI3RXN
DMI2RXN
DMI1RXN
DMI0RXN

PCH_DUAL_DDCDATA - DP DETECTED
PCH_LVDS_DDCDATA - LVDS DETECT
HIGH-LVDS ENABLED
LOW-LVDS DISABLED (DEFAULT)
CLOSE TO PCH
PCH 4 AXG
LOW-DP DISABLED (DEFAULT)
HIGH-DP ENABLED
EVEREST-M
Frank Hu
Sat Jan 01 18:30:03 2011
97
31
R4882
PCH_CRT_BLUE
PCH_CRT_GREEN
PCH_CRT_RED
R4791
BA48
BB47
BB49
M43
M36
BB45
BF44
BF42
AT45
BH41
M45
PCH_LCM_INVPWM_R
AE48
AH43
AF37
AK39
AH49
AF43
N48
T39
M40
P49
M47
T42
T49
M49
T43
AV42
AV40
AV45
AV46
AU48
AU47
AV47
AV49
AT49
AT47
AT40
AY47
AY49
AY43
AY45
BA47
AP47
AP49
P46
P42
AT38
BB43
BE44
BE42
BJ42
BG42
AT43
P45
J47
T45
P39
T40
K47
AF36
AE47
AK40
AN48
AM47
AK47
AJ48
AN47
AM49
AK49
AJ47
AF39
AF40
AH45
AH47
AF49
AF45
AF47
P38
M39
AP39
AP40
AM42
AM40
AP43
AP45
U4700
ITL_PANTHERPOINT_FCBGA_989P
PCH_DP_HPD
PCH_DP_AUX_DP
PCH_DP_AUX_DN
PCH_DUAL_DDCDATA
PCH_DUAL_DDCCLK
PCH_CRT_VSYNC
PCH_CRT_HSYNC
PCH_CRT_DDCDATA
PCH_CRT_DDCCLK
PCH_DP_LANE3_DP
PCH_DP_LANE2_DP
PCH_DP_LANE0_DP
PCH_DP_LANE1_DP
PCH_DP_LANE3_DN
PCH_DP_LANE2_DN
PCH_DP_LANE1_DN
PCH_DP_LANE0_DN
PCH_LVDS_TXDL2_DP
PCH_LVDS_TXDL1_DP
PCH_LVDS_TXDL0_DP
PCH_LVDS_TXDL2_DN
PCH_LVDS_TXDL1_DN
PCH_LVDS_TXDL0_DN
PCH_LVDS_TXCL_DP
PCH_LVDS_TXCL_DN
PCH_LVDS_DDCDATA
PCH_LVDS_DDCCLK
2
1
R4729
2
1
R4789
2
1
R4790
2
1
2
1
2
1
R4843
2
1
R4842
2
1
R4841
2
1
R4845
2
1
R4844
PCH_LCM_BKLTEN
PCH_LCM_VDDEN
48<
45<
1K_1%_2
A01
PCH_LCM_INVPWM
47<>
47<>
47<>
47<>
47>
47<
47<
47<
47<
47<
47<
47<
47<
100K_5%_2100K_5%_2
0_5%_2
67<
67<
67<
67<
67<
67<
67<
67<
67<
2.37K_1%_2
67<
48<
48<67<
67<
45<
45<
45<
45<
45<
45<
150_1%_2
150_1%_2
150_1%_2
P3V3_S
2.2K_5%_22.2K_5%_2
CS_1310AXXXXXX-MTR
CS
C
SIZE
CHANGE by DATE
8
8 7
7 6
6 5
5 4
4 3
3
2
1
D
D
CC
BB
AA
REV
1
SHEET
2
DOC.NUMBER
of
CODE
INVENTEC
TITLE
OUT
OUT
OUT
OUT
OUT
OUT
OUT
OUT
OUT
IN
BI
BI
BI
BI
OUT
OUT
OUT
OUT
OUT
OUT
OUT
OUT
OUT
OUT
OUT
OUT
OUT
OUT
OUT
OUT
OUT
OUT
OUT
CRT
Digital Display Interface
LVDS
SDVO_INTN
SDVO_INTP
SDVO_STALLN
SDVO_STALLP
SDVO_TVCLKINN
SDVO_TVCLKINP
DDPD_HPD
DDPC_HPD
DDPB_HPD
DDPD_AUXP
DDPC_AUXP
DDPB_AUXP
DDPD_AUXN
DDPC_AUXN
DDPB_AUXN
DDPD_CTRLDATA
DDPD_CTRLCLK
DDPC_CTRLDATA
DDPC_CTRLCLK
SDVO_CTRLDATA
SDVO_CTRLCLK
DAC_IREF
CRT_VSYNC
CRT_RED
CRT_IRTN
CRT_HSYNC
CRT_GREEN
CRT_DDC_DATA
CRT_DDC_CLK
CRT_BLUE
DDPD_1P
DDPD_0P
DDPC_3P
DDPC_2P
DDPC_0P
DDPC_1P
LVD_VBG
LVD_IBG
LVDSB_DATA3
LVDSB_DATA2
LVDSB_DATA1
DDPB_3P
DDPB_2P
DDPD_3P
DDPD_2P
DDPB_1P
DDPB_0P
DDPD_1N
DDPD_0N
DDPC_3N
DDPC_2N
DDPC_1N
DDPC_0N
DDPB_3N
DDPB_2N
DDPD_3N
DDPD_2N
LVD_VREFL
LVD_VREFH
DDPB_1N
DDPB_0N
LVDSB_DATA0
LVDSB_DATA#3
LVDSB_DATA#2
LVDSB_DATA#1
LVDSB_DATA#0
LVDSB_CLK
LVDSB_CLK#
LVDSA_DATA3
LVDSA_DATA2
LVDSA_DATA1
LVDSA_DATA0
LVDSA_DATA#3
LVDSA_DATA#2
LVDSA_DATA#1
LVDSA_DATA#0
LVDSA_CLK
LVDSA_CLK#
L_VDD_EN
L_DDC_DATA
L_DDC_CLK
L_CTRL_DATA
L_CTRL_CLK
L_BKLTEN
L_BKLTCTL

STP_A16OVR
PCH 5 USB
LOW=A16 SWAP OVERRIDE
HIGH=DEFAULT
TOP-BLOCK SWAP OVERRIDE
BBS_BIT1
1
0
1
0
11
00
GPIO51
GPIO19
BBS_BIT0
-
SPI (DEFAULT)
LPC
BOOT BIOS
DESTINATION
RESERVED(NAND)
Routed with 90 ohms impedance
Total length no longer than 11 inches
BBS STRAP
WS
DEBUG PORT
DEBUG PORT
RESERVE FOR USB3.0
WS
RESERVE FOR USB3.0
eSATA
WLAN
WEBCAM
BT
3G
WS
RESERVE FOR USB3.0
FOR eSATA
RESERVE FOR USB3.0
CLOSE TO PCH
Sun Jan 02 17:15:21 2011
EVEREST-M
97
32
Frank Hu
10K_5%_2_DY
1
2
2
22_5%_2
SMC_WAKE_SCI#
2
PCH_XDPFN4
PCH_XDPFN2
PCH_XDPFN3
PCH_XDPFN5
PCH_XDPFN1
PCH_XDPFN0
2
1
A14
10K_5%_2_DY
1
P3V3_A
0_5%_2
R4817
1
USB_OC#_0
USB_OC#_1
USB_OC#_2
P3V3_A
USB_P13_DP
USB_P13_DN
2
USB_P12_DP
10K_5%_2_DY
R4896
2
USB_P12_DN
USB_P10_DP
USB_P2_DP
USB_P2_DN
USB_P1_DP
USB_P1_DN
2
1
R4837
2
10K_5%_2
SMC_WAKE_SCI#
10K_5%_2
2
R4838
B17
1
2
2
0_5%_2
10K_5%_2
1
R4840
2
0_5%_2
R4835
R4839
R4836
1
2
10K_5%_2
USB_P0_DP
USB_P0_DN
BB7
10K_5%_2
L30
TP4714
1
C30
A30
TP4715
1
E30
G30
TP4702
1
R4715
R4880
M28
USB_P10_DN
K30
L32
E28
H28
C26
B25
A26
K28
USB_P5_DN
AT12
USB_P5_DP
A24
C24
C25
R4726
22.6_1%_3
L16
CLK_PCI_DEBUG_R
1
R4879
32<>
32<>
USB3_P1_RX_DN
BC28
BE30
USB3_P3_TX_DN
USB3_P3_RX_DN
BE28
USB3_P3_TX_DP
USB3_P1_TX_DP
USB3_P1_TX_DN
USB3_P3_RX_DP
USB3_P1_RX_DP
BC30
AU28
AB45
CLKIN_PCI_FB
29<
P3V3_A
32<
32<
1K_5%_2_DY
BUF_PLT_RST#
PLT_RST#
BTMDL#
CLK_PCI_TPM
CLK_PCI_EC
DGPU_PWM_SELECT#
BBS_BIT1
37<39<60<68<
100K_5%_2
TC7SZ08FU
0.1UF_16V_2
32<>
54>
1K_5%_2_DY
10K_5%_2
P3V3_S
1K_5%_2_DY
43<
37<>
P3V3_A
22_5%_2
22_5%_2
22_5%_2
54>
32<>
50>
10K_5%_2
37>
0_5%_2
PCH_XDPFN7
PCH_XDPFN6
CLK_PCI_DEBUG
55<
1
R4832
1
R4716
1
2
R4728
1
2
R4821
1
2
R4878
1
2
R4877
1
2
R4714
1
2
R4881
2
1
1
2
C4772
1
2
U4701
1
2
3
4
5
R4727
1
2
STP_A16OVR
U4700
DGPU_HOLD_RST#
DGPU_SELECT#
DGPU_PWM_SELECT#_R
BTMDL#
SATA_ODD_DA#
PCI_3S_INTG#
PCI_3S_INTH#
+V3A_PME#
CLK_PCI_EC_R
CLK_PCI_TPM_R
67<
37< 32<
DGPU_PWR_EN#
1
2
1
R4834
1
R4833
P3V3_A
AV28
BG32
BG46
AY16
M20
B21
AB46
AM5
L24
K24
Y13
C18
AM4
AK43
BG16
AH37
AH38
BJ16
BH25
BG26
AW30
CLK_PCI_FB_R
H43
H49
K42
J48
C6
K10
D44
C42
G40
G42
F46
E42
D47
E40
C44
C46
G38
H38
K38
K40
H40
ITL_PANTHERPOINT_FCBGA_989P
C14
D14
A16
C16
K20
B33
C33
A32
C32
E32
G32
K32
N28
C28
A28
C29
B29
D28
BF3
BA2
AY5
AT8
AV10
AV5
BD4
BE8
BA3
BB1
AV1
AV3
AT5
AY3
AT1
AT3
BB3
BB5
AT4
AU2
BC8
AY7
AV7
AU3
BG4
AT10
BF6
32<
N30
AK45
H3
AH12
C
A01
CS
CS_1310AXXXXXX-MTR
BJ26
32<>
2
1
R4780 10K_5%_2
2
1
R4818 10K_5%_2
2
1
R4717 10K_5%_2
2
1
R4718
10K_5%_2_DY
2
1
R4721
10K_5%_2_DY
2
1
R4720
10K_5%_2_DY
2
1
R4719 10K_5%_2
2
1
R4724
8.2K_5%_2
2
1
R4723
8.2K_5%_2
2
1
R4722
10K_5%_2_DY
2
1
R4725
8.2K_5%_2
2
1
R4711
8.2K_5%_2
37<32>
50>
32<>
67<32>
67<
37>
32<>
37>32>
32<>
37>
33>
P3V3_S
32<>
32<>
32<>
PCI_3S_INTA#
DGPU_PWR_EN#
SATA_ODD_DA#
DGPU_SELECT#
EC_DGPU_PWR_EN#
PCI_3S_INTH#
DGPU_HOLD_RST#
PCI_3S_INTG#
RUNSCI0#
PCI_3S_INTD#
PCI_3S_INTC#
PCI_3S_INTB#
32<>
32<>
32<>
32<>
PCI_3S_INTC#
PCI_3S_INTA#
PCI_3S_INTB#
PCI_3S_INTD#
BE32
BF32
AY26
BJ32
BB26
AV26
AY30
AU26
SIZE
CHANGE by DATE
8
8 7
7 6
6 5
5 4
4 3
3
2
1
D
D
CC
BB
AA
REV
1
SHEET
2
DOC.NUMBER
of
CODE
INVENTEC
TITLE
BI
BI
BI
IN
IN
IN
IN
BI
BI
BI
BI
IN
BI
BI
BI
OUT
BI
OUT
OUT
OUT
BI
BI
BI
BI
BI
BI
BI
BI
BI
OUT
IN
IN
IN
IN
BI
IN
IN
IN
IN
BI
IN
IN
IN
BI
BI
BI
BI
BI
IN
BI
BI
BI
BI
BI
BI
BI
BI
BI
IN
BI
+
-
BI
OUT
OUT
OUT
OUT
BI
USB
PCI
NVRAM
RSVD
TP24
TP10
TP11
TP12
TP13
TP14
TP15
TP5
TP4
USB3TP4
USB3TP3
USB3TP2
USB3TP1
USB3TN4
USB3TN3
USB3TN2
USB3TN1
USB3RP4
USB3RP3
USB3RP2
USB3RP1
USB3RN4
USB3RN3
USB3RN2
USB3RN1
TP23
TP22
TP21
TP20
TP19
TP18
TP17
TP16
TP9
TP8
TP7
TP6
TP3
TP2
TP1
PLTRST#
CLKOUT_PCI3
CLKOUT_PCI4 OC7#/GPIO14
OC6#/GPIO10
OC5#/GPIO9
OC4#/GPIO43
OC3#/GPIO42
OC2#/GPIO41
OC1#/GPIO40
OC0#/GPIO59
USBRBIAS
USBRBIAS#
CLKOUT_PCI2
CLKOUT_PCI1
CLKOUT_PCI0
PME#
USBP13P
USBP13N
USBP12P
USBP12N
USBP11P
USBP11N
USBP10P
USBP10N
USBP9P
USBP9N
USBP8P
USBP8N
USBP7P
USBP7N
USBP6P
USBP6N
USBP5P
USBP5N
USBP4P
USBP4N
USBP3P
USBP3N
USBP2P
USBP2N
USBP1P
USBP1N
USBP0P
USBP0N
PIRQH#/GPIO5
PIRQG#/GPIO4
PIRQF#/GPIO3
PIRQE#/GPIO2
GNT3#/GPIO55
GNT2#/GPIO53
GNT1#/GPIO51
REQ3#/GPIO54
REQ2#/GPIO52
REQ1#/GPIO50
PIRQD#
PIRQC#
PIRQB#
PIRQA#
RSVD29
RSVD28
RSVD27
RSVD26
RSVD24
RSVD25
RSVD16
RSVD15
RSVD14
RSVD13
RSVD12
RSVD11
RSVD10
RSVD9
RSVD22
RSVD21
RSVD20
RSVD19
RSVD18
RSVD17
RSVD8
RSVD7
RSVD6
RSVD5
RSVD4
RSVD3
RSVD2
RSVD1
RSVD23

PCH 6 MISC
HIGH - INTEL ME CRYPTO TLS CIPHER SUITE WITH CONFIDENTIALITY
STRAP PIN
HOST_ALERT#1 - TLS CONFIDENTIALITY
STRAP PIN
INTEGRATED CLOCKING
1:DEFAULT/0:ENABLE
LOW- TX,RXTERMINATED TO SAME VOLTAGE
(DC COUPLING MODE) DEFAULT
HIGH-ENABLED (DEFAULT)
PCH_XDPFN8 - ON DIE PLL VOLTAGE REGULATOR
LOW-DISABLED
STRAP
FDI_OVRVLTG
LOW - (DEFAULT) ENABLE INTEGRATED CLK
STRAP PIN
LOW - (DEFAULT) INTEL ME CRYPTO TRANSPORT LAYER SECURITY(TLS) CIPHER SUITE WITH NO CONFIDENTIALITY
HIGH - DISABLE INTEGRATED CLK
CLOSE TO PCH
BOTH THESE SHOULD BE
FOLLOW EDS1.0
WS
WS
Sun Jan 02 17:58:29 2011
Frank Hu
EVEREST-M
33
97
BJ6
BG2
BG48
P37
390_5%_2
1
R4712
2
AH8
AH10
AK11
T14
V8
2
1
R4867
AK10
AY1
PCH_PECI
PCH_XDPFN16
HOST_ALERT#1
33>
P3V3_A
33>
GFX_CRB_DET
P3V3_S
2
10K_5%_2
33> 33<
R4870
MFG_MODE
P3V3_S
LAN_PHY_PWR
33>
37>
DGPU_PWROK
P3V3_S
33>
GFX_CRB_DET
1
1
DGPU_HPD_INTR#_R
H36
E38
E8
T5
20>
PM_THRMTRIP#
38<
AY10
NV_CLE
THRMTRIP#_R
56_5%_2_DY
R4713
1
2
P1V05_VCCPS
20>
R4860
PCH_XDPFN13
E16
P4
AU16
E1
F49
F1
E49
D49
D1
C48
C2
BJ5
BJ46
BJ45
BJ44
BJ4
BH47
BH3
AY11
P5
A40
C41
B41
C40
K4
PCH_XDPFN12
R4866
M5
BF1
BF49
BE49
BE1
BD49
BD1
B47
B3
A6
A5
A46
A45
A44
A4
D6
V3
V13
M3
N2
K1
P8
D40
U2
G2
C4
C10
A42
T7
C
A01
CS
50<
37<
20>
37<>
37>
60> 20<
0_5%_2_DY
10K_5%_2
P3V3_S
P3V3_A
59<
33>
1K_5%_2
P3V3_A
1K_5%_2
10K_5%_2
10K_5%_2
0_5%_2
10K_5%_2
0_5%_2
32<
39<>
33>
67<
16>
10K_5%_2
10K_5%_2
10K_5%_2
0_5%_2
0_5%_2
50> 33>
33>
33>33<
33>
0_5%_2
33>37>
33<
33> 33<
33> 33<
50>
33>
33>
37>
33>
10K_5%_2
200K_1%_2
10K_5%_2_DY
10K_5%_2_DY
10K_5%_2
100K_5%_2
33>
33>
1K_5%_2_DY
P3V3_S
10K_5%_2
10K_5%_2_DY
H_PECI
HOST_ALERT#1
ICC_EN#
SATA_ODD_PRSNT#
FDI_OVRVLTG
BIOS_REC
SATA_ODD_PRSNT#
TEST_DET
BIOS_REC
FDI_OVRVLTG
PCH_XDPFN8
CRIT_TEMP_REP#
33<
33>
33>
TEST_DET
MFG_MODE
10K_5%_2_DY
10K_5%_2
10K_5%_2_DY
CRIT_TEMP_REP#
33<
ICC_EN#
10K_5%_2_DY
1.5K_1%_1/16W
CS_1310AXXXXXX-MTR
R4876
1
2
R4872
1
2
R4871
1
2
R4819
1
2
R4875
1
2
R4874
1
2
R4869
1
2
R4784
1
2
R4811
1
2
R4868
1
2
2
R4863
1
2
R4831
1
2
R4820
1
2
1
2
R4864
1
R4825
1
2
R4862
1
2
R4830
1
2
R4826
1
2
R4865
1
2
R4873
1
2
R4827
1
2
R4828
2
R4829
1
2
R4781
1
2
2
R4853
1
2
R4779
1
2
R4861
1
2
33<
PCH_XDPFN8
TEST_DET
RUNSCI0#
PCH_XDPFN15
BIOS_REC
MFG_MODE
GFX_CRB_DET
H_CPUPWRGD
KBRST#
ICC_EN#_R
PCH_XDPFN17
PCH_XDPFN9
PCH_XDPFN14
EC_3S_A20GATE
SATA_ODD_PWREN
ITL_PANTHERPOINT_FCBGA_989P
10K_5%_2
59<
1
U4700
SIZE
CHANGE by DATE
8
8 7
7 6
6 5
5 4
4 3
3
2
1
D
D
CC
BB
AA
REV
1
SHEET
2
DOC.NUMBER
of
CODE
INVENTEC
TITLE
IN
OUT
OUT
IN
IN
OUT
OUT
IN
OUT
OUT
OUT
OUT
IN
IN
IN
OUT
OUT
IN
OUT
OUT
OUT
OUT
OUT
OUT
OUT
OUT
OUT
OUT
OUT
OUT
OUT
BI
OUT
OUT
GPIO
NCTF
CPU/MISC
DF_TVS
VSS_NCTF_16
VSS_NCTF_15
VSS_NCTF_14
VSS_NCTF_13
NC_1
TS_VSS1
TS_VSS2
TS_VSS3
TS_VSS4
VSS_NCTF_31
VSS_NCTF_30
VSS_NCTF_29
VSS_NCTF_28
VSS_NCTF_27
VSS_NCTF_26
VSS_NCTF_25
VSS_NCTF_24
VSS_NCTF_23
VSS_NCTF_22
VSS_NCTF_21
VSS_NCTF_20
VSS_NCTF_19
VSS_NCTF_18
VSS_NCTF_17
TACH5/GPIO69
TACH7/GPIO71
TACH6/GPIO70
TACH4/GPIO68
A20GATE
VSS_NCTF_32
SATA4GP/GPIO16
GPIO35
STP_PCI#/GPIO34
INIT3_3V#
SATA2GP/GPIO36
TACH1/GPIO1
GPIO15
BMBUSY#/GPIO0
GPIO8
THRMTRIP#
PECI
RCIN#
PROCPWRGD
SDATAOUT1/GPIO48
SDATAOUT0/GPIO39
SLOAD/GPIO38
SCLOCK/GPIO22
SATA5GP/GPIO49/TEMP_ALERT#
SATA3GP/GPIO37
TACH3/GPIO7
TACH0/GPIO17
TACH2/GPIO6
VSS_NCTF_12
VSS_NCTF_11
VSS_NCTF_10
VSS_NCTF_9
VSS_NCTF_8
VSS_NCTF_7
VSS_NCTF_6
VSS_NCTF_5
VSS_NCTF_4
VSS_NCTF_3
VSS_NCTF_2
VSS_NCTF_1
LAN_PHY_PWR_CTRL/GPIO12
GPIO57
GPIO24
GPIO28
GPIO27

15mil
15mil
15mil
40mil
3A
15mil
15mil
1.3A
15mil
PCH 7 POWER
15mil
15mil
15mil
15mil
15mil
20mil
15mil
20mil
Frank Hu
EVEREST-M
Sat Jan 01 18:30:57 2011
97
34
ITL_PANTHERPOINT_FCBGA_989P
AJ17
AB36
AT20
AK36
AK37
U47
U48
AM37
AM38
AP36
AP37
V33
V34
AT16
AJ16
AG17
AG16
V1
AP17
AU20
BG6
AP16
BH29
AN34
AN33
AT24
AP26
AP24
AP23
AP21
AN27
AN26
AN21
AN17
AN16
BJ22
AN19
+V1.05S_VCCAPLLEXP
AJ31
AJ29
AJ27
AJ26
AJ23
AG29
AG27
AG26
AG24
AG23
AG21
AF23
AF21
AD23
AD21
AC23
AA23
+V1.05S_VccAFDIPLL
U4700
C4750
1uF_6.3V_2
R4810
2
1
R4808
2
1
C4744
2
1
C4745
2
1
C4732
2
1
C4775
2
1
C4747
2
1
L4700
2
1
C4706
2
1
C4707
2
1
C4708
2
1
L4701
2
1
C4709
2
1
C4748
2
1
C4756
2
1
C4749
2
1
R4809
2
1
2
1
C4752
2
1
C4753
2
1
C4751
2
1
C4754
2
1
2
1
C4710
2
1
C4711
2
1
C4755
2
1
C4746
0_5%_2_DY
+VCCAFDI_VRM
P3V3_S
1uF_6.3V_2
1UF_6.3V_2_DY
CS
P1V05_VCCPS
+V1.05S
+V1.05S
+V1.05S
10uF_6.3V_3
0.1UF_16V_2
1uF_6.3V_2 1uF_6.3V_2 1uF_6.3V_2
+V1.05S
0_5%_2_DY
+V1.05S
10uF_6.3V_3
+V1.05S
1uF_6.3V_2 1uF_6.3V_2
+VCCAFDI_VRM
0_5%_3
P1V5_S
1uF_6.3V_2
+V3M
+VCCAFDI_VRM
0.01UF_50V_2
0.1UF_16V_2
0.01UF_50V_2
0.1UF_16V_2
P1V8_S
+V1.05S
1uF_6.3V_2
22uF_6.3V_5
P1V05_VCCPS
P3V3_S
P3V3_S
10uF_6.3V_3 0.01UF_50V_2 0.1UF_16V_2
FBM_11_160808_121T
FBM_11_160808_121T
P1V8_S
P3V3_S
A01
CS_1310AXXXXXX-MTR
C
SIZE
CHANGE by DATE
8
8 7
7 6
6 5
5 4
4 3
3
2
1
D
D
CC
BB
AA
REV
1
SHEET
2
DOC.NUMBER
of
CODE
INVENTEC
TITLE
LVDS
FDI
POWER
VCC CORE
CRT
DMI
HVCMOS
VCCIO
NAND / SPI
VCCCORE[12]
VCCCORE[13]
VCCCORE[14]
VCCCORE[15]
VCCIO[28]
VCCIO[15]
VCCCORE[17]
VCCCORE[16]
VCCCORE[11]
VCCCORE[10]
VCCCORE[9]
VCCCORE[8]
VCCCORE[7]
VCCCORE[6]
VCCCORE[5]
VCCCORE[4]
VCCCORE[2]
VCCCORE[1]
VCCCORE[3]
VCCSPI
VCCVRM[2]
VccAFDIPLL
VCCDFTERM[4]
VCCDFTERM[3]
VCCADAC
VCCTX_LVDS[1]
VCCTX_LVDS[2]
VCCALVDS
VCCVRM[3]
VCCAPLLEXP
VCCTX_LVDS[4]
VCCTX_LVDS[3]
VSSADAC
VSSALVDS
VCC3_3[6]
VCC3_3[7]
VCC3_3[3] VCCDFTERM[2]
VCCDFTERM[1]
VCCDMI[1]
VCCCLKDMI
VCCDMI[2]
VCCIO[16]
VCCIO[17]
VCCIO[18]
VCCIO[19]
VCCIO[20]
VCCIO[21]
VCCIO[22]
VCCIO[23]
VCCIO[24]
VCCIO[25]
VCCIO[26]
VCCIO[27]

PCH 8 POWER
10mil
10mil
10mil
15mil
20mil
15mil
15mil
15mil
20mil
20mil
20mil
15mil
10mil
10mil
15mil
20mil
10mil
20mil
10mil
3A
10mil
20mil
20mil
10mil
1.1A
20mil
EVEREST-M
Sat Jan 01 18:31:14 2011
Frank Hu
35
97
+V1.05S
AA26
22uF_6.3V_5
1
V21
T21
T19
P32
AC16
AC17
AD17
AF11
AK1
AF14
AH14
AH13
AF13
AJ2
T34
W16
AA16
P22
P20
N22
N20
P34
AN24
AN23
M26
T26
P24
V24
V23
T24
T23
T29
T27
P28
P26
N26
V5REF
C4738
0.1UF_16V_2
A22
BJ8
V19
T17
V16
AG33
AG34
AF34
AF33
AF17
BF47
BD47
Y49
N16
W33
W31
W29
W26
W24
W23
W21
AD31
AD29
AC31
AC29
AC27
AC26
AA31
AA29
AA27
AA24
AA21
AA19
AL24
AL29
BH23
T38
V12
T16
AD49
+V1.05S_VCCAPLLSATA
P3V3_S
0.1UF_16V_2
C4701
1
2
C4735
1
VSREF_SUS
2
C4773
1uF_6.3V_2
ITL_PANTHERPOINT_FCBGA_989P
1uF_6.3V_2
0.1UF_16V_2
1
22UF_6.3V_5_DY
FBM_11_160808_121T
U4700
+V1.05S_VCCAPLLDMI2
VCCADPLLB
VCCADPLLA
+V1.05S_VCCACLK
2
1
C4712
2
1
C4713
2
1
C4733
2
1
C4700
2
1
L4702
2
1
C4734
2
1
2
1
2
1
C4736
2
1
C4737
2
1
R4709
2
1
3
D4700
1
C4770
2
1
C4739
2
1
R4710
2
1
3
D4701
2
1
2
C4740
2
1
C4716
2
1
C4702
2
1
C4742
2
1
C4741
2
1
C4743
2
1
C4719
2
1
C4718
2
1
R4805
2
1
C4720
2
1
C4721
2
1
C4722
2
1
C4723
2
1
C4724
2
1
L4703
2
1
L4704
2
1
C4725
2
C4726
2
1
C4728
2
1
C4727
2
1
C4729
2
1
C4730
2
1
C4731
2
1
C4703
2
C4715
2
1
C4714
2
1
C4771
2
1
R4806
2
1
C4705
2
1
C4704
2
1
C4717
2
1
C4774
2
1
R4807
1uF_6.3V_2
+V_RTC
0_5%_2_DY
1uF_6.3V_2
10uF_6.3V_3
22UF_6.3V_5_DY
1uF_6.3V_2
22uF_6.3V_5
0_5%_2_DY
0.1UF_10V_2_DY
0.1UF_16V_2
1uF_6.3V_2_DY
P3V3_S
0.1UF_16V_2
1uF_6.3V_2
+V1.05M
P3V3_A
0.1UF_16V_2
CS_1310AXXXXXX-MTR
+V1.05_LAN_M_DCPSUS<1>
4.7uF_6.3V_3 0.1UF_16V_2
FBM_11_160808_121T
P1V05_VCCPS
+V1.05_LAN_M
1UF_6.3V_2_DY
+V1.05S
1uF_6.3V_2
+V1.05S
+V1.05M
+V1.05M
0.1UF_16V_2
P3V3_S
10uF_6.3V_3
P3V3_A
0.1UF_16V_2
0.1UF_16V_2 0.1UF_16V_2
0.1UF_16V_2
1uF_6.3V_2
1uF_6.3V_2
10uF_6.3V_3
+VCCAFDI_VRM
1uF_6.3V_2
0.1UF_16V_2
1uF_6.3V_2
1uF_6.3V_2_DY
+V1.05S
+V1.05S
0.1UF_16V_2
0_5%_2_DY
1uF_10V_2
1uF_10V_2
0603_DY
+V1.05S
+V1.05S
+V1.05S
+VCCAFDI_VRM
P3V3_A
P3V3_S
P3V3_A
+V1.05S
P3V3_A
10_5%_5
1uF_10V_2
BAT54_30V_0.2A
0.1UF_16V_2
BAT54_30V_0.2A
10_5%_5
P3V3_A
+V1.05S
P5V_S
P3V3_S
P5V_A
P3V3_A
C
A01
CS
SIZE
CHANGE by DATE
8
8 7
7 6
6 5
5 4
4 3
3
2
1
D
D
CC
BB
AA
REV
1
SHEET
2
DOC.NUMBER
of
CODE
INVENTEC
TITLE
NC
NC
HDA
CPU
RTC
PCI/GPIO/LPC
MISC
POWER
USB
Clock and Miscellaneous
SATA
VCCVRM[4]
DCPRTC
VCCASW[20]
VCC3_3[2]
VCCASW[18]
VCCASW[15]
VCCASW[19]
VCCIO[5]
VCCASW[17]
VCCASW[16]
VCCASW[1]
VCCIO[34]
V5REF_SUS
DCPSUS[4]
VCCSUS3_3[1]
VCCASW[2]
VCCIO[29]
VCCAPLLDMI2
VCCASW[4]
DCPSUSBYP
VCCASW[3]
VCCASW[5]
VCCASW[6]
VCCSUSHDA
VCCSUS3_3[6]
VCCASW[7]
VCCASW[8]
VCCASW[9]
VCCASW[10]
VCCASW[11]
VCCASW[12]
V5REF
VCC3_3[4]
VCCRTC
VCCSUS3_3[10]
VCCSUS3_3[9]
VCCSUS3_3[8]
VCCSUS3_3[7]
VCCADPLLB
VCCDIFFCLKN[1]
DCPSUS[1]
VCCSSC
VCCADPLLA
VCCACLK
VCCDIFFCLKN[2]
DCPSST
VCCASW[22]
VCCASW[23]
VCCASW[21]
VCC3_3[1]
VCC3_3[8]
VCCSUS3_3[2]
VCCSUS3_3[3]
VCCSUS3_3[4]
VCCSUS3_3[5]
V_PROC_IO
VCCDIFFCLKN[3]
VCCASW[13]
VCCASW[14]
VCCVRM[1]
VCCAPLLSATA
DCPSUS[3]
DCPSUS[2]
VCCDSW3_3
VCC3_3[5]
VCCIO[14]
VCCIO[30]
VCCIO[31]
VCCIO[32]
VCCIO[33]
VCCIO[12]
VCCIO[13]
VCCIO[6]
VCCIO[2]
VCCIO[3]
VCCIO[4]
VCCIO[7]

PCH 9 GND
Sun Jan 02 18:04:06 2011
Frank Hu
EVEREST-M
97
36
AB11
AA34
AA33
AA3
AA2
AK46
D42
ITL_PANTHERPOINT_FCBGA_989P
BB38
M24
BB12
F45
G48
H26
AY4
AY42
AY46
AY8
B11
B15
B19
B23
B27
B31
B35
B39
B7
BB16
BB20
BB22
BB24
BB28
BB30
BB4
BB46
BC14
BC18
BC2
BC22
BC26
BC32
BC34
BC36
BC40
BC42
BC48
BD46
BD5
BE22
BE26
BE40
BF10
BF12
BF16
BF20
BF22
BF24
BF26
BF28
BD3
BF30
BF38
BF40
BF8
BG17
BG21
BG33
BG44
BG8
BH11
BH15
BH17
BH19
H10
BH27
BH31
BH33
BH35
BH39
BH43
BH7
D3
D12
D16
D18
D22
D24
D26
D30
D32
D34
D38
D8
E18
E26
G18
G20
G26
G28
G36
H12
H18
H22
H24
H30
H32
H34
F3
H46
K18
K26
K39
K46
K7
L18
L2
L20
L26
L28
L36
L48
M12
P16
M18
M22
M30
M32
M34
M38
M4
M42
M46
M8
N18
P30
N47
P11
P18
T33
P40
P43
P47
P7
R2
R48
T12
T31
T37
T4
W34
T46
T47
T8
V11
V17
V26
V27
V29
V31
V36
V39
V43
V7
W17
W19
W2
W27
W48
Y12
Y38
Y4
Y42
Y46
Y8
BG29
N24
AJ3
AD47
B43
BE10
BG41
G14
H16
T36
BG22
BG24
C22
AP13
M14
AP3
AP1
BE16
BC16
BG28
BJ28
U4700
AW36
ITL_PANTHERPOINT_FCBGA_989P
AF12
AD16
AM36
AP8
H5
AA17
AB43
AM39
AM43
AM45
AM46
AM7
AN2
AN29
AN3
AN31
AP12
AB5
AP19
AP28
AP30
AP32
AP38
AP4
AP42
AP46
AR2
AB7
AR48
AT11
AT13
AT18
AT22
AT26
AT28
AT30
AT32
AT34
AC19
AT39
AT42
AT46
AT7
AU24
AU30
AV16
AV20
AV24
AV30
AC2
AV38
AV4
AV43
AV8
AW14
AW18
AW2
AW22
AW26
AW28
AC21
AW32
AW34
AW40
AW48
AV11
AY12
AY22
AY28
AC24
AC33
AC34
AC48
AD10
AD11
AD12
AD13
AD19
AD24
AD26
AD27
AD33
AD34
AD36
AD37
AD38
AD39
AD4
AD40
AD42
AD43
AD45
AD46
AD8
AE2
AE3
AF10
AD14
AF16
AF19
AF24
AF26
AF27
AF29
AF31
AF38
AF4
AF42
AF46
AF5
AF7
AF8
AG19
AG2
AG31
AG48
AH11
AH3
AH36
AH39
AH40
AB14
AH42
AH46
AH7
AJ19
AJ21
AJ24
AJ33
AJ34
AK12
AK3
AB39
AK38
AK4
AK42
AK8
AL16
AL17
AL19
AL2
AL21
AB4
AL23
AL26
AL27
AL31
AL33
AL34
AL48
AM11
AM14
U4700
CS_1310AXXXXXX-MTR
CS A01
C
SIZE
CHANGE by DATE
8
8 7
7 6
6 5
5 4
4 3
3
2
1
D
D
CC
BB
AA
REV
1
SHEET
2
DOC.NUMBER
of
CODE
INVENTEC
TITLE
VSS[352]
VSS[351]
VSS[350]
VSS[349]
VSS[348]
VSS[347]
VSS[346]
VSS[345]
VSS[344]
VSS[343]
VSS[342]
VSS[340]
VSS[338]
VSS[337]
VSS[335]
VSS[334]
VSS[333]
VSS[331]
VSS[330]
VSS[329]
VSS[328]
VSS[325]
VSS[324]
VSS[323]
VSS[322]
VSS[321]
VSS[320]
VSS[319]
VSS[318]
VSS[317]
VSS[316]
VSS[315]
VSS[314]
VSS[313]
VSS[312]
VSS[311]
VSS[310]
VSS[309]
VSS[308]
VSS[307]
VSS[306]
VSS[305]
VSS[304]
VSS[303]
VSS[302]
VSS[301]
VSS[300]
VSS[299]
VSS[298]
VSS[297]
VSS[296]
VSS[295]
VSS[294]
VSS[293]
VSS[292]
VSS[291]
VSS[290]
VSS[289]
VSS[288]
VSS[287]
VSS[286]
VSS[285]
VSS[284]
VSS[283]
VSS[282]
VSS[281]
VSS[280]
VSS[279]
VSS[278]
VSS[277]
VSS[276]
VSS[275]
VSS[274]
VSS[273]
VSS[272]
VSS[271]
VSS[270]
VSS[269]
VSS[268]
VSS[267]
VSS[266]
VSS[265]
VSS[264]
VSS[263]
VSS[262]
VSS[261]
VSS[260]
VSS[259]
VSS[258]
VSS[257]
VSS[256]
VSS[255]
VSS[254]
VSS[253]
VSS[252]
VSS[251]
VSS[250]
VSS[249]
VSS[248]
VSS[247]
VSS[246]
VSS[245]
VSS[244]
VSS[243]
VSS[242]
VSS[241]
VSS[240]
VSS[239]
VSS[238]
VSS[237]
VSS[236]
VSS[235]
VSS[234]
VSS[233]
VSS[232]
VSS[231]
VSS[230]
VSS[229]
VSS[228]
VSS[227]
VSS[226]
VSS[225]
VSS[224]
VSS[223]
VSS[222]
VSS[221]
VSS[220]
VSS[219]
VSS[218]
VSS[217]
VSS[216]
VSS[215]
VSS[214]
VSS[213]
VSS[212]
VSS[211]
VSS[210]
VSS[209]
VSS[208]
VSS[207]
VSS[206]
VSS[205]
VSS[204]
VSS[203]
VSS[202]
VSS[201]
VSS[200]
VSS[199]
VSS[198]
VSS[197]
VSS[196]
VSS[195]
VSS[194]
VSS[193]
VSS[192]
VSS[191]
VSS[190]
VSS[189]
VSS[188]
VSS[187]
VSS[186]
VSS[185]
VSS[184]
VSS[183]
VSS[182]
VSS[181]
VSS[180]
VSS[179]
VSS[178]
VSS[177]
VSS[176]
VSS[175]
VSS[174]
VSS[173]
VSS[172]
VSS[171]
VSS[170]
VSS[169]
VSS[168]
VSS[167]
VSS[166]
VSS[165]
VSS[164]
VSS[163]
VSS[162]
VSS[161]
VSS[160]
VSS[159]
VSS[158]
VSS[157]
VSS[156]
VSS[155]
VSS[154]
VSS[153]
VSS[152]
VSS[151]
VSS[150]
VSS[149]
VSS[148]
VSS[147]
VSS[146]
VSS[145]
VSS[144]
VSS[143]
VSS[142]
VSS[141]
VSS[140]
VSS[139]
VSS[138]
VSS[137]
VSS[136]
VSS[135]
VSS[134]
VSS[133]
VSS[132]
VSS[131]
VSS[130]
VSS[129]
VSS[128]
VSS[127]
VSS[126]
VSS[125]
VSS[124]
VSS[123]
VSS[122]
VSS[121]
VSS[120]
VSS[119]
VSS[118]
VSS[117]
VSS[116]
VSS[115]
VSS[114]
VSS[113]
VSS[112]
VSS[111]
VSS[110]
VSS[109]
VSS[108]
VSS[107]
VSS[106]
VSS[105]
VSS[104]
VSS[103]
VSS[102]
VSS[101]
VSS[100]
VSS[99]
VSS[98]
VSS[97]
VSS[96]
VSS[95]
VSS[94]
VSS[93]
VSS[92]
VSS[91]
VSS[90]
VSS[89]
VSS[88]
VSS[87]
VSS[86]
VSS[85]
VSS[84]
VSS[83]
VSS[82]
VSS[81]
VSS[80]
VSS[79]
VSS[78]
VSS[77]
VSS[76]
VSS[75]
VSS[74]
VSS[73]
VSS[72]
VSS[71]
VSS[70]
VSS[69]
VSS[68]
VSS[67]
VSS[66]
VSS[65]
VSS[64]
VSS[63]
VSS[62]
VSS[61]
VSS[60]
VSS[59]
VSS[58]
VSS[57]
VSS[56]
VSS[55]
VSS[54]
VSS[53]
VSS[52]
VSS[51]
VSS[50]
VSS[49]
VSS[48]
VSS[47]
VSS[46]
VSS[45]
VSS[44]
VSS[43]
VSS[42]
VSS[41]
VSS[40]
VSS[39]
VSS[38]
VSS[37]
VSS[36]
VSS[35]
VSS[34]
VSS[33]
VSS[32]
VSS[31]
VSS[30]
VSS[29]
VSS[28]
VSS[27]
VSS[26]
VSS[25]
VSS[24]
VSS[23]
VSS[22]
VSS[21]
VSS[20]
VSS[19]
VSS[18]
VSS[17]
VSS[16]
VSS[15]
VSS[14]
VSS[13]
VSS[12]
VSS[11]
VSS[10]
VSS[9]
VSS[8]
VSS[7]
VSS[6]
VSS[5]
VSS[4]
VSS[3]
VSS[2]
VSS[1]
VSS[0]

WS
1.Battery
EC_SMB1
EC_SMB2
1.Charge
2.GPU Thermal
EC_SMB3
1.CPU Thermal
Close EC
HIGH - (Default) NORMAL MODE
STRAP PIN
Close EC
low-Enabled
GPO76_SHBM - Enable shared BIOS Memory
LOW - TEST MODE
CLOSE TO EC
EC
STRAP PIN
0: JTAG select
1: (Default)
CLOSE IC PIN
CLOSE IC PIN
CLOSE IC PIN
20mil
NEED 0.1UF
WS
37
97
Tue Jan 04 11:09:01 2011
EVEREST-M
Frank Hu
EC_EDP_MUX_IC_SEL
RSMRST#
DRAMRST_CNTRL_EC
0_5%_2
1
52<
USB0_PWREN
SCAN_IN<0>
220_5%_2
220_5%_2
220_5%_2
220_5%_2
0_5%_2
0_5%_2
0_5%_2
R365
SCAN_OUT<2>
SLP_S5#
CRIT_TEMP_REP#
SUS_OLED#
BAT_OLED#
H_PECI
58<
58<
33>
20>
PM_EXTTS#1
3G_ON#
DGPU_HOLD_RST#
29
PWR_BLED#
EC_SMB3_CLK
58<
119
LID_SW#_3
PWR_SWIN#_3
WLON#
10K_5%_2_DY
FAN_TACH
SLP_S4#
TP_ON#
WL_OLED#
58
R309
1
P1V05_VCCPS
C308
1
1
EC_DGPU_PWR_EN#
CHG_EN
R368
1
0_5%_2
BOARDID0
DGPU_PWR_EN#
0_5%_2
FLASH_OVERRIDE
26>
32<
EC_PWRSW#
28
R366
123
74
75
2
R367
15
26
R378
43_1%_2
1
86
28>
EC_SPI_SO
SCAN_IN<1>
SCAN_IN<2>
VCC_POR#
2
59
0_5%_2
FAN_TACH
2
1
R361
2
1
R379
2
1
R362
2
1
R380
2
1
R355
2
1
R330
2
1
R357
2
1
PAD300
2
1
C307
2
1
R334
2
1
R335
2
1
R333
2
1
R376
2
1
R336
3
8
7
4
2
5
1
6
U300
2
1
R377
2
1
C314
2
1
C315
2
1
C316
2
1
C317
2
1
R356
2
1
3
Q300
2
1
C310
2
1
C312
2
1
L300
2
1
C306
2
1
C313
2
1
C303
2
1
C304
2
1
C300
2
1
C311
2
1
C305
2
1
2
1
R316
2
1
3
D302
2
1
R313
2
1
R312
2
1
R340
2
1
R339
2
1
R374
2
1
R373
2
1
R371
2
1
R302
2
1
R353
2
1
R352
2
1
R372
2
1
R331
2
1
R300
2
1
R370
2
1
R314
2
1
R301
2
1
R375
2
1
R341
2
1
R303
2
1
R321
2
1
R319
2
1
R322
2
1
R323
2
1
R358
2
1
R359
2
1
C301
2
1
R304
2
1
R305
2
1
R306
2
1
R307
2
1
R308
2
1
2
R310
R311
2
1
R363
2
R364
2
1
2
1
2
1
2
2
1
R360
2
1
R345
2
1
R329
2
1
R354
2
1
R369
104
4
44
85
115
88
76
46
19
63
117
31
125
12
13
11
10
7
3
2
128
127
126
41
42
43
47
48
49
50
51
52
33
34
35
36
37
38
39
40
53
61
60
57
56
55
54
122
112
111
110
83
113
121
91
84
82
68
67
73
81
9
27
25
24
23
22
21
20
17
80
16
72
71
14
66
65
120
109
6
69
70
114
8
124
94
93
108
96
95
79
64
77
107
5
116
89
78
45
18
87
92
90
106
105
101
30
118
62
102
103
100
99
98
97
32
U301
A01
3.3K_5%_2
10K_5%_2
33_5%_2
WINB_W25Q80BVSSIG_SOIC_8P
BOARDID0
EC_SPI_SO
C
CS_1310AXXXXXX-MTR
CS
P3V3_A
H_PROCHOT#_EC
47K_5%_2
SMC_WAKE_SCI#
EC_SPI_SI
EC_SMB2_DATA
EC_SMB2_CLK
ECSTRAP110
37<>
55>
54<>
EC_MUTE#
ECSTRAP110
BOARDID1
10<
100K_5%_2
EC_PW_ON#
10K_5%_2
VCC_POR#
37<
HW_I_ADC
HW_V_ADC
+V3LA_EC
ACPRESENT
30<
10K_5%_2
0
SCAN_IN<7..0>
SCAN_OUT<17..0>
10K_5%_2_DY
H_PROCHOT#
IM_CLK_5
IM_DAT_5
EC_SMB1_DATA
EC_SMB1_CLK
EC_SMB3_DATA
BOARDID1
SLP_LAN#
SLP_SUS#
EC_SPI_CS0#
EC_SPI_CLK
EC_SPI_CS0#
PECI
PCI_3S_CLKRUN#
PCI_3S_SERIRQ
LPC_3S_AD<3>
LPC_3S_AD<2>
LPC_3S_AD<1>
LPC_3S_AD<0>
LPC_3S_FRAME#
CLK_PCI_EC
PLT_RST#
CAPS_LED#_3
DCIN_BLED#
BAT_BLED1#
FM_32KHZ
SCROLL_LED#_3
BTIFON#
USB1_PWREN
NUM_LED#_3
ACPRES#
EC_LCM_INVPWM
SW_LCM_BKLTEN
H_PROCHOT#_EC
BATT_IN
+V3LA_EC_VREF
FAN_PWMA
MAIN_PWRGD
+V5AUXON
SLP_S3#
SLP_A#
EC_BKLTEN
EC_PCH_PWROK
EC_SPI_SI
EC_SPI_CLK
SCAN_IN<7>
SCAN_IN<6>
SCAN_IN<5>
SCAN_IN<4>
SCAN_IN<3>
SCAN_OUT<17>
SCAN_OUT<16>
SCAN_OUT<15>
SCAN_OUT<14>
SCAN_OUT<11>
SCAN_OUT<12>
SCAN_OUT<13>
SCAN_OUT<10>
SCAN_OUT<9>
SCAN_OUT<7>
SCAN_OUT<6>
SCAN_OUT<8>
HW_V_ADC
BATT_IN
SCAN_OUT<0>
HW_I_ADC
SCAN_OUT<5>
SCAN_OUT<4>
SCAN_OUT<3>
SCAN_OUT<1>
SCAN_OUT<0>
EC_SMI
EC_3S_A20GATE
RUNSCI0#
LOW_BAT#_3
SUS_STAT#
RSMRST#
EC_LCM_INVPWM
KBRST#
SSM3K7002BFU 100K_5%_2
P5V_S
47K_5%_2
53<>
53<>
P3V3_AL
10K_5%_2_DY
3.3K_5%_2
3.3K_5%_2
29<>
29<>
P3V3_AL
2.2K_1%_2
2.2K_1%_2
55<
1.8K_5%_2 1.8K_5%_2
72<>
8>
72<>
8>
10K_5%_2_DY
1.5K_1%_1/16W
10K_5%_2
1.5K_1%_2_DY
680pF_50V_2
37< 38>
19<
12<
30>
30>
0_5%_2
37<
37>
28<
1uF_6.3V_2 WINB_NPCE791LA0DX_LQFP_128P
GND_KBC_ALG
30>
11<
38>37<
38>
58<
72<>
30>
37<>
8>
57>
58<
0_5%_2
53<
0_5%_2
0_5%_2
0_5%_2
0_5%_2
9>
10<
P3V3_AL
BAT54_30V_0.2A
100K_5%_2
P3V3_AL
+V3LA_EC
8>
37<
30>
17< 11<
18<
44<48<
9>
37>
8>
37<
4.7K_5%_2
0_5%_2_DY
0_5%_2
0_5%_2
0_5%_2
10K_5%_2
P3V3_S P3V3_AL
P3V3_AL
0_5%_2
33_5%_2
33_5%_2
37>28>
37>28>
P3V3_AL
GND_KBC_ALG
POWERPAD1x1m
220_5%_2
220_5%_2
220_5%_2
220_5%_2
7
6
4
5
2
3
1
0.1UF_16V_2
17
16
15
14
11
12
13
10
9
7
6
8
37<
8>
53>37>
37<
8>
0.1UF_16V_2
0.1UF_16V_2
0.1UF_16V_2
GND_KBC_ALG
0.1UF_16V_2 4.7uF_6.3V_3
5
4
3
2
1
0
P3V3_S
P3V3_AL
+V3LA_EC
0.1UF_16V_2
4.7uF_6.3V_3
FBM_11_160808_121T
P3V3_AL
0.1UF_16V_2
0.1UF_16V_2
0.1UF_16V_2
0.1UF_16V_2
4.7uF_6.3V_3
0.1UF_16V_2
28<
P3V3_S
30<
0_5%_2
30<>
30< 43<
55<
43<
28<>
55<43<
28<>
55<43<
28<>
55<
28<>
43<
32>
39<
32<>
60< 68<
30>
100K_5%_2
10K_5%_2
10K_5%_2
P3V3_S
10K_5%_2
P3V3_S P3V3_A
37>
30<
P3V3_A
33<
10K_5%_2_DY
SIZE
CHANGE by DATE
8
8 7
7 6
6 5
5 4
4 3
3
2
1
D
D
CC
BB
AA
REV
1
SHEET
2
DOC.NUMBER
of
CODE
INVENTEC
TITLE
IN
IN
BI
BI
BI
BI
OUT
BI
BI
IN
IN
OUT
OUT
OUT
IN
OUT
OUT
OUT
IN
OUT
BI
OUT
IN
OUT
OUT
OUT
IN
IN
OUT
OUT
IN
OUT
IN
IN
OUT
1
2
IN
IN
IN
OUT
OUT
DI
HOLD#
WP#
CS#
CLK
VCC
GND
DO
BI
IN
OUT
IN
IN
IN
OUT
G
DS
OUT
IN
OUTOUT
NC
OUT
OUT
OUT
IN
IN
IN
OUT
OUT
OUT
IN
IN
IN
OUTOUT
OUT
IN IN
OUT
IN
BI
OUT
BI
OUT
OUT
OUT
BI
OUT
OUT
OUT
IN
IN
BI
OUT
OUT
OUT
IN
IN
OUT
BI
OUT
OUT
BI
BI
BI
BI
BI
IN
OUT
OUT
OUT
OUT
BI
KBSOUT11_P80_DAT
KBSOUT10_P80_CLK
KBSOUT17_GPIO57
KBSOUT16_GPIO60
KBSOUT15_GPIO61_XOR_OUT
KBSOUT14_GPIO62
KBSOUT13_GPIO63
KBSOUT12_GPIO64
KBSOUT9_SDP_VIS#
KBSOUT8
KBSOUT7
KBSOUT6_RDY#
KBSOUT5_TDO
KBSOUT4_JEN0#
KBSOUT3_TDI
KBSOUT2_TMS
KBSOUT1_TCK
KBSOUT0_JENK#
KBSIN7
KBSIN6
KBSIN5
KBSIN4
KBSIN3
KBSIN2
KBSIN1
KBSIN0
VCC_POR#
GPIO52_PSDAT3_RDY#
PSCLK3_GPIO50_TDO
GPIO46_TRST#
GPIO44_TDI
GPIO43_TMS
GPIO42_TCK
GPIO40_F_PWM
GPIO45_E_PWM
PECI
VTT
GPIO87_SIN_CR
SCL4_GPIO47
GPIO51
GPIO36
SDA4_GPIO53
GPO83_SOUT_CR_TRIST#
GPIO72
GPIO71
GPIO67_PWUREQ#
GPIO65_SMI#
ECSCI#_GPIO54
GPIO85_GA20
KBRST#_GPIO86
GPIO11_CLKRUN#
SERIRQ
LAD3
LAD2
LAD1
LAD0
LFRAME#
LCLK
LRESET#
GPIO10_LPCPD#
GPIO34
GPIO41
VDD
AVCC
VCC5
VCC4
VCC3
VCC2
VCC1
GND6
GND5
GND4
GND3
GND2
GND1
AGND
VCORF
GPIO37_PSCLK1
GPIO35_PSDAT1
PSCLK2_GPIO26
PSDAT2_GPIO27
F_SCK
GPIO81
F_CS0#
F_SDIO0
F_SDIO1
GPIO17_SCL1
GPIO22_SDA1
GPIO73_SCL2
GPIO74_SDA2
GPIO33_H_PWM
GPIO32_D_PWM
TA2_GPIO20
TA1_GPIO56
TB1_GPIO14
A_PWM_GPIO15
B_PWM_GPIO21
C_PWM_GPIO13
CLKOUT_GPIO55
GPIO02
GPIO00_EXTCLK
GPIO16
GPIO24
GPIO70
GPO82_TEST#
GPO84_XORTR#
GPIO75
GPO76_SHBM
GPIO77
GPIO31_SDA3
GPIO30
GPIO23_SCL3
GPIO07
GPIO06
GPIO03
GPIO01
GPIO66_G_PWM
GPIO97
DA2_GPIO96
DA1_GPIO95
DA0_GPIO94
GPIO04
GPIO05
AD3_GPIO93
AD2_GPIO92
AD1_GPIO91
AD0_GPIO90
VREF

30mil
RSET=0.0012*T2-0.9308*T+96.147
10mil
Hysteresis is 30C
FAN & THERMAL
GM Thermal shutdown at 80.8℃+/-3℃from 60℃to 100℃
PM Thermal shutdown at 86℃+/-3℃from 60℃to 100℃
38
97
Fri Dec 31 10:16:37 2010
EVEREST-M
Frank Hu
2 3
1
Q4301
G2
G1
4
3
2
1
CN4300
2
1
C4304
2
1
C4302
2
1
R4304
2
1
R4305
2
1
C4300
2
1
R4301
2
1
R4300
2
1
3
Q4300
2
1
R4302
2
1
C4301
2
1
R4303
5
1
34 2
U4411
2
1
C4303
LMBT3904LT1G
THRM_SHUTDWN#
4.7K_5%_2
1000PF_50V_2_DY
ACES_50273_0047N_001_4P
4.7UF_10V_3
CSC0402_DY
CS_1310AXXXXXX-MTR
+THM_VDD
FAN_PWMA
FAN_TACH
PM_THRMTRIP#
VR_PWRGD
THRM_SHUTDWN#
0.1UF_16V_2
P5V_AL
150_5%_2
GMT_G708T1U_SOT23_5P
32.4K_1%_2
37>
P3V3_S
37<
4.7K_5%_2
P3V3_S
P5V_S
330_5%_2
14>18<
2M_5%_2
SSM3K7002BFU
0.1UF_16V_2
C
A01
CS
SIZE
CHANGE by DATE
8
8 7
7 6
6 5
5 4
4 3
3
2
1
D
D
CC
BB
AA
REV
1
SHEET
2
DOC.NUMBER
of
CODE
INVENTEC
TITLE
B
C E
G
G
4
3
2
1
OUT
IN
IN
OUT
G
DS
OUT
OUT
VCC SET
GND
OT
HYST

15MIL
15MIL
15MIL
15MIL
30MIL
15MIL
LAN
0805
4.7UH
EVEREST-M
39
97
Fri Dec 31 10:16:38 2010
Frank Hu
2
1
C401
2
1
R412
2
1
R416
2
1
R417
2
1
C415
2
1
C402
2
1
L400
2
1
R402
2
1
C400
2
1
R413
2
1
R400
2
1
R401
2
1
R414
2
1
C413
2
1
C414
2
1
C416
2
1
R415
2
1
C412
2
1
C411
2
1
X400
2
1
R403
2
1
R404
2
1
R405
2
1
R406
2
1
R407
1
TP401
1
TP402
1
TP400
2
1
C403
2
1
C404
2
1
R418
2
1
R409
2
1
R408
2
1
R410
2
1
R411
9
10
49
4
5
29
19
15
8
47
46
43
40
37
22
16
11
30
31
28
2
1
6
12
38
39
41
42
36
44
45
23
20
17
13
24
21
18
14
25
27
26
3
33
34
32
35
7
48
U400
+V3M_LAN
22UF_6.3V_5
A01
CS_1310AXXXXXX-MTR
0.1UF_16V_2
0603_DY
SMB_DATA_LAN
SMB_CLK_LAN
0.1UF_16V_2
22UF_6.3V_5
68<
29>
CLK_PCIE_LAN_DN
PCIE_LAN_RX_DP
PCIE_LAN_RX_DN
CS
60< 37<
CLK_PCIE_LAN_DP
LED_R3S_LANACT#
LED_R3S_LANLINK#
+V1.05_LAN_CTRL_1P0
LAN_X2
40<
0_5%_2
0.1UF_16V_2
0_5%_5
0_5%_2
CLKREQ_LAN#_R
+V1.05_LAN
+V1.05_LAN
0_5%_5
LAN_JTAG_TCK
LAN_X1
LAN_JTAG_TMS
LAN_PHY_PWR
SML0_DATA
SML0_CLK
LAN_X2
LAN_X1
PCIE_LAN_TX_DN
PCIE_LAN_TX_DP
PCIE_LAN_RX_C_DN
PCIE_LAN_RX_C_DP
PLT_RST#_R
LAN_JTAG_TCK
LAN_JTAG_TMS
LAN_TRD3_DN
LAN_TRD3_DP
LAN_TRD2_DN
LAN_TRD2_DP
LAN_TRD1_DN
LAN_TRD1_DP
LAN_TRD0_DN
LAN_TRD0_DP
+V3M_LAN_RSVD_NC
LAN_ENABLE
+V3M_LAN_RSVD_VCC3P3_2
+V3M_LAN_RSVD_VCC3P3_1
PLT_RST#
CLKREQ_LAN#
33PF_50V_2
25MHZ
10K_5%_2_DY
33PF_50V_2
0_5%_2
39<
39<
39<>
+V3M_LAN
10K_5%_2_DY
0.1UF_16V_2
+V3M
39<>
33>
0_5%_2_DY
10K_5%_2
29>29<
29>
29<
0_5%_2
0_5%_2
1K_5%_2
39>
39>
3.01K_1%_2
ITL_LEWISVILLE_PQFN_48P
39<>
39<>
0.1UF_16V_2
+V3M_LAN
29>
29>
29<
29>
29<
32<>
29<
0.1UF_16V_2
0_5%_2
10K_5%_2
P3V3_A
0_5%_2
1UF_10V_2
0_5%_2_DY
4.7K_5%_2
4.7K_5%_2
+V1.05_LAN_M
40<
40<
40<
40<
40<
40<
40<
40<
+V3M_LAN
C
SIZE
CHANGE by DATE
8
8 7
7 6
6 5
5 4
4 3
3
2
1
D
D
CC
BB
AA
REV
1
SHEET
2
DOC.NUMBER
of
CODE
INVENTEC
TITLE
BI
BI
BI
BI
BI
BI
BI
BI
BI
BI
OUT
OUT
BI
IN
IN
BI
BI
BI
BI
BI
BI
OUT
OUT
OUT
IN
IN
IN
IN
IN
LED
JTAG
SMBUS
MDI
PCIE
VSS_EPAD
CLK_REQ_N
VDD1P0_47
VDD1P0_46
PE_CLKN
PE_CLKP
VDD1P0_43
PERn
PERp
VDD1P0_40
PETn
PETp
VDD1P0_37
PE_RST_N
JTAG_TCK
JTAG_TDO
JTAG_TMS
JTAG_TDI
SMB_DATA
TEST_EN
VDD3P3_29
SMB_CLK
LED1
LED0
LED2
MDI_MINUS3
MDI_PLUS3
VDD1P0_22
MDI_MINUS2
MDI_PLUS2
VDD3P3_19
MDI_MINUS1
MDI_PLUS1
VDD1P0_16
VDD3P3_15
MDI_MINUS0
MDI_PLUS0
RBIAS
VDD1P0_11
XTAL_IN
XTAL_OUT
VDD1P0_8
CTRL_1P0
RSVD_NC
VDD3P3_IN
VDD3P3_OUT
LAN_DISABLE_N
RSVD_VCC3P3_2
RSVD_VCC3P3_1

RJ45 & TRANSFORMER
8152 OPEN
WS
WS
97
EVEREST-M
40
Tue Jan 04 00:15:14 2011
Frank Hu
+V3M_LAN_TRANSFORMER
+V3M_LAN
LAN_TRD0_CN_DN
LAN_TRD0_CN_DP
LAN_TRD2_CN_DN
LAN_TRD1_CN_DN
LAN_TRD1_CN_DP
LAN_TRD2_CN_DP
LAN_TRD3_CN_DN
LAN_TRD3_CN_DP
JACK470
RSC_0603_DY
LAN_TRD3_DN
LAN_TRD3_DP
LAN_TRD2_DN
LAN_TRD2_DP
LAN_TRD1_DN
LAN_TRD1_DP
LAN_TRD0_DP
0.1UF_16V_2
C408
RSC_0603_DY
2
SYN_100073HR008G13CZL_8P
G1
G2
G3
G4
4
5
7
8
3
6
1
2
13
17
16
18
20
23
19
21
0.1UF_16V_2
C409
1
LAN_TRD0_DN
12
11
9
8
6
5
3
2
10
7
4
1
14
22
15
24
U470
BOTH_GST5009_SOP_24P
LAN_TRD0_CN_DN
LAN_TRD1_CN_DN
LAN_TRD2_CN_DN
LAN_TRD3_CN_DN
LAN_TRD0_CN_DP
LAN_TRD1_CN_DP
LAN_TRD2_CN_DP
LAN_TRD3_CN_DP
C406
2
0.1UF_16V_2
2
1
R472
1
R475
2
1
R476
2
1
R478
2
1
R477
2 2
1
2
1
C407
2
1
C405
1
2
1
C410
2
1
R471
2
1
R470
2
1
R474
2
1
R473
0_5%_2_DY
LED_R3S_LANLINK#
A01
LED_R3S_LANACT#
0.1UF_16V_2 1UF_6.3V_2
+V3M_LAN
RSC_0603_DY
RSC_0603_DY
75_5%_3 75_5%_3
1000PF_2000V_6
75_5%_3 75_5%_3
40<
40<
40<
40<
40<
40<
40<
40<
C
CS
CS_1310AXXXXXX-MTR
SIZE
CHANGE by DATE
8
8 7
7 6
6 5
5 4
4 3
3
2
1
D
D
CC
BB
AA
REV
1
SHEET
2
DOC.NUMBER
of
CODE
INVENTEC
TITLE
OUT
OUT
MX4+
MX3+
MX2+
MX1+
MX4-
MX3-
MX2-
MX1-
MCT4
MCT3
MCT2
MCT1
TD4+
TD3+
TD2+
TD1+
TD4-
TD3-
TD2-
TD1-
TCT4
TCT3
TCT2
TCT1
IN
IN
IN
IN
IN
IN
IN
IN
IN
IN
G
G
G
G
TX+
TX-
RX+
P4
P5
P7
P8
RX-
IN
IN
IN
IN
IN
IN
IN
IN
OUT
OUT
OUT
OUT
OUT
OUT

11/16 MODIFY FOR VENDOR COMMAND
R501 ONLY NEEDED FOR -11Z
PORT C: MICROPHONE JACK
PORT B: INTERNAL MIC
PORT CONFIGURATION
PORT A: HEADPHONE JACK
AUDIO CODEC
10 MIL
NEAR CODEC
RESERVE FOR EMI, CLOSE TO CODEC
120 OHMS@100MHZ
0OHM_5% 1206 PAD
RESERVE FOR EMI (10-22PF)
10 MIL
10 MIL
IS REMOVED DURING SYSTEM RE-START.
AND IF SUPPLY TO VAUX_3.3
10 MIL
PLACE BYPASS CAPS CLOSE TO DEVICE.
1A
Sun Jan 02 13:16:19 2011
Frank Hu
EVEREST-M
41
97
C514
1UF_6.3V_2
C516
2
42<
C_BIAS
1
2
2
10K_1%_2
P3V3_A
100_5%_2
35
34
33
27
25
CONEX_CX20671_21Z_QFN_40P
0.1UF_16V_2
0.1UF_16V_2
C511
0.1UF_16V_2
R507
0.1UF_16V_2
C510
1
2
1
R512
4
8
C
A01
P3V3_S
10UF_6.3V_5
LDO_OUT_3.3V
0.1UF_16V_2
0.1UF_16V_2
0.1UF_16V_2
10UF_6.3V_3
10UF_6.3V_5
5.11K_1%_2
39.2K_1%_2
0.1UF_16V_2
CSC0402_DY
0.1UF_16V_2
0_5%_2
0_5%_2
0_5%_2
0_5%_2
CSC0402_DY
+V5S_LPWR_5.0
SPK_OUT_R+_R
SPK_OUT_R-_R
SPK_OUT_L-_R
SPK_OUT_L+_R
HDA_3S_SDIN0_R
CS
10UF_6.3V_5
0_5%_6
0.1UF_16V_2
10K_5%_2_DY
CS_1310AXXXXXX-MTR
28
26
21
40
18
29
3
19
41
38
37
11
13
12
24
39
10
22
23
30
9
14
15
6
36
2
1
2
C517
1
2
C513
1
2
1
2
C515
1
2
1
2
2
C526
1
2
C527
1
2
C528
1
2
C520
1
2
C521
1
2
C518
1
C519
1
2
R511
R508
1
2
1
2
2
C508
2
C507
1
2
1
C504
1
2
1
2
1
2
C533
1
2
1
2
C506
1
2
R506
1
2
R505
1
2
R504
1
2
R503
1
2
1
C535
1
2
C536
1
2
C537
1
2
1
R509
1
2
C525
1
2
R501
1
2
C529
1UF_6.3V_2
P3V3_A
R513
2
R502 33_5%_2
33_5%_2
2
1
R500
C522
17
16
1
0_5%_2
C532
CSC0402_DY
2
CSC0402_DY
CSC0402_DY
C534
CSC0402_DY
CSC0402_DY
2
0.1UF_16V_2
10UF_6.3V_5
1
C531
C530
2
2
5
C512
1UF_6.3V_2
1
1
7
1
0.1UF_16V_2
10UF_6.3V_5
31
32
1
U500
20
0.1UF_16V_2
PCSPKR_PCH_3_R
10UF_6.3V_5
10UF_6.3V_5
C509
SIZE
CHANGE by DATE
8
8 7
7 6
6 5
5 4
4 3
3
2
1
D
D
CC
BB
AA
REV
1
SHEET
2
DOC.NUMBER
of
CODE
INVENTEC
TITLE
OUT
PORTC_R
C_BIAS
B_BIAS
PORTB_L
PORTB_R
SENSE_A
GPIO1-SPK_MUTE#
GPIO0-EAPD#
SPDIF
DMIC_CLK
GND
AVEE
PORTA_L
PORTA_R
NC
NC
AVDD_HP
AVDD_3.3
AVDD_5V
FILT_1.65
PORTC_L
FLY_N
FLY_P
DVDD_3.3
CLASS-D_REF
RIGHT+
RPWR_5.0
RIGHT-
LEFT-
LPWR_5.0
LEFT+
PC_BEEP
RESET#
SYNC
VDD_IO
SDATA_IN
BIT_CLK
SDATA_OUT
FILT_1.8
VAUX_3.3
DMIC1-2

AUDIO AMP
INTERNAL SPEAKERS
AUDIO JACKS
Recommended for protection
PORT A
HEADPHONE
PORT C
EXTENAL MICROPHONE
Reserve for EMI, place close to connector
EVEREST-M
97
42
Sun Jan 02 13:17:10 2011
Frank Hu
SINGA_2SJ_T351_019_6P
1
R602
R603
2
5.1_5%_2
PHP_PESD5V2S2UT_SOT23_3P
CSC0402_DY
1
2.2UF_6.3V_2
2.2UF_6.3V_2
D602
1
2
CN600
ACES_50224_0040N_001_4P
C604
CSC0402_DY
C607 C605
CSC0402_DY
1
VARISTOR_DY
2
1
D604
2
1
D603
2
1
2
1
D601
2
1
R601
2
1
R600
G2
G1
4
3
2
1
2
C600
2
1
C601
2
1
3
2
1
D600
2
1
C609
C608
2
1
C602
2
1
C603
2
1
R604
2
1
R605
G2
G1
6
5
4
3
2
1
JACK601
G2
G1
6
5
4
3
2
JACK600
2
1
2
1
2
1
C606
2
1
CS_1310AXXXXXX-MTR
VARISTOR_DY
3.3K_5%_2
100_5%_2
VARISTOR_DY
VARISTOR_DY
C_BIAS
CSC0402_DY CSC0402_DY
5.1_5%_2
CSC0402_DY
CSC0402_DY
CSC0402_DY
SINGA_2SJ_T351_019_6P
100_5%_2
41>
3.3K_5%_2
C
A01
CS
SIZE
CHANGE by DATE
8
8 7
7 6
6 5
5 4
4 3
3
2
1
D
D
CC
BB
AA
REV
1
SHEET
2
DOC.NUMBER
of
CODE
INVENTEC
TITLE
G1
1
2
3
4
G2
IN

R3500
TPM
6019B0101801
6019B0761601
P/N
(SUPPORT VPRO)
FW VERSION
1.02
15mil
15mil
STUFF FOR FW1.2
NC FOR SUPPORT VPRO
TPM1.2
LPCPD# SHOULD BE CONNECT TO VDD
3.16
EVEREST-M
Frank Hu
Fri Dec 31 10:16:39 2010
97
43
2
1
R3500
14
13
5
8
9
27
7
16
28
22
21
17
20
23
26
2
6
15
4
3
25
24
19
18
12
11
10
1
U3500
4
32
1
X3500
2
1
C3500
2
1
C3501
2
1
R3503
2
1
C3503
2
1
C3504
2
1
C3505
2
1
C3502
2
1
R3501
2
1
R3502
A01
P3V3_S
56< 55<
20<
32<>
55<
28<>
30<>
PCI_3S_CLKRUN#
TPM_XTALO
TPM_XTALI
10PF_50V_2
0.1UF_16V_2
10PF_50V_2
32.768KHZ
10M_5%_2
0_5%_2_DY
0.1UF_16V_2
LPC_3S_AD<1>
LPC_3S_AD<0>
37<>
55<
28<>
28<>
55<
37<>
LPC_3S_AD<3>
LPC_3S_AD<2>
55<
37<> 28<>
28<>37<>
55<
CLK_PCI_TPM
32>
BUF_PLT_RST#
LPC_3S_FRAME#
28>
37<>
55<
0_5%_2
INFINEON_SLB9635TT1.2_FW3.16_TSSOP_28P
PCI_3S_SERIRQ
37<>
4.7K_5%_2
37<>
P3V3_S
P3V3_A
P3V3_S
0.1UF_16V_2
0.1UF_16V_2
30<
C
CS_1310AXXXXXX-MTR
CS
SIZE
CHANGE by DATE
8
8 7
7 6
6 5
5 4
4 3
3
2
1
D
D
CC
BB
AA
REV
1
SHEET
2
DOC.NUMBER
of
CODE
INVENTEC
TITLE
IN
IN
IN
IN
IN
XTALO
XTALI_32K_IN
VSB
TESTI
TESTBI_BADD
SERIRQ
PP
LRESET#
LPCPD#
LFRAME#
LCLK
LAD3
LAD2
LAD1
LAD0
GPIO2
GPIO
CLKRUN#
GND
NC
GND
VDD
VDD
GND
NC
GND
NC
NC
IN
IN
IN
IN

20mil
CPT PANEL
LOW:DISABLE
HI:ENABLE
LCM CONN
40mil
30mil
30mil
Place as close as possible to connector
for LED panel
Tue Jan 04 11:07:56 2011
44
EVEREST-M
Frank Hu
97
PCH_LVDS_TXDL2_DP
PCH_LVDS_TXCL_DP
EDP_TX1_DP
R?
1
2
0_5%_2
EDP_TX0_DN
EDP_TX1_DN
R?
1
2
0_5%_2
0_5%_2_DY
2
R?
R?
PCH_LVDS_TXCL_DN
PCH_LVDS_TXDL2_DN
2
1
0_5%_2
R?
1
0_5%_2
2
0_5%_2_DY
0_5%_2_DY
0_5%_2_DY
3
4
5
6
P3V3_S
2.2K_5%_2
1
R3002
2
PCH_LVDS_DDCCLK
PCH_LVDS_DDCDATA
PCH_LCM_INVPWM
1000PF_50V_2
C3009
0.1uF_25V_3
P3V3_S
2
1
C3005
0.1UF_16V_2
EC_EDP_MUX_IC_SEL
1
EC_BKLTEN
2
3 5
+V3S_PCH_LCM_VDDEN
0.01UF_50V_2
470K_5%_2
SSM3K7002BFU
R3010
1
680pF_50V_2
C3006
KC_FBM_11_160808_101A20T_2P
4.7uF_25V_5
U3000
TC7SZ08FU
+VBAT_LVDS
23
25
26 G2
G1
9
8
7
30
29
28
27
24
22
21
20
2
19
18
17
16
15
14
13
12
11
10
1
CN?
ACES_50252_03001_002_30P
2.2K_5%_2
1
C3001
R3000
2
C3010
1
1
2
AM3423P
4
2
R3009
1
3
Q3001
R3006
1
PCH_LCM_VDDEN
2
1
2
47K_5%_2
P3V3_S
2
1
C3008
2
1
P3V3_S
2
100_5%_2
2
1
C3003
0.1UF_16V_2
2
1
C3004
10uF_6.3V_3
3
3 6
5
2
1
Q3000
2
1
Q3002
SSM3K7002BFU
37>48<
R3005
1
100_5%_2
PCH_LVDS_TXDL0_DP
PCH_LVDS_TXDL1_DP
PCH_LVDS_TXDL1_DN
PCH_LVDS_TXDL0_DN
100K_5%_2
R3004
1
2
CSC0402_DY
C3002
1
2
PVBAT
L3001
1
2
2
1
2
4 2
0.1UF_16V_2
2
1
C3000
1
1
2
R?
1
2
R?
0_5%_2_DY
1
R?
2
0_5%_2_DY
1
2
R?
1
2
R?
1
2
0_5%_2_DY
R?
1
0_5%_2_DY
2
R?
P3V3_S
USB_P10_DN
G2
SW_LCM_INVPWM
33_5%_2
R3001
R3003
GPU_LVDS2_TXDL2_DP
2
26
30
GPU_LVDS2_TXCL_DN
1
2
4344
USB_P10_DP
GPU_LVDS2_TXCL_DP
GPU_LVDS2_TXDL1_DP
GPU_LVDS2_TXDL1_DN
SW_LVDS_TXCL_DP
SW_LVDS_TXCL_DN
SW_LVDS_TXDL1_DN
SW_LVDS_DDCDATA
SW_LVDS_TXDL1_DP
67>
+VBAT_LVDS
32<>
32<>
ACES_88242_4600_46P
SW_LVDS_DDCCLK
SW_LVDS_TXDL0_DN
40
38
31
0.1UF_16V_2
MIC_IN_DATA
P3V3_S
10K_5%_2_DY
R3008
1
2
10K_5%_2
R3007
1
2
MIC_IN_CLK
44<41>
P3V3_S
CN3000
1
3
USB_P10_DP
USB_P10_DN
5
VARISTOR_DY
MIC_IN_CLK
41>44<
20
C3007
1
44<
44<
G1
9
8 7
6 5
46 45
42
41
4
39
37
36 35
34 33
32
3
29
28 27
25
24 23
22
21
2
19
18 17
16 15
12 11
10
67>
67>
67>
P5V_S
NXP_IP4223CZ6_SOT457_6P_DY
2
1
D3001
2
1
D3000
2
1
4
6
1
2
U3001
CS_1310AXXXXXX-MTR
MIC_IN_DATA
VARISTOR_DY
41>44<
44<
32<>
44<
32<>
C
A01
CS
SW_LVDS_TXDL2_DN
SW_LVDS_TXDL2_DP
GPU_LVDS2_TXDL0_DN
GPU_LVDS2_TXDL0_DP
GPU_LVDS2_TXDL2_DN
100_5%_2
SW_LVDS_TXDL0_DP
1314
SIZE
CHANGE by DATE
8
8 7
7 6
6 5
5 4
4 3
3
2
1
D
D
CC
BB
AA
REV
1
SHEET
2
DOC.NUMBER
of
CODE
INVENTEC
TITLE
IN
IN
IN
IN
IN
IN
IN
G
G
9
8
7
6
5
4
30
3
29
28
27
26
25
24
23
22
21
20
2
19
18
17
16
15
14
13
12
11
10
1
IN
IN
IN
IN
IN
IN
IN
IN
IN IN
IN
BI
BI
IN
IN
+
-
IN
G
DS
G
DS
S
PMOS_4D1S
G
D
VIO
VBUSGND
VIO
VIO
VIO
IN
IN
IN
IN
IN
IN
IN
IN
IN
IN
IN
IN
IN
IN
IN
IN
IN
IN
IN
IN
IN
IN
IN
3
44
23
19
17
15
11
1
G1
14
4
2
36
5
7
9
13
21
25
27
29
31
33
35
37
39
41
43
45
6
8
10
12
16
18
20
22
24
26
28
30
32
34
38
40
42
46
G2

CRT CONN
(40 MILS)
CO-LAYOUT
FOLLOW INTEL DESIGN GUIDE
Frank Hu
EVEREST-M
Fri Dec 31 10:17:01 2010
97
45
2
1
C3056
2
1
C3057
2
1
C3060
2
1
C3061
2
1
C3062
2
1
C3050
2
1
C3051
2
1
C3052
2
1
C3063
2
1
C3064
2
1
C3065
2
1
R3059
2
1
R3060
2
1
R3061
2
1
R3054
2
1
R3053
2
1
R3052
2
1
L3050
2
1
L3051
2
1
L3052
2
1
R3071
2
1
R3072
2
1
R3075
2
1
R3073
2
1
R3074
2
1
R3076
2
1
R3077
2
1
R3064
2
1
R3065
2
1
R3066
2
1
R3067
2
1
R3068
2
1
R3069
2
1
R3070
2
1
FUSE3050
2
1
C3053
2
1
C3054
2
1
C3055
2
1
R3062
2
1
R3063
2
1
R3050
2
1
R3051
1
16
15
98
7
6
5
4
3
2
14
13
12
11
10
U3050
2
1
D3050
2
1
R3058
2
1
R3057
2
1
R3055
2
1
R3056
2
1
C3058
2
1
C3059
G2
G1
9
8
7
6
5
4
3
2
15
14
13
12
11
10
1
CN3050
A01
CS_1310AXXXXXX-MTR
SYN_070546FR015S251ZR_15P
22PF_50V_2
LOW18ANR12G00BD
45>
10PF_50V_2
CRT_DDCCLK_R
CRT_DDCDATA_R
CRT_HSYNC_CN
45<
P5V_S
45<
CRT_R_CN
CRT_G_CN
CRT_B_CN
+V5S_CRTCONNPWR_FUSE
CRT_VSYNC_CN
CRT_HSYNC_CN
45>
33_5%_2
33_5%_2
12PF_50V_2_DY 12PF_50V_2_DY
CRT_R_CN
CRT_G_CN
CRT_B_CN
CRT_VSYNC_R
CRT_VSYNC
CRT_DDCCLK_R
CRT_HSYNC_R
CRT_HSYNC
CRT_DDCDATA_R
GPU_CRT_DDCCLK
GPU_CRT_DDCDATA
GPU_CRT_HSYNC
GPU_CRT_VSYNC
GPU_CRT_R
GPU_CRT_G
GPU_CRT_B
PCH_CRT_DDCDATA
PCH_CRT_DDCCLK
CRT_DDCCLK
CRT_DDCDATA
CRT_VSYNC_CN
CRT_DDCCLK
CRT_DDCDATA
PCH_CRT_BLUE
PCH_CRT_HSYNC
PCH_CRT_VSYNC
PCH_CRT_GREEN
PCH_CRT_RED
CRT_HSYNC
CRT_VSYNC
CRT_B
CRT_G
CRT_R
CRT_B
CRT_G
CRT_R
+V5S_CRTCONNPWR_D
CRT_DDCCLK_CN
CRT_DDCDATA_CN
CRT_G_L
CRT_R_L
CRT_B_L
CRT_G_CN
CRT_B_CN
CRT_R_CN
0.22UF_6.3V_2 0.22UF_6.3V_2 0.22UF_6.3V_2
45>
45<
45< 45>
45>
45<
TI_TPD7S019_15DBQR_SSOP_16P
P5V_S
P3V3_S
P5V_S
71>
71>
71>
71>
0_5%_2_DY
0_5%_2_DY
0_5%_2_DY
71>
71>
71>
31>
31>
0_5%_2_DY
0_5%_2_DY
0_5%_2_DY
0_5%_2_DY
0_5%_2
0_5%_2
45<>
2.2K_5%_2 2.2K_5%_2
33_5%_2
45>
45>
45<>
45>
33_5%_2
45<
45>
45<
45<
P3V3_S
150_1%_2
31>
31>
31>
31>
31>
0_5%_2
0_5%_2
0_5%_2
0_5%_2
0_5%_2
45<
45<
45<
45<
45<
45>
45>
45>
45>
2.2K_5%_2 2.2K_5%_2
P5V_S
SBR3U40P1
1A_32V_0467001
150_1%_2 150_1%_2
10PF_50V_2
10PF_50V_2 22PF_50V_2
0.1UF_10V_2_DY 0.1UF_10V_2_DY
45>
45>45<
45>45<
45>
22PF_50V_2
10PF_50V_2 10PF_50V_2 10PF_50V_2
LOW18ANR12G00BD
LOW18ANR12G00BD
0_5%_2
0_5%_2
0_5%_2
45<
45<
45<
C
CS
SIZE
CHANGE by DATE
8
8 7
7 6
6 5
5 4
4 3
3
2
1
D
D
CC
BB
AA
REV
1
SHEET
2
DOC.NUMBER
of
CODE
INVENTEC
TITLE
OUT
OUT
OUT
IN
IN
IN
BI
BI
OUT
OUT
OUT
OUT
OUT
OUT
IN
OUT
IN
IN
IN
IN
IN
IN
IN
IN
IN
IN
IN
IN
IN
IN
IN
IN
IN
IN
IN
IN
IN
IN
IN
IN
OUT
OUT
OUT
OUT
VCC-SYNC SYNC_OUT2
SYNC_IN2
DDC_OUT1
BYP
VCC-DCC
GND
VIDEO_3
VIDEO_2
VIDEO_1
VCC-VIDEO
SYNC_OUT1
SYNC_IN1
DCC_OUT2
DDC_IN2
DDC_IN1
IN
G2
G1
15
14
13
12
11
10
9
8
7
6
5
4
3
2
1

CLOSE TO CONNECTOR
HDMI CONN
40MIL
CLOSE TO CONNECTOR
Fri Dec 31 10:16:40 2010
Frank Hu
EVEREST-M
97
46
2
1
D3156
2
1
C3151
2
1
R3164
2
1
R3160
1
TP3150
2
1
R3175
2
1
R3174
2
1
R3159
2
1
R3161
2
1
R3162
S
G
D
Q3150
S
G
D
Q3151
8
6
7
9
10
5
4
2
1
3
D3155
8
6
7
9
10
5
4
2
1
3
D3154
2
1
R3173
2
1
R3172
2
1
R3171
2
1
R3170
2
1
R3169
2
1
R3168
2
1
R3167
2
1
R3165
2
1
3
Q3152
2
1
R3166
2
1
R3151
2
1
C3158
2
1
C3159
2
1
C3156
2
1
C3157
2
1
C3154
2
1
C3155
2
1
C3152
2
1
C3153
2
1
R3157
2
1
R3156
2
1
R3155
2
1
R3154
2
1
R3153
2
1
R3152
2
1
R3150
2
1
C3150
2
1
R3163
2
1
D3152
2
1
D3151
2
1
D3150
2
1
D3153
2
1
R3158
2
1
FUSE3150
2
3
1
5
6
4
8
9
7
11
12
10
14
19
G4
G3
G2
G1
16
15
17
13
18
CN3150
HDMI_CN_DDCCLK
4.7K_5%_2
GPU_HDMI_TX0_R_DN
GPU_HDMI_TX0_R_DP
P3V3_GPUS
1M_5%_2
499_1%_2
0_5%_2
0_5%_2
0_5%_2
0_5%_2
4.7K_5%_2
33_5%_2
SBR3U40P1
1K_5%_2
VARISTOR_DY
22PF_50V_2_DY
CS_1310AXXXXXX-MTR
GPU_HDMI_DDCDATA
GPU_HDMI_DDCCLK
GPU_HDMI_TXC_DP
GPU_HDMI_TXC_DN
GPU_HDMI_TX0_DN
GPU_HDMI_TX0_DP
GPU_HDMI_TX1_DN
GPU_HDMI_TX1_DP
GPU_HDMI_TX2_DN
HDMI_CN_DDCDATA
GPU_HDMI_TX2_DP
GPU_HDMI_HPDET
GPU_HDMI_TXC_R_DN
GPU_HDMI_TXC_R_DP
GPU_HDMI_TX1_R_DN
GPU_HDMI_TX1_R_DP
GPU_HDMI_TX2_R_DN
HDMI_CN_DDCDATA
HDMI_CN_DDCCLK
+V5LA_HDMI_CONNPWR
GPU_HDMI_TX2_R_DP
GPU_HDMI_TXC_C_DN
GPU_HDMI_TXC_C_DP
GPU_HDMI_TX1_C_DN
GPU_HDMI_TX1_C_DP
GPU_HDMI_TX2_C_DN
GPU_HDMI_TX0_C_DP
GPU_HDMI_TX0_C_DN
GPU_HDMI_TX2_C_DP
71<>
33_5%_2
71<>
4.7K_5%_2
71>
71>
71>
71>
71>
71>
71>
0.1UF_16V_2
0.1UF_16V_2
0.1UF_16V_2
0.1UF_16V_2
0.1UF_16V_2
0.1UF_16V_2
0.1UF_16V_2
SSM3K17FU
4.7K_5%_2
SSM3K17FU
P3V3_GPUS
46<>
46<>
0_5%_2_DY
+V5S_HDMI
SEM_0544M_MSOP_10P_DY
P5V_S
71>
SSM3K7002BFU
0.1UF_16V_2
499_1%_2
499_1%_2
499_1%_2
499_1%_2
499_1%_2
499_1%_2
499_1%_2
SEM_0544M_MSOP_10P_DY
100PF_50V_2
71<
100K_5%_2
VARISTOR_DY
SBR3U40P1
+V5S_HDMI
0_5%_2
0_5%_2
0_5%_2
46<>
46<>
VARISTOR_DY
1A_32V_0467001
TP35
SYN_100042MR019M153ZL_19P
0_5%_2
CS A01
C
SIZE
CHANGE by DATE
8
8 7
7 6
6 5
5 4
4 3
3
2
1
D
D
CC
BB
AA
REV
1
SHEET
2
DOC.NUMBER
of
CODE
INVENTEC
TITLE
OUT
BI
BI
BI
BI
G
DS
G
DS
NC
NC
NC
VCC
NC
LINE4
LINE3
GND
LINE2
LINE1
NC
NC
NC
VCC
NC
LINE4
LINE3
GND
LINE2
LINE1
BI
G
DS
IN
IN
IN
IN
BI
IN
IN
IN
IN
G4
G3
G2
G1
HOT-PLUG-DETECT
+5V-POWER
DDC-CEC-GND
DDC-DATA
DDC-CLOCK
RESERVED
CEC
TMDS-CLOCK-
TMDS-CLOCK-SHIELD
TMDS-CLOCK+
TMDS-DATA0-
TMDS-DATA0-SHIELD
TMDS-DATA0+
TMDS-DATA1-
TMDS-DATA1-SHIELD
TMDS-DATA1+
TMDS-DATA2-
TMDS-DATA2-SHIELD
TMDS-DATA2+

PCH Dual-mode
40mil
DP CONN
PIN 14 :DDC buffer ID
distinguish from HDMI &DVI Adapter
EVEREST-M
47
97
Fri Dec 31 10:16:41 2010
Frank Hu
G4
G3
G2
G1
9
8
7
6
5
4
3
20
2
19
18
17
16
15
14
13
12
11
10
1
CN3300
2
1
D3300
S
G
D
Q3300
2
1
3
Q3302
2
1
R3305
2
1
3
Q3303
2
1
R3306
2
1
R3302
2
1
R3304
S
G
D
Q3304
S
G
D
Q3308
2
1
R3303
2
1
R3301
S
G
D
Q3305
S
G
D
Q3309
2
1
C3300
S
G
D
Q3306
S
G
D
Q3310
2
1
C3301
S
G
D
Q3307
S
G
D
Q3301
2
1
C3309
2
1
C3308
2
1
C3307
2
1
C3306
2
1
C3305
2
1
C3304
2
1
C3303
2
1
C3302
2
1
R3307
2
1
FUSE3300
2
1
R3300
2
1
R3308
2
1
R3309
DDCDATA_AUXN_CN
PCH_DUAL_DDCDATA_M
PCH_DUAL_DDCCLK_M
PCH_DP_AUX_M_DP
PCH_DP_HPD_CN
P3V3_S
DDCCLK_AUXP_CN
DDCDATA_AUXN_CN
PCH_DP_HPD_CN
1A_32V_0467001
100K_5%_2
P3V3_S
SSM3K17FU
10K_5%_2
CS_1310AXXXXXX-MTR
+V3S_DPCONNPWR_FUSE
DDC_AUX_EN#
+V3S_DPCONNPWR_D
DDCCLK_AUXP_CN
PCH_DP_LANE1_DP PCH_DP_LANE1_C_DP
PCH_DP_LANE0_DN PCH_DP_LANE0_C_DN
PCH_DP_LANE0_DP PCH_DP_LANE0_C_DP
PCH_DP_LANE1_DN PCH_DP_LANE1_C_DN
PCH_DP_LANE2_DP PCH_DP_LANE2_C_DP
PCH_DP_LANE3_DP PCH_DP_LANE3_C_DP
PCH_DP_LANE2_DN PCH_DP_LANE2_C_DN
PCH_DP_LANE3_DN PCH_DP_LANE3_C_DN
PCH_DP_AUX_M_DN
PCH_DP_HPD
PCH_DP_AUX_C_DP
PCH_DP_AUX_C_DN
PCH_DP_AUX_DP
PCH_DP_AUX_DN
PCH_DUAL_DDCCLK
PCH_DUAL_DDCDATA
MLX_105020_6001_20P
0_5%_2
5.1M_5%_2
47>
1M_5%_2
DDC_AUX_EN#
SBR3U40P1
P5V_S
10K_5%_2
SSM3K7002BFU
SSM3K7002BFU
47<>
47<>
100K_5%_2
100K_5%_2
0.1UF_16V_2
0.1UF_16V_2
0.1UF_16V_2
0.1UF_16V_2
0.1UF_16V_2
0.1UF_16V_2
0.1UF_16V_2
0.1UF_16V_2
SSM3K17FU
SSM3K17FU
P5V_S
SSM3K17FU
SSM3K17FU
SSM3K17FU
SSM3K17FU
SSM3K17FU
SSM3K17FU
31<
0.1UF_16V_2
P3V3_S
0.1UF_16V_2
2.2K_5%_2
P3V3_S
2.2K_5%_2
CS A01
C
SIZE
CHANGE by DATE
8
8 7
7 6
6 5
5 4
4 3
3
2
1
D
D
CC
BB
AA
REV
1
SHEET
2
DOC.NUMBER
of
CODE
INVENTEC
TITLE
G4
G3
G2
G1
9
8
7
6
5
4
3
20
2
19
18
17
16
15
14
13
12
11
10
1
OUT
IN
G
DS
IN
G
DS
G
DS
BI
BI
G
DS
G
D S
BIBI
G
DS
G
D S
BI
G
D S
G
DS
BI
G
D S
G
DS
IN
IN
IN
IN
IN
IN
IN
IN
OUT
BI
BI
OUT

40mil
EDP CONN
40mil
EVEREST-M
Frank Hu
Tue Jan 04 11:08:43 2011
97
48
R3360
100K_5%_2_DY
R3359
100K_5%_2_DY
0.1UF_16V_2
C3360
0.1UF_16V_2
C3361
1
1
2
R3357
C3350
1
TC7SZ08FU
100_5%_2
21>
EC_BKLTEN
PCH_LCM_BKLTEN
15
17
23
ACES_87216_2406_24P
10
12
1
EDP_TX0_C_DN
EDP_TX0_C_DP
32
0.1UF_16V_2
Q3351
+V3S_eDPCONNPWR
100_5%_2
P3V3_S
0.1UF_16V_2
14
EDP_HPD#_CN
EDP_TX0_DP
U3350
5
2
2
R3350
680pF_50V_2
EDP_TX0_DN
0.1UF_16V_2
AM3423P
2
2
1
C3359
2
1
R3356
2
1
R3355
2
1
3
Q3353
2
1
2
1
2
1
R3358
2
1
2
2
1
3
2
1
3
Q3352
2
1
R3354
2
1
C3358
2
1
R3353
4
3 6
5
2
1
Q3350
1
2
1
L3350
2
1
C3355
2
1
C3353
1
4
3
2
1
2
R3351
2
1
C3356
2
1
R3352
2
1
C3357
2
1
C3352
1
C3351
2
1
C3354
G2
G1
987 65 4
24
22
21
20
19 18
16
13
11
CN3350
100K_5%_2
PCH_LCM_INVPWM
EDP_AUX_C_DN
0.01UF_50V_2
SSM3K7002BFU
P3V3_S
EDP_HPD#_CN
A01
EDP_AUX_DN
EDP_AUX_DP
PCH_LCM_VDDEN
EDP_AUX_C_DN
EDP_AUX_C_DP
EDP_AUX_C_DP
EDP_HPD#
+VBAT_eDP
21<>
21<>
SSM3K7002BFU
100K_5%_2_DY
48>
48>
100K_5%_2_DY
PVBAT
KC_FBM_11_160808_101A20T_2P
37>44<
100K_5%_2
21>
47K_5%_2
P3V3_S
470K_5%_2
P3V3_S
4.7uF_25V_5 0.1uF_25V_3
CSC0402_DY
10uF_6.3V_3 0.1UF_16V_2
SSM3K7002BFU
1K_5%_2
21<
48<
48<
P1V05_VCCPS
CS
CS_1310AXXXXXX-MTR
C
SIZE
CHANGE by DATE
8
8 7
7 6
6 5
5 4
4 3
3
2
1
D
D
CC
BB
AA
REV
1
SHEET
2
DOC.NUMBER
of
CODE
INVENTEC
TITLE
OUT
IN
OUT
OUT
G
DS
BI
IN
OUT
IN
BI
IN
G
DS
G
D S
S
PMOS_4D1S
G
D
OUT
IN
IN
IN
+
-
OUT
G2
24
22
20
19
18
17
16
14
12
11
10
9
87
5
3
2
1
23
21
4
6
G1
15
13

CARDREADER/USB CONNECTOR
30mil
DB CONN USB & CARDREADER
1.5A
EVEREST-M
49
97
Fri Dec 31 10:17:02 2010
Frank Hu
G2
G1
9
8
7
6
5
4
3
2
18
17
16
15
14
13
12
11
10
1
CN255
CS_1310AXXXXXX-MTR
ACES_50503_0184N_001_18P
P5V_A
A01
LED_3IN1
USB_OC#_1
USB_P8_DN
USB_P8_DP
USB_P2_DN
USB_P2_DP
USB_P1_DN
USB_P1_DP
USB1_PWREN
58<
32<
32<>
32<>
32<>
32<>
32<>
32<>
P3V3_S
C
CS
SIZE
CHANGE by DATE
8
8 7
7 6
6 5
5 4
4 3
3
2
1
D
D
CC
BB
AA
REV
1
SHEET
2
DOC.NUMBER
of
CODE
INVENTEC
TITLE
IN
IN
IN
IN
OUT
IN
IN
IN
IN
18
17
16
15
14
13
12
11
G2
10
9
8
7
6
5
4
3
2
1
G1

CLOSE TO SATA CONN
40MILS
SATA HDD
SATA SSD
SATA HDD/SSD & ODD CONN
CLOSE TO SATA CONN
1.1A
SATA ODD
EVEREST-M
50
Frank Hu
97
Sun Jan 02 18:54:06 2011
2
1
R1750
2
1
C1756
2
1
C1757
2
1
C1755
2
1
C1754
2
1
D1751
2
1
D1753
2
1
D1750
2
1
D1752
2
1
C1753
2
1
R1753
2
1
3
Q1751
2
1
R1751
2
1
R1752
43
652
1
Q1750
2
1
C1750
2
1
C1751
2
1
C1752
P4
S1
S4
S7
P5
P6
G2
G1
P1
S5
S6
S3
S2
P2
P3
CN1750
2
1
C1900
2
1
C1901
2
1
C1902
2
1
R1900
2
1
C1905
2
1
C1906
2
1
C1903
2
1
C1904
G2
G1
9
8
7
6
5
4
3
2
16
15
14
13
12
11
10
1
CN1900
2
1
C1706
2
1
C1700
2
1
C1701
2
1
D1702
2
1
D1701
2
1
D1703
2
1
D1700
2
1
C1703
2
1
C1702
2
1
C1705
2
1
C1704
2
1
R1700
16
15
14
10
9
8
22
21
20
18
19
17
13
12
11
7
4
1
G2
G1
5
6
3
2
CN1700
SATA_HDD_RX_DN
SATA_HDD_RX_DP
SATA_HDD_TX_DN
SATA_HDD_TX_DP
SATA_HDD_RX_C_DP
SATA_HDD_RX_C_DN
SATA_HDD_TX_C_DN
SATA_HDD_TX_C_DP
+V3S_SATAHDDCONN
22UF_6.3V_5
28<
28<
28>
28>
0.01UF_50V_2
0.01UF_50V_2
0.01UF_50V_2
VARISTOR_DY VARISTOR_DY
VARISTOR_DY
22UF_6.3V_5 0.1UF_16V_2
P5V_S
VARISTOR_DY
RSC_0603_DY
P3V3_S
0.01UF_50V_2
SYN_127043HR022M22SZR_22P
SATA_ODD_PRSNT#
33>
32<
SATA_SSD_TX_C_DP
P3V3_S
22UF_6.3V_5
SATA_SSD_RX_DP
28<
SATA_SSD_TX_DN
SATA_SSD_TX_DP
A01
SATA_ODD_TX_DP
SATA_ODD_TX_DN
SATA_ODD_RX_DN
SATA_ODD_RX_DP
SATA_ODD_PWREN
SATA_ODD_DA# SATA_ODD_R_DA#
SATA_ODD_TX_C_DP
SATA_ODD_TX_C_DN
SATA_ODD_RX_C_DN
SATA_ODD_RX_C_DP
SATA_SSD_RX_DN
SATA_SSD_RX_C_DP
SATA_SSD_TX_C_DN
SATA_SSD_RX_C_DN
+V3S_SATASSDCONN
+V5S_SATAODDCONN_MOS
28>
28>
0.01UF_50V_2
0.01UF_50V_2
28<
28<
0.01UF_50V_2
0.01UF_50V_2
10K_5%_2
SSM3K7002BFU
P3V3_S
1M_5%_2
P5V_S
VARISTOR_DY VARISTOR_DY VARISTOR_DY VARISTOR_DY
32<>
1M_5%_2
1000PF_50V_2
AM3423P
0_5%_2
10UF_6.3V_3
1UF_6.3V_2 1UF_6.3V_2
SYN_127382FR013G503ZR_13P
28<
28>
28>
0.01UF_50V_2
0.01UF_50V_2
22UF_6.3V_5 0.1UF_16V_2
P5V_S
0.01UF_50V_2
0.01UF_50V_2
ACES_88501_1601_16P
RSC_0603_DY
C
CS
CS_1310AXXXXXX-MTR
SIZE
CHANGE by DATE
8
8 7
7 6
6 5
5 4
4 3
3
2
1
D
D
CC
BB
AA
REV
1
SHEET
2
DOC.NUMBER
of
CODE
INVENTEC
TITLE
IN
OUT
OUT
OUT
OUT
IN
IN
IN
G
DS
S
PMOS_4D1S
G
D
G2
G1
GND
A+
A-
GND
B-
B+
GND
DP
+5V
+5V
MD
GND
GND
OUT
OUT
IN
IN
16
15
14
13
G
G
12
11
10
9
8
7
6
5
4
3
2
1
OUT
OUT
IN
RESERVED
G2
G1
V12
V12
V12
V5
V5
V5
V3.3
V3.3
V3.3
B+
B-
A-
A+
GND
GND
GND
GND
GND
GND
GND
GND

E-SATA CONN
CLOSE TO IC PINS
40MIL
FUNCTION
DEFAULT
STANDBY
CH0,1->5DB
CH1->5DB
CH0->5DB
0
X
D1
D0
X
0
1
1
0
1
1
0
EN
0
1
1
1
1
E-SATA
51
97
Fri Dec 31 10:16:42 2010
EVEREST-M
Frank Hu
2
1
C1800
2
1
C1801
2
1
C1804
2
1
C1805
2
1
D1800
2
1
D1802
2
1
D1803
2
1
D1801
2
1
34
L1800
1
3
2 6
7
10
9
G4
G3
G2
G1
8
5
4
11
CN1800
2
1
C1806
2
1
C1807
2
1
C1808
2
1
C1809
2
1
C1802
2
1
C1803
2
1
C1810
2
1
C1811
2
1
R1800
2
1
R1801
2
1
R1802
2
1
R1803
2
1
R1804
20
16 10
6
5
4
15
14
21
11
12
1
2
19
18
17
13
3
7
8
9
U1800
REDRIVER_ESATA_TX_DN
REDRIVER_ESATA_TX_DP
0.1UF_16V_2
0.01UF_50V_2
51<
A01
USB_P0_DP
USB_P0_DN USB_P0_L_DN
REDRIVER_ESATA_RX_C_DP
USB_P0_L_DP
REDRIVER_ESATA_TX_C_DP
REDRIVER_ESATA_TX_C_DN
REDRIVER_ESATA_RX_C_DN
REDRIVER_ESATA_RX_DN
REDRIVER_ESATA_RX_DP
SATA_ESATA_TX_DP
SATA_ESATA_TX_DN SATA_ESATA_TX_C_DN
SATA_ESATA_TX_C_DP
REDRIVER_ESATA_RX_DP
REDRIVER_ESATA_RX_DN
REDRIVER_ESATA_TX_DP
REDRIVER_ESATA_TX_DN
SATA_ESATA_RX_DP
SATA_ESATA_RX_C_DP
SATA_ESATA_RX_DN
SATA_ESATA_RX_C_DN
32<>
32<>
WCM_2012_900T
+USB_VCC0
P3V3_S
1UF_6.3V_2 1UF_6.3V_2
0.1UF_16V_2
VARISTOR_DY
TWIN_EU103_117CRL_TW_11P
VARISTOR_DY VARISTOR_DY VARISTOR_DY
P3V3_S
51>
51>
TI_SN75LVCP412RTJR_QFN_20P
28>
28>
0.01UF_50V_2
0.01UF_50V_2
0.01UF_50V_2
0.01UF_50V_2
0.01UF_50V_2
0.01UF_50V_2
51<
51>
51>
RSC_0402_DY
4.7K_5%_2 4.7K_5%_2
P3V3_S
4.7K_5%_2
4.7K_5%_2_DY
0.01UF_50V_2
28<
28<
CS
CS_1310AXXXXXX-MTR
C
SIZE
CHANGE by DATE
8
8 7
7 6
6 5
5 4
4 3
3
2
1
D
D
CC
BB
AA
REV
1
SHEET
2
DOC.NUMBER
of
CODE
INVENTEC
TITLE
IN
IN
OUT
OUT
IN
IN
OUT
OUT
BI
BI
VCC
USB_P
USB_N
TXP
TXN
RXP
RXN
G4
G3
G2
G1
GND
GND
GND
GND
OUT
OUT
IN
IN
TML
VCC
GND
GND
GND
VCC
TX_0P
TX_0N
GND
RX_1N
RX_1P
VCC
D0
D1
EN
VCC
TX_1P
TX_1N
GND
RX_0N
RX_0P

CLOSE TO ESATA CONNECTOR
40MIL
40MIL
ESATA POWER
USB CONN
Frank Hu
EVEREST-M
Sun Jan 02 18:04:58 2011
97
52
P3V3_AL
10K_5%_2
USB_OC#_1
2
1
PAD1800
2
1
R1806
2
1
R1805
2
1
C1812
2
1
C1813
2
1
C1814
2
1
C1815
8
7
6
5
3
2
1
4
U1801
0.01UF_50V_2
POWERPAD1X1M
USB0_PWREN
+V5A_ESATAPWR_IN
37>
P5V_A
0.1UF_16V_2
GMT_G547G1P81U_MSOP_8P
22UF_6.3V_5 0.1UF_16V_2 RSC_0402_DY
+USB_VCC0
CS_1310AXXXXXX-MTR
CS A01
C
SIZE
CHANGE by DATE
8
8 7
7 6
6 5
5 4
4 3
3
2
1
D
D
CC
BB
AA
REV
1
SHEET
2
DOC.NUMBER
of
CODE
INVENTEC
TITLE
1
2
OUT
IN
OUT
OUT
OUT
OC#EN
IN
IN
GND

PUT ON BOTTOM SIDE
14" KEYBOARD
25mil
K/B & TP/B CONN
14" TOUCH PAD
53
97
Fri Dec 31 10:16:43 2010
EVEREST-M
Frank Hu
2
1
D256
2
1
D255
2
1
D254
2
1
D253
2
1
D252
2
1
D251
2
1
D250
2
1
D262
2
1
C252
2
1
C250
G2
G1
6
5
4
3
2
1
CN250
2
1
D200
G2
G1
2
1
CN200
2
1
R254
2
1
D258
2
1
D259
2
1
D260
2
1
R251
2
1
R252
2
1
R253
6
5
4
3
2
1
SW200
G2
G1
9
8
7
6
5
4
34
33
32
31
30
3
29
28
27
26
25
24
23
22
21
20
2
19
18
17
16
15
14
13
12
11
10
1
CN251
CSC0402_DY
SCAN_IN<2>
37<
TP_ON#
NUM_LED#_3
SCROLL_LED#_3
CAPS_LED#_3
IM_DAT_5
IM_CLK_5
SCAN_OUT<3>
SCAN_OUT<7>
SCAN_OUT<12>
SCAN_OUT<8>
SCAN_OUT<14>
SCAN_OUT<10>
SCAN_OUT<5>
SCAN_OUT<6>
SCAN_OUT<9>
SCAN_OUT<11>
SCAN_OUT<0>
SCAN_OUT<1>
SCAN_OUT<17..0>
SCAN_OUT<15>
SCAN_OUT<13>
SCAN_OUT<4>
SCAN_OUT<2>
SCAN_OUT<17>
SCAN_OUT<16>
PWR_SWIN#_3
PWR_SWIN#_3
SCAN_IN<5>
SCAN_IN<6>
SCAN_IN<1>
SCAN_IN<0>
SCAN_IN<7>
SCAN_IN<2>
SCAN_IN<3>
SCAN_IN<4>
SCAN_IN<7>
SCAN_IN<4>
SCAN_IN<6>
SCAN_IN<5>
SCAN_IN<3>
SCAN_IN<0>
SCAN_IN<1>
ACES_88502_060N_6P
37>
CSC0402_DY
P5V_S
37<>
37<>
200_5%_2
200_5%_2
200_5%_2
EZJZ0V120JA_DY EZJZ0V120JA_DY EZJZ0V120JA_DY
3
7
12
8
14
10
5
6
9
11
0
1
15
13
4
2
17
16
0_5%_2
MISAKI_NTC017_DA1G_E160T_6P
ENTERY_3703_Q02N_03R_2P
VARISTOR_DY
53>
53< 37<
53< 37<
37<53<
53< 37<
PTWO_AFF340_A2G1V_P _34P
53< 37<
53< 37<
37<53<
53< 37<
37<
53<
37<
53<
53<
37<
53<
37<
53<
37<
37<
53<
37<
53<
EZJZ0V120JA_DY
EZJZ0V120JA_DY
EZJZ0V120JA_DY
EZJZ0V120JA_DY
EZJZ0V120JA_DY
EZJZ0V120JA_DY
P3V3_S
53<
37<
EZJZ0V120JA_DY
EZJZ0V120JA_DY
C
CS_1310AXXXXXX-MTR
A01
CS
SIZE
CHANGE by DATE
8
8 7
7 6
6 5
5 4
4 3
3
2
1
D
D
CC
BB
AA
REV
1
SHEET
2
DOC.NUMBER
of
CODE
INVENTEC
TITLE
IN
IN
BI
BI
IN
G
1
2
3
4
5
6
G
OUT
IN
G1
2
1
G2
IN
IN
IN
IN
IN
IN
IN
IN
IN
OUT
OUT
OUT
IN
OUT
OUT
A
B
DC
IN
IN
IN
34
33
32
31
30
29
28
27
26
25
24
23
22
21
20
19
18
17
16
15
14
13
12
11
10
9
8
7
6
5
4
3
2
1
G1
G2

20MIL
ALWAYS STUFF
BLUETOOTH CONN
GND
CH_CLK
CH_DATA#
RST#
GND
2
4
6
8
10
1
3
5
7
9
USB_N
USB_P
BTMDL
VCC
DISABLE
BLUETOOTH
Frank Hu
EVEREST-M
Fri Dec 31 10:17:02 2010
97
54
2
1
R2105
2
1
C2100
2
1
C2104
G2
G1
6
5
4
3
2
1
CN2100
22UF_6.3V_5
P3V3_S
ACES_87213_0600N_6P
CS_1310AXXXXXX-MTR
BTMDL#
BTIFON#
USB_P12_DN
USB_P12_DP
32<>
55> 37>
32<>
32<>
100K_5%_2
P3V3_S
0.1UF_16V_2
C
CS A01
SIZE
CHANGE by DATE
8
8 7
7 6
6 5
5 4
4 3
3
2
1
D
D
CC
BB
AA
REV
1
SHEET
2
DOC.NUMBER
of
CODE
INVENTEC
TITLE
OUT
BI
BI
BI
3
2
1
G
4
5
6
G

25mil
375mA
1,100mA
500mA
2,750mA
MINI CARD 1
MINI1 WLAN/DEBUG CARD
1.5V
3.3V
Peak(max)mA Normal(max)mA
Note:
2.7A
SUPPORT IAMT NEED +V3A
Wireless & Debug card
EVEREST-M
Frank Hu
Fri Dec 31 10:16:43 2010
97
55
2
1
3
Q1300
2
1
R1302
2
1
R1303
2
1
C1301
2
1
C1304
2
1
C1303
2
1
C1305
2
1
C1306
2
1
C1302
2
1
3
Q1301
2
1
R1301
2
1
R1300
1
36
38
32
30
45
43
41
39
37
19
17
5
20
16
14
12
10
8
51
49
47
3
11
13
33
31
22
25
23
42
46
44
26
18
4
35
29
27
21
15
50
40
34
9
G2
G1
7
24
52
2
48
28
6
CN1300
0.1UF_16V_2 0.1UF_16V_2
LPC_3S_FRAME#
LPC_3S_AD<2>
LPC_3S_AD<0>
WXMIT_OFF#
0_5%_2
USB_P5_DN
USB_P5_DP
WIMAX_LED#
BTIFON#
BUF_PLT_RST#
LPC_3S_AD<1>
LPC_3S_AD<3>
PCI_3S_SERIRQ
CL_RST#
CL_DATA
CL_CLK
PCIE_WLAN_TX_DP
PCIE_WLAN_TX_DN
PCIE_WLAN_RX_DP
PCIE_WLAN_RX_DN
CLK_PCI_DEBUG
BUF_PLT_RST#
CLK_PCIE_WLAN_DP
CLK_PCIE_WLAN_DN
CLKREQ_WLAN#
PCIE_WAKE#
PCH_3A_SMDATA
PCH_3A_SMCLK
WXMIT_OFF#
WLON#
37>
54<>
SSM3K7002FU_DY
0_5%_2
BELLW_80051_1021_52P
29>
29>
29>
56<
20<
32<>
43<55<
30<
0_5%_2
22uF_6.3V_5 0.1UF_16V_2
32<>
32<>
0_5%_2
55<
20<
32<>
43<
56<
55>
43<
28<> 37<>
0.1UF_16V_2
43<
28<> 37<>
43<
37<>28<>
43<
37<>28<>
28>
37<>
43<
29<>
29<>
22uF_6.3V_5
P3V3_S
P1V5_S
SSM3K7002BFU
37>
C
CS A01
CS_1310AXXXXXX-MTR
SIZE
CHANGE by DATE
8
8 7
7 6
6 5
5 4
4 3
3
2
1
D
D
CC
BB
AA
REV
1
SHEET
2
DOC.NUMBER
of
CODE
INVENTEC
TITLE
G
DS
OUT
OUT
IN
G
DS
BI
BI
OUT
BI
BI
IN
IN
IN
IN
IN
IN
IN
IN
OUT
OUT
OUT
BI
IN
IN
OUT
OUT
IN
IN
IN
IN
OUT
GG
3.3V
GND
1.5V
LED_WPAN#
LED_WLAN#
LED_WWAN#
GND
USB_D+
USB_D-
GND
SMB_DATA
SMB_CLK
1.5V
GND
+3.3VAUX
PERST#
RESERVED
GND
RESERVED
RESERVED
RESERVED
RESERVED
RESERVED
1.5V
GND
3.3V
RESERVED
RESERVED
RESERVED
RESERVED
RESERVED
RESERVED
RESERVED
RESERVED
GND
PETP0
PETN0
GND
GND
PERP0
PERN0
GND
RESERVED
RESERVED
GND
REFCLK+
REFCLK-
GND
CLKREQ#
RESERVED
RESERVED
WAKE#

MINI2 3G
25mil
MINI CARD 2
3G/GPS
1A
CLOSE TO SIM CONNECTOR
EVEREST-M
97
56
Fri Dec 31 10:17:03 2010
Frank Hu
2
1
C1404
2
1
3
Q1401
2
1
C1403
4
6
3
1
52
U1402
P6
P1
P2
P7
P5
G2
G1
P3
CN1400
2
1
C1405
2
1
C1406
2
1
C1407
2
1
C1402
2
1
C1401
2
1
C1400
1
36
38
32
30
45
43
41
39
37
19
17
5
20
16
14
12
10
8
51
49
47
3
11
13
33
31
22
25
23
42
46
44
26
18
4
35
29
27
21
15
50
40
34
9
G2
G1
7
24
52
2
48
28
6
CN1401
BELLW_80051_1021_52P
0.1UF_16V_2
22uF_6.3V_522uF_6.3V_5
UIM_PWR
UIM_DATA
UIM_RST
A01
CS_1310AXXXXXX-MTR
P3V3_S
USB_P13_DP
USB_P13_DN
BUF_PLT_RST#
3G_OFF#
UIM_CLK
UIM_DATA UIM_RST
UIM_CLK
UIM_PWR
3G_ON#
3G_OFF#
P3V3_S
0.1UF_16V_2
32<>
32<>
56>
32<>
43< 55<20<
56<>
56<>
56<>
56<>
56<>
0.1UF_16V_2
P1V5_S
0.1UF_16V_2
TAI_PMPAT5_06GLBS7N14_6P
NXP_IP4223CZ6_SOT457_6P_DY
4.7uF_6.3V_3 0.1UF_16V_2
56<>
56<>
56<>
SSM3K7002BFU
37>
56<
C
CS
SIZE
CHANGE by DATE
8
8 7
7 6
6 5
5 4
4 3
3
2
1
D
D
CC
BB
AA
REV
1
SHEET
2
DOC.NUMBER
of
CODE
INVENTEC
TITLE
BI
BI
BI
BI
BI
IN
IN
OUT
IN
G
DS
BI
BI
BI
VIO
VBUS
GND
VIO
VIO VIO
G
I_O
VPP
VCC
RST
CLK
G
GND
GG
3.3V
GND
1.5V
LED_WPAN#
LED_WLAN#
LED_WWAN#
GND
USB_D+
USB_D-
GND
SMB_DATA
SMB_CLK
1.5V
GND
+3.3VAUX
PERST#
RESERVED
GND
RESERVED
RESERVED
RESERVED
RESERVED
RESERVED
1.5V
GND
3.3V
RESERVED
RESERVED
RESERVED
RESERVED
RESERVED
RESERVED
RESERVED
RESERVED
GND
PETP0
PETN0
GND
GND
PERP0
PERN0
GND
RESERVED
RESERVED
GND
REFCLK+
REFCLK-
GND
CLKREQ#
RESERVED
RESERVED
WAKE#
BI
BI

HALL SENSOR
15mil
HALL SENSOR
Frank Hu
EVEREST-M
Fri Dec 31 10:17:03 2010
97
57
2
1
L50
2
1
C50
2
1
R52
1
2
3
U50
LID_SW#_3
MAG_MH248BESO_SOT23_3P
1000PF_50V_2
100K_5%_2
VARISTOR_DY
37<
P3V3_AL
C
A01
CS
CS_1310AXXXXXX-MTR
SIZE
CHANGE by DATE
8
8 7
7 6
6 5
5 4
4 3
3
2
1
D
D
CC
BB
AA
REV
1
SHEET
2
DOC.NUMBER
of
CODE
INVENTEC
TITLE
OUT
GND
OUT
VDD

BATTERY LED
LED
WIMAX LED
Wireless & BT LED
CARD READER LED
POWER LED
Suspend LED
DC-IN LED
HDD LED
EVEREST-M
Frank Hu
Fri Dec 31 10:16:44 2010
97
58
2
1
C149
5
4
3
2
1
U191
2
1
C156
2
1
D153
2
1
R156
5
4
3
2
1
U150
2
1
C151
2
1
R153
2
1
D151
2
1
C152
2
1
R152
2
1
D152
2
1
D150
2
1
R151
2
1
C153
2
1
R150
2
1
D159
2
1
C154
2
1
C150
2
1
D155
2
1
R154
2
1
C159
2
1
D154
2
1
R160
2
1
C155
2
1
R155
2
1
D156
TC7SZ08FU
P5V_S
CSC0402_DY
LED_3IN1
CS_1310AXXXXXX-MTR
DCIN_BLED#
PWR_BLED#
SUS_OLED#
WL_OLED#
BAT_OLED#
BAT_BLED1#
LED_3S_SATA#
72<>
37>
CSC0402_DY
TC7SZ08FU
CSC0402_DY
37>
37<
P5V_S
CSC0402_DY
19_217_T1D_CP1Q2QY_3T
CSC0402_DY
HT_191UY
19_217_T1D_CP1Q2QY_3T 220_5%_2
19_217_T1D_CP1Q2QY_3T
P5V_A
220_5%_2
P5V_S
220_5%_2
150_5%_2
P5V_S
P3V3_A
49>
CSC0402_DY
0.1UF_16V_2
19_217_T1D_CP1Q2QY_3T
37>
37>
CSC0402_DY
HT_191UY
HT_191UY
220_5%_2
P5V_S
150_5%_2
150_5%_2
P3V3_S
CSC0402_DY
19_217_T1D_CP1Q2QY_3T 220_5%_2
P3V3_AL
P5V_A
CS A01
C
SIZE
CHANGE by DATE
8
8 7
7 6
6 5
5 4
4 3
3
2
1
D
D
CC
BB
AA
REV
1
SHEET
2
DOC.NUMBER
of
CODE
INVENTEC
TITLE
IN
IN
+
-
IN
+
-
IN
IN
IN
IN
IN

30PPM
15mil
15mil
Layout note: All decoupling 0.1uF disperse closed to pin
CLOSE TO IC PIN15,18
Please place close to CLKGEN within 500mils
CLOCK GENERATOR
EVEREST-M
Frank Hu
Tue Jan 04 00:18:17 2011
97
59
CLKIN_BUF_DOT96_DP
CLKIN_BUF_DOT96_DN
CLKIN_SATA1_DP
1
1
R4013
R4012
2
33_5%_2_DY
2
33_5%_2_DY
2
1
R4000
2
1
R4008
2
1
R4009
2
1
R4010
2
1
R4011
2
1
R4002
2
1
R4004
2
1
R4003
2
1
C4011
5
4
3
2
1
U4001
2
1
R4001
2
1
R4014
2
1
R4015
2
1
R4016
2
1
R4017
2
1
R4005
2
1
R4006
2
1
R4007
2
1
C4003
2
1
C4004
2
1
X4000
2
1
L4001
2
1
C4010
2
1
C4009
2
1
C4008
2
1
C4007
2
1
C4005
2
1
C4006
2
1
L4000
2
1
C4002
2
1
C4000
2
1
C4001
27
28
15 17
29
1
18
24
5
13
14
31
32
10
11
30
12
9
26
2
21
8
33
3
4
20
23
19
22
16
25
7
6
U4000
IDT_ICS9LRS3197AKLFT_MLF_32P
0.1UF_16V_20.1UF_16V_2
10uF_6.3V_3
FBM_11_160808_121T
10uF_6.3V_3 0.1UF_16V_2 0.1UF_16V_2 0.1UF_16V_2 0.1UF_16V_2 0.1UF_16V_2
FBM_11_160808_121T
14.31818MHz
33pF_50V_2 33pF_50V_2
+V3S_CLK_VDD
P3V3_S
P3V3_S
P1V05_VCCPS +V1.05S_VCCP_VDD
P3V3_S
P3V3_A
CLK_R3S_PCH14_R
10K_5%_2_DY
PCH_3S_SMDATA
CLKIN_PCH14
60<
CKG_X1
A01
0_5%_2_DY
PCH_3S_SMCLK
59>
CLKOUT_DMI_CLKGEN_DN
CLKOUT_DMI_CLKGEN_DP
CS_1310AXXXXXX-MTR
CLKIN_DMI_PCH_DN
CLKIN_DMI_PCH_DP
CLKIN_SATA1_DN
CLKIN_DMI_PCH_R_DN
CLKIN_DMI_PCH_R_DP
CLK_SATA1_R_DN
CLK_SATA1_R_DP
CLK_BUF_DOT96_R_DN
CLK_BUF_DOT96_R_DP
CLK_BUF_CPYCLK_R_DN
CLK_BUF_CPYCLK_R_DP
CLKOUT_DMI_CLKGEN_R_DN
CLKOUT_DMI_CLKGEN_R_DP
CLKPWRGD_R
CKG_X2
ICC_EN#
MAIN_PWRGD
CLK_XDP_CLKGEN_DP
CLKIN_BUF_CPYCLK_DN
CLK_XDP_CLKGEN_DN
CLKIN_BUF_CPYCLK_DP
CLKPWRGD
CLKPWRGD
10K_5%_2
33_5%_2_DY
33_5%_2_DY
33_5%_2_DY
33_5%_2_DY
33>
TC7SZ08FU
1K_5%_2_DY
0.1UF_16V_2
0_5%_2_DY
0_5%_2_DY
0_5%_2_DY
33_5%_2_DY
33_5%_2_DY
0_5%_2_DY
0_5%_2
33_5%_2_DY
26<
27<
29<>
59>
C
CS
SIZE
CHANGE by DATE
8
8 7
7 6
6 5
5 4
4 3
3
2
1
D
D
CC
BB
AA
REV
1
SHEET
2
DOC.NUMBER
of
CODE
INVENTEC
TITLE
IN
IN
OUT
+
-
OUT
OUT
OUT
OUT
OUT
OUT
OUT
OUT
OUT
OUT
OUT
OUT
OUT
OUT
BI
BI
VDDSRC_3.3
VDDCPU_IO
CPUC1_LPR
CPUT1_LPR
GNDCPU
CPUC0_LPR
CPUT0_LPR
VDDCPU_3.3
CLKPWRGD-PD#_3.3
GNDREF
X2
X1
VDDREF_3.3
REF_3L-FSLC_3.3
SDATA_3.3
SCLK_3.3
GND
CPU_STOP#
VDDSRC_IO
SRCC1_LPR
SRCT1_LPR
GNDSRC
SATAC_LPR
SATAT_LPR
GNDSATA
GND27MHz
27MHz_SS
27MHz_nonSS
VDD_27MHz
DOT96C_LPR
DOT96T_LPR
GNDDOT96MHz
VDDDOT96MHz_3.3

Close to CPU
Close to CPU
Close to CPU
Close to CPU
Close to CPU
SERIES
PCH ONLY
10mil
10mil
XDP CONNECTOR
XDP
EVEREST-M
97
Fri Dec 31 10:16:45 2010
60
Frank Hu
2
1
R8056
2
1
R8043
2
1
R8044
2
1
R8045
2
1
R8046
2
1
R8006
2
1
R8015
2
1
R8010
2
1
R8047
2
1
R8004
2
1
R8005
2
1
R8007
2
1
R8008
2
1
R8051
2
1
R8054
2
1
R8009
2
1
R8000
2
1
R8011
2
1
R8055
2
1
R8048
2
1
R8049
2
1
R8050
2
1
R8002
2
1
R8003
2
1
R8013
2
1
R8012
2
1
R8014
2
1
R8052
2
1
R8001
2
1
R8053
4443
54
58
52
5655
57
51
53
46
39
24
22
6
4
23
21
5
3
17
15
11
9
36
34
30
28
18
16
12
10
35
33
29
27
40
42
47
45
41
2625
20
19
1413
87
6059
5049
3837
32
31
2
1
48
CN8000
SAMTEC_BSH_030_01_L_D_A_TR_60P
20<
H_TMS
51_1%_2_DY
1K_5%_2
TDO_R
10K_5%_2_DY
25<
25>
25>
CFG<3>
CFG<2>
CFG<1>
CFG<0>
CFG<17>
H_CPUPWRGD_XDP
0_5%_2_DY
1K_5%_2_DY
0_5%_2_DY
PCH_TDI
PCH_TCK
PCH_TDO
PCH_TCK
61>
H_CPUPWRGD_XDP
A01
TMS_R
TDI_R
TRST#_R
TDO_R
PCH_TMS
PCH_TDI
PCH_TRST#
PCH_TDO
TCK_XDP
TDO_R
H_TMS
H_TCK1
PCH_TCK
PCH_TMS
H_TCK
H_TDO
H_TCK1
H_TCK
PCH_3S_SMCLK
PCH_3S_SMDATA
ALLSYS_PWROK
CFG<0>
XDP_PWRSW#
H_CPUPWRGD
TCK_XDP
XDP_PWRSW#_R
TMS_R
TDI_R
TRST#_R
XDP_DBRESET#
+V1.05S_VCCP_VCC_OBS_CD
CLK_XDP_R_DN
CLK_XDP_R_DP
CFG<7>
CFG<6>
CFG<5>
CFG<4>
CFG<9>
CFG<8>
CFG<16>
+V1.05S_VCC_OBS_AB
H_BPM7_XDP#
H_BPM6_XDP#
H_BPM5_XDP#
H_BPM4_XDP#
CFG<11>
CFG<10>
H_BPM3_XDP#
H_BPM2_XDP#
H_BPM1_XDP#
H_BPM0_XDP#
H_PRDY#
H_PREQ#
MAIN_PWRGD
H_TRST#
H_TDI
CLK_XDP_DN
CLK_XDP_DP
PLT_RST#
CLK_XDP_R_DP
SYS_RESET#
H_TDO
60<>
0_5%_2
0_5%_2
0_5%_2
0_5%_2
60<
60>20<
60>
0_5%_2_DY
0_5%_2
0_5%_2_DY
0_5%_2_DY
0_5%_2_DY 0_5%_2_DY
60>20<
20>60<
0_5%_2_DY
0_5%_2_DY
60<>
20<
60<>
27< 26<
59<> 29<>
60< 25>
61>
60<>
28>
28>
60<>
61>
61>
28>
60<>
60>
28>
61<
60>
60<>
61>
28>
61>
60>
28>
60>
60<>
28>
61>
28>
60>
61>
0_5%_2_DY
P1V05_VCCPS
P3V3_S
25>
25>
20>
20<
0_5%_2_DY
10K_5%_2_DY
+V1.05S
0_5%_2_DY
0_5%_2_DY
0_5%_2_DY
0_5%_2_DY
0_5%_2_DY
1K_5%_2_DY
20<
60<>
20<
39<
32<>
37<
68<
29>
59<37<
14<18>
0_5%_2_DY
20>
30<
0_5%_2_DY
60<>
20>
25<
25>
25<25>
25> 25<
25>
25<25>
25>
25>
25> 60<
25>
25>
1K_5%_2
P3V3_S
P1V05_VCCPS
CS_1310AXXXXXX-MTR
C
CS
SIZE
CHANGE by DATE
8
8 7
7 6
6 5
5 4
4 3
3
2
1
D
D
CC
BB
AA
REV
1
SHEET
2
DOC.NUMBER
of
CODE
INVENTEC
TITLE
IN
IN
OUT
OUT
OUT
IN
OUT
OUT
BI
BI
BI
BI
BI
IN
BI
BI
BI
BI
BI
IN
IN
IN
OUT
OUT
IN
OUT
OUT
IN
IN
IN
IN
IN
IN
IN
IN
IN
IN
IN
IN
IN
IN
OUT
IN
OUT
OUT
OUT
IN
IN
OUT
OUT
IN
IN
IN
IN
IN
IN
IN
OUT
IN
IN
IN
IN
IN
GND17
TMS
TDI
TRSTn
TDO
GND15
DBR#_HOOK7
RESET#_HOOK6
VCC_OBS_CD
ITPCLK#_HOOK5
ITPCLK_HOOK4
GND13
OBSDATA_D3
OBSDATA_D2
GND11
OBSDATA_D1
OBSDATA_D0
GND9
OBSFN_D1
OBSFN_D0
GND7
OBSDATA_C3
OBSDATA_C2
GND5
OBSDATA_C1
OBSDATA_C0
GND3
OBSFN_C1
OBSFN_C0
GND1
GND16
TCK0
TCK1
SCL
SDA
GND14
HOOK3
HOOK2
VCC_OBS_AB
HOOK1
PWRGOOD_HOOK0
GND12
OBSDATA_B3
OBSDATA_B2
GND10
OBSDATA_B1
OBSDATA_B0
GND8
OBSFN_B1
OBSFN_B0
GND6
OBSDATD_A4
OBSDATD_A2
GND4
OBSDATD_A1
OBSDATD_A0
GND2
OBSFN_A1
OBSFN_A0
GND0

15MIL
ME JTAG
15MIL
Frank Hu
EVEREST-M
Fri Dec 31 10:16:46 2010
97
61
2
1
R8041
2
1
R8042
G2
G1
6
5
4
3
2
1
JACK8000
2
1
R8016
2
1
C8000
2
1
R8017
2
1
C8001
2
1
C8002
2
1
R8021
2
1
R8038
2
1
R8022
2
1
R8023
2
1
R8020
2
1
R8019
2
1
R8018
14
4
8
11
7
1
9
10
12
13
6
5
3
2
U8000
2
1
C8003
2
1
R8035
2
1
R8033
2
1
R8032
2
1
R8034
2
1
R8029
2
1
R8031
2
1
R8028
2
1
R8030
2
1
C8004
2
1
R8039
2
1
R8040
2
1
R8036
2
1
R8037
2
1
R8024
2
1
R8025
2
1
R8026
2
1
R8027
14
4
8
11
7
1
9
10
12
13
6
5
3
2
U8001
61<
ME_TDI
PCH_TMS_R
PCH_TRST#_R
+V3M
0.1UF_16V_2
22_5%_2
CS_1310AXXXXXX-MTR
PCH_TDO
PCH_TMS
PCH_TRST#
PCH_TCK
PCH_TDI
PCH_TCK_R
PCH_TDI_R
ME_TDO
ME_TRST#
ME_TDO
ME_TDI
ME_TMS
ME_TCK
ME_TMS
ME_TRST#
ME_TCK
PCH_TCK_R
1K_5%_2 1K_5%_2
1K_5%_2
3.24K_1%_2
28>60>
60<>
0.1UF_16V_2
1K_5%_2
PHP_GTL2005_TSSOP_14P
10K_5%_2
10K_5%_2_DY
+V3M
60>
60<>
28>
60<>
60>
28>
60<>
60>
28>
0_5%_2_DY
0_5%_2_DY
0_5%_2_DY
0_5%_2_DY
220PF_50V_2
10K_5%_2
61<
PHP_GTL2005_TSSOP_14P
806_1%_2
2.37K_1%_2
+V3M
0.1UF_16V_2 10K_5%_2_DY
10K_5%_2
0.1UF_16V_2
+V3M
61>
61>
61>
61>
61>
MLX_85510_5019_6P
10K_5%_2_DY
10K_5%_2
10K_5%_2_DY
10K_5%_2
10K_5%_2
61<
61<
61<
10K_5%_2_DY
619_1%_2
10K_5%_2
10K_5%_2_DY
301_1%_2
+V3M
CS A01
C
SIZE
CHANGE by DATE
8
8 7
7 6
6 5
5 4
4 3
3
2
1
D
D
CC
BB
AA
REV
1
SHEET
2
DOC.NUMBER
of
CODE
INVENTEC
TITLE
OUT
OUT
OUT
OUT
IN
IN
IN
IN
IN
G2
6
5
4
3
2
1
G1
OUT
IN
GND3
B3
B2
GND2
B1
B0
VCC
GND1
A3
GTLREF
A2
DIR
A0
A1
OUT
OUT
OUT
OUT
OUT
GND3
B3
B2
GND2
B1
B0
VCC
GND1
A3
GTLREF
A2
DIR
A0
A1

PICK BUTTON BOARD
CONNECT TO TOUCHPAD MODULE
CONNECT TO TOUCHPAD SWITCH BOARD
PICK BUTTON BOARD
(FOR - TOUCHPAD MODULE, TOUCHPAD SWITCH BOARD, FINGERPRINT MODULE)
CONNECT TO MAINBOARD'S TP CONNECTOR
EVEREST-M
62
97
Fri Dec 31 10:17:03 2010
Frank Hu
G2
G1
2
1
CN9020
1
S9021
1
S9020
1
FIX9304
1
FIX9904
1
FIX9303
1
FIX9302
1
FIX9301
1
FIX9300
32
1
D9041
6
5
4
3
2
1
SW9020
6
5
4
3
2
1
SW9021
G2
G1
6
5
4
3
2
1
CN9022
G2
G1
6
5
4
3
2
1
CN9021
ACES_88766_060N_6P
ACES_88766_060N_6P
MISAKI_NTC017_DA1G_E160T_6P
MISAKI_NTC017_DA1G_E160T_6P
PHP_PESD5V2S2UT_SOT23_3P
FIX_MASK
FIX_MASK
FIX_MASK
FIX_MASK
FIX_MASK
SCREW300_800_1P
SCREW220_800_1P
ENTERY_3703_Q02N_03R_2P
GND_TP
+TP_5S
GND_TP
GND_TP
+TP_5S
GND_TP
GND_TP
GND_TP
A01
DB_TP_ON#
DB_TP_ON#
TP_IM_DAT_5
TP_IM_CLK_5
LEFT_TP
RIGHT_TP
FIX_MASK
62<
62>
RIGHT_TP
LEFT_TP
62<>
TP_IM_DAT_5
TP_IM_CLK_5
62<>
62>
62<>
62<>
62<
62<
C
CS_1310AXXXXXX-MTR
CS
SIZE
CHANGE by DATE
8
8 7
7 6
6 5
5 4
4 3
3
2
1
D
D
CC
BB
AA
REV
1
SHEET
2
DOC.NUMBER
of
CODE
INVENTEC
TITLE
6
1
G2
5
4
2
3
G1
IN
IN
BI
BI
G1
2
1
G2
OUT
OUT
A
B
DC
A
B
DC
OUT
BI
BI
IN
6
1
G2
5
4
2
3
G1

TOUCH PAD SW BOARD
TOUCHPAD SWITCH BOARD
EVEREST-M
Frank Hu
Fri Dec 31 10:16:46 2010
97
63
1
S9041
1
S9040
1
FIX9043
1
FIX9042
1
FIX9041
1
FIX9040
2
1
R9040
1
PAD9041
1
PAD9040
2
1
C9040
3
2
1
D9040
6
5
4
3
2
1
SW9040
MISAKI_NTC017_DA1G_E160T_6P
PHP_PESD5V2S2UT_SOT23_3P_DY
0.01UF_50V_2
SMDPAD_1P_40X120
SMDPAD_1P_40X120
33_5%_2
FIX_MASK FIX_MASK FIX_MASK FIX_MASK SCREW230_700_1P
SCREW230_700_1P
GND_PB
GND_PB
GND_PB
GND_PB
CS A01
CS_1310AXXXXXX-MTR
C
SIZE
CHANGE by DATE
8
8 7
7 6
6 5
5 4
4 3
3
2
1
D
D
CC
BB
AA
REV
1
SHEET
2
DOC.NUMBER
of
CODE
INVENTEC
TITLE
A
B
DC

POWER BUTTON BOARD
POWER BUTTON
EVEREST-M
Frank Hu
Fri Dec 31 10:16:46 2010
97
64
1
S9001
1
S9000
2
1
C9000
G2
G1
4
3
2
1
SW9000
1
PAD9000
1
FIX9005
1
FIX9004
1
FIX9003
1
FIX9002
1
FIX9001
1
FIX9000
1
PAD9001
32
1
D9000
PHP_PESD5V2S2UT_SOT23_3P_DY
SMDPAD_1P_40X120
FIX_MASK FIX_MASK FIX_MASK FIX_MASK
FIX_MASK FIX_MASK
SMDPAD_1P_40X120
FOX_1BT002_0021L_4P
1000PF_50V_2
SCREW540_700_NP_1P SCREW540_700_NP_1P
GND_BTN
GND_BTN
GND_BTN
GND_BTN
A01
CS
CS_1310AXXXXXX-MTR
C
SIZE
CHANGE by DATE
8
8 7
7 6
6 5
5 4
4 3
3
2
1
D
D
CC
BB
AA
REV
1
SHEET
2
DOC.NUMBER
of
CODE
INVENTEC
TITLE

CLOSE TO RTS5159
R9151 R9152
CARD READER & USB BOARD
CLOSE TO CN
CARDREADER & USB BOARD
USB
65
97
Fri Dec 31 10:16:47 2010
EVEREST-M
Frank Hu
2
1
C9108
1
FIX9105
1
FIX9104
1
FIX9103
1
FIX9102
1
FIX9101
1
FIX9100
2
1
34
L9150
1
G4
G3
G2
G1
4
2
3
CN9152
1
G4
G3
G2
G1
4
2
3
CN9151
2
1
C9114
2
1
34
L9151
2
1
R9150
2
1
C9152
2
1
C9153
2
1
PAD9150
2
1
C9150
2
1
C9154
2
1
C9151
8
7
6
5
3
2
1
4
U9150
2
1
C9107
2
1
C9105
2
1
C9106
1
S9102
22
9
17
11
3
1
19
18
6
14
21
20
16
2
4
5
8
7
10
13
12
15
G2
G1
CN9101
1
S9101
2
1
C9112
2
1
R9151
2
1
C9109
2
1
C9110
2
1
C9111
2
1
C9104
2
1
R9103
2
1
C9102
2
1
R9101
2
1
R9102
2
1
C9103
48
47
13
10
29
28
27
26
25
23
21
20
43
42
41
40
39
38
37
35
34
31
19
36
44
2
30
7
3
24
22
45
14
46
32
12
6
17
15
18
16
5
4
33
11
9
1
8
U9100
2
1
L9100
2
1
C9113
2
1
C9101
2
1
C9100
2
1
R9100
2
1
X9100
G2
G1
9
8
7
6
5
4
3
2
18
17
16
15
14
13
12
11
10
1
CN9100
ACES_50503_0184N_001_18P
12MHZ
270K_5%_2
20PF_50V_2 20PF_50V_2
0.1UF_16V_2
BLM18PG600SN1D
REA_RTS5159_VDD_GR_LQFP_48P
1UF_6.3V_2
100K_5%_2
0_5%_2
47PF_50V_2_DY
6.2K_1%_2
1UF_6.3V_2
0.1UF_16V_2
0.1UF_16V_2
1UF_6.3V_2
0_5%_2
0.1UF_16V_2
SCREW300_900_1P
TAIT_R009_040_LM_22P
SCREW480_800_700_1P
2.2UF_6.3V_2
1UF_6.3V_2 1UF_6.3V_2
GMT_G547G1P81U_MSOP_8P
0.1UF_16V_2
0.01UF_50V_222UF_6.3V_5_DY
POWERPAD_2_0610
330UF_6.3V 0.1UF_16V_2 RSC_0402_DY
WCM_2012_900T
10UF_6.3V_3
SYN_020133GR004M52CZL_4P
SYN_020133GR004M52CZL_4P
WCM_2012_900T
FIX_MASK_0.8 FIX_MASK_0.8 FIX_MASK_0.8 FIX_MASK_0.8 FIX_MASK_0.8 FIX_MASK_0.8
0.1UF_16V_2
+USB_VCC1
GND_CARD
GND_CARD
GND_CARD
+V5A_DB
+USB_VCC1
GND_CARD
+USB_VCC1
GND_CARD
GND_CARD
GND_CARD
+CARD_3V3
GND_CARD
GND_CARD
+VBUS
GND_CARD
+V3S_CARD
+V5A_DB
+V3S_CARD
+VBUS
GND_CARD
+VBUS
GND_CARD
GND_CARD
GND_CARD
GND_CARD
GND_CARD
GND_CARD
GND_CARD
+VBUS
GND_CARD
GND_CARD
+CARD_3V3
GND_CARD
+VBUS
GND_CARD
GND_CARD
GND_CARD
GND_CARD
SD_D1
SD_CLK_MS_CLK
SD_D3
VREG
VREG
USB_DB_3IN1_DP
USB_DB_3IN1_DN
XTIL1
XTIL0
USB_DB_P2_DP
USB_DB_P1_DN
SB_USB_1_DB
USB_DB_3IN1_DP
USB_OC#_1_DB
LED_3IN1_DB
USB_DB_3IN1_DN
USB_DB_P2_DN
USB_DB_P1_DP
LED_3IN1_DB
MS_BS
MS_D1
SD_D0_MS_D0
MS_D2
MS_INS#
MS_D3
SD_CMD
SD_WP
SD_CD#
SD_D1
SD_CLK_MS_CLK
XTIL1
XTIL0 SD_D3
SD_D2
SD_D2
SD_WP
SD_CD#
SD_CLK_MS_CLK
MS_D3
MS_INS#
MS_D2
SD_D0_MS_D0
MS_D1
MS_BS
USB_DB_P2_DP
USB_DB_P1_DP
USB_DB_P2_DN
USB_DB_P2_L_DP
USB_DB_P2_L_DN
USB_DB_P1_DN
USB_DB_P1_L_DP
USB_DB_P1_L_DN
USB_DB_P2_L_DP
USB_DB_P2_L_DN
USB_DB_P1_L_DN
USB_DB_P1_L_DP
SB_USB_1_DB
+V5A_DB_USB_IN
USB_OC#_1_DB
65<
65<
65<
65<
65<
65<
65<>
65<>
65<
65<
65>
65<
65<
65<>
65<>
65>
65<>
65<>
65<>
65<>
65<>
65<>
65<>
65<>
65<>
65<>
65>
65> 65>
65>
65>
SD_D0_MS_D0
65<>
65>
SD_CMD
65<>
65<>
65<
65<
65<
65<
65<>
65<>
65<>
65<>
65<>
65<>
65<>
65<>
65<>
65<>
65<>
65<>
65<>
65<>
65<>
65<>
65<
65>
CS_1310AXXXXXX-MTR
CS A01
C
SIZE
CHANGE by DATE
8
8 7
7 6
6 5
5 4
4 3
3
2
1
D
D
CC
BB
AA
REV
1
SHEET
2
DOC.NUMBER
of
CODE
INVENTEC
TITLE
OUT
OUT
BI
BI BI
BI BI
IN
GND
GND
SD-CD
MS-SCLK
MS-DATA3
MS-INS
MS-DATA2
MS-DATA0
MS-DATA1
MS-BS
SD-VDD
SD-CD-WP
SD-DAT2
SD-DAT3
SD-CMD
SD-CLK
SD-DAT0
SD-DAT1
SD-WP
MS-VSS
SD-VSS
MS-VSS
MS-VCC
SD-VSS
IN
BI BI
BI BI
BI
BI
BI
BI
IN
BI
BI
BI
IN
IN
IN
IN
IN
IN
IN
IN
OUT
OUT
XTLI
XTL0
GND
MODE_SEL
RST#
SP19
SP18
SP17
SP16
SP15
SP14
SP13
SP5
SP6
SP7
SP8
SP9
NC
SP10
GND
D3V3
SP11
SP12
SD_CMD
XTAL_CTR
GPIO0
EEDO
EECS
EESK
EEDI
SP1
SP2
SP3
MS_D4
SP4
MS_D5
GND
D3V3
VREG
CARD_3V3
3V3_IN
NC
GND
DP
DM
NC
RREF
AV_PLL
OUT
OUT
G
G
G
G
G
D+
D-
VCC
G
G
G
G
G
D+
D-
VCC
BI BI BI
BI
BI
BI
BI BI
OUT
BI
BI
BI
BI
OUT
+
OUT
1
2
IN
IN
OUT
OUT
OUT
OC#EN
IN
IN
GND
IN
BI
BI
BI
BI
BI
BI
BI
BI
IN
18
17
16
15
14
13
12
11
G2
10
9
8
7
6
5
4
3
2
1
G1

EMI
EMI
EVEREST-M
66
97
Fri Dec 31 10:17:04 2010
Frank Hu
2
1
C7500
2
1
C7503
2
1
C7501
2
1
C7502
2
1
C7504
2
1
C7507
2
1
C7505
2
1
C7506
2
1
C7508
2
1
C7509
2
1
C7510
2
1
C7511
0.1UF_16V_2
0.1UF_16V_2
0.1UF_16V_2
0.1UF_16V_2 0.1UF_16V_2
0.1UF_16V_2
0.1UF_16V_2
0.1UF_16V_2
P1V5
0.1UF_16V_2
0.1UF_16V_2
0.1UF_16V_2
0.1UF_16V_2
C
CS_1310AXXXXXX-MTR
A01
CS
SIZE
CHANGE by DATE
8
8 7
7 6
6 5
5 4
4 3
3
2
1
D
D
CC
BB
AA
REV
1
SHEET
2
DOC.NUMBER
of
CODE
INVENTEC
TITLE

10.72A
3.55A
2.5A
HIGH
AFTER RESET
LOW
20mil
LOW: B1
20mil
LOW: B1
HI: B2
1 : ADDIN CARD NOT PLUGGED IN
DGPU_PRSNT#
HIGH
DGPU_PWROK
DGPU_PWR_EN#
HIGH
DGPU_HOLD_RST#
DGPU_SELECT#
DGPU_PWM_SELECT#
0 : DGPU POWER SWITCH TURNED ON
1 : DGPU POWER IS STABLE
GPU SW / POWER
1 : PWM SIGNAL FROM PCH
0 : PWM SIGNAL FROM EC
1 : DISPLAY SWITCH ENABLED FOR IGPU
1 : RESET IS RELEASED
LOW
HI: B2
20mil
HIGH
DURING RESET
0 : ADDIN CARD PRESENT
1 : POWER SWITCH TURNED OFF
0 : DGPU POWER IS NOT STABLE.
0 : KEEP DGPU IN RESET
0 : DISPLAY SWITCH ENABLED FOR DGPU
EVEREST-M
Frank Hu
67
Fri Dec 31 10:16:48 2010
97
43
9
22
23
24
25
31
32
33
34
26
27
28
29
35
36
37
38
16
15
12
11
7
6
3
2
8
5
42
41
40
4
39
30
21
20
19
18
17
14
13
10
1
U3005
2
1
R7401
2
1
R7405
2
1
R3021
2
1
R3020
2
1
R7402
2
1
3
Q7400
2
1
R7403
2
1
3
Q7401
4
3 6
5
2
1
Q7407
2
1
C7404
5
4
1
2
3
U3004
2
1
R7410
2
1
R7409
2
1
R7414
2
1
R7408
2
1
3
Q7406
2
1
C7403
2
1
R7404
2
1
3
Q7402
16
1
15
8
13
14
12
10
11
9
6
5
7
3
2
4
U3003
16
1
15
8
13
14
12
10
11
9
6
5
7
3
2
4
U3002
2
1
R7412
2
1
C7400
2
1
R7411
2
1
C7401
2
1
R7400
2
1
3
Q7410
2
1
3
Q7405
2
1
R7407
2
1
C7402
2
1
R7406
2
1
3
Q7403
3
2
1
45
6
7
8
Q7404
2
1
R7413
2
1
3
Q7408
2
1
C7405
3
2
1
45
6
7
8
Q7409
EC_DGPU_PWR_EN#
PCH_LVDS_DDCCLK
SW_LVDS_DDCDATA
PCH_LVDS_DDCDATA
GPU_LVDS_DDCDATA
SW_LVDS_DDCCLK
GPU_LVDS_DDCCLK
32>
67<
SSM3K7002BFU
DGPU_PWROK#
SW_LVDS_TXDL0_DN
SW_LVDS_TXDL0_DP
SW_LVDS_TXDL1_DN
SW_LVDS_TXDL1_DP
SW_LVDS_TXDL2_DN
SW_LVDS_TXCL_DP
PER_PI2PCIE2412ZHE_TQFN_42P
PCH_LVDS_TXCL_DP
PCH_LVDS_TXCL_DN
PCH_LVDS_TXDL2_DP
PCH_LVDS_TXDL2_DN
PCH_LVDS_TXDL1_DP
PCH_LVDS_TXDL1_DN
PCH_LVDS_TXDL0_DP
PCH_LVDS_TXDL0_DN
P1V8_S
SSM3K7002BFU
10K_5%_2
CLKREQ_GPU_PEG#_MOS
CLKREQ_GPU_PEG#
330uF_2V_15mR_Pana_-35%
220K_5%_2
CSC0402_DY
EC_DGPU_PWR_EN#
100K_5%_2
P3V3_S
10K_5%_2
AM4430N
0.1UF_25V_2
SSM3K7002BFU
P3V3_GPUS
330PF_50V_2
SSM3K7002BFU
EC_DGPU_PWR_EN
A01
SSM3K7002BFU
750K_1%_2
GPU_LCM_BKLTEN
PCH_LCM_BKLTEN
SW_LCM_BKLTEN
GPU_LCM_VDDEN
PCH_LCM_VDDEN
SW_LCM_VDDEN
P5V_S
DGPU_SELECT#
DGPU_SELECT
TC7SH14F
GPU_LCM_INVPWM
CS
CS_1310AXXXXXX-MTR
DGPU_PRSNT#
DGPU_SELECT#
DGPU_SELECT
GPU_LVDS1_TXCL_DP
GPU_LVDS1_TXCL_DN
GPU_LVDS1_TXDL2_DP
GPU_LVDS1_TXDL1_DP
GPU_LVDS1_TXDL1_DN
GPU_LVDS1_TXDL0_DP
GPU_LVDS1_TXDL2_DN
GPU_LVDS1_TXDL0_DN
SW_LVDS_TXDL2_DP
SW_LVDS_TXCL_DN
EC_LCM_INVPWM
SW_LCM_INVPWM
PCH_LCM_INVPWM
DGPU_PWM_SELECT#
DGPU_PWROK
DGPU_PWROK_5R
DGPU_PWROK#
DGPU_PWROK_5R
DGPU_PWROK
DGPU_PWROK#
10K_5%_2
10K_5%_2_DY
P3V3_S
P3V3_S
0.1UF_16V_2
0_5%_2
0_5%_2_DY
32<
PHP_CBT3257DS_QSOP_16P
31>
48<
PHP_CBT3257DS_QSOP_16P
44<
44<
P5V_S
680PF_50V_2
67<
10K_5%_2_DY
P3V3_A
0_5%_2
0_5%_2
AM4430N
P1V05_VCCPS
SSM3K7002BFU
10K_5%_2
P3V3_S
SSM3K7002BFU
67<
P5V_S
AM3423P
200_5%_3
200_5%_2
P1V05_GPUS
67<
33<>
16>
P3V3_S
SSM3K7002BFU
750K_1%_2
P5V_S P1V5
200_5%_2
P1V5_GPUS
C
SIZE
CHANGE by DATE
8
8 7
7 6
6 5
5 4
4 3
3
2
1
D
D
CC
BB
AA
REV
1
SHEET
2
DOC.NUMBER
of
CODE
INVENTEC
TITLE
G
DS
IN
IN
IN
OUT
3A
3B2
3B1
4A
4B2
4B1
OE
VCC
GND
2A
2B2
2B1
1A
1B2
1B1
S
OUT
OUT
IN
IN
IN
IN
OUT
OUT
IN
IN
IN
IN
IN
3A
3B2
3B1
4A
4B2
4B1
OE
VCC
GND
2A
2B2
2B1
1A
1B2
1B1
S
G
DS
OUT
OUT
IN
IN
IN
IN
IN
IN
IN
IN
IN
IN
IN
IN
IN
IN
IN
IN
IN
G
DS
IN
G
DS
OUT
OUT
OUT
OUT
G
DS
OUT
OUT
IN
TML
SEL
C7
C6
C5
C4
C3
C2
C1
C0
B7
B6
B5
B4
B3
B2
B1
B0
A7
A6
A5
A4
A3
A2
A1
A0
VDD
VDD
VDD
GND
VDD
GND
GND
VDD
GND
VDD
GND
VDD
GND
GND
VDD
GND
GND
OUT
IN
NMOS_4D3S
D
G
S
IN
OUT
G
DS
OUT
IN
IN
IN
G
DS
S
PMOS_4D1S
G
D
+
NC
+
-
IN
IN
OUT
G
DS
OUT
IN
IN
NMOS_4D3S
D
G
S

GPU-1
20mil
20mil
15mil
15mil
15mil
15mil
10mil
10mil
CLOSE TO POWER IC
9768
Fri Dec 31 10:16:49 2010
Frank Hu
2
1
R5003
2
1
C5039
2
1
C5042
2
1
C5043
2
1
C5044
2
1
C5045
2
1
C5046
2
1
C5047
2
1
R5002
2
1
3
Q5001
2
1
C5063
2
1
C5003
2
1
C5002
2
1
C5001
2
1
C5064
2
1
C5159
2
1
C5065
2
1
C5000
2
1
R5000
5
4
3
2
1
U5001
2
1
R5026
2
1
R5027
2
1
X5000
2
1
C5069
2
1
C5068
2
1
R5073
2
1
C5158
2
1
L5007
2
1
C5157
2
1
C5137
2
1
C5135
2
1
L5006
2
1
C5138
2
1
C5136
2
1
R5074
D2
D1
B2
B1
AD9
AF9
AE9
U5000
1
2
R5076
2
1
C5005
2
1
C5006
2
1
C5007
2
1
C5008
2
1
C5010
2
1
C5009
2
1
C5011
2
1
C5012
2
1
C5014
2
1
C5013
2
1
C5015
2
1
C5016
2
1
C5017
2
1
C5018
2
1
C5019
2
1
C5020
2
1
C5021
2
1
C5022
2
1
C5024
2
1
C5023
2
1
C5025
2
1
C5026
2
1
C5027
2
1
C5028
2
1
C5030
2
1
C5029
2
1
C5031
2
1
C5032
2
1
C5034
2
1
C5033
2
1
C5035
2
1
C5036
2
1
R5017
2
1
R5075
2
1
C5139
2
1
L5009
2
1
C5142
2
1
C5145
2
1
C5004
2
1
C5134
2
1
C5146
2
1
C5150
2
1
C5153
2
1
C5149
2
1
C5154
2
1
C5132
2
1
C5140
2
1
C5143
2
1
C5147
2
1
C5151
2
1
C5155
2
1
C5133
2
1
C5141
2
1
C5144
2
1
C5148
2
1
C5152
2
1
C5156
P7
D35
AD20
J9
J13
J12
J11
J10
AP35
AM26
AL26
AK25
AL25
AM25
AM24
AM23
AL23
AK22
AL22
AM22
AM21
AM20
AL20
AK19
AL19
AP32
AN32
AM32
AM31
AM30
AM29
AL29
AK29
AK28
AL28
AM28
AM27
AM19
AM18
AM17
AL17
AJ18
AJ17
AG21
F7
AG19
AN26
AP26
AR26
AR25
AP25
AN25
AN23
AP23
AR23
AR22
AP22
AN22
AN20
AP20
AR20
AR19
AP34
AR34
AR32
AR31
AP31
AN31
AN29
AP29
AR29
AR28
AP28
AN28
AP19
AN19
AN17
AP17
AM16
AR17
AR16
AG14
AG20
AG23
AG22
AG18
AG17
AG16
AG15
AG13
AL16
AK26
AK23
AK20
AK18
AJ27
AG12
AJ25
AJ24
AJ22
AJ21
AJ19
AJ15
AJ14
AG26
AG25
AG24
AG11
AK27
AK24
AK21
AK17
AK16
AR13
AG6
AF6
AD6
AC5
AB7
AB4
AA4
Y4
V6
U7
P6
H32
G5
F4
A7
E7
E5
D7
D6
D5
C7
B7
AL7
AK15
AJ5
A2
R7
E35
AD19
U5000
18PF_50V_2
0.1uF_16V_2
+GPU_NVVDD_L_R
+GPU_V1.05S_PEX_PLLVDD
PEG_RX15_C_DP
0.1uF_6.3V_1
0.1uF_6.3V_1
0.1uF_6.3V_1
0.1uF_6.3V_1
0.1uF_6.3V_1
0.1uF_6.3V_1
CLK_PEG_GPU_REF_DN
CLK_PEG_GPU_REF_DP
200_1%_2
SSM3K7002BFU
P3V3_GPUS
CLKREQ_GPU_PEG#_MOS
EC_PEG_RST#
37<
32<>
22UF_6.3V_5_DY 10UF_6.3V_3_DY 1UF_6.3V_2_DY 0.1UF_16V_2_DY
4.7uF_6.3V_3 10uF_6.3V_3 22UF_6.3V_5
P1V05_GPUS
0.1uF_16V_2
P3V3_GPUS
0.1UF_16V_2
0.1UF_16V_2
4700PF_50V_2
KC_HLM_160808_R10J
0.1UF_16V_2
XTAL27_IN
10K_5%_2
XTAL27_OUT
27MHz
NVIDIA_N12P_GS_BGA_973P
0_5%_2_DY
CLK_GPU_27M
4.7uF_6.3V_3 0.1uF_16V_2
0_5%_2
100_1%_2
0.1UF_16V_2
1uF_6.3V_2
P3V3_GPUS
P1V05_GPUS
4.7uF_6.3V_3
PEG_TX15_DP
PEG_TX15_DN
PEG_RX15_DP
PEG_RX15_DN
PEG_TX14_DN
PEG_TX14_DP
PEG_RX14_DN
PEG_RX14_DP
PEG_TX13_DN
PEG_TX13_DP
PEG_RX13_DN
PEG_RX13_DP
PEG_TX12_DN
PEG_TX12_DP
PEG_RX12_DN
PEG_RX12_DP
PEG_RX15_C_DN
PEG_RX14_C_DN
PEG_RX14_C_DP
PEG_RX13_C_DN
PEG_RX13_C_DP
PEG_RX12_C_DP
PEG_RX12_C_DN
PEG_RX11_DN
PEG_TX11_DP
PEG_TX11_DN
PEG_RX11_DP
PEG_RX10_DN
PEG_RX10_DP
PEG_RX9_DP
PEG_RX9_DN
PEG_TX10_DP
PEG_TX10_DN
PEG_TX9_DN
PEG_TX9_DP
PEG_TX8_DN
PEG_TX8_DP
PEG_RX8_DN
PEG_RX8_DP
PEG_RX7_DN
PEG_RX7_DP
PEG_RX6_DP
PEG_RX6_DN
PEG_RX5_DN
PEG_RX5_DP
PEG_TX7_DN
PEG_TX7_DP
PEG_TX6_DN
PEG_TX6_DP
PEG_TX5_DP
PEG_TX5_DN
PEG_RX11_C_DN
PEG_RX11_C_DP
PEG_RX10_C_DN
PEG_RX10_C_DP
PEG_RX9_C_DN
PEG_RX9_C_DP
PEG_RX8_C_DP
PEG_RX8_C_DN
PEG_RX7_C_DN
PEG_RX7_C_DP
PEG_RX6_C_DP
PEG_RX6_C_DN
PEG_RX5_C_DN
PEG_RX5_C_DP
PEG_RX4_DN
PEG_RX4_DP
PEG_RX3_DN
PEG_RX3_DP
PEG_RX2_DP
PEG_RX2_DN
PEG_TX4_DP
PEG_TX4_DN
PEG_TX3_DP
PEG_TX3_DN
PEG_TX2_DN
PEG_TX2_DP
PEG_TX1_DN
PEG_RX1_DN
PEG_RX1_DP
PEG_RX0_DP
PEG_RX0_DN
PEG_TX1_DP
PEG_RX4_C_DN
PEG_RX4_C_DP
PEG_RX3_C_DN
PEG_RX3_C_DP
PEG_RX2_C_DN
PEG_RX2_C_DP
PEG_RX1_C_DP
PEG_RX1_C_DN
PEG_RX0_C_DP
PEG_RX0_C_DN
PLT_RST#
+GPU_NVVDD_L
+GPU_V1.05S_SP_PLLVDD
GND_SENSE_R
+GPU_V1.05S_PLLVDD
21>
21>
21<
21<
21>
21>
21<
21<
21>
21>
21<
21<
21>
21>
21<
21<
0.1uF_6.3V_1
0.1uF_6.3V_1
0.1uF_6.3V_1
0.1uF_6.3V_1
0.1uF_6.3V_1
0.1uF_6.3V_1
0.1uF_6.3V_1
0.1uF_6.3V_1
21<
21>
21>
21<
21<
21<
21<
21<
21>
21>
21<
21<
21<
21<
0.1uF_6.3V_1
0.1uF_6.3V_1
0.1uF_6.3V_1
0.1uF_6.3V_1
0.1uF_6.3V_1
0.1uF_6.3V_1
0.1uF_6.3V_1
0.1uF_6.3V_1
0.1uF_6.3V_1
21<
21<
21>
21>
21>
21<
21<
21>
PEG_TX0_DP
21>
PEG_TX0_DN
21>
0.1uF_6.3V_1
0.1uF_6.3V_1
0.1uF_6.3V_1
0.1uF_6.3V_1
0.1uF_6.3V_1
0.1uF_6.3V_1
0.1uF_6.3V_1
0.1uF_6.3V_1
0.1uF_6.3V_1
39<
60<
TC7SZ08FU
100K_5%_2
P3V3_GPUS
0.1uF_16V_2
NVIDIA_N12P_GS_BGA_973P
2.49K_1%_2
10K_5%_2
1uF_6.3V_2 1uF_6.3V_2 4.7uF_6.3V_3
0.1uF_16V_2 1uF_6.3V_2
4.7UF_6.3V_3
0.1uF_16V_2
0_5%_2_DY
0.1uF_16V_2
P1V05_GPUS
1uF_6.3V_2 1uF_6.3V_2
0.1uF_16V_2 0.1uF_16V_2
4.7UF_6.3V_3_DY 1UF_6.3V_2_DY
1uF_6.3V_2 1uF_6.3V_2
HK1005R10J_T_200mA
10K_5%_2
18PF_50V_2
4.7uF_6.3V_3
P1V05_GPUS
4.7uF_6.3V_3
KC_HLM_160808_R10J
10uF_6.3V_3
0.1UF_16V_2
10UF_6.3V_3
0.1UF_16V_2
22UF_6.3V_5
P1V05_GPUS
0.1uF_16V_2
A01
CS_1310AXXXXXX-MTR
C
ES
DATE
2
CODE
INVENTEC
DOC.NUMBER
TITLE
of
A
E
D
C
B
7 6 5 4 3 2
1
7 6 5 4 3
E
D
C
B
A
FF
8
8
REV
CHANGE by
EVEREST
1
SHEET
SIZE
OUT
OUT
OUT
OUT
OUT
OUT
OUT
OUT
OUT
OUT
OUT
OUT
IN
IN
OUT
OUT
OUT
OUT
IN
IN
IN
IN
OUT
G
DS
IN
+
-
IN
IN
14/16 XTAL_PLL
XTAL_SSIN XTAL_OUTBUFF
XTAL_OUT
XTAL_IN
VID_PLLVDD
SP_PLLVDD
PLLVDD
OUT
BI
BI
IN
IN
IN
IN
IN
IN
IN
IN
IN
IN
IN
IN
IN
IN
IN
IN
IN
IN
IN
IN
IN
IN
IN
IN
IN
IN
OUT
OUT
OUT
OUT
OUT
OUT
OUT
OUT
OUT
OUT
OUT
OUT
OUT
OUT
OUT
OUT
GF108
RFU
GT21X
1/16 PCI_EXPRESS
PEX_SVDD_3V3GT21X
GF108
VDD_SENSE_3
VDD_SENSE_2
VDD_SENSE_1
VDD33_5
VDD33_4
VDD33_3
VDD33_2
VDD33_1
TESTMODE
PEX_TX9*
PEX_TX9
PEX_TX8*
PEX_TX8
PEX_TX7*
PEX_TX7
PEX_TX6*
PEX_TX6
PEX_TX5*
PEX_TX5
PEX_TX4*
PEX_TX4
PEX_TX3*
PEX_TX3
PEX_TX2*
PEX_TX2
PEX_TX15*
PEX_TX15
PEX_TX14*
PEX_TX14
PEX_TX13*
PEX_TX13
PEX_TX12*
PEX_TX12
PEX_TX11*
PEX_TX11
PEX_TX10*
PEX_TX10
PEX_TX1*
PEX_TX1
PEX_TX0*
PEX_TX0
PEX_TSTCLK_OUT*
PEX_TSTCLK_OUT
PEX_TERMP
PEX_SVDD_3V3_NC
PEX_SVDD_3V3
PEX_RX9*
PEX_RX9
PEX_RX8*
PEX_RX8
PEX_RX7*
PEX_RX7
PEX_RX6*
PEX_RX6
PEX_RX5*
PEX_RX5
PEX_RX4*
PEX_RX4
PEX_RX3*
PEX_RX3
PEX_RX2*
PEX_RX2
PEX_RX15*
PEX_RX15
PEX_RX14*
PEX_RX14
PEX_RX13*
PEX_RX13
PEX_RX12*
PEX_RX12
PEX_RX11*
PEX_RX11
PEX_RX10*
PEX_RX10
PEX_RX1*
PEX_RX1
PEX_RX0*
PEX_RX0
PEX_RST*
PEX_REFCLK*
PEX_REFCLK
PEX_PLL_HVDD_NC
PEX_PLLVDD
PEX_IOVDD_5
PEX_IOVDD_4
PEX_IOVDD_3
PEX_IOVDD_2
PEX_IOVDD_1
PEX_IOVDDQ_9
PEX_IOVDDQ_8
PEX_IOVDDQ_7
PEX_IOVDDQ_6
PEX_IOVDDQ_5
PEX_IOVDDQ_4
PEX_IOVDDQ_3
PEX_IOVDDQ_25
PEX_IOVDDQ_24
PEX_IOVDDQ_23
PEX_IOVDDQ_22
PEX_IOVDDQ_21
PEX_IOVDDQ_20
PEX_IOVDDQ_2
PEX_IOVDDQ_19
PEX_IOVDDQ_18
PEX_IOVDDQ_17
PEX_IOVDDQ_16
PEX_IOVDDQ_15
PEX_IOVDDQ_14
PEX_IOVDDQ_13
PEX_IOVDDQ_12
PEX_IOVDDQ_11
PEX_IOVDDQ_10
PEX_IOVDDQ_1
PEX_CLKREQ*
NC_9
NC_8
NC_7
NC_6
NC_5
NC_4
NC_3
NC_26
NC_25
NC_24
NC_23
NC_22
NC_21
NC_20
NC_2
NC_19
NC_18
NC_17
NC_16
NC_15
NC_14
NC_13
NC_12
NC_11
NC_10
NC_1
GND_SENSE_3
GND_SENSE_2
GND_SENSE_1

GPU-2
16mil
10mil
Fri Dec 31 10:16:50 2010
9769
Frank Hu
2
1
C5056
2
1
C5057
2
1
C5070
2
1
C5071
2
1
R5077
2
1
C5059
2
1
C5060
2
1
C5074
2
1
C5058
2
1
L5002
2
1
C5061
2
1
C5037
2
1
C5038
2
1
R5016
2
1
C5062
Y27
W27
V34
V29
V27
U29
U27
T27
R27
P27
N27
G25
G24
G28
G27
G12
G11
G15
G14
B26
A32
D32
E26
D14
E10
A10
C14
A26
A31
D31
F26
E14
D9
B10
B14
D28
A34
D34
D27
D15
F11
D10
A16
G16
G19
B11
C13
D16
A25
B25
D25
C26
A17
C28
A28
B28
A29
B34
B35
B32
C32
B31
C29
B16
C31
B29
E29
D30
F29
C33
E31
D33
F32
E32
C16
E25
D24
F25
D26
E28
F28
F27
D29
F17
F16
A14
E16
F15
F14
F13
E13
D12
E11
D11
D8
F12
A13
F9
F10
F8
E8
A8
B8
C8
C10
A11
C11
D13
B13
D20
B19
E20
B17
C19
F19
G20
A20
C17
A22
B22
C22
B23
D22
A23
D21
E22
F21
C23
D18
C25
F23
F24
F22
G21
B20
F20
C20
D19
A19
E19
F18
E23
D23
D17
E17
M27
L27
K27
U5000
2
1
R5038
2
1
C5066
2
1
C5067
2
1
R5040
2
1
R5039
2
1
R5037
2
1
C5073
2
1
C5072
2
1
C5079
2
1
C5078
2
1
C5085
2
1
C5084
2
1
C5083
2
1
C5082
2
1
C5081
2
1
C5080
2
1
R5041
2
1
C5077
2
1
L5000
2
1
C5076
2
1
C5075
AJ28
AE27
AD27
AC27
AB29
AB27
AA31
J29
J24
J23
J22
J21
J20
J17
J16
AA29
J15
J14
H29
G9
G8
G22
G18
G17
E21
B18
AA27
AE29
AD29
AH29
AG29
M29
L29
R29
P29
AC33
AJ34
AJ32
AE31
N31
J32
H35
L34
AC34
AJ35
AJ31
AD32
N32
H31
G35
L35
AF35
AL34
AL32
AF32
P30
J30
H34
P32
T29
T30
K33
K35
P34
AC35
AB32
AE33
AE34
P33
AE35
AF34
AE32
AF33
AM35
AM34
AL35
AJ33
AH32
AH34
P35
AH35
AH33
AH30
AJ30
AK32
AK30
AL33
AM33
AL31
AN33
N35
AD30
AC32
AE30
AF30
AF31
AH31
AG32
AG30
R30
R32
N34
P31
M30
N30
M32
L30
L31
K31
H30
K32
K30
L33
G32
G30
F30
G31
E33
E34
G33
G34
H33
K34
N33
L32
W34
W31
W33
W32
U33
T35
Y29
W29
V32
Y30
Y31
Y34
W35
Y35
AB35
AB34
Y33
Y32
AB33
U31
AA32
AB31
AA30
AB30
W30
T33
T34
U32
U35
U34
V30
U30
AC30
AC31
T31
T32
J27
J18
AF27
J19
AG27
U5000
1UF_6.3V_2
73<
NVIDIA_N12P_GS_BGA_973P
0.1UF_16V_2
4.7uF_6.3V_3
0.1UF_16V_2
FBM_10_160808_301A05T_500mA
FBA_CLK0_DP
FBA_CLK0_DN
FBA_CMD<30..0>
4.7UF_6.3V_3
4.7UF_6.3V_3
0.1UF_16V_2
0.1UF_16V_2
0.1UF_16V_2
P1V5_GPUS
4.7UF_6.3V_3
FBC_CMD<30..0>
FBC_CMD<25>
75<
75<
76<
10K_5%_2
C
+GPU_V1.05S_FB_DLLAVDD0
FBA_DQS_DP<7>
FBA_DQS_DP<6>
FBA_DQS_DP<5>
FBA_DQS_DP<4>
FBA_DQS_DP<3>
FBA_DQS_DP<2>
FBA_DQS_DP<1>
FBA_DQS_DP<0>
FBA_DQS_DN<7>
FBA_DQS_DN<6>
FBA_DQS_DN<5>
FBA_DQS_DN<4>
FBA_DQS_DN<3>
FBA_DQS_DN<2>
FBA_DQS_DN<1>
FBA_DQS_DN<0>
FBA_DQM<7>
FBA_DQM<6>
FBA_DQM<5>
FBA_DQM<4>
FBA_DQM<3>
FBA_DQM<2>
FBA_DQM<1>
FBA_DQM<0>
+GPU_V1.5S_FBA_DEBUG
FBA_D<9>
FBA_D<8>
FBA_D<7>
FBA_D<63>
FBA_D<62>
FBA_D<61>
FBA_D<60>
FBA_D<6>
FBA_D<59>
FBA_D<58>
FBA_D<57>
FBA_D<56>
FBA_D<55>
FBA_D<54>
FBA_D<53>
FBA_D<52>
FBA_D<51>
FBA_D<50>
FBA_D<5>
FBA_D<49>
FBA_D<48>
FBA_D<47>
FBA_D<46>
FBA_D<45>
FBA_D<44>
FBA_D<43>
FBA_D<42>
FBA_D<41>
FBA_D<40>
FBA_D<4>
FBA_D<39>
FBA_D<38>
FBA_D<37>
FBA_D<36>
FBA_D<35>
FBA_D<34>
FBA_D<33>
FBA_D<32>
FBA_D<31>
FBA_D<30>
FBA_D<3>
FBA_D<29>
FBA_D<28>
FBA_D<27>
FBA_D<26>
FBA_D<25>
FBA_D<24>
FBA_D<23>
FBA_D<22>
FBA_D<21>
FBA_D<20>
FBA_D<2>
FBA_D<19>
FBA_D<18>
FBA_D<17>
FBA_D<16>
FBA_D<15>
FBA_D<14>
FBA_D<13>
FBA_D<12>
FBA_D<11>
FBA_D<10>
FBA_D<1>
FBA_D<0>
FBA_CMD<22>
FBA_CMD<1>
FBA_CMD<7>
FBA_CMD<14>
FBA_CMD<26>
FBA_CMD<10>
FBA_CMD<30>
FBA_CMD<0>
FBA_CMD<12>
FBA_CMD<19>
FBA_CMD<13>
FBA_CMD<6>
FBA_CMD<21>
FBA_CMD<4>
FBA_CMD<5>
FBA_CMD<17>
FBA_CMD<3>
FBA_CMD<28>
FBA_CMD<2>
FBA_CMD<16>
FBA_CMD<11>
FBA_CMD<27>
FBA_CMD<8>
FBA_CMD<29>
FBA_CMD<9>
FBA_CMD<18>
FBA_CMD<24>
FBA_CMD<20>
FBA_CMD<25>
FBA_CLK1_DN
FBA_CLK1_DP
FBA_DQS_DP<7..0>
FBA_DQM<7..0>
FBA_DQS_DN<7..0>
FBA_D<63..0>
FBC_DQS_DN<7..0>
FBC_DQS_DP<7..0>
FBC_DQM<7..0>
FBC_D<63..0>
+GPU_V1.5S_FBCAL_PD_VDDQ
FBC_DQS_DP<7>
FBC_DQS_DP<6>
FBC_DQS_DP<5>
FBC_DQS_DP<4>
FBC_DQS_DP<3>
FBC_DQS_DP<2>
FBC_DQS_DP<1>
FBC_DQS_DP<0>
FBC_DQS_DN<7>
FBC_DQS_DN<6>
FBC_DQS_DN<5>
FBC_DQS_DN<4>
FBC_DQS_DN<3>
FBC_DQS_DN<2>
FBC_DQS_DN<1>
FBC_DQS_DN<0>
FBC_DQM<7>
FBC_DQM<6>
FBC_DQM<5>
FBC_DQM<4>
FBC_DQM<3>
FBC_DQM<2>
FBC_DQM<1>
FBC_DQM<0>
+GPU_V1.5S_FBC_DEBUG
FBC_D<9>
FBC_D<8>
FBC_D<7>
FBC_D<63>
FBC_D<62>
FBC_D<61>
FBC_D<60>
FBC_D<6>
FBC_D<59>
FBC_D<58>
FBC_D<57>
FBC_D<56>
FBC_D<55>
FBC_D<54>
FBC_D<53>
FBC_D<52>
FBC_D<51>
FBC_D<50>
FBC_D<5>
FBC_D<49>
FBC_D<48>
FBC_D<47>
FBC_D<46>
FBC_D<45>
FBC_D<44>
FBC_D<43>
FBC_D<42>
FBC_D<41>
FBC_D<40>
FBC_D<4>
FBC_D<39>
FBC_D<38>
FBC_D<37>
FBC_D<36>
FBC_D<35>
FBC_D<34>
FBC_D<33>
FBC_D<32>
FBC_D<31>
FBC_D<30>
FBC_D<3>
FBC_D<29>
FBC_D<28>
FBC_D<27>
FBC_D<26>
FBC_D<25>
FBC_D<24>
FBC_D<23>
FBC_D<22>
FBC_D<21>
FBC_D<20>
FBC_D<2>
FBC_D<19>
FBC_D<18>
FBC_D<17>
FBC_D<16>
FBC_D<15>
FBC_D<14>
FBC_D<13>
FBC_D<12>
FBC_D<11>
FBC_D<10>
FBC_D<1>
FBC_D<0>
FBC_CMD<22>
FBC_CMD<1>
FBC_CMD<7>
FBC_CMD<14>
FBC_CMD<26>
FBC_CMD<10>
FBC_CMD<30>
FBC_CMD<0>
FBC_CMD<12>
FBC_CMD<19>
FBC_CMD<13>
FBC_CMD<6>
FBC_CMD<21>
FBC_CMD<4>
FBC_CMD<5>
FBC_CMD<17>
FBC_CMD<3>
FBC_CMD<28>
FBC_CMD<2>
FBC_CMD<16>
FBC_CMD<11>
FBC_CMD<27>
FBC_CMD<8>
FBC_CMD<29>
FBC_CMD<9>
FBC_CMD<18>
FBC_CMD<24>
FBC_CMD<20>
FBC_CLK1_DN
FBC_CLK1_DP
FBC_CLK0_DN
FBC_CLK0_DP
7
6
5
4
3
2
1
0
7
6
5
4
3
2
1
0
7
6
5
4
3
2
1
0
63
62
61
60
59
58
57
56
55
54
53
52
51
50
49
48
47
46
45
44
43
42
41
40
39
38
37
36
35
34
33
32
31
30
29
28
27
26
25
24
23
22
21
74<> 73<>
20
19
18
17
16
15
14
13
12
11
10
9
8
7
6
5
4
3
2
1
0
0.1UF_16V_2
1UF_6.3V_2
0.1UF_16V_2 0.1UF_16V_2
10K_5%_2
74<
74<
12
30
13
19
6
4
21
17
5
3
16
28
11
27
29
8
9
18
24
10UF_6.3V_3
FBM_10_160808_301A05T_500mA
0.1UF_16V_2
P1V05_GPUS
10UF_6.3V_3
60.4_1%_2
P1V5_GPUS
22
20
1
14
7
10
26
0
2
25
74<73<
74<>73<>
0.1UF_16V_2
0.1UF_16V_2
0.1UF_16V_2
1uF_6.3V_2
P1V5_GPUS
76<> 75<>
4.7uF_6.3V_3
NVIDIA_N12P_GS_BGA_973P
P1V05_GPUS
7
6
5
4
3
2
1
7
6
0
5
4
3
2
1
0
6
7
5
3
4
1
2
0
63
62
61
60.4_1%_2 40.2_1%_2
40.2_1%_2
P1V5_GPUS
76<
30
12
19
13
6
21
4
5
17
3
28
16
11
27
8
29
9
18
24
20
60.4_1%_2
P1V5_GPUS
2260
59
58
57
56
55
54
53
52
51
50
49
48
47
46
45
44
43
42
41
40
39
38
37
36
35
34
33
32
31
30
29
28
27
26
25
24
23
22
21
20
19
18
17
16
15
14
13
12
11
10
9
8
7
6
5
4
2
3
1
0
1
7
14
26
10
0
2
25
75<>
75< 76<
76<>
0.1UF_16V_2
0.1UF_16V_2
0.1UF_16V_2
1UF_6.3V_2
4.7UF_6.3V_3
ES
CS_1310AXXXXXX-MTR
A01
DATE
2
CODE
INVENTEC
DOC.NUMBER
TITLE
of
A
E
D
C
B
7 6 5 4 3 2
1
7 6 5 4 3
E
D
C
B
A
FF
8
8
REV
CHANGE by
EVEREST
1
SHEET
SIZE
BI
BI
OUT
3/16 FBB
GF108
FBB_CMD7
FBB_CMD1
FBB_CMD22
FBB_CMD20
FBB_CMD24
FBB_CMD18
FBB_CMD21
FBB_CMD5
FBB_CMD17
FBB_CMD28
N/A
FBB_CMD30
FBB_CMD11
FBB_CMD16
FBB_CMD3
FBB_CMD4
FBB_CMD6
FBB_CMD13
FBB_CMD19
FBB_CMD12
FBB_CMD8
FBB_CMD26
FBB_CMD15
FBB_CMD27
FBB_CMD29
FBB_CMD0
FBB_CMD23
GT21X
FBB_CMD25
FBB_CMD2
FBB_CMD10
FBB_CMD14
FBB_CMD9
FB_CAL_TERM_GND
FB_CAL_PU_GND
FB_CAL_PD_VDDQ
FBVDDQ_38
FBVDDQ_37
FBVDDQ_36
FBVDDQ_35
FBVDDQ_34
FBVDDQ_33
FBVDDQ_32
FBVDDQ_31
FBVDDQ_30
FBVDDQ_29
FBVDDQ_28
FBB_WCK3*
FBB_WCK3
FBB_WCK2*
FBB_WCK2
FBB_WCK1*
FBB_WCK1
FBB_WCK0*
FBB_WCK0
FBB_DQS_WP7
FBB_DQS_WP6
FBB_DQS_WP5
FBB_DQS_WP4
FBB_DQS_WP3
FBB_DQS_WP2
FBB_DQS_WP1
FBB_DQS_WP0
FBB_DQS_RN7
FBB_DQS_RN6
FBB_DQS_RN5
FBB_DQS_RN4
FBB_DQS_RN3
FBB_DQS_RN2
FBB_DQS_RN1
FBB_DQS_RN0
FBB_DQM7
FBB_DQM6
FBB_DQM5
FBB_DQM4
FBB_DQM3
FBB_DQM2
FBB_DQM1
FBB_DQM0
FBB_DEBUG1
FBB_DEBUG0_CAS2
FBB_D9
FBB_D8
FBB_D7
FBB_D63
FBB_D62
FBB_D61
FBB_D60
FBB_D6
FBB_D59
FBB_D58
FBB_D57
FBB_D56
FBB_D55
FBB_D54
FBB_D53
FBB_D52
FBB_D51
FBB_D50
FBB_D5
FBB_D49
FBB_D48
FBB_D47
FBB_D46
FBB_D45
FBB_D44
FBB_D43
FBB_D42
FBB_D41
FBB_D40
FBB_D4
FBB_D39
FBB_D38
FBB_D37
FBB_D36
FBB_D35
FBB_D34
FBB_D33
FBB_D32
FBB_D31
FBB_D30
FBB_D3
FBB_D29
FBB_D28
FBB_D27
FBB_D26
FBB_D25
FBB_D24
FBB_D23
FBB_D22
FBB_D21
FBB_D20
FBB_D2
FBB_D19
FBB_D18
FBB_D17
FBB_D16
FBB_D15
FBB_D14
FBB_D13
FBB_D12
FBB_D11
FBB_D10
FBB_D1
FBB_D0
FBB_CMD9
FBB_CMD8
FBB_CMD7
FBB_CMD6
FBB_CMD5
FBB_CMD4
FBB_CMD31
FBB_CMD30
FBB_CMD3
FBB_CMD29
FBB_CMD28
FBB_CMD27
FBB_CMD26
FBB_CMD25
FBB_CMD24
FBB_CMD23
FBB_CMD22
FBB_CMD21
FBB_CMD20
FBB_CMD2
FBB_CMD19
FBB_CMD18
FBB_CMD17
FBB_CMD16
FBB_CMD15
FBB_CMD14
FBB_CMD13
FBB_CMD12
FBB_CMD11
FBB_CMD10
FBB_CMD1
FBB_CMD0
FBB_CLK1*
FBB_CLK1
FBB_CLK0*
FBB_CLK0
IN
OUT
OUT
OUT
OUT
OUT
OUT
OUT
BI
BI
OUT
OUT
OUT
OUT
OUT
RFU
RFU
GT21X GF108
GF108 GT21X
FB_VREF
FBA_CMD7
FBA_CMD1
FBA_CMD14
FBA_CMD26
FBA_CMD25
FBA_CMD23
FBA_CMD0
FBA_CMD10
FBA_CMD22
FBA_CMD20
FBA_CMD24
FBA_CMD18
FBA_CMD9
FBA_CMD30
FBA_CMD12
FBA_CMD19
FBA_CMD13
FBA_CMD6
FBA_CMD21
FBA_CMD4
FBA_CMD5
FBA_CMD17
FBA_CMD3
FBA_CMD28
FBA_CMD16
FBA_CMD11
FBA_CMD15
FBA_CMD27
FBA_CMD8
FBA_CMD29
N/A
GF108
GT21X
FBA_CMD2
2/16 FBA
FB_VREF_NC
FB_PLLAVDD_2
FB_PLLAVDD_1
FB_DLLAVDD_2
FB_DLLAVDD_1
FBVDDQ_9
FBVDDQ_8
FBVDDQ_7
FBVDDQ_6
FBVDDQ_5
FBVDDQ_4
FBVDDQ_3
FBVDDQ_27
FBVDDQ_26
FBVDDQ_25
FBVDDQ_24
FBVDDQ_23
FBVDDQ_22
FBVDDQ_21
FBVDDQ_20
FBVDDQ_2
FBVDDQ_19
FBVDDQ_18
FBVDDQ_17
FBVDDQ_16
FBVDDQ_15
FBVDDQ_14
FBVDDQ_13
FBVDDQ_12
FBVDDQ_11
FBVDDQ_10
FBVDDQ_1
FBA_WCK3*
FBA_WCK3
FBA_WCK2*
FBA_WCK2
FBA_WCK1*
FBA_WCK1
FBA_WCK0*
FBA_WCK0
FBA_DQS_WP7
FBA_DQS_WP6
FBA_DQS_WP5
FBA_DQS_WP4
FBA_DQS_WP3
FBA_DQS_WP2
FBA_DQS_WP1
FBA_DQS_WP0
FBA_DQS_RN7
FBA_DQS_RN6
FBA_DQS_RN5
FBA_DQS_RN4
FBA_DQS_RN3
FBA_DQS_RN2
FBA_DQS_RN1
FBA_DQS_RN0
FBA_DQM7
FBA_DQM6
FBA_DQM5
FBA_DQM4
FBA_DQM3
FBA_DQM2
FBA_DQM1
FBA_DQM0
FBA_DEBUG1
FBA_DEBUG0_CAS2
FBA_D9
FBA_D8
FBA_D7
FBA_D63
FBA_D62
FBA_D61
FBA_D60
FBA_D6
FBA_D59
FBA_D58
FBA_D57
FBA_D56
FBA_D55
FBA_D54
FBA_D53
FBA_D52
FBA_D51
FBA_D50
FBA_D5
FBA_D49
FBA_D48
FBA_D47
FBA_D46
FBA_D45
FBA_D44
FBA_D43
FBA_D42
FBA_D41
FBA_D40
FBA_D4
FBA_D39
FBA_D38
FBA_D37
FBA_D36
FBA_D35
FBA_D34
FBA_D33
FBA_D32
FBA_D31
FBA_D30
FBA_D3
FBA_D29
FBA_D28
FBA_D27
FBA_D26
FBA_D25
FBA_D24
FBA_D23
FBA_D22
FBA_D21
FBA_D20
FBA_D2
FBA_D19
FBA_D18
FBA_D17
FBA_D16
FBA_D15
FBA_D14
FBA_D13
FBA_D12
FBA_D11
FBA_D10
FBA_D1
FBA_D0
FBA_CMD9
FBA_CMD8
FBA_CMD7
FBA_CMD6
FBA_CMD5
FBA_CMD4
FBA_CMD31
FBA_CMD30
FBA_CMD3
FBA_CMD29
FBA_CMD28
FBA_CMD27
FBA_CMD26
FBA_CMD25
FBA_CMD24
FBA_CMD23
FBA_CMD22
FBA_CMD21
FBA_CMD20
FBA_CMD2
FBA_CMD19
FBA_CMD18
FBA_CMD17
FBA_CMD16
FBA_CMD15
FBA_CMD14
FBA_CMD13
FBA_CMD12
FBA_CMD11
FBA_CMD10
FBA_CMD1
FBA_CMD0
FBA_CLK1*
FBA_CLK1
FBA_CLK0*
FBA_CLK0

GPU-3
Frank Hu
EVEREST-M
Fri Dec 31 10:17:04 2010
97
70
2
1
C5055
2
1
C5052
2
1
C5053
2
1
C5054
2
1
C5118
2
1
C5124
2
1
C5112
2
1
C5113
2
1
C5114
2
1
C5115
2
1
C5116
2
1
C5117
2
1
C5119
2
1
C5125
2
1
C5123
2
1
C5122
2
1
C5121
2
1
C5120
2
1
C5126
2
1
C5127
2
1
C5128
2
1
C5129
2
1
C5130
2
1
C5131
AA19
AP33
AA18
AP30
AP3
AP27
AP24
AP21
AP18
AP15
AP12
AN34
AN2
AA17
AL9
AL6
AL30
AL27
AL24
AL21
AL18
AL15
AL12
AK5
AA16
AK34
AK31
AK2
AG5
AG34
AG31
AG2
AE25
AE24
AE23
AA15
AE22
AE21
AE20
AE19
AE18
AE17
AE16
AE15
AE14
AE13
AA14
AE12
AE11
AD5
AD34
AD31
AD25
AD23
AD21
AD2
AD17
AA13
AD15
AD13
AD11
AC9
AB24
AB22
AB20
AB18
AB16
AB14
AA12
Y25
Y23
AB12
Y21
Y19
Y17
Y15
Y13
Y11
V9
V5
V31
V24
AA5
V22
V20
V2
V18
V16
V14
V12
U25
U24
U23
AA34
U22
U21
U20
U19
U18
U17
U16
U15
U14
U13
AA25
U12
U11
T25
T23
T21
T19
T17
T15
T13
T11
AA24
R5
R34
R31
R2
P24
P22
P20
P18
P16
P14
AA23
P12
N25
N24
N23
N22
N21
N20
N19
N18
N17
AA22
N16
N15
N14
N13
N12
N11
M5
M34
M31
M25
AA21
M23
M21
M2
M19
M17
M15
M13
M11
L9
J5
AA20
J34
J31
J2
F5
F34
F31
F2
E9
E6
E30
AA2
AA11
E27
E24
E18
E15
E12
C34
C2
B9
B6
B33
B30
B3
B27
B24
B21
B15
B12
AP9
AP6
U5000
Y24
Y22
Y20
Y18
Y16
Y14
Y12
W25
W24
W23
W22
W21
W20
W19
W18
W17
W16
W15
W14
W13
W12
W11
V25
V23
V21
V19
V17
V15
V13
V11
T24
T22
T20
T18
T16
T14
T12
R25
R24
R23
R22
R21
R20
R19
R18
R17
R16
R15
R14
R13
R12
R11
P25
P23
P21
P19
P17
P15
P13
P11
M24
M22
M20
M18
M16
M14
M12
L25
L24
L23
L22
L21
L20
L19
L18
L17
L16
L15
L14
L13
L12
L11
AD24
AD22
AD18
AD16
AD14
AD12
AC25
AC24
AC23
AC22
AC21
AC20
AC19
AC18
AC17
AC16
AC15
AC14
AC13
AC12
AC11
AB25
AB23
AB21
AB19
AB17
AB15
AB13
AB11
U5000
0.01UF_50V_2
0.047UF_16V_2
22UF_6.3V_5
CS_1310AXXXXXX-MTR
NVIDIA_N12P_GS_BGA_973P
NVIDIA_N12P_GS_BGA_973P
4.7uF_6.3V_3
0.047UF_16V_2
0.015UF_10V_2
4700PF_50V_2
PVCORE_GPU PVCORE_GPU
PVCORE_GPU
10uF_6.3V_3
0.015UF_10V_2
10uF_6.3V_3
1uF_6.3V_2
0.022uF_16V_2
0.01UF_50V_2
0.1UF_16V_2 0.1UF_16V_2
0.022uF_16V_2
0.01UF_50V_2
0.22UF_6.3V_2
0.022uF_16V_2
0.01UF_50V_2
0.22UF_6.3V_2
0.047UF_16V_2
0.22UF_6.3V_2
6800PF_25V_2
CS A01
C
SIZE
CHANGE by DATE
8
8 7
7 6
6 5
5 4
4 3
3
2
1
D
D
CC
BB
AA
REV
1
SHEET
2
DOC.NUMBER
of
CODE
INVENTEC
TITLE
15/16 GND
GND_9
GND_80
GND_8
GND_79
GND_78
GND_77
GND_76
GND_75
GND_74
GND_73
GND_72
GND_71
GND_70
GND_7
GND_69
GND_68
GND_67
GND_66
GND_65
GND_64
GND_63
GND_62
GND_61
GND_60
GND_6
GND_59
GND_58
GND_57
GND_56
GND_55
GND_54
GND_53
GND_52
GND_51
GND_50
GND_5
GND_49
GND_48
GND_47
GND_46
GND_45
GND_44
GND_43
GND_42
GND_41
GND_40
GND_4
GND_39
GND_38
GND_37
GND_36
GND_35
GND_34
GND_33
GND_32
GND_31
GND_30
GND_3
GND_29
GND_28
GND_27
GND_26
GND_25
GND_24
GND_23
GND_22
GND_21
GND_20
GND_2
GND_191
GND_190
GND_19
GND_189
GND_188
GND_187
GND_186
GND_185
GND_184
GND_183
GND_182
GND_181
GND_180
GND_18
GND_179
GND_178
GND_177
GND_176
GND_175
GND_174
GND_173
GND_172
GND_171
GND_170
GND_17
GND_169
GND_168
GND_167
GND_166
GND_165
GND_164
GND_163
GND_162
GND_161
GND_160
GND_16
GND_159
GND_158
GND_157
GND_156
GND_155
GND_154
GND_153
GND_152
GND_151
GND_150
GND_15
GND_149
GND_148
GND_147
GND_146
GND_145
GND_144
GND_143
GND_142
GND_141
GND_140
GND_14
GND_139
GND_138
GND_137
GND_136
GND_135
GND_134
GND_133
GND_132
GND_131
GND_130
GND_13
GND_129
GND_128
GND_127
GND_126
GND_125
GND_124
GND_123
GND_122
GND_121
GND_120
GND_12
GND_119
GND_118
GND_117
GND_116
GND_115
GND_114
GND_113
GND_112
GND_111
GND_110
GND_11
GND_109
GND_108
GND_107
GND_106
GND_105
GND_104
GND_103
GND_102
GND_101
GND_100
GND_10
GND_1
GND_099
GND_098
GND_097
GND_096
GND_095
GND_094
GND_093
GND_092
GND_091
GND_090
GND_089
GND_088
GND_087
GND_086
GND_085
GND_084
GND_083
GND_082
GND_081
16/16 NVVDD
VDD_111
VDD_110
VDD_109
VDD_108
VDD_107
VDD_106
VDD_105
VDD_104
VDD_103
VDD_102
VDD_101
VDD_100
VDD_099
VDD_098
VDD_097
VDD_096
VDD_095
VDD_094
VDD_093
VDD_092
VDD_091
VDD_090
VDD_089
VDD_088
VDD_087
VDD_086
VDD_085
VDD_084
VDD_083
VDD_082
VDD_081
VDD_080
VDD_079
VDD_078
VDD_077
VDD_076
VDD_075
VDD_074
VDD_073
VDD_072
VDD_071
VDD_070
VDD_069
VDD_068
VDD_067
VDD_066
VDD_065
VDD_064
VDD_063
VDD_062
VDD_061
VDD_060
VDD_059
VDD_058
VDD_057
VDD_056
VDD_055
VDD_054
VDD_053
VDD_052
VDD_051
VDD_050
VDD_049
VDD_048
VDD_047
VDD_046
VDD_045
VDD_044
VDD_043
VDD_042
VDD_041
VDD_040
VDD_039
VDD_038
VDD_037
VDD_036
VDD_035
VDD_034
VDD_033
VDD_032
VDD_031
VDD_030
VDD_029
VDD_028
VDD_027
VDD_026
VDD_025
VDD_024
VDD_023
VDD_022
VDD_021
VDD_020
VDD_019
VDD_018
VDD_017
VDD_016
VDD_015
VDD_014
VDD_013
VDD_012
VDD_011
VDD_010
VDD_009
VDD_008
VDD_007
VDD_006
VDD_005
VDD_004
VDD_003
VDD_002
VDD_001

20mil
20mil
GPU-4
20mil
20mil
20mil
EVEREST-M
Frank Hu
71
97
Tue Jan 04 00:15:45 2011
4.7uF_6.3V_3
1uF_6.3V_2 0.1UF_16V_2
AM13
NVIDIA_N12P_GS_BGA_973P
1UF_6.3V_2_DY
AP2
AN3
AR2
GPU_HDMI_TXC_DN
GPU_HDMI_TXC_DP
GPU_HDMI_TX0_DN
AM3
AM4
U5000
+GPU_V3S_DACA_VDD
C5105
BLM15AG221SN1D_300mA
C5104
AK13
AJ8
2
1
C5108
1K_1%_2
0.1UF_16V_2_DY
0.1UF_16V_2
4.7UF_6.3V_3
GPU_CRT_VSYNC
GPU_CRT_R
GPU_CRT_G
GPU_CRT_B
C5110C5111
FBM_10_160808_301A05T_500mA
C5106
2
1
C5040
2
1
C5041
2
1
C5048
2
1
C5049
2
1
C5050
2
1
R5022
2
1
R5023
2
1
C5051
2
1
2
1
R5024
G2
G3
AM2
AK6
AG7
AH7
AK4
AM1
AL4
AJ4
U5000
2
1
R5064
2
1
R5034
2
1
R5035
2
1
R5070
AB6
AC6
AR4
AR5
AP5
AN5
AN7
AP7
AR7
AR8AK8
AN4
AP4
L7
U5000
2
1
R5068
2
1
C5101
2
1
C5102
2
1
C5103
2
1
C5100
2
1
L5003
2
1
R5065
2
1
R5066
2
1
R5067
G4
G1
AL13
AK12
AJ12
AM15
AM14
AL14
2
1
1
L5004
2
C5107
2
1
2
1
C5109
2
1
2
1
L5008
2
1
2
1
2
1
R5071
2
1
R5028
2
1
R5029
2
1
R5069
AH3
AH2
AH1
AJ1
AJ2
AJ3
AL3
AL2
AD7
AF2
AF3
AL1
AJ6 AE5
AE6
AF5
AF4
AG4
AH4
AH5
AH6
AE7
AD4
AE4
K6
L1
U5000
AK7
AJ9
AP1
AM5
AL5
AM6
AM7
K2
U5000
2
1
C5096
2
1
L5005
2
1
C5095
2
1
C5097
2
1
C5099
2
1
C5098
2
1
C5091
2
1
L5001
2
1
C5092
2
1
C5093
2
1
C5094
2
1
R5072
AP11
AN11
AR10
AR11
AN10
AP10
AP8
AN8
AN13
AP13
AG10
AJ11
AK9
AL11
AK11
AL10
AK10
AM9
AM10
AL8
AM8
AM12
AM11
AG9
K1
U5000
0.1UF_16V_2
0.1UF_6.3V_1
124_1%_2
1uF_6.3V_2
+GPU_V3S_IFPA_IOVDD
4.7uF_6.3V_3
MMZ1608S181AT
1K_1%_2_DY
P3V3_GPUS
GPU_HDMI_TX0_DP
GPU_HDMI_TX1_DN
GPU_HDMI_TX1_DP
GPU_HDMI_TX2_DP
GPU_HDMI_HPDET
2.2K_1%_2
2.2K_1%_2
10K_5%_2_DY
IFPCD_PLLVDD
4.7uF_6.3V_3
0.1UF_16V_2
NVIDIA_N12P_GS_BGA_973P
150_1%_2
4.7uF_6.3V_3
GPU_HDMI_TX2_DN
GPU_CRT_HSYNC
GPU_LVDS1_TXDL0_DP
GPU_LVDS1_TXDL0_DN
GPU_LVDS1_TXDL1_DN
GPU_LVDS1_TXDL1_DP
GPU_LVDS1_TXDL2_DN
GPU_LVDS1_TXDL2_DP
GPU_LVDS1_TXCL_DN
GPU_LVDS1_TXCL_DP
GPU_LVDS2_TXDL0_DN
GPU_LVDS2_TXDL0_DP
+GPU_V1.05S_IFPAB_PLLVDD
GPU_LVDS2_TXDL1_DN
GPU_LVDS2_TXDL1_DP
GPU_LVDS2_TXDL2_DN
GPU_LVDS2_TXDL2_DP
GPU_LVDS2_TXCL_DN
GPU_LVDS2_TXCL_DP
NVIDIA_N12P_GS_BGA_973P
10K_5%_2
10K_5%_2
NVIDIA_N12P_GS_BGA_973P
45<
45<
45<
150_1%_2150_1%_2
10K_5%_2
0.1UF_16V_2_DY
IFPCD_IOVDD
0.1UF_16V_2
1K_1%_2
0.1UF_16V_21uF_6.3V_2
P1V05_GPUS
4.7uF_6.3V_3
P3V3_GPUS
NVIDIA_N12P_GS_BGA_973P
P1V05_GPUS
0.1UF_16V_2_DY
0.1UF_16V_2_DY1uF_6.3V_2
FBM_10_160808_301A05T_500mA
P3V3_GPUS
4.7uF_6.3V_3
0.1UF_16V_2
0.1UF_16V_2
4.7uF_6.3V_3
MMZ1608S181AT
P3V3_GPUS
4.7uF_6.3V_3
1K_1%_2_DY
10K_5%_2
NVIDIA_N12P_GS_BGA_973P
10K_5%_2
C
CS_1310AXXXXXX-MTR
A01
CS
SIZE
CHANGE by DATE
8
8 7
7 6
6 5
5 4
4 3
3
2
1
D
D
CC
BB
AA
REV
1
SHEET
2
DOC.NUMBER
of
CODE
INVENTEC
TITLE
OUT
OUT
OUT
OUT
OUT
4/16 DACA
I2CA_SDA
I2CA_SCL
DACA_VSYNC
DACA_VREF
DACA_VDD
DACA_RSET
DACA_RED
DACA_HSYNC
DACA_GREEN
DACA_BLUE
IN
OUT
OUT
OUT
OUT
OUT
OUT
OUT
OUT
IFPEF
HDMI
DVI-SL
DP
HPDE
TXD2
TXD2
TXD1
TXD1
TXD0
DVI-DL
SDA
TXC
TXD0
TXC
SCL
HPDE
SCL
TXD2
TXD2
TXD1
TXD1
TXD0
TXD0
TXC
TXC
SDA
SCL
TXC
TXC
TXD0
TXD0
TXD1
TXD1
TXD2
TXD2
HPDF
TXD5
TXD5
TXD4
TXD3
TXD3
TXD4
9/16 IFPEF
IFPF_L3*
IFPF_L3
IFPF_L2*
IFPF_L2
IFPF_L1*
IFPF_L1
IFPF_L0*
IFPF_L0
IFPF_IOVDD
IFPF_AUX*
IFPF_AUX
IFPE_L3*
IFPE_L3
IFPE_L2*
IFPE_L2
IFPE_L1*
IFPE_L1
IFPE_L0*
IFPE_L0
IFPE_IOVDD
IFPE_AUX*
IFPE_AUX
IFPEF_RSET
IFPEF_PLLVDD
GPIO21
GPIO15
HPDC
IFPC
DP
SCL
TXC
TXC
TXD0
TXD0
TXD1
TXD1
TXD2
TXD2
SDA
DVI/HDMI
8/16 IFPC
IFPC_RSET
IFPC_PLLVDD
IFPC_L3*
IFPC_L3
IFPC_L2*
IFPC_L2
IFPC_L1*
IFPC_L1
IFPC_L0*
IFPC_L0
IFPC_IOVDD
IFPC_AUX*
IFPC_AUX
GPIO1
OUT
OUT
OUT
OUT
OUT
OUT
OUT
OUT
OUT
OUT
OUT
OUT
OUT
OUT
OUT
OUT
6/16 DACB
I2CB_SDA
I2CB_SCL
DACB_VSYNC
DACB_VREF
DACB_VDD
DACB_RSET
DACB_RED
DACB_HSYNC
DACB_GREEN
DACB_BLUE
HPDD
IFPD
TXC
TXC
DP
SDA
TXD1
TXD1
TXD0
TXD0
TXD2
TXD2
SCL
DVI/HDMI
5/16 IFPD
IFPD_RSET
IFPD_PLLVDD
IFPD_L3*
IFPD_L3
IFPD_L2*
IFPD_L2
IFPD_L1*
IFPD_L1
IFPD_L0*
IFPD_L0
IFPD_IOVDD
IFPD_AUX*
IFPD_AUX
GPIO19
HPDAB
IFPAB
LVDS
IFPAB_TXD3*
IFPAB_TXD3
IFPAB_TXD0
IFPAB_TXD1*
IFPAB_TXD0*
DVI-DL
IFPAB_TXD1
IFPAB_TXD5*
IFPAB_TXD5
IFPAB_TXC*
IFPAB_TXC
IFPAB_TXD2*
IFPAB_TXD2
IFPAB_TXD4
IFPAB_TXD4*
7/16 IFPAB
IFPB_TXD7*
IFPB_TXD7
IFPB_TXD6*
IFPB_TXD6
IFPB_TXD5*
IFPB_TXD5
IFPB_TXD4*
IFPB_TXD4
IFPB_TXC*
IFPB_TXC
IFPB_IOVDD
IFPA_TXD3*
IFPA_TXD3
IFPA_TXD2*
IFPA_TXD2
IFPA_TXD1*
IFPA_TXD1
IFPA_TXD0*
IFPA_TXD0
IFPA_TXC*
IFPA_TXC
IFPA_IOVDD
IFPAB_RSET
IFPAB_PLLVDD
GPIO0

20mil
20mil
GPU-5
PUT TOGETHER
24.9K_1% FOR NVIDIA_N12P_GS_BGA_973P
72
Frank Hu
EVEREST-M
Fri Dec 31 10:16:52 2010
97
2
1
R5001
2
1
R5020
2
1
R5019
2
1
R5018
2
1
R5021
2
1
R5036
2
1
R5052
2
1
R5050
2
1
R5009
2
1
R5030
2
1
R5033
2
1
R5043
2
1
R5032
2
1
R5031
2
1
R5015
2
1
R5014
2
1
R5013
2
1
R5010
2
1
R5012
2
1
R5011
2
1
R5008
2
1
R5007
2
1
R5004
2
1
R5005
2
1
R5006
2
1
C5088
2
1
R5057
2
1
R5058
2
1
R5061
2
1
R5062
2
1
R5063
V7
W7
W5
A5
C4
D3
D4
C3
C5
M9
N9
G6
F6
K9
AK14
AB5
A4
J25
J26
U5000
2
1
R5044
2
1
R5045
2
1
R5025
2
1
R5046
2
1
R5051
2
1
R5060
2
1
R5059
2
1
3
Q5000
2
1
R5049
2
1
R5042
2
1
R5055
2
1
R5056
2
1
R5053
2
1
R5054
2
1
C5089
2
1
C5090
1
4
7
8
5
2
3 6
U4412
B5
B4
AP16
AR14
AN16
AN14
AP14
E1
E2
E4
E3
J7
H6
H5
H4
H1
H2
H3
M7
M6
L6
L5
K3
M4
L4
L2
J6
J4
H7
K5
K4
U5000
2
1
R5047
2
1
C5086
W2
AF1
Y9
W9
AB9
AA9
W1
Y5
AC3
AC2
AC1
AC4
AB1
AB2
AB3
Y3
Y2
Y6
W6
U6
AE2
AE3
Y1
W3
W4
V4
AE1
AA6
AA7
U5000
2
1
R5048
2
1
C5087
L3
N5
U9
T9
R9
P9
N3
N2
U1
U4
T1
T2
T3
P3
P2
P1
P4
N6
T6
R6
U3
U2
N1
P5
T4
R4
N4
T5
U5
U5000
ROM_SI
NVIDIA_N12P_GS_BGA_973P
10K_5%_2_DY
24.9K_1%_2
0_5%_2
0_5%_2
2.2K_1%_2
2.2K_1%_2
72>
72>
THRM_GPU_DN
THRM_SHUTDWN#
THRM_GPU_DN
THRM_GPU_DP
P3V3_GPUS
10K_5%_2
0_5%_2_DY
10K_5%_2 10K_5%_2 10K_5%_2
GPU_VID1
GPU_VID0
GPU_LCM_BKLTEN
GPU_LCM_VDDEN
ROM_SO
ROM_SCLK
72<
72<
2.2K_1%_2
CS
CS_1310AXXXXXX-MTR
ALERT#
THRM_GPU_DP
DCIN_BLED#
THRM_SHUTDWN#
EC_SMB2_DATA
EC_SMB2_CLK
GPU_LVDS_DDCDATA
GPU_LVDS_DDCCLK
STRAP0
STRAP1
STRAP2
ROM_SCLK
ROM_SI
ROM_SO
GPU_LCM_INVPWM
STRAP2
STRAP1
STRAP0
0_5%_2_DY
10K_5%_2
10K_5%_2 10K_5%_2
NVIDIA_N12P_GS_BGA_973P
72<
72<
2200PF_50V_2_DY
0.1UF_16V_2_DY
P3V3_GPUS
GMT_G784_MSOP_8P__DY
SSM3K7002BFU
58<37>
10K_5%_2
100K_5%_2
P3V3_GPUS
0_5%_2_DY
0_5%_2
10K_5%_2 10K_5%_2
0_5%_2 0_5%_2
10K_5%_2
P3V3_GPUS
10K_5%_2
0_5%_2
P3V3_GPUS
0_5%_2
37<>
8>
37<>
8>
72<
72<
72<
45.3K_1%_2
10K_5%_2_DY 10K_5%_2_DY
34.8K_1%_2
P3V3_GPUS
72>
72>
72>
15K_1%_2
10K_5%_2_DY
10K_1%_2 10K_5%_2_DY
10K_5%_2_DY 15K_1%_2
P3V3_GPUS
40.2K_1%_2
40.2K_1%_2
10K_5%_2
16<
P3V3_GPUS
NVIDIA_N12P_GS_BGA_973P
NVIDIA_N12P_GS_BGA_973P 10K_5%_2
36K_5%_2
72<
72<
72<
72<
2.2K_1%_2 0.1uF_16V_2
P3V3_GPUS
10K_5%_2
0.1UF_16V_2
P3V3_GPUS
0.1UF_16V_2
P3V3_GPUS
A01
C
SIZE
CHANGE by DATE
8
8 7
7 6
6 5
5 4
4 3
3
2
1
D
D
CC
BB
AA
REV
1
SHEET
2
DOC.NUMBER
of
CODE
INVENTEC
TITLE
IN
IN
IN
IN
IN
IN
11/16 MIOB
MIOB_VSYNC_NC
MIOB_VREF_NC
MIOB_VDDQ_NC_4
MIOB_VDDQ_NC_3
MIOB_VDDQ_NC_2
MIOB_VDDQ_NC_1
MIOB_HSYNC_NC
MIOB_DE_NC
MIOB_D9_NC
MIOB_D8_NC
MIOB_D7_NC
MIOB_D6_NC
MIOB_D5_NC
MIOB_D4_NC
MIOB_D3_NC
MIOB_D2_NC
MIOB_D1_NC
MIOB_D14_NC
MIOB_D13_NC
MIOB_D12_NC
MIOB_D11_NC
MIOB_D10_NC
MIOB_D0_NC
MIOB_CTL3_NC
MIOB_CLKOUT_NC*
MIOB_CLKOUT_NC
MIOB_CLKIN_NC
MIOB_CAL_PU_GND_NC
MIOB_CAL_PD_VDDQ_NC
OUT
OUT
OUT
13/16 MISC2
STRAP2
STRAP1
STRAP0
SPDIF_NC
ROM_SO
ROM_SI
ROM_SCLK
ROM_CS*
PGOOD_OUT*
MULTI_STRAP_REF1_GND
MULTI_STRAP_REF0_GND
I2CH_SDA
I2CH_SCL
GND_H
GND_F
CEC
BUFRST*
BBIASP_NC
BBIASN_NC
OUT
OUT
OUT
OUT
OUT
OUT
BI
G
DS
BI
BI
BI
BI
OUT
IN
IN
GND
ALERT#
SMBDATA
SMBCLK
THERM#
DXN
DXP
VCC
OUT
OUT
12/16 MISC1
THERMDP
THERMDN
JTAG_TRST*
JTAG_TMS
JTAG_TDO
JTAG_TDI
JTAG_TCK
I2CS_SDA
I2CS_SCL
I2CC_SDA
I2CC_SCL
GPIO9
GPIO8
GPIO7
GPIO6
GPIO5
GPIO4
GPIO3
GPIO24
GPIO23
GPIO22
GPIO20
GPIO2
GPIO18
GPIO17
GPIO16
GPIO14
GPIO13
GPIO12
GPIO11
GPIO10
IN
IN
IN
10/16 MIOA
MIOA_VSYNC_NC
MIOA_VREF_NC
MIOA_VDDQ_NC_4
MIOA_VDDQ_NC_3
MIOA_VDDQ_NC_2
MIOA_VDDQ_NC_1
MIOA_HSYNC_NC
MIOA_DE_NC
MIOA_D9_NC
MIOA_D8_NC
MIOA_D7_NC
MIOA_D6_NC
MIOA_D5_NC
MIOA_D4_NC
MIOA_D3_NC
MIOA_D2_NC
MIOA_D1_NC
MIOA_D14_NC
MIOA_D13_NC
MIOA_D12_NC
MIOA_D11_NC
MIOA_D10_NC
MIOA_D0_NC
MIOA_CTL3_NC
MIOA_CLKOUT_NC*
MIOA_CLKOUT_NC
MIOA_CLKIN_NC
MIOA_CAL_PU_GND_NC
MIOA_CAL_PD_VDDQ_NC

1.5A
VRAM
1.5A
EVEREST-M
Frank Hu
97
73
Fri Dec 31 10:16:52 2010
2
1
R5524
2
1
C5552
2
1
R5500
2
1
C5551
2
1
C5550
2
1
C5503
2
1
R5501
2
1
C5549
2
1
C5548
2
1
C5547
2
1
C5546
2
1
C5501
2
1
R5504
2
1
R5505
2
1
C5553
2
1
C5554
2
1
C5555
2
1
C5556
2
1
C5557
2
1
C5558
2
1
C5559
2
1
R5526
2
1
R5525
2
1
R5529
2
1
R5528
2
1
R5527
L8
L3
G9
G1
F9
E8
E2
D8
D1
B9
B1
T9
T1
P9
P1
M9
M1
J8
J2
G8
E1
B3
A9
H1
M8
H9
H2
F1
E9
D2
C9
C1
A8
A1
R9
R1
N9
N1
K8
K2
G7
D9
B2
T2
J3
K1
L9
L1
J9
J1
A3
B8
A2
A7
C2
C8
C3
D7
B7
C7
G3
F3
H7
G2
H8
H3
F8
F2
F7
E3
D3
E7
L2
K9
K7
J7
K3
M3
N8
M2
R3
T8
R2
R8
P2
P8
N2
P3
M7
T7
T3
N7
R7
L7
P7
N3
U5501
L8
L3
G9
G1
F9
E8
E2
D8
D1
B9
B1
T9
T1
P9
P1
M9
M1
J8
J2
G8
E1
B3
A9
H1
M8
H9
H2
F1
E9
D2
C9
C1
A8
A1
R9
R1
N9
N1
K8
K2
G7
D9
B2
T2
J3
K1
L9
L1
J9
J1
A3
B8
A2
A7
C2
C8
C3
D7
B7
C7
G3
F3
H7
G2
H8
H3
F8
F2
F7
E3
D3
E7
L2
K9
K7
J7
K3
M3
N8
M2
R3
T8
R2
R8
P2
P8
N2
P3
M7
T7
T3
N7
R7
L7
P7
N3
U5500
FBA_CMD<20>
69<>
73<
P1V5_GPUS
10K_5%_2
160_1%_2
0.1UF_16V_2 0.1UF_16V_2
P1V5_GPUS
CS_1310AXXXXXX-MTR
FBA_VREF0
FBA_CMD<18>
FBA_CMD<29>
FBA_CMD<30>
FBA_CMD<12>
FBA_CMD<9>
FBA_CMD<13>
FBA_CMD<0>
FBA_CMD<25>
FBA_CMD<2>
FBA_CMD<24>
FBA_CMD<8>
FBA_CMD<19>
FBA_CMD<28>
FBA_DQS_DN<3>
FBA_DQS_DN<0>
FBA_DQM<0>
FBA_DQM<3>
FBA_DQS_DP<0>
FBA_DQS_DP<3>
FBA_CLK0_DN
FBA_CLK0_DP
FBA_D<1>
FBA_D<5>
FBA_D<2>
FBA_D<4>
FBA_D<0>
FBA_D<7>
FBA_D<3>
FBA_D<6>
FBA_D<29>
FBA_D<25>
FBA_D<31>
FBA_D<28>
FBA_D<30>
FBA_D<24>
FBA_D<27>
FBA_D<26>
FBA_CMD<10>
FBA_CMD<1>
FBA_CMD<3>
FBA_CMD<26>
FBA_CMD<6>
FBA_CMD<17>
FBA_CMD<14>
FBA_CMD<4>
FBA_CMD<22>
FBA_CMD<5>
FBA_CMD<21>
FBA_CMD<7>
FBA_CMD<30..0>
FBA_VREF0
FBA_D<0..7>
FBA_D<24..31>
FBA_CMD<27>
FBA_CMD<25>
FBA_VREF1
FBA_CLK0_DN
FBA_CLK0_DP
FBA_DQS_DN<1>
FBA_CMD<28>
FBA_DQS_DN<2>
FBA_CMD<19>
FBA_CMD<8>
FBA_CMD<24>
FBA_CMD<2>
FBA_CMD<25>
FBA_CMD<0>
FBA_CMD<13>
FBA_DQM<1>
FBA_DQM<2>
FBA_DQS_DP<2>
FBA_DQS_DP<1>
FBA_D<9>
FBA_D<13>
FBA_D<8>
FBA_D<12>
FBA_D<10>
FBA_D<15>
FBA_D<11>
FBA_D<14>
FBA_D<19>
FBA_D<20>
FBA_D<17>
FBA_D<22>
FBA_D<18>
FBA_D<23>
FBA_D<16>
FBA_D<21>
FBA_CLK0_DN
FBA_CLK0_DP
FBA_CMD<9>
FBA_CMD<12>
FBA_CMD<10>
FBA_CMD<1>
FBA_CMD<3>
FBA_CMD<26>
FBA_CMD<6>
FBA_CMD<17>
FBA_CMD<14>
FBA_CMD<4>
FBA_CMD<30>
FBA_CMD<29>
FBA_CMD<18>
FBA_CMD<22>
FBA_CMD<5>
FBA_CMD<21>
FBA_CMD<20>
FBA_CMD<7>
FBA_CMD<30..0>
FBA_VREF0
FBA_D<8..15>
FBA_D<16..23>
0.1UF_16V_2
P1V5_GPUS
1.1K_1%_2
0.1UF_16V_2 0.1UF_16V_2
18
29
30
12
9
13
0
25
2
24
8
19
73<
74<> 73<>
74< 69>
69<>
69<>
69<>
69<>
10K_5%_2
243_1%_2
73< 69>
0.1UF_16V_2
0.01UF_50V_2
1.1K_1%_2
P1V5_GPUS
HYNIX_H5TQ1G63DFR_11C_FBGA_96P
0.1UF_16V_2 1uF_6.3V_2 1uF_6.3V_2
1
P1V5_GPUS
P1V5_GPUS
7
20
14
4
17
6
26
3
1
10
21
5
22
73<
5
2
4
0
7
6
3
29
28
31
25
30
24
27
26
69<>
0.1UF_16V_2
69>
74<> 73<>
69>
73<>74<>
0.1UF_16V_2
10K_5%_2
1.1K_1%_2
74<
0.01UF_50V_2
1.1K_1%_2
0.1UF_16V_2
69>73<
73< 69>
69<>
73<>74<>
74< 69>
69<>
19
8
24
2
25
0
13
69<>
69<>
243_1%_2
HYNIX_H5TQ1G63DFR_11C_FBGA_96P
69>
73<
1uF_6.3V_2 1uF_6.3V_2
P1V5_GPUS
9
12
30
18
29
22
5
21
10
1
3
26
6
17
14
4
20
7
73<
8
12
13
9
P1V5_GPUS
11
14
15
10
69<>
17
22
20
19
21
16
23
18
69<>
C
A01
CS
SIZE
CHANGE by DATE
8
8 7
7 6
6 5
5 4
4 3
3
2
1
D
D
CC
BB
AA
REV
1
SHEET
2
DOC.NUMBER
of
CODE
INVENTEC
TITLE
IN
BI
BI
BI
BI
BI
BI
IN
IN
BI
BI
BI
BI
IN
BI
BI
IN
BI
IN
IN
ZQ
WE#
VSSQ#G9
VSSQ#G1
VSSQ#F9
VSSQ#E8
VSSQ#E2
VSSQ#D8
VSSQ#D1
VSSQ#B9
VSSQ#B1
VSS#T9
VSS#T1
VSS#P9
VSS#P1
VSS#M9
VSS#M1
VSS#J8
VSS#J2
VSS#G8
VSS#E1
VSS#B3
VSS#A9
VREFDQ
VREFCA
VDDQ#H9
VDDQ#H2
VDDQ#F1
VDDQ#E9
VDDQ#D2
VDDQ#C9
VDDQ#C1
VDDQ#A8
VDDQ#A1
VDD#R9
VDD#R1
VDD#N9
VDD#N1
VDD#K8
VDD#K2
VDD#G7
VDD#D9
VDD#B2
RESET#
RAS#
ODT
NC#L9
NC#L1
NC#J9
NC#J1
DQU7
DQU6
DQU5
DQU4
DQU3
DQU2
DQU1
DQU0
DQSU#
DQSU
DQSL#
DQSL
DQL7
DQL6
DQL5
DQL4
DQL3
DQL2
DQL1
DQL0
DMU
DML
CS#
CKE
CK#
CK
CAS#
BA2
BA1
BA0
A9
A8
A7
A6
A5
A4
A3
A2
A15
A14
A13
A12_BC#
A11
A10_AP
A1
A0
BI
IN
IN
IN
IN
IN
IN
IN
BI
BI
BI
BI
ZQ
WE#
VSSQ#G9
VSSQ#G1
VSSQ#F9
VSSQ#E8
VSSQ#E2
VSSQ#D8
VSSQ#D1
VSSQ#B9
VSSQ#B1
VSS#T9
VSS#T1
VSS#P9
VSS#P1
VSS#M9
VSS#M1
VSS#J8
VSS#J2
VSS#G8
VSS#E1
VSS#B3
VSS#A9
VREFDQ
VREFCA
VDDQ#H9
VDDQ#H2
VDDQ#F1
VDDQ#E9
VDDQ#D2
VDDQ#C9
VDDQ#C1
VDDQ#A8
VDDQ#A1
VDD#R9
VDD#R1
VDD#N9
VDD#N1
VDD#K8
VDD#K2
VDD#G7
VDD#D9
VDD#B2
RESET#
RAS#
ODT
NC#L9
NC#L1
NC#J9
NC#J1
DQU7
DQU6
DQU5
DQU4
DQU3
DQU2
DQU1
DQU0
DQSU#
DQSU
DQSL#
DQSL
DQL7
DQL6
DQL5
DQL4
DQL3
DQL2
DQL1
DQL0
DMU
DML
CS#
CKE
CK#
CK
CAS#
BA2
BA1
BA0
A9
A8
A7
A6
A5
A4
A3
A2
A15
A14
A13
A12_BC#
A11
A10_AP
A1
A0

1.5A
VRAM
1.5A
Fri Dec 31 10:16:53 2010
Frank Hu
EVEREST-M
97
74
2
1
R5519
2
1
C5532
2
1
C5533
2
1
C5534
2
1
C5535
2
1
C5536
2
1
C5537
2
1
C5538
2
1
C5539
2
1
C5540
2
1
C5541
2
1
C5542
2
1
C5543
2
1
C5544
2
1
C5545
L8
L3
G9
G1
F9
E8
E2
D8
D1
B9
B1
T9
T1
P9
P1
M9
M1
J8
J2
G8
E1
B3
A9
H1
M8
H9
H2
F1
E9
D2
C9
C1
A8
A1
R9
R1
N9
N1
K8
K2
G7
D9
B2
T2
J3
K1
L9
L1
J9
J1
A3
B8
A2
A7
C2
C8
C3
D7
B7
C7
G3
F3
H7
G2
H8
H3
F8
F2
F7
E3
D3
E7
L2
K9
K7
J7
K3
M3
N8
M2
R3
T8
R2
R8
P2
P8
N2
P3
M7
T7
T3
N7
R7
L7
P7
N3
U5503
2
1
R5523
2
1
R5521
2
1
R5520
L8
L3
G9
G1
F9
E8
E2
D8
D1
B9
B1
T9
T1
P9
P1
M9
M1
J8
J2
G8
E1
B3
A9
H1
M8
H9
H2
F1
E9
D2
C9
C1
A8
A1
R9
R1
N9
N1
K8
K2
G7
D9
B2
T2
J3
K1
L9
L1
J9
J1
A3
B8
A2
A7
C2
C8
C3
D7
B7
C7
G3
F3
H7
G2
H8
H3
F8
F2
F7
E3
D3
E7
L2
K9
K7
J7
K3
M3
N8
M2
R3
T8
R2
R8
P2
P8
N2
P3
M7
T7
T3
N7
R7
L7
P7
N3
U5502
2
1
R5522
FBA_CMD<30>
P1V5_GPUS
74< 69>
74<>
10K_5%_2
160_1%_2
HYNIX_H5TQ1G63DFR_11C_FBGA_96P
0.1UF_16V_2
FBA_CMD<5>
FBA_CMD<7>
FBA_CMD<19>
FBA_CMD<10>
FBA_CMD<29>
FBA_CMD<18>
FBA_CMD<13>
FBA_CMD<12>
FBA_CMD<14>
FBA_CMD<30>
FBA_CMD<27>
FBA_CMD<11>
FBA_CMD<16>
FBA_CMD<21>
FBA_CMD<24>
FBA_CMD<8>
FBA_CMD<28>
FBA_DQS_DN<7>
FBA_DQS_DN<5>
FBA_DQS_DP<5>
FBA_DQS_DP<7>
FBA_DQM<5>
FBA_DQM<7>
FBA_CLK1_DP
FBA_CLK1_DN
FBA_VREF1
FBA_D<63>
FBA_D<61>
FBA_D<60>
FBA_D<57>
FBA_D<62>
FBA_D<56>
FBA_D<59>
FBA_D<58>
FBA_D<40>
FBA_D<47>
FBA_D<42>
FBA_D<41>
FBA_D<45>
FBA_D<46>
FBA_D<43>
FBA_D<44>
FBA_CMD<1>
FBA_CMD<26>
FBA_CMD<3>
FBA_CMD<17>
FBA_CMD<6>
FBA_CMD<9>
FBA_CMD<20>
FBA_CMD<4>
FBA_CMD<22>
FBA_CMD<30..0>
FBA_D<56..63>
FBA_D<40..47>
FBA_CLK1_DN
FBA_CMD<16>
FBA_CMD<0>
FBA_CLK1_DP
FBA_CMD<28>
FBA_DQS_DN<6>
FBA_DQS_DN<4>
FBA_CMD<21>
FBA_CMD<8>
FBA_CMD<24>
FBA_CMD<11>
FBA_CMD<16>
FBA_CMD<27>
FBA_CMD<14>
FBA_CMD<12>
FBA_DQM<4>
FBA_DQM<6>
FBA_DQS_DP<6>
FBA_DQS_DP<4>
FBA_D<53>
FBA_D<49>
FBA_D<55>
FBA_D<50>
FBA_D<54>
FBA_D<48>
FBA_D<52>
FBA_D<51>
FBA_D<37>
FBA_D<34>
FBA_D<39>
FBA_D<33>
FBA_D<38>
FBA_D<32>
FBA_D<36>
FBA_D<35>
FBA_CLK1_DN
FBA_CLK1_DP
FBA_CMD<5>
FBA_CMD<1>
FBA_CMD<26>
FBA_CMD<3>
FBA_CMD<17>
FBA_CMD<6>
FBA_CMD<9>
FBA_CMD<20>
FBA_CMD<13>
FBA_CMD<18>
FBA_CMD<29>
FBA_CMD<7>
FBA_CMD<10>
FBA_CMD<19>
FBA_CMD<4>
FBA_CMD<22>
FBA_CMD<30..0>
FBA_VREF1
FBA_D<48..55>
FBA_D<32..39>
0.1UF_16V_2
P1V5_GPUS
0.1UF_16V_2 0.1UF_16V_2
243_1%_2
5
7
19
10
29
18
13
12
14
30
27
11
16
21
24
8
74<> 73<>
69>74< 73<
69<>
69<>
69<>
69<>
69>74<
69>74<
0.1UF_16V_2 0.1UF_16V_2
HYNIX_H5TQ1G63DFR_11C_FBGA_96P
1uF_6.3V_2 1uF_6.3V_2
63
61
60
57
62
P1V5_GPUS
22
4
20
9
6
26
17
3
1
74<
73<
56
58
59
40
47
42
41
45
69<>
44
43
46
69<>
0.1UF_16V_2 0.1UF_16V_2
P1V5_GPUS
74< 69>
73<>
69>
74<>
69>
73<>74<>
10K_5%_2
0.1UF_16V_2 0.1UF_16V_2
69>
74<
73<>
73<
69<>
69<>
21
8
24
11
16
27
30
14
12
69<>
69<>
243_1%_2
69>74<
1uF_6.3V_2 1uF_6.3V_2
P1V5_GPUS
13
18
29
7
10
19
5
1
26
3
17
6
9
20
4
22
74< 73<
53
49
50
55
52
48
54
51
34
37
39
33
38
32
36
69<>
35
69<>
P1V5_GPUS
C
A01
CS
CS_1310AXXXXXX-MTR
SIZE
CHANGE by DATE
8
8 7
7 6
6 5
5 4
4 3
3
2
1
D
D
CC
BB
AA
REV
1
SHEET
2
DOC.NUMBER
of
CODE
INVENTEC
TITLE
IN
BI
BI
BI
BI
BI
BI
ZQ
WE#
VSSQ#G9
VSSQ#G1
VSSQ#F9
VSSQ#E8
VSSQ#E2
VSSQ#D8
VSSQ#D1
VSSQ#B9
VSSQ#B1
VSS#T9
VSS#T1
VSS#P9
VSS#P1
VSS#M9
VSS#M1
VSS#J8
VSS#J2
VSS#G8
VSS#E1
VSS#B3
VSS#A9
VREFDQ
VREFCA
VDDQ#H9
VDDQ#H2
VDDQ#F1
VDDQ#E9
VDDQ#D2
VDDQ#C9
VDDQ#C1
VDDQ#A8
VDDQ#A1
VDD#R9
VDD#R1
VDD#N9
VDD#N1
VDD#K8
VDD#K2
VDD#G7
VDD#D9
VDD#B2
RESET#
RAS#
ODT
NC#L9
NC#L1
NC#J9
NC#J1
DQU7
DQU6
DQU5
DQU4
DQU3
DQU2
DQU1
DQU0
DQSU#
DQSU
DQSL#
DQSL
DQL7
DQL6
DQL5
DQL4
DQL3
DQL2
DQL1
DQL0
DMU
DML
CS#
CKE
CK#
CK
CAS#
BA2
BA1
BA0
A9
A8
A7
A6
A5
A4
A3
A2
A15
A14
A13
A12_BC#
A11
A10_AP
A1
A0
BI
IN
BI
BI
IN
IN
IN
IN
IN
IN
ZQ
WE#
VSSQ#G9
VSSQ#G1
VSSQ#F9
VSSQ#E8
VSSQ#E2
VSSQ#D8
VSSQ#D1
VSSQ#B9
VSSQ#B1
VSS#T9
VSS#T1
VSS#P9
VSS#P1
VSS#M9
VSS#M1
VSS#J8
VSS#J2
VSS#G8
VSS#E1
VSS#B3
VSS#A9
VREFDQ
VREFCA
VDDQ#H9
VDDQ#H2
VDDQ#F1
VDDQ#E9
VDDQ#D2
VDDQ#C9
VDDQ#C1
VDDQ#A8
VDDQ#A1
VDD#R9
VDD#R1
VDD#N9
VDD#N1
VDD#K8
VDD#K2
VDD#G7
VDD#D9
VDD#B2
RESET#
RAS#
ODT
NC#L9
NC#L1
NC#J9
NC#J1
DQU7
DQU6
DQU5
DQU4
DQU3
DQU2
DQU1
DQU0
DQSU#
DQSU
DQSL#
DQSL
DQL7
DQL6
DQL5
DQL4
DQL3
DQL2
DQL1
DQL0
DMU
DML
CS#
CKE
CK#
CK
CAS#
BA2
BA1
BA0
A9
A8
A7
A6
A5
A4
A3
A2
A15
A14
A13
A12_BC#
A11
A10_AP
A1
A0
IN
BI
BI
BI
BI
BI
BI
BI
BI
BI
IN
IN
IN

1.5A
VRAM
1.5A
97
Frank Hu
EVEREST-M
Fri Dec 31 10:16:54 2010
75
2
1
R5514
2
1
R5506
2
1
C5502
2
1
R5507
2
1
R5503
2
1
C5500
2
1
R5502
2
1
C5518
2
1
C5519
2
1
C5520
L8
L3
G9
G1
F9
E8
E2
D8
D1
B9
B1
T9
T1
P9
P1
M9
M1
J8
J2
G8
E1
B3
A9
H1
M8
H9
H2
F1
E9
D2
C9
C1
A8
A1
R9
R1
N9
N1
K8
K2
G7
D9
B2
T2
J3
K1
L9
L1
J9
J1
A3
B8
A2
A7
C2
C8
C3
D7
B7
C7
G3
F3
H7
G2
H8
H3
F8
F2
F7
E3
D3
E7
L2
K9
K7
J7
K3
M3
N8
M2
R3
T8
R2
R8
P2
P8
N2
P3
M7
T7
T3
N7
R7
L7
P7
N3
U5505
2
1
R5518
2
1
C5521
2
1
C5522
2
1
C5523
2
1
C5524
2
1
R5516
L8
L3
G9
G1
F9
E8
E2
D8
D1
B9
B1
T9
T1
P9
P1
M9
M1
J8
J2
G8
E1
B3
A9
H1
M8
H9
H2
F1
E9
D2
C9
C1
A8
A1
R9
R1
N9
N1
K8
K2
G7
D9
B2
T2
J3
K1
L9
L1
J9
J1
A3
B8
A2
A7
C2
C8
C3
D7
B7
C7
G3
F3
H7
G2
H8
H3
F8
F2
F7
E3
D3
E7
L2
K9
K7
J7
K3
M3
N8
M2
R3
T8
R2
R8
P2
P8
N2
P3
M7
T7
T3
N7
R7
L7
P7
N3
U5504
2
1
C5525
2
1
C5526
2
1
C5527
2
1
C5528
2
1
R5517
2
1
R5515
2
1
C5529
2
1
C5530
2
1
C5531
1.1K_1%_2
HYNIX_H5TQ1G63DFR_11C_FBGA_96P
FBC_D<2>
FBC_D<4>
7
FBC_D<24..31>
FBC_DQM(1)
FBC_DQSN(2)
FBC_CMD<28>
160_1%_2
0.1UF_16V_2
P1V5_GPUS
CS_1310AXXXXXX-MTR
FBC_VREF0
FBC_CMD<28>
FBC_CMD<19>
FBC_CMD<8>
FBC_CMD<24>
FBC_CMD<2>
FBC_CMD<25>
FBC_CMD<0>
FBC_CMD<13>
FBC_CMD<9>
FBC_CMD<12>
FBC_CMD<30>
FBC_CMD<29>
FBC_CMD<18>
FBC_DQS_DN<0>
FBC_DQS_DN<3>
FBC_DQM<3>
FBC_DQM<0>
FBC_DQS(3)
FBC_DQS_DP<0>
FBC_CLK0_DN
FBC_CLK0_DP
FBC_D<25>
FBC_D<30>
FBC_D<26>
FBC_D<29>
FBC_D<28>
FBC_D<31>
FBC_D<27>
FBC_D<24>
FBC_D<5>
FBC_D<1>
FBC_D<7>
FBC_D<0>
FBC_D<6>
FBC_D<3>
FBC_CMD<10>
FBC_CMD<1>
FBC_CMD<3>
FBC_CMD<26>
FBC_CMD<6>
FBC_CMD<17>
FBC_CMD<14>
FBC_CMD<4>
FBC_CMD<22>
FBC_CMD<5>
FBC_CMD<21>
FBC_CMD<20>
FBC_CMD<7>
FBC_CLK0_DN
FBC_CLK0_DP
FBC_CMD<30..0>
FBC_VREF0
FBC_D<0..7>
FBC_CMD<30..0>
FBC_VREF1
FBC_CMD<25>
FBC_DQSN(1)
FBC_CMD<19>
FBC_CMD<8>
FBC_CMD<24>
FBC_CMD<2>
FBC_CMD<25>
FBC_CMD<0>
FBC_CMD<13>
FBC_CMD<9>
FBC_DQM(2)
FBC_DQS(1)
FBC_DQS(2)
FBC_D<9>
FBC_D<15>
FBC_D<10>
FBC_D<12>
FBC_D<8>
FBC_D<14>
FBC_D<11>
FBC_D<13>
FBC_D<21>
FBC_D<22>
FBC_D<19>
FBC_D<23>
FBC_D<17>
FBC_D<20>
FBC_D<16>
FBC_D<18>
FBC_CLK0_DN
FBC_CLK0_DP
FBC_CMD<12>
FBC_CMD<10>
FBC_CMD<1>
FBC_CMD<3>
FBC_CMD<26>
FBC_CMD<6>
FBC_CMD<17>
FBC_CMD<14>
FBC_CMD<4>
FBC_CMD<30>
FBC_CMD<29>
FBC_CMD<18>
FBC_CMD<22>
FBC_CMD<5>
FBC_CMD<21>
FBC_CMD<20>
FBC_CMD<7>
FBC_VREF0
FBC_D<8..15>
FBC_D<16..23>
0.1UF_16V_2
P1V5_GPUS
1.1K_1%_2
0.1UF_16V_2 0.1UF_16V_2
76<>
69>
75<>
75<76<
19
8
24
2
25
0
13
9
12
30
29
18
10K_5%_2 243_1%_2
75< 69>
75< 69>
0.01UF_50V_2
1.1K_1%_2
P1V5_GPUS
0.1UF_16V_2 0.1UF_16V_2 1uF_6.3V_2 1uF_6.3V_2
69>
75<
69>
75<
25
P1V5_GPUS
P1V5_GPUS
5
22
21
10
1
3
26
6
17
14
4
20
7
75<
26
30
29
28
31
27
24
5
69<>
2
1
4
0
7
3
6
69<>
76<
0.1UF_16V_2
69>
76<> 75<>
P1V5_GPUS
10K_5%_2
0.1UF_16V_2
1.1K_1%_2 0.01UF_50V_2
0.1UF_16V_2 0.1UF_16V_2
19
8
24
2
25
0
13
9
243_1%_2
HYNIX_H5TQ1G63DFR_11C_FBGA_96P
75<
69>
75<
69>
1uF_6.3V_2 1uF_6.3V_2
P1V5_GPUS
12
30
29
18
22
5
21
10
1
3
26
6
17
14
4
20
75<
9
15
10
12
8
P1V5_GPUS
14
13
11
69<>
22
21
19
23
17
18
16
20
69<>
C
A01
CS
SIZE
CHANGE by DATE
8
8 7
7 6
6 5
5 4
4 3
3
2
1
D
D
CC
BB
AA
REV
1
SHEET
2
DOC.NUMBER
of
CODE
INVENTEC
TITLE
BI
BI
BI
BI
IN
ZQ
WE#
VSSQ#G9
VSSQ#G1
VSSQ#F9
VSSQ#E8
VSSQ#E2
VSSQ#D8
VSSQ#D1
VSSQ#B9
VSSQ#B1
VSS#T9
VSS#T1
VSS#P9
VSS#P1
VSS#M9
VSS#M1
VSS#J8
VSS#J2
VSS#G8
VSS#E1
VSS#B3
VSS#A9
VREFDQ
VREFCA
VDDQ#H9
VDDQ#H2
VDDQ#F1
VDDQ#E9
VDDQ#D2
VDDQ#C9
VDDQ#C1
VDDQ#A8
VDDQ#A1
VDD#R9
VDD#R1
VDD#N9
VDD#N1
VDD#K8
VDD#K2
VDD#G7
VDD#D9
VDD#B2
RESET#
RAS#
ODT
NC#L9
NC#L1
NC#J9
NC#J1
DQU7
DQU6
DQU5
DQU4
DQU3
DQU2
DQU1
DQU0
DQSU#
DQSU
DQSL#
DQSL
DQL7
DQL6
DQL5
DQL4
DQL3
DQL2
DQL1
DQL0
DMU
DML
CS#
CKE
CK#
CK
CAS#
BA2
BA1
BA0
A9
A8
A7
A6
A5
A4
A3
A2
A15
A14
A13
A12_BC#
A11
A10_AP
A1
A0
BI
IN
IN
IN
IN
IN
ZQ
WE#
VSSQ#G9
VSSQ#G1
VSSQ#F9
VSSQ#E8
VSSQ#E2
VSSQ#D8
VSSQ#D1
VSSQ#B9
VSSQ#B1
VSS#T9
VSS#T1
VSS#P9
VSS#P1
VSS#M9
VSS#M1
VSS#J8
VSS#J2
VSS#G8
VSS#E1
VSS#B3
VSS#A9
VREFDQ
VREFCA
VDDQ#H9
VDDQ#H2
VDDQ#F1
VDDQ#E9
VDDQ#D2
VDDQ#C9
VDDQ#C1
VDDQ#A8
VDDQ#A1
VDD#R9
VDD#R1
VDD#N9
VDD#N1
VDD#K8
VDD#K2
VDD#G7
VDD#D9
VDD#B2
RESET#
RAS#
ODT
NC#L9
NC#L1
NC#J9
NC#J1
DQU7
DQU6
DQU5
DQU4
DQU3
DQU2
DQU1
DQU0
DQSU#
DQSU
DQSL#
DQSL
DQL7
DQL6
DQL5
DQL4
DQL3
DQL2
DQL1
DQL0
DMU
DML
CS#
CKE
CK#
CK
CAS#
BA2
BA1
BA0
A9
A8
A7
A6
A5
A4
A3
A2
A15
A14
A13
A12_BC#
A11
A10_AP
A1
A0
IN
BI
BI
BI
BI
BI
BI
BI
BI
BI
IN
IN
BI
BI
IN
IN
IN
IN
BI
BI

65W-75W 8A(6036A0003401)
90W 10A(6036A0002901)
FUSE6000
120W 12A(6036A0006001)
Active Low
WS
WS
Active High
X01
9776
1310xxxxx-0-0
MODEL,PROJECT,FUNCTION
21-OCT-2002
XXX
FUSE6000
NFE31PT222Z1E9L
PVADPTR
4
3
C6033
10PF_50V_2
1000PF_50V_2
L6001
2
C6010
RSC_1206_DY
RSC_1206_DY
R6002
1
C6029
CSC0402_DY
CHG_EN
1
10K_5%_3_DY
R6014
2
R6011
SSM3K7002FU_DY
ACPRES#
R6013
3.3K_1%_3
EC_SMB2_CLK
EC_SMB2_DATA
HW_I_ADC
CSC0603_DY
1
1
20.5K_1%_2
R6012
10K_5%_3
100pF_50V_2
C6027
C6028
110K_1%_2
1
10_1%_2
R6010
1
30.1K_1%_2
2
CSC0402_DY
P3V3_AL
2
4.02K_1%_3
R6006
1M_5%_3
1
0.1UF_25V_3
2
R6023
DIODES_BAV99
C6013
0.1UF_25V_3
PVADPTR
0.1UF_25V_3
PVPACK
POWERPAD_2_0610
L6000
C6006
0.047uF_16V_2
2
BAT54C_30V_0.2A
1UF_10V_2
R6008
TI_BQ24725RGRR_QFN_20P
5
0.01_1%_6
AM4410NC
2
2200pF_50V_2
PVADPTR
1
R6000
4.7K_5%_3
1
CN6000
1
C6035
4
PVBAT
68UF_25V
1
Q6005
0.1uF_16V_2_DY
RSC_0603_DY
1
R6018
33K_5%_2_DY
R6019
PVBAT
RSC_0603_DY
1
R6017
2
2
PAD6000
4.02K_1%_3
R6015
10_5%_5
U6000
6
7
Q6004
2
C6011
C6008
C6026
1
P3V3_AL
2
CSC0402_DY
3
2
R6021
1
0.1UF_16V_2
C6014
1
HW_V_ADC
C6003
2
1
1
C6015
VRCHARGER_HG
VRCHARGER_PH
1
5
C6017
10
VRCHARGER_LG
1
2
1
2
1
1
D6000
2
2
C6012
R6007
Q6002
C6018
1
D6001
BAT54C_30V_0.2A
AM4410NC
1
AON7410
4.7UF_25V_5
2
C6001
4.7UF_25V_5
C6005
470pF_50V_2
1
C6002
Q6000
2
1
C6000
CSC0805_DY
2
3
2
1
45
6
7
8
TPCA8065_H
0.1uF_25V_3
D6002
D6003
C6009 R6004
C6025
C6023
C6019
C6016
Q6001
R6001
R6020
R6005
Q6003
R6003
C6007
C6024
R6009
C6004
C6021
R6016
C6022
C6020
2
2
1
2
1
2
1
2
1
2
2
3
1
2
1
2
1
2
1
2
2
1
2
1
2
1
2
2
1
2
1
3
1
2
1
2
3
2
1
1
2
1
2
1
2
1
2
1
3
2
1
46
7
8
3
2
4 5
6
7
8
43 2
1
43 2
1
2
1
2
3
2
1
4 5
6
7
8
3
2
1
45
6
7
8
2
2
2
1
2
1
2
1
2
1
1
2
1
2
1
2
1
2
1
2
1
2
1
2
1
2
1
2
1
2
G2
G1
3
2
1
20
21
13
12
8
9
16
19
15
18
14
3
17
11
2
1
4
0.1UF_16V_2
CSC0805_DY
ACES_91302_0047L_1_4P
8A_125V
4.7UF_25V_5
CSC0805_DY
4.7UF_25V_5
4.7UF_25V_5
4.02K_1%_3
6.98_1%_2
AON7410
SBR3U40P1_DY
0.0015uF_50V_2 2.2_5%_3
PCMC063T_4R7MN
0.1UF_25V_3
0.1UF_25V_3
0.1UF_16V_2
0.01_1%_6
1UF_25V_3
RSC_0603_DY
P3V3_AL
Block Diagram
CS
C
REV
INVENTEC
3 2
CHANGE by
TITLE
SHEET
of
1
4
A A
B B
C C
DD
1
23
45
56
67
78
8
CODE
SIZE
DATE
DOC.NUMBER
OUT
C
A2
A1
C
A2
A1
NMOS_4D3S
D
G
S
NMOS_4D3S
D
G
S
NMOS_4D3S
D
G
S
NMOS_4D3S
D
G
S
+
NMOS_4D3S
D
G
S
1
2
1
G1
2
3
4
G2
IN
OUT
OUT
OUT
OUT
G
DS
VCC
TML
SRP
SRN
SDA
SCL
REGN
PHASE
LODRV
IOUT
ILIM
HIDRV
GND
CMSRC
BTST
BATDRV
ACP
ACOK
ACN
ACDRV
ACDET

REMOVE ?
77 97
XXX
21-OCT-2002
MODEL,PROJECT,FUNCTION
1310xxxxx-0-0
X01
BAT54C_30V_0.2A
D6105
P3V3_AL
1K_5%_2
R6106
CN6101
+V5AUXON
P5V_AL P5V_AL
1
R6105
PVBAT
THRM_SHUTDWN#
5
2
EZJZ0V120JA_DY
GMT_G686LT11U_SOT23_5P
2
PHP_PESD5V0S1BB_SOD523_2P
D6104
1
360K_1%_2
R6108
P5V_AL
2
R6109R6110
BATT_IN
EC_SMB1_DATA
EC_SMB1_CLK
1
33_5%_2
R6101
2
R6102
33_5%_2
2
1
PVPACK
1000PF_50V_2
C6106
1
R6100
D6102
D6103
D6106
FUSE6100
R6103
R6104
C6107
U6100
D6101
CN6100
D6100
2
1
2
1
2
1
2
2
1
2
1
3
2
1
2
1
2
1
2
1
2
1
43
1
2
1
2
1
2
1
2
1 1
2
1
2
5
6
7
3
9
8
G4
G3
G2
G1
2
1
4
LOTES_AAA_BAT_059_P03_2P
0.1uF_16V_2
10K_5%_2
510K_1%_2
100K_1%_2
EZJZ0V500AA
715K_1%_2
1K_5%_2
PHP_PESD5V0S1BB_SOD523_2P
LITTLEFUSE_R451015_15A_65V
102K_1%_3
EZJZ0V500AA
PHP_PESD5V0S1BB_SOD523_2P
SYN_200045GR009G15JZR_9P
PVRTC
Block Diagram
CS
C
REV
INVENTEC
3 2
CHANGE by
TITLE
SHEET
of
1
4
A A
B B
C C
DD
1
23
45
56
67
78
8
CODE
SIZE
DATE
DOC.NUMBER
OUT
IN
BI
BI
OUT
1
2
1
2
1
2
-+
C
A2
A1
RESET
GND
VCC
MR
VSEN
G
G
G
G
GND
GND
SMC
SMD
TS
B-I
ID
BATT+
BATT+

4A
10A
7A
CHECK
CHECK
WS
3.8A
XXX
21-OCT-2002
MODEL,PROJECT,FUNCTION
1310xxxxx-0-0
78 97
X01
P3V3_AL
AON7410
BAT54C_30V_0.2A
PAD6203
2
PCMC063T_3R3MN
3
130K_1%_3
DIODE-BAT54-TAP-PHP
3
+V5AUXON
8
4.7UF_25V_5
C6205
POWERPAD_2_0610
4.7UF_25V_5
C6204
0.1UF_25V_3
TI_TPS51123RGER_QFN_24P
AON7702L
C6215
0.1uF_16V_2
1
3
DIODES_BAV99
D6202
D6203
DIODES_BAV99
1
C6223
1
0.1uF_16V_2
C6222
1
0.1UF_25V_2
1
3
0_5%_3
2200pF_50V_24.7_5%_3
AON7410
C6209
1
PAD6202
POWERPAD_2_0610
SSM3K7002FU
1
Q6201
PAD6205
0_5%_2
1
2
SSM3K7002FU
Q6202
R6200
100K_5%_2
1
100K_5%_2_DY
2
3
1
Q1
+V5AUXON
1
120K_1%_2
3
20K_5%_2_DY
2
R3
R6209
4.7UF_25V_5
R6207
4.7UF_25V_5
1
R6201
2
P5V_AL
R1
EC_PW_ON#
R2
10K_5%_2
1
0_5%_2_DY
2
2
1
EC_PW_ON
D1
SSM3K7002FU
2
Q6203
C6218
R6210
2
3
C6212
P5V_A
P5V_A
1
L6200
U6200
10
V3LA_HG
2
6
8
C6208
V5A_LG
19
V3LA_LG
V3LA_SW
12
11
9
8
7
20
21
23
24
22
V5A_HG
V5A_SW
0.1UF_25V_3
2
4.7UF_25V_5
C6213
10K_5%_2
R6212
RSC_0402_DY
R6215
2
1
1
2
+V3LDO
P5V_AL
AON7702L
1
C
CS
Block Diagram
P2V
0_5%_3
1UF_6.3V_2
1UF_25V_3
10K_1%_2
0.047uF_16V_2
2200pF_50V_2
POWERPAD_2_0610
200_5%_2
FDMC8884
PCMC063T_3R3MN
330UF_6.3V
0.22UF_6.3V_2
2.2uF_25V_5
13
18
6
15
14
4
1
2
5
16
3
17
1
2
2
1
1
2
1
2
1
2
1
2
1
2
1
2
1
22
2
1
22
1
2
1
2
1
22
2
32
4
1
2
3
1
2
1
2
1
1
2
1
2
1
2
1
2 2
2
2
1
2
1
2
1
2
8
7
6
2
3
7
56
54
1
2
8
7
6
54
1
2
3
1
2
1
2
2
2
1
2
1
2
2
3
1
1
1
2
R6204
C6206
C6207
C6224
Q6207
Q6206
R6211
R6213
R6216C6220
R5
R4
C6200
C6203
C6201
C6214
R6208
R6202
D6201
C6211
1
SSM3K7002FU
25
P3V3_A
5
6
7
8
Q6200
P3V3_AL
2
10K_5%_2
1
1
P3V3_AL P15V_A
1
PVBAT
10K_1%_2
1
PAD6201
1
330UF_6.3V
Q6205
1
L6201
1
C6202
5
R6205
2
POWERPAD_2_0610
PAD6200
2
2
15.4K_1%_2
P15V_A
R6206
1
PVBAT
4
RSC_0402_DY
POWERPAD_2_0610
6.8K_1%_2
Q6204
7
10UF_6.3V_3
+V5AUXON
1
2
3
4
POWERPAD1X1M
PAD6204
REV
INVENTEC
3 2
CHANGE by
TITLE
SHEET
of
1
4
A A
B B
C C
DD
1
23
45
56
67
78
8
CODE
SIZE
DATE
DOC.NUMBER
C
A2
A1
1
2
NMOS_4D3S
D
G
S
G
DS
G
DS
G
DS
1
2
+
1
2
1
2
+
1
2
IN
IN
OUT
IN
NC
G
DS
NMOS_4D3S
D
G
S
NMOS_4D3S
D
G
SS
G
D
S
G
D
IN
1
2
VFB1
VFB2
GND
SKIPSEL
VREG5
ENC
TML
TONSEL
VIN
ENTRIP2
TRIP1
EN0
VREF
DRVL2
VBST2
VREG3
VO2 VO1
PGOOD
VBST1
DRVH1
LL1
DRVL1
LL2
DRVH2

VOUT=(1+R1/R2)*0.7
R2
R1
3.7A
22A
3.7A
VOUT=(1.8*R2)/(R1+R2)
CHECK
X01
9779
1310xxxxx-0-0
21-OCT-2002
XXX
MODEL,PROJECT,FUNCTION
R6353
P3V3_S
TPCA8A02_H
C6305
0.1UF_25V_3
VR15_PH
VR15_LG
P0V75_VREF_M
2
4
0.22uF_6.3V_2
1
Q6350
VRVCCP_LG
VRVCCP_PH
VRVCCP_HG
10K_1%_2
U6340
P5V_A
10UF_6.3V_3
GMT_G5694F11U_SOP_8P
P1V8_S
0_5%_2
TI_TPS51218DSCR_SON_10P
U6350
R6352
P5V_A
R6350
+V1.05S_VCCP_EN
1
2
C6350
1
R6351
1
5
7
Q6351
R6354 PCMC063T_3R3MN POWERPAD_2_0610
1
6
0.1UF_25V_3
C6352
PVBAT
R6304
1
100K_5%_2
1
PAD6350
POWERPAD_2_0610
4.7UF_25V_5
1
4.7UF_25V_5
2
P1V05_VCCPS
L6350
1
PAD6351
1
2
R6305
PAD6340
POWERPAD_2_0610
R6301
17
1
0_5%_2
0_5%_2
2
2
R6300
1
C6300
2.2uF_6.3V_3
U6300
2
8
75K_1%_2
TI_TPS51216RUKR_QFN_20P
POWERPAD_2_0610
560UF_2.5V
4.7_5%_3
2200pF_50V_2
2.2_5%_3
10K_1%_2
0.01uF_50V_2
52.3K_1%_2
POWERPAD_2_0610
PCMC104T_1R0MN
VR15_HG
TPCA8065_H
4.7UF_25V_5
CS
C
4.7UF_25V_5
Block Diagram
AON7410
4.7_5%_3
2.2_5%_3
330UF_6.3V
5.1K_1%_2
2200pF_50V_2
AON7702L
1uF_10V_2
CSC0402_DY
4.7UF_25V_5
10K_1%_2
22UF_6.3V_5
CSC0402_DY
13K_1%_2
PAN_ELL5PR2R2N
0.1UF_16V_2
10_5%_3
10K_5%_2
VR18_PH
0.1UF_16V_2
CSC0402_DY
0.1uF_10V_2
10uF_6.3V_3
200K_1%_2
110K_1%_2
5
4
3
7
6
2
9
1
8
1
2
1
2
1
2
1
2
1
2
1
2
1
2
1
2
1
2
1
2
2
1
2
1
2
1
2
1
2
2
1
2
14
11
7
19
10
20
13
21
18
12 15
9
2
6
3
4
5
1
1
2
2
1
1
2
1
2
1
2
8
7
6
5
1
3
1
2
1
2
1
2
3 4
8
7
6
54
1
2
3
1
2
2
1
2
1
2
1
2
2
2
1
2
9
3
11
1
5
8
2
10
4
1
2
2
1
2
1
2
1
2
8
7
6
4
1
2
3
1
2
1
2
2
8
7
6
54
1
2
3
1
2
1
2
1
2
1
2
L6340
C6344
C6343
C6342
C6341
C6340
C6345
R6342
R6343
R6340
R6341
R6302
C6301
C6302
C6304
R6303
R6306
C6310
Q6301
C6306
R6307
L6300
Q6300
C6307 C6309
PAD6302
PAD6301
C6351
R6356
C6357
C6353
C6354
R6355
C6355 C6356
P1V5
PAD6300
2
1
PVBAT
POWERPAD_2_0610
1
C6308
4.7UF_25V_5
POWERPAD_2_0610
1
PAD6310
2
P0V75_S
C6303
16
2
1
P5V_A
REV
INVENTEC
3 2
CHANGE by
TITLE
SHEET
of
1
4
A A
B B
C C
DD
1
23
45
56
67
78
8
CODE
SIZE
DATE
DOC.NUMBER
IN
1
2
1
2
NMOS_4D3S
D
G
S S
G
D
+
DRVL
V5IN
SW
DRVH
VBST
GND
RF
VFB
EN
TRIP
PGOOD
1
2
1
2
1
2
1
2
NMOS_4D3S
D
G
S S
G
D
+
VTTSNS
VTTREF
VTTGND
VTT
VREF
VLDOIN
VDDQSNS
VBSTV5IN
TRIP
TML
SW
S5
S3
REFIN
PGOOD
PGND
MODE
GND
DRVL
DRVH
IN
IN
1
2
REF
FB
LX
TML
GND
PGND
EN
VCC
VIN

NEW
WS WS
80 97
XXX
21-OCT-2002
MODEL,PROJECT,FUNCTION
1310xxxxx-0-0
X01
TI_TPS51219RTER_QFN_16P
0_5%_3
15
16
17
10K_5%_2
VRVCCIO_HG
TPCA8065_H
1
VCCIO_SENSE
2.2UF_10V_3
10K_5%_2
R6404
2
1
0_5%_2_DY
R6405
2
P3V3_A
VSS_SENSE_VCCIO
0.01UF_50V_2
1UF_10V_2
POWERPAD1X1M
18
16
15
14
13
CSC0402_DY
VTT_PG
C6408
C6407
4.7UF_25V_5
P5V_A
2
R6432
2
C6439
1
1
1
Q6400
7
5
C6404
R6407
1K_5%_2
R6402
100PF_50V_2_DY
VTT_PG
VCCIO_SEL
10UF_10V_5
0_5%_2_DY
PCMC063T_R33MN
L6430
POWERPAD_2_0610
C6444
C6443
1
RSC_0603_DY
2
PAD6431
P0V85_S
22UF_6.3V_5_DY
2
0.1UF_25V_3
R6433
0_5%_2
C6438
2
0_5%_2
2
C6437
0.1UF_16V_2
2
2
2
0_5%_3
POWERPAD_2_0610
C6406
C6405
2
13
P3V3_S
R6403
VRVCCIO_LG
P5V_A
0.22UF_6.3V_2
C6435
0.01UF_50V_2
C6434
CSC0402_DY
RSC_0603_DY
R6408
L6400
PVBAT
1.5S_CPU_PG
SLP_S3#_5R
25
1
1UF_10V_2
2
R6435
C6441
22UF_6.3V_5 22UF_6.3V_5
U6430
VCCSA_VID1
VCCSA_VID0
PAD6430
10UF_10V_5
C6430 C6431
C6436
RSC_0402_DY
R6431
2
VCCSA_SENSE
2
5.11K_1%_2
1
R6430
1
VCCSA_PG
10K_5%_2
R6436
2
P3V3_S
2
4
TI_TPS51461RGER_QFN_24P
VRVCCSA_PH
C6410
C6409
C6433
C6432
R6434
C6440
C6442
R6437
PAD6400
PAD6402
U6400
Q6401
C6401
R6400
R6401
R6406
C6402
C6400
C6403
PAD6401
1
43
1
2
2
1
1
1
2
1
2
1
1
2
1
1
1
1
2
1
2
1
1
2
1
2
2
1
2
1
1
2
2
5
24
23
22
17
9
8
7
11
1021
20
19
6
1
3
12
2
1
2
1
43 2
1
4
1
9
6
12
2
8
3
7
14
10
11
5
3
2
1
4 5
6
7
8
3
2
1
46
8
2
1
2
1
2
1
2
1
2
1
2
1
1
2
1
2
1
2
1
2
1
2
1
2
1
2
1
2
1
2
1
2
1
2
1
2
1
CSC0402_DY
3300PF_50V_2
TPCA8A02_H
4.7UF_25V_5 4.7UF_25V_5
POWERPAD_2_0610
86.6K_1%_2
C
CS
Block Diagram
100K_5%_2_DY
0.1UF_25V_3
0_5%_2
22UF_6.3V_5
560UF_2.5V
POWERPAD_2_0610
1UF_10V_2
PVCCIO
VRVCCIO_PH
22UF_6.3V_5
ETQP4LR36AFM
REV
INVENTEC
3 2
CHANGE by
TITLE
SHEET
of
1
4
A A
B B
C C
DD
1
23
45
56
67
78
8
CODE
SIZE
DATE
DOC.NUMBER
IN
+
1
2
1
2
VREF
VOUT
VID1
VID0
V5FILT
V5DRV
TML
SLEW
PGOOD
MODE
GND
EN
COMP
BST
SW
SW
SWVIN
VIN
VIN
PGND
PGND
PGND
SW
SW
1
2
1
2
VSNS
VREF
V5
TRIP
SW
REFIN
PWPD
PGOOD
PGND
MODE
GSNS
GND
EN
DL
DH
COMP
BST
S
G
D
NMOS_4D3S
D
G
S
IN
OUT
IN
IN
IN
OUT
IN
IN
IN
IN
1
2

81
97
XXX
21-OCT-2002
MODEL,PROJECT,FUNCTION
1310xxxxx-0-0
X01
VR_SVID_CLK
R6507
TI_TPS51650RSLR_QFN_48P
23
2.2UF_6.3V_3
7
5
1
R6535
P5V_CPU
TPCA8065_H
4.7UF_10V_3
C6507
R6534
P5V_CPU
2
100K_1%_NTC
42.2K_1%_2
24K_1%_2
30
32
10K_5%_2
VRCPU_HG2
0.1UF_25V_2
0_5%_2
GPWM1
GSKIP
CPWM3
GPWM2
R6531
2
1
VRCPU_LG2
VRCPU_PH2
PVBAT
0_5%_2
0_5%_2
36
1
2
2
2
0_5%_2
0_5%_2_DY
R6521
R6519
P3V3_A
0_5%_2_DY
31
21
VR_SVID_ALRT#
VR_PWRGD
VR_ON
0_5%_2
1
+VGFX_PWRGD
0_5%_2_DY
VSSAXG_SENSE
VAXG_SENSE
R6506
26
2
28
0_5%_2_DY
R6515
2.2UF_6.3V_3
VREF
2
R6526
20K_5%_2
MAIN_PWRGD
1
2 2
1 1
R6527
8.66K_1%_2
VR_ON
2
1
2
1
1
4.12K_1%_2
33PF_50V_2
2
2
VREF
2
1
2
C6501
1
P3V3_A
2
1
1
1
2
R6525
R6524
56K_1%_2
1
2
2
2
2
2
2
1
1
1
R6528
100K_1%_NTC
R6529
1
2
2
2
1
2
C6508
30K_5%_2
0.1UF_16V_2_DY
2
2
0_5%_2
1
R6509
1
R6502
VR_SVID_CLK
VR_SVID_DATA
2
2
2
R6501
130_1%_2
54.9_1%_2
R6500
1
PVTT
1
1
VREF
C6500
0.1UF_16V_2_DY
1
C6504
2
2
100K_1%_2
2
1 1
VREF
4
3
2
1
5
6
7
8
1
TPCA8057_H
Q6503
2 2
1
Q6502
1
C6517
2 2
C6510
2
2
1
10_5%_3
2
5
62
7
8
1
4
3
2
1
TPCA8057_H
1
1
1
2
6
7
8
3
2
1
4
7
8
1
2
2
C6511
1
2
1
C6513
1
C6515
C6521
R6536
CSC0402_DY
RSC_0603_DY
RSC_0603_DY
CSC0402_DY
2
1 1
3
1
R6543
2
100K_1%_NTC
PAN_ETQP4LR36ZFC_4P
2
C6533
1
4
2
1
28.7K_1%_2
560UF_2.5V
2
1
C6534
3
470UF_2V
1
1
2
C6514
1
1
R6538
17.8K_1%_3
1
3
2
R6539
2
1
L6500
2
2
2
2
4
1
2
R6540
28.7K_1%_2
2
3
470UF_2V
4.7UF_25V_5
4.7UF_25V_5
4.7UF_25V_5
CPU_CSP1
CPU_CSN1
1
C6516
0.033UF_16V_2
2
1
R6542
L6501
4
3
2
TPCA8065_H
2
2
4.7UF_25V_5
C6512
Q6500
2
2
R6514
2
R6512
2
C6506
2.2UF_10V_3
C6505
1
R6513
PVBAT
PAD6500
POWERPAD_2_0610
6
5
1
1
2
33PF_50V_2
R6510
8.45K_1%_2
R6503
1
VREF
C6502
1
C6503
2
30K_1%_2
R6505
R6504
200K_1%_2
Block Diagram
CS
C
VREF
0_5%_2_DY
R6508
1
R6511
VREF
R6517
R6522
VREF
0_5%_2_DY
VREF
1
1
1
15.4K_1%_2
1
75K_1%_2
CPU_CSN1
GPU_CSN1
100K_1%_2
R6523
R6520
GPU_CSP1
GPU_CSP2
R6516
1
1
GPU_CSN2
R6518
CPU_CSP3
18
9
4
5
8
6
12
11
2
16
35
10
25
27
22
24
34
33
14
17
19
20
15
13
U6500
H_PROCHOT#
VR_SVID_DATA
VSSSENSE
CPU_CSN2
CPU_CSN3
CPU_CSP1
CPU_CSP2
VCCSENSE
29
R6530
1
R6533
2.2_5%_3
37
38
41
45
46
47
49
43
42
39
40
PAD6501
PVBAT
VRCPU_PH1
2.2_5%_3
R6532 C6509
1
P5V_A
48
VRCPU_LG1
44
0.1UF_25V_2
2
VRCPU_HG1
P5V_A
0.1UF_16V_2_DY
1
R6537
PAN_ETQP4LR36ZFC_4P
100K_1%_NTC
1
1
3
2
162K_1%_2
1
C6531
470UF_2V
C6532
1
PVCORE
17.8K_1%_3
2
162K_1%_2
C6518
CPU_CSN2
POWERPAD_2_0610
2
4.7UF_25V_5
4.7UF_25V_5
CPU_CSP2
4.7UF_25V_5
C6519
C6520
1
4.7UF_25V_5
0.033UF_16V_2
C6522
R6541
R6544
2
PVCORE
2
3
1
15.4K_1%_2
1
Q6501
REV
INVENTEC
3 2
CHANGE by
TITLE
SHEET
of
1
4
A A
B B
C C
DD
1
23
45
56
67
78
8
CODE
SIZE
DATE
DOC.NUMBER
+
++
+
VR_ON
VR_HOT
VREF
VDIO
VCLK
VBAT
V5DRV
V5
V3R3
PGND
N_C
GVFB
GTHERM
GSKIP#
GPWM2
GPWM1
GPGOOD
GOCP_R
GND
GGFB
GF_IMAX
GCSP2
GCSP1
GCSN2
GCSN1
GCOMP
CVFB
CTHERM
CSW2
CSW1
CPWM3
CPGOOD
COCR-1
CGFB
CF-IMAX
CDL2
CDL1
CDH2
CDH1
CCSP3
CCSP2
CCSP1
CCSN3
CCSN2
CCSN1
CCOMP
CBST2
CBST1
ALERT#
1
2
IN
IN
IN
IN
OUT
OUT
OUT
OUT
IN
IN
IN
IN
IN
IN
IN
IN
OUT
OUT
OUT
OUT
IN
OUT
IN
IN
BI
OUT
OUT
OUT
IN
IN
IN
BI
IN
NMOS_4D3S
D
G
S
NMOS_4D3S
D
G
S
NMOS_4D3S
D
G
S
NMOS_4D3S
D
G
S
1
2

82 97
XXX
21-OCT-2002
MODEL,PROJECT,FUNCTION
1310xxxxx-0-0
X01
P5V_A
VRAXG_LG1
VRAXG_PH1
5
TI_TPS51601DRBR_SON_8P
2.2_5%_3 0.1UF_25V_2
2
1
RSC_0603_DY
GPU_CSN2
C6613
C6612
C6610
Q6602
GPWM2
GSKIP#
GPWM1
GSKIP#
CPWM3
PVBAT
100K_1%_NTC
R6605
0.033UF_16V_2
GPU_CSP2
PVAXG
PVAXG
PVCORE
28.7K_1%_2
100K_1%_NTC
0.033UF_16V_2
162K_1%_2
2
2
1
C6526
4.7UF_25V_5
R6546
RSC_0603_DY
C6529
1UF_10V_2
TPCA8065_H
R6601
POWERPAD_2_0610
PAD6601
GPU_CSP1
2
PAN_ETQP4LR36ZFC_4P
R6604
R6602
2
17.8K_1%_3
4.7UF_25V_5
1
GPU_CSN1
1
CPU_CSN3
C6528
1
CPU_CSP3
4.7UF_25V_5
PAD6600
POWERPAD_2_0610
Q6600
C6600
C6603
C6602
C6527
R6607
C6614
C6606
C6609
C6524
C6601
R6606
R6600
R6545
C6608
C6523
C6615
C6607
C6530
C6525
R6608
R6547
R6609
R6603
R6548
R6611
R6550
R6610
U6601
R6549
L6601
L6600
L6502
Q6603
Q6601
Q6506
U6600
Q6505
PAD6503
C6611
C6605
C6604
U6501
2
1
2
1
2
1
2
1
2
1
2
1
2
1
2
1
2
1
2
1
2
1
1
2
1
2
1
2
1
1
2
1
2
1
2
1
2
1
2
1
2
1
2
1
2
1
2
1
2
1
2
1
1
43 2
1
43 2
1
43 2
1
3
2
1
4 5
6
7
8
3
2
1
46
7
8
3
2
1
4 5
6
7
8
3
2
1
4 5
6
7
8
3
2
1
4 5
6
7
8
3
2
1
4 5
6
7
8
2
1
2
1
2
1
2
1
2
1
2
1
2
1
2
2
2
1
2
1
2
2
1
2
1
2
1
6
72
3
9
4 5
8
1
6
72
3
9
4 5
8
1
6
72
3
9
4 5
8
1
17.8K_1%_3
PAN_ETQP4LR36ZFC_4P
17.8K_1%_3
PAN_ETQP4LR36ZFC_4P
162K_1%_2
28.7K_1%_2
4.7UF_25V_5
TPCA8065_H
VRCPU_HG3
P5V_CPU
C
CS
Block Diagram
VRAXG_HG1
2.2_5%_3
TI_TPS51601DRBR_SON_8P
TPCA8057_H
CSC0402_DY
VRCPU_PH3
VRCPU_LG3
PVBAT
P5V_A
TPCA8065_H
VRAXG_HG2
VRAXG_PH2
VRAXG_LG2
P5V_A
1UF_10V_2
4.7UF_25V_5
1UF_10V_2
TPCA8057_H
PVBAT
TI_TPS51601DRBR_SON_8P
2.2_5%_3
POWERPAD_2_0610
4.7UF_25V_5
0.1UF_25V_2
100K_1%_NTC
0.1UF_25V_2 4.7UF_25V_5
4.7UF_25V_5
4.7UF_25V_5
CSC0402_DY
28.7K_1%_2
RSC_0603_DY
4.7UF_25V_5 162K_1%_2
4.7UF_25V_5
4.7UF_25V_5
CSC0402_DY
TPCA8057_H
0.033UF_16V_2
REV
INVENTEC
3 2
CHANGE by
TITLE
SHEET
of
1
4
A A
B B
C C
DD
1
23
45
56
67
78
8
CODE
SIZE
DATE
DOC.NUMBER
IN
IN
VDD
SW
SKIP#
PWM
PAD
GND
DRVL
DRVH
BST
NMOS_4D3S
D
G
S
NMOS_4D3S
D
G
S
NMOS_4D3S
D
G
S
NMOS_4D3S
D
G
S
NMOS_4D3S
D
G
S
VDD
SW
SKIP#
PWM
PAD
GND
DRVL
DRVH
BST
NMOS_4D3S
D
G
S
1
2
1
2
1
2
OUT
OUT
OUT
OUT
OUT
OUT
IN
IN
IN
VDD
SW
SKIP#
PWM
PAD
GND
DRVL
DRVH
BST

WS
WS
Original Sch
30A
3.5A
CHECK
1
1
0
0
0
0.90V
1
VID0
0
POW_SW0
0.90V
+VDDC_GPU
PCORE_GPU
1.00V
PCORE_GPU
+VDDC_GPU
1.05V
1.00V
For XT
For PRO
1
0
POW_SW0
VID0
POW_SW1
VID1
0
VID1
POW_SW1
CHECK
WS
CHECK
WS
WS
83 97
XXX
21-OCT-2002
MODEL,PROJECT,FUNCTION
1310xxxxx-0-0
X01
1
POW_SW1
2
R6708
P3V3_S
10K_5%_2
R6
POW_SW0
1
Q3
SSM3K7002FU
1
10K_5%_2
P3V3_S
C6709
1K_1%_2
47pF_50V_2
R6704
11
R6701
1
9
TI_TPS51217DSCR_SON_10P
1
U6700
5
4
3
2
10
8
VRGPU_SW
1
75K_1%_2
1
C6701
2
10K_5%_2
EC_DGPU_PWR_EN
1
R6802
VDDC_GPU_PG
2
C6801
1UF_6.3V_2
1
R6703
2
7
C6704
C6705
C6708
2
4.7UF_25V_5
TPCA8065_H
1
1
2.2_5%_3
R6700
0.1UF_25V_3
PVCORE_GPU
2
PAD6700
P3V3_S
P5V_A
2
2
POWERPAD_2_0610
PAD6701
2
C6707
470UF_2V
2
SLP_S3#_3R
0_5%_2
R6705
2
1
P5V_A
1
2
10K_5%_2
R6707
2
1
C6702
CSC0402_DY
R6801
10K_5%_2
I80
1
2
D6700
Q6702
3
1
2
1
4.7UF_25V_5
SBR3U40P1
R6706
PAN_ETQP4LR36WFC_4P
2
L6700
Q6700
5
40.2K_1%_2
2
3
POWERPAD_2_0610
PAD6702
PVBAT
1
C1
R7
C6706
R6702
C6703
C6700
Q6701
Q2
8
7
6
54
3
2
1
2
1
2 3 2
2
1
2
1
1
2
1
11
2
1
2
1
43
1
2
1
1
2
1
46
8
2
1
2
8
7
6
54
3
2
1
7
6
1
2
2
1
2
2
CSC0402_DY
100PF_50V_2
1uF_10V_2
POWERPAD_2_0610
470UF_2V
4.7UF_25V_5
10.2K_1%_2
20K_1%_2
TSB_TPCA8057_H_8P
68K_1%_2
SSM3K7002FU
C
CS
Block Diagram
VRGPU_HG
VRGPU_LG
TSB_TPCA8057_H_8P
REV
INVENTEC
3 2
CHANGE by
TITLE
SHEET
of
1
4
A A
B B
C C
DD
1
23
45
56
67
78
8
CODE
SIZE
DATE
DOC.NUMBER
OUT
IN
D S
G
8
7
6
5
3
1
4
2
IN
G
DS
1
2
+
1
2
+
1
2
NMOS_4D3S
D
G
S
D S
G
8
7
6
5
3
1
4
2
VFB
VBST
V5IN
TRIP
TRAN
SW
PGOOD
GND
EN
DRVL
DRVH
IN
G
DS
IN

VGA controller capacity enabled=0 (Default)
VGA controller capacity disabled=1
Disable the external BIOS ROM device=0 (Default)
Enable the external BIOS ROM device=1
If GPIO_22 = 0, then CONFIG [2:0] defines the primary
Voltage control signal for the memory-voltage regulator.
1 0 = Audio for DisplayPort and HDMI, if dongle is detected
GENLK_CLK
BACO MODE
RESERVED
GPIO_2
GPIO_1
GPIO_0
PIN
CONFIGURATION STRAPS:
Pin-Based Straps
GPU
Whistler
Advertises the PCIe device as 5.0 GT/s capable at power on=1
0 0 = No audio function
(PCB default is 0)
(ASIC Internal pull down, and PCB Default is 0)
CONFIG[1]
CONFIG[0]
GPIO_13
PCB default is left unconnected
Must be low during reset
BIF_VGA DIS
0 1 = Audio for DisplayPort only
AUD[1]
RESERVED
RESERVED
GPIO_21
Must be low during reset
(7A)
Advertises the PCIe device as 2.5 GT/s capable at power on=0
Tx De-emphasis enabled=1 (Default)
Tx De-emphasis disabled=0
50% Tx output swing=0
AUD [1:0]:
DESCRIPTION OF DEFAULT SETTINGS
BIOS_ROM_EN
TX_DEEMPH_EN
AUD[0]
GPIO_22
GPIO_12
TX_PWRS_ENB
STRAPS
GPIO_11
CONFIG[2]
RESERVED
GPIO_8
HSYNC
Full Tx output swing=1 (Default)
GPIO_9
memory-aperture size. Default is 0 0 1
1 1 = Audio for both DisplayPort and HDMI. (Default is 1 1)
VSYNC
Must be low during reset
PCB default is left unconnected
(2.012A)
84 97
XXX
21-OCT-2002
MODEL,PROJECT,FUNCTION
1310xxxxx-0-0
X01
VDDC_GPU_PG
C5108
PX_MODE
Q5105
P3V3_A
SSM3K7002FU
68pF_50V_2
C5104
1
1
P15V_A
SSM3K7002FU
0_5%_2_DY
C5116
C5118
2.2uF_6.3V_3
0.01uF_50V_2
1
2
2
Q5110
P1V8_GPUS
Q5112
AM3402N FDMC7692
1
P1V8_SP3V3_A
5
Q5117
1
R5106
2
C5107
100K_5%_2
C
CS
Block Diagram
1
DGPU_PWR_EN#
P3V3_S
10K_5%_2
R5119
200_5%_2
P1V5_GPUS
1
2.2uF_6.3V_3
P3V3_GPUS
3
2
Q5113
0_5%_2
R5517
R5516
3
C5120
0.1uF_16V_2
Q5121
AM2321P
R5123
2
2
SSM3K7002FU
2
1
2
1
2
1
2
1
2
1
2
2
2
2
1
4 5
6
7
8
2
2
1
3
1
3
4
36
2
1
2
1
2
1
2
1
3
Q5122
1
2
1
3
SSM3K7002FU
560K_1%_2
P15V_A
P1V5
Q5109
SSM3K7002FU
3
560K_1%_2
R5115
100K_5%_2
R5111
68pF_50V_2
R5114
1
REV
INVENTEC
3 2
CHANGE by
TITLE
SHEET
of
1
4
A A
B B
C C
DD
1
23
45
56
67
78
8
CODE
SIZE
DATE
DOC.NUMBER
IN
IN
G
DS
G
DS
NMOS_4D3S
D
G
S
G
DS
IN
G
DS
G
DS
D
G
S
NMOS_4D1S
G
SD

UP TO 5.0-GT/S BIT RATE.
PCI EXPRESS BUS:TRANSMITTED/RECEIVER
GEN2:
TDP: 20~25 W
WHISTLER PRO
TDP: 30~35 W
WHISTLER XT
CLOSE TO GPU
85 97
XXX
21-OCT-2002
MODEL,PROJECT,FUNCTION
1310xxxxx-0-0
X01
0.1UF_16V_2
U5001
5
PEG_TX15_DN
PEG_TX15_DP
PEG_TX14_DN
CLK_PEG_GPU_REF_DN
P3V3_S
CLK_PEG_GPU_REF_DP
R5003
1
AH16
10K_5%_2
2
C5000
1
DGPU_HOLD_RST#
4
PEG_PLT_RST#
AMD_216_0810_001_FCBGA_962P
PEG_TX9_DP
PEG_TX8_DN
PEG_TX7_DP
PEG_TX6_DN
PEG_TX13_DN
PLT_RST#
PEG_TX0_DP
V35
PEG_RX10_C_DN
PEG_RX11_C_DP
C5154
1
Y29
Y30
H32
H33
K29
J33
PEG_RX5_C_DP
PEG_RX5_C_DN
PEG_RX4_C_DN
PEG_RX3_C_DN
PEG_RX2_C_DN
PEG_RX2_C_DP
W33Y35
C
CS
Block Diagram
PEG_TX10_DN
C5152
2
0.1UF_16V_2
0.1UF_16V_2
2
C5146
PEG_RX7_C_DP
PEG_RX6_C_DN
PEG_RX6_C_DP
PEG_RX7_C_DN
PEG_RX8_C_DP
PEG_TX5_DN
PEG_TX1_DN
N29
K32
G38
PEG_TX14_DP
2
1
R5002
2
1
R5125
2
1
C5155
2
1
2
C5156
2
1
C5157
2
1
C5005
2
1
C5004
1
2
1
C5153
2
1
C5149
1
C5148
2
1
C5150
2
1
C5151
2
1
C5145
2
1
C5144
2
1
2
1
C5147
2
1
C5141
2
1
C5140
2
1
C5142
2
1
C5143
2
1
C5137
2
1
C5136
2
1
C5138
2
1
C5139
2
1
C5135
2
1
C5134
2
1
C5132
2
1
C5133
2
1
C5130
2
1
C5131
2
1
C5129
2
1
C5128
2
3
2
1
2
1
R5127
2
1
R5126
AA30
N30
N33
N32
P30
P29
P33
P32
T30
T29
T33
T32
U30
U29
U33
U32
W32
K30
J32
K33
L30
L29
L33
L32
Y33
Y32
M35
L36
N38
M37
P35
N36
R38
P37
T35
R36
U38
T37
U36
W38
V37
W36
F35
E37
F37
H35
G36
J38
H37
K35
J36
L38
K37
AA38
Y37
AB35
AA36
U5124
PEG_RX14_C_DP
PEG_RX14_C_DN
PEG_RX15_C_DP
P1V0_GPU
0.1UF_16V_2
0.1UF_16V_2
0.1UF_16V_2
0.1UF_16V_2
0.1UF_16V_2
PEG_RX1_C_DN
PEG_RX1_C_DP
PEG_RX0_C_DN
PEG_RX0_C_DP
PEG_TX4_DP
0_5%_2_DY
100K_5%_2
TC7SZ08FU
PEG_RX15_DN
PEG_RX15_DP
PEG_RX14_DN
PEG_RX13_DN
0.1UF_16V_2
0.1UF_16V_2
0.1UF_16V_2
0.1UF_16V_2
0.1UF_16V_2
0.1UF_16V_2
0.1UF_16V_2
0.1UF_16V_2
2K_1%_2
1.27K_1%_2
PEG_TX4_DN
PEG_TX5_DP
PEG_RX4_C_DP
PEG_RX3_C_DP
PEG_TX6_DP
PEG_TX7_DN
PEG_TX11_DN
PEG_TX11_DP
PEG_TX8_DP
PEG_TX9_DN
PEG_TX3_DN
PEG_TX12_DP
PEG_TX2_DP PEG_RX2_DN
PEG_RX3_DP
PEG_TX0_DN
PEG_RX2_DP
PEG_TX13_DP
PEG_TX12_DN
PEG_RX11_C_DN
PEG_RX13_C_DP
PEG_RX10_C_DP
PEG_RX9_C_DP
PEG_RX9_C_DN
PEG_RX13_C_DN
PEG_RX6_DN
PEG_RX10_DP
PEG_RX15_C_DN
PEG_RX0_DN
PEG_RX6_DP
PEG_RX8_DP
PEG_RX9_DP
PEG_RX10_DN
PEG_RX7_DP
PEG_RX7_DN
PEG_RX8_DN
PEG_RX13_DP
PEG_RX14_DP
PEG_RX11_DN
PEG_RX1_DN
PEG_TX3_DP
PEG_TX2_DN
PEG_TX1_DP
PEG_RX9_DN
PEG_RX12_C_DP PEG_RX12_DN
PEG_RX12_C_DN
PEG_RX0_DP
0.1UF_16V_2
0.1UF_16V_2
0.1UF_16V_2
0.1UF_16V_2
0.1UF_16V_2
0.1UF_16V_2
0.1UF_16V_2
0.1UF_16V_2
0.1UF_16V_2
0.1UF_16V_2
0.1UF_16V_2
0.1UF_16V_2
0.1UF_16V_2
0.1UF_16V_2
0.1UF_16V_2
0.1UF_16V_2
PEG_RX8_C_DN
0.1UF_16V_2
PEG_RX5_DN
PEG_RX5_DP
PEG_RX4_DN
PEG_RX4_DP
PEG_RX3_DN
PEG_RX11_DP
PEG_RX12_DP
PEG_RX1_DP
PEG_TX10_DP
REV
INVENTEC
3 2
CHANGE by
TITLE
SHEET
of
1
4
A A
B B
C C
DD
1
23
45
56
67
78
8
CODE
SIZE
DATE
DOC.NUMBER
BI
IN
IN
+
-
BI
BI
BI
BI
BI
BI
BI
BI
BI
BI
BI
BI
BI
BI
BI
BI
BI
BI
BI
BI
BI
BI
BI
BI
BI
BI
BI
BI
BI
BI
BI
BI
BI
BI
BI
BI
BI
BI
BI
BI
BI
BI
BI
BI
BI
BI
BI
BI
BI
BI
BI
BI
BI
BI
BI
BI
BI
BI
BI
BI
BI
BI
BI
BI
BI
CALIBRATION
CLOCK
PCI EXPRESS INTERFACE
PCIE_TX9P
PCIE_TX9N
PCIE_TX8P
PCIE_TX8N
PCIE_TX7P
PCIE_TX7N
PCIE_TX6P
PCIE_TX6N
PCIE_TX5P
PCIE_TX5N
PCIE_TX4P
PCIE_TX4N
PCIE_TX3P
PCIE_TX3N
PCIE_TX2P
PCIE_TX2N
PCIE_TX1P
PCIE_TX1N
PCIE_TX15P
PCIE_TX15N
PCIE_TX14P
PCIE_TX14N
PCIE_TX13P
PCIE_TX13N
PCIE_TX12P
PCIE_TX12N
PCIE_TX11P
PCIE_TX11N
PCIE_TX10P
PCIE_TX10N
PCIE_TX0P
PCIE_TX0N
PERSTB
PCIE_RX9P
PCIE_RX9N
PCIE_RX8P
PCIE_RX8N
PCIE_RX7P
PCIE_RX7N
PCIE_RX6P
PCIE_RX6N
PCIE_RX5P
PCIE_RX5N
PCIE_RX4P
PCIE_RX4N
PCIE_RX3P
PCIE_RX3N
PCIE_RX2P
PCIE_RX2N
PCIE_RX1P
PCIE_RX1N
PCIE_RX15P
PCIE_RX15N
PCIE_RX14P
PCIE_RX14N
PCIE_RX13P
PCIE_RX13N
PCIE_RX12P
PCIE_RX12N
PCIE_RX11P
PCIE_RX11N
PCIE_RX10P
PCIE_RX10N
PCIE_RX0P
PCIE_RX0N
PCIE_REFCLKP
PCIE_REFCLKN
PCIE_CALRP
PCIE_CALRNPWRGOOD

1.8V,0.1A
I=0.07A
Away from noisy GND area.
Away from noisy GND area.
Away from noisy GND area.
CLOSE TO GPU
32 KHZ SPREAD SPECTRUM MODULATION
3.3V,0.05A
SWING: 3.3V
IF GPU_GPIO22 = 0, THEN GPIO[13:11]
DEFINES THE PRIMARY MEMORY APERTURE SIZE
GPU_
GPIO11
0.90V
For XT
PCORE_GPU
+VDDC_GPU
1.05V
1.00V
+VDDC_GPU
0.90V
1
1
0
0
POW_SW1
VID0
0
0
POW_SW1
VID0
POW_SW0
1
0
0
VID1
1
VID1
32 MB
1
FUTURE ASIC
64 MB
128 MB
I=0.005A
1
0
I=0.075A
I=0.045A
HDMI
0
00
SIZE
0
0 0
11
GPU_
GPIO13 GPIO12
SWING: 1.8V
HYNIX
(1GB)
0
1
(1GB)
(GDDR5)
SAMSUNG
Vendor
MEM_ID0
MEM_ID1
GPU Multi Level Pin Straps feature
CRT
0
MEM_ID3 MEM_ID2
(DEFAULT)
0
GPU_
256 MB
1
0
1
0
0
HDMI&DP Audio
[ALERT]
I=0.125A
DUAL CHANNEL FOR 3D FUNCTION
EDP
3.3V,0.13A
CLOSE TO GPU
MEMORY APERTURE
JTAG MODE
MLPS option for future ASIC
For PRO
POW_SW0 PCORE_GPU
1.00V
9786
MODEL,PROJECT,FUNCTION
X01
XXX
1310xxxxx-0-0
21-OCT-2002
R5163
R5161
10K_5%_2
1
10K_5%_2
2
R5159
10K_5%_2
1
10K_5%_2
1
POW_SW1
2
POW_SW0
2
10K_5%_2
R5179
1
1
GPU_LCM_BKLTEN
GPU_GPIO19
R5158
10K_5%_2
GPU_GPIO5
GPU_GPIO9
GPU_CRT_HSYNC
R5177
10K_5%_2_DY
1
R5178
R5176
GPU_CRT_VSYNC
GPU_GPIO23
10K_5%_2_DY
2
R5009
FBM_11_160808_121T
P3V3_GPUS
2
R5164
10K_5%_2_DY
R5162
10K_5%_2_DY
2
R5160R5008
10K_5%_2
P3V3_GPUS
R5020
0_5%_2_DY
R5021
0_5%_2_DY
1
GPU_THM_DAT
GPU_THM_CLK
GPU_TS_FDO
2
C5026
P1V8_GPUS
R5024
10K_5%_2_DY 10K_5%_2_DY
R5025
1
C5013
1
U5018
2
7
8
2200PF_50V_3
1
C5014
1
1
GPU_JTAG_TDO
GPU_JTAG_TDI
2
10K_5%_2_DY
0.1UF_16V_2
GMT_G784_MSOP_8P
2
1
2
1
R5019
1
1
TP5036
1
TP5035
22
1
2
1
R5041
2
1
R5202
2
1
R5208
2
1
R5040
2
1
R5039
2
1
R5038
2
1
R5037
2
1
C5206
2
1
R5203
2
1
R5209
2
1
C5210
2
1
C5213
2
1
R5211
2
1
R5212
1
TP5189
1
TP5190
2
1
C5163
2
1
C5161
1
TP5032
1
TP5031
2
1
R5023
2
1
R5022
2
1
C5006
2
1
L5007
2
1
R5012
2
1
R5010
2
1
C5166
2
1
C5011
4
3
2
1
X5015
2
1
R5016
10
1
8
4
11
3
7
6
2
9
5
U5017
1
TP5165
2
2
1
R5168
2
1
R5167
22
2
1
2
1
R5175
2
1
R5170
2
1
R5171
2
1
R5173
2
1
R5172
2
1
R5169
2
1
R5030
2
1
R5029
2
1
R5174
2
1
2
1
L5180
2
1
L5181
1
4 5
2
3 6
2
1
C5027
2
1
C5028
2
1
2
2
1
2
1
R5194
2
1
R5196
2
1
R5197
2
1
C5033
2
1
R5034
2
1
R5185
2
1
C5184
2
1
C5183
2
1
C5192
2
1
C5182
1
2
1
C5193
2
1
C5188
2
1
L5186
2
1
R5191
2
1
R5187
2
1
C5199
2
1
C5201
2
1
C5205
2
1
L5207
2
1
L5042
2
1
C5200
2
1
C5204
2
1
C5198
2
1
R5195
AD32
AU34
AV33
AW35
AW34
AC38
AG32
AC34
AH13
AG31
AC33
AC29
AU20
AT19
AU14
AV13
AR30
AT29
AU24
AV23
AT23
AT33
AR22
AU32
AU22
AR32
AV21
AT31
AT21
AV31
AR20
AU30
AT17
AT27
AR16
AR26
AU16
AU26
AV15
AV25
AT15
AT25
AR14
AR24
AJ33
AJ32
AK32
AL31
AK21
AJ21
AJ26
AK26
AB34
AD37
AA29
AC31
AC30
AD39
AM23
AL24
AM24
AN23
AK23
AC36
AK24
AD29
AH15
AJ13
AK17
AJ17
AH17
AJ23
AH23
AN13
AK13
AJ14
AL13
AN16
AM17
AN14
AG30
AK14
AM13
AM14
AM16
AL16
AK16
AJ16
AH18
AH20
AH24
AH26
AJ24
AK20
AJ20
AK19
AJ19
AD35
AD31
AD30
AE36
AT7
AU6
AW6
AR6
AU5
AW5
AP6
AP12
AU12
AW12
AR12
AW3
AT11
AV11
AP10
AU10
AW10
AR10
AT9
AV9
AN7
AV7
AU3
AU1
AU8
AR8
AR3
AW8
AP8
AR1
AF29
AN31
AN32
AM32
AG29
AK29
AM21
AM29
AM30
AK30
AN21
AL29
AL30
AJ31
AJ30
AL19
AM19
AN26
AM26
AF32
AC32
AE38
AF31
AF30
AF37
AE34
AD34
AN20
AM20
AM27
AL27
AF33
AD33
AG33
U5124
10K_5%_2
150_1%_2
EC_SMB2_CLK
THRM_GPU_DN
THRM_GPU_DP
P3V3_GPUS
GPU_PS3
GPU_CRT_R
150_1%_2
150_1%_2
EC_SMB2_DATA
FBM_11_160808_121T
P1V8_GPUS
GPU_XOIN_27M_R
P1V0_GPU
0.1UF_16V_2
0.1UF_16V_2
10UF_6.3V_3
1UF_6.3V_2
FBM_11_160808_121T
P1V8_GPUS
0.1UF_16V_2
GPU_HDMI_DDCDATA
GPU_HDMI_DDCCLK
715_1%_2_DY
GPU_CRT_VSYNC
GPU_CRT_HSYNC
10UF_6.3V_3
10UF_6.3V_3
FBM_11_160808_121T
IDT_6V40088_DFN_10P
GPU_JTAG_TMS
GPU_JTAG_TRSTB
P1V8_GPUS
P3V3_GPUS
15PF_50V_2
XTAL_4PIN
27MHZ_12PF
15PF_50V_2
1M_5%_2
P3V3_GPUS
GPU_XOIN2_100M
GPU_XOIN_27M
0_5%_3_DY
10K_5%_2_DY
10UF_6.3V_3
10K_5%_2_DY
10K_5%_2_DY
10K_5%_2_DY
10K_5%_2
10K_5%_2_DY
10K_5%_2
10K_5%_2
TP24
TP24
10K_5%_2_DY
0_5%_3_DY
0_5%_2_DY
0_5%_2_DY
0_5%_2_DY
0.1UF_16V_2_DY
10K_5%_2_DY
10K_5%_2_DY
0.1UF_16V_2_DY
0.1UF_16V_2_DY
10K_5%_2_DY
TP24
TP24
TP24
TP24
33_5%_2
33_5%_2
0_5%_2
0_5%_2
TP24
10K_5%_2_DY
10K_5%_2_DY
FBM_11_160808_121T
0.1UF_16V_2
0.1UF_16V_2
0_5%_2_DY
0.1UF_16V_2
249_1%_2
499_1%_2
1UF_6.3V_2
10UF_6.3V_3
1UF_6.3V_2
1UF_6.3V_2
0.1UF_16V_2
10K_5%_2
10K_5%_2
0.1UF_16V_2 1UF_6.3V_2
FBM_11_160808_121T
10UF_6.3V_3
499_1%_2
AMD_216_0810_001_FCBGA_962P
10K_5%_2_DY
10K_5%_2_DY
P1V8_GPUS
P1V8_GPUS
P1V8_GPUS
P1V8_GPUS
GPU_GPIO11
GPU_JTAG_TCK
GPU_GPIO5
GPU_GPIO2
GPU_GPIO22
GPU_THERM_INT#
GPU_GPIO1
GPU_JTAG_TDO
GPU_JTAG_TMS
GPU_JTAG_TCK
GPU_JTAG_TDI
GPU_JTAG_TRSTB
GPU_GPIO23
GPU_GPIO22
GPU_GPIO21
POW_SW1
GPU_GPIO19
GPU_THERM_INT#
GPU_EDP_HPD
GPU_GPIO0
GPU_XOIN2_100M_R
GPU_LCM_BKLTEN
POW_SW0
GPU_THM_CLK
GPU_THM_DAT
GPU_HDMI_TX2_DN
GPU_PS1
GPU_PS2
GPU_CRT_DDCDATA
GPU_CRT_DDCCLK
GPU_EDP_AUX_DN
GPU_EDP_AUX_DP
GPU_PS1
GPU_GPIO12
GPU_GPIO9
GPU_GPIO13
GPU_TS_FDO
DPLL_PVDD
TSVDD
Everest Main Board
THRM_SHUTDWN#
THRM_GPU_DP
THRM_GPU_DN
C
CS
CS_1310AXXXXXX-MTR
1
Block Diagram
A01
1
BEN LEE February 22, 2010
VDD1D1
CLK_GPU_27M
GPU_HDMI_TXC_DP
GPU_HDMI_TXC_DN
GPU_EDP_TX0_DP
GPU_HDMI_TX1_DP
GPU_HDMI_TX1_DN
GPU_HDMI_TX0_DP
AVDD
GPU_PS3
GPU_CRT_B
GPU_EDP_TX1_DN
GPU_HDMI_TX0_DN
GPU_HDMI_TX2_DP
GPU_GPIO1
GPU_GPIO0
GPU_GPIO2
DPLL_VDDC
GPU_EDP_TX0_DN
GPU_EDP_TX1_DP
GPU_PS2
GPU_CRT_G
GPU_XOIN_27M_R
GPU_HDMI_HPD1
GPU_GPIO12
GPU_GPIO13
GPU_GPIO21
GPU_GPIO11
GPU_XOIN2_100M_R
MEM_ID0
MEM_ID1
MEM_ID2
MEM_ID3
TITLE
DATE
CODE
SIZE
1
E
D
C
B
A
7 6 5 4 3 2
1
7 6 5 4 3
E
D
C
B
A
FF
8
of
CHANGE by
8
REV
DOC.NUMBER
SHEET
2
INVENTEC
BI
OUT
OUT
OUT
OUT
BI
BI
BI
BI
IN
IN
IN
OUT
BI
BI
BI
OUT
OUT
IN
IN
IN
OUT
IN
IN
OUT
OUT
OUT
X2
X1_ICLK
VDD_27M
VDD_100M
TML
S1
S0
GND_PLL
GND_27M
27M
100M
OUT
OUT
OUT
OUT
OUT
IN
IN
IN
IN
IN
IN
BI
OUT
BI
BI
IN
BI
BI
BI
BI
BI
BI
BI
OUT
IN
IN
OUT
IN
OUT
OUT
IN
OUT
OUT
OUT
IN
OUT
OUT
OUT
IN
IN
IN
OUT
IN
OUT
OUT
OUT
OUT
IN
IN
OUT
BI
BI
BI
IN
IN
GND
ALERT#
SMBDATA
SMBCLK
THERM#
DXN
DXP
VCC
IN
OUT
OUT
OUT
OUT
BI
OUT
OUT
OUT
BI
BI
PLL/CLOCK
THERMAL
DDC/AUX
DAC2
DAC1
GENERAL PURPOSE I/O
I2C
MUTI GFX
DPD
DPC
DPB
DPA
SWAPLOCKB
SWAPLOCKA
XO_IN2
XO_IN
TS_A/NC
Y/NC
VSYNC
VDD2DI/NC
VDD1DI
V2SYNC/GENLK_VSYNC
TXCDP_DPD3P
TXCDM_DPD3N
TXCCP_DPC3P
TXCCM_DPC3N
TXCBP_DPB3P
TXCBM_DPB3N
TXCAP_DPA3P
TXCAM_DPA3N
TX5P_DPD0P
TX5P_DPB0P
TX5M_DPD0N
TX5M_DPB0N
TX4P_DPD1P
TX4P_DPB1P
TX4M_DPD1N
TX4M_DPB1N
TX3P_DPD2P
TX3P_DPB2P
TX3M_DPD2N
TX3M_DPB2N
TX2P_DPC0P
TX2P_DPA0P
TX2M_DPC0N
TX2M_DPA0N
TX1P_DPC1P
TX1P_DPA1P
TX1M_DPC1N
TX1M_DPA1N
TX0P_DPC2P
TX0P_DPA2P
TX0M_DPC2N
TX0M_DPA2N
SDA
SCL
RSET
RB
R2SET/NC
R2B/NC
R2/NC
R
GB
G2B/NC
G2/NC
G
DDCCLK_AUX5P
DDCDATA_AUX5N
DDCCLK_AUX4P
DDCDATA_AUX4N
DDCCLK_AUX3P
DDCDATA_AUX3N
DDC6DATA
DDC6CLK
DDC2DATA
DDC2CLK
DDC1DATA
DDC1CLK
COMP/NC
C/NC
BB
B2B/NC
B2/NC
B
AVSSQ
AVDD
AUX2P
AUX2N
AUX1P
AUX1N
A2VSSQ/TSVSSQ
A2VDDQ/NC
A2VDD/NC
XTALOUT
XTALIN
VSS2DI/NC
VSS1DI
VREFG
TSVSS
TSVDD
TS_FDO
DDCCLK_AUX7P
DDCDATA_AUX7N
JTAG_TRSTB
JTAG_TMS
JTAG_TDO
JTAG_TDI
JTAG_TCK
HSYNC
HPD1
H2SYNC/GENLK_CLK
GPIO_9_ROMSI
GPIO_8_ROMSO
GPIO_7_BLON
GPIO_6
GPIO_5_AC_BATT
GPIO_4_SMBCLK
GPIO_3_SMBDATA
GPIO_23_CLKREQB
GPIO_22_ROMCSB
GPIO_21_BB_EN
GPIO_20_PWRCNTL_1
GPIO_2
GPIO_19_CTF
GPIO_18_HPD3
GPIO_17_THERMAL_INT
GPIO_16
GPIO_15_PWRCNTL_0
GPIO_14_HPD2
GPIO_13
GPIO_12
GPIO_11
GPIO_10_ROMSCK
GPIO_1
GPIO_0
GENERICG_HPD6
GENERICF_HPD5
GENERICE_HPD4
GENERICD
GENERICC
GENERICB
GENERICA
DVPDATA_9
DVPDATA_8
DVPDATA_7
DVPDATA_6
DVPDATA_5
DVPDATA_4
DVPDATA_3
DVPDATA_23
DVPDATA_22
DVPDATA_21
DVPDATA_20
DVPDATA_2
DVPDATA_19
DVPDATA_18
DVPDATA_17
DVPDATA_16
DVPDATA_15
DVPDATA_14
DVPDATA_13
DVPDATA_12
DVPDATA_11
DVPDATA_10
DVPDATA_1
DVPDATA_0
DVPCNTL_MVP_1
DVPCNTL_MVP_0
DVPCNTL_2
DVPCNTL_1
DVPCNTL_0
DVPCLK
DPLUS
DPLL_VDDC
DPLL_PVSS
DPLL_PVDD
DMINUS

R & CAPS CLOSE TO GPU
R & CAPS CLOSE TO GPU
CHANNEL A
87 97
XXX
21-OCT-2002
MODEL,PROJECT,FUNCTION
1310xxxxx-0-0
X01
2
1
C5217
2
1
C5216
2
1
R5044
2
1
R5043
2
1
R5215
2
1
R5214
2
1
R5221
2
1
R5220
2
1
R5222
2
1
R5219
2
1
R5218
2
1
R5045
L15
K26
D9
A14
E10
C14
E22
C32
D23
A32
K19
K23
L20
L18
AH12
M12
M27
AG12
N12
L27
J19
H17
J17
H16
J16
G16
L13
H20
H19
H23
G21
H21
J26
H26
J24
H24
J23
G24
D7
J10
E12
E16
E20
D25
D29
C34
D13
F14
E14
D15
F16
A16
A5
E6
D17
C6
A6
E8
C8
A8
G9
K10
K9
G8
G10
F18
H11
J13
H13
G13
C10
A10
F10
D11
A12
F12
A18
C18
F30
D31
E32
F32
D33
G32
E18
D19
E34
F20
A20
D21
F22
A22
C22
E24
A24
C24
F24
A35
A26
C26
F26
D27
E28
A28
C28
F28
A30
C30
C35
C37
F8
J11
C12
C16
C20
E26
E30
A34
K16
M13
K27
K24
H14
J14
G27
H27
J20
K21
K17
K20
G19
J21
U5124
P1V5_GPUS
243_1%_2
243_1%_2
243_1%_2
VM_A1_ADA<16>
VM_A1_ADA<15>
VM_A1_ADA<24>
24
27
VM_A1_ADA<27>
25
21
20
MVREFSA_GPU
243_1%_2
243_1%_2
243_1%_2
AMD_216_0810_001_FCBGA_962P
VM_A0_ADA<4>
VM_A0_ADA<3>
VM_A0_ADA<2>
VM_A0_ADA<1>
VM_A0_ADA<0>
0
MVREFDA_GPU
0.1UF_16V_2
VM_A1_ADA<31..0>
22
VM_A0_ADA<24>
VM_A0_ADA<25>
VM_A0_ADA<26>
VM_A1_AA<6>
VM_A1_AA<4>
VM_A0_AA<7..0>
0.1UF_16V_2
P1V5_GPUS
P1V5_GPUS
40.2_1%_2
VM_A0_ADA<23>
28
100_1%_2
19
100_1%_2
40.2_1%_2
18
19
20
VM_EDCA0_0
VM_EDCA1_0
VM_EDCA0_3
VM_A1_AA<7..0>
VM_A1_ADA<10>
VM_A1_ADA<11>
VM_A1_ADA<13>
12
VM_A1_ADA<12>
31
VM_A0_ADA<29>
VM_A0_ADA<28>
VM_A0_ADA<27>
VM_A0_ADA<22>
VM_A0_ADA<21>
VM_A0_ADA<20>
VM_A1_AA<3>
VM_A1_AA<1>
VM_A0_AA<7>
VM_A0_AA<6>
VM_A1_AA<0>
VM_A0_AA<5>
VM_A0_AA<4>
VM_A0_AA<2>
VM_A0_AA<1>
VM_A0_AA<3>
VM_A0_AA<0>
VM_A1_AA<7>
VM_A1_AA<5>
VM_A1_AA<2>
6
7
5
4
3
2
7
6
4
5
3
0
1
2
1
0
VM_A1_ADA<1>
VM_A1_ADA<2>
2
VM_WCKA0_0_DN
VM_WCKA0_1_DN
VM_WCKA1_0_DP
VM_WCKA1_0_DN
VM_WCKA1_1_DP
22
VM_A1_ADA<22>
VM_A1_ADA<9>
VM_A0_ADA<8>
VM_WCKA1_1_DN
VM_WCKA0_0_DP
VM_WCKA0_1_DP
VM_EDCA1_2
VM_EDCA1_3
VM_EDCA0_2
VM_EDCA0_1
VM_EDCA1_1
VM_A1_ADA<28>
28
27
VM_A0_ADA<30>
DDR_A_CKEA1
VM_A0_ADA<14>
30
VM_A0_ADA<16>
16
15
VM_A0_ADA<12>
VM_A0_ADA<11>
VM_A0_ADA<10>
VM_A0_ADA<9>
VM_DDBIA0_2
VM_DDBIA0_1
VM_DDBIA0_0
VM_DDBIA1_0
VM_DDBIA1_1
VM_DDBIA1_2
VM_DDBIA0_3
VM_DDBIA1_3
DDR_A_CASA1#
DDR_A_CASA0#
DDR_A_RASA1#
VM_ADBIA0
VM_ADBIA1
DDR_A_CSA1#_0
DDR_A_RASA0#
VM_A1_AA<8>
VM_A0_AA<8>
DDR_A_WEA0#
DDR_A_CKEA0
DDR_A_CSA0#_0
VM_A0_ADA<5>
VM_A0_ADA<6>
VM_A0_ADA<7>
VM_A0_ADA<13>
VM_A0_ADA<15>
VM_A0_ADA<17>
VM_A0_ADA<31>
VM_A0_ADA<18>
VM_A0_ADA<19>
5
VM_A0_ADA<31..0>
17
14
13
12
11
10
9
8
7
6
4
3
2
1
29
26
25
24
23
21
VM_A1_ADA<0>
VM_A1_ADA<18>
VM_A1_ADA<17>
VM_A1_ADA<14>
VM_A1_ADA<8>
VM_A1_ADA<7>
VM_A1_ADA<6>
VM_A1_ADA<5>
VM_A1_ADA<4>
VM_A1_ADA<3>
VM_A1_ADA<19>
VM_A1_ADA<20>
VM_A1_ADA<21>
VM_A1_ADA<23>
VM_A1_ADA<25>
VM_A1_ADA<26>
VM_A1_ADA<29>
VM_A1_ADA<30>
VM_A1_ADA<31>
31
30
29
26
23
0
1
3
4
5
6
7
8
9
10
11
13
14
15
16
17
18
DDR_A_CLKA1_DN
DDR_A_CLKA1_DP
DDR_A_CLKA0_DN
DDR_A_CLKA0_DP
DDR_A_WEA1#
C
CS
CS_1310AXXXXXX-MTR
Everest Main Board
Block Diagram
A01
BEN LEE
February 22, 2010
1 1
REV
INVENTEC
3 2
CHANGE by
TITLE
SHEET
of
1
4
A A
B B
C C
DD
1
23
45
56
67
78
8
CODE
SIZE
DATE
DOC.NUMBER
OUT
OUT
OUT
OUT
OUT
BI
BI
BI
BI
BI
BI
BI
BI
BI
BI
OUT
BI
BI
BI
BI
BI
BI
BI
BI
BI
BI
BI
BI
BI
BI
BI
BI
BI
BI
BI
BI
OUT
BI
OUT
OUT
OUT
OUT
OUT
BI
OUT
OUT
GDDR5
DDR3
GDDR5/GDDR3
DDR2
GDDR5/DDR2/GDDR3
DDR3
GDDR3/GDDR5
DDR2
MEMORY INTERFACE A
WEA1B
WEA0B
DDBIA1_3/QSA_7B/WDQSA_7
DDBIA1_2/QSA_6B/WDQSA_6
DDBIA1_1/QSA_5B/WDQSA_5
DDBIA1_0/QSA_4B/WDQSA_4
DDBIA0_3/QSA_3B/WDQSA_3
DDBIA0_2/QSA_2B/WDQSA_2
DDBIA0_1/QSA_1B/WDQSA_1
DDBIA0_0/QSA_0B/WDQSA_0
MAA1_8
MAA0_8
EDCA1_3/QSA_7/RDQSA_7
EDCA1_2/QSA_6/RDQSA_6
EDCA1_1/QSA_5/RDQSA_5
EDCA1_0/QSA_4/RDQSA_4
EDCA0_3/QSA_3/RDQSA_3
EDCA0_2/QSA_2/RDQSA_2
EDCA0_1/QSA_1/RDQSA_1
EDCA0_0/QSA_0/RDQSA_0
RASA1B
RASA0B
ADBIA1/ODTA1
ADBIA0/ODTA0
MAA1_1/MAA_9
MAA1_0/MAA_8
MAA0_7/MAA_7
MAA0_6/MAA_6
MAA0_5/MAA_5
MAA0_4/MAA_4
MAA0_3/MAA_3
MAA0_2/MAA_2
MAA1_7/MAA_A15_BA1
MAA1_6/MAA_14_BA0
MAA1_5/MAA_13_BA2
MAA1_4/MAA_12
MAA1_3/MAA_11
MAA1_2/MAA_10
MAA0_1/MAA_1
MAA0_0/MAA_0
WCKA1B_1/DQMA_7
WCKA1_1/DQMA_6
WCKA1B_0/DQMA_5
WCKA1_0/DQMA_4
WCKA0B_1/DQMA_3
WCKA0_1/DQMA_2
WCKA0B_0/DQMA_1
WCKA0_0/DQMA_0
CSA1B_1
CSA1B_0
CSA0B_1
CSA0B_0
CLKA1B
CLKA1
CLKA0B
CLKA0
CKEA1
CKEA0
CASA1B
CASA0B
MEM_CALRP2
MEM_CALRP0
MEM_CALRN2
MEM_CALRN1
MEM_CALRN0
MVREFSA
MVREFDA
MEM_CALRP1
DQA0_9/DQA_9
DQA0_8/DQA_8
DQA0_7/DQA_7
DQA1_31/DQA_63
DQA1_30/DQA_62
DQA1_29/DQA_61
DQA1_28/DQA_60
DQA0_6/DQA_6
DQA1_27/DQA_59
DQA1_26/DQA_58
DQA1_25/DQA_57
DQA1_24/DQA_56
DQA1_23/DQA_55
DQA1_22/DQA_54
DQA1_21/DQA_53
DQA1_20/DQA_52
DQA1_19/DQA_51
DQA1_18/DQA_50
DQA0_5/DQA_5
DQA1_17/DQA_49
DQA1_16/DQA_48
DQA1_15/DQA_47
DQA1_14/DQA_46
DQA1_13/DQA_45
DQA1_12/DQA_44
DQA1_11/DQA_43
DQA1_10/DQA_42
DQA1_9/DQA_41
DQA1_8/DQA_40
DQA0_4/DQA_4
DQA1_7/DQA_39
DQA1_6/DQA_38
DQA1_5/DQA_37
DQA1_4/DQA_36
DQA1_3/DQA_35
DQA1_2/DQA_34
DQA1_1/DQA_33
DQA1_0/DQA_32
DQA0_31/DQA_31
DQA0_30/DQA_30
DQA0_3/DQA_3
DQA0_29/DQA_29
DQA0_28/DQA_28
DQA0_27/DQA_27
DQA0_26/DQA_26
DQA0_25/DQA_25
DQA0_24/DQA_24
DQA0_23/DQA_23
DQA0_22/DQA_22
DQA0_21/DQA_21
DQA0_20/DQA_20
DQA0_2/DQA_2
DQA0_19/DQA_19
DQA0_18/DQA_18
DQA0_17/DQA_17
DQA0_16/DQA_16
DQA0_15/DQA_15
DQA0_14/DQA_14
DQA0_13/DQA_13
DQA0_12/DQA_12
DQA0_11/DQA_11
DQA0_10/DQA_10
DQA0_1/DQA_1
DQA0_0/DQA_0

JTAG
R & CAPS CLOSE TO GPU
25MM) AND KEEP ALL COMPONENT CLOSE TO EACH OTHER.
JTAG SIGNAL STUFF OPTION
NORMAL
MODE
(WITHIN 5MM) EXCEPT RSER2
DEBUG ONLY
1
GPU_TESTEN
SIGNALS
0
MODE
R & CAPS CLOSE TO GPU
CHANNEL B
PLACE ALL THESE COMPONENTS VERY CLOSE TO GPU (WITHIN
88 97
XXX
21-OCT-2002
MODEL,PROJECT,FUNCTION
1310xxxxx-0-0
X01
2
1
R5049
2
1
C5225
2
1
C5226
2
1
R5051
2
1
R5050
2
1
C5054
2
1
R5052
2
1
R5055
2
1
R5053
2
1
R5047
2
1
R5046
2
1
C5228
2
1
C5227
2
1
R5048
AB11
N10
AK5
AF5
AK6
AE4
T5
H1
T3
H3
AD28
Y10
T10
AA12
Y12
W8
AA9
Y8
AA8
AA7
AC9
AC8
W9
Y9
T8
U8
U9
N9
N8
N7
P9
T9
P8
AM5
AJ9
AH1
AB5
V5
P3
K3
F6
AH11
AF3
AF1
AD5
AD3
AD1
AD6
AP5
AP1
AB3
AP3
AN4
AM1
AM6
AL4
AK1
AM7
AM8
AL7
AK9
AB1
AG7
AG8
AF9
AF8
AK3
AJ4
AH6
AH5
AG4
AF6
AB6
AA4
H6
H5
G4
F5
F3
F1
Y5
Y3
E1
Y1
Y6
V3
V1
V6
U4
T1
T6
R4
P5
E3
P6
N4
M5
M3
M1
M6
L4
K5
K6
J4
C3
C5
AM3
AJ8
AH3
AC4
W4
P1
K1
G7
AC10
AD10
L10
P10
AL10
AK10
AD7
AD8
L8
L9
AA11
U10
AA10
W10
W7
T7
U5124
2
1
R5223
2
1
R5224
51_1%_2_DY51_1%_2_DY
0.1UF_16V_2
MVREFDB_GPU
P1V5_GPUS
P1V5_GPUS
40.2_1%_2
VM_B1_ADA<4>
VM_B1_ADA<3>
VM_B1_ADA<2>
VM_B1_ADA<1>
VM_B1_ADA<0>
VM_B0_ADA<31>
VM_B0_AA<0>
VM_B0_AA<2>
VM_B0_AA<5>
VM_B0_ADA<14>
14
5K_1%_2 120PF_50V_2
40.2_1%_2
100_1%_2
VM_B1_ADA<31..0>
3
0.1UF_16V_2
51_1%_2
10_1%_2
0.1UF_16V_2_DY0.1UF_16V_2_DY
10K_5%_2_DY
AMD_216_0810_001_FCBGA_962P
100_1%_2
5.11K_1%_2
P3V3_GPUS
VM_WCKB0_0_DN
VM_WCKB1_1_DN
VM_EDCB0_2
VM_DDBIB0_0
VM_DDBIB1_1
VM_B0_ADA<21>
VM_B1_AA<1>
VM_B0_AA<7>
VM_B0_ADA<15>
VM_B1_AA<7>
VM_B1_AA<6>
VM_B1_AA<5>
VM_B1_AA<7..0>
VM_B0_AA<7..0>
VM_B0_AA<6>
VM_B1_AA<0>
VM_B1_AA<2>
24
VM_B1_ADA<8>
27
VM_B1_ADA<25>
VM_B1_ADA<24>
VM_B1_ADA<22>
VM_B1_ADA<18>
VM_B1_ADA<16>
VM_B1_ADA<14>
VM_B0_AA<4>
VM_B0_ADA<13>
VM_B0_ADA<12>
VM_B0_ADA<11>
6
VM_B1_ADA<28>
VM_B1_ADA<29>
VM_B1_ADA<30>
VM_B1_ADA<31>
BEN LEE
11
A01
CS
C
February 22, 2010
CS_1310AXXXXXX-MTR
Everest Main Board
Block Diagram
MVREFSB_GPU
VM_B1_ADA<23>
VM_B1_ADA<21>
VM_B1_ADA<19>
DDR_B_CLKB0_DN
DDR_B_CLKB0_DP
DDR_B_CLKB1_DP
DDR_B_CLKB1_DN
DDR_B_RASB0#
DDR_B_RASB1#
DDR_B_CASB0#
DDR_B_CSB0#_0
DDR_B_CASB1#
VM_RESET
DDR_B_CKEB0
DDR_B_CKEB1
DDR_B_WEB0#
DDR_B_WEB1#
VM_B0_AA<8>
VM_B1_AA<8>
VM_WCKB0_0_DP
4
VM_B0_AA<3>
VM_B0_AA<1>
3
VM_B1_AA<3>
2
7
5
6
5
4
VM_WCKB0_1_DP
VM_WCKB0_1_DN
VM_WCKB1_0_DN
VM_EDCB0_0
VM_EDCB0_1
VM_EDCB1_1
VM_EDCB1_2
0
3
1
7
6
2
1
0
VM_WCKB1_0_DP
VM_B1_ADA<6>
30
VM_B0_ADA<17>
VM_B0_ADA<18>
VM_B0_ADA<4>
VM_B0_ADA<3>
VM_B1_ADA<27>
17
VM_B0_ADA<16>
VM_B0_ADA<29>
VM_B0_ADA<28>
10
VM_B1_ADA<10>
VM_EDCB1_0
VM_DDBIB0_1
VM_ADBIB1
VM_ADBIB0
VM_DDBIB0_2
VM_DDBIB0_3
VM_DDBIB1_0
VM_DDBIB1_2
VM_DDBIB1_3
VM_EDCB1_3
VM_WCKB1_1_DP
30
VM_B0_ADA<27>
VM_B0_ADA<25>
28
VM_B0_ADA<24>
7
VM_B0_ADA<8>
13
VM_B0_ADA<10>
VM_B0_ADA<9>
VM_B0_ADA<7>
VM_B0_ADA<6>
VM_B0_ADA<5>
VM_B0_ADA<2>
VM_B0_ADA<1>
VM_B0_ADA<0>
VM_B0_ADA<30>
VM_B0_ADA<23>
VM_B0_ADA<22>
VM_B0_ADA<20>
VM_B0_ADA<19>
VM_B1_ADA<20>
VM_B1_ADA<17>
VM_B1_ADA<15>
VM_B1_ADA<13>
VM_B1_ADA<12>
VM_B1_ADA<11>
VM_B1_ADA<9>
VM_B1_ADA<7>
VM_B1_ADA<5>
VM_B1_ADA<26>
23
12
17
18
25
31
29
28
26
25
22
21
20
19
16
15
14
13
11
9
8
7
6
5
4
2
1
0
31
29
27
26
24
23
22
21
20
19
18
16
15
12
11
10
9
8
5
4
3
2
1
0
DDR_B_CSB1#_0
VM_B0_ADA<31..0>
VM_RESET_R2VM_RESET_R1
VM_EDCB0_3
VM_B1_AA<4>
VM_B0_ADA<26>
GPU_TESTEN
REV
INVENTEC
3 2
CHANGE by
TITLE
SHEET
of
1
4
A A
B B
C C
DD
1
23
45
56
67
78
8
CODE
SIZE
DATE
DOC.NUMBER
BI
BI
OUT
OUT
OUT
OUT
OUT
OUT
OUT
OUT
OUT
OUT
BI
OUT
OUT
OUT
OUT
BI
BI
BI
BI
BI
OUT
GDDR5/DDR2/GDDR3
GDDR5
DDR3
GDDR3/GDDR5
DDR2
DDR3
GDDR5/GDDR3
DDR2
MEMORY INTERFACE B
MAB1_8
MAB0_8
WEB1B
WEB0B
DDBIB1_3/QSB_7B/WDQSB_7
DDBIB1_2/QSB_6B/WDQSB_6
DDBIB1_1/QSB_5B/WDQSB_5
DDBIB1_0/QSB_4B/WDQSB_4
DDBIB0_3/QSB_3B/WDQSB_3
DDBIB0_2/QSB_2B/WDQSB_2
DDBIB0_1/QSB_1B/WDQSB_1
DDBIB0_0/QSB_0B/WDQSB_0
EDCB1_3/QSB_7/RDQSB_7
EDCB1_2/QSB_6/RDQSB_6
EDCB1_1/QSB_5/RDQSB_5
EDCB1_0/QSB_4/RDQSB_4
EDCB0_3/QSB_3/RDQSB_3
EDCB0_2/QSB_2/RDQSB_2
EDCB0_1/QSB_1/RDQSB_1
EDCB0_0/QSB_0/RDQSB_0
RASB1B
RASB0B
ADBIB1/ODTB1
ADBIB0/ODTB0
MAB1_1/MAB_9
MAB1_0/MAB_8
MAB0_7/MAB_7
MAB0_6/MAB_6
MAB0_5/MAB_5
MAB0_4/MAB_4
MAB0_3/MAB_3
MAB0_2/MAB_2
MAB1_7/BA1
MAB1_6/BA0
MAB1_5/BA2
MAB1_4/MAB_12
MAB1_3/MAB_11
MAB1_2/MAB_10
MAB0_1/MAB_1
MAB0_0/MAB_0
DRAM_RST
WCKB1B_1/DQMB_7
WCKB1_1/DQMB_6
WCKB1B_0/DQMB_5
WCKB1_0/DQMB_4
WCKB0B_1/DQMB_3
WCKB0_1/DQMB_2
WCKB0B_0/DQMB_1
WCKB0_0/DQMB_0
CSB1B_1
CSB1B_0
CSB0B_1
CSB0B_0
CLKTESTB
CLKTESTA
CLKB1B
CLKB1
CLKB0B
CLKB0
CKEB1
CKEB0
CASB1B
CASB0B
TESTEN
MVREFSB
MVREFDB
DQB0_9/DQB_9
DQB0_8/DQB_8
DQB0_7/DQB_7
DQB1_31/DQB_63
DQB1_30/DQB_62
DQB1_29/DQB_61
DQB1_28/DQB_60
DQB0_6/DQB_6
DQB1_27/DQB_59
DQB1_26/DQB_58
DQB1_25/DQB_57
DQB1_24/DQB_56
DQB1_23/DQB_55
DQB1_22/DQB_54
DQB1_21/DQB_53
DQB1_20/DQB_52
DQB1_19/DQB_51
DQB1_18/DQB_50
DQB0_5/DQB_5
DQB1_17/DQB_49
DQB1_16/DQB_48
DQB1_15/DQB_47
DQB1_14/DQB_46
DQB1_13/DQB_45
DQB1_12/DQB_44
DQB1_11/DQB_43
DQB1_10/DQB_42
DQB1_9/DQB_41
DQB1_8/DQB_40
DQB0_4/DQB_4
DQB1_7/DQB_39
DQB1_6/DQB_38
DQB1_5/DQB_37
DQB1_4/DQB_36
DQB1_3/DQB_35
DQB1_2/DQB_34
DQB1_1/DQB_33
DQB1_0/DQB_32
DQB0_31/DQB_31
DQB0_30/DQB_30
DQB0_3/DQB_3
DQB0_29/DQB_29
DQB0_28/DQB_28
DQB0_27/DQB_27
DQB0_26/DQB_26
DQB0_25/DQB_25
DQB0_24/DQB_24
DQB0_23/DQB_23
DQB0_22/DQB_22
DQB0_21/DQB_21
DQB0_20/DQB_20
DQB0_2/DQB_2
DQB0_19/DQB_19
DQB0_18/DQB_18
DQB0_17/DQB_17
DQB0_16/DQB_16
DQB0_15/DQB_15
DQB0_14/DQB_14
DQB0_13/DQB_13
DQB0_12/DQB_12
DQB0_11/DQB_11
DQB0_10/DQB_10
DQB0_1/DQB_1
DQB0_0/DQB_0
BI
BI
BI
BI
BI
BI
BI
BI
BI
BI
BI
BI
BI
BI
BI
BI
BI
BI
BI
BI
BI
BI
BI
BI

1.0V,1.1A
1.8V,0.04A
1.0V,0.1A
GDDR5 900MHZ,1.5V,2.3A(PEAK)
VDDC+VDDCI=43.3A(PEAK)
GPU POWER
1.8V,0.44A
1.8V,0.04A
1.8V,0.017A
3.3V,0.06A
1.8V,0.17A
VDDC+VDDCI=43.3A(PEAK)
WAITING POWER DESIGN
VOLTAGE SENESE
1.8V,0.15A
BIF_VDDC IS SEPARATE CORE
POWER FOR THE PCIE BUS LOGIC.
1.8V,0.05A
Follow GDDR3 ORB
THAT HAVE A CHANGE OF REFERENCE PLANE
ONE CAP PER THREE SIGNALS
VOLTAGE.ADD STITCHING CAPS WHEN REQUIRED,
STITCHING CAPS OPTION FOR MEM SIGNALS
9789
MODEL,PROJECT,FUNCTION
X01
XXX
1310xxxxx-0-0
21-OCT-2002
2
1
C5278
2
1
C5280
2
1
C5286
2
1
C5277
2
1
C5279
2
1
C5285
2
1
C5292
2
1
C5299
2
1
C5309
2
1
C5311
2
1
C5317
2
1
C5323
2
1
C5329
2
1
C5315
2
1
C5322
2
1
C5327
2
1
C5333
2
1
C5340
2
1
C5308
2
1
C5296
2
1
C5303
2
1
C5291
2
1
C5061
2
1
C5284
2
1
C5290
2
1
C5295
2
1
C5302
2
1
C5307
2
1
C5314
2
1
C5321
2
1
C5326
2
1
C5332
2
1
C5337
2
1
C5062
2
1
C5064
2
1
C5298
2
1
C5304
2
1
C5310
2
1
C5063
2
1
C5065
2
1
C5066
2
1
C5056
2
1
C5058
2
1
C5060
2
1
L5057
2
1
C5059
2
1
C5241
2
1
C5244
2
1
C5236
2
1
C5239
2
1
C5232
2
1
C5229
2
1
C5248
2
1
C5252
2
1
C5254
2
1
C5259
2
1
C5266
2
1
C5271
2
1
C5234
2
1
C5237
2
1
C5270
2
1
C5265
2
1
C5258
2
1
C5253
2
1
C5251
2
1
C5247
2
1
C5246
2
1
C5240
2
1
L5336
2
1
L5233
2
1
L5250
2
1
L5249
2
1
L5230
2
1
C5231
2
1
C5235
2
1
L5243
2
1
C5260
2
1
C5267
2
1
C5275
2
1
C5257
2
1
C5264
2
1
C5276
2
1
C5245
2
1
C5238
2
1
C5242
2
1
C5263
2
1
C5269
2
1
C5274
2
1
C5256
2
1
C5273
2
1
C5268
2
1
C5262
2
1
C5255
2
1
C5272
2
1
C5261
2
1
C5281
2
1
C5287
2
1
C5283
2
1
C5289
2
1
C5294
2
1
C5301
2
1
C5306
2
1
C5313
2
1
C5320
2
1
C5325
2
1
C5331
2
1
C5339
2
1
C5312
2
1
C5319
2
1
C5324
2
1
C5330
2
1
C5338
2
1
C5305
2
1
C5300
2
1
C5293
2
1
C5288
2
1
C5282
2
1
C5335
2
1
C5328
2
1
C5318
2
1
C5334
2
1
C5297
2
1
C5316
AG15
AG13
AG11
AF15
AF13
AF12
AF11
AD12
AG24
AG23
AF24
AF23
G14
G11
AL9
AK8
AJ7
AG10
Y7
Y11
U7
U11
R11
AF7
P7
N11
M11
L7
L26
L23
L21
L16
L12
K8
AD11
K13
K11
J9
J7
H10
G29
G26
G23
G20
G17
AC7
M18
M16
M15
AD16
AD13
AC15
AC12
Y13
V15
T15
AB13
T12
R16
R13
R12
N22
N20
N17
N15
N13
M23
AA13
T27
N27
AB21
AB18
AB16
AA27
Y28
Y26
Y23
Y21
Y18
Y16
V27
V24
V22
AA24
V20
V17
U26
U23
U21
U18
U16
T24
T22
AA22
T20
T17
R26
R23
R21
R18
N24
M26
AH28
AA20
AH27
AH22
AG21
AG18
AG16
AF22
AF20
AF17
AD26
AD23
AA17
AD21
AD18
AC27
AC24
AC22
AC20
AC17
AB28
AB26
AB23
AA15
AG27
AG26
AF27
AF26
AN10
AM10
AN9
AB37
Y31
W30
W29
V28
AA34
AA33
AA32
AA31
N28
M28
L28
J30
J29
H30
H29
G31
U28
T28
R28
G30
U12
M21
V12
M20
H8
H7
AG28
AF28
AH29
U5124
1UF_6.3V_2
1UF_6.3V_2
1UF_6.3V_2
1UF_6.3V_2
1UF_6.3V_2
1UF_6.3V_2
1UF_6.3V_2
0.1UF_16V_2
1UF_6.3V_2
10UF_6.3V_3
0.1UF_16V_2
SPV10
FBM_11_160808_121T
SPV18
0.1UF_16V_2
AMD_216_0810_001_FCBGA_962P
1UF_6.3V_2
P1V5_GPUS
PCIE_PVDD
1UF_6.3V_2
1UF_6.3V_2
PCIE_VDDR
0.1UF_16V_2
0.1UF_16V_2
0.1UF_16V_2
0.1UF_16V_2
0.1UF_16V_2
0.1UF_16V_2
10UF_6.3V_3
10UF_6.3V_3
P1V8_GPUS
FBM_11_160808_121T
P3V3_GPUS
PCIE_PVDD
P1V8_GPUS
FBM_11_160808_121T
10UF_6.3V_3
1UF_6.3V_2
P1V8_GPUS
FBM_11_160808_121T
P1V8_GPUS
FBM_11_160808_121T
P1V0_GPU
10UF_6.3V_3
10UF_6.3V_3
10UF_6.3V_3
PVCORE_GPU
1UF_6.3V_2
1UF_6.3V_2
1UF_6.3V_2
BIF_VDDC
P1V8_GPUS
BLM18PG600SN1D
P1V0_GPU
10UF_6.3V_3
1UF_6.3V_2
1UF_6.3V_2
1UF_6.3V_2
10UF_6.3V_3 1UF_6.3V_2
1UF_6.3V_2
1UF_6.3V_2
1UF_6.3V_2
1UF_6.3V_2
10UF_6.3V_3
0.1UF_16V_2
1UF_6.3V_2
FBM_11_160808_121T
10UF_6.3V_3
1UF_6.3V_2
1UF_6.3V_2
1UF_6.3V_2
1UF_6.3V_2
10UF_6.3V_3
1UF_6.3V_2
10UF_6.3V_3
1UF_6.3V_2
1UF_6.3V_2
10UF_6.3V_3
10UF_6.3V_3
0.1UF_16V_2
1UF_6.3V_2
1UF_6.3V_2
1UF_6.3V_2
1UF_6.3V_2
1UF_6.3V_2
1UF_6.3V_2
1UF_6.3V_2
1UF_6.3V_2
1UF_6.3V_2
1UF_6.3V_2
1UF_6.3V_2
1UF_6.3V_2
1UF_6.3V_2
1UF_6.3V_2
1UF_6.3V_2
1UF_6.3V_2
1UF_6.3V_2
1UF_6.3V_2
1UF_6.3V_2
1UF_6.3V_2
10UF_6.3V_3
10UF_6.3V_3
10UF_6.3V_3
10UF_6.3V_3
0.1UF_16V_2
1UF_6.3V_2
1UF_6.3V_21UF_6.3V_20.1UF_16V_2
1UF_6.3V_2
1UF_6.3V_2
1UF_6.3V_2
1UF_6.3V_2
1UF_6.3V_2
1UF_6.3V_2
1UF_6.3V_2
1UF_6.3V_2
1UF_6.3V_2
1UF_6.3V_2
1UF_6.3V_2
1UF_6.3V_2
1UF_6.3V_210UF_6.3V_3
10UF_6.3V_3
10UF_6.3V_3
10UF_6.3V_3
10UF_6.3V_3
10UF_6.3V_3
10UF_6.3V_3
10UF_6.3V_3
10UF_6.3V_3
1UF_6.3V_2
1UF_6.3V_2
1UF_6.3V_2
1UF_6.3V_2
1UF_6.3V_2
1UF_6.3V_2
1UF_6.3V_2
0.1UF_16V_2
P1V8_GPUS
PVCORE_GPU
VDD_CT
MVP18
VDDR4
BEN LEE
1
A01
Block Diagram
Everest Main Board
February 22, 2010
1
CS_1310AXXXXXX-MTR
CS
C
TITLE
DATE
CODE
SIZE
1
E
D
C
B
A
7 6 5 4 3 2
1
7 6 5 4 3
E
D
C
B
A
FF
8
of
CHANGE by
8
REV
DOC.NUMBER
SHEET
2
INVENTEC
SENESE
VOLTAGE
CORE I/O
ISOLATED
TRANSLATION
LEVEL
I/O
MEM I/O
CORE
PCIE
PLL
POWER
FB_GND
FB_VDDCI
FB_VDDC
VDDC#30
VDDC#29
VDDCI#22
VDDCI#1
VDDCI#19
VDDCI#16
VDDCI#11
VDDCI#7
VDDC#8
VDDC#7
VDDC#58
VDDC#57
VDDC#56
VDDCI#2
VDDC#55
VDDC#54
VDDC#53
VDDC#52
VDDC#51
VDDC#50
VDDC#49
VDDC#48
VDDCI#21
VDDC#47
VDDC#6
VDDC#46
VDDC#45
VDDC#44
VDDC#43
VDDC/BIF_VDDC#42
VDDC#41
VDDC#40
VDDC#39
VDDC#38
VDDCI#20
VDDC#5
VDDC#37
VDDC#36
VDDC#35
VDDC#34
VDDCI#18
VDDCI#17
VDDC/BIF_VDDC#33
VDDC#32
VDDCI#15
VDDCI#14
VDDC#4
VDDCI#13
VDDCI#12
VDDC#31
VDDCI#10
VDDCI#9
VDDCI#8
VDDC#28
VDDC#27
VDDC#26
VDDC#25
VDDC#3
VDDC#24
VDDC#23
VDDC#22
VDDC#21
VDDC#20
VDDC#19
VDDC#18
VDDCI#6
VDDCI#5
VDDC#17
VDDC#2
VDDC#16
VDDC#15
VDDC#14
VDDC#13
VDDCI#4
VDDCI#3
VDDC#12
VDDC#11
VDDC#10
VDDC#9
VDDC#1
VDD_CT#4
VDD_CT#3
VDD_CT#2
VDD_CT#1
NC_VSSRHB
NC_VSSRHA
NC_VDDRHB
NC_VDDRHA
VDDR4#6
VDDR4#3
VDDR4#2
VDDR4#1
VDDR4#8
VDDR4#7
VDDR4#5
VDDR4#4
VDDR3#4
VDDR3#3
VDDR3#2
VDDR3#1
VDDR1#9
VDDR1#8
VDDR1#7
VDDR1#6
VDDR1#5
VDDR1#4
VDDR1#34
VDDR1#33
VDDR1#32
VDDR1#31
VDDR1#30
VDDR1#3
VDDR1#29
VDDR1#28
VDDR1#27
VDDR1#26
VDDR1#25
VDDR1#24
VDDR1#23
VDDR1#22
VDDR1#21
VDDR1#20
VDDR1#2
VDDR1#19
VDDR1#18
VDDR1#17
VDDR1#16
VDDR1#15
VDDR1#14
VDDR1#13
VDDR1#12
VDDR1#11
VDDR1#10
VDDR1#1
SPVSS
SPV10
PCIE_VDDR#8
PCIE_VDDR#7
PCIE_VDDR#6
PCIE_VDDR#5
PCIE_VDDR#4
PCIE_VDDR#3
PCIE_VDDR#2
PCIE_VDDR#1
PCIE_VDDC#9
PCIE_VDDC#8
PCIE_VDDC#7
PCIE_VDDC#6
PCIE_VDDC#5
PCIE_VDDC#4
PCIE_VDDC#3
PCIE_VDDC#2
PCIE_VDDC#12
PCIE_VDDC#11
PCIE_VDDC#10
PCIE_VDDC#1
SPV18
MPV18#2
MPV18#1
PCIE_VDDR/PCIE_PVDD

BACO
PX_MODE=0, FOR BACO MODE
PX_MODE=1, FOR NORMAL MODE
9790
MODEL,PROJECT,FUNCTION
X01
XXX
1310xxxxx-0-0
21-OCT-2002
P1V0_GPU
4.7UF_6.3V_3
AB24
Everest Main Board
Block Diagram
February 22, 2010
C
CS
CS_1310AXXXXXX-MTR
1
A01
1
BEN LEE
AMD_216_0810_001_FCBGA_962P
AM2302N
P5V_S
SSM3K7002BFU
PVCORE_GPU
10K_5%_2
1K_5%_2
4.7UF_6.3V_3
ALPHA_AO3416_SOT23_3P
VPCIE_ON
VDDC_ON
PX_EN
VPCIE_ON
VDDC_ON
0_5%_2
PX_MODE
SSM3K7002BFU
0_5%_3_DY
U5124
A3
AA6
F15
F17
F19
F21
F23
F25
F27
F29
F31
F33
AB12
F7
F9
G2
G6
H9
J2
J27
J6
J8
K14
AB15
K7
L11
L17
L2
L22
L24
L6
M17
M22
M24
N16
N18
N2
N21
N23
N26
N6
R15
R17
R2
AB20
R20
R22
R24
R27
R6
T11
T13
T16
T18
T21
AB22
T23
T26
U13
U15
U17
U2
U20
U22
U24
U27
U6
V11
V13
V16
V18
V21
V23
V26
W2
W6
AB27
Y15
Y17
Y20
Y22
Y24
Y27
AC11
AC13
A37
AC16
AC18
AC2
AC21
AC23
AC26
AC28
AC6
AD15
AD17
AA16
AD20
AD22
AD24
AD27
AD9
AE2
AE6
AF10
AF16
AF18
AA18
AF21
AG17
AG2
AG20
AG22
AG6
AG9
AH21
AJ10
AJ11
AA2
AJ2
AJ28
AJ6
AK11
AK31
AK7
AL11
AL14
AL17
AL2
AA21
AL20
AL23
AL26
AL32
AL6
AL8
AM11
AM31
AM9
AA23
AN11
AN2
AN30
AN6
AN8
AP11
AP7
AP9
AR5
B11
AA26
B13
B15
B17
B19
B21
B23
B25
B27
B29
B31
AA28
B33
B7
B9
C1
C39
E35
E5
F11
F13
AL21
AB39
J31
J34
K31
K34
K39
L31
L34
M39
N31
E39
N34
P31
P34
P39
R34
T31
T34
T39
U31
U34
F34
V34
V39
W31
W34
Y34
Y39
F39
G33
G34
H31
H34
H39
A39
AW1
AW39
Q5341
1
2
R5342
1
2
1
4
1
24
5
1
2
Q5351
2
Q5072
3
2
1
2
R5353
1
2
1
2
3
1
Q5069
D
G
S
C5347
1
2
1
1
2
1
2
Q5343
3
1
2
1
2
M34
5
1
3
10K_5%_2
2
C5345
P3V3_S
SSM3K7002BFU
P3V3_S
C5348
0.1UF_16V_2
R5352
1K_5%_2
3
TC7SZ08FU
R5068
0_5%_2_DY
2
2
11
P3V3_S
AB17
TC7SZ08FU
3
SSM3K7002BFU
DGPU_PWR_EN#
R5344
P3V3_GPUS
3
Q5070
C5346
DGPU_PWROK
R5071
U5349
U5067
PX_EN#
2
0.1UF_16V_2
VDDC_GPU_PG
PX_MODE
PVCORE_GPU
R5350
BIF_VDDC
TITLE
DATE
CODE
SIZE
1
E
D
C
B
A
7 6 5 4 3 2
1
7 6 5 4 3
E
D
C
B
A
FF
8
of
CHANGE by
8
REV
DOC.NUMBER
SHEET
2
INVENTEC
+
-
G
DS
IN
OUT
G
DS
IN
S
G
D
G
S D
IN
G
D S
OUT
OUT
OUT
G
DS
G
DS
+
-
IN
GND
GND#162
GND#152
GND#97
GND#96
GND#95
GND#94
GND#93
GND#92
GND#91
GND#90
GND#89
GND#88
GND#9
GND#87
GND#86
GND#85
GND#84
GND#83
GND#82
GND#81
GND#80
GND#79
GND#8
GND#78
GND#77
GND#76
GND#75
GND#74
GND#73
GND#72
GND#71
GND#70
GND#69
GND#7
GND#68
GND#67
GND#66
GND#65
GND#64
GND#63
GND#62
GND/PX_EN#61
GND#60
GND#59
GND#6
GND#58
GND#57
GND#56
GND#55
GND#54
GND#53
GND#52
GND#51
GND#50
GND#49
GND#5
GND#48
GND#47
GND#46
GND#45
GND#44
GND#43
GND#42
GND#41
GND#40
GND#4
GND#39
GND#38
GND#37
GND#36
GND#35
GND#34
GND#33
GND#32
GND#31
GND#30
GND#3
GND#29
GND#28
GND#27
GND#26
GND#25
GND#24
GND#23
GND#22
GND#21
GND#20
GND#2
GND#19
GND#18
GND#175
GND#174
GND#173
GND#172
GND#171
GND#17
GND#170
GND#169
GND#168
GND#167
GND#166
GND#165
GND#164
GND#163
GND#161
GND#160
GND#16
GND#159
GND#158
GND#157
GND#156
GND#155
GND#154
GND#153
GND#151
GND#150
GND#149
GND#15
GND#148
GND#147
GND#146
GND#145
GND#144
GND#143
GND#142
GND#141
GND#140
GND#139
GND#14
GND#138
GND#137
GND#136
GND#135
GND#134
GND#133
GND#132
GND#131
GND#130
GND#129
GND#13
GND#128
GND#127
GND#126
GND#125
GND#124
GND#123
GND#122
GND#121
GND#120
GND#119
GND#12
GND#118
GND#117
GND#116
GND#115
GND#114
GND#113
GND#112
GND#111
GND#110
GND#109
GND#11
GND#108
GND#107
GND#106
GND#105
GND#104
GND#103
GND#102
GND#101
GND#100
GND#98
GND#10
GND#1
VSS_MECH#3
VSS_MECH#2
VSS_MECH#1
PCIE_VSS#9
PCIE_VSS#8
PCIE_VSS#7
PCIE_VSS#6
PCIE_VSS#5
PCIE_VSS#4
PCIE_VSS#35
PCIE_VSS#34
PCIE_VSS#33
PCIE_VSS#32
PCIE_VSS#31
PCIE_VSS#30
PCIE_VSS#3
PCIE_VSS#29
PCIE_VSS#28
PCIE_VSS#27
PCIE_VSS#26
PCIE_VSS#25
PCIE_VSS#24
PCIE_VSS#23
PCIE_VSS#22
PCIE_VSS#21
PCIE_VSS#20
PCIE_VSS#2
PCIE_VSS#19
PCIE_VSS#18
PCIE_VSS#17
PCIE_VSS#16
PCIE_VSS#15
PCIE_VSS#14
PCIE_VSS#13
PCIE_VSS#12
PCIE_VSS#11
PCIE_VSS#10
PCIE_VSS#1

1.8V,0.33A
1.8V,0.33A
SUPPORT FUTURE GPU MULTI
1.0V,0.33A
1.0V,0.22A
FUTURE ASIC
1.0V,0.33A
PS_0: BALL AM34
ADD THESE BOM OPTIONS TO
LEVEL PIN STRAPS FEATURE.
40MILL 40MILL
1.8V,0.33A
91
97
XXX
21-OCT-2002
MODEL,PROJECT,FUNCTION
1310xxxxx-0-0
X01
2
1
C5076
2
1
R5075
2
1
R5074
2
1
R5073
2
1
C5379
2
1
C5376
2
1
C5373
2
1
C5380
2
1
C5377
2
1
C5374
2
1
C5381
2
1
C5378
2
1
C5375
2
1
C5361
2
1
C5364
2
1
C5367
2
1
C5360
2
1
C5363
2
1
C5366
2
1
L5371
2
1
L5369
2
1
L5357
2
1
L5355
2
1
L5368
2
1
L5354
2
1
R5372
2
1
R5370
2
1
R5358
2
1
R5356
2
1
C5365
2
1
C5362
2
1
C5359
2
1
R5384
2
1
R5382
2
1
R5383
AK27
AF35
AG36
AG38
AH37
AH35
AJ36
AJ38
AK37
AN36
AP37
AP35
AR35
AR37
AU39
AW37
AU35
AK35
AL36
AP34
AR34
AJ27
U5124
AL38
AM37
AM39
AG34
AF34
AK34
AK33
AJ34
AH34
AM33
AL33
AV19
AU18
AW18
AP23
AP22
AP15
AP14
AP21
AP20
AT13
AP13
AV29
AU28
AW28
AP26
AP25
AP33
AN33
AP24
AN24
AP32
AP31
AM35
AN38
AR18
AV17
AR28
AV27
AM34
AL34
AK39
AH39
AF39
AU37
AR39
AP39
AN34
AW22
AW20
AP19
AP18
AN19
AW16
AW14
AP17
AP16
AN17
AW32
AW30
AP30
AP29
AN29
AW26
AW24
AP28
AP27
AN27
U5124
1UF_6.3V_2
0.1UF_16V_2
10K_5%_2_DY
DPEF_VDD18
DPEF_VDD18
DPCD_VDD18
DPCD_VDD18
DPAB_VDD18
DPAB_VDD18
DPAB_VDD10
DPAB_VDD18
DPAB_VDD10
DPAB_VDD18
DPCD_VDD18
DPCD_VDD10 DPCD_VDD18
DPCD_VDD10
DPEF_VDD10 DPEF_VDD18
DPEF_VDD10 DPEF_VDD18
0_1%_3
DPEF_VDD10
10UF_6.3V_3
0.1UF_16V_2
1UF_6.3V_2
10UF_6.3V_3
0_1%_3
0_1%_3
150_1%_2
10UF_6.3V_3
1UF_6.3V_2
AMD_216_0810_001_FCBGA_962P
AMD_216_0810_001_FCBGA_962P
150_1%_2 150_1%_2
0_1%_3
BLM18PG181SN1D
BLM18PG181SN1D
BLM18PG181SN1D_DY
BLM18PG181SN1D_DY
BLM18PG181SN1D_DY
BLM18PG181SN1D_DY
1UF_6.3V_2
10UF_6.3V_3
10UF_6.3V_3
1UF_6.3V_2
10UF_6.3V_3
1UF_6.3V_2
0_5%_2
10K_5%_2_DY 0.1UF_16V_2_DY
0.1UF_16V_20.1UF_16V_2
0.1UF_16V_20.1UF_16V_2
P1V0_GPU
DPEF_VDD18
DPCD_VDD10
DPAB_VDD10DPCD_VDD18
P1V8_GPUS
P1V8_GPUS
DPAB_VDD18
C
CS_1310AXXXXXX-MTR
A01
BEN LEE
February 22, 2010
1 1
Everest Main Board
Block Diagram
CS
REV
INVENTEC
3 2
CHANGE by
TITLE
SHEET
of
1
4
A A
B B
C C
DD
1
23
45
56
67
78
8
CODE
SIZE
DATE
DOC.NUMBER
LVDS CONTROL
LVTMDP
VARY_BL
TXOUT_U3P
TXOUT_U3N
TXOUT_U2P_DPF0P
TXOUT_U2N_DPF0N
TXOUT_U1P_DPF1P
TXOUT_U1N_DPF1N
TXOUT_U0P_DPF2P
TXOUT_U0N_DPF2N
TXOUT_L3P
TXOUT_L3N
TXOUT_L2P_DPE0P
TXOUT_L2N_DPE0N
TXOUT_L1P_DPE1P
TXOUT_L1N_DPE1N
TXOUT_L0P_DPE2P
TXOUT_L0N_DPE2N
TXCLK_UP_DPF3P
TXCLK_UN_DPF3N
TXCLK_LP_DPE3P
TXCLK_LN_DPE3N
DIGON
DP E/F POWER
DP C/D POWER DP A/B POWER
DP PLL POWER
DP/DPF_VSSR#5
DP/DPF_VSSR#4
DP/DPF_VSSR#3
DP/DPF_VSSR#2
DP/DPF_VSSR#1
DPEF/DPF_VDD18#2
DPEF/DPF_VDD18#1
DPEF/DPF_VDD10#2
DPEF/DPF_VDD10#1
DP_VSSR/DPF_PVSS
DPEF_VDD18/DPF_PVDD
DPEF_CALR
DP/DPE_VSSR#4
DP/DPE_VSSR#3
DP/DPE_VSSR#2
DP/DPE_VSSR#1
DPEF/DPE_VDD18#2
DPEF/DPE_VDD18#1
DPEF/DPE_VDD10#2
DPEF/DPE_VDD10#1
DP_VSSR/DPE_PVSS
DPEF_VDD18/DPE_PVDD
DP/DPD_VSSR#5
DP/DPD_VSSR#4
DP/DPD_VSSR#3
DP/DPD_VSSR#2
DP/DPD_VSSR#1
DPCD/DPD_VDD18#2
DPCD/DPD_VDD18#1
DPCD/DPD_VDD10#2
DPCD/DPD_VDD10#1
DP_VSSR/DPD_PVSS
DPCD_VDD18/DPD_PVDD
DPCD_CALR
DP/DPC_VSSR#5
DP/DPC_VSSR#4
DP/DPC_VSSR#3
DP/DPC_VSSR#2
DP/DPC_VSSR#1
DPCD/DPC_VDD18#2
DPCD/DPC_VDD18#1
DPCD/DPC_VDD10#2
DPCD/DPC_VDD10#1
DP_VSSR/DPC_PVSS
DPCD_VDD18/DPC_PVDD
DP/DPB_VSSR#5
DP/DPB_VSSR#4
DP/DPB_VSSR#3
DP/DPB_VSSR#2
DP/DPB_VSSR#1
DPAB/DPB_VDD18#2
DPAB/DPB_VDD18#1
DPAB/DPB_VDD10#2
DPAB/DPB_VDD10#1
DP_VSSR/DPB_PVSS
DPAB_VDD18/DPB_PVDD
DPAB_CALR
DP/DPA_VSSR#5
DP/DPA_VSSR#4
DP/DPA_VSSR#3
DP/DPA_VSSR#2
DP/DPA_VSSR#1
DPAB/DPA_VDD18#2
DPAB/DPA_VDD18#1
DPAB/DPA_VDD10#2
DPAB/DPA_VDD10#1
DP_VSSR/DPA_PVSS
DPAB_VDD18/DPA_PVDD

CHANNEL A MEMORY
GDDR5
9792
MODEL,PROJECT,FUNCTION
X01
XXX
1310xxxxx-0-0
21-OCT-2002
2
1
C5506
2
1
C5505
2
1
C5504
2
1
C5503
2
1
C5502
2
1
C5501
2
1
C5499
2
1
C5500
2
1
C5476
2
1
C5475
2
1
C5474
2
1
C5473
2
1
C5472
2
1
C5471
2
1
C5470
2
1
C5469
2
1
C5496
2
1
C5491
2
1
C5483
2
1
C5464
2
1
C5460
2
1
C5081
2
1
C5477
2
1
C5453
2
1
C5454
2
1
C5459
2
1
C5462
2
1
C5463
2
1
C5465
2
1
C5466
2
1
C5467
2
1
C5468
2
1
C5478
2
1
C5479
2
1
C5480
2
1
C5482
2
1
C5486
2
1
C5490
2
1
C5493
2
1
C5498
2
1
R5485
2
1
R5489
2
1
R5456
2
1
R5455
2
1
R5481
2
1
R5090
2
1
C5484
2
1
R5487
2
1
R5488
2
1
C5492
2
1
R5495
2
1
C5497
2
1
R5494
2
1
R5091
2
1
R5092
2
1
R5093
J13
L12
P4
P5
D4
D5
V3
V14
V12
V1
R4
R3
R14
R12
R11
R1
N3
N14
N12
N1
M5
M10
K2
K13
H2
H13
F5
F10
E3
E14
E12
E1
C4
C3
C14
C12
C11
C1
A3
A14
A12
A1
T5
T10
P10
L5
L10
K14
K1
H14
H1
G5
G10
D10
B5
B10
V10
A10
J14
V5
A5
T3
T14
T12
T1
P3
P14
P12
P1
N5
N10
M3
M14
M12
M1
L2
L13
K3
K12
H3
H12
G2
G13
F3
F14
F12
F1
E5
E10
D3
D14
D12
D1
B3
B14
B12
B1
R5
R10
P11
L4
L14
L11
L1
G4
G14
G11
G1
D11
C5
C10
J10
J5
J2
G3
J1
R2
R13
C13
C2
A13
A11
F2
F4
E2
E4
B2
M2
M4
B4
N2
N4
T2
T4
V2
V4
M13
M11
N13
N11
A2
T13
T11
V13
V11
F13
F11
E13
E11
B13
B11
A4
P2
P13
D13
D2
G12
J3
J11
J12
L3
J4
K4
K5
K10
K11
H10
H11
H5
H4
U5094
2
1
R5079
2
1
R5080
2
1
C5082
2
1
C5461
2
1
R5458
2
1
R5457
2
1
C5086
2
1
R5085
2
1
R5084
2
1
R5088
2
1
R5083
2
1
R5087
J13
L12
P4
P5
D4
D5
V3
V14
V12
V1
R4
R3
R14
R12
R11
R1
N3
N14
N12
N1
M5
M10
K2
K13
H2
H13
F5
F10
E3
E14
E12
E1
C4
C3
C14
C12
C11
C1
A3
A14
A12
A1
T5
T10
P10
L5
L10
K14
K1
H14
H1
G5
G10
D10
B5
B10
V10
A10
J14
V5
A5
T3
T14
T12
T1
P3
P14
P12
P1
N5
N10
M3
M14
M12
M1
L2
L13
K3
K12
H3
H12
G2
G13
F3
F14
F12
F1
E5
E10
D3
D14
D12
D1
B3
B14
B12
B1
R5
R10
P11
L4
L14
L11
L1
G4
G14
G11
G1
D11
C5
C10
J10
J5
J2
G3
J1
R2
R13
C13
C2
A13
A11
F2
F4
E2
E4
B2
M2
M4
B4
N2
N4
T2
T4
V2
V4
M13
M11
N13
N11
A2
T13
T11
V13
V11
F13
F11
E13
E11
B13
B11
A4
P2
P13
D13
D2
G12
J3
J11
J12
L3
J4
K4
K5
K10
K11
H10
H11
H5
H4
U5089
P1V5_GPUS
VM_A1_ADA<5>
5
VM_A1_ADA<31..0>
P1V5_GPUS
VM_A0_AA<0>
60.4_1%_2
60.4_1%_2
DDR_A_CKEA0
P1V5_GPUS
0.1UF_16V_2
0.1UF_16V_2
0.1UF_16V_2
0.1UF_16V_2
10UF_6.3V_3
1UF_6.3V_2
1UF_6.3V_2
1UF_6.3V_2
5.49K_1%_2
60.4_1%_2
60.4_1%_2
DDR_A_CASA1#
DDR_A_RASA1#
DDR_A_CKEA1
P1V5_GPUS
P1V5_GPUS
VM_DDBIA0_2
VM_DDBIA0_3
1UF_6.3V_2
0.1UF_16V_2
0.1UF_16V_2
0.1UF_16V_2
0.1UF_16V_2
0.1UF_16V_2
0.1UF_16V_2
0.1UF_16V_2
0.1UF_16V_2
0.1UF_16V_2
0.1UF_16V_2
0.1UF_16V_2
0.1UF_16V_2
1UF_6.3V_2_DY
1UF_6.3V_2_DY
1UF_6.3V_2_DY
1UF_6.3V_2_DY
1UF_6.3V_2_DY
1UF_6.3V_2_DY
10UF_6.3V_3
1UF_6.3V_2
1UF_6.3V_2
1UF_6.3V_2
1UF_6.3V_2
1UF_6.3V_2
1UF_6.3V_2
1UF_6.3V_2
1UF_6.3V_2
1UF_6.3V_2
1UF_6.3V_2
1UF_6.3V_2
2.37K_1%_2
1UF_6.3V_2
2.37K_1%_25.49K_1%_2
1UF_6.3V_2
5.49K_1%_2
1UF_6.3V_2
2.37K_1%_2
0_5%_2_DY
120_1%_2
0_5%_2
HYNIX_H5GQ2H24MFR_T2C_BGA_170P
2.37K_1%_25.49K_1%_2
1UF_6.3V_2
1UF_6.3V_2
5.49K_1%_2 2.37K_1%_2
1UF_6.3V_2
5.49K_1%_2 2.37K_1%_2
0_5%_2
0_5%_2_DY
120_1%_2
HYNIX_H5GQ2H24MFR_T2C_BGA_170P
1UF_6.3V_2
P1V5_GPUS P1V5_GPUS
P1V5_GPUS
P1V5_GPUSP1V5_GPUS
P1V5_GPUS
P1V5_GPUS
P1V5_GPUS
P1V5_GPUS
VM_WCKA1_0_DN
VM_WCKA1_1_DN
VM_A1_AA<6>
VM_A1_AA<5>
14
VM_A1_ADA<14>
VM_A1_ADA<15>
VM_A1_ADA<13>
VM_A1_ADA<9>
VM_A1_ADA<8>
VM_A1_ADA<11>
VM_A1_ADA<0>
VM_A1_ADA<12>
VM_A1_ADA<31>
6
4
7
3
2
1
0
11
10
8
9
12
13
31
24
30
26
29
25
28
27
18
21
17
22
23
16
20
0
1
3
2
5
4
7
6
29
27
31
25
28
24
16
20
17
21
18
22
19
23
5
6
3
7
4
2
1
0
11
10
8
9
14
12
13
15
7
6
5
3
2
1
0
VM_A1_ADA<6>
VM_A1_ADA<7>
VM_A1_ADA<2>
VM_A1_ADA<1>
VM_A1_ADA<10>
VM_A1_ADA<24>
VM_A1_ADA<30>
VM_A1_ADA<26>
VM_A1_ADA<29>
VM_A1_ADA<25>
VM_A1_ADA<28>
VM_A1_ADA<27>
VM_A1_ADA<18>
VM_A1_ADA<17>
VM_A1_ADA<22>
VM_A1_ADA<19>
VM_A1_ADA<23>
VM_A1_ADA<16>
VM_A1_ADA<20>
VM_A1_AA<2>
VM_A1_AA<0>
VM_A1_AA<1>
VM_A1_AA<4>
VM_A1_AA<3>
VM_EDCA1_3
VM_EDCA1_1
VM_DDBIA1_1
DDR_A_CLK1_DN
VM_REFDC_A1
VM_REFD2_A1
VM_REFD1_A1
VM_A0_ADA<31>
VM_A0_ADA<28>
VM_A0_ADA<19>
VM_A0_ADA<23>
VM_A0_ADA<5>
VM_A0_ADA<6>
VM_A0_ADA<3>
VM_A0_ADA<4>
VM_A0_ADA<1>
VM_A0_ADA<11>
VM_A0_ADA<8>
VM_A0_ADA<12>
VM_A0_AA<2>
VM_DDBIA0_0
DDR_A_RASA0#
VM_A0_AA<7..0>
VM_A0_AA<8>
DDR_A_CLK0_DN
DDR_A_CLK0_DP
DDR_A_WEA0#
VM_REFD1_A0
BEN LEE
1
A01
Block Diagram
Everest Main Board
February 22, 2010
1
CS
C
CS_1310AXXXXXX-MTR
VM_A0_ADA<22>
VM_A1_ADA<4>
VM_A1_ADA<3>
VM_A0_ADA<13>
VM_A0_AA<3>
VM_A0_AA<4>
26
VM_A0_ADA<31..0>
30
VM_WCKA0_0_DP
4
VM_A0_ADA<24>
VM_A1_AA<8>
VM_A1_AA<7..0>
VM_A1_AA<7>
VM_EDCA1_0
VM_ADBIA0
DDR_A_CLK1_DP
VM_EDCA0_0
VM_A0_ADA<30>
VM_A0_ADA<26>
VM_A0_ADA<29>
VM_A0_ADA<27>
VM_A0_ADA<25>
VM_A0_ADA<16>
VM_A0_ADA<20>
VM_A0_ADA<7>
VM_A0_ADA<2>
VM_A0_ADA<0>
VM_A0_ADA<10>
VM_A0_ADA<9>
VM_A0_ADA<14>
VM_A0_ADA<15>
VM_A0_AA<7>
VM_A0_AA<6>
VM_A0_AA<5>
VM_WCKA0_0_DN
VM_WCKA0_1_DP
VM_WCKA0_1_DN
VM_EDCA0_3
VM_EDCA0_2
VM_EDCA0_1
VM_DDBIA0_1
DDR_A_CASA0#
DDR_A_CSA0#_0
VM_RESET
VM_A1_ADA<21>
VM_WCKA1_0_DP
19
VM_DDBIA1_2
VM_DDBIA1_3
DDR_A_CSA1#_0
DDR_A_WEA1#
VM_A0_AA<1>
VM_DDBIA1_0
VM_WCKA1_1_DP
VM_EDCA1_2
VM_RESET
VM_ADBIA1
VM_REFD2_A0
VM_REFDC_A0
VM_A0_ADA<18>
VM_A0_ADA<21>
VM_A0_ADA<17>
15
TITLE
DATE
CODE
SIZE
1
E
D
C
B
A
7 6 5 4 3 2
1
7 6 5 4 3
E
D
C
B
A
FF
8
of
CHANGE by
8
REV
DOC.NUMBER
SHEET
2
INVENTEC
BI
BI
BI
BI
BI
BI
BI
BI
BI
BI
BI
BI
BI
BI
BI
BI
BI
BI
BI
BI
BI
BI
BI
BI
VSS-B5
VSS-B10
VSS-D10
VSS-G5
VSS-G10
VSS-H1
VSS-H14
VSS-K1
VSS-K14
VSS-L5
VSS-L10
VSS-P10
VSS-T5
VSS-T10
SEN
VSSQ-V14
VSSQ-V12
VSSQ-V3
VSSQ-V1
VSSQ-R14
VSSQ-R12
VSSQ-R11
VSSQ-R4
VSSQ-R3
VSSQ-R1
VSSQ-N1
VSSQ-N14
VSSQ-N12
VSSQ-N3
VSSQ-M10
VSSQ-M5
VSSQ-K13
VSSQ-K2
VSSQ-H13
VSSQ-H2
VSSQ-F10
VSSQ-F5
VSSQ-E14
VSSQ-E12
VSSQ-E3
VSSQ-E1
VSSQ-C14
VSSQ-C12
VSSQ-C11
VSSQ-C4
VSSQ-C3
VSSQ-C1
VSSQ-A14
VSSQ-A12
VSSQ-A3
VSSQ-A1
ZQ
VREFC
VDD-R10
VDD-R5
VDD-P11
VDD-L14
VDDQ-T14
VDDQ-T12
VDDQ-T3
VDDQ-T1
VDDQ-P14
VDDQ-P12
VDDQ-P3
VDDQ-P1
VDDQ-N10
VDDQ-N5
VDDQ-M14
VDDQ-M12
VDDQ-M3
VDDQ-M1
Vpp,NC1
Vpp,NC
WCK23#|WCK01#
WCK23|WCK01
WCK01#|WCK23#
WCK01|WCK23
RFU/A12/NC
VREFD2
VREFD1
MF
VDD-L11
VDD-L4
VDDQ-L13
VDDQ-L2
VDDQ-K12
VDDQ-K3
VDDQ-H12
VDDQ-H3
WE#|CS#
VDD-L1
VDD-G14
VDD-G11
VDD-G4
VDD-G1
VDD-D11
VDD-C10
VDD-C5
VDDQ-G13
VDDQ-G2
VDDQ-F14
VDDQ-F12
VDDQ-E10
DBI3#|DBI0#
DBI2#|DBI1#
DBI1#|DBI2#
DBI0#|DBI3#
EDC3|EDC0
EDC2|EDC1
EDC1|EDC2
EDC0|EDC3
VDDQ-E5
VDDQ-D14
VDDQ-D12
VDDQ-D3
VDDQ-D1
VDDQ-B14
VDDQ-B12
VDDQ-B3
VDDQ-B1
A5/BA1|A3/BA3
CK#
CK
VDDQ-F1
A1/A9|A6/A11
CKE#
RESET#
A2/BA0|A4/BA2
RAS#|CAS#
A6/A11|A1/A9
A7/A8|A0/A10
A4/BA2|A2/BA0
A0/A10|A7/A8
A3/BA3|A5/BA1
CS#|WE#
CAS#|RAS#
DQ0|DQ24
DQ1|DQ25
DQ2|DQ26
DQ3|DQ27
DQ4|DQ28
DQ5|DQ29
DQ6|DQ30
DQ7|DQ31
DQ8|DQ16
DQ9|DQ17
DQ10|DQ18
DQ11|DQ19
DQ12|DQ20
DQ13|DQ21
DQ14|DQ22
DQ15|DQ23
DQ16|DQ8
DQ17|DQ9
DQ18|DQ10
DQ19|DQ11
DQ20|DQ12
DQ21|DQ13
DQ22|DQ14
DQ23|DQ15
DQ24|DQ0
DQ25|DQ1
DQ26|DQ2
DQ27|DQ3
DQ28|DQ4
DQ29|DQ5
DQ30|DQ6
DQ31|DQ7
ABI#
VDDQ-F3
BI
BI
BI
BI
BI
BI
BI
BI
BI
BI
BI
BI
BI
BI
BI
BI
BI
BI
BI
BI
BI
BI
BI
BI
VSS-B5
VSS-B10
VSS-D10
VSS-G5
VSS-G10
VSS-H1
VSS-H14
VSS-K1
VSS-K14
VSS-L5
VSS-L10
VSS-P10
VSS-T5
VSS-T10
SEN
VSSQ-V14
VSSQ-V12
VSSQ-V3
VSSQ-V1
VSSQ-R14
VSSQ-R12
VSSQ-R11
VSSQ-R4
VSSQ-R3
VSSQ-R1
VSSQ-N1
VSSQ-N14
VSSQ-N12
VSSQ-N3
VSSQ-M10
VSSQ-M5
VSSQ-K13
VSSQ-K2
VSSQ-H13
VSSQ-H2
VSSQ-F10
VSSQ-F5
VSSQ-E14
VSSQ-E12
VSSQ-E3
VSSQ-E1
VSSQ-C14
VSSQ-C12
VSSQ-C11
VSSQ-C4
VSSQ-C3
VSSQ-C1
VSSQ-A14
VSSQ-A12
VSSQ-A3
VSSQ-A1
ZQ
VREFC
VDD-R10
VDD-R5
VDD-P11
VDD-L14
VDDQ-T14
VDDQ-T12
VDDQ-T3
VDDQ-T1
VDDQ-P14
VDDQ-P12
VDDQ-P3
VDDQ-P1
VDDQ-N10
VDDQ-N5
VDDQ-M14
VDDQ-M12
VDDQ-M3
VDDQ-M1
Vpp,NC1
Vpp,NC
WCK23#|WCK01#
WCK23|WCK01
WCK01#|WCK23#
WCK01|WCK23
RFU/A12/NC
VREFD2
VREFD1
MF
VDD-L11
VDD-L4
VDDQ-L13
VDDQ-L2
VDDQ-K12
VDDQ-K3
VDDQ-H12
VDDQ-H3
WE#|CS#
VDD-L1
VDD-G14
VDD-G11
VDD-G4
VDD-G1
VDD-D11
VDD-C10
VDD-C5
VDDQ-G13
VDDQ-G2
VDDQ-F14
VDDQ-F12
VDDQ-E10
DBI3#|DBI0#
DBI2#|DBI1#
DBI1#|DBI2#
DBI0#|DBI3#
EDC3|EDC0
EDC2|EDC1
EDC1|EDC2
EDC0|EDC3
VDDQ-E5
VDDQ-D14
VDDQ-D12
VDDQ-D3
VDDQ-D1
VDDQ-B14
VDDQ-B12
VDDQ-B3
VDDQ-B1
A5/BA1|A3/BA3
CK#
CK
VDDQ-F1
A1/A9|A6/A11
CKE#
RESET#
A2/BA0|A4/BA2
RAS#|CAS#
A6/A11|A1/A9
A7/A8|A0/A10
A4/BA2|A2/BA0
A0/A10|A7/A8
A3/BA3|A5/BA1
CS#|WE#
CAS#|RAS#
DQ0|DQ24
DQ1|DQ25
DQ2|DQ26
DQ3|DQ27
DQ4|DQ28
DQ5|DQ29
DQ6|DQ30
DQ7|DQ31
DQ8|DQ16
DQ9|DQ17
DQ10|DQ18
DQ11|DQ19
DQ12|DQ20
DQ13|DQ21
DQ14|DQ22
DQ15|DQ23
DQ16|DQ8
DQ17|DQ9
DQ18|DQ10
DQ19|DQ11
DQ20|DQ12
DQ21|DQ13
DQ22|DQ14
DQ23|DQ15
DQ24|DQ0
DQ25|DQ1
DQ26|DQ2
DQ27|DQ3
DQ28|DQ4
DQ29|DQ5
DQ30|DQ6
DQ31|DQ7
ABI#
VDDQ-F3

GDDR5
CHANNEL B MEMORY
9793
MODEL,PROJECT,FUNCTION
X01
XXX
1310xxxxx-0-0
21-OCT-2002
2
1
C5403
2
1
C5396
2
1
C5388
2
1
C5440
2
1
C5434
2
1
C5426
2
1
C5443
2
1
C5446
2
1
C5447
2
1
C5448
2
1
C5449
2
1
C5450
2
1
C5451
2
1
C5452
2
1
C5418
2
1
C5417
2
1
C5416
2
1
C5415
2
1
C5414
2
1
C5413
2
1
C5412
2
1
C5411
J13
L12
P4
P5
D4
D5
V3
V14
V12
V1
R4
R3
R14
R12
R11
R1
N3
N14
N12
N1
M5
M10
K2
K13
H2
H13
F5
F10
E3
E14
E12
E1
C4
C3
C14
C12
C11
C1
A3
A14
A12
A1
T5
T10
P10
L5
L10
K14
K1
H14
H1
G5
G10
D10
B5
B10
V10
A10
J14
V5
A5
T3
T14
T12
T1
P3
P14
P12
P1
N5
N10
M3
M14
M12
M1
L2
L13
K3
K12
H3
H12
G2
G13
F3
F14
F12
F1
E5
E10
D3
D14
D12
D1
B3
B14
B12
B1
R5
R10
P11
L4
L14
L11
L1
G4
G14
G11
G1
D11
C5
C10
J10
J5
J2
G3
J1
R2
R13
C13
C2
A13
A11
F2
F4
E2
E4
B2
M2
M4
B4
N2
N4
T2
T4
V2
V4
M13
M11
N13
N11
A2
T13
T11
V13
V11
F13
F11
E13
E11
B13
B11
A4
P2
P13
D13
D2
G12
J3
J11
J12
L3
J4
K4
K5
K10
K11
H10
H11
H5
H4
U5077
2
1
R5432
2
1
R5428
J13
L12
P4
P5
D4
D5
V3
V14
V12
V1
R4
R3
R14
R12
R11
R1
N3
N14
N12
N1
M5
M10
K2
K13
H2
H13
F5
F10
E3
E14
E12
E1
C4
C3
C14
C12
C11
C1
A3
A14
A12
A1
T5
T10
P10
L5
L10
K14
K1
H14
H1
G5
G10
D10
B5
B10
V10
A10
J14
V5
A5
T3
T14
T12
T1
P3
P14
P12
P1
N5
N10
M3
M14
M12
M1
L2
L13
K3
K12
H3
H12
G2
G13
F3
F14
F12
F1
E5
E10
D3
D14
D12
D1
B3
B14
B12
B1
R5
R10
P11
L4
L14
L11
L1
G4
G14
G11
G1
D11
C5
C10
J10
J5
J2
G3
J1
R2
R13
C13
C2
A13
A11
F2
F4
E2
E4
B2
M2
M4
B4
N2
N4
T2
T4
V2
V4
M13
M11
N13
N11
A2
T13
T11
V13
V11
F13
F11
E13
E11
B13
B11
A4
P2
P13
D13
D2
G12
J3
J11
J12
L3
J4
K4
K5
K10
K11
H10
H11
H5
H4
U5078
2
1
R5444
2
1
R5445
2
1
R5438
2
1
C5441
2
1
R5439
2
1
R5436
2
1
R5430
2
1
C5435
2
1
R5431
2
1
R5423
2
1
C5427
2
1
R5424
2
1
C5442
2
1
C5437
2
1
C5433
2
1
C5429
2
1
C5425
2
1
C5422
2
1
C5421
2
1
C5420
2
1
C5419
2
1
C5410
2
1
R5392
2
1
R5391
2
1
R5407
2
1
R5406
2
1
C5404
2
1
R5398
2
1
R5400
2
1
R5401
2
1
C5397
2
1
R5393
2
1
R5394
2
1
C5389
2
1
C5409
2
1
C5408
2
1
C5405
2
1
C5402
2
1
C5399
2
1
C5395
2
1
C5390
2
1
R5386
2
1
R5387
2
1
C5385
0.1UF_16V_2
0.1UF_16V_2
0.1UF_16V_2
1UF_6.3V_2
1UF_6.3V_2
1UF_6.3V_2
1UF_6.3V_2
1UF_6.3V_2
1UF_6.3V_2
1UF_6.3V_2
1UF_6.3V_2
10UF_6.3V_3
0.1UF_16V_2
0.1UF_16V_2
0.1UF_16V_2
0.1UF_16V_2
0.1UF_16V_2
0.1UF_16V_2
0.1UF_16V_2
0.1UF_16V_2
1UF_6.3V_2
1UF_6.3V_2
1UF_6.3V_2
1UF_6.3V_2
1UF_6.3V_2
1UF_6.3V_2
1UF_6.3V_2
5.49K_1%_2
HYNIX_H5GQ2H24MFR_T2C_BGA_170P
VM_WCKB0_1_DP
8
VM_B1_ADA<11>
VM_B1_ADA<0>
VM_B1_ADA<1>
P1V5_GPUS
VM_B1_ADA<5>
5
P1V5_GPUS
VM_B0_AA<1>
10UF_6.3V_3 2.37K_1%_2
1UF_6.3V_2 1UF_6.3V_2
5.49K_1%_2 2.37K_1%_2
1UF_6.3V_2
5.49K_1%_2 2.37K_1%_2
0_5%_2_DY
1UF_6.3V_2
120_1%_2
0_5%_2
60.4_1%_2
60.4_1%_2
5.49K_1%_2
1UF_6.3V_2
2.37K_1%_2
5.49K_1%_2
1UF_6.3V_2
2.37K_1%_2
0_5%_2_DY
5.49K_1%_2
1UF_6.3V_2
2.37K_1%_2
0_5%_2
120_1%_2
HYNIX_H5GQ2H24MFR_T2C_BGA_170P
60.4_1%_2
60.4_1%_2
0.1UF_16V_2
0.1UF_16V_2
0.1UF_16V_2
0.1UF_16V_2
0.1UF_16V_2
1UF_6.3V_2_DY
1UF_6.3V_2_DY
1UF_6.3V_2_DY
1UF_6.3V_2_DY
1UF_6.3V_2_DY
1UF_6.3V_2_DY
P1V5_GPUS
P1V5_GPUS
P1V5_GPUS P1V5_GPUS
P1V5_GPUS P1V5_GPUS P1V5_GPUS P1V5_GPUS P1V5_GPUS
P1V5_GPUS
P1V5_GPUS
P1V5_GPUS
VM_B0_ADA<31>
VM_B0_ADA<15>
VM_B1_ADA<29>
20
VM_B0_ADA<20>
VM_B0_ADA<19>
VM_B0_ADA<22>
VM_B0_ADA<16>
VM_B0_ADA<9>
VM_RESET
VM_B0_ADA<10>
VM_B1_ADA<6>
VM_B0_ADA<27>
VM_B0_ADA<1>
VM_B0_ADA<0>
VM_B0_ADA<11>
VM_B1_ADA<26>
DDR_B_WEB1#
DDR_B_CSB1#_0
VM_RESET
VM_REFD1_B1
VM_REFD2_B1
VM_EDCB1_2
VM_DDBIB1_0
VM_DDBIB1_3
DDR_B_CLK1_DP
VM_B1_ADA<31..0>
2
DDR_B_CLK1_DN
VM_B1_ADA<17>
VM_REFD1_B0
VM_REFDC_B0
VM_ADBIB0
VM_REFD2_B0
VM_WCKB0_0_DP
VM_B0_ADA<14>
VM_B1_ADA<18>
VM_B1_ADA<16>
VM_B1_AA<8>
VM_B1_AA<7..0>
5
7
VM_B0_AA<3>
VM_B0_AA<2>
VM_B0_AA<7..0>
VM_B0_AA<8>
VM_B0_AA<5>
VM_B0_AA<4>
VM_B1_ADA<21>
VM_REFDC_B1
VM_ADBIB1
DDR_B_CKEB1
DDR_B_CASB1#
DDR_B_RASB1#
VM_DDBIB1_1
VM_DDBIB1_2
VM_EDCB1_3
VM_EDCB1_1
VM_EDCB1_0
VM_WCKB1_1_DN
VM_WCKB1_0_DP
VM_WCKB1_0_DN
VM_B0_AA<0>
VM_WCKB0_0_DN VM_WCKB1_1_DP
VM_B1_ADA<22>
DDR_B_WEB0#
DDR_B_CSB0#_0
DDR_A_CKEB0
DDR_B_CASB0#
DDR_B_RASB0#
DDR_B_CLK0_DN
DDR_B_CLK0_DP
VM_DDBIB0_0
VM_DDBIB0_1
VM_DDBIB0_3
VM_DDBIB0_2
VM_EDCB0_3
VM_EDCB0_2
VM_EDCB0_0
VM_EDCB0_1
VM_WCKB0_1_DN
1
VM_B0_AA<6>
VM_B0_AA<7>
VM_B0_ADA<13>
13
Everest Main Board
BEN LEE
1
A01
Block Diagram
February 22, 2010
1
CS
C
CS_1310AXXXXXX-MTR
29
26
27
22
18
21
5
6
2
1
11
8
9
10
15
14
12
28
VM_B0_ADA<31..0>
16
31
24
23
17
25
0
2
4
6
3
19
6
7
3
0
9
15
14
12
28
27
25
30
26
17
16
23
21
18
22
19
7
6
4
3
2
1
0
31
24
1
30
4
0
3
7
VM_B0_ADA<8>
VM_B0_ADA<12>
VM_B0_ADA<30>
VM_B0_ADA<29>
VM_B0_ADA<28>
VM_B0_ADA<24>
VM_B0_ADA<25>
VM_B0_ADA<17>
VM_B0_ADA<23>
VM_B0_ADA<18>
VM_B0_ADA<21>
VM_B0_ADA<5>
VM_B0_ADA<6>
VM_B0_ADA<4>
VM_B0_ADA<7>
VM_B0_ADA<3>
VM_B0_ADA<2>
4
VM_B0_ADA<26>
11
10
20
13
VM_B1_ADA<4>
VM_B1_ADA<7>
VM_B1_ADA<24>
VM_B1_ADA<31>
VM_B1_ADA<15>
VM_B1_ADA<13>
VM_B1_ADA<14>
VM_B1_ADA<12>
VM_B1_ADA<9>
VM_B1_ADA<8>
VM_B1_ADA<10>
VM_B1_ADA<2>
VM_B1_ADA<3>
VM_B1_ADA<23>
VM_B1_ADA<30>
VM_B1_ADA<25>
VM_B1_ADA<28>
VM_B1_ADA<27>
29
VM_B1_ADA<19>
VM_B1_ADA<20>
5
VM_B1_AA<7>
VM_B1_AA<5>
VM_B1_AA<2>
VM_B1_AA<0>
VM_B1_AA<1>
VM_B1_AA<4>
VM_B1_AA<6>
VM_B1_AA<3>
TITLE
DATE
CODE
SIZE
1
E
D
C
B
A
7 6 5 4 3 2
1
7 6 5 4 3
E
D
C
B
A
FF
8
of
CHANGE by
8
REV
DOC.NUMBER
SHEET
2
INVENTEC
BI
BI
BI
BI
BI
BI
BI
BI
BI
BI
BI
BI
BI
BI
BI
BI
BI
BI
BI
BI
BI
BI
BI
VSS-B5
VSS-B10
VSS-D10
VSS-G5
VSS-G10
VSS-H1
VSS-H14
VSS-K1
VSS-K14
VSS-L5
VSS-L10
VSS-P10
VSS-T5
VSS-T10
SEN
VSSQ-V14
VSSQ-V12
VSSQ-V3
VSSQ-V1
VSSQ-R14
VSSQ-R12
VSSQ-R11
VSSQ-R4
VSSQ-R3
VSSQ-R1
VSSQ-N1
VSSQ-N14
VSSQ-N12
VSSQ-N3
VSSQ-M10
VSSQ-M5
VSSQ-K13
VSSQ-K2
VSSQ-H13
VSSQ-H2
VSSQ-F10
VSSQ-F5
VSSQ-E14
VSSQ-E12
VSSQ-E3
VSSQ-E1
VSSQ-C14
VSSQ-C12
VSSQ-C11
VSSQ-C4
VSSQ-C3
VSSQ-C1
VSSQ-A14
VSSQ-A12
VSSQ-A3
VSSQ-A1
ZQ
VREFC
VDD-R10
VDD-R5
VDD-P11
VDD-L14
VDDQ-T14
VDDQ-T12
VDDQ-T3
VDDQ-T1
VDDQ-P14
VDDQ-P12
VDDQ-P3
VDDQ-P1
VDDQ-N10
VDDQ-N5
VDDQ-M14
VDDQ-M12
VDDQ-M3
VDDQ-M1
Vpp,NC1
Vpp,NC
WCK23#|WCK01#
WCK23|WCK01
WCK01#|WCK23#
WCK01|WCK23
RFU/A12/NC
VREFD2
VREFD1
MF
VDD-L11
VDD-L4
VDDQ-L13
VDDQ-L2
VDDQ-K12
VDDQ-K3
VDDQ-H12
VDDQ-H3
WE#|CS#
VDD-L1
VDD-G14
VDD-G11
VDD-G4
VDD-G1
VDD-D11
VDD-C10
VDD-C5
VDDQ-G13
VDDQ-G2
VDDQ-F14
VDDQ-F12
VDDQ-E10
DBI3#|DBI0#
DBI2#|DBI1#
DBI1#|DBI2#
DBI0#|DBI3#
EDC3|EDC0
EDC2|EDC1
EDC1|EDC2
EDC0|EDC3
VDDQ-E5
VDDQ-D14
VDDQ-D12
VDDQ-D3
VDDQ-D1
VDDQ-B14
VDDQ-B12
VDDQ-B3
VDDQ-B1
A5/BA1|A3/BA3
CK#
CK
VDDQ-F1
A1/A9|A6/A11
CKE#
RESET#
A2/BA0|A4/BA2
RAS#|CAS#
A6/A11|A1/A9
A7/A8|A0/A10
A4/BA2|A2/BA0
A0/A10|A7/A8
A3/BA3|A5/BA1
CS#|WE#
CAS#|RAS#
DQ0|DQ24
DQ1|DQ25
DQ2|DQ26
DQ3|DQ27
DQ4|DQ28
DQ5|DQ29
DQ6|DQ30
DQ7|DQ31
DQ8|DQ16
DQ9|DQ17
DQ10|DQ18
DQ11|DQ19
DQ12|DQ20
DQ13|DQ21
DQ14|DQ22
DQ15|DQ23
DQ16|DQ8
DQ17|DQ9
DQ18|DQ10
DQ19|DQ11
DQ20|DQ12
DQ21|DQ13
DQ22|DQ14
DQ23|DQ15
DQ24|DQ0
DQ25|DQ1
DQ26|DQ2
DQ27|DQ3
DQ28|DQ4
DQ29|DQ5
DQ30|DQ6
DQ31|DQ7
ABI#
VDDQ-F3
BI
BI
BI
BI
BI
BI
BI
BI
BI
BI
BI
BI
BI
BI
BI
BI
BI
BI
BI
BI
BI
VSS-B5
VSS-B10
VSS-D10
VSS-G5
VSS-G10
VSS-H1
VSS-H14
VSS-K1
VSS-K14
VSS-L5
VSS-L10
VSS-P10
VSS-T5
VSS-T10
SEN
VSSQ-V14
VSSQ-V12
VSSQ-V3
VSSQ-V1
VSSQ-R14
VSSQ-R12
VSSQ-R11
VSSQ-R4
VSSQ-R3
VSSQ-R1
VSSQ-N1
VSSQ-N14
VSSQ-N12
VSSQ-N3
VSSQ-M10
VSSQ-M5
VSSQ-K13
VSSQ-K2
VSSQ-H13
VSSQ-H2
VSSQ-F10
VSSQ-F5
VSSQ-E14
VSSQ-E12
VSSQ-E3
VSSQ-E1
VSSQ-C14
VSSQ-C12
VSSQ-C11
VSSQ-C4
VSSQ-C3
VSSQ-C1
VSSQ-A14
VSSQ-A12
VSSQ-A3
VSSQ-A1
ZQ
VREFC
VDD-R10
VDD-R5
VDD-P11
VDD-L14
VDDQ-T14
VDDQ-T12
VDDQ-T3
VDDQ-T1
VDDQ-P14
VDDQ-P12
VDDQ-P3
VDDQ-P1
VDDQ-N10
VDDQ-N5
VDDQ-M14
VDDQ-M12
VDDQ-M3
VDDQ-M1
Vpp,NC1
Vpp,NC
WCK23#|WCK01#
WCK23|WCK01
WCK01#|WCK23#
WCK01|WCK23
RFU/A12/NC
VREFD2
VREFD1
MF
VDD-L11
VDD-L4
VDDQ-L13
VDDQ-L2
VDDQ-K12
VDDQ-K3
VDDQ-H12
VDDQ-H3
WE#|CS#
VDD-L1
VDD-G14
VDD-G11
VDD-G4
VDD-G1
VDD-D11
VDD-C10
VDD-C5
VDDQ-G13
VDDQ-G2
VDDQ-F14
VDDQ-F12
VDDQ-E10
DBI3#|DBI0#
DBI2#|DBI1#
DBI1#|DBI2#
DBI0#|DBI3#
EDC3|EDC0
EDC2|EDC1
EDC1|EDC2
EDC0|EDC3
VDDQ-E5
VDDQ-D14
VDDQ-D12
VDDQ-D3
VDDQ-D1
VDDQ-B14
VDDQ-B12
VDDQ-B3
VDDQ-B1
A5/BA1|A3/BA3
CK#
CK
VDDQ-F1
A1/A9|A6/A11
CKE#
RESET#
A2/BA0|A4/BA2
RAS#|CAS#
A6/A11|A1/A9
A7/A8|A0/A10
A4/BA2|A2/BA0
A0/A10|A7/A8
A3/BA3|A5/BA1
CS#|WE#
CAS#|RAS#
DQ0|DQ24
DQ1|DQ25
DQ2|DQ26
DQ3|DQ27
DQ4|DQ28
DQ5|DQ29
DQ6|DQ30
DQ7|DQ31
DQ8|DQ16
DQ9|DQ17
DQ10|DQ18
DQ11|DQ19
DQ12|DQ20
DQ13|DQ21
DQ14|DQ22
DQ15|DQ23
DQ16|DQ8
DQ17|DQ9
DQ18|DQ10
DQ19|DQ11
DQ20|DQ12
DQ21|DQ13
DQ22|DQ14
DQ23|DQ15
DQ24|DQ0
DQ25|DQ1
DQ26|DQ2
DQ27|DQ3
DQ28|DQ4
DQ29|DQ5
DQ30|DQ6
DQ31|DQ7
ABI#
VDDQ-F3
BI
BI
BI
BI

0.12A
NEED A GPIO PIN
TRUTH TABLE (SEL CONTROL)
PORT A IS ACTIVE
PORT B IS ACTIVE
Unplug Cable
GPU_HDMI_HPD1
Plug Cable
L
H
Plug Cable
L
H
L
GPU_HDMI_HPDET
H
FUNCTION
H
H
Unplug Cable
Plug Cable
Unplug Cable
GPU_EDP_HPD
Unplug Cable
L
Plug Cable
L
H
L
DGPU_HPD_INTR#_R
PCH-COUGARPOINT: Pin H36 (TACH2/GPIO6)
L
Unplug Cable
EDP_HPD#_CN
Plug Cable
DGPU_HPD_INTR#_R
Plug Cable
0.12A
H
Unplug Cable
PCH-COUGARPOINT: Pin H36 (TACH2/GPIO6)
(GPU)
(CPU)
SEL /HPD_SEL/AUX_SEL
EDP_TX1_DP
EDP_TX1_DN
EDP_TX0_DN
EDP_TX0_DP
EDP_AUX_DP
EDP_AUX_DN
EDP_MUX_IC_SEL
0.1UF_16V_2
EC_EDP_MUX_IC_SEL
94 97
XXX
21-OCT-2002
MODEL,PROJECT,FUNCTION
1310xxxxx-0-0
X01
10K_5%_2
SSM3K7002BFU
P3V3_S
CPU_EDP_AUX_DN
CPU_EDP_TX1_DP
CPU_EDP_TX1_DN
GPU_EDP_TX0_DN
GPU_EDP_TX1_DN
CPU_EDP_AUX_DP
PER_PI3VEDP212ZLEX_TQFN_32P
GPU_EDP_AUX_DP
GPU_EDP_AUX_DN
2
1
3
Q5098
2
1
R5509
2
1
C5507
2
3
1
Q5512
2
1
3
Q5103
2
1
R5514
2
1
R5511
2
1
R5510
2
1
3
Q5100
2
1
R5099
2
1
R5096
2
1
R5095
2
3
1
Q5097
2
1
C5515
2
1
C5513
2
1
C5508
2
1
C5102
29
10
13
17
8
21
22
26
5
27
24
30
2
25
1
14
18
7
15
19
6
9
4
33 32
31
3
28
23
20
1612
11
U5101
P3V3_GPUS
MMBT3904
P3V3_GPUS
P3V3_S
P3V3_S
0_5%_2
0.1UF_16V_2 0.1UF_16V_2 0.1UF_16V_2
10K_5%_2
150K_5%_2
SSM3K7002BFU
0_5%_2
10K_5%_2
150K_5%_2
SSM3K7002BFU
MMBT3904
0.1UF_16V_2
GPU_EDP_TX0_DP
CPU_EDP_TX0_DN
EDP_MUX_IC_SEL
CPU_EDP_TX0_DP
GPU_EDP_TX1_DP
11
February 22, 2010
BEN LEE
A01
Block Diagram
Everest Main Board
CS_1310AXXXXXX-MTR
CS
C
DGPU_HPD_INTR#_R
GPU_EDP_HPD
DGPU_HPD_INTR#_R
GPU_HDMI_HPDETEDP_HPD#_CN
GPU_HDMI_HPD1
REV
INVENTEC
3 2
CHANGE by
TITLE
SHEET
of
1
4
A A
B B
C C
DD
1
23
45
56
67
78
8
CODE
SIZE
DATE
DOC.NUMBER
BI
BI
BI
IN
G
DS
B
CE
IN
G
DS
OUT
OUT
OUT
G
DS
IN
OUT
B
CE
BI
BI
BI
BI
BI
BI
BI
BI
BI
BI
BI
BI
BI
BI
BI
BI
BI
VDD
SEL
HPD_B
HPD_A
HPD
GND
D1-B
D1-A
D1-
D1+A
D0-B
D0-A
D0-
D0+B
D0+
AUX-B
AUX-A
AUX-
AUX+B
AUX+A
AUX+
VDD
D1+
GND
AUX_SEL
D0+A
VDD
GND
D1+B
VDD
VDD
VDD
HPD_SEL

+PWR_AUD
+PVDD2
+PWR_AUD
+PVDD2
+PVDD1
CLOSE TO CODEC PIN12
+PVDD1
CLOSE TO CODEC
CLOSE TO CODEC
+PWR_AUD
CLOSE TO CODEC
CLOSE TO CODEC
CLOSE TO CODEC PIN19
CLOSE TO CODEC
CLOSE TO CODEC PIN46
CLOSE TO CODEC PIN39
95 97
XXX
21-OCT-2002
MODEL,PROJECT,FUNCTION
1310xxxxx-0-0
X01
1
31
SPK_OUT_L-
2
C518
4.7UF_6.3V_3
R502
2
2.2K_1%_2
FBMA_11_160808_151A20T
L503
1
10UF_6.3V_3
1
C504
20K_1%_2
39.2K_1%_2
R513
2
R512
1
2
1
20K_1%_2
1
R511
2
1K_1%_2
1K_1%_2
22
10UF_6.3V_3
C516
0.1UF_16V_2
2
2
2.2UF_10V_3
24
0.1UF_16V_2
39
0.1UF_16V_2
BAT54_30V_0.2A
FBMA_11_160808_151A20T
2
1
L501
C502
dgnd
POWER
1
10UF_6.3V_3
POWER
C505
0.1UF_16V_2
2
2
dgnd
C503
2
1
0.1UF_16V_2
C501
0.1UF_16V_2
1
2
2
1
10UF_6.3V_3
2.2K_1%_2
10UF_6.3V_3
C512
1
27
23
48
47
44
45
17
1
49
7
15
5
4
3
46
41
2
22
21
28
37
6
13
33
32
14
36
35
34
26
25
38
42
18
19
20
2
1
R504
1
1
R501
1
2
1
C517
4.7UF_6.3V_3
1
2
2
dgnd
2
C511
2
C510
2.2UF_10V_3
1
2
dgnd
1
2
1
2
2
1
1
POWER
POWER
MIC_R
HP_R
HP_L
MIC_L
11
February 22, 2010
A01
Everest Main Board
C
CS_1310AXXXXXX-MTR
CS
BEN LEE
2
1
VARISTOR_DY
D503D502
1
2
dgnd
C521
11
C520
22
C519
1
2
4.7K_5%_2
R515
2
1
47K_5%_2
R514
PCSPKR_PCH_3
0.01UF_50V_2
dgnd
Block Diagram
2
VARISTOR_DY
dgnd
2
C522
D501
3
POWER
C523
2
1
L502
2
1
dgnd
1
10UF_6.3V_3
2
FBMA_11_160808_151A20T
R503
2
29
30
C508
10UF_6.3V_3
C509
0.1UF_16V_2
2
3
D505
1
2
3
R506
2
1
2
AMP_PD#
EC_MUTE#
HDA_3S_RST#
1
D504
0_5%_2
1
R507
1K_5%_2
BAT54_30V_0.2A
BAT54_30V_0.2A
dgnd
POWER
MIC1_VREFO_L
1
C515
1
11
MIC1_VREFO_R MIC1_VREFO_R
MIC1_VREFO_L
2
C506
C507
10UF_6.3V_3
SPK_OUT_L+
R510
P3V3_S
1
0_5%_2
1
dgnd
2
22PF_50V_2
12
8
9
10
11
dgnd
22_5%_2
R509
2
R505
2
1
1
22_5%_2
AMP_PD#
MIC_IN_CLK
MIC_IN_DATA
HDA_3S_SDOUT
HDA_3S_RST#
HDA_3S_SYNC
SPK_OUT_R+
SPK_OUT_R-
10UF_6.3V_3
1
1
HDA_3S_BITCLK
HDA_3S_SDIN0
R508
2
1
0_5%_2
0.1UF_16V_2
P3V3_S
16
P5V_S
HPS
MICS
dgnd
2
C500
0.1UF_16V_2
P5V_S
C513
C514
POWER
U500
40
43
C520
REA_ALC269Q_VB6_GR_QFN_48P
2.2UF_10V_3
REV
INVENTEC
3 2
CHANGE by
TITLE
SHEET
of
1
4
A A
B B
C C
DD
1
23
45
56
67
78
8
CODE
SIZE
DATE
DOC.NUMBER
NC
IN
IN
OUT
IN
IN
IN
IN
OUT
OUT
OUT
IN
IN
IN
IN
IN
IN
OUT
OUT
OUT
OUT
IN
OUT
IN
IN
IN
NC
OUT
NC
GND
SPDIFO
EAPD
PVDD2
SPK-R+
SPK-R-
PVSS2
PVSS1
SPK-L-
SPK-L+
PVDD1
AVDD2
AVSS2
CBP
CBN
CPVEE
HP-OUT-R
HP-OUT-L
MIC1-VREFO-L
MIC1-VREFO-R
MIC2-VREFO
LDO-CAP
VREF
AVSS1
AVDD1
LINE1-R
LINE1-L
MIC1-R
MIC1-L
MONO-OUT
JDREF
SENSE-B
MIC2-R
MIC2-L
LINE2-R
LINE2-L
SENSE-A
PCBEEP
RESET#
SYNC
DVDD-IO
SDATA-IN
DVSS2
BIT-CLK
SDATA-OUT
PD#
GPIO1-DMIC-CLK
GIO0-DMIC-DATA
DVDD1

96 97
XXX
21-OCT-2002
MODEL,PROJECT,FUNCTION
1310xxxxx-0-0
X01
600OHM_25%
SINGA_2SJ_T351_019_6P
HPS
HP_R
HP_L
R603
75_5%_2
2
1
R604
75_5%_2
1
2
1
L603
2
L604
600OHM_25%
1
2
1
2
D603
VARISTOR_DY
1
2
D604
VARISTOR_DY
1
2
D605
VARISTOR_DY
C605
100PF_50V_2
2
1
C606
2
1
100PF_50V_2
100PF_50V_2_DY
1
2
C607
JACK601
4
5
1
2
3
G2
G1
6
D600
PHP_PESD5V2S2UT_SOT23_3P
2
1
3
G1
SPK_OUT_R-
SPK_OUT_R+
SPK_OUT_L-
SPK_OUT_L+
SPK_OUT_L-_R
SPK_OUT_R-_R
SPK_OUT_L+_R
SPK_OUT_R+_R
R606
0_5%_3
R607
0_5%_3
R608
0_5%_3
R605
0_5%_3
2
1
C608
1000PF_50V_2_DY
1000PF_50V_2_DY
C610
2
1
1
2
C611
1000PF_50V_2_DY
1000PF_50V_2_DY
1
2
C609
ACES_50224_0040N_001_4P
CN600
1
3
4
G2
2
MICS
MIC_R
MIC_L
L601
2
600OHM_25%
1
L602
600OHM_25%
1
2
2
1
D601
VARISTOR_DY
2
1
D602
VARISTOR_DY
1
100PF_50V_2
2
C603
C604
2
100PF_50V_2
1
JACK600
G1
G2
SINGA_2SJ_T351_019_6P
1
3
4
5
6
2
A01
C
CS
CS_1310AXXXXXX-MTR
Everest Main Board
Block Diagram
BEN LEE
February 22, 2010
1 1
REV
INVENTEC
3 2
CHANGE by
TITLE
SHEET
of
1
4
A A
B B
C C
DD
1
23
45
56
67
78
8
CODE
SIZE
DATE
DOC.NUMBER
OUT
OUT
OUT
IN
IN
G1
1
2
3
4
G2
IN
IN
OUT
IN
IN

1.5A
1.5A
VRAM
97
97
Fri Dec 31 10:16:55 2010
EVEREST-M
Frank Hu
2
1
R5511
2
1
R5510
2
1
R5509
2
1
R5512
L8
L3
G9
G1
F9
E8
E2
D8
D1
B9
B1
T9
T1
P9
P1
M9
M1
J8
J2
G8
E1
B3
A9
H1
M8
H9
H2
F1
E9
D2
C9
C1
A8
A1
R9
R1
N9
N1
K8
K2
G7
D9
B2
T2
J3
K1
L9
L1
J9
J1
A3
B8
A2
A7
C2
C8
C3
D7
B7
C7
G3
F3
H7
G2
H8
H3
F8
F2
F7
E3
D3
E7
L2
K9
K7
J7
K3
M3
N8
M2
R3
T8
R2
R8
P2
P8
N2
P3
M7
T7
T3
N7
R7
L7
P7
N3
U5507
2
1
C5517
2
1
C5516
2
1
C5515
2
1
C5514
2
1
C5513
2
1
C5512
2
1
C5511
2
1
R5508
L8
L3
G9
G1
F9
E8
E2
D8
D1
B9
B1
T9
T1
P9
P1
M9
M1
J8
J2
G8
E1
B3
A9
H1
M8
H9
H2
F1
E9
D2
C9
C1
A8
A1
R9
R1
N9
N1
K8
K2
G7
D9
B2
T2
J3
K1
L9
L1
J9
J1
A3
B8
A2
A7
C2
C8
C3
D7
B7
C7
G3
F3
H7
G2
H8
H3
F8
F2
F7
E3
D3
E7
L2
K9
K7
J7
K3
M3
N8
M2
R3
T8
R2
R8
P2
P8
N2
P3
M7
T7
T3
N7
R7
L7
P7
N3
U5506
2
1
C5510
2
1
C5509
2
1
C5508
2
1
C5507
2
1
R5513
2
1
C5506
2
1
C5505
2
1
C5504
CS_1310AXXXXXX-MTR
10K_5%_2
FBC_CLK1_DP
HYNIX_H5TQ1G63DFR_11C_FBGA_96P
10K_5%_2
P1V5_GPUS
10K_5%_2
243_1%_2
FBC_CLK1_DP
76<
FBC_DQS_DP<4>
FBC_DQS_DP<6>
FBC_D<40..47>
69<>
FBC_CLK1_DN
FBC_DQM<6>
FBC_DQS_DN<4>
FBC_CMD<21>
FBC_CMD<8>
FBC_CMD<13>
13
FBC_CMD<24>
160_1%_2
FBC_DQS_DN<6>
FBC_CMD<28>
0.1UF_16V_2 0.1UF_16V_2 0.1UF_16V_2
FBC_DQM<5>
FBC_CMD<11>
FBC_CMD<8>
FBC_CMD<21>
FBC_DQM<7>
FBC_DQS_DP<5>
FBC_DQS_DP<7>
FBC_DQS_DN<7>
FBC_CMD<28>
FBC_DQS_DN<5>
FBC_CMD<16>
FBC_CMD<27>
FBC_CMD<14>
FBC_CMD<12>
FBC_CMD<30>
FBC_CMD<29>
FBC_CMD<7>
FBC_CMD<18>
FBC_CMD<13>
FBC_CMD<10>
FBC_CMD<26>
FBC_CMD<1>
FBC_CMD<5>
FBC_CMD<19>
FBC_CLK1_DN
FBC_CLK1_DP
FBC_D<47>
FBC_D<42>
FBC_D<41>
FBC_D<44>
FBC_D<45>
FBC_D<40>
FBC_D(43)
FBC_D<46>
FBC_D<58>
FBC_D<60>
FBC_D<59>
FBC_D<62>
FBC_D<57>
FBC_D<61>
FBC_D<56>
FBC_D<63>
FBC_CMD<3>
FBC_CMD<30..0>
FBC_CMD<20>
FBC_CMD<4>
FBC_CMD<9>
FBC_CMD<6>
FBC_CMD<17>
FBC_CMD<22>
FBC_VREF1 FBC_D<56..63>
FBC_CMD<16>
FBC_CLK1_DN
FBC_CMD<0>
FBC_CMD<27>
FBC_CMD<24>
FBC_CMD<16>
FBC_D<52>
FBC_D<48>
FBC_D<55>
FBC_D<51>
FBC_D<54>
FBC_D<50>
FBC_D<53>
FBC_D<49>
FBC_D<36>
FBC_D<33>
FBC_D<37>
FBC_D<32>
FBC_D<38>
FBC_D<34>
FBC_D<39>
FBC_D<35>
FBC_DQM<4>
FBC_CMD<11>
FBC_CMD<27>
FBC_CMD<30>
FBC_CMD<14>
FBC_CMD<12>
FBC_CMD<5>
FBC_CMD<1>
FBC_CMD<26>
FBC_CMD<3>
FBC_CMD<17>
FBC_CMD<6>
FBC_CMD<9>
FBC_CMD<20>
FBC_CMD<18>
FBC_CMD<29>
FBC_CMD<7>
FBC_CMD<10>
FBC_CMD<19>
FBC_CMD<4>
FBC_CMD<22>
FBC_CMD<30..0>
FBC_VREF1
FBC_D<48..55>
FBC_D<32..39>
0.1UF_16V_2 0.1UF_16V_2
P1V5_GPUS
243_1%_2
11
24
8
21
69>
75<>76<>
75<
76<
16
27
14
12
30
29
7
18
13
10
26
1
5
19
69>
76<
76<
69>
0.1UF_16V_2 0.1UF_16V_2 0.1UF_16V_2 1uF_6.3V_2 1uF_6.3V_2
47
42
41
44
45
40
43
46
P1V5_GPUS
P1V5_GPUS
3
20
4
9
6
17
22
76< 75<
58
60
59
62
57
61
56
63
69<>
75<>
69>
76<>
69>76<
69>
75<>76<>
76<> 75<>
69>
0.1UF_16V_2 0.1UF_16V_2
HYNIX_H5TQ1G63DFR_11C_FBGA_96P
69>76<
69<
69<
69>
69>
21
8
24
11
16
27
30
14
12
18
69>
76< 69>
1uF_6.3V_2 1uF_6.3V_2
P1V5_GPUS
P1V5_GPUS
29
7
10
19
5
1
26
3
17
6
9
20
4
22
76< 75<
51
54
55
48
52
50
49
53
69<>
36
32
38
37
33
34
39
35
69<>
C
A01
CS
SIZE
CHANGE by DATE
8
8 7
7 6
6 5
5 4
4 3
3
2
1
D
D
CC
BB
AA
REV
1
SHEET
2
DOC.NUMBER
of
CODE
INVENTEC
TITLE
BI
IN
IN
IN
BI
BI
ZQ
WE#
VSSQ#G9
VSSQ#G1
VSSQ#F9
VSSQ#E8
VSSQ#E2
VSSQ#D8
VSSQ#D1
VSSQ#B9
VSSQ#B1
VSS#T9
VSS#T1
VSS#P9
VSS#P1
VSS#M9
VSS#M1
VSS#J8
VSS#J2
VSS#G8
VSS#E1
VSS#B3
VSS#A9
VREFDQ
VREFCA
VDDQ#H9
VDDQ#H2
VDDQ#F1
VDDQ#E9
VDDQ#D2
VDDQ#C9
VDDQ#C1
VDDQ#A8
VDDQ#A1
VDD#R9
VDD#R1
VDD#N9
VDD#N1
VDD#K8
VDD#K2
VDD#G7
VDD#D9
VDD#B2
RESET#
RAS#
ODT
NC#L9
NC#L1
NC#J9
NC#J1
DQU7
DQU6
DQU5
DQU4
DQU3
DQU2
DQU1
DQU0
DQSU#
DQSU
DQSL#
DQSL
DQL7
DQL6
DQL5
DQL4
DQL3
DQL2
DQL1
DQL0
DMU
DML
CS#
CKE
CK#
CK
CAS#
BA2
BA1
BA0
A9
A8
A7
A6
A5
A4
A3
A2
A15
A14
A13
A12_BC#
A11
A10_AP
A1
A0
IN
IN
IN
IN
BI
BI
BI
BI
BI
BI
IN
BI
IN
BI
BI
IN
IN
IN
ZQ
WE#
VSSQ#G9
VSSQ#G1
VSSQ#F9
VSSQ#E8
VSSQ#E2
VSSQ#D8
VSSQ#D1
VSSQ#B9
VSSQ#B1
VSS#T9
VSS#T1
VSS#P9
VSS#P1
VSS#M9
VSS#M1
VSS#J8
VSS#J2
VSS#G8
VSS#E1
VSS#B3
VSS#A9
VREFDQ
VREFCA
VDDQ#H9
VDDQ#H2
VDDQ#F1
VDDQ#E9
VDDQ#D2
VDDQ#C9
VDDQ#C1
VDDQ#A8
VDDQ#A1
VDD#R9
VDD#R1
VDD#N9
VDD#N1
VDD#K8
VDD#K2
VDD#G7
VDD#D9
VDD#B2
RESET#
RAS#
ODT
NC#L9
NC#L1
NC#J9
NC#J1
DQU7
DQU6
DQU5
DQU4
DQU3
DQU2
DQU1
DQU0
DQSU#
DQSU
DQSL#
DQSL
DQL7
DQL6
DQL5
DQL4
DQL3
DQL2
DQL1
DQL0
DMU
DML
CS#
CKE
CK#
CK
CAS#
BA2
BA1
BA0
A9
A8
A7
A6
A5
A4
A3
A2
A15
A14
A13
A12_BC#
A11
A10_AP
A1
A0
BI
BI
BI
BI
BI
IN
BI
